Как сделать своими руками туалет на даче – Дачный туалет своими руками: фото, чертежи, видео
Как сделать туалет на даче своими руками

Первая постройка, которая возводится на дачном участке это туалет. Туалет на даче отличается от городского санузла отсутствием системы канализации. Поэтому постройка туалета на даче — это не только возведение кабинки, но и организация места сбора и утилизации отходов. Возможных вариантов устройства туалета на даче несколько о них и о том, как построить туалет на даче своими руками будет подробно рассказано в этом материале.
Уличный туалет для дачи
Большинство дач используется только в теплое время года, поэтому наибольшей популярностью пользуется летний или уличный туалет для дачи. Эта конструкция проста и хорошо проверена временем. Построить летний туалет на даче можно своими руками из доступных материалов, что безусловно является большим достоинством.
Рис.1. Интересный дизайн дачного туалета.

Рис.2. Такое строение будет отличным украшением участка.
Рис.3. Китайский стиль.
Уличный туалет для дачи состоит из туалетной кабинки и ямы для сбора отходов под ним. Кабинка для туалета на даче может быть изготовлена из любых материалов. Яма под туалет на даче может быть изготовлена любого размера. Глубина ямы для туалета зависит от числа пользователей.
Рис.4. Схема устройство уличного туалета с выгребной ямой.
Рис.5. Деревенский туалет самый простой вид, который имеет длительный срок эксплуатации. Он представляет собой кабинку, под которой сделана яма. Все отходы попадают прямиков в нее. Яму можно чистить раз в 7 – 10 лет, или просто закапывать и передвигать туалет на новое место. Чтобы деревенский туалет не имел неприятного запаха в яму раз в несколько месяцев добавляют аэробных бактерий, которые перерабатывают отходы, и запах пропадает.
Рис.6. Оригинальное решение для двери.
Однако выгребная яма для туалета на даче хорошо будет работать только при низком уровне грунтовых вод. Если уровень грунтовых вод большой, то выгребную яму будет постоянно подтапливать, и она все время будет переполняться. В этом случае от туалета такого типа придется отказаться, либо в место ямы придется использовать гидроизолированную емкость. Однако тогда необходимо, как минимум раз в год вызывать ассенизатор.
Рис.7. Схема уборной с выгребной ямой.

Рис.8. Устройство торфяного туалета.
Рис.9. Торфяной биотуалет для дачи.
Деревянный туалет для дачи своими руками
Строительство туалета на даче уличного типа можно разбить на три этапа подготовка ямы для сбора отходов, устройство фундамента и изготовление кабины туалета. При строительстве важно помнить, что туалет будет служить очень долго только в том случае если установка туалета на даче выполнена правильно.
Рис.10. Требования к размещению уборной на дачном участке.
Рис.11. Правила расположение строений на участке.
Выгребная яма для туалета на даче
Яма для туалета на даче изготавливают с укрепленными стенками. Если не укрепить яму под туалет на даче, то за не большой промежуток времени она быстро обвалиться. Для укрепления стенок ямы удобно использовать бак для туалета из двухсот литровой бочки.
Рис.12. Устройство ямы при низком уровне грунтовых вод.
Если существует опасность высокого уровня грунтовых вод, то необходимо использовать пластиковый герметичный бак. Бочку вкапывают в землю в месте выгребной ямы. По мере эксплуатации туалета ее придется чистить. Чтобы облегчить это дело и одновременно не задумываться куда деть содержимое, в процессе эксплуатации туалета в него необходимо добавлять специальный состав. Этот состав можно приобрести в любом дачном магазине. В него входят бактерии, которые переработают все отходы, после чего их можно использовать как удобрение.
Рис.13. При высоком уровне грунтовых вод существует риск подтопления выгребной ямы и утечки нечистот. В этом случае для отходов используют пластиковый бак. Вокруг него устраивают дренаж. В этом случае отходы туалета на даче периодически приходится удалять, что без сомнения является недостатком такой конструкции.
Рис.14. При низком уровне грунтовых вод можно использовать металлическую или пластиковые бочку. В бочке по периметру делают отверстия для отвода жидкой фракции. Вокруг бочку засыпают гравием это обеспечивает дренаж. Такую выгребную яму чистить придется раз в несколько лет, что является большим преимуществом по сравнению с предыдущим вариантом.
Рис.15. Яма из автомобильных покрышек.
Рис.16. Выгребная яма из кирпича.
Как сделать фундамент для туалета на даче
По большому счету для такой конструкции как деревянный туалет не требуется особого фундамента. Однако для того чтобы постройка служила долго фундамент под туалет на даче все-таки нужен. Кроме того, если кабинку поднять над землей хотя бы на 10 см, то таким образом будет обеспечено проветривание туалета на даче.
Рис.17. Подняв туалет над землей на 10-20 см можно обеспечить хорошую вентиляцию выгребной ямы.
Рис.18. Летний туалет на сваях на наклонном участке.
Самый простой вариант фундамента для уличного туалета — это вырыть ямы по углам туалета глубиной 20 — 30 см, засыпать их песком, а на песок положить блоки или бордюрный камень. Так же просто будет установить свайный фундамент, для этого можно приобрести четыре винтовые сваи длиной 1 м.
Рис.19. Простейший фундамент из блоков для туалетной кабинки.
Рис.20. Фундамент из бетонных блоков.
Рис.21. Фундамент из толстой тротуарной плитки.
Чертежи деревянного туалета для дачи
Кабина туалета для дачи может иметь различный внешний вид, но по конструкции она всегда однотипная. Она изготавливается из деревянных брусьев по каркасной технологии. Сначала собирают каркас из брусков, а потом обшивают вагонкой или любым другим материалом.
Рис.22. Каркас туалета для дачи. Кабинка для туалета на даче может быть изготовлена по каркасной технологии. Сначала строят каркас из бруска сечением 60х80 или 80х80 мм. После чего каркас обшивают, вагонкой, доской и сайдингом. Для крыши в качестве стропил может использоваться доска сечением 40х100 мм, обрешетку можно сделать из доски толщиной 20 мм. Чаще всего крышу кроют профлистом. Вентиляция туалета обеспечивается за счет окошка над дверью.
Рис.23. Чертеж туалетного домика с крышей типа мансарда.
Рис.24. Основные размеры простой кабинки.
Для каркаса хорошо подойдет брус 60х80, 80х80 или 100х100 мм. Можно использовать брус меньшего сечения, но тогда необходимо ставить несколько диагональных перемычек для устойчивости конструкции.
Рис.25. Схема кабинки с размерами.
Рис.26. Чертеж и спецификация туалетной кабинки.
Каркасный туалет для дачи начинают строить со сборки основания из 4 брусков длиной 1,5 м. Далее устанавливают вертикальные стойки. Обязательно необходимо установить стойки для двери. Расстояние между стойками должно быть равно ширине двери вместе с коробкой. В качестве стропил можно использовать доску 40х120 мм. Сверху на стропила укладывается доска толщиной 20-25мм, поверх нее настилается профлист.
Рис.27. Устройство кабинки летнего туалета.
Рис.28. Чертеж туалетной кабинки.
Как сделать вытяжку в туалете на даче
Для летнего туалета важно предусмотреть окно над дверью, это будет вентиляция туалета и источник освещения. Не стоит это окно стеклить иначе в туалете будет жарко и сильно пахнуть.
Рис.29. Окно вентиляция над дверью.
Рис.30. Устройство вентиляционного окна.
Чем обшить туалет для дачи снаружи
Снаружи для защиты от дождя каркас туалетной кабинки может быть обшит любым материалом, например, профлистом или сайдингом. Однако наиболее популярным материалом является вагонка или блок-хаус. Для крыши туалета используется любой кровельный материал, например, профлист.
Рис.31. Каркас туалета может быть зашит любым материалом. Чаще всего используют деревянную вагонку. Однако дерево плохо противостоит атмосферным осадкам, поэтому его необходимо обрабатывать антисептиком.

Рис.32. Такая кабинка будет мало заметна на участке.
Рис.33. Комбинированная обшивка туалетного домика.
Рис.34. Отделка туалета доской.
Сиденье для туалета на даче
В качестве сиденья может быть использованы различные конструкции начиная с помоста заканчивая отверстием в полу. На мой взгляд удобнее всего использовать специальное сиденье для туалета на даче.
Рис.35. В качестве сиденья может использоваться специальное ведро. Оно устанавливается на пол туалета непосредственно над ямой и крепится к полу саморезами. Крышка не позволяет распространяться неприятному запаху. Обеспечить хорошее проветривание яме можно подняв туалет на 10-15 см над уровнем земли, так не будет запаха и мух.
Рис.36. Сиденье для дачного туалета в виде унитаза.
Рис.37. Традиционный вариант сиденья.
Туалет для дачи без запаха
Существует несколько вариантов организации туалета для дачи без запаха: биотуалет, торфяной туалет, выгребная яма и септик. Все эти варианты отличаются по стоимости, сложности обслуживания и трудоемкости постройки.
Химический биотуалет на даче
Биотуалет представляет собой разновидность туалета, которым не требуется система канализации. Отходы жизнедеятельности накапливаются в специальном баке.
Рис.38. Модульный биотуалет.
Химические биотуалеты снабжены баком для накопления отходов и смыва, в бак смыва наливают воду и дезодорирующую жидкость, а в бак отходов добавляются дезинфицирующе-расщепляющую жидкость. Использование такого туалета практически аналогично городскому.
Рис.39. Химический биотуалет — это автономный комплекс, снабженный баком для нечистот. Такой туалет может быть установлен в любом месте. Однако небольшая емкость для нечистот требует постоянной утилизации отходов жизнедеятельности. Такой туалет прекрасно подойдет для кратковременного использования.
Достоинством химических биотуалетов является автономность, а, следовательно, их возможно установить в любом месте, в том числе и в доме, и не строить специального строения.
Рис.40. Дезодорирующая жидкость обеспечит отсутствие запаха.
Рис.41. Правила обращения с химическим туалетом.
Недостатком является необходимость постоянного слива отходов. Следует отметить, что не все химические жидкости позволяют сливать отходы в почву, а значит придется иметь специальное место для утилизации отходов.
Финский туалет для дачи
Торфяной туалет для дачи от химических отличаются более простой конструкцией. В своей работе они не используют химических препаратов. Конструктивно торфяные туалеты представляют собой небольшой бак с механизмом отвода жидкости. Для расщепления отходов после каждого использование необходимо в туалет засыпать немного торфа.
Рис.42. Торфяной туалет для дачи представляет собой систему в которой отделяется твердая фракция отделяется от жидкой. Жидкая фракция отводится, а твердая за счет присыпки торфом перерабатывается в удобрения для сада. Недостатком торфяного биотуалета является необходимость утилизации жидкой фракции и регулярная чистка от переработанной твердой фракции.
Большим достоинством торфяного туалета является экологичность. Отходы, перемешанные с торфом можно использовать как органическое удобрение для растений.
Рис.43. Емкость с отходами у финского туалета располагается под кабинкой.
Рис.44. Устройство торфяного туалета по финской технологии.
Недостатком является необходимость сооружения специального домика, установка вентиляции и необходимости оборудования дренажа для жидких фракций.
Рис.45. Вентиляция финского туалета.
Септик для туалета на даче
Септик для туалета на даче это самый современный способ утилизации отходов жизнедеятельности. Существуют полностью автономные септики не требующие обслуживания. Их принцип работы построен на расщеплении отходов.
Рис.46. Принцип работы септика.
Рис.47. Схема установки септика.
Рис.48. Септик — это автономная система канализации для дома. Из-за сложности установки и необходимости круглогодичного использования, они обычно применяются в загородных домах. Нечистоты попадая в септик подвергаются разложению. Септик не требует регулярных чисток.
Учитывая сложность установки и стоимость оборудования, септики обычно применяются в загородных домах круглогодичного проживания.
Рис.49. Септик для загородного дома.
Мы рассмотрели все возможные варианты туалетов для дачи. Несмотря на обилие вариантов наибольшее распространение получили септик и традиционный уличный туалет для дачи. Септик хорош своей автономностью и возможностью организации полноценной системы канализации. Обычно септик применяют в загородных домах и дачах круглогодичного проживания. Если дача посещается только в летний период, то самый простой вариант организации туалета — это деревенский вариант. Для деревенского туалета необходимо установить выгребную яму, роль которой обычно выполняет бочка, а сверху построить кабинку. Обычно кабинку строят из дерева. Если хорошо декорировать туалетный домик, то помимо выполнения своего прямого назначения, он будет еще прекрасным украшением участка.
mhremont.ru
Дачный туалет своими руками. Как сделать туалет на даче — инструкция : как сделать самому

Содержание
- Какой туалет на даче можно обустроить – виды и особенности
- Где можно разместить дачный туалет – правила и рекомендации
- Туалет на даче своими руками – инструкция строительства пудр-клозета
- Чертеж дачного туалета
- Фундамент и опора для туалета
- Изготавливаем каркас уличного туалета
- Обшиваем корпус туалета, делаем крышу
- Навешиваем дверь
- Обустраиваем стульчак в туалете
- Как построить туалет на даче с выгребной ямой
- Дачный туалет люфт-клозет и его особенности
Какой туалет на даче можно обустроить – виды и особенности
На обустроенной даче, где есть дом и фактически можно жить, желательно иметь два туалета – один в доме, а второй на улице. Туалет в доме удобно использовать ночью или в непогоду, когда идет дождь. Все же в доме и теплее и комфортнее. Уличный туалет для дачи необходим для того, чтобы использовать его днем после огородно-садовых работ на участке и не нести грязь с улицы в дом.
Всего существует несколько видов туалетов, которые можно использовать на даче:
- Уличный туалет с выгребной ямой.
- Пудр-клозет.
- Люфт-клозет.
- Биотуалет.
- Химический туалет.
- Торфяной туалет для дачи.
На выбор туалета влияет такой показатель, как уровень залегания грунтовых вод. Если вода находится далеко (глубже 2,5 м) и никогда не поднимается выше этой отметки даже в сезон дождей или весенних паводков, то можно использовать любой из предложенных вариантов туалета. Если же уровень грунтовых вод высокий, вода находится близко от поверхности, то обустраивать туалет с выгребной ямой нельзя.

Уличный туалет с выгребной ямой – старая добрая проверенная временем конструкция. Она представляет собой выгребную яму глубиной до 1,5 м, сверху которой стоит туалетный домик. Нечистоты в яме накапливаются и постепенно разлагаются. Если интенсивность использования такого туалета велика, то заполнение ямы происходит стремительно, нечистоты не успевают ферментироваться. Раньше такую проблему решали просто – снимали туалетный домик, закапывали старую яму, а в другом месте выкапывали новую и ставили сверху туалет. Сейчас же предпочитают чистить выгребные ямы либо с помощью ассенизаторской машины, либо вручную.

Пудр-клозет – вариант туалета для местности, где близко находится вода. В его конструкции вовсе нет выгребной ямы. Вместо нее используется емкость (ведро, бочка, ящик), которая устанавливается сразу под стульчаком. Чтобы нечистоты не слишком напоминали о себе неприятным запахом, после каждого похода в туалет их посыпают сухим торфом, опилками или золой. Сам процесс напоминает припудривание, от чего и произошло название данного вида туалетов «пудр-клозет». После заполнения емкость достается и опорожняется в компостную яму, кучу или другое место. Со временем нечистоты, пересыпанные торфом, превратятся в чудное удобрение.

Люфт-клозет – туалет с герметичной выгребной ямой, которую очищают с помощью ассенизаторской машины. Обычно люфт-клозеты обустраивают непосредственно в доме рядом с наружной стеной дома. Выгребная яма находится снаружи, нечистоты в нее поступают по трубе. Сама яма имеет уклон в сторону от дома для удобства очистки.
Биотуалет – привычная для городских жителей кабинка с емкостью, в которую заливают активные микроорганизмы для переработки нечистот. Наверное, самый простой способ обустройства туалета на даче, так как строить ничего не нужно – можно купить готовый биотуалет любых размеров, как уличный, так и домашний.
Химический туалет отличается от биотуалета только средством переработки нечистот. Здесь используются химические реагенты, поэтому содержимое контейнера после переработки нельзя использовать в качестве удобрения на огороде, в отличие от биотуалета.

Торфяной туалет – это домашний вариант пудр-клозета. По сути пудр-клозет тоже является торфяным туалетом, ведь в нем торф используется для припудривания фекалий. Домашний торфяной туалет – модернизированное достижение цивилизации. Он очень похож на обычный унитаз, только в бачке для воды вместо воды – сухой торф, а вместо труб канализации емкость для нечистот.

Такой туалет можно смело устанавливать внутри дома. Для устранения неприятного запаха в его конструкции предусмотрена вентиляция, которую необходимо вывести на улицу.
Выбор туалета для дачи полностью зависит от ваших личных предпочтений и от условий, которые диктуют правила СанПина.
Где можно разместить дачный туалет – правила и рекомендации
На размещение уличного туалета существуют определенные ограничения. В первую очередь они касаются тех туалетов, в которых нечистоты могут контактировать с грунтом и грунтовыми водами.
- От туалета до источника воды должно быть не менее 25 м. Будь то колодец, скважина, озеро, ручей или другой водный объект. Если дачный участок располагается под некоторым уклоном, то туалет необходимо устанавливать ниже источника забора воды. Это исключит попадание стоков в питьевую воду.
Важно! Обратите внимание, что учитывать следует не только свой источник воды, но и ближайших соседей.
- От туалета до дома и погреба или подвала должно быть минимум 12 м.
- От летнего душа или бани, сауны не менее 8 м.
- Расстояние от постройки для содержания животных до туалета должно быть 4 м.
- От стволов деревьев – 4 м, от кустарников – 1 м.
- От забора до туалета должно быть не менее 1 м.
- Также обязательно учитывается роза ветров при выборе места и расположения уличного туалета, чтобы не досаждать ни себе, ни соседям неприятным амбре.
- Дверь в туалет не должна открываться в сторону соседей.
- Если грунтовые воды ниже 2,5 м, то можно обустраивать любой уличный туалет. Если выше 2,5 м, то туалет с выгребной ямой делать нельзя, только пудр-клозет или люфт-клозет, а также можно ставить биотуалеты. Такие конструкции безопасны в том плане, что нечистоты не могут попасть в грунтовые воды и загрязнить их.
Учтите, что при выборе места для туалета необходимо ориентироваться на объекты не только на своем участке, но и на соседском. Это касается и деревьев, и сараев, и дома, и всего остального. Для туалетов типа пудр-клозет и люфт-клозет перечисленные выше ограничения не действуют, так как в них нечистоты не контактируют с грунтом. Единственное, что придется учесть при их размещении, это розу ветров и удобство использования.
Туалет на даче своими руками – инструкция строительства пудр-клозета
Обустроить дачный туалет собственноручно не так уж и сложно, достаточно обладать начальными плотницкими навыками, инженерным мышлением и запастись помощью друга. Рассмотрим пример строительства туалета на даче по типу пудр-клозет. Как мы уже писали, его особенность в том, что под туалетом нет выгребной ямы. И это значительно облегчает задачу. Во-первых, такой туалет можно располагать рядом с жилым домом. Во-вторых, сама технология строительства несколько легче, не придется рыть котлован. В-третьих, исключено загрязнение грунтовых вод.
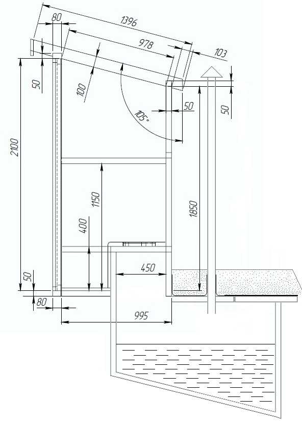
Чертеж дачного туалета
Строительство туалета необходимо начать с чертежа, чтобы все элементы и детали имели соответствующие размеры, а не на глазок. В связи с тем, что в пудр-клозете нет выгребной ямы, на чертеже будет представлена только конструкция туалетного домика.
Схематично пудр-клозет можно представить так:

Размеры туалета подбираются так, чтобы им было удобно пользоваться. Например, самый распространенный размер: ширина 1,5 м, глубина 1 м, высота 2,2 м. Размеры могут быть увеличены, если того требуют габариты хозяев. Материал изготовления туалета может быть разным: самые распространенные деревянные туалеты, но можно обшивать стены металлопрофилем, шифером или другим материалом, а также возводить стены из кирпича.
Туалет дачный деревянный – чертеж в разрезе.
Пример 1.


Пример 2.

Вы можете воспользоваться готовым чертежом, а можете составить свой. Главное – соблюдение размеров при строительстве.
Фундамент и опора для туалета

Дачный туалет – это строение, которое не требует тяжелого фундамента. В некоторых источниках Вы можете встретить предложение заливать под туалет ленточный фундамент. На самом деле это лишнее, особенно, если туалет деревянный. Опору для туалетного домика можно сделать двумя способами: первый – закопать столбы-опоры, второй выложить по периметру кирпичи или бетонные блоки.
В качестве столбов-опор можно использовать как деревянный брус или бревно, так и бетонные столбики. Последние более устойчивы к агрессивной среде и прослужат дольше.
- Первым делом размечаем участок. Крайне важно точно определить углы строения.
- Берем 4 асбестоцементные трубы диаметром от 150 мм и обмазываем их снаружи битумной мастикой.
- В углах туалетного домика выкапывает скважины и заглубляем трубы на глубину 50 – 70 см. Глубина заложения труб может быть и больше, это зависит от структуры грунта. Можно сделать 90 см или 1 м.
- На высоту 1/3 трубы их необходимо залить бетонным раствором. Старательно уплотняем бетон, чтобы удалить пузырьки воздуха.
- Внутрь труб вставляем деревянные или бетонные столбы-опоры. Чтобы закрепить их, добавляем бетонный раствор.
Столбы-опоры в данном случае могут выступать и вертикальной частью каркаса, т.е. их необходимо выгнать на высоту 2,3 м от земли. Также необходимо постоянно проверять, чтобы расположение столбов было ровным относительно углов.
Бывают случаи, когда в качестве опоры достаточно закрепить бетонные блоки или кирпичи, на которые затем будет установлен каркас. В таком случае необходимо снять верхний слой грунта на глубину 20 – 30 см и плотно утрамбовать основание. Для большей надежности на дно можно засыпать слой песка. Сверху устанавливаются бетонные блоки, кирпичи или бетонные бордюры.
Изготавливаем каркас уличного туалета

Каркас дачного туалета можно изготовить из деревянного бруса 50х50 мм или 80х80 мм. Более толстый и массивный брус 100х100 мм и больше брать не обязательно. Также можно использовать металлические уголки.

Каркас должен представлять собой конструкцию:
- 4-е несущие вертикальные опоры.
- Обвязка крыши туалета. Продольные брусья для крыши должна выступать за пределы корпуса туалета на 30 – 40 см. Спереди навес будет служить козырьком, а сзади – для отвода дождевой воды подальше от туалета.
- Обвязка или стяжка на уровне будущего стульчака. Обычно брусья обвязки стульчака крепятся в распор к несущим вертикальным опорам. Высота расположения стульчака должна быть удобной – 40 см от пола туалета.
- Диагональные укосины для прочности конструкции на задней и боковых стенках туалета.
- Каркас для крепления двери. Две вертикальные опоры на высоту до 1,9 м и горизонтальная перемычка сверху на этой же высоте.
Обязательно высчитайте высоту стульчака, так как слишком высокое сидение будет неудобным, особенно если среди хозяев есть низкорослые люди. Обозначьте, на каком уровне будет чистовой пол в туалете, и отложите от него 38 – 40 см вверх. Учтите, что сверху обвязки будет еще обшивка толщиной 20 – 25 мм.
Обшиваем корпус туалета, делаем крышу
Дальнейшее строительство дачного туалета заключается в том, чтобы обшить каркас. Так как деревянные туалеты пользуются неизменной популярностью за счет своей самобытной красоты, удобства и комфорта, то стены дачного туалета можно обшить деревянными досками.

Деревянные доски толщиной 15 – 25 мм прибивают к каркасу, плотно подгоняя их друг к другу. Располагать доски необходимо вертикально. Так как крыша будет располагаться с уклоном к задней стенке, то верхнюю часть досок обшивки придется аккуратно срезать под углом.
Вместо дерева можно использовать листы профнастила, шифера или другого материала. С ними намного легче работать, так как потребуется всего три листа для задней и двух боковых стенок. Но в таком туалете значительно менее комфортно находиться, чем в деревянном. А все потому, что не происходит естественный влажностный и воздушный обмен через стены.
На задней стенке туалета необходимо сделать дверцу, через которую можно будет вынимать емкость с нечистотами. Обычно ее делают на всю ширину задней стенки на высоту 40 см (до высоты стульчака). Закрепляется такая дверца на петлях. Выполнить ее можно из тех же деревянных досок.
Крышу дачного туалета обычно кроют тем же материалом, что и все постройки на участке, чтобы строения не выбивались из композиции. Можно использовать листы профнастила или металлочерепицу. В крыше необходимо выполнить отверстие для вентиляционной трубы, которое затем следует тщательно герметизировать.
Если Вы хотите сделать крышу туалета деревянной, то ее обязательно следует покрыть рубероидом или другим рулонным материалом, чтобы дерево не намокало.
Навешиваем дверь
Дверь для дачного туалета обычно делают деревянной. Дверь навешиваем на петлях. Количество петель 2 или 3 зависит от тяжести и массивности двери. Чем тяжелее дверь, тем больше должно быть петель. Механизм закрывания двери в туалет каждый делает, как ему больше нравится: защелка, крючок, шпингалет или деревянная задвижка. Внутри туалета также необходимо установить защелку.
Над дверью следует сделать окошко, через которое сможет проникать естественное освещение. Обычно его делают как можно ближе к крыше, чтобы внутрь не попадала вода во время дождя. Окошко можно застеклить, тогда будет не страшен ни дождь, ни насекомые, которые часто залетают через такие оконца. Как выглядит дачный деревянный туалет, можно увидеть на фото.
Дачный туалет: фото – примеры




Обустраиваем стульчак в туалете
Сиденье или стульчак в дачном туалете выполняют из деревянных досок, вагонки или влагостойкой фанеры. Лучше использовать чистое дерево без добавок, поэтому фанеру исключаем. Каркас будущего стульчака был сделан еще на этапе обустройства каркаса, поэтому сейчас достаточно аккуратно обшить его деревянными досками и окрасить. Посередине вырезаем отверстие, через которое будем справлять нужду. Обязательно проверьте, на какой глубине от начала стульчака следует сделать отверстие, чтобы им было удобно пользоваться.

Под стульчак устанавливаем емкость для нечистот объемом от 20 до 40 л. Кстати, крышку стульчака можно сделать откидывающуюся на петлях, а можно стационарную.
На стене в удобном месте навешиваем емкость для торфа. Внизу ставим ведро для туалетной бумаги. Внутри туалета можно установить умывальник, если это позволяют габариты строения. Тогда под умывальником устанавливаем ведро для помоев.
Как построить туалет на даче с выгребной ямой

Строительство туалета с выгребной ямой несколько сложнее, так как придется обустроить яму для отходов. Туалетный домик для данного вида туалетов ничем не отличается, поэтому мы его затрагивать не будем. Обозначим только, как сделать коммуникации. На схеме представлено, как должна располагаться выгребная яма относительно туалетного домика. Исходя из этого, выполняем разметку участка и приступаем к земляным работам.

- Копаем выгребную яму с уклоном в сторону задней стенки туалета глубиной 1,5 м.
- Дно и стены ямы утрамбовываем глиной слоем 15 – 25 см. Некоторые вместо глины делают стены ямы из дерева, кирпича или бетона. Если грунтовые воды находятся на достаточной глубине, то делать стены выгребной ямы полностью герметичными не обязательно. Достаточно глиняного замка.
- Основание под туалет сбиваем из деревянного бруса 100х100 мм. Также можно использовать тротуарный бордюр или бетонные блоки, уложив их на землю. Если использовать деревянный брус, то его необходимо обработать антисептиком.
- Над выгребной ямой обустраиваем настил из досок. Сначала сбиваем каркас из брусьев. Делаем между ними такое расстояние, чтобы было удобно очищать яму. Учтите, что настил делается за пределами туалетного домика, под домиком остается свободное пространство достаточного размера, чтобы нечистоты попадали в яму.
- Настил необходимо обить снизу рубероидом или другим рулонным материалом.
- За туалетом устанавливаем люк, представляющий собой откидную крышку на петлях. Люк будет использоваться при очистке ямы. Деревянный люк обрабатываем антисептиком.
- Прокладываем вентиляционную трубу из ямы. Устанавливаем ее рядом с задней стенкой туалета, выводим на 70 – 100 см выше крыши туалета. Для этих целей можно использовать обычную канализационную трубу. Сверху на трубу закрепляем козырек, чтобы внутрь не попадала вода и мусор. Закрепляем трубу к задней стенке хомутами. Нижний край вентиляционной трубы должен располагаться на 15 – 20 см ниже уровня пола туалета.
- Сверху устанавливается туалетный домик.
- Вокруг туалета с выгребной ямой необходимо обязательно делать отмостку и отведение дождевой воды, чтобы она не затопила яму с нечистотами.
Если в дальнейшем планируется очищать выгребную яму с помощью ассенизаторской машины, то туалет необходимо так располагать на участке, чтобы машина могла подъехать на достаточное расстояние. Помните, рукав такой машины всего 7 м.
Дачный туалет люфт-клозет и его особенности

Чаще всего дачный туалет типа люфт-клозет устанавливается рядом с жилым домом или внутри дома. Сточная яма располагается снаружи строения, за его стенами. Туалет такого типа можно строить только там, где есть возможность обогревать сточную яму в зимний период. Если же пользоваться туалетом зимой не будут, то перед концом сезона выгребную яму необходимо полностью очистить.
Основное отличие люфт-клозета от других видов туалетов в том, что выгребная яма в нем выполняется полностью герметичной и регулярно очищается с помощью ассенизаторской машины. Вот несколько отличий в строительстве люфт-клозета:
- Герметичная яма, чтобы нечистоты не впитывались в грунт. Можно заливать яму из бетона, выполнять ее из кирпича и оштукатуривать, а можно использовать готовые пластиковые емкости – кессоны.
- Из выгребной ямы обязательно должна идти вентиляционная труба. Проводить ее необходимо через дымоход печи или камина. В свою очередь из дымохода должна идти труба в яму, через которую будет поступать теплый воздух. Это необходимо, чтобы яма не замерзала. Материал вытяжной трубы – асбестоцементная или керамическая.
- Если в доме нет обычной печи или камина, а только газовое отопление, то обогрев выгребной ямы необходимо осуществить с помощью маломощного электронагревателя.
- Над ямой делается крышка/люк. Чтобы крышка не промерзала, ее делают двойной: верхняя – металлическая или чугунная, а нижняя – деревянная. Между крышками укладываем теплоизоляционный материал.
- Уклон ямы должен быть в сторону от дома для удобства ее очистки.
В последнее время все большей популярностью пользуются торфяные туалеты для дачи. Их удобство в том, что их можно смело располагать в доме в любом помещении. Торфяные туалеты легко чистятся, практически не издают запаха, с ними может совладать даже хрупкая женщина или пожилой человек. Также подобные туалеты можно делать на улице, тот же пудр-клозет – всего лишь предшественник современного торфяного туалета.
presstile.ru
каркасные конструкции и другие, инструкция как сделать своими руками, видео и фото
Если вы решили сделать дачный туалет своими руками, то эта статья именно для вас. Мы рассмотрим все, что необходимо знать: от правильного выбора места до устройства выгребной ямы и сооружения деревянной конструкции. Вам нужно просто руководствоваться рекомендациями из обзора, чтобы без труда справиться с работой.

На фото: деревянный туалет – самое простое решение для дачи

Окрашивание позволяет придать строению более привлекательный вид
Как организовать работы
Чтобы сделать дачный туалет, не надо быть строителем или столяром. Строение отличается простотой, поэтому его сооружение по силам любому человеку. Но есть целый ряд нюансов, несоблюдение которых может привести к множеству проблем, поэтому в первую очередь нужно разобраться с правилами установки. Только после этого можно приступать к работе.

Обычно туалет располагается в дальнем углу участка
Как выбрать место

На этой простой схеме отражены основные требования по расположению конструкции
В первую очередь нужно выбрать правильное расположение дачного туалета.
Тут есть несколько правил, которые нужно помнить при определении места строительства:
- Расстояние от туалета до источника питьевой воды должно быть не менее 25 метров. В идеале, чем дальше расположен колодец, тем лучше. Нельзя ставить конструкцию ближе, особенно, если у вас грунтовые воды расположены недалеко от поверхности;
- От дома сооружение лучше располагать не ближе 5 м. Это обусловлено как санитарными нормами, так и тем, что при близком расположении неприятные запахи будут проникать в дом, особенно в летнее время, когда окна открыты. Также желательно учитывать преобладающее направление ветра у вас в регионе, чтобы по возможности поставить туалет с подветренной стороны;

Все расстояния тщательно измеряются
- Также следует соблюдать отступ от забора, минимальное расстояние составляет 1 м. Если вы поставите конструкцию вплотную, то соседи могут подать на вас в суд и вам придется переносить строение;
- При решении вопроса, где поставить туалет, не забывайте учитывать и уровень участка. Нужно ставить постройку так, чтобы она не располагалась в самом высоком месте. Но и в низине производить строительство нежелательно, особенно если весной у вас на участке стоит вода.
Если у вас будет закрытая выгребная яма, то не забудьте предусмотреть место для подъезда ассенизаторского автомобиля. А то часто получаются ситуации, что машина просто не может подъехать.
Материалы и инструмент
Чтобы соорудить каркасный туалет с выгребной ямой, нужен простой набор материалов. Все необходимые компоненты представлены в виде таблицы для наглядности.

Блок-хаус выглядит привлекательно, но и стоит дороже доски
| Материал | Рекомендации по выбору |
| Деревянный брусок | Из него будет сооружаться каркас конструкции. Лучше брать варианты сечением 40х40 мм и больше, чтобы обеспечить прочность и надежность. Чаще всего используется сосна, ее цена невысока, а надежности вполне достаточно для наших работ |
| Доска | Для обшивки конструкции используется доска толщиной 32 и более миллиметра. При желании снаружи можно обшивать поверхности блок-хаусом или имитацией бруса. Но можно обойтись и дешевой доской, особенно если вы хотите провести процесс с минимальными затратами |
| Кровельный материал | Для этих целей можно использовать шифер, металлочерепицу, гибкую кровлю и любой другой подходящий материал. Некоторые используют обычный рубероид, который крепится к настилу из доски или ориентированно-стружечной плиты |
| Материал для выгребной ямы | Просто копать яму и оставлять ее так, крайне нежелательно: стенки со временем могут осесть, и ваш туалет упадет или провалится. Для ямы можно использовать шины от грузовиков или тракторов, можно выкладывать стенки из кирпича, а можно сделать ее из бетонных колец (продаются специальные канализационные варианты уменьшенного диаметра) |
| Труба для вентиляции | Лучше всего использовать для этих целей обычную канализационную трубу диаметром 110 мм. Ее количество зависит от высоты конструкции |

Такая труба идеально подходит для вентиляции
Что касается инструмента, то нужен такой набор:
- Ножовка или электроинструмент для резки дерева. Можно обойтись и ручным вариантом, это намного дешевле;
- Лопата для рытья выгребной ямы;
- Если вы будете укладывать кирпич, то нужен мастерок и емкость для приготовления раствора;
- Собирать конструкцию можно или с помощью гвоздей (нужен молоток) или саморезами (нужен шуруповерт). Я предпочитаю второй вариант за его надежность;

Шуруповерт позволяет быстро и качественно соединять деревянные элементы
- Рулетка с карандашом, угольник и уровень помогут проводить четкие замеры и собирать ровную конструкцию.
Рытье выгребной ямы
Эта часть работ при всей своей простоте отнимает много сил, поэтому лучше рыть яму не самому, а с 1-2 помощниками, чтобы попеременно отдыхать.
Рабочий процесс состоит из следующих действий:
- Определяется конфигурация будущей ямы. Если вы будете использовать колеса или кольца, то нужно углубление круглой формы. Если стенки будут выкладываться из кирпича, то можно делать квадратный вариант со стороной в 100-120 см. Важно определиться с тем, какого типа будет яма, если грунтовые воды близко к поверхности, то лучше делать ее закрытого типа, чтобы отходы не попадали в почву;
- Размечается поверхность, и начинаются работы. Верхний плодородный слой почвы лучше убрать отдельно, чтобы использовать его в огороде. Дальше грунт выбирается и либо вывозится, либо равномерно рассыпается, чтобы поднять уровень площадки или выровнять ямы на участке;

Яма копается строго по размерам
- Глубина обычно составляет около 2-х метров. Больше делать не нужно. После того как яма будет готова, стоит выровнять дно и поправить стенки, если это необходимо;

Чтобы стенки не обваливались, работу лучше проводить в сухой период года
- Если стенки выкладываются из кирпича, лучше делать их квадратными. Вывести круг намного сложнее, а вот положить ровные стороны проще. Не нужно идеальное качество кладки, главное – надежно крепить элементы на раствор и делать стенки более-менее ровными. В нижней части можно оставлять отверстия для дренажа;

Из кирпича проще делать квадратную яму
- Укладка шин производится еще проще. Они аккуратно ставятся друг на друга и выравниваются. Дополнительно крепить их не нужно. В верхнем элементе можно сделать прорезь, чтобы потом можно было вставлять шланг для выкачивания выгребной ямы;

Шины – дешевое решение для открытых выгребных ям
- Если используются бетонные кольца, то их лучше ставить с помощью подъемника. Чаще всего используется два кольца, глубина как раз получается два метра;

Если нужен основательный дачный туалет – используйте для ямы бетонные кольца
- При необходимости дно бетонируется. Тут все просто: выравнивается грунт, насыпается и уплотняется песчаная подушка толщиной 10 см. Поверх заливается раствор толщиной 5 см;
- Если у вас будет открытый вариант, то на дно насыпается дренажный слой. Тут все легко: берется щебень средней фракции и распределяется слоем 20-30 см по поверхности.
Сооружение домика
Теперь разберемся, как сделать туалет на даче своими руками.
Процесс несложен и состоит из таких действий:

Схема достаточно проста, если разбить ее на мелкие действия
- Перед тем как построить туалет, составьте его проект со всеми размерами. Это очень сильно упростит рабочий процесс, ведь вы будете знать все параметры каждого элемента. Кроме того, когда четко представляешь конечный результат, то сборка проходит намного быстрее и проще;

Простейший дачный туалет, который может собрать каждый
- По чертежу производится подготовка материалов. Бруски нарезаются на куски требуемого размера. Если у вас односкатная крыша, то передние стойки должны быть выше задних на 20 см, это самый простой вариант кровли;
- В первую очередь собирается основание. Тут самое главное сделать конструкцию ровной, для этого перед скреплением всех элементов обязательно проверьте диагонали. Это самый простой способ проконтролировать геометрию и исключить перекосы. Скреплять части лучше всего саморезами;
Для обеспечения наилучшей надежности нижнюю часть желательно обработать отработкой или другим защитным составом.
- Устанавливается основа на почву. Проще всего использовать 4 бетонных блока, которые исключат контакт деревянных поверхностей с землей и станут надежной опорой конструкции. Заливать фундамент я не советую, блоки отлично справляются с функцией основания;

Основание ставится на бетонные блоки и обильно обрабатывается защитным составом
- Крепятся вертикальные стойки. Для работы проще всего использовать металлические крепежные уголки, с их помощью вы быстро и надежно соедините элементы. Важно при креплении контролировать вертикальность стоек с помощью уровня. При необходимости можно дополнительно зафиксировать брусок временными раскосами;

На уголки крепить стойки очень удобно

Вот пример того, как уголками соединить основу и стойку
- Сооружается стульчак. Тут все просто: из бруска делается каркас высотой 40 см и шириной не менее 50 см. Особых требований нет, главное – обеспечить жесткость конструкции. Для этой части конструкции применяется такой же брусок, как и для стоек;

Возвышение должно иметь удобные для эксплуатации размеры
- Крепятся опоры крыши и обрамление для двери. Что касается брусков на кровле, то они должны иметь вынос от 20 см, чтобы закрывать стены от осадков. Для дверей делается усиливающий каркас по размеру будущего полотна. Как все это выглядит в собранном виде, хорошо показано на фото ниже;

Вот так выглядит готовый каркас под дачный туалет
- Стены обшиваются доской. Тут все просто, главное нарезать материал по размеру. Крепление производится с помощью саморезов или гвоздей. Лучше использовать обрезную доску, чтобы в конструкции не было щелей. Туалет все-таки уличный, и нежелательно, чтобы там гулял ветер;

Если у вас есть фанера, то обшивку можно производить и этим материалом
- Собирается и ставится дверь. Используется простая конструкция, которая состоит из доски, двух перемычек и одного или двух раскосов для обеспечения надежности. Причем лучше сначала собрать конструкцию, а потом ровно отрезать верхнюю и нижнюю часть. На каркас туалета полотно крепится на петли, которые можно купить в любом хозяйственном магазине;

Вначале скрадывается и скрепляется конструкция, а потом отрезается все лишнее по линии
- Вентиляционную трубу проще всего крепить с задней стороны. Она должна быть выше крыши как минимум на 20 см и опускаться в яму примерно на 15 см. Для улучшения вентиляции и защиты от осадков сверху крепится дефлектор.

Труба должна быть выше крыши, иначе нормальной вентиляции не будет
После постройки не забудьте обработать конструкцию защитным составом. Можно использовать как краску, так и пропитки, которые не скрывают структуру дерева, но надежно защищают поверхность от влаги и вредителей. Окрашивание нужно обновлять не реже, чем раз в 3 года, это продлит срок службы конструкции как минимум вдвое.

Защитная обработка – завершающая стадия рабочего процесса
Сооружение пудр-клозета
Если уровень грунтовых вод на участке очень высок или имеются другие ограничения для сооружения выгребной ямы, то проще соорудить пудр-клозет. Он еще называется торфяной туалет из-за того, что в качестве наполнителя при использовании применяется торф.

Этот вариант не требует выгребной ямы
Конструкция во многом схожа с обычным вариантом, но имеются и отличия, именно их мы и разберем ниже:
- В первую очередь нужно сделать схему будущего строения. Она похожа на вышеописанный вариант, но в ней домик ставится не на яму, а на основание из бетонных блоков, установленное на земле;

Так выглядит данный вариант
- Домик можно собрать в любом месте и поставить туда, куда вам нужно. В туалете лучше сделать пол, чтобы ставить ведро не на землю, а на настил. При определении размеров не забудьте о том, что рядом должно располагаться ведро с торфом. Именно поэтому такие туалеты обычно шире, чем стандартные;

Вместо торфа можно использовать и опилки
- Высота пьедестала зависит от размеров ведра или емкости, которая будет использоваться. Определись вначале с этим аспектом, а потом приступайте к работе. Часто получается, что после сборки оказывается, что ведро не влезает и приходится приспосабливаться, хотя если предусмотреть это заранее, то проблем можно избежать;
- Продумайте, как будет извлекаться емкость. Можно сделать откидной стульчак, а можно соорудить дверцы в задней стенке, чтобы вынимать ведро с улицы. Особой разницы нет, выбирайте то, что удобнее вам.

Дачный туалет этого типа должен предусматривать легкое извлечение емкости
Вывод
Используя этот обзор, вы без труда сможете соорудить дачный туалет. Все этапы описаны очень подробно, а видео в этой статье наглядно показывает важные моменты рабочего процесса, чтобы вам было еще проще разобраться в теме. Если у вас есть какие-либо вопросы, пишите их в комментариях ниже.
kursremonta.ru
Как сделать туалет на даче своими руками: пошаговая инструкция

Если человек решил приобрести загородный участок для отдыха с друзьями или семьей, вопрос, как сделать туалет на даче, возникнет в первую очередь. Домик для отправления естественных физиологических надобностей — обязательный атрибут не только любого жилища, но и приусадебной территории, на которой предстоит находиться не один час. Вполне логично, что каждому хозяину захочется как можно быстрее начать и закончить на даче сооружение нужного всем туалета. И хотя на первый взгляд, кажется, что дело это довольно простое, торопиться не стоит. Следует внимательно изучить дачную территорию и определиться с выбором места для туалетного домика, учитывая ряд санитарных требований. А еще 1 важным моментом является выбор вида уборной, ведь их существует несколько. Какой же туалет лучше построить на территории дачного участка?
Как правильно выбрать место для дворовой уборной?
Удобным и комфортным для жильцов дачи является размещение туалета внутри дома. Здесь тепло и сухо. Не надо выходить на улицу ночью или в дождливый день. Но такой клозет требует длительного времени на сооружение и по затратам выходит дороже. Если человек работает на грядках, предпочтительнее сбегать в дворовую уборную, не думая о том, что можно испачкать землей пол в жилище. Поэтому вначале проще и правильнее будет соорудить туалет на улице. На каком же месте участка надо его разместить? Чтобы сделать все правильно, следует учитывать санитарно-гигиенические требования к обустройству уличных клозетов. Особенно это касается отхожих мест с выгребными ямами.
Поскольку самым неприятным в них является запах, уборные обычно принято располагать не в непосредственной близости от стен жилого дома, а на расстоянии 8-10 м от них. Не стоит высаживать рядом с туалетом деревья и кустарники. Дистанция между ними должна быть в несколько метров. Если на даче имеется колодец, то следует соблюдать между ним и отхожим местом расстояние в 50 м. Если загородное жилище не стоит на отшибе, а окружено участками соседей, нужно подумать и об их комфорте. Нельзя строить дворовую уборную прямо перед их домом, даже если участки разделяет забор (удаленность от изгороди должна составлять не менее 1 м). Лучше разместить клозет так, чтобы соседи не чувствовали запаха из него и не видели его прямо перед собой. Нужно провести наблюдения за ветром, установить, в какую сторону он дует чаще всего. И если там нет вблизи никаких построек, можно в этом месте устраивать уборную.

Туалет лучше несколько отнести от дома
Важным обстоятельством является рельеф дачного участка и наличие под землей грунтовых вод. Если загородная территория имеет уклон, то туалет нужно располагать в низине, чтобы источник забора воды был выше его. В таком случае грязные стоки не попадут в чистую воду. Хорошо, когда грунтовые воды протекают на глубине 2,5 м, т. е. достаточно удалены от поверхности земли. Это значит, что можно строить на своем участке уборную с выгребной ямой. А если глубина уровня грунтовых вод составляет менее 2 м, подойдут виды туалетов с емкостями для сбора нечистот. В противном случае почва и вода могут загрязниться вредными продуктами распада.
Основные виды дворовых уборных
Определившись с местом будущего туалета, стоит задуматься над его конструкцией. В настоящее время есть несколько видов уборных, которые подойдут для дачи:
- биотуалет;
- пудр-клозет;
- торфяная уборная;
- химический туалет;
- уборная с выгребной ямой.
Все вышеперечисленные ватерклозеты, кроме последнего, желательно устанавливать на участках с близким расположением к поверхности земли грунтовых вод. Отхожее место с выгребной ямой обустраивают лишь при глубоком протекании грунтовых вод. Что же собой представляют данные туалетные домики?
Самым простым решением для дачи станет биотуалет. Это кабинка, которую можно купить и установить на своем участке, не тратя время на строительство. Внутри кабинки находится двухсекционная емкость для сбора нечистот. Сюда заливают специальные расщепители фекалий. Они перерабатывают их, и устраняют неприятный запах. Спустя 7-8 дней после начала использования биотуалета его нужно будет очистить от нечистот, слив их либо в другие емкости, либо в почву. Уход за этим туалетом простой. Но минусом такой уборной является для некоторых рачительных хозяев ее стоимость.

Пудр-клозет (торфяной биотуалет)
Химический ватерклозет почти не отличается от биотуалета. Разница заключается лишь в антисептиках, заливаемых в резервуар. Химические реагенты, разрушающие нечистоты, вредны для окружающей среды, ими нельзя удобрять почву на участке. Поэтому такие уборные лучше подходят для городов. Их можно увидеть на строительных площадках или массовых праздничных мероприятиях.
Пудр-клозет — туалетная конструкция без выгребной ямы. Ее заменяет любая объемная емкость (бочка, резервуар), устанавливаемая под стульчак. Все нечистоты, поступающие в емкость, сразу же присыпаются опилками, торфом или золой, словно припудриваются сверху для устранения неприятного аромата. Отсюда и название клозета. Когда резервуар заполняется доверху, его опорожняют и используют содержимое в качестве удобрения.
Вариантом пудр-клозета является торфяной туалет. В сливной бачок засыпают сухой торф, который поступает в резервуар под стульчаком и присыпает нечистоты.
Самой привычной всем, но трудоемкой в постройке считается уборная с выгребной ямой. Сверху над ямой устанавливают туалетный домик. Нечистоты после заполнения ямы либо удаляют вручную, либо в помощь вызывают ассенизаторов.
Как соорудить опору домика под уборную?
Любая хозяйственная постройка начинается с чертежа. Хозяину нужно определиться с размерами будущего клозета, прежде чем закупать строительный материал. Распространены следующие размеры дачного туалета:
- высота — 2 м;
- ширина сторон по 1,5 м;
- глубина 1-1,2 м.
Но можно скорректировать их по своему желанию: сделать конструкцию выше, просторнее.
Чтобы уборную не унесло ветром, надо выполнить для нее опору под каркас. Что касается фундамента, то для небольшого строения он не обязателен. Существует несколько способов сооружения опор. В первом случае можно сделать устойчивое основание из кирпича или блоков. Для этого на месте будущего туалета снимают почву на глубину в 30 см, затем землю тщательно утрамбовывают. Площадку по периметру выкладывают блоками или кирпичом. Сверху на опору устанавливают туалетный домик. В будущем его можно будет легко переместить на другое место.

Основание туалета
Во втором случае в качестве опор можно применить асбестовые трубы с брусьями из дерева. Трубы с диаметром не менее 15 см и длиной 100 см будут устойчивыми и надежными. Вначале по периметру основания в каждом из его 4 углов выкапываются углубления в 50-80 см. В них вертикально устанавливаются асбестовые трубы, внутрь которых на 1/3 заливается бетонный раствор. Затем внутрь таких опор вставляются деревянные брусья длиной от 2,3 м и диаметром 5х5 см. Они будут служить вертикальными частями каркаса будущего туалета. Дерево прочно закрепится в бетонном растворе, только нужно при установке следить за ровностью брусьев, чтобы они были строго вертикальными. Задние брусья должны быть короче передних на 10-15 см, так как крыша домика обычно наклонная.
Изготовление каркаса клозета и его обшивка
Установив вертикальные брусья-опоры и скорректировав их высоту, можно выполнять обвязку каркаса. Верхняя стяжка делается на уровне крыши конструкции. Горизонтальные рейки прибивают по периметру всех сторон домика. Спереди и сзади они должны выступать за границы корпуса на 30 см. Так как крыша делается с небольшим козырьком и отводит от уборной дождевую воду, чтобы та не текла прямо на стену. Нижнюю стяжку выполняют на уровне сиденья или стульчака на высоте 35-40 см от пола уборной. Переднюю стенку не трогают, ведь здесь будет дверь. Чтобы корпус был еще прочнее, на его боковые и заднюю стенки набивают диагональные укосины. На переднюю стенку туалета устанавливают еще 2 опоры вертикальных, их высота — 190 см. По их верхней линии прибивают горизонтальную перемычку. В этот каркас будет вставляться дверь.

Вариант исполнения из дерева
Теперь следует обшить конструкцию выбранным материалом: деревом или металлопрофилем. Теплее и уютнее находиться внутри деревянного туалета. Лучше взять для него доски толщиной 1,5-2 см. Вымеряют материал по высоте и прибивают вертикально к каркасу с 3 сторон. Обязательно следить, чтобы доски плотно прилегали одна к другой, и между ними не было щелей. Снизу на задней стенке надо будет из тех же досок сделать небольшую дверцу. Через нее будет доставаться емкость, заполненная нечистотами. Чтобы этот процесс был легким, дверца делается на высоту стульчака и ширину задней стены уборной. Для крепления дверцы используют петли. Крыша туалетного домика может быть либо шиферной, либо из дерева. Чтобы продлить срок службы деревянной крыши, сверху ее покрывают рубероидом.
Обустройство стульчака и двери в уборной
После того как все 3 стены клозета готовы, можно приступить к изготовлению двери и ее креплению к корпусу конструкции. Размеры двери (ширина, высота) должны совпадать с проемом, для нее подготовленным. Доски сбивают вместе. На корпус туалета и полотно двери прикручивают шурупами по 2 петли, и навешивают дверь на стенку. Прикручивают изнутри и снаружи ручку. Еще 1 важным элементом двери является задвижка. Ее прикрепляют к дверце с 2 сторон. Закрывать дверь можно при помощи обычного крючка, стальной защелки или шпингалета, — это уже личный выбор каждого. Чтобы в уборной было светло, над дверью желательно сделать небольшое окошко и застеклить его. Окошко можно вырезать и на боковой стенке туалета.

Вариант обустройства стульчака
Теперь осталось сделать самую нужную часть туалета — стульчак. Как было сказано выше, высота его обычно составляет не более 40 см. Слишком высокий стульчак неудобен, особенно для детей. Каркас стульчака имеет ширину в 50 см. Его, как и стены уборной, обшивают досками и сверху в центре вырезают отверстие для отправления естественных надобностей. Оно не должно быть слишком большим или маленьким. Под готовый стульчак ставится емкость для нечистот объемом в 30-40 л. Остальная часть пола застилается досками. Деревянный туалетный домик нужно покрасить или покрыть лаком. Когда покрытие высохнет, туалет дополняют последними штрихами. На стенку навешивают емкость для опилок или торфа и держатель (кронштейн) для туалетной бумаги, ставят на пол урну. Пудр-клозет готов!
Как сделать выгребную яму?
Некоторые хозяева предпочитают старые добрые туалеты с выгребными ямами. Как правильно обустроить такую уборную? Для начала следует вырыть саму яму глубиной в 150 см. Уклон делается в сторону задней стены будущего клозета. Затем все стенки и дно ямы плотно утрамбовывают слоем глины (20-25 см), можно выложить их кирпичом. Туалетный домик, который строится, как и пудр-клозет, будет располагаться над передней третью ямы. Основание для уборной делают из деревянных брусьев. Над ямой настилают доски (за пределами клозета) и обивают их снизу рубероидом. В настиле прорезают отверстие и навешивают на петлях крышку. Это будет люк. Из ямы вверх параллельно задней стенке туалета надо вывести трубу для вентиляции. Ее нижний край должен опускаться на 20 см ниже уровня туалетного пола, а верхний на 80 см выходить выше крыши клозета. Рядом с трубой над ямой устанавливают деревянный домик и закрепляют трубу на его задней стенке с помощью хомутов. Далее вокруг уличного туалета для дачи заливают бетонную отмостку (шириной в 1 м). Она не допустит попадания в выгребную яму дождевой воды.
Какую уборную соорудить на загородном участке, каждый хозяин решит самостоятельно, но на любой клозет потребуется немного времени и сил. В строительстве дачного туалета своими руками есть плюсы и минусы. Но когда конструкция будет готова, человек будет гордиться, что сделал ее сам.
sadovod.guru
Дачный туалет своими руками пошагово
Первая постройка, которая появляется на любом участке — туалет. Мы можем как-то обойтись без домика и душа, а вот без этой постройки — никак. Для многих туалет для дачи своими руками — первый строительный опыт. Хорошо что строение незамысловатое, так что даже без наличия опыта справится несложно.

Самая первая постройка на даче — туалет. Часто это — первый опыт строительства своими руками
Хоть дачный туалет и не самая сложная постройка, особенностей много. Без четкого плана действий не обойтись. Распишем по шагам, как построить туалет на даче:
- Выбираете тип туалета.
- Определяете место на участке под строительство.
- Определяетесь с размерами и материалами для строительства.
- Приступаете к строительству.
Теперь о каждом пункте подробнее.
О видах, конструкциях домиков для дачного туалета читайте тут (со схемами и размерами).
Какой туалет сделать на даче
Перед началом строительства нужно выбрать тип дачного туалета. Речь идет не о домике, а о его внутреннем устройстве. По типу устройства разделить их можно на две большие группы: с выгребной ямой или без. Если уровень грунтовых вод на участке высокий — выше чем 3,5 метра — выбор ваш ограничен только туалетами без выгребной ямы, иначе в воде неминуемо окажутся остатки продуктов жизнедеятельности. Аналогичные ограничения накладываются и на участки, в основании которых есть природные трещины, а также на сланцевых породах. На других грунтах с более глубоким залеганием водоносных слоев устанавливать можно кабинку любой конструкции.

Форма и размеры туалетной кабинки — далеко не все отличия, которые может иметь туалет
С выгребной ямой
При выборе такого варианта нужно учесть, что глубина ямы должна быть на 1 метр меньше, чем самый высокий уровень грунтовых вод (обычно весенний). Объем ее выбирается в зависимости от частоты посещения и количества человек. Например, в домах постоянного проживания на 2-3 человека достаточно объема в 1,5 куба. Для дач, посещаемых в основном на выходные, выгребная яма для туалета может быть меньше.
Форма емкости — любая, но чаще делают квадратную, иногда — круглую. Стенки выкладывают из кирпича, бетона, бутовой кладки, просмоленной древесины. Можно емкость сделать из бетонных колец. Только в этом случае нужно будет побеспокоиться о герметичности стыков и дна.
Чтобы обеспечить герметичность, под кладкой и по бокам делают слой утрамбованной глины (глиняный замок) толщиной 20-30 см. Если с трамбовкой глины возится неохота, можно покрыть готовую кладку пропиткой, придающей материалам повышенную степень гидроизоляции (битумной или на основе цемента).

Чертеж дачного туалета с выгребной ямой
Выгребной туалет для дачи обязательно обустраивают системой вентиляции. В яму встраивается труба большого диаметра (не менее 100 мм), второй конец которой поднимается не менее чем на 50-70 см над крышей домика (или дома). Также вентиляционное окошко делается в самом домике. Оно может быть на дверью или на одной из боковых стен.
При заполнении более чем на 2/3 объема содержимое ямы выкачивается машиной ассенизатором. Планируя туалет для дачи своими руками, принимайте во внимание, что к яме должна подъезжать машина.
Есть два типа организации выгребной ямы:
- Обычный — под домиком.
- Люфт-клозет — яма располагается в стороне. При таком строении унитаз может стоять в доме, а нечистоты по трубам, уложенным под определенным уклоном, попадают в емкость.
Строительство люфт-клозета на даче весьма дорогая затея, разве что вы все равно решили делать пристройку или дача у вас — полноценный жилой дом, в котором проводится много времени. Вам нужна будет полноценная система вентиляции, вода для смыва, и трубы нужно будет прокладывать ниже глубины промерзания грунта. А так как они должны идти под наклоном, то и выгребная яма опускается на приличную глубину.

Схема люфт-клозета. Если любите комфорт, построить туалет можно прямо в дачном домике
При устройстве туалета такого типа важно выдержать наклон трубы — он должен быть 2-3 см на метр. Не нужно делать больше или меньше — именно в таком диапазоне. Если сделать уклон меньше, есть риск того, что содержимое будет застаиваться. Если сделать больше, то вода убежит, а твердые и более тяжелые включения останутся в трубе и будут распространять «ароматы».
О методах устранения запахов в уличном туалете с выгребной ямой читайте тут.
Без выгребной ямы
В большинстве своем туалеты без выгребной ямы строятся намного проще и быстрее. В них отходы собираются в герметичную емкость, которая обычно ставится прямо под стульчаком. Вся разница в том, как перерабатываются отходы и нейтрализуется их запах. Есть следующие виды:
Плюсы у дачных туалетов без выгребной ямы (называют еще сухими) существенные:
Минусы тоже немалые:
- Туалеты фабричного изготовления не так уж и дешевы.
- Необходимо периодически менять емкость.
- Нужно следить за наличием средств нейтрализации.
Как сделать недорогую, но красивую дорожку к туалету читайте здесь.
Нормы установки туалета на участке
Большая часть ограничений относится к туалетам с выгребной ямой: необходимо ограничить возможные загрязнения. Нормы такие:
Остальные нормы справедливы для всех типов туалетов:
- До границы участка должно быть не менее 1 метра.
- Двери не должны открываться в сторону соседнего участка.
- При выборе места расположения нужно учитывать преобладающее направление ветра.
Выбирая место, где будете строить туалет для дачи своими руками, обращайте внимание не только на собственные постройки и объекты, но и на соседские. Это поможет избежать трений с ними и с санстанцией.
Если строить будете туалет с выгребной ямой, ко всем перечисленным требованиям нужно еще добавить — организацию подъезда для машины-ассенизатора.
Постройка дачного душа описана в этой статье.
Как сделать туалет на даче своими руками
Первые два шага вы уже прошли: выбрали тип туалета и место для его установки. Следующий шаг — выбираем размеры. С ними определиться не так уж и сложно. Как выбрать объем выгребной ямы рассказывали — на 2-3 человека достаточно 1,5 кубометра, теперь о том, каких размеров должен быть домик для туалета. Тут все зависит от собственного желания и от габаритов хозяев. В стандартном варианте делают туалеты следующих размеров:
- высота — 220 см;
- ширина — 150 см;
- глубина — 100 см.
Эти габариты удобны для людей со средней комплекцией. Их можно изменять так, как вам удобно. Никаких стандартов нет.
Домики для туалетов чаще всего делают из дерева. Но это — не правило. Он может быть из листового материала типа ДВП, ГВЛ, из плоского шифера, кирпича и любых других строительных материалов, профилированного листового металла, даже из пластика.

Туалет на даче своими руками строят из любого материала. Этот — из профнастила
Самый любимый кровельный материал для дачного туалета — шифер. Недорого стоит устройство мягкой кровли из наплавляемых материалов. А вообще, можно использовать любой имеющийся в наличии. Его крепят на сплошную обрешетку, так что особой разницы нет.
Строим деревенский туалет
Последний этап — собственно строительство. Порядок действий определяется тем, какого типа туалет вы будете возводить. Если с выгребной ямой, первой делают ее.

Устройство деревенского туалета с выгребной ямой. Отличный вариант для дачи
Выгребная яма для туалета
Порядок действий при строительстве такой:
Далее приступают к сооружению туалетного домика.
Чтобы не возится с кладкой и гидроизоляцией, можно установить специальную пластиковую емкость — септик. Они бывают разных объемов и конструкций — с одной или двумя горловинами.

Септики в выгребную яму дачного туалета — и никаких проблем с гидроизоляцией
Котлован роется чуть больше размеров выбранного септика, емкость устанавливается, засыпается вынутым ранее грунтом. Устройство такой выгребной ямы в разы быстрее и надежнее.
Кабинка для дачного туалета
Любой туалет для дачи устанавливается в небольшой кабинке-домике. Своими руками проще всего сделать прямоугольное сооружение с односкатной крышей: минимум времени, затрат и материалов.

Основание под кабинку — столбики
Первым делом нужно позаботиться о наличии пола. Его нужно поднять на некоторое расстояние над землей. Удобнее сделать это при помощи столбиков, сложенных в углах постройки. Закапывать их на глубину промерзания грунта вряд ли стоит, но заглубить в грунт на 20-30 см ниже плодородного слоя нужно. Складывают их обычно из кирпичей, бутового камня, можно залить из бетона, и т.п. На таком основании во время пучения кабинка будет подниматься, но обычно это ни к каким серьезным повреждениям не приводит: сооружение небольшое.
Как оказалось, туалет для дачи своими руками построить не так уж и сложно. Времени и затрат нужно немного. Зато в процессе приобретете полезные навыки.
dekormyhome.ru
Как сделать туалет на даче своими руками
Многие владельцы дачных участков задаются вопросом, как же обустроить уличный туалет? Для начала необходимо исследовать участок, чтобы определить, какой тип дачного туалета возможно здесь возвести, поскольку их существует несколько. Далее следует определиться, где именно возможно установить санузел согласно рекомендациям СанПина. И только уже после этого возможно приступить к самим строительным работам.
Какой санузел сделать на даче?
На облагороженном участке, где имеется дом и, по сути, возможно жить, предпочтительно иметь 2 санузла – один в здании, а 2-ой на улице. Туалет в здании комфортно использовать в ночное время либо в плохую погоду. Все-таки в доме и теплее, и удобнее. Уличный санузел для дачи требуется для того, чтобы пользоваться им в дневное время уже работы в огороде на участке, когда не хочется занести грязь с улицы в жилье.

Всего имеется несколько типов туалетов, применимых на дачном участке:
- уличный санузел с выгребной ямой;
- биотуалет;
- химтуалет;
- торфяной санузел для дачи.
При выборе туалета большое влияние имеет такой показатель, как глубина нахождения грунтовых вод. В случае если вода располагается глубоко (ниже 3м) и никогда не поднималась выше данной отметки даже в период сильных дождей либо таянья снега, в таком случае возможно использовать любой из порекомендованных вариантов санузла. Если же грунтовые воды располагаются рядом с поверхности, то обустраивать санузел с выгребной ямой запрещено.
Дачный санузел с выгребной ямой – испытанное временем сооружение. В его конструкцию входит выгребная яма глубиной вплоть до 2м, на которую сверху ставится туалетный домик. Происходит накапливание в яме фекалий, которые со временем разлагаются. В случае если интенсивность применения подобного клозета велика, в таком случае заполнение ямы происходит очень быстро, нечистоты из-за этого не успевают ферментироваться. Ранее подобную задачу решали так: убирали туалетный домик, зарывали прежнюю яму, а в ином месте делали новую и устанавливали поверх санузла. Сейчас же стараются очистить выгребную яму либо воспользовавшись специальной машины, либо собственноручно.
В нашем материале мы пошагово рассмотрим, как сделать беседку из профильной трубы своими руками.
Здесь вы прочтете советы по созданию летней кухни на участке.
Как сделать окатные ворота на участке своими руками? Об этом вы узнаете тут.
Торфяной санузел для дачи – вариант санузла для участка, где близко к поверхности располагаются грунтовые воды. В его конструкции совсем отсутствует выгребная яма. Вместо нее применяется какая-либо емкость. Для того чтобы фекалии не сильно привелакили к себе внимание неприятным ароматом, после каждого похода в санузел их нужно посыпать сухим торфом. Уже после наполнения емкость нужно достать и очистить от содержимого. Спустя некоторое время нечистоты, покрытые торфом, преобразятся в удобрение.
Биотуалет – обыкновенная кабинка с емкостью, в которой происходит перерабатывание фикалий при помощи активных бактерий.
Химтуалет отличим от биотуалета только лишь средством обработки нечистот. Тут применяются хим реагенты, по этой причине содержимое емкости уже после переработки невозможно применять в виде удобрения, что не скажешь о биотуалете.
Выбор санузла для дачи целиком находится в зависимости от ваших индивидуальных предпочтений и от условий, которые устанавливают правила СанПина.
Нормы установки туалета на участке
На размешение уличного санузла имеются конкретные ограничения. В первую очередь они затрагивают те санузлы, в которых нечистоты имеют все шансы входить в контакт с почвой и грунтовыми водами.
- От санузла до источника воды обязано быть не меньше 25м. В случае если дачный участок находится под определенным уклоном, то санузел следует ставить ниже источника сбора воды. Это исключит проникновение стоков в питьевую воду.
- От санузла до здания и погреба либо подвала обязано быть как минимум 12м.
- Расстояние от сооружения для содержания животных до санузла обязано быть 4м.
- От стволов деревьев – 4м, от кустов – 1м.
- От забора до санузла обязано быть не меньше 1м.
- Также непременно нужно учесть розу ветров при выборе местоположения уличного санузла для того, чтобы не досаждать ни себе, ни соседям малоприятным запахом.
- Дверь в санузел не должна раскрываться в сторону соседних участков.
- Если грунтовые воды расположены ниже 2м, в таком случае возможно обустромть на участке уличный туалет любого из вышеназванных типов. Если выше 2м, то санузел с выгребной ямой сделать невозможно, только лишь торфяной туалет или устанавливать биотуалеты. Подобные конструкции не опасны в том плане, что нечистоты не смогут оказаться в грунтовых водах и загрязнить их.

Надо учесть, что при выборе местоположения для санузла следует ориентироваться на объекты не только лишь на собственном участке, однако и на соседних. Это относится к деревьям, сараям, зданиям и всего прочего. Для торфяных санузлов приведенные прежде ограничения не действуют, поскольку в них нечистоты не имеют контакта с почвой. Единственное, что будет необходимо учесть, размещая его, это розу ветров и практичность применения.
Как построить туалет на даче собственными руками
Определившись с местом под строительство, можно переходить к самим работам. Возведение дачного туалета происходит следующим образом:
-

Фундамент под туалет
Рытье котлована. Его размер, как правило, рассчитывается, отталкиваясь из условий применения (число людей, цикличность и продолжительность посещений дачи и пр.). Как правило, двухметровый в глубину котлован вполне достаточен. Сечение данной ямы – квадрат с гранями в 1м либо круг диаметром 1м. Эти параметры возможно немножко увеличить с учетом необходимости укрепления стенок ямы.
- Создание подходящего дна. Наиболее простым методом может быть засыпка дна щебенкой либо гравием. Но такого рода способ не может исключить частичного проникания отходов из санузла в почву. В случае если грунтовые воды находятся на участке вблизи к поверхности почвы, дно лучше сделать герметичным, к примеру, залив его бетонном.
- Возведение деревянного домика
- Нужно выполнить разметку основы будущего домика прямо на местности и сделать фундамент столбчатого типа. Для этого в указанных углах сооружают кирпичные опоры, которые позже следует покрыть водоизоляционным материалом (к примеру, рубероидом).
- Нужно подготовить балки из дерева для каркаса: раскрой, грунтование (допустимо, с заблаговременным пропитыванием составами против гнили), окрашивание. Кропотливая подготовка деревянных составляющих конструкции защитит их от влажности и увеличит срок службы сооружения.
- Создается рама и устанавливается на опорные столбы фундамента.
- Установка на раму с содействием металлических пластинок. Расположение каждой из них следует проконтролировать уровнем перед тем, как осуществить жесткое соединение.
- Установка дверных вертикальных стоек и проверка их уровнем.
- Установка балок для кровли.
- Монтажные работы по установке дополнительных вертикальных балочных конструкций меж опорами для возможности комфортно выполнить обшивку (при нужде).
- Обустройство крыши санузла.
- Облицовка каркаса снаружи (материалом для этого смогут послужить доска либо вагонка). Приемлемый шаг при выполнении обшивки доской – 15см.
- Выполнение обшивки каркаса изнутри.
- Монтаж специального подиума с отверстием. Для данных целей изнутри домика над ямой требуется собрать еще одну каркасную конструкцию надлежащей формы.
- Сбор и крепление дверного полотна.
- Подведение проводки, монтаж световых приборов и выключателя, чтобы удобно было посещать санузел в сумерках либо в ночное время.
- Создание отверстия над дверью для натурального освещения в дневное время.
- Монтаж сидения, у которого крышка будет плотно прилегать к подиуму. Прикрытая крышка уменьшит возможность возникновения малоприятных ароматов.
- Вентиляция санузла:
Несмотря на то, что верное устройство дачного санузла собственными руками дает возможность уменьшить возникновение малоприятного аромата, а многочисленные типы туалетов исключают возникновение гнили в массе отходов, санузел на даче, произведенный с выгребной ямой, либо иная конструкция обязаны снабжаться вентиляцией.
Вентиляционная труба вводится в яму не меньше, чем на 15см. Для данных целей прекрасно подойдут легкие и крепкие пластиковые трубы для канализации диаметром 100мм.
Для стойкости их укрепляют снаружи стены строения, используя для этого металлические хомуты. Вентиляционная трубка обязана подниматься над кровлей приблизительно на 50см. Защита вентиляционной трубы от ливня и мусора совершается при помощи поставленного на конце трубы дефлектора.
Заключение
Теперь вы сами убедились, что сделать дачный туалет собственными руками не так уж и сложно. Нужно учитывать все нормы и правила СанПина, в таком случае не возникнет проблем уже после строительства. Если не поскупиться на материалах и сделать все качественно, дачный туалет прослужит долгие годы.
Вконтакте
Одноклассники
Google+
vokrugdachi.com
как сделать дачный туалет правильно, фото и видео примеры
Содержание:1. Выбор месторасположения туалета на даче
2. Выбор типа туалета
3. Туалеты с выгребными ямами
4. Как сделать люфт-клозет
5. Пудр-клозет своими руками
Одной из первых построек на дачном участке является обычный уличный туалет. Можно первое время обойтись без ограды территории и даже без дома, но без обустройства клозета дачная жизнь не может считаться благоустроенной – нельзя же бегать отдыхающим на свежем воздухе каждый раз по нужде в ближайшие заросли. Как правильно сделать туалет на даче, чтобы он не мешал неприятными запахами и прослужил максимально возможный срок? Подобный вопрос интересует многих владельцев дачного участка.

Выбор месторасположения туалета на даче
Не существует каких-то определенных правил, регламентирующих, как сделать дачный туалет, но ряд обязательных требований есть:
- место расположения клозета должно находиться от источника воды не менее чем в 30 метрах, от жилого строения – в 5 метрах, от границ территории – одного метра;
- при наличии на участке высокого уровня подземных вод не желательно обустраивать туалет на даче с выгребной ямой;
- колодец при установке на пересеченной местности должен находиться выше санузла;
- чтобы исключить неприятные запахи, следует при выборе места ознакомиться с розой ветров на участке;
- необходимо обеспечить подъезд специальной техники к выгребной яме.
Выбор типа туалета
Поскольку на строительство клозета отводится немного времени, для дач рекомендуют использовать такие типы туалетов:
- выгребная яма;
- биотуалет;
- пудр-клозет;
- люфт-клозет.
У всех видов дачных туалетов имеются особенности – их необходимо учитывать до начала строительных работ. Часто выбор варианта не зависит от предпочтений хозяев и финансовой составляющей. Например, когда водоносный горизонт располагается выше 3,5 метров, ничего не остается кроме, как построить пудр-клозет. А вот менее высокое залегание слоя воды дает возможность выбрать любой вариант обустройства туалета. Читайте также: «Как построить туалет на даче своими руками: варианты строительства».
Туалеты с выгребными ямами
Данный тип клозетов, изображенный на фото, относится к наиболее простым конструкциям, которые сделать можно быстро. Обычно устройство выгребной ямы выглядит так – это собственно сама выкопанная яма, куда отправляются нечистоты. Их потом удаляют либо вручную, либо задействуют ассенизаторскую машину (прочитайте также: «Устройство дачного туалета — конструкция на примерах»).

Последовательность действий, как сделать дачный туалет с выгребной ямой, выглядит так:
- Выкапывают яму, имеющую глубину 1,5-2 метра и чаще всего квадратную форму. Ее стены укрепляют либо досками, либо бетонными кольцами или кирпичом. При устройстве ямы можно задействовать старую бочку или положить одну на другую автомобильные шины. Дно бетонируют или отсыпают щебнем. Необходимо все щели законопатить до абсолютной водонепроницаемости, чтобы не допустить попадания нечистот в грунтовые воды.
- Далее требуется строительство кабинки для туалета. Чаще всего, принимая решение как сделать туалет на даче своими руками, делают выбор в пользу строительства домика над ямой, для которого потребуется возвести 4 столбика из кирпича для каждого угла кабинки. Сверху их изолируют рубероидом. Поверх столбиков укладывают раму из бруса 100х100 миллиметров, пропитанную грунтовкой и окрашенную составом, предотвращающим гниение.
По углам вертикально монтируют четыре стойки, закрепляя их металлическими пластинами. Также нужно установить стойки для дверей, не забывая про необходимость сделать уклон для крыши. Прямо над ямой строят каркас для сидения. Поверх конструкции помещают балки для крыши, на которые настилают рубероид и шифер. Читайте также: «Уличный туалет своими руками — постройка и обустройство».
С наружной стороны кабинки на каркас прибивают бруски, соблюдая шаг 15 сантиметров, и поверх монтируют финишную обшивку. С внутренней стороны кабинку облагораживают деревянной или пластиковой вагонкой. Для настила на пол используют крепкую доску. В завершение проводят освещение домика.
- Обустройство вентиляции. Наличие выгребной ямы является причиной неприятного запаха. Полностью устранить его невозможно, но можно значительно уменьшить путем использования герметичной крышки для стульчака и создания качественной вентиляции.
Для ее обустройства используют 100-миллиметровую канализационную трубу, закрепив изделие на задней стенке кабинки хомутами. Трубу проводят через отверстие в подиуме в выгребную яму на 10 сантиметров и другим концом выводят над крышей постройки на 20 сантиметров.
Место стыка трубы с ямой нужно изолировать куском пакли с битумной мастикой, а на конец трубы установить дефлектор.
Как сделать люфт-клозет
До того, как сделать туалет на даче своими руками по типу люфт-клозета роют абсолютно герметичную яму, для очистки которой нужно пользоваться услугами ассенизаторской машины. Яму оклеивают гидроизоляцией, которой может служить глиняная обмазка толщиной 50 сантиметров. Читайте также: «Как сделать туалет в частном доме, конструкция и порядок обустройства».
Люфт-клозет имеет две части, одна из которых — унитаз, расположенный в жилом доме. Отличие заключается в приемнике отходов. Другая часть размещается за пределами постройки и имеет вид выгребной ямы. Ее верхнюю часть оборудуют двойным люком для ассенизаторской машины, в пространство между крышками помещают теплоизолятор.

Пудр-клозет своими руками
Преимущество такого устройства туалета заключается в отсутствии выгребной ямы. Емкость для приема нечистот располагают в стульчаке. Это может быть ведро или простой бак. Принцип функционирования отличается простотой. После каждого посещения санузла, отходы присыпают опилками, торфом или землей из рядом стоящего ящика.
Вентиляцию в пудр-клозете обустраивают в обязательном порядке стандартным способом. Это удобный в эксплуатации вид туалета можно легко скомбинировать с разными дачными строениями.
kanalizaciyadoma.com

