Каркасный гараж своими руками пошаговая инструкция с фото – Каркасный гараж своими руками: основные принципы строительства, плюс два варианта
Как построить каркасный гараж своими руками — пошаговая инструкция +Видео
В условиях российских климатических зон гараж для автомобиля не роскошь, а необходимость. От перепадов влажности и температуры в первую очередь страдает лакокрасочное покрытие машины. Простым решением этой проблемы станет каркасный гараж своими руками.
Кроме того, в отличие от возведения кирпичного гаража, постройка подобного сооружения обойдётся весьма бюджетно.
Особенной популярностью каркасные гаражи пользуются у автовладельцев, которые много большую часть года проводят на даче.
Общие сведения
Строительные технологии не стоят на месте — появляется всё больше новых материалов, упрощающих работу мастеров. Так большие и маленькие здания, в основе которых заложен деревянный или металлический каркас, стали пользоваться большим спросом.
Какие преимущества имеет гараж по каркасной технологии перед капитальным:
- —
скорость возведения не идёт ни в какое сравнение с традиционной кирпичной кладкой или монолитом - — простота монтажа — имея в наличии точный чертёж, с постройкой справится даже не опытный строитель
- — низкая теплопроводность — качественное утепление обеспечит комфортную температуру внутри гаража
- — долговечность и лёгкость — каркасно щитовой гараж не обладает значительной массой, поэтому для его сооружения не нужен сложный фундамент
- — цена — себестоимость подобных конструкций очень низкая. К тому же, если вы решили построить каркасный гараж своими руками, то не придётся нести дополнительные расходы на оплату труда наёмных работников.
ЭТО ВАЖНО: Основой для каркаса могут послужить не только детали из дерева, но и металлические трубы.
Как построить бюджетный каркасный гараж. Пошаговая инструкция
Строительство по каркасной технологии предполагает несколько этапов:
- — подготовительный
- — заливка фундамента
- — возведение стен
- — устройство крыши
- — утепление внутри и снаружи
- — установка гаражных ворот
Подготовительный этап
На данном этапе необходимо выбрать место под быстровозводимый гараж, определиться с проектом и закупить необходимые строительные материалы и оборудование.
Для постройки гаража лучше всего подойдут открытые места с гладким рельефом. Изучая проекты, обращайте внимание на размер будущего строения — 5х8 или 7х10 — выбор зависит от имеющейся площади на участке.
ЭТО ВАЖНО: К воротам гаража в частном доме нужно обустроить короткий и свободный подъезд. Также чертежи отличаются типом крыши. Гараж может быть выполнен как с односкатной крышей, так и с двускатной.
Для «скелета» постройки предпочтительнее использовать деревянный брус либо направляющие из профильной трубы.
Заливка фундамента
В начале следует обозначить место 10*10 для будущего гаража колышками и шпагатом. По периметру этой зоны с поверхности земли снимается ровный слой дёрна, убирается вся растительность. Площадка тщательно разравнивается и утрамбовывается. Затем поверхность засыпается гравием или смесью песок+гравий и обрабатывается виброплитой.
ЭТО ВАЖНО: Можно утрамбовать почву и вручную, используя широкую доску или кусок фанеры.
Следующий шаг в устройстве фундамента — это выбор его типа. Для того, чтобы построить лёгкий каркасный гараж, подойдёт один из вариантов:
- Монолитный
- Столбчатый
- Ленточный
Монолитный фундамент наиболее надёжный из всех, но и более трудоёмкий и дорогой в отличие от столбчатого и ленточного. Для того, чтобы получить качественную и долговечную плиту под каркасный гараж, потребуется грамотное армирование основания. К тому же монолитный фундамент сохнет довольно долго: окончательное застывание наступает примерно через месяц.
Столбчатый фундамент обычно возводят для хозпостроек типа бань и сараев, так как эти сооружения более лёгкие по массе. В случае необходимости можно адаптировать столбчатый фундамент и под возведение гаража.
Ленточный фундамент — это наиболее подходящая основа для того, чтобы построить каркасный гараж. Его заливка своими руками не составит сложностей.
ЭТО ВАЖНО: Перед началом работ по устройству фундамента любого типа изучите инструкцию, фото и видео материалы и чётко соблюдайте правила.
Как сделать ленточный фундамент под каркасный гараж?
Для работ по разметке понадобятся следующие инструменты: уровень строительный, лазерный дальномер, отвес, угольник столярный, шпагат капроновый, колья.
Начинаем разметку от одного из углов будущего гаража. Расстояния отмеряем в соответствии с чертежом, заложенным в проект каркасного гаража.
Вбиваем колышек и выравниваем его по отвесу. В противоположном углу вбиваем второй колышек. Протягиваем капроновый шпагат между ними. Далее с помощью угольника, находим угол 90 градусов и под ним тянем шпагат к третьему и четвертому колышку. Завершив обвязку, проверяем все углы — они должны быть прямыми (90 градусов).
Затем необходимо выкопать траншею под заливку фундамента. Рекомендованная глубина закладки не более 50 см. Бортики канала выравниваются штыковой лопатой, дно тщательно утрамбовывается.
ЭТО ВАЖНО: Приступайте к закладке фундамента в солнечную погоду. Мокрый грунт может осыпаться, и вам придётся переделывать работу.
Далее начинается подготовка опалубки. Из досок и кусков фанеры сбивается или собирается с помощью саморезов основная конструкция и опускается в траншею. Стенки опалубки должны плотно соприкасаться со стенками вырытого канала. Дно засыпается песком или смесью песка и гравия. Далее в траншею опускается металлический каркас из арматуры.
Подготовленный цементный аккуратно заливается в опалубку. Чтобы выпустить возможные пузыри воздуха, следует проткнуть не застывший бетон в нескольких местах прутом арматуры.
Затем на бетон укладывается слой полиэтиленовой плёнки. Это поможет избежать растрескивания поверхности.
ЭТО ВАЖНО: Первые дни следует поливать фундамент водой. Так он будет крепче.
После окончательного застывания поверхность фундамента гидроизолируют рубероидом.
Как сделать каркасный гараж. Возведение стен
Основа гаража формируется из деревянного бруса или металлопрофиля. На данном этапе необходимо приобрести:
- — брус 100*100 для обвязки и стоек
- — доски не менее 4 см для сборки стропильной системы
- — доску не менее 2 см для выполнения обрешётки
- — доски для укладки пола не менее 4 см толщиной
Перед использованием всё дерево обрабатывается антисептическим и огнезащитным составами, а также хорошо просушивается в тени.
Монтаж каркаса стен начинается с выполнения нижней обвязки. Для этого по внутреннему периметру будущей постройки укладывается брус 100*100 мм. Затем все детали соединяются по углам шпонками и врубкой.
Далее, в соответствии с проектом, устанавливаются и фиксируются нагелями и металлическими уголками основные вертикальные стойки. Шаг между ними не должен составлять меньше двух метров.
Затем из бруса формируется верхняя обвязка. Промежуточные стойки и перемычки фиксируются уголком и саморезами.
Перекрытие пола собирается в самый последний момент. Подготовленные 40 мм доски крепятся на нижнюю обвязку и черновой пол готов.
Как строится крыша каркасного гаража. Типы и пошаговая инструкция
Наиболее простыми типами крыши каркасных гаражей являются односкатная и двускатная. Пр самостоятельном монтаже специалисты рекомендуют строить каркасный односкатный гараж. Такая кровля не только проще возводится, но и обходится дешево. Кроме того, односкатная крыша обладает более высокой прочностью.
При монтаже крыши выполняются следующие шаги:
- — подготовка и установка стропильной системы
- — сборка обрешётки
- — укладка гидроизоляции
- — укладка кровельного материала
Стропильная система — это так называемый «скелет» крыши. Она принимает на себя всю нагрузку, начиная с массы кровельного покрытия и заканчивая весом слоя снега в зимнее время. Строительство стропильной системы — важнейший этап при возведении крыши. От качества сборки конструкции зависит время, которое вам прослужит каркасный гараж из бруса.
Обрешётка — опора для кровли. На неё ляжет гидроизоляция и материал внешнего покрытия крыши. Для сборки обрешётки разрешается использовать как обрезную, так и не обрезную доску.
Изоляция — слой материала, препятствующего попаданию влаги внутрь гаража.
Кровельный материал — укладывается поверх изоляции. Недорогой каркасный гараж обычно покрывают профнастилом, ондулином или гибкой черепицей.
Монтаж кровли начинается со сборки стропил.
ЭТО ВАЖНО: Выполняя расчёт количества балок помните, что расстояние между ними не должно превышать 1 метра.
Односкатный гараж
В случае с односкатной крышей стропила укладываются поперек каркаса, это сэкономит время при монтаже. После укладки балки крепятся к основанию уголками с саморезами или с помощью гвоздей.
Затем начинается сборка обрешётки. Если используется необрезная доска, то следует очистить её от остатков коры. После подготовки доски обрешётки укладываются поперёк стропил и фиксируются саморезами. Между элементами обрешётки не должны образовываться щели и зазоры.
Поверх обрешётки на каркасный гараж укладывается слой гидроизоляционного материала. Традиционно используется рубероид, либо специальная плёнка.
При гидроизоляции рубероидом, слои материала укладываются друг на друга внахлёст. Величина нахлёста должна составить не менее 3-4 см. Затем материал прибивают к доскам обрешётки гвоздями.
Гидроизоляционная плёнка фиксируется строительным степплером со скобами.
После слоя изоляции устанавливается окончательное покрытие. Для каждого из вариантов свои правила укладки и эксплуатации. При укладке руководствуйтесь рекомендациями производителя выбранного кровельного материала.
Двухскатный гараж
Такую крышу смонтировать сложнее, но выбрав её хозяева получают дополнительное пространство для хранения — чердак. Общая цена гаража возрастёт примерно на 30 процентов в сравнении ценой за односкатный гараж. Двухскатную стропильную систему проще всего собрать на земле, а потом поднимать готовые фермы на верхнюю обвязку и крепить.
Строим деревянный пол в каркасном гараже. Обустройство пола в гараже выполняется после монтажа кровли. Так он не будет повреждён атмосферными осадками.
Традиционно строители рекомендуют использовать для пола нешпунтованную доску. Она образует естественные зазоры, благодаря которым под воздействием влажности и перепадов температур, пол не деформируется. Для фиксации половой доски на лаги применяют саморезы или гвозди.
ТОП 9 магазинов, где я выгодно закупаюсь
ТОП 7 по товарам и мебели для дома:
7 лучших строительных и мебельных магазинов!
- Akson.ru- это интернет-гипермаркет строительных и отделочных материалов!
- homex.ru- HomeX.ru предлагает большой выбор качественных отделочных, материалов, света и сантехники от лучших производителей с быстрой доставкой по Москве и России.
- Instrumtorg.ru – это интернет – магазин строительного, автомобильного, крепежного, режущего и другого инструмента, необходимого каждому мастеру.
- Qpstol.ru — «Купистол» стремится предоставить лучший сервис своим клиентам. 5 звёзд на ЯндексМаркет.
- Lifemebel.ru- гипермаркет мебели с оборотом более 50 000 000 в месяц!
- Ezakaz.ru- Представленная на сайте мебель изготавливается на собственной фабрике в Москве, а так же проверенными производителями из Китая, Индонезии, Малайзии и Тайваня.»
- Mebelion.ru- – крупнейший интернет-магазин по продаже мебели, светильников, интерьерного декора и других товаров для красивого и уютного дома.
domsdelat.ru
Каркасный гараж своими руками — инструкция по сборке
Многие люди считают, что гараж должен быть своего рода крепостью, возведенной из привычных, но дорогих строительных материалов. В наше время имеется возможность выбрать менее затратный способ возведения сооружений – это каркасная технология строительства. Если придерживаться всех предписаний, то гараж получится не только теплым, но и прочным. Несмотря на кажущуюся хлипкость строения, он имеет ряд преимуществ:
- Ввиду небольшого веса строения, отпадает необходимость в возведении мощного фундамента, который можно сделать на почве любого типа.
- При малой толщине стен они отлично держат тепло внутри гаража, поэтому не придется тратить много средств на обогрев.
- Не нужно штукатурить. Кроме того, как для внешней, так и для внутренней отделки в продаже имеется множество сравнительно недорогих материалов.
- Самая грязная работа – монтаж фундамента. Все остальные работы не приводят к загрязнению участка.
- От начала строительства до его завершения пройдет максимум 2 месяца, и половина этого срока отводится на застывание бетонного фундамента.
А можно ли построить крепкий каркасный гараж своими руками? Конечно же, даже в одиночку, что не всегда удобно, но вполне реализуемо. Давайте вместе рассмотрим все этапы выполнения работ.
Из чего сделать скелет?
Поскольку речь идет о каркасном строительстве, вполне понятно, что необходимо тщательно продумать, из какого материала его сделать. Для этого может быть использовано дерево или металл. В каждом случае работы по изготовлению скелета буду отличаться, поэтому остановимся на выборе материала более подробно.
Брус
Рассмотрим преимущества и недостатки деревянного каркаса.
Плюсы
- Каркасник обойдется несколько дешевле.
- Если нет электричества, то все работы можно выполнить обыкновенным столярным инструментом. Этот вариант крайне трудоемок, да и времени уйдет больше.
Минусы
К недостаткам можно отнести:
- Высокий уровень пожарной опасности, в сравнении с другими материалами (исключением является лишь строение из бревен).
- Древесиной любят полакомиться разные насекомые и жучки.
- Материал не переносит длительного воздействия влаги.
Многие из перечисленных недостатков не так уж и существенны при соответствующей обработке материала. Что касается пожароопасности, то, как правило, в гараже есть много других предметов и жидкостей, которые легко воспламеняются, так что конструктивные особенности помещения не играют большой роли.
Металл
В этом случае при изготовлении скелета может быть использован:
- Металлопрофиль или ЛСТК.
- Профильная труба.
- Металлический уголок.
Стоит также остановиться на особенностях более детально.
- Сам по себе материал не горюч, но после пожара становится непригодным для дальнейшей эксплуатации.
- Любую конструкцию можно сделать разборной, но при работе с деталями из толстого металла лучше воспользоваться электросваркой.
- Каркас подвержен коррозии.
На этом этапе вы должны четко определиться с выбором — придется выбирать подходящий проект.
Как быть с проектом?
Многие люди считают, что при строительстве несложных конструкций можно обойтись без бумажной волокиты, но в нашем случае возводиться будет не маленькое временное сооружение, а гараж, который должен выдержать большую массу снега на крыше, и не перекоситься под тяжестью ворот. Поэтому лучше не рисковать, а воспользоваться готовым проектом или сделать свой. В таком случае вам будет видно, сколько и какого материала нужно приобрести.
Мы предлагаем вашему вниманию проект гаража, но если по каким-то причинам он не подходит, то его можно переделать, внеся свои коррективы.
Схема
Лист 1
Лист 2
Лист 3
Лист 4
Лист 5
Лист 6
Лист 8
Лист 9
Лист 10
Лист 11
Лист 12
Лист 13
Лист 14
Лист 15
Лист 16
Лист 17
Подготовительные работы
Итак, с проектом разобрались, материалы закупили, теперь приступим к подготовительным работам.
Площадка под строительство
Чаще всего место, где будет построен гараж, определено заранее, но при детальном рассмотрении оно может оказаться неудобным, так как расположено на склоне. В некоторых случаях проще начать строительство в другом месте, чем вывозить тонны земли, привлекая для этого разнообразную технику.
Окончательно определившись с участком, обозначьте габариты гаража колышками. Еще раз проверьте, будет ли удобным въезд.
Какой будет фундамент?
В зависимости от выбранного типа фундамента осуществляют подготовку участка.
- При заливке мелкозаглубленного ленточного фундамента снимается часть грунта в тех местах, где он будет проходить.
- Под монолитную плиту производится выемка грунта по всему периметру на глубину не менее 50 см.
- В случае изготовления столбчатого фундамента вырываются ямы размером 50×50 см до твердого основания.
- Если принято решение сделать свайно-винтовой фундамент, то грунт не трогаем вовсе.
Приступим к изготовлению фундамента
Мы рассмотрим процесс изготовления самого дорогого, но наиболее практичного вида фундамента – это заливка монолитной плиты. Такое основание не продавят колеса автомобиля, да и при изготовлении смотровой ямы не возникнет проблем. Вы же можете выбрать наиболее подходящий или менее дорогой тип фундамента, воспользовавшись рекомендациями из подборок видео на соответствующую тему.
Тип фундамента:
При сооружении плитного фундамента порядок действий будет таким:
| С помощью трактора выроем котлован |
Производится выборка грунта на глубину 50 см. |
| В самой нижней точке его глубина должна быть не менее 50 см |
Дно основательно трамбуется. |
| Толстый слой песка предотвратит деформацию плиты |
Засыпается песком настолько, чтобы до верха котлована он не доходил 20 см. |
| Вибротрамбовка очень облегчит труд |
Песок тоже нужно хорошо утрамбовать. |
| Геотекстиль не даст песку смешаться с щебнем |
Поверх укладывается геотекстиль. |
| Слой щебня тоже нужно утрамбовать |
Следующим слоем пирога будет щебень средней фракции, которым заполняется котлован до краев. Его тоже нужно хорошо утрамбовать. |
| Лучше всего сделать опалубку по высоте заливки плит |
Теперь дело за опалубкой. Лучше всего, если она будет выставлена вровень с уровнем заливки плиты – так меньше вероятность допустить перепады. Что касается толщины бетонного слоя, то 20 см вполне будет достаточно для легкового автомобиля. Для грузовика лучше увеличить толщину до 30 см. |
| Конструкция должна быть жесткой |
Выставив опалубку необходимо обеспечить жесткость конструкции, закрепив подпорки со всех сторон. Лучше всего, если для опалубки будет использоваться толстая доска. Если это не так, то подпорок понадобится больше. |
| Позаботимся о гидроизоляции |
Поверх щебня с нахлестом на опалубку укладывается гидроизоляция, в качестве которой используются рулонные материалы на битумной основе или толстая полиэтиленовая пленка. |
| Устанавливаем первый слой арматуры |
Теперь устанавливается первый слой арматуры Ø10‒14 мм. Он не должен касаться дна, поэтому необходимо обеспечить необходимый зазор. Для этой цели не нужно использовать кирпичи и другие предметы, так как они могут проткнуть гидроизоляцию, а некоторые вовсе не пригодны для укладки в стяжку. |
Пластиковые фиксаторы для арматуры |
Воспользуйтесь пластиковыми фиксаторами для арматуры. |
| Установлен и закреплен второй ряд арматуры |
Затем укладывается еще слой арматуры. |
| При заливке бетона его нужно уплотнить |
Залив бетон, нужно его провибрировать (процесс показан на фото), стараясь при этом не касаться каркаса и опалубки. Штыкование палкой утомительно и малоэффективно. |
|
Края опалубки послужили уровнем заливки и выравнивания бетонной подушки. |
|
| В любое время года плита нуждается в защите |
Теперь придется ждать почти целый месяц, пока бетон не наберет необходимую прочность. В летний период подушку нужно периодически поливать водой и накрывать материалом, предотвращающим быстрое испарение влаги. Также фундамент нуждается в защите, если сделан осенью и оставлен до весны. |
Возведение каркаса
Поскольку речь идет о деревянной конструкции, то все детали необходимо пропитать антисептическим составом. Нам потребуются брусья и доски таких размеров:
- Для нижней части гаража используем брусья 100×40 или 100×50 мм.
- Размер угловых брусьев и стоек – 100×100 мм.
- Стропила и дополнительные стойки – 100×50 мм.
- Расстояние между стойками – 110–120 мм.
- Оптимальна длина досок – 3 м. Можно приобрести шестиметровые заготовки и разрезать пополам.
- Для крыши будем использовать доски 100×25 мм.
- Обрешетку лучше делать из брусков 30×30 или 40×40 мм.
На плите начнем сборку первой стены |
Итак, фундамент готов, можно приступать к возведению каркаса. Его сборку начнем на плоскости, а потом поднимем, установим и закрепим. Начнем с задней стенки. Для придания раме прочности в углах следует установить подкосы. |
В передней стенке будут установлены ворта |
Следующей монтируется усиленная часть каркаса, в которой будут установлены ворота. |
Установка боковины |
Затем зафиксируем противоположную стену от двери. |
Сборка последней части |
Приступим к сборке передней стенки. |
Теперь можно всё надежно скрепить |
Теперь ее можно установить и закрепить. Из металлического уголка (65 мм) сделаем наружную и внутреннюю рамы ворот и зафиксируем их друг с другом металлическими полосками. |
Примерка изготовленной стропил |
Приступим к изготовлению стропил. Сделав первую секцию, можно проверить, насколько она точно изготовлена. |
Монтаж стропил |
Убедившись, что всё сделано правильно, сделаем остальные стропила и установим их. |
Необходимо уложить пароизоляцию |
Закрепляем пароизоляцию и прибиваем обрешетку. |
Для обшивки каркаса используем ОСБ |
В качестве кровельного материала мы использовали ондулин. |
![]() |
Каркас обшили ОСБ. |
Для такой конструкции идеально подходят металлопластиковые окна |
Вставили металлопластиковые окна. Рамы ворот сварили из профильной трубы 40×25 мм и, соблюдая технику пожарной безопасности, приварили к раме. |
На этом работы закончены |
Вот такой получился гараж. |
Виды ворот |
Распашные ворота более просты в изготовлении, но не очень удобны. Были случаи, когда сильный порыв ветра срывал створку с фиксирующего устройства, что приводило к повреждению кузова автомобиля. Поэтому сейчас часто можно встретить различные устройства, закрывающие въезд. |
Устройство гаража с мансардой
Если габариты строения позволяют, то чердачное помещение можно переоборудовать под мансарду. Конечно, лучше всего было бы предусмотреть мансарду еще в стадии проектирования, но так получается далеко не всегда, потому что потребность в дополнительной полезной площади возникает в процессе эксплуатации помещения.
Процесс переоборудования
Один из моментов, который придется учесть, — это размещение лестницы и вырезание для прохода части потолка так, чтобы не нарушить его несущую способность, что не всегда возможно сделать. Если так получается и в вашем случае, то к имеющемуся строению можно сделать пристройку, через которую будете подниматься в жилое помещение.
В некоторых случаях в помещение на втором этаже проникают газы от работающего двигателя. Особо это может ощущаться при запуске холодного двигателя (особенно дизельного). Поэтому в самом гараже должна быть предусмотрена вентиляция. Необходимо также установить дверь в жилое помещение.
Всё учтено при планировании
Если изготовление мансарды запланировано заранее, то в проекте уже предусмотрено, где и как будет установлена лестница. Для того чтобы максимально использовать имеющуюся площадь, крышу делают ломаной.
Как утеплять?
Жилое помещение должно быть теплым, а если гараж неутепленный, то нужно будет заняться не только стенами мансарды, но и полом. Вначале поговорим о стенах, обсудив основные правила утепления.
Натянутая капроновая нить напоминает паутину |
Специалисты настоятельно рекомендуют использовать капроновую нить, так как она спасет утеплитель от провисания и сползания. Из нити делается своеобразная паутина, которая натягивается и надежно закрепляется. При этом важно помнить, что утепляется не весь чердак, а только жилое помещение. |
Капроновая нить надежно удерживает минвату |
При работе со стенами мансарды сначала укладывается утеплитель, а затем натягивается нить. То же самое делается и с потолком, если потом не будет возможности уложить утеплитель сверху. Важно учесть, что минимальный слой укладываемого утеплителя не должен быть менее 200 мм. В местности с суровыми зимами нужно увеличить толщину утеплителя до 300 мм. |
Позаботимся о том, чтобы сквозь утеплитель не проходил холодный воздух |
При укладке утеплителя важно позаботиться о том, чтобы не осталось мостиков холода. Что касается минваты, то она может в себе накапливать воду, поэтому мнения о целесообразности ее применения расходятся. Многие люди предпочитают пользоваться пеноплексом, так как он не гигроскопичен. |
Для этого следующий ряд утеплителя должен перекрывать стыки |
Для этого следующий ряд утеплителя укладывается таким образом, чтобы он перекрывал швы уложенного материала. |
Пароизоляцию проклеим серебряным армированным скотчем |
На стыках обязательно нужно проклеить пароизоляцию. Для этого лучше всего использовать серебряный армированный скотч. Он не только прочный, но и хорошо клеится. |
При проклеивании паризоляции на стенах, обратный нахлест не нужен |
На мансарде пароизоляция монтируется обратным нахлестом, поэтому ее монтаж выполняется сверху вниз. Обратный нахлест означает, что следующее полотно пароизоляции ляжет на верхнее полотно. Тем самым пары, поднимающиеся снизу помещения, пойдут не в стыки, а к верху кровли и будут выветрены благодаря вентиляции. |
Благодаря контррейкам обеспечивается вентиляция под обшивкой |
После монтажа утеплителя со стороны помещения (так же, как и снаружи) должны быть прибиты контррейки. |
Обшивочные доски в качестве конрреек |
На потолке роль контррейки и обрешетки будут выполнять доски толщиной 25 мм. Такую двойную функцию доска может выполнять только на ровном потолке. |
Так выглядит кровельный пирог |
Представить всё в деталях поможет схема кровельного пирога крыши мансарды. |
Видео: нюансы и технология утепления мансардных крыш
Что касается способов утепления пола, то единственным ограничением в выборе материала может быть его большой вес.
Видео: способы утепления пола мансарды
Можно ли сделать гараж на две машины?
Если в семье 2 автомобиля, то каркас можно сделать таким, что в гараже поместятся даже 4 машины. В этом случае придется рассчитывать габариты и несущую способность используемого материала, пусть то будет дерево или металл. В следующем ролике демонстрируется процесс возведения такого строения.
Видео: строительство каркасного гаража на 2 автомобиля
Строительство каркасника обходится дешевле, но такое строение не назовешь бюджетным вариантом. При соблюдении технологии возведения такого строения, оно прослужит хозяину и его автомобилю не один десяток лет.
kakpravilnosdelat.ru
Каркасный гараж своими руками — инструкция по строительству и обустройству!
Правильно обустроенный каркасный гараж будет обеспечивать надежное хранение автомобиля в любое время года. Люди все чаще отдают предпочтение именно каркасным постройкам. Древесина предельно проста в обработке и монтаже, да и в финансовом плане такой вариант является одним из наиболее выгодных.

Каркасный гараж своими руками

Каркасный гараж своими руками
В возведении каркасного гаража нет ничего сверхсложного. С выполнением основных строительных мероприятий можно справиться своими руками. Нужно лишь разобраться в главных особенностях такой работы и во всем следовать инструкции.
Содержание пошаговой инструкции:
Преимущества каркасного гаража

Преимущества каркасного гаража
- Прочная конструкция. Каркасный гараж обеспечивает надежную защиту автомобиля и прочих объектов от неблагоприятных погодных и других воздействий.
- Низкие показатели теплопроводности. В холодное время гараж будет быстро прогреваться от сторонних источников тепла, что позволит пользоваться постройкой с максимальным комфортом.
- Простота возведения. Для строительства каркасного гаража не нужно привлекать множество помощников, от услуг специалистов также можно отказаться. Единственное, что рекомендуется поручить профессионалам, если вы новичок, это составление необходимой проектной документации.
- Сравнительно низкая стоимость возведения.
- Высокая скорость выполнения работы.

Преимущества каркасного гаража
Одним из главных преимуществ каркасного гаража для большинства частных застройщиков является возможность его возведения своими руками. Достаточно ознакомиться с основными положениями руководства и сделать все по инструкции. Начните с подготовки необходимой проектной документации со всеми требуемыми чертежами.
Необходимая проектная документация
- Эскизный проект.
- Трехмерная модель.
- План фундамента.
- Ситуационный план. В этом документе должны быть отражены высотные отметки и оформлена привязка к постройкам, уже присутствующим на участке.
- Схема монтажа элементов каркасной конструкции.
- Схема установки стропил.
- План цоколя.
- Чертежи всех элементов кровельной конструкции.
- План системы водоснабжения и отведения канализационных стоков.
- Подробная пояснительная записка с указанием особенностей строительства, важных технических характеристик, конструкций, стройматериалов и пр.

Проект гаража
Перечисленные чертежи сделают работы по обустройству гаража максимально простыми и удобными. С их помощью на выполнение необходимых строительных мероприятий уйдет минимальное количество времени.
Однако составить такой подробный проект без наличия требуемых навыков крайне сложно. В подобных ситуациях остается либо обращаться к профессионалам, либо же подбирать подходящие чертежи в открытых источниках.
Место для гаража
Прежде чем приступать к строительству, выберите подходящее место для обустройства гаража. Продумайте все так, чтобы в дальнейшем не возникало никаких затруднений с выездом и въездом автомобиля.

Где строить гараж
Лучше, чтобы гараж был расположен недалеко от дома. Оптимальный размер площадки для обустройства гаража – 10х10 м. Габариты самого гаража можете подбирать на свое усмотрение. Настоятельно не рекомендуется привязывать площадь постройки к размерам какого-то конкретного автомобиля, т. к. через время вы можете поменять свою машину на более габаритную модель.
Очистите выбранную площадку от любого рода мусора и прочих сторонних предметов. Уберите с площадки растительность. Выровняйте и утрамбуйте землю.
Разметьте площадку в соответствии с планом вашего гаража. Разметить территорию вам помогут простые колышки и любая веревка.
Руководство по возведению гаража
Приступайте к строительству каркасного гаража. Начинать, как и при возведении любой другой конструкции, нужно с обустройства фундамента.
Первый этап – фундамент

Ленточный фундамент
Готовая каркасная постройка будет иметь сравнительно небольшой вес, благодаря чему требования к прочности основания существенно снижаются. Самое главное, чтобы площадка была ровной и устойчивой.

Заливка

Заливка
При желании небольшой каркасный гараж можно построить даже на утрамбованном гравии либо ровной асфальтированной дорожке, но лучше, все-таки, отдать предпочтение бетонированному покрытию.
Выройте траншею по периметру будущего основания. Будет достаточно ямы глубиной порядка 400-500 мм. Установите опалубку.
Засыпьте дно траншеи небольшим слоем песчано-гравийной смеси. В случае если фундамент обустраивается на сложном грунте, уложите поверх утрамбованной засыпки арматурную сетку.
Залейте бетонный раствор. Заливку можно выполнять самостоятельно либо же поручить это специализированной бригаде.
В случае самостоятельной заливки вам придется потратить дополнительное время и силы на приготовление раствора.

Заливка пола гаража

Залитый черновой пол гаража с настилом гидроизоляции
После заливки бетон нужно обработать специальным вибратором. Он тщательно утрамбует смесь и удалит из нее лишний воздух. При отсутствии вибратора нужно хотя бы проткнуть бетон в нескольких местах арматурным стержнем. Все углубления в дальнейшем заделываются бетонным раствором.
Оставьте фундамент застывать на 3-5 недель. После этого можете приступать к выполнению других строительных мероприятий.

Укладка нижней обвязки

Нижняя обвязка
Второй этап – пол

Заливка чистового пола в гараже

Выравнивание бетона правилом
Приступайте к обустройству пола.
Засыпьте территорию конструкции гравием. Уложите на тонкий слой гравийной насыпи армирующую сетку и залейте бетон. На застывший бетон настелите рубероид.
Поверх рубероида уложите деревянные брусья. К брусу прибейте доски настила.
Если уровень прохождения подземных вод и особенности почвы позволяют, можете обустроить в гараже смотровую яму. При желании также можете сделать полноценный погреб. Лишними такие дополнения определенно не будут.
Третий этап – каркас
После завершения работ по обустройству основания и пола приступайте к монтажу каркаса.
Для обустройства нижней части используйте доски 10х5 см, предварительно пропитанные антисептиком. Угловые стойки каркаса, а также стойки ворот монтируйте из бруса 10х10 см. Для изготовления всех остальных стоек, балок, а такж

Строим каркас гаража
е стропильных элементов используйте доски 10х5 см.
Стойки нижней подвязки монтируйте с шагом до 120 см. Крепление этих стоек к нижней обвязке можно выполнить при помощи уголков и саморезов, гвоздей, либо же соединения типа «шип-паз».

Процесс сборки каркаса для гаража

Процесс сборки каркаса для гаража
Возведите каркас в соответствии с проектом.
Если ширина гаража будет превышать 4 м, для изготовления потолочных балок предпочтительнее использовать не брус 10х10, а качественные доски 10х5. Они сделают готовую постройку гораздо более крепкой и надежной.
Для изготовления продольных элементов и необходимых укосин используйте брус 5х5 см.
На сборку гаражного каркаса обычно уходит несколько дней. Чтобы работа проходила быстрее и легче, можете заручиться поддержкой 1-2 помощников.

Каркасный гараж
Четвертый этап – крыша
Приступайте к обустройству крыши. Рекомендации по подготовке стропильных элементов приводились ранее. Стропила крепите к мауэрлату, а мауэрлат – к верхней обвязке каркаса.

Как построить каркасный гараж
Поверх стропил набейте доски 10х2,5 см – они будут выполнять функции обрешетки. Финишный кровельный материал выбирайте на свое усмотрение. Можете отдать предпочтение как бюджетному битуму, так и более дорогим материалам типа еврошифера, металлочерепицы и пр. В этом моменте ориентируйтесь на свои личные предпочтения и доступный бюджет.
Пятый этап – отделка стен

Стены гаража
Для внутренней отделки каркасного гаража используйте вагонку. Обшивка стен выполняется с параллельным обустройством паро-, тепло- и влагоизоляционного слоев.
Для монтажа слоев изоляции нужно набить обрешетку. Обычно обрешетка собирается из деревянного бруса. Шаг крепления бруса подбирается индивидуально в соответствии с толщиной теплоизоляционных плит.

Утепление
Внешнюю обшивку также можно выполнить с применением вагонки. Нередко используется сайдинг. Материал внешней обшивки выбирайте на свое усмотрение.
Отделка завершается монтажом стеклопакетов и двери. На этом этапе вам также предстоит самостоятельно принять решение в отношении оптимального варианта упомянутых конструкций.
Шестой этап – ворота

Отделка каркасного гаража профнастилом и установка ворот
Ворота выбирайте на свой вкус. На современном рынке представлен огромный ассортимент гаражных ворот – от обыкновенных и наиболее популярных распашных конструкций из металла до современных автоматических подъемных воротных систем, состоящих из нескольких секций.

Типы монтажа ( подъемов) секционных ворот

Типовая схема секционных ворот
Стоимость готовых ворот будет варьироваться в соответствии с особенностями их конструкции, удобством эксплуатации, качеством изоляции и отделки, внешним видом и прочими параметрами. При желании ворота для гаража можно сделать своими руками, предварительно изучив положения руководства по сборке выбранной разновидности системы.
Габариты ворот подбирайте так, чтобы в гараж можно было беспрепятственно въезжать. Через время вы можете поменять автомобиль – помните это и делайте проем для ворот с некоторым запасом.
Седьмой этап – внутреннее обустройство

Печка для гаража
В завершение остается лишь выполнить работы по внутреннему обустройству гаража. Рекомендации по обшивке стен приводились ранее – для этой работы отлично подходит вагонка.
При наличии чердачного помещения, достаточно выложить его пол досками толщиной 25-30 мм и установить лестницу.

Чердак
Соответствующим образом обустраиваются смотровая яма и погреб. Выполняется монтаж электропроводки.

Монтаж электропроводки
Вся остальная работа выполняется исключительно на усмотрение владельца.

Канализационный стояк, выходящий в гараж
Для большего удобства к гаражу подводятся водопроводные и канализационные трубы. Также рекомендуется продумать решение вопроса обогрева гаража, чтобы его можно было максимально комфортно использовать и в холодную погоду.

Обустройство гаража
Удачной работы!
Видео – Каркасный гараж своими руками
svoimi-rykami.ru
выбор материала и порядок сборки
Покупка автомобиля – это дорогостоящее приобретение. Да, автомобиль может круглогодично находиться на открытом воздухе или же «зимовать» под временным сооружением, но как это отобразится на его техническом состоянии? Подумайте, может построить крытое помещение?
Выбирая проекты для строительства гаража, упор делается на длительность работы и ценовую категорию. Если раньше можно было выбирать только между железным и стационарным строением, то сейчас все большую популярность набирают каркасные гаражи, которые пришли к нам из-за рубежа.

Решились, но не знаете, как построить гараж по каркасной технологии? Давайте разбираться вместе.
Чем же отличаются каркасные гаражи от иных видов?
Одним из главных преимуществ таких строений является возможность самостоятельного строительства. Вам понадобиться только один помощник и разработанный проект, включающий в себя все необходимые чертежи (эскизы), примерный расчет нужных строительных и дополнительных материалов. К другим преимуществам можно отнести:
- доступность по стоимости, по сравнению со стационарными гаражами;
- простота и маленький срок строительного процесса;
- низкая теплопроводность, позволяющая в зимнее время быстро прогреть помещение до нужной температуры;
- прочность.
Предлагаем вам пошаговую инструкцию каркасного гаража своими руками, с поэтапным описанием работ.
Проектирование будущего строения

Чертеж каркасного гаража
Начальным этапом в любом строительстве является эскиз или рисунок будущего помещения. Это позволит сэкономить время и деньги на строительство, ведь вы будете знать, сколько материала вам понадобится на вашу задумку. Если раньше проект каркасного гаража, все необходимые расчеты нужно было делать вручную, то сейчас в Интернете немало специальных программ, которые с максимальной точностью проведут все вычисления.
Площадка, на которой планируется строительство гаража, не должна находиться далеко от дома. Предпочтительное расстояние – до 10 метров. Зону строительства необходимо очистить от растений, мусора, корней. Землю на ней нужно утрамбовать и выровнять. После подготовительных работ сделайте подушку из гравия и песка, на которую потом ляжет фундамент.
Необходимые инструменты
Для работ вам, как минимум, понадобятся: лопаты, перчатки, уровень, готовая опалубка. В зависимости от типа гаража для каркаса нужны будут деревянные брусья, лучше использовать лиственницу, липу или осину, либо профильные трубы. Для основания – качественный бетонный раствор.
Выбор типа и залив фундамента

Свайный фундамент
Фундамент – это основа любого строительства, он несет наибольшую нагрузку . Именно на него будет потом будет устанавливаться конструкция будущего строения.
Различают три типа фундамента:
- свайный или столбчатый — заливается при постройке деревянных домов или бань. Считается одним их самых доступных по цене. Недостатком является невозможность постройки без специальной техники;
- монолитная плита – такой тип заливается с обязательным проведением армирования и выравнивания поверхности. Недостатком считают длительный срок до полного высыхания смеси;
- ленточный – самый популярный тип, который полностью отвечает требованиям по прочности и доступной стоимостью.
Обратите внимание! Фундамент для каркасного гаража выбирается, учитывая качество почвы и уровень грунтовых вод.

Ленточный фундамент
Исходя из того, что фундамент под каркасный гараж исполняет также роль «чернового пола», чаще всего заливают монолитный фундамент. Работа над основанием начинается с копания траншеи по периметру будущего гаража. Глубина траншеи составляет 40-50 см. После этого, с трех сторон строения, устанавливаем опалубку. Для данного этапа можно использовать некондиционные доски, фанеру, бруски всевозможных размеров. Если же хотите и в дальнейшем использовать эту опалубку повторно, то лучше оберните ее клеенкой или другим водонепроницаемым материалом.

Монолитный фундамент
Следующий этап – обвязка арматуры. Она позволит укрепить бетонную смесь. Делают ее из металлических прутьев диаметром 10-12 миллиметров. Заключительная операция – заливаем весь периметр площадки бетонной смесью и выравниваем. Остается дождаться полного высыхания раствора. Сохнет бетонная стяжка приблизительно 2-3 недели.

Армирование монолитного фундамента
Гараж по каркасной технологии может вытягиваться либо из металла, либо из дерева. Рассмотрим строительство каркасного гаража для каждого вида материала.
Строим гараж из металла
Этот тип каркаса для гаража строится из профильной трубы, размерами 40х40 и 40х20. Первый профиль укладывается на основание, крепление происходит с использованием анкерных болтов. Между собой трубы свариваются. После чего происходит монтаж всей конструкции. На элементы скелета «крепим» обшивку. В нашем случае ею служат металлические листы. При желании – профилированные. Наиболее удобными для обшивки стен считают листы из металлопрофиля марки С10, размерами 2000 х 5 мм. Листы накладываются внахлест и крепятся сварочным аппаратом. Сначала точечно, а после окончания обшивки – полностью. Альтернативным вариантом могут выступать саморезы. Выбирайте сами.

Металлический каркас
Обращайте внимание! Листы должны размещаться так, чтобы нахлест производился сверху вниз. Таким образом, под материал не будет попадать влага.
К положительным свойствам металлического профиля можно отнести его негорючесть, прочность, быстроту монтажа. К «минусам» — необходимость использования сварки.
Каркасный гараж из деревянных брусьев
Чаще всего каркас гаража делают из дерева. Ввиду того, что древесина легко поддается гниению и другим природным влияниям, все элементы перед началом работы необходимо обработать специализированными веществами, которые смогут ликвидировать эти свойства материала.
Следует отметить, что каркасный гараж из дерева является самым бюджетным вариантом данной постройки. Как и в случае с металлическим каркасом, деревянный гараж тоже начинают строить из заливки фундамента. Для нижней обвязки лучше использовать брусья размерами 100х50 мм, крепление которых производим анкерными болтами. Для дальнейшей работы лучше использовать брусья 100х100 или 150х150 мм. Для лучшей устойчивости строения рекомендуется делать зазор между вертикальными конструктивными элементами 30-120 см.

Деревянный каркас
Обшивкой для деревянного каркаса могут выступать:
- влагостойкая фанера;
- плита осб;
- доски.
Обратите внимание! Данные материалы для обшивки могут деформироваться под влиянием внешней среды, поэтому необходимо делать промежутки (деформационные швы) 3-5 мм между плитами.
Крепление выбранного материала производим саморезами для дерева или же «ершовыми гвоздями». Между соседними гвоздями в центре листа должен оставаться зазор в 300 мм, от края листа необходимо отступать по 150 мм. Для избежания раскола кромки, крепежные изделия вкручиваем, оставляя промежуток в 10мм, не затягивая при этом слишком сильно.
Конструкции крыши и ворот
Что ж, стены на месте, переходим к монтированию крыши. Она бывает – плоской, односкатной и двухскатной. Плоская крыша, наиболее легкий вариант монтажа, но наиболее подверженный риску деформации. Поэтому, выбирайте либо одно-, либо двускатную крышу. Наклон в таких кровлях не позволит снегу закрепляться на них и он будет под собственным весом падать на землю. Начинается данная технологическая операция с закрепления стропильной системы. Учитывайте то, что именно на нее будет перекладываться вся нагрузка от атмосферных осадков. Части стропильной системы крепятся между собой с помощью затяжек, что позволит разгрузить коньковый брус. Выбор кровельного материала зависит от ваших материальных возможностей. Это может быть классическая или металочерепица, шифер, профнастил.

Двухскатная крыша
Установка ворот – это заключительный этап. По способу открывания они делятся на раздвижные, секционные, распашные или откатные. После установки системы не забудьте обработать поверхность грунтовкой и краской, для предотвращения коррозии.
Утепление, внешняя и внутренняя обшивка
Утепление стен поможет поддерживать нормальную температуру внутри помещения. Для этого, во время возведения стен, между обшивкой размещают утеплитель. Им может быть стекло- или минеральная вата, пенопласт.

Отделка каркасного гаража сайдингом
Внутренняя часть стены может обшиваться деревянной или ПВХ-вагонкой, листами ДСП или ДВП и другими облицовочными материалами. Для длительной эксплуатации гараж внешние поверхности тоже следует облицевать. В этом случае также использую вагонку, облицовывают декоративным кирпичом, сайдингом.
При умелом подходе строительство гаража займет у вас чуть больше месяца, включая время на сушку фундамента. Приобрести нужные материалы можно на рынках или в специализированных магазинах, изучить варианты – в сети Интернет и тогда задача «как построить каркасный гараж своими руками» уже не будет казаться такой невыполнимой. Удачи!
vseogarage.ru
Гараж по каркасной технологии фото
Гараж по каркасной технологии – подробная фото инструкция технологии строительства каркасного гаража с двускатной крышей по канадской технологии своими руками. Мы уже строили гараж, но там мы использовали более сложную и более жёсткую конструкцию. Сейчас будет немного проще в изготовлении, выбор конечно за вами какую конструкцию и технологию использовать при строительстве каркасного гаража своим руками.

Гараж по каркасной технологии – фундамент
фундамент из блоковНачинаем строительство с фундамента. Я использовал ленточный фундамент с применением строительных керамзитовых блоков. Пустоты заливаем бетоном. После чего делаем отмостку. Лучше всего использовать армированный не глубокий ленточный с пробуренными на 1 метр отверстиями.
нижняя обвязка гаражаПо периметру фундамента укладываем джутовую ленту и делаем нижнюю обвязку из бруса, после чего, основательно прикручиваем её с помощью анкеров к фундаменту.
Шаг 2 Стены для каркасного гаража
каркасные стеныСобираем стены на земле и после чего устанавливаем их с помощью помощников закрепляя их на временные укосины.
каркасные стены вид сбокуМежду стеной и нижней обвязкой укладываем джутовую ленту.
гараж своими рукамиПосле установки последней стены, выравниваем все стены по уровню и скрепляем их между собой.
После чего прибиваем гвоздями к нижней обвязке.
Шаг 3 Верхняя обвязка и перекрытие
верхняя обвязка гаражаДелаем верхнюю обвязку. Доски верхней обвязки должны перекрывать стыки стен.
делаем перекрытиеУкладываем и соединяем четыре доски на ребро по периметру каркасного гаража.
перекрытие второго этажаУкладываем и закрепляем лаги.
перемычки между лагамиУкладываем перемычки между лагами.
перемычки между лагами в перекрытииУ вас должен получится выступ, это облегчит Вам монтаж потолка.
Лаги следует прибивать к верхней обвязке и к доскам уложенным по периметру.
межэтажное перекрытие осбУкладываем листы осб в шахматном порядке, добавляя перемычки там где это нужно для крепления осб листов.
можно сделать плоскую крышуУкладываем второй слой осб с перекрытием стыков первого слоя. Если Вы планируете впоследствии сделать второй этаж, но не сразу, то можно осб покрыть битумной мастикой и укрыть рубероидом. Не забыв при этом поставить отливы.
Шаг 4 Крыша для каркасного гаража
коньковый брусЕсли не планируете делать второй этаж, а планируете сделать двускатную крышу то устанавливаем коньковую доску.
монтаж стропилУстанавливаем и закрепляем стропила.
стропильная система крышиСтавим перемычки между стропилами и делаем свесы крыши.
обрешётка крышиДелаем обрешётку на крышу каркасного гаража и можно приступать к отделке фасада.
Гараж по каркасной технологииВот такой незатейливый получился гараж по каркасной технологии своими руками. Фасад можно сделать фасадным сайдингом или обшить металлическим профилированным листом, можно покрыть осб а затем покрасить.
Обсудить процесс строительства и задать вопросы можно на нашем строительном ФОРУМЕ по адресу Как построить каркасный гараж своими руками.
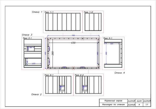
Проект каркасного гаража
Скачать (PDF, 1.96MB)
proektlife.ru
Как сделать каркасный гараж своими руками – пошаговая инструкция
Гараж и мастерская
Гараж – строение, необходимое каждому автомобилисту, которое обеспечивает сохранность транспортного средства и уберегает машину от негативных воздействий окружающей среды. Многие собственники откладывают возведение такого объекта, предполагая, что его строительство является слишком сложной и дорогостоящей процедурой. Однако сегодня можно построить гараж с минимальными временными и финансовыми затратами, если возвести каркасную конструкцию. В статье узнаем об основных нюансах и особенностях каркасного строительства.
1
Почему каркасные конструкции так популярны?
В последние годы технология строительства каркасных объектов стала очень востребованной. При использовании качественных строительных материалов и при правильной организации работ, такой гараж ничем не будет уступать объекту, выстроенному из кирпича, дерева или любых других традиционных материалов.
Широкую популярность технология каркасного строительства приобрела, в первую очередь, благодаря простоте монтажа. Каркасное здание можно возвести самостоятельно, не обращаясь за помощью к профессиональным монтажникам, благодаря чему можно существенно сократить бюджет на сооружение объекта. Кроме того, такое строительство занимает сравнительно немного времени – опытные в этом деле люди могут построить объект всего за несколько дней.

Сокращение расходов на возведение здания обусловлено еще и доступностью современных строительных материалов. А благодаря их малому весу, доставку на место стройки можно выполнить без привлечения специализированной техники.
Каркас для гаража может быть сооружен из разных материалов, но чаще всего используют деревянный брус и металлический профиль.
Сама процедура строительства включает в себя несколько простых этапов:
- 1. Подготовка стройплощадки.
- 2. Рытье котлована и создание фундамента.
- 3. Разметка и сборка каркаса стен.
- 4. Устройство кровли.
- 5. Утепление и обшивка стен.
- 6. Монтаж гаражных ворот.
Чтобы научиться строить каркасные объекты своими руками, необходимо разобраться в каждом из описанных этапов в отдельности.
2
Начало монтажных работ – подготовка строительной площадки и устройство фундамента
Подготовительные работы считаются наиболее важными при любом строительстве. От качества подготовки места для возведения объекта будет зависеть ровность фундамента и надежность всего нового здания. После выбора подходящего места на участке, необходимо расчистить периметр и тщательно выровнять местность.
Площадка под застройку должна быть больше периметра возводимого объекта на 50–60 см с каждой стороны. После разметки с земли необходимо удалить плодородный слой почвы глубиной от 15 до 20 см. Проще всего вырыть такую яму с помощью специальной техники, хотя при некоторой сноровке и наличии свободного времени можно обойтись лопатой и сделать все самому. Дно выкапанной ямы обязательно нужно утрамбовать вручную или с помощью катка.
Для строительства каркасного гаража подойдет любой тип фундамента, так как постройка не будет отличаться большим весом, а значит, не создаст серьезной нагрузки на подготовленное основание. Однако помимо самого строительного объекта при выборе фундамента нужно учитывать и вес автомобиля, который будет стоять в гараже. Специалисты рекомендуют для каркасных объектов создавать плитный или ленточный фундамент.
После определения типа фундамента необходимо наметить угловые точки периметра под стены. Для начала нужно отметить одну угловую точку, в которой устанавливается разметочная обноска. К обноске привязывают шнуры – по два на каждую сторону при устройстве ленточного фундамента, в этом случае расстояние между шнурами будет задавать ширину планируемой ленты. Шнуры растягивают по сторонам будущего фундамента на всю длину, после чего фиксируют на противоположных обносках.

Крайне важно сделать все углы будущего здания прямыми. С помощью перекладины установленной обноски можно в определенных пределах перемещать точку фиксации на ней шнура. Чтобы убедиться в прямоугольности углов, можно измерить диагонали прямоугольника, они должны быть одинаковыми по длине.
Каркасный гараж можно построить на бюджетном столбчатом основании. Фундамент из опор отличается простотой монтажа, его можно сделать самостоятельно и он прекрасно подходит для последующего настила дощатого пола, который должен быть достаточно прочным и надежным, чтобы выдерживать вес автомобиля. Столбчатый фундамент можно сделать из разных материалов. Обычно для устройства такого основания используют железобетонные конструкции, бетонные блоки, кирпич или комбинируют сразу несколько материалов.
Ленточный фундамент отличается большей сложностью в обустройстве и требует намного больше времени, так как в строительстве придется использовать бетонный раствор, который достаточно долго набирает прочность и застывает. Главным преимуществом ленточного основания под каркасное строение является то, что он дает широкие возможности по созданию смотровой ямы. Пол гаража на ленточном фундаменте можно делать как деревянным, так и бетонным.

Третьим по популярности типом фундамента для строительства каркасных сооружений является плитное основание. Оно считается наиболее сложным и затратным при строительстве, так как требует создания целой системы утрамбованных слоев из разных материалов, поверх которых уже заливается бетон. Достоинством плитного основания является его высокая прочность, надежность и долговечность.
3
Проектирование и возведение каркаса постройки
После создания фундамента можно переходить к возведению каркаса будущего сооружения. Каркас гаража может быть изготовлен из металлического профиля, деревянного бруса или из обоих этих материалов одновременно. Определившись с используемыми материалами, обязательно нужно подготовить проект. Этот документ позволит правильно выполнить все этапы строительства и возвести действительно качественное, хорошо продуманное здание.
Сами монтажные работы принято разделять на несколько этапов:
- 1. Установка нижней обвязки.
- 2. Сборка вертикальных конструкций – стен.
- 3. Установка верхней обвязки.
- 4. Обшивка каркаса.
- 5. Монтаж каркаса крыши.
Первым делом на готовое основание настилают гидроизоляционный материал (обычно рубероид). Гидроизоляция необходима для защиты деревянных и металлических элементов будущего здания от негативного воздействия влаги. Рубероид выступает вполне приличной отсечкой, благодаря которой влага не будет распространяться от стенок фундамента и из грунта при обильных осадках.

На следующем этапе на фундамент укладывается деревянный брус выбранного размера, это может быть брус 120×120 мм, 150×150 мм или 120×150 мм. Брус при желании можно заменить доской 50×120 мм или стальной профильной трубой с квадратным сечением 10×10 см. Для закрепления брусовой обвязки в углах используют шпонки или врубку. Металлические элементы обвязки закрепляются на углах сваркой, а деревянные – анкерными винтами или шпильками, вмурованными в основание. При монтаже обвязки на столбчатый фундамент внутри ее рамы на ребро укладываются лаги, которые будут необходимы для закрепления дощатого пола.
После этого можно переходить к сборке каркаса стен. Существует два варианта сборки:
- 1. На месте установки. То есть каркасные стены собираются и фиксируются вертикально на месте их постоянного расположения. Метод используется при монтаже деревянных конструкций.
- 2. На земле. Металлический каркас стен обычно собирают в горизонтальном положении на земле, после чего его поднимают и прикрепляют к обвязке в вертикальном положении.
В качестве элементов деревянного каркаса используют брус 60×60 мм, доску 30×150 или 30×120 мм. Металлический каркас принято собирать из профильной трубы 60×60 мм. После соединения отдельных элементов между собой и установки подготовленной конструкции вертикально, выполняется верхняя обвязка, необходимая для придания каркасу максимальной прочности. Для обвязки используют брус или трубу, которые по размеру должны соответствовать размеру отдельных элементов каркаса. К примеру, если вертикальные стойки изготовлены из досок шириной в 120 мм, то верхнюю обвязку можно сделать из такой же доски, укладывая ее в два слоя, или из бруса 60×120 мм.

Возведенный каркас необходимо сразу обшить внутри или снаружи облицовочными материалами. В качестве такой обшивки используют листы из ОСБ или фанеры, а также профнастил. Обшивка внутренней или внешней стороны объекта сделает его более прочным и позволит перейти к монтажу кровли.
Крышу гаража можно делать одно- или двухскатной. Двускатные крыши строить дороже и труднее, зато они позволяют обустроить полезное чердачное помещение или подготовить подкрышное пространство для хранения материалов и инструментов, используемых в хозяйстве. Постройка крыши выполняется в несколько этапов. Сначала делается стропильная система, после чего скаты обшиваются фанерными листами, поверх которых укладывается кровля.
4
Устройство пола гаража и монтаж утеплительных материалов
После устройства крыши и обшивки стен с одной стороны можно приступать к монтажу пола в гараже. Если застелить пол до установки крыши, деревянная облицовка может сильно пострадать из-за внезапных осадков. Лучше всего для облицовки использовать не шпунтованную доску, чтобы отделка могла расширяться и сужаться из-за изменения температуры и влажности окружающей среды.
Настил делают с небольшим зазором между отдельными элементами облицовки. Между досками нужно оставлять свободное пространство не менее 3–4 мм, чтобы при температурном расширении отделка не деформировалась. Облицовку обычно укладывают на лаги из деревянных брусков и закрепляют на основании саморезами или гвоздями.
На плитный фундамент дополнительную облицовку можно и не укладывать. Достаточно будет только обработать поверхность специальной укрепляющей грунтовкой глубокого проникновения, которая сможет упрочнить, скрепить верхние слои бетона и обеспечить основанию лучшие гидрофобные характеристики. Бетонный пол сверху можно окрасить или укрыть керамической плиткой, а можно оставить и без отделки вовсе.

Следующим шагом строительства каркасного объекта является его утепление. Теплоизоляцию установить в каркас сооружения очень просто. Выбранный материал просто помещается в пустоты в каркасе с внутренней или внешней стороны (в зависимости от того, с какой стороны первоначально были обшиты стены).
Для утепления можно использовать минвату, пенополистирол, напыляемый пенополиуретан и любые другие теплоизоляционные материалы. Напыляемый пенополиуретан считается предпочтительным для утепления каркасного строения. Он дороже большинства других типов теплоизоляции, требует применения специального оборудования, зато им можно полностью заполнить все пустое пространство в каркасе, в том числе любые полости и щели, благодаря чему постройка будет качественно защищена от мостиков холода.
После монтажа утеплителя можно приступать к обшивке стен со стороны, где еще не установлены облицовочные материалы. Для обшивки можно использовать любые легкие отделки, рекомендуется с обеих сторон здание облицовывать с использованием одного материала. То есть, если изнутри стены уже обиты ОСБ-плитами, то и снаружи лучше обивать каркас этими же плитами.
5
Финишная облицовка и установка гаражных ворот
Чтобы гараж стал по-настоящему комфортным, привлекательным внутри и снаружи, все поверхности в нем дополнительно облицовываются. Внутри для отделки помещения лучше всего использовать надежные, долговечные и устойчивые к внешним негативным воздействиям материалы. Рекомендуется отказаться от облицовки, которая легко горит и способствует быстрому распространению пламени. В гаражах, где могут храниться пожароопасные вещества, таким отделкам места нет.

Одновременно с финишной облицовкой в гараже устанавливают ворота, которые могут быть распашными, секционными, роллетными или подъемно-поворотными. Для самостоятельной установки лучше всего подходят простые распашные двустворчатые ворота, остальные конструкции требуют при монтаже определенных профессиональных знаний и умений, которых у обычного собственника, скорее всего, нет.
Постройка каркасного здания, хоть и занимает достаточно много времени, но может быть выполнена полностью самостоятельно. Конечно, если вы найдете себе помощников, работы пойдут быстрее и отнимут меньше сил, но при определенной сноровке можно обойтись и без них. Соблюдайте описанную в нашей пошаговой инструкции очередность действий, и вы сможете сделать гараж своей мечты с минимальными вложениями.
obustroen.ru
Каркасный гараж своими руками — пошаговая инструкция с фото, схемами и видео
Построить каркасный гараж собственными руками под силу большинству автовладельцев. Достаточно следовать основным требованиям инструкции и соблюдать технику безопасности при работе.
Достоинства и недостатки каркасной постройки
Каждый гараж, как капитальный, так и упрощённый, должен выполнять несколько функций:
- Защита автомашины от погодных факторов и несанкционированного доступа.
- Проведение текущего ремонта, обслуживания и осмотра техники.
- Хранение комплекта инструментов и запчастей.
Каркасный гараж не уступает в функциональности капитальному кирпичному строению и при этом обойдётся намного дешевле.
Каркас здания часто изготавливается из древесины. Её легко обрабатывать, она недорога и не требует мощного фундамента. Обшивка строения выполняется из любого подходящего материала: сайдинга, профнастила, сэндвич-панелей, доски-вагонки.
Среди основных преимуществ гаража, построенного своими руками, можно выделить:
- Лёгкость возведения. При наличии основных навыков с работой может справиться даже начинающий строитель.
- Нет необходимости в привлечении мощной специализированной техники и оборудования.
- Лёгкость и прочность конструкции. Как следствие — не нужно обустраивать заглублённый фундамент.
Основной недостаток — горючесть деревянного каркаса. Чтобы избежать возгораний, он обшивается с обеих сторон негорючими материалами. В качестве утеплителя используется негорючая минеральная вата. Кроме этого, древесина пропитывается антипиренами.
Каркас можно изготавливать и из других материалов, например, металлической профилированной трубы. В качестве обшивки для такого строения используются пятимиллиметровые металлопрофильные листы. Такое здание устойчиво к возгораниям, однако каркас требует дополнительной обработки средствами от ржавчины.
Подготовка к строительству: инструменты и материалы
При выборе древесины для строительства необходимо учитывать несколько факторов:
- Брусья могут быть клеёные и цельные. Первый вариант — не деформируется со временем, не требует дополнительных опор. Однако его стоимость в разы превышает цельный.
- Использование непрофилированного бруса увеличивает расход антисептиков, антипиренов, окрасочных материалов. Также в процессе обработки могут возникнуть трещины, требующие шпатлевки. У профилированного бруса такие недостатки отсутствуют.
Следует тщательно подходить и к выбору породы древесины. Среди пригодных для строительства каркасного гаража выделяют:
- Дуб. Очень прочный и надёжный материал. Высокая прочность приводит к сложности обработки, потому распил может делать поставщик.
- Бук. Основные достоинства — практичность, лёгкость в обработке, приятные естественные оттенки.
- Ольха — недорогой материал, способный имитировать более ценные породы. Устойчив к повышенной влажности.
- Сосна — самый дешёвый и популярный строительный материал. Основные недостатки — слабая устойчивость к влаге, подверженность механическим воздействиям.
- Лиственница идеальна для регионов с высокой влажностью. Она прочна и не подвержена гниению.
Также для строительства понадобится комплект инструментов:
- Шурупы, шиферные гвозди и другие крепёжные элементы.
- Металлические уголки.
- Профнастил или другой материал для обшивки.
- Строительный отвес.
- Шуруповёрт или набор отвёрток.
- Ножовка или ножницы по металлу.
Размеры и подробный чертёж
Ширина стандартного каркасного гаража для одной машины — около четырёх метров. Длина — не менее 5,5, может доходить и до семи. Высота — 2,5–2,7 метра, без учёта кровли. Конкретные размеры выбираются с учётом особенностей конкретного автомобиля. К примеру, высота гаража для бортовой газели — не менее трёх метров. Минимальное расстояние от автомашины до стены — полметра.

На чертеже представлена конструкция, ориентированная на один автомобиль

Все габариты указываются примерно
При строительстве гаража для двух автомобилей плановая ширина строения удваивается.
Пошаговая инструкция по возведению каркасного гаража своими руками
Строительство каркасного гаража проходит в несколько этапов. На каждом соблюдается определённая технология и последовательность действий:
- Возведение фундамента.
- Сборка каркаса.
- Изготовление крыши.
- Внешняя и внутренняя обшивка стен.
- Монтаж ворот.
Разберём этапы подробнее.
Строительство фундамента
Строительство каркасного гаража начинается с тщательной подготовки территории. Площадку, выделенную под застройку, очищают от растительности и корней деревьев, немного заглубляют. После этого засыпается слой песка, по периметру будущего основания устанавливаются колышки и натягивается строительная нить.
Внешнюю сторону фундамента необходимо гидроизолировать. Для этого используется битумная мастика. Она укладывается несколькими слоями, просушивается, затем засыпается песком до поверхности грунта.
Оптимальный фундамент для каркасного гаража — монолитный. Он будет служить и черновым полом, который впоследствии можно будет обшить нужным материалом.
- По периметру будущего строения выкапывается траншея, выравнивается и утрамбовывается.
- По бокам устанавливается деревянная опалубка.
- На дно траншеи выкладывается песчано-гравийная смесь. Поверхность тщательно утрамбовывается.
- На готовую поверхность укладываются две металлические армирующие сетки. Это сделает конструкцию более прочной.
- Основание заливается бетоном. После этого фундамент должен просохнуть в течение трёх недель.

Поверхность тщательно выравнивается
Сбор каркаса
Гаражный каркас изготавливается из тщательно просушенной древесины. Для его обустройства необходимы:
- Брусья 100*100 мм, из которых оборудуются основные вертикальные стойки и балки перекрытий на потолке и полу.
- 40-миллиметровые доски, необходимые для обустройства стропильной системы.
- 20-миллиметровая доска, из которой создаётся обрешётка.
- Половые доски. Их толщина начинается от 40 мм.
Количество материалов для изготовления каркаса зависит от запланированных размеров строения.

Крыша может быть односкатной или двухскатной
«Скелет» будущего гаража возводится после высыхания фундамента. Процесс сборки происходит следующим образом:
- Фундамент гидроизолируется. Для этого используется обычный рубероид, наклеенный на битумную мастику. Эта процедура защищает деревянный каркас гаража от гниения и повышенной влажности.
- По периметру гаража укладываются брусья нижней обвязки толщиной 100*100 мм. В углах они соединяются при помощи специальных шпонок и врубок.
- На нижнюю обвязку монтируются угловые и промежуточные столбы. Они крепятся к основанию при помощи нагелей. Дополнительную прочность конструкции обеспечивают металлические уголки, закреплённые к обвязке и стойкам при помощи саморезов. При монтаже следует соблюдать расстояние между соседними стойками: оно не должно быть менее двух метров.
- Устанавливается верхняя обвязка. Брусья крепятся аналогичным способом, с помощью нагелей и металлических уголков.
- Монтируются промежуточные стойки и горизонтальные перемычки. При их креплении стоит ориентироваться на размеры утеплительных матов: это позволит избежать укладки дополнительной обрешётки. В качестве крепёжных элементов используются металлические уголки и саморезы.
Перекрытия пола изготавливаются из доски-«сороковки» и монтируются на внешнюю обвязку. Сверху укладывается напольная доска.

При укладке напольных досок следует избегать щелей и трещин
Установка ворот
Гаражные ворота можно приобрести готовые или произвести их самостоятельно, ориентируясь на размеры автомашины. Габариты конструкции необходимо знать заранее: следует оставить место для ворот в общем каркасе гаража. Стандартная ширина створок — 2,5 метра.
Остов ворот изготавливается из брусков 100*100 мм. Дополнительная жёсткость обеспечивается поперечными деревянными планками. На вертикальные стойки каркаса гаража и ворот прикручиваются петли, после чего можно навешивать дверь.
Обшивка конструкции профнастилом или подобным материалом выполняется одновременно с отделкой стен гаража и после тщательной обработки антипиренами и антисептиками.

Простейшую распашную конструкцию можно изготовить самостоятельно
Монтаж стропильной системы и крыши
Самый простой вариант крыши для каркасного гаража — односкатный. Эта конструкция достаточно проста в установке, недорога и прочна.
Стандартная односкатная крыша каркасного гаража состоит из нескольких элементов:
- Стропильная система. Это основа, к которой будут крепиться остальные элементы. На неё же приходится вся нагрузка на крышу.
- Обрешётка, закреплённая на стропильной системе. Представляет собой опорную поверхность, на которую будет устанавливаться кровельное покрытие.
- Изоляционные материалы. Их функция — защита помещения от дождя и снега, а также удержание тепла внутри гаража.
- Кровельное покрытие.
При строительстве каркаса одна из стен гаража делается выше остальных. Это требуется для обеспечения оптимального наклона крыши. Как правило, он не превышает 25 градусов.
В первую очередь оборудуется стропильная система. Для небольших гаражей, рассчитанных на одну машину, подойдёт упрощённая конструкция с горизонтальными балками, уложенными вдоль или поперёк гаражного помещения. С точки зрения экономии, наиболее целесообразным будет поперечное размещение: можно укладывать короткие брусья.
Расстояние между стропильными балками не должно превышать метра. В противном случае конструкция будет недостаточно крепкой, и в результате деформируется. После установки на каркасную основу балки фиксируются с помощью металлических уголков и шурупов.
Следующий этап — настил обрешётки. Для этого используется обрезная или необрезная доска, называемая также шалёвкой. Второй вариант считается оптимальным: материал обойдётся намного дешевле, а после окончательной отделки отличить его от аналога достаточно трудно.
Если для создания обрешётки используется шалёвка, её необходимо очистить от коры. Доски укладываются на стропильные бруски, перпендикулярно к ним, и крепятся с помощью шурупов. В процессе работы необходимо следить, чтобы не было больших щелей.
Поверх обрешётки укладывается слой гидроизоляции. Она защищает гаражное помещение от осадков. В качестве гидроизоляционного материала может использоваться рубероид либо подкровельная плёнка (например, гидробарьер).
Рубероид укладывается снизу вверх, внахлёст. Листы должны перекрывать друг друга на несколько сантиметров. Благодаря этому вода, попадающая под кровельное покрытие, будет скатываться с крыши вниз и не проникать на доски. Материал прибивается к обрешётке обычными гвоздями. Подкровельная плёнка укладывается аналогичным образом, для крепления используются нержавеющие скобы или гвозди.

Указаны основные этапы
Заключительный этап — укладка кровельного покрытия. Выбор материала достаточно велик:
- Профнастил. Прочен, устойчив к атмосферным воздействиям. Одно из основных достоинств — возможность повторного использования.
- Шифер. Прочный материал, срок службы которого достигает 40 лет. Из-за высокой стоимости его использование не всегда оправдано для отделки небольших гаражей.
- Металлочерепица — современное кровельное покрытие, чаще используемое для отделки капитальных каменных строений.
- Рулонные покрытия. Недорогие материалы, лёгкие в монтаже, прочные и надёжные. Средний срок службы рубероида — 12–15 лет, что компенсируется небольшой ценой.
Монтаж кровельного покрытия начинается с нижнего ряда. Крепление происходит с помощью шиферных гвоздей или шурупов. Листы укладываются внахлёст, в результате на одном гвозде их будет четыре. По краям прибивается ещё несколько гвоздей, чтобы исключить поднятие шифера при сильном ветре.
Утепление и обшивка
Перед проведением работ по окончательной обшивке каркасного гаража, деревянный остов необходимо обработать антисептиками и антипиренами. После этого можно приступать к монтажу.
Внешняя обшивка каркасного гаража чаще всего выполняется с помощью металлопрофиля. Это прочный и долговечный материал, устойчивый к огню и погодным факторам. Для обшивки стен подойдёт металлопрофиль, в маркировке которого присутствуют буквы С или ПС.
Профильные листы крепятся к каркасу при помощи специальных шестигранных саморезов. Работа происходит следующим образом:
- Лист металлического профиля прикладывается к угловой стойке, выравнивается по строительному отвесу.
- В нижнюю волну профнастила вкручиваются саморезы. Это необходимо для первичного закрепления материала.
- Укладывается второй лист. Нахлёст должен составлять одну волну. После этого оба изделия вместе крепятся саморезами к каркасу. На каждый квадратный метр требуется 5–6 саморезов.
- При необходимости металлический профиль можно нарезать электролобзиком или ножницами для резки металла. Не стоит использовать болгарку или аналогичные приборы: полимерная поверхность листов обгорает, что приводит к появлению коррозии и снижению полезных свойств материала.
Такие же металлопрофильные листы с маркировкой Н или ПК можно использовать в качестве кровельного покрытия. Монтаж осуществляется снизу вверх, внахлёст на волну, для крепления используются шестигранные саморезы с уплотнительными шайбами.
При желании каркасный гараж можно утеплить. Для этого можно взять каменную вату, изготовленную в виде своеобразных матов. Процесс утепления происходит поэтапно:
- На внутреннюю часть стен крепится ветрозащитная плёнка.
- В свободное пространство между стойками укладываются маты.
- Сверху утеплитель обшивается досками или листовым железом.
Стандартный утеплитель и металлопрофиль можно заменить готовыми сэндвич-панелями. Это сборные конструкции, состоящие из профилированного покрытия с одной стороны, плоского металлического листа с другой и утеплительного слоя между ними.
Видео: Строительство каркасного гаража
При использовании перечисленных правил вы сможете построить каркасный гараж собственноручно. Это не потребует больших затрат финансов, сил и времени. Достаточно заранее определиться с размерами и материалами постройки.
kakpostroit.su

Пластиковые фиксаторы для арматуры
На плите начнем сборку первой стены
В передней стенке будут установлены ворта
Установка боковины
Сборка последней части
Теперь можно всё надежно скрепить
Примерка изготовленной стропил
Монтаж стропил
Необходимо уложить пароизоляцию
Для обшивки каркаса используем ОСБ
Для такой конструкции идеально подходят металлопластиковые окна
На этом работы закончены
Виды ворот
Натянутая капроновая нить напоминает паутину
Капроновая нить надежно удерживает минвату
Позаботимся о том, чтобы сквозь утеплитель не проходил холодный воздух
Для этого следующий ряд утеплителя должен перекрывать стыки
Пароизоляцию проклеим серебряным армированным скотчем
При проклеивании паризоляции на стенах, обратный нахлест не нужен
Благодаря контррейкам обеспечивается вентиляция под обшивкой
Обшивочные доски в качестве конрреек
Так выглядит кровельный пирог

