ΠΠ»Π°ΠΏΠ°Π½Π° Π²Π΅Π½ΡΠΈΠ»ΡΡΠΈΠΎΠ½Π½ΡΠ΅ β Π²ΡΠ±ΠΈΡΠ°Π΅ΠΌ Π²ΠΎΠ·Π΄ΡΡΠ½ΡΠΉ Π³Π΅ΡΠΌΠ΅ΡΠΈΡΠ΅ΡΠΊΠΈΠΉ Π΄ΡΠΎΡΡΠ΅Π»Ρ Ρ ΡΠ»Π΅ΠΊΡΡΠΎΠΏΡΠΈΠ²ΠΎΠ΄ΠΎΠΌ Π΄Π»Ρ ΠΏΡΠΈΡΠΎΡΠ½ΠΎ-Π²ΡΡΡΠΆΠ½ΠΎΠΉ Π²Π΅Π½ΡΠΈΠ»ΡΡΠΈΠΈ
Π³Π΅ΡΠΌΠ΅ΡΠΈΡΠ΅ΡΠΊΠΈΠΉ, ΡΡΠ΅Π½ΠΎΠ²ΠΎΠΉ, ΡΠ»Π΅ΠΊΡΡΠΈΡΠ΅ΡΠΊΠΈΠΉ, Π²ΠΎΠ·Π΄ΡΡΠ½ΡΠΉ, ΠΎΠ±ΡΠ°ΡΠ½ΡΠΉ, Π΄Π»Ρ ΡΡΠ΅Π½, ΠΊΠ°Π½Π°Π»ΠΈΠ·Π°ΡΠΈΠΈ, Π±Π°Π½ΠΈ, Π²ΠΈΠ΄Π΅ΠΎ-ΠΈΠ½ΡΡΡΡΠΊΡΠΈΡ ΠΏΠΎ ΠΌΠΎΠ½ΡΠ°ΠΆΡ ΡΠ²ΠΎΠΈΠΌΠΈ ΡΡΠΊΠ°ΠΌΠΈ, ΡΠΎΡΠΎ ΠΈ ΡΠ΅Π½Π°
Π‘ΠΎΠ²ΡΠ΅ΠΌΠ΅Π½Π½ΡΠ΅ ΠΊΠ²Π°ΡΡΠΈΡΡ ΠΈ Π΄ΠΎΠΌΠ° ΡΠ²Π»ΡΡΡΡΡ Π³Π΅ΡΠΌΠ΅ΡΠΈΡΠ½ΡΠΌΠΈ ΠΊΠΎΠ½ΡΡΡΡΠΊΡΠΈΡΠΌΠΈ, ΠΏΠΎΡΡΠΎΠΌΡ Π½ΡΠΆΠ΄Π°ΡΡΡΡ Π² ΡΡΡΠ΅ΠΊΡΠΈΠ²Π½ΠΎΠΉ Π²Π΅Π½ΡΠΈΠ»ΡΡΠΈΠΈ. ΠΠ±ΡΠ·Π°ΡΠ΅Π»ΡΠ½ΡΠΌ Π΅Π΅ ΡΠ»Π΅ΠΌΠ΅Π½ΡΠΎΠΌ ΡΠ²Π»ΡΡΡΡΡ Π²Π΅Π½ΡΠΈΠ»ΡΡΠΈΠΎΠ½Π½ΡΠ΅ ΠΊΠ»Π°ΠΏΠ°Π½Π°, ΠΊΠΎΡΠΎΡΡΠ΅ ΠΏΡΠΎΠΏΡΡΠΊΠ°ΡΡ Π²ΠΎΠ·Π΄ΡΡΠ½ΡΠ΅ ΠΌΠ°ΡΡΡ ΡΠΎΠ»ΡΠΊΠΎ Π² ΠΎΠ΄Π½Ρ ΡΡΠΎΡΠΎΠ½Ρ. Π§Π°ΡΠ΅ Π²ΡΠ΅Π³ΠΎ Π² ΡΠΈΡΡΠ΅ΠΌΠ°Ρ
Π²ΠΎΠ·Π΄ΡΡ
ΠΎΠΎΠ±ΠΌΠ΅Π½Π° Π²ΡΡΡΠ΅ΡΠ°Π΅ΡΡΡ Π²Π΅Π½ΡΠΈΠ»ΡΡΠΈΠΎΠ½Π½ΡΠΉ ΠΊΠ»Π°ΠΏΠ°Π½ Π΄Π»Ρ ΡΡΠ΅Π½, ΠΊΠΎΡΠΎΡΡΠΉ ΠΌΠΎΠΆΠ΅Ρ Π±ΡΡΡ Π²Ρ
ΠΎΠ΄Π½ΡΠΌ ΠΈΠ»ΠΈ ΠΎΠ±ΡΠ°ΡΠ½ΡΠΌ.

ΠΠ΅Π½ΡΠΈΠ»ΡΡΠΈΠΎΠ½Π½ΡΠΉ Π²ΡΡΡΠΆΠ½ΠΎΠΉ ΠΊΠ»Π°ΠΏΠ°Π½
Π Π΄Π°Π½Π½ΠΎΠΉ ΡΡΠ°ΡΡΠ΅ ΠΌΡ ΠΏΠΎΠ΄ΡΠΎΠ±Π½ΠΎ ΠΎΠ·Π½Π°ΠΊΠΎΠΌΠΈΠΌΡΡ Ρ ΠΏΡΠ΅Π΄Π½Π°Π·Π½Π°ΡΠ΅Π½ΠΈΠ΅ΠΌ ΡΠ°ΠΊΠΈΡ ΠΊΠ»Π°ΠΏΠ°Π½ΠΎΠ², ΡΠ°ΡΡΠΌΠΎΡΡΠΈΠΌ ΡΠ°Π·Π»ΠΈΡΠ½ΡΠ΅ ΠΈΡ Π²ΠΈΠ΄Ρ, ΠΎΡΠΎΠ±Π΅Π½Π½ΠΎΡΡΠΈ ΠΈ ΠΏΡΠΎΡΠ΅ΡΡ ΠΌΠΎΠ½ΡΠ°ΠΆΠ°.
ΠΡΠ΅Π΄Π½Π°Π·Π½Π°ΡΠ΅Π½ΠΈΠ΅
ΠΠ΅Π½ΡΠΈΠ»ΡΡΠΈΠΎΠ½Π½ΡΠΉ Π²ΠΎΠ·Π΄ΡΡΠ½ΡΠΉ ΠΊΠ»Π°ΠΏΠ°Π½ Π²ΡΠΏΠΎΠ»Π½ΡΠ΅Ρ ΡΡΠ°Π·Ρ Π½Π΅ΡΠΊΠΎΠ»ΡΠΊΠΎ Π²Π°ΠΆΠ½ΡΡ ΡΡΠ½ΠΊΡΠΈΠΉ:
- ΠΠ±Π΅ΡΠΏΠ΅ΡΠΈΠ²Π°Π΅Ρ ΠΏΡΠ°Π²ΠΈΠ»ΡΠ½ΠΎΠ΅ ΠΈ Π±Π΅ΡΠΏΠ΅ΡΠ΅Π±ΠΎΠΉΠ½ΠΎΠ΅ ΡΡΠ½ΠΊΡΠΈΠΎΠ½ΠΈΡΠΎΠ²Π°Π½ΠΈΠ΅ ΡΠΈΡΡΠ΅ΠΌΡ Π²ΠΎΠ·Π΄ΡΡ ΠΎΠΎΠ±ΠΌΠ΅Π½Π°.
- Π Π΅Π³ΡΠ»ΠΈΡΡΠ΅Ρ ΠΏΠΎΠ΄Π°ΡΡ Π²ΠΎΠ·Π΄ΡΡ Π° ΠΈ ΡΠ΅ΠΆΠΈΠΌΡ ΡΠ°Π±ΠΎΡΡ Π²Π΅Π½ΡΠΈΠ»ΡΡΠΈΠΈ.
- ΠΠ°ΠΊ ΡΠΆΠ΅ Π±ΡΠ»ΠΎ ΡΠΊΠ°Π·Π°Π½ΠΎ Π²ΡΡΠ΅, ΠΏΡΠ΅Π΄ΠΎΡΠ²ΡΠ°ΡΠ°Π΅Ρ Π΄Π²ΠΈΠΆΠ΅Π½ΠΈΠ΅ Π²ΠΎΠ·Π΄ΡΡΠ½ΡΡ ΠΌΠ°ΡΡ Π² ΠΎΠ±ΡΠ°ΡΠ½ΠΎΠΌ Π½Π°ΠΏΡΠ°Π²Π»Π΅Π½ΠΈΠΈ ΠΈΠ»ΠΈ ΠΏΠΎΠ»Π½ΠΎΡΡΡΡ ΠΏΠ΅ΡΠ΅ΠΊΡΡΠ²Π°Π΅Ρ Π²Π΅Π½ΡΠΈΠ»ΡΡΠΈΠΎΠ½Π½ΠΎΠ΅ ΠΎΡΠ²Π΅ΡΡΡΠΈΠ΅.
- ΠΠ±Π΅ΡΠΏΠ΅ΡΠΈΠ²Π°Π΅Ρ Π±Π°Π»Π°Π½Ρ ΠΌΠ΅ΠΆΠ΄Ρ ΠΏΡΠΈΡΠΎΡΠ½ΡΠΌ ΠΈ Π²ΡΡΡΠΆΠ½ΡΠΌ ΠΏΠΎΡΠΎΠΊΠΎΠΌ Π²ΠΎΠ·Π΄ΡΡ Π°.
- Π―Π²Π»ΡΠ΅ΡΡΡ Π·Π°ΡΠΈΡΠΎΠΉ ΠΎΡ ΠΏΡΠΎΠ½ΠΈΠΊΠ½ΠΎΠ²Π΅Π½ΠΈΡ ΡΠ»ΠΈΡΠ½ΠΎΠ³ΠΎ ΡΡΠΌΠ° Π² ΠΏΠΎΠΌΠ΅ΡΠ΅Π½ΠΈΠ΅.
ΠΡΠΎΠΌΠ΅ ΡΠΎΠ³ΠΎ, Π½Π° ΡΠ΅Π³ΠΎΠ΄Π½ΡΡΠ½ΠΈΠΉ Π΄Π΅Π½Ρ ΡΡΡΠ΅ΡΡΠ²ΡΡ ΠΊΠΎΠ½ΡΡΡΡΠΊΡΠΈΠΈ, ΠΊΠΎΡΠΎΡΡΠ΅Β ΠΏΠΎΠΌΠΈΠΌΠΎ Π²ΡΡΠ΅ΠΏΠ΅ΡΠ΅ΡΠΈΡΠ»Π΅Π½Π½ΡΡ , Π²ΡΠΏΠΎΠ»Π½ΡΡ Π΅ΡΠ΅ ΠΈ ΠΏΡΠΎΡΠΈΠ²ΠΎΠΏΠΎΠΆΠ°ΡΠ½ΡΡ ΡΡΠ½ΠΊΡΠΈΡ. Π’Π°ΠΊΠΈΠΌ ΠΎΠ±ΡΠ°Π·ΠΎΠΌ, Π΄Π°Π½Π½ΠΎΠ΅ ΡΡΡΡΠΎΠΉΡΡΠ²ΠΎ ΡΠ²Π»ΡΠ΅ΡΡΡ Π²Π°ΠΆΠ½ΡΠΌ ΡΠ»Π΅ΠΌΠ΅Π½ΡΠΎΠΌ Π²Π΅Π½ΡΠΈΠ»ΡΡΠΈΠΈ.

ΠΠ΅Π½ΡΠΈΠ»ΡΡΠΈΠΎΠ½Π½ΡΠΉ ΠΏΡΠΈΡΠΎΡΠ½ΡΠΉ ΠΊΠ»Π°ΠΏΠ°Π½
ΠΠΈΠ΄Ρ ΠΊΠ»Π°ΠΏΠ°Π½ΠΎΠ²
ΠΠ° ΡΠ΅Π³ΠΎΠ΄Π½ΡΡΠ½ΠΈΠΉ Π΄Π΅Π½Ρ ΡΡΡΠ΅ΡΡΠ²ΡΠ΅Ρ Π΄ΠΎΠ²ΠΎΠ»ΡΠ½ΠΎ ΠΌΠ½ΠΎΠ³ΠΎ Π²ΠΈΠ΄ΠΎΠ² Π²ΡΠ΅Π²ΠΎΠ·ΠΌΠΎΠΆΠ½ΡΡ Π²Π΅Π½ΡΠΈΠ»ΡΡΠΈΠΎΠ½Π½ΡΡ ΠΊΠ»Π°ΠΏΠ°Π½ΠΎΠ². Π ΠΏΠ΅ΡΠ²ΡΡ ΠΎΡΠ΅ΡΠ΅Π΄Ρ ΠΎΠ½ΠΈ ΡΠ°Π·Π»ΠΈΡΠ°ΡΡΡΡ ΠΏΠΎ ΡΠ²ΠΎΠ΅ΠΌΡ ΠΏΡΠ΅Π΄Π½Π°Π·Π½Π°ΡΠ΅Π½ΠΈΡ:
| ΠΡΠΈΡΠΎΡΠ½ΡΠ΅ | ΠΡΠΏΠΎΠ»ΡΠ·ΡΡΡΡΡ Π΄Π»Ρ ΠΏΠΎΠ΄ΡΠΎΡΠ° Π²ΠΎΠ·Π΄ΡΡ Π° Π² ΠΏΠΎΠΌΠ΅ΡΠ΅Π½ΠΈΠ΅. ΠΠΎΠ³ΡΡ ΡΠ΅Π³ΡΠ»ΠΈΡΠΎΠ²Π°ΡΡ ΠΏΠΎΡΠΎΠΊ Π²Ρ ΠΎΠ΄ΡΡΠΈΡ Π²ΠΎΠ·Π΄ΡΡΠ½ΡΡ ΠΌΠ°ΡΡ ΠΊΠ°ΠΊ Π² ΡΡΡΠ½ΠΎΠΌ, ΡΠ°ΠΊ ΠΈ Π°Π²ΡΠΎΠΌΠ°ΡΠΈΡΠ΅ΡΠΊΠΎΠΌ ΡΠ΅ΠΆΠΈΠΌΠ΅. ΠΡΠΎΠΌΠ΅ ΡΠΎΠ³ΠΎ, ΠΎΠ½ΠΈ ΠΌΠΎΠ³ΡΡ ΠΏΡΠ΅ΠΊΡΠ°ΡΠΈΡΡ ΡΡΠ½ΠΊΡΠΈΠΎΠ½ΠΈΡΠΎΠ²Π°Π½ΠΈΠ΅ Π²Π΅Π½ΡΠΈΠ»ΡΡΠΈΠΎΠ½Π½ΠΎΠΉ ΡΠΈΡΡΠ΅ΠΌΡ, ΡΠ°ΠΊ ΠΊΠ°ΠΊ ΠΏΡΠΈ ΠΏΠΎΠ»Π½ΠΎΠΌ ΠΏΠ΅ΡΠ΅ΠΊΡΡΡΠΈΠΈ ΠΊΠ»Π°ΠΏΠ°Π½ Π³Π΅ΡΠΌΠ΅ΡΠΈΡΠ΅ΡΠΊΠΈΠΉ. |
| ΠΡΡΡΠΆΠ½ΡΠ΅ | ΠΠ±Π΅ΡΠΏΠ΅ΡΠΈΠ²Π°ΡΡ Π²ΡΠ²ΠΎΠ΄ Π²ΠΎΠ·Π΄ΡΡ Π° ΠΈΠ· ΠΏΠΎΠΌΠ΅ΡΠ΅Π½ΠΈΡ Π½Π°ΡΡΠΆΡ. ΠΡΠ½ΠΎΠ²Π½Π°Ρ ΠΈΡ Π·Π°Π΄Π°ΡΠ° Π·Π°ΠΊΠ»ΡΡΠ°Π΅ΡΡΡ Π² ΠΏΡΠ΅Π΄ΠΎΡΠ²ΡΠ°ΡΠ΅Π½ΠΈΠΈ Π΄Π²ΠΈΠΆΠ΅Π½ΠΈΡ Π²ΠΎΠ·Π΄ΡΡΠ½ΡΡ ΠΌΠ°ΡΡ Π² ΠΎΠ±ΡΠ°ΡΠ½ΡΡ ΡΡΠΎΡΠΎΠ½Ρ, ΡΡΠΎ ΠΌΠΎΠΆΠ΅Ρ ΠΏΡΠΎΠΈΠ·ΠΎΠΉΡΠΈ ΠΏΠΎ ΠΏΡΠΈΡΠΈΠ½Π΅ ΡΠ°Π·Π»ΠΈΡΠ½ΡΡ Π°ΡΠΌΠΎΡΡΠ΅ΡΠ½ΡΡ ΡΠ²Π»Π΅Π½ΠΈΠΉ. ΠΡΠΎΠΌΠ΅ ΡΠΎΠ³ΠΎ, ΡΡΡΡΠΎΠΉΡΡΠ²Π° ΠΏΡΠ΅Π΄ΠΎΡΠ²ΡΠ°ΡΠ°ΡΡ ΠΏΡΠΎΠ½ΠΈΠΊΠ½ΠΎΠ²Π΅Π½ΠΈΠ΅ Π² ΠΏΠΎΠΌΠ΅ΡΠ΅Π½ΠΈΠ΅ Π½Π°ΡΠ΅ΠΊΠΎΠΌΡΡ , ΠΏΡΡ Π°, ΠΈ ΠΏΡΠΎΡΠ΅Π³ΠΎ ΠΌΡΡΠΎΡΠ°. |
| ΠΠΊΠΎΠ½Π½ΡΠ΅ | Π£ΡΡΠ°Π½Π°Π²Π»ΠΈΠ²Π°ΡΡΡΡ Π½Π° ΠΏΠ»Π°ΡΡΠΈΠΊΠΎΠ²ΡΠ΅ ΠΎΠΊΠ½Π° ΠΈ ΠΎΠ±Π΅ΡΠΏΠ΅ΡΠΈΠ²Π°ΡΡ Π°Π²ΡΠΎΠΌΠ°ΡΠΈΡΠ΅ΡΠΊΠΎΠ΅ ΠΏΡΠΎΠ²Π΅ΡΡΠΈΠ²Π°Π½ΠΈΠ΅. |
ΠΠ±ΡΠ°ΡΠΈΡΠ΅ Π²Π½ΠΈΠΌΠ°Π½ΠΈΠ΅! ΠΠ΅Π½ΡΠΈΠ»ΡΡΠΈΠΎΠ½Π½ΡΠΌΠΈ Π½Π°Π·ΡΠ²Π°ΡΡ Π΅ΡΠ΅ ΠΈ ΠΊΠ»Π°ΠΏΠ°Π½Π° Π΄Π»Ρ ΠΊΠ°Π½Π°Π»ΠΈΠ·Π°ΡΠΈΠΈ, ΠΎΠ΄Π½Π°ΠΊΠΎ, ΠΊ Π²ΠΎΠ·Π΄ΡΡ ΠΎΠΎΠ±ΠΌΠ΅Π½Ρ Π² ΠΏΠΎΠΌΠ΅ΡΠ΅Π½ΠΈΡΡ ΠΎΠ½ΠΈ Π½Π΅ ΠΈΠΌΠ΅ΡΡ Π·Π½Π°ΡΠ΅Π½ΠΈΡ ΠΈ ΠΏΡΠ΅Π΄Π½Π°Π·Π½Π°ΡΠ΅Π½Ρ Π΄Π»Ρ ΠΊΠΎΠΌΠΏΠ΅Π½ΡΠ°ΡΠΈΠΈ Π΄Π°Π²Π»Π΅Π½ΠΈΡ Π² ΡΠΈΡΡΠ΅ΠΌΠ΅.

ΠΠ΅Π½ΡΠΈΠ»ΡΡΠΈΠΎΠ½Π½ΡΠΉ ΠΊΠ°Π½Π°Π»ΠΈΠ·Π°ΡΠΈΠΎΠ½Π½ΡΠΉ ΠΊΠ»Π°ΠΏΠ°Π½
ΠΡΠΎΠΌΠ΅ ΡΠΎΠ³ΠΎ, Π΄Π°Π½Π½ΡΠ΅ ΠΈΠ·Π΄Π΅Π»ΠΈΡ ΡΠ°Π·Π»ΠΈΡΠ°ΡΡΡΡ ΠΏΠΎ ΡΠ²ΠΎΠ΅ΠΉ ΡΠΎΡΠΌΠ΅.
ΠΠ½ΠΈ ΠΌΠΎΠ³ΡΡ Π±ΡΡΡ:
- ΠΡΡΠ³Π»ΡΠΌΠΈ;
- ΠΠ²Π°Π΄ΡΠ°ΡΠ½ΡΠΌΠΈ ΠΈΠ»ΠΈ ΠΏΡΡΠΌΠΎΡΠ³ΠΎΠ»ΡΠ½ΡΠΌΠΈ.
Π Π·Π°Π²ΠΈΡΠΈΠΌΠΎΡΡΠΈ ΠΎΡ ΡΠ²ΠΎΠ΅Π³ΠΎ ΡΡΡΡΠΎΠΉΡΡΠ²Π°, ΠΎΠ½ΠΈ Π±ΡΠ²Π°ΡΡ ΡΠ»Π΅ΠΊΡΡΠΈΡΠ΅ΡΠΊΠΈΠΌΠΈ ΠΈΠ»ΠΈ ΡΡΡΠ½ΡΠΌΠΈ. ΠΠ»Π΅ΠΊΡΡΠΈΡΠ΅ΡΠΊΠΈΠΉ ΠΊΠ»Π°ΠΏΠ°Π½ ΡΠ°Π±ΠΎΡΠ°Π΅Ρ ΡΠΎΠ²ΠΌΠ΅ΡΡΠ½ΠΎ Ρ Π΄ΡΡΠ³ΠΈΠΌ Π²Π΅Π½ΡΠΈΠ»ΡΡΠΈΠΎΠ½Π½ΡΠΌ ΠΎΠ±ΠΎΡΡΠ΄ΠΎΠ²Π°Π½ΠΈΠ΅ΠΌ ΠΈ Π°Π²ΡΠΎΠΌΠ°ΡΠΈΡΠ΅ΡΠΊΠΈ ΡΠ΅Π³ΡΠ»ΠΈΡΡΠ΅Ρ Π²ΠΎΠ·Π΄ΡΡΠ½ΡΠΉ ΠΏΠΎΡΠΎΠΊ.
Π£ΡΡΡΠΎΠΉΡΡΠ²ΠΎ ΠΊΠ»Π°ΠΏΠ°Π½ΠΎΠ²
ΠΡΠΈΡΠΎΡΠ½ΡΠΉ Π½Π°ΡΡΠ΅Π½Π½ΡΠΉ

Π£ΡΡΡΠΎΠΉΡΡΠ²ΠΎ ΠΏΡΠΈΡΠΎΡΠ½ΠΎΠ³ΠΎ ΠΊΠ»Π°ΠΏΠ°Π½Π°
Π‘ΡΠ΅Π½ΠΎΠ²ΠΎΠΉ ΠΏΡΠΈΡΠΎΡΠ½ΡΠΉ ΠΊΠ»Π°ΠΏΠ°Π½ ΡΠ²Π»ΡΠ΅ΡΡΡ Π½Π°ΠΈΠ±ΠΎΠ»Π΅Π΅ ΡΠ°ΡΠΏΡΠΎΡΡΡΠ°Π½Π΅Π½Π½ΠΎΠΉ ΠΊΠΎΠ½ΡΡΡΡΠΊΡΠΈΠ΅ΠΉ (ΡΠ·Π½Π°ΠΉΡΠ΅ Π·Π΄Π΅ΡΡ, ΠΊΠ°ΠΊ ΠΎΠ±ΡΡΡΡΠ°ΠΈΠ²Π°Π΅ΡΡΡ Π²Π΅Π½ΡΠΈΠ»ΡΡΠΈΡ ΠΊΠΎΡΠ΅Π»ΡΠ½ΠΎΠΉ ΡΠ°ΡΡΠ½ΠΎΠ³ΠΎ Π΄ΠΎΠΌΠ°).
ΠΠ½ ΡΠΎΡΡΠΎΠΈΡ ΠΈΠ· ΡΠ»Π΅Π΄ΡΡΡΠΈΡ ΡΠ»Π΅ΠΌΠ΅Π½ΡΠΎΠ²:
- Π’ΡΡΠ±Π° β Π΄Π»ΠΈΠ½Π° Π½Π΅ΠΌΠ½ΠΎΠ³ΠΎ Π±ΠΎΠ»ΡΡΠ΅ ΡΠΎΠ»ΡΠΈΠ½Ρ ΡΡΠ΅Π½Ρ.
- ΠΠ°ΡΡΠΆΠ½Π°Ρ ΡΠ΅ΡΠ΅ΡΠΊΠ° β Π·Π°Π΄Π΅ΡΠΆΠΈΠ²Π°Π΅Ρ ΠΊΡΡΠΏΠ½ΡΠΉ ΠΌΡΡΠΎΡ.
- Π¨ΡΠΌΠΎΠΈΠ·ΠΎΠ»ΡΡΠΈΠΎΠ½Π½ΡΠΉ ΠΌΠ°ΡΠ΅ΡΠΈΠ°Π» β ΡΠ°ΡΠΏΠΎΠ»Π°Π³Π°Π΅ΡΡΡ Π²Π½ΡΡΡΠΈ ΡΡΡΠ±Ρ.
- Π€ΠΈΠ»ΡΡΡ β ΠΏΡΠ΅Π΄ΠΎΡΠ²ΡΠ°ΡΠ°Π΅Ρ ΠΏΡΠΎΠ½ΠΈΠΊΠ½ΠΎΠ²Π΅Π½ΠΈΠ΅ ΠΏΡΠ»ΠΈ ΠΈ Π΄ΡΡΠ³ΠΎΠ³ΠΎ ΠΌΠ΅Π»ΠΊΠΎΠ³ΠΎ ΠΌΡΡΠΎΡΠ°.
- ΠΠΎΠ΄Π²ΠΈΠΆΠ½ΡΠΉ ΡΠ»Π΅ΠΌΠ΅Π½Ρ β ΡΠ΅Π³ΡΠ»ΠΈΡΡΠ΅Ρ ΠΈΠ½ΡΠ΅Π½ΡΠΈΠ²Π½ΠΎΡΡΡ ΠΏΠΎΡΠΎΠΊΠ° Π²ΠΎΠ·Π΄ΡΡ Π° ΠΈ ΠΏΡΠΈ Π½Π΅ΠΎΠ±Ρ ΠΎΠ΄ΠΈΠΌΠΎΡΡΠΈ ΠΏΠ΅ΡΠ΅ΠΊΡΡΠ²Π°Π΅Ρ ΡΠΈΡΡΠ΅ΠΌΡ.
- ΠΠ΅ΡΠ΅ΠΊΠ»ΡΡΠ°ΡΠ΅Π»Ρ β ΠΏΡΠ΅Π΄Π½Π°Π·Π½Π°ΡΠ΅Π½ Π΄Π»Ρ ΡΠΏΡΠ°Π²Π»Π΅Π½ΠΈΡ ΠΏΠΎΠ΄Π²ΠΈΠΆΠ½ΡΠΌ ΡΠ»Π΅ΠΌΠ΅Π½ΡΠΎΠΌ.
- ΠΡΡΡΠΊΠ° ΠΎΠ³ΠΎΠ»ΠΎΠ²ΠΊΠ° β ΠΏΡΠΈΠ΄Π°Π΅Ρ ΠΊΠΎΠ½ΡΡΡΡΠΊΡΠΈΠΈ Π΄Π΅ΠΊΠΎΡΠ°ΡΠΈΠ²Π½ΡΠΉ Π²ΠΈΠ΄ ΠΈ Π·Π°ΡΠΈΡΠ°Π΅Ρ ΠΎ ΠΌΠ΅Ρ Π°Π½ΠΈΡΠ΅ΡΠΊΠΈΡ ΠΏΠΎΠ²ΡΠ΅ΠΆΠ΄Π΅Π½ΠΈΠΉ.
Π’Π°ΠΊΠ°Ρ ΠΊΠΎΠ½ΡΡΡΡΠΊΡΠΈΡ ΠΎΠ±Π»Π°Π΄Π°Π΅Ρ ΡΡΠ΄ΠΎΠΌ ΠΏΡΠ΅ΠΈΠΌΡΡΠ΅ΡΡΠ², ΡΠ°ΠΊΠΈΡ ΠΊΠ°ΠΊ:
- ΠΡΠΎΡΡΠΎΡΠ° ΠΌΠΎΠ½ΡΠ°ΠΆΠ°;
- ΠΠ½Π΅ΡΠ½ΠΈΠΉ Π²ΠΈΠ΄ ΡΡΡΡΠΎΠΉΡΡΠ²Π° Π½Π΅ ΠΏΠΎΡΡΠΈΡ Π΄ΠΈΠ·Π°ΠΉΠ½ ΠΈΠ½ΡΠ΅ΡΡΠ΅ΡΠ°;
- Π£Π΄ΠΎΠ±ΡΡΠ²ΠΎ ΡΠΊΡΠΏΠ»ΡΠ°ΡΠ°ΡΠΈΠΈ;
- ΠΡΡΠ΅ΠΊΡΠΈΠ²Π½ΠΎΡΡΡ;
- ΠΠΎΠ·ΠΌΠΎΠΆΠ½ΠΎΡΡΡ ΡΡΡΠ°Π½ΠΎΠ²ΠΊΠΈ ΡΠ²ΠΎΠΈΠΌΠΈ ΡΡΠΊΠ°ΠΌΠΈ Π΄Π°ΠΆΠ΅ ΠΏΠΎΡΠ»Π΅ Π²ΡΠΏΠΎΠ»Π½Π΅Π½ΠΈΡ ΠΎΡΠ΄Π΅Π»ΠΊΠΈ ΠΏΠΎΠΌΠ΅ΡΠ΅Π½ΠΈΡ.
Π‘ΠΎΠ²Π΅Ρ! ΠΡΠ»ΠΈ ΡΡΡΡΠΎΠΉΡΡΠ²ΠΎ ΡΠ°ΡΠΏΠΎΠ»ΠΎΠΆΠΈΡΡ Π²Π±Π»ΠΈΠ·ΠΈ Π±Π°ΡΠ°ΡΠ΅ΠΈ ΠΎΡΠΎΠΏΠ»Π΅Π½ΠΈΡ, ΡΠΎ ΠΏΠΎΡΡΡΠΏΠ°ΡΡΠΈΠΉ Π²ΠΎΠ·Π΄ΡΡ Π±ΡΠ΄Π΅Ρ ΡΡΠ°Π·Ρ ΠΆΠ΅ Π½Π°Π³ΡΠ΅Π²Π°ΡΡΡΡ.

ΠΠΠ 125
ΠΡΠΈΠΌΠ΅ΡΠΎΠΌ ΡΠ°ΠΊΠΈΡ ΠΌΠΎΠ΄Π΅Π»Π΅ΠΉ ΡΠ²Π»ΡΡΡΡΡ:
- ΠΠΠ 125;
- ΠΠΠ-125 ΠΈ Π΄Ρ.
Π£ΡΡΡΠΎΠΉΡΡΠ²ΠΎ ΡΠ»Π΅ΠΊΡΡΠΈΡΠ΅ΡΠΊΠΈΡ ΠΊΠ»Π°ΠΏΠ°Π½ΠΎΠ² Π±ΠΎΠ»Π΅Π΅ ΡΠ»ΠΎΠΆΠ½ΠΎΠ΅, ΡΠ°ΠΊ ΠΊΠ°ΠΊ ΠΎΠ½ΠΈ ΠΈΠΌΠ΅ΡΡ Π΄Π°ΡΡΠΈΠΊΠΈ ΠΈ ΡΠ»Π΅ΠΊΡΡΠΈΡΠ΅ΡΠΊΠΈΠΉ ΠΏΡΠΈΠ²ΠΎΠ΄. ΠΠ΄Π½Π°ΠΊΠΎ, ΠΏΡΠΈΠ½ΡΠΈΠΏ ΠΈΡ ΡΠ°Π±ΠΎΡΡ ΠΎΡΡΠ°Π΅ΡΡΡ ΡΠ΅ΠΌ ΠΆΠ΅. Π¦Π΅Π½Π° Π°Π²ΡΠΎΠΌΠ°ΡΠΈΡΠ΅ΡΠΊΠΈΡ ΡΡΡΡΠΎΠΉΡΡΠ², ΠΊΠΎΠ½Π΅ΡΠ½ΠΎ ΠΆΠ΅, Π²ΡΡΠ΅ ΠΌΠ΅Ρ Π°Π½ΠΈΡΠ΅ΡΠΊΠΈΡ .

ΠΡΠΎΡΡΠΎΠΉ Π²ΡΡΡΠΆΠ½ΠΎΠΉ ΠΊΠ»Π°ΠΏΠ°Π½
ΠΡΡΡΠΆΠ½ΠΎΠΉ
ΠΡΡΡΠΆΠ½ΠΎΠΉ ΠΊΠ»Π°ΠΏΠ°Π½, ΠΊΠ°ΠΊ ΠΏΡΠ°Π²ΠΈΠ»ΠΎ, ΠΈΠΌΠ΅Π΅Ρ Π±ΠΎΠ»Π΅Π΅ ΠΏΡΠΎΡΡΡΡ ΠΊΠΎΠ½ΡΡΡΡΠΊΡΠΈΡ, ΡΠ΅ΠΌ ΠΏΡΠΈΡΠΎΡΠ½ΡΠΉ ΠΈ ΡΠΎΡΡΠΎΠΈΡ Π²ΡΠ΅Π³ΠΎ ΠΈΠ· ΡΡΠ΅Ρ ΡΠ»Π΅ΠΌΠ΅Π½ΡΠΎΠ²:
- ΠΠ΅ΠΏΠΎΠ΄Π²ΠΈΠΆΠ½Π°Ρ ΡΠ°ΡΡΡ Π² Π²ΠΈΠ΄Π΅ ΡΠ΅ΡΠ΅ΡΠΊΠΈ β ΠΌΠΎΠΆΠ΅Ρ Π±ΡΡΡ ΠΊΠ²Π°Π΄ΡΠ°ΡΠ½ΠΎΠΉ ΠΈΠ»ΠΈ ΠΏΡΡΠΌΠΎΡΠ³ΠΎΠ»ΡΠ½ΠΎΠΉ. ΠΡΠ½ΠΎΠ²Π½ΠΎΠ΅ Π΅Π΅ Π½Π°Π·Π½Π°ΡΠ΅Π½ΠΈΠ΅ Π·Π°ΠΊΠ»ΡΡΠ°Π΅ΡΡΡ Π² ΠΏΡΠΈΠ΄Π°Π½ΠΈΠΈ ΠΊΠΎΠ½ΡΡΡΡΠΊΡΠΈΠΈ Π΄Π΅ΠΊΠΎΡΠ°ΡΠΈΠ²Π½ΠΎΠ³ΠΎ Π²ΠΈΠ΄Π°, Π° ΡΠ°ΠΊΠΆΠ΅ Π·Π°ΡΠΈΡΠ΅ Π·Π°ΡΠ»ΠΎΠ½ΠΊΠΈ ΠΎΡ ΠΌΠ΅Ρ Π°Π½ΠΈΡΠ΅ΡΠΊΠΎΠ³ΠΎ ΠΏΠΎΠ²ΡΠ΅ΠΆΠ΄Π΅Π½ΠΈΡ.
- ΠΠΎΠ΄Π²ΠΈΠΆΠ½Π°Ρ ΡΠ°ΡΡΡ (Π·Π°ΡΠ»ΠΎΠ½ΠΊΠ°) β ΠΏΡΠ΅Π΄ΡΡΠ°Π²Π»ΡΠ΅Ρ ΡΠΎΠ±ΠΎΠΉ ΠΊΡΡΠ³Π»ΡΠΉ ΠΈΠ»ΠΈ ΠΊΠ²Π°Π΄ΡΠ°ΡΠ½ΡΠΉ Π»Π΅ΠΏΠ΅ΡΡΠΎΠΊ, ΠΊΠΎΡΠΎΡΡΠΉ ΠΌΠΎΠΆΠ΅Ρ ΠΎΡΠΊΡΡΠ²Π°ΡΡΡΡ ΡΠΎΠ»ΡΠΊΠΎ Π² ΠΎΠ΄Π½Ρ ΡΡΠΎΡΠΎΠ½Ρ.
- Π€Π»Π°Π½Π΅Ρ β ΠΏΡΠ΅Π΄Π½Π°Π·Π½Π°ΡΠ΅Π½ Π΄Π»Ρ ΡΠΎΠ΅Π΄ΠΈΠ½Π΅Π½ΠΈΡ ΡΡΡΡΠΎΠΉΡΡΠ²Π° Ρ Π²Π΅Π½ΡΠΈΠ»ΡΡΠΈΠΎΠ½Π½ΡΠΌ ΠΊΠ°Π½Π°Π»ΠΎΠΌ β Π²ΡΠ΅Π³Π΄Π° ΠΈΠΌΠ΅Π΅Ρ ΠΊΡΡΠ³Π»ΡΡ ΡΠΎΡΠΌΡ.
ΠΠ±ΡΠ°ΡΠΈΡΠ΅ Π²Π½ΠΈΠΌΠ°Π½ΠΈΠ΅! ΠΡΠ»ΠΈ Π²ΡΠ±ΠΈΡΠ°Π΅ΡΡΡ ΠΊΠ»Π°ΠΏΠ°Π½ Π΄Π»Ρ Π±Π°Π½ΠΈ, Π½Π΅ΠΎΠ±Ρ ΠΎΠ΄ΠΈΠΌΠΎ ΡΠ΄Π΅Π»ΠΈΡΡ Π²Π½ΠΈΠΌΠ°Π½ΠΈΠ΅ ΠΌΠ°ΡΠ΅ΡΠΈΠ°Π»Ρ, ΠΈΠ· ΠΊΠΎΡΠΎΡΠΎΠ³ΠΎ ΠΎΠ½ ΡΠ΄Π΅Π»Π°Π½, ΡΠ°ΠΊ ΠΊΠ°ΠΊ ΡΡΡΡΠΎΠΉΡΡΠ²ΠΎ Π΄ΠΎΠ»ΠΆΠ½ΠΎ Π²ΡΠ΄Π΅ΡΠΆΠΈΠ²Π°ΡΡ Π²ΠΎΠ·Π΄Π΅ΠΉΡΡΠ²ΠΈΠ΅ Π²ΡΡΠΎΠΊΠΎΠΉ ΡΠ΅ΠΌΠΏΠ΅ΡΠ°ΡΡΡΡ ΠΈ ΠΏΠΎΠ²ΡΡΠ΅Π½Π½ΠΎΠΉ Π²Π»Π°ΠΆΠ½ΠΎΡΡΠΈ. ΠΠΎΡΡΠΎΠΌΡ Π½Π΅Π»ΡΠ·Ρ ΡΡΡΠ°Π½Π°Π²Π»ΠΈΠ²Π°ΡΡ ΠΏΠ»Π°ΡΡΠΈΠΊΠΎΠ²ΡΠ΅ ΠΈΠ·Π΄Π΅Π»ΠΈΡ.
ΠΠΎΠ½ΡΠ°ΠΆ ΡΠ»Π΅Π΄ΡΠ΅Ρ ΠΎΡΡΡΠ΅ΡΡΠ²Π»ΡΡΡ ΠΎΡΡΠΎΡΠΎΠΆΠ½ΠΎ, ΡΡΠΎΠ±Ρ Π½Π΅ ΠΏΠΎΠ²ΡΠ΅Π΄ΠΈΡΡ Π·Π°ΡΠ»ΠΎΠ½ΠΊΡ, Π° ΡΠ°ΠΊΠΆΠ΅, ΡΡΠΎΠ±Ρ Π² ΠΊΠΎΠ½ΡΡΡΡΠΊΡΠΈΡ Π½Π΅ ΠΏΠΎΠΏΠ°Π» ΡΡΡΠΎΠΈΡΠ΅Π»ΡΠ½ΡΠΉ ΠΌΡΡΠΎΡ. Π ΠΏΡΠΎΡΠΈΠ²Π½ΠΎΠΌ ΡΠ»ΡΡΠ°Π΅ ΡΡΡΡΠΎΠΉΡΡΠ²ΠΎ Π½Π΅ Π±ΡΠ΄Π΅Ρ ΡΠ°Π±ΠΎΡΠ°ΡΡ ΠΊΠ°ΠΊ ΠΏΠΎΠ»ΠΎΠΆΠ΅Π½ΠΎ.
Π ΠΏΡΠΈΠΌΠ΅ΡΡ, Π·Π°ΡΠ»ΠΎΠ½ΠΊΠ° ΠΌΠΎΠΆΠ΅Ρ Π±ΡΡΡ Π²ΡΠ΅Π³Π΄Π° ΠΎΡΠΊΡΡΡΠΎΠΉ. ΠΠΎΡΡΠΎΠΌΡ ΠΏΠΎΡΠ»Π΅ ΡΡΡΠ°Π½ΠΎΠ²ΠΊΠΈ, ΠΎΠ±ΡΠ·Π°ΡΠ΅Π»ΡΠ½ΠΎ Π½ΡΠΆΠ½ΠΎ ΠΏΡΠΎΠ²Π΅ΡΠΈΡΡ ΡΠ°Π±ΠΎΡΠΎΡΠΏΠΎΡΠΎΠ±Π½ΠΎΡΡΡ ΠΈΠ·Π΄Π΅Π»ΠΈΡ.

Π‘Ρ Π΅ΠΌΠ° ΠΎΠΊΠΎΠ½Π½ΠΎΠ³ΠΎ ΠΊΠ»Π°ΠΏΠ°Π½Π°
ΠΠΊΠΎΠ½Π½ΡΠΉ
ΠΠ°Π½Π½ΡΠΉ ΠΊΠ»Π°ΠΏΠ°Π½ ΠΏΡΠ΅Π΄ΡΡΠ°Π²Π»ΡΠ΅Ρ ΡΠΎΠ±ΠΎΠΉ ΠΊΠΎΠ½ΡΡΡΡΠΊΡΠΈΡ, ΠΊΠΎΡΠΎΡΠ°Ρ Π²ΡΡΡΠ°ΠΈΠ²Π°Π΅ΡΡΡ Π² ΠΎΠΊΠΎΠ½Π½ΡΠΉ ΠΏΡΠΎΡΠΈΠ»Ρ. ΠΠ³ΠΎ ΡΡΡΡΠΎΠΉΡΡΠ²ΠΎ Π΄ΠΎΡΡΠ°ΡΠΎΡΠ½ΠΎ ΠΏΡΠΎΡΡΠΎΠ΅, ΠΎΠ΄Π½Π°ΠΊΠΎ, ΡΡΡΠ΅ΠΊΡΠΈΠ²Π½ΠΎΡΡΡ ΠΎΡ ΡΡΠΎΠ³ΠΎ Π½Π΅ ΡΡΡΠ°Π΄Π°Π΅Ρ.
ΠΠ΄ΠΈΠ½ΡΡΠ²Π΅Π½Π½ΡΠΌ Π½Π΅Π΄ΠΎΡΡΠ°ΡΠΊΠΎΠΌ ΠΌΠΎΠΆΠ½ΠΎ Π½Π°Π·Π²Π°ΡΡ ΠΎΡΡΡΡΡΡΠ²ΠΈΠ΅ ΡΠΈΠ»ΡΡΡΠ°ΡΠΈΠΈ, Π½ΠΎ, ΡΠ°ΠΊ ΠΊΠ°ΠΊ ΡΠ΅Π»Ρ ΡΠ°ΠΌΠ° ΠΏΠΎ ΡΠ΅Π±Π΅ Π΄ΠΎΡΡΠ°ΡΠΎΡΠ½ΠΎ ΡΠ·ΠΊΠ°Ρ, ΡΠ΅ΡΠ΅Π· Π½Π΅Π΅ Π½Π΅ ΠΌΠΎΠΆΠ΅Ρ ΠΏΡΠΎΠ½ΠΈΠΊΠ½ΡΡΡ ΠΌΡΡΠΎΡ Ρ ΡΠ»ΠΈΡΡ. ΠΡΠΈ Π½Π΅ΠΎΠ±Ρ ΠΎΠ΄ΠΈΠΌΠΎΡΡΠΈ, ΡΠ΅Π»Ρ ΠΌΠΎΠΆΠ½ΠΎ ΠΏΠ΅ΡΠ΅ΠΊΡΡΡΡ ΠΈΠ»ΠΈ ΠΎΡΡΠ΅Π³ΡΠ»ΠΈΡΠΎΠ²Π°ΡΡ ΠΈΠ½ΡΠ΅Π½ΡΠΈΠ²Π½ΠΎΡΡΡ ΠΏΠΎΡΠΎΠΊΠ° ΠΏΡΠΈ ΠΏΠΎΠΌΠΎΡΠΈ ΡΠΏΠ΅ΡΠΈΠ°Π»ΡΠ½ΠΎΠΉ ΡΡΡΠΊΠΈ.
ΠΠΊΠΎΠ½Π½ΡΠ΅ ΠΊΠ»Π°ΠΏΠ°Π½Π° ΠΏΠΎΡΡΠ°Π²Π»ΡΡΡΡΡ Π²ΠΌΠ΅ΡΡΠ΅ Ρ ΠΎΠΊΠ½ΠΎΠΌ. ΠΠΎΡΡΠΎΠΌΡ Π½Π° ΠΈΡ Π½Π°Π»ΠΈΡΠΈΠ΅ ΡΠ»Π΅Π΄ΡΠ΅Ρ ΠΎΠ±ΡΠ°ΡΠ°ΡΡ Π²Π½ΠΈΠΌΠ°Π½ΠΈΠ΅ ΠΏΡΠΈ Π²ΡΠ±ΠΎΡΠ΅ ΡΡΠ΅ΠΊΠ»ΠΎΠΏΠ°ΠΊΠ΅ΡΠΎΠ². ΠΡΠ°Π²Π΄Π°, ΡΡΡΠ΅ΡΡΠ²ΡΡΡ ΠΌΠΎΠ΄Π΅Π»ΠΈ, ΠΊΠΎΡΠΎΡΡΠ΅ ΠΌΠΎΠ½ΡΠΈΡΡΡΡΡΡ Π½Π° ΡΠΆΠ΅ ΡΡΡΠ°Π½ΠΎΠ²Π»Π΅Π½Π½ΡΠ΅ ΠΏΠ»Π°ΡΡΠΈΠΊΠΎΠ²ΡΠ΅ ΠΎΠΊΠ½Π°.
ΠΠ±ΡΠ°ΡΠΈΡΠ΅ Π²Π½ΠΈΠΌΠ°Π½ΠΈΠ΅! Π‘ΡΡΠ΅ΡΡΠ²ΡΡΡ ΠΌΠΎΠ΄Π΅Π»ΠΈ, ΠΊΠΎΡΠΎΡΡΠ΅ Π½Π΅ ΠΏΠΎΠ·Π²ΠΎΠ»ΡΡΡ ΡΠ΅Π³ΡΠ»ΠΈΡΠΎΠ²Π°ΡΡ Π²ΠΎΠ·Π΄ΡΡΠ½ΡΠΉ ΠΏΠΎΡΠΎΠΊ, Π° Π»ΠΈΡΡ ΠΎΠ³ΡΠ°Π½ΠΈΡΠΈΠ²Π°ΡΡ Π΅Π³ΠΎ ΠΏΡΠΈ ΡΠΈΠ»ΡΠ½ΡΡ ΠΏΠΎΡΡΠ²Π°Ρ Π²Π΅ΡΡΠ°. ΠΠΎΠ½Π΅ΡΠ½ΠΎ ΠΆΠ΅, Π»ΡΡΡΠ΅, ΠΊΠΎΠ³Π΄Π° ΠΈΠΌΠ΅Π΅ΡΡΡ ΡΡΠ½ΠΊΡΠΈΡ ΡΠΏΡΠ°Π²Π»Π΅Π½ΠΈΡ ΠΏΡΠΈΡΠΎΠΊΠΎΠΌ. ΠΠΎΡΡΠΎΠΌΡ Π½Π° Π΄Π°Π½Π½ΡΠΉ ΠΌΠΎΠΌΠ΅Π½Ρ Π½Π΅ΠΎΠ±Ρ ΠΎΠ΄ΠΈΠΌΠΎ ΠΎΠ±ΡΠ°ΡΠ°ΡΡ Π²Π½ΠΈΠΌΠ°Π½ΠΈΠ΅ ΠΏΡΠΈ Π²ΡΠ±ΠΎΡΠ΅ ΠΈΠ·Π΄Π΅Π»ΠΈΡ.

Π‘Ρ Π΅ΠΌΠ° ΡΠ°ΡΠΏΠΎΠ»ΠΎΠΆΠ΅Π½ΠΈΡ ΠΏΡΠΈΡΠΎΡΠ½ΠΎΠ³ΠΎ ΠΊΠ»Π°ΠΏΠ°Π½Π°
Π£ΡΡΠ°Π½ΠΎΠ²ΠΊΠ° Π²Π΅Π½ΡΠΈΠ»ΡΡΠΈΠΎΠ½Π½ΡΡ ΠΊΠ»Π°ΠΏΠ°Π½ΠΎΠ²
ΠΡΠΈΡΠΎΡΠ½ΡΠΉ
ΠΡΠ΅ΠΆΠ΄Π΅ ΡΠ΅ΠΌ ΠΏΡΠΈΡΡΡΠΏΠΈΡΡ ΠΊ ΠΌΠΎΠ½ΡΠ°ΠΆΡ ΠΏΡΠΈΡΠΎΡΠ½ΠΎΠ³ΠΎ ΠΊΠ»Π°ΠΏΠ°Π½Π°, Π½Π΅ΠΎΠ±Ρ ΠΎΠ΄ΠΈΠΌΠΎ ΠΎΠΏΡΠ΅Π΄Π΅Π»ΠΈΡΡΡΡ Ρ ΠΌΠ΅ΡΡΠΎΠΌ Π΅Π³ΠΎ ΡΠ°ΡΠΏΠΎΠ»ΠΎΠΆΠ΅Π½ΠΈΡ. ΠΠ»Ρ ΡΡΠΎΠ³ΠΎ ΠΏΡΠ΅Π΄Π²Π°ΡΠΈΡΠ΅Π»ΡΠ½ΠΎ Π΄ΠΎΠ»ΠΆΠ½Π° Π±ΡΡΡ ΡΠΎΡΡΠ°Π²Π»Π΅Π½Π° ΡΡ Π΅ΠΌΠ° Π²Π΅Π½ΡΠΈΠ»ΡΡΠΈΠΎΠ½Π½ΠΎΠΉ ΡΠΈΡΡΠ΅ΠΌΡ, Π² ΡΠΎΠΎΡΠ²Π΅ΡΡΡΠ²ΠΈΠΈ Ρ ΠΎΠΏΡΠ΅Π΄Π΅Π»Π΅Π½Π½ΡΠΌΠΈ ΠΏΡΠ°Π²ΠΈΠ»Π°ΠΌΠΈ. ΠΡΡΡΠ΅ Π²ΡΠ΅Π³ΠΎ Π΄ΠΎΠ²Π΅ΡΠΈΡΡ ΡΠ°Π±ΠΎΡΡ Π½Π°Π΄ ΡΠ°ΠΊΠΎΠΉ ΡΡ Π΅ΠΌΠΎΠΉ ΡΠΏΠ΅ΡΠΈΠ°Π»ΠΈΡΡΠ°ΠΌ.
ΠΠ°Π»ΡΠ½Π΅ΠΉΡΠ°Ρ ΠΆΠ΅ ΠΈΠ½ΡΡΡΡΠΊΡΠΈΡ ΠΏΠΎ ΠΌΠΎΠ½ΡΠ°ΠΆΡ Π²ΡΠ³Π»ΡΠ΄ΠΈΡ ΡΠ»Π΅Π΄ΡΡΡΠΈΠΌ ΠΎΠ±ΡΠ°Π·ΠΎΠΌ:
- Π ΠΏΠ΅ΡΠ²ΡΡ ΠΎΡΠ΅ΡΠ΅Π΄Ρ Π½Π°Π΄ΠΎ ΠΈΠ·ΠΌΠ΅ΡΠΈΡΡ ΡΠΎΠ»ΡΠΈΠ½Ρ ΡΡΠ΅Π½Ρ ΠΈ ΠΏΡΠΈΠΎΠ±ΡΠ΅ΡΡΠΈ ΠΈΠ·Π΄Π΅Π»ΠΈΠ΅ ΠΏΠΎΠ΄Ρ ΠΎΠ΄ΡΡΠ΅ΠΉ Π΄Π»ΠΈΠ½Ρ. Π ΠΏΡΠΎΠ΄Π°ΠΆΠ΅ ΠΌΠΎΠΆΠ½ΠΎ Π½Π°ΠΉΡΠΈ ΡΡΡΡΠΎΠΉΡΡΠ²Π° Ρ ΡΡΡΠ±ΠΎΠΉ ΠΎΡ 0,4 Π΄ΠΎ 1 ΠΌ.
- ΠΠΎΡΠ»Π΅ ΡΠΎΠ³ΠΎ ΠΊΠ°ΠΊ ΠΌΠ΅ΡΡΠΎ ΡΠ°ΡΠΏΠΎΠ»ΠΎΠΆΠ΅Π½ΠΈΡ ΡΡΡΡΠΎΠΉΡΡΠ²Π° Π±ΡΠ΄Π΅Ρ ΠΎΠΏΡΠ΅Π΄Π΅Π»Π΅Π½ΠΎ, Π½ΡΠΆΠ½ΠΎ ΠΏΡΠΎΠ±ΡΡΠΈΡΡ ΠΎΡΠ²Π΅ΡΡΡΠΈΠ΅ Π² ΡΡΠ΅Π½Π΅. ΠΠΈΠ°ΠΌΠ΅ΡΡ Π΄ΠΎΠ»ΠΆΠ΅Π½ ΠΈΠΌΠ΅ΡΡ Π½Π΅Π±ΠΎΠ»ΡΡΠΎΠΉ Π·Π°ΠΏΠ°Ρ, ΡΡΠΎΠ±Ρ ΡΡΡΠ±Π° ΠΌΠΎΠ³Π»Π° ΡΠ²ΠΎΠ±ΠΎΠ΄Π½ΠΎ ΠΏΡΠΎΠΉΡΠΈ Π² ΠΎΡΠ²Π΅ΡΡΡΠΈΠ΅.
- ΠΠΎΡΠ»Π΅ ΡΡΡΠ°Π½ΠΎΠ²ΠΊΠΈ ΡΡΡΠ±Ρ Π²ΡΠ΅ ΡΠ΅Π»ΠΈ Π½Π΅ΠΎΠ±Ρ ΠΎΠ΄ΠΈΠΌΠΎ Π·Π°ΠΏΠ΅Π½ΠΈΡΡ, ΡΡΠΎΠ±Ρ ΡΡΡΠΊΠΈ Π±ΡΠ»ΠΈ Π³Π΅ΡΠΌΠ΅ΡΠΈΡΠ½ΡΠΌΠΈ.
- ΠΠ°ΡΠ΅ΠΌ ΡΠ½Π°ΡΡΠΆΠΈ ΡΡΡΠ°Π½Π°Π²Π»ΠΈΠ²Π°Π΅ΡΡΡ Π·Π°ΡΠΈΡΠ½Π°Ρ ΡΠ΅ΡΠ΅ΡΠΊΠ°, Π° Π²Π½ΡΡΡΠΈ ΠΌΠΎΠ½ΡΠΈΡΡΠ΅ΡΡΡ ΡΠ°ΠΌ ΠΊΠ»Π°ΠΏΠ°Π½, Π² ΡΠΎΠΎΡΠ²Π΅ΡΡΡΠ²ΠΈΠΈ Ρ ΠΈΠ½ΡΡΡΡΠΊΡΠΈΠ΅ΠΉ ΠΎΡ ΠΏΡΠΎΠΈΠ·Π²ΠΎΠ΄ΠΈΡΠ΅Π»Ρ.

ΠΠ° ΡΠΎΡΠΎ β ΡΠ΅ΡΠ΅ΡΠΊΠ° Ρ Π½Π°ΡΡΠΆΠ½ΠΎΠΉ ΡΡΠΎΡΠΎΠ½Ρ
ΠΠ±ΡΠ°ΡΠΈΡΠ΅ Π²Π½ΠΈΠΌΠ°Π½ΠΈΠ΅! Π§ΡΠΎΠ±Ρ ΠΎΡΠ°Π΄ΠΊΠΈ ΠΈ Π²Π»Π°Π³Π° Π½Π΅ ΠΏΡΠΎΠ½ΠΈΠΊΠ°Π»ΠΈ Π²Π½ΡΡΡΡ ΠΊΠΎΠ½ΡΡΡΡΠΊΡΠΈΠΈ, ΡΠ½Π°ΡΡΠΆΠΈ Π½Π°Π΄ ΡΠ΅ΡΠ΅ΡΠΊΠΎΠΉ ΡΠ»Π΅Π΄ΡΠ΅Ρ ΡΡΡΠ°Π½ΠΎΠ²ΠΈΡΡ Π΄ΠΎΠΆΠ΄Π΅ΠΎΡΠ±ΠΎΠΉΠ½ΠΈΠΊ.
ΠΡΡΡΠΆΠ½ΠΎΠΉ
ΠΠΎΠ½ΡΠ°ΠΆ Π²ΡΡΡΠΆΠ½ΠΎΠ³ΠΎ ΠΊΠ»Π°ΠΏΠ°Π½Π° ΠΏΠΎΠ΄ΡΠ°Π·ΡΠΌΠ΅Π²Π°Π΅Ρ Π½Π°Π»ΠΈΡΠΈΠ΅ Π²Π΅Π½ΡΠΈΠ»ΡΡΠΈΠΎΠ½Π½ΡΡ ΠΊΠ°Π½Π°Π»ΠΎΠ², ΠΊΠΎΡΠΎΡΡΠ΅ ΠΌΠΎΠ³ΡΡ ΡΠ°ΡΠΏΠΎΠ»Π°Π³Π°ΡΡΡΡ Π² ΡΡΠ΅Π½Π΅ ΠΈΠ»ΠΈ Π² ΠΏΠ΅ΡΠ΅ΠΊΡΡΡΠΈΠΈ.
ΠΠ±ΡΡΠ½ΠΎ Π²ΡΡΡΠΆΠ½ΡΠ΅ ΠΎΡΠ²Π΅ΡΡΡΠΈΡ Ρ ΠΊΠ»Π°ΠΏΠ°Π½Π°ΠΌΠΈ ΡΡΡΠ°Π½Π°Π²Π»ΠΈΠ²Π°ΡΡ Π² ΡΠ΅Ρ Π½ΠΈΡΠ΅ΡΠΊΠΈΡ ΠΏΠΎΠΌΠ΅ΡΠ΅Π½ΠΈΡΡ :
- ΠΠ° ΠΊΡΡ Π½Π΅;
- Π ΡΡΠ°Π»Π΅ΡΠ΅;
- Π ΡΠ°Π½ΡΠ·Π»Π΅ ΠΈ Ρ.Π΄.
ΠΠ°Π»ΠΈΡΠΈΠ΅ Π² ΡΡΠΈΡ ΠΏΠΎΠΌΠ΅ΡΠ΅Π½ΠΈΡΡ Π²ΡΡΡΠΆΠ½ΡΡ ΡΠ»Π΅ΠΌΠ΅Π½ΡΠΎΠ² Π΄ΠΎΡΡΠ°ΡΠΎΡΠ½ΠΎ, ΡΡΠΎΠ±Ρ ΠΎΠ±ΠΌΠ΅Π½ Π²ΠΎΠ·Π΄ΡΡ Π° ΠΎΡΡΡΠ΅ΡΡΠ²Π»ΡΠ»ΡΡ Π²ΠΎ Π²ΡΠ΅Ρ ΠΏΠΎΠΌΠ΅ΡΠ΅Π½ΠΈΡΡ , ΡΠ°ΠΊ ΠΊΠ°ΠΊ Π΅Π³ΠΎ ΡΠΈΡΠΊΡΠ»ΡΡΠΈΡ ΠΏΡΠΎΠΈΡΡ ΠΎΠ΄ΠΈΡ ΡΠ΅ΡΠ΅Π· ΡΠ΅Π»ΠΈ Π² Π΄Π²Π΅ΡΡΡ .
ΠΠ΅ΡΡ ΠΌΠΎΠ½ΡΠ°ΠΆ ΡΠ²ΠΎΠ΄ΠΈΡΡΡ ΠΊ ΡΠΎΠ΅Π΄ΠΈΠ½Π΅Π½ΠΈΡ ΠΊΠΎΠ½ΡΡΡΡΠΊΡΠΈΠΈ Ρ ΡΡΠΈΠΌΠΈ ΠΊΠ°Π½Π°Π»Π°ΠΌΠΈ. ΠΠ°ΠΊ ΠΏΡΠ°Π²ΠΈΠ»ΠΎ, ΡΠ»Π΅ΠΌΠ΅Π½ΡΡ ΡΠΎΠ΅Π΄ΠΈΠ½ΡΡΡΡΡ ΡΠ»Π°Π½ΡΠ΅Π²ΡΠΌ ΡΠΏΠΎΡΠΎΠ±ΠΎΠΌ. ΠΠΎΡΠ»Π΅ ΡΠΎΠ³ΠΎ ΠΊΠ°ΠΊ ΡΠ°ΠΌ ΠΊΠ»Π°ΠΏΠ°Π½ Π±ΡΠ΄Π΅Ρ ΡΠΎΠ΅Π΄ΠΈΠ½Π΅Π½, Π½Π° ΡΡΠ΅Π½Ρ ΠΈΠ»ΠΈ ΠΏΠΎΡΠΎΠ»ΠΎΠΊ Π½Π°ΠΊΠ»Π°Π΄ΡΠ²Π°Π΅ΡΡΡ Π²Π΅ΡΡ Π½ΡΡ ΡΠ΅ΡΠ΅ΡΠΊΠ°, ΠΊΠΎΡΠΎΡΠ°Ρ ΡΠ°ΡΠ΅ Π²ΡΠ΅Π³ΠΎ ΠΊΡΠ΅ΠΏΠΈΡΡΡ ΠΊ ΠΏΠΎΠ²Π΅ΡΡ Π½ΠΎΡΡΠΈ ΠΏΡΠΈ ΠΏΠΎΠΌΠΎΡΠΈ ΡΠ°ΠΌΠΎΡΠ΅Π·ΠΎΠ².
ΠΠΎΡ, ΠΏΠΎΠΆΠ°Π»ΡΠΉ, ΠΈ Π²ΡΠ΅ ΠΎΡΠ½ΠΎΠ²Π½ΡΠ΅ ΠΌΠΎΠΌΠ΅Π½ΡΡ, ΠΊΠΎΡΠΎΡΡΠ΅ Π½Π΅ΠΎΠ±Ρ ΠΎΠ΄ΠΈΠΌΠΎ Π·Π½Π°ΡΡ ΠΎ Π²Π΅Π½ΡΠΈΠ»ΡΡΠΈΠΎΠ½Π½ΡΡ ΠΊΠ»Π°ΠΏΠ°Π½Π°Ρ ΠΏΡΠΈ ΠΎΠ±ΡΡΡΡΠΎΠΉΡΡΠ²Π΅ ΡΠΈΡΡΠ΅ΠΌΡ.
ΠΡΠ²ΠΎΠ΄
ΠΠ»Π°ΠΏΠ°Π½Π° ΡΠ²Π»ΡΡΡΡΡ Π²Π°ΠΆΠ½ΡΠΌ ΡΠ»Π΅ΠΌΠ΅Π½ΡΠΎΠΌ Π²Π΅Π½ΡΠΈΠ»ΡΡΠΈΠΎΠ½Π½ΡΡ ΡΠΈΡΡΠ΅ΠΌ, ΠΏΠΎΠ·Π²ΠΎΠ»ΡΡΡΠΈΠΌ ΡΠ΅Π³ΡΠ»ΠΈΡΠΎΠ²Π°ΡΡ ΠΈΡ ΡΠ°Π±ΠΎΡΡ. ΠΠ΅Π½ΡΠΈΠ»ΡΡΠΈΠΎΠ½Π½ΡΠ΅ ΠΊΠ»Π°ΠΏΠ°Π½Π° ΠΌΠΎΠ³ΡΡ ΡΡΡΠ°Π½Π°Π²Π»ΠΈΠ²Π°ΡΡΡΡ ΠΊΠ°ΠΊ Π½Π° ΠΏΡΠΈΡΠΎΡΠ½ΡΠ΅, ΡΠ°ΠΊ ΠΈ Π²ΡΡΡΠΆΠ½ΡΠ΅ ΠΎΡΠ²Π΅ΡΡΡΠΈΡ. ΠΡΠΈΡΠ΅ΠΌΒ ΠΎΠ±ΡΠ°ΡΠ½ΡΠΉ Π²Π΅Π½ΡΠΈΠ»ΡΡΠΈΠΎΠ½Π½ΡΠΉ ΠΊΠ»Π°ΠΏΠ°Π½ ΠΈ Π²ΡΡΡΠΆΠ½ΠΎΠΉ Π²ΡΠΏΠΎΠ»Π½ΡΡΡ ΡΠ°Π·Π½ΡΠ΅ ΡΡΠ½ΠΊΡΠΈΠΈ, ΠΏΠΎΡΡΠΎΠΌΡ ΡΠ°Π±ΠΎΡΠ°ΡΡ Π² ΡΠΈΡΡΠ΅ΠΌΠ΅ ΡΠΎΠ²ΠΌΠ΅ΡΡΠ½ΠΎ.
ΠΠ· Π²ΠΈΠ΄Π΅ΠΎ Π² ΡΡΠΎΠΉ ΡΡΠ°ΡΡΠ΅ ΠΌΠΎΠΆΠ½ΠΎ ΠΏΠΎΠ΄ΡΠ΅ΡΠΏΠ½ΡΡΡ Π½Π΅ΠΊΠΎΡΠΎΡΡΡ Π΄ΠΎΠΏΠΎΠ»Π½ΠΈΡΠ΅Π»ΡΠ½ΡΡ ΠΈΠ½ΡΠΎΡΠΌΠ°ΡΠΈΡ ΠΏΠΎ Π΄Π°Π½Π½ΠΎΠΉ ΡΠ΅ΠΌΠ΅.
gidroguru.com
ΠΠ΅Π½ΡΠΈΠ»ΡΡΠΈΠΎΠ½Π½ΡΠΉ ΠΊΠ»Π°ΠΏΠ°Π½ Π² ΡΡΠ΅Π½Π΅: ΠΌΠΎΠ΄Π΅Π»ΠΈ ΠΈ ΡΡΡΠ°Π½ΠΎΠ²ΠΊΠ°
ΠΠ°ΠΊ ΠΈΠ·Π±Π΅ΠΆΠ°ΡΡ ΠΊΠΎΠ½Π΄Π΅Π½ΡΠ°ΡΠΈΠΈ Π²ΠΎΠ΄Ρ Π½Π° ΠΎΠΊΠ½Π°Ρ ΠΈ ΡΡΠ΅Π½Π°Ρ ΠΊΠ²Π°ΡΡΠΈΡ Ρ Π³Π΅ΡΠΌΠ΅ΡΠΈΡΠ½ΡΠΌΠΈ ΠΎΠΊΠ½Π°ΠΌΠΈ? ΠΡΠΆΠ½ΠΎ ΡΠΌΠ΅Π½ΡΡΠΈΡΡ ΡΡΠΎΠ²Π΅Π½Ρ Π²Π»Π°ΠΆΠ½ΠΎΡΡΠΈ Π²ΠΎΠ·Π΄ΡΡ Π°. ΠΠ΅Π½ΡΠΈΠ»ΡΡΠΈΠΎΠ½Π½ΡΠΉ ΠΊΠ»Π°ΠΏΠ°Π½ Π² ΡΡΠ΅Π½Π΅ β ΠΎΠ΄ΠΈΠ½ ΠΈΠ· ΡΠΏΠΎΡΠΎΠ±ΠΎΠ² Π΄ΠΎΠ±ΠΈΡΡΡΡ ΡΡΠΎΠ³ΠΎ. ΠΠΎΡΡΡΠΏΠ°ΡΡΠ΅Π³ΠΎ ΡΠ΅ΡΠ΅Π· Π½Π΅Π³ΠΎ ΠΊΠΎΠ»ΠΈΡΠ΅ΡΡΠ²ΠΎ Π²ΠΎΠ·Π΄ΡΡ Π°, Π΄ΠΎΡΡΠ°ΡΠΎΡΠ½ΠΎ Π΄Π»Ρ ΡΠ΅Π³ΡΠ»ΠΈΡΠΎΠ²Π°Π½ΠΈΡ Π²Π»Π°Π³ΠΎΡΠΎΠ΄Π΅ΡΠΆΠ°Π½ΠΈΡ Π²Π½ΡΡΡΠ΅Π½Π½Π΅Π³ΠΎ Π²ΠΎΠ·Π΄ΡΡ Π°.

Π‘ ΡΠ°ΡΠΏΡΠΎΡΡΡΠ°Π½Π΅Π½ΠΈΠ΅ΠΌ Π³Π΅ΡΠΌΠ΅ΡΠΈΡΠ½ΡΡ ΠΎΠΊΠΎΠ½ ΠΈ Π΄Π²Π΅ΡΠ΅ΠΉ ΠΏΠΎΡΠ²ΠΈΠ»ΠΈΡΡ ΠΏΡΠΎΠ±Π»Π΅ΠΌΡ Ρ Π²Π΅Π½ΡΠΈΠ»ΡΡΠΈΠ΅ΠΉ Π² ΠΏΠΎΠΌΠ΅ΡΠ΅Π½ΠΈΡΡ . ΠΡΠΈ ΠΈΡΠΏΠΎΠ»ΡΠ·ΠΎΠ²Π°Π½ΠΈΠΈ Π΄Π΅ΡΠ΅Π²ΡΠ½Π½ΡΡ ΡΠ°ΠΌ ΠΏΡΠΎΠ²Π΅ΡΡΠΈΠ²Π°Π½ΠΈΠ΅ ΠΏΡΠΎΠΈΡΡ ΠΎΠ΄ΠΈΡ ΠΏΡΡΠ΅ΠΌ ΠΈΠ½ΡΠΈΠ»ΡΡΡΠ°ΡΠΈΠΈ ΡΠ΅ΡΠ΅Π· ΡΠ΅Π»ΠΈ ΠΈ Π½Π΅ΠΏΠ»ΠΎΡΠ½ΠΎΡΡΠΈ, ΡΡΠΎ Π½Π΅Π΄ΠΎΡΡΠ°ΡΠΎΡΠ½ΠΎ Π΄Π»Ρ ΠΏΠΎΠ΄Π°ΡΠΈ ΡΠ°ΡΡΠ΅ΡΠ½ΠΎΠ³ΠΎ ΠΊΠΎΠ»ΠΈΡΠ΅ΡΡΠ²Π° ΠΏΡΠΈΡΠΎΡΠ½ΠΎΠ³ΠΎ Π²ΠΎΠ·Π΄ΡΡ Π°, Π½ΠΎ ΠΏΠΎΠ·Π²ΠΎΠ»ΡΠ΅Ρ ΠΈΠ·Π±Π΅ΠΆΠ°ΡΡ ΠΏΠΎΠ²ΡΡΠ΅Π½ΠΈΡ Π²Π»Π°ΠΆΠ½ΠΎΡΡΠΈ ΠΈ ΠΊΠΎΠ½Π΄Π΅Π½ΡΠ°ΡΠΈΠΈ Π΅Π΅ Π½Π° ΠΏΠΎΠ²Π΅ΡΡ Π½ΠΎΡΡΡΡ .
Π‘ΠΎΠ²ΡΠ΅ΠΌΠ΅Π½Π½ΡΠ΅ ΡΠΈΡΡΠ΅ΠΌΡ ΠΈΠ· ΠΠΠ₯ Π½Π΅ ΠΏΠΎΠ·Π²ΠΎΠ»ΡΡΡ ΠΎΡΡΡΠ΅ΡΡΠ²Π»ΡΡΡ ΠΌΠΈΠΊΡΠΎΠΏΡΠΎΠ²Π΅ΡΡΠΈΠ²Π°Π½ΠΈΠ΅ ΡΠ°ΠΊΠΈΠΌ ΡΠΏΠΎΡΠΎΠ±ΠΎΠΌ. ΠΡΠΈ Π³Π΅ΡΠΌΠ΅ΡΠΈΡΠ½ΠΎ Π·Π°ΠΊΡΡΡΡΡ ΠΎΠΊΠ½Π°Ρ Π² ΠΏΠΎΠΌΠ΅ΡΠ΅Π½ΠΈΠΈ Ρ Π»ΡΠ΄ΡΠΌΠΈ Π½Π°ΡΠΈΠ½Π°Π΅Ρ ΠΏΠΎΠ²ΡΡΠ°ΡΡΡΡ ΡΡΠΎΠ²Π΅Π½Ρ ΠΎΡΠ½ΠΎΡΠΈΡΠ΅Π»ΡΠ½ΠΎΠΉ Π²Π»Π°ΠΆΠ½ΠΎΡΡΠΈ ΠΈ ΡΠ³Π»Π΅ΠΊΠΈΡΠ»ΠΎΠ³ΠΎ Π³Π°Π·Π°. ΠΡΠΎ ΠΎΡΡΠΈΡΠ°ΡΠ΅Π»ΡΠ½ΠΎ ΡΠΊΠ°Π·ΡΠ²Π°Π΅ΡΡΡ Π½Π° ΡΠ°ΠΌΠΎΡΡΠ²ΡΡΠ²ΠΈΠΈ ΠΈ ΠΏΡΠΈΠ²ΠΎΠ΄ΠΈΡ ΠΊ ΠΎΡΠ΅Π΄Π°Π½ΠΈΡ ΠΊΠΎΠ½Π΄Π΅Π½ΡΠ°ΡΠ° Π½Π° ΠΎΠΊΠ½Π°Ρ ΠΈ ΡΡΠ΅Π½Π°Ρ Π² Ρ ΠΎΠ»ΠΎΠ΄Π½ΡΠΉ ΠΏΠ΅ΡΠΈΠΎΠ΄. ΠΠ΄Π½ΠΎ ΠΈΠ· ΡΠ΅ΡΠ΅Π½ΠΈΠΉ Π΄Π»Ρ ΠΎΡΠ³Π°Π½ΠΈΠ·Π°ΡΠΈΠΈ ΠΏΡΠΈΡΠΎΠΊΠ° β Π²Π΅Π½ΡΠΈΠ»ΡΡΠΈΠΎΠ½Π½ΡΠΉ ΠΊΠ»Π°ΠΏΠ°Π½ Π² ΡΡΠ΅Π½Π΅.
ΠΠΎΠ·Π΄ΡΡ ΠΎΠΎΠ±ΠΌΠ΅Π½ Π² ΠΏΠΎΠΌΠ΅ΡΠ΅Π½ΠΈΠΈ
Π Π·Π°Π²ΠΈΡΠΈΠΌΠΎΡΡΠΈ ΠΎΡ Π²ΠΈΠ΄Π° ΠΏΠΎΠΌΠ΅ΡΠ΅Π½ΠΈΠΉ ΠΈ ΠΊΠΎΠ»ΠΈΡΠ΅ΡΡΠ²Π° Π»ΡΠ΄Π΅ΠΉ, ΠΊΠΎΡΠΎΡΡΠ΅ ΠΏΠΎΡΡΠΎΡΠ½Π½ΠΎ Π² Π½ΠΈΡ Π½Π°Ρ ΠΎΠ΄ΡΡΡΡ, ΠΌΠ΅Π½ΡΠ΅ΡΡΡ ΠΈ ΠΏΠΎΡΡΠ΅Π±Π½ΠΎΡΡΡ Π² ΠΏΡΠΈΡΠΎΡΠ½ΠΎΠΌ Π²ΠΎΠ·Π΄ΡΡ Π΅. ΠΠ»Ρ ΠΆΠΈΠ»ΡΡ ΠΏΠΎΠΌΠ΅ΡΠ΅Π½ΠΈΠΉ Π² Π΄ΠΎΠΌΠ°Ρ ΠΈ ΠΊΠ²Π°ΡΡΠΈΡΠ°Ρ Π½Π΅ΠΎΠ±Ρ ΠΎΠ΄ΠΈΠΌΠΎ ΠΎΠ±Π΅ΡΠΏΠ΅ΡΠΈΡΡ ΡΠ°ΠΊΠΎΠΉ Π²ΠΎΠ·Π΄ΡΡ ΠΎΠΎΠ±ΠΌΠ΅Π½:
- ΡΠ°ΡΡΠ½ΡΠ΅ Π΄ΠΎΠΌΠ° β ΠΊΡΠ°ΡΠ½ΠΎΡΡΡ Π²ΠΎΠ·Π΄ΡΡ ΠΎΠΎΠ±ΠΌΠ΅Π½Π° ΠΎΡ 1 Π² ΡΠ°Ρ, ΠΈΠ»ΠΈ ΠΎΡ 30 ΠΌ3/Ρ Π½Π° ΡΠ΅Π»ΠΎΠ²Π΅ΠΊΠ°;
- ΠΊΠ²Π°ΡΡΠΈΡΡ β ΠΎΡ 3 ΠΌ3/Ρ Π½Π° 1 ΠΌ2 ΠΏΠ»ΠΎΡΠ°Π΄ΠΈ;
- ΠΎΠ±ΡΠ΅ΡΡΠ²Π΅Π½Π½ΡΠ΅ Π·Π΄Π°Π½ΠΈΡ β ΠΊΡΠ°ΡΠ½ΠΎΡΡΡ Π²ΠΎΠ·Π΄ΡΡ ΠΎΠΎΠ±ΠΌΠ΅Π½Π° ΠΎΡ 2 Π² ΡΠ°Ρ, ΠΈΠ»ΠΈ ΠΎΡ 20 ΠΌ3/Ρ Π½Π° ΡΠ΅Π»ΠΎΠ²Π΅ΠΊΠ°.
ΠΠΎΠ»ΠΈΡΠ΅ΡΡΠ²ΠΎ Π²ΠΎΠ·Π΄ΡΡ Π° ΡΡΡΠ°Π½Π°Π²Π»ΠΈΠ²Π°Π΅ΡΡΡ ΡΠ°ΡΡΠ΅ΡΠΎΠΌ Π΄Π»Ρ ΠΊΠ°ΠΆΠ΄ΠΎΠ³ΠΎ ΠΏΠΎΠΌΠ΅ΡΠ΅Π½ΠΈΡ.

ΠΠ²ΠΈΠΆΠ΅Π½ΠΈΠ΅ Π²ΠΎΠ·Π΄ΡΡ Π° Π² ΠΏΠΎΠΌΠ΅ΡΠ΅Π½ΠΈΠΈ.
ΠΡΠΆΠ½ΡΠΉ ΠΏΡΠΈΡΠΎΠΊ ΠΎΠ±Π΅ΡΠΏΠ΅ΡΠΈΠ²Π°ΡΡ ΡΡΡΠ°Π½ΠΎΠ²ΠΊΠ°ΠΌΠΈ, Π²Π΅Π½ΡΠΈΠ»ΡΡΠΎΡΠ°ΠΌΠΈ, ΠΈΠ»ΠΈ Π΅ΡΡΠ΅ΡΡΠ²Π΅Π½Π½ΡΠΌ ΡΠΏΠΎΡΠΎΠ±ΠΎΠΌ, Π·Π° ΡΡΠ΅Ρ ΡΠ°Π·Π½ΠΈΡΡ Π΄Π°Π²Π»Π΅Π½ΠΈΠΉ. ΠΠ»Ρ ΡΡΠΈΡ ΡΠ΅Π»Π΅ΠΉ ΡΡΡΠ°Π½Π°Π²Π»ΠΈΠ²Π°ΡΡ Π² ΡΡΠ΅Π½Ρ Π²Π΅Π½ΡΠΈΠ»ΡΡΠΈΠΎΠ½Π½ΡΠ΅ ΠΊΠ»Π°ΠΏΠ°Π½Ρ, ΠΌΠΎΠ½ΡΠΈΡΡΡΡ ΠΏΡΠΎΠ²Π΅ΡΡΠΈΠ²Π°ΡΠ΅Π»ΠΈ ΠΈ Π²ΡΡΡΠΆΠ½ΡΠ΅ ΡΠ°Ρ ΡΡ.
ΠΡΠΈΠ½ΡΠΈΠΏ Π΄Π΅ΠΉΡΡΠ²ΠΈΡ Π²Π΅Π½ΡΠΈΠ»ΡΡΠΈΠΎΠ½Π½ΠΎΠ³ΠΎ ΠΊΠ»Π°ΠΏΠ°Π½Π°
ΠΠ΅Π½ΡΠΈΠ»ΡΡΠΈΠΎΠ½Π½ΡΠΉ ΠΏΡΠΈΠ±ΠΎΡ ΡΡΠ΅Π½ΠΎΠ²ΠΎΠ³ΠΎ ΠΌΠΎΠ½ΡΠ°ΠΆΠ° ΡΡΡΠ°Π½Π°Π²Π»ΠΈΠ²Π°ΡΡ Π΄Π»Ρ ΠΏΠΎΠ΄Π°ΡΠΈ ΠΏΡΠΈΡΠΎΠΊΠ° Π²ΠΎΠ·Π΄ΡΡ Π° ΠΏΡΠΈ ΠΎΡΡΡΡΡΡΠ²ΠΈΠΈ Π΄ΡΡΠ³ΠΈΡ ΡΡΡΡΠΎΠΉΡΡΠ². ΠΡΠΎ Π½Π΅Π΄ΠΎΡΠΎΠ³ΠΎΠΉ ΡΠΏΠΎΡΠΎΠ± ΠΏΠΎΠ½ΠΈΠ·ΠΈΡΡ Π²Π»Π°ΠΆΠ½ΠΎΡΡΡ ΠΈ ΠΈΠ·Π±Π΅ΠΆΠ°ΡΡ Π·Π°ΠΏΠΎΡΠ΅Π²Π°Π½ΠΈΡ ΠΎΠΊΠΎΠ½, Π³ΡΠΈΠ±ΠΊΠ° Π½Π° ΡΡΠ΅Π½Π°Ρ . ΠΠ΅ Π²ΡΠ΅Π³Π΄Π° ΠΏΠΎΠ»ΡΡΠ°Π΅ΡΡΡ ΡΠΎΠ»ΡΠΊΠΎ ΠΎΠ΄Π½ΠΈΠΌ ΠΊΠ»Π°ΠΏΠ°Π½ΠΎΠΌ ΠΎΠ±Π΅ΡΠΏΠ΅ΡΠΈΡΡ Π²Π΅Π½ΡΠΈΠ»ΡΡΠΈΡ, Π½ΠΎ ΠΎΠ½ ΠΏΠΎΠΌΠΎΠ³Π°Π΅Ρ ΠΏΠΎΠ΄Π΄Π΅ΡΠΆΠΈΠ²Π°ΡΡ ΠΌΠΈΠ½ΠΈΠΌΠ°Π»ΡΠ½ΡΠΉ Π²ΠΎΠ·Π΄ΡΡ ΠΎΠΎΠ±ΠΌΠ΅Π½.

ΠΠ΅Π½ΡΠΈΠ»ΡΡΠΈΠΎΠ½Π½ΠΎΠ΅ ΡΡΡΡΠΎΠΉΡΡΠ²ΠΎ ΠΠ΅Π½ΡΡ.
ΠΠ»Π°ΠΏΠ°Π½ ΡΡΡΠ°Π½Π°Π²Π»ΠΈΠ²Π°Π΅ΡΡΡ Π² Π½Π°ΡΡΠΆΠ½ΡΡ ΡΡΠ΅Π½Ρ Ρ ΡΠ°ΠΊΠΈΠΌ ΡΠ°ΡΡΠ΅ΡΠΎΠΌ, ΡΡΠΎΠ±Ρ ΠΏΠΎΡΠΎΠΊ Π²ΠΎΠ·Π΄ΡΡ Π° ΠΏΡΠΎΡ ΠΎΠ΄ΠΈΠ» ΡΠ΅ΡΠ΅Π· ΠΆΠΈΠ»ΡΠ΅ ΠΏΠΎΠΌΠ΅ΡΠ΅Π½ΠΈΡ ΠΈ ΠΏΠΎΠΊΠΈΠ΄Π°Π» Π·Π΄Π°Π½ΠΈΠ΅ ΡΠ΅ΡΠ΅Π· Π²Π΅Π½ΡΠΈΠ»ΡΡΠΈΠΎΠ½Π½ΡΠ΅ ΠΊΠ°Π½Π°Π»Ρ ΠΈΠ»ΠΈ Π²ΡΡΡΠΆΠ½ΡΡ ΡΠΈΡΡΠ΅ΠΌΡ. Π Π½Π΅ΠΌ Π½Π΅Ρ ΡΠ»Π΅ΠΊΡΡΠΎΠΏΡΠΈΠ²ΠΎΠ΄Π°, Π΄Π²ΠΈΠΆΠ΅Π½ΠΈΠ΅ ΠΏΡΠΎΠΈΡΡ ΠΎΠ΄ΠΈΡ ΠΈΠ·-Π·Π° ΡΠ°Π·Π½ΠΈΡΡ Π°ΡΠΌΠΎΡΡΠ΅ΡΠ½ΠΎΠ³ΠΎ ΠΈ Π²Π½ΡΡΡΠ΅Π½Π½Π΅Π³ΠΎ Π΄Π°Π²Π»Π΅Π½ΠΈΡ. ΠΡΠΎΠΈΠ·Π²ΠΎΠ΄ΠΈΡΠ΅Π»ΡΠ½ΠΎΡΡΡ ΠΈΠ·Π΄Π΅Π»ΠΈΡ Π·Π°Π²ΠΈΡΠΈΡ ΠΎΡ ΠΏΠΎΠ³ΠΎΠ΄Π½ΡΡ ΡΡΠ»ΠΎΠ²ΠΈΠΉ, ΡΡΠ°ΠΆΠ°, ΡΠΎΡΡΠΎΡΠ½ΠΈΡ Π²ΡΡΡΠΆΠ½ΠΎΠΉ ΡΠΈΡΡΠ΅ΠΌΡ.ΠΠ°ΠΆΠ΄Π°Ρ ΠΌΠΎΠ΄Π΅Π»Ρ ΠΎΡΠ½Π°ΡΠ°Π΅ΡΡΡ Π·Π°Π±ΠΎΡΠ½ΡΠΌΠΈ ΠΈ ΡΠ°Π·Π΄Π°ΡΡΠΈΠΌΠΈ ΡΡΡΡΠΎΠΉΡΡΠ²Π°ΠΌΠΈ, ΡΠΈΠ»ΡΡΡΠ°ΠΌΠΈ, ΡΠΎΠΏΡΠΎΡΠΈΠ²Π»Π΅Π½ΠΈΡ Π² ΠΊΠΎΡΠΎΡΡΡ ΡΠΌΠ΅Π½ΡΡΠ°ΡΡ ΠΏΡΠΎΠΈΠ·Π²ΠΎΠ΄ΠΈΡΠ΅Π»ΡΠ½ΠΎΡΡΡ.
ΠΠ΅ΡΠ΅ΠΏΠ°Π΄ Π΄Π°Π²Π»Π΅Π½ΠΈΡ ΠΈΠ½Π΄ΠΈΠ²ΠΈΠ΄ΡΠ°Π»Π΅Π½ Π΄Π»Ρ ΠΊΠ°ΠΆΠ΄ΠΎΠ³ΠΎ Π·Π΄Π°Π½ΠΈΡ ΠΈ ΠΊΠ»ΠΈΠΌΠ°ΡΠ°, ΠΈ ΠΎΠΏΡΠ΅Π΄Π΅Π»ΠΈΡΡ ΡΠΎΡΠ½ΠΎΠ΅ Π·Π½Π°ΡΠ΅Π½ΠΈΠ΅ ΠΏΡΠΎΠΈΠ·Π²ΠΎΠ΄ΠΈΡΠ΅Π»ΡΠ½ΠΎΡΡΠΈ Π²Π΅Π½ΡΠΈΠ»ΡΡΠΈΠΎΠ½Π½ΡΡ ΡΡΡΡΠΎΠΉΡΡΠ² Π΅ΡΡΠ΅ΡΡΠ²Π΅Π½Π½ΠΎΠ³ΠΎ ΡΠΈΠΏΠ° ΡΠ»ΠΎΠΆΠ½ΠΎ. ΠΡΠΈ Ρ ΠΎΡΠΎΡΠ΅ΠΉ Π²ΡΡΡΠΆΠ½ΠΎΠΉ ΡΠΈΡΡΠ΅ΠΌΠ΅ ΠΈ Π½ΠΎΡΠΌΠ°Π»ΡΠ½ΡΡ Π°ΡΠΌΠΎΡΡΠ΅ΡΠ½ΡΡ ΡΡΠ»ΠΎΠ²ΠΈΡΡ ΡΡΡΡΠΎΠΉΡΡΠ²Π° ΠΏΠΎΠ΄Π±ΠΈΡΠ°ΡΡΡΡ Ρ ΡΡΠ΅ΡΠΎΠΌ ΠΏΠ΅ΡΠ΅ΠΏΠ°Π΄Π° Π΄Π°Π²Π»Π΅Π½ΠΈΡ Π² 10 ΠΠ°. ΠΡΠΈ ΡΠ΅Ρ ΠΆΠ΅ ΡΡΠ»ΠΎΠ²ΠΈΡΡ ΡΡΠ°Π²Π½ΠΈΠ²Π°Π΅ΠΌ ΡΠ°Π±ΠΎΡΡ ΡΠ°Π·Π½ΡΡ Π²Π΅Π½ΡΠΈΠ»ΡΡΠΈΠΎΠ½Π½ΡΡ ΠΊΠ»Π°ΠΏΠ°Π½ΠΎΠ². ΠΠΎΠΊΠ°Π·Π°ΡΠ΅Π»ΠΈ ΠΏΡΠΈΠ±ΠΎΡΠ° ΠΎΠΏΡΠ΅Π΄Π΅Π»ΡΠ΅ΠΌ ΠΏΠΎ Π³ΡΠ°ΡΠΈΠΊΡ ΠΏΡΠΎΠΈΠ·Π²ΠΎΠ΄ΠΈΡΠ΅Π»ΡΠ½ΠΎΡΡΠΈ.
ΠΠ±ΡΠ°ΡΠΈΡΠ΅ Π²Π½ΠΈΠΌΠ°Π½ΠΈΠ΅: Π½Π΅ΠΊΠΎΡΠΎΡΡΠ΅ ΠΏΡΠΎΠΈΠ·Π²ΠΎΠ΄ΠΈΡΠ΅Π»ΠΈ ΠΌΠΎΠ³ΡΡ ΡΠΊΠ°Π·ΡΠ²Π°ΡΡ ΡΠ°ΡΡ ΠΎΠ΄ Π²ΠΎΠ·Π΄ΡΡ Π° ΠΏΡΠΈ ΡΠ°Π·Π½ΠΈΡΠ΅ Π΄Π°Π²Π»Π΅Π½ΠΈΠΉ, ΠΊΠΎΡΠΎΡΠΎΠ΅ ΡΠ΅Π΄ΠΊΠΎ Π΄ΠΎΡΡΠΈΠΆΠΈΠΌΠΎ Π² ΠΆΠΈΠ»ΡΠ΅.
ΠΡΠΎΠΈΠ·Π²ΠΎΠ΄ΠΈΡΠ΅Π»ΠΈ ΠΈ ΠΌΠΎΠ΄Π΅Π»ΠΈ ΡΡΡΡΠΎΠΉΡΡΠ²
ΠΡΠΈ Π²ΡΠ±ΠΎΡΠ΅ Π²Π΅Π½ΡΠΈΠ»ΡΡΠΈΠΎΠ½Π½ΠΎΠ³ΠΎ ΠΊΠ»Π°ΠΏΠ°Π½Π° Π΄Π»Ρ ΡΡΠ΅Π½Ρ Π½ΡΠΆΠ½ΠΎ Π·Π½Π°ΡΡ Π΅Π³ΠΎ Ρ Π°ΡΠ°ΠΊΡΠ΅ΡΠΈΡΡΠΈΠΊΠΈ:
- ΠΏΡΠΎΠΈΠ·Π²ΠΎΠ΄ΠΈΡΠ΅Π»ΡΠ½ΠΎΡΡΡ;
- ΠΌΠ°ΠΊΡΠΈΠΌΠ°Π»ΡΠ½Π°Ρ ΠΈ ΠΌΠΈΠ½ΠΈΠΌΠ°Π»ΡΠ½Π°Ρ ΡΠΎΠ»ΡΠΈΠ½Π° ΡΡΠ΅Π½Ρ;
- Π΄ΠΈΠ°ΠΌΠ΅ΡΡ ΠΎΡΠ²Π΅ΡΡΡΠΈΡ Π΄Π»Ρ ΡΡΡΠ°Π½ΠΎΠ²ΠΊΠΈ ΡΡΡΠ±Ρ;
- ΠΏΡΠΈΠ½ΡΠΈΠΏ ΡΠ΅Π³ΡΠ»ΠΈΡΠΎΠ²Π°Π½ΠΈΡ.
ΠΠΎΠ΄Π΅Π»ΠΈ Π²Π΅Π½ΡΠΈΠ»ΡΡΠΈΠΎΠ½Π½ΡΡ ΡΡΡΡΠΎΠΉΡΡΠ² Π΄Π»Ρ ΡΡΠ΅Π½, ΠΏΡΠ΅Π΄ΡΡΠ°Π²Π»Π΅Π½Π½ΡΠ΅ Π½Π° ΡΡΠ½ΠΊΠ΅ ΠΎΡΠ»ΠΈΡΠ°ΡΡΡΡ ΠΊΡΠΎΠΌΠ΅ ΠΎΡΠ½ΠΎΠ²Π½ΡΡ ΠΏΠ°ΡΠ°ΠΌΠ΅ΡΡΠΎΠ² Π΅ΡΡ ΠΈ Π½Π°Π»ΠΈΡΠΈΠ΅ΠΌ ΡΠΈΠ»ΡΡΡΠ°, ΡΡΠΌΠΎΠ³Π»ΡΡΠΈΡΠ΅Π»Ρ, ΡΠΈΠΏΠΎΠΌ ΡΠ΅Π³ΡΠ»ΡΡΠΈΠΈ.
Π’Π°Π±Π»ΠΈΡΠ° Π²ΠΎΠ·ΠΌΠΎΠΆΠ½ΡΡ ΠΌΠΎΠ΄Π΅Π»Π΅ΠΉ Π²Π΅Π½ΡΠΈΠ»ΡΡΠΈΠΎΠ½Π½ΡΡ ΡΡΡΡΠΎΠΉΡΡΠ²
| ΠΡΠΎΠΈΠ·Π²ΠΎΠ΄ΠΈΡΠ΅Π»Ρ Π²Π΅Π½ΡΠΈΠ»ΡΡΠΈΠΎΠ½Π½ΠΎΠ³ΠΎ ΠΊΠ»Π°ΠΏΠ°Π½Π° | ΠΠ°ΡΠΊΠ° | Π’ΠΈΠΏ | ΠΡΠΎΠΈΠ·Π²ΠΎΠ΄ΠΈΡΠ΅Π»ΡΠ½ΠΎΡΡΡ ΠΏΡΠΈ 10 ΠΠ° | ΠΠΈΠ°ΠΌΠ΅ΡΡ ΠΎΡΠ²Π΅ΡΡΡΠΈΡ | Π’ΠΎΠ»ΡΠΈΠ½Π° ΡΡΠ΅Π½Ρ |
|---|---|---|---|---|---|
| Flakt Woods | RIV | ΠΌΠ΅Ρ Π°Π½ΠΈΡΠ΅ΡΠΊΠΈΠΉ | 9 | 80 | 400 |
| KIV 125 | ΠΌΠ΅Ρ Π°Π½ΠΈΡΠ΅ΡΠΊΠΈΠΉ | 30 | 125 | 400 | |
| ΠΠ΅Π½ΡΡ | ΠΠ‘ 100 | ΠΌΠ΅Ρ Π°Π½ΠΈΡΠ΅ΡΠΊΠΈΠΉ | 25 | 100 | 500 |
| Aereco | EHT | Π³ΠΈΠ³ΡΠΎΠΌΠ΅Ρ Π°Π½ΠΈΡΠ΅ΡΠΊΠΈΠΉ | 5β40 (Π² Π·Π°Π²ΠΈΡΠΈΠΌΠΎΡΡΠΈ ΠΎΡ Π²Π»Π°ΠΆΠ½ΠΎΡΡΠΈ) | 100 | 350 |
| EFT | ΠΌΠ΅Ρ Π°Π½ΠΈΡΠ΅ΡΠΊΠΈΠΉ | 40 | 100 | 350 | |
| Helios | ZLE 100 | ΠΌΠ΅Ρ Π°Π½ΠΈΡΠ΅ΡΠΊΠΈΠΉ | 30 | 100 | 400 |
| ZLA 80 | ΠΌΠ΅Ρ Π°Π½ΠΈΡΠ΅ΡΠΊΠΈΠΉ | 25 | 80 | 500 | |
| ZLA 100 | ΠΌΠ΅Ρ Π°Π½ΠΈΡΠ΅ΡΠΊΠΈΠΉ | 30 | 100 | 500 | |
| ZLA 160 | ΠΌΠ΅Ρ Π°Π½ΠΈΡΠ΅ΡΠΊΠΈΠΉ | 45 | 160 | 500 | |
| Maico | ALD 10 | ΠΌΠ΅Ρ Π°Π½ΠΈΡΠ΅ΡΠΊΠΈΠΉ | 32 | 100 | 500 |
| ALD 125 | ΠΌΠ΅Ρ Π°Π½ΠΈΡΠ΅ΡΠΊΠΈΠΉ | 25 | 125 | 500 | |
| ALD 160 | ΠΌΠ΅Ρ Π°Π½ΠΈΡΠ΅ΡΠΊΠΈΠΉ | 25 | 160 | 500 | |
| Vortice | KIV Quadro | ΠΌΠ΅Ρ Π°Π½ΠΈΡΠ΅ΡΠΊΠΈΠΉ | 42 | 125 | 1000 |
| Siegenia | Aerocube | ΠΌΠ΅Ρ Π°Π½ΠΈΡΠ΅ΡΠΊΠΈΠΉ | 32 | 150 | 500 |
| ΠΠΎΠΌΠ²Π΅Π½Ρ | ΠΠΎΠΌΠ²Π΅Π½Ρ | ΠΌΠ΅Ρ Π°Π½ΠΈΡΠ΅ΡΠΊΠΈΠΉ | 13 | 40 | 1000 |
| ΠΠ»Π°Π³ΠΎΠ²Π΅ΡΡ | TL 98 | ΠΌΠ΅Ρ Π°Π½ΠΈΡΠ΅ΡΠΊΠΈΠΉ | 32 | 100 | 350 |

ΠΠ»Π°ΠΏΠ°Π½ Vortice.
Π£ΡΡΡΠΎΠΉΡΡΠ²Π° ΠΊΠΎΠΌΠΏΠ°Π½ΠΈΠΈ Aereco ΡΠ°Π±ΠΎΡΠ°ΡΡ Ρ Π³ΠΈΠ³ΡΠΎΠΌΠ΅Ρ Π°Π½ΠΈΡΠ΅ΡΠΊΠΎΠΉ ΡΠ΅Π³ΡΠ»ΡΡΠΈΠ΅ΠΉ β ΠΏΡΠΈ ΠΏΠΎΠ²ΡΡΠ΅Π½ΠΈΠΈ Π² ΠΏΠΎΠΌΠ΅ΡΠ΅Π½ΠΈΠΈ Π²Π»Π°ΠΆΠ½ΠΎΡΡΠΈ ΠΊΠΎΠ»ΠΈΡΠ΅ΡΡΠ²ΠΎ ΠΏΡΠΎΡ ΠΎΠ΄ΡΡΠ΅Π³ΠΎ Π²ΠΎΠ·Π΄ΡΡ Π° Π²ΠΎΠ·ΡΠ°ΡΡΠ°Π΅Ρ Π΄ΠΎ 40 ΠΌ3/Ρ. ΠΠΎΠ»ΡΡΠΈΠ½ΡΡΠ²ΠΎ ΠΊΠ»Π°ΠΏΠ°Π½ΠΎΠ² Π΄Π»Ρ ΡΡΠ΅Π½ ΡΠ°Π·ΡΠ°Π±ΠΎΡΠ°Π½Ρ Ρ ΡΡΡΠ½ΡΠΌ ΡΠ΅Π³ΡΠ»ΠΈΡΠΎΠ²Π°Π½ΠΈΠ΅ΠΌ ΠΏΡΠΎΠΈΠ·Π²ΠΎΠ΄ΠΈΡΠ΅Π»ΡΠ½ΠΎΡΡΠΈ.
ΠΠΎΠ½ΡΠ°ΠΆ ΠΈ ΡΠΊΡΠΏΠ»ΡΠ°ΡΠ°ΡΠΈΡ
ΠΠ΅Π½ΡΠΈΠ»ΡΡΠΈΠΎΠ½Π½ΡΠΉ ΠΊΠ»Π°ΠΏΠ°Π½ Π² ΡΡΠ΅Π½Π΅ ΠΏΡΠΎΡΡ Π² ΡΡΡΠ°Π½ΠΎΠ²ΠΊΠ΅, Π½ΠΎ ΡΡΠ΅Π±ΡΠ΅Ρ ΡΠΏΠ΅ΡΠΈΠ°Π»ΠΈΠ·ΠΈΡΠΎΠ²Π°Π½Π½ΡΡ ΡΡΡΡΠΎΠΉΡΡΠ² β ΠΏΠ΅ΡΡΠΎΡΠ°ΡΠΎΡΠΎΠ² ΠΈ ΡΡΡΠ°Π½ΠΎΠ²ΠΎΠΊ Π°Π»ΠΌΠ°Π·Π½ΠΎΠ³ΠΎ Π±ΡΡΠ΅Π½ΠΈΡ. ΠΠ»Π°ΠΏΠ°Π½Ρ ΠΌΠΎΠ½ΡΠΈΡΡΡΡ Π½Π° ΡΡΠ΅Π½Ρ Π½Π΅Π΄Π°Π»Π΅ΠΊΠΎ ΠΎΡ Π½Π°Π³ΡΠ΅Π²Π°ΡΡΠ΅Π³ΠΎ ΡΡΡΡΠΎΠΉΡΡΠ²Π°, ΡΡΠΎ ΠΏΠΎΠ·Π²ΠΎΠ»ΡΠ΅Ρ ΠΈΠ·Π±Π΅ΠΆΠ°ΡΡ ΠΏΠΎΡΠΎΠΊΠΎΠ² Ρ ΠΎΠ»ΠΎΠ΄Π½ΠΎΠ³ΠΎ Π²ΠΎΠ·Π΄ΡΡ Π° Π·ΠΈΠΌΠΎΠΉ. Π Π°Π±ΠΎΡΠ° Π½Π°ΡΠΈΠ½Π°Π΅ΡΡΡ Ρ Π²ΡΡΠ΅Π·Π°Π½ΠΈΡ ΠΈΠ»ΠΈ Π²ΡΠ±ΠΈΠ²Π°Π½ΠΈΡ ΠΎΡΠ²Π΅ΡΡΡΠΈΡ Π½ΡΠΆΠ½ΠΎΠ³ΠΎ Π΄ΠΈΠ°ΠΌΠ΅ΡΡΠ° ΠΈ ΡΡΡΠ°Π½ΠΎΠ²ΠΊΠΈ Π² Π½Π΅Π³ΠΎ ΡΡΡΠ±Ρ.

Π£ΡΡΠ°Π½ΠΎΠ²ΠΊΠ° ΠΏΡΠΎΠ²Π΅ΡΡΠΈΠ²Π°ΡΠ΅Π»Ρ.
Π©Π΅Π»ΠΈ ΠΌΠ΅ΠΆΠ΄Ρ Π²Π΅Π½ΡΠΈΠ»ΡΡΠΈΠΎΠ½Π½ΠΎΠΉ ΡΡΡΠ±ΠΎΠΉ ΠΈ ΡΡΠ΅Π½ΠΎΠΉ ΠΈΠ·ΠΎΠ»ΠΈΡΡΡΡ Π³Π΅ΡΠΌΠ΅ΡΠΈΠΊΠΎΠΌ Π΄Π»Ρ ΡΠ΅ΠΏΠ»ΠΎΠΈΠ·ΠΎΠ»ΡΡΠΈΠΈ ΠΈ Π·Π°ΡΠΈΡΡ ΠΎΡ ΡΠ»ΠΈΡΠ½ΠΎΠ³ΠΎ ΡΡΠΌΠ°. Π‘ Π΄Π²ΡΡ ΡΡΠΎΡΠΎΠ½ ΡΡΠ΅Π½Ρ Π½Π° ΠΎΡΠ²Π΅ΡΡΡΠΈΠ΅ ΡΡΡΠ°Π½Π°Π²Π»ΠΈΠ²Π°Π΅ΡΡΡ ΠΏΡΠΈΠ΅ΠΌΠ½ΠΎΠ΅ ΠΈ ΡΠ°Π·Π΄Π°ΡΡΠ΅Π΅ ΡΡΡΡΠΎΠΉΡΡΠ²Π° (ΡΠ΅ΡΠ΅ΡΠΊΠΈ, Π΄ΠΈΡΡΡΠ·ΠΎΡΡ) ΠΈ ΡΠΈΠ»ΡΡΡ, ΠΊΠΎΡΠΎΡΡΠ΅ Π²Ρ ΠΎΠ΄ΡΡ Π² ΠΊΠΎΠΌΠΏΠ»Π΅ΠΊΡ. ΠΡΠ»ΠΈ ΠΏΠΎΠ·Π²ΠΎΠ»ΡΠ΅Ρ ΠΌΠ΅ΡΡΠΎ, ΠΊΠ»Π°ΠΏΠ°Π½ ΡΡΡΠ°Π½Π°Π²Π»ΠΈΠ²Π°Π΅ΡΡΡ Π·Π° ΡΠ°Π΄ΠΈΠ°ΡΠΎΡΠΎΠΌ ΠΈΠ»ΠΈ ΡΡΠ°Π·Ρ Π½Π°Π΄ Π½ΠΈΠΌ. ΠΡΠΎ ΡΠ»ΡΡΡΠ°Π΅Ρ Π²Π΅Π½ΡΠΈΠ»ΡΡΠΈΡ Π·Π° ΡΡΠ΅Ρ ΡΠΈΡΠΊΡΠ»ΡΡΠΈΠΈ ΡΠ΅ΠΏΠ»ΠΎΠ³ΠΎ Π²ΠΎΠ·Π΄ΡΡ Π° ΠΎΠΊΠΎΠ»ΠΎ Π½Π΅Π³ΠΎ.

Π£ΡΡΠ°Π½ΠΎΠ²ΠΊΠ° Π²Π΅Π½ΡΠΈΠ»ΡΡΠΈΠΎΠ½Π½ΡΡ ΡΠ΅ΡΠ΅ΡΠΎΠΊ.
Π£ΡΡΠ°Π½ΠΎΠ²ΠΊΠ° ΡΡΠ΅Π½ΠΎΠ²ΠΎΠ³ΠΎ Π²Π΅Π½ΡΠΈΠ»ΡΡΠΈΠΎΠ½Π½ΠΎΠ³ΠΎ ΠΊΠ»Π°ΠΏΠ°Π½Π° ΠΏΠΎΠ·Π²ΠΎΠ»ΠΈΡ ΡΠΌΠ΅Π½ΡΡΠΈΡΡ Π²Π»Π°Π³ΠΎΡΠΎΠ΄Π΅ΡΠΆΠ°Π½ΠΈΠ΅ Π²ΠΎΠ·Π΄ΡΡ Π° Π² ΠΏΠΎΠΌΠ΅ΡΠ΅Π½ΠΈΠΈ ΠΈ ΠΎΡΠ³Π°Π½ΠΈΠ·ΠΎΠ²Π°ΡΡ Π²ΠΎΠ·Π΄ΡΡ ΠΎΠΎΠ±ΠΌΠ΅Π½. ΠΠΎ ΠΏΡΠΎΠΈΠ·Π²ΠΎΠ΄ΠΈΡΠ΅Π»ΡΠ½ΠΎΡΡΠΈ ΠΌΠΎΠΆΠ΅Ρ Π½Π΅ Ρ Π²Π°ΡΠΈΡΡ Π΄Π»Ρ Π½ΠΎΡΠΌΠ°ΡΠΈΠ²Π½ΡΡ Π·Π½Π°ΡΠ΅Π½ΠΈΠΉ ΠΏΡΠΈΡΠΎΡΠ½ΠΎΠ³ΠΎ Π²ΠΎΠ·Π΄ΡΡ Π° Π² ΠΏΠΎΠΌΠ΅ΡΠ΅Π½ΠΈΡΡ Ρ ΠΏΠΎΡΡΠΎΡΠ½Π½ΡΠΌ Π½Π°Ρ ΠΎΠΆΠ΄Π΅Π½ΠΈΠ΅ΠΌ Π»ΡΠ΄Π΅ΠΉ. Π ΠΊΠ°ΠΆΠ΄ΠΎΠΌ ΡΠ»ΡΡΠ°Π΅ Π²ΠΎΠ·ΠΌΠΎΠΆΠ½ΠΎΡΡΡ ΡΡΡΠ°Π½ΠΎΠ²ΠΊΠΈ ΠΏΡΠΎΠ²Π΅ΡΡΠ΅ΡΡΡ ΡΡΠ°Π²Π½Π΅Π½ΠΈΠ΅ΠΌ ΡΡΠ΅Π±ΡΠ΅ΠΌΠΎΠ³ΠΎ Π²ΠΎΠ·Π΄ΡΡ ΠΎΠΎΠ±ΠΌΠ΅Π½Π° Ρ ΠΏΠ°ΡΠΏΠΎΡΡΠ½ΡΠΌΠΈ Ρ Π°ΡΠ°ΠΊΡΠ΅ΡΠΈΡΡΠΈΠΊΠ°ΠΌΠΈ Π°Π³ΡΠ΅Π³Π°ΡΠ°. ΠΠΎΠ»ΡΡΠΎΠ΅ Π·Π½Π°ΡΠ΅Π½ΠΈΠ΅ Π΄Π»Ρ ΡΠ°Π±ΠΎΡΡ ΡΠ°ΠΊΠΎΠ³ΠΎ ΠΊΠ»Π°ΠΏΠ°Π½Π° ΠΈΠΌΠ΅Π΅Ρ Π²ΡΡΡΠΆΠ½Π°Ρ ΡΠΈΡΡΠ΅ΠΌΠ° Π² ΠΏΠΎΠΌΠ΅ΡΠ΅Π½ΠΈΡΡ .
rems-info.ru
ΡΠ°Π·Π½ΠΎΠ²ΠΈΠ΄Π½ΠΎΡΡΠΈ Π²ΠΎΠ·Π΄ΡΡΠ½ΠΎΠ³ΠΎ Π²Π΅Π½ΡΠΈΠ»ΡΡΠΈΠΎΠ½Π½ΠΎΠ³ΠΎ ΠΊΠ»Π°ΠΏΠ°Π½Π° Π΄Π»Ρ ΠΊΠ°Π½Π°Π»ΠΈΠ·Π°ΡΠΈΠΈΡ ΠΈ ΡΡΠ΅ΡΠ° Π΅Π³ΠΎ ΠΏΡΠΈΠΌΠ΅Π½Π΅Π½ΠΈΡ
ΠΒ ΠΏΡΠΎΡΠ΅ΡΡΠ΅ ΠΏΠΎΠ²ΡΠ΅Π΄Π½Π΅Π²Π½ΠΎΠΉ ΠΆΠΈΠ·Π½Π΅Π΄Π΅ΡΡΠ΅Π»ΡΠ½ΠΎΡΡΠΈ ΡΠΎΠ²ΡΠ΅ΠΌΠ΅Π½Π½ΠΎΠ³ΠΎ ΡΠ΅Π»ΠΎΠ²Π΅ΠΊΠ° ΠΎΠ±ΡΠ°Π·ΡΠ΅ΡΡΡ ΠΎΠ³ΡΠΎΠΌΠ½ΠΎΠ΅ ΠΊΠΎΠ»ΠΈΡΠ΅ΡΡΠ²ΠΎ Ρ ΠΎΠ·ΡΠΉΡΡΠ²Π΅Π½Π½ΡΡ ΠΈΒ Π±ΡΡΠΎΠ²ΡΡ ΡΡΠΎΡΠ½ΡΡ Π²ΠΎΠ΄, ΠΏΠΎΡΡΡΠΏΠ°ΡΡΠΈΡ ΠΈΠ·Β ΡΠ°Π½ΠΈΡΠ°ΡΠ½ΡΡ ΠΏΡΠΈΠ±ΠΎΡΠΎΠ² ΡΠ°Π·Π»ΠΈΡΠ½ΠΎΠ³ΠΎ Π½Π°Π·Π½Π°ΡΠ΅Π½ΠΈΡ (Π²Π°Π½Π½Ρ, ΡΠ½ΠΈΡΠ°Π·Ρ, ΡΡΠ°ΠΏΡ, ΡΡΠΊΠΎΠΌΠΎΠΉΠ½ΠΈΠΊΠΈ ΠΈΒ ΠΌΠΎΠΉΠΊΠΈ). Π‘ΠΎΠ³Π»Π°ΡΠ½ΠΎ ΡΡΡΠ΅ΡΡΠ²ΡΡΡΠΈΠΌ Π½ΠΎΡΠΌΠ°ΠΌ Π²ΠΎΠ΄ΠΎΠΎΡΠ²ΠΎΠ΄Π°, Π΅ΠΆΠ΅ΡΡΡΠΎΡΠ½ΡΠΉ ΠΎΠ±ΡΡΠΌ ΡΡΠΎΠΊΠΎΠ² Π½Π°Β ΠΎΠ΄Π½ΠΎΠ³ΠΎ ΡΠ΅Π»ΠΎΠ²Π΅ΠΊΠ° ΠΌΠΎΠΆΠ΅Ρ Π΄ΠΎΡΡΠΈΠ³Π°ΡΡ 180 Π»ΠΈΡΡΠΎΠ² ΠΈΒ Π²ΡΡΠ΅. ΠΠ»Ρ ΠΈΡ Β ΠΎΡΠ²ΠΎΠ΄Π° ΡΒ ΠΎΠ΄Π½ΠΎΠ³ΠΎ ΡΡΠΎΠ²Π½Ρ ΠΏΡΠΈΠΌΠ΅Π½ΡΡΡΡΡ Π·Π°ΠΊΡΡΡΡΠ΅ ΠΏΡΡΠΌΠΎΠ»ΠΈΠ½Π΅ΠΉΠ½ΡΠ΅ ΡΠ°ΠΌΠΎΡΡΡΠ½ΡΠ΅ ΡΡΡΠ±ΠΎΠΏΡΠΎΠ²ΠΎΠ΄Ρ, ΠΊΒ ΠΊΠΎΡΠΎΡΡΠΌ ΠΏΡΠΈ ΠΏΠΎΠΌΠΎΡΠΈ ΡΠ°ΡΠΎΠ½Π½ΡΡ ΡΠ°ΡΡΠ΅ΠΉ ΠΏΠΎΠ΄ΠΊΠ»ΡΡΠ΅Π½Ρ Π½Π°Π·Π²Π°Π½Π½ΡΠ΅ ΡΠ°Π½ΠΈΡΠ°ΡΠ½ΡΠ΅ ΠΏΡΠΈΠ±ΠΎΡΡ.Π‘Π°ΠΌΠΎΡΡΡΠ½ΡΠ΅ ΡΡΡΠ±ΠΎΠΏΡΠΎΠ²ΠΎΠ΄Ρ Π²ΡΠ΅Ρ Π³ΠΎΡΠΈΠ·ΠΎΠ½ΡΠ°Π»ΡΠ½ΡΡ ΡΡΠΎΠ²Π½Π΅ΠΉ ΠΏΠΎΠ΄ΠΊΠ»ΡΡΠ°ΡΡΡΡ ΠΊΒ Π²Π΅ΡΡΠΈΠΊΠ°Π»ΡΠ½ΠΎΠΉ ΡΡΡΠ±Π΅, Π½Π°Π·ΡΠ²Π°Π΅ΠΌΠΎΠΉ ΠΊΠ°Π½Π°Π»ΠΈΠ·Π°ΡΠΈΠΎΠ½Π½ΡΠΌ ΡΡΠΎΡΠΊΠΎΠΌ. ΠΠΈΠΆΠ½ΡΡ ΡΠ°ΡΡΡ ΡΡΡΠ±Ρ ΡΡΠΎΡΠΊΠ° ΡΠ΅ΡΠ΅Π· ΡΠ°ΡΠΎΠ½Π½ΡΠΉ ΡΠ»Π΅ΠΌΠ΅Π½Ρ ΡΠΎΠ΅Π΄ΠΈΠ½ΡΠ΅ΡΡΡ ΡΒ ΡΠ΅Π½ΡΡΠ°Π»ΡΠ½ΠΎΠΉ ΠΊΠ°Π½Π°Π»ΠΈΠ·Π°ΡΠΈΠΎΠ½Π½ΠΎΠΉ ΡΠΈΡΡΠ΅ΠΌΠΎΠΉ. Π‘Π°Π½ΠΈΡΠ°ΡΠ½ΡΠ΅ ΠΏΡΠΈΠ±ΠΎΡΡ, Π³ΠΎΡΠΈΠ·ΠΎΠ½ΡΠ°Π»ΡΠ½ΡΠ΅ ΡΡΡΠ±Ρ ΠΈΒ ΡΡΠΎΡΠΊ ΠΎΠ±ΡΠ°Π·ΡΡΡ Π²Π½ΡΡΡΠΈΠ΄ΠΎΠΌΠΎΠ²ΡΡ ΡΠΈΡΡΠ΅ΠΌΡ ΠΊΠ°Π½Π°Π»ΠΈΠ·Π°ΡΠΈΠΈ ΡΠ»ΠΈΠ²Π½ΡΡ Π²ΠΎΠ΄. ΠΠ»Π°ΡΡΠΈΡΠ΅ΡΠΊΠΈ, Π²Π΅ΡΡ Π½ΡΡ ΡΠ°ΡΡΡ Π²Π΅Π½ΡΠΈΠ»ΠΈΡΡΠ΅ΠΌΠΎΠ³ΠΎ ΠΊΠ°Π½Π°Π»ΠΈΠ·Π°ΡΠΈΠΎΠ½Π½ΠΎΠ³ΠΎ ΡΡΠΎΡΠΊΠ° ΠΏΡΠΎΠ΄ΠΎΠ»ΠΆΠ°Π΅ΡΡΡ Π²ΡΡΠ΅ ΡΡΠΎΠ²Π½Ρ ΠΊΡΠΎΠ²Π»ΠΈ ΠΈΒ Π½Π΅Β Π·Π°ΠΊΡΡΠ²Π°Π΅ΡΡΡ Π·Π°Π³Π»ΡΡΠΊΠ°ΠΌΠΈ.
ΠΠ΅Π²Π΅Π½ΡΠΈΠ»ΠΈΡΡΠ΅ΠΌΡΠ΅ ΡΡΠΎΡΠΊΠΈ ΠΈΒ Π²Π΅Π½ΡΠΈΠ»ΡΡΠΈΠΎΠ½Π½ΡΠ΅ ΠΊΠ»Π°ΠΏΠ°Π½Ρ
ΠΠ΄Π½Π°ΠΊΠΎ Π²Β ΡΡΡΠΎΠΈΡΠ΅Π»ΡΠ½ΠΎΠΉ ΠΏΡΠ°ΠΊΡΠΈΠΊΠ΅ ΡΠ°ΡΡΠΎ Π½Π΅Ρ Π²ΠΎΠ·ΠΌΠΎΠΆΠ½ΠΎΡΡΠΈ Π²ΡΠΏΠΎΠ»Π½Π΅Π½ΠΈΡ Π²Π΅Π½ΡΠΈΠ»ΠΈΡΡΠ΅ΠΌΡΡ ΠΊΠ°Π½Π°Π»ΠΈΠ·Π°ΡΠΈΠΎΠ½Π½ΡΡ ΡΡΠΎΡΠΊΠΎΠ² ΡΒ Π²ΡΡ ΠΎΠ΄ΠΎΠΌ Π²Π΅ΡΡ Π½Π΅ΠΉ ΡΠ°ΡΡΠΈ Π½Π°Π΄ ΠΊΡΠΎΠ²Π»Π΅ΠΉ ΠΈΠ»ΠΈ Π½Π°Β ΡΠ΅ΡΠ΄Π°ΠΊ. ΠΒ ΡΠ°ΠΊΠΈΡ ΡΠ»ΡΡΠ°ΡΡ Π½Π°Π΄ΡΠΆΠ½ΡΡ ΡΠ°Π±ΠΎΡΡ Π²ΡΠ΅ΠΉ ΠΊΠ°Π½Π°Π»ΠΈΠ·Π°ΡΠΈΠΈ ΠΈΒ ΡΠ°Π½ΠΈΡΠ°ΡΠ½ΡΡ ΠΏΡΠΈΠ±ΠΎΡΠΎΠ², Π±Π΅Π· ΡΡΡΠ²ΠΎΠ² Π³ΠΈΠ΄ΡΠΎΠ·Π°ΡΠ²ΠΎΡΠΎΠ², ΠΏΠΎΡΡΡΠΏΠ»Π΅Π½ΠΈΠΉ ΠΊΠ°Π½Π°Π»ΠΈΠ·Π°ΡΠΈΠΎΠ½Π½ΡΡ ΠΈΡΠΏΠ°ΡΠ΅Π½ΠΈΠΉ Π²Β ΠΏΠΎΠΌΠ΅ΡΠ΅Π½ΠΈΡ ΠΎΠ±Π΅ΡΠΏΠ΅ΡΠΈΠ²Π°Π΅Ρ ΠΏΡΠΈΠΌΠ΅Π½Π΅Π½ΠΈΠ΅ Π½Π°Β Π²Π΅ΡΡ Π½Π΅ΠΉ ΡΠ°ΡΡΠΈ ΡΡΠΎΡΠΊΠ° ΡΠΏΠ΅ΡΠΈΠ°Π»ΡΠ½ΠΎΠ³ΠΎ Π²Π΅Π½ΡΠΈΠ»ΡΡΠΈΠΎΠ½Π½ΠΎΠ³ΠΎ ΠΊΠ»Π°ΠΏΠ°Π½Π°.ΠΡΠΏΠΎΠ»ΡΠ·ΡΠ΅ΠΌΡΠ΅ Π²Β ΡΡΡΠΎΠΈΡΠ΅Π»ΡΡΡΠ²Π΅ ΠΊΠ°Π½Π°Π»ΠΈΠ·Π°ΡΠΈΠΎΠ½Π½ΡΡ ΡΠΈΡΡΠ΅ΠΌ ΡΠΆΠ΅ Π΄ΠΎΡΡΠ°ΡΠΎΡΠ½ΠΎ Π΄Π°Π²Π½ΠΎ, ΡΡΠΈ ΡΡΡΡΠΎΠΉΡΡΠ²Π° Π²ΠΏΠ΅ΡΠ²ΡΠ΅ ΠΏΠΎΡΠ²ΠΈΠ»ΠΈΡΡ Π²Β ΡΡΡΠ°Π½Π°Ρ Π‘ΠΊΠ°Π½Π΄ΠΈΠ½Π°Π²ΡΠΊΠΎΠ³ΠΎ ΠΏΠΎΠ»ΡΠΎΡΡΡΠΎΠ²Π°, Π³Π΄Π΅ ΠΎΠ±ΠΈΠ»ΡΠ½ΡΠ΅ ΡΠ½Π΅Π³ΠΎΠΏΠ°Π΄Ρ Π·Π°ΡΡΠΏΠ°Π»ΠΈ Π΅ΡΒ Π²ΡΡ ΠΎΠ΄Ρ Π½Π°Β ΠΊΡΡΡΠ°Ρ Π·Π΄Π°Π½ΠΈΠΉ, ΠΏΡΠΈΠ²ΠΎΠ΄Ρ ΠΊΒ Π·Π°ΠΌΠ΅ΡΠ·Π°Π½ΠΈΡ Π²Π΅Π½ΡΠΈΠ»ΡΡΠΈΠΎΠ½Π½ΠΎΠ³ΠΎ Π²ΡΡ ΠΎΠ΄Π° ΠΊΠ°Π½Π°Π»ΠΈΠ·Π°ΡΠΈΠΎΠ½Π½ΠΎΠ³ΠΎ ΡΡΠΎΡΠΊΠ°. ΠΒ ΡΠ΅Π·ΡΠ»ΡΡΠ°ΡΠ΅ Π½Π°ΡΡΡΠ°Π»Π°ΡΡ Π²Π΅Π½ΡΠΈΠ»ΡΡΠΈΡ Π²ΡΠ΅ΠΉ Π΄ΠΎΠΌΠΎΠ²ΠΎΠΉ ΠΊΠ°Π½Π°Π»ΠΈΠ·Π°ΡΠΈΠΈ (ΡΡΠΎΠΊΠΈ ΠΈΠΌΠ΅ΡΡ Π½Π΅ΠΏΡΠΈΡΡΠ½ΡΠΉ ΠΈΒ Π²ΡΠ΅Π΄Π½ΡΠΉ Π΄Π»Ρ Π·Π΄ΠΎΡΠΎΠ²ΡΡ Π·Π°ΠΏΠ°Ρ ) ΠΈΒ ΠΊΠΎΠΌΠΏΠ΅Π½ΡΠ°ΡΠΈΡ ΡΠ°Π·ΡΠ΅ΠΆΠ΅Π½ΠΈΡ Π²ΠΎΠ·Π΄ΡΡ Π° Π²Π½ΡΡΡΠΈ ΡΡΡΠ± ΡΠΈΡΡΠ΅ΠΌΡ ΠΏΡΠΈ ΡΠ»ΠΈΠ²Π΅ Π²ΠΎΠ΄Ρ.
Π‘ΠΎΠ²ΡΠ΅ΠΌΠ΅Π½Π½ΡΠ΅ Π²Π΅Π½ΡΠΈΠ»ΡΡΠΈΠΎΠ½Π½ΡΠ΅ ΠΊΠ»Π°ΠΏΠ°Π½Ρ ΠΏΡΠ΅Π΄Π½Π°Π·Π½Π°ΡΠ΅Π½Ρ Π΄Π»Ρ Π²Π΅Π½ΡΠΈΠ»ΡΡΠΈΠΈ Π²Π½ΡΡΡΠ΅Π½Π½Π΅ΠΉ ΠΊΠ°Π½Π°Π»ΠΈΠ·Π°ΡΠΈΠΈ Π·Π΄Π°Π½ΠΈΠΉ. ΠΒ ΡΠ²ΠΎΠ΅ΠΉ ΠΊΠΎΠ½ΡΡΡΡΠΊΡΠΈΠΈ ΠΊΠ»Π°ΠΏΠ°Π½Ρ ΠΈΠΌΠ΅ΡΡ ΡΠΏΠ΅ΡΠΈΠ°Π»ΡΠ½ΡΡ ΠΏΠΎΠ΄Π²ΠΈΠΆΠ½ΡΡ Π΄ΠΈΠ°ΡΡΠ°Π³ΠΌΡ, ΡΠ΅Π°Π³ΠΈΡΡΡΡΡΡ Π½Π°Β Π²Π΅Π»ΠΈΡΠΈΠ½Ρ Π΄Π°Π²Π»Π΅Π½ΠΈΡ Π²Β ΡΡΡΠ±Π°Ρ ΠΊΠ°Π½Π°Π»ΠΈΠ·Π°ΡΠΈΠΈ. ΠΡΠΏΠΎΠ»ΡΠ·ΠΎΠ²Π°Π½ΠΈΠ΅ ΠΏΠΎΠ΄ΠΎΠ±Π½ΡΡ ΠΊΠΎΠ½ΡΡΡΡΠΊΡΠΈΠΉ ΠΏΠΎΠ·Π²ΠΎΠ»ΡΠ΅Ρ ΠΎΡΠΊΠ°Π·Π°ΡΡΡΡ ΠΎΡΒ Π½Π΅ΠΎΠ±Ρ ΠΎΠ΄ΠΈΠΌΠΎΡΡΠΈ Π²ΡΠ²ΠΎΠ΄ΠΈΡΡ ΠΊΠ°Π½Π°Π»ΠΈΠ·Π°ΡΠΈΠΎΠ½Π½ΡΠ΅ ΡΡΠΎΡΠΊΠΈ Π½Π°Β ΠΊΡΡΡΡ. ΠΠ»Π°Π³ΠΎΠ΄Π°ΡΡ ΡΡΠΈΠΌ ΠΊΠ»Π°ΠΏΠ°Π½Π°ΠΌ ΡΡΠΎΠ²Π΅Π½Ρ Π²Π΅Π½ΡΠΈΠ»ΡΡΠΈΠΈ ΠΌΠΎΠΆΠ΅Ρ Π·Π°ΠΊΠ°Π½ΡΠΈΠ²Π°ΡΡΡΡ Π½Π°Β ΡΠ΅ΡΠ΄Π°ΠΊΠ°Ρ Π·Π΄Π°Π½ΠΈΠΉ ΠΈΠ»ΠΈ, Π΄Π°ΠΆΠ΅, Π²Β ΠΏΠΎΠΌΠ΅ΡΠ΅Π½ΠΈΡΡ , Π³Π΄Π΅ ΡΡΡΠ°Π½ΠΎΠ²Π»Π΅Π½Ρ ΡΠ°Π½ΠΈΡΠ°ΡΠ½ΡΠ΅ ΠΏΡΠΈΠ±ΠΎΡΡ.
ΠΠ°ΠΆΠ½ΠΎΡΡΡ Π²Π΅Π½ΡΠΈΠ»ΡΡΠΈΠΈ ΠΊΠ°Π½Π°Π»ΠΈΠ·Π°ΡΠΈΠΈ
ΠΡΡΡΠΆΠ½Π°Ρ ΡΠ°ΡΡΡ ΡΡΠΎΡΠΊΠ° Π²Π°ΠΆΠ½Π° Π΄Π»Ρ Π²ΠΎΠ·Π΄ΡΡ ΠΎΠΎΠ±ΠΌΠ΅Π½Π° Π²Β ΡΠΈΡΡΠ΅ΠΌΠ΅, ΡΡΡΠΎΠΉΡΠΈΠ²ΠΎΠΉ ΡΠ°Π±ΠΎΡΡ ΡΠΈΡΠΎΠ½ΠΎΠ² ΡΠ°Π½ΠΈΡΠ°ΡΠ½ΡΡ ΠΏΡΠΈΠ±ΠΎΡΠΎΠ², Π²Β ΠΊΠΎΡΠΎΡΡΡ Π½Π°Ρ ΠΎΠ΄ΠΈΡΡΡ Π²ΠΎΠ΄Π°, Π²ΡΠΏΠΎΠ»Π½ΡΡΡΠ°Ρ ΡΠΎΠ»Ρ Π³ΠΈΠ΄ΡΠ°Π²Π»ΠΈΡΠ΅ΡΠΊΠΎΠ³ΠΎ Π·Π°ΡΠ²ΠΎΡΠ°. ΠΠ΅ΠΎΠ±Ρ ΠΎΠ΄ΠΈΠΌΠΎΡΡΡ Π½Π°Π΄ΡΠΆΠ½ΠΎΠΉ Π²Π΅Π½ΡΠΈΠ»ΡΡΠΈΠΈ ΠΊΠ°Π½Π°Π»ΠΈΠ·Π°ΡΠΈΠΎΠ½Π½ΠΎΠ³ΠΎ ΡΡΠΎΡΠΊΠ° ΠΏΠΎΠ½ΡΡΠ½Π° ΠΈΠ·Β ΡΠΈΠ·ΠΈΠΊΠΈ ΠΏΡΠΎΡΠ΅ΡΡΠ°:
- ΠΡΠΈ ΡΠΏΡΡΠΊΠ΅ ΡΡΠ°Π»Π΅ΡΠ°, Π²ΠΎΠ΄Π° ΠΏΠΎΡΡΡΠΏΠ°Π΅Ρ Π²Β ΡΡΠΎΡΠΊ.
- ΠΡΠ° Π²ΠΎΠ΄Π° Π·Π°ΡΡΠ³ΠΈΠ²Π°Π΅Ρ Π²ΠΎΠ·Π΄ΡΡ , ΡΠΎΠ·Π΄Π°ΡΡΠΈΠΉ ΡΠ°Π·ΡΠ΅ΠΆΠ΅Π½ΠΈΠ΅ ΠΈΠ»ΠΈ ΠΎΡΡΠΈΡΠ°ΡΠ΅Π»ΡΠ½ΡΡ ΡΠ°Π·Π½ΠΈΡΡ Π²Β Π΄Π°Π²Π»Π΅Π½ΠΈΠΈ. ΠΠ°ΠΆΠ½ΠΎ, ΡΡΠΎ ΡΠ»ΠΈΠ² Π±ΠΎΠ»ΡΡΠΎΠ³ΠΎ ΠΊΠΎΠ»ΠΈΡΠ΅ΡΡΠ²Π° Π²ΠΎΠ΄Ρ ΠΈΒ Π½Π΅Π΄ΠΎΡΡΠ°ΡΠΎΡΠ½ΠΎΠ΅ ΠΏΠΎΡΡΡΠΏΠ»Π΅Π½ΠΈΠ΅ Π½Π°ΡΡΠΆΠ½ΠΎΠ³ΠΎ Π²ΠΎΠ·Π΄ΡΡ Π° Π΄Π»Ρ Π²ΡΡΠ°Π²Π½ΠΈΠ²Π°Π½ΠΈΡ Π΄Π°Π²Π»Π΅Π½ΠΈΡ Π²Β ΠΎΠ±Π΅ΠΈΡ Π²Π΅ΡΠ²ΡΡ Π³ΠΈΠ΄ΡΠΎΠ·Π°ΡΠ²ΠΎΡΠ°, ΠΏΡΠΈΠ²ΠΎΠ΄ΡΡ ΠΊΒ Π²ΠΎΠ·Π½ΠΈΠΊΠ½ΠΎΠ²Π΅Π½ΠΈΡ Π²Β ΡΡΡΠ±Π΅ ΠΊΡΠΈΡΠΈΡΠ΅ΡΠΊΠΎΠ³ΠΎ ΡΠ°Π·ΡΠ΅ΠΆΠ΅Π½ΠΈΡ. ΠΡΠ»ΠΈ Π½Π΅Β Π±ΡΠ΄Π΅Ρ Π²Π΅Π½ΡΠΈΠ»ΡΡΠΈΠΈ, ΠΏΡΠΈ ΡΠΏΡΡΠΊΠ΅ ΡΡΠ°Π»Π΅ΡΠ°, Π²ΠΎΠ·Π΄ΡΡ Π·Π°ΡΡΠ³ΠΈΠ²Π°Π΅ΡΡΡ Π²Π½ΡΡΡΡ, ΡΠΎΠ·Π΄Π°Π²Π°Ρ ΠΎΡΡΠΈΡΠ°ΡΠ΅Π»ΡΠ½ΠΎΠ΅ Π΄Π°Π²Π»Π΅Π½ΠΈΠ΅.
- ΠΠ»Π°Π³ΠΎΠ΄Π°ΡΡ ΡΠ°ΠΊΠΎΠΌΡ ΠΎΡΡΠΈΡΠ°ΡΠ΅Π»ΡΠ½ΠΎΠΌΡ Π΄Π°Π²Π»Π΅Π½ΠΈΡ, Π²ΠΎΠ΄Π° ΠΈΠ·Β ΠΊΠΎΠ»Π΅Π½Π° ΡΠ°ΠΌΠΎΠ³ΠΎ ΡΠ»Π°Π±ΠΎΠ³ΠΎ Π³ΠΈΠ΄ΡΠΎΠ·Π°ΡΠ²ΠΎΡΠ° Π²ΡΠ°ΡΡΠ²Π°Π΅ΡΡΡ Π²Β ΡΠ°ΠΌΠΎΡΡΡΠ½ΡΡ ΡΡΡΠ±Ρ. Π―Π²Π»Π΅Π½ΠΈΠ΅ ΠΏΠΎΠ»ΡΡΠΈΠ»ΠΎ Π½Π°Π·Π²Π°Π½ΠΈΠ΅ Β«ΡΡΡΠ² Π³ΠΈΠ΄ΡΠΎΠ·Π°ΡΠ²ΠΎΡΠ°Β»: ΡΡΠΎΠ±Ρ Π΄Π°Π²Π»Π΅Π½ΠΈΠ΅ Π²Π½ΡΡΡΠΈ ΡΡΡΠ±Ρ ΡΡΠ°Π²Π½ΡΠ»ΠΎΡΡ ΡΒ Π°ΡΠΌΠΎΡΡΠ΅ΡΠ½ΡΠΌ Π΄Π°Π²Π»Π΅Π½ΠΈΠ΅ΠΌ, Π²ΠΎΠ·Π΄ΡΡ ΠΎΡΠΊΡΠ΄Π°-ΡΠΎ Π΄ΠΎΠ»ΠΆΠ΅Π½ ΠΏΠΎΡΡΡΠΏΠΈΡΡ. ΠΡΡΡ Π½Π°ΠΈΠΌΠ΅Π½ΡΡΠ΅Π³ΠΎ ΡΠΎΠΏΡΠΎΡΠΈΠ²Π»Π΅Π½ΠΈΡΒ β ΡΠΈΡΠΎΠ½ (Π³ΠΈΠ΄ΡΠΎΠ·Π°ΡΠ²ΠΎΡ) ΡΠ°ΠΊΠΎΠ²ΠΈΠ½Ρ, ΠΈΠΌΠ΅ΡΡΠΈΠΉ Π½Π°ΠΈΠΌΠ΅Π½ΡΡΡΡ Π²ΡΡΠΎΡΡ Π²ΠΎΠ΄ΡΠ½ΠΎΠ³ΠΎ Π·Π°ΡΠ²ΠΎΡΠ°. ΠΠΎΠ·Π΄ΡΡ Π·Π°ΡΡΠ³ΠΈΠ²Π°Π΅ΡΡΡ ΡΠ΅ΡΠ΅Π· ΡΠΈΡΠΎΠ½, ΠΎΠ΄Π½ΠΎΠ²ΡΠ΅ΠΌΠ΅Π½Π½ΠΎ ΡΒ ΡΡΠΈΠΌ ΠΎΡΡΡΠ΄Π° Π²ΡΡΡΠ³ΠΈΠ²Π°Π΅ΡΡΡ Π²ΠΎΠ΄Π°, ΡΠ°Π·ΡΡΡΠ°Π΅ΡΡΡ Π²ΠΎΠ΄ΡΠ½ΠΎΠΉ Π·Π°ΡΠ²ΠΎΡ.
- ΠΠΎΠ³Π΄Π° ΡΠΈΡΠΎΠ½ ΡΠ΅ΡΡΠ΅Ρ Π²ΠΎΠ΄Ρ ΠΈΠ·Β ΠΊΠΎΠ»Π΅Π½Π°, ΠΊΠ°Π½Π°Π»ΠΈΠ·Π°ΡΠΈΠΎΠ½Π½ΡΠΌ Π·Π°ΠΏΠ°Ρ Π°ΠΌ ΠΎΡΠΊΡΡΠ²Π°Π΅ΡΡΡ ΠΏΡΡΡ Π²Β ΠΏΠΎΠΌΠ΅ΡΠ΅Π½ΠΈΠ΅. ΠΠΎΡΠ»Π΅ ΡΠ΅Π³ΠΎ ΠΊΠ°Π½Π°Π»ΠΈΠ·Π°ΡΠΈΠΎΠ½Π½ΡΠ΅ ΠΈΡΠΏΠ°ΡΠ΅Π½ΠΈΡ ΡΠ²ΠΎΠ±ΠΎΠ΄Π½ΠΎ ΠΏΠΎΡΡΡΠΏΠ°ΡΡ Π²Β ΠΏΠΎΠΌΠ΅ΡΠ΅Π½ΠΈΡ, ΠΈΒ Π²Β ΠΊΠ²Π°ΡΡΠΈΡΠ΅ Π²ΠΎΠ·Π½ΠΈΠΊΠ°Π΅Ρ Ρ Π°ΡΠ°ΠΊΡΠ΅ΡΠ½ΡΠΉ Π·Π°ΠΏΠ°Ρ ΠΊΠ°Π½Π°Π»ΠΈΠ·Π°ΡΠΈΠΈ. ΠΠ°Π½Π°Π»ΠΈΠ·Π°ΡΠΈΠΎΠ½Π½ΡΠ΅ Π·Π°ΠΏΠ°Ρ ΠΈ ΠΌΠΎΠ³ΡΡ Π±ΡΡΡ Π²ΡΠ΅Π΄Π½ΡΠΌΠΈ, ΡΠΎΠΊΡΠΈΡΠ½ΡΠΌΠΈ ΠΈΒ Π΄Π°ΠΆΠ΅ Π²Π·ΡΡΠ²ΠΎΠΎΠΏΠ°ΡΠ½ΡΠΌΠΈ. ΠΠ±ΡΡΠ½ΠΎ ΠΎΠ½ΠΈ ΡΠΎΠ΄Π΅ΡΠΆΠ°Ρ ΠΌΠ΅ΡΠ°Π½, Π½ΠΎΒ ΡΠ°ΠΊΠΆΠ΅ ΠΌΠΎΠ³ΡΡ ΡΠΎΠ΄Π΅ΡΠΆΠ°ΡΡ Π²ΠΈΡΡΡΡ, Π±Π°ΠΊΡΠ΅ΡΠΈΠΈ, ΠΏΠ°ΡΠΎΠ³Π΅Π½Π½ΡΠ΅ Π³ΡΠΈΠ±ΠΊΠΈ ΠΈΒ Π΄ΡΡΠ³ΠΈΠ΅ ΠΎΡΠ³Π°Π½ΠΈΠ·ΠΌΡ.
ΠΠΎΠ½ΡΡΡΡΠΊΡΠΈΡ Π²Π΅Π½ΡΠΈΠ»ΡΡΠΈΠΎΠ½Π½ΡΡ ΠΊΠ»Π°ΠΏΠ°Π½ΠΎΠ²
ΠΠ°ΠΊ ΠΏΡΠ°Π²ΠΈΠ»ΠΎ, Π²Β ΠΊΠΎΠ½ΡΡΡΡΠΊΡΠΈΠΈ ΠΊΠ»Π°ΠΏΠ°Π½Π° ΠΈΠΌΠ΅Π΅ΡΡΡ ΠΊΠΎΡΠΏΡΡ ΡΒ Π±ΠΎΠΊΠΎΠ²ΡΠΌ ΠΎΠΊΠ½ΠΎΠΌ, Π·Π°ΠΊΡΡΡΡΠΌ ΡΠΏΠ΅ΡΠΈΠ°Π»ΡΠ½ΠΎΠΉ ΡΠ΅ΡΠΊΠΎΠΉ, Π·Π°ΡΠΈΡΠ°ΡΡΠ΅ΠΉ ΠΎΡΒ ΠΏΠΎΠΏΠ°Π΄Π°Π½ΠΈΡ Π²Π½ΡΡΡΡ Π½Π°ΡΠ΅ΠΊΠΎΠΌΡΡ . ΠΒ ΠΊΠΎΡΠΏΡΡΠ΅, ΡΡΠ΅Π½ΠΊΠΈ ΠΊΠΎΡΠΎΡΠΎΠ³ΠΎ ΠΈΠΌΠ΅ΡΡ ΡΠ΅ΠΏΠ»ΠΎΠ²ΡΡ ΠΈΠ·ΠΎΠ»ΡΡΠΈΡ, ΡΠ°ΡΠΏΠΎΠ»ΠΎΠΆΠ΅Π½Π° ΠΏΠΎΠ΄Π²ΠΈΠΆΠ½Π°Ρ ΠΌΠ΅ΠΌΠ±ΡΠ°Π½Π°Β β Π΄ΠΈΠ°ΡΡΠ°Π³ΠΌΠ°. ΠΠΎΠΏΠΎΠ»Π½ΠΈΡΠ΅Π»ΡΠ½ΠΎ, Π²Β Π·Π°Π²ΠΈΡΠΈΠΌΠΎΡΡΠΈ ΠΎΡΒ ΠΌΠΎΠ΄Π΅Π»ΠΈ Π²Π΅Π½ΡΠΈΠ»ΡΡΠΈΠΎΠ½Π½ΠΎΠ³ΠΎ ΠΊΠ»Π°ΠΏΠ°Π½Π°, Π²Β ΠΊΠΎΠ½ΡΡΡΡΠΊΡΠΈΠΈ ΠΌΠΎΠΆΠ΅Ρ ΠΏΡΠΈΡΡΡΡΡΠ²ΠΎΠ²Π°ΡΡ ΠΌΠ½ΠΎΠ³ΠΎΡΠ·ΡΡΠΊΠΎΠ²Π°Ρ ΡΠΏΠ»ΠΎΡΠ½ΠΈΡΠ΅Π»ΡΠ½Π°Ρ ΠΌΠ°Π½ΠΆΠ΅ΡΠ°-ΠΏΡΠΎΠΊΠ»Π°Π΄ΠΊΠ° ΠΈΒ ΡΠΏΠ΅ΡΠΈΠ°Π»ΡΠ½ΡΠΉ ΠΏΠ΅ΡΠ΅Ρ ΠΎΠ΄Π½ΠΈΠΊ. ΠΠ΅ΡΠ΅Ρ ΠΎΠ΄Π½ΠΈΠΊ Π΄Π°ΡΡ Π²ΠΎΠ·ΠΌΠΎΠΆΠ½ΠΎΡΡΡ ΠΏΡΠΎΠΈΠ·Π²ΠΎΠ΄ΠΈΡΡ ΡΠ½ΠΈΠ²Π΅ΡΡΠ°Π»ΡΠ½ΡΡ ΡΡΡΠ°Π½ΠΎΠ²ΠΊΡ ΠΊΠ»Π°ΠΏΠ°Π½Π° Π½Π°Β Π½Π΅Π²Π΅Π½ΡΠΈΠ»ΠΈΡΡΠ΅ΠΌΡΠ΅ ΡΡΠΎΡΠΊΠΈ Π½Π΅ΡΠΊΠΎΠ»ΡΠΊΠΈΡ Π΄ΠΈΠ°ΠΌΠ΅ΡΡΠΎΠ² (50, 75 ΠΈΒ 110 ΠΌΠΌ). Π£ΠΏΠ»ΠΎΡΠ½ΠΈΡΠ΅Π»ΡΠ½Π°Ρ ΠΌΠ°Π½ΠΆΠ΅ΡΠ° ΠΎΠ±Π΅ΡΠΏΠ΅ΡΠΈΠ²Π°Π΅Ρ ΠΏΠΎΠ²ΡΡΠ΅Π½Π½ΡΡ Π³Π΅ΡΠΌΠ΅ΡΠΈΡΠ½ΠΎΡΡΡ ΡΡΡΠ°Π½ΠΎΠ²ΠΊΠΈ ΠΊΠΎΠ½ΡΡΡΡΠΊΡΠΈΠΈ.ΠΠ΅Π½ΡΠΈΠ»ΡΡΠΈΠΎΠ½Π½ΡΠ΅ ΠΊΠ»Π°ΠΏΠ°Π½Ρ ΡΠ°Π·Π»ΠΈΡΠ½ΡΡ ΡΠ°Π·ΠΌΠ΅ΡΠΎΠ² Π΄Π°Π²Π½ΠΎ ΠΏΡΠΎΠΈΠ·Π²ΠΎΠ΄ΡΡΡΡ ΠΈΠ·Β ΡΠΈΠ½ΡΠ΅ΡΠΈΡΠ΅ΡΠΊΠΈΡ ΠΌΠ°ΡΠ΅ΡΠΈΠ°Π»ΠΎΠ². ΠΠ½ΡΡΡΠΈ ΠΊΠ»Π°ΠΏΠ°Π½Π° Π½Π°Ρ ΠΎΠ΄ΠΈΡΡΡ ΠΏΠΎΠ΄Π²ΠΈΠΆΠ½Π°Ρ Π΄ΠΈΠ°ΡΡΠ°Π³ΠΌΠ°, ΠΊΠΎΡΠΎΡΠ°Ρ ΠΏΡΠΈ ΠΏΠΎΠ»ΠΎΠΆΠΈΡΠ΅Π»ΡΠ½ΠΎΠΌ ΠΈΠ»ΠΈ Π½Π΅ΠΉΡΡΠ°Π»ΡΠ½ΠΎΠΌ Π΄Π°Π²Π»Π΅Π½ΠΈΠΈ ΠΎΡΡΠ°ΡΡΡΡ Π·Π°ΠΊΡΡΡΠΎΠΉ. ΠΡΠΈ ΡΠΏΡΡΠΊΠ΅ Π²ΠΎΠ΄Ρ, Π²ΠΎΠ·Π½ΠΈΠΊΠ°ΡΡΠ΅Π΅ ΠΎΡΡΠΈΡΠ°ΡΠ΅Π»ΡΠ½ΠΎΠ΅ Π΄Π°Π²Π»Π΅Π½ΠΈΠ΅ Π²Β ΡΡΡΠ±Π°Ρ ΠΊΠ°Π½Π°Π»ΠΈΠ·Π°ΡΠΈΠΈ ΠΎΡΠΊΡΡΠ²Π°Π΅Ρ Π΄ΠΈΠ°ΡΡΠ°Π³ΠΌΡ, Π΄Π°Π²Π°Ρ Π΄ΠΎΡΡΡΠΏ Π²ΠΎΠ·Π΄ΡΡ Ρ Π²Β ΡΠΈΡΡΠ΅ΠΌΡ. ΠΠΎΡΠ»Π΅ Π²ΡΡΠ°Π²Π½ΠΈΠ²Π°Π½ΠΈΡ Π²Π½ΡΡΡΠ΅Π½Π½Π΅Π³ΠΎ ΠΈΒ Π²Π½Π΅ΡΠ½Π΅Π³ΠΎ Π΄Π°Π²Π»Π΅Π½ΠΈΠΉ Π΄ΠΈΠ°ΡΡΠ°Π³ΠΌΠ° Π·Π°ΠΊΡΡΠ²Π°Π΅ΡΡΡ ΠΏΠΎΠ΄ Π²ΠΎΠ·Π΄Π΅ΠΉΡΡΠ²ΠΈΠ΅ΠΌ ΡΠΈΠ» Π³ΡΠ°Π²ΠΈΡΠ°ΡΠΈΠΈ. ΠΡΠΈ Π½Π°Π»ΠΈΡΠΈΠΈ ΠΏΠΎΠ»ΠΎΠΆΠΈΡΠ΅Π»ΡΠ½ΠΎΠ³ΠΎ ΠΈΠ»ΠΈ Π½Π΅ΠΉΡΡΠ°Π»ΡΠ½ΠΎΠ³ΠΎ Π΄Π°Π²Π»Π΅Π½ΠΈΡ Π²Β ΡΠΈΡΡΠ΅ΠΌΠ΅, ΠΎΠ½Π° ΠΎΡΡΠ°ΡΡΡΡ Π³Π΅ΡΠΌΠ΅ΡΠΈΡΠ½ΠΎΠΉ ΠΈΒ Π½Π΅Β ΠΏΠΎΠ·Π²ΠΎΠ»ΡΠ΅Ρ Π·Π°ΠΏΠ°Ρ Π°ΠΌ ΠΏΡΠΎΡΠ°ΡΠΈΠ²Π°ΡΡΡΡ Π½Π°ΡΡΠΆΡ. ΠΠ΅Π½ΡΠΈΠ»ΡΡΠΈΠΎΠ½Π½ΡΠΉ ΠΊΠ»Π°ΠΏΠ°Π½ ΡΡΠ°Π±ΠΈΠ»ΠΈΠ·ΠΈΡΡΠ΅Ρ Π΄Π°Π²Π»Π΅Π½ΠΈΠ΅ Π²Β ΡΡΡΠ±Π΅. ΠΠΎΠ³Π΄Π° ΠΎΠ½ΠΎ ΡΡΠ°Π²Π½ΠΈΠ²Π°Π΅ΡΡΡ ΡΒ Π°ΡΠΌΠΎΡΡΠ΅ΡΠ½ΡΠΌ Π΄Π°Π²Π»Π΅Π½ΠΈΠ΅ΠΌ, ΠΊΠ»Π°ΠΏΠ°Π½ Π·Π°ΠΊΡΡΠ²Π°Π΅ΡΡΡ. ΠΡΠΈ Π½Π΅ΠΉΡΡΠ°Π»ΡΠ½ΠΎΠΌ ΠΈΠ»ΠΈ ΠΏΠΎΠ»ΠΎΠΆΠΈΡΠ΅Π»ΡΠ½ΠΎΠΌ Π΄Π°Π²Π»Π΅Π½ΠΈΠΈ Π΄ΠΈΠ°ΡΡΠ°Π³ΠΌΠ° ΠΎΡΡΠ°ΡΡΡΡ Π·Π°ΠΊΡΡΡΠΎΠΉ, ΡΠ΄Π΅ΡΠΆΠΈΠ²Π°Ρ ΠΏΠ»ΠΎΡ ΠΎΠΉ Π²ΠΎΠ·Π΄ΡΡ Π²Β ΡΠΈΡΡΠ΅ΠΌΠ΅.
ΠΠΎΠ·Π΄ΡΡΠ½ΡΠΉ ΠΊΠ»Π°ΠΏΠ°Π½ ΡΠ°ΠΊΠΆΠ΅ ΡΠ»ΡΠΆΠΈΡ Π²Β ΡΠΈΡΡΠ΅ΠΌΠ΅ ΠΏΡΠ΅Π΄ΡΠΏΡΠ΅ΠΆΠ΄Π΅Π½ΠΈΡ Π·Π°ΡΠΎΡΠ΅Π½ΠΈΡ ΡΡΡΠ± ΠΊΠ°Π½Π°Π»ΠΈΠ·Π°ΡΠΈΠΈ, ΠΏΡΠΈ Π½Π°Π»ΠΈΡΠΈΠΈ Π·Π°ΡΠΎΡΠ°, Π²ΠΎΒ Π²ΡΠ΅ΠΌΡ ΡΠΏΡΡΠΊΠ° ΡΡΠ°Π»Π΅ΡΠ°, Π²ΠΎΠ·Π΄ΡΡ Π½Π°ΠΎΠ±ΠΎΡΠΎΡ Π²ΡΡΠ΅ΡΠ½ΡΠ΅ΡΡΡ ΠΈΠ·Β ΡΡΠΎΡΠΊΠ°. ΠΡΠΎ ΡΠΎΠ·Π΄Π°ΡΡ Π²Β ΡΠΈΡΡΠ΅ΠΌΠ΅ ΠΏΠΎΠ»ΠΎΠΆΠΈΡΠ΅Π»ΡΠ½ΠΎΠ΅ Π΄Π°Π²Π»Π΅Π½ΠΈΠ΅. ΠΡΠΈ Π½Π°Π»ΠΈΡΠΈΠΈ Π²Β ΡΠΈΡΡΠ΅ΠΌΠ΅ ΠΏΠΎΠ»ΠΎΠΆΠΈΡΠ΅Π»ΡΠ½ΠΎΠ³ΠΎ Π΄Π°Π²Π»Π΅Π½ΠΈΡ ΠΊΠ»Π°ΠΏΠ°Π½ Π½Π΅Β ΡΡΠ°Π±Π°ΡΡΠ²Π°Π΅Ρ, ΠΈΒ Π²ΠΎΠ·Π΄ΡΡ Π²ΡΡ ΠΎΠ΄ΠΈΡ ΡΠ΅ΡΠ΅Π· ΡΠΈΡΠΎΠ½. ΠΠΎΠ΄Π° ΠΈΒ Π³ΡΡΠ·Ρ Π²ΡΡΠ°Π»ΠΊΠΈΠ²Π°ΡΡΡΡ Π²Β ΡΠ°ΠΊΠΎΠ²ΠΈΠ½Ρ. ΠΠΎΠ³Π΄Π° Π²ΠΎΠ΄Π° ΡΠΉΠ΄ΡΡ ΠΎΠ±ΡΠ°ΡΠ½ΠΎ Π²Β ΡΠΈΡΠΎΠ½, Π²ΠΎΡΡΡΠ°Π½Π°Π²Π»ΠΈΠ²Π°Ρ Π²ΠΎΠ΄Π½ΡΠΉ Π·Π°ΡΠ²ΠΎΡ, Π³ΡΡΠ·Ρ ΠΎΡΡΠ°Π½Π΅ΡΡΡ Π²Β ΡΠ°ΠΊΠΎΠ²ΠΈΠ½Π΅. Π―Π²Π»ΡΡΡΡ ΠΏΠΎΠΊΠ°Π·Π°ΡΠ΅Π»Π΅ΠΌ ΡΠΎΠ³ΠΎ, ΡΡΠΎ ΡΠΈΡΡΠ΅ΠΌΠ° ΡΠΊΠΎΡΠΎ Π·Π°Π±Π»ΠΎΠΊΠΈΡΡΠ΅ΡΡΡ.
ΠΡΠ½ΠΎΠ²Π½ΡΠ΅ ΠΊΡΠΈΡΠ΅ΡΠΈΠΈ ΠΏΡΠΈΠΌΠ΅Π½Π΅Π½ΠΈΡ ΠΊΠ»Π°ΠΏΠ°Π½Π°
- ΠΠΎΠ·Π΄ΡΡΠ½ΡΠΉ ΠΊΠ»Π°ΠΏΠ°Π½ Π΄ΠΎΠ»ΠΆΠ΅Π½ ΠΎΠ±Π΅ΡΠΏΠ΅ΡΠΈΠ²Π°ΡΡ Π³Π΅ΡΠΌΠ΅ΡΠΈΡΠ½ΠΎΡΡΡ ΠΏΡΠΈ Π½ΠΈΠ·ΠΊΠΈΡ Π΄Π°Π²Π»Π΅Π½ΠΈΡΡ . ΠΠ»Ρ ΡΠΈΡΡΠ΅ΠΌ ΡΒ ΠΏΠΎΠ΄ΠΊΠ»ΡΡΠ΅Π½ΠΈΠ΅ΠΌ Π΄ΠΎΒ 4-Ρ ΠΆΠΈΠ»ΡΡ ΠΏΠΎΠΌΠ΅ΡΠ΅Π½ΠΈΠΉ ΠΈΒ Π²ΡΡΠΎΡΠΎΠΉ Π΄ΠΎΒ 3-Ρ ΡΡΠ°ΠΆΠ΅ΠΉ, Π½Π°Π»ΠΈΡΠΈΠ΅ Π΄ΠΎΠΏΠΎΠ»Π½ΠΈΡΠ΅Π»ΡΠ½ΠΎΠ³ΠΎ ΠΊΠ»Π°ΠΏΠ°Π½Π° Π½Π΅Β ΡΡΠ΅Π±ΡΠ΅ΡΡΡ. ΠΡΠ΅Π²ΠΈΠ΄Π½ΠΎ, ΡΡΠΎ Π΄Π»Ρ Π½Π°Π΄ΡΠΆΠ½ΠΎΠ³ΠΎ ΠΎΡΠ²ΠΎΠ΄Π° ΡΠ°ΡΡΡΡΠ½ΠΎΠ³ΠΎ ΠΊΠΎΠ»ΠΈΡΠ΅ΡΡΠ²Π° ΡΠ»ΠΈΠ²Π½ΡΡ Π²ΠΎΠ΄, Π΄ΠΈΠ°ΠΌΠ΅ΡΡ ΡΡΡΠ±Ρ ΡΡΠΎΡΠΊΠ° Π΄ΠΎΠ»ΠΆΠ΅Π½ ΠΏΡΠ΅Π²ΡΡΠ°ΡΡ ΡΠ°ΠΌΡΠΉ Π±ΠΎΠ»ΡΡΠΎΠΉ Π΄ΠΈΠ°ΠΌΠ΅ΡΡ Π³ΠΎΡΠΈΠ·ΠΎΠ½ΡΠ°Π»ΡΠ½ΠΎΠ³ΠΎ ΡΠ»ΠΈΠ²Π°, ΡΡΠΎΠ±Ρ ΠΊΠΎΠ»ΠΈΡΠ΅ΡΡΠ²ΠΎ ΠΏΠΎΡΡΡΠΏΠ°ΡΡΠ΅Π³ΠΎ Π²ΠΎΠ·Π΄ΡΡ Π° ΡΠΏΠΎΡΠΎΠ±ΡΡΠ²ΠΎΠ²Π°Π»ΠΎ Π²ΡΡΠ°Π²Π½ΠΈΠ²Π°Π½ΠΈΡ ΠΎΡΡΠΈΡΠ°ΡΠ΅Π»ΡΠ½ΠΎΠ³ΠΎ Π΄Π°Π²Π»Π΅Π½ΠΈΡ Π²Β ΡΡΡΠ±Π΅.
- Π’.ΠΊ. Π²Π΅Π½ΡΠΈΠ»ΡΡΠΈΠΎΠ½Π½ΡΠΉ ΠΊΠ»Π°ΠΏΠ°Π½ Π½Π°Β Π½Π΅Π²Π΅Π½ΡΠΈΠ»ΠΈΡΡΠ΅ΠΌΡΠΉ ΡΡΠΎΡΠΊ ΠΌΠΎΠΆΠ΅Ρ ΠΏΡΠΈΠΌΠ΅Π½ΡΡΡΡΡ Π²Β Π»ΡΠ±ΠΎΠΌ ΡΠ»ΡΡΠ°Π΅ ΠΏΡΠΈ Π½Π΅Π²ΠΎΠ·ΠΌΠΎΠΆΠ½ΠΎΡΡΠΈ ΠΈΠ»ΠΈ Π½Π΅ΠΆΠ΅Π»Π°ΡΠ΅Π»ΡΠ½ΠΎΡΡΠΈ Π²ΡΡ ΠΎΠ΄Π° Π½Π°Β ΠΊΡΡΡΡ, ΡΒ Π½Π΅Π³ΠΎ Π΄ΠΎΠ»ΠΆΠ΅Π½ Π±ΡΡΡ Π·Π°ΠΏΠ°Ρ ΠΌΠΎΡΠ½ΠΎΡΡΠΈ, Π΄ΠΎΡΡΠ°ΡΠΎΡΠ½ΡΠΉ Π΄Π»Ρ ΠΏΠΎΠ΄Π΄Π΅ΡΠΆΠ°Π½ΠΈΡ ΠΏΠΎΡΡΠΎΡΠ½Π½ΠΎΠ³ΠΎ Π΄Π°Π²Π»Π΅Π½ΠΈΡ Π²Β ΡΠΈΡΡΠ΅ΠΌΠ°Ρ , ΡΠ°Π±ΠΎΡΠ°ΡΡΠΈΡ ΠΊΡΠ°ΡΠΊΠΎΠ²ΡΠ΅ΠΌΠ΅Π½Π½ΠΎ (Π΄ΠΎΠΌ, ΠΎΡΠΈΡ, Π±ΠΎΠ»ΡΠ½ΠΈΡΠ°, ΡΠΊΠΎΠ»Π°, Π³ΠΎΡΡΠΈΠ½ΠΈΡΠ° ΠΈΠ»ΠΈ ΠΎΠ±ΡΠ΅ΡΡΠ²Π΅Π½Π½ΡΠΉ ΡΡΠ°Π»Π΅Ρ). ΠΠΎΠ·Π΄ΡΡΠ½ΡΠΉ ΠΊΠ»Π°ΠΏΠ°Π½ ΠΈΠΌΠ΅Π΅Ρ Ρ Π°ΡΠ°ΠΊΡΠ΅ΡΠΈΡΡΠΈΠΊΡ ΠΏΡΠΎΠΏΡΡΠΊΠ½ΠΎΠΉ ΡΠΏΠΎΡΠΎΠ±Π½ΠΎΡΡΠΈ Π²ΠΎΠ·Π΄ΡΡ Π°, ΠΏΡΠΈΠΌΠ΅ΡΠ½ΠΎ ΠΎΡΒ 32 Π΄ΠΎΒ 47 Π»ΠΈΡΡΠΎΠ²/ΡΠ΅ΠΊΡΠ½Π΄Ρ, ΠΏΡΠΈ ΠΎΡΡΠΈΡΠ°ΡΠ΅Π»ΡΠ½ΠΎΠΌ Π΄Π°Π²Π»Π΅Π½ΠΈΠΈ Π²Β 250 ΠΠ°. ΠΡΠΎΡ ΠΏΠΎΠΊΠ°Π·Π°ΡΠ΅Π»Ρ Π΄ΠΎΠ»ΠΆΠ΅Π½ ΠΏΡΠ΅Π²ΡΡΠ°ΡΡ Π½ΠΎΡΠΌΡ ΠΈΒ ΡΡΠ°Π½Π΄Π°ΡΡΡ, ΡΡΠΎΠ±Ρ Π³Π°ΡΠ°Π½ΡΠΈΡΠΎΠ²Π°Π½Π½ΠΎ ΠΎΠ±Π΅ΡΠΏΠ΅ΡΠΈΠ²Π°ΡΡ ΠΏΠΎΡΡΡΠΏΠ»Π΅Π½ΠΈΠ΅ Π²ΠΎΠ·Π΄ΡΡ Π° Π²Β Π½Π΅ΠΎΠ±Ρ ΠΎΠ΄ΠΈΠΌΠΎΠΌ ΠΊΠΎΠ»ΠΈΡΠ΅ΡΡΠ²Π΅.
- ΠΡΠΈ ΡΠ°Π±ΠΎΡΠ΅ ΡΒ ΠΌΠ½ΠΎΠ³ΠΎΡΡΠ°ΠΆΠ½ΡΠΌΠΈ Π·Π΄Π°Π½ΠΈΡΠΌΠΈ ΠΎΡΠΎΠ±Π΅Π½Π½ΠΎ Π²Π°ΠΆΠ½ΠΎ ΠΏΡΠΈΠ½ΠΈΠΌΠ°ΡΡ Π²ΠΎΒ Π²Π½ΠΈΠΌΠ°Π½ΠΈΠ΅ ΠΏΡΠΎΠΏΡΡΠΊΠ½ΡΡ ΡΠΏΠΎΡΠΎΠ±Π½ΠΎΡΡΡ ΠΊΠ»Π°ΠΏΠ°Π½ΠΎΠ², ΠΈΡ Β ΡΠΎΠΎΡΠ²Π΅ΡΡΡΠ²ΠΈΠ΅ ΡΡΡΠΎΠΈΡΠ΅Π»ΡΠ½ΡΠΌ Π½ΠΎΡΠΌΠ°ΠΌ ΠΈΒ ΡΡΠ°Π½Π΄Π°ΡΡΠ°ΠΌ. Π§Π°ΡΡΠΎ Π²Β Π½ΠΈΡ Π³ΠΎΠ²ΠΎΡΠΈΡΡΡ, ΡΡΠΎ ΠΏΡΠΎΠΏΡΡΠΊΠ½Π°Ρ ΡΠΏΠΎΡΠΎΠ±Π½ΠΎΡΡΡ ΠΊΠ»Π°ΠΏΠ°Π½Π° Π΄ΠΎΠ»ΠΆΠ½Π° ΠΈΠΌΠ΅ΡΡ, ΠΊΠ°ΠΊ ΠΌΠΈΠ½ΠΈΠΌΡΠΌ, ΠΏΡΡΠΈΠΊΡΠ°ΡΠ½ΠΎΠ΅ ΠΏΡΠ΅Π²ΡΡΠ΅Π½ΠΈΠ΅ ΠΌΠ°ΠΊΡΠΈΠΌΠ°Π»ΡΠ½ΠΎΠ³ΠΎ ΠΏΠΎΠΊΠ°Π·Π°ΡΠ΅Π»Ρ ΠΏΡΠΎΠΏΡΡΠΊΠ½ΠΎΠΉ ΡΠΏΠΎΡΠΎΠ±Π½ΠΎΡΡΠΈ ΡΡΠΎΡΠΊΠ°. ΠΠΎΠ³Π΄Π° Π²Π΅Π½ΡΠΈΠ»ΡΡΠΈΠΎΠ½Π½ΡΠΉ ΠΊΠ»Π°ΠΏΠ°Π½ ΡΡΡΠ°Π½ΠΎΠ²Π»Π΅Π½ Π½Π°Β ΡΡΠΎΡΠΊ Π·Π΄Π°Π½ΠΈΡ Π²ΡΡΠ΅ ΡΠ΅ΡΡΡΡΡ ΡΡΠ°ΠΆΠ΅ΠΉ, ΡΡΡΠ΅ΡΡΠ²ΡΡΡ ΠΎΡΠΎΠ±ΡΠ΅ ΠΏΡΠ°Π²ΠΈΠ»Π° ΠΎΡΡΡΠ΅ΡΡΠ²Π»Π΅Π½ΠΈΡ Π²Π΅Π½ΡΠΈΠ»ΡΡΠΈΠΈ.
- ΠΡΠΈΠΌΠ΅Π½Π΅Π½ΠΈΠ΅ Π²Π΅Π½ΡΠΈΠ»ΡΡΠΈΠΎΠ½Π½ΡΡ ΠΊΠ»Π°ΠΏΠ°Π½ΠΎΠ² ΡΠ΅Π³ΡΠ»ΠΈΡΡΠ΅ΡΡΡ ΠΎΡΡΠ°ΡΠ»Π΅Π²ΡΠΌΠΈ ΡΡΠ°Π½Π΄Π°ΡΡΠ°ΠΌΠΈ ΠΈΒ Π½ΠΎΡΠΌΠ°ΠΌΠΈ. ΠΒ ΡΠ°Π±ΠΎΡΠ°Ρ ΠΏΠΎΒ ΠΏΡΠΎΠ΅ΠΊΡΠ½ΠΎΠΌΡ ΠΌΠΎΠ΄Π΅Π»ΠΈΡΠΎΠ²Π°Π½ΠΈΡ Π½ΠΎΠ²ΡΡ ΠΊΠ°Π½Π°Π»ΠΈΠ·Π°ΡΠΈΠΎΠ½Π½ΡΡ ΡΠΈΡΡΠ΅ΠΌ Π²Β ΡΡΡΠΎΡΡΠ΅ΠΌΡΡ Π·Π΄Π°Π½ΠΈΠΈ ΠΈΠ»ΠΈ Π²Π½Π΅ΡΠ΅Π½ΠΈΡ ΠΈΠ·ΠΌΠ΅Π½Π΅Π½ΠΈΠΉ Π²Β ΡΠΆΠ΅ ΡΡΡΠ΅ΡΡΠ²ΡΡΡΠΈΠ΅ ΡΠΈΡΡΠ΅ΠΌΡ, Π½ΡΠΆΠ½ΠΎ ΡΡΠΈΡΡΠ²Π°ΡΡ ΠΏΡΠΎΠΏΡΡΠΊΠ½ΡΡ ΡΠΏΠΎΡΠΎΠ±Π½ΠΎΡΡΡ ΠΈΡΠΏΠΎΠ»ΡΠ·ΡΠ΅ΠΌΡΡ Π²ΠΎΠ·Π΄ΡΡΠ½ΡΡ ΠΊΠ»Π°ΠΏΠ°Π½ΠΎΠ², Π½Π°ΠΏΡΡΠΌΡΡ ΡΠ²ΡΠ·Π°Π½Π½ΡΡ ΡΒ ΡΠ°ΠΊΠΈΠΌ ΠΏΠΎΠΊΠ°Π·Π°ΡΠ΅Π»Π΅ΠΌ, ΠΊΠ°ΠΊ ΡΠΆΠ΅ΠΊΡΠΈΠΎΠ½Π½Π°Ρ (Π²ΡΡΠ³ΠΈΠ²Π°ΡΡΠ°Ρ) ΡΠΏΠΎΡΠΎΠ±Π½ΠΎΡΡΡ Π²ΠΎΠ΄Ρ. Π§Π΅ΠΌ Π±ΠΎΠ»ΡΡΠ΅ ΠΎΠ±ΡΡΠΌΡ ΡΠ»ΠΈΠ²Π°, ΡΠ΅ΠΌ Π±ΠΎΠ»ΡΡΠ΅ΠΉ ΠΏΡΠΎΠΏΡΡΠΊΠ½ΠΎΠΉ ΡΠΏΠΎΡΠΎΠ±Π½ΠΎΡΡΡΡ Π΄ΠΎΠ»ΠΆΠ΅Π½ ΠΎΠ±Π»Π°Π΄Π°ΡΡ ΠΊΠ»Π°ΠΏΠ°Π½.
ΠΠΎΠΌΠ±ΠΈΠ½ΠΈΡΠΎΠ²Π°Π½Π½ΡΠ΅ ΠΊΠΎΠ½ΡΡΡΡΠΊΡΠΈΠΈ
ΠΠΎΠΌΠΈΠΌΠΎ ΠΊΠ»Π°ΠΏΠ°Π½ΠΎΠ², Π²ΡΠΏΠΎΠ»Π½Π΅Π½Π½ΡΡ Π²Β Π²ΠΈΠ΄Π΅ ΠΎΡΠ΄Π΅Π»ΡΠ½ΠΎΠΉ ΠΊΠΎΠ½ΡΡΡΡΠΊΡΠΈΠΈ, ΠΌΠΎΠ³ΡΡ ΠΏΡΠΈΠΌΠ΅Π½ΡΡΡΡΡ ΡΠΏΠ΅ΡΠΈΠ°Π»ΡΠ½ΡΠ΅ ΡΠΈΡΠΎΠ½Ρ ΡΒ Π²ΡΡΡΠΎΠ΅Π½Π½ΡΠΌ Π²ΠΎΠ·Π΄ΡΡΠ½ΡΠΌ Π²Π΅Π½ΡΠΈΠ»ΡΡΠΈΠΎΠ½Π½ΡΠΌ ΠΊΠ»Π°ΠΏΠ°Π½ΠΎΠΌ. ΠΠ½ΠΈ ΠΏΠΎΠ·Π²ΠΎΠ»ΡΡΡ Π΄ΠΎΡΡΠ°ΡΠΎΡΠ½ΠΎ ΠΏΡΠΎΡΡΠΎ ΠΏΡΠ΅Π΄ΡΠΏΡΠ΅ΠΆΠ΄Π°ΡΡ ΠΏΠΎΡΠ»Π΅Π΄ΡΡΠ²ΠΈΡ ΠΎΡΡΠΈΡΠ°ΡΠ΅Π»ΡΠ½ΠΎΠ³ΠΎ Π΄Π°Π²Π»Π΅Π½ΠΈΡ Π²Β ΠΊΠ°Π½Π°Π»ΠΈΠ·Π°ΡΠΈΠΎΠ½Π½ΠΎΠΉ ΡΠΈΡΡΠ΅ΠΌΠ΅, Π±Π΅Π· ΡΡΡΠ°Π½ΠΎΠ²ΠΊΠΈ Π²Π΅Π½ΡΠΈΠ»ΡΡΠΈΠΎΠ½Π½ΠΎΠ³ΠΎ ΠΊΠ»Π°ΠΏΠ°Π½Π° Π½Π°Β ΡΠ΅ΡΠ΄Π°ΠΊΠ΅ Π·Π΄Π°Π½ΠΈΡ.Π’Π°ΠΊΠ°Ρ ΠΌΠΎΠ΄Π΅Π»Ρ ΡΠΈΡΠΎΠ½Π° ΠΈΡΠΏΠΎΠ»ΡΠ·ΡΠ΅Ρ ΡΠ°ΡΡΠΌΠΎΡΡΠ΅Π½Π½ΡΠΉ ΡΠ°Π½Π΅Π΅ ΠΏΡΠΈΠ½ΡΠΈΠΏ ΡΠ°Π±ΠΎΡΡ Π²ΠΎΠ·Π΄ΡΡΠ½ΠΎΠ³ΠΎ ΠΊΠ»Π°ΠΏΠ°Π½Π°. ΠΠΈΠ°ΡΡΠ°Π³ΠΌΠ° ΡΠΈΡΠΎΠ½Π° ΠΏΡΠΈ ΠΎΡΡΠΈΡΠ°ΡΠ΅Π»ΡΠ½ΠΎΠΌ Π΄Π°Π²Π»Π΅Π½ΠΈΠΈ ΠΎΡΠΊΡΡΠ²Π°Π΅ΡΡΡ Π΄ΠΎΒ ΡΠΎΠ³ΠΎ, ΠΊΠ°ΠΊ Π²ΡΠ±ΠΈΠ²Π°Π΅ΡΡΡ Π²ΠΎΠ΄Π½ΡΠΉ Π·Π°ΡΠ²ΠΎΡ ΡΠΈΡΠΎΠ½Π°.
ΠΡΠ½ΠΎΠ²Π½ΡΠ΅ ΡΠ΅ΠΊΠΎΠΌΠ΅Π½Π΄Π°ΡΠΈΠΈ ΠΏΠΎΒ ΡΡΡΠ°Π½ΠΎΠ²ΠΊΠ΅
Π£ΡΡΠ°Π½ΠΎΠ²ΠΊΠ° Π²Π΅Π½ΡΠΈΠ»ΡΡΠΈΠΎΠ½Π½ΠΎΠ³ΠΎ ΠΊΠ»Π°ΠΏΠ°Π½Π° ΠΌΠΎΠΆΠ΅Ρ ΠΎΡΡΡΠ΅ΡΡΠ²Π»ΡΡΡΡΡ:
- Π²Π΅ΡΡΠΈΠΊΠ°Π»ΡΠ½ΠΎ;
- Π³ΠΎΡΠΈΠ·ΠΎΠ½ΡΠ°Π»ΡΠ½ΠΎ;
- Π½Π°Β ΡΠ΅ΡΠ΄Π°ΠΊΠ΅ ΠΈΠ»ΠΈ Π²Β ΠΏΠΎΠΌΠ΅ΡΠ΅Π½ΠΈΠΈ.
ΠΡΡ Π·Π°Π²ΠΈΡΠΈΡ ΠΎΡΒ ΠΊΠΎΠ½ΡΡΡΡΠΊΡΠΈΠΈ ΠΈΒ ΡΠΏΠΎΡΠΎΠ±Π° ΠΌΠΎΠ½ΡΠ°ΠΆΠ°. Π‘ΡΡΠ΅ΡΡΠ²ΡΡΡΠΈΠ΅ ΡΠ΅ΠΊΠΎΠΌΠ΅Π½Π΄Π°ΡΠΈΠΈ ΠΏΠΎΒ ΠΊΠ»Π°ΠΏΠ°Π½Ρ Π½Π°Β Π½Π΅ΠΎΡΠ°ΠΏΠ»ΠΈΠ²Π°Π΅ΠΌΠΎΠΌ ΡΠ΅ΡΠ΄Π°ΠΊΠ΅ Π²ΠΊΠ»ΡΡΠ°ΡΡ ΡΡΠ΅ΠΏΠ»Π΅Π½ΠΈΠ΅ ΡΡΠΎΡΠΊΠ°, ΠΏΡΠΈ ΡΡΠΎΠΌ ΡΠ°ΠΌ ΠΊΠ»Π°ΠΏΠ°Π½ ΡΡΠ΅ΠΏΠ»ΡΡΡ Π½Π΅Ρ Π½Π°Π΄ΠΎΠ±Π½ΠΎΡΡΠΈ, Ρ. ΠΊ. Π²ΠΎΠ·Π΄ΡΡΠ½Π°Ρ ΠΏΡΠΎΡΠ»ΠΎΠΉΠΊΠ° ΠΌΠ΅ΠΆΠ΄Ρ ΠΊΡΡΡΠΊΠΎΠΉ ΠΈΒ ΠΊΠΎΡΠΏΡΡΠΎΠΌ ΡΠ»ΡΠΆΠΈΡ Ρ ΠΎΡΠΎΡΠΈΠΌ ΡΠ΅ΠΏΠ»ΠΎΠΈΠ·ΠΎΠ»ΡΡΠΎΡΠΎΠΌ.
ΠΠ»Ρ ΠΏΡΠ΅Π΄ΠΎΡ ΡΠ°Π½Π΅Π½ΠΈΡ ΠΏΠΎΠ΄Π²ΠΈΠΆΠ½ΠΎΠΉ ΠΌΠ΅ΠΌΠ±ΡΠ°Π½Ρ ΠΎΡΒ ΠΏΠΎΠΏΠ°Π΄Π°Π½ΠΈΡ Π²Π»Π°Π³ΠΈ ΠΈΒ Π³ΡΡΠ·ΠΈ, Π½Π°ΡΡΡΠ°ΡΡΠΈΡ Π³Π΅ΡΠΌΠ΅ΡΠΈΡΠ½ΠΎΡΡΡ ΠΊΠΎΠ½ΡΡΡΡΠΊΡΠΈΠΈ, ΠΊΠ»Π°ΠΏΠ°Π½ ΡΡΡΠ°Π½Π°Π²Π»ΠΈΠ²Π°Π΅ΡΡΡ Π½Π°Β 30 ΠΈΒ Π±ΠΎΠ»Π΅Π΅ ΡΠ°Π½ΡΠΈΠΌΠ΅ΡΡΠΎΠ² Π²ΡΡΠ΅ Π²Π΅ΡΡ Π½Π΅ΠΉ ΡΠ°ΠΌΠΎΡΡΡΠ½ΠΎΠΉ ΡΡΡΠ±Ρ ΡΒ ΠΏΠΎΠ΄ΠΊΠ»ΡΡΠ΅Π½Π½ΡΠΌΠΈ ΡΠ°Π½ΠΈΡΠ°ΡΠ½ΡΠΌΠΈ ΠΏΡΠΈΠ±ΠΎΡΠ°ΠΌΠΈ Π½Π°Β ΡΠ°ΡΡΡΠΎΡΠ½ΠΈΠΈ Π½Π΅Β ΠΌΠ΅Π½Π΅Π΅ 20 ΡΠ°Π½ΡΠΈΠΌΠ΅ΡΡΠΎΠ² ΠΎΡΒ Π±Π»ΠΈΠΆΠ°ΠΉΡΠ΅Π³ΠΎ ΡΠΈΡΠΎΠ½Π°. ΠΡΠΈ ΡΡΡΠ°Π½ΠΎΠ²ΠΊΠ΅ ΠΊΠ»Π°ΠΏΠ°Π½Π° Π²Β Π²Π°Π½Π½ΠΎΠΉ ΠΈΠ»ΠΈ ΡΡΠ°Π»Π΅ΡΠ΅, ΡΠΏΠ΅ΡΠΈΠ°Π»ΠΈΡΡΡ ΡΠΎΠ²Π΅ΡΡΡΡ ΠΎΡΠΎΠ±Π΅Π½Π½ΠΎ ΡΡΠ°ΡΠ΅Π»ΡΠ½ΠΎ ΠΊΠΎΠ½ΡΡΠΎΠ»ΠΈΡΠΎΠ²Π°ΡΡ Π²ΠΎΠ·ΠΌΠΎΠΆΠ½ΠΎΡΡΡ ΡΠ²ΠΎΠ±ΠΎΠ΄Π½ΠΎΠ³ΠΎ Π΄ΠΎΡΡΡΠΏΠ° Π²ΠΎΠ·Π΄ΡΡ Π°. ΠΡΠΆΠ½ΠΎ ΠΏΠΎΠΌΠ½ΠΈΡΡ, ΡΡΠΎ Π²ΠΎΠ΄Π° ΠΎΠ±Π»Π°Π΄Π°Π΅Ρ ΠΏΠΎΠ²ΡΡΠ΅Π½Π½ΠΎΠΉ ΡΠΆΠ΅ΠΊΡΠΎΡΠ½ΠΎΠΉ ΡΠΏΠΎΡΠΎΠ±Π½ΠΎΡΡΡΡ, ΡΠ²Π»Π΅ΠΊΠ°Ρ Π·Π°Β ΡΠΎΠ±ΠΎΠΉ Π²ΠΎΠ·Π΄ΡΡ Π²Β 25 ΡΠ°Π· Π±ΠΎΠ»ΡΡΠ΅ ΡΠ²ΠΎΠ΅Π³ΠΎ ΠΎΠ±ΡΡΠΌΠ°.
ΠΠΈΠ΄Π΅ΠΎ
ΠΡΠ»ΠΈΡΠ½ΠΎΠ΅ Π²ΠΈΠ΄Π΅ΠΎ, Π½Π°Π³Π»ΡΠ΄Π½ΠΎ ΠΏΠΎΠΊΠ°Π·ΡΠ²Π°ΡΡΠ΅Π΅ ΠΊΠ°ΠΊ ΠΏΡΠΈΠ½ΡΠΈΠΏ ΡΠ°Π±ΠΎΡΡ ΡΠ°ΠΊΠΎΠ³ΠΎ ΠΊΠ»Π°ΠΏΠ°Π½Π°, ΡΠ°ΠΊ ΠΈΒ ΠΈΠ»Π»ΡΡΡΡΠΈΡΡΡΡΠ΅Π΅ Π½Π΅ΠΎΠ±Ρ ΠΎΠ΄ΠΈΠΌΠΎΡΡΡ Π΅Π³ΠΎ ΠΏΡΠΈΠΌΠ΅Π½Π΅Π½ΠΈΡ. ΠΠΎΡΠΌΠΎΡΡΠΈΡΠ΅ ΠΎΠ±ΡΠ·Π°ΡΠ΅Π»ΡΠ½ΠΎ, ΠΎΠ½ΠΎ ΡΠΎΠ³ΠΎ Π΄ΠΎΡΡΠΎΠΉΠ½ΠΎ.
ΠΠΏΡΠΎΡΠ΅ΠΌ, Π²ΡΠ΅ ΠΈΡΡΠΎΡΠ½ΠΈΠΊΠΈ ΡΠΎΠ³Π»Π°ΡΠ°ΡΡΡΡ, ΡΡΠΎ ΠΏΡΠ°Π²ΠΈΠ»ΡΠ½Π°Ρ ΡΡΡΠ°Π½ΠΎΠ²ΠΊΠ° Π²Π΅Π½ΡΠΈΠ»ΡΡΠΈΠΎΠ½Π½ΠΎΠ³ΠΎ ΠΊΠ»Π°ΠΏΠ°Π½Π° Π³Π°ΡΠ°Π½ΡΠΈΡΡΠ΅Ρ Π½Π°Π΄ΡΠΆΠ½ΡΡ ΡΠ°Π±ΠΎΡΡ ΠΊΠ°Π½Π°Π»ΠΈΠ·Π°ΡΠΈΠΈ ΠΈΒ ΠΏΡΠ΅Π΄ΠΎΡΠ²ΡΠ°ΡΠ°Π΅Ρ ΠΏΠΎΠΏΠ°Π΄Π°Π½ΠΈΠ΅ ΠΈΡΠΏΠ°ΡΠ΅Π½ΠΈΠΉ ΠΈΠ·Β ΡΠ°Π½ΠΎΠ²ΠΎΠΉ ΡΠΈΡΡΠ΅ΠΌΡ. ΠΠΎΒ ΠΌΠ½Π΅Π½ΠΈΡ Π±ΠΎΠ»ΡΡΠΈΠ½ΡΡΠ²Π°, ΠΈΠΌΠ΅Π½Π½ΠΎ Π²Π΅Π½ΡΠΈΠ»ΡΡΠΈΠΎΠ½Π½ΡΠΉ ΠΊΠ»Π°ΠΏΠ°Π½ ΡΠΏΠΎΡΠΎΠ±Π΅Π½ Π»ΡΡΡΠ΅ Π²ΡΠ΅Π³ΠΎ ΡΠ΅ΡΠΈΡΡ Π²ΠΎΠΏΡΠΎΡ Π½Π°Π΄ΡΠΆΠ½ΠΎΠΉ ΡΠ°Π±ΠΎΡΡ ΠΊΠ°Π½Π°Π»ΠΈΠ·Π°ΡΠΈΠΈ Π²Β Π΄ΠΎΠΌΠ°Ρ Π΄ΠΎΒ ΡΡΡΡ ΡΡΠ°ΠΆΠ΅ΠΉ. ΠΠ°ΠΆΠ΅ Π²Β ΠΌΠ½ΠΎΠ³ΠΎΠΏΠΎΠ΄ΡΠ΅Π·Π΄Π½ΡΡ Π΄ΠΎΠΌΠ°Ρ ΡΠ°ΠΊΠΎΠΉ ΡΡΠ°ΠΆΠ½ΠΎΡΡΠΈ, ΠΌΠΎΠΆΠ½ΠΎ ΠΎΠ±ΡΠ΅Π΄ΠΈΠ½ΠΈΡΡ 3β4 ΡΡΠΎΡΠΊΠ° ΡΒ ΠΎΠ±ΡΠΈΠΌ Π²Π΅Π½ΡΠΈΠ»ΡΡΠΈΠΎΠ½Π½ΡΠΌ Π²ΡΡ ΠΎΠ΄ΠΎΠΌ ΠΈΒ ΡΡΡΠ°Π½ΠΎΠ²ΠΈΡΡ Π½Π°Β Π½Π΅Π³ΠΎ ΠΊΠ»Π°ΠΏΠ°Π½ Π²ΠΌΠ΅ΡΡΠΎ Π·Π°Π³Π»ΡΡΠΊΠΈ.
septik.guru
Π²ΠΎΠ·Π΄ΡΡΠ½ΡΠΉ ΠΊΠ»Π°ΠΏΠ°Π½ Π΄Π»Ρ Π½Π΅Π²Π΅Π½ΡΠΈΠ»ΠΈΡΡΠ΅ΠΌΡΡ ΠΊΠ°Π½Π°Π»ΠΈΠ·Π°ΡΠΈΠΎΠ½Π½ΡΡ ΡΡΠΎΡΠΊΠΎΠ², Π²Π΅Π½ΡΠΊΠ»Π°ΠΏΠ°Π½ Π½Π° ΠΊΠ°Π½Π°Π»ΠΈΠ·Π°ΡΠΈΡ, ΡΠΎΡΠΎ ΠΈ Π²ΠΈΠ΄Π΅ΠΎ
Π‘ΠΎΠ΄Π΅ΡΠΆΠ°Π½ΠΈΠ΅:1.Β ΠΡΠΈΠΌΠ΅Π½Π΅Π½ΠΈΠ΅ Π²Π΅Π½ΡΠΈΠ»ΡΡΠΈΠΎΠ½Π½ΡΡ
ΠΊΠ»Π°ΠΏΠ°Π½ΠΎΠ²
2.Β ΠΡΠΈΠ½ΡΠΈΠΏΡ Π²Π΅Π½ΡΠΈΠ»ΡΡΠΈΠΈ ΠΊΠ°Π½Π°Π»ΠΈΠ·Π°ΡΠΈΠΎΠ½Π½ΠΎΠΉ ΡΠΈΡΡΠ΅ΠΌΡ
3.Β Π£ΡΡΡΠΎΠΉΡΡΠ²ΠΎ Π²Π΅Π½ΡΠΈΠ»ΡΡΠΈΠΎΠ½Π½ΠΎΠ³ΠΎ ΠΊΠ»Π°ΠΏΠ°Π½Π° Π΄Π»Ρ ΠΊΠ°Π½Π°Π»ΠΈΠ·Π°ΡΠΈΠΈ
4.Β ΠΡΠ°Π²ΠΈΠ»Π° ΠΈΡΠΏΠΎΠ»ΡΠ·ΠΎΠ²Π°Π½ΠΈΠ΅ Π²Π΅Π½ΡΠΈΠ»ΡΡΠΈΠΎΠ½Π½ΠΎΠ³ΠΎ ΠΊΠ»Π°ΠΏΠ°Π½Π°
5.Β ΠΠΎΠΌΠ±ΠΈΠ½ΠΈΡΠΎΠ²Π°Π½Π½ΡΠ΅ ΡΡΡΡΠΎΠΉΡΡΠ²Π°
6.Β Π£ΡΡΠ°Π½ΠΎΠ²ΠΊΠ° Π²ΠΎΠ·Π΄ΡΡΠ½ΠΎΠ³ΠΎ ΠΊΠ»Π°ΠΏΠ°Π½Π°
ΠΡΠ±ΠΎΠ΅ ΠΆΠΈΠ»ΠΎΠ΅ ΠΏΠΎΠΌΠ΅ΡΠ΅Π½ΠΈΠ΅, Π±ΡΠ΄Ρ ΡΠΎ ΠΊΠ²Π°ΡΡΠΈΡΠ° ΠΈΠ»ΠΈ ΡΠ°ΡΡΠ½ΡΠΉ Π΄ΠΎΠΌ, ΠΎΠ±ΡΠ·Π°ΡΠ΅Π»ΡΠ½ΠΎ ΠΏΡΠΎΠΈΠ·Π²ΠΎΠ΄ΠΈΡ ΡΠΎ ΠΈΠ»ΠΈ ΠΈΠ½ΠΎΠ΅ ΠΊΠΎΠ»ΠΈΡΠ΅ΡΡΠ²ΠΎ Π±ΡΡΠΎΠ²ΡΡ ΠΎΡΡ ΠΎΠ΄ΠΎΠ². ΠΠ΅ΠΉΡΡΠ²ΡΡΡΠΈΠΌΠΈ Π½ΠΎΡΠΌΠ°ΠΌΠΈ ΡΡΡΠ°Π½ΠΎΠ²Π»Π΅Π½ΠΎ ΠΊΠΎΠ»ΠΈΡΠ΅ΡΡΠ²ΠΎ ΡΡΠΎΠΊΠΎΠ² Π½Π° ΠΎΠ΄Π½ΠΎΠ³ΠΎ ΡΠ΅Π»ΠΎΠ²Π΅ΠΊΠ° Π² ΡΡΡΠΊΠΈ, ΠΊΠΎΡΠΎΡΠΎΠ΅ Π΄ΠΎΡ ΠΎΠ΄ΠΈΡ Π΄ΠΎ 180 Π»ΠΈΡΡΠΎΠ². Π§ΡΠΎΠ±Ρ ΠΎΡΠ²ΠΎΠ΄ΠΈΡΡ ΡΠ°ΠΊΠΎΠ΅ ΠΊΠΎΠ»ΠΈΡΠ΅ΡΡΠ²ΠΎ ΡΡΠΎΠΊΠΎΠ², Π½Π΅ΠΎΠ±Ρ ΠΎΠ΄ΠΈΠΌΠΎ ΠΈΡΠΏΠΎΠ»ΡΠ·ΠΎΠ²Π°ΡΡ ΡΠ°ΠΌΠΎΡΠ΅ΡΠ½ΡΠ΅ ΠΊΠ°Π½Π°Π»ΠΈΠ·Π°ΡΠΈΠΎΠ½Π½ΡΠ΅ ΡΠΈΡΡΠ΅ΠΌΡ, ΠΊ ΠΊΠΎΡΠΎΡΡΠΌ ΠΈ ΠΏΠΎΠ΄ΠΊΠ»ΡΡΠ°ΡΡΡΡ ΡΠ°Π½ΡΠ΅Ρ Π½ΠΈΡΠ΅ΡΠΊΠΈΠ΅ ΠΏΡΠΈΡΠΏΠΎΡΠΎΠ±Π»Π΅Π½ΠΈΡ.Β
ΠΡ Π»ΠΎΠΊΠ°Π»ΡΠ½ΡΡ
Π³ΠΎΡΠΈΠ·ΠΎΠ½ΡΠ°Π»ΡΠ½ΠΎ ΡΡΡΠ°Π½ΠΎΠ²Π»Π΅Π½Π½ΡΡ
ΡΡΡΠ±ΠΎΠΏΡΠΎΠ²ΠΎΠ΄ΠΎΠ² ΡΡΠΎΠΊΠΈ ΠΏΠΎΡΡΡΠΏΠ°ΡΡ ΠΊ Π²Π΅ΡΡΠΈΠΊΠ°Π»ΡΠ½ΠΎΠΌΡ ΠΊΠ°Π½Π°Π»ΠΈΠ·Π°ΡΠΈΠΎΠ½Π½ΠΎΠΌΡ ΡΡΠΎΡΠΊΡ, ΡΠΎΠ΅Π΄ΠΈΠ½Π΅Π½Π½ΠΎΠΌΡ Ρ ΡΠΈΡΡΠ΅ΠΌΠΎΠΉ ΡΠ΅Π½ΡΡΠ°Π»ΡΠ½ΠΎΠΉ ΠΊΠ°Π½Π°Π»ΠΈΠ·Π°ΡΠΈΠΈ. Π‘Π°Π½ΡΠ΅Ρ
Π½ΠΈΠΊΠ°, Π³ΠΎΡΠΈΠ·ΠΎΠ½ΡΠ°Π»ΡΠ½ΡΠ΅ Π²ΠΎΠ΄ΠΎΠΎΡΠ²ΠΎΠ΄Ρ ΠΈ Π²Π΅ΡΡΠΈΠΊΠ°Π»ΡΠ½ΡΠΉ ΡΡΠΎΡΠΊ ΠΎΠ±ΡΠ΅Π΄ΠΈΠ½ΡΡΡΡΡ Π²ΠΎ Π²Π½ΡΡΡΠΈΠ΄ΠΎΠΌΠΎΠ²ΡΡ ΡΠΈΡΡΠ΅ΠΌΡ ΠΊΠ°Π½Π°Π»ΠΈΠ·Π°ΡΠΈΠΈ. Π‘ΠΎΠ³Π»Π°ΡΠ½ΠΎ ΡΠΈΠΏΠΎΠ²ΠΎΠΌΡ ΠΏΡΠΎΠ΅ΠΊΡΡ, ΡΡΠΎΡΠΊ ΠΎΠ±ΡΡΠ½ΠΎ Π²ΡΡ
ΠΎΠ΄ΠΈΡ Π½Π° ΠΊΡΡΡΡ ΠΈ Π½Π΅ Π·Π°ΠΊΡΡΠ²Π°Π΅ΡΡΡ Π·Π°Π³Π»ΡΡΠΊΠ°ΠΌΠΈ.Β
ΠΡΠΈΠΌΠ΅Π½Π΅Π½ΠΈΠ΅ Π²Π΅Π½ΡΠΈΠ»ΡΡΠΈΠΎΠ½Π½ΡΡ ΠΊΠ»Π°ΠΏΠ°Π½ΠΎΠ²
Π ΡΡΡΠΎΠΈΡΠ΅Π»ΡΠ½ΠΎΠΉ ΡΡΠ΅ΡΠ΅ Π½Π΅ΡΠ΅Π΄ΠΊΠΎ Π²ΠΎΠ·Π½ΠΈΠΊΠ°ΡΡ ΡΠΈΡΡΠ°ΡΠΈΠΈ, ΠΊΠΎΠ³Π΄Π° Π²ΠΎΠ·ΠΌΠΎΠΆΠ½ΠΎΡΡΠΈ Π²ΡΠ²Π΅ΡΡΠΈ Π²Π΅Π½ΡΠΈΠ»ΡΡΠΈΡ ΡΡΠΎΡΠΊΠ° Π½Π° ΠΊΡΡΡΡ ΠΏΡΠΎΡΡΠΎ Π½Π΅Ρ. ΠΠ΅Π· ΡΡΠΎΠ³ΠΎ ΡΠ°Π±ΠΎΡΠ° ΡΠΈΡΡΠ΅ΠΌΡ Π½Π΅Π²ΠΎΠ·ΠΌΠΎΠΆΠ½Π°, ΠΈ ΡΡΠΎ-ΡΠΎ Π² ΡΡΠΎΠΉ ΡΠΈΡΡΠ°ΡΠΈΠΈ Π½ΡΠΆΠ½ΠΎ Π΄Π΅Π»Π°ΡΡ, Π²Π΅Π΄Ρ ΡΠΈΡΡΠ΅ΠΌΠ°, Π² ΠΊΠΎΡΠΎΡΠΎΠΉ ΠΏΠΎΡΡΠΎΡΠ½Π½ΠΎ ΠΏΡΠΎΠΈΡΡ ΠΎΠ΄ΡΡ Π³ΠΈΠ΄ΡΠΎΡΠ΄Π°ΡΡ, Π° Π·Π°ΠΏΠ°Ρ ΠΈ ΠΏΠΎΠΏΠ°Π΄Π°ΡΡ Π² ΠΆΠΈΠ»ΡΠ΅ ΠΏΠΎΠΌΠ΅ΡΠ΅Π½ΠΈΡ, Π½Π΅ ΠΌΠΎΠΆΠ΅Ρ ΡΡΠΈΡΠ°ΡΡΡΡ ΠΊΠ°ΡΠ΅ΡΡΠ²Π΅Π½Π½ΠΎΠΉ ΠΈ Π½Π°Π΄Π΅ΠΆΠ½ΠΎΠΉ.Β

Π ΡΡΠ»ΠΎΠ²ΠΈΡΡ ΠΏΠΎΡΡΠΎΡΠ½Π½ΡΡ ΠΌΠΎΡΠΎΠ·ΠΎΠ² Π²ΡΡ ΠΎΠ΄Π½ΡΠ΅ ΠΊΠ°Π½Π°Π»Ρ ΡΡΠΎΡΠΊΠΎΠ² Π·Π°ΠΌΠ΅ΡΠ·Π°Π»ΠΈ, ΠΈ ΠΊΠΎΠ½ΡΠ°ΠΊΡΠ° Ρ Π°ΡΠΌΠΎΡΡΠ΅ΡΠΎΠΉ Π½Π΅ Π±ΡΠ»ΠΎ. Π Π΅Π·ΡΠ»ΡΡΠ°Ρ Π²ΡΡ ΠΎΠ΄ΠΈΠ» ΠΏΠ»Π°ΡΠ΅Π²Π½ΡΠΌ: Π²ΡΠ΅ Π·Π΄Π°Π½ΠΈΠ΅ ΠΎΠΊΠ°Π·ΡΠ²Π°Π»ΠΎΡΡ Π±ΡΠΊΠ²Π°Π»ΡΠ½ΠΎ ΠΏΡΠΎΠΏΠΈΡΠ°Π½Π½ΡΠΌ Π½Π΅ΠΏΡΠΈΡΡΠ½ΡΠΌΠΈ Π·Π°ΠΏΠ°Ρ Π°ΠΌΠΈ, Π° Π½Π΅Ρ Π²Π°ΡΠΊΠ° Π²ΠΎΠ·Π΄ΡΡ Π° Π² ΡΠΈΡΡΠ΅ΠΌΠ΅ ΠΏΡΠΈ ΡΠ°Π·ΡΠ΅ΠΆΠ΅Π½ΠΈΠΈ Π½ΠΈΡΠ΅ΠΌ Π½Π΅ ΠΊΠΎΠΌΠΏΠ΅Π½ΡΠΈΡΠΎΠ²Π°Π»Π°ΡΡ.Β
ΠΠ΅Π½ΡΠΈΠ»ΡΡΠΈΠΎΠ½Π½ΡΠ΅ ΠΊΠ»Π°ΠΏΠ°Π½Ρ Π΄Π»Ρ ΠΊΠ°Π½Π°Π»ΠΈΠ·Π°ΡΠΈΠΈ ΡΠΏΠΎΡΠΎΠ±Π½Ρ ΡΠ΅ΡΠ°ΡΡ ΠΏΠΎΠ΄ΠΎΠ±Π½ΡΠ΅ Π·Π°Π΄Π°ΡΠΈ Π±Π΅Π· ΠΎΡΠΎΠ±ΡΡ ΠΏΡΠΎΠ±Π»Π΅ΠΌ. Π ΠΊΠΎΠ½ΡΡΡΡΠΊΡΠΈΡ ΡΠΈΠΏΠΈΡΠ½ΠΎΠ³ΠΎ ΠΊΠ»Π°ΠΏΠ°Π½Π° Π²Ρ ΠΎΠ΄ΠΈΡ ΠΏΠΎΠ΄Π²ΠΈΠΆΠ½Π°Ρ Π΄ΠΈΠ°ΡΡΠ°Π³ΠΌΠ°, ΠΊΠΎΡΠΎΡΠ°Ρ ΡΠΏΠΎΡΠΎΠ±Π½Π° Π²ΠΎΡΠΏΡΠΈΠ½ΠΈΠΌΠ°ΡΡ Π΄Π°Π²Π»Π΅Π½ΠΈΠ΅ Π² ΡΡΡΠ±ΠΎΠΏΡΠΎΠ²ΠΎΠ΄Π΅. ΠΡΠΈ ΡΡΡΡΠΎΠΉΡΡΠ²Π° ΠΏΠΎΠ·Π²ΠΎΠ»ΡΡΡ Π·Π°Π±ΡΡΡ ΠΎ Π½Π΅ΠΎΠ±Ρ ΠΎΠ΄ΠΈΠΌΠΎΡΡΠΈ Π²ΡΠ²ΠΎΠ΄Π° ΡΡΠΎΡΠΊΠ° Π½Π° ΠΊΡΡΡΡ. ΠΠ°Π»ΠΎ ΡΠΎΠ³ΠΎ, ΡΡΠΎ Ρ ΠΈΡΠΏΠΎΠ»ΡΠ·ΠΎΠ²Π°Π½ΠΈΠ΅ΠΌ ΠΊΠ»Π°ΠΏΠ°Π½ΠΎΠ² ΡΡΠΎΡΠΊ ΠΌΠΎΠΆΠ΅Ρ Π±ΡΡΡ Π²ΡΠ²Π΅Π΄Π΅Π½ Π½Π° ΡΠ΅ΡΠ΄Π°ΠΊ, ΡΠ°ΠΊ Π΅Π³ΠΎ ΠΌΠΎΠΆΠ½ΠΎ ΡΠ°Π·ΠΌΠ΅ΡΠ°ΡΡ Π΄Π°ΠΆΠ΅ Π² ΠΎΡΠ΄Π΅Π»ΡΠ½ΡΡ ΠΏΠΎΠΌΠ΅ΡΠ΅Π½ΠΈΡΡ , Π³Π΄Π΅ ΡΠΌΠΎΠ½ΡΠΈΡΠΎΠ²Π°Π½Π° ΡΠ°Π½ΡΠ΅Ρ Π½ΠΈΠΊΠ°Β (ΠΏΡΠΎΡΠΈΡΠ°ΠΉΡΠ΅: «ΠΠ΅Π½ΡΠΈΠ»ΡΡΠΈΡ ΠΊΠ°Π½Π°Π»ΠΈΠ·Π°ΡΠΈΠΎΠ½Π½ΠΎΠ³ΠΎ ΡΡΠΎΡΠΊΠ°, ΠΏΡΠ°Π²ΠΈΠ»Π° ΡΡΡΡΠΎΠΉΡΡΠ²Π°»).Β
ΠΡΠΈΠ½ΡΠΈΠΏΡ Π²Π΅Π½ΡΠΈΠ»ΡΡΠΈΠΈ ΠΊΠ°Π½Π°Π»ΠΈΠ·Π°ΡΠΈΠΎΠ½Π½ΠΎΠΉ ΡΠΈΡΡΠ΅ΠΌΡ
ΠΡΠ²ΠΎΠ΄Π½ΠΎΠΉ ΠΊΠ°Π½Π°Π» ΡΡΠΎΡΠΊΠ° ΠΆΠΈΠ·Π½Π΅Π½Π½ΠΎ Π½Π΅ΠΎΠ±Ρ ΠΎΠ΄ΠΈΠΌ ΡΠΈΡΡΠ΅ΠΌΠ΅, ΡΡΠΎΠ±Ρ Π²ΡΠ΅ ΡΡΡΡΠΎΠΉΡΡΠ²Π°, ΠΏΠΎΠ΄ΠΊΠ»ΡΡΠ΅Π½Π½ΡΠ΅ ΠΊ Π½Π΅ΠΉ, ΡΠ°Π±ΠΎΡΠ°Π»ΠΈ Π½ΠΎΡΠΌΠ°Π»ΡΠ½ΠΎ.
ΠΠΎΡΠ°Π·Π΄ΠΎ ΠΏΡΠΎΡΠ΅ ΠΎΠ±ΡΡΡΠ½ΠΈΡΡ Π½Π΅ΠΎΠ±Ρ ΠΎΠ΄ΠΈΠΌΠΎΡΡΡ Ρ ΠΎΡΠΎΡΠ΅ΠΉ Π²Π΅Π½ΡΠΈΠ»ΡΡΠΈΠΎΠ½Π½ΠΎΠΉ ΡΠΈΡΡΠ΅ΠΌΡ, Π΅ΡΠ»ΠΈ ΡΠ°ΡΡΠΌΠΎΡΡΠ΅ΡΡ ΠΎΡΠ½ΠΎΠ²Π½ΡΠ΅ ΠΏΡΠΈΠ½ΡΠΈΠΏΡ Π΅Π΅ ΡΠ°Π±ΠΎΡΡ:
- Π‘ΠΏΡΡΠΊΠ°Π΅ΠΌΠ°Ρ Π²ΠΎΠ΄Π° ΠΈΠ· ΡΠ°Π½ΡΠ΅Ρ Π½ΠΈΡΠ΅ΡΠΊΠΈΡ ΠΏΡΠΈΠ±ΠΎΡΠΎΠ² ΠΏΠΎΠΏΠ°Π΄Π°Π΅Ρ Π² ΡΡΠΎΡΠΊ.
- ΠΠΊΠ°Π·Π°Π²ΡΠΈΡΡ Π² ΡΡΠΎΡΠΊΠ΅, Π²ΠΎΠ΄Π° Π½Π°ΡΠΈΠ½Π°Π΅Ρ Π·Π°ΡΡΠ³ΠΈΠ²Π°ΡΡ Π²ΠΎΠ·Π΄ΡΡ , ΡΠΎΠ·Π΄Π°Π²Π°Ρ ΡΠ°Π·ΡΠ΅ΡΠ΅Π½ΠΈΠ΅ ΠΈΠ»ΠΈ ΠΎΡΡΠΈΡΠ°ΡΠ΅Π»ΡΠ½ΡΡ ΡΠ°Π·Π½ΠΈΡΡ Π² Π΄Π°Π²Π»Π΅Π½ΠΈΠΈ. ΠΡΠΎΠ±Π΅Π½Π½ΠΎ ΡΡΠΎ Π²Π°ΠΆΠ½ΠΎ ΠΏΡΠΈ ΡΠ»ΠΈΠ²Π΅ Π±ΠΎΠ»ΡΡΠΈΡ ΠΎΠ±ΡΠ΅ΠΌΠΎΠ² Π²ΠΎΠ΄Ρ, ΠΏΠΎΡΠΊΠΎΠ»ΡΠΊΡ Π² ΡΠ°ΠΊΠΎΠΌ ΡΠ»ΡΡΠ°Π΅ Π²ΠΎΠ·Π΄ΡΡ Π° Π² ΡΠΈΡΡΠ΅ΠΌΠ΅ Π±ΡΠ΄Π΅Ρ Π½Π΅Π΄ΠΎΡΡΠ°ΡΠΎΡΠ½ΠΎ Π΄Π»Ρ ΡΡΠ°Π±ΠΈΠ»ΠΈΠ·Π°ΡΠΈΠΈ Π΄Π°Π²Π»Π΅Π½ΠΈΡ. ΠΠ΅Π»ΠΈΡΠΈΠ½Π° ΡΠ°Π·ΡΠ΅ΠΆΠ΅Π½ΠΈΡ Π±ΡΠ΄Π΅Ρ Π½Π°ΡΡΠΎΠ»ΡΠΊΠΎ Π²Π΅Π»ΠΈΠΊΠ°, ΡΡΠΎ Π΅Π³ΠΎ Π²Π΅Π»ΠΈΡΠΈΠ½Ρ ΠΌΠΎΠΆΠ½ΠΎ ΡΠΌΠ΅Π»ΠΎ Π½Π°Π·ΡΠ²Π°ΡΡ ΠΊΡΠΈΡΠΈΡΠ΅ΡΠΊΠΎΠΉ.
- ΠΠΎΡΠ²Π»Π΅Π½ΠΈΠ΅ ΠΎΡΡΠΈΡΠ°ΡΠ΅Π»ΡΠ½ΠΎΠ³ΠΎ Π΄Π°Π²Π»Π΅Π½ΠΈΡ ΠΏΡΠΎΠ²ΠΎΡΠΈΡΡΠ΅Ρ ΠΏΠΎΠΏΠ°Π΄Π°Π½ΠΈΠ΅ Π²ΠΎΠ΄Ρ ΠΈΠ· Π½Π°ΠΈΠ±ΠΎΠ»Π΅Π΅ ΡΠ»Π°Π±ΠΎΠ³ΠΎ Π³ΠΈΠ΄ΡΠΎΠ·Π°ΡΠ²ΠΎΡΠ° Π² ΡΡΡΠ±Ρ. ΠΡΠΎΡ ΠΏΡΠΎΡΠ΅ΡΡ Π½Π°Π·ΡΠ²Π°Π΅ΡΡΡ ΡΡΡΠ²ΠΎΠΌ Π³ΠΈΠ΄ΡΠΎΠ·Π°ΡΠ²ΠΎΡΠ°, Π²Π΅Π΄Ρ Π΄Π»Ρ Π²ΡΡΠ°Π²Π½ΠΈΠ²Π°Π½ΠΈΡ Π΄Π°Π²Π»Π΅Π½ΠΈΠΉ Π² ΡΠΈΡΡΠ΅ΠΌΠ΅ Π΄ΠΎΠ»ΠΆΠ΅Π½ ΠΏΠΎΡΠ²ΠΈΡΡΡΡ Π²ΠΎΠ·Π΄ΡΡ β Π½ΠΎ Π²Π·ΡΡΡΡΡ Π΅ΠΌΡ Π½Π΅ΠΎΡΠΊΡΠ΄Π°. ΠΠ΄ΠΈΠ½ΡΡΠ²Π΅Π½Π½ΠΎΠ΅ ΠΌΠ΅ΡΡΠΎ β ΡΠ°ΠΊΠΎΠ²ΠΈΠ½Π°, ΠΏΠΎΡΠΊΠΎΠ»ΡΠΊΡ ΡΠΎΠΏΡΠΎΡΠΈΠ²Π»Π΅Π½ΠΈΠ΅ Π½Π° ΡΡΠΈΡ ΡΡΠ°ΡΡΠΊΠ°Ρ Π²ΡΠ΅Π³Π΄Π° ΠΌΠ΅Π½ΡΡΠ΅. Π ΡΠ΅Π·ΡΠ»ΡΡΠ°ΡΠ΅ Π²ΠΎΠ·Π΄ΡΡ ΡΡΠ½Π΅ΡΡΡ Π² ΡΠΈΡΡΠ΅ΠΌΡ ΠΈΠ· ΡΠΈΡΠΎΠ½Π°, ΡΠ΅ΠΌ ΡΠ°ΠΌΡΠΌ ΡΠ°Π·ΡΡΡΠ°Ρ Π²ΠΎΠ΄ΡΠ½ΡΡ ΠΏΡΠ΅Π³ΡΠ°Π΄Ρ.Β
- ΠΠ°Π»ΡΡΠ΅ Π²ΡΠ΅ ΠΏΠΎΠ½ΡΡΠ½ΠΎ: Π²ΠΎΠ΄Π°, Π²ΡΡΠΎΡΠ°Π½Π½Π°Ρ ΠΈΠ· Π·Π°ΡΠ²ΠΎΡΠ° ΡΠΈΡΠΎΠ½Π°, Π΄Π°Π΅Ρ Π²ΠΎΠ·ΠΌΠΎΠΆΠ½ΠΎΡΡΡ ΠΊΠ°Π½Π°Π»ΠΈΠ·Π°ΡΠΈΠΎΠ½Π½ΡΠΌ Π·Π°ΠΏΠ°Ρ Π°ΠΌ ΠΏΠΎΠΏΠ°Π΄Π°ΡΡ Π² ΠΆΠΈΠ»ΠΎΠ΅ ΠΏΠΎΠΌΠ΅ΡΠ΅Π½ΠΈΠ΅. ΠΠΎΠ½Π΅ΡΠ½ΠΎ, ΠΎΠ½ΠΈ ΠΏΠΎΠ»ΡΠ·ΡΡΡΡΡ ΡΠ°ΠΊΠΎΠΉ Π²ΠΎΠ·ΠΌΠΎΠΆΠ½ΠΎΡΡΡΡ ΠΈ ΠΏΡΠΎΠ½ΠΈΠΊΠ°ΡΡ Π² Π΄ΠΎΠΌ, ΡΠ΅ΠΌ ΡΠ°ΠΌΡΠΌ Π½Π°ΡΡΡΠ°Ρ ΠΏΠΎΠΊΠΎΠΉ ΠΆΠΈΠ»ΡΡΠΎΠ². Π£ΡΠΈΡΡΠ²Π°Ρ, ΡΠΎΡ ΡΠ°ΠΊΡ, ΡΡΠΎ Π½Π΅ΠΊΠΎΡΠΎΡΡΠ΅ ΠΊΠ°Π½Π°Π»ΠΈΠ·Π°ΡΠΈΠΎΠ½Π½ΡΠ΅ Π³Π°Π·Ρ ΠΌΠΎΠ³ΡΡ Π±ΡΡΡ ΡΠΎΠΊΡΠΈΡΠ½ΡΠΌΠΈ ΠΈΠ»ΠΈ Π²Π·ΡΡΠ²ΠΎΠΎΠΏΠ°ΡΠ½ΡΠΌΠΈ, ΡΠΎ ΡΡΠ°Π½ΠΎΠ²ΠΈΡΡΡ ΠΏΠΎΠ½ΡΡΠ½ΠΎ, ΡΡΠΎ ΠΈΡ ΠΏΠΎΡΠ²Π»Π΅Π½ΠΈΡ Π½ΡΠΆΠ½ΠΎ ΠΈΠ·Π±Π΅ΠΆΠ°ΡΡ.Β
Π£ΡΡΡΠΎΠΉΡΡΠ²ΠΎ Π²Π΅Π½ΡΠΈΠ»ΡΡΠΈΠΎΠ½Π½ΠΎΠ³ΠΎ ΠΊΠ»Π°ΠΏΠ°Π½Π° Π΄Π»Ρ ΠΊΠ°Π½Π°Π»ΠΈΠ·Π°ΡΠΈΠΈ
ΠΠΎΠ½ΡΡΡΡΠΊΡΠΈΡ Π²Π΅Π½ΡΠΈΠ»ΡΡΠΈΠΎΠ½Π½ΡΡ ΠΊΠ»Π°ΠΏΠ°Π½ΠΎΠ² ΠΏΡΠ΅Π΄ΠΏΠΎΠ»Π°Π³Π°Π΅Ρ Π½Π°Π»ΠΈΡΠΈΠ΅ Π±ΠΎΠΊΠΎΠ²ΠΎΠ³ΠΎ ΠΎΠΊΠΎΡΠΊΠ°, ΠΎΠ±ΠΎΡΡΠ΄ΠΎΠ²Π°Π½Π½ΠΎΠ³ΠΎ ΡΠ΅ΡΠΊΠΎΠΉ, ΠΊΠΎΡΠΎΡΠ°Ρ ΠΏΡΠ΅Π΄ΠΎΡΠ²ΡΠ°ΡΠ°Π΅Ρ ΠΏΠΎΠΏΠ°Π΄Π°Π½ΠΈΠ΅ Π²Π½ΡΡΡΡ ΠΌΠ΅Π»ΠΊΠΈΡ Π½Π°ΡΠ΅ΠΊΠΎΠΌΡΡ . Π ΡΠ΅ΠΏΠ»ΠΎΠΈΠ·ΠΎΠ»ΠΈΡΠΎΠ²Π°Π½Π½ΠΎΠΌ ΠΊΠΎΡΠΏΡΡΠ΅ Π½Π°Ρ ΠΎΠ΄ΠΈΡΡΡ ΠΎΡΠ½ΠΎΠ²Π½ΠΎΠΉ ΡΠ°Π±ΠΎΡΠΈΠΉ ΡΠ»Π΅ΠΌΠ΅Π½Ρ ΡΡΡΡΠΎΠΉΡΡΠ²Π° β Π΄ΠΈΠ°ΡΡΠ°Π³ΠΌΠ°. ΠΡΠΎΠΌΠ΅ ΡΠΎΠ³ΠΎ, Π² ΡΡΡΡΠΎΠΉΡΡΠ²ΠΎ ΠΌΠΎΠ³ΡΡ Π²Ρ ΠΎΠ΄ΠΈΡΡ ΠΌΠ°Π½ΠΆΠ΅ΡΠ°-ΠΏΡΠΎΠΊΠ»Π°Π΄ΠΊΠ° ΠΈ ΠΏΠ΅ΡΠ΅Ρ ΠΎΠ΄Π½ΠΈΠΊ, ΠΊΠΎΡΠΎΡΡΠΉ ΠΏΠΎΠ·Π²ΠΎΠ»ΡΠ΅Ρ ΠΌΠΎΠ½ΡΠΈΡΠΎΠ²Π°ΡΡ ΠΊΠ»Π°ΠΏΠ°Π½ Π½Π° ΡΡΠΎΡΠΊ Π»ΡΠ±ΠΎΠ³ΠΎ Π΄ΠΈΠ°ΠΌΠ΅ΡΡΠ° (ΠΈΠ»ΠΈ ΠΎΠ³ΡΠ°Π½ΠΈΡΠ΅Π½Π½ΠΎΠ³ΠΎ ΡΠΏΠ΅ΠΊΡΡΠ° Π΄ΠΈΠ°ΠΌΠ΅ΡΡΠΎΠ²). ΠΠ°Π½ΠΆΠ΅ΡΠ° ΠΆΠ΅ Π΄Π°Π΅Ρ Π²ΠΎΠ·ΠΌΠΎΠΆΠ½ΠΎΡΡΡ ΠΏΠΎΠ²ΡΡΠΈΡΡ Π³Π΅ΡΠΌΠ΅ΡΠΈΡΠ½ΠΎΡΡΡ ΡΡΡΡΠΎΠΉΡΡΠ²Π°.Β

Π Π°Π±ΠΎΡΠ° ΠΊΠ»Π°ΠΏΠ°Π½Π° Π½Π°ΡΠΈΠ½Π°Π΅ΡΡΡ Π² ΡΠΎΡ ΠΌΠΎΠΌΠ΅Π½Ρ, ΠΊΠΎΠ³Π΄Π° Π² ΡΠΈΡΡΠ΅ΠΌΠ΅ Π²ΠΎΠ·Π½ΠΈΠΊΠ°Π΅Ρ ΠΎΡΡΠΈΡΠ°ΡΠ΅Π»ΡΠ½ΠΎΠ΅ Π΄Π°Π²Π»Π΅Π½ΠΈΠ΅: ΡΠ°Π·ΡΠ΅ΠΆΠ΅Π½ΠΈΠ΅ Π²ΠΎΠ·Π΄Π΅ΠΉΡΡΠ²ΡΠ΅Ρ Π½Π° ΠΌΠ΅ΠΌΠ±ΡΠ°Π½Ρ, ΠΎΡΠΊΡΡΠ²Π°Ρ Π΅Π΅, ΠΈ Π²ΠΎΠ·Π΄ΡΡ ΠΏΠΎΠΏΠ°Π΄Π°Π΅Ρ Π² ΡΠΈΡΡΠ΅ΠΌΡ. ΠΠΎΠ³Π΄Π° Π΄Π°Π²Π»Π΅Π½ΠΈΡ ΠΏΠΎ ΠΎΠ±Π΅ ΡΡΠΎΡΠΎΠ½Ρ ΠΎΡ ΠΊΠ»Π°ΠΏΠ°Π½Π° Π²ΡΡΠΎΠ²Π½Π΅Π½Ρ, Π΄ΠΈΠ°ΡΡΠ°Π³ΠΌΠ° ΡΠ°ΠΌΠ° ΡΠΎΠ±ΠΎΠΉ Π·Π°ΠΊΡΡΠ²Π°Π΅ΡΡΡ.Β
ΠΠΎΠΊΠ° Π΄Π°Π²Π»Π΅Π½ΠΈΠ΅ Π² ΡΠΈΡΡΠ΅ΠΌΠ΅ ΡΡΠ°Π±ΠΈΠ»ΡΠ½ΠΎ, Π΄ΠΈΠ°ΡΡΠ°Π³ΠΌΠ° Π½Π°Ρ ΠΎΠ΄ΠΈΡΡΡ Π² Π·Π°ΠΊΡΡΡΠΎΠΌ ΠΏΠΎΠ»ΠΎΠΆΠ΅Π½ΠΈΠΈ ΠΈ ΠΏΡΠ΅ΠΏΡΡΡΡΠ²ΡΠ΅Ρ ΠΏΠΎΠΏΠ°Π΄Π°Π½ΠΈΡ Π·Π°ΠΏΠ°Ρ ΠΎΠ² Π² ΠΏΠΎΠΌΠ΅ΡΠ΅Π½ΠΈΠ΅. Π’ΠΎ Π΅ΡΡΡ, ΠΊΠ»Π°ΠΏΠ°Π½ Π½Π΅ ΡΠΎΠ»ΡΠΊΠΎ Π²ΡΡΠ°Π²Π½ΠΈΠ²Π°Π΅Ρ Π΄Π°Π²Π»Π΅Π½ΠΈΠ΅ Π² ΠΊΡΠΈΡΠΈΡΠ΅ΡΠΊΠΈΡ ΡΠ»ΡΡΠ°ΡΡ , Π½ΠΎ ΠΈ ΡΠ»Π΅Π΄ΠΈΡ Π·Π° Π΅Π³ΠΎ ΠΈΠ·ΠΌΠ΅Π½Π΅Π½ΠΈΡΠΌΠΈ Π² ΡΠΎΠ½ΠΎΠ²ΠΎΠΌ ΡΠ΅ΠΆΠΈΠΌΠ΅. ΠΠΏΡΠ΅Π΄Π΅Π»Π΅Π½Π½ΡΡ ΡΠΎΠ»Ρ Π²Π΅Π½ΡΠΈΠ»ΡΡΠΈΠΎΠ½Π½ΡΠΉ ΠΊΠ»Π°ΠΏΠ°Π½ Π΄Π»Ρ ΠΊΠ°Π½Π°Π»ΠΈΠ·Π°ΡΠΈΠΈ ΠΎΡΡΠ³ΡΡΠ²Π°Π΅Ρ ΠΈ Π² Π²ΠΎΠΏΡΠΎΡΠ°Ρ Π·Π°ΡΠΎΡΠ΅Π½ΠΈΡ ΡΡΡΠ±ΠΎΠΏΡΠΎΠ²ΠΎΠ΄ΠΎΠ². ΠΡΠ»ΠΈ ΡΠΈΡΡΠ΅ΠΌΠ° Π·Π°ΡΠΎΡΠΈΠ»Π°ΡΡ, ΡΠΎ ΠΏΠΎΡΠ»Π΅ ΡΠΏΡΡΠΊΠ° Π²ΠΎΠ·Π΄ΡΡ Π²ΡΡ ΠΎΠ΄ΠΈΡ ΠΈΠ· ΡΡΠΎΡΠΊΠ°, ΡΡΠΎ ΡΠΎΠ·Π΄Π°Π΅Ρ ΠΏΠΎΠ»ΠΎΠΆΠΈΡΠ΅Π»ΡΠ½ΠΎΠ΅ Π΄Π°Π²Π»Π΅Π½ΠΈΠ΅. ΠΡΡΠ΅ΡΡΠ²Π΅Π½Π½ΠΎ, ΠΌΠ΅ΠΌΠ±ΡΠ°Π½Π° ΠΎΡΡΠ°Π΅ΡΡΡ Π·Π°ΠΊΡΡΡΠΎΠΉ, ΠΏΠΎΡΡΠΎΠΌΡ Π²ΠΎΠ·Π΄ΡΡ Π½Π°ΡΠΈΠ½Π°Π΅Ρ Π²ΡΡ ΠΎΠ΄ΠΈΡΡ ΡΠ΅ΡΠ΅Π· ΡΠ°ΠΊΠΎΠ²ΠΈΠ½Ρ, Π²ΡΡΠ°Π»ΠΊΠΈΠ²Π°Ρ Π½Π°ΡΡΠΆΡ Π²ΠΎΠ΄Ρ ΠΈ Π³ΡΡΠ·Ρ. ΠΠΎΠ΄Π° ΠΏΠΎΡΠ»Π΅ ΡΡΠ°Π±ΠΈΠ»ΠΈΠ·Π°ΡΠΈΠΈ ΡΠΈΡΡΠ΅ΠΌΡ ΡΠΉΠ΄Π΅Ρ ΠΎΠ±ΡΠ°ΡΠ½ΠΎ Π² ΡΠΈΡΠΎΠ½, ΠΈ Π³ΠΈΠ΄ΡΠΎΠ·Π°ΡΠ²ΠΎΡ Π²ΠΎΡΡΡΠ°Π½ΠΎΠ²ΠΈΡΡΡ, Π° Π²ΠΎΡ Π³ΡΡΠ·Ρ ΠΈΠ· ΡΠ°ΠΊΠΎΠ²ΠΈΠ½Ρ Π½ΠΈΠΊΡΠ΄Π° Π½Π΅ Π΄Π΅Π½Π΅ΡΡΡ, ΠΈ ΡΡΠΎ ΠΏΡΡΠΌΠΎΠ΅ ΠΏΠΎΠ΄ΡΠ²Π΅ΡΠΆΠ΄Π΅Π½ΠΈΠ΅ ΡΠΎΠ³ΠΎ, ΡΡΠΎ ΡΡΡΠ±ΠΎΠΏΡΠΎΠ²ΠΎΠ΄ ΠΏΠΎΡΠ° ΠΎΡΠΈΡΠ°ΡΡ.Β

ΠΡΠ°Π²ΠΈΠ»Π° ΠΈΡΠΏΠΎΠ»ΡΠ·ΠΎΠ²Π°Π½ΠΈΠ΅ Π²Π΅Π½ΡΠΈΠ»ΡΡΠΈΠΎΠ½Π½ΠΎΠ³ΠΎ ΠΊΠ»Π°ΠΏΠ°Π½Π°
Π‘ΡΡΠ΅ΡΡΠ²ΡΠ΅Ρ ΠΎΡΠ½ΠΎΠ²Π½ΡΠ΅ ΠΏΡΠ°Π²ΠΈΠ»Π°, Π²ΡΠΏΠΎΠ»Π½Π΅Π½ΠΈΠ΅ ΠΊΠΎΡΠΎΡΡΡ Π΄Π°ΡΡ Π²ΠΎΠ·ΠΌΠΎΠΆΠ½ΠΎΡΡΡ ΠΊΠ»Π°ΠΏΠ°Π½Ρ Π²ΡΠΏΠΎΠ»Π½ΡΡΡ Π²ΡΠ΅ Π²ΠΎΠ·Π»ΠΎΠΆΠ΅Π½Π½ΡΠ΅ Π½Π° Π½Π΅Π³ΠΎ ΡΡΠ½ΠΊΡΠΈΠΈ:
- ΠΠΎΠ·Π΄ΡΡΠ½ΡΠΉ ΠΊΠ»Π°ΠΏΠ°Π½ Π΄ΠΎΠ»ΠΆΠ΅Π½ Π±ΡΡΡ Π³Π΅ΡΠΌΠ΅ΡΠΈΡΠ½ΡΠΌ Π΄Π°ΠΆΠ΅ ΠΏΡΠΈ Π½Π΅Π²ΡΡΠΎΠΊΠΈΡ ΠΏΠΎΠΊΠ°Π·Π°ΡΠ΅Π»ΡΡ Π΄Π°Π²Π»Π΅Π½ΠΈΡ. ΠΡΠ»ΠΈ Π² Π·Π΄Π°Π½ΠΈΠΈ Π½Π°Ρ ΠΎΠ΄ΠΈΡΡΡ Π½Π΅ Π±ΠΎΠ»Π΅Π΅ 4-Ρ ΠΆΠΈΠ»ΡΡ ΠΏΠΎΠΌΠ΅ΡΠ΅Π½ΠΈΠΉ ΠΈΠ»ΠΈ 3-Ρ ΡΡΠ°ΠΆΠ΅ΠΉ, ΡΠΎ Π΄ΠΎΠΏΠΎΠ»Π½ΠΈΡΠ΅Π»ΡΠ½ΡΠΉ ΠΊΠ»Π°ΠΏΠ°Π½ Π½Π΅ Π½ΡΠΆΠ΅Π½. ΠΠΎΠ½Π΅ΡΠ½ΠΎ, ΡΡΠΎΠ±Ρ ΠΎΡΠ²ΠΎΠ΄ΠΈΡΡ ΡΠ°ΡΡΠ΅ΡΠ½ΡΠΉ ΠΎΠ±ΡΠ΅ΠΌ ΡΡΠΎΠΊΠ°, ΡΡΡΠ±Π° ΡΡΠΎΡΠΊΠ° Π΄ΠΎΠ»ΠΆΠ½Π° Π±ΡΡΡ ΡΠΎΠ»ΡΠ΅ ΡΠ°ΠΌΠΎΠΉ ΡΠΎΠ»ΡΡΠΎΠΉ Π³ΠΎΡΠΈΠ·ΠΎΠ½ΡΠ°Π»ΡΠ½ΠΎΠΉ ΡΡΡΠ±Ρ, ΡΡΠΎΠ±Ρ Π² ΡΠΈΡΡΠ΅ΠΌΠ΅ Π±ΡΠ»ΠΎ Π΄ΠΎΡΡΠ°ΡΠΎΡΠ½ΠΎ Π²ΠΎΠ·Π΄ΡΡ Π° Π΄Π»Ρ ΠΊΠΎΠΌΠΏΠ΅Π½ΡΠ°ΡΠΈΠΈ ΡΠ°Π·ΡΠ΅ΠΆΠ΅Π½ΠΈΡ.
- Π§ΡΠΎΠ±Ρ Π²Π΅Π½ΡΠΈΠ»ΡΡΠΈΠΎΠ½Π½ΡΠΉ ΠΊΠ»Π°ΠΏΠ°Π½ ΡΠ°Π±ΠΎΡΠ°Π» Π½ΠΎΡΠΌΠ°Π»ΡΠ½ΠΎ, Π΅Π³ΠΎ ΠΏΠΎΠΊΠ°Π·Π°ΡΠ΅Π»ΠΈ Π΄ΠΎΠ»ΠΆΠ½Ρ Π±ΡΡΡ Π²ΡΡΠ΅ ΡΡΡΠ°Π½ΠΎΠ²Π»Π΅Π½Π½ΡΡ Π½ΠΎΡΠΌΠ°ΠΌΠΈ. ΠΠ»Π°ΠΏΠ°Π½Ρ ΠΈΡΠΏΠΎΠ»ΡΠ·ΡΡΡΡΡ Π² ΡΠ΅Ρ ΡΠ»ΡΡΠ°ΡΡ , ΠΊΠΎΠ³Π΄Π° Π²ΡΠ²ΠΎΠ΄ ΡΡΠΎΡΠΊΠ° Π½Π° ΠΊΡΡΡΡ ΠΎΡΡΡΡΡΡΠ²ΡΠ΅Ρ, ΠΏΠΎΡΡΠΎΠΌΡ ΠΎΠ½ΠΈ Π΄ΠΎΠ»ΠΆΠ½Ρ Π±ΡΡΡ ΠΌΠ°ΠΊΡΠΈΠΌΠ°Π»ΡΠ½ΠΎ ΠΌΠΎΡΠ½ΡΠΌΠΈ, ΡΡΠΎΠ±Ρ ΠΏΠΎΠ΄Π΄Π΅ΡΠΆΠΈΠ²Π°ΡΡ Π½Π΅ΠΎΠ±Ρ ΠΎΠ΄ΠΈΠΌΠΎΠ΅ Π΄Π°Π²Π»Π΅Π½ΠΈΠ΅ Π² ΡΠΈΡΡΠ΅ΠΌΠ΅ ΠΏΠΎΡΡΠΎΡΠ½Π½ΠΎ. ΠΠ°ΠΊ ΠΏΡΠ°Π²ΠΈΠ»ΠΎ, Π²ΠΎΠ·Π΄ΡΡΠ½ΡΠ΅ ΠΊΠ°Π½Π°Π»ΠΈΠ·Π°ΡΠΈΠΎΠ½Π½ΡΠ΅Β ΠΊΠ»Π°ΠΏΠ°Π½Ρ ΠΏΡΠΎΠΏΡΡΠΊΠ°ΡΡ ΠΎΠΊΠΎΠ»ΠΎ 32-47 Π»ΠΈΡΡΠΎΠ² Π²ΠΎΠ·Π΄ΡΡ Π° Π² ΡΠ΅ΠΊΡΠ½Π΄Ρ, Π΅ΡΠ»ΠΈ ΠΎΡΡΠΈΡΠ°ΡΠ΅Π»ΡΠ½ΠΎΠ΅ Π΄Π°Π²Π»Π΅Π½ΠΈΠ΅ Π΄ΠΎΡΡΠΈΠ³Π°Π΅Ρ 250 ΠΠ°. ΠΠΎΠ½Π΅ΡΠ½ΠΎ, ΡΠ΅ΠΌ Π±ΠΎΠ»ΡΡΠ΅ ΠΌΠΎΡΠ½ΠΎΡΡΡ ΠΊΠ»Π°ΠΏΠ°Π½Π° ΠΏΡΠ΅Π²ΡΡΠ°Π΅Ρ ΡΠ°ΡΡΠ΅ΡΠ½ΡΡ, ΡΠ΅ΠΌ Π»ΡΡΡΠ΅ Π΄Π»Ρ Π²ΡΠ΅ΠΉ ΡΠΈΡΡΠ΅ΠΌΡ.
- Π£ΡΠ»ΠΎΠ²ΠΈΡ ΡΠ°Π±ΠΎΡΡ Π² ΠΌΠ½ΠΎΠ³ΠΎΡΡΠ°ΠΆΠ½ΡΡ Π·Π΄Π°Π½ΠΈΡΡ Π΄ΠΎΠ²ΠΎΠ»ΡΠ½ΠΎ ΡΠ»ΠΎΠΆΠ½Ρ, ΠΈ Π² ΡΠ°ΠΊΠΎΠΌ ΡΠ»ΡΡΠ°Π΅ ΡΠ°Π±ΠΎΡΠΈΠ΅ Ρ Π°ΡΠ°ΠΊΡΠ΅ΡΠΈΡΡΠΈΠΊΠΈ ΠΊΠ»Π°ΠΏΠ°Π½Π° Π΄ΠΎΠ»ΠΆΠ½Ρ Π±ΡΡΡ Π΅ΡΠ΅ Π²ΡΡΠ΅. Π’ΠΎ ΠΆΠ΅ ΡΠ°ΠΌΠΎΠ΅ ΡΠΊΠ°Π·Π°Π½ΠΎ ΠΈ Π²ΠΎ Π²ΡΠ΅Ρ ΡΡΡΠΎΠΈΡΠ΅Π»ΡΠ½ΡΡ Π½ΠΎΡΠΌΠ°ΡΠΈΠ²Π½ΡΡ Π΄ΠΎΠΊΡΠΌΠ΅Π½ΡΠ°Ρ . ΠΡΠ»ΠΈ ΡΠ²Π΅ΡΡΠΈ ΡΡΡ ΠΈΠ½ΡΠΎΡΠΌΠ°ΡΠΈΡ ΠΊ ΠΎΠ΄Π½ΠΎΠΌΡ ΠΏΡΠ°Π²ΠΈΠ»Ρ, ΡΠΎ ΠΏΠΎΠ»ΡΡΠΈΡΡΡ, ΡΡΠΎ ΠΏΡΠΎΠΏΡΡΠΊΠ½Π°Ρ ΡΠΏΠΎΡΠΎΠ±Π½ΠΎΡΡΡ ΠΊΠ»Π°ΠΏΠ°Π½Π° Π΄ΠΎΠ»ΠΆΠ½Π° Π±ΡΡΡ, ΠΊΠ°ΠΊ ΠΌΠΈΠ½ΠΈΠΌΡΠΌ, Π² ΠΏΡΡΡ ΡΠ°Π· Π±ΠΎΠ»ΡΡΠ΅ Π°Π½Π°Π»ΠΎΠ³ΠΈΡΠ½ΠΎΠ³ΠΎ ΠΏΠΎΠΊΠ°Π·Π°ΡΠ΅Π»Ρ ΡΡΠΎΡΠΊΠ°. ΠΡΠΎΠΌΠ΅ ΡΠΎΠ³ΠΎ, ΠΏΡΠΈ ΡΡΡΠ°Π½ΠΎΠ²ΠΊΠ΅ Π²Π΅Π½ΡΠΈΠ»ΡΡΠΈΠΈ Π² ΡΡΠ°Π»Π΅ΡΠ΅ ΡΠ°ΡΡΠ½ΠΎΠ³ΠΎ Π΄ΠΎΠΌΠ°, Π²ΡΡΠΎΡΠ° ΠΊΠΎΡΠΎΡΠΎΠ³ΠΎ ΠΏΡΠ΅Π²ΠΎΡΡ ΠΎΠ΄ΠΈΡ ΡΠ΅ΡΡΡΠ΅ ΡΡΠ°ΠΆΠ°, ΠΈΡΠΏΠΎΠ»ΡΠ·ΡΡΡΡΡ ΠΎΡΠΎΠ±ΡΠ΅ ΠΏΡΠ°Π²ΠΈΠ»Π° ΡΠΎΠ·Π΄Π°Π½ΠΈΡ Π²Π΅Π½ΡΠΈΠ»ΡΡΠΈΠΎΠ½Π½ΠΎΠΉ ΡΠΈΡΡΠ΅ΠΌΡ.
- ΠΡΠΏΠΎΠ»ΡΠ·ΠΎΠ²Π°Π½ΠΈΠ΅ Π²Π΅Π½ΡΠΈΠ»ΡΡΠΈΠΎΠ½Π½ΡΡ ΠΊΠ»Π°ΠΏΠ°Π½ΠΎΠ² ΠΎΠΏΡΠ΅Π΄Π΅Π»ΡΠ΅ΡΡΡ Π±ΠΎΠ»ΡΡΠΈΠΌ ΠΊΠΎΠ»ΠΈΡΠ΅ΡΡΠ²ΠΎΠΌ Π½ΠΎΡΠΌΠ°ΡΠΈΠ²Π½ΡΡ Π°ΠΊΡΠΎΠ². ΠΠ°ΠΏΡΠΈΠΌΠ΅Ρ, Π² ΠΏΡΠΎΠ΅ΠΊΡΠ½ΠΎΠΌ ΠΌΠΎΠ΄Π΅Π»ΠΈΡΠΎΠ²Π°Π½ΠΈΠΈ ΠΏΡΠΎΠΏΡΡΠΊΠ½Π°Ρ ΡΠΏΠΎΡΠΎΠ±Π½ΠΎΡΡΡ Π²ΠΎΠ·Π΄ΡΡΠ½ΡΡ ΠΊΠ»Π°ΠΏΠ°Π½ΠΎΠ² ΡΠ²Π»ΡΠ΅ΡΡΡ ΠΏΠ°ΡΠ°ΠΌΠ΅ΡΡΠΎΠΌ, ΠΊΠΎΡΠΎΡΡΠΉ Π΄ΠΎΠ»ΠΆΠ΅Π½ ΠΎΠ±ΡΠ·Π°ΡΠ΅Π»ΡΠ½ΠΎ Π²ΠΊΠ»ΡΡΠ°ΡΡΡΡ Π² ΡΠ°ΡΡΠ΅ΡΡ. ΠΠ°ΡΠ°ΠΌΠ΅ΡΡΡ ΠΊΠ»Π°ΠΏΠ°Π½Π° Π½Π°ΠΏΡΡΠΌΡΡ Π·Π°Π²ΡΠ·Π°Π½Ρ Π½Π° ΠΎΠ±ΡΠ΅ΠΌΡ ΡΡΠΎΠΊΠΎΠ², ΠΊΠΎΡΠΎΡΡΠ΅ ΠΏΡΠΈΠ΄Π΅ΡΡΡ ΠΏΠ΅ΡΠ΅ΡΠ°Π±Π°ΡΡΠ²Π°ΡΡ ΠΊΠ°Π½Π°Π»ΠΈΠ·Π°ΡΠΈΠΎΠ½Π½ΠΎΠΉ ΡΠΈΡΡΠ΅ΠΌΠ΅: ΡΠ΅ΠΌ ΠΎΠ½ΠΈ Π±ΠΎΠ»ΡΡΠ΅, ΡΠ΅ΠΌ Π±ΠΎΠ»ΡΡΡΡ ΠΌΠΎΡΠ½ΠΎΡΡΡ Π΄ΠΎΠ»ΠΆΠ½ΠΎ ΠΈΠΌΠ΅ΡΡ ΡΡΡΡΠΎΠΉΡΡΠ²ΠΎ.Β
ΠΠΎΠΌΠ±ΠΈΠ½ΠΈΡΠΎΠ²Π°Π½Π½ΡΠ΅ ΡΡΡΡΠΎΠΉΡΡΠ²Π°
ΠΡΠΎΠΌΠ΅ ΠΎΡΠ΄Π΅Π»ΡΠ½ΠΎ Π²ΡΠΏΡΡΠΊΠ°Π΅ΠΌΡΡ ΠΊΠ»Π°ΠΏΠ°Π½ΠΎΠ², ΡΡΡΠ΅ΡΡΠ²ΡΡΡ ΠΈ Π²Π΅ΡΡΠΈΠΈ ΡΠΈΡΠΎΠ½ΠΎΠ², Π² ΠΊΠΎΡΠΎΡΡΠ΅ Π²ΠΎΠ·Π΄ΡΡΠ½ΡΠ΅ ΠΊΠ»Π°ΠΏΠ°Π½Ρ Π²ΡΡΡΠ°ΠΈΠ²Π°ΡΡΡΡ ΠΈΠ·Π½Π°ΡΠ°Π»ΡΠ½ΠΎ. Π’Π°ΠΊΠΈΠ΅ ΠΊΠΎΠ½ΡΡΡΡΠΊΡΠΈΠΈ ΠΏΡΠ΅Π΄ΠΎΡ ΡΠ°Π½ΡΡΡ ΡΠΈΡΡΠ΅ΠΌΡ ΠΎΡ Π²ΠΎΠ·Π½ΠΈΠΊΠ½ΠΎΠ²Π΅Π½ΠΈΠΉ ΠΎΡΡΠΈΡΠ°ΡΠ΅Π»ΡΠ½ΠΎΠ³ΠΎ Π΄Π°Π²Π»Π΅Π½ΠΈΡ Π²Π½Π΅ Π·Π°Π²ΠΈΡΠΈΠΌΠΎΡΡΠΈ ΠΎΡ ΡΠΎΠ³ΠΎ, ΡΡΡΠ°Π½ΠΎΠ²Π»Π΅Π½ Π½Π° ΡΠ΅ΡΠ΄Π°ΠΊΠ΅ ΠΊΠ»Π°ΠΏΠ°Π½ ΠΈΠ»ΠΈ Π½Π΅Ρ. ΠΡΠ»ΠΈΡΠΈΠΉ Π² ΡΡΡΡΠΎΠΉΡΡΠ²Π΅ Π²ΡΡΡΠΎΠ΅Π½Π½ΠΎΠ³ΠΎ ΠΊΠ»Π°ΠΏΠ°Π½Π° Π½Π΅Ρ, ΠΈ ΡΠ°Π±ΠΎΡΠ°Π΅Ρ ΠΎΠ½ ΠΏΠΎ ΡΠ΅ΠΌ ΠΆΠ΅ ΠΏΡΠΈΠ½ΡΠΈΠΏΠ°ΠΌ, ΠΎΡΠΊΡΡΠ²Π°Ρ Π΄ΠΈΠ°ΡΡΠ°Π³ΠΌΡ Π΄ΠΎ ΡΠΎΠ³ΠΎ, ΠΊΠ°ΠΊ ΠΏΡΠΎΠΈΠ·ΠΎΠΉΠ΄Π΅Ρ ΡΡΡΠ² Π³ΠΈΠ΄ΡΠΎΠ·Π°ΡΠ²ΠΎΡΠ°.Β
Π£ΡΡΠ°Π½ΠΎΠ²ΠΊΠ° Π²ΠΎΠ·Π΄ΡΡΠ½ΠΎΠ³ΠΎ ΠΊΠ»Π°ΠΏΠ°Π½Π°
ΠΠ΅Π½ΡΠΈΠ»ΡΡΠΈΠΎΠ½Π½ΡΠΉ ΠΊΠ»Π°ΠΏΠ°Π½ Π΄Π»Ρ ΠΊΠ°Π½Π°Π»ΠΈΠ·Π°ΡΠΈΠΈ ΠΌΠΎΠΆΠ½ΠΎ ΡΡΡΠ°Π½Π°Π²Π»ΠΈΠ²Π°ΡΡ:
- Π³ΠΎΡΠΈΠ·ΠΎΠ½ΡΠ°Π»ΡΠ½ΠΎ;
- Π²Π΅ΡΡΠΈΠΊΠ°Π»ΡΠ½ΠΎ;
- ΠΏΠΎΠ΄ ΠΊΡΡΡΠ΅ΠΉ ΠΈΠ»ΠΈ Π² ΠΏΠΎΠΌΠ΅ΡΠ΅Π½ΠΈΠΈ.Β
ΠΡΠ΅Π½Ρ ΠΌΠ½ΠΎΠ³ΠΎΠ΅ Π·Π°Π²ΠΈΡΠΈΡ ΠΎΡ ΠΊΠΎΠ½ΡΡΡΡΠΊΡΠΈΠΈ ΡΠ·Π»Π° ΠΈ Π²ΡΠ±ΡΠ°Π½Π½ΠΎΠ³ΠΎ ΡΠΏΠΎΡΠΎΠ±Π° ΡΡΡΠ°Π½ΠΎΠ²ΠΊΠΈ. ΠΠ°ΠΊ ΠΏΡΠ°Π²ΠΈΠ»ΠΎ, Π² ΡΠΏΠΈΡΠΎΠΊ ΡΠ΅ΠΊΠΎΠΌΠ΅Π½Π΄Π°ΡΠΈΠΉ ΠΏΠΎ ΡΡΡΠ°Π½ΠΎΠ²ΠΊΠ΅ ΠΊΠ»Π°ΠΏΠ°Π½Π° Π½Π° ΡΠ΅ΡΠ΄Π°ΠΊΠ΅ Π²Ρ ΠΎΠ΄ΠΈΡ ΡΠ΅ΠΏΠ»ΠΎΠΈΠ·ΠΎΠ»ΡΡΠΈΡ ΠΏΠΎΠΌΠ΅ΡΠ΅Π½ΠΈΡ. ΠΠ»Π°ΠΏΠ°Π½ ΠΏΡΠΈ ΡΡΠΎΠΌ Π½Π΅ ΡΡΠ΅ΠΏΠ»ΡΠ΅ΡΡΡ, Π³Π»Π°Π²Π½ΠΎΠ΅ β ΡΡΠΎΠ±Ρ Ρ ΠΎΠ»ΠΎΠ΄ Π½Π΅ ΠΏΠΎΠΏΠ°Π΄Π°Π» Π² ΠΏΠΎΠΌΠ΅ΡΠ΅Π½ΠΈΠ΅, Π³Π΄Π΅ ΠΎΠ½ ΡΡΡΠ°Π½ΠΎΠ²Π»Π΅Π½, ΠΈ ΡΠΎΠ³Π΄Π° Π΄ΠΎΠ»ΠΆΠ½ΠΎΠ΅ ΡΡΠ΅ΠΏΠ»Π΅Π½ΠΈΠ΅ Π±ΡΠ΄Π΅Ρ ΡΠΎΠ·Π΄Π°Π½ΠΎ ΠΏΡΠΎΡΡΡΠ°Π½ΡΡΠ²ΠΎΠΌ ΠΌΠ΅ΠΆΠ΄Ρ ΠΊΡΡΡΠ΅ΠΉ ΠΈ ΡΠ°ΠΌΠΈΠΌ ΡΡΡΡΠΎΠΉΡΡΠ²ΠΎΠΌ.Β
Π§ΡΠΎΠ±Ρ Π·Π°ΡΠΈΡΠΈΡΡ ΠΌΠ΅ΠΌΠ±ΡΠ°Π½Ρ ΠΎΡ Π²ΠΎΠ·Π΄Π΅ΠΉΡΡΠ²ΠΈΡ Π²Π½Π΅ΡΠ½ΠΈΡ ΡΠ°ΠΊΡΠΎΡΠΎΠ², Π²ΡΠΎΠ΄Π΅ Π³ΡΡΠ·ΠΈ ΠΈ Π²Π»Π°Π³ΠΈ, ΠΊΠ»Π°ΠΏΠ°Π½ Π΄ΠΎΠ»ΠΆΠ΅Π½ ΠΌΠΎΠ½ΡΠΈΡΠΎΠ²Π°ΡΡΡΡ Ρ ΠΎΡΡ Π±Ρ Π½Π° 30 ΡΠΌ Π²ΡΡΠ΅ ΡΠ°ΠΌΠΎΠΉ Π²Π΅ΡΡ Π½Π΅ΠΉ ΡΡΡΠ±Ρ, ΠΊ ΠΊΠΎΡΠΎΡΠΎΠΉ ΠΏΠΎΠ΄ΠΊΠ»ΡΡΠ΅Π½Π° ΡΠ°Π½ΡΠ΅Ρ Π½ΠΈΠΊΠ°. Π Π°ΡΡΡΠΎΡΠ½ΠΈΠ΅ Π΄ΠΎ Π±Π»ΠΈΠΆΠ°ΠΉΡΠ΅Π³ΠΎ ΡΠΈΡΠΎΠ½Π° Π½Π΅ Π΄ΠΎΠ»ΠΆΠ½ΠΎ Π±ΡΡΡ ΠΌΠ΅Π½ΡΡΠ΅ 20 ΡΠΌ. ΠΡΠ΅ ΡΡΠΎ ΠΏΠΎΠ·Π²ΠΎΠ»ΡΠ΅Ρ ΡΠ±Π΅ΡΠ΅ΡΡ Π²ΠΎΠ·Π΄ΡΡΠ½ΡΠΉ ΠΊΠ»Π°ΠΏΠ°Π½ Π΄Π»Ρ Π½Π΅Π²Π΅Π½ΡΠΈΠ»ΠΈΡΡΠ΅ΠΌΡΡ ΠΊΠ°Π½Π°Π»ΠΈΠ·Π°ΡΠΈΠΎΠ½Π½ΡΡ ΡΡΠΎΡΠΊΠΎΠ² ΠΎΡ Π½Π°ΡΡΡΠ΅Π½ΠΈΡ Π³Π΅ΡΠΌΠ΅ΡΠΈΡΠ½ΠΎΡΡΠΈ, ΠΏΠΎΡΠΊΠΎΠ»ΡΠΊΡ Π²ΠΎΠ·Π½ΠΈΠΊΠ°ΡΡΠΈΠ΅ ΠΈΠ·-Π·Π° ΡΡΠΎΠ³ΠΎ ΠΏΡΠΎΠ±Π»Π΅ΠΌΡ ΠΌΠΎΠ³ΡΡ Π±ΡΡΡ ΠΊΡΠ°ΠΉΠ½Π΅ Π½Π΅ΠΏΡΠΈΡΡΠ½ΡΠΌΠΈ.
Π£ΡΡΠ°Π½Π°Π²Π»ΠΈΠ²Π°Ρ ΠΊΠ»Π°ΠΏΠ°Π½ Π² Π²Π°Π½Π½ΠΎΠΉ ΠΈΠ»ΠΈ ΡΡΠ°Π»Π΅ΡΠ΅, ΡΡΠΎΠΈΡ Π²ΠΎΡΠΏΠΎΠ»ΡΠ·ΠΎΠ²Π°ΡΡΡΡ ΡΠ»Π΅Π΄ΡΡΡΠ΅ΠΉ ΡΠ΅ΠΊΠΎΠΌΠ΅Π½Π΄Π°ΡΠΈΠ΅ΠΉ ΠΈ ΠΎΠ±Π΅ΡΠΏΠ΅ΡΠΈΡΡ ΠΏΠΎΠΌΠ΅ΡΠ΅Π½ΠΈΠ΅ ΠΌΠ°ΠΊΡΠΈΠΌΠ°Π»ΡΠ½ΡΠΌ ΠΊΠΎΠ»ΠΈΡΠ΅ΡΡΠ²ΠΎΠΌ Π²ΠΎΠ·Π΄ΡΡ Π°. Π‘ΠΏΠ΅ΡΠΈΠ°Π»ΠΈΡΡΡ ΡΠΎΠ²Π΅ΡΡΡΡ ΡΡΠ°ΡΠ΅Π»ΡΠ½ΠΎ ΡΠ»Π΅Π΄ΠΈΡΡ Π·Π° ΡΡΠΈΠΌ ΠΌΠΎΠΌΠ΅Π½ΡΠΎΠΌ, ΠΏΠΎΡΠΊΠΎΠ»ΡΠΊΡ Π²ΠΎΠ΄Π° ΠΎΠ±Π»Π°Π΄Π°Π΅Ρ Π½Π΅ΠΏΡΠΈΡΡΠ½ΡΠΌ ΡΠ²ΠΎΠΉΡΡΠ²ΠΎΠΌ Π·Π°Ρ Π²Π°ΡΡΠ²Π°ΡΡ ΠΎΠ±ΡΠ΅ΠΌ Π²ΠΎΠ·Π΄ΡΡ Π°, ΠΏΡΠ΅Π²ΡΡΠ°ΡΡΠΈΠΉ ΠΎΠ±ΡΠ΅ΠΌ ΡΠ°ΠΌΠΎΠΉ Π²ΠΎΠ΄Ρ Π² 25 ΡΠ°Π·.Β
ΠΠΎΠ»Π΅Π΅ ΠΏΠΎΠ΄ΡΠΎΠ±Π½ΠΎ ΠΌΠΎΠΆΠ½ΠΎ ΡΠ°ΡΡΠΌΠΎΡΡΠ΅ΡΡ ΠΊΠΎΠ½ΡΡΡΡΠΊΡΠΈΡ Π²ΠΎΠ·Π΄ΡΡΠ½ΠΎΠ³ΠΎ ΠΊΠ»Π°ΠΏΠ°Π½Π° Π½Π° ΡΠΎΡΠΎ, ΠΈ ΡΠΎΠ³Π΄Π° Π²ΡΠ΅ Π±ΠΎΠ»ΡΡΠ°Ρ ΡΠ°ΡΡΡ Π²ΠΎΠΏΡΠΎΡΠΎΠ² ΠΎΡΠΏΠ°Π΄Π΅Ρ ΡΠ°ΠΌΠ° ΡΠΎΠ±ΠΎΠΉ, ΠΏΠΎΡΠΊΠΎΠ»ΡΠΊΡ Π½Π°Π³Π»ΡΠ΄Π½ΠΎΠ΅ ΠΈΠ·ΠΎΠ±ΡΠ°ΠΆΠ΅Π½ΠΈΠ΅ ΠΏΠΎΠ·Π²ΠΎΠ»ΡΠ΅Ρ ΡΡΠ°Π·Ρ ΠΆΠ΅ ΠΏΠΎΠ½ΡΡΡ, ΠΊΠ°ΠΊ ΡΠ°Π±ΠΎΡΠ°Π΅Ρ Π΄Π°Π½Π½ΠΎΠ΅ ΡΡΡΡΠΎΠΉΡΡΠ²ΠΎ.Β
ΠΠ°ΠΊΠ»ΡΡΠ΅Π½ΠΈΠ΅
ΠΡΠ°Π²ΠΈΠ»ΡΠ½ΠΎ ΡΡΡΠ°Π½ΠΎΠ²Π»Π΅Π½Π½ΡΠΉ Π²Π΅Π½ΡΠΊΠ»Π°ΠΏΠ°Π½ Π½Π° ΠΊΠ°Π½Π°Π»ΠΈΠ·Π°ΡΠΈΡ ΡΠ»ΡΡΡΠ°Π΅Ρ Π΅Π΅ ΡΠ°Π±ΠΎΡΡ ΠΈ Π½Π΅ Π΄Π°Π΅Ρ Π²ΠΎΠ·ΠΌΠΎΠΆΠ½ΠΎΡΡΡ ΡΠ°Π·Π»ΠΈΡΠ½ΡΠΌ Π³Π°Π·Π°ΠΌ ΠΏΠΎΠΏΠ°Π΄Π°ΡΡ Π² ΠΆΠΈΠ»ΡΠ΅ ΠΏΠΎΠΌΠ΅ΡΠ΅Π½ΠΈΡ, Π½Π°ΡΡΡΠ°Ρ ΡΠ΅ΠΌ ΡΠ°ΠΌΡΠΌ ΠΊΠΎΠΌΡΠΎΡΡΠ½ΡΠ΅ ΡΡΠ»ΠΎΠ²ΠΈΡ ΠΏΡΠΎΠΆΠΈΠ²Π°Π½ΠΈΡ. Π‘ΠΏΠ΅ΡΠΈΠ°Π»ΠΈΡΡΡ ΡΡ
ΠΎΠ΄ΡΡΡΡ Π²ΠΎ ΠΌΠ½Π΅Π½ΠΈΠΈ, ΡΡΠΎ Π²Π΅Π½ΡΠΈΠ»ΡΡΠΈΠΎΠ½Π½ΡΠΉ ΠΊΠ»Π°ΠΏΠ°Π½ Π΄Π°Π΅Ρ Π²ΠΎΠ·ΠΌΠΎΠΆΠ½ΠΎΡΡΡ ΡΠ΅ΡΠΈΡΡ ΠΏΡΠΎΠ±Π»Π΅ΠΌΡ Π²Π΅Π½ΡΠΈΠ»ΡΡΠΈΠΈ ΠΊΠ°Π½Π°Π»ΠΈΠ·Π°ΡΠΈΠΎΠ½Π½ΠΎΠΉ ΡΠΈΡΡΠ΅ΠΌΡ ΡΠ°ΠΌΡΠΌ ΠΏΡΠΎΡΡΡΠΌ ΠΎΠ±ΡΠ°Π·ΠΎΠΌ. ΠΡΠΎΠΌΠ΅ ΡΠΎΠ³ΠΎ, ΡΡΠΎ ΡΡΡΡΠΎΠΉΡΡΠ²ΠΎ ΡΠ²Π»ΡΠ΅ΡΡΡ ΠΎΠΏΡΠΈΠΌΠ°Π»ΡΠ½ΡΠΌ ΡΠ΅ΡΠ΅Π½ΠΈΠ΅ΠΌ Π΄Π»Ρ Π²Π΅Π½ΡΠΈΠ»ΡΡΠΈΠΈ Π΄ΠΎΠΌΠΎΠ², ΠΈΠΌΠ΅ΡΡΠΈΡ
Π½Π΅ Π±ΠΎΠ»Π΅Π΅ ΡΡΠ΅Ρ
ΡΡΠ°ΠΆΠ΅ΠΉ, Π½ΠΎ Π΅Π³ΠΎ ΠΌΠΎΠΆΠ½ΠΎ ΠΈΡΠΏΠΎΠ»ΡΠ·ΠΎΠ²Π°ΡΡ ΠΈ Π² Π±ΠΎΠ»ΡΡΠΈΡ
Π΄ΠΎΠΌΠ°Ρ
: Π΄ΠΎΡΡΠ°ΡΠΎΡΠ½ΠΎ ΡΠΎΠ΅Π΄ΠΈΠ½ΠΈΡΡ Π½Π΅ΡΠΊΠΎΠ»ΡΠΊΠΎ ΡΡΠΎΡΠΊΠΎΠ², ΠΈΠΌΠ΅ΡΡΠΈΡ
ΠΎΠ±ΡΠΈΠΉ Π²ΡΡ
ΠΎΠ΄ Π²Π΅Π½ΡΠΈΠ»ΡΡΠΈΠΈ, ΠΈ ΡΠΌΠΎΠ½ΡΠΈΡΠΎΠ²Π°ΡΡ Π½Π° Π½Π΅ΠΌ ΠΊΠ°Π½Π°Π»ΠΈΠ·Π°ΡΠΈΠΎΠ½Π½ΡΠΉ Π²Π΅Π½ΡΠΈΠ»ΡΡΠΈΠΎΠ½Π½ΡΠΉ ΠΊΠ»Π°ΠΏΠ°Π½.
kanalizaciyadoma.com
ΠΡΠΎΡΠΈΠ²ΠΎΠΏΠΎΠΆΠ°ΡΠ½ΡΠΉ ΠΊΠ»Π°ΠΏΠ°Π½ Π΄Π»Ρ Π²Π΅Π½ΡΠΈΠ»ΡΡΠΈΠΈ ΠΈ Π΅Π³ΠΎ Π½Π°Π·Π½Π°ΡΠ΅Π½ΠΈΠ΅
Π‘ΠΎΠ²ΡΠ΅ΠΌΠ΅Π½Π½ΡΠ΅ ΠΏΠΎΡΡΡΠΎΠΉΠΊΠΈ Π½Π΅ ΠΎΠ±Ρ ΠΎΠ΄ΡΡΡΡ Π±Π΅Π· ΡΠΈΡΠΎΠΊΠΎΠΉ ΡΠ΅ΡΠΈ ΠΈΠ½ΠΆΠ΅Π½Π΅ΡΠ½ΡΡ ΡΠΈΡΡΠ΅ΠΌ. ΠΠ½ΠΈ Π½Π΅ΠΎΠ±Ρ ΠΎΠ΄ΠΈΠΌΡ Π΄Π»Ρ ΡΠ°Π±ΠΎΡΡ Π±ΠΎΠ»ΡΡΠΎΠ³ΠΎ ΡΠΈΡΠ»Π° ΡΠ»Π΅ΠΊΡΡΠΈΡΠ΅ΡΠΊΠΈΡ ΠΏΡΠΈΠ±ΠΎΡΠΎΠ². ΠΠ»Π΅ΠΊΡΡΠΈΡΠ΅ΡΠΊΠΈΠ΅ ΠΏΡΠΈΠ±ΠΎΡΡ Π² ΡΠ²ΠΎΡ ΠΎΡΠ΅ΡΠ΅Π΄Ρ ΡΠ°ΡΡΠΎ ΡΠΏΠΎΡΠΎΠ±ΡΡΠ²ΡΡΡ Π²ΠΎΠ·Π½ΠΈΠΊΠ½ΠΎΠ²Π΅Π½ΠΈΡ ΠΏΠΎΠΆΠ°ΡΠΎΠ². ΠΠ°Π΄ΡΠΌΠ»Π΅Π½ΠΈΠ΅ ΠΏΡΠΈ ΠΏΠΎΠΆΠ°ΡΠ΅ Ρ Π²ΡΡΠΎΠΊΠΎΠΉ ΡΠΊΠΎΡΠΎΡΡΡΡ ΠΏΠ΅ΡΠ΅ΠΌΠ΅ΡΠ°Π΅ΡΡΡ ΠΏΠΎ Π·Π΄Π°Π½ΠΈΡ. ΠΠ»Ρ ΠΏΡΠ΅Π΄ΠΎΡΠ²ΡΠ°ΡΠ΅Π½ΠΈΡ ΠΎΡΡΠ°Π²Π»Π΅Π½ΠΈΡ ΠΏΡΠΎΠ΄ΡΠΊΡΠ°ΠΌΠΈ Π³ΠΎΡΠ΅Π½ΠΈΡ ΡΡΡΠ°Π½Π°Π²Π»ΠΈΠ²Π°ΡΡΡΡ ΡΠΏΠ΅ΡΠΈΠ°Π»ΡΠ½ΡΠ΅ ΠΌΠ΅Ρ Π°Π½ΠΈΠ·ΠΌΡ Π΄Π»Ρ Π·Π°ΡΠΈΡΡ ΠΎΡ Π΄ΡΠΌΠ°, Π²ΠΊΠ»ΡΡΠ°ΡΡΠΈΠ΅ ΠΏΡΠΎΡΠΈΠ²ΠΎΠΏΠΎΠΆΠ°ΡΠ½ΡΠΉ ΠΊΠ»Π°ΠΏΠ°Π½ Π΄Π»Ρ Π²Π΅Π½ΡΠΈΠ»ΡΡΠΈΠΈ.

ΠΠ°Π·Π½Π°ΡΠ΅Π½ΠΈΠ΅
ΠΡΠΎΡΠΈΠ²ΠΎΠΏΠΎΠΆΠ°ΡΠ½ΡΠΉ ΠΊΠ»Π°ΠΏΠ°Π½ ΠΏΡΠ΅Π΄ΡΡΠ°Π²Π»ΡΠ΅Ρ ΡΠΎΠ±ΠΎΠΉ ΠΎΠ΄Π½Ρ ΠΈΠ· Π³Π»Π°Π²Π½ΡΡ ΡΠΎΡΡΠ°Π²Π»ΡΡΡΠΈΡ Π²Π΅Π½ΡΡΠΈΡΡΠ΅ΠΌΡ. ΠΠ»Π΅ΠΌΠ΅Π½Ρ ΠΏΡΠ΅Π΄Π½Π°Π·Π½Π°ΡΠ΅Π½ Π΄Π»Ρ ΠΎΠ³ΡΠ°Π½ΠΈΡΠ΅Π½ΠΈΡ ΡΠ°ΡΠΏΡΠΎΡΡΡΠ°Π½Π΅Π½ΠΈΡ ΠΎΠ³Π½Ρ ΠΈ ΡΠ΅Π·ΡΠ»ΡΡΠ°ΡΠΎΠ² Π΅Π³ΠΎ Π³ΠΎΡΠ΅Π½ΠΈΡ ΠΏΠΎ Π²ΠΎΠ·Π΄ΡΡ ΠΎΠ²ΠΎΠ΄Π°ΠΌ. ΠΠ°Π»ΠΈΡΠΈΠ΅ ΡΠ°ΠΊΠΎΠ³ΠΎ ΡΡΡΡΠΎΠΉΡΡΠ²Π° ΠΎΠ±Π΅ΡΠΏΠ΅ΡΠΈΠ²Π°Π΅Ρ ΠΏΠΎΠ²ΡΡΠ΅Π½ΠΈΠ΅ ΡΡΠΎΠ²Π½Ρ ΠΏΠΎΠΆΠ°ΡΠ½ΠΎΠΉ Π±Π΅Π·ΠΎΠΏΠ°ΡΠ½ΠΎΡΡΠΈ, ΠΈΡΠΊΠ»ΡΡΠ°Ρ ΠΏΠ΅ΡΠ΅ΠΌΠ΅ΡΠ΅Π½ΠΈΠ΅ Π²ΠΎΠ·Π³ΠΎΡΠ°Π½ΠΈΡ Π² Π·Π΄Π°Π½ΠΈΠΈ.
ΠΡΠΎΠΌΠ΅ ΠΎΠ³ΡΠ°Π½ΠΈΡΠΈΡΠ΅Π»ΡΠ½ΠΎΠΉ ΡΡΠ½ΠΊΡΠΈΠΈ ΠΊΠ»Π°ΠΏΠ°Π½ ΠΈΠ³ΡΠ°Π΅Ρ ΡΠΎΠ»Ρ ΡΠ»Π΅ΠΌΠ΅Π½ΡΠ°, ΠΊΠΎΡΠΎΡΡΠΉ ΡΠ½ΠΈΠΆΠ°Π΅Ρ ΠΏΡΠΈΡΠΎΠΊ Π²ΠΎΠ·Π΄ΡΡ Π° Π΄Π»Ρ ΡΠ²Π΅Π»ΠΈΡΠ΅Π½ΠΈΡ Π³ΠΎΡΠ΅Π½ΠΈΡ. ΠΡΠ΅ Π²ΠΎΠ·ΠΌΠΎΠΆΠ½Ρ ΠΌΠΎΠ΄ΠΈΡΠΈΠΊΠ°ΡΠΈΠΈ ΠΏΡΠΎΡΠΈΠ²ΠΎΠΏΠΎΠΆΠ°ΡΠ½ΡΡ ΡΡΡΡΠΎΠΉΡΡΠ², ΠΊΠΎΡΠΎΡΡΠ΅ ΠΈΡΠΏΠΎΠ»ΡΠ·ΡΡΡΡΡ Π΄Π»Ρ ΡΠ΄Π°Π»Π΅Π½ΠΈΡ Π·Π°Π΄ΡΠΌΠ»Π΅Π½ΠΈΡ, Π³Π°Π·Π°, ΠΏΡΠΎΠ΄ΡΠΊΡΠΎΠ² Π³ΠΎΡΠ΅Π½ΠΈΡ.
Π£ΡΡΡΠΎΠΉΡΡΠ²ΠΎ ΠΏΡΠΎΡΠΈΠ²ΠΎΠΏΠΎΠΆΠ°ΡΠ½ΠΎΠ³ΠΎ ΠΊΠ»Π°ΠΏΠ°Π½Π°

ΠΡΠΎΡΠΈΠ²ΠΎΠΏΠΎΠΆΠ°ΡΠ½ΡΠΉ ΠΊΠ»Π°ΠΏΠ°Π½ ΠΌΠΎΠΆΠ½ΠΎ Π½Π°Π·Π²Π°ΡΡ Π·Π°ΡΠ»ΠΎΠ½ΠΊΠΎΠΉ, ΡΡΠ°ΡΡΠ²ΡΡΡΠ΅ΠΉ Π² ΠΏΡΠΎΡΠ΅ΡΡΠ΅ ΠΏΠ΅ΡΠ΅ΠΊΡΡΠ²Π°Π½ΠΈΡ ΠΈΠ»ΠΈ ΠΎΡΠΊΡΡΠ²Π°Π½ΠΈΡ ΠΊΠ°Π½Π°Π»ΠΎΠ² Π²Π΅Π½ΡΠΈΠ»ΡΡΠΈΠΈ ΠΈ ΡΠ°Ρ Ρ. ΠΡΠΎΡΠΈΠ²ΠΎΠΏΠΎΠΆΠ°ΡΠ½ΡΠ΅ ΠΊΠ»Π°ΠΏΠ°Π½Ρ Π΄Π»Ρ ΡΠΈΡΡΠ΅ΠΌ Π²Π΅Π½ΡΠΈΠ»ΡΡΠΈΠΈ ΡΠΎΡΡΠΎΡΡ ΠΈΠ·:
- ΠΠΎΡΠΏΡΡ;
- ΠΠ°ΡΠ»ΠΎΠ½ΠΊΠ°;
- ΠΡΠΈΠ²ΠΎΠ΄.
ΠΠΎΡΠΏΡΡ ΡΠ²Π»ΡΠ΅ΡΡΡ Π½Π΅ΡΡΡΠ΅ΠΉ ΡΠ°ΡΡΡΡ. ΠΠ½ ΡΠ½Π°Π±ΠΆΠ°Π΅ΡΡΡ ΠΎΠ΄Π½ΠΈΠΌ ΠΈΠ»ΠΈ Π΄Π²ΡΠΌΡ ΡΠ»Π°Π½ΡΠ°ΠΌΠΈ Π΄Π»Ρ Π·Π°ΠΊΡΠ΅ΠΏΠ»Π΅Π½ΠΈΡ ΡΡΡΡΠΎΠΉΡΡΠ²Π° Π² ΠΊΠ°Π½Π°Π»Π΅. ΠΠ·Π³ΠΎΡΠ°Π²Π»ΠΈΠ²Π°Π΅ΡΡΡ ΠΊΠΎΡΠΏΡΡ Π² ΡΠ°Π·Π»ΠΈΡΠ½ΡΡ ΡΠΎΡΠΌΠ°Ρ :
- ΠΡΡΠ³Π»ΡΠΉ ΠΈΠ»ΠΈ ΠΏΡΡΠΌΠΎΡΠ³ΠΎΠ»ΡΠ½ΡΠΉ β ΡΠΎΡΠΌΠ° Π·Π°Π²ΠΈΡΠΈΡ ΠΎΡ ΠΊΠΎΠ½ΡΠΈΠ³ΡΡΠ°ΡΠΈΠΈ Π²ΠΎΠ·Π΄ΡΡ ΠΎΠ²ΠΎΠ΄Π°, Π΄Π»Ρ ΠΊΠΎΡΠΎΡΠΎΠ³ΠΎ ΠΏΡΠ΅Π΄ΡΡΠΌΠΎΡΡΠ΅Π½Π° ΡΡΡΠ°Π½ΠΎΠ²ΠΊΠ° ΠΊΠ»Π°ΠΏΠ°Π½Π°;
- Π‘ΠΎΠ΄Π΅ΡΠΆΠΈΡ ΠΎΠ΄Π½Ρ ΠΈΠ»ΠΈ Π΄Π²Π΅ ΡΠ΅ΠΊΡΠΈΠΈ, ΠΎΡΠ²Π΅ΡΠ°ΡΡΠΈΠ΅ Π·Π° ΠΏΡΠ΅Π΄Π΅Π» ΠΎΠ³Π½Π΅ΡΡΠΎΠΉΠΊΠΎΡΡΠΈ.
ΠΡΠΎΡΠΈΠ²ΠΎΠΏΠΎΠΆΠ°ΡΠ½ΡΠΉ ΠΊΠ»Π°ΠΏΠ°Π½ ΠΌΠΎΠΆΠ΅Ρ ΠΈΠΌΠ΅ΡΡ ΠΊΠΎΡΠΏΡΡ ΠΈΠ· ΡΠ°Π·Π½ΡΡ ΠΌΠ°ΡΠ΅ΡΠΈΠ°Π»ΠΎΠ²:
- Π§Π΅ΡΠ½Π°Ρ ΡΠ³Π»Π΅ΡΠΎΠ΄ΠΈΡΡΠ°Ρ ΡΡΠ°Π»Ρ;
- ΠΠ΅ΡΠΆΠ°Π²Π΅ΡΡΠ°Ρ ΡΡΠ°Π»Ρ;
- ΠΡΠΈΠ½ΠΊΠΎΠ²Π°Π½Π½Π°Ρ ΡΡΠ°Π»Ρ.
ΠΡΠΈΠΌΠ΅Π½ΠΈΡΠ΅Π»ΡΠ½ΠΎ ΠΊ ΠΎΠΊΡΡΠΆΠ°ΡΡΠΈΠΌ ΡΡΠ»ΠΎΠ²ΠΈΡΠΌ Π²ΡΠ±ΠΈΡΠ°Π΅ΡΡΡ ΠΊΠΎΡΠΏΡΡ ΠΈΠ·Π΄Π΅Π»ΠΈΡ. ΠΡΠΈ ΡΡΠ»ΠΎΠ²ΠΈΡΡ ΠΏΠΎΠ²ΡΡΠ΅Π½Π½ΠΎΠΉ Π²Π»Π°ΠΆΠ½ΠΎΡΡΠΈ ΡΠ΅ΠΊΠΎΠΌΠ΅Π½Π΄ΡΠ΅ΡΡΡ Π²ΡΠ±ΠΈΡΠ°ΡΡ ΠΊΠΎΡΠΏΡΡ ΠΈΠ· Π½Π΅ΡΠΆΠ°Π²Π΅ΡΡΠ΅ΠΉ ΡΡΠ°Π»ΠΈ.
ΠΠ½ΡΡΡΠΈ ΠΊΠΎΡΠΏΡΡΠ° ΡΠ°Π·ΠΌΠ΅ΡΠ°Π΅ΡΡΡ Π·Π°ΡΠ»ΠΎΠ½ΠΊΠ°, Π²ΡΠ°ΡΠ΅Π½ΠΈΠ΅ ΠΊΠΎΡΠΎΡΠΎΠΉ ΠΎΠ±Π΅ΡΠΏΠ΅ΡΠΈΠ²Π°Π΅Ρ ΠΎΡΠΊΡΡΠ²Π°Π½ΠΈΠ΅. ΠΠΎΠ΄Π΅Π»ΠΈ ΠΊΠ»Π°ΠΏΠ°Π½ΠΎΠ² ΠΎΡΠ½Π°ΡΠ°ΡΡΡΡ ΠΎΠ΄ΠΈΠ½Π°ΡΠ½ΠΎΠΉ Π·Π°ΡΠ»ΠΎΠ½ΠΊΠΎΠΉ ΠΈΠ»ΠΈ Π·Π°ΡΠ»ΠΎΠ½ΠΊΠΎΠΉ, ΡΠΎΡΡΠΎΡΡΠ΅ΠΉ ΠΈΠ· Π½Π΅ΡΠΊΠΎΠ»ΡΠΊΠΈΡ ΡΡΠ²ΠΎΡΠΎΠΊ. Π ΡΠ»ΡΡΠ°Π΅ Ρ Π½Π΅ΡΠΊΠΎΠ»ΡΠΊΠΈΠΌΠΈ ΡΡΠ²ΠΎΡΠΊΠ°ΠΌΠΈ ΠΈΠΌΠ΅ΡΡΡΡ ΠΌΠ΅Π½ΡΡΠΈΠΉ Π²ΡΠ»Π΅Ρ Π·Π°ΡΠ»ΠΎΠ½ΠΊΠΈ Π·Π° Π³ΡΠ°Π½ΠΈΡΡ ΠΊΠΎΡΠΏΡΡΠ°. ΠΠ½ΠΎΠΆΠ΅ΡΡΠ²ΠΎ ΡΡΠ²ΠΎΡΠΎΠΊ ΠΎΡΡΡΠ΅ΡΡΠ²Π»ΡΡΡ Π΄Π²ΠΈΠΆΠ΅Π½ΠΈΠ΅ ΠΎΠ΄Π½ΠΎΠ²ΡΠ΅ΠΌΠ΅Π½Π½ΠΎ.
ΠΠΊΠ»ΡΡΠ΅Π½ΠΈΠ΅ ΠΊΠ»Π°ΠΏΠ°Π½Π° ΠΌΠΎΠΆΠ΅Ρ Π±ΡΡΡ Π°Π²ΡΠΎΠΌΠ°ΡΠΈΡΠ΅ΡΠΊΠΈΠΌ ΠΈΠ»ΠΈ ΡΡΡΠ½ΡΠΌ. ΠΠ²ΡΠΎΠΌΠ°ΡΠΈΡΠ΅ΡΠΊΠΈΠΉ ΡΠ΅ΠΆΠΈΠΌ ΡΠ°Π±ΠΎΡΡ ΠΏΡΠ΅Π΄ΡΡΠΌΠ°ΡΡΠΈΠ²Π°Π΅Ρ ΠΏΠΎΠ΄Π°ΡΡ ΡΠΈΠ³Π½Π°Π»Π° ΠΎΡ ΡΠΈΡΡΠ΅ΠΌΡ ΠΏΠΎΠΆΠ°ΡΠ½ΠΎΠΉ ΡΠΈΠ³Π½Π°Π»ΠΈΠ·Π°ΡΠΈΠΈ. Π ΡΡΠ½ΠΎΠ΅ ΡΠΏΡΠ°Π²Π»Π΅Π½ΠΈΠ΅ ΠΎΡΡΡΠ΅ΡΡΠ²Π»ΡΠ΅ΡΡΡ Ρ ΠΏΡΠ»ΡΡΠ° ΠΈΠ»ΠΈ ΠΊΠ½ΠΎΠΏΠΎΠΊ, ΡΠ°ΡΠΏΠΎΠ»ΠΎΠΆΠ΅Π½Π½ΡΡ Π½Π° ΡΡΠ°ΠΆΠ°Ρ .
ΠΠΎΠ»ΠΎΠΆΠ΅Π½ΠΈΡ Π·Π°ΡΠ»ΠΎΠ½ΠΊΠΈ ΠΌΠ΅Π½ΡΡΡΡΡ ΠΏΡΠΈ Π½Π°Π»ΠΈΡΠΈΠΈ ΡΠ°ΠΊΠΈΡ ΠΏΡΠΈΠ²ΠΎΠ΄ΠΎΠ²:
- ΠΠ»Π΅ΠΊΡΡΠΎΠΌΠ΅Ρ Π°Π½ΠΈΡΠ΅ΡΠΊΠΈΠΉ;
- ΠΠ»Π΅ΠΊΡΡΠΈΡΠ΅ΡΠΊΠΈΠΉ ΡΠ΅Π²Π΅ΡΡΠΈΠ²Π½ΡΠΉ;
- ΠΠ»Π΅ΠΊΡΡΠΎΠΌΠ°Π³Π½ΠΈΡΠ½ΡΠΉ;
- Π’Π΅ΠΏΠ»ΠΎΠ²ΠΎΠΉ Π·Π°ΠΌΠΎΠΊ.
ΠΡΠΈΠΌΠ΅Π½Π΅Π½ΠΈΠ΅ ΡΠ΅ΠΏΠ»ΠΎΠ²ΠΎΠ³ΠΎ Π·Π°ΠΌΠΊΠ° Π² ΠΏΠΎΡΠ»Π΅Π΄Π½Π΅Π΅ Π²ΡΠ΅ΠΌΡ Π·Π°ΠΏΡΠ΅ΡΠ΅Π½ΠΎ Π½ΠΎΡΠΌΠ°ΠΌΠΈ ΠΏΠΎΠΆΠ°ΡΠ½ΠΎΠΉ Π±Π΅Π·ΠΎΠΏΠ°ΡΠ½ΠΎΡΡΠΈ.
Π Π°Π·Π½ΠΎΠ²ΠΈΠ΄Π½ΠΎΡΡΠΈ

ΠΠ»Π°ΠΏΠ°Π½ ΠΏΡΠΎΡΠΈΠ²ΠΎΠΏΠΎΠΆΠ°ΡΠ½ΡΠΉ ΠΠΠΠ-1Π
ΠΠ΅Π½ΡΠΈΠ»ΡΡΠΈΠΎΠ½Π½ΡΠ΅ ΠΏΡΠΎΡΠΈΠ²ΠΎΠΏΠΎΠΆΠ°ΡΠ½ΡΠ΅ ΠΊΠ»Π°ΠΏΠ°Π½Ρ ΡΠ°Π·Π΄Π΅Π»ΡΡΡΡΡ Π½Π° ΡΠ°Π·Π½ΠΎΠ²ΠΈΠ΄Π½ΠΎΡΡΠΈ:
- ΠΠΎΡΠΌΠ°Π»ΡΠ½ΠΎ Π·Π°ΠΊΡΡΡΡΠΉ β Ρ Π°ΡΠ°ΠΊΡΠ΅ΡΠΈΠ·ΡΠ΅ΡΡΡ ΠΏΡΠΈΠΌΠ΅Π½Π΅Π½ΠΈΠ΅ΠΌ Π² ΡΠΈΡΡΠ΅ΠΌΠ°Ρ , ΠΎΡΠ²Π΅ΡΠ°ΡΡΠΈΡ Π·Π° Π²ΡΠ²ΠΎΠ΄ ΡΠ΅Π·ΡΠ»ΡΡΠ°ΡΠΎΠ² Π³ΠΎΡΠ΅Π½ΠΈΡ. ΠΠ° Π½Π°ΡΠ°Π»ΡΠ½ΠΎΠΉ ΡΡΠ°Π΄ΠΈΠΈ Π·Π°ΡΠ»ΠΎΠ½ΠΊΠ° Π·Π°ΠΊΡΡΡΠ°, ΡΡΠΎΠ±Ρ ΠΎΠ±Π΅ΡΠΏΠ΅ΡΠΈΡΡ Π±Π»ΠΎΠΊΠΈΡΠΎΠ²ΠΊΡ Π΄ΠΎΡΡΡΠΏΠ° ΠΊΠΈΡΠ»ΠΎΡΠΎΠ΄Π° ΠΊ ΠΊΠ°Π½Π°Π»Π°ΠΌ. ΠΡΠΈ ΠΏΠΎΠΆΠ°ΡΠ΅ ΠΏΡΠΎΠΈΡΡ ΠΎΠ΄ΠΈΡ ΠΎΡΠΊΡΡΡΠΈΠ΅ Π·Π°ΡΠ»ΠΎΠ½ΠΊΠΈ, ΠΈ Π΄ΡΠΌ Π·Π°Π±ΠΈΡΠ°Π΅ΡΡΡ ΠΈΠ· ΠΏΠΎΠΌΠ΅ΡΠ΅Π½ΠΈΡ, Π² ΠΊΠΎΡΠΎΡΠΎΠΌ Π½Π°ΡΠΈΠ½Π°Π΅ΡΡΡ ΡΠ°ΡΠΏΡΠΎΡΡΡΠ°Π½Π΅Π½ΠΈΠ΅ ΠΎΠ³Π½Ρ;
- ΠΠΎΡΠΌΠ°Π»ΡΠ½ΠΎ ΠΎΡΠΊΡΡΡΡΠΉ β ΡΠ°ΡΠΏΠΎΠ»Π°Π³Π°Π΅ΡΡΡ Π² ΠΊΠ»Π°ΡΡΠΈΡΠ΅ΡΠΊΠΈΡ Π²Π΅Π½ΡΡΠΈΡΡΠ΅ΠΌΠ°Ρ Π½Π° ΠΌΠ΅ΠΆΠ΄ΡΡΡΠ°ΠΆΠ½ΡΡ ΠΏΡΠΎΡΡΡΠ°Π½ΡΡΠ²Π°Ρ . ΠΠ΅ΡΠ²ΠΎΠ½Π°ΡΠ°Π»ΡΠ½ΠΎ Π·Π°ΡΠ»ΠΎΠ½ΠΊΠ° ΠΎΡΠΊΡΡΡΠ°. Π ΡΠΈΡΡΠ°ΡΠΈΠΈ Π²ΠΎΠ·Π½ΠΈΠΊΠ½ΠΎΠ²Π΅Π½ΠΈΡ ΠΏΠΎΠΆΠ°ΡΠ° Π·Π°ΡΠ»ΠΎΠ½ΠΊΠ° ΠΏΡΠΎΠΈΡΡ ΠΎΠ΄ΠΈΡ Π·Π°ΠΊΡΡΡΠΈΠ΅ Π·Π°ΡΠ»ΠΎΠ½ΠΊΠΈ, ΠΊΠΎΡΠΎΡΠ°Ρ ΠΏΠ΅ΡΠ΅ΠΊΡΡΠ²Π°Π΅Ρ ΠΊΠ°Π½Π°Π». Π ΡΠ΅Π·ΡΠ»ΡΡΠ°ΡΠ΅ ΠΈΡΠΊΠ»ΡΡΠ°Π΅ΡΡΡ ΠΏΠ»ΠΎΡΠ°Π΄Ρ Π½Π°Π»ΠΈΡΠΈΡ Π²ΠΎΠ·Π³ΠΎΡΠ°Π½ΠΈΡ;
- ΠΡΠΌΠΎΠ²ΠΎΠΉ Π΄ΡΠΎΡΡΠ΅Π»Ρ β ΡΠ°ΡΡΡΠΈΡΠ°Π½ Π΄Π»Ρ ΡΡΡΠ°Π½ΠΎΠ²ΠΊΠΈ Π² Π±ΠΎΠ»ΡΡΠΈΡ ΠΏΠΎΠΌΠ΅ΡΠ΅Π½ΠΈΡΡ , Π³Π΄Π΅ ΠΏΡΠ΅Π΄ΠΏΠΎΠ»Π°Π³Π°Π΅ΡΡΡ ΡΠ°Π·ΠΌΠ΅ΡΠ΅Π½ΠΈΠ΅ ΠΎΠ³ΡΠΎΠΌΠ½ΠΎΠ³ΠΎ ΡΠΈΡΠ»Π° Π»ΡΠ΄Π΅ΠΉ (ΠΊΠΎΡΠΈΠ΄ΠΎΡ, Ρ ΠΎΠ»Π», Π·Π°Π»). Π€ΡΠ½ΠΊΡΠΈΠΎΠ½ΠΈΡΡΠ΅Ρ ΠΏΡΠΈ ΠΏΠΎΠΆΠ°ΡΠ΅, ΡΠ΄Π°Π»ΡΡ Π³Π°Π·ΠΎΠ²ΡΠ΅ ΡΠΌΠ΅ΡΠΈ;
- ΠΠ»Π°ΠΏΠ°Π½ Π΄Π²ΠΎΠΉΠ½ΠΎΠ³ΠΎ Π΄Π΅ΠΉΡΡΠ²ΠΈΡ β ΠΏΡΠ΅Π΄ΡΡΠ°Π²Π»ΡΠ΅Ρ ΡΠΎΠ±ΠΎΠΉ ΡΠΎΡΠ΅ΡΠ°Π½ΠΈΠ΅ ΠΎΡΠΊΡΡΡΠΎΠ³ΠΎ ΠΈ Π·Π°ΠΊΡΡΡΠΎΠ³ΠΎ ΡΡΡΡΠΎΠΉΡΡΠ²Π°. ΠΠ° Π½Π°ΡΠ°Π»ΡΠ½ΠΎΠΌ ΡΡΠ°ΠΏΠ΅ Π΄ΡΠΎΡΡΠ΅Π»Ρ Π·Π°ΠΊΡΡΡ. ΠΡΠΈ ΠΏΠΎΡΠ²Π»Π΅Π½ΠΈΠΈ ΠΏΠΎΠΆΠ°ΡΠ° ΠΏΡΠΎΠΈΡΡ ΠΎΠ΄ΠΈΡ Π·Π°ΠΊΡΡΡΠΈΠ΅ Π·Π°ΡΠ»ΠΎΠ½ΠΊΠΈ Π΄Π»Ρ ΠΏΡΠ΅Π΄ΠΎΡΠ²ΡΠ°ΡΠ΅Π½ΠΈΡ ΡΠ°ΡΠΏΡΠΎΡΡΡΠ°Π½Π΅Π½ΠΈΡ ΠΏΠΎΠΆΠ°ΡΠ°. ΠΡΠΈ ΠΏΡΠ΅ΠΊΡΠ°ΡΠ΅Π½ΠΈΠΈ ΠΎΠ³Π½Ρ ΠΈΠ·Π΄Π΅Π»ΠΈΠ΅ Π² ΠΎΡΠΊΡΡΡΠΎΠΌ ΡΠΎΡΡΠΎΡΠ½ΠΈΠΈ ΠΎΡΡΠ°ΡΡΠ²Π°Π΅Ρ Π²Π΅ΡΠ΅ΡΡΠ²Π° Π³ΠΎΡΠ΅Π½ΠΈΡ ΠΈΠ· ΠΏΠΎΠΌΠ΅ΡΠ΅Π½ΠΈΡ.
ΠΡΠΈΠΌΠ΅Π½ΠΈΡΠ΅Π»ΡΠ½ΠΎ ΠΊ Π·ΠΎΠ½Π΅ ΠΊΡΠ΅ΠΏΠ»Π΅Π½ΠΈΡ ΠΊΠ»Π°ΠΏΠ°Π½ Π²Π΅Π½ΡΠΈΠ»ΡΡΠΈΠΎΠ½Π½ΡΠΉ ΠΏΡΠΎΡΠΈΠ²ΠΎΠΏΠΎΠΆΠ°ΡΠ½ΡΠΉ ΡΠ°Π·Π΄Π΅Π»ΡΠ΅ΡΡΡ Π½Π° Π΄Π²Π΅ ΠΊΠ°ΡΠ΅Π³ΠΎΡΠΈΠΈ:
- ΠΠ°Π½Π°Π»ΡΠ½ΡΠΉ β ΡΠ°Π·ΠΌΠ΅ΡΠ°Π΅ΡΡΡ Π² Π²Π΅Π½ΡΠΈΠ»ΡΡΠΈΠΎΠ½Π½ΠΎΠΉ ΡΠΈΡΡΠ΅ΠΌΠ΅ ΠΈ ΡΠ°Ρ ΡΠ΅ Π»ΠΈΡΡΠ°;
- Π‘ΡΠ΅Π½ΠΎΠ²ΠΎΠΉ β ΡΡΡΠ°Π½Π°Π²Π»ΠΈΠ²Π°Π΅ΡΡΡ Π½Π° Π²Π½Π΅ΡΠ½ΠΈΡ ΡΡΠ΅Π½Π°Ρ Π·Π΄Π°Π½ΠΈΡ.
Π ΠΎΡΠ΄Π΅Π»ΡΠ½ΡΡ ΠΊΠ°ΡΠ΅Π³ΠΎΡΠΈΡ Π²ΡΠ΄Π΅Π»Π΅Π½ Π³Π°Π·ΠΎΠ²ΠΎΠ΅ ΡΡΡΡΠΎΠΉΡΡΠ²ΠΎ, ΠΏΡΠΈΠΌΠ΅Π½ΡΠ΅ΠΌΠΎΠ΅ Π² ΠΏΠΎΠΌΠ΅ΡΠ΅Π½ΠΈΠΈ, Π³Π΄Π΅ Π΅ΡΡΡ Π΄ΠΎΡΡΡΠΏ Π³Π°Π·Π°. ΠΠ³ΠΎ ΡΡΠ½ΠΊΡΠΈΠΎΠ½ΠΈΡΠΎΠ²Π°Π½ΠΈΠ΅ ΠΎΡΡΡΠ΅ΡΡΠ²Π»ΡΠ΅ΡΡΡ ΠΏΠΎΡΡΠ΅Π΄ΡΡΠ²ΠΎΠΌ ΠΏΡΠ΅Π³ΡΠ°ΠΆΠ΄Π΅Π½ΠΈΡ Π³Π°Π·Π° Π² Π°Π²ΡΠΎΠΌΠ°ΡΠΈΡΠ΅ΡΠΊΠΎΠΌ ΡΠ΅ΠΆΠΈΠΌΠ΅ ΠΏΡΠΈ Π²ΠΎΠ·Π½ΠΈΠΊΠ½ΠΎΠ²Π΅Π½ΠΈΠΈ ΠΎΠ³Π½Ρ. ΠΠ·Π΄Π΅Π»ΠΈΠ΅ ΠΎΡΠ½Π°ΡΠ΅Π½ΠΎ Π΄Π°ΡΡΠΈΠΊΠΎΠΌ, ΠΊΠΎΡΠΎΡΡΠΉ ΡΡΠ²ΡΡΠ²ΠΈΡΠ΅Π»Π΅Π½ ΠΊ ΡΠ²Π΅Π»ΠΈΡΠ΅Π½ΠΈΡ ΡΠ΅ΠΌΠΏΠ΅ΡΠ°ΡΡΡΡ. ΠΡΠΈ ΠΏΠΎΠ²ΡΡΠ΅Π½ΠΈΠΈ ΡΠ΅ΠΌΠΏΠ΅ΡΠ°ΡΡΡΡ ΠΏΡΠΎΠΈΡΡ ΠΎΠ΄ΠΈΡ ΠΎΡΡΠ°Π½ΠΎΠ²ΠΊΠ° ΠΏΠΎΡΡΡΠΏΠ»Π΅Π½ΠΈΡ Π³Π°Π·Π° ΠΊ ΡΠ°ΠΊΠΈΠΌ ΡΡΡΡΠΎΠΉΡΡΠ²Π°ΠΌ ΠΊΠ°ΠΊ ΠΊΠΎΡΠ΅Π», Π³Π°Π·ΠΎΠ²Π°Ρ ΠΏΠ»ΠΈΡΠ°. ΠΠ»Π°ΠΏΠ°Π½Π½ΡΠΉ ΡΠ»Π΅ΠΌΠ΅Π½Ρ ΡΠ°Π·ΠΌΠ΅ΡΠ°Π΅ΡΡΡ Π²ΠΎΠ·Π»Π΅ ΠΏΡΠΈΠ±ΠΎΡΠΎΠ² ΠΈ ΡΠ΅Ρ Π½ΠΈΠΊΠΈ.

ΠΡΠ΅ ΠΈΠ·Π²Π΅ΡΡΠ΅Π½ ΠΎΡΡΠ΅ΠΊΠ°ΡΡΠΈΠΉ Π²ΠΈΠ΄ ΠΊΠ»Π°ΠΏΠ°Π½Π°, ΠΌΠΎΠ½ΡΠ°ΠΆ ΠΊΠΎΡΠΎΡΠΎΠ³ΠΎ ΠΎΡΡΡΠ΅ΡΡΠ²Π»ΡΠ΅ΡΡΡ Π² ΠΌΠ΅ΡΡΠ°Ρ ΠΏΠ΅ΡΠ΅ΡΠ΅ΡΠ΅Π½ΠΈΡ Π²ΠΎΠ·Π΄ΡΡΠ½ΡΠΌΠΈ ΠΊΠ°Π½Π°Π»Π°ΠΌΠΈ ΡΡΠ΅Π½ ΠΈΠ»ΠΈ ΠΈΠ½ΡΡ ΠΊΠΎΠ½ΡΡΡΡΠΊΡΠΈΠΉ. ΠΠ·Π΄Π΅Π»ΠΈΠ΅ ΡΠΏΠΎΡΠΎΠ±ΡΡΠ²ΡΠ΅Ρ ΠΎΠ³ΡΠ°Π½ΠΈΡΠ΅Π½ΠΈΡ ΠΏΠ΅ΡΠ΅ΠΌΠ΅ΡΠ΅Π½ΠΈΡ Π΄ΡΠΌΠ° ΠΈΠ· Π³Π»Π°Π²Π½ΠΎΠ³ΠΎ Π²ΠΎΠ·Π΄ΡΡ ΠΎΠ²ΠΎΠ΄Π° ΠΊ ΠΏΠ΅ΡΠΈΡΠ΅ΡΠΈΠΈ.
ΠΠ»Π°ΠΏΠ°Π½Ρ ΠΊΠ»Π°ΡΡΠΈΡΠΈΡΠΈΡΡΠ΅ΡΡΡ, ΡΠ°ΠΊΠΆΠ΅, ΠΏΠΎ ΠΊΠ»ΠΈΠΌΠ°ΡΠΈΡΠ΅ΡΠΊΠΎΠΌΡ ΠΏΡΠΈΠ·Π½Π°ΠΊΡ. ΠΠ·Π³ΠΎΡΠ°Π²Π»ΠΈΠ²Π°ΡΡΡΡ ΡΡΡΡΠΎΠΉΡΡΠ²Π°, ΠΊΠΎΡΠΎΡΡΠ΅ Π±ΡΠ΄ΡΡ ΠΏΡΠΈΠΌΠ΅Π½ΡΡΡΡΡ ΠΏΡΠΈ Π½ΠΈΠ·ΠΊΠΈΡ ΡΠ΅ΠΌΠΏΠ΅ΡΠ°ΡΡΡΠ°Ρ Π²ΠΎΠ·Π΄ΡΡ Π°. ΠΠ½ΠΈ ΡΡΠΈΡΠ°ΡΡΡΡ ΠΌΠΎΡΠΎΠ·ΠΎΡΡΠΎΠΉΠΊΠΈΠΌΠΈ. ΠΠ»Ρ ΡΠ°Π±ΠΎΡΡ Π² ΠΌΠΎΡΡΠΊΠΈΡ ΡΡΠ»ΠΎΠ²ΠΈΡΡ ΠΏΡΠΎΠΈΠ·Π²ΠΎΠ΄ΡΡΡΡ ΠΊΠ»Π°ΠΏΠ°Π½Ρ ΠΌΠΎΡΡΠΊΠΎΠ³ΠΎ ΡΠΈΠΏΠ°, ΡΠΊΡΠΏΠ»ΡΠ°ΡΠΈΡΡΠ΅ΠΌΡΠ΅ ΠΏΡΠΈ ΠΏΠΎΠ²ΡΡΠ΅Π½Π½ΠΎΠΉ Π²Π»Π°ΠΆΠ½ΠΎΡΡΠΈ.
ΠΡΠ°Π²ΠΈΠ»Π° Π²ΡΠ±ΠΎΡΠ°
ΠΡΠΈ Π²ΡΠ±ΠΎΡΠ΅ ΡΡΡΡΠΎΠΉΡΡΠ²Π° Π½Π΅ΠΎΠ±Ρ ΠΎΠ΄ΠΈΠΌΠΎ ΡΡΠΈΡΡΠ²Π°ΡΡ ΡΠ°ΠΊΠΈΠ΅ ΠΏΠΎΠΊΠ°Π·Π°ΡΠ΅Π»ΠΈ:
- Π¦Π΅Π»Ρ ΠΈΡΠΏΠΎΠ»ΡΠ·ΠΎΠ²Π°Π½ΠΈΡ β Π΄Π»Ρ ΡΠ΄Π°Π»Π΅Π½ΠΈΡ Π΄ΡΠΌΠ° ΠΈΠ»ΠΈ ΠΏΡΠ΅Π΄ΠΎΡΠ²ΡΠ°ΡΠ΅Π½ΠΈΡ ΡΠ°ΡΠΏΡΠΎΡΡΡΠ°Π½Π΅Π½ΠΈΡ ΠΎΠ³Π½Ρ;
- Π‘ΡΠ΅ΠΏΠ΅Π½Ρ ΠΎΠ³Π½Π΅ΡΡΠΎΠΉΠΊΠΎΡΡΠΈ β Ρ Π°ΡΠ°ΠΊΡΠ΅ΡΠΈΠ·ΡΠ΅Ρ ΠΏΠ΅ΡΠΈΠΎΠ΄ ΡΠΎΡ ΡΠ°Π½Π΅Π½ΠΈΡ ΡΠ΅Π»ΠΎΡΡΠ½ΠΎΡΡΠΈ ΠΏΡΠΈ Π²ΠΎΠ·Π΄Π΅ΠΉΡΡΠ²ΠΈΠΈ ΠΎΠ³Π½Ρ;
- ΠΠ°Π±Π°ΡΠΈΡΡ β Π²ΡΠ±ΠΈΡΠ°Π΅ΡΡΡ ΡΠΎΠΎΡΠ²Π΅ΡΡΡΠ²Π΅Π½Π½ΠΎ ΠΊ ΠΈΠΌΠ΅ΡΡΠ΅ΠΌΡΡΡ ΠΊΠ°Π½Π°Π»Ρ, ΡΠΊΠΎΡΠΎΡΡΠΈ ΠΏΠ΅ΡΠ΅ΠΌΠ΅ΡΠ΅Π½ΠΈΡ Π²ΠΎΠ·Π΄ΡΡ Π°;
- ΠΠΈΠ΄ ΠΏΡΠΈΠ²ΠΎΠ΄Π°, ΠΊΠΎΡΠΎΡΡΠΉ ΠΎΡΠ²Π΅ΡΠ°Π΅Ρ Π·Π° ΡΠ°Π±ΠΎΡΡ ΡΡΡΡΠΎΠΉΡΡΠ²Π°;
- Π‘ΠΎΠΏΡΠΎΡΠΈΠ²Π»Π΅Π½ΠΈΠ΅ β Π²Π»ΠΈΡΠ΅Ρ Π½Π° ΠΏΠΎΡΠ΅ΡΡ Π΄Π°Π²Π»Π΅Π½ΠΈΡ Π² ΡΠ΅ΡΠΈ;
- ΠΠ΅Ρ.
ΠΡΠ΅ Ρ Π°ΡΠ°ΠΊΡΠ΅ΡΠΈΡΡΠΈΠΊΠΈ ΡΡΡΡΠΎΠΉΡΡΠ²Π° ΡΠΊΠ°Π·ΡΠ²Π°ΡΡΡΡ Π² ΠΊΠ°ΡΠ°Π»ΠΎΠ³Π°Ρ ΡΠΈΡΠΌΡ-ΠΏΡΠΎΠΈΠ·Π²ΠΎΠ΄ΠΈΡΠ΅Π»Ρ. ΠΡΠΈ ΠΏΡΠΎΠ΅ΠΊΡΠΈΡΠΎΠ²Π°Π½ΠΈΠΈ ΡΠΈΡΡΠ΅ΠΌ Π²Π΅Π½ΡΠΈΠ»ΡΡΠΈΠΈ Π½Π΅ΠΎΠ±Ρ ΠΎΠ΄ΠΈΠΌΠΎ ΠΎΠΏΡΠ΅Π΄Π΅Π»ΠΈΡΡΡΡ Ρ Π²ΡΠ±ΠΎΡΠΎΠΌ ΠΊΠ»Π°ΠΏΠ°Π½Π°. ΠΠ΅Π΄Ρ Π±Π΅ΡΠΏΠ΅ΡΠ΅Π±ΠΎΠΉΠ½Π°Ρ ΡΠ°Π±ΠΎΡΠ° Π²Π΅Π½ΡΠΈΠ»ΡΡΠΈΠΈ ΠΎΠ±Π΅ΡΠΏΠ΅ΡΠΈΠ²Π°Π΅ΡΡΡ ΠΏΡΠ°Π²ΠΈΠ»ΡΠ½ΡΠΌ Π²ΡΠ±ΠΎΡΠΎΠΌ ΡΠΎΡΡΠ°Π²Π»ΡΡΡΠΈΡ Π΄Π΅ΡΠ°Π»Π΅ΠΉ.
Π£ΡΡΠ°Π½ΠΎΠ²ΠΊΠ° ΠΈ ΠΏΡΠΈΠΌΠ΅Π½Π΅Π½ΠΈΠ΅
Π£ΡΡΠ°Π½ΠΎΠ²ΠΊΠ° ΠΏΡΠΎΡΠΈΠ²ΠΎΠΏΠΎΠΆΠ°ΡΠ½ΡΡ ΠΊΠ»Π°ΠΏΠ°Π½ΠΎΠ² Π² ΡΠΈΡΡΠ΅ΠΌΠ΅ Π²Π΅Π½ΡΠΈΠ»ΡΡΠΈΠΈ ΡΠ΅Π³ΡΠ»ΠΈΡΡΠ΅ΡΡΡ ΡΠΏΠ΅ΡΠΈΠ°Π»ΡΠ½ΡΠΌΠΈ Π½ΠΎΡΠΌΠ°ΡΠΈΠ²Π½ΡΠΌΠΈ Π΄ΠΎΠΊΡΠΌΠ΅Π½ΡΠ°ΠΌΠΈ. ΠΠΎΠ½Ρ ΡΠ°ΡΠΏΠΎΠ»ΠΎΠΆΠ΅Π½ΠΈΡ Π²ΡΠ±ΠΈΡΠ°ΡΡΡΡ Ρ ΡΡΠ΅ΡΠΎΠΌ Π½Π°Π·Π½Π°ΡΠ΅Π½ΠΈΡ ΡΡΡΡΠΎΠΉΡΡΠ²Π°. ΠΠΎΡΠΌΠ°Π»ΡΠ½ΠΎ ΠΎΡΠΊΡΡΡΡΠ΅ ΠΊΠ»Π°ΠΏΠ°Π½Ρ, ΠΈΠ³ΡΠ°ΡΡΠΈΠ΅ ΡΠΎΠ»Ρ ΠΎΠ³ΡΠ°Π½ΠΈΡΠΈΡΠ΅Π»Ρ ΠΎΠ³Π½Ρ, ΡΡΡΠ°Π½Π°Π²Π»ΠΈΠ²Π°ΡΡΡΡ Π² ΠΎΠ³ΡΠ°ΠΆΠ΄Π°ΡΡΠ΅ΠΉ ΠΊΠΎΠ½ΡΡΡΡΠΊΡΠΈΠΈ ΠΈΠ»ΠΈ Π±Π»ΠΈΠ· Π½Π΅Π΅. ΠΠΎΠ·ΠΌΠΎΠΆΠ½Ρ ΡΠ°ΠΊΠΈΠ΅ ΡΡ Π΅ΠΌΡ ΡΠ°ΡΠΏΠΎΠ»ΠΎΠΆΠ΅Π½ΠΈΡ:
- Π ΡΡΠ΅Π½Π΅ ΠΈΠ»ΠΈ ΠΈΠ½ΠΎΠΉ ΠΎΠ³ΡΠ°ΠΆΠ΄Π°ΡΡΠ΅ΠΉ ΠΊΠΎΠ½ΡΡΡΡΠΊΡΠΈΠΈ, ΠΏΡΠ΅Π΄ΠΏΠΎΠ»Π°Π³Π°ΡΡΠ΅ΠΉ ΠΏΠΎΠ΄ΠΊΠ»ΡΡΠ΅Π½ΠΈΠ΅ Π²Π΅Π½ΡΠΊΠ°Π½Π°Π»Π° ΠΊ ΡΡΡΡΠΎΠΉΡΡΠ²Ρ;
- ΠΠ° Π½Π΅ΠΊΠΎΡΠΎΡΠΎΠΌ ΡΠ°ΡΡΡΠΎΡΠ½ΠΈΠΈ ΠΎΡ ΠΎΠ³ΡΠ°ΠΆΠ΄Π΅Π½ΠΈΡ, ΠΎΠ±Π΅ΡΠΏΠ΅ΡΠΈΠ²Π°Ρ ΠΎΠ³Π½Π΅ΡΡΠΎΠΉΠΊΠΎΡΡΡ ΡΡΠ°ΡΡΠΊΠ° Π²Π΅Π½ΡΠΊΠ°Π½Π°Π»Π° ΠΎΡ ΠΊΠ»Π°ΠΏΠ°Π½Π° Π΄ΠΎ ΡΡΠ΅Π½Ρ;
- Π ΡΡΡΠΎΠΈΡΠ΅Π»ΡΠ½ΠΎΠΉ ΠΊΠΎΠ½ΡΡΡΡΠΊΡΠΈΠΈ Π΄Π»Ρ ΠΎΡΡΡΠ΅ΡΡΠ²Π»Π΅Π½ΠΈΡ Π΄Π²ΠΈΠΆΠ΅Π½ΠΈΡ Π²ΠΎΠ·Π΄ΡΡ Π° ΠΌΠ΅ΠΆΠ΄Ρ ΡΠΎΡΠ΅Π΄Π½ΠΈΠΌΠΈ ΠΊΠΎΠΌΠ½Π°ΡΠ°ΠΌΠΈ, ΠΈΡΠΊΠ»ΡΡΠ°Ρ Π²Π·Π°ΠΈΠΌΠΎΠ΄Π΅ΠΉΡΡΠ²ΠΈΠ΅ Ρ Π²ΠΎΠ·Π΄ΡΡ ΠΎΠ²ΠΎΠ΄Π°ΠΌΠΈ.
ΠΠΎΡΠΌΠ°Π»ΡΠ½ΠΎ Π·Π°ΠΊΡΡΡΡΠ΅ ΡΡΡΡΠΎΠΉΡΡΠ²Π° ΠΏΠΎΠΌΠ΅ΡΠ°ΡΡΡΡ Π² Π΄ΡΠΌΠΎΠ²ΡΠ΅ Π²Π΅Π½ΡΠΈΠ»ΡΡΠΈΠΎΠ½Π½ΡΠ΅ ΡΡΡΠ±Ρ. ΠΠ»Π°Π²Π½ΠΎΠ΅ ΠΏΡΠ°Π²ΠΈΠ»ΠΎ ΠΌΠΎΠ½ΡΠ°ΠΆΠ° β Π΄ΠΎΡΡΡΠΏΠ½ΠΎΡΡΡ ΠΏΡΠΈΠ²ΠΎΠ΄Π° ΠΈ ΡΠ°Π±ΠΎΡΠΈΡ ΠΌΠΎΠ΄ΡΠ»Π΅ΠΉ Π΄Π»Ρ Π²ΡΠΏΠΎΠ»Π½Π΅Π½ΠΈΡ ΡΠ΅Ρ Π½ΠΈΡΠ΅ΡΠΊΠΎΠ³ΠΎ ΠΎΠ±ΡΠ»ΡΠΆΠΈΠ²Π°Π½ΠΈΡ.
ΠΠ΅ΡΠ΅Π΄ ΠΏΡΠΎΡΠ΅ΡΡΠΎΠΌ ΡΠ°ΡΠΏΠΎΠ»ΠΎΠΆΠ΅Π½ΠΈΡ ΠΏΡΠΎΠ²Π΅ΡΡΠ΅ΡΡΡ ΡΠ°Π±ΠΎΡΠΎΡΠΏΠΎΡΠΎΠ±Π½ΠΎΡΡΡ ΠΌΠ΅Ρ Π°Π½ΠΈΠ·ΠΌΠ°, Π³Π΅ΡΠΌΠ΅ΡΠΈΡΠ½ΠΎΡΡΡ Π·Π°ΡΠ»ΠΎΠ½ΠΊΠΈ. ΠΠ΅ΡΠΈΠΎΠ΄ΠΈΡΠ½ΠΎΡΡΡ ΠΎΠ±ΡΠ»ΡΠΆΠΈΠ²Π°Π½ΠΈΡ ΠΈ ΠΏΡΠΎΠ²Π΅ΡΠΊΠΈ ΠΏΡΠΎΠΏΠΈΡΠ°Π½Ρ Π² Π³ΠΎΡΡΠ΄Π°ΡΡΡΠ²Π΅Π½Π½ΡΡ ΡΡΠ°Π½Π΄Π°ΡΡΠ°Ρ ΠΏΠΎ ΠΏΠΎΠΆΠ°ΡΠ½ΠΎΠΉ Π±Π΅Π·ΠΎΠΏΠ°ΡΠ½ΠΎΡΡΠΈ.
ΠΠ±Π΅ΡΠΏΠ΅ΡΠΈΡΡ Π±Π΅Π·ΠΎΠΏΠ°ΡΠ½ΠΎΡΡΡ Π·Π΄Π°Π½ΠΈΡ ΠΏΡΠΈ ΠΏΠΎΠΆΠ°ΡΠ΅ ΠΏΠΎΠΌΠΎΠΆΠ΅Ρ ΠΏΡΠ°Π²ΠΈΠ»ΡΠ½ΡΠΉ Π²ΡΠ±ΠΎΡ ΠΏΡΠΎΡΠΈΠ²ΠΎΠΏΠΎΠΆΠ°ΡΠ½ΠΎΠ³ΠΎ ΠΊΠ»Π°ΠΏΠ°Π½Π° Π½Π° ΡΡΠ°Π΄ΠΈΠΈ ΠΏΡΠΎΠ΅ΠΊΡΠΈΡΠΎΠ²Π°Π½ΠΈΡ. Π£ΡΡΠ°Π½ΠΎΠ²ΠΊΠ° ΡΠ°ΠΊΠΎΠ³ΠΎ ΡΡΡΡΠΎΠΉΡΡΠ²Π° ΠΏΠΎΠ·Π²ΠΎΠ»ΠΈΡ ΠΏΡΠ΅Π΄ΡΠΏΡΠ΅Π΄ΠΈΡΡ ΠΏΠ΅ΡΠ΅ΠΌΠ΅ΡΠ΅Π½ΠΈΠ΅ ΠΎΠ³Π½Ρ ΠΈ Π΄ΡΠΌΠ° Π² ΠΏΠΎΠΌΠ΅ΡΠ΅Π½ΠΈΠΈ ΠΏΠΎ ΠΊΠ°Π½Π°Π»Π°ΠΌ Π²Π΅Π½ΡΠΈΠ»ΡΡΠΈΠΈ.
ventkam.ru
ΠΠ΅Π½ΡΠΈΠ»ΡΡΠΈΠΎΠ½Π½ΡΠ΅ ΠΊΠ»Π°ΠΏΠ°Π½Ρ, ΠΏΠ°Π½Π°ΡΠ΅Ρ ΠΎΡ Π²ΠΎΠ·ΠΌΠΎΠΆΠ½ΡΡ ΠΏΡΠΎΠ±Π»Π΅ΠΌ ΠΈΠ»ΠΈ Π½Π΅Π½ΡΠΆΠ½ΠΎΠ΅ ΡΡΡΡΠΎΠΉΡΡΠ²ΠΎ?
Π‘ΠΈΡΡΠ΅ΠΌΠ° Π²Π΅Π½ΡΠΈΠ»ΡΡΠΈΠΈ ΡΠ²Π»ΡΠ΅ΡΡΡ ΠΆΠΈΠ·Π½Π΅Π½Π½ΠΎ Π²Π°ΠΆΠ½ΡΠΌ ΡΠ»Π΅ΠΌΠ΅Π½ΡΠΎΠΌ Π² ΠΊΠΎΠ½ΡΡΡΡΠΊΡΠΈΠΈ ΠΏΡΠ°ΠΊΡΠΈΡΠ΅ΡΠΊΠΈ Π»ΡΠ±ΠΎΠ³ΠΎ ΡΠΎΠΎΡΡΠΆΠ΅Π½ΠΈΡ. ΠΠΎ Π²ΠΎΠΏΡΠ΅ΠΊΠΈ ΠΌΠ½Π΅Π½ΠΈΡ, ΡΡΠΎ Π²Π΅Π½ΡΠΈΠ»ΡΡΠΈΡ β ΡΡΠΎ ΠΊΠ°Π½Π°Π»Ρ, ΠΏΠΎ ΠΊΠΎΡΠΎΡΡΠΌ ΠΆΠΈΠ»ΠΈΡΠ΅ ΡΠΎΠ΅Π΄ΠΈΠ½ΡΠ΅ΡΡΡ Ρ ΡΠ»ΠΈΡΠ΅ΠΉ, ΡΡΠ° ΡΠΈΡΡΠ΅ΠΌΠ° ΡΠ²Π»ΡΠ΅ΡΡΡ ΡΠ»ΠΎΠΆΠ½ΡΠΌ ΠΈΠ½ΠΆΠ΅Π½Π΅ΡΠ½ΡΠΌ ΡΠΎΠΎΡΡΠΆΠ΅Π½ΠΈΠ΅ΠΌ, Π² ΠΊΠΎΡΠΎΡΠΎΠΌ ΠΏΡΠΈΡΡΡΡΡΠ²ΡΠ΅Ρ Π±ΠΎΠ»ΡΡΠΎΠ΅ ΠΊΠΎΠ»ΠΈΡΠ΅ΡΡΠ²ΠΎ ΡΠ°Π·Π»ΠΈΡΠ½ΠΎΠ³ΠΎ ΠΎΠ±ΠΎΡΡΠ΄ΠΎΠ²Π°Π½ΠΈΡ. Π ΠΎΠ΄Π½ΠΈΠΌ, ΠΈΠ· Π½Π°ΠΈΠ±ΠΎΠ»Π΅Π΅ Π·Π½Π°ΡΠΈΠΌΡΡ ΡΠ»Π΅ΠΌΠ΅Π½ΡΠΎΠ² ΡΠ²Π»ΡΡΡΡΡ Π²Π΅Π½ΡΠΈΠ»ΡΡΠΈΠΎΠ½Π½ΡΠ΅ ΠΊΠ»Π°ΠΏΠ°Π½Ρ.
ΠΠ»Π°Π³ΠΎΠ΄Π°ΡΡ ΠΈΠΌ ΠΏΡΠΎΠΈΡΡ ΠΎΠ΄ΠΈΡ ΡΠ΅Π³ΡΠ»ΠΈΡΠΎΠ²ΠΊΠ° ΡΠΈΠ»Ρ Π²ΠΎΠ·Π΄ΡΡΠ½ΠΎΠ³ΠΎ ΠΏΠΎΡΠΎΠΊΠ°, ΠΏΡΠΈΡΠΎΡΠ½ΡΠ΅ β ΠΏΡΠΈΠΌΠ΅Π½ΡΡΡ Π΄Π»Ρ ΠΎΡΠ³Π°Π½ΠΈΠ·Π°ΡΠΈΠΈ Π²Π΅Π½ΡΠΈΠ»ΡΡΠΈΠΈ ΠΏΡΠΈ Π½Π΅Π΄ΠΎΡΡΠ°ΡΠΎΡΠ½ΠΎΠΌ Π²ΠΎΠ·Π΄ΡΡ ΠΎΠΎΠ±ΠΌΠ΅Π½Π΅, ΠΏΠΎΠΆΠ°ΡΠ½ΡΠ΅ β ΠΏΡΠ΅Π΄ΠΎΡΠ²ΡΠ°ΡΠ°ΡΡ ΡΠ°ΡΠΏΡΠΎΡΡΡΠ°Π½Π΅Π½ΠΈΠ΅ ΠΎΠ³Π½Ρ ΠΏΠΎ Π²ΠΎΠ·Π΄ΡΡΠ½ΡΠΌ ΠΊΠ°Π½Π°Π»Π°ΠΌ. ΠΡΡΡ ΡΡΡΡΠΎΠΉΡΡΠ²Π°, ΠΊΠΎΡΠΎΡΡΠ΅ ΡΠΎΠ·Π΄Π°ΡΡ Π±Π°Π»Π°Π½Ρ ΠΌΠ΅ΠΆΠ΄Ρ ΠΏΡΠΈΡΠΎΡΠ½ΡΠΌ ΠΈ Π²ΡΡΡΠΆΠ½ΡΠΌ Π²ΠΎΠ·Π΄ΡΡ ΠΎΠΌ, ΠΈ ΠΏΡΠ΅Π΄ΠΎΡΠ²ΡΠ°ΡΠ°ΡΡΠ΅Π΅ ΠΏΡΠΈΡΠΎΠΊ Π²ΠΎΠ·Π΄ΡΡ Π°, ΠΏΡΠΈ ΠΎΡΡΠ°Π½ΠΎΠ²Π»Π΅Π½Π½ΠΎΠΉ Π²Π΅Π½ΡΠΈΠ»ΡΡΠΈΠΎΠ½Π½ΠΎΠΉ ΡΠΈΡΡΠ΅ΠΌΠ΅. Π Π°Π·Π½ΠΎΠ²ΠΈΠ΄Π½ΠΎΡΡΠ΅ΠΉ ΡΠ°ΠΊΠΈΡ ΠΏΡΠΈΡΠΏΠΎΡΠΎΠ±Π»Π΅Π½ΠΈΠΉ ΡΡΡΠ΅ΡΡΠ²ΡΠ΅Ρ ΠΏΡΠ΅Π²Π΅Π»ΠΈΠΊΠΎΠ΅ ΠΌΠ½ΠΎΠΆΠ΅ΡΡΠ²ΠΎ.
ΠΠ±ΡΠ΅ΠΏΡΠΎΠΌΡΡΠ»Π΅Π½Π½ΡΠ΅ ΠΊΠ»Π°ΠΏΠ°Π½Ρ
ΠΠ°ΠΈΠ±ΠΎΠ»Π΅Π΅ ΡΠ°ΡΠΏΡΠΎΡΡΡΠ°Π½Π΅Π½Π½ΠΎΠ΅ Π½Π°Π·Π²Π°Π½ΠΈΠ΅ ΡΠ°ΠΊΠΈΡ ΡΡΡΡΠΎΠΉΡΡΠ² β ΠΎΠ±ΡΠ°ΡΠ½ΡΠΉ ΠΊΠ»Π°ΠΏΠ°Π½ Π΄Π»Ρ Π²Π΅Π½ΡΠΈΠ»ΡΡΠΈΠΈ. ΠΠ½ ΠΏΡΠ΅Π΄Π½Π°Π·Π½Π°ΡΠ΅Π½ Π΄Π»Ρ ΠΏΠ΅ΡΠ΅ΠΊΡΡΠ²Π°Π½ΠΈΡ ΠΈΠ»ΠΈ ΠΎΡΡΠ΅ΠΊΠ°Π½ΠΈΡ Π²ΠΎΠ·Π΄ΡΡΠ½ΠΎΠ³ΠΎ ΠΏΠΎΡΠΎΠΊΠ° ΠΏΡΠΈ Π΄Π²ΠΈΠΆΠ΅Π½ΠΈΠΈ Π΅Π³ΠΎ Π² ΠΎΠ±ΡΠ°ΡΠ½ΡΡ ΡΡΠΎΡΠΎΠ½Ρ. ΠΡΠΎΠΌΠ΅ ΡΠΎΠ³ΠΎ, ΠΊΡΠΎΠΌΠ΅ ΠΏΡΠ΅Π΄ΠΎΡΠ²ΡΠ°ΡΠ΅Π½ΠΈΡ Β«ΠΎΠ±ΡΠ°ΡΠ½ΠΎΠΉ ΡΡΠ³ΠΈΒ», ΡΡΠΎ ΡΡΡΡΠΎΠΉΡΡΠ²ΠΎ Π½Π΅ Π΄Π°Π΅Ρ ΠΏΡΠΎΠ½ΠΈΠΊΠ½ΡΡΡ Π½Π΅ΠΏΡΠΈΡΡΠ½ΡΠΌ Π·Π°ΠΏΠ°Ρ Π°ΠΌ, Π² ΠΏΠΎΠΌΠ΅ΡΠ΅Π½ΠΈΠ΅.
ΠΡ ΠΊΠΎΠ½ΡΡΡΡΠΊΡΠΈΡ Π½Π°Π΄Π΅ΠΆΠ½Π°Ρ ΠΈ ΠΏΡΠΎΡΡΠ°Ρ: ΠΌΠ΅ΠΆΠ΄Ρ Π΄Π²ΡΡ ΡΠ»Π°Π½ΡΠ΅Π² Π·Π°ΠΊΡΠ΅ΠΏΠ»Π΅Π½Π° Π²ΠΎΠ·Π΄ΡΡΠ½Π°Ρ Π·Π°ΡΠ»ΠΎΠ½ΠΊΠ° Π΄Π»Ρ Π²Π΅Π½ΡΠΈΠ»ΡΡΠΈΠΈ, ΠΊΠΎΡΠΎΡΠ°Ρ ΡΠ΅Π³ΡΠ»ΠΈΡΡΠ΅Ρ Π΄ΠΈΠ°ΠΌΠ΅ΡΡ Π²ΠΎΠ·Π΄ΡΡΠ½ΠΎΠ³ΠΎ ΠΎΡΠ²Π΅ΡΡΡΠΈΡ, ΠΈ ΡΠΎΠΎΡΠ²Π΅ΡΡΡΠ²Π΅Π½Π½ΠΎ ΠΏΡΠΎΡ ΠΎΠ΄ΠΈΠΌΠΎΡΡΡ Π²ΠΎΠ·Π΄ΡΡ Π°. Π’Π°ΠΊΠΎΠ΅ ΠΏΡΠΈΡΠΏΠΎΡΠΎΠ±Π»Π΅Π½ΠΈΠ΅ ΠΌΠΎΠΆΠ΅Ρ ΠΈΠΌΠ΅ΡΡ ΠΊΠ°ΠΊ ΡΡΡΠ½ΠΎΠΉ, ΡΠ°ΠΊ ΠΈ Π°Π²ΡΠΎΠΌΠ°ΡΠΈΡΠ΅ΡΠΊΠΈΠΉ ΠΏΡΠΈΠ²ΠΎΠ΄.
ΠΠ³Π½Π΅Π·Π°Π΄Π΅ΡΠΆΠΈΠ²Π°ΡΡΠΈΠ΅ ΠΊΠ»Π°ΠΏΠ°Π½Ρ
ΠΡΠΎΡΠΈΠ²ΠΎΠΏΠΎΠΆΠ°ΡΠ½ΡΠ΅ ΠΊΠ»Π°ΠΏΠ°Π½Ρ ΡΠΈΡΡΠ΅ΠΌ Π²Π΅Π½ΡΠΈΠ»ΡΡΠΈΠΈ ΠΏΡΠ΅Π΄Π½Π°Π·Π½Π°ΡΠ΅Π½Ρ Π΄Π»Ρ ΠΏΡΠ΅Π΄ΠΎΡΠ²ΡΠ°ΡΠ΅Π½ΠΈΡ ΡΠ°ΡΠΏΡΠΎΡΡΡΠ°Π½Π΅Π½ΠΈΡ ΠΏΠΎΠΆΠ°ΡΠ° ΠΏΠΎ Π²ΠΎΠ·Π΄ΡΡΠ½ΡΠΌ ΠΊΠ°Π½Π°Π»Π°ΠΌ ΠΈ ΠΏΡΠΎΠ½ΠΈΠΊΠ½ΠΎΠ²Π΅Π½ΠΈΡ Π΅Π³ΠΎ Π² ΠΏΠΎΠΌΠ΅ΡΠ΅Π½ΠΈΡ. ΠΡΠΎΠΌΠ΅ ΡΠΎΠ³ΠΎ, ΠΎΠ½ΠΈ ΠΎΡΡΠ°Π½Π°Π²Π»ΠΈΠ²Π°ΡΡ ΡΠ°ΡΠΏΡΠΎΡΡΡΠ°Π½Π΅Π½ΠΈΠ΅ Π΄ΡΠΌΠ° ΠΈ Π΄ΡΡΠ³ΠΈΡ ΠΏΡΠΎΠ΄ΡΠΊΡΠΎΠ² Π³ΠΎΡΠ΅Π½ΠΈΡ ΠΏΠΎ ΡΠΈΡΡΠ΅ΠΌΠ΅ Π²Π΅Π½ΡΠΈΠ»ΡΡΠΈΠΈ.
ΠΠΎΠ½ΡΡΡΡΠΊΡΠΈΠ²Π½ΠΎ, ΠΎΠ½ΠΈ ΠΌΠΎΠ³ΡΡ Π±ΡΡΡ Π²ΡΠΏΠΎΠ»Π½Π΅Π½Ρ Π² Π½Π΅ΡΠΊΠΎΠ»ΡΠΊΠΈΡ Π²Π°ΡΠΈΠ°Π½ΡΠ°Ρ :
- ΠΠΎΡΠΌΠ°Π»ΡΠ½ΠΎ-Π·Π°ΠΊΡΡΡΡΠ΅. ΠΡΠΈ ΡΡΡΠ°Π½ΠΎΠ²ΠΊΠ΅ Π·Π°ΠΊΡΡΡΡ ΠΈ ΠΎΡΠΊΡΡΠ²Π°ΡΡΡΡ Π² ΡΠ»ΡΡΠ°Π΅ ΠΏΠΎΠΆΠ°ΡΠ°.
- ΠΠΎΡΠΌΠ°Π»ΡΠ½ΠΎ-ΠΎΡΠΊΡΡΡΡΠ΅. ΠΡΠΈ ΡΡΡΠ°Π½ΠΎΠ²ΠΊΠ΅ ΠΎΡΠΊΡΡΡΡ, Π½ΠΎ Π² ΡΠ»ΡΡΠ°Π΅ ΠΏΠΎΠΆΠ°ΡΠ° ΠΏΠ΅ΡΠ΅ΠΊΡΡΠ²Π°ΡΡ Π²ΠΎΠ·Π΄ΡΡ ΠΎΠ²ΠΎΠ΄, ΠΈ ΡΠΎΠΎΡΠ²Π΅ΡΡΡΠ²Π΅Π½Π½ΠΎ ΠΏΠΎΡΠΎΠΊ Π²ΠΎΠ·Π΄ΡΡ Π°.
- ΠΡΠΎΡΠΈΠ²ΠΎΠΏΠΎΠΆΠ°ΡΠ½ΡΠΉ ΠΊΠ»Π°ΠΏΠ°Π½ Π΄Π»Ρ Π²Π΅Π½ΡΠΈΠ»ΡΡΠΈΠΈ Π΄Π²ΠΎΠΉΠ½ΠΎΠ³ΠΎ Π΄Π΅ΠΉΡΡΠ²ΠΈΡ. ΠΡΠΎ ΡΡΡΡΠΎΠΉΡΡΠ²ΠΎ ΠΌΠΎΠΆΠ΅Ρ Π±ΡΡΡ ΠΈ ΠΎΡΠΊΡΡΡΡΠΌ ΠΈ Π·Π°ΠΊΡΡΡΡΠΌ Π² Π·Π°Π²ΠΈΡΠΈΠΌΠΎΡΡΠΈ ΠΎΡ Π΅Π³ΠΎ Π½Π°ΡΡΡΠΎΠΉΠΊΠΈ ΠΈ Π½Π°Π·Π½Π°ΡΠ΅Π½ΠΈΡ.
- ΠΡΠΌΠΎΠ²ΡΠ΅. Π ΡΡΠ°ΡΠ½ΠΎΠΌ ΡΠ΅ΠΆΠΈΠΌΠ΅ Π·Π°ΡΠ»ΠΎΠ½ΠΊΠ° Π·Π°ΠΊΡΡΡΠ°. Π ΡΠ»ΡΡΠ°Π΅ Π²ΠΎΠ·Π³ΠΎΡΠ°Π½ΠΈΡ, Π·Π°ΡΠ»ΠΎΠ½ΠΊΠ° ΠΎΡΠΊΡΡΠ²Π°Π΅ΡΡΡ ΠΈ ΡΠ΅ΡΠ΅Π· ΠΎΡΠΊΡΡΠ²ΡΠΈΠΉΡΡ Π²ΠΎΠ·Π΄ΡΡ ΠΎΠ²ΠΎΠ΄ ΠΏΡΠΎΠΈΡΡ ΠΎΠ΄ΠΈΡ ΡΠ΄Π°Π»Π΅Π½ΠΈΠ΅ Π΄ΡΠΌΠ° ΠΈ ΠΏΡΠΎΠ΄ΡΠΊΡΠΎΠ² Π³ΠΎΡΠ΅Π½ΠΈΡ.

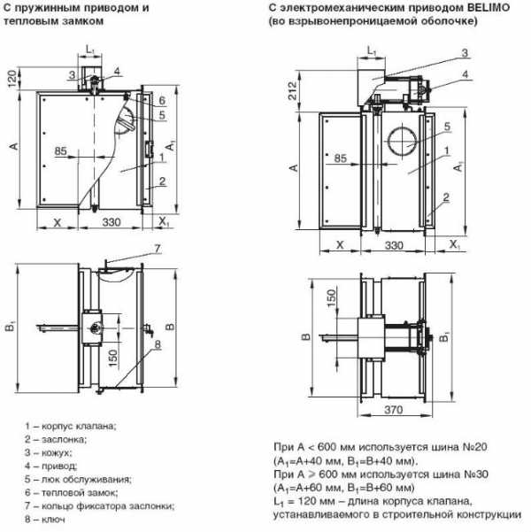
ΠΠ·ΡΡΠ²ΠΎΠ·Π°ΡΠΈΡΠ΅Π½Π½ΠΎΠ΅ ΠΎΠ±ΠΎΡΡΠ΄ΠΎΠ²Π°Π½ΠΈΠ΅
ΠΠ·ΡΡΠ²ΠΎΠ·Π°ΡΠΈΡΠ΅Π½Π½ΡΠΉ ΠΊΠ»Π°ΠΏΠ°Π½ ΠΏΡΠ΅Π΄Π½Π°Π·Π½Π°ΡΠ΅Π½ Π΄Π»Ρ ΠΏΡΠΈΠΌΠ΅Π½Π΅Π½ΠΈΡ Π² Π²Π΅Π½ΡΠΈΠ»ΡΡΠΈΠΎΠ½Π½ΡΡ ΡΠΈΡΡΠ΅ΠΌΠ°Ρ , Π³Π΄Π΅ ΠΏΡΠΈ ΠΏΡΠΎΠ²Π΅Π΄Π΅Π½ΠΈΠΈ ΠΏΡΠΎΠΈΠ·Π²ΠΎΠ΄ΡΡΠ²Π΅Π½Π½ΠΎΠ³ΠΎ ΡΠΈΠΊΠ»Π° ΠΏΡΠΎΠΈΡΡ ΠΎΠ΄ΠΈΡ Π²ΡΠ΄Π΅Π»Π΅Π½ΠΈΠ΅ Π²Π·ΡΡΠ²ΠΎΠΎΠΏΠ°ΡΠ½ΡΡ Π³Π°Π·ΠΎΠ² ΠΈ ΠΌΠ΅Π»ΠΊΠΎΠ΄ΠΈΡΠΏΠ΅ΡΡΠ½ΡΡ Π°ΡΡΠΎΠ·ΠΎΠ»ΡΠ½ΡΡ ΡΠΎΠ΅Π΄ΠΈΠ½Π΅Π½ΠΈΠΉ Π»Π΅Π³ΠΊΠΎΠ²ΠΎΡΠΏΠ»Π°ΠΌΠ΅Π½ΡΡΡΠΈΡ ΡΡ ΠΆΠΈΠ΄ΠΊΠΎΡΡΠ΅ΠΉ.
ΠΡΠ΅ Π²Π·ΡΡΠ²ΠΎΠ·Π°ΡΠΈΡΠ΅Π½Π½ΠΎΠ΅ ΠΎΠ±ΠΎΡΡΠ΄ΠΎΠ²Π°Π½ΠΈΠ΅ Π΄Π΅Π»ΠΈΡΡΡ Π½Π° Π΄Π²Π° ΡΠΈΠΏΠ° Π² Π·Π°Π²ΠΈΡΠΈΠΌΠΎΡΡΠΈ ΠΎΡ ΡΠΏΡΠ°Π²Π»Π΅Π½ΠΈΡ ΠΏΡΠΈΠ²ΠΎΠ΄ΠΎΠΌ:
- ΠΡΠΈΡΠΏΠΎΡΠΎΠ±Π»Π΅Π½ΠΈΠ΅ Ρ Π°Π²ΡΠΎΠΌΠ°ΡΠΈΡΠ΅ΡΠΊΠΈΠΌ ΡΠ»Π΅ΠΊΡΡΠΎΠΌΠ°Π³Π½ΠΈΡΠ½ΡΠΌ ΠΏΡΠΈΠ²ΠΎΠ΄ΠΎΠΌ.
- Π£ΡΡΡΠΎΠΉΡΡΠ²ΠΎ Ρ ΡΠ»Π΅ΠΊΡΡΠΎΠΌΠ΅Ρ Π°Π½ΠΈΡΠ΅ΡΠΊΠΈΠΌ ΠΏΡΠΈΠ²ΠΎΠ΄ΠΎΠΌ.
ΠΠΎ Π²Π·ΡΡΠ²ΠΎΠ·Π°ΡΠΈΡΠ΅Π½Π½ΠΎΠΌ ΡΠ»Π΅ΠΊΡΡΠΎΠΌΠ°Π³Π½ΠΈΡΠ½ΠΎΠΌ ΠΊΠ»Π°ΠΏΠ°Π½Π΅, ΠΏΠΎ ΡΠΈΠ³Π½Π°Π»Ρ Π°Π²ΡΠΎΠΌΠ°ΡΠΈΠΊΠΈ ΡΡΠ°Π±Π°ΡΡΠ²Π°Π΅Ρ ΠΏΡΡΠΆΠΈΠ½Π°, ΡΠ°Π±ΠΎΡΠ°ΡΡΠ°Ρ ΠΏΠΎ ΠΏΡΠΈΠ½ΡΠΈΠΏΡ ΠΎΠ±ΡΠ°ΡΠ½ΠΎΠ³ΠΎ Π΄Π΅ΠΉΡΡΠ²ΠΈΡ, ΠΊΠΎΡΠΎΡΠ°Ρ ΠΈ Π·Π°ΠΊΡΡΠ²Π°Π΅Ρ Π²ΠΎΠ·Π΄ΡΡ
ΠΎΠ²ΠΎΠ΄.
Π‘ΠΎΠ²Π΅Ρ:
ΠΠ° ΡΠ΅Π³ΠΎΠ΄Π½ΡΡΠ½ΠΈΠΉ Π΄Π΅Π½Ρ Π²ΡΠ±ΠΎΡ ΡΠ°ΠΊΠΎΠ³ΠΎ ΠΎΠ±ΠΎΡΡΠ΄ΠΎΠ²Π°Π½ΠΈΡ Π²Π΅Π»ΠΈΠΊ. ΠΠ³ΠΎ ΠΌΠΎΠΆΠ½ΠΎ ΠΏΡΠΈΠΎΠ±ΡΠ΅ΡΡΠΈ Π² ΡΡΡΠΎΠΈΡΠ΅Π»ΡΠ½ΡΡ , ΡΠΏΠ΅ΡΠΈΠ°Π»ΠΈΠ·ΠΈΡΠΎΠ²Π°Π½Π½ΡΡ ΠΈ ΠΈΠ½ΡΠ΅ΡΠ½Π΅Ρ- ΠΌΠ°Π³Π°Π·ΠΈΠ½Π°Ρ . ΠΠΎ Π²ΡΠ±ΠΈΡΠ°Ρ ΠΈΡ , ΡΠ»Π΅Π΄ΡΠ΅Ρ ΠΏΠΎΠΌΠ½ΠΈΡΡ, ΡΡΠΎ Π½Π΅ΠΏΡΠ°Π²ΠΈΠ»ΡΠ½ΠΎ ΡΡΡΠ°Π½ΠΎΠ²Π»Π΅Π½Π½ΠΎΠ΅ ΠΈΠ»ΠΈ Π²ΡΠ±ΡΠ°Π½Π½ΠΎΠ΅ Π½Π΅ ΠΏΠΎ Π½Π°Π·Π½Π°ΡΠ΅Π½ΠΈΡ, ΠΎΠ½ΠΎ ΠΌΠΎΠΆΠ΅Ρ ΠΏΡΠΈΠ²Π΅ΡΡΠΈ ΠΊ ΠΎΡΡΠ°Π½ΠΎΠ²ΠΊΠ΅ Π΄Π²ΠΈΠΆΠ΅Π½ΠΈΡ Π²ΠΎΠ·Π΄ΡΡ Π° ΠΏΠΎ Π²ΠΎΠ·Π΄ΡΡΠ½ΡΠΌ ΠΊΠ°Π½Π°Π»Π°ΠΌ. ΠΠΎΠ²Π΅ΡΡΡΠ΅ Π²ΡΠ±ΠΎΡ ΠΏΡΠΎΡΠ΅ΡΡΠΈΠΎΠ½Π°Π»Π°ΠΌ.
ventilationpro.ru
ΠΠ»Π°ΠΏΠ°Π½Ρ Π²Π΅Π½ΡΠΈΠ»ΡΡΠΈΠΎΠ½Π½ΡΠ΅
ΠΠ»Ρ ΠΏΡΠ°Π²ΠΈΠ»ΡΠ½ΠΎΠ³ΠΎ ΠΈ Π±Π΅ΡΠΏΠ΅ΡΠ΅Π±ΠΎΠΉΠ½ΠΎΠ³ΠΎ ΡΡΠ½ΠΊΡΠΈΠΎΠ½ΠΈΡΠΎΠ²Π°Π½ΠΈΡ Π²Π΅Π½ΡΠΈΠ»ΡΡΠΈΠΎΠ½Π½ΠΎΠΉ ΡΠΈΡΡΠ΅ΠΌΡ, Π΄Π»Ρ ΡΠΏΡΠ°Π²Π»Π΅Π½ΠΈΡ Π΅Π΅ ΡΠ΅ΠΆΠΈΠΌΠ°ΠΌΠΈ ΡΠ°Π±ΠΎΡΡ ΠΈ ΠΏΠΎΠ΄Π°ΡΠΈ Π²ΠΎΠ·Π΄ΡΡ Π° Π² ΡΠΈΡΡΠ΅ΠΌΠ°Ρ Π²Π΅Π½ΡΠΈΠ»ΡΡΠΈΠΈ ΠΈΠΌΠ΅Π΅ΡΡΡ ΡΠΏΠ΅ΡΠΈΠ°Π»ΡΠ½ΠΎΠ΅ ΡΡΡΡΠΎΠΉΡΡΠ²ΠΎ, ΠΊΠΎΡΠΎΡΠΎΠ΅ Π½Π°Π·ΡΠ²Π°Π΅ΡΡΡ Π²Π΅Π½ΡΠΈΠ»ΡΡΠΈΠΎΠ½Π½ΡΠΌ ΠΊΠ»Π°ΠΏΠ°Π½ΠΎΠΌ.
Β
ΠΡΠ΅ ΠΎΠ΄Π½ΠΎΠΉ ΡΡΠ½ΠΊΡΠΈΠ΅ΠΉ Π²Π΅Π½ΡΠΈΠ»ΡΡΠΈΠΎΠ½Π½ΠΎΠ³ΠΎ ΠΊΠ»Π°ΠΏΠ°Π½Π° ΡΠ²Π»ΡΠ΅ΡΡΡ ΠΏΡΠ΅Π΄ΠΎΡΠ²ΡΠ°ΡΠ΅Π½ΠΈΡ ΠΏΡΠΈΡΠΎΠΊΠ° Π²ΠΎΠ·Π΄ΡΡ Π° Π² ΡΠΎ Π²ΡΠ΅ΠΌΡ, ΠΊΠΎΠ³Π΄Π° ΡΠΈΡΡΠ΅ΠΌΠ° Π²Π΅Π½ΡΠΈΠ»ΡΡΠΈΠΈ ΡΠΆΠ΅ Π½Π΅ ΡΡΠ½ΠΊΡΠΈΠΎΠ½ΠΈΡΡΠ΅Ρ. Π’Π°ΠΊ ΠΆΠ΅ Π΄Π°Π½Π½ΠΎΠ΅ ΡΡΡΡΠΎΠΉΡΡΠ²ΠΎ ΡΠΎΠ·Π΄Π°Π΅Ρ Π±Π°Π»Π°Π½Ρ ΠΌΠ΅ΠΆΠ΄Ρ ΠΏΡΠΈΡΠΎΡΠ½ΡΠΌ ΠΈ ΠΏΠ΅ΡΠ΅ΡΠ°Π±ΠΎΡΠ°Π½Π½ΡΠΌ ΡΠΈΡΡΠ΅ΠΌΠΎΠΉ Π²ΠΎΠ·Π΄ΡΡ ΠΎΠΌ. ΠΠ° ΡΠ΅Π³ΠΎΠ΄Π½ΡΡΠ½ΠΈΠΉ Π΄Π΅Π½Ρ Π΅ΡΡΡ ΠΈ ΡΠ°ΠΊΠ°Ρ ΡΠ°Π·Π½ΠΎΠ²ΠΈΠ΄Π½ΠΎΡΡΡ, ΠΊΠΎΡΠΎΡΠ°Ρ Π²ΡΠΏΠΎΠ»Π½ΡΠ΅Ρ ΠΏΡΠΎΡΠΈΠ²ΠΎΠΏΠΎΠΆΠ°ΡΠ½ΡΡ ΡΡΠ½ΠΊΡΠΈΡ.
Β
ΠΠ΅Π½ΡΠΈΠ»ΡΡΠΈΠΎΠ½Π½ΡΠΉ ΠΊΠ»Π°ΠΏΠ°Π½ — ΡΡΡΡΠΎΠΉΡΡΠ²ΠΎ ΠΈ ΠΊΠΎΠ½ΡΡΡΡΠΊΡΠΈΡ
ΠΠ΅Π½ΡΠΈΠ»ΡΡΠΈΠΎΠ½Π½ΡΠ΅ ΠΊΠ»Π°ΠΏΠ°Π½Ρ, ΠΊΠΎΡΠΎΡΡΠ΅ ΠΈΡΠΏΠΎΠ»ΡΠ·ΡΡΡΡΡ Π² Π²ΠΎΠ·Π΄ΡΡ
ΠΎΠ²ΠΎΠ΄Π°Ρ
, ΠΈΠΌΠ΅ΡΡ Π»ΠΈΠ±ΠΎ ΠΏΡΡΠΌΠΎΡΠ³ΠΎΠ»ΡΠ½ΡΠΉ, Π»ΠΈΠ±ΠΎ ΠΊΡΡΠ³Π»ΡΠΉ Π²ΠΈΠ΄ ΠΏΡΠΎΡΠΈΠ»Ρ. ΠΡΠΈ Π²ΡΠ±ΠΎΡΠ΅, Π² ΠΏΠ΅ΡΠ²ΡΡ ΠΎΡΠ΅ΡΠ΅Π΄Ρ, ΠΊΠ°ΠΊ ΠΏΡΠ°Π²ΠΈΠ»ΠΎ, Π²ΡΠ±ΠΈΡΠ°ΡΡ ΠΎΠΏΡΠ΅Π΄Π΅Π»Π΅Π½Π½ΡΠΉ ΡΠΈΠΏ ΠΊΠ»Π°ΠΏΠ°Π½Π°, Π²Π΅Π΄Ρ Π΄Π°Π½Π½ΠΎΠ΅ ΡΡΡΡΠΎΠΉΡΡΠ²ΠΎ ΠΌΠΎΠΆΠ½ΠΎ ΠΏΠΎΠ΄ΡΠ°Π·Π΄Π΅Π»ΠΈΡΡ Π½Π° Π½Π΅ΡΠΊΠΎΠ»ΡΠΊΠΎ ΠΊΠ»Π°ΡΡΠΈΡΠΈΠΊΠ°ΡΠΈΠΉ. Π ΠΈΠΌΠ΅Π½Π½ΠΎ Π½Π° ΡΠ΅Π³ΠΎΠ΄Π½ΡΡΠ½ΠΈΠΉ Π΄Π΅Π½Ρ ΡΡΡΠ΅ΡΡΠ²ΡΡΡ ΡΠ»Π΅Π΄ΡΡΡΠΈΠ΅ Π²ΠΈΠ΄Ρ Π²Π΅Π½ΡΠΈΠ»ΡΡΠΈΠΎΠ½Π½ΡΡ
ΠΊΠ»Π°ΠΏΠ°Π½ΠΎΠ². Π Π°ΡΡΠΌΠΎΡΡΠΈΠΌ ΠΈΡ
Π±ΠΎΠ»Π΅Π΅ ΠΏΠΎΠ΄ΡΠΎΠ±Π½ΠΎ.
Β
Π Π°Π·Π½ΠΎΠ²ΠΈΠ΄Π½ΠΎΡΡΠΈ Π²Π΅Π½ΡΠΈΠ»ΡΡΠΈΠΎΠ½Π½ΡΡ ΠΊΠ»Π°ΠΏΠ°Π½ΠΎΠ²
ΠΠ»Π°ΠΏΠ°Π½ ΠΏΡΠΈΡΠΎΡΠ½ΠΎΠ³ΠΎ ΡΠΈΠΏΠ° ΠΈΠΌΠ΅Π΅Ρ ΡΠ°ΠΊΠΈΠ΅ Π½Π΅ΠΎΡΠΏΠΎΡΠΈΠΌΡΠ΅ ΠΏΡΠ΅ΠΈΠΌΡΡΠ΅ΡΡΠ²Π°, ΠΊΠ°ΠΊ ΠΎΡΡΡΠ΅ΡΡΠ²Π»Π΅Π½ΠΈΠ΅ ΡΠ΅Π³ΡΠ»ΠΈΡΠΎΠ²ΠΎΡΠ½ΡΡ
ΡΠ°Π±ΠΎΡ ΠΊΠ°ΠΊ ΡΡΡΠ½ΡΠΌ, ΡΠ°ΠΊ ΠΈ Π°Π²ΡΠΎΠΌΠ°ΡΠΈΡΠ΅ΡΠΊΠΈΠΌ ΡΠΏΠΎΡΠΎΠ±ΠΎΠΌ. ΠΡ
ΠΎΡΠ½ΠΎΠ²Π½Π°Ρ ΡΡΠ½ΠΊΡΠΈΡ Π·Π°ΠΊΠ»ΡΡΠ°Π΅ΡΡΡ Π² ΡΠΎΠΌ, ΡΡΠΎΠ±Ρ ΠΏΡΠΎΠ²ΠΎΠ΄ΠΈΡΡ ΡΠ΅Π³ΡΠ»ΠΈΡΠΎΠ²ΠΊΡ ΠΏΡΠΎΡ
ΠΎΠ΄ΡΡΠ΅Π³ΠΎ ΠΏΡΠΈΡΠΎΡΠ½ΠΎΠ³ΠΎ Π²ΠΎΠ·Π΄ΡΡ
Π° Π² Π²Π΅Π½ΡΠΈΠ»ΡΡΠΈΠΎΠ½Π½ΠΎΠΉ ΡΠΈΡΡΠ΅ΠΌΠ΅ ΠΈΠ»ΠΈ Π½Π° ΠΎΠ΄Π½ΠΎΠΌ ΠΈΠ· Π΅Π΅ ΡΡΠ°ΡΡΠΊΠΎΠ².
Β
Β
Β
Π ΡΠΎΠΌΡ ΠΆΠ΅ Π΄Π°Π½Π½ΡΠ΅ Π²Π΅Π½ΡΠΈΠ»ΡΡΠΈΠΎΠ½Π½ΡΠ΅ ΠΊΠ»Π°ΠΏΠ°Π½Ρ ΠΎΡΠ²Π΅ΡΠ°ΡΡ Π·Π° ΠΏΡΠ΅ΠΊΡΠ°ΡΠ΅Π½ΠΈΠ΅ ΡΠΈΡΠΊΡΠ»ΡΡΠΈΠΈ Π²ΠΎΠ·Π΄ΡΡΠ½ΡΡ ΠΏΠΎΡΠΎΠΊΠΎΠ² ΠΏΠΎ Π²Π΅Π½ΡΠΈΠ»ΡΡΠΈΠΎΠ½Π½ΠΎΠΉ ΡΠΈΡΡΠ΅ΠΌΠ΅, Π² ΠΌΠΎΠΌΠ΅Π½Ρ Π΅Π΅ Π½Π΅ΡΠ°Π±ΠΎΡΠ΅Π³ΠΎ ΡΠΎΡΡΠΎΡΠ½ΠΈΡ. ΠΠ°ΠΊ ΠΏΡΠ°Π²ΠΈΠ»ΠΎ Π½Π°ΠΈΠ±ΠΎΠ»Π΅Π΅ ΡΠ΅Π»Π΅ΡΠΎΠΎΠ±ΡΠ°Π·Π½ΠΎ Π΄Π»Ρ ΠΎΡΡΡΠ΅ΡΡΠ²Π»Π΅Π½ΠΈΡ Π΄Π°Π½Π½ΡΡ ΡΡΠ½ΠΊΡΠΈΠΉ ΡΡΡΠ°Π½Π°Π²Π»ΠΈΠ²Π°ΡΡ Π°Π²ΡΠΎΠΌΠ°ΡΠΈΡΠ΅ΡΠΊΠΎΠ΅ ΠΎΠ±ΠΎΡΡΠ΄ΠΎΠ²Π°Π½ΠΈΠ΅, Π΄Π»Ρ ΡΠΎΠ³ΠΎ ΡΡΠΎ Π±Ρ ΠΏΡΠΎΠΈΡΡ ΠΎΠ΄ΠΈΠ»Π° ΡΠΈΠ½Ρ ΡΠΎΠ½ΠΈΠ·Π°ΡΠΈΡ Ρ ΠΎΡΠ½ΠΎΠ²Π½ΠΎΠΉ ΡΠΈΡΡΠ΅ΠΌΠΎΠΉ ΠΈ ΠΊΠ»Π°ΠΏΠ°Π½ ΡΡΠ°Π±Π°ΡΡΠ²Π°Π» ΠΏΡΠΈ Π΅Π΅ ΠΎΡΠΊΠ»ΡΡΠ΅Π½ΠΈΠΈ ΠΈ ΠΎΡΠΊΡΡΠ²Π°Π»ΡΡ Π² ΡΠΎ Π²ΡΠ΅ΠΌΡ, ΠΊΠΎΠ³Π΄Π° ΠΏΡΠΎΠΈΠ·ΠΎΠΉΠ΄Π΅Ρ Π²ΠΊΠ»ΡΡΠ΅Π½ΠΈΠ΅ Π²Π΅Π½ΡΠΈΠ»ΡΡΠΈΠΎΠ½Π½ΠΎΠΉ ΡΠΈΡΡΠ΅ΠΌΡ.
Π‘Π»Π΅Π΄ΡΡΡΠΈΠΌ Π²ΠΈΠ΄ΠΎΠΌ Π²Π΅Π½ΡΠΈΠ»ΡΡΠΈΠΎΠ½Π½ΡΡ
ΠΊΠ»Π°ΠΏΠ°Π½ΠΎΠ² ΡΠ²Π»ΡΠ΅ΡΡΡ ΠΊΠ»Π°ΠΏΠ°Π½ ΠΎΠ±ΡΠ°ΡΠ½ΠΎΠ³ΠΎ ΡΠΈΠΏΠ° ΡΠ°Π±ΠΎΡΡ. ΠΠ°Π½Π½ΠΎΠ΅ ΡΡΡΡΠΎΠΉΡΡΠ²ΠΎ, ΠΊΠ°ΠΊ ΠΏΡΠ°Π²ΠΈΠ»ΠΎ, ΡΡΠ½ΠΊΡΠΈΠΎΠ½ΠΈΡΡΠ΅Ρ Π² ΡΠ°ΠΊΠΈΡ
Π²Π΅Π½ΡΠΈΠ»ΡΡΠΈΠΎΠ½Π½ΡΡ
Π°ΠΏΠΏΠ°ΡΠ°ΡΠ°Ρ
ΠΊΠ°ΠΊ Π²ΡΡΡΠΆΠ½ΡΠ΅ Π·ΠΎΠ½ΡΡ. ΠΠ°Π½Π½ΠΎΠ΅ ΠΈΡΠΏΠΎΠ»ΡΠ·ΠΎΠ²Π°Π½ΠΈΠ΅ ΠΎΠ±ΡΡΠ»ΠΎΠ²Π»Π΅Π½ΠΎ ΡΠ΅ΠΌ, ΡΡΠΎ ΠΎΠ±ΡΠ°ΡΠ½ΡΠΉ ΠΊΠ»Π°ΠΏΠ°Π½ Π²ΡΠΏΠΎΠ»Π½ΡΠ΅Ρ ΡΠ°ΠΊΠΈΠ΅ Π·Π°Π΄Π°ΡΠΈ, ΠΊΠ°ΠΊ ΠΏΡΠ΅Π΄ΠΎΡΠ²ΡΠ°ΡΠ΅Π½ΠΈΠ΅ ΡΠ°Π·Π²ΠΎΡΠΎΡΠ° Π²ΠΎΠ·Π΄ΡΡΠ½ΡΡ
ΠΌΠ°ΡΡ Π² Π²Π΅Π½ΡΠΈΠ»ΡΡΠΈΠΎΠ½Π½ΠΎΠΉ ΡΠΈΡΡΠ΅ΠΌΠ΅, ΠΏΡΠΈ Π²ΠΎΠ·Π½ΠΈΠΊΠ°ΡΡΠΈΡ
ΠΏΠ΅ΡΠΈΠΎΠ΄ΠΈΡΠ΅ΡΠΊΠΈ Π°ΡΠΌΠΎΡΡΠ΅ΡΠ½ΡΡ
ΡΠ²Π»Π΅Π½ΠΈΡΡ
.
Β
Π₯Π°ΡΠ°ΠΊΡΠ΅ΡΠΈΡΡΠΈΠΊΠΈ Π²Π΅Π½ΡΠΈΠ»ΡΡΠΈΠΎΠ½Π½ΡΡ ΠΊΠ»Π°ΠΏΠ°Π½ΠΎΠ²
Β
ΠΡΠ΅ Π΄Π°Π½Π½ΡΠΉ Π²ΠΈΠ΄ Π²Π΅Π½ΡΠΈΠ»ΡΡΠΈΠΎΠ½Π½ΡΡ ΠΊΠ»Π°ΠΏΠ°Π½ΠΎΠ² ΡΠ»ΡΠΆΠΈΡ ΠΏΡΠ΅Π³ΡΠ°Π΄ΠΈΡΠ΅Π»Π΅ΠΌ ΠΎΡ ΠΏΠΎΠΏΠ°Π΄Π°Π½ΠΈΡ Π² ΠΏΠΎΠΌΠ΅ΡΠ΅Π½ΠΈΠ΅ Π²ΡΠ΅Π²ΠΎΠ·ΠΌΠΎΠΆΠ½ΡΡ ΠΌΠ΅Π»ΠΊΠΈΡ Π½Π°ΡΠ΅ΠΊΠΎΠΌΡΡ , ΠΏΡΡ Π° ΠΈ ΠΏΡΠ»ΠΈ Ρ ΡΠ»ΠΈΡΡ, Π² ΡΠ΅ ΠΌΠΎΠΌΠ΅Π½ΡΡ, ΠΊΠΎΠ³Π΄Π° Π²Π΅Π½ΡΠΈΠ»ΡΡΠΈΠΎΠ½Π½Π°Ρ ΡΠΈΡΡΠ΅ΠΌΠ° ΠΎΡΠΊΠ»ΡΡΠ΅Π½Π°. ΠΡ ΠΈ ΠΊΠΎΠ½Π΅ΡΠ½ΠΎ, Π½Π΅ΠΌΠ°Π»ΠΎΠ²Π°ΠΆΠ½ΡΠΌ ΡΠ²Π»ΡΠ΅ΡΡΡ ΡΠΎ, ΡΡΠΎ Π΄Π°Π½Π½ΡΠΉ Π²ΠΈΠ΄ ΠΊΠ»Π°ΠΏΠ°Π½ΠΎΠ² ΠΈΠΌΠ΅Π΅Ρ ΠΈ Π²Π΅Π½ΡΠΈΠ»ΠΈΡΡΡΡΠ΅Π΅ ΡΠ²ΠΎΠΉΡΡΠ²ΠΎ.
Β
Π ΡΠΎΡΠ½Π΅Π΅ ΠΏΡΠ΅Π΄ΠΎΡΠ²ΡΠ°ΡΠ°Π΅Ρ ΠΏΠΎΡΠ²Π»Π΅Π½ΠΈΠ΅ Π²ΡΠ΅Π²ΠΎΠ·ΠΌΠΎΠΆΠ½ΡΡ ΠΏΠΎΡΡΠΎΡΠΎΠ½Π½ΠΈΡ Π·Π°ΠΏΠ°Ρ ΠΎΠ², ΠΎΡΠΎΠ±Π΅Π½Π½ΠΎ Π²ΠΎ Π²ΡΠ΅ΠΌΡ ΠΏΡΠΈΠ³ΠΎΡΠΎΠ²Π»Π΅Π½ΠΈΡ ΠΏΠΈΡΠΈ, ΡΠ±ΠΎΡΠΊΠΈ ΠΈ Ρ.Π΄. ΠΠ³ΠΎ ΡΠΈΡΡΠ΅ΠΌΠ° ΡΠ°Π±ΠΎΡΡ ΡΡΡΠΎΠΈΡΡΡ Π½Π° ΡΠΎΠΌ, ΡΡΠΎ ΠΏΡΠΈ ΠΎΡΠΊΠ»ΡΡΠ΅Π½Π½ΠΎΠΉ Π²Π΅Π½ΡΠΈΠ»ΡΡΠΈΠΈ Π΄Π°Π½Π½ΡΠΉ ΠΊΠ»Π°ΠΏΠ°Π½ Π½Π°Ρ ΠΎΠ΄ΠΈΡΡΡ Π² Π·Π°ΠΊΡΡΡΠΎΠΌ ΡΠ΅ΠΆΠΈΠΌΠ΅, ΠΈ ΠΏΡΠΈ Π²ΠΊΠ»ΡΡΠ΅Π½ΠΈΠΈ Π΅Π΅, ΠΊΠ»Π°ΠΏΠ°Π½ ΠΎΡΠΊΡΡΠ²Π°Π΅ΡΡΡ ΠΈ Π½Π°ΠΊΠΎΠΏΠ»Π΅Π½Π½ΡΠΉ ΠΎΡΡΠ°Π±ΠΎΡΠ°Π½Π½ΡΠΉ Π²ΠΎΠ·Π΄ΡΡ Π²ΡΠ΄Π°Π΅ΡΡΡ Π½Π° ΡΠ°Ρ ΡΡ Π²Π΅Π½ΡΠΈΠ»ΡΡΠΈΠΈ.
Β

Β
ΠΡΡΠ°Π»ΡΠ½ΡΠ΅ Π²ΠΈΠ΄Ρ Π²Π΅Π½ΡΠΈΠ»ΡΡΠΈΠΎΠ½Π½ΡΡ ΠΊΠ»Π°ΠΏΠ°Π½ΠΎΠ² ΠΈΠΌΠ΅ΡΡ ΠΏΡΠΈΠΌΠ΅ΡΠ½ΠΎ Π°Π½Π°Π»ΠΎΠ³ΠΈΡΠ½ΡΠ΅ ΠΏΡΠΈΠ½ΡΠΈΠΏΡ ΡΠ°Π±ΠΎΡΡ ΠΈ Π²ΡΠΏΠΎΠ»Π½ΡΡΡ ΡΠ°ΠΊΠΈΠ΅ ΡΡΠ½ΠΊΡΠΈΠΈ ΠΊΠ°ΠΊ ΡΠ΅Π³ΡΠ»ΠΈΡΠΎΠ²ΠΊΠ° Π±Π°Π»Π°Π½ΡΠ° Π²ΠΎΠ·Π΄ΡΡΠ½ΡΡ ΠΌΠ°ΡΡ Ρ ΡΠ»ΠΈΡ ΠΈ Π² ΠΏΠΎΠΌΠ΅ΡΠ΅Π½ΠΈΠΈ, ΡΡΠΎΡ ΠΊΠ»Π°ΠΏΠ°Π½ Π½Π°Π·ΡΠ²Π°Π΅ΡΡΡ Π²ΠΎΠ·Π΄ΡΡΠ½ΡΠΌ. Π‘Π»Π΅Π΄ΡΡΡΠΈΠΉ ΠΊΠ»Π°ΠΏΠ°Π½ Π²ΡΠΏΠΎΠ»Π½ΡΠ΅Ρ ΡΡΠ½ΠΊΡΠΈΡ ΡΠ΄Π°Π»Π΅Π½ΠΈΡ Π΄ΡΠΌΠ° ΠΈ ΠΏΠΎ ΠΏΡΠΈΠ½ΡΠΈΠΏΡ ΡΠ°Π±ΠΎΡΡ ΡΡ ΠΎΠΆ Ρ ΠΎΠ±ΡΠ°ΡΠ½ΡΠΌ ΠΊΠ»Π°ΠΏΠ°Π½ΠΎΠΌ, ΠΎΠ΄Π½Π°ΠΊΠΎ Π² Π΄Π°Π½Π½ΠΎΠΌ ΡΠ»ΡΡΠ°Π΅ ΠΊΠ»Π°ΠΏΠ°Π½ ΡΡΠ°Π±Π°ΡΡΠ²Π°Π΅Ρ ΡΡΠ°Π·Ρ ΠΏΡΠΈ Π²ΠΎΠ·Π½ΠΈΠΊΠ½ΠΎΠ²Π΅Π½ΠΈΠΈ ΠΏΠΎΠΆΠ°ΡΠΎΠΎΠΏΠ°ΡΠ½ΠΎΠΉ ΡΠΈΡΡΠ°ΡΠΈΠΈ.
Β
ΠΡΠ΅ ΠΎΠ΄Π½ΠΈΠΌ ΠΈΠΌΠ΅ΡΡΠΈΠΌ Π±ΠΎΠ»ΡΡΠΎΠ΅ ΡΡΠ½ΠΊΡΠΈΠΎΠ½Π°Π»ΡΠ½ΠΎΠ΅ Π½Π°Π·Π½Π°ΡΠ΅Π½ΠΈΠ΅ ΠΊΠ»Π°ΠΏΠ°Π½ΠΎΠΌ ΡΠ²Π»ΡΠ΅ΡΡΡ ΡΠ°ΠΊΠΎΠΉ Π²ΠΈΠ΄ ΠΊΠ»Π°ΠΏΠ°Π½ΠΎΠ² ΠΊΠ°ΠΊ ΠΊΠ»Π°ΠΏΠ°Π½ Π²Π·ΡΡΠ²ΠΎΠ·Π°ΡΠΈΡΠ½ΠΎΠ³ΠΎ Π½Π°Π·Π½Π°ΡΠ΅Π½ΠΈΡ. ΠΠΌΠ΅Π½Π½ΠΎ Π΄Π°Π½Π½ΠΎΠ΅ ΠΎΠ±ΠΎΡΡΠ΄ΠΎΠ²Π°Π½ΠΈΠ΅ ΡΠ΅Π³ΡΠ»ΠΈΡΡΠ΅Ρ ΡΠΊΠΎΠΏΠ»Π΅Π½ΠΈΠ΅ Π³Π°Π·ΠΎΠ², ΠΊΠΎΡΠΎΡΡΠ΅ ΠΌΠΎΠ³ΡΡ ΠΈΠΌΠ΅ΡΡ Π²Π·ΡΡΠ²ΠΎΠΎΠΏΠ°ΡΠ½ΡΠ΅ ΡΠ²ΠΎΠΉΡΡΠ²Π°, Π΄Π°Π½Π½ΡΠΉ Π²ΠΈΠ΄ ΡΡΡΠ°Π½Π°Π²Π»ΠΈΠ²Π°Π΅ΡΡΡ ΠΈΡΠΊΠ»ΡΡΠΈΡΠ΅Π»ΡΠ½ΠΎ Π² ΡΠ΅Ρ Π²Π΅Π½ΡΠΈΠ»ΡΡΠΈΠΎΠ½Π½ΡΡ ΡΠΈΡΡΠ΅ΠΌΠ°Ρ , ΠΊΠΎΡΠΎΡΡΠ΅ ΡΠΏΠ΅ΡΠΈΠ°Π»ΡΠ½ΠΎ ΠΏΡΠ΅Π΄ΡΡΠΌΠΎΡΡΠ΅Π½Ρ Π΄Π»Ρ Π΄Π°Π½Π½ΠΎΠ³ΠΎ Π²ΠΈΠ΄Π° ΡΠ°Π±ΠΎΡΡ. ΠΠ΅Π½ΡΠΈΠ»ΡΡΠΈΠΎΠ½Π½ΡΠ΅ ΠΊΠ»Π°ΠΏΠ°Π½Ρ ΠΆΠ΅ ΠΊΠΎΡΠΎΡΡΠΌΠΈ ΠΎΡΠ½Π°ΡΠ°ΡΡΡΡ ΠΏΠΎΠ΄ΠΎΠ±Π½ΡΠ΅ ΡΠΈΡΡΠ΅ΠΌΡ ΠΈΠΌΠ΅ΡΡ Π°Π±ΡΠΎΠ»ΡΡΠ½ΡΡ Π±Π΅Π·ΠΎΠΏΠ°ΡΠ½ΠΎΡΡΡ Π²ΠΎ Π²ΡΠ΅ΠΌΡ ΡΠ°Π±ΠΎΡΡ, ΠΏΠΎΡΠΊΠΎΠ»ΡΠΊΡ Π²ΠΎΠ·Π½ΠΈΠΊΠ½ΠΎΠ²Π΅Π½ΠΈΠ΅ ΠΈΡΠΊΡΡ Π² Π½ΠΈΡ ΠΈΡΠΊΠ»ΡΡΠ°Π΅ΡΡΡ.
promplace.ru
