Колодезный насос с автоматикой реле давления и защитными устройствами – Какие колодезные насосы с автоматикой лучше?
Какие колодезные насосы с автоматикой лучше?
СодержаниеАвтоматизация системы водоснабжения – это первое, что приходит на ум практически любому человеку, когда он задумывается об обустройстве этой системы у себя дома. В первую очередь это касается частных домов, которые не подключены к центральному водоснабжению.
Реле давления и электронные автоматические блоки для колодезных насосов
В таких случаях необходимо вырывать колодец или скважину и погружать в него насос. Ну а для автоматизации всех процессов необходимо пользоваться автоматикой.
Колодезный насос имеет тот же спектр автоматики, что и все остальные образцы такого оборудования. Именно про автоматические системы водоснабжения мы сейчас и поговорим.
Виды автоматики для насосов
Стоит понимать, что насос – это обычная установка, которая занимается исключительно подкачкой воды. Он не регулирует ее количество, не может самовольно выключаться или включаться.
Совершенно очевидно для любого человека, что оставлять насос без автоматики – это значит просто добавить себе огромное количество проблем. Ведь вам придется каждый раз бегать к оборудованию для включения или блокирования действия системы. Ситуация усугубляется, если мы рассматриваем колодезные или скважинные насосы.
Насосы для колодца, как правило, производят в погружном исполнении. А это значит, что они постоянно находятся в воде.
Проблема здесь в том, что колодец – это не статичный источник. Уровень воды колодца может понижаться или повышаться. В то время как колодезные насосы подвешены на определенной высоте. Работать без жидкости им совершенно запрещено, так как сухой ход постепенно разрушает насос.

Насос Педроло с встроенным поплавковым выключателем
Бегать же каждый раз для включения или отключения системы при изменении уровня заполнения колодцев – это дело очень хлопотное. Если же на насосы устанавливают автоматические блоки, то всю работу на себя возьмут именно они. Таким образом, у вас существенно поубавится дел.
Современные насосы практически всегда снабжаются блоками автоматического действия. Как правило, это могут быть как простейшие реле для включения или выключения оборудования, так и сложные системы с кучей электроники.
к меню ↑
Простейшая автоматика
Даже самые обыкновенные колодезные насосы снабжаются простейшей системой автоматического включения и выключения. Происходит она за счет изменения уровня заполнения колодцев.
Сейчас мы имеем в виду регуляторы уровня воды колодца и блокираторы сухого хода.
Самым популярным и востребованным на данный момент является поплавковый выключатель. Он же и самый простой. Поплавковый выключатель работает по очень простой технологии. Колодезный насос оборудуется специальным датчиком. К нему прикрепляется поплавок.
Насос реагирует на движение поплавка, вернее, на уровень его положения. Если поплавок находится выше устройства, значит колодец имеет достаточный уровень жидкости, который оптимален для нормальной работы насоса.
Если же поплавок опустился ниже уровня насоса, то оборудование автоматически отключится. Стоит понимать, что колодезные насосы способны работать до тех пор, пока их рабочая, заборная часть погружена в воду. В одних моделях эта часть находится внизу насоса, в других же забор воды происходит в верхней части.

Колодезный насос с поплавковым выключателем, блокиратором сухого хода и панелью управления
Аналогичным образом работают датчики уровня воды. Только они уже монтируются на стенки колодцев, откуда и происходит наблюдение.
Еще один интересный прибор – это непосредственно блокиратор сухого хода. Колодезные и скважинные насосы сейчас им оборудуются еще на заводе, однако это касается далеко не всех моделей.
Блокиратор состоит из нескольких контактов с разными полюсами. Когда насос начинает работу, они заряжаются. В нормальных условиях его рабочая камера полностью заполняется водой, а потому цепь в контактах замыкается.
Если же устройство работает вхолостую, то цепь замкнуться не может, что приводит к аварийному отключению двигателя.
Основные плюсы:
- Простота конструкции;
- Надежность;
- Относительная дешевизна;
- Мобильность;
- Эффективность.
Основные минусы:
- Малый набор функций;
- Довольно трудоемкий способ настройки и обслуживания автоматики (насос придется вынимать из источника).
к меню ↑
Автоматические реле
Автоматические реле включения и выключения стоят практически на каждой насосной станции AL-KO. Но и насосы для колодцев ими оборудуют не реже. Без этого реле нормальное функционирование системы водоснабжения практически невозможно и вот почему.

Реле давления с манометром
Чтобы нормально работать, в системе водоснабжения должно быть достаточное давление. Давление должно образовываться в тот момент, когда открывается кран. Причем если вами не куплен специальный накопительный бак, то насос должен качать воду из колодца каждый раз, когда вы откроете кран.
Для упрощения работы всей системы и оптимизации ее работы устанавливают гидроаккумуляторы. Это специальные баки с мембраной, в которой находится воздух. Воздух в мембране есть постоянно, и в зависимости от наполненности бака, образует оптимальное давление.
Если воды в баке становится слишком мало – давление понижается. Если же гидроаккумулятор полностью заполнен, тогда наоборот, давление повысится.
Именно на изменения уровня давления в системе и реагирует это реле. Его же подключают и к насосу.
При понижении давления реле автоматически запускает программу включения насосной установки. И качать воду она будет до тех пор, пока давление в системе не выровняется. В этот момент сработает обратный контакт, и реле отключит устройство.
Такой простой и очень эффективный подход сразу же завоевал доверие у огромного количества людей, что и сказалось на его популярности. Автоматические реле монтируют практически повсеместно. Они используются как для обслуживания колодцев или скважин, так и для куда более серьезных работ.
Основные плюсы:
- Простота конструкции;
- Дешевизна;
- Чрезвычайная эффективность;
- Легкость в настройке.

Улучшенное реле давление электронного образца от компании Грундфос
Что же до минусов, то их у такой автоматики практически нет. Более того, замену ей могут составлять только блоки автоматического контроля электронного образца, о которых мы поговорим выше. В остальных же случаях ничего лучше вы все равно не найдете.
Электронная продвинутая автоматика
Стоит понимать, что практически все колодезные насосы, как мы уже упоминали выше, являются обычными инструментами для подкачки жидкости. Для их включения или выключения надо использовать дополнительную автоматику. Равно, как и для контроля их работы.
Именно этим и занимаются электронные блоки автоматического управления. Их монтируют на системы, что обслуживают колодец, скважину или любой другой источник.
Особенность такой автоматики в ее чрезвычайной эффективности и функциональности. Во-первых, она не только дублирует функции реле давления, но и улучшает свое взаимодействие.
Например, реле давления способно отреагировать только на крайние изменения в системе. Поэтому для включения или выключения подкачки воды из колодца необходимо преодоление одного из установленных положений.
Электронная же автоматика реагирует намного качественнее. Она анализирует уровень давления в режиме реального времени и способна запустить насос в любой момент.
Например, как только в ванной кто-то открутит кран, как автоматика тут же зафиксирует незначительный спад давления и запустит насос. Если же кран закрыт, автоматика продолжит работу насоса до тех пор, пока в системе давление не выровняется.
Таким образом, вам не нужен будет даже гидроаккумулятор, ведь всю работу на себя берет электронный блок.

Электронный блок автоматики с возможностью настройки и манометром
Более того, с его помощью можно забыть о проблемах, что связаны со слабым напором в трубах, в случае использования нескольких сантехнических приборов.
Такое часто случается, когда например, кто-то собирается помыться в тот же момент, как другой его сожитель запускает стиральную машинку или поливает цветы. Давление в системе падает, а гидроаккумулятор не способен удовлетворить его полностью.
В итоге ни вы не помоетесь нормально, ни ваш сосед цветы не польет. Электронные блоки решают эту проблему. Они способны подавать на насос у колодца определенный уровень напряжения. Если напряжение повысится, то и скорость его работы существенно увеличится, а значит, трубопровод будет получать достаточное количество жидкости.
Здесь есть еще один момент. Так как электронная автоматика регулирует уровень напряжения, то это же может привести к экономии средств. Так как установка будет подавать слабое напряжение в момент, когда вы берете мало воды. Например, когда собрались просто умыться или набрать стакан воды.
В таком случае насос будет потреблять меньше электричества, что сразу же положительно скажется на ваших затратах.
Плюс к этому электронные блоки полностью настраиваемые. Им можно менять алгоритмы работы, регулировать работу и т.д.
Основные плюсы:
- Функциональность;
- Возможность настраивать систему;
- Чрезвычайная эффективность;
- Возможность экономии средств
- Наличие у качественных моделей аварийных систем отключения;
- Возможность избавится от проблемы слабого напора в системе во время повышения уровня потребления.
Основные минусы:
- Нуждается в постоянном притоке электричества;
- Очень сложная конструкция;
- Очень высокая цена.
к меню ↑
Монтаж автоматики для колодезных насосов

Монтаж колодезного насоса с подключенным предохранительным поплавком
Монтировать автоматику для насосов можно самостоятельно, так как процесс это достаточно простой. Однако здесь все зависит от конкретных моделей как автоматических систем контроля, так и самых насосных установок.
Например, блокираторы сухого хода, как правило, уже вмонтированы в сам насос. Но подключить их отдельно не так просто, особенно если разработчик это заранее не предусмотрел.
После этого нужно очень аккуратно опустить насос в колодезь, не повредив при этом сам поплавок. Важно монтировать устройство по центру колодца и позаботиться о его чистоте. Чтобы поплавок не мог случайно зацепиться за что-то, так как это сразу же отразится на его работе.
В некоторых случаях его закрепляют к стабилизатору уровня, например, к арматуре. Но используется такой способ редко.
Реле давления монтируют непосредственно на насос. Его подключают к нему с помощью специальных контактов. Также реле можно ставить на гидроаккумулятор, хотя, здесь все определяется конкретной схемой системы.
После монтажа реле настраивают и тщательно тестируют. Важно выставить правильный порог как верхнего, так и нижнего давления.
Электронную автоматику самому лучше не ставить. Она для этого слишком дорога. Да и настройка ее работы – это дело довольно хлопотное. А потому его лучше доверить профессионалу. Он со своей работой справится не в пример лучше и быстрее. Расходы же на монтаж блока управления будут незначительны, особенно на фоне его стоимости.
Читайте также: Полезные советы при выборе и установке лестницы для колодца.
к меню ↑
Обзор функций колодезного насоса Grundfos с автоматикой (видео)
Главная страница » Насосы для колодцевbyreniepro.ru
Погружной насос для колодца с автоматикой: типы и принципы работы
ПОДЕЛИТЕСЬ
В СОЦСЕТЯХ
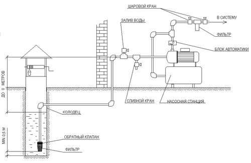
Любой владелец загородного дома или дачи знает насколько важно бесперебойное снабжение водой в условиях отсутствия централизованного водопровода. В былые времена люди обходились колодцами, из которых воду черпали ведрами. Сегодня к колодцам добавились скважины, а подъем воды на поверхность осуществляется электрическими насосами. Вершиной технического прогресса в этой области по праву может считаться погружной насос для колодца с автоматикой. Он не только снабжает водой все домашнее хозяйство, но и делает это без серьезного вмешательства человека.

Погружной насос в колодце обеспечит бесперебойное водоснабжение
Назначение и типы насосов для подачи воды из скважин и колодцев
Все насосы погружного типа обеспечивают подъем воды на поверхность с определенной глубины, которая зависит от мощности агрегата, и доставку ее до потребителя. Отличительной особенностью таких насосов является то, что они опускаются частично или полностью в толщу воды. По принципу действия можно различить два различных типа погружных насосов для колодца. С автоматикой или без нее, они бывают:
- вибрационные. Основным рабочим элементом таких насосов является подвижный поршень, который и создает давление воды при своем возвратно-поступательным движении. Оно обеспечивается электродвижущей силой катушки индуктивности, к сердечнику которой жестко крепится через шток поршень. На катушку подается ток напряжением 220 В, который создает магнитное поле, вызывающее движение сердечника вместе с поршнем. При втягивании поршня, в рабочую камеру затекает вода. Дойдя до предельной точки, поршень размыкает контакты и отключат магнитное поле. Под действием пружины поршень с силой давит на воду, создавая давление. Этот процесс постоянно повторяется, поднимая воду на необходимый уровень. Эти насосы обладают небольшой мощностью, зато неплохо справляются с мутной водой и мелкими камнями без значительного ущерба своей работоспособности. Стоят они не дорого, порядка 20 – 25 у.е. Поршень можно заменить самостоятельно без особого труда;

Схема вибрационного погружного насоса
- центробежные. В этом типе насосов поток воды обеспечивается крыльчаткой, соединенной с валом электродвигателя. Она вращается под действием электродвижущей силы, возникающей, благодаря магнитному полю, на роторе электродвигателя. Такие насосы обладают большой мощностью и могут использоваться для водоснабжения домов и даже предприятий. Минусом является их большая чувствительность к загрязнениям в воде. Даже мелкие камешки, в 1 – 2 мм, способны сократить срок службы агрегата в 5 – 10 раз, а большего размера вообще вывести насос из строя. При этом его ремонт достаточно дорог. Стоимость таких насосов начинается от 100 у.е.

Схема подключения центробежного погружного насоса
Любой из этих типов агрегатов может быть оборудован автоматической системой управления, позволяющей включать агрегат уже при открытии водопроводного крана.
Полезный совет! Если вода в колодце или скважине мутная или в ней попадаются мелкие камешки до 2 мм, то выбирать лучше вибрационные насосы. Они менее восприимчивы к таким загрязнителям. При этом нужно знать, что их мощность в 2 – 3 раза ниже, чем у центробежных.
Погружной насос для колодца с автоматикой
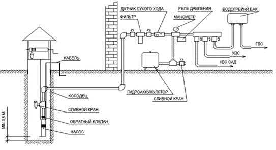
В последнее время все большую популярность набирают погружные насосы для колодца с автоматикой. Это не случайно. Ведь человек всегда стремился облегчить себе жизнь, изобретая те или иные механизмы. Строго говоря, для создания автоматической системы подачи воды мало одного насоса и шлангов. Нужно дополнительное оборудование. К такому оборудованию можно отнести: электронный блок управления, гидроаккумулятор, различные датчики, устройства защиты от перегрева и низкого уровня воды, фильтры.

Погружной насос для колодца
Разберем все эти элементы подробнее. Блок управления служит для получения и обработки сигналов от различных датчиков. Его задача включать и выключать насос в тех или иных ситуациях. Гидроаккумулятор представляет собой закрытый баллон, способный выдержать высокое внутреннее давление. В нем находится мембрана, соединенная с датчиком. Он срабатывает при понижении давления ниже критического. При этом автоматика включает насос, который заполняет водой баллон. Когда давление повысится до необходимого — насос выключится. Сделан этот механизм для того, чтобы насос не работал постоянно, включаясь при каждом открытии крана. Это значительно увеличивает ресурс всей системы и создает стабильное давление в водопроводе.
Статья по теме:
Как установить насос для повышения давления воды в квартире. Классификация насосов для повышения давления в водопроводе квартиры. Критерии выбора, особенности самостоятельной установки.
Датчики служат для снятия показаний с тех или иных параметров. Датчик давления воды определяет этот показатель в водопроводе. Датчик «сухого хода» обеспечивает защиту насоса от перегрева. Он срабатывает на выключение при попадании в систему воздуха, что говорит о снижении уровня воды. Датчик уровня воды обеспечивает отключение насоса при критическом понижении уровня воды. Он устанавливается на поплавках центробежных насосов.

Водоснабжение частного дома из колодца с помощью погружного насоса
Устройство и работа автоматической системы подачи воды
Чтобы погружные насосы для колодца с автоматикой работали бесперебойно необходимо всю систему монтировать правильно. А устройство ее таково: В колодце или скважине в толще воды или на поплавке расположен насос. От него идет труба, в которой находится ниппель и обратный клапан, не позволяющий воде стекать вниз. Труба соединена на поверхности с крестовиной также через ниппель и обратный клапан. В ней находится датчик давления, соединенный через гибкую подводку с блоком управления.
От крестовины одна труба идет к гидроаккумулятору, а другая ко всем потребляющим элементам: кранам, унитазу, душу, стиральной машине и другим бытовым приборам. Провод от насоса соединен через розетку с блоком управления. Сам блок подключен к сети 220 В через автоматические выключатели, рассчитанные на силу тока от 10 до 16 ампер. Этот параметр зависит от мощности оборудования. Выключатели обеспечивают защиту автоматики и насоса от перегрузок в сети.

Погружные насосы для колодца
Погружные насосы для колодца с автоматикой работают следующим образом: при первом включении насос накачивает воду в гидроаккумулятор через обратный клапан и фильтры, пока давление в нем не достигнет максимального. Датчик давления срабатывает и дает сигнал автоматике на отключение насоса. Теперь система готова к использованию. Включая кран или бытовой прибор с водопотреблением, мы даем возможность воде под давлением выходить из гидроаккумулятора. Воды в нем может быть от 30 до 100 л.
Полезный совет! Покупая гидроаккумулятор, следует иметь в виду, что объем помещающейся в него воды, примерно в 2 раза меньше всего объема устройства. Это связано с тем, что все свободное пространство выше мембраны заполнено воздухом.

Схема обвязки насоса для скважины с гидропневматической автоматикой и кессоном
Когда большая часть воды выйдет, мембрана под действием пружины будет увеличивать объем камеры с воздухом, что снижает давление. При критически низком уровне датчик подаст сигнал в блок управления на включение насоса. Вода, заполнив гидроаккумулятор, вновь увеличит давление и цикл может повторяться вновь и вновь.
Как правильно выбирать погружные насосы для колодца с автоматикой
При выборе погружных насосов для колодца с автоматикой решающим должно быть то, на какую высоту он должен поднимать воду и как далеко ее поставлять. Эти параметры отражены на упаковке и в инструкции. Для мелких до 20 м. колодцев можно использовать любой насос, если вода подается не слишком далеко. В случае, когда расстояние до потребителей не более 50 м, покупать насос нужно с высотой подъема не менее 20 м. Расстояние от 50 до 100 м. заставляет использовать прибор с высотой подъема 40 м.

Схема работы погружного насоса с автоматикой
Выбор насоса зависит и от чистоты воды. В очищенном от песка и мелких примесей колодце, можно использовать любые насосы, а в загрязненных только вибрационные.
Полезный совет! Если планируется налаживать постоянное водоснабжение, то лучше приобретать насос с верхним забором воды. Это позволяет насосу не перегреться при сильном понижении уровня воды и не набрать в себя песка или ила. Насос начнет «глотать воздух», и автоматика выключит его.

Монтаж погружного насоса
Объем гидроаккумулятора следует выбирать, исходя из потребностей семьи. При малом водопотреблении достаточно 50 – 60 л, а при значительном необходимо приобретать баллон емкостью не менее 100 л.
Оборудование своего загородного дома погружным насосом для колодца с автоматикой решит все проблемы с организацией водоснабжения. Вода будет подаваться автоматически и бесперебойно к любому потребителю внутри дома и на садовом участке для полива растений.
Как установить погружной насос в скважину (видео)
ОЦЕНИТЕМАТЕРИАЛ Загрузка… ПОДЕЛИТЕСЬ
В СОЦСЕТЯХ
СМОТРИТЕ ТАКЖЕ
REMOO В ВАШЕЙ ПОЧТЕremoo.ru
Автоматика для скважинных (погружных) насосов
СодержаниеНа любом загородном участке, что не подключен к центральной системе водоснабжения, хозяева первым делом оборудуют скважину или другой подобный источник воды. Затем в него опускают насос, который позволит добывать жидкость из скважины и делать это достаточно продуктивно.
Автоматический блок управления для погружного насоса
Однако не стоит забывать и то, какое серьезное значение играет автоматика для скважинных насосов. Ведь без нее невозможно наладить автономную систему водоснабжения в доме.
Особенности и назначение
Блок автоматического управления играет огромную роль в деле обустройства всей системы водоснабжения любого частного дома. Без него людям пришлось бы тратить несравнимо больше времени на совершенно элементарные вещи.
Стоит понимать, что скважинный насос – это всего лишь устройство, что способно выкачивать жидкость из источников. Ни на что большее он не способен. Система водоснабжения тоже сложностью не отличается. Она состоит из труб, переходников и распределителей, которые просто доводят воду из скважины до конечного потребителя.
Однако для обустройства нормального функционирования системы водоснабжения необходимо установить автоматический блок управления насоса. С его помощью можно будет настроить работу устройства так, чтобы практически полностью исключить из этой схемы присутствие человека.
В противном случае вам придется ухищряться другими, более сложными и трудоемкими методами. Можно, конечно, не использовать автоматические приборы, а постараться оборудовать крупные накопительные баки или другие емкости для забора и распределения жидкости. Но здесь стоит учесть несколько нюансов.
Помимо наличия воды в трубопроводе, для безопасного и комфортного его эксплуатирования нужно обеспечить еще и достаточный уровень давления. При наличии нормального давления вода будет течь из крана с оптимальным напором. Если же давление слишком слабое, то это сразу провоцирует множество проблем.
Без наличия систем управления обычный накопительный бак, пусть даже и очень большой, все же будет требовать огромного количества внимания человека. Вам придется постоянно запускать насос вручную, подкачивать жидкость, контролировать ее уровень и т.д.

Реле давления с манометром
Если же вмонтировать на насосную станцию небольшой блок управления, то всех этих неудобств можно будет избежать. И стоит заметить, что простейшие автоматические системы для погружных или поверхностных скважинных насосов не отличаются сложностью. Да и цена у них вполне приемлемая.
Современная автоматика для насосов поделена на несколько поколений, но работает она по одному и тому же принципу.
Для полного понимания всей картины мы рассмотрим принцип действия реле давления – простейшего автоматического регулятора работы погружных и поверхностных насосов. Сразу предупреждаем, что блок управления типа реле давления требует также наличия гидроаккумулятора в системе. В противном случае эффективно работать он не сможет.
Гидроаккумулятор – это сравнительно небольшая емкость под воду, которая является составным элементом насосной станции. В гидроаккумуляторе есть резиновая мембрана со сжатым воздухом. При подкачке в него воды, ее масса начинает давить на мембрану и взаимодействовать с ней, что приводит к изменению уровня давления гидроаккумуляторе.
Так как это гидроаккумулятор является исходной точкой системы, а выход из него блокируется обратным клапаном, то давление в нем автоматически распространяется на весь трубопровод. Как только уровень жидкость в баке падает, падает и давление, так как воздушная мембрана постоянно взаимодействует с жидкостью внутри бака.
Именно этот нехитрый прием и позволяет создать блок управления для насосных станций. Являет он собой обычное реле из двух позиции. Каждая позиция настраивается отдельно и является крайней точкой показателей давления.
Так, нижняя позиция уровня давления будет достигнута в тот момент, когда в баке будет критически низкий уровень воды. В этого момент система автоматически запустит работу насоса для того, чтобы выровнять ее уровень.
Работать насос будет до тех пор, пока не будет достигнут верхний предел давления в гидроаккумуляторе, и реле не выключится. По такому принципу этот примитивный блок управления работает практически постоянно.
Более продвинутая автоматика способна обходится без гидроаккумуляторов и имеет множество дополнительных функций. Но принцип действия всегда остается один. Специальные датчики отслеживают уровень давления в трубопроводе, и в случае его понижения или повышения реагируют соответствующим образом.

Электронная автоматика с возможность переключения программ
к меню ↑
Виды, отличия и характеристики
Как уже было упомянуто выше, существует довольно много различных разновидностей автоматических систем. Они могут выполнять как частичные функции по обеспечению нормальной деятельности отдельного оборудования, так и полностью контролировать все процессы, а также оптимизировать их по заданным программам.
Также некоторые автоматические переключатели выполняют более конкретные функции, например, защищают устройство от перегрева или работы всухую. Перечислить их все не так просто, но мы все же попытаемся.
Деление будем вести по поколениям. Если следовать по этой шкале, то существует три основных поколения автоматических блоков управления. Причем различаются они не только по сложности или современности, но и по типу выполняемых задач.
к меню ↑
Первое поколение автоматики
К первому поколению этих устройств относят простейшую автоматику и отдельные приборы. Они не могут организовать полностью автономное функционирование системы водоснабжения, но этого от таких приборов и не требуется.
Читайте также: как работает и для чего используется насосная станция водоснабжения?
К автоматике первого поколения относят:
- Реле давления;
- Поплавковые выключатели;
- Блокираторы сухого хода.

Конструкция стандартного реле давления для поверхностных насосов
О принципе работы реле давления многое уже было сказано выше. Этот простой блок автоматики удобен его дешевизной и практичностью. Реле редко ломается, легко настраивается и в случае поломки его можно быстро заменить.
Проблема с ним только в том, что помимо реле, придется покупать еще и гидроаккумулятор. Самостоятельно этот блок управления справиться с поставленными задачами не сможет.
Поплавковые выключатели защищают насосы от работы в неестественных условиях. Например, от серьезно обмеления источника, когда уровень воды резко падает и насос оказывается на его дне.
В первую очередь такую автоматику ставят на погружные насосы. Причем имеются в виду как скважинные, так и дренажные модели. Поплавок подсоединен к переключателю, который реагирует на его положение.
Как только уровень воды падает, происходит моментальная реакция, и поплавок автоматически отключает устройство. Стоит заметить, что этот простой механизм очень серьезно помогает человеку и предохраняет насос от поломок.
Блокираторы сухого хода тоже являются примитивной автоматикой, но все их задачи заключаются в автоматическом отключении устройства, если в его камере не была обнаружена жидкость. Как правило, эти детали чаще используются в поверхностных моделях скважинных насосов.
к меню ↑
Второе поколение автоматики
Блок управления второго поколения – это уже куда более серьезный механизм. Подразумевается использование электронного прибора с несколькими датчиками. Эти датчики монтируются непосредственно в трубопроводе, на насосе и еще в нескольких местах.
Вся информация с датчиков передается на микросхему, которая и контролирует все процессы, что связаны с обеспечением работы системы водоснабжения.

Насосная станция, с подключенным гидроаккумулятором и реле давления
Электронный блок удобен его практичностью и большим количеством функций. Для его нормального функционирования уже не требуется покупать гидроаккумулятор, так как автоматика реагирует на изменения давления в системе в режиме реального времени. Как только где-то включается кран, датчик тут же реагирует падение давления.
При понижении его до определенного уровня он сразу же подает команду насосу, а тот подкачивает воду до тех пор, пока кран не будет закрыт и давление в системе не нормализуется.
Как видим, принцип действия во многом схож с принципом работы реле давления, но здесь уже мы избавляемся от лишнего звена в системе и оптимизируем работу всех ее элементов.
Плюс к этому электронные блоки часто снабжаются дополнительными функциями:
- Контроля температуры;
- Аварийного отключения;
- Блокирования сухого хода;
- Контроля уровня жидкости.
И это далеко не все их особенности. Из минусов таких устройств можно отметить их большую склонность к появлению поломок, необходимость тонкой настройки и повышенную цену.
к меню ↑
Третье поколение автоматики
К блокам управления последнего поколения относятся действительно мощные и надежные системы. Стоят они очень дорого, но свои деньги отрабатывают. По сути — это все та же электронная автоматика, но с расширенным количеством функции.
Одной из главных считается возможность тонкого контроля двигателя насоса. Дело в том, что практически любой бытовой насос снабжается нерегулируемым движком. Вернее, регулировать его можно, но не своими руками. Работает он в одном режиме и с одной скоростью. В большинстве случаев этого вполне достаточно, но далеко не всегда.

Автоматические блоки управления последнего поколения
Стоит понимать, что очень часто от движка насоса не требуется столь больших усилий для подкачки жидкости. Например, если кто-то в ванной просто открыл кран на несколько секунд, то стандартная электронная автоматика тут же запустит насос в полную мощность. Хотя, по большому счету, таких усилий от него не требовалось.
А ведь насос во время работы использует достаточно много электричества и расходует свой ресурс. Решить эту проблему можно, если установить рассматриваемые блоки управления.
Автоматика третьего уровня не только запускает насосное оборудование в нужный момент, она также регулирует уровень напряжения электричества, что подается на его двигатель.
Таким образом, вам удастся лучше контролировать работу насоса, уменьшить износ его двигателя и существенно сократить расходы на электроэнергию.
Также автоматика обладает всеми известными функциями прямого и аварийного контроля, отлично защищает устройство от перепадов напряжения и других подобных неприятностей.
Плюс к этому ее можно программировать по нескольким алгоритмам работы, что тоже очень полезно. Особенно если у вас нестандартная система водоснабжения со своими нюансами.
к меню ↑
Особенности подключения автоматики для насосов
Подключать блоки автоматического управления совсем не сложно. Однако и здесь есть несколько нюансов. Если говорить о приборах первого поколения, то монтировать их нужно редко. Как правило, монтаж необходим только для реле давления, так как его докупают отдельно.

Электронное реле давления с возможностью тонкой настройки
Поплавковые выключатели и блокираторы сухого хода чаще всего встраивают еще на этапе сборки насоса. В некоторых случаях их нужно будет подключить перед погружением образца в скважину. Но процесс подключения здесь будет заключаться только в соединении нескольких клем и их герметизации.
Реле давления монтируется на гидроаккумулятор. Его нужно уже предварительно настроить путем вращения большой и малой гаек. Первая отвечает за верхний предел давления, вторая за разницу давлений.
Этапы подключения:
- Собираем всю систему, устанавливаем гидроаккумулятор.
- Крепим на него реле давления.
- Подсоединяем все элементы.
- Подключаем устройство к электричеству, если в этом есть необходимость.
- Настраиваем верхнюю позицию реле.
- Настраиваем разницу между верхней и нижней позицией.
- Тестируем работу системы.
- При необходимости перенастраиваем некоторые положения.
Электронные блоки управления самостоятельно ставить не рекомендуется. Они слишком сложны, нуждаются в подключении множества датчиков, тонкой настройке, да и стоят очень прилично. Лучше доверьте эту работу профессионалу.
к меню ↑
Обзор блока автоматики для скважинных насосов (видео)
Главная страница » Скважинные насосыbyreniepro.ru
видео-инструкция по монтажу своими руками, особенности погружных изделий с автоматикой, фото
Вряд ли может считаться комфортным тот дом, в котором отсутствует система водоснабжения. Причем, в данном случае, речь может идти не только о централизованной сети, но также и о локальном водопроводе, который обслуживает одно домовладение.
Для его создания необходимо приобрести автоматический насос для колодца. О разновидностях таких устройств и о правильном их выборе вам расскажет наша статья.

Помпа с автоматикой
Локальные водопроводные системы
Автоматические колодезные насосы применяются для создания локальных водопроводных систем, подразделяемых на два вида:
- гидропневматическая система – помимо помпы в нее входит гидроаккумулятор и реле, которое регулирует давление в трубах. Продаваться они могут как по отдельности, так и в комплекте. Во втором случае, поставляемое устройство называется насосной станцией;

Насосная станция
- электронная система – оборудована электронным блоком, установленным в трубу. Эффективность работы такой водопроводной сети выше, чем у предыдущей, поэтому она пользуется большей популярностью. Кроме того, в последних моделях таких устройств блок монтируются непосредственно внутрь корпуса насоса. Это избавляет от необходимости проведения дополнительных монтажных работ.

Аппарат со встроенной электроникой
Совет!
При выборе того или иного вида конструкции учитывайте, что гидропневматическая система, как правило, имеет меньшую производительность по сравнению с электронной разновидностью.
Виды автоматических насосов
В автономных водопроводах используется один из двух типов помп:
- поверхностные устройства – располагаются на удаленном расстоянии от колодца, воду из которого поднимают при помощи подключенного шланга. Они обеспечивают большой напор воды и, кроме того, просты в монтаже и обслуживании. Их недостатком является недостаточная мощность, из-за которой они могут поднимать воду с глубины не более 9 метров;
- погружные аппараты – размещаются внутри колодца в толще воды. Автоматический погружной насос для колодца способен работать на большой глубине. Вдобавок, у него простая и надежная конструкция, обеспечивающая длительный срок службы.
Из названных двух видов приборов рекомендуем вам выбрать второй тип, поскольку помимо названных преимуществ он имеет следующие достоинства:
- он лучше подходит для работы в зимних условиях;
- имеет более высокий КПД;
- обеспечивает более стабильную работу водопроводной системы;
- создает низкий уровень шума.
Популярные марки автоматических насосов для колодца
Выбирая автоматическую помпу для своего колодца, нужно в первую очередь присмотреться к тем торговым маркам, которые пользуются наибольшей популярностью у покупателей. Давайте рассмотрим их.
Погружные насосы
Среди погружных колодезных насосов, применяемых для автоматизированных сетей водоснабжения, наиболее популярными являются следующие марки:
- «Малыш» — работая в составе гидропневматической системы, устройства под этим названием могут стабильно обеспечивать водой небольшой загородный дом или земельный участок. Благодаря тому, что их цена является вполне доступной, они пользуются особым успехом у дачников;

Малыш
- «Ручеек» — еще одна популярная у владельцев приусадебных участков марка. Так же, как и в предыдущем случае, она используются как элемент гидропневматической водопроводной системы. Имеет наилучшее соотношение цены и качества выпускаемой продукции. Отличается безотказностью в работе;

Прибор «Ручеек»
- «Водолей» — аппараты, выпускаемые под этим брендом, имеют простую и надежную конструкцию. Вдобавок, они изготавливаются из высококачественных и устойчивых к коррозии материалов;

Прибор «Водолей»
- «Джилекс» — такой погружной насос для колодца с автоматикой оборудуется специальным блоком управления. В зависимости от давления в системе он запускает или останавливает помпу. К преимуществам данной марки следует отнести хорошее качество и надежность ее приборов;

Блок управления «Джилекс»
- «Grundfos» — выпускает модели, хорошо приспособленные для работы как в чистой, так и в загрязненной воде, имеющей примесь песка. Отличительными чертами таких помп является их компактность и износостойкость;
Колодезные аппараты «Grundfos»
- «Dab» — под этой маркой выпускаются устройства, специально предназначенные для работы в колодце в автоматическом режиме. Эти аппараты имеют встроенные датчики потока и давления. Помимо этого, они оборудованы электромеханическим управлением.
Прибор Dab
Статьи по теме:
Поверхностные насосы
Поверхностные аппараты просты в установке и в обслуживании. Их можно подключить своими руками. Поэтому, выбирая помпу для своего колодца, можно присмотреться и к такому варианту.
При этом прежде всего стоит обратить внимание на аппараты, предлагаемые известными фирмами. Среди популярных производителей, выпускающих поверхностные насосы для колодцев, присутствуют уже упомянутые выше «Джилекс» и «Grundfos».
Первый из них пользуется большей популярностью по сравнению со вторым, поскольку имеет меньшую цену и лучше адаптирован для российских условий эксплуатации.
Помимо этих двух марок, успехом у покупателей пользуются следующие фирмы:
- Al-co – известный немецкий производитель, выпускающий насосные станции. Они имеют напор до 60 метров и способны подавать до 6000 литров воды в час;

На фото — насосная станция AL-KO
- Wilo – старейший насосный изготовитель в Европе. Выпускаемые им помпы являются компактными по размеру и бесшумными в работе. Благодаря установленной автоматике, они способны обеспечить бесперебойным водоснабжением как дачу, так и загородный дом;
Аппарат Wilo
- Awelco – итальянская компания, более 20 лет выпускающая устройства для водоснабжения. Предлагаемые покупателю аппараты этой марки имеют высокую мощность и отличное качество сборки. Вдобавок к тому, их стоимость является вполне доступной для среднестатистического российского покупателя.
Станция Awelco
Правила выбора конкретной модели насоса для колодца
Определившись с типом и маркой помпы, приступаем к определению подходящей модели. Инструкция по выбору здесь будет следующей.
Вначале обращаем внимание на производительность насоса для колодца. Для создания автономного водопровода эта величина должна составлять от 3000 литров в час и более. Это необходимо для бесперебойной работы системы в тех случаях, когда одновременно включены несколько точек потребления. К таковым относится стиральные и посудомоечные машины, краны и унитазы.
После этого, если имеем дело с поверхностной помпой, смотрим на высоту подачи, если покупаем погружное устройство, то на максимальный напор. При этом учитываем, что 1 метр вертикали равен 4 метрам на горизонтальной плоскости. Расстояние высчитываем от точки забора воды до самой удаленной точки, в которую будет подаваться жидкость.
Совет!
Для того, чтобы купленное устройство прослужило как можно дольше, выбирайте прибор с запасом мощности.
То есть, если вам требуется помпа с максимальным напором 20 метров, берите ту, у которой этот параметр равен 40 метрам.
При выборе поверхностного аппарата обязательно учтите такую характеристику, как глубина всасывания. Обычно она составляет 8-9 метров. Для забора воды с большей глубины потребуется глубинный насос.

Поверхностный агрегат можно использовать до глубины 8 метров
Необходимо позаботиться еще об одной проблеме. В том случае, если в вашей электрической сети величина тока является нестабильной, следует приобрести стабилизатор напряжения. Он поможет защитить технику от резких скачков тока и сделать подачу воды равномерной.
Вывод
Автоматические колодезные насосы применяются в составе гидропневматической или электронной системы водоснабжения для колодца. При этом их автоматика представляет собой внешнее реле, подключаемое к помпе, либо электронный блок, монтируемый внутрь корпуса устройства.
Насосы для колодцев с автоматикой могут быть поверхностного или погружного типа. В первом случае они оборудуются гидроаккумулятором и реле давления. Их можно приобрести по отдельности или единым блоком, который называют насосной станцией. Что касается погружных устройств, то они имеют встроенные датчики и электромеханическое управление.
Выбирая подходящий аппарат, следует в первую очередь обратить внимание на те марки, которые пользуются успехом у покупателей. Их полный перечень был приведен выше.
Выбирать конкретную модель нужно на основе ее основных технических параметров. К ним относится производительность, высота подачи и максимальный напор.
Рекомендуем вам просмотреть видео в этой статье. Оно сообщит вам дополнительные сведения по рассматриваемой теме.
kolodec.guru
Погружной Насос С Автоматикой Для Колодца: Выбор + Монтаж

Автоматический погружной насос для колодца
Автоматические насосы для колодцев предназначены для обеспечения удобной бесперебойной подачей воды в дом. Особых навыков процесс автоматизации насоса не требует и в большинстве случаев осуществить его можно своими руками.
В статье даны некоторые рекомендации по использованию автоматической системы для подачи воды из колодца.
Какие виды автоматических систем
Перед монтажом автоматической системы подачи воды необходимо определить ее вид.
Это может быть:
- Гидропневматическая система, состоящая из гидроаккумулятора и реле, которое регулирует в трубе давление воды. Недостатком устройства является невысокая производительность, что значительно уменьшает ее частоту применение.
- Электронная система в своем составе имеет небольшой электронный блок, монтируемый непосредственно в трубу. Такой вариант автоматики более распространен, а последние модели разработаны с таким расчетом, чтобы она устанавливалась вовнутрь механизма насоса. Такая конструкция существенно облегчает процесс сборки.
Как выбрать насос для системы
Промышленность выпускает два основных вида насосов:
- Погружные.
- Поверхностные.
Перед выбором насоса для конкретного колодца или скважины нужно учесть некоторые моменты:
- Параметры колодца. Основной показатель — дебит колодца, или объем воды, получаемой из колодца в единицу времени.
Совет: Не стоит брать для колодца, у которого небольшой запас воды, насос с большой производительностью. Необходимо учитывать динамический и статический уровни воды.
- Параметры насоса. В этом случае главным показателем является напор, создаваемый насосом. При расчетах необходимо точно знать, высоту подъема воды, и подбирать агрегат с подходящими характеристиками: мощностью и производительностью.
- В каком режиме будет работать насос – весь год или весенне-летний период, и для каких целей предназначена вода: питьевых или технических.
Какие виды погружных насосов
Существует различные виды погружных насосов:
- Дренажные. С их помощью откачивается грязная вода из ям, канав, погребов и подвалов. Их отлично используют во время весеннего затопления, сильных и затяжных дождей.
- Со встроенной автоматикой. Это надежное и эффективное решение для автономного водоснабжения. Встроенная автоматика обеспечивает защиту насоса от скачков напряжения и других неблагоприятных факторов.
- Вибрационные. Предназначены для перекачки воды без всяких примесей, к которым относятся: ил, песок, водоросли. При работе такие устройства легко погружать.
- Насосы с обратным клапаном. Использование такого оборудования обеспечивает препятствие возврата воды назад в колодец.
Совет: Выбирать такой насос нужно с качественным клапаном и надежной герметичностью.
Особое внимание заслуживают погружные центробежные насосы.
Они используются для:
- Глубоких колодцев, у которых большой запас и уровень воды.
- Сезонной подачи воды и водоснабжения круглый год.
- Водоснабжения из скважин. Подача воды из колодца может осуществляться c установкой на насосе поплавка, что защитит работу системы от сухого хода.
Кроме того колодец должен иметь такие параметры:
- Иметь большую глубину, чтобы опустить скважинный насос. При этом нужно соблюдать минимальное расстояние до дна и насос должен быть покрыт водой.
- Сохранение достаточного дебита, объема воды, откачиваемого из колодца за определенное время без критического уменьшения уровня.
Особенностью погружных насосов является то, что они работают при полном погружении в воду. Охлаждение двигателя производится водой. Используются такие агрегаты в скважинах и колодцах с большим запасом воды.
Погружные насосы изготавливаются небольшими диаметрами, имеют вытянутую форму, цена их различная, предназначены для работы в известняковой и песчаной воде.

Общий вид погружных насосов
Что такое автоматизированная подача воды
Все операции по автоматизации насоса выполняются в доме. К моменту проведения трубопровод должен быть смонтирован, трубы проложены ниже уровня промерзания почвы, хорошо утеплены, что обеспечит бесперебойную подачу воды и при очень низкой температуре.
Совет: Все разветвления труб для воды должны выполняться лишь после места врезки автоматики.

Схема установки погружного насоса
Автоматический насос для колодца с помощью троса подвешивается в колодце.
Инструкция по монтажу предлагает:
- Укладывается в конце отрезка трубы насос, соединяемый с тройником, который ведет в трубопровод.
- Разматывается электрический кабель для подключения насоса к электросети, и укладывается рядом с трубой.
- После этого устанавливается на выходное отверстие агрегата обратный клапан. При этом используется паковочный сантехнический материал.
- Пластиковая или латунная муфта присоединяется к обратному клапану. Как видно на фото.

Соединение насоса и тубы
- Присоединяется к муфте труба.
- Затем электрокабель крепится к водопроводной трубе, для устранения его болтанки в колодце. Кабель можно примотать к трубе с помощью изоленты с шагом в 0,5 метров или пластиковыми хомутами.
Совет: Приматывать электрокабель нужно с небольшим провисанием.
- Подвесить насос в колодце можно на оцинкованном или капроновом тросе. Страховочный трос продевается в проушины, расположенные на оголовке насоса и надежно закрепляется.
- После того как труба, электрический кабель и страховочный трос подготовлены, насос можно аккуратно опускать в колодец. При этом его нужно удерживать за страховочный трос. Запрещается за электрокабель поднимать насос.
- После опускания насоса на необходимую глубину, нужно закрепить второй конец этого троса на каркасе.
- Теперь соединяются вертикальный трубопровод и тройник. Для обеспечения герметизации соединения используется пакля и сантехпаста.
- Через верх наружу выводится электрический кабель. Его можно завести в траншею, при планировке ввода его в дом таким способом.
После монтажа насоса в колодец выполняется прокладка трубопровода сквозь фундамент до места установки водопроводного оборудования: бойлера, гидроаккумулятора, фильтров. После укладки всех труб нужно в траншее трубопровод укутать в геотекстиль, засыпать песком слоем 10 сантиметров, после этого засыпать грунтом.
Как подключить гидроаккумулятор и автоматику
Для работы насоса в автоматическом режиме и создания более комфортных условий, устанавливаются реле автоматики и гидроаккумулятор, представляющий собой мембранный бак, частично заполненный водой, а частично воздухом. Давление воздуха увеличивается при заполнении емкости с водой, когда уровень воды уменьшается, давление воздуха падает.
Одним словом гидроаккумулятор — перевалочный пункт для воды между скважиной и потребителями. Чтобы предотвратить постоянное включение насоса, при открывании крана сантехприбора, применяется гидроаккумулятор. Он может работать несколько часов использования.
При падении в гидроаккумуляторе давления воздуха до критической отметки, может сработать реле давления и включить насос, который сразу заполнит гидроаккумулятор водой. Сразу после наполнения емкости, реле давления включает сигнал для отключения насоса.
Схема автоматической насосной станцииПорядок подключения:
- В помещении устанавливаются гидроаккумулятор и реле давления.
- Реле ставится сверху горизонтально, таким образом, конденсат не будет затекать внутрь.
- Электрокабеля, которые подводятся к реле, должны защищаться гофрой.
- Реле давления подсоединяется через УЗО, при этом ток утечки должен составлять 10 мА, и автомат, выполняющий отключения на 6 А.
Как монтируются насосы для колодцев с автоматикой хорошо видно на видео. В этой статье кратко излагаются общие принципы использования автоматизированных систем водозабора на приусадебных участках.
moikolodets.ru
Блок автоматики для погружного, глубинного насоса
СодержаниеАвтоматика для погружного насоса устанавливается для регулирования потока воды и бесперебойной работы в скважине или колодце. Благодаря подобной схеме загородный дом, дача, ферма и другие сооружения обеспечиваются надёжным источником централизованного водоснабжения.
Для покупки и самостоятельной установки автоматики для насосов нужно знать принципы работы данного механизма, а главное – погружной насос должен находиться под водой.
Вместо вступления: виды насосов
Разделяют два типа погружного или глубинного оборудования:
- Вибрационный.
- Центробежный.
Обыкновенный колодезный насос рассчитан на глубину до 10 метров. Глубинный насос для опускания в скважину или глубокий колодец функционирует при погружении до 50 м. Для работы требуется давление воды, поэтому в зависимости от типа модели, есть рекомендации по погружению.

Погружные насосы для колодцев
Вибрационные насосы крайне распространены на водяных скважинах. Центробежные устройства используют на фермерских хозяйствах и в частных секторах. Это обусловлено лёгкостью в эксплуатации и установке, стабильной работой и низкой ценой. Принцип действия – вращение лопастей. Они создают центробежную силу, которая поднимает внутри давление, толкающее воду по трубе.
Вибрационная система глубинного насоса пользуются популярностью у людей технически подкованных, она удобней в использовании и продуктивней. Такими насосами осуществляется чистка воды и скважины, они работают и в загрязнённой среде. Поэтому следует при выборе необходимого для водоснабжения оборудования в первую очередь обратить внимание на них.
Схема работы такова – под действием силы тока намагничивается катушка, притягивающая якорь. Из-за этого резиновый поршень выгибается, уменьшая давление наполняя камеру водой. Когда вода касается катушки, последняя размагничивается, поршень возвращается в исходное положение, увеличивая давление во всасывающей камере. Вода выталкивается в нагнетающую камеру. Когда вода отступает от катушки, та снова намагничивается и резиновый поршень, изгибаясь, вновь создаёт перепад давления, выталкивающий воду из нагнетающей камеры в трубопровод.
к меню ↑
Насосы с датчиком давления
Реле давления необходимо для регулировки потока воды. Благодаря ему измеряется давления внутри насосов и автоматическое отключение или включение. Оно напрямую связано с гидроаккумулятором, который наполняется благодаря автоматике погружного насоса. При понижении давления реле включает погружной насос для колодца, при наполнении водой давление повышается. Когда оно достигает заданной при настройках отметки, реле отключает работу.

Установка насоса скважины
Подключается реле к системе погружного насоса до подключения к электропитанию. Устройство соединяется с водоснабжением в специально установленном месте. Если завод изготовитель не предусмотрел подобное, то подключать следует через латунный дюймовый тройник («ёлочка»). Подобным устройством подключается и гидроаккумулятор и манометр (измеритель давления). Иногда реле имеют нестандартное гнездо, поэтому его стоит изучить и при необходимости обзавестись латунным переходником. Резьбу нужно уплотнить, во избежание протекания и поломок.
Подключается к электросети в несколько этапов:
- определяется две группы контактов на датчике давления, которые размыкаются при максимальном давлении;
- при выборе кабеля руководствуются мощностью насоса;
- провод, служащий для заземления, соединяется с реле через определённые винты. Символ заземления на винтах обозначается перевёрнутой буквой Т с двумя дополнительными горизонтальными полосками;
- жилы провода электросети соединяются с контактами каждой отдельной парой контактов на датчике давления. Объединять их нельзя ни в коем случае;
- контакты реле соединяются с насосом, соблюдая цвет проводов. Можно присоединить их к проводам заземления, но это не обязательно.
Проверка работы реле: включить насос для колодца с автоматикой и следить за показаниями манометра. По мере забора воды, давление будет расти. При достижении точки максимума, реле отключит насос. Если же воду расходовать (можно включить кран или шланг), то давление понижается и опять же на определённой отметке реле давления включит насос обратно.

Сборка насосной группы для подключения погружного скважинного насоса
к меню ↑
Настройка погружного насоса с автоматикой
Автоматизация водозабора обеспечивает лёгкий доступ к воде, однако проблемы возникают с настройкой. Заводские настройки подойдут для большинства пользователей насосов. Однако возникает необходимость их изменить, для чего требуется:
- Обесточить систему гидроснабжения.
- Спустить воду, пока манометр не покажет ноль.
- Включить электричество в системе гидроснабжения.
- Повторно включить работу насоса и следить за возрастанием давления.
- На момент, когда реле отключит насос, зафиксировать давление на манометре.
- После этого, вновь спустить воду до того момента, как автоматическая система включит насос.
- Зафиксировать давление включения.
- Прочистить фильтры.
Только после этих манипуляций приступают к настройке. В реле две пружины. Большая регулирует максимальное значение, малая же – разницу между максимальным и минимальным. Чтобы выставить максимальное значение давления, следует подкрутить большую пружину реле. Если требуется отрегулировать и минимальное значение, то затягивают гайку на малой пружине. Для уменьшения значения давления гайки приспускают.
Далее повторяют манипуляции по пунктам (исключая чистку фильтров), дабы удостовериться, что система работает в желаемом режиме. Следует учитывать, что гайки чувствительны и крутить их надо осторожно.
к меню ↑
Защита от сухого хода и поплавковые выключатели
Сухой ход – так называют работу погружного насоса без достаточного количества воды. Возникает это из-за засорения, нарушения герметичности трубы и из-за отсутствия воды. Подобрав правильную модель и рассчитав динамическое изменение уровня воды можно избежать последней проблемы.

Электрическая схема включения реле защиты насоса от сухого хода
Исключить другие поломки можно регулярным инспектированием и чисткой. Существуют реле с дополнительной функцией защиты от сухого хода. Для этого производят специальные поплавки и пресс контроль использующие автоматику.
Поплавковые выключатели подойдут для колодца или объёмистого резервуара с водой. Некоторые из них рассчитаны на ограничение перелива, поэтому следует внимательней ознакомиться с моделью, прежде чем ставить. Те поплавки, которые предотвращают сухой ход, оборудованы контактами, размыкающимися при падении уровня воды. Установленный на поплавке кабель располагают с учётом того, чтобы уровень воды был достаточен при отключении (мотор не работал на сухом ходу).
Пресс-контроль подойдёт для погружных насосов, если они используются нечасто. Блок управления автоматически включает оборудование при открывании крана и выключает, когда кран закрывается. В зависимости от настроек, отключается при снижении давления до 1,5-2,5 бар.
к меню ↑
Автоматика для погружного насоса: защита от сухого хода и перегрузки (видео)
к меню ↑
Принцип работы гидроаккумулятора
Это устанавливаемый в систему бак для регулировки давления и хранения воды. Цели гидроаккумулятора:
- повышение срока эксплуатации насоса, благодаря тому, что он включается реже из-за запасов воды в баке;
- поддержка постоянного давления в трубопроводе;
- защита от гидроударов;
- запас воды даже во время отключения электричества и других неполадок.
Внутри бака гидроаккумулятора находится мембрана, разделяющая его на две части. В первой хранится вода, во второй воздух или азот. Мембрана изготавливается из бутила, резинового материала, подходящего по гигиеническим нормам для хранения воды и выдерживающего значительный напор. Благодаря этому материалу вода не соприкасается с металлом стенок бака. В некоторых моделях гидроаккумуляторов предусмотрен клапан для стравливания воздуха, в других такой клапан устанавливают самостоятельно.
Электронасос подаёт в бак гидроаккумулятора воду до тех пор, пока мембрана не расширится, и датчик давления в воздушной камере не отключит реле. Во время забора воды из бака давление падает, и датчик включает автоматику. Насос с датчиком давления регулируется. Гидроаккумулятор подсоединяют к блоку управления погружным насосом.
к меню ↑
Насосы Акваробот
Насосные системы и поверхностные насосы Акваробот оборудованы необходимыми устройствами. Поэтому не нужно покупать дополнительные реле, датчики потока и гидроаккумуляторы. Акваробот автоматизирован и настроен на различную частоту использования, достаточно выбрать модель.
Акваробот защищает от перепадов напряжения, давления, колебаний воды. Акваробот оборудован внутренними автоматическими системами защиты от сухого хода, даже при поломке электронасоса. Существуют модели Акваробот с адаптивными насосными станциями малого объёма – 2 и 5 литров и универсальная станция на 24 литра.

Фото насосной станции автоматического водоснабжения Акваробот М на базе вибрационного насоса Бавлинец
к меню ↑
Подключение блока автоматики к насосу
Самостоятельная обвязка блока автоматики для глубинного и погружного насосов требует расчётов мощности. Поэтому лучше заранее приобрести оборудование одной фирмы, рассчитанное на соединение друг с другом.
Существует три основных типа блоков автоматики, от вида зависит то, как подключить блок и как установить в нём верные настройки давления. Разделяют:
- блок управления в виде пульта;
- пресс-контроль;
- блок управления с поддержкой давления.
Первый тип подключается к реле давления. Иногда можно устанавливать напрямую к поплавковому выключателю. К нему необходимо докупать защиту от сухого хода, подключение реле давления к погружному насосу и другие элементы. Некоторые блоки автоматики уже содержат все защитные элементы. Пресс-контроль обеспечивает самую надёжную и многофункциональную защиту. Последний тип в первую очередь рассчитан на системы, где нельзя допускать сильных перепадов давления.
Управляющий блок автоматики для погружного насоса автоматики устанавливается между местом забора воды и гидроаккумулятором. На корпусе обозначается стрелка, которая должна совпадать с движением воды. При использовании мощного насоса (с давлением более 10 бар), следует перед блоком автоматики установить редуктор давления.
Подключение погружного насоса к электросети и блоку автоматики производится фастонами. Винтом регулируется минимальное давление, как правило, оно составляет 1,5 бар. Для герметизации рекомендуется использование тефлоновой ленты.
nasosovnet.ru
погружных, скважинных, дренажных (реле давления, блоки автоматики).
Главной функцией насосной установки является перемещение жидкости из определенного источника к потребителю. Часто используется в организации отопления или водоснабжения. Сама система состоит из труб, переходников, а также распределителей, которые обеспечивают транспортировку холодной или горячей воды. Для контроля рекомендуется использовать автоматический механизм, автоматика для скважинного насоса – один из них. Она предназначена для запуска, регуляции, а также остановки устройства. Регулировать можно благодаря реле, блоку регуляции, панели пуска и станции управления, которая защищает от перепада напряжения, короткого замыкания и других непредвиденных ситуаций.
Существует три поколения погружной системы контроля. Они отличаются сложностью устройства и уровнем организации. Для полноценного функционирования необходимо, чтобы каждая из ее частей были исправными:
- Блочная автоматика. Она реагирует на изменение напора при открытии или закрытии крана.
- Реле давления. Этот элемент предотвращает работу вхолостую, когда жидкость не поступает из источника в достаточном количестве и напор падает.
- Панель пуска. Она запускает и отключает скважинный насос.
- Станция управления. Она реагирует на отсутствие воды и выключает оборудование.
При включении запускается процесс перекачки. Для удобства, на большинстве моделей устанавливают контроллеры в виде лампочек, которые реагируют на включение, выключение и поломку. Пока кран открыт, механизм остается во включенном состоянии. После закрытия регулятор еще держит насос включенным около 10 секунд. Далее он становится в режим ожидания. В случае незапланированной ситуации, поломки или холостого хода срабатывает специальная защита. Оборудование обеспечено функцией перезапуска после незапланированной остановки.
Когда используется скважина, регуляция устанавливается в зависимости от типа и мощности: погружные механизмы требуют выбора специальных компактных герметичных элементов, а для наружных устройств используют реле или датчики для установки в помещениях.
Использование контроллеров значительно упрощает работу водоснабжения, но есть некоторые недостатки:
- применить возможно только на модели с показателями от 2,2 бар;
- электронная плата плохо переносит перепады напряжения;
- оборудование для погружной модели предусматривает ограниченный поток воды.
Наличие контролирующей электроники обеспечивает бесперебойное функционирование, защищает от износа, а также значительно уменьшает риск влияния человеческого фактора.

teplovodservice.ru
