Котлы длительного горения своими руками пиролизные – чертежи, принцип работы, фото и видео пошаговая инструкция
Самодельный пиролизный котёл: чертежи, расчёт, наладка, видео
Пиролизные котлы давно завоевали популярность у владельцев частных домов — по значению КПД они приближаются к газовому оборудованию, при этом могут быть установлены даже в любом доме и не зависят от наличия газа и электричества. Пиролизный котел можно сделать самостоятельно, сэкономив немало денег.
Отличия и преимущества
В обычных дровяных котлах и печах с водяным отоплением древесина сгорает довольно быстро, и одной загрузки дров хватает на 3-4 часа. Отопительное оборудование при этом требует постоянного внимания, ведь если огонь в топке потухнет, то теплоноситель остынет, и в доме станет холодно. Эта особенность твердотопливных котлов часто вынуждает домовладельцев устанавливать дополнительный электрообогрев или устанавливать котел длительного горения.
Котлы пиролизного типа, отличаются длительным временем работы на одной загрузке. Они могут использовать в качестве топлива дрова или пеллеты — прессованные отходы деревообработки. Длительность работы таких моделей обусловлена особым режимом работы, основанном на пиролизе.
Видео: принцип работы котла
Пиролиз — что это такое, и как его используют в котлах
Процесс горения древесины достаточно сложен. Она состоит из волокон целлюлозы, скрепленных связующим веществом — лизином. При нагреве эти связи разрушаются, и начинается выделение газа, а древесные волокна начинают темнеть и обугливаться. Газ, называемый пиролизным, содержит горючие элементы, в том числе водород. Нагреваясь от горячей поверхности тлеющего полена, он воспламеняется и образует яркий огонь.
Повышенное содержание кислорода в зоне горения увеличивает размер пламени. Это можно заметить при открывании топочной дверки — дрова сразу начинают гореть ярче. Сгорание пиролизных газов сопровождается активным выделением тепла, от чего тление дров усиливается, и очень скоро они сгорают до углей. Пламя при этом может достигать высоты более метра, при этом греется не только печь, но и дымоход, а горячие, не до конца прогоревшие газы с высоким содержанием сажи выходят в трубу.
Конструкция пиролизного котла позволяет сжигать дымовые газы в отдельной зоне дожига. При этом дрова в зоне газогенерации тлеют долго и равномерно, с постоянной температурой. Чтобы избежать активного горения топлива, поступление воздуха в загрузочную камеру ограничивают с помощью заслонки. К зоне дожигания газов воздух, напротив, нагнетают, иногда с помощью вентилятора, но чаще — с использованием естественной тяги.
Конструкция
Внешне котел пиролизного типа не сильно отличается от твердотопливного аналога. В корпусе из стали или чугуна расположена топка, оснащенная дверкой или люком для загрузки топлива. Топка может быть разделена на камеры газогенерации и дожига с помощью перегородок, но иногда деление условное, и процессы происходят в разных зонах топки.
Для чистки от золы в нижней части камеры загрузки топлива расположен колосник, а ниже — зольник с дверцей или ящиком для сбора золы. Отдельной дверцей для прочистки оснащается также зона дожига, так как в ней часто образуется сажа, и требуется ее прочистка.
Рядом с топкой расположен теплообменник, по которому циркулирует выбранный для системы отопления теплоноситель: антифриз, тосол или специально подготовленная вода. Он оснащен двумя штуцерами для подключения труб отопительного контура.
Для отвода дыма предназначен подключаемый к дымоходу патрубок, подсоединенный к топке в зоне дожига. Он может быть оснащен датчиками температуры и шибером для регулирования тяги.
Уровень автоматизации котла зависит от модели, при этом стоит отметить, что котлы с регулированием процесса горения энергозависимы, их установка возможна только при наличии бесперебойного электроснабжения.Видео: конструкция пиролизного котла
Достоинства и недостатки
- Несомненное преимущество, благодаря которому пиролизные котлы по удобству использования приближаются к газовым — это эффективность и высокий КПД. Но этим перечень достоинств котла не ограничивается, их отличают также:
- длительная работа на одной загрузке топливника — до 48 часов в мощных моделях, до 18 часов — в бытовых;
- доступность и разнообразие потребляемого топлива — пиролизные котлы могут работать также на пеллетах, брикетах, стружке и обрезках досок, а некоторые модели даже на опиле;
- котлы имеют компактные размеры, для их установки достаточно небольшого отдельного помещения;
- температура дыма на выходе из котла невысока, максимум 200 градусов в режиме растопки, что позволяет использовать недорогой и удобный в сборке металлический сэндвич-дымоход;
- дым содержит незначительное количество сажи, не загрязняет атмосферу и кровельное покрытие;
- современные модели оснащены автоматическим регулятором тяги, позволяющим установить режим отопления и не тратить время на регулирование режима;
- срок использования котла — от 15 лет.
Недостатки котлов пиролизного типа:
- требовательны к влажности используемой древесины, она не должна превышать 20 процентов;
- требуют правильного монтажа отопительного контура, о чем будет рассказано ниже;
- покупные котлы, особенно чугунные модели, довольно дорогие, по цене сравнимы с газовым оборудованием.
Как можно заметить, все недостатки пиролизных котлов устранимы за счет правильной эксплуатации. А уменьшить стоимость отопительного оборудования можно, сделав самодельный котел — это вполне реально, если провести расчет тепловой мощности, а также найти готовые чертежи или сделать их своими руками по эскизам опробованных моделей.
Чертежи и описание

Предлагаемый для сборки самодельный котел, представленный на чертеже, выполнен своими руками по типу пиролизного котла верхнего горения с принудительным наддувом воздуха в камеру сгорания.
Принцип его действия таков:
- в топливник через дверку, расположенную в верхней части корпуса, закладывают разовую порцию топлива и разжигают их сверху;
- вентилятор-дымосос, установленный в верхней части корпуса, направляет выделяющийся при горении дым в камеру дожигания;
- там происходит окончательное догорание газов и содержащихся в них горючих включений;
- дым отводится через дымовой патрубок, расположенный в задней части котла, в дымоход;
- зола, образующаяся при топке, через колосниковую решетку попадает в зольник, который находится ниже топочной камеры;
- топку окружает водяная рубашка, играющая роль теплообменника и термоизоляции стенок котла;
- вода в теплообменник поступает через нижний штуцер, расположенный в задней части котла, а отводится в систему — через верхний;
- на верхней плоскости котла расположен контроллер, позволяющий регулировать режим, а внутри теплообменника — температурный датчик.
На чертеже представлены размеры котла и обозначения его конструктивных частей. Часть размеров обозначена буквенным кодом — их уточняют по таблице и выбирают по желаемой мощности котла. Эти размеры определены тепловым расчетом, от них зависит правильная и бесперебойная его работа.


Материалы и инструмент, необходимые для сборки
- Корпус котла делают своими руками из листовой стали и металлических труб с помощью сварки. Поэтому перед его изготовлением необходимо подготовить:
- сварочный инвертор, электроды;
- болгарка с отрезными и шлифовальными кругами;
- дрель с набором сверл по металлу;
- электролобзик.
Материалы и их примерное количество:
- 3 листа стали стандартного размера 1250х2500 мм, толщина 4-5 мм, лучше холодный прокат — его меньше ведет при скачках температуры;
- 2 листа оцинкованной стали 1250х2500 мм, толщина 1,5-2 мм;
- металлическая труба Ø32 мм, толщина стенок 3,2 мм;
- металлические трубы Ø57 мм, толщина стенок 3,5 мм;
- металлическая труба Ø159 мм, толщина стенок 4,5 м, общая длина 0,5 м;
- профильная труба двух сортотипов: 60х30х2 и 80х40х2;
- фурнитуру для дверок — ручки, задвижки;
- метизы;
- шамотный кирпич для футеровки топки;
- асбестовый шнур для термоизоляции дверцы.
Точное количество материала необходимо уточнить по рабочим чертежам. Кроме этого, необходимо подготовить дымосос — вентилятор необходимой мощности, термодатчик, контроллер и источник бесперебойного питания на ~220 В. Мощность вентилятора определяется с помощью расчета.
Технология сборки
- Последовательность операций может быть различной, но опыт мастеров показывает, что сборку котла своими руками лучше проводить так:
- По приведенному базовому чертежу выполняют рабочий, с размерами, уточненными по таблице и расчету.
- Из листов металла и труб болгаркой вырезают заготовки для сборки агрегата. Отверстия для труб и штуцеров выполняют с помощью дрели и электролобзика или плазмореза — второй вариант предпочтительнее, так как позволяет сделать идеально ровный срез.
- Сваривают топочную камеру из металла 4-5 мм толщиной. Вваривают перегородку, образующую дымооборот в задней части топки. Между загрузочной камерой и зоной дожига из уголка или стальной полосы делают опору для колосника. Колосник лучше устанавливать чугунный — он прослужит дольше, а при деформации или прогорании можно легко его снять и заменить.
- К камере в верхней его части приваривают дымовой патрубок и трубу с заслонкой для подачи воздуха. На выходе предусматривают посадочные места для дымососа.
- Выполняют проемы для дверок топочной и зольной камеры из обрезков металла.
- Наваривают перемычки, которые будут соединять внутреннюю и внешнюю стенки теплообменника и компенсировать перепады давления. Их можно сделать из стальной полосы. Перемычки должны располагаться вертикально, чтобы не мешать естественной циркуляции теплоносителя.
- Постепенно приваривают внешние стенки теплобменника, соединяя их с перемычками. В отверстия на задней стенке котла приваривают штуцера для подачи воды в систему.
- Делают из листового металла дверцы. Их выполняют двойными со слоем теплоизоляции — асбестовой тканью. Дверки крепят к котлу на петли или продумывают другой тип крепления.
- Топку в зоне дожига футеруют шамотным кирпичом в четверть кирпича на жаропрочный раствор.
- К котлу приваривают или крепят на болты регулируемые ножки, позволяющие выставить его строго горизонтально.
- Корпус шлифуют, удаляют окалину, после чего своими руками покрывают его жаропрочной краской из баллона.
- Устанавливают дымосос между дымовым патрубком и дымоходом, подключают его к сети.
- На верхней части котла устанавливают контроллер, а датчик размещают в теплообменнике рядом с выходным штуцером.
На этом сборка котла закончена, и можно подключать его к системе отопления и приступать к наладке.
Подключение котла к отопительному контуру
Котлы длительного горения, сделанные своими руками, могут работать в системах с естественной или принудительной циркуляцией — их конструкция достаточно надежна. Системы с естественной циркуляцией монтируются с соблюдением угла наклона труб, с принудительной — с подключением циркуляционного насоса нужной мощности, которая определяется расчетом.
Из-за склонности к низкотемпературной коррозии теплообменника рекомендуется обязательно контролировать температуру воды на входном штуцере. Она не должна опускаться ниже 60 градусов Цельсия. Для того, чтобы поддержать ее в этих пределах, между прямой и обратной трубой делают перемычку, с помощью которой обратку разбавляют горячей водой до нужной температуры.
Наладка и включение
Перед включением котла в работу необходимо заполнить систему теплоносителем. Наладка заключается в выборе режима подачи воздуха в камеру дожига, тем самым регулируется интенсивность горения газов и температура в топке.
Косвенно можно определить оптимальность режима работы по дыму, выходящему из трубы: если он не имеет резкого запаха и серого оттенка, значит, топливо сгорает полностью, и режим выбран правильно.Первые несколько дней самодельный котел работает в режиме тестирования. В это время лучше не оставлять его без присмотра и использовать только качественное топливо, а камеру загружать на 2/3 загрузки. После тестирования котел можно запускать на полную мощность и наслаждаться теплом в доме.
gidpopechkam.ru
Пиролизный котел своими руками: принцип работы, видео-уроки
Главная » Отопление » Как сделать котел пиролизного горения — видео уроки
На значительной территории России дрова по-прежнему самый доступный вид топлива и многие отапливаются дровяными котлами. Все бы ничего, но в обычных твердотопливных котлах закладка прогорает за 2-3 часа, что совсем неудобно — дом надолго не оставишь. Есть котлы длительного горения. В них одна закладка дров может гореть до 8-10 часов, но стоят они солидных денег. Однако, как обычно, выход есть — сделать пиролизный котел своими руками. Не сказать, что это простая работа — навыки сварки должны быть на высоком уровне, да и материалы стоят немало. Тем не менее, самодельных пиролизников много.
Принцип работы пиролизного котла
Содержание статьи
Применительно к отопительным котлам пиролизом называется горение топлива при недостаточном количестве кислорода. При этом топливо выделяет большое количество газов, практически все из них горючие. Эти газы направляются в специальную камеру сгорания и дожига, куда подается вторичный воздух. Газовоздушная смесь вспыхивает, выделяя большое количество тепла. Тепловой энергии выделяется намного больше, чем можно извлечь при обычном горении дров или угля. Дело в том, что многие из образовавшихся при горении топлива летучих веществ, имеют очень высокую температуру сгорания. В результате, из того же количества топлива, пиролизные котлы извлекают больше тепла.
Из-за особенностей процесса горения (выделения большого количества газов) такие установки называют еще газогенераторными котлами.
Конструктивная особенность пиролизных котлов — топка, состоящая из двух камер. В одну закладывается топливо (часто это верхняя часть топки), в ней же происходит выделение газов, и потому эта часть называется камерой газогенарации. Через неширокую горловину газы попадают во вторую камеру — дожига. Тут перемешиваются с вторичным воздухом, вспыхивают и сгорают практически без остатка.

Пиролизный котел с нижней камерой дожига
В среднем КПД пиролизников — выше 85%. Есть модели, способные выдавать 92% и даже немного больше. Но данные показатели возможны только и исключительно при использовании сухого топлива. Его влажность должна быть 5-8%. При 40% содержании влаги горение может полностью затухнуть, а при 20% просто буде неэффективным. И это — один из главных недостатков этой технологии: дрова и уголь приходится предварительно сушить, например, сделав площадку возле дымовой трубы. Просто дрова, просушенные в дровнике не пойдут, как и уголь, взятый из кучи на улице.
В видео продемонстрирован котел, в котором камера дожига находится вверху. Хотя котлы такого типа имеют более простое строение (образовавшиеся газы сами поднимаются вверх), самодельщики предпочитают камеру с нижним располодением камеры дожига (как на фото выше).
На что обратить внимание при изготовлении
Если вы собираетесь делать пиролизный котел своими руками, вам надо четко представлять не только механизм и принцип его работы, но и учитывать все неприятные моменты, которыми данные агрегаты обладают. В первую очередь необходимо сказать о том, что практически все пиролизные газы ядовиты. То есть, агрегат должен быть полностью герметичным, сварные швы должны быть высшего качества.
Кроме того, для обеспечения безопасности необходима система контроля за процессом горения (датчики температуры, дыма, наличия тяги) и автоматика, которая в зависимости от показаний датчиков регулирует процессы горения. Если самодельный пиролизный котел собираетесь делать на естественной тяге, автоматика может быть простейшей — энергонезависимой. При наличии вентилятора наддува для подачи воздуха в току, нужны уже более серьезные (и дорогие) устройства, а они питаются от сети 220 В. Работа котла такого типа без автоматики опасна, потому необходим источник бесперебойного питания, который обеспечит работу вентилятора и автоматики на 10-12 часов — время прогорания закладки.

Примерная компоновка пиролизного котла
Второй момент. В некоторых моделях пиролизников температура в активной фазе достигает 1000°C и выше. Обычная конструкционная сталь при таких условиях быстро прогорит. Чтобы котел существовал долго, необходима жаростойкая сталь и внутренняя футеровка самых термонагруженных частей. Если пиролизный котел делают своими руками, футеровку чаще всего делают из шамотного кирпича. В рабочей фазе шамот разогревается до малинового свечения и становится очень хрупким. Если, вдруг, вам придется в это время орудовать в печи, будьте аккуратны — повредить футеровку в данный момент легко, а ремонтировать — долго и сложно.
Сколько будут стоить материалы и запчасти
Сколько точно будет стоить пиролизный котел, сделанный своими руками, зависит от требуемой мощности и выбранной конструкции. Однако, если покупать жаростойкую сталь, колосники, делать футеровку, ставить автоматику (пусть и недорогую), сумма набегает 850-1200$. Это затраты на материалы и компоненты, но с самостоятельной сваркой. Они озвучены теми, кто уже пиролизник сварил и использует. Если за сварку придется платить, то расходы надо удвоить.
Как видим, в случае владения сваркой, экономия есть, но далеко не самая большая. Можно найти готовые варианты твердотопливный пиролизных котлов за 1500$. Хотя, как известно, дешевый товар имеет низкую цену не просто так. На чем-то там сэкономили. И даже можно предположить на чем: на футеровке. Именно секреты предохранения стенок топки от перегорания берегут производители больше всего, и тратят на исследования в этой области большие деньги. Потому качественное оборудование и стоит больших денег.
Видео-проект пиролизного кола, процесс сборки
<
stroychik.ru
Пиролизный котел своими руками, чертежи и принцип работы
Несмотря на то, что газификация в городах России официально была закончена еще в прошлом веке, все-таки остались обделенные вниманием небольшие населенные пункты, в которых данные коммуникации не проведены и их проведение не планируется властями. Именно поэтому, высокий спрос на печи из кирпича не в далеком прошлом, как это может показаться на первый взгляд. Многие люди ошибочно считают, что это всего лишь простая конструкция, с помощью которой можно без труда отопить любое помещение при необходимости. Но если вы планируете регулярно эксплуатировать данное приспособление в качестве основного источника тепла, вы можете столкнуться с неожиданными для себя трудностями и проблемами. Именно поэтому, в момент создания печи своими руками, важно соблюдать огромное количество нюансов, о которых мы и поговорим в этой статье.
Чертеж котла
Пиролизная печь в качестве доступного аналога кирпичной конструкции
Первое, что нужно знать тем, кто решил создать данный источник тепла, это обязательное наличие прочного и надежного фундамента. Его создание лучше всего доверить профессионалам своего дела, которые имеют необходимый опыт и навыки. Данные услуги специалистов, разумеется, стоит не мало, ведь это весьма кропотливая и непростая задача. Но, в том случае, если вы не располагаете крупной суммой, обратите свое внимание на неплохой аналог – пиролизные печи. За их создание вы можете взяться самостоятельно, для этого понадобятся только расходные материалы, а также соответствующие чертежи и схемы. Сегодня конструкции из кирпича своими руками достаточно востребованы в загородном и дачном домостроении, особенно в тех регионах, где не были проведены центральные газовые магистрали и не введены в эксплуатацию отопительные системы. Стоит отметить, что существует возможность создать печь из кирпича, которая будет функционировать, реализуя принцип пиролиза, но при этом не будет нуждаться в надежном фундаменте. Такое оборудование пригодно для ежедневной эксплуатации и при этом сможет прослужить вам достаточно долго. Все что будет требоваться от вас – подбрасывать топливо по мере необходимости.
Почему стоит отдать предпочтение такой печке?
Основными достоинствами такой конструкции стоит назвать следующие характеристики:
Принцип работы пиролизной печи
Возможность поддерживания установленного температурного режима на протяжении длительного времени. Для этого потребуется только увеличить вместительности топливной камеры.
Минимальный уровень выделения токсических веществ в процессе переработки топлива. Именно поэтому, такая печь обеспечит комфортную для проживания температуру, а также безопасный для здоровья микроклимат в помещениях.
Данная печь способна сжигать всевозможные строительные и бытовые отходы, в том числе и автомобильную резину, пластик, а также части ДВП. Перечисленные материалы, будут хорошим топливом, но категорически не рекомендуется использовать отходы в качестве постоянного топлива. Кроме того, их сжигание будет безопасным, только в том случае, если при загрузке он будет составлять третью часть от всего количества топлива.

Несмотря на все перечисленные достоинства, пиролизная конструкция имеет и свои минусы. Самыми существенными являются:
- Высокие требования к качеству топлива. Оно должно быть, в первую очередь, сухим. Влажный материал не допустим к использованию, так как эксплуатация пиролиза в таком случае не даст необходимого результата, так как выделяемое тепло попросту растворится паром в процессе горения.
- Крупные габариты. Данную особенность можно считать недостатком, если пиролизный котел своими руками вы планируете расположить в небольшом помещении.
- Зависимость от вспомогательного оборудования. Обеспечивающий хорошую тягу вентилятор, к сожалению, не будет работать в круглосуточном режиме.
- Постоянный уход за печью. Для того, чтобы поддерживать микроклимат в доме, нужно постоянно следить за наличием дров в камере, а также перед каждой новой закладкой убирать перегоревшие угли.
Работа кирпичной пиролизной печиДо начала монтажных работ, чрезвычайно важно провести все необходимые расчеты, учитывая особенности помещения, после чего составить схему будущего оборудования. Сегодня существует возможность воспользоваться уже готовым чертежом из интернета, который создавался профессионалом.
Принцип работы
Вместо основания, для устойчивости конструкции, проводится укладка периметр печи керамическим кирпичом. Создание перегородок внутри печи происходит с использованием шамотного кирпича. Полноценно эксплуатировать конструкцию можно будет лишь после окончательной сборки и обустройства системы вентиляции. Чрезвычайно важно брать в учет время, которое будет необходимо для полного сгорания топлива. Специалисты в области строительства рекомендуют использовать прессованные дрова для обогрева помещения. Когда пиролизная печь будет запущена, следует определить КПД (коэффициент полезного действия). Для этого не требуется закупать никакое измерительное оборудование, нужно только хорошенько принюхаться к запаху дыма. Если вы не ощущаете угарный газ, то КПД достаточно высок.
Внешний вид готового котла для пиролизной печи
Создавая пиролизный котел своими руками пошаговая инструкция необходима в первую очередь для того, чтобы должным образом соблюсти все правила пожарной безопасности. Пренебрегая данным требованиям, вы можете спровоцировать пожар в своем доме или же нанести непоправимый урон здоровью всех жильцов. Кроме того, настоятельно рекомендуется проводить монтаж печи в отдельном нежилом помещении. Для того, чтобы камера прослужила долго, следует позаботиться о ее защите с помощью плотного металлической обшивки.
Сравнение конструкции котлов
Теперь важно поговорить о материалах, которых понадобятся для проведения работ.
- Чугунные колосники;
- Керамический и шамотный кирпич.
- Стальной лист для защиты камеры. Его толщина должна быть не менее 2 миллиметров, но не более 4 миллиметров.
- Мощный вентилятор для циркуляции воздуха.
- Регуляторы температурных показателей.
- Дверцы для печи.
- Дверцы для котла.
- Сварочный электрический аппарат, болгарка, дрель.
- Несколько труб разного диаметра.
- Электроды для сварочных работ.
Нюансы, которые нужно знать
Как мы уже сказали, создание такой печи – процесс достаточно простой, но, требующий определенных познаний. Так как данная конструкция относится к обогревательному оборудованию, то будьте готовы к тому, что во время выполнения работ вам придется работать с повышенными температурами и учитывать многие особенности герметизации, что выполнить самостоятельно практически невозможно. Но учитывая советы, которые были упомянуты в данной статье, вам непременно удастся сделать действительно долговечные пиролизные печи.

Если вы желаете усилить тепловой эффект, то обустройте уже завершенную конструкцию дополнительной стенкой из шамотного и огнеупорного кирпича. Создание котла возможно даже с минимальными умениями в работе по свариванию металла. Учитывайте тот факт, что создание пиролизной печки – это не только процесс кирпичной кладки, но и монтаж камеры котла, которую по праву можно назвать основным конструкционным элементом.
Самым правильным решением будет покупка уже собранного котла, который будет необходимо лишь обложить кирпичом
Особенности установки котла
Котел в готовом виде можно приобрести в специализированных магазинах. Производители выпускают оборудование, к которому обязательно идет руководство по монтажу и эксплуатации. Но как показывает практика, поданных данных, зачастую, не хватает для того, чтобы беспрепятственно провести установку. Помните, что котел представляет собой достаточно крупное сооружение, имеющее немалый вес. Основание под конструкцию традиционно выкладывается из кирпича. Оно является прочным и надежным, потому что без труда выдержит нагрузку.
Конструкционные особенности камеры сгорания
Даже после нескольких лет эксплуатации печи, будьте уверены, что фундамент не даст трещину и уж тем более не начнет деформироваться. Для выполнения процесса кладки, применяйте предварительно замешенный песочно-глиняный раствор из песка и глины. Мы подробно рассмотрели все нюансы и особенности создания пиролизной печи, уточнили все, что нужно знать о котлах, а также раскрыли секреты для облегчения строительных работ. Надеемся, что данная информация будет полезной и пригодится вам.
jsnip.ru
для длительного горения, пошаговая инструкция, для древесины, чертежи
Впервые конструкцию длительного горения изготовил литовский инженер, но отечественное производство сумело усовершенствовать твердотопливные котлы. Но такое изготовление пиролизного оборудования можно провести и своими руками. Это позволит сэкономить на приборе.
Особенности процесса пиролиза древесины
Во время горения дров не используется весь потенциал топлива, так как древесина сгорает достаточно быстро. Из-за этого процесс горения значительно утруднен, ведь постоянно приходится подкладывать дрова в котел или печь. С этой целью была сконструирована печь длительного горения Беляева, Попова и Холмова.
Пиролиз создает для топлива такие условия, когда сгорание древесины замедляется и выделяется намного больше тепла. Длительное горение достигается при понижении подачи кислорода. В результате образуется, природный кокс и горючий газ. Данный газ смешивается с кислородом и также сгорает под воздействием высоких температур, выделяя достаточно много тепла.
Этапы пиролиза:
- С минимальным доступом кислорода сгорает дерево и выделяет горючий газ;
- Сгорает горючий газ в камере догорания, выделяя тепло.
Пиролизное горение в двух этапах широко используется в печах длительного горения и в твердотопливных генераторах. Так можно устроить газогенераторный котел для автомобиля. Но важно правильно настроить работу котла.
Стоимость промышленных элементов может отличаться высокой стоимостью. Для устройства такого котла необходимые качественные и дорогие огнеупорные материалы. К тому же в промышленных котлах предусмотрена эффективная автоматическая система.
На скорость горения влияет температура прогрева дров и их влажность. Чем больше воды, тем длительнее будет она испаряться.
Контроль за горением происходит путем контроля подачи воздуха. Подача кислорода может происходить за счет вентилятора. Работает он за счет подключения к электросети. При обустройстве вентилятора получает установка, которая зависима от электрической сети.
Чертежи и принцип работы пиролизного котла своими руками
Принцип работы устройства зависит от конструкции системы. Для начала следует внимательно изучить схему и чертежи системы длительного горения. Это поможет лучше понять функции каждого элемента.
Схема пиролизной установки:
- Вход для кислорода;
- Топка;
- Дымоход;
- Трубопровод для подачи и отвода жидкости;
- Регуляторы;
- Место монтажа вентилятора.
Дымоход для пиролизного котла ничем не отличается по своему устройству от труб для выброса продуктов горения классических агрегатов. В нашей следующей статье вы узнаете, какие трубы лучше выбрать для монтажа дымохода: https://homeli.ru/stroitelstvo-doma/inzhenernye-sistemy/otoplenie/truby-dlya-dymokhoda.
В систему могут входить и другие детали. Вся сложность конструкции разобрана в чертежах. Наиболее простая конструкция наблюдается в чертеже котла «Пиролиз71».
Для отопления частного дома достаточно мощности котла в 40 кВт. Для увеличения или уменьшения мощности прибора потребуется внести изменения в саму конструкцию оборудования. В этом случае учитывают пропорциональные размеры всех элементов котла.
Для устройства отопительной системы с помощью твердотопливного котла своими руками необходимо сделать правильный расчет с учетом габаритов всех деталей.
Для маленького дома вполне достаточно котла с показателем 25-30 кВт. Абсолютно бесплатно пиролизную систему отопления не устроишь. Но есть выполнять работы своими руками, то можно сэкономить.
Твердотопливный котел – это отопительное устройство, которое использует энергию горящего твердого топлива. В статье: https://homeli.ru/stroitelstvo-doma/inzhenernye-sistemy/otoplenie/kotly-na-tverdom-toplive вы найдете описание и классификацию современных систем отопления длительного горения с использованием котлов на твердом топливе.
Принцип работы, плюсы и минусы пиролизного котла
Разобраться в принципе действия можно исходя из схем и чертежей. Но для самостоятельно изготовления понадобится больше углубиться в принцип работы устройства. Горелка работает благодаря сухой перегонке. При достижении температуры 500-600 градусов начинается разложение дерева. В итоге появляется горючий газ и натуральный кокс.
Горючий газ смешивается с воздухом. Именно это становится спусковым крючком для начала горения. Но для правильного процесса в камере должна поддерживаться оптимальная температура.
В результате пиролизного горения получается дым, который абсолютно безвредный для окружающей среды.
Устройство длительного горения позволяет максимально использовать твердое топливо. В итоге остается совсем мало отходов. Потенциал древесины раскрывается лучше, выделяется больше тепла и можно отопить большие площади.
Пиролиз относится к экзотермическим процессам. Это общее название класса, в результате деятельности которого образуется тепло. Но данное тепло используется для обогрева и сушки топлива.
Преимущества пиролизных котлов:
- Длительное время поддерживается стабильная температура;
- Вместительность загрузочного бункера;
- Высокий КПД;
- Можно использовать для утилизации продуктов древесной переработки.
Но самодельный пиролизник имеет свои недостатки. Среди минусов выделяют большие размеры конструкции, зависимость от электричества и выборочность топлива. При покупке готовой системы отмечают высокую стоимость оборудования. Для отопления дома нельзя использовать влажную древесину. Из-за высокой влажности пиролиз будет затрудненным.
Пошаговая инструкция, как сделать пиролизный котел своими руками
Для работы потребуется внушительный список инструментов. Потребуется дрель, сварочный аппарат, болгарка, вентилятор, термодатчик. Также понадобятся электроды, металлические листы, набор различных труб и стальных полос.
Толщина стали должна составлять 4 мм. Для экономии на корпус котла применяют более тонкий материал. Достаточно 3 мм толщины.
Для корпуса котла используется качественная и прочная сталь. Оптимальная толщина – не меньше 3 мм.
После изучения всех планов и чертежей можно изготовить гидролизный котел. Все детали системы вырезаются с помощью болгарки. Для их скрепления используется сварочный аппарат. Но выполнить работу правильно поможет пошаговая инструкция с учетом всех нюансов.
Рекомендации по оборудованию пиролизника:
- Загрузочный бункер необходимо разместить выше, чем у обычных топливных конструкциях;
- Горелка предусматривает наличие специального ограничителя для контроля подачи воздуха;
- Ограничитель делается из трубы сечением 70 мм, длина должна быть больше корпуса прибора;
- К нижнему отсеку ограничителя приваривают диск из стали, который создают со стенками трубы зазор в 4 см;
- Монтаж ограничителя предусматривает отверстие в крышке котла;
- Загрузочный бункер должен иметь прямоугольную форму;
- В качестве дверцы используется стальная накладка;
- Нижняя приставка имеет отверстие для удаления продуктов горения;
- Для улучшения теплоотдачи трубы внутри котла, ее выполняют с небольшим изгибом;
- Контроль количества теплоносителя проходит с помощью вентиля.
Правильность монтажа определяется после первого запуска котла. В продуктах горения не должен находиться угарный газ. Эксплуатация котла предусматривает регулярную проверку герметичности сварных швов. Также потребуется очищать печь на дровах или угле от золы и копоти.
Часто пиролизные котлы используются в комплексе с водяным отоплением. Но можно попробовать параллельное функционирование с системой обогрева воздуха. Воздух передвигается по трубам, а возвращается по полу.
Пиролизные котлы с водяным контуром и без – это высокоэффективное оборудование для качественного и быстрого прогрева помещений. В нашем следующем материале вы найдёте информацию об особенностях устройства агрегатов, а также ознакомитесь с популярными моделями: https://homeli.ru/stroitelstvo-doma/inzhenernye-sistemy/otoplenie/piroliznyj-kotel.
Эксплуатация пиролизного котла длительного горения своими руками
Настройка правильного функционирования котла после установки также имеет свои особенности. В норме котел не дымит. Перед первым включением котел подсоединяется к дымоходу и наполняется водой. На котле размещается терморегулятор для контроля показателей температуры жидкости. Чтобы смонтировать термометр в котлах предусмотрены специальные отверстия.
Последовательность включения котла:
- Вентилятор подключается к электросети и проверяется на работоспособность. Воздушные заслонки должны быть на среднем положении.
- В загрузочный бункер необходимо положить небольшое количество бумаги и щепок. Дверцы камеры потребуется закрыть.
- Открывается дроссельная заслонка дымохода, включается вентилятор и поджигается бумага.
- После разгорания дров форсунка перекрывается.
- Через нижний отсек сжигания выполняется контроль горения.
- После закипания жидкости потребуется отключить вентилятор. Пламя погаснет, а вода начнет остывать.
Установка котла предусматривает соблюдения правил безопасности. Монтировать прибор лучше в отдельно котельной. Оборудуют прибор на основе из кирпича или бетона. Предусматривается интервал между котлом и стенами – от 20 см.
Пиролизный котел своими руками: чертежи (видео)
Пиролизный котел имеет множество преимуществ. Это надежная система, которая позволяет получить максимальное количество тепла от сгорания древесины. Можно приобрести заводской вариант или сделать котел самостоятельно в домашних условиях.
homeli.ru
Пиролизный котел своими руками — изготовление и эксплуатация!
Пиролизный котел – одна из наиболее современных и экономичных разновидностей отопительных агрегатов. Для работы такого котла подходит самое разнообразное твердое топливо – от дров и прессованных гранул до торфа и бытового мусора.

Пиролизный котел своими руками
Единственным существенным недостатком подобного оборудования является его высокая стоимость. Но при желании вы можете справиться с изготовлением котла своими руками. Для этого нужно досконально разобраться в схемах сборки и иметь навыки работы со сварочным оборудованием.

Пиролизный котел своими руками (характеристики такого котла представлены в таблице)
Таблица 1. Пиролизный, газогенераторный котел. Параметры при разных мощностях
| Параметры | Ед.изм. | 15-25 кВт | 20-30 кВт | 40-50 кВт | 80-100 кВт |
|---|---|---|---|---|---|
| Теплопроизводительность | кВт | 15-25 | 20-30 | 40-50 | 80-100 |
| Объем камеры загрузки (газообразования) | м3 | 0,13 | 0,15 | 0,22 | 0,52 |
| Рабочее давление теплоносителя (не более) | МПа | 0,3 | 0,3 | 0,3 | 0,3 |
| Рабочая температура воды. Максимальная / Минимальная | 0С | 90 / 65 | 90 / 65 | 90 / 65 | 90 / 65 |
| КПД при влажности топлива:20% / 40% | % | 90 / 82 | 90 / 82 | 90 / 82 | 90 / 82 |
| Номинальное разрежение за котлом | Па | 25 | 25 | 25 | 25 |
| Температура исходящих газов | 0С | 140 | 140 | 140 | 150 |
| Потребляемая электрическая мощность | Вт | 40 | 40 | 90 | 180 |
| Напряжение питания | В | 220 | 220 | 220 | 220 |
| Диаметр дымохода | мм | 194 | 200 | 200 | 219 |
| Отапливаемая площадь (ориентировочно) | м2 | До 250 | До 300 | До 500 | До 1000 |
| Максимальная длина дров | м | 0,45 | 0,45 | 0,58 | 0,92 |
| Габаритные размеры Глубина * Ширина * Высота | мм | 810 / 740 / 1130 | 810 / 740 / 1220 | 950 / 760 / 1350 | 1300 / 1030 / 1440 |
| Вес | кг | 350 | 400 | 450 | 650 |
| Топливо | — | Дрова, топливные брикеты | Дрова, топливные брикеты | Дрова, топливные брикеты | Дрова, топливные брикеты |
Содержание статьи
Как работает пиролизный котел?
В основе работы котла лежит принцип пиролиза, суть которого заключается в термическом разложении твердого топлива при высокой температуре в условиях искусственно созданного дефицита кислорода. В результате топливо тлеет, разлагаясь на твердый остаток и пиролизный газ. Образующиеся газы также сгорают, что повышает теплоэффективность оборудования и делает расход топлива более рациональным.

Устройство котла
Дополнительным преимуществом рассматриваемых отопительных котлов является экологическая безопасность. В процессе пиролизного сжигания топлива выделяющиеся вредные компоненты смешиваются с углекислым газом и утилизируются. В результате в атмосферу выводится дым, не содержащий канцерогенов и прочих вредных веществ. Эта особенность позволяет топить котлы даже резиной, обрезками древесно-стружечных плит и прочими подобными материалами.

Как движется воздух в котле
Важно! Объем примесей типа резины и полимеров не должен превышать 20% от суммарного количества топлива.
Работа пиролизных котлов состоит из 4 основных этапов.
- На первом этапе топливо дополнительно сушится и разлагается на твердый остаток и газы.
- На втором этапе пиролизные газы сжигаются.
- На третьем этапе продувается пламя и тепло возвращается к топливу, что способствует выделению дополнительного количества тепла.
- На четвертом этапе оставшиеся продукты сгорания выводятся через дымоход.

Пиролизный котел
Разобравшись в особенностях работы котла, приступаем к его изготовлению. Начнем с подготовки необходимых материалов и инструментов.

Котел пиролизный Viessman

Описание конструкции
Набор для работы
- Листовой металл толщиной от 0,8 мм.
- Огнестойкие кирпичи.
- Температурные датчики.
- Решетка колосника.
- Трубы диаметром 32 мм, 57 мм и 160 мм.
- Профилированные трубы в количестве 2 штук.
- Дверца зольника.
- Дверка для топливной камеры.
- Вентилятор.
- Гибкая пережженная проволока.
- Болгарка.
- Шлифовальные круги.
- Сварочный аппарат.
Порядок изготовления пиролизного котла
Прежде чем приступать к изготовлению котла, ознакомьтесь с некоторыми полезными рекомендациями. При условии их соблюдения готовое оборудование будет максимально производительным, эффективным и экономичным.
Полезные рекомендации
- Систему нужно укомплектовать вентилем для регулирования интенсивности движения теплоносителя.
- Для увеличения теплоотдачи трубу теплоносителя лучше сделать изогнутой, к примеру, в форме змеевика.
- Проем для загрузки топлива должен иметь прямоугольную форму. При этом дверцу отверстия следует укомплектовать стальной накладкой для уплотнения.
- Для контроля интенсивности поступающего воздушного потока система укомплектовывается ограничителем.
Инструкция

Чертеж пиролизного котла
Первый шаг. Из листового металла вырезаем стенки корпуса котла в количестве 4 штук. В передней стенке вырезаем отверстия для топочной камеры и зольника.
Второй шаг. Вырезаем отверстия для трубников и дымососа.
Третий шаг. Соединяем вместе все металлические стенки, за исключением задней. Для этого используем сварочный аппарат. Тщательно отшлифовываем стыки между сторонами будущего отопительного котла.

Стенки котла

Дверца

Зольник
Четвертый шаг. Собираем теплообменник котла в соответствии с представленной схемой. Свариваем трубы.

Котел
Пятый шаг. Вставляем теплообменник в корпус котла. Убеждаемся в герметичности соединений с помощью компрессора. При отсутствии течей привариваем заднюю стенку корпуса.
Шестой шаг. Устанавливаем решетку колосника. Она разделит корпус котла на 2 камеры. В одной (нижней) будет тлеть загрузка, во второй – сгорать газы. Нижнюю камеру укомплектовываем воздуховодом, а после обкладываем огнестойким кирпичом с каждой стороны.

Корпус пиролизного котла изнутри
Седьмой шаг. Монтируем дверцы зольной камеры и топливника. Они должны максимально плотно прилегать к корпусу.
Восьмой шаг. Устанавливаем собранный котел на предварительно выложенную кирпичную опорную площадку.
Девятый шаг. Подключаем дымоход. Трубу для отведения дыма рекомендуется обернуть минеральной ватой для утепления.
Десятый шаг. Подключаем к агрегату водяной контур.
Одиннадцатый шаг. Устанавливаем дутьевой насос.

Котел

Пиролизный котел своими руками
Дополнительно котел можно автоматизировать, установив систему температурных датчиков и регуляторов. Они будут контролировать интенсивность подачи воздуха.

Вытяжка около котла

Блок автоматики (подключен насос, вытяжка и датчики)
Техника безопасности
При установке самодельного котла соблюдаем следующие важные правила:
- для установки отопительного агрегата нужно выделить отдельную котельную;
- в котельной нужно оборудовать эффективную вентиляционную систему. Минимальная площадь воздуховодного отверстия – 100 см2;
- расстояние между агрегатом и любыми другими поверхностями и предметами должно быть больше 20 см;
- перед топкой котла укладываем на пол стальной лист толщиной не менее 3 мм;
- котел устанавливаем на предварительно обустроенное кирпичное либо бетонное основание;
- дымоотводящую трубу нужно качественно утеплить. Без теплоизоляции процессы образования конденсата, копоти и прочих неприятностей будут более интенсивными. Это отрицательно скажется на эффективности оборудования и сроке его службы.
В завершение выполняется проверка КПД котла. Для этого достаточно сделать тестовую загрузку топлива. Если выходящий дым не будет иметь угарного запаха, значит с КПД котла все в порядке и его можно использовать для обогрева дома безо всяких опасений.
Чем топить пиролизный котел?

Пиролизный котел
Виды топлива
Для топки пиролизного котла можно использовать:
- дрова;
- торф в брикетах;
- антрацит;
- древесные гранулы и брикеты;
- бурый уголь;
- кокс.
Перечисленные виды топлива различаются по калорийности. От этого показателя напрямую зависит эффективность работы агрегата. Применение менее калорийного топлива может уменьшить КПД котла на 30% и более.

Чем топить котел

Чем топить котел
Чаще всего для топки пиролизных котлов используют брикеты и пеллеты. Брикеты могут изготавливаться из древесины, соломы и торфа. Идеальный вариант – брикеты, изготовленные по методу прессования. Те же брикеты, которые изготавливаются из опилок, рекомендуется использовать только в комплексе с бурым углем либо дровами.
Для изготовления пеллетов тоже может использоваться древесина или солома. Материал прессуется подобно брикетам.
Нередко для топки пиролизных котлов используются дрова. Важно! Для обеспечения максимальной эффективности работы оборудования и уменьшения расхода топлива нужно использовать древесину влажностью не более 20%.
В целом же при выборе топлива следует учитывать особенности местности, в которой находится ваш дом. Если вы живете в окружении лесов, наиболее целесообразным вариантом будет использование дров. Жителям же степных полос, как правило, выгоднее топить углем.
Если в месте вашего проживания доступно любое топливо, выбирайте самое калорийное. Этим вы обеспечите наиболее высокий КПД оборудования при минимальном расходе.

Котел пиролизный
Цены на брикеты топливные
Брикеты топливные
Советы специалистов по топке котла
Давайте посмотрим, что говорят профессионалы в отношении выбора оптимального вида топлива.
Так, при топке древесиной будет образовываться много дыма. Чтобы избавиться от сопутствующих этому неудобств, по краям загрузки нужно укладывать поленья более крупного размера, а в центр класть мелкую растопку.
В густонаселенных местностях рекомендуется воздерживаться от использования торфа, т.к. в процессе его сжигания выделяется большое количество углекислого газа и в атмосферу выводятся различные крупные частицы, что вряд ли понравится соседям.
Для эффективного использования антрацита нужен сильный очаг. Мощности пиролизного котла обычно не хватает для полного сжигания такого топлива. Чтобы уменьшить расходы, отсеивайте от пепла крупные уцелевшие фрагменты и используйте их повторно.
Таким образом, владея навыками работы со сваркой и следуя приведенным рекомендациям, вы сможете самостоятельно изготовить эффективный, надежный, безопасный и экономичный пиролизный котел.

Работа котла
Удачной работы!
Видео – Пиролизный котел своими руками
Цены на модельный ряд твердотопливных котлов
Твердотопливные котлы
stroyday.ru
Схема пиролизного котла: устройство, чертежи, обвязка, расчет
Из всех видов отопительных установок, работающих на твердом топливе, наиболее эффективными считаются агрегаты, в которых при сжигании дров или угля происходит пиролиз. Это процесс дожигания газов, выделяющихся из дров или угля при их тлении, что позволяет передавать теплоносителю почти всю энергию сгорания топлива. Данный принцип использует схема пиролизного котла, в которой реализовано выделение горючего газа из топлива и его последующее сжигание.

Конструкция и компоновка элементов установки
В отличие от классических твердотопливных установок устройство пиролизных котлов длительного горения предусматривает две камеры сгорания вместо традиционной топки. В первой камере осуществляется медленное горение за счет недостаточного количества воздуха. При этом топливо начинает выделять так называемый пиролизный газ, перетекающий во вторичную камеру вместе с продуктами сгорания. Туда же подается достаточное количество воздуха, вследствие чего газ воспламеняется и сгорает, нагревая водяную рубашку агрегата.
Расположение двух камер может быть различным, поскольку отопительные котлы пиролизного типа могут работать как на естественной тяге дымохода, так и с помощью принудительной подачи воздуха вентилятором. В установках, использующих естественную тягу, вторичная камера расположена над первичной и воздух проходит через топливо снизу вверх. При искусственно создаваемой тяге главная топка, наоборот, находится над камерой дожига и поток воздуха направлен сверху вниз. Это отражают представленные ниже схемы устройства пиролизных котлов с различной компоновкой камер.

Способы подачи воздуха для горения
К высоте и диаметру дымохода предъявляются повышенные требования, когда схема подачи воздуха в пиролизном котле предполагает использование обычной тяги. Ее должно хватать на преодоление сопротивления газовоздушного тракта установки и дымоходной трубы, а также на создание разрежения в топке величиной 16—20 Па. Подобрать диаметр можно по выходному патрубку, а высота должна быть не менее 5—6 м.
Принудительная подача воздуха в обе камеры может осуществляться тремя способами:
Обычно схема пиролизного котла, предусматривает установку вентилятора в режиме нагнетания. Это объясняется тем, что обычный нагнетатель по стоимости доступнее чем дымосос, так как последний должен вытягивать отходящие газы с высокой температурой. По этой причине его конструктивные элементы стоят дороже.
Ведущие производители пиролизных котлов устанавливают на свои изделия дымососы на выходе продуктов горения. Причина – обеспечение безопасности для человека, открывшего дверцу топки в рабочем режиме. Дымосос создает разрежение, поэтому пламя не полыхнет через открытый проем человеку в лицо.
При большой мощности установки производителями применяются вентиляторы для котлов обоих типов, на входе и выходе газовоздушного тракта.
Для того, чтобы понять, как работает пиролизный котел, рекомендуем посмотреть следующее видео.
Изготовление пиролизного котла
Эффективность этого вида установок на дровах стала причиной их популярности у мастеров, которые могут изготавливать твердотопливные котлы пиролизного типа собственными силами из имеющихся материалов. Процесс этот достаточно трудоемкий и требующий навыков выполнения слесарных и сварочных работ, некоторого минимума инструментов и оборудования:
- аппарат для электросварки;
- угловая шлифовальная машина;
- дрель электрическая;
- набор слесарных инструментов.
Если имеются навыки, инструменты и большое желание, то можно изготовить агрегат, используя следующий чертеж пиролизного котла на естественной тяге:

1 – воздушный канал; 2 – дверца для загрузки топлива; 3 – дверца вторичной камеры; 4 – заслонка прямой тяги; 5 – первичная камера; 6 – верхняя крышка; 7 – входной канал для подачи воздуха; 8 – воздушная заслонка; 9 – патрубок для группы безопасности; 10 – вторичная камера дожигания; 11 – патрубок присоединения дымохода; 12 – форсунка; 13 – жаротрубный теплообменник.
Материалом для изготовления камер может служить жаропрочная легированная сталь, но это дорогой материал, поэтому мастера берут простую углеродистую сталь толщиной 5 мм. Для защиты ее от высокой температуры в нижней части топки выполняется футеровка пиролизного котла огнеупорным кирпичом. Им же нужно защитить днище вторичной камеры, куда направлен факел пламени. Для обшивки водяной рубашки применяется листовой металл толщиной 3 мм, его приваривают к ребрам жесткости из полосовой стали. Из такого же металла изготавливают дверцы, крышку и обрамление проемов.

Передачу тепла от дымовых газов устройство котла предусматривает через жаротрубный теплообменник, находящийся внутри водяной рубашки. Для его изготовления подойдут бесшовные стальные трубы из углеродистой стали наружным диаметров 48 или 57 мм. Количество труб следует подобрать по необходимой площади поверхности теплообмена, для чего выполняется расчет пиролизного котла.
Учитывая, что топливо в пиролизных агрегатах горит долго (до 12 часов) и продуктивно, некоторые владельцы классических установок прямого горения задумываются о том, можно ли их модернизировать. Такая переделка твердотопливного котла в пиролизный возможна, но при условии, что топка агрегата сделана из металла, а не чугуна. Колосниковая решетка убирается и с помощью электросварки на ее месте закрепляется перегородка, разделяющая главную топку и зольник, который будет выполнять роль вторичной камеры. Между ними устанавливается форсунка. Кроме этого, понадобится организовать подачу воздуха в обе камеры, надо изготовить воздушные каналы и установить их, как показано на чертеже.
Как правило, переделка котла в пиролизный происходит не на заводских агрегатах, а на самодельных, это расширяет возможности для усовершенствования конструкции. Можно менять проходное сечение форсунки, размеры обеих камер или площади поверхностного теплообмена, добиваясь наилучших показателей длительности горения и повышения КПД установки.
Расчет пиролизного котла
Расчет начинается с определения величины температурного напора, ºС:
Ƭ= (∆Т — ∆t) / ln (∆Т / ∆t)
В этой формуле:
- ∆Т – перепад температур продуктов сгорания перед теплообменником и после него;
- ∆t – разница между температурами в трубопроводах подачи и возврата теплоносителя.
Полученное значение Ƭ подставляют в формулу:
S = Q / k / Ƭ, где:
- Q – расчетная мощность отопительной установки, Вт;
- k – коэффициент теплопередачи, равен 30 Вт / м2 ºС.
Укрупненный расчет мощности пиролизного котла (Q, кВт) выполняется исходя из площади здания. Ее значение нужно принимать по наружному обмеру дома, результат разделить на 10. Смысл этого действия в том, что на обогрев каждых 100 м2 здания требуется ориентировочно 10 кВт тепловой энергии. Полученный результат – это расчетная мощность системы отопления, а источник тепла принимается с коэффициентом запаса. Он зависит от региона проживания и колеблется от 1,1 до 1,5.
Пусконаладочные работы
После того как сборка пиролизного котла завершена, нужно обязательно проверить герметичность сварных соединений. Водяная рубашка наполняется водой, затем в нее накачивается воздух, создавая избыточное давление. Некачественно сваренные швы дадут о себе знать протечками. Теперь можно производить испытания, лучше это делать на улице, подавая проточную воду из шланга. Если на агрегате установлена группа безопасности, то можно наполнить резервуар котла водой и проверить его работу при критическом давлении 2—2,5 Бар. Порядок испытаний следующий:
- Присоединить временный дымоход, загрузить в камеру топливо и открыть заслонку прямой тяги.
- Прекратить подачу проточной воды, предусмотрев для этого временный кран.
- Произвести розжиг и запуск пиролизного котла. Как только дрова разгорятся, заслонку прямой тяги нужно прикрывать, чтобы начался процесс пиролиза.
- Открыв дверцу вторичной камеры, убедиться в наличии факела пламени. Здесь требуется регулировка пиролизного котла, нужно добиться ровного и устойчивого факела, открывая или закрывая воздушную заслонку.
- Закрыть дверцу и наблюдать за показаниями термометра и манометра. В закрытой водяной рубашке процесс парообразования может начаться при достижении давления 1,5 Бар, в это время надо внимательно отслеживать температуру.
- Качественно сваренные пиролизные котлы отопления могут выдерживать давление до 3 Бар, но не стоит ставить рекорды. Достаточно, если предохранительный клапан, настроенный на давление 2 или 2,5 Бар начнет сбрасывать пар, тогда можно открывать кран и возобновлять циркуляцию воды. Заслонку подачи воздуха надо закрыть, чтобы топливо начало затухать.
Будьте осторожны, проводя такие испытания, есть опасность обвариться кипятком по неосторожности или при разрыве водяной рубашки.
Подключение котла к системе отопления
Последний этап – подключение пиролизного котла и выполнение его обвязки. Как и во всех твердотопливных установках, надо исключить образование конденсата на внутренних стенках топки во время разогрева. Это явление сокращает срок службы корпуса топки, поскольку конденсат содержит включения серы и будет вызывать интенсивную коррозию металла. По этой причине обвязка котла отопления должна быть выполнена по схеме, не допускающей попадание в рубашку холодной воды при разогреве.
Ниже приведена классическая схема подключения пиролизного котла к системе отопления с балансировочным вентилем между подающим и обратным трубопроводами.

Перемычка образует малый контур, в котором теплоноситель приводится в движение циркуляционным насосом. Приведенная на схеме обвязка пиролизного котла отопления позволяет воде циркулировать по малому контуру, прогреваясь вместе с агрегатом. Термостатический трехходовой клапан начнет подмешивать холодную воду из системы в тот момент, когда в малом контуре температура воды достигнет заданного значения, обычно это 45—50 ºС.
Рабочая температура в системе отопления лежит в пределах 60—80 ºС, поднимать ее выше приходится редко. Если при работе в этом диапазоне температур в вашем доме прохладно, то надо искать причину в самой системе. Увеличивать температуру не имеет смысла, это только увеличит расход дров в пиролизном котле.
Заключение
Пиролизные установки, сделанные своими руками, приобретают все большую востребованность. Причина – высокая стоимость котлов заводского изготовления, самодельные агрегаты часто оказываются единственной альтернативой. Единственный недостаток — топливо для пиролизных котлов должно иметь влажность не выше 25%, иначе процесс пиролиза будет слабым, что влияет на производительность установки.
cotlix.com
Как собрать своими руками пиролизные котлы длительного горения?
Сегодня для отопления и подачи горячей воды используются различные типы котлов и систем. Не исключение из этого списка — пиролизные установки. Пиролизные котлы длительного горения представляют собой печи, которые сжигают древесный газ, выделяя при этом большое количество тепла. Топливо в таких котлах сгорает без остатка, сам котел имеет сразу 2 камеры сгорания. Есть дополнительная камера для небольшого количества отходов.

Схема твердотопливного котла.
В верхнюю камеру загружают приготовленное топливо, тут же будет происходить первый этап его распада. В эту камеру воздух не поступает, т. е. происходит экзотермическая реакция. Температура сжигания составляет около 200-800°C, образуется 2 компонента вторичного продукта — это пиролизный газ и древесный уголь. На втором этапе начинает выделяться тепло, которое используется для просушки топлива, подогрева воздуха, который поступает в камеру сгорания.
Топливо для пиролизного котла
Необходимо отдельное внимание уделить качеству топлива. Влажность древесины не должна быть больше 20%. Но работать печь может и при влажности в 50%, хотя это и не столь желательно. Необязательно использовать одно только дерево, топить котел вполне можно и торфом, углем. Но данные виды топлива не гарантируют должной теплоотдачи, т. е. пиролизный газ не будет вырабатываться в должном количестве.
При закладке дров необходимо следить, чтобы все поленья были должного качества, только в этом случае будет достигнут желаемый тепловой эффект.
Вернуться к оглавлению
Плюсы и минусы котлов
Котлы длительного горения, своими руками выбранные, характеризуются не только достоинствами, но и некоторыми недостатками.
Преимущества следующие:
Схема пиролизного котла длительного горения.
- оборудование способно поддерживать горение длительное время на необходимом уровне в полностью автономном режиме. В большой камере, предназначенной для загрузки топлива, достигается одновременно высокое КПД, что недостижимо для других типов котлов;
- в продуктах горения содержится низкое количество канцерогенных веществ, т. е. печи более экологичны;
- за счет таких котлов можно утилизировать многие вещества, включая ДСП, резину, полимеры, ДВП;
- в топливе содержится мало дополнительных веществ.
Но есть и минусы, среди которых необходимо отметить:
Схема газогенераторной печи своими руками.
- стоимость котла получается высокой, но самостоятельное изготовление может помочь снизить все расходы;
- размеры котла довольно больше, для его установки необходимо отдельное помещение. В нем придется установить систему вентиляции для подачи свежего воздуха. Требуется наличие трубы, выводящей продукты горения наружу;
- высокие требования к топливу для котла. Применять можно только сухие дрова, так как пиролиз невозможен при влажной древесине, эффективность котла снижается, а тепловая энергия просто выходит с продуктами горения и паром;
- энергозависимость — котел не может работать постоянно, если его не подключить к сети. Это требуется по той причине, что для работ необходим небольшой вентилятор, постоянно подающий свежий воздух.
Вернуться к оглавлению
Сборка котла своими руками
Сборка котла длительного горения сложна, для этого все же требуется иметь опыт. Рекомендуется не самостоятельно составлять схему, а использовать уже готовую. Заказывать индивидуальный проект у специалиста будет очень дорого, намного дешевле купить уже готовый котел, чем планировать его сборку и установку своими руками.
Вернуться к оглавлению
Материалы и инструменты
Схема универсальной газовой горелки.
Многие предпочитают собирать котлы самостоятельно, хотя и нельзя сказать, что процесс совсем простой. Тут необходимо иметь некоторые навыки, схема может использоваться уже готовая, так как собирать ее «с нуля», не будучи профессиональным инженером, не стоит. Специалисты рекомендуют выбирать схему такого котла, после чего закупать материалы в полном соответствии с этой схемой, а не наоборот.
Из инструментов для работы по сборке котла длительного горения понадобятся:
- сварочный аппарат;
- электродрель с выбором насадок;
- углошлифовальная машинка под круг с диаметром в 230 мм. Необходимо дополнительно приготовить круг с диаметром в 125 мм, хотя это и не является обязательным условием.
Материалы для сборки котла длительного горения следующие:
Схема устройства твердотопливного котла: 1. Люк, сквозь который нужно удалять золу; 2. Трубы охлаждения; 3. Люк для шурудения; 4. Загрузочный люк; 5. Управляющая панель; 6. Подача в систему; 7. Люк для проведения чистки; 8. Шибер; 9. Клапан предохранительный; 10. Рубашка водяная; 11. Теплоизоляция; 12. Возврат из системы; 13. Кран для слива и залива воды; 14. Нижний люк для чистки; 15. Горелка; 16. Подача топлива; 17. Специальный ящик для золы.
- металл с толщиной в 4 мм. Площадь листа — 7,5 м². Корпус котла вполне можно сделать из листа с толщиной в 3 мм;
- труба для котла, которая имеет диаметр в 57 мм. Толщина ее стенки должна составлять 3,5 мм. Общее количество трубы — 7-8 м;
- труба для котла с диаметром в 159 мм, толщина стенки — 4,5 мм. Общее количество — 0,5 м;
- огнеупорный красный кирпич, который предназначен для кладки печей, другой материал брать не следует. Количество — 12-15 шт;
- труба для котла с диаметром в 32 мм, толщина стенки — 3,2 мм. Количество — 1 м .п.;
- профилированная труба для котла с сечением 60*30 мм, толщина стенки — 2 мм. Общее количество — 1,5 м.п.;
- стальная полоса, ширина которой составляет 20 мм, а толщина — 4 мм. Общее количество — 7,5 м.п.;
- электроды для сварочного электрического аппарата, количество — 5 пачек;
- стальная полоса с шириной в 80 мм, толщиной — в 5 мм. Общее количество — 1 м.п.;
- отрезные круги с диаметром в 230 мм, количество — 10 шт;
- шлифовальные круги с диаметром в 125 мм, количество — 5 шт;
- температурный датчик;
- дутьевый датчик.
Схема монтажа котла на твердом топливе.
Это основные материалы, которые требуются для изготовления котла длительного горения на 40 кВт. По ходу работы может возникнуть необходимость в использовании других расходных дополнительных материалов, но они никак не влияют на скорость работы. Обычно это элементы крепежа, дополнительные электроды. После работы возможно потребуется обработка грунтовкой для защиты металла от коррозии, так что ее тоже рекомендуется приготовить заранее.
Вернуться к оглавлению
Схема сборки котла
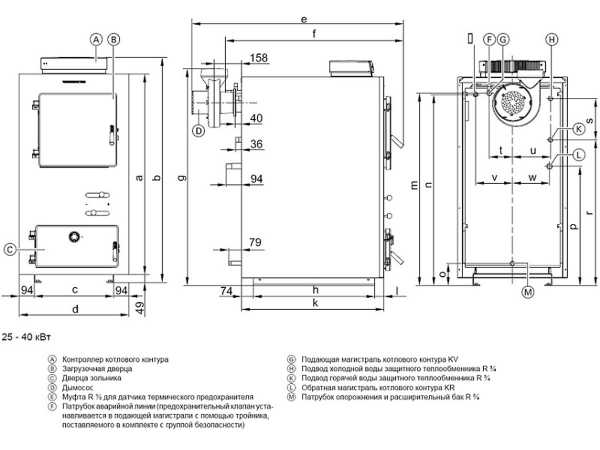
Перед тем как начинать сборку котла, необходимо предварительно подготовить подробную схему. Некоторые специалисты советуют для этого воспользоваться готовыми схемами. На рисунке приведет пример подобного котла (рис. 1). Оптимальным вариантом является создание котла на 40 кВт, который будет иметь:
Схема принципа работы пиролизного котла.
- контроллер-контур котла;
- дверцу для загрузки;
- крышку для зольника;
- дымосос;
- муфту для температурного датчика-предохранителя;
- патрубок;
- подающую магистраль;
- подводы для холодной воды;
- подвод для горячей воды в защитном теплообменнике;
- расширительный бак;
- патрубок для опорожнения.
Пример схемы котла на рис. 2. Пиролизный котел собирается только в полном соответствии с выбранной схемой. Если нет уверенности в своих силах, то необходимо эту работу оставить для специалистов, только в этом случае котел получится надежным и безопасным.
Пиролизные котлы в качестве теплоносителя предусматривают не воду, а воздух, хотя некоторые модели работают именно с водой. В первом случае подача горячего воздуха осуществляется по специальным трубам, обратный поток идет самотеком у поверхности пола. Это обеспечивает использование котлов именно для загородных домов.
Вернуться к оглавлению
Монтаж котла в доме
После того как пиролизный котел полностью собран, можно начинать его монтаж на необходимое место. Важна не только техническая сторона, но и соблюдение противопожарных правил. Если нормы не соблюдать, то это повлечет за собой довольно большие штрафы, может стать причиной возникновения аварийных ситуаций, которые опасны для жизни. Чтобы этого не произошло, необходимо соблюдать некоторые правила монтажа, которые обеспечат необходимую безопасность:
Схема этапов сгорания топлива в котле.
- все оборудование, в том числе и котлы длительного горения своими руками, следует ставить только в отдельных, специально для этого предназначенных помещениях, котельных;
- под котлом придется сначала соорудить основание, его выполняют из бетона либо кирпича;
- перед каморой для топки необходимо смонтировать металлический экран, т. е. установить лист, который имеет толщину в 1,5-2 мм;
- от корпуса котла и до стен помещения необходимо соблюдать расстояние минимум в 20 см;
- в котельной придется устроить специальное вентиляционное отверстие площадью от 100 см². Для работы котла требуется постоянный приток свежего воздуха.
Схему подключения можно посмотреть на рис. 3 Потребуется и установка дымохода, его оборачивают фольгированным материалом, в основании имеющего минеральную вату. Такое утепление необходимо, потому что при прохождении через трубу газов на стенках могут возникнуть следы конденсата, дегтя — это крайне отрицательно сказывается на состоянии всего котла, его безопасности.
Пиролизные котлы сегодня встречаются довольно часто, хотя и есть более современное оборудование, обеспечивающее дом горячей водой и отоплением. Такие агрегаты имеют довольно простую конструкцию, их можно собрать своими руками, используя не самые дорогие материалы. При монтаже котлов требуется соблюдать меры безопасности, в котельной должен быть дымоход, вентиляция. Сам корпус котла должен находиться на определенном расстоянии от стен, иметь защитный экран в виде простого стального листа.
1popechi.ru
