Коттедж с большими окнами – Дома с большими окнами под ключ, проекты домов с панорамными окнами
современное остекление дома на 5 спален
Наше архитектурное бюро реализовало очередной интересный объект. На этот раз перед нами была поставлена задача сделать проект дома с большими окнами. Как всегда мы комплексно подошли к решению вопроса, и вместе с домом была разработана небольшая баня с бассейном.
К бане пристроили современную теплицу в едином стиле. На въезде сделали большой навес. Который начинается от самого забора. Подъезд к гаражу будет всегда чистый от атмосферных осадков. Архитектура дома необычна, интерес придает очень сложная и современная кровля. В плане коттедж имеет непростую форму.
Застройка участка велась этапами. Сначала был возведен основной дом, а затем вспомогательные постройки. Далее в статье расскажем подробней как мы создали красивый и удобный дом на 5 спален для большой семьи.
Панорамные окна: изюминка современного проекта
Как наполнить дом светом? Есть различные варианты. Мы применили давно зарекомендованный метод. Связка второго света и больших панорамных витражей на два этажа с ориентацией на южную сторону. Не секрет, что через окна проходят основные теплопотери, поэтому южная сторона не случайный выбор. Зимой через большое южное окно в дом попадает большое количество солнечного тепла, что не скажешь о северной стороне. Так же не надо забывать о том, что в России холодный климат, и большое количество витражей применять не разумно. Руководствуясь этим правилом мы расположили большие окна в следующих помещениях:
- Три вертикальных витража в гостиной-столовой
- Панорамные окна в детских
- Витражное остекление в спальне
- Большое окно в лестничном холле

Правильное расположение оконных конструкций позволило придать внутреннему пространству дома легкость и воздушность. Особенно это удалось в помещении гостиной. Дом наполнен светом и объемом. Светлые тона в архитектуре дома и дизайне интерьера зрительно увеличили пространство.
Проект дома с большими окнами в пол, террасой и открытой верандой — или природа в доме!
Каждый стремится к единению с природой. Светопрозрачные конструкции в пол — лучший метод быть ближе к природе, занимаясь при этом домашними делами. Создавая наш проект мы позаботились о всех членах семьи. У каждого есть свой мир открытый в буйство красок и эмоций. Настроение семьи в такой атмосфере всегда позитивное. Открытая веранда зовет на приятную беседу за чашечкой чая. А если погода начнет хмуриться — это не повод уйти в дом. Можно заглянуть на крытую террасу, оснащенной печь-камином и барбекю. 
Терраса максимально защищена от ветра, комфорт и уют дарит современный интерьер. Функционал террасы в этом проекте обеспечивает проход к бане под крышей. А из бани можно попасть в теплицу, которая примыкает справа. Передвижения людей продуманы до мелочей, планировка удобна и рациональна.
Дом на 5 спален — для большой и дружной семьи
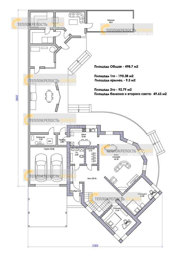
Далее несколько слов о планировочном решении дома. На первом этаже основным двухсветным пространством является столовая совмещенная гостиной. В зоне отдыха расположен камин. Площадь помещения достаточна, что бы принять большое количество гостей. Кухня находится в отдельном помещении. Из нее через тамбур есть выход на крытую террасу, а в гостиной спроектирована витражная дверь на открытую веранду.
План 1-го этажа

На въезде примыкает к гаражу большой навес. Общее количество машиномест — 4. Отдельной зоной за лестницей расположены две из 5 спален. Комнаты имеют достаточную площадь. Также на первом этаже есть котельная, санузел и гардеробная комната. Из просторного холла, красивая лестница ведет нас на второй этаж. Стоит отметить, что стены дома спроектированы из крупноформатного кирпича. При выполнении рабочего проекта была выполнена полная раскладка блоков поштучно, что позволило внести существенную экономию в проект.
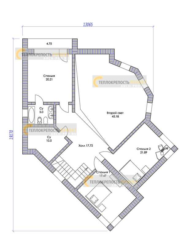
План 2-го этажа

С лестничного холла мы сможем попасть во все помещения этажа. Второй этаж вместил в себя три спальных комнаты. Одна из спален имеет отдельный санузел и балкон. Пространство холла объединено вторым светом. Этаж насыщен светом и объемом. Все спальни имеют большие витражи. Из них открывается замечательный вид на окружающую природу.

Посадка на участке дома на 5 спален
Основное пятно застройки разместили в северном углу участка. Это позволило организовать закрытый обособленный двор. Дом и баня соединены крытой террасой, что позволит проходить в баню под крышей.

Раскрытие главных помещений особняка на южную. юго-западную стороны. Это позволило добиться оптимальной инсоляции комнат. Площадь застройки дома достаточно большая около 500 кв. м., но посадка получилась достаточно компактна. Это позволит в будущем разместить на участке теннисный корт. Расположение в лесу даст возможность всегда быть на свежем воздухе. В центре двора возможно организовать летний бассейн, в который можно нырнуть после банных процедур.
Проект дома с большими окнами из кирпича- фото

Очередной наш проект получил достойную оценку заказчика. Если и Вам понравился проект коттеджа с большими окнами на 5 спален, отмечайте его в соцсетях.
Также смотрите похожие статьи:

Оригинальный проект дома

Проект современного дома

Проект каменного дома с большими окнами

Проект дома с четырехскатной крышей
Главный архитектор проекта Рябков Сергей Сергеевич
Руководитель проектного отдела
arch-pro.ru
Современный проект дома с большими окнами.
Как прекрасно наблюдать из окна за детворой, играющей в снежки, или видеть огни ночного города, горные холмы, покрытые снегом или даже синее море! Насладиться этими видами в полной мере можно, установив в доме панорамные окна.
Сейчас это очень модно, и если раньше владельцам домов с такими окнами приходилось мириться с откровенной прохладой в домах, то сейчас существует ряд технологий, позволяющих получить прекрасный вид из окна без каких-либо минусов.
Проект дома с большими окнами должен учитывать, в первую очередь, где будут размещены панорамные окна. Если их разместить на северной стороне, то даже энергосберегающие окна не помогут в сохранении тепла.
Панорамные окна следует размещать на южной или юго-западной стороне дома, таким образом, через окна в течение дня будет попадать больше солнца, а значит, и больше тепла.

Планы этажей


| Общая площадь | 235,7 кв.м |
| Жилая площадь | 160,63 кв.м |
| Длина | 15,42 м |
| Ширина | 13,14 м |
| Высота | 7 м |
Фото красивых домов с большими окнами
Имеет значение и размер дома. В маленьком помещении слишком большие окна могут выглядеть неуместно, другое дело – большой двухэтажный дом, в котором панорамное остекление только добавит стиля.
Красивые дома с большими окнами – это современно, модно и невероятно уютно. Большие окна дают такие плюсы как:
- высокий уровень дневного освещения в доме. Солнечный свет вместо электрических ламп – это очень приятно, а также это несет пользу для здоровья;
- единение с природой. Вы вроде бы находитесь в помещении, но вроде бы и нет. Вы получаете возможность вечерами, укутавшись в плед, наблюдать восхитительное зрелище – закат солнца, не выходя из своего дома.
В проектах коттеджей с панорамными окнами стоит учитывать, что стекло – холодный материал, и зимой это свойство только усилится, что довольно неприятно, поэтому стоит подумать о дополнительном отоплении, например:
- встроенные в пол конвекторы;
- низкие трубчатые радиаторы;
- окна с подогревом (самый дорогой и самый простой вариант).
Есть некоторые нюансы, которые стоит учитывать, если вы все же решили установить в своем доме большие, панорамные окна.
Во-первых, будьте готовы к тому, что такие окна требуют постоянного мытья. Учитывайте климат – в регионах, где шесть из семи дней в неделю выпадают осадки, панорамные окна придется мыть ежедневно, а это – отдельная статья расходов, так как такое занятие требует профессионального подхода.
Во-вторых, это небезопасно для вашего имущества. Если воры решат нагрянуть в ваш дом, стекло будет достаточно легко разбить, поэтому следует раскошелиться на видеосигнализацию.
В третьих, проект дома с большими окнами изначально должен учитывать установку панорамного остекления, чтобы это в итоге не выглядело нелепо или не пришлось затрачивать кучу времени, сил и денег для того, чтобы окна выглядели гармонично.
Нельзя забывать и о материале, из которого построен дом, к примеру, в проекте большого дома из бруса такое остекление может смотреться вполне стильно, чего не скажешь о домах из больших бревен.
Когда уже решены все технические моменты, можно перейти к оформлению окна. Не стоит завешивать панорамное окно шторами, иначе пропадает весь тот эффект единения с природой и окружающим миром, которого дают такие окна. Если же декорирования текстилем не избежать, выбирайте легкие, полупрозрачные ткани, идеальный выбор – японские шторы.
proecty-domov.ru
Одноэтажные коттеджи с большими окнами
С чего начинается строительство одноэтажного коттеджа с панорамным остеклением? С приобретения участка земли и разработки проектно-сметной документации. С финансовой точки зрения оба этапа являются затратными. Можно ли сэкономить и стоит ли? Единственным допустимым способом экономии в данной ситуации является покупка готового решения. Готовые проекты коттеджей с большими окнами особенно популярны. Это объясняется тем, что проектировщики создают планы нестандартных строений с множеством достоинств. Кстати, их не называют типовыми. Это скорее «индивидуальный вариант многократного применения».
Проекты одноэтажных коттеджей с большими окнами
Строительство 1-этажного коттеджа с большими окнами
Преимущества:
- Во-первых, стоимость разработанного решения всегда ниже, чем цена индивидуального проектирования.
- Во-вторых, проектно-сметная документация не нуждается в дополнениях, вы можете получить ее практически сразу, при внесении изменений – через несколько недель после обращения. Чертежи индивидуального строительства составляются, рассчитываются и согласовываются гораздо дольше. Иногда процедура занимает несколько месяцев.
- В существующих вариантах, огромное количество раз проверенных и перепроверенных, в том числе на практике, продумано оптимальное использование стройматериалов, поэтому само возведение здания обойдется дешевле, чем строительство одноэтажного коттеджа по персональным расчетам.
- Предложенные варианты строительства полностью соответствуют нормативным документам, поэтому готовы для согласования в компетентных органах.
- Самым важным достоинством таких вариантов специалисты называют их проверку временем. Большинство неоднократно успешно реализовывались – это главный показатель надежности.
При выборе «своей» вариации жилья следует учитывать ряд нюансов:
- геодезическую характеристику участка: его рельеф, уровень грунтовых вод, характеристику грунта;
- климатические особенности региона;
- соразмерность делянки с домостроением.
Изучая предложенные планы коттеджей с большими окнами, следует учесть, ориентирован ли одноэтажный дом на стороны света. Естественное освещение — важный фактор сохранения здоровья и экономии электроэнергии. При выборе решения коттеджа с большими окнами не забывайте о розе ветров. Важную роль играет квадратура полезной площади – ее выбирают в зависимости от состава семьи и перспектив ее расширения. При наличии домашних животных в проекте должно быть предусмотрено пространство для их пребывания.
Что получает заказчик
Проекты, предлагаемые профессиональными конструкторскими бюро и строительными организациями, включают в себя:
- характеристику здания;
- перечень производимых работ;
- описание предполагаемых конструкций;
- чертеж цокольного и основного этажей, отдельных помещений;
- указание толщины стен и перегородок.
На детальной схеме фасада в разрезе отмечаются высота помещений, проемы, чертежи фундамента, перекрытий, кровли.
Проектирование одноэтажных коттеджей с панорамными окнами
Панорамное остекление в коттеджах популярно и востребовано. Это ассоциируется с респектабельностью дома и успешности его обитателей. При их проектировании специалисты включают в смету использование технологии фасадного остекления, позволяющие реализовать этот архитектурный замысел.
Сложность работ при проектировании одноэтажного дома с большими светопроникающими конструкциями повышается, так как приходится учитывать дополнительную нагрузку на боковые стены, рассчитывать допустимую нагрузку на светопроникающую конструкцию. Но результат стоит того: заказчик получает пакет документов для возведения роскошного одноэтажного коттеджа с окнами от потолка до пола, которые могут быть соединительным мостиком между внутренними помещениями и придомовым участком.
www.ermakdom.com
