ΠΡΠΏΠ΅Π»Ρ Π΄Π»Ρ Π±Π°Π½ΠΈ ΡΠ²ΠΎΠΈΠΌΠΈ ΡΡΠΊΠ°ΠΌΠΈ ΠΈΠ· Π΄Π΅ΡΠ΅Π²Π° β ΠΡΠΏΠ΅Π»Ρ Π΄Π»Ρ Π±Π°Π½ΠΈ ΡΠ²ΠΎΠΈΠΌΠΈ ΡΡΠΊΠ°ΠΌΠΈ
ΠΏΠΎΡΡΡΠΎΠΉΠΊΠ°, ΠΎΡΠ΄Π΅Π»ΠΊΠ° ΠΈ ΡΠΎΠ²Π΅ΡΡ ΠΏΠΎ ΡΡ ΠΎΠ΄Ρ (115 ΡΠΎΡΠΎ)
ΠΡΠΏΠ΅Π»Ρ Π² Π±Π°Π½Π΅ Π² ΡΠΎΠ²ΡΠ΅ΠΌΠ΅Π½Π½ΠΎΠΌ ΠΏΡΠ΅Π΄ΡΡΠ°Π²Π»Π΅Π½ΠΈΠΈ ΡΡΠΎ ΠΌΠ°Π»Π΅Π½ΡΠΊΠΈΠΉ Π±Π°ΡΡΠ΅ΠΉΠ½ Ρ ΠΏΡΠΎΡ Π»Π°Π΄Π½ΠΎΠΉ Π²ΠΎΠ΄ΠΎΠΉ, Π² ΠΊΠΎΡΠΎΡΡΡ ΠΌΠΎΠΆΠ½ΠΎ ΠΎΠΊΡΠ½ΡΡΡΡΡ ΠΏΠΎΡΠ»Π΅ ΠΏΠ°ΡΠΈΠ»ΠΊΠΈ. ΠΠ½Π°ΡΠ΅Π½ΠΈΠ΅ Π΅Π³ΠΎ Π΄Π»Ρ Π·Π΄ΠΎΡΠΎΠ²ΡΡ ΠΈ ΡΠ΄ΠΎΠ²ΠΎΠ»ΡΡΡΠ²ΠΈΡ ΡΡΡΠ΄Π½ΠΎ ΠΏΠ΅ΡΠ΅ΠΎΡΠ΅Π½ΠΈΡΡ. Π‘Π΄Π΅Π»Π°ΡΡ ΠΊΡΠΏΠ΅Π»Ρ Π² ΠΏΠΎΠΌΠ΅ΡΠ΅Π½ΠΈΠΈ ΠΎΡΠ½Π°ΡΠ΅Π½Π½ΠΎΠΌ Π²ΠΎΠ΄ΠΎΠΏΡΠΎΠ²ΠΎΠ΄ΠΎΠΌ ΠΈ ΡΡΡΡΠΎΠΉΡΡΠ²ΠΎΠΌ Π΄Π»Ρ Π½Π°Π³ΡΠ΅Π²Π° ΠΈ ΠΎΡΠΎΠΏΠ»Π΅Π½ΠΈΡ Π½Π΅ ΡΡΡΠ΄Π½ΠΎ, ΠΏΡΠΈ ΡΡΠΎΠΌ ΠΎΠ½Π° ΠΌΠΎΠΆΠ΅Ρ ΡΠ»ΡΠΆΠΈΡΡ ΠΊΠ°ΠΊ Π² ΠΊΠ°ΡΠ΅ΡΡΠ²Π΅ Π°ΡΡΠΈΠ±ΡΡΠ° Π² ΠΊΠΎΠ½ΡΡΠ°ΡΡΠ½ΡΡ Π²ΠΎΠ΄Π½ΡΡ ΠΏΡΠΎΡΠ΅Π΄ΡΡΠ°Ρ , ΡΠ°ΠΊ ΠΈ Π°Π²ΡΠΎΠ½ΠΎΠΌΠ½ΠΎ β Π² ΠΊΠ°ΡΠ΅ΡΡΠ²Π΅ Π΅ΠΌΠΊΠΎΡΡΠΈ Π΄Π»Ρ ΠΏΡΠΈΠ½ΡΡΠΈΡ Π²Π°Π½Π½.

ΠΠ° ΡΠΎΡΠΎ β ΠΈΠ½ΡΠ΅ΡΡΠ΅ΡΡ Π±Π°Π½Ρ Ρ ΠΊΡΠΏΠ΅Π»ΡΡ Π² ΡΠ°Π·Π»ΠΈΡΠ½ΠΎΠΌ ΡΡΠΈΠ»Π΅: ΡΡΠΎ ΠΌΠΎΠΆΠ΅Ρ Π±ΡΡΡ Π±Π΅ΡΠΎΠ½Π½ΡΠΉ ΠΊΠΎΡΠ»ΠΎΠ²Π°Π½ Π½Π° ΡΡΠΎΠ²Π½Π΅ ΠΏΠΎΠ»Π° ΠΈΠ»ΠΈ Π±ΠΎΠ»ΡΡΠ°Ρ Π΄Π΅ΡΠ΅Π²ΡΠ½Π½Π°Ρ Π±ΠΎΡΠΊΠ° Ρ Π»Π΅ΡΠ΅Π½ΠΊΠΎΠΉ. ΠΡΠ±ΠΎΡ ΠΌΠΎΠ΄Π΅Π»Π΅ΠΉ Π·Π°Π²ΠΈΡΠΈΡ ΠΎΡ ΠΈΠ½Π΄ΠΈΠ²ΠΈΠ΄ΡΠ°Π»ΡΠ½ΡΡ ΠΏΡΠ΅Π΄ΠΏΠΎΡΡΠ΅Π½ΠΈΠΉ, Π½ΠΎ Π½Π°Π»ΠΈΡΠΈΠ΅ Π±Π΅ΡΠΎΠ½Π½ΠΎΠ³ΠΎ Π±Π°ΡΡΠ΅ΠΉΠ½Π° Π² ΠΊΠΎΡΠ»ΠΎΠ²Π°Π½Π΅ Π½ΡΠΆΠ½ΠΎ ΠΏΡΠ΅Π΄ΡΡΠΌΠΎΡΡΠ΅ΡΡ Π΅ΡΠ΅ Π½Π° ΡΡΠ°ΠΏΠ΅ ΠΏΡΠΎΠ΅ΠΊΡΠΈΡΠΎΠ²Π°Π½ΠΈΡ Π·Π΄Π°Π½ΠΈΡ Π΄Π»Ρ Π±Π°Π½ΠΈ.
ΠΠ°ΠΏΠΎΠ»ΡΠ½ΡΠ΅ Π΅ΠΌΠΊΠΎΡΡΠΈ ΠΈΠ· Π΄Π΅ΡΠ΅Π²Π° ΠΈ ΠΏΠ»Π°ΡΡΠΈΠΊΠ° ΠΌΠΎΠΆΠ½ΠΎ Π»Π΅Π³ΠΊΠΎ Π΄ΠΎΠ±Π°Π²ΠΈΡΡ Π² Π»ΡΠ±ΠΎΠ΅ Π²ΡΠ΅ΠΌΡ: ΠΌΠΎΠ½ΡΠ°ΠΆ ΡΡΡΠ± Π΄Π»Ρ ΠΏΠΎΠ΄Π°ΡΠΈ ΠΈ ΠΎΡΠ²ΠΎΠ΄Π° Π²ΠΎΠ΄Ρ Π½Π΅ ΡΠΎΡΡΠ°Π²ΠΈΡ ΠΎΡΠΎΠ±ΠΎΠ³ΠΎ ΡΡΡΠ΄Π°.

ΠΠΎ ΡΡΠ°Π΄ΠΈΡΠΈΠΈ, Π³Π»ΡΠ±ΠΈΠ½Π° Π΅ΠΌΠΊΠΎΡΡΠΈ Π΄Π»Ρ ΠΎΠΊΡΠ½Π°Π½ΠΈΡ Π΄ΠΎΠ»ΠΆΠ½Π° ΡΠΎΡΡΠ°Π²Π»ΡΡΡ ΠΏΠΎΠ»ΡΠΎΡΠ° ΠΌΠ΅ΡΡΠ°, Π΄ΡΡΠ³ΠΈΠ΅ Π³Π°Π±Π°ΡΠΈΡΡ Π·Π°Π²ΠΈΡΡΡ ΠΎΡ ΡΠΎΠ³ΠΎ, Π½Π° ΡΠΊΠΎΠ»ΡΠΊΠΎ ΡΠ΅Π»ΠΎΠ²Π΅ΠΊ ΠΎΠ½Π° ΡΠ°ΡΡΡΠΈΡΠ°Π½Π°. ΠΠ°Π΄ΡΠΌΠΊΠ° ΡΠ΄Π΅Π»Π°ΡΡ ΠΊΡΠΏΠ΅Π»Ρ ΡΠ²ΠΎΠΈΠΌΠΈ ΡΡΠΊΠ°ΠΌΠΈ ΠΈΠ»ΠΈ Π½Π° Π·Π°ΠΊΠ°Π· Π΄Π°Π΅Ρ ΠΎΠΏΡΠ΅Π΄Π΅Π»Π΅Π½Π½ΡΡ ΡΠ²ΠΎΠ±ΠΎΠ΄Ρ Π² Π²ΡΠ±ΠΎΡΠ΅ ΡΠ°Π·ΠΌΠ΅ΡΠΎΠ² ΠΈ ΡΠΎΡΠΌΡ.

ΠΠ΅ΡΠΎΠ½Π½Π°Ρ ΠΊΡΠΏΠ΅Π»Ρ
ΠΠ°ΠΈΠ±ΠΎΠ»Π΅Π΅ ΠΏΡΠΎΡΡΠ°Ρ Π² ΠΈΡΠΏΠΎΠ»Π½Π΅Π½ΠΈΠΈ ΡΠΎΡΠΌΠ° ΠΊΠΎΡΠ»ΠΎΠ²Π°Π½Π° β ΠΏΡΡΠΌΠΎΡΠ³ΠΎΠ»ΡΠ½Π°Ρ, Π΅Π³ΠΎ ΡΠΎΡΡ Π½Π° ΡΡΡΠ°Π½ΠΎΠ²Π»Π΅Π½Π½ΠΎΠΌ ΡΡΠ°ΡΡΠΊΠ΅, Π΄ΠΎ ΡΠΎΠ³ΠΎ, ΠΊΠ°ΠΊ ΠΏΡΠΈΡΡΡΠΏΠΈΡΡ ΠΊ ΠΏΠΎΠ»ΠΎΠ²ΠΎΠΌΡ ΠΏΠΎΠΊΡΡΡΠΈΡ. ΠΠΎΡΠ»Π΅ ΡΠ±ΠΎΡΠΊΠΈ Π»ΠΈΡΠ½Π΅Π³ΠΎ Π³ΡΡΠ½ΡΠ° ΠΈ Π²ΡΡΠ°Π²Π½ΠΈΠ²Π°Π½ΠΈΡ ΡΡΠ΅Π½, Π² ΡΠ΄ΠΎΠ±Π½ΠΎΠΌ ΠΏΠΎ ΠΏΠ»Π°Π½ΠΈΡΠΎΠ²ΠΊΠ΅ ΡΠ³Π»Π΅ Π½Π° Π΄Π½Π΅ ΠΊΠΎΡΠ»ΠΎΠ²Π°Π½Π° Π΄Π΅Π»Π°Π΅ΡΡΡ ΠΎΡΠ²Π΅ΡΡΡΠΈΠ΅ Π΄Π»Ρ ΡΠ»ΠΈΠ²Π½ΠΎΠΉ ΡΡΡΠ±Ρ, ΠΊΠΎΡΠΎΡΠ°Ρ Π²ΡΠ²ΠΎΠ΄ΠΈΡΡΡ Π² ΠΊΠ°Π½Π°Π»ΠΈΠ·Π°ΡΠΈΡ.

ΠΡΠΈ Π½Π΅ΠΎΠ±Ρ ΠΎΠ΄ΠΈΠΌΠΎΡΡΠΈ ΡΠ»ΠΈΠ² ΠΎΡΠ½Π°ΡΠ°Π΅ΡΡΡ Π½Π°ΡΠΎΡΠΎΠΌ. ΠΠ»ΠΈΠ½Ρ ΡΡΡΠ±Ρ Π½ΡΠΆΠ½ΠΎ ΡΠ°ΡΡΡΠΈΡΠ°ΡΡ Ρ Π·Π°ΠΏΠ°ΡΠΎΠΌ, Π»ΠΈΡΠ½ΡΡ Π΅Π΅ ΡΠ°ΡΡΡ ΡΡΠ΅Π·Π°Π΅ΡΡΡ ΠΏΠΎΡΠ»Π΅ Π·Π°Π»ΠΈΠ²ΠΊΠΈ Π±Π΅ΡΠΎΠ½Π°.

Π Π·Π°Π²ΠΈΡΠΈΠΌΠΎΡΡΠΈ ΠΎΡ ΠΎΡΠΎΠ±Π΅Π½Π½ΠΎΡΡΠ΅ΠΉ ΠΌΠΎΠ½ΡΠ°ΠΆΠ°, ΡΡΡΠ±Ρ Π΄Π»Ρ ΠΏΠΎΡΡΡΠΏΠ»Π΅Π½ΠΈΡ Π²ΠΎΠ΄Ρ ΠΌΠΎΠΆΠ½ΠΎ Π²ΡΡΡΠΎΠΈΡΡ Π² ΡΡΠ΅Π½Ρ, ΠΈΠ»ΠΈ ΠΏΡΠ΅Π΄ΡΡΠΌΠΎΡΡΠ΅ΡΡ ΡΡΡΠ°Π½ΠΎΠ²ΠΊΡ ΠΎΡΠ΄Π΅Π»ΡΠ½ΠΎΠ³ΠΎ ΡΠΌΠ΅ΡΠΈΡΠ΅Π»Ρ.

ΠΠ»Ρ Π³ΠΈΠ΄ΡΠΎΠΈΠ·ΠΎΠ»ΡΡΠΈΠΎΠ½Π½ΠΎΠΉ ΠΏΠΎΠ΄ΡΡΠΊΠΈ Π΄Π½ΠΎ ΠΏΠΎΠΊΡΡΠ²Π°Π΅ΡΡΡ ΡΠ»ΠΎΠ΅ΠΌ ΠΏΠ΅ΡΠΊΠ°, ΠΊΠΎΡΠΎΡΡΠΉ Π·Π°ΠΌΠ°ΡΠΈΠ²Π°Π΅ΡΡΡ ΠΈ ΡΡΠ°ΠΌΠ±ΡΠ΅ΡΡΡ, Π·Π°ΡΠ΅ΠΌ Π·Π°ΡΡΠΏΠ°Π΅ΡΡΡ ΡΠ°Π²Π½ΠΎΠΌΠ΅ΡΠ½ΡΠΉ ΡΠ»ΠΎΠΉ Π³ΡΠ°Π²ΠΈΡ. ΠΠ° Π΄Π½Π΅ ΠΈ ΡΡΠ΅Π½Π°Ρ Π·Π°ΠΊΡΠ΅ΠΏΠ»ΡΠ΅ΡΡΡ ΡΠ΅ΡΠ΅ΡΠΊΠ° Π°ΡΠΌΠ°ΡΡΡΡ Ρ ΡΡΠ΅ΠΉΠΊΠ°ΠΌΠΈ 20Ρ 20 ΠΈΠ»ΠΈ 30Ρ 30 ΡΠΌ, Π·Π°ΡΠ΅ΠΌ ΠΏΠΎ ΠΏΠ΅ΡΠΈΠΌΠ΅ΡΡΡ Π²ΡΠΊΠ»Π°Π΄ΡΠ²Π°Π΅ΡΡΡ ΠΎΠΏΠ°Π»ΡΠ±ΠΊΠ° ΠΈΠ· Π»ΠΈΡΡΠΎΠ² ΠΠ‘Π ΠΈΠ»ΠΈ ΠΠ‘Π Ρ ΠΏΠΎΠ΄ΠΏΠΎΡΠΊΠ°ΠΌΠΈ ΠΈΠ· Π±ΡΡΡΠ°, ΠΊΠΎΡΠΎΡΠ°Ρ ΡΠΎΡΠΌΠΈΡΡΠ΅Ρ Π±ΠΎΡΡΠΈΠΊ Π±Π°ΡΡΠ΅ΠΉΠ½Π° Π½ΡΠΆΠ½ΠΎΠΉ Π²ΡΡΠΎΡΡ. ΠΠ½ΡΡΡΠ΅Π½Π½ΡΡ ΠΏΠΎΠ²Π΅ΡΡ Π½ΠΎΡΡΡ ΠΎΠΏΠ°Π»ΡΠ±ΠΊΠΈ Π½ΡΠΆΠ½ΠΎ ΠΈΠ·ΠΎΠ»ΠΈΡΠΎΠ²Π°ΡΡ ΠΏΠ»Π΅Π½ΠΎΡΠ½ΡΠΌ ΠΌΠ°ΡΠ΅ΡΠΈΠ°Π»ΠΎΠΌ.

ΠΠ»Ρ ΡΡΡΠΎΠΈΡΠ΅Π»ΡΡΡΠ²Π° ΠΊΡΠΏΠ΅Π»ΠΈ Π½ΡΠΆΠ½ΠΎ ΠΈΡΠΏΠΎΠ»ΡΠ·ΠΎΠ²Π°ΡΡ Π±Π΅ΡΠΎΠ½ Π²ΡΡΠΎΠΊΠΎΠ³ΠΎ ΠΊΠ°ΡΠ΅ΡΡΠ²Π°, Ρ ΠΊΠΎΠ½Π΄ΠΈΡΠΈΡΠΌΠΈ Π²ΠΎΠ΄ΠΎΡΡΠΎΠΉΠΊΠΎΡΡΠΈ ΠΈ ΠΏΡΠΎΡΠ½ΠΎΡΡΠΈ. Π¦Π΅ΠΌΠ΅Π½Ρ ΠΌΠ°ΡΠΊΠΈ 500 ΠΈ Π²ΡΡΠ΅, ΡΡΡΠΎΠΈΡΠ΅Π»ΡΠ½ΡΠΉ ΠΏΠ΅ΡΠΎΠΊ β ΠΎΡΠΈΡΠ΅Π½Π½ΡΠΉ ΠΊΡΡΠΏΠ½ΠΎΠ·Π΅ΡΠ½ΠΈΡΡΡΠΉ, ΡΠ΅Π±Π΅Π½Ρ Ρ ΡΡΠ°ΠΊΡΠΈΠ΅ΠΉ ΠΎΡ 10 Π΄ΠΎ 20 ΠΌΠΌ.

ΠΠ°ΠΌΠ΅Ρ Π΄Π΅Π»Π°Π΅ΡΡΡ Π² ΠΏΡΠΎΠΏΠΎΡΡΠΈΠΈ Π½Π° 1 ΡΠ°ΡΡΡ ΡΠ΅ΠΌΠ΅Π½ΡΠ° β 3 ΡΠ°ΡΡΡΠΌΠΈ ΠΏΠ΅ΡΠΊΠ° ΠΈ 5 ΡΠ°ΡΡΠ΅ΠΉ ΡΠ΅Π±Π½Ρ Ρ ΠΏΠΎΡΡΠ΅ΠΏΠ΅Π½Π½ΡΠΌ Π΄ΠΎΠ±Π°Π²Π»Π΅Π½ΠΈΠ΅ΠΌ Π²ΠΎΠ΄Ρ, Π·Π°ΡΠ΅ΠΌ, ΠΏΠΎ ΠΏΡΠΎΠΏΠΎΡΡΠΈΡΠΌ ΡΠΊΠ°Π·Π°Π½Π½ΡΠΌ Π½Π° ΡΠΏΠ°ΠΊΠΎΠ²ΠΊΠ΅, Π²Π²ΠΎΠ΄ΡΡΡΡ ΡΠΏΠ΅ΡΠΈΠ°Π»ΡΠ½ΡΠ΅ Π΄ΠΎΠ±Π°Π²ΠΊΠΈ, ΠΏΠΎΠ²ΡΡΠ°ΡΡΠΈΠ΅ Π²ΠΎΠ΄ΠΎΡΡΠΎΠΉΠΊΠΎΡΡΡ Π±Π΅ΡΠΎΠ½Π°.

Π‘ΠΌΠ΅ΡΡ Π·Π°Π»ΠΈΠ²Π°Π΅ΡΡΡ ΡΠ½Π°ΡΠ°Π»Π° Π² ΠΏΡΠΎΠ΅ΠΌΡ ΡΡΠ΅Π½, Π·Π°ΡΠ΅ΠΌ Π½Π° ΠΏΠΎΠ» ΠΊΠΎΡΠ»ΠΎΠ²Π°Π½Π°, ΠΏΠΎΡΠ»Π΅ ΡΠ΅Π³ΠΎ ΠΏΡΠΎΠ²ΠΎΠ΄ΠΈΡΡΡ ΡΠΏΠ»ΠΎΡΠ½Π΅Π½ΠΈΠ΅ Π²ΠΈΠ±ΡΠ°ΡΠΎΡΠΎΠΌ. ΠΠ»Ρ ΠΏΠΎΠ»Π½ΠΎΠ³ΠΎ ΡΠΊΡΠ΅ΠΏΠ»Π΅Π½ΠΈΡ ΠΈ Π²ΡΡΡΡ Π°Π½ΠΈΡ Π±Π΅ΡΠΎΠ½Π° Π½ΡΠΆΠ½ΠΎ Π½Π΅ ΠΌΠ΅Π½Π΅Π΅ 7 Π΄Π½Π΅ΠΉ. Π§Π΅ΡΠ΅Π· Π½Π΅Π΄Π΅Π»Ρ ΠΌΠΎΠΆΠ½ΠΎ ΡΠ½ΡΡΡ ΠΎΠΏΠ°Π»ΡΠ±ΠΊΡ, Π·Π°Π΄Π΅Π»Π°ΡΡ Π΄Π΅ΡΠ΅ΠΊΡΡ ΠΈ ΡΠ΄Π΅Π»Π°ΡΡ ΡΠΎΠ½ΠΊΡΡ Π»ΠΈΡΠ΅Π²ΡΡ ΡΡΡΠΆΠΊΡ ΠΏΠΎΠ»Π°.
Π‘Π»Π΅Π΄ΡΡΡΠΈΠΉ ΡΡΠ°ΠΏ β ΠΎΡΠ΄Π΅Π»ΠΊΠ°. ΠΠ½ΡΡΡΠ΅Π½Π½ΡΡ ΡΠ°ΡΡΡ Π΅ΠΌΠΊΠΎΡΡΠΈ ΠΌΠΎΠΆΠ½ΠΎ ΠΏΠΎΠΊΡΡΡΡ ΠΊΠ΅ΡΠ°ΠΌΠΈΡΠ΅ΡΠΊΠΎΠΉ ΠΏΠ»ΠΈΡΠΊΠΎΠΉ ΠΈΠ»ΠΈ ΠΏΠΎΠΊΡΠ°ΡΠΈΡΡ ΠΊΡΠ°ΡΠΊΠΎΠΉ Π΄Π»Ρ Π±Π°ΡΡΠ΅ΠΉΠ½Π°.

ΠΡΠΏΠ΅Π»Ρ Π΄Π»Ρ Π±Π°Π½ΠΈ ΠΈΠ· Π±Π΅ΡΠΎΠ½Π° Π½ΡΠΆΠ½ΠΎ ΠΎΡΠ½Π°ΡΡΠΈΡΡ ΡΠ΄ΠΎΠ±Π½ΠΎΠΉ ΠΈ Π±Π΅Π·ΠΎΠΏΠ°ΡΠ½ΠΎΠΉ Π»Π΅ΡΡΠ½ΠΈΡΠ΅ΠΉ Ρ ΠΏΠΎΡΡΡΠ½ΡΠΌΠΈ.

ΠΡΠΏΠ΅Π»Ρ ΠΈΠ· Π΄Π΅ΡΠ΅Π²Π°
ΠΠ»Ρ ΡΠΎΠ³ΠΎ, ΡΡΠΎΠ±Ρ ΡΠ΄Π΅Π»Π°ΡΡ ΠΊΡΠΏΠ΅Π»Ρ Π΄Π»Ρ Π±Π°Π½ΠΈ ΠΈΠ· Π΄Π΅ΡΠ΅Π²Π° ΡΠ²ΠΎΠΈΠΌΠΈ ΡΡΠΊΠ°ΠΌΠΈ, Π½ΡΠΆΠ½ΠΎ ΠΎΠ±Π»Π°Π΄Π°ΡΡ ΠΎΠΏΡΡΠΎΠΌ ΠΈ Π·Π½Π°Π½ΠΈΡΠΌΠΈ. ΠΡΠ° ΠΏΡΠΎΡΡΠ°Ρ, Π½Π° ΠΏΠ΅ΡΠ²ΡΠΉ Π²Π·Π³Π»ΡΠ΄, ΠΊΠΎΠ½ΡΡΡΡΠΊΡΠΈΡ ΠΈΠ· Π±ΠΎΠ»ΡΡΠΎΠΉ Π±ΠΎΡΠΊΠΈ Ρ ΠΎΡΠ²ΠΎΠ΄Π°ΠΌΠΈ Π΄Π»Ρ Π²ΠΎΠ΄Ρ ΠΈ ΠΏΡΠΈΠΌΡΠΊΠ°ΡΡΠ΅ΠΉ ΡΠ½Π°ΡΡΠΆΠΈ Π»Π΅ΡΡΠ½ΠΈΡΠ΅ΠΉ Π΄ΠΎΠ»ΠΆΠ½Π° ΠΎΠ±Π»Π°Π΄Π°ΡΡ ΠΏΡΠΎΡΠ½ΠΎΡΡΡΡ ΠΈ Π³Π΅ΡΠΌΠ΅ΡΠΈΡΠ½ΠΎΡΡΡΡ.

ΠΠ° ΠΏΠ΅ΡΠ²ΠΎΠΌ ΡΡΠ°ΠΏΠ΅ Π½ΡΠΆΠ΅Π½ ΠΏΡΠΎΡΠ΅ΡΡΠΈΠΎΠ½Π°Π»ΡΠ½ΡΠΉ ΡΠ΅ΡΡΠ΅ΠΆ Π² Π½Π΅ΡΠΊΠΎΠ»ΡΠΊΠΈΡ ΠΏΡΠΎΠ΅ΠΊΡΠΈΡΡ Ρ ΡΠΎΡΠ½ΡΠΌ ΡΠ°ΡΠΊΠ»Π°Π΄ΠΎΠΌ ΡΠ°Π·ΠΌΠ΅ΡΠΎΠ² ΠΈ ΠΊΠΎΠ»ΠΈΡΠ΅ΡΡΠ²Π° Π½ΡΠΆΠ½ΡΡ Π·Π°Π³ΠΎΡΠΎΠ²ΠΎΠΊ. ΠΠΎΡΠΊΠΈ Π΄Π»Ρ ΡΡΠ΅Π½ΠΎΠΊ ΡΠ°ΡΠΏΠΈΠ»ΠΈΠ²Π°ΡΡΡΡ, Π·Π°ΡΠ΅ΠΌ ΡΡΠ΅Π·Π΅ΡΡΡΡΡΡ ΠΏΠΎ ΠΊΡΠ°ΡΠΌ Π΄Π»Ρ ΡΠΎΠ·Π΄Π°Π½ΠΈΡ ΠΏΠΎΠ»ΡΠΊΡΡΠ³Π»ΡΡ ΡΠΈΠΏΠΎΠ² ΠΈ ΠΏΠ°Π·ΠΎΠ², ΠΊΠΎΡΠΎΡΡΠ΅ Π±ΡΠ΄ΡΡ ΡΠΊΡΠ΅ΠΏΠ»ΡΡΡ ΠΈΡ ΠΏΠΎ ΡΠ°Π΄ΠΈΡΡΡ.
Π’Π°ΠΊΠΆΠ΅ ΠΏΠΎ ΡΠΈΡΡΠ΅ΠΌΠ΅ ΡΠΈΠΏ-ΠΏΠ°Π· Π΄Π΅Π»Π°ΡΡΡΡ Π·Π°Π³ΠΎΡΠΎΠ²ΠΊΠΈ Π΄Π»Ρ Π΄Π½ΠΈΡΠ°, ΠΏΡΠΈ ΡΡΠΎΠΌ Π½ΡΠΆΠ½ΠΎ ΠΎΠ±Π΅ΡΠΏΠ΅ΡΠΈΡΡ ΠΈΠ΄Π΅Π°Π»ΡΠ½ΠΎΠ΅ ΠΏΡΠΈΠΌΡΠΊΠ°Π½ΠΈΠ΅ ΠΈ ΡΠΎΠ²Π½ΡΡ ΠΏΠΎΠ²Π΅ΡΡ Π½ΠΎΡΡΡ ΡΠ±ΠΎΡΠ½ΡΡ ΡΠ°ΡΡΠ΅ΠΉ.

ΠΡΠΈ Π²ΡΡΠ΅Π·Π°Π½ΠΈΠΈ Π΄Π½Π° ΠΈ ΡΠ±ΠΎΡΠΊΠ΅ ΡΡΠ΅Π½ΠΎΠΊ ΡΠ°ΠΊΠΆΠ΅ ΡΡΠ΅Π±ΡΠ΅ΡΡΡ ΡΠΎΡΠ½ΡΠΉ ΡΠ°ΡΡΠ΅Ρ ΠΈ Π°ΠΊΠΊΡΡΠ°ΡΠ½ΠΎΡΡΡ. ΠΠ° ΠΏΠΎΡΠ»Π΅Π΄Π½Π΅ΠΌ ΡΡΠ°ΠΏΠ΅ ΡΠΎΠ±ΡΠ°Π½Π½ΡΠΉ ΡΠΈΠ»ΠΈΠ½Π΄Ρ ΡΡΡΠ³ΠΈΠ²Π°Π΅ΡΡΡ ΠΊΠ°ΠΊ ΠΌΠΈΠ½ΠΈΠΌΡΠΌ ΡΡΠ΅ΠΌΡ ΠΌΠ΅ΡΠ°Π»Π»ΠΈΡΠ΅ΡΠΊΠΈΠΌΠΈ ΠΎΠ±ΠΎΠ΄ΠΊΠ°ΠΌΠΈ, ΠΊΠΎΡΠΎΡΡΠ΅ Π·Π°ΠΊΡΠ΅ΠΏΠ»ΡΡΡΡΡ Π½Π°ΠΊΡΡΡΠΈΠ²Π°Π½ΠΈΠ΅ΠΌ Π±ΠΎΠ»ΡΠ°. ΠΠ°ΡΠ΅ΠΌ ΠΎΡΡΠ°Π΅ΡΡΡ ΡΠΎΠΎΡΡΠ΄ΠΈΡΡ Π»Π΅ΡΡΠ½ΠΈΡΡ ΠΈ ΡΡΡΠ°Π½ΠΎΠ²ΠΈΡΡ Π²Π½ΡΡΡΠΈ Π±ΠΎΡΠΊΠΈ Π½Π΅Π±ΠΎΠ»ΡΡΡΡ ΡΠΊΠ°ΠΌΠ΅ΠΉΠΊΡ.

ΠΠ΅Π½Π΅Π΅ ΡΡΡΠ΄ΠΎΠ΅ΠΌΠΊΠΈΠΉ Π²Π°ΡΠΈΠ°Π½Ρ Ρ ΡΠΎΡ ΡΠ°Π½Π΅Π½ΠΈΠ΅ΠΌ ΠΎΡΠΎΠ±ΠΎΠ³ΠΎ ΡΡΡΠ° Π΄Π΅ΡΠ΅Π²ΡΠ½Π½ΠΎΠΉ ΠΎΡΠ΄Π΅Π»ΠΊΠΈ β ΠΏΡΠΈΠΎΠ±ΡΠ΅ΡΡΠΈ ΠΏΠ»Π°ΡΡΠΈΠΊΠΎΠ²ΡΡ Π΅ΠΌΠΊΠΎΡΡΡ ΠΊΡΠΏΠ΅Π»ΠΈ Π΄Π»Ρ Π±Π°Π½ΠΈ ΠΈ ΠΎΡΠ΄Π΅Π»Π°ΡΡ Π΅Π΅ ΡΠ½Π°ΡΡΠΆΠΈ Π΄Π΅ΠΊΠΎΡΠ°ΡΠΈΠ²Π½ΡΠΌΠΈ ΡΠ΅ΠΉΠΊΠ°ΠΌΠΈ.
Π€ΠΎΡΠΎ ΠΊΡΠΏΠ΅Π»ΠΈ Π΄Π»Ρ Π±Π°Π½ΠΈ





































Π’Π°ΠΊΠΆΠ΅ ΡΠ΅ΠΊΠΎΠΌΠ΅Π½Π΄ΡΠ΅ΠΌ ΠΏΠΎΡΠ΅ΡΠΈΡΡ:
mojdominfo.ru
ΠΡΠΏΠ΅Π»Ρ Π΄Π»Ρ Π±Π°Π½ΠΈ ΡΠ²ΠΎΠΈΠΌΠΈ ΡΡΠΊΠ°ΠΌΠΈ: ΡΠΎΠ²Π΅ΡΡ ΠΈ ΡΠ΅ΠΊΠΎΠΌΠ΅Π½Π΄Π°ΡΠΈΠΈ
ΠΡΠΏΠ΅Π»Ρ Π΄Π»Ρ Π±Π°Π½ΠΈ ΠΈ Π΅Π΅ ΠΎΡΠΎΠ±Π΅Π½Π½ΠΎΡΡΠΈ Π² ΡΠΎΠ²ΡΠ΅ΠΌΠ΅Π½Π½ΠΎΠΌ ΠΌΠΈΡΠ΅ ΡΡΠ°Π»ΠΈ Π΄ΠΎΡΡΠ°ΡΠΎΡΠ½ΠΎ Π²Π΅Π»ΠΈΠΊΠΈ. Π‘ Π΄Π°Π²Π½ΠΈΡ Π²ΡΠ΅ΠΌΠ΅Π½ ΡΡΠΈΡΠ°Π»ΠΎΡΡ, ΡΡΠΎ Π±Π°Π½Ρ Π΄Π»Ρ ΡΡΡΡΠΊΠΎΠ³ΠΎ ΡΠ΅Π»ΠΎΠ²Π΅ΠΊΠ° Π½Π΅ΡΡΠΎ Π±ΠΎΠ»ΡΡΠ΅Π΅ ΡΠ΅ΠΌ ΠΌΠ΅ΡΡΠΎ ΠΎΡΠ΄ΡΡ Π°. ΠΠ»Ρ Π½Π°ΡΡΠΎΡΡΠ΅Π³ΠΎ ΡΡΡΡΠΊΠΎΠ³ΠΎ ΡΠ΅Π»ΠΎΠ²Π΅ΠΊΠ°, Π½ΠΈΡΠ΅Π³ΠΎ Π»ΡΡΡΠ΅, ΡΠ΅ΠΌ ΠΏΠΎΡΠ΅ΡΠ΅Π½ΠΈΠ΅ Π΄Π°Π½Π½ΠΎΠ³ΠΎ Π·Π°Π²Π΅Π΄Π΅Π½ΠΈΡ Π½Π΅ Π±ΡΠ΄Π΅Ρ ΠΈ Π΄Π°ΠΆΠ΅ ΡΠ°ΡΠ½Π° Π½Π΅ ΡΡΠΎΠΈΡ ΠΈ ΡΡΠ΄ΠΎΠΌ.
ΠΠ΅ΡΡΠΎ, Π² ΠΊΠΎΡΠΎΡΠΎΠΌ ΠΌΠΎΠΆΠ½ΠΎ Π½Π΅ ΡΠΎΠ»ΡΠΊΠΎ ΠΎΡΠ΄ΠΎΡ Π½ΡΡΡ ΠΏΠΎΡΠ»Π΅ ΡΡΠΆΠ΅Π»ΠΎΠ³ΠΎ Π΄Π½Ρ ΠΈΠ»ΠΈ Π½Π΅Π΄Π΅Π»ΠΈ, Π½ΠΎ ΠΈ ΠΏΡΠΎΡΡΠΎ ΠΏΠΎΡΠΈΠ΄Π΅ΡΡ Ρ Π΄ΡΡΠ·ΡΡΠΌΠΈ ΠΏΠΎΡΠ»Π΅ Π΄ΠΎΠ»Π³ΠΎΠ³ΠΎ ΡΠ°ΡΡΡΠ°Π²Π°Π½ΠΈΡ. Π ΡΡΠΈΡΡΠ²Π°Ρ Π²ΡΠ΅ Π»Π΅ΡΠ΅Π±Π½ΡΠ΅ ΡΠ²ΠΎΠΉΡΡΠ²Π° ΠΏΠ°ΡΠΎΠ², ΡΠΎ ΠΏΠΎΠ»ΡΡΠ°Π΅ΡΡΡ, ΡΡΠΎ Π½Π΅ΡΠΊΠΎΠ»ΡΠΊΠΎ Π΄Π΅Π» Π΄Π΅Π»Π°Π΅ΡΡΡ ΠΎΠ΄Π½ΠΎΠ²ΡΠ΅ΠΌΠ΅Π½Π½ΠΎ ΠΏΡΠΎΡΡΠΎ Π½Π°Ρ ΠΎΠ΄ΡΡΡ Π² ΠΎΠ΄Π½ΠΎΠΉ ΠΊΠΎΠΌΠ½Π°ΡΠ΅.
ΠΡ Π° ΠΊΠ°ΠΊΠ°Ρ ΠΆΠ΅ Π½Π°ΡΡΠΎΡΡΠ°Ρ ΡΡΡΡΠΊΠ°Ρ Π±Π°Π½Ρ Π΅ΡΠ»ΠΈ Π½Π΅Ρ ΠΆΠ³ΡΡΠ΅Π³ΠΎ ΠΏΠ°ΡΠ° Π΄ΡΠ±ΠΎΠ²ΠΎΠ³ΠΎ Π²Π΅Π½ΠΈΠΊΠ° ΠΈ ΠΊΡΠΏΠ΅Π»ΠΈ Ρ Ρ ΠΎΠ»ΠΎΠ΄Π½ΠΎΠΉ Π²ΠΎΠ΄ΠΎΠΉ. ΠΠ΅ΡΠ²ΡΠ΅ Π΄Π²Π° Π°ΡΠΏΠ΅ΠΊΡΠ° Π½Π΅ ΡΠΎΡΡΠ°Π²ΠΈΡ ΡΡΡΠ΄Π½ΠΎΡΡΠΈ ΡΠ΄Π΅Π»Π°ΡΡ. Π ΠΏΠΎ ΠΏΠΎΠ²ΠΎΠ΄Ρ ΡΡΠ΅ΡΡΠ΅Π³ΠΎ ΠΈ Π±ΡΠ΄Π΅Ρ ΡΠ΅Π³ΠΎΠ΄Π½Ρ Π½Π°ΡΠ° ΡΡΠ°ΡΡΡ, Π±Π°Π½ΠΈ Ρ ΠΊΡΠΏΠ΅Π»ΡΡ, ΡΠΎΡΠΎ ΠΊΠΎΡΠΎΡΡΡ Π²Ρ ΠΌΠΎΠΆΠ΅ΡΠ΅ ΡΠ°ΡΡΠΌΠΎΡΡΠ΅ΡΡ Π² ΡΠ΅ΡΠ΅Π½ΠΈΠΈ Π²ΡΠ΅ΠΉ ΡΡΠ°ΡΡΠΈ.

ΠΡΠ΅Π΄Π½Π°Π·Π½Π°ΡΠ΅Π½ΠΈΠ΅ ΠΊΡΠΏΠ΅Π»ΠΈ Π΄Π»Ρ Π±Π°Π½ΠΈ
ΠΡΠ»ΠΈ Π·Π°Π³Π»ΡΠ½ΡΡΡ Π² ΠΏΡΠΎΡΠ»ΠΎΠ΅, ΡΠΎ ΡΠ°ΠΌ, ΠΊΡΠΏΠ΅Π»Ρ ΠΏΡΠ΅Π΄ΡΡΠ°Π²Π»ΡΠ΅Ρ ΡΠΎΠ±ΠΎΠΉ ΡΡΠ΅Π΄Π½ΠΈΡ ΡΠ°Π·ΠΌΠ΅ΡΠΎΠ² ΡΠ°ΡΡ, ΠΊΠΎΡΠΎΡΠ°Ρ Π±ΡΠ»Π° ΠΏΡΠ΅Π΄Π½Π°Π·Π½Π°ΡΠ΅Π½Π° Π΄Π»Ρ ΠΏΡΠΎΠ²Π΅Π΄Π΅Π½ΠΈΠ΅ ΠΎΠ±ΡΡΠ΄ΠΎΠ² ΠΊΡΠ΅ΡΠ΅Π½ΠΈΡ ΡΠ΅Π»ΠΎΠ²Π΅ΠΊΠ°. ΠΠΎ Π²ΡΠ΅ΠΌΡ ΠΈΠ΄Π΅Ρ, ΠΈ ΡΠ΅ΠΉΡΠ°Ρ ΠΏΠΎΠ΄ ΠΊΡΠΏΠ΅Π»ΡΡ ΠΌΡ ΠΏΠΎΠ΄ΡΠ°Π·ΡΠΌΠ΅Π²Π°Π΅ΠΌ ΡΠ΅Π·Π΅ΡΠ²ΡΠ°Ρ Ρ Ρ ΠΎΠ»ΠΎΠ΄Π½ΠΎΠΉ Π²ΠΎΠ΄ΠΎΠΉ ΠΏΡΠ΅Π΄Π½Π°Π·Π½Π°ΡΠ΅Π½Π½ΡΠΉ Π΄Π»Ρ Π±Π°Π½ΠΈ. ΠΠ·Π³ΠΎΡΠ°Π²Π»ΠΈΠ²Π°ΡΡ, ΠΏΡΠ΅Π΄ΡΡΠ°Π²Π»Π΅Π½Π½ΡΠΉ ΡΠ΅Π·Π΅ΡΠ²ΡΠ°Ρ, ΡΠ°ΠΊΠΆΠ΅, ΡΡΠ°Π»ΠΈ ΠΈΠ· ΡΠ°Π·Π»ΠΈΡΠ½ΡΡ ΠΌΠ°ΡΠ΅ΡΠΈΠ°Π»ΠΎΠ², Π° Π² ΠΎΡΠ½ΠΎΠ²Π½ΠΎΠΌ ΠΈΠ·: ΠΏΠ»Π°ΡΡΠΈΠΊΠ°, Π΄Π΅ΡΠ΅Π²Π° ΠΈ Π½Π΅ΡΠΊΠΎΠ»ΡΠΊΠΈΡ Π²ΠΈΠ΄ΠΎΠ² ΠΌΠ΅ΡΠ°Π»Π»ΠΎΠ².
Π Π±ΡΠ»ΡΠ΅ Π²ΡΠ΅ΠΌΠ΅Π½Π°, Π±Π°Π½ΠΈ ΡΡΡΠΎΠΈΠ»ΠΈ ΠΎΠΊΠΎΠ»ΠΎ Π²ΠΎΠ΄ΠΎΠ΅ΠΌΠΎΠ² ΡΠ°Π·Π½ΠΎΠ³ΠΎ ΡΠΈΠΏΠ°, Π±ΡΠ΄Ρ ΡΠΎ ΠΎΠ·Π΅ΡΠΎ ΠΈΠ»ΠΈ ΡΠ΅ΠΊΠ°. ΠΠΌΠ΅Π½Π½ΠΎ ΠΏΠΎΡΡΠΎΠΌΡ ΠΈ ΠΊΡΠΏΠ΅Π»Ρ Π΄Π»Ρ Π±Π°Π½Ρ Π½ΡΠΆΠ½Π° Π½Π΅ Π±ΡΠ»Π°. Π‘ΡΠΈΡΠ°Π»ΠΎΡΡ, ΡΡΠΎ ΠΏΡΡΠ³Π½ΡΡΡ Π² Π΅ΡΡΠ΅ΡΡΠ²Π΅Π½Π½ΡΠΉ Π²ΠΎΠ΄ΠΎΠ΅ΠΌ ΠΏΠΎΡΠ»Π΅ ΠΏΠ°ΡΠΊΠΈ Π² Π±Π°Π½Π΅ β ΡΡΠΎ Π»ΠΎΠ³ΠΈΡΠ½ΠΎΠ΅ Π·Π°Π²Π΅ΡΡΠ΅Π½ΠΈΠ΅ ΠΎΠ±ΡΡΠ΄Π°.
Π Π°Π½Π΅Π΅ Π»ΡΠ΄ΠΈ Π²ΠΎΡΠΏΡΠΈΠ½ΠΈΠΌΠ°Π»ΠΈ ΡΡΠΎ ΠΊΠ°ΠΊ ΡΠ²ΠΎΠ΅ΠΎΠ±ΡΠ°Π·Π½ΡΠΉ ΡΠΈΡΡΠ°Π», Π° ΡΠ΅ΠΉΡΠ°Ρ β ΠΊΠ°ΠΊ ΡΠΏΠΎΡΠΎΠ± ΠΎΡΠ΄ΠΎΡ Π½ΡΡΡ, ΠΏΡΠΈ ΡΡΠΎΠΌ Π½Π΅ ΡΠ΅ΡΡΡ Π±ΡΠ»ΠΎΠΉ Π°ΠΊΡΡΠ°Π»ΡΠ½ΠΎΡΡΠΈ. Π’Π°ΠΊ ΠΊΠ°ΠΊ Π±Π°Π½ΠΈ ΠΎΡΡΠ°Π»ΠΈΡΡ ΠΏΠΎΠΏΡΠ»ΡΡΠ½Ρ, Π½ΠΎ ΠΏΡΠΈ ΡΡΠΎΠΌ ΠΏΠΎΡΡΠΎΡΠ½Π½ΠΎΠΉ Π²ΠΎΠ·ΠΌΠΎΠΆΠ½ΠΎΡΡΠΈ Π²ΡΠ΅Π·Π΄Π° Π½Π° ΠΏΡΠΈΡΠΎΠ΄Ρ Ρ Π½Π°Π»ΠΈΡΠΈΠ΅ΠΌ Π±Π»ΠΈΠΆΠ°ΠΉΡΠ΅Π³ΠΎ ΠΎΠ·Π΅ΡΠ° Π½Π΅Ρ, ΡΠΎ Π² Π½ΠΈΡ , ΡΡΠ°Π»ΠΈ ΡΡΡΠ°Π½Π°Π²Π»ΠΈΠ²Π°ΡΡ Π±ΠΎΡΠΊΠΈ Π±ΠΎΠ»ΡΡΠΈΡ ΡΠ°Π·ΠΌΠ΅ΡΠΎΠ².
ΠΡΠΏΠ΅Π»Ρ, ΡΡΠΈΡΠ°Π΅ΡΡΡ ΠΎΠ΄Π½ΠΈΠΌ ΠΈΠ· ΠΎΡΠ΅Π½Ρ ΠΏΠΎΠ»Π΅Π·Π½ΡΡ ΠΈΠ·ΠΎΠ±ΡΠ΅ΡΠ΅Π½ΠΈΠΉ ΡΠ΅Π»ΠΎΠ²Π΅ΡΠ΅ΡΡΠ²Π°. ΠΠ΅Π΄Ρ ΠΏΠΎΡΠ»Π΅ Ρ ΠΎΡΠΎΡΠ΅ΠΉ ΠΏΠ°ΡΠΊΠΈ ΠΈ Π±ΠΈΡΡΡ Π²Π΅Π½ΠΈΠΊΠΎΠΌ, Π½ΡΡΡΡ Π² Ρ ΠΎΠ»ΠΎΠ΄Π½ΡΡ Π²ΠΎΠ΄Ρ, ΡΠ΅Π»ΠΎΠ²Π΅ΠΊ ΠΈΡΠΏΡΡΡΠ²Π°Π΅Ρ Π½Π΅ ΡΠΎΠ»ΡΠΊΠΎ Π°Π΄ΡΠ΅Π½Π°Π»ΠΈΠ½, Π½ΠΎ Π΅ΡΠ΅ ΠΈ ΠΎΠΌΠΎΠ»Π°ΠΆΠΈΠ²Π°Π΅ΡΡΡ Π΅ΡΡΠ΅ΡΡΠ²Π΅Π½Π½ΡΠΌ, ΠΏΡΠΈΡΠΎΠ΄Π½ΡΠΌ ΠΏΡΡΠ΅ΠΌ.
ΠΠ° ΡΡΠ΅Ρ Π²ΠΎΠ΄Ρ, ΡΠ΅Π»ΠΎΠ²Π΅ΠΊ ΠΏΠΎΠ»ΡΡΠ°Π΅Ρ ΠΌΠ°ΡΡΡ ΡΠΌΠΎΡΠΈΠΉ ΡΡΠ΅Π΄ΠΈ ΠΊΠΎΡΠΎΡΡΡ Π΅ΡΡΡ ΠΈ ΡΠ΅ ΠΊΠΎΡΠΎΡΡΠ΅ ΡΠ»ΡΡΡΠ°ΡΡ ΡΠ°ΠΌΠΎΡΡΠ²ΡΡΠ²ΠΈΠ΅, ΠΏΠΎΠ²ΡΡΠ°ΡΡ ΠΊΡΠΎΠ²ΠΎΠΎΠ±ΡΠ°ΡΠ΅Π½ΠΈΠ΅, Π½ΠΎΡΠΌΠ°Π»ΠΈΠ·ΡΡΡ ΡΠ°Π±ΠΎΡΡ ΡΠ΅ΡΠ΄ΡΠ°, Π΄Π΅Π»Π°ΡΡ ΠΊΠΎΠΆΡ Π³Π»Π°Π΄ΠΊΠΎΠΉ.
ΠΡΠ΅ ΡΡΠΈ Π½Π΅Π±ΠΎΠ»ΡΡΠΈΠ΅ ΠΏΡΠΎΡΠ΅ΡΡΡ, ΡΠΊΠ»Π°Π΄ΡΠ²Π°ΡΡΡ Π² ΠΎΠ΄Π½ΠΎ ΡΠ΅Π»ΠΎΠ΅ ΠΏΠΎΠ·Π²ΠΎΠ»ΡΡΡ ΡΠ΅Π»ΠΎΠ²Π΅ΠΊΡ Π½Π΅ ΡΠΎΠ»ΡΠΊΠΎ ΠΏΡΠΈΠ²Π΅ΡΡΠΈ ΡΠ΅Π±Ρ Π² ΠΏΠΎΡΡΠ΄ΠΎΠΊ, Π½ΠΎ Π΅ΡΠ΅ ΠΈ ΠΏΡΠΎΠ΄Π»ΠΈΡΡ ΡΠ΅Π±Π΅ ΠΆΠΈΠ·Π½Ρ. Π Ρ ΠΎΠ»ΠΎΠ΄Π½ΡΡ Π²ΠΎΠ΄Ρ Π½Π°Ρ ΠΎΠ΄ΡΡΡΡΡΡ Π² ΠΊΡΠΏΠ΅Π»ΠΈ Π΄Π»Ρ Π±Π°Π½ΠΈ ΠΈΠ· Π΄Π΅ΡΠ΅Π²Π° ΡΠ°ΡΡΠΎ Π΄ΠΎΠ±Π°Π²Π»ΡΡΡ ΡΡΠΈΡΠ½ΡΠ΅ ΠΌΠ°ΡΠ»Π° ΠΈ ΠΌΠΈΠ½Π΅ΡΠ°Π»Ρ, ΡΡΠΎ ΡΠΏΠΎΡΠΎΠ±ΡΡΠ²ΡΠ΅Ρ ΡΠΊΡΠ΅ΠΏΠ»Π΅Π½ΠΈΡ ΠΈΠΌΠΌΡΠ½ΠΈΡΠ΅ΡΠ° ΡΠ΅Π»ΠΎΠ²Π΅ΠΊΠ° ΠΈ ΡΠΌΠ΅Π½ΡΡΠ°Π΅Ρ ΡΡΠ΅ΠΏΠ΅Π½Ρ Π·Π°ΡΠ°ΠΆΠ΅Π½ΠΈΡ Π»ΡΠ±ΡΠΌΠΈ ΠΈΠ½ΡΠ΅ΠΊΡΠΈΡΠΌΠΈ.
ΠΠ»Π°Π³ΠΎΠ΄Π°ΡΡ ΡΠΎΠ²ΠΌΠ΅ΡΡΠΈΡΠ΅Π»ΡΡΡΠ²Ρ Π²ΡΠ΅Ρ Π²ΡΡΠ΅ΡΠΊΠ°Π·Π°Π½Π½ΡΡ ΡΠ°ΠΊΡΠΎΡΠΎΠ², ΠΌΠΎΠΆΠ½ΠΎ ΡΠΌΠ΅Π»ΠΎ ΠΎΡΠ²Π΅ΡΠΈΡΡ Π½Π° Π²ΠΎΠΏΡΠΎΡ ΠΎΠ± Π°ΠΊΡΡΠ°Π»ΡΠ½ΠΎΡΡΠΈ ΠΏΡΠΈΠ΅ΠΌΠ° Π±Π°Π½ΠΈ Π² ΡΠ°Π·Π½ΡΠ΅ Π²ΡΠ΅ΠΌΠ΅Π½Π°. Π Π²ΠΎΡ ΡΡΠΎ ΠΊΠ°ΡΠ°Π΅ΡΡΡ ΠΊΡΠΏΠ΅Π»ΠΈ, ΡΠΎ ΠΎΠ½Π° ΠΌΠΎΠΆΠ΅Ρ Π±ΡΡΡ ΡΠ΄Π΅Π»Π°Π½Π° ΠΈ ΠΈΡΠΊΡΡΡΡΠ²Π΅Π½Π½ΠΎ, ΡΠΎ Π΅ΡΡΡ Π½Π΅ Π½Π°ΡΡΡΠ°Π»ΡΠ½ΡΠΉ Π²ΠΎΠ΄ΠΎΠ΅ΠΌ. ΠΠΈΠ΄ Π΅Π΅ ΡΠΎΠΆΠ΅ Π½Π΅ ΠΎΠ±ΡΡΠ»ΠΎΠ²Π»Π΅Π½, ΡΡΠΎ Π΄Π°Π΅Ρ ΠΎΡΠ»ΠΈΡΠ½ΡΡ Π²ΠΎΠ·ΠΌΠΎΠΆΠ½ΠΎΡΡΡ ΡΠ΄Π΅Π»Π°ΡΡ Π΅Π΅ ΡΠ°ΠΌΠΎΡΡΠΎΡΡΠ΅Π»ΡΠ½ΠΎ, ΠΈ Π²ΡΠ΄Π΅Π»ΠΈΡΡΡ ΡΡΠ΅Π΄ΠΈ Π΄ΡΡΠ·Π΅ΠΉ (ΠΏΠΎΠ΄ΡΡΠ³).

Π Π°Π·Π½ΠΎΠ²ΠΈΠ΄Π½ΠΎΡΡΠΈ ΠΊΡΠΏΠ΅Π»Π΅ΠΉ Π΄Π»Ρ Π±Π°Π½ΠΈ
ΠΡΠΈΠΎΠ±ΡΠ΅ΡΠ΅Π½ΠΈΠ΅ ΠΊΡΠΏΠ΅Π»ΠΈ Π² ΠΏΠ»Π°ΡΡΠΈΠΊΠΎΠ²ΠΎΠΌ Π²Π°ΡΠΈΠ°Π½ΡΠ΅ Π΄ΠΎΡΡΡΠΏΠ½ΠΎ Π½Π° ΡΡΠ½ΠΊΠ΅, Π½ΠΎ Π²Ρ ΡΠ°ΠΊΠΆΠ΅ ΠΌΠΎΠΆΠ΅ΡΠ΅ ΡΠ΄Π΅Π»Π°ΡΡ Π°Π½Π°Π»ΠΎΠ³, ΠΈΠ· Π΄Π΅ΡΠ΅Π²Π°, Π±Π°Π½Ρ Ρ ΠΊΡΠΏΠ΅Π»ΡΡ ΠΏΡΠΎΠ΅ΠΊΡΡ, ΡΠΎΡΠΎ ΠΊΠΎΡΠΎΡΡΡ , ΠΏΠΎΠΌΠΎΠ³ΡΡ Π²Π°ΠΌ ΡΠ΄Π΅Π»Π°ΡΡ ΠΏΡΠ°Π²ΠΈΠ»ΡΠ½ΡΠΉ Π²ΡΠ±ΠΎΡ. Π‘Π°ΠΌΠΎΡΡΠΎΡΡΠ΅Π»ΡΠ½ΠΎΠ΅ Π΅Π΅ ΠΈΠ·Π³ΠΎΡΠΎΠ²Π»Π΅Π½ΠΈΠ΅ Π½Π΅ ΠΏΡΠ΅Π΄ΡΡΠ°Π²Π»ΡΠ΅Ρ ΡΠΎΠ±ΠΎΠΉ ΡΠ»ΠΎΠΆΠ½ΡΠΉ ΠΏΡΠΎΡΠ΅ΡΡ, Π½ΠΎ ΠΏΡΠΈ ΡΡΠΎΠΌ, ΡΡΠΎΠΈΡ ΡΡΠ΅ΡΡΡ Π½Π΅ΠΊΠΎΡΠΎΡΡΠ΅ ΠΌΠΎΠΌΠ΅Π½ΡΡ.

ΠΠΈΠ΄Ρ ΠΊΡΠΏΠ΅Π»Π΅ΠΉ
ΠΡΠΏΠ΅Π»ΠΈ ΠΊΠ»Π°ΡΡΠΈΡΠΈΡΠΈΡΡΡΡΡΡ ΠΏΠΎ Π²ΠΈΠ΄Π°ΠΌ. Π Π°Π·Π½ΠΈΡΡ ΠΌΠ΅ΠΆΠ΄Ρ ΠΊΡΠΏΠ΅Π»ΡΠΌΠΈ ΠΌΠΎΠ³ΡΡ ΡΠΎΡΡΠ°Π²Π»ΡΡΡ Π½Π΅ΡΠΊΠΎΠ»ΡΠΊΠΎ ΠΎΡΠ΄Π΅Π»ΡΠ½ΡΡ ΡΠ°ΠΊΡΠΎΡΠΎΠ².
ΠΠΎ ΡΠΎΡΠΌΠ΅ ΠΊΡΠΏΠ΅Π»ΠΈ Π±ΡΠ²Π°ΡΡ:
- ΠΊΡΡΠ³Π»ΡΠ΅;
- ΠΊΠ²Π°Π΄ΡΠ°ΡΠ½ΡΠ΅;
- ΠΎΠ²Π°Π»ΡΠ½ΡΠ΅.
ΠΠΎ ΠΈΠ·Π³ΠΎΡΠ°Π²Π»ΠΈΠ²Π°Π΅ΠΌΠΎΠΌΡ ΠΌΠ°ΡΠ΅ΡΠΈΠ°Π»Ρ:
- Π±Π΅ΡΠΎΠ½Π½ΡΠ΅;
- ΠΏΠ»Π°ΡΡΠΈΠΊΠΎΠ²ΡΠ΅;
- Π΄Π΅ΡΠ΅Π²ΡΠ½Π½ΡΠ΅;
- ΠΌΠ΅ΡΠ°Π»Π»ΠΈΡΠ΅ΡΠΊΠΈΠ΅.
ΠΠ°ΠΈΠ±ΠΎΠ»Π΅Π΅ ΡΠ°ΡΠΏΡΠΎΡΡΡΠ°Π½Π΅Π½Π½ΡΠΌ Π²Π°ΡΠΈΠ°Π½ΡΠΎΠΌ, ΡΠ²Π»ΡΠ΅ΡΡΡ ΠΈΠ·Π³ΠΎΡΠΎΠ²Π»Π΅Π½ΠΈΠ΅ ΠΊΡΠΏΠ΅Π»ΠΈ ΠΈΠ· Π΄Π΅ΡΠ΅Π²Π°, Π»ΡΠ±ΠΎΠΉ, ΠΏΠΎΠ½ΡΠ°Π²ΠΈΠ²ΡΠ΅ΠΉΡΡ ΡΠΎΡΠΌΡ. ΠΡΠΈ ΡΡΠΎΠΌ ΡΡΠΎΠΈΡ ΡΠ°ΠΊΠΆΠ΅ ΡΡΠ΅ΡΡΡ ΠΈ ΡΠΎΡ ΡΠ°ΠΊΡ, ΡΡΠΎ ΠΎΡ Π²ΡΠ±ΠΎΡΠ° ΡΠΎΠ³ΠΎ ΠΈΠ»ΠΈ ΠΈΠ½ΠΎΠ³ΠΎ Π²ΠΈΠ΄Π° Π΄ΡΠ΅Π²Π΅ΡΠΈΠ½Ρ, ΡΠΎΠΆΠ΅ Π·Π°Π²ΠΈΡΡΡ Π½Π΅ΠΊΠΎΡΠΎΡΡΠ΅ ΠΎΡΠ΄Π΅Π»ΡΠ½ΡΠ΅ ΡΠ°ΠΊΡΠΎΡΠ°.
ΠΡΠΈ Π²ΡΠ±ΠΎΡΠ΅ ΠΊΠ΅Π΄ΡΠΎΠ²ΠΎΠΉ ΠΊΡΠΏΠ΅Π»ΠΈ, Π²Ρ ΠΎΡΠΎΠ±ΠΎ Π½ΠΈΡΠ΅ΠΌ Π½Π΅ ΠΎΡΠ»ΠΈΡΠΈΡΠ΅ΡΡ, Π²Π΅Π΄Ρ ΠΎΠ½Π° ΡΠ²Π»ΡΠ΅ΡΡΡ ΡΠ°ΠΌΠΎΠΉ ΡΠ°ΡΠΏΡΠΎΡΡΡΠ°Π½Π΅Π½Π½ΠΎΠΉ, Π½ΠΎ Π½Π΅ Π·ΡΡ. ΠΡΠ΅Π²Π΅ΡΠΈΠ½Π° ΠΊΠ΅Π΄ΡΠ° Π½Π°ΡΡΡΠ΅Π½Π° ΠΈ ΠΏΡΠΎΠΏΠΈΡΠ°Π½Π° Π±ΠΎΠ»ΡΡΠΈΠΌ ΡΠ°Π·Π½ΠΎΠΎΠ±ΡΠ°Π·ΠΈΠ΅ΠΌ ΡΡΠΈΡΠ½ΡΡ ΠΌΠ°ΡΠ΅Π», Π·Π° ΡΡΠ΅Ρ ΡΠ΅Π³ΠΎ ΠΏΡΠΎΠΈΡΡ ΠΎΠ΄ΠΈΡ ΠΏΠΎΡΡΠΎΡΠ½Π½ΠΎΠ΅ ΠΈΡ Π²ΡΠ΄Π΅Π»Π΅Π½ΠΈΠ΅ Π² Π²ΠΎΠ΄Ρ.
Π―Π²Π½ΠΎΠ³ΠΎ ΡΡΡΠ΅ΠΊΡΠ°, ΠΌΠ°ΡΠ»Π° ΠΊΠΎΠ½Π΅ΡΠ½ΠΎ ΠΆΠ΅ Π½Π΅ ΠΏΡΠΈΠ½Π΅ΡΡΡ Π²Π΅Π΄Ρ Π²ΡΠ΅ ΠΎΠ½ΠΈ ΡΠ°Π±ΠΎΡΠ°ΡΡ Π½Π° ΠΊΠ»Π΅ΡΠΎΡΠ½ΡΠΌ ΡΡΠΎΠ²Π½Π΅, ΠΊΠ°ΠΊ Π² ΡΠΎΡΠ΅ΡΠ°Π½ΠΈΠΈ Ρ Π½Π°Π»ΠΈΡΠΎΠΉ Π²ΠΎΠ΄ΠΎΠΉ, ΡΠ°ΠΊ ΠΈ ΠΏΡΠΈ ΡΠΎΠ²ΠΌΠ΅ΡΡΠΈΠΌΠΎΡΡΠΈ Ρ ΡΠ΅Π»ΠΎΠΌ, ΠΏΠΎΡΠ»Π΅ ΠΏΠΎΠ³ΡΡΠΆΠ΅Π½ΠΈΡ. ΠΠΎ ΡΠΆΠ΅ ΡΠ΅ΡΠ΅Π· Π½Π΅ΡΠΊΠΎΠ»ΡΠΊΠΎ ΡΠ°ΡΠΎΠ², ΠΏΠΎΡΠ»Π΅ ΠΏΠ°ΡΠΊΠΈ ΠΈ Π½ΡΡΡΠ½ΠΈΡ Π² ΠΏΡΠ΅Π΄ΡΡΠ°Π²Π»Π΅Π½Π½ΡΠΉ Π²ΠΈΠ΄ ΠΊΡΠΏΠ΅Π»ΠΈ, Π²Π°ΡΠ° ΠΊΠΎΠΆΠ° ΡΡΠ°Π½Π΅Ρ Π³Π»Π°Π΄ΠΊΠΎΠΉ ΠΈ Π½Π΅ΠΆΠ½ΠΎΠΉ.
ΠΡΠΎΠΌΠ΅ Π²ΡΡΠ΅ΡΠΊΠ°Π·Π°Π½Π½ΠΎΠ³ΠΎ ΡΠ°ΠΊΡΠ°, Π΄ΡΠ΅Π²Π΅ΡΠΈΠ½Π° ΠΊΠ΅Π΄ΡΠ° Π½Π°ΡΡΡΠ΅Π½Π° Π±ΠΎΠ»ΡΡΠΈΠΌ ΠΊΠΎΠ»ΠΈΡΠ΅ΡΡΠ²ΠΎΠΌ ΡΠΈΡΠΎΠ½ΡΠΈΠ΄ΠΎΠ². ΠΡΠΈ ΠΌΠΈΠΊΡΠΎ-Π²Π΅ΡΠ΅ΡΡΠ²Π° ΠΏΠΎΠ²ΡΡΠ°ΡΡ Π·Π°ΡΠΈΡΠ½ΡΡ ΡΡΠ½ΠΊΡΠΈΡ Π±ΠΎΡΡΠ±Ρ ΡΠ΅Π»ΠΎΠ²Π΅ΡΠ΅ΡΠΊΠΎΠ³ΠΎ ΠΎΡΠ³Π°Π½ΠΈΠ·ΠΌΠ° Ρ ΡΠ°Π·Π»ΠΈΡΠ½ΡΠΌΠΈ Π²ΠΈΠ΄Π°ΠΌΠΈ Π²ΠΈΡΡΡΠΎΠ² ΠΈ ΠΈΠ½ΡΠ΅ΠΊΡΠΈΠΉ.

ΠΡΠ»ΠΈ Π²Ρ ΠΏΡΠ΅Π΄ΠΏΠΎΡΡΠ΅ΡΠ΅ ΠΎΡΡΠ°Π½ΠΎΠ²ΠΈΡΡ ΡΠ²ΠΎΠΉ Π²ΡΠ±ΠΎΡ Π½Π° Π΄ΡΠ±Π΅, ΡΠΎ Ρ Π»Π΅Π³ΠΊΠΎΡΡΡΡ ΠΈΠ·Π±Π°Π²ΠΈΡΠ΅ΡΡ ΠΎΡ Π±ΠΎΠ»ΡΡΠΈΠ½ΡΡΠ²Π° Π΄Π΅ΡΠΌΠ°ΡΠΎΠ»ΠΎΠ³ΠΈΡΠ΅ΡΠΊΠΈΡ Π·Π°Π±ΠΎΠ»Π΅Π²Π°Π½ΠΈΠΉ, ΠΈ ΠΎΠ±ΡΠΈΡ ΠΏΡΠΎΠ±Π»Π΅ΠΌ Ρ ΠΊΠΎΠΆΠ΅ΠΉ. ΠΡΠ΅Π²Π΅ΡΠΈΠ½Π° Π΄ΡΠ±Π° ΠΏΠΎΠ·Π²ΠΎΠ»ΡΠ΅Ρ ΠΏΠΎΠ»Π½ΠΎΡΡΡΡ Π½ΠΎΡΠΌΠ°Π»ΠΈΠ·ΠΎΠ²Π°ΡΡ ΠΎΠ±ΠΌΠ΅Π½ Π²Π΅ΡΠ΅ΡΡΠ² Π² ΠΎΡΠ³Π°Π½ΠΈΠ·ΠΌΠ΅. Π‘ΡΠ΅Π΄ΠΈ Π΄ΠΎΠΏΠΎΠ»Π½ΠΈΡΠ΅Π»ΡΠ½ΡΡ ΡΡΡΠ΅ΠΊΡΠΎΠ², ΠΌΠΎΠΆΠ½ΠΎ ΠΎΡΠΌΠ΅ΡΠΈΡΡ ΡΠ°ΠΊΠΈΠ΅ ΠΊΠ°ΠΊ: ΡΡΡΡΠ°Π½Π΅Π½ΠΈΠ΅ Π·ΡΠ΄Π°, Π²ΠΎΡΡΡΠ°Π½ΠΎΠ²Π»Π΅Π½ΠΈΠ΅ Π½Π΅ΡΠ²Π½ΠΎΠΉ ΡΠΈΡΡΠ΅ΠΌΡ, ΡΠΏΠΎΡΠΎΠ±ΡΡΠ²ΡΠ΅Ρ Π·Π°ΠΆΠΈΠ²Π»Π΅Π½ΠΈΡ ΡΠ°Π½.
ΠΡΠ΅ ΠΎΠ΄Π½ΠΈΠΌ Π²Π°ΡΠΈΠ°Π½ΡΠΎΠΌ, ΠΌΠΎΠΆΠ΅Ρ ΡΡΠ°ΡΡ Π΄ΡΠ΅Π²Π΅ΡΠΈΠ½Π° Π»ΠΈΡΡΠ²Π΅Π½Π½ΠΈΡΡ. ΠΠ½Π° Π±ΡΠ΄Π΅Ρ Π΄ΠΎΠ»Π³ΠΎΠ²Π΅ΡΠ½Π°, ΠΏΡΠΎΡΠ½Π°, Π½Π΅ ΠΏΠΎΠ΄Π²Π΅ΡΠΆΠ΅Π½Π° Π³Π½ΠΈΠ΅Π½ΠΈΡ ΠΈ Π΄Π°Π΅Ρ ΠΎΡΠ³Π°Π½ΠΈΠ·ΠΌΡ ΠΎΠ±ΡΠΈΠ΅ ΠΏΠΎΠ»ΠΎΠΆΠΈΡΠ΅Π»ΡΠ½ΡΠ΅ Ρ Π°ΡΠ°ΠΊΡΠ΅ΡΠΈΡΡΠΈΠΊΠΈ. ΠΡΠ½ΠΎΠ²Π½ΡΠΌΠΈ, ΡΡΠ΅Π΄ΠΈ Π½ΠΈΡ , ΠΌΠΎΠΆΠ½ΠΎ Π²ΡΠ΄Π΅Π»ΠΈΡΡ ΠΎΡΠΈΡΠ΅Π½ΠΈΠ΅ ΠΏΠΎΡ, Π½ΠΎΡΠΌΠ°Π»ΠΈΠ·Π°ΡΠΈΡ Π΄Π°Π²Π»Π΅Π½ΠΈΡ, ΠΏΠΎΠ²ΡΡΠ΅Π½ΠΈΠ΅ ΠΎΠ±ΡΠ΅Π³ΠΎ ΠΆΠΈΠ·Π½Π΅Π½Π½ΠΎΠ³ΠΎ ΡΠΎΠ½ΡΡΠ°, Π° ΡΠ°ΠΊΠΆΠ΅, ΠΌΠ½ΠΎΠΆΠ΅ΡΡΠ²ΠΎ Π΄ΠΎΠΏΠΎΠ»Π½ΠΈΡΠ΅Π»ΡΠ½ΡΡ .

ΠΡΠ»ΠΈ Π½Π°ΡΠ°ΡΡ ΡΠ°ΡΡΠΌΠ°ΡΡΠΈΠ²Π°ΡΡ ΠΌΠΈΠ½ΡΡΡ ΠΊΡΠΏΠ΅Π»ΠΈ, ΡΠΎ ΠΈΡ Π½Π΅Ρ. Π Π²ΠΎΡ ΡΡΠΎ ΠΊΠ°ΡΠ°Π΅ΡΡΡ ΠΎΡΠ΄Π΅Π»ΡΠ½ΡΡ , ΠΎΡΠ΅Π½Ρ Π²Π°ΠΆΠ½ΡΡ Π΄Π΅ΡΠ°Π»Π΅ΠΉ, ΡΠΎ Π·Π΄Π΅ΡΡ ΡΡΠΎΠΈΡ ΠΎΡΠΌΠ΅ΡΠΈΡΡ ΠΎΠ³ΡΠΎΠΌΠ½ΡΡ ΡΠ»ΠΎΠΆΠ½ΠΎΡΡΡ Π² ΡΠΊΡΠΏΠ»ΡΠ°ΡΠ°ΡΠΈΠΈ. ΠΡΠΆΠ½ΠΎ ΡΡΠΎΠ±Ρ Π½Π° Π΄Π½Π΅ ΠΊΡΠΏΠ΅Π»ΠΈ, ΠΏΠΎΡΡΠΎΡΠ½Π½ΠΎ Π½Π°Ρ ΠΎΠ΄ΠΈΠ»Π°ΡΡ Π²ΠΎΠ΄Π°, ΠΈΠ½Π°ΡΠ΅ Π΄ΡΠ΅Π²Π΅ΡΠΈΠ½Π° ΠΏΡΠΎΡΡΠΎ ΠΏΠ΅ΡΠ΅ΡΠΎΡ Π½Π΅Ρ. ΠΠ»Ρ ΡΠΎΠ³ΠΎ, ΡΡΠΎΠ±Ρ ΠΈΠ·Π±Π΅ΠΆΠ°ΡΡ Π΄Π°Π½Π½ΠΎΠΉ ΡΠΈΡΡΠ°ΡΠΈΠΈ Π½Π΅ΠΎΠ±Ρ ΠΎΠ΄ΠΈΠΌΠΎ ΠΎΡΡΠ°Π²Π»ΡΡΡ Π½Π° Π΄Π½Π΅ Π½Π΅ΠΌΠ½ΠΎΠ³ΠΎ Π²ΠΎΠ΄Ρ, Π° ΡΠ²Π΅ΡΡ Ρ Π½Π°ΠΊΡΡΠ²Π°ΡΡ ΠΊΡΠΏΠ΅Π»Ρ ΠΊΡΡΡΠΊΠΎΠΉ.
ΠΡΠ΅ ΠΎΠ΄Π½ΠΎΠΉ ΠΌΠ°Π»Π΅Π½ΡΠΊΠΎΠΉ ΠΎΡΠΎΠ±Π΅Π½Π½ΠΎΡΡΡΡ, ΠΌΠΎΠΆΠ½ΠΎ ΡΠΊΠ°Π·Π°ΡΡ ΡΠΎ, ΡΡΠΎ ΠΌΠΎΠ½ΡΠ°ΠΆ ΠΊΡΠΏΠ΅Π»ΠΈ Π΄ΠΎΠ»ΠΆΠ΅Π½ ΠΏΡΠΎΠ²ΠΎΠ΄ΠΈΡΡΡ ΡΠΎΠ»ΡΠΊΠΎ Π½Π° ΠΈΠ΄Π΅Π°Π»ΡΠ½ΠΎ ΡΠΎΠ²Π½ΡΡ ΠΏΠΎΠ²Π΅ΡΡ Π½ΠΎΡΡΡ. ΠΡΠ»ΠΈ Π² ΠΌΠ΅ΡΡΠ΅ ΡΡΡΠ°Π½ΠΎΠ²ΠΊΠΈ ΠΊΡΠΏΠ΅Π»ΠΈ ΠΏΠΎΠ» Π½Π΅ ΡΠ²Π»ΡΠ΅ΡΡΡ ΡΠΎΠ²Π½ΡΠΌ, ΡΠΎ ΡΠ΅ΠΊΠΎΠΌΠ΅Π½Π΄ΡΠ΅ΡΡΡ ΠΈΡΠΏΠΎΠ»ΡΠ·ΠΎΠ²Π°ΡΡ ΡΠΏΠ΅ΡΠΈΠ°Π»ΡΠ½ΡΠ΅ ΠΏΠ»Π°ΡΡΠΈΠΊΠΎΠ²ΡΠ΅ ΠΏΠΎΠ΄ΠΊΠ»Π°Π΄ΠΊΠΈ, ΠΊΠΎΡΠΎΡΡΠ΅ ΡΠΈΠΊΡΠΈΡΡΡΡΡΡ ΠΏΠΎΠ΄ Π½ΠΎΠΆΠΊΠ°ΠΌΠΈ.
ΠΡ ΠΏΠΎΠ»Π° Π΄ΠΎ ΡΠ»ΠΈΠ²Π½ΠΎΠ³ΠΎ ΡΠ»Π°Π½Π³Π° Π΄ΠΎΠ»ΠΆΠ½ΠΎ Π±ΡΡΡ Π½Π΅ ΠΌΠ΅Π½Π΅Π΅ 10 ΡΠ°Π½ΡΠΈΠΌΠ΅ΡΡΠΎΠ². ΠΠΎΡΠ»Π΅ ΡΠ΅Π³ΠΎ, ΠΎΠ΄Π½Ρ ΡΡΠΎΡΠΎΠ½Ρ ΡΠ»Π°Π½Π³Π° ΠΎΠΏΡΡΠΊΠ°ΡΡ Π² ΠΊΠ°Π½Π°Π»ΠΈΠ·Π°ΡΠΈΡ Π° Π΄ΡΡΠ³ΡΡ Π²ΡΡΠ°Π²Π»ΡΡΡ Π² ΠΎΡΠ²Π΅ΡΡΡΠΈΠ΅ Π² ΠΊΡΠΏΠ΅Π»ΠΈ.
ΠΠΎΠ»Π½ΡΠΉ ΠΌΠΎΠ½ΡΠ°ΠΆ ΠΊΡΠΏΠ΅Π»ΠΈ Π΄Π»Ρ Π±Π°Π½ΠΈ ΡΠ²ΠΎΠΈΠΌΠΈ ΡΡΠΊΠ°ΠΌΠΈ
ΠΠ½ΠΎΠ³ΠΈΠ΅ Π»ΡΠ΄ΠΈ Ρ ΠΊΠΎΡΠΎΡΡΡ ΠΏΡΠΈΡΡΡΡΡΠ²ΡΠ΅Ρ Π±Π°Π½ΠΈ ΡΠ°ΡΡΠΎ Π·Π°Π΄Π°ΡΡΡΡ Π²ΠΎΠΏΡΠΎΡΠ°ΠΌΠΈ: ΠΌΠΎΠΆΠ½ΠΎ Π»ΠΈ ΡΠ΄Π΅Π»Π°ΡΡ ΠΊΡΠΏΠ΅Π»Ρ Π΄Π»Ρ Π±Π°Π½ΠΈ ΡΠΎΠ±ΡΡΠ²Π΅Π½Π½ΡΠΌΠΈ ΡΡΠΊΠ°ΠΌΠΈ? ΠΠ°ΠΊ ΡΠ΄Π΅Π»Π°ΡΡ ΠΊΡΠΏΠ΅Π»Ρ Π΄Π»Ρ Π±Π°Π½ΠΈ ΡΠ²ΠΎΠΈΠΌΠΈ ΡΡΠΊΠ°ΠΌΠΈ? ΠΠ΅ΡΠ΅Π΄ Π½Π΅ΠΏΠΎΡΡΠ΅Π΄ΡΡΠ²Π΅Π½Π½ΡΠΌ Π½Π°ΡΠ°Π»ΠΎΠΌ ΠΌΠΎΠ½ΡΠ°ΠΆΠ° ΡΠ»Π΅Π΄ΡΠ΅Ρ ΠΎΠΏΡΠ΅Π΄Π΅Π»ΠΈΡΡΡ Ρ ΠΌΠ΅ΡΡΠΎΡΠ°ΡΠΏΠΎΠ»ΠΎΠΆΠ΅Π½ΠΈΠ΅ΠΌ Π½ΠΎΠ²ΠΎΠ³ΠΎ ΠΈΡΡΠΎΡΠ½ΠΈΠΊΠ° Π·Π΄ΠΎΡΠΎΠ²ΠΎΠΉ ΠΈ Π΄ΠΎΠ»Π³ΠΎΠΉ ΠΆΠΈΠ·Π½ΠΈ.

ΠΡΠ±ΠΎΡ Π΄ΠΎΠ»ΠΆΠ΅Π½ Π±ΡΡΡ ΡΠ΄Π΅Π»Π°Π½ ΠΏΡΠ°Π²ΠΈΠ»ΡΠ½ΠΎ, ΡΡΠΎΠ±Ρ ΠΏΠΎΠ»Π½ΠΎΡΡΡΡ ΡΠΎΠ±Π»ΡΠ΄Π°ΡΡ ΡΠΈΡΡΠ΅ΠΌΡ ΠΊΠ°Π½Π°Π»ΠΈΠ·Π°ΡΠΈΠΈ ΠΈ ΠΏΡΠΈ ΡΡΠΎΠΌ, Π±ΡΠ»ΠΎ ΡΠ²ΠΎΠ±ΠΎΠ΄Π½ΠΎΠ΅ ΠΌΠ΅ΡΡΠΎ. ΠΡΠΏΠ΅Π»Ρ Π΄Π»Ρ Π±Π°Π½ΠΈ, ΡΠ°Π·ΠΌΠ΅ΡΡ ΠΊΠΎΡΠΎΡΠΎΠΉ, ΠΌΠΎΠ³ΡΡ Π±ΡΡΡ ΡΠ°Π·Π»ΠΈΡΠ½ΡΠ΅. ΠΠΎ ΠΈ Π·Π΄Π΅ΡΡ, Π² ΠΏΠ΅ΡΠ²ΡΡ ΠΎΡΠ΅ΡΠ΅Π΄Ρ, Π½ΡΠΆΠ½ΠΎ ΠΎΡΠΌΠ΅ΡΠΈΡΡ Π½Π°ΡΠΊΠΎΠ»ΡΠΊΠΎ Π²Π΅Π»ΠΈΠΊΠ° ΠΊΠΎΠΌΠ½Π°ΡΠ° Π΄Π»Ρ ΡΡΡΠ°Π½ΠΎΠ²ΠΊΠΈ ΠΊΡΠΏΠ΅Π»ΠΈ. ΠΠ΄Π΅Π°Π»ΡΠ½ΡΠΉ Π²Π°ΡΠΈΠ°Π½Ρ Π΄Π»Ρ ΠΊΡΠΏΠ΅Π»ΠΈ Π² ΠΊΠ°ΠΆΠ΄ΠΎΠΉ ΠΎΡΠ΄Π΅Π»ΡΠ½ΠΎΠΉ ΡΠΈΡΡΠ°ΡΠΈΠΈ Π΄ΠΎΠ»ΠΆΠ΅Π½ Π±ΡΡΡ ΡΠ°ΡΡΠΌΠΎΡΡΠ΅Π½ ΠΈΠ·Π½Π°ΡΠ°Π»ΡΠ½ΠΎ, Π΅ΡΠ΅ ΠΏΡΠΈ Π΅Π΅ ΠΏΠ»Π°Π½ΠΈΡΠΎΠ²ΠΊΠ΅.
ΠΠΎ ΡΠΏΠΎΡΠΎΠ±Π°ΠΌ ΠΌΠΎΠ½ΡΠ°ΠΆΠ° ΠΊΡΠΏΠ΅Π»ΠΈ ΠΏΠΎΠ΄ΡΠ°Π·Π΄Π΅Π»ΡΡΡΡΡ Π½Π°:
- ΡΠ³Π»ΡΠ±Π»Π΅Π½Π½ΡΠ΅;
- ΠΎΠ±Π»ΠΈΠ²Π½ΡΠ΅;
- ΠΎΡΠΊΡΡΡΡΠ΅.
ΠΠ»Ρ ΠΊΠ°ΠΆΠ΄ΠΎΠ³ΠΎ ΠΈΠ· ΠΏΡΠ΅Π΄ΡΡΠ°Π²Π»Π΅Π½Π½ΡΡ ΡΠΏΠΎΡΠΎΠ±ΠΎΠ² ΡΡΡΠ°Π½ΠΎΠ²ΠΊΠ° Π±ΡΠ΄Π΅Ρ ΠΎΡΠ»ΠΈΡΠ°ΡΡΡ ΡΠ²ΠΎΠΈΠΌΠΈ ΠΈΠ½Π΄ΠΈΠ²ΠΈΠ΄ΡΠ°Π»ΡΠ½ΡΠΌΠΈ ΠΎΡΠΎΠ±Π΅Π½Π½ΠΎΡΡΡΠΌΠΈ.
ΠΠΎΠ½ΡΠ°ΠΆ ΡΠ³Π»ΡΠ±Π»Π΅Π½Π½ΠΎΠΉ ΠΊΡΠΏΠ΅Π»ΠΈ
ΠΠ»Ρ ΡΡΡΠ°Π½ΠΎΠ²ΠΊΠΈ ΠΏΡΠ΅Π΄ΡΡΠ°Π²Π»Π΅Π½Π½ΠΎΠ³ΠΎ Π²ΠΈΠ΄Π° ΠΊΡΠΏΠ΅Π»ΠΈ Π½Π΅ΠΎΠ±Ρ ΠΎΠ΄ΠΈΠΌΠΎ ΠΏΡΠΎΠ²Π΅ΡΡΠΈ Π½Π΅ΡΠΊΠΎΠ»ΡΠΊΠΎ Π½Π΅Π±ΠΎΠ»ΡΡΠΈΡ ΠΌΠ΅ΡΠΎΠΏΡΠΈΡΡΠΈΠΉ, ΠΊΠΎΡΠΎΡΡΠ΅ ΠΎΠ±ΡΡΠ½ΠΎ Π²ΡΠΏΠΎΠ»Π½ΡΡΡΡΡ ΠΏΡΠΈ ΠΏΠΎΡΡΡΠΎΠ΅Π½ΠΈΠΈ Π±Π°ΡΡΠ΅ΠΉΠ½ΠΎΠ². Π ΠΎΠ±ΡΠ·Π°ΡΠ΅Π»ΡΠ½ΠΎΠΌ ΠΏΠΎΡΡΠ΄ΠΊΠ΅ Π½ΡΠΆΠ½ΠΎ Π²ΡΡΡΡΡ ΠΊΠΎΡΠ»ΠΎΠ²Π°Π½, Π²ΠΎΠ·Π²Π΅ΡΡΠΈ ΠΎΠ³ΡΠ°ΠΆΠ΄Π΅Π½ΠΈΠ΅ Π²ΠΎΠΊΡΡΠ³ Π½Π΅Π³ΠΎ, ΠΏΡΠΎΠΈΠ·Π²Π΅ΡΡΠΈ Π½Π°ΡΡΠΈΠ» Π³ΠΈΠ΄ΡΠΎΠΈΠ·ΠΎΠ»ΡΡΠΈΠΈ ΠΈ ΡΠ΄Π΅Π»Π°ΡΡ ΠΎΠ±Π»ΠΈΡΠΎΠ²ΠΊΡ. ΠΠΎΠΏΠΎΠ»Π½ΠΈΡΠ΅Π»ΡΠ½ΠΎ, Π² ΡΡΠΎΡ ΠΏΡΠ½ΠΊΡ Π΄ΠΎΠ»ΠΆΠ½Ρ Π²Ρ ΠΎΠ΄ΠΈΡΡ ΠΊΠΎΠΌΠΏΠΎΠ½Π΅Π½ΡΡ Π΄Π»Ρ ΠΎΠ±ΠΎΡΡΠ΄ΠΎΠ²Π°Π½ΠΈΡ ΡΠ»ΠΈΠ²Π° Π²ΠΎΠ΄Ρ. ΠΠ°Π½Π½ΡΠΉ Π²ΠΈΠ΄ ΡΡΠΈΡΠ°Π΅ΡΡΡ ΡΠ°ΠΌΡΠΌ ΡΠ΅ΡΠ½ΠΈΡΡΡΠΌ Π² ΠΎΠΆΠΈΠ΄Π°Π½ΠΈΠΈ ΠΌΠΎΠ»ΠΎΠ΄ΠΎΡΡΠΈ ΠΈ Π΄ΠΎΠ»Π³ΠΎΠ²Π΅ΡΠ½ΠΎΡΡΠΈ.

ΠΠΎΠ½ΡΠ°ΠΆ ΠΎΡΠΊΡΡΡΠΎΠΉ ΠΊΡΠΏΠ΅Π»ΠΈ
Π ΠΏΡΠ΅Π΄ΡΡΠ°Π²Π»Π΅Π½Π½ΠΎΠΌ ΡΠ»ΡΡΠ°Π΅, Π²ΡΠ΅ Π½Π΅ΠΎΠ±Ρ ΠΎΠ΄ΠΈΠΌΡΠ΅ ΡΠ°Π±ΠΎΡΡ Π±ΡΠ΄ΡΡ Π·Π½Π°ΡΠΈΡΠ΅Π»ΡΠ½ΠΎ Π»Π΅Π³ΡΠ΅, ΠΈ ΡΠ°ΠΌΠΎ Π²ΡΠΏΠΎΠ»Π½Π΅Π½ΠΈΠ΅ Π±ΡΠ΄Π΅Ρ Π½Π°ΠΌΠ½ΠΎΠ³ΠΎ ΠΏΡΠΎΡΠ΅. ΠΠ»Ρ ΠΌΠΎΠ½ΡΠ°ΠΆΠ° ΡΡΠ΅Π±ΡΠ΅ΡΡΡ Π²ΠΌΠ΅ΡΡΠΈΡΠ΅Π»ΡΠ½ΡΠΉ ΡΠ΅Π·Π΅ΡΠ²ΡΠ°Ρ, Π²ΡΠΏΠΎΠ»Π½Π΅Π½Π½ΡΠΉ ΠΈΠ· Π΄ΡΠ΅Π²Π΅ΡΠΈΠ½Ρ ΠΈΠ»ΠΈ ΡΠΏΠ΅ΡΠΈΠ°Π»ΡΠ½ΡΠ΅ ΠΊΡΠΏΠ΅Π»ΠΈ Π΄Π»Ρ Π±Π°Π½ΠΈ ΠΈΠ· ΠΏΠΎΠ»ΠΈΠΏΡΠΎΠΏΠΈΠ»Π΅Π½Π° ΠΊΠΎΡΠΎΡΡΠ΅. Π ΠΏΠΎΡΠ»Π΅Π΄ΡΡΠ²ΠΈΠΈ, ΠΏΠΎΠ΄ΠΊΠ»ΡΡΠ°Π΅ΡΡΡ ΠΊ ΠΊΠ°Π½Π°Π»ΠΈΠ·Π°ΡΠΈΠΈ, Π° ΠΎΠΊΠΎΠ½ΡΠ°ΡΠ΅Π»ΡΠ½ΡΠΌ ΡΡΠ°ΠΏΠΎΠΌ, ΠΏΡΠΎΠΈΠ·Π²ΠΎΠ΄ΠΈΡΡΡ Π²Π½Π΅ΡΠ½ΡΡ ΠΎΡΠ΄Π΅Π»ΠΊΠ°.
ΠΠ»Π°ΡΡΠΈΠΊΠΎΠ²ΡΡ ΠΊΡΠΏΠ΅Π»Ρ Π΄Π»Ρ Π±Π°Π½ΠΈ ΠΎΠ±ΡΡΠ½ΠΎ ΠΏΡΠΈΠΎΠ±ΡΠ΅ΡΠ°ΡΡ Π»ΡΠ΄ΠΈ, Ρ ΠΊΠΎΡΠΎΡΡΡ ΠΎΠ³ΡΠ°Π½ΠΈΡΠ΅Π½Π½ΡΠΉ Π±ΡΠ΄ΠΆΠ΅Ρ ΠΈΠ»ΠΈ ΠΏΡΠΈ Π½Π΅Ρ ΠΎΡΠ΅Π½ΠΈΠΈ Π²ΡΠΏΠΎΠ»Π½ΡΡΡ ΡΠ°ΠΌΠΎΡΡΠΎΡΡΠ΅Π»ΡΠ½ΡΠ΅ ΡΠ°Π±ΠΎΡΡ.
ΠΡΠ΅ ΠΎΠ΄Π½ΠΈΠΌ Π²Π°ΡΠΈΠ°Π½ΡΠΎΠΌ ΠΌΠΎΠΆΠ΅Ρ ΡΡΠ°ΡΡ ΡΠΊΠΎΡΠ΅ΠΉΡΠ΅Π΅ ΠΈΡΠΏΠΎΠ»ΡΠ·ΠΎΠ²Π°Π½ΠΈΠ΅ Π΄Π»Ρ ΡΠΎΠ³ΠΎ, ΡΡΠΎΠ±Ρ ΠΏΠΎΠ½ΡΡΡ Π½ΡΠΆΠ½Π° ΠΎΠ½Π° Π²ΠΎΠΎΠ±ΡΠ΅ ΠΈΠ»ΠΈ Π½Π΅Ρ. ΠΠΎ Π·Π΄Π΅ΡΡ ΡΡΠΎΠΈΡ ΡΡΠ΅ΡΡΡ, ΡΡΠΎ ΠΏΡΠΈ Π»ΡΠ±ΠΎΠΌ ΠΈΠ· Π²ΡΠ±ΡΠ°Π½Π½ΡΡ Π²Π°ΡΠΈΠ°Π½ΡΠΎΠ², Π΄ΠΎΠΏΠΎΠ»Π½ΠΈΡΠ΅Π»ΡΠ½ΠΎ, ΠΏΡΠΈΠ΄Π΅ΡΡΡ ΠΏΡΠΈΠΎΠ±ΡΠ΅ΡΠ°ΡΡ ΠΈ ΡΡΠΈΡΠ½ΡΠ΅ ΠΌΠ°ΡΠ»Π°, ΡΡΠΎΠ±Ρ Π΄ΠΎΠ±Π°Π²ΠΈΡΡ Π² Π½Π°ΠΏΠΎΠ»Π½Π΅Π½Π½ΡΡ ΠΊΡΠΏΠ΅Π»Ρ, ΠΈ ΠΌΠΈΠ½Π΅ΡΠ°Π»Ρ.
ΠΡΠΈ ΡΠ°ΡΡΠΌΠΎΡΡΠ΅Π½ΠΈΠΈ Π΄Π°Π½Π½ΠΎΠ³ΠΎ Π²ΠΈΠ΄Π°, ΡΠ°ΠΊΠΆΠ΅, ΡΡΠΎΠΈΡ ΠΎΡΠΌΠ΅ΡΠΈΡΡ ΡΡΠΎ ΡΠ΄Π΅Π»Π°Π½Π° ΠΎΠ½Π° ΠΈΠ· ΠΏΠΎΠ»ΠΈΠΏΡΠΎΠΏΠΈΠ»Π΅Π½Π°, ΠΊΠΎΡΠΎΡΡΠΉ ΡΠ²Π»ΡΠ΅ΡΡΡ ΡΠΊΠΎΠ»ΠΎΠ³ΠΈΡΠ΅ΡΠΊΠΈ ΡΠΈΡΡΡΠΌ ΠΌΠ°ΡΠ΅ΡΠΈΠ°Π»ΠΎΠΌ. ΠΠ½ Π½Π΅ Π²ΡΠ΄Π΅Π»ΡΠ΅Ρ Π½ΠΈΠΊΠ°ΠΊΠΈΡ Π²ΡΠ΅Π΄ΠΎΠ½ΠΎΡΠ½ΡΡ Π²Π΅ΡΠ΅ΡΡΠ², Π·Π° ΡΡΠ΅Ρ ΡΠ΅Π³ΠΎ, ΡΠ²Π»ΡΠ΅ΡΡΡ Π½Π° 100% Π±Π΅Π·ΠΎΠΏΠ°ΡΠ½ΡΠΌ Π΄Π»Ρ ΡΠ΅Π»ΠΎΠ²Π΅ΡΠ΅ΡΠΊΠΎΠ³ΠΎ ΠΎΡΠ³Π°Π½ΠΈΠ·ΠΌΠ°. Π‘ΡΠ΅Π΄ΠΈ Π΄ΠΎΡΡΠΎΠΈΠ½ΡΡΠ² ΠΏΡΠ΅Π΄ΡΡΠ°Π²Π»Π΅Π½Π½ΠΎΠΉ ΠΊΡΠΏΠ΅Π»ΠΈ ΠΌΠΎΠΆΠ½ΠΎ ΠΎΡΠΌΠ΅ΡΠΈΡΡ Π΄ΠΎΠ»Π³ΠΎΠ²Π΅ΡΠ½ΠΎΡΡΡ, ΠΏΡΠ°ΠΊΡΠΈΡΠ½ΠΎΡΡΡ, ΠΏΡΠΎΡΡΠΎΡΡ Π² ΡΡ ΠΎΠ΄Π΅, ΡΡΡΠΎΠΉΡΠΈΠ²ΠΎΡΡΡ ΠΊ ΡΠ°ΡΠ°ΠΏΠΈΠ½Π°ΠΌ ΠΈ ΡΡΠ΅ΡΠΈΠ½Π°ΠΌ.

Π Π°ΡΡΠΌΠ°ΡΡΠΈΠ²Π°Ρ ΠΏΠ»Π°ΡΡΠΈΠΊΠΎΠ²ΡΠ΅ Π²ΠΈΠ΄Ρ ΠΊΡΠΏΠ΅Π»Π΅ΠΉ ΠΏΡΠΈΠ²Π»Π΅ΠΊΠ°ΡΡ Π΄ΠΎΡΡΠ°ΡΠΎΡΠ½ΠΎ ΠΌΠ½ΠΎΠ³ΠΎ ΠΊΠΎΠΌΠΏΠΎΠ½Π΅Π½ΡΠΎΠ², ΠΊΠΎΡΠΎΡΡΠ΅ ΡΠΆΠ΅ Π±ΡΠ»ΠΈ ΡΠΊΠ°Π·Π°Π½Ρ, Π½ΠΎ ΠΈ ΡΡΠΎ Π΅ΡΠ΅ Π½Π΅ Π²ΡΠ΅. ΠΠ½ΠΈ ΡΠ°ΠΊΠΆΠ΅ ΠΌΠΎΠ³ΡΡ Π±ΡΡΡ ΡΠ°Π·Π½ΠΎΠΎΠ±ΡΠ°Π·Π½ΡΡ ΡΠΎΡΠΌ ΠΈ ΡΠ°Π·ΠΌΠ΅ΡΠΎΠ². Π ΠΈΡ ΠΊΠΎΠΌΠΏΠ»Π΅ΠΊΡΠ°ΡΠΈΡ Π²Ρ ΠΎΠ΄ΡΡ ΡΡΡΠΏΠ΅Π½ΡΠΊΠΈ, ΠΏΠ΅ΡΠΈΠ»Π°, Π²ΠΎΠ·ΠΌΠΎΠΆΠ½Ρ ΡΠΈΠ΄Π΅Π½ΡΡ ΠΈ ΡΠ°Π·Π»ΠΈΡΠ½ΡΠ΅ Π³ΠΈΠ΄ΡΠΎΡΠ΅Ρ Π½ΠΈΡΠ΅ΡΠΊΠΈΠ΅ ΡΠ²ΠΎΠΉΡΡΠ²Π°.
ΠΠ»Ρ ΡΠΎΠ·Π΄Π°Π½ΠΈΡ ΠΏΡΠΈΠ²Π»Π΅ΠΊΠ°ΡΡΠ΅Π³ΠΎ Π΄Π»Ρ Π±Π°Π½ΠΈ Π²ΠΈΠ΄Π°, ΠΏΡΠΎΠΈΠ·Π²ΠΎΠ΄ΠΈΡΡΡ ΠΎΠ±ΡΠΈΠ²ΠΊΠ°, Π²ΡΠΏΠΎΠ»Π½Π΅Π½Π½Π°Ρ Ρ ΠΏΠΎΠΌΠΎΡΡΡ Π΄Π΅ΡΠ΅Π²Π°, Π·Π°ΡΠ°ΡΡΡΡ ΠΈΠΌ ΡΠ²Π»ΡΠ΅ΡΡΡ Π»ΠΈΡΡΠ²Π΅Π½Π½ΠΈΡΠ°. ΠΠΎ Π²ΡΠ΅ΠΌΡ ΠΏΠ΅ΡΠΈΠΌΠ΅ΡΡΡ Π΄Π΅Π»Π°Π΅ΡΡΡ ΠΎΠ±Π²ΡΠ·ΠΊΠ°, Π° ΡΠ²Π΅ΡΡ Ρ ΠΊΡΠ΅ΠΏΠΈΡΡΡ Π²Π°Π³ΠΎΠ½ΠΊΠ°, Π²ΡΠΏΠΎΠ»Π½Π΅Π½Π½Π°Ρ, ΡΠ°ΠΊΠΆΠ΅, ΠΈΠ· Π»ΠΈΡΡΠ²Π΅Π½Π½ΠΈΡΡ.
ΠΡΠ»ΠΈ Π΅ΡΡΡ Π½Π΅ΠΎΠ±Ρ ΠΎΠ΄ΠΈΠΌΠΎΡΡΡ, ΠΌΠΎΠΆΠ½ΠΎ ΡΠ΄Π΅Π»Π°ΡΡ Π΅ΡΠ΅ ΠΈ Π΄ΠΎΠΏΠΎΠ»Π½ΠΈΡΠ΅Π»ΡΠ½ΡΠ΅ ΡΡΠΎΠ²Π΅ΡΡΠ΅Π½ΡΡΠ²ΠΎΠ²Π°Π½ΠΈΡ. ΠΠ°ΠΏΡΠΈΠΌΠ΅Ρ, Π²ΠΎ Π²Π½ΡΡΡΡ ΠΌΠΎΠΆΠ½ΠΎ ΡΡΡΠ°Π½ΠΎΠ²ΠΈΡΡ ΡΡΠ½ΠΊΡΠΈΠΈ Π³ΠΈΠ΄ΡΠΎΠΌΠ°ΡΡΠ°ΠΆΠ° ΠΈΠ»ΠΈ ΠΏΠΎΠ΄ΠΎΠ³ΡΠ΅Π²Π°. ΠΡΠΈ ΡΡΡΠ°Π½ΠΎΠ²ΠΊΠ΅ ΠΏΠΎΠ΄ΠΎΠ³ΡΠ΅Π²Π°, Π½Π°Π³ΡΠ΅Π²Π°ΡΠ΅Π»Ρ ΠΌΠΎΠΆΠ΅Ρ Π±ΡΡΡ, ΠΊΠ°ΠΊ ΡΠ»Π΅ΠΊΡΡΠΈΡΠ΅ΡΠΊΠΈΠΌ, ΡΠ°ΠΊ ΠΈ Π³Π°Π·ΠΎΠ²ΡΠΌ.
ΠΠΎΠ½ΡΠ°ΠΆ ΠΊΡΠΏΠ΅Π»ΠΈ ΠΎΠ±Π»ΠΈΠ²Π½ΠΎΠ³ΠΎ ΡΠΈΠΏΠ°
ΠΡΠΈ Π²ΡΠ±ΠΎΡΠ΅ Π΄Π°Π½Π½ΠΎΠ³ΠΎ Π²ΠΈΠ΄Π° ΠΊΡΠΏΠ΅Π»ΠΈ, ΠΌΠΎΠ½ΡΠ°ΠΆ ΠΏΡΠΎΠΈΠ·Π²ΠΎΠ΄ΠΈΡΡΡ Π·Π° ΡΡΠ΅Ρ Π²ΡΡΠ°Π²ΠΊΠΈ Π² ΡΡΠ΅Π½Ρ ΡΠ²ΠΎΠ΅ΠΎΠ±ΡΠ°Π·Π½ΠΎΠΉ ΡΡΡΠ°Π½ΠΎΠ²ΠΊΠΈ, ΠΊΠΎΡΠΎΡΠ°Ρ Π±ΡΠ΄Π΅Ρ Π°ΠΊΡΠΈΠ²ΠΈΡΠΎΠ²Π°ΡΡΡΡ Β«ΠΏΠΎΡΡΠ½ΡΠ² Π·Π° Π²Π΅ΡΠ΅Π²ΠΎΡΠΊΡΒ». ΠΡΠΈ Π²ΡΠΏΠΎΠ»Π½Π΅Π½ΠΈΠΈ Π΄Π°Π½Π½ΠΎΠ³ΠΎ Π΄Π΅ΠΉΡΡΠ²ΠΈΡ, Π½Π° Π²Π°Ρ ΡΠ²Π΅ΡΡ Ρ Π±ΡΠ΄Π΅Ρ Π²ΡΠ»ΠΈΠ²Π°ΡΡΡΡ ΡΡΠ°Ρ Π²ΠΎΠ΄Ρ.
ΠΠΎΡΠ»Π΅ Π²ΠΎΠ·Π²ΡΠ°ΡΠ΅Π½ΠΈΡ Π² ΡΡΠ°Π½Π΄Π°ΡΡΠ½ΠΎΠ΅ ΠΏΠΎΠ»ΠΎΠΆΠ΅Π½ΠΈΠ΅, Π±ΠΎΡΠΊΠ° Π΄Π»Ρ Π±Π°Π½ΠΈ ΠΊΡΠΏΠ΅Π»Ρ ΠΈ ΡΡΡΠ°Π½ΠΎΠ²Π»Π΅Π½Π½ΡΠΉ ΠΌΠ΅Ρ Π°Π½ΠΈΠ·ΠΌ ΡΠ½ΠΎΠ²Π° Π±ΡΠ΄Π΅Ρ Π½Π°Π±ΠΈΡΠ°ΡΡ Π² Π½Π΅Π΅ Π²ΠΎΠ΄Ρ. Π Π΅Π³ΡΠ»ΠΈΡΡΠ΅ΡΡΡ Π΄Π°Π½Π½Π°Ρ ΡΠΈΡΡΠ΅ΠΌΠ° ΡΠΏΠ΅ΡΠΈΠ°Π»ΡΠ½ΡΠΌ ΠΏΠΎΠΏΠ»Π°Π²ΠΊΠΎΠΌ ΡΡΡΠ°Π½ΠΎΠ²Π»Π΅Π½Π½ΡΠΌ Π²Π½ΡΡΡΠΈ. ΠΡΠ΅ Π·Π°ΡΡΠ°ΡΡ Π½Π° ΠΏΡΠ΅Π΄Π»ΠΎΠΆΠ΅Π½Π½ΡΠΉ Π²ΠΈΠ΄ ΠΌΠ΅Ρ Π°Π½ΠΈΠ·ΠΌΠ° ΠΎΡΠ΅Π½Ρ ΠΌΠΈΠ½ΠΈΠΌΠ°Π»ΡΠ½Ρ, Π΄Π° ΠΈ ΡΡΡΠ°Π½ΠΎΠ²ΠΊΠ° Π½Π΅ Π·Π°ΠΉΠΌΠ΅Ρ ΠΌΠ½ΠΎΠ³ΠΎ Π²ΡΠ΅ΠΌΠ΅Π½ΠΈ ΠΈ Π½Π΅ ΡΠΎΡΡΠ°Π²ΠΈΡ ΠΏΡΠΎΠ±Π»Π΅ΠΌ.

Π‘Π°ΠΌΠΎΡΡΠΎΡΡΠ΅Π»ΡΠ½ΠΎΠ΅ Π²ΡΠΏΠΎΠ»Π½Π΅Π½ΠΈΠ΅ Π±Π΅ΡΠΎΠ½Π½ΠΎΠΉ ΠΊΡΠΏΠ΅Π»ΠΈ
ΠΡΠ΅Π΄Π»ΠΎΠΆΠ΅Π½Π½ΡΠΉ Π²Π°ΡΠΈΠ°Π½Ρ ΠΊΡΠΏΠ΅Π»ΠΈ ΡΡΡΠ΅ΡΡΠ²ΡΠ΅Ρ Π΄Π»Ρ Π»ΡΠ΄Π΅ΠΉ, ΠΊΠΎΡΠΎΡΡΠ΅ Π½Π΅ Π±ΠΎΡΡΡΡ ΡΡΡΠ΄Π½ΠΎΡΡΠ΅ΠΉ. ΠΠ°Π½Ρ Ρ ΠΊΡΠΏΠ΅Π»ΡΡ Π½Π° ΡΠ»ΠΈΡΠ΅, ΡΠ°ΡΡΠΎ ΡΠ°ΡΡΠΌΠ°ΡΡΠΈΠ²Π°Π΅ΡΡΡ ΠΊΠ°ΠΊ ΡΡΠΆΠ΅Π»ΡΠΉ Π²Π°ΡΠΈΠ°Π½Ρ. ΠΠ»Ρ ΡΠΎΠ±ΡΡΠ²Π΅Π½Π½ΠΎΡΡΡΠ½ΠΎΠ³ΠΎ ΠΈΠ·Π³ΠΎΡΠΎΠ²Π»Π΅Π½ΠΈΡ ΠΏΠΎΡΡΠ΅Π±ΡΡΡΡΡ Π½Π΅ ΡΠΎΠ»ΡΠΊΠΎ ΠΌΠ°ΡΠ΅ΡΠΈΠ°Π»ΡΠ½ΡΠ΅ ΡΠ°ΡΡ ΠΎΠ΄Ρ, Π½ΠΎ Π΅ΡΠ΅ ΠΈ Π²ΡΠ΅ΠΌΡ, ΠΈ ΡΡΠΈΠ»ΠΈΡ.
Π‘ ΡΠ°ΠΌΠΎΠ³ΠΎ Π½Π°ΡΠ°Π»Π° ΠΌΠΎΠΆΠ½ΠΎ ΡΠΌΠ΅Π»ΠΎ ΡΠΊΠ°Π·Π°ΡΡ ΠΎ ΡΠΎΠΌ, ΡΡΠΎ Π΄Π΅Π»ΠΎ ΡΡΠΎ Π½Π΅ Π»Π΅Π³ΠΊΠΎΠ΅ ΠΈ Π½Π΅ Π±ΡΡΡΡΠΎΠ΅, ΡΡΠΈΡΡΠ²Π°Ρ ΡΠΎ, ΡΡΠΎ Π·Π°Π½ΡΡΡ ΠΎΠ½ΠΎ ΠΌΠΎΠΆΠ΅Ρ Π΄Π°ΠΆΠ΅ ΠΌΠ΅ΡΡΡ. ΠΠ»Ρ ΡΡΠΎΠ³ΠΎ Π½ΡΠΆΠ½ΠΎ Π²ΡΠΊΠΎΠΏΠ°ΡΡ ΡΠΌΡ Π½ΡΠΆΠ½ΡΡ Π²Π°ΠΌ ΡΠ°Π·ΠΌΠ΅ΡΠΎΠ² ΠΈ ΠΏΠΎΠ»Π½ΠΎΡΡΡΡ Π²ΡΡΠΈΡΡΠΈΡΡ Π΅Π΅ ΠΎΡ Π»ΠΈΡΠ½Π΅Π³ΠΎ ΠΌΡΡΠΎΡΠ°. ΠΠ°Π»Π΅Π΅, Π² ΠΏΡΠΎΡΠ΅ΡΡΠ΅ ΡΠΊΠ»Π°Π΄ΡΠ²Π°Π΅ΡΡΡ Π°ΡΠΌΠ°ΡΡΡΠ° ΠΈ Π΄Π΅Π»Π°Π΅ΡΡΡ ΠΎΠΏΠ°Π»ΡΠ±ΠΊΠ°. Π ΠΎΠ±ΡΠ°Π·ΠΎΠ²Π°Π²ΡΠΈΠΉΡΡ Π² ΠΈΡΠΎΠ³Π΅ Π·Π°Π·ΠΎΡ Π·Π°Π»ΠΈΠ²Π°Π΅ΡΡΡ Π±Π΅ΡΠΎΠ½. ΠΠΎΡΠ»Π΅ ΠΏΠΎΠ»Π½ΠΎΠ³ΠΎ Π²ΡΡΡΡ Π°Π½ΠΈΡ ΡΠΆΠ΅ ΠΏΡΠΎΠ΄Π΅Π»Π°Π½Π½ΠΎΠΉ ΡΠ°Π±ΠΎΡΡ, Π²ΠΎΡΠΏΡΠΎΠΈΠ·Π²ΠΎΠ΄ΠΈΡΡΡ ΡΠ½ΡΡΠΈΠ΅ Π΄ΠΎΡΠΎΠΊ ΠΈ Π²ΡΡΠ°Π²Π½ΠΈΠ²Π°Π½ΠΈΠ΅ Π²ΡΠ΅ΠΉ ΠΏΠΎΠ²Π΅ΡΡ Π½ΠΎΡΡΠΈ Ρ ΠΏΠΎΠΌΠΎΡΡΡ ΡΠΏΠ°ΡΠ»Π΅Π²ΠΊΠΈ.
ΠΠ°Π»Π΅Π΅, ΠΏΡΠΎΠΈΠ·Π²ΠΎΠ΄ΡΡΡΡ Π³ΡΡΠ½ΡΠΎΠ²ΠΎΡΠ½ΡΠ΅ ΡΠ°Π±ΠΎΡΡ. ΠΠΎΡΠ»Π΅ ΡΠ΅Π³ΠΎ ΠΈΠ΄Π΅Ρ ΠΎΠΊΡΠ°ΡΠΊΠ° ΠΈΠ»ΠΈ ΠΊΠ»Π°Π΄ΠΊΠ° ΠΏΠ»ΠΈΡΠΊΠΈ (ΠΏΠΎ Π²Π°ΡΠ΅ΠΌΡ ΡΡΠΌΠΎΡΡΠ΅Π½ΠΈΡ). Π ΠΈΡΠΎΠ³Π΅ ΠΏΠΎΠ΄Π²ΠΎΠ΄ΠΈΡΡΡ Π²ΠΎΠ΄Π°, ΠΈ Π²Ρ ΠΏΠΎΠ»ΡΡΠ°Π΅ΡΠ΅ ΠΎΡΠ»ΠΈΡΠ½ΡΠΉ Π±Π°ΡΡΠ΅ΠΉΠ½-ΠΊΡΠΏΠ΅Π»Ρ ΡΠΎΠ±ΡΡΠ²Π΅Π½Π½ΠΎΡΡΡΠ½ΠΎΠ³ΠΎ ΠΏΡΠΎΠΈΡΡ ΠΎΠΆΠ΄Π΅Π½ΠΈΡ. Π Π·Π°Π²Π΅ΡΡΠ΅Π½ΠΈΠΈ ΡΠ΅ΠΊΠΎΠΌΠ΅Π½Π΄ΡΠ΅ΠΌ ΠΏΠΎΡΠΌΠΎΡΡΠ΅ΡΡ Π²ΠΈΠ΄Π΅ΠΎ:
stroymasterok.com
ΠΡΠΏΠ΅Π»Ρ Π΄Π»Ρ Π±Π°Π½ΠΈ ΡΠ²ΠΎΠΈΠΌΠΈ ΡΡΠΊΠ°ΠΌΠΈ
ΠΠ·Π³ΠΎΡΠΎΠ²ΠΈΡΡ ΠΊΡΠΏΠ΅Π»Ρ Π΄Π»Ρ Π±Π°Π½ΠΈ ΠΌΠΎΠΆΠ½ΠΎ Π½Π΅ΡΠΊΠΎΠ»ΡΠΊΠΈΠΌΠΈ ΡΠΏΠΎΡΠΎΠ±Π°ΠΌΠΈ: ΡΠΌΠΎΠ½ΡΠΈΡΠΎΠ²Π°ΡΡ Π±Π΅ΡΠΎΠ½Π½ΡΡ ΠΊΡΠΏΠ΅Π»Ρ, ΠΈΠ·Π³ΠΎΡΠΎΠ²ΠΈΡΡ Π΄Π΅ΡΠ΅Π²ΡΠ½Π½ΡΡ ΠΈΠ»ΠΈ ΠΏΡΠΈΠΎΠ±ΡΠ΅ΡΡΠΈ ΠΏΠ»Π°ΡΡΠΈΠΊΠΎΠ²ΡΠΉ Π°Π½Π°Π»ΠΎΠ³. ΠΠΎΡΡΠ°ΠΏΠ½ΠΎ ΠΏΡΠΎΡΠ΅ΡΡ ΡΡΡΠ°Π½ΠΎΠ²ΠΊΠΈ ΠΊΡΠΏΠ΅Π»ΠΈ Π²ΡΠ³Π»ΡΠ΄ΠΈΡ ΡΠ»Π΅Π΄ΡΡΡΠΈΠΌ ΠΎΠ±ΡΠ°Π·ΠΎΠΌ.
ΠΡΠ±ΠΈΡΠ°Π΅ΠΌ ΠΌΠ΅ΡΡΠΎ, Π³Π΄Π΅ Π½ΡΠΆΠ½ΠΎ ΠΌΠΎΠ½ΡΠΈΡΠΎΠ²Π°ΡΡ ΠΊΡΠΏΠ΅Π»Ρ
ΠΠ»ΠΎΡΠ°Π΄ΠΊΠ° ΠΏΠΎΠ΄ ΠΊΡΠΏΠ΅Π»Ρ Π²ΡΠ±ΠΈΡΠ°Π΅ΡΡΡ Π² Π·Π°Π²ΠΈΡΠΈΠΌΠΎΡΡΠΈ ΠΎΡ Π²Π°ΡΠΈΡ ΠΏΡΠ΅Π΄ΠΏΠΎΡΡΠ΅Π½ΠΈΠΉ, Π° ΡΠ°ΠΊΠΆΠ΅ Π½ΡΠΆΠ½ΠΎ ΡΡΠ΅ΡΡΡ Π±Π»ΠΈΠ·ΠΎΡΡΡ ΡΠ°ΡΠΏΠΎΠ»ΠΎΠΆΠ΅Π½ΠΈΡ Π²Π°ΡΠ΅ΠΉ Π±Π°Π½ΠΈ. ΠΡΠ±ΠΈΡΠ΅Π»ΠΈ Π²ΠΎΠ΄Π½ΡΡ ΠΏΡΠΎΡΠ΅Π΄ΡΡ Π½Π° ΡΠ»ΠΈΡΠ΅ Π±ΠΎΠ»ΡΡΠ΅ Π²ΡΠ΅Π³ΠΎ ΠΎΠ±ΡΠ°Π΄ΡΡΡΡΡ, Π΅ΡΠ»ΠΈ ΠΊΡΠΏΠ΅Π»Ρ Π±ΡΠ΄Π΅Ρ Π½Π° ΠΎΡΠΊΡΡΡΠΎΠΌ Π²ΠΎΠ·Π΄ΡΡ Π΅. Π ΠΊΠΎΠ³Π΄Π° Π²Π½ΡΡΡΠΈ Π±Π°Π½ΠΈ Π΅ΡΡΡ ΠΌΠ½ΠΎΠ³ΠΎ ΠΌΠ΅ΡΡΠ°, ΡΡΡΠ°Π½ΠΎΠ²ΠΈΡΡ ΠΊΡΠΏΠ΅Π»Ρ ΠΌΠΎΠΆΠ½ΠΎ ΠΈ Π²Π½ΡΡΡΠΈ ΠΏΠΎΠΌΠ΅ΡΠ΅Π½ΠΈΡ.
ΠΠΎ ΡΠΏΠΎΡΠΎΠ±Ρ ΠΌΠΎΠ½ΡΠ°ΠΆΠ° ΠΊΡΠΏΠ΅Π»ΠΈ ΠΊΠ»Π°ΡΡΠΈΡΠΈΡΠΈΡΡΡΡ Π½Π°:
- Π·Π°Π³Π»ΡΠ±Π»Π΅Π½Π½ΡΠ΅;
- ΠΎΠ±Π»ΠΈΠ²Π½ΡΠ΅;
- Β ΠΎΡΠΊΡΡΡΡΠ΅.
ΠΠΏΡΠ΅Π΄Π΅Π»ΡΠ΅ΠΌ ΠΌΠΎΠ΄Π΅Π»Ρ ΠΊΡΠΏΠ΅Π»ΠΈ
ΠΡΠΈ ΡΠΎΠ·Π΄Π°Π½ΠΈΠΈ ΠΊΡΠΏΠ΅Π»ΠΈ Π΄Π»Ρ Π±Π°Π½Π½ΠΎΠ³ΠΎ ΠΏΠΎΠΌΠ΅ΡΠ΅Π½ΠΈΡ Π½ΡΠΆΠ½ΠΎ ΡΡΠ°ΡΠ΅Π»ΡΠ½ΠΎ ΠΏΠΎΠ΄ΠΎΠΉΡΠΈ ΠΈ ΠΎΠ±ΠΎΡΠ½ΠΎΠ²Π°ΡΡ Π²ΡΠ±ΠΎΡ ΠΌΠ°ΡΠ΅ΡΠΈΠ°Π»ΠΎΠ² Π΄Π»Ρ ΠΊΠΎΠ½ΠΊΡΠ΅ΡΠ½ΠΎΠΉ ΠΌΠΎΠ΄Π΅Π»ΠΈ Π΅ΠΌΠΊΠΎΡΡΠΈ.
ΠΠΎ ΠΏΡΠΈΠΌΠ΅Π½ΡΠ΅ΠΌΠΎΠΌΡ ΠΌΠ°ΡΠ΅ΡΠΈΠ°Π»Ρ ΠΊΡΠΏΠ΅Π»ΠΈ ΠΌΠΎΠ³ΡΡ Π±ΡΡΡ:
- Β ΠΈΠ· Π΄Π΅ΡΠ΅Π²Π°;
- Β Π±Π΅ΡΠΎΠ½Π½ΡΠ΅;
- Β ΠΈΠ· ΠΏΠ»Π°ΡΡΠΈΠΊΠΎΠ²ΡΡ ΠΌΠ°ΡΠ΅ΡΠΈΠ°Π»ΠΎΠ².
Π’ΠΈΠΏ ΠΊΡΠΏΠ΅Π»ΠΈ ΠΈ Π΅Π΅ ΠΊΠΎΠ½ΡΡΡΡΠΊΡΠΈΠ²Π½ΡΠ΅ ΠΎΡΠΎΠ±Π΅Π½Π½ΠΎΡΡΠΈ Π²ΡΠ±ΠΈΡΠ°ΡΡ, ΠΈΡΡ ΠΎΠ΄Ρ ΠΈΠ· ΠΏΠ»Π°Π½ΠΈΡΡΠ΅ΠΌΠΎΠ³ΠΎ ΠΊΠΎΠ»ΠΈΡΠ΅ΡΡΠ²Π° Π»ΡΠ΄Π΅ΠΉ, ΠΊΠΎΡΠΎΡΡΠ΅ ΠΎΠ΄Π½ΠΎΠ²ΡΠ΅ΠΌΠ΅Π½Π½ΠΎ Π±ΡΠ΄ΡΡ ΠΏΠΎΠ³ΡΡΠΆΠ°ΡΡΡΡ Π² Π΅ΠΌΠΊΠΎΡΡΡ. ΠΠ½ΠΎΠ³Π΄Π° Π²ΡΠΏΠΎΠ»Π½ΡΡΡ ΠΏΡΡΠΌΠΎ Π² Π»ΠΎΠ½Π΅ Π΅ΠΌΠΊΠΎΡΡΠΈ ΡΠΏΠ΅ΡΠΈΠ°Π»ΡΠ½ΠΎ ΠΏΡΠ΅Π΄ΡΡΠΌΠΎΡΡΠ΅Π½Π½ΡΠ΅ ΡΠΈΠ΄ΡΡΠΈΠ΅ ΠΌΠ΅ΡΡΠ°, ΠΈΠ»ΠΈ ΠΏΡΠΎΡΡΠΎ ΠΈΠ·Π³ΠΎΡΠ°Π²Π»ΠΈΠ²Π°ΡΡ Β«Π²Π°Π½Π½ΡΡΒ», Π² ΠΊΠΎΡΠΎΡΡΡ Π΄ΠΎΡΡΠ°ΡΠΎΡΠ½ΠΎ Π±ΡΠ΄Π΅Ρ Π½Π΅ΡΠΊΠΎΠ»ΡΠΊΠΎ ΡΠ°Π· ΠΎΠΊΡΠ½ΡΡΡΡΡ. Π ΠΊΡΠΏΠ΅Π»ΠΈ ΠΌΠΎΠΆΠ½ΠΎ ΠΏΡΠ΅Π΄ΡΡΠΌΠΎΡΡΠ΅ΡΡ ΡΠ°ΠΊΠΈΠ΅ Π΄ΠΎΠΏΠΎΠ»Π½ΠΈΡΠ΅Π»ΡΠ½ΡΠ΅ ΡΡΠ½ΠΊΡΠΈΠΈ, ΠΊΠ°ΠΊ ΠΏΠΎΠ΄ΠΎΠ³ΡΠ΅Π², Π³ΠΈΠ΄ΡΠΎΠΌΠ°ΡΡΠ°ΠΆ ΠΈ Π΄ΡΡΠ³ΠΈΠ΅.
ΠΠΎΡΠΎΠ²ΠΈΠΌ ΠΏΠ»ΠΎΡΠ°Π΄ΠΊΡ ΠΏΠΎΠ΄ ΠΌΠΎΠ½ΡΠ°ΠΆ ΠΊΡΠΏΠ΅Π»ΠΈ
- Β ΠΠ»Ρ ΡΡΡΠ°Π½ΠΎΠ²ΠΊΠΈ Π·Π°Π³Π»ΡΠ±Π»Π΅Π½Π½ΠΎΠΉ ΠΊΡΠΏΠ΅Π»ΠΈ ΠΏΡΠ΅Π΄ΡΡΠΌΠ°ΡΡΠΈΠ²Π°ΡΡΡΡ ΡΠ»Π΅Π΄ΡΡΡΠΈΠ΅ ΡΡΠ°ΠΏΡ:
- Β Π ΡΠΎΠΎΡΠ²Π΅ΡΡΡΠ²ΠΈΠΈ Ρ ΠΏΡΠ΅Π΄ΠΏΠΎΠ»Π°Π³Π°Π΅ΠΌΡΠΌΠΈ ΠΎΠ±ΡΠ΅ΠΌΠ°ΠΌΠΈ ΡΡΡΠ°Π½Π°Π²Π»ΠΈΠ²Π°Π΅ΠΌΠΎΠΉ ΠΊΡΠΏΠ΅Π»ΠΈ Π½Π΅ΠΎΠ±Ρ ΠΎΠ΄ΠΈΠΌΠΎ Π²ΡΡΡΡΡ ΠΊΠΎΡΠ»ΠΎΠ²Π°Π½.
- Β Π ΡΡΠΎΡΠΌΠΈΡΠΎΠ²Π°Π½Π½ΡΠΉ ΠΈ ΠΏΡΠ΅Π΄Π²Π°ΡΠΈΡΠ΅Π»ΡΠ½ΠΎ ΠΎΡΠΈΡΠ΅Π½Π½ΡΠΉ ΠΊΠΎΡΠ»ΠΎΠ²Π°Π½ ΡΡΡΠ°Π½Π°Π²Π»ΠΈΠ²Π°Π΅ΡΡΡ ΠΎΠΏΠ°Π»ΡΠ±ΠΊΠ°.
- Β ΠΠ°ΡΠ΅ΠΌ ΠΏΡΠΎΠΊΠ»Π°Π΄ΡΠ²Π°ΡΡΡΡ ΠΏΡΡΡΡΡ Π°ΡΠΌΠ°ΡΡΡΡ, ΠΈ Π·Π°Π»ΠΈΠ²Π°Π΅ΡΡΡ Π±Π΅ΡΠΎΠ½Π½Π°Ρ ΡΠΌΠ΅ΡΡ.
- Β ΠΠ° Π³ΠΎΡΠΎΠ²ΠΎΠ΅ Π±Π΅ΡΠΎΠ½Π½ΠΎΠ΅ ΠΎΡΠ½ΠΎΠ²Π°Π½ΠΈΠ΅ ΡΠΊΠ»Π°Π΄ΡΠ²Π°Π΅ΡΡΡ Π³ΠΈΠ΄ΡΠΎΠΈΠ·ΠΎΠ»ΡΡΠΈΡ.
ΠΡΠΏΠ΅Π»Ρ ΠΈΠ· Π±Π΅ΡΠΎΠ½Π°

ΠΡΠΏΠ΅Π»Ρ ΠΈΠ· Π±Π΅ΡΠΎΠ½Π°
ΠΡΡΠ°ΡΠΈ, ΠΊΠ°ΠΊΠΎΠΉ ΠΌΠ°ΡΠΊΠΈ Π²ΡΠ±ΡΠ°ΡΡ Π±Π΅ΡΠΎΠ½ ΡΠΈΡΠ°ΠΉΡΠ΅ ΡΡΡ β Β ΠΊΠ°ΠΊΠΎΠΉ ΠΌΠ°ΡΠΊΠΈ Π²ΡΠ±ΡΠ°ΡΡ Π±Π΅ΡΠΎΠ½ ΡΠΈΡΠ°ΠΉΡΠ΅ Π·Π΄Π΅ΡΡ.
ΠΠΎΠ³Π΄Π° ΠΏΠ»Π°Π½ΠΈΡΡΠ΅ΡΡΡ ΡΠΎΠ·Π΄Π°ΡΡ ΡΠ»ΠΈΡΠ½ΡΡ ΠΊΡΠΏΠ΅Π»Ρ Ρ ΠΎΠ΄Π½ΠΎΠ²ΡΠ΅ΠΌΠ΅Π½Π½ΡΠΌ ΠΏΠΎΡΠ΅ΡΠ΅Π½ΠΈΠ΅ΠΌ Π΅Ρ Π΄Π²ΡΠΌΡ ΠΏΠΎΡΠ΅ΡΠΈΡΠ΅Π»ΡΠΌΠΈ, ΡΡΠΈ ΠΌΠ΅ΡΠΎΠΏΡΠΈΡΡΠΈΡ ΠΌΠΎΠΆΠ½ΠΎ ΠΎΠΏΡΡΡΠΈΡΡ.
ΠΠ·Π³ΠΎΡΠΎΠ²Π»Π΅Π½ΠΈΠ΅ ΠΊΡΠΏΠ΅Π»ΠΈ ΠΈΠ· Π±Π΅ΡΠΎΠ½Π° Π·Π°Π½ΠΈΠΌΠ°Π΅Ρ Π½Π΅ΠΌΠ°Π»ΠΎ Π²ΡΠ΅ΠΌΠ΅Π½ΠΈ. ΠΠ»Ρ Π½Π°ΡΠ°Π»Π° Π²ΡΠΊΠΎΠΏΠ°ΠΉΡΠ΅ ΡΠΌΡ Π½ΡΠΆΠ½ΠΎΠ³ΠΎ ΡΠ°Π·ΠΌΠ΅ΡΠ° ΠΈ Π²ΡΡΠΈΡΡΠΈΡΠ΅ Π΅Ρ. ΠΡΠΏΠ΅Π»Ρ β ΡΡΠΎ Π΅ΠΌΠΊΠΎΡΡΡ ΠΈΠ»ΠΈ Π±Π°ΡΡΠ΅ΠΉΠ½, ΠΈ ΠΏΡΠΈ Π΅Ρ ΡΡΡΡΠΎΠΉΡΡΠ²Π΅ Π½Π΅ ΠΎΠ±ΠΎΠΉΡΠΈΡΡ Π±Π΅Π· Π΄ΠΎΠΏΠΎΠ»Π½ΠΈΡΠ΅Π»ΡΠ½ΠΎΠΉ Π³ΡΠ°Π²ΠΈΠΉΠ½ΠΎ-ΠΏΠ΅ΡΡΠ°Π½ΠΎΠΉ ΠΏΠΎΠ΄ΡΡΠΊΠΈ. ΠΠ½Π° ΠΏΠΎΠ΄Π΄Π΅ΡΠΆΠΈΡ ΠΊΡΠΏΠ΅Π»Ρ Π² ΠΊΠ°ΡΠ΅ΡΡΠ²Π΅ ΠΎΠΏΠΎΡΡ. ΠΠ°ΡΠ΅ΠΌ Π²ΡΠΏΠΎΠ»Π½ΡΠ΅ΡΡΡ ΠΆ\Π± ΡΠ°ΡΠ°. ΠΡΠΌΠΈΡΡΡΡ Π±Π΅ΡΠΎΠ½, ΠΈΡΠΏΠΎΠ»ΡΠ·ΡΡ ΠΎΠ΄Π½ΠΎΡΠ»ΠΎΠΉΠ½ΡΡ Π°ΡΠΌΠ°ΡΡΡΡ, Π΄ΠΈΠ°ΠΌΠ΅ΡΡΠΎΠΌ 8 ΠΌΠΌ, ΠΏΡΠΎΠΊΠ»Π°Π΄ΡΠ²Π°Ρ ΠΏΡΡΡΡΡ ΡΠ΅ΡΠ΅Π· ΠΊΠ°ΠΆΠ΄ΡΠ΅ 300 ΠΌΠΌ.
ΠΡΡΡ ΡΡΠ΅Π±ΠΎΠ²Π°Π½ΠΈΡ ΠΊ Π±Π΅ΡΠΎΠ½Ρ, ΠΏΡΠΈΠΌΠ΅Π½ΡΠ΅ΠΌΠΎΠΌΡ ΠΏΡΠΈ ΠΏΡΠΎΠΈΠ·Π²ΠΎΠ΄ΡΡΠ²Π΅ ΡΠ°ΡΠΈ: Π³Π»Π°Π²Π½ΡΠ΅ Π΅Π³ΠΎ ΠΊΠ°ΡΠ΅ΡΡΠ²Π° β Π²ΠΎΠ΄ΠΎΡΡΡΠΎΠΉΡΠΈΠ²ΠΎΡΡΡ ΠΈ ΠΏΡΠΎΡΠ½ΠΎΡΡΡ. Π’Π°ΠΊ, Π½Π° 1 ΠΌ3 Π±Π΅ΡΠΎΠ½Π°, ΡΠ΅Π±Π΅Π½ΠΊΠΈ, ΡΠ΅ΠΌΠ΅Π½ΡΠ°, ΠΏΠ΅ΡΡΠ°Π½ΠΎΠΉ ΡΠΌΠ΅ΡΠΈ, Π²ΠΎΠ΄Ρ, Π±Π΅ΡΡΡΡΡ, ΡΠΎΠΎΡΠ²Π΅ΡΡΡΠ²Π΅Π½Π½ΠΎ: 1270 ΠΊΠ³ ΡΠ΅Π±Π½Ρ, 327 ΠΊΠ³ ΡΠ΅ΠΌΠ΅Π½ΡΠ°, 625 ΠΊΠ³ ΠΏΠ΅ΡΠΊΠ°, 177 ΠΊΠ³ Π²ΠΎΠ΄Ρ. ΠΠ΅ΡΠΎΠ½ Π² Π³ΠΎΡΠΎΠ²ΠΎΠΌ Π²ΠΈΠ΄Π΅ ΠΌΠΎΠΆΠ½ΠΎ ΠΊΡΠΏΠΈΡΡ Π½Π° Π·Π°Π²ΠΎΠ΄Π΅. Π ΠΌΠ°ΡΠΊΠ°Ρ ΠΈ ΡΠ²ΠΎΠΉΡΡΠ²Π°Ρ Π±Π΅ΡΠΎΠ½Π° ΡΠΈΡΠ°ΠΉΡΠ΅ Π·Π΄Π΅ΡΡ.
ΠΠ½ΡΡΡΠΈ Π³ΠΈΠ΄ΡΠΎΠΈΠ·ΠΎΠ»ΠΈΡΡΡΡ ΡΠ°ΡΡ ΠΏΡΠΈ ΠΏΠΎΠΌΠΎΡΠΈ ΡΠ»Π°ΡΡΠΈΡΠ½ΠΎΠΉ ΠΌΠ΅ΠΌΠ±ΡΠ°Π½Ρ, ΡΠ»Π΅Π΄ΠΎΠΌ, Π½Π° ΠΎΡΠ½ΠΎΠ²Π΅ ΡΠΏΠ΅ΡΠΈΠ°Π»ΡΠ½ΠΎΠ³ΠΎ ΠΊΠ»Π΅Ρ, ΡΠΊΠ»Π°Π΄ΡΠ²Π°ΡΡ ΠΌΠΎΠ·Π°ΠΈΡΠ½ΡΠΉ ΡΠ»ΠΎΠΉ ΠΈΠ»ΠΈ ΠΊΠ΅ΡΠ°ΠΌΠΈΡΠ΅ΡΠΊΡΡ ΠΏΠ»ΠΈΡΠΊΡ. ΠΠΎΡΠ»Π΅ ΡΡΠΎΠ³ΠΎ Π½Π΅ΠΎΠ±Ρ ΠΎΠ΄ΠΈΠΌΠΎ ΠΏΡΠΎΠΈΠ·Π²Π΅ΡΡΠΈ Π·Π°ΡΠΈΡΠΊΡ ΡΠ²ΠΎΠΌ ΠΌΠ΅ΠΆΠ΄Ρ ΠΏΠ»ΠΈΡΠΊΠ°ΠΌΠΈ. ΠΡΠΈ ΡΡΡΡΠΎΠΉΡΡΠ²Π΅ Π±Π΅ΡΠΎΠ½Π½ΠΎΠΉ ΠΊΡΠΏΠ΅Π»ΠΈ Π½Π°Π΄ΠΎ ΡΠ²ΠΎΠ΅Π²ΡΠ΅ΠΌΠ΅Π½Π½ΠΎ ΠΏΠΎΠ΄Π²Π΅ΡΡΠΈ ΠΊΠΎΠΌΠΌΡΠ½ΠΈΠΊΠ°ΡΠΈΠΈ ΠΏΠΎΠ΄Π°ΡΠΈ ΠΈ ΡΠ»ΠΈΠ²Π° Π²ΠΎΠ΄Ρ.
ΠΠ΅ΡΠ΅Π²ΡΠ½Π½Π°Ρ ΠΊΡΠΏΠ΅Π»Ρ
ΠΠ΅ΡΠ΅Π²ΠΎ ΡΠ°ΡΠ΅ Π²ΡΠ΅Π³ΠΎ ΠΏΡΠΈΠΌΠ΅Π½ΡΠ΅ΡΡΡ Π΄Π»Ρ ΡΡΡΠΎΠΈΡΠ΅Π»ΡΡΡΠ²Π° ΠΊΡΠΏΠ΅Π»Π΅ΠΉ. ΠΡ Π²ΡΠ±ΡΠ°Π½Π½ΠΎΠ³ΠΎ Π²ΠΈΠ΄Π° Π΄ΡΠ΅Π²Π΅ΡΠΈΠ½Ρ Π±ΡΠ΄Π΅Ρ Π·Π°Π²ΠΈΡΠ΅ΡΡ ΠΈ ΡΡΡΠ΅ΠΊΡ ΠΊΡΠΏΠ°Π½ΠΈΠΉ.
- Β ΠΠ΅Π΄ΡΠΎΠ²Π°Ρ ΠΊΡΠΏΠ΅Π»Ρ ΡΠΎΠ΄Π΅ΡΠΆΠΈΡ ΡΡΠΈΡΠ½ΡΠ΅ ΠΌΠ°ΡΠ»Π°, ΠΏΠΎΠ΄ Π²ΠΎΠ·Π΄Π΅ΠΉΡΡΠ²ΠΈΠ΅ΠΌ ΠΊΠΎΡΠΎΡΡΡ ΠΊΠΎΠΆΠ½ΡΠ΅ ΠΏΠΎΠΊΡΠΎΠ²Ρ ΡΡΠ°Π½ΠΎΠ²ΡΡΡΡ Π½Π΅ΠΆΠ½ΡΠΌΠΈ. ΠΠ΅Π΄Ρ ΠΏΠΎΠ²ΡΡΠ°Π΅Ρ Π·Π°ΡΠΈΡΠ½ΡΠ΅ ΡΠΈΠ»Ρ ΠΎΡΠ³Π°Π½ΠΈΠ·ΠΌΠ° Π·Π° ΡΡΡΡ ΡΠΎΠ΄Π΅ΡΠΆΠ°ΡΠΈΡ ΡΡ Π² Π½ΡΠΌ ΡΠΈΡΠΎΠ½ΡΠΈΠ΄ΠΎΠ².
- Β ΠΡΠΏΠ΅Π»Ρ ΠΈΠ· Π΄ΡΠ΅Π²Π΅ΡΠΈΠ½Ρ Π΄ΡΠ±Π° ΠΎΠ±Π»Π°Π΄Π°Π΅Ρ ΡΡΠΏΠΎΠΊΠ°ΠΈΠ²Π°ΡΡΠΈΠΌ Π΄Π΅ΠΉΡΡΠ²ΠΈΠ΅ΠΌ, Π±Π»Π°Π³ΠΎΡΠ²ΠΎΡΠ½ΠΎ Π²ΠΎΠ·Π΄Π΅ΠΉΡΡΠ²ΡΡ Π½Π° Π½Π΅ΡΠ²Π½ΡΡ ΡΠΈΡΡΠ΅ΠΌΡ, Π° ΡΠ°ΠΊΠΆΠ΅ Π½ΠΎΡΠΌΠ°Π»ΠΈΠ·ΡΡ ΠΎΠ±ΠΌΠ΅Π½ Π²Π΅ΡΠ΅ΡΡΠ² ΠΈ ΡΡΠΊΠΎΡΡΡ ΡΠ΅Π³Π΅Π½Π΅ΡΠΈΡΡΡΡΠΈΠ΅ ΠΏΡΠΎΡΠ΅ΡΡΡ Π½Π° ΠΊΠΎΠΆΠ΅.
- ΠΠΈΡΡΠ²Π΅Π½Π½Π°Ρ ΠΊΡΠΏΠ΅Π»Ρ ΡΠΏΠΎΡΠΎΠ±Π½Π° Π½ΠΎΡΠΌΠ°Π»ΠΈΠ·ΠΎΠ²Π°ΡΡ Π΄Π°Π²Π»Π΅Π½ΠΈΠ΅, ΡΠΊΡΡΡΠ°ΠΊΡ Π»ΠΈΡΡΠ²Π΅Π½Π½ΠΈΡΡ ΠΎΡΠΈΡΠ°Π΅Ρ ΠΏΠΎΡΡ. ΠΠ½Π° ΠΏΡΠΎΡΠ½Π° ΠΈ Π΄ΠΎΠ»Π³ΠΎΠ²Π΅ΡΠ½Π°.

Π£Π³Π»Π΅Π±Π»Π΅Π½Π½Π°Ρ ΠΊΡΠΏΠ΅Π»Ρ ΠΈΠ· Π΄Π΅ΡΠ΅Π²Π°ΠΡΠΈ ΡΡΡΡΠΎΠΉΡΡΠ²Π΅ ΡΠ³Π»ΡΠ±Π»Π΅Π½Π½ΠΎΠΉ ΠΊΡΠΏΠ΅Π»ΠΈ Π½Π΅ΠΎΠ±Ρ ΠΎΠ΄ΠΈΠΌΠΎ Π²ΡΡΡΡΡ ΠΊΠΎΡΠ»ΠΎΠ²Π°Π½, ΠΏΡΠΎΠΈΠ·Π²Π΅ΡΡΠΈ Π΅Π³ΠΎ Π·Π°ΡΠΈΡΡΠΊΡ, Π²ΠΎΠ·Π²Π΅ΡΡΠΈ ΠΎΠ³ΡΠ°ΠΆΠ΄Π΅Π½ΠΈΡ, Π²ΡΠΏΠΎΠ»Π½ΠΈΡΡ Π³ΠΈΠ΄ΡΠΎΠΈΠ·ΠΎΠ»ΡΡΠΈΡ ΠΈ ΠΎΠ±Π»ΠΈΡΠΎΠ²ΠΊΡ. ΠΠ±ΡΠ·Π°ΡΠ΅Π»ΡΠ½ΠΎ Π½Π΅ΠΎΠ±Ρ ΠΎΠ΄ΠΈΠΌΠΎ ΠΏΡΠ΅Π΄ΡΡΠΌΠΎΡΡΠ΅ΡΡ ΠΎΠ±ΠΎΡΡΠ΄ΠΎΠ²Π°Π½ΠΈΠ΅ Π΄Π»Ρ ΠΏΠΎΠ΄Π°ΡΠΈ Π²ΠΎΠ΄Ρ ΠΈ Π΅Ρ ΡΠ»ΠΈΠ²Π°. ΠΠ°Π½Π½ΡΠΉ Π²Π°ΡΠΈΠ°Π½Ρ ΡΠ²Π»ΡΠ΅ΡΡΡ Π΄ΠΎΠ²ΠΎΠ»ΡΠ½ΠΎ Π·Π°ΡΡΠ°ΡΠ½ΡΠΌ ΠΈ ΡΡΡΠ΄ΠΎΡΠΌΠΊΠΈΠΌ.

ΠΡΠΏΠ΅Π»Ρ Π΄Π»Ρ Π±Π°Π½ΠΈ ΡΠ²ΠΎΠΈΠΌΠΈ ΡΡΠΊΠ°ΠΌΠΈΠΠ°ΠΌΠ½ΠΎΠ³ΠΎ ΠΏΡΠΎΡΠ΅ ΠΈΠ·Π³ΠΎΡΠΎΠ²ΠΈΡΡ ΠΎΡΠΊΡΡΡΡΡ ΠΊΡΠΏΠ΅Π»Ρ. ΠΠ»Ρ ΡΡΠΎΠ³ΠΎ Π½Π΅ΠΎΠ±Ρ ΠΎΠ΄ΠΈΠΌΠΎ ΠΏΡΠΈΠΎΠ±ΡΠ΅ΡΡΠΈ ΡΠ΅Π·Π΅ΡΠ²ΡΠ°Ρ Π½ΡΠΆΠ½ΠΎΠ³ΠΎ ΠΎΠ±ΡΡΠΌΠ° ΠΈΠ· Π΄Π΅ΡΠ΅Π²Π° ΠΈΠ»ΠΈ ΠΏΠΎΠ»ΠΈΠΏΡΠΎΠΏΠΈΠ»Π΅Π½Π°, ΡΡΡΠ°Π½ΠΎΠ²ΠΈΡΡ Π΅Π³ΠΎ Π½Π° ΠΏΡΠΎΡΠ½ΠΎΠ΅ ΠΎΡΠ½ΠΎΠ²Π°Π½ΠΈΠ΅, ΠΏΠΎΠ΄ΠΊΠ»ΡΡΠΈΡΡ ΠΊ ΡΠΈΡΡΠ΅ΠΌΠ΅ Π²ΠΎΠ΄ΠΎΡΠ½Π°Π±ΠΆΠ΅Π½ΠΈΡ ΠΈ ΠΊΠ°Π½Π°Π»ΠΈΠ·Π°ΡΠΈΠΈ ΠΈ ΠΏΡΠΎΠΈΠ·Π²Π΅ΡΡΠΈ Π²Π½Π΅ΡΠ½ΡΡ ΠΎΡΠ΄Π΅Π»ΠΊΡ. Π ΠΏΠΎΡΠ»Π΅Π΄Π½Π΅Π΅ Π²ΡΠ΅ΠΌΡ ΡΡΠ°Π»ΠΈ ΠΎΡΠΎΠ±Π΅Π½Π½ΠΎ ΠΏΠΎΠΏΡΠ»ΡΡΠ½ΡΠΌΠΈ ΠΏΠ»Π°ΡΡΠΈΠΊΠΎΠ²ΡΠ΅ ΠΊΡΠΏΠ΅Π»ΠΈ. ΠΡ ΡΡΡΠ°Π½ΠΎΠ²ΠΊΠ° ΠΎΡΠ»ΠΈΡΠ°Π΅ΡΡΡ ΡΠΊΠΎΠ½ΠΎΠΌΠΈΡΠ½ΠΎΡΡΡΡ, Π° ΡΡΠ΅Π΄ΠΈ Π΄ΠΎΡΡΠΎΠΈΠ½ΡΡΠ² ΠΌΠΎΠΆΠ½ΠΎ Π²ΡΠ΄Π΅Π»ΠΈΡΡ ΠΏΡΠ°ΠΊΡΠΈΡΠ½ΠΎΡΡΡ, Π΄ΠΎΠ»Π³ΠΎΠ²Π΅ΡΠ½ΠΎΡΡΡ, ΡΡΡΠΎΠΉΡΠΈΠ²ΠΎΡΡΡ ΠΊ ΡΠ°ΡΡΡΠ΅ΡΠΊΠΈΠ²Π°Π½ΠΈΡ, ΡΠ°ΡΠ°ΠΏΠΈΠ½Π°ΠΌ, Π»Π΅Π³ΠΊΠΈΠΉ ΡΡ ΠΎΠ΄. ΠΡΡΠΎΠΊΠΎΡΠ΅Ρ Π½ΠΎΠ»ΠΎΠ³ΠΈΡΠ½ΡΠΉ ΠΏΠΎΠ»ΠΈΠΏΡΠΎΠΏΠΈΠ»Π΅Π½ Π½Π° 100% Π±Π΅Π·ΠΎΠΏΠ°ΡΠ΅Π½.
ΠΡΠΏΠ΅Π»ΠΈ ΠΈΠ· ΠΏΠ»Π°ΡΡΠΈΠΊΠ° Π²ΡΠΏΡΡΠΊΠ°ΡΡ ΡΠ°Π·Π½ΡΡ ΡΠ°Π·ΠΌΠ΅ΡΠΎΠ² ΠΈ ΡΠΎΡΠΌ. ΠΠΎΠΌΠΏΠ»Π΅ΠΊΡΡΡΡ ΠΊΡΠΏΠ΅Π»ΠΈ ΠΏΠ΅ΡΠΈΠ»Π°ΠΌΠΈ, ΡΠΈΠ΄Π΅Π½ΡΠ΅ΠΌ, ΡΡΡΠΏΠ΅Π½ΡΠΊΠ°ΠΌΠΈ. Π§ΡΠΎΠ±Ρ ΠΏΡΠΈΠ΄Π°ΡΡ ΠΊΡΠΏΠ΅Π»ΠΈ ΠΏΡΠΈΠ²Π»Π΅ΠΊΠ°ΡΠ΅Π»ΡΠ½ΡΠΉ Π²Π½Π΅ΡΠ½ΠΈΠΉ Π²ΠΈΠ΄, ΠΏΠ»Π°ΡΡΠΈΠΊΠΎΠ²ΡΠ΅ Π΅ΠΌΠΊΠΎΡΡΠΈ ΠΎΠ±ΡΠΈΠ²Π°ΡΡ Π΄Π΅ΡΠ΅Π²ΡΠ½Π½ΡΠΌ ΡΠ°ΡΡΡΠΊΠΎΠΌ. ΠΡΠΎ ΠΏΡΠΎΡΠ΅ Π²ΡΠ΅Π³ΠΎ ΡΠ΄Π΅Π»Π°ΡΡ, ΡΠΎΠΎΡΡΠ΄ΠΈΠ² ΠΊΠ°ΡΠΊΠ°Ρ ΠΏΠΎ ΠΏΠ΅ΡΠΈΠΌΠ΅ΡΡΡ ΠΊΡΠΏΠ΅Π»ΠΈ, Π΄Π°Π»Π΅Π΅ Π·Π°ΠΊΡΠ΅ΠΏΠΈΠ² Π½Π° Π½Π΅ΠΌ Π²Π°Π³ΠΎΠ½ΠΊΡ.

ΠΠ±Π»ΠΈΠ²Π½Π°Ρ ΠΊΡΠΏΠ΅Π»ΡΠΡΠΎ ΡΠ°ΠΌΡΠΉ ΡΠΊΠΎΠ½ΠΎΠΌΠΈΡΠ½ΡΠΉ ΡΠΈΠΏ ΠΊΡΠΏΠ΅Π»ΠΈ. Π ΡΡΠ΅Π½Ρ Π²ΡΡΡΠ°ΠΈΠ²Π°Π΅ΡΡΡ ΡΠΈΡΡΠ΅ΠΌΠ°, ΠΏΠΎΠ·Π²ΠΎΠ»ΡΡΡΠ°Ρ ΠΎΠΏΡΠΎΠΊΠΈΠ½ΡΡΡ Π½Π° ΡΠ΅Π±Ρ ΡΠ°Π· ΠΈΠ»ΠΈ ΡΡΠ°Ρ Π²ΠΎΠ΄Ρ, ΠΏΠΎΡΡΠ½ΡΠ² Π·Π° Π²Π΅ΡΡΠ²ΠΊΡ. Π‘ Π²ΠΎΠ·Π²ΡΠ°ΡΠ΅Π½ΠΈΠ΅ΠΌ ΡΡΠ°ΡΠ° Π½Π° ΠΈΡΡ ΠΎΠ΄Π½ΡΡ ΠΏΠΎΠ·ΠΈΡΠΈΡ, ΠΎΠ½ Π²Π½ΠΎΠ²Ρ Π½Π°ΠΏΠΎΠ»Π½ΡΠ΅ΡΡΡ Π²ΠΎΠ΄ΠΎΠΉ. ΠΠΎΡΡΡΠΏΠ»Π΅Π½ΠΈΠ΅ Π²ΠΎΠ΄Ρ ΡΠ΅Π³ΡΠ»ΠΈΡΡΠ΅ΡΡΡ ΡΠΏΠ΅ΡΠΈΠ°Π»ΡΠ½ΡΠΌ ΠΌΠ΅Ρ Π°Π½ΠΈΠ·ΠΌΠΎΠΌ, ΠΎΡΠ½ΠΎΠ²Π°Π½Π½ΡΠΌ Π½Π° ΠΏΠΎΠΏΠ»Π°Π²ΠΊΠ΅. ΠΠ±ΡΠ·Π°ΡΠ΅Π»ΡΠ½ΠΎ ΠΏΠΎΡΠΈΡΠ°ΠΉΡΠ΅ ΠΏΡΠΎ ΠΈΠ·Π³ΠΎΡΠΎΠ²Π»Π΅Π½ΠΈΠ΅ Π±Π°Π½ΠΈ ΠΈΠ· Π±ΡΠ΅Π²Π½Π°.
ΠΠΈΠ΄Π΅ΠΎ β ΠΊΡΠΏΠ΅Π»Ρ Π΄Π»Ρ ΠΊΡΠΏΠ°Π½ΠΈΡ ΡΠ²ΠΎΠΈΠΌΠΈ ΡΡΠΊΠ°ΠΌΠΈ
stroyvopros.net
ΠΡΠΏΠ΅Π»Ρ Π΄Π»Ρ Π±Π°Π½ΠΈ — ΠΊΠ°ΠΊΠΎΠΉ Π²ΡΠ±ΡΠ°ΡΡ ΠΈΠ»ΠΈ ΡΠ΄Π΅Π»Π°ΡΡ ΡΠ²ΠΎΠΈΠΌΠΈ ΡΡΠΊΠ°ΠΌΠΈ?
ΠΠ°Π½Ρ Π² Π ΠΎΡΡΠΈΠΈ Π½Π΅ ΠΏΡΠΎΡΡΠΎ ΠΌΠ΅ΡΡΠΎ Π΄Π»Ρ ΠΏΠΎΠΌΡΠ²ΠΊΠΈ. ΠΡΠΎ ΡΠ²ΠΎΠ΅Π³ΠΎ ΡΠΎΠ΄Π° ΡΠΈΠ»ΠΎΡΠΎΡΠΈΡ, ΠΎΠΏΠΈΡΠ°ΡΡΠ°ΡΡΡ Π½Π° Π²Π΅ΠΊΠΎΠ²ΡΡ ΡΡΠ°Π΄ΠΈΡΠΈΡ. ΠΠ°ΠΊΠΎΠΉ ΡΡΡΡΠΊΠΈΠΉ Π½Π΅ Π»ΡΠ±ΠΈΡ ΠΏΠΎΠΌΡΡΡΡΡ, ΠΏΠΎΠΏΠ°ΡΠΈΡΡΡΡ, ΡΡΠΎΠ±Ρ Π²Π΅Π½ΠΈΠΊΠΎΠΌ ΠΈ ΡΠΈΡΡΠΎΠΉ Π²ΠΎΠ΄ΠΎΠΉ Π²ΡΠ³Π½Π°ΡΡ ΠΈΠ· ΡΠ΅Π±Ρ Ρ Π²ΠΎΡΡ, ΠΎΡΠ²ΠΎΠ±ΠΎΠ΄ΠΈΡΡΡΡ ΠΎΡ Π½Π΅Π³Π°ΡΠΈΠ²Π° ΠΈ Π³ΡΡΡΡΠ½ΡΡ ΠΌΡΡΠ»Π΅ΠΉ, Π½Π°Π±ΡΠ°ΡΡΡΡ ΡΠΈΠ» ΠΈ Π·Π°ΠΊΠ°Π»ΠΈΡΡ ΠΎΡΠ³Π°Π½ΠΈΠ·ΠΌ. ΠΡΠΎΠ±ΠΎΠ΅ ΡΠ΄ΠΎΠ²ΠΎΠ»ΡΡΡΠ²ΠΈΠ΅ Π±ΡΠ²Π°Π»ΡΠΉ Π»ΡΠ±ΠΈΡΠ΅Π»Ρ ΡΡΡΡΠΊΠΎΠΉ Π±Π°Π½ΠΈ ΠΏΠΎΠ»ΡΡΠ°Π΅Ρ ΠΎΡ ΠΏΠΎΠΎΡΠ΅ΡΠ΅Π΄Π½ΠΎΠ³ΠΎ ΠΏΠΎΡΠ΅ΡΠ΅Π½ΠΈΡ ΠΏΠ°ΡΠ½ΠΎΠΉ ΠΈ ΠΏΠΎΠ³ΡΡΠΆΠ΅Π½ΠΈΡ Π² Ρ ΠΎΠ»ΠΎΠ΄Π½ΡΡ Π²ΠΎΠ΄Ρ. Π§ΡΠΎΠ±Ρ ΡΡΠΎ ΡΡΠ°Π»ΠΎ Π²ΠΎΠ·ΠΌΠΎΠΆΠ½ΡΠΌ, Π½Π΅ΠΎΠ±Ρ ΠΎΠ΄ΠΈΠΌ Π΄ΠΎΡΡΠ°ΡΠΎΡΠ½ΡΠΉ ΠΎΠ±ΡΠ΅ΠΌ Ρ ΠΎΠ»ΠΎΠ΄Π½ΠΎΠΉ Π²ΠΎΠ΄Ρ.

ΠΠ΅Π»ΠΎ ΡΠ΅ΡΠ°Π΅ΡΡΡ ΠΏΡΠΎΡΡΠΎ, Π΅ΡΠ»ΠΈ ΡΡΠ΄ΠΎΠΌ Ρ Π΄Π°ΡΠ½ΠΎΠΉ ΠΈΠ»ΠΈ Π΄Π΅ΡΠ΅Π²Π΅Π½ΡΠΊΠΎΠΉ Π±Π°Π½Π΅ΠΉ Π½Π°Ρ ΠΎΠ΄ΠΈΡΡΡ Π΅ΡΡΠ΅ΡΡΠ²Π΅Π½Π½ΡΠΉ Π²ΠΎΠ΄ΠΎΠ΅ΠΌ, Π³Π΄Π΅ ΠΌΠΎΠΆΠ½ΠΎ Β«ΡΠ±ΠΈΡΡΒ» Π³ΡΠ°Π΄ΡΡ ΠΏΠ°ΡΠ½ΠΎΠ³ΠΎ Π½Π°ΠΊΠ°Π»Π°. Π ΠΏΡΠΎΡΠΈΠ²Π½ΠΎΠΌ ΡΠ»ΡΡΠ°Π΅ Π½ΡΠΆΠ½Π° Π΅ΠΌΠΊΠΎΡΡΡ, Π³Π΄Π΅ ΠΏΠΎΡΠ΅ΡΠΈΡΠ΅Π»ΠΈ ΡΠΌΠΎΠ³ΡΡ ΠΏΡΠΈΠ½ΡΡΡ ΠΊΠΎΠ½ΡΡΠ°ΡΡΠ½ΠΎΠΉ ΡΠ΅ΠΌΠΏΠ΅ΡΠ°ΡΡΡΡ Π²ΠΎΠ΄Π½ΡΠ΅ ΠΏΡΠΎΡΠ΅Π΄ΡΡΡ. ΠΠ°ΠΈΠΌΠ΅Π½Π΅Π΅ Π·Π°ΡΡΠ°ΡΠ½ΡΠΌ Π²ΠΎ Π²ΡΠ΅Ρ ΡΠΌΡΡΠ»Π°Ρ Π²Π°ΡΠΈΠ°Π½ΡΠΎΠΌ ΡΠ²Π»ΡΠ΅ΡΡΡ Π±Π°Π½Π½Π°Ρ ΠΊΡΠΏΠ΅Π»Ρ: ΠΈ Π²ΠΎΠ΄Ρ Π΄ΠΎΡΡΠ°ΡΠΎΡΠ½ΠΎ, ΠΈ ΡΡΠΎΠΈΡ Π½Π΅Π΄ΠΎΡΠΎΠ³ΠΎ. Π ΡΠ°Π·Π½ΠΎΠ²ΠΈΠ΄Π½ΠΎΡΡΡΡ ΠΊΡΠΏΠ΅Π»Π΅ΠΉ Π΄Π»Ρ Π±Π°Π½ΠΈ, ΠΌΠ°ΡΠ΅ΡΠΈΠ°Π»Π°Ρ , ΠΈΡΠΏΠΎΠ»ΡΠ·ΡΠ΅ΠΌΡΡ Π΄Π»Ρ ΠΈΡ ΠΈΠ·Π³ΠΎΡΠΎΠ²Π»Π΅Π½ΠΈΡ, Π° ΡΠ°ΠΊΠΆΠ΅ ΡΠΏΠΎΡΠΎΠ±Π°Ρ ΠΈΡ ΠΌΠΎΠ½ΡΠ°ΠΆΠ° ΠΏΠΎΠ²Π΅Π΄Π°Π΅Ρ Π΄Π°Π»Π΅Π΅ Π½Π°ΡΠ° ΡΡΠ°ΡΡΡ.

ΠΡΠ±ΠΈΡΠ°Π΅ΠΌ ΠΊΡΠΏΠ΅Π»Ρ
ΠΠΎ ΡΠΎΡΠΌΠ΅
ΠΠ²Π°Π»ΡΠ½ΡΠ΅ ΠΈ ΠΎΠΊΡΡΠ³Π»ΡΠ΅ ΠΊΡΠΏΠ΅Π»ΠΈ β Π½Π°ΠΈΠ±ΠΎΠ»Π΅Π΅ ΠΏΠΎΠΏΡΠ»ΡΡΠ½ΡΠ΅ Π΅ΠΌΠΊΠΎΡΡΠΈ. ΠΠΌ Π»Π΅Π³ΠΊΠΎ Π½Π°ΠΉΡΠΈ ΡΠ΄ΠΎΠ±Π½ΠΎΠ΅ ΠΌΠ΅ΡΡΠΎ Π² ΠΏΡΠΎΡΡΠΎΡΠ½ΠΎΠΉ Π±Π°Π½Π΅ ΠΈ ΠΏΠΎΠΌΠ΅ΡΡΠΈΡΡ Π΄Π°ΠΆΠ΅ Π½Π° ΡΠ°ΠΌΠΎΠΉ ΠΌΠ°Π»Π΅Π½ΡΠΊΠΎΠΉ Π±Π°Π½Π½ΠΎΠΉ ΠΏΠ»ΠΎΡΠ°Π΄ΠΈ. ΠΠ²Π°Π΄ΡΠ°ΡΠ½ΡΠ΅ ΠΈ ΠΏΡΡΠΌΠΎΡΠ³ΠΎΠ»ΡΠ½ΡΠ΅ ΠΊΡΠΏΠ΅Π»ΠΈ Π½Π΅ ΡΡΠΎΠ»Ρ ΡΠ°ΡΠΏΡΠΎΡΡΡΠ°Π½Π΅Π½Ρ, ΡΠ°ΠΊ ΠΊΠ°ΠΊ ΡΡΠ΅Π±ΡΡΡ ΠΏΡΠΎΡΡΠΎΡΠ° ΠΈ ΠΌΠΎΠ½ΡΠΈΡΡΡΡ ΠΈΡ ΠΏΡΠ΅ΠΈΠΌΡΡΠ΅ΡΡΠ²Π΅Π½Π½ΠΎ Π² ΠΏΠ°ΡΠΈΠ»ΠΊΠ°Ρ Π±ΠΎΠ»ΡΡΠΎΠ³ΠΎ ΡΠ°Π·ΠΌΠ΅ΡΠ°. ΠΠΎ Π²ΡΠ΅Ρ ΠΎΡΠ½ΠΎΡΠ΅Π½ΠΈΡΡ ΠΈΠ΄Π΅Π°Π»ΡΠ½ΡΠΌ ΠΏΠΎ ΡΠΎΡΠΌΠ΅ ΡΠ²Π»ΡΠ΅ΡΡΡ ΡΠ³Π»ΠΎΠ²ΠΎΠΉ ΡΠ΅Π·Π΅ΡΠ²ΡΠ°Ρ. ΠΠΌΡ Π²Π΅Π·Π΄Π΅ Π½Π°ΠΉΠ΄Π΅ΡΡΡ ΠΌΠ΅ΡΡΠΎ, Π³Π΄Π΅ ΠΎΠ½ ΠΏΡΠΎΡΠ²ΠΈΡ ΡΡΠ΄Π΅ΡΠ° ΡΡΠ³ΠΎΠ½ΠΎΠΌΠΈΡΠ½ΠΎΡΡΠΈ β ΠΏΠΎΠ·Π²ΠΎΠ»ΠΈΡ ΡΠΎΡ ΡΠ°Π½ΠΈΡΡ ΠΌΠ΅ΡΡΠΎ Π² ΠΌΠΈΠ½ΠΈΠ°ΡΡΡΠ½ΠΎΠΉ ΠΏΠ°ΡΠΈΠ»ΠΊΠ΅ ΠΈ Π΄ΠΎΠ±Π°Π²ΠΈΡ ΡΡΡΠ° Β«ΡΠ°ΡΡΠΊΠΎΠ³ΠΎ ΠΌΠ°ΡΡΡΠ°Π±Π°Β». ΠΠ½ΠΈ:
- ΠΏΡΠ°ΠΊΡΠΈΡΠ½Ρ,
- ΠΊΠΎΠΌΡΠΎΡΡΠ½Ρ,
- ΠΊΠΎΠΌΠΏΠ°ΠΊΡΠ½Ρ.
Π Π°Π·Π»ΠΈΡΠ½ΡΠ΅ ΠΏΠΎ ΡΠΎΡΠΌΠ΅ Π±Π°Π½Π½ΡΠ΅ ΠΊΡΠΏΠ΅Π»ΠΈ
ΠΠΎ ΠΌΠ°ΡΠ΅ΡΠΈΠ°Π»Ρ
Π―Π²Π»ΡΠ΅ΡΠ΅ΡΡ ΠΏΡΠΈΠ²Π΅ΡΠΆΠ΅Π½ΡΠ΅ΠΌ ΡΡΠ°Π΄ΠΈΡΠΈΠΎΠ½Π½ΠΎΠΉ ΡΡΡΡΠΊΠΎΠΉ Π΄Π΅ΡΠ΅Π²ΡΠ½Π½ΠΎΠΉ Π±Π°Π½ΠΈ ΠΈΠ»ΠΈ, Π½Π°ΠΏΡΠΎΡΠΈΠ², Π»ΡΠ±ΠΈΡΠ΅ ΠΈΠ·Π΄Π΅Π»ΠΈΡ ΠΈΠ· ΡΠΎΠ²ΡΠ΅ΠΌΠ΅Π½Π½ΡΡ ΠΌΠ°ΡΠ΅ΡΠΈΠ°Π»ΠΎΠ² Π»ΠΈΠ±ΠΎ ΡΡΠ°ΡΠΈΠΎΠ½Π°ΡΠ½Π°Ρ ΠΊΡΠΏΠ΅Π»Ρ Π΄Π»Ρ Π²Π°Ρ Π½Π°ΠΈΠ±ΠΎΠ»Π΅Π΅ ΠΏΡΠΈΠ²Π»Π΅ΠΊΠ°ΡΠ΅Π»ΡΠ½Π°? Π Π°ΡΡΠΊΠ°ΠΆΠ΅ΠΌ ΠΎ ΠΊΠ°ΠΆΠ΄ΠΎΠΉ.
ΠΡΠΏΠ΅Π»ΠΈ Π΄Π΅ΡΠ΅Π²ΡΠ½Π½ΡΠ΅ (Π±ΡΠ²Π°ΡΡ ΠΎΠ΄Π½ΠΎ- ΠΈ Π΄Π²ΡΡ ΠΌΠ΅ΡΡΠ½ΡΠ΅) β Π½Π΅ΡΠ»Π΅Π½Π½Π°Ρ Π±Π°Π½Π½Π°Ρ ΠΊΠ»Π°ΡΡΠΈΠΊΠ° β ΠΈ ΡΠ΅Π³ΠΎΠ΄Π½Ρ ΠΏΠΎ-ΠΏΡΠ΅ΠΆΠ½Π΅ΠΌΡ ΠΏΠΎΠΏΡΠ»ΡΡΠ½Ρ Π² Π ΠΎΡΡΠΈΠΈ. Π ΡΡΡΠΊΠΎΠΌΡ ΡΠ΅Π»ΠΎΠ²Π΅ΠΊΡ ΠΏΡΠΈΡΡΠ΅Π½ Π»Π΅ΡΠ½ΠΎΠΉ Π΄ΡΡ , ΡΠ΅ΠΏΠ»ΠΎ ΠΈ ΡΠΊΠΎΠ»ΠΎΠ³ΠΈΡΠ½ΠΎΡΡΡ Π΄Π΅ΡΠ΅Π²ΡΠ½Π½ΠΎΠ³ΠΎ ΠΈΠ·Π΄Π΅Π»ΠΈΡ. Π’ΡΠ°Π΄ΠΈΡΠΈΠΎΠ½Π½ΡΠ΅ ΠΊΡΠΏΠ΅Π»ΠΈ Π΄Π»Ρ Π±Π°Π½ΠΈ ΠΈΠ·Π³ΠΎΡΠ°Π²Π»ΠΈΠ²Π°ΡΡ ΠΈΠ· ΠΌΠ°ΡΡΠΈΠ²Π°:
- Π±Π»Π°Π³ΠΎΡΠΎΠ΄Π½ΠΎΠ³ΠΎ Π΄ΡΠ±Π°,
- Π΄ΠΎΠ»Π³ΠΎΠ²Π΅ΡΠ½ΠΎΠΉ Π»ΠΈΡΡΠ²Π΅Π½Π½ΠΈΡΡ,
- Π²Π΅Π»ΠΈΡΠ΅ΡΡΠ²Π΅Π½Π½ΠΎΠ³ΠΎ ΠΊΠ΅Π΄ΡΠ°,
- ΠΈΠ·ΡΡΠ½ΠΎΠ³ΠΎ Π±ΡΠΊΠ°,
- ΡΡΡΠΎΠΉΠ½ΠΎΠΉ Π±Π΅ΡΠ΅Π·Ρ.

ΠΠ΅ΡΠ΅Π²ΡΠ½Π½Π°Ρ Π΅ΠΌΠΊΠΎΡΡΡ ΡΠΊΠΎΠ»ΠΎΠ³ΠΈΡΠ½Π° ΠΈ ΡΡΠ°Π΄ΠΈΡΠΈΠΎΠ½Π½Π° Π΄Π»Ρ ΡΡΡΡΠΊΠΎΠΉ Π±Π°Π½ΠΈ

ΠΠ΅Π»Π°ΡΠ΅Π»ΡΠ½ΠΎ ΠΎΠΏΡΠΎΠ±ΠΎΠ²Π°ΡΡ ΠΈΠ½Π½ΠΎΠ²Π°ΡΠΈΠΎΠ½Π½ΡΠ΅ ΠΌΠ°ΡΠ΅ΡΠΈΠ°Π»Ρ? Π Π΅ΠΊΠΎΠΌΠ΅Π½Π΄ΡΠ΅ΠΌ ΠΏΠ»Π°ΡΡΠΈΠΊ. Π΅ΠΌΠΊΠΎΡΡΡ ΠΈΠ· ΠΏΠΎΠ»ΠΈΠΌΠ΅ΡΠΎΠ² ΠΈΠΌΠ΅Π΅Ρ ΡΡΡΠ΅ΡΡΠ²Π΅Π½Π½ΡΠΉ ΠΈΠ·ΡΡΠ½: ΠΎΠ½Π° ΠΏΠ»ΠΎΡ ΠΎ Π΄Π΅ΡΠΆΠΈΡ ΡΠ΅ΠΌΠΏΠ΅ΡΠ°ΡΡΡΡ, Π²ΠΎΠ΄Π° Π² Π½Π΅ΠΉ Π±ΡΡΡΡΠΎ Π½Π°Π³ΡΠ΅Π²Π°Π΅ΡΡΡ. Π ΠΎΡΡΠ°Π»ΡΠ½ΠΎΠΌ ΠΆΠ΅ ΡΡΠΈ Π±Π°Π½Π½ΡΠ΅ ΡΠ΅Π·Π΅ΡΠ²ΡΠ°ΡΡ ΡΠΎΡΡΠΎΡΡ ΠΈΡΠΊΠ»ΡΡΠΈΡΠ΅Π»ΡΠ½ΠΎ ΠΈΠ· Π΄ΠΎΡΡΠΎΠΈΠ½ΡΡΠ². ΠΠ½ΠΈ:
- ΠΎΡΠ½ΠΎΡΠΈΡΠ΅Π»ΡΠ½ΠΎ Π΄Π΅ΡΠ΅Π²Ρ ΠΏΠΎ ΡΠ΅Π½Π΅,
- Π»Π΅Π³ΠΊΠΎ ΡΡΠ°Π½ΡΠΏΠΎΡΡΠΈΡΡΡΡΡΡ (ΡΠΎΡΠ³ΠΎΠ²Π»Ρ ΠΈΡ ΡΠ΅Π°Π»ΠΈΠ·ΡΠ΅Ρ Π² ΡΠ°Π·ΠΎΠ±ΡΠ°Π½Π½ΠΎΠΌ Π²ΠΈΠ΄Π΅),
- ΠΏΡΠΎΡΡΡ Π² ΠΌΠΎΠ½ΡΠ°ΠΆΠ΅ (Π½Π΅ ΡΡΠ΅Π±ΡΡΡ ΡΠΏΠ΅ΡΠΈΠ°Π»ΡΠ½ΠΎΠΉ ΠΏΠΎΠ΄Π³ΠΎΡΠΎΠ²ΠΊΠΈ),
- ΠΏΡΠΎΡΠ½Ρ ΠΈ Π΄ΠΎΠ»Π³ΠΎΠ²Π΅ΡΠ½Ρ Π² ΡΠΊΡΠΏΠ»ΡΠ°ΡΠ°ΡΠΈΠΈ,
- ΡΡΡΠ΅ΡΠΈΡΠ½Ρ (Π²ΡΠΏΡΡΠΊΠ°ΡΡΡΡ Π² ΡΠΈΡΠΎΠΊΠΎΠΉ ΡΠ²Π΅ΡΠΎΠ²ΠΎΠΉ Π³Π°ΠΌΠΌΠ΅).

ΠΠ»Π°ΡΡΠΈΠΊΠΎΠ²ΡΠ΅ ΡΠ΅Π·Π΅ΡΠ²ΡΠ°ΡΡ Π±ΡΠ²Π°ΡΡ ΡΠ°Π·Π»ΠΈΡΠ½ΡΠΌΠΈ ΠΏΠΎ ΡΠΎΡΠΌΠ΅ ΠΈ ΡΠ°Π·ΠΌΠ΅ΡΡ
ΠΡΠ΄ΠΆΠ΅ΡΠ½ΡΠΉ, Ρ ΠΎΡΡ ΠΈ ΡΡΡΠ΄ΠΎΠ·Π°ΡΡΠ°ΡΠ½ΡΠΉ, Π²Π°ΡΠΈΠ°Π½Ρ Π΅ΠΌΠΊΠΎΡΡΠΈ Π΄Π»Ρ Π·Π°ΠΊΠ°Π»ΠΈΠ²Π°ΡΡΠΈΡ Π±Π°Π½Π½ΡΡ ΠΏΡΠΎΡΠ΅Π΄ΡΡ β Π±Π΅ΡΠΎΠ½Π½Π°Ρ ΠΊΡΠΏΠ΅Π»Ρ. ΠΠ΅Π·ΡΡΠ»ΠΎΠ²Π½ΡΠ΅ ΠΏΡΠ΅ΠΈΠΌΡΡΠ΅ΡΡΠ²Π° ΡΠ°ΠΊΠΎΠΉ Π΅ΠΌΠΊΠΎΡΡΠΈ:
- Π²ΠΎΠ·ΠΌΠΎΠΆΠ½ΠΎΡΡΡ Π²ΡΠ±ΠΎΡΠ° ΠΏΠΎ ΡΠ²ΠΎΠ΅ΠΌΡ ΡΡΠΌΠΎΡΡΠ΅Π½ΠΈΡ ΠΈ ΡΠΎΡΠΌΡ, ΠΈ ΡΠ°Π·ΠΌΠ΅ΡΠ°,
- ΠΏΡΠΎΡΠ½ΠΎΡΡΡ ΠΈ Π΄ΠΎΠ»Π³ΠΎΠ²Π΅ΡΠ½ΠΎΡΡΡ Π² ΡΠΊΡΠΏΠ»ΡΠ°ΡΠ°ΡΠΈΠΈ,
- ΠΏΡΠ΅ΠΊΡΠ°ΡΠ½ΠΎ Π΄Π΅ΡΠΆΠΈΡ Π½ΡΠΆΠ½ΡΠΉ ΡΡΠΎΠ²Π΅Π½Ρ ΡΠ΅ΠΌΠΏΠ΅ΡΠ°ΡΡΡΡ.
ΠΡΠΏΠ΅Π»Ρ Π±Π΅ΡΠΎΠ½Π½Π°Ρ Ρ ΠΎΡΡ ΠΈ ΡΡΠ΅Π±ΡΠ΅Ρ Π±ΠΎΠ»ΡΡΠΈΡ ΡΡΠΈΠ»ΠΈΠΉ ΠΏΡΠΈ ΡΠΎΠΎΡΡΠΆΠ΅Π½ΠΈΠΈ, Π½ΠΎ ΡΠ»ΡΠΆΠΈΡ Π΄ΠΎΠ»Π³ΠΎ
ΠΠΎ ΡΠΏΠΎΡΠΎΠ±Ρ ΠΌΠΎΠ½ΡΠ°ΠΆΠ°
Π Π°Π·Π»ΠΈΡΠ°ΡΡΡΡ ΠΊΡΠΏΠ΅Π»ΠΈ:
- Π·Π°Π³Π»ΡΠ±Π»Π΅Π½Π½ΡΠ΅,
- ΠΎΠ±Π»ΠΈΠ²Π½ΡΠ΅,
- ΠΎΡΠΊΡΡΡΡΠ΅.
ΠΠ°Π³Π»ΡΠ±Π»Π΅Π½Π½ΡΡ Π΅ΠΌΠΊΠΎΡΡΡ Ρ Π»Π΅ΡΡΠ½ΠΈΡΠ΅ΠΉ Π΄Π»Ρ ΡΡ ΠΎΠ΄Π° Π² ΡΠ΅Π·Π΅ΡΠ²ΡΠ°Ρ ΠΌΠΎΠΆΠ½ΠΎ ΡΠ°Π·ΠΌΠ΅ΡΡΠΈΡΡ Π²Π½ΡΡΡΠΈ Π±Π°Π½ΠΈ (Π΅ΡΠ»ΠΈ ΠΏΠΎΠ΄ΡΠΌΠ°ΡΡ ΠΎΠ± ΡΡΠΎΠΌ Π½Π΅Ρ ΠΈΡΡΠΎΠΌ ΡΠΎΠΎΡΡΠΆΠ΅Π½ΠΈΠΈ Π½Π° ΡΡΠ°Π΄ΠΈΠΈ ΠΏΡΠΎΠ΅ΠΊΡΠΈΡΠΎΠ²Π°Π½ΠΈΡ) Π»ΠΈΠ±ΠΎ ΡΠ½Π°ΡΡΠΆΠΈ β Ρ ΠΊΡΡΠ»ΡΡΠ°, Π½Π°ΠΏΡΠΈΠΌΠ΅Ρ, ΠΈΠ»ΠΈ Π½Π° ΡΠΏΠ΅ΡΠΈΠ°Π»ΡΠ½ΠΎ ΠΏΡΠ΅Π΄ΡΡΠΌΠΎΡΡΠ΅Π½Π½ΠΎΠΉ ΠΏΡΠΈΠ»Π΅Π³Π°ΡΡΠ΅ΠΉ ΠΊ Π·Π΄Π°Π½ΠΈΡ ΠΏΠ»ΠΎΡΠ°Π΄ΠΊΠ΅. ΠΡΠΎ Π·Π°Π²ΠΈΡΠΈΡ ΠΎΡ ΠΏΡΠ΅Π΄ΠΏΠΎΡΡΠ΅Π½ΠΈΠΉ Ρ ΠΎΠ·ΡΠ΅Π² ΠΈ ΠΊΠΎΠ½ΠΊΡΠ΅ΡΠ½ΡΡ ΡΡΠ»ΠΎΠ²ΠΈΠΉ.
ΠΠΠΠΠ! ΠΠΎΠ»Π³ΠΎΠ²Π΅ΡΠ½Π΅Π΅ Π±ΡΠ΄Π΅Ρ ΡΠΎΠΎΡΡΠΆΠ΅Π½ΠΈΠ΅ Π²Π½ΡΡΡΠΈ Π·Π΄Π°Π½ΠΈΡ, ΠΈΠ±ΠΎ ΠΎΠ½ΠΎ Π½Π΅ Π±ΡΠ΄Π΅Ρ ΠΈΡΠΏΡΡΡΠ²Π°ΡΡ Π½Π° ΡΠ΅Π±Π΅ ΡΠ°Π·ΡΡΡΠΈΡΠ΅Π»ΡΠ½ΠΎΠ³ΠΎ Π²ΠΎΠ·Π΄Π΅ΠΉΡΡΠ²ΠΈΡ ΠΏΠ΅ΡΠ΅ΠΏΠ°Π΄Π° ΡΠ΅Π·ΠΎΠ½Π½ΡΡ ΡΠ΅ΠΌΠΏΠ΅ΡΠ°ΡΡΡ.

ΠΡΠΏΠ΅Π»Ρ Π·Π°Π³Π»ΡΠ±Π»Π΅Π½Π½ΠΎΠ³ΠΎ ΡΠΈΠΏΠ° Π½Π° ΡΠΏΠ΅ΡΠΈΠ°Π»ΡΠ½ΠΎΠΉ ΠΏΠ»ΠΎΡΠ°Π΄ΠΊΠ΅ Ρ Π±Π°Π½ΠΈ
ΠΡΠΊΡΡΡΠΎΠ³ΠΎ Π²ΠΈΠ΄Π° ΠΊΡΠΏΠ΅Π»Ρ β ΡΡΠΎ Π½Π°Π·Π΅ΠΌΠ½ΠΎΠ΅ ΡΠΎΠΎΡΡΠΆΠ΅Π½ΠΈΠ΅, ΡΠΎΡΡΠΎΡΡΠ΅Π΅ ΠΈΠ· ΡΠ΅Π·Π΅ΡΠ²ΡΠ°ΡΠ° ΠΈ ΠΏΠΎΠ΄ΡΠΎΠ΅Π΄ΠΈΠ½Π΅Π½Π½ΠΎΠΉ ΠΊ Π½Π΅ΠΌΡ ΡΠΈΡΡΠ΅ΠΌΡ Π²ΠΎΠ΄ΠΎΡΠ½Π°Π±ΠΆΠ΅Π½ΠΈΡ ΠΈ ΠΊΠ°Π½Π°Π»ΠΈΠ·Π°ΡΠΈΠΈ. Π ΠΏΠΎΠ»ΡΠ·Ρ ΡΠ°ΠΊΠΎΠΉ ΠΊΡΠΏΠ΅Π»ΠΈ Π΄Π΅Π»Π°Π΅ΡΡΡ Π²ΡΠ±ΠΎΡ, ΠΊΠΎΠ³Π΄Π° Π½Π΅Ρ ΡΡΠ»ΠΎΠ²ΠΈΠΉ, ΠΆΠ΅Π»Π°Π½ΠΈΡ ΠΈΠ»ΠΈ Π²ΡΠ΅ΠΌΠ΅Π½ΠΈ Π½Π° ΠΏΠΎΡΡΡΠΎΠΉΠΊΡ Π·Π°Π³Π»ΡΠ±Π»Π΅Π½Π½ΠΎΠ³ΠΎ Π²Π°ΡΠΈΠ°Π½ΡΠ°.

ΠΡΠΊΡΡΡΠΎΠ³ΠΎ Π²ΠΈΠ΄Π° ΠΊΡΠΏΠ΅Π»Ρ Π½Π° ΡΠΏΠ΅ΡΠΈΠ°Π»ΡΠ½ΠΎΠΉ ΠΏΠ»ΠΎΡΠ°Π΄ΠΊΠ΅ Π²ΠΎ Π΄Π²ΠΎΡΠ΅
ΠΠ±Π»ΠΈΠ²Π½ΠΎΠ³ΠΎ Π²ΠΈΠ΄Π° ΠΊΡΠΏΠ΅Π»Ρ, ΡΡΡΠΎΠ³ΠΎ Π³ΠΎΠ²ΠΎΡΡ, ΠΈ Π½Π΅ ΠΊΡΠΏΠ΅Π»Ρ Π²ΠΎΠ²ΡΠ΅ Π² ΠΏΡΠΈΠ²ΡΡΠ½ΠΎΠΌ ΠΏΠΎΠ½ΠΈΠΌΠ°Π½ΠΈΠΈ ΡΡΠΎΠ³ΠΎ ΡΠ»ΠΎΠ²Π°, Π° Π΄Π΅ΡΠ΅Π²ΡΠ½Π½ΠΎΠ΅, ΠΊΠ°ΠΊ ΠΏΡΠ°Π²ΠΈΠ»ΠΎ, Π²Π΅Π΄ΡΠΎ, ΠΏΡΠΈΠΊΡΠ΅ΠΏΠ»Π΅Π½Π½ΠΎΠ΅ ΠΊ ΡΡΠ΅Π½Π΅ ΠΏΠΎΠΌΡΠ²ΠΎΡΠ½ΠΎΠΉ ΠΈΠ»ΠΈ ΠΏΠ°ΡΠ½ΠΎΠΉ.

ΠΠ°ΡΠΈΠ°Π½Ρ ΠΏΡΠΈΠ³ΠΎΠ΄Π½ΡΠΉ Π΄Π°ΠΆΠ΅ Π΄Π»Ρ Π±Π°Π½Ρ ΡΠ°ΠΌΠΎΠΉ ΠΌΠ°Π»ΠΎΠΉ ΠΏΠ»ΠΎΡΠ°Π΄ΠΈ β ΠΎΠ±Π»ΠΈΠ²Π½Π°Ρ ΠΊΡΠΏΠ΅Π»Ρ
ΠΠ·Π³ΠΎΡΠΎΠ²Π»Π΅Π½ΠΈΠ΅ ΡΠ²ΠΎΠΈΠΌΠΈ ΡΡΠΊΠ°ΠΌΠΈ
ΠΠ·Π³ΠΎΡΠΎΠ²Π»Π΅Π½ΠΈΠ΅ Π΅ΠΌΠΊΠΎΡΡΠΈ Π΄Π»Ρ ΠΊΡΠΏΠ°Π½ΠΈΡ ΡΠ²ΠΎΠΈΠΌΠΈ ΡΡΠΊΠ°ΠΌΠΈ Π·Π½Π°ΡΠΈΡΠ΅Π»ΡΠ½ΠΎ ΡΠ΄Π΅ΡΠ΅Π²Π»ΡΠ΅Ρ ΡΡΠΎ ΡΠΎΠΎΡΡΠΆΠ΅Π½ΠΈΠ΅. ΠΠ°ΠΆΠ½ΠΎ ΡΠΎΠ»ΡΠΊΠΎ Π΄Π»Ρ ΡΡΠΈΡ ΡΠ΅Π»Π΅ΠΉ ΠΈΠΌΠ΅ΡΡ Π΄ΠΎΡΡΠ°ΡΠΎΡΠ½ΡΠΉ ΡΡΠΎΠ²Π΅Π½Ρ Π·Π½Π°Π½ΠΈΠΉ ΠΈ ΡΠΌΠ΅Π½ΠΈΠΉ. ΠΡΠ°ΠΊ:
1.ΠΠ°Π³Π»ΡΠ±Π»Π΅Π½Π½Π°Ρ ΠΊΡΠΏΠ΅Π»Ρ. ΠΠ°ΠΈΠ±ΠΎΠ»Π΅Π΅ ΡΠ»ΠΎΠΆΠ½ΡΠΉ Π²Π°ΡΠΈΠ°Π½Ρ Ρ ΡΠΎΡΠΊΠΈ Π·ΡΠ΅Π½ΠΈΡ ΡΠ΅Ρ Π½ΠΎΠ»ΠΎΠ³ΠΈΠΈ ΠΈ ΡΡΡΠ΄ΠΎΠ²ΡΡ Π·Π°ΡΡΠ°Ρ. Π‘ΠΎΠΎΡΡΠΆΠ΅Π½ΠΈΠ΅ ΠΊΠ°ΠΊ Π²Π½ΡΡΡΠΈΠ±Π°Π½Π½ΠΎΠ³ΠΎ Π·Π°Π³Π»ΡΠ±Π»Π΅Π½Π½ΠΎΠ³ΠΎ ΡΠ΅Π·Π΅ΡΠ²ΡΠ°ΡΠ°, ΡΠ°ΠΊ ΠΈ ΡΠ»ΠΈΡΠ½ΠΎΠ³ΠΎ ΡΡΠ΅Π±ΡΠ΅Ρ ΡΡΠ΄Π° ΠΏΠΎΡΠ»Π΅Π΄ΠΎΠ²Π°ΡΠ΅Π»ΡΠ½ΠΎ ΠΏΡΠΎΠ²ΠΎΠ΄ΠΈΠΌΡΡ ΡΡΡΠΎΠΈΡΠ΅Π»ΡΠ½ΡΡ ΠΏΡΠΎΡΠ΅ΡΡΠΎΠ². Π ΠΈΠΌΠ΅Π½Π½ΠΎ:
- ΡΡΡΡΠ΅ ΠΊΠΎΡΠ»ΠΎΠ²Π°Π½Π° ΠΌΠΈΠ½ΠΈΠΌΡΠΌ Π² 1,5 ΠΌ Π³Π»ΡΠ±ΠΈΠ½ΠΎΠΉ ΠΆΠ΅Π»Π°Π΅ΠΌΠΎΠΉ ΠΏΠ»ΠΎΡΠ°Π΄ΠΈ,
- Π°ΡΠΌΠΈΡΠΎΠ²Π°Π½ΠΈΠ΅ Π΄Π½Π° ΠΏΡΠΈ ΠΏΠΎΠΌΠΎΡΠΈ ΠΌΠ΅ΡΠ°Π»Π»ΠΈΡΠ΅ΡΠΊΠΎΠΉ ΡΠ΅ΡΠΊΠΈ, Π° ΡΡΠ΅Π½ΠΎΠΊ β Π°ΡΠΌΠ°ΡΡΡΠΎΠΉ,
- ΠΌΠΎΠ½ΡΠ°ΠΆ ΠΎΠΏΠ°Π»ΡΠ±ΠΊΠΈ Ρ Π·Π°Π·ΠΎΡΠΎΠΌ Π² 5 ΡΠΌ ΠΎΡΠ½ΠΎΡΠΈΡΠ΅Π»ΡΠ½ΠΎ ΡΠ΅ΡΠΊΠΈ Π½Π° Π΄Π½Π΅ ΠΈ Π°ΡΠΌΠ°ΡΡΡΡ Π½Π° ΡΡΠ΅Π½Π°Ρ ,
- Π·Π°Π»ΠΈΠ²ΠΊΠ° Π±Π΅ΡΠΎΠ½Π° Π² ΠΎΠ΄ΠΈΠ½ ΠΏΡΠΈΠ΅ΠΌ Π½Π° ΡΡΠΎΠΊ, Π΄ΠΎΡΡΠ°ΡΠΎΡΠ½ΡΠΉ Π΄Π»Ρ ΡΠΎΡΠΌΠΈΡΠΎΠ²Π°Π½ΠΈΡ ΠΌΠΎΠ½ΠΎΠ»ΠΈΡΠ½ΠΎΠ³ΠΎ ΠΎΡΠ½ΠΎΠ²Π°Π½ΠΈΡ,
- Π³ΠΈΠ΄ΡΠΎΠΈΠ·ΠΎΠ»ΡΡΠΈΡ,
- ΡΠ½ΡΡΠΈΠ΅ ΠΎΠΏΠ°Π»ΡΠ±ΠΊΠΈ,
- ΠΏΠΎΠ΄Π²ΠΎΠ΄ΠΊΠ° ΠΊΠΎΠΌΠΌΡΠ½ΠΈΠΊΠ°ΡΠΈΠΉ,
- ΠΎΡΠ΄Π΅Π»ΠΊΠ° Π΄Π½Π° ΠΈ ΡΡΠ΅Π½ ΠΊΡΠΏΠ΅Π»ΠΈ ΠΊΠ΅ΡΠ°ΠΌΠΈΡΠ΅ΡΠΊΠΎΠΉ ΠΏΠ»ΠΈΡΠΊΠΎΠΉ ΠΈΠ»ΠΈ ΡΡΡΠ°Π½Π°Π²Π»ΠΈΠ²Π°Π΅ΡΡΡ ΠΈ Π·Π°ΠΊΡΠ΅ΠΏΠ»ΡΠ΅ΡΡΡ Π²Π½ΡΡΡΠΈ Π±Π΅ΡΠΎΠ½Π½ΠΎΠΉ ΡΠ°ΡΠΈ ΠΏΠ»Π°ΡΡΠΈΠΊΠΎΠ²ΡΠΉ ΡΠ΅Π·Π΅ΡΠ²ΡΠ°Ρ,
- ΡΡΡΠ°Π½ΠΎΠ²ΠΊΠ° Π»Π΅ΡΡΠ½ΠΈΡΡ ΠΈ ΠΏΡΠΎΡΠ΅ΠΉ ΡΡΡΠ½ΠΈΡΡΡΡ.

ΠΠ°Π³Π»ΡΠ±Π»Π΅Π½Π½ΡΠΉ Π±Π°Π½Π½ΡΠΉ ΠΏΠ»Π°ΡΡΠΈΠΊΠΎΠ²ΡΠΉ ΡΠ΅Π·Π΅ΡΠ²ΡΠ°Ρ
ΠΡΠΎ ΡΠ΅Ρ Π½ΠΎΠ»ΠΎΠ³ΠΈΡ ΡΠΎΠΎΡΡΠΆΠ΅Π½ΠΈΡ Π±Π΅ΡΠΎΠ½Π½ΠΎΠΉ Π»ΠΈΠ±ΠΎ Π·Π°Π³Π»ΡΠ±Π»Π΅Π½Π½ΠΎΠΉ ΠΏΠ»Π°ΡΡΠΈΠΊΠΎΠ²ΠΎΠΉ ΠΊΡΠΏΠ΅Π»ΠΈ.
2.Β ΠΡΠΏΠ΅Π»Ρ ΠΎΡΠΊΡΡΡΠΎΠ³ΠΎ ΡΠΈΠΏΠ°. Π§Π°ΡΠ΅ Π²ΡΠ΅Π³ΠΎ ΡΡΠΎ Π±ΡΠ²Π°Π΅Ρ Π΅ΠΌΠΊΠΎΡΡΡ ΠΈΠ· Π΄Π΅ΡΠ΅Π²Π° Π»ΠΈΠ±ΠΎ ΠΏΠ»Π°ΡΡΠΈΠΊΠΎΠ²Π°Ρ, ΠΎΠ±Π»ΠΈΡΠΎΠ²Π°Π½Π½Π°Ρ Π²Π°Π³ΠΎΠ½ΠΊΠΎΠΉ ΠΈΠ· Π»ΠΈΡΡΠ²Π΅Π½Π½ΠΈΡΡ. Π‘Π°ΠΌΠΎΡΡΠΎΡΡΠ΅Π»ΡΠ½ΠΎ ΠΈΠ·Π³ΠΎΡΠΎΠ²ΠΈΡΡ ΠΊΡΠΏΠ΅Π»Ρ ΠΈΠ· ΠΌΠ°ΡΡΠΈΠ²Π° Π΄Π΅ΡΠ΅Π²Π° ΠΏΠΎΡΠΈΠ»ΡΠ½ΠΎ Π»ΠΈΡΡ ΡΠΏΠ΅ΡΠΈΠ°Π»ΠΈΡΡΡ, ΠΏΠΎΡΠΊΠΎΠ»ΡΠΊΡ Π·Π΄Π΅ΡΡ Π½ΡΠΆΠ½Ρ ΠΈ ΠΎΠΏΡΠ΅Π΄Π΅Π»Π΅Π½Π½ΡΠ΅ Π·Π½Π°Π½ΠΈΡ, ΠΈ Π½Π°Π²ΡΠΊΠΈ. ΠΠ΅Π· Π½ΠΈΡ Π΅ΠΌΠΊΠΎΡΡΡ ΡΠΈΡΠΊΡΠ΅Ρ ΠΎΠΊΠ°Π·Π°ΡΡΡΡ Π½Π΅Π³Π΅ΡΠΌΠ΅ΡΠΈΡΠ½ΠΎΠΉ ΠΈ ΡΠΊΠΎΡΠΎ Π΄Π°ΡΡ ΡΠ΅ΡΡ. ΠΠΎΡΡΠΎΠΌΡ ΡΠ΅Π»Π΅ΡΠΎΠΎΠ±ΡΠ°Π·Π½Π΅Π΅ ΠΊΡΠΏΠΈΡΡ Π³ΠΎΡΠΎΠ²ΡΠΉ ΡΠΊΠ·Π΅ΠΌΠΏΠ»ΡΡ ΠΆΠ΅Π»Π°Π΅ΠΌΠΎΠ³ΠΎ ΡΠ°Π·ΠΌΠ΅ΡΠ° ΠΈ ΡΠΎΡΠΌΡ ΠΈΠ»ΠΈ Π·Π°ΠΊΠ°Π·Π°ΡΡ Π΅Π³ΠΎ ΠΌΠ°ΡΡΠ΅ΡΡ ΠΏΠΎ Π²Π°ΡΠΈΠΌ ΠΌΠ΅ΡΠΊΠ°ΠΌ. ΠΡΠ»ΠΈ Π±Π°Π½Π½ΠΎΠ΅ ΠΏΠΎΠΌΠ΅ΡΠ΅Π½ΠΈΠ΅ ΡΠΆΠ΅ ΠΏΠΎΡΡΡΠΎΠ΅Π½ΠΎ, ΡΠΎ ΡΠ΅Π·Π΅ΡΠ²ΡΠ°Ρ Π² Π³ΠΎΡΠΎΠ²ΠΎΠΌ Π²ΠΈΠ΄Π΅ Π² Π½Π΅Π³ΠΎ Π²Π½Π΅ΡΡΠΈ Π½Π΅Π²ΠΎΠ·ΠΌΠΎΠΆΠ½ΠΎ, ΠΏΠΎΡΡΠΎΠΌΡ ΠΏΠΎΡΡΠ°Π²Π»ΡΠ΅ΡΡΡ ΠΊΡΠΏΠ΅Π»Ρ ΠΈΠ· Π΄Π΅ΡΠ΅Π²Π° Π² ΡΠ°Π·ΠΎΠ±ΡΠ°Π½Π½ΠΎΠΌ Π²ΠΈΠ΄Π΅, Π° ΠΌΠΎΠ½ΡΠ°ΠΆ Π΅Π΅ ΠΈ ΡΡΡΠΆΠΊΡ ΠΎΠ±ΡΡΡΠ°ΠΌΠΈ ΠΏΡΠ°Π²ΠΈΠ»ΡΠ½ΠΎ ΠΌΠΎΠΆΠ΅Ρ ΠΎΡΡΡΠ΅ΡΡΠ²ΠΈΡΡ ΡΠΎΠ»ΡΠΊΠΎ ΠΌΠ°ΡΡΠ΅Ρ.
Π£ΡΡΠ°Π½Π°Π²Π»ΠΈΠ²Π°ΡΡ Π΅ΠΌΠΊΠΎΡΡΡ Π΄Π»Ρ Ρ ΠΎΠ»ΠΎΠ΄Π½ΠΎΠΉ Π²ΠΎΠ΄Ρ Π½Π° ΡΠΎΠ²Π½ΡΡ ΠΏΠΎΠ²Π΅ΡΡ Π½ΠΎΡΡΡ ΠΏΠΎΠ»Π°, ΠΊΠΎΡΠΎΡΡΠΉ, Π² ΡΠ²ΠΎΡ ΠΎΡΠ΅ΡΠ΅Π΄Ρ, Π½Π°Π΄Π΅ΠΆΠ½ΠΎ Π³ΠΈΠ΄ΡΠΎΠΈΠ·ΠΎΠ»ΠΈΡΡΡΡ. ΠΠ°ΠΊ Π²ΡΡΠΊΡΡ Π±ΠΎΡΠΊΡ, ΠΊΡΠΏΠ΅Π»Ρ ΠΏΠ΅ΡΠ΅Π΄ Π½Π°ΡΠ°Π»ΠΎΠΌ ΡΠΊΡΠΏΠ»ΡΠ°ΡΠ°ΡΠΈΠΈ Π½Π°ΠΏΠΎΠ»Π½ΡΡΡ Π²ΠΎΠ΄ΠΎΠΉ ΠΈ Π΄Π°ΡΡ Π΄Π΅ΡΠ΅Π²Ρ ΡΠ°Π·ΠΌΠΎΡΠΈΡΡΡΡ Π² ΡΠ΅ΡΠ΅Π½ΠΈΠ΅ Π½Π΅ΡΠΊΠΎΠ»ΡΠΊΠΈΡ ΡΠ°ΡΠΎΠ², ΡΡΠΎΠ±Ρ Π²ΠΎΠ·ΠΌΠΎΠΆΠ½ΡΠ΅ Π½Π΅Π±ΠΎΠ»ΡΡΠΈΠ΅ ΡΠ΅Π»ΠΈ ΠΌΠ΅ΠΆΠ΄Ρ Π΄ΠΎΡΠΊΠ°ΠΌΠΈ ΠΏΠ»ΠΎΡΠ½ΠΎ Π·Π°ΠΊΡΡΠ»ΠΈΡΡ. ΠΠ°ΡΠ΅ΠΌ Π²ΠΎΠ΄Ρ ΡΠ»ΠΈΠ²Π°ΡΡ, ΠΈ, ΠΎΠΏΠΎΠ»ΠΎΡΠ½ΡΠ², Π½Π°ΠΏΠΎΠ»Π½ΡΡΡ ΡΠ½ΠΎΠ²Π° Π²ΠΎΠ΄ΠΎΠΉ ΡΠΆΠ΅ Π΄Π»Ρ ΠΏΡΠΈΠ½ΡΡΠΈΡ ΠΊΠΎΠ½ΡΡΠ°ΡΡΠ½ΡΡ Π²Π°Π½Π½.
ΠΠΠΠΠ! ΠΡΠ»ΠΈ Ρ Π²Π°Ρ Π±Π°Π½Ρ Π½Π° Π΄ΡΠΎΠ²Π°Ρ , ΡΠΎ ΠΊΡΠΏΠ΅Π»Ρ Π½Π΅ ΡΡΠ°Π²ΡΡ Π±Π»ΠΈΠ·ΠΊΠΎ ΠΎΡ ΠΏΠ΅ΡΠΈ Π²ΠΎ ΠΈΠ·Π±Π΅ΠΆΠ°Π½ΠΈΠ΅ Π΅Π΅ ΡΠ°ΡΡΡΡ Π°Π½ΠΈΡ.
ΠΡΠ»ΠΈ Π²Π΅ΡΡΠΈ ΡΠ΅ΡΡ ΠΎΠ± ΠΎΡΠΊΡΡΡΠΎΠΉ ΠΊΡΠΏΠ΅Π»ΠΈ ΠΈΠ· ΠΏΠ»Π°ΡΡΠΈΠΊΠ°, ΡΠΎ Π½ΡΠΆΠ½ΠΎ Π΄Π»Ρ ΡΡΡΠΎΠΉΡΠΈΠ²ΠΎΡΡΠΈ, ΡΠ½ΡΠ² ΠΏΡΠ΅Π΄Π²Π°ΡΠΈΡΠ΅Π»ΡΠ½ΠΎ Π½ΠΎΠΆΠΊΠΈ ΠΈ ΠΏΡΠ΅Π΄ΡΡΠΌΠΎΡΡΠ΅Π² ΡΡΠΎΠΊ, Π²ΡΡΡΠ°Π²ΠΈΡΡ Π΅ΠΌΠΊΠΎΡΡΡ Π½Π° ΡΠΎΠ²Π½ΡΠΉ ΠΏΠΎΠ». ΠΠΎ Π²Π½Π΅ΡΠ½Π΅ΠΌΡ ΠΏΠ΅ΡΠΈΠΌΠ΅ΡΡΡ Π΅ΠΌΠΊΠΎΡΡΡ ΠΈΠ· ΠΏΠ»Π°ΡΡΠΈΠΊΠ° ΠΈΠ·Π³ΠΎΡΠ°Π²Π»ΠΈΠ²Π°Π΅ΡΡΡ Π±ΡΡΡΠΊΠΎΠ²ΡΠΉ ΠΊΠ°ΡΠΊΠ°Ρ, Π½Π° ΠΊΠΎΡΠΎΡΡΠΉ ΠΊΡΠ΅ΠΏΠΈΡΡΡ Π²Π°Π³ΠΎΠ½ΠΊΠ°. ΠΠΎΡΠ»Π΅ ΡΡΠΈΡ ΡΠ°Π±ΠΎΡ Π²Ρ ΠΎΠ΄ Π² ΡΠ΅Π·Π΅ΡΠ²ΡΠ°Ρ ΠΎΠ±Π΅ΠΈΡ ΡΠ°Π·Π½ΠΎΠ²ΠΈΠ΄Π½ΠΎΡΡΠ΅ΠΉ ΠΎΠ±ΡΡΡΡΠ°ΠΈΠ²Π°Π΅ΡΡΡ ΠΏΠΎΠ΄ΠΈΡΠΌΠΎΠΌ, Π»Π΅ΡΡΠ½ΠΈΡΠ΅ΠΉ Ρ ΠΏΠ΅ΡΠΈΠ»Π°ΠΌΠΈ.

Π΅ΠΌΠΊΠΎΡΡΠΈ ΠΈΠ· ΠΏΠ»Π°ΡΡΠΈΠΊΠ° ΡΡΠ½ΠΊΡΠΈΠΎΠ½Π°Π»ΡΠ½Ρ ΠΈ ΡΠ°Π·Π½ΠΎΠΎΠ±ΡΠ°Π·Π½Ρ ΠΏΠΎ ΡΠ°Π·ΠΌΠ΅ΡΡ ΠΈ ΡΠΎΡΠΌΠ΅
3.ΠΠ±Π»ΠΈΠ²Π½Π°Ρ ΠΊΡΠΏΠ΅Π»Ρ. ΠΡΠ΅ΠΏΠΈΡΡΡ Π΅ΠΌΠΊΠΎΡΡΡ Π½Π° ΡΡΠΎΠ²Π½Π΅ Π²ΡΡΠ΅ ΡΠ΅Π»ΠΎΠ²Π΅ΡΠ΅ΡΠΊΠΎΠ³ΠΎ ΡΠΎΡΡΠ°, ΠΎΠ½Π° ΡΠ½Π°Π±ΠΆΠ°Π΅ΡΡΡ Π²Π΅ΡΠ΅Π²ΠΊΠΎΠΉ, ΠΏΠΎΡΡΠ½ΡΠ² Π·Π° ΠΊΠΎΡΠΎΡΡΡ ΠΌΠΎΡΡΠΈΠΉΡΡ Π²ΡΠ»ΠΈΠ²Π°Π΅Ρ ΠΈΠ· Π²Π΅Π΄ΡΠ° Π½Π° ΡΠ΅Π±Ρ Ρ ΠΎΠ»ΠΎΠ΄Π½ΡΡ Π²ΠΎΠ΄Ρ. ΠΠΎΡΠ»Π΅ ΡΡΠΎΠ³ΠΎ Π²Π΅Π΄ΡΠΎ Π±Π»Π°Π³ΠΎΠ΄Π°ΡΡ Π²ΡΠ°ΡΠ°ΡΡΠ΅ΠΉΡΡ ΠΎΡΠΈ, Π½Π° ΠΊΠΎΡΠΎΡΡΡ ΠΎΠ½ΠΎ ΡΡΡΠ°Π½ΠΎΠ²Π»Π΅Π½ΠΎ, Π²ΠΎΠ·Π²ΡΠ°ΡΠ°Π΅ΡΡΡ Π² ΠΏΡΠ΅ΠΆΠ½Π΅Π΅ ΠΏΠΎΠ»ΠΎΠΆΠ΅Π½ΠΈΠ΅. ΠΠ°Ρ ΠΎΠ΄ΡΡΠΈΠΉΡΡ Π² ΡΠ΅Π·Π΅ΡΠ²ΡΠ°ΡΠ΅ ΠΏΠΎΠΏΠ»Π°Π²ΠΊΠΎΠ²ΡΠΉ ΠΌΠ΅Ρ Π°Π½ΠΈΠ·ΠΌ ΠΎΠ±Π΅ΡΠΏΠ΅ΡΠΈΠ²Π°Π΅Ρ Π½Π°ΠΏΠΎΠ»Π½Π΅Π½ΠΈΠ΅ Π²Π΅Π΄ΡΠ° Π½ΠΎΠ²ΠΎΠΉ ΠΏΠΎΡΡΠΈΠ΅ΠΉ Ρ ΠΎΠ»ΠΎΠ΄Π½ΠΎΠΉ Π²ΠΎΠ΄Ρ. ΠΡΠΎ Π½Π°ΠΈΠ±ΠΎΠ»Π΅Π΅ ΠΏΡΠΎΡΡΠΎΠΉ Π² ΠΈΡΠΏΠΎΠ»Π½Π΅Π½ΠΈΠΈ ΠΈ ΠΌΠ°Π»ΠΎΠ·Π°ΡΡΠ°ΡΠ½ΡΠΉ Π²Π°ΡΠΈΠ°Π½Ρ ΠΊΡΠΏΠ΅Π»ΠΈ

ΠΠ±Π»ΠΈΠ²Π½ΠΎΠ΅ ΡΡΡΡΠΎΠΉΡΡΠ²ΠΎ ΡΠ΄ΠΎΠ±Π½ΠΎ ΠΈ Π½Π΅ Π·Π°Π½ΠΈΠΌΠ°Π΅Ρ Π΄ΠΎΠΏΠΎΠ»Π½ΠΈΡΠ΅Π»ΡΠ½ΠΎΠ³ΠΎ ΠΌΠ΅ΡΡΠ°
ΠΠ°ΠΊΠ°Ρ Π±Ρ ΠΊΡΠΏΠ΅Π»Ρ Π΄Π»Ρ Π²Π°Ρ Π½ΠΈ Π±ΡΠ»Π° ΠΏΡΠ΅Π΄ΠΏΠΎΡΡΠΈΡΠ΅Π»ΡΠ½Π° β ΠΈΠ· Π΄Π΅ΡΠ΅Π²Π°, Π±Π΅ΡΠΎΠ½Π° Π»ΠΈΠ±ΠΎ ΠΏΠ»Π°ΡΡΠΈΠΊΠΎΠ²Π°Ρ β Π³Π΄Π΅ Π±Ρ Π²Ρ Π΅Π΅ Π½ΠΈ ΡΠ°Π·ΠΌΠ΅ΡΡΠΈΠ»ΠΈ β Π² ΠΏΠ°ΡΠΈΠ»ΠΊΠ΅ ΠΈΠ»ΠΈ Π½Π° ΡΠ»ΠΈΡΠ΅ β ΠΎΠ½Π° ΠΏΡΠΈΠ½Π΅ΡΠ΅Ρ Π²Π°ΠΌ ΠΈ Π²Π°ΡΠΈΠΌ Π³ΠΎΡΡΡΠΌ ΠΌΠ½ΠΎΠΆΠ΅ΡΡΠ²ΠΎ ΠΏΠΎΠ»ΠΎΠΆΠΈΡΠ΅Π»ΡΠ½ΡΡ ΡΠΌΠΎΡΠΈΠΉ, ΠΏΠΎΠ·Π²ΠΎΠ»ΠΈΡ Π·Π°ΠΊΠ°Π»ΠΈΡΡ ΠΎΡΠ³Π°Π½ΠΈΠ·ΠΌ ΠΈ ΡΠΊΡΠ΅ΠΏΠΈΡΡ Π·Π΄ΠΎΡΠΎΠ²ΡΠ΅. ΠΡΠ΄ΡΡ Π² Ρ ΠΎΡΠΎΡΠΎ ΠΎΠ±ΠΎΡΡΠ΄ΠΎΠ²Π°Π½Π½ΠΎΠΉ Π±Π°Π½Π΅ Ρ ΠΊΠΎΠ½ΡΡΠ°ΡΡΠ½ΡΠΌΠΈ Π²ΠΎΠ΄Π½ΡΠΌΠΈ ΠΏΡΠΎΡΠ΅Π΄ΡΡΠ°ΠΌΠΈ ΡΠ²ΠΎΠ΅ΠΉ ΡΠ΅ΠΌΡΠ΅ΠΉ ΠΈΠ»ΠΈ Π² Π΄ΡΡΠΆΠ΅ΡΠΊΠΎΠΉ ΠΊΠΎΠΌΠΏΠ°Π½ΠΈΠΈ Ρ Π»ΠΈΡ Π²ΠΎΠΉ ΠΎΠΊΡΠΏΠΈΡ Π²ΡΠ΅ ΠΌΠ°ΡΠ΅ΡΠΈΠ°Π»ΡΠ½ΡΠ΅ ΠΈ ΡΠΈΠ·ΠΈΡΠ΅ΡΠΊΠΈΠ΅ Π·Π°ΡΡΠ°ΡΡ.
proekt-banya.ru
5+ ΡΡΠ°ΠΏΠΎΠ² ΠΏΠΎ ΠΈΠ·Π³ΠΎΡΠΎΠ²Π»Π΅Π½ΠΈΡ ΠΊΡΠΏΠ΅Π»ΠΈ Π΄Π»Ρ Π±Π°Π½ΠΈ ΡΠ²ΠΎΠΈΠΌΠΈ ΡΡΠΊΠ°ΠΌΠΈ [+13 Π€ΠΠ’Π]
Π§ΡΠΎΠ±Ρ ΠΏΡΠΈ ΠΏΠΎΡΠ΅ΡΠ΅Π½ΠΈΠΈ Π±Π°Π½ΠΈ ΠΏΠΎΡΡΠ²ΡΡΠ²ΠΎΠ²Π°ΡΡ ΡΠ΄ΠΎΠ²ΠΎΠ»ΡΡΡΠ²ΠΈΠ΅ Π² ΠΏΠΎΠ»Π½ΠΎΠΌ ΠΎΠ±ΡΠ΅ΠΌΠ΅, Π² Π½Π΅ΠΉ ΡΠ»Π΅Π΄ΡΠ΅Ρ ΠΎΠ±ΡΡΡΡΠΎΠΈΡΡ ΠΊΠ°ΠΊ ΠΏΠ°ΡΠΈΠ»ΠΊΡ, ΡΠ°ΠΊ ΠΈ ΠΌΠΎΠ΅ΡΠ½ΡΡ, ΡΠ°Π·Π΄Π΅Π²Π°Π»ΠΊΡ ΠΈ ΠΊΡΠΏΠ΅Π»Ρ. ΠΡΠ΅Π΄ΡΡΠΌΠΎΡΡΠ΅ΡΡ ΠΎΠ±ΠΎΡΡΠ΄ΠΎΠ²Π°Π½ΠΈΠ΅ Π΄Π°Π½Π½ΡΡ
ΠΏΠΎΠΌΠ΅ΡΠ΅Π½ΠΈΠΉ Π²Ρ Π΄ΠΎΠ»ΠΆΠ½Ρ Π΅ΡΠ΅ Π½Π° ΡΡΠ°Π΄ΠΈΠΈ ΡΡΡΠΎΠΈΡΠ΅Π»ΡΡΡΠ²Π° Π±Π°Π½ΠΈ. Π Π΄Π°Π½Π½ΠΎΠΉ ΡΡΠ°ΡΡΠ΅ ΠΌΡ Π²Π°ΠΌ ΡΠ°ΡΡΠΊΠ°ΠΆΠ΅ΠΌ, ΠΊΠ°ΠΊ ΡΠ΄Π΅Π»Π°ΡΡ ΠΊΡΠΏΠ΅Π»Ρ Π΄Π»Ρ Π±Π°Π½ΠΈ ΡΠ²ΠΎΠΈΠΌΠΈ ΡΡΠΊΠ°ΠΌΠΈ.

ΠΠ° ΡΠΎΡΠΎ Π³ΠΎΡΠΎΠ²Π°Ρ ΠΊΡΠΏΠ΅Π»Ρ
ΠΡΠ΅ Π½Π° ΡΡΠ°Π΄ΠΈΠΈ ΠΏΡΠΎΠ΅ΠΊΡΠΈΡΠΎΠ²Π°Π½ΠΈΡ Π±Π°Π½ΠΈ Π²Π°ΠΌ ΡΠ»Π΅Π΄ΡΠ΅Ρ ΠΎΠΏΡΠ΅Π΄Π΅Π»ΠΈΡΡΡΡ Ρ ΡΠ°Π·ΠΌΠ΅ΡΠ°ΠΌΠΈ, ΠΌΠ΅ΡΡΠΎΠΏΠΎΠ»ΠΎΠΆΠ΅Π½ΠΈΠ΅ΠΌ ΠΈ ΡΠΏΠΎΡΠΎΠ±ΠΎΠΌ ΡΡΡΠ°Π½ΠΎΠ²ΠΊΠΈ ΡΠΎΠΉ ΠΊΠΎΠ½ΡΡΡΡΠΊΡΠΈΠΈ, Π² ΠΊΠΎΡΠΎΡΠΎΠΉ Π²Ρ Π±ΡΠ΄Π΅ΡΠ΅ ΠΎΡ Π»Π°ΠΆΠ΄Π°ΡΡΡΡ ΠΏΠΎΡΠ»Π΅ ΠΏΠ°ΡΠΈΠ»ΠΊΠΈ.
ΠΡΠΏΠ΅Π»Ρ ΠΌΠΎΠΆΠ΅Ρ ΠΈΠΌΠ΅ΡΡ Π½Π΅ΡΠΊΠΎΠ»ΡΠΊΠΎ Π²ΠΈΠ΄ΠΎΠ²:
- ΡΠ³Π»ΡΠ±Π»Π΅Π½Π½Π°Ρ;
- ΠΎΡΠΊΡΡΡΠ°Ρ;

ΠΡΠΊΡΡΡΡΠΉ Π²Π°ΡΠΈΠ°Π½Ρ ΠΈΡΠΏΠΎΠ»Π½Π΅Π½ΠΈΡ
- Π²ΡΠ»ΠΈΠ²Π½Π°Ρ;
- Π²Π½ΡΡΡΠΈ Π±Π°Π½ΠΈ.
Π£Π³Π»ΡΠ±Π»Π΅Π½Π½Π°Ρ ΠΊΡΠΏΠ΅Π»Ρ
ΠΡΠΏΠ΅Π»Ρ ΠΎΠ±ΡΡΠ½ΠΎ ΠΏΡΠΈΠ½ΡΡΠΎ ΡΡΡΠ°Π½Π°Π²Π»ΠΈΠ²Π°ΡΡ Π²Π³Π»ΡΠ±Ρ Π·Π΅ΠΌΠ»ΠΈ, Π² ΡΠ²ΡΠ·ΠΈ Ρ ΡΡΠΈΠΌ ΡΠ°ΠΌΡΠΉ Π»ΡΡΡΠΈΠΉ Π²Π°ΡΠΈΠ°Π½Ρ Π΄Π»Ρ Π΅Π΅ ΠΎΡΠ½ΠΎΠ²Ρ β Π±Π΅ΡΠΎΠ½.
Π§Π°ΡΠ° Π΄Π»Ρ ΡΠ³Π»ΡΠ±Π»Π΅Π½Π½ΠΎΠΉ ΠΊΠΎΠ½ΡΡΡΡΠΊΡΠΈΠΈ
ΠΡΠ°ΠΏΡ ΡΠΎΠ·Π΄Π°Π½ΠΈΡ ΡΠ³Π»ΡΠ±Π»Π΅Π½Π½ΠΎΠΉ ΠΊΡΠΏΠ΅Π»ΠΈ:
- Π²Π½Π°ΡΠ°Π»Π΅ Π²Π°ΠΌ Π½ΡΠΆΠ½ΠΎ Π±ΡΠ΄Π΅Ρ Π²ΡΡΡΡΡ ΡΠΌΡ;
- ΡΠ΄Π΅Π»Π°ΡΡ ΠΎΠΏΠ°Π»ΡΠ±ΠΊΡ Ρ ΡΡΡΠ°Π½ΠΎΠ²ΠΊΠΎΠΉ Π² Π½Π΅Π΅ Π°ΡΠΌΠ°ΡΡΡΡ;
- Π·Π°Π»ΠΈΡΡ Π±Π΅ΡΠΎΠ½;

ΠΡΠ°ΠΏΡ ΡΠ°Π±ΠΎΡΡ Ρ Π±Π΅ΡΠΎΠ½ΠΎΠΌ
Π‘ΠΎΠ²Π΅Ρ! ΠΠ΅ΡΠΎΠ½ ΠΆΠ΅Π»Π°ΡΠ΅Π»ΡΠ½ΠΎ Π·Π°Π»ΠΈΠ²Π°ΡΡ Π·Π° ΠΎΠ΄ΠΈΠ½ ΡΠ°Π·, ΡΡΠΎΠ±Ρ ΠΈΡΠΊΠ»ΡΡΠΈΡΡ Π²Π΅ΡΠΎΡΡΠ½ΠΎΡΡΡ Π΅Π³ΠΎ Π½Π΅ΡΠ°Π²Π½ΠΎΠΌΠ΅ΡΠ½ΠΎΠ³ΠΎ Π·Π°ΡΡΡΠ²Π°Π½ΠΈΡ ΡΠ°Π½ΡΡΠ΅ ΠΏΠΎΠ»ΠΎΠΆΠ΅Π½Π½ΠΎΠ³ΠΎ ΡΡΠΎΠΊΠ°.
- Π½Π°ΡΡΠΆΠ½ΡΠ΅ ΡΡΠ΅Π½Ρ Π½ΡΠΆΠ½ΠΎ Π±ΡΠ΄Π΅Ρ ΠΏΠΎΠΊΡΡΡΡ Π³ΠΈΠ΄ΡΠΎΠΈΠ·ΠΎΠ»ΡΡΠΈΠΎΠ½Π½ΡΠΌ ΠΌΠ°ΡΠ΅ΡΠΈΠ°Π»ΠΎΠΌ;
- Π²Π½ΡΡΡΠ΅Π½Π½ΠΈΠ΅ ΡΡΠ΅Π½Ρ ΡΡΠ΅Π±ΡΠ΅ΡΡΡ ΠΎΠ±Π»ΠΈΡΠ΅Π²Π°ΡΡ ΠΏΠ»Π΅Π½ΠΊΠΎΠΉ ΠΈΠ»ΠΈ ΠΏΠ»ΠΈΡΠΊΠΎΠΉ;
- ΠΏΠΎΠ΄Π²Π΅ΡΡΠΈ ΠΊΠΎΠΌΠΌΡΠ½ΠΈΠΊΠ°ΡΠΈΠΈ.

ΠΠ»Π°Π²Π½ΠΎΠ΅ Π½Π΅ Π·Π°Π±ΡΡΡ ΠΏΡΠΎ ΠΏΠΎΠ΄Π²ΠΎΠ΄ ΠΈ ΡΠ»ΠΈΠ² Π²ΠΎΠ΄Ρ
ΠΠ±ΡΡΡΡΠΎΠΉΡΡΠ²ΠΎ ΠΎΡΠΊΡΡΡΠΎΠΉ ΠΊΡΠΏΠ΅Π»ΠΈ
Π’Π°ΠΊΠΈΠ΅ ΠΊΡΠΏΠ΅Π»ΠΈ Π΄Π»Ρ Π±Π°Π½ΠΈ ΡΠ²ΠΎΠΈΠΌΠΈ ΡΡΠΊΠ°ΠΌΠΈ Π΄Π΅Π»Π°ΡΡ Π½Π°ΠΌΠ½ΠΎΠ³ΠΎ ΠΏΡΠΎΡΠ΅, ΡΠ°ΠΊ ΠΊΠ°ΠΊ Π΅ΡΡΡ Π²ΠΎΠ·ΠΌΠΎΠΆΠ½ΠΎΡΡΡ Π²ΡΠ±ΠΎΡΠ° ΡΠ°Π·ΠΌΠ΅ΡΠ° Π΅ΠΌΠΊΠΎΡΡΠΈ, Π½Π΅ ΠΎΠ³ΡΠ°Π½ΠΈΡΠΈΠ²Π°Ρ ΡΠ΅Π±Ρ ΠΏΡΠΈ ΡΡΠΎΠΌ Π² ΠΏΡΠΎΡΡΡΠ°Π½ΡΡΠ²Π΅.
ΠΠΎΡΡΠ΄ΠΎΠΊ ΡΠ°Π±ΠΎΡ:
- ΠΏΠΎΠ΄ Π²ΡΠ±ΡΠ°Π½Π½ΡΡ Π΅ΠΌΠΊΠΎΡΡΡ Π²Π°ΠΌ Π½ΡΠΆΠ½ΠΎ Π±ΡΠ΄Π΅Ρ Π²ΡΡΠΎΠ²Π½ΡΡΡ Π·Π΅ΠΌΠ»Ρ. ΠΡΠΈ ΠΆΠ΅Π»Π°Π½ΠΈΠΈ ΠΌΠΎΠΆΠ΅ΡΠ΅ ΡΠ΄Π΅Π»Π°ΡΡ ΡΡΠ½Π΄Π°ΠΌΠ΅Π½Ρ, ΡΠ΅ΡΠ΅Π· ΠΊΠΎΡΠΎΡΡΠΉ Π±ΡΠ΄Π΅Ρ Π΄Π΅Π»Π°ΡΡΡΡ ΡΠ»ΠΈΠ² ΠΈ ΠΏΠΎΠ΄ΠΊΠ»ΡΡΠ°ΡΡΡΡ Π²ΠΎΠ΄Π°;
- ΡΠ»Π΅Π΄ΡΡΡΠΈΠΉ Π²Π°Ρ ΡΠ°Π³ Π±ΡΠ΄Π΅Ρ Π·Π°ΠΊΠ»ΡΡΠ°ΡΡΡΡ Π² ΠΎΡΠ΄Π΅Π»ΠΊΠ΅ ΠΈ Π΄Π΅ΠΊΠΎΡΠΈΡΠΎΠ²Π°Π½ΠΈΠΈ ΠΊΡΠΏΠ΅Π»ΠΈ. Π’Π°ΠΊΠΆΠ΅ Π²Ρ ΠΌΠΎΠΆΠ΅ΡΠ΅ ΡΡΡΠ°Π½ΠΎΠ²ΠΈΡΡ Π²Π½ΡΡΡΠΈ Π»ΡΠ±ΡΠ΅ Π²ΠΎΠ΄Π½ΡΠ΅ ΠΏΡΠΈΡΠΏΠΎΡΠΎΠ±Π»Π΅Π½ΠΈΡ, Π±ΡΠ΄Ρ ΡΠΎ Π°ΡΡΠ°ΡΠΎΡ ΠΈΠ»ΠΈ Π³ΠΈΠ΄ΡΠΎΠΌΠ°ΡΡΠ°ΠΆ ΠΈ ΡΠ°ΠΊ Π΄Π°Π»Π΅Π΅;

Π£Π΄ΠΎΠ±Π½Π°Ρ ΠΊΡΠΏΠ΅Π»Ρ Ρ Π»Π΅ΡΠ΅Π½ΠΊΠΎΠΉ
Π‘ΠΎΠ²Π΅Ρ! Π ΡΡΠΎΠΌ ΡΠ»ΡΡΠ°Π΅ Π»ΡΡΡΠ΅ Π²ΡΠ΅Π³ΠΎ Π²ΡΠ±ΠΈΡΠ°ΡΡ Π΄ΠΎΡΠΊΠΈ ΠΈΠ· Π»ΠΈΡΡΠ²Π΅Π½Π½ΡΡ ΠΏΠΎΡΠΎΠ΄ Π΄Π΅ΡΠ΅Π²Π°.
- ΡΠΊΡΠ°ΡΡΡΠ΅ ΠΊΡΠΏΠ΅Π»Ρ Π»ΡΠ±ΡΠΌΠΈ Π²ΡΠ±ΡΠ°Π½Π½ΡΠΌΠΈ Π°ΠΊΡΠ΅ΡΡΡΠ°ΡΠ°ΠΌΠΈ. Π ΠΏΡΠΈΠΌΠ΅ΡΡ, Π΄Π»Ρ ΡΠ΄ΠΎΠ±ΡΡΠ²Π° Π²Ρ ΠΌΠΎΠΆΠ΅ΡΠ΅ ΡΠΎΠΎΡΡΠ΄ΠΈΡΡ ΠΏΡΠΈΡΡΠ°Π²Π½ΠΎΠΉ ΠΏΠΎΠ΄ΠΈΡΠΌ, Π½Π΅Π±ΠΎΠ»ΡΡΡΡ Π»Π΅ΡΡΠ½ΠΈΡΡ, Π° Π²Π½ΡΡΡΠΈ ΠΌΠΎΠΆΠ½ΠΎ Π±ΡΠ΄Π΅Ρ ΡΡΡΠ°Π½ΠΎΠ²ΠΈΡΡ ΡΠΊΠ°ΠΌΠ΅ΠΉΠΊΡ.
ΠΡΠΏΠ΅Π»Ρ Π²Π½ΡΡΡΠΈ Π±Π°Π½ΠΈ ΠΈ Π²ΡΠ»ΠΈΠ²Π½Π°Ρ ΠΊΡΠΏΠ΅Π»Ρ
Π‘ΠΎΠΎΡΡΠΆΠ°ΡΡ ΠΊΡΠΏΠ΅Π»Ρ ΠΌΠΎΠΆΠ½ΠΎ ΠΊΠ°ΠΊ Π½Π° ΡΠ»ΠΈΡΠ΅, ΡΠ°ΠΊ ΠΈ Π²Π½ΡΡΡΠΈ Π±Π°Π½ΠΈ, Π½ΠΎ ΡΠΎΠ»ΡΠΊΠΎ Π΅ΡΠ»ΠΈ Π΅Π΅ ΠΏΠ»ΠΎΡΠ°Π΄Ρ ΠΏΠΎΠ·Π²ΠΎΠ»ΡΠ΅Ρ Π²Π°ΠΌ ΡΠ΄Π΅Π»Π°ΡΡ ΡΡΠΎ. ΠΠ»Ρ ΡΠΎΠ³ΠΎ ΡΡΠΎΠ±Ρ ΠΊΡΠΏΠ΅Π»Ρ ΡΡΠΎΡΠ»Π° ΡΡΡΠΎΠΉΡΠΈΠ²ΠΎ, Π½ΠΎΠΆΠΊΡ Π½ΡΠΆΠ½ΠΎ Π±ΡΠ΄Π΅Ρ ΡΠ½ΠΈΠΌΠ°ΡΡ ΠΈ ΡΡΠ°Π²ΠΈΡΡ Π΅Π΅ Π΄Π½ΠΈΡΠ΅ΠΌ Π½Π΅ΠΏΠΎΡΡΠ΅Π΄ΡΡΠ²Π΅Π½Π½ΠΎ ΡΠΆΠ΅ Π½Π° ΠΏΠΎΠ».

ΠΠ°ΡΠΈΠ°Π½Ρ ΡΡΡΠ°Π½ΠΎΠ²ΠΊΠΈ Π²Π½ΡΡΡΠΈ Π±Π°Π½ΠΈ
Π‘ΠΎΠ²Π΅Ρ! Π£ΡΡΠ°Π½Π°Π²Π»ΠΈΠ²Π°ΡΡ ΠΊΡΠΏΠ΅Π»Ρ Π²Π½ΡΡΡΠΈΒ Π±Π°Π½ΠΈΒ Π»ΡΡΡΠ΅ Π²ΡΠ΅Π³ΠΎ Π² ΡΠΎΠΌ ΠΌΠ΅ΡΡΠ΅, Π³Π΄Π΅ ΠΏΠ»Π°Π½ΠΈΡΡΠ΅ΡΡΡ ΠΎΠ±ΡΡΡΡΠΎΠΈΡΡ ΠΌΠΎΠ΅ΡΠ½ΠΎΠ΅ ΠΎΡΠ΄Π΅Π»Π΅Π½ΠΈΠ΅, ΠΏΠΎΡΠΊΠΎΠ»ΡΠΊΡ Π² ΡΡΠΎΠΌ ΠΏΠΎΠΌΠ΅ΡΠ΅Π½ΠΈΠΈ ΡΠΆΠ΅ Π±ΡΠ΄Π΅Ρ ΠΎΠ±ΡΡΡΡΠΎΠ΅Π½ ΡΡΠΎΠΊ Π΄Π»Ρ Π²ΠΎΠ΄.

ΠΡΠ»ΠΈΠ²Π½Π°Ρ ΠΌΠΎΠ΄Π΅Π»Ρ
ΠΡΠ»ΠΈ Ρ Π²Π°Ρ Π½Π΅Ρ ΠΎΡΠΎΠ±ΠΎΠ³ΠΎ ΠΆΠ΅Π»Π°Π½ΠΈΡ Π·Π°Π½ΠΈΠΌΠ°ΡΡΡΡ ΡΡΡΠΎΠΈΡΠ΅Π»ΡΠ½ΡΠΌΠΈ ΡΠ°Π±ΠΎΡΠ°ΠΌΠΈ, ΡΠΎ Π΄Π»Ρ ΠΎΠ±ΡΡΡΡΠΎΠΉΡΡΠ²Π° ΠΊΡΠΏΠ΅Π»ΠΈ ΠΌΠΎΠΆΠ΅ΡΠ΅ ΠΈΡΠΏΠΎΠ»ΡΠ·ΠΎΠ²Π°ΡΡ ΠΈΠ½ΠΎΠΉ ΡΠΏΠΎΡΠΎΠ± β ΡΠ΄Π΅Π»Π°ΡΡ Π΅Π΅ Π²ΡΠ»ΠΈΠ²Π½ΠΎΠΉ. ΠΠ»Ρ ΡΡΠΎΠ³ΠΎ Π²Π°ΠΌ Π½ΡΠΆΠ½ΠΎ Π±ΡΠ΄Π΅Ρ Π·Π°ΡΠ°Π½Π΅Π΅ ΡΠΌΠΎΠ½ΡΠΈΡΠΎΠ²Π°ΡΡ ΡΠΏΠ΅ΡΠΈΠ°Π»ΡΠ½ΡΡ ΠΊΠΎΠ½ΡΡΡΡΠΊΡΠΈΡ ΠΈ ΠΏΡΠΈΡΠ΅ΠΏΠΈΡΡ Π΅Π΅ ΠΊ ΠΎΠ΄Π½ΠΎΠΉ ΠΈΠ· ΡΡΠ΅Π½ Π±Π°Π½ΠΈ. ΠΡΠΈ ΠΏΠΎΠΌΠΎΡΠΈ Π΄Π°Π½Π½ΠΎΠΉ ΠΊΠΎΠ½ΡΡΡΡΠΊΡΠΈΠΈ Π²Π΅Π΄ΡΠΎ Ρ Ρ ΠΎΠ»ΠΎΠ΄Π½ΠΎΠΉ Π²ΠΎΠ΄ΠΎΠΉ Π±ΡΠ΄Π΅Ρ ΠΎΠΏΡΠΎΠΊΠΈΠ΄ΡΠ²Π°ΡΡΡΡ Π½Π° Π²Π°Ρ.
ΠΠ΅Π»Π°Π΅ΡΡΡ ΡΠ°ΠΊΠ°Ρ ΠΊΡΠΏΠ΅Π»Ρ ΠΏΡΠΈ ΠΌΠΈΠ½ΠΈΠΌΠ°Π»ΡΠ½ΡΡ ΡΠΈΠ·ΠΈΡΠ΅ΡΠΊΠΈΡ ΠΈ Π΄Π΅Π½Π΅ΠΆΠ½ΡΡ Π·Π°ΡΡΠ°ΡΠ°Ρ , Π²ΡΠ΅ ΡΠ°Π±ΠΎΡΡ Π²Ρ ΡΠ΄Π΅Π»Π°Π΅ΡΠ΅ Π² ΡΠ°ΠΌΡΠ΅ ΠΊΠΎΡΠΎΡΠΊΠΈΠ΅ ΡΡΠΎΠΊΠΈ,Β ΡΠ΅Π½Π° ΡΠ°ΠΊΠΎΠΉ ΠΊΠΎΠ½ΡΡΡΡΠΊΡΠΈΠΈ Π±ΡΠ΄Π΅Ρ Π²Π΅ΡΡΠΌΠ° ΠΏΡΠΈΠ΅ΠΌΠ»Π΅ΠΌΠΎΠΉ.
Π‘ΡΡΠΎΠΈΡΠ΅Π»ΡΡΡΠ²ΠΎ ΠΊΡΠΏΠ΅Π»ΠΈ ΡΠ²ΠΎΠΈΠΌΠΈ ΡΡΠΊΠ°ΠΌΠΈ
Π‘Π°ΠΌΠΎΡΡΠΎΡΡΠ΅Π»ΡΠ½ΠΎ ΠΎΠ±ΡΡΡΡΠ°ΠΈΠ²Π°Ρ ΠΊΡΠΏΠ΅Π»Ρ, Π²Ρ Π΄ΠΎΠ»ΠΆΠ½Ρ ΠΏΡΠΈΠ΄Π΅ΡΠΆΠΈΠ²Π°ΡΡΡΡ ΠΎΠΏΡΠ΅Π΄Π΅Π»Π΅Π½Π½ΡΡ ΡΡΠ°ΠΏΠΎΠ² ΡΠ°Π±ΠΎΡ:
- Π²ΡΠ±ΠΎΡ ΠΌΠ΅ΡΡΠ° Π΄Π»Ρ ΡΡΡΠ°Π½ΠΎΠ²ΠΊΠΈ;
- Π²ΡΠ±ΠΎΡ ΠΊΠΎΠ½ΡΡΡΡΠΊΡΠΈΠΈ;
- ΠΏΠΎΠ΄Π³ΠΎΡΠΎΠ²ΠΊΠ° ΠΎΡΠ½ΠΎΠ²Π°Π½ΠΈΡ;
- ΠΏΠΎΠ΄Π²Π΅Π΄Π΅Π½ΠΈΠ΅ ΠΊΠΎΠΌΠΌΡΠ½ΠΈΠΊΠ°ΡΠΈΠΉ;
- ΠΌΠΎΠ½ΡΠ°ΠΆ.
ΠΠ»Ρ ΡΠΎΠ³ΠΎ ΡΡΠΎΠ±Ρ Π²ΡΠ±ΡΠ°ΡΡ ΡΠ΄Π°ΡΠ½ΠΎΠ΅ ΠΌΠ΅ΡΡΠΎ Π΄Π»Ρ ΠΎΠ±ΡΡΡΡΠΎΠΉΡΡΠ²Π° Π΄Π°Π½Π½ΠΎΠΉ ΠΊΠΎΠ½ΡΡΡΡΠΊΡΠΈΠΈ, Π²Π°ΠΌ Π½ΡΠΆΠ½ΠΎ ΠΎΠΏΡΠ΅Π΄Π΅Π»ΠΈΡΡΡΡ Ρ Π²Π°ΡΠΈΠΌΠΈ ΠΏΡΠ΅Π΄ΠΏΠΎΡΡΠ΅Π½ΠΈΡΠΌΠΈ. ΠΡΠ»ΠΈ Π²Ρ ΠΏΡΠ΅Π΄ΠΏΠΎΡΠΈΡΠ°Π΅ΡΠ΅ ΠΏΡΠΈΠ½ΠΈΠΌΠ°ΡΡ Π²ΠΎΠ΄Π½ΡΠ΅ ΠΏΡΠΎΡΠ΅Π΄ΡΡΡ Π½Π° ΡΠ²Π΅ΠΆΠ΅ΠΌ Π²ΠΎΠ·Π΄ΡΡ Π΅, ΠΈ Π΅ΡΠ»ΠΈ ΠΏΠ»ΠΎΡΠ°Π΄Ρ Π²Π°ΡΠ΅Π³ΠΎ ΡΡΠ°ΡΡΠΊΠ° ΠΏΠΎΠ·Π²ΠΎΠ»ΡΠ΅Ρ, ΡΠΎ Π²Ρ ΠΌΠΎΠΆΠ΅ΡΠ΅ ΡΠ°ΡΠΏΠΎΠ»ΠΎΠΆΠΈΡΡ ΠΊΡΠΏΠ΅Π»Ρ Π½Π° ΡΠ»ΠΈΡΠ΅.

ΠΡΠ²Π°ΡΡ ΠΌΠΎΠ΄Π΅Π»ΠΈ Ρ ΠΏΠΎΠ΄ΠΎΠ³ΡΠ΅Π²ΠΎΠΌ
ΠΡΠ»ΠΈ Π² Π²Π°ΡΠ΅ΠΉ Π±Π°Π½Π΅ ΠΌΠ΅ΡΡΠ° ΠΏΡΠ΅Π΄ΠΎΡΡΠ°ΡΠΎΡΠ½ΠΎ, ΡΠΎ ΠΌΠΎΠΆΠ΅ΡΠ΅ ΡΡΡΠ°Π½ΠΎΠ²ΠΈΡΡ ΠΏΡΡΠΌΠΎ Π² Π½Π΅ΠΉ ΠΊΡΠΏΠ΅Π»Ρ. ΠΠΎ ΡΠΎΠ³Π΄Π° Π²Π°ΠΌ Π½ΡΠΆΠ½ΠΎ ΡΠ΅ΡΠΈΡΡ, ΠΊΠ°ΠΊΠΎΠ² Π±ΡΠ΄Π΅Ρ ΡΠΏΠΎΡΠΎΠ± ΠΊΡΠ΅ΠΏΠ»Π΅Π½ΠΈΡ Π΄Π°Π½Π½ΠΎΠΉ ΠΊΠΎΠ½ΡΡΡΡΠΊΡΠΈΠΈ, ΠΏΠΎΠ½ΡΡΡ Π±ΡΠ΄Π΅Ρ Π»ΠΈ ΠΎΠ½Π° ΠΎΡΠΊΡΡΡΠ°Ρ ΠΈΠ»ΠΈ ΡΠ³Π»ΡΠ±Π»Π΅Π½Π½Π°Ρ Π² ΡΡΠ½Π΄Π°ΠΌΠ΅Π½Ρ ΠΈΠ»ΠΈ Π·Π΅ΠΌΠ»Ρ.
ΠΠΏΡΠ΅Π΄Π΅Π»ΡΠ΅ΠΌΡΡ Ρ ΠΌΠΎΠ΄Π΅Π»ΡΡ
Π Π²ΡΠ±ΠΎΡΡ Π΄Π°Π½Π½ΠΎΠΉ ΠΊΠΎΠ½ΡΡΡΡΠΊΡΠΈΠΈ ΡΠ»Π΅Π΄ΡΠ΅Ρ ΠΏΠΎΠ΄Ρ ΠΎΠ΄ΠΈΡΡ ΠΎΡΠ½ΠΎΠ²Π°ΡΠ΅Π»ΡΠ½ΠΎ. Π‘Π°ΠΌΡΠΌΠΈ Π»ΡΡΡΠΈΠΌΠΈ ΡΡΠΈΡΠ°ΡΡΡΡ ΠΊΠΎΠ½ΡΡΡΡΠΊΡΠΈΠΈ ΠΈΠ· Π΄Π΅ΡΠ΅Π²Π°.
ΠΠ½ΠΈ ΠΈΠΌΠ΅ΡΡ ΠΊΠ°ΠΊ ΠΏΡΠΈΠ²Π»Π΅ΠΊΠ°ΡΠ΅Π»ΡΠ½ΡΠΉ Π²Π½Π΅ΡΠ½ΠΈΠΉ ΠΎΠ±Π»ΠΈΠΊ, ΡΠ°ΠΊ ΠΈ ΠΎΠ±Π»Π°Π΄Π°ΡΡ ΡΠ΅Π»Π΅Π±Π½ΡΠΌΠΈ ΡΠ²ΠΎΠΉΡΡΠ²Π°ΠΌΠΈ. ΠΡΠΎΠΌΠ΅ ΡΡΠΎΠ³ΠΎ, ΠΎΠ½ΠΈ ΠΏΠΎΠΌΠΎΠ³ΡΡ ΡΠΎΠ·Π΄Π°ΡΡ ΠΏΡΠΈΡΡΠ½ΡΡ Π°ΡΠΌΠΎΡΡΠ΅ΡΡ Π² Π±Π°Π½Π΅.

ΠΠΎΠ΄Π΅Π»ΠΈ ΠΈΠ· ΠΏΠ»Π°ΡΡΠΈΠΊΠ°
Π‘ΡΡΠ΅ΡΡΠ²ΡΡΡ Π΅ΡΠ΅ ΠΈ ΠΏΠ»Π°ΡΡΠΈΠΊΠΎΠ²ΡΠ΅ ΠΊΡΠΏΠ΅Π»ΠΈ Π΄Π»Ρ Π±Π°Π½ΠΈ, ΠΊΠΎΡΠΎΡΡΠ΅ ΠΏΡΠ΅Π΄ΡΡΠ°Π²Π»ΡΡΡ ΡΠΎΠ±ΠΎΠΉ Π΅ΠΌΠΊΠΎΡΡΠΈ, ΠΎΡΠ»ΠΈΡΠ°ΡΡΠΈΠ΅ΡΡ ΡΡΠ½ΠΊΡΠΈΠΎΠ½Π°Π»ΡΠ½ΠΎΡΡΡΡ ΠΈ ΡΠΎΡΠΌΠ°ΠΌΠΈ. ΠΠ°Π½Π½ΡΠ΅ ΠΊΠΎΠ½ΡΡΡΡΠΊΡΠΈΠΈ Π½Π΅ Π±ΡΠ΄ΡΡ ΡΡΠ΅Π±ΠΎΠ²Π°ΡΡ ΡΠ±ΠΎΡΠΊΠΈ ΠΈ Π½Π°ΠΏΠΎΠΌΠΈΠ½Π°ΡΡ ΡΠΎΠ±ΠΎΠΉ ΠΏΠΎ Π±ΠΎΠ»ΡΡΠ΅ΠΉ ΡΠ°ΡΡΠΈ ΠΌΠΈΠ½ΠΈ-Π±Π°ΡΡΠ΅ΠΉΠ½Ρ.
ΠΡΠ±ΠΈΡΠ°ΡΡ ΡΡ ΠΈΠ»ΠΈ ΠΈΠ½ΡΡ ΠΌΠΎΠ΄Π΅Π»Ρ ΠΊΡΠΏΠ΅Π»ΠΈ, Π²Ρ Π΄ΠΎΠ»ΠΆΠ½Ρ ΠΎΡΠ½ΠΎΠ²ΡΠ²Π°ΡΡΡ Π½Π° ΡΠΎΠΌ, ΡΡΠΎ Π² Π½Π΅ΠΉ Π²Π°ΠΌ Π΄ΠΎΠ»ΠΆΠ½ΠΎ ΡΠ΄ΠΎΠ±Π½ΠΎ Π½Π°Ρ ΠΎΠ΄ΠΈΡΡΡΡ.
ΠΠ»Ρ ΡΡΠΎΠ³ΠΎ Π½ΡΠΆΠ½ΠΎ Π±ΡΠ΄Π΅Ρ ΡΡΠ΅ΡΡΡ:
- ΡΠΊΠΎΠ»ΡΠΊΠΎ ΠΎΠ΄Π½ΠΎΠ²ΡΠ΅ΠΌΠ΅Π½Π½ΠΎ ΡΠ΅Π»ΠΎΠ²Π΅ΠΊ Π±ΡΠ΄Π΅Ρ Π½Π°Ρ ΠΎΠ΄ΠΈΡΡΡΡ Π² Π½Π΅ΠΉ;
- Π±ΡΠ΄Π΅Ρ Π»ΠΈ ΠΎΠ±ΡΡΡΡΠΎΠ΅Π½ΠΎ Π΄Π°Π½Π½ΠΎΠ΅ ΡΠΎΠΎΡΡΠΆΠ΅Π½ΠΈΠ΅ ΡΠΈΠ΄ΡΡΠΈΠΌΠΈ ΠΌΠ΅ΡΡΠ°ΠΌΠΈ Π΄Π»Ρ ΠΏΡΠΎΠ΄ΠΎΠ»ΠΆΠΈΡΠ΅Π»ΡΠ½ΠΎΠ³ΠΎ ΠΏΡΠΈΠ½ΡΡΠΈΡ Π²ΠΎΠ΄Π½ΡΡ ΠΏΡΠΎΡΠ΅Π΄ΡΡ ΠΈΠ»ΠΈ ΠΆΠ΅ ΠΎΠ½ΠΎ Π±ΡΠ΄Π΅Ρ ΠΏΡΠ΅Π΄Π½Π°Π·Π½Π°ΡΠ΅Π½ΠΎ Π΄Π»Ρ ΡΠΎΠ³ΠΎ, ΡΡΠΎΠ±Ρ Π½Π΅ΡΠΊΠΎΠ»ΡΠΊΠΎ ΡΠ°Π· ΠΎΠΊΡΠ½ΡΡΡΡΡΒ Π² Π½Π΅Π³ΠΎ;

ΠΠ΄Π΅ΡΡ Π΅ΡΡΡ Π³ΠΈΠ΄ΡΠΎΠΌΠ°ΡΡΠ°ΠΆ
- Π±ΡΠ΄ΡΡ Π»ΠΈ ΡΠΎΠ·Π΄Π°Π½Ρ Π² Π½Π΅ΠΌ Π΄ΠΎΠΏΠΎΠ»Π½ΠΈΡΠ΅Π»ΡΠ½ΡΠ΅ ΡΡΠ½ΠΊΡΠΈΠΈ, ΡΠ°ΠΊΠΈΠ΅ ΠΊΠ°ΠΊ ΠΏΠΎΠ΄ΠΎΠ³ΡΠ΅Π², Π³ΠΈΠ΄ΡΠΎΠΌΠ°ΡΡΠ°ΠΆ ΠΈ ΡΠ°ΠΊ Π΄Π°Π»Π΅Π΅.
ΠΠΎΠ΄Π³ΠΎΡΠΎΠ²ΠΊΠ° ΠΎΡΠ½ΠΎΠ²Π°Π½ΠΈΡ
Π‘ΠΏΠΎΡΠΎΠ±Ρ ΠΎΠ±ΡΡΡΡΠΎΠΉΡΡΠ²Π° ΠΎΡΠ½ΠΎΠ²Π°Π½ΠΈΡ Π΄Π»Ρ ΡΠ³Π»ΡΠ±Π»Π΅Π½Π½ΠΎΠΉ ΠΊΡΠΏΠ΅Π»ΠΈ ΡΠΈΠ»ΡΠ½ΠΎ ΠΎΡΠ»ΠΈΡΠ°ΡΡΡΡ ΠΎΡ ΠΎΠ±ΡΡΡΡΠΎΠΉΡΡΠ²Π° ΠΎΡΠΊΡΡΡΠΎΠΉ. ΠΡΠ»ΠΈ Π²Ρ ΠΎΡΡΠ°Π½ΠΎΠ²ΠΈΠ»ΠΈ ΡΠ²ΠΎΠΉ Π²ΡΠ±ΠΎΡ Π½Π° ΠΎΡΠΊΡΡΡΠΎΠΉ ΠΊΠΎΠ½ΡΡΡΡΠΊΡΠΈΠΈ, ΠΊΠΎΡΠΎΡΠ°Ρ Π±ΡΠ΄Π΅Ρ ΡΠ°ΡΡΡΠΈΡΠ°Π½Π° Π½Π° Π½Π°Ρ ΠΎΠΆΠ΄Π΅Π½ΠΈΠ΅ Π² Π½Π΅ΠΉ Π½Π΅ Π±ΠΎΠ»Π΅Π΅ Π΄Π²ΡΡ ΡΠ΅Π»ΠΎΠ²Π΅ΠΊ, ΡΠΎ Π΄Π°Π½Π½ΡΠΉ ΡΡΠ°ΠΏ ΠΌΠΎΠΆΠ½ΠΎ ΠΈ ΡΠΏΡΡΡΠΈΡΡ. Π ΡΡΠΎΠΌ ΡΠ»ΡΡΠ°Π΅ Π΅ΠΌΠΊΠΎΡΡΡ Π±ΡΠ΄Π΅Ρ ΡΡΡΠ°Π½Π°Π²Π»ΠΈΠ²Π°ΡΡΡΡ Π½Π° ΠΏΠΎΠ» ΠΈΠ»ΠΈ Π·Π΅ΠΌΠ»Ρ.
ΠΠ»Ρ ΠΏΠΎΠ΄Π³ΠΎΡΠΎΠ²ΠΊΠΈ ΠΎΡΠ½ΠΎΠ²Π°Π½ΠΈΡ ΡΠ³Π»ΡΠ±Π»Π΅Π½Π½ΠΎΠΉ ΠΊΡΠΏΠ΅Π»ΠΈ Π²Π°ΠΌ ΡΠ»Π΅Π΄ΡΠ΅Ρ ΠΏΡΠΎΠ²Π΅ΡΡΠΈ ΡΡΠ΄ ΠΌΠ΅ΡΠΎΠΏΡΠΈΡΡΠΈΠΉ, ΠΊΠΎΡΠΎΡΡΠ΅ ΠΎΠΏΠΈΡΡΠ²Π°Π΅Ρ ΠΈΠ½ΡΡΡΡΠΊΡΠΈΡ, ΡΠΎΠ³Π»Π°ΡΠ½ΠΎ ΠΊΠΎΡΠΎΡΠΎΠΉ ΠΎΠ½ΠΈ Π±ΡΠ΄ΡΡ ΠΌΠΎΠ½ΡΠΈΡΠΎΠ²Π°ΡΡΡΡ.

Π ΠΎΠ΅ΠΌ ΠΊΠΎΡΠ»ΠΎΠ²Π°Π½
ΠΠ½Π°ΡΠ°Π»Π΅ Π²Π°ΠΌ Π½ΡΠΆΠ½ΠΎ Π±ΡΠ΄Π΅Ρ Π²ΡΡΡΡΡ ΠΊΠΎΡΠ»ΠΎΠ²Π°Π½, ΡΠΎΠ³Π»Π°ΡΠ½ΠΎ ΡΠ°Π·ΠΌΠ΅ΡΠ°ΠΌ Π²Π°ΡΠ΅ΠΉ ΠΊΡΠΏΠ΅Π»ΠΈ, Π·Π°ΡΠ΅ΠΌ ΡΡΡΠ°Π½ΠΎΠ²ΠΈΡΡ ΠΎΠΏΠ°Π»ΡΠ±ΠΊΡ, ΠΏΡΠΎΠ»ΠΎΠΆΠΈΡΡ Π°ΡΠΌΠ°ΡΡΡΡ, ΠΏΠΎΡΠΎΠΌ Π·Π°Π»ΠΈΡΡ Π±Π΅ΡΠΎΠ½ ΠΈ ΡΠ»ΠΎΠΆΠΈΡΡ Π³ΠΈΠ΄ΡΠΎΠΈΠ·ΠΎΠ»ΡΡΠΈΠΎΠ½Π½ΡΠΉ ΠΌΠ°ΡΠ΅ΡΠΈΠ°Π».
ΠΠ±ΡΠ°ΡΠΈΡΠ΅ Π²Π½ΠΈΠΌΠ°Π½ΠΈΠ΅! ΠΠ΅ΡΠΌΠΎΡΡΡ Π½Π° ΡΠΎ, ΡΡΠΎ Π΄Π°Π½Π½ΡΠΉ Π²Π°ΡΠΈΠ°Π½Ρ ΠΎΠ±ΡΡΡΡΠΎΠΉΡΡΠ²Π° ΠΊΠΎΠ½ΡΡΡΡΠΊΡΠΈΠΈ, Π² ΠΊΠΎΡΠΎΡΠΎΠΉ Π²Ρ Π±ΡΠ΄Π΅ΡΠ΅ ΠΎΡ Π»Π°ΠΆΠ΄Π°ΡΡΡΡ ΠΏΠΎΡΠ»Π΅ ΠΏΠ°ΡΠΈΠ»ΠΊΠΈ Π΄ΠΎΡΡΠ°ΡΠΎΡΠ½ΠΎ ΡΡΡΠ΄ΠΎΠ΅ΠΌΠΊΠΈΠΉ, Π½ΠΎ ΡΠ°ΠΊΠ°Ρ ΠΊΠΎΠ½ΡΡΡΡΠΊΡΠΈΡ ΠΏΡΠΎΡΠ»ΡΠΆΠΈΡ Π²Π°ΠΌ Π½Π°ΠΌΠ½ΠΎΠ³ΠΎ Π΄ΠΎΠ»ΡΡΠ΅.

ΠΠΎΠ»Π½ΡΠΉ ΠΊΠΎΠΌΠΏΠ»Π΅ΠΊΡ ΠΎΠ±ΠΎΡΡΠ΄ΠΎΠ²Π°Π½ΠΈΡ
ΠΠΎΠΌΠΌΡΠ½ΠΈΠΊΠ°ΡΠΈΠΈ, Π° ΡΠΎΡΠ½Π΅Π΅ ΠΎΠ±ΡΡΡΡΠΎΠΉΡΡΠ²ΠΎ ΠΏΠΎΠ΄Π²ΠΎΠ΄Π° ΠΈ ΠΎΡΠ²ΠΎΠ΄Π° Π²ΠΎΠ΄Ρ, Π²Ρ Π΄ΠΎΠ»ΠΆΠ½Ρ Π±ΡΠ΄Π΅ΡΠ΅ ΡΠΏΠ»Π°Π½ΠΈΡΠΎΠ²Π°ΡΡ Π·Π°ΡΠ°Π½Π΅Π΅. Π‘Π²ΡΠ·Π°Π½ΠΎ ΡΡΠΎ Ρ ΡΠ΅ΠΌ, ΡΡΠΎ Π²ΠΎΠ΄Π° Π² ΡΠΎΠ·Π΄Π°Π½Π½ΠΎΠΉ Π²Π°ΠΌΠΈ ΠΊΠΎΠ½ΡΡΡΡΠΊΡΠΈΠΈ Π΄ΠΎΠ»ΠΆΠ½Π° Π±ΡΠ΄Π΅Ρ ΠΎΠ±Π½ΠΎΠ²Π»ΡΡΡΡΡ ΠΏΠΎΡΡΠΎΡΠ½Π½ΠΎ. ΠΠ»Ρ ΠΎΡΠΊΡΡΡΡΡ ΠΊΡΠΏΠ΅Π»Π΅ΠΉ Π²ΠΏΠΎΠ»Π½Π΅ Π±ΡΠ΄Π΅Ρ Π΄ΠΎΡΡΠ°ΡΠΎΡΠ½ΠΎ ΠΎΡΠ³Π°Π½ΠΈΠ·ΠΎΠ²Π°ΡΡ Π½Π°Π±ΠΎΡ ΠΈ ΡΠ»ΠΈΠ² Π²ΠΎΠ΄Ρ, Π° Π²ΠΎΡ Π΄Π»Ρ ΡΠ³Π»ΡΠ±Π»Π΅Π½Π½ΡΡ Π½ΡΠΆΠ½ΠΎ Π±ΡΠ΄Π΅Ρ ΠΏΡΠΎΠ²ΠΎΠ΄ΠΈΡΡ ΡΠΈΡΡΠ΅ΠΌΡ ΠΊΠΎΠΌΠΌΡΠ½ΠΈΠΊΠ°ΡΠΈΠΉ ΠΈ Π²ΠΎΠ΄ΠΎΡΠ½Π°Π±ΠΆΠ΅Π½ΠΈΡ.
ΠΡΠ²ΠΎΠ΄
Π’Π΅ΠΏΠ΅ΡΡ Π²Ρ Π·Π½Π°Π΅ΡΠ΅, ΠΊΠ°ΠΊ ΡΠ΄Π΅Π»Π°ΡΡ ΠΈ ΡΡΡΠ°Π½ΠΎΠ²ΠΈΡΡ ΠΊΡΠΏΠ΅Π»Ρ Π΄Π»Ρ Π±Π°Π½ΠΈ ΡΠ²ΠΎΠΈΠΌΠΈ ΡΡΠΊΠ°ΠΌΠΈ ΠΈΠ· Π±Π΅ΡΠΎΠ½Π° ΠΈ ΠΏΠ»Π°ΡΡΠΈΠΊΠ°. ΠΠΎΠ»Π΅Π΅ ΠΏΠΎΠ»Π½ΡΡ ΠΈΠ½ΡΠΎΡΠΌΠ°ΡΠΈΡ ΠΏΠΎ Π΄Π°Π½Π½ΠΎΠΉ ΡΠ΅ΠΌΠ΅ Π²Ρ ΠΌΠΎΠΆΠ΅ΡΠ΅ ΠΏΡΠΎΡΠΌΠΎΡΡΠ΅ΡΡ Π½Π° Π²ΠΈΠ΄Π΅ΠΎ Π² ΡΡΠΎΠΉ ΡΡΠ°ΡΡΠ΅.
9ban.ru
ΠΡΠΏΠ΅Π»Ρ Π΄Π»Ρ Π±Π°Π½ΠΈ ΡΠ²ΠΎΠΈΠΌΠΈ ΡΡΠΊΠ°ΠΌΠΈ
Π’ΡΠ°Π΄ΠΈΡΠΈΠΎΠ½Π½ΠΎ ΠΏΠΎΡΠ»Π΅ Π²ΡΡΠΎΠΊΠΈΡ ΡΠ΅ΠΌΠΏΠ΅ΡΠ°ΡΡΡ ΡΡΡΡΠΊΠΎΠΉ ΠΏΠ°ΡΠ½ΠΎΠΉ ΠΏΡΠΈΠ½ΡΡΠΎ Π±ΡΠ»ΠΎ ΠΎΠΊΡΠ½Π°ΡΡΡΡ Π² Ρ ΠΎΠ»ΠΎΠ΄Π½ΡΡ Π²ΠΎΠ΄Ρ, ΠΏΠΎΡΡΠΎΠΌΡ Π±Π°Π½ΠΈ ΠΈ ΡΡΠ°ΡΠ°Π»ΠΈΡΡ ΡΡΡΠ°Π½Π°Π²Π»ΠΈΠ²Π°ΡΡ Π½Π° Π±Π΅ΡΠ΅Π³Ρ ΡΠ΅ΠΊΠΈ ΠΈΠ»ΠΈ Π΄ΡΡΠ³ΠΎΠ³ΠΎ Π²ΠΎΠ΄ΠΎΠ΅ΠΌΠ°. ΠΠΎΠ΄ΠΎΠ±Π½ΡΠ΅ ΡΡΠ°Π΄ΠΈΡΠΈΠΈ ΡΠΎΡ ΡΠ°Π½ΠΈΠ»ΠΈΡΡ ΠΈ Π΄ΠΎ Π½Π°ΡΠΈΡ Π΄Π½Π΅ΠΉ, Π½ΠΎ ΡΠ΅Π³ΠΎΠ΄Π½Ρ Π²ΡΠ΅ ΡΠ°ΡΠ΅ Π»ΡΠ±ΠΈΡΠ΅Π»ΠΈ Π±Π°Π½ΠΈ ΠΏΡΠ΅Π΄ΠΏΠΎΡΠΈΡΠ°ΡΡ, Π²ΡΠΉΠ΄Ρ ΠΈΠ· ΠΏΠ°ΡΠ½ΠΎΠΉ ΠΏΡΡΠ³Π½ΡΡΡ, Π² ΡΡΡΡΠΎΠ΅Π½Π½ΡΡ ΠΏΠΎΠ΄ ΠΊΡΡΡΠ΅ΠΉ ΠΊΡΠΏΠ΅Π»Ρ, Π° Π½Π΅ Π±Π΅ΠΆΠ°ΡΡ ΠΏΠΎ ΠΌΠΎΡΠΎΠ·Ρ ΠΊ Π±Π»ΠΈΠΆΠ°ΠΉΡΠ΅ΠΌΡ Π²ΠΎΠ΄ΠΎΠ΅ΠΌΡ.

ΠΡΠΏΠ΅Π»Ρ Π΄Π»Ρ Π±Π°Π½ΠΈ ΡΠ²ΠΎΠΈΠΌΠΈ ΡΡΠΊΠ°ΠΌΠΈ
ΠΠΎΠΆΠ½ΠΎ Π»ΠΈ ΡΠΎΠΎΡΡΠ΄ΠΈΡΡ ΠΊΡΠΏΠ΅Π»Ρ Π΄Π»Ρ Π±Π°Π½ΠΈ ΡΠ²ΠΎΠΈΠΌΠΈ ΡΡΠΊΠ°ΠΌΠΈ? ΠΡΠ»ΠΈ Π΅ΡΡΡ ΠΆΠ΅Π»Π°Π½ΠΈΠ΅, ΡΠΎ, ΠΊΠΎΠ½Π΅ΡΠ½ΠΎ ΠΆΠ΅, ΡΡΠΎ Π²ΠΏΠΎΠ»Π½Π΅ Π²ΠΎΠ·ΠΌΠΎΠΆΠ½ΠΎ. ΠΠ½Π° ΠΌΠΎΠΆΠ΅Ρ Π±ΡΡΡ ΠΈΠ·Π³ΠΎΡΠΎΠ²Π»Π΅Π½Π° ΠΈΠ· Π΄ΡΠ΅Π²Π΅ΡΠΈΠ½Ρ, Π·Π°Π»ΠΈΡΠ° ΠΈΠ· Π±Π΅ΡΠΎΠ½Π° ΠΈΠ»ΠΈ ΠΆΠ΅ ΡΡΡΠ°Π½ΠΎΠ²Π»Π΅Π½Π° Π³ΠΎΡΠΎΠ²Π°Ρ ΡΠ°ΡΠ° ΠΈΠ· ΡΠΏΠ΅ΡΠΈΠ°Π»ΡΠ½ΠΎΠ³ΠΎ ΠΏΠ»Π°ΡΡΠΈΠΊΠ°, ΠΊΠΎΡΠΎΡΠ°Ρ Π²ΠΏΠΎΡΠ»Π΅Π΄ΡΡΠ²ΠΈΠΈ ΠΎΠ±Π»ΠΈΡΠΎΠ²ΡΠ²Π°Π΅ΡΡΡ Π΄Π΅ΠΊΠΎΡΠ°ΡΠΈΠ²Π½ΡΠΌ ΠΌΠ°ΡΠ΅ΡΠΈΠ°Π»ΠΎΠΌ.

ΠΡΠΏΠ΅Π»Ρ Π² ΡΡΠ°Π΄ΠΈΡΠΈΡΡ ΡΠΏΠΎΠ½ΡΠΊΠΎΠΉ Π±Π°Π½ΠΈ-ΠΎΡΡΡΠΎ
ΠΠ½ΡΠ΅ΡΠ΅ΡΠ½Π°Ρ ΠΏΠ°ΡΠ°Π»Π»Π΅Π»Ρ — Π² ΡΠΏΠΎΠ½ΡΠΊΠΎΠΉ ΠΊΡΠ»ΡΡΡΡΠ΅ ΡΡΡΠ΅ΡΡΠ²ΡΠ΅Ρ ΡΠ²ΠΎΡ ΡΡΠ°Π΄ΠΈΡΠΈΠΎΠ½Π½Π°Ρ Π±Π°Π½Ρ, ΠΊΠΎΡΠΎΡΠ°Ρ Π½Π°Π·ΡΠ²Π°Π΅ΡΡΡ ΠΎΡΡΡΠΎ. ΠΠ½Π°, Π² ΠΏΡΠΈΠ½ΡΠΈΠΏΠ΅, ΡΠΎΡΡΠΎΠΈΡ ΠΈΠ· Π΄Π΅ΡΠ΅Π²ΡΠ½Π½ΠΎΠΉ Π±ΠΎΡΠΊΠΈ. ΠΡΠ»ΠΈΡΠ°Π΅ΡΡΡ ΠΎΡΡΡΠΎ ΠΎΡ ΠΎΠ±ΡΡΠ½ΠΎΠΉ ΠΊΡΠΏΠ΅Π»ΠΈ ΡΠ΅ΠΌ, ΡΡΠΎ ΠΎΠ½Π° ΠΏΠΎΠ΄ΠΎΠ³ΡΠ΅Π²Π°Π΅ΡΡΡ ΠΏΡΠΈ ΠΏΠΎΠΌΠΎΡΠΈ ΡΡΡΠ°Π½ΠΎΠ²Π»Π΅Π½Π½ΠΎΠΉ ΡΡΠ΄ΠΎΠΌ Ρ Π±ΠΎΡΠΊΠΎΠΉ ΠΈΠ»ΠΈ Π΄Π°ΠΆΠ΅ Π²Π½ΡΡΡΠΈ Π½Π΅Π΅ ΠΌΠ΅ΡΠ°Π»Π»ΠΈΡΠ΅ΡΠΊΠΎΠΉ ΠΏΠ΅ΡΠΈ. ΠΠΎΡΡΡΠΎΠΈΠ² ΠΏΠΎΠ΄ΠΎΠ±Π½ΡΠΉ Π²Π°ΡΠΈΠ°Π½Ρ, ΠΌΠΎΠΆΠ½ΠΎ ΠΏΠΎΠ»ΡΡΠΈΡΡ Π΅ΡΠ΅ ΠΎΠ΄Π½Ρ Π±Π°Π½Ρ ΠΈ ΠΊΡΠΏΠ΅Π»Ρ ΠΎΠ΄Π½ΠΎΠ²ΡΠ΅ΠΌΠ΅Π½Π½ΠΎ.
Π€ΠΎΡΠΌΠ° ΠΈ ΠΌΠ°ΡΠ΅ΡΠΈΠ°Π» ΠΈΠ·Π³ΠΎΡΠΎΠ²Π»Π΅Π½ΠΈΡ ΠΊΡΠΏΠ΅Π»ΠΈ
ΠΡΠΏΠ΅Π»Ρ ΡΠ°ΡΠ΅ Π²ΡΠ΅Π³ΠΎ ΠΈΠ·Π³ΠΎΡΠ°Π²Π»ΠΈΠ²Π°ΡΡ Π² ΡΠ΅ΡΡΡΠ΅Ρ Π³Π΅ΠΎΠΌΠ΅ΡΡΠΈΡΠ΅ΡΠΊΠΈΡ ΡΠΎΡΠΌΠ°Ρ — ΡΡΠΎ ΠΊΠ²Π°Π΄ΡΠ°ΡΠ½Π°Ρ, ΠΊΡΡΠ³Π»Π°Ρ, ΡΡΠ΅ΡΠ³ΠΎΠ»ΡΠ½Π°Ρ ΠΈΠ»ΠΈ ΠΎΠ²Π°Π»ΡΠ½Π°Ρ.
- Π‘Π°ΠΌΠΎΠΉ ΠΏΠΎΠΏΡΠ»ΡΡΠ½ΠΎΠΉ ΡΠΎΡΠΌΠΎΠΉ Π΄Π΅ΡΠ΅Π²ΡΠ½Π½ΠΎΠΉ ΠΊΡΠΏΠ΅Π»ΠΈ ΡΠ²Π»ΡΠ΅ΡΡΡ ΠΎΠ²Π°Π». Π’Π°ΠΊΠΎΠ΅ ΡΠΎΠΎΡΡΠΆΠ΅Π½ΠΈΠ΅ — ΡΠ°ΠΌΠΎΠ΅ ΠΊΠΎΠΌΠΏΠ°ΠΊΡΠ½ΠΎΠ΅ ΠΈΠ· Π²ΡΠ΅Ρ , ΠΈ ΠΌΠΎΠΆΠ΅Ρ Π±ΡΡΡ ΡΡΡΠ°Π½ΠΎΠ²Π»Π΅Π½ΠΎ Π΄Π°ΠΆΠ΅ Π² Π½Π΅Π±ΠΎΠ»ΡΡΠΎΠΌ ΠΏΠΎΠΌΠ΅ΡΠ΅Π½ΠΈΠΈ. ΠΡΠΎΠΌΠ΅ ΡΡΠΎΠ³ΠΎ, ΠΎΠ²Π°Π»ΡΠ½Π°Ρ ΡΠΎΡΠΌΠ° ΠΈΠΌΠ΅Π΅Ρ Ρ ΠΎΡΠΎΡΡΡ ΠΆΠ΅ΡΡΠΊΠΎΡΡΡ, ΠΈ ΡΠ°ΠΊΡΡ ΠΊΠΎΠ½ΡΡΡΡΠΊΡΠΈΡ Π»Π΅Π³ΠΊΠΎ ΡΠΎΠ±ΠΈΡΠ°ΡΡ.

ΠΡΠΏΠ΅Π»Ρ ΠΎΠ²Π°Π»ΡΠ½ΠΎΠΉ ΡΠΎΡΠΌΡ Ρ ΠΎΡΠΎΡΠΎ Π²ΠΏΠΈΡΡΠ²Π°Π΅ΡΡΡ Π΄Π°ΠΆΠ΅ Π² ΡΠ΅ΡΠ½ΠΎΠΌ ΠΏΠΎΠΌΠ΅ΡΠ΅Π½ΠΈΠΈ
- ΠΡΡΠ³Π»Π°Ρ ΡΠΎΡΠΌΠ° Ρ ΠΎΡΠΎΡΠΎ ΠΏΠΎΠ΄ΠΎΠΉΠ΄Π΅Ρ Π΄Π»Ρ ΠΈΠ·Π³ΠΎΡΠΎΠ²Π»Π΅Π½ΠΈΡ Π΄Π΅ΡΠ΅Π²ΡΠ½Π½ΠΎΠΉ ΡΠΏΠΎΠ½ΡΠΊΠΎΠΉ Π±Π°Π½ΠΈ, ΡΠ°ΠΊ ΠΊΠ°ΠΊ Π² Π½Π΅ΠΉ Π½ΡΠΆΠ½ΠΎ ΡΠ΄Π΅Π»Π°ΡΡ ΠΎΡΠ΄Π΅Π»Π΅Π½ΠΈΠ΅ Π΄Π»Ρ ΡΡΡΠ°Π½ΠΎΠ²ΠΊΠΈ ΠΏΠ΅ΡΠΈ.

ΠΡΡΠΎΠΊΠ°Ρ ΠΊΡΠΏΠ΅Π»Ρ ΠΊΡΡΠ³Π»ΠΎΠΉ ΡΠΎΡΠΌΡ
- ΠΠ²Π°Π΄ΡΠ°ΡΠ½ΡΡ ΠΊΡΠΏΠ΅Π»Ρ ΠΈΠ· Π΄Π΅ΡΠ΅Π²Π° Π΄Π΅Π»Π°ΡΡ ΠΊΡΠ°ΠΉΠ½Π΅ ΡΠ΅Π΄ΠΊΠΎ, ΡΠ°ΠΊ ΠΊΠ°ΠΊ ΠΎΠ½Π° Π½Π΅ ΠΎΡΠ΅Π½Ρ ΡΠ΄ΠΎΠ±Π½Π° Π² ΡΠΊΡΠΏΠ»ΡΠ°ΡΠ°ΡΠΈΠΈ, ΠΈ Π΅Π΅ ΠΊΠΎΠ½ΡΡΡΡΠΊΡΠΈΡ Π½Π΅ ΠΈΠΌΠ΅Π΅Ρ Π΄ΠΎΡΡΠ°ΡΠΎΡΠ½ΠΎΠΉ ΠΆΠ΅ΡΡΠΊΠΎΡΡΠΈ. ΠΡΠΎΠΌΠ΅ ΡΠΎΠ³ΠΎ, ΡΠ³Π»Ρ ΠΊΠ²Π°Π΄ΡΠ°ΡΠ½ΡΡ ΠΊΠΎΠ½ΡΡΡΡΠΊΡΠΈΠΉ Π΄ΠΎΠ»ΡΡΠ΅ ΠΏΡΠΎΡΡΡ Π°ΡΡ, ΠΈ ΠΏΡΠΎΡΠ΅ΡΡ ΠΏΡΠΎΡ ΠΎΠ΄ΠΈΡ Π½Π΅ΡΠ°Π²Π½ΠΎΠΌΠ΅ΡΠ½ΠΎ, Π° ΡΡΠΎ Π²Π΅ΡΡΠΌΠ° Π½Π΅ΠΆΠ΅Π»Π°ΡΠ΅Π»ΡΠ½ΠΎ Π΄Π»Ρ Π΄Π΅ΡΠ΅Π²ΡΠ½Π½ΡΡ ΠΊΠΎΠ½ΡΡΡΡΠΊΡΠΈΠΉ. ΠΠΎΡΡΠΎΠΌΡ ΡΠ°ΡΡΠΎ ΠΌΠ°ΡΡΠ΅ΡΠ° ΠΏΡΠΎΡΡΠΎ ΡΠΊΡΡΠ³Π»ΡΡΡ Π²Π½ΡΡΡΠ΅Π½Π½ΠΈΠ΅ ΡΠ³Π»Ρ ΠΊΡΠΏΠ΅Π»ΠΈ.

Π‘Π»ΠΎΠΆΠ½Π°Ρ Π² ΠΈΠ·Π³ΠΎΡΠΎΠ²Π»Π΅Π½ΠΈΠΈ ΠΊΡΠΏΠ΅Π»Ρ ΠΊΠ²Π°Π΄ΡΠ°ΡΠ½ΠΎΠ³ΠΎ ΡΠ΅ΡΠ΅Π½ΠΈΡ
- Π’ΡΠ΅ΡΠ³ΠΎΠ»ΡΠ½Π°Ρ ΠΊΡΠΏΠ΅Π»Ρ ΠΌΠΎΠΆΠ΅Ρ Π±ΡΡΡ ΠΈΠ·Π³ΠΎΡΠΎΠ²Π»Π΅Π½Π° ΠΈΠ· Π΄Π΅ΡΠ΅Π²Π° ΠΈΠ»ΠΈ ΠΏΠ»Π°ΡΡΠΈΠΊΠ°. ΠΠ½Π° ΡΠ΄ΠΎΠ±Π½Π° ΡΠ΅ΠΌ, ΡΡΠΎ ΠΊΠΎΠΌΠΏΠ°ΠΊΡΠ½ΠΎ ΡΡΡΠ°Π½Π°Π²Π»ΠΈΠ²Π°Π΅ΡΡΡ Π² ΡΠ³ΠΎΠ» ΠΊΠΎΠΌΠ½Π°ΡΡ ΠΈ Π½Π΅ Π·Π°Π½ΠΈΠΌΠ°Π΅Ρ Π·Π½Π°ΡΠΈΡΠ΅Π»ΡΠ½ΠΎΠΉ ΠΏΠ»ΠΎΡΠ°Π΄ΠΈ Π±Π°Π½ΠΈ. Π‘ΠΌΠΎΡΡΠΈΡΡΡ ΡΠ°ΠΊΠ°Ρ ΠΊΠΎΠ½ΡΡΡΡΠΊΡΠΈΡ ΠΎΡΠ΅Π½Ρ Π°ΠΊΠΊΡΡΠ°ΡΠ½ΠΎ ΠΈ Π΄ΠΎΡΡΠ°ΡΠΎΡΠ½ΠΎ ΡΠ΅ΡΠΏΠ΅ΠΊΡΠ°Π±Π΅Π»ΡΠ½ΠΎ, ΠΈ, Π½Π°Π²Π΅ΡΠ½ΠΎΠ΅, ΠΏΠΎΠ΄ΠΎΠΉΠ΄Π΅Ρ Π΄Π»Ρ Π»ΡΠ±ΠΎΠ³ΠΎ ΠΈΠ½ΡΠ΅ΡΡΠ΅ΡΠ° Π±Π°Π½Π½ΠΎΠ³ΠΎ ΠΏΠΎΠΌΠ΅ΡΠ΅Π½ΠΈΡ.

ΠΡΠΎΠ±ΡΠΉ ΠΈΠ·ΡΡΠΊ β ΠΊΡΠΏΠ΅Π»Ρ ΡΠ»ΠΎΠΆΠ½ΠΎΠΉ ΡΡΠ΅ΡΠ³ΠΎΠ»ΡΠ½ΠΎΠΉ ΡΠΎΡΠΌΡ
ΠΠ΅ΡΠΎΠ½Π½Π°Ρ ΠΊΡΠΏΠ΅Π»Ρ, ΡΡΡΡΠΎΠ΅Π½Π½Π°Ρ Π² ΠΏΠΎΠ»Ρ Π±Π°Π½ΠΈ, ΠΌΠΎΠΆΠ΅Ρ ΠΈΠΌΠ΅ΡΡ ΡΠ°ΠΌΡΠ΅ ΠΏΡΠΎΠΈΠ·Π²ΠΎΠ»ΡΠ½ΡΠ΅ ΡΠΎΡΠΌΡ, ΡΠ°ΠΊ ΠΊΠ°ΠΊ ΠΆΠ΅ΡΡΠΊΠΎΡΡΡ Π΅ΠΉ ΠΎΠ±Π΅ΡΠΏΠ΅ΡΠΈΠ²Π°ΡΡ ΡΠΊΡΠ΅ΠΏΠ»Π΅Π½Π½ΡΠ΅ Π°ΡΠΌΠΈΡΠΎΠ²Π°Π½ΠΈΠ΅ΠΌ ΡΡΠ΅Π½ΠΊΠΈ ΠΈ Π΄Π½ΠΎ.

ΠΠ΅ΡΠΎΠ½Π½Π°Ρ ΠΊΡΠΏΠ΅Π»Ρ , ΠΌΠΈΠ½ΠΈ-Π±Π°ΡΡΠ΅ΠΉΠ½
ΠΠ»Π°ΡΡΠΈΠΊΠΎΠ²ΡΠ΅ ΠΊΡΠΏΠ΅Π»ΠΈ ΡΠ°ΠΊΠΆΠ΅ ΠΈΠΌΠ΅ΡΡ ΡΠ°Π·Π½ΡΠ΅ Π³Π΅ΠΎΠΌΠ΅ΡΡΠΈΡΠ΅ΡΠΊΠΈΠ΅ ΡΠΎΡΠΌΡ. Π’Π°ΠΊΠΈΠ΅ ΠΌΠΈΠ½ΠΈ-Π±Π°ΡΡΠ΅ΠΉΠ½Ρ ΡΡΡΠ°Π½Π°Π²Π»ΠΈΠ²Π°ΡΡ ΠΎΠ±ΡΡΠ½ΠΎ Π½Π° Π±Π°Π½Π½ΠΎΠΌ ΠΏΠΎΠ»Ρ (Π½Π° ΠΏΠΎΠ²Π΅ΡΡ Π½ΠΎΡΡΠΈ ΠΈΠ»ΠΈ Π² ΡΠ΄Π΅Π»Π°Π½Π½ΡΠΉ ΠΏΡΠΈΡΠΌΠΎΠΊ). Π€ΠΎΡΠΌΡ ΠΊΡΠΏΠ΅Π»ΠΈ Π½ΠΈΠΊΠ°ΠΊ Π½Π΅ Π²Π»ΠΈΡΡΡ Π½Π° Π΅Π΅ ΡΠΊΡΠΏΠ»ΡΠ°ΡΠ°ΡΠΈΠΎΠ½Π½ΡΠ΅ Ρ Π°ΡΠ°ΠΊΡΠ΅ΡΠΈΡΡΠΈΠΊΠΈ, ΠΈ ΠΌΠΎΠΆΠ½ΠΎ Π²ΡΠ±ΡΠ°ΡΡ Π»ΡΠ±ΡΡ ΠΈΠ· Π½ΠΈΡ Π½Π° Π²ΠΊΡΡ Π²Π»Π°Π΄Π΅Π»ΡΡΠ° Π±Π°Π½ΠΈ.

ΠΠ½ΠΎΠ³ΠΈΠ΅ ΠΏΡΠΎΠ±Π»Π΅ΠΌΡ ΡΠ΅ΡΠ°ΡΡΡΡ ΠΎΡΠ΅Π½Ρ ΠΏΡΠΎΡΡΠΎ ΡΡΡΠ°Π½ΠΎΠ²ΠΊΠΎΠΉ ΠΏΠ»Π°ΡΡΠΈΠΊΠΎΠ²ΠΎΠΉ ΠΊΡΠΏΠ΅Π»ΠΈ
ΠΠ΅ΡΠ΅Π²ΡΠ½Π½Π°Ρ ΠΊΡΠΏΠ΅Π»Ρ
ΠΡΠ»ΠΈ ΠΏΡΠΈΠ½ΡΡΠΎ ΡΠ΅ΡΠ΅Π½ΠΈΠ΅ ΡΠ΄Π΅Π»Π°ΡΡ Π΄Π΅ΡΠ΅Π²ΡΠ½Π½ΡΡ ΠΊΡΠΏΠ΅Π»Ρ ΡΠ°ΠΌΠΎΡΡΠΎΡΡΠ΅Π»ΡΠ½ΠΎ, ΡΠΎ ΡΠ½Π°ΡΠ°Π»Π° Π½ΡΠΆΠ½ΠΎ Π²ΡΠ±ΡΠ°ΡΡ ΠΏΠΎΠ΄Ρ ΠΎΠ΄ΡΡΠΈΠΉ Π΄Π»Ρ Π½Π΅Π΅ ΠΌΠ°ΡΠ΅ΡΠΈΠ°Π», ΡΠ°ΠΊ ΠΊΠ°ΠΊ Π½Π΅ ΠΊΠ°ΠΆΠ΄Π°Ρ Π΄ΡΠ΅Π²Π΅ΡΠΈΠ½Π° ΠΏΡΠΈΠ³ΠΎΠ΄Π½Π° Π΄Π»Ρ ΠΈΠ·Π³ΠΎΡΠΎΠ²Π»Π΅Π½ΠΈΡ Π΅ΠΌΠΊΠΎΡΡΠ΅ΠΉ, ΠΏΠΎΡΡΠΎΡΠ½Π½ΠΎ ΡΠΎΠΏΡΠΈΠΊΠ°ΡΠ°ΡΡΠΈΡ ΡΡ Ρ Π²ΠΎΠ΄ΠΎΠΉ.
ΠΠ»Ρ ΡΠ°ΠΊΠΈΡ ΠΈΠ·Π΄Π΅Π»ΠΈΠΉ ΠΏΠΎΠ΄Ρ ΠΎΠ΄ΠΈΡ Π΄ΡΠ΅Π²Π΅ΡΠΈΠ½Π° ΡΠ²Π΅ΡΠ΄ΡΡ ΠΏΠΎΡΠΎΠ΄, ΠΊΠΎΡΠΎΡΠ°Ρ ΠΏΠΎ ΠΌΠΈΠ½ΠΈΠΌΡΠΌΡ Π²ΠΏΠΈΡΡΠ²Π°Π΅Ρ Π² ΡΠ²ΠΎΡ ΡΡΡΡΠΊΡΡΡΡ Π²Π»Π°Π³Ρ, Π° Π·Π½Π°ΡΠΈΡ, ΠΏΡΠΎΡΠ»ΡΠΆΠΈΡ ΠΌΠ°ΠΊΡΠΈΠΌΠ°Π»ΡΠ½ΠΎ Π²ΠΎΠ·ΠΌΠΎΠΆΠ½ΡΠΉ ΡΡΠΎΠΊ.
ΠΠ°Π²Π½ΠΎ ΠΈΠ·Π²Π΅ΡΡΠ½ΠΎ, ΡΡΠΎ ΠΎΠΏΡΠ΅Π΄Π΅Π»Π΅Π½Π½ΡΠ΅ Π΄Π΅ΡΠ΅Π²ΡΡ ΠΎΠ±Π»Π°Π΄Π°ΡΡ Π±Π»Π°Π³ΠΎΠΏΡΠΈΡΡΠ½ΡΠΌΠΈ ΠΎΠ·Π΄ΠΎΡΠ°Π²Π»ΠΈΠ²Π°ΡΡΠΈΠΌΠΈ Π²ΠΎΠ·ΠΌΠΎΠΆΠ½ΠΎΡΡΡΠΌΠΈ, ΠΏΡΠΈΠ΄Π°ΡΡΠΈΠΌΠΈ ΡΠ΅Π»ΠΎΠ²Π΅ΠΊΡ Π΄ΠΎΠΏΠΎΠ»Π½ΠΈΡΠ΅Π»ΡΠ½ΡΠ΅ ΠΆΠΈΠ·Π½Π΅Π½Π½ΡΠ΅ ΡΠΈΠ»Ρ. ΠΠΎΡΡΠΎΠΌΡ ΠΈΠΌΠ΅Π½Π½ΠΎ ΡΠ°ΠΊΠΈΠ΅ ΠΏΠΎΡΠΎΠ΄Ρ Π²ΡΠ±ΠΈΡΠ°ΡΡ Π΄Π»Ρ ΠΈΠ·Π³ΠΎΡΠΎΠ²Π»Π΅Π½ΠΈΡ Π½Π΅ ΡΠΎΠ»ΡΠΊΠΎ ΠΊΡΠΏΠ΅Π»Π΅ΠΉ, Π½ΠΎ ΠΈ Π΄ΡΡΠ³ΠΈΡ Π°ΠΊΡΠ΅ΡΡΡΠ°ΡΠΎΠ², ΠΊΠΎΡΠΎΡΡΠ΅ ΠΈΡΠΏΠΎΠ»ΡΠ·ΡΡΡΡΡ Π² Π±Π°Π½Π΅.
Π Π΄Π΅ΡΠ΅Π²ΡΡΠΌ, ΠΊΠΎΡΠΎΡΡΠΌ ΡΠ²ΠΎΠΉΡΡΠ²Π΅Π½Π½Ρ ΠΏΠΎΠ΄ΠΎΠ±Π½ΡΠ΅ ΠΊΠ°ΡΠ΅ΡΡΠ²Π°, ΠΎΡΠ½ΠΎΡΡΡΡΡ Π»ΠΈΡΡΠ²Π΅Π½Π½ΠΈΡΠ°, ΡΠΈΠ±ΠΈΡΡΠΊΠΈΠΉ ΠΊΠ΅Π΄Ρ, Π±ΡΠΊ ΠΈ Π΄ΡΠ±.
ΠΠΈΡΡΠ²Π΅Π½Π½ΠΈΡΠ°
ΠΡΠ΅Π²Π΅ΡΠΈΠ½Π° Π»ΠΈΡΡΠ²Π΅Π½Π½ΠΈΡΡ β ΡΡΠΎ ΠΏΡΠ΅ΠΊΡΠ°ΡΠ½ΡΠΉ Π²ΡΠ±ΠΎΡ Π΄Π»Ρ Π»ΡΠ±ΡΡ Π°ΠΊΡΠ΅ΡΡΡΠ°ΡΠΎΠ² Π±Π°Π½ΠΈ, ΡΠ°ΠΊ ΠΊΠ°ΠΊ ΠΎΠ½Π° ΠΎΠ±Π»Π°Π΄Π°Π΅Ρ ΡΠΏΠ΅ΡΠΈΡΠΈΡΠ΅ΡΠΊΠΈΠΌΠΈ ΡΠ²ΠΎΠΉΡΡΠ²Π°ΠΌΠΈ, Π±Π»Π°Π³ΠΎΠΏΡΠΈΡΡΠ½ΠΎ Π²Π»ΠΈΡΡΡΠΈΠΌΠΈ Π½Π° Π·Π΄ΠΎΡΠΎΠ²ΡΠ΅ ΡΠ΅Π»ΠΎΠ²Π΅ΠΊΠ°. Π’Π°ΠΊ, Π·Π°ΠΌΠ΅ΡΠ΅Π½ΠΎ, ΡΡΠΎ Π°ΡΠΎΠΌΠ°ΡΡ ΠΈ Π½Π°ΡΡΠΎΠΈ Π»ΠΈΡΡΠ²Π΅Π½Π½ΠΈΡΡ ΠΏΠΎΠ²ΡΡΠ°ΡΡ ΠΎΠ±ΡΠΈΠΉ ΡΠΎΠ½ΡΡ ΠΎΡΠ³Π°Π½ΠΈΠ·ΠΌΠ°, Π°ΠΊΡΠΈΠ²ΠΈΠ·ΠΈΡΡΡΡ Π·Π°ΡΠΈΡΠ½ΡΠ΅ ΡΠ΅Π°ΠΊΡΠΈΠΈ, Π° ΡΠ°ΠΊΠΆΠ΅ ΠΎΡΠΈΡΠ°ΡΡ ΠΈ ΠΎΠΌΠΎΠ»Π°ΠΆΠΈΠ²Π°ΡΡ ΠΊΠΎΠΆΡ.

ΠΡΠ»ΠΈΡΠ½ΡΠΉ Π²Π°ΡΠΈΠ°Π½Ρ β Π»ΠΈΡΡΠ²Π΅Π½Π½ΠΈΡΠ°. ΠΡΠ΅Π²Π΅ΡΠΈΠ½Π° Π½Π΅ Π±ΠΎΠΈΡΡΡ Π²ΠΎΠ΄Ρ ΠΈ ΠΎΠ±Π»Π°Π΄Π°Π΅Ρ ΠΎΠ·Π΄ΠΎΡΠΎΠ²ΠΈΡΠ΅Π»ΡΠ½ΡΠΌΠΈ ΡΠ²ΠΎΠΉΡΡΠ²Π°ΠΌΠΈ
ΠΠΈΡΡΠ²Π΅Π½Π½ΠΈΡΠ° Ρ ΠΎΡΠΎΡΠΎ Π²ΡΠ΄Π΅ΡΠΆΠΈΠ²Π°Π΅Ρ ΠΈ ΡΠΊΡΡΡΠ΅ΠΌΠ°Π»ΡΠ½ΠΎ Π²ΡΡΠΎΠΊΠΈΠ΅ ΡΠ΅ΠΌΠΏΠ΅ΡΠ°ΡΡΡΡ, ΠΈ ΠΈΡ ΠΏΠ΅ΡΠ΅ΠΏΠ°Π΄Ρ, ΠΎΠ±Π»Π°Π΄Π°Π΅Ρ ΡΠ²Π΅ΡΠ΄ΠΎΠΉ ΡΡΡΡΠΊΡΡΡΠΎΠΉ, ΠΏΠΎΡΡΠΎΠΌΡ ΠΏΡΠΎΡΠ½Π° ΠΈ Π΄ΠΎΠ»Π³ΠΎΠ²Π΅ΡΠ½Π°, ΡΠ°ΠΊ ΠΊΠ°ΠΊ ΠΎΡΠ»ΠΈΡΠ½ΠΎ ΡΠΎΠΏΡΠΎΡΠΈΠ²Π»ΡΠ΅ΡΡΡ ΠΏΡΠΎΠ½ΠΈΠΊΠ½ΠΎΠ²Π΅Π½ΠΈΡ ΠΈΠ·Π»ΠΈΡΠ½Π΅ΠΉ Π²Π»Π°Π³ΠΈ Π² ΡΠΎΠ»ΡΡ Π΄Π΅ΡΠ΅Π²Π°. ΠΠ»Π°Π³ΠΎΠ΄Π°ΡΡ ΠΎΡΠΎΠ±ΡΠΌ Π°Π½ΡΠΈΡΠ΅ΠΏΡΠΈΡΠ΅ΡΠΊΠΈΠΌ ΡΠ²ΠΎΠΉΡΡΠ²Π°ΠΌ, ΠΎΠ½Π° Π½Π΅ ΠΏΠΎΠ΄Π²Π΅ΡΠΆΠ΅Π½Π° Π³Π½ΠΈΠ»ΠΎΡΡΠ½ΡΠΌ ΠΏΡΠΎΡΠ΅ΡΡΠ°ΠΌ ΠΈ ΠΎΠ±ΡΠ°Π·ΠΎΠ²Π°Π½ΠΈΡ Π³ΡΠΈΠ±ΠΊΠ°.
ΠΠ΅Π΄Ρ
ΠΡΠ΅Π²Π΅ΡΠΈΠ½Π° ΠΊΠ΅Π΄ΡΠ° ΠΈΠΌΠ΅Π΅Ρ Π΄Π°ΠΆΠ΅ Π±ΠΎΠ»ΡΡΡΡ ΠΏΠ»ΠΎΡΠ½ΠΎΡΡΡ, ΡΠ΅ΠΌ Π»ΠΈΡΡΠ²Π΅Π½Π½ΠΈΡΠ°, ΠΈ ΠΎΠ±Π»Π°Π΄Π°Π΅Ρ Π½ΠΈΡΡΡΡ Π½Π΅ Ρ ΡΠ΄ΡΠΈΠΌΠΈ Ρ Π°ΡΠ°ΠΊΡΠ΅ΡΠΈΡΡΠΈΠΊΠ°ΠΌΠΈ ΠΏΠΎ ΡΠΎΠΏΡΠΎΡΠΈΠ²Π»Π΅Π½ΠΈΡ Π²Π½Π΅ΡΠ½Π΅ΠΉ ΡΡΠ΅Π΄Π΅. ΠΡΠΎΠΌΠ΅ ΡΠΎΠ³ΠΎ, ΠΎΠ½Π° ΡΠ²Π»ΡΠ΅ΡΡΡ ΠΈΡΡΠΎΡΠ½ΠΈΠΊΠΎΠΌ ΡΠΈΡΠΎΠ½ΡΠΈΠ΄ΠΎΠ², ΠΊΠΎΡΠΎΡΡΠ΅ ΠΏΠΎΠ΄Π°Π²Π»ΡΡΡ ΡΠΎΡΡ Π±Π°ΠΊΡΠ΅ΡΠΈΠΉ, ΡΡΠΎ ΠΈΡΠΊΠ»ΡΡΠ°Π΅Ρ ΠΏΠΎΡΠ²Π»Π΅Π½ΠΈΡ ΠΏΠ»Π΅ΡΠ΅Π½ΠΈ ΠΈ ΠΊΠΎΠ»ΠΎΠ½ΠΈΠΉ Π³ΡΠΈΠ±ΠΊΠ°.

ΠΠ΅Π΄ΡΠΎΠ²Π°Ρ ΠΊΡΠΏΠ΅Π»Ρ. ΠΠΎΠΌΠΈΠΌΠΎ Π²ΡΡΠΎΠΊΠΎΠΉ ΠΏΡΠΎΡΠ½ΠΎΡΡΠΈ β Π΅ΡΠ΅ ΠΈ Π½Π°ΡΡΡΠ΅Π½Π½ΠΎΡΡΡ Π°ΡΠΎΠΌΠ°ΡΠΈΡΠ΅ΡΠΊΠΈΠΌΠΈ ΡΠΌΠΎΠ»Π°ΠΌΠΈ ΠΈ ΡΡΠΈΡΠ½ΡΠΌΠΈ ΠΌΠ°ΡΠ»Π°ΠΌΠΈ
ΠΠ΅Π΄ΡΠΎΠ²Π°Ρ Π΄ΡΠ΅Π²Π΅ΡΠΈΠ½Π° ΠΎΠ±ΠΎΠ³Π°ΡΠ΅Π½Π° ΡΡΠΈΡΠ½ΡΠΌΠΈ ΠΌΠ°ΡΠ»Π°ΠΌΠΈ, ΠΊΠΎΡΠΎΡΡΠ΅ ΠΎΠ·Π΄ΠΎΡΠ°Π²Π»ΠΈΠ²Π°ΡΡΠ΅ ΡΠ°Π±ΠΎΡΠ°ΡΡ Π΄Π°ΠΆΠ΅ Π½Π° ΠΊΠ»Π΅ΡΠΎΡΠ½ΠΎΠΌ ΡΡΠΎΠ²Π½Π΅. ΠΠ΅Π΄Ρ ΠΈΠΌΠ΅Π΅Ρ ΡΠ²ΠΎΠΉΡΡΠ²ΠΎ Π½ΠΎΡΠΌΠ°Π»ΠΈΠ·ΠΎΠ²Π°ΡΡ ΡΠ°Π±ΠΎΡΡ ΡΠ΅ΡΠ΄Π΅ΡΠ½ΠΎ-ΡΠΎΡΡΠ΄ΠΈΡΡΠΎΠΉ ΠΈ Π½Π΅ΡΠ²Π½ΠΎΠΉ ΡΠΈΡΡΠ΅ΠΌΡ, ΡΡΠΏΠΎΠΊΠ°ΠΈΠ²Π°Π΅Ρ ΠΈ ΠΏΠΎΠΌΠΎΠ³Π°Π΅Ρ ΡΠ°ΡΡΠ»Π°Π±ΠΈΡΡΡΡ, Π° ΠΊΡΠΎΠΌΠ΅ ΡΡΠΎΠ³ΠΎ — ΡΡΠΈΡΠ°Π΅ΡΡΡ ΡΠΈΠ»ΡΠ½ΡΠΌ Π°ΡΡΠΎΠ΄ΠΈΠ·ΠΈΠ°ΠΊΠΎΠΌ.
ΠΡΠΊ
ΠΡΠΊΠΎΠ²Π°Ρ Π΄ΡΠ΅Π²Π΅ΡΠΈΠ½Π° ΠΈΠΌΠ΅Π΅Ρ ΠΏΠ»ΠΎΡΠ½ΡΡ ΠΈ ΠΏΡΠΎΡΠ½ΡΡ ΡΡΡΡΠΊΡΡΡΡ, ΡΡΠΎ ΠΏΠΎΠΌΠΎΠ³Π°Π΅Ρ Π΅ΠΉ ΡΠΎΠΏΡΠΎΡΠΈΠ²Π»ΡΡΡΡΡ Π²Π½Π΅ΡΠ½ΠΈΠΌ Π½Π΅Π³Π°ΡΠΈΠ²Π½ΡΠΌ Π²ΠΎΠ·Π΄Π΅ΠΉΡΡΠ²ΠΈΠ΅ΠΌ ΠΈ ΡΡΠΎΠΉΠΊΠΎ ΠΏΠ΅ΡΠ΅Π½ΠΎΡΠΈΡΡ Π²Π»Π°ΠΆΠ½ΠΎΡΡΡ ΠΈ ΠΏΠ΅ΡΠ΅ΠΏΠ°Π΄Ρ ΡΠ΅ΠΌΠΏΠ΅ΡΠ°ΡΡΡΡ Π² Π²Π΅ΡΡΠΌΠ° ΡΠΈΡΠΎΠΊΠΎΠΌ Π΄ΠΈΠ°ΠΏΠ°Π·ΠΎΠ½Π΅. ΠΡΠΊ ΠΎΠ±Π»Π°Π΄Π°Π΅Ρ ΡΠ΅ΡΠΏΠΊΠΈΠΌ Π°ΡΠΎΠΌΠ°ΡΠΎΠΌ, ΡΠΊΡΠ΅ΠΏΠ»ΡΡΡΠΈΠΌΠΈ ΠΈΠΌΠΌΡΠ½ΠΈΡΠ΅Ρ ΡΠ΅Π»ΠΎΠ²Π΅ΠΊΠ° ΡΠ²ΠΎΠΉΡΡΠ²Π°ΠΌΠΈ. ΠΡΠΏΠ΅Π»Ρ, ΠΈΠ·Π³ΠΎΡΠΎΠ²Π»Π΅Π½Π½Π°Ρ ΠΈΠ· ΡΡΠΎΠ³ΠΎ Π΄Π΅ΡΠ΅Π²Π°, ΠΏΡΠΎΡΠ»ΡΠΆΠΈΡ ΠΎΡΠ΅Π½Ρ Π΄Π»ΠΈΡΠ΅Π»ΡΠ½ΡΠΉ ΡΡΠΎΠΊ.

ΠΡΠ΅Π²Π΅ΡΠΈΠ½Π° Π±ΡΠΊΠ° Π½Π΅ ΡΡΠ°ΡΠ΅Π΅Ρ, ΠΈΠΌΠ΅Π΅Ρ ΡΠ²ΠΎΠΉΡΡΠ²ΠΎ ΠΏΠΎΠ²ΡΡΠ°ΡΡ ΠΈΠΌΠΌΡΠ½ΠΈΡΠ΅Ρ ΡΠ΅Π»ΠΎΠ²Π΅ΠΊΠ°
ΠΡΠ±
ΠΡΠ±ΠΎΠ²Π°Ρ Π΄ΡΠ΅Π²Π΅ΡΠΈΠ½Π° ΠΈΠ·Π²Π΅ΡΡΠ½Π° ΡΠ²ΠΎΠΈΠΌΠΈ Π·Π°ΠΌΠ΅ΡΠ°ΡΠ΅Π»ΡΠ½ΡΠΌΠΈ ΡΠ²ΠΎΠΉΡΡΠ²Π°ΠΌΠΈ Π½Π΅ ΠΎΠ΄Π½Ρ ΡΠΎΡΠ½Ρ Π»Π΅Ρ. ΠΡΠ± Π²ΡΠ΅Π³Π΄Π° ΡΠ²Π»ΡΠ»ΡΡ ΡΠΈΠΌΠ²ΠΎΠ»ΠΎΠΌ ΠΊΡΠ΅ΠΏΠΎΡΡΠΈ ΠΈ ΠΎΡΠΌΠ΅Π½Π½ΠΎΠ³ΠΎ Π·Π΄ΠΎΡΠΎΠ²ΡΡ, ΡΠ°ΠΊ ΠΊΠ°ΠΊ ΡΠ°ΠΌΠΎ Π΄Π΅ΡΠ΅Π²ΠΎ ΠΈΠΌΠ΅Π΅Ρ ΠΏΠ»ΠΎΡΠ½ΡΡ ΠΈ ΠΏΡΠΎΡΠ½ΡΡ ΡΡΡΡΠΊΡΡΡΡ. ΠΠΌΠ΅Ρ Π΄ΡΠ±ΠΎΠ²ΡΡ ΠΊΡΠΏΠ΅Π»Ρ, ΠΌΠΎΠΆΠ½ΠΎ ΠΏΡΠΈ ΠΊΠ°ΠΆΠ΄ΠΎΠΌ ΠΏΠΎΡ ΠΎΠ΄Π΅ Π² Π±Π°Π½Ρ ΠΏΠΎΠ»ΡΡΠ°ΡΡ Π·Π°ΡΡΠ΄ Π±ΠΎΠ΄ΡΠΎΡΡΠΈ ΠΈ ΡΠ½Π΅ΡΠ³ΠΈΠΈ. ΠΡΠΎΠΌΠ΅ ΡΠΎΠ³ΠΎ, ΡΡΠ° Π΄ΡΠ΅Π²Π΅ΡΠΈΠ½Π° ΡΠΏΠΎΡΠΎΠ±ΡΡΠ²ΡΠ΅Ρ Π·Π°ΠΆΠΈΠ²Π»Π΅Π½ΠΈΡ ΡΠ°Π½, ΡΠ»ΡΡΡΠ΅Π½ΠΈΡ ΡΠ½Π°, Π½ΠΎΡΠΌΠ°Π»ΠΈΠ·Π°ΡΠΈΠΈ ΠΎΠ±ΠΌΠ΅Π½Π° Π²Π΅ΡΠ΅ΡΡΠ², Π½Π΅ΠΉΡΡΠ°Π»ΠΈΠ·Π°ΡΠΈΠΈ Π²ΠΎΡΠΏΠ°Π»ΠΈΡΠ΅Π»ΡΠ½ΡΡ ΠΏΡΠΎΡΠ΅ΡΡΠΎΠ².

Π Π²ΡΠ΅ ΠΆΠ΅ Π»ΠΈΠ΄Π΅ΡΠΎΠΌ ΠΏΠΎ ΠΏΠΎΠΏΡΠ»ΡΡΠ½ΠΎΡΡΠΈ ΡΡΠ΅Π΄ΠΈ Π²ΡΠ΅Ρ ΠΏΠΎΡΠΎΠ΄ Π΄ΡΠ΅Π²Π΅ΡΠΈΠ½Ρ Π±ΡΠ» ΠΈ ΠΎΡΡΠ°Π΅ΡΡΡ Π΄ΡΠ±
ΠΡΠ± ΠΌΠΎΠΆΠ½ΠΎ ΡΠΌΠ΅Π»ΠΎ Π½Π°Π·Π²Π°ΡΡ ΡΠ°ΠΌΡΠΌ ΠΏΠΎΠΏΡΠ»ΡΡΠ½ΡΠΌ ΠΌΠ°ΡΠ΅ΡΠΈΠ°Π»ΠΎΠΌ Π΄Π»Ρ ΠΈΠ·Π³ΠΎΡΠΎΠ²Π»Π΅Π½ΠΈΡ Π±Π°Π½Π½ΡΡ Π°ΠΊΡΠ΅ΡΡΡΠ°ΡΠΎΠ², ΠΏΠΎΡΡΠΎΠΌΡ ΡΠ°ΡΠ΅ Π²ΡΠ΅Π³ΠΎ Π»ΡΠ±ΠΈΡΠ΅Π»ΠΈ Π±Π°Π½Ρ Π²ΡΠ±ΠΈΡΠ°ΡΡ ΠΈΠΌΠ΅Π½Π½ΠΎ ΡΡΡ Π΄ΡΠ΅Π²Π΅ΡΠΈΠ½Ρ.
ΠΡΡΡ Ρ ΠΊΡΠΏΠ΅Π»Π΅ΠΉ ΠΈΠ· Π΄ΡΠ΅Π²Π΅ΡΠΈΠ½Ρ ΠΈ ΡΠ²ΠΎΠΈ ΠΌΠΈΠ½ΡΡΡ — ΡΡΠΎ ΡΠ»ΠΎΠΆΠ½ΠΎΡΡΡ Π² ΡΠΊΡΠΏΠ»ΡΠ°ΡΠ°ΡΠΈΠΈ ΠΈ ΡΡ ΠΎΠ΄Π΅. ΠΠ΅Π»ΡΠ·Ρ Π΄ΠΎΠΏΡΡΠΊΠ°ΡΡ ΠΏΠ΅ΡΠ΅ΡΡΡ Π°Π½ΠΈΡ Π΄Π΅ΡΠ°Π»Π΅ΠΉ, ΠΏΠΎΡΡΠΎΠΌΡ ΠΏΠΎΡΠ»Π΅ ΠΈΡΠΏΠΎΠ»ΡΠ·ΠΎΠ²Π°Π½ΠΈΡ ΠΈ ΠΏΡΠΎΠΌΡΠ²Π°Π½ΠΈΡ Π΅ΠΌΠΊΠΎΡΡΠΈ Π² Π½Π΅Π΅ Π½Π΅ΠΎΠ±Ρ ΠΎΠ΄ΠΈΠΌΠΎ Π½Π°Π»ΠΈΡΡ Π½Π΅Π±ΠΎΠ»ΡΡΠΎΠ΅ ΠΊΠΎΠ»ΠΈΡΠ΅ΡΡΠ²ΠΎ Π²ΠΎΠ΄Ρ, Π° ΡΠ²Π΅ΡΡ Ρ Π·Π°ΠΊΡΡΡΡ ΠΊΡΡΡΠΊΠΎΠΉ, ΡΡΠΎΠ±Ρ ΠΎΠ½Π° ΠΈΡΠΏΠ°ΡΡΠ»Π°ΡΡ ΠΌΠ΅Π΄Π»Π΅Π½Π½Π΅Π΅, Π½ΠΎ ΠΏΠΎΡΡΠΎΡΠ½Π½ΠΎ ΠΏΠΎΠ΄Π΄Π΅ΡΠΆΠΈΠ²Π°Π»Π° Π²Π½ΡΡΡΠΈ ΠΎΠΏΡΠ΅Π΄Π΅Π»Π΅Π½Π½ΡΠΉ ΡΡΠΎΠ²Π΅Π½Ρ Π²Π»Π°ΠΆΠ½ΠΎΡΡΠΈ.
ΠΠ»Ρ ΡΡΡΠ°Π½ΠΎΠ²ΠΊΠΈ Π΄Π΅ΡΠ΅Π²ΡΠ½Π½ΡΡ Π±ΠΎΡΠ΅ΠΊ-ΠΊΡΠΏΠ΅Π»Π΅ΠΉ Π½Π΅ΠΎΠ±Ρ ΠΎΠ΄ΠΈΠΌΠΎ ΠΏΠΎΠ΄Π³ΠΎΡΠΎΠ²ΠΈΡΡ ΠΈΠ΄Π΅Π°Π»ΡΠ½ΠΎ ΡΠΎΠ²Π½ΡΡ ΠΏΠΎΠ²Π΅ΡΡ Π½ΠΎΡΡΡ Π²ΠΎ ΠΈΠ·Π±Π΅ΠΆΠ°Π½ΠΈΠ΅ ΠΏΠ΅ΡΠ΅ΠΊΠΎΡΠ° ΠΈ Π΄Π΅ΡΠΎΡΠΌΠ°ΡΠΈΠΈ ΠΊΠΎΠ½ΡΡΡΡΠΊΡΠΈΠΈ. ΠΡΠΈ Π½Π΅Π²ΠΎΠ·ΠΌΠΎΠΆΠ½ΠΎΡΡΠΈ Π½Π°ΠΉΡΠΈ ΡΠ°ΠΊΡΡ ΠΏΠ»ΠΎΡΠ°Π΄ΠΊΡ, ΠΌΠΎΠΆΠ½ΠΎ Π²ΡΡΠΎΠ²Π½ΡΡΡ ΠΏΠΎ ΡΡΠΎΠ²Π½Ρ ΡΠ°ΠΌΡ ΠΊΡΠΏΠ΅Π»Ρ, ΠΏΠΎΠ΄Π»ΠΎΠΆΠΈΠ² ΠΏΠΎΠ΄ Π½ΡΠΆΠ½ΡΡ Π΅Π΅ ΡΡΠΎΡΠΎΠ½Ρ Π΄Π΅ΡΠ΅Π²ΡΠ½Π½ΡΠ΅ ΠΏΠΎΠ΄ΠΊΠ»Π°Π΄ΠΊΠΈ Π½Π΅ΠΎΠ±Ρ ΠΎΠ΄ΠΈΠΌΠΎΠΉ ΡΠΎΠ»ΡΠΈΠ½Ρ.
ΠΠ±Π»ΠΈΠ²Π½Π°Ρ ΠΊΡΠΏΠ΅Π»Ρ
ΠΡΠΎΠΌΠ΅ ΡΡΡΠ°Π½Π°Π²Π»ΠΈΠ²Π°Π΅ΠΌΡΡ Π½Π° ΠΏΠΎΠ» ΠΈ Π²ΠΌΡΡΠΎΠ²ΡΠ²Π°Π΅ΠΌΡΡ Π² Π½Π΅Π³ΠΎ ΠΊΡΠΏΠ΅Π»Π΅ΠΉ Π΄Π»Ρ ΠΏΠΎΠΌΡΠ²ΠΊΠΈ, ΠΈΠ·Π³ΠΎΡΠ°Π²Π»ΠΈΠ²Π°ΡΡ ΠΈ ΠΎΠ±Π»ΠΈΠ²Π½ΡΠ΅ ΠΊΡΠΏΠ΅Π»ΠΈ. ΠΡ ΠΎΠ±ΡΡΠ½ΠΎ ΠΈΡΠΏΠΎΠ»ΡΠ·ΡΡΡ Π² ΡΠ΅Ρ ΡΠ»ΡΡΠ°ΡΡ , ΠΊΠΎΠ³Π΄Π° ΠΌΠ΅ΡΡΠ° Π² Π±Π°Π½Π΅ Π½Π΅Π΄ΠΎΡΡΠ°ΡΠΎΡΠ½ΠΎ, ΠΈ Π½Π΅Π²ΠΎΠ·ΠΌΠΎΠΆΠ½ΠΎ ΡΡΡΠ°Π½ΠΎΠ²ΠΈΡΡ ΠΏΠΎΠ»Π½ΠΎΡΠ΅Π½Π½ΡΠΉ ΠΌΠΈΠ½ΠΈ-Π±Π°ΡΡΠ΅ΠΉΠ½, ΠΊΡΠ΄Π° ΡΠΌΠΎΠ³ Π±Ρ Π·Π°Π±ΡΠ°ΡΡΡΡ ΡΠ΅Π»ΠΎΠ²Π΅ΠΊ. ΠΡΠΎΡΠ΅ΠΌ, ΠΎΠ±Π»ΠΈΠ²Π½ΡΠ΅ ΠΊΡΠΏΠ΅Π»ΠΈ ΡΠ°ΡΡΠΎ ΡΡΡΠ°Π½Π°Π²Π»ΠΈΠ²Π°ΡΡ Π² ΡΡΡΡΠΊΠΈΡ Π±Π°Π½ΡΡ ΠΈ Π² ΡΠ°ΡΠ½Π°Ρ ΠΏΡΠΎΡΡΠΎ Π΄Π»Ρ Π»ΡΠ±ΠΈΡΠ΅Π»Π΅ΠΉ ΠΏΡΠΈΠ½ΡΡΡ ΠΌΠ³Π½ΠΎΠ²Π΅Π½Π½ΠΎΠΉ Ρ ΠΎΠ»ΠΎΠ΄Π½ΡΠΉ Π΄ΡΡ.

ΠΠ±Π»ΠΈΠ²Π½Π°Ρ ΠΊΡΠΏΠ΅Π»Ρ β Π²ΠΎΠ·ΠΌΠΎΠΆΠ½ΡΠΉ Π²ΡΡ ΠΎΠ΄, Π΅ΡΠ»ΠΈ Π΄Π»Ρ Π±ΠΎΠ»ΡΡΠΎΠΉ Π΅ΠΌΠΊΠΎΡΡΠΈ ΠΏΡΠΎΡΡΠΎ Π½Π΅Ρ ΠΌΠ΅ΡΡΠ°
ΠΠΈΠ΄Π΅ΠΎ: ΡΠ°Π·Π½ΠΎΠ±ΡΠ°Π·ΠΈΠ΅ Π±Π°Π½Π½ΡΡ ΠΊΡΠΏΠ΅Π»Π΅ΠΉ
ΠΠΎΠ½ΡΠ°ΠΆ Π΄Π΅ΡΠ΅Π²ΡΠ½Π½ΠΎΠΉ ΠΊΡΠΏΠ΅Π»ΠΈ
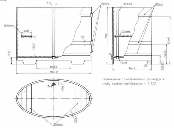
Π§Π΅ΡΡΠ΅ΠΆ ΠΊΡΠΏΠ΅Π»ΠΈ ΠΈ ΠΌΠ°ΡΠ΅ΡΠΈΠ°Π»Ρ Π΄Π»Ρ Π΅Π΅ ΠΈΠ·Π³ΠΎΡΠΎΠ²Π»Π΅Π½ΠΈΡ
ΠΡΠ΅ΠΆΠ΄Π΅ ΡΠ΅ΠΌ ΠΏΠΎΠΊΡΠΏΠ°ΡΡ ΠΌΠ°ΡΠ΅ΡΠΈΠ°Π»Ρ Π΄Π»Ρ ΠΈΠ·Π³ΠΎΡΠΎΠ²Π»Π΅Π½ΠΈΡ ΠΊΡΠΏΠ΅Π»ΠΈ, Π½Π΅ΠΎΠ±Ρ ΠΎΠ΄ΠΈΠΌΠΎ ΡΠΎΡΡΠ°Π²ΠΈΡΡ ΠΊΠ°ΡΠ΅ΡΡΠ²Π΅Π½Π½ΡΠΉ ΡΠ±ΠΎΡΠΎΡΠ½ΡΠΉ ΡΠ΅ΡΡΠ΅ΠΆ ΡΡΠΎΠΉ Π΅ΠΌΠΊΠΎΡΡΠΈ Ρ ΡΠΎΡΠ½ΡΠΌΠΈ ΡΠ°ΡΡΠ΅ΡΠ°ΠΌΠΈ ΡΠ°Π·ΠΌΠ΅ΡΠΎΠ² ΠΈ ΠΊΠΎΠ»ΠΈΡΠ΅ΡΡΠ²Π° Π΄Π΅ΡΠ°Π»Π΅ΠΉ.

Π§Π΅ΡΡΠ΅ΠΆ Π΄Π΅ΡΠ΅Π²ΡΠ½Π½ΠΎΠΉ ΠΊΡΠΏΠ΅Π»ΠΈ (Π² Π΄Π°Π½Π½ΠΎΠΌ ΡΠ»ΡΡΠ°Π΅ ΡΠ°Π·ΠΌΠ΅ΡΡ ΠΏΡΠΎΡΡΠ°Π²Π»Π΅Π½Ρ Π² Π΄ΡΠΉΠΌΠ°Ρ )
Π Π΅ΠΊΠΎΠΌΠ΅Π½Π΄ΠΎΠ²Π°Π½ΠΎ Π²ΡΠΏΠΎΠ»Π½ΠΈΡΡ ΡΠ΅ΡΡΠ΅ΠΆ Π² Π½Π΅ΡΠΊΠΎΠ»ΡΠΊΠΈΡ ΠΏΡΠΎΠ΅ΠΊΡΠΈΡΡ — ΡΠΎΠ³Π΄Π° Π»Π΅Π³ΡΠ΅ Π±ΡΠ΄Π΅Ρ ΠΏΡΠΎΡΡΠΈΡΠ°ΡΡ Π²ΡΠ΅ ΠΏΠ°ΡΠ°ΠΌΠ΅ΡΡΡ Π½Π΅ΠΎΠ±Ρ ΠΎΠ΄ΠΈΠΌΡΡ ΠΊΠΎΠΌΠΏΠ»Π΅ΠΊΡΡΡΡΠΈΡ β Π΄Π΅ΡΠ°Π»Π΅ΠΉ ΡΡΠ΅Π½ΠΎΠΊ, Π΄Π½ΠΈΡΠ°, Π»Π΅ΡΡΠ½ΠΈΡΡ.
Π‘Ρ Π΅ΠΌΠ° ΠΏΠΎΠ΄Π³ΠΎΠ½ΠΊΠΈ ΡΡΠ΅Π½ΠΎΠΊ ΠΊΡΠΏΠ΅Π»ΠΈ
ΠΠ΅ΡΡΠ½ΠΈΡΠ° ΠΌΠΎΠΆΠ΅Ρ ΠΈΠΌΠ΅ΡΡ ΡΡΡΠΏΠ΅Π½ΡΠΊΠΈ, ΠΊΠ°ΠΊ Π½Π° ΠΏΡΠ΅Π΄ΡΡΠ°Π²Π»Π΅Π½Π½ΠΎΠΌ ΡΠ΅ΡΡΠ΅ΠΆΠ΅, ΠΈΠ»ΠΈ ΠΏΡΠΎΡΡΠΎ Π΄Π΅ΡΠ΅Π²ΡΠ½Π½ΡΠ΅ ΠΏΠ΅ΡΠ΅ΠΊΠ»Π°Π΄ΠΈΠ½Ρ. ΠΠΎ Π² ΠΏΠΎΡΠ»Π΅Π΄Π½Π΅ΠΌ ΡΠ»ΡΡΠ°Π΅, Π² ΡΠ΅Π»ΡΡ Π±Π΅Π·ΠΎΠΏΠ°ΡΠ½ΠΎΡΡΠΈ, Π½Π΅ΠΎΠ±Ρ ΠΎΠ΄ΠΈΠΌΠΎ, ΡΡΠΎΠ±Ρ ΠΏΡΠΈΡΡΠ°Π²Π½Π°Ρ Π»Π΅ΡΡΠ½ΠΈΡΠ° Π·Π°ΡΠ΅ΠΏΠ»ΡΠ»Π°ΡΡ Π·Π° ΠΊΡΠ°ΠΉ ΠΊΡΠΏΠ΅Π»ΠΈ.
- ΠΠΎΡΠΊΠΈ Π±ΡΠ΄ΡΡ Π½Π΅ΠΎΠ±Ρ ΠΎΠ΄ΠΈΠΌΡ Π΄Π»Ρ ΡΡΠ΅Π½ΠΎΠΊ ΠΈ Π΄Π½Π° ΠΊΡΠΏΠ΅Π»ΠΈ, ΠΏΠΎΠ΄ΡΡΠ°Π²ΠΎΠΊ ΠΏΠΎΠ΄ Π½Π΅Π΅, Π²Π½ΡΡΡΠ΅Π½Π½ΠΈΡ ΡΠΊΠ°ΠΌΠ΅Π΅ΠΊ ΠΈ Π»Π΅ΡΡΠ½ΠΈΡΡ. ΠΠ±ΡΡΠ½ΠΎ ΠΈΡΠΏΠΎΠ»ΡΠ·ΡΠ΅ΡΡΡ ΠΌΠ°ΡΠ΅ΡΠΈΠ°Π» ΡΠ΅ΡΠ΅Π½ΠΈΠ΅ΠΌ 20 Γ 120 ΠΌΠΌ, Ρ ΡΡΠ΅ΡΠΎΠΌ ΡΠΎΠ³ΠΎ, ΡΡΠΎ ΠΊΡΠ°Ρ Π΄ΠΎΡΠΊΠΈ Π±ΡΠ΄ΡΡ ΡΡΠ΅Π·Π΅ΡΠΎΠ²Π°ΡΡΡΡ. ΠΠ»ΠΈΠ½Π° Π΄ΠΎΡΠΊΠΈ Π±ΡΠ΄Π΅Ρ Π·Π°Π²ΠΈΡΠ΅ΡΡ ΠΎΡ Π²ΡΠ±ΡΠ°Π½Π½ΠΎΠΉ Π²ΡΡΠΎΡΡ ΠΊΡΠΏΠ΅Π»ΠΈ.
- ΠΠ»Ρ ΠΏΠΎΠ΄ΡΡΠ°Π²ΠΎΠΊ ΠΏΠΎΠ΄ ΠΊΡΠΏΠ΅Π»Ρ, Π½ΡΠΆΠ΅Π½ Π±ΡΠ΄Π΅Ρ Π±ΡΡΡ 100 Γ 100 ΠΈΠ»ΠΈ 150 Γ 150 ΠΌΠΌ. ΠΠ³ΠΎ Π΄Π»ΠΈΠ½Π° Π±ΡΠ΄Π΅Ρ Π·Π°Π²ΠΈΡΠ΅ΡΡ ΠΎΡ ΡΠΈΡΠΈΠ½Ρ ΠΈ Π΄Π»ΠΈΠ½Ρ ΠΊΡΠΏΠ΅Π»ΠΈ.
- ΠΡΠΎΠΌΠ΅ Π΄ΠΎΡΠΎΠΊ ΠΏΠΎΡΡΠ΅Π±ΡΡΡΡΡ ΠΌΠ΅ΡΠ°Π»Π»ΠΈΡΠ΅ΡΠΊΠΈΠ΅ ΠΏΠΎΠ»ΠΎΡΡ ΠΈ Π±ΠΎΠ»ΡΡ, ΠΊΠΎΡΠΎΡΡΠΌΠΈ Π±ΡΠ΄ΡΡ ΡΡΡΠ³ΠΈΠ²Π°ΡΡΡΡ ΡΡΡΠ°Π½ΠΎΠ²Π»Π΅Π½Π½ΡΠ΅ Π΄ΠΎΡΠΊΠΈ. ΠΠ΅ΡΠ°Π»Π» Π΄Π»Ρ ΠΏΠΎΠ»ΠΎΡΠΎΠΊ Π½ΡΠΆΠ½ΠΎ Π²ΡΠ±ΠΈΡΠ°ΡΡ Π΄ΠΎΡΡΠ°ΡΠΎΡΠ½ΠΎ Π³ΠΈΠ±ΠΊΠΈΠΉ, Π½ΠΎ ΠΎΡΠ΅Π½Ρ ΠΏΡΠΎΡΠ½ΡΠΉ.
- ΠΠ»Ρ ΡΠΊΡΠ΅ΠΏΠ»Π΅Π½ΠΈΡ ΠΎΡΠ΄Π΅Π»ΡΠ½ΡΡ Π΄Π΅ΡΠ°Π»Π΅ΠΉ Π΄Π½Π° ΠΈ ΠΏΡΠΈΠΊΡΡΡΠΈΠ²Π°Π½ΠΈΡ Π½ΠΎΠΆΠ΅ΠΊ Π±ΡΠ΄ΡΡ Π½Π΅ΠΎΠ±Ρ ΠΎΠ΄ΠΈΠΌΡ ΡΠ°ΠΌΠΎΡΠ΅Π·Ρ. Β ΠΠΎ Π½ΡΠΆΠ½ΠΎ ΡΡΠ΅ΡΡΡ ΠΈ ΡΠΎ, ΡΡΠΎ Π²Π½ΡΡΡΠΈ ΠΊΡΠΏΠ΅Π»ΠΈ Π½Π΅ Π΄ΠΎΠ»ΠΆΠ½ΠΎ Π±ΡΡΡ Π½ΠΈ ΠΎΠ΄Π½ΠΎΠΉ ΠΌΠ΅ΡΠ°Π»Π»ΠΈΡΠ΅ΡΠΊΠΎΠΉ Π΄Π΅ΡΠ°Π»ΠΈ.
ΠΠ·Π³ΠΎΡΠΎΠ²Π»Π΅Π½ΠΈΠ΅ Π΄Π΅ΡΠ°Π»Π΅ΠΉ Π΄Π»Ρ Π΄Π΅ΡΠ΅Π²ΡΠ½Π½ΠΎΠΉ ΠΊΡΠΏΠ΅Π»ΠΈ
ΠΠ·Π³ΠΎΡΠΎΠ²ΠΈΡΡ Π΄Π΅ΡΠ΅Π²ΡΠ½Π½ΡΠ΅ ΡΠ»Π΅ΠΌΠ΅Π½ΡΡ Π΄Π»Ρ ΡΠ±ΠΎΡΠΊΠΈ ΠΊΡΠΏΠ΅Π»ΠΈ Π½Π΅ ΡΠ°ΠΊ ΠΏΡΠΎΡΡΠΎ, ΠΊΠ°ΠΊ ΠΊΠ°ΠΆΠ΅ΡΡΡ, ΡΠ°ΠΊ ΠΊΠ°ΠΊ ΠΎΠ½ΠΈ Π΄ΠΎΠ»ΠΆΠ½Ρ Π±ΡΠ΄ΡΡ ΡΠΎΠ·Π΄Π°ΡΡ Π΅Π΄ΠΈΠ½ΡΡ ΠΏΡΠΎΡΠ½ΡΡ, ΠΈ Π² ΡΠΎ ΠΆΠ΅ Π²ΡΠ΅ΠΌΡ — Π³Π΅ΡΠΌΠ΅ΡΠΈΡΠ½ΡΡ ΠΊΠΎΠ½ΡΡΡΡΠΊΡΠΈΡ, ΠΊΠΎΡΠΎΡΠ°Ρ Π½Π΅ Π±ΡΠ΄Π΅Ρ ΠΏΡΠΎΡΠ΅ΠΊΠ°ΡΡ Π½ΠΈ Π² ΠΎΠ΄Π½ΠΎΠΌ ΠΌΠ΅ΡΡΠ΅. ΠΠΎΡΠΊΠΈ Π΄ΠΎΠ»ΠΆΠ½Ρ ΠΏΠ»ΠΎΡΠ½ΠΎ ΡΡΡΠΊΠΎΠ²Π°ΡΡΡΡ ΠΌΠ΅ΠΆΠ΄Ρ ΡΠΎΠ±ΠΎΠΉ, ΡΠΎΠ·Π΄Π°Π²Π°Ρ ΡΠ΅Π»ΡΠ½ΡΡ, Π±Π΅Π· ΡΠ΅Π»Π΅ΠΉ ΠΏΠΎΠ²Π΅ΡΡ Π½ΠΎΡΡΡ Π½Π° ΡΡΠ΅Π½ΠΊΠ°Ρ ΠΈ Π½Π° ΠΏΠ»ΠΎΡΠΊΠΎΡΡΠΈ Π΄Π½Π°. ΠΡΠΎΠΌΠ΅ ΡΡΠΎΠ³ΠΎ, ΡΡΠ΅Π½ΠΊΠΈ ΠΊΡΠΏΠ΅Π»ΠΈ Π΄ΠΎΠ»ΠΆΠ½Ρ Π±ΡΡΡ ΠΏΠ»ΠΎΡΠ½ΠΎ ΡΠΎΡΡΡΠΊΠΎΠ²Π°Π½Ρ Ρ Π΄ΠΎΠ½Π½ΠΎΠΉ ΠΏΠ»ΠΎΡΠΊΠΎΡΡΡΡ.
- ΠΠΎΡΠΊΠΈ ΡΠ°ΡΠΏΠΈΠ»ΠΈΠ²Π°ΡΡΡΡ Π½Π° ΠΎΠ΄ΠΈΠ½Π°ΠΊΠΎΠ²ΡΠ΅ ΠΎΡΡΠ΅Π·ΠΊΠΈ (Π² ΡΠΎΠΎΡΠ²Π΅ΡΡΡΠ²ΠΈΠΈ Ρ ΡΠ΅ΡΡΠ΅ΠΆΠΎΠΌ), ΡΠ°Π²Π½ΡΠ΅ Π²ΡΡΠΎΡΠ΅ ΡΡΠ΅Π½ΠΎΠΊ ΠΏΠ»ΡΡ 100 Γ· 120 ΠΌΠΌ. ΠΡΠΎ ΡΠ°ΡΡΡΠΎΡΠ½ΠΈΠ΅, Π½Π° ΠΊΠΎΡΠΎΡΠΎΠ΅ Π΄Π½ΠΎ ΠΊΡΠΏΠ΅Π»ΠΈ ΠΏΠΎΠ΄Π½ΠΈΠΌΠ΅ΡΡΡ Π½Π°Π΄ ΠΏΠΎΠ»ΠΎΠΌ. ΠΠΈΠΆΠ½ΡΡ ΡΠ°ΡΡΡ Π΄ΠΎΡΠΎΠΊ ΠΏΡΠΈ ΡΡΠΎΠΌ Π·Π°ΠΊΡΠΎΠ΅Ρ ΡΡΠΎ ΠΏΡΠΎΡΡΡΠ°Π½ΡΡΠ²ΠΎ ΠΎΡ ΡΠΊΠ²ΠΎΠ·Π½ΡΠΊΠ°.
- ΠΠ°ΡΠ΅ΠΌ ΠΊΠ°ΠΆΠ΄Π°Ρ ΠΈΠ· Π΄ΠΎΡΠΎΠΊ ΠΏΠΎ ΠΊΡΠ°ΡΠΌ ΡΡΠ΅Π·Π΅ΡΡΠ΅ΡΡΡ. Π‘ ΠΎΠ΄Π½ΠΎΠΉ ΡΠΎΡΠΌΠΈΡΡΠ΅ΡΡΡ ΠΏΠΎΠ»ΡΠΊΡΡΠ³Π»ΡΠΉ ΡΠΈΠΏ, Π° Ρ Π΄ΡΡΠ³ΠΎΠΉ Π²ΡΡΠ΅Π·Π°Π΅ΡΡΡ ΠΏΠΎΠ»ΡΠΊΡΡΠ³Π»ΡΠΉ ΠΏΠ°Π·, ΠΈΠΌΠ΅ΡΡΠΈΠΉ ΡΠΎΡΠ½ΠΎ ΡΠ°ΠΊΠΎΠΉ ΠΆΠ΅ ΡΠ°Π΄ΠΈΡΡ, ΠΊΠ°ΠΊ ΠΈ Ρ ΡΠΈΠΏΠ° — ΠΎΠ½ΠΈ Π΄ΠΎΠ»ΠΆΠ½Ρ ΠΈΠ΄Π΅Π°Π»ΡΠ½ΠΎ ΠΏΠΎΠ΄Ρ ΠΎΠ΄ΠΈΡΡ Π΄ΡΡΠ³ ΠΊ Π΄ΡΡΠ³Ρ.

ΠΠΎΡΠΊΠΈ Π΄Π»Ρ ΡΡΠ΅Π½ΠΎΠΊ ΠΊΡΠΏΠ΅Π»ΠΈ ΡΡΠ΅Π·Π΅ΡΡΡΡΡΡ ΡΠ°ΠΊ, ΡΡΠΎΠ±Ρ ΠΈΠ΄Π΅Π°Π»ΡΠ½ΠΎ ΠΏΡΠΈΠ»Π΅Π³Π°ΡΡ Π΄ΡΡΠ³ ΠΊ Π΄ΡΡΠ³Ρ ΠΏΠΎΠ»ΡΠΊΡΡΠ³Π»ΡΠΌΠΈ ΠΏΠ°Π·Π°ΠΌΠΈ
- ΠΠΎΡΠΊΠΈ Π΄Π»Ρ Π΄Π½ΠΈΡΠ° ΡΠΎΠΆΠ΅ Π΄ΠΎΠ»ΠΆΠ½Ρ Π±ΡΡΡ ΠΎΡΡΡΠ΅Π·Π΅ΡΠΎΠ²Π°Π½Ρ ΠΏΠΎΠ΄ ΡΠΎΠ΅Π΄ΠΈΠ½Π΅Π½ΠΈΠ΅ ΡΠΈΠΏ-ΠΏΠ°Π· Π±Π΅Π· Π±ΠΎΠΊΠΎΠ²ΡΡ ΡΠ°ΡΠΎΠΊ, ΡΠ°ΠΊΠΈΠΌ ΠΎΠ±ΡΠ°Π·ΠΎΠΌ, ΡΡΠΎΠ±Ρ ΠΏΠΎΠ²Π΅ΡΡ Π½ΠΎΡΡΡ ΠΏΠΎΠ»Π° Π±ΡΠ»Π° ΠΈΠ΄Π΅Π°Π»ΡΠ½ΠΎ ΡΠΎΠ²Π½ΠΎΠΉ ΠΈ Π½Π΅ ΠΈΠΌΠ΅Π»Π° Π΄Π°ΠΆΠ΅ ΠΌΠ°Π»Π΅Π½ΡΠΊΠΈΡ ΡΠ΅Π»Π΅ΠΉ.

ΠΠ»Ρ Π΄Π½ΠΈΡΠ° ΠΌΠΎΠΆΠ½ΠΎ ΠΈΡΠΏΠΎΠ»ΡΠ·ΠΎΠ²Π°ΡΡ ΡΠΏΡΠ½ΡΠΎΠ²Π°Π½Π½ΡΠ΅ Π΄ΠΎΡΠΊΠΈ β¦
- ΠΡΡΠ³ΠΎΠΉ Π²Π°ΡΠΈΠ°Π½Ρ — Β Π΄ΠΎΡΠΊΠΈ Π΄ΠΎΠ»ΠΆΠ½Ρ Π±ΡΡΡ ΡΠΎΠ²Π½ΡΠΌΠΈ, ΠΈΠ΄Π΅Π°Π»ΡΠ½ΠΎ ΠΏΠΎΠ΄ΠΎΠ³Π½Π°Π½Π½ΡΠΌΠΈ, Π±Π΅Π· ΡΠΏΡΠ½ΡΠΎΠ²Π°Π½Π½ΡΡ ΡΠΎΠ΅Π΄ΠΈΠ½Π΅Π½ΠΈΠΉ.

β¦ ΠΈΠ»ΠΈ ΠΏΡΠΎΡΡΠΎ ΠΈΠ΄Π΅Π°Π»ΡΠ½ΠΎ ΠΏΠΎΠ΄ΠΎΠ³Π½Π°Π½Π½ΡΠ΅ Π΄ΡΡΠ³ ΠΊ Π΄ΡΡΠ³Ρ ΠΏΠΎ Π²ΡΠ΅ΠΉ Π΄Π»ΠΈΠ½Π΅
- ΠΠ°Π»Π΅Π΅, Π½Π° ΠΊΠ°ΠΆΠ΄ΠΎΠΉ ΠΈΠ· Π΄ΠΎΡΠΎΠΊ, ΠΏΡΠ΅Π΄Π½Π°Π·Π½Π°ΡΠ΅Π½Π½ΡΡ Π΄Π»Ρ ΡΡΠ΅Π½ΠΎΠΊ ΠΊΡΠΏΠ΅Π»ΠΈ, ΠΎΡ Π½ΠΈΠΆΠ½Π΅Π³ΠΎ ΠΈΡ ΠΊΡΠ°Ρ ΠΎΡΠΌΠ΅ΡΡΠ΅ΡΡΡ ΠΎΠ΄ΠΈΠ½Π°ΠΊΠΎΠ²ΠΎΠ΅ ΡΠ°ΡΡΡΠΎΡΠ½ΠΈΠ΅, Π½Π°ΠΏΡΠΈΠΌΠ΅Ρ, Π² 100 ΠΌΠΌ. ΠΡΡΠ΅ Π΅Π³ΠΎ ΠΎΡΠΌΠ΅ΡΠ°Π΅ΡΡΡ ΡΠΎΡΠ½Π°Ρ ΡΠΎΠ»ΡΠΈΠ½Π° Π΄ΠΎΡΠΊΠΈ, ΠΈΠ· ΠΊΠΎΡΠΎΡΠΎΠΉ Π±ΡΠ΄Π΅Ρ ΠΌΠΎΠ½ΡΠΈΡΠΎΠ²Π°ΡΡΡΡ Π΄Π½ΠΈΡΠ΅, Π½Π°ΠΏΡΠΈΠΌΠ΅Ρ, 25 ΠΈΠ»ΠΈ 30 ΠΌΠΌ.
- ΠΠ° ΠΎΡΠΌΠ΅ΡΠ΅Π½Π½ΠΎΠΌ ΡΡΠ°ΡΡΠΊΠ΅ Π°ΠΊΠΊΡΡΠ°ΡΠ½ΠΎ ΡΡΠ΅Π·Π΅ΡΡΠ΅ΡΡΡ ΠΊΠ²Π°Π΄ΡΠ°ΡΠ½ΡΠΉ ΠΏΠ°Π·, Π³Π»ΡΠ±ΠΈΠ½ΠΎΠΉ Π² ΠΎΠ΄Π½Ρ ΡΡΠ΅ΡΡ ΡΠΎΠ»ΡΠΈΠ½Ρ Π΄ΠΎΡΠΊΠΈ, Π² Π΄Π°Π½Π½ΠΎΠΌ ΡΠ»ΡΡΠ°Π΅ β 8 Γ· 10 ΠΌΠΌ.
- ΠΠ°ΠΊΠΎΠ½ΡΠΈΠ² ΠΈΠ·Π³ΠΎΡΠΎΠ²Π»Π΅Π½ΠΈΠ΅ Π΄Π΅ΡΠ°Π»Π΅ΠΉ ΠΏΠΎ ΡΠ°ΡΡΡΠΈΡΠ°Π½Π½ΡΠΌ ΡΠ°Π·ΠΌΠ΅ΡΠ°ΠΌ, ΠΈΡ ΠΏΠΎΠ΄Π²Π΅ΡΠ³Π°ΡΡ ΡΡΠ°ΡΠ΅Π»ΡΠ½ΠΎΠΉ ΡΠ»ΠΈΡΠΎΠ²ΠΊΠ΅. Π’Π°ΠΊ, Π΄ΠΎΡΠΊΠΈ Π΄Π»Ρ ΡΡΠ΅Π½ΠΎΠΊ Π΄ΠΎΠ»ΠΆΠ½Ρ Π±ΡΡΡ ΠΈΠ΄Π΅Π°Π»ΡΠ½ΠΎ Π³Π»Π°Π΄ΠΊΠΈΠΌΠΈ Ρ ΠΎΠ±Π΅ΠΈΡ ΡΡΠΎΡΠΎΠ½, Π° Π΄Π΅ΡΠ°Π»ΠΈ Π΄Π½ΠΈΡΠ° β ΠΏΠΎ ΠΌΠ΅Π½ΡΡΠ΅ΠΉ ΠΌΠ΅ΡΠ΅ Ρ ΡΠΎΠΉ ΡΡΠΎΡΠΎΠ½Ρ, ΠΊΠΎΡΠΎΡΠ°Ρ ΠΎΠ±ΡΠ°ΡΠ΅Π½Π° Π²Π½ΡΡΡΡ ΠΊΡΠΏΠ΅Π»ΠΈ.
ΠΡΠ°ΠΏΡ ΠΌΠΎΠ½ΡΠ°ΠΆΠ°
ΠΡΠΈΠ½ΡΠΈΠΏ ΠΌΠΎΠ½ΡΠ°ΠΆΠ° Π΄Π΅ΡΠ΅Π²ΡΠ½Π½ΠΎΠΉ ΠΊΡΠΏΠ΅Π»ΠΈ ΡΡ ΠΎΠΆ Ρ ΠΈΠ·Π³ΠΎΡΠΎΠ²Π»Π΅Π½ΠΈΠ΅ΠΌ Π±ΠΎΡΠ΅ΠΊ. Π Π°Π·Π½ΠΈΡΠ° Π² ΡΡΠΎΠΌ ΠΏΡΠΎΡΠ΅ΡΡΠ΅ Π·Π°ΠΊΠ»ΡΡΠ°Π΅ΡΡΡ Π² ΡΠΎΡΠΌΠ΅ ΠΈ ΡΠΎΠ»ΡΠΈΠ½Π΅ Π΄Π΅ΡΠ΅Π²ΡΠ½Π½ΡΡ ΡΠ»Π΅ΠΌΠ΅Π½ΡΠΎΠ², ΠΎΠ±ΡΠ°Π·ΡΡΡΠΈΡ ΡΡΠ΅Π½ΠΊΠΈ ΠΏΠΎΠ»ΡΡΠ°Π΅ΠΌΠΎΠΉ Π΅ΠΌΠΊΠΎΡΡΠΈ. ΠΠΎΡΠΊΠΈ Π΄Π»Ρ ΠΊΡΠΏΠ΅Π»ΠΈ — Π°Π±ΡΠΎΠ»ΡΡΠ½ΠΎ ΡΠΎΠ²Π½ΡΠ΅, Π° Π΄Π»Ρ Π±ΠΎΡΠΊΠΈ ΠΎΠ½ΠΈ ΡΡΠΆΠ°ΡΡΡΡ ΠΊ Π΄ΠΎΠ½Π½ΠΎΠΉ ΠΈ Π²Π΅ΡΡ Π½Π΅ΠΉ ΠΎΡΠΊΡΡΡΠΎΠΉ ΡΠ°ΡΡΠΈ Π΅ΠΌΠΊΠΎΡΡΠΈ.

Π‘Π°ΠΌΠΎΡΡΠΎΡΡΠ΅Π»ΡΠ½ΡΠΉ ΠΌΠΎΠ½ΡΠ°ΠΆ Π΄Π΅ΡΠ΅Π²ΡΠ½Π½ΠΎΠΉ ΠΊΡΠΏΠ΅Π»ΠΈ β Π·Π°Π΄Π°ΡΠ° ΠΏΠΎΠ²ΡΡΠ΅Π½Π½ΠΎΠ³ΠΎ ΡΡΠΎΠ²Π½Ρ ΡΠ»ΠΎΠΆΠ½ΠΎΡΡΠΈ!
ΠΠΎΠ½ΡΠ°ΠΆ ΠΊΡΠΏΠ΅Π»ΠΈ ΠΎΡΡΡΠ΅ΡΡΠ²Π»ΡΠ΅ΡΡΡ ΠΏΠΎΡΡΠ°ΠΏΠ½ΠΎ, ΡΠ»Π΅Π΄ΡΡΡΠΈΠΌ ΠΎΠ±ΡΠ°Π·ΠΎΠΌ:
- ΠΠ΅ΡΠ²ΡΠΌ ΡΡΠ°ΠΏΠΎΠΌ ΠΈΠ΄Π΅Ρ ΠΌΠΎΠ½ΡΠ°ΠΆ ΡΠΈΡΠ° ΠΈΠ· Π΄ΠΎΡΠΎΠΊ. ΠΠ½ ΠΏΠΎΡΠ»ΡΠΆΠΈΡ Π·Π°ΡΠ΅ΠΌ Π·Π°Π³ΠΎΡΠΎΠ²ΠΊΠΎΠΉ, ΠΈΠ· ΠΊΠΎΡΠΎΡΠΎΠΉ Π±ΡΠ΄Π΅Ρ ΡΠΎΡΠΌΠΈΡΠΎΠ²Π°ΡΡΡΡ Π΄Π½ΠΎ ΠΊΡΠΏΠ΅Π»ΠΈ. ΠΠΎΡΠΊΠΈ ΡΠΊΠ»Π΅ΠΈΠ²Π°ΡΡΡΡ ΠΌΠ΅ΠΆΠ΄Ρ ΡΠΎΠ±ΠΎΠΉ ΡΡΠΎΠ»ΡΡΠ½ΡΠΌ ΠΊΠ»Π΅Π΅ΠΌ ΠΈ ΡΠΆΠΈΠΌΠ°ΡΡΡΡ ΡΡΡΡΠ±ΡΠΈΠ½Π°ΠΌΠΈ Π΄ΠΎ ΠΏΠΎΠ»Π½ΠΎΠΉ Π³ΠΎΡΠΎΠ²Π½ΠΎΡΡΠΈ ΡΡΠΎΠ³ΠΎ Π΄Π΅ΡΠ΅Π²ΡΠ½Π½ΠΎΠ³ΠΎ ΡΠΈΡΠ°.

Π‘ΠΎΠ±ΡΠ°Π½Π½ΡΠΉ ΠΈ ΡΠΊΠ»Π΅Π΅Π½Π½ΡΠΉ Π΄Π΅ΡΠ΅Π²ΡΠ½Π½ΡΠΉ ΡΠΈΡ Π΄Π»Ρ ΠΈΠ·Π³ΠΎΡΠΎΠ²Π»Π΅Π½ΠΈΡ Π΄Π½ΠΈΡΠ°
ΠΠΎΠ½ΡΡΠ½ΠΎ, ΡΡΠΎ Π΄Π»Ρ ΠΎΠ²Π°Π»ΡΠ½ΠΎΠΉ ΠΊΡΠΏΠ΅Π»ΠΈ ΡΠΎΠ±ΠΈΡΠ°Π΅ΡΡΡ ΠΏΡΡΠΌΠΎΡΠ³ΠΎΠ»ΡΠ½ΡΠΉ ΡΠΈΡ, Π΄Π»Ρ ΠΊΡΡΠ³Π»ΠΎΠΉ — ΠΊΠ²Π°Π΄ΡΠ°ΡΠ½ΡΠΉ.

ΠΡΠΈΠΌΠ΅Ρ ΡΠ°Π·ΠΌΠ΅ΡΠΊΠΈ Π·Π°Π³ΠΎΡΠΎΠ²ΠΊΠΈ Π΄Π½Π°
- ΠΠΎΡΠ»Π΅ ΠΏΡΠΎΡΡΡ Π°Π½ΠΈΡ ΠΊΠ»Π΅Ρ, Π½Π° Π΄Π΅ΡΠ΅Π²ΡΠ½Π½ΠΎΠΉ ΠΏΠΎΠ²Π΅ΡΡ Π½ΠΎΡΡΠΈ ΡΠ°Π·ΠΌΠ΅ΡΠ°Π΅ΡΡΡ ΠΈ Π²ΡΡΠ΅ΡΡΠΈΠ²Π°Π΅ΡΡΡ Π½ΡΠΆΠ½Π°Ρ ΡΠΈΠ³ΡΡΠ° Ρ ΡΠ°Π·ΠΌΠ΅ΡΠ°ΠΌΠΈ, ΡΠΎΠΎΡΠ²Π΅ΡΡΡΠ²ΡΡΡΠΈΠΌΠΈ ΡΠ΅ΡΡΠ΅ΠΆΡ. ΠΠ°ΡΠ΅ΠΌ ΠΎΡΠ΅Π½Ρ Π°ΠΊΠΊΡΡΠ°ΡΠ½ΠΎ Π²ΡΠΏΠΈΠ»ΠΈΠ²Π°Π΅ΡΡΡ ΡΠ±ΠΎΡΠ½Π°Ρ Π΄Π΅ΡΠ°Π»Ρ Π΄Π½Π°. ΠΠΎΠ³ΡΠ΅ΡΠ½ΠΎΡΡΠΈ ΠΏΡΠΈ Π²ΡΡΠ΅Π·Π°Π½ΠΈΠΈ ΡΡΠΎΠΉ ΠΊΡΠΈΠ²ΠΎΠ»ΠΈΠ½Π΅ΠΉΠ½ΠΎΠΉ ΡΠΈΠ³ΡΡΡ Π΄ΠΎΠΏΡΡΠΊΠ°ΡΡ Π½Π΅Π»ΡΠ·Ρ β Π»ΡΡΡΠ΅ Π½Π΅ ΡΠΎΡΠΎΠΏΠΈΡΡΡΡ, ΡΡΠΎΠ±Ρ Π½Π΅ Π΄ΠΎΠΏΡΡΡΠΈΡΡ ΡΠ°ΡΠ°Π»ΡΠ½ΠΎΠΉ ΠΎΡΠΈΠ±ΠΊΠΈ. ΠΡΠ°ΠΉ Π³ΠΎΡΠΎΠ²ΠΎΠ³ΠΎ Π΄Π½ΠΈΡΠ° Π½Π΅ΠΎΠ±Ρ ΠΎΠ΄ΠΈΠΌΠΎ ΡΡΠ°ΡΠ΅Π»ΡΠ½ΠΎ ΠΎΠ±ΡΠ°Π±ΠΎΡΠ°ΡΡ Π½Π°ΠΆΠ΄Π°ΡΠ½ΠΎΠΉ Π±ΡΠΌΠ°Π³ΠΎΠΉ, ΡΡΠΎΠ±Ρ ΠΈΠ·Π±Π°Π²ΠΈΡΡΡΡ ΠΎΡ Π·Π°ΡΡΠ΅Π½ΡΠ΅Π² ΠΈ ΠΌΠ΅Π»ΠΊΠΈΡ Π½Π΅ΡΠΎΠ²Π½ΠΎΡΡΠ΅ΠΉ.
- ΠΠ°Π»Π΅Π΅, ΠΏΠΎΠ»ΡΡΠΈΠ²ΡΠΈΠΉΡΡ ΡΠΈΡ Π½ΡΠΆΠ½ΠΎ Π΄ΠΎΠΏΠΎΠ»Π½ΠΈΡΠ΅Π»ΡΠ½ΠΎ ΡΠΊΡΠ΅ΠΏΠΈΡΡ Ρ Π½ΠΈΠΆΠ½Π΅ΠΉ ΡΡΠΎΡΠΎΠ½Ρ Π΄Π½Π° Π±ΡΡΡΠΊΠ°ΠΌΠΈ 20 Γ 30 ΠΌΠΌ. ΠΡ ΠΏΡΠΈΠΊΡΡΡΠΈΠ²Π°ΡΡ ΡΠ°ΠΌΠΎΡΠ΅Π·Π°ΠΌΠΈ, ΠΊΠΎΡΠΎΡΡΠ΅ Π½ΠΈ Π² ΠΊΠΎΠ΅ΠΌ ΡΠ»ΡΡΠ°Π΅ Π½Π΅ Π΄ΠΎΠ»ΠΆΠ½Ρ ΠΏΡΠΎΠΉΡΠΈ Π½Π°ΡΠΊΠ²ΠΎΠ·Ρ, ΠΈΠ½Π°ΡΠ΅ ΠΈΡ ΠΎΡΡΡΡΠ΅ ΠΊΠΎΠ½ΡΡ Π±ΡΠ΄ΡΡ ΡΠΎΡΡΠ°ΡΡ Π² ΠΏΠΎΠ»Ρ ΠΊΡΠΏΠ΅Π»ΠΈ, ΡΡΠΎ ΠΌΠΎΠΆΠ΅Ρ ΠΏΡΠΈΠ²Π΅ΡΡΠΈ ΠΊ ΡΡΠ°Π²ΠΌΠ°ΠΌ.
ΠΠΎΠΏΠΎΠ»Π½ΠΈΡΠ΅Π»ΡΠ½ΠΎ ΠΌΠΎΠΆΠ½ΠΎ Π·Π°ΠΊΡΠ΅ΠΏΠΈΡΡ ΠΎΠΏΠΎΡΠ½ΡΠ΅ Π±ΡΡΡΠΊΠΈ, ΠΊΠΎΡΠΎΡΡΠ΅ Π±ΡΠ΄ΡΡ Π²ΠΏΠΎΡΠ»Π΅Π΄ΡΡΠ²ΠΈΠΈ Π²ΡΠΏΠΎΠ»Π½ΡΡΡ ΡΠΎΠ»Ρ Π½ΠΎΠΆΠ΅ΠΊ — ΠΎΠ½ΠΈ ΡΡΡΠ°Π½Π°Π²Π»ΠΈΠ²Π°ΡΡΡΡ ΠΏΠΎ ΠΊΡΠ°ΡΠΌ Π΄ΠΎΠ½Π½ΠΎΠΉ ΠΏΠ»ΠΎΡΠΊΠΎΡΡΠΈ.
ΠΡΠ»ΠΈ ΠΏΡΠΈΠΎΠ±ΡΠ΅ΡΠ°ΡΡΡΡ Π³ΠΎΡΠΎΠ²ΡΠ΅ ΠΊΡΠΏΠ΅Π»ΠΈ, ΡΠΎ ΠΎΠ±ΡΡΠ½ΠΎ Π² ΠΊΠΎΠΌΠΏΠ»Π΅ΠΊΡΠ΅ Π΄Π½ΠΎ ΡΠ°Π·Π΄Π΅Π»Π΅Π½ΠΎ Π½Π° ΡΡΠΈ ΡΠ°ΡΡΠΈ. ΠΡΠΎ Π΄Π΅Π»Π°Π΅ΡΡΡ Π»ΠΈΡΡ Π΄Π»Ρ ΡΠ΄ΠΎΠ±ΡΡΠ²Π° ΡΡΠ°Π½ΡΠΏΠΎΡΡΠΈΡΠΎΠ²ΠΊΠΈ. ΠΠ΅ΡΠ°Π»ΠΈ ΠΈΠ· ΠΊΠΎΠΌΠΏΠ»Π΅ΠΊΡΠ° ΡΠΎΠ±ΠΈΡΠ°ΡΡ Π² ΡΠ΅Π»ΡΡ ΠΏΠ»ΠΎΡΠΊΠΎΡΡΡ ΡΠ°ΠΊΠΆΠ΅, ΠΊΠ°ΠΊ Π±ΡΠ»ΠΎ ΡΠΊΠ°Π·Π°Π½ΠΎ Π²ΡΡΠ΅ — Β ΠΏΡΠΈ ΠΏΠΎΠΌΠΎΡΠΈ ΠΊΠ»Π΅Ρ, Π±ΡΡΡΠΊΠΎΠ² ΠΈ ΡΠ°ΠΌΠΎΡΠ΅Π·ΠΎΠ².
- ΠΠ°Π»Π΅Π΅, Π΄Π»Ρ ΠΊΠΎΠΌΡΠΎΡΡΠ½ΠΎΠ³ΠΎ ΡΠ»ΠΈΠ²Π° Π²ΠΎΠ΄Ρ ΠΈΠ· Π΅ΠΌΠΊΠΎΡΡΠΈ, Π±Π»ΠΈΠΆΠ΅ ΠΊ ΠΊΡΠ°Ρ Π΄Π½ΠΈΡΠ°, ΠΏΡΠΎΡΠ²Π΅ΡΠ»ΠΈΠ²Π°Π΅ΡΡΡ ΠΎΡΠ²Π΅ΡΡΡΠΈΠ΅ Π½ΡΠΆΠ½ΠΎΠ³ΠΎ Π΄ΠΈΠ°ΠΌΠ΅ΡΡΠ°, Π² ΠΊΠΎΡΠΎΡΠΎΠ΅ ΡΡΡΠ°Π½Π°Π²Π»ΠΈΠ²Π°Π΅ΡΡΡ ΡΠΈΡΠΎΠ½ ΡΠΎ ΡΠ»Π°Π½Π³ΠΎΠΌ.

Π Π³ΠΎΡΠΎΠ²ΠΎΠΌ Π΄Π½ΠΈΡΠ΅ Π²ΡΡΠ΅Π·Π°Π΅ΡΡΡ ΠΎΡΠ²Π΅ΡΡΡΠΈΠ΅ ΠΏΠΎΠ΄ ΡΠ»ΠΈΠ² β¦
ΠΡΠ»ΠΈ Π½Π΅Ρ Π²ΠΎΠ·ΠΌΠΎΠΆΠ½ΠΎΡΡΠΈ ΡΡΡΠ°Π½ΠΎΠ²ΠΈΡΡ ΡΠ»ΠΈΠ²Π½ΡΡ ΡΡΡΠ±Ρ ΠΈΠ·-Π·Π° ΠΎΡΡΡΡΡΡΠ²ΠΈΡ ΠΊΠ°Π½Π°Π»ΠΈΠ·Π°ΡΠΈΠΈ, ΡΠΎ Π²ΠΎΠ΄Ρ ΠΌΠΎΠΆΠ½ΠΎ ΠΎΡΠΊΠ°ΡΠΈΠ²Π°ΡΡ ΠΈΠ· ΠΊΡΠΏΠ΅Π»ΠΈ Ρ ΠΏΠΎΠΌΠΎΡΡΡ Π½Π°ΡΠΎΡΠ°, Π½ΠΎ ΡΡΠΎΡ Π²Π°ΡΠΈΠ°Π½Ρ, ΠΏΡΠ°Π²Π΄Π°, ΡΡΠ°Π½Π΅Ρ Π±ΠΎΠ»Π΅Π΅ ΡΠ»ΠΎΠΆΠ½ΡΠΌ ΠΈ Π½Π΅ΡΠ΄ΠΎΠ±Π½ΡΠΌ.

Π² ΠΊΠΎΡΠΎΡΠΎΠ΅ ΠΏΠΎΠ·Π΄Π½Π΅Π΅ Π±ΡΠ΄Π΅Ρ ΠΏΠΎΠ΄ΡΠΎΠ΅Π΄ΠΈΠ½Π΅Π½ ΡΠΈΡΠΎΠ½ ΡΠΎ ΡΠ»Π°Π½Π³ΠΎΠΌ
- Π‘Π»Π΅Π΄ΡΡΡΠΈΠΌ ΡΠ°Π³ΠΎΠΌ ΠΌΠΎΠΆΠ½ΠΎ ΠΏΠ΅ΡΠ΅Ρ ΠΎΠ΄ΠΈΡΡ ΠΊ ΡΠ±ΠΎΡΠΊΠ΅ ΡΡΠ΅Π½ΠΎΠΊ. ΠΠ»Ρ ΡΡΠΎΠ³ΠΎ Π΄ΠΎΠ½Π½ΡΡ ΡΠ°ΡΡΡ ΠΏΠΎΠ΄Π½ΠΈΠΌΠ°ΡΡ Π½Π° ΡΠ°Π±ΠΎΡΠΈΠΉ ΡΡΠΎΠ», ΠΈΠΌΠ΅ΡΡΠΈΠΉ ΡΠ°ΠΊΡΡ ΠΆΠ΅ Π²ΡΡΠΎΡΡ, ΠΊΠ°ΠΊ ΠΈ ΡΡΠ΅Π½ΠΊΠΈ ΠΊΡΠΏΠ΅Π»ΠΈ — ΡΠ°ΠΊ Π±ΡΠ΄Π΅Ρ ΡΠ΄ΠΎΠ±Π½Π΅Π΅ ΠΌΠΎΠ½ΡΠΈΡΠΎΠ²Π°ΡΡ Π΄ΠΎΡΠΊΠΈ Π½Π° ΠΊΡΠ°ΠΉ Π΄ΠΎΠ½Π½ΠΎΠ³ΠΎ ΡΠΈΡΠ°.
- ΠΠ½Π°ΡΠ°Π»Π΅ Π΄Π΅Π»Π°Π΅ΡΡΡ ΠΏΡΠΈΠΌΠ΅ΡΠΊΠ° — Π½Π° ΠΊΡΠ°ΠΉ ΡΠΈΡΠ° ΠΏΠ»ΠΎΡΠ½ΠΎ ΡΡΡΠ°Π½Π°Π²Π»ΠΈΠ²Π°Π΅ΡΡΡ ΠΎΠ΄Π½Π° ΠΈΠ· ΠΏΠΎΠ΄Π³ΠΎΡΠΎΠ²Π»Π΅Π½Π½ΡΡ Π΄ΠΎΡΠΎΠΊ. ΠΠ΅ Π½Π°Π΄Π΅Π²Π°ΡΡ ΠΊΠ²Π°Π΄ΡΠ°ΡΠ½ΡΠΌ ΠΏΠ°Π·ΠΎΠΌ Π½Π° ΡΠΈΡ ΠΈ ΠΏΡΠΈΡΡΡΠΊΠΈΠ²Π°ΡΡ Π΄ΠΎ ΡΠΏΠΎΡΠ° ΡΠ΅Π·ΠΈΠ½ΠΎΠ²ΡΠΌ ΠΌΠΎΠ»ΠΎΡΠΊΠΎΠΌ.

ΠΠ΅ΡΠ²Π°Ρ Π΄ΠΎΡΠΊΠ°
- ΠΠ°Π»Π΅Π΅, ΠΏΠΎ ΡΡΡΠ°Π½ΠΎΠ²Π»Π΅Π½Π½ΠΎΠΉ ΠΏΠ΅ΡΠ²ΠΎΠΉ Π΄ΠΎΡΠΊΠ΅ Π΄Π΅Π»Π°ΡΡ ΠΎΡΠΌΠ΅ΡΠΊΡ ΠΊΠ°ΡΠ°Π½Π΄Π°ΡΠΎΠΌ, Π° Π·Π°ΡΠ΅ΠΌ ΠΏΠΎ Π²ΡΠ΅ΠΌΡ ΠΊΡΠ°Ρ ΡΠΈΡΠ° ΠΏΡΠΎΠ΄Π»Π΅Π²Π°ΡΡ ΠΏΠΎΠ»ΡΡΠ΅Π½Π½ΡΡ Π»ΠΈΠ½ΠΈΡ. ΠΠ½Π° ΡΡΠ°Π½Π΅Ρ ΠΎΡΠΈΠ΅Π½ΡΠΈΡΠΎΠΌ Π΄Π»Ρ ΡΡΡΠ°Π½ΠΎΠ²ΠΊΠΈ ΠΎΡΡΠ°Π»ΡΠ½ΡΡ Π΄ΠΎΡΠΎΠΊ.
ΠΡΠ΅Π½Ρ Π²Π°ΠΆΠ½ΠΎ ΠΏΡΠ°Π²ΠΈΠ»ΡΠ½ΠΎ ΡΡΡΠ°Π½ΠΎΠ²ΠΈΡΡ Π΄ΠΎΡΠΊΠΈ Π½Π° ΠΏΠΎΠ»ΡΠΊΡΡΠ³Π»ΡΡ ΠΏΠΎΠ²ΠΎΡΠΎΡΠ°Ρ , ΡΠΎΠ±Π»ΡΠ΄Π°Ρ ΠΏΡΠΈ ΡΡΠΎΠΌ ΡΠ³ΠΎΠ», ΠΊΠΎΡΠΎΡΡΠΉ Π΄ΠΎΠ»ΠΆΠ΅Π½ Π±ΡΡΡ ΠΎΠΏΡΠ΅Π΄Π΅Π»Π΅Π½ Π·Π°ΡΠ°Π½Π΅Π΅ ΠΈ ΠΎΡΠΌΠ΅ΡΠ΅Π½ Π² ΡΠ΅ΡΡΠ΅ΠΆΠ΅ ΠΊΡΠΏΠ΅Π»ΠΈ.

ΠΠΎΡΠ»Π΅Π΄ΠΎΠ²Π°ΡΠ΅Π»ΡΠ½ΡΠΉ ΠΌΠΎΠ½ΡΠ°ΠΆ ΡΡΠ΅Π½ΠΎΠΊ ΠΊΡΠΏΠ΅Π»ΠΈ
- ΠΠΎΡΠΊΠΈ ΡΡΡΠ°Π½Π°Π²Π»ΠΈΠ²Π°ΡΡΡΡ ΠΌΠ°ΠΊΡΠΈΠΌΠ°Π»ΡΠ½ΠΎ ΠΏΠ»ΠΎΡΠ½ΠΎ Π΄ΡΡΠ³ ΠΊ Π΄ΡΡΠ³Ρ ΠΈ ΡΠ°ΠΊΠΆΠ΅ ΠΏΠΎΠ΄Π±ΠΈΠ²Π°ΡΡΡΡ ΡΠ΅Π·ΠΈΠ½ΠΎΠ²ΡΠΌ ΠΌΠΎΠ»ΠΎΡΠΊΠΎΠΌ.

ΠΠΎΡΡΠΈ Π²ΡΠ΅ β ΠΎΡΡΠ°Π»Π°ΡΡ ΠΏΠΎΡΠ»Π΅Π΄Π½ΡΡ Π΄ΠΎΡΠΊΠ° β¦
- ΠΠΎΡΠ»Π΅Π΄Π½ΡΡ Π΄ΠΎΡΠΊΡ Π½Π°ΡΠΈΠ½Π°ΡΡ ΠΌΠΎΠ½ΡΠΈΡΠΎΠ²Π°ΡΡ ΡΠ²Π΅ΡΡ Ρ, ΠΌΠ΅ΠΆΠ΄Ρ Π΄Π²ΡΡ ΡΠΆΠ΅ ΡΡΡΠ°Π½ΠΎΠ²Π»Π΅Π½Π½ΡΡ ΡΠ»Π΅ΠΌΠ΅Π½ΡΠΎΠ². ΠΠ½Π° Π°ΠΊΠΊΡΡΠ°ΡΠ½ΠΎ Π²Π±ΠΈΠ²Π°Π΅ΡΡΡ Π² ΠΎΠ±ΡΠΈΠΉ ΡΡΠ΄. ΠΡΠΈ ΡΡΠΎΠΌ ΡΠΎΡΠ΅Π΄Π½ΠΈΠ΅ Π΄ΠΎΡΠΊΠΈ ΠΌΠΎΠ³ΡΡ Π΄Π°ΠΆΠ΅ Π½Π΅ΠΌΠ½ΠΎΠ³ΠΎ ΠΎΡΠΎΠΉΡΠΈ ΠΎΡ ΠΏΠΎΠ²Π΅ΡΡ Π½ΠΎΡΡΠΈ Π΄Π½Π°.

β¦ ΠΊΠΎΡΠΎΡΡΡ ΠΏΠΎΡΠΈΡ ΠΎΠ½ΡΠΊΡ Π·Π°Π±ΠΈΠ²Π°ΡΡ ΡΠ²Π΅ΡΡ Ρ Π² ΠΎΡΡΠ°Π²ΡΠΈΠΉΡΡ Π΄Π»Ρ Π½Π΅Π΅ ΠΏΡΠΎΡΠ²Π΅Ρ
ΠΠ΅ ΡΡΡΠ°ΡΠ½ΠΎ — ΠΏΠΎΡΠ»Π΅ ΡΠΎΠ³ΠΎ, ΠΊΠ°ΠΊ ΠΏΠΎΡΠ»Π΅Π΄Π½ΡΡ Π΄Π΅ΡΠ°Π»Ρ Π±ΡΠ΄Π΅Ρ ΠΏΡΠΎΠ΄Π²ΠΈΠ½ΡΡΠ° Π½Π° ΠΎΠ΄ΠΈΠ½ ΡΡΠΎΠ²Π΅Π½Ρ Ρ ΠΎΡΡΠ°Π»ΡΠ½ΡΠΌΠΈ ΡΠ»Π΅ΠΌΠ΅Π½ΡΠ°ΠΌΠΈ ΡΡΠ΅Π½ΠΎΠΊ, Π΅Π΅ ΠΈ ΡΡΠ΄ΠΎΠΌ ΡΡΠΎΡΡΠΈΠ΅ Π΄ΠΎΡΠΊΠΈ ΠΏΠΎΠ΄Π±ΠΈΠ²Π°ΡΡ ΡΠ±ΠΎΠΊΡ Π΄Π»Ρ ΡΠΎΠ³ΠΎ, ΡΡΠΎΠ±Ρ ΠΎΠ½ΠΈ ΠΏΠ»ΠΎΡΠ½ΠΎ ΡΠ΅Π»ΠΈ ΡΠ²ΠΎΠΈΠΌΠΈ ΠΏΠ°Π·Π°ΠΌΠΈ Π½Π° Π΄ΠΎΠ½Π½ΡΡ ΠΏΠ»ΠΎΡΠΊΠΎΡΡΡ.
- Π‘Π»Π΅Π΄ΡΡΡΠΈΠΌ ΡΡΠ°ΠΏΠΎΠΌ ΡΠΎΠ±ΡΠ°Π½Π½ΡΡ ΠΊΡΠΏΠ΅Π»Ρ Π½ΡΠΆΠ½ΠΎ ΡΡΡΠ½ΡΡΡ ΠΌΠ΅ΡΠ°Π»Π»ΠΈΡΠ΅ΡΠΊΠΈΠΌΠΈ ΠΏΠΎΠ»ΠΎΡΠ°ΠΌΠΈ. Π Π½ΠΈΡ ΠΏΠΎ ΠΊΡΠ°ΡΠΌ ΡΠ΄Π΅Π»Π°Π½Ρ ΡΠΏΠ΅ΡΠΈΠ°Π»ΡΠ½ΡΠ΅ ΡΡΠΊΠΈ, Π² ΠΊΠΎΡΠΎΡΡΠ΅ Π±ΡΠ΄Π΅Ρ ΡΡΡΠ°Π½Π°Π²Π»ΠΈΠ²Π°ΡΡΡΡ ΡΡΡΠ³ΠΈΠ²Π°ΡΡΠΈΠΉ Π±ΠΎΠ»Ρ. ΠΠΎΡΠ»Π΅ ΡΡΡΠ°Π½ΠΎΠ²ΠΊΠΈ Π±ΠΎΠ»ΡΠ°, Π½Π° Π΅Π³ΠΎ ΡΠ΅Π·ΡΠ±Ρ Π½Π°ΠΆΠΈΠ²Π»ΡΠ΅ΡΡΡ Π³Π°ΠΉΠΊΠ°, ΠΏΠΎΠ²ΠΎΡΠ°ΡΠΈΠ²Π°Ρ ΠΊΠΎΡΠΎΡΡΡ ΡΡΡΠ³ΠΈΠ²Π°ΡΡ ΠΌΠ΅ΡΠ°Π»Π»ΠΈΡΠ΅ΡΠΊΠΈΠΉ ΠΎΠ±ΡΡΡ, ΡΠ΅ΠΌ ΡΠ°ΠΌΡΠΌ ΠΏΡΠΈΠΆΠΈΠΌΠ°Ρ Π΄ΠΎΡΠΊΠΈ ΠΌΠ°ΠΊΡΠΈΠΌΠ°Π»ΡΠ½ΠΎ ΠΏΠ»ΠΎΡΠ½ΠΎ Π΄ΡΡΠ³ ΠΊ Π΄ΡΡΠ³Ρ.

Π‘ΠΊΡΠ΅ΠΏΠ»Π΅Π½ΠΈΠ΅ ΠΊΠΎΠ½ΡΡΡΡΠΊΡΠΈΠΈ ΠΊΡΠΏΠ΅Π»ΠΈ ΠΌΠ΅ΡΠ°Π»Π»ΠΈΡΠ΅ΡΠΊΠΈΠΌΠΈ ΠΎΠ±ΡΡΡΠ°ΠΌΠΈ
Π’Π°ΠΊΠΈΡ ΠΏΠΎΠ»ΠΎΡ-ΠΎΠ±ΡΡΡΠ΅ΠΉ Π΄ΠΎΠ»ΠΆΠ½ΠΎ Π±ΡΡΡ, ΠΊΠ°ΠΊ ΠΌΠΈΠ½ΠΈΠΌΡΠΌ, ΡΡΠΈ. ΠΡ ΡΠ°ΡΠΏΠΎΠ»Π°Π³Π°ΡΡ Π² Π½ΠΈΠΆΠ½Π΅ΠΉ ΠΈ ΡΡΠ΅Π΄Π½Π΅ΠΉ ΡΠ°ΡΡΠΈ ΠΊΡΠΏΠ΅Π»ΠΈ, Π° ΡΠ°ΠΊΠΆΠ΅ Π½Π° ΡΠ°ΡΡΡΠΎΡΠ½ΠΈΠΈ 100 Γ· 250 ΠΌΠΌ ΠΎΡ Π²Π΅ΡΡ Π° ΠΊΠΎΠ½ΡΡΡΡΠΊΡΠΈΠΈ.

ΠΠΎΡΠΎΠ²Π°Ρ ΠΊΡΠΏΠ΅Π»Ρ ΠΏΠΎΠ΄Π²Π΅ΡΠ³Π°Π΅ΡΡΡ ΠΎΡΠ΅Π½Ρ ΡΡΠ°ΡΠ΅Π»ΡΠ½ΠΎΠΉ Π·Π°ΡΠΈΡΡΠΊΠ΅
- ΠΠΎΡΠ»Π΅ ΡΡΠΎΠ³ΠΎ ΠΊΡΠΏΠ΅Π»Ρ ΠΏΠ΅ΡΠ΅Π²ΠΎΡΠ°ΡΠΈΠ²Π°Π΅ΡΡΡ ΠΈ ΡΡΡΠ°Π½Π°Π²Π»ΠΈΠ²Π°Π΅ΡΡΡ Π½Π° Π΄ΠΎΠ½Π½ΡΡ ΡΠ°ΡΡΡ. Π‘Π²Π΅ΡΡ Ρ Π²ΡΠ΅ Π΄Π΅ΡΠ°Π»ΠΈ ΠΎΠ±ΡΠ°Π±Π°ΡΡΠ²Π°ΡΡΡΡ ΠΌΠ΅Π»ΠΊΠΎΠ·Π΅ΡΠ½ΠΈΡΡΠΎΠΉ Π½Π°ΠΆΠ΄Π°ΡΠ½ΠΎΠΉ Π±ΡΠΌΠ°Π³ΠΎΠΉ, Π° Π·Π°ΡΠ΅ΠΌ ΡΠ»ΠΈΡΡΡΡΡΡ Π΄ΠΎ ΠΈΠ΄Π΅Π°Π»ΡΠ½ΠΎΠΉ Π³Π»Π°Π΄ΠΊΠΎΡΡΠΈ, ΡΡΠΎΠ±Ρ Π°Π±ΡΠΎΠ»ΡΡΠ½ΠΎ ΠΈΡΠΊΠ»ΡΡΠΈΡΡ Π²ΠΎΠ·ΠΌΠΎΠΆΠ½ΠΎΡΡΡ ΡΡΠ°Π²ΠΌ ΠΊΠΎΠΆΠΈ.
- Π‘Π»Π΅Π΄ΡΡΡΠΈΠΉ ΡΡΠ°ΠΏ β ΡΡΠΎ ΠΈΠ·Π³ΠΎΡΠΎΠ²Π»Π΅Π½ΠΈΠ΅ ΠΏΡΠΈΡΡΠ°Π²Π½ΠΎΠΉ Π»Π΅ΡΡΠ½ΠΈΡΡ. Π‘Π°ΠΌΡΠΉ ΠΏΡΠΎΡΡΠΎΠΉ Π²Π°ΡΠΈΠ°Π½Ρ ΡΠΎΡΡΠΎΠΈΡ ΠΈΠ· Π΄Π²ΡΡ Ρ ΠΎΡΠΎΡΠΎ ΠΎΠ±ΡΠ°Π±ΠΎΡΠ°Π½Π½ΡΡ Π΄ΠΎΡΠΎΠΊ, ΡΡΡΠ°Π½Π°Π²Π»ΠΈΠ²Π°Π΅ΠΌΡΡ Π²Π΅ΡΡΠΈΠΊΠ°Π»ΡΠ½ΠΎ, ΠΈ Π³ΠΎΡΠΈΠ·ΠΎΠ½ΡΠ°Π»ΡΠ½ΡΡ ΡΡΡΠΏΠ΅Π½Π΅ΠΉ-ΠΏΠ΅ΡΠ΅ΠΊΠ»Π°Π΄ΠΈΠ½. ΠΠ΅Π»Π°ΡΠ΅Π»ΡΠ½ΠΎ Π½Π° Π²Π΅ΡΡ Π½ΡΡ ΡΠ°ΡΡΡ Π»Π΅ΡΡΠ½ΠΈΡΡ ΡΡΡΠ°Π½ΠΎΠ²ΠΈΡΡ ΠΊΡΡΡΠΊΠΈ ΠΈΠ»ΠΈ Π·Π°ΠΊΡΠ΅ΠΏΠΈΡΡ ΡΠ·Π°Π΄ΠΈ ΠΎΠΏΠΎΡΠ½ΡΡ Π΄ΠΎΡΠΎΠΊ Π΄Π΅ΡΠ΅Π²ΡΠ½Π½ΡΠ΅ ΠΏΠΎΠ΄ΠΏΠΎΡΠΊΠΈ.

ΠΡΠΈ ΠΈΠ·Π³ΠΎΡΠΎΠ²Π»Π΅Π½ΠΈΠΈ Π»Π΅ΡΡΠ½ΠΈΡΡ ΠΌΠΎΠΆΠ½ΠΎ ΠΏΡΠΎΡΠ²ΠΈΡΡ ΡΠΎΠ±ΡΡΠ²Π΅Π½Π½ΡΡ ΡΠ°Π½ΡΠ°Π·ΠΈΡ
- ΠΠ½ΡΡΡΠΈ ΠΊΡΠΏΠ΅Π»ΠΈ ΡΡΡΠ°Π½Π°Π²Π»ΠΈΠ²Π°ΡΡΡΡ Π³ΠΎΡΠΎΠ²ΡΠ΅ Π΄Π΅ΡΠ΅Π²ΡΠ½Π½ΡΠ΅ ΡΠΈΠ΄Π΅Π½ΡΡ, Π° ΠΏΡΠΈ ΠΆΠ΅Π»Π°Π½ΠΈΠΈ Π½Π° Π±ΠΎΠΊΠΎΠ²ΡΡ Π²Π½Π΅ΡΠ½ΡΡ ΡΡΠ΅Π½ΠΊΡ Π΅ΠΌΠΊΠΎΡΡΠΈ ΠΌΠΎΠΆΠ½ΠΎ Π·Π°ΠΊΡΠ΅ΠΏΠΈΡΡ ΠΏΠΎΠ»ΠΊΡ-ΡΡΠΎΠ»ΠΈΠΊ.
ΠΡΠΎΠΌΠ΅ ΡΡΠΎΠ³ΠΎ, Π² Π³ΠΎΡΠΎΠ²ΡΡ ΠΊΡΠΏΠ΅Π»Ρ Π½Π΅ΡΠ΅Π΄ΠΊΠΎ ΡΡΡΠ°Π½Π°Π²Π»ΠΈΠ²Π°ΡΡ ΡΠΈΡΡΠ΅ΠΌΡ ΠΏΠΎΠ΄Π°ΡΠΈ Π²ΠΎΠ΄Ρ, Π΅Π΅ ΡΠΈΠ»ΡΡΡΠ°ΡΠΈΠΈ, ΠΏΠΎΠ΄ΠΎΠ³ΡΠ΅Π²Π° ΠΈΠ»ΠΈ ΠΏΡΠΈΠ½ΡΠ΄ΠΈΡΠ΅Π»ΡΠ½ΠΎΠΉ ΡΠΈΡΠΊΡΠ»ΡΡΠΈΠΈ Π΄Π»Ρ ΡΠΎΠ·Π΄Π°Π½ΠΈΡ ΠΌΠ°ΡΡΠ°ΠΆΠ½ΡΡ ΡΡΡΡΠΉ β ΠΏΠΎ ΡΠΈΠΏΡ Π΄ΠΆΠ°ΠΊΡΠ·ΠΈ. ΠΠΎ ΡΡΠΎ ΡΠΆΠ΅ β Π·Π°Π΄Π°ΡΠΈ Π΄ΡΡΠ³ΠΎΠ³ΠΎ ΡΡΠΎΠ²Π½Ρ ΡΠ»ΠΎΠΆΠ½ΠΎΡΡΠΈ, ΠΌΠΈ Π² Π½Π°ΡΡΠΎΡΡΠ΅ΠΉ ΡΡΠ°ΡΡΠ΅ Π½Π΅ ΡΠ°ΡΡΠΌΠ°ΡΡΠΈΠ²Π°ΡΡΡΡ.
- ΠΠΎΡΠ»Π΅Π΄Π½ΠΈΠΌ ΡΡΠ°ΠΏΠΎΠΌ, ΠΏΠΎΡΠ»Π΅ ΡΡΡΠ°Π½ΠΎΠ²ΠΊΠΈ ΠΊΡΠΏΠ΅Π»ΠΈ Π² ΠΏΠΎΠΌΠ΅ΡΠ΅Π½ΠΈΠΈ ΠΈΠ»ΠΈ Π½Π° ΡΠ»ΠΈΡΠ΅ Π½Π° ΡΠ²ΠΎΠ΅ ΡΡΠ°ΡΠ½ΠΎΠ΅ ΠΌΠ΅ΡΡΠΎ, ΡΠ»Π°Π½Π³ Π΄Π»Ρ ΠΎΡΠ²ΠΎΠ΄Π° Π²ΠΎΠ΄Ρ ΡΠΎΠ΅Π΄ΠΈΠ½ΡΠ΅ΡΡΡ Ρ ΡΡΡΠ±ΠΎΠΉ ΠΊΠ°Π½Π°Π»ΠΈΠ·Π°ΡΠΈΠΈ.
ΠΠΈΠ΄Π΅ΠΎ: ΡΠ°Π±ΠΎΡΠ° ΠΌΠ°ΡΡΠ΅ΡΠ° ΠΏΠΎ ΠΈΠ·Π³ΠΎΡΠΎΠ²Π»Π΅Π½ΠΈΡ Π΄Π΅ΡΠ΅Π²ΡΠ½Π½ΠΎΠΉ ΠΊΡΠΏΠ΅Π»ΠΈ
ΠΠΎΠ½ΡΠ°ΠΆ ΡΠΏΠΎΠ½ΡΠΊΠΎΠΉ Π±Π°Π½ΠΈ ΠΎΡΡΡΠΎ ΠΏΡΠΎΠ²ΠΎΠ΄ΠΈΡΡΡ ΠΏΡΠ°ΠΊΡΠΈΡΠ΅ΡΠΊΠΈ ΡΠ°ΠΊΠΈΠΌ ΠΆΠ΅ ΠΎΠ±ΡΠ°Π·ΠΎΠΌ. ΠΠ΄Π½Π°ΠΊΠΎ, Π΅ΡΡΡ ΠΈ Ρ Π°ΡΠ°ΠΊΡΠ΅ΡΠ½Π°Ρ ΠΎΡΠΎΠ±Π΅Π½Π½ΠΎΡΡΡ — Π΄ΠΎΠΏΠΎΠ»Π½ΠΈΡΠ΅Π»ΡΠ½ΠΎ Π² ΠΊΡΠΏΠ΅Π»ΠΈ Π΄ΠΎΠ»ΠΆΠ½Π° Π±ΡΡΡ Π΅ΡΠ΅ ΠΈ Π΄Π΅ΡΠ΅Π²ΡΠ½Π½Π°Ρ ΡΠ΅ΡΠ΅ΡΠΊΠ°, ΠΊΠΎΡΠΎΡΠ°Ρ Π΄ΠΎΠ»ΠΆΠ½Π° ΠΎΡΠ΄Π΅Π»ΠΈΡΡ ΡΠ°ΡΡΡ ΠΏΡΠΎΡΡΡΠ°Π½ΡΡΠ²Π° Π΄Π»Ρ ΡΠΏΠ΅ΡΠΈΠ°Π»ΡΠ½ΠΎΠΉ ΠΏΠ΅ΡΠΈ, ΡΡΡΠ°Π½Π°Π²Π»ΠΈΠ²Π°Π΅ΠΌΠΎΠΉ Π½Π΅ΠΏΠΎΡΡΠ΅Π΄ΡΡΠ²Π΅Π½Π½ΠΎ Π² Π²ΠΎΠ΄Ρ.

ΠΠ°ΡΠΈΠ°Π½Ρ ΠΎΡΡΡΠΎ Ρ ΡΠ°ΡΠΏΠΎΠ»ΠΎΠΆΠ΅Π½ΠΈΠ΅ΠΌ ΠΏΠ΅ΡΠΈ Π½Π΅ΠΏΠΎΡΡΠ΅Π΄ΡΡΠ²Π΅Π½Π½ΠΎ Π² ΠΊΡΠΏΠ΅Π»ΠΈ, Π² ΠΎΡΠ³ΠΎΡΠΎΠΆΠ΅Π½Π½ΠΎΠΌ ΡΠ΅ΡΠ΅ΡΠΊΠΎΠΉ ΠΏΡΠΎΡΡΡΠ°Π½ΡΡΠ²Π΅
ΠΠ΅ΡΡ ΠΈΠΌΠ΅Π΅Ρ ΡΠΏΠ΅ΡΠΈΠ°Π»ΡΠ½ΡΡ, Π°Π±ΡΠΎΠ»ΡΡΠ½ΠΎ Π³Π΅ΡΠΌΠ΅ΡΠΈΡΠ½ΡΡ ΠΊΠΎΠ½ΡΡΡΡΠΊΡΠΈΡ, Π²ΠΎ ΠΈΠ·Π±Π΅ΠΆΠ°Π½ΠΈΠ΅ ΠΏΠΎΠΏΠ°Π΄Π°Π½ΠΈΡ Π² Π΅Π΅ ΡΠΎΠΏΠΊΡ Π²ΠΎΠ΄Ρ. ΠΡΠΎΠ²Π° Π² ΡΠ°ΠΊΡΡ ΠΏΠ΅ΡΡ Π·Π°ΠΊΠ»Π°Π΄ΡΠ²Π°ΡΡΡΡ ΡΠ΅ΡΠ΅Π· Π²Π΅ΡΡ Π½Π΅Π΅ Π΅Π΅ ΠΎΡΠ΄Π΅Π»Π΅Π½ΠΈΠ΅, Π° ΠΏΠΎΠ΄Π΄ΡΠ² ΠΎΡΡΡΠ΅ΡΡΠ²Π»ΡΠ΅ΡΡΡ ΡΠ΅ΡΠ΅Π· ΠΎΡΠ²Π΅ΡΡΡΠΈΠ΅, ΠΊΠΎΡΠΎΡΠΎΠ΅ Π²ΡΠ²ΠΎΠ΄ΠΈΡΡΡ ΡΠ΅ΡΠ΅Π· ΡΡΠ΅Π½ΠΊΡ ΠΊΡΠΏΠ΅Π»ΠΈ Π½Π°ΡΡΠΆΡ.

ΠΡΠΏΠ΅Π»Ρ-ΠΎΡΡΡΠΎ Ρ Π²Π½Π΅ΡΠ½ΠΈΠΌ ΡΠ°ΡΠΏΠΎΠ»ΠΎΠΆΠ΅Π½ΠΈΠ΅ΠΌ ΠΏΠ΅ΡΠΊΠΈ
ΠΡΠΏΠΎΠ»ΡΠ·ΡΡΡ ΠΈ Π΄ΡΡΠ³ΠΎΠΉ Π²Π°ΡΠΈΠ°Π½Ρ ΡΡΡΠ°Π½ΠΎΠ²ΠΊΠΈ ΠΏΠ΅ΡΠΈ β Π² Π½Π΅ΠΏΠΎΡΡΠ΅Π΄ΡΡΠ²Π΅Π½Π½ΠΎΠΉ Π±Π»ΠΈΠ·ΠΎΡΡΠΈ ΠΎΡ ΠΊΡΠΏΠ΅Π»ΠΈ. ΠΠ΅ΡΡ Π² ΡΡΠΎΠΌ ΡΠ»ΡΡΠ°Π΅ ΠΎΠ±ΠΎΡΡΠ΄ΠΎΠ²Π°Π½Π° Π²ΠΎΠ΄ΡΠ½ΡΠΌ ΠΊΠΎΠ½ΡΡΡΠΎΠΌ, ΡΠ΅ΡΠ΅Π· ΠΊΠΎΡΠΎΡΡΠΉ ΡΠΈΡΠΊΡΠ»ΠΈΡΡΠ΅Ρ Π²ΠΎΠ΄Π°, Π½Π°Π³ΡΠ΅Π²Π°ΡΡΡ ΠΈ Π²ΠΎΠ·Π²ΡΠ°ΡΠ°ΡΡΡ ΠΎΠ±ΡΠ°ΡΠ½ΠΎ Π² ΠΊΡΠΏΠ΅Π»Ρ. ΠΡΠΎ Π½Π΅ΡΠΊΠΎΠ»ΡΠΊΠΎ ΠΎΡΠ»ΠΈΡΠ°Π΅ΡΡΡ ΠΎΡ ΡΠΏΠΎΠ½ΡΠΊΠΎΠΉ ΡΡΠ°Π΄ΠΈΡΠΈΠΈ, Π½ΠΎ ΡΠ΅ΠΌ Π½Π΅ ΠΌΠ΅Π½Π΅Π΅ ΡΡΡΠ΅ΠΊΡ Π΄Π°Π΅Ρ ΠΏΡΠ°ΠΊΡΠΈΡΠ΅ΡΠΊΠΈ ΡΠ°ΠΊΠΎΠΉ ΠΆΠ΅.
ΠΠ°Π½Ρ ΠΎΡΡΡΠΎ ΠΎΠ±ΡΡΠ½ΠΎ ΡΡΡΠ°Π½Π°Π²Π»ΠΈΠ²Π°ΡΡ Π½Π° ΡΠ»ΠΈΡΠ΅, ΠΆΠ΅Π»Π°ΡΠ΅Π»ΡΠ½ΠΎ — ΠΏΠΎΠ΄ Π½Π°Π²Π΅ΡΠΎΠΌ. Π ΡΠΎΠΌ ΡΠ»ΡΡΠ°Π΅, Π΅ΡΠ»ΠΈ Π΅Π΅ ΠΌΠΎΠ½ΡΠΈΡΡΡΡ Π² ΠΏΠΎΠΌΠ΅ΡΠ΅Π½ΠΈΠΈ, ΡΠΎ ΡΡΡΠ±Ρ ΠΎΡ ΠΏΠ΅ΡΠΈ ΠΏΠΎΠ΄ΠΊΠ»ΡΡΠ°ΡΡ ΠΊ Π΄ΡΠΌΠΎΡ ΠΎΠ΄Ρ ΠΈΠ»ΠΈ Π²ΡΠ²ΠΎΠ΄ΡΡ ΡΠ΅ΡΠ΅Π· ΡΡΠ΅Π½Ρ ΠΈΠ»ΠΈ ΠΊΡΡΡΡ.
ΠΠ°ΠΊ ΡΠ΄Π΅Π»Π°ΡΡ Π±Π΅ΡΠΎΠ½ΡΡ ΠΊΡΠΏΠ΅Π»Ρ
ΠΠ΅ΡΠΎΠ½Π½Π°Ρ ΠΊΡΠΏΠ΅Π»Ρ, ΠΏΠΎ ΡΡΡΠΈ, ΠΏΡΠ΅Π΄ΡΡΠ°Π²Π»ΡΠ΅Ρ ΡΠΎΠ±ΠΎΠΉ ΠΌΠΈΠ½ΠΈ-Π±Π°ΡΡΠ΅ΠΉΠ½, ΠΏΠΎΡΡΠΎΠΌΡ ΠΈ ΡΡΡΡΠ°ΠΈΠ²Π°ΡΡ Π΅Π΅ ΠΏΠΎ ΡΠΎΠΌΡ ΠΆΠ΅ ΠΏΡΠΈΠ½ΡΠΈΠΏΡ.

ΠΠ΅ΡΠΎΠ½Π½Π°Ρ ΠΊΡΠΏΠ΅Π»Ρ β ΡΡΠΎ, ΠΏΠΎ ΡΡΡΠΈ, ΠΌΠΈΠ½ΠΈΠ°ΡΡΡΠ½ΡΠΉ Π±Π°ΡΡΠ΅ΠΉΠ½
- Π‘ΡΡΠΎΠΈΡΠ΅Π»ΡΡΡΠ²ΠΎ ΡΠ°ΠΊΠΎΠΉ ΠΊΡΠΏΠ΅Π»ΠΈ β ΡΡΠΎ Π΄ΠΎΡΡΠ°ΡΠΎΡΠ½ΠΎ ΡΡΠΆΠ΅Π»ΡΠΉ ΡΡΡΠ΄, ΡΠ°ΠΊ ΠΊΠ°ΠΊ ΠΏΠ΅ΡΠ²ΠΎΠ΅, ΡΡΠΎ Π½Π΅ΠΎΠ±Ρ ΠΎΠ΄ΠΈΠΌΠΎ ΡΠ΄Π΅Π»Π°ΡΡ — Π²ΡΡΡΡΡ ΠΏΠΎΠ΄ Π½Π΅Π΅ ΠΊΠΎΡΠ»ΠΎΠ²Π°Π½. ΠΠ½ Π΄ΠΎΠ»ΠΆΠ΅Π½ ΠΈΠΌΠ΅ΡΡ Π³Π»ΡΠ±ΠΈΠ½Ρ ΡΡΡΡ ΠΌΠ΅Π½ΡΡΠ΅, ΡΠ΅ΠΌ ΡΠΎΡΡ ΡΡΠ΅Π΄Π½Π΅Π³ΠΎ ΡΠ΅Π»ΠΎΠ²Π΅ΠΊΠ°, ΡΠΎ Π΅ΡΡΡ ΠΏΡΠΈΠ±Π»ΠΈΠ·ΠΈΡΠ΅Π»ΡΠ½ΠΎ Π² 1500 Γ· 1600 ΠΌΠΌ, ΠΏΠ»ΡΡ 170 Γ· 200 ΠΌΠΌ Π΄Π»Ρ ΡΠΊΠ»Π°Π΄ΠΊΠΈ ΠΏΠ΅ΡΡΠ°Π½ΠΎΠΉ ΠΏΠΎΠ΄ΡΡΠΊΠΈ, Π°ΡΠΌΠΈΡΠΎΠ²Π°Π½ΠΈΡ ΠΈ Π·Π°Π»ΠΈΠ²ΠΊΠΈ ΡΠ΅ΠΌΠ΅Π½ΡΠ°. Π¨ΠΈΡΠΈΠ½Π° ΠΊΡΠΏΠ΅Π»ΠΈ Π΄Π΅Π»Π°Π΅ΡΡΡ ΠΏΠΎ ΠΆΠ΅Π»Π°Π½ΠΈΡ Π²Π»Π°Π΄Π΅Π»ΡΡΠ° Π±Π°Π½ΠΈ ΠΈ ΠΏΠΎ ΡΠ΅Π°Π»ΡΠ½ΠΎΠΉ Π²ΠΎΠ·ΠΌΠΎΠΆΠ½ΠΎΡΡΠΈ ΠΈΠΌΠ΅ΡΡΠ΅Π³ΠΎΡΡ ΠΏΡΠΎΡΡΡΠ°Π½ΡΡΠ²Π°.

ΠΡΠΊΠΎΠΏΠ°Π½Π½ΡΠΉ ΠΊΠΎΡΠ»ΠΎΠ²Π°Π½
- ΠΠΎΡΠ»ΠΎΠ²Π°Π½ ΠΏΠΎ Π΄Π»ΠΈΠ½Π΅ ΠΈ ΡΠΈΡΠΈΠ½Π΅ Π² ΠΊΠ°ΠΆΠ΄ΡΡ ΡΡΠΎΡΠΎΠ½Ρ (ΠΈΠ»ΠΈ ΠΏΠΎ ΡΠ°Π΄ΠΈΡΡΡ β Π΅ΡΠ»ΠΈ ΠΏΠ»Π°Π½ΠΈΡΡΠ΅ΡΡΡ ΠΊΡΡΠ³Π»Π°Ρ ΠΊΡΠΏΠ΅Π»Ρ) ΡΠΎΠ΅ΡΡΡ Π±ΠΎΠ»ΡΡΠ΅ Π²ΡΠ±ΡΠ°Π½Π½ΠΎΠ³ΠΎ ΡΠ°Π·ΠΌΠ΅ΡΠ° Π½Π° 150 Γ· 170 ΠΌΠΌ, ΡΠ°ΠΊ ΠΊΠ°ΠΊ ΠΈΠΌΠ΅Π½Π½ΠΎ ΡΠ°ΠΊΡΡ ΡΠΎΠ»ΡΠΈΠ½Ρ Π±ΡΠ΄ΡΡ ΠΈΠΌΠ΅ΡΡ Π±Π΅ΡΠΎΠ½Π½ΡΠ΅ ΡΡΠ΅Π½ΠΊΠΈ.
- ΠΡΠ»ΠΈ ΠΏΠ»Π°Π½ΠΈΡΡΠ΅ΡΡΡ Π½Π° Π΄Π½Π΅ Π±Π°ΡΡΠ΅ΠΉΠ½Π° ΡΠ΄Π΅Π»Π°ΡΡ ΡΡΠΎΠΊ Π΄Π»Ρ ΠΎΡΠ²ΠΎΠ΄Π° Π²ΠΎΠ΄Ρ, ΡΠΎ Π½Π΅ΠΎΠ±Ρ ΠΎΠ΄ΠΈΠΌΠΎ Π² ΡΡΠ΅Π½Π΅, ΡΠ°ΡΠΏΠΎΠ»ΠΎΠΆΠ΅Π½Π½ΠΎΠΉ Π±Π»ΠΈΠΆΠ΅ ΠΊ ΡΡΠΎΡΠ½ΠΎΠΉ ΡΠΌΠ΅, ΠΏΡΠΎΡΡΡΡ ΡΡΠ°Π½ΡΠ΅Ρ ΡΠ°ΠΊΠΎΠΉ ΠΆΠ΅ Π³Π»ΡΠ±ΠΈΠ½Ρ, ΡΡΠΎ ΠΈ ΠΊΠΎΡΠ»ΠΎΠ²Π°Π½, Π° Π·Π°ΡΠ΅ΠΌ ΠΏΡΠΎΠ»ΠΎΠΆΠΈΡΡ ΡΡΠ΄Π° Ρ Π½ΡΠΆΠ½ΡΠΌ ΡΠΊΠ»ΠΎΠ½ΠΎΠΌ ΠΎΡΠ²ΠΎΠ΄Π½ΡΡ ΡΡΡΠ±Ρ. ΠΠΎ ΠΎΠ±ΡΡΠ½ΠΎ Π² ΡΠ°ΠΊΠΎΠΉ ΠΊΡΠΏΠ΅Π»ΠΈ ΠΈΡΠΏΠΎΠ»ΡΠ·ΡΡΡ Π΄Π»Ρ ΠΎΡΠΊΠ°ΡΠΊΠΈ Π²ΠΎΠ΄Ρ Π½Π°ΡΠΎΡ.
- ΠΠΎΡΠ»Π΅ ΡΠΎΠ³ΠΎ, ΠΊΠ°ΠΊ ΠΊΠΎΡΠ»ΠΎΠ²Π°Π½ Π±ΡΠ΄Π΅Ρ Π³ΠΎΡΠΎΠ², Π½Π° Π΅Π³ΠΎ Π΄Π½ΠΎ Π·Π°ΡΡΠΏΠ°Π΅ΡΡΡ ΠΏΠ΅ΡΠΎΠΊ, ΠΊΠΎΡΠΎΡΡΠΉ ΠΎΠ±ΡΠ·Π°ΡΠ΅Π»ΡΠ½ΠΎ ΡΠ²Π»Π°ΠΆΠ½ΡΠ΅ΡΡΡ ΠΈ Ρ ΠΎΡΠΎΡΠΎ ΡΡΡΠ°ΠΌΠ±ΠΎΠ²ΡΠ²Π°Π΅ΡΡΡ. Π’ΠΎΠ»ΡΠΈΠ½Π° ΡΡΠΎΠΉ ΠΏΠ΅ΡΡΠ°Π½ΠΎΠΉ ΠΏΠΎΠ΄ΡΡΠΊΠΈ Π΄ΠΎΠ»ΠΆΠ½Π° ΡΠΎΡΡΠ°Π²Π»ΡΡΡ 80 Γ· 100 ΠΌΠΌ.

ΠΡΠΌΠΈΡΠΎΠ²Π°Π½ΠΈΠ΅ ΡΡΠ΅Π½ΠΎΠΊ ΠΈ Π΄Π½Π°
- ΠΠ°Π»Π΅Π΅, Π½Π° Π΄Π½ΠΎ ΠΈ ΡΡΠ΅Π½Ρ Π·Π°ΠΊΡΠ΅ΠΏΠ»ΡΠ΅ΡΡΡ Π°ΡΠΌΠ°ΡΡΡΠ½Π°Ρ ΡΠ΅ΡΠ΅ΡΠΊΠ° ΠΈΠ· ΠΏΡΡΡΠ° Π΄ΠΈΠ°ΠΌΠ΅ΡΡΠΎΠΌ 8 Γ· 10 ΠΌΠΌ. Π ΡΡΠ΅Π½Π°ΠΌ Π΅Π΅ Π·Π°ΠΊΡΠ΅ΠΏΠ»ΡΡΡ Ρ ΠΏΠΎΠΌΠΎΡΡΡ ΡΠΊΠΎΠ±ΠΎΠΊ, ΠΈΠ·Π³ΠΎΡΠΎΠ²Π»Π΅Π½Π½ΡΡ ΠΈΠ· ΠΏΡΠΎΠ²ΠΎΠ»ΠΎΠΊΠΈ Π² 5 ΠΌΠΌ. ΠΡΠΈ ΡΡΠΎΠΌ Π½ΡΠΆΠ½ΠΎ ΠΏΠΎΠΌΠ½ΠΈΡΡ, ΡΡΠΎ ΡΠ΅ΡΠ΅ΡΠΊΠ° Π΄ΠΎΠ»ΠΆΠ½Π° ΡΠ°ΡΠΏΠΎΠ»Π°Π³Π°ΡΡΡΡ Π½Π° ΡΠ°ΡΡΡΠΎΡΠ½ΠΈΠΈ Π² 50 Γ· 70 ΠΌΠΌ ΠΎΡ Π³ΡΡΠ½ΡΠΎΠ²ΡΡ ΡΡΠ΅Π½ΠΎΠΊ.
- ΠΠ»Ρ Π·Π°Π»ΠΈΠ²ΠΊΠΈ ΡΠΎΠ²Π½ΡΡ ΡΡΠ΅Π½ Π²Π΅ΡΡΠΈΠΊΠ°Π»ΡΠ½ΠΎ ΡΡΡΠ°Π½Π°Π²Π»ΠΈΠ²Π°Π΅ΡΡΡ ΡΠΏΠ»ΠΎΡΠ½Π°Ρ ΠΎΠΏΠ°Π»ΡΠ±ΠΊΠ° ΠΈΠ· ΡΠ°Π½Π΅ΡΡ, ΠΊΠΎΡΠΎΡΠ°Ρ Π΄ΠΎΠΏΠΎΠ»Π½ΠΈΡΠ΅Π»ΡΠ½ΠΎ ΡΠΊΡΠ΅ΠΏΠ»ΡΠ΅ΡΡΡ Π±ΡΡΡΠΊΠ°ΠΌΠΈ ΠΈ ΡΠ°ΡΠΏΠΎΡΠ½ΡΠΌΠΈ ΡΠ³ΠΎΠ»ΠΊΠ°ΠΌΠΈ.
ΠΠΏΠ°Π»ΡΠ±ΠΊΡ ΡΡΡΠ°Π½Π°Π²Π»ΠΈΠ²Π°ΡΡ ΠΏΠΎ ΡΡΠΎΠ²Π½Ρ, Π½Π° ΡΠ°ΡΡΡΠΎΡΠ½ΠΈΠΈ Π² 150 Γ· 170 ΠΌΠΌ ΠΎΡ Π·Π΅ΠΌΠ»ΡΠ½ΡΡ ΡΡΠ΅Π½. ΠΠ½Π° ΠΎΠ±ΡΡΠ½ΠΎ ΠΏΠΎΠ΄Π½ΠΈΠΌΠ°Π΅ΡΡΡ Π½Π° 120 Γ· 150 ΠΌΠΌ Π½Π°Π΄ ΠΏΠΎΠ²Π΅ΡΡ Π½ΠΎΡΡΡΡ ΠΏΠΎΠ»Π° — Π΄Π»Ρ ΡΠΎΠ·Π΄Π°Π½ΠΈΡ Π±ΠΎΡΡΠΈΠΊΠΎΠ², ΠΊΠΎΡΠΎΡΡΠ΅ Π½Π΅ ΠΏΠΎΠ·Π²ΠΎΠ»ΡΡ Π²ΠΎΠ΄Π΅ ΡΠ°Π·Π»ΠΈΠ²Π°ΡΡΡΡ ΠΏΠΎ ΠΏΠΎΠ²Π΅ΡΡ Π½ΠΎΡΡΠΈ.

Π£ΡΡΠ°Π½ΠΎΠ²Π»Π΅Π½Π½Π°Ρ ΠΎΠΏΠ°Π»ΡΠ±ΠΊΠ° ΠΈΠ· Π»ΠΈΡΡΠΎΠ² ΠΠ‘Π
ΠΠΎΠΏΠΎΠ»Π½ΠΈΡΠ΅Π»ΡΠ½ΠΎ ΡΠ°Π½Π΅ΡΠ½ΡΠ΅ ΡΡΠ΅Π½Ρ ΠΎΠΏΠ°Π»ΡΠ±ΠΊΠΈ ΡΠ°ΡΠΏΠΈΡΠ°ΡΡ Π±ΡΡΡΠΊΠ°ΠΌΠΈ, ΠΊΠΎΡΠΎΡΡΠ΅ Π½Π΅ ΠΏΠΎΠ·Π²ΠΎΠ»ΡΡ ΠΈΠΌ ΠΏΡΠΎΠ³Π½ΡΡΡΡΡ ΠΏΠΎΠ΄ ΡΡΠΆΠ΅ΡΡΡΡ Π·Π°Π»ΠΈΡΠΎΠ³ΠΎ ΡΠ°ΡΡΠ²ΠΎΡΠ°.
- Π ΡΡΡΡΠΎΠ΅Π½Π½ΡΡ ΠΎΠΏΠ°Π»ΡΠ±ΠΊΡ Π·Π°Π»ΠΈΠ²Π°Π΅ΡΡΡ ΡΠ°ΡΡΠ²ΠΎΡ, ΠΊΠΎΡΠΎΡΡΠΉ ΠΏΠΎ ΠΌΠ΅ΡΠ΅ Π·Π°ΡΡΡΠ²Π°Π½ΠΈΡ ΠΎΠ±ΡΠ°Π·ΡΠ΅Ρ Π½Π°Π΄Π΅ΠΆΠ½ΡΠ΅ Π±Π΅ΡΠΎΠ½Π½ΡΠ΅ ΡΡΠ΅Π½Ρ ΠΊΡΠΏΠ΅Π»ΠΈ.
ΠΠΎΠ²Π΅ΡΡ Π½ΠΎΡΡΡ Π±ΠΎΡΡΠΈΠΊΠΎΠ² Ρ ΠΎΡΠΎΡΠΎ Π²ΡΡΠ°Π²Π½ΠΈΠ²Π°Π΅ΡΡΡ, ΠΈ Π²ΡΡ ΠΊΠΎΠ½ΡΡΡΡΠΊΡΠΈΡ ΠΎΡΡΠ°Π²Π»ΡΠ΅ΡΡΡ Π·Π°ΡΡΡΠ²Π°ΡΡ, Π΄Π»Ρ ΡΠ΅Π³ΠΎ ΠΏΠΎΠ½Π°Π΄ΠΎΠ±ΠΈΡΡΡ ΠΎΠΊΠΎΠ»ΠΎ 25 Γ· 28 Π΄Π½Π΅ΠΉ.

Π‘ΡΠ΅Π½ΠΊΠΈ ΠΊΡΠΏΠ΅Π»ΠΈ Π·Π°Π»ΠΈΡΡ ΠΈ ΠΆΠ΄ΡΡ Π½Π°Π±ΠΎΡΠ° ΠΏΡΠΎΡΠ½ΠΎΡΡΠΈ
- ΠΠΎΡΠ»Π΅ Π½Π°Π±ΠΎΡΠ° Π±Π΅ΡΠΎΠ½ΠΎΠΌ Π½Π΅ΠΎΠ±Ρ ΠΎΠ΄ΠΈΠΌΠΎΠΉ ΠΏΡΠΎΡΠ½ΠΎΡΡΠΈ, Π½ΡΠΆΠ½ΠΎ ΡΠ½ΡΡΡ ΠΎΠΏΠ°Π»ΡΠ±ΠΊΡ ΠΈ ΡΠ΄Π΅Π»Π°ΡΡ ΡΡΡΠΆΠΊΡ Π½Π° ΠΏΠΎΠ»Ρ ΠΊΡΠΏΠ΅Π»ΠΈ. ΠΠ½Π° Π΄ΠΎΠ»ΠΆΠ½Π° ΠΈΠΌΠ΅ΡΡ ΠΎΠ±ΡΡΡ ΡΠΎΠ»ΡΠΈΠ½Ρ Π² 60 Γ· 80 ΠΌΠΌ.
- ΠΠ°Π»Π΅Π΅, ΠΏΠΎΡΠ»Π΅ ΡΠΎΠ³ΠΎ ΠΊΠ°ΠΊ ΠΏΠΎΠ» Π±ΡΠ΄Π΅Ρ Π³ΠΎΡΠΎΠ², ΠΌΠΎΠΆΠ½ΠΎ ΠΏΡΠΈΡΡΡΠΏΠΈΡΡ ΠΊ Π²ΡΡΠ°Π²Π½ΠΈΠ²Π°Π½ΠΈΡ ΡΡΠ΅Π½ Ρ ΠΏΠΎΠΌΠΎΡΡΡ ΡΡΡΠΊΠ°ΡΡΡΠ½ΡΡ ΡΠΌΠ΅ΡΠ΅ΠΉ. Π¨ΡΡΠΊΠ°ΡΡΡΠΊΠ° Π½Π°ΠΊΠ»Π°Π΄ΡΠ²Π°Π΅ΡΡΡ ΡΠ°ΠΊΠΈΠΌ ΡΠ»ΠΎΠ΅ΠΌ, ΡΡΠΎΠ±Ρ Π½Π°Π΄Π΅ΠΆΠ½ΠΎ Π·Π°ΠΏΠΎΠ»Π½ΠΈΡΡ Π²ΡΠ΅ Π²ΠΎΠ·ΠΌΠΎΠΆΠ½ΡΠ΅ ΡΠ°ΠΊΠΎΠ²ΠΈΠ½Ρ, Π²ΠΎΠ·Π½ΠΈΠΊΡΠΈΠ΅ ΠΎΡ Π²ΠΎΠ·Π΄ΡΡΠ½ΡΡ ΠΏΡΠ·ΡΡΠ΅ΠΉ, ΠΈ Π΄ΡΡΠ³ΠΈΠ΅ Π½Π΅ΡΠΎΠ²Π½ΠΎΡΡΠΈ ΠΏΠΎΠ²Π΅ΡΡ Π½ΠΎΡΡΠΈ ΡΡΠ΅Π½.

ΠΠΎΡΠΎΠ²ΡΠ΅ ΠΏΠΎΠ΄ΡΠΎΠ²Π½Π΅Π½Π½ΡΠ΅ ΡΡΠ΅Π½Ρ ΠΈ Π±ΠΎΡΡΠΈΠΊΠΈ ΠΊΡΠΏΠ΅Π»ΠΈ
- Π‘Π»Π΅Π΄ΡΡΡΠΈΠΌ ΡΠ°Π³ΠΎΠΌ ΠΌΠΎΠΆΠ½ΠΎ ΠΏΠ΅ΡΠ΅Ρ ΠΎΠ΄ΠΈΡΡ ΠΊ Π³ΠΈΠ΄ΡΠΎΠΈΠ·ΠΎΠ»ΡΡΠΈΠΎΠ½Π½ΡΠΌ ΡΠ°Π±ΠΎΡΠ°ΠΌ. ΠΠΈΠ΄ΡΠΎΠΈΠ·ΠΎΠ»ΠΈΡΠΎΠ²Π°ΡΡ Π½ΡΠΆΠ½ΠΎ Π½Π΅ ΡΠΎΠ»ΡΠΊΠΎ ΡΡΠ΅Π½Ρ ΠΈ ΠΏΠΎΠ» Π±Π°ΡΡΠ΅ΠΉΠ½Π°, Π½ΠΎ ΠΈ ΡΡΠ΅Π½Ρ ΠΏΠΎΠΌΠ΅ΡΠ΅Π½ΠΈΡ Π²ΠΎΠΊΡΡΠ³ Π½Π΅Π³ΠΎ, Π΅ΡΠ»ΠΈ ΠΊΡΠΏΠ΅Π»Ρ ΠΊ Π½ΠΈΠΌ ΠΏΡΠΈΠΌΡΠΊΠ°Π΅Ρ.
ΠΠ»Ρ Π³ΠΈΠ΄ΡΠΎΠΈΠ·ΠΎΠ»ΡΡΠΈΠΈ ΠΎΠ±ΡΡΠ½ΠΎ ΠΈΡΠΏΠΎΠ»ΡΠ·ΡΠ΅ΡΡΡ ΡΠΏΠ΅ΡΠΈΠ°Π»ΡΠ½Π°Ρ ΠΏΡΠΎΠΏΠΈΡΠΊΠ° Π³Π»ΡΠ±ΠΎΠΊΠΎΠ³ΠΎ ΠΏΡΠΎΠ½ΠΈΠΊΠ½ΠΎΠ²Π΅Π½ΠΈΡ, ΠΊΠΎΡΠΎΡΠ°Ρ Π½Π°Π½ΠΎΡΠΈΡΡΡ Π² Π½Π΅ΡΠΊΠΎΠ»ΡΠΊΠΎ ΡΠ»ΠΎΠ΅Π² Ρ ΠΏΠΎΠΌΠΎΡΡΡ ΡΠΈΡΠΎΠΊΠΎΠΉ ΠΊΠΈΡΡΠΈ ΠΈΠ»ΠΈ Π²Π°Π»ΠΈΠΊΠ°. ΠΡΠΈΡΠ΅ΠΌΒ Ρ ΠΊΠ°ΠΆΠ΄ΡΠΌ ΠΏΠΎΡΠ»Π΅Π΄ΡΡΡΠΈΠΌ ΡΠ»ΠΎΠ΅ΠΌ ΠΏΡΠΎΠΏΠΈΡΠΊΠ° ΠΏΡΠΎΠ½ΠΈΠΊΠ°Π΅Ρ Π²ΡΠ΅ Π³Π»ΡΠ±ΠΆΠ΅ Π² ΡΡΠ΅Π½Ρ, ΠΈ ΡΠΏΠΎΡΠΎΠ±Π½Π° ΠΏΡΠΎΠΏΠΈΡΠ°ΡΡ Π΅Π΅ Π½Π° ΡΠΎΠ»ΡΠΈΠ½Ρ Π΄ΠΎ 200 ΠΌΠΌ. ΠΡΠΎΡ Π³ΠΈΠ΄ΡΠΎΠΈΠ·ΠΎΠ»ΠΈΡΡΡΡΠΈΠΉ ΡΠΎΡΡΠ°Π² ΠΏΡΠΎΠ½ΠΈΠΊΠ°Π΅Ρ Π²ΠΎ Π²ΡΠ΅ ΠΏΠΎΡΡ ΡΡΡΠΊΠ°ΡΡΡΠΊΠΈ ΠΈ Π±Π΅ΡΠΎΠ½Π½ΠΎΠΉ ΡΡΠ΅Π½Ρ, Π½Π°Π΄Π΅ΠΆΠ½ΠΎ Π·Π°ΠΊΡΠΏΠΎΡΠΈΠ²Π°Ρ ΠΈΡ ΠΎΡ ΠΏΠΎΡΠ»Π΅Π΄ΡΡΡΠ΅Π³ΠΎ ΠΏΡΠΎΠ½ΠΈΠΊΠ½ΠΎΠ²Π΅Π½ΠΈΡ Π²Π»Π°Π³ΠΈ.
- ΠΠ°Π»Π΅Π΅, ΠΏΠΎΡΠ»Π΅ ΠΏΡΠΎΡΡΡ Π°Π½ΠΈΡ Π³ΠΈΠ΄ΡΠΎΠΈΠ·ΠΎΠ»ΡΡΠΈΠΎΠ½Π½ΠΎΠ³ΠΎ ΡΠΎΡΡΠ°Π²Π°, Π½Π° ΡΡΠ΅Π½Π°Ρ Π²ΠΎΠΊΡΡΠ³ ΠΊΡΠΏΠ΅Π»ΠΈ ΠΈ Π½Π° Π΅Π΅ Π±ΠΎΡΡΠΈΠΊΠ°Ρ Π½ΡΠΆΠ½ΠΎ ΡΡΠ°Π·Ρ ΠΆΠ΅ ΠΏΠΎΠ»ΠΎΠΆΠΈΡΡ Π΄Π΅ΠΊΠΎΡΠ°ΡΠΈΠ²Π½ΡΡ ΠΏΠ»ΠΈΡΠΊΡ.
- ΠΠΎΡΠ»Π΅ ΠΎΠ±Π»ΠΈΡΠΎΠ²ΠΊΠΈ ΡΡΠ΅Π½Β Β Π²ΠΎΠΊΡΡΠ³ ΠΊΡΠΏΠ΅Π»ΠΈ ΠΈ Π΅Π΅ Π²ΡΡΡΡΠΏΠ°ΡΡΠΈΡ Π±ΠΎΡΡΠΈΠΊΠΎΠ², ΠΌΠΎΠΆΠ½ΠΎ ΠΏΠ΅ΡΠ΅Ρ ΠΎΠ΄ΠΈΡΡ ΠΊ Π½Π°Π½Π΅ΡΠ΅Π½ΠΈΡ ΠΆΠΈΠ΄ΠΊΠΎΠΉ ΡΠ΅Π·ΠΈΠ½Ρ ΠΈΠ»ΠΈ ΠΊΠ»Π°Π΄ΠΊΠ΅ ΠΊΠ΅ΡΠ°ΠΌΠΈΡΠ΅ΡΠΊΠΎΠΉ ΠΏΠ»ΠΈΡΠΊΠΈ Π½Π° ΡΡΠ΅Π½ΠΊΠΈ Π²Π½ΡΡΡΠΈ ΠΏΠΎΠ»ΡΡΠΈΠ²ΡΠ΅Π³ΠΎΡΡ ΠΌΠΈΠ½ΠΈ-Π±Π°ΡΡΠ΅ΠΉΠ½Π°.
— ΠΡΠ»ΠΈ Π²ΡΠ±ΠΈΡΠ°Π΅ΡΡΡ ΠΊΠ΅ΡΠ°ΠΌΠΈΡΠ΅ΡΠΊΠ°Ρ ΠΎΠ±Π»ΠΈΡΠΎΠ²ΠΊΠ°, ΡΠΎ ΡΠ΅ΠΊΠΎΠΌΠ΅Π½Π΄ΠΎΠ²Π°Π½ΠΎ Π²ΡΠ±ΡΠ°ΡΡ Π²Π°ΡΠΈΠ°Π½Ρ Π² Π²ΠΈΠ΄Π΅ ΠΌΠ΅Π»ΠΊΠΎΠΉ ΠΏΠ»ΠΈΡΠΊΠΈ, ΠΊΠΎΡΠΎΡΠ°Ρ ΡΠΊΠ»Π°Π΄ΡΠ²Π°Π΅ΡΡΡ Π½Π° ΠΏΠΎΠ²Π΅ΡΡ Π½ΠΎΡΡΡ Π½Π° Π²ΠΎΠ΄ΠΎΡΡΠΎΠΉΠΊΠΈΠΉ ΠΏΠ»ΠΈΡΠΎΡΠ½ΡΠΉ ΠΊΠ»Π΅ΠΉ. ΠΠ°ΡΠΈΡΠΊΡ Π΄Π»Ρ Π·Π°Π΄Π΅Π»ΡΠ²Π°Π½ΠΈΡ ΡΠ²ΠΎΠ² ΡΠΎΠΆΠ΅ Π½ΡΠΆΠ½ΠΎ Π²ΡΠ±ΠΈΡΠ°ΡΡ ΡΠΎΠ»ΡΠΊΠΎ Π²ΠΎΠ΄ΠΎΡΡΠΎΠΉΠΊΡΡ.
— ΠΠΈΠ΄ΠΊΡΡ ΡΠ΅Π·ΠΈΠ½Ρ ΠΎΠ±ΡΡΠ½ΠΎ Π½Π°Π½ΠΎΡΡΡ ΠΌΠ΅ΡΠΎΠ΄ΠΎΠΌ Π½Π°ΠΏΡΠ»Π΅Π½ΠΈΡ, Π½ΠΎ ΠΌΠΎΠΆΠ½ΠΎ ΡΡΠΎ ΡΠ΄Π΅Π»Π°ΡΡ ΠΈ Ρ ΠΏΠΎΠΌΠΎΡΡΡ Π²Π°Π»ΠΈΠΊΠ°. ΠΠ»Π°Π²Π½ΠΎΠ΅ — ΡΠΎΠ·Π΄Π°ΡΡ ΡΠΏΠ»ΠΎΡΠ½ΡΡ ΠΏΠΎΠ²Π΅ΡΡ Π½ΠΎΡΡΡ Π½Π° ΡΡΠ΅Π½Π°Ρ ΠΈ Π½Π° ΠΏΠΎΠ»Ρ ΠΊΡΠΏΠ΅Π»ΠΈ. ΠΡΠΎΡ ΠΌΠ°ΡΠ΅ΡΠΈΠ°Π» ΠΎΠ±ΡΠ°Π·ΡΠ΅Ρ ΡΠΎΠ²Π½ΡΡ ΡΠ»Π°ΡΡΠΈΡΠ½ΡΡ ΠΈ ΠΏΡΠΎΡΠ½ΡΡ ΠΏΠ»Π΅Π½ΠΊΡ, ΠΊΠΎΡΠΎΡΠ°Ρ Π½Π΅ Π±ΠΎΠΈΡΡΡ ΠΌΠ΅Ρ Π°Π½ΠΈΡΠ΅ΡΠΊΠΈΡ ΠΏΠΎΠ²ΡΠ΅ΠΆΠ΄Π΅Π½ΠΈΠΉ ΠΈ Π² ΡΠΎ ΠΆΠ΅ Π²ΡΠ΅ΠΌΡ — Π½Π΅ ΠΏΠΎΠ·Π²ΠΎΠ»ΠΈΡ Π²ΠΎΠ΄Π΅ ΡΠΎΠΏΡΠΈΠΊΠ°ΡΠ°ΡΡΡΡ Ρ Π±Π΅ΡΠΎΠ½Π½ΡΠΌΠΈ ΡΡΠ΅Π½Π°ΠΌΠΈ.
- ΠΠΎΡΠ»Π΅Π΄Π½Π΅ΠΉ ΠΌΠΎΠ½ΡΠΈΡΡΠ΅ΡΡΡ Π»Π΅ΡΡΠ½ΠΈΡΠ°, Π²Π΅Π΄ΡΡΠ°Ρ Π² ΠΊΡΠΏΠ΅Π»Ρ. ΠΠ΅ ΠΌΠΎΠΆΠ½ΠΎ Π·Π°ΡΠ΅ΠΏΠΈΡΡ Π·Π° Π±ΠΎΡΡΠΈΠΊ Π±Π°ΡΡΠ΅ΠΉΠ½Π°, Π° ΠΌΠΎΠΆΠ½ΠΎ Π²ΠΌΡΡΠΎΠ²Π°ΡΡ Π² ΠΏΠΎΠ» ΡΡΠ΄ΠΎΠΌ Ρ Π½Π΅ΠΉ, Π² Π·Π°Π²ΠΈΡΠΈΠΌΠΎΡΡΠΈ ΠΎΡ Π²ΡΠ±ΡΠ°Π½Π½ΠΎΠΉ ΠΌΠΎΠ΄Π΅Π»ΠΈ.

ΠΠΎΡΠΎΠ²Π°Ρ ΠΊΡΠΏΠ΅Π»Ρ ΠΏΠΎΡΠ»Π΅ ΠΏΠΎΠ»Π½ΠΎΠΉ Π³ΠΈΠ΄ΡΠΎΠΈΠ·ΠΎΠ»ΡΡΠΈΠΈ
- Π Π΅ΠΊΠΎΠΌΠ΅Π½Π΄ΡΠ΅ΡΡΡ ΠΎΠΊΠΎΠ»ΠΎ Π±Π°ΡΡΠ΅ΠΉΠ½Π° ΡΠ΄Π΅Π»Π°ΡΡ ΡΠ»ΠΈΠ²Π½ΡΡ ΠΊΠ°Π½Π°Π²ΠΊΡ, ΠΏΠΎ ΠΊΠΎΡΠΎΡΠΎΠΉ Π±ΡΠ΄Π΅Ρ ΠΎΡΠ²ΠΎΠ΄ΠΈΡΡΡΡ Π²ΠΎΠ΄Π°, ΡΡΠ΅ΠΊΠ°ΡΡΠ°Ρ Ρ ΡΠ΅Π»ΠΎΠ²Π΅ΠΊΠ° ΠΏΡΠΈ Π²ΡΡ ΠΎΠ΄Π΅ Π΅Π³ΠΎ ΠΈΠ· ΠΊΡΠΏΠ΅Π»ΠΈ. Π‘ΡΠΎΠΊ Π·Π°ΠΊΡΡΠ²Π°ΡΡ ΡΠ²Π΅ΡΡ Ρ ΡΠ΅ΡΠ΅ΡΠΊΠΎΠΉ.
ΠΠ»Π°ΡΡΠΈΠΊΠΎΠ²Π°Ρ ΠΊΡΠΏΠ΅Π»Ρ
Π§ΡΠΎΠ±Ρ ΠΈΠ·Π±Π°Π²ΠΈΡΡΡΡ ΠΎΡ Π»ΠΈΡΠ½ΠΈΡ Ρ Π»ΠΎΠΏΠΎΡ, ΠΌΠΎΠΆΠ½ΠΎ ΠΏΡΠΈΠΎΠ±ΡΠ΅ΡΡΠΈ Π³ΠΎΡΠΎΠ²ΡΡ ΠΏΠ»Π°ΡΡΠΈΠΊΠΎΠ²ΡΡ Π΅ΠΌΠΊΠΎΡΡΡ ΠΊΡΠΏΠ΅Π»ΠΈ, ΡΠ΅ΠΌ Π±ΠΎΠ»Π΅Π΅, ΡΡΠΎ ΠΈΡ ΠΏΡΠΎΠΈΠ·Π²ΠΎΠ΄ΡΡ ΡΠ°ΠΌΠΎΠΉ ΡΠ°Π·Π½ΠΎΠΉ ΡΠΎΡΠΌΡ, ΠΈ ΠΌΠΎΠΆΠ½ΠΎ Π½Π΅ ΡΠΎΠ»ΡΠΊΠΎ Π²ΡΠ±ΡΠ°ΡΡ Π½Π°ΠΈΠ±ΠΎΠ»Π΅Π΅ ΠΏΠΎΠ΄Ρ ΠΎΠ΄ΡΡΡΡ, Π½ΠΎ ΠΈ Π·Π°ΠΊΠ°Π·Π°ΡΡ ΠΈΠ·Π³ΠΎΡΠΎΠ²ΠΈΡΠ΅Π»Ρ ΡΠ²ΠΎΠΉ ΡΠΊΡΠΊΠ»ΡΠ·ΠΈΠ²Π½ΡΠΉ Π²Π°ΡΠΈΠ°Π½Ρ Ρ ΠΊΠΎΠ½ΠΊΡΠ΅ΡΠ½ΡΠΌΠΈ ΡΠ°Π·ΠΌΠ΅ΡΠ°ΠΌΠΈ.

ΠΡΠ»ΠΈΡΠ½ΡΠΉ Π²Π°ΡΠΈΠ°Π½Ρ β ΠΏΠ»Π°ΡΡΠΈΠΊΠΎΠ²Π°Ρ ΠΊΡΠΏΠ΅Π»Ρ
ΠΠ»Π°ΡΡΠΈΠΊΠΎΠ²ΡΡ ΠΊΡΠΏΠ΅Π»Ρ ΠΌΠΎΠΆΠ½ΠΎ ΡΠ³Π»ΡΠ±ΠΈΡΡ Π² ΠΏΠΎΠ» — ΡΡΠΎΡ ΠΏΡΠΎΡΠ΅ΡΡ ΠΏΡΠΎΠ²ΠΎΠ΄ΠΈΡΡΡ ΠΏΠΎΡΡΠΈ ΡΠ°ΠΊΠΈΠΌ ΠΆΠ΅ ΠΎΠ±ΡΠ°Π·ΠΎΠΌ, ΠΊΠ°ΠΊ ΠΈ ΠΏΠΎΡΡΡΠΎΠΉΠΊΠ° Π±Π΅ΡΠΎΠ½Π½ΠΎΠ³ΠΎ ΠΌΠΈΠ½ΠΈ-Π±Π°ΡΡΠ΅ΠΉΠ½Π°. ΠΡΠ»ΠΈΡΠΈΠ΅ — Π²ΠΌΠ΅ΡΡΠΎ ΡΠΊΠ»Π°Π΄ΠΊΠΈ ΠΊΠ΅ΡΠ°ΠΌΠΈΡΠ΅ΡΠΊΠΎΠ³ΠΎ Π΄Π΅ΠΊΠΎΡΠ°ΡΠΈΠ²Π½ΠΎΠ³ΠΎ ΠΏΠΎΠΊΡΡΡΠΈΡ ΠΈΠ»ΠΈ Π½Π°ΠΏΡΠ»Π΅Π½ΠΈΡ ΡΠ΅Π·ΠΈΠ½ΠΎΠ²ΠΎΠΉ ΠΏΠ»Π΅Π½ΠΊΠΈ ΡΡΡΠ°Π½Π°Π²Π»ΠΈΠ²Π°Π΅ΡΡΡ ΠΏΠ»Π°ΡΡΠΈΠΊΠΎΠ²Π°Ρ ΡΠΌΠΊΠΎΡΡΡ.
ΠΡΡΠ³ΠΎΠΉ Π²Π°ΡΠΈΠ°Π½Ρ Π΅Π΅ ΡΡΡΠ°Π½ΠΎΠ²ΠΊΠΈ — ΡΡΠΎ ΠΌΠΎΠ½ΡΠ°ΠΆ Π² ΠΏΠΎΡΡΡΠΎΠ΅Π½Π½ΡΠΉ ΠΏΠΎ Π΅Π΅ ΡΠΎΡΠΌΠ΅ ΠΊΠ°ΡΠΊΠ°Ρ ΠΈ Π΄Π°Π»ΡΠ½Π΅ΠΉΡΠ°Ρ Β ΠΎΠ±ΡΠΈΠ²ΠΊΠ° ΠΏΠ°Π½Π΅Π»ΡΠΌΠΈ (Π½Π°ΠΏΡΠΈΠΌΠ΅Ρ, Π΄Π΅ΡΠ΅Π²ΡΠ½Π½ΡΠΌΠΈ).
ΠΠ»Π°ΡΡΠΈΠΊΠΎΠ²Π°Ρ ΠΊΡΠΏΠ΅Π»Ρ Π΄ΠΎ ΠΈ ΠΏΠΎΡΠ»Π΅ ΡΡΡΠ°Π½ΠΎΠ²ΠΊΠΈ Π½Π° ΠΊΠ°ΡΠΊΠ°Ρ ΠΈ ΠΎΡΠ΄Π΅Π»ΠΊΠΈ
- ΠΡΠ΅Π½Ρ Π²Π°ΠΆΠ½ΠΎ ΠΊΠ°ΡΠ΅ΡΡΠ²Π΅Π½Π½ΠΎ ΠΏΠΎΠ΄Π³ΠΎΡΠΎΠ²ΠΈΡΡ ΠΏΠΎΠ²Π΅ΡΡ Π½ΠΎΡΡΡ ΠΏΠΎΠ΄ ΡΡΡΠ°Π½ΠΎΠ²ΠΊΡ ΠΊΡΠΏΠ΅Π»ΠΈ — ΠΎΠ½Π° Π΄ΠΎΠ»ΠΆΠ½Π° Π±ΡΡΡ ΡΠΎΠ²Π½Π°Ρ ΠΈ Π΄ΠΎΡΡΠ°ΡΠΎΡΠ½ΠΎ Π³Π»Π°Π΄ΠΊΠ°Ρ. ΠΠ° Π½Π΅Π΅ Π²ΡΡΡΠ°Π²Π»ΡΠ΅ΡΡΡ ΠΏΠ»Π°ΡΡΠΈΠΊΠΎΠ²Π°Ρ Π΅ΠΌΠΊΠΎΡΡΡ, Π² ΠΊΠΎΡΠΎΡΠΎΠΉ Π·Π°ΡΠ°Π½Π΅Π΅ ΠΏΡΠΎΠ΄Π΅Π»ΡΠ²Π°Π΅ΡΡΡ ΠΎΡΠ²Π΅ΡΡΡΠΈΠ΅ Π΄Π»Ρ ΡΠ»ΠΈΠ²Π°. ΠΡΠΈ ΡΡΡΠ°Π½ΠΎΠ²ΠΊΠ΅ ΠΎΡΠ²ΠΎΠ΄Π½ΠΎΠΉ ΡΡΡΠ±Ρ, Π΅Π΅ ΡΠΎΠ΅Π΄ΠΈΠ½Π΅Π½ΠΈΠ΅ Ρ ΠΊΡΠΏΠ΅Π»ΡΡ Π½ΡΠΆΠ½ΠΎ Ρ ΠΎΡΠΎΡΠΎ Π³ΠΈΠ΄ΡΠΎΠΈΠ·ΠΎΠ»ΠΈΡΠΎΠ²Π°ΡΡ.
- ΠΠ°Π»Π΅Π΅, Π²ΠΎΠΊΡΡΠ³ ΠΊΡΠΏΠ΅Π»ΠΈ ΠΌΠΎΠ½ΡΠΈΡΡΠ΅ΡΡΡ ΠΊΠ°ΡΠΊΠ°Ρ ΠΈΠ· Π΄Π΅ΡΠ΅Π²ΡΠ½Π½ΡΡ Π±ΡΡΡΠΊΠΎΠ², Π½Π° ΠΊΠΎΡΠΎΡΡΠ΅ ΠΈ Π±ΡΠ΄ΡΡ ΠΊΡΠ΅ΠΏΠΈΡΡΡΡ Π΄Π΅ΡΠ΅Π²ΡΠ½Π½ΡΠ΅ ΠΈΠ»ΠΈ ΠΏΠ»Π°ΡΡΠΈΠΊΠΎΠ²ΡΠ΅ ΠΏΠ°Π½Π΅Π»ΠΈ. Π‘Π°ΠΌΠΈ ΠΏΠ°Π½Π΅Π»ΠΈ Π² Π΄Π°Π½Π½ΠΎΠΌ ΡΠ»ΡΡΠ°Π΅ Π½Π΅ ΠΈΠ³ΡΠ°ΡΡ Π½ΠΈΠΊΠ°ΠΊΠΎΠΉ Π½Π΅ΡΡΡΠ΅ΠΉ ΡΠΎΠ»ΠΈ β ΠΎΠ½ΠΈ ΡΠΎΠ»ΡΠΊΠΎ Π²ΡΠΏΠΎΠ»Π½ΡΡΡ Π΄Π΅ΠΊΠΎΡΠ°ΡΠΈΠ²Π½ΡΡ ΡΡΠ½ΠΊΡΠΈΡ. ΠΡΠ΅ Π½Π°Π³ΡΡΠ·ΠΊΠΈ Π΄ΠΎΠ»ΠΆΠ΅Π½ Π²Π·ΡΡΡ Π½Π° ΡΠ΅Π±Ρ ΠΊΠ°ΡΠΊΠ°Ρ ΠΈΠ· Π±ΡΡΡΠ°, ΠΏΠΎΡΡΠΎΠΌΡ Π΅Π³ΠΎ Π½ΡΠΆΠ½ΠΎ Π΄Π΅Π»Π°ΡΡ Π½Π°Π΄Π΅ΠΆΠ½ΡΠΌ ΠΈ ΠΆΠ΅ΡΡΠΊΠΈΠΌ.
- ΠΠ»Ρ ΠΊΠ°ΡΠΊΠ°ΡΠ° Π½ΡΠΆΠ½ΠΎ ΠΏΠΎΠ΄Π³ΠΎΡΠΎΠ²ΠΈΡΡ Π±ΡΡΡΡΡ ΡΠ΅ΡΠ΅Π½ΠΈΠ΅ΠΌ Π½Π΅ ΠΌΠ΅Π½Π΅Π΅, ΡΠ΅ΠΌ 50 Γ 50 ΠΌΠΌ, Π° Π΄Π»Ρ Π²Π½Π΅ΡΠ½Π΅ΠΉ ΠΎΠ±ΡΠΈΠ²ΠΊΠΈ β ΡΠΎΠ½ΠΊΠΈΠ΅ Π΄ΠΎΡΠΊΠΈ (ΠΌΠΎΠΆΠ½ΠΎ Π΄Π°ΠΆΠ΅ ΠΏΠΎΡΡΠ΄ΠΊΠ° 10 Γ· 15 ΠΌΠΌ ΡΠΎΠ»ΡΠΈΠ½ΠΎΠΉ), Π½ΠΎ ΠΎΠ±ΡΠ·Π°ΡΠ΅Π»ΡΠ½ΠΎ ΠΎΠ±ΡΠ°Π±ΠΎΡΠ°Π½Π½ΡΠ΅ Π²ΠΎΠ΄ΠΎΠΎΡΡΠ°Π»ΠΊΠΈΠ²Π°ΡΡΠΈΠΌΠΈ ΡΠΎΡΡΠ°Π²Π°ΠΌΠΈ. ΠΠΏΠΎΠ»Π½Π΅ ΠΏΡΠΈΠΌΠ΅Π½ΠΈΠΌΡ ΠΏΠ»Π°ΡΡΠΈΠΊΠΎΠ²ΡΠ΅ ΠΏΠ°Π½Π΅Π»ΠΈ ΠΈΠ»ΠΈ Π²Π°Π³ΠΎΠ½ΠΊΠ° Ρ ΡΠΈΡΡΠ½ΠΊΠΎΠΌ, ΠΈΠΌΠΈΡΠΈΡΡΡΡΠΈΠΌ ΡΠ°ΠΊΡΡΡΡ Π΄ΡΠ΅Π²Π΅ΡΠΈΠ½Ρ. ΠΠΎΠ½ΡΠ°ΠΆ ΠΎΡΠ΄Π΅Π»ΠΎΡΠ½ΠΎΠ³ΠΎ ΠΌΠ°ΡΠ΅ΡΠΈΠ°Π»Π° ΠΏΡΠΎΠ²ΠΎΠ΄ΠΈΡΡΡ Π² Π·Π°Π²ΠΈΡΠΈΠΌΠΎΡΡΠΈ ΠΎΡ Π΅Π³ΠΎ Π²ΠΈΠ΄Π°.
ΠΡΠ»ΠΈ Π²ΡΠ±ΡΠ°Π½Π° Π΄Π΅ΡΠ΅Π²ΡΠ½Π½Π°Ρ ΠΈΠ»ΠΈ ΠΏΠ»Π°ΡΡΠΈΠΊΠΎΠ²Π°Ρ Π²Π°Π³ΠΎΠ½ΠΊΠ°, ΡΠΎ ΠΎΠ±ΡΠ΅ΡΠ΅ΡΠΊΠ° ΠΏΠΎΠ΄ Π½Π΅Π΅ Π΄Π΅Π»Π°Π΅ΡΡΡ Π±ΠΎΠ»Π΅Π΅ ΡΠ°ΡΡΠ°Ρ, Π° Π·Π°ΠΊΡΠ΅ΠΏΠ»ΡΠ΅ΡΡΡ ΠΎΠ½Π° ΠΊ Π΅Π΅ Π±ΡΡΡΠΊΠ°ΠΌ Ρ ΠΏΠΎΠΌΠΎΡΡΡ ΠΊΠ»ΡΠΌΠΌΠ΅ΡΠΎΠ², ΠΊΠΎΡΠΎΡΡΠ΅ ΠΌΠΎΠ³ΡΡ ΠΏΡΠΈΠΊΡΡΡΠΈΠ²Π°ΡΡΡΡ, ΠΏΡΠΈΠ±ΠΈΠ²Π°ΡΡΡΡ ΠΈΠ»ΠΈ ΠΏΡΠΈΡΡΡΠ΅Π»ΠΈΠ²Π°ΡΡΡΡ ΡΠΊΠΎΠ±Π°ΠΌΠΈ.

ΠΠ΅ΡΠ΅Π²ΡΠ½Π½Π°Ρ Π²Π°Π³ΠΎΠ½ΠΊΠ° Ρ ΠΊΠ»ΡΠΌΠΌΠ΅ΡΠ°ΠΌΠΈ
ΠΡΠ»ΠΈ Π²ΡΠ±ΡΠ°Π½Ρ Π΄Π΅ΡΠ΅Π²ΡΠ½Π½ΡΠ΅ ΠΏΠ°Π½Π΅Π»ΠΈ, ΡΠΎ ΠΎΠ½ΠΈ ΠΏΡΠΈΠΊΡΡΡΠΈΠ²Π°ΡΡΡΡ ΠΊ ΠΊΠ°ΡΠΊΠ°ΡΡ ΡΠ°ΠΌΠΎΡΠ΅Π·Π°ΠΌΠΈ Π² ΠΎΡΠ²Π΅ΡΡΡΠΈΡ, Π²ΡΡΠ²Π΅ΡΠ»Π΅Π½Π½ΡΠ΅ Β«ΠΏΠΎΠ΄ ΠΏΠΎΡΠ°ΠΉΒ», Π° ΡΠ²Π΅ΡΡ Ρ ΡΠ»ΡΠΏΠΊΠΈ Π·Π°ΠΌΠ°Π·ΡΠ²Π°ΡΡΡΡ ΠΈΠ·Π³ΠΎΡΠΎΠ²Π»Π΅Π½Π½ΡΠΌ ΠΈΠ· ΡΠΌΠ΅ΡΠΈ ΡΡΠΎΠ»ΡΡΠ½ΠΎΠ³ΠΎ ΠΊΠ»Π΅Ρ ΠΈ ΠΎΠΏΠΈΠ»ΠΎΠΊ ΡΠΎΡΡΠ°Π²ΠΎΠΌ.
ΠΡΠ»ΠΈ ΠΏΡΠΈ ΠΎΠ±ΡΠΈΠ²ΠΊΠ΅ Π½Π΅ΠΎΠ±Ρ ΠΎΠ΄ΠΈΠΌΠΎ ΠΎΠ±Π»ΠΈΡΠ΅Π²Π°ΡΡ ΡΠ³Π»Ρ, ΡΠΎ ΠΈΡ ΠΌΠΎΠΆΠ½ΠΎ Π·Π°ΠΊΡΡΡΡ ΡΠΏΠ΅ΡΠΈΠ°Π»ΡΠ½ΡΠΌΠΈ ΡΡΡΠ½ΠΈΡΡΡΠ½ΡΠΌΠΈ ΡΠ³ΠΎΠ»ΠΊΠ°ΠΌΠΈ — ΠΈΡ Π² Π΄Π°Π½Π½ΠΎΠΌ ΡΠ»ΡΡΠ°Π΅ ΠΌΠΎΠΆΠ½ΠΎ Π±ΡΠ΄Π΅Ρ ΠΏΠΎΠΏΡΠΎΡΡΡ ΠΏΡΠΈΠΊΠ»Π΅ΠΈΡΡ Π½Π° Β«ΠΆΠΈΠ΄ΠΊΠΈΠ΅ Π³Π²ΠΎΠ·Π΄ΠΈΒ».
ΠΠΎΠ½ΡΠ°ΠΆ ΠΎΠ±Π»ΠΈΠ²Π½ΠΎΠΉ ΠΊΡΠΏΠ΅Π»ΠΈ
ΠΡΠΈΠ½ΡΠΈΠΏ ΠΈΠ·Π³ΠΎΡΠΎΠ²Π»Π΅Π½ΠΈΡ ΠΎΠ±Π»ΠΈΠ²Π½ΠΎΠΉ ΠΊΡΠΏΠ΅Π»ΠΈ ΡΠ°ΠΊΠΎΠΉ ΠΆΠ΅, ΠΊΠ°ΠΊ ΠΈ Π±ΠΎΠ»ΡΡΠΎΠΉ Π΄Π΅ΡΠ΅Π²ΡΠ½Π½ΠΎΠΉ Β«ΠΏΠΎΡΡΠ΄ΠΈΠ½ΡΒ», Π½ΠΎ Π΄Π»Ρ Π½Π΅Π΅ Π² ΠΊΡΠ°ΠΉΠ½Π΅ΠΌ ΡΠ»ΡΡΠ°Π΅ ΠΌΠΎΠΆΠ½ΠΎ ΠΈΡΠΏΠΎΠ»ΡΠ·ΠΎΠ²Π°ΡΡ Π΄Π°ΠΆΠ΅ ΠΎΠ±ΡΡΠ½ΠΎΠ΅ ΠΆΠ΅ΡΡΠΊΠΎΠ΅ ΠΏΠ»Π°ΡΡΠΈΠΊΠΎΠ²ΠΎΠ΅ Π²Π΅Π΄ΡΠΎ, ΠΊΠΎΡΠΎΡΠΎΠ΅ ΠΌΠΎΠΆΠ½ΠΎ Π΄Π»Ρ ΠΊΡΠ°ΡΠΎΡΡ ΠΎΠ±ΡΠΈΡΡ ΡΠ²Π΅ΡΡ Ρ Π΄Π΅ΡΠ΅Π²ΡΠ½Π½ΡΠΌΠΈ ΡΠ΅ΠΉΠΊΠ°ΠΌΠΈ ΠΈ ΡΡΡΠ½ΡΡΡ ΠΈΡ ΠΌΠ΅ΡΠ°Π»Π»ΠΈΡΠ΅ΡΠΊΠΈΠΌΠΈ ΠΎΠ±ΡΡΡΠ°ΠΌΠΈ.

ΠΠ·Π³ΠΎΡΠΎΠ²ΠΈΡΡ ΠΎΠ±Π»ΠΈΠ²Π½ΡΡ ΠΊΡΠΏΠ΅Π»Ρ ΡΠΌΠΎΠΆΠ΅Ρ, Π½Π°Π²Π΅ΡΠ½ΠΎΠ΅, Π»ΡΠ±ΠΎΠΉ Π΄ΠΎΠΌΠ°ΡΠ½ΠΈΠΉ ΠΌΠ°ΡΡΠ΅Ρ
Π£ΡΡΠ°Π½Π°Π²Π»ΠΈΠ²Π°Π΅ΡΡΡ ΠΎΠ±Π»ΠΈΠ²Π½Π°Ρ ΠΊΡΠΏΠ΅Π»Ρ Π½Π° ΡΡΠ΅Π½Π΅ Ρ ΠΏΠΎΠΌΠΎΡΡΡ Π΄Π΅ΡΠ΅Π²ΡΠ½Π½ΡΡ ΠΊΡΠΎΠ½ΡΡΠ΅ΠΉΠ½ΠΎΠ². ΠΠ²Π΅ ΠΏΠΎΠ»ΡΠΎΡΠΈ-ΡΠ°ΠΏΡΡ ΠΎΠ±Π΅ΡΠΏΠ΅ΡΠΈΠ²Π°ΡΡ ΠΏΠΎΠ΄Π²ΠΈΠΆΠ½ΠΎΡΡΡ ΠΊΡΠ΅ΠΏΠ»Π΅Π½ΠΈΡ. ΠΠ»Ρ ΠΎΠΏΡΠΎΠΊΠΈΠ΄ΡΠ²Π°Π½ΠΈΡ ΠΊΡΠΏΠ΅Π»ΠΈ Ρ Ρ ΠΎΠ»ΠΎΠ΄Π½ΠΎΠΉ Π²ΠΎΠ΄ΠΎΠΉ Π½Π° ΡΠ΅Π±Ρ Π½Π΅ΠΎΠ±Ρ ΠΎΠ΄ΠΈΠΌΠΎ Π·Π°ΠΊΡΠ΅ΠΏΠΈΡΡ Π²Π΅ΡΠ΅Π²ΠΊΡ.

ΠΠΎΠΏΠ»Π°Π²ΠΊΠΎΠ²ΡΠΉ ΠΌΠ΅Ρ Π°Π½ΠΈΠ·ΠΌ Π΄Π»Ρ ΠΏΠΎΠ΄Π΄Π΅ΡΠΆΠ°Π½ΠΈΡ Π½ΡΠΆΠ½ΠΎΠ³ΠΎ ΡΡΠΎΠ²Π½Ρ Ρ ΠΎΠ»ΠΎΠ΄Π½ΠΎΠΉ Π²ΠΎΠ΄Ρ Π² ΠΎΠ±Π»ΠΈΠ²Π½ΠΎΠΉ ΠΊΡΠΏΠ΅Π»ΠΈ
ΠΠΎΠ²Π½ΡΡΡΡ ΠΊΡΠΏΠ΅Π»ΠΈ ΠΌΠΎΠΆΠ΅Ρ ΡΡΡΠ°Π½Π°Π²Π»ΠΈΠ²Π°Π΅ΡΡΡ ΡΠΏΠ΅ΡΠΈΠ°Π»ΡΠ½ΡΠΉ ΠΏΠΎΠΏΠ»Π°Π²ΠΊΠΎΠ²ΡΠΉ ΠΌΠ΅Ρ Π°Π½ΠΈΠ·ΠΌ, ΠΊΠΎΡΠΎΡΡΠΉ ΠΊΠΎΠ½ΡΡΠΎΠ»ΠΈΡΡΠ΅Ρ Π½Π°Π»ΠΈΡΠΈΠ΅ Π²ΠΎΠ΄Ρ Π² Π΅ΠΌΠΊΠΎΡΡΠΈ. ΠΠΎΡΠ»Π΅ ΠΎΠΏΠΎΡΠΎΠΆΠ½Π΅Π½ΠΈΡ Π²Π΅Π΄ΡΠ° ΠΏΡΠΎΠΈΠ·Π²ΠΎΠ΄ΠΈΡΡΡ Π°Π²ΡΠΎΠΌΠ°ΡΠΈΡΠ΅ΡΠΊΠΎΠ΅ Π΅Π³ΠΎ Π½Π°ΠΏΠΎΠ»Π½Π΅Π½ΠΈΠ΅ ΠΈΠ· Π²ΠΎΠ΄ΠΎΠΏΡΠΎΠ²ΠΎΠ΄Π½ΠΎΠΉ ΡΡΡΠ±Ρ.Β Π ΠΏΡΠΈΠ½ΡΠΈΠΏΠ΅, ΠΊΠΎΠ½ΡΡΡΡΠΊΡΠΈΠΈ ΠΏΠΎ ΠΏΡΠΈΠ½ΡΠΈΠΏΡ ΡΠ°Π±ΠΎΡΡ ΡΠΎΠΏΠΎΡΡΠ°Π²ΠΈΠΌΠ° ΡΠΎ ΡΠ»ΠΈΠ²Π½ΡΠΌ Π±Π°ΡΠΊΠΎΠΌ. ΠΠΎΠ΄ΠΎΠ±Π½ΡΠΉ Π²Π°ΡΠΈΠ°Π½Ρ ΠΊΡΠΏΠ΅Π»ΠΈ Π½Π΅ ΠΏΠΎΡΡΠ΅Π±ΡΠ΅Ρ Π±ΠΎΠ»ΡΡΠΈΡ Π·Π°ΡΡΠ°Ρ, Π»Π΅Π³ΠΎΠΊ Π² ΠΈΠ·Π³ΠΎΡΠΎΠ²Π»Π΅Π½ΠΈΠΈ ΠΈ ΠΌΠΎΠ½ΡΠ°ΠΆΠ΅, ΠΈ Π΄ΠΎΠΊΠ°Π·Π°Π» ΡΠ²ΠΎΡ ΡΡΡΠ΅ΠΊΡΠΈΠ²Π½ΠΎΡΡΡ ΠΏΡΠΈ ΠΏΡΠΈΠ½ΡΡΠΈΠΈ Π±Π°Π½Π½ΡΡ ΠΏΡΠΎΡΠ΅Π΄ΡΡ.
ΠΠ·Π³ΠΎΡΠΎΠ²ΠΈΡΡ ΡΠ°ΠΌΠΎΡΡΠΎΡΡΠ΅Π»ΡΠ½ΠΎ ΠΊΡΠΏΠ΅Π»Ρ Π΄Π»Ρ Π±Π°Π½ΠΈ — Π΄ΠΎΡΡΠ°ΡΠΎΡΠ½ΠΎ ΡΠ»ΠΎΠΆΠ½ΠΎΠ΅ Π·Π°Π½ΡΡΠΈΠ΅. ΠΠΎ ΠΏΡΠΈ ΠΆΠ΅Π»Π°Π½ΠΈΠΈ Π΄Π°ΠΆΠ΅ ΡΡΠΎ — Π²ΠΎΠ·ΠΌΠΎΠΆΠ½ΠΎ. ΠΡΠΏΠΎΠ»ΡΠ·ΡΡ ΠΏΠΎΡΠ°Π³ΠΎΠ²ΡΠ΅ ΠΈΠ½ΡΡΡΡΠΊΡΠΈΠΈ ΠΈ ΠΏΡΠΈΠΌΠ΅Π½ΠΈΠ² Π²ΡΠ΅ ΡΠ²ΠΎΠΈ ΡΠ²ΠΎΡΡΠ΅ΡΠΊΠΈΠ΅ ΡΠΏΠΎΡΠΎΠ±Π½ΠΎΡΡΠΈ, ΠΌΠΎΠΆΠ½ΠΎ ΡΠΏΡΠ°Π²ΠΈΡΡΡΡ ΠΈ Ρ ΠΏΠΎΠ΄ΠΎΠ±Π½ΠΎΠΉ Π·Π°Π΄Π°ΡΠ΅ΠΉ. ΠΡΠ»ΠΈ ΠΆΠ΅ Π½Π΅Ρ ΡΠ²Π΅ΡΠ΅Π½Π½ΠΎΡΡΠΈ Π² Π΅Π΅ ΡΠ΄Π°ΡΠ½ΠΎΠΌ Π·Π°Π²Π΅ΡΡΠ΅Π½ΠΈΠΈ, ΡΠΎ, Π½Π°Π²Π΅ΡΠ½ΠΎΠ΅, ΡΠ°Π·ΡΠΌΠ½Π΅Π΅ Π±ΡΠ΄Π΅Ρ ΠΏΡΠΈΠΎΠ±ΡΠ΅ΡΡΠΈ Π³ΠΎΡΠΎΠ²ΡΠ΅ ΠΈΠ·Π΄Π΅Π»ΠΈΡ ΠΈΠ»ΠΈ ΠΆΠ΅ ΠΏΡΠΈΠ³Π»Π°ΡΠΈΡΡ Π΄Π»Ρ ΠΏΠΎΡΡΡΠΎΠΉΠΊΠΈ ΠΊΡΠΏΠ΅Π»ΠΈ ΠΊΠ²Π°Π»ΠΈΡΠΈΡΠΈΡΠΎΠ²Π°Π½Π½ΡΡ ΠΌΠ°ΡΡΠ΅ΡΠΎΠ².
ΠΠΎΡ ΠΎΠΆΠΈΠ΅ ΡΡΠ°ΡΡΠΈabisgroup.ru
ΠΡΠΏΠ΅Π»Ρ Π΄Π»Ρ Π±Π°Π½ΠΈ ΡΠ²ΠΎΠΈΠΌΠΈ ΡΡΠΊΠ°ΠΌΠΈ
ΠΠ°ΠΆΠ½ΡΠΌ Π°ΡΡΠΈΠ±ΡΡΠΎΠΌ ΡΠΎΠ²ΡΠ΅ΠΌΠ΅Π½Π½ΠΎΠΉ Π±Π°Π½ΠΈ ΡΠ²Π»ΡΠ΅ΡΡΡ ΠΊΡΠΏΠ΅Π»Ρ β Π±ΠΎΠ»ΡΡΠ°Ρ Π΅ΠΌΠΊΠΎΡΡΡ Ρ Ρ ΠΎΠ»ΠΎΠ΄Π½ΠΎΠΉ Π²ΠΎΠ΄ΠΎΠΉ Π΄Π»Ρ ΠΎΠΏΠΎΠ»Π°ΡΠΊΠΈΠ²Π°Π½ΠΈΡ. ΠΠ»Ρ Π΅Π΅ ΠΈΠ·Π³ΠΎΡΠΎΠ²Π»Π΅Π½ΠΈΡ ΠΈΡΠΏΠΎΠ»ΡΠ·ΡΠ΅ΡΡΡ Π΄ΡΠ΅Π²Π΅ΡΠΈΠ½Π° ΡΠ°Π·Π»ΠΈΡΠ½ΡΡ ΠΏΠΎΡΠΎΠ΄, ΠΏΠ»Π°ΡΡΠΈΠΊ ΠΈ Π±Π΅ΡΠΎΠ½, ΠΏΡΠΈ ΡΡΠΎΠΌ ΡΠΎΡΠΌΠ° Π΅ΠΌΠΊΠΎΡΡΠΈ, Π° ΡΠ°ΠΊΠΆΠ΅ Π΅Π΅ ΡΠ°ΡΠΏΠΎΠ»ΠΎΠΆΠ΅Π½ΠΈΠ΅ ΠΎΡΠ½ΠΎΡΠΈΡΠ΅Π»ΡΠ½ΠΎ ΠΏΠΎΠ»Π° ΡΠΎΠΆΠ΅ ΠΈΠΌΠ΅ΡΡ ΡΠ²ΠΎΠΈ Π²Π°ΡΠΈΠ°ΡΠΈΠΈ. Π‘Π΄Π΅Π»Π°ΡΡ ΠΊΡΠΏΠ΅Π»Ρ Π΄Π»Ρ Π±Π°Π½ΠΈ ΡΠ²ΠΎΠΈΠΌΠΈ ΡΡΠΊΠ°ΠΌΠΈ Π½Π΅ΡΠ»ΠΎΠΆΠ½ΠΎ, Π΅ΡΠ»ΠΈ ΠΏΡΠ°Π²ΠΈΠ»ΡΠ½ΠΎ ΠΏΠΎΠ΄ΠΎΠ±ΡΠ°ΡΡ ΠΌΠ°ΡΠ΅ΡΠΈΠ°Π» ΠΈ ΡΠΏΠΎΡΠΎΠ± ΠΌΠΎΠ½ΡΠ°ΠΆΠ°.

ΠΡΠΏΠ΅Π»Ρ Π΄Π»Ρ Π±Π°Π½ΠΈ ΡΠ²ΠΎΠΈΠΌΠΈ ΡΡΠΊΠ°ΠΌΠΈ
ΠΠ±ΡΡΡΡΠΎΠΉΡΡΠ²ΠΎ ΠΊΡΠΏΠ΅Π»ΠΈ ΠΈΠ· Π±Π΅ΡΠΎΠ½Π°
ΠΠ·Π³ΠΎΡΠΎΠ²Π»Π΅Π½ΠΈΠ΅ Π±Π΅ΡΠΎΠ½Π½ΠΎΠΉ ΠΊΡΠΏΠ΅Π»ΠΈ ΡΡΠΈΡΠ°Π΅ΡΡΡ Π½Π°ΠΈΠ±ΠΎΠ»Π΅Π΅ ΡΡΡΠ΄ΠΎΠ΅ΠΌΠΊΠΈΠΌ ΠΈ Π·Π°Π½ΠΈΠΌΠ°Π΅Ρ ΠΌΠ½ΠΎΠ³ΠΎ Π²ΡΠ΅ΠΌΠ΅Π½ΠΈ. ΠΡΠΈ ΡΡΠΎΠΌ Π΅ΠΌΠΊΠΎΡΡΡ ΠΈΠ· Π±Π΅ΡΠΎΠ½Π° ΡΠ»ΡΠΆΠΈΡ Π³ΠΎΡΠ°Π·Π΄ΠΎ Π΄ΠΎΠ»ΡΡΠ΅ Π΄Π΅ΡΠ΅Π²ΡΠ½Π½ΡΡ ΠΈ ΠΏΠ»Π°ΡΡΠΈΠΊΠΎΠ²ΡΡ ΠΌΠΎΠ΄Π΅Π»Π΅ΠΉ. Π’Π°ΠΊ ΠΊΠ°ΠΊ Π±Π΅ΡΠΎΠ½Π½Π°Ρ ΠΊΡΠΏΠ΅Π»Ρ ΠΌΠΎΠ½ΡΠΈΡΡΠ΅ΡΡΡ Π² ΡΠ³Π»ΡΠ±Π»Π΅Π½ΠΈΠΈ ΠΏΠΎΠ»Π°, ΠΊΠΎΡΠ»ΠΎΠ²Π°Π½ Π΄Π»Ρ Π½Π΅Π΅ Π³ΠΎΡΠΎΠ²ΡΡ Π½Π° ΡΡΠ°ΠΏΠ΅ ΡΡΡΠΎΠΈΡΠ΅Π»ΡΡΡΠ²Π° Π±Π°Π½ΠΈ.

ΠΠ±ΡΡΡΡΠΎΠΉΡΡΠ²ΠΎ ΠΊΡΠΏΠ΅Π»ΠΈ ΠΈΠ· Π±Π΅ΡΠΎΠ½Π°
Π ΠΏΡΠΎΡΠ΅ΡΡΠ΅ ΡΠ°Π±ΠΎΡΡ ΠΏΠΎΡΡΠ΅Π±ΡΠ΅ΡΡΡ:
- Π»ΠΎΠΏΠ°ΡΠ°;
- ΡΡΠΎΠ²Π΅Π½Ρ;
- ΠΏΠ»ΠΈΡΡ OSB;
- Π°ΡΠΌΠ°ΡΡΡΠ° ΡΠ΅ΡΠ΅Π½ΠΈΠ΅ΠΌ 8 ΠΌΠΌ;
- Π±Π΅ΡΠΎΠ½Π½ΡΠΉ ΡΠ°ΡΡΠ²ΠΎΡ;
- Π³ΡΠ°Π²ΠΈΠΉ ΠΈ ΠΏΠ΅ΡΠΎΠΊ;
- Π³ΠΈΠ΄ΡΠΎΠΈΠ·ΠΎΠ»ΡΡΠΈΠΎΠ½Π½Π°Ρ ΡΠΌΠ΅ΡΡ;
- ΠΏΠ»Π°ΡΡΠΈΠΊΠΎΠ²ΡΠ΅ ΡΡΡΠ±Ρ.
ΠΠΎΠ΄Π³ΠΎΡΠΎΠ²ΠΊΠ° ΠΊΠΎΡΠ»ΠΎΠ²Π°Π½Π°
ΠΠΎ ΡΡΡΡΠΎΠΉΡΡΠ²Π° Π² Π±Π°Π½Π΅ ΠΏΠΎΠ»Π° Π²ΡΠ±ΠΈΡΠ°ΡΡ ΡΡΠ°ΡΡΠΎΠΊ ΠΏΠΎΠ΄ ΠΊΡΠΏΠ΅Π»Ρ ΠΈ ΡΠΎΡΡ ΠΊΠΎΡΠ»ΠΎΠ²Π°Π½. Π€ΠΎΡΠΌΠ° ΠΊΠΎΡΠ»ΠΎΠ²Π°Π½Π° ΠΌΠΎΠΆΠ΅Ρ Π±ΡΡΡ Π»ΡΠ±ΠΎΠΉ, Π½ΠΎ ΠΏΡΠΎΡΠ΅ Π²ΡΠ΅Π³ΠΎ ΠΈΠ·Π³ΠΎΡΠΎΠ²ΠΈΡΡ Π΅ΠΌΠΊΠΎΡΡΡ Ρ ΠΏΡΡΠΌΡΠΌΠΈ ΡΠ³Π»Π°ΠΌΠΈ β ΠΊΠ²Π°Π΄ΡΠ°ΡΠ½ΡΡ ΠΈΠ»ΠΈ ΠΏΡΡΠΌΠΎΡΠ³ΠΎΠ»ΡΠ½ΡΡ. ΠΠ»Ρ ΡΠ΄ΠΎΠ±ΡΡΠ²Π° ΡΠΊΡΠΏΠ»ΡΠ°ΡΠ°ΡΠΈΠΈ Π³Π»ΡΠ±ΠΈΠ½Π° ΠΊΠΎΡΠ»ΠΎΠ²Π°Π½Π° Π½Π΅ Π΄ΠΎΠ»ΠΆΠ½Π° Π±ΡΡΡ ΠΌΠ΅Π½ΡΡΠ΅ 1,5 ΠΌ. Π¨ΠΈΡΠΈΠ½Π° Π·Π°Π²ΠΈΡΠΈΡ ΠΎΡ ΠΊΠΎΠ»ΠΈΡΠ΅ΡΡΠ²Π° Π»ΡΠ΄Π΅ΠΉ, ΠΊΠΎΡΠΎΡΡΠ΅ ΠΎΠ΄Π½ΠΎΠ²ΡΠ΅ΠΌΠ΅Π½Π½ΠΎ Π·Π°Ρ ΠΎΡΡΡ ΠΎΠΊΡΠ½ΡΡΡΡΡ, Π° ΡΠ°ΠΊΠΆΠ΅ ΠΎΡ ΡΠ°Π·ΠΌΠ΅ΡΠΎΠ² ΡΠ°ΠΌΠΎΠΉ Π±Π°Π½ΠΈ. ΠΠ½ΠΎ ΠΈ ΡΡΠ΅Π½ΠΊΠΈ ΠΊΠΎΡΠ»ΠΎΠ²Π°Π½Π° Π²ΡΡΠ°Π²Π½ΠΈΠ²Π°ΡΡ, ΡΠ±ΠΈΡΠ°ΡΡ Π»ΠΈΡΠ½ΠΈΠΉ Π³ΡΡΠ½Ρ.

ΠΡΠΏΠ΅Π»Ρ Π΄Π»Ρ Π±Π°Π½ΠΈ ΡΠ²ΠΎΠΈΠΌΠΈ ΡΡΠΊΠ°ΠΌΠΈ
Π ΠΎΠ΄Π½ΠΎΠΌ ΠΈΠ· ΡΠ³Π»ΠΎΠ² Π΄Π΅Π»Π°ΡΡ ΠΎΡΠ²Π΅ΡΡΡΠΈΠ΅ Π΄Π»Ρ ΡΠ»ΠΈΠ²Π°, Π²ΡΠ²ΠΎΠ΄ΡΡ ΠΏΠ»Π°ΡΡΠΈΠΊΠΎΠ²ΡΡ ΡΡΡΠ±Ρ ΠΊ ΡΠ»ΠΈΠ²Π½ΠΎΠΉ ΡΠΌΠ΅ ΠΈΠ»ΠΈ ΠΏΠΎΠ΄ΠΊΠ»ΡΡΠ°ΡΡ ΠΊ Π½Π°ΡΠΎΡΡ. ΠΠ΅ΡΡ Π½ΠΈΠΉ ΠΊΠΎΠ½Π΅Ρ ΡΡΡΠ±Ρ Π΄ΠΎΠ»ΠΆΠ΅Π½ Π²ΡΡΡΡΠΏΠ°ΡΡ Π½Π°Π΄ Π΄Π½ΠΎΠΌ ΠΊΠΎΡΠ»ΠΎΠ²Π°Π½Π° ΠΏΡΠΈΠΌΠ΅ΡΠ½ΠΎ Π½Π° 15 ΡΠΌ, Π»ΠΈΡΠ½Π΅Π΅ ΡΡΠ΅ΠΆΠ΅ΡΡΡ Π² ΠΏΡΠΎΡΠ΅ΡΡΠ΅ ΠΌΠΎΠ½ΡΠ°ΠΆΠ°. Π Π²Π΅ΡΡ Π½Π΅ΠΉ ΡΠ°ΡΡΠΈ ΡΠΌΡ ΠΏΡΠΎΠΊΠ»Π°Π΄ΡΠ²Π°ΡΡ ΡΡΡΠ±Ρ Π΄Π»Ρ Π½Π°ΠΏΠΎΠ»Π½Π΅Π½ΠΈΡ ΠΊΡΠΏΠ΅Π»ΠΈ ΡΠΈΡΡΠΎΠΉ Π²ΠΎΠ΄ΠΎΠΉ. ΠΠ°ΡΠ΅ΠΌ Π½Π°ΡΡΠΏΠ°ΡΡ Π½Π° Π΄Π½ΠΎ ΡΠ»ΠΎΠΉ ΡΠ΅ΡΠ½ΠΎΠ³ΠΎ ΠΏΠ΅ΡΠΊΠ°, ΠΏΡΠΎΠ»ΠΈΠ²Π°ΡΡ Π΅Π³ΠΎ Π²ΠΎΠ΄ΠΎΠΉ ΠΈ ΡΡΠ°ΠΌΠ±ΡΡΡ. ΠΠ°Π»Π΅Π΅ ΠΈΠ΄Π΅Ρ ΡΠ»ΠΎΠΉ ΠΌΠ΅Π»ΠΊΠΎΠ³ΠΎ Π³ΡΠ°Π²ΠΈΡ, ΠΊΠΎΡΠΎΡΡΠΉ ΡΠΎΠΆΠ΅ ΡΠ»Π΅Π΄ΡΠ΅Ρ ΡΠ°Π·ΡΠΎΠ²Π½ΡΡΡ ΠΈ ΡΡΡΠ°ΠΌΠ±ΠΎΠ²Π°ΡΡ.
ΠΡΠΌΠΈΡΠΎΠ²Π°Π½ΠΈΠ΅ ΠΈ Π·Π°Π»ΠΈΠ²ΠΊΠ°

ΠΡΠΌΠΈΡΠΎΠ²Π°Π½ΠΈΠ΅
ΠΠ· ΠΏΡΡΡΡΠ΅Π² Π°ΡΠΌΠ°ΡΡΡΡ Π²ΡΠΆΡΡ ΡΠ΅ΡΠ΅ΡΠΊΡ Ρ ΡΡΠ΅ΠΉΠΊΠΎΠΉ 20Ρ 20 ΠΈΠ»ΠΈ 30Ρ 30 ΡΠΌ ΠΈ ΡΠΊΠ»Π°Π΄ΡΠ²Π°ΡΡ Π΅Π΅ Π½Π° ΠΏΠ΅ΡΡΠ°Π½ΠΎ-Π³ΡΠ°Π²ΠΈΠΉΠ½ΡΡ ΠΏΠΎΠ΄ΡΡΠΊΡ. ΠΠΎΠ΄ ΡΠ΅ΡΠ΅ΡΠΊΡ Π² Π½Π΅ΡΠΊΠΎΠ»ΡΠΊΠΈΡ ΠΌΠ΅ΡΡΠ°Ρ ΠΏΠΎΠ΄ΠΊΠ»Π°Π΄ΡΠ²Π°ΡΡ ΠΎΠ±ΡΠ΅Π·ΠΊΠΈ ΠΏΠ»Π°ΡΡΠΈΠΊΠΎΠ²ΡΡ ΡΡΡΠ± ΡΠΈΡΠΈΠ½ΠΎΠΉ 5 ΡΠΌ ΠΈΠ»ΠΈ ΡΠΏΠ΅ΡΠΈΠ°Π»ΡΠ½ΡΠ΅ ΡΠΈΠΊΡΠ°ΡΠΎΡΡ. ΠΠΎ Π±ΠΎΠΊΠ°ΠΌ ΡΠ°ΠΊΠΆΠ΅ ΡΡΡΠ°Π½Π°Π²Π»ΠΈΠ²Π°ΡΡ Π°ΡΠΌΠΈΡΡΡΡΠΈΠ΅ ΡΠ΅ΡΠ΅ΡΠΊΠΈ ΠΈ ΡΠ²ΡΠ·ΡΠ²Π°ΡΡ ΠΈΡ ΠΌΠ΅ΠΆΠ΄Ρ ΡΠΎΠ±ΠΎΠΉ ΠΏΡΠΎΠ²ΠΎΠ»ΠΎΠΊΠΎΠΉ. ΠΠ· Π»ΠΈΡΡΠΎΠ² OSB ΡΠ±ΠΈΠ²Π°ΡΡ ΠΎΠΏΠ°Π»ΡΠ±ΠΊΡ ΠΈ ΡΠΊΡΠ΅ΠΏΠ»ΡΡΡ Π΅Π΅ ΠΏΠΎΠΏΠ΅ΡΠ΅ΡΠ½ΡΠΌΠΈ Π±ΡΡΡΡΡΠΌΠΈ Ρ Π½Π°ΡΡΠΆΠ½ΠΎΠΉ ΡΡΠΎΡΠΎΠ½Ρ. ΠΠ±ΡΠ·Π°ΡΠ΅Π»ΡΠ½ΠΎ Π΄Π΅Π»Π°ΡΡ Π²ΡΡΠ΅Π· Π΄Π»Ρ ΡΡΡΠ±Ρ, ΠΏΠΎΠ΄Π°ΡΡΠ΅ΠΉ ΡΠΈΡΡΡΡ Π²ΠΎΠ΄Ρ.

ΠΠΏΠ°Π»ΡΠ±ΠΊΠ°
ΠΠΎΠ²Π΅ΡΡ Π½ΠΎΡΡΡ, ΠΊΠΎΡΠΎΡΠ°Ρ Π±ΡΠ΄Π΅Ρ ΠΊΠΎΠ½ΡΠ°ΠΊΡΠΈΡΠΎΠ²Π°ΡΡ Ρ ΡΠ°ΡΡΠ²ΠΎΡΠΎΠΌ, ΠΎΠ±ΠΈΠ²Π°ΡΡ ΠΏΠ»Π΅Π½ΠΊΠΎΠΉ, ΡΡΠΎΠ±Ρ ΠΎΠΏΠ°Π»ΡΠ±ΠΊΠ° Π½Π΅ Π²ΠΏΠΈΡΡΠ²Π°Π»Π° Π²ΠΎΠ΄Ρ. ΠΡΠ»ΠΈ ΡΠ°ΡΠ° ΠΊΡΠΏΠ΅Π»ΠΈ Π΄ΠΎΠ»ΠΆΠ½Π° Π²ΠΎΠ·Π²ΡΡΠ°ΡΡΡΡ Π½Π°Π΄ ΠΏΠΎΠ»ΠΎΠΌ, ΡΡΠ΅Π½ΠΊΠΈ ΠΎΠΏΠ°Π»ΡΠ±ΠΊΠΈ Π΄Π΅Π»Π°ΡΡ Π²ΡΡΠ΅ ΠΊΠΎΡΠ»ΠΎΠ²Π°Π½Π° Π½Π° 15-20 ΡΠΌ.

Π£ΡΡΠ°Π½ΠΎΠ²ΠΊΠ° ΠΎΠΏΠ°Π»ΡΠ±ΠΊΠΈ
Π§Π°ΡΡΠΈ ΠΎΠΏΠ°Π»ΡΠ±ΠΊΠΈ ΡΠ±ΠΈΠ²Π°ΡΡ Π²ΠΌΠ΅ΡΡΠ΅, ΡΠΊΡΠ΅ΠΏΠ»ΡΡ ΠΏΠΎ Π²Π½ΡΡΡΠ΅Π½Π½ΠΈΠΌ ΡΠ³Π»Π°ΠΌ Π΄Π΅ΡΠ΅Π²ΡΠ½Π½ΡΠΌ Π±ΡΡΡΠΎΠΌ, ΠΏΠΎΡΠ»Π΅ ΡΠ΅Π³ΠΎ ΠΎΠΏΡΡΠΊΠ°ΡΡ Π² ΠΊΠΎΡΠ»ΠΎΠ²Π°Π½ ΡΠ°ΠΊ, ΡΡΠΎΠ±Ρ ΠΌΠ΅ΠΆΠ΄Ρ Π²Π΅ΡΡΠΈΠΊΠ°Π»ΡΠ½ΡΠΌΠΈ ΡΠ΅ΡΠ΅ΡΠΊΠ°ΠΌΠΈ ΠΈ ΡΡΠ΅Π½ΠΊΠ°ΠΌΠΈ ΡΠΈΡΠΎΠ² ΠΎΡΡΠ°Π²Π°Π»ΠΎΡΡ ΡΠ²ΠΎΠ±ΠΎΠ΄Π½ΠΎΠ΅ ΠΏΡΠΎΡΡΡΠ°Π½ΡΡΠ²ΠΎ 3-5 ΡΠΌ. ΠΠΎΠ΄ Π½ΠΈΠΆΠ½ΠΈΠ΅ ΠΊΡΠ°Ρ ΡΠΈΡΠΎΠ² ΡΠ°ΠΊΠΆΠ΅ ΠΏΠΎΠ΄ΠΊΠ»Π°Π΄ΡΠ²Π°ΡΡ ΠΏΠ»Π°ΡΡΠΈΠΊΠΎΠ²ΡΠ΅ ΡΠΈΠΊΡΠ°ΡΠΎΡΡ, ΠΎΡΡΠ°Π²Π»ΡΡ ΡΠ°ΡΡΡΠΎΡΠ½ΠΈΠ΅ Π΄ΠΎ ΡΠ΅ΡΠ΅ΡΠΊΠΈ ΠΎΠΊΠΎΠ»ΠΎ 5 ΡΠΌ. Π£ΠΊΡΠ΅ΠΏΠ»ΡΡΡ ΠΊΠΎΠ½ΡΡΡΡΠΊΡΠΈΡ Π΄Π²ΡΠΌΡ ΠΈΠ»ΠΈ ΡΡΠ΅ΠΌΡ ΡΠ°ΡΠΏΠΎΡΠΊΠ°ΠΌΠΈ ΠΈΠ· Π±ΡΡΡΠ° ΠΈ ΠΏΡΠΈΡΡΡΠΏΠ°ΡΡ ΠΊ Π·Π°Π»ΠΈΠ²ΠΊΠ΅.

ΠΠΎΠ΄ΠΏΠΎΡΠΊΠΈ
ΠΠ»Ρ Π·Π°Π»ΠΈΠ²ΠΊΠΈ ΠΊΡΠΏΠ΅Π»ΠΈ Π½ΡΠΆΠ΅Π½ ΠΏΡΠΎΡΠ½ΡΠΉ Π²ΠΎΠ΄ΠΎΡΡΠΎΠΉΠΊΠΈΠΉ ΡΠ°ΡΡΠ²ΠΎΡ Π²ΡΡΠΎΠΊΠΎΠ³ΠΎ ΠΊΠ°ΡΠ΅ΡΡΠ²Π°, ΠΏΠΎΡΡΠΎΠΌΡ ΡΠ΅ΠΊΠΎΠΌΠ΅Π½Π΄ΡΠ΅ΡΡΡ ΠΈΡΠΏΠΎΠ»ΡΠ·ΠΎΠ²Π°ΡΡ ΡΠ΅ΠΌΠ΅Π½Ρ Π½Π΅ Π½ΠΈΠΆΠ΅ Π400. ΠΠ΅ΡΠΎΠΊ Π΄ΠΎΠ»ΠΆΠ΅Π½ Π±ΡΡΡ ΠΊΡΡΠΏΠ½ΠΎΠ·Π΅ΡΠ½ΠΈΡΡΡΠΉ, Π±Π΅Π· ΠΏΡΠΈΠΌΠ΅ΡΠ΅ΠΉ, Π° ΡΠ΅Π±Π΅Π½Ρ ΠΌΠ΅Π»ΠΊΠΎΡΡΠ°ΠΊΡΠΈΠΎΠ½Π½ΡΠΉ, ΡΠ°Π·ΠΌΠ΅ΡΠΎΠΌ 10-20 ΠΌΠΌ. ΠΠΎΠΆΠ½ΠΎ Π΄ΠΎΠ±Π°Π²ΠΈΡΡ Π² ΡΠ°ΡΡΠ²ΠΎΡ Π³ΠΈΠ΄ΡΠΎΡΠ΅Ρ Π½ΠΈΡΠ΅ΡΠΊΠΈΠ΅ ΠΊΠΎΠΌΠΏΠΎΠ½Π΅Π½ΡΡ, ΠΏΠΎΠ²ΡΡΠ°ΡΡΠΈΠ΅ Π²ΠΎΠ΄ΠΎΡΡΠΎΠΉΠΊΠΎΡΡΡ Π±Π΅ΡΠΎΠ½Π° Π² Π½Π΅ΡΠΊΠΎΠ»ΡΠΊΠΎ ΡΠ°Π·.

ΠΠ°Π»ΠΈΠ²ΠΊΠ° Π±Π΅ΡΠΎΠ½Π°

ΠΠ°Π»ΠΈΠ²ΠΊΠ° Π±Π΅ΡΠΎΠ½Π°

ΠΠ°Π»ΠΈΠ²ΠΊΠ° Π±Π΅ΡΠΎΠ½Π°
ΠΡΠΈ Π·Π°ΠΌΠ΅ΡΠΈΠ²Π°Π½ΠΈΠΈ ΡΠ°ΡΡΠ²ΠΎΡΠ° ΡΠ»Π΅Π΄ΡΠ΅Ρ ΡΠΎΠ±Π»ΡΠ΄Π°ΡΡ ΠΏΡΠΎΠΏΠΎΡΡΠΈΠΈ: Π½Π° 1 ΡΠ°ΡΡΡ ΡΡΡ ΠΎΠ³ΠΎ ΡΠ΅ΠΌΠ΅Π½ΡΠ° Π±Π΅ΡΡΡ 3 ΡΠ°ΡΡΠΈ ΠΏΡΠΎΡΠ΅ΡΠ½Π½ΠΎΠ³ΠΎ ΠΏΠ΅ΡΠΊΠ° ΠΈ 5 ΡΠ°ΡΡΠ΅ΠΉ ΠΌΠ΅Π»ΠΊΠΎΠ³ΠΎ ΡΠ΅Π±Π½Ρ. ΠΠΎΠ΄Π° Π²Π»ΠΈΠ²Π°Π΅ΡΡΡ Π½Π΅Π±ΠΎΠ»ΡΡΠΈΠΌΠΈ ΠΏΠΎΡΡΠΈΡΠΌΠΈ, ΠΏΠΎΡΠ»Π΅ ΡΡΠ°ΡΠ΅Π»ΡΠ½ΠΎΠ³ΠΎ Π²ΡΠΌΠ΅ΡΠΈΠ²Π°Π½ΠΈΡ. ΠΠΈΠ΄ΡΠΎΡΠ΅Ρ Π½ΠΈΡΠ΅ΡΠΊΠΈΠ΅ Π΄ΠΎΠ±Π°Π²ΠΊΠΈ Π²ΡΡΡΠΏΠ°ΡΡ Π² ΠΊΠΎΠ½ΡΠ΅ Π·Π°ΠΌΠ΅ΡΠ° Π² ΡΠΎΠΎΡΠ½ΠΎΡΠ΅Π½ΠΈΠΈ 4 ΠΊΠ³ Π½Π° ΠΊΡΠ±ΠΈΡΠ΅ΡΠΊΠΈΠΉ ΠΌΠ΅ΡΡ Π±Π΅ΡΠΎΠ½Π°. ΠΠ°Π»ΠΈΠ²Π°ΡΡ ΡΠ½Π°ΡΠ°Π»Π° ΡΡΠ΅Π½Ρ Π΅ΠΌΠΊΠΎΡΡΠΈ, Π° Π·Π°ΡΠ΅ΠΌ ΠΏΠΎΠ»; Π²Π΅ΡΡ ΡΡΡΠ±Ρ ΠΏΡΠΈΠΊΡΡΠ²Π°ΡΡ Π·Π°Π³Π»ΡΡΠΊΠΎΠΉ. ΠΠΎΡΠ»Π΅ Π·Π°Π»ΠΈΠ²ΠΊΠΈ Π½Π΅ΠΎΠ±Ρ ΠΎΠ΄ΠΈΠΌΠΎ ΡΠΏΠ»ΠΎΡΠ½ΠΈΡΡ ΡΠ°ΡΡΠ²ΠΎΡ Π²ΠΈΠ±ΡΠ°ΡΠΎΡΠΎΠΌ ΠΈΠ»ΠΈ ΠΏΡΠΎΡΡΡΡΠ°ΡΡ ΡΡΠ΅Π½ΠΊΠΈ ΠΎΠΏΠ°Π»ΡΠ±ΠΊΠΈ ΠΌΠΎΠ»ΠΎΡΠΊΠΎΠΌ.

ΠΠ°Π»ΠΈΠ²ΠΊΠ° Π±Π΅ΡΠΎΠ½Π° Π½Π° Π΄Π½ΠΎ

Π‘ΡΠ΅Π½ΠΊΠΈ ΠΊΡΠΏΠ΅Π»ΠΈ

ΠΡΡΠ°Π²Π½ΠΈΠ²Π°Π½ΠΈΠ΅ ΡΡΠ΅Π½ΠΎΠΊ
ΠΠΈΠ΄ΡΠΎΠΈΠ·ΠΎΠ»ΡΡΠΈΡ ΠΈ ΠΎΡΠ΄Π΅Π»ΠΊΠ°
Π‘Π½ΠΈΠΌΠ°ΡΡ ΠΎΠΏΠ°Π»ΡΠ±ΠΊΡ ΡΠ΅ΠΊΠΎΠΌΠ΅Π½Π΄ΡΠ΅ΡΡΡ Π½Π΅ ΡΠ°Π½Π΅Π΅, ΡΠ΅ΠΌ ΡΠ΅ΡΠ΅Π· 7 ΡΡΡΠΎΠΊ. ΠΠ° ΡΡΠΎ Π²ΡΠ΅ΠΌΡ Π±Π΅ΡΠΎΠ½ Π΄ΠΎΡΡΠ°ΡΠΎΡΠ½ΠΎ Ρ ΠΎΡΠΎΡΠΎ ΡΠΏΡΠΎΡΠ½ΠΈΡΡΡ ΠΈ ΠΏΡΠΎΡΠΎΡ Π½Π΅Ρ. Π‘ ΠΏΠΎΠΌΠΎΡΡΡ ΡΠ΅ΠΌΠ΅Π½ΡΠ½ΠΎΠ³ΠΎ ΡΠ°ΡΡΠ²ΠΎΡΠ° Π·Π°Π΄Π΅Π»ΡΠ²Π°ΡΡ ΠΎΠ±ΡΠ°Π·ΠΎΠ²Π°Π²ΡΠΈΠ΅ΡΡ Π½Π° ΡΡΠ΅Π½ΠΊΠ°Ρ ΠΊΡΠΏΠ΅Π»ΠΈ Π²ΡΠ΅ΠΌΠΊΠΈ ΠΈ Π΄ΡΡΠ³ΠΈΠ΅ Π΄Π΅ΡΠ΅ΠΊΡΡ. ΠΠΎΠ» ΡΠ°ΠΊΠΆΠ΅ Π²ΡΡΠ°Π²Π½ΠΈΠ²Π°ΡΡ ΡΠΎΠ½ΠΊΠΎΠΉ ΡΡΡΠΆΠΊΠΎΠΉ, Π° ΡΠ»ΠΈΠ²Π½ΡΡ ΡΡΡΠ±Ρ ΠΎΠ±ΡΠ΅Π·Π°ΡΡ ΠΏΠΎ ΡΡΠΎΠ²Π½Ρ ΠΏΠΎΠ»Π°. ΠΠΎΡΠ»Π΅ Π²ΡΡΡΡ Π°Π½ΠΈΡ ΠΏΠΎΠ²Π΅ΡΡ Π½ΠΎΡΡΠΈ Π΅Π΅ ΠΏΠΎΠΊΡΡΠ²Π°ΡΡ ΠΏΠ»ΠΎΡΠ½ΡΠΌ ΡΠ»ΠΎΠ΅ΠΌ Π³ΠΈΠ΄ΡΠΎΠΈΠ·ΠΎΠ»ΡΡΠΈΠΎΠ½Π½ΠΎΠΉ ΡΠΌΠ΅ΡΠΈ. ΠΠ°Π»Π΅Π΅ ΡΡΠ΅Π½ΠΊΠΈ ΠΈ Π΄Π½ΠΎ Π΅ΠΌΠΊΠΎΡΡΠΈ Π³ΡΡΠ½ΡΡΡΡ ΠΈ ΠΎΡΡΠ°Π²Π»ΡΡΡ ΡΠΎΡ Π½ΡΡΡ.
ΠΠ»Ρ ΠΎΡΠ΄Π΅Π»ΠΊΠΈ Π±ΠΎΠ»ΡΡΠ΅ Π²ΡΠ΅Π³ΠΎ ΠΏΠΎΠ΄Ρ ΠΎΠ΄ΠΈΡ ΠΌΠΎΠ·Π°ΠΈΡΠ½Π°Ρ ΠΊΠ΅ΡΠ°ΠΌΠΈΡΠ΅ΡΠΊΠ°Ρ ΠΏΠ»ΠΈΡΠΊΠ°. ΠΠ»ΠΈΡΠΊΡ ΡΠΊΠ»Π°Π΄ΡΠ²Π°ΡΡ ΡΠΎΠ»ΡΠΊΠΎ Π½Π° Π²ΠΎΠ΄ΠΎΡΡΠΎΠΉΠΊΠΈΠΉ ΠΊΠ»Π΅ΠΉ, Π° Π΄Π»Ρ ΠΎΠ±ΡΠ°Π±ΠΎΡΠΊΠΈ ΡΠ²ΠΎΠ² ΠΏΡΠΈΠΌΠ΅Π½ΡΡΡ Π²ΠΎΠ΄ΠΎΡΡΠΎΠΉΠΊΡΡ Π·Π°ΡΠΈΡΠΊΡ. ΠΡΡΠΌΠΎΡΠ³ΠΎΠ»ΡΠ½ΡΡ ΠΊΡΠΏΠ΅Π»Ρ ΠΎΠ±Π»ΠΈΡΠ΅Π²Π°ΡΡ ΠΏΠ»ΠΈΡΠΊΠΎΠΉ Π΄ΠΎΡΡΠ°ΡΠΎΡΠ½ΠΎ Π»Π΅Π³ΠΊΠΎ, Π΄Π΅Π»Π°ΡΡ ΡΠΈΠ³ΡΡΠ½ΡΠ΅ Π²ΡΡΠ΅Π·Ρ ΠΏΠΎΠ½Π°Π΄ΠΎΠ±ΠΈΡΡΡ Π²ΡΠ΅Π³ΠΎ 2 ΡΠ°Π·Π° β Π΄Π»Ρ ΡΠ»ΠΈΠ²Π° ΠΈ ΡΡΡΠ±Ρ ΠΏΠΎΠ΄Π°ΡΠΈ. ΠΠΎ Π΅ΡΠ»ΠΈ Π½Π΅ Ρ ΠΎΡΠ΅ΡΡΡ ΡΡΠ°ΡΠΈΡΡ Π²ΡΠ΅ΠΌΡ Π½Π° ΠΎΠ±Π»ΠΈΡΠΎΠ²ΠΊΡ, Π²Π½ΡΡΡΠ΅Π½Π½ΡΡ ΠΏΠΎΠ²Π΅ΡΡ Π½ΠΎΡΡΡ ΠΊΡΠΏΠ΅Π»ΠΈ ΠΏΡΠΎΡΡΠΎ ΠΏΠΎΠΊΡΡΠ²Π°ΡΡ ΡΠ΅Π·ΠΈΠ½ΠΎΠ²ΠΎΠΉ ΠΊΡΠ°ΡΠΊΠΎΠΉ, ΠΊΠΎΡΠΎΡΠ°Ρ ΡΠΎΠ²Π΅ΡΡΠ΅Π½Π½ΠΎ Π½Π΅ ΠΏΡΠΎΠΏΡΡΠΊΠ°Π΅Ρ Π²ΠΎΠ΄Ρ, Π½Π΅ ΡΡΠ΅ΡΠΊΠ°Π΅ΡΡΡ ΠΈ Π΄ΠΎΠ»Π³ΠΎ ΡΠ»ΡΠΆΠΈΡ.

ΠΠΎΠΊΡΠ°ΡΠΊΠ° ΠΊΡΠΏΠ΅Π»ΠΈ
ΠΠ»Ρ Π±Π΅Π·ΠΎΠΏΠ°ΡΠ½ΠΎΡΡΠΈ ΠΈ ΡΠ΄ΠΎΠ±ΡΡΠ²Π° Π½Π° ΠΎΠ΄Π½ΠΎΠΉ ΠΈΠ· ΡΡΠ΅Π½ΠΎΠΊ ΠΊΡΠ΅ΠΏΡΡ ΠΌΠ΅ΡΠ°Π»Π»ΠΈΡΠ΅ΡΠΊΠΈΠ΅ ΠΏΠΎΡΡΡΠ½ΠΈ, Π²Π΅ΡΡ ΠΊΠΎΡΠΎΡΡΡ Π²ΡΡ ΠΎΠ΄ΠΈΡ Π·Π° Π±ΠΎΡΡΠΈΠΊ ΠΊΡΠΏΠ΅Π»ΠΈ ΠΈ ΡΠΈΠΊΡΠΈΡΡΠ΅ΡΡΡ ΠΊ ΠΏΠΎΠ»Ρ Π°Π½ΠΊΠ΅ΡΠ½ΡΠΌΠΈ Π±ΠΎΠ»ΡΠ°ΠΌΠΈ. ΠΠΎΠΆΠ½ΠΎ Π·Π°ΡΠ°Π½Π΅Π΅ Π²ΠΌΡΡΠΎΠ²Π°ΡΡ Π°ΡΠΌΠ°ΡΡΡΠ½ΡΠ΅ ΡΡΠ΅ΡΠΆΠ½ΠΈ Π² ΡΡΠ΅Π½Ρ ΠΈ Π±ΠΎΡΡΠΈΠΊ, ΡΡΠΎΠ±Ρ Π²ΠΏΠΎΡΠ»Π΅Π΄ΡΡΠ²ΠΈΠΈ ΠΏΡΠΈΠ²Π°ΡΠΈΡΡ ΠΊ Π½ΠΈΠΌ ΠΏΠΎΡΡΡΠ½ΠΈ.

Π£ΡΡΠ°Π½ΠΎΠ²ΠΊΠ° Π»Π΅ΡΡΠ½ΠΈΡΡ Π² ΠΊΡΠΏΠ΅Π»Ρ

Π£ΡΡΠ°Π½ΠΎΠ²ΠΊΠ° Π»Π΅ΡΡΠ½ΠΈΡΡ Π² ΠΊΡΠΏΠ΅Π»Ρ

Π£ΡΡΠ°Π½ΠΎΠ²ΠΊΠ° Π»Π΅ΡΡΠ½ΠΈΡΡ Π² ΠΊΡΠΏΠ΅Π»Ρ

Π£ΡΡΠ°Π½ΠΎΠ²ΠΊΠ° Π»Π΅ΡΡΠ½ΠΈΡΡ Π² ΠΊΡΠΏΠ΅Π»Ρ
ΠΠ΅ΡΠ΅Π²ΡΠ½Π½Π°Ρ ΠΊΡΠΏΠ΅Π»Ρ
Π‘Π±ΠΎΡΠΊΠ° ΠΈ ΡΡΡΠ°Π½ΠΎΠ²ΠΊΠ° Π΄Π΅ΡΠ΅Π²ΡΠ½Π½ΠΎΠΉ ΠΊΡΠΏΠ΅Π»ΠΈ Π·Π°ΠΉΠΌΠ΅Ρ Π³ΠΎΡΠ°Π·Π΄ΠΎ ΠΌΠ΅Π½ΡΡΠ΅ Π²ΡΠ΅ΠΌΠ΅Π½ΠΈ. ΠΠ»Ρ ΡΠ°ΠΊΠΎΠΉ Π΅ΠΌΠΊΠΎΡΡΠΈ ΠΊΠΎΡΠ»ΠΎΠ²Π°Π½ Π½Π΅ Π½ΡΠΆΠ΅Π½, Ρ ΠΎΡΡ Π²ΡΡΡΠ΅ΡΠ°ΡΡΡΡ ΠΈ Π·Π°Π³Π»ΡΠ±Π»Π΅Π½Π½ΡΠ΅ Π²Π°ΡΠΈΠ°Π½ΡΡ ΠΊΡΠΏΠ΅Π»Π΅ΠΉ ΠΈΠ· Π΄Π΅ΡΠ΅Π²Π°. Π‘Π΅ΠΉΡΠ°Ρ Π² ΠΏΡΠΎΠ΄Π°ΠΆΠ΅ ΠΈΠΌΠ΅Π΅ΡΡΡ ΠΎΠ³ΡΠΎΠΌΠ½ΠΎΠ΅ ΠΊΠΎΠ»ΠΈΡΠ΅ΡΡΠ²ΠΎ Π³ΠΎΡΠΎΠ²ΡΡ Π΄Π΅ΡΠ΅Π²ΡΠ½Π½ΡΡ Π΅ΠΌΠΊΠΎΡΡΠ΅ΠΉ Π»ΡΠ±ΠΎΠ³ΠΎ ΡΠ°Π·ΠΌΠ΅ΡΠ° ΠΈ ΡΠΎΡΠΌΡ, Π° ΡΠ°ΠΊΠΆΠ΅ ΠΊΠΎΠΌΠΏΠ»Π΅ΠΊΡΡ Π΄Π»Ρ ΡΠ°ΠΌΠΎΡΡΠΎΡΡΠ΅Π»ΡΠ½ΠΎΠΉ ΡΠ±ΠΎΡΠΊΠΈ, ΡΡΠΎ Π²ΡΡ ΠΎΠ΄ΠΈΡ Π³ΠΎΡΠ°Π·Π΄ΠΎ Π΄Π΅ΡΠ΅Π²Π»Π΅. Π‘Π΄Π΅Π»Π°ΡΡ ΠΆΠ΅ ΠΏΠΎΠ΄ΠΎΠ±Π½ΡΡ ΠΊΠΎΠ½ΡΡΡΡΠΊΡΠΈΡ Ρ Π½ΡΠ»Ρ ΠΌΠΎΠΆΠ΅Ρ ΡΠΎΠ»ΡΠΊΠΎ ΠΎΠΏΡΡΠ½ΡΠΉ ΠΌΠ°ΡΡΠ΅Ρ, Π²Π΅Π΄Ρ ΠΎΠ±ΡΠ°Π±ΠΎΡΠΊΠ° Π΄ΡΠ΅Π²Π΅ΡΠΈΠ½Ρ ΠΈΠΌΠ΅Π΅Ρ ΠΌΠ½ΠΎΠΆΠ΅ΡΡΠ²ΠΎ ΡΠ΅ΠΊΡΠ΅ΡΠΎΠ².

ΠΠ΅ΡΠ΅Π²ΡΠ½Π½Π°Ρ ΠΊΡΠΏΠ΅Π»Ρ
ΠΠ»Ρ ΡΠ±ΠΎΡΠΊΠΈ ΠΊΡΠΏΠ΅Π»ΠΈ ΠΈΠ· Π·Π°Π³ΠΎΡΠΎΠ²ΠΎΠΊ ΠΏΠΎΡΡΠ΅Π±ΡΡΡΡΡ:
- Π΄Π΅ΡΠ΅Π²ΡΠ½Π½ΡΠ΅ ΡΠ΅ΠΉΠΊΠΈ Ρ Π²ΡΠ±ΠΎΡΠΊΠΎΠΉ Π½Π° Π±ΠΎΠΊΠΎΠ²ΡΡ ΠΊΡΠΎΠΌΠΊΠ°Ρ ;
- Π±Π°Π»ΠΊΠΈ-Π΄Π΅ΡΠΆΠ°ΡΠ΅Π»ΠΈ;
- ΠΌΠ΅ΡΠ°Π»Π»ΠΈΡΠ΅ΡΠΊΠΈΠ΅ ΠΎΠ±ΡΡΡΠΈ;
- ΠΏΠ»Π°ΡΡΠΈΠΊΠΎΠ²ΡΠΉ ΡΠ»ΠΈΠ²;
- ΡΠ°ΠΌΠΎΡΠ΅Π·Ρ;
- Π΄ΡΠ΅Π»Ρ;
- ΡΠΈΠ»ΠΈΠΊΠΎΠ½;
- ΡΠ΅Π·ΠΈΠ½ΠΎΠ²ΡΠΉ ΠΌΠΎΠ»ΠΎΡΠΎΠΊ;
- Π±ΠΎΠ»ΡΡ ΠΈ Π³Π°ΠΉΠΊΠΈ Π΄Π»Ρ ΠΎΠ±ΡΡΡΠ΅ΠΉ;
- ΡΡΡΡΠ±ΡΠΈΠ½Π°;
- Π²ΠΎΠ΄ΠΎΡΡΠΎΠΉΠΊΠΈΠΉ ΠΊΠ»Π΅ΠΉ Π΄Π»Ρ Π΄Π΅ΡΠ΅Π²Π°;
- Π½Π°ΠΆΠ΄Π°ΡΠ½Π°Ρ Π±ΡΠΌΠ°Π³Π°;
- ΡΠ»Π΅ΠΊΡΡΠΎΠ»ΠΎΠ±Π·ΠΈΠΊ;
- ΡΡΡΡΠΏΠΎΠ²Π΅ΡΡ.
Π¨Π°Π³ 1. Π‘Π±ΠΎΡΠΊΠ° Π΄Π½Π° ΠΊΡΠΏΠ΅Π»ΠΈ

Π‘Π±ΠΎΡΠΊΠ° Π΄Π½Π° ΠΊΡΠΏΠ΅Π»ΠΈ
ΠΡΠΎΠΏΠΈΡΠ°Π½Π½ΡΠ΅ Π°Π½ΡΠΈΡΠ΅ΠΏΡΠΈΠΊΠΎΠΌ ΡΠ΅ΠΉΠΊΠΈ ΡΠΊΠ»Π΅ΠΈΠ²Π°ΡΡ Π² ΡΠΈΡΠΎΠΊΠΈΠΉ ΠΏΡΡΠΌΠΎΡΠ³ΠΎΠ»ΡΠ½ΠΈΠΊ ΠΈ Π·Π°ΠΆΠΈΠΌΠ°ΡΡ ΡΡΡΡΠ±ΡΠΈΠ½ΠΎΠΉ. ΠΠΎΡΠ»Π΅ Π²ΡΡΡΡ Π°Π½ΠΈΡ ΠΊΠ»Π΅Ρ ΠΏΠΎΠ»ΡΡΠΈΠ²ΡΠΈΠΉΡΡ ΡΠΈΡ ΠΎΠ±ΡΠ΅Π·Π°ΡΡ Π² ΡΠΎΡΠΌΠ΅ ΠΊΡΡΠ³Π° ΠΈΠ»ΠΈ ΠΎΠ²Π°Π»Π°. ΠΡΡΡΡΠΏΠΈΠ² ΠΎΡ ΠΊΡΠ°Ρ ΡΠΈΡΠ° 7-10 ΡΠΌ, Π²ΡΡΠ΅Π·Π°ΡΡ ΠΊΡΡΠ³Π»ΠΎΠ΅ ΠΎΡΠ²Π΅ΡΡΡΠΈΠ΅ ΠΏΠΎΠ΄ ΡΠ»ΠΈΠ²Π½ΠΎΠΉ ΠΊΠ»Π°ΠΏΠ°Π½. Π‘ Π½Π°ΡΡΠΆΠ½ΠΎΠΉ ΡΡΠΎΡΠΎΠ½Ρ Π½Π°Π±ΠΈΠ²Π°ΡΡ Π±Π°Π»ΠΊΠΈ-Π΄Π΅ΡΠΆΠ°ΡΠ΅Π»ΠΈ, ΠΊΠΎΡΠΎΡΡΠ΅ ΠΎΠ±Π΅ΡΠΏΠ΅ΡΠ°Ρ Π²ΠΎΠ·Π΄ΡΡΠ½ΡΠΉ Π·Π°Π·ΠΎΡ ΠΌΠ΅ΠΆΠ΄Ρ Π΄Π½ΠΎΠΌ Π΅ΠΌΠΊΠΎΡΡΠΈ ΠΈ ΠΏΠΎΠ»ΠΎΠΌ Π±Π°Π½ΠΈ.

Π‘Π±ΠΎΡΠΊΠ° Π΄Π½Π° ΠΊΡΠΏΠ΅Π»ΠΈ

Π£ΡΡΠ°Π½ΠΎΠ²ΠΊΠ° ΡΠ»ΠΈΠ²Π½ΠΎΠ³ΠΎ ΠΊΠ»Π°ΠΏΠ°Π½Π°

Π£ΡΡΠ°Π½ΠΎΠ²ΠΊΠ° ΡΠ»ΠΈΠ²Π½ΠΎΠ³ΠΎ ΠΊΠ»Π°ΠΏΠ°Π½Π°
Π¨Π°Π³ 2. Π‘Π±ΠΎΡΠΊΠ° ΡΡΠ΅Π½ΠΎΠΊ
Π ΡΠ΅ΠΉΠΊΠ°Ρ Π΄Π»Ρ ΡΡΠ΅Π½ΠΎΠΊ Ρ ΡΡΠ»ΡΠ½ΠΎΠΉ ΡΡΠΎΡΠΎΠ½Ρ Π½Π° ΡΠ°ΡΡΡΠΎΡΠ½ΠΈΠΈ 4 ΡΠΌ ΠΎΡ ΠΊΡΠ°Ρ Π΄Π΅Π»Π°ΡΡ ΠΏΡΡΠΌΠΎΡΠ³ΠΎΠ»ΡΠ½ΡΠ΅ ΠΏΠ°Π·Ρ, ΡΠΈΡΠΈΠ½Π° ΠΊΠΎΡΠΎΡΡΡ Π½Π° 1-2 ΠΌΠΌ Π±ΠΎΠ»ΡΡΠ΅ ΡΠΎΠ»ΡΠΈΠ½Ρ Π΄Π½Π° Π΅ΠΌΠΊΠΎΡΡΠΈ. Π‘ ΠΏΠΎΠΌΠΎΡΡΡ ΠΏΠ°Π·ΠΎΠ² ΠΈ Π±ΠΎΠΊΠΎΠ²ΡΡ Π²ΡΡΠ΅Π·ΠΎΠ² Π½Π° ΠΊΡΠΎΠΌΠΊΠ°Ρ ΡΠ΅ΠΉΠΊΠΈ ΡΠΊΡΠ΅ΠΏΠ»ΡΡΡΡΡ Ρ Π΄Π½ΠΎΠΌ ΠΈ ΠΌΠ΅ΠΆΠ΄Ρ ΡΠΎΠ±ΠΎΠΉ. ΠΠΎΠ³Π΄Π° ΠΏΠΎΠ»ΠΎΠ²ΠΈΠ½Π° ΡΠ΅Π΅ΠΊ ΡΡΡΠ°Π½ΠΎΠ²Π»Π΅Π½Π°, ΠΌΠΎΠ½ΡΠΈΡΡΡΡ ΡΠ»ΠΈΠ²: ΡΠ»ΠΈΠ²Π½ΠΎΠΉ ΠΊΠ»Π°ΠΏΠ°Π½ ΠΎΠ±ΠΌΠ°Π·ΡΠ²Π°ΡΡ ΡΠΈΠ»ΠΈΠΊΠΎΠ½ΠΎΠΌ, Π²ΡΡΠ°Π²Π»ΡΡΡ Π² ΠΎΡΠ²Π΅ΡΡΡΠΈΠ΅ ΠΈ Π·Π°ΠΊΡΠ΅ΠΏΠ»ΡΡΡ ΡΠΈΡΠΎΠ½. ΠΠΎ Π±ΠΎΠΊΠ°ΠΌ ΡΠΈΡΠΎΠ½ ΡΠΈΠΊΡΠΈΡΡΡΡ ΠΊ ΠΏΠΎΠ²Π΅ΡΡ Π½ΠΎΡΡΠΈ ΡΠ°ΠΌΠΎΡΠ΅Π·Π°ΠΌΠΈ. Π‘Π»ΠΈΠ²Π½Π°Ρ ΡΡΡΠ±ΠΊΠ° Π΄ΠΎΠ»ΠΆΠ½Π° ΠΏΡΠΎΡ ΠΎΠ΄ΠΈΡΡ Π·Π° ΠΎΠ΄Π½ΠΎΠΉ ΠΈΠ· Π½ΠΎΠΆΠ΅ΠΊ ΠΊΡΠΏΠ΅Π»ΠΈ, Π²Π΄ΠΎΠ»Ρ Π±ΠΎΠΊΠΎΠ²ΠΎΠΉ ΡΡΠ΅Π½ΠΊΠΈ, Π° Π·Π°ΡΠ΅ΠΌ Π²ΡΡ ΠΎΠ΄ΠΈΡΡ Π½Π°ΡΡΠΆΡ.

Π‘Π±ΠΎΡΠΊΠ° ΡΡΠ΅Π½ΠΎΠΊ
ΠΠΎΡΠ»Π΅ ΡΡΡΠ°Π½ΠΎΠ²ΠΊΠΈ ΡΠ»ΠΈΠ²Π° ΠΏΡΠΎΠ΄ΠΎΠ»ΠΆΠ°ΡΡ ΡΠ±ΠΎΡΠΊΡ ΡΡΠ΅Π½ΠΎΠΊ Π΅ΠΌΠΊΠΎΡΡΠΈ. ΠΠΎΡΠ»Π΅Π΄Π½ΡΡ ΡΠ΅ΠΉΠΊΡ Π²ΡΡΠ°Π²Π»ΡΡΡ ΡΠ²Π΅ΡΡ Ρ, ΡΡΡΡ ΠΏΡΠΈΠΏΠΎΠ΄Π½ΡΠ² ΡΠΌΠ΅ΠΆΠ½ΡΠ΅ ΡΠ΅ΠΉΠΊΠΈ ΠΏΠΎ ΠΎΠ±Π΅ ΡΡΠΎΡΠΎΠ½Ρ. ΠΠΎΠ΄Π±ΠΈΠ²Π°Ρ ΡΠ΅ΠΉΠΊΠΈ ΡΠ΅Π·ΠΈΠ½ΠΎΠ²ΡΠΌ ΠΌΠΎΠ»ΠΎΡΠΊΠΎΠΌ, ΡΠΏΠ»ΠΎΡΠ½ΡΡΡ ΡΠΎΠ΅Π΄ΠΈΠ½Π΅Π½ΠΈΡ ΠΈ ΠΏΠ΅ΡΠ΅Ρ ΠΎΠ΄ΡΡ ΠΊ ΡΡΡΠ°Π½ΠΎΠ²ΠΊΠ΅ ΠΎΠ±ΡΡΡΠ΅ΠΉ.

Π‘Π±ΠΎΡΠΊΠ° ΡΡΠ΅Π½ΠΎΠΊ

Π‘Π±ΠΎΡΠΊΠ° ΡΡΠ΅Π½ΠΎΠΊ
Π¨Π°Π³ 3. ΠΡΠ΅ΠΏΠ»Π΅Π½ΠΈΠ΅ ΡΡΡΠ³ΠΈΠ²Π°ΡΡΠΈΡ ΠΎΠ±ΡΡΡΠ΅ΠΉ
Π‘ Π½Π°ΡΡΠΆΠ½ΠΎΠΉ ΡΡΠΎΡΠΎΠ½Ρ Π΅ΠΌΠΊΠΎΡΡΠΈ ΠΏΠΎ ΠΏΠ΅ΡΠΈΠΌΠ΅ΡΡΡ ΠΏΡΠΎΠ²ΠΎΠ΄ΡΡ Π΄Π²Π΅ Π³ΠΎΡΠΈΠ·ΠΎΠ½ΡΠ°Π»ΡΠ½ΡΡ ΡΠΏΠ»ΠΎΡΠ½ΡΡ Π»ΠΈΠ½ΠΈΠΈ β Π½Π° ΡΡΠΎΠ²Π½Π΅ 15 ΠΈ 80 ΡΠΌ ΠΎΡ Π½ΠΈΠΆΠ½Π΅ΠΉ ΠΊΡΠΎΠΌΠΊΠΈ. Π§ΡΠΎΠ±Ρ Π·Π°ΠΊΡΠ΅ΠΏΠΈΡΡ ΠΎΠ±ΡΡΡΠΈ Π½Π° Π½ΡΠΆΠ½ΠΎΠΌ ΡΡΠΎΠ²Π½Π΅, ΠΏΠΎ Π»ΠΈΠ½ΠΈΡΠΌ Π½Π°ΠΆΠΈΠ²Π»ΡΡΡ Π½Π΅ΡΠΊΠΎΠ»ΡΠΊΠΎ ΠΌΠ°Π»Π΅Π½ΡΠΊΠΈΡ Π³Π²ΠΎΠ·Π΄ΠΈΠΊΠΎΠ². Π’Π΅ΠΏΠ΅ΡΡ ΠΌΠΎΠΆΠ½ΠΎ ΠΏΡΠΈΡΡΡΠΏΠ°ΡΡ ΠΊ ΡΡΡΠ³ΠΈΠ²Π°Π½ΠΈΡ ΡΡΠ΅Π½ΠΎΠΊ. Π Π·Π°ΠΌΠΊΠΈ ΠΎΠ±ΡΡΡΠ΅ΠΉ Π²ΡΡΠ°Π²Π»ΡΡΡ Π±ΠΎΠ»ΡΡ ΠΈ Π½Π°ΡΠΈΠ½Π°ΡΡ Π·Π°ΠΊΡΡΡΠΈΠ²Π°ΡΡ Π³Π°ΠΉΠΊΠΈ Π΄ΠΎ ΡΠ΅Ρ ΠΏΠΎΡ, ΠΏΠΎΠΊΠ° ΡΠ°ΡΡΡΠΎΡΠ½ΠΈΠ΅ ΠΌΠ΅ΠΆΠ΄Ρ Π·Π°ΠΌΠΊΠ°ΠΌΠΈ Π½Π΅ ΡΠΌΠ΅Π½ΡΡΠΈΡΡΡ Π΄ΠΎ 4 ΡΠΌ.

ΠΡΠ΅ΠΏΠ»Π΅Π½ΠΈΠ΅ ΡΡΡΠ³ΠΈΠ²Π°ΡΡΠΈΡ ΠΎΠ±ΡΡΡΠ΅ΠΉ

ΠΡΠ΅ΠΏΠ»Π΅Π½ΠΈΠ΅ ΡΡΡΠ³ΠΈΠ²Π°ΡΡΠΈΡ ΠΎΠ±ΡΡΡΠ΅ΠΉ
ΠΠΎΡΠ»Π΅ ΡΡΠΎΠ³ΠΎ Π³Π²ΠΎΠ·Π΄ΠΈΠΊΠΈ ΠΈΠ·Π²Π»Π΅ΠΊΠ°ΡΡ, Π° ΠΎΠ±ΡΡΡΠΈ ΠΏΡΠΎΡΡΡΠΊΠΈΠ²Π°ΡΡ ΠΏΠΎ ΠΏΠ΅ΡΠΈΠΌΠ΅ΡΡΡ ΠΌΠΎΠ»ΠΎΡΠΊΠΎΠΌ Π΄Π»Ρ ΡΠΌΠ΅Π½ΡΡΠ΅Π½ΠΈΡ Π·Π°Π·ΠΎΡΠΎΠ² ΠΌΠ΅ΠΆΠ΄Ρ Π΄Π΅ΡΠ΅Π²ΡΠ½Π½ΠΎΠΉ ΠΈ ΠΌΠ΅ΡΠ°Π»Π»ΠΈΡΠ΅ΡΠΊΠΎΠΉ ΠΏΠΎΠ²Π΅ΡΡ Π½ΠΎΡΡΡΡ. ΠΠ»Ρ ΡΡΠ°Π½Π΄Π°ΡΡΠ½ΠΎΠΉ ΠΊΡΠΏΠ΅Π»ΠΈ Ρ Π²Π°ΡΠ°Π΅Ρ Π΄Π²ΡΡ ΠΎΠ±ΡΡΡΠ΅ΠΉ, Π΅ΡΠ»ΠΈ ΠΆΠ΅ Π΅ΠΌΠΊΠΎΡΡΡ Π²ΡΡΠΎΠΊΠ°Ρ, ΠΏΠΎΡΡΠ΅Π±ΡΠ΅ΡΡΡ Π΅ΡΠ΅ ΠΎΠ΄ΠΈΠ½ ΠΎΠ±ΡΡΡ.
Π¨Π°Π³ 4. ΠΡΠ΄Π΅Π»ΠΊΠ° ΠΈ ΡΡΡΠ°Π½ΠΎΠ²ΠΊΠ° ΠΊΡΠΏΠ΅Π»ΠΈ

ΠΡΠ΄Π΅Π»ΠΊΠ° ΠΈ ΡΡΡΠ°Π½ΠΎΠ²ΠΊΠ° ΠΊΡΠΏΠ΅Π»ΠΈ

ΠΡΠ΄Π΅Π»ΠΊΠ° ΠΈ ΡΡΡΠ°Π½ΠΎΠ²ΠΊΠ° ΠΊΡΠΏΠ΅Π»ΠΈ
Π‘ ΠΏΠΎΠΌΠΎΡΡΡ Π½Π°ΠΆΠ΄Π°ΡΠ½ΠΎΠΉ Π±ΡΠΌΠ°Π³ΠΈ ΠΎΠ±ΡΠ°Π±Π°ΡΡΠ²Π°ΡΡ Π²Π½ΡΡΡΠ΅Π½Π½ΡΡ ΠΈ Π½Π°ΡΡΠΆΠ½ΡΡ ΠΏΠΎΠ²Π΅ΡΡ Π½ΠΎΡΡΡ Π΅ΠΌΠΊΠΎΡΡΠΈ, ΠΎΡΠΎΠ±ΠΎΠ΅ Π²Π½ΠΈΠΌΠ°Π½ΠΈΠ΅ ΡΠ΄Π΅Π»ΡΡ ΠΊΡΠΎΠΌΠΊΠ°ΠΌ ΡΡΠ΅Π½ΠΎΠΊ. Π‘Π½ΠΈΠΌΠ°ΡΡ Π²ΡΠ΅ ΡΠ΅ΡΠΎΡ ΠΎΠ²Π°ΡΠΎΡΡΠΈ, Π½Π΅Π±ΠΎΠ»ΡΡΠΈΠ΅ Π²ΡΡΡΡΠΏΡ, Π·Π°ΡΠΈΡΠ°ΡΡ ΠΌΠ΅Π»ΠΊΠΈΠ΅ Π΄Π΅ΡΠ΅ΠΊΡΡ. ΠΠ»Ρ ΡΠ΄ΠΎΠ±ΡΡΠ²Π° ΠΌΠΎΠΆΠ½ΠΎ Π·Π°ΠΊΡΠ΅ΠΏΠΈΡΡ Π²Π½ΡΡΡΠΈ ΠΊΡΠΏΠ΅Π»ΠΈ ΡΠΊΠ°ΠΌΠ΅Π΅ΡΠΊΡ, ΠΈΡΠΏΠΎΠ»ΡΠ·ΡΡ ΡΡΡΡΠΏΠΎΠ²Π΅ΡΡ ΠΈ ΡΠ°ΠΌΠΎΡΠ΅Π·Ρ. ΠΠΎΠ³Π΄Π° ΠΊΡΠΏΠ΅Π»Ρ ΠΏΠΎΠ»Π½ΠΎΡΡΡΡ Π³ΠΎΡΠΎΠ²Π°, Π΅Π΅ Π½ΡΠΆΠ½ΠΎ ΠΏΡΠ°Π²ΠΈΠ»ΡΠ½ΠΎ ΡΡΡΠ°Π½ΠΎΠ²ΠΈΡΡ. Π£ΡΠ°ΡΡΠΎΠΊ ΠΏΠΎΠ΄ Π΅ΠΌΠΊΠΎΡΡΡ Π΄ΠΎΠ»ΠΆΠ΅Π½ Π±ΡΡΡ Π°Π±ΡΠΎΠ»ΡΡΠ½ΠΎ ΡΠΎΠ²Π½ΡΠΌ ΠΈ ΠΏΡΠΎΡΠ½ΡΠΌ, ΡΡΠΎΠ±Ρ ΠΊΡΠΏΠ΅Π»Ρ Π½Π΅ ΠΏΡΠΎΡΠ΅Π΄Π°Π»Π° ΠΏΠΎΠ΄ Π²Π΅ΡΠΎΠΌ Π²ΠΎΠ΄Ρ ΠΈ Π»ΡΠ΄Π΅ΠΉ.

Π‘ΠΊΠ°ΠΌΠ΅ΠΉΠΊΠ°

Π‘ΠΊΠ°ΠΌΠ΅ΠΉΠΊΠ°

Π‘ΠΊΠ°ΠΌΠ΅ΠΉΠΊΠ°
ΠΠΎΠ½ΡΡΡΡΠΊΡΠΈΡ ΡΡΡΠ°Π½Π°Π²Π»ΠΈΠ²Π°ΡΡ ΡΠ°ΠΊ, ΡΡΠΎΠ±Ρ ΡΠ»ΠΈΠ²Π½Π°Ρ ΡΡΡΠ±Π° ΠΏΡΠΎΡ ΠΎΠ΄ΠΈΠ»Π° Π²Π΄ΠΎΠ»Ρ ΡΡΠ΅Π½ΠΊΠΈ ΠΈ Π½Π΅ ΠΌΠ΅ΡΠ°Π»Π° Ρ ΠΎΠ΄ΡΠ±Π΅. ΠΡΠΈ ΠΆΠ΅Π»Π°Π½ΠΈΠΈ ΠΊ ΡΡΠ΅Π½ΠΊΠ°ΠΌ ΠΊΡΠΏΠ΅Π»ΠΈ ΠΊΡΠ΅ΠΏΡΡ Π½Π΅Π±ΠΎΠ»ΡΡΠΈΠ΅ ΠΏΠ΅ΡΠΈΠ»Π° ΠΈ Π½Π΅ΡΠΊΠΎΠ»ΡΠΊΠΎ ΡΡΡΠΏΠ΅Π½Π΅ΠΉ.
ΠΠΎΠ½ΡΠ°ΠΆ ΠΊΡΠΏΠ΅Π»Π΅ΠΉ ΠΈΠ· ΠΏΠ»Π°ΡΡΠΈΠΊΠ°
ΠΠ»Π°ΡΡΠΈΠΊΠΎΠ²ΡΠ΅ ΠΊΡΠΏΠ΅Π»ΠΈ ΡΡΡΠ°Π½ΠΎΠ²ΠΈΡΡ ΠΏΡΠΎΡΠ΅ Π²ΡΠ΅Π³ΠΎ. Π‘Π½Π°ΡΠ°Π»Π° ΠΏΠΎΠ΄Π³ΠΎΡΠ°Π²Π»ΠΈΠ²Π°ΡΡ ΡΡΠ°ΡΡΠΎΠΊ: ΠΏΠΎΠ» Π²ΡΡΠ°Π²Π½ΠΈΠ²Π°ΡΡ, Π·Π°ΡΡΠΈΠ»Π°ΡΡ Π³ΠΈΠ΄ΡΠΎΠΈΠ·ΠΎΠ»ΠΈΡΡΡΡΠΈΠΌ ΠΌΠ°ΡΠ΅ΡΠΈΠ°Π»ΠΎΠΌ ΠΈ Π΄Π΅Π»Π°ΡΡ ΡΡΡΠΆΠΊΡ. ΠΡΠ»ΠΈ Π΅ΠΌΠΊΠΎΡΡΡ ΡΡΡΠ°Π½Π°Π²Π»ΠΈΠ²Π°ΡΡ Π½Π° Π΄Π΅ΡΠ΅Π²ΡΠ½Π½ΡΠΉ ΠΏΠΎΠ», Π΄ΠΎΡΠΊΠΈ ΠΏΡΠ΅Π΄Π²Π°ΡΠΈΡΠ΅Π»ΡΠ½ΠΎ ΠΏΡΠΎΠΏΠΈΡΡΠ²Π°ΡΡ Π°Π½ΡΠΈΠ³ΡΠΈΠ±ΠΊΠΎΠ²ΡΠΌ ΡΠΎΡΡΠ°Π²ΠΎΠΌ. ΠΠ°Π»Π΅Π΅ ΠΏΠ»Π°ΡΡΠΈΠΊΠΎΠ²ΡΡ ΠΊΡΠΏΠ΅Π»Ρ Π²ΡΡΡΠ°Π²Π»ΡΡΡ ΠΏΠΎ ΡΡΠΎΠ²Π½Ρ, ΠΏΠΎΠ΄ΠΊΠ»ΡΡΠ°ΡΡ ΡΠ»ΠΈΠ² ΠΊ Π½Π°ΡΠΎΡΡ.

ΠΠΎΠ½ΡΠ°ΠΆ ΠΊΡΠΏΠ΅Π»Π΅ΠΉ ΠΈΠ· ΠΏΠ»Π°ΡΡΠΈΠΊΠ°

ΠΠΎΠ½ΡΠ°ΠΆ ΠΊΡΠΏΠ΅Π»Π΅ΠΉ ΠΈΠ· ΠΏΠ»Π°ΡΡΠΈΠΊΠ°
ΠΠ°Π²Π΅ΡΡΠ°ΡΡΠΈΠΉ ΡΡΠ°ΠΏ β ΠΎΠ±ΡΠΈΠ²ΠΊΠ° Π΅ΠΌΠΊΠΎΡΡΠΈ Π΄Π΅ΡΠ΅Π²ΠΎΠΌ. ΠΠ»Ρ ΡΡΠΈΡ ΡΠ΅Π»Π΅ΠΉ ΠΈΡΠΏΠΎΠ»ΡΠ·ΡΠ΅ΡΡΡ Π΄ΡΠ΅Π²Π΅ΡΠΈΠ½Π° ΡΠ²Π΅ΡΠ΄ΡΡ ΠΏΠΎΡΠΎΠ΄, ΡΡΡΠΎΠΉΡΠΈΠ²Π°Ρ ΠΊ ΠΏΠΎΠ²ΡΡΠ΅Π½Π½ΠΎΠΉ Π²Π»Π°ΠΆΠ½ΠΎΡΡΠΈ: Π΄ΡΠ±, ΠΊΠ΅Π΄Ρ, Π»ΠΈΡΡΠ²Π΅Π½Π½ΠΈΡΠ° ΠΈΠ»ΠΈ Π±ΡΠΊ. ΠΡΡΡ ΠΈ ΡΠ΅ΠΉΠΊΠΈ Π΄ΠΎΠ»ΠΆΠ½Ρ Π±ΡΡΡ ΡΡΡ ΠΈΠΌΠΈ, Π±Π΅Π· ΡΡΠ΅ΡΠΈΠ½ ΠΈ ΡΡΡΠΊΠΎΠ², ΡΠ²Π΅ΡΠ»ΡΠ΅ Π½Π° ΡΡΠ΅Π·Π°Ρ . ΠΡΡΡ Π½Π°ΡΠ΅Π·Π°ΡΡ ΠΏΠΎ Π²ΡΡΠΎΡΠ΅ Π΅ΠΌΠΊΠΎΡΡΠΈ ΠΈ Π²ΡΡΡΠ°Π²Π»ΡΡΡ ΠΏΠΎ ΠΏΠ΅ΡΠΈΠΌΠ΅ΡΡΡ ΠΊΡΠΏΠ΅Π»ΠΈ Ρ ΡΠ°Π³ΠΎΠΌ 30 ΡΠΌ. ΠΠ΅ΡΡ ΠΈ Π½ΠΈΠ· Π²Π΅ΡΡΠΈΠΊΠ°Π»ΡΠ½ΡΡ ΡΡΠΎΠ΅ΠΊ ΡΠΎΠ΅Π΄ΠΈΠ½ΡΡΡ Π³ΠΎΡΠΈΠ·ΠΎΠ½ΡΠ°Π»ΡΠ½ΡΠΌΠΈ ΠΏΠ΅ΡΠ΅ΠΌΡΡΠΊΠ°ΠΌΠΈ. ΠΠΎΠ»ΡΡΠΈΠ²ΡΠΈΠΉΡΡ ΠΊΠ°ΡΠΊΠ°Ρ ΠΎΠ±ΡΠΈΠ²Π°ΡΡ ΡΠ΅ΠΉΠΊΠ°ΠΌΠΈ, Π° Π·Π°Π·ΠΎΡ ΠΌΠ΅ΠΆΠ΄Ρ ΠΏΠ»Π°ΡΡΠΈΠΊΠΎΠ²ΡΠΌΠΈ ΡΡΠ΅Π½Π°ΠΌΠΈ ΠΈ ΠΎΠ±ΡΠΈΠ²ΠΊΠΎΠΉ ΠΌΠ°ΡΠΊΠΈΡΡΡΡ ΡΠ»ΠΈΡΠΎΠ²Π°Π½Π½ΠΎΠΉ Π΄ΠΎΡΠΊΠΎΠΉ.
ΠΠΈΠ΄Π΅ΠΎ β ΠΡΠΏΠ΅Π»Ρ Π΄Π»Ρ Π±Π°Π½ΠΈ ΡΠ²ΠΎΠΈΠΌΠΈ ΡΡΠΊΠ°ΠΌΠΈ
tolkostroyka.ru

