Лавки деревянные своими руками – Скамейка Из Дерева Своими Руками: 205+ (Фото) Разных Вариантов
3 проекта для сада и дачи
Второй проект – это стильная и красивая скамейка, выдержанная в предельно лаконичном дизайне. Благодаря массивному основанию и наборному сиденью из брусков изделие смотрится основательно и по-современному.

Деревянные проставки между брусьями обеспечивают зазоры для оттока воды и делают лавочку хорошо приспособленной для использования на улице. При желании, сиденью можно придать небольшую криволинейную форму: мягкая дуга не только добавит скамейке дизайнерской выразительности, но и будет препятствовать скоплению дождевой воды на поверхности брусьев.
Эта садовая скамейка проста в изготовлении, и ее не составит труда сделать своими руками. В проекте используют два типа соединений: клееную сборку на вставном шипе и простые шурупные стяжки. Они обеспечат прочную связь элементов и подготовят дачную мебель ко всем испытаниями на открытом воздухе.
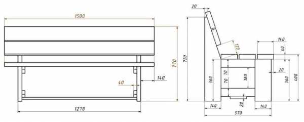
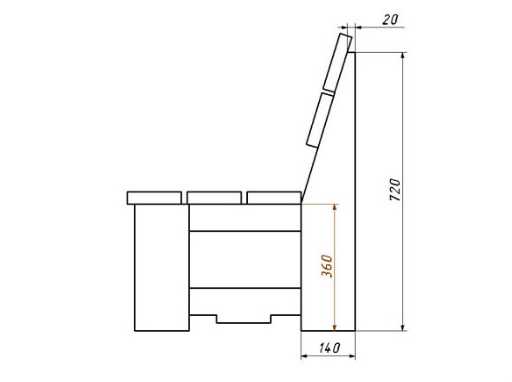
Столярные узлы на вставном шипеЧертеж скамейки из дерева с размерами

Открыть чертеж в большом размере

Открыть чертеж в большом размере
Изготовление и сборка сиденья
По указанным в схеме размерам подготовьте 11 планок сиденья. Важно чтобы каждая из них имела одинаковую форму и максимально ровную поверхность. Прежде чем собрать сиденье, заранее определитесь с лицевыми гранями. Внимательно рассмотрите древесину и расположите бруски так, чтобы грани с более красивой текстурой были с внешней стороны.
Выпилите и отшлифуйте 30 квадратных проставок размером 40х3 мм. На брусках сделайте точную разметку и просверлите отверстия под железный шток. Для удобства и соблюдения точности сверлите отверстия серийно, укладывая в пачку сразу несколько брусьев. На внешней стороне наружных брусьев делают цековку – углубление, в котором будет скрыта стяжная гайка.

Элементы сиденья собирают на трех металлических штоках. Заранее подготовьте три стержня из нержавейки с нарезанной на концах резьбой. Последовательно соберите на штоках брусья сиденья, не забывая устанавливать деревянные проставки. Стяните собранную конструкцию гайками с подложенными шайбами.
Сборка основания

Ориентируясь на размеры указанные в чертеже, выпилите все элементы основания: ножки, верхние перекладины, проножки и распорку.

Нанесите разметку на проножки и вырежьте паз, в который будет входить распорка. Для точной работы используйте пильный стол с пазовым диском.
В ножках, верхних перекладинах и проножках отфрезеруйте гнезда для вставного шипа, размерами 8х22х40 мм. По аналогичным размерам нарежьте вставные шипы. Перед склейкой проведите сухую сборку и оцените точность подгонки соединений.
Нанесите клей на все узлы боковины и стяните конструкцию струбцинами.
После высыхания боковин завершите сборку основания, установив распорку. Одного самореза с каждой стороны будет достаточно, чтобы распорка надежно фиксировалась в пазе проножек.
Крепление сиденья к основанию

Отцентруйте основание на перевернутом сиденье. По указанным в схеме размерам вырежьте монтажную планку и просверлите в ее гранях направляющие отверстия. Прикрутите монтажную планку к боковине, после чего соедините ее с сиденьем скамьи.
woodschool.ru
Как сделать скамейку из дерева своими руками svoimy-rukami.ru
Скамейку для сада нельзя рассматривать исключительно, как обычный предмет меблировки, используемый для отдыха. Этот вид мебели может стать эффектным украшением дачного участка. Изготовленная скамейка из дерева своими руками способна стать ключевой составляющей целой композиции, подчеркивающей красоту и преимущества ландшафтного дизайна в вашем саду или во дворе. При этом важное место отводится стилю, материалам и зоне расположения будущего изделия.

Преимущества скамейки из дерева
Покупать шикарную мебель для улицы – сейчас мало кто может допустить такое разорение кошелька. Сделать скамейку своими руками по чертежам – тройная польза:
- Практичное изделие из дерева, в котором учтены все индивидуальные пожелания и элементы, на порядок выше штампованных заводских моделей, ориентированных на экономию материала. Заказ скамейки отдельному мастеру тоже не всегда оправдывает ожидания.
- Изготовление своими руками потребует затрат только на расходные материалы, а если они уже имеются, то и вовсе обойдется без вложений.
- Сооружение интерьерных и ландшафтных элементов для дачи на собственный вкус трудно назвать работой. Это всегда удовольствие – со знанием дела создавать для себя что-то новое, чтобы потом гордиться и наслаждаться трудами своей работы.
Почему из дерева?
Древесина – наиболее подходящий материал, чтобы сделать лавку своими руками. Это обусловлено его качествами:
- Доступен. На даче часто остаются неиспользованные элементы: доски, брусья или остатки после ремонта или строительства. При отсутствии, купить древесину — дешевле, чем металл, пластик и другие возможные материалы.
- Легко обрабатывается. Деревянные элементы всегда объемные, в отличие от металлических и полимерных, поэтому им несложно придать нужную форму и более точно скрепить между собой. Структура материала хорошо поддается механическому воздействию.
- Удобство. Сидеть на деревянной скамейке гораздо приятнее, чем на железке, даже искусно обработанной.

- Менее теплопроводен (медленно нагревается и охлаждается). Это заметно даже в теплое время года: в тени металл всегда холодный, дерево сохраняет естественную среднюю температуру. Такое качество благоприятствует «здоровым» посиделкам на скамейке.
- Прочность – одно из важнейших свойств древесины. При соблюдении принципов обработки и сборки садовая скамейка, изготовленная своими руками, прослужит несколько десятилетий. Этого нельзя сказать о полимерах: всем знакомые пластиковые стулья быстро изнашиваются, испытывая весовые нагрузки, и ломаются при первом же неловком движении.
Выбор материала и инструментов
Древесина должна быть качественной. Для скамейки следует выбирать элементы без сучков, трещин, гнилых участков. От этого зависят удобство обработки и соединения деталей, а также срок службы готового изделия.
Особое внимание: только сухая древесина подходит для начала работ. Сырая доска — причина деформации скамейки и ее разрушения при смене погодных условий. Перед обработкой материал необходимо тщательно высушить.
Варианты изготовления кресла из дерева своими руками читать далееПорода ничем не ограничивается: чтобы сделать садовую скамейку для дачи, подойдет любая доступная древесина. Дуб – самый прочный, но тяжелый. Если стоять скамейке всю жизнь в одном месте, лучше выбирать его.
Сосна – оптимальный выбор для любых вариантов изделий. Она – самый распространенный стройматериал: древесину будет несложно найти дома или приобрести на ближайшей базе; доступная по цене, в меру прочная, менее податлива влиянию температур. Используют также липу, лиственницу и другие породы.
Изготовление скамейки своими руками – плотницкая работа, для нее потребуются простые столярные приспособления. В целях безопасности и качества работы рекомендуется пользоваться только надежным исправным инструментом. Прочно закрепленные ручки молотка, лезвия рубанка, заточенная ножовка или добротный диск на электрической пиле – залог эффективного достижения результата.
Скамейка-трансформер из дерева

В последнее время стала популярной многофункциональная мебель типа трансформер, которая может использоваться для различных нужд. Например, садовая скамейка после бесхитростных манипуляций превращается в стол с сидениями. Просто, выгодно и можно, к тому же, сделать своими руками.
Нюансы, которые стоит учесть
Для дешевизны сборки своими руками лучше использовать детали из дерева. Чтобы выполнить сборку понадобится создать довольно детальные чертежи, которые помогут ориентироваться в процессе. Их можно выполнить как на бумаге от руки, так и в строительных программах, если есть навыки обращения с подобным софтом.
Помимо деревянных заготовок следует запастись саморезами и подготовить инструменты: шуруповерт, пилу, наждачную бумагу, кисть для обработки. Существует довольно простая подвижная конструкция с двумя функциональными положениями: скамейка и стол. Из одного в другое положение она переходит при помощи специального соединения.

Можно найти несколько различных вариантов сборки конструкции своими руками, но мы рассмотрим два. В первом могут использоваться металлические детали, а втором — полностью изготовлена из дерева. Итак, с чего стоит начать?
Материалы для работы
Самые распространенные породы дерева, которые используются в подобных конструкциях — сосна и лиственница. Они отлично подойдут для изготовления каркаса. Также можно использовать дуб, но его очень тяжело обрабатывать.
Нужно выбирать доски без гнили и дефектов. Понадобятся заготовки, длиной до 2 м и шириной до 50 см. Для крепления понадобится множество мелких саморезов, гаек и болтов.
Первый этап сборки
Нужно изготовить детали, выровнять их, придать им форму и отшлифовать. Скамейка трансформер может быть изготовлена и по индивидуальным размерам, но довольно часто используют значение 1700 мм в качестве основой длины каркаса.

Конструкция трансформер будет состоять из трех соединяемых частей — стол, широкая и узкая лавка. Первая лавочка будет шире, а вторая — уже. Это необходимо для того, чтобы каркас складывался:
- Для изготовления широкой части понадобится три детали 1700х120х20 или цельный щит 1700х400 мм. Для ножек будут использоваться две планки 34х11х11 мм
- Полученные заготовки тщательно шлифуются
- Ножки закрепляются на планке, формируя букву Т
- Лавка должна получиться высотой 450 мм
- На планку, на которой закреплены ножки, прикручиваются с помощью саморезов доски или щиты
- Между ножками ставится распорка, которая обеспечит жесткость. Она соединяется с аналогичным элементом на противоположной стороне с помощью деревянной жердины, длиной примерно 1690 мм.
Первая часть почти готова. Пока не дошло дело до сборки остальных элементов, нужно проверить, как скамейка выдержит вес одного-двух человек. Если она выдержала нагрузку, можно продолжать работы над вторым и третьим элементом конструкции.
Второй этап — столешница и вторая лавка
Вторая часть конструкции по ширине будет немного уже первой. В качестве ножек будет использоваться три элемента — два, размерами 320х10х10 и одна 220х10х10 мм. Собираются все заготовки в форме буквы А:
- К верхней планке в 220 мм закрепляют две планки длиной 320 под углом и между ними устанавливают распорки. Расстояние между первой планкой и второй в нижней части не должно быть меньше 300 мм
- Распорки ножек соединяются между собой. На полученную букву «А» закрепляется три бруска, размером 1691х110х20 или цельный щит
- Общая ширина изготовленной части должна быть меньше чем у первой детали. Чтобы проверить правильность сборки, стоит совместить лавки. Если они хорошо соединяются, то все выполнено правильно
- Стол делается из пяти дощечек, размерами 1700х270х20 мм или цельного щита
- Заготовки прикручиваются к планке 1100х40х8 с шагом в 80 мм.
Верхняя часть скамейки готова, теперь остается выполнить подвижный механизм и закрепить его между элементами. Чтобы скамейка-трансформер могла менять положение, понадобится несколько дополнительных элементов.
Третий этап — механизм
В результате работ мы имеем три части — широкую и узкую лавку, а также стол. Их нужно соединить между собой подвижным элементом. Когда все детали будут собраны, получим скамейку трансформер.
- В качестве соединительной детали можно использовать и металлические и деревянные планки
- Нужно соединить верхнюю планку А образной ножки со столешницей, а потом и средину Т- образной
Вместо саморезов лучше использовать подвижное болтовое соединение, закрепленное гайкой.

- Угол первой лавки должен быть соединен с углом столешницы короткой планкой
- Вторая лавка соединяется длинной деталью с планкой столешницы
- В конце сборки нужно проверить, как работает соединение
Дополнительный вариант
Существует другой вид конструкции, который можно собрать своими руками. Скамейка-трансформер будет иметь не шесть ножек, а восемь. Вместо двух А-образных деталей понадобится четыре.
Отличаются они между собой только размерами верхней части, которая у двух заготовок будет меньше на 100 мм. Конструкции лавок будут абсолютно идентичны. Прикрепляются они с помощью подвижного соединения. К концу заготовки, которая имеет длинную верхнюю планку, прикручивают деревянную деталь. Она должна устанавливаться под углом в 100° под столешницей, соединяя ту с лавкой. Ее длина составляет примерно половину длины планки столешницы. Соединение укрепляется распоркой.
Вторую лавку соединяют удлиненной планкой без распорок. Этот тип конструкции можно изготовить своими руками полностью из дерева.
Завершающий этап
Последний этап сборки своими руками был завершен и остается только нанести защитное покрытие. Если скамейка-трансформер будет находиться под навесом, достаточно морилки для еще защиты. В случае, когда конструкция из дерева размещена на открытом пространстве под небом, следует использовать специальную водостойкую краску. Первым делом красят стол, затем сиденья и ножки.
После покраски понадобится обновлять слой раз в 1,5 года, иначе дерево быстро прогниет. Конструкция способна пробыть в эксплуатации примерно 10 лет.
Садовая скамейка трансформер, изготовленная своими руками, может стать не только функциональным предметом быта, но и частью интерьера сада. Детали, изготовленные из дерева, можно не только вскрыть лаком или краской, но и украсить резьбой и другими декоративными деталями. Только следует это делать аккуратно, чтобы не повредить жесткость конструкции.
В итоге, скамейка, сделанная своими руками, может использоваться и в качестве стола, когда это необходимо.
Изготовление скамейки из бревна
Чтобы изготовить скамейку из поваленного дерева, понадобится бензопила. Основным материалом конструкции станет ствол с большим диаметром. Минимальная длина – 1 м.

Технология создания изделия выглядит так:
- на бревно наносится разметка с помощью карандаша или маркера таким образом, чтобы материал был поделен надвое. Но распил будет осуществляться не посередине, а с небольшим смещением в одну сторону от центра бревна. В итоге должны получиться 2 неравные по размеру детали. Меньшая из них пойдет на изготовление спинки, большая будет выполнять функцию сиденья;
- после распила бревна надвое поверхность изготовленных деталей следует выровнять по месту спила, чтобы получились ровные плоскости. Неровности аккуратно удаляются с помощью бензопилы;
- переверните деталь сиденья плоскостью вниз. Найдите самое высокое место окружности и нанесите разметку в виде двух линий, соединяющихся между собой. У вас должен получиться треугольник с округлым основанием и равными боковыми сторонами, вершина которого направлена к плоскости сиденья. При этом высота треугольника должна быть небольшой, чтобы конструкция не развалилась. Проще говоря, вам понадобится вырезать своеобразный «кусок торта» небольшого размера ближе к краю окружности. Вырезанный элемент обязательно должен быть цельным, он будет проходить по всей длине сиденья. Делается это для того, чтобы впоследствии выполнить тип крепления, называемый ласточкиным хвостом;

- полученный элемент следует разделить пополам по длине. Спинка сиденья (его задняя часть) будет опираться на эти детали, поэтому в соответствующих местах нужно сделать треугольные вырезы, которые совпадут по размеру и форме с опорными элементами;
- для создания крепкого упора аналогичные зарубки нужно сделать и в боковой части сиденья. Углубления на спинке и сиденье должны располагаться зеркально. Сюда будут вставлены концы треугольных опор.
svoimy-rukami.ru
Как сделать простую скамейку из дерева своими руками
Многое зависит от того, как предлагается использовать данный предмет меблировки, некогда один из самых распространенных в русских избах и теремах. Поэтому такие моменты, как подбор текстуры дерева, оттенка, оригинальной формы и так далее – все это на усмотрение мастера, который и будет делать скамейку из дерева.
С практической стороны большего внимания заслуживают иные вопросы – способы соединения различных частей (так называемые столярные технологии), оценка целесообразности использования той или иной породы и оптимальная геометрия простейшей скамейки. Со всеми этими нюансами изготовления скамьи своими руками автор и предлагает разобраться. А все остальное зависит лишь от личной фантазии и некоторых предпочтений (или определенных параметров, если кто-то сделал конкретный заказ).

Древесина для скамейки
Во-первых, скамейки в наше время используются в основном на дачных или приусадебных участках. В доме – значительно реже, разве что в подсобных помещениях и отдельных постройках (мастерская, баня, гараж).
Во-вторых, с учетом особенностей эксплуатации (под открытым небом, в неотапливаемых строениях), не всякая древесина подходит для этих целей. Специалисты рекомендуют делать скамейки из лиственницы или сосны. Так как речь идет о выполнении всех технологических операций своими руками, дуб (кого не смущает цена) не подходит по причине своей твердости.
Обработка этого дерева крайне сложна и требует хороших навыков в столярном деле. Если думать о долговечности скамьи, то предпочтительнее все-таки лиственница. Даже набирая влагу, это дерево становится лишь прочнее, и менее подвержено гниению, чем другие хвойные породы.
О том, что дерево не должно иметь значительных дефектов (крупные сучки, расколы и так далее), о необходимости его просушки и пропитки говорить не стоит – это элементарные вещи. Но вот напоминание о процентном содержании влаги лишним не будет.
В строительстве допускается использовать заготовок из дерева с показателем не более 20%. Но это правило. На практике придется доски (бруски) «выдержать» в соответствующих условиях, пока значение не будет в пределах 8 – 10%. Иначе скручивания или изгиба отдельных частей деревянной скамейки не избежать.

Металлоизделия
Изготовление скамейки из дерева своими руками без дополнительных крепежных деталей – дело довольно сложное. Что бы ни говорилось в советах о простоте сборки без единого «гвоздя», только посадкой на клей, обольщаться не стоит. Такая технология, связанная с различными выпилами, их точными совпадениями с «шипами», доступна лишь столяру высокой квалификации, с большим практическим опытом. Да и для простой деревянной скамейки лишние сложности не нужны.
Что подготовить для сборки скамьи?
Саморезы
Самый лучший вариант для дерева. Во-первых, ремонтопригодность такой скамейки намного выше. Для замены поврежденной (износившейся) детали достаточно выкрутить метиз. С гвоздями будет сложнее. Чтобы их вытащить, придется повозиться, и не факт, что в этом месте не образуется вмятина на дереве.
Во-вторых, для установки самореза сначала высверливается отверстие (канал). Правильно определив положение дрели, его несложно сделать направленным строго перпендикулярно поверхности образца. А вот забить гвоздь в древесину с первого раза, без искривлений, получается не всегда. Вряд ли кого устроит скамейка, из которой в разных местах торчат металлические острые «штырьки».
В-третьих, забивка гвоздя нередко влечет растрескивание древесины. Самое обидное, что по известному закону это происходит чаще всего, когда сборка скамейки практически завершена.
Дополнительный крепеж
Это обобщенное название деталей, обеспечивающих повышенную прочность всех соединений. Варианты для дерева – уголки, пластины фигурные, скобы. Что именно понадобится, несложно понять, глядя на чертеж скамейки.
Все крепежные металлические детали, которые будут применяться при изготовлении деревянной скамейки, должны быть из стали с антикоррозийным покрытием. Например, так называемая «оцинковка». Использование обычных саморезов приведет к тому, что они начнут ржаветь и «прикипят» к дереву. Выкрутить их (при необходимости) станет настоящей проблемой.
Размеры заготовок
Речь можно вести лишь о рекомендуемых параметрах. Сборка любой конструкции, если она выполняется своими руками – процесс творческий. Это относится и к чертежам, которые будут приведены ниже. Их следует рассматривать лишь как некий ориентир, подсказку. А выбирать конкретную длину скамейки, ширину и так далее – дело мастера.

Бруски. Сечение – квадрат или прямоугольник. Для скамейки достаточно стороны (в см) от 3 до 5.
Доски. Подразумевается в первую очередь толщина. Ее следует соотносить с длиной скамейки. Так как речь идет о простейших вариантах «мебели», то наличие промежуточных опор, как правило, не предусматривается. Исходя из этого, следует брать доски на 30 мм, как минимум.
Такая скамейка не получится слишком тяжелой, и ее можно будет переставить в одиночку. Что, собственно, и требуется для простых моделей универсального применения.
Порядок изготовления скамейки
Подготовка конструктивных элементов
Она заключается не только в раскрое древесины по размерам, но и в качественной обработке всех получившихся деталей. Возможно, шлифовка и не потребуется, если в дальнейшем деревянную скамейку предполагается окрасить, но зачистка поверхности – обязательна. Ее можно выполнить быстро и качественно при помощи эл/инструмента под названием «шлифовальная машинка». О имеющихся в продаже моделях, особенностях их применения подробно рассказывается здесь.

Каждый образец, для удобства дальнейшей сборки, нужно промаркировать, в соответствие со схемой скамейки. Учитывая, что перед использованием деревянные детали придется обрабатывать, метки необходимо ставить с торцов.
Сборка конструкции
Некоторые особенности этого процесса уже указаны. С чего начинать – решать только мастеру. Как правило, спинка, если она предусмотрена схемой, устанавливается в последнюю очередь.

Такие лавки часто изготовляют для установки в банях. По сути, те же скамейки, только название другое.

Максимально надежной стыковки отдельных частей скамейки можно добиться, если одновременно использовать все способы крепления – «шип-паз», саморезы и дополнительные элементы. Причем все места примыкания деталей следует предварительно промазывать клеем.

Давать какие-либо дополнительные инструкции по работе с определенными инструментами, выбору диаметра сверла и так далее автор считает излишним. Человеку, привыкшему все собирать своими руками, подобные подсказки не требуются.
Успехов вам, читатель, в самостоятельном конструировании!
masterim.guru
|
У меня нет особого опыта в столярных работах. Как поэтапно можно сделать простую скамейку для улицы? Iranika [62.7K]4 года назад Самый простой вариант уличной скамьи — это скамья в деревенском стиле, которая состоит из двух пней к которым сверху прибита деревянная доска шириной 25-40 см. У такой скамьи даже спинка не предусмотрена, так как их ставили либо к забору, либо к одной из стен дома, которые и служили опорой для спины сидящего на скамье человека. Если такая скамья была довольно-таки длинной, то по центру ставился еще один пень подходящего размера, чтобы скамья не прогибалась и доска, которая служила сиденьем ненароком не треснула. Ну, а если хочется сделать своими руками что-то более цивилизованное, чем деревенская лавочка на пнях, то надо купить необходимый пиломатериал в качестве бруса, доски (толщиной 2,5 — 3 см), либо вагонку, которая пойдет на изготовление сиденья и спинки скамьи. Естественно понадобится и набор необходимых столярных инструментов, таких как ножовка, молоток, рубанок, дрель-шуруповерт и т. д. Кроме этого понадобятся гвозди, соморезы или болты, которые будут скреплять всю конструкцию. Посмотрите на чертеж скамьи, которая на мой взгляд очень проста в исполнении: ![]() Она без спинки, но вы ведь и спрашивали о самом простом варианте, а со спинкой — это уже более сложная конструкция. Кстати, сиденье здесь можно выполнить, задействовав всего одну широкую или две доски поуже, в зависимости от того каким материалом будете располагать. Начинаете изготовление скамьи с необходимых замеров требуемого материала, отпиливаете все составляющие в соответствии с размерами на чертеже. А следующим этапом производите сборку изделия, скрепляя все детали при помощи саморезов и шуруповерта. Когда скамья будет готова не забудьте обработать ее защитным составом. Это может быть лакокрасочный материал, предназначенный для внешних работ по дереву или гидрофобное покрытие, которые защитят вашу скамью от вредного воздействия различных погодных условий (дождь, снег, УФ излучения и т. д.), которые вредны для деревянной улично-садовой мебели. система выбрала этот ответ лучшим в избранное ссылка отблагодарить СТЭЛС [17.8K]11 месяцев назад Без особых навыков в столярном деле, можно соорудить вот такую скамейку — ![]() Нам понадобятся пять досок, длиною примерно 120 сантиметров, толщиной 4-5 сантиметра и шириной около 25-30 сантиметров. Шесть болтов с шайбами и гайками диаметром 8-10 мм. длиною 100-120 мм. (в зависимости от толщины досок. Саморезы по дереву 12 штук длиною 80 мм. Рубанок, ножовка, дрель со сверлом 9-11 мм. (в зависимости от толщины болтов) и угольник. ![]() Доски нужно сначала острогать, с пластей и ребер. Размечаем доски-боковины и спиливаем под углом 45 градусов. Можно сделать сначала одну а вторую отчеркнуть по ней. Так же размечаем «косые» резы для задних подпорок. Собираем стойки на болты, затягиваем гайками. На задние опоры кладем сиденье, и прикручиваем саморезами по три с каждой стороны, что бы не выгибало. Сзади прикручиваем спинку на три самореза каждую сторону. Все! — скамейка готова! Принцип изготовления этой скамейки такой же как и выше, только сиденье и спинка более широкие. Для этого доски связаны поперечинами снизу и сзади. ![]() Вот эту скамейку, без спинки, можно изготовить еще проще. Однако я бы для нее взял доски не меньше 6 сантиметров толщиной, особенно для ножек, и торцевой спил делать надо исключительно перпендикулярно пласти, что бы стояли ровно и не раскачивались. ![]() Эта скамью можно сделать из МДФ панелей от старой мебели имея только саморезы и лобзик. Для того что бы старые панели не размыкали, можно покрасить.
в избранное
ссылка
отблагодарить
Elden
[53K]2 года назад Если говорить о самой простейшей, тогда нужно взять вот что:
Закапываем два меньших столба по 90 сантиметров, ровно на глубину 45 сантиметров, лучше всего вокруг столба в земле вбить камни. А два столба по 140 сантиметров с небольшим углом на расстоянии 20 сантиметров. Перекладинами сбиваем эти столбы между собой, как на рисунке: ![]() Далее останется прибить сидение и спинку к этим столбам. ![]() Конеч\но чем толще будет материал, тем прочнее скамейка. Желательно перед монтажом дерево как минимум покрасить, особенно ту часть, что в земле будет, чтобы дольше простояла. в избранное ссылка отблагодарить Вероника [62.4K]4 года назад Простую удобную скамейку можно сделать из доступных материалов. Ее конструкция должна быть несложной, чтобы изготовить без применения специального инструмента, достаточно пилы, молотка, отвертки, саморезов или гвоздей. Сначала нарисуем эскиз будущей скамейки, определммся с ее размерами, какой формы, из какого материала будет изготовлена. Длина скамейки должна быть такой, чтобы на ней разместились хотя бы три человека. Для ее изготовлении подойдет доска 40мм, тогда конструкция скамейки получится жесткая, надежная. ![]() Нужно отпилить 2 доски длиной 520мм, и разрезать по длине. Полученные 4 бруска пойдут для соединения ножек и для крепления сидения. 2 доски дл.720мм, они будут держать ножки и спинку одновременно. Все подготовленные детали отстрогать, чтобы не было заусенцев, с краев можно снять фаски, чтобы и края были гладкими. После этого можно собирать скамейку. Собрать ножки, между собой они соединяются с помощью поперечен.Затем на них крепятся с помощью саморезов доски сидения и спинки. Затем ножки скрепить нижней поперечиной. Готовую скамейку можно покрыть лаком или покрасить. ![]() Или самой простой вариант скамейки, без спинки:
в избранное
ссылка
отблагодарить
postscriptum
[5.8K]11 месяцев назад Одна из самых простых и при этом визуально красивая скамейка получается так — нужно взять одно массивное бревно (не длинное), распилить его на две части, которые будут основой скамейки. Благодаря своей массивности и противоположности направления укладки сидению, они придадут лавке устойчивость. На отрезки бревна кладут и прибивают доску, желательно достаточно толстую. На этом и ограничиться можно, но, если нужно, чтобы было кроме простоты еще и красиво, то приспосабливают спинку лавочки. Две толстые жерди прибивают к отрезкам бревен и сидению, верх их должен быть несколько отклонен в стороны. На них прикладывают и прибивают спинку, желательно из широкой доски. ![]() Вовсе не обязательно соблюдать ровные линии и пропорции, неровные линии даже предпочтительнее, только обязательно — хорошая шлифовка и полировка, покрытие морилкой и лаком. Если все сделать с соответствующим антуражем — деревянная решетка на заднем плане, вьющиеся растения, выложенное крупной белой галькой основание и получится красиво и стильно. в избранное ссылка отблагодарить Ким Чен Ын [319K]2 года назад Вы пишите о самой простой скамейке. Самая простая это к примеру вот такая. ![]() Два пенька отрезанные по одному размеру (по высоте) и сама перекладина (сиденье) можно использовать доски, фанеру не тоньше 10-и мм, ЛДСП, МДФ и так далее. А этапы изготовления выглядят так: Бревно распиливаем на две одинаковые части. Пеньки можно и покрасить. Сверху прибивается гвоздями лоска необходимой ширины, головки гвоздей чуть притапливаются. Пеньки можно установить не только вертикально, а и лёжа, вот пример такой скамейки. ![]() Только тут уже используются три бревна одно из них распилено вдоль. Углубления (посадочное место) можно выбрать и топором, распиленное вдоль бревно (сиденье) крепится гвоздями к ножкам скамейки. Или вот такой вариант скамейки. Тоже ни чего сложного, два пенька одной высоты, разметка под запил на одном уровне, запил по толщине доски и доска фиксируется гвоздями. Описанные, выше, варианты вообще не требуют какого либо опыта столярных работ, всё совершенно просто. в избранное ссылка отблагодарить володя [32.3K]4 года назад Самую простую скамейку можно сделать из обычного большого бревна и проще ничего просто нет. Взять бревно очистить от коры и зашкурить можно и не шкурить и прислонить его к стене дома или сарая или к забору. Если такой вариант не устраивает то тут можно немного пофантазировать бревно можно распилить пополам или порезать его на чурбачки из которых получаться замечательные скамейки: ![]() Продолжая тему простых скамеек и причем весьма оригинальных хочу Вам предложить на выбор несколько вариантов, тут не надо особых знаний и умений достаточно посмотреть на фото и сразу все санет понятно и доступно:
в избранное
ссылка
отблагодарить
Алексей104
[12.1K]4 года назад Еще один вариант несложной скамьи. ![]() Размеры у нее следующие 1200Х460Х400: ![]() Изготавливаем шесть одинаковых опор для сидения с вырезом под… сами знаете что (вырез для простоты можно опустить и сделать просто прямоугольные брусочки) ![]() Временно зафиксировав конструкцию струбцинами, закручиваем в нее саморезы, собирая верхнюю рамку ![]() Чтобы между деталями было одинаковое расстояние, не возбраняется использовать прокладки (брус) ![]() Затем прикручиваем рейки на сидение (между ними так же желательно прокладывать обрезки, чтобы выдерживалось одинаковое расстояние между рейками) ![]() В углы рамки приворачиваем саморезами ножки из бруса ![]() Затем прикручиваем царги (ребра жесткости), кстати, так же желательно с подставками. ![]() НУ и в финале, покрываем скамейку лаком, краской или маслом. в избранное ссылка отблагодарить Irischka [10.2K]2 года назад Самой простой для изготовления является использование бревна и доски. Для этой цели необходимо распилить бревно на равные по высоте брёвна, которые будут являться ножками нашей лавочки, скамейки, а вот на них мы устанавливаем, крепим доску. Конечно, эта инструкция условная, но суть действий понятна. ![]() Если вы планируете сделать настоящую, добротную скамейку, то вам стоит изучить следующую схему. ![]() Приведём еще примеры скамеек. ![]() Скамейку можно изготовить и с применением старых стульев или табуреток, посмотрите фото. ![]() Посмотрите так же видео по данному вопросу. в избранное ссылка отблагодаритьЗнаете ответ? |
Смотрите также: |
www.remotvet.ru
Лавочки, сделанные своими руками из дерева и других материалов
Скамьи деревянные и лавки, которые есть на приусадебных участках, дают возможность отдохнуть. Но можно не устанавливать простую скамейку, а сделать своими руками целый уголок для отдыха, со столом и прочими составляющими ансамбля, причём из подручных материалов. В таком случае, отдых дополнит возможность наслаждаться красотой природы и результатами собственных усилий. Существует немало привлекательных задумок, как сделать скамейку. Упрощённые варианты скамеек из дерева своими руками под силу создать кому угодно, было бы желание.
Содержание материала
Облагораживаем зону отдыха
В саду либо около домика хочется разместить побольше зелени. Цветники возможно объединить со скамейкой. Потребуется 2 деревянных ящика, в которых растут цветы, между ящиками размещаются оструганные, отшлифованные дощечки. Лавку можно разместить возле стенки, на стену набить несколько длинных дощечек, чтобы получилась спинка.

Деревянные ящики возможно заменить каменными либо бетонными тумбочками. Они прослужат дольше, ухаживать за ними придётся меньше. Есть готовые клумбы из бетона. Доску можно приобрести уже обработанную, а можно провести обработку своими руками. Вместо доски используют половинку бревна. Вариант выбирается на основании стиля оформления участка/сада. Закрепляется сиденье металлическим уголком дюбелями (если это металл), к дереву оно крепится саморезами снизу либо болтами насквозь.

При наличии крупных растений в вазонах можно поступить так: скамейка охватит растения. Вазоны нужны прочные, ведь они будут ножками. Существует похожий вариант лавки из досок без наличия растений. Опоры создаются из досок, равных по размеру, сиденье обустраивается из бруса.
Опорой для скамейки из дерева в саду могут стать и пустотелые стройблоки. В отверстия вставляют обработанные бруски, получается сиденье скамейки. Грани бруса следует округлить для удобства при сидении. Блоки предпочтительнее использовать большие, с толстыми стенами. При отсутствии таковых их хорошо скрепляют между собой. Сначала крепятся блоки (к примеру, шпильками), далее — бруски (болтами либо нагелями).

Скамейки, собранные из брёвен
Если участок оформлен в этническом стиле, то от обычных вариантов садовых скамеек своими руками придётся отойти. Предпочтительнее использовать брёвна, с корой либо без неё. Сиденьем для садовой скамейки, сделанной своими руками из брёвен, послужит распиленный вдоль ствол. Спинкой лавочки из дерева выступит меньший по диаметру ствол либо срез ближе к краю. Ножки деревянной лавочки выполняются из нешироких кусков бревна.
Ножки и сиденья скамейки для сада соединяют металлические штифты. Под них в обеих деталях сверлятся отверстия, имеющие меньший диаметр.- Штифт забивается в отверстие, вторая часть забивается по древесине.
- Во избежание появления следов укладывают кусок доски, по нему стучат молотком (либо кувалдой). Соединение должно обустраиваться надёжным, можно установить 2-3 штифта либо убрать немного бревна, чтобы получилась площадка одинакового размера на обеих деталях. Нарастив площадь опоры, увеличьте надёжность крепления сиденья деревянной скамьи, ведь бревно тяжёлое.
Ещё один вариант скамейки из брёвен без спинки — с сиденьем, сделанным из очень толстой доски, с ножками из колоды большого диаметра. В колоде делают паз под укладку сиденья деревянной скамьи. Топором, болгаркой либо бензопилой можно сделать углубление без особого труда.

На дачном участке часто нужен рабочий стол. Из бревна возможно сделать как деревянную скамью, так и стол. Столешницу сделать из досок, остальные составляющие — из брёвен разных диаметров либо из половинок.
Используем ветки
Спинку, ножки, подлокотники возможно создать из толстых и не очень толстых веток, сиденье обустроить из ошкуренной и обработанной (очищенной от коры, отшлифованной) необрезной доски. Ещё один вариант красивой скамейки из древесины, который можно установить в саду либо на дачном участке — расположенные в разном направлении доски и ветки. Такая деревянная скамья не требует особого мастерства. И чем небрежнее работа, тем привлекательнее внешне результат.

Плетёную спинку можно видеть на скамейках нечасто. Вокруг дерева можно обустроить площадку для отдыха и скамью. Конструкции просты, как и настил. Дополнят картину качели и беседка. Над скамьёй можно разместить перголу — лёгкую беседку. Полной релаксации поспособствует обустройство пруда, фонтана либо водопада.
Деревянные и металлические варианты
Полностью металлические садовые скамейки бывают красивыми, однако летом такие изделия сильно нагреваются, а зимой на них невозможно присесть, ведь они холодные. Данных несовершенств нет у лавок из металла и дерева. Ножки, несущая конструкция сделаны из металла, сиденье и спинка — деревянные.
Можно сделать скамью из профиля. Из него свариваются прямоугольники, к боковушкам привариваются перемычки. На них держатся дощечки сиденья. В более совершенном виде — с подлокотниками, спинкой, подушками конструкция смотрится весьма комфортно. Большое сиденье делает лавку диваном, подушки — это обтянутый тканью поролон для мебели. То же стилевое решение представлено в столах. Берётся рама из профтрубы, а столешница создаётся из досок.

Значительный нюанс: если сиденье либо столешница делается из нескольких прилегающих частей, то их не следует соединять впритык. Между соседними дощечками либо брусками следует делать зазор в 3-4 мм. Древесина будет разбухать и усыхать, а зазор позволит поверхности оставаться почти ровной при данных процессах.
Добиться плавных линий позволят варианты, при которых трубы сгибаются. Получаются садовые лавки и стол со скруглёнными гранями. Такая садовая мебель безопасна в использовании. Круглую либо профилированную трубу изгибают, оставляя по сторонам в форме буквы «П» с большой спинкой. Длина её равна длине скамьи. Для стола размеры немного больше.
- Нужны по 2 одинаковые заготовки на стол и скамью.
- Нарезаются доски одинаковой длины. Для сиденья нужны доски по 40 см, для столешницы — хотя бы 55 см.
- Крепление к трубам производится мебельными болтами с плоской шляпкой. Шляпки не будут торчать, под них делают отверстие немного большего диаметра.
Скамейки, созданные из досок
Даже обычную вещь удастся сделать неповторимой, если относиться к задаче креативно. К примеру, ножками и подлокотниками могут служить деревянные колеса. Простейший вариант — доска на ножках, сделанных в виде буквы «Х».
Из досок возможно сделать лавку в виде буквы «П». Основное задание — хорошо зафиксировать ножки и сиденья. Следует использовать толстую доску либо брус, не прогибающиеся. Можно поставить доску «на ребро», чтобы получилось жёстче. Надёжности придадут уголки, установленные снизу.

Интересный вариант: ножки делаются из досок, разнящихся по длине. Каждая вторая делается короче на ширину дощечки для сиденья. Выполнить задачу просто: следует не нарушать размерных параметров, соединение производится гвоздями в сиденье.
Нетривиальные и привычные варианты
Можно прикрепить сиденье к большому камню. Красиво, однако сидеть зимой на нём малоприятно. Также можно сделать красоту из стволов бамбука. Сделать лавку из камня под силу не каждому — не все имеют соответствующее оборудование. Рассмотрим более привычные варианты.
Простая садовая лавочка будет выглядеть необычно благодаря использованию особенного материала. Для обустройства подойдёт брус со скруглёнными краями. Брёвна небольшого размера обтёсываются по бокам, получается такой же результат. Непривычно собраны ножки: бруски плашмя расположены один на другом.

Как сделать садовую скамейку длиной около 120 см, шириной — около 45 см, высотой — 38 см? Скругляются грани бруса фрезой либо используется профилированный брус. По цене получится дороже, но работа упростится. Он хорошо обработан, соединять несложно. На одну ножку тратится 5 брусков. 45 см умножаем на 5 шт. — получается 2,25 м. На 2 ножки требуется 4,5 м бруса. На сиденье нужна доска 40 мм толщиной и шириной по 90 мм. Для сиденья лавочки требуется 5 досок длиной 1,2 м. 1,2 м умножаем на 5 штук — получается 6 метров.
- Нарезаются и обрабатываются дощечки для сиденья лавочки. Грани закругляются. При отсутствии шлифовальной машинки либо фрезера нужно использовать наждачную бумагу. Также можно договориться на лесопилке об обработке и шлифовке, чтобы работы стало меньше.
- Доски одинаковой длины шлифуются, покрываются лаком.
- Бруски для ножек складываются один возле одного, по краям выравниваются.
- Наносятся линии по местам крепежа. Расстояние между ними — 7-10 см.
Штифты подойдут из металла, можно сделать деревянные нагели. Под них сверлятся отверстия немного меньшего диаметра, глубина отверстия составит половину длины штифта. Они забиваются в одну деталь, сверху в отверстие насаживается вторая деталь. В такое соединение можно добавить клея, но конструкция выйдет неразъёмной. При штифтовом соединении главная задача — расположить отверстия обязательно одно над другим. Так получится ровный край.

- Следует отмерить одинаковое расстояние от края по шаблону. Нужен отрезок планки шириной приблизительно 1,5 см. На этом расстоянии от края брусков делаются отверстия.
- Приложив ровно по краю, нужно отметить места пересечения с перпендикулярными линиями.
Штифты располагаются в шахматном порядке, отверстия делаются через одно пересечение. Отверстия на одном бруске с разных сторон размещаются в шахматном порядке. На штифтах соединяются ножки с сиденьем: по 2 штифта идёт на каждую планку.
Технологически этот тип соединения верный, однако он непростой, нужно определённое мастерство. Можно упростить задачу: сложить бруски один на другой, закрепить струбцинами, проделать отверстие насквозь в двух-трёх сетах, расположив по центру и краям, соединить длинной шпилькой, с шайбами под шляпкой и гайкой. К ножкам планки сиденья садовой лавочки прибиваются гвоздями сверху либо присоединяются штифтами.
Деревянная скамейка своими руками сделана, время переходить к отделке. Если сиденье присоединено гвоздями, то возьмите мастику для дерева, добавьте мелких опилок, перемешайте смесь. Замажьте места соединений, после высыхания сровняйте шкуркой до гладкости. Затем покройте лаком либо красками по дереву для наружных работ (не укрывными, оставляющими видимой текстуру дерева).

Скамейка, созданная из сломанных стульев
У всех найдутся старые стулья. Они должны быть одинаковы и довольно прочны. Разберите 2 стула, оставьте часть со спинкой и ножками. Соедините 2 спинки брусками с подходящим сечением. Для большей жёсткости на расстоянии около 20 см от пола сделайте раму с поперечными перекладинами. Она будет служить подставкой для ног либо местом хранения вещей.
После шлифовки красьте получившееся изделие обычной краской. Разные породы древесины закрашиваются лишь укрывными красками. Наносите кистью либо из баллона. Вырежьте сиденье из толстой фанеры (толщиной 8-10 мм), обтяните поролоном, тканью.
Кресло либо скамья для сада, сделанные из паллет
Из грузовых паллет тоже удастся сделать садовую мебель своими руками. Разбирать ничего не придётся. Из одной выйдет сиденье, из второй получится спинка. Нужны хорошо обработанные дощечки для подлокотников, для ножек требуются бруски.
В паллете усиливаются области крепления кусками брусков, прикручиваются саморезами с двух сторон. Из бруса сечением минимум 100*100 мм нарезается 4 одинаковых отрезка длиной по 80 см. Прикручиваются они в местах, которые были укреплены. На ножки отводится 20-25 см. Крепление производится 4-мя саморезами длиной минимум 150 мм.
Прикручиваются опоры для подлокотников. Нужно придерживаться вертикальности и предусмотреть одинаковое расстояние на ножки, чтобы сиденье располагалось ровно. При наличии погрешностей по высоте можно подпилить, но придётся это сделать и сверху. Отклонения от вертикали исправить можно, лишь прикрутив ножку снова.
Ножки прикручены, теперь к задним стойкам следует прикрепить вторую паллету, по бокам разместить дощечки для подлокотников. Вырезается из мебельного поролона кусок, который обтягивается тканью. Можно своими руками сшить подушки для спинки. Хотите получить кресло в стиле лофт? Тогда пройдитесь наждачкой либо шлифовальной машиной, обработайте поверхности до гладкого состояния. Покрытие можно сделать краской, которая придаёт древесине тёмный цвет.
interier.club
видео-инструкция как сделать простую скамейку со спинкой, чертежи, фото и цена
Все фото из статьи
Во время освоения собственного участка хозяевам следует уделить внимание не только строительству загородного дома, но и выполнить грамотное планирование приусадебной территории с обустройством несложных элементов ландшафтного дизайна и декоративного озеленения, а также оборудованием удобных мест для комфортного отдыха на свежем воздухе в теплое время года.
Одним из обязательных предметов садово-парковой мебели, который непременно должен присутствовать на каждом загородном участке, является обычная садовая скамейка или деревянная лавочка со спинкой своими руками которую изготовить по силам любому домашнему мастеру в условиях собственной мастерской.

Удобная деревянная скамейка с оригинальным дизайном.
Самодельная скамейка для садового участка
В настоящее время в продаже можно встретить достаточное количество готовых предложений для самостоятельной установки малых архитектурных форм и различных вариантов садовой мебели, которые изготавливаются по типовому проекту из самых разнообразных современных материалов.
В то же время наиболее аргументированным и экономически оправданным решением принято считать самостоятельное изготовление лавочки из дерева своими руками по собственным эскизам, которые могут зависеть от личного вкуса владельцев участка и концептуального стиля оформления ландшафтного дизайна.
Чтобы любой владелец загородного жилья смог без труда справиться с этой задачей, в настоящей статье читателю будет предложена пошаговая инструкция, в которой подробно описаны несложные варианты изготовления простейшей лавочки и садовой скамейки со спинкой.

Компактная скамеечка для двоих человек.
Место для установки лавочки
В первую очередь, перед тем как сделать деревянную лавочку со спинкой, нужно грамотно продумать место для ее установки на загородном участке, поскольку от этого будет зависеть степень и уровень комфорта во время ее использования, а также вид и характер используемых материалов, вес и технологические особенности конструкции.
- Для тихого спокойного отдыха деревянные лавочки и скамейки лучше всего размещать во внутреннем дворе дома на ровной площадке вблизи деревьев или высоких зеленых насаждений.
- Зону отдыха рекомендуется располагать в уютном затененном месте с панорамным живописным видом, которое должно быть надежно защищено от ветра и сквозняков.
- Если площадка для отдыха не оборудована стационарным навесом или тентом для защиты от атмосферных осадков, можно изготовить скамейку разборной или мобильной конструкции, которая с наступлением холодного времени года убирается на временное хранение в гараж или сарай.

На фото показано подходящее место для тихого отдыха.
Совет!Не рекомендуется устанавливать стационарные деревянные лавочки своими руками вблизи естественных или искусственных водоемов, на низменных территориях участка, а также в местах постоянного скопления воды, поскольку в вечернее время там может собираться большое количество комаров, мошек и других летающих кровососущих насекомых .
В этом случае лучше использовать легкую мобильную скамейку, которую при необходимости можно без труда перенести на другое место.
Выбор и подготовка материала
Внешний вид, долговечность и качество готового изделия будут во многом зависеть от правильного выбора материала, используемого для его изготовления, поэтому подбирая пиломатериалы, следует уделить внимание не только качеству древесины, но и отсутствию следов поражения плесенью или насекомыми вредителями.
- Для изготовления стационарной скамейки лучше всего использовать брус и доски большого сечения, а также массивные деревянные колоды, горбыли или обрезки бревен,главным преимуществом которых является невысокая цена, поскольку их принято считать ненужными отходами лесоперерабатывающего производства.
- Для того чтобы изготовить легкую мобильную лавочку, которую легко можно перенести на новое место или убрать в помещение на зимнее хранение, следует использовать бруски сечением не более 60х60 мм, а также доски или планки толщиной не выше 25-30 мм.
- Чтобы защитить древесину от разрушительного воздействия влаги и гнилостных бактерий, перед тем как сделать лавочку из дерева своими руками, все деревянные детали необходимо два раза обработать специальным антисептическим составом, который можно купить в любом строительном магазине.

Небольшая переносная лавка.
Совет! Особое внимание следует уделить деревянным элементам и деталям лавочки, которые вкапываются в землю или имеют непосредственный контакт с грунтом. Для защиты от влаги и гниения древесины их необходимо пропитать горячим отработанным маслом, смешанным с канатной смазкой, или обработать разогретой резинобитумной мастикой.
Изготовление простейшей лавочки
В качестве простейшего примера далее будет рассмотрена технология изготовления легкой переносной лавочки без спинки, на которой свободно сможет разместиться для отдыха три или четыре человека.
Для того чтобы сделать деревянную лавочку своими руками, используется доска толщиной 30 мм, а окончательная сборка выполняется при помощи клеевого соединения деталей с использованием деревянных нагелей или шкантов.
- Из доски толщиной 30 мм вырезать сиденье, ширина которого должна быть около 300 мм. Если доски подходящей ширины нет в наличии, его можно изготовить из двух или трех частей, склеив их между собой в торец при помощи деревянных нагелей.

Чертеж для изготовления переносной скамейки.
- Из этой же доски нужно вырезать две абсолютно одинаковые боковины, которые будут являться опорными ножками скамейки.
- Внимательно посмотрев чертежи простой лавочки из дерева своими руками, выпилить подпорную балку, которая служит для соединения боковин, и одновременно является ребром жесткости для сиденья.
- Горизонтальную подпорную балку вставить в прорези вертикальных боковин, предварительно промазав этот узел столярным клеем, после чего закрепить ее в торец к каждой боковине при помощи четырех саморезов.
- В верхних торцах вертикальных ножек и в верхнем торце подпорной балки просверлить глухие отверстия глубиной 30 мм. Такие же соосные отверстия глубиной 20 мм нужно просверлить в нижней плоскости сиденья.
- Торцы боковин и опорной балки обильно промазать столярным клеем, а в отверстия на этот же клей установить деревянные шканты. После этого нужно совместить отверстия в сиденье с выступающими нагелями, плотно прижить его к несущей конструкции, и оставить на несколько часов до полного высыхания клея.

Самостоятельное изготовление лавочек из дерева всегда нужно начинать с изучения сборочных чертежей.
Совет! Если в дальнейшем предполагается установка скамейки на мягкую или рыхлую почву, в нижней части ножек следует закрепить плашмя горизонтальную широкую планку, которая позволит увеличить опорную площадь и снизить давление на грунт.
Сооружение скамейки со спинкой
Садовая скамейка со спинкой более комфортна и удобна в использовании, однако занимает много места и обладает достаточно большим весом, поэтому чаще всего изготавливается в стационарном исполнении.
Если внимательно посмотреть чертежи лавочки из дерева своими руками, несложно понять что для их изготовления используются более прочные и массивные элементы.

Сборочный чертеж лавочки со спинкой из дерева.
- Детали несущей конструкции следует изготавливать из бруса сечением не менее 80х80 мм, а соединять их между собой при помощи саморезов или деревянных шкантов и столярного клея.
- В качестве обрешетки сиденья следует использовать доски и планки толщиной не менее 30-35 мм, а для обрешетки спинки достаточно будет толщины 20-25 мм.
- Сборку решетчатой конструкции спинки и сиденья лучше всего выполнять при помощи шипового или пазового и гребневого соединения с использованием влагостойкого столярного клея, обращая внимание на чертежи лавочек и скамеек из дерева, представленные в этой статье.

Более простая конструкция садовой скамейки со спинкой.
Заключение
После предварительной сборки, для дополнительного удобства все углы деревянных элементов рекомендуется закруглить, по краям скамейки установить подлокотники, а поверхность сиденья и спинки отшлифовать мелкой наждачной шкуркой и покрыть атмосферостойким палубным лаком.
Внимательно посмотрев представленное видео в этой статье, читатель сможет получить более наглядное представление о самостоятельном изготовлении несложной садовой мебели в собственной домашней мастерской.
rubankom.com
Скамейка из дерева своими руками для сада: этапы изготовления
Лавочки, которые обычно находятся в парках, на дачах или в садах, — это не только важная часть благоустройства и экстерьера. Садовые скамейки предназначены для отдыха, поэтому более всего от них требуется 2 вещи: эстетика и комфорт.
От того, что сегодня часто делают оригинальные лавочки, отдых превращается во что-то большее, а сами скамейки для дачи и парков становятся не только предметом быта, но также и целыми предметами искусства. При этом чаще всего довольно интересную, не затратную по времени и дешевую скамейку можно создать собственноручно.
Для того, чтобы сконструировать самостоятельно деревянную лавочку, достаточно иметь некоторые навыки работы с инструментом по дереву, а также найти подходящий чертеж лавки или просто придумать ее дизайн.

Сегодня есть масса оригинальных решений, которые помогут выбрать лучший вариант для дачи или частного дома.
Поскольку самым естественным и наиболее дешевым материалом для создания лавок остается именно дерево, то перед тем, как сделать скамейку, стоит разобрать, какие есть виды скамей, и как их можно собрать.
Обычная садовая лавочка
Для изготовления садовой лавочки используются преимущественно деревянные материалы, но для довольно массивных лавочек больших размеров придется использовать также металлические детали. Речь идет в первую очередь о креплениях и соединительных элементах, которые имеет скамейка из дерева.
Основным расходным материалом для лавочки обычно становиться деревянная доска. Чтобы рассмотреть необходимые для разных видов скамеек материалы, можно оценить отдельный пример.
Процесс монтажа лавки
Создание стандартной скамейки для сада требует деревянной доски длиной в 1500 миллиметров, шириной 150 миллиметров и толщиной около 40 миллиметров. Для обычной лампочки достаточно 5-6 таких досок.
Для задних ножек можно использовать 2 такие же заготовки, только укороченные до одного метра. Эти ножки также должны выполнять функцию спинки. Передние ножки будут изготовлены из такой же доски, но для них используются заготовки по 360 миллиметров длиной. Нужно учитывать, что скамейка то из дерева своими руками может быть сделана и с другой высотой. Главное — ее правильно рассчитать.
В результате получится скамейка длиной в полтора метра, высотой сиденья 45 см и с вдвое большей высотой спинки. При этом ширина сиденья составляет около 40 сантиметров (для трех досок на сиденье).
Усиление конструкции производится с помощью брусков с квадратным сечением 4х4 сантиметра. Такая простейшая деревянная скамейка будет скреплена саморезами.
Для улучшения креплений используются брусья, дополнительный раскрой досок перед соединением, делается уклон спинки — так получается скамейка, как показано на фото.
Кроме указанных материалов также можно использовать лак и грунтовку для покрытия поверхности лавочки с целью ее защиты от внешнего влияния влаги. Исходя из этого, можно рассматривать и другие более оригинальные конструкции, но главным образом стоит определиться с порядком выполнения работы по созданию такой лавки, ведь любая скамья своими руками из дерева — это сложная конструкция, требующая некой технологии постройки.
Изготовление скамейки: этапы

Технология включает 7 этапов:
- На первом этапе нужно подготовить материалы или по возможности найти элементы, уже подходящие к конструкции по размеру и форме. В крайнем случае можно даже купить набор типа конструктора. Но при желании можно найти исходные заготовки и обработать их самостоятельно. Важным этапом подготовки древесины является создание макета, схемы или чертежа скамейки из дерева. Благодаря точности указанных размеров и расчетов можно сразу определить нужное количество материала, что сэкономит затраты на постройку лавочки. Согласно чертежам, заготовки нужно раскроить и обработать со всех сторон поверхности, подготовить соединительные элементы, отшлифовать доски для сидения спинки, ножки, а также закруглить торцы досок, чтобы обезопасить их. Дальше можно приступать к следующему шагу.
- На втором этапе нужно обработать задние ножки, отметив высоту сиденья на них, а также обрезав части к которым будут присоединяться доски спинки. Оптимальный градус наклона спинки может составлять до 20 градусов, а иногда и больше. Данные срезы нужно делать лобзиком.
- Третий этап — это соединение ножек с помощью брусьев. Передние и задние ножки соединяются брусьями снизу и сверху. Это позволяет получить дополнительную стойкость конструкции.
- На следующем шагу две боковины (попарно сбиты нижней и верхней обвязкой задние и передние ножки) соединяются досками для сидения. Доски прикручиваются саморезами к верхним брусьям и должны иметь между собой зазоры 10-20 мм для отвода влаги и вентиляции лавочки.
- На пятом этапе используют нижнюю обвязку соединяющих брусьев двух боковин, для чего можно использовать дополнительную доску длиной 150 сантиметров. Для большей устойчивости досками соединяют сами ножки — задние и передние отдельно.
- На шестом этапе монтируют задние ножки со спинкой своими руками. Спинки желательно крепить на высоте 20 сантиметров от сидения, также оставляя между ними зазоры.
- Последний этап — покрытие мебели лаком. Благодаря глубокой пропитке и лаковому покрытию скамейка приобретает защиту от воздействия влаги, грибков, а также насекомых. Кроме того лак насыщает цвет поверхности скамьи, от чего она становится еще более приятной на вид.
Разнообразия садовых лавочек
Садовая лавочка из дерева своими руками может быть сделана довольно тривиально, но также может отличаться оригинальными решениями, о чем было сказано выше. Если взять за основу приведенный пример стандартной садовой лавочки, то, изменив некоторые его элементы, можно получить большое количество возможно схем.
Часто для установки скамейки достаточно иметь две пары опор, между которыми прокладывается одна или две доски. В качестве таких опор могут выступать клумбы, как показывает фотография внизу.

Вариаций такой скамейки очень много, существует только одна проблема — обеспечение надежных креплений к клумбам, которая впрочем решается с помощью металлических крепежей, деревянных фиксаторов-распорок или как-то иначе.
В качестве опор могут выступать разнообразные деревянные конструкции, например, небольшие башенки из деревянных брусков, сложенных в виде домика, или обычные пеноблоки и так далее.
Деревянная скамейка со спинкой может быть сделана из бревен. Скамейки из бревен и бревенчатые лавочки выглядят довольно красиво и особенно хорошо вписываются в ландшафт парка или сада. Кроме того создание скамейки из бревна довольно простое и быстрое, хотя может потребовать дополнительных физических усилий.
Бревно для скамьи распиливают вдоль и получают поверхность, которая служит в качестве сиденья. Полубревно укладывается на части другой половины бревна, часто с таких лавочек даже не снимают кору, что придает им особенно естественного вида.
Как видно на фото, единственная загвоздка здесь — создание спинки. В этом случае приходится применять металлические или кованые штифты на обоих концах бревна, к которым крепится спинка из доски, бруса или еще одной части бревна.
Также можно сделать намного большую конструкцию, сложить сразу же стол с двумя скамейками использовав в качестве опоры конструкции полноценные бревна и перпендикулярно им установить плоскости 2 скамеек, а также стола между ними, который будет приподнят на обрезках укороченных бревен.
Неформатная древесина и неординарные решения

Специфически выглядит садовая мебель, сделанная не по формату, то есть когда отсутствуют четкие чертежи скамеек или схемы. Главное требование к таким скамейкам — наличие дополнительных соединений для обеспечения жесткости и повышения выносливости конструкции. Для этого ножки и спинки дополнительно соединяют внизу под сиденьем лавочки.
Спинка может быть нескольких видов, например, плетеной или из нескольких грубых веток. Такие лавочки после завершения работы также обрабатываются лаком и благодаря небрежному виду становятся довольно интересными декорациями.
В некоторых случаях ножки скамьи вбиваются в землю, после чего на них устанавливаются сиденья. Как вариант спинки можно рассматривать и плетеную спинку, но для этого варианта стоит предвидеть не 2 задние ножки, а сразу несколько (3-4 или больше).
В общем случае деревянная лавка своими руками — это всегда что-то особенное. Мастера работы по дереву рекомендуют не ограничиваться шаблонными схемами таких лавочек, но уделять внимание творчеству. Экспериментируя с высотой лавочек, разнообразными видами материалов, опор, длинных или коротких досок, устанавливая сиденья вдоль и поперек длины лавочки можно добиться ошеломляющего и незабываемого успеха. Главное перед тем, как сделать лавочку, — понять, что это просто, и начать экспериментировать. Но прежде, чем пытаться сделать оригинальную скамейку, стоит все же попробовать собрать хотя бы самую простую согласно чертежу.
derevostroika.ru






в избранное
ссылка
отблагодарить
Elden
[53K]



в избранное
ссылка
отблагодарить
postscriptum
[5.8K]



в избранное
ссылка
отблагодарить
Алексей104
[12.1K]










