Лестница на 2й этаж – Чертежи лестницы на второй этаж с поворотами: основные нюансы
Чертежи лестницы на второй этаж с поворотами: основные нюансы

Правильно спроектированная поворотная лестница отлично дополнит интерьер.
Любой частный дом, имеющий больше одного этажа, вынуждает его владельца возводить межэтажную лестницу. Опытному в строительных делах хозяину вполне реально сделать ее своими руками. Но следует иметь в виду, что о постройке лестницы на верхний этаж лучше подумать заранее – еще до строительства дома, на этапе его проектирования.
Сложными лестничные конструкции получаются по причине элементарной нехватки пространства. Хозяева в таких случаях делают выбор в пользу винтовой лестницы или маршевой с поворотом. Добиться успеха в сооружении межэтажной лестницы своими руками можно, если грамотно рассчитать всю лестничную конструкцию и спланировать процесс ее возведения. Но проконсультироваться у специалиста, например, насчет допустимой нагрузки на лестницу, конечно, стоит.
Какой тип конструкции выбрать
Прежде всего, нужно определиться с назначением и частотой ее использования. В некоторых случаях предпочтительным вариантом является легкая складная конструкция, не имеющая поворотов и не предназначенная для больших нагрузок. Например, когда 2-й этаж является мансардой (или даже чердаком), то вряд ли возникнет необходимость перемещать туда большие и тяжелые предметы. Количество людей, регулярно поднимающихся на такой этаж, тоже будет невелико.

В некоторых случаях именно такая лестница будет уместной.
Самая распространенная и наиболее простая в изготовлении конструкция, соединяющая второй этаж с первым, – это маршевая лестница. Она является не только удобной, но и безопасной, а это важно, если пользоваться лестницей будут дети и люди преклонного возраста. Кроме того, по качественно сделанной маршевой лестнице без проблем можно поднимать на верхний этаж и спускать обратно крупногабаритные предметы – мебель, например, или стройматериалы. Возвести своими руками проще именно маршевую лестницу. Строят ее обычно из дерева или металла.

Маршевая лестница не только очень удобна, ее еще и весьма просто сконструировать своими силами.
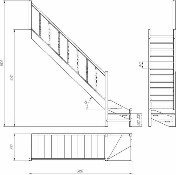
Лестницу на второй этаж часто делают в несколько маршей. Причиной такого решения является необходимость вписать конструкцию в ограниченное пространство, сохраняя правильный угол наклона.
Важно!
Если лестницу сделать слишком крутой, пользоваться ею будет некомфортно.

Поворотная лестница с удобным углом наклона маршей.
Какая польза от чертежа
Собственник жилья имеет полное право делать все по своему усмотрению – выбирать высоту и ширину конструкции, строить ее из дерева или металлических деталей, производить все работы своими руками или нанимать специалистов, делать выбор в пользу той или иной конфигурации. Но все-таки стоит внимательно отнестись к соблюдению определенных параметров лестницы. Чтобы она получилась безопасной и удобной следует, прежде всего, выдерживать правильные соотношения высоты и глубины ступеней, потому что именно эти размеры определяют уклон всей конструкции.

Нестандартные ступени может и придадут вашей лестнице оригинальный вид, но пользоваться ей будет не очень комфортно.
В любом случае составление чертежа будущей лестницы позволит учесть все тонкости сооружения, соединяющего первый этаж со вторым, что значительно снизит вероятность ошибок. Даже подгонка деталей, скорее всего, не понадобится, если чертеж выполнен должным образом (что, кстати, не так уж и сложно). Другой положительный момент – возможность точно рассчитать количество материала, требующегося для изготовления лестничной конструкции.
Даже такой незамысловатый чертеж позволит вам избежать массы ошибок.
Основные параметры
Чертеж должен начинаться с составления плана помещения. В него включаются двери, окна, элементы мебели и другие возможные препятствия. Дальнейшие шаги по проектированию желательно делать только после ознакомления с существующими строительными нормами, касающимися лестничных построек. Вот список самых основных:
- Наклон лестницы не должен превышать 45°.
- Минимум ширины марша – 0,9 м.
- Максимальная высота подступенка – 20 см.
- Глубина ступеньки – не меньше 25 см.
- Ограждение (высота перил) – 0,9 м.
Кроме того, все ступени должны быть одинаковыми по высоте, иначе ходить по лестнице будет некомфортно. Исключением могут быть лишь первая и последняя ступени. Иногда так требуют расчеты, а иногда первую ступень делают в виде площадки перед лестницей.

Примечательно, что различная ширина марша в пределах одной лестницы допускается.
Средний шаг человека
Удобство лестницы будет зависеть еще от того, какой принимается величина шага человека при расчетах. Средний человеческий рост находится в диапазоне 160–180 см, соответствующий этому росту шаг: 60–64 см.
Учитывается также длина стопы. Здесь исходят из того, что шагающий чувствует себя безопасно, когда 70% его стопы находится на опорной поверхности. Опять же, опираясь на средние значения, глубину ступени выбирают из диапазона 25–30 см. Существует формула, связывающая три параметра: 2h + d ≈ 60–64 см, где 2h – удвоенная высота подступенка, d – глубина проступи, а сумма этих чисел должна давать величину среднего человеческого шага. Стоит отметить, что данная формула не является “панацеей”, поэтом не следует воспринимать ее, как обязательное условие.
Альтернативный способ расчета лестницы Часть 1
Альтернативный способ расчета лестницы Часть 2
Насколько сложно черчение
Чтобы начертить схему прямого марша, достаточно будет школьных знаний из курса геометрии. Сделать это можно своими руками. Но перед тем, как наносить чертеж будущей лестницы на план помещения, необходимо вычислить все ее параметры. Для этого можно воспользоваться следующей инструкцией:
- Рассчитывается число ступенек – высота помещения делится на высоту одной ступеньки. При этом должно учитываться перекрытие, то есть берется расстояние от пола 1-го этажа до пола 2-го.
- Затем нужно определить длину конструкции, для этого глубина проступи умножается на количество ступеней. Если длина известна или есть серьезные ограничения на ее величину, тогда делают наоборот – вычисляют глубину проступи, исходя из длины марша: делят предполагаемую длину на количество ступеней.
- Вносят необходимые коррективы, чтобы конструкция получилась удобной и вписалась в интерьер помещения.
- Вычисляется площадь лестничной конструкции: значение ширины марша умножается на его длину.
- Необходимы также длины опорных балок (тетив или косоуров). Для вычисления пользуются теоремой Пифагора – в качестве катетов выступают высота лестничной конструкции и ее проекция на горизонтальную ось. Квадратный корень из суммы квадратов этих размеров даст гипотенузу – искомую длину.
- Полученные значения вносятся в чертеж.
Лестничный поворот
Теперь самое главное – сначала рассчитывают параметры поворотной части, а уж потом берутся за марши. Тут знаний нужно побольше, чем в случае с простыми лестницами и без грамотно построенного чертежа сложно будет разобраться. Чертежи, выполненные профессионалами, могут послужить хорошим примером для новичков. Следует также иметь в виду, что расчеты часто являются процессом последовательного приближения, то есть, сразу попасть в те самые размеры получается далеко не всегда, приходится шаг за шагом уточнять отдельные параметры.

Чертеж должен отображать лестницу в трех проекциях.
Как делается поворот? Возможны два варианта – межпролетная площадка или забежные ступени. Первый вариант проще, его по силам сделать своими руками. Кроме того, пользоваться площадкой удобнее, но нужен простор.

Отличаются конструкции удобством пользования и сложностью проектирования.
Второй вариант используется при нехватке пространства. Расчеты в этом случае сложнее – придется постараться, чтобы лестница получилась удобной и безопасной. Для расчета забежных ступеней используются следующие методы:
пропорциональный;- датский;
- метод поворота линий;
- метод развертки.

Чертим забежные ступени.
Важно!
При использовании забежных ступеней необходимо контролировать их глубину на линии движения – она не должна быть меньше 20 см.
Глубину проступи забежных ступенек, как правило, увеличивают созданием напуска в 3–4 см. Нежелательно превышать эту величину, так как спуск может стать неудобным и даже опасным. Когда недостаточно места для полноценной постановки стопы, человек может поскользнуться, что приведет к травмам. Подниматься по таким ступеням тоже неудобно – носок будет постоянно цепляться за чересчур большой напуск.
Поворотная конструкция на 180° требует соблюдения определенного расстояния между маршами. Значение равное 75 мм является минимально допустимым для этого зазора.
Создание забежных ступеней для поворотной лестницы
Готовые варианты
Не у всех владельцев частных домов есть желание и время делать чертежи и выполнять строительные работы своими руками. Тем более, когда существуют очень неплохие варианты готовых лестничных конструкций, собираемых из модулей. Доступны самые разные модификации – прямые, винтовые, криволинейные. Одни собираются из деревянных элементов, другие – из металлических. И все это не сложнее детского конструктора – на самостоятельную сборку модульной лестницы тратятся считанные часы. Высота и ширина частей легко регулируется, давая возможность вписать лестницу в интерьер и предоставить доступ на верхний этаж в кратчайшие сроки. Многообразие стилевых решений позволит найти подходящий вариант для любой обстановки.

Стоит также обратить внимание на специализированное ПО, предназначенное для расчетов различных параметров, – SolidWorks, StairDesigner и другие. С такими инструментами строительство сложной конструкции своими руками станет возможным даже для того, кто не имел дело с чертежами. Кроме того, для проектирования несложных конструкций существуют бесплатные онлайн-сервисы, то есть любой желающий может пробовать свои силы в проектировании без установки на свой компьютер дополнительного софта.
Проектирование лестницы в программе “Компас” (простой вариант)
Проектирование лестницы в программе AutoCAD (сложный вариант)
lestnitsygid.ru
Компактная лестница на второй этаж: варианты для маленьких домов
Постройка двухэтажного частного дома, коттеджа или дачи – выгодное решение, позволяющее расширить жилое пространство. Для экономии полезной площади в таких строениях устанавливают малогабаритные лестницы. Такие конструкции различаются по количеству ступеней и формам маршей. При этом компактная лестница на второй этаж должна отвечать требованиям практичности и безопасности.
Стильные и компактные конфигурации лестниц
Маленькие лестницы устанавливают для экономии полезного пространства. При их изготовлении делают так, чтобы ступени располагались максимально близко друг к другу, но перемещаться по ним было удобно. Необходимо тщательно подойти к выбору модели, чтобы установить в своем доме максимально безопасную конструкцию.
Даже такая компактная лестница может выглядеть очень органичноОсобое значение имеет форма проема и его ширина. Выбор типа конструкции небольших габаритов зависит именно от этих показателей. Размеры ступеней и уклон лестницы – основные данные, которые стоит учитывать. Важно разобраться, какие виды конструкций лучше всего подходят для маленьких пространств.
Одномаршевые
Одномаршевые модели являются самыми простыми. Однако и при установке подобных лестниц на второй этаж можно сэкономить место. Минимальное необходимое место при 3-метровой высоте этажа – 80х180 см.
Простая одномаршевая конструкцияПроектировщики решаются ради этого на различные нестандартные решения. К примеру, к ним относятся модели, в которых сужены проступи с каждой стороны. 
Лестничные конструкции с одним маршем также могут быть складными и выдвижными.
Поворотные
Модели с поворотами маршей устанавливают в углу или у стены. Площадки в них играют роль элемента, необходимого для разворота. Повороты выполняют на 90° или 180°. Двухмаршевые лестницы не занимают много места, но подниматься и спускаться по ним достаточно удобно. Забежные ступени в таких случаях просто незаменимы. Минимальное занимаемое место при 3-метровой высоте этажа – 160х180 см.
Удачное угловое решение для маленькой площадиБлагодаря установке такого сооружения узкий проход на второй этаж получается более изящным. В сравнении с прямыми маршами при перемещении приходится менять направление движения. Существуют и другие отличия:
- Компактность. Они не занимают много места, а параметры при этом остаются оптимальными.
- Удобство – по ним удобно перемещаться даже с крупным предметом в руках.
- Эстетичность. Угловые изделия выглядят интересно и аккуратно.
- Безопасность. По этому показателю поворотные изделия безопаснее винтовых.
Винтовые
Популярны сегодня малогабаритные винтовые модели. Эти конструкции устанавливают как в многоуровневых квартирах, так и в загородных домах. Удобство эксплуатации таких сооружений заключается в соблюдении правил эргономики – движение вверх и вниз осуществляется комфортно, а под ступенями не создается мертвых зон. Размещать такую лестницу на второй этаж дома на маленькой площади более выгодно. Минимальные размеры в плане при высоте этажа 3 м – 130х130 см.

Ступени крепятся к вертикальной стойке по спирали. Одним из главных плюсов винтовых изделий является изящество форм. Создают их из металла или дерева – в любом случае они способны вписаться в современный интерьер.
Однако винтовые изделия имеют и свои недостатки. К примеру, если человек несет в руках крупный предмет, спускаться будет некомфортно. Деревянные модели придают дому атмосферу уюта.
Раскладные
Если подниматься наверх приходится нечасто, лучше установить в загородном доме конструкцию раскладного типа. Она отлично подходит для мансарды. Ее преимуществом является возможность складывания при необходимости. Малогабаритные выдвижные модели прикрепляют к люку на потолке. Можно легко откинуть конструкцию, а затем задвинуть ее обратно. Для обслуживания чердака раскладная конструкция – идеальный вариант.

Допускается устанавливать такую модель в любой зоне дома. Ее выбор зависит лишь от расположения крупногабаритной мебели. Кроме того, установка раскладной модели не сказывается на интерьере.
Существует несколько разновидностей таких изделий:
- телескопические;
- выдвижные;
- откидные;
- секционные.
Ширина обычно приближена к показателям обычных приставных конструкций. Как правило, она составляет 60-65 см. При большом уклоне спускаться по ней получится лишь спиной вперед.
При выборе подходящего вида конструкции небольших габаритов смотрят на общий дизайн помещения. Главное, чтобы она была прочной, эргономичной и безопасной. Такую небольшую лестницу для дачи монтируют там, где мансарда используется редко. Эффективно устанавливать подобные конструкции в домах с высотой потолков до 3 м.
Малогабаритные решения
При необходимости установить лестницу, которая бы не «скрадывала» пространство и была максимально удобной, обращают внимание на малогабаритные конструкции. Существует несколько видов таких изделий, способных соответствовать требованиям практичности и надежности.
Модульные конструкции
При установке модульных подъемов на второй этаж можно экспериментировать с интерьером и выбирать различные варианты сборки. Их можно сделать своими руками, что является главным преимуществом. Модульные конструкции бывают винтовыми, спиралевидными, Г- и П-образными. Они могут быть и скругленными. Модульная система позволяет придать лестнице любую форму в плане, а добавление нужного количества элементов позволяет набрать произвольную высоту.
Устанавливают их в проемах разной ширины и длины. Важно правильно установить модульную лестницу – от этого зависит безопасность жильцов. При этом обращают внимание на проживание в доме лиц с ограниченными возможностями – детей и пожилых людей.
Выбирают модульную лестницу с маленьким проемом на второй этаж в соответствии с такими рекомендациями:
- Перед выбором измеряют площадь комнаты и узнают габариты проема.
- Лучше, если конструкция будет оборудована перилами, которые обеспечат безопасность перемещения.
- Для удобства подъема и спуска выбирают лестницы без подступенков – так обеспечивается комфорт при постановке ноги.
- Дизайн конструкции создают с учетом общего стиля помещения.
Благодаря небольшим платформам и компактным поворотам, легко сэкономить жилое пространство. Сперва обращают внимание на безопасность изделия и только потом – на его внешний вид. Модульные конструкции устанавливают в доме, где перемещаться между этажами нужно быстро. Часто эту конструкцию выбирают для установки в баню.
Лестница «гусиный шаг»
Среди одномаршевых конструкций стоит выделить лестницу «гусиный шаг». Она не занимает место, но и не стесняет движений при подъеме и спуске. Изменяя размеры марша, важно сохранить оптимальную ширину шага и диапазон уклона. Если даже при выборе крайних значений подъем на второй этаж создать не получится, экономить место для устройства лестницы не стоит.

Отличием конструкции является поочередное сужение проступи с каждой стороны. Это позволяет создать комфорт при перемещении, при этом оставив длину марша сравнительно небольшой.
Такая конструкция может стать изюминкой всего интерьераЛестница «гусиный шаг» создана для комфортного передвижения в ограниченном пространстве. Для таких моделей оптимальный уклон – 50° – 60°. Их ширина сокращается до 60-80 см. При этом соотношение высоты подступенка и ширины проступи в таких конструкциях довольно необычное. Если перенести его на обычную одномаршевую лестницу, перемещение по ней было бы небезопасным.
Важные вопросы удобства и безопасности
При монтаже лестницы на второй этаж небольшого дома важно сочетать конструкцию с фоновым стилем интерьера. Еще необходимо учитывать некоторые требования:
- компактные размеры;
- безопасность;
- комфортность перемещения.
Конструкция не должна быть слишком крутой – никак не больше 60°. Уклон рассчитывают исходя из возможности ее использования детьми и пожилыми людьми. Лучше оборудовать конструкцию перилами. Покрытие выбирают таким, чтобы не скользить по нему при передвижении. Если лестницу изготавливают из полированного камня, можно постелить на нее ковровую дорожку.
Часто конструкции приходится выполнять с большим уклоном – до 75° градусов. При этом устанавливают довольно большую глубину ступеней. Повысить удобство и безопасность лестницы можно с помощью установки ручек, за которые можно держаться при подъеме и спуске.
Правила безопасности:
- начиная с первого метра, лестницу оборудуют ограждением высотой 90 см;
- просветы между стойками перил не должны превышать 10 см;
- ширина проступи должна быть достаточной для комфортной постановки ноги – 25-30 см;
- для удобства обхвата рукой поручни создают с оптимальным диаметром – 32-60 мм;
- все ступени должны быть одной высоты.
Оптимальные размеры ограждений и поручнейПри проектировании лестницы на второй этаж важно позаботиться не только о ее эргономичности, но и о функциональности. Поэтому такие конструкции создают по индивидуальным чертежам. Выполнить расчеты вы можете и самостоятельно при помощи бесплатных онлайн-калькуляторов лестниц.
Варианты компактных лестниц
Ознакомившись с основными видами компактных лестниц, рекомендуем посмотреть фото таких конструкций. Это поможет выбрать подходящую модель для своего загородного дома. Важно, чтобы она сочеталась с интерьером помещения.
domzastroika.ru
Внешняя лестница на второй этаж: особенности конструкции

Живописный домик с интересующим нас элементом экстерьера
Все мы привыкли видеть частные дома с крылечками, оснащенные хоть небольшим, но подъемом, но вот внешняя лестница на второй этаж – это достаточная редкость, которую повстречать можно нечасто. Однако нередки ситуации, когда организация именно такого входа в здание крайне необходима.
Именно об этом мы и поговорим в сегодняшней статье, стараясь максимально развить тему, и представляя много интересных вариантов и решений по теме.
Содержание статьи
Особенности наружных лестниц на второй этаж
Давайте начнем с того, что перечислим обстоятельства, которые требуют установки такого подъема.
Когда лестница на второй этаж в коттедже необходима
Самое банальное и логичное, что первым приходит в голову – это организация дополнительного эвакуационного выхода. К двухэтажным жилым строениям такие требования не предъявляются, но вот к трехэтажным – да.
Однако никто не запрещает владельцу дома поступить именно таким образом, ведь запасной выход часто делается и в одноэтажных строениях.

Эвакуационный выход делается из несгораемых материалов
А что еще, помимо этого, подтолкнет к тому, что будет нужна лестница на второй этаж с улицы:
- Первый вариант – отсутствие внутри помещения достаточного места для возведения нормальной маршевой лестницы, а использовать винтовую — нет возможности и желания.

Лестница в маленьком доме на второй этаж
- Возможно, первый этаж строения будет занят не под жилое пространство, а, например, под капитальный гараж или мастерскую.

Лестница на 2й этаж – раздельные жилые зоны
- Иногда требуется разделить жилое пространство на независимые зоны. Например, на одном этаже проживает одна семья, а на другом – вторая.

Лестница на балкон второго этажа
- Наличие в доме используемого чердака факт положительный, но далеко не все хотят видеть посреди какой-нибудь из комнат вход в него на потолке, и уж тем более устанавливать здесь отдельную лестницу. В таком случае внешнее расположение подъема будет очень функциональным и удобным. Лестница может быть очень прочной и добротной, тогда как внутридомовые решения часто ограничиваются раскладными вариантами, по которым достаточно сложно что-либо габаритное перемещать.

Если мансарда жилая, то и вход должен быть соответствующим
- Многим приходится мириться с необычными особенностями рельефа их земельного участка. В таких ситуациях и сам дом бывает наполовину вросшим в грунт, либо наоборот – установлен на высоких сваях.

Лестница на второй этаж из уголка
- Конструкция некоторых домов предполагает наличие высокого цоколя. По сути, лестница будет вести на первый этаж, однако ее высота может быть приличной.

Лестница на второй этаж сварная
Не забудем также про дизайнерские изыски – мастера этого дела, в попытках создать что-то оригинальное и удивительное, придумывают и воплощают в жизнь самые смелые идеи и формы.
Виды лестниц и материалы, из которых они изготавливаются
Что касается деления конструкций по видам, то тут никого не удивишь. По сути, применяются всего два типа: маршевые и винтовые – которые, однако, имеют множество вариаций исполнения.
Так же существует множество конструкций, сочетающих в себе черты и того и другого вида – назвать их можно комбинированными. Особняком стоят варианты, у которых геометрия не является правильной, то есть они криволинейны.
Подобные лестницы на улицах встречаются очень редко, так как обычно под наружные конструкции не отводят много свободного места.
Давайте перечислим основные особенности каждого из названных видов:
- Маршевые конструкции – это лестницы с прямыми участками подъема. Если подъем слишком высок, и не хватает места для размещения длинного марша, его разбивают и делают поворотным, оснащаю поворотной площадкой или забежными ступенями. Оба варианта показаны на фото выше.
- Подобное исполнение подъема считается самым надежным и удобным в использовании. Прямые пролеты незаменимы при наличии пожилых и самых маленьких пользователей, по ним очень просто организовать подъем габаритных вещей, и легко расходиться при встречном движении, при условии достаточной ширины марша.
- Винтовые лестницы примечательны тем, что имеют необычный и привлекательный для зрителя внешний вид и самые компактные габариты – отдельные экземпляры способны уместиться на площади в 1,5-2 метра квадратных.
- Однако многие, обольстившись красотой таких конструкций, не учитывают, что пользование ими не только неудобно, из-за витиеватости и крутизны, но и просто опасно. Особенно удивляешься, когда люди в погоне за оригинальностью отказываются от перил, что строго запрещено действующим законодательством.
- Подъем наверх по такой лестнице мебели или чего-то габаритного весьма проблематичен, и зачастую приходится привлекать для решения проблемы технику и подавать грузы через окна

Лестница в саду на второй этаж
- Перед вами самый, что ни на есть, комбинированный вариант. Думаем, о его преимуществах и недостатках догадались уже все – по своим свойствам подобные решение больше похожи на винтовые лестницы.

Криволинейная лестница
- Последний вариант, как уже говорилось, достаточно редок, но и их при желании можно отыскать. Как видно из фото, лестница чем-то напоминает винтовую, но по ходу подъема меняет свое направление изгиба. Существуют и другие варианты, когда может меняться ширина пролета, угол его наклона, высота и ширина ступеней и прочее. Все это, несомненно, делает конструкцию необычной, но шагать по ней становится от этого только сложней.
В принципе, это все виды лестниц на 2 этаж, если говорить именно об их конструкции, но визуальное отличие может наблюдаться и из-за разницы в материалах, их которых лестница построена.
Тут тоже мало кого можно удивить, так как для этих целей используется все то, что применяется и при строительстве домов:

Как делается лестница на второй этаж: бетонный вариант лестницы будет дорог и сложен в исполнении
- Бетон – материал очень распространенный для возведения «приземленных» крылец (подробней читайте тут), но для «воздушных» применяется редко, что и не удивительно, в силу понятных причин. Поэтому подобные варианты исполнения можно увидеть разве что в больших особняках, фасад которых без подобных элементов будет скуп и невыразителен.

Высокая кирпичная лестница облицована плиткой
- Кирпич – в принципе, по этому материалу можно сказать все то же самое, что и по предыдущему, впрочем, как и по любому тяжелому, блочному. Подобные лестницы очень прочны, но требуют значительного вложения средств. Помимо этого стоит отметить, что в большинстве случаев они нуждаются в дополнительной облицовке другими материалами: плиткой, деревом, ДПК и прочим.

Навес над лестницей на второй этаж
- Металл – этот материал можно назвать несомненным лидером при изготовлении лестниц на второй этаж с улицы. Конструкция получается очень прочной и при правильном уходе будет исправно служить не одно десятилетие, сильно не теряя при этом внешней привлекательности. Не забываем также, что металл пожаробезопасен, и фактически является единственным материалом для создания пожарных эвакуационных лестниц.
- Относительная легкость конструкции позволяет не применять серьезных фундаментов и сильно не нагружать конструкцию самого дома.
- Внешний вид металлической лестницы не так привлекателен, как остальные, однако это не мешает облагораживать такие лестницы прочими декоративными материалами. Если хозяину по карману приобрести ковку, то это тоже станет дополнительным украшением.

Лестница на второй этаж в садовом домике: цена на деревянные лестницы может быть как доступной, так и недосягаемой
- Дерево – прекрасный природный материал, который может органично вписаться в любое строение, даже сделанное из камня. Такие конструкции примечательны, прежде всего, тем, что являются одними из самых доступных (при условии использования недорогой древесины). При этом вы получаете природную красоту, невероятные ароматы и достаточно простую обработку, что позволяет взяться за строительство самому, при условии наличия нужных инструментов.
Если вам интересно, как строится лестница на второй этаж, то обязательно прочтите следующую главу, где заниматься этим нелегким делом будет на вид хрупкая девушка, а на деле – неплохой мастер. Удивлены? Тогда вперед, и вы убедитесь, что подобная работа будет по силам любому.
Строительство наружной лестницы на второй этаж
Итак, давайте посмотрим, как собирается из дерева простая лестница на второй этаж своими руками. Но перед тем как будет изложена пошаговая инструкция, давайте дадим некоторую вводную часть.
В рассматриваемом примере имеется небольшой каркасный дом, у которого старая лестница пришла в негодность и наша героиня решила своими силами заменить ее на новую. После демонтажа освободилась небольшая бетонная площадка, которая являлась основанием предыдущей конструкции – ей же мы и воспользуемся.
Возведение площадки
Плитный фундамент полностью определяет габариты лестничной площадки, которая расположится перед входом. Отсюда же можно сразу получить ширину лестничного марша и провести дополнительные расчеты по его параметрам.
Сильно вдаваться в вычисления и размеры не будем, так как подобная информация не раз уже давалась в прочих статьях на нашем сайте – обязательно ознакомьтесь.

Установка скоб для опор
- Работа начинается с того, что определяется расположение четырех опор, которые будут удерживать всю конструкцию.
- После разметки в бетонном основании засверливаются отверстия под мощные металлические анкера и выполняется крепление вот таких скоб, которые помогут надежно закрепить столбы, в качестве которых выступят цельные брусья 100х100 миллиметров.
Отступление! Мы не стали отдельно перечислять инструмент, который вам потребуется при работе, и делать это мы будем по ходу. Так, для выполнения уже описанных действий вам не обойтись без перфоратора и удобного гаечного ключа.

Установка опор
- Выполнив эту нехитрую манипуляцию, придется немного поднапрячься и водрузить на место все четыре бруса-опоры.

Фиксация опор
- Их фиксация выполняется при помощи оцинкованных саморезов. Использовать каленые нельзя, так как они очень быстро проржавеют.
Совет! Перед тем как затягивать окончательно крепеж, обязательно выставляйте все детали по вертикали, в двух плоскостях. Для этого вам понадобится обычный строительный уровень или лазерный осепостроитель.

Установка раскосая для дополнительной фиксации
- Если столбы, устанавливаемые возле стен, можно довольно просто выровнять и зафиксировать, то свободностоящие лучше дополнительно укрепить временным раскосом. Впоследствии он уберется.

Определение уровня площадки
- Далее наша героиня поднялась наверх, чтобы фактически определить горизонтальный уровень верхней площадки. В этом деле ей помогают столярный угольник и длинный строительный уровень.
- Тут стоит учесть толщину будущего настила, чтобы не получить в итоге ненужную ступеньку перед входом.

Спиливаем ненужные части столбов
- Полученный уровень переносится на все опоры, после чего лишняя высота подрезается. Работать можно простой ножовкой или вот такой электропилой сабельного типа, как на фото.

Отпиливание заготовок для верхней обвязки
- Настал новый день, на улице хорошая погода, которая так и шепчет… и наша героиня готова продолжать.
- На очереди – изготовление верхней обвязки конструкции, которая не только свяжет друг с другом установленные ранее опоры, но и станет основанием для будущего настила. Так как данный элемент будет несущим, для его изготовления лучше использовать достаточно прочные доски, толщина которых не будет меньше 35 миллиметров, а ширина – 20 сантиметров.

Установка обвязки
- Итак, отрезаем доски нужной длины. Так как все соединения будут болтовыми, нам потребуется высверлить под крепеж отверстия нужного диаметра. Для удобства можете предварительно закрепить элемент струбцинами или саморезами. На каждом столбе будет по две точки крепления.

Стягивание деталей
- Опять-таки, используем стальной оцинкованный крепеж, который будет очень долго служить в условиях высокой влажности. Стягиваем все максимально надежно.
- Устанавливаем такие элементы со всех сторон, однако для надежной фиксации опор этого недостаточно. Усилить конструкцию помогут крестообразные раскосы, изготовлением которых мы сейчас и займемся.
- Первым делом размечаем расположение досок и определяем угол их пересечения. Нам потребуется сделать соединение в полдерева, поэтому важна точная разметка деталей.

Выборка ненужной части молотком
- Для работы потребуется циркулярная пила, высота пропила которой выставляется на нужный уровень. После этого внутри выбираемой части делаются частые пропилы (примерно каждый сантиметр), и при помощи острой стороны молотка или топорика выбивается ненужная часть.

Сборка крестовины
- Подобная манипуляция выполняется и на ответной доске, после чего они при помощи саморезов соединяются в цельный крест.

Полное укрепление основания
- Снова новый день, новый наряд, и снова работа… Заготовленные детали выставляются с некоторым разбросом по высоте со всех четырех сторон. Соединения выполняются на те же болты, и по той же технологии.

Установка центрального лага
- Теперь можно переходить к обшивке площадки досками, но сначала нужно установить центральные лаги, так как между этими элементами не должно быть расстояния больше 50-ти сантиметров.
- Для фиксации используем подобранные по размеру скобы и самые обычные гвозди, хотя можно использовать и саморезы – выбирайте сами.

Делаем настил
- По фактическим размерам площадки заранее нарезаем нужное количество досок для настила и поднимаем их разом наверх. Крепить детали будем на саморезы, поэтому не забудьте захватить с собой шуруповерт.
- Очень важно оставлять между досками некоторый зазор, который позволит бе
olestnicah.ru
Лестница на второй этаж ( 70 фото): идеи и дизайн
Современные тенденции к рациональному использованию территории больше, чем когда-либо, побуждают строить дома не в «ширину», а в «высоту». Это касается частных сооружений, но даже жители квартир стараются организовать многоуровневую планировку, расширяя тем самым полезную площадь. Для объединения верхнего и нижнего пространств возникает необходимость в возведении лестницы на второй этаж, на особенностях выбора которой мы остановимся детальнее.
Разновидности лестниц по конструкции
При проектировании лестницы в первую очередь придется ориентироваться не на дизайн, а на площадь помещения, чтобы подобрать идеальное изделие по конструкции и размерам. Выделяют два основных вида:
Маршевые лестницы
Распространенный вариант лестниц, спроектированных с учетом биомеханики движений и обеспечивающих удобное, безопасное передвижение. Они состоят из маршей, насчитывающих от 3 до 15 ступеней. Если максимального количества недостаточно, высоту делят на два проема, между которыми устанавливается небольшая площадка или забежные ступени. Такие сооружения называют уже двухмаршевыми.
Маршевые лестницы различаются по форме и бывают прямыми, поворотными (Г-образной или П-образной формы) или изогнутыми. При определении этого параметра необходимо опираться на площадь комнаты, высоту потолков, расположение второго этажа.
По типу несущей конструкции выделяют два вида маршевых изделий: на косоурах и тетивах. В первом случае ступени укладываются сверху балки, а во втором — с внутренней стороны опорного элемента проделываются специальные пазы.
Выбирать придется также вид ступеней. Детали с подступенниками выглядят более массивно и отлично впишутся в классический интерьер, а те, что без них, подойдут для современного дома из-за легкой конструкции.
В целом, маршевые лестницы представлены в широком ассортименте и даже для малогабариток можно подобрать подходящий экземпляр или комбинировать его с другими предметами.

Винтовые лестницы
Принцип таких конструкций очень прост: на установленный стержень крепятся ступени, которые по спирали поднимаются вверх. Они не занимают лишнее пространство и достаточно компактны.
Главная причина, по которой винтовые лестницы уступают маршевым — сложности при передвижении из-за отсутствия прочной опоры. Не рекомендуется устанавливать такой экземпляр в доме, где проживают дети или пожилые люди. Оптимальными считаются следующие параметры: центральная ширина ступеней должна быть не меньше 20 см, а самая широкая часть — не больше 40 см.
В остальных случаях винтовые лестницы можно считать отличным вариантом как для современного, так и для классического стилей. Благодаря своей спиралевидной форме, они становятся ключевым элементом интерьера, а разнообразить дизайн помогут изделия разных форм — от квадратных до восьмиугольных.

Лестницы на больцах
Установить в центре комнаты лестницу этого типа не получится — опорой для нее служит несущая стена, к которой ступени крепятся с помощью больцев (болтов). Собранные в одну систему они образуют единый несущий элемент, придающий конструкции легкий, практически невесомый вид, благодаря которому ее часто используют в современных интерьерах.
Несмотря на визуальную хрупкость, изделия способны выдержать от 500 до 1100 кг, в зависимости от материала и производителя. Кроме этого, болты позволяют регулировать высоту ступеней после монтажа.
Популярностью пользуются лестницы на больцах с перилами, которые забирают часть нагрузки на себя. Можно поэкспериментировать с основой, формой и освещением для создания уникального варианта для вашего дома.

Выбираем материал для лестницы
Лестницы изготавливаются из разных материалов, которые наделяют их определенными эстетическими и практическими свойствами.
Деревянные лестницы
Представляя лестницу в доме, сразу возникает образ прочной деревянной конструкции с фигурными перилами и красивой глубокой текстурой. Это может быть роскошное венге, дуб или минималистичная древесина простых пород. Оптимальными вариантами считаются ясень, орех, бук, а вот сосна недостаточно прочная, чтобы выдерживать требуемую нагрузку. Лаковое покрытие защитит от негативного воздействия окружающей среды, но его придется регулярно обновлять.
Такой материал подойдет для любых конструкций, но наиболее органично выглядит в качестве маршевых изделий. Для кантри или американского стиля подобное решение незаменимо.

Металлические лестницы
Металлические сооружения прослужат вам полстолетия, сохранив первозданный, аккуратный внешний вид. Для этого выбирайте экземпляры из нержавеющей стали, которая не поддается коррозии, так как хромированные или окрашенные варианты обладают ограниченным сроком эксплуатации — не больше 6-7 лет.
Пластичность основы позволяет придать лестнице и ее деталям любую форму. Металл часто комбинируют с другими материалами, например, деревом, стеклом, бетоном. Из него получаются изящные кованые поручни.

Бетонные лестницы
В отличие от более естественных материалов, бетон не обладает легкостью или утонченностью, в чистом виде вряд ли впишется в классический интерьер, но вместо этого придаст ощущение основательности и целостности.
Такие сооружения достаточно надежны, могут выдерживать высокие нагрузки и не портятся со временем. К сожалению, их сложно установить самостоятельно, но дешевизна сырья покрывает этот недостаток.
Важным преимуществом бетонных лестниц является возможность их декорирования: камнем, древесиной или даже кафельной плиткой. Уникальная грубая текстура будет незаметна, зато вы получите эстетичную конструкцию по доступной стоимости.

Каменные лестницы
Мрамор обладает потрясающей глубокой текстурой, но в качестве лестничного покрытия он быстро изнашивается, буквально через несколько лет. Противоположные свойства имеют гранит или кварцит. Также отлично справляются со своей ролью и значительно более дешевые искусственные аналоги.
Каменные лестницы часто комбинируют с металлическими поручнями, а корректируя декор можно вписать их во многие стили.

Стеклянные лестницы
Если на первое место выходит дизайн, от которого не требуется десять лет исправной «службы», стеклянным конструкциям нет конкурентов. Из этого материала изготавливаются ступеньки, которые крепятся на больцы или используются на винтовых лестницах. Гармонично выступает в тандеме с металлом, усиливающим эффект глянца и придающим надежности столь хрупкому изделию.
Действительно, лестницы из стекла могут повредиться при сильном ударе, но даже при его отсутствии на поверхности со временем появляются заметные царапины. Для большей прочности лучше брать закаленные или ламинированные разновидности. Акриловое стекло считается наиболее надежным, но имеет свойство темнеть со временем.

Стили и дизайн
Из-за своей формы лестницы часто выделяются среди интерьерного ансамбля, при этом оставаясь его органичной частью. Для этого при разработке дизайна необходимо ориентироваться на основную стилистику помещений.
Лестницы в современном стиле
Современная эстетика любит лаконичность и сдержанность, использование практичных материалов, их комбинацию для создания более сложного вида. Предпочтение отдается чистым геометрическим формам, линиям, ровным поверхностям.
Стиль работает с особенностями пространства, поэтому тип конструкции лестницы может быть любой, главное, чтобы она выгодно смотрелась в интерьере.

Лестницы в классическом стиле
Как упоминалось выше, для классики характерно применение трех материалов: древесины, металла и декоративного камня, среди которых первый явно лидирует. Изначально нужно выбирать помещения с большой площадью, так как здесь даже лестница отличается массивным внешним видом.
Зачастую это маршевые изделия на косоурах или тетивах с закрытыми подступенниками, разделенные на несколько пролетов и огражденные прочными перилами, не редко — с характерной резьбой.

Лестницы в стиле лофт
Бетонные лестницы на второй этаж гармонично взаимодействуют со стилистикой лофта, подчеркивая его индустриальный характер. Впрочем, уместно будут смотреться и другие основы.
Лестница должна иметь предельно простую конструкцию, обеспечивая комфортное передвижение. Так как лофтовый интерьер по правилам размещается на больших площадях, то о размерах сооружения можно не беспокоиться.

Лестницы в стиле минимализм
Желательно, чтобы лестницы в стиле минимализм как можно меньше привлекали к себе внимание. В идеале они должны вписываться в общий объем комнаты, образуя с ней единое функциональное целое.
Средства выразительности сведены к минимуму: фактура материала, плавность линий, естественная цветовая гамма. Отличное решение — ступени на больцах.

Лестницы в стиле ар-деко
Изящный и многоликий ар-деко стремится подчеркнуть свою «статусность» во всех деталях — от основы лестницы до перил. Последние могут повторять сложные, переплетающиеся узоры, вдохновленные флористическими образами.
Маршевые лестницы будут смотреться монументально и знатно, винтовые, благодаря своей спиралевидной форме, сами по себе соответствуют стилистке ар-деко, а вот больцевые крепления покажутся слишком простыми.

Где разместить: основные правила
Установка лестницы на второй этаж — слишком индивидуальный процесс, который зависит от размеров, планировки и высоты потолков в вашем пространстве.
Самым популярным местом для лестницы остается прихожая, особенно в просторных особняках. Таким образом, войдя в дом, вы сразу получаете доступ ко всем комнатам, не блуждая по коридорам.
Вторым по популярности местом для размещения подъема является гостиная. Это удобно для зданий со средней площадью, если второй этаж ведет в приватное помещение, например, спальню. В зале, объединенном с кухней, лестницу можно использовать для зонирования.

Как оформить пространство под лестницей?
Чтобы как-то компенсировать внушительные размеры лестницы, ее можно объединить с другим функциональным предметом, используя пустующее пространство. Это относится к маршевым конструкциям, расположенным рядом со стеной. Сооружение таких изделий сложнее, требует подробных замеров и тщательного планирования, но итоговый результат позволит максимально задействовать каждый квадратный метр помещения.
Подлестничная область может служить в качестве каркаса для шкафов. Решение актуально в холле (хранение одежды и обуви) или гостиной (для домашней библиотеки и бытовых предметов).
Лестницу можно организовать в виде стенки в гостиной, по выступающим частям которой осуществляется передвижение по этажам.
Ценители качественных напитков могут обустроить себе большую коллекцию вин, оградив ее стеклянными дверцами и установив освещение.
В образовавшейся нише можно поставить небольшой диванчик, оформить уютное место для отдыха и уединения, а на боковые стенки установить полки.
Пространство под лестницей подойдет для создания отдельного помещения — кладовой, рабочего кабинета или мини-мастерской. Любой ребенок придет в восторг от такой укромной детской игровой комнаты.
Использование этих идей позволит по-другому взглянуть на лестницы в доме, которые из громоздкого предмета превратятся в функциональное решение.

Дизайн лестницы на второй этаж — фото
Сложно не заметить лестницу даже в самом просторном интерьере, именно поэтому ее дизайну уделяется так много внимания. Еще больше разнообразных форм, вариантов декора и планировок — в нашей фотоподборке. Приятного просмотра!

Видео: Лестница на второй этаж — идеи дизайна
trizio.ru
Лестницы на второй этаж: фото вариантов
Одноэтажные частные дома уже не производят такого впечатления, как когда-то раньше. Ведь именно дома из нескольких этажей создадут более масштабное пространство для воплощения творческих идей. И крайне необходимая деталь в данной конструкции — это лестница на 2-й либо 3-й этаж.





Чтобы увидеть фото лестницы на второй этаж, достаточно просмотреть страницы сайтов в интернете, где от изобилия лестниц просто кружится голова. Будь то современный пригородный дом, двухуровневые апартаменты или частная гостиница – лестница всегда будет функциональным дизайнерским дополнением в интерьере. Но стоит помнить, что не каждый новичок способен сделать лестницу на второй этаж. Тогда помощь со стороны инженеров и архитекторов будет очень кстати. Но если вы все же задумали соорудить собственноручно лестницу своей мечты, тогда, как говорится, ни пуха ни пера вам. Преимуществом в создании такой лестницы непременно станет ваш конструктивный подход к делу и персональное проектирование.
Лестница на второй этаж — очень важная часть внутренней отделки дома. Однако, её параметры желательно рассчитать ещё перед началом строительства жилья.
Главное, что нужно соблюсти при создании лестницы, так это максимальный комфорт и удобство при использовании.
Какие именно бывают варианты лестниц на второй этаж? Далее, речь пойдет о разнообразии лестниц.
Вариации лестниц на 2-й этаж
Самым распространенным видом лестниц можно называть маршевые лестницы. Перечисленные виды конструкций делятся на подгруппы в зависимости от формы и конструкции, а именно:
- Лестницы на косоурах. Такая разновидность конструкций производится из бетонной, деревянной или металлической основы, состоящей из балок, которые объединены с основанием.
- Опорная конструкция на тетивах. Данная лестница имеет непростую установку, ступени соединяют с внутренней частью балки.
- Конструкция на больцах. Изготавливается из стального или деревянного материала. Все компоненты объединены друг с другом с помощью болтов.
- Винтовая лестница, состоящая из опор, поручней и ступенек. Выполняется преимущественно из металлической или деревянной основы.
На косоурах
Данный вид признан наиболее распространенным. Такая разновидность может безупречно подойти для любых комнат, поскольку может видоизменяться в габаритах, а также имеет характерную прочность и безопасность, что крайне важно для маленьких детей. Подобные лестницы производятся как с подступенями, так и без них. Метод крепежа ступеней будет зависеть от числа балок, присоединяющихся к основе.
Косоуры, в свою очередь, делятся на:
- Ломаные;
- Винтовые;
- Прямые.
Модификации такого вида бывают самыми многообразными. К примеру, для домашнего уюта в доме больше всего импонирует деревянная лестница на подступенях. В общем, дизайн лестницы на второй этаж зависит от вашего яркого воображения и креативного мышления.



На тетивах
Опорные конструкции на тетивах смотрятся изящно в творении архитектурного искусства, именно поэтому такой вид лестниц предпочитают люди с оригинальным творческим вкусом. Такая шикарная лестница наделена следующими свойствами:
- Замечательный внешний вид;
- Практичность в использовании;
- Довольно непростая конструкция.
Главное достоинство данной лестницы — в ее прекрасном сочетании как в классическом оформлении, так и в современном. Между прочим, такая лестница замечательно подойдет для любых пространств: музеев, библиотек или театров. Ступеньки у лестницы соединены с внутренней частью балки.



На больцах
Тип лестницы делается, в основном, из стального материала, но также встречаются случаи деревянных конструкций. Соединены все составляющие лестницы друг с другом особыми болтами. Внешнее отличие таких лестниц заключается в том, что сооружения в состоянии выдерживать нагрузку до двухсот килограмм. Объяснением тому является монтаж балки к стенке, потолку либо полу с помощью прочных металлических стержней.
Касаемо ступенек в лестнице, то они бывают закрытыми и открытыми, а также бывают необычной формы, которая будет вам по душе. Вы можете самостоятельно ее разобрать или произвести ремонт, если есть потребность на то.
Винтовая лестница
Спиральная или, как ее еще называют, винтовая лестница, чаще всего применяется в домах либо квартирах. Состав следующий: опора, поручни и ступени. Главным плюсом перечисленных лестниц будет экономия пространства, ведь они имеют сравнительно небольшие размеры.
Делятся на следующие подвиды:
- Квадратные;
- Восьмиугольные;
- Круглые.
Особенность опорной конструкции в том, что она с одной стороны соединяется с центральной стойкой, а с другой — со стеной. Подобные небольшие лестницы на второй этаж изготавливают на стальной или деревянной основе.



С чего начинается строительство лестницы?
Для того чтобы грамотно построить лестницу на второй этаж, необходимо соблюсти ряд советов, а именно — рассчитать конструкцию согласно строительным нормам, учитывая угол подъема, ширину и высоту ступенек. Изготовить лестницу на второй этаж – занятие не из легких.
Для начала требуется определить высоту от пола до второго этажа вашего дома. Высота должна быть 20 сантиметров. Затем определить проекцию лестницы на пол. Средняя ширина ступеньки будет составлять двадцать пять сантиметров. Для того чтобы получить размеры проекции, необходимо умножить число ступенек на предположительную ширину.
Далее определяем длину конструкции и сразу же приступаем к приготовлению частей лестницы и их примерке. Несколько слов о стилях опорных конструкций.
Разнообразие стилей лестниц
Красивые лестницы на второй этаж отличаются своим разнообразием не только по форме и строению, но и по стилям. Интерьер лестницы на второй этаж становится привлекательнее благодаря таким концепциям. А для лучшего определения с выбором – предоставим вам список основных стилей:
Классический стиль
Этот стиль относится к числу наиболее востребованных лестниц, ведь именно его можно отнести к разряду универсальных с точки зрения интегрирования в различные помещения.
Стиль винтаж
Отличается характерными свойствами:
- Состаренностью поверхностей;
- Сложностью конфигураций.
Прямые лестницы на второй этаж в стиле винтаж наполняют ваше пространство гармонией и уютом. Лучшим материалом для подобных сооружений считается камень. Используя фрески и антикварную мебельную фурнитуру, вы идеально подчеркнете всю неповторимость вашей лестницы.
В стиле хай-тек
Самым оптимальным материалом для подобных лестниц будет камень и керамика или сталь и стекло. Свойственные черты в стиле high-tech:
- Простота в конфигурациях;
- Оригинальность мотивов
- Необычность узоров.





Стиль прованс
Прованс или другое название – сельский стиль, характерен чрезмерным применением текстильного материала в дизайнерском интерьере. При оформлении лестниц будет актуальным использовать ковровое покрытие на ступенях.
Совет: Необходимо крайне внимательно выбирать сочетание цветов в использовании данного стиля. Рекомендуется выполнять такие лестницы из натурального дерева.
Американский стиль
Домашние лестницы на второй этаж американского стиля следует выбирать, учитывая теплые оттенки, гнутые поручни и использование резьбы. Конструкция данного стиля выполняется, в основном, из дорогих пород дерева. Не совсем бюджетный вариант, но эксперты настаивают, что высокая стоимость целиком оправдана.
Выводы
Посмотрев в интернете фото дачных лестниц своими руками, вы можете самостоятельно произвести возведение любой из перечисленных лестниц. Когда мы делаем лестницу на второй этаж, несомненно, необходимо учитывать и тип комнаты, в которой предполагается строительство. К примеру, в гостиной для придания конструкции дополнительной оригинальности, можно добавить освещение лестницы на второй этаж. Если это будет загородный дом, то в таком случае, дачная лестница на второй этаж рекомендована таких видов:
- Прямые;
- Прямоугольные;
- Винтовые.
Чересчур крутая лестница на второй этаж может стать причиной для травм и ушибов, особенно для пожилых людей и маленьких детей.
Просмотреть лестницы на второй этаж вы можете, посетив страницы веб-сайтов либо самостоятельно придумать свой неповторимый стиль конструкции. После того как мы построим лестницу на второй этаж, можно с облегчением вздохнуть и любоваться своей работой.
Прочтите также:
←Вернуться
www.it-nv.ru
Лестницы на второй этаж в частных домах
Лестницы используются человеком повсеместно — в каждом здании, в переходах метро, на тротуарах, на лесных тропах и конечно, в частных домах. Лестничные конструкции были придуманы очень давно: самой старой из них, созданной руками человека, насчитывается 7 тысяч лет. Она построена из дерева и размещена в соляной шахте в Австрии.
Современные лестничные конструкции различаются по назначению, конструкции и внешнему виду. Чердачная, подвальная или междуэтажная, винтовая, больцевая или маршевая, внутренняя или наружная лестница — какая-то из них обязательно есть в каждом доме.
Английский архитектор и поэт Генри Уоттон еще в 1624 году заметил, что сделать хорошую лестницу непросто, так как она являет собой сложную архитектурную задачу. А ведь лестницы и сегодня представляют собой самый сложный модуль домового строительства. В этой статье попробуем разобраться, какими бывают лестницы, из каких материалов создаются и возможно ли построить лестницу своими руками.
Как любая конструктивная модель, лестница имеет составные части — основные, без которых невозможна конструкция и дополнительные — выполняющие вспомогательную и декоративную функции. Некоторые из них могут одновременно выполнять обе функции — как, например, подступник.
Ниже представлено описание возможных составных частей, понимание назначения которых поможет составить правильное представление о конструкции лестниц.
К основным частям относятся (в зависимости от конструкции) ступени, тетивы, косоуры и поддерживающие элементы.
Ступени
Представляют собой горизонтальную поверхность — проступь и вертикальную — подступенок. На проступь ступают ногами, а подступенок поддерживает проступь и выполняет защитную, но также и декоративную функции.

Тетивы
Это балки, поддерживающие лестницу по бокам (с торцов).

Косоуры
Это балки, удерживающие ступени снизу.

Поддерживающие элементы
Сюда относятся стойки и больцы. Стойка выполняет основную несущую функцию в конструкции винтовых лестниц. Больцы представляют собой специальные болты, с помощью которых крепятся к стене ступени в больцевых конструкциях.

Дополнительные части лестниц
К дополнительным частям (в зависимости от конструкции) относят перила, балюстрады, балясины.
Перила
Перила выполняют в виде поручней, стоек, прутьев или, решетки. Могут быть деревянными, металлическими, бетонными, из стекла или пластика. Лестницы на второй этаж в частном доме с двумя поручнями — это классика лестничной конструкции, однако именно перилами хозяева часто пренебрегают.

Баллюстрады
Представляют собой огороженную площадку в верхней части лестницы. Обычно имеет полукруглую форму.

Балясины
Вертикальные декоративные элементы между перилами и ступенями. Зачастую несут и функциональную нагрузку.

Конструктивные виды лестниц
Наиболее распространенные лестницы в частном доме на второй этаж — маршевые, больцевые и винтовые (спиральные). Каждую из них можно разместить как снаружи, так и внутри дома. Они могут быть выполнены из различных материалов и иметь различную форму. Кроме того, каждая из них имеет свои сильные и слабые стороны.
Маршевые лестницы: особенности
Конструкция этих лестниц наиболее распространена и представляет собой собранные воедино балки и ступени, образующие прямой ряд, называемый лестничным маршем. Ступени могут быть уложены на тетивы или же косоуры. В зависимости от высоты межэтажного пространства варьирует количество маршей и лестничных площадок. Так, различают одномаршевые и двухмаршевые, а также многомаршевые конструкции. Один марш — это прямая лестница на второй этаж.

К преимуществам этих лестниц относят удобство перемещения по ним. Среди минусов этих конструкций — необходимость в большом пространстве. Оптимальная площадь, требуемая для организации небольшой маршевой лестницы — 3 кв.м. Сэкономить квадратные метры можно, организовав поворотные межмаршевые площадки. Таким образом, маршевые лестницы бывают прямыми и поворотными.
Прямые
Прямая лестница маршевого типа состоит из одного пролета, соединяющего два этажа. Такие варианты просты, удобны и надежны, но требуют больше всего места.

Поворотные
Поворотная маршевая лестница состоит из нескольких маршей и содержит промежуточную площадку. Такая конструкция занимает значительно меньше места по сравнению с прямой. Конструкция с чередой ступеней вместо площадки именуется как забежная лестница. Очень часто поворотные лестницы размещают вдоль стен, а пространство под ними используют, обустраивая там прачечные, кладовки, декоративные полки и встроенные шкафы.

Поворотные конструкции, в свою очередь, бывают Г-образными, П-образными, трехсекционными, трапециевидными, закругленными и комбинированными. Выбор подходящей формы лестницы определяется индивидуальными предпочтениями хозяев и особенностями помещения.
Больцевые лестницы: особенности
Больцевые лестницы на второй этаж в частном доме представляют собой конструкции, несущую функцию в которых выполняют больцы — силовые болты, прикрепленные с одной стороны к стене. Больцы соединяют висячие торцы ступеней и фиксируют их. Считается, что такие конструкции не уступают по надежности балочным.
К преимуществам этих конструкций относят высокую надежность, компактные размеры и доступную стоимость деталей. Установка такой лестницы обходится ощутимо дешевле маршевой и даже винтовой. Эти конструкции выглядят очень воздушно, благодаря чему помещение смотрится больше и светлее. Зачастую это угловая лестница на второй этаж, однако размещение такой лестницы также возможно вдоль стены. Недостатком конструкции является условие наличия прочной стены с одной стороны лестницы.

Винтовые лестницы: особенности
Винтовые конструкции обычно изготавливаются из дерева или металла. При этом центральная стойка такой лестницы обычно делается из металла. Вокруг стойки крепятся ступени в виде клиньев. Узкой стороной они соединяются со стойкой, а широкой — с балясинами или же со стеной. Такие конструкции обычно не имеют подступенок.
Это очень компактная лестница. Ее можно вытянуть до любой высоты и при этом она займет под собой одну и ту же минимальную площадь. Немаловажно и то, что именно винтовая лестница на второй этаж своими руками собирается без проблем. Помимо этого, в любом строительном магазине можно приобрести готовые лестничные наборы для самостоятельной сборки, которые стоят в разы дешевле конструкции, построенной на заказ.

Нельзя не сказать и о недостатках, главный из которых заключается в том, что это очень крутая лестница и к тому же неудобная. Так, размер ступени оптимален только посередине — там, куда нога ступает реже всего. Кроме того, винтовые лестницы выполняются для правшей и левшей отдельно: для правшей спираль закручена вправо, а для левшей — влево.
По таким лестницам крайне неудобно поднимать мебель, технику и иные громоздкие предметы. Все это накладывает определенные ограничения на размещение винтовой конструкции. В частности, их размещение рекомендовано для помещений, подниматься в которые требуется не чаще 3-4 раз в день (подвал, чердак).
Модульная лестница
Помимо представленных выше конструкций существуют также модульные лестницы на второй этаж. Такие лестницы представляют собой готовый набор деталей лестницы, которые можно установить любым удобным способом и в любом подходящем месте дома.

Материалы для изготовления лестниц
Для производства лестниц сегодня используют любые строительные материалы — бетон, дерево, металл, а также пластик и стекло. Выбор того или иного варианта определяется индивидуальными предпочтениями хозяев дома, их бюджетом, дизайнерскими требованиями и особенностями помещения.
Дерево
Деревянная лестница представляет собой наиболее привычный и распространенный вариант. Дерево очень податливо и удобно в работе, имеет относительно невысокую стоимость, однако и недостатков не лишено.
Так, недорогие конструкции из прямослойного дерева (деревья хвойных пород) очень быстро расшатываются, часто рассыхаются и начинают скрипеть. Поэтому из хвойных пород обычно строится складная лестница, хранить которую можно на чердаке, где климат для такой породы более подходящий. Из хвойных пород деревьев также может быть построена временная лестница.

Дерево твердых пород более подходит для строительства лестниц. Конструкции из этих пород прослужат до 300 лет при условии, что технология производства не была нарушена. Правда, такие породы дерева достаточно дороги, а некоторые из них и вовсе невозможно найти в свободной продаже. К твердым породам относят бук, тис, ясень, дуб, венге; к средне-твердым — грушу, орех, березу, и черную сосну; к мягким — сосну, лиственницу и ель; к очень мягким — пихту и тополь.

Еще одним важным критерием, определяющим годность породы к использованию при изготовлении лестниц является ее влажность. Так, сухая древесина имеет влажность 12%. Более влажная древесина со временем начнет коробиться и усыхать, нарушая прочность конструкции. Параметру влажности уделяют очень большое внимание. Чтобы избежать коробления материала, часто применяют клееную древесину.
Один из очень важных критериев древесины — ее плотность. Чем плотнее порода — тем она прочнее. Наибольшей плотностью обладают дуб и ясень (680 кг/3). Среднеплотными являются ель (450 кг/м3), осина (495 кг/м3) и сосна (525 кг/м3). Самая низкая плотность у пихты — всего 375 кг/м3.
Для строительства лестниц применяют древесину из хвойных и лиственных пород. Каждая из них обладает определенными достоинствами и недостатками.
Сосна
Несмотря на имеющиеся недостатки, сосна является очень популярным материалом для изготовления лестниц. Объясняется это, прежде всего, ее низкой стоимостью, повсеместным распространением, легкостью в обработке и возможностью тонирования.

Из недостатков стоит сказать о выделении смол, препятствующих равномерному нанесению тонировки. Помимо этого, сосна недостаточно твердая, а потому быстро изнашивается.
Цвет древесины — светло-розовый, желтоватый, желто-бурый. Со временем неравномерно темнеет.
При выборе этой породы стоит отдавать предпочтение материалу более высокого сорта — хорошо просушенному, без трещин, сучков и смоляных линз. Такое дерево обойдется несколько дороже, однако и прослужит значительно дольше. Древесина низшего сорта зачастую очень плохо высушена, а потому деформируется и коробится по мере высыхания, нарушая геометрию лестничной конструкции, ее надежность и прочность.
Дуб
Массив дуба при производстве лестниц очень популярен: он очень прочный, имеет привлекательный внешний вид, широко распространен.
Среди минусов породы отмечается ее очень пористая структура, не позволяющая до зеркального блеска отшлифовать поверхность. Кроме того, дуб имеет высокую стоимость.

Цвет древесины — светло-желтый, сероватый, зеленоватый, красно-бурый, со временем может потемнеть.
Бук
В качестве материала для изготовления лестниц бук получил распространение как доступный материал, сопоставимый по качеству с дубом.
Кроме цены преимуществом материала является его высокая прочность и распространенность.
Из недостатков этой породы отмечается повышенная гигроскопичность.

Цвет древесины — светло-розовый с небольшими сосудами.
Ясень
Ясень очень часто ставят в один ряд с дубом и считают одним из лучших материалов для производства лестничных конструкций.
В список достоинств ясеня входят высокая прочность породы, гибкость и пластичность. Кроме того, материал хорошо подается шлифовке.

Из недостатков — отличная от дуба градация цвета.
Цвет древесины — светло-розовый, темно-бурый. Сильно выражены годовые кольца.
Металл
Металл при строительстве лестниц обычно используется вкупе с другими материалами — деревом, стеклом, бетоном или пластиком. Так, каркас конструкции может быть сварным металлическим, а ступени — бетонными, стеклянными или деревянными.
Решив установить в своем доме металлическую лестницу, предпочтение рекомендуется отдавать нержавеющей стали. Главное преимущество этого металла — устойчивость к коррозии. Конструкция из нержавейки прослужит не менее 50 лет. Окрашенная сталь является вариантом менее желательным, ведь срок ее службы не превышает 5 лет.

Хромированная сталь не отличается высокой прочностью, да и срок ее службы не превышает 5 лет. Латунные лестницы надежны, однако очень быстро темнеют и теряют свою привлекательность. Анодированный алюминий не ржавеет, однако уязвим перед механическими повреждениями.

Камень
Вариант неплохой, однако очень дорогой. Из камня могут быть выполнены только ступени (а корпус, например, из бетона) или же отделана вся лестница целиком. Наиболее подходящий камень — гранит или кварцит. Эти породы очень прочные и способны служить сотни лет. Мрамор является мягким камнем — уже через несколько лет его ступени начинают стираться.

Бетон
Железобетон при строительстве лестниц используется чаще всего. В частных домах обычно строят конструкции комбинированные с металлом или же монолитные. В первом случае ступени и площадки отливаются из бетона в готовый металлический каркас, усиленный арматурой. В случае изготовления монолитных конструкций вся лестница изготавливается из металла, поверхности же покрываются деревом, стеклом или другими материалами.

Стекло
В хай тек интерьерах очень часто размещаются стеклянные лестницы. Стекло для этих целей берется закаленное или ламинированное. Впрочем, это не всегда способно защитить конструкции от раскола после удара с торца. Кроме того, стеклянные ступени быстро царапаются. При использовании акрилового стекла приходиться мириться с его пожелтением спустя несколько лет эксплуатации.
Особенности строительства лестниц
Сделать лестницу на второй этаж своими руками достаточно непросто. Подобная задача требует кропотливой проектной работы и определенных математических расчетов. Впрочем, проект простой лестничной конструкции разработать можно, не обладая специальными знаниями. Строительство лестницы состоит из двух основных этапов: проектирования и монтажа.
Проектирование лестницы
При проектировании следует знать некоторых правила размещения лестницы в помещении. Это касается ее размеров, угла наклона, типа конструкции.
Размеры лестницы
Высота лестницы должны быть равна высоте от пола верхнего этажа до пола нижнего. Длина определяется суммой длин всех ступеней, включая маршевые площадки.
Ширина зависит от того, какого типа лестница: винтовая имеет ширину 100 см, а маршевая и больцевая 120 см. Ступени, согласно строительным нормам, должны иметь глубину 30 см, а высоту — 15 см. Такие значения соответствуют ширине шага человека, а потому являются наиболее комфортными.
Угол наклона
Оптимальный угол наклона конструкции — 45°. Правда, его не всегда можно добиться. Чем круче лестница — тем выше будет подступенок и тем уже ширина проступи. Не стоит забывать, что ширина ступеней не должна быть менее 20 см. Минимальная высота проступенка 12 см, а максимальная — 20 см. Уличная лестница на второй этаж, являющаяся специальной (запасной или пожарной) обычно имеет угол наклона более 45°.
Тип конструкции
Если площадь помещения мала, имеет смысл выбрать винтовую лестницу. В остальных случаях желательно вписать в помещение больцевую или маршевую конструкцию. Перила должны иметь высоту не менее 0,9 м, а при наличии в семье маленьких детей желательно построить дополнительные перила высотой 0,6 м. Маршевая лестница требует не менее 3 м.кв. свободного пространства, а больцевая — несущей стены. Это следует иметь в виду при размещении лестницы.

Особенности установки лестницы
Планировка лестницы в частном доме на второй этаж будет зависеть от типа конструкции: больцевая лестница требует размещения возле несущей стены, а винтовая и маршевая лестница могут быть размещены в любом месте.
Нюансы монтажа маршевой лестницы
Чтобы понять, подходит ли выбранное место для размещения лестницы, потребуется вычислить размеры лестницы и соотнести их с размерами пространства. Для этого потребуется измерить высоту стены, возле которой будет размещена конструкция, а также длину пола. Далее потребуется изобразить треугольник с прямым углом, стена и пол у которого будут катетами, лестница же — гипотенузой. Угол лестницы по отношению к полу должен составлять 45°. Ширина конструкции определяется произвольно.

Протяженность маршей в такой конструкции не должна превышать 10 ступеней — это обеспечит комфортный подъем. При необходимости разместить 20 ступеней, необходимо будет сделать два марша с промежуточной площадкой, ширина которой должна быть сопоставима с шириной марша.
Нюансы монтажа винтовой лестницы
Установка винтовой конструкции обычно не представляет сложностей, однако требует большой аккуратности. В целях безопасности центр ступени должен иметь ширину не менее 20 см. При этом самая широкая часть ступени не должна превышать 40 см.
От величины проема будет зависеть крутизна лестницы — чем он меньше, тем круче лестница. Нижний опорный узел должен быть прочно фиксированы к полу анкерными болтами. Стойка может быть забетонирована в пол. Между втулками и ступенями должны быть размещены амортизаторы.
Нюансы монтажа больцевой лестницы
Конструкция этих лестниц не предполагает наличия косоуров и тетив, а вот перила или защитные ограждения установить желательно. Монтаж больцевой конструкции производится на несущие стены. Главное при монтаже такой конструкции — правильно наметить точки крепления на стене. Ступень сначала крепится к стене, а затем под нее ставится больц.
Нюансы монтажа перил
Монтаж перил осуществляется после сборки лестниц. Перила состоят из двух частей — поручней и балясин. Балясины располагаются с краю каждой ступени посередине. Крепление балясин к ступеням осуществляется с помощью шкантов, которые для большей надежности стоит обработать клеем ПВХ.
Стоимость лестниц
Стоимость лестницы, выполненной на заказ, зависит от нескольких составляющих — материала, размеров изделия, а также наличия дополнительных элементов.
Материал
В зависимости от используемых материалов формируется стоимость конструкции. Так, лестницы из венге, вяза и эвкалипта, гранита и нержавеющей стали являются одними из самых дорогих. Между тем, строительство лестницы из сосны или бетона потребует минимальных затрат.
Параметры изделия
Тип несущей основы, расположение конструкции, проходимость, размеры маршей, высота перил, предполагаемые нагрузки на конструкцию — все это влияет на конечную стоимость лестницы.

Дополнительные элементы
Основу стоимости лестницы формируют лестничный марш и ступени. Существенное влияние на конечную стоимость могут оказать такие элементы, как подступени, перила и площадки между маршами. Помимо этого, лестница может быть украшена элементами ковки, литьем с золочением, точеными балясинами.
Совокупность этих составляющих и формирует конечную стоимость лестницы.
framehouse.club
Лестницы на второй этаж: выбор конструкции и дизайна
Без лестницы не обходится ни одно здание высотой больше одного этажа. Это относится к городским строениям и к загородным коттеджам, к производственным помещениям и к хозяйственным постройкам.
Ко всем конструкциям предъявляются повышенные требования по безопасности, удобству пользования и внешнему виду. Важной деталью интерьера или экстерьера являются лестницы на второй этаж для дома

Витая конструкция
Содержание статьи
Разновидности межэтажных лестниц
Лучше всего раскроет тему статьи видео в этой статье:
В последнее время одноэтажными жилыми дачными постройками можно удивить. Помимо нецелесообразности использования земли подобным образом, в наши дни все больше внимания уделяется комфорту, а комфортность проживания напрямую зависит от размеров помещения, рациональности планировки и эстетической составляющей. От конструкции и отделки также во многом зависит безопасность и комфорт проживания.
Лестница на 2-й этаж может быть установлена в частном загородном доме. Также и в многоуровневой городской квартире обязательно должна присутствовать лестница в квартире с этажа на этаж.
Планировать размещение следует еще на этапе проектирования здания. Расположение, вид и материал изготовления зависят от площади, дизайна и планировки помещения.
Требования к лестницам и их элементам указаны в СНиП 31-02-2001 «Дома жилые одноквартирные», СНиП 21-01-97 «Пожарная безопасность зданий», СНиП II-25-80 «Деревянные конструкции», ГОСТ 23118-2012 «Конструкции стальные строительные», ГОСТ 23120-2016 «Лестницы маршевые площадки и ограждения стальные», ГОСТ 8717-2016 «Ступени бетонные и железобетонные».
Рассмотрим, какие варианты используются для перемещения между этажами.
По расположению
В загородных домах они могут быть установлены и внутри и снаружи здания. В обоих случаях они должны привлекать внимание своим внешним видом, формой, дизайном. Конечно, уличные выполняются в более строгом и минималистическом стиле, в отличие от установленных внутри помещения.
Итак:
- лестницы внешние на второй этаж дома;
Зачастую сооружение делают снаружи помещения. Это может быть вызвано желанием сэкономить полезную площадь внутри дома. Также такую конструкцию можно установить, если вторым этажом не так часто пользуются, например, на нем находится чердак.

Примитивные варианты
В этом случае можно попасть в дверь, расположенной вдоль фасада. Также типы устанавливаются для обеспечения пожарной безопасности. В зданиях с высотой от трех этажей такая конструкция обязательно должна быть предусмотрена.

Двухэтажные дома
Лестничная система, расположенная вне помещения, должна быть должным образом защищена от факторов, которые могут оказывать на нее негативное воздействие: осадки, ультрафиолетовые лучи, перепады температур, ветер и насекомые.

Бюджетный вариант
Несмотря на нахождение внутри помещения, такие системы также нужно обрабатывать защитными составами.
По эксплуатации
Это:
В загородном хозяйстве используются два виды раскладных лестниц: стремянки и чердачные. Как правило, стремянками для доступа на второй этаж не пользуются, а вот чердачные лестницы в этом сегменте очень даже пригодятся.
Используют ее в случае не слишком частого посещения второго этажа. Обычно это происходит, когда на втором этаже располагается подсобное помещение или чердак.
Она очень функциональна — она занимает мало места, прочна и удобна для использования. В сложенном виде ее практически не видно. Крышку люка можно закамуфлировать в соответствии с дизайном потолка.

Чердачная лестница
Приставные варианты крайне редко используются в наше время для доступа на второй этаж. Только в случаях, когда второй этаж посещается в исключительных случаях или в виде временной конструкции.

Временная
Приставные могут иметь выдвижные и складные секции. Для безопасной эксплуатации необходимо прислонить к вертикальной стене. Угол наклона обычно составляет 70-80 градусов.
Складные и приставные типы могут быть изготовлены из дерева и металла. В продаже есть довольно широкий ассортимент таких конструкций. Инструкция подскажет, как делать монтаж такой системы. Однако их не слишком сложно изготовить и без подсказок.
- стационарные.
Они устанавливаются или одновременно с возведением строения, или позже. Они могут располагаться внутри помещения или за его пределами. Форма стационарных типов и материал изготовления также может быть самыми разнообразными.

Стационарные
На основании норм для проектирования и опыта пользователей, давно уже был сделан выбор, какая длина и высота ступеней, каков оптимальный угол подъема должны быть.
Некоторые важные параметры удобной стационарной лестницы:
- Ширина обычно выбирается от 90 до 120 см. При такой ширине процесс перемещения осуществляется достаточно комфортно.
- Удобная глубина проступей составляет 28-32 см. У винтовой лестницы ширина узкой стороны колеблется в пределах 10-12 см, широкой — 40-45 см.
- Высота подступенка выбирается из диапазона: 14-19 см.
- Толщина ступени — не менее 2 см.
- Давно рассчитано, какой угол наклона удобен для подъема и спуска: 35-40 градусов.
- Высота перил — 90-100 см. Расстояние между балясинами — 20-25 см.
Все размеры могут быть изменены с учетом особенностей эксплуатирующих ее людей.
По креплению
Монтаж осуществляется различными способами.
На тетивах
Тетивы представляют собой опорные направляющие. Ступени крепятся к ним с помощью пазов, пропиленных в теле доски.

Простые лестницы в доме на тетивах
На косоурах
Косоуры также являются направляющими. Только проступь укладывается на косоур сверху, в специально подготовленное углубление.

Ступени на косоуре
Косоуры и тетивы могут быть прямой формы, ломаной и зигзагообразной.

Лестница на витом косоуре
Наглядно отличие в принципе крепления ступеней на косоур и тетиву представлено на фото:

Крепление ступеней
На больцах
Крепление ступеней в этой конструкции происходит с помощью специальных штырей — «больцев». С их помощью ступени одним торцом крепятся к стене, а также соединяются между собой. В результате ступени оказываются практически парящими в воздухе. Больцевая система ̶ очень изящная, смотрится невероятно стильно.
На первый взгляд может показаться, что конструкция неустойчивая, однако это неверное предположение. Грузоподъемность этих лестниц ̶ не ниже других.

Больцевые лестницы в двухэтажном коттедже
На опорной балке
- Они являются настоящей находкой в помещениях с дефицитом площади. В малогабаритные здания такая межэтажная конструкция отлично впишется.
- Крепление осуществляется посредством вертикального опорного столба, на который зауженным концом крепятся ступени.
- Ступени разворачиваются под разными углами в виде веера.
- За счет удачной конструкции места такая лестница занимает немного: 1,5-2,0 кв.м.
- Даже без декора смотрится симпатично, а если подключить фантазию, можно превратить ее в произведение искусства.
- Однако, не все так безоблачно. Используя ее, практически невозможно поднять на второй этаж крупногабаритную мебель и другие предметы интерьера. Следует это учитывать.
- К тому же, эксплуатация сопряжена с возможностью получения травм. Подниматься и спускаться по такой конструкции следует с предельной осторожностью и не на большой скорости.
Важно! Перемещение по винтовому виду детей возможно только под присмотром взрослых. Пожилым людям также следует крайне внимательно использовать данную конструкцию.

Лестницы в маленьких комнатах на вертикальной опоре
Комбинированные
Здесь сочетаются различные виды креплений: ступени могут одной стороной крепиться к балке, с другой ̶ опираться на косоур. Или больцевая лестница может дополнительно опираться на вертикальный столб.
По форме
Все лестницы по своей форме подразделяются на три типа:
- Это наиболее простая, надежная и устойчивая конструкция.
- Системы состоят из одного марша (пролета) или нескольких. Соответственно, и название у них: одномаршевые, двухмаршевые и т.д. Один марш состоит из 5-15 ступенек.
- Маршевые могут быть поворотными, причем в обе стороны.
- Поворот может быть выполнен под углом 90 градусов (Г-образные конструкции), на 180 градусов (П-образные), под другими, индивидуальными углами.
- Между маршами обычно располагается площадка, или они могут соединяться с помощью забежных ступеней.
- Маршевые требуют достаточно много площади для установки. Лишь поворотные модели могут немного скомпенсировать этот недостаток.

Трехмаршевая Г-образная лестница с забежными ступенями
Такие лестницы относятся к видам с креплением на вертикальном столбе. Спиральные или витые способны украсить интерьер помещения, придать ему неповторимый стиль.

Сказочная винтовая лестница

Крепление лестницы ко второму этажу, вид сверху
- Комбинированные
Такие конструкции сочетают элементы винтовой и маршевой разновидности. И зачастую бывают самыми удачными в дизайнерском плане.
По материалу
Теперь немного поговорим о материалах.
Из дерева
Деревянные конструкции до сих пор остаются наиболее востребованными и популярными у владельцев недвижимости за городом. Никакой другой материал не сравнится с тем, что может дать интерьеру и экстерьеру обычное дерево: уют, тепло, красоту, приятные ощущения при тактильном контакте.
По всей вероятности, дерево никогда не выйдет из моды. И не станем забывать достойные характеристики этого материала.
Ведь при правильной обработке дерево обладает следующими качествами:
- надежность:
- прочность;
- экологическая безопасность;
- неподверженность коррозии;
- легкость конструкции по сравнению с бетоном;
- возможность изготовления и ремонта своими руками.
Однако и у такого привлекательного сооружения есть свои минусы: необходимость периодического обслуживания, горючесть, низкая стойкость к механическим повреждениям, скрипучесть. Справедливости ради, следует отметить, что практически полностью минусы устраняются в результате правильной обработки материала и грамотного монтажа конструкции.
Деревянная лестница может быть просто удачно и мило вписана в интерьер, а может являться демонстрацией благосостояния хозяина дома.

Простые, бюджетные лестницы
Кто любит роскошь, тому сюда. Взгляните на представленные фотографии.

Шикарные элитные лестницы на 2 этаж загородного дома

Роскошное оформление
Металлические
Внутри помещения возводить чисто металлическую лестницу ̶ довольно спорное решение. Холодный материал, удовольствие от передвижения по которому вряд ли кто-то получит…
Конечно, в сочетании с другими материалами: стеклом, пластиком, деревом, металл может применяться и для устройства сооружений и в здании.

Металлические лестницы внутри дома на второй этаж с деревянными ступенями
А вот металлический тип, расположенный на улице ̶ вполне удачный вариант. Прочная, при правильной обработке от коррозии, долговечная конструкция, украшенная различными вариантами декора, отлично впишется в любой архитектурный стиль построенного здания.

Металлические простые лестницы на 2 этаж
Металлические могут быть сварными, литыми или представлять собой сборные на второй этаж. Отлично смотрится их украшение ковкой и декоративное оформление светильниками. Дополнительным плюсом этого материала является возможность изготовить любую необходимую форму.
Из бетона
Бетонная разновидность представляют собой массивную, прочную, долговечную, устойчивую к разного рода воздействиям конструкцию.
Важно! Для установки бетонной разновидности следует предусмотреть отдельный фундамент.
Так же, как и в случае с металлической конструкцией, без отделки не обойтись. Лучше всего сочетается со строгим бетоном отделка из теплого дерева.

Винтовая бетонная лестница с отделкой ступеней деревом.
Из стекла
Не стоит бояться хрупкости используемого в лестничных конструкциях стекла. Оно не имеет ничего общего с оконным. Для устройства используют триплекс — многослойное, соединенное с полимером стекло. Толщина такого материала — до 40 мм. Чтобы его разбить, нужно сильно постараться.
Стеклянные варианты можно приобрести: это могут быть и готовые, и выполненные под заказ. Цена стеклянной конструкции довольно высокая. Да и впишется она не во всякий интерьер.

Стеклянные веерные лестницы
Из камня
Это еще один вариант лестниц из вип-сегмента. Каменные сооружения устанавливаются в помещениях, габариты которых это позволяют. Без отдельного фундамента также не обойтись. Самостоятельная установка вряд ли возможна.

Лестница из мрамора
Комбинированные
В таких конструкциях используется сочетание различных материалов.

Бетонная лестница, отделанная плиткой и украшенная металлическими перилами
Стили
Сооружения можно выполнить в разных стилях, а можно руководствоваться личными представлениями о прекрасном.
Некоторые варианты стилей:
Расположение сооружения в доме
При выборе места установки межэтажной лестницы следует руководствоваться практическими и эстетическими соображения. Большое значение имеет площадь и расположение комнат в здании. Лестничную конструкцию можно установить и посередине огромного зала, в углу небольшого коридора и в комнате, а можно эргономично спрятать в эркере.
Например, можно установить проем лестницы на 2 этаж в углу комнаты:

Вариант лестницы в бревенчатом доме
Если подъем осуществляется вдоль стены, то ее можно интересно задекорировать. Самое простое — разместить картины или фотографии.

Оформление стены лестницы
Устройство межэтажной лестницы ̶ дело ответственное. Этой конструкцией вы будете пользоваться долгие годы.
Пусть это будут несложные чердачные системы или дизайнерские лестницы на три этажа. После планирования и расчетов важно остановится на том варианте, который удачно впишется во внешний вид помещения и станет удобной и безопасной архитектурной деталью.
olestnicah.ru
