Лестница с поворотом своими руками – чертежи и как сделать своими руками
чертежи и как сделать своими руками
Изготовление лестницы, ведущей на 2 этаж, лучше начинать на стадии постройки дома и заложить ее строительство в проект. Если этого не былосделано, следует создавать конструкцию исходя из свободного пространства.
Как правило, его не хватает. Поэтому приходится возводить сложные изделия. При достаточном уровне подготовки строительство ведется своими руками. На стадии проектирования важно обладать некоторыми инженерными знаниями, чтобы провести все расчеты и составить чертежи.
1
Выбор типа конструкции
Обычно для соединения этажей строятся деревянные поворотные лестницы. Разработанная технология позволяет конструировать безопасные изделия, по которым могут ходить и дети.
В зависимости от планировки дома и наличия свободного пространства лестницы, ведущие на второй этаж, имеют следующие разновидности:
- 1. Маршевые. Количество маршей бывает различное. На повороте между ними располагаются площадки или устанавливаются забежные ступени. Бывают косоурные конструкции или применяется система на тетивах.
- 2. Винтовые. Не занимают много места. В качестве опоры используется несущая стойка.
- 3. На больцах. В таких изделиях отсутствуют косоуры. Крепеж ступеней ведется к стене, а между ними располагаются больцы.
- 4. Комбинированные. Конструкция объединяет в себе разные системы.
2
Маршевые изделия
Если позволяет пространство, то устанавливается 1 марш. Когда его не хватает, делаются Г-образные и П-образные изделия.
В первом случае поворот проводится на 90 градусов. Если между маршами устанавливаются забежные ступени, то количество их колеблется от 2 до 3. Больше не рекомендуется, потому что это осложняет перемещение. Ставится такой вид в углу. С одной стороны находится стена, а со второй располагается ограждение, которое базируется на опорном столбе.

Маршевая лестница с поворотом на 90 градусов
П-образная схема позволяет делать поворот на 180 градусов. Здесь также может формироваться площадка или забежные ступени. Во втором случае место существенно экономится. В нижнем пространстве удобно располагать шкафы для хранения вещей.

Лестница с поворотом на 180 градусов
3
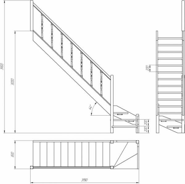
Порядок расчета
Расчеты проводятся на основе существующих норм:
- наклон конструкции должен находиться в пределах 35-45 градусов;
- ширина пролета – 0,9 м;
- высота ступенек не более 20 см;
- глубина ступенек — от 25 см;
- высота ограждения – 0,9 м.
В целях экономии пространства лестница изготавливается с большей крутизной. Однако это ведет к затруднению подъема и спуска.
Все ступеньки устанавливаются на одной высоте, исключение делается лишь для первой и последней. В расчетах применяется правило: при постановке ноги на ступеньку, 70 % должно стать на опорную поверхность. При росте человека 160-180 см его шаг составляет в районе 60 см. Если обозначить через В — высоту ступени, а через С — глубину, то при проектировании можно пользоваться формулой: 2В+С=60 см. Расчеты показывают, что ширина ступени получается равной длине ноги. Если эту величину увеличить, то появятся неудобства при ходьбе.
Во время проектирования забежных ступеней следует помнить, что ширина в меньшей части должна составлять не менее 100 мм. Высота нависания над нижней поверхностью – не больше, чем 50 мм.
4
Составление проекта
Перед началом работ по изготовлению лестницы необходимо составить чертеж будущей конструкции. Чтобы изделием можно было безопасно пользоваться, требуется высчитать все геометрические параметры, правильно выбрать уклон. В этом отношении схема оказывает существенную помощь.

При проектировании разрабатываются следующие параметры:
- 1. Во время подсчета общего количества ступенек берется расстояние между этажами с учетом толщины пола и делится на высоту ступеньки.
- 2. Длина конструкции определяется умножением ширины ступеньки на их количество.
- 3. Площадь высчитывается умножением длины изделия на ширину марша.
- 4. С помощью теоремы Пифагора высчитывается размер косоур. Одним катетам является высота лестницы, а вторым проекция косоур на горизонтальную ось.
- 5. Высчитанные величины закладываются в чертеж.
Если полученные размеры не позволяют вписаться в существующее пространство, необходимо их подкорректировать.
5
Используемые материалы и инструменты
При изготовлении лестницы своими руками используются следующие породы дерева:
- 1. Бук. Только при наличии сухого помещения.
- 2. Клен. Со временем появляются трещины.
- 3. Дуб. Прочный, надежный материал.
- 4. Лиственница. После дуба считается второй по качеству.
- 5. Сосна. Используется только при отсутствии сучков, которые после температурных деформаций древесины могут выпасть.
Во время работы подготавливаются следующие материалы и инструменты:
- деревянный брус сечением 100х100 мм;
- доска толщиной 40-50 мм;
- поручни, перила, балясины;
- столярный клей;
- топор;
- молоток;
- линейка;
- угольник;
- уровень;
- трубный ключ;
- бокорезы;
- шурупы;
- анкера;
- уголки.
6
Изготовление элементов конструкции и сборка своими руками
Для того чтобы собрать поворотную лестницу своими руками, необходимо изготовить и купить все ее составляющие. Пошаговая инструкция состоит из этапов:
- 1. Изготовление косоурной балки.
- 2. Формирование ступеней и их сборка.
- 3. Установка перил и балясин.
6.1
Изготовление косоурной балки
Размер косоурных балок соответствует длине пролета. В них выпиливаются углы. Делается это с помощью специального строительного треугольника. При его отсутствии используется шаблон, который изготавливается из фанеры. Его стороны соответствуют длине и ширине ступеней.

Получаются зубья, на которые будут фиксироваться ступени.

Крепление балки начинается с верхней части. Это делается для того, чтобы снизу легче было устранить выявленные недостатки. Крепеж ведется к потолочной балке и брусу, который забетонирован в пол и прикреплен анкерными болтами.
Для косоура устанавливаются опоры, которые располагаются возле стены. Это брусья сечение 50х50 мм. При их установке используется уровень.
6.2
Формирование ступеней и их сборка
По размеру ступени выпиливаются одинаковыми. Для изготовления забежного варианта используются специальные шаблоны. Затем древесина покрывается лаковым покрытием. При установке наружная часть ступеней закрепляется на шурупы.

Во внутренней части делаются пазы, которые заполняются строительным клеем. Затем эти пазы вставляются в косоур.

После этого начинается формирования подступенков. Они выпиливаются на 5 мм ниже просвета. Это необходимо для того, чтобы при набухании древесина не оказывала давления на основные ступени.
6.3
Установка балясин и перил
Для выпиливания балясин своими руками нужен опыт. Оптимальным вариантом является покупка готовых изделий. Они имеют широкий выбор. Их крепление к ступенькам проводится при помощи шкантов, которые представляют собой деревянные стержни. В ступеньках и балясинах сверлятся отверстия. Затем они заполняются клеем, и в них вбивается шкант.
На поворотных площадках крепятся тумбы. Это те же самые балясины, но утолщенной формы. К ним ведется крепление перил. Чтобы установить поручень, в перилах выбирается паз. Он делается точно по ширине поручня, который в него вставляется и прибивается. Перила фиксируются на опорных тумбах с помощью шпилек. На последнем этапе вся деревянная лестница обрабатывается лаком.

Изготовление лестницы своими руками относится к сложным работам. Здесь нужен опыт и умение. Если нет уверенности в своих силах, лучше заказать сборную конструкцию и собрать ее на месте. Изготовленная из дерева конструкция служит длительное время. Для этого ей стоит обеспечить хороший уход.
obustroen.ru
Лестница на второй этаж своими руками из дерева с поворотом на 90

Отличным украшением загородного дома является добротная деревянная лестница. Данная конструкция выполняется из различных материалов. Загородный дом в несколько ярусов обязательно обустраивается подобным элементом. Лестница на второй этаж своими руками из дерева с поворотом на 90 градусов должна обеспечивать комфортное передвижение по ней. Важнейшими моментами при изготовлении такого сооружения является точные расчеты и правильный монтаж. От качества монтажных работ зависит безопасное перемещение жильцов.
Содержание:
- Виды лестничных конструкций
- Варианты поворотных лестничных изделий
- Лестница на второй этаж своими руками из дерева с поворотом на 90: монтируем самостоятельно
- Самые популярная древесина для производства
- Особенности расчетов
- Как выполнить расчет лестницы с поворотом: чертежи и схемы
- Видео: самый простой способ расчета самостоятельно
- Монтаж несущей конструкции
- Монтаж ступеней и сборка конструкции
- Монтаж перил и балясин
- Полезные советы
- Видео: монтаж деревянной лестничной конструкции в доме
Маршевая поворотная конструкция
Виды лестничных конструкций
Есть несколько разновидностей подобных лестниц на второй этаж:
- Маршевые сооружения – это несложные системы, которые могут содержать один или несколько маршей. В основном это прямолинейные детали со ступенями. В одном марше не должно быть более 16 ступеней.

Добротная маршевая система
- Винтовые разновидности подходят для малогабаритных помещений. Они представляют собой конструкции, вокруг которых по спирали поднимаются ступени. Подобное сооружение может быть возведено в любом месте комнаты, даже в центральной части.

Изысканная винтовая конструкция с поворотом на 90 град.
- Комбинированные системы выглядят как дугообразное и криволинейное сооружение. Они сочетают элементы винтовой и маршевой конструкций.

Комбинированный вариант
- Конструкции на больцах являются бескосоурными системами. При этом ступени устанавливаются к стене, а между собой соединяются больцами.

Устройство варианта на больцах
Еще в момент проектирования стоит продумать, какого типа будет конструкция и из какого материала.
Полезная информация! Поворотные маршевые системы применяются при ограниченном пространстве. В индивидуальных коттеджах особой популярностью пользуются изделия из дерева.
Варианты поворотных лестничных изделий
Маршевые лестницы на второй этаж, выполненные своими руками из дерева, с поворотом на 90 могут отличаться размещением деталей и общим видом. Подъемный механизм монтируется на косоуры или тетивы. Устройство бывает открытым или закрытым. Марш для подъема делается прямым или поворотным.
Поворотные конструкции делятся на разновидности:
- Г-образная имеет схему, когда два пролета размещаются под 90 градусов друг к другу.

Г-образный вариант
- П-образная отличается поворотом на 180 градусов. Пролеты размещаются в параллельном положении друг к другу. Расстояние, соединяющее их, представляет собой площадку и обладает выходом на этаж или между ярусами.

П-образная модель
К сведению! В некоторых случаях в одной модели используется несколько базовых конструкций. Подобные изделия называются комбинированными.
Статья по теме:
Лестницы на второй этаж в частном доме. Подробный обзор существующих видов лестниц и практическое руководство по монтажу в отдельном материале.
Лестница на второй этаж своими руками из дерева с поворотом на 90: монтируем самостоятельно
Качественную и удобную лестницу на второй этаж своими руками из дерева с поворотом на 90 градусов можно смонтировать своими руками или купить готовые элементы подобных систем. В обоих случаях разрабатывается предварительный проект, и производятся необходимые замеры сооружения, а также высоты пролета.
В помощь:
Дополнить и расширить информацию о самостоятельном расчете и монтаже лестниц из дерева с поворотом на 90° поможет специальная публикация в профессиональном online-журнале о ремонте и строительстве HouseChief.ru.
Самые популярная древесина для производства
Нужно ответственно подойти к подбору качественных материалов для сооружения изделия. Древесина считается самым оптимальным вариантом. Она легко подгоняется, а также относится к бюджетным способам.
Для создания удобных систем стоит рассмотреть следующие варианты:
- Клен характеризуется устойчивостью и прочностью на изгиб. Но в подобной древесине могут появляться трещины.

Система из клена
- Бук может использоваться в помещениях, где нет повышенной влажности.

Вариация из бука
- Дуб относится к одним из лучших строительных материалов. Он отличается твердостью и прочностью.

Дубовые лестницы являются самыми надежными и дорогими
- Лиственница характеризуется стойкостью к гниению и считается прочным и твердым материалом.

Изысканный вариант из лиственницы
- Можно выбрать бюджетный вариант сосну.

Бюджетный вариант из сосны
Для монтажных работ потребуется электролобзик, шуруповерт, ножовка, стамеска, угольник и уровень. Подбирается материал из обрезных досок, опорных и вспомогательных брусьев, а также крепежных деталей.
Полезная информация! Перед применением древесный материал высушивают и покрывают защитными водоотталкивающими растворами.
Особенности расчетов
Прежде чем приступить к монтированию лестницы на второй этаж своими руками из дерева с поворотом на 90 необходимо разработать чертеж. В процессе применяются специальные формулы.
Составление проекта требует знаний об основных элементах конструкции:
- Ступени делятся на поворотные, выполняющие поворот конструкции, и прямые.
- Несущие опоры могут быть тетивными или косоурными.

Составные элементы изделия
Чтобы выполнить идеальную конструкцию необходимо знать следующие параметры:
- Расстояние проема от самого верхнего подступенька до угловой части забежной ступеньки.
- Ширину ступенек. Необходимый минимум 120 мм.
- Ширина пролета (марша) не берется меньше 80 см.
- Самая большая высота ступеньки 220 мм.

Графический расчет маршевой лестницы с забежными ступенями

Правильный расчет ступеней
Полезная информация! К самым практичным конструкциям относятся модели со стойкой посередине. Они отличаются простотой сборки и хорошими эксплуатационными характеристиками.
Как выполнить расчет лестницы с поворотом: чертежи и схемы
При самостоятельном проектировании нужно предусмотреть следующие моменты:
- Ширину и высоту ступеней. Так как величина среднего шага равняется 60 см, то ширину и высоту одной ступени вычисляют по следующей формуле: 2b+c=60. При этом с и b представляют собой размеры ступеней.
- Рассчитывается угол наклона ступеней. Не стоит ради экономии пространства делать слишком крутую конструкцию. Оптимальный угол наклона варьируется от 25 до 35 градусов.
- При расчете поворотных ступеней нужно учесть, что размер меньшей стороны должна быть около 100 мм. А перекрытие поворотного узла над предыдущим имеет значение около 50 мм.

Устройство и параметры ступенек

Расчет лестницы зависит от ширины проема в перекрытии и высоты помещения

Угол наклона зависит от назначения лестницы
Видео: самый простой способ расчета самостоятельно
Монтаж несущей конструкции
Лестница на второй этаж своими руками из дерева с поворотом на 90 выполняется с монтажа несущих конструкций. При этом производятся следующие действия:
- Производится выпиливание косоуров. Сначала делается шаблон в виде треугольника с прямым углом и размеченными размерами высоты подступени и глубины ступеньки. Выполняется разметка и выпиливание элементов. Торцевые части хорошо шлифуются.

Разметка будущего косоура с помощью металлического уголка

Готовые к монтажу косоуры
- Для крепежа косоуров производится монтирование столбов с опорами. Брус закрепляется с помощью специальных крепежных компонентов. Также может бетонироваться в пол.
- К деталям перекрытия косоуры монтируются саморезами и болтами. Деталь внизу вставляется в опорный брусок. При этом вытачивается паз. Для лучшего крепежа готовится смесь из клея с опилками.

Креплению косоура к перекрытию
- Пристенная деталь монтируется аналогичным способом вверху. В нижней части фиксируется при помощи металлического уголка. На всех этапах производства используется уровень.

Инструкция по монтажу
Монтаж ступеней и сборка конструкции
Лестница на второй этаж делается своими руками из дерева с поворотом на 90 из одинаковых ступеней, которые вырезаются по шаблону.
Из площадки производятся забежные ступеньки. Они выпиливаются по чертежу. При этом линии должны выходить из одного угла. После производства всех элементов, они обрабатываются лаком и специальным защитным составом.

Монтаж ступеней
Выполняется тетива для марша, который находится внизу. Выпиливаются пазы, в которые будут устанавливаться ступени. Выступающие части наружной тетивы маскируются торцами забежных ступеней.
Полезный совет! Не следует делать заготовки, которые плотно входят между ступенями. Чтобы конструкция была прочной на многие годы, выполняются небольшие зазоры.
Монтаж перил и балясин
Важную роль в обустройстве интерьера играют детали для декорирования – балясины и перила. Для закрепления балясин к ступеням применяются шканты. Дополнительно производится обработка смолой и клеем. Для крепления перил по всей длине делается паз, куда заходит рейка прибитая к балясинам. Готовую лестницу нужно обработать машинкой для шлифовки или наждачкой. Затем выполняется окрашивание или покрытие морилкой или лаком.

Схемы крепления перил и балясин
Полезный совет! Балясины лучше расположить на каждой ступени, что обеспечит большую прочность конструкции.
Полезные советы
Лестница из древесины требует особого ухода. Для этого предпринимаются следующие меры:
- Уборка производится мокрой тряпкой без применения моющих средств.
- Поверхность протирается сухой тряпкой с добавлением воска.
- Нельзя допускать пересушивания конструкции.
- Необходимо вовремя устранять все неполадки: скрипы, расклейку мест соединений и ослабление крепежных деталей.

Роскошная конструкция из древесины
Полезная информация! Подобная система дает усадку. Поэтому не стоит ее сразу крепко монтировать. Она должна отстояться несколько недель.
Монтаж собственными силами и правильный уход позволят создать прочное и красивое изделие, которое прослужит многие годы.
Видео: монтаж деревянной лестничной конструкции в доме
www.spets-stroy-portal.ru
Поворотная лестница с забежными ступенями своими руками + видео
Поворотная лестница – самый популярный вид сооружения в двухэтажных домах. К ее основным преимуществам можно отнести компактность и возможность размещения в углу, за счет чего осуществляется значительная экономия места.
В чем основные плюсы поворотной лестницы?
Такая конструкция идеально подходит для небольших помещений, где важно сэкономить больше места. При этом ключевой особенностью является возможность установки дополнительных ступеней в том случае, если ширина проема составляет около метра. Поворот лестницы может быть осуществлен несколькими способами – на 90° и на 180°, причем последняя конструкция по внешнему виду выглядит очень «хрупко», но не занимает много места.

Разновидности поворотных лестниц:
- Криволинейные, используемые достаточно редко за счет того, что вы не сможете ощущать необходимой устойчивости под ногами, ведь при ее создании придется в точности соблюдать ширину облегающего конца – она должна равняться минимум 10 см;
- Лестница изогнутой формы, считающаяся наиболее экономичным видом. Такие конструкции в свою очередь делятся на винтовые, четвертьоборотные и полуоборотные, различаются углом поворота. Однако отдельно стоит вынести винтовые лестницы, которые считаются наиболее практичными, особенно если при обустройстве расположить стойку посередине. Их чаще всего изготавливают либо из дерева, либо из металла. Их ключевой особенностью является возможность обустройства на небольшой площади, но есть и минус – металлические лестницы не совсем удобны.
Деревянная лестница с забежными ступенями
Самым известным типом поворотной лестницы является именно этот вариант. Она похожа на пластину с краями, которые отличаются по ширине. При этом размеры варьируются с учетом нескольких факторов: ширина в самой узкой части не должна быть менее 100 мм, в середине – не менее 200 мм.

Это продиктовано ключевыми моментами: одна ступня должна опираться на широкую часть для получения требуемой площади для нормальной опоры, а вторая ступня при этом оказывается на узком месте, а значит, должной опоры не получит.
К слову, именно этот фактор является главным недостатком такой лестницы – по ней неудобно и довольно опасно подниматься и спускаться, поскольку существует высокий риск соскользнуть. Если вы сделаете ступени меньше, такая лестница будет непригодной. И эту проблему можно решить, если в качестве материала для лестницы использовать дерево.

Однако поворотная лестница с забежными ступенями чаще всего устанавливается в небольших помещениях, поскольку данная конструкция позволит сэкономить площадь, также ее можно монтировать как в центре комнаты, так и вблизи стены – все зависит от проекта комнаты. Самый простой вариант лестницы – соединение нескольких прямых маршей со ступенями в поворотной области. Самый сложный момент при создании лестницы – средняя ступень поворота, которая чаще всего выполняется в следующих вариациях:
- Ступень будет примыкать к углу поворота так, чтобы ее широкая часть упиралась в стены проема, расположенные к ним перпендикулярно.
- Край верхней ступени должен примыкать к углу между стенами. В данном случае одна ступень будет упираться в стену, следующая – в стену, которая располагается перпендикулярно. При этом их формы и размеры не должны быть различны.
Мастера сайта REMOSKOP.RU подготовили для Вас специальный калькулятор Калькулятор расчета лестницы. Вы легко сможете рассчитать необходимые размеры лестницы.
Поворотная лестница своими руками: работа профессионала
Чтобы сделать практичную и красивую лестницу, вам нужно грамотно подойти к ее расчету, выбору используемого материала, покупке требуемых инструментов при необходимости. Первое, что вам нужно – рассчитать ваш будущий проект. Нормы четко показывают ключевые характеристики сооружений: ширину и высоту, а также перила (ограждение). И только в том случае, если вы учтете все эти факторы, можно получить положительный результат. Естественно, не обойтись без инструментов – молотки, шлифмашина, если необходимо «довести до ума», болты и тетивы, отвертки. Желательно запастись этим заранее, чтобы в последующем не отрываться от рабочего процесса.

Как сделать поворотную лестницу своими руками — пошаговая схема
Шаг 1: Проводим расчеты
Для расчета требуемого количества ступеней нужно исходить из высоты. Практика показывает, что оптимальной высотой является около 15-20 см и не более 30 см, поскольку более высокие либо низкие ступени делают подъем опасным. Нужно продумать ширину: необходимо, чтобы она могла гарантировать полную опору для ног – от 20 до 30 см. Важна и ширина самой лестницы – нежелательно делать ее менее 1,2 м. К слову, расчет лестницы для многих считается самым сложным шагом, а потому попробуйте просто найти устраивающую вас схему в интернете.
Шаг 2: Установка проступей и подступенок
Для закрепления таких элементов, как проступи и подступени, следует выпилить уступы на тетивах, в которых вставляем шипы ступеней. Если «гнезда» (уступы) находятся на нижней части тетивы, то ее сначала ставим на место, а следом снизу монтируем сами ступени. Тетивы могут быть установлены на балки площадки разнообразными методами. К самому надежному относят крепление с использованием тетивы с торцевыми шипами.
Есть еще вариант использования скоб, однако в таком случае не следует говорить о практичности постройки. К слову, можете воспользоваться вместо тетивы болтами, поскольку такие крепежи сегодня считаются наиболее эффективными. Несмотря на то, что конструкция по внешнему виду будет очень хрупкой, такие крепежные элементы очень прочные и надежные – если использовать болты, ваша лестница сможет выдерживать нагрузки до 1500 кг.
Шаг 3: Учет усадки стен
Чаще всего, лестницы изготавливают при постройке нового дома, если и вы столкнулись с таким вопросом, то должны учитывать усадку здания. Для этого центральные балки подпираются крепкими временными стойками (главное, сделать их прочными), закрепляем их скобами, и на концах балок, которые будут установлены около стен, оставляем маленький зазор. После процесса усадки, стойки нужно убрать, а в гнезда, где будут расположены балки, монтируем прокладки требуемого размера.
Шаг 4: Делаем ограждение
К созданию ограждения мы приступаем только тогда, когда закрепили тетивы и вставили ступени, то есть, когда лестница практически собрана. Стойки ограждений вставляем в уже подготовленные выемки, следом устанавливаем поручни.
Шаг 5: Оформление лестницы
Последний наш этап – декорирование сооружения. Поскольку в работе мы использовали дерево, нужно, чтобы применяемый нами материал не только украсил древесину, но и стал своеобразной защитой. А потому лучше всего приобрести полупрозрачную краску или простой лак. При этом проводить работы по покраске желательно в теплую погоду, а само дерево должно быть сухим. Покраску лестницы осуществляют валиком либо кистями сверху вниз, прокрашивая на каждом уровне ограждение и ступени. Среднее время высыхания материала составляет около трех суток.
К слову, чтобы дерево прослужило вам как можно дольше, его необходимо на несколько дней хранить в помещении, где будет осуществляться ремонт, чтобы разница в температуре не повлияла на структуру и качество древесины. Таким образом, поворотные лестницы на второй этаж являются хоть и достаточно сложными для самостоятельного создания, но и наиболее практичными конструкциями. Экономия места, возможность установки и около стен, и по центру помещения – это не единственные плюсы!

remoskop.ru
Лестницы с поворотом своими руками
В некоторых домах вполне уместно будет смотреться лестница с поворотом. Обычно такой вариант выбирают, если по каким-то причинам нельзя установить одномаршевую конструкцию. В этом случае в подъеме делается поворот на некоторый градус (на 90 или 180). Для изготовления лестницы с поворотом своими руками обычно используется древесина или металл. От того, какой материал будет применяться, зависят параметры будущей конструкции и сложность её монтажа.

Подбираем материал
Лучше всего для изготовления лестницы на второй этаж с поворотом использовать все же древесину. Дело в том, что забежные ступеньки во время монтажа в любом случае придется корректировать, как бы точно ни был выполнен предварительный расчет и замеры. Если будет использоваться другой материал, например, камень, то выполнить подобную корректировку не получится. Древесина же без проблем позволяет устранять любые отклонения и неточности монтажа, причем это можно сделать практически на любом этапе изготовления лестницы.
Сегодня в продаже можно найти заготовки и шаблоны как раз для деревянных лестниц. Они позволяют значительно облегчить сам процесс монтажа. Но это не значит, что при этом не нужно будет подгонять конструкцию по конкретным размерам. Кроме того, такие заготовки не всегда изготавливаются из качественного материала, хотя цена самих изделий зачастую довольно высокая.
Основные детали лестницы вполне можно сделать своими силами, но для этого потребуется правильно подобрать материал и комплектующие. Недостающие элементы можно приобрести в магазинах. Например, можно купить готовые декоративные балясины. Ведь изготовление такой детали заняло бы достаточно много времени.
Теперь разберем, какие материалы потребуются для лестницы из дерева с поворотом. Прежде всего, как уже упоминалось выше, это древесина. Лучше всего для этой цели использовать массивы бука или дуба. Но эти породы достаточно дорогие. Поэтому можно отдать предпочтение лиственнице, сосне либо клену. В любом случае, древесина должна быть как следует просушена. Иначе тетива со временем потеряет свою форму, а ступеньки будут неприятно скрипеть, что потребует дополнительных затрат на ремонт.
Ширина доски для монтажа конструкции должна быть не менее 55 мм. Также понадобятся деревянные бруски толщиной как минимум в 40 мм. Нужно приобрести крепежи для конструкции (например, винты, шурупы, саморезы). Пригодятся металлические уголки и строительный клей.
Стоит сказать, что в отличие от деревянных конструкций, металлические лестницы с поворотом используются довольно редко. Так как их монтаж является довольно сложным.
Выбор несущей конструкции
Несущая конструкция лестничного марша известная ещё, как косоур, просто необходима для возведения любой лестницы. Для конструкции с поворотными ступеньками понадобится от 4 до 6 косоуров. Это зависит от количества маршей и размеров угла поворота:
Если маршей всего два, то чтобы закрепить эти балки потребуется сначала установить один центральный столб, служащий декоративным элементом, а также основой для крепления косоуров.
Если маршей три, то несущих столбов потребуется уже не один, а два. Для этого следует выбрать опору с минимальным сечением 100 на 100 мм. Высота столба зависит от того, какая именно поворотная лестница будет установлена.
Расчета поворота лестницы
Для того чтобы сделать расчет, требуется знать некоторые важные параметры. В частности, нужно вычислить ширину марша, размеры ступенек, а также радиус поворота. Кроме того, нужно будет узнать длину проекции от горизонтальной плоскости марша. Данный показатель измеряется от последней ступеньки до вершины угла поворота.
Для расчета ширины ступенек за основу берется средняя линия. Причем все ступеньки на одном марше должны иметь одну одинаковую ширину.
Указанные выше параметры можно посчитать разными способами. Например, применяются специальные формулы. Но так как расчеты являются довольно сложными, данный метод будет неприемлем для некоторых людей. В качестве альтернативы можно использовать графический способ. Именно он будет рассмотрен ниже.
Необходимые расчеты
Лестница с поворотом на 180 градусов
Итак, как рассчитать лестницу с поворотом? Рассмотрим поэтапно:
- Прежде всего, нужно взять лист миллиметровой бумаги и отметить на нем место, где будет находиться центр изгиба (пусть это будет точка A), который совпадает с радиусом внутренней стороны будущей лестницы.
- Кроме того, нужно понять, сколько потребуется сделать забежных ступенек. Обычно их сооружают как можно больше, чтобы по лестнице было удобнее подниматься. Например, вы выбрали семь таких ступенек. Обозначьте их на плане. Затем через начало следующей ступени прочерчиваем прямую (обозначим её как DE).
- Прямая, обозначенная на плане как AB, делит лестницу на левую и правую равные стороны. Середину марша нужно обозначить в виде кривой. На этой кривой от прямой AB отложите участок, который равен половине ширины обычно ступеньки.
- От найденной точки (обозначим её как точку 1) проводим отрезок, равный ширине ступеньки. От получившейся точки снова отложите отрезок, как было описано чуть выше (обозначим его как точка 2).
- Таким образом, вы должны обойти семь точек. После этого через точки 1 и центр изгиба (точка А), очерчиваем линию, которая пересекается с ранее обозначенной линией DE.
- Еще одну линию нужно провести через точки 2 и A. Таким же образом находим значения на линии DE от остальных 5 точек.
- Линии, которые соединяют одни одинаковые точки, обозначенные числами, будут определять будущую геометрию ступенек.
Расчеты другой половины лестницы (части с забежными ступеньками) делаются подобным образом. Описанным методом можно рассчитать практически любые поворотные лестницы, о чем вы убедитесь ниже.
Лестница с поворотом на 90 градусов
У расчета этой поворотной лестницы много общего с предыдущей:
- Аналогично сначала находится центр изгиба (обозначим как точка А). После чего через неё проводится прямая (обозначим её как AC).
- Далее нужно определиться, как будут располагаться ступеньки. Здесь два варианта: или прямая делит угловую ступеньку на две равные части либо две ступеньки своими краями примыкают к прямой. В обоих вариантах имеется в виду прямая AC. При выборе второго способа нужно начертить кривую, на которой следует отложить равные ширине ступенек отрезки.
- Далее следует определить количество забежных ступенек. Если ими будут 4 ступеньки на повороте, то через окончание четвертой из них нужно провести прямую, которую на схеме обозначим как EB. Причем точка B здесь является пунктом пересечения двух прямых: EB и CA.
- После этого от точки центра изгиба отложите произвольный отрезок AD, на котором отмечаются три точки так, чтобы первый отрезок был равен двум частям, второй — трем частям, а третий -четырем частям. Здесь «одна часть» — ничто иное, как произвольный отрезок, равный одной условной единице измерения.
- После этого нужно соединить конец третьего отрезка с точкой B. Кроме того, от начала и конца второго отрезка нужно провести линии до пересечения с AB. Причем они должны быть параллельны по отношению к отрезку, сделанному на предыдущем шаге.
- Точки, которые получились на участке AB, соединяются с началом и концом третьего отрезка. Полученные линии определяют конфигурацию забежных ступенек.
Порядок монтажа
Прежде всего, нужно сказать, что сделать лестницу с поворотом своими руками будет сложно одному человеку хотя бы потому, что сама конструкция весит относительно немало. Поэтому рекомендуется заручиться помощником, после чего можно приступать к изготовлению.
Если лестница имеет всего один поворот, то соответственно в её конструкции предусмотрено два марша разной длины. В длинном марше делается восемь ступенек, причем самая верхняя оканчивается там, где начинается площадка следующего этажа. В коротком марше всего три ступеньки. Кроме того, в конструкции имеется три забежные ступеньки, которые повернуты на 30 градусов.
Порядок проведения работ:
- Начать изготовление такой лестницы лучше всего с монтажа косоуров. Сначала изготавливается шаблон в виде прямоугольного треугольника. Для удобства его закрепляют на направляющую рейку. Далее косоур размечается, после чего вырезается при помощи циркулярки. Для того чтобы конструкция имела достаточную прочность, ширина самой тонкой части должна быть как минимум 160 мм.
- После этого можно начинать установку опорного столба, в котором предварительно нужно сделать пазы для вставки косоуров. В углу монтируют опору, которая будет фиксировать косоур около стены. Кстати, основой для установки забежных ступенек будет именно эта опорная конструкция. Что касается верхних концов косоуров, то их следует закрепить металлическими уголками.
- Для изготовления забежных ступенек понадобятся доски размером 90x90x4 см. Как уже было сказано выше, всего будет три ступеньки. Для их изготовления доска делится на три части таким образом, чтобы линии разметки выходили из одного угла.
- Когда ступеньки будут вырезаны, их тщательно подгоняют по длине. Далее они покрываются несколькими слоями лака.
- Для закрепления забежных ступенек, в столбе необходимо вырезать пазы, которые по высоте должны быть немного меньше толщины вставляемой в них доски. Это надежно зафиксирует ступеньки с внутренней стороны лестничной конструкции. С внешней стороны требуется произвести доработку опоры. Это необходимо для того, чтобы разместить на неё ступеньки.
- Когда прямые ступеньки будут готовы, их следует закрепить на свое место длинными саморезами. Причем головки самих крепежных изделий нужно утопить. Чтобы выступающий угол забежной ступеньки не был заметен, марш нужно обустроить непосредственно на тетиве. Чтобы можно было смонтировать опорный столб, конец тетивы обрезается под прямым углом.
- Когда забежные ступеньки будут готовы, можно устанавливать перила. Кстати, балясины иногда крепятся снизу через ступеньку саморезами, но этот способ использовать нежелательно, т.к. его нельзя назвать надежным. Для этой цели лучше всего подойдут деревянные прутья, называемые шкантами. Так, в ступеньках сначала нужно сделать круглые отверстия с диаметром немного меньше габаритов шкантов. После чего отверстия заполняются клеевым раствором. Подобные отверстия делаются также в балясинах, но здесь существует одно очень важное требование: они должны быть сделаны строго по центру и располагаться вертикально.
- Далее между первым и вторым столбом необходимо натянуть веревку, которая послужит вспомогательным инструментом при отметке на балясинах угла наклона перил.
- Далее по этим меткам следует срезать верхушки стоек. Для фиксации поручня можно использовать длинные саморезы. Места их крепления нужно скрыть шпатлевкой.
На этом работы по возведению лестницы можно считать законченными. Как видите, здесь нет ничего сложного.
Почитать еще:
Статьи которые сейчас читают:
biostar-russia.ru
чертежи проектов и нюансы расчета (фото и видео)
Строительство дома и его облагораживание – это любимое занятие многих мужчин. Частный дом является признаком достатка, уюта и независимости. Если к созданию его дизайна подойти оригинально, то можно сделать настоящий шедевр.
Не лишним элементом интерьера будет лестница. Построенная поворотная лестница на второй этаж своими руками будет нести большой заряд положительной энергии и эмоций.
Фото лестницы на 90 градусовКак правильно её соорудить и какими элементами украсить, мы рассмотрим в этой статье.
Выбираем тип конструкции
Что касается видов, то их в наличии есть множество. Так криволинейный тип дизайна является воплощением обязательной ширины конца (узкого) с размером не менее 100 мм, а изогнутый будет выгоден для пространства, но имеет вид не столь изящный, а более монументальный.
Существуют и поворотные лестницы на второй этаж с задвижными ступенями. По той причине, что при перемещении по ним нет чувства опоры, они в последние годы мало применяются.
Есть также еще одна градация таких конструкций:
- Круговые;
- Полуоборотные:
- Четвертьоборотные.
Секреты проектирования
Очень много людей задаётся вопросом, как рассчитать поворотную лестницу на второй этаж? В нынешнее время можно и не быть специалистом по проектированию, для этого необходим всего лишь иметь выход в интернет. Во всемирной паутине есть много различных сервисов по расчету лестниц.
Инструкция к этим сервисам предостерегает пользователей о том, что нужно знать некоторые данные:
- Длину и высоту проема;
- Ширину будущей лестницы частного дома;
- Необходимое количество ступеней;
- Количество доповоротных и поворотных ступенек;
- Толщину последних;
- Выступ краев.
Такие сервисы имеют одно большое преимущество – помимо возможности проектирования и создания обычного чертежа, можно сделать цветной эскиз и посмотреть, как этот элемент будет вписываться в цветовую гамму помещения.
Лестница с поворотной площадкой в углу помещенияВажно. Пользуясь онлайн сервисами, у вас также появляется возможность оснастить их специальными поручнями для детей, пожилых людей или для жильцов с ограниченными физическими возможностями.
Расчет полуоборотных лестниц
Любой квалифицированный дизайнер скажет, что при наличии в доме лестницы с поворотными ступенями будет экономия пространства в помещении без потери функциональности и комфорта.
Выполняя расчет поворотной лестницы, обратите внимание на следующие важные моменты:
- Нужно выбирать оптимальное количество ступеней – на 80 см ширины должно приходиться три ступени. Если взять большее количество, то мастеру или вам придется изготавливать более узкие ступеньки, такой шаг приведет к тому, что жителям дома будет некомфортно перемещаться между этажами;
- Если вы захотели сделать проем лишь над верхней частью конструкции, то нужно учитывать высоту в области поворота до перекрытия. Минимальная высота должна быть не менее двух метров, иначе будет большая вероятность травмировать голову;
- Важным шагом является выбор ширины лестничного проема. Чем больше будет её ширина, тем большее количество ступеней поместится. Наиболее удобны конструкции, в которых чертежи поворотных лестниц обладают соотношением: сумма двух высот ступеней и одной их глубины равняются шестидесяти сантиметрам (плюс минус пять). Идеальным считается наклон от тридцати до сорока градусов с глубиной ступеней 300 мм и высотой 250 мм.
Материал для конструкции
Мы думаем, что все согласятся, что дерево будет идеальным материалом для отделки домов. Металл и пластик не имеют столько антуража при реализации их в дизайне частных коттеджей.
Применение древесины позволяет реализовывать разнообразные формы, которые очень хорошо впишутся в интерьер дома с его деревянными покрытиями и мебелью. К тому же на дерево можно нанести любой рисунок или резьбу. Еще одно преимущество – это его цена.
Поворотная деревянная лестница, расположенная в конце прихожейСовет. Для того чтобы ваши деревянные ступни прослужили как можно дольше применяйте только специальные тонировки и лаки устойчивые к стиранию.
Наиболее частные рекомендации
- Опытные мастера и дизайнеры при проектировании советуют рассмотреть возможность сооружения под лестницами кладовок. Выполняя разработку конструкции, вы можете воплотить в неё самые креативные и смелые идеи;
- Нужно определиться с видом древесины для вашей конструкции. Доски из ели имеют доступную стоимость и цену. Они обладают светлой однородной структурой и долговечностью. Еловые доски – это идеальный вариант.Доски из бука имеют сероватый или красноватый оттенок и слабовыраженную структуру. По своей прочности заметно уступают ели.
Буковая доскаСветло-желтый дуб устойчив по отношению к внешним факторам и тоже пригоден для постройки. Сейчас представлен большой выбор дерева для создания ступеней и каркасов, поэтому каждый мастер может выбрать материалы на своё усмотрение и финансовые возможности;
- Если вы действительно захотите научиться строить поворотные лестницы своими руками, то для этого вам понадобиться специальная обучающая литература и видео уроки, благо, что их можно найти без проблем на нашем портале;
- Большая ошибка устанавливать деревянную лестницу на этапе строительства дома. Такая конструкция рассматривается как временная, но затем становится постоянно эксплуатируемой;
- Будьте внимательны так как недобросовестные мастера могут обшить металлический каркас деревом, а сэкономленные средства оставить себе;
- Не нужно придумывать сложную конструкцию лестницы, так как это может усложнить перемещение по ней и транспортировку мебели. Необычной конструкцией вы мало кого удивите, а вот проблем себе создадите множество.
Вариации конструкцийВажно. Не пренебрегайте правилами техники безопасности.
В последнее время стало популярным не устанавливать перила, но такие шаги могут привести к тяжелым последствиям, ведь вам придется по ним передвигаться и ночью, когда освещение минимально.
Вполне возможно, что в таких случаях вам поможет онлайн расчет поворотных лестниц.
Подсветка
Для того чтобы придать комфорт подъему и индивидуальности дизайну можно взять к установке такой элемент как подсветку лестницы в доме. Нужно сразу сказать, что монтаж этих элементов является трудоемким процессом и без навыков в электрике ничего не получиться.
Вмонтированные в ступеньки неоновые лампыОсвещение светильниками
Лестница должна иметь хорошее освещение. Оно должно быть не ярким, но при этом удобным для передвижения. При сообщении лестницы со стеной можно применять для этих целей настенные бра и светильники.
Помимо своих прямых функций эти элементы будут выполнять ещё и декоративные задачи, что придаст атмосфере больше уюта.
Поворотные деревянные лестницы могут снабжаться такими видами светильников:
- Вмонтированными в перила или балясины;
- Внешними;
- Вмонтированными в ступеньки.
Галогенные и неоновые лампы
Несомненным преимуществом такого освещения будет мягкий свет, который не будет содержать всяческих теней. Это придаст больший комфорт при спуске, к тому же неоновые лампы наиболее долговечны и их хватит на длительный срок.
Важно. Такой вид лампочек очень хрупок, поэтому от повреждений их нужно защищать, например, декорированными плафонами.
Эти лампочки боятся скачков напряжения, при них они перегорают. Следовательно, нужно продумать стабилизацию напряжения, возможно, придется применять специальное стабилизирующее оборудование. Помимо этого они сильно нагреваются, нужно проследить за тем, чтобы не было их контакта с легко возгораемыми материалами.
Диодная лентаДля большего комфорта и экономии электрической энергии можно сделать автоматическое освещение. Оно будет включаться только тогда, когда жильцы будут пользоваться лестницей.
Светодиодные лампы
Это наиболее востребованный вид подсветки. Для монтажа таких лампочек сооружают специальные ниши в балясинах или ступенях. Большим преимуществом является большой цветовой выбор диодов.
Для того чтобы ускорить работы можно купить светодиодную ленту для подсветки лестницы, она может быть самоклеющейся. Их можно наклеить по краям лестницы, чтобы четко видеть её границы.Нужно отметить, что лампочки такого типа долговечны, имеют яркий свет и низкое потребление электроэнергии, а также не нагреваются.
Преимущества таких лампочек:
- Отпадает необходимость в отделочных работах;
- Большое разнообразие цветовых вариантов и дизайнерских решений;
- Возможность работы от батареек.
Единственное что следует обеспечить, так это исключить попадание воды на подсветку и своевременную замену сгоревших ламп.
Поворотная конструкция с освещениемИтоги
Лестница с поворотными ступенями – это наиболее востребованная конструкция. Рассмотренные в этой статье рекомендации значительно вам помогут при собственноручном создании таких элементов.
Советуем вам не пренебрегать техникой безопасности при их строительстве и монтаже. В представленном видео в этой статье вы найдете дополнительную информацию по данной теме.
sdelai-lestnicu.ru
