Лестницы складные для чердака – Лестница раскладная на чердак своими руками
Лестница на чердак своими руками – виды, материал и монтаж. Как выбрать.
Под скатной крышей частного, несмотря на то что там размещаются элементы стропильного каркаса, остается свободно место. В зависимости от конструкции и уклона кровли его может быть больше или меньше, но, как правило домовладельцы стараются его каким-либо образом использовать.
Опытные проектировщики утверждают, что даже на неотапливаемом чердаке можно организовать удобное пространство для сезонного хранения вещей или даже оборудовать дополнительную летнюю спальню. Однако, если вы хотите максимально эффективно использовать это помещение, вам понадобиться хотя бы раскладная или выдвижная лестница на чердак. В этой статье мы расскажем самые удобные и экономичные способы оборудования подъема в чердачное помещение, которые можно воплотить даже своими руками.
Содержание статьи
Что такое чердак?
Чердак – это помещение хозяйственного назначение, организованное в подкровельном пространства скатной крыши жилого дома. В отличии от мансарды, чердачное помещение не имеет термоизоляции скатов, отопления, оно может не оснащаться естественным освещением, а самое главное – оно не используется постоянно.
Чаще всего чердак используют для следующих целей:
- Сезонное хранение. Чердак пригодится при случаях, когда нужно убрать какие-то крупногабаритные предметы на длительное время. Очень удобно там складировать вещи, которые используются сезонно, к примеру, лыжи и санки летом или садовый инвентарь зимой.
- Сушка продуктов растениеводства. Под крышей в летнее время становится очень жарко, благодаря чему на чердаке можно быстро высушить лекарственные или пряные травы, корнеплоды перед закладкой на хранение.
- Комната для летнего использования. Так как скаты крыши не утепляются, а помещение не отапливается на чердаке зимой холодно. Но в летний период это помещение вполне можно использовать как дополнительную спальню или игровую комнату.
Устройство чердака
Обратите внимание! Чердак имеет огромный потенциал для использования домовладельцами, если его грамотно обустроить. Удобная лестница на чердак – обязательное условие активной эксплуатации этого помещения, причем чем чаще вы там бываете, тем капитальней должен быть оборудован подъем.

Особенности чердака
Особенности чердачных моделей
Многие домовладельцы, озаботившись грамотным оборудованием помещения под крышей, задаются вопросом, как сделать лестницу на чердак своими руками или как выбрать наиболее подходящую по цене и конструкции модель.
На самом деле, выбор лестниц для чердачных помещений в строительных магазинах, однако, многие их делают своими руками, чтобы сэкономить. Сделанная своими руками лесенка ни в чем не уступает покупной, если она соответствует следующим требованиям:
- Прочность. Конструкция модели обязательно должна быть прочной, чтобы легко, с запасом выдерживать вес человека, который по ней поднимается.
- Компактность. Для чердака подходят только компактная лесенка, размеры которой рассчитаны таким образом, чтобы не занимать много пространства в и без того тесном помещении. Поэтому для оборудования чердаков часто используются раздвижные или складные, то есть нестационарные, модели, которые в сложенном виде скрываются в проем люка, а при необходимости очень просто раскладываются.
- Легкость. Оборудование чердачного помещения обычно не предусматривает усиления фундамента, поэтому лесенка для подъема должна быть максимально легкой, но при этом прочной.

Различные виды чердачных лестниц
Важно! Варианты чердачной лестницы очень разнообразны по материалу, конструкции и стоимости. Можно приобрести готовую лестницу или выполнить изготовление и монтаж своими руками. Если вы склоняетесь в сторону первого варианта, обязательно обращайте внимание на качество продукции, так как от этого зависит ваша безопасность.
Критерии выбора
Если вы собираетесь активно использовать чердак, вам обязательно нужно оборудовать подъем к этому помещению, иначе его эксплуатация будет затруднительной. Так как выбор конструкций очень разнообразен, опытные мастера рекомендуют обращать внимание на следующие критерии:
- Количество свободного места. Откидная лестница на чердак – более компактная, а стационарные модели с широкими ступеньками просты в эксплуатации и считаются самыми удобными. Поэтому, делая выбор, нужно ориентироваться на то, сколько в наличии свободного пространства.
- Интенсивность использования. К чердачным помещениям, которые используются регулярно и активно, должен быть организован удобный, безопасный подъем. Поэтому для мест, предназначенных для сезонного хранения, можно использовать складные лестницы на чердак, изготовленные своими руками. А если, в подкровельном пространств организуется дополнительная комната, придется задуматься о стационарной модели. Проектировщики используют одно правило: чем чаще используется помещение, тем капитальней и надежней должна быть лестница.
- Особенности домочадцев. При выборе лесенки на чердак обязательно нужно учитывать, кто ей будет пользоваться. Несмотря на то, что складная конструкция очень компактна, пожилым людям и людям с проблемами опорно-двигательного аппарата пользоваться ей будет неудобно, небезопасно. С другой стороны, лестничный механизм, который можно сложить и спрятать люк, может ограничить доступ на чердак детям, которые могут нечаянно пострадать от своего неуемного любопытства.
Различные варианты чердачных лестниц
Помните! Чердачное помещение обязательно должно быть оборудован лесенкой, даже если вы не планируете использовать его в качестве места сезонного хранения. Домовладельцу все равно приходится подниматься туда, чтобы обследовать важные узлы стропильного каркаса, открывать и закрывать слуховые окна, чинить крышу.
Виды
Если вы озаботились оборудованием своего чердачного помещения, вам придется раз и навсегда решить вопрос с устройством подъема. Чердачные лесенки отличаются по материалу, использованному для их изготовления, конструкции и форме. Обычно по этим признакам их делят на следующие виды:
- Стационарные. Стационарными называют капитальные, неподвижные конструкции, которые используются постоянно. Лесенка стационарного типа имеет опору не только на пол, но и на поверхность стен и крепится к чердачному перекрытию. Такая модель наиболее удобна и безопасна, вдоль всей длины лестницы идут перила, которые не дадут при подъеме упасть. Стационарные модели могут быть прямыми, имеющими 1 марш, двухмаршевыми или винтовыми.

Стационарная лестница
- Складные. Складные модели отличаются тем, что в сложенном виде они прячутся в чердачном люке, поэтому не нарушают единство пространства и стиля в помещении. Они занимают мало места, компактные и легкие. При необходимости механизм готов мгновенно раздвинуться, чтобы предоставить доступ на чердак. Этот вариант подходит для помещений, которые используются неинтенсивно, время от времени. Чтобы установить складную лесенку потребуется надежное крепление, необходимое для безопасной эксплуатации.

Складная модель
Обратите внимание! Главное условие безопасной эксплуатации чердачного помещения – наличие удобного, хорошо оборудованного подъема. Поэтому важно не ошибиться в выборе конструкции чердачной лесенки и правильно определить объем нагрузки, который на нее ляжет.
Складные варианты
Складная лестница на чердак – удобное и практичное решение для частного дома с неинтенсивно используемым подкровельным пространством. Этот вариант имеет неоспоримые преимущества: небольшой вес, компактность, удобство использования.
Причем изготовить выдвижную лесенку с люком своими руками достаточно просто, даже если вы не можете найти в продаже устраивающую вас по всем параметрам модель. Нестационарные чердачные лесенки бывают следующих типов:
- Приставные. Приставные деревянные лестницы на чердак – это самое простое решение вопроса подъема в подкровельное помещение. Их изготовить своими руками достаточно просто, достаточно взять две длинных деревяшки, эти два бруска нужно соединить между собой поперечинами, которые будут служить ступеньками. Чтобы можно было без опаски лазать по этой конструкции, лучше ошкурить деревяшки. Приставные лесенки уместны, если подниматься на чердак приходится нечасто. Их недостаток в том, что при подъеме нужно страховать человека, придерживая лесенку.

Приставная лестница на чердак
- Складные. Складные модели отличаются тем, что состоят из одного механизма, который при необходимости выдвигает лестницу из чердачного люка. Это очень удобная конструкция, которая позволяет экономить место. В зависимости от высоты перекрытия она может состоять из одной или нескольких секций. Достать лестницу из люка можно с помощью крючка. Когда она не используется, люк закрыт, он не портит внешний вид помещения, не занимает место.

Складная лесенка
- Выдвижные. Выдвижные модели – одна из модификаций складных, они могут состоять из двух или более сегментов. Второй сегмент выдвигается с помощью специального механизма при необходимости. Благодаря такому устройству, размер всей конструкции такой маленький, что она вся легко прячется в чердачном люке. Две и три секции делается, если расстояние между полом и перекрытием достаточно большое.
Выдвижная модель
Помните! Чердак – неотапливаемое помещение, поэтому чтобы защитить жилые комнаты от проникновения холодного воздуха из-под крыши, необходимо утеплить все детали люка таким же слоем утеплителя, что и чердачное перекрытие, а также проследить, чтобы он закрывался плотно, без щелей.
Материалы
От материала, из которого изготовлена чердачная лесенка зависят такие качества изделия как прочность, долговечность, несущая способность. В настоящее время в строительных магазинах продаются конструкции на любой вкус. Чаще всего представлены модели, изготовленные из следующих материалов:
- Древесина. Качественные деревянные пиломатериалы – отличное сырье для изготовления лесенки. Из брусков можно сделать обычную приставную модель, более сложную маршевую или даже винтовую. Дерево – легкий, прочный, удобный в обработке материал, который к тому же доступен по цене. Однако, чтобы деревянное изделие служило дольше, нужно его ошкурить, пропитать маслом, окрасить или покрыть лаком.

Вариант из дерева
- Металл. Для изготовления складных и выдвижных вариантов обычно используется металлический профиль. Благодаря металлу, изделие получается прочным, долговечным, но при этом легким. Работать с этим материалом своими руками сложней, так как необходим опыт сварки и резки по металлу.

Вариант из металла
- Комбинация материалов. Некоторые модели являются комбинированными некоторые части механизма в них металлические, а ступеньки деревянные. Такое устройство позволяет объединить сильные стороны обоих материалов, а также удешевить производство.

Комбинированная лесенка
Изготовление своими руками
Несмотря на огромный ассортимент строительных магазинов, случается, что домовладельцев не устраивают прилагаемые модели лесенок из-за размеров, формы или цены. В таком случае можно изготовить ее самостоятельно со всеми необходимыми параметрами. При расчете, проектировании и изготовлении изделия нужно учитывать следующие нормы:
- Ширина не должна быть меньше 60 см, иначе изделием будет неудобно, небезопасно пользоваться.
- Угол наклона лестницы не должен превышать 60 градусов, иначе при подъеме возникает риск падения, травм.
- Расстояние между ступеньками должно составлять 30-40 см. Слишком маленькой или слишком большое расстояние приведет к тому, что эксплуатации лестницы будет неудобной.
- Крепление должно быть надежным. Если лестница фиксируется на одном месте, на стене нужно предусмотреть дополнительные крепления, чтобы сделать конструкцию надежнее.
Учтите, что для работы потребуется большое количество крепежных элементов. А в складных моделях каждую пару деталей соединяют с помощью подвижных креплений, чтобы выдвигать и задвигать секции при необходимости.

Чердачная лестница своими руками
Видео-инструкция
krovlyakrishi.ru
Лестницы на чердак: виды и варианты
Мансарда, чердак, технический этаж в зданиях — достаточно часто используемые типы помещений, для которых иногда нужны особенные конструкции. Чтобы правильно подобрать лестницы на чердак, виды которых весьма разнообразны, необходимо знать их варианты и особенности. Рассмотрим основные типы внутренних и наружных систем для входа на чердак.

Виды сооружений
Содержание статьи
Основные требования к чердачным сооружениям
Вне зависимости от того, как будет использоваться пространство на чердаке, к сооружению есть несколько основных требований:
- Она в обязательном порядке должна быть безопасной. Если ей будут пользоваться дети или пожилые люди, то есть необходимость в оборудовании системой ограждения – поручнями или перилами. Подвижные виды должны иметь безопасные механизмы раскладывания.

Безопасные строения
- Полное удобство перемещения иногда трудно обеспечить. Но по возможности стоит предусмотреть и это, выбрав наиболее подходящий вид для конкретной планировки.
- Ступени необходимо сделать нескользкими и безопасными для спуска и подъема по ним. Для этого материал ступенек выбирается с противоскользящей фактурой, либо применяются антискользящие накладки.
Исходя из этих условий, можно переходить к выбору.
Делаем выбор
Непосредственно под крышей в доме обычно устраивают:
- Мансардное помещение;
- Технический чердак;
- Детскую комнату.
В зависимости от частоты использования чердачного помещения в основном и делается выбор в пользу того или иного типа. Но чаще всего, лестницы для мансард и чердаков должны иметь небольшие габариты, либо легко убираться, когда ими не пользуются.

Компактная винтовая разновидность
Основные условия, которые необходимо рассмотреть при подборе:
- Частота использования. Если на чердак приходится подниматься часто и имеется достаточно свободной площади, то лучше будет установить стационарную разновидность. В случае использования чердачного пространства в технических целях можно применить компактные раскладные или выдвижные сооружения.

Подвижные
- Если лестницей будут пользоваться дети и пожилые люди, то требуется сооружения с перилами.
- В случае недостаточности места отличной альтернативой станут небольшие винтовые разновидности выхода на чердак.

Компактный винтовой тип
- Когда бюджет ограничен, можно рассмотреть возможность изготовления своими руками.

Винтовой тип можно установить самостоятельно
Учтя все индивидуальные условия, необходимо подобрать конкретный вид стационарный или подвижный.
Стационарные лестницы для чердака
Если сделан выбор в пользу стационарной, то возможны следующие виды ее исполнения:
- Приставная;
- Маршевая;
- Винтовая модель.
Каждая из них имеет свои достоинства и недостатки, особенности размещения.
Приставная конструкция
Самый простой – приставное сооружение. Для ее установки требуется минимум места, но и подниматься по ней достаточно сложно. Она устанавливается практически вертикально.
Такие конструкции требуют надежного крепления. Еще одним вариантом, который можно расположить под большим углом, является сооружение ступеней «гусиный шаг».
Совет! Даже при правильных расчетах и устройстве, не стоит использовать «гусиный шаг» в качестве основного.
Маршевые лестницы на чердак
Маршевая разновидность возможна:
- Одиночный марш является наиболее простой моделью. Размещается она, как правило, вдоль стены. Иногда, с целью обеспечения большего комфорта при движении и компактности размещения, сооружение оснащается забежными ступенями. Они могут располагаться в начале и конце марша.
- Двухмаршевый, с разворотом на 90 градусов и промежуточной площадкой или забежными ступенями.
- Двухмаршевый, с разворотом на 180 градусов и промежуточной площадкой или забежными ступенями.
Но даже очень компактные маршевые варианты требуют значительно больше места для размещения, чем винтовые.
Винтовые модели
Основными достоинствами их являются компактность и возможность расположения их в любом месте помещения.
В зависимости от вида опорного сооружения они изготавливаются в нескольких вариантах:
- Ступени опираются на несущие стены и центральную опору. Форма в этом случае повторяет форму окружающих ее стен.

Опора на внутренние стены и центральную трубу
- Опора ступеней на выгнутые элементы – тетивы, которые одновременно выполняют роль ограждения системы. Элементы ступенек надежно закрепляются в пазах гнутой тетивы.

Винтовой тип на тетивах
- Опора ступеней на косоуры – возможны варианты однобалочной или двухбалочной разновидности. Элементы ступеней фиксируются на балке сверху.

Винтовой вид на двойном косоуре
- Консольное защемление ступеней производится внутри центральной опоры.

Консольное защемление ступенек в центральной опоре
- Опирание ступеней на обсадную трубу.

Маленькие типы — фото
Основное условие для безопасности использования – ГОСТ предусматривает ширину ступеней в средней части не менее 20 см.
Подвижные варианты
Достаточно часто пространство нижнего этажа можно значительно сэкономить, если использовать сооружения, которые в нерабочем состоянии убираются в люк чердака, либо откидываются к стене.
Основными можно назвать:
- Раскладные;
- Ножничный тип;
- Откидной;
- Выдвижные;
- Телескопические;
- Раздвижной.
Чердачный люк может:
- Открываться вверх на чердачное помещение –удобен в случае откидных лестниц.
- Открываться вниз – обычно применяется в случае встроенной в люк разновидности.
- Открытый проем без люка.
Раскладываться сооружения могут ручным способом или автоматизировано.
Раскладные виды
Раскладывающиеся — наиболее распространенный вид. В настоящее время их без проблем можно приобрести в готовом виде.

На фото раскладной вид
Данный вариант представляет собой систему из нескольких секций, которые соединены между собой шарнирами. В разложенном виде он становится цельным маршем от пола до перекрытия.
В нерабочем состоянии она компактно складывается и убирается под крышку люка. Модели выпускаются как с поручнями, облегчающими подъем, так и без них.
Встроенные сооружения имеют минимум три складные секции. Меньшее количество элементов неизбежно приведет к увеличению проема. А это значительно уменьшит полезную площадь. Верхняя секция фиксируется на откидной крышке люка. Раскладывается конструкция под углом 70о – 75о к полу.
Все соединительные детали выполняются из металла, так как они несут значительную нагрузку. Остальные элементы могут изготавливаться из дерева или алюминия, чтобы снизить общий вес.
Ножничный
Достаточно новым, но уже получившим заслуженное внимание, является ножничный вид. Смысл состоит в том, что работа всей системы осуществляется по принципу ножниц. В таких моделях возможна установка полноценных по ширине ступеней.
Предельная нагрузка такой системы обычно до 200 кг. На многих сайтах продавцов можно посмотреть видео монтажа лестницы ножничного типа.
Откидная лестница на чердак
Откидной вариант очень удобен, если рядом расположена стена. В нерабочем состоянии конструкция убирается в ее сторону.
Откидная разновидность возможна в нескольких вариантах:
- Нижняя часть марша убирается под верхнюю секцию. Вся конструкция прислоняется к стене.

Откидной тип
- Марш отодвигается от стены при помощи колесиков.

Откидная тип на колесах
- Марш на косоурах изготавливается с особой системой складывания конструкции. В сложенном виде он откидывается к стене и фиксируется крепежным крюком.

Откидная конструкция на косоурах

Чертеж
Возможен также вариант обычного марша, который откидывается и закрепляется на стене.
Выдвижная разновидность
Выдвижные сооружения снабжены специальным механизмом, который выдвигает до уровня пола. В нерабочем состоянии конструкция полностью задвигается в помещение.

Выдвижное строение
Недостаткком можно назвать то, что он занимает значительную часть площади. Складные варианты, встроенные в люк, гораздо удобнее.
Телескопические лестницы
Еще одним очень удобным способом подъема являются телескопические конструкции. Их можно приобрести готовыми вместе с крышкой люка. Самостоятельная установка – видео из интернета значительно облегчит такую работу.
В сложенном состоянии сооружения очень компактны, так как секции конструкции входят одна в другую.
Раздвижные конструкции
Вариант из отдельных секций, которые выдвигаются относительно друг друга, достаточно распространен.
Перемещение отдельных секций осуществляется при помощи салазочного механизма.
Автоматические конструкции
Подвижные конструкции могут раскладываться не только в ручном режиме, но и автоматически. Для этого различные модели оснащаются электроприводом.

Автоматические типы
Автоматические виды являются удобным и безопасным вариантом передвижения.

Автоматические типы
Обычно они изготавливаются из металла, оснащаются пультом дистанционного управления. Цена зависит от используемого привода.
Наружные варианты
Наружное устройство для входа в помещение в основном применяется в случае редкого использования чердака. Они значительно уступают внутренним в плане комфортности.
На наружные лестницы распространяются все те же требования, что предъявляются к основным входным системам. Наиболее распространенным вариантом являются сооружения из металла.
Аксессуары
Практически все изготовители выпускают и отдельные элементы.
Это могут быть:
- Монтажные комплекты уголков – предназначаются для быстрой центровки. Устанавливаются в углах коробки люка с целью недопущения перекоса, усиливают его.
- Дополнительный утепляющий верхний короб.
- Наконечники для ножек – придают конструкции большую устойчивость, предохраняют поверхность пола от повреждения.
- Планки декоративные предназначены для отделки проема в потолке.
- Газовые доводчики позволяют более плавно раскладывать и складывать конструкцию. Значительно облегчают управление.
- Ограждение проема вокруг люка повышает безопасность, упрощает движение по ней.
- Боковые поручни могут устанавливаться с одной или двух сторон системы. Важно! Лестницы для детских чердаков должны быть оборудованы поручнями в обязательном порядке.
- Декоративные надставки могут дополнять конструкцию короба.
- Дополнительные секции позволяют увеличить длину подвижной лестницы ножничного типа.

Комплектующие
Комплектующие детали также используются для ремонта конструкций. Какая бы она не была выбрана, она должна быть надежной и безопасной в использовании. Больше информации о видах чердачных лестниц можно получить из видео в этой статье.
olestnicah.ru
Раскладная лестница на чердак своими руками: чертежи, размеры, установка
В доме, где есть чердачное помещение – всегда найдется место для всех необходимых вещей. Ведь именно чердак можно использовать для хранения важных, но не часто используемых предметов. Кроме того, при должном усилии возможно перестроить подкровельное пространство в просторную комнату, в том числе и жилого назначения (подробнее: как сделать жилую комнату на чердаке). Конечно, чаще чердаки в частных домах используются как дополнительные кладовки или склады. Однако, каким бы ни было назначение данного пространства, самое главное, чем необходимо его обеспечить – это надежной лестничной системой. Лестницы для чердаков могут иметь различную конфигурацию, но наиболее удобными и практичными считаются складные чердачные лестницы. В чем преимущество подобных конструкций и как их сделать самостоятельно? Разберем такие вопросы подробно, но прежде стоит рассказать об особенностях раскладных лестничных системах.
Складные лестницы: преимущества и особенности
Лестницы для чердака со складной конструкцией отличаются мобильностью, компактностью и функциональностью. Такая лестничная система во многом превосходит статичные и приставные аналоги. К преимуществам раскладной лестницы на чердак можно отнести:
- экономию пространства под чердачным люком;
- надежность и безопасность;
- компактный внешний вид;
- удобство использования;
- легкость;
- возможность самостоятельного конструирования и монтажа.
Достоинств у раскладных лестниц действительно много. В чем же главная особенность подобной системы? Прежде всего, стоит сказать, что по принципу использования она больше напоминает приставные лестницы. Чтобы подняться необходимо будет придерживаться за ступени, расположенные выше, а наиболее удобный вариант спуска по ней — это спиной вперед. Конечно, многие современные конструкции могут быть оборудованы широкими ступенями и дополнительными перилами, которые сделают процедуру спуска и подъёма наиболее безопасной.
Также к особенностям изделия можно отнести и то, что раздвижная лестница на чердак после использования будет задвинута и сложена под крышку люка. То есть на виду такая конструкция находится только во время эксплуатации, а в остальное же время она не занимает место и не является доступной. Это очень удобно в случае, когда в помещении нет достаточно места или в доме маленькие дети. Ведь аккуратно сложив систему и подняв ее наверх, можно не волноваться, что в отсутствие взрослых малыши захотят подняться на чердак. Кроме того, изделие никак не повлияет на интерьер, то есть не придется подбирать форму или расцветку согласно дизайнерской задумки помещения, так как лестницу просто не видно, до тех пор, пока не понадобится ее использовать.
Конечно, очень важно, чтобы раздвижная чердачная лестница была максимально прочной, но при этом оставалась легкой, так как пользоваться ею могут не только сильные мужчины, но и более хрупкие девушки или подростки. Обеспечить подобную функциональность может правильно разработанная конструкция, в которой все узлы надежно скреплены, а детали позволяют разложить систему буквально простым движением руки.
Конструкция раздвижной лестницы
Задумываясь о раскладной лестничной системе стоит иметь в виду, что чердачные складные лестницы могут отличаться по своей конструкции. В частности, принято выделять 4 основных подвида.
1. Лестница гармошка или ножницы. Такая система имеет компактный вид. Особенность ее в том, что складывается она по принципу гармошки. Как правило, такие конструкции выполняются из легкого металла. Это важное условие, так как все детали находятся в движении и при малой прочности легко могут выйти из строя. Если делается складная лестница на чердак своими руками, то наиболее внимательно стоит отнестись к местам соединения частей. Также периодически стоит смазывать шарниры, чтобы не образовывалась коррозия, а также для более плавного процесса трансформации.
2. Телескопическая система. Особенность данной модели в том, что изделие довольно легко раскладывается и также просто собирается. Лестница относится к наиболее миниатюрным вариантам в сложенном виде. Изготавливать ее рекомендуется из алюминия, так как это легкий и прочный металл. Главные части изделия – это полые трубки, которые фиксируются одна в другой в разложенном виде, в сложенном же виде трубки просто заходят друг в друга. К каждой трубке прикреплена секция ступенек, которые также выполняются из алюминия. Чтобы привести лестницу в рабочее состояние, достаточно ослабить фиксаторы и немного потянуть за нижнюю часть. Именно телескопическая конструкция считается наиболее простой, однако, выполнить правильное соединение самостоятельно довольно затруднительно. Поэтому такие системы чаще производят на заказ.
3. Секционная лестница. Этот вариант считается востребованным и распространенным. Именно его чаще всего выполняют своими руками. Особенность конструкции в том, что состоит она из 2-4 частей, соединенных в единую систему. Если состоит из двух секций, то раскладывается она по принципу книги, если элементов больше, то раскладывается как буклет. Еще один вариант подобной конструкции – это, когда части задвигаются друга над другом, но не как в случае с телескопической лестницей, когда трубки входят друг в друга, а просто элементы как бы накладываются поверх. Подобные модели нельзя отнести к очень компактной продукции, так как места для них требуется больше чем для других вариаций, но при этом именно секционные лестницы считаются максимально надежными и безопасными.
4. Откидная лестница. Подобные модели используются реже других, так как конструкция их довольно необычна, а изготовить ее можно только имея особые навыки и специальное оборудование. Особенность изделия в том, что в разложенном виде оно напоминает стационарный лестничный марш, то есть требуется много места для ее установки. Система состоит из тетивы и закрепленных на ней ступеней при помощи сложных креплений-петель. Для придания лестницы рабочего вида необходимо зафиксировать тетиву, а затем уложить на нее ступени. А чтобы собрать конструкцию придется сначала откинуть ступени, а потом убрать тетиву, что не всегда возможно проделать быстро и легко.
Также все изделия могут классифицироваться по материалу производства. Основными считаются следующие виды лестниц:
- деревянные;
- металлические;
- композитные.
Важно! Складная чердачная лестница должна быть максимально прочной и надежной, но при этом легкой. Поэтому лучшим выбором может стать комбинация материалов. Например, когда ступени и перила выполняются из древесины, а детали, отвечающие за трансформацию, выполнены из металла. Подобные конструкции будут иметь не большую стоимость, но при этом способны эффективно прослужить долгие годы. Пластиковыми или композитными могут быть только те элементы, на которые практически не оказывается никакого давления. Так как от постоянной нагрузки они очень быстро могут выйти из строя, а лестница станет не безопасной для использования. Часто пластиковыми или резиновыми бывают накладки на ступени, которые предотвращают скольжение.
Технические характеристики складных лестниц
Какая бы конструкция ни была выбрана в качестве варианта подъема на чердак, стоит иметь в виду, что есть рекомендованные параметры, которым изделие должно отвечать. В частности, это касается таких характеристик, как:
- высота – четкого значения данная характеристика не имеет, так как в каждом конкретном случае может изменяться расстояние от пола до люка, то есть раскладная лестница должна основательно стоять на ровной поверхности пола и надежно зафиксирована на чердачном перекрытии, но при этом не стоит забывать, что лестничная система имеет определенный угол наклона;
- ширина – ориентироваться стоит на значение в 60-70 см, если планируются поручни, то данный параметр стоит увеличить в зависимости от их параметров;
- угол наклона – не менее 60-75 градусов, чем больше данный параметр, тем более безопасным и комфортным будет подъем;
- количество ступеней – зависит от высоты лестницы, но приблизительно составляет 14-16 ступеней;
- шаг ступеней – 16-23 см, данный параметр должен быть таким, чтобы владельцам было удобно передвигаться по ступеням;
- толщина ступеней – 17-25 мм, не стоит слишком увеличивать характеристику, так как это приведет к утяжелению конструкции, но и делать слишком тонкие ступени не желательно, потому что потеряется прочность;
- допустимая нагрузка – так как изделие должно быть рассчитано на вес человека плюс определенный груз, который может переноситься, то стоит делать небольшой запас в данной характеристике, то есть все крепления и ступени должны выдерживать не менее 150 кг;
- параметры люка – стандартом считается размер 120х60 см.
Учитывая все перечисленное можно приступать к составлению плана будущей лестницы. Раскладная лестницы на чердак своими руками требует произведения определенных расчетов, без которых гарантировать прочность и безопасность изделия невозможно. Но также важно и правильно установить изделие.
Конструирование и монтаж лестницы на чердак
Самый простой вариант – это сконструировать складные деревянные чердачные лестницы. Ведь древесина является доступным материалом, с которым довольно легко работать. Понадобится минимальный набор инструментов и, хотя бы небольшой инженерный и столярный опыт. Прежде чем приступить к выполнению работы, следует создать чертежи будущей конструкции. Первым делом стоит измерить расстояние от пола комнаты до люка чердака и произвести все требуемые расчеты, с учетом вышеперечисленных параметров. Самый простой вариант лестницы – это секционное изделие, раскладываемое по принципу книги. Использовать для работы следует толстый брус в качестве тетивы и доски или бруски достаточной толщины для ступеней, а также металлические крепления и шарниры. Согласно разработанной схеме необходимо напилить заготовки будущей лестницы. Делать это можно обычной ручной пилой, однако электролобзиком выполнить работу будет намного проще и быстрее. Когда все элементы подготовлены можно приступать к закреплению лестницы на дверце люка, читайте также: чердачная лестница с люком.
Важно! Раскладные секции должны быть максимально прочно соединены между собой шарнирами, но при этом легко раскладываться и собираться. Крышку люка стоит сделать распашной наружу. Также необходимо позаботиться и об укреплении самого люка. Лучше всего использовать металлический уголок, который надежно зафиксирует люк и поможет обезопасить процедуру спуска и подъема. Стоит отметить, что конструкция лестницы должна быть закреплена не только на крышке, но и фиксироваться к полу чердака. Еще один важный момент – это способ приведения лестницы в рабочее состояние. Стоит продумать вариант фиксации, а также безопасный, но простой способ приведения лестницы в рабочий вид.
Когда чердачная складная лестница будет готова, следует протестировать ее и убедиться, что все детали выполняют свою функцию исправно. В процессе эксплуатации останется только вовремя смазывать шарниры и другие подвижные части, а также следить за состоянием ступеней.
Видео по теме:
Посмотрите еще статьи:
kryshagid.ru
Чердачная лестница своими руками: как сделать, размеры, чертежи
Чердачное помещение может использоваться по-разному. Некоторые хранят там редко используемые вещи, другие оборудуют дополнительное жилое пространство. Но в любом случае попасть на чердак без наличия лестницы невозможно. Конечно, такое приспособление можно приобрести в уже готовом виде, но гораздо дешевле сделать все своими руками. А как это осуществить? Давайте вместе разберемся в этом вопросе.
Разновидности лестниц на чердак
Чердачная лестница своими руками – это задача выполнимая. Но прежде чем приступить к ее решению, стоит определиться с видом этой конструкции. Чердачная лестница может быть выполнена в следующих вариантах:
- Приставной вариант. Это самая простая конструкция лестницы на чердак. Но вот пользоваться ей не совсем удобно. Конструкция устанавливается практически вертикально, что затрудняет передвижение. Приставная лестница на чердак является, как правило, временной мерой. Эту конструкцию можно устанавливать как внутри помещения, так и вне стен частного дома. Наружная лестница на чердак встречается во многих строениях в сельской местности.
- Маршевая конструкция. Это капитальная чердачная лестница. Ее используют в тех случаях, когда имеется мансардный этаж. Размеры такой конструкции довольно большие, поэтому для ее установки понадобится много свободного пространства.
- Винтовая лестница на чердак. Эта конструкция тоже является капитальной. Она занимает меньше места, чем маршевый вариант. Сделать такую стационарную лестницу своими руками будет сложно, так как вам потребуется наличие большого опыта и знаний.
- Раскладная чердачная лестница. Подобную конструкцию можно приобрести в уже готовом виде. Часто устройство крепится к люку, бедующему на чердак. Она представляет собой конструкцию, выполненную из несколько секций, которая между собой соединяются с помощью шарниров. Чердачная лестница с люком своими руками – это наиболее приемлемый вариант для домов с ограниченным свободным пространством.

- Ножничный тип чердачной лестницы. Это относительно новый вариант конструкции. Сделать ее своими руками будет сложно, поэтому лучше приобрести уже готовое изделие.
- Откидная лестница на чердак. Такой вариант удобен в том случае, если рядом с люком расположена стена. Когда необходимость в лестницы нет, ее просто отодвигают.
- Выдвижная конструкция. В нерабочем состоянии лестница полностью задвигается на чердак.
- Еще один вариант – это телескопическая конструкция. Такую лестницу на чердак можно приобрести уже в готовом виде, вместе с люком.

Какой вариант выбрать, стационарную или лестницу-трансформер – это решать самим владельцам. Если присутствует жилая комната на чердаке, а доступ наверх нужен постоянно, то лучше выбрать неподвижную конструкцию. Она более надежная и удобная в эксплуатации. Но стационарная лестница на чердак займет много места и потребует «лишнего» расхода средств и сил.
Если свободного пространства мало, то лучше обратить внимание на варианты складных или выдвижных лестниц. Или использовать приставную конструкцию. Такие варианты чердачных лестниц можно легко сделать своими руками.
Какой материал выбрать для лестницы
Для изготовления самодельной чердачной лестницы можно применять металл или древесину. А какой вариант материала будет наиболее практичным и удобным? В большинстве случае используют древесину. Такой выбор обуславливается следующим:
- Древесина весит меньше, чем железо;
- С этим материалом легко работать. Для обработки древесины не нужны специальные инструменты или аппаратура, достаточно иметь обычный набор плотника;
- Этот материал «мягкий». Чердачная, да и любая другая лестница – это травмоопасная конструкция. Деревянные ступеньки немного снижают риск получения серьезной травмы;
- Привлекательный внешний вид. Естественная текстура и цвет древесины создают уют, и вся конструкция будет выглядеть красиво.
Для создания выдвижных, телескопических и раскладных лестниц на чердак нередко применяют алюминий или сплав с этим металлом. Такие конструкции получаются надежными и легкими. Но вот сделать подобную лестницу своими руками будет сложнее, чем из древесины. Для этого, чаще всего, нужно задействовать различные станки. Именно поэтому деревянные лестницы на чердак считаются самыми распространенными.
Довольно часто применяют комбинацию из нескольких материалов. Например, несущие элементы чердачной лестницы могут быть сделаны из железа. Ступеньки в таком случае выполняются из древесины или другого материала, например, стекла. Кроме того, для уменьшения травмоопасности можно покрыть их резиной или другой нескользящей поверхностью.
Требования к конструкции
Приставная, складная, маршевая или телескопическая чердачная лестница должна быть сделана в соответствии с определенными правилами. В первую очередь это касается безопасности. Кроме того, лестница на чердак должна отвечать и другим требованиям, а именно:
- Если используется складная конструкция, то она не должна перекрывать проход и пространство под люком на чердак.
- Лестница должна быть достаточно прочной, чтобы выдержать вес всех домочадцев.
- При составлении чертежей и самом изготовлении следует учитывать возраст и физические способности живущих в доме людей. Например, если пожилой человек будет подниматься по крутой лестнице на чердак, то он может упасть с нее. В этом случае лучше использовать маршевую конструкцию.
Большинство складных чердачных лестниц не имеет перил. Это существенно повышает риск получения травмы. Особенно это опасно, если в доме живут дети. В таком случае, если чердак используется постоянно, лучше применить капитальную конструкцию.
Ширина лестничного пролета будет зависеть от размеров проема люка на чердак. Чем он шире, тем удобней будет пользоваться конструкцией. При этом могут наблюдаться существенные потери тепла, если чердак не отапливается.
Простые варианты конструкции
Как сделать лестницу на чердак своими руками? Тут многое будет зависеть от выбранного вами варианта конструкции. Если пространства мало, и отсутствует большой опыт в столярных работах, то можно использовать простой вариант складной чердачной лестницы. Такая конструкция подойдет в том случае, если люк расположен непосредственно около стенки.
Для ее изготовления вам понадобится следующее:
- Для измерения и разметки приготовьте рулетку и простой карандаш;
- Обычную лестницу из дерева. Ее высота должна быть на 20-30 сантиметров больше, чем расстояние от пола до чердака. Ширина лестницы может немного отличаться от ширины люка;
- Карточные петли. Их ширина должна равняться толщине косоуров (брусков, на которые крепятся перекладины) приготовленной лестницы. Таких петель нужно четыре штуки;

- Два деревянных бруска толщиной 2-3 сантиметра. Их длина должна равняться ширине люка на чердак. И еще два бруска с шириной на 20 сантиметров больше предыдущих;
- Чтобы делать спилы приготовьте ножовку по дереву;
- Крючок и петелька с анкером, саморезы.
Для изготовления простой чердачной лестницы нужно выполнить несложные манипуляции. Вначале поработаем рулеткой и карандашом. Сначала отмеряем сверху две трети от длины приготовленной деревянной лестницы и распиливаем ее. Места спилов соединяем при помощи карточных петель, при этом нужно сделать так, чтобы меньшая часть складывалась к стенке.
После этого, в нижней части лестницы крепим длинные бруски. Делаем это с помощью саморезов, прочно и надежно. Это будет основание лестницы на чердак. В верхней части крепим короткий брус на карточные петли. Затем соединяем его прочно к другому, прибитому к стенке под люком на чердак. На этом вся работа закончена.
Такая конструкция такая же простая, как и приставная лестница на чердак. Сделать ее своими руками не составит большого труда. Но и минусы у них общие. В обоих случаях чердачная лестница будет постоянно на виду.
Более сложный вариант лестницы
Сделать чердачную лестницу своими руками так, чтобы ее не было видно в сложенном виде тоже вполне возможно. Конечно, тут вам понадобиться больше навыков и времени. Первым делом следует заняться изготовлением и монтажом люка. Именно эта конструкция будет основой для нашей чердачной лестницы.
Построить люк можно с использованием четырех деревянных брусков 50 на 50 миллиметров и фанерного листа толщиной в один сантиметр. Размеры будущей конструкции будут зависеть от размеров проема в чердачном перекрытии.
На концах брусьев делаем выпилы на половину их ширины, и промазываем их клеем. Далее собираем прямоугольный каркас, дополнительно усилив места стыков саморезами. Чтобы соблюдать острые углы можно прибить временные косынки их фанеры толщиной в 4 миллиметра. Очень важно строго соотнести размеры проема в чердачном перекрытии и размеры люка.
После того, как каркас собран его оббивают фанерой и крепят к коробу в чердачном перекрытии на петли. Чтобы люк на чердак не открывался под собственным весом, следует установить защелку. Также можно обшить края войлоком или другим уплотнителем. Это будет полезно в том случае, если чердак в доме не отапливается в зимний период.
Складная лестница на чердак своими руками будет сделана из древесины. Тут тоже можно обойтись уже готовыми изделием. Сам процесс изготовления лестницы выглядит следующим образом:
- Вначале уже готовую конструкцию распиливаем на куски, длина которых должны быть чуть меньше размеров люка. Как правило, таких «кусков» будет три;
- Далее, каждый участок лестницы соединяют со следующим с помощью металлических шарниров. Их можно изготовить самостоятельно или приобрести подходящие в строительном магазине;
- После этого, верхняя секция лестницы крепится к чердачному люку, к верхней его стороне.
Такая конструкция будет видна только в расправленном состоянии. Когда лестница сложена, она убирается на чердак. Такой вариант прекрасно подходит для небольших домов, «страдающих» от недостатка свободного пространства. 
Видео по теме:
Стационарный вариант лестницы
Самый надежный, но при этом и самый сложный и затратный вариант – это маршевая лестница. Такую конструкцию применяют при соблюдении двух условий. Во-первых, чердак должен быть жилым или часто использоваться. Во-вторых, в самом доме должно быть много свободного пространства. Размеры чердачной лестницы будут большие, поэтому места нужно будет много.
Сам процесс изготовления простого варианта маршевой конструкции выглядит следующим образом:
- Вначале проводим расчеты будущей чердачной лестницы. Высчитываем длину пролета, шага, проступи и другие параметры. Составляем чертеж;

- Приготавливаем материал. Для чердачной маршевой лестницы нужно запастись досками шириной в сорок сантиметров. Их длина должна равняться длине пролета. Таких досок используют две, но для большей надежности можно и больше. Также следует подготовить материал для ступенек. Здесь можно использовать и деревянные доски, и прочный пластик, и специальное стекло. Все деревянные элементы должны иметь влажность не более 12 процентов. В противном случае чердачная лестница в скором времени начнет рассыхаться и скрипеть;
- Подготавливаем косоуры. Для этого, с помощью заранее приготовленных лекал делаем разметку на 40-ка сантиметровых досках будущих ступенек. После этого делаем выпилы;
- Далее, нужно установить косоуры на свои места. Они должны прочно упираться в пол первого этажа и пол чердака;
- Следующим этапом будет монтаж ступеней. В самом простом варианте доски просто прикручивают при помощи саморезов к выступам в косоурах;
- Если в доме есть дети или пожилые люди, то лестницу на чердак лучше оснастить перилами. Их можно сделать металлическими или выполнить из той же древесины.

Видео по теме:
Такая простая чердачная маршевая лестница будет надежней складной или телескопической. Но стоит помнить, что она замет много свободного пространства. Также очень важно тщательно делать все расчеты, чтобы конструкция получилась надежной и долговечной.
Посмотрите еще статьи:
kryshagid.ru
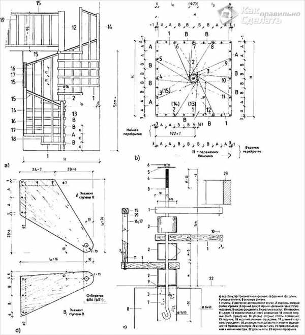
Изготовление складной чердачной лестницы своими руками.
Содержание:
1. Введение.
2. Изготовление люка для выхода на чердак и крепления чердачной лестницы.
3. Изготовление и сборка складной деревянной лестницы.
1. Введение. (Рис. 1)
Введение
Введение 2. Изготовление люка для выхода на чердак и крепления чердачной лестницы 3. Изготовление и сборка складной деревянной лестницы 1. Введение. Michail RybakovПри обустройстве частного дома невозможно обойтись без лестницы. В зависимости от площади и этажности помещения это могут быть как шикарные маршевые лестницы в частных домах из камня и бетона, устланные коврами и позволяющими пройти одновременно нескольким людям, могут быть конструкции скромнее, в метр полтора шириной из дерева, металла или стекла или компактные узкие винтовые лестницы экономящие пространство. (Рис. 2, 3)
В зависимости от площади и этажности помещения это могут быть как шикарные маршевые лестницы в частных домах из камня и бетона, устланные коврами и позволяющими пройти одновременно нескольким людям, могут быть конструкции скромнее, в метр полтора шириной из дерева, металла или стекла или компактные узкие винтовые лестницы экономящие пространство
Изготовление и сборка складной деревянной лестницы 1. Введение. При обустройстве частного дома невозможно обойтись без лестницы. В зависимости от площади и этажности помещения это могут быть как шикарные маршевые лестницы в частных домах из камня и бетона, устланные коврами и позволяющими пройти одновременно нескольким людям, могут быть конструкции скромнее, в метр полтора шириной из дерева, металла или стекла или компактные узкие винтовые лестницы экономящие пространство. Michail RybakovВ зависимости от площади и этажности помещения это могут быть как шикарные маршевые лестницы в частных домах из камня и бетона, устланные коврами и позволяющими пройти одновременно нескольким людям, могут быть конструкции скромнее, в метр полтора шириной из дерева, металла или стекла или компактные узкие винтовые лестницы экономящие пространство
Изготовление и сборка складной деревянной лестницы 1. Введение. При обустройстве частного дома невозможно обойтись без лестницы. В зависимости от площади и этажности помещения это могут быть как шикарные маршевые лестницы в частных домах из камня и бетона, устланные коврами и позволяющими пройти одновременно нескольким людям, могут быть конструкции скромнее, в метр полтора шириной из дерева, металла или стекла или компактные узкие винтовые лестницы экономящие пространство. Michail RybakovДаже проживая в одноэтажном доме, периодически возникает необходимость в лестнице для подъема на чердак. Статьи о том, как рассчитать величину лестницу и построить лестницу из бетона и дерева, какой должна быть лестница из декинга уже есть на нашем сайте, и ознакомиться с ними вы сможете, пройдя по ссылкам: «Покрытии для террас из древесины» , «Конструкция керамогранитных ступеней для лестниц» , «Лестница своими руками. расчет и виды. » , «Деревянная лестница своими руками.способы обустройства» , «Как установить стеклянные ограждения на лестнице. » , «Дизайн «живого» озелененного бетонного дома. » , «Как сделать бетонный пол по грунту в частном доме». На этот раз пришло время изучить возможность сооружения своими руками чердачной лестницы. (Рис. 4, 5)
На этот раз пришло время изучить возможность сооружения своими руками чердачной лестницы
В зависимости от площади и этажности помещения это могут быть как шикарные маршевые лестницы в частных домах из камня и бетона, устланные коврами и позволяющими пройти одновременно нескольким людям, могут быть конструкции скромнее, в метр полтора шириной из дерева, металла или стекла или компактные узкие винтовые лестницы экономящие пространство. Даже проживая в одноэтажном доме, периодически возникает необходимость в лестнице для подъема на чердак. Статьи о том, как рассчитать величину лестницу и построить лестницу из бетона и дерева, какой должна быть лестница из декинга уже есть на нашем сайте, и ознакомиться с ними вы сможете, пройдя по ссылкам: Покрытии для террас из древесины , Конструкция керамогранитных ступеней для лестниц , Лестница своими руками расчет и виды , Деревянная лестница своими руками способы обустройства , Как установить стеклянные ограждения на лестнице , Дизайн «живого» озелененного бетонного дома , Как сделать бетонный пол по грунту в частном доме. На этот раз пришло время изучить возможность сооружения своими руками чердачной лестницы. Michail RybakovНа этот раз пришло время изучить возможность сооружения своими руками чердачной лестницы
В зависимости от площади и этажности помещения это могут быть как шикарные маршевые лестницы в частных домах из камня и бетона, устланные коврами и позволяющими пройти одновременно нескольким людям, могут быть конструкции скромнее, в метр полтора шириной из дерева, металла или стекла или компактные узкие винтовые лестницы экономящие пространство. Даже проживая в одноэтажном доме, периодически возникает необходимость в лестнице для подъема на чердак. Статьи о том, как рассчитать величину лестницу и построить лестницу из бетона и дерева, какой должна быть лестница из декинга уже есть на нашем сайте, и ознакомиться с ними вы сможете, пройдя по ссылкам: Покрытии для террас из древесины , Конструкция керамогранитных ступеней для лестниц , Лестница своими руками расчет и виды , Деревянная лестница своими руками способы обустройства , Как установить стеклянные ограждения на лестнице , Дизайн «живого» озелененного бетонного дома , Как сделать бетонный пол по грунту в частном доме. На этот раз пришло время изучить возможность сооружения своими руками чердачной лестницы. Michail RybakovЛестницы для подъема на чердак могут быть самых разных конструкций и моделей. Если позволяет площадь, то устанавливают маршевую лестницу или винтовую. Очень часто для обустройства подьема на чердак используют модульные лестницы или лестница трансформер . Лестницы любой конструкции будут отлично выполнять функцию устройства ведущего на чердак, но чаще всего происходит так, что для обустройства чердачной лестницы места либо минимум, либо вообще нет. В таком случае на помощь приходят складные и раздвижные чердачные лестницы . Изготавливают их из металла или древесины. (Рис. 6, 7)
Изготавливают их из металла или древесины
Очень часто для обустройства подьема на чердак используют модульные лестницы или лестница трансформер. Лестницы любой конструкции будут отлично выполнять функцию устройства ведущего на чердак, но чаще всего происходит так, что для обустройства чердачной лестницы места либо минимум, либо вообще нет. В таком случае на помощь приходят складные и раздвижные чердачные лестницы. Изготавливают их из металла или древесины. Michail RybakovИзготавливают их из металла или древесины
Очень часто для обустройства подьема на чердак используют модульные лестницы или лестница трансформер. Лестницы любой конструкции будут отлично выполнять функцию устройства ведущего на чердак, но чаще всего происходит так, что для обустройства чердачной лестницы места либо минимум, либо вообще нет. В таком случае на помощь приходят складные и раздвижные чердачные лестницы. Изготавливают их из металла или древесины. Michail RybakovПри этом не менее важным моментом является правильное обустройство люка ведущего на чердак. В данной статье предлагаю рассмотреть изготовление складных чердачных лестниц и грамотное оборудование проема и крышки люка.
2. Изготовление люка для выхода на чердак и крепления чердачной лестницы. (Рис. 8)
Изготовление люка для выхода на чердак и крепления чердачной лестницы
Изготавливают их из металла или древесины. При этом не менее важным моментом является правильное обустройство люка ведущего на чердак. В данной статье предлагаю рассмотреть изготовление складных чердачных лестниц и грамотное оборудование проема и крышки люка 2. Изготовление люка для выхода на чердак и крепления чердачной лестницы. Michail RybakovПеред тем как соорудить и установить лестницу (складную или раздвижную) необходимо выполнить целый ряд подготовительных мероприятий. В число этих мероприятий входят заготовка материала, инструмента, а так же укрепление входного проема ведущего на чердак. (Рис. 9)
В число этих мероприятий входят заготовка материала, инструмента, а так же укрепление входного проема ведущего на чердак
В данной статье предлагаю рассмотреть изготовление складных чердачных лестниц и грамотное оборудование проема и крышки люка 2. Изготовление люка для выхода на чердак и крепления чердачной лестницы. Перед тем как соорудить и установить лестницу (складную или раздвижную) необходимо выполнить целый ряд подготовительных мероприятий. В число этих мероприятий входят заготовка материала, инструмента, а так же укрепление входного проема ведущего на чердак. Michail Rybakov* Перечень инструментов состоит из такого списка: рулетка, угольник, карандаш, ножовка, пилы, молоток, шуруповерт, дрель, (возможно перфоратор), стамеска, болты, отвертка, плоскогубцы. Может пригодиться так же и бытовой фрезерный станок. («Дрель и шуруповерт » , «Электроинструменты. перфоратор, отбойный молоток» , «Шлифовальные электроинструменты» , «Лобзики, сабельные пилы, рубанки, фрезерные машины» ).
* В список необходимых материалов вошло следующее: деревянные бруски и доски индивидуального размера, фанера, полистирол или пенопласт (для утепления крышки), пленка — паробарьер, готовые навесы, шарниры и подъемный механизм (реализуются в строительных магазинах в большом ассортименте), доски или брусья (в зависимости от высоты, нагрузки и ваших предпочтений) для изготовления тетивы и ступеней, герметик и уплотнитель (силиконовый или резиновый).
Теперь попробуем изготовить и установить ведущий на чердак люк с крышкой. Для этого делаем замеры имеющегося проема (по мере необходимости расширяем или сужаем его). Удобнее всего использовать проем выхода на чердак с минимальным размером 1.30 м * 1.40 м., но так как все индивидуально, то в первую очередь ориентируйтесь на возможности своей потолочной поверхности и строительные особенности крыши своего дома. (Рис. 10, 11, 12, 13, 14, 15)
Удобнее всего использовать проем выхода на чердак с минимальным размером 1 30 м * 1 40 м , но так как все индивидуально, то в первую очередь ориентируйтесь на возможности своей потолочной поверхности и строительные особенности крыши своего дома
* Перечень инструментов состоит из такого списка: рулетка, угольник, карандаш, ножовка, пилы, молоток, шуруповерт, дрель, (возможно перфоратор), стамеска, болты, отвертка, плоскогубцы. Может пригодиться так же и бытовой фрезерный станок ( Дрель и шуруповерт , Электроинструменты перфоратор, отбойный молоток , Шлифовальные электроинструменты , Лобзики, сабельные пилы, рубанки, фрезерные машины ) * В список необходимых материалов вошло следующее: деревянные бруски и доски индивидуального размера, фанера, полистирол или пенопласт (для утепления крышки), пленка — паробарьер, готовые навесы, шарниры и подъемный механизм (реализуются в строительных магазинах в большом ассортименте), доски или брусья (в зависимости от высоты, нагрузки и ваших предпочтений) для изготовления тетивы и ступеней, герметик и уплотнитель (силиконовый или резиновый) Теперь попробуем изготовить и установить ведущий на чердак люк с крышкой. Для этого делаем замеры имеющегося проема (по мере необходимости расширяем или сужаем его). Удобнее всего использовать проем выхода на чердак с минимальным размером 1 30 м * 1 40 м , но так как все индивидуально, то в первую очередь ориентируйтесь на возможности своей потолочной поверхности и строительные особенности крыши своего дома. 10, 11, 12, 13, 14, 15) Michail RybakovУдобнее всего использовать проем выхода на чердак с минимальным размером 1 30 м * 1 40 м , но так как все индивидуально, то в первую очередь ориентируйтесь на возможности своей потолочной поверхности и строительные особенности крыши своего дома
* Перечень инструментов состоит из такого списка: рулетка, угольник, карандаш, ножовка, пилы, молоток, шуруповерт, дрель, (возможно перфоратор), стамеска, болты, отвертка, плоскогубцы. Может пригодиться так же и бытовой фрезерный станок ( Дрель и шуруповерт , Электроинструменты перфоратор, отбойный молоток , Шлифовальные электроинструменты , Лобзики, сабельные пилы, рубанки, фрезерные машины ) * В список необходимых материалов вошло следующее: деревянные бруски и доски индивидуального размера, фанера, полистирол или пенопласт (для утепления крышки), пленка — паробарьер, готовые навесы, шарниры и подъемный механизм (реализуются в строительных магазинах в большом ассортименте), доски или брусья (в зависимости от высоты, нагрузки и ваших предпочтений) для изготовления тетивы и ступеней, герметик и уплотнитель (силиконовый или резиновый) Теперь попробуем изготовить и установить ведущий на чердак люк с крышкой. Для этого делаем замеры имеющегося проема (по мере необходимости расширяем или сужаем его). Удобнее всего использовать проем выхода на чердак с минимальным размером 1 30 м * 1 40 м , но так как все индивидуально, то в первую очередь ориентируйтесь на возможности своей потолочной поверхности и строительные особенности крыши своего дома. Michail RybakovУдобнее всего использовать проем выхода на чердак с минимальным размером 1 30 м * 1 40 м , но так как все индивидуально, то в первую очередь ориентируйтесь на возможности своей потолочной поверхности и строительные особенности крыши своего дома
* Перечень инструментов состоит из такого списка: рулетка, угольник, карандаш, ножовка, пилы, молоток, шуруповерт, дрель, (возможно перфоратор), стамеска, болты, отвертка, плоскогубцы. Может пригодиться так же и бытовой фрезерный станок ( Дрель и шуруповерт , Электроинструменты перфоратор, отбойный молоток , Шлифовальные электроинструменты , Лобзики, сабельные пилы, рубанки, фрезерные машины ) * В список необходимых материалов вошло следующее: деревянные бруски и доски индивидуального размера, фанера, полистирол или пенопласт (для утепления крышки), пленка — паробарьер, готовые навесы, шарниры и подъемный механизм (реализуются в строительных магазинах в большом ассортименте), доски или брусья (в зависимости от высоты, нагрузки и ваших предпочтений) для изготовления тетивы и ступеней, герметик и уплотнитель (силиконовый или резиновый) Теперь попробуем изготовить и установить ведущий на чердак люк с крышкой. Для этого делаем замеры имеющегося проема (по мере необходимости расширяем или сужаем его). Удобнее всего использовать проем выхода на чердак с минимальным размером 1 30 м * 1 40 м , но так как все индивидуально, то в первую очередь ориентируйтесь на возможности своей потолочной поверхности и строительные особенности крыши своего дома. Michail RybakovУдобнее всего использовать проем выхода на чердак с минимальным размером 1 30 м * 1 40 м , но так как все индивидуально, то в первую очередь ориентируйтесь на возможности своей потолочной поверхности и строительные особенности крыши своего дома
* Перечень инструментов состоит из такого списка: рулетка, угольник, карандаш, ножовка, пилы, молоток, шуруповерт, дрель, (возможно перфоратор), стамеска, болты, отвертка, плоскогубцы. Может пригодиться так же и бытовой фрезерный станок ( Дрель и шуруповерт , Электроинструменты перфоратор, отбойный молоток , Шлифовальные электроинструменты , Лобзики, сабельные пилы, рубанки, фрезерные машины ) * В список необходимых материалов вошло следующее: деревянные бруски и доски индивидуального размера, фанера, полистирол или пенопласт (для утепления крышки), пленка — паробарьер, готовые навесы, шарниры и подъемный механизм (реализуются в строительных магазинах в большом ассортименте), доски или брусья (в зависимости от высоты, нагрузки и ваших предпочтений) для изготовления тетивы и ступеней, герметик и уплотнитель (силиконовый или резиновый) Теперь попробуем изготовить и установить ведущий на чердак люк с крышкой. Для этого делаем замеры имеющегося проема (по мере необходимости расширяем или сужаем его). Удобнее всего использовать проем выхода на чердак с минимальным размером 1 30 м * 1 40 м , но так как все индивидуально, то в первую очередь ориентируйтесь на возможности своей потолочной поверхности и строительные особенности крыши своего дома. Michail RybakovУдобнее всего использовать проем выхода на чердак с минимальным размером 1 30 м * 1 40 м , но так как все индивидуально, то в первую очередь ориентируйтесь на возможности своей потолочной поверхности и строительные особенности крыши своего дома
* Перечень инструментов состоит из такого списка: рулетка, угольник, карандаш, ножовка, пилы, молоток, шуруповерт, дрель, (возможно перфоратор), стамеска, болты, отвертка, плоскогубцы. Может пригодиться так же и бытовой фрезерный станок ( Дрель и шуруповерт , Электроинструменты перфоратор, отбойный молоток , Шлифовальные электроинструменты , Лобзики, сабельные пилы, рубанки, фрезерные машины ) * В список необходимых материалов вошло следующее: деревянные бруски и доски индивидуального размера, фанера, полистирол или пенопласт (для утепления крышки), пленка — паробарьер, готовые навесы, шарниры и подъемный механизм (реализуются в строительных магазинах в большом ассортименте), доски или брусья (в зависимости от высоты, нагрузки и ваших предпочтений) для изготовления тетивы и ступеней, герметик и уплотнитель (силиконовый или резиновый) Теперь попробуем изготовить и установить ведущий на чердак люк с крышкой. Для этого делаем замеры имеющегося проема (по мере необходимости расширяем или сужаем его). Удобнее всего использовать проем выхода на чердак с минимальным размером 1 30 м * 1 40 м , но так как все индивидуально, то в первую очередь ориентируйтесь на возможности своей потолочной поверхности и строительные особенности крыши своего дома. Michail RybakovУдобнее всего использовать проем выхода на чердак с минимальным размером 1 30 м * 1 40 м , но так как все индивидуально, то в первую очередь ориентируйтесь на возможности своей потолочной поверхности и строительные особенности крыши своего дома
* Перечень инструментов состоит из такого списка: рулетка, угольник, карандаш, ножовка, пилы, молоток, шуруповерт, дрель, (возможно перфоратор), стамеска, болты, отвертка, плоскогубцы. Может пригодиться так же и бытовой фрезерный станок ( Дрель и шуруповерт , Электроинструменты перфоратор, отбойный молоток , Шлифовальные электроинструменты , Лобзики, сабельные пилы, рубанки, фрезерные машины ) * В список необходимых материалов вошло следующее: деревянные бруски и доски индивидуального размера, фанера, полистирол или пенопласт (для утепления крышки), пленка — паробарьер, готовые навесы, шарниры и подъемный механизм (реализуются в строительных магазинах в большом ассортименте), доски или брусья (в зависимости от высоты, нагрузки и ваших предпочтений) для изготовления тетивы и ступеней, герметик и уплотнитель (силиконовый или резиновый) Теперь попробуем изготовить и установить ведущий на чердак люк с крышкой. Для этого делаем замеры имеющегося проема (по мере необходимости расширяем или сужаем его). Удобнее всего использовать проем выхода на чердак с минимальным размером 1 30 м * 1 40 м , но так как все индивидуально, то в первую очередь ориентируйтесь на возможности своей потолочной поверхности и строительные особенности крыши своего дома. Michail RybakovДалее переносим полученные результаты замеров на бумагу. Это потребуется для создания эскиза с указанием точных рассчитанных размеров будущей лестницы. (Рис. 16, 17)
Это потребуется для создания эскиза с указанием точных рассчитанных размеров будущей лестницы
Для этого делаем замеры имеющегося проема (по мере необходимости расширяем или сужаем его). Удобнее всего использовать проем выхода на чердак с минимальным размером 1 30 м * 1 40 м , но так как все индивидуально, то в первую очередь ориентируйтесь на возможности своей потолочной поверхности и строительные особенности крыши своего дома. Далее переносим полученные результаты замеров на бумагу. Это потребуется для создания эскиза с указанием точных рассчитанных размеров будущей лестницы. Michail RybakovЭто потребуется для создания эскиза с указанием точных рассчитанных размеров будущей лестницы
Для этого делаем замеры имеющегося проема (по мере необходимости расширяем или сужаем его). Удобнее всего использовать проем выхода на чердак с минимальным размером 1 30 м * 1 40 м , но так как все индивидуально, то в первую очередь ориентируйтесь на возможности своей потолочной поверхности и строительные особенности крыши своего дома. Далее переносим полученные результаты замеров на бумагу. Это потребуется для создания эскиза с указанием точных рассчитанных размеров будущей лестницы. Michail RybakovПриступаем к изготовлению рамы будущего люка. Рама играет важнейшую роль в конструкции уже, потому что является несущей деталью, к которой будут закреплены утепленная крышка и лестница. В связи с этим к надежности ее устройства нужно подойти с особым вниманием. (Рис. 18)
В связи с этим к надежности ее устройства нужно подойти с особым вниманием
Это потребуется для создания эскиза с указанием точных рассчитанных размеров будущей лестницы. Приступаем к изготовлению рамы будущего люка. Рама играет важнейшую роль в конструкции уже, потому что является несущей деталью, к которой будут закреплены утепленная крышка и лестница. В связи с этим к надежности ее устройства нужно подойти с особым вниманием. Michail RybakovИтак, на деревянных брусках (или досках) соответствующего размера напиливаются углы, так что бы при их стыковке друг к другу получилась рама с прямыми углами. После этого выполняют своеобразную «примерку» рамы к чердачному проему и, удостоверившись в том, что углы соответствуют 90 градусам, места соединения углов промазывают клеем. Для того чтобы углы сохранили свои «правильные» 90 градусов, устанавливаются распорки или временные косынки в углах рамы и затем части рамы скручиваются саморезами. («Мобильный деревянный дом на лыжах своими руками» , «Возводим подиум. фото в интерьере» , «Как сделать деревянный пол по грунту на лагах» ). (Рис. 19, 20, 21)
Для того чтобы углы сохранили свои «правильные» 90 градусов, устанавливаются распорки или временные косынки в углах рамы и затем части рамы скручиваются саморезами ( Мобильный деревянный дом на лыжах своими руками , Возводим подиум фото в интерьере , Как сделать деревянный пол по грунту на лагах )
В связи с этим к надежности ее устройства нужно подойти с особым вниманием. Итак, на деревянных брусках (или досках) соответствующего размера напиливаются углы, так что бы при их стыковке друг к другу получилась рама с прямыми углами. После этого выполняют своеобразную «примерку» рамы к чердачному проему и, удостоверившись в том, что углы соответствуют 90 градусам, места соединения углов промазывают клеем. Для того чтобы углы сохранили свои «правильные» 90 градусов, устанавливаются распорки или временные косынки в углах рамы и затем части рамы скручиваются саморезами ( Мобильный деревянный дом на лыжах своими руками , Возводим подиум фото в интерьере , Как сделать деревянный пол по грунту на лагах ). Michail RybakovДля того чтобы углы сохранили свои «правильные» 90 градусов, устанавливаются распорки или временные косынки в углах рамы и затем части рамы скручиваются саморезами ( Мобильный деревянный дом на лыжах своими руками , Возводим подиум фото в интерьере , Как сделать деревянный пол по грунту на лагах )
В связи с этим к надежности ее устройства нужно подойти с особым вниманием. Итак, на деревянных брусках (или досках) соответствующего размера напиливаются углы, так что бы при их стыковке друг к другу получилась рама с прямыми углами. После этого выполняют своеобразную «примерку» рамы к чердачному проему и, удостоверившись в том, что углы соответствуют 90 градусам, места соединения углов промазывают клеем. Для того чтобы углы сохранили свои «правильные» 90 градусов, устанавливаются распорки или временные косынки в углах рамы и затем части рамы скручиваются саморезами ( Мобильный деревянный дом на лыжах своими руками , Возводим подиум фото в интерьере , Как сделать деревянный пол по грунту на лагах ). Michail RybakovДля того чтобы углы сохранили свои «правильные» 90 градусов, устанавливаются распорки или временные косынки в углах рамы и затем части рамы скручиваются саморезами ( Мобильный деревянный дом на лыжах своими руками , Возводим подиум фото в интерьере , Как сделать деревянный пол по грунту на лагах )
В связи с этим к надежности ее устройства нужно подойти с особым вниманием. Итак, на деревянных брусках (или досках) соответствующего размера напиливаются углы, так что бы при их стыковке друг к другу получилась рама с прямыми углами. После этого выполняют своеобразную «примерку» рамы к чердачному проему и, удостоверившись в том, что углы соответствуют 90 градусам, места соединения углов промазывают клеем. Для того чтобы углы сохранили свои «правильные» 90 градусов, устанавливаются распорки или временные косынки в углах рамы и затем части рамы скручиваются саморезами ( Мобильный деревянный дом на лыжах своими руками , Возводим подиум фото в интерьере , Как сделать деревянный пол по грунту на лагах ). Michail Rybakov После этого раму люка можно крепить к базовой обвязке проема или закрепляют к элементам перекрытия гвоздями (использовать нужно гвозди не менее 100 мм).
Важно! Лестница будет помещаться поверх крышки люка, поэтому никакие укосы — распорки не могут оставаться по углам рамы, чтобы не препятствовать ее подъему. (Рис. 22)
Лестница будет помещаться поверх крышки люка, поэтому никакие укосы — распорки не могут оставаться по углам рамы, чтобы не препятствовать ее подъему
Для того чтобы углы сохранили свои «правильные» 90 градусов, устанавливаются распорки или временные косынки в углах рамы и затем части рамы скручиваются саморезами ( Мобильный деревянный дом на лыжах своими руками , Возводим подиум фото в интерьере , Как сделать деревянный пол по грунту на лагах ). После этого раму люка можно крепить к базовой обвязке проема или закрепляют к элементам перекрытия гвоздями (использовать нужно гвозди не менее 100 мм). Важно!. Лестница будет помещаться поверх крышки люка, поэтому никакие укосы — распорки не могут оставаться по углам рамы, чтобы не препятствовать ее подъему. Michail RybakovКрышка люка должна быть легкой, крепкой и теплой одновременно. Для этого между листами фанеры, пластика или другого крепкого материала (вырезанными в соответствии с размером чердачного выхода) помещают лист пенополистирола и паробарьер. Таким образом, вы сможете утеплить крышку проема и избежать значительных теплопотерь. Квадрат утепленной фанеры обрамляют еще одной рамкой из доски. Здесь уже можно поэкспериментировать с креплением.
С помощью готовых навесов крышку прикрепляют к раме. Осталось закрепить на крышке люка удобную ручку и выбранный подъемный механизм (облегчающий эксплуатацию — подъем и спуск крышки люка). (Рис. 23, 24)
Осталось закрепить на крышке люка удобную ручку и выбранный подъемный механизм (облегчающий эксплуатацию — подъем и спуск крышки люка)
Квадрат утепленной фанеры обрамляют еще одной рамкой из доски. Здесь уже можно поэкспериментировать с креплением. С помощью готовых навесов крышку прикрепляют к раме. Осталось закрепить на крышке люка удобную ручку и выбранный подъемный механизм (облегчающий эксплуатацию — подъем и спуск крышки люка). Michail RybakovОсталось закрепить на крышке люка удобную ручку и выбранный подъемный механизм (облегчающий эксплуатацию — подъем и спуск крышки люка)
Квадрат утепленной фанеры обрамляют еще одной рамкой из доски. Здесь уже можно поэкспериментировать с креплением. С помощью готовых навесов крышку прикрепляют к раме. Осталось закрепить на крышке люка удобную ручку и выбранный подъемный механизм (облегчающий эксплуатацию — подъем и спуск крышки люка). Michail RybakovРаму люка при креплении к обвязке так же лучше пройти герметиком или клеем. Это предотвратит появление сквозняков. Крайние грани крышки дополнительно можно проклеить резиновым или силиконовым утеплителем. («Утепление потолка» , «Утепление стен» , «Способы обшивки и утепления стен каркасного дома. » ).
3. Изготовление и сборка складной деревянной лестницы. (Рис. 25)
Изготовление и сборка складной деревянной лестницы
Раму люка при креплении к обвязке так же лучше пройти герметиком или клеем. Это предотвратит появление сквозняков. Крайние грани крышки дополнительно можно проклеить резиновым или силиконовым утеплителем ( Утепление потолка , Утепление стен , Способы обшивки и утепления стен каркасного дома ) 3. Изготовление и сборка складной деревянной лестницы. Michail RybakovЗакрепив в потолочном проеме изготовленный своими руками люк, можно приступать к изготовлению складной лестницы. Первым делом нужно отмерить необходимую длину бруса для тетивы. Лестница будет состоять из трех частей. Каждая часть короче предыдущей, начиная с верхнего элемента. Это необходимое условие для удобства при складывании лестницы. Необходимо учитывать так же и момент прохождения сложенной лестницы рамы проема. То есть в сложенном виде лестница будет иметь вид объемного набора деревянных брусьев на крышке люка и в процессе закрытия люка лестница может цепляться за край проема. Поэтому еще на этапе составления чертежа нужно предусмотреть отступ лестницы от края. (Рис. 26)
Поэтому еще на этапе составления чертежа нужно предусмотреть отступ лестницы от края
Это необходимое условие для удобства при складывании лестницы. Необходимо учитывать так же и момент прохождения сложенной лестницы рамы проема. То есть в сложенном виде лестница будет иметь вид объемного набора деревянных брусьев на крышке люка и в процессе закрытия люка лестница может цепляться за край проема. Поэтому еще на этапе составления чертежа нужно предусмотреть отступ лестницы от края. Michail RybakovВозвращаясь к изготовлению лестницы, обратим внимание на то, что после нарезания бруса для тетивы у нас должно получиться три пары брусьев разной длины. Теперь принимаемся за изготовление ступеней — перекладин. Перекладины так же нарезаются из доски согласно индивидуальным размерам вашей лестницы. Для того чтобы надежно и красиво закрепить перекладины к брусьям тетивы, с внутренней стороны брусьев тетивы делается вырубка по размеру ступени и глубинной около пяти миллиметров. Вставив во врубку тетивы ступени, закрепляете их шуруповертом саморезами ПШ. Процедуру продолжаете со всеми перекладинами. (Рис. 27)
Процедуру продолжаете со всеми перекладинами
Перекладины так же нарезаются из доски согласно индивидуальным размерам вашей лестницы. Для того чтобы надежно и красиво закрепить перекладины к брусьям тетивы, с внутренней стороны брусьев тетивы делается вырубка по размеру ступени и глубинной около пяти миллиметров. Вставив во врубку тетивы ступени, закрепляете их шуруповертом саморезами ПШ. Процедуру продолжаете со всеми перекладинами. Michail RybakovСледующим этапом станет сборка закрепление элементов складной лестницы к раме люка чердачного проема.
Петли для соединения складывающихся частей лестницы можно приобрести готовые, а можно изготовить самостоятельно. Выглядят такие устройства как две соединенные и свободно вращающиеся металлические планки. Они должны быть изготовлены из достаточно толстого металла, чтобы выдержать вес лестницы и не изгибаться. (Рис. 28)
Они должны быть изготовлены из достаточно толстого металла, чтобы выдержать вес лестницы и не изгибаться
Процедуру продолжаете со всеми перекладинами. Следующим этапом станет сборка закрепление элементов складной лестницы к раме люка чердачного проема Петли для соединения складывающихся частей лестницы можно приобрести готовые, а можно изготовить самостоятельно. Выглядят такие устройства как две соединенные и свободно вращающиеся металлические планки. Они должны быть изготовлены из достаточно толстого металла, чтобы выдержать вес лестницы и не изгибаться. Michail RybakovКрепить петли нужно так, чтобы изгиб (место соединения металлических планок) находился ровно на полосе соединения частей лестницы. Для этого части лестницы укладываются на ровную поверхность, плотно стыкуясь между собой. Петли складываете галочкой и разводите ровно на расстояние необходимое для фиксации к частям лестницы. Крепить петли лучше болтами 6 — 8 мм. При использовании саморезов велика вероятность того, что они быстро разболтаются, и придется переделывать всю конструкцию. После фиксации петель обязательно проверьте полученный результат на синхронность сгиба.
Соединив две первых части те же действия проводим и с третьим элементом. После соединения всех трех элементов лестницы петлями, вновь проверьте их, сложив и разложив конструкцию.
Собранная лестница крепиться к крышке люка металлическими углами. С помощью болтов уголки фиксируются к поверхности лестницы и крышки.
После закрепления лестницы последним штрихом станет установка поддерживающих шарниров и замка — задвижки, который будет удерживать крышку люка с лестницей в закрытом состоянии.
Шарниры состоят из четырех длинных планок (по две на каждую). Соединены они таким образом, что в раскрытом состоянии остаются под определенным углом, не давая крышке полностью откинуться. Подобие таких шарниров можно видеть в старых шифоньерах, трельяжах, да и частенько в современных тумбочках и секретерах. (Рис. 29)
Подобие таких шарниров можно видеть в старых шифоньерах, трельяжах, да и частенько в современных тумбочках и секретерах
После закрепления лестницы последним штрихом станет установка поддерживающих шарниров и замка — задвижки, который будет удерживать крышку люка с лестницей в закрытом состоянии. Шарниры состоят из четырех длинных планок (по две на каждую). Соединены они таким образом, что в раскрытом состоянии остаются под определенным углом, не давая крышке полностью откинуться. Подобие таких шарниров можно видеть в старых шифоньерах, трельяжах, да и частенько в современных тумбочках и секретерах. Michail RybakovПружины, облегающие пользование лестницей присутствуют в готовых изделиях. В лестницах изготавливаемых своими руками, как правило, установкой пружин себя никто не утруждает. Но при желании, всегда можно приобрести подобную фурнитуру в специализированных точках и установить согласно инструкции. (Рис. 30)
Но при желании, всегда можно приобрести подобную фурнитуру в специализированных точках и установить согласно инструкции
Подобие таких шарниров можно видеть в старых шифоньерах, трельяжах, да и частенько в современных тумбочках и секретерах. Пружины, облегающие пользование лестницей присутствуют в готовых изделиях. В лестницах изготавливаемых своими руками, как правило, установкой пружин себя никто не утруждает. Но при желании, всегда можно приобрести подобную фурнитуру в специализированных точках и установить согласно инструкции. Michail RybakovСобрав и установив лестницу, нужно позаботиться и о защите древесины. Для этого все деревянные элементы обрабатываются антисептическими средствами и покрываются тонирующими веществами. При этом можно использовать морилку, лаки, краски. («Антисептик для древесины цена» , «Как покрыть дерево морилкой» , «Морилка для дерева» , «Малярные инструменты, кисти, валики» , «Виды лаков» ).
Статья с сайта Книга строителяhttps://kniga-stroitelia.ru/
kniga-stroitelia.ru
Размеры чердачных лестниц – важный параметр при выборе и монтаже
Чердачное помещение в большинстве домов выполняет функцию дополнительного хозяйственного помещения, где удобно хранить самые разнообразные вещи, которые в доме держать нежелательно, а выбросить жалко. Для быстрого и удобного перемещения на чердак лучше всего подходят складные модели. Для того чтобы сделать правильный выбор необходимо знать и хорошо ориентироваться в существующих размерах чердачных лестниц.

Пример возможных вариантов чердачных лестниц с размерами
Базовые параметры и особенности
Главные особенности чердачных конструкций определяются их функциональным предназначением. Для всех складных лестниц на чердак характерно следующее:
- Скромные размеры, которые позволяют удобное использование даже для взрослого человека, при этом сама конструкция полностью скрыта.
- Относительно небольшой вес, который может выдержать лестница. Обычно он не превышает 150 кг, что соответствует нагрузке на обычные стремянки.
- Большой угол наклона, как правило, около 60°, что обусловлено минимальной площадью и относительно небольшой длиной. Иначе лестницу было бы очень трудно прятать.
Все представленные на рынке модели имеют три возможных типа складных механизмом, каждый из которых имеет свои особенности и определяет размеры чердачных лестниц. К ним относятся:
- Раздвижные модели. Представляют собой обычно две секции, которые выдвигаются в процессе опускания лестницы. Одна из секций прочно закреплена к крышке лестницы. Для изготовления применяется металл, так как другие материалы использовать невозможно. Главным недостатком этих моделей является значительное место, которые необходимо для монтажа такой конструкции.
- Раскладные модели, которые используются повсеместно. Универсальные размеры позволяют их устанавливать практически в любых чердачных проёмах. Конструкция таких моделей достаточно проста и состоит из трёх или четырёх секций, соединённых между собой на стыках, и работающих с помощью пружинного механизма. Обычно изготавливаются из дерева, реже из металла. Высота легко регулируется с помощью последней секции.
- Модели гармошки, основу которых составляет пружинный механизм. Лестница раскладывается путем постепенно расправления секций. Разобранная конструкция фиксируется специальными креплениями. Изготавливаются только из металла.
Важно! Выбор типа лестницы должен определяться с учётом характера и частоты её использования.

Пример параметров для лестницы-гармошки
Значение размера при выборе конструкции
Чтобы выбрать нужную модель, необходимо точно знать размеры и значения нескольких параметров:
- Размер проёма, где будет установлена лестница. Лестницы производят со строго определёнными размерами, которые ненамного отличаются. Иначе потерялась бы суть конструкции как незаметного и компактного сооружения.
Важно! Для чердачной лестницы, размер проёма которых больше, чем у понравившейся модели, габариты можно подогнать, за счёт нашивки дополнительных планок по бокам межэтажного перекрытия. Иначе говоря, маленькую конструкцию можно установить в большом проёме.
- Высоту или расстояние от пола до потолка, где расположен проём. Обычно чердачная конструкция может использоваться в помещениях с высотой от 2.7 до 3.3 м. Изменения в любую сторону сделают лестницу бесполезной или очень опасной.
- Длину лестницы, которая необходима. Чем больше угол, тем труднее использование лестницы, не говоря о возможности поднимать по ней вещи. Базовый угол наклона является предельно допустимым. Если есть возможность, лучше выбирать модели с более пологим спуском.
Лучше всего использовать складные чердачные лестницы, размеры которых создают максимум удобств в использовании. В некоторых случаях особенно если лестница будет использоваться постоянно, имеет смысл сместить акцент с компактности в сторону комфорта.

Чердачные лестницы Fakro
Чтобы получить полное представление о существующих размерах типовых чердачных лестниц можно рассмотреть габариты основных моделей одной из крупнейших мировых фирм по производству подобных конструкций. Чердачные лестницы Fakro, размеры которых приводятся ниже, дают полное представление обо всех возможных вариантах, существующих сегодня на рынке:
- Материал изготовления – металл или дерево.
- Допустимая нагрузка до 200 кг.
- Используемые габариты для деревянных конструкций:
- Ширина от 60 до 70 см.
- Длина от 70 до 120 см.
- Высота от 270 до 325 см.
- Используемые габариты для металлических конструкций:
- Ширина от 50 до 70 см.
- Длина от 94 до 130 см.
- Высота от 280 до 300 см.
- Длина ступени от 50 до 70 см.
- Ширина ступени 8 см.
- Высота проёма от 14 до 22 см.
Лестницы выпускаются раздвижные, складные, складывающиеся (гармошки) и могут удовлетворить любого потребителя.
Вконтакте
Google+
lestnitsahouse.ru
Как сделать лестницу на чердак своими руками
Если в ближайшее время вы намерены переоборудовать чердак под функциональное помещение, то стоит перед началом работ продумать где установить лестницу и как ее изготовить. Здесь также будет установлена потолочная дверь или люк. Такую конструкцию можно заказать или купить готовую, но давайте узнаем, как можно сделать всё самостоятельно. Так, вы изрядно сэкономите семейный бюджет и приобретете новые навыки, которые вполне могут пригодиться вам в будущем.
Ранее чердачные лестницы делали снаружи, но едва ли кого-то порадует перспектива подниматься в помещение через улицу в мороз или дождь. У многих людей в чердаке устроена потолочная дверь, чаще всего в коридоре, и при необходимости взобраться на верх, они используют приставную лестницу. Но это тоже неудобно, если вам предстоит обустроить на верхнем ярусе, например, рабочий кабинет или комнату отдыха. Для цивилизованного человека более удачным выбором будет установка стационарного или складного ступенчатого подъёмника. Если нет места для первого варианта, то второй вас весьма устроит.
Требования к конструкции

Какой бы вариант лестницы ни был вами выбран, он должен соответствовать требованиям техники безопасности. Конструкция должна обеспечивать безопасный проход на чердак и быть достаточно прочной. Винтовой тип занимают сравнительно мало места и отличаются высокой привлекательностью, однако, пожилым людям подняться по таким ступенькам будет весьма трудно.
Если позволяет площадь коридора или прихожей, то лучше сделать достаточно широкий проем, чтобы можно было установить хорошую стационарную лестницу.
Чем больше проем на чердак, тем больше будут теплопотери, если речь, конечно же, не идет об отапливаемом чердачном помещении.
Стационарная лестница
Поручни и перила обеспечивают достаточную безопасность для человека, поднимающегося по лестнице. Поэтому если возможно, то изготовьте конструкцию с этими элементами. Поскольку в нашем случае речь идет о самостоятельном изготовлении, то важно также обработать ее специальными средствами, повышающими огнеупорность конструктива. Это особенно актуально для деревянной лестницы.
Показатель грузоподъемности должен быть не малым, так как при необходимости поднять на чердак тяжелый груз нужно учитывать и собственный вес. Итак, оптимальная грузоподъемность – 260 кг.
Разновидности

Чердачные лестницы делятся на такие виды:
- Монолитные. Они могут быть маршевыми и винтовыми.
- Складные. Бывают рычажными, ножничными, откидными, раздвижными или телескопическими.
- Переносные стремянки или приставные.
Переносные виды – это временный вариант соединения этажей. Если вы планируете использовать чердак в редких случаях, то приставная конструкция – это оптимальный вариант. Но при обустройстве верхнего помещения под зону отдыха или для игр детей нужно сделать более надежную лестницу.
Приставная лестница
Чаще всего на обустройство массивной конструкции нет места в жилых домах. Поэтому не удивительно, что выдвижные лестницы и их складные собратья пользуются наибольшим спросом при обустройстве чердака. Они компактны, являются безопасными и удобными, просты в использовании.
Размеры

Чердачная лестница имеет стандартные параметры, соблюдая которые вы сможете изготовить действительно надежную и удобную в эксплуатации конструкцию:
- Ширина марша должна составлять 65–110 см.
- Высота до 3,5 м. Это связано с тем, что падение с такой или большей высоты чревато получением травм, да и жесткость высокой конструкции будет значительно меньше.
- Среднее число ступеней – 15.
- Высота подступенок – 19 см.
- Толщина ступеней – 1,8–2,2 см.
- Угол наклона колеблется от 60 до 75º. Это обусловлено тем, что угол меньше 60º потребует много пространства, а угол больше 75º – опасен при использовании.
- Если вам предстоит сделать складной вариант, то он должен выдерживать вес до 150 кг.
- Ступени не должны быть скользкими. Их устанавливают параллельно полу.
Выбор места

Если вам предстоит сделать лестницу самому, то важно определить место установки – внутри или снаружи, если вы выберете первый вариант, то в каком помещении будет проделан проем для подъема на чердак? Важно, чтобы лестница не мешала домочадцам. Поэтому устанавливать ее на кухне или в спальне не целесообразно.
Если верхний ярус не будет интенсивно использоваться, то устройство для подъема на него можно сделать в гостиной. Лучше, чтобы лестница была закрытой или автономной. В такой ситуации складная конструкция – это очень хороший вариант.
Замеры

Если вы будете делать складную лестницу, то примите во внимание ее размеры в сложенном и разложенном виде. Сделайте замер от пола помещения до потолка. Определитесь с шириной, количеством ступеней, углом наклона. Все данные фиксируйте на бумаге, что поможет вам составить максимально точный чертеж. Ошибки в расчетах могут привести к нежелательным последствиям. Например, лестницей будет неудобно пользоваться, увеличится риск получения травмы.
Ступеньки необходимо расположены параллельно полу. Двери не должны открываться на лестничный пролет.
Выбор материала

При изготовлении лестницы из дерева следует обработать все детали антисептиками во избежание гниения готового изделия. После сборки можно будет покрасить изделие любыми подходящим по цвету лаком/краской. Обычно чердачные лестницы делают из сосны. Этот материал выбирает большинство самоделкиных, так как с древесиной легче работать чем с металлом.
Если же вы, таки решили работать с металлом, то используйте материалы с оцинкованным покрытием. Этот вид металла не ржавеет. Такие конструкции обладают большой прочностью. Так, вы сможете сэкономить пространство, оцинкованные элементы тонкие, а посему не занимают много места.
Чтобы металлические детали не терлись друг о друга, можно использовать пластиковые детали. Таким образом, за счет сменных боковых пластмассовых вставок будет предотвращено скольжение.
Форма

Особенность чердачной лестницы – форма. Она должна быть эргономичной, компактной, комфортной и удобной. В небольшом помещении габаритная конструкция будет смотреться нелепо. В достаточно большом помещении – ограничений нет, хотите устанавливайте компактную, а хотите постройте стационарную массивную.
От имеющегося пространства и личных предпочтений зависит, будет ли лестница одно-, двух- или трехмаршевой. Если от пола до потолка не больше 3 м, то вполне можно обойтись самым простым типом — одномаршевым. Но, если вы желаете быть более оригинальными, соорудите двухмаршевое изделие.
Чтобы одномаршевая конструкция выглядела интересней, сделайте ее дугообразной. Ступени можно изготовить в виде расходящихся лучей.
Начало работы

Если замеры вами были сделаны, а чертежи очерчены, то самое время составить смету материалов. Вам следует запастись:
- Шурупы.
- Отвертки.
- Рулетка.
- Ножовка по дереву.
- Набор гаечных ключей.
- Монтажная пена.
- Угломер.
- Шарниры.
В качестве основания используются боковые и вертикальные балки, служащие опорой. Величина допустимых нагрузок на конструкцию полностью зависит от прочности основания.
Двухсекционная лестница

Одна секция такой конструкции складывается наверх. В собранном виде двухсекционная лестница не прячется, а остается на виду. Такое допускается, если выход на чердак обустраивается в гараже или ином рабочем помещении. При оформлении дома в соответствующем стиле двухсекционная модель будет удачно смотреться и в коридоре. Для ее изготовления вам понадобятся следующие материалы:
- Рулетка.
- Обычная деревянная лестница.
- Ножовка по дереву.
- 4 бруска, имеющие толщину 2–3 см, 2 из них должны соответствовать ширине люка, а 2 – быть длиннее на 20 см.
- 4 шт. карточных петель, соответствующие ширине косоура.
- Крепежные элементы.
Косоур – это основа лестницы, на которую укладывают ступени.
Технология изготовления

Для начала нужно соединить короткий брусок при помощи петель с верхним концом лестницы, другой аналогичный брусок следует жестко закрепить к нижней части. Чтобы в итоге конструкция была надежной, возьмите 2 рейки и прибейте их наискосок с обратной стороны лестничного марша. При этом надо провести эти действия так, чтобы эти укрепляющие рейки не препятствовали перемещению по лестнице.
После этого необходимо отмерить 2/3 от общей длины. Измерения проводятся снизу. В намеченном месте следует распилить лестницу. Эти части впоследствии будут соединены карточными петлями, которые крепят с обратной стороны. Таким образом, конструкцию можно будет легко сложить.
Верхний брусок закрепляется под люком. Благодаря крючку и петле, ваше изделие не будет открываться произвольно. Итак, крючок крепится к стене, а петля – к бруску.
Изготовление складной лестницы на тетивах

Процесс изготовления складной лестницы состоит из таких этапов:
- Поделите высоту от пола до чердачного люка на 3 части. При этом первая часть должна быть такой как размер люка, вторая – чуть меньше, а третья – перекрывать оставшееся расстояние до пола.
- Теперь нужно отмерить угол люка малкой.
- Перенесите угол на заготовки лестницы, что позволит вам отметить ступени.
- Между секциями высверлите отверстия для последующего монтажа шарнира.
- Отшлифуйте все элементы.
- В местах установки шарниров доски распиливаются.
- Нарежьте и отшлифуйте ступени.
- Сделайте выемки в тетивах для установки ступеней.
- Вставьте ступени в тетивы, сажая их на клей, а после стягивая саморезами.
- Соедините петлями секции. Чтобы правильно выполнить этот этап работ, разместите секции на ровной плоскости.
- Проверьте функциональность секций.
- Соберите конструкцию и временно установите ее в люк. Если оказалось, что лестницу нужно немного подогнать, то сделайте это.
- Теперь отшлифуйте все поверхности и вскройте ее лаком в несколько слоев. При этом следующий можно наносить только после полного высыхания предыдущего слоя.
- После высыхания лака, установите готовое изделие в люк в люк.
Чтобы ускорить процесс, выполняйте все работы с напарником. Это также поможет избежать травм при работе на высоте.
Если у вас есть вопросы по теме, то непременно задайте их нашему эксперту. Желаете дополнить статью или предоставить полезные дополнительные рекомендации? Оставляйте свои комментарии.
Видео
Фото
На фото представлено несколько вариантов чердачных лестниц:
Лестница на чердак с улицы
Лестница над входом
Оригинальная лестница
Раскладная конструкция

Виды раскладных лестниц
Схемы
Расчет винтовой лестницы
Чертеж лестницы
Схема деревянной лестницы
Схема конструкции
Схема определения высоты и уклона лестницы
kakpravilnosdelat.ru












