Лучшие проекты баня – 50 лучших проектов бань от строительного портала
Проекты бань из бруса: планировка, фото
Бани из бруса – это такие же капитальные строения, возвести которые можно только по заранее подготовленному проекту. Имея на руках готовый эскиз и расчет материалов, можно сделать надежное и красивое строение из данного материала. Далее идет фото подборка проектов бань из бруса.
Баня-малютка из бруса, также есть фотоотчет строительства похожего строения.

Внутреннее убранство выполнено в стиле минимализм. Габариты комнаты отдыха сопоставимы по размерам с душевой и парилкой.

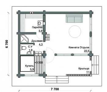
Красивый внешний облик и грамотное расположение всех функциональных помещений отличает этот проект.
На входе терраса, из которой ведет дверь в тамбур. Просторная комната отдыха, небольшой душ, санузел и довольно большая парилка. Особенное внимание топочной. Она примыкает к парной и войти в нее можно прямо из комнаты отдыха.

Один кровельный скат пологий и перекрывает собой небольшой тамбур. Оригинальное решение в планировке.
Помимо основных помещений, есть еще и кухня.
Индивидуальный проект.

Красивая внешняя отделка, с удачной компоновкой внутренних помещений.


Проект выполнен в индивидуальном стиле. Фундамент выложен декоративным камнем. На входе веранда и предусмотрен небольшой мансардный этаж.

Несмотря на небольшие внешние габариты, внутри достаточно места. Тамбур на входе, просторная комната отдыха и парная с душевой.

Внешне, строение похоже на терем из русских сказок. В проекте уклон сделан на индивидуальный внешний вид.
Внутри нет недостатков в планировке помещений. Как и в большинстве проектов – большая комната отдыха, санузел, душевая, парилка и топочная.


Оригинальная планировка с пристроенным крыльцом. Внутри есть все, что нужно для бани и, отдельная жилая комната.


Необычное расположение помещений. Есть все, что нужно для мытья и отдыха.

По фото этот проект больше похож на жилой дом. О том, что это баня, можно узнать, только зайдя внутрь.
Собственно и планировка говорит о том, что это еще и жилой дом. Внутри есть гостиная, две спальни и кухня.
Также рекомендуем посмотреть специализированный раздел нашего сайта, где представлены варианты строений из простого, профилированного и клееного бруса.
proekt-banya.ru
Лучшие проекты бань с террасой и барбекю: 30 фото
Проекты бань с террасой и барбекю можно сделать самостоятельно или найти в интернете уже готовыеПроекты бань бывают разные. Это может быть дом и беседка с террасой, мангалом и барбекю под одной односкатной большой общей крышей, где находится пристроенная сауна из сруба с крыльцом, и комнаты отдыха с бассейном и верандой. Баня может быть совмещенной 3х4 из пеноблоков с пристроем из кирпича и угловая треугольная крыша вместе с низкой летней зоной, навесом и хозблоком. Рядом можно построить гараж, сарай и дровяник. Дешево получится пристройка из блоков с плоской низкой крышей, если нарисовать план своими руками. Пристрой может быть в виде кухни с дровником и деревянные окна.
Проект бани с беседкой под одной крышей с комнатой отдыха и барбекю: 4 в 1
Что может быть лучше бани с отдельной комнатой для отдыха и площадкой для барбекю? Это настоящая зона для релакса, которая может быть разных размеров, а материал, из которого она сделано, может быть, как деревом, так и камнем.
Проект, сочетающий в себе баню и террасу, станет отличным вариантом для шумной и веселой компании гостей.
Собираясь устроить на своей даче комфортабельное и универсальное место отдыха, хозяева стремятся сделать его таким, чтобы всем членам семьи было там удобно и комфортно. Не стоит и о гостях забывать, которым полноценный релакс, комфорт и развлечения на свежем воздухе тоже нужно обеспечить.
Преимущества проекта 4 в 1:
- Экономия территории. Экономится место для строений, плюс не нужно соединять дополнительные постройки между собой дорожками.
- Сокращение строительных расходов. Баня и терраса могут иметь одну стену. Одна крыша тоже сэкономит ваши деньги.
- Комплексный отдых. Можно приготовить ужин, потом попариться и после всего этого сделать барбекю.
- Единство стиля. Не всегда при возведении отдельных построек хозяева придерживаются одного стиля, что сказывается на общей гармоничности. Совмещая все в одном, легче придерживаться одного стиля и есть где разгуляться дизайнеру.
В проектах бань с беседкой под одной крышей указаны размеры всех помещений
Баня, терраса, комната отдыха и барбекю – отличное проектное решение. Оно позволит воплотить разнообразнейшие задумки, объединяя их в единый дачный комплекс.
Отличное дополнение – пристройка к бане комнаты отдыха
Величина земельного участка, обычно, определяет выбор проекта. Например, классическим вариантом террасы и бани будет размер 6х9 м. Такое строение могут позволить те хозяева, у которых в наличии есть большая площадь. Такой комплекс вместит не только большую семью, но и большую компанию друзей.
Двухэтажное здание станет отличным вариантом отделения парной зоны от оны отдыха.
В таком случае для террасы и бани предусматривается общий фундамент. Если здание будет иметь два этажа, то внизу, обычно располагают барбекю и парилку, а второй этаж отводится для комнаты отдыха, или гостевой.
Также рекомендуем прочитать:
2 вида величин земельных участков:
- Классический, прямоугольный 6х9;
- Квадратный 6х6 для пристройки к дому.
Если есть желание или необходимость в пристройке к дому бани, нужно использовать проект 6х6. Такие пропорции отлично впишут вашу баню в дизайн участка. Благодаря этому, вы сильно расширите площадь жилого дома и бонусом станет уютное открытое место для отдыха. Оно станет идеальным местом, из которого вы в любую погоду сможете насладиться свежим воздухом.
Что нужно учесть, создавая проект угловой бани с террасой и барбекю
Вместительная внутри и компактная снаружи – терраса с угловой баней. Обычно такой проект используется в случаях, когда зону отдыха нужно расположить рядом с домом. Терраса, которая примыкает к коттеджу, может быть, как квадратной, так и прямоугольной. Однако, завершенный вид строению придаст именно угловая площадка и, вдобавок, эффективно распределит территорию участка. На первом этаже поместится все.
Среди преимуществ угловой бани с террасой и барбекю стоит отметить компактность и отличные эстетические качества
Угловая площадка придаст вашему участку вид завершенности и позволит грамотно распределить полезное пространство.
Если же вы собираетесь продолжить строительство, например, достроить еще одну комнату для гостей, и хотите грамотно распланировать ваш участок, то вам нужно взглянуть в сторону двухэтажного здания, которое в этом случае будет оптимальным. Сегодня популярными являются банные коттеджи, которые заключают в себя различные пристройки, например, террасу.
Что можно достроить к банному коттеджу:
- Детскую игровую площадку;
- Место для танцев;
- Беседку;
- Барбекю.
В такой зоне будет очень удобно размещать и принимать гостей, организовывать вечеринки и праздники, ну и конечно, просто жить и дышать свежим воздухом. Декоративные занавески или сетка спасут вас от надоедливых насекомых летними вечерами.
Баня с террасой и барбекю: материалы для строительства
Для реализации понравившегося проекта террасы с баней и барбекю, необходимо определиться с материалом для строительства. Одним из лучших материалов считается брус.
Преимущества бруса:
- Не требуется дополнительное утепление, потому как брус отлично держит тепло;
- Создает незабываемую банную атмосферу, при которой издавна люди принимали банные процедуры;
- Отличный регулятор влажности, потому что дерево дышит;
- Экологичность. Давно уже доказано, что деревянная баня оказывает оздоровительный эффект.
Деревянный брус – самый популярный материал при строительстве бани, потому что он натурален и может дышать. Конденсат внутри бани не скапливается и не образуется на стенах плесень, однако, держать долго тепло дерево не в состоянии. Внешне, материал из дерева смотрится эстетично и эффектно, придавая деревенский колорит. Кстати, баня с мансардой и террасой – тоже отличный проект.
Бани с террасами возводят из кирпича, потому что они наиболее пожаробезопасны, однако, их необходимо долгое время прогревать и необходима установка специальной вентиляционной системы.
Материалы для бани с террасой и барбекю следует выбирать, исходя из своих финансовых возможностей и личных предпочтений
Терраса и баня могут быть под одной крышей, однако фундамент придется делать для таких помещений разным, потому что баня тяжелее, чем терраса, а грунт под ней будет проседать быстрее. Фундаменты террасы и бани, обычно, разделяют слоем утеплителя.
Сочетается ли баня с барбекю под одной крышей: особенности фундамента
К недостаткам бруса можно отнести низкую пожарную безопасность и склонность к образованию плесени. Другие материал, например, блоки газосиликата, могут подойти для строительства бани. Каркасные банные домики тоже популярны, ввиду невысокой стоимости и быстрого монтажа. В зависимости от выбора материала для строительства, планируется и фундамент – основа бани.
Виды фундамента:
- Винтовой. Используют специальные сваи, на которых конструкция будет стоять. Дополнительная подготовка земли не требуется, поэтому он подходит для всех видов почв. Его установка не занимает много времени и может проводиться в любое время года.
- Столбчатый. Наиболее простой вид фундамента и наиболее экономичный. Для возведения небольшой бани с террасой он будет в самый раз.
- Ленточный. Довольно трудоемкий вариант и к нему целесообразно прибегать, при наличии сложного грунта на участке, или если планируется двухэтажная баня.
Баня тяжелее террасы, поэтому, обычно под них закладываются различные основы. Бани из кирпича пожаробезопаснны, однако на их прогрев понадобиться больше времени и ресурсов. Без качественной вентиляции даже каменные строения долго не простоят, потому что внутри будет собираться конденсат, который станет причиной плесени или грибка.
Клееный брус отличается от бревна, потому что это разные строительные материалы. Брус стоит дешевле, а бревна могут быть цилиндрованными.
К преимуществам кирпича можно отнести его экологичтность, возможность возведения зданий любой формы, длительны срок службы. Кирпичные бани не требуют внешней отделки и стоят дешевле деревянных.
Делаем правильно: баня с зоной барбекю под одной крышей
При планировке строительства, нужно учесть розу ветров. От сквозняков вас защитит терраса. Ветра также влияют на расположение барбекю, поскольку дым должен лететь от отдыхающих, а не в их сторону.
Перед тем как делать баню с зоной барбекю, следует ознакомиться с рекомендациями специалистов и посмотреть обучающее видео
Позаботьтесь про отопление в вашей бане с террасой, если вы хотите ее использовать круглый год.
Для начала нужно понять, для каких целей вам нужна баня с террасой. Выбор южной стороны может быть обусловлен для тех хозяев, которые любят проводить свое время отдыха получая воздушные ванны от горячего солнышка и загорать. Чтобы иметь возможность спрятаться от жары в летний зной, южная сторона вам не подойдет. Целесообразнее посадить с солнечной стороны деревья с большой кроной, ветви которой создадут приятную тень.
Особенности строительства бани с барбекю и террасой:
- В классическом представлении терраса не имеет кровли, но для защиты от непогоды и для удобства, можно покрыть крышу, например, поликарбонатом, можно прозрачным.
- В бане, независимо от ее площади, рекомендовано наличие трех отдельных помещений: душевая, парилка и раздевалка.
- Огнеупорный кирпич лучше всего подойдет для постройки барбекю, а участок вокруг него, для большей пожарной безопасности, можно уложить каменной или керамической плиткой. Для барбекю потребуется отдельный дымоход.
Для того, чтобы такое, довольно сложное сооружение, как терраса и баня с барбекю были для хозяина предметом его гордости, и надолго оставались местом, где можно превосходно провести досуг в компании друзей, так и с семьей, стоит ее постройку доверить людям, которые давно и много этим занимаются.
Как построить дровяник своими руками дешево (видео)
В привлечении профессионалов есть ряд плюсов. Например, профессионалы вам с большой точностью оценят все сроки и расходы, заключат договоры на поставку материалов и сделают сооружение качественно и в кратчайшие сроки. Не лишним будет ознакомиться с их портфолио и узнать отзывы хозяев, у которых они работали.
Примеры проектов бань с террасой и барбекю (фото идей)
oteplicah.ru
Проекты небольших бань: преимущества, примеры

Конечно, хорошо иметь просторную и большую баню, в которой легко поместиться компанией друзей или всей семьей. Но далеко не все могут похвастаться большим по площади участком, особенно если речь идет о бане. Даже если территория совсем небольшая, это не повод отказывать себе в удовольствии посещения русской бани – обратите внимание на небольшие бани.
Проекты небольших бань: преимущества и недостатки
Подобные проекты имеют следующие преимущества:
- компактность. Маленькие бани легко поместятся даже на небольшом участке;
- быстрая растопка. Благодаря небольшим размерам парная быстро нагревается, поэтому дров или другого топлива понадобится меньше;
- простота постройки. Возвести небольшую баню своими руками проще, кроме того, постройка займет меньше времени;
- возможность строительства бани на облегченном фундаменте;
- экономия. Для строительства и отделки понадобится меньшее количество материала.
К недостатку можно отнести небольшую вместимость бани. Большие компании могут не уместиться, поэтому придется посещать парную по очереди.
Но не стоит думать, что проекты небольших бань для дачи – это исключительно бюджетные варианты. Можно сделать и роскошную баню с бассейном, пусть и по размерам она будет маленькой.

Проект маленькой бани: фото, особенности планировки
Составить проект и провести все необходимые расчеты можно самостоятельно или обратиться к профессионалам. В первом случае вы сможете подготовить чертежи бесплатно, но самому делать проект можно только в том случае, если вы уверены в своих возможностях. Проекты небольших бань, фото того, как они выглядят после реализации, можно найти в интернете. В таком случае вы сможете оценить разные варианты и подобрать оптимальный для себя.
Проект бани должен предусматривать следующие помещения:
- прихожую. Обычно она также выполняет роль раздевалки;
- парная – основное помещение, без которого существование бани невозможно;
- мойка. Здесь устанавливают душ, ставят емкость с водой;
- комната отдыха. Иногда ее делают непосредственно на террасе или веранде.
Для экономии пространства можно объединить прихожую и комнату отдыха, но в таком случае помещение должно быть просторным, иначе в нем будет неудобно находиться.
Проект небольшой бани для дачи обычно рассчитан на несколько человек. Но чересчур маленькое сооружение делать нельзя. В парной как минимум должно умещаться два человека, которые могут свободно перемещаться: на каждого человека нужно около 1,5-2 квадратных метров. Лучше установить печь для бани топкой в предбаннике, в таком случае будет удобнее ее топить, а в парной появится свободное пространство.
При расчете размера комнаты отдыха нужно учитывать, что одному человеку понадобится около 3 квадратных метров.
Размеры моечной могут быть разными: от нескольких квадратных метров до площади, превышающей размеры парной.
Маленькая баня на даче своими руками: проекты
Конечно, в интернете представлено множество проектов и чертежей. Рассмотрим наиболее популярные планировки маленьких бань для дачи.
Маленькая баня 3×4
Компактный и бюджетный вариант, который отлично подходит для небольшого приусадебного участка. Несмотря на свои размеры в такой бане можно разместить все необходимые для отдыха помещения. Возведение такой постройки займет мало времени – всего 3-4 дня.

Баня маленькая 3×6
Представляет собой три помещения, которые примерно одинаковы по размеру и идут друг за другом: комната отдыха, мойка, парная. Она также удобна и имеет достаточную вместимость. Строительство бани занимает в среднем около 10 дней.

Маленькая банька 4×4
Более просторный вариант, в котором представлено три основных помещения. Обычно самым просторным помещением делают комнату отдыха, которая также выполняет функции предбанника и раздевалки.
Такой проект маленькой бани для дачи является самым практичным. Его реализация займет всего около недели.

Небольшая баня 4×5
Такой вариант бани похож на 4×4, но может также иметь дополнительно небольшую террасу. Она удобна тем, что в теплое время года на ней можно отдохнуть, наслаждаясь чистым воздухом и яркими пейзажами.

Несмотря на свою компактность, проекты для маленьких бань могут различаться друг от друга размерами и расположением помещений, наличием веранды и т. д.
При составлении проекта не забудьте обозначить не только размеры самих помещений, но также отметить расположение дверей и окон, расстановку мебели. Перед строительством также следует определиться с материалами и рассчитать их количество.
Для строительства бань можно использовать разные материалы: дерево, кирпич, пеноблок. Каждый из материалов имеет свои достоинства и недостатки.

Несмотря на свою компактность, небольшая баня – это функциональное сооружение, в котором вы сможете хорошо попариться с веником для бани. Она гармонично впишется в небольшой участок и не займет лишнего пространства. Кроме того, маленькую баню своими руками сделать несложно и недорого.
1 333
Автор публикации
Комментарии: 0Публикации: 198Регистрация: 13-01-2017
postroitbanju.ru
