Обозначение швеллер на чертеже – Обозначения на чертежах КМД — Проектирование металлоконструкций
| Профиль трехгранный | a | ||
| Профиль сегментный | a × s | ||
| Профиль трапециевидный | a × b × s | ||
| Профиль овальный | a × b | ||
| Труба овального сечения | a × b × s | ||
| Профиль полосовой | a × s | ||
| Полособульб | Номер или другие данные | ||
| Полособульб сдвоенный | Номер или другие данные | ||
| Уголок равнополочный | a × s | ||
| Уголок неравнополочный | a × b × s | ||
| Профиль тавровый | Номер или другие данные | ||
| Профиль двутавровый | Номер или другие данные | ||
| Швеллер равнополочный | Номер или h × a × s | ||
| Швеллер неравнополочный | Номер или h × a × b × s | ||
| Профиль рельсовый | Номер или другие данные | ||
| Углобульб | Номер или другие данные | ||
| Профиль С -образный равнополочный | Номер или h × a × b × s | ||
| Профиль зетовый равнополочный | Номер или h × a × s | ||
mytooling.ru
Обозначение швеллера на чертеже | ТРАСТ МЕТАЛЛ
Сортовой прокат
Листовой прокат
Нержавеющая сталь
Метизы и метсырье
Цветные металлы
Тогда нужно быстро пересчитать вес двутавра из тонн в метры. Стандартные размеры по ГОСТ Р варьируются в следующих диапазонах: Высота двутавра(h): от 100 (мм) до 780 (мм)[,1],. Горячекатанная балка двутавровая, выполняется монолитной, при производстве сварного двутавра, есть возможность применения в сечении сварной балки разных типов сталей для полок и стенок, такие балки называются бистальные балки. Профиль готового изделия зависит от профиля отверстий валков, которые сжимают исходную заготовку. Вес горячекатаных стальных двутавров с уклоном внутренних граней полок также зависит от номера профиля и устанавливается сортаментом вГОСТ 8239-89. По нормативам ГОСТ 8239-89 отклонения по массе 1 (м) длины двутавра должны быть в рамках от +3 ,% до – 5%.
Обозначение швеллера на чертеже
Максимальная высота горячекатаной балки 600 мм, сварная балка 2 – 4м (на нашем оборудование до 1,5м). Толщина стенки (s): от 3.8 (мм) до 96 (мм). Его производство, впрочем, как и изготовление всей прочей продукции, независимо от её дальнейшего применения и сферы использования, в полной мере регламентируется соответствующими ГОСТами, дающими подробное описание продукции, с указанием всех её возможностей и характеристик. Эти типоразмеры прописаны в ГОСТе. Основные два типа двутавровых балок: Горячекатанная двутавровая балка Сварная двутавровая балка. Что касается более подробной классификации товара, то таблица наиболее значимых для пользователя параметров включает в себя следующее: Продукция с параллельными гранями может быть нормальной, со средней, узкой или широкой полкой, колонной, Двутавр, грани которого расположены под уклоном доступен в следующих вариациях: обычные, не имеющие маркировки, особые («М»), используемые при обустройстве сложных конструкций с подвесной геометрией, особые («С»), актуальные при построении специализированных сооружений со сложной структурой, могут быть оснащены узкими полками, но с чрезмерно удлинённой средней частью, Исходя из точности проката, двутавр 100 подразделяют на такие категории: А – высокая точность, В – точность обычная, В зависимости от типа продукции, её размера и условий использования двутавр 50 может иметь следующую маркировку: Обычный («Б») – являет собой идеальное решение при возведении зданий и сооружений самой разной направленности и предназначения. Ширина полки (b): от 55 (мм) до 190 (мм).
Не рекомендуется к наружному использованию, в самом крайнем случае должен иметь соответствующее антикоррозионное покрытие, Колонный двутавр («К») – незаменим при проведении строительных работ на самых разных промышленных объектах, требующих обустройства колонн несущего типа, а также в тех ситуациях, когда использование ж/б колонн недопустимо или не рекомендуется, Широкополочный («Ш») – выступает в роли отдельного и самостоятельного строительного элемента, способного выполнять несущие функции, что обусловлено как его конструкцией, так и внешним видом. Чтобы обозначить на схемах расположение таких конструктивных элементов, как фермы, балки, колонны и связи, используются условные изображения. Толщина стенки (s): от 4.5 (мм) до 12 (мм). Согласно действующим правилам и нормам указывать их следует как в выносных надписях, так и в текстовых документах. По точности прокатки двутавры с уклоном внутренних граней полок классифицируются на образцы типа Б (повышенная точность) и образцы типа В (обычная точность).Уклон внутренних граней полок должен быть в пределах от 6 ,% до 12%. Момент сопротивления двутавра.
Эти машины называются прокатными станами и представляют собой сложный комплекс механизмов, узлов и деталей, предназначенных для осуществления пластической деформации металла. Вес рассчитывается по формуле: • m = pх V, где p– это средняя плотность стали, V – объём двутавра. Уникальная конструкция двутавра 36м позволяет ему распределять действующие нагрузки равномерно по всей своей площади, снижая, таким образом, риски связанные с возникновением различных внештатных ситуаций. При этом заготовка вытягивается и сжимается в поперечнике. Сварная двутавровая балка является хорошей альтернативой горячекатаной балки и имеет значительные преимущества использования сварной балки. При расчётах веса используют среднюю плотность стали, которая составляет 7850 (кг/м3). В строительстве двутавровые балки применяются чаще всего как элемент междуэтажных перекрытий, колонн, мостов и эстакад.
Горячекатанная балка изготавливливается из стальной заготовки методом горячей прокатки. Ссылки. CC BY-SA 3.0 wikiredia.ru. Масса двутавра зависит от номинальной площади его поперечного сечения и длины. Название и профиль стального проката определяется на основании формы его поперечного сечения. При изображении металлических конструкций на схемах и чертежах обозначаются профили прокатной стали, из которой они изготовлены, а также другие элементы. Хотя возможны и другие ситуации при которых вам пригодится информация о весе двутавра 27.
Они оснащены технологическим оборудованием, обрабатывающим практически весь объем стали, который выплавляется в сталеплавильных цехах. Его непосредственным изготовлением занимаются специализированные прокатные производства. Нестандартная горячекатаная балка отличная от типоразмеров указанных ГОСТе не выпускается. Вес метра двутавра — краткий обзор темы. Применение деревянных двутавровых балок в перекрытиях в каркасном домостроении позволяет: сократить затраты на устройство фундаментов, ускорить сроки строительства, значительно снизить общий вес здания. Катаная балка имеет стандартную длину. Двутавр: размеры, характеристики.
Двутавр 12 размеры и масса: Масса двутавров. Чем больше нагрузка, тем больше и длина балочного пролёта. С правой стороны от графического изображения профиля проставляются значения следующих величин: Толщина и ширина полки (для уголка) Диаметр стержня (для круглой стали) Номер профиля (для швеллера и двутавра) Внутренний даиметр и толщина стенки (для трубы) Ширина и толщина листа (для полосовой стали) В тех случаях, когда элемент металлической конструкции состоит из нескольких идентичных профилей, то их количество указывается перед обозначением, к примеру: . Двутавры стальные горячекатаные с параллельными гранями полок согласно ГОСТ Р по соотношению размеров и условиям работы делятся на типы: балочные (нормальные и широкополочные), колонные, свайные, образцы дополнительной серии. Металлопрокат в целом и двутавр 100 в частности, обретает в нашей стране всё большую популярность, становясь востребованным и неотъемлемым атрибутом при проведении широчайшего спектра работ. Сейчас самыми распространенными профилями стального проката являются: угловая равнополочная, угловая неравнополочная, тавровая, двутавровая, зетовая, швеллер. Процесс прокатки металла. Также стальные двутавровые балки часто используются для армирования шахтных стволов, в автомобильной промышленности и вагоностроении.
Объём двутавра рассчитывается по формуле: • V = FHх h, где FH – это номинальная площадь поперечного сечения, h – длина двутавра. Расчетные механические свойства сварной балки не хуже, чем у соответствующего размера горячекатаной. Сортамент горячекатаных стальных двутавров с уклоном внутренних граней полок устанавливается ГОСТом 8239-89. Двутавровые балки – элемент несущей конструкции в сечении напоминает букву «H», является наиболее выгодным типом сечения балок, так как в нём распределение нагрузки от изгиба лучше всего соответствует распределению материала. Двутавровая деревянная балка применяется в каркасном домостроении.
Именно благодаря этому применение двутавров особенно актуально в ситуациях, когда требуется повышенная сопротивляемость внешним нагрузкам и изгибам. Сварная двутавровая балка может изготавливаться под требования заказчика, что обеспечит невероятную гибкость в проектировании и изготовлении металлокаркасов, которые по своим несущим и механическим свойствам, не будут уступать конструкциям из горячекатаных балкок. И вес двутавра 27 данные касающиеся двутавра 27, приводятся в таблице номер 1, расположенной ниже по тексту и являются выпиской из сортамента по ГОСТу 8239-72. Горячекатаная двутавровая балка, имеет строгое соотношение геометрических размеров полки и стенки, как по толщинам, так и по ширине полок и высоте стенок. В заключении стоит сказать, что современные двутавры, и двутавр 50 здесь не исключение, являют собой необычайно надёжный, универсальный и востребованный материал, который благодаря грамотному сочетанию своих параметров и доступной цены пользуется заслуженным спросом у отечественного потребителя, оставляя далеко позади множество конкурентных предложений импортного производства.
Сфера использования. Помимо прочего, двутавровые балки бывают: Нормальный — обозначение символом «Б» Широкополочный — обозначение «Ш» Колонный — обозначение буквой «К» Деревянная двутавровая балка. Различия сварной и гарячекатанной двутавровой балки. С точки зрения технологии, последней стадией металлургического производства является получение готового проката. Высота двутавра по ГОСТу 8239-72 может быть следующей: 100, 120, 140, 160, 180, 200, 220, 240, 270, 300, 330, 360, 400, 450, 500, 550, 600 мм. Минимизация отходов металла при сварке двутавровой балки за счет изготовления балки требуемой длины.
Если проект предполагает применение в конструкции не только стали, но и других металлов (к примеру, алюминия), то для того, чтобы обозначить элементы, которые из них изготавливаются, перед указанием профилей наносятся специальные буквенные символы. Двутавры всех типов изготавливают длиной от 4 (м) до 12 (м), по согласованию с потребителем допускается изготовление образцов длиной больше 12 (м). Однако, устойчивость двутавра к скручиванию очень мала (как и у других открытых сечений — швеллер, уголок) — примерно в 400 раз меньше, чем у круглой трубы такого же сечения. Прокатные станы обладают большой мощностью, а придание стали необходимой формы производится с помощью ее прохождения между валками. ГОСТ 21.501-2011.
Конструктивно современные прокатные станы состоят из трех основных узлов: рабочих клетей, электродвигателей и передаточных устройств. Условное обозначение профилей проката. Таблица номер 1. Область применения материала достаточно обширна и включает в себя следующие направления: Промышленное и одиночное возведение зданий и сооружений разной сложности и геометрии, Возведение ответственных проектов, в том числе различных переходов, мостов и прочего, Строительство иных конструкций, требующих повышенной прочности с незначительным итоговым весом сооружения, Направляющие для крановых систем промышленного типа. Сегодня нами будут рассмотрены стандарты, используемые при изготовлении различных двутавров, дано их описание и отрасли применения. Электродвигатели необходимы для вращения валков через передаточные механизмы, которые, в свою очередь, состоят из шпинделей, шестерен, муфт. Сварная балка выпускается любого типоразмера.
Размеры двутавров. Как показывает практика, от того, насколько хорошо в той или иной стране развито металлургическое производство, зависит степень обеспеченности металлами машиностроительных, транспортных, строительных предприятий, сельского хозяйства, а также многих других отраслей. Это означает, что весь спектр выпускаемых сегодня двутавровых балок, в том числе и двутавр 35б1, должны в полной мере соответствовать заявленным требованиям, а их характеристики не должны выходить за пределы действующих нормативных параметров. Справочник металлопроката. Согласно ГОСТ Р масса одного погонного метра стального нормального балочного двутавра в зависимости от номера профиля варьируется от 8.1 (кг) до 194.8 (кг), широкополочного двутавра – от 24.4 (кг) до 518.3 (кг)[,2],, колонного двутавра – от 26.8 (кг) до 1332 (кг).
Горячекатаная балка соответствует типоразмерам заданным по ГОСТ 26020-83 или по СТО АСЧМ 20-93. Стандартные размеры по ГОСТ 8239-89 варьируются в следующих диапазонах: Высота двутавра (h): от 100 (мм) до 600 (мм). Предельные отклонения по размерам и форме поперечного сечения соответствуют СТО АСЧМ 20-93 или ГОСТ 26020-83. Сортамент двутавра подлежит строгому регламентированию со стороны государства, выступая в роли единого и непреложного норматива, обязательного к исполнению всеми производителями. Номер профиля обозначает высоту сечения, например двутавр с номером профиля 20, имеет высоту сечения 20см. Классифицируются сварной балки: От внешней формы и расположения граней полок до особенностей производства и способов применения. В современной экономике производство различных металлов имеет немалое значение.
Для этого используются теоретические значения веса 1 метра двутавра из справочника. Они соответствуют первым буквам названия металла, например: . Двутавр называется по номерам, ГОСТом 8239-72 предусмотрены следующие номера двутавра: 10, 12, 14, 16, 18, 18а, 20, 20а, 22, 22а, 24, 24а, 27, 27а, 30, 30а, 33, 36, 40, 45, 50, 55, 60. Кроме того для практической работы, оказывается важным ещё и знание веса 1 метра двутавра для каждого номера. Средняя толщина полки (t): от 7.2 (мм) до 17.8 (мм). Условное обозначение профилей проката. Основные технические аспекты двутавровых балок. См. также.
При производстве двутавровых балок применяется целый ряд государственных стандартов (ГОСТ), среди которых: 19425 и 8239 – стандарт, регламентирующий изготовление стального двутавра с уклоном внутренних граней, его размеры и характеристики, 26020 – данный стандарт регламентирует технологический процесс производства двутавров с параллельными гранями, 19425 – содержит в себе все необходимые данные об изготовлении балок специальной предназначенности, ТУ – под конкретные разновидности изделий, в том числе и двутавр 24, выпускаемых на основании предварительной договорённости с заказчиками. Двутавровая металлическая балка широко применяется в строительстве перекрытий и мостовых сооружений. Производственные стандарты, используемые при изготовлении двутавров. Вес двутавра 27. Вес метра двутавра зависит от его размеров.
На чертежах в разрезах и видах профили проката указываются при помощи контурных изображений, при этом скругления уклонов и углов полок не отображаются. Толщина стенки двутавра по ГОСТу 8239-72, для разных номеров, может быть 4.5, 4.8, 4.9, 5.0, 5.1, 5.2, 5.4, 5.6, 6.0, 6.5, 7.0, 7.5, 8.3, 9.0, 10, 11, 12 мм. По точности двутавры классифицируются на образцы типа А (высокая точность) и образцы типа В (обычная точность). Толщина полки (t): от 5.1 (мм) до 146 (мм). Ширина полки (b): от 55 (мм) до 435 (мм).
Обозначение швеллера
Радиусы закруглений и уклоны считаются вспомогательными параметрами. Наше оборудование позволяет производить комбинации размеров балок из диапазона полки 200мм – толщиной 6мм – 40мм и стенки 250мм – 1500мм толщина 6мм – 32мм. Название происходит от лат. , taurus (бык) ,— двутавровые балки «двурогие» по обеим сторонам. В США чаще всего используют балки с широкими полками ( wide-flange (WF) shape ). Общие характеристики. Заключение.
Двутавровые балки – описание и характеристики. Типы металлических двутавровых балок. Максимальная нагрузка на двутавровые балки по стандартуASTM: A36 ,— до 36 ksi A572 ,— от 42 ksi до 60 ksi (обычно 50 ksi) от 50 ksi до 65 ksi. Рабочие клети состоят из валков, станин, проводки, установочных механизмов и плитовин. Двутавровая балка в основании первого этажа строения. Балка двутаврового профиля в тридцать раз жестче и в семь раз прочнее балки квадратного профиля аналогичной площади сечения, что превосходит прочность швеллера.
На сегодняшний день двутавровые балки, в том числе и разновидность двутавр 40, являют собой одну из наиболее распространённых вариаций стальных балок, что, по сути, и обуславливает столь обширный ассортимент этого материала, представленный на отечественном строительном рынке. По сути дела, в промышленном производстве прокатка –, это разновидность обработки металла давлением, при которой ему придается требуемая форма путем сжатия между вращающитмися валками. В не длинных конструкциях (15 – 20 м) специалисты рекомендуют применять сплошные балки. широко применяю в строительстве и обусловлено такими свойствами, как простота конструкции и прочность при работе с большими нагрузками. Чаще всего для соединения друг с другом различных элементов металлических конструкций используются сварные швы, а иногда –, заклепки. Масса образцов варьируется в пределах от 9.46 (кг) до 108 (кг). Это полезно знать особенно тогда, когда продажа двутавра происходит по цене указанной в тоннах, а вы покупаете двутавр в количестве оцениваемом вами по метрам.
Размеры всех этих и других профилей указываются в специальных справочниках на стальной прокат, а также в ГОСТах. Двутавр горячекатанный производится по ГОСТу 8239-72. Похожие материалы (по тегу) Другие материалы в этой категории:Сборка сварной балки двутавровой » Двута́вр  ,— стандартный профиль конструктивных элементов из чёрногопроката или дерева, имеющий сечение, близкое по форме к букве «Н». Одна из главных отличительных характеристик материала – сечение поперечного типа Н-подобной конфигурации, выполненное в виде стенки и двух полок, что обеспечивает продукции дополнительную механическую жёсткость. Двутавровая балка в несущей конструкции работает главным образом на изгиб.
Ржавая клёпаная стальная двутавровая балка Схема деревянной двутавровой балки. Что позволяет уменьшать расход металла при изготовлении металлоконструкции без снижения прочностных характеристик. По сравнению с использованием простых балок в строительстве, использование двутавровых балок позволяет избежать таких проблем, как усадка, усушка, сдвиги, трещины, скрип готового строения и прочее. Каждый из номеров двутавра в сортаменте характеризуется своими стандартными параметрами, главными из которых можно считать: высоту двутавра, ширина полки двутавра, толщина стенки двутавра и средняя толщина полки двутавра. Сварная балка представляет собой сварную конструкцию из стальных листов. В английском языке используется термин I-beam (или H-shaped ), в польском и немецком ,— чаще используют термины, аналогичные double-T . Сортамент по ГОСТу 8739-72. (выписка для двутавра 27)
Смотрите также
Обозначение швеллера на чертежах
Однако такая продукция в основном изготавливается под заказ. Компания расположена в Кемеровской области и по праву считается одним из старейших заводов…
Швеллер обозначение
Цифра в обозначении изделия означает расстояние между внешними гранями швеллера в сантиметрах, буквенные обозначения говорят о свойствах полок и граней…
Обозначение швеллера в спецификации
Швеллер 16, размеры которого идеально подходят для тех сооружений, которые испытывают небольшие нагрузки, применяют не реже, чем его стальную…
Швеллер обозначения
Швеллер — металлическое изделие, имеющее множество разновидностей, размеры и характеристики которых регламентируются в основном ГОСТами. Другими словами,…
Обозначения швеллера
Так, указанная цифра 10 свидетельствует о том, что высота полки равна 10 см или 100 мм. Длина швеллера может быть любой. О размерах. Современные…
trastmetal.ru
Швеллер обозначение в спецификации | ТРАСТ МЕТАЛЛ
Сортовой прокат
Листовой прокат
Нержавеющая сталь
Метизы и метсырье
Цветные металлы
Особенностями назовем следующие моменты: Грани расположены параллельно. Довольно часто при маркировке указываются цифры, которые определяют расстояние между полками. В качестве элемента, усиливающего бетонную конструкцию. Сортамент швеллеров. С – изделия специального предназначения.
Сортамент швеллеров с параллельными гранями полок. Сортамент предоставляет просто огромный выбор рассматриваемого строительного материала. Производственные площадки по выпуску рам и переносных несущих конструкций. Незначительная коррозия на поверхности допускается. Стандартные типоразмеры существенно упрощают процесс проектирования, так как можно рассчитать требуемое количество несущих элементов, максимально допустимую нагрузку и многие другие параметры.
Сортамент швеллеров с наклонными гранями полок. Л – обозначение варианта исполнения легкого типа с параллельным расположением полок. Основные технические характеристики позволяют подобрать наиболее подходящий строительный материал. Область применения. Гнутый швеллер. Важным параметром, которым обладает швеллер строительный с уклоном внутренних граней полок, можно назвать расстояние между полками, указываемое в сантиметрах.
Швеллер специальный обладает необычной формой и может применяться в самых различных отраслях промышленности, к примеру, в машиностроении. При расшифровке следует учитывать цифры, которые стоят перед буквой. Швеллер с наклонными гранями полок. При строительстве сооружения для получения каркаса, пандусов или перекрытий.Балка хорошо справляется с возникающей поперечной или осевой нагрузкой, может существенно повысить прочность перекрытий. Швеллеры, размеры которых в таблицах зачастую указываются в миллиметрах, характеризуются: Длина материла зачастую не указывается в таблицах. Стоит учитывать, что подобный материал, изготавливаемый из различных марок стали, применяется для создания ответственных несущих конструкций, а значит его заявленные характеристики должны соответствовать реальным.
Строительные швеллеры с параллельными гранями полок могут быть обычной или высокой точности. Кроме этого, швеллер уголок имеет относительно невысокую массу и высокий показатель прочности. Рекомендации по выбору. Швеллер с параллельными гранями полок. При создании перекрытий больших пролетов, создании стен.
Э – экономичные варианты исполнения. Основные характеристики швеллеров. Полка строительного швеллера предназначена для принятия части нагрузки и ее распределения. С увеличением размеров увеличивается и объем используемого материала, а также его вес. От типа применяемого материала зависят многие физико-механические качества: твердость поверхности, устойчивость к воздействию нагрузки, коррозионная стойкость и многие другие. На момент изготовления сырье делится на несколько заготовок, длина которых может составлять от 4 до 12 метров в длину. Однако стоит учитывать, что при использовании материала придется ее удалить и покрыть поверхность защитным веществом.
Швеллер обозначение в спецификации
Указывается и марка стали. Применяя маркировку и специальные таблицы можно определить основные характеристики материала. Для того чтобы рассчитать нагрузку учитывается вес одного погонного метра. Радиус закругления есть, но он значительно ниже, чем у варианта с параллельным расположением граней. Не стоит забывать о том, что масса строительного швеллера учитывается при проведении расчетов на момент проектирования сооружения или конструкции. Они предназначены для указания точности: Зарубежные производители могут применять иные стандарты по маркировке рассматриваемого строительного материала. Скачать ГОСТ 8240-97.
При выборе следует учитывать параметры строительного швеллера, а также тип используемого металла при изготовлении. Полка швеллера может быть расположена под прямым углом относительно основания. Все типы швеллеров классифицируются по форме конструкции: т-образный, н-образный, квадратная или прямоугольная форма основания. Гнутый швеллер, размеры которого могут варьироваться в большом диапазоне, делится на две основные категории: Вес швеллера гнутого типа можно определить по таблице. При маркировке указывается буква «У».
По способу изготовления выделяют следующие виды: горячекатаный, специальные, равнополочный, неравнополочный. Стальной швеллер предназначен для создания несущей конструкции, но нагрузка будет оказываться и на основание. Поверхность материала не должна иметь каких-либо дефектов. При выборе рассматриваемого строительного материала следует уделить внимание специальным таблицам, которые существенно упрощают поставленную задачу. На чертеже и в другой технической документации можно встретить дополнительные буквы в маркировке. При производстве может соблюдаться различная степень точности. Маркировка швеллера проводится с использованием букв и цифр: П — марка швеллера с параллельным расположение полок друг относительно друга.
Швеллер обозначение
Также есть швеллер усиленный, рассчитанный на высокую нагрузку. Для того чтобы разобраться с основными табличными данными следует рассмотреть поперечное сечение, по которому указывается и ширина швеллера. Создание сортамента было проведено по причине того, что металлический швеллер получил самое широкое распространение и применяется во многих отраслях промышленности. Рассматриваемый материал характеризуется тем, что отлично справляется с осевыми и несущими нагрузками, при применении определенных сплавов он не реагирует на воздействие окружающей среды и имеет относительно небольшой вес. Встречается швеллер с параллельными гранями полок довольно часто, так как он прост в производстве. Классификация швеллеров. Важной характеристикой является вес одного погонного метра.
Рассматривая различные виды швеллеров, следует отметить, что при их изготовлении могут применяться различные материалы: углеродистая, низколегированная, качественная холоднокатаная стали. Для изготовления второго типа рассматриваемого материала применяется профилегибочные санки. К особенностям подобного варианта исполнения можно отнести нижеприведенные моменты: При изготовлении в качестве стандарта используется ГОСТ 8240-97. Размеры швеллеров по ГОСТ соблюдают практически все производители, что существенно упрощает процесс выбора. Примером можно назвать толщину стенок и полок, радиус внутреннего закругления, площадь поверхности поперечного сечения.
Уклон противоположных полок может составлять от 4% до 10%. Это связано с тем, что подобный показатель может варьироваться в достаточно большом диапазоне. Вес швеллера, таблица указывается в справочной документации, также может варьировать в достаточно большом диапазоне. Бюджетным предложением назовем вариант с обычной прочностью. После этого проводится деление на меньшие заготовки мерной, кратной мерной или немерной длины.
У–указывает на строительный материал с полками, расположенными под углом. В качестве основы может использоваться углеродистая сталь высокого или обыкновенного качества. Эти качества определили широкое распространение строительного материала в самых различных сферах: Автомобилестроение. Сортамент швеллеров представлен таблицей соотношения основных характеристик. Госстандарт сортамента (ГОСТ 8240-97 или ГОСТ 8240-89) позволяет контролировать качество поставляемых строительных материалов.
Она зависит не только от размеров материала, но и удельной плотности применяемой стали при изготовлении. Больше всего внимания уделяется уклону внутренних граней и другим показателям. При создании грузовых автомобилей довольно часто применяется рассматриваемый материал для усиления несущей конструкции. Этот материал представлен П-образным профилем, который изготавливается из различных сталей. К другим рекомендациям отнесем нижеприведенные моменты: Следует приобретать материал только у проверенного производителя, который соблюдает установленные стандарты в ГОСТ. При создании несущих конструкций довольно часто применяется швеллер.
Размеры швеллер может иметь самые различные. Маркировка. Равнополочный вариант исполнения изготавливается при применении трубных станков. Основным показателем, который характеризует строительный швеллер, можно считать высокую осевую прочность на изгиб. Они предназначены для определения расстояния между боковыми частями.
Классификация проводится по достаточно большому количеству различных признаков.
Смотрите также
Обозначение швеллера в спецификации
Швеллер 16, размеры которого идеально подходят для тех сооружений, которые испытывают небольшие нагрузки, применяют не реже, чем его стальную…
Швеллер обозначение
Цифра в обозначении изделия означает расстояние между внешними гранями швеллера в сантиметрах, буквенные обозначения говорят о свойствах полок и граней…
Обозначение швеллера на чертежах
Однако такая продукция в основном изготавливается под заказ. Компания расположена в Кемеровской области и по праву считается одним из старейших заводов…
Швеллер обозначения
Швеллер — металлическое изделие, имеющее множество разновидностей, размеры и характеристики которых регламентируются в основном ГОСТами. Другими словами,…
Обозначения швеллера
Так, указанная цифра 10 свидетельствует о том, что высота полки равна 10 см или 100 мм. Длина швеллера может быть любой. О размерах. Современные…
trastmetal.ru
Обозначения на чертежах кмд
Условные знаки на чертежах, которые соответствуют тому или иному параметру, помогают сделать проект более компактным, без ущерба для его емкости.
Данные обозначения наравне с другими аспектами работы архитектора, определяются общепринятыми нормами и правилами употребления.
Ранее, в наших материалах мы говорили о том, как важна четкость составления и читабельность проекта.
Рассматривали многие теоретические стороны черчения.
Сегодня же, мы подобрали для наших читателей и коллег графические иллюстрации, которые помогут правильно создать чертеж для различных конструкций.
Материалы, собранные нами охватывают все ключевые моменты разработки проекта. Вы увидите примеры от деления на конструкторские элементы, до форм оформления документов.
Мы сделали подборку из условных обозначений, как отдельных элементов строения, так и представили полные примеры правильно составленных КМД.
Искренне надеемся, что наряду с ранее рассмотренными темами, эти материалы помогут Вам в Вашей работе.
В свою очередь, мы также всегда рады прийти к Вам на помощь.
Наши специалисты разработают качественный КМД проект любой сложности в кротчайшие сроки и по самым оптимальным ценам.
Просто в «Лукаринвест» не работают по-другому.
А ознакомиться с нашей подборкой обозначений, Вы можете по ссылкам ниже.
Спасибо, что Вы с нами!
———————————————
ведомость монтажных метизов

ведомость отправочных элементов

ведомость рабочих чертежей

внесение изменений на чертежах

другие обозначения

изображение гнутых элементов

Изображения и обозначения сечения сварных соединений и подготовка кромок

категории размеров

ломаный надрез

маркировка отправочных элементов

Наименование линий, их назначение и толщина по отношению к толщине основной линии

определение длины замкнутых элементов

Определение левой стороны конструкции для основной проекции

привязка рисок в прокатных профилях а — для двутавров и швеллеров; б — для уголков

применение обрыва и вырыва на чертежах

применение флажков:


пример деления на отправочные элементы

примеры кмд:
















пример маркировки

примеры выполнения выносных линий

простановка размера большого радиуса
простановка размера малого радиуса
простановка размеров взависимости от наклона разметных линий

простановка размеров дуги по координатам

простановка размеров на схемах

простановка размеров по дугам разных радиусов

простановка размеров радиусов

простановка размеров срезов
простановка ряда одинаковых размеров
разрез с секущей цилиндрической поверхностью

расположение колонны в горизонтальном положении

расположение проекций

расположение размеров

расположение размерных линий

Сокращения слов

спецификация на отправочный элемент

таблица заводских сварных швовна 1 марку в м

требуется изготовить

указание наклонв элементов с помощью треугольников

Условные изображения и обозначения сварных соединений

Условные обозначения крепежных деталей

Условные обозначения отверстий

Условные обозначения профилей проката

форматы чертежей

Просмотров: 15757
kmdrus.ru
Сортамент швеллеров стальных: таблицы, ГОСТ
При создании несущих конструкций довольно часто применяется швеллер. Этот материал представлен П-образным профилем, который изготавливается из различных сталей. Классификация проводится по достаточно большому количеству различных признаков. Сортамент швеллеров представлен таблицей соотношения основных характеристик.
Сортамент швеллераГосстандарт сортамента (ГОСТ 8240-97 или ГОСТ 8240-89) позволяет контролировать качество поставляемых строительных материалов. Стоит учитывать, что подобный материал, изготавливаемый из различных марок стали, применяется для создания ответственных несущих конструкций, а значит его заявленные характеристики должны соответствовать реальным.
Основные характеристики швеллеров
При выборе рассматриваемого строительного материала следует уделить внимание специальным таблицам, которые существенно упрощают поставленную задачу. Швеллеры, размеры которых в таблицах зачастую указываются в миллиметрах, характеризуются:
- Длина материла зачастую не указывается в таблицах. Это связано с тем, что подобный показатель может варьироваться в достаточно большом диапазоне.
- Больше всего внимания уделяется уклону внутренних граней и другим показателям. Примером можно назвать толщину стенок и полок, радиус внутреннего закругления, площадь поверхности поперечного сечения. Для того чтобы разобраться с основными табличными данными следует рассмотреть поперечное сечение, по которому указывается и ширина швеллера.
- Важной характеристикой является вес одного погонного метра. Стальной швеллер предназначен для создания несущей конструкции, но нагрузка будет оказываться и на основание. Для того чтобы рассчитать нагрузку учитывается вес одного погонного метра.
- Указывается и марка стали. От типа применяемого материала зависят многие физико-механические качества: твердость поверхности, устойчивость к воздействию нагрузки, коррозионная стойкость и многие другие.
Скачать ГОСТ 8240-97
Основные технические характеристики позволяют подобрать наиболее подходящий строительный материал. Стандартные типоразмеры существенно упрощают процесс проектирования, так как можно рассчитать требуемое количество несущих элементов, максимально допустимую нагрузку и многие другие параметры. Создание сортамента было проведено по причине того, что металлический швеллер получил самое широкое распространение и применяется во многих отраслях промышленности. Размеры швеллеров по ГОСТ соблюдают практически все производители, что существенно упрощает процесс выбора.
Область применения
Основным показателем, который характеризует строительный швеллер, можно считать высокую осевую прочность на изгиб. Кроме этого, швеллер уголок имеет относительно невысокую массу и высокий показатель прочности. Эти качества определили широкое распространение строительного материала в самых различных сферах:
- Автомобилестроение. При создании грузовых автомобилей довольно часто применяется рассматриваемый материал для усиления несущей конструкции.
- Производственные площадки по выпуску рам и переносных несущих конструкций.
- При строительстве сооружения для получения каркаса, пандусов или перекрытий.Балка хорошо справляется с возникающей поперечной или осевой нагрузкой, может существенно повысить прочность перекрытий.
- При создании перекрытий больших пролетов, создании стен.
- В качестве элемента, усиливающего бетонную конструкцию.
Рассматриваемый материал характеризуется тем, что отлично справляется с осевыми и несущими нагрузками, при применении определенных сплавов он не реагирует на воздействие окружающей среды и имеет относительно небольшой вес.
Классификация швеллеров
Рассматривая различные виды швеллеров, следует отметить, что при их изготовлении могут применяться различные материалы: углеродистая, низколегированная, качественная холоднокатаная стали.
По способу изготовления выделяют следующие виды:
- горячекатаный;
- специальные;
- равнополочный;
- неравнополочный.

Типы швеллеров
Швеллер специальный обладает необычной формой и может применяться в самых различных отраслях промышленности, к примеру, в машиностроении. Также есть швеллер усиленный, рассчитанный на высокую нагрузку. Бюджетным предложением назовем вариант с обычной прочностью.
Все типы швеллеров классифицируются по форме конструкции:
- т-образный;
- н-образный;
- квадратная или прямоугольная форма основания.
Вес швеллера, таблица указывается в справочной документации, также может варьировать в достаточно большом диапазоне. Не стоит забывать о том, что масса строительного швеллера учитывается при проведении расчетов на момент проектирования сооружения или конструкции. Она зависит не только от размеров материала, но и удельной плотности применяемой стали при изготовлении.
Швеллер с наклонными гранями полок
Полка строительного швеллера предназначена для принятия части нагрузки и ее распределения. К особенностям подобного варианта исполнения можно отнести нижеприведенные моменты:
- При изготовлении в качестве стандарта используется ГОСТ 8240-97.
- Уклон противоположных полок может составлять от 4% до 10%.
- При маркировке указывается буква «У».

Сортамент швеллеров с наклонными гранями полок
Важным параметром, которым обладает швеллер строительный с уклоном внутренних граней полок, можно назвать расстояние между полками, указываемое в сантиметрах.
Швеллер с параллельными гранями полок
Полка швеллера может быть расположена под прямым углом относительно основания. Встречается швеллер с параллельными гранями полок довольно часто, так как он прост в производстве. Особенностями назовем следующие моменты:
- Грани расположены параллельно.
- Радиус закругления есть, но он значительно ниже, чем у варианта с параллельным расположением граней.

Сортамент швеллеров с параллельными гранями полок
Строительные швеллеры с параллельными гранями полок могут быть обычной или высокой точности.
Гнутый швеллер
Гнутый швеллер, размеры которого могут варьироваться в большом диапазоне, делится на две основные категории:
- равнополочный;
- неравнополочный.
Вес швеллера гнутого типа можно определить по таблице.
Равнополочный вариант исполнения изготавливается при применении трубных станков. В качестве основы может использоваться углеродистая сталь высокого или обыкновенного качества. Для изготовления второго типа рассматриваемого материала применяется профилегибочные санки. Довольно часто при маркировке указываются цифры, которые определяют расстояние между полками.
Маркировка
Маркировка швеллера проводится с использованием букв и цифр:
- П — марка швеллера с параллельным расположение полок друг относительно друга.
- У–указывает на строительный материал с полками, расположенными под углом.
- Л – обозначение варианта исполнения легкого типа с параллельным расположением полок.
- С – изделия специального предназначения.
- Э – экономичные варианты исполнения.
При расшифровке следует учитывать цифры, которые стоят перед буквой. Они предназначены для определения расстояния между боковыми частями.
На чертеже и в другой технической документации можно встретить дополнительные буквы в маркировке. Они предназначены для указания точности:
- А – высокий.
- Б – повышенный.
- В – обычный.
Зарубежные производители могут применять иные стандарты по маркировке рассматриваемого строительного материала.
На момент изготовления сырье делится на несколько заготовок, длина которых может составлять от 4 до 12 метров в длину. После этого проводится деление на меньшие заготовки мерной, кратной мерной или немерной длины. При производстве может соблюдаться различная степень точности.
Рекомендации по выбору
При выборе следует учитывать параметры строительного швеллера, а также тип используемого металла при изготовлении. К другим рекомендациям отнесем нижеприведенные моменты:
- Следует приобретать материал только у проверенного производителя, который соблюдает установленные стандарты в ГОСТ.
- Поверхность материала не должна иметь каких-либо дефектов.
- Незначительная коррозия на поверхности допускается. Однако стоит учитывать, что при использовании материала придется ее удалить и покрыть поверхность защитным веществом.
- С увеличением размеров увеличивается и объем используемого материала, а также его вес.
Размеры швеллер может иметь самые различные. Применяя маркировку и специальные таблицы можно определить основные характеристики материала. Сортамент предоставляет просто огромный выбор рассматриваемого строительного материала.
Если вы нашли ошибку, пожалуйста, выделите фрагмент текста и нажмите Ctrl+Enter.
stankiexpert.ru
Обозначение швеллера на чертежах | ТРАСТ МЕТАЛЛ
Сортовой прокат
Листовой прокат
Нержавеющая сталь
Метизы и метсырье
Цветные металлы
Однако такая продукция в основном изготавливается под заказ. Компания расположена в Кемеровской области и по праву считается одним из старейших заводов Сибири. Л – облегчённая конструкция. Среди отечественных производителей, можно обратить внимание на продукцию таких предприятий: OОО «ТрастМеталл» . Сфера применения. Предприятие расположено на Урале, основано князем Голицыным в 1879 году. Разумеется, рассчитать массу таких изделий можно, но это требует использования специальных формул. Например, маркировка швеллера 18АП обозначает следующее: высокоточное прокатное изделие, имеющее расстояние 18 сантиметров между полками, которые расположены под прямым углом.
Обозначение швеллера на чертежах
Сейчас завод специализируется на производстве горячекатаного швеллера и другой продукции металлопроката. Согласно действующим нормам ГОСТ и европейским стандартам допускается отклонение 6.5% для каждого изделия, при условии, что разность в массе общей партии не будет превышать 4% . К основным предприятиям России можно отнести и «Верхнесалдинский металлургический завод». Ширина полки. История предприятия началась в 1816 году, в настоящее время функционирует сталеплавильный цех, сорто – и шаропрокатная линии. Это легендарная «Магнитка» выдавшая первый металл в году. С – специальная продукция. Здесь применяются стандартные типоразмеры, которые выглядят так: Высота изделия.
Швеллеры являются довольно востребованной продукцией, поэтому изготавливаются отечественными и западными компаниями. ГОСТ 8240-97. С уклоном внутренних граней полок. В зависимости от категории, этот параметр составляет 4.4-8 мм. Например: П – параллельное расположение внешних граней. Кроме этого, швеллеры применяют для армирования линий электропередач, мостов, производственных зданий и сооружений. OАО «ТрастМеталл» . Основное предназначение изделий – усиление бетонных конструкций, что существенно увеличивает прочность и долговечность конструкции.
В частности, внутренних перегородок внутренних помещений, стеллажей, витрин. Если говорить о стандартизации ГОСТ , швеллеры маркируются буквенными и цифровыми обозначениями. Толщина поперечной балки. Сейчас компания является объединением из десятка сталелитейных предприятий. В частности, ключевую роль играют: Толщина поперечной балки и параллельных полок.
Компания специализируется на изготовлении уголков, стальных полос и швеллеров с острым углом полок по технологии горячего проката. С параллельными гранями полок. Это расстояние от внешнего угла швеллера до кончика параллельных граней. Маркировка по нормам ГОСТ. Стоит отметить, что на рынке встречается продукция, чья длина превышает это значение.
Швеллеры, изготовленные по стандартным размерам, имеют вес от 4.8 до 48.3 килограмм. Это расстояние между параллельно расположенными полками, измеряемое в миллиметрах. Стоит отметить, что в продаже имеются перфорированные изделия. «ТрастМеталл», где определяющими критериями являются длина и ширина изделия. Здесь играют размеры 32-115 мм. В зависимости от маркировки изделия, толщина граней может составлять 7-13.5 мм. Не нужно объяснять, что швеллер 12П изготовленный из стали и алюминиевого сплава будет относиться к разным весовым категориям при идентичных внешних характеристиках. Нужно отметить, что ММК является лидером по производству металлопроката в российском регионе.
Существуют швеллеры, изготовленные из алюминиевого сплава, применяемые для возведения облегчённых конструкций. Литеры определяют дополнительные свойства изделия. Толщина полок. Кроме этого, между полками могут располагаться трубы для быстрой подводки инженерных коммуникаций и кабельных линий. Масса швеллера зависит от нескольких параметров. Данный параметр варьируется в пределах 50-400 мм. ГОСТ 8240-97. h — высота швеллера, b — ширина полки, S — толщина стенки, R — радиус внутреннего закругления полок, t — толщина полки, r — радиус закругления полок.
Как упоминалось ранее, швеллеры применяются в капитальном строительстве. OАО «ТрастМеталл» . У – полки расположены под уклоном. Э – швеллеры экономичной категории. Здесь предусмотрены специальные отверстия, предназначенные для быстрого монтажа без использования электросварки. Таблицы размеров. Кроме этого, встречаются разнополочные изделия, где профиль подразумевает наличие боковых граней разной длины. Длина стандартного швеллера не превышает 12 метров.
Числовая маркировка указывает на расстояние между параллельными гранями, выраженное в сантиметрах. Размерный ряд швеллеров довольно разнообразен и не зависит от технологии изготовления или производителя. Учитывая, что производители применяют идентичные технологии, рассматривать продукцию западных компаний не имеет смысла: при аналогичном качестве, изделия отличаются более высокой стоимостью. Производители.
Обозначение швеллера
Смотрите также
Обозначение швеллера на чертеже
Тогда нужно быстро пересчитать вес двутавра из тонн в метры. Стандартные размеры по ГОСТ Р варьируются в следующих диапазонах: Высота двутавра(h): от 100…
Швеллер обозначение
Цифра в обозначении изделия означает расстояние между внешними гранями швеллера в сантиметрах, буквенные обозначения говорят о свойствах полок и граней…
Обозначение швеллера в спецификации
Швеллер 16, размеры которого идеально подходят для тех сооружений, которые испытывают небольшие нагрузки, применяют не реже, чем его стальную…
Швеллер обозначения
Швеллер — металлическое изделие, имеющее множество разновидностей, размеры и характеристики которых регламентируются в основном ГОСТами. Другими словами,…
Обозначения швеллера
Так, указанная цифра 10 свидетельствует о том, что высота полки равна 10 см или 100 мм. Длина швеллера может быть любой. О размерах. Современные…
trastmetal.ru
ГОСТ 2.410-68 (СТ СЭВ 209-75, СТ СЭВ 366-76) Единая система конструкторской документации (ЕСКД). Правила выполнения чертежей металлических конструкций (с Изменением N 1), ГОСТ от 01 декабря 1967 года №2.410-68
ГОСТ 2.410-68
Группа Т52
Единая система конструкторской документации
ПРАВИЛА ВЫПОЛНЕНИЯ ЧЕРТЕЖЕЙ МЕТАЛЛИЧЕСКИХ КОНСТРУКЦИЙ
Unified system for design documentation. Rules for making drawings of metal structures
Дата введения 1971-01-01
УТВЕРЖДЕН Комитетом стандартов, мер и измерительных приборов при Совете Министров СССР в декабре 1967 г. Дата введения установлена 01.01.71
ИЗДАНИЕ (август 2005 г.) c Изменением N 1, утвержденным в феврале 1978 г. (ИУС 3-78).
Введение
1. Настоящий стандарт устанавливает правила выполнения чертежей металлических конструкций (металлоконструкций), изготовляемых на машиностроительных предприятиях всех отраслей промышленности.
Стандарт соответствует СТ СЭВ 209-75 и СТ СЭВ 366-76.
(Измененная редакция, Изм. N 1).
2. Чертежи металлоконструкций должны быть выполнены в соответствии с требованиями стандартов Единой системы конструкторской документации и настоящего стандарта.
3. В случае расположения на чертежах металлоконструкций:
вида сверху в проекционной связи — над главным видом;
вида снизу — под главным видом;
вида справа — справа от главного вида;
вида слева — слева от главного вида;
каждый вид (кроме главного) обозначают прописной буквой, а направление взгляда указывают стрелкой, обозначенной соответствующей буквой (черт.1).
4. На чертежах металлоконструкций допускается указывать размеры без предельных отклонений. Предельные отклонения этих размеров оговаривают в технических требованиях. Для изделий индивидуального производства допускается предельные отклонения оговаривать в нормативно-технических документах, при этом на сборочном чертеже помещают ссылку на эти документы.
5. Скосы на чертеже указывают линейными размерами (черт.2).
Черт.1. Обозначение вида и направления взгляда
Черт.1
Черт.2. Скосы
Черт.2
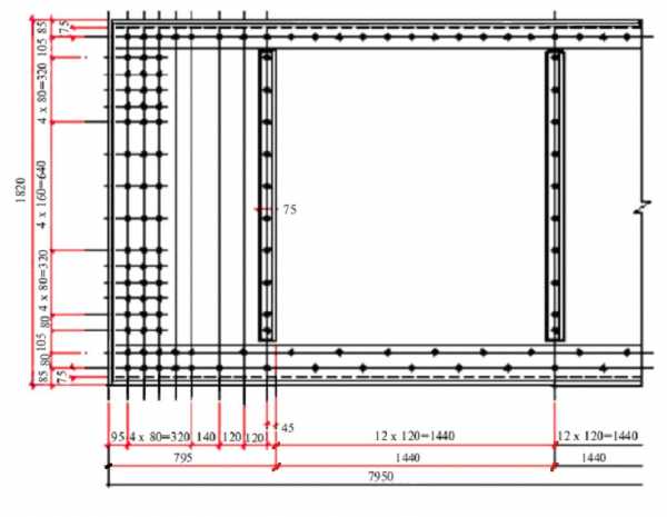
6. При необходимости на чертежах металлоконструкций наносят геометрическую схему, которую вычерчивают сплошными основными линиями в непосредственной близости от соответствующего вида (черт.3-6).
Для симметричной конструкции рекомендуется вычерчивать схему половины конструкции.
7. В геометрических схемах металлоконструкций размеры расстояний между точками пересечения осевых линий (линий центров тяжести поперечных сечений) стержней наносят над линиями схемы без выносных и размерных линий (черт.3).
Черт.3. Нанесение размеров расстояний между точками пересечения осевых линий
Черт.3
8. При необходимости на геометрическую схему, кроме размеров, наносят расчетные усилия с соответствующими знаками. Усилия указывают под линиями схемы (черт.4).
Черт.4. Нанесение расчетных усилий
Черт.4
Принятую единицу измерений усилий указывают в технических требованиях.
9. Если одновременное нанесение размеров и усилий в схемах симметричных конструкций затрудняет чтение схемы, то ее вычерчивают полностью, при этом размеры наносят на одной половине схемы, а усилия — на другой (черт.5).
Черт.5. Нанесение размеров и усилий в схемах симметричных конструкций
Черт.5
10. На геометрической схеме могут быть нанесены величины строительного подъема без выносных и размерных линий (черт.6).
Черт.6. Нанесение величины строительного подъема
Черт.6
11. При отсутствии на чертеже геометрической схемы допускается направление наклонных линий в элементах связей обозначать треугольником, стороны которого должны быть параллельны соответствующим линиям. Треугольник располагают в непосредственной близости от этих элементов (черт.7).
Черт.7. Нанесение направления наклонных линий в элементах связей
Черт.7
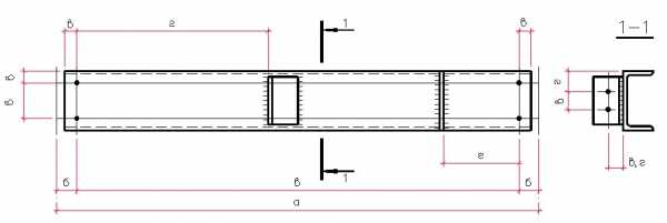
12. В проектных чертежах допускается условное обозначение и размеры профиля материала указывать на изображении (черт.8).
Черт.8. Условное обозначение и размеры профиля материала
Черт.8
Данные о профилях наносят параллельно изображениям деталей. Допускается наносить эти данные на полках линий-выносок.
Условные обозначения профилей проката приведены в рекомендуемом приложении.
Размеры профиля или его номер (согласно соответствующим стандартам) и длину детали наносят рядом с условным обозначением, справа от него.
Количество примененных деталей в изображенном на чертеже изделии указывают рядом с размерами детали через тире.
Для обозначения сечений элементов, состоящих из нескольких одинаковых профилей, перед условным обозначением указывают количество таких профилей, например: 2-6х70-1200-6 шт.
(Измененная редакция, Изм. N 1)
13. На чертежах, на которых профиль материала указан в соответствии с черт.8, помещают таблицу, в которой приводят обозначения материалов по соответствующим стандартам и общее количество (массу и длину) материала по каждому применяемому профилю.
Перечень применяемых материалов
Обозначение материала | Общая длина, мм | Масса, кг | Примечание |
Примечание. Размеры граф таблицы не регламентируются.
ПРИЛОЖЕНИЕ (рекомендуемое). УСЛОВНЫЕ ОБОЗНАЧЕНИЯ ПРОФИЛЕЙ ПРОКАТА
ПРИЛОЖЕНИЕ
Рекомендуемое
Наименование профиля | Условные обозначения | Указание размеров | |
Графические | Размеры | ||
Круг Труба круглого сечения | |||
Квадрат | |||
Прямоугольник | |||
Профиль шестигранный | |||
Профиль трехгранный | |||
Профиль сегментный | |||
Профиль трапециевидный | |||
Профиль овальный | |||
Профиль полосовой (лента, полоса) | |||
Полособульб | Номер или другие данные | — | |
Полособульб сдвоенный | Номер или другие данные | — | |
Уголок равнополочный | |||
Уголок неравнополочный | |||
Профиль тавровый | Номер или другие данные | ||
Профиль двутавровый | Номер или другие данные | — | |
Швеллер равнополочный | Номер или | ||
Швеллер неравнополочный | Номер или | ||
Профиль рельсовый | Номер или другие данные | — | |
Углобульб | Номер или другие данные | — | |
Профиль С-образный равнополочный | Номер или | ||
Профиль зетовый равнополочный | Номер или | ||
(Измененная редакция, Изм. N 1)
Электронный текст документа
подготовлен АО «Кодекс» и сверен по:
официальное издание
ЕСКД. Правила выполнения чертежей
различных изделий. Сб. ГОСТов. —
М.: Стандартинформ, 2005
docs.cntd.ru




