Обратный клапан утепленный – Клапан КВУ (воздушный утепленный) с электроприводом: описание
Клапан воздушный утепленный КВУ-А (алюминиевые лопатки)
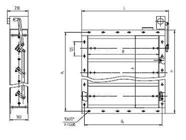
Клапан КВУ-А это утепленный клапан, предназначенный для работы в условиях низкихтемператур до-70С (только с обогре- вом). Клапан имеет повышенную жесткость корпуса, рассчитанную на защиту от перекосов в условиях высоких перепадов среднесуточной температуры. Каркас клапана состоит из коробчатого корпуса, выполненного из оцинкованной стали. Лопатки клапана изготовлены из усиленного алюминиевого профиля. Оси лопаток вращаются в латунных подшипниках. Клапан КВУ-А изготавливается прямоуголь- ного сечения. Возможно изготовление нестандартного размера. Возможно секционное исполнение. Максимальная ширина клапана водносекционном исполнении -1400мм.
| Вид климатического исполнения Тип исполнительного механизма Исполнение Рабочее давление до Удельная мощность периметрального обогрева Мощность одного ТЭНа (не зависит от длинны) |
УХЛ 2 или 3 1800 Па 15-40 Вт/м 400 Вт |
ОБЩЕПРОМЫШЛЕННОЕ:
Клапан КВУ-А может изготавливаться в нескольких комплектациях. В базовом исполнении клапан поставляется с ТЭНами. Дополнительно возможно установить периметральный обогрев клапана и привода, который представляет из себя саморегулирующийся нагревательный кабель. Кабель имеет безреостатное автоматическое управление. Для предотвращения механического повреждения и дополнительной защиты от атмосферных осадков кабеля и электромеханического привода они могут быть закрыты специальным кожухом. Для удобства монтажа на корпусе клапана может быть установлена клемная коробка. При заказе вариант исполнения клапана должен быть указан в маркировке.
Пример записи:
КВУ-А-У-М-2В-АхВ-AF230(О)-ЗКП-ПО-К-Л/П
КВУ — тип клапана
А — алюминиевый
У — без ТЭНов (еслисТЭНами то не писать)
М — латунные втулки (если пластиковые то не писать)
2В — два ведущих вала (если один то не писать)
АхВ — размер (А-ширина, В-высота)
AF230 — тип привода (если ручной то р/пр)
(О) — подогрев привода(только с клемной коробкой)
ЗКП — защитный кожух привода
ПО — периметральный обогрев клапана
К — клемная коробка
ВЗРЫВОЗАЩИЩЕННОЕ:
Клапаны КВУ-Ех-А-У могут использоваться в системах, в которых перемещаются взрывоопасные смеси и устанавливаться во взрывоопасных зонах помещений согласно маркировке взрывозащиты IIGb c T6. Клапаны НЕ ПРИМЕНИМЫ для перемещения через них газопаровоздушных смесей от технологических установок, в которых взрывоопасные вещества нагреваются выше температуры их самовоспламенения или находятся под избыточным давлением.
В зависимости от комплектации клапан может быть снабжен ручным или электромеханическим приводом. Электропривод клапана имеет маркировку взрывозащиты 1ЕхdIICT6 по ГОСТ Р 51330.0-99. Допускается изготовление клапана под электромеханический привод. В этом случае возможна самостоятельная установка привода с маркировкой взрывозащиты 1ЕхdIICT6 согласно ГОСТ Р 51330.0-99.
Пример записи:
КВУ-Ех-А-У-АхВ-ЭПВ^-230(О)-ПО-К-Л/П
КВУ-Ех-А-У — тип клапана
АхВ — размер (А-ширина, В-высота)
ЭПВ-AF^O — тип привода (если ручной то р/пр)
(О) — взрывозащищенный подогрев привода (только с клемной коробкой)
ПО — периметральный обогрев клапана (только с клемной коробкой)
К — взрывозащищенная клемная коробка
|
Высота |
400 |
500 |
600 |
800 |
900 |
1000 |
1200 |
1400 |
1500 |
1600 |
1700 |
1800 |
2000 |
2400 |
|---|---|---|---|---|---|---|---|---|---|---|---|---|---|---|
| Кол-во ТЭНов, шт |
3 |
4 |
5 |
6 |
7 |
8 |
9 |
10 |
11 |
12 |
13 |
14 |
15 |
18 |
| Сумарная мощность ТЭНов, кВт |
1,2 |
1,6 |
2,0 |
2,4 |
2,8 |
3,2 |
3,6 |
4,0 |
4,4 |
4,8 |
5,2 |
5,6 |
6,0 |
7,2 |

В таблице указаны реальные геометрические размеры клапанов (Нр — высота, Вр-ширина), а также момент открытия и закрытия лопаток клапана приведенный в соответствие с типоразмерным рядом приводов в зависимости от размера клапана.
|
|
400 |
500 |
600 |
700 |
800 |
900 |
1000 |
1100 |
1200 |
1400 | B | |
|---|---|---|---|---|---|---|---|---|---|---|---|---|
|
400 |
500 |
600 |
700 |
800 |
900 |
1000 |
1100 |
1200 |
1400 | Bp | ||
|
400 |
328 |
4 Нм |
4 Нм |
4 Нм |
4 Нм |
4 Нм |
4 Нм |
4 Нм |
4 Нм |
4 Нм |
10 Нм |
|
|
500 |
468 |
4 Нм |
4 Нм |
4 Нм |
4 Нм |
4 Нм |
4 Нм |
4 Нм |
4 Нм |
10 Нм |
10 Нм |
|
|
600 |
608 |
4 Нм |
4 Нм |
4 Нм |
4 Нм |
4 Нм |
4 Нм |
4 Нм |
4 Нм |
10 Нм |
10 Нм |
|
|
800 |
748 |
4 Нм |
10 Нм |
10 Нм |
10 Нм |
10 Нм |
10 Нм |
10 Нм |
10 Нм |
10 Нм |
10 Нм |
|
|
900 |
888 |
4 Нм |
10 Нм |
10 Нм |
10 Нм |
10 Нм |
10 Нм |
10 Нм |
10 Нм |
10 Нм |
10 Нм |
|
|
1000 |
1028 |
10 Нм |
10 Нм |
10 Нм |
10 Нм |
10 Нм |
10 Нм |
10 Нм |
10 Нм |
10 Нм |
20 Нм |
|
|
1200 |
1168 |
10 Нм |
10 Нм |
10 Нм |
10 Нм |
20 Нм |
20 Нм |
20 Нм |
20 Нм |
20 Нм |
20 Нм |
|
|
1400 |
1308 |
10 Нм |
20 Нм |
20 Нм |
20 Нм |
20 Нм |
20 Нм |
20 Нм |
20 Нм |
20 Нм |
20 Нм |
|
|
1500 | 1448 |
20 Нм |
20 Нм |
20 Нм |
20 Нм |
20 Нм |
20 Нм |
20 Нм |
20 Нм |
20 Нм |
20 Нм |
|
|
1600 |
1588 |
20 Нм |
20 Нм |
20 Нм |
20 Нм |
20 Нм |
20 Нм |
20 Нм |
20 Нм |
20 Нм |
20 Нм |
|
|
1700 |
1728 |
20 Нм |
20 Нм |
20 Нм |
20 Нм |
20 Нм |
20 Нм |
20 Нм |
20 Нм |
20 Нм |
20 Нм |
|
|
1800 |
1868 |
20 Нм |
|
20 Нм |
20 Нм |
20 Нм |
20 Нм |
20 Нм |
20 Нм |
20 Нм |
20 Нм |
|
|
2000 |
2008 |
20 Нм |
20 Нм |
20 Нм |
20 Нм |
20 Нм |
20 Нм |
20 Нм |
20 Нм |
20 Нм |
20 Нм |
|
|
2200 |
2148 |
20 Нм |
20 Нм |
20 Нм |
20 Нм |
20 Нм |
20 Нм |
20 Нм |
20 Нм |
20 Нм |
20 Нм |
|
|
2300 |
2288 |
20 Нм |
20 Нм |
20 Нм |
20 Нм |
20 Нм |
20 Нм |
20 Нм |
20 Нм |
|
40 Нм |
|
|
2400 |
2428 |
20 Нм |
20 Нм |
20 Нм |
20 Нм |
20 Нм |
20 Нм |
20 Нм |
20 Нм |
40 Нм |
40 Нм |
|
|
|
||||||||||||
|
H |
Hp |
|||||||||||
Фото готовой продукции:

pvkom.ru
УСЛОВИЯ ЭКСПЛУАТАЦИИ:Клапан воздушный утепленный КВУ предназначен для регулирования количество воздуха и газовых смесей, агрессивность которых по отношению к углеродистым сталям обыкновенного качества не выше агрессивности воздуха с температурой до 800С, не содержащих пыли и других твердых примесей в количестве более 100 мг/м3, а также липких веществ и волокнистых материалов, и применяются в системе кондиционирования воздуха и вентиляции низкого давления (рабочее давление до 1470 Па (150 кгс/м2)). | Размеры клапана воздушного утепленного КВУ
| ||||||||
xn—-ctbjbybfhgmm5ai.xn--p1ai
Воздушный клапан утеплённый КВУ 150х300
Наша компания производит заслонки воздушные утеплённые КВУ или воздушный клапан утеплённый КВУ ЛЮБОГО размера по самым дешёвым ценам на рынке.Утеплённые воздушные клапаны КВУ изготавливаются из алюминиевого профиля шириной 120мм по периметру которого вставлена уплотнительная резина, что надёжно защищает помещение от холодного воздуха. Утеплённый воздушный клапан КВУ по желанию заказчика комплектуется тенами или саморегулирующим кабелем. На корпус КВУ с тенами устанавливается клемная коробка. Лопость воздушной утеплённой заслонки шириной 100мм или 150мм в зависимости от размера клапана. Мы производим утеплённые воздушные клапана КВУ под электропривод или под ручной привод. В месте где крепится электропривод на корпус клапана КВУ устанавливается утеплённый кожух. На клапаны под ручной привод по желанию заказчика устанавливается металлический или пластиковый сектор управления.
При производстве заслонок с шириной больше 1500мм устанавливается перемычка, при высоте заслонки более 1000мм для жоскости конструкции клапан стягивается шпилькой.
| Наименование | В | А | C |
| Клапан воздушный утеплённый | 150 | 300 | 120 |
Заполните обязательные поля *.
Назад
vent48.ru
Клапан воздушный утепленный VKZ(H)
Сегодня воздушные клапана являются атрибутом любой современной вентиляционной или отопительной системы. Назначение их очень простое: регулировка количества подаваемого воздуха. Клапан воздушный утепленный VKZ(H) применяется в качес тве регулирующей или отсекающей заслонки. Он устойчиво работает при предельно низких (до -70оС) – температурах.
Особенности устройства и принцип работы
Конструктивно клапан воздушный утепленный спроектирован следующим образом: корпус с 4-мя стенками только прямоугольного сечения имеет с каждой стороны присоединительные фланцы шириной 36 мм. Внутри корпуса расположены поворотные лопатки, изготовленные из специального алюминиевого профиля. Стороны лопаток, примыкающие друг к другу, сделаны в форме замкового уплотнения. В его полости находится трубчатый электрический нагреватель (ТЭН) мощностью 0,5 кВт, который временно разогревает стык лопаток в случае обмерзания, и этим облегчает их раскрытие. Количество ТЭНов можно подсчитать по следующей формуле N=k*(n+1), здесь k-количество секций, n-количество лопаток. Суммарную мощность всех ТЭНов подсчитывают по формуле: P=0,5*N, кВт.
Лопатки клапана открываются параллельно и начинают перемещаться с помощью тяг и рычагов. На корпусе клапана размещена клемная коробка, с помощью которой подключаются системы автоматики и сигнализации. Управление воздушным клапаном утепленным осуществляется с помощью электропривода Belimo, который показывает положение лопаток в клапане «открыто-закрыто». Он оснащен пружинным возвратом или плавным регулированием с помощью тока напряжением 220 или 24 В. Данный тип клапанов не может работать с агрессивными средами взрывоопасного характера. В зависимости от размеров воздушной заслонки утепленной может применяться несколько приводов. Существуют несколько вариантов комплектации исполнительного механизма привода, и все они обеспечивают надежную работоспособность клапана независимо от его расположения в пространстве.
Конструкцией клапана утепленного предусмотрен обогрев наружного периметра, для чего по нему проложен гибкий саморегулирующий нагревательный кабель, постоянно подключенный в сеть напряжением 220 вольт. Погонный метр этого гибкого ТЭНа имеет удельную мощность 33 Вт/м. Его основное назначение – подогрев электропривода, торцов поворотных лопаток и примыканий лопаток к корпусу клапана. Кабель снаружи закрывается специальным утеплительным кожухом, который не выходит за внешние габариты фланцев клапана. Размеры клапана воздушного утепленного VKZ(H) строго регламентированы. Минимальная ширина В=400мм, максимальная – 3,5 метра (кратность через 100 мм).
Высота Н=n*140+40 мм, где n – количество лопаток.
www.ventprom.spb.ru
ВЕКОТЕХ — Клапаны вентиляционные
Производим вентиляционные клапаны следующих типов:
— обратные клапаны типа «бабочка» ОКК круглый и ОКП прямоугольный
— обратные гравитационные клапаны ГКК круглый и ГКП прямоугольный
— запорно-регулирующие жалюзийные клапаны ЖК под привод или с ручным управлением
— утепленные запорно-регулирующие жалюзийные клапаны утепленные КВУ
— дроссель клапаны под привод или с ручным управлением
— шиберы круглые и прямоугольные
Обратный клапан тип «бабочка» ОКК круглый и ОКП прямоугольный под привод или с ручным управлением
|
Выполнены на базе оси, к которой через пружину закрепленены два лепестка. Под действием вентилятора, точнее благодаря его давлению, лепески открываются. При отключении вентилятора срабатывает пружинный возврат и лепестки закрываются. |
||
| Обратный клапан круглый |
Обратный клапан прямоугольный |
|
Обратный клапан гравитационный ГКК и ГКП |
|||
|
Клапан гравитационный предназначен для вентиляции одностороннего действия. Положение лопаток определяется силой воздушного потока. Клапаны гравитационные выполнены из стального профиля. Вид климатического исполнения клапана — УХЛ 4 по ГОСТ 15150-69. Клапан может быть установлен как в горизонтальном, так и в вертикальном участках воздуховода. При установке в вертикальном воздуховоде поток воздуха должен быть направлен снизу вверх. Характерны низкими потерями давления в сравнении с клапанами ОКК и ОКП за счет отсутствия возвратных пружин. Уменьшение потерь давления позволяет подать системой вентиляции больше воздуха |
|||
| Гравитационный клапан прямоугольный офланцованный |
Гравитационный клапан круглый под нипель |
Низкие потери давления воздуха у клапана ГК и высокие у пружинного клапана типа «бабочка» | |
Запорно-регулирующий жалюзийный клапан ЖК под привод или с ручным управлением неутепленный
Клапаны жалюзийные применяются как запорные и запорно-регулирующие устройства. Незаменимы для плавного регулирования расхода воздуха в средних и крупных системах микроклимата.
|
||||
|
Утепленный запорно-регулирующий жалюзийный клапан под привод или с утепленные c предпрогревом КВУ Клапаны воздушные утепленные предназначены для установки на заборе наружного воздуха в вентиляционных системах для снижения вероятности обмерзания и заклинивания клапана без прогрева. Клапан состоит из корпуса, внутри которого на осях смонтированы поворотные лопатки (3-13 шт.), ТЭНов и привода (ручного и электрического). Каждая лопатка имеет коробчатое сечение. От электрического привода через систему тяг и рычагов осуществляется синхронное движение лопаток от положения «открыто» до положения «закрыто» и обратно. В варианте комплектации с электроприводом «Веlimo» или «Simens» в конструкции электропривода заложена возвратная пружина для закрытия клапана при отсутствии напряжения в сети.
|
Вариант энергосберегающего решения приточной установки с низкими потерями давления (воздух проходит минуя теплообменники нагрева и охлаждения), на базе: 5-ть жалюзийных клапанов с электроприводами:
Дроссель клапаны круглые и прямоугольные с ручным (ДК) и электроуправлением (ДКэ)
Дроссель клапаны — запорно-регулирующие устройства, предназначены для регулирования количества проходящего через воздуховоды воздуха. Дроссель клапаны изготавливаются из оцинкованной или нержавеющей стали на ниппельном или фланцевом соединении и состоят из корпуса, узла управления и полотна.
Клапана с ручным приводом небольших сечений выполняются с пластиковыми ручками, больших с металлическими.
Прямоугольные офланцованы фланцем 20мм, большими сечениями фланцем 30мм.
Круглые офланцовываются отдельно по желанию потребителя. Размером от 500мм выполняются на фланцах. Фланцы соединяются болтами. Желательно уплотнение пенолентой. Для средних и крупных сечений зажимными скобами.
К дроссель-клапанам желателен доступ для последующей взможности регулирования.
![]() |
![]() |
|
| Прямоугольный с ручным приводом ДК |
Круглый с ручным приводом ДК |
Круглый с электроприводом ДКэ |
Шиберы представляют из себя металлический карман, внутри которого поступательно перемещается заслонка. Шиберы используются для регулирования потока воздуха, проходящего через воздуховоды. Выполняются круглого и прямоугольного сечения, из оцинкованной или нержавеющей стали.
![]() |
|
|
| Шибер круглый прямой из зеркальной нержавеющей стали |
Шибер круглый прямой из оцинкованной стали |
Шибер прямоугольный прямой из оцинкованной стали |
Недостатком, особенно прямых шиберов являются большие потери давления и из-за узкой щели регулирования, где возникает высокая скорость воздуха — являются источником шума. Для регулировки расхода воздуха в системах микроклимата лучше использовать дроссель-клапаны ДК, а при больших сечениях воздуховодов жалюзийные клапаны ЖК.
Шиберы незаменимы в системах аспирации и пневмотранспорта. Где для уменьшения потерь давления и скапливания отходов желательно применять косые шиберы с углом заслонки 450.
Сопутствующее:
ООО «ИПЦ «ВЕКОТЕХ» производит любые типы вышеуказанных клапанов из оцинкованной и нержавеющей стали, включая по эскизам заказчика полученным на электронку.
www.vecotech.com.ua
Заслонки, Клапаны дымоудаления, Клапаны обратные, Клапаны огнезадерживающие, Клапаны противопожарные, Клапаны специальные
-ОБЩЕГО НАЗНАЧЕНИЯ-
Обратный клапан КО (КОп), типовая серия 5.904-41
Заслонка А3Д 192 с ручным приводом, типовая серия 5.904-49
Заслонки А3Д 133, АЗД 136, А3Д 132 с ручным приводом, типовая серия 5.904-13
Заслонки А3Д 122, АЗД 134, А3Д 130, с управлением электроприводом МЭО, Belimo, типовая серия 5.904-13
Заслонка А3Д 190, с управлением электроприводом МЭО, Belimo, типовая серия 5.904-49
Клапан лепестковый КЛ, типовая серия 1.494-33
Клапан утепленный створный КУС серия 5.904-74.93
-ИСКРОБЕЗОПАСНЫЕ-
Клапаны А3Е 028, А3Е 025, АЗЕ 026, АЗЕ 027, типовая серия 3.904-18
Клапан А3Е 024, типовая серия 3.904-18
-ВЗРЫВОЗАЩИЩЕННЫЕ-
Клапаны А3Е 100, АЗЕ 101, А3Е 102, АЗЕ 103, АЗЕ 104, типовая серия 5.904-58
Заслонки А3Д 196, АЗД 197, А3Д 193 с ручным приводом, типовая серия 5.904-49
Клапан А3Е 105, типовая серия 5.904-58
-ОГНЕЗАДЕРЖИВАЮЩИЕ-
Клапаны А3Е 073, АЗЕ 074, АЗЕ 075, типовая серия 5.904-42
Клапан А3Е 106, типовая серия 5.904-70-93
Клапан А3Е 107, типовая серия 5.904-71-93
Клапаны А3Е 086, АЗЕ 087, АЗЕ 088, АЗЕ 089, типовая серия 5.904-53
Клапаны А3Е 094, АЗЕ 095, АЗЕ 096, АЗЕ 097, типовая серия 5.904-54
-СПЕЦИАЛЬНЫЕ КЛАПАНЫ И ОБОРУДОВАНИЕ-
Клапан утеплённый КВУ, с управлением ручным или электроприводом
Клапан алюминиевый УВК с ручным или электромеханическим приводом
Клапан усиленный УВК с ручным или электромеханическим приводом
-ДЫМОУДАЛЕНИЯ-
Клапан дымоудаления КДМ-2
Клапан КДП-5А
-ПРОТИВОПОЖАРНЫЕ-
Клапан противопожарный — КПУ-1
Клапан противопожарный — КПУ-1М-60
Клапан противопожарный — КПУ-1М-90
Клапан противопожарный — КПУ-1М-90 МС
Клапан противопожарный — КПУ-1В
Клапан противопожарный — КПУ-2
Клапан противопожарный — КПУ-3
Переходы для клапанов КПУ
Клапан избыточного давления КИД
В вентиляции немаловажным моментом является контроль над потоком воздуха. Этот процесс контролируют специальные воздухорегулирующие устройства — воздушные заслонки и клапаны.
Разновидности воздухорегулирующих устройств
Данные устройства могут быть общего и специального назначения. Например, клапаны специального назначения, помимо функции регулирования воздушного потока, могут защищать от взрывов, возгораний, дыма.
Воздушные клапаны и заслонки воздушные условно делятся по функционалу на следующие категории:
- устройства общего назначения — они предотвращают перетекания воздуха и регулируют его поток. К ним может быть отнесены воздушная заслонка АЗД 133, лепестковый клапан КЛ, заслонка АЗД 190, обратный клапан КО и другие;
- искробезопасные устройства — отличаются латунными лопатками, которые полностью предотвращают образование искр при работе во взрывоопачных средах. Среди представителей — клапан АЗЕ 028, АЗЕ 024;
- взрывозащищенный тип устройства — предназначен для работы с взрывоопасными газовыми смесями, при этом не допускается их использование с взрывоопасными пылями;
- огнезадерживающие клапаны — обладают огнезащитными функциями за счет покрытия корпуса специального вспучивающего покрытия, представителем является клапан огнезадерживающий АЗЕ 073, АЗЕ 074, АЗЕ 075;
- клапаны специального назначения, среди которых унифицированный, усиленный, утепленный клапаны;
- клапаны дымоудаления используются в пожароопасных помещениях, среди них — клапаны КДП-5А, КДМ 2;
- противопожарный клапан — обладает огнезадерживающими свойствами и высокой огнестойкостью, например КПУ, КПУ-1, КПУ-2 и т.д.
Кроме того, по типу привода, заслонки и клапаны бывают:
- с ручным приводом;
- с электроприводом.
Выбирая устройство, необходимо понимать, какие задачи будут на него возложены и в какой среде ему предстоит работать.
Стоимость
Стоимость вентиляторов высокого давления зависит от типа, материала, из, а также непосредственно от продавца. В случае же, если приобретать промышленный вентилятор непосредственно у производителя, то цена всегда будет ниже, нежели чем купить у продавца, сделавшего уже наценку на заводскую цену.
Компания “Циклон” является официальным производителем, выпускающим всю линейку промышленно-вентиляционного оборудования и предлагая оптимальное качество, все заявленные технические характеристики и возможность купить оборудование по заводской цене.
ciklon.net
Клапан воздушный утепленный КВУ
КВУ клапан воздушный утепленный предназначены для установки на заборе наружного воздуха в вентиляционных системах.
КЛАПАН ВОЗДУШНЫЙ УТЕПЛЕННЫЙ
КВУ
КВУ клапан воздушный утепленный предназначены для установки на заборе наружного воздуха в вентиляционных системах. Конструкция клапана утепленного КВУ состоит из стального окрашенного корпуса, внутри которого на осях смонтированы поворотные лопатки. От ручного или электрического привода через систему тяг и рычагов осуществляется синхронное движение лопаток от положения «открыто» до положения «закрыто и братно. Клапаны воздушные утепленные КВУ имеют трубчатые электронагреватели (ТЭНы) в каждом стыке поворотных лопаток для разогрева стыков при открывании в случае возможного их смерзания. Электропрогрев должен включаться за 10-20 минут до открытия клапана утепленного КВУ и выключается пуском вентиляционной системы.
УСЛОВИЯ ЭКСПЛУАТАЦИИ:
Клапан воздушный утепленный КВУ
Клапан воздушный утепленный КВУ предназначен для регулирования количество воздуха и газовых смесей, агрессивность которых по отношению к углеродистым сталям обыкновенного качества не выше агрессивности воздуха с температурой до 800С, не содержащих пыли и других твердых примесей в количестве более 100 мг/м3, а также липких веществ и волокнистых материалов, и применяются в системе кондиционирования воздуха и вентиляции низкого давления (рабочее давление до 1470 Па (150 кгс/м2)).
Размеры клапана воздушного утепленного КВУ
| Типоразмер клапана | Площадь живого сечения, кв.м. | Число лопаток n | размеры, мм | Число ТЭНов n1 | Мощность кВт | Масса, кг (без МЭО) | |||
| B | B1 | H | h2 | ||||||
Клапан воздушный утепленный КВУ 400х500 | 0,21 | 2 | 500 | 540 | 400 | 440 | 3 | 0,6 | 27,4 |
Клапан воздушный утепленный КВУ 600х500 | 0,31 | 3 | 600 | 640 | 4 | 0,8 | 31,8 | ||
Клапан воздушный утепленный КВУ 600х1000 | 0,61 | 3 | 1000 | 1040 | 600 | 640 | 4 | 1,6 | 43,2 |
Клапан воздушный утепленный КВУ 800х1000 | 0,78 | 4 | 800 | 840 | 5 | 2 | 54,3 | ||
Клапан воздушный утепленный КВУ 1000х1000 | 1 | 5 | 1000 | 1040 | 6 | 2,4 | 65,3 | ||
Клапан воздушный утепленный КВУ 1200х1000 | 1,15 | 6 | 1182 | 1222 | 7 | 2,8 | 74,5 | ||
Клапан воздушный утепленный КВУ 1400х1000 | 1,38 | 7 | 1380 | 1420 | 8 | 3,2 | 83,7 | ||
Клапан воздушный утепленный КВУ 1600х1000 | 158 | 8 | 1582 | 1622 | 9 | 3,6 | 92,8 | ||
Клапан воздушный утепленный КВУ 1800х1000 | 1,87 | 9 | 1755 | 1795 | 10 | 4 | 112,3 | ||
Клапан воздушный утепленный КВУ 2400х1000 | 2,4 | 12 | 2400 | 2440 | 13 | 5,2 | 169,7 | ||
Клапан воздушный утепленный КВУ 600х1400 | 0,84 | 3 | 600 | 640 | 4 | 2,4 | 45,8 | ||
Клапан воздушный утепленный КВУ 1400х1400 | 1,9 | 7 | 1400 | 1440 | 1380 | 142 0 | 8 | 4,8 | 112,3 |
Клапан воздушный утепленный КВУ 1600х1400 | 2,22 | 8 | 1582 | 162 2 | 9 | 5,4 | 120,7 | ||
Клапан воздушный утепленный КВУ 1800х1400 | 2,6 | 9 | 1755 | 179 5 | 10 | 6 | 129,1 | ||
Клапан воздушный утепленный КВУ 2400х1400 | 3,4 | 12 | 2400 | 244 0 | 13 | 7,8 | 169,7 | ||
xn—-ctbjbybfhgmm5ai.xn--p1ai





