ΠΠ΄Π½ΡΡΠΊΠΈ ΠΏΡΠΎΠ΅ΠΊΡ β ΠΠΈΠ·Π°ΠΉΠ½-ΠΏΡΠΎΠ΅ΠΊΡ ΠΎΠ΄Π½ΠΎΠΊΠΎΠΌΠ½Π°ΡΠ½ΠΎΠΉ ΠΊΠ²Π°ΡΡΠΈΡΡ: 85 Π»ΡΡΡΠΈΡ ΡΠ΅Π°Π»ΠΈΠ·Π°ΡΠΈΠΉ
ΠΡΠΈΠ³ΠΈΠ½Π°Π»ΡΠ½ΡΠΉ Π΄ΠΈΠ·Π°ΠΉΠ½ ΠΈΠ½ΡΠ΅ΡΡΠ΅ΡΠ° Β«ΠΎΠ΄Π½ΡΡΠΊΠΈΒ»

Π£Π²Π΅ΡΠ΅Π½Ρ, Π²Π°ΠΌΒ Π±ΡΠ΄Π΅Ρ ΠΈΠ½ΡΠ΅ΡΠ΅ΡΠ½ΠΎ ΠΏΠΎΠ·Π½Π°ΠΊΠΎΠΌΠΈΡΡΡΡ Ρ ΡΠ΄ΠΎΠ±Π½ΠΎΠΉ ΠΏΠ»Π°Π½ΠΈΡΠΎΠ²ΠΊΠΎΠΉ ΠΎΠ΄Π½ΠΎΠΊΠΎΠΌΠ½Π°ΡΠ½ΠΎΠΉ ΠΊΠ²Π°ΡΡΠΈΡΡ, Π² ΠΊΠΎΡΠΎΡΠΎΠΉ Π±ΡΠ΄Π΅Ρ ΠΌΠ΅ΡΡΠΎ ΠΈ Π±ΠΎΠ»ΡΡΠΎΠΉ Π΄Π²ΡΡΠΏΠ°Π»ΡΠ½ΠΎΠΉ ΠΊΡΠΎΠ²Π°ΡΠΈ, ΠΈ Π³ΠΎΡΡΠΈΠ½ΠΎΠΉ, Π° Π΅ΡΡ Ρ ΠΎΡΠ΅ΡΡΡ ΠΈΠΌΠ΅ΡΡ Π±Π°ΡΠ½ΡΡ ΡΡΠΎΠΉΠΊΡ, ΡΡΠ½ΠΊΡΠΈΠΎΠ½Π°Π»ΡΠ½ΡΡ ΠΊΡΡ Π½Ρ ΠΈ ΠΏΡΠΎΡΡΠΎΡΠ½ΡΡ Π²Π°Π½Π½ΡΡ. ΠΡΠΈ Π²ΡΡΠΌ ΡΡΠΎΠΌ Π·Π°ΠΊΠ°Π·ΡΠΈΠΊΠΈ Ρ ΠΎΡΡΡ ΡΠΎΡ ΡΠ°Π½ΠΈΡΡ ΡΡΠ²ΡΡΠ²ΠΎ ΡΠ²ΠΎΠ±ΠΎΠ΄Ρ Π² ΠΏΡΠΎΡΡΡΠ°Π½ΡΡΠ²Π΅ ΠΊΠ²Π°ΡΡΠΈΡΡ. ΠΠΎΠΌΠΏΠ°Π½ΠΈΡ Design ART-UGOL ΡΠ°Π·ΡΠ°Π±ΠΎΡΠ°Π»Π° ΡΠ°ΠΊΠΎΠΉ ΠΏΡΠΎΠ΅ΠΊΡ Π΄Π»Ρ ΠΌΠΎΠ»ΠΎΠ΄ΠΎΠΉ ΠΏΠ°ΡΡ.

ΠΡΠΈΡ ΠΎΠΆΡΡ ΠΎΡΠ³ΠΎΡΠΎΠ΄ΠΈΠ»ΠΈ ΠΎΡ ΠΊΠΎΠΌΠ½Π°ΡΡ ΡΠΊΠ°ΡΠΎΠΌ Π΄Π»Ρ Π²Π΅ΡΠ΅ΠΉ. Π ΠΎΠ±ΡΠ°Π·ΠΎΠ²Π°Π²ΡΠ΅ΠΉΡΡ Π½ΠΈΡΠ΅ Π±ΡΠ»Π° ΡΡΡΠ°Π½ΠΎΠ²Π»Π΅Π½Π° Π±ΠΎΠ»ΡΡΠ°Ρ ΠΊΡΠΎΠ²Π°ΡΡ Π½Π° ΠΏΠΎΠ΄ΠΈΡΠΌΠ΅, ΠΈΠ· ΠΊΠΎΡΠΎΡΠΎΠ³ΠΎ Π²ΡΠ΄Π²ΠΈΠ³Π°ΡΡΡΡ ΡΡΠΈΠΊΠΈ Π΄Π»Ρ ΠΏΠ°ΡΡΠ΅Π»ΡΠ½ΡΡ ΠΏΡΠΈΠ½Π°Π΄Π»Π΅ΠΆΠ½ΠΎΡΡΠ΅ΠΉ. Π£ΠΊΡΠ°ΡΠ΅Π½ΠΈΠ΅ΠΌ ΡΡΠΎΠΉ ΡΠ°ΡΡΠΈ ΠΊΠΎΠΌΠ½Π°ΡΡ ΡΠ»ΡΠΆΠ°Ρ Π±ΡΠ° ΠΈ Π½Π°Π²Π΅ΡΠ½Π°Ρ ΠΏΠΎΠ»ΠΊΠ° Π΄Π»Ρ ΠΌΠ΅Π»ΠΎΡΠ΅ΠΉ Π²Π΄ΠΎΠ»Ρ ΡΠΏΠ°Π»ΡΠ½ΠΎΠ³ΠΎ ΠΌΠ΅ΡΡΠ°. ΠΡ Π³ΠΎΡΡΠΈΠ½ΠΎΠΉ ΡΡΡ ΡΠ°ΡΡΡ ΠΎΡΠ΄Π΅Π»ΡΠ΅Ρ ΡΡΠΆΡΠ»Π°Ρ ΠΏΠΎΡΡΡΠ΅ΡΠ° ΠΈΠ· ΡΡΠΌΠ½ΠΎΠΉ ΡΠΊΠ°Π½ΠΈ.

ΠΠ°Π»Π΅Π΅ ΠΎΠ±ΠΎΡΡΠ΄ΠΎΠ²Π°Π½Π° Π³ΠΎΡΡΠΈΠ½Π°Ρ Ρ Π΄ΠΈΠ²Π°Π½ΠΎΠΌ, ΠΊΡΠ΅ΡΠ»ΠΎΠΌ ΠΈ ΠΆΡΡΠ½Π°Π»ΡΠ½ΡΠΌ ΡΡΠΎΠ»ΠΈΠΊΠΎΠΌ. ΠΠ»Ρ ΡΠΎΠ³ΠΎ, ΡΡΠΎΠ±Ρ Π΄ΠΎΠ±Π°Π²ΠΈΡΡ ΠΏΡΠΎΡΡΠΎΡΠ°, Π΄ΠΈΠ·Π°ΠΉΠ½Π΅ΡΡ ΡΠ΄Π΅Π»Π°Π»ΠΈ ΠΏΠ°Π½Π΅Π»ΠΈ ΠΈΠ· Π»Π°ΠΌΠΈΠ½Π°ΡΠ° ΠΏΠΎΠ΄ ΡΠ²Π΅ΡΠ»ΠΎΠ΅ Π΄Π΅ΡΠ΅Π²ΠΎ, Π° Π²Π΅ΡΡ Π½ΡΡ ΡΠ°ΡΡΡ ΡΡΠ΅Π½ ΠΈ ΠΏΠΎΡΠΎΠ»ΠΎΠΊ ΠΏΠΎΠΊΡΠ°ΡΠΈΠ»ΠΈ Π² Π±Π΅Π»ΡΠΉ ΡΠ²Π΅Ρ.

ΠΠ°ΠΊ ΡΠ°ΠΊΠΎΠ²ΠΎΠΉ ΡΡΠΎΠ»ΠΎΠ²ΠΎΠΉ Π½Π΅Ρ, Π½ΠΎ Π΅ΡΡΡ Π±Π°ΡΠ½Π°Ρ ΡΡΠΎΠΉΠΊΠ°, Π·Π° ΠΊΠΎΡΠΎΡΠΎΠΉ Π΄Π²ΠΎΠΈΠΌ Π²ΠΏΠΎΠ»Π½Π΅ ΠΌΠΎΠΆΠ½ΠΎ ΠΏΠΎΠΎΠ±Π΅Π΄Π°ΡΡ. Π Π²ΠΎΡ Π±Π΅Π»ΠΎΡΠ½Π΅ΠΆΠ½Π°Ρ ΠΊΡΡ Π½Ρ Ρ ΠΎΡΠ΄Π΅Π»ΠΊΠΎΠΉ ΠΈΠ· ΡΠ²Π΅ΡΠ»ΠΎΠΉ Π΄ΡΠ΅Π²Π΅ΡΠΈΠ½Ρ ΠΏΡΠΎΡΡΠΎΡΠ½Π° ΠΈ ΡΡΠ½ΠΊΡΠΈΠΎΠ½Π°Π»ΡΠ½Π°. ΠΠ½ΠΎΠΆΠ΅ΡΡΠ²ΠΎ Π½Π°Π²Π΅ΡΠ½ΡΡ ΠΈ Π²ΡΡΡΠΎΠ΅Π½Π½ΡΡ ΡΠΊΠ°ΡΠΎΠ² ΠΏΠΎΠΌΠΎΠ³ΡΡ Ρ ΠΎΠ·ΡΠΉΠΊΠ΅ Π½Π°Π²Π΅ΡΡΠΈ ΠΏΠΎΡΡΠ΄ΠΎΠΊ.

Π‘Π°Π½ΡΠ·Π΅Π» ΡΠΎΠ²ΠΌΠ΅ΡΡΠ½Π½ΡΠΉ. ΠΡΡΠ΅Π²Π°Ρ ΠΊΠ°Π±ΠΈΠ½Π° ΠΎΡΠ΄Π΅Π»Π°Π½Π° ΠΌΠΎΠ·Π°ΠΈΡΠ½ΠΎΠΉ ΠΊΠ΅ΡΠ°ΠΌΠΈΡΠ΅ΡΠΊΠΎΠΉ ΠΏΠ»ΠΈΡΠΊΠΎΠΉ ΠΈ ΠΎΡΠ΄Π΅Π»Π΅Π½Π° ΠΎΡ ΠΎΡΡΠ°Π»ΡΠ½ΠΎΠΉ ΡΠ°ΡΡΠΈ ΠΏΠΎΠΌΠ΅ΡΠ΅Π½ΠΈΡ ΡΡΠ΅ΠΊΠ»ΡΠ½Π½ΠΎΠΉ ΠΏΠ΅ΡΠ΅Π³ΠΎΡΠΎΠ΄ΠΊΠΎΠΉ. Π’ΡΡ ΠΆΠ΅ ΡΡΡΠ°Π½ΠΎΠ²Π»Π΅Π½Π° ΡΡΠΈΡΠ°Π»ΡΠ½Π°Ρ ΠΌΠ°ΡΠΈΠ½Π°-Π°Π²ΡΠΎΠΌΠ°Ρ, Π½Π°Π΄ ΠΊΠΎΡΠΎΡΠΎΠΉ ΠΈΠΌΠ΅ΡΡΡΡ Π½Π°Π²Π΅ΡΠ½ΡΠ΅ ΠΏΠΎΠ»ΠΊΠΈ ΠΈ ΠΏΠΎΠ»ΠΎΡΠ΅Π½ΡΠ΅ΡΡΡΠΈΡΠ΅Π»Ρ. ΠΡΠΈΠ³ΠΈΠ½Π°Π»ΡΠ½ΡΠ΅ ΡΠ°ΠΊΠΎΠ²ΠΈΠ½Π° ΠΈ ΡΠ½ΠΈΡΠ°Π· Π²ΡΠ±ΡΠ°Π½Ρ Π΄ΠΈΠ·Π°ΠΉΠ½Π΅ΡΠ°ΠΌΠΈ Π½Π΅ ΡΠ»ΡΡΠ°ΠΉΠ½ΠΎ. ΠΠΌ Ρ ΠΎΡΠ΅Π»ΠΎΡΡ Π²Π½Π΅ΡΡΠΈ Π°Π²ΡΠΎΡΡΠΊΡΡ ΠΈΠ·ΡΠΌΠΈΠ½ΠΊΡ Π² ΠΏΡΠΎΠ΅ΠΊΡ.

Π‘ΠΎΠ²ΡΠ΅ΠΌΠ΅Π½Π½ΡΠΉ ΡΡΠΈΠ»Ρ ΠΈ ΡΡΡΠ½ΠΎ-ΡΠ΅ΡΠΎ-Π±Π΅Π»Π°Ρ ΠΏΠ°Π»ΠΈΡΡΠ° ΡΠΎΠ·Π΄Π°Π»ΠΈ ΠΎΡΠ»ΠΈΡΠ½ΡΠΉ ΠΈΠ½ΡΠ΅ΡΡΠ΅Ρ, ΠΊΠΎΡΠΎΡΡΠΉ Π½Π΅ ΡΠ°Π·Π΄ΡΠ°ΠΆΠ°Π΅Ρ Π²Π·Π³Π»ΡΠ΄. Π ΡΠΎΠΆΠ΅ Π²ΡΠ΅ΠΌΡ Π΄Π΅ΡΠ΅Π²ΠΎ ΠΈ ΠΊΠ°ΠΊ ΠΌΠ°ΡΠ΅ΡΠΈΠ°Π», ΠΈ ΠΊΠ°ΠΊ ΠΎΡΡΠ΅Π½ΠΎΠΊ ΡΠ²Π΅ΡΠ° Π΄ΠΎΠ±Π°Π²ΠΈΠ»ΠΈ Π΄ΠΈΠ·Π°ΠΉΠ½Ρ ΡΠ΅ΠΏΠ»Π° ΠΈ ΡΡΡΠ°.

interiorsmall.ru
ΠΡΠΎΠ΅ΠΊΡ ΠΎΠ΄Π½ΠΎΠΊΠΎΠΌΠ½Π°ΡΠ½ΠΎΠΉ ΠΊΠ²Π°ΡΡΠΈΡΡ | Β«ΠΠ΅ΡΡΠ½ΡΠΉΒ»
ΠΠ½ΡΠΎΠ½ ΠΠ΅ΡΡΠ½ΡΠΉ ΡΡΠΊΠΎΠ²ΠΎΠ΄ΠΈΡΠ΅Π»Ρ ΡΡΡΠ΄ΠΈΠΈ Π΄ΠΈΠ·Π°ΠΉΠ½Π°
ΠΠ°ΠΊ ΠΏΡΠ°Π²ΠΈΠ»ΠΎ, «ΠΎΠ΄Π½ΡΡΠΊΠΈ» Π°ΡΡΠΎΡΠΈΠΈΡΡΡΡΡΡ Ρ Π»ΡΠ΄Π΅ΠΉ Ρ ΠΏΠΎΠ»Π½ΡΠΌ ΠΎΡΡΡΡΡΡΠ²ΠΈΠ΅ΠΌ Π»ΠΈΡΠ½ΠΎΠ³ΠΎ ΠΏΡΠΎΡΡΡΠ°Π½ΡΡΠ²Π° ΠΈ Π²ΠΎΠΎΠ±ΡΠ΅ ΠΌΠ΅ΡΡΠ° ΠΊΠ°ΠΊ ΡΠ°ΠΊΠΎΠ²ΠΎΠ³ΠΎ. ΠΠΎΡ ΠΌΡ ΠΈ ΡΠ΅ΡΠΈΠ»ΠΈ Π² ΠΎΡΠ΅ΡΠ΅Π΄Π½ΠΎΠΉ ΡΠ°Π· Π΄ΠΎΠΊΠ°Π·Π°ΡΡ: Π΄ΠΈΠ·Π°ΠΉΠ½ ΠΊΠ²Π°ΡΡΠΈΡΡ Π44 β ΠΎΠ΄Π½ΠΎΠΊΠΎΠΌΠ½Π°ΡΠ½ΠΎΠΉ, ΡΠΈΠΏΠΎΠ²ΠΎΠΉ, Ρ ΠΌΠ°Π»Π΅Π½ΡΠΊΠΎΠΉ ΠΊΡΡ Π½Π΅ΠΉ, β ΠΌΠΎΠΆΠ½ΠΎ ΠΏΡΠΎΠ΄ΡΠΌΠ°ΡΡ ΡΠ°ΠΊ, ΡΡΠΎ Π΅Π΄ΠΈΠ½ΡΡΠ²Π΅Π½Π½Π°Ρ ΠΊΠΎΠΌΠ½Π°ΡΠ° Π±ΡΠ΄Π΅Ρ ΠΈ ΡΡΡΠ½ΠΎΠΉ, ΠΈ ΡΡΠ½ΠΊΡΠΈΠΎΠ½Π°Π»ΡΠ½ΠΎΠΉ.

ΠΠ±ΡΠ°ΡΠΈΡΠ΅ Π²Π½ΠΈΠΌΠ°Π½ΠΈΠ΅: Π΅ΡΠ»ΠΈ ΡΠ±ΡΠ°ΡΡ Π°ΠΊΡΠ΅Π½ΡΠ½ΡΠ΅ ΡΡΠΊΠΈΠ΅ ΡΠ²Π΅ΡΠ°, ΠΏΠΎΠΌΠ΅ΡΠ΅Π½ΠΈΠ΅ ΡΡΠ°Π½Π΅Ρ ΡΡΠ»ΠΎΠ²Π½ΠΎ-ΠΌΠΎΠ½ΠΎΡ ΡΠΎΠΌΠ½ΡΠΌ. ΠΡ ΠΏΡΠ΅Π΄Π»ΠΎΠΆΠΈΠ»ΠΈ Π·Π°ΠΊΠ°Π·ΡΠΈΠΊΠ°ΠΌ ΡΠ²Π΅ΡΠ»ΡΠΉ ΡΠ²Π΅Ρ ΡΡΠ΅Π½ ΠΈ ΠΏΠΎΠ»Π°, ΠΏΠΎΡΠΊΠΎΠ»ΡΠΊΡ ΡΠ²Π΅ΡΠ»Π°Ρ Π³Π°ΠΌΠΌΠ° ΠΈΠ΄Π΅Π°Π»ΡΠ½Π° Π΄Π»Ρ ΠΏΠΎΠΌΠ΅ΡΠ΅Π½ΠΈΠΉ, ΠΊΠΎΡΠΎΡΡΠ΅ Π½Π°Π΄ΠΎ Π²ΠΈΠ·ΡΠ°Π»ΡΠ½ΠΎ ΡΠ°ΡΡΠΈΡΠΈΡΡ. ΠΡΡΠ°ΡΠΈ, ΠΈΠΌΠ΅Π½Π½ΠΎ Π½Π° Π±Π»Π΅Π΄Π½ΠΎ-ΡΠ΅ΡΠΎΠΌ ΡΠΎΠ½Π΅ ΠΎΡΠΎΠ±Π΅Π½Π½ΠΎ Π²ΡΠΈΠ³ΡΡΡΠ½ΠΎ ΡΠΌΠΎΡΡΠΈΡΡΡ ΡΡΠΏΠ΅ΡΡΡΠΈΠ»ΡΠ½Π°Ρ ΠΈ ΡΠΎΠ²ΡΠ΅ΠΌΠ΅Π½Π½Π°Ρ ΠΊΠΎΠΌΠΏΠΎΠ·ΠΈΡΠΈΡ ΠΈΠ· ΠΊΠ°ΡΡΠΈΠ½!
Π‘ΠΎΠ²Π΅Ρ Π΄ΠΈΠ·Π°ΠΉΠ½Π΅ΡΠ°
ΠΠΎΠΌΠ΅ΡΡΠΈΡΠ΅ ΠΈΠ·ΠΎΠ±ΡΠ°ΠΆΠ΅Π½ΠΈΡ Π² ΠΏΠ°ΡΠΏΠ°ΡΡΡ, Π° Π·Π°ΡΠ΅ΠΌ Π² ΡΡΠΌΠ½ΡΠΉ Π±Π°Π³Π΅Ρ ΡΠ°Π·Π½ΠΎΠΉ ΡΠΎΠ»ΡΠΈΠ½Ρ. ΠΡΠΈ ΡΡΠΎΠΌ ΡΠ°ΡΡΡΠΎΡΠ½ΠΈΠ΅ ΠΌΠ΅ΠΆΠ΄Ρ ΡΠ°ΠΌΠΊΠ°ΠΌΠΈ Π΄ΠΎΠ»ΠΆΠ½ΠΎ Π±ΡΡΡ Π½Π΅ Π±ΠΎΠ»Π΅Π΅ 3 ΡΠΌ, Π° ΡΠ°Π·ΠΌΠ΅Ρ ΡΠ°ΠΌΠΎΠΊ — ΠΌΠΈΠ½ΠΈΠΌΡΠΌ 50Ρ 50 ΡΠΌ.

Π Π½Π°ΡΠ΅ΠΌ ΡΠ»ΡΡΠ°Π΅ ΠΏΡΠΎΠ΅ΠΊΡ ΠΎΠ΄Π½ΠΎΠΊΠΎΠΌΠ½Π°ΡΠ½ΠΎΠΉ ΠΊΠ²Π°ΡΡΠΈΡΡ ΡΠΎΠ΄Π΅ΡΠΆΠΈΡ Π½Π΅ ΡΠΎΠ²ΡΠ΅ΠΌ Π·Π°ΠΊΠΎΠ½Π½ΠΎΠ΅ ΡΠ΅ΡΠ΅Π½ΠΈΠ΅: ΠΏΠΎ Π½Π°ΡΡΠΎΡΠ½ΠΈΡ Π·Π°ΠΊΠ°Π·ΡΠΈΠΊΠΎΠ² ΠΌΡ ΠΏΠΎΠ»Π½ΠΎΡΡΡΡ ΠΏΠ΅ΡΠ΅Π½Π΅ΡΠ»ΠΈ ΠΊΡΡ Π½Ρ Π² Π·ΠΎΠ½Ρ Π³ΠΎΡΡΠΈΠ½ΠΎΠΉ, ΡΠ΄Π΅Π»Π°Π² Π½Π° Π΅Ρ ΠΌΠ΅ΡΡΠ΅ ΠΊΡΠΎΡ ΠΎΡΠ½ΡΡ ΡΠΏΠ°Π»ΡΠ½Ρ. ΠΠΎΡΠΊΠΎΠ»ΡΠΊΡ Π² Π±ΡΠ΄ΡΡΠ΅ΠΌ Π·Π΄Π΅ΡΡ Π±ΡΠ΄Π΅Ρ ΠΆΠΈΡΡ Ρ ΠΎΠ»ΠΎΡΡΠΎΠΉ ΠΏΠ°ΡΠ΅Π½Ρ, ΡΠ°ΠΌΠ° ΠΊΡΡ Π½Ρ Π²ΡΠΏΠΎΠ»Π½Π΅Π½Π° Π² ΠΌΠΈΠ½ΠΈΠΌΠ°Π»ΠΈΡΡΠΈΡΠ΅ΡΠΊΠΎΠΌ ΡΡΠΈΠ»Π΅, Ρ ΠΎΡΡΡΠΎΠ²Π½ΠΎΠΉ Π²ΡΡΡΠΆΠΊΠΎΠΉ ΠΈ Π±Π΅Π· Π½Π°Π²Π΅ΡΠ½ΡΡ ΡΠΊΠ°ΡΡΠΈΠΊΠΎΠ². ΠΠΊΡΠ΅Π½ΡΠ½ΡΠΉ Π±ΠΈΡΡΠ·ΠΎΠ²ΡΠΉ ΠΈ ΠΆΡΠ»ΡΡΠΉ ΠΏΠΎΠ΄Π΄Π΅ΡΠΆΠΈΠ²Π°Π΅ΡΡΡ ΡΠ²Π΅ΡΠ°ΠΌΠΈ Π²ΡΠ΄Π²ΠΈΠΆΠ½ΡΡ ΡΡΠΈΠΊΠΎΠ² ΠΈ ΠΏΠΎΠ»ΠΎΡ Π½Π° ΡΡΠ΅Π½Π΅.
ΠΠΎΠ΄Π±ΠΎΡΠΊΠ° Π² ΡΠ΅ΠΌΡ: ΠΡΡ Π½ΠΈ-Π³ΠΎΡΡΠΈΠ½ΡΠ΅ 20 ΠΌ2 (76 ΡΠΎΡΠΎ)

ΠΡ ΡΠ°ΡΡΠΎ ΠΏΠΎΠ²ΡΠΎΡΡΠ΅ΠΌ, ΡΡΠΎ ΠΊΠΎΠ²ΡΡ β Π»ΡΡΡΠΈΠΉ ΠΏΠΎΠΌΠΎΡΠ½ΠΈΠΊ Π² Π²ΠΎΠΏΡΠΎΡΠ°Ρ Π·ΠΎΠ½ΠΈΡΠΎΠ²Π°Π½ΠΈΡ ΠΏΡΠΎΡΡΡΠ°Π½ΡΡΠ²Π°. Π ΡΡΠΎΠΉ ΠΊΠΎΠΌΠ½Π°ΡΠ΅ ΠΊΠΎΠ²ΡΡ ΠΎΠΏΡΠ΅Π΄Π΅Π»ΡΠ΅Ρ Π³ΠΎΡΡΠΈΠ½ΡΡ Π·ΠΎΠ½Ρ, Π² ΠΊΠΎΡΠΎΡΡΡ ΡΠ°ΠΊΠΆΠ΅ ΠΏΠΎΠΏΠ°Π΄Π°Π΅Ρ ΡΡΡΠ½ΠΎΠ΅ ΠΊΡΠ΅ΡΠ»ΠΎ ΠΈ ΡΠΎΡΡΠ΅Ρ. ΠΠΎΠΎΠ±ΡΠ΅, ΠΎΡΠ΅ΡΡΠ°Π½ΠΈΡ Π²Π΅ΡΠ΅ΠΉ Π² ΡΠΎΠ²ΡΠ΅ΠΌΠ΅Π½Π½ΠΎΠΌ ΡΡΠΈΠ»Π΅ ΠΏΡΠΈΠ²ΡΡΠ½Π΅Π΅ Π΄Π»Ρ ΠΌΠΎΠ»ΠΎΠ΄ΡΡ Π»ΡΠ΄Π΅ΠΉ, ΠΎΠ΄Π½Π°ΠΊΠΎ ΡΠ΅ΡΠ΅ΡΠ΅Π½Ρ Π½Π° ΠΊΠ»Π°ΡΡΠΈΡΠ΅ΡΠΊΠΈΠ΅ ΡΠΎΡΠΌΡ ΡΠΎΠΆΠ΅ ΠΌΠΎΠΆΠ΅Ρ Π²ΡΠ³Π»ΡΠ΄Π΅ΡΡ ΠΎΡΠ΅Π½Ρ Π·Π΄ΠΎΡΠΎΠ²ΠΎ! Π ΠΏΠΎΠ΄ΡΠ²Π΅ΡΠΆΠ΄Π΅Π½ΠΈΠ΅ ΡΠΎΠΌΡ β Π΄ΠΈΠ·Π°ΠΉΠ½Π΅ΡΡΠΊΠΈΠ΅ ΠΏΡΠΎΠ·ΡΠ°ΡΠ½ΡΠ΅ ΡΡΡΠ»ΡΡ Π² ΡΡΠΎΠ»ΠΎΠ²ΠΎΠΉ Π·ΠΎΠ½Π΅. ΠΡΠ±ΠΎΡ ΡΠ΅Π±Ρ ΠΎΠΏΡΠ°Π²Π΄Π°Π»: Π»ΡΠ³ΠΊΠΈΠ΅, ΠΏΡΠ°ΠΊΡΠΈΡΠ΅ΡΠΊΠΈ Π½Π΅Π²ΠΈΠ΄ΠΈΠΌΡΠ΅, ΠΎΠ½ΠΈ ΠΏΠΎΠ΄Π°ΡΠΈΠ»ΠΈ ΠΈΠ»Π»ΡΠ·ΠΈΡ ΠΎΡΡΡΡΡΡΠ²ΠΈΡ ΠΌΠ΅Π±Π΅Π»ΠΈΠΈ, ΡΠΊΡΠ°ΡΠΈΠ² ΡΠΎΠ±ΠΎΡ Π΄ΠΈΠ·Π°ΠΉΠ½ ΠΎΠ΄Π½ΠΎΠΊΠΎΠΌΠ½Π°ΡΠ½ΠΎΠΉ ΠΊΠ²Π°ΡΡΠΈΡΡ.
Π‘ΠΎΠ²Π΅Ρ Π΄ΠΈΠ·Π°ΠΉΠ½Π΅ΡΠ°
ΠΡΠΎΡΡΡΠ΅ ΡΡΠΎΡΡ, ΡΠ²Π΅Ρ ΡΠΊΠ°Π½ΠΈ ΠΊΠΎΡΠΎΡΡΡ ΡΠΎΠ²ΠΏΠ°Π΄Π°Π΅Ρ Ρ ΡΠ²Π΅ΡΠΎΠΌ ΠΎΠ±ΠΎΠ΅Π² ΠΈΠ»ΠΈ ΠΊΡΠ°ΡΠΊΠΈ Π΄Π»Ρ ΡΡΠ΅Π½, ΡΠΌΠΎΡΡΡΡΡΡ Π½Π΅ΠΉΡΡΠ°Π»ΡΠ½ΠΎ ΠΈ ΠΏΡΠ°ΠΊΡΠΈΡΠ΅ΡΠΊΠΈ Π½Π΅Π·Π°ΠΌΠ΅ΡΠ½Ρ. ΠΡΠΎΡ ΠΏΡΠΈΡΠΌ ΠΌΠΎΠΆΠ½ΠΎ ΠΈΡΠΏΠΎΠ»ΡΠ·ΠΎΠ²Π°ΡΡ, Π΅ΡΠ»ΠΈ Π²Ρ Π½Π΅ Ρ ΠΎΡΠΈΡΠ΅ ΠΏΠ΅ΡΠ΅Π³ΡΡΠΆΠ°ΡΡ ΠΊΠΎΠΌΠ½Π°ΡΡ Π»ΠΈΡΠ½ΠΈΠΌΠΈ Π΄Π΅ΡΠ°Π»ΡΠΌΠΈ.

ΠΠ° ΠΊΠ°ΡΡΠΈΠ½ΠΊΠ΅ Π²ΠΈΠ΄Π½Ρ Π΄Π²Π΅ Π΄Π²Π΅ΡΠΈ Π² ΡΠ³Π»Ρ, Π½Π° ΠΊΠΎΡΠΎΡΡΠ΅ Ρ ΠΎΡΠ΅ΡΡΡ ΠΎΠ±ΡΠ°ΡΠΈΡΡ Π²Π½ΠΈΠΌΠ°Π½ΠΈΠ΅: ΠΎΡΠ΅Π½Ρ, ΠΎΡΠ΅Π½Ρ Π²Π°ΠΆΠ½ΠΎ ΠΎΠ±ΡΠ°ΠΌΠ»ΡΡΡ ΠΏΡΠΎΡΠΌΡ Π½Π°Π»ΠΈΡΠ½ΠΈΠΊΠ°ΠΌΠΈ, ΡΡΠΎΠ±Ρ ΠΈΠ½ΡΠ΅ΡΡΠ΅Ρ Π²ΡΠ³Π»ΡΠ΄Π΅Π» Π·Π°Π²Π΅ΡΡΡΠ½Π½ΡΠΌ! ΠΡΠΎΠ·ΡΠ°ΡΠ½Π°Ρ Π΄Π²Π΅ΡΡ ΠΈΠ· ΠΌΠ°ΡΠΎΠ²ΠΎΠ³ΠΎ Π·Π°ΠΊΠ°Π»ΡΠ½Π½ΠΎΠ³ΠΎ ΡΡΠ΅ΠΊΠ»Π° Π²Π΅Π΄ΡΡ Π² ΠΊΠΎΡΠΈΠ΄ΠΎΡ, Π²ΡΠΎΡΠ°Ρ ΠΆΠ΅, Π·Π°ΡΡΠΎΡΠ΅Π½Π½Π°Ρ, ΡΠΊΡΡΠ²Π°Π΅Ρ ΠΎΡ ΡΡΠΎΡΠΎΠ½Π½ΠΈΡ Π³Π»Π°Π· Π½Π΅Π±ΠΎΠ»ΡΡΡΡ Π³Π°ΡΠ΄Π΅ΡΠΎΠ±Π½ΡΡ. ΠΠ°ΠΊ ΠΌΡ ΡΠΆΠ΅ Π³ΠΎΠ²ΠΎΡΠΈΠ»ΠΈ Π²ΡΡΠ΅, ΠΎΡΠ½ΠΎΠ²Π½ΠΎΠΉ ΠΏΡΠΎΠ±Π»Π΅ΠΌΠΎΠΉ ΠΎΠ΄Π½ΠΎΠΊΠΎΠΌΠ½Π°ΡΠ½ΡΡ ΠΊΠ²Π°ΡΡΠΈΡ ΡΡΠΈΡΠ°Π΅ΡΡΡ ΠΊΠ°ΡΠ°ΡΡΡΠΎΡΠΈΡΠ΅ΡΠΊΠ°Ρ Π½Π΅Ρ Π²Π°ΡΠΊΠ° ΠΌΠ΅ΡΡ Π΄Π»Ρ Ρ ΡΠ°Π½Π΅Π½ΠΈΡ ΡΠ°ΠΌΡΡ Π½Π΅ΠΎΠ±Ρ ΠΎΠ΄ΠΈΠΌΡΡ Π²Π΅ΡΠ΅ΠΉ. ΠΡ ΡΠ΅ΡΠΈΠ»ΠΈ ΡΡΠΎΡ Π²ΠΎΠΏΡΠΎΡ, ΠΎΡΠ³ΠΎΡΠΎΠ΄ΠΈΠ² ΡΠ°ΡΡΡ ΠΊΠΎΠΌΠ½Π°ΡΡ ΠΈ Π²ΡΠ΄Π΅Π»ΠΈΠ² ΡΠ΅ΠΌ ΡΠ°ΠΌΡΠΌ ΠΏΠΎΠΌΠ΅ΡΠ΅Π½ΠΈΠ΅, Π² ΠΊΠΎΡΠΎΡΠΎΠΌ ΠΌΠΎΠΆΠ½ΠΎ ΡΠΊΠ»Π°Π΄ΡΠ²Π°ΡΡ Π½Π΅ ΡΠΎΠ»ΡΠΊΠΎ ΠΎΠ΄Π΅ΠΆΠ΄Ρ, Π½ΠΎ ΠΈ Π±ΠΎΠ»Π΅Π΅ ΠΊΡΡΠΏΠ½ΡΠ΅ ΠΏΡΠ΅Π΄ΠΌΠ΅ΡΡ.
ο»ΏΠΡΡΠ°ΡΠΈ!
Π Π²Π°ΡΠ΅ΠΌ Π΄ΠΈΠ·Π°ΠΉΠ½-ΠΏΡΠΎΠ΅ΠΊΡΠ΅
ΠΠΈΠ·Π°ΠΉΠ½Π΅ΡΡΠΊΠ°Ρ ΡΠΊΠΈΠ΄ΠΊΠ° β Π²Π°ΠΌ!
Π‘ Π½Π°ΠΌΠΈ Π²ΡΠ³ΠΎΠ΄Π½ΠΎ! ΠΠΈΠ·Π°ΠΉΠ½-ΠΏΡΠΎΠ΅ΠΊΡ ΠΏΠΎΠ»Π½ΠΎΡΡΡΡ ΠΎΠΊΡΠΏΠΈΡΡΡ Π·Π° ΡΡΡΡ Π΄ΠΈΠ·Π°ΠΉΠ½Π΅ΡΡΠΊΠΈΡ ΡΠΊΠΈΠ΄ΠΎΠΊ Π½Π° ΡΠΎΠ²Π°ΡΡ. ΠΠΎΡΡΠΈ Π² ΠΊΠ°ΠΆΠ΄ΠΎΠΌ ΠΌΠ°Π³Π°Π·ΠΈΠ½Π΅ Ρ Π½Π°Ρ Π΅ΡΡΡ ΡΠ°ΠΊΠ°Ρ ΡΠΊΠΈΠ΄ΠΊΠ°! ΠΡ ΠΏΠΎΠ΄Π΅Π»ΠΈΠΌΡΡ Π΅Ρ Ρ Π²Π°ΠΌΠΈ!
ΠΠΏΠΈΡΠ΅ΠΌΡΡ Π² Π±ΡΠ΄ΠΆΠ΅Ρ!
ΠΡΡ Π΄ΠΎ Π½Π°ΡΠ°Π»Π° ΠΏΠΎΠ΄Π±ΠΎΡΠ° ΠΌΠ΅Π±Π΅Π»ΠΈ ΠΈ ΠΎΡΠ΄Π΅Π»ΠΎΡΠ½ΡΡ ΠΌΠ°ΡΠ΅ΡΠΈΠ°Π»ΠΎΠ² ΠΌΡ ΠΎΠΏΡΠ΅Π΄Π΅Π»ΠΈΠΌ Ρ Π²Π°ΠΌΠΈ Π±ΡΠ΄ΠΆΠ΅Ρ. Π ΡΡΠΎΡ Π±ΡΠ΄ΠΆΠ΅Ρ ΠΌΡ ΠΈ Π²ΠΏΠΈΡΠ΅ΠΌΡΡ. ΠΠ°ΠΏΡΠ΅Π΄Π΅Π»ΡΠ½ΠΎ Π΄ΠΎΡΠΎΠ³ΠΈΠ΅ ΡΠΎΠ²Π°ΡΡ ΠΈΡΠΊΠ»ΡΡΠ΅Π½Ρ!
ΠΠ»Π°Π½ΠΈΡΠΎΠ²ΠΊΠ° Π±Π΅Π· ΠΎΠ³ΡΠ°Π½ΠΈΡΠ΅Π½ΠΈΠΉ!
ΠΠ΅ΡΠ΅ΠΏΠ»Π°Π½ΠΈΡΠΎΠ²ΠΊΠ° β Π²Π°ΠΆΠ½Π΅ΠΉΡΠΈΠΉ ΡΡΠ°ΠΏ Π΄ΠΈΠ·Π°ΠΉΠ½-ΠΏΡΠΎΠ΅ΠΊΡΠ°! ΠΡ ΠΏΠΎΡΠ°Π±ΠΎΡΠ°Π΅ΠΌ Π½Π°Π΄ Π½Π΅ΠΉ Π΄ΠΎ ΡΠ΅Ρ ΠΏΠΎΡ, ΠΏΠΎΠΊΠ° ΠΎΠ½Π° Π²Π°Ρ Π½Π΅ ΡΡΡΡΠΎΠΈΡ. Π Π½Π΅ Π²Π°ΠΆΠ½ΠΎ, ΡΠΊΠΎΠ»ΡΠΊΠΎ Π±ΡΠ΄Π΅Ρ Π²Π°ΡΠΈΠ°Π½ΡΠΎΠ²: 5, 10, 20… ΠΠ³ΡΠ°Π½ΠΈΡΠ΅Π½ΠΈΠΉ Π½Π΅Ρ!
ΠΠΎΠ½ΡΡΠ»ΡΡΠ°ΡΠΈΡ β Π±Π΅ΡΠΏΠ»Π°ΡΠ½ΠΎ!
ΠΠ΅ΡΠ²ΡΠΉ ΡΠ°Π· Π΄Π΅Π»Π°Π΅ΡΠ΅ ΡΠ΅ΠΌΠΎΠ½Ρ Ρ Π΄ΠΈΠ·Π°ΠΉΠ½Π΅ΡΠΎΠΌ? ΠΡ ΠΏΠΎΠ΄ΡΠΎΠ±Π½ΠΎ ΡΠ°ΡΡΠΊΠ°ΠΆΠ΅ΠΌ, ΠΊΠ°ΠΊ ΠΏΡΠΎΡ ΠΎΠ΄ΠΈΡ ΠΏΡΠΎΠ΅ΠΊΡΠΈΡΠΎΠ²Π°Π½ΠΈΠ΅, ΠΏΠΎΠ΄Π΅Π»ΠΈΠΌΡΡ ΠΎΠΏΡΡΠΎΠΌ, ΠΏΠΎΠΌΠΎΠΆΠ΅ΠΌ ΠΎΠΏΡΠ΅Π΄Π΅Π»ΠΈΡΡ Π±ΡΠ΄ΠΆΠ΅Ρ ΠΈ Ρ.Π΄. Π Π²ΡΠ΅ ΡΡΠΎ ΡΠΎΠ²Π΅ΡΡΠ΅Π½Π½ΠΎ Π±Π΅ΡΠΏΠ»Π°ΡΠ½ΠΎ!
ΠΠΎΠ»Π΅Π΅ 10 Π»Π΅Ρ Π½Π° ΡΡΠ½ΠΊΠ΅!
ΠΡΠΎ Π³ΠΎΠ²ΠΎΡΠΈΡ ΡΠΎΠ»ΡΠΊΠΎ ΠΎ ΡΠΎΠΌ, ΡΡΠΎ ΠΌΡ ΠΏΡΠ΅Π΄Π»Π°Π³Π°Π΅ΠΌ ΠΊΠ°ΡΠ΅ΡΡΠ²Π΅Π½Π½ΡΠΉ ΠΏΡΠΎΠ΄ΡΠΊΡ ΠΏΠΎ ΠΎΠΏΡΠΈΠΌΠ°Π»ΡΠ½ΠΎΠΉ ΡΠ΅Π½Π΅, ΡΠ°Π±ΠΎΡΠ°Π΅ΠΌ ΡΠ΅ΡΡΠ½ΠΎ ΠΈ Π½Π° Π½Π°Ρ ΠΌΠΎΠΆΠ½ΠΎ ΠΏΠΎΠ»ΠΎΠΆΠΈΡΡΡΡ!
ΠΠ°ΡΠ°Π½ΡΠΈΡ 1 Π³ΠΎΠ΄!
ΠΡ Π³Π°ΡΠ°Π½ΡΠΈΡΡΠ΅ΠΌ ΠΊΠ°ΡΠ΅ΡΡΠ²Π΅Π½Π½ΡΠ΅ ΡΠ΅ΡΡΠ΅ΠΆΠΈ! ΠΡΠ»ΠΈ Π½Π°ΠΉΠ΄Π΅ΡΡΡ ΠΎΡΠΈΠ±ΠΊΠ°, ΠΌΡ Π±Π΅ΡΠΏΠ»Π°ΡΠ½ΠΎ ΠΈ ΠΎΠΏΠ΅ΡΠ°ΡΠΈΠ²Π½ΠΎ ΡΡΡΡΠ°Π½ΠΈΠΌ ΠΈΡ . ΠΠ°ΡΠ°Π½ΡΠΈΡ Π΄Π΅ΠΉΡΡΠ²ΡΠ΅Ρ Π² ΡΠ΅ΡΠ΅Π½ΠΈΠ΅ Π³ΠΎΠ΄Π° ΠΏΠΎΡΠ»Π΅ ΡΠ΄Π°ΡΠΈ Π΄ΠΈΠ·Π°ΠΉΠ½-ΠΏΡΠΎΠ΅ΠΊΡΠ°!

ΠΠΈΠ·Π°ΠΉΠ½ ΡΠΈΠΏΠΎΠ²ΠΎΠΉ ΠΊΠ²Π°ΡΡΠΈΡΡ ΡΠ΅Π΄ΠΊΠΎ ΡΠΎΠ΄Π΅ΡΠΆΠΈΡ ΡΠΎΠ²Π΅ΡΡ ΠΏΠΎ ΠΏΠ΅ΡΠ΅ΠΎΠ±ΠΎΡΡΠ΄ΠΎΠ²Π°Π½ΠΈΡ ΠΊΡΡ Π½ΠΈ Π² ΡΠΏΠ°Π»ΡΠ½Ρ, Π½ΠΎ Π½Π΅ ΠΏΠΎΠ΄Π΅Π»ΠΈΡΡΡΡ ΡΠ°ΠΊΠΈΠΌ Π²Π°ΡΠΈΠ°Π½ΡΠΎΠΌ ΠΌΡ Π½Π΅ ΠΌΠΎΠ³Π»ΠΈ. π ΠΠ΄Π΅ΡΡ Π½Π° ΠΏΠ»ΠΎΡΠ°Π΄ΠΈ ΠΌΠ΅Π½Π΅Π΅ 8 ΠΌ.ΠΊΠ². ΡΠΌΠ΅ΡΡΠΈΠ»Π°ΡΡ ΠΊΡΠΎΠ²Π°ΡΡ, ΡΠ°Π±ΠΎΡΠΈΠΉ ΡΡΠΎΠ», ΠΊΡΠ΅ΡΠ»ΠΎ ΠΈ ΡΠΊΠ°Ρ Ρ Π΄Π²Π΅ΡΡΠΌΠΈ-ΠΊΡΠΏΠ΅! Π‘ΡΠ°Π·Ρ Π·Π°ΠΌΠ΅ΡΠΈΠΌ: ΠΈΠ½ΡΠ΅ΡΡΠ΅Ρ ΠΌΠΎΠ³ Π±Ρ Π²ΡΠ³Π»ΡΠ΄Π΅ΡΡ Π²Π΅ΡΡΠΌΠ° ΡΠΊΡΠ΄Π½ΠΎ, Π΅ΡΠ»ΠΈ Π±Ρ Π½Π΅ ΡΠΈΡΠΎΠΊΠΈΠ΅ ΠΏΠΎΠ»ΠΎΡΡ Π½Π° ΡΡΠ΅Π½Π°Ρ , ΠΊΠΎΡΠΎΡΡΠ΅ Π²ΠΈΠ·ΡΠ°Π»ΡΠ½ΠΎ ΡΠ°ΡΡΠΈΡΠΈΠ»ΠΈ ΠΏΡΠΎΡΡΡΠ°Π½ΡΡΠ²ΠΎ. ΠΠ΅ΡΠΌΠΎΡΡΡ Π½Π° ΡΠΎ, ΡΡΠΎ ΠΌΠ΅Π±Π΅Π»Ρ ΡΡΠΎΠΈΡ Π²ΠΏΠ»ΠΎΡΠ½ΡΡ Π΄ΡΡΠ³ ΠΊ Π΄ΡΡΠ³Ρ, Π³Π½Π΅ΡΡΡΠ΅Π³ΠΎ ΠΎΡΡΡΠ΅Π½ΠΈΡ Π½Π΅Ρ Π±Π»Π°Π³ΠΎΠ΄Π°ΡΡ ΠΈΠΌΠ΅Π½Π½ΠΎ ΡΡΠΈΠΌ ΠΏΠΎΠ»ΠΎΡΠΊΠ°ΠΌ. ΠΡΠ±ΠΎΠΏΡΡΠ½ΠΎ, ΡΡΠΎ Π² Π±ΠΎΠ»ΡΡΠΎΠΌ ΠΏΠΎΠΌΠ΅ΡΠ΅Π½ΠΈΠΈ ΠΎΠ½ΠΈ ΡΠΊΠΎΡΠ΅Π΅ Π²ΡΠ³Π»ΡΠ΄Π΅Π»ΠΈ Π±Ρ Π½Π°Π²ΡΠ·ΡΠΈΠ²ΠΎ, Π° Π½Π° Π²ΠΎΡ ΠΌΠ°Π»Π΅Π½ΡΠΊΠΎΠΌ βΠΏΡΡΠ°ΡΠΊΠ΅β, Π·Π° ΡΡΡΡ ΡΠ΅ΡΠ΅Π΄ΠΎΠ²Π°Π½ΠΈΡ ΠΎΡΡΠ΅Π½ΠΊΠΎΠ² Π±ΠΈΡΡΠ·ΠΎΠ²ΠΎΠ³ΠΎ ΠΈ Π±Π΅Π»ΠΎΠ³ΠΎ, ΡΠΏΠ°ΡΠ°ΡΡ ΠΏΠΎΠ»ΠΎΠΆΠ΅Π½ΠΈΠ΅!
ΠΠΎΠ΄Π±ΠΎΡΠΊΠ° Π² ΡΠ΅ΠΌΡ: ΠΠΈΠ·Π°ΠΉΠ½ ΡΠΏΠ°Π»ΡΠ½ΠΈ Π² ΡΠΎΠ²ΡΠ΅ΠΌΠ΅Π½Π½ΠΎΠΌ ΡΡΠΈΠ»Π΅ (53 ΡΠΎΡΠΎ)
Π‘ΠΎΠ²Π΅Ρ Π΄ΠΈΠ·Π°ΠΉΠ½Π΅ΡΠ°
ΠΡΠΎΡΡΡΠ΅ ΡΡΠΎΡΡ, ΡΠ²Π΅Ρ ΡΠΊΠ°Π½ΠΈ ΠΊΠΎΡΠΎΡΡΡ ΡΠΎΠ²ΠΏΠ°Π΄Π°Π΅Ρ Ρ ΡΠ²Π΅ΡΠΎΠΌ ΠΎΠ±ΠΎΠ΅Π² ΠΈΠ»ΠΈ ΠΊΡΠ°ΡΠΊΠΈ Π΄Π»Ρ ΡΡΠ΅Π½, ΡΠΌΠΎΡΡΡΡΡΡ Π½Π΅ΠΉΡΡΠ°Π»ΡΠ½ΠΎ ΠΈ ΠΏΡΠ°ΠΊΡΠΈΡΠ΅ΡΠΊΠΈ Π½Π΅Π·Π°ΠΌΠ΅ΡΠ½Ρ. ΠΡΠΎΡ ΠΏΡΠΈΡΠΌ ΠΌΠΎΠΆΠ½ΠΎ ΠΈΡΠΏΠΎΠ»ΡΠ·ΠΎΠ²Π°ΡΡ, Π΅ΡΠ»ΠΈ Π²Ρ Π½Π΅ Ρ ΠΎΡΠΈΡΠ΅ ΠΏΠ΅ΡΠ΅Π³ΡΡΠΆΠ°ΡΡ ΠΊΠΎΠΌΠ½Π°ΡΡ Π»ΠΈΡΠ½ΠΈΠΌΠΈ Π΄Π΅ΡΠ°Π»ΡΠΌΠΈ.
Π ΡΠΊΠΎΠ»ΡΠΊΠΎ ΡΡΠΎΠΈΡ ΠΌΠΎΠΉ Π΄ΠΈΠ·Π°ΠΉΠ½-ΠΏΡΠΎΠ΅ΠΊΡ?
ο»Ώ ΠΠ±ΡΠ°Ρ ΠΏΠ»ΠΎΡΠ°Π΄Ρ, ΠΌ2:0
ΠΠ±ΡΠ΅ΠΊΡ:
ΠΡΠ±Π΅ΡΠΈΡΠ΅…ΠΠΎΠΌΠ½Π°ΡΠ°1-ΠΊ ΠΊΠ²Π°ΡΡΠΈΡΠ°2-ΠΊ ΠΊΠ²Π°ΡΡΠΈΡΠ°3-ΠΊ ΠΊΠ²Π°ΡΡΠΈΡΠ°4-ΠΊ ΠΊΠ²Π°ΡΡΠΈΡΠ°5-ΠΊ ΠΊΠ²Π°ΡΡΠΈΡΠ°Π’Π°ΡΠ½Ρ
Π°ΡΡΠΠΎΡΡΠ΅Π΄ΠΆ
1. Π£ΠΊΠ°ΠΆΠΈΡΠ΅ ΠΏΠ»ΠΎΡΠ°Π΄Ρ
2. ΠΡΠ±Π΅ΡΠΈΡΠ΅ ΡΠΈΠΏ ΠΎΠ±ΡΠ΅ΠΊΡΠ°
3. ΠΠΌΠΈΡΠ΅! ΠΠΎΠΊΠ°ΠΆΠΈΡΠ΅ ΠΈΠ½ΡΠ΅ΡΡΠ΅Ρ Π΄ΡΡΠ·ΡΡΠΌ! π
ΠΠΎΡ ΠΎΠΆΠΈΠ΅ Π΄ΠΈΠ·Π°ΠΉΠ½-ΠΏΡΠΎΠ΅ΠΊΡΡ

ΠΠ²ΡΡΠΊΠ° ΠΈΠ· ΠΎΠ΄Π½ΡΡΠΊΠΈ

ΠΠΈΠ·Π°ΠΉΠ½ ΠΊΠ²Π°ΡΡΠΈΡΡ-ΡΡΡΠ΄ΠΈΠΈ

ΠΠΈΠ·Π°ΠΉΠ½ ΠΎΠ΄Π½ΠΎΠΊΠΎΠΌΠ½Π°ΡΠ½ΠΎΠΉ
ο»Ώpechenyi.com
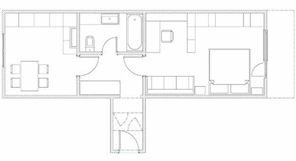
ΠΠ»Π°Π½ΠΈΡΠΎΠ²ΠΊΠ° ΠΎΠ΄Π½ΠΎΠΊΠΎΠΌΠ½Π°ΡΠ½ΡΡ ΠΊΠ²Π°ΡΡΠΈΡ. ΠΠΈΠ·Π°ΠΉΠ½ ΠΏΡΠΎΠ΅ΠΊΡ ΠΎΠ΄Π½ΠΎΠΊΠΎΠΌΠ½Π°ΡΠ½ΠΎΠΉ ΠΊΠ²Π°ΡΡΠΈΡΡ.
ΠΡΠ΅Π΄Π»Π°Π³Π°Ρ ΡΠ°ΡΡΠΌΠΎΡΡΠ΅ΡΡ Π½Π΅ΡΠΊΠΎΠ»ΡΠΊΠΎ Π³ΠΎΡΠΎΠ²ΡΡ Π΄ΠΈΠ·Π°ΠΉΠ½ ΠΏΡΠΎΠ΅ΠΊΡΠΎΠ² ΠΎΠ΄Π½ΠΎΠΊΠΎΠΌΠ½Π°ΡΠ½ΠΎΠΉ ΠΊΠ²Π°ΡΡΠΈΡΡ ΠΈ ΠΏΡΠΎΠ°Π½Π°Π»ΠΈΠ·ΠΈΡΠΎΠ²Π°ΡΡ ΡΠ΄Π°ΡΠ½ΡΠ΅ Ρ ΠΎΠ΄Ρ Π² ΠΈΡ ΡΠ΅Π°Π»ΠΈΠ·Π°ΡΠΈΠΈ. ΠΠ»Ρ Π΄Π°Π½Π½ΠΎΠΉ ΡΡΠ°ΡΡΠΈ Ρ Π²ΡΠ±ΡΠ°Π» Π΄Π²Π° ΠΈΠ½ΡΠ΅ΡΠ΅ΡΠ½ΡΡ Π΄ΠΈΠ·Π°ΠΉΠ½Π΅ΡΡΠΊΠΈΡ ΡΠ΅ΡΠ΅Π½ΠΈΡ Π΄Π»Ρ ΠΏΠΎΠΌΠ΅ΡΠ΅Π½ΠΈΠΉ Ρ Π΄ΠΎΠ²ΠΎΠ»ΡΠ½ΠΎ ΡΠ°ΡΠΏΡΠΎΡΡΡΠ°Π½Π΅Π½Π½ΠΎΠΉ Ρ Π½Π°Ρ ΠΏΠ»ΠΎΡΠ°Π΄ΡΡ Π² 40-45 ΠΊΠ².ΠΌ. ΠΠ°Π΄Π΅ΡΡΡ, ΠΌΠ½ΠΎΠ³ΠΈΠ΅ ΠΈΠ΄Π΅ΠΈ ΠΈ ΠΏΡΠΈΠ΅ΠΌΡ ΡΡΠ°Π½ΡΡ ΠΏΠΎΠ»Π΅Π·Π½ΡΠΌΠΈ Π΄Π»Ρ Π²Π°ΡΠΈΡ ΠΏΠ»Π°Π½ΠΎΠ².
ΠΡΠ°ΠΊ, ΠΌΡ ΡΠ°ΡΡΠΌΠΎΡΡΠΈΠΌ:
ΠΠΈΠ·Π°ΠΉΠ½ ΠΏΡΠΎΠ΅ΠΊΡ ΠΎΠ΄Π½ΠΎΠΊΠΎΠΌΠ½Π°ΡΠ½ΠΎΠΉ ΠΊΠ²Π°ΡΡΠΈΡΡ 45 ΠΊΠ².ΠΌ
ΠΠ½ΡΠ΅ΡΡΠ΅Ρ, ΡΠΎΠ·Π΄Π°Π½Π½ΡΠΉ Π²ΠΎΠΊΡΡΠ³ Π²Π΅Π»ΠΎΡΠΈΠΏΠ΅Π΄Π°, β ΠΈΠΌΠ΅Π½Π½ΠΎ ΡΠ°ΠΊΠ°Ρ ΠΌΡΡΠ»Ρ ΠΏΠ΅ΡΠ²ΠΎΠΉ ΠΏΡΠΈΡ ΠΎΠ΄ΠΈΡ Π½Π° ΡΠΌ, ΠΊΠΎΠ³Π΄Π° ΡΠΌΠΎΡΡΠΈΡΡ Π½Π° ΡΠΎΡΠΎΠ³ΡΠ°ΡΠΈΠΈ ΡΡΠΎΠΉ Π½Π΅Π±ΠΎΠ»ΡΡΠΎΠΉ ΠΊΠ²Π°ΡΡΠΈΡΡ. ΠΠΎ ΡΠ°ΠΊΠΎΠ΅ ΡΠ΅ΡΠ΅Π½ΠΈΠ΅ Π΄ΠΈΠ·Π°ΠΉΠ½Π΅ΡΠ° ΡΠΎΠ·Π΄Π°Π΅Ρ ΠΈΠ΄Π΅Π°Π»ΡΠ½ΡΠΉ Π°Π½ΡΠ°ΠΌΠ±Π»Ρ ΡΠ°Π·ΡΠ°Π±ΠΎΡΠ°Π½Π½ΠΎΠ³ΠΎ ΠΏΡΠΎΠ΅ΠΊΡΠ° ΠΈ Π΅Π³ΠΎ Π³Π°ΡΠΌΠΎΠ½ΠΈΡΠ½ΠΎΠ³ΠΎ Π²ΠΎΠΏΠ»ΠΎΡΠ΅Π½ΠΈΡ.
ΠΠ»Ρ ΡΠ°ΡΡΠΈΡΠ΅Π½ΠΈΡ ΠΏΡΠΎΡΡΡΠ°Π½ΡΡΠ²Π° Π±ΡΠ»ΠΎ ΠΏΡΠΈΠ½ΡΡΠΎ ΡΠ΅ΡΠ΅Π½ΠΈΠ΅ ΠΏΡΠ΅Π²ΡΠ°ΡΠΈΡΡ ΠΎΠ΄Π½ΠΎΠΊΠΎΠΌΠ½Π°ΡΠ½ΡΡ ΠΊΠ²Π°ΡΡΠΈΡΡ Π² ΡΡΡΠ΄ΠΈΡ Ρ ΡΡΠ½ΠΊΡΠΈΠΎΠ½Π°Π»ΡΠ½ΡΠΌ Π·ΠΎΠ½ΠΈΡΠΎΠ²Π°Π½ΠΈΠ΅ΠΌ, ΠΏΠΎΡΡΠΎΠΌΡ Π΅Π΄ΠΈΠ½ΡΡΠ²Π΅Π½Π½Π°Ρ Π²Π½ΡΡΡΠ΅Π½Π½ΡΡ ΡΡΠ΅Π½Π° ΠΏΠΎΠΌΠ΅ΡΠ΅Π½ΠΈΡ ΠΎΡΠ΄Π΅Π»ΡΠ΅Ρ ΡΠΎΠ»ΡΠΊΠΎ ΡΠΎΠ²ΠΌΠ΅ΡΠ΅Π½Π½ΡΠΉ ΡΠ°Π½ΡΠ·Π΅Π».
ΠΠ°Π²Π°ΠΉΡΠ΅ ΡΠ°ΡΡΠΌΠΎΡΡΠΈΠΌ ΡΠ΄Π°ΡΠ½ΡΠ΅ ΠΏΡΠΈΠ΅ΠΌΡ, ΠΊΠΎΡΠΎΡΡΠ΅ ΠΈΡΠΏΠΎΠ»ΡΠ·ΠΎΠ²Π°Π»ΠΈ Π΄ΠΈΠ·Π°ΠΉΠ½Π΅ΡΡ:

ΠΠ»Π°Π²Π½ΡΠΉ ΠΌΠΎΡΠΈΠ² β Π΅Π΄ΠΈΠ½Π΅Π½ΠΈΠ΅ Ρ ΠΏΡΠΈΡΠΎΠ΄ΠΎΠΉ
- Π ΠΏΠ°Π»ΠΈΡΡΠ΅ ΠΈΠ½ΡΠ΅ΡΡΠ΅ΡΠ° ΠΎΡΡΠ°Π·ΠΈΠ»Π°ΡΡ Π»ΡΠ±ΠΎΠ²Ρ Π΅Π³ΠΎ ΠΎΠ±ΠΈΡΠ°ΡΠ΅Π»ΡΠ½ΠΈΡΡ ΠΊ ΠΏΡΠΈΡΠΎΠ΄Π΅. ΠΠ΄Π΅ΡΡ Π³ΡΠ°ΠΌΠΎΡΠ½ΠΎ ΠΈΡΠΏΠΎΠ»ΡΠ·ΠΎΠ²Π°Π½Ρ ΡΠ°ΠΊΡΡΡΡ Π΄Π΅ΡΠ΅Π²Π°, Π½Π°ΡΡΡΠ°Π»ΡΠ½ΡΠ΅ ΠΎΡΡΠ΅Π½ΠΊΠΈ Π·Π΅Π»Π΅Π½ΠΎΠ³ΠΎ, Π±Π΅ΠΆΠ΅Π²ΠΎΠ³ΠΎ, ΠΊΠΎΡΠΈΡΠ½Π΅Π²ΠΎΠ³ΠΎ Ρ Π½Π΅Π±ΠΎΠ»ΡΡΠΈΠΌΠΈ Π°ΠΊΡΠ΅Π½ΡΠ°ΠΌΠΈ Π΄ΡΡΠ³ΠΈΡ ΡΠ²Π΅ΡΠΎΠ². ΠΠ΅Π»ΡΠ΅ ΡΡΠ΅Π½Ρ ΠΈ ΠΏΠΎΡΠΎΠ»ΠΎΠΊ Π²ΠΈΠ·ΡΠ°Π»ΡΠ½ΠΎ ΡΠ°ΡΡΠΈΡΡΡΡ ΠΏΡΠΎΡΡΡΠ°Π½ΡΡΠ²ΠΎ. ΠΠ° ΠΈΡ ΡΠΎΠ½Π΅ Π΄ΡΡΠ³ΠΈΠ΅ ΡΠ»Π΅ΠΌΠ΅Π½ΡΡ ΡΠΌΠΎΡΡΡΡΡΡ Π΅ΡΠ΅ Π²ΡΠ³ΠΎΠ΄Π½Π΅Π΅.

ΠΠ°ΠΊΡΠΈΠΌΡΠΌ ΡΠΎΠ»Π½Π΅ΡΠ½ΠΎΠ³ΠΎ ΡΠ²Π΅ΡΠ°
- ΠΠΎΠ»ΡΡΠΈΠ΅ ΠΎΠΊΠ½Π° Π±Π΅Π· ΡΡΠΆΠ΅Π»ΡΡ Π·Π°Π½Π°Π²Π΅ΡΠΎΠΊ ΠΏΡΠΎΠΏΡΡΠΊΠ°ΡΡ ΠΌΠ½ΠΎΠ³ΠΎ ΡΠ²Π΅ΡΠ°, Π΄Π΅Π»Π°Ρ ΠΏΠΎΠΌΠ΅ΡΠ΅Π½ΠΈΠ΅ Π²ΠΎΠ·Π΄ΡΡΠ½ΡΠΌ ΠΈ Π»Π΅Π³ΠΊΠΈΠΌ.
- ΠΠΈΠ·ΠΊΠ°Ρ ΠΌΠ΅Π±Π΅Π»Ρ ΠΎΡΠ»ΠΈΡΠ½ΠΎ Π²ΠΏΠΈΡΡΠ²Π°Π΅ΡΡΡ Π² Π½Π΅Π±ΠΎΠ»ΡΡΠΎΠ΅ ΠΏΠΎΠΌΠ΅ΡΠ΅Π½ΠΈΠ΅. Π―ΡΠΊΠΈΠΉ ΡΠ²Π΅Ρ Π΄ΠΈΠ²Π°Π½Π° Π΄Π΅Π»Π°Π΅Ρ Π³Π»Π°Π²Π½ΡΠΉ Π°ΠΊΡΠ΅Π½Ρ Π³ΠΎΡΡΠΈΠ½ΠΎΠΉ. ΠΠΊΡΠ΅ΡΡΡΠ°ΡΡ Π² ΡΠ°ΠΊΠΎΠΌ ΡΠ»ΡΡΠ°Π΅ Π΄ΠΎΠ»ΠΆΠ½Ρ Π½Π΅ ΡΠΈΠ»ΡΠ½ΠΎ Π±ΡΠΎΡΠ°ΡΡΡΡ Π² Π³Π»Π°Π·Π°.
- ΠΡΠ΅ ΠΎΠ΄Π½ΠΈΠΌ Π³ΡΠ°ΠΌΠΎΡΠ½ΡΠΌ Π΄ΠΈΠ·Π°ΠΉΠ½Π΅ΡΡΠΊΠΈΠΌ Ρ ΠΎΠ΄ΠΎΠΌ ΡΡΠ°Π»ΠΎ ΠΈΡΠΏΠΎΠ»ΡΠ·ΠΎΠ²Π°Π½ΠΈΠ΅ Π°ΠΆΡΡΠ½ΡΡ ΠΏΠ΅ΡΠ΅Π³ΠΎΡΠΎΠ΄ΠΎΠΊ, ΠΊΠΎΡΠΎΡΡΠ΅ ΠΎΠ΄Π½ΠΎΠ²ΡΠ΅ΠΌΠ΅Π½Π½ΠΎ ΡΠ»ΡΠΆΠ°Ρ ΠΏΠΎΠ»ΠΊΠ°ΠΌΠΈ. ΠΡΠΎ Π΄Π΅ΠΉΡΡΠ²ΠΈΡΠ΅Π»ΡΠ½ΠΎ ΡΡΠ½ΠΊΡΠΈΠΎΠ½Π°Π»ΡΠ½ΠΎ ΠΈ ΠΊΡΠ°ΡΠΈΠ²ΠΎ.

ΠΠ΅ΡΠΊΠ°Π»ΡΠ½ΡΠ΅ Π΄Π²Π΅ΡΠΈ Π² ΠΏΡΠΈΡ ΠΎΠΆΠ΅ΠΉ
- ΠΠ΅Π±ΠΎΠ»ΡΡΠΎΠΉ Π³Π°ΡΠ΄Π΅ΡΠΎΠ± Π² ΠΏΡΠΈΡ ΠΎΠΆΠ΅ΠΉ ΠΏΡΠ°ΠΊΡΠΈΡΠ½ΠΎ ΡΠΊΡΡΡ Π·Π° ΡΠ°Π·Π΄Π²ΠΈΠΆΠ½ΡΠΌΠΈ Π΄Π²Π΅ΡΡΠΌΠΈ ΠΈ ΡΡΠ΅Π½ΠΎΠΉ Ρ ΠΌΠ½ΠΎΠ³ΠΎΡΠΈΡΠ»Π΅Π½Π½ΡΠΌΠΈ Π½ΠΈΡΠ°ΠΌΠΈ-ΠΏΠΎΠ»ΠΊΠ°ΠΌΠΈ. ΠΠ΅ΡΡΠ° Π΄Π»Ρ Ρ ΡΠ°Π½Π΅Π½ΠΈΡ Π²Π΅ΡΠ΅ΠΉ ΠΈ ΡΠ°ΡΡΡΠ°Π½ΠΎΠ²ΠΊΠΈ Π°ΠΊΡΠ΅ΡΡΡΠ°ΡΠΎΠ² Π²ΠΏΠΎΠ»Π½Π΅ Π΄ΠΎΡΡΠ°ΡΠΎΡΠ½ΠΎ.

ΠΡΡ Π½Ρ ΠΎΡΠ΄Π΅Π»Π΅Π½Π° Π±Π°ΡΠ½ΠΎΠΉ ΡΡΠΎΠΉΠΊΠΎΠΉ
- ΠΠ΅Π±ΠΎΠ»ΡΡΠ°Ρ Π·ΠΎΠ½Π° ΠΊΡΡ Π½ΠΈ ΠΎΡΠ΅Π½Ρ ΡΡΠ½ΠΊΡΠΈΠΎΠ½Π°Π»ΡΠ½Π° Π·Π° ΡΡΠ΅Ρ Π΄Π»ΠΈΠ½Π½ΠΎΠ³ΠΎ ΠΏΡΠΎΡ ΠΎΠ΄Π° ΠΌΠ΅ΠΆΠ΄Ρ ΡΡΠΎΠ»ΠΎΠΌ ΠΈ Π³Π°ΡΠ½ΠΈΡΡΡΠΎΠΌ. ΠΠ΄Π΅ΡΡ ΡΠ°ΠΊΠΆΠ΅ ΠΏΡΠ΅Π΄ΡΡΠΌΠΎΡΡΠ΅Π½Ρ ΡΠ΄ΠΎΠ±Π½ΡΠ΅ Π½ΠΈΡΠΈ Π΄Π»Ρ ΠΌΠ΅Π»ΠΎΡΠ΅ΠΉ.

Π‘ΠΏΠ°Π»ΡΠ½Ρ Π·Π° ΠΌΠΎΠ΄ΡΠ»ΡΠ½ΠΎΠΉ ΡΡΠ΅Π½ΠΊΠΎΠΉ
- Π’Π°ΠΊΠ°Ρ ΠΏΠ΅ΡΠ΅Π³ΠΎΡΠΎΠ΄ΠΊΠ° ΠΌΠ΅ΠΆΠ΄Ρ Π·ΠΎΠ½Π°ΠΌΠΈ ΠΏΠΎΠ·Π²ΠΎΠ»ΡΠ΅Ρ ΠΈΡΠΏΠΎΠ»ΡΠ·ΠΎΠ²Π°ΡΡ ΠΏΠΎΠ»ΠΊΠΈ Ρ Π΄Π²ΡΡ ΡΡΠΎΡΠΎΠ½. Π ΡΠ΅Π»Π΅Π²ΠΈΠ·ΠΎΡ ΠΎΡΠ΅Π½Ρ Π»Π΅Π³ΠΊΠΎ ΠΏΠΎΠ²Π΅ΡΠ½ΡΡΡ Π² Π½ΡΠΆΠ½ΡΡ ΡΡΠΎΡΠΎΠ½Ρ.

Π ΡΠΏΠ°Π»ΡΠ½Π΅ ΠΎΡΠ³Π°Π½ΠΈΠ·ΠΎΠ²Π°Π½ΠΎ ΠΈ ΡΠ°Π±ΠΎΡΠ΅Π΅ ΠΌΠ΅ΡΡΠΎ
- ΠΡΠΎΠ²Π°ΡΡ Π² ΡΠ°ΠΊΠΎΠΌ Π΄ΠΈΠ·Π°ΠΉΠ½Π΅, ΠΏΠΎ ΡΡΡΠΈ, ΠΎΡΡΡΡΡΡΠ²ΡΠ΅Ρ, Π° ΠΌΠ΅ΡΡΠΎ Π΄Π»Ρ ΡΠ½Π° ΠΎΡΠ³Π°Π½ΠΈΠ·ΠΎΠ²Π°Π½ΠΎ Π½Π° Π½Π΅Π±ΠΎΠ»ΡΡΠΎΠΌ ΠΏΠΎΠ΄ΠΈΡΠΌΠ΅. ΠΡΠΎ Π½Π΅ ΡΠΎΠ»ΡΠΊΠΎ ΠΎΡΠ΅Π½Ρ ΠΊΡΠ°ΡΠΈΠ²ΠΎ ΠΈ ΡΡΠΈΠ»ΡΠ½ΠΎ, Π½ΠΎ ΠΈ ΠΏΡΠ°ΠΊΡΠΈΡΠ½ΠΎ, Π²Π΅Π΄Ρ ΠΌΠ΅ΡΡΠΎ ΠΏΠΎΠ΄ ΠΏΠΎΠ΄ΠΈΡΠΌΠΎΠΌ ΠΌΠΎΠΆΠ½ΠΎ ΠΈΡΠΏΠΎΠ»ΡΠ·ΠΎΠ²Π°ΡΡ Π΄Π»Ρ Ρ ΡΠ°Π½Π΅Π½ΠΈΡ ΠΌΠ½ΠΎΠ³ΠΈΡ Π²Π΅ΡΠ΅ΠΉ.
- ΠΠ΅Π±ΠΎΠ»ΡΡΠ°Ρ ΡΠ°Π±ΠΎΡΠ°Ρ Π·ΠΎΠ½Π° Ρ ΠΎΡΠΎΡΠΎ Π²ΠΏΠΈΡΠ°Π»Π°ΡΡ Π² ΠΎΠ±ΡΠΈΠΉ Π΄ΠΈΠ·Π°ΠΉΠ½. Π‘ΠΊΠ»Π°Π΄Π½ΠΎΠΉ ΡΡΡΠ», ΠΊΠΎΡΠΎΡΡΠΉ ΡΡΠ°Π» ΡΡΠΊΠΈΠΌ Π°ΠΊΡΠ΅Π½ΡΠΎΠΌ, ΠΌΠΎΠΆΠ½ΠΎ ΠΎΡΠ΅Π½Ρ Π»Π΅Π³ΠΊΠΎ ΡΠ±ΡΠ°ΡΡ ΠΏΡΠΈ Π½Π΅ΠΎΠ±Ρ ΠΎΠ΄ΠΈΠΌΠΎΡΡΠΈ. Π ΡΡΠΎΠ»Π΅ΡΠ½ΠΈΡΠ° ΠΏΠΎΠ΄Π½ΠΈΠΌΠ°Π΅ΡΡΡ, ΡΠΊΡΡΠ²Π°Ρ ΡΠΎΠ±ΠΎΠΉ ΠΏΠΎΠ»ΠΎΡΠΊΠΈ.

ΠΠ΅ΠΎΠ±ΡΡΠ½ΠΎΠ΅ ΠΈΡΠΏΠΎΠ»ΡΠ·ΠΎΠ²Π°Π½ΠΈΠ΅ Π²Π΅Π»ΠΎΡΠΈΠΏΠ΅Π΄Π°
- Π Π΄ΠΎΠ»Π³ΠΎΠΆΠ΄Π°Π½Π½ΡΠΉ Β«Π³Π²ΠΎΠ·Π΄ΡΒ» ΠΏΡΠΎΠ΅ΠΊΡΠ° β Π²Π΅Π»ΠΎΡΠΈΠΏΠ΅Π΄, ΠΊΠΎΡΠΎΡΡΠΉ ΡΠ»ΡΠΆΠΈΡ ΠΏΠΎΠ΄ΠΏΠΎΡΠΊΠΎΠΉ Π΄Π»Ρ ΡΠ°ΠΊΠΎΠ²ΠΈΠ½Ρ. Π Π»Π°ΠΊΠΎΠ½ΠΈΡΠ½ΠΎΠΌ ΠΎΡΠΎΡΠΌΠ»Π΅Π½ΠΈΠΈ ΡΠ°Π½ΡΠ·Π»Π° ΠΎΠ½ Π΄Π΅ΠΉΡΡΠ²ΠΈΡΠ΅Π»ΡΠ½ΠΎ ΡΡΠ°Π» ΠΈΠ·ΡΠΌΠΈΠ½ΠΊΠΎΠΉ. Π―ΡΠΊΠΎΠ΅ ΠΎΡΠ²Π΅ΡΠ΅Π½ΠΈΠ΅, ΡΠ²Π΅Ρ ΠΏΠΎΠ»Π° ΠΈ ΠΊΠΎΠ²ΡΠΈΠΊΠΎΠ² ΡΠΎΠ·Π΄Π°ΡΡ ΠΎΡΡΡΠ΅Π½ΠΈΠ΅ ΠΏΡΠ΅Π±ΡΠ²Π°Π½ΠΈΡ Π½Π° ΠΎΡΠΊΡΡΡΠΎΠΉ Π»ΡΠΆΠ°ΠΉΠΊΠ΅, Π·Π°Π»ΠΈΡΠΎΠΉ ΡΠΎΠ»Π½Π΅ΡΠ½ΡΠΌ ΡΠ²Π΅ΡΠΎΠΌ.
ΠΠΎ-ΠΌΠΎΠ΅ΠΌΡ, ΡΡΠΎ Π΄Π΅ΠΉΡΡΠ²ΠΈΡΠ΅Π»ΡΠ½ΠΎ ΠΊΡΠ°ΡΠΈΠ²ΡΠΉ, ΠΎΡΠΈΠ³ΠΈΠ½Π°Π»ΡΠ½ΡΠΉ ΠΈ ΠΎΡΠ΅Π½Ρ ΠΏΡΠ°ΠΊΡΠΈΡΠ½ΡΠΉ Π΄ΠΈΠ·Π°ΠΉΠ½ ΠΏΡΠΎΠ΅ΠΊΡ ΠΎΠ΄Π½ΠΎΠΊΠΎΠΌΠ½Π°ΡΠ½ΠΎΠΉ ΠΊΠ²Π°ΡΡΠΈΡΡ ΡΡΡΠ΄ΠΈΠΈ, Π²ΠΎΠΏΠ»ΠΎΡΠΈΡΡ ΠΊΠΎΡΠΎΡΡΠΉ ΠΌΠΎΠΆΠ½ΠΎ Π΄ΠΎΠ²ΠΎΠ»ΡΠ½ΠΎ Π»Π΅Π³ΠΊΠΎ ΠΈ Π½Π΅Π΄ΠΎΡΠΎΠ³ΠΎ. ΠΠ½ ΠΎΡΠ»ΠΈΡΠ½ΠΎ ΠΏΠΎΠ΄ΠΎΠΉΠ΄Π΅Ρ Π΄Π»Ρ ΠΎΠ΄Π½ΠΎΠ³ΠΎ ΠΎΠ±ΠΈΡΠ°ΡΠ΅Π»Ρ ΠΈΠ»ΠΈ ΠΌΠΎΠ»ΠΎΠ΄ΠΎΠΉ ΠΏΠ°ΡΡ, ΠΊΠΎΡΠΎΡΠ°Ρ Π²Π΅Π΄Π΅Ρ Π°ΠΊΡΠΈΠ²Π½ΡΠΉ ΠΎΠ±ΡΠ°Π· ΠΆΠΈΠ·Π½ΠΈ, Π»ΡΠ±ΠΈΡ ΠΏΡΠΈΡΠΎΠ΄Ρ, ΡΡΠΊΠΈΠ΅ ΠΊΡΠ°ΡΠΊΠΈ ΠΈ Π΄ΠΎΠΌΠ°ΡΠ½ΠΈΠΉ ΡΡΡ.
ΠΠΈΠ·Π°ΠΉΠ½ ΠΏΡΠΎΠ΅ΠΊΡ ΠΎΠ΄Π½ΠΎΠΊΠΎΠΌΠ½Π°ΡΠ½ΠΎΠΉ ΠΊΠ²Π°ΡΡΠΈΡΡ 45 ΠΊΠ².ΠΌ. Ρ Π΄ΠΎΠ²ΠΎΠ»ΡΠ½ΠΎ Π½Π΅ΡΡΠ°Π½Π΄Π°ΡΡΠ½ΠΎΠΉ ΠΏΠ»Π°Π½ΠΈΡΠΎΠ²ΠΊΠΎΠΉ
Π‘ΡΠ΅Π΄ΠΈ ΡΠ΄Π°ΡΠ½ΡΡ Π΄ΠΈΠ·Π°ΠΉΠ½Π΅ΡΡΠΊΠΈΡ ΡΠ°Π·ΡΠ°Π±ΠΎΡΠΎΠΊ Ρ ΠΎΡΡ Π²ΡΠ΄Π΅Π»ΠΈΡΡ ΡΡΠΎ ΠΎΡΠΎΡΠΌΠ»Π΅Π½ΠΈΠ΅ ΠΈΠ½ΡΠ΅ΡΡΠ΅ΡΠ° Π½Π° Π½Π΅Π±ΠΎΠ»ΡΡΠΎΠΉ ΠΏΠ»ΠΎΡΠ°Π΄ΠΈ ΠΈ Ρ Π΄ΠΎΠ²ΠΎΠ»ΡΠ½ΠΎ Π½Π΅ΡΡΠ°Π½Π΄Π°ΡΡΠ½ΠΎΠΉ ΠΏΠ»Π°Π½ΠΈΡΠΎΠ²ΠΊΠΎΠΉ. Π ΠΏΠΎΠΌΠ΅ΡΠ΅Π½ΠΈΠΈ Π±ΡΠ» ΠΏΡΠ΅Π΄ΡΡΠΌΠΎΡΡΠ΅Π½ Π²ΡΠ΅Π³ΠΎ ΠΎΠ΄ΠΈΠ½ ΠΎΠΊΠΎΠ½Π½ΡΠΉ ΠΏΡΠΎΠ΅ΠΌ, ΠΏΠΎΡΡΠΎΠΌΡ Π³Π»Π°Π²Π½ΠΎΠΉ Π·Π°Π΄Π°ΡΠ΅ΠΉ Π±ΡΠ»ΠΎ ΡΠ΄Π΅Π»Π°ΡΡ ΠΊΠ²Π°ΡΡΠΈΡΡ ΠΌΠ°ΠΊΡΠΈΠΌΠ°Π»ΡΠ½ΠΎ ΡΠ²Π΅ΡΠ»ΠΎΠΉ ΠΈ ΠΏΡΠΎΡΡΠΎΡΠ½ΠΎΠΉ. Π ΠΏΠΎΡΠΊΠΎΠ»ΡΠΊΡ Ρ ΠΎΠ·ΡΠ΅Π²Π° ΠΊΠ°ΡΠ΅Π³ΠΎΡΠΈΡΠ΅ΡΠΊΠΈ ΠΎΡΠΊΠ°Π·Π°Π»ΠΈΡΡ ΠΎΡ ΠΏΡΠΎΡΡΡΠ°Π½ΡΡΠ²Π° Π±Π΅Π· ΠΊΠ°ΠΊΠΈΡ -Π»ΠΈΠ±ΠΎ ΠΏΠ΅ΡΠ΅Π³ΠΎΡΠΎΠ΄ΠΎΠΊ, ΡΠ΅ΡΠΈΡΡ ΡΠ°ΠΊΡΡ Π·Π°Π΄Π°ΡΡ Π±ΡΠ»ΠΎ Π½Π΅ΠΏΡΠΎΡΡΠΎ.
ΠΠΊΠΎΠ½ΡΠ°ΡΠ΅Π»ΡΠ½ΡΠΉ ΠΏΠ»Π°Π½ Ρ ΡΠ°ΡΡΡΠ°Π½ΠΎΠ²ΠΊΠΎΠΉ ΠΌΠ΅Π±Π΅Π»ΠΈ:

ΠΠ»Π°Π½ ΠΊΠ²Π°ΡΡΠΈΡΡ 45 ΠΊΠ².ΠΌ
ΠΠ±ΡΠ°Ρ ΠΊΠΎΠ½ΡΠ΅ΠΏΡΠΈΡ ΠΏΡΠ΅Π΄ΡΡΠΌΠ°ΡΡΠΈΠ²Π°Π΅Ρ ΠΎΡΠ³Π°Π½ΠΈΠ·Π°ΡΠΈΡ Π² ΡΠ°ΠΌΠΎΠΉ ΡΠ²Π΅ΡΠ»ΠΎΠΉ ΡΠ°ΡΡΠΈ ΠΊΠ²Π°ΡΡΠΈΡΡ Π³ΠΎΡΡΠΈΠ½ΠΎΠΉ, ΠΎΡ ΠΊΠΎΡΠΎΡΠΎΠΉ Π±Π°ΡΠ½ΠΎΠΉ ΡΡΠΎΠΉΠΊΠΎΠΉ ΠΎΡΠ΄Π΅Π»Π΅Π½Π° ΠΊΡΡ Π½Ρ. Π‘ΠΏΠ°Π»ΡΠ½Ρ Π²ΡΠ½Π΅ΡΠ΅Π½Π° Π² ΠΎΡΠ΄Π΅Π»ΡΠ½ΡΡ Π½ΠΈΡΡ ΠΈ ΡΠΊΡΡΡΠ° Π»Π΅Π³ΠΊΠΎΠΉ ΠΏΠΎΠ»ΡΠΏΡΠΎΠ·ΡΠ°ΡΠ½ΠΎΠΉ ΠΏΠ΅ΡΠ΅Π³ΠΎΡΠΎΠ΄ΠΊΠΎΠΉ, ΠΊΠΎΡΠΎΡΠ°Ρ Π±ΡΠ΄Π΅Ρ Ρ ΠΎΡΠΎΡΠΎ ΠΏΡΠΎΠΏΡΡΠΊΠ°ΡΡ Π΄Π½Π΅Π²Π½ΠΎΠΉ ΡΠ²Π΅Ρ.

Π‘Π²Π΅ΡΠ»Π°Ρ Π³ΠΎΡΡΠΈΠ½Π°Ρ
Π‘ΡΠ΅Π½Ρ, ΠΏΠΎΠ» ΠΈ ΠΏΠΎΡΠΎΠ»ΠΊΠΈ Π²ΡΠΏΠΎΠ»Π½Π΅Π½Ρ Π² Π±Π΅Π»ΠΎ-ΡΠ΅ΡΡΡ ΡΠΎΠ½Π°Ρ , ΡΡΠΎ Π²ΠΈΠ·ΡΠ°Π»ΡΠ½ΠΎ ΡΠ°ΡΡΠΈΡΡΠ΅Ρ ΠΏΡΠΎΡΡΡΠ°Π½ΡΡΠ²ΠΎ. ΠΠ»Π°Π²Π½ΡΠΉ ΠΏΡΠ΅Π΄ΠΌΠ΅Ρ ΠΌΠ΅Π±Π»ΠΈΡΠΎΠ²ΠΊΠΈ β Π΄ΠΈΠ²Π°Π½ β ΠΏΠΎΠ΄ΠΎΠ±ΡΠ°Π½ Π² ΡΠΎΠ½ Π²Π½ΡΡΡΠ΅Π½Π½Π΅ΠΉ ΠΎΡΠ΄Π΅Π»ΠΊΠΈ, Π° ΡΡΠΊΠΈΡ ΠΊΡΠ°ΡΠΎΠΊ ΠΈΠ½ΡΠ΅ΡΡΠ΅ΡΡ Π΄ΠΎΠ±Π°Π²Π»ΡΡΡ Π°ΠΊΡΠ΅ΡΡΡΠ°ΡΡ β ΠΏΠΎΠ΄ΡΡΠΊΠΈ, ΠΊΠΎΠ²Π΅Ρ, Π°Π±Π°ΠΆΡΡ Π»Π°ΠΌΠΏΡ.

ΠΡΠΎΡΡΡΠ΅ ΡΠΎΡΠΌΡ ΠΈ Π»Π°ΠΊΠΎΠ½ΠΈΡΠ½ΡΠΉ Π΄ΠΈΠ·Π°ΠΉΠ½ ΠΌΠ΅Π±Π΅Π»ΠΈ
ΠΠ»Π°Π²Π½ΡΠΌ Β«ΠΏΠΎΠΆΠΈΡΠ°ΡΠ΅Π»Π΅ΠΌΒ» ΠΏΡΠΎΡΡΡΠ°Π½ΡΡΠ²Π° ΡΠ°ΡΡΠΎ ΡΡΠ°Π½ΠΎΠ²ΠΈΡΡΡ ΠΌΠ°ΡΡΠΈΠ²Π½Π°Ρ ΠΌΠ΅Π±Π΅Π»Ρ ΠΏΡΠΈΡΡΠ΄Π»ΠΈΠ²ΡΡ ΡΠΎΡΠΌ. ΠΠΎΡΡΠΎΠΌΡ Π΄Π»Ρ ΠΌΠ°Π»Π΅Π½ΡΠΊΠΎΠ³ΠΎ ΠΏΠΎΠΌΠ΅ΡΠ΅Π½ΠΈΡ ΡΡΠΎΠΈΡ Π²ΡΠ±ΠΈΡΠ°ΡΡ ΠΏΡΠ΅Π΄ΠΌΠ΅ΡΡ Π±ΠΎΠ»Π΅Π΅ ΡΠ΄Π΅ΡΠΆΠ°Π½Π½ΠΎΠ³ΠΎ Π΄ΠΈΠ·Π°ΠΉΠ½Π° ΠΈΠ· Π»Π΅Π³ΠΊΠΈΡ ΠΌΠ°ΡΠ΅ΡΠΈΠ°Π»ΠΎΠ². ΠΡΡΠΌΡΠ΅ Π»ΠΈΠ½ΠΈΠΈ ΡΠΊΠ°Π½Π΄ΠΈΠ½Π°Π²ΡΠΊΠΎΠ³ΠΎ ΡΡΠΈΠ»Ρ ΡΡΠ°Π½ΡΡ Π΄Π΅ΠΉΡΡΠ²ΠΈΡΠ΅Π»ΡΠ½ΠΎ Ρ ΠΎΡΠΎΡΠΈΠΌ Π²Π°ΡΠΈΠ°Π½ΡΠΎΠΌ.

Π Π°ΡΡΡΠ°Π²Π»ΡΠ΅ΠΌ ΠΏΡΠ°Π²ΠΈΠ»ΡΠ½ΡΠ΅ Π°ΠΊΡΠ΅Π½ΡΡ
Π ΠΏΠΎΠ΄Π±ΠΎΡΠ΅ Π΄Π΅ΡΠ°Π»Π΅ΠΉ Π²Π½ΡΡΡΠ΅Π½Π½Π΅Π³ΠΎ ΡΠ±ΡΠ°Π½ΡΡΠ²Π° ΠΎΡΠ΅Π½Ρ ΡΠ΄Π°ΡΠ½ΡΠΌ ΡΠ΅ΡΠ΅Π½ΠΈΠ΅ΠΌ Π΄Π»Ρ ΡΡΠΎΠΉ Π³ΠΎΡΡΠΈΠ½ΠΎΠΉ ΡΡΠ°Π»ΠΈ:
- ΠΡΠ΄Π²ΠΈΠΆΠ½ΡΠ΅ ΡΡΠΎΠ»ΠΈΠΊΠΈ, ΠΏΠΎΠΌΠΎΠ³Π°ΡΡΠΈΠ΅ ΡΠΊΠΎΠ½ΠΎΠΌΠΈΡΡ ΠΌΠ΅ΡΡΠΎ.
- ΠΠ½ΡΠ΅ΡΠ΅ΡΠ½ΡΠΉ ΡΡΠΈΠΏΡΠΈΡ , ΠΊΠΎΡΠΎΡΡΠΉ Π½Π΅ ΠΏΡΠΈΠ²Π»Π΅ΠΊΠ°Π΅Ρ ΠΎΡΠΎΠ±ΠΎΠ³ΠΎ Π²Π½ΠΈΠΌΠ°Π½ΠΈΡ, Π½ΠΎ ΠΎΡΠ»ΠΈΡΠ½ΠΎ Π³Π°ΡΠΌΠΎΠ½ΠΈΡΡΠ΅Ρ Ρ ΡΠ°ΠΊΡΡΡΠΎΠΉ ΡΡΠ΅Π½ΠΊΠΈ ΡΠΏΠ°Π»ΡΠ½ΠΈ.
- Π‘ΠΎΡΠ½ΡΠΉ Π·Π΅Π»Π΅Π½ΡΠΉ ΡΠ²Π΅Ρ, Π²ΡΠ³ΠΎΠ΄Π½ΠΎ ΠΊΠΎΠ½ΡΡΠ°ΡΡΠΈΡΡΡΡΠΈΠΉ Ρ ΠΎΠ±ΡΠ΅ΠΉ ΡΠ΄Π΅ΡΠΆΠ°Π½Π½ΠΎΡΡΡΡ ΠΈΠ½ΡΠ΅ΡΡΠ΅ΡΠ°.

ΠΠ°ΡΠ½Π°Ρ ΡΡΠΎΠΉΠΊΠ° ΡΡΠ°Π»Π° ΠΎΠ±Π΅Π΄Π΅Π½Π½ΡΠΌ ΡΡΠΎΠ»ΠΎΠΌ
ΠΠ°Π»Π΅Π½ΡΠΊΠ°Ρ ΠΊΡΡ Π½Ρ Π² ΡΠ°ΠΊΠΎΠΉ ΠΊΠ²Π°ΡΡΠΈΡΠ΅ ΡΠ°Π΄ΡΠ΅Ρ Π³Π»Π°Π· ΡΡΠΊΠΈΠΌΠΈ ΠΊΡΠ°ΡΠΊΠ°ΠΌΠΈ ΠΈ ΡΠΈΡΡΠΎΡΠΎΠΉ Π±Π΅Π»ΠΎΠ³ΠΎ ΡΠ²Π΅ΡΠ°. ΠΠ»ΡΠ½ΡΠ΅Π²ΡΠ΅ ΠΏΠΎΠ²Π΅ΡΡ Π½ΠΎΡΡΠΈ ΠΎΡΠ»ΠΈΡΠ½ΠΎ ΠΎΡΡΠ°ΠΆΠ°ΡΡ ΡΠ²Π΅Ρ, ΡΠ΅ΠΌ ΡΠ°ΠΌΡΠΌ Π΅ΡΠ΅ Π²ΡΠ³ΠΎΠ΄Π½Π΅Π΅ ΡΠ°ΡΡΠΈΡΡΡ ΠΏΠΎΠΌΠ΅ΡΠ΅Π½ΠΈΠ΅.

ΠΠ΅Π±ΠΎΠ»ΡΡΠ°Ρ ΡΡΠ½ΠΊΡΠΈΠΎΠ½Π°Π»ΡΠ½Π°Ρ ΠΊΡΡ Π½Ρ
ΠΠ±ΡΠ°ΡΠΈΡΠ΅ Π²Π½ΠΈΠΌΠ°Π½ΠΈΠ΅ Π½Π° Π΄Π΅ΡΠ°Π»ΠΈ β ΠΎΡΠΈΠ³ΠΈΠ½Π°Π»ΡΠ½Π°Ρ ΠΏΠ΅ΡΠ΅Π³ΠΎΡΠΎΠ΄ΠΊΠ° ΠΌΠ΅ΠΆΠ΄Ρ ΠΊΡΡ Π½Π΅ΠΉ ΠΈ ΡΠΏΠ°Π»ΡΠ½Π΅ΠΉ Ρ ΡΠ·ΠΎΡΠΎΠΌ Π² Π²ΠΈΠ΄Π΅ Π²Π΅ΡΠΎΠΊ ΡΠΎΠ·Π΄Π°Π΅Ρ ΠΎΡΡΡΠ΅Π½ΠΈΠ΅ ΠΏΡΠ΅Π±ΡΠ²Π°Π½ΠΈΡ Π½Π° ΡΠ²Π΅ΠΆΠ΅ΠΌ Π²ΠΎΠ·Π΄ΡΡ Π΅, ΠΊ ΡΠΎΠΌΡ ΠΆΠ΅, ΠΏΡΠΎΠΏΡΡΠΊΠ°Π΅Ρ ΠΌΠ°ΠΊΡΠΈΠΌΡΠΌ ΡΠΎΠ»Π½Π΅ΡΠ½ΠΎΠ³ΠΎ ΡΠ²Π΅ΡΠ°. ΠΠ±ΡΠ΅Π΅ ΡΠ²Π΅ΡΠΎΠ²ΠΎΠ΅ ΡΠ΅ΡΠ΅Π½ΠΈΠ΅ ΠΏΠΎΠ΄Π΄Π΅ΡΠΆΠΈΠ²Π°Π΅Ρ Π΄Π°ΠΆΠ΅ ΠΏΠΎΡΡΠ΄Π° ΡΡΠΊΠΎΠ³ΠΎ Π΄ΠΈΠ·Π°ΠΉΠ½Π°.

Π‘ΠΏΠ°Π»ΡΠ½Ρ Π·Π° ΠΏΠΎΠ»ΡΠΏΡΠΎΠ·ΡΠ°ΡΠ½ΠΎΠΉ ΡΡΠ΅Π½ΠΊΠΎΠΉ
ΠΠ°Π»Π΅Π½ΡΠΊΠ°Ρ ΡΠΏΠ°Π»ΡΠ½Ρ Π²ΡΠΏΠΎΠ»Π½Π΅Π½Π° Π² Π»Π°ΠΊΠΎΠ½ΠΈΡΠ½ΠΎΠΌ Π΄ΠΈΠ·Π°ΠΉΠ½Π΅ Π±Π΅Π· ΠΊΠ°ΠΊΠΈΡ -Π»ΠΈΠ±ΠΎ ΡΡΠΊΠΈΡ Π°ΠΊΡΠ΅Π½ΡΠΎΠ², ΡΡΠΎ ΡΠΎΠ·Π΄Π°Π΅Ρ ΠΎΡΡΡΠ΅Π½ΠΈΠ΅ ΡΠΏΠΎΠΊΠΎΠΉΡΡΠ²ΠΈΡ ΠΈ ΠΊΠΎΠΌΡΠΎΡΡΠ°. Π‘ΡΠΎΠΈΡ ΠΎΡΠΌΠ΅ΡΠΈΡΡ, ΡΡΠΎ Π΄Π°ΠΆΠ΅ Π½Π° ΡΠ°ΠΊΠΎΠΉ ΠΎΠ³ΡΠ°Π½ΠΈΡΠ΅Π½Π½ΠΎΠΉ ΠΏΠ»ΠΎΡΠ°Π΄ΠΈ ΡΠ΄Π°Π»ΠΎΡΡ ΠΏΠΎΠΌΠ΅ΡΡΠΈΡΡ ΠΏΡΠ°ΠΊΡΠΈΡΠ½ΡΠΉ Π³Π°ΡΠ΄Π΅ΡΠΎΠ±, ΡΠ°Π·Π΄Π²ΠΈΠΆΠ½ΡΠ΅ Π΄Π²Π΅ΡΠΈ ΠΊΠΎΡΠΎΡΠΎΠ³ΠΎ ΠΈΠ΄Π΅Π°Π»ΡΠ½ΠΎ ΡΠ»ΠΈΠ²Π°ΡΡΡΡ Ρ Π΄ΡΡΠ³ΠΈΠΌΠΈ ΠΏΠ΅ΡΠ΅Π³ΠΎΡΠΎΠ΄ΠΊΠ°ΠΌΠΈ.

Π‘ΠΎΠ²ΠΌΠ΅ΡΠ΅Π½Π½ΡΠΉ ΡΠ°Π½ΡΠ·Π΅Π» Π² ΠΌΠ°Π»Π΅Π½ΡΠΊΠΈΡ ΠΊΠ²Π°ΡΡΠΈΡΠ°Ρ
ΠΡΠ»ΠΈΡΠ½ΡΠΌ Π²ΡΠ±ΠΎΡΠΎΠΌ Π΄ΠΈΠ·Π°ΠΉΠ½Π΅ΡΠ° ΡΡΠ°Π» ΠΎΡΠ»ΠΈΡΠ°ΡΡΠΈΠΉΡΡ ΠΏΠΎ ΡΠ²Π΅ΡΠΎΠ²ΠΎΠΉ Π³Π°ΠΌΠΌΠ΅, Π½ΠΎ Π²ΡΠ΄Π΅ΡΠΆΠ°Π½Π½ΡΠΉ Π² Π΅Π΄ΠΈΠ½ΠΎΠΌ ΡΡΠΈΠ»Π΅, ΡΠΎΠ²ΠΌΠ΅ΡΠ΅Π½Π½ΡΠΉ ΡΠ°Π½ΡΠ·Π΅Π». ΠΠ°ΡΡΠ΅Π»ΡΠ½ΡΠΉ ΡΠΈΡΠ΅Π½Π΅Π²ΡΠΉ ΡΠ²Π΅Ρ Ρ ΠΎΡΠΎΡΠΎ Π³Π°ΡΠΌΠΎΠ½ΠΈΡΡΠ΅Ρ Ρ ΡΠ΅ΡΡΠΌ ΠΈ Π·Π΅Π»Π΅Π½ΡΠΌ ΡΠΎΠ½Π°ΠΌΠΈ, ΡΠΎΠ·Π΄Π°Π΅Ρ ΠΎΡΡΡΠ΅Π½ΠΈΠ΅ ΡΠ»Π΅Π³Π°Π½ΡΠ½ΠΎΠΉ ΡΠΎΡΠΊΠΎΡΠΈ Π΄Π°ΠΆΠ΅ Π² ΡΠ°ΠΊΠΎΠΌ ΠΌΠ°Π»Π΅Π½ΡΠΊΠΎΠΌ ΠΏΡΠΎΡΡΡΠ°Π½ΡΡΠ²Π΅.

ΠΡΡΠ΅Π²Π°Ρ ΠΊΠ°Π±ΠΈΠ½Π° ΡΠΊΠΎΠ½ΠΎΠΌΠΈΡ ΠΌΠ΅ΡΡΠΎ
ΠΠ΅Π±ΠΎΠ»ΡΡΠ°Ρ Π΄ΡΡΠ΅Π²Π°Ρ ΠΊΠ°Π±ΠΈΠ½Π° ΠΏΠΎΠ·Π²ΠΎΠ»ΠΈΠ»Π° ΡΡΠΊΠΎΠ½ΠΎΠΌΠΈΡΡ ΠΌΠ΅ΡΡΠΎ Π΄Π»Ρ ΡΡΠΈΡΠ°Π»ΡΠ½ΠΎΠΉ ΠΌΠ°ΡΠΈΠ½ΠΊΠΈ. Π‘ΡΠ΅ΠΊΠ»ΡΠ½Π½ΡΠ΅ ΡΡΠ΅Π½ΠΊΠΈ ΠΈ ΠΏΠΎΠ»ΠΎΡΠΊΠΈ ΡΡΠ°Π»ΠΈ ΠΏΡΠ°ΠΊΡΠΈΡΠ½ΡΠΌΠΈ ΡΠ»Π΅ΠΌΠ΅Π½ΡΠ°ΠΌΠΈ, ΠΊΠΎΡΠΎΡΡΠ΅ ΡΠΎΠ»ΡΠΊΠΎ ΠΏΠΎΠ΄ΡΠ΅ΡΠΊΠΈΠ²Π°ΡΡ ΠΎΠ±ΡΡΡ Π»Π΅Π³ΠΊΠΎΡΡΡ ΠΈΠ½ΡΠ΅ΡΡΠ΅ΡΠ°.
ΠΠΎΠ³Ρ ΡΠΌΠ΅Π»ΠΎ ΡΠΊΠ°Π·Π°ΡΡ, ΡΡΠΎ ΡΠ°ΡΡΠΌΠΎΡΡΠ΅Π½Π½ΡΠΉ Π²Π°ΡΠΈΠ°Π½Ρ ΡΡΠ°Π» ΠΎΠ΄Π½ΠΈΠΌ ΠΈΠ· ΡΠ°ΠΌΡΡ ΡΠ΄Π°ΡΠ½ΡΡ Π΄ΠΈΠ·Π°ΠΉΠ½ ΠΏΡΠΎΠ΅ΠΊΡΠΎΠ² ΠΎΠ΄Π½ΠΎΠΊΠΎΠΌΠ½Π°ΡΠ½ΡΡ ΠΊΠ²Π°ΡΡΠΈΡ. Π’Π°ΠΊΠΎΠ΅ ΡΠ΅ΡΠ΅Π½ΠΈΠ΅ ΠΎΠΏΡΠΈΠΌΠ°Π»ΡΠ½ΠΎ ΠΏΠΎΠ΄ΠΎΠΉΠ΄Π΅Ρ Π΄Π»Ρ ΠΌΠΎΠ»ΠΎΠ΄ΡΡ Π»ΡΠ΄Π΅ΠΉ, Π½Π°ΡΠ°Π²ΡΠΈΡ ΠΆΠΈΡΡ ΠΎΡΠ΄Π΅Π»ΡΠ½ΠΎ, ΠΈΠ»ΠΈ ΡΡΠΏΡΡΠΆΠ΅ΡΠΊΠΎΠΉ ΠΏΠ°ΡΡ, Ρ ΠΊΠΎΡΠΎΡΠΎΠΉ Π΅ΡΠ΅ Π½Π΅Ρ Π΄Π΅ΡΠ΅ΠΉ.
Π Π°ΡΡΠΈΡΠ΅Π½ΠΈΠ΅ ΠΏΡΠΎΡΡΡΠ°Π½ΡΡΠ²Π° Π² ΠΌΠ°Π»Π΅Π½ΡΠΊΠΎΠΉ ΠΎΠ΄Π½ΠΎΠΊΠΎΠΌΠ½Π°ΡΠ½ΠΎΠΉ ΠΊΠ²Π°ΡΡΠΈΡΠ΅
ΠΠ°ΠΊΠΈΠ΅ Π΅ΡΠ΅ ΠΏΡΠΈΠ΅ΠΌΡ ΠΏΠΎΠΌΠΎΠ³ΡΡ ΡΠ²Π΅Π»ΠΈΡΠΈΡΡ ΠΏΡΠΎΡΡΡΠ°Π½ΡΡΠ²ΠΎ Π² ΡΠΈΠΏΠΎΠ²ΡΡ ΠΎΠ΄Π½ΠΎΠΊΠΎΠΌΠ½Π°ΡΠ½ΡΡ ΠΊΠ²Π°ΡΡΠΈΡΠ°Ρ ? Π Π΅ΠΊΠΎΠΌΠ΅Π½Π΄ΡΡ ΠΏΡΠΈΠ½ΠΈΠΌΠ°ΡΡ Π²ΠΎ Π²Π½ΠΈΠΌΠ°Π½ΠΈΠ΅ ΡΠ°ΠΊΠΈΠ΅ Π΄ΠΈΠ·Π°ΠΉΠ½Π΅ΡΡΠΊΠΈΠ΅ ΡΠΎΠ²Π΅ΡΡ:
- Π£ΡΠΈΠΌΡΡ Π³ΡΠ°ΠΌΠΎΡΠ½ΠΎ Π·ΠΎΠ½ΠΈΡΠΎΠ²Π°ΡΡ ΠΏΠΎΠΌΠ΅ΡΠ΅Π½ΠΈΠ΅. Π’ΠΎΠ»ΡΡΡΠ΅ ΠΌΠ°ΡΡΠΈΠ²Π½ΡΠ΅ ΡΡΠ΅Π½Ρ Π·Π΄Π΅ΡΡ Π½Π΅ ΠΏΠΎΠ΄ΠΎΠΉΠ΄ΡΡ. ΠΡΡΡΠ΅ ΠΏΡΠΈΠ±Π΅Π³Π½ΡΡΡ ΠΊ Π»Π΅Π³ΠΊΠΈΠΌ ΠΏΠ΅ΡΠ΅Π³ΠΎΡΠΎΠ΄ΠΊΠ°ΠΌ, ΡΠ°Π·Π½ΡΠΌ ΡΠ°ΠΊΡΡΡΠ°ΠΌ ΠΏΠΎΠ»ΠΎΠ² ΠΈ ΠΌΠ½ΠΎΠ³ΠΎΡΡΠΎΠ²Π½Π΅Π²ΡΠΌ ΠΏΠΎΡΠΎΠ»ΠΊΠ°ΠΌ, ΡΠ²Π΅ΡΠ»ΡΠΌ ΡΠΎΠ½Π°ΠΌ ΡΡΠ΅Π½.
- Π§Π΅ΠΌ Π±ΠΎΠ»ΡΡΠ΅ ΡΠ²Π΅ΡΠ°, ΠΊΠ°ΠΊ ΠΏΡΠΈΡΠΎΠ΄Π½ΠΎΠ³ΠΎ, ΡΠ°ΠΊ ΠΈ ΠΈΡΠΊΡΡΡΡΠ²Π΅Π½Π½ΠΎΠ³ΠΎ, Π±ΡΠ΄Π΅Ρ Π² ΠΊΠ²Π°ΡΡΠΈΡΠ΅, ΡΠ΅ΠΌ ΡΠΈΡΠ΅ ΠΎΠ½Π° Π±ΡΠ΄Π΅Ρ ΠΊΠ°Π·Π°ΡΡΡΡ. ΠΠ΅ ΡΡΠΎΠΈΡ Π·Π°ΠΊΡΡΠ²Π°ΡΡ ΠΎΠΊΠ½Π° Π³ΡΠΎΠΌΠΎΠ·Π΄ΠΊΠΈΠΌΠΈ ΡΡΠΎΡΠ°ΠΌΠΈ.
- ΠΡΠ»ΠΈ Π² ΠΈΠ½ΡΠ΅ΡΡΠ΅ΡΠ΅ Π½Π΅ ΠΎΠ±ΠΎΠΉΡΠΈΡΡ Π±Π΅Π· Π΄Π²Π΅ΡΠ΅ΠΉ, ΠΎΡΠ»ΠΈΡΠ½ΠΎΠΉ Π°Π»ΡΡΠ΅ΡΠ½Π°ΡΠΈΠ²ΠΎΠΉ ΡΡΠ°Π½ΡΡ ΡΠ°Π·Π΄Π²ΠΈΠΆΠ½ΡΠ΅ ΠΊΠΎΠ½ΡΡΡΡΠΊΡΠΈΠΈ.
- ΠΠ±ΡΠ΅ΠΌΠ½Π°Ρ ΠΌΠ΅Π±Π΅Π»Ρ ΡΠΎΠ»ΡΠΊΠΎ ΡΠΊΡΠ°Π΄Π΅Ρ ΠΌΠ΅ΡΡΠΎ ΠΈ ΡΠ΄Π΅Π»Π°Π΅Ρ ΠΊΠΎΠΌΠ½Π°ΡΡ Π·Π°Ρ Π»Π°ΠΌΠ»Π΅Π½Π½ΡΠΌΠΈ. ΠΡΠ΄Π°Π²Π°ΠΉΡΠ΅ ΠΏΡΠ΅Π΄ΠΏΠΎΡΡΠ΅Π½ΠΈΠ΅ Π½ΠΈΠ·ΠΊΠΈΠΌ ΠΏΡΠ΅Π΄ΠΌΠ΅ΡΠ°ΠΌ Ρ Π»Π°ΠΊΠΎΠ½ΠΈΡΠ½ΡΠΌ Π΄ΠΈΠ·Π°ΠΉΠ½ΠΎΠΌ ΠΈ ΠΏΠΎΠ΄ΡΠ΅ΡΠΊΠΈΠ²Π°ΠΉΡΠ΅ ΠΈΡ ΠΎΡΠΈΠ³ΠΈΠ½Π°Π»ΡΠ½ΡΠΌΠΈ Π°ΠΊΡΠ΅ΡΡΡΠ°ΡΠ°ΠΌΠΈ.
- Π‘ΡΠ°ΡΠ°ΠΉΡΠ΅ΡΡ ΡΠΎΡ ΡΠ°Π½ΠΈΡΡ ΠΊΠ°ΠΊ ΠΌΠΎΠΆΠ½ΠΎ Π±ΠΎΠ»ΡΡΠ΅ ΡΠ²ΠΎΠ±ΠΎΠ΄Π½ΠΎΠ³ΠΎ ΠΌΠ΅ΡΡΠ° Π² ΡΠ΅Π½ΡΡΠ΅ ΠΊΠΎΠΌΠ½Π°ΡΡ. ΠΡΠΎ Π²ΠΈΠ·ΡΠ°Π»ΡΠ½ΠΎ ΡΠ°ΡΡΠΈΡΠΈΡ Π΅Π΅ ΠΏΠ»ΠΎΡΠ°Π΄Ρ.
- ΠΠ΅ Π·Π°Π±ΡΠ²Π°ΠΉΡΠ΅ ΠΎ ΡΠΎΠ·Π΄Π°Π½ΠΈΠΈ ΡΠ΄ΠΎΠ±Π½ΡΡ ΠΌΠ΅ΡΡ Π΄Π»Ρ Ρ ΡΠ°Π½Π΅Π½ΠΈΡ Π²Π΅ΡΠ΅ΠΉ. ΠΡΠ³ΠΎΠ½ΠΎΠΌΠΈΡΠ½ΠΎΡΡΡ β Π²Π°ΠΆΠ½Π°Ρ ΡΠΎΡΡΠ°Π²Π»ΡΡΡΠ°Ρ Π»ΡΠ±ΠΎΠ³ΠΎ ΠΏΡΠΎΠ΅ΠΊΡΠ°.
6 ΡΠΎΡΠΎΠ³ΡΠ°ΡΠΈΠΉ ΡΠ΄Π°ΡΠ½ΡΡ Π΄ΠΈΠ·Π°ΠΉΠ½ ΠΏΡΠΎΠ΅ΠΊΡΠΎΠ² ΠΎΠ΄Π½ΠΎΠΊΠΎΠΌΠ½Π°ΡΠ½ΡΡ ΠΊΠ²Π°ΡΡΠΈΡ
ΠΡΠ΅Π΄Π»Π°Π³Π°Ρ Π΅ΡΠ΅ Π½Π΅ΡΠΊΠΎΠ»ΡΠΊΠΎ ΠΈΠ½ΡΠ΅ΡΠ΅ΡΠ½ΡΡ Π΄ΠΈΠ·Π°ΠΉΠ½ ΠΏΡΠΎΠ΅ΠΊΡΠΎΠ² ΠΎΠ΄Π½ΠΎΠΊΠΎΠΌΠ½Π°ΡΠ½ΡΡ ΠΊΠ²Π°ΡΡΠΈΡ ΡΠΎΡΠΎ Ρ ΠΏΠΎΠ»Π΅Π·Π½ΡΠΌΠΈ ΠΈΠ΄Π΅ΡΠΌΠΈ:

ΠΡΡ Π½Ρ ΠΏΠΎΡΠ΅ΡΠ΅Π΄ΠΈΠ½Π΅ ΡΡΡΠ΄ΠΈΠΈ

Π‘ΠΏΠ°Π»ΡΠ½ΠΎΠ΅ ΠΌΠ΅ΡΡΠΎ Π·Π° ΡΠΈΡΠΌΠΎΠΉ

Π Π°Π·Π΄Π²ΠΈΠΆΠ½ΡΠ΅ ΠΏΠ΅ΡΠ΅Π³ΠΎΡΠΎΠ΄ΠΊΠΈ

ΠΠ½ΠΎΠ³ΠΎΡΡΠΎΠ²Π½Π΅Π²ΡΠ΅ ΠΏΠΎΡΠΎΠ»ΠΊΠΈ ΠΈ ΠΎΠ±ΠΈΠ»ΠΈΠ΅ ΡΠ²Π΅ΡΠ°

Π€ΠΎΡΠΎΠΎΠ±ΠΎΠΈ ΡΠ°ΡΡΠΈΡΡΡΡ ΠΏΡΠΎΡΡΡΠ°Π½ΡΡΠ²ΠΎ

ΠΠΎΠ΄ΠΈΡΠΌ Π·ΠΎΠ½ΠΈΡΡΠ΅Ρ ΠΏΠΎΠΌΠ΅ΡΠ΅Π½ΠΈΠ΅ ΠΈ ΡΠΎΠ·Π΄Π°Π΅Ρ ΠΌΠ΅ΡΡΠΎ Π΄Π»Ρ Ρ ΡΠ°Π½Π΅Π½ΠΈΡ
ΠΠ°ΠΊ Π²ΠΈΠ΄Π½ΠΎ ΠΈΠ· ΡΡΠΈΡ ΠΏΡΠΎΠ΅ΠΊΡΠΎΠ², Π΄Π°ΠΆΠ΅ Π½Π΅Π±ΠΎΠ»ΡΡΠΈΠ΅ ΠΊΠ²Π°ΡΡΠΈΡΡ ΠΈ Π½Π΅Π²ΡΠ³ΠΎΠ΄Π½ΡΠ΅ ΠΏΠ»Π°Π½ΠΈΡΠΎΠ²ΠΊΠΈ ΠΌΠΎΠΆΠ½ΠΎ ΠΏΡΠ΅Π²ΡΠ°ΡΠΈΡΡ Π² ΡΡΠΈΠ»ΡΠ½ΡΠ΅, ΡΡΠ½ΠΊΡΠΈΠΎΠ½Π°Π»ΡΠ½ΡΠ΅ ΠΈ ΡΡΡΠ½ΡΠ΅ ΠΈΠ½ΡΠ΅ΡΡΠ΅ΡΡ. ΠΡΠ΅ Π»ΡΡΡΠΈΠ΅ Π΄ΠΈΠ·Π°ΠΉΠ½ ΠΏΡΠΎΠ΅ΠΊΡΡ ΠΎΠ΄Π½ΠΎΠΊΠΎΠΌΠ½Π°ΡΠ½ΡΡ ΠΊΠ²Π°ΡΡΠΈΡ ΠΏΡΠΈΠ΄Π΅ΡΠΆΠΈΠ²Π°ΡΡΡΡ ΠΎΠ±ΡΠΈΡ ΠΏΡΠ°Π²ΠΈΠ», Π½ΠΎ ΠΏΡΠΈΡΠΏΠΎΡΠ°Π±Π»ΠΈΠ²Π°ΡΡ ΠΈΡ ΠΏΠΎΠ΄ ΠΊΠ°ΠΆΠ΄ΡΠΉ ΠΎΡΠ΄Π΅Π»ΡΠ½ΡΠΉ ΡΠ»ΡΡΠ°ΠΉ ΠΈ ΠΏΠΎΠΆΠ΅Π»Π°Π½ΠΈΡ Ρ ΠΎΠ·ΡΠ΅Π². ΠΡΠ»ΠΈ Π²Ρ Ρ ΠΎΡΠΈΡΠ΅ ΡΠ΄Π΅Π»Π°ΡΡ Π΄Π΅ΠΉΡΡΠ²ΠΈΡΠ΅Π»ΡΠ½ΠΎ ΠΈΠ½ΡΠ΅ΡΠ΅ΡΠ½ΡΠΉ Π΄ΠΈΠ·Π°ΠΉΠ½, ΠΏΠΎΠΌΠΎΡΡ ΠΎΠΏΡΡΠ½ΡΡ ΠΏΡΠΎΡΠ΅ΡΡΠΈΠΎΠ½Π°Π»ΠΎΠ² ΡΡΠ°Π½Π΅Ρ ΠΎΡΠ»ΠΈΡΠ½ΡΠΌ ΡΠ΅ΡΠ΅Π½ΠΈΠ΅ΠΌ.
ΠΡΠ°ΡΠΈΠ²ΠΎΠ΅ ΠΈ ΡΡΡΠ½ΠΎΠ΅ ΠΆΠΈΠ»ΡΠ΅ ΡΠ΅Π°Π»ΡΠ½ΠΎ Π² Π»ΡΠ±ΠΎΠΌ ΡΠ»ΡΡΠ°Π΅!
sdom-stroy.ru
ΠΠ°ΠΊ ΠΈΠ· ΠΎΠ΄Π½ΡΡΠΊΠΈ ΡΠ΄Π΅Π»Π°ΡΡ Π΄Π²ΡΡΠΊΡ: 16 Π»ΡΡΡΠΈΡ ΠΈΠ΄Π΅ΠΉ
ΠΠ°Π²Π΅ΡΡ ΠΠ΅ΡΠ΅ΠΏΠ»Π°Π½ΠΈΡΠΎΠ²ΠΊΠΈ- ΠΠ°ΡΠ°Π»ΠΎΠ³ Π΄ΠΎΠΌΠΎΠ²
- ΠΠ²Π°ΡΡΠΈΡΠ°
- Π‘ΠΏΠ°Π»ΡΠ½Ρ
- ΠΡΡ Π½Ρ
- Π‘ΡΠΎΠ»ΠΎΠ²Π°Ρ
- ΠΠΎΡΡΠΈΠ½Π°Ρ
- ΠΠ°Π½Π½Π°Ρ ΠΊΠΎΠΌΠ½Π°ΡΠ°, ΡΠ°Π½ΡΠ·Π΅Π»
- ΠΡΠΈΡ ΠΎΠΆΠ°Ρ
- ΠΠ΅ΡΡΠΊΠ°Ρ
- ΠΠ°Π½ΡΠ°ΡΠ΄Π°
- ΠΠ°Π»Π΅Π½ΡΠΊΠΈΠ΅ ΠΊΠΎΠΌΠ½Π°ΡΡ
- Π Π°Π±ΠΎΡΠ΅Π΅ ΠΌΠ΅ΡΡΠΎ
- ΠΠ°ΡΠ΄Π΅ΡΠΎΠ±Π½Π°Ρ
- ΠΠΈΠ±Π»ΠΈΠΎΡΠ΅ΠΊΠ°
- ΠΠ΅ΠΊΠΎΡΠΈΡΠΎΠ²Π°Π½ΠΈΠ΅
- ΠΠ΅Π±Π΅Π»Ρ
- ΠΠΊΡΠ΅ΡΡΡΠ°ΡΡ
- ΠΠ°Π³ΠΎΡΠΎΠ΄Π½ΡΠΉ Π΄ΠΎΠΌ
- ΠΠ°Π½Π΄ΡΠ°ΡΡ
- Π‘ΠΈΡΡΠ΅ΠΌΡ Ρ ΡΠ°Π½Π΅Π½ΠΈΡ
- ΠΠΎΡΠΈΠ΄ΠΎΡ
- Π£Π±ΠΎΡΠΊΠ°
- Π€ΡΠ½Π΄Π°ΠΌΠ΅Π½Ρ
- ΠΡΠΎΠ²Π»Ρ
- Π‘ΡΠ΅Π½Ρ
- ΠΠΊΠ½Π°
- ΠΠ²Π΅ΡΠΈ ΠΈ ΠΏΠ΅ΡΠ΅Π³ΠΎΡΠΎΠ΄ΠΊΠΈ
- ΠΠΎΡΠΎΠ»ΠΎΠΊ
- ΠΠ°Π»ΠΊΠΎΠ½Ρ ΠΈ Π»ΠΎΠ΄ΠΆΠΈΠΈ
- ΠΠ½ΡΡΡΠ΅Π½Π½ΠΈΠ΅ ΠΊΠΎΠ½ΡΡΡΡΠΊΡΠΈΠΈ
- ΠΠΎΠ»
- ΠΠΎΠ΄ΠΎΡΠ½Π°Π±ΠΆΠ΅Π½ΠΈΠ΅ ΠΈ ΠΊΠ°Π½Π°Π»ΠΈΠ·Π°ΡΠΈΡ
- ΠΡΠΎΠΏΠ»Π΅Π½ΠΈΠ΅
- ΠΠ΅Π½ΡΠΈΠ»ΡΡΠΈΡ ΠΈ ΠΊΠΎΠ½Π΄ΠΈΡΠΈΠΎΠ½ΠΈΡΠΎΠ²Π°Π½ΠΈΠ΅
- ΠΠ°Π·ΠΎ- ΠΈ ΡΠ½Π΅ΡΠ³ΠΎΡΠ½Π°Π±ΠΆΠ΅Π½ΠΈΠ΅
- ΠΡΠ²Π΅ΡΠ΅Π½ΠΈΠ΅
- Π‘Π°Π½ΡΠ΅Ρ Π½ΠΈΡΠ΅ΡΠΊΠΎΠ΅ ΠΎΠ±ΠΎΡΡΠ΄ΠΎΠ²Π°Π½ΠΈΠ΅
- ΠΠ΅Π·ΠΎΠΏΠ°ΡΠ½ΠΎΡΡΡ ΠΈ Π΄ΠΎΠΌΠ°ΡΠ½ΡΡ Π°Π²ΡΠΎΠΌΠ°ΡΠΈΠΊΠ°
- ΠΠ°Π½ΠΈ, ΡΠ°ΡΠ½Ρ, Π±Π°ΡΡΠ΅ΠΉΠ½Ρ
- Π‘ΡΡΠΎΠΈΡΠ΅Π»ΡΠ½ΡΠ΅ ΠΌΠ°ΡΠ΅ΡΠΈΠ°Π»Ρ
- ΠΡΠ΄Π΅Π»ΠΎΡΠ½ΡΠ΅ ΠΌΠ°ΡΠ΅ΡΠΈΠ°Π»Ρ
- ΠΠ½ΡΡΡΡΠΌΠ΅Π½ΡΡ
- Π’Π΅Ρ Π½ΠΈΠΊΠ°
www.ivd.ru
ΠΈΠ½ΡΠ΅ΡΡΠ΅Ρ ΠΎΠ΄Π½ΡΡΠΊΠΈ, ΡΠ΅ΠΌΠΎΠ½Ρ ΠΎΠ΄Π½ΡΡΠΊΠΈ, ΠΈΠ΄Π΅ΠΈ Π΄Π»Ρ ΠΎΠ΄Π½ΡΡΠΊΠΈ, Π΄ΠΈΠ·Π°ΠΉΠ½-ΠΏΡΠΎΠ΅ΠΊΡ ΠΎΠ΄Π½ΡΡΠΊΠΈ.
ΠΡΡ
ΠΎΠ΄Π½Π°Ρ ΠΏΠ»Π°Π½ΠΈΡΠΎΠ²ΠΊΠ° ΠΎΠ΄Π½ΠΎΠΊΠΎΠΌΠ½Π°ΡΠ½ΠΎΠΉ ΠΊΠ²Π°ΡΡΠΈΡΡ.
(ΠΠ°ΠΆΠΌΠΈΡΠ΅ Π½Π° ΠΈΠ·ΠΎΠ±ΡΠ°ΠΆΠ΅Π½ΠΈΠ΅ Π΄Π»Ρ ΡΠ²Π΅Π»ΠΈΡΠ΅Π½ΠΈΡ)
ΠΠΎΠΏΡΠΎΡ ΡΠΈΡΠ°ΡΠ΅Π»Ρ:
ΠΠΎΠ±ΡΡΠΉ Π΄Π΅Π½Ρ! ΠΡΒ ΡΒ ΠΌΡΠΆΠ΅ΠΌ ΠΏΡΠΈΠΎΠ±ΡΠ΅Π»ΠΈ ΠΎΠ΄Π½ΠΎΠΊΠΎΠΌΠ½Π°ΡΠ½ΡΡ ΠΊΠ²Π°ΡΡΠΈΡΡ 43,97 ΠΌ2Β Π² Π½ΠΎΠ²ΠΎΠΌ ΠΏΠ°Π½Π΅Π»ΡΠ½ΠΎΠΌ Π΄ΠΎΠΌΠ΅. ΠΠ°ΡΠ΅ΠΌΡ ΡΡΠ°ΡΡΡΡ, ΠΊΠΎΠ½Π΅ΡΠ½ΠΎ, Π½Π΅Β Π±ΡΠ»ΠΎ ΠΏΡΠ΅Π΄Π΅Π»Π°, Π½ΠΎΒ ΡΠ°ΠΌΠΈΠΌ Π½Π΅Β ΠΏΠΎΠ»ΡΡΠ°Π΅ΡΡΡ ΡΡΠ½ΠΊΡΠΈΠΎΠ½Π°Π»ΡΠ½ΠΎ ΡΠ°Π·Π΄Π΅Π»ΠΈΡΡ Π΅Π΄ΠΈΠ½ΡΡΠ²Π΅Π½Π½ΡΡ ΠΊΠΎΠΌΠ½Π°ΡΡ Π½Π°Β ΡΠΏΠ°Π»ΡΠ½Ρ ΠΈΒ ΠΊΠ°Π±ΠΈΠ½Π΅Ρ. ΠΠ»ΠΎΠ±Π°Π»ΡΠ½ΡΡ ΠΏΠ΅ΡΠ΅Π΄Π΅Π»ΠΎΠΊ ΠΌΡΒ Π½Π΅Β ΠΏΠ»Π°Π½ΠΈΡΡΠ΅ΠΌ, Ρ ΠΎΡΠ΅Π»ΠΎΡΡΒ Π±Ρ ΡΠ°Π·Π΄Π΅Π»ΠΈΡΡ ΠΏΡΠΎΡΡΡΠ°Π½ΡΡΠ²ΠΎ ΠΏΠ΅ΡΠ΅Π³ΠΎΡΠΎΠ΄ΠΊΠΎΠΉ ΠΈΠ»ΠΈ ΡΡΠΎΡΠΎΠΉ. ΠΡΠ΅Π½Ρ Ρ ΠΎΡΠ΅Π»ΠΎΡΡΒ Π±Ρ Π²ΡΠ΄Π΅ΡΠΆΠ°ΡΡ Π²ΡΡ ΠΊΠ²Π°ΡΡΠΈΡΡ Π²Β ΠΎΠ΄Π½ΠΎΠΌ Π±Π΅Π»ΠΎ-ΡΠ²Π΅ΡΠ»ΠΎ-Π±Π΅ΠΆΠ΅Π²ΠΎΠΌ ΡΡΠΈΠ»Π΅ ΠΌΠΈΠ½ΠΈΠΌΠ°Π»ΠΈΠ·ΠΌΠ°. ΠΠΎΠΌΠΎΠ³ΠΈΡΠ΅, ΠΏΠΎΠΆΠ°Π»ΡΠΉΡΡΠ°, ΠΈΠ΄Π΅ΡΠΌΠΈ Π½Π΅Β ΡΠ»ΠΈΡΠΊΠΎΠΌ Π΄ΠΎΡΠΎΠ³ΠΎΠ³ΠΎ ΠΈΒ ΡΠΊΡΠΊΠ»ΡΠ·ΠΈΠ²Π½ΠΎΠ³ΠΎ, Π½ΠΎΒ Π²Β ΡΠΎΒ ΠΆΠ΅ Π²ΡΠ΅ΠΌΡ ΠΎΡΠΈΠ³ΠΈΠ½Π°Π»ΡΠ½ΠΎΠ³ΠΎ ΡΠ΅ΠΌΠΎΠ½ΡΠ°.
Π‘ΠΏΠ°ΡΠΈΠ±ΠΎ! Π’Π°ΡΡΡΠ½Π° Π’ΠΈΠΌΠΎΡΠ΅Π΅Π²Π°.
Β
ΠΡΠ²Π΅Ρ Π΄ΠΈΠ·Π°ΠΉΠ½Π΅ΡΠ°:
ΠΠΈΠ·Π°ΠΉΠ½-ΠΏΡΠΎΠ΅ΠΊΡ ΠΎΠ΄Π½ΡΡΠΊΠΈ Ρ ΡΠ°ΡΡΡΠ°Π½ΠΎΠ²ΠΊΠΎΠΉ ΠΌΠ΅Π±Π΅Π»ΠΈ.
(ΠΠ°ΠΆΠΌΠΈΡΠ΅ Π½Π° ΠΈΠ·ΠΎΠ±ΡΠ°ΠΆΠ΅Π½ΠΈΠ΅ Π΄Π»Ρ ΡΠ²Π΅Π»ΠΈΡΠ΅Π½ΠΈΡ)
ΠΠΈΠ·Π°ΠΉΠ½ ΠΈΠ½ΡΠ΅ΡΡΠ΅ΡΠΎΠ² ΠΊΠ²Π°ΡΡΠΈΡ Π½Π΅Β ΠΎΠ±ΡΠ·Π°ΡΠ΅Π»ΡΠ½ΠΎ Π΄ΠΎΠ»ΠΆΠ΅Π½ Π±ΡΡΡ Π²ΡΡΡΡΠ½ΡΠΌ ΠΈΒ ΡΠ»ΠΎΠΆΠ½ΡΠΌ. ΠΠΈΠ·Π°ΠΉΠ½Π΅Ρ ΡΡΡΠ΄ΠΈΠΈ ReΒ Design ΠΠΊΠ°ΡΠ΅ΡΠΈΠ½Π° ΠΡΡΠ΅ΡΠ΅Π½ΠΊΠΎ ΠΏΡΠ΅Π΄Π»ΠΎΠΆΠΈΠ»Π° ΡΠ²ΠΎΠΉ Π²Π°ΡΠΈΠ°Π½Ρ ΠΈΠ½ΡΠ΅ΡΡΠ΅ΡΠ° ΠΎΠ΄Π½ΡΡΠΊΠΈ. Π’Π°ΠΊ ΠΊΠ°ΠΊ ΡΠΈΡΠ°ΡΠ΅Π»ΡΠ½ΠΈΡΠ° ΡΠ²Π½ΠΎ ΠΏΡΠΎΡΠΈΠ² Π³Π»ΠΎΠ±Π°Π»ΡΠ½ΡΡ ΠΏΠ΅ΡΠ΅ΠΏΠ»Π°Π½ΠΈΡΠΎΠ²ΠΎΠΊ, Π½Π΅Β ΠΏΡΠΈΠ΄Π΅ΡΡΡ Π½Π°ΡΠΈΠ½Π°ΡΡ ΠΊΠ°ΠΏΠΈΡΠ°Π»ΡΠ½ΡΠΉ ΡΠ΅ΠΌΠΎΠ½Ρ ΠΎΠ΄Π½ΡΡΠΊΠΈ. ΠΡΠ΅ ΠΎΡΠ½ΠΎΠ²Π½ΡΠ΅ ΠΊΠΎΠΌΠ½Π°ΡΡ ΠΌΠΎΠΆΠ½ΠΎ ΠΎΡΡΠ°Π²ΠΈΡΡ Π½Π°Β ΠΈΡΡ ΠΎΠ΄Π½ΡΡ ΠΌΠ΅ΡΡΠ°Ρ . ΠΒ Π²Β ΠΊΠ°ΡΠ΅ΡΡΠ²Π΅ Π΄Π΅ΠΊΠΎΡΠ°ΡΠΈΠ²Π½ΠΎΠΉ ΠΈΠ΄Π΅ΠΈ Π΄Π»Ρ ΠΎΠ΄Π½ΡΡΠΊΠΈ Π²ΡΠ±ΡΠ°ΡΡ ΠΌΡΠ³ΠΊΠΎΠ΅ Π·ΠΎΠ½ΠΈΡΠΎΠ²Π°Π½ΠΈΠ΅ Π΅Π΄ΠΈΠ½ΡΡΠ²Π΅Π½Π½ΠΎΠΉ ΠΆΠΈΠ»ΠΎΠΉ ΠΊΠΎΠΌΠ½Π°ΡΡ.
ΠΡΡ Π½Ρ
ΠΠ»Ρ ΠΊΡΡ Π½ΠΈ Π΄ΠΈΠ·Π°ΠΉΠ½Π΅Ρ ΠΠΊΠ°ΡΠ΅ΡΠΈΠ½Π° ΠΡΡΠ΅ΡΠ΅Π½ΠΊΠΎ ΡΠΎΠ²Π΅ΡΡΠ΅Ρ ΠΌΠ΅Π±Π΅Π»ΡΠ½ΡΠΉ Π³Π°ΡΠ½ΠΈΡΡΡ ΡΒ Π-ΠΎΠ±ΡΠ°Π·Π½ΠΎΠΉ ΡΠ°ΡΡΡΠ°Π½ΠΎΠ²ΠΊΠΎΠΉ. Π’Π΅Ρ Π½ΠΈΠΊΠ°, ΠΊΠ°ΠΊ ΠΈΒ ΠΏΠΎΠ»ΠΎΠΆΠ΅Π½ΠΎ Π²Β ΡΠΎΠ²ΡΠ΅ΠΌΠ΅Π½Π½ΠΎΠΌ Π΄ΠΈΠ·Π°ΠΉΠ½Π΅ ΠΈΠ½ΡΠ΅ΡΡΠ΅ΡΠΎΠ² ΠΊΠ²Π°ΡΡΠΈΡ, Π²ΡΡΡΠΎΠ΅Π½Π½Π°Ρ.
ΠΡΠ»ΠΈ ΡΠΈΡΠ°ΡΠ΅Π»ΡΠ½ΠΈΡΠ° ΡΠ΅ΡΠΈΡΡΡ Π½Π°Β ΠΊΠΎΡΠΌΠ΅ΡΠΈΡΠ΅ΡΠΊΠΈΠΉ ΡΠ΅ΠΌΠΎΠ½Ρ ΠΎΠ΄Π½ΡΡΠΊΠΈ, ΡΠΎΒ Π·ΠΎΠ½Ρ ΠΊΡΡ Π½ΠΈ ΠΌΠΎΠΆΠ½ΠΎ ΠΎΠ±ΠΎΡΡΠ΄ΠΎΠ²Π°ΡΡ Π²ΡΡΡΠΎΠ΅Π½Π½ΡΠΌΠΈ ΡΠΎΡΠ΅ΡΠ½ΡΠΌΠΈ ΡΠ²Π΅ΡΠΈΠ»ΡΠ½ΠΈΠΊΠ°ΠΌΠΈ Π²Β ΠΏΠΎΠ΄Π²Π΅ΡΠ½ΠΎΠΌ ΠΏΠΎΡΠΎΠ»ΠΊΠ΅. Π Π°Π±ΠΎΡΠΈΠ΅ ΠΏΠΎΠ²Π΅ΡΡ Π½ΠΎΡΡΠΈ Π·ΠΎΠ½Ρ Π³ΠΎΡΠΎΠ²ΠΊΠΈ ΠΏΠΎΠ΄ΡΠ²Π΅ΡΠΈΡΡ ΡΠ²Π΅ΡΠΈΠ»ΡΠ½ΠΈΠΊΠ°ΠΌΠΈ, ΠΈΠ½ΡΠ΅Π³ΡΠΈΡΠΎΠ²Π°Π½Π½ΡΠΌΠΈ Π²Β ΠΊΡΡ ΠΎΠ½Π½ΡΠ΅ Π½Π°Π²Π΅ΡΠ½ΡΠ΅ ΡΠΊΠ°ΡΡ, Π°Β Π·ΠΎΠ½Ρ ΡΡΠΎΠ»ΠΎΠ²ΠΎΠΉΒ β ΠΎΠ±ΠΎΠ·Π½Π°ΡΠΈΡΡ Π»Π°ΠΌΠΏΠ°ΠΌΠΈ Π½Π°Β Π΄Π»ΠΈΠ½Π½ΡΡ ΠΏΠΎΠ΄Π²Π΅ΡΠ°Ρ .
ΠΠ»Ρ Π±ΠΎΠ»ΡΡΠΈΠ½ΡΡΠ²Π° ΠΊΡΡ ΠΎΠ½Π½ΡΡ ΠΏΠΎΠΌΠ΅ΡΠ΅Π½ΠΈΠΉ Π»ΡΡΡΠ΅ Π²ΡΠ΅Π³ΠΎ ΠΏΠΎΠ΄Ρ ΠΎΠ΄ΠΈΡ Π-ΠΎΠ±ΡΠ°Π·Π½Π°Ρ ΠΏΠ»Π°Π½ΠΈΡΠΎΠ²ΠΊΠ°. ΠΠΎΡΠΊΠΎΠ»ΡΠΊΡ ΠΏΠΎΡΡΠΈ Π²ΡΠ΅ ΡΠΎΠ²ΡΠ΅ΠΌΠ΅Π½Π½ΡΠ΅ Π³Π°ΡΠ½ΠΈΡΡΡΡ ΡΠΎΠ±ΠΈΡΠ°ΡΡΡΡ ΠΈΠ· ΠΎΡΠ΄Π΅Π»ΡΠ½ΡΡ ΠΌΠΎΠ΄ΡΠ»Π΅ΠΉ, ΡΠ³Π»ΠΎΠ²ΡΡ ΠΊΡΡ Π½Ρ ΠΌΠΎΠΆΠ½ΠΎ Π·Π°ΠΊΠ°Π·Π°ΡΡ Ρ Π»ΡΠ±ΠΎΠ³ΠΎ ΠΏΡΠΎΠΈΠ·Π²ΠΎΠ΄ΠΈΡΠ΅Π»Ρ, Π² Π»ΡΠ±ΠΎΠΉ ΠΊΠΎΠ»Π»Π΅ΠΊΡΠΈΠΈ.
ΠΠΎΡΠΈΠ΄ΠΎΡ
ΠΡΠ΅ ΠΎΠ΄Π½Π° ΠΈΠ΄Π΅Ρ Π΄Π»Ρ ΠΎΠ΄Π½ΡΡΠΊΠΈ ΡΒ ΡΠ·ΠΊΠΈΠΌ Π΄Π»ΠΈΠ½Π½ΡΠΌ ΠΊΠΎΡΠΈΠ΄ΠΎΡΠΎΠΌ: Π·Π΅ΡΠΊΠ°Π»ΠΎ Π½Π°Β ΡΡΠ΅Π½Π΅. ΠΠ½ΠΎ Π²ΠΈΠ·ΡΠ°Π»ΡΠ½ΠΎ ΡΠ°ΡΡΠΈΡΠΈΡ ΠΊΠΎΡΠΈΠ΄ΠΎΡ ΠΈΒ ΠΊΒ ΡΠΎΠΌΡΒ ΠΆΠ΅ ΡΠ°Π·ΠΎΠ±ΡΠ΅Ρ Π΅Π³ΠΎ ΠΏΠΎΠΏΠΎΠ»Π°ΠΌ. Π‘Β ΡΠ°ΠΊΠΎΠΉΒ ΠΆΠ΅ ΡΠ΅Π»ΡΡ ΡΠ΄Π΅Π»Π°Π½ΠΎ ΡΠ°Π·Π΄Π΅Π»Π΅Π½ΠΈΠ΅ Π°Π½ΡΡΠ΅ΡΠΎΠ»ΠΈ Π²Β ΠΊΠΎΡΠΈΠ΄ΠΎΡΠ΅.
Π‘ ΠΏΠΎΠΌΠΎΡΡΡ Π·Π΅ΡΠΊΠ°Π»Π° ΠΌΠΎΠΆΠ½ΠΎ ΠΈΡΠΏΡΠ°Π²ΠΈΡΡ ΠΏΡΠΎΠΏΠΎΡΡΠΈΠΈ ΠΏΠΎΠΌΠ΅ΡΠ΅Π½ΠΈΡ ΠΈΠ»ΠΈ Π΄ΠΎΠ±Π°Π²ΠΈΡΡ ΡΠ²Π΅ΡΠ°. ΠΠ΅ Π³ΠΎΠ²ΠΎΡΡ ΡΠΆΠ΅ ΠΎ ΡΠΎΠΌ, ΡΡΠΎ Π² ΠΏΡΠΈΡ ΠΎΠΆΠ΅ΠΉ Π·Π΅ΡΠΊΠ°Π»ΠΎ β Π²Π΅ΡΡ Π½Π΅Π·Π°ΠΌΠ΅Π½ΠΈΠΌΠ°Ρ.
Π‘ΠΏΠ°Π»ΡΠ½Ρ
Π‘ΠΏΠ°Π»ΡΠ½Π°Ρ Π·ΠΎΠ½Π°. Π§Π°ΡΡΠΎ ΠΎΠ΄Π½ΠΎΠΌΡ ΠΏΠΎΠΌΠ΅ΡΠ΅Π½ΠΈΡ ΠΏΡΠΈΡ ΠΎΠ΄ΠΈΡΡΡ ΡΠΎΠ²ΠΌΠ΅ΡΠ°ΡΡ Π²Β ΡΠ΅Π±Π΅ ΡΡΠ½ΠΊΡΠΈΠΈ Π΄Π²ΡΡ ΠΈΠ»ΠΈ ΡΡΠ΅Ρ . ΠΡΠΎ Π½Π΅Β ΡΠΎΠ»ΡΠΊΠΎ Π²ΡΠ½ΡΠΆΠ΄Π΅Π½Π½Π°Ρ Π½Π΅ΠΎΠ±Ρ ΠΎΠ΄ΠΈΠΌΠΎΡΡΡ, Π½ΠΎΒ Π·Π°ΡΠ°ΡΡΡΡ ΠΈΒ ΠΎΡΠ΅Π²ΠΈΠ΄Π½ΠΎΠ΅ ΡΠ΄ΠΎΠ±ΡΡΠ²ΠΎ. ΠΒ Π΄Π°Π½Π½ΠΎΠΌ ΡΠ»ΡΡΠ°Π΅ Π΄ΠΈΠ·Π°ΠΉΠ½-ΠΏΡΠΎΠ΅ΠΊΡ ΠΎΠ΄Π½ΡΡΠΊΠΈ Π²ΠΊΠ»ΡΡΠ°Π΅Ρ Π²Β ΡΠ΅Π±Ρ ΡΠΎΠ²ΠΌΠ΅ΡΠ΅Π½ΠΈΠ΅ Π΄Π²ΡΡ Π·ΠΎΠ½Β β ΡΠΏΠ°Π»ΡΠ½ΠΈ ΠΈΒ ΡΠ°Π±ΠΎΡΠ΅Π³ΠΎ ΡΠ³ΠΎΠ»ΠΊΠ°Β β Π²Β ΠΎΠ΄Π½ΠΎΠΌ ΠΏΠΎΠΌΠ΅ΡΠ΅Π½ΠΈΠΈ. ΠΠΈΠ·Π°ΠΉΠ½Π΅Ρ ΠΏΡΠ΅Π΄Π»ΠΎΠΆΠΈΠ»Π° ΡΠ°Π·Π΄Π΅Π»ΠΈΡΡ Π±ΠΎΠ»ΡΡΡΡ ΠΊΠΎΠΌΠ½Π°ΡΡ ΠΏΡΠΈ ΠΏΠΎΠΌΠΎΡΠΈ ΡΡΠ΅Π»Π»Π°ΠΆΠ°. ΠΡΠΊΡΡΡΡΠΉ ΡΡΠ΅Π»Π»Π°ΠΆ Π½Π΅Β Π²ΠΎΡΠΏΡΠΈΠ½ΠΈΠΌΠ°Π΅ΡΡΡ ΠΊΠ°ΠΊ ΡΡΠ΅Π½Π°, Π½ΠΎΒ ΡΠΎΡ ΡΠ°Π½ΡΠ΅Ρ ΠΎΡΡΡΠ΅Π½ΠΈΠ΅ ΡΠ΅Π΄ΠΈΠ½Π΅Π½Π½ΠΎΡΡΠΈ.
ΠΠΎΠ½Π° ΡΠΏΠ°Π»ΡΠ½ΠΈ Π²ΠΌΠ΅ΡΠ°Π΅Ρ Π±ΠΎΠ»ΡΡΡΡ ΠΊΡΠΎΠ²Π°ΡΡ ΠΈΒ ΠΏΠ»Π°ΡΡΠ½ΠΎΠΉ ΡΠΊΠ°Ρ. ΠΠ΅ΡΠ»ΡΡΠ°ΠΉΠ½ΠΎ ΠΈΡΠΏΠΎΠ»ΡΠ·ΠΎΠ²Π°Π½ΠΈΠ΅ Π΄Π²ΡΡ ΡΠ°Π·Π½ΡΡ ΠΏΡΠΈΠΊΡΠΎΠ²Π°ΡΠ½ΡΡ ΡΠ²Π΅ΡΠΈΠ»ΡΠ½ΠΈΠΊΠΎΠ². Π’ΠΎΡ, ΠΊΠΎΡΠΎΡΡΠΉ Π½Π°Β Π΄Π»ΠΈΠ½Π½ΠΎΠΉ Π½ΠΎΠΆΠΊΠ΅, ΡΡΠΎΠΈΡ Π½Π°Β Π±ΠΎΠ»Π΅Π΅ Π²ΡΡΠΎΠΊΠΎΠΉ ΡΡΠΌΠ±ΠΎΡΠΊΠ΅ Π½Π°Β ΠΎΠ΄Π½ΠΎΠΉ Π»ΠΈΠ½ΠΈΠΈ ΡΠΎΒ ΡΡΠ΅Π»Π»Π°ΠΆΠΎΠΌ Π½Π°ΠΏΡΠΎΡΠΈΠ², ΡΠ»ΠΎΠ²Π½ΠΎ ΠΏΠΎΠ³ΡΠ°Π½ΠΈΡΠ½ΡΠΉ ΡΡΠΎΠ»Π±ΠΈΠΊ ΠΌΠ΅ΠΆΠ΄Ρ Π΄Π²ΡΠΌΡ Π·ΠΎΠ½Π°ΠΌΠΈ.
ΠΡΡΠΎΠΊΠΈΠ΅ ΠΈΠ·Π³ΠΎΠ»ΠΎΠ²ΡΡ ΡΠ»ΡΠΆΠ°Ρ ΠΎΠ΄Π½ΠΈΠΌ ΠΈΠ· ΡΠ»Π΅ΠΌΠ΅Π½ΡΠΎΠ² Π΄Π»Ρ Π²ΠΎΠΏΠ»ΠΎΡΠ΅Π½ΠΈΡ Π΄ΠΈΠ·Π°ΠΉΠ½Π΅ΡΡΠΊΠΈΡ Π·Π°Π΄ΡΠΌΠΎΠΊ, Π²Π΅Π΄Ρ Π΄Π»Ρ ΠΈΡ ΠΎΡΠ΄Π΅Π»ΠΊΠΈ ΠΈΡΠΏΠΎΠ»ΡΠ·ΡΡΡ ΡΠ°ΠΌΡΠ΅ ΡΠ°Π·Π½ΠΎΠΎΠ±ΡΠ°Π·Π½ΡΠ΅ ΠΌΠ°ΡΠ΅ΡΠΈΠ°Π»Ρ.
Π Π°Π±ΠΎΡΠΈΠΉ ΡΠ³ΠΎΠ»ΠΎΠΊ. Π‘ΡΠΎΠ», ΡΠ°ΡΠΏΠΎΠ»ΠΎΠΆΠ΅Π½Π½ΡΠΉ ΠΏΡΠΈ Π²Ρ ΠΎΠ΄Π΅ Π²Β ΡΠ³Π»Ρ ΠΊΠΎΠΌΠ½Π°ΡΡ, ΡΠΎΠ·Π΄Π°Π΅Ρ Π²ΠΏΠ΅ΡΠ°ΡΠ»Π΅Π½ΠΈΠ΅ Π»ΠΈΡΠ½ΠΎΠ³ΠΎ ΠΊΠ°Π±ΠΈΠ½Π΅ΡΠ°. ΠΠ°ΠΏΡΠΎΡΠΈΠ² ΡΠ°Π±ΠΎΡΠ΅Π³ΠΎ ΠΌΠ΅ΡΡΠ° ΡΠ°ΡΠΏΠΎΠ»ΠΎΠΆΠΈΠ»ΡΡ Π΄ΠΈΠ²Π°Π½. ΠΡΡΠ°ΡΠΈ, Π΅ΡΠ»ΠΈ Π²ΡΠ±ΡΠ°ΡΡ Π΄Π»Ρ Π·ΠΎΠ½ΠΈΡΠΎΠ²Π°Π½ΠΈΡ ΡΡΠ΅Π»Π»Π°ΠΆΠΈ Π½Π°Β ΠΊΠΎΠ»Π΅ΡΠΈΠΊΠ°Ρ , ΡΠΎΒ ΠΈΠ½ΡΠ΅ΡΡΠ΅Ρ ΠΎΠ΄Π½ΡΡΠΊΠΈ ΠΌΠΎΠΆΠ½ΠΎ ΡΡΠ°Π½ΡΡΠΎΡΠΌΠΈΡΠΎΠ²Π°ΡΡ ΠΏΠΎΠ΄ Π»ΡΠ±ΡΠ΅ Π·Π°Π΄Π°ΡΠΈ. ΠΠ°ΠΏΡΠΈΠΌΠ΅Ρ, ΡΠ΄Π²ΠΈΠ½ΡΠ² ΡΡΠ΅Π»Π»Π°ΠΆΠΈ ΠΊΒ ΡΡΠ΅Π½Π΅ ΠΈΠ»ΠΈ ΠΎΡΠ³ΠΎΡΠΎΠ΄ΠΈΠ² ΠΈΠΌΠΈ ΠΊΡΠΎΠ²Π°ΡΡ, ΠΌΠΎΠΆΠ½ΠΎ ΠΏΡΠΈΠ½ΠΈΠΌΠ°ΡΡ Π³ΠΎΡΡΠ΅ΠΉ Π²Β ΠΈΠΌΠΏΡΠΎΠ²ΠΈΠ·ΠΈΡΠΎΠ²Π°Π½Π½ΠΎΠΉ Π³ΠΎΡΡΠΈΠ½ΠΎΠΉ.
ΠΡΡΡΡΠ° Π΄Π»Ρ ΡΠ°ΠΊΠΎΠ³ΠΎ ΠΏΠΎΠΌΠ΅ΡΠ΅Π½ΠΈΡ Π½Π΅Β Π³ΠΎΠ΄ΠΈΡΡΡ, Π»ΡΡΡΠ΅ ΠΈΡΠΏΠΎΠ»ΡΠ·ΠΎΠ²Π°ΡΡ ΡΠΎΡΠ΅ΡΠ½ΡΠ΅ ΡΠ²Π΅ΡΠΈΠ»ΡΠ½ΠΈΠΊΠΈ. ΠΡΠΈ Π²ΡΠ±ΠΎΡΠ΅ ΡΠ»Π΅ΠΌΠ΅Π½ΡΠΎΠ² Π΄Π΅ΠΊΠΎΡΠ° ΠΌΠ½ΠΎΠ³ΠΎΡΡΠ½ΠΊΡΠΈΠΎΠ½Π°Π»ΡΠ½ΠΎΠΉ ΠΎΠ΄Π½ΠΎΠΊΠΎΠΌΠ½Π°ΡΠ½ΠΎΠΉ ΠΊΠ²Π°ΡΡΠΈΡΡ ΠΈΡΡ ΠΎΠ΄ΠΈΡΠ΅ ΠΈΠ·Β ΠΏΡΠΈΠ½ΡΠΈΠΏΠ° Β«Π»ΡΡΡΠ΅ ΠΌΠ΅Π½ΡΡΠ΅ Π΄Π°Β Π»ΡΡΡΠ΅Β».
Π’Π-Π·ΠΎΠ½Π° ΠΌΠΎΠΆΠ΅Ρ Π²ΠΌΠ΅ΡΡΠΈΡΡ Π² ΡΠ΅Π±Ρ ΠΌΠ½ΠΎΠΆΠ΅ΡΡΠ²ΠΎ ΡΠ°Π·Π½ΠΎΠΎΠ±ΡΠ°Π·Π½ΡΡ ΡΠΈΡΡΠ΅ΠΌ Ρ ΡΠ°Π½Π΅Π½ΠΈΡ. ΠΡΠΎ ΠΎΡΠΎΠ±Π΅Π½Π½ΠΎ Π²Π°ΠΆΠ½ΠΎ, ΠΊΠΎΠ³Π΄Π° Π½Π΅ Ρ ΠΎΡΠ΅ΡΡΡ Π·Π°ΡΠΎΡΡΡΡ ΠΈΠ½ΡΠ΅ΡΡΠ΅Ρ ΠΌΠ½ΠΎΠΆΠ΅ΡΡΠ²ΠΎΠΌ ΠΌΠ΅Π»ΠΎΡΠ΅ΠΉ.
www.4living.ru
ΠΠ²ΡΡΠΊΠ° ΠΈΠ· ΠΎΠ΄Π½ΡΡΠΊΠΈ | Β«ΠΠ΅ΡΡΠ½ΡΠΉΒ»
ΠΠ»ΠΈΠ½Π° Π΄ΠΈΠ·Π°ΠΉΠ½Π΅Ρ ΠΈΠ½ΡΠ΅ΡΡΠ΅ΡΠ°
Π³. ΠΠ°Π»Π°ΡΠΈΡ Π°
ΠΠ ΠΠΊΠ²Π°ΡΠ΅Π»ΠΈ
1-ΠΊΠΎΠΌΠ½Π°ΡΠ½Π°Ρ
46 ΠΌ2
2015 Π³ΠΎΠ΄
ΠΠ°Π²Π΅ΡΠ½ΠΎΠ΅, ΠΌΠ½ΠΎΠ³ΠΈΠ΅ ΡΠ΄ΠΈΠ²ΡΡΡΡ, Π½ΠΎ ΡΡΠΎ Π²ΠΎΠ²ΡΠ΅ Π½Π΅ ΠΊΠ²Π°ΡΡΠΈΡΠ° Ρ ΠΎΠ»ΠΎΡΡΡΠΊΠ°, Π° ΠΏΠΎΠ»Π½ΠΎΡΠ΅Π½Π½ΠΎΠ΅ ΡΠ΅ΠΌΠ΅ΠΉΠ½ΠΎΠ΅ Π³Π½Π΅Π·Π΄ΠΎ. ΠΠΎΡ ΠΎΠ½ΠΎ β ΡΠΌΠ΅Π½ΠΈΠ΅ Π΄ΠΎΠ³ΠΎΠ²Π°ΡΠΈΠ²Π°ΡΡΡΡ Ρ ΠΆΡΠ½Π°ΠΌΠΈ ΠΈ ΡΠΎΠ·Π΄Π°Π²Π°ΡΡ ΠΌΡΠΆΡΠΊΠΎΠΉ ΠΈΠ½ΡΠ΅ΡΡΠ΅Ρ ΠΏΠΎ ΡΠ²ΠΎΠ΅ΠΌΡ Π²ΠΊΡΡΡ: Π°Π±ΡΠΎΠ»ΡΡΠ½ΠΎ Π²ΡΠ΅ Π΄Π΅ΡΠ°Π»ΠΈ ΠΏΠΎ ΠΎΡΠΎΡΠΌΠ»Π΅Π½ΠΈΡ ΠΊΠ²Π°ΡΡΠΈΡΡ ΠΌΡ ΠΏΡΠΎΠ³ΠΎΠ²Π°ΡΠΈΠ²Π°Π»ΠΈ Ρ Π·Π°ΠΊΠ°Π·ΡΠΈΠΊΠΎΠΌ, ΡΡΠΏΡΡΠ³Π° ΠΊΠΎΡΠΎΡΠΎΠ³ΠΎ Π΄Π°ΠΆΠ΅ Π½Π΅ Π²ΠΌΠ΅ΡΠΈΠ²Π°Π»Π°ΡΡ Π² ΠΎΠ±ΡΡΠΆΠ΄Π΅Π½ΠΈΡ. π
ΠΠ΄Π΅ΡΡ Π²ΡΡ ΡΠ°ΠΊ ΠΈ Π΄ΡΡΠΈΡ Π»ΠΎΡΡΠΎΠΌ: ΡΡΠ΅Π½Ρ, ΠΌΠ΅Π±Π΅Π»Ρ, ΡΠ²Π΅ΡΠΎΠ²Π°Ρ Π³Π°ΠΌΠΌΠ°… ΠΠ° ΡΡΠΎΠΌ ΠΈΠ·ΠΎΠ±ΡΠ°ΠΆΠ΅Π½ΠΈΠΈ Π²ΠΈΠ΄Π½ΠΎ, Π½Π°ΡΠΊΠΎΠ»ΡΠΊΠΎ Π½Π΅ΠΎΠ±ΡΡΠ½ΡΠ΅ Π² ΠΏΠΎΠΌΠ΅ΡΠ΅Π½ΠΈΠΈ ΠΎΠΊΠ½Π°: ΠΎΠ³ΡΠΎΠΌΠ½ΡΠ΅, Π² ΠΏΠΎΠ» β ΡΠ°ΠΊΠΈΠ΅ ΠΊΠ°ΠΊ ΡΠ°Π· Ρ Π°ΡΠ°ΠΊΡΠ΅ΡΠ½Ρ Π΄Π»Ρ Π²ΡΠ±ΡΠ°Π½Π½ΠΎΠ³ΠΎ ΡΡΠΈΠ»Ρ. ΠΡ ΡΠ±ΡΠ°Π»ΠΈ Π±Π°ΡΠ°ΡΠ΅ΠΈ, ΡΡΠΎΠ±Ρ ΡΠ΅ Π½Π΅ ΠΏΠΎΡΡΠΈΠ»ΠΈ Π²ΠΈΠ΄, ΠΈ ΠΏΡΠ΅Π΄ΡΡΠΌΠΎΡΡΠ΅Π»ΠΈ ΠΏΠΎΠ΄ ΠΎΠΊΠ½Π°ΠΌΠΈ ΠΊΠΎΠ½Π²Π΅ΠΊΡΠΎΡΠ½ΡΠΉ ΠΎΠ±ΠΎΠ³ΡΠ΅Π²Π°ΡΠ΅Π»Ρ.
ΠΠ΅ΡΠ΅ΠΏΠ»Π°Π½ΠΈΡΠΎΠ²ΠΊΠ° ΠΎΠ΄Π½ΡΡΠΊΠΈ Π·Π°ΠΊΠ»ΡΡΠ°Π»Π°ΡΡ Π² ΡΠΎΠΌ, ΡΡΠΎ Π½Π°ΠΌ ΡΠ΄Π°Π»ΠΎΡΡ Π½Π°ΠΉΡΠΈ ΠΌΠ΅ΡΡΠΎ Π΄Π»Ρ Π½Π΅Π±ΠΎΠ»ΡΡΠΎΠΉ Π³ΠΎΡΡΠΈΠ½ΠΎΠΉ, ΡΠΏΠ°Π»ΡΠ½ΠΈ ΠΈ Π΄Π°ΠΆΠ΅ Π³Π°ΡΠ΄Π΅ΡΠΎΠ±Π½ΠΎΠΉ. Π§Π΅ΡΡΠ½ΠΎ Π³ΠΎΠ²ΠΎΡΡ, ΠΏΠΎΠ½Π°ΡΠ°Π»Ρ Π½Π°ΠΌ ΡΠ°ΠΌΠΈΠΌ Π½Π΅ Π²Π΅ΡΠΈΠ»ΠΎΡΡ, ΡΡΠΎ ΡΠ°ΠΊΠΎΠ΅ Π²ΠΎΠ·ΠΌΠΎΠΆΠ½ΠΎ! ΠΠ΄Π½Π°ΠΊΠΎ Π²ΠΎΡ β ΠΏΠΎΠ»ΡΡΠΈΠ»ΠΎΡΡ: ΠΊΠΎΠΌΠΏΠ°ΠΊΡΠ½ΠΎ, ΡΡΡΠ½ΠΎ ΠΈ Ρ Ρ Π°ΡΠ°ΠΊΡΠ΅ΡΠΎΠΌ. π
ο»ΏΠΡΡΠ°ΡΠΈ!
Π Π²Π°ΡΠ΅ΠΌ Π΄ΠΈΠ·Π°ΠΉΠ½-ΠΏΡΠΎΠ΅ΠΊΡΠ΅
ΠΠΈΠ·Π°ΠΉΠ½Π΅ΡΡΠΊΠ°Ρ ΡΠΊΠΈΠ΄ΠΊΠ° β Π²Π°ΠΌ!
Π‘ Π½Π°ΠΌΠΈ Π²ΡΠ³ΠΎΠ΄Π½ΠΎ! ΠΠΈΠ·Π°ΠΉΠ½-ΠΏΡΠΎΠ΅ΠΊΡ ΠΏΠΎΠ»Π½ΠΎΡΡΡΡ ΠΎΠΊΡΠΏΠΈΡΡΡ Π·Π° ΡΡΡΡ Π΄ΠΈΠ·Π°ΠΉΠ½Π΅ΡΡΠΊΠΈΡ ΡΠΊΠΈΠ΄ΠΎΠΊ Π½Π° ΡΠΎΠ²Π°ΡΡ. ΠΠΎΡΡΠΈ Π² ΠΊΠ°ΠΆΠ΄ΠΎΠΌ ΠΌΠ°Π³Π°Π·ΠΈΠ½Π΅ Ρ Π½Π°Ρ Π΅ΡΡΡ ΡΠ°ΠΊΠ°Ρ ΡΠΊΠΈΠ΄ΠΊΠ°! ΠΡ ΠΏΠΎΠ΄Π΅Π»ΠΈΠΌΡΡ Π΅Ρ Ρ Π²Π°ΠΌΠΈ!
ΠΠΏΠΈΡΠ΅ΠΌΡΡ Π² Π±ΡΠ΄ΠΆΠ΅Ρ!
ΠΡΡ Π΄ΠΎ Π½Π°ΡΠ°Π»Π° ΠΏΠΎΠ΄Π±ΠΎΡΠ° ΠΌΠ΅Π±Π΅Π»ΠΈ ΠΈ ΠΎΡΠ΄Π΅Π»ΠΎΡΠ½ΡΡ ΠΌΠ°ΡΠ΅ΡΠΈΠ°Π»ΠΎΠ² ΠΌΡ ΠΎΠΏΡΠ΅Π΄Π΅Π»ΠΈΠΌ Ρ Π²Π°ΠΌΠΈ Π±ΡΠ΄ΠΆΠ΅Ρ. Π ΡΡΠΎΡ Π±ΡΠ΄ΠΆΠ΅Ρ ΠΌΡ ΠΈ Π²ΠΏΠΈΡΠ΅ΠΌΡΡ. ΠΠ°ΠΏΡΠ΅Π΄Π΅Π»ΡΠ½ΠΎ Π΄ΠΎΡΠΎΠ³ΠΈΠ΅ ΡΠΎΠ²Π°ΡΡ ΠΈΡΠΊΠ»ΡΡΠ΅Π½Ρ!
ΠΠ»Π°Π½ΠΈΡΠΎΠ²ΠΊΠ° Π±Π΅Π· ΠΎΠ³ΡΠ°Π½ΠΈΡΠ΅Π½ΠΈΠΉ!
ΠΠ΅ΡΠ΅ΠΏΠ»Π°Π½ΠΈΡΠΎΠ²ΠΊΠ° β Π²Π°ΠΆΠ½Π΅ΠΉΡΠΈΠΉ ΡΡΠ°ΠΏ Π΄ΠΈΠ·Π°ΠΉΠ½-ΠΏΡΠΎΠ΅ΠΊΡΠ°! ΠΡ ΠΏΠΎΡΠ°Π±ΠΎΡΠ°Π΅ΠΌ Π½Π°Π΄ Π½Π΅ΠΉ Π΄ΠΎ ΡΠ΅Ρ ΠΏΠΎΡ, ΠΏΠΎΠΊΠ° ΠΎΠ½Π° Π²Π°Ρ Π½Π΅ ΡΡΡΡΠΎΠΈΡ. Π Π½Π΅ Π²Π°ΠΆΠ½ΠΎ, ΡΠΊΠΎΠ»ΡΠΊΠΎ Π±ΡΠ΄Π΅Ρ Π²Π°ΡΠΈΠ°Π½ΡΠΎΠ²: 5, 10, 20… ΠΠ³ΡΠ°Π½ΠΈΡΠ΅Π½ΠΈΠΉ Π½Π΅Ρ!
ΠΠΎΠ½ΡΡΠ»ΡΡΠ°ΡΠΈΡ β Π±Π΅ΡΠΏΠ»Π°ΡΠ½ΠΎ!
ΠΠ΅ΡΠ²ΡΠΉ ΡΠ°Π· Π΄Π΅Π»Π°Π΅ΡΠ΅ ΡΠ΅ΠΌΠΎΠ½Ρ Ρ Π΄ΠΈΠ·Π°ΠΉΠ½Π΅ΡΠΎΠΌ? ΠΡ ΠΏΠΎΠ΄ΡΠΎΠ±Π½ΠΎ ΡΠ°ΡΡΠΊΠ°ΠΆΠ΅ΠΌ, ΠΊΠ°ΠΊ ΠΏΡΠΎΡ ΠΎΠ΄ΠΈΡ ΠΏΡΠΎΠ΅ΠΊΡΠΈΡΠΎΠ²Π°Π½ΠΈΠ΅, ΠΏΠΎΠ΄Π΅Π»ΠΈΠΌΡΡ ΠΎΠΏΡΡΠΎΠΌ, ΠΏΠΎΠΌΠΎΠΆΠ΅ΠΌ ΠΎΠΏΡΠ΅Π΄Π΅Π»ΠΈΡΡ Π±ΡΠ΄ΠΆΠ΅Ρ ΠΈ Ρ.Π΄. Π Π²ΡΠ΅ ΡΡΠΎ ΡΠΎΠ²Π΅ΡΡΠ΅Π½Π½ΠΎ Π±Π΅ΡΠΏΠ»Π°ΡΠ½ΠΎ!
ΠΠΎΠ»Π΅Π΅ 10 Π»Π΅Ρ Π½Π° ΡΡΠ½ΠΊΠ΅!
ΠΡΠΎ Π³ΠΎΠ²ΠΎΡΠΈΡ ΡΠΎΠ»ΡΠΊΠΎ ΠΎ ΡΠΎΠΌ, ΡΡΠΎ ΠΌΡ ΠΏΡΠ΅Π΄Π»Π°Π³Π°Π΅ΠΌ ΠΊΠ°ΡΠ΅ΡΡΠ²Π΅Π½Π½ΡΠΉ ΠΏΡΠΎΠ΄ΡΠΊΡ ΠΏΠΎ ΠΎΠΏΡΠΈΠΌΠ°Π»ΡΠ½ΠΎΠΉ ΡΠ΅Π½Π΅, ΡΠ°Π±ΠΎΡΠ°Π΅ΠΌ ΡΠ΅ΡΡΠ½ΠΎ ΠΈ Π½Π° Π½Π°Ρ ΠΌΠΎΠΆΠ½ΠΎ ΠΏΠΎΠ»ΠΎΠΆΠΈΡΡΡΡ!
ΠΠ°ΡΠ°Π½ΡΠΈΡ 1 Π³ΠΎΠ΄!
ΠΡ Π³Π°ΡΠ°Π½ΡΠΈΡΡΠ΅ΠΌ ΠΊΠ°ΡΠ΅ΡΡΠ²Π΅Π½Π½ΡΠ΅ ΡΠ΅ΡΡΠ΅ΠΆΠΈ! ΠΡΠ»ΠΈ Π½Π°ΠΉΠ΄Π΅ΡΡΡ ΠΎΡΠΈΠ±ΠΊΠ°, ΠΌΡ Π±Π΅ΡΠΏΠ»Π°ΡΠ½ΠΎ ΠΈ ΠΎΠΏΠ΅ΡΠ°ΡΠΈΠ²Π½ΠΎ ΡΡΡΡΠ°Π½ΠΈΠΌ ΠΈΡ . ΠΠ°ΡΠ°Π½ΡΠΈΡ Π΄Π΅ΠΉΡΡΠ²ΡΠ΅Ρ Π² ΡΠ΅ΡΠ΅Π½ΠΈΠ΅ Π³ΠΎΠ΄Π° ΠΏΠΎΡΠ»Π΅ ΡΠ΄Π°ΡΠΈ Π΄ΠΈΠ·Π°ΠΉΠ½-ΠΏΡΠΎΠ΅ΠΊΡΠ°!
ΠΡΡ Π½Ρ Ρ ΠΎΡΡ Π½Π΅Π±ΠΎΠ»ΡΡΠ°Ρ, Π½ΠΎ Π²ΠΌΠ΅ΡΡΠΈΡΠ΅Π»ΡΠ½Π°Ρ β Π·Π° ΡΡΡΡ ΠΏΡΠΎΠ΄ΡΠΌΠ°Π½Π½ΡΡ Π·ΠΎΠ½ Ρ ΡΠ°Π½Π΅Π½ΠΈΡ ΠΈ ΠΎΡΡΡΠΎΠ²ΠΊΠ°, Π²ΡΠΏΠΎΠ»Π½ΡΡΡΠ΅Π³ΠΎ ΡΠ°ΠΊΠΆΠ΅ ΡΠΎΠ»Ρ ΡΠΎΠ²ΡΠ΅ΠΌΠ΅Π½Π½ΠΎΠ³ΠΎ ΡΠ΅ΠΌΠ΅ΠΉΠ½ΠΎΠ³ΠΎ ΠΎΡΠ°Π³Π° Ρ Π²Π°ΡΠΎΡΠ½ΠΎΠΉ ΠΏΠ°Π½Π΅Π»ΡΡ ΠΈ ΠΎΠ±Π΅Π΄Π΅Π½Π½ΠΎΠ³ΠΎ ΡΡΠΎΠ»Π°. Π’Π°ΠΊΡΡ ΠΈΠ΄Π΅Ρ, ΠΊΡΡΠ°ΡΠΈ, ΠΌΠΎΠΆΠ½ΠΎ ΠΏΠΎΡΠΎΠ²Π΅ΡΠΎΠ²Π°ΡΡ ΡΠ΅ΠΌ, Π΄Π»Ρ ΠΊΠΎΠ³ΠΎ ΠΏΡΠΈΠ½ΡΠΈΠΏΠΈΠ°Π»ΡΠ½ΠΎ Π²Π°ΠΆΠ½Π° ΡΠΊΠΎΠ½ΠΎΠΌΠΈΡ ΠΌΠ΅ΡΡΠ° Π² ΠΊΡΡ Π½Π΅. Π’ΠΎ ΠΆΠ΅ ΠΊΠ°ΡΠ°Π΅ΡΡΡ ΠΈ Π³Π»ΡΠ½ΡΠ΅Π²ΡΡ ΡΠ°ΡΠ°Π΄ΠΎΠ²: ΡΡΠ°Π΄ΠΈΡΠΈΠΎΠ½Π½ΠΎ ΠΌΡ ΠΈΡΠΏΠΎΠ»ΡΠ·ΡΠ΅ΠΌ ΠΈΡ Π΄Π»Ρ ΡΠ°ΡΡΠΈΡΠ΅Π½ΠΈΡ ΠΏΡΠΎΡΡΡΠ°Π½ΡΡΠ²Π°, ΠΏΡΠΈΠ΄Π°Π½ΠΈΡ ΠΎΠ±ΡΡΠΌΠ°.
Π‘ΠΎΠ²Π΅Ρ Π΄ΠΈΠ·Π°ΠΉΠ½Π΅ΡΠ°
ΠΡΠ»ΠΈ Π΄ΠΈΠ·Π°ΠΉΠ½ ΠΎΠ΄Π½ΡΡΠΊΠΈ ΠΏΠΎΠ΄ΡΠ°Π·ΡΠΌΠ΅Π²Π°Π΅Ρ Π·ΠΎΠ½ΠΈΡΠΎΠ²Π°Π½ΠΈΠ΅, ΠΏΠΎΠ»ΡΠ·ΡΠΉΡΠ΅ΡΡ ΡΠ²Π΅ΡΠΈΠ»ΡΠ½ΠΈΠΊΠ°ΠΌΠΈ β Π½Π°ΠΏΠΎΠ»ΡΠ½ΡΠΌΠΈ, ΠΏΠΎΠ΄Π²Π΅ΡΠ½ΡΠΌΠΈ ΠΈΠ»ΠΈ, ΠΊΠ°ΠΊ Π² Π½Π°ΡΠ΅ΠΌ ΡΠ»ΡΡΠ°Π΅, ΡΡΠ΅ΠΊΠΎΠ²ΡΠΌΠΈ. ΠΠΎΡΠ»Π΅Π΄Π½ΠΈΠ΅, ΠΊ ΠΏΡΠΈΠΌΠ΅ΡΡ, ΡΠ΄ΠΎΠ±Π½ΠΎ Π²ΡΠ°ΡΠ°ΡΡΡΡ ΠΈ Π΄Π²ΠΈΠΆΡΡΡΡ, Π±Π»Π°Π³ΠΎΠ΄Π°ΡΡ ΡΠ΅ΠΌΡ ΡΠ²Π΅ΡΠΎΠ²ΠΎΠΉ Π»ΡΡ ΠΌΠΎΠΆΠ½ΠΎ Π½Π°ΠΏΡΠ°Π²Π»ΡΡΡ Π½Π° ΠΎΠΏΡΠ΅Π΄Π΅Π»ΡΠ½Π½ΡΠ΅ ΡΡΠ°ΡΡΠΊΠΈ.
ΠΠ΄Π΅ΡΡ ΠΈ Π½ΠΈΠΆΠ΅ ΠΌΠΎΠΆΠ½ΠΎ ΡΠ°ΡΡΠΌΠΎΡΡΠ΅ΡΡ, Π·Π° ΡΡΡΡ ΡΠ΅Π³ΠΎ Ρ Π½Π°Ρ ΠΏΠΎΠ»ΡΡΠΈΠ»Π°ΡΡ Π΄Π²ΡΡΠΊΠ° ΠΈΠ· ΠΎΠ΄Π½ΡΡΠΊΠΈ: Π±Π΅Π»ΡΠ΅ ΡΡΠ΅Π½Ρ ΠΎΠ³ΡΠ°ΠΆΠ΄Π°ΡΡ ΠΌΠ°Π»Π΅Π½ΡΠΊΡΡ ΡΠΏΠ°Π»ΡΠ½Ρ, ΠΎΡΠΊΡΠ΄Π°, Π² ΡΠ²ΠΎΡ ΠΎΡΠ΅ΡΠ΅Π΄Ρ, ΠΎΡΠΊΡΡΠ²Π°Π΅ΡΡΡ ΠΏΡΠΎΡ ΠΎΠ΄ Π² Π³Π°ΡΠ΄Π΅ΡΠΎΠ±Π½ΡΡ. ΠΠ½ΡΠ΅ΡΠ΅ΡΠ½ΠΎ ΠΎΠ±ΡΠ³ΡΠ°Π½Π° Π½ΠΈΡΠ° Π² ΡΡΠ΅Π½Π΅: ΡΠΎ ΡΡΠΎΡΠΎΠ½Ρ ΡΠΏΠ°Π»ΡΠ½ΠΈ ΠΎΠ½Π° ΠΏΡΠ΅Π²ΡΠ°ΡΠ°Π΅ΡΡΡ Π² ΡΠ΄ΠΎΠ±Π½ΡΠΉ Π²ΡΡΡΡΠΏ, ΠΊΡΠ΄Π° ΠΌΠΎΠΆΠ½ΠΎ ΠΏΠΎΠ»ΠΎΠΆΠΈΡΡ ΡΠ΅Π»Π΅ΡΠΎΠ½ ΠΈ ΠΏΡΠΎΡΠΈΠ΅ ΠΌΠ΅Π»ΠΎΡΠΈ. ΠΡΠΎΠ·ΡΠ°ΡΠ½ΡΠ΅ Π΄Π²Π΅ΡΠΈ-ΠΊΡΠΏΠ΅ Π² Π΄Π°Π½Π½ΠΎΠΌ ΡΠ»ΡΡΠ°Π΅ ΠΌΠΎΠΆΠ½ΠΎ ΡΡΠΈΡΠ°ΡΡ Π½ΠΎΠΌΠΈΠ½Π°Π»ΡΠ½ΡΠΌΠΈ β ΠΈΡ ΡΡΠ½ΠΊΡΠΈΡ Π·Π°ΠΊΠ»ΡΡΠ°Π΅ΡΡΡ, ΡΠΊΠΎΡΠ΅Π΅, Π² ΡΠΎΠΌ, ΡΡΠΎΠ±Ρ Π½Π΅ ΠΏΡΡΠΊΠ°ΡΡ Π΄ΠΎΠΌΠ°ΡΠ½ΠΈΡ ΠΆΠΈΠ²ΠΎΡΠ½ΡΡ Π½ΠΎΡΡΡ ΠΊ ΡΠΏΡΡΠΈΠΌ Ρ ΠΎΠ·ΡΠ΅Π²Π°ΠΌ. π
ΠΠ΅ΡΠ΅ΠΏΠ»Π°Π½ΠΈΡΠΎΠ²ΠΊΠ° ΠΎΠ΄Π½ΡΡΠΊΠΈ, Π½Π° Π½Π°Ρ Π²Π·Π³Π»ΡΠ΄, ΠΏΠΎΠ»ΡΡΠΈΠ»Π°ΡΡ ΡΠ΄Π°ΡΠ½ΠΎΠΉ: Π΄Π°ΠΆΠ΅ ΠΏΡΠΈ ΡΠΎΠΌ, ΡΡΠΎ ΡΠΏΠ°Π»ΡΠ½Ρ ΡΠ°Π·ΠΌΠ΅ΡΠ°ΠΌΠΈ Π΅Π΄Π²Π° ΠΏΡΠ΅Π²ΡΡΠ°Π΅Ρ ΡΠ°ΠΌΡ ΠΊΡΠΎΠ²Π°ΡΡ, Π±Π»Π°Π³ΠΎΠ΄Π°ΡΡ Π±Π΅Π»ΡΠΌ ΡΡΠ΅Π½Π°ΠΌ Π·Π΄Π΅ΡΡ Π½Π΅Ρ ΠΎΡΡΡΠ΅Π½ΠΈΡ Π·Π°ΠΌΠΊΠ½ΡΡΠΎΠ³ΠΎ ΠΏΡΠΎΡΡΡΠ°Π½ΡΡΠ²Π°. ΠΠΏΡΠΎΡΠ΅ΠΌ, ΡΡΠ° ΠΆΠ΅ΡΡΠ²Π° Π±ΡΠ»Π° ΡΠΎΠ·Π½Π°ΡΠ΅Π»ΡΠ½ΠΎΠΉ β ΠΎΡΠΊΠ°Π· ΠΎΡ Π±ΠΎΠ»ΡΡΠ΅ΠΉ ΡΠΏΠ°Π»ΡΠ½ΠΈ Π² ΠΏΠΎΠ»ΡΠ·Ρ Π³Π°ΡΠ΄Π΅ΡΠΎΠ±Π½ΠΎΠΉ, ΠΊΠΎΡΠΎΡΡΡ Π·Π°ΠΊΠ°Π·ΡΠΈΠΊ ΡΠ°ΠΊ Ρ ΠΎΡΠ΅Π» ΠΈΠ·Π½Π°ΡΠ°Π»ΡΠ½ΠΎ.
Π ΡΠΊΠΎΠ»ΡΠΊΠΎ ΡΡΠΎΠΈΡ ΠΌΠΎΠΉ Π΄ΠΈΠ·Π°ΠΉΠ½-ΠΏΡΠΎΠ΅ΠΊΡ?
ο»Ώ ΠΠ±ΡΠ°Ρ ΠΏΠ»ΠΎΡΠ°Π΄Ρ, ΠΌ2:
0
ΠΠ±ΡΠ΅ΠΊΡ:
ΠΡΠ±Π΅ΡΠΈΡΠ΅…ΠΠΎΠΌΠ½Π°ΡΠ°1-ΠΊ ΠΊΠ²Π°ΡΡΠΈΡΠ°2-ΠΊ ΠΊΠ²Π°ΡΡΠΈΡΠ°3-ΠΊ ΠΊΠ²Π°ΡΡΠΈΡΠ°4-ΠΊ ΠΊΠ²Π°ΡΡΠΈΡΠ°5-ΠΊ ΠΊΠ²Π°ΡΡΠΈΡΠ°Π’Π°ΡΠ½Ρ
Π°ΡΡΠΠΎΡΡΠ΅Π΄ΠΆ
1. Π£ΠΊΠ°ΠΆΠΈΡΠ΅ ΠΏΠ»ΠΎΡΠ°Π΄Ρ
2. ΠΡΠ±Π΅ΡΠΈΡΠ΅ ΡΠΈΠΏ ΠΎΠ±ΡΠ΅ΠΊΡΠ°
3. ΠΠΌΠΈΡΠ΅!
ΠΠ»Π°Π½ ΠΏΠ΅ΡΠ΅ΠΏΠ»Π°Π½ΠΈΡΠΎΠ²ΠΊΠΈ
ΠΎΠ΄Π½ΠΎΠΊΠΎΠΌΠ½Π°ΡΠ½ΠΎΠΉ ΠΊΠ²Π°ΡΡΠΈΡΡ

ΠΠ»Π°Π½ Π½Π°Π³Π»ΡΠ΄Π½ΠΎ ΠΈΠ»Π»ΡΡΡΡΠΈΡΡΠ΅Ρ Π²Π΅ΡΡ Π΄ΠΈΠ·Π°ΠΉΠ½Π΅ΡΡΠΊΠΈΠΉ βΡΠΎΠΊΡΡβ Ρ ΡΠ°ΡΡΠΈΡΠ΅Π½ΠΈΠ΅ΠΌ ΠΏΡΠΎΡΡΡΠ°Π½ΡΡΠ²Π°. ΠΠ»ΠΎΡΠ°Π΄Ρ ΠΊΠ²Π°ΡΡΠΈΡΡ β Π²ΡΠ΅Π³ΠΎ 46 ΠΌ.ΠΊΠ², Π° ΡΡΠΎΠ»ΡΠΊΠΎ Π²ΡΠ΅Π³ΠΎ ΠΏΠΎΠΌΠ΅ΡΡΠΈΠ»ΠΎΡΡ! ΠΠ°ΠΊ Π²ΠΈΠ΄ΠΈΡΠ΅, Π½Π΅Ρ ΡΠΎΠ²Π½ΡΠΌ ΡΡΡΡΠΎΠΌ Π½ΠΈΡΠ΅Π³ΠΎ Π½Π΅Π²ΠΎΠ·ΠΌΠΎΠΆΠ½ΠΎΠ³ΠΎ β ΠΏΠΎ ΠΊΡΠ°ΠΉΠ½Π΅ΠΉ ΠΌΠ΅ΡΠ΅, Π² ΠΎΠΏΡΡΠ½ΡΡ ΡΡΠΊΠ°Ρ ΠΈ ΠΏΡΠΈ Π½Π°Π»ΠΈΡΠΈΠΈ ΡΠ°Π½ΡΠ°Π·ΠΈΠΈ! π
ΠΠΎΡ ΠΎΠΆΠΈΠ΅ Π΄ΠΈΠ·Π°ΠΉΠ½-ΠΏΡΠΎΠ΅ΠΊΡΡ

ΠΡΡ Π½Ρ-ΡΡΠΎΠ»ΠΎΠ²Π°Ρ-Π³ΠΎΡΡΠΈΠ½Π°Ρ

ΠΠ΅Π΄ΠΎΡΠΎΠ³ΠΎΠΉ ΠΈΠ½ΡΠ΅ΡΡΠ΅Ρ ΡΠΈΠΏΠΎΠ²ΠΎΠΉ ΠΊΠ²Π°ΡΡΠΈΡΡ

ΠΠΎΡΡΠΈΠ½Π°Ρ ΠΊΡΡ Π½Ρ 30 ΠΊΠ² ΠΌ
ο»Ώpechenyi.com
ΠΠ»Π°Π½ΠΈΡΠΎΠ²ΠΊΠ° ΠΊΠ²Π°ΡΡΠΈΡ Π² ΠΊΠΈΡΠΏΠΈΡΠ½ΡΡ Π΄ΠΎΠΌΠ°Ρ : ΠΈΠ· ΠΎΠ΄Π½ΡΡΠΊΠΈ Π΄Π²ΡΡΠΊΠ°
ΠΠ΅Π³ΠΊΠΈΠΌ Π΄Π²ΠΈΠΆΠ΅Π½ΠΈΠ΅ΠΌ ΡΡΠΊΠΈ Π΄ΠΈΠ·Π°ΠΉΠ½Π΅ΡΡ ΡΠ½ΠΎΡΡΡ Π²ΡΠ΅ ΠΏΠΎΠ΄Π΄Π°ΡΡΠΈΠ΅ΡΡ ΡΠ½ΠΎΡΡ ΠΏΠ΅ΡΠ΅Π³ΠΎΡΠΎΠ΄ΠΊΠΈ ΠΈ Π½Π° ΠΎΡΠ²ΠΎΠ±ΠΎΠ΄ΠΈΠ²ΡΠ΅ΠΌΡΡ ΠΏΡΠΎΡΡΡΠ°Π½ΡΡΠ²Π΅ Π²ΠΎΠ·Π²ΠΎΠ΄ΡΡ ΡΠΎΠ²ΡΠ΅ΠΌΠ΅Π½Π½ΡΠΉ ΠΈΠ½ΡΠ΅ΡΡΠ΅Ρ, Π³Π΄Π΅ ΡΡΡΠ΅Π½Ρ Π²ΡΠ΅ ΠΏΠΎΠΆΠ΅Π»Π°Π½ΠΈΡ ΡΠ΅ΠΌΡΠΈ Ρ Π΄Π²ΡΠΌΡ ΠΌΠ°Π»Π΅Π½ΡΠΊΠΈΠΌΠΈ ΠΈ ΠΎΠ·ΠΎΡΠ½ΡΠΌΠΈ Π±Π»ΠΈΠ·Π½Π΅ΡΠ°ΠΌΠΈ.
ΠΠ° ΡΠΎΡΠΎ:
ΠΠ΅ΠΆΠ½Π°Ρ ΠΏΠ°ΡΡΠ΅Π»ΡΠ½Π°Ρ Π³Π°ΠΌΠΌΠ°, Π±Π°ΡΡ Π°ΡΠΈΡΡΡΠ΅ ΡΠ΅ΠΊΡΡΡΡΡ ΡΠ΅ΠΊΡΡΠΈΠ»Ρ ΠΈ ΠΈΠ·ΡΡΠ½ΡΠ΅ ΡΠ»Π΅ΠΌΠ΅Π½ΡΡ Π² Π²ΠΈΠ΄Π΅ Π»ΡΡΡΡ ΠΈ ΡΠ°ΠΌΠΎΡΠ΅ΠΊ Π΄Π»Ρ ΠΊΠ°ΡΡΠΈΠ½ ΠΏΡΠΈΠ·Π²Π°Π½Ρ ΡΠ³Π»Π°Π΄ΠΈΡΡ ΡΡΡΠΎΠ³ΠΈΠΉ ΠΌΠΈΠ½ΠΈΠΌΠ°Π»ΠΈΠ·ΠΌ ΡΡΠΎΠ³ΠΎ ΠΈΠ½ΡΠ΅ΡΡΠ΅ΡΠ°.
Π‘Π²Π΅Π΄Π΅Π½ΠΈΡ ΠΎΒ ΠΊΠ²Π°ΡΡΠΈΡΠ΅: ΠΎΠ΄Π½ΠΎΠΊΠΎΠΌΠ½Π°ΡΠ½Π°Ρ ΠΊΠ²Π°ΡΡΠΈΡΠ° ΠΏΠ»ΠΎΡΠ°Π΄ΡΡ 58Β ΠΊΠ².Β ΠΌ. Π½Π°Β 4Β ΡΡΠ°ΠΆΠ΅ 9-ΡΡΠ°ΠΆΠ½ΠΎΠ³ΠΎ ΠΊΠΈΡΠΏΠΈΡΠ½ΠΎΠ³ΠΎ Π΄ΠΎΠΌΠ° Π²Β ΠΠΎΡΠΊΠ²Π΅.
ΠΠ»Π°Π΄Π΅Π»ΡΡΡ ΠΊΠ²Π°ΡΡΠΈΡΡ: ΠΌΠΎΠ»ΠΎΠ΄Π°Ρ ΡΠ΅ΠΌΡΡ ΡΒ Π΄Π΅ΡΡΠΌΠΈ-Π±Π»ΠΈΠ·Π½Π΅ΡΠ°ΠΌΠΈ (ΠΌΠ°Π»ΡΡΠΈΠΊΠΈ 2Β Π»Π΅Ρ).
ΠΠΎΠΆΠ΅Π»Π°Π½ΠΈΡ ΠΊΠ»ΠΈΠ΅Π½ΡΠΎΠ²: ΡΠ²Π΅Π»ΠΈΡΠ΅Π½ΠΈΠ΅ ΠΊΠΎΠ»ΠΈΡΠ΅ΡΡΠ²Π° ΠΊΠΎΠΌΠ½Π°ΡΒ β Π²ΡΠ΄Π΅Π»ΠΈΡΡ ΠΎΡΠ΄Π΅Π»ΡΠ½ΡΡ ΡΠΏΠ°Π»ΡΠ½Ρ Π΄Π»Ρ ΡΠΎΠ΄ΠΈΡΠ΅Π»Π΅ΠΉ, ΠΎΡΠ΄Π΅Π»ΡΠ½ΡΡ Π΄Π΅ΡΡΠΊΡΡ ΠΈΒ Π³ΠΎΡΡΠΈΠ½ΡΡ, ΡΠΎΠ²ΠΌΠ΅ΡΠ΅Π½Π½ΡΡ ΡΒ ΠΊΡΡ Π½Π΅ΠΉ.

ΠΠ»Π°Π½ 1-ΠΊΠΎΠΌΠ½Π°ΡΠ½ΠΎΠΉ ΠΊΠ²Π°ΡΡΠΈΡΡ ΠΏΠΎΡΠ»Π΅ ΠΏΠ΅ΡΠ΅ΠΏΠ»Π°Π½ΠΈΡΠΎΠ²ΠΊΠΈ.
ΠΠ΅ΡΠ΅Π΄ Π΄ΠΈΠ·Π°ΠΉΠ½Π΅ΡΠ°ΠΌΠΈ ΡΡΠΎΡΠ»Π° Π·Π°Π΄Π°ΡΠ° ΠΏΡΠ΅Π²ΡΠ°ΡΠΈΡΡ ΠΎΠ΄Π½ΠΎΠΊΠΎΠΌΠ½Π°ΡΠ½ΡΡ ΠΊΠ²Π°ΡΡΠΈΡΡ Π²Β Π΄Π²ΡΡΠΊΡ, ΡΒ ΠΈΠ·ΠΎΠ»ΠΈΡΠΎΠ²Π°Π½Π½ΡΠΌΠΈ ΠΊΠΎΠΌΠ½Π°ΡΠ°ΠΌΠΈ Π΄Π»Ρ ΡΠΎΠ΄ΠΈΡΠ΅Π»Π΅ΠΉ ΠΈΒ Π΄Π΅ΡΠ΅ΠΉ ΠΈΒ ΠΎΠ±ΡΠ΅Π΄ΠΈΠ½Π΅Π½Π½ΠΎΠΉ ΠΊΡΡ Π½Π΅ΠΉ-Π³ΠΎΡΡΠΈΠ½ΠΎΠΉ. ΠΠ»Ρ ΠΎΡΡΡΠ΅ΡΡΠ²Π»Π΅Π½ΠΈΡ ΡΡΠΎΠΉ Π·Π°Π΄Π°ΡΠΈ Π²Β ΠΊΠ²Π°ΡΡΠΈΡΠ΅ Π±ΡΠ»ΠΈ ΡΠ½Π΅ΡΠ΅Π½Ρ Π²ΡΠ΅ Π½Π΅Π°ΠΊΡΡΠ°Π»ΡΠ½ΡΠ΅ ΠΏΠ΅ΡΠ΅Π³ΠΎΡΠΎΠ΄ΠΊΠΈ (Π±Π»Π°Π³ΠΎ ΠΏΠ»Π°Π½ΠΈΡΠΎΠ²ΠΊΠ° ΠΊΠ²Π°ΡΡΠΈΡ Π²Β ΠΊΠΈΡΠΏΠΈΡΠ½ΡΡ Π΄ΠΎΠΌΠ°Ρ ΡΡΠΎ ΠΏΠΎΠ·Π²ΠΎΠ»ΡΠ΅Ρ), ΠΏΠΎΠ»Π½ΠΎΡΡΡΡ ΠΏΠ΅ΡΠ΅ΠΎΡΠΌΡΡΠ»Π΅Π½ΠΎ Π²Π½ΡΡΡΠ΅Π½Π½Π΅Π΅ ΠΏΡΠΎΡΡΡΠ°Π½ΡΡΠ²ΠΎ ΠΈΒ Π²Π½Π΅ΡΠ΅Π½Ρ ΠΌΠ½ΠΎΠ³ΠΎΡΠΈΡΠ»Π΅Π½Π½ΡΠ΅ ΠΈΠ·ΠΌΠ΅Π½Π΅Π½ΠΈΡ.
Π¦Π΅Π½ΡΡΠΎΠΌ ΠΊΠΎΠΌΠΏΠΎΠ·ΠΈΡΠΈΠΈ ΡΡΠ°Π»Π° ΠΎΠ±ΡΠ΅Π΄ΠΈΠ½Π΅Π½Π½Π°Ρ ΠΊΡΡ Π½Ρ-Π³ΠΎΡΡΠΈΠ½Π°Ρ. ΠΠ΄Π΅ΡΡ Π½Π΅ΠΎΠ±Ρ ΠΎΠ΄ΠΈΠΌΠΎ Π±ΡΠ»ΠΎ ΠΎΠ±ΡΡΡΡΠΎΠΈΡΡ Π½Π΅Β ΡΠΎΠ»ΡΠΊΠΎ ΠΎΠ±ΡΡΡ Π·ΠΎΠ½Ρ, Π³Π΄Π΅ Π±ΡΠ΄ΡΡ ΡΠΎΠ±ΠΈΡΠ°ΡΡΡΡ Π²ΡΠ΅ ΡΠ»Π΅Π½Ρ ΡΠ΅ΠΌΡΠΈ Π΄Π»Ρ ΠΎΠ±Π΅Π΄ΠΎΠ²-Π·Π°Π²ΡΡΠ°ΠΊΠΎΠ² ΠΈΒ Π΄ΠΎΡΡΠ³Π°, Π½ΠΎΒ ΠΈΒ ΡΠ΄Π΅Π»Π°ΡΡ ΠΏΠΎΠ²ΡΠ΅Π΄Π½Π΅Π²Π½ΡΠΉ ΠΏΡΠΎΡΠ΅ΡΡ ΠΏΡΠΈΠ³ΠΎΡΠΎΠ²Π»Π΅Π½ΠΈΡ ΠΏΠΈΡΠΈ ΠΌΠ°ΠΊΡΠΈΠΌΠ°Π»ΡΠ½ΠΎ ΡΠ΄ΠΎΠ±Π½ΡΠΌ. Π§ΡΠΎΠ±Ρ Π²ΠΌΠ΅ΡΡΠΈΡΡ ΠΌΠ°ΠΊΡΠΈΠΌΡΠΌ Π±ΡΡΠΎΠ²ΠΎΠΉ ΡΠ΅Ρ Π½ΠΈΠΊΠΈ, Π²Π΄ΠΎΠ»Ρ Π΄Π²ΡΡ ΡΡΠ΅Π½ Π±ΡΠ»ΠΈ ΡΡΡΡΠΎΠ΅Π½Ρ Π½ΠΈΡΠΈ. ΠΡΡΠ°Π»ΡΠ½ΡΠ΅ Π΄Π²Π΅ ΡΡΠ΅Π½Ρ Π·Π°Π½ΡΡΡ ΡΠ΄ΠΎΠ±Π½ΡΠΌ ΡΠ°ΡΠΊΠ»Π°Π΄ΡΠ²Π°ΡΡΠΈΠΌΡΡ ΡΠ³Π»ΠΎΠ²ΡΠΌ Π΄ΠΈΠ²Π°Π½ΠΎΠΌ.
Π‘ΠΏΠ°Π»ΡΠ½ΠΈ ΡΠ΄Π΅Π»Π°Π½Ρ ΠΎΡΠ½ΠΎΡΠΈΡΠ΅Π»ΡΠ½ΠΎ Π½Π΅Π±ΠΎΠ»ΡΡΠΈΠΌΠΈ, Π½ΠΎΒ ΡΠ°ΡΠΈΠΎΠ½Π°Π»ΡΠ½Π°Ρ ΠΎΡΠ³Π°Π½ΠΈΠ·Π°ΡΠΈΡ ΠΏΡΠΎΡΡΡΠ°Π½ΡΡΠ²Π° Π²Π½ΡΡΡΠΈ Π΄Π΅Π»Π°Π΅Ρ ΠΈΡ Β ΠΎΡΠ΅Π½Ρ ΡΡΡΠ½ΡΠΌΠΈ ΠΈΒ Π΄Π°ΠΆΠ΅ ΠΏΡΠΎΡΡΠΎΡΠ½ΡΠΌΠΈ. ΠΠΎΠΌΠ½Π°ΡΡ Π΄Π»Ρ Π±Π»ΠΈΠ·Π½Π΅ΡΠΎΠ² ΡΠ΄Π΅Π»Π°Π»ΠΈ ΡΒ Π»Π΅Π³ΠΊΠΈΠΌ Β«ΠΊΠΎΡΠ°Π±Π΅Π»ΡΠ½ΡΠΌΒ» Π½Π°ΡΡΡΠΎΠ΅Π½ΠΈΠ΅ΠΌ: ΡΡΠ΅Π½Ρ ΠΎΠ±ΡΠΈΡΡ Π΄Π΅ΡΠ΅Π²ΡΠ½Π½ΡΠΌΠΈ ΠΏΠ°Π½Π΅Π»ΡΠΌΠΈ, Π²Β ΠΊΠ°ΡΠ΅ΡΡΠ²Π΅ Π΄ΠΎΠΏΠΎΠ»Π½Π΅Π½ΠΈΡΒ β Π»ΡΡΡΡΠ°-ΠΏΡΠΎΠΏΠ΅Π»Π»Π΅Ρ ΠΈΒ Π½Π΅ΠΆΠ½ΠΎ-Π³ΠΎΠ»ΡΠ±ΠΎΠΉ ΡΠ΅ΠΊΡΡΠΈΠ»Ρ. Π‘ΠΏΠ°Π»ΡΠ½Ρ ΡΠΎΠ΄ΠΈΡΠ΅Π»Π΅ΠΉ ΠΏΠΎΠ»ΡΡΠΈΠ»Π°ΡΡ ΡΠ°ΠΌΠΎΠΉ ΠΈΠ·ΡΡΠ½ΠΎΠΉ ΠΏΠΎΒ ΡΡΠΈΠ»Ρ. ΠΒ ΠΏΡΠΈΡΠΎΠ΅Π΄ΠΈΠ½Π΅Π½Π½ΠΎΠΉ Π»ΠΎΠ΄ΠΆΠΈΠΈ ΡΠΏΡΡΡΠ°Π»ΠΈ Ρ ΠΎΠ·Π±Π»ΠΎΠΊ ΡΒ Π³Π»Π°Π΄ΠΈΠ»ΡΠ½ΠΎΠΉ Π΄ΠΎΡΠΊΠΎΠΉ ΠΈΒ ΡΡΡΠΈΠ»ΠΊΠΎΠΉ Π΄Π»Ρ Π±Π΅Π»ΡΡ.
Π‘Π»ΠΎΠΆΠ½ΠΎΡΡΠΈ Π²Β Π²ΠΎΠΏΠ»ΠΎΡΠ΅Π½ΠΈΠΈ ΠΏΠΎΠ΄ΠΎΠ±Π½ΠΎΠ³ΠΎ Π΄ΠΈΠ·Π°ΠΉΠ½Π΅ΡΡΠΊΠΎΠ³ΠΎ ΡΠ΅ΡΠ΅Π½ΠΈΡ Π²ΠΎΠ·Π½ΠΈΠΊΠ»ΠΈ ΠΈΠ·-Π·Π° ΠΏΠ΅ΡΠ΅Π½ΠΎΡΠ° ΠΊΡΡ Π½ΠΈ ΠΏΡΠ°ΠΊΡΠΈΡΠ΅ΡΠΊΠΈ Π²Β ΡΠ΅Π½ΡΡ ΠΊΠ²Π°ΡΡΠΈΡΡ. ΠΠ΄Π½Π°ΠΊΠΎ ΠΏΠ»Π°Π½ΠΈΡΠΎΠ²ΠΊΠ° ΠΊΠ²Π°ΡΡΠΈΡ Π²Β ΠΊΠΈΡΠΏΠΈΡΠ½ΡΡ Π΄ΠΎΠΌΠ°Ρ ΠΏΠΎΠ·Π²ΠΎΠ»ΠΈΠ»Π° ΠΏΠΎΠΉΡΠΈ Π½Π°Β ΡΠ°ΠΊΠΎΠΉ ΡΠ°Π³. ΠΠ΅ΡΠ΅Π³ΠΎΡΠΎΠ΄ΠΊΠ°, ΡΒ ΠΏΠΎΠΌΠΎΡΡΡ ΠΊΠΎΡΠΎΡΠΎΠΉ Π±ΡΠ»Π° Π²ΡΠ΄Π΅Π»Π΅Π½Π° Π½ΠΈΡΠ° Π΄Π»Ρ ΠΊΡΡ Π½ΠΈ, ΡΠΏΡΠΎΠ΅ΠΊΡΠΈΡΠΎΠ²Π°Π½Π° ΡΠ°ΠΊΠΈΠΌ ΠΎΠ±ΡΠ°Π·ΠΎΠΌ, ΡΡΠΎ ΠΎΠ½Π°Β ΠΆΠ΅ ΡΠΎΡΠΌΠΈΡΡΠ΅Ρ Π²Π½ΡΡΡΠ΅Π½Π½Π΅Π΅ ΠΏΡΠΎΡΡΡΠ°Π½ΡΡΠ²ΠΎ ΡΠΏΠ°Π»ΡΠ½ΠΈ ΡΠΎΠ΄ΠΈΡΠ΅Π»Π΅ΠΉ ΠΈΒ ΠΎΠ±ΡΠ΅Π΄ΠΈΠ½Π΅Π½Π½ΠΎΠ³ΠΎ ΡΠ°Π½ΡΠ·Π»Π°, ΠΊΡΠ΄Π° ΠΊΡΠΎΠΌΠ΅ Π²Π°Π½Π½ΠΎΠΉ ΠΈΒ Π΄ΡΡΠ΅Π²ΠΎΠΉ ΠΊΠ°Π±ΠΈΠ½Ρ Π²ΡΡΠ°Π»Π° ΡΡΠΈΡΠ°Π»ΡΠ½Π°Ρ ΠΌΠ°ΡΠΈΠ½Π° ΠΈΒ ΡΠΈΡΡΠ΅ΠΌΠ° Ρ ΡΠ°Π½Π΅Π½ΠΈΡ. ΠΡΠΈ Π²Ρ ΠΎΠ΄Π΅ Π±ΡΠ»Π° ΠΎΠ±ΡΡΡΡΠΎΠ΅Π½Π° ΠΎΡΠ΄Π΅Π»ΡΠ½Π°Ρ ΠΊΠΎΠΌΠ½Π°ΡΠΊΠ° ΠΏΠΎΠ΄ Π³Π°ΡΠ΄Π΅ΡΠΎΠ±Π½ΡΡ.
Π’Π°ΠΊΠΈΠΌ ΠΎΠ±ΡΠ°Π·ΠΎΠΌ, ΠΌΠ°Π»Π΅Π½ΡΠΊΠ°Ρ ΠΊΠ²Π°ΡΡΠΈΡΠΊΠ° ΠΏΡΠ΅Π²ΡΠ°ΡΠΈΠ»Π°ΡΡ Π²Β ΠΈΠ½ΡΠ΅ΡΠ΅ΡΠ½ΠΎΠ΅ ΠΈΒ ΡΡΡΠ½ΠΎΠ΅ ΠΆΠΈΠ»ΠΈΡΠ΅, Π³Π΄Π΅ Π±Π»Π°Π³ΠΎΠ΄Π°ΡΡ Π³ΡΠ°ΠΌΠΎΡΠ½ΠΎΠΌΡ ΠΏΠ»Π°Π½ΠΈΡΠΎΠ²Π°Π½ΠΈΡ ΠΈΒ ΠΈΠ½ΡΠ΅ΡΠ΅ΡΠ½ΡΠΌ ΡΠ΅ΡΠ΅Π½ΠΈΡΠΌ Π±ΡΠ»ΠΈ ΡΡΡΠ΅Π½Ρ ΠΈΠ½ΡΠ΅ΡΠ΅ΡΡ Π²ΡΠ΅Ρ ΡΠ»Π΅Π½ΠΎΠ² ΡΠ΅ΠΌΡΠΈ.
Β

ΠΒ ΠΏΡΠΈΡ ΠΎΠΆΠ΅ΠΉ Π²ΡΠ΅ ΠΎΡΠ΅Π½Ρ ΡΡΠ½ΠΊΡΠΈΠΎΠ½Π°Π»ΡΠ½ΠΎ: Π½Π°ΡΠΈΠ½Π°Ρ ΠΎΡΒ Π±ΠΎΠ»ΡΡΠΈΡ Π·Π΅ΡΠΊΠ°Π»ΡΠ½ΡΡ ΠΏΠ°Π½Π΅Π»Π΅ΠΉ, ΠΊΠΎΡΠΎΡΡΠ΅ ΡΠ»ΡΠΆΠ°Ρ Π½Π΅Β ΡΠΎΠ»ΡΠΊΠΎ Π΄Π»Ρ ΡΠΎΠ³ΠΎ, ΡΡΠΎΠ±Ρ Π²ΠΈΠ΄Π΅ΡΡ ΡΠ΅Π±Ρ Π²Β ΠΏΠΎΠ»Π½ΡΠΉ ΡΠΎΡΡ, Π½ΠΎΒ ΠΈΒ Π·ΡΠΈΡΠ΅Π»ΡΠ½ΠΎ ΡΠ²Π΅Π»ΠΈΡΠΈΠ²Π°ΡΡ ΠΌΠ°Π»Π΅Π½ΡΠΊΠΎΠ΅ ΠΏΡΠΎΡΡΡΠ°Π½ΡΡΠ²ΠΎ, ΠΈΒ Π·Π°ΠΊΠ°Π½ΡΠΈΠ²Π°Ρ ΠΎΡΠ΄Π΅Π»ΠΊΠΎΠΉ ΡΡΠ΅Π½, ΠΏΠΎΠΊΡΡΡΡΡ ΠΎΡΠ΅Π½Ρ ΠΏΡΠ°ΠΊΡΠΈΡΠ½ΡΠΌ ΠΌΠ°ΡΠ΅ΡΠΈΠ°Π»ΠΎΠΌΒ β ΠΌΠΈΠΊΡΠΎΡΠ΅ΠΌΠ΅Π½ΡΠΎΠΌ.
Β

Π£ΡΠΈΡΡΠ²Π°Ρ, ΡΡΠΎ ΠΏΡΡΠΌΠΎ Π½Π°ΠΏΡΠΎΡΠΈΠ² Π²Ρ ΠΎΠ΄Π° ΡΠ΄Π΅Π»Π°Π»ΠΈ Π³Π°ΡΠ΄Π΅ΡΠΎΠ±Π½ΡΡ, ΠΏΡΠΈΡ ΠΎΠΆΡΡ Π½Π΅Β ΡΡΠ°Π»ΠΈ Π·Π°Π³ΡΠΎΠΌΠΎΠΆΠ΄Π°ΡΡ ΠΌΠ΅Π±Π΅Π»ΡΡ. ΠΠ΄Π΅ΡΡ ΠΎΡΡΠ°Π²ΠΈΠ»ΠΈ Π»ΠΈΡΡ Π²Π΅ΡΠ°Π»ΠΊΡ Π΄Π»Ρ Π²Π΅ΡΡ Π½Π΅ΠΉ ΠΎΠ΄Π΅ΠΆΠ΄Ρ, ΠΎΡΠΊΡΡΡΡΠ΅ ΠΏΠΎΠ»ΠΎΡΠΊΠΈ ΠΈΒ ΡΠ΄ΠΎΠ±Π½ΡΡ ΡΠΊΠ°ΠΌΠ΅Π΅ΡΠΊΡ. ΠΠ°Π½Π΅Π»Ρ ΡΒ Π²Π΅ΡΠ°Π»ΠΊΠ°ΠΌΠΈ Π±Π΅Π»ΠΎΠ³ΠΎ ΡΠ²Π΅ΡΠ° ΠΎΠ±ΠΈΡΠ° ΠΊΠΎΠΆΠ΅ΠΉ, Π»Π΅Π³ΠΊΠΎΠΉ Π²Β ΠΎΠ±ΡΠ»ΡΠΆΠΈΠ²Π°Π½ΠΈΠΈ.
Β

ΠΠ°ΡΠ΄Π΅ΡΠΎΠ±Π½Π°Ρ ΡΠ½Π°Π±ΠΆΠ΅Π½Π° ΠΌΠ°ΠΊΡΠΈΠΌΠ°Π»ΡΠ½ΡΠΌ ΠΊΠΎΠ»ΠΈΡΠ΅ΡΡΠ²ΠΎΠΌ ΠΏΠΎΠ»ΠΎΡΠ΅ΠΊ, ΡΡΠΈΡΠΊΠΎΠ² ΠΈΒ ΡΡΠ°Π½Π³ Π΄Π»Ρ Π²Π΅ΡΠ°Π»ΠΎΠΊ.
Β

Π¦Π΅Π½ΡΡΠΎΠΌ ΠΊΠΎΠΌΠΏΠΎΠ·ΠΈΡΠΈΠΈ Π²Β ΠΊΡΡ Π½Π΅-Π³ΠΎΡΡΠΈΠ½ΠΎΠΉ ΡΠ²Π»ΡΠ΅ΡΡΡ ΠΏΡΠΎΠ·ΡΠ°ΡΠ½Π°Ρ ΠΎΠ±Π΅Π΄Π΅Π½Π½Π°Ρ Π³ΡΡΠΏΠΏΠ° ΠΈΒ Π½Π΅ΠΎΠ±ΡΡΠ½ΠΎΠΉ ΡΠΎΡΠΌΡ Π»ΡΡΡΡΠ° Π½Π°Π΄ Π½Π΅ΠΉ.
Β

ΠΠ±Π»ΠΈΡΠΎΠ²ΠΊΠ° ΠΊΡΡ ΠΎΠ½Π½ΠΎΠ³ΠΎ ΡΠ°ΡΡΡΠΊΠ° Π²ΡΠΏΠΎΠ»Π½Π΅Π½Π° ΠΈΠ·Β Π½Π°ΡΡΡΠ°Π»ΡΠ½ΠΎΠ³ΠΎ ΡΠ»Π°Π½ΡΠ°. Π‘ΠΎΡΠ΅ΡΠ°Π½ΠΈΠ΅ Π³ΡΡΠ±ΠΎΠ³ΠΎ Π½Π°ΡΡΡΠ°Π»ΡΠ½ΠΎΠ³ΠΎ ΠΊΠ°ΠΌΠ½Ρ ΡΒ Π½Π΅ΠΆΠ½ΠΎΠΉ ΡΠ²Π΅ΡΠΎΠ²ΠΎΠΉ Π³Π°ΠΌΠΌΠΎΠΉ ΠΈΒ ΠΌΡΠ³ΠΊΠΈΠΌΠΈ ΡΠ°ΠΊΡΡΡΠ°ΠΌΠΈ ΡΠΎΠ·Π΄Π°Π΅Ρ ΠΈΠ½ΡΠ΅ΡΠ΅ΡΠ½ΡΡ ΠΈΠ³ΡΡ ΠΊΠΎΠ½ΡΡΠ°ΡΡΠΎΠ².
Β

Π’Π°ΠΊ ΠΊΠ°ΠΊ ΠΊΡΡ Π½Ρ ΠΎΠ΄Π½ΠΎΠ²ΡΠ΅ΠΌΠ΅Π½Π½ΠΎ ΡΠ²Π»ΡΠ΅ΡΡΡ ΠΈΒ Π³ΠΎΡΡΠΈΠ½ΠΎΠΉ, ΡΠΎΒ ΠΊΡΡ ΠΎΠ½Π½ΡΠΉ Π³Π°ΡΠ½ΠΈΡΡΡ ΠΏΠΎΡΡΠ°ΡΠ°Π»ΠΈΡΡ Π·Π°ΠΌΠ°ΡΠΊΠΈΡΠΎΠ²Π°ΡΡ ΠΏΠΎΠ΄ ΠΎΠ±ΡΡΠ½ΡΡ ΡΠΈΡΡΠ΅ΠΌΡ Ρ ΡΠ°Π½Π΅Π½ΠΈΡ.
Β

ΠΒ Π΄Π΅ΡΡΠΊΠΎΠΉ ΠΏΠΎΡΡΠ°ΡΠ°Π»ΠΈΡΡ ΡΠΎΠ·Π΄Π°ΡΡ Π°ΡΠΌΠΎΡΡΠ΅ΡΡ ΡΡΡΠ° ΠΈΒ ΠΊΠΎΠΌΡΠΎΡΡΠ°, Π΄ΠΎΠ±Π°Π²ΠΈΠ»ΠΈ Π½ΠΎΡΠΊΠΈ Β«ΠΊΠ°ΡΡΠ½ΠΎΠ³ΠΎΒ» ΠΈΠ½ΡΠ΅ΡΡΠ΅ΡΠ° ΡΒ ΠΏΠΎΠΌΠΎΡΡΡ ΡΠ΅ΠΏΠ»ΠΎΠ³ΠΎ Π΄Π΅ΡΠ΅Π²Π° ΠΈΒ Π½Π΅ΠΎΠ±ΡΡΠ½ΠΎΠΉ Π»ΡΡΡΡΡ-ΠΏΡΠΎΠΏΠ΅Π»Π»Π΅ΡΠ°.
Β

Π¨ΠΊΠ°Ρ Π΄Π»Ρ ΠΎΠ΄Π΅ΠΆΠ΄Ρ, ΠΆΠ°Π»ΡΠ·ΠΈ ΠΈΒ ΡΠΊΡΠ°Π½ Π±Π°ΡΠ°ΡΠ΅ΠΈ ΡΠ΄Π΅Π»Π°Π»ΠΈ ΠΈΠ·Β ΠΎΠ΄Π½ΠΎΠ³ΠΎ Π²ΠΈΠ΄Π° Π΄Π΅ΡΠ΅Π²Π°, ΡΡΠΎ ΡΠΏΠΎΡΡΠ΄ΠΎΡΠΈΠ»ΠΎ ΠΈΠ½ΡΠ΅ΡΡΠ΅Ρ Π΄Π΅ΡΡΠΊΠΎΠΉ.
Β

ΠΠ»Ρ ΡΠ΅ΠΌΠ΅ΠΉΠ½ΠΎΠ³ΠΎ ΡΠΎΡΠΎΠ°ΡΡ ΠΈΠ²Π° Π²Β Π΄Π΅ΡΡΠΊΠΎΠΉ ΡΠΆΠ΅ ΠΏΡΠ΅Π΄ΡΡΠΌΠΎΡΡΠ΅Π½Π° ΡΠΈΡΡΠ΅ΠΌΠ° ΡΠ°Π·Π²Π΅ΡΠΊΠΈ ΠΈΠ·ΡΡΠ½ΡΡ ΡΠ°ΠΌΠΎΠΊ Π½Π΅ΠΆΠ½ΠΎ-Π³ΠΎΠ»ΡΠ±ΠΎΠ³ΠΎ ΡΠ²Π΅ΡΠ°.
Β

Π‘ΠΏΠ°Π»ΡΠ½Ρ ΠΏΠΎΠ»ΡΡΠΈΠ»Π°ΡΡ ΡΠ°ΠΌΠΎΠΉ Π½Π΅ΠΆΠ½ΠΎΠΉ ΠΊΠΎΠΌΠ½Π°ΡΠΎΠΉ Π²Β ΠΊΠ²Π°ΡΡΠΈΡΠ΅, ΠΏΠ°ΡΡΠ΅Π»ΡΠ½Π°Ρ Π³Π°ΠΌΠΌΠ° ΠΈΒ Ρ ΡΡΡΡΠ°Π»ΡΠ½ΡΠ΅ ΡΠ²Π΅ΡΠΈΠ»ΡΠ½ΠΈΠΊΠΈ-ΠΏΠΎΠ΄Π²Π΅ΡΡ Π΄ΠΎΠΏΠΎΠ»Π½Π΅Π½Ρ Π»Π΅Π³ΠΊΠΈΠΌΠΈ ΡΠ΅ΡΠ²ΠΈΡΠΎΠ²ΠΎΡΠ½ΡΠΌΠΈ ΡΡΠΎΠ»ΠΈΠΊΠ°ΠΌΠΈ, Π²ΡΠΏΠΎΠ»Π½ΡΡΡΠΈΠΌΠΈ ΡΡΠ½ΠΊΡΠΈΡ ΠΏΡΠΈΠΊΡΠΎΠ²Π°ΡΠ½ΡΡ ΡΡΠΌΠ±ΠΎΡΠ΅ΠΊ.
Β

ΠΒ ΡΠ΅Π»ΡΡ ΡΠΊΠΎΠ½ΠΎΠΌΠΈΠΈ ΠΌΠ΅ΡΡΠ° Π²ΡΠ΅ Π΄Π²Π΅ΡΠΈΒ β Π²Β ΡΠΏΠ°Π»ΡΠ½Ρ, Π΄Π΅ΡΡΠΊΡΡ ΠΈΒ Π΄Π°ΠΆΠ΅ ΡΠ°Π½ΡΠ·Π΅Π»Β β ΡΠ΄Π΅Π»Π°Π½Ρ ΡΠ°Π·Π΄Π²ΠΈΠΆΠ½ΡΠΌΠΈ.
Β

ΠΠ°Β ΠΏΡΠΈΡΠΎΠ΅Π΄ΠΈΠ½Π΅Π½Π½ΠΎΠΌ ΠΊΒ ΡΠΏΠ°Π»ΡΠ½Π΅ Π±Π°Π»ΠΊΠΎΠ½Π΅ ΡΡΡΠ°Π½ΠΎΠ²ΠΈΠ»ΠΈ Π΄Π²Π° ΡΡΡΡΠ° ΡΠΊΠ»Π°Π΄Π½ΡΡ ΡΡΡΠΈΠ»ΠΎΠΊ Π΄Π»Ρ Π±Π΅Π»ΡΡ, ΠΊΠΎΡΠΎΡΠΎΠ΅ Π·Π΄Π΅ΡΡΒ ΠΆΠ΅ ΠΌΠΎΠΆΠ½ΠΎ ΠΈΒ ΠΏΠΎΠ³Π»Π°Π΄ΠΈΡΡ. Π‘Π°ΠΌ ΠΏΠΎΠ΄ΠΎΠΊΠΎΠ½Π½ΠΈΠΊ ΠΎΠ±ΠΈΡ Π΄Π΅ΡΠ΅Π²ΠΎΠΌ ΠΈΒ ΠΏΡΠ΅Π²ΡΠ°ΡΠ΅Π½ Π²Β Π½Π΅Π±ΠΎΠ»ΡΡΠΎΠ΅ ΡΠ°Π±ΠΎΡΠ΅Π΅ ΠΌΠ΅ΡΡΠΎ.
Β

ΠΒ Π½Π΅Π±ΠΎΠ»ΡΡΠΎΠΉ ΡΠ°Π½ΡΠ·Π΅Π» Π²ΠΌΠ΅ΡΡΠΈΠ»ΠΎΡΡ Π²ΡΠ΅ Π½Π΅ΠΎΠ±Ρ ΠΎΠ΄ΠΈΠΌΠΎΠ΅ Π΄Π»Ρ ΡΠ°ΠΊΠΎΠΉ Π±ΠΎΠ»ΡΡΠΎΠΉ ΡΠ΅ΠΌΡΠΈ: Π΄ΡΡΠ΅Π²Π°Ρ ΠΊΠ°Π±ΠΈΠ½ΠΊΠ°, Π²Π°Π½Π½Π°, ΠΏΠΎΠ»Π½ΠΎΡΠ΅Π½Π½Π°Ρ ΡΠ°ΠΊΠΎΠ²ΠΈΠ½Π°. ΠΠΈΡΠ° Π½Π°Π΄ ΡΠΈΡΡΠ΅ΠΌΠΎΠΉ ΠΈΠ½ΡΡΠ°Π»Π»ΡΡΠΈΠΈ Π΄ΠΎΠΏΠΎΠ»Π½ΠΈΡΠ΅Π»ΡΠ½ΠΎ ΠΏΠΎΠ΄ΡΠ²Π΅ΡΠΈΠ²Π°Π΅ΡΡΡ, ΠΈΒ Π·Π΄Π΅ΡΡΒ ΠΆΠ΅ ΡΠΏΡΡΡΠ°Π½ ΠΈΒ Π²ΠΎΠ΄ΠΎΠ½Π°Π³ΡΠ΅Π²Π°ΡΠ΅Π»Ρ Π½Π°Β ΡΠ»ΡΡΠ°ΠΉ ΠΎΡΠΊΠ»ΡΡΠ΅Π½ΠΈΡ Π³ΠΎΡΡΡΠ΅ΠΉ Π²ΠΎΠ΄ΡΒ β Π΄Π»Ρ Π½Π΅Π³ΠΎ ΠΏΡΠ΅Π΄ΡΡΠΌΠΎΡΡΠ΅Π½ ΡΠΊΡΡΡΡΠΉ Π»ΡΠΊ.
Β

ΠΠΈΡΠ° Π½Π°Π΄ ΡΡΠΈΡΠ°Π»ΡΠ½ΠΎΠΉ ΠΌΠ°ΡΠΈΠ½ΠΎΠΉ Π΄ΠΎΠΏΠΎΠ»Π½Π΅Π½Π° Π²ΡΡΡΠΎΠ΅Π½Π½ΠΎΠΉ ΡΠΈΡΡΠ΅ΠΌΠΎΠΉ Ρ ΡΠ°Π½Π΅Π½ΠΈΡ.
Β

Π‘ΡΠ΅Π½Ρ Π²Β ΡΠ°Π½ΡΠ·Π»Π΅ ΠΎΠ±Π»ΠΈΡΠΎΠ²Π°Π½Ρ Π½Π°ΡΡΡΠ°Π»ΡΠ½ΡΠΌ ΡΡΠ°Π²Π΅ΡΡΠΈΠ½ΠΎΠΌ, ΠΎΠ±Π»Π°Π΄Π°ΡΡΠΈΠΌ ΠΏΡΠΈΡΡΠ½ΠΎΠΉ ΠΏΠΎΡΠΈΡΡΠΎΠΉ ΡΠ΅ΠΊΡΡΡΡΠΎΠΉ.
ΠΡΠΎΠ΅ΠΊΡ Π΄ΠΈΠ·Π°ΠΉΠ½Π΅ΡΠΎΠ² ΠΠΊΠ°ΡΠ΅ΡΠΈΠ½Ρ ΠΠΎΠΏΠ°ΡΠΈΠ½ΠΎΠΉ ΠΈΒ Π€ΠΈΠ»ΠΈΠΏΠΏΠ° ΠΡΡΡΡΠ½ΡΠ½Π°Β β ΡΡΠ°ΡΡΠ½ΠΈΠΊΠΈ ΠΊΠΎΠ½ΠΊΡΡΡΠ° Β«ΠΡΡΡΠΈΠΉ 3D-ΠΏΡΠΎΠ΅ΠΊΡ ΠΊΠ²Π°ΡΡΠΈΡΡ Π΄ΠΎΒ 70Β ΠΊΠ².Β ΠΌΒ» Π½Π°Β ΡΠ°ΠΉΡΠ΅ pinwin.ru. Π‘ΡΡΠ»ΠΊΠ° Π½Π°Β ΡΡΡΠ°Π½ΠΈΡΡ ΠΏΡΠΎΠ΅ΠΊΡΠ°: http://www.pinwin.ru/konkurs.php?kact=2&knid=22&rbid=3064
www.4living.ru

