Откатные ворота ширина – ширина конструкции, максимальная длина, расчет, чертеж и схема в 4 метра
размеры створок и расчет мателриалов
Компания «Русская Ограда». Мы занимаемся установкой заборов, ворот (в том числе автоматических), установкой столбов и линий ЛЭП по всей Москве и Московской области. Звоните: +7 (495) 762-97-99 c 09:00 до 21:00 ежедневно.
Сегодня все чаще въезды в частные дворы обустраивают современными устройствами – сдвижными, оснащенными автоматикой, или консольными воротами, в зависимости от предпочтений и потребностей. Откатные ворота, размеры которых соответствуют стандартным, более доступны, их можно приобрести сразу по рыночной цене, в то время как «не формат» надо заказывать у специализированных фирм-производителей, и это всегда обходиться дороже. Однако, лучше всего сделать все своими руками из прочных материалов, и быть уверенным в качестве и немного сэкономить. Перед началом изготовления необходимо изучить теоретическую составляющую не только производства, но и составления чертежа и подбора материалов.
Факторы и расчёт габаритов устройства
Транспорт, как определяющий фактор
Конечно, определить стандартные размеры откатных ворот нужно заранее, ведь проемы бывают абсолютно разными. В зависимости от различных потребностей, их размеры сильно отличаются. Решать Вам – пользоваться стандартными шаблонными схемами, или разработать собственный чертеж такого важного элемента, как ворота, которые создают первое впечатление о хозяине, и которые вместе с ограждением являются лицом участка.
Для того, чтобы ничего не пришлось подгонять в процессе монтажа, рекомендуется заранее планировать размеры проема, материалы и конструкции несущих столбов, на которые будет навешено портальное устройство, заливать под них фундамент, возможно даже с закладными. Определить оптимальные величины ширины и высоты портала можно, ответив на вопрос: какой тип автотранспорта будет заезжать на участок — легковые, грузовые машины, тяжелая техника, или несколько газелей одновременно?
Если планируется, что во двор будет въезжать только легковая машина, то определить минимальные размеры проезда под будущие откатные ворота намного легче. Чаще всего автомобили имеют среднюю ширину 2 метра, дополнительно требуется пространство с обеих сторон для облегчения въезда и маневренности – это еще + 1 метр. Итого по ширине — около 3 метров. По высоте считается вполне достаточным размер (Ширина Х Высота) 3 Х 2 метра. Когда речь идет о грузовых машинах, то желательно не делать прожилин или других ограничений в высоту, а ширина должны быть не менее 3,5-4 метров.
Габариты противовесной части
Ворота откатного консольного типа (створка) состоят из двух частей:
- Проёмная часть — полотно;
- Противовесная часть, или по-другому называемая как хвостовик, концевик, косынка, раскос или противовес.
Считается, что нормальная длина противовесной части – это 40 % ширины проёма, хотя значения могут колебаться в пределах 33-50%. Придерживаясь данного параметра, изготовитель получает оптимальный расход пространства и материалов.

Каркас створки
Можно найти сведения, что концевик должен составлять 50 и 60%, но это излишне для бытовых ворот. Противовес в половину полотна портальной конструкции актуален для промышленных сдвижных устройств и въезда крупногабаритного транспорта, когда ширина проёма 8 и больше метров.
Важно знать! Минимальная длина противовесной части должна быть равна 33% от величины проёма. Если при замере оказывается, что у Вас не хватает пространства для отката, то следует признать, что откатного типа конструкцию устанавливать запрещено, так как недостаточная противовесная часть приведет к регулярному падению створки в открытом состоянии. В таком случае лучше рассмотреть другие варианты, возможным решением могут стать обычные распашные ворота.
Расчёт материалов на примере
Легче всего делать чертеж на классическом примере, где откатные ворота будут устанавливаться в проем шириной 4м и высотой 2м, створка будет обшита листами профнастила. Для данной конструкции можно смело приобретать комплект фурнитуры, рассчитанный на 400 кг: ролики металлические или полимерные, направляющая длиной 6м сечением 60*70мм.

Схема откатной конструкции
Четырехметровая рама створки согласно формуле в проёмной части будет равна 4,2 м. Дополнительные 200 мм рассчитаны для перекрытия проёма с каждой стороны на 100 мм. Тогда противовес составляет 1,6 м — 40%. Это значение удовлетворяет вышеописанным техническим условиям.
Формулы для подсчёта минимальной конструкции
Как уже определено, минимальная длина противовеса полотна рассчитывается по формуле: умноженная на 0,4 ширина проема плюс 200 мм.
На основе замеров расстояния между несущими столбами, можно определить минимальную длину полотна по формуле: минимальная длина противовеса плюс ширина проезда плюс 200 мм A=C+B+200.
Затем определить рекомендуемую длину полотна портальной конструкции с противовесом можно по формуле: ширина проезда, умноженная на 1,5 + 200 мм.
Сделав замеры ширины въезда, можно узнать минимальное значение длины отката с противовесом по следующей формуле: величина зоны отката равна ширине проема.

Чертеж створки и монтажа
После замеров расстояния между несущими столбами подсчитайте рекомендуемую величину отката полотна с противовесом по формуле: ширина проема, умноженная на 1.6.
Особенности и принципы работы сдвижного устройства
rusograda.ru
Размеры откатных ворот
Откатные ворота можно изготовить практически любых размеров. Стандартные размеры откатных ворот — 4 метра в длину и 2 в высоту. При необходимости и желании покупателя, всегда существует возможность купить ворота любого размера.
Требования к размерам на участке для монтажа откатных ворот
Cуществуют минимальные требования обусловленные конструктивными особенностями ворот. Для откатного типа, необходимо пространство вдоль забора в сторону предполагаемого отката ворот в размере минимум 1.5 длины проема. Между забором и другими конструкциями на участке, в том месте где будет стоять электропривод, следовательно и будут откатываться ворота, должно быть достаточно места минимум для свободного прохода одного человека. Мы рекомендуем оставлять расстояние от забора до любого строения, в месте установки ворот от 0.5 метра.
Если строение прилегает к забору практически вплотную, но расстояния достаточно для монтажа ворот, необходимо обеспечить все условия для нормальной работы электропривода.
- Обеспечить защиту от попадания на электропривод дождевых потоков с крыш прилегающих зданий.
- Защитить место установки электропривода от снежных наносов.
- Исключить затопление привода.
Основанием последних двух пунктов являются требования производителей к монтажу электроприводов. (касс защиты электроприбора IP 4.4)

Такие требования обусловлены устойчивостью изделия в плане монтажа фундамента и не может быть изменена в меньшую сторону. Если ни одна из сторон не соответствует этой норме, существует два решения:
- Ворота другого типа
- Раздвижные ворота
Последние — очень редкое изделие. Правильнее называть последние как двустворчатые ворота. Суть заключается в том, что полотно ровно по центру разрезано пополам и створки разбагаются в разные стороны освобождая проезд. Такая модификация, может стать экономически нецелесообразной. Стоимость раздвижных ворот будет равна цене обычных такого размера, с минимальным умножением на два.
Размеры роликов и комплектующих
Все ролики, консольная балка, размер площадки для электропривода, размер противовеса, классифицируются по весу готового воротного полотна. Вес полотна зависит от размера ворот, варианта обшивки. Вес, как правило, классифицируется:
до 400 кг;
400 — 800;
800 — 1500;
1500 — 2000;
На основании этих данных, подбираются монтажные комплекты. В мире существует достаточное количество производителей комплектующих, соответственно целесообразно брать весь комплект у одного производителя. На нашем сайте имеется калькулятор раздвижных ворот, в котором выбрав требуемый размер, можно точно определить рекомендуемые приводы и консольные балки вашего размера.
Как может показаться на первый взгляд, единого стандарта роликов и консольной балки — не существует, вернее есть, например стандарт EN 10162, однако гарантировать что по этому стандарту собраны ворота, можно только при условии того, что производитель который устанавливал ворота, пользовался оригинальными комплектующими, которые соответствовали всем стандартам. При ремонте ворот, необходимо установить пренадлежность запасных частей к поставшикам оригинальной продукции.
Существует как минимум два варианта консольных балок: «эко» и «евро» некоторые производители имеют более широкие градации.
Размер площадки для монтажа электропривода
Основной значимой составляющей для монтажа приводов ворот является вес. В зависимости от последнего, подбирается электропривод. Привод может быть наземного исполнения, без необходимости монтажа площадки.
garantplaststroi.ru
Откатные ворота своими руками схемы, чертежи, фото, технология
В интернете много неполной информации по монтажу откатных ворот своими руками, прочитав ее не особо понятен ход выполнения работ либо само устройство откатных ворот.
В данной инструкции мы попытаемся наглядно продемонстрировать монтаж консольных откатных ворот от и до, и помочь вам рассчитать высоту и ширину ворот именно для вас.
Чтобы приступить к монтажу, нужны чертежи, одного чертежа для всех ворот не существует, все зависит от ширины и высоты проема в заборе.
Фурнитура для откатных ворот

Первое с чего можно начинать сборку ворот это фурнитура, но лишь после расчета веса и размеров ворот, фурнитуру можно приобрести отдельно или сделать своими руками из подшипников, в комплект фурнитуры входит:
- направляющая рельса обычно 6 м длиной;
- 2 роликовые опоры
- 1 верхний роликовый кронштейн, чтобы избежать качания ворот;
- 1 концевой ролик;
- 1 улавливатель концевого ролика, чтобы во время ветра ворота правильно пристыковались и не сломали автоматику.


Дополнительные аксессуары для фурнитуры:
- Монтажно-регулировочная опора для роликовых опор.
- Механический замок.
- Рейка зубчатая.
- Крепежный элемент для зубчатой рейки.
Теперь о нагрузке. Комплекты бывают разные, для разного веса ворот, смотрите таблицу, в ней показана зависимость веса и ширины ворот.
| Ширина проема не более | Вес ворот |
| 4 м. | 300 кг. |
| 4 м. | 400 кг. |
| 4.5 м. | 500 кг. |
| 6 м. | 600 кг. |
| 10 м. | 1000 кг. |
| 12 м. | 1200 кг. |
Эти данные пригодятся вам при выборе фурнитуры, но большинство умельцев стараются сделать все детали своими руками, так как комплект не дешевый.
Чтобы сделать фурнитуру самому, нужно знать, куда и зачем она крепиться, об этом читайте ниже.
Как выбрать качественную фурнитуру
Основная деталь, направляющая рельса, лучшим выбором будет рельса европейского производителя. Деталь хорошего качества имеет зеркально ровную поверхность и четкие геометрические формы. Деталь должна быть оцинкована не иметь окалин и ржавчин на своей поверхности. У качественной направляющей толщина металла от 3.5 мм до 5 мм.
Выбирая роликовые опоры, обратите внимание, чтобы они были изготовлены полностью из металла, пластмассовые или прорезиненные прослужат недолго. Все геометрические формы металла должны быть правильными, малейшие отклонение свидетельствуют о некачественной сборке.
Что касается остальных металлических деталей, они должны быть покрыты цинком, оттенок цинка должен быть однотонный, минимальная толщина метала 3-4 мм.
Размеры откатных ворот
От размеров и веса откатных ворот будет зависеть стоимость фурнитуры. Ширина вычисляется таким способом, к ширине проема в заборе прибавляют еще 50% ширины. Например, у вас ширина проема 4 метра, делим на 2, получаем 2 метра + 4 метра ширина проема, итого длина направляющей рельсы будет 6 метров.
Чтобы было легче понять и запомнить предлагаю формулу и схему:
B/2=A→A+B=L
- B – ширина проема;
- A – длина противовеса;
- L – длина направляющей рельсы.

После того как вы определились с размером каркаса можно приступать к его изготовлению, каркас изготавливается из профильной металлической трубы 40x40x 2 мм и 40x20x2 мм для внутренней обрешетки. Для алюминиевых каркасов используют профиль от 60 мм.
Высоту каркаса ворот лучше сделать равной длине профнастила. Профнастил лучше выбрать по жестче. Перед креплением профнастила к каркасу, просверлите в каркасе отверстия на половину меньше диаметра кровельного самореза, так как саморез может не пробурить профилированную трубу каркаса, вместо саморезов можно использовать вытяжные заклепки.
Ширина нижней профилированной трубы должна соответствовать ширине направляющей рельсы.
Если у вас ширина ворот более 4-х метров,то для сборки основы каркаса лучше использовать прямоугольные трубы!


На фото ниже показано, как правильно сделать каркас, для разной ширины проема.



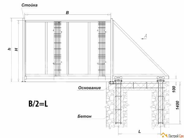
Фундамент для ворот
С размером фундамента определиться довольно легко, так как он имеет длину равную 1/2 ширины проема, по формуле:
B/2=L
- B – ширина проема;
- L – длина фундамента;

Если с длиной фундамента все просто, то с монтажом мы имеем множество вариантов.
Фундамент может быть выполнен из следующих материалов:
- Монолитный П-образный.
- Монолитный сплошной.
- Из винтовых свай.
В монтаже монолитного фундамента тоже есть небольшие особенности, можно использовать арматуру, приваренную к швеллеру, анкерные болты или длинные шпильки с резьбой.


Рассмотрим вариант со швеллером (силовой рамой), он может быть с опорными столбами одним или двумя либо без них, в обоих случаях силовая рама крепится заподлицо к существующим столбам забора. Высота опорных столбов соответствует высоте самих ворот + высота роликовых опор. Использование двух опорных столбов возле силовой рамы целесообразно для широких ворот, которые сильно раскачиваются ветром. Если опорные столбы не предусмотрены, то вместо них делаются металлические закладные в каменный забор.


На фото, заложения фундамента.


Схема без металлических стоек.


Расположение несущих роликов

Фото силовой рамы


Чтобы ровно выставить силовую раму с противоположной стороны, где находиться опорный столб с уловителем концевого ролика, отступают 10 см (толщину столба) от забора и натягивают шнур до последнего угла швеллера, по всей своей длине край швеллера должен повторять линию шнура.
Установка и регулировка ворот
После того как силовая рама готова к использованию, выставьте роликовые опоры по уровню, установите верхний роликовый кронштейн, установка зависит от конструкции кронштейна.


Чтобы заранее определить, где монтировать нижнюю ловушку, на роликовые опоры одевают направляющую рельсу без ворот. Нижняя ловушка предназначена не только для того чтобы удерживать ворота по горизонтали, но и снять нагрузку с роликовых опор, для этого концевой ролик должен закатываться в ловушку так чтобы ворота приподнимались вверх на 3-5 мм.


Если после установки рамы, концевой ролик сильно провис, отрегулируйте роликовые опоры.
Если все сделано правильно, но вы не добились правильной работы откатных ворот, то скорей всего у вас не качественный комплект фурнитуры, он предназначен для другого веса или каркас собран неправильно, из-за этого ворота сильно провисают и не могут попасть в нижнюю ловушку.
Монтаж зубчатой рейки
После того как отрегулированы все вышеописанные механизмы, можно приступить к монтажу автоматики. Ниже на видео показано, как можно сделать электропривод своими руками.


Начнем с зубчатой рейки, они бывают металлические и нейлоновые, металлические естественно лучше и надежней. Их толщина варьируется от 8 до 30 мм. Стандартный размер рейки 1 метр. Для крепления используют количество реек равное ширине проема + 1 рейку для концевых выключателей автоматики. Зазор между зубцами шестерни привода и рейки должен быть 1-2 мм. Рейка крепиться на нижнюю трубу каркаса ворот с помощью крепежного элемента для зубчатой рейки. Отверстия в рейке позволяют регулировать ее по высоте.

На картинке два варианта крепления зубчатой рейки, не советуем крепить рейку к направляющей рельсе, во время сварки направляющая может изогнуться, если в направляющую вкручивать болты, это тоже может вызвать трудности при монтаже и во время работы ворот.
Часто крепежные элементы приваривают, хотя для их крепления существует специальный С-профиль для зубчатой рейки. На фото ниже оба варианта.



Если вы будете покупать электропривод, то к нему в комплекте прилагается 4 метра зубчатой рейки.
Для тех, кто не хочет тратиться на зубчатую рейку, ее можно заменить велосипедной цепью или как показано в одном из видео на цепь от «жигулей».
Автоматика ворот
Как откатные, так и распашные могут открываться автоматически. Их работа управляется с помощью пульта дистанционного управления и выключателей, устанавливаемых в доме, и, возможно, у ворот. Один пульт может запускать не только ворота, но и ворота гаража, и даже освещение. Автоматические приводы состоят из электродвигателя, движущейся зубчатой рейки и устройства управления. Их можно приобрести как отдельное устройство, хотя лучше заказать их сразу с воротами. Тогда вы будете уверены, что привод был правильно подобран и не будет сюрпризов при сборке.
Для откатных ворот нужен один двигатель для перемещения зубчатой рейки, прикрепленной к нижней кромке створки. А для раздвижных ворот необходимы два цилиндра, крепятся по одному к каждой из створок. Привод имеет механизм, позволяющий открыть ворота в случае отключения подачи тока. Современные приводы могут питаться от аккумулятора, заряженного от сети или солнечной батареи. Ворота открываются автоматически, требуют установки устройств, обеспечивающих безопасность их использования. Необходимы фотоэлементы, благодаря которым створки не двигаются, когда на их пути появится препятствие. Сигнальная лампа, установленная на видном месте, сообщит о том, что ворота открываются или закрываются.
Выбор электропривода
При выборе привода важно, чтобы шестерни редуктора были из стали или латуни, но не из пластика или силумина. Второй важный элемент, это концевик, он контролирует точки, до которых воротам можно открываться и закрываться, концевик бывает механический и герконовый (магнитный), как показала практика, механический может замерзнуть в зимнее время. Как правило, качество деталей привода зависит от его мощности, чем выше мощность привода, тем качественней его сборка. Что касается грузоподъемности, то она указывается в документации.
Базовая комплектация привода:
- 4 метра зубчатой рейки;
- фотоэлементы;
- сигнальная лампа;
- пульт и приемник;
- монтажная пластина.
Для тех, кто не знает, для чего нужны фотоэлементы, то они представляют собой 2 датчика, которые монтируются по краям ворот. Когда появляется препятствие между фотоэлементами ворота открываются или закрываются, в зависимости от того как вы запрограммируете автоматику.
Монтаж автоматики


Первым делом приваривается или прикручивается монтажная пластина для установки привода, она поставляется в комплекте с приводом с ее помощью можно регулировать высоту и угол наклона привода.


После монтажа привода, монтируются магнитные датчики, фотоэлементы и сигнальная лампа. Как правило, приводы подключаются к сети 220 и после программной настройки сразу готовы к работе.


Похожие материалы
postroy-sam.info
Как выбрать откатные ворота, типы откатных ворот и их характеристики
Правильно выбрать откатные ворота довольно сложно, так как разобраться в технических характеристиках конструкции и определить, какому из продавцов можно доверять свои деньги и нервы достаточно трудоемкий процесс.
Выбирая подрядчика для изготовления сдвижных ворот, обязательно надо понимать, с кем имеешь дело. Лучше всего посмотреть готовые объекты потенциальных компаний, на которых данные конструкции уже установлены, т.к. откатных ворот на рынке много, а вот качество, материалы и внешний вид у изделий заметно отличаются. Опираясь на стоимость с разницей в 50-80 долларов, вы абсолютно не застрахованы от того, чтобы получить некачественную продукцию. Существует вероятность, что всего через полгода придется искать подходящую краску для закрытия ржавчины, появившейся на ваших въездных воротах.
Виды и типы откатных ворот
Какие откатные ворота купить – этот вопрос задают себе люди, подходя к возведению ограждения у себя на участке. Разобраться с тонкостями и не переплатить, выбрать оптимальный вариант – это задача не из легких.Уличные откатные ворота бывают нескольких типов:
- консольные;
- рельсовые;
- подвесные.
Выделяют также одностворчатые и двустворчатые. Они могут быть на ручном управлении или оснащаться автоматикой.
Рельсовые
Откатные ворота рельсового типа изготавливались еще в СССР, когда современную комплектацию для откатных ворот негде было приобрести. Для снятия нагрузки с несущей трубы использовались всевозможные рельсы в комплекте с движущимися по ним роликами. Сейчас же выпускается усовершенствованная комплектация, обладающая такими достоинствами:- Масса створки поддерживается роликами, что дает возможность делать очень широкие проемы.
- При правильной балансировке не нужны большие усилия приводного устройства, что увеличивает срок службы и уменьшает износ.
- Направляющая рельса не мешает проезду и не требует укрепленной фундаментной основы.
- Нет ограничения на габаритную высоту транспорта, проезжающего через проем.
- Легкое аварийное открытие даже с учетом большого веса створки.
- Зимой нужно очищать рельсы от ледяных скоплений.
- Несущие ролики поддаются сильному износу под весом створки.
- Сложность ремонта.

Подвесные
Откатные ворота подвесного типа используются для перекрытия проемов зданий и сооружений, конструкция схожа по принципу используемой фурнитуры для стандартных откатных ворот, используется также балка и ролики, но принцип нагрузки на воротах абсолютно другой.В подвесных конструкциях несущая балка подвешивается над проемом, и весь вес ворот тянет ее вниз, а в воротах сдвижных, наоборот, ворота находятся сверху на балке, пытаясь ее деформировать своим весом.
Ключевые достоинства:
- Просты в монтаже и использовании.
- Возможна установка автоматики.
- Устойчивы при сильных ветрах.
- Обширный выбор комплектующих для откатных ворот на случай выхода из строя отдельной детали.
- Простота ухода.
- Опорные ролики работают бесшумно и мягко.
Минусом можно назвать ограничение высоты проема для проезжающего транспорта. Также этот вид достаточно материалоемкий.
Консольные
Откатные ворота консольного типа — самая распространенная конструкция на сегодняшний день, проверенная и удобная в эксплуатации. Конструкция отличается повышенной сложностью, однако, судя по отзывам, это вполне оправдано. Полотно ворот подвешивается на консольных роликах с помощью направляющей балки, которая расположена в любой части ворот (чаще – в нижней).Достоинствами типа выступают:
- Отсутствие контакта с наземной рельсой и ограничения по высоте ТС.
- Усиленная надежность.
- Даже в обильный снегопад не нарушается работа ворот (они находятся на расстоянии минимум 10 см от земли).
- Могут оборудоваться автоматикой и системой безопасности.
- Сложность монтажа.
- Нужен запас забора, ширина которого в 1,5 больше ширины проема.
Одностворчатые и двустворчатые
Одностворчатый вариант имеет простое устройство – створка ворот полностью закрывает весь проем. Двустворчатая конструкция раздвижных ворот несколько сложнее – створки сходятся на середине (или там, где это удобно владельцу), и под каждую из них создается отдельная конструкция. В результате стоимость двустворчатых ворот получается больше за счет необходимости двойного комплекта фурнитуры, направляющих, роликов и т.п. при сохранении примерно тех же габаритов полотна.Ручные и автоматические раздвижные ворота приобретают все большую популярность благодаря своим удобством в эксплуатации – нет необходимости чистить снег, они не занимают место перед воротами и во дворе вовремя открытия, им особо не страшны ветровые нагрузки. А также автоматика для данных ворот куда более доступна по цене, чем приводы для распашных ворот, поэтому выбор очевиден.
Из какого профиля делают откатные ворота
Уличные ворота изготавливаются из профильной трубы, поэтому выбор профиля для откатных ворот всегда необходимо производить в зависимости от габаритов конструкции. Самым популярным сечением металла является 60х40х2 мм – подходящий для большинства конструкций, имеет достаточную прочность и не перегружает балку лишним весом.Откатные ворота могут изготавливаться как с глухим зашитием каркаса, так и с комбинированным, например, металлоштакет либо евросетка – на сегодняшний день пользующаяся повышенным спросом при выборе ограждения для участков.
В случае особых пожеланий по коррозийной стойкости можно приобрести конструкции из оцинкованного металла, сделанные на крупнейшем заводе России. Весь процесс производства откатных ворот данной серии автоматизирован. Для их изготовления используются оцинкованные профили, что позволяют собирать ворота без сварочных соединений и в свою очередь избавляет от коррозии в последующем. Ворота, изготовленные из оцинкованных профилей, очень удобны для транспортировки, так как перемещаются в разобранном виде и довольно просто собираются на месте своими силами.
Какой размер откатных ворот выбрать
Ворота откатного формата выпускаются в стандартном размере и производятся на заказ по меркам клиента. Стандартные габариты составляют 4х2 м и 3х2 м (ШхВ). Если ширина полотна больше 4 м, потребуется заказать оборудование для балансировки противовеса, что приведет к солидному удорожанию проекта.Размеры зависят и от типа ворот, и от транспорта, который будет проезжать через проем. Для легкового авто достаточно ширины 3 м, а для грузового – на 4 м. Если вы ставите подвесные ворота, учитывайте высоту ТС, чтобы оно легко проходило под направляющей балкой. Это и задаст высоту конструкции.
Откатные ворота на участке с уклоном
Часто встречаются участки с уклоном. Поставить на них откатные ворота сложнее, но вполне реально. Главное, чтобы перепад не превышал 15 см. Перед установкой определитесь с такими параметрами:-
В какую сторону будет идти откат – вверх или вниз относительно уклона. В идеале – вниз, чтобы полотно не упиралось в уклон.
-
Высота уклона – от этого зависит, насколько большим будет просвет. Чтобы закрыть просвет, можно разместить «лежачего полицейского».
-
Длина ворот – от нее зависит вес конструкции и нагрузки на направляющие элементы.
Откатные ворота – удобное и красивое решение для любого участка, имеющее более низкую цену и более доступную автоматику.
terol.by
Направляющая для откатных ворот — Всё о воротах и заборе
Основные комплектующие для откатных ворот своими руками
Сегодня откатные ворота стали самой популярной конструкцией для многих владельцев дач, частных домов, коттеджей или таунхаусов.
Главными преимуществами такого рода ворот считаются:
- Возможность установки такой конструкции абсолютно в любом месте, т. к. нет ограничений относительно размеров свободного пространства, находящегося перед ними. Если все конструктивные соответствующие особенности грамотно предварительно продумать, то в данные ворота сможет въехать любой по высоте автомобиль.
- Удобство использования конструкции. К примеру, нет сложности в процессе открывания/закрывания ворот в условиях сильного порыва ветра, что характерно для распашных конструкций.
- Универсальность ворот. В зависимости от конкретной специфики эксплуатации конструкции можно выбрать абсолютно любые габариты полотна. Вариантов множество — ворота данного типа могут быть как легкими, так и утяжеленными.
- Разнообразие внешней отделки ворот. Обычно для этого применяют материалы такого плана, как профнастил, сэндвич-панели, металлопрофиль или древесина.
- Привлекательный внешний вид конструкций – существенный дополнительный «плюс» таких ворот.

Технические решения, которые в нынешнее время используют в процессе создания откатных ворот, зависимо от специфики конструкции, могут серьезно отличаться. Соответственно, их исполнение также может быть различным. Оно зависит, в основном, от расположения балки – ее можно устанавливать вверху, посередине или внизу.
Для работы откатных ворот нужна специальная фурнитура. Большинство наших соотечественников сейчас предпочитает ворота делать самостоятельно, а фурнитуру приобретать готовую. Но можно изготовить комплектующие для откатных ворот своими руками и, соответственно, максимально удешевить стоимость всей конструкции.
Перечень необходимых комплектующих
В базовую комплектацию такой конструкции обязательно входят:
- две роликовые каретки;
- направляющая балка;
- два уловителя;
- ограничитель;
- заглушки;
- концевой/накатной ролик.
Каждый из элементов, которые перечислены выше, выполняет свои определенные функции — эффективная работа всей конструкции возможна исключительно при условии наличия абсолютно всех комплектующих. Заводская фурнитура намного удобней в процессе эксплуатации по сравнению с самодельной – кроме того, все ее детали между собой отлично взаимодействуют.
Единственный недостаток готового комплекта — его высокая стоимость, что, соответственно, заставляет людей находить альтернативные варианты. Но изготовить дома комплектующие для ворот непросто – это требует наличия определенных материалов/инструментов, а также определенного качества проведения работ.
Изготовление направляющей балки своими руками
Направляющая балка называться может по-разному: рельс, швеллер или консоль. В заводских условиях это изделие изготавливают из стального профиля, который имеет сложную геометрическую форму — в домашних условиях ее невозможно повторить. Длина такой балки от 5 до 7 м, а толщина металла 3,5-5 мм. Данная деталь является самой важной и наиболее габаритной из всего комплекта. При самостоятельном ее изготовлении следует грамотно подобрать материал, с учетом веса полотна и ширины створки.

Длина балка обязана быть в 1,5 раза больше, чем ширина ворот. Оптимальный вариант для самодельной консоли — это квадратная труба, которая имеет сечение 60мм х 60мм х 4мм. Ее длина, при этом, должна равняться ширине ворот, которая умножена на 1,5. Нужно тщательно очистить трубу от окалины и ржавчины, а также хорошо отшлифовать ее поверхность.
Если на трубе есть сварочный продольный шов, нужно сделать его боковым и отшлифовать изнутри. Нередко такие швы серьезно мешают роликам передвигаться по направляющей, соответственно подготовить внутреннюю поверхность нужно не менее тщательно, чем наружную.
Процесс самостоятельного изготовления роликовых кареток
Тележки или роликовые каретки на себя принимают нагрузку от створки, которая движется и переносят ее на фундамент конструкции ворот. Профиль совместно с установленной рамой благодаря кареткам передвигается вдоль проема ворот. На каждой из кареток имеется по 8 роликов – они могут быть и полимерными, и металлическими.
Уровень качество заводских кареток значительно выше, чем сделанных своими руками. Но грамотно изготовленные самостоятельно каретки могут прослужить относительно длительный период времени.

Как ролики оптимально использовать подшипники от генератора автомобиля «Жигули». Внутренний диаметр такого подшипника должен находиться в пределах 14 — 40мм – он должен не просто помещаться в трубу, но еще и свободно двигаться по ней. Для осей кареток часто используются шпильки М18 – их предварительно следует разрезать на куски определенной длины. Кроме этого, нужна небольшая пластина железа, толщина которой составляет от 8 мм – она необходима для создания основания каретки.
Более тонкий металл пластины не сможет выдержать вес конструкции ворот и погнется!
Процесс создания каретки относительно прост: пластины из металла размечаются, болгаркой обрезается лишнее, затем просверливаются отверстия, необходимые для крепления подшипников. Диаметр этих отверстий должен быть равен диаметру оси. В процессе сверления мастера рекомендуют для охлаждения применять масло – это позволит металлу не перегреться.
Оси примеряются к отверстиям и обрезаются до нужной длины. После этого на оси одеваются шайбы, затем подшипники, которые максимально крепко прикручиваются. При этом подшипники до приваривания основы обязательно следует набить смазкой.
Балки и каретки – это самые сложные в плане изготовления комплектующие, которые необходимы для создания откатных ворот своими руками. Все остальные элементы такой конструкции создать в домашних условиях значительно проще.
Еще недавно многие отдавали предпочтение распашным воротам. Это обусловлено тем, что такую конструкцию легко установить своими руками. Кроме того, цена таких гаражных ворот доступна, и поставить их может любой владелец дома.
Но в последнее время все чаще хозяева частных домовладений или дач отдают предпочтение сдвижным воротам. Они удобны в эксплуатации, надежны, современны. При этом необходимо иметь дополнительные комплектующие.
Устанавливают откатные ворота в частных домовладениях, гаражах, на дачах. Дабы сэкономить средства на установке, многие владельцы изготавливают и монтируют их своими руками.
Это вполне реально сделать, вооружившись необходимым оборудованием, помощью друзей и, конечно же, инструкцией по установке.
Положительные и отрицательные стороны откатных гаражных ворот
Среди недостатков можно выделить:
- Высокая цена по сравнению с распашными гаражными воротами.
Еще недавно установить откатные ворота могли только обеспеченные люди. Это обусловлено высокой ценой комплектующих. Особенно дорого стоил электропривод, поэтому не каждый мог поставить ворота своими руками.
Сейчас люди отдают предпочтение именно откатным воротам. Пусть придется переплатить, но они будут наслаждаться комфортом
- Необходимо дополнительное пространство для откатывания ворот.
Установить ворота проблематично, если нет дополнительной площади возле ворот. При этом можно установить их изнутри.
Основным преимуществом откатных гаражных ворот является возможность въезда транспортного средства любой высоты, так как ни сверху, ни снизу конструкция проема не ограничена.
Характеристика
По створкам двигается профилированная консоль. Роликовая каретка крепится к фундаменту. Она определяет путь направляющей. Устройство системы включает в себя направляющие ролики с подшипниками.
Смазывать их нет необходимости. Каретки состоят из 8-ми роликов, покрытых металлом или полимером.
Благодаря качественным комплектующим конструкция может служить 50 тысяч полных циклов «открыть/закрыть». При условии правильного использования гаражных ворот этого достаточно на длительный период.
Материал для зашивки гаражных ворот своими руками: Профнастил, металлический лист, дерево, поликарбонат.
Калитку можно поставить отдельно или встроить в конструкцию.
Итак, комплектующие откатных гаражных ворот:
- Каретка (роликовая тележка).
- Направляющие ролики (поддерживающий, накатной).
- Заглушки направляющей
- Нижний и верхний улавливатель
- Направляющий рельс 6 метров
Производим замеры проема и створок
Очень важно правильно замерить проем. От этого будет зависеть, какие выбирать комплектующие и автоматику. Поэтому первоначально необходимо определить высоту и ширину створки.
От ширины улицы и габаритов автотранспорта зависит, какой проезд необходимо делать между столбами. Рекомендуем поставить 2 балки и попытаться заехать машиной между ними. Если удалось, значит, такой должна быть ширина проема. Если вы сбили хоть 1 балку, то следует расширить проезд.
Ширина проезда, как правило, составляет 1,5 ширины проема.
К примеру, проем ворот равен 4 метрам. Длина ворот в таком случае составит 4 метра*1,5=6 метров.
Покупать фурнитуру нужно с направляющей длиной в 6 метров. Пространство для откатывания будет таким же.
Подготовка опорных столбов
Про установку опорных столбов следует подумать заблаговременно. Примерно за 1-2 недели до начала изготовления створок. Это время нужно для того, чтобы застыл бетон.
В качестве материала для опорных столбов подойдут швеллер, металлическая труба, брус, столбы из кирпича или бетона.
Бетонировать их необходимо на глубину 1 метра, именно на это расстояние промерзает земля. Иначе весной или зимой столб может наклониться, а это повлияет на нормальное функционирование ворот.
Для крепления нащельников, когда будете изготавливать столбы, на каждом из них нужно сделать по 3 закладные. В дальнейшем, без проблем прикрепите к ним верхние ролики, нижний и верхний улавливатель.
Приварите арматуру посередине забетонированной трубы. С другой стороны приварите арматуру к уголку 50х50 длиной 80 мм. Этот уголок расположен в шве стороной, приваренной к арматуре.
Ко второй стороне приваривают нащельник. Ближе к краю столба уголок должен быть заложен в шве. Этот нащельник будет на расстоянии 8-10 см от края опорного столба.
Если планируете автоматику для гаражных ворот, заложите провода для фотоэлементов, привода, сигнальной лампы и антенны.
Схема проводки для автоматики
Схема подключения откатных ворот
Делаем фундамент (швеллер)
Швеллер — основной элемент для фундамента откатных ворот. Ширина его составит 10, 16 или 20 см. Используется также арматура с сечением 10-14 мм. Разрежьте арматуру, чтобы длина частей составляла 1 метр. Затем приварите их к швеллеру.
Приготовьте ров длиной вполовину ширины проема. Ширина составляет 30 см, глубина 1 метр. Поставьте швеллер и забетонируйте. Фундамент для ворот готов.
Размер фундамента составит половину проема.
Сначала по уровню выставите швеллер. Его верх должен быть на одном уровне с асфальтом. Если планируете укладывать плитку, учтите ее высоту. На этом уровне и бетонируйте швеллер.
Если взять во внимание все советы, выйдет ровная железная площадка. К ней приварите ролики для ворот.
Фундамент сохнет неделю, в это время у вас есть возможность сделать замеры откатных ворот.
Сначала нужно сделать каркас.
Изготавливаем несущую раму
Материал рамы — профиль (профильная труба). Для наружного каркаса используют профиль (трубу) размером 60х40 или 50х50 мм. Для внутреннего —20х30 или 40х20 мм.
В первую очередь почистите от ржавчины металл для рамы. Для этого используйте болгарку с железной щеткой. Обезжирьте, используя растворитель и тряпку.
Затем покройте металл антикоррозийным грунтом.
Далее, необходимо сварить раму. Каркас варят с нижней части кверху. Возьмите направляющий рельс 60х70 мм и приварите к нему снизу 2 трубы размером 60х40 по 60 сантиметров. Направляющий рельс приваривают к трубам для того, чтобы конструкция была устойчивой при сварке каркаса.
Затем возьмите направляющую и сверху приварите профиль каркаса 60х40 мм. С помощью прихваток по 2 сантиметра через 50-60 см приварите трубу к направляющей.
Важно, чтобы направляющая и трубы были сварены в шахматном порядке. Это делается для избегания дефектов ворот.
Затем приварите первую и вторую трубу наружного и профили внутреннего каркаса.
После этого зачистите швы с помощью болгарки.
Ролики для откатных ворот
Красим и обшиваем ворота
После грунтовки труб нужно их покрасить. Самая распространенная краска — алкидная эмаль.
Нанесите сначала один слой краски, затем дайте просохнуть, после чего нанесите еще один.
Для обшивки подойдет профлист, металл или дерево.
Устанавливаем ворота своими руками
После того как застыл фундамент, можно устанавливать ворота.
Этап №1. Выставите ворота на том месте, где будут так называемые лапы. Их крепят для того, чтобы было удобнее красить и перевозить ворота.
Этап №2. Срежьте «лапы» и выставите ролики для откатных ворот на фундаменте, предварительно раздвинув их на максимальную ширину. Направляющая должна быть надета на ролики.
Этап №3. Выровняйте с помощью уровня.
Этап №4. Роликовая каретка приваривается к швеллеру.
Иногда, люди, которые устанавливают ворота своими руками, допускают ошибки. Например, они считают, что роликовая каретка лучше будет прикреплена с помощью гаек или шпилек. Думают, что неполадки можно будет исправить. Но при таком методе крепежа работы, наоборот, прибавится.
Это обусловлено, прежде всего, тем, что придется долго возиться с воротами: нарезать резьбу, просверлить швеллер. Очень точно нужно будет их установить. Если будет отклонение хотя бы на пару миллиметров, то придется несколько дней потратить на сварку. В конечном счете все равно придется приварить ролики к фундаменту.
Для того чтобы снять роликовую тележку или передвинуть ее, достаточно подрезать шов сварки. Если понадобится это повторить это несколько раз, смело можно это делать: работа ворот не нарушится.
Правильнее использовать шпильки. Но нужно учитывать, что необходимо точно устанавливать фундамент. Рекомендуем использовать готовые площадки под ролики с существующими шпильками. Для этого приварите площадку к фундаменту, а ролики закрепите на площадку, используя гайки или шпильки. Оптимальный вариант — крепить ролики к фундаменту с помощью сварки.
Этап №5. Прихватите сваркой верхний поддерживающий ролик.
Этап №6. Поставьте концевой ролик.
Этап №7. Приварите нижний и верхний улавливатель.
Если в качестве опорных столбов служат стальные трубы или швеллер, то улавливатели приваривайте на столбы. Если столб из кирпича или бетона, используйте профильную трубу. Ее крепят к столбу с помощью арматуры или дюбелей.
Армирование бетонного фундамента
Предусматривают это заблаговременно, путем выпускания закладных из столба. Затем к закладным крепят улавливатели. Сделать это своими руками значительно дешевле, чем в специализирующейся фирме.
Автоматика для откатных ворот своими руками
Для того чтобы было удобнее пользоваться воротами, поставьте автоматику. Она упростит открытие и закрытие. Благодаря автоматике вам не понадобится выходить из машины или дома для того, чтобы управлять створками.
После нажатия кнопки на пульте двери легко откроются. Для автоматических откатных гаражных ворот понадобится привод.
Поставить откатные ворота своими руками получится намного дешевле, нежели заказывать их. Купите комплектующие, вооружитесь чертежами и инструкциями, и вперед навстречу комфорту.
Как правильно сделать направляющую для откатных ворот своими руками
Такое интересное приспособление, как откатные ворота состоит из нескольких важных элементов: направляющей, роликовых кареток, накатного ролика, уловителей, роликов и заглушек (они имеют анодированное покрытие). Без всех этих деталей и шины невозможно правильное устройство откатных ворот. даже если вы будете работать над конструкцией своими руками. Несмотря на всю трудоёмкость и проблематичность процесса создания конструкции такого типа, это вполне осуществимо.
Самая основная часть приспособлений
Ключевым винтиком в таком механизме, как откатные ворота, является гнутый несущий профиль, который получил название направляющая. Обычно эта деталь имеет длину 6 м и изготавливается из стали.

Кроме того, профиль отличается сложной геометрической формой. Альтернативное название несущего профиля откатных ворот, который может быть оцинкованным и неоцинкованным, – балка или рельс.
Оцинкованная или неоцинкованная деталь?
Многие мастера, которые хотят сделать откатные ворота своими руками. стараются найти оцинкованную фурнитуру для ворот. Что ими движет? Вера в то, что у такой детали срок службы намного дольше, чем у чёрного металла. Верно ли это утверждение?
Оцинкованная балка будет лучше противостоять коррозии, чем обычный чёрный металл. Полотно ворот делается из трубы толщиной 2 мм, а фурнитура — из стали, толщина которой должна быть от 3,5 мм. Это значит, что данная деталь будет толще практически в два раза. Полотно откатных ворот начнёт гнать намного быстрее, чем основание направляющей. Если вы позаботитесь о регулярном уходе за воротами и постараетесь вовремя прижигать очаги ржавчины, то автоматически увеличится срок службы.
Забудьте о таком выражении, как «коррозия трубы», так как вода в неё попасть не сможет, чему дополнительно поспособствует регулярное проветривание. Кроме того, к недостаткам оцинкованных направляющих, которые вы будете собирать своими руками, можно причислить потребность в окраске специальным грунтом для цветных металлов. Такая грунтовка не является бюджетной. Небольшая баночка будет стоить несколько десятков долларов.
Если проигнорировать такой совет и воспользоваться обычным алкидным грунтом или эмалью, то уже через пару месяцев краска с грунтовкой начнёт сыпаться с ворот. Это не столько технический недостаток, сколько эстетическая морока, которая может вылиться вам в дополнительные траты. Шина направляющей от таких манипуляции не пострадает.
Зачем нужна направляющая?
На первый взгляд, кажется, что данная деталь является простой и примитивной, но она выполняет достаточно важную и ответственную функцию. От качества направляющей зависит:
Очень часто профили для откатных ворот, независимо от того, своими руками вы их делаете или нет, производятся за границей (Австрия, Италия), но есть и отечественные производители, которые выпускают такую деталь, но она более низкого качества, чем ее заграничные коллеги.
Если вы ищите все части для откатных приспособлений самостоятельно, то нужно брать во внимание геометрию направляющей. Сечение по длине не должно быть разным. То есть, не стоит покупать фурнитуру, с одной стороны которой роликовая каретка будет входить легко, а с другой – при помощи кувалды. В противном случае возможны заедания и дерганья ворот. Кроме того, вы должны удостовериться, что верхняя часть с нижними полками направляющей параллельна своими линиями.
Почему же так важны чёткие грани у направляющей?
Роль граней направляющей откатных ворот своими руками весьма немаловажна, именно они центрируют ворота. Если расположение роликов ровное и они находятся на одной линии, а грани профиля изготовлены качественно, такие ворота будут радовать хозяев плавным ходом и хорошим сроком эксплуатации.

Очень важно знать, из какого материала сделана направляющая шина ворот. Если товар маркирован как сталь Ст. 3ПС (Сталь конструкционная углеродистая), то не беритесь использовать такую направляющую для своей конструкции. Фурнитура должна быть изготовлена из специальной конструкционной стали. Если вы остановите свой выбор на материале другого качества, то тяжелые воротах спустя некоторое время перестанут функционировать, потому что рельс разогнётся (её не защитит даже шина).
Что ещё нужно знать, чтобы выбрать отличную направляющую?
Основным фактором при выборе фурнитуры для откатных створок или створки, которые вы планируете сделать своими руками, является толщина несущего профиля. Некоторые фирмы стараются максимально сэкономить на толщине профиля. При этом они забывают, что качественный рельс должен иметь следующие параметры: 60х70 мм. Некоторые отечественные производители делают эту деталь толщиной 3 мм. Даже если вы потрогаете такой лист руками, вы сможете почувствовать, насколько хрупкими будут ваши ворота.
Но все же есть производители, которые трудятся на благо мастеров в СНГ и производят своими станками детали и комплектующие, смогли добиться хороших результатов при прокатывании профиля и создании фурнитуры для откатных ворот.
Для создания направляющей используют станки, которые работают также по выпуску фурнитуры для откатных конструкций: Rolling Center, IBFM, Comunello и белорусской Alutech.
Источники: http://www.vashcottage.ru/journal/post/307, http://svoivorota.ru/garazhnie/sdvizhnie/napravlyayushhie-dlya-otkatnyx-vorot.html, http://vorotagate.ru/otkatnye/napravlyayushhaya-svoimi-rukami
zabor-pro.ru
Конструкция откатных ворот своими руками: описание типов
Ограждение – лучший способ обозначить границы своего участка. При его установке обязательно предусматриваются ворота и калитки, через которые на территорию будут заходить люди и заезжать транспорта. Их конструктивное исполнение может быть самым разнообразным. Все зависит от вкуса и финансовых возможностей владельцев, а также стилистического оформления дома. Многие отдают предпочтение откатным системам, которые, обладая презентабельным внешним видом, способны добавить статусности расположенному на участке строению. Такие ворота нельзя назвать доступными, так как они предполагают заливку фундамента. Однако, возможность монтажа своими руками, удобство эксплуатации и ряд других преимуществ заставляют многих остановить свой выбор именно на таком механизме.

Откатные ворота – высокий статус владельца
Особенности откатных ворот
Предпочтение откатной системе отдается по нескольким причинам. Они:
- имеют привлекательный внешний вид;
- отличаются надежным исполнением, так как для их изготовления используются металлические комплектующие, а опоры всегда изготавливаются из труб;
- бесшумны. Как следствие, даже если открытие/закрытие будет проходить в темное время суток, соседи и домочадцы не будут испытывать никакого дискомфорта из-за громкого скрипа;
- не требуют много места для установки, что особенно актуально для небольших придомовых территорий;
- не создают проблем при эксплуатации в зимнее время, так как позволяют отказаться от чистки снега;
- удобны в обслуживании, которое главным образом заключается в контроле состояния ходовой части;
- имеют продолжительный срок службы;
- могут работать в автоматическом режиме при оснащении автоматическими механизмами, что значительно повышает комфортность владельцев.

Монтаж в ограниченном пространстве
Однако их установки требует серьезных финансовых вложение, так как предполагает наличие монолитной платформы. Хотя используя в качестве опор трубы, затраты можно несколько снизить. Учитывая конструктивные особенности откатных ворот, необходимо выделить намного больший участок забора для их монтажа, чем случае установки распашных.
Существующие виды откатных ворот
Конструктивное исполнение может быть самым разнообразным. В самом общем случае можно выделяют:
- Консольные;
- Подвесные;
- Колесные (рельсовые).
Каждый тип имеет свои особенности, определяющие удобство его эксплуатации и срок службы.
Консольные
Консольные состоят из откатного полотна, устанавливаемого на направляющую. Входящая в ее состав балка крепится только с одной стороны. Балка изготавливается из П-образного профиля со ступеньками внутри. Перемещение роликов осуществляется внутри балки. В результате через ролики нагрузка передается балке. Балка может располагаться внизу, вверху и посередине.
Такая система отличается взломостойкостью и требует минимум места вдоль забора. Благодаря своему достаточно простому конструктивному исполнению допускает установку своими руками.

Консольная конструкция
Подвесные
У такой конструкции имеется верхнее ограничение. Для крепления подвижных частей используются верхние направляющие. Балка имеет характерное «П»-образное сечение, у которого края загнуты внутрь. Ролики располагаются внутри направляющей и удерживают створку в нужном положении. Полотно фактически весит на роликах.
При установке могут возникнуть сложности с заездом на ограждаемую территорию специальной техники.

Подвесная конструкция
Колесные
Предполагается наличие специального закладного рельса, по которому на роликах двигаются откатные ворота. Закладной рельс укладывают прямо на грунт либо на подготовленный фундамент. К нижней части двигающейся створки прикручиваются ролики, которые катятся по закладному рельсу, обеспечивая тем самым ее передвижение.

Колесная система
Учитывая, что ворота находятся на улице, такой механизм имеет один существенный недостаток: рельсу, используемую для перемещения роликов, приходится постоянно очищаться от образовавшейся грязи, опавшей листвы, кусков льда. В противном случае ролики просто не будут двигаться. Это не только создает определенные трудности в процессе эксплуатации, но и снижает срок служб: материал, из которого они изготовлены, корродирует.

Уязвимое место консольной конструкции
Какой конструкции отдать предпочтение?
Какая система будет предпочтительней, в каждом конкретном случае решается индивидуально. Все зависит от существующей потребности в транспорте, периодичности эксплуатации, необходимости открытия/ закрытия в зимнее время года. Также учитываются финансовые возможности. Установка тяжелого полотна потребуется дополнительных материальных затрат на используемые комплектующие.

Возможный вариант
Расчет откатных ворот
От правильности выполненного расчета в целом будет зависеть возможность изготовления откатных ворот своими руками. Этот этап является наиболее важным. Пропустить его не получится, из-за сложного конструктивного исполнения откатных ворот по сравнению с распашными. При изготовлении всех элементов «на глаз» можно добиться того, что система не будет работать либо в процессе работы периодически будут возникать серьезные проблемы.

Расчет геометрии
Наиболее сложным в техническом плане является механизм консольного типа, порядок расчета которого приведен ниже. Чтобы можно было приступить к монтажным работам, следует рассчитать:
- Высоты и ширину проема. От этого напрямую зависит, ворота какого типа могут быть смонтированы;
- Вес используемого противовеса;
- Вес откатных ворот в сборе.
Опираясь на полученные данные, можно будет разработать эскиз будущей конструкции и подготовить детальные чертежи.

Эскиз обязателен
Ширина проема для откатных ворот
Расчет указанного параметра осуществляют с учетом габаритов транспорта, который в будущем будет заезжать на территорию. Внимание уделяет не только легковым, но и грузовым авто. Так, если обычной «Газели» габариты 2,5 м, для у «КамАЗа» – 2,9 м. Учитывая, что угол заезда и оставляемый зазор между зеркалами опорами ограждения, ширина проезда возрастает до 4 м. В зависимости от особенности грунта, тяжелых условий эксплуатации транспорта в межсезонье, ширину проема увеличивают еще минимум на 0,5 м. В итоге ширина проема становится равной 5 м.

Ширина проема может быть различной
Ширина и высота полотна
Размеры полотна во многом зависят от сортамента материалов, представленных на рынке. Чаще всего для изготовления полотна используется профнастил, а остальных конструктивных элементов – профиль и/или труба. Если последние в процессе изготовления откатных ворот обязательно будут свариваться, то соединение листов профнастила любым из возможных методов придет к тому, что ворота будут выглядеть не эстетично.

Параметры полотна зависят от размеров профнастила
Размеры полотна в последствие окажут прямое влияние вес монтируемой конструкции и, как следствие, требования к механизмам. При достаточно больших габаритах к обычным расчетам дополняется расчет ветровой нагрузки, размер которой для каждой местности имеет свое значение. Такой расчет желательно выполнить с некоторым запасом.
Если возникают какие-то сомнения в правильности расчетов, выполненных своими руками, стоит за дополнительной консультацией обратиться в специализированную компанию.

Расчет должен быть очень точным
Расчет противовеса
Чтобы створка двигалась плавно, ее уравновешивают. Даже своими руками можно рассчитать вес противовеса, который позволит равномерно распределить по кареткам массу смонтированной конструкции. Как правило, нагрузка минимальна в случае наибольшей массы противовеса.
На габариты противовеса накладываются некоторые ограничения. Длину противовеса задают исходя из ширины устанавливаемой створки. Он должен быть равен примерно половине данного параметра, то есть 50%. В отдельных случаях при ограниченном пространстве длина противовеса может быть уменьшена до 40% ширины устанавливаемых откатных ворот.

Масса противовеса должна быть достаточной
Внимание! Зная длину противовеса, можно определить протяженность участка забора, вдоль которого будет осуществляться откат ворот.
Расчет веса откатных ворот
Суммарная масса определяется видом используемого материала. При расчетах можно ориентироваться на усредненные значения. Так, квадрат профнастила в среднем весит около 4 кг, а стальной лист толщиной 2 мм – 17 кг.
Отталкиваясь от габаритов устанавливаемых откатных ворот, определяют общую массу механизма и габариты направляющей. Например, планируя установить откатные ворота весом около 300 кг, следует использоваться балку 9×5 м, при изготовлении которой использовался материал толщиной минимум 3,5 мм. При расчетах обязательно учитывается коэффициент запаса прочности (минимум 1,4).

Масса створки зависит от материала
Вес системы окажет непосредственное влияние на требования, предъявляемые к заливаемому фундаменту и диаметрам труб, которые используются в качестве опор. Чем больше масса, тем прочнее должен быть фундамент и толще трубы.
Расчет фурнитуры
Монтаж откатных ворот осуществляется с использованием специальной фурнитуры, например, роликов. Такие изделия представлены в широком ассортименте и могут быть подобраны для любых откатных ворот, независимо от их конструктивного исполнения.

Используемая фурнитура
Для каждого конкретного региона принимается соответствующая ветровая нагрузка. Она должна равномерно распределяться по опорным зонам полотна. Изготовленная своими руками конструкция выдержит даже достаточно сильный ветер, если расчетная прочность выбранной фурнитуры будет выше расчетной массы откатных ворот.
При установке роликов обязательно предусматривается 30% прочностной запас. Делается это не с целью увеличения продолжительности эксплуатации ворот или роликов, а для того, чтобы сделать расстояние между центрами кареток больше.

Ролики должны быть прочными
Что еще следует учесть?
Кроме перечисленных параметров желательно также выполнить прочностной расчет рейки, опор ворот под кареткой и необходимое количество анкеров. Вес закладных для опорных столбов можно рассчитать следующим образом:

Закладные под столбы нужно рассчитать
- Определиться с количеством устанавливаемых столбов;
- Найти 60% от общей массы монтируемой конструкции;
- Определив массу закладных разделив второй пункт на первый.
Устройство консольных ворот
Прежде чем начать монтаж ворот своими руками, следует ознакомиться с их устройством. На первый взгляд может показаться, что их конструктивное исполнение настолько сложно, что монтаж своими руками в принципе невозможен. При желании всю работу по изготовлению основных элементов можно выполнить самостоятельно либо приобрести уже готовый комплект.

Основные элементы
Ворота состоят из:
- Направляющей балки, воспринимающей вес ворот и изготавливаемой с ней в виде единой конструкции;
- Двух тележек или роликов, предназначенных для установки консольной части ворот;
- Съемного концевого ролика, в который упираются створки ворот, находящиеся в закрытом положении;
- Уловителя верхнего/нижнего. Последний воспринимает нагрузку, а второй уменьшает парусность закрытых ворот;
- Кронштейна, предотвращающего боковое качание створок;
- Подставки, используемой для установки опор, обеспечивающих движение створок.

Схема конструкции
Створка
Ее устройство должна отвечать всем необходимым требованиям по жесткости и устойчивости. Это позволит обеспечить работоспособность ворот при образовании гололедицы или сильных порывах ветра. В частности, предусматриваются дополнительные ребра жесткости, позволяющие исключить провисание под собственным весом.

Оформление створки
Комплектующие
Комплектующие приобретаются после полного расчета откатных ворот. В продаже можно найти качественное оборудование, предлагаемой производителями из разных стран мира. В качестве примера можно рассмотреть следующий вариант.
Пусть ширина проема 3,8 м. Выполняя расчет, получим, что ширина створки численно равна: 3,8 м + 0,4 * 3,8 м. В итоге получается 5,32 м. Для такой откатной системы необходимо приобрести комплект, включающий шестиметровую балку.

Ширина проема и створки связаны
Выбирая комплектующие, следует обращать внимание на нагрузку, которую сможет выдержать балка. Она должна быть минимум 500 кг. Если ширина проема превосходит 4 м, следует выбрать направляющую балку с сечением 71 × 65 мм при толщине стеной 3,5 мм. Если же проем будет шире 6 м, то выдерживаемая нагрузка уже должна достигать 600 кг.

Размер сечения направляющие важен
Автоматика
Для более удобной эксплуатации откатные ворота комплектуются оборудованием, обеспечивающим автоматический режим работы. Наличие системы дистанционного управления позволяет открывать/закрывать ворота прямо из автомобиля.

С автоматикой жизнь комфортнее
При выборе подходящего оборудования ориентируются на ширину проема. При четырехметровом проеме приобретается привод, позволяющий передвигать 600 кг. Если проем шире 4 м, но уже 6 м выбирается оборудование, рассчитанное на нагрузку до 1300 кг. Если ворота отличаются интенсивным открывание/ закрывание, приобретается привод, позволяющий перемещать до 1800 кг.

Оборудование должно соответствовать
Сооружение фундамента своими руками
От того, насколько грамотно будут выполнены монтажные работы, во многом будет зависеть продолжительность эксплуатации установленной откатной системы. Работы начинаются с заливки фундамента, а заканчиваются установкой необходимого оборудования.

Фундамент по всей длине
Работы по заливке фундамента начинаются с разметки территории. Для этого, от места установки забора отступают расстояние, равное ширине фундамента (0,5 метра), от края ворот – откату ворот. Фундамент заливают, ориентируясь на глубину промерзания грунта. Если в качестве опор не получается использовать столбы забора, с противоположной стороны устанавливают ответный столб, например, изготовленный из трубы. Его располагают за пределами проема.

Заливка по разметке
Планируя автоматизировать процесс открытия /закрытия, следует организовать место, по которому будет осуществлять прокладка проводки. Можно воспользоваться трубой из металла или пластика с круглым или квадратным поперечным сечением. Сторона или диаметр трубы должен быть свыше 25 мм.
Для автоматики следует предусмотреть место
Закладной элемент можно изготовить из швеллера 16, длина которого совпадает соответствующим параметром заливаемого фундамента. В качестве армирования последнего используется арматура (диаметром 12 мм). Ее приваривают к закладному элементу и соединяют между собой. В траншеи закладной элемент размещают арматурой вниз.

Глубина заливки фундамента важна
Швеллер боковой стороной должен прилегать к опоре забора. Пространственное положение закладного элемента следует обязательно выверить еще до начала заливки бетона. Он должен располагаться горизонтально и параллельно линии, по которой осуществляется открытие / закрытие.

Наглядная схема бетонирования
Внимание! Закладной элемент для откатного механизма должен располагаться на одном уровне с дорожным покрытием. Между нижним краем ворот и дорогой при монтаже предусматривается зазор в 10 см.

Зазор обязателен
Таким образом, смонтировать откатные ворота своими руками при желании сможет каждый. Их конструктивное исполнение может быть различным, в зависимости от типа и ширины проема. Подобрав оптимальный вариант, необходимо будет выполнить расчет и приступить к монтажу откатных ворот. При достаточном запасе прочности, смонтированные откатные ворота не будут бояться внешней нагрузки и обязательно смогут прослужить достаточно долго.
Вконтакте
Google+
abgate.ru
Устройство откатных ворот на дачном участке
Откатные ворота — это конструкция, которая идеально подходит, когда нет места для распашных створок. Такие ворота позволяют эффективно экономить место, открывание и закрывание их очень простое, также можно смонтировать электродвигатель, который будет сам по сигналу открывать проезд. Подробная инструкция по монтажу подобных ворот позволит вам самостоятельно собрать их, не затрачивая много времени и средств.

Откатные ворота позволяют эффективно экономить место, открывание и закрывание их очень простое, также можно смонтировать электродвигатель, который будет сам по сигналу открывать проезд.
Модели ворот: от распашных до откатных
Сегодня применяются самые различные конструкции, которые отличаются друг от друга как по внешнему виду, так и по своему устройству. Самые простые — это распашные ворота, которые может сделать своими руками каждый. Такая конструкция может иметь одну или две створки, калитку. Открываются они внутрь либо наружу, навешиваются на петли. Такие распашные ворота очень простые и надежные, но для их функционирования необходимо место, равное длине створки (даже немного больше, чтобы каждая створка свободно открывалась и закрывалась).
Установка откатных ворот более сложная и затратная, но зато места она занимает намного меньше, а чтобы открыть ворота, достаточно сдвинуть створку в сторону.
А вот устройство откатных ворот иное. Они состоят из одной либо двух сдвижных створок, которые не раскрываются, а сдвигаются параллельно полотну забора. Такие створки двигаются по специальным направляющим при помощи роликов, то есть установка этой конструкции более сложная и затратная, но зато места она занимает намного меньше, а чтобы открыть ворота, достаточно сдвинуть створку в сторону.
При желании можно дополнительно смонтировать электродвигатель для автоматической их работы.
Есть и другие типы ворот. Например, подъемные, когда створка просто поднимается наверх и устанавливается параллельно земле, но чаще всего такие конструкции используются не для ограждений, а для гаражей.
Особенности конструкции откатных ворот на дачном участке
Особенности откатных ворот одновременно облегчают их использование и усложняют монтаж. Дело в том, что для их установки своими руками необходимо, чтобы участок был ровным и прямым, в противном случае створка просто не будет нормально открываться либо закрываться. Для обеспечения нормального отката требуется свободный участок вдоль полотна забора с длиной, равной размеру между столбами проема ворот, умноженного на 1,5.
Для обеспечения нормального отката требуется свободный участок вдоль полотна забора с длиной, равной размеру между столбами проема ворот, умноженного на 1,5.
Кроме того, в эксплуатации такие ворота также намного сложнее, место для их отката должно быть постоянно чистым, в направляющих не должно быть мусора, а зимой необходимо постоянно очищать территорию вокруг створок, чтобы полотно не имело никаких препятствий. В зимнее время необходимо следить, чтобы на механизме открывания не намерзал лед, так как открытие станет просто невозможным — ролики либо колеса не смогут крутиться.
Но есть и неоспоримый плюс такой конструкции, которую можно сделать своими руками. Такие ворота очень прочны и надежны, они не занимают много места. Еще одним преимуществом можно назвать то, что для облегчения открытия часто на такие ворота ставится электродвигатель.
Делать такие ворота своими руками можно из самых различных материалов, но чаще всего это металлические листы, профнастил, кованые решетки, которые создают надежную защиту. Конструкция получается крепкой и функциональной.
Монтаж откатных ворот своими руками
Перед тем как начать установку откатных ворот, необходимо точно определиться с их размерами. Ширина, длина, высота — все эти данные следует предварительно рассчитать. Это не только облегчит работу, но и сделает ворота функциональными и удобными. Кроме того, от размеров конструкции зависит вес створок и выбор фурнитуры. Ширина проема должна быть достаточной для выезда транспортного средства, рекомендуется отдельно сооружать небольшую калитку для прохода проживающих.
Перед тем как начать установку откатных ворот, необходимо точно определиться с их размерами. Ширина, длина, высота — все эти данные следует предварительно рассчитать.
Чтобы определить ширину, можно воспользоваться простым методом. Вбейте по бокам обычные деревянные жерди и попробуйте проехать на вашей машине таким образом, чтобы не задеть их, в идеале по бокам должно оставаться достаточно свободного пространства, чтобы можно было открыть двери. Большое значение имеет и ширина улицы, с которой будет осуществляться заезд. Поэтому устройство именно откатных ворот рекомендуется для дачных и приусадебных участков, где заезд может быть затруднен. От размера проема зависит и размер самой створки, необходимое пространство для отката.
Оптимальным является пространство, примерно в полтора раза большее, чем длина самой створки. Приведем пример расчета: проем составляет 4 м, значит, общая длина для откатных ворот должна составлять 6 м (4х1,5=6). То есть фурнитуру надо заказывать исходя именно из значения в шесть метров (это касается откатного механизма, направляющих и прочего).
Далее приступаем к установке своими руками опорных столбов, если при монтаже забора они не были смонтированы. Лучше всего для этого пользоваться такими материалами, как металлическая труба, брус из дуба, швеллер. Такие столбы отлично выдержат вес створок, не дадут им просесть. Опорные столбы необходимо монтировать на глубине не меньше одного метра, чтобы преодолеть точку промерзания грунта. Если это правило не соблюдать, то столбы могут выйти из вертикали в зимние и весенние месяцы.
Сам монтаж своими руками осуществляется следующим образом:
Опорные столбы необходимо монтировать на глубине не меньше одного метра, чтобы преодолеть точку промерзания грунта.
- сначала определяется место для установки, после чего выкапываются столбы на глубину от одного метра;
- на дно ямы укладывается песчано-гравийная подушка, ставятся столбы;
- все опоры необходимо выровнять по вертикали при помощи строительного уровня, после этого можно начинать заливку бетоном;
- в процессе высыхания бетонной смеси следует постоянно контролировать, чтобы столбы стояли ровно.
Теперь для откатных ворот следует устроить фундамент. Для этого отлично подходит металлический швеллер, который имеет ширину в 20-60 см, дополнительно используется арматура с сечением 10-14 мм, которая нарезается на метровые куски, привариваемые затем к полочкам швеллера.
По ходу движения створки выкапываем своими руками траншею шириной в 40 см, глубиной — до 1,5 м. Далее опускается в яму швеллер, после чего фундамент заливается бетоном. Учитываем, что верх швеллера должен находиться на одном уровне с заездом откатных ворот. После заливки рекомендуется подождать примерно неделю, прежде чем приступать к дальнейшей работе.
Учитывайте, что верх швеллера должен находиться на одном уровне с заездом откатных ворот.
В это время можно начинать изготовление рамы. Для этого берется профильная труба, из которой каркас и сваривается. Внизу должна идти направляющая с сечением 60х70х3,5 мм. Это позволяет выдерживать вес створок до 400 кг. Внешняя рама делается из трубы с сечением 60х40 мм или 50х50 мм. Она представляет собой прямоугольник, а та часть, которая находится за полотном забора в закрытом состоянии, — треугольник. Для внутреннего каркаса используется профиль с сечением в 40х20 или 30х20 мм. Такой внутренний каркас для откатных ворот позволяет надежно крепить обшивку в виде профнастила, металлического листа, деревянного щита и прочего.
Сварка и обшивка
Свариваются конструкции с шагом в 20-30 см. Направляющие и трубы привариваются в шахматном порядке, чтобы полотно не повело. Все швы после сварки необходимо тщательно зачистить, нанести грунтовку против коррозии. Окрашивать такие рамы рекомендуется алкидными эмалями.
Устройство роликов должно быть надежным, лучше не использовать соединение со швеллером шпильками и прочим, сварка в данном случае обеспечивает большую прочность.
Обшивка откатной конструкции осуществляется, когда рама полностью высохла. Чаще всего для этой цели используется профнастил, который крепится саморезами по металлу и стальными заклепками. Но можно применять и обычный железный лист, который просто приваривается к раме. Тут все зависит от общего вида забора, какой строительный материал применялся для его изготовления.
Теперь приступаем к установке створки откатных ворот. На фундаменте выставляются ролики, на которые монтируется направляющие с полотном створки. Ворота ставятся на место, вертикальность проверяется уровнем. Улавливатели для роликов лучше всего крепить к столбам. Устройство роликов должно быть надежным, лучше не использовать соединение со швеллером шпильками и прочим, сварка в данном случае обеспечивает большую прочность.
Приведенное руководство по установке общее, оно позволяет правильно распланировать монтаж откатных ворот, рассчитать количество материала. Важно, чтобы площадка под установку была ровной и чистой от зеленых насаждений, посторонних предметов. В таком случае створки будут откатываться без проблем, не доставляя никаких хлопот при эксплуатации.
zavorota.ru
