Отопитель на отработанном масле своими руками – Печка на отработке своими руками: чертежи, видеоинструкции
принцип действия, схема, пошаговая инструкция
С целью обустройства автономной системы отопления многие народные умельцы создают самые различные конструкции. Одной из наиболее продуктивных является печь на отработанном масле, которой пользовались еще в советские времена. КПД этого обогревателя находится на высоком уровне, и даже стремительное развитие технологий не нарушает популярность изобретения.
Печи на отработке отличаются пониженным расходом топливаИстория появления масляной печки
История происхождения масляной печки уходит своими корнями в далекие 60-е годы прошлого столетия, когда должность президента Советского Союза занимал Никита Сергеевич Хрущев. Как известно, именно этот человек открыл людям возможность покупать собственные автомобили, осуществил массовый запуск гаражных кооперативов, а также вовсю раздавал участки для развития предприятий. Множество изменений переживало и сельское хозяйство, которое становилось механизированным. И уже в эти времена стали появляться первые ростки экологического мышления.
Гаражные постройки и частные дачи нуждались в полноценном отоплении, а топливо, которое в настоящее время считается большой ценностью и носителем энергии, продавалось по невероятно низким ценам. Однако и тогда люди учились экономить, используя отработанное масляное сырье для различных бытовых целей. Ведь в советские времена за слив отработки можно было получить огромный штраф, который составлял 1\3 часть от месячной зарплаты.
В этом видео вы узнаете, как сделать безопасную печь на отработке:
Использовать в качестве источника тепла уголь было недешево, а газовые баллоны вообще являлись роскошью и экзотикой. Несанкционированная вырубка дров в лесу могла привести к криминальной ответственности, причем тогда все решалось без суда и следствия.
В таких обстоятельствах люди стали искать альтернативные способы обогрева бытовых помещений, что и привело к созданию первой печки на отработке (мазуте). Правда, в то время применялся обиходный варочный прибор — керогаз.
Принцип действия обогревателя обосновывался на дожигании испарившего керосина в специальном резервуаре. В отличие от примуса паяльной лампы, где осуществляется горение сильно нагретых паров, керогаз считался сравнительно безопасным для использования, а любые отклонения от рабочего режима сопровождались специфической вонью и копотью, поэтому вероятность аварий была минимальной.
Масляная печка функционировала по аналогичному принципу, только перед мастерами возникла необходимость полного сжигания загрязненного вязкого топлива в домашних условиях.
Еще одним прародителем обогревательной системы на масле стала газогенераторная установка. Ее активно использовали во время войны, когда лучшие топливные смеси отправлялись на фронт.
Сравнение с современными моделями
Что касается сегодняшних печей, то они вовсе не похожи на старые прототипы, за исключением буржуйки, которая сохраняет изначальный принцип работы. В шестидесятые годы прошлого века сгорание топлива до состояния углекислого газа и водяных паров не считалось чем-то вредным, чего нельзя сказать о нынешнем времени. Сейчас же любые парниковые газы являются опасным врагом экологии, поэтому люди стараются отказываться от систем, загрязняющих окружающую среду. Обеспечить полное дожигание отработки по-прежнему невозможно, но вот достичь максимальной экономичности вполне реально.
Современные масляные печи отличаются от первоначальныхТакже в далеком прошлом на рынке не было моторных масел с синтетическими добавками и хитроумными присадками, которые способны в несколько раз сократить расход топлива ДВС, но при неправильном сгорании выделяют канцерогены, токсические вещества и мутагены. Да и люди тогда были более устойчивы к различным окружающим воздействиям, а численность населения примерно в 2,5 раза была меньше, чем сейчас.
И в конце концов, советское машинное масло являлось натуральным нефтяным продуктом, изготовленным на основе насыщенных углеродов, которые не могли достигать высокой температуры горения. Это значит, что появление вредных и опасных окислов азоты в тех обогревателях практически исключалось. Современные установки выбрасывают такие вещества в значительных объемах, что заставляет искать более чистые и альтернативные решения.
Об окислах азота
Любые оксиды азоты — серьезная опасность для человеческого организма. В медицинской отрасли задействуется наиболее слабый из них — закись азота, при соблюдении строгой дозировки и постоянном наблюдении анестезиолога. Если соединить большое количество азота с кислородом, это приведет к непоправимым последствиям. Баки с окислителями для боевых ракет содержат в себе тетраокись азота N204 — довольно едким и ядовитым «собратом» гептила.
Если говорить о масляных печках, то в этом случае важно учитывать такие моменты:
- При достижении температуры от 900°C объемы выкидываемых окислов азота достигают максимального уровня.
- Если газовоздушная смесь содержит избыток кислорода, то при пиковых температурах он начинает «захватывать» частицы топливного состава, а образованные окислы азота перемещаются по дымовому тракту.
- При температуре 600°C активность оксидов азота становится выше, чем у кислорода. Из печки выходит практически безвредный азот, углекислый газ и водяные пары.
- При снижении температуры до отметки 400°C окислы приобретают вторую стадию стабильности. Окислить тяжелые органические вещества они уже не могут.
Если у вас есть гараж, значит, имеется и отработка, так в самый раз сделать печь на отработке-экономном варианте топливаХарактер и тонкости работы
Перед тем как создать печь на отработке капельного типа своими руками, важно разобраться с принципом работы системы-капельницы, а также провести несколько расчетов. Масляная печка представляет собой сложную отопительную установку, которая работает на тяжелом, плохо горящем и грязном топливе со специфическим составом. Чтобы достичь полного сгорания смеси, некоторые тяжелые составляющие нужно тщательно расщепить на более легкие. То есть, нужно окислить все добавки, которые не подвластны кислороду.
Процедура подобного расщепления может называться:
- Пиролизом.
- Плазменным расщеплением.
Для расщепления необходимо задействовать теплоту горения самой топливной смеси, что делает процесс самоподдерживающимся и саморегулирующимся. Однако до этого масло испаряют, а пары нагревают в температурном режиме 300-400°C. В результате произойдет нарастающий пиролиз, который выпалит буквально все сложные частицы. В домашних условиях этого достигают двумя путями.
Как сделать печь на отработанном масле:
Первый принцип
Первая методика плазменного расщепления подразумевает банальное сжигание масла в специальном резервуаре. Разогреваясь до определенной температуры, топливо переходит в газообразное состояние и начинает испаряться. Затем оно проходит через простую вертикальную трубу (допускаются трубы с изгибами).
Такая печь очень удобна в транспортировкеПодача воздуха в емкость с горящим маслом осуществляется с помощью горловины со специальной дроссельной заслонкой. Ее задача заключается в регулировке интенсивности горения без изменения степени сгорания. Чтобы достичь этого, газовоздушную смесь нужно постоянно перемешивать.
На этапе подобной обработки в камеру сгорания периодически подают свободный приток воздуха. Для этого в резервуаре проделывают специальные дыры, а в качестве расширения над камерой сгорания используется либо колпак, либо неполная перегородка.
Следуя чертежу, можно легко сделать печь своими рукамиЧертежи печи на отработанном масле своими руками создаются за несколько минут. Главное, понимать основные особенности принципа и следовать за пошаговым руководством.
Недостатки технологии
Каждая печь, работающая по описываемому принципу, имеет массу недостатков.
Среди них следует выделить такие моменты:
- Установка работает с открытым пламенем, а зона, к которой можно по неосторожности прикоснуться, раскаляется докрасна. Это значит, что размещать такие обогревательные системы в домах и жилых объектах категорически запрещено. А при монтаже конструкции в гаражных или других бытовых постройках появляется высокий риск пожарной опасности. Чтобы избежать непредвиденных последствий, необходимо дополнительно сооружать отбор и отвод тепла.
- Увеличивать размеры самодельной печки для получения тепловой мощности больше 15 кВт бесполезно. Вместо требуемой продуктивности, придется бороться с сильной сажей и чадом.
- Потушить печь при превышении допустимой степени горения непросто. Для этого нужно использовать углекислотный огнетушитель, но ни в коем случае не порошковый. Дело в том, что при контакте с раскаленным металлом порошок начнет взрываться.
- Еще одним недостатком технологии являются весомые сложности отбора тепла для отопления или ГВС. Из-за чрезмерного остывания наружных частей внутренний температурный режим существенно меняется, что ухудшает показатели КПД, а также приводит к осаждению сажи. Получить большой тепловой потенциал от подобной системы, к сожалению, нельзя.
- Заправка резервуара слишком обводненным составом может привести к мгновенному вскипанию, а затем и к взрыву печки.
Подробнее о двухконтурной печи:
Ну и подобная обогревательная система не способна полностью расщепить тяжелые фракции топлива, хотя в плане экономичности она вполне хороша. Любые оставшиеся частицы оседают в шлам в резервуаре, а через 4-5 топок их нужно доставать из емкости, что требует особых усилий.
Второй вариант
При изготовлении печи на масле своими руками по первому принципу можно столкнуться с различными минусами. Но народные умельцы нашли массу выходов из подобной ситуации и стали изобретать продуктивные установки, которые лишены таких минусов. Сегодня масляные печки активно используются в жилых помещениях, кухонном пространстве, гаражах и в любых других постройках. Правда, чтобы создать безопасный механизм придется серьезно потрудиться и проявить определенное мастерство.
По желанию, при изготовлении печи можно организовать место для подогрева пищиЕсли учесть вышеизложенную информацию, то становится понятно, что главным источником повышенной опасности печки на саможоге является контейнер с кипящим топливом. Чтобы предотвратить непредвиденное возгорание смеси, ее нужно испарять каким-либо другим методом. При этом зону плазменного расщепления, сгорания и дожигания лучше объединить в факеле пламени, чтобы не влиять на функциональность печи. Также целесообразно сделать так, чтобы печь работала на обводненном источнике энергии. В результате появляется логическая необходимость создать горелку.
Горелки для отработки
Чтобы сделать печь на отработанном масле, важно заранее найти подходящие схемы, чертежи и пошаговые инструкции, а затем пошагово переходить от одного действия к следующему. В промышленных условиях практически любые топливные смеси сжигаются в форсунках. Достичь полного сгорания в факеле можно с помощью 2-3-ступенчатого образования топливовоздушной смеси. Роль форсунки заключается в окончательном сжигании всех частиц, включая льяльные воды судов.
Схема поможет сделать печь на отработанном маслеЧтобы обеспечить стабильную работу механизма, важно не только правильно сварить и изготовить его, но и подобрать правильные материалы.
Также появится необходимость обустроить мини-цех подготовки топливной смеси, который состоит из таких частей:
- гомогенизатор;
- диспергатор;
- насосы;
- фильтрующие установки;
- системы подогрева.
Также следует подготовить систему автоматического управления всеми этими узлами, иначе функциональные возможности обогревателя окажутся под угрозой. При этом для отработанного масла и такая расширенная конструкция может оказаться недостаточно мощной. Объясняется этот парадокс наличием тяжелым битуминозных составляющих. С целью повышения продуктивности работы форсунку дополняют жаровым кожухом и камерой дожигания с теплоизоляционными элементами.
Как сделать горелку на отработке:
Горелка для отработки считается наиболее простым и доступным для самостоятельного создания вариантом масляного обогревателя. При желании можно изготовить обогревательную систему с высокими показателями КПД своими руками.
‘; blockSettingArray[0][«setting_type»] = 1; blockSettingArray[0][«element»] = «h2»; blockSettingArray[0][«elementPosition»] = 1; blockSettingArray[0][«elementPlace»] = 1; blockSettingArray[4] = []; blockSettingArray[4][«minSymbols»] = 0; blockSettingArray[4][«minHeaders»] = 0; blockSettingArray[4][«text»] = ‘
‘; blockSettingArray[4][«setting_type»] = 5; blockSettingArray[9] = []; blockSettingArray[9][«minSymbols»] = 0; blockSettingArray[9][«minHeaders»] = 0; blockSettingArray[9][«text»] = ‘
‘; blockSettingArray[9][«setting_type»] = 6; blockSettingArray[9][«elementPlace»] = 90; var jsInputerLaunch = 15;
kaminguru.com
Отопление на отработанном масле своими руками: варианты организации
Любой материал, являющийся для обычного человека всего лишь мусором, от которого необходимо избавиться, в руках мастера может приносить ощутимую материальную выгоду.
Например, обрезки разнокалиберных труб, старый газовый баллон и прочие металлические отходы превратятся в печь, а отработанное масло – в топливо. Организовать отопление на отработанном масле своими руками не так уж и сложно.
Мы расскажем вам об основных вариантах устройства систем отопления на “бросовом” виде топлива. В предложенной нами статье детально описаны способы изготовления проверенных на практике самодельных приборов. С учетом наших рекомендаций вы сможете добиться оптимального результата.
Содержание статьи:
Общий принцип функционирования
Если мы хотим получить качественное отопление на основе отработки, масло нельзя просто взять и поджечь, поскольку оно будет чадить и вонять. Чтобы не испытывать на себе эти неприятные и опасные для здоровья побочные эффекты, нужно нагреть топливо так, чтобы оно начало испаряться.
Гореть будут полученные в результате нагрева летучие вещества. Это и есть основной принцип работы отопительного агрегата на отработке.

Печки на отработке заводского производства пользуются неизменным спросом, но ведь такой агрегат можно смастерить и своими руками
Применение перфорированной трубки
Для воплощения этого принципа в конструкции печки предусматривают две камеры, которые соединяют между собой трубой с отверстиями. В нижнюю камеру через заливное отверстие поступает топливо, которое здесь же и нагревают. Образующиеся при этом летучие вещества поднимаются вверх по трубе, насыщаясь через перфорацию кислородом воздуха.

Принципиальная схема двухкамерной печки с соединительной перфорированной трубой позволяет понять, как именно функционирует несложный агрегат на отработке
Полученная горючая смесь воспламеняется уже в трубе, а полное её сгорание происходит в верхней камере дожигания, отделенной от дымохода специальной перегородкой. Если технология процесса соблюдается в должной мере, копоти и дыма при горении практически не образуется. А вот тепла будет достаточно для обогрева помещения.
Использование плазменной чаши
Ради достижения максимальной эффективности процесса, можно пойти и более сложным путем. Напомним, что наша цель состоит в выделении из топлива летучих составляющих путем его нагрева. Для этого в единственную камеру агрегата следует поместить чашу из металла, которую нужно не просто нагреть, а раскалить.
Через специальный дозатор из топливного бака в камеру тоненькой струйкой или каплями будет поступать отработка. Попадая на поверхность чаши, жидкость мгновенно испарится, а образовавшийся при этом газ будет гореть.

Эффективность такой модели выше, поскольку топливо, поступающее капельным путем, лучше сгорает, а проблема его долива в процессе эксплуатации печи отпадает сама собой
Если всё делать правильно, сгорание газов должно сопровождаться голубовато-белым пламенем. Похожее пламя можно наблюдать при горении плазмы, поэтому раскаленную чашу часто называют плазменной. А саму технологию именуют капельной подачей: ведь топливо при ней должно поступать исключительно малыми дозами.
При всем разнообразии конструкций, работа всех отопительных агрегатов на бросовом топливе основана на описанном выше принципе.
Баланс преимуществ и недостатков
Казалось бы, идея практически лишена недостатков, но это не так. Чтобы принять взвешенное решение об использовании в своём доме такого отопления, нужно видеть не только плюсы от его применения, но и минусы.
Начнем с достоинств метода. Итак, если у вас есть регулярный доступ к бросовому топливу, каковым по сути является отработка, то вы можете эффективно использовать и одновременно утилизировать этот материал. Грамотное применение технологии позволяет получить тепло с полным сгоранием материала без выброса в атмосферу вредных веществ.
К прочим плюсам можно отнести:
- незамысловатую конструкцию отопительного агрегата;
- малые затраты на топливо и оборудование;
- возможность применения любого масла, которое есть в хозяйстве: растительное, органическое, синтетическое;
- горючий материал можно использовать, даже если загрязнения составляют десятую часть от его объёма;
- высокая эффективность.
К недостаткам метода следует отнестись со всей серьёзностью. Если не соблюдать технологию процесса, может произойти неполное сгорание топлива. Его пары опасны для окружающих.

Если бы недостатков у отопления на отработке было больше, чем преимуществ, не появлялись бы в продаже вот такие изделия заводского производства, которые раскупают как горячие пирожки, несмотря достаточно высокие цены
Не зря главным требованием при обустройстве отопления на отработке является наличие вентиляции в том помещении, где будет эксплуатироваться котел.
Перечислим и другие минусы:
- поскольку для хорошей тяги нужен качественный дымоход, он должен быть прямым, а его протяженность – от пяти метров;
- дымовую трубу и плазменную чашу нужно регулярно и основательно чистить;
- сложность капельной технологии заключается в проблемном розжиге: на момент подачи топлива чаша уже должна быть раскаленной;
- эксплуатация котла вызывает высушивание воздуха и выгорание кислорода;
- самостоятельное создание и применение водогрейных конструкций может способствовать понижению температуры в зоне сгорания, что ставить под угрозу эффективность процесса в целом.
Чтобы решить последнюю из приведенных выше проблем, можно смонтировать водяную рубашку там, где она не сможет повлиять на качество горения – на дымоходе. Перечисленные недостатки привели к тому, что изделие без существенных доработок практические не применяется для обогрева жилых помещений.
Где применять и как доработать?
Ввиду существенного списка недостатков, калориферы на масляных отходах редко используются в жилье. Применение их возможно только в хозпомещениях и в случае устройства безотказно действующей . Зато их широко применяют для прогрева технических и производственных площадей.
Автомобилисты именно их используют в качестве , и то в случае устройства хорошей . Огородники устанавливают в теплицах, животноводы – в хозяйственных постройках. На автомобильных мойках, на СТО, на складах, где нет горючих материалов, им всегда найдется место.

Если эксплуатация котла на отработке для обогрева жилых помещений вызывает опасения, то в условиях гаража, СТО и автомоек эта модель востребована всегда
Часто базовые конструкции подвергаются разного рода доработкам. Например, для этих целей используют водяную рубашку или водогрейные змеевики. Подобное оборудование включают в состав водяного отопления. Печи такого вида должны работать с применением автоматики, в противном случае их функционирование придется неусыпно контролировать.
Несколько удачных самоделок
Используя базовый принцип конструкции, всегда можно придумать изделие, которое будет максимально соответствовать вашим собственным запросам. Попытаемся предложить вам некоторые варианты, достойные не только внимания, но и воплощения.
Вариант #1 – с готовым корпусом
Эта конструкция может понравиться такому домашнему умельцу, который уже освоил навыки сварки. Суть её заключена в применении в качестве корпуса изделия готовой основы – кислородного или газового баллона, трубы или бочки с толстыми стенками.
Чтобы наглядно представить себе процесс превращения заготовок в печь на отработке, внимательно рассмотрите приведенную ниже схему.
В работе изделия используется плазменная чаща и, значит, технология капельной подачи. Оно способно продуцировать примерно 15 кВт тепла, которые обогреют до 150 м2 площади.
Не стоит эту модель пытаться модернизировать, преследуя цель повысить её производительность путем усиления воздушного потока или изменением размеров камеры сгорания. Это может привести к увеличению объёма сажи и чада, что небезопасно.

В процессе сгорания отработка сильно нагревает стенки корпуса котла, в результате чего тонкостенные изделия могут просто прогореть и оказаться пожароопасными
Для начала нам необходимо соорудить основу модели – её корпус. Для этого нам нужна труба высотой 780 мм, диаметром 210 мм и с толстыми стенками (не менее 10 мм). Днище корпуса вырезаем из стального листа (не менее 5 мм). Диаметр круга дна составляет 219 мм. Осталось лишь приварить дно к одной из сторон корпуса.
Ножки, которые вам предстоит приварить ко дну, можно изготовить из прочных болтов. Чтобы отслеживать процесс горения внутри трубы и иметь возможность стартового разогрева чаши, нужно в 70 мм от уровня дна сделать в корпусе смотровое окно. Для этого в корпусе следует прорезать отверстие такого размера, чтобы оно было функциональным – удобным для самого пользователя.
Вырезанная часть трубы пойдёт на изготовление дверцы отверстия. Нужно лишь приварить к ней аккуратный буртик и проложить по её периметру асбестовый шнур, чтобы дверка герметично закрывала отверстие. Закрепляем дверцу на корпусе при помощи болтов.
Для дымоотвода понадобится труба диаметром 108 мм с толстыми стенками (4 мм). Её следует приварить к корпусу на стороне, противоположной той, где прорезано смотровое окошко. От верха отступите 7-10 см.
Чтобы сделать крышку, из листового металла (толщина 5 мм) вырезают круглую заготовку диаметром 228 мм. По краю заготовки следует приварить буртик. Для этого нужна металлическая полоска толщиной 3 мм, а шириной – 40 мм. В получившейся крышке сбоку делаем ещё одно смотровое отверстие диаметром 18 мм. Его дверца будет играть роль предохранительного клапана.
В центре крышки вырезаем ещё одно отверстие диаметром 89 мм. В него будет вставляться труба для подачи воздуха, которую делаем из заготовки длиной 76 см, диаметром 89 мм, а толщиной стенки 3 мм.
Заготовку перфорируем. Для этого от края отступаем 5 см и высверливаем по кругу 9 отверстий диаметром 5 мм. Через 5 см нужно проделать ещё два ряда отверстий – 8 в ряду, диаметр 4,2 мм. Ещё через 5 см делаем четвертый ряд отверстий – 9 штук, диаметр 3 мм.
Для выполнения следующей работы нам понадобится болгарка. По краю трубы, от которого мы отступали 5 см, прорезаем щели высотой 3 см, толщиной 1,6 мм. По окружности таких щелей должно быть 9 штук.
С противоположного конца трубы в 5-7 мм от края прорезаем отверстие 10 мм в диаметре. В него будет вставляться труба для подачи топлива диаметром 10 мм и стенками в 1 мм толщиной. Как видно из схемы, она входит в трубу для воздуха и заканчивается одновременно с ней. Протяженность этого топливопровода и его угол изгиба зависят от местоположения маслобака.
Труба для подачи топлива и воздуха в сборе приваривается к крышке. При установке в корпус изделия она должна не упираться в дно, а не доставать до него 12 см.
Приступаем к изготовлению плазменной чаши. Для этого понадобится толстостенная труба (толщина 4 мм) диаметром 133 мм. Отрезаем от неё кусок 3 см. Из стального листа толщиной 2 мм вырезаем круглую заготовку диаметром 219 мм. Заготовку привариваем к отрезку и получаем чашу.
Собственно, печка практически готова. Осталось её собрать. Для этого внутрь корпуса в 7 см от дна размещаем чашу. Теперь она должна быть хорошо видна из смотрового окошка, расположенного внизу. Из окна чашу и поджигают. Ставим на предусмотренное для неё место крышку с устройствами для подачи воздуха и масла.
Дымоход, который будет присоединен к соответствующему патрубку, делается из трубы толщиной 4 мм и диаметром 114 мм. Протяженность дымохода должна быть не менее 4 метров. Особенностью его можно считать исключительно вертикальное расположение. Никаких наклонных участков быть не должно! Наружную часть дымохода следует утеплить.

Эта печь на отработке сделана не по той схеме, которую мы привели выше, но её основу тоже составляет отработавший своё газовый баллон
Когда установлен маслобак, можно проверить работу агрегата. Для этого в чашу помещают бумагу, смоченную горючим, а затем поджигают её. На завершающей стадии горения бумаги можно начинать подавать отработку. Схема этого устройства не зря приведена так подобно. Мы хотим, чтобы у вас получился качественный аппарат, который будет долго радовать своего создателя бесперебойной и безопасной работой.
Этапы сооружения котла, работающего на отработанном масле, подробно описаны в . Рекомендуем ознакомиться с технологией изготовления самоделки, которая найдет применение в дачном и загородном хозяйстве.
Вариант #2 – самый популярный
Эта модель действительно пользуется популярностью у владельцев дач и гаражей. Сделать её несложно. В её состав входят два отделения (камеры). В нижнее заливается горючее, которое будет нагреваться для образования летучих газов. При переходе их через перфорированную трубу, расположенную между отделениями, происходит насыщение газов кислородом и их воспламенение.
При сгорании смеси газов в верхнем отсеке температура может достигать 800 градусов. Такой нагрев требует активной подачи воздуха. Для этого в нижнем отсеке предусмотрено смотровое отверстие, через которое, кроме того, заливают топливо. Чтобы с его помощью регулировать подачу воздуха, необходима заслонка.
Все размеры этой самой популярной гаражной модели печки на отработке приведены на схеме, но, если вам проще сделать квадратные камеры, используйте параметры, указанные в видео, которое мы разместили в конце статьи
При переходе газов из нижней части сооружения в верхнюю насыщение смеси кислородом идёт через небольшие отверстия (диаметр 10 мм) в трубе.
Для выполнения работ следует подготовить:
- болгарку с отрезными и зачистными дисками; Минимальный диаметр диска – 125 мм.
- перфоратор со сверлом не меньше 13 мм;
- сварочный аппарат (от 200 ампер) и защитную маску или очки;
- кувалду;
- молоток, зубило и плоскогубцы;
- уголок для ножек;
- листовую сталь;
- переноску;
- заклепки.
Из листового железа выкраивается и варится нижний отсек. В нем вырезают смотровое окно, через которое внутрь будет поступать топливо и воздух. Задвижку для этого отверстия закрепляют на корпусе отсека заклепкой.

В процессе сборки и сварки изделия необходимо тщательно проверять на качество все швы, потому что эта модель очень сильно нагревается во время её эксплуатации
К нижней камере приваривают перфорированный соединительный газопровод-трубу, к которой присоединяют методом сварки верхний отсек со съемной крышкой. Его тоже выкраивают из листовой стали и сваривают. В процессе сварки следует тщательно проверять соединения на отсутствие зазоров.

Готовая двухкамерная печь выглядит очень просто, но эффективность её работы не вызывает никаких сомнений: она уже показала себя и неоднократно
Для придания конструкции лучшей устойчивости используют металлические уголки. Дымоход должен быть присоединен к трубе строго вертикально. Проверить работу готовой можно, залив масло в нижний отсек. Там его поджигают, используя для этой цели обычную бумагу.
Процесс работы аналогичной, но немного доработанной печки можно посмотреть на видео в финальной части этой статьи.
Вариант #3 – маленький, но удаленький
Для больших помещений нужны производительные печки из предыдущих вариантов. Но есть и агрегаты-малютки, которые тоже многое могут. Вот такая самоделка весит всего лишь 10 кг.
При расходе 0,5 л горючего за час она способна выдать до 6 кВт тепла. Можно раскочегарить её и сильнее, но делать этого не стоит из соображений техники безопасности: взорвётся. Отличный вариант для гаражного обогрева.
Если у вас имеется старый газовый баллон, то именно он может стать топливным резервуаром для этой самоделки. Ёмкость для масла собирают из верхушки и дна этого баллона. При этом рекомендуется сохранить круговой шов с уплотнительным кольцом, которое дополнительно увеличит прочность изделия.

В левой части изображена печь со всеми параметрами, которые вам пригодятся в процессе её изготовления, а в правой готовое изделие становится основной частью водяного отопления
Если газового баллона нет, то подойдет и любая другая ёмкость высотой 350 мм и диаметром от 200 до 400 мм. Из неё и будет сварен резервуар для горения топлива.
Для создания воздушно-топливной смеси используем трубу, стенки которой не менее 4 мм толщиной. Конус можно сварить из прочной стали, толщиной от 4 мм. На схеме представлены все размеры конструкции. Они могут быть откорректированы как в меньшую, так и в большую сторону, но не более чем на 2 см.
Особое внимание следует уделить швам в местах перехода к конусам: именно здесь из-за активного горения смеси газов может происходить максимальный нагрев.
Дымоход для этой печки делают протяженностью не больше 3,5 метров, чтобы при создании слишком активной тяги топливо не затягивалось в трубу. Такое вытягивание может не только повысить расход горючего, но и снизить его теплоотдачу.
Эта самоделка может использоваться в водогрейном варианте отопления. Для этого, как показано на правом рисунке схемы, вокруг зоны дожигания топлива наматывают стальную трубку, по которой будет проходить вода.
Для предотвращения существенного снижения температуры газов, змеевик закрывают стальным кожухом, отражающим тепло. Нагретая таким способом вода уходит в систему отопления.
Использовать газовый баллон можно так же успешно в изготовлении . Технология ее сборки подробно описана в предложенной нами статье.
Соблюдение техники безопасности
Для безопасной эксплуатации самодельного отопления на отработке необходимо обратить особое внимание на качество масла. В нем не должны присутствовать вещества, способные легко воспламеняться – бензин, ацетон и прочие.
Качество автомобильных отходов, как правило, оставляет желать лучшего. При их использовании может образовываться нагар, который придется время от времени счищать.

Вы видите, насколько может раскалиться котел, в качестве топлива для которого используется отработанное масло: нельзя поблизости от него сушить носки, ставить чайник с водой или раскладывать сухие доски
Кроме того, следует соблюдать перечисленные ниже меры безопасности.
- Диаметр дымохода не должен быть меньше 10 см. Предпочтительнее : на его поверхности откладывается меньше сажи.
- Рядом с котлом не могут находиться горючие вещества, в том числе и топливный бак. Только на безопасном расстоянии.
- Исключите попадание в камеру с раскаленным маслом воды или иной жидкости. Последствия подобной протечки представлены на видео в заключительной части этой статьи.
- В процессе функционирования котла на отработанном масле температуры нагрева значительно превышают те, которые достигаются при сгорании твердого топлива. Поэтому для этой конструкции и выбирают толстостенные материалы.
- Желательно оборудовать котельную системой принудительной циркуляции воздуха.
Не оставляйте работающий агрегат без присмотра. Это эффективная, но довольно опасная вещь.
Выводы и полезное видео по теме
Мастера-умельцы не делают секретов из собственных наработок и всегда готовы поделиться достижениями, показать самоделки в работе. Обратите внимание на видео, в котором представлена такая же печь, как в варианте #2, но с некоторыми доработками.
Посмотрите, как она работает, каков результат её использования в условиях внешнего мороза для обогрева довольно просторного гаражного помещения.
Ещё раз обращаем ваше внимание на технику безопасности, которую следует соблюдать при использовании самодельных печек на отработке.
Бросовое горючее, которое может достаться вам, если уж не совсем даром, то за сущие копейки, всегда привлекает внимание рукастых владельцев гаражных мастерских, теплиц или других нежилых помещений, требующих обогрева.
Да, талантливые люди могут буквально из отходов сделать необходимую в хозяйстве вещь. Но умение не приходит извне: оно нарабатывается. Возможно, наша информация поможет не только тем, кто уже умеет, но и тем, кто хочет научиться делать всё своими руками.
Хотите поделиться собственным опытом в сооружении прибора отопления на отработке? У вас есть информация, которая будет полезна посетителям сайта, желающим сделать печку для гаража своими руками? Пишите, пожалуйста, комментарии в расположенном ниже блоке, размещайте фото по теме, задавайте вопросы.
sovet-ingenera.com
Сборка печи на отработанном масле своими руками
Печь на отработанном масле – это оптимальный вариант для обогрева складских, гаражных, рабочих помещений. Результат использования такой печи сочетает в себе хороший обогрев и низкую себестоимость используемого топлива. Отработанное масло («отработка») относится к тем видам отходов, которые в больших количествах имеются на любых СТО или в гаражных хозяйствах. Такое масло сложно переработать и практически невозможно утилизировать.

Печки на отработанном масле как раз и являются способом повторного использования этого продукта. Любое отслужившее свой срок масло — трансмиссионное, моторное, индустриальное — может послужить в качестве топлива, на котором будут работать такие самодельные отопительные установки.
Особенности эксплуатации
Благодаря своей конструкции печь на отработке может быть изготовлена собственноручно. К несомненным достоинствам такого вида отопления можно отнести:
- экономичность. Печки на отработанном масле экономны как в изготовлении обслуживании, так и в выборе и расходе топлива;
- мобильность. Чертеж конструкции печи предусматривает небольшие габариты, поэтому корпус печи может быть легко демонтирован и перенесен в другое место;
- энергонезависимость. Эксплуатация такого оборудования не связана ни с электросетями, ни с газопроводами. Оно не требует дополнительных источников питания в виде аккумуляторов и батарей;
- конструкция масляной печки позволяет использовать ее верхнюю часть как варочную поверхность.

Вместе с тем существуют и некоторые проблемы, связанные с эксплуатацией отопительных печей, работающих на масле. К ним можно отнести необходимость установки высокого — до 4 метров в высоту – дымохода, а также систематическая еженедельная чистка печки от грязи и копоти.
Необходимые материалы
Для того чтобы собрать печь на отработке своими руками, не нужно покупать новые металлические изделия. Можно использовать металлолом, который есть почти в каждом гараже. Например, прототипом для изготовления топочной камеры может служить корпус компрессора от холодильника или любой старый баллон.

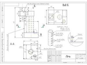
Так же понадобятся две тонкостенные трубы длиной около 4 м и диаметром в 8-10 см. Они будут играть роль основного и дополнительного радиаторов. Еще одна труба нужна для вытяжки. Приблизительный чертеж однокамерной масляной печи приведен ниже:

Технология изготовления (одна камера)
В процессе работы печи на отработанном масле должны находиться в вертикальном положении. Для этого требуется изготовить ножки – для этого подойдут куски труб или уголки. Одинаковые куски металла длиной около 20 см нужно приварить к корпусу будущей печки. После этого устанавливаем самодельный отопительный прибор в вертикальное положение.

В верхней части печки прорезаем отверстие для вытяжки. По размерам оно должно соответствовать радиусу подготовленной трубы.
Небольшой вырез можно попробовать рассверлить болгаркой, а отверстие большего диаметра лучше выполнить сварочным аппаратом.
Труба для вытяжки
Привариваем трубу для вытяжки. В корпусе трубы делаем отверстия. Для этой работы можно использовать болгарку с отрезным кругом. Отверстия делают на расстоянии 10 см от корпуса и высотой до 0,5 м. В этой же трубе на расстоянии одного метра делаем врез второй трубы – для дополнительного радиатора. Эту работу можно выполнить сварочным аппаратом. Дополнительный радиатор располагается параллельно полу, вдоль стены. Вверху самодельной печки делаем отверстие для подачи топлива.

Это самый простой вариант печи, который можно усовершенствовать и сделать удобным и безопасным. Например, на горизонтальный радиатор положить лист железа – тогда печь на отработке можно использовать не только для отопления, но и для подогрева воды и приготовления пищи.
План (две камеры)
Схема печи представляет собой две камеры, соединенные между собой отрезком трубы большого диаметра с высверленными отверстиями.
Нижняя половина будет представлять собой емкость для отработанного масла, которое будет использовано в качестве топлива. Одновременно она будет и камерой сгорания, и испарителем. Приблизительный чертеж такой установки предложен ниже:
Нижняя часть
Двухкамерные печи на отработанном масле должны обязательно иметь ножки. Воздушный зазор между полом и дном печки послужит дополнительным фактором, улучшающим обогрев помещения.

В нижнем корпусе должно быть сделано отверстие, прикрытое заслонкой – для регулировки режима работы и подачи топлива в камеру.
Корпус
В верхнюю крышку нижнего корпуса вваривается труба с отверстиями. Эта труба станет дожигающей камерой, в которой будут сгорать пары кипящего масла. Такая схема конструкции может обеспечить практически полное сгорание топлива.

К верхней части отопительной системы приваривается нагреваемый цилиндрический корпус. Внутри него должна быть перегородка для задержки теплых продуктов сгорания.
Дымоход
Труба дымохода приваривается к верхней поверхности нагревательного модуля. Диаметр такой трубы должен быть более 100 мм, длина — 3-4 м. Дымоход размещается вертикально или под углом.
Дымоход должен быть расположен строго вертикально и с выходом на улицу – только так можно избежать самопроизвольного затухания масляной печки.
Чертеж дымохода показывает, что эта часть отопительной системы должна быть разборной – так будет легче его чистить от грязи и копоти.

Для непрерывной работы масляной системы отопления нужно обеспечить бесперебойную подачу топлива в корпус печи. Для этого можно приварить дополнительную емкость чуть повыше камеры-испарителя, которая будет соединена с ней отдельной металлической трубой.
Увеличение КПД
Можно добиться увеличения эффективности печки, например, принудительно направив воздушный поток в верхнюю часть печки. Для этого немного меняется схема: на верхнем отсеке отопительного прибора монтируется воздушная нагревательная камера. Рядом с ней на безопасном расстоянии устанавливается вентилятор.

С помощью такого вентилятора воздух нагнетается в воздухообменник, нагревается там и подается в отапливаемое помещение.
Базовый чертеж печки можно усовершенствовать: например, сделать на ее основе отопительный котел с водяным контуром. Так можно отапливать несколько помещений в одном здании.
Способы эксплуатации
Само по себе масло не горит. Для начала реакции в него нужно бросить быстровоспламеняющуюся «затравку». В топливном отсеке поверх отработанного масла наливают около стакана бензина, спирта или растворителя. С помощью фитиля на длинном основании затравку поджигают. При горении «затравки» выделяется определенное количество тепла, необходимое для закипания масла.
При кипении масло испаряется. В трубу-дожигатель поступают раскаленные масляные пары, которые дают устойчивый столб огня в трубе. Через 5-10 минут после разогрева печь выходит на устойчивый режим работы. При помощи поддувала-заслонки можно определить интенсивность разогрева и мощность отопления в целом.
Требования техники безопасности
Нельзя использовать легковоспламеняющиеся жидкости в качестве основного топлива. Бензины или растворитель предназначены лишь для запуска процесса горения и используются в небольших количествах. Для того чтобы эффективно использовать систему отопления, в качестве топлива нужно брать только чистое отработанное масло. Даже небольшая примесь воды приводит к резкому вспениванию масла, выходу его на поверхность, после чего может случиться пожар.

Поэтому нужно тщательно следить за качеством топлива и иметь неподалеку огнетушитель. Масляная печка не должна использоваться в помещениях с сильными сквозняками — это приводит к затуханию пламени в печи. Для того чтобы заново ее разжечь, нужно будет дождаться полного остывания корпуса устройства.
Печки на отработке нельзя оставлять без надзора, так как при оптимальном режиме работы ее поверхность нагревается до 800оС – это может воспламенить предметы, находящиеся неподалеку. После окончания работы нужно дождаться охлаждения печи до приемлемой температуры.
x-teplo.ru
Печь на отработанном масле своими руками

Печь, которая функционирует на отработанном масле, позволит уменьшить количество отходов, что загрязняют внешнюю среду. Конструкция механизма довольно простая, поэтому сделать такое устройство может каждый сварщик. В данной статье мы рассмотрим особенности сборки печи на отработанном масле своими руками с рекомендациями специалистов.
Оглавление:
- Принцип работы печки
- Пошаговая инструкция сборки печи на отработанном масле своими руками из листов металла и труб
- Печь из баллона на отработанном масле: пошаговая инструкция
- Особенности установки и эксплуатации печи
- Как повысить эффективность работы печи?
- Техника безопасности эксплуатации устройства
Принцип работы печки
Печь на отработанном масле сэкономит растраты на отопление небольших промышленных помещений, мастерских теплиц и тому подобное. Существуют разные варианты устройства печи, например, пиролизная, капельная, сделанная из баллона или собранная из листов металла. Чтобы правильно соорудить печь надобно ознакомиться с подробной инструкцией и учитывать советы специалистов по обустройству отопительной печки.

Печь работающая на отработанном масле имеет сходство с устройством пиролизной конструкции. Процесс горения осуществляется в два этапы, где вначале выделяются пары от отработанного масла, а после эти газы догорают при слишком высоких температурах в этом устройстве. Процесс сгорания масла и паров позволяет обустроить печку, которая не выделяет токсичных или вредных веществ, при этом эффективность подобного устройства повышается в несколько раз.
Чтобы отработанное масло полностью сгорало необходимо придерживаться советов по сборке установки. Подобная печь состоит из нескольких важных частей, которые определяют принцип работы установки:
1. Камера в нижней области печи с низкими показателями температуры, что соединяется с баком и образует небольшой проем для подачи кислорода. Данная часть предназначена для доливки отработки и поджигания топлива.
2. Средняя часть установки представляет собой камеру сгорания газов вместе с кислородом. Она сделана в форме трубы с проемами, через какие постоянно поступает воздух в необходимом количестве для эффективной работы печки.
3. Верхняя область печки состоит из камеры, в какой сжигаются оставшиеся газы, что образуют дым. К этой части присоединяется труба для дымохода, что выводит излишние пары.

Дымоход, что предназначается для конструкции печи на отработанном масле, обязан иметь как минимум 4 метра в длину. Его установка должна происходить только в вертикальном размещении. В процессе сгорания отработанное топлив образует значительное количество нагара, что остается в трубе, а при горизонтальном положении дымоход скорее будет засоряться. В подобном случае, вещества сгорания оказываются в помещении, что может вызвать отравление чадным газом. В здании допускается проводить трубы под углами в 90 или 45 градусов, однако, при выходе дымохода из здания, труба должна располагаться в строго вертикальном положении. Верхнюю область закрывают оголовком, чтобы осадки не попадали в печку.
При сборке печи на отработанном масле с водяным контуром, рекомендуется использовать сталь высокого качества с жаропрочными свойствами, толщина которой должна составлять около 4 мм. На верхнюю камеру припадает самая большая температурная нагрузка, примерно, до 750 градусов. Данную часть конструкции рекомендуется делать из плотных листов металла.

Пошаговая инструкция сборки печи на отработанном масле своими руками из листов металла и труб
Конструкцию можно выработать из листов железа или труб различных диаметров, что определяется типом устройства. Перед началом работ нужно подготовить все нужные приспособления и материалы, такие как:
- болгарка с кругами для отрезки и шлифовки;
- листы металла и трубы;
- сварочное устройство и электроды;
- металлические уголки;
- краска по металлу, что нагревается до высоких температур.
В процессе работ советуется пользоваться чертежами печи на отработанном масле, чтобы возведенная конструкция правильно функционировала. Технология сборки печи имеет такую последовательность:
1. В первую очередь необходимо соорудить нижнюю часть камеры, что соединяется с топливным баком. Она имеет форму прямого или округленного бака с крышкой, в какой есть две трубы. Первая предназначается для подачи масла, а вторая для прикрепления трубы, что ведет в среднюю часть установки. Необходимо вырезать элемента для бака, края которых нужно зачистить с помощью болгарки и сваривать все части.

2. К стенкам бака необходимо приварить дно, а также прикрепить металлические, уголки, которые будут ножками.
3. Для образования крышки используют лист металла, в котором вырезаются отверстия. Первое должна находиться в центре и иметь в диаметре 100 мм, а второе располагаться поближе к краю, отверстием в 60 мм. Крышку можно сделать съемной, что облегчит процесс чистки конструкции, а также перемещение печки.
4. Для подачи кислорода нужно подготовить трубы общей протяжностью 370 миллиметров, диаметр каких составляет 100 мм. В них высверливают отверстия, через какие будет поддаваться кислород, они должны составлять 1/10 часть общего диаметра изделия и располагаться одинаково по всей длине.
5. Трубу важно приварить к нижней области устройства, перпендикулярно крышке. На ней надобно сделать заслонку воздушную, что будет присоединенная с содействием болтов или заклепки. Отверстие под заслонку должно иметь 6 см, через которое поддается масло и разжигается топливо.
6. Конструкция верхнего бака соответствует сборке нижней области. Стенки устройства советуется изготовить из трубы 350 миллиметров.
7. В листе металла, который образует дно нужно образовать проем диаметром 10 см, что будет располагаться поближе к краю. К нижней области отверстия надобно приварить незначительную часть трубы, диаметр какой имеет 11 см. Это необходимо, чтобы присоединить изделие к камере сжигания газов.
8. Крышка верхней области капельной печи на отработанном масле поддается воздействию температуры в 600-800 градусов, в отличие, от иных частей устройства. Поэтому, для работ нужно использовать листы металла толщиной в 6 мм. В крышке важно сделать проем для дымоходной трубы, которая должно совпадать с местом проема на дне камеры. Между данными частями нужно сделать перегородку из плотного куска металла, что должен располагаться поближе к дымовому отверстию.

9. К верхней области крышки приделывают трубу, какую после присоединяют к дымоходной части. Чтобы конструкция была устойчивой и жесткой необходимо между камерами приварить металлическую распорку в форме трубы, диаметр которой должен иметь 20-30 см.
10. Последним этапом работ считается покраска печи специальными средствами по обработке металла с жаропрочными свойствами.
Печь из баллона на отработанном масле: пошаговая инструкция
Механизм печи на отработке должен быть примитивным и доступным в результате эксплуатации. Иным вариантом сборки печки является использование и переоборудования старых предметов. В предоставленном случае, мы опишем особенности сборки печки из старого баллона. Для работ необходимо приобрести трубу диаметром от 8 до 10 см, длина которой должна составлять 4 метра.

На вопрос: как сделать печь на отработанном масле из баллона, предлагаем следующую пошаговую инструкцию выполнения работ. Все работы можно сделать на небольшой площади, главное, иметь необходимые материалы и приспособления. Процесс монтажа имеет такую последовательность:
1. Для изготовления ножек нужно использовать металлический уголок, длина которого для каждой детали должна составлять 20 см. Приварить изделие нужно с помощью электрической сварки к корпусу баллона.
2. Далее, ставим конструкцию в вертикальном положении и в верхней области образуем отверстие, что соответствует диаметру используемой трубы для вытяжной части устройства. Вырез рекомендуется сделать с применением сварочного аппарата, таким же образом прикрепляем трубу.
3. В трубе нужно сделать отверстия, которые будут пропускать воздух, диаметр каких должен составлять 10 см. Все работы осуществляются с помощью болгарки. Отверстия нужно делать до высоты в 1,5 метра, пропустив вначале 10 см.
4. На высоте в 1 метр нужно сделать еще одно отверстие, что предназначается для иного радиатора. Трубу необходимо прикрепить параллельно полу, перпендикулярно стене устройства.
5. В верхней камере печки нужно сделать небольшое отверстие, предназначенное для подачи переработанного масла.

В общем счете, существует множество схем самодельной печи на отработанном масле. Устройство из баллона является наиболее компактным и практичным в применении. Оно имеет высокие показатели КПД, при этом на ее изготовление не требуется больших растрат.
Особенности установки и эксплуатации печи
Место, предназначенное для установки печи должно быть ровным. Пол в гараже или мастерской для устройства может быть забетонированным, в ином случае, нужно сделать кладку из кирпичей. Расстояние между стеной и печью должно быть не меньше одного метра, если поверхность покрыта горючими средствами. Отверстие для подачи масла надобно расположить практично для дальнейшего использования.
В различных ресурсах можно увидеть фото печи на отработанном масле, что указывают на разные технологии сборки конструкции. В устройстве нужно правильно монтировать дымоходную часть, например, длина трубы должна быть как минимум 4 метра, чтобы образовать хорошую тягу. С внешней стороны трубу необходимо утеплить, чтобы избежать появления конденсата кислот, которые будут разрушать механизм. Печка на отработке из баллона весьма практична, особенно при очистке.
Отопительное устройство может функционировать на масле минеральном или синтетическом. Заливать топливо необходимо примерно наполовину, чтобы оставить свободную площадь для формирования паров. После заливки масла важно оставить заслонку немного открытой, чтобы масло насытилось кислородом для эффективного горения. Разжигать печь рекомендуется с содействием спичек, что опускают на поверхность масла. После того как масло начало гореть необходимо заслонку немного прикрыть, а далее, с ее помощью урегулируют подачу кислорода в камеру.
Важно знать! В водяную печь на использованном масле или в иную конструкцию не рекомендуется заливать бензин, керосин или иные вещества, которые легко воспламеняются.

Как повысить эффективность работы печи?
Печки на отработке отлично подойдут для отопления гаража или небольшой мастерской. Однако, в здании с неизменным перемещением людей, оборудовать такую конструкцию не рекомендуется. Разогретая поверхность печки впитывает кислород, что вредоносно для дыхательных путей человека. Если планируется оборудовать такое устройство для жилого здания, то его необходимо поместить в отдельной комнате. А технология отопления должна быть водяной, чтобы избежать выделения вредных паров.
Водяной способ улучшения эффективности заключается в образовании герметичного бака с жидкостью, который располагается над верхней камерой. К данному баку прикрепляют штуцера для подачи и отвода воды. Они располагаются на различных уровнях, чтобы сделать отопление помещения разной площади.
Иным вариантом увеличения производительности печи является определенная конвекция воздуха. Это можно обустроить с применением вентилятора, который располагается поближе к верхней камере. Он охлаждает камеру и в то же время обогревает здание, забирая теплый воздух от печки. Это позволит продлить срок эксплуатации печки на отработке.

Техника безопасности эксплуатации устройства
Конструкция печи на отработанном масле представляет собой систему отопления, которая является пожароопасной. В процессе эксплуатации устройства необходимо знать и придерживаться определенных правил:
1. Прежде чем установить пеку необходимо проверить ее на работоспособность, перед этим убрав все горючие вещества и материалы.
2. В процессе работы печи не советуется доливать масло.
3. Заполнять топливный бак отработкой рекомендуется после остывания устройства.
4. Возле печки нельзя оставлять материалы, средства и иные предметы, которые могут легко воспламениться.
5. Исключите вероятность падения материалов на печку.
Если выполнять все инструкции и предписания, то вы обеспечите безопасность использования устройства. Такую печь лучше всего собрать для небольших помещений, где имеются большие запасы отработанного масла, например, в автомастерских. Такой вариант является весьма экономичным, ведь позволяет использовать бесплатные ресурсы для отопления здания. Дополнительно можно оборудовать лист металла, на котором легко будет разогреть воду или еду.

Технологию сборки устройства советуем посмотреть по видео про печь на отработанном масле. В процессе работ, нужно придерживаться определенной последовательности с соблюдением техники безопасности. Это позволит создать экономичную и практичную печь в процессе эксплуатации.
strport.ru
Печь на отработанном масле
Среди множества вариантов самодельных отопителей и печек стоит упомянуть интересную конструкцию нагревателя – печи на отработанном масле. У многих из старых автолюбителей в гаражах и подвалах сохранилось немалое количество отработанного моторного масла. В работу по прямому предназначению смазочный материал не годится, а в качестве топлива для печки на отработке подходит просто идеально.

Варианты печи на отработанном масле
Внешний вид печи на масле не вызывает энтузиазма, но это только на первый взгляд. Практически все самодельные варианты топки на отработанной смазке многократно усовершенствовались и переделывались с целью добиться устойчивой работы и хорошей теплоотдачи. Чтобы понять и оценить надежность конструкции, стоит хотя бы раз изготовить печь на отработке своими руками, или попользоваться готовым вариантом в сильный мороз.
Чаще всего для себя изготавливают самый простой и легкий вариант печи на отработанном масле. При желании можно собрать более сложные конструкции:
- Печь на отработке с наддувом воздуха в камеру сгорания;
- Банная печь на отработанном масле с регулировкой мощности нагрева;
- Печь на отработке с водяным контуром или принудительным обдувом нагретой поверхности;
- Капельная печь на отработанном масле.
Важно! Высокая вязкость и плохая испаряемость отработанного масла повышают пожаробезопасность печи, но при этом не мешают легко обслуживать и заправлять емкость, контролировать процесс горения и удаления отработанных газов.
Для большинства конструкций понадобится листовой черный металл толщиной 3-4мм, болгарка с тремя дисками по металлу, сварочный аппарат и десяток электродов №4.

Особенности устройства и работы
Для работы печи подойдет любое углеводородное масло, по консистенции и свойствам сходное с моторным. Могут использоваться гидравлические, и балластные жидкости, все, что может гореть в сильно разогретом состоянии. Отдельные любители умудряются сжигать прогоркшее растительное масло, и даже расплавленные консистентные отработанные смазки.
Важно! Все варианты возможны при условии отсутствия в масле присадок или добавок, дающих при сгорании или пиролизе токсичные или ядовитые соединения.
Что и где горит в печи
Конструкция печки на отработанном масле имеет две основные зоны горения и одну вспомогательную. Как такового, обособленного фронта или факела горения топливовоздушной смеси в печи нет. Условная область горения находится в камере сгорания – перфорированной трубе, соединяющей верхнюю и нижнюю часть печи.

В нижней камере находится запас отработанного масла, чем меньше его объем, тем быстрее и лучше прогревается отработанное масло, быстрее испаряется и сгорает. К нижнему резервуару через металлический маслопровод подключается дополнительная емкость или бак с основным запасом отработки.
Самое сложное — процесс розжига печи. Для этого в камору горения заталкивают несколько кусочков пакли, обильно смоченной керосином. В нижнюю емкость печи через отверстие с крышкой заливают отработку на ¾ номинального объема. Поджигают паклю, и процесс розжига пошел.

По мере прогревания масло начинает интенсивно испаряться, пары, смешиваясь с разогретым воздухом, поступают в камору и усиливают горение. Под действием тяги воздуха в трубе продукты горения быстро удаляются на безопасное расстояние.
Вариант капельной печи
Кроме приведенного варианта печи на отработке, похожего на гигантскую гантель, поставленную вертикально, существует еще одна очень интересная схема печи на моторном масле. Такую конструкцию еще называют печкой с жаровой чашкой. Принцип работы понятен из приведенного чертежа печи на отработке.

На дне баллона располагается открытая мелкая емкость, с наполнителем в виде ломаной проволоки-путанки. По вертикальной трубе сверху вниз стекает и капает отработка. Капли отработанного масла, попадая на раскаленный металл, испаряются с разложением тяжелых нефтепродуктов на более легкие компоненты. Они очень хорошо горят и дают меньше сажи.

Тепло от облака горящего масла передается через стенки в окружающий воздух или в массив воды бака или теплообменника.
Если вопрос не стоит о мобильности печи на отработке, лучше использовать конструкцию с капельным подводом масла.
Как организовать грамотный теплосъем с поверхности печи
Создать горящий клубок огня мало. Необходимо еще как-то правильно отвести тепло в окружающее пространство и согреть воздух в помещении. По сути, это масляный аналог буржуйки, рядом тепло, а чуть поодаль холодно.
Вот здесь в печи на отработанном масле проявляются некоторые ее недостатки, о которых надо знать, и быть готовым устранить возможные последствия:
- Высокая температура каморы горения масла интенсивно высушивает воздух в помещении, «съедает» кислород и насыщает воздух разнообразными опасными соединениями недогоревшего масла. Для устранения последнего фактора используют печь на отработке с наддувом. С помощью электровентилятора через дополнительный патрубок в области соединения верхней емкости с дымоходом подают воздух. Подобная модернизация откачивает просочившиеся продукты горения из помещения, улучшает розжиг и тягу, зачастую позволяет уменьшить высоту дымохода до 2,5м.

- Кольцевая конструкция печи на отработке привязана к месту расположения трубы выхлопа газов, при этом большая часть поверхности, излучающая тепло, направлена не в центр помещения, а на стены. Поэтому для увеличения эффективности теплоотдачи обычно применяют отражающий экран из обклеенного алюминиевой фольгой материала.
- Зачастую обогревать приходится не только угол в гараже или сарае, печь на отработке с водяным контуром позволяет полноценно обогревать целый дом под 100м2. Чаще всего медный теплообменник с водой впаивают в верхнюю камеру печи. Но самым удачным решением признана схема, указанная на рисунке.

Конструируем и собираем печь на отработке своими силами
Изготовление конструкции очень просто, на первом этапе вырезаем заготовки из листового металла согласно чертежу, на втором этапе качественно свариваем электросваркой в готовую конструкцию согласно схеме.

Шаг первый — изготавливаем основные детали
Первым делом раскраиваем на листе и вырезаем болгаркой 4 днища верхней и нижней камер печи. Под чистовую обработку оставляем припуск в 1мм к диаметру каждого элемента. Вырезанные заготовки подгоняем по чертежным размерам на точиле. То же самое требование касается боковых стенок камер.
Для жаровой каморы можно использовать готовую толстостенную трубу или старый баллон с толщиной стенки не менее 4мм. С помощью керна размечаем положения отверстий и просверливаем их на сверлильном станке, можно электродрелью.
Шаг второй — сборка конструкции
Сварочные работы не представляют особой сложности при правильном подборе режима электросварки.

Совет! Прежде чем приступать к итоговой сборке, попрактикуйтесь в сварке на обрезках стального листа и трубы. Это позволит оптимально подобрать ток и скорость работы электродом.
Далее выполняем работы в следующем порядке:
- Прихватываем точками днища и боковые стенки нижней камеры, провариваем шов дважды для получения прочного и герметичного соединения;
- Устанавливаем жаровую камору в готовую нижнюю камеру и фиксируем одной точкой, разогреваем паяльной лампой место укладки сварочного шва и также в горячем виде провариваем дважды;
- Одеваем на трубу нижнее днище верней камеры и свариваем аналогично предыдущему пункту;
- Привариваем боковые стенки и крышку верхней камеры, опоры, переходник для дымохода в обычном режиме.
Для заливного отверстия печки подберите вариант легкосъемной плотной крышки или створки, позволяющей регулировать объем воздуха, засасываемого печкой.
Испытание
Для проверки надежности соединения следует провести термические испытание печи. Цель — проверить надежность сварочных швов под действием внутренних деформаций в разогретом состоянии. Для этого можно установить две-три работающие паяльные лампы в направлении жаровой каморы и прогревать конструкцию в течение получаса. Если конструкция не потеряет ни одного сварочного шва – изделие готово к работе.
Итог
Печь на отработанном масле имеет смысл только при условии, если у вас есть возможность приобретать или обменивать отработку в достаточном количестве за небольшие деньги. В современных условиях рынка собрать бесплатно 100-200л топлива за один раз вполне реально, но для постоянного использования необходим источник на порядок мощнее. Так что в использовании печи на отработке экономические проблемы могут быть сложнее технических.
bouw.ru
Печь на отработанном масле своими руками
Отработанное масло замечательно горит, являясь прекрасным и сравнительно недорогим топливом для печки. Сделать такую печь своими руками достаточно просто, но следует знать, что применяется данная конструкция не для обогрева жилых помещений. Сфер для ее применения и так очень много: самодельная печь на отработанном масле отлично решит проблемы с обогревом гаража, дачи, теплицы или мастерской.
Плюсы печей на отработке
У таких печей море достоинств, давайте попробуем их обобщить:
- Как вы понимаете, цена отработанного масла невысока, следовательно, такая печка будет очень даже экономичным вариантом обогрева. Масло подойдет любого вида: трансформаторное, моторное, амортизационное трансмиссионное, причем оно может быть даже очень грязным. А, если учесть, что эта печь не потребует больше никаких энергоисточников (угля, дров, газа, электроэнергии, без которой не обойдется обычный камин), то экономия для ее хозяина выходит существенная. Кстати, теплоотдача такой печи 13-15 кВт/час – сравните с электрорадиатором!
- Удивительно, но – факт: печь работающая на отработанном масле экологична. Попробуйте использовать ее на территории гаражного кооператива – никто из соседей не пожалуется на задымленность, ведь масло полностью сгорает без дыма и остатка. Эксплуатировать такую печь можно в любом людном месте, ведь людям не грозят токсичные выбросы, да и окружающей территории загрязнения от нее не страшны.
- Конструкция печи на отработке очень проста. Габариты ее небольшие, она легко разбирается для перевозки с одного места на другое. Ни каких регулирующих форсунок и капельниц, затрудняющих эксплуатацию печки, вы здесь не встретите. Регулируется она без всякой автоматики – просто крышкой, перемещающейся над трубой для заливки масла. Эта простая чудо-печь быстро поднимет температуру в помещении до комнатной, поскольку при температуре горения в 800-900 градусов, она создает температуру воздуха на выходе до 95 градусов.
- Но самое главное, что такую «помощницу» каждый сможет изготовить самостоятельно по приведенному ниже чертежу.
Инструкция по изготовлению
Печь на отработанном масле своими руками выполняется из двух резервуаров, соединительной трубы, а также дымохода. Конструкция ее сваривается из металла, 4 мм в толщину. Но для верхней крышки верхнего резервуара толщина металла должна быть больше — 6 мм, так как эта крышка прогорает намного быстрее, чем другие части печи.

Требования к соединительной трубе таковы:
- Диаметр ее должен быть не меньше 100 мм.
- Длина трубы должна превышать ее диаметр в четыре раза, имея протяженность в 35-40 см. По всей трубе высверливаются отверстия диаметра 9 мм в количестве 48-50 штук.
- Расположение этих отверстий может быть таким: по кругу – 8 шт., и по ряду (вдоль трубы) – 6 шт.

Как видно на схеме, труба, вытягивающая дым, размещается над верхним резервуаром. Ее выполняют из жаростойкого материала, например – стали. А вот конечный отрезок трубы, который будет выдерживать более низкую температурную нагрузку, можно изготовить из таких материалов, как жесть, оцинковка или керамика. Дымоход должен иметь высоту, не менее 4-х метров, а лучше всего – метров 5-7.
Теплоотдача печи будет лучше, если отрезок дымоотводящей трубы выполнить под наклоном. Только конечный ее участок должен быть вертикален для исключения задувания ветра. Дымоход накрывается специальной крышкой для защиты от затекания в него дождевой воды. Трубу дымохода желательно сконструировать так, чтобы она легко снималась для прочистки дымохода от копоти и сажи.
Нижнюю часть резервуара приваривают к ножкам, плотно (без зазоров) надевая на нее сверху крышку, имеющую отверстие для воздуха и масла. Затем сваривают вместе крышку с отверстием, трубу, на которой высверлены 48 отверстий и верхний резервуар.
Отверстие для воздуха и масла должно регулироваться и закрываться легко при помощи специальной, смонтированной для этого крышечки. Мощность горения напрямую зависит от величины оставленного зазора.

Выполненная таким образом печь на отработанном масле своими руками готова к эксплуатации. Она не только эффективно обогреет помещение в холодное время года. На раскаленной поверхности ее верхнего резервуара можно будет разогреть принесенную с собой в гараж еду или вскипятить воду.
А еще такую печь можно применить в качестве водяного отопления. На самом горячем верхнем резервуаре можно смонтировать емкость с водой, из верхней части которой выходит труба, подсоединяясь к радиатору водяного отопления. Остывшая вода будет возвращаться опять в ту же емкость по обратной трубе. Устроенный таким образом водяной контур даст вам относительно недорогое отопление, которое, к тому же, можно регулировать.
Техника безопасности
- Располагая такую печь, являющуюся объектом повышенной пожароопасности, помните, что вокруг нее должно быть свободное пространство, без наличия предметов, способных привести к возгоранию, ведь печь будет раскалена до очень высоких температур.
- Такая печь всегда выполняется только в напольном варианте.
- Топливом этой печи не должен служить ацетон, бензин либо иные легковоспламеняющиеся вещества. И, конечно, их не должно быть рядом с печью.
- В резервуар с маслом не должна попадать вода. Представьте, что будет, если на раскаленную сковороду с маслом попадет капля воды? В печи эффект от этого будет во много крат сильнее, с возможным воспламенением. Не следует этого допускать.
- В помещении установки такой печи обязательно должны быть вентиляционные отверстия. Проверьте, чтобы они были свободны, ничем не завешены и не заложены. Вентиляция необходима, чтобы в помещении не увеличивалась доля угарного газа, способного в больших количествах привести к отравлению.
- В уже работающую печь доливать масло нельзя. Требуется подождать, пока она остынет, и лишь после этого заправлять ее.
Делать самодельную печь на отработанном масле недолго и просто. Да, конечно, это – не идеал. Но, при минимальных материальных затратах, вы получите отличную печь, быстро согреющую вашу мастерскую или гараж в самые сильные морозы.
Читайте также: Печь на солярке своими руками, Котел для бани своими руками, Печь для бани с теплообменником, Металлические печи для бани — Чертежи
banyagid.com
полезные советы, чертежи и рекомендации
Печка, работающая на отработанном масле – отличный и экономный вариант обогрева, к тому же подобные печи на отработке вы сможете изготовить своими руками, используя ряд материалов и руководствуясь чертежами. Как сделать печки на отработанном масле в домашних условиях вы узнаете в этом материале.
Что такое отработка: преимущества и недостатки
Отработанное масло, или же просто отработка, широко используется для работы печи. Такое масло можно найти в больших количествах на всевозможных автомобильных предприятиях, СТО и мастерских. Для печей используется индустриальное, трансмиссионное и моторное масло.
Утилизировать отработку можно, но зачем, когда можно сэкономить хорошие деньги, изготовив из нее печку своими руками. Отработанное масло дает теплоотдачу, которая равняется 15 кВт работы электрообогревателя. Расход при этом составляет от 05 и до 2 литров в час.
Печи на отработке работают по принципу прямого нагревания воздуха, с их помощью можно отапливать такие небольшие помещения, как мастерские, теплицы, гаражи и так далее. Также такая печь пригодиться и на автосервисе, где не нужно будет долго искать нужное топливо.
Печи на отработки имеют следующие преимущества:
- отсутствие гари и копоти при сгорании масла;
- печь проста в работе;
- высокий уровень пожаробезопасности, поскольку горят лишь пары топлива, а не оно само.
Но стоит учитывать и недостатки топлива:
- отработанное масло содержит массу примесей, влаги, спиртов и многого другого, что, при использовании в котлах может засорить фильтры и форсунки, и даже спровоцировать взрыв в блоге подогрева;
- масло перед использованием в котле нужно фильтровать и очищать, что невозможно сделать самостоятельно;
- невозможность держать на холоде отработку, оно должно храниться либо в отапливаемом помещении, либо в закрытом виде в бочке на глубине, соответствующей уровню замерзания земли.
Классификация печей на отработанном масле
Наиболее распространенными в быту видами печей на отработанном масле являются печки на пиролизе и турбогорелки.
Особенность пиролизных печей состоит в том, что отработанное топливо нагревается от кислородного недостатка в камере, где разлагается масло. Остатки разложения во второй камере сгорают вместе с кислородом, что провоцирует выделение тепла в большом количестве. Температура пиролиза может быть изменена, если прибавить или убавить уровень подачи воздуха в камеру. Но подобную печь нужно будет постоянно чистить, а еще в ней невозможно поддерживать ту или иную температуру в автоматическом режиме.
Турбогорелки работают как двигатели для дизелей: масло попадает в камеру и начинается горение паров. Однако подобные печи очень привередливые в отношении качества топлива также их нужно каждый раз перед использованием подогревать.
По конструкции печи на отработке делятся на такие:
- агрегаты, изготовленные на основе газового баллона;
- агрегаты с поддувом;
- агрегаты с капельной подачей масла.
Как сделать печь на отработке из газового баллона
Печка на основе газовых, кислородных либо же углеродных баллонов – наиболее проста для изготовления своими руками. У баллонов толстые стены, что сделает печку долгоиграющей, кроме того, печка на газовом баллоне сможет отопить помещение до 90 квадратных метров. Ее не нужно будет оснащать системой принудительной подачи воздуха, масло же поступит в нее само. Обратите внимание, что высота контура должна соответствовать источнику горения, размещенного внутри. Чтобы изготовить такую модель своими руками вам понадобится следующий перечень материалов:
- Дымоходные трубы с диаметров внутри 10 см и стенками толщиной по 2 мм и длиной по 4 мм.
- Емкость для топлива на 8–15 литров.
- Трубки для горелок.
- Электроды и аппарат для сварки.
- Напильник.
- Болгарка.
- Уголки из стали.
- Дрель и сверла.
- Рулетка с уровнем.
Теперь, когда все готово, можно приступать к работе. Бесшовный баллон емкостью 50 л и толщиной стенок по 1,5 см, но не более. Важно, чтобы температура кипения была порядка 300 градусов, а температура в камере выше 600 соответственно.
Чтобы избавиться от запаха одоранта, характерного для газового баллона, нужно вынести его на улицу и слить конденсат, а потом несколько раз ополоснуть водой. После этого его заливают водой до горла, ставят вертикально на поддон либо же закапывают в землю так, чтобы он оставался в вертикальном положении.
Верхнюю часть баллона срезают болгаркой, при первом надрезе вода начинает стекать. Когда она стечет, продолжайте делать надрезы. Итак, нижнюю часть баллона мы применим в качестве камеры, а срезанную верхнюю часть – в качестве крышки для печи.
Внизу к баллону привариваем печные «ножки» в виде стальных двадцатисантиметровых уголков. А вверху делаем отверстие, которое послужит для протяжения вытяжной трубы.
Также нам потребуется дымоходная тонкостенная труба, она будет работать как вытяжка. Ее диаметр должен быть порядка 10 см, а длина – от 4 м. Вставьте трубу в отверстие и приварите, соблюдая вертикальное положение. Кроме этого отверстия, нужно сделать еще одно, прикрыв пластиной, чтобы можно было регулировать процесс подачи воздуха.
Обратите внимание, что дымоход должен быть расположен строго по вертикали, с помощью уровня следует проконтролировать это.
Затем сверлим небольшое отверстие через 10 см от предыдущего с диаметром до 3 мм, а через несколько миллиметров – еще такое же. Всего подобных отверстий в итоге должно быть 10. Также здесь же, на трубе просверлите еще одно отверстие под новую трубу с диаметром до 6 см и длиной от 2 до 4 м. Ее нужно вставить параллельно уровню пола и приварить.
Отрезанную часть баллона мы будем использовать в качестве емкости для заливания переработанного масла. Помните, что нельзя заливать неочищенное масло, чтобы не спровоцировать пожар или взрыв.
В верхней съемной части баллона при желании можно присоединить так называемый поднос для подогрева готовых блюд. Чтобы его сделать, возьмите стальной лист, вырежьте из него квадрат или прямоугольник и приварите к крышке или же на трубе, которая находится параллельно уровню пола.
Печь работает следующим образом: отработка наливается в размере двух третей емкости баллона, потом поджигаете бумагу, кладете ее сверху и закрываете печь. Когда температура горения увеличится, пары начнут самовозгораться. Помните, что масло в работающую печку подливать нельзя. Также нельзя вместо масла использовать керосин или бензин.
Чтобы очистить печку после работы, снимите верхнюю часть и постучите крышкой по баллону, чтобы сажа оттуда выпала.
Печь на отработке из стальных листов
Чертежи и сборка конструкции печи из стальных листов.
А сейчас мы узнаем, как сделать печку на отработке из стальных листов. Подобная печь более компакта и не очень много весит. Кроме того, она подключается к отоплению, морозоустойчива также на ней можно готовить еду.
Перечень необходимых инструментов такой:
Стальные листы по 4 и 6 мм толщиной каждый.- Болгарка.
- Напильник.
- Инструмент для сварки и электроды.
- Труба для дымохода.
- Чертежи.
- Стальные уголки под печные ножки.
- Рулетка с уровнем.
- Молоток.
- Труба для горелки (стальная, медная или жестяная).
Подготовьте чертеж конструкции и прорисуйте все детали. Сделайте детали для резервуара из стального листа, имеющего толщину 4 мм. Затем из листа толщиной 6 мм изготавливается топливник и крышка. Листы нужно разложить на полу и на них делаются разметки. Потом их вырезают на детали болгаркой и сваривают швы.
Вырежьте полоску 115 мм в ширину из листа толщиной 4 мм, сложите на станке полосу и приварите ее сварочным аппаратом – у вас должна выйти труба для масла. Из этого же листа вырезаем круг с диаметром 34,5 см, который будет служить крышкой для масляной емкости. Привариваем ее к трубе, а к ней – уголки со всех сторон.
Берем лист толщиной 6 мм и вырезаем 6-сантиметровую полоску, сворачиваем ее кольцом с диаметром 35,2 см. Вырезаем круг с диаметром 35,2 см из этого же листа, посередине просверливаем дыру диаметром 10 см для дымоходной трубы. С правой стороны через 4 см сверлим еще одно отверстие на 5 см для вливания масла. Теперь кольцо и круг свариваем и получаем бак для заливания масла.
Чтобы сделать нижнюю часть емкости, берем лист на 6 мм и вырезаем из него круг с диаметром на 35,2 см, потом отступите пару сантиметров от его края и вырежьте отверстие на 10 см. Оно будет служить для прохождения патрубка, в который будет вставлена труба для дымохода. Сам патрубок делается из трубы диаметром 10 см, от которой отрезается отрезок размером в 13 сантиметров.
Вырежьте прямоугольник из 6-миллиметрового листа, ширина его должна составлять 7 см, а длина – 33 соответственно, он будет служить в качестве перегородки. Ее приваривают к кругу диаметром 35,2. А во второе отверстие вставляют готовый патрубок.
На трубе для горелки просверливают 48 отверстий на 9 мм, они должны располагаться друг от друга на расстоянии 6 см.
Готовую трубу вставьте в крышку для масляного контейнера, проверьте уровнем, чтобы она стояла ровно. Погрешности следует удалить болгаркой или напильником. Части должны плотно входить друг в друга, приваривать их не нужно.
Вставьте выхлопной патрубок на 16 см в отверстие бака, куда будет заливаться масло.
Соедините верхнюю часть резервуара с нижней не приваривая их, а просто соедините плотно деталями. Чтобы максимально их закрепить, сделайте кольцо для уплотнения диаметром 35,4 см и наденьте на резервуар.
Приварите заливочный бак к трубе, где сделано много отверстий. С обратной стороны к этой же трубе приварите скрепленную конструкцию резервуара. Чтобы контейнер для заливки масла легко открывался и закрывался, его оснащают круглой пластинкой.
Сделайте дымоход из 4-метровой трубы. Дымоход нельзя проводить горизонтально, внутри помещения он может проходить под наклоном, но на улице – только вертикально.
Противопожарные меры
Какой бы вы ни сделали вашу печь на отработке, следует придерживаться следующих правил по безопасности:
- не оставляйте печку на сквозняке;
- не ставьте печь рядом с предметами, способными легко воспламеняться;
- соблюдайте дистанцию на полметра вокруг печи, чтобы на нем ничего не находилось;
- в масло не должна попадать вода;
- регулярно проверяйте дымоход на герметичность;
- используйте только техническое очищенное масло;
- не оставляйте работающий агрегат без присмотра.
Если вы будете соблюдать эти правила, то ваша печь прослужит максимально долго и позволит вам сэкономить значительные средства на отоплении.
bane.guru


Стальные листы по 4 и 6 мм толщиной каждый.