Отопительный котел своими руками сделать – видео-инструкция по монтажу своими руками, особенности твердотопливных приборов на дровах (дровяной), твердом топливе, отработке, индукционных, электрокотлов, чертежи, цена, фото
как сделать, чертежи, как сварить агрегат отопления для дома
Система отопления частного дома – это сложная схема разводки труб, сердцем которой является отопительный котел. В нем нагревается теплоноситель, который под действием законов физики или при помощи циркуляционного насоса перемещается по трубам, попадает в радиаторы, где отдает свое тепло, и остывшим возвращается опять в котел. И процесс этот повторяется до бесконечности.
Современный рынок котельного и отопительного оборудования предлагает сегодня огромный ассортимент нагревательных приборов. К сожалению, цена многих моделей не всем по карману. Поэтому перед частью потребителей встает вопрос, можно ли сделать котел отопления своими руками, будет ли этот самодельный прибор работать так же эффективно, как заводские аналоги? Сделать котел можно, если вы хороший сварщик и работать он будет не хуже.
Виды отопительных котлов
В первую очередь необходимо определиться, какой котел нужен для вашего дома. Это будет зависеть от того топлива, которое будет использовано для растопки. Отсюда и классификация:

- газовые;
- электрические;
- твердотопливные;
- жидкотопливные.
Электрические
Любой из этих котлов можно изготовить своими руками. Самый простой из них – электрический. По сути, это бак, в который вмонтирован ТЭН. Из бака еще выходят два патрубка, соединяемые с контурами подачи и обратки. Нет ни дымохода, ни камеры сгорания, все просто.

Электрические котлы всем хороши, но есть у них два недостатка. Первый: электроэнергия – самое дорогое топливо. Второй: при падении напряжения в сети (а это случается с завидным постоянством) котел перестает работать корректно. Снижается его мощность, падает температура теплоносителя.
Газовые
Конструкции остальных видов более сложные. И они все практически схожи между собой с некоторыми отличиями. Что касается газового котла, то для его установки потребуется разрешение газовой службы.

Представители этой организации могут такой отопительный агрегат не принять к установке. В первую очередь потребуют провести его опрессовку в своей лаборатории.
Наличие акта – это гарантия, что разрешение вам все-таки дадут.
Котлы на жидком топливе
Эксплуатация этого варианта связана с большими трудностями. Во-первых, придется строить отдельно стоящий склад около дома, где будет храниться топливо. В нем все должно соответствовать требованиям пожарной безопасности.

Во-вторых, от склада до котельной придется тянуть трубопровод. Его обязательно утепляют. В-третьих, в котле этого типа устанавливается специальная горелка, которую надо отрегулировать. Сделать это не так просто в плане настройки.
Твердотопливные

О том, как сделать котел, работающий на твердых видах топлива, для отопления дома и будем говорить ниже.
Что понадобится?
Как было сказано выше, чтобы сварить отопительный агрегат, вы должны быть хорошим сварщиком. Работа на уровне любителя здесь не подойдет.
Инструменты
Что требуется для проведения этой работы. Из инструментов вам понадобятся:

- электросварочный аппарат;
- газовый резак;
- болгарка;
- молоток;
- рулетка;
- маркер или мел.
Материалы
Из материалов:

- труба бесшовная диаметром 425 мм;
- труба диаметром 100 мм;
- труба диаметром 25 мм;
- металлический лист толщиною 4 мм;
- два сгона диаметром 25 мм;
- небольшие петли;
- уголок 25 мм;
- арматура диаметром 8 мм.
Проект
Многие новички ищут чертежи котлов в Интернете или специальной технической литературе и уже по ним проводят работу. В принципе, это правильный путь.
Самое главное, найти чертежи, в которых указаны размеры отопительного прибора.
Изготовление корпуса
Итак, в первую очередь подготавливаются детали будущего агрегата. Из трубы 425 мм будет изготавливаться корпус отопительного прибора. Для небольшого отопительного котла высота в 1,0-1,2 м с учетом небольшого диаметра – это оптимальный вариант.

Режем трубу по этим размерам с помощью газового резака. Края обрабатываем болгаркой.
Отверстия для топки и поддувала
Теперь необходимо в корпусе вырезать два отверстия: под топку и для поддувала. Они должны быть прямоугольными. Для топки подойдет размер 20х10 см, для поддувала 20х3 см. Они располагаются один над другим, топочное отверстие выше.

Расстояние от края трубы до поддувала в пределах 5-7 см. Между отверстиями расстояние – 5 см. Края отверстия обрабатываются болгаркой. Вырезанный кусок стенки трубы для топки будет использован в качестве дверцы. Его края также зачищаются.
Отверстия для патрубков
С помощью резака вырезаются еще два отверстия под патрубки подачи и обратки диаметром 25 мм. Отверстия располагаются друг напротив друга. При этом отверстие обратки вырезают сбоку котла над топкой: от топочного отверстия на расстоянии 15 см.

На расстоянии 5 см только от верхнего края корпуса вырезается отверстие для подачи теплоносителя. Тут же к этим отверстиям можно приварить два сгона.
Внутренние детали
Из металлического листа вырезаются три блина: два диаметром 425 мм, один диаметром 412 мм. Последний будет установлен внутрь корпуса, а так как толщина стенки трубы составляет 6 мм, то на диаметр выпадает 12 мм, плюс 1 мм на свободное вхождение.

В одном из блинов диаметром 425 мм и в круге 412 мм по центру вырезается отверстие диаметром чуть больше 100 мм. Готовится дымоход из трубы 100 мм. Для этого режется отрезок 120-130 мм. Из трубы 25 мм нарезаются кусочки длиною по 50 мм для ножек котла. Из арматуры делается решетка для зольника, за основу берется размер внутреннего диаметра корпуса.
Сборка отопительного агрегата
В первую очередь к блину 412 мм приваривается дымоход. Затем внутри корпуса на высоте 30-35 см от топочного отверстия необходимо приварить временные упоры. Это может быть проволока или арматура. На них сверху опускается блин с дымоходом.
Основные стыки
А вот теперь самый важный момент – надо сварить между собой блин и корпус котла. Проварить шов надо обязательно с двух сторон и сделать это необходимо качественно. Этот стык есть сопряжение топки и водяного бака.

Далее на торчащий из котла дымоход надевается блин 425 мм. Здесь необходимо хорошо проварить два стыка: между внешними краями блина и корпусом котла, между дымоходом и металлическим кругом.
Топочный отсек
Следующий этап касается топочной камеры. С обратной стороны от дымохода внутрь корпуса вставляется готовая решетка из арматуры.

Затем из уголка 25 мм вырезаются болгаркой несколько кусков, которые привариваются внутрь котла между топочным отверстием и поддувалом. Это будут упоры, на которые ляжет решетка.
Нижняя часть корпуса
И последнее. Необходимо приварить блин 425 мм к нижнему краю корпуса, приварить к нему четыре ножки из трубы 25 мм высотою по 5 см. Далее привариваются петли, на которые навешивается дверца топки.
Конструкция для задвижки поддувала
Конструкция может быть разной: в виде обычной дверцы, в виде шибера (это заслонка, которая перемещается в плоскости отверстия), в виде поворотной заслонки с отверстиями в корпусе. Продаются готовые изделия, которые просто привариваются по месту.

Можно сварить цельную конструкцию своими руками и прикрепить ее к котлу. Из всех предложенных вариантов самый простой – это или дверца, или шибер.
Тестирование и подключение к системе
Твердотопливный котел для отопления дома готов. Теперь необходимо его проверить. Для этого на один из сгонов накручивается заглушка, а во второй заливается вода. Если через сварные швы вода не проходит, то сварка была проведена на высоком уровне.

Опасаться, что во время работы отопительный агрегат потечет, не стоит. Готовый агрегат подключается к системе отопления загородного дома. То есть, соединяются сгоны с патрубками подачи и обратки теплоносителя.
Монтаж дымохода
Проводится монтаж дымохода. Обратите внимание, что этот элемент прибора должен выходить вертикально вверх. Если так расположить его не удается, то отводов должно быть минимальное количество.

В неотапливаемом чердаке его придется утеплить.
Первая растопка
Очень важно правильно провести первую топку. При этом нельзя использовать большое количество топлива. Небольшая закладка должна протопить сам агрегат, особенно это касается дымохода. При резком повышении температуры на его стенках может образоваться конденсат, который превратится в деготь, сужая диаметр. А это понижение тяги, которая отвечает за корректную работу отопительного прибора.
Регулировка зазора
В процессе топки регулируется зазор в поддувало. Надо найти оптимальный размер, который обеспечит топочную камеру необходимым количеством свежего воздуха (кислорода).

Обязательно обращайте внимание на высоту закладки. Ее верхний край должен располагаться на расстоянии 20 см от внутреннего блина. Это расстояние обеспечит оптимальное сжигание дров или угля. При этом дым и угарные газы беспрепятственно будут выводиться через дымоходную трубу.
Принцип работы
По сути, традиционный твердотопливный котел работает как обычная печка. Здесь также есть топка, в которой горят дрова (уголь, пеллеты и другие виды твердого топлива). Выделяемая энергия нагревает теплоноситель, расположенный в емкости над камерой сгорания.
Нагрев теплоносителя в этой конструкции производится и от внутреннего блина, и от дымохода, который пронизывает насквозь емкость с водой. При этом корпус котла также нагревается, что создает аккумулирующий эффект, сдерживающий быстрое остывание при выключении агрегата.
Нагретый теплоноситель поднимается вверх и выходит через верхний патрубок в подающий контур системы отопления. Охлажденный теплоноситель поступает в котел через нижний патрубок, соединенный с обратным контуром.
Другие варианты
Твердотопливный котел для отопления дома может быть изготовлен в виде куба из металлического листа толщиною 4 мм. Это более сложная конструкция, в которой придется собирать отдельную топочную камеру. Получится, что в корпус котла устанавливается камера сгорания. А между стенками двух конструкций будет циркулировать теплоноситель. Это более эффективный вариант, но сложный в изготовлении. В нем много сварных швов, что снижает надежность и безопасность эксплуатации.
x-teplo.ru
Котел отопления своими руками — как сделать, как сварить + Фото + Чертежи
Центром отопительной системы в частном доме является отопительный котел. Именно он выделяет энергию, которая в дальнейшем преобразуется, поступает в теплоноситель и нагревает отопительные радиаторы. В этой статье мы расскажем как сделать котел отопления своими руками, как сварить котел для отопления частного дома, а также предоставим чертежи и фото инструкции.
Виды отопительных котлов
Котлы, работающие на газу
Перед началом самостоятельного изготовления котла, необходимо определиться с его видом, который зависит от типа топлива, нагреваемого тепловой носитель. При желании можно соорудить котел, работающий от любого топлива. Найти необходимую информацию можно на ресурсах интернета. Однако прежде чем сделать выбор, стоит иметь представление о преимуществах и недостатках самых известных из них.
- Котлы для отопления, работающие на газу. Данный вид не стоит пытаться изготовить своими руками, так как к ним предъявляется очень много требований, которые вы вряд ли сможете удовлетворить. Ну и не менее важная причина – это высокая вероятность взрыва в ходе эксплуатации. Монтаж газового котла запрещен в подвальном помещении дома.
- Для изготовления электрического котла вам не потребуется профессиональных навыков и наличия множества материалов. Нельзя не отметить огромный недостаток – высокие цены на электрическую энергию. Это является идеальным вариантом для периодического обогрева домика на даче, но для постоянного использования электрический котел очень дорог.
- Котел с жидким топливом вполне подходит для изготовления своими руками, но стоимость топлива и особенности настройки форсунок могут вызвать немалые сложности в ходе работ.
- Среди всех перечисленных вариантов самым оптимальным можно назвать котел, работающий на твердом топливе, в качестве которого можно успешно использовать дрова.
Котел для системы водяного отопления
Всем известно, что дрова имеют высокую скорость сгорания, а соответственно не успевают обогреть помещение до нужной температуры при первоначальном КПД. Для того чтобы оптимизировать этот процесс, стоит рассмотреть два способа самостоятельного сооружения котлов на твердом топливе.
Пиролизный вариант котла
Котел такого вида адаптирован под сжигание дров, его дополнительное название – газогенераторный котел. Суть его работы состоит в том, что сгорание дров и выходящих из них летучих веществ осуществляется отдельно. Благодаря пиролизному процессу таким котлам удается сохранять оптимальный температурный режим теплового носителя длительностью от 6 до 12 часов, не подкладывая дрова.
Принцип работы пиролизного котла Работа пиролизного котла не может осуществляться без электрической энергии, которая обеспечивает работу вентилятора поддерживающего процесс горения принудительным способом.
Размеры таких конструкций составляют 1,5×0,75×1,7 м. Объем емкости для воды – 500 литров с обеспечиваемой мощностью 50 кВт. Габариты установки могут варьироваться исходя из индивидуальных потребностей.
Как правило, для самостоятельного изготовления конструкции вам потребуется стальной лист толщиной 4-6 мм, чугунный лист 1 см, труба из стали с толщиной стен 4 мм, электроды для сварки и сварочный аппарат. Также запаситесь центробежным вентилятором, колосниковой решеткой, совпадающей с размером камеры горения, автоматическое устройство для регулирования температурного режима, асбестовый лист и уплотнительный шнур.
По окончании процесса изготовления должна быть произведена обвязка котла отопления своими руками с соблюдением технологических требований.
Пеллетный тип котла
Принцип работы пеллетного котла
Этот вид котельной установки более автоматизирован и менее прихотлив в уходе в процессе эксплуатации. Пеллеты представляют собой гранулированную древесину, для изготовления которой используются опилки и стружка. Поскольку этот материал сыпучий, их подача в камеру для сгорания осуществляется автоматически с помощью шнека, или бункера.
Пеллеты У вас могут возникнуть трудности при изготовлении такого котла из-за отсутствия определенного электрического оборудования: электрического двигателя для обеспечения работы шнека, или бункерной заслонки.
Работа пеллетного котла выполняется таким способом, при котором отпадает необходимость в растопке или добавлении топлива. На это влияют габариты бункера. Благодаря принципу работы котельной установки можно контролировать количество выделяемого тепла, за счет количества подаваемых пеллет в топку.
Эти два вида котлов являются оптимальными для собственноручного изготовления. На каком из них останавливать свой выбор, решать вам. Это определяется многими факторами, главным из которых является необходимость в тепле и наличии определенного вида топлива, которое вы будете применять.
При любом варианте необходимо строго следовать технологии и соблюдать правила безопасности.
Видео
Посмотрите, как можно самостоятельно сделать котел длительного горения:
В этом видео демонстрируется твердотопливный котел шахтного типа с теплоаккумулятором:
Схемы и чертежи
Устройство печки медленного горения
Устройство пеллетного котла
Чертеж твердотопливного котла
Чертеж с размерами для создания твердотопливного котла
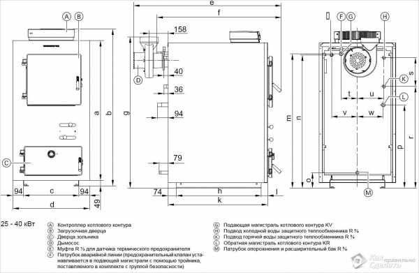
Чертеж пиролизного котла Viessmann на 25-40 кВт
Viessmann на 65 и 80 кВт
Чертеж котла для самостоятельного изготовления
Печь медленного горения
Чертеж печи на отработке
Простой и безопасный банный котел
Фото
Сварочные работы при изготовлении котла
Изготовление котла в домашних условиях
Переделка сейфа в печку
Печь-камин с режимом тления до 8 часов
Печка медленного горения из газового баллона
Самодельная металлическая печь
Надёжный и экономичный твердотопливный котёл
Котел отопления на отработанном масле
Выполненный из бочки
Испытание самодельного котла длительного горения
Читайте также:
kakpravilnosdelat.ru
Сварить котел отопления своими руками чертежи
Как сварить котел для отопления дома своими руками
Каждый задумывался о том, какими способами можно сэкономить на отоплении своего жилья. Лучшим способом отопления является котел, ведь сварить его можно самостоятельно. Данная статья предназначается для тех, кто не знает, как сварить котел отопления своими руками и любит самостоятельно мастерить приспособления, увеличивающие уровень комфорта в собственном доме.
Как подобрать правильный способ изготовления
Перед тем, как обращаться к специалистам или искать в Интернете способы изготовления, необходимо определиться с его предназначением. Ведь от его роли будет зависеть и вид его конструкции. Для начала необходимо уяснить, что все котлы своими руками основаны на едином принципе: устройство греет теплоноситель, а теплообменник получает тепло за счет сгорающего топлива.
Для того чтобы добиться максимальной эффективности нагрева, необходимо учесть конструкцию и сгорание топлива. На основе простых физических законов можно сделать вывод, что большой показатель тепла, передаваемого за единицу времени, напрямую зависит от размера емкости носителя тепла и площади передающей трубки. Учитывая полноту сгорания топлива, необходимо допустить максимальный приток кислорода к топливу, чтобы предотвратить отток пиролизного газа, который передает немало тепла.
Конструкция котла
Конструкция и внешний вид котла будет зависеть от нескольких технических параметров:
- Перед тем, как приступить к сборке элемента отопления, необходимо удостовериться в наличии материала. В лучшем случае следует подобрать нержавеющий жаросткойкий вид металла, но может сойти и обычный железный лист (на практике очень легко найти дешевый материал).
- Следующим немаловажным фактором создания будет выбор возможности обработки стали. Не каждый имеет в своем гараже оборудование для выплавки чугунной стали, которая обычно стоит дороже котла, поэтому стиль обработки ограничивается только лишь вашей фантазией. Традиционным методом изготовления является резка болгаркой, электросваркой или газовым резаком стального листа.
- На конструкцию печки также влияет вид топлива, которое вы собираетесь применять для отопления.
- Также нужно рассчитать правильный способ циркуляции носителя тепла, а именно максимально расширить диаметр контуров и патрубков и увеличить высоту водяного бака. Большой размер диаметра позволяет уменьшить сопротивление воде и получить высокую скорость передачи теплоносителя без применения специальных насосов.
Сборка самодельного котла будет немного отличаться от заводского по одной простой причине: если электроэнергия перестанет подаваться на разогретый водяной бак, стоит ожидать проблем с подачей воды. Эти факторы могут привести к разрушению самодельного отопителя, вследствие давления паров. Поэтому следует собирать руками с меньшим диаметром труб и высотой водяного бака.
Разнообразие самодельных котлов отопления и способы их установки
При изготовлении домашнего котла своими руками следует выбрать его тип в зависимости от материалов и способа отопления. Далее вы узнаете о дровяных, электрических, пиролизных и масляных типах котлов.
Дровяные котлы
Если рассматривать простой вариант изготовления котла, то это похоже на два цилиндра разных диаметров, помещенных один в другой. Внешний водяной цилиндр предназначается для хранения воды, а внутренний – для печки твердого топлива. Так как пространство между трубками забито водой, вы можете выбрать любой диаметр для труб, но желательно сделать его больше, чтобы уменьшить сварку. Главным недостатком дровяного котла является низкое значение коэффициента полезного действия, однако простота его изготовления и дальнейшего использования делает его одним из самых популярных самодельных средств отопления.
Для сборки котла понадобятся следующие инструменты: перчатки на руки, спецодежда и маска для сварки, дрель со сверлами по металлу, электроды и сварочный аппарат, а также измерительные приборы (рулетка, уровень и т.д.). Из материалов нам понадобятся листы толщиной по 5 миллиметров, дроссельные заслонки, дверцы для котла, чугунная решетка и уголки.
Рис. 1 Принцип работы
Процесс сооружения дровяного котла отопления пошагово:
- Взять две бочки разного диаметра шириной, не более чем по 4 миллиметра.
- Вырезать отверстия для зольника и водяного контейнера в обеих бочках с помощью болгарки.
- Установить цилиндры друг в друга и сварить над ними крышку.
- Приварить вместе топку и зольник и закрыть дверцей.
- Приварить к бочкам трубы для циркуляции воды и подключения к генератору.
- Приделать рештак внутрь печки.
- Сделать отверстие для дымохода в бочке и установить трубу.
- По окончанию работ проверить его на герметичность (проверить на предмет течи).
- Смонтировать и подключить к сети.
Рис. 2 Современный дизайн
Пиролизные котлы отопления
Для того чтобы сэкономить на материалах и энергии, потраченной на работу котла, следует использовать именно такой тип агрегатов. Принцип работы котла заключается в смеси воздуха и пиролизного газа, которая воспламеняется и дает больше тепла. Стоимость материалов для изготовления пиролизного котла на порядок выше, чем у дровяного, но через пару отопительных сезонов устройство окупается.
Конструкция пиролизного водяного агрегата будет состоять из нескольких секторов: регуляторы подачи электроэнергии, отверстие, дымовые каналы, вентилятор, камера сгорания и трубы. При его изготовлении необходимо придерживаться точного чертежа в связи со сложностью в сборке конструкции. Высокая отопительная способность и коэффициент полезного действия позволяют снизить расход энергии и установить мощность на 25-30 кВт, в отличие от других котлов (40-50 кВт).
Рис. 3 Схема сборки
Для его сборки нам понадобится электродрель, термодатчик, отрезной круг на 230 миллиметров, болгарка, электроды и сварочный аппарат, а также стальные полосы толщиной 2 мм и вентилятор.
- Вырезать отверстие для топлива немного выше, чем резервуар для горения.
- Установить ограничитель, который контролирует подачу воздуха.
- Вырезать в котле специальное отверстие для ограничителя.
- Приварить ограничитель из трубы толщиной 65-70 мм.
- Сделать прямоугольное отверстие для загрузки и надежно закрыть его стальной накладкой.
- Вырезать отверстие для удаления золы.
- Желательно сделать отводную трубу с изгибом ради повышения количества вырабатываемого тепла.
- Установить снаружи конструкции вентиль для регулировки количества теплоносителя.
- Провести герметическую проверку и смонтировать.
Рис. 4 Принцип работы
Котлы отопления на отработанном масле
Довольно необычная конструкция котла, которая предполагает использование масла как топлива для отопления. При работе отопитель испаряет масло, которое, в свою очередь, капает в поддон и превращается в горючий газ. Этот газ играет роль теплообменника. Данный вид котла является универсальным и легким в использовании, а также экономичным: как топливо может использоваться обычная солярка.
Так как процесс горения в таком агрегате происходит дважды, следует устанавливать две камеры для горения. Отработанное масло горит в первой камере, а потом в виде горючего газа переходит во вторую камеру, и, перемешиваясь с кислородом, производит процесс горения, который и образовывает тепло. В связи с работой на высоких температурах не рекомендуется устанавливать его возле окон и на сквозняках, однако, в использовании он весьма безопасен.
Рис. 5 Принцип работы
- Первая камера изготовляется для подачи воздуха, поэтому мастерим ее так, чтобы она регулировалась: устанавливаем заслонку, которая по возможности открывается и закрывается;
- Вторая камера, предназначенная для обработанного масла для сжигания, должна быть разборной, чтобы по возможности вычищать ее от золы и ржавчины;
- Приварить строго вертикальный дымоход (безо всяких наклонов) длиной не менее в четыре метра;
- Срезать нижнюю и верхнюю части баллона и изготовить из оставшихся половинок разборную камеру для сгораемого масла;
- Приварить ножки к нижней части баллона и вырезать отверстие для трубы снизу;
- Делаем несколько отверстий для вентиляции в трубе и привариваем к новоиспеченному резервуару;
- Привариваем этот баллон к трубам и соединяем их с трубами;
- Установить.
Рис. 6 Способ оформления
Электрический котел отопления
Еще одним распространенным видом котлов является электрический. Его популярность среди мастеров обусловлена экономичностью и простотой сборки. Монтируется он в трубу, идущую вертикально вверх, а тэн подсоединяется вовнутрь нее. Из обратного трубопровода идет патрубок из обратного трубопровода, к которому присоединена поддача сверху. На этом конструкцией электрического котла можно было бы ограничиться.
Однако для правильной его работы необходимо учитывать некоторые нюансы, а именно вид топлива. Ведь электрическое отопление своими руками является одним из самых дорогих в наши дни, поэтому установка электрического котла влечет за собой внушительные материальные затраты.
При сборке корпуса котла необходимо собирать с двойными стенками, между которыми протекает теплоизолирующий материал (обычно песок). Между зольным и топочным бункерами приваривается перегородка, а на внутренние стенки – ребра, которые соединяют внешние и внутренние стенки. На лицевой стороне корпуса желательно установить окошки, вырезав болгаркой промежутки. Также не стоит забывать об установке дверей для очистки резервуара и дымохода, идущего прямолинейно вверх.
Надеюсь, данные рекомендации помогли вам разобраться в типах и предназначению котлов, а также ответила на вопрос, как сварить котел для отопления. Для изготовления своими руками необходимо потратиться, но через пару отопительных сезонов вы начнете прилично экономить!
Котел Viessmann
Котел отопления своими руками
Центром отопительной системы в частном доме является отопительный котел. Именно он выделяет энергию, которая в дальнейшем преобразуется, поступает в теплоноситель и нагревает отопительные радиаторы. В этой статье мы расскажем как сделать котел отопления своими руками, как сварить котел для отопления частного дома, а также предоставим чертежи и фото инструкции.
Виды отопительных котлов
Котлы, работающие на газу
Перед началом самостоятельного изготовления котла, необходимо определиться с его видом, который зависит от типа топлива, нагреваемого тепловой носитель. При желании можно соорудить котел, работающий от любого топлива. Найти необходимую информацию можно на ресурсах интернета. Однако прежде чем сделать выбор, стоит иметь представление о преимуществах и недостатках самых известных из них.
- Котлы для отопления, работающие на газу. Данный вид не стоит пытаться изготовить своими руками, так как к ним предъявляется очень много требований, которые вы вряд ли сможете удовлетворить. Ну и не менее важная причина – это высокая вероятность взрыва в ходе эксплуатации. Монтаж газового котла запрещен в подвальном помещении дома.
- Для изготовления электрического котла вам не потребуется профессиональных навыков и наличия множества материалов. Нельзя не отметить огромный недостаток – высокие цены на электрическую энергию. Это является идеальным вариантом для периодического обогрева домика на даче, но для постоянного использования электрический котел очень дорог.
- Котел с жидким топливом вполне подходит для изготовления своими руками, но стоимость топлива и особенности настройки форсунок могут вызвать немалые сложности в ходе работ.
- Среди всех перечисленных вариантов самым оптимальным можно назвать котел, работающий на твердом топливе, в качестве которого можно успешно использовать дрова.
Котел для системы водяного отопления
Всем известно, что дрова имеют высокую скорость сгорания, а соответственно не успевают обогреть помещение до нужной температуры при первоначальном КПД. Для того чтобы оптимизировать этот процесс, стоит рассмотреть два способа самостоятельного сооружения котлов на твердом топливе.
Пиролизный вариант котла
Котел такого вида адаптирован под сжигание дров, его дополнительное название – газогенераторный котел. Суть его работы состоит в том, что сгорание дров и выходящих из них летучих веществ осуществляется отдельно. Благодаря пиролизному процессу таким котлам удается сохранять оптимальный температурный режим теплового носителя длительностью от 6 до 12 часов, не подкладывая дрова.
Принцип работы пиролизного котла Работа пиролизного котла не может осуществляться без электрической энергии, которая обеспечивает работу вентилятора поддерживающего процесс горения принудительным способом.
Размеры таких конструкций составляют 1,5×0,75×1,7 м. Объем емкости для воды – 500 литров с обеспечиваемой мощностью 50 кВт. Габариты установки могут варьироваться исходя из индивидуальных потребностей.
Как правило, для самостоятельного изготовления конструкции вам потребуется стальной лист толщиной 4-6 мм, чугунный лист 1 см, труба из стали с толщиной стен 4 мм, электроды для сварки и сварочный аппарат. Также запаситесь центробежным вентилятором, колосниковой решеткой, совпадающей с размером камеры горения, автоматическое устройство для регулирования температурного режима, асбестовый лист и уплотнительный шнур.
По окончании процесса изготовления должна быть произведена обвязка котла отопления своими руками с соблюдением технологических требований.
Пеллетный тип котла
Принцип работы пеллетного котла
Этот вид котельной установки более автоматизирован и менее прихотлив в уходе в процессе эксплуатации. Пеллеты представляют собой гранулированную древесину, для изготовления которой используются опилки и стружка. Поскольку этот материал сыпучий, их подача в камеру для сгорания осуществляется автоматически с помощью шнека, или бункера.
Пеллеты У вас могут возникнуть трудности при изготовлении такого котла из-за отсутствия определенного электрического оборудования: электрического двигателя для обеспечения работы шнека, или бункерной заслонки.
Работа пеллетного котла выполняется таким способом, при котором отпадает необходимость в растопке или добавлении топлива. На это влияют габариты бункера. Благодаря принципу работы котельной установки можно контролировать количество выделяемого тепла, за счет количества подаваемых пеллет в топку.
Эти два вида котлов являются оптимальными для собственноручного изготовления. На каком из них останавливать свой выбор, решать вам. Это определяется многими факторами, главным из которых является необходимость в тепле и наличии определенного вида топлива, которое вы будете применять.
При любом варианте необходимо строго следовать технологии и соблюдать правила безопасности.
Посмотрите, как можно самостоятельно сделать котел длительного горения:
В этом видео демонстрируется твердотопливный котел шахтного типа с теплоаккумулятором:
Схемы и чертежи
Устройство печки медленного горения
Устройство пеллетного котла
Чертеж твердотопливного котла
Чертеж с размерами для создания твердотопливного котла
Чертеж пиролизного котла Viessmann на 25-40 кВт
Viessmann на 65 и 80 кВт
Чертеж котла для самостоятельного изготовления
Печь медленного горения
Чертеж печи на отработке
Простой и безопасный банный котел
Сварочные работы при изготовлении котла
Изготовление котла в домашних условиях
Переделка сейфа в печку
Печь-камин с режимом тления до 8 часов
Печка медленного горения из газового баллона
Самодельная металлическая печь
Надёжный и экономичный твердотопливный котёл
Котел отопления на отработанном масле
Выполненный из бочки
Испытание самодельного котла длительного горения
Как сделать котел отопления
Проектируя систему отопления для частного дома, многие владельцы для того, чтобы сократить расходы на покупку оборудования, предпочитают самодельные котлы отопления заводским. Действительно, заводские агрегаты стоят достаточно дорого, а сделать котёл на дровах своими руками вполне по силам, если у вас имеются грамотные чертежи и есть навыки обращения с инструментами для механической обработки материалов, а также со сварочным аппаратом.

Схема работы водогрейных котлов, как правило, универсальна – тепловая энергия, которая выделяется при сгорании топлива, передаётся на теплообменник, откуда идёт на отопительные приборы для обогрева дома. Конструкция агрегатов может быть самой разной, как используемое топливо и материалы для изготовления.
Пиролизные котлы длительного горения
Схема работы пиролизного устройства длительного горения основана на процессе пиролиза (сухой перегонки). В процессе тления дров выделяется древесный газ, который сгорает при очень высокой температуре. При этом выделяется большое количество тепла – оно идёт на обогрев водяного теплообменника, откуда поступает через магистраль в отопительные приборы для обогрева дома.
Твердотопливные пиролизные котлы – достаточно дорогое удовольствие, поэтому многие владельцы для своего дома предпочитают изготовить самодельный котёл отопления.
Конструкция такого агрегата довольно проста. Твердотопливные пиролизные котлы состоят из следующих элементов:
- Камера загрузки дров.
- Колосник.
- Камера сгорания летучих газов.
- Дымосос – средство обеспечения принудительной тяги.
- Теплообменник водяного типа.
Дрова помещают в загрузочную камеру, поджигают и закрывают заслонку. В герметичном пространстве при тлении дров образуются азот, углерод и водород. Они поступают в специальный отсек, где сгорают – при этом выделяется большое количество теплоты. Она используется для нагревания водяного контура, откуда вместе с нагретым теплоносителем идёт на отопление дома.
Время сгорания топлива у такого водогрейного устройства составляет около 12 часов – это достаточно удобно, поскольку нет необходимости часто к нему наведываться для загрузки новой порции дров. По этой причине твердотопливные котлы пиролизного действия очень высоко ценятся среди владельцев домов частного сектора.
Чертёж на схеме наглядно демонстрирует все особенности конструкции водогрейных котлов пиролизного действия.

Для того, чтобы самостоятельно изготовить подобный аппарат, понадобятся болгарка, сварочный аппарат и следующие расходные материалы:
- Лист металла толщиной в 4 мм.
- Металлическая труба диаметром в 300 мм с толщиной стенки 3 мм.
- Металлические трубы, диаметр которых составляет 60 мм.
- Металлические трубы, диаметр которых составляет 100 мм.
Пошагово алгоритм изготовления выглядит следующим образом:
- Отрезаем участок длиной 1 м из трубы диаметром 300 мм.
- Далее необходимо приделать дно из листового металла – для этого нужно вырезать участок необходимого размера и сварить с трубой. Подставки можно сварить из швеллера.
- Далее делаем средство для забора воздуха. Вырезаем из листового металла круг диаметром 28 см. В середине сверлим отверстие размером 20 мм.
- Размещаем с одной стороны вентилятор – лопасти должны быть 5 см по ширине.
- Далее ставим трубку, диаметр которой 60 мм и длина более 1 м. С верхней стороны крепим люк для того, чтобы была возможность регулировки воздушного потока.
- В нижней части котла необходимо отверстие для топлива. Далее нужно сварить и прикрепить люк для герметичного закрывания.
- Сверху размещаем дымоход. Он ставится вертикально на расстоянии 40 см, после чего его пропускают через теплообменник.
Твердотопливные пиролизные устройства водогрейного типа очень эффективно обеспечивают отопление частного дома. Их самостоятельное изготовление помогает сэкономить очень существенную сумму денег.
Как изготовить паровой котёл своими руками
Схема действия паровых систем отопления построена на использовании тепловой энергии горячего пара. При сгорании топлива образуется определённое количество теплоты, которое поступает на водогрейный участок системы. Там вода превращается в пар, который под высоким давлением поступает с водогрейного участка в магистраль отопления.
Такие аппараты могут быть одноконтурными и двухконтурными. Одноконтурный аппарат используется только для отопления. Двухконтурный обеспечивает ещё и наличие горячего водяного снабжения.
Паровая система отопления состоит из следующих элементов:
- Водогрейного парового устройства.
- Стояков.
- Магистрали.
- Радиаторов отопления.
Чертёж на рисунке наглядно демонстрирует все нюансы конструкции парового котла.

Сварить такой агрегат своими руками можно, если иметь некоторые навыки в обращении со сварочным аппаратом и инструментами для механической обработки материалов. Самой важной частью системы является барабан. К нему подсоединяем трубы водяного контура и приборы для контроля и измерений.
В верхнюю часть агрегата при помощи насоса нагнетается вода. Вниз направлены трубы, по которым вода поступает в коллекторы и подъёмный трубопровод. Он проходит в зоне сгорания топлива и там происходит нагревание воды. По сути здесь задействован принцип сообщающихся сосудов.
Для начала необходимо хорошо продумать систему и изучить все её элементы. Потом необходимо закупить все необходимые расходные материалы и инструменты:
- Трубы из нержавейки диаметром 10-12 см.
- Стальной лист из нержавейки толщиной в 1 мм.
- Трубы диаметром 10 мм и 30 мм.
- Предохранительный клапан.
- Асбест.
- Инструменты для механической обработки.
- Сварочный аппарат.
- Приборы для контроля и измерений.

Далее изготовление агрегата выглядит следующим образом:
- Делаем корпус из трубы длиной 11 см с толщиной стенки 2,5 мм.
- Делаем 12 дымогарных труб длиной 10 см.
- Делаем жаровую трубку 11 см.
- Из листа нержавейки изготавливаем перегородки. В них проделываем отверстия для дымогарных трубок – их крепим к основанию при помощи сварки.
- Привариваем к корпусу предохранительный клапан и коллектор.
- Теплоизоляцию выполняем при помощи асбеста.
- Оснащаем агрегат приборами контроля и регулировки.
Как показывает практика, изготовление котлов для систем отопления частных домов достаточно распространено. При правильном выполнении всех теплотехнических расчётов, при наличии грамотно составленного чертежа и схемы разводки магистрали такие аппараты достаточно эффективно справляются со своей задачей и позволяют сэкономить значительную сумму денег, поскольку подобные устройства заводского изготовления стоят достаточно дорого.

Изготовление отопительных аппаратов своими силами – задача скрупулёзная, сложная и трудоёмкая. Для того, чтобы с ней справиться, нужно уметь пользоваться сварочным аппаратом и иметь навыки владения инструментами для механической обработки материалов. Если же вы таких навыков не имеете, такой случай будет неплохим поводом научиться – и вы своими руками сумеете обеспечить своё жильё теплом и комфортом.
Проектируя систему отопления для частного дома, многие владельцы для того, чтобы сократить расходы на покупку оборудования, предпочитают самодельные котлы отопления заводским. Действительно, заводские агрегаты стоят достаточно дорого, а сделать котёл…
- Cхема подключения котла на твердом топливе
- Как работают пиролизные котлы
- Котел длительного горения своими руками
- Самодельный пеллетный котел
Источники: http://kotlomaniya.ru/kotly/kak-svarit-kotel-otpleniya-svoimi-rukami.html, http://kakpravilnosdelat.ru/kotel-otopleniya-svoimi-rukami/, http://mynovostroika.ru/kotel_otoplenija_svoimi_rukami
teplosten24.ru
Котел отопления своими руками — чертежи
Самодельный — не значит ущербный. В который паз мы убеждаемся в том, что отсутствие свободного времени и определенных навыков сильно бьют по нашему карману. Это замкнутый круг, но мы в принципе, не об этом. Даже такие сложные и ответственные устройства, как отопительные котлы, могут быть собраны самостоятельно, целиком и ли частично. У них может быть несовершенная кривая КПД или слабенький внешний вид, но все они работают. Они отапливают дома если не как основное отопительное оборудование, то как запасное или вспомогательное. Некоторые варианты для решения задач по отоплению своими руками мы предложим сегодня.
Содержание:
- Котлы отопления для дома
- Электричество и газ, как традиционные виды топлива
- Альтернативные источники тепла и сухой остаток
- Котлы отопления на дровах
- Пиролизный котел своими руками
- Котел на жидком топливе своими руками
Котлы отопления для дома

Несмотря на то что нефть стремительно падает в цене, на простых людях это не отражается никак в лучшем случае. То же происходит и с другими источниками энергии, кроме солнечной, но это отдельная история. Любое топливо стоит денег и перед тем как устроить систему отопления в частном доме своими руками, стоит определиться с видом топлива. Лучше всего, если это будет универсальная система, которая может использовать для обогрева максимальное количество источников энергии.

Абсолютно доступных и дешевых вариантов отопления очень мало. Если рассматривать котлы, которые работают на твердом топливе, как универсальные устройства для получения тепла, то и они имеют свои ограничения в использовании, а твердое топливо не такое дешевое, как кажется. Уголь, дрова, брикеты — все это нужно покупать в большом количестве и где-то складировать, привозить, причем складировать так, чтобы топливо не потеряло своих свойств.

Электричество и газ, как традиционные виды топлива

Электричество наиболее доступный вид энергии, в том смысле, что не электрифицированных районов осталось очень мало. Цены на электрическую энергию заставляют крепко подумать о том, насколько целесообразно делать ее основным видом топлива. Хотя современные электрокотлы позволяют хорошо экономить и тариф можно выбрать наиболее оптимальный, но качество электричества, которое подается в наши дома, оставляет желать лучшего, а перебои и нестабильность подачи могут заставить мерзнуть «без света» неделями.

Природный газ тоже можно считать относительно доступным, а беды у него такие же, как у электричества — нестабильность подачи, отвратительное качество, низкое давление и огромные цены. Ни один человеческий газовый котел не станет работать на таком топливе длительное время, а ремонт газового оборудования — дело длительное и очень дорогое. Поэтому и газу однозначно доверять тепло в своем доме нельзя.
Альтернативные источники тепла и сухой остаток

Самые разные альтернативные источники энергии можно рассматривать только, как дополнение к основным видам топлива. Солнечная энергия бесплатна, но цены на оборудование и конвекторы — заоблачные. Определенный интерес представляют в этом плане тепловые насосы, но простая семья из пяти человек физически не может позволить себе инвестировать в будущее 25-30 тысяч евро, хотя здесь больше дело в приоритетах — средний семейный автомобиль стоит примерно столько же. Что в итоге?
- Газ. Дорогой, подача нестабильная, качество не позволит установить технологичный экономный газовый котел отопления.
- Электричество. Подача нестабильная, напряжение тоже непостоянное, стоит дорого, но есть практически в каждом доме и даже в самой глуши. Электрические котлы отопления наиболее часто применяются также и для горячего водоснабжения. Также есть возможность устанавливать современные ионные экономичные отопительные станции.
- Жидкое топливо. Бесперспективный метод отопления, поскольку тенденция к сокращению использования нефтепродуктов через десяток-другой лет коснется не только фондовых бирж, но и Ракукинского сельсовета. Котлы на жидком топливе обычно рассматриваются как вспомогательное отопительное оборудование и для временного отопления. Они неудобны в эксплуатации, чадят, КПД не самый высокий.
- Твердое топливо. Пока это единственный, если не альтернативный, то дополнительный способ организовать автономное отопление. Твердотопливный котел отопления своими руками чертежи разных конструктивных вариантов, мы приводим, как иллюстрацию доступности такого метода.
- Альтернативные методы отопления. Для нашей страны первой половины ХХI века — это остается фантастикой, очень привлекательным и интересным материалом для изучения, но возможности реализовывать большинство схем получения альтернативной энергии нет.
Котлы отопления на дровах

Дровяной котел в самом простом и доступном варианте можно выполнить по принципу двух цилиндров, один из которых помещен внутрь второго. Цилиндр малого диаметра при этом будет предназначен для топки, а в большем цилиндре находится теплоноситель. Реализовать его можно так же просто, как выглядит описанная схема.

В пространство между трубами заливается вода или антифриз, к этому резервуару подключаются два патрубка, а внутренний объем будет предназначен для топки дровами. Такая схема работает как на дровах, так и на опилках или щепках, но особенно результативного КПД ждать от такого котла не стоит.
Пиролизный котел своими руками

Самый эффективный из котлов, которые работают на твердом топливе. Суть его работы заключается в том, чтобы достичь такой температуры внутри камеры сгорания, чтобы топливо (дрова, опилки, тырса, брикеты) не сгорало сразу, а разлагалось под воздействием температуры в пределах 300-600 градусов. Если удастся добиться этих условий, тогда во время работы в топке будет выделяться пиролизный газ, который и есть основное топливо для такого котла.

Дерево начинает разлагаться под влиянием температуры, но полноценно гореть оно не сможет из-за малого объема кислорода. Если открыть дозированную подачу воздуха, тогда появится возможность регулировать температуру работы аппарата. Чертеж такого устройства мы привели на страничке, но даже если купить пиролизный котел, то он окупится буквально за сезон. Другое дело, что выполнить его своими руками не так просто, как дровяной.
Котел на жидком топливе своими руками

Жидкотопливные котлы работают на отработанном моторном масле, мазуте, солярке и прочими отходами перегонки нефти. Он довольно экономичный, поскольку в принципе негорючее, точнее, слабо горючее жидкое топливо сгорает не само по себе, а сгорают его пары. Газы образуются в результате попадания капель топлива на раскаленную плоскость и точно так же, как и в дровяных котлах, сгорая, нагревают теплоноситель.

Эти виды котлов для отопления не единственные из возможных вариантов для постройки своими руками. Они просто самые простые, которые показывают, что если есть умелые руки и желание, можно не просто здорово экономить на оборудовании, но и рассчитать оптимальный котел, который будет соответствовать всем запросам по топливу, объему отапливаемого помещения и может прослужить не меньше, чем заводское оборудование. Не мерзните зимой, удачных экспериментов!
Читайте также Теплоизоляция трубопроводов отопления, Как увлажнить воздух в комнате без увлажнителя, Водяное отопление частного дома своими руками, Ветрогенераторы на 220В своими руками
nashprorab.com
Как сделать твердотопливный котел своими руками
Очень часто, сталкиваясь со сложными задачами, мы начинаем понимать, что их решение находится на поверхности. Вот так и с отоплением. Казалось бы, что может быть проще, используя газовый или электрический котел. Но практика показывает, не везде зимой давление газа стабильно, а электричество подается с завидным непостоянством. Поэтому проблема остается. Что делать? Остается альтернативный вариант – установить отопительный агрегат, работающий на дровах или угле. Тем более, твердотопливный котел своими руками сделать не так уж и сложно. И это еще один плюс в сторону альтернативного способа отапливать жилые помещения.

Принцип работы
Физическая составляющая процесса работы самодельных котлов на твердом топливе очень проста.
- Производится загрузка топлива в топку, где оно поджигается.
- Угарные газы, полученные при сгорании твердого топлива, и горячий воздух поднимаются вверх и выходят через дымоход на улицу.
- При движении вверх они проходят через специальную камеру, где располагается теплообменник. Через него происходит нагрев теплоносителя, поступающего в систему отопления дома.
Как видите, все довольно-таки просто. Хотя надо отметить, что этот принцип работы самодельных котлов на дровах, торфе, опилках и угле полностью соответствует и другим типам отопительных приборов, работающих на других видах топлива. Соответственно и конструкция их мало чем отличаются друг от друга. Конечно, есть определенные конструктивные нюансы. К примеру, твердотопливные котлы – это агрегаты с низким коэффициентом полезного действия. «Едят» они топливо в больших количествах, выделяя при этом огромное количество тепловой энергии, большая часть которой, к сожалению, вылетает в трубу. Поэтому сегодня, говоря о самодельных котлах отопления на дровах, необходимо говорить о современных моделях с более высоким КПД. Их и будем разбирать в этой статье.
Котел на дровах цилиндрического типа
Но перед тем как перейти к основному сборочному процессу, хотелось бы несколько слов сказать об условиях реализации данного проекта.
- Надежность конструкции котла будет зависеть от того, как вы владеете используемым в этом деле инструментом. Основной из них – это сварочный аппарат. Если ваши навыки не позволяют добиться максимального результат, то лучше от эксперимента отказаться и передать сборку агрегата специалисту, то есть высококвалифицированному сварщику.
- Говоря об эксперименте, а сборка котла на дровах своими руками – это большой эксперимент, надо отдать должное, что вы можете применить все свои инженерные знания и опыт. И в случае удачно проведенного процесса гордиться им. Но не забываем, что самодельный котел потребует доработки в процессе его эксплуатации. Некоторые незначительные неточности и ошибки дадут о себе знать обязательно. Так что к ним надо просто быть готовым.
- Для изготовления твердотопливного котла используются металлические листы или труба толщиною не меньше 5 мм. Это же относится к трубным элементам теплообменника.
- Установка настроечных приборов. Немаловажный момент в деле изготовления самодельного котла. Что именно надо установить: термометры на входе и выходе теплоносителя, регулятор мощности циркуляционного насоса, датчик тяги.
- Кстати, о циркуляционном насосе. Не все потребители устанавливают это оборудование, которое привязывает систему отопления дома к электроэнергии. Но, как показывает практика, именно этот агрегат дает возможность увеличить КПД котла, равномерно распределяя теплоноситель по всей отопительной системе, и внутри теплообменника в том числе.
Компактная конструкция
Варианты конструкции твердотопливных котлов
Самый простой вариант твердотопливного котла – это буржуйка с водяным контуром внутри. Это на самом деле самое простое устройство, не требующее больших знаний и умения изготовления. Но так как мы говорим о современных моделях, то буржуйку рассматривать здесь не будем. К тому же ее конструкция сегодня хоть и используется для обогрева небольших помещений, чаще всего модели с водяным контуром подключаются к системе теплых полов.
Процесс изготовления
Итак, рассмотрим схему изготовления твердотопливного котла своими руками. Начнем с корпуса и камеры сгорания оборудования.
Внимание! Так как топка подвергается серьезному нагреванию, обычно температура внутри нее не снижается ниже +1000°С, то изготавливают камеру сгорания из жаропрочных стальных листов. Если их вы не приобрели, тогда можно использовать обычную сталь, только стенки изготавливают из сдвоенных металлических листов.
Буржуйка с водяным контуром
Размеры котла и топки выполняются строго по чертежам твердотопливных котлов, изготавливаемых своими руками. Чертежи вы можете найти в свободном доступе на просторах Интернета. Хотелось бы обратить ваше внимание, что в конструкции этого типа отопительных агрегатов лучше всего устанавливать ребра жесткости, которые помогут стенкам не коробиться под действием высоких температур. В качестве ребер жесткости можно использовать стальные уголки.
Теперь, что касается современного подхода к решению повышения КПД. В настоящее время разработаны достаточно уникальные конструкции твердотопливных котлов, в которых используется процесс пиролиза. Что это такое? Известно, что топочные газы, которые покидают котел через дымоход, обладают значительной тепловой энергией. Здесь важно собрать топочные газы, обогатить их кислородом и поджечь. При сгорании выделяется тепло, которое можно пустить на нагрев теплоносителя.
Простая схема самодельного котла
Как этого добиться? Для этого в корпусе твердотопливного котла необходимо установить еще одну камеру сгорания, в которой и будет происходить сжигание топочных газов. Так как котел изготавливается своими руками, то оптимальный вариант, если вторая топка будет располагаться над первой. В конструкции будут учитываться чисто физические законы. Поэтому две топки друг от друга отделяются горизонтальной перегородкой, с одного края которой будет оставлен зазор. Через него топочные газы будут переходить из одной камеры в другую.
Сегодня во многие конструкции твердотопливных котлов устанавливают аккумулирующие водяные баки. Их монтирует поверх котла, вода нагревается за счет теплоотдачи корпуса агрегата и дымохода. По сути, это обычный аккумулятор, который начинают работать при потухшей топке. Это временный запас горячей воды, которая поступает в систему отопления дома.
Изготовление теплообменника
Оптимальный вариант конструкции – это трубная система, соединенная в один неразрывный контур. Говорить о форме и размерах теплообменника можно лишь с позиции формы топки и мощности самого отопительного прибора. К примеру, если вы хотите, чтобы количество нагреваемого теплоносителя было большим, то рекомендуем изготавливать П-образный теплообменник только горизонтального типа. Он будет огибать топку с трех сторон кроме стенки, где находится дверца для закладки твердого топлива.
Движение топочных газов
Но и это еще не все, что касается эффективности работы теплообменного устройства. Большое значение будет иметь количество используемых труб и их диаметр. Если ваш котел будет устанавливать в отопительную систему с естественной циркуляцией теплоносителя, тогда минимальный диаметр используемых труб будет равен 40 мм. Конечно, это, наверняка, снизит количество трубных контуров, но эффективность работы отопления будет достаточно высокой.
В отоплении с принудительной циркуляцией диаметр используемых труб может быть меньше, но 25 мм – минимальный размер. Теперь к вопросу, что сложнее сделать, первый вариант или второй? Второй будет сложнее, потому что большое количество труб требует большого количества стыков. А это не только увеличение объема проводимых работ, но и повышение риска образования трещин в местах стыковки.
Трубчатый теплообменник
Сборка котла
Итак, все основные элементы готовы, можно переходить к сборке агрегата. Отметим, что металлические отопительные приборы являются достаточно большими и имеют приличный вес. Так что специалисты советуют сборку прибора проводить по месту его установки.
- В первую очередь под котел необходимо залить прочный фундамент. Хорошо, если его поверхность будет облицована огнеупорным кирпичом.
- Устанавливается корпус.
- Затем монтируется теплообменная трубная конструкция. Ее просто приваривают изнутри к стенкам камеры сгорания, а патрубки выводят за пределы отопительного прибора.
- Затем укладывается колосниковая решетка на заранее приваренные металлические направляющие.
- Навешиваются дверцы.
- Привариваются снаружи ребра жесткости.
- В самый последний момент устанавливается верхняя плита с отверстием под дымоход. К отверстию заранее приваривается патрубок, который по размерам диаметра будет чуть меньше диаметра дымохода.
- На верхнюю плиту устанавливается аккумулирующая емкость.
Дровяной котел
Вот так можно ответить на волнующих многих вопрос: как сделать котел на дровах своими руками? Процесс не самый простой.
Мы разобрали всего лишь одну конструкцию котлов, работающих на твердом топливе. На деле их очень много. Сегодня большой популярностью пользуются самодельные твердотопливные котлы длительного горения. О них мы уже писали на нашем сайте.
Не забудьте оценить статью:
Загрузка…otepleivode.ru
Котел своими руками: чертежи, принцип работы (видео)
В связи быстрым ростом цен на природный газ все больше людей переходят на отопление своего дома с помощью твердотопливных котлов, работающих на дровах, опилках и других древесных отходах. Преимущество таких котлов заключается в удобной конструкции, несложном принципе работы и монтаже. Более того, они позволяют экономить время и личные денежные средства. Но чтобы котел своими руками работал правильно и с максимальной отдачей, очень важно правильно составить и рассчитать чертежи. Их можно составить своими руками или скачать бесплатно на соответствующих форумах.

Схема подключения котла к отопительной системе.
В России много частных домов, которые отапливаются посредством угля и дров. Если сравнивать твердотопливный котел и классическую печь, то можно заметить, что они мало отличаются друг от друга. Они обладают практически одинаковым коэффициентом полезного действия. Благодаря простому устройству отопительных котлов их можно изготовить своими руками в домашних условиях с использованием доступных каждому материалов и непрофессионального инструмента. Главное — правильно составить или подобрать чертежи.
Если делать отопительный котел своими силами, то в их конструкцию можно будет внести ряд усовершенствований, которые позволят лучше обогревать помещение за счет повышения его эффективности.
Конструктивные особенности отопительного котла
Схема котла на твердом топливе.
Несмотря на огромное количество сходства с обычной печью, отопительный котел обладает рядом отличий. Они касаются способа отдачи тепла помещению. В конструкцию отопительных котлов входят следующие элементы:
- Бункер, в котором происходит сжигание твердого топлива. Для этого он оборудуется колосниками, обеспечивающими подачу требуемого количества воздуха.
- Резервуар для воды, которая выступает в качестве теплоносителя в этой системе отопления, и трубчатый теплообменник.
- Дымоход, обеспечивающий систему необходимой тягой и отводом продуктов сгорания.
- Система дроссельных заслонок, предназначенных для регулирования тяги и перекрытия каналов после того, как огонь в печи полностью угаснет.
Чтобы отопительный котел, изготовленный своими руками, обеспечивал равномерный температурный режим в жилом помещении, его в обязательном порядке оборудуют водяным аккумулятором тепла. Он выполнен в виде емкости определенного размера, установка которой осуществляется в верхней части котла. Его основная задача заключается в накапливании тепловой энергии во время активной топки. По окончании этого процесса начинается циркуляция жидкости по всей отопительной системе, в результате чего происходит обогрев воздуха в доме.
Помимо этого при устройстве отопительного котла своими руками можно установить дополнительный бачок, для изготовления которого используется нержавеющая сталь. Его монтаж должен быть произведен прямо над аккумулятором тепла. Его задача заключения в обеспечении горячей водой для бытовых нужд. И хотя он не является обязательным элементом отопительной системы, он способствует созданию условий для комфортной жизни в загородном доме.
Прежде чем приступить к работе по созданию отопительного оборудования, необходимо составить точные чертежи самого котла и всех составляющих его частей. Типовые устройства широко представлены в специальной литературе, интернете или периодических изданиях. Но чтобы более рационально использовать жилую площадь, лучше всего самостоятельно разработать индивидуальный проект отопительного оборудования, работа которого осуществляется исключительно на твердом топливе.
Вернуться к оглавлению
Инструменты и материалы для изготовления отопительного котла
Схема работы пиролизного котла.
Чтобы сделать твердотопливный котел, понадобятся следующие материалы:
- стальной лист, толщина которого не должна быть меньше 5 мм;
- металлический уголок;
- чугунная колосниковая решетка;
- небольшой лист нержавеющей стали, предназначенный для производства аккумулятора;
- лист нержавейки для изготовления емкости для бытовых нужд;
- печные дроссельные заслонки;
- стальные трубы разного диаметра;
- песок карьерный.
Для закупки всех необходимых материалов можно сходить в любой магазин, который специализируется на реализации металлопроката. Стоимость материалов в таких магазинах напрямую зависит от их объема. Поэтому при разовом приобретении всего необходимого по списку можно существенно сэкономить средства своего бюджета.
Для изготовления котла отопления на твердом топливе своими руками потребуются сварочные работы. Поэтому нелишним будет найти сварочный аппарат. Покупать его для разового использования невыгодно из-за высокой стоимости. Поэтому этот агрегат лучше всего попросить у знакомых или взять в аренду у профессиональных сварщиков. Кроме сварочного аппарата для работы потребуются такие инструменты, как:
- болгарка;
- щипцы и пассатижи;
- электрическая дрель;
- сверла;
- рулетка, строительный уровень, угольники.
Для получения отличного результата потребуются навыки проведения сварочных работ и работ с металлорежущими инструментами. Нужно заранее приготовить защитное снаряжение для глаз и рук.
Вернуться к оглавлению
Технология изготовления отопительного котла в домашних условиях
Сделать самостоятельно котел отопления несложно, главное — грамотно организовать производственный процесс. Поэтому намного удобнее делать отдельные детали на верстаке, поставить который можно в оборудованную мастерскую или любое другое помещение, где есть место для установки рабочего стола.
Важно! Основой любого отопительного котла является топка. В ней температура достигает тысячи градусов. Поэтому для ее сборки необходимо использовать материалы с соответствующими характеристиками.
Вернуться к оглавлению
Этапы изготовления корпуса котла:
Схема металлического дымоотвода для котла.
- Из стального листа посредством болгарки вырезается четыре стенки котла. Если не удалось достать жаропрочную сталь, можно использовать простую, но в этом случае стенки должны быть двойными.
- На металлопрокат с помощью измерительного инструмента и линейки из чертежа переносятся размеры деталей будущего котла. Помимо стенок камеры из стального уголка нужно будет изготовить усилитель, предназначенный для закрытия стыков между частями печи.
- В передней стенке камеры вырезается прямоугольное отверстие. Его размер должен соответствовать топочной и зольной дверцам.
Чтобы сделать ровное прямоугольное отверстие, на металл нужно нанести разметку, после чего по углам произвести сверление листа электрической дрелью. Так можно избежать повреждения листа.
Отопительный котел подразумевает устройство двух баков для воды. Для их изготовления лучше всего использовать нержавеющий стальной лист. Чтобы не заниматься производством емкостей самостоятельно, их можно заказать в специализированной мастерской. К тому же их стоимость не очень высокая.
Для изготовления теплообменника используются водопроводные трубы, которые с помощью сварочного аппарата соединяются таким образом, чтобы образовался проточный контур с большой внешней поверхностью. Благодаря этому можно добиться максимально быстрой и наиболее полной теплоотдачи от сгораемого твердого топлива к теплоносителю.
Сборку котла лучше всего производить непосредственно на месте установки отопительного оборудования. Под котел в обязательном порядке делается фундамент, для чего можно использовать термостойкий кирпич.
На фундамент кладут днище зольного бункера, а по его периметру выставляют внутренние стенки котла, соблюдая при этом их строгую вертикальность.
Внутри корпуса укладываются колосники и устанавливаются теплообменники. После этого с наружной стороны к бункеру посредством сварки крепятся ребра жесткости, для изготовления которых лучше всего использовать стальной прямоугольный профиль. Теперь остается установить наружные стенки корпуса и произвести монтаж верхней плиты.
Между внутренней и наружной стенками корпуса укладывается песок, выполняющий функцию дополнительного аккумулятора тепла. Кроме того, он обеспечивает защитой стенки камеры сгорания от перегрева. Песок не должен содержать органические включения. Нелишним будет прокалить его перед использованием. В противном случае при эксплуатации самодельного котла отопления может появиться неприятный запах.
После того как на верхнюю плиту будут установлены емкости из нержавеющей стали и произведено их подключение к контурам, котел будет полностью готов к эксплуатации.
1poteply.ru
Самодельные котлы отопления своими руками для отопления дома, чертежи
Самодельные котлы отопления – это реальность. Особенно для тех, кто любит самостоятельно мастерить руками различные приспособления, увеличивающие комфорт жизни.
В целом
Все самодельные котлы отопления основываются на одном принципе. Сгорающее топливо будет отдавать тепло теплообменнику, а он – будет нагревать теплоноситель. На то, как будет работать отопительный котел, влияет два основных важных фактора – это конструкция теплообменника и полнота сгорания топлива. В первом случае – чем больше будет площадь теплового контакта топки и емкости с носителем тепла – тем больше тепла будет передаваться в единицу времени. В случае с полнотой сгорания топлива – если приток кислорода будет незначительным, то вместе с продуктами сгорания будет уходить и пиролизный газ. А он – может отдать тепло при сгорании.

Самодельный котел отопления
Создаем котел
Конечно, на то, какая именно будет конструкция котла, сделанного собственноручно, влияет несколько факторов:
- Прежде всего, это доступность определенных материалов. Конечно, более долговечными будут жаростойкие виды нержавейки. Но быстрее и дешевле будет достать обычный лист.
- Также важный аспект – это возможность обработки. В своем гараже вы, скорее всего, не сможете сотворить литую печку из чугуна, — ведь оборудование для этого будет дороже самой печки. Поэтому решения здесь могут быть самыми разными – все зависит от вашей фантазии и от способности физических законов ее реализовать. Обычно котел отопления своими руками создается из традиционного материала – листовой стали до 5 мм толщины. И резать болгаркой такую сталь легко, а кроме того, можно это делать газовым резаком или электросваркой.
Конструкция будущего котла также будет прямым образом зависеть от того, какое топливо будет применяться.
Также на конструкцию повлияет способ циркуляции теплоносителя. Ведь чтобы циркуляция была естественной, требуется большая высота бака и большой диаметр патрубков и контуров отопления. Чем ниже будет диаметр, тем больше сопротивление движению воды и ниже шансы получить хорошую скорость циркуляции теплоносителя, не используя при этом насос.

Схема-чертеж самодельного котла на твердом топливе
А вот самодельный котел отопления с насосом циркуляции позволяет сделать диаметр труб меньшим, высоту бака – тоже. Но здесь пользователей подстерегает некая ловушка – если подача электроэнергии при греющем котле прекратится, то и циркуляция воды остановится. Вследствие этого можно увидеть разорванный паром котел. Поэтому приведем несколько советов, которые помогут вам в таком процессе, как изготовление котлов отопления своими руками.
Рекомендуем к прочтению:
Патрубки котла, контуры отопления – все это должно быть сделано трубой не менее 32 мм. Диаметр трубки на выходе из теплообменника – 32 мм. Если насос остановится, скорость циркуляции воды будет медленнее, а температура – наоборот, начнет возрастать. Поэтому лучше сделать контур не из металлопластика или полипропилена, а из оцинковки, герметизировав резьбы льном с краской или суриком.
Далее мы рассмотрим, как сделать котел отопления разных типов.
Дровяные котлы
Дровяные котлы отопления своими руками – если рассматривать самый простой вариант, — это два цилиндра разных диаметров, которые помещены один в другой. Во внутреннем цилиндре будет топка, во внешнем – бак для воды.
Чтобы сварка котлов отопления была уменьшена, берут готовую толстую трубу с большим диаметром.
Конечно, в таком случае можно комбинировать формы и размеры труб в зависимости от того, что есть у вас в наличии. Пространство между трубками заполнено водой. Такие котлы отопления своими руками являются универсальными – они будут работать на любом твердом топливе. Сделать такой котел просто, использовать – тоже, однако обратная сторона медали – это низкий КПД.
Рекомендуем к прочтению:

Самодельный котел на дровах
Пиролизные котлы
Когда самодельный котел для отопления дома использует температуру 200-800 градусов и когда недостаточно кислорода, дерево будет разлагаться на древесный кокс и пиролизный газ, выделяя тепло. Теперь нужно только подмешать воздух к пиролизному газу – и он воспламенится. Стоимость материалов, чтобы осуществить изготовление котлов отопления такого типа, будет выше. Но такой котел окупится у вас через 3-4 сезона отопления. Чертежи и конструкции пиролизных котлов можно найти у нас на сайте.

Самодельный пиролизный котел
Котлы на отработанном масле
Конструкция такого котла является довольно любопытной. Перед сгоранием котел испаряет масло. После разжигания при рабочей температуре котла масло, которое капает в специальный поддон, моментально превращается в горючие газы. Именно они и нагревают теплообменник. Как топливо – без различных модификаций, может применяться солярка.

Котел на отработанном масле
Электрические котлы
Изготовление котла отопления своими руками электрического типа – это реальность. Такие котлы являются простыми по конструкции. ТЭН ставится вовнутрь трубы, которая ставится вертикальным образом. Снизу идет патрубок из обратного трубопровода, а сверху подсоединяется подача. В принципе, котел практически готов.
Но есть некоторые нюансы, влияющие на то, как сварить котел отопления. Как известно, цены на электричество постоянно возрастают — ведь это наиболее дорогой вид отопления собственного дома. Кроме того, вам следует знать, что инструкция техники безопасности запрещает подсоединять котлы с мощностью выше 7 кВт к 220 Вольтам. А вот 380 есть не везде и не у всех. Самый простой электрический котел – это корпус из трубки, ТЭН, естественная циркуляция носителя тепла.

Электрический самодельный котел
Отдельно стоит отметить индукционные котлы. Если брать самые простые вариации – то это толстостенная труба из пластика, вокруг нее наматывается сотня витков эмалированного провода, который подключен к сварочному инвертору с током на выходе примерно на 15 ампер.
Вовнутрь располагают те компоненты, которые будут нагреваться вихревыми токами – обрезки толстой проволоки или рубленного стального витка. Снизу подсоединяют обратный трубопровод, сверху – подающий. Контур заполняют водой – и все, можно подавать питание. Но только не включайте систему без теплоносителя! Это расплавит пластик вмиг.
otoplenie-doma.org
