Печь для бани своими руками из металла чертежи видео с баком для воды – Печи для бани своими руками, чертеж, дровяные с баком.
Печь для бани из металла своими руками: чертежи, фото, видео
Металлических печей для бани в продаже много, но хорошие стоят немалых денег. Если есть достаточный опыт сварки металла, можно изготовить печь самому, по своим размерам. О том, как сделать печь для бани из металла (листового), чертежи и фото — дальше.
Содержание статьи
- 1 Печь из металла для бани и сауны — в чем разница
- 2 Самодельные печи для русской бани
- 2.1 Каменка: какого размера и где
- 2.2 Чертежи самодельных банных печей из металла
- 3 Как сделать печь для сауны
- 3.1 Чертежи и схемы
Печь из металла для бани и сауны — в чем разница
Между режимами парения в бане и сауне есть существенная разница. В сауне температура воздуха очень высокая — от 85C и намного выше. При такой температуре влажность высокой быть просто не может — сразу получите ожог, а веник осыпется за пять минут. И она действительно небольшая, порядка 5-15%. В русской же парной температура держится в пределах 55-65°C, изредка поднимаясь до 70°C. При таких температурах влажность «нагоняют» большую — 50-60%.

Один из вариантов сварной печи для сауны
Для обеспечения таких разных задач требуются разные подходы для построения печи. В сауну требуется наибольшая площадь соприкосновения корпуса печи с окружающим воздухом и ускорение прохождения воздушных потоков вдоль стенок. Все подчинено задаче как можно скорее нагреть воздух в парилке. Каменка есть, но она небольшая, открытая, находится, как правило, над топкой. Камни в ней прогреваются максимум до 200-250°C, так как много тепла отдают окружающему воздуху. С такой каменки получить можно немного пара. Но в сауне много и не надо — один/два ковшика дадут 15% влажности. Больше просто не вытерпеть.
В русской парной задача другая — не перегреть помещение и добиться большого количества пара. Причем пар должен быть определенной кондиции — он должен состоять из очень мелких капелек. Его еще называют «сухим» и имеет он высокую температуру — порядка 130-150°C. При таком условии после парения в теле ощущается легкость и прилив сил. Такой пар получают только с раскаленных камней, температура которых не менее 500°C. Чтобы достичь ее камни «упаковывают» внутрь топки — в ней размещают ящик — закрытую каменку.

Тут каменка расположена внутри а сверху приделан бак
Как видите, есть солидные конструктивные отличия. Их надо иметь в виду.
Самодельные печи для русской бани
Что еще надо иметь ввиду при конструировании печи для режима русской парной? То, что имея нагретые металлические стенки удержать температуру в пределах требуемых 60-65°C нереально. Обязательно перетопите. При этом от стенок печи идет жесткое ИК излучение и рядом находится тяжело. Проблема решается двумя способами:
- Футеровкой топки. Внутри топка обкладывается жаростойким кирпичом (шамотным на шамотный раствор). Положить его можно на ребро, тогда толщина футеровки 6 см, а можно найти узкий шамот с ребром 3 см. В любом случае металлические стенки греются незначительно, основная энергия направлена на обогрев каменки. В этом случае надо сразу проектировать топку увеличенных размеров, учитывая, что значительный объем ее занят футеровкой. Минус этого варианта — очень высокая температура дыма, а следовательно — высокая пожарная опасность. Выход — отобрать у дыма большую часть энергии. Самый простой вариант — каменка или бак для воды на трубе. Вариант сложнее — отопительный щиток, в который подается дым непосредственно из печи, а остыв в лабиринте щитка, на выходе он имеет не более 80-120°C.

Футеровка — обложить топку изнутри жаропрочным кирпичом
- Кирпичный экран или саркофаг вокруг металлической печи. Экран складывают из обычного керамического кирпича, в стенке делают окошки или устанавливают дверки чтобы была возможность регулировать степень нагрева воздуха в помещении. Как видим, для поддержания температуры в заданном режиме этот вариант более удобен. Но с практической точки зрения он хуже. Дело в том, что за экраном стенки топки перегреваются (конвекции почти нет и они не остывают). В результате, через некоторое время металл перегорает. Выход — ставить жаропрочную сталь или конструкционную, но большой толщины. В данном случае, чем больше будет толщина металла, тем дольше будет служить печь. По статистике самая проблемная зона — верхняя и задняя поверхность топки. Вот тут постарайтесь поставить самый толстый металл, который найдете.

Снаружи закрыть корпус кирпичным экраном
Еще стоит поговорить о швах. В самодельных печах из металла (в заводских, в принципе, тоже) часто прогорание начинается именно со швов. На производстве данную проблему обходят при помощи гнутых конструкций. В верхней части стараются швов вообще избежать. При изготовлении печи для бани своими руками вы вряд ли сможете согнуть лист металла толщиной 6-10 мм, так что остается только одно — делать швы как можно качественнее.
Каменка: какого размера и где
Необходимое количество камней зависит от объема парной (при условии, что утеплена баня нормально). В разных источниках есть разные рекомендации с большим или меньшим количеством — от 20 до 40 кг на 1 м3. В принципе, чем больше камней, тем легче получить требуемое количество пара, но при условии, что у печи хватит мощности их нагреть.
Проблема в том, что камни разной породы имеют разную плотность, и, следовательно, одна и та же масса занимает разный объем. В принципе, для средней парилки объемом 12-14 м3, размеры каменки примерно такие: 30*40*30 мм. Параметры можно немного изменять, делать шире/уже/выше — смотрите по конструктиву печи.

Каменка может быть разной формы и размера
Соотношение объема топки к объему каменки — сложный теплотехнический расчет, который даже не всякий теплотехник осилить в состоянии. Намного проще воспользоваться готовыми чертежами или экспериментально определенными пропорциями. Как минимум, объем «свободной» от каменки топки не должен быть меньше. Лучше, если даже больше примерно на 30-50%.
Немного о том, в какой части топки лучше всего располагать ящик для камней. Все давно пришли к выводу, что самая высокая температура — в верхней части и у задней стенки. Вот в этом месте и имеет смысл расположить емкость. Во-первых, часть термической нагрузки со свода топки снимется, а во-вторых, камни хорошо нагреются.
Не за бывайте об обслуживании каменки и о том, что туда каким-то образом должна попадать вода. Лючок для обслуживания надо располагать таким образом, чтобы вы могли без особых проблем достать рукой до самого дальнего края. А подачу воды вглубь каменки надо организовать так, чтобы не обжечься. Обычно вставляют трубку или систему трубок, которые расходятся по всей плоскости емкости для камней. Со стороны помещения эта трубка заканчивается воронкой. Трубку обкладывают камнями. При подаче в нее воды, она распределяется по поверхности каменки/камней и испаряется.
Чертежи самодельных банных печей из металла
Эта печь разработана для парной 2*3*2,3 м. Варилась из листового металла толщиной 3 мм.

Печь из металла для бани с закрытой каменкой
Для активизации горения предусмотрено подключение дополнительного воздуховода, проложенного с улицы. Из других решений — ребра жесткости (уголки) приваренные к бокам топки в верхней части топки для того, чтобы при сильном нагреве металл не выгибало.
Следующая схема металлической печи для бани сделана с подачей воздуха в верхнюю часть топки. Это так называемые печи с дожиганием газов. На задней стене приварена пластина из металла. В щель между этой пластиной и задней стенкой топки при помощи трубок-воздуховодов подается воздух из-под колосников. Это нехитрое, вроде, устройство решает сразу две задачи. Во-первых, охлаждает заднюю стенку, снижая вероятность ее прогорания. Во-вторых, воздух подается в верхнюю часть разогретым. Там сосредоточены разогретые до высоких температур дымовые газы, большая часть которых горючая (до 80%). Когда эти газы смешиваются с подогретым воздухом, горючие вещества воспламеняются, температура в верхней части топки становится еще выше, камни нагреваются до более высоких температур. При этом (при использовании сухих дров) топлива требуется намного меньше. На этом принципе построены многие печи длительного горения, но в банных печах он стал использоваться недавно.

Печь с подачей вторичного воздуха
Примерно та же модель, но без дожига, выполнена в другом формате. Тут размеры не указаны, зато проще понять пропорции и расположение различных элементов.

Объемная модель самодельной печи-каменки из металла
В данном случае объем топки составляет около 130% от объема каменки. Нормальное соотношение. Дымоход смещен назад, что не всегда хорошо — могут возникнуть сложности при устройстве дымохода — он может упереться в потолочную балку — придется дымоход изгибать, что нежелательно. Так что насчет расположения трубы — подумайте.
Еще в среде любителей бани постоянно ведутся споры: бак для нагрева воды в парилке — это хорошо или плохо… Одни регулируют влажность открывая/закрывая крышку бака. Их такой вариант устраивает. Другие говорят, что этот пар «тяжелый», и выносят бак в моечное отделение, а воду в нем греют, встроив в топку теплообменник и соединив его с баком трубами. Следующая схема — печь в баню из металла с баком для воды.

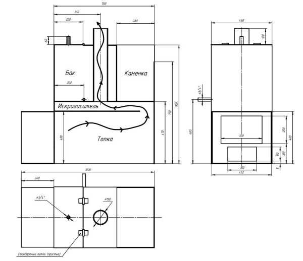
Чертеж печи для бани с баком для воды
Конструкция грамотная — при помощи «искрогасителя» путь прохождения дымовых газов длиннее, дольше он остается в топке, лучше нагревает стенки. Если вы не хотите бак, на его место можно уложить камни.
Интересный вариант с баком, который находится в задней части печи. Дымоход сдвинут назад, и проходит через бак. Высота бака большая, теплосъем будет эффективным — температура дымохода на выходе из бака большой не будет точно.

Вариант небольшой печи с большим баком
Интересно устроена каменка. Она не очень большая, но для небольших и средних парилок ее объема хватит. Закрывается она крышкой, что с одной стороны не очень удобно: закрывать крышку после подачи воды на камни будет проблематично. С другой стороны, это удобно в обслуживании.

Разрезы печи и размеры
Как сделать печь для сауны
Как уже говорилось, основная задача этого типа отопительных приборов — быстро «нагнать» требуемую температуру и иметь возможность ее поддерживать. Есть простое решение — поставит вентилятор, который будет обдувать стенки печи, ускоряя нагрев.
Примерно такую же функцию выполняет кожух-конвектор. Это кожух вокруг корпуса печи. Между ним и стенкой топки остается зазор в 1,5-2 см. В эту щель снизу засасывается воздух. Он проходит вдоль стенок, нагревается, заодно остужая стенки. Далее поднимается вверх, разнося тепло по парилке.

Принцип работы конвекционного кожуха
Если корпус печи делают из толстого металла, то кожух можно и из тонкого. Он редко нагревается до больших температур, и перегорание ему не угрожает. Если в печи для сауны каменка будет находится вверху, над топкой, как на фото, то в корпусе можно сделать отверстия для вентилирования каменки. Тогда часть воздуха, который поднимается вдоль стенок, будет попадать в каменку, обдувать камни и нагреваться еще сильнее. Такая каменка называется вентилируемой. Она хороша именно для суховоздушных саун.
Чертежи и схемы
Конструкция печей для сауны проще. Нужна топка нормального размера, в которую помещаются большие поленья. В верхней части, над верхней частью топки привариваются борта каменки, объем которой обычно 20-25 литров. Вариации могут быть по ширине/высоте/глубине, но особых каких-то хитростей нет.

Схемы металлических печей для сауны
Установка бака для нагрева воды в парилке сауны — идея не самая лучшая. Вы не сможете контролировать влажность, а при высоких температурах легко получить ожог. Тем не менее, несколько вариантов установки баков на фото выше.
Другой тип каменки — внутри топки. При желании можно сделать на нее крышку и такую печь можно использовать в двух режимах — с открытой крышкой для сухого парения, с открытой — для получения большего количества пара.

Каменка внутри корпуса
Источник
Тематические статьи
highlogistic.ru
Печь для бани своими руками из металла с баком для воды чертеж
При создании бани всегда встает вопрос о ее обогреве. Выбирая из готовых вариантов, лучше отдать предпочтение тому, который будет не только качественным, но и экономичным. При отсутствии средств на строительство каменного источника обогрева можно сделать печь для бани своими руками.
Вариант оформления бани с металлической печкой
При самостоятельном изготовлении печи важно держать под рукой необходимые инструменты, набор чертежей для строительства банных самодельных печей и обладать опытом сварщика. При работе с листами стали учитывайте, что при температуре в +150 градусов происходит изменение свойств железа, при +250 пропадает его выносливость при постоянных нагрузках, а при +550 сталь становится темно-коричневого цвета, что свидетельствует об изменении линейных свойств.
Особенно осторожно требуется работать при разогреве металла до +900 градусов! При такой температуре возможна нежелательная деформация будущей печи.
Цветовая палитра каления стали
Учет названных нюансов обеспечит:
- продолжительную аккумуляцию тепловых масс;
- прогрев бани и поднятие в ней температурного режима в короткий срок;
- высокий уровень безопасности для моющихся людей.
Кроме того, для таких печей не потребуется много места благодаря их небольшим размерам.
Баня должна поддерживать температурный режим от +50 градусов. С этой целью рекомендуется устанавливать самодельные печи для бани из металла. В их использовании есть следующие плюсы:
- малогабаритные конструкции, что актуально для небольших помещений;
- нельзя задохнуться, так как такая железная «самоделка» выводит продукты горения через дымоходную трубу;
Металлические печи различных габаритов и типов
- за счет высокого коэффициента теплоотдачи происходит быстрый прогрев парного помещения. В среднем около 1,5 часа;
- срок годности, напрямую зависящий от качества выполненной работы и материалов;
- отсутствие задымленности при растопке бани сырой древесиной;
- невысокая себестоимость.
У таких самодельных металлических печей есть и некоторые минусы:
- малые габариты конструкции исключают использование в просторных банных помещениях;
- быстрый период остывания. Чтобы печь грела, тепло необходимо постоянно поддерживать;
- высокая вероятность воспламенения расположенных рядом со стенками конструкции предметов.
Существует 3 варианта:
- Открытый – с небольшим по объему баком для воды и каменкой открытого типа. Для усиления коэффициента теплоемкости такой печи для бани потребуется накрыть камни оцинкованной крышкой.
- Закрытый. Для увеличения теплоемкости снаружи и изнутри производят выкладку из огнеупорного кирпича с применением скрепов из металла, размещают специальную решетку.
- Комбинированный. При таком варианте формируется полный набор: 2 задвижки, топливник, решетка, 2 патрубка (диаметром 10 см и 14 см), поддувало и предусматриваются 4 отверстия для трубы и обводного колена. Для этого используются листы из стали толщиной около 0,5 см.
Металлическая печь с открытой каменкой
Также печь для бани бывает холодного и горячего типа. Первая подходит для отапливаемых помещений. О ее стенки невозможно обжечься, так как они прогреваются они лишь до +50 градусов. Второй вариант не позволяет контролировать температуру в бане и применяется при нерегулярном пользовании парилкой.
Типы печей в зависимости от вида топлива:
- электрические – корпус с ТЭНом и специальные элементы для изоляции тепла;
- дровяные. Необходимо много древесины в качестве топлива, длительное время прогрева помещения и постоянный контроль;
- газовые. Они удобны и надежны благодаря наличию предохранительного устройства, которое реагирует в момент уменьшения подачи уровня газа или при полном его отключении.
Металлическая печь на дровахОсобенности источников обогрева для бани и сауны
В традиционной русской бане издавна принято подавать много пара, а жара – меньше. С этой целью применяют закрытую каменку, расположенную над топкой. Она с внутренней стороны обкладывается устойчивым к жару кирпичом с сохранением небольшого воздушного зазора. Раскалить камни для такой бани требуется до +500 градусов.
Финская сауна предполагает невысокий уровень влажности – 5-15% и температурный режим до +85 градусов. Каменку используют открытую, со слабо накаленными камнями. Для подачи пара достаточно полить ее водой.
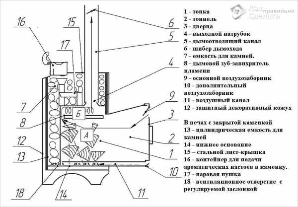
Основные составляющие металлических печей
Их наличие предусмотрено во всех банных конструкциях.
Топка
Это двухкамерное приспособление. Верхняя часть (топочная) необходима для сжигания топлива, а нижняя (зольник) – для накапливания и сбора золы. Эти два отсека разделены между собой решеткой, и каждый из них имеет дверцу. Часто нижнее отделение оставляют открытым для притока воздуха, используя его в качестве поддувального. Также в дверце топки (габариты 20х25 см) можно сделать отверстия с заслонкой для регулирования подачи воздуха.
Каменка
Над дверцей топки, расположенной напротив входа, фиксируются пруты размером от 1 см. Дверка самой каменки должна «смотреть» на парилку. Далее в нее укладываются камни без содержания слюды. Нежелательно использование гранита. Чем больше булыжников – тем обширнее раскаленная поверхность.
Топка
В верхней части печки для бани, сделанной из металла своими руками, лучше смонтировать люк, чтобы создать доступ до дна отсека и обеспечить обслуживание каменки. Над ней устанавливается крышка для дымохода. Последний этап – монтаж бака с водой.
Дымоход
Это труба для вывода образовавшегося дыма и подогрева воды, подаваемой на камни. Дымоход необходимо изолировать, так как из-за его высокой температуры легко обжечься.
Его габариты должны соответствовать размерам железной печи. Толщина проходов должна быть равна половине кирпича.
Приобретать дымоход лучше в уже скомплектованном виде с наружной трубой, внутренним дымоходом, дефлектором.
Бак
Он монтируется над топкой. В его нижнюю часть встраивается кран для постепенной подачи жидкости на раскаленные камни. Со стороны дымохода бак перекрывается стальным полукругом с отверстием под дымоходный трубопровод. На ту часть емкости, которая будет наполняться водой, монтируется крышка с ручкой. Равно как и дымоход, бак лучше купить готовый.
Дополнительные элементы
К ним относятся дверцы и решетки. Для экономии времени их приобретают в готовом виде.
Чертежей и вариантов много, но набор составляющих элементов примерно одинаков.
Инструменты
Для начала работы потребуется подготовить:
- болгарку;
- сварочный аппарат;
- измеритель;
- ножницы для металла;
- колосник;
- лист стали 0,8 см;

Колосник для печи
- дымоход;
- металлическую трубу толщиной 0,5-1 см;
- кран для подачи воды на камни;
- квадрат 1х1 см;
- дверцы для каменки, поддувала и топки;
- сантиметровый прут;
- камни;
- карандаш;
- ведро для мусора;
- плоскогубцы.
Важные нюансы
Предварительно требуется определить место под будущую конструкцию. При необходимости выкладывается фундамент и два ряда кирпичей. Под ним делают котлован глубиной 70 см. Его дно присыпается песком и сверху битым кирпичом. Далее монтируется каркас и опалубка, после поверхность заливается бетоном.
Фундамент под металлическую банную печьВажно помнить:
- зазор между печью и стеной не менее 1 м;
- на стену возле конструкции необходимо прикрепить фольгу;
- дымоход лучше сделать из сэндвич-трубы с теплоизоляционным слоем;
- в месте стыка крыши и дымохода требуется сформировать узел прохода;
- конструкцию лучше обнести кирпичом для предотвращения ожогов.
Печь-каменка
Это простая разновидность имеет несколько способов создания.
Вариант 1
С использованием железной бочки без дна и верха. Полученная емкость наполовину заполняется кирпичами, положенными на ребро, и колосниковой решеткой, уложенной сверху. В остальные 2/3 пространства помещаются камни, устанавливается дымоход. В конце такая самодельная печь в баню накрывается крышкой из листов стали.
Вариант 2
Кирпичи для строительства печи-каменки не используются. Последовательность работ:
- Подготовить схемы и необходимые инструменты.
- В длинной трубе вырезать отверстие под поддувало размерами 5х20 см. Внутри трубы над ним зафиксировать крепление для колосника.
- Для топки сформировать отверстие 25х20 см. Над ним смонтировать крепления для прутов, размер которых около 1 см.
- С другой стороны печи создать отверстие, в которое будет подаваться жидкость. В каменку уложить камни.
- Сделать прорезь под дымоход. В нижней части трубы установить кран.
- Сформировать крышку на нагревательный бак с прорезью под дымоход, петлей и ручкой.
Печь-каменка с двумя отсекамиВариант 3
В данной печи предусмотрены 2 каменки. Изготавливается она по аналогии с предыдущими. Разница в том, что для соединения двух каменок используют 4 пластины.
Другие возможные разновидности
Помимо печей-каменок актуальны:
Печка-буржуйка
- обычная печь горизонтальной формы. Используется пропановый баллон и обрезные остатки металлопроката. Вырезаются проемы под дверки и дымоходную трубу, на уголки фиксируется решетка из колосников, а крышка устанавливается на исходное место. Монтируются ножки и створки;
- вертикальный котел для бани. Он состоит из топливника, водного бака и каменки закрытого типа. Потребуется заранее сформировать заготовки дна крышки и перегородок, произвести процесс сварки круглых колосников. Составляющие элементы делают по описанной выше схеме.
Многие чертежи печей для бани, изготовленных из металла, предусматривают горизонтальные и вертикальные варианты конструкции с выходом топки в отдельное помещение, с закрытой и открытой каменкой. Также распространена самодельная печка-буржуйка. Это обыкновенный металлический ящик с дверкой и трубой. Она требует много топлива при невысоком показателе теплоотдачи.
Образец чертежа печи из металла для самостоятельного изготовления
Заключительная отделка
Независимо от типа и размеров печи для бани конструкцию необходимо обработать термоустойчивой эмалью. Для этого поверхность обезжиривается, а затем органический состав наносится в несколько слоев.
Нанесение термоустойчивой эмали
Готовые печи нельзя запускать в работу сразу. Прежде всего, принудительно или естественным способом просушите банное помещение.
Придерживаясь названных советов и обладая опытом сварки, вы получите печь, радующую долгие годы. Выбирайте вариант, который оптимально впишется в банное помещение и не «съест» дополнительную площадь.
jsnip.ru
Печь для бани из металла своими руками: чертежи, фото, видео
Металлических печей для бани в продаже много, но хорошие стоят немалых денег. Если есть достаточный опыт сварки металла, можно изготовить печь самому, по своим размерам. О том, как сделать печь для бани из металла (листового), чертежи и фото — дальше.
Содержание статьи
Печь из металла для бани и сауны — в чем разница
Между режимами парения в бане и сауне есть существенная разница. В сауне температура воздуха очень высокая — от 85C и намного выше. При такой температуре влажность высокой быть просто не может — сразу получите ожог, а веник осыпется за пять минут. И она действительно небольшая, порядка 5-15%. В русской же парной температура держится в пределах 55-65°C, изредка поднимаясь до 70°C. При таких температурах влажность «нагоняют» большую — 50-60%.
Один из вариантов сварной печи для сауныДля обеспечения таких разных задач требуются разные подходы для построения печи. В сауну требуется наибольшая площадь соприкосновения корпуса печи с окружающим воздухом и ускорение прохождения воздушных потоков вдоль стенок. Все подчинено задаче как можно скорее нагреть воздух в парилке. Каменка есть, но она небольшая, открытая, находится, как правило, над топкой. Камни в ней прогреваются максимум до 200-250°C, так как много тепла отдают окружающему воздуху. С такой каменки получить можно немного пара. Но в сауне много и не надо — один/два ковшика дадут 15% влажности. Больше просто не вытерпеть.
В русской парной задача другая — не перегреть помещение и добиться большого количества пара. Причем пар должен быть определенной кондиции — он должен состоять из очень мелких капелек. Его еще называют «сухим» и имеет он высокую температуру — порядка 130-150°C. При таком условии после парения в теле ощущается легкость и прилив сил. Такой пар получают только с раскаленных камней, температура которых не менее 500°C. Чтобы достичь ее камни «упаковывают» внутрь топки — в ней размещают ящик — закрытую каменку.
Тут каменка расположена внутри а сверху приделан бакКак видите, есть солидные конструктивные отличия. Их надо иметь в виду.
Самодельные печи для русской бани
Что еще надо иметь ввиду при конструировании печи для режима русской парной? То, что имея нагретые металлические стенки удержать температуру в пределах требуемых 60-65°C нереально. Обязательно перетопите. При этом от стенок печи идет жесткое ИК излучение и рядом находится тяжело. Проблема решается двумя способами:
- Футеровкой топки. Внутри топка обкладывается жаростойким кирпичом (шамотным на шамотный раствор). Положить его можно на ребро, тогда толщина футеровки 6 см, а можно найти узкий шамот с ребром 3 см. В любом случае металлические стенки греются незначительно, основная энергия направлена на обогрев каменки. В этом случае надо сразу проектировать топку увеличенных размеров, учитывая, что значительный объем ее занят футеровкой. Минус этого варианта — очень высокая температура дыма, а следовательно — высокая пожарная опасность. Выход — отобрать у дыма большую часть энергии. Самый простой вариант — каменка или бак для воды на трубе. Вариант сложнее — отопительный щиток, в который подается дым непосредственно из печи, а остыв в лабиринте щитка, на выходе он имеет не более 80-120°C.
Футеровка — обложить топку изнутри жаропрочным кирпичом - Кирпичный экран или саркофаг вокруг металлической печи. Экран складывают из обычного керамического кирпича, в стенке делают окошки или устанавливают дверки чтобы была возможность регулировать степень нагрева воздуха в помещении. Как видим, для поддержания температуры в заданном режиме этот вариант более удобен. Но с практической точки зрения он хуже. Дело в том, что за экраном стенки топки перегреваются (конвекции почти нет и они не остывают). В результате, через некоторое время металл перегорает. Выход — ставить жаропрочную сталь или конструкционную, но большой толщины. В данном случае, чем больше будет толщина металла, тем дольше будет служить печь. По статистике самая проблемная зона — верхняя и задняя поверхность топки. Вот тут постарайтесь поставить самый толстый металл, который найдете.
Снаружи закрыть корпус кирпичным экраном
Еще стоит поговорить о швах. В самодельных печах из металла (в заводских, в принципе, тоже) часто прогорание начинается именно со швов. На производстве данную проблему обходят при помощи гнутых конструкций. В верхней части стараются швов вообще избежать. При изготовлении печи для бани своими руками вы вряд ли сможете согнуть лист металла толщиной 6-10 мм, так что остается только одно — делать швы как можно качественнее.
Каменка: какого размера и где
Необходимое количество камней зависит от объема парной (при условии, что утеплена баня нормально). В разных источниках есть разные рекомендации с большим или меньшим количеством — от 20 до 40 кг на 1 м3. В принципе, чем больше камней, тем легче получить требуемое количество пара, но при условии, что у печи хватит мощности их нагреть.
Проблема в том, что камни разной породы имеют разную плотность, и, следовательно, одна и та же масса занимает разный объем. В принципе, для средней парилки объемом 12-14 м3, размеры каменки примерно такие: 30*40*30 мм. Параметры можно немного изменять, делать шире/уже/выше — смотрите по конструктиву печи.
Каменка может быть разной формы и размераСоотношение объема топки к объему каменки — сложный теплотехнический расчет, который даже не всякий теплотехник осилить в состоянии. Намного проще воспользоваться готовыми чертежами или экспериментально определенными пропорциями. Как минимум, объем «свободной» от каменки топки не должен быть меньше. Лучше, если даже больше примерно на 30-50%.
Немного о том, в какой части топки лучше всего располагать ящик для камней. Все давно пришли к выводу, что самая высокая температура — в верхней части и у задней стенки. Вот в этом месте и имеет смысл расположить емкость. Во-первых, часть термической нагрузки со свода топки снимется, а во-вторых, камни хорошо нагреются.
Не за бывайте об обслуживании каменки и о том, что туда каким-то образом должна попадать вода. Лючок для обслуживания надо располагать таким образом, чтобы вы могли без особых проблем достать рукой до самого дальнего края. А подачу воды вглубь каменки надо организовать так, чтобы не обжечься. Обычно вставляют трубку или систему трубок, которые расходятся по всей плоскости емкости для камней. Со стороны помещения эта трубка заканчивается воронкой. Трубку обкладывают камнями. При подаче в нее воды, она распределяется по поверхности каменки/камней и испаряется.
Чертежи самодельных банных печей из металла
Эта печь разработана для парной 2*3*2,3 м. Варилась из листового металла толщиной 3 мм.
Печь из металла для бани с закрытой каменкойДля активизации горения предусмотрено подключение дополнительного воздуховода, проложенного с улицы. Из других решений — ребра жесткости (уголки) приваренные к бокам топки в верхней части топки для того, чтобы при сильном нагреве металл не выгибало.
Следующая схема металлической печи для бани сделана с подачей воздуха в верхнюю часть топки. Это так называемые печи с дожиганием газов. На задней стене приварена пластина из металла. В щель между этой пластиной и задней стенкой топки при помощи трубок-воздуховодов подается воздух из-под колосников. Это нехитрое, вроде, устройство решает сразу две задачи. Во-первых, охлаждает заднюю стенку, снижая вероятность ее прогорания. Во-вторых, воздух подается в верхнюю часть разогретым. Там сосредоточены разогретые до высоких температур дымовые газы, большая часть которых горючая (до 80%). Когда эти газы смешиваются с подогретым воздухом, горючие вещества воспламеняются, температура в верхней части топки становится еще выше, камни нагреваются до более высоких температур. При этом (при использовании сухих дров) топлива требуется намного меньше. На этом принципе построены многие печи длительного горения, но в банных печах он стал использоваться недавно.
Печь с подачей вторичного воздухаПримерно та же модель, но без дожига, выполнена в другом формате. Тут размеры не указаны, зато проще понять пропорции и расположение различных элементов.
Объемная модель самодельной печи-каменки из металлаВ данном случае объем топки составляет около 130% от объема каменки. Нормальное соотношение. Дымоход смещен назад, что не всегда хорошо — могут возникнуть сложности при устройстве дымохода — он может упереться в потолочную балку — придется дымоход изгибать, что нежелательно. Так что насчет расположения трубы — подумайте.
Еще в среде любителей бани постоянно ведутся споры: бак для нагрева воды в парилке — это хорошо или плохо… Одни регулируют влажность открывая/закрывая крышку бака. Их такой вариант устраивает. Другие говорят, что этот пар «тяжелый», и выносят бак в моечное отделение, а воду в нем греют, встроив в топку теплообменник и соединив его с баком трубами. Следующая схема — печь в баню из металла с баком для воды.
Чертеж печи для бани с баком для водыКонструкция грамотная — при помощи «искрогасителя» путь прохождения дымовых газов длиннее, дольше он остается в топке, лучше нагревает стенки. Если вы не хотите бак, на его место можно уложить камни.
Интересный вариант с баком, который находится в задней части печи. Дымоход сдвинут назад, и проходит через бак. Высота бака большая, теплосъем будет эффективным — температура дымохода на выходе из бака большой не будет точно.
Вариант небольшой печи с большим бакомИнтересно устроена каменка. Она не очень большая, но для небольших и средних парилок ее объема хватит. Закрывается она крышкой, что с одной стороны не очень удобно: закрывать крышку после подачи воды на камни будет проблематично. С другой стороны, это удобно в обслуживании.

Как сделать печь для сауны
Как уже говорилось, основная задача этого типа отопительных приборов — быстро «нагнать» требуемую температуру и иметь возможность ее поддерживать. Есть простое решение — поставит вентилятор, который будет обдувать стенки печи, ускоряя нагрев.
Примерно такую же функцию выполняет кожух-конвектор. Это кожух вокруг корпуса печи. Между ним и стенкой топки остается зазор в 1,5-2 см. В эту щель снизу засасывается воздух. Он проходит вдоль стенок, нагревается, заодно остужая стенки. Далее поднимается вверх, разнося тепло по парилке.
Принцип работы конвекционного кожухаЕсли корпус печи делают из толстого металла, то кожух можно и из тонкого. Он редко нагревается до больших температур, и перегорание ему не угрожает. Если в печи для сауны каменка будет находится вверху, над топкой, как на фото, то в корпусе можно сделать отверстия для вентилирования каменки. Тогда часть воздуха, который поднимается вдоль стенок, будет попадать в каменку, обдувать камни и нагреваться еще сильнее. Такая каменка называется вентилируемой. Она хороша именно для суховоздушных саун.
Чертежи и схемы
Конструкция печей для сауны проще. Нужна топка нормального размера, в которую помещаются большие поленья. В верхней части, над верхней частью топки привариваются борта каменки, объем которой обычно 20-25 литров. Вариации могут быть по ширине/высоте/глубине, но особых каких-то хитростей нет.
Схемы металлических печей для сауныУстановка бака для нагрева воды в парилке сауны — идея не самая лучшая. Вы не сможете контролировать влажность, а при высоких температурах легко получить ожог. Тем не менее, несколько вариантов установки баков на фото выше.
Другой тип каменки — внутри топки. При желании можно сделать на нее крышку и такую печь можно использовать в двух режимах — с открытой крышкой для сухого парения, с открытой — для получения большего количества пара.
Каменка внутри корпусаbaniwood.ru
7+ вариантов чертежей печи для бани из металла [+9 ФОТО]
Печь в бане является обязательным атрибутом, поскольку именно она отвечает за нагрев и последующее поддержание температуры. При этом существует целый ряд заводских изделий или конструкций из кирпича, которые максимально отвечают необходимым требованиям. Однако особой популярностью пользуются чертежи самодельных печей для бани из металла, которые дают возможность изготовить небольшое устройство, идеально подходящее для конкретных условий.

Любительское фото простейшей самодельной печи из металла
Процесс изготовления
Для начала необходимо сказать о том, что существует целый ряд подобных изделий, которые отличаются своей конструкцией и принципом работы. Поэтому чертежи печей для бань из металла бывают разными. Однако все они обладают приблизительно одинаковым принципом действия (см.также статью «Печь для бани из трубы: советы по изготовлению»).

Простейший чертеж банной печи
Топка
- Прежде всего, необходимо изготовить топку. Ее размеры каждый определяет сам, но профессионалы советуют при ширине 0.5 метра делать такую же высоту.
- Многие чертежи самодельной печи для бани из металла предполагают использование некоторых готовых элементов. К ним относятся решетки и дверцы. При этом мастера советуют выбирать эти детали, изготовленные именно из металла, поскольку чугунные изделия придется фиксировать особенным образом.

Проект изготовления металлической конструкции с детальным указанием необходимых элементов и их размеров
- Типовой чертеж печи для бани из металла предполагает, что топка будет состоять из двух секций. В первой из них происходит сжигание топлива, а вторая нужна для сбора золы. Учитывая это, их разделяют решеткой и делают отдельные дверцы.
- Стоит отметить, что окно секций для сбора золы часто используют для создания тяги, которая необходима для горения.
- Если чертеж банной печи из металла предполагает размещение каменки, то верхнюю часть топки также изготавливают из решетки
Совет! Для изготовления печи стоит использовать толстый металл. Так конструкцию не поведет при нагреве, и она сможет выделять больше тепла.

Подробный чертеж в правильном оформлении
Каменка и бак с водой
- Над топкой необходимо сделать отдельную камеру с дверцей, которая будет отделяться решеткой.
- В нее помешают специальные камни для длительного поддержания температуры.
- При этом чертежи банной печи из металла рекомендуют делать закрывающее окно, которое можно использовать для подачи воды и создания пара.
- Необходимо отметить, что обычные камни для таких печей не подходят. Особенно это относится к материалу, содержащему кремний или другие включения.
- Верх данного отсека делают с отверстием для трубы. Она будет отводить дым, и при этом подогревать воду.

Принцип действия подобных печей
- Емкость для жидкости устанавливают сверху. При этом чертежи печей для бани из металла советуют, чтобы печная труба проходила через ее середину. Так вода будет нагреваться и от дымохода и от верхней поверхности банной каменки.
- Профессиональные мастера рекомендуют установить на низ такого бака кран. При этом нужно приобрести специальные устройства, цена которых может быть велика, но именно они смогут работать длительный срок в условиях постоянного перепада температуры.

Два варианта создания горизонтальных устройств
Отдельное внимание уделяют крышке емкости. Ее можно изготовить из древесины, но тогда нужно защитить область соприкосновения с дымоходом. При этом инструкция по монтажу советует делать в ней небольшие прорези для свободного выхода пара.
Совет! Подобную конструкцию обычно изготавливают из толстостенной трубы. Это помогает решить вопрос о дешевых материалах, поскольку такие изделия можно найти на пунктах приема вторсырья по сходной стоимости.

Проект металлической печи для бани с правильной установкой и организацией дымохода
Дымоход
Когда создают чертеж печки для бани из металла, то отдельное внимание уделяют дымоходу, а именно местам, где он будет проходить через крышу. Дело в том, что трубы при топке имеют довольно большую температуру и во избежание возгорания их нужно дополнительно изолировать. Также они должны располагаться на определенной высоте, чтобы создавать постоянную тягу.

Правильная организация дымохода
Создавая печи своими руками, многие мастера советуют для организации подобных проходов приобретать готовые изделия, которые делаются специально для данных целей. При этом их довольно часто выпускают в виде цельного комплекса с наружной трубой и грибком.
Также нужно подумать и о защитном экране, в задачу которого входить предотвращать воздействие высокой температуры на стены из древесины. Их лучше всего создавать со светоотражающей поверхностью, чтобы осуществлять отвод инфракрасного излучения. Данные изделия довольно часто продаются в готовом виде и имеют относительно небольшую стоимость.

Заводские изделия для организации отвода дыма имеют хороший внешний вид и отлично справляются со своими задачами
Вывод
В представленном видео в этой статье вы найдете дополнительную информацию по данной теме. Также на основании текста, который представлен выше, можно сделать вывод о том, что принцип изготовление печей из металла довольно пост. При этом существует масса различных конструкций, которые имеют свои определенные особенности и характеристики (см.также статью «Чертежи металлической печи для бани своими руками: как соорудить каменку в парной с высоким КПД»).
Отдельное внимание при этом стоит уделить некоторым заводским изделиям, которые представлены в виде дверей, дымоходов и решеток. Они позволят значительно облегчить процесс изготовления, а значит, именно на их базе стоит разрабатывать чертежи.
9ban.ru
Делаем печь для бани своими руками из металла: чертежи и инструкция
Металлическая печь для бани имеет ряд преимуществ перед кирпичной. Она относительно легкая, быстро разогревается, быстро отдает тепло. Кроме того, стальную печку можно смастерить своими руками, если знать некоторые конструктивные особенности.
Выбираем конструкцию печи
К банной печке из металла предъявляется ряд требований:
- Быстрый нагрев, высокий КПД.
- Длительная теплоотдача. Чтобы этого добиться, придется усовершенствовать систему с помощью каменки или особого устройства топки.
- Компактность. Печь не должна занимать много места в парной. Для оптимизации пространства используют вертикально ориентированные сооружения, а топочное отверстие выносят в предбанник.
- Безопасность. Металл раскаляется до критических температур. Чтобы избежать ожогов, лучше соорудить на печь специальный кожух или обложить отопитель кирпичом.
Исходя из этих требований, выбирают тип конструкции:
- Корпус может быть вертикальным или горизонтальным. Первый занимает мало места, но отличается низкой мощностью и быстрым прогоранием топлива. Второй — с точностью наоборот: имеет лучшую теплоотдачу, но занимает большую площадь.
- Отверстие для загрузки располагают в парилке или предбаннике. Последний вариант также способствует экономии места.
- Бак с горячей водой ставят прямо на плиту (такой бачок можно сделать своими руками из нержавеющей стали) или располагают отдельно. Удобный вариант – бачок в моечной комнате. Его соединяют трубами со стальным теплообменником, расположенным на дымоходе.
- Каменка тоже имеет разновидности. Открытая каменка, наследие финнов, нагревается не больше, чем до 400 градусов Цельсия. Зато при поливе водой она дает отличный мягкий пар. Кладка, спрятанная под металлическим корпусом, раскаляется до 700-800 градусов, но требует регулярной чистки.
Чертежи, схемы, фото
Подготовка металла
Принцип изготовления стальной печи является общим для всех видов конструкций. Нужно только заранее подготовить проект, выполнить чертежи (или взять готовые) и следовать инструкциям.
Для примера ниже представлено пошаговое руководство к действию для печи с отдельным водяным бачком и встроенной каменкой. Габариты следует рассчитывать индивидуально исходя из размеров бани и количества посетителей. Вот ориентировочные показатели:
- Внешняя каменка квадратная, 50 на 50 см, h – 80 сантиметров.
- Внутренняя каменка чуть меньших размеров: соотношение сторон 40 на 40 см, h – 50 см. Промежуток между стенками двух печей должен быть не более 5 см по периметру.
- Размеры самой печи следующие: 50 см в ширину, 90 см длины, h=0,5 метра.
- Размеры бачка 40 на 50 на 60 сантиметров (ширина, длина, высота). Объем такого сосуда 120 л. Такого количества хватит для 3-4 человек (при условии, что горячая вода будет разбавляться холодной).
Алгоритм изготовления следующий:
- Подготовительный этап. Сюда входит заготовка материала (для бани лучше использовать толстое листовое железо от 2 мм), а также эскизы, чертежи. Перед покупкой материала необходимо высчитать общую площадь стальных листов.
- Вырезание деталей конструкции. Оптимальный инструмент – болгарка (иначе ее называют круглошлифовальной машиной). Стоит обратить внимание на углы — они должны быть строго 90°. Неровные края металла необходимо зашлифовать.
- Перед сваркой рекомендуется проверить все размеры, а также сделать «отпуск» металла (предварительное раскаливание).
Есть возможность минимизировать негативные последствия нагрева. Для этого те части конструкции, которые подвержены максимальным температурам, следует раскалить до красного оттенка, затем медленно остудить. Обычно, больше всего страдает дымоход, верхняя плита, боковины. Если после процедуры железные листы слегка покоробились, их можно самостоятельно выровнять молотком. На всякий случай следует подровнять размеры. Данный метод помогает избавиться от будущей деформации отопительного элемента.
Сварочные работы
Начать сварку следует с каменки.
- Две боковины соединить под углом 90 градусов, сделать несколько спаек. Сила тока должна быть умеренной, чтобы металл не перегрелся, а шов был ровным. Спайки не должны быть большими, достаточно нескольких миллиметров. При этом, нужно все время следить за углом и корректировать положение листов. Таким же образом сварить две другие боковины.
- Соединить две части под прямым углом. Аналогичным методом следует сваривать противоположные углы.
- Следующий шаг — присоединение дна и крышки. Толщина металла для дна должна быть не менее 10 мм — на этот участок приходится основной тепловой удар. Для того, чтобы крышка не падала в короб, одну ее сторону можно фиксировать с помощью тонкой подставки. Небольшие огрехи в расчетах и получившиеся щели можно скрыть с помощью сварки. Для этого достаточно оставлять промежутки примерно одинаковыми с обеих сторон.
- Когда наметка короба закончена, можно сделать полноценные швы.
- По такому же принципу нужно сварить остальные элементы: наружный кожух, топочную камеру, водяной бачок.
- С помощью болгарки в коробе нужно прорезать дверцу. В днище внешнего кожуха нужно просверлить отверстия для «ножек» внутренней каменки. Это могут быть водопроводные трубы или арматурные прутья. Принципиальный момент – отверстия должны быть горизонтальными и находиться на одной высоте. В топочной камере сделать входное отверстие для дров. Из остатков металла можно соорудить дверцы.
- Осталось лишь соединить все части в общую конструкцию. Для этого нужно изготовить четыре пластины, они должны совпадать с размерами отверстия внешней каменки. В крышке внешнего короба прорезать отверстие для дымохода, совпадающее с диаметром трубы.
- По периметру выемки для каменки необходимо закрепить металлические полосы шириной 20 мм. Изнутри приварить уголок 45 на 45 мм, так, чтобы в паре со стенкой он образовывал полку. Именно на них будет упираться вся конструкция. Топочную дверцу повесить на петли. Все соединения проварить двойным швом (изнутри и снаружи).
- Собрать всю конструкцию. Внутренняя каменка должна располагаться вертикально на трубах. Отверстия внутренней и внешней печек следует соединить металлическими пластинами. Закрепить сооружение можно сверху любыми обрезками металлолома.
- На наружном кожухе закрепить крышку. Прорезать дымоходное отверстие, вставить трубу.
poluchi-teplo.ru
Печь для бани своими руками +чертежи, фото
Главный элемент парилки – конечно же, нагревательная печь для бани. Современное промышленное производство предлагает на замену традиционным дровяным каменкам множество моделей: на жидком топливе, на газе с металлическим корпусом, работающие на пеллетах. Заводские изделия оснащены множеством функций и экономно расходуют топливо. Да и уход за ними минимален.
Вариантов самодельных устройств для парной существует множество, в зависимости от типа помещения. Например, бывают так называемые холодные печи, то есть такие, у которых наружные стенки не прогреваются выше 50°C. Это важное преимущество, поскольку такая конструкция не дает обжечься. Подобные агрегаты требуют долгой непрерывной растопки. Обогрев происходит через специальные воздуховоды. Они вбирают воздух от пола и разогревают его, пропуская сквозь топочную камеру. Теплый и мягкий пар выходит сверху, никого не обжигая. В такой бане легко регулировать уровень влажности и температуру нагрева.

В отличие от «холодных», «горячие» печи быстро и эффективно прогревают парную за счет раскаленных стенок, температура которых может доходить до 100°C. Неосторожные прикосновения к ним грозят ожогами, да и степень нагрева воздуха в данном случае трудно контролировать. А это грозит тепловым ударом.
Из кирпича
Из кирпича с баком для воды
Добротная и простая «холодная» печь для бани конструктивно выглядит так: топочная камера выполняется из огнеупорного кирпича, под ней располагается зольник. Сверху для сохранения жара раскладываются булыжники на стальную или чугунную решетку. Их массу рассчитывают из соотношения: на 1 м3 парилки требуется 20–30 кг камней. Эта пропорция верна для непрерывно работающих устройств. Если нагрев происходит периодически, то есть после прогрева помещения до нужного уровня ее гасят, тогда количество надо увеличить еще в 2 раза. Иногда для лучшего удержания тепла добавляют чугунные чушки в соотношении 20% на 80% камня.
Сами стены, помимо кирпича, можно выполнить из обычного или бутового камня. Порой для строительства берут гранит или голыш. Вес каждого элемента – от 1 до 5 кг. Не пытайтесь строить из кремния – от нагревания тот просто лопнет.
В качестве связующего раствора при кладке каменки можно использовать только глину с песком. Обычный цементный раствор не выдержит высоких температур и не прослужит и года.
Глиняный раствор
Глина замачивается в воде на несколько суток и смешивается с просеянным песком до консистенции густой сметаны. Песок предпочтительнее брать не речной, а горный. Его грани неровные, нешлифованные и обеспечивают лучшее сцепление.
Печь из обожженного кирпича с камнями весит немало, поэтому под нее придется делать фундамент. Для этого достаточно котлована глубиной 70 см.
На дно засыпают 15 см песка и щебень. Затем все заливается слоем бетона, желательно с армированием. Сверху застывший фундамент закрывают рулонами рубероида для гидроизоляции.
Кирпичная печь на прочном фундаменте
Отметим некоторые моменты:
- Угол бани, где устанавливается печь, должен быть теплоизолирован и укреплен. Помимо опасности возгорания, в нем будет наблюдаться большой перепад температур, который способен привести к появлению трещин в стенах.
- Первый ряд укладывается на рубероидную подложку без раствора, насухо.
- Остальные блоки при работе смачиваются водой, каждый новый ряд укладывается с перевязкой (со смещением относительно предыдущего).
- Нужно следить за тем, чтобы стороны кирпичей, обращенные внутрь топочной камеры, были целыми, без сколов и трещин. Стенка здесь должна быть как можно более гладкой, поскольку любая выбоина провоцирует разрушение сооружения. В то же время нельзя обмазывать внутренние поверхности глиной — высохнув, она начнет отслаиваться и засорять дымоход,
- После завершения кладочных работ, печку надо просушить. Для этого либо ее оставляют на 15 дней при хорошем притоке воздуха, либо несколько раз протапливают в щадящем режиме.
Видео: кладка каменки 3×3,5 кирпича
Чертежи
Виды печей из кирпича
Схема кирпичной печи-каменки
Пример порядовки

С отдельно стоящей емкостью для воды
Порядовка
Металлическая печка
Металлическая банная печь
В отличие от кирпичных сооружений, металлические агрегаты компактны и быстро прогреваются сами и нагревают помещение.
Для металлической печки тоже нужен фундамент. Хотя ее масса намного меньше каменного собрата, тем не менее, и под нее нужно сделать надежное основание.
Фундамент под металлическую печь
Исходным материалом послужит толстолистовая сталь или трубы большого диаметра. По конструкции такая печь будет аналогична каменной. Единственное различие – топка. Ее принято делать двухкамерной, чтобы во втором отделении могло происходить дожигание топлива. Подобная схема позволяет увеличить производительность на 20%.
Корпус должен быть полностью проварен – сварка прихватками здесь не подходит.
Главным недостатком стальной печи можно считать обширную раскаленную поверхность, опасную для людей. Однако это легко поправить. После установки корпус просто обкладывается огнеупорным кирпичом, для конвекции оставляют щели.
Обкладка кирпичом
Видео: изготовление металлической печи для бани поэтапно
Чертежи и схемы металлических печей
Устройство котла для бани
Устройство металлической печи-каменки
Устройство печи для бани с закрытой каменкой
Печь на отработке
Схема металлической печи-каменки
Чертеж безопасного простого банного котла
Со встроенным баком для нагрева воды
Чертеж металлической печи
Принцип работы котла на отработке
Самодельная металлическая печь из трубы
Каменка из металла с баком для воды
Чертеж буржуйки
Прочная печь
kakpravilnosdelat.ru
Металлическая печь для бани своими руками: чертежи + фото
Баня – это довольно распространенный атрибут в России, обязательный для частного дома, дачи, загородной усадьбы.
Видов печного оборудования довольно много: одни предпочитают кирпичную каменку, сложенную профессиональным мастером, а другим по душе сконструированная собственными руками металлическая печь.
Последний вариант является экономичным, так как может быть выполнен из подручных материалов самостоятельно.
Преимущества агрегата
Можно выделить следующие положительные моменты, которыми наделена металлическая печь для бани:
- Компактность, небольшие размеры дают возможность установки конструкции даже в маленьком помещении.
- Отсутствие необходимости возведения специального массивного фундамента. Для такой печки подойдет и облегченный вид основания, что значительно упрощает процесс установки.
- В металлической банной печи можно поддерживать постоянное горение, что позволяет сохранять температуру на заданном значении в течение всей банной процедуры.
- Экономичный вариант печного оборудования, возможность изготовить сооружение из подручных материалов.
Недостатки
Несмотря на наличие положительных сторон, металлическая печь для бани имеет и свои минусы:
- Очень быстро остывает, так как отсутствует свойство накопления тепловой энергии. Для того чтобы в бане сохранялась высокая температура, нужно поддерживать постоянный процесс горения.
- Низкая способность нагрева большого помещения.
- Необходимость в обеспечении специальной защиты, так как пожаробезопасность металлической конструкции низкая. Рекомендуется установить дополнительную обшивку корпуса.
Выбор формы
Многим покажется такой параметр несущественным. На самом деле конфигурация влияет на производительность оборудования и удобство при его использовании в процессе эксплуатации. Печной агрегат бывает:
- цилиндрическим;
- горизонтальным;
- фигурным;
- прямоугольным.
Последний вид наиболее распространенный и удобный в использовании. При такой конфигурации у печи есть угловые зоны, которые подвержены минимальному накалу. Именно поэтому многие считают, что в прямоугольной конструкции наилучшим образом сохраняется каркас печи.
Форма также влияет на равномерность нагревания как самой конструкции, так и отапливаемого помещения. При максимальном нагревании одного элемента оборудования происходит уменьшение разогрева другого. Это, в свою очередь, обеспечивает равномерность обогрева помещения, постоянный баланс тепловых потоков.
Правильный нагрев конструкции влияет на ее механическую устойчивость. Круглая или цилиндрическая печь характеризуется низкой степенью, поэтому для нее делают более плотные стенки. Прямоугольная печь считается устойчивой, так как у нее имеются холодные углы.
Варианты печного сооружения, выполненного своими руками
Металлические банные печи, можно сказать, имеют уже длинную историю, поэтому за такой долгий период умельцами были разработаны и предложены различные виды их изготовления.
Самый простой вариант – это металлическая печь-каменка, выполненная из железной бочки. Для этого у бочки срезается дно и крышка, в результате получается цилиндр. Затем его до середины загружают кирпичами, поставленными на ребро. Сверху на них укладывается колосниковая решетка. Оставшуюся половину бочки на 2/3 части заполняют камнями. После этого выводят дымоход и устанавливают крышку. Такой способ изготовления печи очень простой, но неудобный в использовании.
Для небольшой по площади бани можно соорудить печь-каменку компактного размера, используя листовую сталь. Внутренняя поверхность такой конструкции выкладывается кирпичом, стенки топки – в полкирпича, дымоход – в одну четверть.
Этот вид печи легко изготовить, использовать в работе. Для прогрева помещения потребуется немного топливного сырья. Комфортная температура будет обеспечена спустя короткий промежуток времени.

Процесс изготовления
Какой вариант исполнения вы бы ни выбрали, потребуется приобрести следующий материал:
- листовую сталь, толщина которой не меньше 8 мм;
- металлическую трубу со стенками 10 мм, диаметром 50—60 см;
- прут толщиной 10 мм;
- колосник;
- щеколды и дверки для топочной камеры, каменки и поддувала;
- водный кран;
- 2 метра трубы (из них 90 см пойдет на топку, 60 см – на бак, а 50 см – на изготовление второстепенных деталей).
Кстати, дверцы для конструктивных элементов можно сделать самостоятельно.
Что касается инструментов, то в работе будем использовать болгарку и сварочный аппарат.
Вариант 1: печная конструкция с закрытым типом каменки
В таком виде сооружения для того чтобы плеснуть воды для подачи пара, потребуется открыть дверку.
Такая конструкция имеет следующие шаги:
- Берем большой кусок трубы, диаметр которой не менее 50 см, и вырезаем в ней проем для поддувала размером 5х20 см.
- Внутри трубы со стороны проема привариваем крепления для колосника, используя для этого любую металлическую пластину с проушинами.
- Переходим к обустройству топки: прорезаем проем 25х20 см, привариваем крепления для прутов каменки. Воспользуемся теми, которые имеют диаметр 1 см, или специально продающимися колосниковыми решетками для печи круглой конфигурации.
- На противоположной стене каменки прорезаем отверстие, через которое подается пар.
- Заполняем камнями, подходящими для такого типа конструкции. Хорошими свойствами, сочетающимися с металлической поверхностью, обладает талькохлорит, диабаз, исключить нужно кремень, гранит, слюдосодержащие камни.
- В крышке для печи вырезаем отверстие под трубу дымохода и устанавливаем ее.

На этом процесс изготовления печной конструкции завершен. Но все же мастера предлагают усовершенствовать ее, добавив бак под горячую воду. Для этого необходим кусок трубы большого диаметра, который нужно вварить в водный кран. Затем берем крышку подходящего размера и разрезаем ее на 2 равные части. В одной половине вырезаем проем для дымохода, а затем привариваем ее на бак. Вторая будет съемной, поэтому к ней необходимо приделать петли и ручку.
Вариант 2: печь постоянного нагрева с открытым типом каменки
Такой агрегат соорудить несложно, имея металлический лист. Его конструкция представляет собой трубу, разделенную на 2 отсека при помощи колосниковой решетки. Верхний – это топка, нижний же выполняет роль зольника-поддувала. Каждое отделение оснащается дверцей, через которую можно закладывать топливо, обеспечивать подачу воздуха, удалять продукты горения.

В дальнем заглушенном торце трубы привариваем патрубок дымохода диаметром 100 мм.
Сверху цилиндрического корпуса присоединяем с помощью сварки металлический короб, который заполняется камнями. Изогнутое колено дымохода позволяет обеспечить максимальное нагревание камней, так как при этом увеличивается контактирующая поверхность раскаленной трубы с каменкой.
Описанный вариант печного сооружения нетрудно выполнить и в виде параллелепипеда. В этом случае понадобятся для заготовок листы металла, а не труба.
Как правило, для такой печки предполагается наличие водогрейного бака. В прямоугольной по форме печи способов его размещения множество, вот лишь некоторые из них:
- на любой из сторон;
- сверху;
- выполнить водяную рубашку по нескольким сторонам;
- врезать трубы на подачу холодной и забор горячей воды.

Удобный способ получения горячей воды – это установка специального теплообменного бака на трубе дымохода. Такой нагреватель можно сделать как самому, так и купить готовый заводской, у которого имеется труба стандартного размера и диаметра. В последнем случае бак врезается в дымоход, его вертикальную часть над корпусом печи, и подключаются трубы на подачу и забор воды. Такой бак при достаточном объеме может выполнять функцию резервуара либо просто быть теплообменником, подключенным к основной емкости под воду.
Вариант 3: металлическая печь открытого типа с дополнительными кирпичными стенами
Этот вид печного оборудования считается сложным в исполнении, но это оправдывается приобретением способности накапливать тепло.
Такая конструкция представляет собой металлический корпус с внутренней кирпичной кладкой. При этом требования к толщине стали снижаются: можно взять лист 2 мм. Для кладки потребуется огнеупорный кирпич из шамота и раствор, в качестве которого подойдет специальная готовая сухая смесь для печных работ. Замешивается она с учетом требований инструкции по применению.
Металлическая печь для бани имеет следующую технологию изготовления:
- Подготавливаем основание: привариваем к нему ножки и подпяточники. Это позволит сделать печное сооружение устойчивым.
- Выкладываем на основание первый сплошной кирпичный ряд. Для остальных – придерживаемся следующих параметров: возле топки укладываем в полкирпича, в районе дымоходных каналов – в четверть.
- Когда будет готова камера поддувала, устанавливаем колосник из чугуна, помещая его между топкой и зольником. Для оформления проемов под загрузочное окно и поддувало можно воспользоваться металлическими уголками, размером 20 х 20. При этом важно следить за ровностью межрядовых швов.
- Над топочной камерой укладываем металлическую решетку из прутьев, диаметр которых 12 мм. На нее будем потом выставлять камни.
- Когда кладка достигнет уровня каменки, нужно справа или слева оставить проем. В него будем загружать камни, доставать их для чистки, а также в это окно во время банной процедуры прыскают водой для парообразования.
- Дымоходный канал желательно сделать извилистым. Это обеспечит максимальный прогрев всего печного корпуса и полное сгорание топливных ресурсов. В том месте, где труба поворачивает наверх, с тыльной стороны создаем ревизионное оконце. В него монтируем задвижку, позволяющую сохранять долго тепло после окончания процесса топки.
- Верхние два ряда кирпичей укладываем сплошными, оставляя проем для монтажа дымоходной трубы, через которую будут выводиться продукты сгорания.
- После того как закончили кирпичную кладку, даем время раствору схватиться, подсохнуть. Затем приступаем к сварке стенок металлического корпуса. В нашей ситуации он напоминает своеобразный футляр. Уголок 20 х 20, пущенный по стыкам, позволяет облегчить сварные работы, сделать швы герметичными.
- Не забываем вырезать проемы под зольник и загрузочную камеру топки, выполняя заготовку передней стенки. Устанавливаем ее на место, привариваем петли для дверей. Полотна дверок делаем шире на 10 мм с каждой стороны, чем подготовленные проемы – это обеспечит плотность при закрывании. Можно проложить асбестовый уплотнитель по периметру дверки или по всей ее внутренней поверхности.
- В заготовке боковой стенки также предусматриваем проем для подготовленного в кирпичной кладке окна под образование пара. Устанавливаем для этого металлическую дверку с уплотняющим материалом. Ее желательно сделать открывающейся вниз, поставить холодную рукоятку для открывания во время банной процедуры, когда есть необходимость в поддаче пара.
- На крышке для печи вырезаем отверстие для дымоходной трубы, после чего прикрепляем ее.
- Далее устанавливаем дымоходный канал, проводя сварочные работы.
- Ставим печь на выбранное место и загружаем камнями.
Правила установки
Вот несколько общих рекомендаций по монтажу печного оборудования:
- устанавливать на расстоянии не меньше 1 метра от стен бани;
- сооружение должно находиться в непосредственной близости от дымохода;
- выполнение специального фундамента, основания из огнеупорных материалов для размещения печи;
- стену, возле которой находится металлическая печь, следует отделать листовым огнеупорным материалом.
Похожие статьи:
pechnoedelo.com
