Печи для бани самодельные металлические – Самодельные печи для бани из металла чертежи
Самодельные металлические печи для бани: схемы и чертежи
Строительство печи всегда требует аккуратности и соблюдения всех технологических требований. Особенно это касается конструкции для бани, так как печка считается ее самой главной деталью.
Основные задачи самодельной металлической печи это нагревать воду и воздух.
Каменка печи может быть:
- Закрытой;
- Открытой.
Безусловно, в закрытой конструкции тепло сохраняется намного дольше. Однако чтобы достичь нужной температуры в парилке, потребуется больше топлива и времени.
Для нечастого посещения, профессионалы советуют устанавливать в баню закрытую каменку.
Парилка намного быстрее нагревается в каменке открытого типа. Однако если плеснуть на камни воду, она начинает быстро охлаждаться.
В парилке всегда располагают цельные камни, с округленными боками.
Чем отличается металлическая печь для бани от печи в сауне
Главным отличием можно назвать температуру парения. В сауне она может достигать 85 градусов, а иногда намного больше. Такая температура не допускает большой влажности. Человек может получить сильный ожог.
Поэтому в сауне всегда поддерживается влажность не больше 5–15%.
В обычной русской парной, значение температуры находится в диапазоне 55–65 градусов. Очень редко она может достичь 70 градусов. Для этой температуры специально поднимают значение влажности. Она находится в пределах 50–60%.
Чтобы решить такие задачи, нужен соответствующий подход к строительству печи. Для установки в сауне необходимо, чтобы корпус печи, как можно больше соприкасался с окружающей атмосферой. Воздушные потоки должны двигаться с большой скоростью вдоль стенок.
Главной задачей считается создание быстрого нагрева парилки до нужной температуры. В самой сауне обычно устанавливается небольшая каменка открытого типа, монтируемая над топкой.
Прогрев камней в подобной печи достигает только 200–250 градусов. Окружающий воздух забирает очень много тепла. Такая каменка может создать только небольшое количество пара. Для сауны этого вполне достаточно. Один ковш воды даст 15% влажность. Человек не сможет вытерпеть ее большее значение.
Задача обычной русской парной совершенно другая. Главное чтобы было много пара. Очень важно добиться его определенного состояния. Он должен иметь вид мелких капель. Такой пар получил название «сухого». Он отличается высокой температурой, примерно 130–150 градусов. Человек, попав в подобные условия, чувствует мощный прилив сил. Чтобы получить такой пар нужно раскалить камни выше 500 градусов. Для этого их опускают глубоко внутрь топки, с установленной закрытой каменкой. Все описанные выше отличия, нужно обязательно учитывать при строительстве печи.
Габариты каменки
Если утепление бани было сделано в соответствии с технологическим процессом, то объем парной будет влиять на количество камней. Существует несколько источников, которые рекомендуют применение определенного количества камней. В среднем на 1 куб. метр положено 20–40 камней. Вообще-то, чем больше положено камней, тем быстрее можно получить нужный объем пара. Однако должно соблюдаться одно условие. Мощность печи должна быть достаточной, для их нагрева.
Основной проблемой, которую приходится решать, эта плотность камней. У каждой породы она своя. Поэтому одинаковая масса может отличаться разным объемом.
Средняя парилка, имеющая объем 12–14 куб метров, хорошо прогревается каменкой с габаритами 30х40х30 миллиметров. В зависимости от конструкции печи эти значения могут изменяться.
Чтобы сделать такой теплотехнический расчет, нужны специальные знания и опыт. Гораздо проще, пользоваться готовыми чертежами, в которых уже высчитаны определенные пропорции. В принципе, как минимум, объем топки, в которой не установлена каменка, не должен быть меньше. В идеале, должен быть даже больше на 30-50%.
Где нужно устанавливать контейнер для камней
Уже давно известно, что температура достигает своего максимума в верхнем отделе, около задней стенки. Именно здесь лучше всего установить такую емкость. Свод топки будет испытывать меньшие термические нагрузки, камни будут хорошо нагреваться.
Каменка требует постоянного обслуживания. Внутрь обязательно должна проникать вода. Люк, предназначенный для обслуживания, должен находиться в месте, откуда можно достать самый дальний его край.
Вода должна подаваться вглубь каменки, при этом человек не должен получить ожог.
В каменку вставляется одна или несколько трубок, которые полностью охватывают всю емкость. В каждую трубку, обложенную камнями, вставляют воронку. Когда в трубку подается вода, она начинает быстро покрывать поверхность камней, происходит ее стремительное испарение.
Технология изготовления
Таких конструкций очень много. Каждая из них имеет свои особенности и отличается принципом работы. Однако существуют в таких печах и одинаковые детали, работающие на одном и том же принципе.

Топка
Самой первой изготавливается топка. Габариты определяются индивидуально. Опытные мастера рекомендуют, если ширина достигает 50 см, создавать аналогичную высоту. Самодельная печь для бани должна предусматривать применение готовых металлических деталей таких как решетки и дверцы.
Надо сказать, что лучше использовать именно стальные детали, так как чугунные изделия отличаются своей фиксацией.
В стандартном проекте металлической печи, закладывается топка, имеющая две секции. Первая предназначена для сжигания топлива. Во второй будет собираться зола. Поэтому их отделяют решеткой, устанавливают отдельные дверки.

Очень часто, окно секции, в которой собирается зола, используется для увеличения тяги, требуемой для создания нормального горения.
Если в проекте металлической банной печи, показана установка каменки, верхний отдел топки также должен быть изготовлен из решетки.
Важно! Чтобы построить печь, лучше взять толстый листовой металл. Конструкция будет устойчивой, ее не поведет от сильного нагрева. Она будет выделять намного больше тепла.
Проект самодельной металлической банной печи
Эта конструкция разрабатывалась для парной, с габаритами 2х3х2,3 м. Для сварки применялся 3 мм листовой металл.
Чтобы улучшить горение, было специально спроектировано подключение еще одного воздуховода, идущего снаружи. Другим технологическим решением стали ребра жесткости. Эти уголки привариваются по бокам, к верхнему отделу топки. Когда будет происходить сильный нагрев, металл не начнет выгибаться.

Другая схема показывает металлическую печь, где подача воздуха осуществляется в верхний отдел топки. Эти конструкции получили название «дожигатели».
К задней стенке приварена металлическая пластина. Между приваренной пластиной и стеной образуется щель. В нее вставляются трубки, через которые происходит подача воздуха, находящегося под колосниками.
Такое простое устройство помогает справиться с двумя проблемами.
Прежде всего, происходит интенсивное охлаждение задней стенки и защита ее от прогорания.
Вторым положительным моментом, считается подача уже разогретого воздуха. В этой области находятся очень горячие дымовые газы. Примерно 80% из них считаются горючими. При соединении этих газов с горячим воздухом, происходит воспламенение горючих веществ.

Температура верхнего отдела топки намного увеличивается. Камни нагреваются до очень высокой температуры. Причем если для этого пользоваться сухими дровами, то их понадобится намного меньше.
Большинство печей длительного горения работают именно на таком принципе. Для банных печей этот способ стали применять несколько лет назад.
Точно такая же модель, не имеющая дожига, имеет несколько другой формат. На чертеже отсутствуют габариты, зато намного проще понять, какие нужны пропорции и как расположены различные детали.

Объем топки, достигает 130% от общего объема каменки. Такое соотношение гарантирует нормальную работу.
Труба дымохода немного смещена назад. Правда такая технология отличается своими недостатками. Возможно появление некоторых проблем, когда будет проводиться монтаж дымохода. Трубу может не пропустить потолочная балка. Придется его изгибать, а это уже нехорошо. Поэтому заранее нужно предусмотреть такую ситуацию, и найти оптимальный путь прокладки дымохода.
Любители бани часто спорят, хорошо или плохо устанавливать в парилке емкость, в которой будет нагреваться вода.
По мнению одних, влажность можно регулировать открыванием крышки бака.
Другие называют такой пар «тяжелым». Они устанавливают емкость в моечном отделе. Нагрев воды происходит при помощи теплообменника, который соединен с баком.
Металлическая печь, оборудованная водяным баком

Такая конструкция превосходно работает. «Искрогаситель» увеличивает путь движения дымовых газов. Они намного дольше находятся в топке, улучшается прогрев стенок. Вместо бака можно положить камни.
Достаточно интересно выглядит вариант, когда бак устанавливается в задней области печки.
Дымоход сдвигается назад. Он проходит прямо через бак. Так как высота бака достаточно большая, повышается эффективность тепло съема. Вызывает интерес и устройство каменки. Ее габариты не имеют больших значений, однако для небольшой парилки этого вполне достаточно.

Вызывает неудобство процесс закрывания крышкой. Его можно делать только с определенной стороны. Очень тяжело закрыть крышку, когда была подана вода в каменку. Плюсом можно назвать удобство обслуживания.

Изготавливаем печь в сауну
Основной задачей таких отопительных приборов считается скорость получения требуемой температуры, а также возможность постоянной её поддержки. Самым простым решением считается установка вентилятора. Благодаря обдуву стенок, будет повышаться температура.
Аналогичной функцией обладает кожух-конвектор. Другими словами, это корпус, завернутый в оболочку. Между топкой и кожухом возникает зазор, примерно 1,5–2 см. Снизу в щель засасывается воздух.
Он движется вдоль стенок, и начинает нагреваться, попутно охлаждая стенки. Затем он начинает подниматься. По всей площади парилки начинает разноситься мягкое тепло.
Если для корпуса печи был использован толстый металл, разрешается кожух изготавливать из более тонкого листа. Он не будет сильно нагреваться, поэтому прогорание стенок исключается. Если каменка будет располагаться вверху, прямо над топкой (смотри фото), в корпусе делается отверстие, чтобы происходило вентилирование каменки. Часть потока воздуха, поднимающегося вдоль стенок, начнет попадать прямо в каменку. Уложенные камни получат дополнительный обдув и нагреются еще больше. Данная каменка получила название «вентилируемая». Ею очень хорошо пользоваться в суховоздушных саунах.
Схемы и эскизы
Для сауны конструкция печей намного проще. Требуется наличие нормальной топки, чтобы можно было пользоваться большими поленьями. К топке, сверху привариваются стенки каменки с объемом 20–25 литров. Можно, конечно, изменять габаритные размеры, но никаких особых хитростей в этом нет.

Не стоит устанавливать в парной сауны, емкость для разогрева воды. Будет очень сложно контролировать влажность. Если температура поднимется очень высоко, можно получить ожог.
На фотографии показаны варианты такой установки бака.

Еще одной разновидностью каменки, считается ее установка внутри топки. Ее можно закрывать крышкой. Сухое парение достигается при открытой крышке. После закрытия каменки, можно получить много пара.
Похожие статьи:
pechnoedelo.com
Металлическая печь для бани своими руками
На вопрос, чем отличается металлическая печь от каменной, многие отвечают с улыбкой и без малейших колебаний – материалом изготовления. За такой ответ можно поставить тройку по пятибалльной системе оценки знаний. Чтобы получить более высокий балл, ознакомьтесь с главными и принципиальными отличиями, эти знания вам очень пригодятся во время изготовления своими руками металлической печки для бани.

Металлическая печь для бани своими руками
Каменная печь сложена из тяжелых кирпичей, следовательно, имеет большую массу. А все тела с большой массой характеризуются значительной инерцией – они долго нагреваются и долго отдают тепло. Для бани это неплохо, но только при одном условии – устройство топки должно обеспечивать максимальную температуру горения дров, в противном случае придется длительное время протапливать помещения.
Металлическая печь наоборот, имеет малую массу, быстро нагревается и столь же быстро остывает. Эти особенности выдвигают принципиально новые требования к топке, дрова в ней должны гореть как можно дольше. Только таким образом можно длительное время поддерживать печь в горячем состоянии.

Топка банной печи
Еще одно важное требование к топке связано с особенностями стали. При нагреве всего до +150°С начинает происходить распад мартенсита, он рекристаллизует и полигонизует, изменяются физические свойства металла.

Зависимость цвета от температуры нагрева металла
Посмотрите на таблицу, при такой температуре металлическая печь не изменяет цвет, нам кажется, что все нормально, а это уже не так. Низкотемпературный отпуск происходит при температуре металла до +250°, сталь теряет устойчивость к динамическим нагрузкам.
Раскаленный докрасна металл печи
Темно-коричневый цвет печи указывает, что металл нагрелся до температуры +550°С, а при этих показателях начинается среднетемпературный отпуск стали, мартенсит превращается в феррит и цементит. Кристаллические превращения металла изменяют его линейные характеристики. Вы обращали внимание, что листовое железо после сильного нагрева и остывания не возвращается к первоначальным размерам? Оно может вспучиться, потерять линейность и т. д. Внешний вид печки становится «очень оригинальным» и далеким от первоначального.

От высокой температуры страдают не только печи, но и металлические дымоходы
Но довольно часто металлическая печь нагревается еще больше и становится ярко-красной. Такой цвет появляется при температуре нагрева +900°С. А это уже высокий отпуск, металл становится очень мягким и пластичным, значительно увеличиваются явления остаточной деформации. Печь может перекосить, сварные швы могут не выдержать появившихся статических усилий. Как предупредить такие негативные явления? Полностью избавиться от них не удастся, но есть способы минимизации. Они помогут увеличить время эксплуатации металлической печки и улучшить комфортность банных процедур за счет увеличения времени поддержания благоприятной температуры в помещении.

Влияние отпуска на механические свойства стали
Содержание материала
Как улучшить характеристики металлической печки
Уверены, что эти знания помогут вам минимизировать негативные последствия слишком сильного нагрева металлической печи. Сделать это можно двумя способами: специальной подготовкой металла и особенностями устройства топки.
Предварительная подготовка металла
После того как вырезаны все отдельные элементы печи, наиболее нагревающиеся детали предварительно отпустите. Сильнее всего греются боковые и верхние части и дверка топки. Нагрейте их любым способом до красного цвета и медленно охлаждайте. После отпуска листы могут немного покоробиться, это не страшно, молотком подровняйте их до первоначального состояния. Еще раз проверьте размеры, если они изменились в заметных пределах, отрежьте до нужных параметров. Этот простой способ исключит коробление печки во время ее эксплуатации.

Заготовки для печных дверец

Пример установленной металлической дверцы
Особенности конструкции топки металлической печи
Большинство металлических печей выдают максимальное количество тепла за минимальное время, дрова очень быстро перегорают, поверхности нагреваются до высоких температур. Поддерживать нормальную и стабильную температуру в парной невозможно – приходится часто подкладывать дрова. В помещении то слишком жарко, то холодно. Почему так происходит? Подобные печи в большинстве случаев имеют колосниковые решетки. Их наличие оправданно в каменных печах, мы уже упоминали, что эти печи нужно быстро нагревать. Сильное горение пламени обеспечивается большим количеством воздуха, попадающим сквозь колосники в пламя.

Металлическая печь с колосниковой решеткой
Колосники делаются из металлических прутков, листового металла многочисленными просверленными отверстиями или литого чугуна, отличаются размерами отверстий и т. д.

Колосниковая решетка чугунная
Дрова лежат на решетке, поступление воздуха ничем не регулируется, наоборот, принимаются все меры для увеличения тяги, что автоматически ускоряет процесс горения. Больше всего нагревается верхняя часть печи, чуть меньше боковины, а низ и фронтальная часть нагреваются незначительно.
Дрова в топке лежат на колоснике

Схема работы печи-каменки
Такой режим горения крайне негативно сказывается как на длительности эксплуатации печки, так и на комфортности пребывания в парной. Приходится огонь периодически заливать водой, если мало воды – пламя быстро вновь разгорается, если много – горение может вообще прекратиться. Одним словом, банный день вместо удовольствия приносит головную боль.
Что предлагаем мы? Решение очень простое – не делайте колосники с поддувалом, пусть дрова лежат на дне печки, а не на колоснике. Дверку топки максимально герметизируйте, можно по периметру использовать асбестовый шнур или минеральную вату.

Асбестовый шнур
В дверке топки проделайте отверстия с обыкновенной подвижной заслонкой для регулирования количества подаваемого воздуха. Одна закладка дров в такой печи будет гореть более часа, есть возможность регулировать температуру нагрева поверхностей. Кроме того, прогреваться будет вся площадь печки. Работы по изготовлению печи за счет отсутствия колосника и зольника упростились, а эффективность и удобство пользования увеличилось.

Топка печи без колосников

Пример печной дверцы с регулируемой заслонкой
Как видите, все знания нам пригодились, их можно использовать не только во время изготовления печки для бани. С теорией мы разобрались, пора переходить к практике.
Краткое описание и размеры металлической печки
Наша конструкция будет иметь отдельный бак для нагрева воды и встроенную в верхнюю часть печи каменку. Пламя со всех сторон нагревает каменку, это значительно повышает коэффициент полезного действия печи. Размеры можете брать произвольные, учитывайте параметры парной и количество одновременно моющихся людей. Мы для примера даем размеры своей печки.
- Внешняя каменка. Ширина 50 см, длина 50 см, высота 80 см.
- Внутренняя каменка. Ширина 40 см, длина 40 см, высота 50 см. Расстояние между стенками внутренней и внешней каменки составляют пять сантиметров по периметру.
- Печь. Ширина 50 см, длина 90 см, высота 50 см. Длину печки можете изменять, делать ее только под внешнюю каменку длиной 50 см (тогда бачок воды придется крепить со стороны на упорах) или увеличивать длину для увеличения объема бачка.
- Бачок для воды. Ширина 40 см, длина 50 см, высота 60 см. В бачок помещается 120 литров воды, что вполне достаточно для помывки трех-четырех человек. Конечно, горячую воду нужно разбавлять холодной.
Инструкция по изготовлению металлической печи
Шаг 1. Заготовьте материалы. Для изготовления нужна листовая сталь, толщина чем больше, тем лучше. Но это может быть очень дорого, мы рекомендуем использовать листы толщиной 1,5÷2,0 мм.

Металлические листы 2 мм
Шаг 2. Сделайте эскиз печи с указанием всех размеров и частей. Подсчитайте количество деталей и их общую площадь. Это поможет вам определиться с потребностью листового железа.

Нарисуйте эскиз вашей печи, например, мелом на стальном листе

Схема — пример банной печи
Шаг 3. Перенесите размеры на металл, вырежьте все элементы печи. Строго соблюдайте углы, они должны равняться 90°, противоположные боковины сделайте максимально одинаковыми. Резать металл нужно круглошлифовальной машиной, соблюдайте правила техники безопасности. Болгарка – очень опасный инструмент, шутить с ней не стоит, слишком тяжелые травмы в итоге можно получить. Заусеницы после обрезания заготовок следует убрать. Перед началом сваривания еще раз проверьте количество и размеры всех деталей.
Сваривание печи
Работы выполняйте на ровной площадке, освободите рабочее место от посторонних предметов. Начнем с изготовления каменки для печки.
Шаг 1. Поставьте на ребро две боковины под прямым углом, начинайте делать прихватки.

Стыкуем две заготовки под прямым углом
Отрегулируйте силу тока, электрическая дуга не должна перегревать металл – шов получится неравномерным и непрочным. Прихватывайте по несколько миллиметров, на один угол достаточно 4÷5 прихваток. Постоянно контролируйте положение боковин. Сварной шов после остывания ведет листы в сторону, выравнивайте их положение. Проверьте угольником углы. Таким же образом прихватите две оставшиеся боковины каменки.

Производим точечную сварку
Шаг 2. Поставьте две подготовленные заготовки вместе, при необходимости откорректируйте углы и прихватите противоположные грани каменки. У вас получился короб каменки, осталось сделать дно и крышку.

Четыре соединенных листа-заготовки, образующих короб
Шаг 3. Прихватите дно и крышку. Во время вырезания вручную заготовок добиться идеальных размеров невозможно, всегда будут отклонения. Это не страшно, перед прихватыванием дна и крышки устанавливайте их таким способом, чтобы разбежность размеров были со всех сторон приблизительно одинаковыми. Щели в несколько миллиметров без проблем заварятся. Чтобы крышка не упала в короб, кладите одну строну на любую подставку, главное, чтобы она была тонкой и не нарушала нужное положение детали. С каждой стороны каменки сделайте по несколько прихваток, как и всегда, обращайте внимание на положение элементов и при необходимости исправляйте отклонения.
Для дна внутренней каменки лучше взять лист толщиной 10 мм. На него приходится главный «улар» пламени, слишком тонкое дно может довольно быстро прогореть и дым начнет поступать в парную. Когда короб каменки полностью прихвачен, наложите полноценные швы.

Делаем дно и крышку
Шаг 4. Проделайте дверку в каменке. Положите короб горизонтально и сделайте разметку. Вырезать отверстие можно болгаркой или сваркой.

Вырезаем дверцу

Молотком выбиваем вырезанный прямоугольник и отставляем его в сторону
В нашем варианте каменка состоит из двух частей: внутренней и внешней. Внешняя должна иметь размеры по периметру больше внутренней примерно на 10 сантиметров для прохода пламени и дыма в дымоход. Внутренняя каменка устанавливается во внешнюю на трубах, диаметр труб произвольный.
Шаг 5. Проделайте в нижней части внешней каменки отверстия под трубы, на них будет стоять внутренняя каменка. Если у вас нет труб, можете использовать металлические прутки или арматуру. Следите, чтобы отверстия были горизонтальными и на одной высоте с двух сторон боковин внешней каменки.

Делаем отверстия под трубы
Таким же способом прихватите внешнюю каменку, топку печи и бак для воды. В топке вырежьте отверстия под дрова. Рекомендуем делать отверстия с таким расчетом, чтобы отрезанные части листа можно было использовать в качестве дверок. Для этого в топке делайте на 1 см отверстия больше, чем в каменке, из этой заготовки можно будет сделать к ней дверку – экономится материал.
Видео — Изготовление печи из металла для бани (часть 1)
Сборка отдельных элементов печи в единую конструкцию

Элементы печи перед соединением
Шаг 1. Заготовьте четыре пластины для сваривания двух каменок. Размеры пластин по длине должны отвечать размерам отверстия внешней каменки.
Шаг 2. В верхней части внешней каменки вырежьте отверстия под дымоходную трубу. Размеры отверстия должны отвечать имеющейся у вас трубе и обеспечивать необходимую тягу в топке.
Шаг 3. По периметру отверстия в печке под каменку приварите металлические полосы высотой примерно 2 сантиметра, размеры проема должны отвечать размерам внешней каменки.

Металлические полосы
Изнутри топки приварите уголок 45×45 м, одна сторона уголка должна выходить в отверстие под каменку и образовывать квадрат. Сторона квадрата должна быть на 0,5÷1 см меньше размеров каменки. На эти полки в отверстии печи будет упираться конструкция. Для увеличения герметизации мета установки каменки используйте листовой асбест, вырежьте из него полоски шириной два сантиметра и положите между дном каменки и упорами из уголка. Разъемное соединение облегчит установку печки в парной. Конструкции печи изготовлены из толстой стали, имеют большие размеры и вес, приварить каменку к печи нецелесообразно. Намного удобнее сделать ее сборно/разборной, это облегчит транспортировку и установку.
Шаг 4. На петлях приварите дверку топки. Двойным швом проварите все предварительно сделанные конструкции. Шов лучше класть снаружи и изнутри.

Дверца
Шаг 5. Вставьте внутреннюю каменку на место, она должна стоять на трубах и иметь вертикальное положение. С помощью заготовленных пластин соедините отверстия внутренней и внешней каменки. Если крепление внутренней каменки вызывает сомнения – закрепите ее сверху отрезками металла, угольниками или арматурой. Эти крепления будут скрытыми, можете использовать любые отходы металла.

Соединение внешней и внутренней каменки

Приваренные треугольники для укрепления соединения внешней и внутренней каменок

Стрелкой показано технологическое отверстие для чистки сажи

Отверстие закрыто дверцей. По периметру дверцы асбестовый шнур, крышка крепится болтами

Верхняя крышка

Готовая печь
Шаг 6. Приварите верхнюю крышку внешней каменки. Прорежьте в ней отверстие под трубу дымохода. Проверьте качество всех швов, при необходимости поправьте пропуски.
Каменка почти готова. Отсталость только сделать технологическое отверстие для очистки сажи, падающей из трубы и продумать установку печи. Сажа будет накапливаться на крышке внутренней каменки. Сбоку внешней стенки каменки сделайте отверстие, закрывайте его крышкой на болтах, для герметизации используйте асбестовый шнур. Аккуратно отшлифуйте болгаркой все углы, снимите заусеницы.
Устанавливать печь мы предлагаем на металлические ножки. Высота ножек не менее 40 сантиметров, внизу обязательно следует класть асбест, сверху металлический лист. Это правила пожарной безопасности.
Видео — Печка для бани (этапы сборки двойной каменки и установки ее на сваренную топочную камеру)
Видео — Печка для бани (заключительная часть)
Практические советы
Мы уже упоминали, что каждый мастер по ходу изготовления печи может вносить свои изменения и корректировки с учетом собственных предпочтений и индивидуальных характеристик парной. Изменения касаются не только размеров печи, но и ее конструкции. Даем несколько подсказок для возможного использования.
Ножки лучше делать в виде продольных салазок – значительно уменьшается давление на половое покрытия, нагрузки распределяются равномерно на несколько половых досок. Это очень важно, сама печь довольно тяжелая, а еще нужно иметь в виду вес камней и воды. Для изготовления ножек подойдет любой имеющийся металл походящих размеров, а для салазок можно взять угольник 50×50 мм. Концы салазок не должны выступать за периметр печки, в противном случае можно травмировать ноги.

Печь на классических ножках

Ножки-полозья для лучшего распределения нагрузки
На дно и по бокам печки можно положить огнеупорные кирпичи – меньше греется металл и дольше держится тепло. Огнеупорные кирпичи бывают двух видов: проводящие тепло (тяжелые) и изолирующие тепло (легкие). Вторые используются для кладки плавильных печей, они сохраняют поверхности холодными, несмотря на огромную температуру внутри. Не ошибитесь, не берите такие материалы. Огнестойкий кирпич для печки бани должен хорошо проводит тепло, обращайте на это внимание. Если планируете класть кирпичи, то увеличьте размеры топки на размеры кирпича.

Облицовка металлической печи кирпичом снаружи
Дверки топки и каменки можно изготовить из пластин, получаемых после вырезания отверстий. Для этого делайте срезы максимально ровными, для уменьшения ширины прореза пользуйтесь тонкими дисками. Работать с ними труднее и дольше, но в итоге у вас все равно будет экономия времени – не придется его терять на изготовление отдельных дверок. Само собой разумеется, что экономится и металл.

Пример вырезания дверцы для топки
Размеры дверок будут меньше размеров отверстий на ширину среза, дверки могут «проваливаться» внутрь топки или каменки. Чтобы исключить такие ситуации следует приварить с обратной стороны отверстий упоры для дверок. Можете использовать неширокие полоски металла. Желательно упоры приваривать по всему периметру отверстий, а не в нескольких точках, таким образом вы увеличите герметичность закрывания дверок.
Бак для воды лучше делать из нержавейки, для сварки нержавейки нужно пользоваться специальными электродами. Настраивайте ток сварочного аппарата специально под нержавейку, помните, что ее варить сложнее, требуется определенный опыт.

Бак из нержавеющей стали
Если в бане моются маленькие дети – обязательно сделайте вокруг печки защитное ограждение. Оно может быть переносным или стационарным, не имеет значения. Главное, чтобы ограждение гарантировало безопасность детей.

Деревянное ограждение для банной печи

Ограждение из дерева для печи
Если во время эксплуатации печи обнаружилось, что ее мощности не хватает для обогрева помещения – не расстраивайтесь. Показатели теплоотдачи печки можно значительно улучшить за счет увеличения эффективной площади. Приварите по бокам и сверху любые металлические пластины, они будут выполнять роль радиаторов-теплообменников. Есть еще один способ увеличения теплоотдачи. Для этого понадобятся изогнутые дугой трубы диаметром примерно 50 сантиметров. Приварите их к боковинам печки, один конец трубы должен располагаться под печкой, а второй над ней. В результате разности температур в трубах появится тяга, холодный воздух втягивается с пола под печкой и выкидывается горячим над ней. Печь будет работать по принципу печки Булерьян.

Схема печи булерьян
На дверке топки рекомендуем сделать регулируемую подачу воздуха. Самый простой способ – изготовить поддувало из трубы. Понадобится кусок трубы длиной ≈10 сантиметров и отрезок листового металла такого же размера. Сделайте посредине двери отверстие под диаметр трубы. Из листового металла вырежьте круг с диаметром на несколько миллиметров меньше условного прохода трубы. В стенках трубы просверлите два отверстия, они должны лежать строго на одной лини и на оси трубы. Расстояние отверстий от конца трубы не менее половины диаметра, в противном случае заслонка не будет полностью перекрывать просвет, что ухудшит возможности регулировки количества подачи свежего воздуха.
В отверстия вставьте отрезок катанки соответствующего диаметра, верхний конец согните в виде ручки. К катанке приварите вырезанный из листовой стали кружочек, зафиксируйте изготовленную заслонку к отверстию в дверке топки.

Круглое поддувало
Есть еще один способ изготовления регулируемых отверстий дверки. Просверлите в нижней части отверстия диаметром 10÷20 мм, центры отверстий должны лежать на одной линии. Снизу и сверху отверстий приварите металлическую пластину, расстояние между пластинами и дверкой должно равняться толщине задвижки. Пластины будут служить направляющими для задвижки. По мере надобности во время топки печи открывайте одно или несколько отверстий.

Пример заводской печной дверцы с отверстиями и заслонкой для них
Это еще не все возможные усовершенствования металлической печки, думайте сами и занимайтесь техническим творчеством. Этот процесс приносит настоящее удовольствие, поверьте профессионалам.

Пример банной печи из металла

Самодельная металлическая печка в бане
banya-expert.com
2 вида самодельных печей для бани [+12 ФОТО]
Поскольку покупка фабричного изделия от производителя с мировым именем – дело весьма затратное, многие наши соотечественники предпочитают самодельные печки для бань. Если внимательно изучить конструкцию такой печи, то становится ясно, что никаких особо сложных деталей в ней нет. А потому изготовить ее своими руками можно при наличии минимальной сноровки.
В разделах нашей статьи мы расскажем о том, как делаются металлические и кирпичные самодельные печи для бань.

Схема и габариты самодельной конструкции
Металлические модели
Проектировка и подбор материала
В большинстве своем самодельные печки для бани представлены стальными и кирпичными моделями. Конечно, встречаются и оригинальные конструкции, использующие фабричные детали (например, цельнолитые чугунные топки), но они являются скорее исключением, а потому рассматривать их мы не станем.
Металлическая печь из стальных труб – самое простое устройство. Для его изготовления нам понадобится отрезок стальной трубы или толстостенной бочки, а также сварочный аппарат и болгарка.
Обратите внимание! Наличие навыков работы со сваркой является обязательным, поскольку от герметичности и прочности сварных швов напрямую зависит, насколько эффективной и долговечной будет наша самодельная печь в баню.
Итак, если стальная модель нам по душе – приступаем к планированию работ:
- Для начала необходимо определиться с особенностями конструкции. Проще всего скачать в сети чертежи самодельных банных печей и выбрать подходящий вариант.
- Впрочем, при необходимости можно спроектировать устройство и самостоятельно, отталкиваясь от размеров труб, имеющихся в нашем распоряжении. Здесь важно правильно подобрать мощность печки, которая будет примерно равна половине объема топки (в литрах).

Устройство стальной модели – один из вариантов
Совет! Для самодельных разновидностей лучше сделать запас по мощности, поскольку их производительность обычно бывает несколько меньше, чем у фабричных образцов.
- Как правило, для изготовления всех заготовок применяются стальные трубы с толщиной стенки не менее 8-10 мм. Чтобы сделать стандартную компактную печь для парилки нужно около полутора метров такой трубы.
- Также нам понадобится несколько решеток и листовой металл. Размеры металлического листа нужно определить заранее, поскольку они зависят от габаритов отдельных элементов.
- Кроме этого стоит купить два комплекта петель и защелок для дверцы топки и зольного ящика, кран для бака с водой и т.д. Цена этих деталей невысока, так что о превышении бюджета можно не волноваться.
Когда все материалы закуплены – можно начинать изготовление конструкции своими руками.
Собираем заготовки в единую конструкцию
Самодельная печка для бани из стальной трубы изготавливается по такому алгоритму:
- Полутораметровый отрезок трубы разрезаем на две части — 90 и 60 см (приблизительно). Большая часть будет использоваться как заготовка для топки с каменкой, а меньшая – как водонагревательный бак.
- Далее начинаем обрабатывать отрезок в 90 см. В нижней части вырезаем паз высотой до 50 мм и шириной 20-25 см. Полученное отверстие будет работать в качестве поддувала, обеспечивая топку кислородом.

Вырезаем отверстия
- Над поддувалом привариваем толстую стальную пластину с закрепленной колосниковой решеткой. Эта пластина выполняет функцию днища топки.
- В стенке трубы проделываем топочное отверстие. На одном краю отверстия привариваем петли и навешиваем дверцу – ее можно изготовить из того же стального листа, предварительно согнув по радиусу трубы.
- Далее нужно изготовить каменку – емкость, в которой будут размещаться нагревательные элементы (галька, булыжники, специальные камни для бани и т.п.). В качестве каменки можно использовать либо отрезок трубы, либо металлическую корзину, сваренную из арматурных прутьев.

Каменка из прутьев
- Из отрезка трубы длиной 60 см делаем бак для нагрева воды. Для этого в нижней части привариваем дно с отверстием для дымохода, а в одной из боковых стенок устанавливаем кран.
- Крышку на бак лучше сделать таким образом, чтобы как минимум треть его оставалась открытой: так можно будет доливать воду, не опасаясь обжечься о металл.
Обратите внимание! Проверяем качество и герметичность швов, поскольку при протекании бака возможно затухание печи и отравление угарным газом.
Топку с каменкой и бак привариваем друг к другу. Для более прочного соединения частей можно по периметру закрепить стальные полосы или же муфту из металлического листа. Дымоход пропускаем через водонагревательный бак и привариваем к днищу максимально герметично.

Трубы для дымохода
Советы по установке
Самодельные железные печи для бани монтируются довольно просто.
Однако к некоторым рекомендациям все же стоит прислушиваться:
- Устанавливать конструкцию нужно таким образом, чтобы топка открывалась по направлению к входной двери.
- В основание печи стоит залить бетонный фундамент толщиной до 30 см. Также не лишней будет укладка двух слоев огнеупорного кирпича на глиняном растворе.
- Расстояние от края печи до любой вертикальной поверхности не должно быть меньше 20 см.
- Для обеспечения пожарной безопасности в деревянном строении нагревательные конструкции можно облицевать кладкой в полкирпича. Кстати, это и от ожогов вас сбережет!

Установленная конструкция
Кладем кирпич
Материалы и раствор
Кирпичные модели банных печей более сложны в проектировке и сооружении. Мастерством печной кладки нужно овладевать не один год, и желательно под руководством опытного мастера.
И все же, если вы считаете, что имеющихся навыков хватит, то попытаться сложить каменку для небольшой бани можно.
- Для кладки нужно использовать полнотелый красный кирпич. Каменка и стены выкладываются из обычного материала, а вот топливник и футеровка требуют использования огнеупоров.
- Наилучший эффект обеспечивает использование песчано-глиняного раствора (1:1).
- Также некоторые специалисты советуют применять специальные термостойкие добавки, но если инструкция соблюдается точно, то и на глине с песком самодельная печь для бани стоит просто великолепно.
Фундамент
Для того чтобы конструкция была максимально стабильной, под нее необходимо уложить качественный фундамент.
Для поддержки массы конструкции в полтонны или более основание нужно обустраивать примерно по такой схеме:

Фото котлована под основание
- На грунте размечаем участок под капитальную несущую конструкцию и вынимаем субстрат на глубину не менее 0,5 м.
Совет! Габариты фундамента делаем ровно на полкирпича больше габаритов конструкции.
- Дно полученного котлована выравниваем, трамбуем и засыпаем слоем песка.
- Установив опалубку, заливаем ее раствором. В качестве наполнителя можно использовать гравий, щебень или бутовый камень.
- Основание просушиваем в течение двух недель, после чего обеспечиваем качественную гидроизоляцию, укладывая поверх фундамента полосы рубероида. Укладку проводим минимум в два слоя, заполняя пустоты битумом или мастикой.

Залитый фундамент
Последовательность работ
Самодельные печки в баню кладутся по такой схеме:
- Подготовленный кирпич замачиваем в воде на несколько минут. Это позволит нам избежать обезвоживания раствора, и обеспечит максимально качественно сцепление.
- Далее приступаем к кладке первого ряда, полностью покрывая кирпичами основание.

Порядовка кирпичной печи небольшого размера
- Второй ряд укладываем по периметру, очерчивая контуры будущей печи. При определении последовательности следует ориентироваться на порядовку (последовательность размещении блоков в каждом ряду).
- При укладке третьего ряда закладываем в швы проволоку, закрепленную на петлях дверцы для поддувала. Проволоку лучше использовать оцинкованную – так фиксация получится более надежной.

Закладываем дверцы
Обратите внимание! Если габариты дверцы не совпадают с габаритами кирпича, то блоки можно немного подпилить.
- Продолжаем класть кирпичи, контролируя углы с помощью отвеса и уровня. На четвертом ряду монтируем зольную решетку.
- Далее возводим кладку, постепенно поднимая уровень стенок. На необходимой высоте (она опять же определяется порядовкой для конкретной модели) устанавливаем колосниковую решетку и топочную дверцу.

Укладка колосниковой решетки
- Поверх топки монтируем решетку каменки – на нее мы затем уложим камни, которые будут нагреваться и обеспечивать равномерный жар.
Совет! Чтобы получить максимальную температуру при минимальном расходе топлива, банная печь может быть оборудована комбинированной засыпкой – галька или базальт вперемешку с чугунными литыми шарами.
- На следующем этапе необходимо смонтировать бак для воды. Для этого нам понадобится металлическая емкость с крышкой. Её мы устанавливаем в печь и обкладываем кирпичом. Также возможен открытый монтаж бака, но в этом случае повышается риск получить ожог при прикосновении к горячей поверхности.

Готовая конструкция с декоративной облицовкой
- Трубу можно как выложить из кирпича, так и сделать из металла. Второй вариант гораздо проще и практичнее, но теплопотери будут более существенными.
Уложенную печь следует оштукатурить глиняным раствором (одна часть глины на полторы-две части песка). Не так давно мастера отдавали предпочтение смесям с добавлением асбеста, но канцерогенные свойства этого материала делают его использование нежелательным.
Вывод
Самодельные банные печи могут быть изготовлены по разным технологиям. Выше приведены лишь самые простые варианты, которые могут быть реализованы начинающим мастером (см.также статью «Чертежи печи для бани из металла: простейшие конструкции»).
Если же вы хотите сделать более сложную модель, советуем внимательно изучать дополнительные источники информации, и в первую очередь — видео в этой статье.
9ban.ru
металлическая банная печь своими руками, печка из металла, чертежи, как сделать из железа, как построить, размеры железных банных печей, фото и видео
Содержание:
В настоящее время на рынке присутствует множество металлических печек для бани, но все они стоят недешево. Если вы обладаете хорошим опытом по сварке металла, то можно сделать печь из железа в баню своими руками. В этой статье мы подробно опишем, прилагая соответствующие фото, как это сделать, имея свои размеры и чертежи.

Отличия печей из металла для бани и сауны
Парилки в бане и сауне значительно отличаются между собой. Сауна сопровождается высокой температурой – свыше 85 ºС. Такие показатели делают невозможным сильно увеличивать еще и влажность, так как неминуемо получение ожогов кожи. При этом веник в таких условиях осыпается всего за 5 минут. Поэтому влажность доводят до 5-15 %. Русская баня отличается температурой в районе 55-65 ºС, что дает возможность поднять относительную влажность до 50-60%.
Для создания тех или иных условий в парной используются разные печи, а также применяются разные подходы к их установке. Если обустраивается сауна, то понадобится соблюсти максимальную площадь контакта корпуса печи с воздухом и обеспечить быструю циркуляцию воздушных потоков вдоль стенок.

Все сводится к тому, чтобы нагреть воздух в парилке как можно скорее. Небольшая открытая каменка, располагаясь над топкой, способна прогреть камни до 200-250 ºС. Она дает возможность получить немного пара – как правило, для сауны этого достаточно, потому что нужно добиться всего 15 % влажности.
В русской бане микроклимат создается иной – достигаются небольшие температуры, и вырабатывается много пара. При этом он должен состоять из очень мелких капелек, разогретых до 130-150 ºС – такой пар называют «сухим». Подобный микроклимат придает телу легкости и сил. «Сухой» пар можно получить лишь раскалив камни до значений более 500 ºС . Для достижения таких показателей камни складывают в топку, то есть в закрытую каменку.
Печи для русской бани, сделанные своими руками
Самое главное при изготавливании по чертежам металлических печей для бани своими руками – это учесть, что невозможно при разогретых металлических стенках поддерживать нужную температуру в пределах 60-65 ºС (прочитайте: «Чертежи банной печи из металла – строим печь своими руками»). Обязательно придется перетапливать, что сопровождается излучением сильных ИК волн, при котором довольно тяжело находиться рядом с печью.
Решить эту проблему можно двумя методами:
- Произвести футеровку топки. Процесс заключается в обкладывании топки изнутри огнеупорным кирпичом. Достаточно укладки на ребро, при этом толщина футеровки составит 6 см, хотя встречается и узкий шамот, толщиной 3 см. Как бы то ни было, нагрев стальных стенок является незначительным, больше всего прогревается каменка. Поэтому сразу следует спроектировать топку, чтобы она была увеличенных размеров, потому как большая часть ее объема отводится на футеровку. Недостатком такого способа считается то, что в результате вырабатывается горячий дым, что понижает пожаробезопасность. Лучше всего провести его охлаждение путем установки бака или каменки на трубу. Немного сложнее – установить отопительный щиток, проходя через который, дым остывает до 80-120 ºС.
- Установить кирпичный экран вокруг печи из железа для бани. Его собирают из керамического кирпича, при этом в стенке оставляют окошки для монтирования дверок, которые позволят в будущем контролировать уровень прогрева воздуха. Можно сделать вывод, что такой вариант является лучшим из-за возможности регулирования температуры, однако он менее практичен, так как задняя стенка очень сильно перегревается, поэтому приходится в конструкцию включать жаропрочную сталь. В таком случае получается, что для более продолжительного срока службы железной банной печи, нужно выбирать довольно толстый металл. Его, как показывает практика, лучше устанавливать в верхней и нижней части топки.

Отдельно стоит упомянуть швы. Самодельная железная печка в баню довольно часто начинает прогорать именно от некачественных швов. В производственных условиях такую проблему решают, используя гнутую конструкцию. Сверху печи стараются минимизировать количество швов.
При изготовлении печки из металла для бани своими руками, вам будет практически не под силу изогнуть 6-10 миллиметровую сталь, поэтому, как правило, остается делать предельно качественные швы.
Каких размеров каменку и в каком месте лучше ставить
Требуемый объем камней определяется размерами парной и качеством утепления. Величина, как правило, варьируется от 20 до 40 кг на 1 кубический метр помещения. Естественно, что, чем их больше, тем легче выработать нужный объем пара.
Ввиду того, что разные камни отличаются по плотности, при одной массе они будут занимать разный объем. Определено, что для парилки, имеющей объем 12-14 м3, потребуется установить каменку 30×40×30 см. Эти размеры в различных ситуациях можно немного корректировать.
Изготавливая банную печь из металла своими руками, нужно будет подобрать индивидуальный объем каменки, исходя из размеров печи. Чтобы не допустить ошибки, лучше оттолкнуться от готовых чертежей. При использовании экспериментального подхода стоит учитывать, что объем топки должен превышать таковой каменки приблизительно на 30-50 %.

Перед тем как построить печку в бане, стоит просчитать наилучшее расположение каменки в топке. Из практики стало ясно, что лучше всего ее разместить сверху, возле задней стенки, где самая большая температура.
Стоит помнить, что каменку нужно будет обслуживать, и ее следует оборудовать так, чтобы туда можно было подавать воду. Люк лучше всего расположить так, чтобы была возможность без особого труда дотянуться рукой до самого удаленного края, и чтобы воду можно было подавать без возможности получить ожог.
Как правило, в каменку добавляют трубки, разведенные внутри емкости, которые доставали бы до всех камней. Со стороны подачи воды трубка оборудуется воронкой. После разведения трубок, они обкладываются камнями. После подачи по трубкам воды, она попадает на камни в каменке и превращается в пар.
Чертежи самодельных стальных печей для бани
Рассмотрим вариант печи, которая будет актуальна для парилки объемом 2×3×2,3 м. Для ее конструкции используются листы стали толщиной 3 мм.
Для запуска процесса горения конструкцией предусмотрен дополнительный воздуховод, который берет свое начало с улицы. Чтобы во время нагрева сталь не изгибалась, вверху топки к бокам приваливают ребра жесткости в виде уголков.

Рассмотрим еще одну схему, по которой можно изготовить металлические банные печи своими руками. Это модели с забором воздуха из верхней части топки. Их еще именуют печами с дожиганием газов. На задней стенке к ней приварена стальная платина. В печь воздух поступает из-под колосников, и подается через воздуховоды, идущие в щель между этой пластиной и задней стенкой топки.
Такая интересная конструкция справляется одновременно с двумя задачами: производит охлаждение задней стенки, не давая ей прогорать, а также подается воздух уже прогретым в верхнюю часть, где сконцентрированы очень горячие газы в виде дыма. 80 % их объема являются горючими.

После смешения с воздухом происходит их воспламенение, что приводит к повышению температуры в топке и прогреву камней до более высоких показателей. Если при этом используются сухие дрова в качестве топлива, то их потребуется значительно меньше. На таком принципе работы построено немало печей продолжительного горения, но для банных печей он стал применяться лишь недавно. Существует и схожая модель без дожига. Изучив ее чертеж можно лучше понять пропорции и размещение разных элементов.
Данная конструкция предполагает построение топки с объемом на 30 % больше, чем каменка. Соотношение можно считать приемлемым. Дымоход располагается со смещением назад, что иногда вызывает сложности при его установке – ему может мешать потолочная балка. При этом может понадобиться произвести изгибание дымохода, что не приветствуется.
Кроме того, перед тем как сделать печь для бани, следует определиться, нужен ли в парной бак для подогрева воды. Некоторые подстраивают уровень влажности, открывая и закрывая крышку бака. Другие специалисты утверждают, что таким образом вырабатывается тяжелый пар, поэтому они советуют устанавливать бак в моечной комнате, а прогрев воды производят посредством вмонтированного в топку теплообменника, соединенного трубами с баком.

Теперь рассмотрим схему металлической печи с баком для воды. Конструкция считается довольно грамотно проработанной. Благодаря искрогасителю дым проходит немного большее расстояние, тем самым лучше прогревая стенки топки. Вместо бака, конечно же, можно уложить камни.
Стоит рассмотреть вариант установки бака сзади печи. Дымоход смещен назад, проходя сквозь бак. Из-за большой высоты бака будет эффективная теплоотдача, следовательно – дымоход не будет перегреваться при выходе из него.
Каменка имеет конструкцию, предполагающую небольшие ее размеры, что вполне достаточно для небольших парилок. У нее есть крышка, но ввиду особенностей расположения, ее бывает сложно закрывать после подачи воды. Но такую конструкцию легче обслуживать.
Изготовление печи для сауны
Основная задача печей – как можно быстрее довести температуру до нужных показателей и удерживать ее на таком уровне. Для ускорения этого процесса применяются вентиляторы, которые, обдувая стенки, ускоряют прогрев.
Для этих целей предназначен и кожух-конвектор. Зазор между ним и стенкой топки должен составлять 1,5-2 см. Через зазор происходит всасывание воздуха, который в процессе движения прогревается, при этом стенки остывают.

Чтобы сделать печку в баню своими руками как можно качественней и практичней, ее корпус изготавливают из толстого металла, а кожух из тонкого, потому что он не подвергается перегреву.
При размещении каменки над топкой, в корпусе можно проделать отверстия для вентиляции. При этом доля воздуха, поднимаемая по стенкам, будет направляться в каменку, обдувая камни и увеличивая их температуру. Такая вентилируемая каменка отлично подходит для саун.
Схемы и чертежи печей
Печи для сауны имеют немного упрощенную конструкцию. Размеры печи из металла для бани, и сама топка, должны быть достаточными для закладки больших поленьев. Сверху топки приваривают борта каменки, объем которой, как правило, составляет от 20 до 25 л. Соотношение в размерах может быть разным, для этого не существует каких-либо конкретных правил.
Чтобы сделать печь из металла для бани как можно правильней, не стоит устанавливать бак для нагрева воды. В противном случае, у вас не получится контролировать уровень влажности в сауне, что при экстремальных температурах может привести к ожогам.
Есть еще вариант – установить каменку внутри топки. Можно предусмотреть крышку, при этом у такой печи может быть два режима работы: с открытой крышкой – чтобы процесс парения был сухим, и с закрытой крышкой – чтобы выработать больший объем пара.
banyaspec.com
15 достоинств и недостатков самодельных печей для бани из металла [+16 ФОТО]
В последние годы набирает обороты мода на собственные бани, причем многие стремятся изготовить их своими руками. Естественно, что отопительное оборудование также можно изготовить самостоятельно для удешевления проекта, и наиболее популярны самодельные металлические печи для бани. О них пойдет речь в статье.

Самодельные металлические банные печи – удачное решение для тех, кто умеет работать руками.
Металлические банные печи
Преимущества

На фото самодельная печь для бани из металла, которая отлично вписывается в интерьер и эффективно работает.
Традиционные русские (и не только) бани имели каменные или кирпичные печи, а также печи, изготовленные из глины. Это, бесспорно, прекрасный вариант, но требующий высокого мастерства печника-каменщика и достаточно много места. В результате такой агрегат выльется в круглую сумму, что для многих любителей попариться совсем неприемлемо.
В поисках альтернативного варианта для строительства банной печи мастера остановились на другом материале – стали. Этот металл выдерживает высокие температуры, прост в обработке и достаточно недорого стоит. Доступность стальных деталей и вовсе не имеет равных: вы можете приобрести как новые изделия, так и пройтись на скупку металлолома и выбрать там подходящие вам части и обрезки.
Среди основных преимуществ стальных печей можно выделить такой список:
- Невысокая цена материала, его доступность и распространенность;
- Высокая прочность металла и его стойкость к высоким температурам, перепадам влажности, механическим и ударным нагрузкам, высоким показателям давления;
- Металлическое оборудование быстро прогревается, что сокращает время подготовки парной к использованию, особенно когда баня находится на даче, и нет возможности заранее растопить печь;
- Стальная конструкция имеет на порядок меньший вес, нежели каменная, поэтому она не требует мощных фундаментов, что также снижает стоимость бани;
- Печь из металла занимает меньше места в помещении и экономит пространство для других полезных объектов;
- Достаточно простая конструкция, доступная непрофессиональным монтажникам;
- Простота обработки металла;
- Сравнительно высокая надежность изделия;
- Отсутствие в дополнительных разрешениях на установку.

При определенном мастерстве самодельная металлическая печь для бани может выглядеть не хуже заводской.
Важно! Самодельные нагревательные стальные банные печи – это не только экономия средств, но и эффективная замена массивным, габаритным и дорогим каменным агрегатам.
Недостатки

Как и любое устройство, металлический агрегат для парной имеет свои недостатки.
При всех бесспорный преимуществах изделия из металла имеют ряд недостатков:
- Агрегат достаточно быстро остывает из-за низкой теплоемкости металла, поэтому нуждается в постоянной топке на протяжении банных процедур, что приводит к повышенной трате дров;
- По сравнению с кирпичными аналогами сталь более пожароопасна, так как стенки сильно нагреваются и излучают тепло. Кроме того, прикосновение к такой стенке может привести к серьезным ожогам;
- Металлические изделия способны прогреть меньший объем, чем массивные кирпичные печи;
- Сталь подвержена электрохимической коррозии, что снижает ее долговечность и может потребовать текущий ремонт слабых мест;
- Кирпичная или каменная печь для бани выглядит намного более солидно и красиво;
- Излучаемое камнем тепло куда более комфортное и целебное, чем агрессивное инфракрасное излучение металлической стенки.
Важно! Некоторые из перечисленных недостатков можно устранить разными способами, но в целом они так или иначе будут определять особенности эксплуатационного режима вашей бани, при этом, не являясь критическими или непреодолимыми.
Разновидности

Конструкции печей могут быть самыми разнообразными, все зависит от фантазии умельцев и мастеров, которые их делают.
Мы рассмотрим наиболее популярные и простые в изготовлении примеры печей. Это агрегаты, сваренные из стальных труб, и устройства, собранные из листовой стали.
Банные печи для бани из труб удобны тем, что для их сборки требуется меньше сварочных работ, так как труба сама по себе уже является неким резервуаром, и простое добавление дна и крышки превращает ее в замкнутый блок, который можно снабдить необходимыми отверстиями, дверцами, колосниковыми решетками и получить готовую топку.
По такому же принципу собирают резервуар для воды и каменку, отводят дымоход – и печь готова.

Принцип изготовления печи из металлической трубы достаточно прост.
Также для производства изделий можно использовать обычную листовую сталь.
Важно! Толщина металла должна быть не менее 8 мм, а лучше – 10 – 12 мм. Чем толще стенка, тем выше теплоемкость устройства, а это напрямую влияет на время остывания отопительного агрегата.
Детали раскраивают согласно чертежу, а затем собирают с помощью электродуговой сварки. В результате получают банную печь кубической формы, что и отличает ее от цилиндрического изделия из трубы.

Прямоугольный профиль говорит нам, что печь собрана из листовой стали.
Изготовление

Изготовление устройства из металла производится согласно чертежу с помощью болгарки и электросварки.
Для изготовления печи нам понадобится чертеж, болгарка с отрезными и зачистными дисками, а также электродуговая сварка с электродами. Также не лишними будут такие инструменты, как молоток, плоскогубцы, монтировка и т.п.
Чертеж легко найти на нашем сайте. Далее мы приводим процесс монтажа в виде списка, так как такая инструкция будет удобнее.
Для работы мы будем использовать металлическую стальную трубу диаметром 500 мм с толщиной стенки не менее 10 мм, а также листовую сталь толщиной 10 мм. Длина трубы – 1.5 метра.
Также нам понадобится труба диаметром 100 мм для дымохода, колосниковая решетка в виде квадрата со стороной 500 мм, дверца для топки и горлышко с резьбой и крышкой для бака.
- Сначала разрезаем трубу на два отрезка – 60 и 90 см;

Разрезаем трубу на отрезки.
- Берем длинный кусок и отрезаем от него отрезок 35 см;
- В куске длиной 55 см в самом низу вырезаем болгаркой квадрат шириной 20 см и высотой 5 см для поддувала. Над квадратом привариваем пластину округлой формы из листовой стали

Вырезаем отверстие для поддувала.
- Формируем топку. Над отверстием для поддувала привариваем колосниковую решетку, вырезанную из нашей заготовки, вырезаем отверстие под дверцу и монтируем петли для самой дверцы;

Делаем отверстие для дверцы.
- Топку накрываем листом стали круглой формы диаметром 500 мм с вырезанным отверстием для дымовой трубы диаметром 100 мм. Лист привариваем;
- Далее берем отрезок трубы длиной 35 см и привариваем к верхней кромке топки;
Далее берем отрезок трубы диаметром 100 мм и привариваем к отверстию в топке, предназначенному для дымохода. Длина отрезка – не менее 140 – 150 см;

Привариваем каменку и дымоход.
- Теперь берем трубу длиной 60 см и привариваем к ней дно с отверстием для дымохода, смещенным к стенке на 15 см от центра;

Завариваем дно бака.
- Надеваем дно на дымоход так, чтобы между краем каменки и дном бака было расстояние 35 – 50 см. Дно намертво привариваем, качество шва должно быть особенно хорошим, чтобы вода не протекала вниз;

Привариваем бак к дымоходу.
- Вырезаем из листовой стали крышку с отверстием для дымохода и отверстием для горловины бака, привариваем горловину;
- Крышку надеваем на дымоход и привариваем к трубе бака и дымоходу намертво;

Привариваем крышку бака к баку и дымоходу.
- Надеваем дверцу на петли;

Ставим дверцу.
- Монтируем задвижку на поддувало.
Важно! При работе с металлом следует соблюдать технику безопасности: защищать глаза и руки, иметь спецодежду и быть предельно внимательным и аккуратным, иначе можно серьезно пораниться.
Вывод
Изготовление самодельных печей для топки бани из металлических деталей – проверенная и распространенная практика, которая стала популярной благодаря относительной дешевизне и простоте работ. Эксплуатация таких устройств не вызывает проблем и вполне комфортна. Процесс сборки агрегата из стали показан на видео в этой статье, которое поможет вам понять, насколько реально это на самом деле.
9ban.ru
Металлические печи для бани: пример устройства самоделки
Металлические печи всегда были серьезной конкуренцией для кирпичных – и в частных домах, и в банях. Они быстро нагреваются и просты в монтаже, что и привлекает сегодня тех, кто строит свою заветную парную своими руками. С одной стороны, металлическая печь для бани отличается эстетичностью и хорошей теплопроводностью. Но, если использовать ее технически неправильно, не избежать пожара. Вот почему так важно учесть все нюансы – о чем и будет эта статья.
Какими бывают современные металлические печи?
Самые простые самодельные металлические печи для бани – это так называемые «буржуйки». Они состоят из ящика с трубой и дверцей, дают мало тепла, а вот дров требуют много. Можно сказать, такие печки – это попросту пережиток прошлого.
Современные же металлические банные печи куда более безопасны. Изготавливаются они в основном из листового железа в 4-5 мм толщиной, с продуманной специальной тепловой камерой для каменной засыпки. Часто их конструкция предусматривает и бак для воды – даже до 70 литров объемом. Но самое главное – металлическая печь обязательно выкладывается огнеупорным кирпичом. Ведь только так можно избежать ожогов и позволить воздуху разогреваться равномерно.
Всего же металлические печи для бани чертежи имеют трех видов: закрытая конструкция, открытая и комбинированная. Первая особенно удобна в семейных небольших банях благодаря своей компактности – внутри и снаружи она застраивается красным кирпичом ради теплоемкости. Сами кирпичи в ней зафиксированы проволочными скрепами, а посредине печи установлена решетка для камней.
Печи же открытой конструкции имеют бак с объемом поменьше, а каменку – открытую. Парилка такой печью прогревается намного быстрее, а для увеличения теплоемкости камни накрываются экранной оцинкованной крышкой. А вот комбинированные металлические печи изготавливаются из листов стали с толщиной 3-5 мм и состоят из топливника с двумя задвижками, поддувалом и решеткой, и из двух патрубков 10 и 14 см диаметром, с четырьмя отверстиями для трубы и обводного колена.
Бывает железная печь для бани разной и по виду топлива:
- Электрическая
Конструкции электрических металлических печей состоит из корпуса с нагревательными ТЭНами и теплоизоляционными материалами.
Это – железные печи для бани с термостатом для регулирования мощности. За безопасность агрегата отвечает предохранительное устройство, которое мгновенно перекрывает подачу газа, если огонь потух.
Такие печи нагреваются медленнее, зато радуют теплом настоящего огня и приятным запахом. Но топлива они требуют немало, как и постоянного ухода за ними.
Пример установки жаростойкого экрана на печку и ее облицовка мыльным камнем — талькохлоритом
Пример устройства металлической печи-самоделки
Сколько бы не ругали самодельные железные печи для бани за «жесткость» тепла, преимуществ у них куда больше, чем недостатков:
- Парилка полностью прогревается буквально за 1,5 часа – ведь металл обладает куда большей теплоотдачей, нежели кирпич или камень.
- Угарным газом отравиться практически невозможно: все вредные вещества при сгорании дров уходят в дымоход, а не проникают через невидимые щели.
- Даже, если дрова мокрые – помещение не задымится.
Но устанавливать железные печи в баню нужно грамотно: не ближе, чем на метр от стен, только рядом с дымоходом и на хорошее, массивное основание из огнеупорных материалов.
Неплохая самодельная железная печь для бани может быть сделана и своими руками – на самом деле это не так сложно, как кажется. А то, что по внешнему виду она будет уступать эффектной магазинной – это пустяк, ведь все равно понадобится кирпичный экран, который все закроет. Главное – чтобы толщина металла была не менее 10 мм.
Монтаж железной печи в стену бани из бревен
Всего в печке две главные части: одна для топки, вторая – для бака с водой. Внизу трубы нужно будет сделать вырез до 20 см шириной – это будет поддувало, над ним же – смонтировать круглую стальную пластину. После чего вырезается ниша для топки, и из куска металла – дверца. Теперь над топкой приваривается каменка – так, чтобы от ее верха до дна было не меньше, чем 10 см. И, наконец, бак для горячей воды – в нем будет отверстие для дымовой трубы. Важно при этом всем внимательно следить за герметичностью всех швов.
Почему так важна форма печи?
От формы печи зависит и ее производительность, и удобство эксплуатации. Так, чаще встречаются такие металлические печи: цилиндрические, фигурные, горизонтальные и наиболее практичные – прямоугольные. Последние хороши тем, что уголоватые зоны их никогда не накаляются докрасна, а потому именно такой каркас в буквальном смысле «держит» форму печи. Хотя даже при такой конструкции ребра жесткости лишними не будут – их можно оборудовать с помощью приваренных уголков.
А вообще форма топливника полностью определяет, какие именно элементы будут больше нагреваться, а какие – меньше. И разогрев одного элемента (к примеру, низа) приводит к уменьшению степени нагрева стенки от зоны горения, что помогает помещению парилки разогреваться более равномерно и устанавливает баланс тепловых потоков. Во-вторых, правильный разогрев определяет механическую устойчивость конструкции. И менее устойчива в этом плане цилиндрическая и круглая печь – вот почему стенки у нее всегда очень толстые, усиленные. В прямоугольной же тонкие стенки держатся за счет холодных углов, но и коробления со временем избежать не получится – это факт.
Установка металлической печи должна проходить по всем правилам — жаростойкие экраны и фундамент, если понадобится
Но правильно выбрать металлическую печь по одной только форме и материалу не так просто – есть масса важных моментов. И самое главное – это предупредить возможное коробление стенок печки, т.е. сплющивание печи из-за перегрева. Это крайне опасно в плане пожара: перегрев металлических стен приводит к образовании трещин в так называемых «складках коробления», которые со временем расширяются и приводят к воспламенению бани.
Об этом процессе более подробно: горячие листы металла естественным образом увеличиваются в линейных размерах, сильно вспучиваются — и оттого гнут соседние, более холодные части печи. И при остывании они уже не могут вернуться в прежнюю форму. А потому при выборе металлической печи для бани или ее самостоятельно изготовления важно провести тщательный осмотр всех ее стенок на предмет прогаров или трещин.
Если же все окажется в порядке – новая металлическая печь будет радовать теплом и прочность еще много лет!
Оцените статью: Поделитесь с друзьями!stroy-banya.com
Печь для бани из металла своими руками: чертежи, фото, видео
Металлических печей для бани в продаже много, но хорошие стоят немалых денег. Если есть достаточный опыт сварки металла, можно изготовить печь самому, по своим размерам. О том, как сделать печь для бани из металла (листового), чертежи и фото — дальше.
Содержание статьи
Печь из металла для бани и сауны — в чем разница
Между режимами парения в бане и сауне есть существенная разница. В сауне температура воздуха очень высокая — от 85C и намного выше. При такой температуре влажность высокой быть просто не может — сразу получите ожог, а веник осыпется за пять минут. И она действительно небольшая, порядка 5-15%. В русской же парной температура держится в пределах 55-65°C, изредка поднимаясь до 70°C. При таких температурах влажность «нагоняют» большую — 50-60%.

Один из вариантов сварной печи для сауны
Для обеспечения таких разных задач требуются разные подходы для построения печи. В сауну требуется наибольшая площадь соприкосновения корпуса печи с окружающим воздухом и ускорение прохождения воздушных потоков вдоль стенок. Все подчинено задаче как можно скорее нагреть воздух в парилке. Каменка есть, но она небольшая, открытая, находится, как правило, над топкой. Камни в ней прогреваются максимум до 200-250°C, так как много тепла отдают окружающему воздуху. С такой каменки получить можно немного пара. Но в сауне много и не надо — один/два ковшика дадут 15% влажности. Больше просто не вытерпеть.
В русской парной задача другая — не перегреть помещение и добиться большого количества пара. Причем пар должен быть определенной кондиции — он должен состоять из очень мелких капелек. Его еще называют «сухим» и имеет он высокую температуру — порядка 130-150°C. При таком условии после парения в теле ощущается легкость и прилив сил. Такой пар получают только с раскаленных камней, температура которых не менее 500°C. Чтобы достичь ее камни «упаковывают» внутрь топки — в ней размещают ящик — закрытую каменку.

Тут каменка расположена внутри а сверху приделан бак
Как видите, есть солидные конструктивные отличия. Их надо иметь в виду.
Самодельные печи для русской бани
Что еще надо иметь ввиду при конструировании печи для режима русской парной? То, что имея нагретые металлические стенки удержать температуру в пределах требуемых 60-65°C нереально. Обязательно перетопите. При этом от стенок печи идет жесткое ИК излучение и рядом находится тяжело. Проблема решается двумя способами:
- Футеровкой топки. Внутри топка обкладывается жаростойким кирпичом (шамотным на шамотный раствор). Положить его можно на ребро, тогда толщина футеровки 6 см, а можно найти узкий шамот с ребром 3 см. В любом случае металлические стенки греются незначительно, основная энергия направлена на обогрев каменки. В этом случае надо сразу проектировать топку увеличенных размеров, учитывая, что значительный объем ее занят футеровкой. Минус этого варианта — очень высокая температура дыма, а следовательно — высокая пожарная опасность. Выход — отобрать у дыма большую часть энергии. Самый простой вариант — каменка или бак для воды на трубе. Вариант сложнее — отопительный щиток, в который подается дым непосредственно из печи, а остыв в лабиринте щитка, на выходе он имеет не более 80-120°C.

Футеровка — обложить топку изнутри жаропрочным кирпичом
- Кирпичный экран или саркофаг вокруг металлической печи. Экран складывают из обычного керамического кирпича, в стенке делают окошки или устанавливают дверки чтобы была возможность регулировать степень нагрева воздуха в помещении. Как видим, для поддержания температуры в заданном режиме этот вариант более удобен. Но с практической точки зрения он хуже. Дело в том, что за экраном стенки топки перегреваются (конвекции почти нет и они не остывают). В результате, через некоторое время металл перегорает. Выход — ставить жаропрочную сталь или конструкционную, но большой толщины. В данном случае, чем больше будет толщина металла, тем дольше будет служить печь. По статистике самая проблемная зона — верхняя и задняя поверхность топки. Вот тут постарайтесь поставить самый толстый металл, который найдете.

Снаружи закрыть корпус кирпичным экраном
Еще стоит поговорить о швах. В самодельных печах из металла (в заводских, в принципе, тоже) часто прогорание начинается именно со швов. На производстве данную проблему обходят при помощи гнутых конструкций. В верхней части стараются швов вообще избежать. При изготовлении печи для бани своими руками вы вряд ли сможете согнуть лист металла толщиной 6-10 мм, так что остается только одно — делать швы как можно качественнее.
Каменка: какого размера и где
Необходимое количество камней зависит от объема парной (при условии, что утеплена баня нормально). В разных источниках есть разные рекомендации с большим или меньшим количеством — от 20 до 40 кг на 1 м3. В принципе, чем больше камней, тем легче получить требуемое количество пара, но при условии, что у печи хватит мощности их нагреть.
Проблема в том, что камни разной породы имеют разную плотность, и, следовательно, одна и та же масса занимает разный объем. В принципе, для средней парилки объемом 12-14 м3, размеры каменки примерно такие: 30*40*30 мм. Параметры можно немного изменять, делать шире/уже/выше — смотрите по конструктиву печи.

Каменка может быть разной формы и размера
Соотношение объема топки к объему каменки — сложный теплотехнический расчет, который даже не всякий теплотехник осилить в состоянии. Намного проще воспользоваться готовыми чертежами или экспериментально определенными пропорциями. Как минимум, объем «свободной» от каменки топки не должен быть меньше. Лучше, если даже больше примерно на 30-50%.
Немного о том, в какой части топки лучше всего располагать ящик для камней. Все давно пришли к выводу, что самая высокая температура — в верхней части и у задней стенки. Вот в этом месте и имеет смысл расположить емкость. Во-первых, часть термической нагрузки со свода топки снимется, а во-вторых, камни хорошо нагреются.
Не за бывайте об обслуживании каменки и о том, что туда каким-то образом должна попадать вода. Лючок для обслуживания надо располагать таким образом, чтобы вы могли без особых проблем достать рукой до самого дальнего края. А подачу воды вглубь каменки надо организовать так, чтобы не обжечься. Обычно вставляют трубку или систему трубок, которые расходятся по всей плоскости емкости для камней. Со стороны помещения эта трубка заканчивается воронкой. Трубку обкладывают камнями. При подаче в нее воды, она распределяется по поверхности каменки/камней и испаряется.
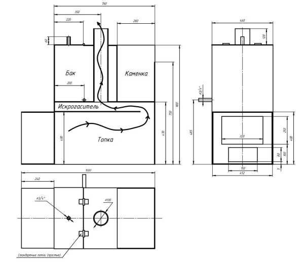
Чертежи самодельных банных печей из металла
Эта печь разработана для парной 2*3*2,3 м. Варилась из листового металла толщиной 3 мм.

Печь из металла для бани с закрытой каменкой
Для активизации горения предусмотрено подключение дополнительного воздуховода, проложенного с улицы. Из других решений — ребра жесткости (уголки) приваренные к бокам топки в верхней части топки для того, чтобы при сильном нагреве металл не выгибало.
Следующая схема металлической печи для бани сделана с подачей воздуха в верхнюю часть топки. Это так называемые печи с дожиганием газов. На задней стене приварена пластина из металла. В щель между этой пластиной и задней стенкой топки при помощи трубок-воздуховодов подается воздух из-под колосников. Это нехитрое, вроде, устройство решает сразу две задачи. Во-первых, охлаждает заднюю стенку, снижая вероятность ее прогорания. Во-вторых, воздух подается в верхнюю часть разогретым. Там сосредоточены разогретые до высоких температур дымовые газы, большая часть которых горючая (до 80%). Когда эти газы смешиваются с подогретым воздухом, горючие вещества воспламеняются, температура в верхней части топки становится еще выше, камни нагреваются до более высоких температур. При этом (при использовании сухих дров) топлива требуется намного меньше. На этом принципе построены многие печи длительного горения, но в банных печах он стал использоваться недавно.

Печь с подачей вторичного воздуха
Примерно та же модель, но без дожига, выполнена в другом формате. Тут размеры не указаны, зато проще понять пропорции и расположение различных элементов.

Объемная модель самодельной печи-каменки из металла
В данном случае объем топки составляет около 130% от объема каменки. Нормальное соотношение. Дымоход смещен назад, что не всегда хорошо — могут возникнуть сложности при устройстве дымохода — он может упереться в потолочную балку — придется дымоход изгибать, что нежелательно. Так что насчет расположения трубы — подумайте.
Еще в среде любителей бани постоянно ведутся споры: бак для нагрева воды в парилке — это хорошо или плохо… Одни регулируют влажность открывая/закрывая крышку бака. Их такой вариант устраивает. Другие говорят, что этот пар «тяжелый», и выносят бак в моечное отделение, а воду в нем греют, встроив в топку теплообменник и соединив его с баком трубами. Следующая схема — печь в баню из металла с баком для воды.

Чертеж печи для бани с баком для воды
Конструкция грамотная — при помощи «искрогасителя» путь прохождения дымовых газов длиннее, дольше он остается в топке, лучше нагревает стенки. Если вы не хотите бак, на его место можно уложить камни.
Интересный вариант с баком, который находится в задней части печи. Дымоход сдвинут назад, и проходит через бак. Высота бака большая, теплосъем будет эффективным — температура дымохода на выходе из бака большой не будет точно.

Вариант небольшой печи с большим баком
Интересно устроена каменка. Она не очень большая, но для небольших и средних парилок ее объема хватит. Закрывается она крышкой, что с одной стороны не очень удобно: закрывать крышку после подачи воды на камни будет проблематично. С другой стороны, это удобно в обслуживании.

Разрезы печи и размеры
Как сделать печь для сауны
Как уже говорилось, основная задача этого типа отопительных приборов — быстро «нагнать» требуемую температуру и иметь возможность ее поддерживать. Есть простое решение — поставит вентилятор, который будет обдувать стенки печи, ускоряя нагрев.
Примерно такую же функцию выполняет кожух-конвектор. Это кожух вокруг корпуса печи. Между ним и стенкой топки остается зазор в 1,5-2 см. В эту щель снизу засасывается воздух. Он проходит вдоль стенок, нагревается, заодно остужая стенки. Далее поднимается вверх, разнося тепло по парилке.

Принцип работы конвекционного кожуха
Если корпус печи делают из толстого металла, то кожух можно и из тонкого. Он редко нагревается до больших температур, и перегорание ему не угрожает. Если в печи для сауны каменка будет находится вверху, над топкой, как на фото, то в корпусе можно сделать отверстия для вентилирования каменки. Тогда часть воздуха, который поднимается вдоль стенок, будет попадать в каменку, обдувать камни и нагреваться еще сильнее. Такая каменка называется вентилируемой. Она хороша именно для суховоздушных саун.
Чертежи и схемы
Конструкция печей для сауны проще. Нужна топка нормального размера, в которую помещаются большие поленья. В верхней части, над верхней частью топки привариваются борта каменки, объем которой обычно 20-25 литров. Вариации могут быть по ширине/высоте/глубине, но особых каких-то хитростей нет.

Схемы металлических печей для сауны
Установка бака для нагрева воды в парилке сауны — идея не самая лучшая. Вы не сможете контролировать влажность, а при высоких температурах легко получить ожог. Тем не менее, несколько вариантов установки баков на фото выше.
Другой тип каменки — внутри топки. При желании можно сделать на нее крышку и такую печь можно использовать в двух режимах — с открытой крышкой для сухого парения, с открытой — для получения большего количества пара.

Каменка внутри корпуса
baniwood.ru
