ΠΠ΅ΡΠ΅ΠΏΠ»Π°Π½ΠΈΡΠΎΠ²ΠΊΠ° ΠΏΠ°Π½Π΅Π»ΡΠ½ΠΎΠΉ ΠΊΠ²Π°ΡΡΠΈΡΡ β ΠΠ΅ΡΠ΅ΠΏΠ»Π°Π½ΠΈΡΠΎΠ²ΠΊΠ° Π² ΠΏΠ°Π½Π΅Π»ΡΠ½ΠΎΠΌ Π΄ΠΎΠΌΠ΅ — 2019 Π³ΠΎΠ΄, ΠΌΠΎΠΆΠ½ΠΎ Π»ΠΈ ΠΈΠ»ΠΈ Π·Π°ΠΏΡΠ΅ΡΠ΅Π½ΠΎ, Π·Π°ΠΊΠΎΠ½, ΠΊΠ°ΠΊ ΡΠ΄Π΅Π»Π°ΡΡ, ΠΈΡΠΊ, Π²Π°ΡΠΈΠ°Π½ΡΡ ΠΏΡΠΎΠ΅ΠΊΡΠ°
ΠΈΠ΄Π΅ΠΈ Π΄Π»Ρ ΡΠ°Π·Π½ΡΡ ΠΊΠ²Π°ΡΡΠΈΡ β INMYROOM
Π‘ΠΊΠΎΠ»ΡΠΊΠΎ ΠΈΠ½ΡΠ΅ΡΠ΅ΡΠ½ΡΡ Π΄ΠΈΠ·Π°ΠΉΠ½Π΅ΡΡΠΊΠΈΡ ΠΈΠ΄Π΅ΠΉ Β«ΡΠ°Π·Π±ΠΈΠ»ΠΈΡΡΒ» ΠΎΒ Π½Π΅ΡΡΡΠΈΠ΅ Π²Π½ΡΡΡΠ΅Π½Π½ΠΈΠ΅ ΡΡΠ΅Π½Ρ Π²Β ΡΠΈΠΏΠΎΠ²ΡΡ ΠΏΠ°Π½Π΅Π»ΡΠΊΠ°Ρ : Π΅ΡΠ΅ ΠΎΠ΄ΠΈΠ½ ΠΏΡΠΎΠ΅ΠΌ Π½Π΅Β ΡΠ΄Π΅Π»Π°ΡΡ, ΠΏΠ΅ΡΠ΅Π³ΠΎΡΠΎΠ΄ΠΊΡ Π½Π΅Β ΠΏΠ΅ΡΠ΅Π½Π΅ΡΡΠΈ. ΠΠΎΒ Π½Π΅Β Π²ΡΠ΅ ΠΏΠΎΡΠ΅ΡΡΠ½ΠΎ: ΠΏΡΠΎΡΠΈ ΠΏΡΠ΅Π΄Π»ΠΎΠΆΠΈΠ»ΠΈ ΡΠ΅Π°Π»ΡΠ½ΡΠ΅ ΠΏΡΠΎΠ΅ΠΊΡΡ ΠΏΠ΅ΡΠ΅ΠΏΠ»Π°Π½ΠΈΡΠΎΠ²ΠΎΠΊ Π²Β Π΄ΠΎΠΌΠ°Ρ ΡΠ°Π·Π½ΡΡ ΡΠ΅ΡΠΈΠΉ β Π΄Π΅Π»ΠΈΠΌΡΡ ΡΠ°ΠΌΠΈΠΌΠΈ Π»ΡΡΡΠΈΠΌΠΈ.
ΠΠ²ΡΡ ΠΊΠΎΠΌΠ½Π°ΡΠ½Π°Ρ ΠΊΠ²Π°ΡΡΠΈΡΠ° Π² II-49
ΠΠΎΠΌΠ° ΡΠ΅ΡΠΈΠΈ II-49 ΠΈΠΌΠ΅ΡΡ ΠΏΠΎΠΏΠ΅ΡΠ΅ΡΠ½ΡΠ΅ Π½Π΅ΡΡΡΠΈΠ΅ ΡΡΠ΅Π½Ρ β ΡΡΠ° ΠΊΠΎΠ½ΡΡΡΡΠΊΡΠΈΠ²Π½Π°Ρ ΠΎΡΠΎΠ±Π΅Π½Π½ΠΎΡΡΡ Π΄Π΅Π»Π°Π΅Ρ ΡΠ΅ΡΠΈΡ ΠΏΠ»ΠΎΡ ΠΎ ΠΏΡΠΈΡΠΏΠΎΡΠΎΠ±Π»Π΅Π½Π½ΠΎΠΉ Π΄Π»Ρ ΠΏΠ΅ΡΠ΅ΠΏΠ»Π°Π½ΠΈΡΠΎΠ²ΠΎΠΊ. ΠΡΡ ΠΈΡΠ΅ΠΊΡΠΎΡ ΠΠ½Π°ΡΡΠ°ΡΠΈΡ ΠΠΈΡΠ΅Π»Π΅Π²Π° ΠΏΡΠ΅Π΄Π»ΠΎΠΆΠΈΠ»Π° Π½Π΅ΡΠΊΠΎΠ»ΡΠΊΠΎ Π²Π°ΡΠΈΠ°Π½ΡΠΎΠ² ΡΠ΅ΡΠ΅Π½ΠΈΡ ΠΏΡΠΎΠ±Π»Π΅ΠΌΡ: ΠΎΡΒ ΠΈΡΠΏΠΎΠ»ΡΠ·ΠΎΠ²Π°Π½ΠΈΡ ΠΏΠ΅ΡΠ΅Π΄Π²ΠΈΠΆΠ½ΡΡ ΠΏΠ΅ΡΠ΅Π³ΠΎΡΠΎΠ΄ΠΎΠΊ Π΄Π»Ρ Π·ΠΎΠ½ΠΈΡΠΎΠ²Π°Π½ΠΈΡ Π΄ΠΎΒ ΡΠΎΠ·Π΄Π°Π½ΠΈΡ ΠΏΡΠΎΠ΅ΠΌΠ° ΠΌΠ΅ΠΆΠ΄Ρ ΠΊΠΎΠΌΠ½Π°ΡΠΎΠΉ ΠΈΒ ΠΊΡΡ Π½Π΅. ΠΠ°-Π΄Π°, ΡΠ°ΠΊΡΡ ΠΏΠ΅ΡΠ΅ΠΏΠ»Π°Π½ΠΈΡΠΎΠ²ΠΊΡ ΠΌΠΎΠΆΠ½ΠΎ ΡΠΎΠ³Π»Π°ΡΠΎΠ²Π°ΡΡ: ΠΊΠΎΠΌΠΌΠ΅Π½ΡΠ°ΡΠΈΠΈ ΡΠΊΡΠΏΠ΅ΡΡΠ° ΠΏΡΠΈΠ»Π°Π³Π°ΡΡΡΡ.
Π§ΠΈΡΠ°ΠΉΡΠ΅ Π΄Π°Π»ΡΡΠ΅ΠΠ²ΡΡΠΊΠ° Π² Π΄ΠΎΠΌΠ΅ ΡΠ΅ΡΠΈΠΈ Π-3
Π‘Π΅ΡΠΈΡ Π΄ΠΎΠΌΠΎΠ² Π-3 β Ρ Π°ΡΠ°ΠΊΡΠ΅ΡΠ½ΡΠΉ ΠΏΠΎΠ·Π΄Π½ΠΈΠΉ Π±ΡΠ΅ΠΆΠ½Π΅Π²ΡΠΊΠΈΠΉ ΠΏΡΠΎΠ΅ΠΊΡ. ΠΠ²Π°ΡΡΠΈΡΡ ΠΎΡΠ»ΠΈΡΠ°ΡΡΡΡ Π±ΠΎΠ»ΡΡΠΈΠΌΠΈ Π±Π°Π»ΠΊΠΎΠ½Π°ΠΌΠΈ ΠΈΒ Π΄ΠΎΠ²ΠΎΠ»ΡΠ½ΠΎ ΡΠ΄ΠΎΠ±Π½ΡΠΌΠΈ ΠΏΠ»Π°Π½ΠΈΡΠΎΠ²ΠΊΠ°ΠΌΠΈ. ΠΡΠ½ΠΎΠ²Π½ΠΎΠΉ Π½Π΅Π΄ΠΎΡΡΠ°ΡΠΎΠΊ β ΡΠΈΠ»ΡΠ½ΠΎ Π²ΠΈΠ΄ΠΎΠΈΠ·ΠΌΠ΅Π½ΠΈΡΡ ΠΎΠ±ΡΡΠ°Π½ΠΎΠ²ΠΊΡ Π½Π΅Β ΠΏΠΎΠ»ΡΡΠΈΡΡΡ ΠΈΠ·-Π·Π° Π½Π΅ΡΡΡΠΈΡ Π²Π½ΡΡΡΠ΅Π½Π½ΠΈΡ ΡΡΠ΅Π½. ΠΠ»Ρ ΡΠ΅Ρ , ΠΊΡΠΎ Ρ ΠΎΡΠ΅Ρ ΡΠ΄Π΅Π»Π°ΡΡ ΠΏΡΠΎΡΡΡΠ°Π½ΡΡΠ²ΠΎ ΠΌΠ°ΠΊΡΠΌΠ°Π»ΡΠ½ΠΎ ΠΊΠΎΠΌΡΠΎΡΡΠ½ΡΠΌ, Π°ΡΡ ΠΈΡΠ΅ΠΊΡΠΎΡ ΠΠ°ΠΊΡΠΈΠΌ ΠΠ°Π½ΠΈΠ½ ΠΏΡΠ΅Π΄Π»ΠΎΠΆΠΈΠ» 3 Π²Π°ΡΠΈΠ°Π½ΡΠ° Π΄Π»Ρ ΡΠ°Π·Π½ΡΡ ΡΠΈΠΏΠΎΠ² ΠΆΠΈΠ»ΡΡΠΎΠ².
Π§ΠΈΡΠ°ΠΉΡΠ΅ Π΄Π°Π»ΡΡΠ΅ΠΠ²ΡΡΠΊΠ°-Β«ΡΠ°ΡΠΏΠ°ΡΠΎΠ½ΠΊΠ°Β» Π² ΠΠ-46Π‘
ΠΒ ΠΏΠ°Π½Π΅Π»ΡΠ½ΠΎΠΌ Π΄ΠΎΠΌΠ΅ ΡΠ΅ΡΠΈΠΈ ΠΠ-46Π‘ Π±ΠΎΠ»ΡΡΠΈΠ½ΡΡΠ²ΠΎ Π²Π½ΡΡΡΠ΅Π½Π½ΠΈΡ ΠΏΠ΅ΡΠ΅Π³ΠΎΡΠΎΠ΄ΠΎΠΊ Π½Π΅ΡΡΡΠΈΠ΅: ΠΊΠ°ΡΠ΄ΠΈΠ½Π°Π»ΡΠ½ΠΎ ΠΈΠ·ΠΌΠ΅Π½ΠΈΡΡ ΠΏΠ»Π°Π½ΠΈΡΠΎΠ²ΠΊΡ Π½Π΅Β ΠΏΠΎΠ»ΡΡΠΈΡΡΡ. ΠΡΠ΅Π½ΠΈΡ Π§ΡΠΏΠΈΠ½Π° ΡΠ²Π΅ΡΠ΅Π½Π°, ΡΡΠΎ ΠΈΒ Π±Π΅Π· ΠΏΠ΅ΡΠ΅Π½ΠΎΡΠ° ΡΡΠ΅Π½ ΠΌΠΎΠΆΠ½ΠΎ ΡΠΎΠ·Π΄Π°ΡΡ ΡΠ΄ΠΎΠ±Π½ΠΎΠ΅ ΠΈΒ ΠΊΠΎΠΌΡΠΎΡΡΠ½ΠΎΠ΅ ΠΏΡΠΎΡΡΡΠ°Π½ΡΡΠ²ΠΎ Π΄Π»Ρ ΠΆΠΈΠ·Π½ΠΈ. ΠΠ»Π°Π²Π½ΠΎΠ΅: Π³ΡΠ°ΠΌΠΎΡΠ½ΠΎ ΠΎΡΠ³Π°Π½ΠΈΠ·ΠΎΠ²Π°ΡΡ Ρ ΡΠ°Π½Π΅Π½ΠΈΠ΅, ΠΎΠ±ΡΡΡΡΠΎΠΈΡΡ Π²ΠΌΠ΅ΡΡΠΈΡΠ΅Π»ΡΠ½ΡΡ ΠΊΡΡ Π½Ρ β Π΄ΠΈΠ·Π°ΠΉΠ½Π΅Ρ ΠΏΠΎΠ΄Π΅Π»ΠΈΠ»Π°ΡΡ ΡΠ²ΠΎΠΈΠΌΠΈ ΠΈΠ΄Π΅ΡΠΌΠΈ ΡΒ InMyRoom.
Π§ΠΈΡΠ°ΠΉΡΠ΅ Π΄Π°Π»ΡΡΠ΅ΠΠ΄Π½ΠΎΠΊΠΎΠΌΠ½Π°ΡΠ½Π°Ρ ΠΊΠ²Π°ΡΡΠΈΡΠ° Π² Π΄ΠΎΠΌΠ΅ ΡΠ΅ΡΠΈΠΈ Π-46
Π‘ΠΎΠ·Π΄Π°ΡΡ ΠΊΠΎΠΌΡΠΎΡΡΠ½ΡΠΉ ΠΈΠ½ΡΠ΅ΡΡΠ΅Ρ Π΄Π»Ρ Ρ ΠΎΠ»ΠΎΡΡΡΠΊΠ° Π²Β ΠΎΠ΄Π½ΡΡΠΊΠ΅ Π½Π΅Β ΡΠΎΡΡΠ°Π²ΠΈΡ ΡΡΡΠ΄Π° β ΡΠ»Π΅Π΄ΡΠ΅Ρ Π»ΠΈΡΡ Π³ΡΠ°ΠΌΠΎΡΠ½ΠΎ ΠΏΡΠΎΠ΄ΡΠΌΠ°ΡΡ ΡΡΠ½ΠΊΡΠΈΠΎΠ½Π°Π»ΡΠ½ΡΠ΅ Π·ΠΎΠ½Ρ ΠΈΒ ΡΠΈΡΡΠ΅ΠΌΡ Ρ ΡΠ°Π½Π΅Π½ΠΈΡ. ΠΒ Π²ΠΎΡ ΠΎΡΠ³Π°Π½ΠΈΠ·Π°ΡΠΈΡ ΠΏΡΠΎΡΡΡΠ°Π½ΡΡΠ²Π° Π΄Π»Ρ ΡΠ΅ΠΌΡΠΈ ΡΒ ΡΠ΅Π±Π΅Π½ΠΊΠΎΠΌ-ΡΠΊΠΎΠ»ΡΠ½ΠΈΠΊΠΎΠΌ β Π·Π°Π΄Π°ΡΠ° ΠΏΠΎΡΠ»ΠΎΠΆΠ½Π΅Π΅. ΠΠΈΠ·Π°ΠΉΠ½Π΅Ρ ΠΠΈΠ°Π½Π° ΠΠ°Π»ΡΡΠ΅Π²Π° ΠΏΡΠ΅Π΄Π»ΠΎΠΆΠΈΠ»Π° ΡΡΠΈ ΡΡΠ³ΠΎΠ½ΠΎΠΌΠΈΡΠ½ΡΡ ΠΏΠ»Π°Π½ΠΈΡΠΎΠ²ΠΊΠΈ ΡΠΊΡΠΎΠΌΠ½ΠΎΠΉ ΠΎΠ΄Π½ΡΡΠΊΠΈ ΠΏΠ»ΠΎΡΠ°Π΄ΡΡ 39 ΠΊΠ²Π°Π΄ΡΠ°ΡΠ½ΡΡ ΠΌΠ΅ΡΡΠΎΠ² Π²Β Π΄ΠΎΠΌΠ΅ ΡΠ΅ΡΠΈΠΈ Π-46.
Π§ΠΈΡΠ°ΠΉΡΠ΅ Π΄Π°Π»ΡΡΠ΅ΠΠ²ΡΡΠΊΠ° Π² ΠΏΠ°Π½Π΅Π»ΡΠ½ΠΎΠΌ Π΄ΠΎΠΌΠ΅ ΡΠ΅ΡΠΈΠΈ ΠΠΠΠ
Π Π΄ΠΎΠΌΠ°Ρ ΡΠ΅ΡΠΈΠΈ ΠΠΠΠ Π½Π΅Ρ Π²ΠΎΠ·ΠΌΠΎΠΆΠ½ΠΎΡΡΠΈ ΡΠ΄Π΅Π»Π°ΡΡ ΠΏΡΠΎΠ΅ΠΌΡ Π²ΠΎ Π²Π½ΡΡΡΠ΅Π½Π½ΠΈΡ Π½Π΅ΡΡΡΠΈΡ ΡΡΠ΅Π½Π°Ρ . ΠΠΎ Ρ ΠΊΠΎΠΌΡΠΎΡΡΠΎΠΌ ΠΎΠ±ΡΡΡΡΠΎΠΈΡΡ ΠΊΠ²Π°ΡΡΠΈΡΡ Π΄Π»Ρ ΡΠ°Π·Π½ΡΡ ΡΠΈΠΏΠΎΠ² ΡΠ΅ΠΌΠ΅ΠΉ ΠΏΠΎΠ΄ ΡΠΈΠ»Ρ ΠΊΠ°ΠΆΠ΄ΠΎΠΌΡ. Β ΠΡΡ ΠΈΡΠ΅ΠΊΡΠΎΡ ΠΠ½Π°ΡΡΠ°ΡΠΈΡ ΠΠΈΡΠ΅Π»Π΅Π²Π° ΠΏΡΠ΅Π΄Π»ΠΎΠΆΠΈΠ»Π° 3 Π²Π°ΡΠΈΠ°Π½ΡΠ° ΡΠ΄ΠΎΠ±Π½ΠΎΠΉ ΠΏΠ»Π°Π½ΠΈΡΠΎΠ²ΠΊΠΈ Π΄Π²ΡΡ ΠΊΠΎΠΌΠ½Π°ΡΠ½ΠΎΠΉ ΠΊΠ²Π°ΡΡΠΈΡΡ, Π° ΡΠΊΡΠΏΠ΅ΡΡ ΠΏΠΎ ΠΏΠ΅ΡΠ΅ΠΏΠ»Π°Π½ΠΈΡΠΎΠ²ΠΊΠ°ΠΌ ΠΠ°ΠΊΡΠΈΠΌ ΠΠΆΡΡΠ°Π΅Π² ΡΠ°ΡΡΠΊΠ°Π·Π°Π» ΠΎ Π½ΡΠ°Π½ΡΠ°Ρ ΡΠΎΠ³Π»Π°ΡΠΎΠ²Π°Π½ΠΈΡ.Β
Π§ΠΈΡΠ°ΠΉΡΠ΅ Π΄Π°Π»ΡΡΠ΅www.inmyroom.ru
ΡΡΠ΅Ρ ΠΊΠΎΠΌΠ½Π°ΡΠ½ΠΎΠΉ, Π΄Π²ΡΡ ΠΊΠΎΠΌΠ½Π°ΡΠ½ΠΎΠΉ ΠΈΠ»ΠΈ ΠΎΠ΄Π½ΠΎΠΊΠΎΠΌΠ½Π°ΡΠ½ΠΎΠΉ ΠΊΠ²Π°ΡΡΠΈΡΡ, Π° ΡΠ°ΠΊΠΆΠ΅ Π²Π°Π½Π½Ρ ΠΈΠ»ΠΈ ΡΠ°Π½ΡΠ·Π»Π°
ΠΠ΅Π»Π°Π½ΠΈΠ΅ ΡΠ»ΡΡΡΠΈΡΡ ΡΠ²ΠΎΠ΅ ΠΆΠΈΠ·Π½Π΅Π½Π½ΠΎΠ΅ ΠΏΡΠΎΡΡΡΠ°Π½ΡΡΠ²ΠΎ Π²ΠΎΠ·Π½ΠΈΠΊΠ°Π΅Ρ Ρ ΠΊΠ°ΠΆΠ΄ΠΎΠ³ΠΎ Π½Π΅Π·Π°Π²ΠΈΡΠΈΠΌΠΎ ΠΎΡ Π³Π°Π±Π°ΡΠΈΡΠΎΠ² ΠΆΠΈΠ»ΡΡ ΠΈ ΡΠΈΠΏΠ° ΠΊΠΎΠ½ΡΡΡΡΠΊΡΠΈΠΈ Π΄ΠΎΠΌΠ°. Π§Π°ΡΡΠΎΡΠ° Π·Π°ΠΏΡΠΎΡΠΎΠ² Π½Π°Β ΠΏΠ΅ΡΠ΅ΠΏΠ»Π°Π½ΠΈΡΠΎΠ²ΠΊΡ Π² ΠΏΠ°Π½Π΅Π»ΡΠ½ΡΡ Π΄ΠΎΠΌΠ°Ρ Β ΠΎΠ±ΡΡΠ»ΠΎΠ²Π»Π΅Π½Π° Π½Π΅ ΡΠΎΠ»ΡΠΊΠΎ Π½Π΅Π²ΡΠ³ΠΎΠ΄Π½ΡΠΌΠΈ Π°ΡΡ ΠΈΡΠ΅ΠΊΡΡΡΠ½ΠΎ-ΡΡΡΠΎΠΈΡΠ΅Π»ΡΠ½ΡΠΌΠΈ ΡΠ΅ΡΠ΅Π½ΠΈΡΠΌΠΈ. ΠΡΠ΅ Π΄Π΅Π»ΠΎ Π² ΠΈΡ ΡΠ΅Π½ΠΎΠ²ΠΎΠΉ Π΄ΠΎΡΡΡΠΏΠ½ΠΎΡΡΠΈ Π² ΠΏΠ»Π°Π½Π΅ Π²ΠΎΠ·Π²Π΅Π΄Π΅Π½ΠΈΡ ΠΆΠΈΠ»ΠΈΡΠ½ΡΡ ΠΊΠΎΠΌΠΏΠ»Π΅ΠΊΡΠΎΠ² ΠΈ, ΠΊΠ°ΠΊ ΡΠ»Π΅Π΄ΡΡΠ²ΠΈΠ΅, ΡΠΈΡΠΎΠΊΠΎΠΌ ΡΠ°ΡΠΏΡΠΎΡΡΡΠ°Π½Π΅Π½ΠΈΠΈ ΠΏΡΠ°ΠΊΡΠΈΡΠ΅ΡΠΊΠΈ Π² ΠΊΠ°ΠΆΠ΄ΠΎΠΌ Π½Π°ΡΠ΅Π»Π΅Π½Π½ΠΎΠΌ ΠΏΡΠ½ΠΊΡΠ΅.
ΠΡΠΎΠ±Π΅Π½Π½ΠΎΡΡΠΈ
ΠΠ»ΡΒ ΠΏΠ΅ΡΠ΅ΠΏΠ»Π°Π½ΠΈΡΠΎΠ²ΠΊΠΈ ΠΊΠ²Π°ΡΡΠΈΡΡ Π² ΠΏΠ°Π½Π΅Π»ΡΠ½ΠΎΠΌ Π΄ΠΎΠΌΠ΅Β Π½Π΅ΠΎΠ±Ρ ΠΎΠ΄ΠΈΠΌΠΎ ΠΏΡΠΎΠΉΡΠΈ Π²Π΅ΡΡ ΠΏΡΠΎΡΠ΅ΡΡ ΠΎΡΠΈΡΠΈΠ°Π»ΡΠ½ΠΎΠ³ΠΎ ΠΎΡΠΎΡΠΌΠ»Π΅Π½ΠΈΡ Π΄ΠΎΠΊΡΠΌΠ΅Π½ΡΠ°ΡΠΈΠΈ Ρ ΡΠ°Π·ΡΠ΅ΡΠ΅Π½ΠΈΠ΅ΠΌΒ ΡΠΎΠ±ΡΡΠ²Π΅Π½Π½ΠΈΠΊΠ° ΠΏΠΎΠΌΠ΅ΡΠ΅Π½ΠΈΡ. Π ΡΠΎΠ»ΡΠΊΠΎΒ ΠΏΠΎΡΠ»Π΅ ΡΠΎΠ³Π»Π°ΡΠΎΠ²Π°Π½ΠΈΡ ΠΏΡΠΎΠ΅ΠΊΡΠ°Β Π²Β ΠΏΡΠΎΠ΅ΠΊΡΠ½ΠΎΠΉ ΠΎΡΠ³Π°Π½ΠΈΠ·Π°ΡΠΈΠΈΒ Ρ ΠΈΠ·ΠΌΠ΅Π½Π΅Π½ΠΈΡΠΌΠΈ Π²Β ΡΠ΅Ρ Π½ΠΈΡΠ΅ΡΠΊΠΎΠΌ ΠΏΠ°ΡΠΏΠΎΡΡΠ΅ ΠΏΠΎΠΌΠ΅ΡΠ΅Π½ΠΈΡ, Π²Π»Π°Π΄Π΅Π»Π΅Ρ ΠΏΠΎΠ»ΡΡΠ°Π΅ΡΒ Π²ΠΎΠ·ΠΌΠΎΠΆΠ½ΠΎΡΡΡ ΠΏΠ΅ΡΠ΅ΠΏΠ»Π°Π½ΠΈΡΠΎΠ²ΠΊΠΈΒ Π±Π΅Π· ΡΠΈΡΠΊΠ° Π΄Π»Ρ ΠΆΠΈΠ·Π½ΠΈ Π΄ΡΡΠ³ΠΈΡ ΠΆΠΈΠ»ΡΡΠΎΠ² Π΄ΠΎΠΌΠ° ΠΈΠ»ΠΈ ΠΎΠ±ΡΠ°Π·ΠΎΠ²Π°Π½ΠΈΡ ΡΡΠ΅ΡΠΈΠ½ ΠΏΠΎ ΡΡΠ΅Π½Π°ΠΌ.

ΠΡΠ΅ ΠΈΠ·-Π·Π° Π½Π°Π»ΠΈΡΠΈΡΒ Π±ΠΎΠ»ΡΡΠΎΠ³ΠΎ ΠΊΠΎΠ»ΠΈΡΠ΅ΡΡΠ²Π° Π½Π΅ΡΡΡΠΈΡ ΡΡΠ΅Π½Β β Ρ Π°ΡΠ°ΠΊΡΠ΅ΡΠ½ΠΎΠΉ ΠΎΡΠΎΠ±Π΅Π½Π½ΠΎΡΡΠΈ ΠΏΠ°Π½Π΅Π»ΡΠ½ΡΡ Π΄ΠΎΠΌΠΎΠ². ΠΡΠΊΠ»ΡΡΠ΅Π½ΠΈΠ΅ ΡΠΎΡΡΠ°Π²Π»ΡΡΡ ΡΠΎΠ»ΡΠΊΠΎ Ρ ΡΡΡΠ΅Π²ΠΊΠΈ ΠΈ Π½Π΅ΠΊΠΎΡΠΎΡΡΠ΅ ΡΠ΅ΡΠΈΠΈ ΡΡΠ°ΡΡΡ ΠΏΠ°Π½Π΅Π»Π΅ΠΊ, Π³Π΄Π΅ ΡΠ΅Π°Π»ΡΠ½ΠΎ ΠΈΡΠΏΠΎΠ»ΡΠ·ΠΎΠ²Π°Π½ΠΈΠ΅Β ΡΠΈΠΏΠΎΠ²ΡΡ ΠΏΡΠΎΠ΅ΠΊΡΠΎΠ² ΠΏΠ΅ΡΠ΅ΠΏΠ»Π°Π½ΠΈΡΠΎΠ²ΠΎΠΊ. ΠΠ°ΠΏΡΠΈΠΌΠ΅Ρ, Π² ΡΠ΅ΡΠΈΠΈΒ 1-515/9Β Π²ΠΎΠΎΠ±ΡΠ΅ Π½Π΅ ΡΡΠ΅Π±ΡΠ΅ΡΡΡΒ ΠΈΠ·ΠΌΠ΅Π½Π΅Π½ΠΈΠ΅ Π½Π΅ΡΡΡΠΈΡ ΠΊΠΎΠ½ΡΡΡΡΠΊΡΠΈΠΉ, ΡΠ°ΠΊ ΠΊΠ°ΠΊ Π²ΡΠ΅ ΡΡΠ΅Π½Ρ, Π·Π° ΠΈΡΠΊΠ»ΡΡΠ΅Π½ΠΈΠ΅ΠΌ ΠΌΠ΅ΠΆΠΊΠ²Π°ΡΡΠΈΡΠ½ΡΡ , ΡΠ²Π»ΡΡΡΡΡ ΠΏΡΠΎΡΡΡΠΌΠΈ Π½Π΅Π½Π΅ΡΡΡΠΈΠΌΠΈ ΠΏΠ΅ΡΠ΅Π³ΠΎΡΠΎΠ΄ΠΊΠ°ΠΌΠΈ.Β ΠΠΎΠ»ΡΡΠ΅Π½ΠΈΠ΅ ΡΠ°Π·ΡΠ΅ΡΠ΅Π½ΠΈΡΒ Π΄Π»Ρ ΡΠ°ΠΊΠΎΠΉ ΠΊΠ²Π°ΡΡΠΈΡΡ ΠΈ ΠΎΡΠΎΡΠΌΠ»Π΅Π½ΠΈΠ΅Β Π½ΠΎΠ²ΠΎΠ³ΠΎ ΡΠ΅Ρ ΠΏΠ°ΡΠΏΠΎΡΡΠ°Β Π½Π΅ ΡΠΎΡΡΠ°Π²ΠΈΡ ΡΡΡΠ΄Π°. ΠΠ° ΠΈ ΠΎΠ±ΠΎΠΉΠ΄Π΅ΡΡΡ ΡΡΠΎ Π³ΠΎΡΠ°Π·Π΄ΠΎ Π΄Π΅ΡΠ΅Π²Π»Π΅ ΠΏΠΎ ΡΡΠ°Π²Π½Π΅Π½ΠΈΡ Ρ Π±ΠΎΠ»Π΅Π΅ Π½ΠΎΠ²ΡΠΌΠΈ Π·Π΄Π°Π½ΠΈΡΠΌΠΈ.
ΠΠ΄Π½Π°ΠΊΠΎ Π² Π±ΠΎΠ»ΡΡΠΈΠ½ΡΡΠ²Π΅ ΠΏΠ°Π½Π΅Π»ΡΠ½ΡΡ Π΄ΠΎΠΌΠΎΠ² ΡΡΡΠ΅ΡΡΠ²ΡΡΡ ΠΎΠΏΡΠ΅Π΄Π΅Π»Π΅Π½Π½ΡΠ΅ ΠΎΡΠΎΠ±Π΅Π½Π½ΠΎΡΡΠΈ:
- ΠΠΎΠ»Π½ΡΠΉ ΠΈΠ»ΠΈ ΡΠ°ΡΡΠΈΡΠ½ΡΠΉ Π΄Π΅ΠΌΠΎΠ½ΡΠ°ΠΆ Π½Π΅ΡΡΡΠΈΡ ΡΡΠ΅Π½, Π΄Π°ΠΆΠ΅ Ρ ΡΠΊΡΠ΅ΠΏΠ»Π΅Π½ΠΈΠ΅ΠΌ ΠΌΠ΅ΡΠ°Π»Π»ΠΎΠΊΠΎΠ½ΡΡΡΡΠΊΡΠΈΡΠΌΠΈΒ ΠΏΡΠ°ΠΊΡΠΈΡΠ΅ΡΠΊΠΈ Π½Π΅Π²ΠΎΠ·ΠΌΠΎΠΆΠ΅Π½. ΠΠΏΡΠ΅Π΄Π΅Π»ΠΈΡΡ ΡΠΈΠΏ ΡΡΠ΅Π½Ρ ΠΌΠΎΠΆΠ½ΠΎ ΠΌΠ΅ΡΠΎΠ΄ΠΎΠΌ Π΅Π΅ ΠΈΠ·ΠΌΠ΅ΡΠ΅Π½ΠΈΡ β ΡΠΈΡΠΈΠ½Π° Π² 12-14 ΡΠΌ ΡΠ²ΠΈΠ΄Π΅ΡΠ΅Π»ΡΡΡΠ²ΡΠ΅Ρ ΠΎ ΠΊΠ°ΠΏΠΈΡΠ°Π»ΡΠ½ΠΎΠΉ ΠΊΠΎΠ½ΡΡΡΡΠΊΡΠΈΠΈ.
- ΠΠΎΠΏΠΎΠ»Π½ΠΈΡΠ΅Π»ΡΠ½ΡΠ΅ ΠΏΡΠΎΠ΅ΠΌΡ Π² Π½Π΅ΡΡΡΠΈΡ ΡΡΠ΅Π½Π°Ρ Β Π΄ΠΎΠ»ΠΆΠ½Ρ Π±ΡΡΡ Π²ΡΠΏΠΎΠ»Π½Π΅Π½ΡΡ Π½Π°Π»ΠΈΡΠΈΠ΅ΠΌ ΡΠ°Π·ΡΠ΅ΡΠ΅Π½ΠΈΡ Π½Π° ΡΡΠΊΠ°Ρ ΠΈ ΠΏΡΠΎΡΠ΅ΡΡΠΈΠΎΠ½Π°Π»ΡΠ½ΡΠΌΠΈ ΡΡΡΠΎΠΈΡΠ΅Π»ΡΠ½ΡΠΌΠΈ ΠΎΡΠ³Π°Π½ΠΈΠ·Π°ΡΠΈΡΠΌΠΈ. Π’ΡΠ΅Π±ΡΠ΅ΡΡΡ ΠΈΠ½ΠΆΠ΅Π½Π΅ΡΠ½ΠΎΠ΅ ΠΈΡΡΠ»Π΅Π΄ΠΎΠ²Π°Π½ΠΈΠ΅ ΠΈ ΡΠ΅Ρ Π½ΠΈΡΠ΅ΡΠΊΠΎΠ΅ Π·Π°ΠΊΠ»ΡΡΠ΅Π½ΠΈΠ΅ ΠΎΡΠ³Π°Π½ΠΈΠ·Π°ΡΠΈΠΈ, ΡΠ°Π·ΡΠ°Π±Π°ΡΡΠ²Π°Π²ΡΠ΅ΠΉ ΠΏΡΠΎΠ΅ΠΊΡ Π΄ΠΎΠΌΠ°.
- ΠΠ±ΡΠ΅Π΅ ΡΠΎΡΡΠΎΡΠ½ΠΈΠ΅ Π΄ΠΎΠΌΠ° ΠΈ ΡΠ΅ΡΠΈΡ ΠΏΠ°Π½Π΅Π»ΡΠΊΠΈ, Π° ΡΠ°ΠΊΠΆΠ΅ ΡΡΠ°ΠΆΠ½ΠΎΡΡΡ ΠΈΠΌΠ΅ΡΡ ΠΊΠ»ΡΡΠ΅Π²ΠΎΠ΅ Π·Π½Π°ΡΠ΅Π½ΠΈΠ΅ Π΄Π»Ρ ΠΏΡΠΎΠ΅ΠΊΡΠ° ΠΏΠ΅ΡΠ΅ΠΏΠ»Π°Π½ΠΈΡΠΎΠ²ΠΊΠΈ. Π§Π΅ΠΌ Π²ΡΡΠ΅ ΡΡΠ°ΠΆ β ΡΠ΅ΠΌ ΠΌΠ΅Π½ΡΡΠ΅ Π½Π°Π³ΡΡΠ·ΠΊΠ° ΠΈ, ΡΠ»Π΅Π΄ΠΎΠ²Π°ΡΠ΅Π»ΡΠ½ΠΎ, Π±ΠΎΠ»ΡΡΠ΅ ΡΠ°Π½ΡΠΎΠ² ΠΏΠΎΠ»ΡΡΠΈΡΡ ΡΠ°Π·ΡΠ΅ΡΠ΅Π½ΠΈΠ΅.
- ΠΠ°Π»ΠΈΡΠΈΠ΅ ΠΏΠΎΠ΄ΠΎΠ±Π½ΡΡ ΠΏΠ΅ΡΠ΅ΡΡΡΠΎΠ΅ΠΊ Ρ ΡΠΎΡΠ΅Π΄Π΅ΠΉ ΡΠ²Π΅ΡΡ Ρ ΠΈΠ»ΠΈ ΡΠ½ΠΈΠ·Ρ ΡΠΌΠ΅Π½ΡΡΠ°Π΅Ρ ΡΠ°Π½ΡΡ Π½Π° ΠΎΠ΄ΠΎΠ±ΡΠ΅Π½ΠΈΠ΅.
- ΠΡΠ΄Π°ΡΡ ΡΠ°Π·ΡΠ΅ΡΠ΅Π½ΠΈΠ΅ ΠΈΠΌΠ΅ΡΡ ΠΏΡΠ°Π²ΠΎ ΡΠΎΠ»ΡΠΊΠΎ ΠΏΡΠΎΠ΅ΠΊΡΠ½ΡΠ΅ ΠΈΠ½ΡΡΠΈΡΡΡΡ Ρ Π΄ΠΎΠΏΡΡΠΊΠΎΠΌ Β«ΠΏΡΠΎΠ΅ΠΊΡΠ½ΠΎΠ³ΠΎΒ» Π‘Π Π, ΡΡΠΎ Π³Π°ΡΠ°Π½ΡΠΈΡΡΠ΅Ρ ΡΠΎΠΎΡΠ²Π΅ΡΡΡΠ²ΠΈΠ΅ Π‘ΠΠΈΠΠΎΠ², Π‘Π°Π½ΠΠΈΠΠΎΠ², ΠΠΠ‘Π’ΠΎΠ², ΠΆΠΈΠ»ΠΈΡΠ½ΠΎΠ³ΠΎ Π·Π°ΠΊΠΎΠ½ΠΎΠ΄Π°ΡΠ΅Π»ΡΡΡΠ²Π° ΠΏΡΠΈ ΠΏΡΠΎΠ΅ΠΊΡΠΈΡΠΎΠ²ΠΊΠ΅ Π½ΠΎΠ²ΡΠ΅ΡΡΠ².
ΠΡΠ»ΠΈΒ Π½Π΅ΠΎΠ±Ρ ΠΎΠ΄ΠΈΠΌΠΎ ΡΡΠ΅ΡΡΡΒ Π½Π΅ΡΡΡΠΈΠ΅ ΠΏΠ°Π½Π΅Π»ΠΈΒ ΠΏΡΠΈ ΠΏΠ΅ΡΠ΅ΠΏΠ»Π°Π½ΠΈΡΠΎΠ²ΠΊΠ΅ ΠΏΠ°Π½Π΅Π»ΡΠ½ΠΎΠΉ ΠΊΠ²Π°ΡΡΠΈΡΡ, ΠΏΠΎΠ½Π°Π΄ΠΎΠ±ΠΈΡΡΡ ΡΠΎΠ±ΡΠ°ΡΡ ΠΏΠΎΠ»Π½ΡΠΉ ΠΏΠ°ΠΊΠ΅Ρ ΡΠΎΠΎΡΠ²Π΅ΡΡΡΠ²ΡΡΡΠΈΡ Π΄ΠΎΠΊΡΠΌΠ΅Π½ΡΠΎΠ² ΠΈ ΠΏΠΎΠ΄Π°ΡΡ Π΅Π³ΠΎ Π² ΠΆΠΈΠ»ΠΈΡΠ½ΡΡ ΠΈΠ½ΡΠΏΠ΅ΠΊΡΠΈΡ. ΠΡΠΈ ΠΏΠΎΠ»ΠΎΠΆΠΈΡΠ΅Π»ΡΠ½ΠΎΠΌ ΠΎΡΠ²Π΅ΡΠ΅ Π²ΡΠ΄Π°ΡΡ ΡΠ°ΡΠΏΠΎΡΡΠΆΠ΅Π½ΠΈΠ΅ Ρ ΡΠ°Π·ΡΠ΅ΡΠ΅Π½ΠΈΠ΅ΠΌ Π½Π° ΠΎΡΡΡΠ΅ΡΡΠ²Π»Π΅Π½ΠΈΠ΅ ΠΎΠΏΡΠ΅Π΄Π΅Π»Π΅Π½Π½ΠΎΠ³ΠΎ Π²ΠΈΠ΄Π° ΡΠ°Π±ΠΎΡ.
Π‘Π΅ΡΡΠΈΡΠΈΡΠΈΡΠΎΠ²Π°Π½Π½ΡΠ΅ ΠΏΠΎΠ΄ΡΡΠ΄ΡΠΈΠΊΠΈ Π²ΡΠ΄Π°ΡΡ Π°ΠΊΡΡ ΡΠΊΡΡΡΡΡ ΡΠ°Π±ΠΎΡ ΠΏΡΠΈ ΡΡΠΈΠ»Π΅Π½ΠΈΠΈ ΠΏΡΠΎΠ΅ΠΌΠΎΠ² Π² Π½Π΅ΡΡΡΠΈΡ ΡΡΠ΅Π½Π°Ρ ΠΈΠ»ΠΈ Π³ΠΈΠ΄ΡΠΎΠΈΠ·ΠΎΠ»ΡΡΠΈΠΎΠ½Π½ΡΡ ΡΠ°Π±ΠΎΡΠ°Ρ . ΠΡΠΎΠ΅ΠΊΡΠ½ΠΎΠ΅ Π±ΡΡΠΎ ΠΏΠΎΠ΄ΠΏΠΈΡΡΠ²Π°Π΅Ρ ΡΡΠΈ Π°ΠΊΡΡ ΠΈ ΠΏΡΠΎΠΈΠ·Π²ΠΎΠ΄ΠΈΡ ΠΏΡΠΎΠ²Π΅ΡΠΊΡ ΡΠΎΠΎΡΠ²Π΅ΡΡΡΠ²ΠΈΡ ΡΠ°Π·ΡΠ΅ΡΠΈΡΠ΅Π»ΡΠ½ΡΠΌ Π΄ΠΎΠΊΡΠΌΠ΅Π½ΡΠ°ΠΌ.
Π Π·Π°Π²Π΅ΡΡΠ΅Π½ΠΈΠΈ ΠΆΠΈΠ». ΠΈΠ½ΡΠΏΠ΅ΠΊΡΠΈΡ Π΄ΠΎΠ»ΠΆΠ½Π° Π²ΡΠ΄Π°ΡΡ Π°ΠΊΡ ΠΎ Π·Π°Π²Π΅ΡΡΠ΅Π½Π½ΠΎΠΉ ΠΏΠ΅ΡΠ΅ΠΏΠ»Π°Π½ΠΈΡΠΎΠ²ΠΊΠ΅, ΠΊΠΎΡΠΎΡΡΠΉ Π°ΠΊΡΡΠ°Π»Π΅Π½ ΠΏΡΠΈ ΠΏΠ΅ΡΠ΅ΠΎΡΠΎΡΠΌΠ»Π΅Π½ΠΈΠΈ ΡΠ΅Ρ ΠΏΠ°ΡΠΏΠΎΡΡΠ° Π² ΠΠ’Π. ΠΡΠΎΡ ΠΏΠΎΡΡΠ΄ΠΎΠΊ ΡΠΎΠ±Π»ΡΠ΄Π°Π΅ΡΡΡ ΠΏΡΠΈ ΠΏΠ΅ΡΠ΅ΠΏΠ»Π°Π½ΠΈΡΠΎΠ²ΠΊΠ΅ Π»ΡΠ±ΡΡ ΡΠΈΠΏΠΎΠ² Π΄ΠΎΠΌΠΎΠ².
Π‘Π΅ΡΠΈΠΈ ΠΈ ΠΏΠ»Π°Π½ΠΈΡΠΎΠ²ΠΊΠΈ
ΠΠ»Ρ Π½Π°ΡΠ°Π»Π° ΠΏΠ΅ΡΠ΅ΠΏΠ»Π°Π½ΠΈΡΠΎΠ²ΠΊΠΈ ΠΊΠ²Π°ΡΡΠΈΡΡ Π² ΠΏΠ°Π½Π΅Π»ΡΠ½ΠΎΠΌ Π΄ΠΎΠΌΠ΅ ΡΠ»Π΅Π΄ΡΠ΅Ρ ΠΎΠΏΡΠ΅Π΄Π΅Π»ΠΈΡΡ ΡΠ΅ΡΠΈΡ ΠΏΠΎΡΡΡΠΎΠΉΠΊΠΈ. Π Π°ΡΠΏΡΠΎΡΡΡΠ°Π½Π΅Π½Π½ΡΠ΅ ΡΠ΅ΡΠΈΠΈΒ Π-7,Β 1-510,Β 1-511, II-32 ΠΏΠΎΠ·Π²ΠΎΠ»ΡΡΡ Π½Π΅ ΡΠΎΠ»ΡΠΊΠΎ ΡΠ΄Π΅Π»Π°ΡΡΒ ΠΏΡΠΎΠ΅ΠΌΡ Π² ΡΡΠ΅Π½Π°Ρ , Π½ΠΎ ΠΈ ΡΠ½Π΅ΡΡΠΈ Π±ΠΎΠ»ΡΡΡΡ ΡΠ°ΡΡΡ ΠΌΠ΅ΠΆΠΊΠΎΠΌΠ½Π°ΡΠ½ΡΡ Β ΠΏΠ΅ΡΠ΅Π³ΠΎΡΠΎΠ΄ΠΎΠΊΒ Π²Π²ΠΈΠ΄Ρ ΠΈΡ Π½Π΅Π½Π΅ΡΡΡΠΈΡ Ρ Π°ΡΠ°ΠΊΡΠ΅ΡΠΈΡΡΠΈΠΊ.Β Π ΡΡΠΎΠΌ ΡΠ»ΡΡΠ°Π΅Β ΡΠ°ΡΠ°Π΄Π½ΡΠ΅ ΠΈ ΠΎΠ΄Π½Π° ΠΏΡΠΎΠ΄ΠΎΠ»ΡΠ½Π°Ρ ΡΡΠ΅Π½Π° ΡΠ²Π»ΡΡΡΡΡ Π½Π΅ΡΡΡΠΈΠΌΠΈ, Π° ΠΌΠ΅ΠΆΠΊΠ²Π°ΡΡΠΈΡΠ½ΡΠ΅ ΡΡΠ΅Π½Ρ ΠΈΠ³ΡΠ°ΡΡ ΡΠΎΠ»Ρ Π΄ΠΈΠ°ΡΡΠ°Π³ΠΌ ΠΆΠ΅ΡΡΠΊΠΎΡΡΠΈ.
ΠΠΎΠΌΠ΅Π½ΡΡΡΒ ΠΆΠΈΠ»ΠΈΡΠ½ΡΠ΅ ΡΡΠ»ΠΎΠ²ΠΈΡΒ Π² ΡΠ°ΠΊΠΈΡ Ρ ΡΡΡΠ΅Π²ΠΊΠ°Ρ ΠΌΠΎΠΆΠ½ΠΎ, Π²ΠΎΡΠΏΠΎΠ»ΡΠ·ΠΎΠ²Π°Π²ΡΠΈΡΡ ΡΠΆΠ΅ Π²ΠΎΠΏΠ»ΠΎΡΠ΅Π½Π½ΡΠΌΠΈΒ ΠΏΡΠΈΠΌΠ΅ΡΠ°ΠΌΠΈ ΠΈ ΠΈΠ΄Π΅ΡΠΌΠΈ ΠΏΠ΅ΡΠ΅Π΄Π΅Π»ΠΊΠΈΒ Π² ΠΏΡΠΎΠ΅ΠΊΡΠ½ΡΡ Π±ΡΡΠΎ.
ΠΠ΅ΡΠ΅ΠΏΠ»Π°Π½ΠΈΡΠΎΠ²ΠΊΠ° ΠΊΠΎΠΌΠ½Π°Ρ
Π ΡΡΠ΅Ρ ΠΊΠΎΠΌΠ½Π°ΡΠ½ΠΎΠΉ ΠΊΠ²Π°ΡΡΠΈΡΠ΅ Π² ΠΏΠ°Π½Π΅Π»ΡΠ½ΠΎΠΌ Π΄ΠΎΠΌΠ΅, ΠΌΠΎΠΆΠ½ΠΎ ΡΠΎΠ΅Π΄ΠΈΠ½ΠΈΡΡ ΠΊΡΡ Π½Ρ Ρ ΠΎΠ΄Π½ΠΎΠΉ ΠΈΠ· ΠΊΠΎΠΌΠ½Π°Ρ. ΠΠΎ Π΄Π»Ρ ΡΡΠΎΠ³ΠΎ Π½Π΅ΠΎΠ±Ρ ΠΎΠ΄ΠΈΠΌΠΎ ΡΠΎΠ±Π»ΡΠ΄Π°ΡΡ Π²ΡΠ΅ ΠΏΡΠ°Π²ΠΈΠ»Π° ΠΏΡΠΈ ΡΠ°Π±ΠΎΡΠ΅ Ρ Π³Π°Π·ΠΎΠ²ΠΎΠΉ ΠΏΠ»ΠΈΡΠΎΠΉ. ΠΠ΅ ΡΠ°Π·ΡΠ΅ΡΠ°Π΅ΡΡΡ ΠΏΠ΅ΡΠ΅Π½ΠΎΡ ΡΠ°ΠΌΠΎΠΉ ΠΊΡΡ Π½ΠΈ Π΄Π°ΠΆΠ΅ Π²Β ΡΠ΅ΡΡΡΠ΅Ρ ΠΊΠΎΠΌΠ½Π°ΡΠ½ΠΎΠΉ ΠΊΠ²Π°ΡΡΠΈΡΠ΅ Π² ΠΏΠ°Π½Π΅Π»ΡΠ½ΠΎΠΌ Π΄ΠΎΠΌΠ΅. Π Π² ΠΎΠ΄Π½ΠΎΠΊΠΎΠΌΠ½Π°ΡΠ½ΠΎΠΌ ΠΆΠΈΠ»ΠΈΡΠ΅ β ΡΠ½ΠΎΡΠΈΡΡ ΠΏΠ΅ΡΠ΅Π³ΠΎΡΠΎΠ΄ΠΊΡ ΠΌΠ΅ΠΆΠ΄Ρ ΠΊΠΎΠΌΠ½Π°ΡΠΎΠΉ ΠΈ ΠΊΡΡ Π½Π΅ΠΉ Π½Π΅ΠΏΡΠ°Π²ΠΎΠΌΠ΅ΡΠ½ΠΎ, ΠΏΠΎΡΠΊΠΎΠ»ΡΠΊΡ ΠΏΠΎΠΌΠ΅ΡΠ΅Π½ΠΈΠ΅ Π±ΡΠ΄Π΅Ρ ΡΡΠΈΡΠ°ΡΡΡΡ ΡΠΆΠ΅ Π½Π΅ΠΆΠΈΠ»ΡΠΌ.

ΠΡΠ²Π°Π΅Ρ, ΡΡΠΎΒ ΠΏΠ΅ΡΠ΅ΠΏΠ»Π°Π½ΠΈΡΠΎΠ²ΠΊΠ° 3-ΠΊΠΎΠΌΠ½Π°ΡΠ½ΠΎΠΉ ΠΊΠ²Π°ΡΡΠΈΡΡ 60 ΠΊΠ². ΠΌΒ Π²Β ΠΏΠ°Π½Π΅Π»ΡΠ½ΠΎΠΌ Π΄ΠΎΠΌΠ΅Β ΠΌΠΎΠΆΠ΅Ρ Π±ΡΡΡ Π·Π°ΠΏΡΠ΅ΡΠ΅Π½Π° Π²Π²ΠΈΠ΄Ρ Π½Π°Π»ΠΈΡΠΈΡ Π² ΡΡΠ΅Π½Π΅ ΡΠΈΡΡΠ΅ΠΌΡ Π²Π΅Π½ΡΠΈΠ»ΡΡΠΈΠΈ ΠΈΠ»ΠΈ ΠΎΡΠΎΠΏΠ»Π΅Π½ΠΈΡ. ΠΠΈΠ±ΠΎ ΡΡΠΎ ΠΎΠ±ΠΎΠΉΠ΄Π΅ΡΡΡ Π·Π°ΠΊΠ°Π·ΡΠΈΠΊΡ Π² Π±ΠΎΠ»ΡΡΡΡ ΡΡΠΌΠΌΡ, Π²Π΅Π΄Ρ ΠΏΠΎΡΡΠ΅Π±ΡΠ΅Ρ Π·Π½Π°ΡΠΈΡΠ΅Π»ΡΠ½ΠΎΠ³ΠΎ ΡΡΠΈΠ»Π΅Π½ΠΈΡ ΠΏΡΠΎΠ΅ΠΌΠ° ΠΈ ΠΎΡΡΡΠ΅ΡΡΠ²Π»Π΅Π½ΠΈΡ ΡΠ°ΡΡΠ΅ΡΠΎΠ² ΠΏΠΎ Π±ΠΎΠ»ΡΡΠΎΠΌΡ ΠΊΠΎΠ»ΠΈΡΠ΅ΡΡΠ²Ρ ΠΏΠ°ΡΠ°ΠΌΠ΅ΡΡΠΎΠ².
ΠΠΎΡΠΈΠ΄ΠΎΡ
ΠΠΎΠΏΡΠ»ΡΡΠ½ΡΠ΅ ΠΈ Π΄ΠΎ ΡΠΈΡ ΠΏΠΎΡ Π²ΠΎΡΡΡΠ΅Π±ΠΎΠ²Π°Π½Π½ΡΠ΅ ΡΠ΅ΡΠΈΠΈ ΠΏΠ°Π½Π΅Π»Π΅ΠΊ, Π½Π°ΠΏΡΠΈΠΌΠ΅Ρ,Β 121 ΠΈΠ»ΠΈ 90, ΠΏΠΎΠ·Π²ΠΎΠ»ΡΡΡ ΡΠ²Π΅Π»ΠΈΡΠΈΡΡ ΡΠ°Π·ΠΌΠ΅Ρ ΠΊΡΡ Π½ΠΈΒ Π·Π° ΡΡΠ΅Ρ ΠΊΠΎΡΠΈΠ΄ΠΎΡΠ°Β ΠΈΠ»ΠΈ Π±Π°Π»ΠΊΠΎΠ½Π°. ΠΠ΄Π΅ΡΡΒ Π½Π΅ΡΡΡΠΈΠΌΠΈ ΡΠ²Π»ΡΡΡΡΡΒ ΠΌΠ΅ΠΆΠΊΠΎΠΌΠ½Π°ΡΠ½ΡΠ΅ ΠΏΠ΅ΡΠ΅Π³ΠΎΡΠΎΠ΄ΠΊΠΈ. ΠΠ»ΡΒ ΠΊΠΎΡΠΈΠ΄ΠΎΡΠ°, Π²Π°Π½Π½ΠΎΠΉ ΠΈ ΡΠ°Π½ΡΠ·Π»Π°Β ΡΡΡΠ΅ΡΡΠ²ΡΠ΅Ρ ΡΡΠ΄ ΡΡΠ°Π½Π΄Π°ΡΡΠΈΠ·ΠΈΡΠΎΠ²Π°Π½Π½ΡΡ ΠΏΡΠΎΠ΅ΠΊΡΠΎΠ² ΠΏΠΎ ΡΠ°ΡΡΠΈΡΠ΅Π½ΠΈΡ ΠΈΠ»ΠΈ ΡΠΌΠ΅Π½ΡΡΠ΅Π½ΠΈΡ ΠΏΠ»ΠΎΡΠ°Π΄ΠΈ ΠΎΠΏΡΠ΅Π΄Π΅Π»Π΅Π½Π½ΠΎΠΉ Π·ΠΎΠ½Ρ Π² ΠΊΠ²Π°ΡΡΠΈΡΠ΅.

ΠΠ°Π΄Π°Π²Π°ΡΡΡ Π²ΠΎΠΏΡΠΎΡΠΎΠΌ,Β Π²ΠΎΠ·ΠΌΠΎΠΆΠ½Π° Π»ΠΈ ΠΏΠ΅ΡΠ΅ΠΏΠ»Π°Π½ΠΈΡΠΎΠ²ΠΊΠ° Π² ΠΏΠ°Π½Π΅Π»ΡΠ½ΠΎΠΌ Π΄ΠΎΠΌΠ΅ 90 ΡΠ΅ΡΠΈΠΈ, ΡΠ»Π΅Π΄ΡΠ΅Ρ ΡΠ½Π°ΡΠ°Π»Π° ΠΎΠΏΡΠ΅Π΄Π΅Π»ΠΈΡΡΡΡ, ΡΡΠΎ ΠΈΠΌΠ΅Π½Π½ΠΎ Π½ΡΠΆΠ½ΠΎ Π²ΡΠΏΠΎΠ»Π½ΠΈΡΡ. ΠΠΎΡΠΈΠ΄ΠΎΡ Π² Π΄Π°Π½Π½ΠΎΠΌ ΡΠ»ΡΡΠ°Π΅ Π²ΡΡΡΡΠΏΠ°Π΅Ρ Π΄ΠΎΡΡΡΠΏΠ½ΠΎΠΉ ΡΠ΅ΡΡΠΈΡΠΎΡΠΈΠ΅ΠΉ, ΠΊΠΎΡΠΎΡΠΎΠΉ ΠΌΠΎΠΆΠ½ΠΎ Π²ΠΎΡΠΏΠΎΠ»ΡΠ·ΠΎΠ²Π°ΡΡΡΡ Π² ΠΏΠΎΠ»ΡΠ·Ρ Π΄ΡΡΠ³ΠΈΡ ΠΏΠΎΠΌΠ΅ΡΠ΅Π½ΠΈΠΉ. Π Π΅ΡΠ»ΠΈ ΠΏΡΠΈΠ΄Π΅ΡΠΆΠΈΠ²Π°ΡΡΡΡ ΡΠΈΠΏΠΎΠ²ΡΠΌΠΈ ΠΏΡΠΎΠ΅ΠΊΡΠ°ΠΌΠΈ, ΠΌΠΎΠΆΠ½ΠΎ ΡΡΠΊΠΎΠ½ΠΎΠΌΠΈΡΡ ΠΈ ΡΡΠ΅Π΄ΡΡΠ²Π°, ΠΈ Π²ΡΠ΅ΠΌΡ Π½Π° ΡΠΎΠ³Π»Π°ΡΠΎΠ²Π°Π½ΠΈΠ΅ ΠΈ ΠΏΠΎΠ»ΡΡΠ΅Π½ΠΈΠ΅ ΡΠ°Π·ΡΠ΅ΡΠ΅Π½ΠΈΠΉ.
ΠΠ°Π½Π½Π°Ρ ΠΊΠΎΠΌΠ½Π°ΡΠ°
ΠΠ΅ΡΠ΅ΠΏΠ»Π°Π½ΠΈΡΠΎΠ²ΠΊΠ° Π²Π°Π½Π½ΠΎΠΉ Π² ΠΏΠ°Π½Π΅Π»ΡΠ½ΠΎΠΌ Π΄ΠΎΠΌΠ΅Β ΠΌΠΎΠΆΠ΅Ρ ΠΏΠΎΠ΄ΡΠ°Π·ΡΠΌΠ΅Π²Π°ΡΡΒ ΠΎΠ±ΡΠ΅Π΄ΠΈΠ½Π΅Π½ΠΈΠ΅ Ρ ΡΡΠ°Π»Π΅ΡΠΎΠΌΒ Π»ΠΈΠ±ΠΎ ΡΠ°ΡΡΠΈΡΠ΅Π½ΠΈΠ΅ ΠΊΡΡ Π½ΠΈ Π·Π° ΡΡΠ΅Ρ ΡΠ΅ΡΡΠΈΡΠΎΡΠΈΠΈ ΠΏΡΠΈΠΌΡΠΊΠ°ΡΡΠ΅ΠΉ ΡΡΠ΅Π½Ρ Π²Π°Π½Π½ΠΎΠΉ. ΠΠ±ΡΡΠ½ΠΎ Π²Π»Π°Π΄Π΅Π»ΡΡΡ Π½Π΅ ΡΡΡΠ΅ΠΌΡΡΡΡ ΡΠΌΠ΅Π½ΡΡΠΈΡΡΒ ΠΏΠ»ΠΎΡΠ°Π΄Ρ ΡΠ°Π½ΡΠ·Π»Π°, Π° Π½Π°ΠΎΠ±ΠΎΡΠΎΡ, ΡΠΎΠ΅Π΄ΠΈΠ½ΡΡΡ ΠΈΡ Ρ ΠΊΠΎΡΠΈΠ΄ΠΎΡΠ°ΠΌΠΈ ΠΈΠ»ΠΈ Π³Π°ΡΠ΄Π΅ΡΠΎΠ±Π½ΡΠΌΠΈ. ΠΠΎ ΡΠ²Π΅Π»ΠΈΡΠΈΠ²Π°ΡΡ ΠΌΠΎΠΊΡΡΠ΅ ΡΠΎΡΠΊΠΈ Π·Π° ΡΡΠ΅Ρ ΠΆΠΈΠ»ΡΡ ΠΏΠΎΠΌΠ΅ΡΠ΅Π½ΠΈΠΉ ΠΈΠ»ΠΈ ΠΏΠ΅ΡΠ΅ΠΌΠ΅ΡΠ°ΡΡ ΠΈΡ ΡΠ°ΠΊΠΈΠΌ ΠΎΠ±ΡΠ°Π·ΠΎΠΌ, ΡΡΠΎΠ±Ρ ΠΎΠ½ΠΈ Π½Π°Ρ ΠΎΠ΄ΠΈΠ»ΠΈΡΡ Π½Π°Π΄ ΠΊΠΎΠΌΠ½Π°ΡΠ°ΠΌΠΈ ΡΠΎΡΠ΅Π΄Π΅ΠΉ, Π½Π΅ ΡΠ°Π·ΡΠ΅ΡΠ°Π΅ΡΡΡ.

ΠΠ΅ΡΠ΅ΠΏΠ»Π°Π½ΠΈΡΠΎΠ²ΠΊΠ° Π² ΠΏΠ°Π½Π΅Π»ΡΠ½ΠΎΠΌ Π΄ΠΎΠΌΠ΅ Π΄Π»Ρ ΠΎΠ±ΡΠ΅Π΄ΠΈΠ½Π΅Π½ΠΈΡΒ ΡΡΠ°Π»Π΅ΡΠ° Ρ Π²Π°Π½Π½ΠΎΠΉΒ ΠΎΡΡΡΠ΅ΡΡΠ²Π»ΡΠ΅ΡΡΡ Π΄ΠΎΠ²ΠΎΠ»ΡΠ½ΠΎ ΠΏΡΠΎΡΡΠΎ, ΠΏΠΎΡΠΊΠΎΠ»ΡΠΊΡ ΠΏΠ΅ΡΠ΅Π³ΠΎΡΠΎΠ΄ΠΊΡ ΡΠ½Π΅ΡΡΠΈ ΠΏΡΠΎΡΡΠΎ ΠΊΠ°ΠΊ Π² ΡΠ΅Ρ Π½ΠΈΡΠ΅ΡΠΊΠΎΠΌ ΠΎΡΠ½ΠΎΡΠ΅Π½ΠΈΠΈ, ΡΠ°ΠΊ ΠΈ Π² Π²ΠΎΠΏΡΠΎΡΠ΅ Π΄ΠΎΠΊΡΠΌΠ΅Π½ΡΠ°Π»ΡΠ½ΠΎΠ³ΠΎ ΠΎΡΠΎΡΠΌΠ»Π΅Π½ΠΈΡ. ΠΠ΄ΠΈΠ½ΡΡΠ²Π΅Π½Π½ΠΎΠ΅, ΡΡΠΎ Π½Π΅ΠΎΠ±Ρ ΠΎΠ΄ΠΈΠΌΠΎ ΡΡΠ΅ΡΡΡ β ΡΠ°ΡΡΠΈΡΠ΅Π½ΠΈΠ΅Β Π²Π°Π½Π½ΠΎΠΉ ΠΊΠΎΠΌΠ½Π°ΡΡΒ ΠΏΡΠ΅Π΄ΠΏΠΎΠ»Π°Π³Π°Π΅Ρ ΡΠΊΠ»Π°Π΄ΠΊΡ Π³ΠΈΠ΄ΡΠΎΠΈΠ·ΠΎΠ»ΡΡΠΈΠΈ Π² ΠΊΠΎΠ½ΡΡΡΡΠΊΡΠΈΡ ΠΏΠΎΠ»ΠΎΠ² ΠΈ ΡΠ΅ΠΏΠ΅ΡΠΈΠ»ΡΠ½ΠΎΠ³ΠΎ ΠΎΡΠ½ΠΎΡΠ΅Π½ΠΈΡ ΠΊ ΠΈΠ½ΠΆΠ΅Π½Π΅ΡΠ½ΡΠΌ ΠΊΠΎΠΌΠΌΡΠ½ΠΈΠΊΠ°ΡΠΈΡΠΌ.
ΠΡΡ Π½Ρ
ΠΠ»Ρ ΠΎΠ΄Π½ΠΎΠΊΠΎΠΌΠ½Π°ΡΠ½ΡΡ Π΄ΠΎΠΌΠΎΠ² ΠΏΠ°Π½Π΅Π»ΡΠ½ΠΎΠ³ΠΎ ΡΠΈΠΏΠ°Β ΡΠ΅ΠΌΠΎΠ½Ρ ΠΊΠ²Π°ΡΡΠΈΡΡΒ Ρ ΠΏΠ΅ΡΠ΅ΠΏΠ»Π°Π½ΠΈΡΠΎΠ²ΠΊΠΎΠΉ ΠΊΡΡ Π½ΠΈ ΠΏΡΠ°ΠΊΡΠΈΡΠ΅ΡΠΊΠΈ Π½Π΅Π²ΠΎΠ·ΠΌΠΎΠΆΠ΅Π½. Π Π½Π΅ΠΊΠΎΡΠΎΡΡΡ ΡΠ΅Π΄ΠΊΠΈΡ ΡΠ»ΡΡΠ°ΡΡ ΠΊΡΡ Π½ΡΒ ΠΌΠΎΠΆΠ΅Ρ Π±ΡΡΡ ΠΎΠ±ΠΎΡΡΠ΄ΠΎΠ²Π°Π½Π°Β ΡΠ»Π΅ΠΊΡΡΠΎΠΏΠ»ΠΈΡΠ°ΠΌΠΈ, ΡΡΠΎ ΡΠΏΡΠΎΡΠ°Π΅Ρ Π·Π°Π΄Π°ΡΡ. ΠΠ»ΠΈ ΠΆΠ΅ ΠΊΠΎΠ½ΡΡΡΡΠΊΡΠΈΡ Π±Π°Π»ΠΊΠΎΠ½Π° ΠΏΠΎΠ·Π²ΠΎΠ»ΡΠ΅Ρ ΡΠΎΠ΅Π΄ΠΈΠ½ΠΈΡΡ Π΅Π΅ ΠΊΡΡ Π½Π΅ΠΉ. ΠΠΎ Π² Π±ΠΎΠ»ΡΡΠΈΠ½ΡΡΠ²Π΅ Π²Π°ΡΠΈΠ°Π½ΡΠΎΠ² ΠΏΡΠ΅Π΄ΠΏΠΎΠ»Π°Π³Π°Π΅ΡΡΡ Π³Π°Π·ΠΎΠ²Π°Ρ ΠΏΠ»ΠΈΡΠ° ΠΈΠ»ΠΈ ΠΆΠ΅ Π½Π°Π»ΠΈΡΠΈΠ΅ ΠΊΠΎΠΌΠΌΡΠ½ΠΈΠΊΠ°ΡΠΈΠΉ Π² ΠΏΡΠΈΠ»Π΅Π³Π°ΡΡΠ΅ΠΉ ΠΌΠ΅ΠΆΠΊΠΎΠΌΠ½Π°ΡΠ½ΠΎΠΉ ΠΏΠ΅ΡΠ΅Π³ΠΎΡΠΎΠ΄ΠΊΠ΅. ΠΡΠΎ ΠΎΠ±ΡΡΠΎΡΡΠ΅Π»ΡΡΡΠ²ΠΎ Π½Π΅Π»ΡΠ·Ρ ΠΈΠ³Π½ΠΎΡΠΈΡΠΎΠ²Π°ΡΡ.

ΠΠΎ Π·Π°ΠΊΠΎΠ½ΠΎΠ΄Π°ΡΠ΅Π»ΡΡΡΠ²Ρ, ΡΠΎΠ΅Π΄ΠΈΠ½Π΅Π½ΠΈΠ΅ ΠΆΠΈΠ»ΡΡ Β ΠΏΠΎΠΌΠ΅ΡΠ΅Π½ΠΈΠΉΒ Ρ ΠΊΡΡ Π½Π΅ΠΉ,Β Π΅ΡΠ»ΠΈΒ ΡΡΡΠ°Π½ΠΎΠ²Π»Π΅Π½Π° Π³Π°Π·ΠΎΠ²Π°Ρ ΠΏΠ»ΠΈΡΠ°, ΠΏΠΎΡΡΠ΅Π±ΡΠ΅Ρ:
- ΡΡΡΠ°Π½ΠΎΠ²ΠΊΠΈ ΡΠ°Π·Π΄Π²ΠΈΠΆΠ½ΠΎΠΉ ΠΏΠ΅ΡΠ΅Π³ΠΎΡΠΎΠ΄ΠΊΠΈ Π²Π·Π°ΠΌΠ΅Π½ ΡΠ½Π΅ΡΠ΅Π½Π½ΠΎΠΉ ΡΡΠ΅Π½Ρ;
- ΠΌΠΎΠ½ΡΠΈΡΠΎΠ²Π°Π½ΠΈΡ Π΄Π²Π΅ΡΠ½ΠΎΠ³ΠΎ ΠΏΡΠΎΠ΅ΠΌΠ°.
ΠΠ΅ΡΠ΅Π½ΠΎΡΠΈΡΡ ΠΌΠΎΠΊΡΡΡ Π·ΠΎΠ½Ρ Ρ ΠΊΡΡ Π½ΠΈ Π² ΠΏΠ΅ΡΠ΅ΠΏΠ»Π°Π½ΠΈΡΠΎΠ²Π°Π½Π½ΠΎΠΉ ΠΊΠ²Π°ΡΡΠΈΡΠ΅ Π΄Π°ΠΆΠ΅ ΠΏΡΠΈ ΡΠΎΠ±Π»ΡΠ΄Π΅Π½ΠΈΠΈ ΠΏΡΠ°Π²ΠΈΠ» Π³ΠΈΠ΄ΡΠΎΠΈΠ·ΠΎΠ»ΡΡΠΈΠΈ Π½Π΅ ΡΠ°Π·ΡΠ΅ΡΠ°Π΅ΡΡΡ, Π΅ΡΠ»ΠΈ Ρ ΡΠΎΡΠ΅Π΄Π΅ΠΉ ΡΠ½ΠΈΠ·Ρ Π½Π°Ρ ΠΎΠ΄ΡΡΡΡ ΠΆΠΈΠ»ΡΠ΅ ΠΊΠΎΠΌΠ½Π°ΡΡ. ΠΡΠΎ ΠΎΠ±ΡΡΡΠ½ΡΠ΅ΡΡΡ Π±ΠΎΠ»ΡΡΠΈΠΌ ΡΠΈΡΠΊΠΎΠΌ Π·Π°ΡΠΎΠΏΠ»Π΅Π½ΠΈΡ Π΄Π»Ρ ΠΊΠ²Π°ΡΡΠΈΡ,Β ΠΊΠΎΡΠΎΡΡΠ΅ Π½Π°Ρ ΠΎΠ΄ΡΡΡΡΒ Π½ΠΈΠΆΠ΅.
Π§ΡΠΎ ΠΌΠΎΠΆΠ½ΠΎ ΠΈ Π½Π΅Π»ΡΠ·Ρ ΠΏΡΠΈ ΠΏΠ΅ΡΠ΅ΠΏΠ»Π°Π½ΠΈΡΠΎΠ²ΠΊΠ΅ Π² ΠΏΠ°Π½Π΅Π»ΡΠ½ΠΎΠΌ Π΄ΠΎΠΌΠ΅
ΠΠΎΠ΄ΠΈΡΠΈΠΊΠ°ΡΠΈΠΈΒ ΠΏΠ°Π½Π΅Π»ΡΠ½ΠΎΠΉ ΠΊΠ²Π°ΡΡΠΈΡΡΒ Π²ΠΎ ΠΌΠ½ΠΎΠ³ΠΎΠΌ Π·Π°Π²ΠΈΡΡΡ ΠΎΡ ΠΏΠ»Π°Π½Π° ΠΏΡΠΎΠ΅ΠΊΡΠΈΡΠΎΠ²ΠΊΠΈ, ΡΠΎΡΡΠΎΡΠ½ΠΈΡ Π²ΡΠ΅ΠΉ ΠΊΠΎΠ½ΡΡΡΡΠΊΡΠΈΠΈ Π΄ΠΎΠΌΠ° ΠΈ Π΅Π³ΠΎ ΠΈΠ·Π½ΠΎΡ, Π° ΡΠ°ΠΊΠΆΠ΅ ΡΠΆΠ΅ ΠΏΡΠΎΠ²Π΅Π΄Π΅Π½Π½ΡΡ ΠΏΠ΅ΡΠ΅ΠΏΠ»Π°Π½ΠΈΡΠΎΠ²ΠΎΠΊ ΡΠΎΡΠ΅Π΄Π΅ΠΉ ΠΈ ΡΡΠ°ΠΆΠ½ΠΎΡΡΠΈ Π·Π΄Π°Π½ΠΈΡ.
ΠΡΠ°ΠΊΡΠΈΡΠ΅ΡΠΊΠΈ Π²ΡΠ΅ Π½ΠΎΠ²ΡΠ΅ ΠΏΠ°Π½Π΅Π»ΡΠ½ΡΠ΅ Π΄ΠΎΠΌΠ° Π΄ΠΎΠΏΡΡΠΊΠ°ΡΡ ΠΌΠΈΠ½ΠΈΠΌΡΠΌ Π²Π°ΡΠΈΠ°ΡΠΈΠΉ Ρ ΠΏΠ΅ΡΠ΅ΡΡΡΠΎΠΉΠΊΠ°ΠΌΠΈ Π²Π½ΡΡΡΠΈ ΠΊΠ²Π°ΡΡΠΈΡ. ΠΠΎ, Π΅ΡΠ»ΠΈ ΡΠ°ΠΊΠ°Ρ ΠΏΠΎΡΡΠ΅Π±Π½ΠΎΡΡΡ Π²ΡΠ΅ ΠΆΠ΅ Π²ΠΎΠ·Π½ΠΈΠΊΠ»Π°, Π΄ΠΎΠΏΡΡΠΊΠ°Π΅ΡΡΡ:
- Π£Π²Π΅Π»ΠΈΡΠ΅Π½ΠΈΠ΅ ΡΠΈΡΠ»Π° ΠΊΠΎΠΌΠ½Π°Ρ Π·Π° ΡΡΠ΅Ρ ΡΡΠ΅ΠΊΠ»ΡΠ½Π½ΡΡ ΠΌΠ°ΡΠΎΠ²ΡΡ ΠΏΠ΅ΡΠ΅Π³ΠΎΡΠΎΠ΄ΠΎΠΊ Π»ΠΈΠ±ΠΎ ΠΊΠ½ΠΈΠΆΠ½ΡΡ Π³Π»ΡΡ ΠΈΡ ΠΏΠΎΠ»ΠΎΠΊ. ΠΡΠ΅ΠΏΠ΅ΠΆΠΈ Π΄ΠΎΠ»ΠΆΠ½Ρ ΡΠ°ΡΠΏΠΎΠ»Π°Π³Π°ΡΡΡΡ ΠΊΠ°ΠΊ Π½Π° ΠΏΠΎΠ»Ρ, ΡΠ°ΠΊ ΠΈ Π½Π° ΠΏΠΎΡΠΎΠ»ΠΊΠ΅. ΠΠΎΠ²ΠΎΠ΅ ΠΏΠΎΠΌΠ΅ΡΠ΅Π½ΠΈΠ΅ ΠΌΠΎΠΆΠ΅Ρ Π±ΡΡΡ ΠΎΠ±ΠΎΡΠΎΠ±Π»Π΅Π½Π½ΡΠΌ. ΠΡΠ΅Π΄ΠΏΠΎΠ»Π°Π³Π°Π΅ΡΡΡ, ΡΡΠΎ Π² ΡΡΠ΅Π½Π΅ Π±ΡΠ΄Π΅Ρ Π²ΡΠΏΠΎΠ»Π½Π΅Π½ Π΅ΡΠ΅ ΠΎΠ΄ΠΈΠ½ Π΄Π²Π΅ΡΠ½ΠΎΠΉ ΠΏΡΠΎΠ΅ΠΌ, ΡΡΠΈΠ»Π΅Π½Π½ΡΠΉ ΠΌΠ΅ΡΠ°Π»Π»ΠΎΠΊΠΎΠ½ΡΡΡΡΠΊΡΠΈΡΠΌΠΈ.
- Π£Π²Π΅Π»ΠΈΡΠ΅Π½ΠΈΠ΅ ΠΏΠΎΠ»Π΅Π·Π½ΠΎΠΉ ΠΏΠ»ΠΎΡΠ°Π΄ΠΈ ΡΠ°Π½ΡΠ·Π»Π° ΠΏΡΡΠ΅ΠΌ ΠΎΠ±ΡΠ΅Π΄ΠΈΠ½Π΅Π½ΠΈΡ Π²Π°Π½Π½Ρ ΠΈ ΡΡΠ°Π»Π΅ΡΠ°. ΠΠ΅ΠΎΠ±Ρ ΠΎΠ΄ΠΈΠΌΠΎ Π²ΡΠΏΠΎΠ»Π½ΠΈΡΡ ΠΏΠ΅ΡΠ΅Π½ΠΎΡ ΠΊΡΠ΅ΠΏΠ»Π΅Π½ΠΈΡ ΠΊΠΎΠΌΠΌΡΠ½ΠΈΠΊΠ°ΡΠΈΠΉ ΠΈ Π³ΠΈΠ΄ΡΠΎΠΈΠ·ΠΎΠ»ΡΡΠΈΡ ΠΏΠΎΠ»Π°.
- Π£Π²Π΅Π»ΠΈΡΠ΅Π½ΠΈΠ΅ ΠΊΡΡ Π½ΠΈ Π·Π° ΡΡΠ΅Ρ ΠΊΠΎΡΠΈΠ΄ΠΎΡΠ° ΠΈΠ»ΠΈ, Π² Π½Π΅ΠΊΠΎΡΠΎΡΡΡ ΡΠΈΠΏΠ°ΠΆΠ°Ρ ΠΏΠ°Π½Π΅Π»ΡΠ½ΡΡ Π΄ΠΎΠΌΠΎΠ² β ΠΎΠ±ΡΠ΅Π΄ΠΈΠ½Π΅Π½ΠΈΠ΅ ΠΊΡΡ Π½ΠΈ ΠΈ Π±Π°Π»ΠΊΠΎΠ½Π°. ΠΠ±ΡΡΡΡΠΎΠΈΡΡ ΠΊΡΡ Π½Ρ-ΡΡΡΠ΄ΠΈΡ ΠΌΠΎΠΆΠ½ΠΎ Π² 2-Ρ ΠΈ Π±ΠΎΠ»Π΅Π΅ ΠΊΠΎΠΌΠ½Π°ΡΠ½ΡΡ ΠΊΠ²Π°ΡΡΠΈΡΠ°Ρ Ρ ΠΎΠ³ΠΎΠ²ΠΎΡΠΊΠΎΠΉ Π½Π° ΡΡΠ΅Π±ΠΎΠ²Π°Π½ΠΈΡ ΠΊ Π±Π΅Π·ΠΎΠΏΠ°ΡΠ½ΠΎΠΌΡ ΠΈΡΠΏΠΎΠ»ΡΠ·ΠΎΠ²Π°Π½ΠΈΡ Π³Π°Π·ΠΎΠ²ΡΡ ΠΏΠ»ΠΈΡ Π² ΠΏΠΎΠΌΠ΅ΡΠ΅Π½ΠΈΠΈ.
- ΠΠΎΠ»ΡΡΠΈΡΡ Π΄ΠΎΠΏΠΎΠ»Π½ΠΈΡΠ΅Π»ΡΠ½ΡΡ ΡΠ°Π±ΠΎΡΡΡ Π·ΠΎΠ½Ρ ΠΈΠ»ΠΈ Π·ΠΈΠΌΠ½ΠΈΠΉ ΡΠ°Π΄, ΡΡΠ΅ΠΏΠ»ΠΈΠ² ΠΈ ΡΡΡΠ°Π½ΠΎΠ²ΠΈΠ² ΡΠ»Π΅ΠΊΡΡΠΈΡΠ΅ΡΠΊΠΈΠΉ ΠΎΠ±ΠΎΠ³ΡΠ΅Π²Π°ΡΠ΅Π»Ρ Π½Π° Π±Π°Π»ΠΊΠΎΠ½Π΅ ΠΈΠ»ΠΈ Π»ΠΎΠ΄ΠΆΠΈΠΈ.
ΠΠ°ΡΠ°Π»ΠΎΠ³ ΡΠΈΠΏΠΎΠ²ΡΡ ΠΏΠ΅ΡΠ΅ΠΏΠ»Π°Π½ΠΈΡΠΎΠ²ΠΎΠΊ, ΠΊΠΎΡΠΎΡΡΠΉ Π½Π°Ρ ΠΎΠ΄ΠΈΡΡΡ Π² ΠΎΡΠΊΡΡΡΠΎΠΌ Π΄ΠΎΡΡΡΠΏΠ΅, ΠΏΠΎΠ·Π²ΠΎΠ»ΡΠ΅Ρ ΠΏΠΎΠ΄ΠΎΠ±ΡΠ°ΡΡ ΠΎΠΏΡΠΈΠΌΠ°Π»ΡΠ½ΡΠΉ Π²Π°ΡΠΈΠ°Π½Ρ, Π±Π΅Π· ΠΎΠ±ΡΠ°ΡΠ΅Π½ΠΈΡ ΠΊ ΠΏΡΠΎΠ΅ΠΊΡΠΈΡΠΎΠ²ΡΠΈΠΊΠ°ΠΌ. ΠΠ»Ρ ΡΡΠΎΠ³ΠΎ ΠΏΡΠΈ ΠΎΠ±ΡΠ°ΡΠ΅Π½ΠΈΠΈΒ Π² ΠΆΠΈΠ».Β ΠΈΠ½ΡΠΏΠ΅ΠΊΡΠΈΡ ΡΠ»Π΅Π΄ΡΠ΅Ρ ΡΠΊΠ°Π·Π°ΡΡ Π²ΡΠ±ΡΠ°Π½Π½ΡΠΉ ΠΏΠ»Π°Π½-ΠΏΡΠΎΠ΅ΠΊΡ.
Π Π΄Π°Π½Π½ΠΎΠΌ ΠΊΠ°ΡΠ°Π»ΠΎΠ³Π΅ ΠΈΠ·ΠΌΠ΅Π½Π΅Π½ΠΈΡ Π΄ΠΎΠ²ΠΎΠ»ΡΠ½ΠΎ Π½Π΅Π·Π½Π°ΡΠΈΡΠ΅Π»ΡΠ½Ρ, Π½ΠΎ ΠΈΡ ΠΏΡΠΎΠΈΠ·Π²Π΅ΡΡΠΈ Π³ΠΎΡΠ°Π·Π΄ΠΎ ΠΏΡΠΎΡΠ΅. Π‘Π»Π΅Π΄ΡΠ΅Ρ ΡΠ°ΠΊΠΆΠ΅ ΠΎΡΠΌΠ΅ΡΠΈΡΡ, ΡΡΠΎ Π·Π°Β ΠΏΠ΅ΡΠ΅ΠΏΠ»Π°Π½ΠΈΡΠΎΠ²ΠΊΠΈΒ Π²Β ΠΏΠ°Π½Π΅Π»ΡΠ½ΡΡ Π΄ΠΎΠΌΠ°Ρ , ΠΊΠΎΡΠΎΡΡΠ΅Β Π·Π°ΠΏΡΠ΅ΡΠ΅Π½Ρ Π·Π°ΠΊΠΎΠ½ΠΎΠΌΒ ΠΈΠ»ΠΈ ΠΎΡΠΎΡΠΌΠ»Π΅Π½Ρ Π½Π΅ΠΏΠΎΠ΄ΠΎΠ±Π°ΡΡΠΈΠΌ ΠΎΠ±ΡΠ°Π·ΠΎΠΌ, ΠΏΡΠ΅Π΄ΡΡΠΌΠΎΡΡΠ΅Π½ ΡΡΡΠ°Ρ ΠΈ, Π·Π°ΡΠ°ΡΡΡΡ, Π²Π»Π°Π΄Π΅Π»Π΅Ρ Π΄ΠΎΠ»ΠΆΠ΅Π½ Π²ΠΎΡΡΡΠ°Π½ΠΎΠ²ΠΈΡΡ ΠΏΡΠ΅ΠΆΠ½ΠΈΠΉ Π²ΠΈΠ΄ (ΠΎΠΏΠ»Π°ΡΠΈΡΡ ΡΠ°Π±ΠΎΡΡ ΠΏΠΎ ΡΡΠΈΠ»Π΅Π½ΠΈΡ ΠΊΠΎΠ½ΡΡΡΡΠΊΡΠΈΠΉ) Π»ΠΈΠ±ΠΎ Π²ΡΠΏΠ»Π°ΡΠΈΡΡ ΠΊΠΎΠΌΠΏΠ΅Π½ΡΠ°ΡΠΈΡ ΡΠΎΡΠ΅Π΄ΡΠΌ Π·Π° ΡΠ΅ ΠΈΠ»ΠΈ ΠΈΠ½ΡΠ΅ ΠΏΡΠΎΡΠ²Π»Π΅Π½ΠΈΡ ΡΡΠ΅ΡΠΈΠ½ Π½Π° ΡΡΠ΅Π½Π°Ρ , ΡΠ΅ΡΠΈ ΠΈ Ρ.Π΄.
Π§ΡΠΎΠ±Ρ Π½Π΅ Π½Π°Π²ΡΠ΅Π΄ΠΈΡΡ ΡΠ΅Π±Π΅ ΠΈ ΠΏΠ΅ΡΠ΅ΡΡΡΠ°Ρ ΠΎΠ²Π°ΡΡΡΡ, ΠΏΠ΅ΡΠ΅Π΄ Π½Π°ΡΠ°Π»ΠΎΠΌ ΡΠ°Π±ΠΎΡ Π½ΡΠΆΠ½ΠΎ ΠΏΡΠΎΠΊΠΎΠ½ΡΡΠ»ΡΡΠΈΡΠΎΠ²Π°ΡΡΡΡ Π² ΠΏΡΠΎΠ΅ΠΊΡΠ½ΠΎΠΌ Π±ΡΡΠΎ ΠΎ Π²ΠΎΠ·ΠΌΠΎΠΆΠ½ΡΡ Π²Π°ΡΠΈΠ°Π½ΡΠ°Ρ ΠΏΠ΅ΡΠ΅ΠΏΠ»Π°Π½ΠΈΡΠΎΠ²ΠΊΠΈ Π΄Π»Ρ ΠΊΠΎΠ½ΠΊΡΠ΅ΡΠ½ΠΎΠ³ΠΎ ΠΏΠΎΠΌΠ΅ΡΠ΅Π½ΠΈΡ.
skedraft.ru
ΠΠΈΠ·Π°ΠΉΠ½ ΠΏΡΠΎΠ΅ΠΊΡ ΠΈ ΠΏΠ΅ΡΠ΅ΠΏΠ»Π°Π½ΠΈΡΠΎΠ²ΠΊΠ° ΠΊΠ²Π°ΡΡΠΈΡΡ Π² ΡΠΈΠΏΠΎΠ²ΠΎΠΌ ΠΏΠ°Π½Π΅Π»ΡΠ½ΠΎΠΌ Π΄ΠΎΠΌΠ΅
17.08.2014 | Π ΡΠ±ΡΠΈΠΊΠ°: ΠΠ½ΡΠ΅ΡΡΠ΅ΡΡ ΠΊΠ²Π°ΡΡΠΈΡ

ΠΠΎ Π²ΡΠ΅ΠΌΠ΅Π½Π° Π‘ΠΎΠ²Π΅ΡΡΠΊΠΎΠ³ΠΎ Π‘ΠΎΡΠ·Π° Π±ΡΠ»ΠΎ ΠΎΡΠ΅Π½Ρ Π²ΡΠ³ΠΎΠ΄Π½ΠΎ ΡΡΡΠΎΠΈΡΡ Π΄ΠΎΠΌΠ° ΠΈΠ· Π±Π΅ΡΠΎΠ½Π½ΡΡ ΠΏΠ°Π½Π΅Π»Π΅ΠΉ. ΠΠ΅Π½ΡΡΠ΅ Ρ Π»ΠΎΠΏΠΎΡ ΠΈ ΠΌΠ΅Π½ΡΡΠ΅ Π·Π°ΡΡΠ°Ρ ΠΏΡΠΈ ΡΡΡΠΎΠΈΡΠ΅Π»ΡΡΡΠ²Π΅ ΠΈ ΠΎΡΠ΄Π΅Π»ΠΊΠ΅, ΡΡΠΎ ΠΆΠ΅ Π΅ΡΠ΅ Π½ΡΠΆΠ½ΠΎ Π±ΡΠ»ΠΎ ΠΏΡΠΎΡΡΠΎΠΌΡ ΡΠΎΠ²Π΅ΡΡΠΊΠΎΠΌΡ ΡΠ΅Π»ΠΎΠ²Π΅ΠΊΡ.
ΠΠΎ ΡΠΆΠ΅ Π½Π° ΡΠ΅Π³ΠΎΠ΄Π½ΡΡΠ½ΠΈΠΉ Π΄Π΅Π½Ρ, ΠΊΠ°ΠΆΠ΄ΠΎΠΌΡ ΠΈΠ· Π½Π°Ρ Ρ ΠΎΡΠ΅ΡΡΡ ΠΆΠΈΡΡ Π² Π΄ΠΎΠΌΠ΅ ΡΠ²ΠΎΠ΅ΠΉ ΠΌΠ΅ΡΡΡ. Π§ΡΠΎΠ±Ρ Π±ΡΠ»ΠΎ ΠΏΡΠΎΡΡΠΎΡΠ½ΠΎ, ΡΡΠΎΠ±Ρ Π²ΡΠ³Π»ΡΠ΄Π΅Π»ΠΎ ΠΊΠ°ΠΊ Π½Π° ΠΊΠ°ΡΡΠΈΠ½ΠΊΠ°Ρ ΡΠ°ΠΌΠΎΠ³ΠΎ ΠΌΠΎΠ΄Π½ΠΎΠ³ΠΎ ΠΆΡΡΠ½Π°Π»Π° ΠΈ ΠΊΠΎΠ½Π΅ΡΠ½ΠΎ, ΡΡΠΎΠ±Ρ Π½ΠΈ ΠΊΠ°ΠΊ Ρ Π²ΡΠ΅Ρ , Π½ΠΎ ΠΏΡΠΈ ΡΡΠΎΠΌ Π΄ΠΎΠΌ ΠΎΡΡΠ°Π²Π°Π»ΡΡ Π²ΡΠ΅ ΡΠ΅ΠΌ ΠΆΠ΅ ΠΎΡΠ°Π³ΠΎΠΌ ΠΈ ΡΠΎΠΉ ΠΆΠ΅ ΠΊΡΠ΅ΠΏΠΎΡΡΡΡ.
Π£ΡΡΡΠΎΠΉΡΡΠ²ΠΎ ΠΏΠ΅ΡΠ΅ΠΏΠ»Π°Π½ΠΈΡΠΎΠ²ΠΊΠΈ ΡΠ²ΠΎΠ΅ΠΉ ΠΊΠ²Π°ΡΡΠΈΡΡ Π΄Π΅Π»ΠΎ Π΄ΠΎΠ²ΠΎΠ»ΡΠ½ΠΎ Ρ
Π»ΠΎΠΏΠΎΡΠ½ΠΎΠ΅ ΠΈ ΠΎΡΠ²Π΅ΡΡΡΠ²Π΅Π½Π½ΠΎΠ΅. ΠΠΎΡΡΠΎΠΌΡ ΠΌΡ Π²Π°ΠΌ ΡΠ΅ΠΊΠΎΠΌΠ΅Π½Π΄ΡΠ΅ΠΌ ΠΎΠ±ΡΠ°ΡΠ°ΡΡΡΡ ΡΠΎΠ»ΡΠΊΠΎ ΠΊ ΠΏΡΠΎΡΠ΅ΡΡΠΈΠΎΠ½Π°Π»Π°ΠΌ Ρ Ρ
ΠΎΡΠΎΡΠ΅ΠΉ ΡΠ΅ΠΊΠΎΠΌΠ΅Π½Π΄Π°ΡΠΈΠ΅ΠΉ. ΠΡΠΎΠΌΠ΅ ΡΠΎΠ³ΠΎ, ΠΏΠ΅ΡΠ΅ΠΏΠ»Π°Π½ΠΈΡΠΎΠ²ΠΊΠ° ΠΊΠ²Π°ΡΡΠΈΡΡ ΠΈ Π΅Π΅ Π±ΡΠ΄ΡΡΠΈΠΉ ΠΏΡΠΎΠ΅ΠΊΡ ΠΎΠ±ΡΠ·Π°ΡΠ΅Π»ΡΠ½ΠΎ Π΄ΠΎΠ»ΠΆΠ½Ρ Π±ΡΡΡ ΡΠΎΠ³Π»Π°ΡΠΎΠ²Π°Π½Ρ Ρ ΡΠΎΠΎΡΠ²Π΅ΡΡΡΠ²ΡΡΡΠΈΠΌΠΈ ΠΈΠ½ΡΡΠ°Π½ΡΠΈΡΠΌΠΈ. ΠΠ½Π°ΡΠ΅ Π΅ΡΡΡ ΠΎΠ³ΡΠΎΠΌΠ½ΡΠΉ ΡΠΈΡΠΊ Π½Π΅ ΡΠΎΠ»ΡΠΊΠΎ ΠΏΠΎΠ»ΡΡΠΈΡΡ Π²ΡΡΠΎΡΠ΅Π½Π½ΡΠΉ ΡΡΡΠ°Ρ, Π½ΠΎ ΠΈ ΠΏΠΎΠ΄Π²Π΅ΡΠ³Π½ΡΡΡ ΡΠ²ΠΎΡ ΠΆΠΈΠ·Π½Ρ, ΠΆΠΈΠ·Π½Ρ Π±Π»ΠΈΠ·ΠΊΠΈΡ
ΠΈ ΡΠΎΡΠ΅Π΄Π΅ΠΉ Π±ΠΎΠ»ΡΡΠΎΠΉ ΠΎΠΏΠ°ΡΠ½ΠΎΡΡΠΈ. Π ΠΌΡ ΡΠ²Π΅ΡΠ΅Π½Ρ, ΡΡΠΎ Π²Π°ΠΌ Π±Ρ ΡΡΠΎΠ³ΠΎ Π½Π΅ Ρ
ΠΎΡΠ΅Π»ΠΎΡΡ.
ΠΠ΄ΠΈΠ½ ΠΈΠ· Π³Π»Π°Π²Π½ΡΡ Π½Π΅Π΄ΠΎΡΡΠ°ΡΠΊΠΎΠ² ΠΊΠ²Π°ΡΡΠΈΡ Π² ΠΏΠ°Π½Π΅Π»ΡΠ½ΡΡ Π΄ΠΎΠΌΠ°Ρ ΡΡΠΎ ΠΌΠ°Π»Π΅Π½ΡΠΊΠΈΠ΅ ΠΈΠ»ΠΈ Π½Π΅ΡΠ΄ΠΎΠ±Π½ΡΠ΅ ΠΏΡΠΎΡΡΡΠ°Π½ΡΡΠ²Π° ΠΎΠ±ΡΡΠ½ΠΎ Π² Π²Π°Π½Π½ΠΎΠΉ ΠΊΠΎΠΌΠ½Π°ΡΠ΅, ΡΠ°Π½.ΡΠ·Π»Π΅ ΠΈ ΠΊΡΡ Π½Π΅. Π§ΡΠΎ Π² ΠΏΡΠΈΠ½ΡΠΈΠΏΠ΅ ΠΠ»Π΅ΠΊΡΠ΅ΠΉ Π‘ΡΡ ΠΎΠ² ΠΈ Π΅Π³ΠΎ ΠΊΠΎΠΌΠ°Π½Π΄Π° ΠΈ Π±ΡΠ΄ΡΡ ΠΈΡΠΏΡΠ°Π²Π»ΡΡΡ Π² Π½Π°ΡΠ΅ΠΌ Π΄ΠΈΠ·Π°ΠΉΠ½ ΠΏΡΠΎΠ΅ΠΊΡΠ΅.
Π€ΠΎΡΠΎΡΠ΅ΠΏΠΎΡΡΠ°ΠΆ ΡΠ΅ΠΌΠΎΠ½ΡΠ° Π²Π°Π½Π½ΠΎΠΉ ΠΊΠΎΠΌΠ½Π°ΡΡ ΠΈ ΡΡΠ°Π»Π΅ΡΠ° Π²Ρ ΠΌΠΎΠΆΠ΅ΡΠ΅ ΠΏΠΎΡΠΌΠΎΡΡΠ΅ΡΡ Π² ΠΎΡΠ΄Π΅Π»ΡΠ½ΠΎΠΉ ΡΡΠ°ΡΡΠ΅. Π Π½Π΅ΠΉ Π²Ρ ΡΠ·Π½Π°Π΅ΡΠ΅, Π½Π΅ΠΊΠΎΡΠΎΡΡΠ΅ ΡΠ΅ΠΊΡΠ΅ΡΡ ΠΊΠ°ΠΊ Ρ Π»Π΅Π³ΠΊΠΎΡΡΡΡ ΡΠΏΡΠ°Π²ΠΈΡΡΡΡ Ρ Π½Π΅ΡΠΎΠ²Π½ΡΠΌΠΈ ΡΡΠ΅Π½Π°ΠΌΠΈ, Π²Π΅ΡΠ½ΠΎΠΉ ΠΊΡΠ°ΡΠΊΠΎΠΉ ΠΈ ΡΠΎΡΡΠ°ΡΠΈΠΌΠΈ ΠΈΠ· ΡΠ°Π·Π½ΡΡ ΡΠ³Π»ΠΎΠ² ΡΡΡΠ±Π°ΠΌΠΈ.
Π‘ΠΎΠ²ΠΌΠ΅ΡΠ΅Π½ΠΈΠ΅ Π³ΠΎΡΡΠΈΠ½ΠΎΠΉ ΠΈ ΠΊΡΡ Π½ΠΈ Π²ΠΎΡ ΡΡΠΎ ΠΈ Π΅ΡΡΡ Π½Π°ΡΠ° ΠΏΠ΅ΡΠ΅ΠΏΠ»Π°Π½ΠΈΡΠΎΠ²ΠΊΠ° ΠΊΠ²Π°ΡΡΠΈΡΡ. Π‘ΠΊΠ°ΠΆΠ΅ΠΌ ΡΠ°ΠΊ ΡΡΠΎ, ΠΈ Π΅ΡΡΡ Π½Π°ΡΠ° ΠΎΡΠ½ΠΎΠ²ΠΎΠΏΠΎΠ»Π°Π³Π°ΡΡΠ°Ρ ΠΈΠ·ΡΠΌΠΈΠ½ΠΊΠ° ΠΏΡΠΎΠ΅ΠΊΡΠ°.
ΠΡΠΎΡ Π΄ΠΈΠ·Π°ΠΉΠ½ ΠΏΡΠΎΠ΅ΠΊΡ Π²ΡΠΏΠΎΠ»Π½Π΅Π½ Π² Π΄Π²ΡΡ Π²Π°ΡΠΈΠ°Π½ΡΠ°Ρ , Π½ΠΎ ΠΎΠ±Π° ΠΎΠ½ΠΈ ΠΈΠΌΠ΅ΡΡ ΠΎΠ±ΡΠΈΠ΅ ΡΠ΅ΡΡΡ. ΠΠ΅ΡΠ²ΠΎΠ΅, ΡΡΠΎ ΡΠΎΠ²ΡΠ΅ΠΌΠ΅Π½Π½ΡΠΉ ΠΌΠΈΠ½ΠΈΠΌΠ°Π»ΠΈΠ·ΠΌ. ΠΡΠΎΡΠΎΠ΅, Π½Π°ΡΡΡΠ°Π»ΡΠ½ΡΠ΅ ΠΌΡΠ³ΠΊΠΈΠ΅ ΡΠΎΠ½Π°. Π ΡΡΠ΅ΡΡΠ΅, ΠΎΡΠ²ΠΎΠ΅Π½ΠΈΠ΅ ΡΠ²ΠΎΠ±ΠΎΠ΄Π½ΠΎΠ³ΠΎ ΠΏΡΠΎΡΡΡΠ°Π½ΡΡΠ²Π° Ρ ΠΎΠ³ΡΠΎΠΌΠ½ΠΎΠΉ ΠΏΠΎΠ»ΡΠ·ΠΎΠΉ.
ΠΡΠ°ΠΊ, Π½ΠΈ Π΄Π»Ρ ΠΊΠΎΠ³ΠΎ Π½Π΅ ΡΠ΅ΠΊΡΠ΅Ρ, ΡΡΠΎ Π΄Π»Ρ ΠΊΠ²Π°ΡΡΠΈΡ Π² ΠΏΠ°Π½Π΅Π»ΡΠ½ΡΡ Π΄ΠΎΠΌΠ°Ρ ΠΏΠΎΠ΄ΠΎΠΉΠ΄ΡΡ Π΄Π°Π»Π΅ΠΊΠΎ Π½Π΅ Π²ΡΡΠΊΠΈΠ΅ ΡΡΠΈΠ»ΠΈΡΡΠΈΡΠ΅ΡΠΊΠΈΠ΅ ΡΠ΅ΡΠ΅Π½ΠΈΡ. Π Π΄Π°Π½Π½ΠΎΠΌ ΡΠ»ΡΡΠ°Π΅ Π²ΡΠ±ΠΎΡ ΠΏΠ°Π» Π½Π° ΡΠΎΠ²ΡΠ΅ΠΌΠ΅Π½Π½ΡΠΉ ΠΌΠΈΠ½ΠΈΠΌΠ°Π»ΠΈΠ·ΠΌ. ΠΠΈΡΠ΅Π³ΠΎ ΡΠ²Π΅ΡΡ ΡΠ΅ΡΡΠ΅ΡΡΠ²Π΅Π½Π½ΠΎΠ³ΠΎ ΠΈ ΠΊΠ°ΡΠ΄ΠΈΠ½Π°Π»ΡΠ½ΠΎΠ³ΠΎ. ΠΡΠ΅ Π΄ΠΎΠ²ΠΎΠ»ΡΠ½ΠΎ ΡΠΏΠΎΠΊΠΎΠΉΠ½ΠΎ ΠΈ Π½Π΅Π²ΠΎΠ·ΠΌΡΡΠΈΠΌΠΎ. ΠΠ»Π°Π²Π½ΡΠΌΠΈ ΡΠ΅ΡΡΠ°ΠΌΠΈ ΡΡΠΎΠ³ΠΎ ΡΡΠΈΠ»Ρ ΡΠ²Π»ΡΠ΅ΡΡΡ ΠΎΠ΄Π½ΠΎΡΠΎΠ΄Π½ΠΎΡΡΡ ΡΠ²Π΅ΡΠ°, ΠΌΠΈΠ½ΠΈΠΌΠ°Π»ΡΠ½ΠΎΠ΅ Π½Π°Π»ΠΈΡΠΈΠ΅ ΠΌΠ΅Π±Π΅Π»ΠΈ ΠΈ ΡΠ°Π·Π»ΠΈΡΠ½ΠΎΠΉ Π΄ΠΎΠΌΠ°ΡΠ½Π΅ΠΉ Π°ΡΡΠΈΠ±ΡΡΠΈΠΊΠΈ. ΠΠΎΡΡΠΎΠΌΡ ΠΏΡΠ΅ΠΆΠ΄Π΅ ΡΠ΅ΠΌ Π²ΡΠ±ΡΠ°ΡΡ ΠΈΠΌΠ΅Π½Π½ΠΎ ΡΡΠΎΡ ΡΡΠΈΠ»Ρ Π΄Π»Ρ ΡΠ²ΠΎΠ΅Π³ΠΎ Π΄ΠΈΠ·Π°ΠΉΠ½ ΠΏΡΠΎΠ΅ΠΊΡΠ°, ΡΠΎΠ²Π΅ΡΡΠ΅ΠΌ Π²Π°ΠΌ ΠΈΠ·Π±Π°Π²ΠΈΡΡΡΡ ΠΎΡ Π½Π΅Π½ΡΠΆΠ½ΠΎΠ³ΠΎ Ρ Π»Π°ΠΌΠ° ΠΈ ΠΎΡΡΠ°Π²ΠΈΡΡ ΡΠΎΠ»ΡΠΊΠΎ ΡΠΎ, ΡΡΠΎ Π±Ρ Π²Ρ Ρ ΠΎΡΠ΅Π»ΠΈ ΠΎΡΡΠ°Π²ΠΈΡΡ Π² ΡΠ²ΠΎΠ΅ΠΌ Π½ΠΎΠ²ΠΎΠΌ Π΄ΠΈΠ·Π°ΠΉΠ½Π΅ ΠΈ ΡΡΠΎ Π² Π½Π΅Π³ΠΎ Π²ΠΏΠΈΡΠ΅ΡΡΡ.
Π§ΡΠΎ ΠΊΠ°ΡΠ°Π΅ΡΡΡ ΡΠ²Π΅ΡΠΎΠ²ΠΎΠΉ Π³Π°ΠΌΠΌΡ ΠΈ ΡΠ΅ΠΊΡΡΡΡ, ΡΠΎ Π² ΠΎΠ΄Π½ΠΎΠΌ ΠΈΠ· Π²Π°ΡΠΈΠ°Π½ΡΠΎΠ² Π±ΡΡΠΎ ΠΌΡ ΡΠ΄Π΅Π»Π°Π»ΠΈ Π°ΠΊΡΠ΅Π½Ρ Π½Π° Π±Π΅Π»ΠΎΠΌ ΠΌΠ°ΡΠΎΠ²ΠΎΠΌ ΡΠ²Π΅ΡΠ΅, ΡΡΠΎ Π·Π½Π°ΡΠΈΡΠ΅Π»ΡΠ½ΠΎ ΡΠ²Π΅Π»ΠΈΡΠΈΠ²Π°Π΅Ρ ΠΈ ΠΎΡΠ²Π΅ΡΠ»ΡΠ΅Ρ ΠΏΡΠΎΡΡΡΠ°Π½ΡΡΠ²ΠΎ. Π‘ΠΏΠ°Π»ΡΠ½Ρ Π½Π΅ Π²ΡΠ΄Π΅Π»ΡΠ΅ΡΡΡ ΠΈΠ· ΠΎΡΠ½ΠΎΠ²Π½ΠΎΠΉ Π³ΡΡΠΏΠΏΡ ΡΠ²Π΅ΡΠΎΠ². ΠΠΎ Π²ΡΠΎΡΠΎΠΌ Π²Π°ΡΠΈΠ°Π½ΡΠ΅ ΠΌΡ ΠΈΡΠΏΠΎΠ»ΡΠ·ΠΎΠ²Π°Π»ΠΈ Π±ΠΎΠ»ΡΡΠ΅ ΠΏΡΠΈΡΠΎΠ΄Π½ΡΡ ΡΠ΅ΠΊΡΡΡΡ ΠΈ ΠΏΠ΅ΡΠΎΡΠ½ΡΡ ΡΠΎΠ½ΠΎΠ², Π½ΠΎ ΡΠΆΠ΅ Π² ΡΡΠΎΠΌ ΠΏΡΠ΅Π΄Π»ΠΎΠΆΠ΅Π½Π½ΠΎΠΌ Π²Π°ΡΠΈΠ°Π½ΡΠ΅ ΡΠΏΠ°Π»ΡΠ½Ρ Π²ΡΠ±ΠΈΠ²Π°Π΅ΡΡΡ Π² Π±ΠΎΠ»Π΅Π΅ ΡΡΠΊΠΈΠ΅ ΠΎΡΡΠ΅Π½ΠΊΠΈ Π±ΠΎΡΠ΄ΠΎ.
ΠΠ΅ΡΠ΅ΠΏΠ»Π°Π½ΠΈΡΠΎΠ²ΠΊΠ° ΠΊΠ²Π°ΡΡΠΈΡΡ, ΠΏΡΠ΅Π΄Π»ΠΎΠΆΠ΅Π½Π½Π°Ρ ΠΡΡ ΠΈΡΠ΅ΠΊΡΡΡΠ½ΡΠΌ ΠΡΡΠΎ ΠΠ»Π΅ΠΊΡΠ΅Ρ Π‘ΡΡ ΠΎΠ²Π°, Π·Π°ΠΊΠ»ΡΡΠ°Π΅ΡΡΡ Π½Π΅ ΡΠΎΠ»ΡΠΊΠΎ Π² ΡΠΎΠΌ, ΡΡΠΎΠ±Ρ ΠΎΠ±ΡΠ΅Π΄ΠΈΠ½ΠΈΡΡ Π΄Π²Π° ΠΏΡΠΎΡΡΡΠ°Π½ΡΡΠ²Π°, Π½ΠΎ ΡΠ°ΠΊΠΆΠ΅ ΠΈ ΠΈΡΠΏΠΎΠ»ΡΠ·ΠΎΠ²Π°ΡΡ ΠΏΠΎ ΠΌΠ°ΠΊΡΠΈΠΌΡΠΌΡ ΡΠ²ΠΎΠ±ΠΎΠ΄Π½ΡΠ΅ ΡΠ³Π»Ρ. ΠΠΌΠ΅Π½Π½ΠΎ ΡΠ°ΠΊ ΠΎΡΠ΅Π½Ρ Π³Π°ΡΠΌΠΎΠ½ΠΈΡΠ½ΠΎ Π²ΠΏΠΈΡΡΠ²Π°ΡΡΡΡ Π² ΠΎΡΡΡΡΠ΅ ΠΈ Π΄ΠΎ ΡΡΠΎΠ³ΠΎ Π²ΡΠ΅ΠΌΠ΅Π½ΠΈ Π½Π΅Π½ΡΠΆΠ½ΡΠ΅ ΡΠ³Π»Ρ Π΄Π²Π° ΡΠΊΠ°ΡΠ° ΠΊΡΠΏΠ΅, ΠΊΠΎΡΠΎΡΡΠ΅ ΠΌΠΎΠΆΠ½ΠΎ ΠΈΡΠΏΠΎΠ»ΡΠ·ΠΎΠ²Π°ΡΡ ΠΊΠ°ΠΊ Π³Π°ΡΠ΄Π΅ΡΠΎΠ± ΠΈΠ»ΠΈ Π½ΠΈΡΡ.
ΠΠΎ Π²Π΅ΡΠ½Π΅ΠΌΡΡ ΠΊ Π½Π°ΡΠ΅ΠΉ Β«ΠΈΠ·ΡΠΌΠΈΠ½ΠΊΠ΅Β» ΠΈ ΡΠ°ΡΡΠΌΠΎΡΡΠΈΠΌ Π΅Π΅ ΠΏΠΎΠ²Π½ΠΈΠΌΠ°ΡΠ΅Π»ΡΠ½Π΅Π΅.
ΠΠ°ΠΊ Π²Ρ ΠΌΠΎΠΆΠ΅ΡΠ΅ ΡΠ²ΠΈΠ΄Π΅ΡΡ, ΠΎΡΠ½ΠΎΠ²Π½Π°Ρ ΠΏΠ΅ΡΠ΅ΠΏΠ»Π°Π½ΠΈΡΠΎΠ²ΠΊΠ° ΠΊΠ²Π°ΡΡΠΈΡΡ Π·Π°ΠΊΠ»ΡΡΠ°Π΅ΡΡΡ Π² ΡΠΎΠΌ, ΡΡΠΎ ΠΌΡ ΡΠ±ΡΠ°Π»ΠΈ Π±ΠΎΠ»ΡΡΠΈΠΉ ΠΎΡΡΠ΅Π·ΠΎΠΊ ΡΡΠ΅Π½Ρ ΠΊΡΡ Π½ΠΈ, Π° ΠΎΠ±ΡΠ΅Π΅ ΠΏΡΠΎΡΡΡΠ°Π½ΡΡΠ²ΠΎ ΠΏΠΎΠ΄Π΅Π»ΠΈΠ»ΠΈ Π½Π° 4 Π°ΠΊΡΠΈΠ²Π½ΡΠ΅ Π·ΠΎΠ½Ρ: ΠΊΡΡ Π½Ρ, ΡΡΠΎΠ»ΠΎΠ²Π°Ρ, ΠΊΠ°Π±ΠΈΠ½Π΅Ρ ΠΈ Π³ΠΎΡΡΠΈΠ½Π°Ρ. ΠΠΎΠ½ΠΈΡΠΎΠ²Π°Π½ΠΈΠ΅ ΠΏΡΠΎΠΈΡΡ ΠΎΠ΄ΠΈΡ Π·Π° ΡΡΠ΅Ρ Π½Π°ΡΡΠΆΠ½ΡΡ ΠΏΠΎΡΠΎΠ»ΠΊΠΎΠ² ΠΈ ΡΠ°ΡΠΏΠΎΠ»ΠΎΠΆΠ΅Π½ΠΈΡ ΠΎΡΠ²Π΅ΡΠ΅Π½ΠΈΡ. ΠΠΎ Π² ΡΠ°Π·Π½ΡΡ ΡΠ»ΡΡΠ°ΡΡ Π·ΠΎΠ½ΠΈΡΠΎΠ²Π°Π½ΠΈΠ΅ ΡΠ°ΠΊΠΆΠ΅ ΠΌΠΎΠΆΠ΅Ρ ΠΏΡΠΎΠΈΡΡ ΠΎΠ΄ΠΈΡΡ ΠΈ Π·Π° ΡΡΠ΅Ρ Π³ΠΈΠΏΡΠΎΠΊΠ°ΡΡΠΎΠ½Π½ΡΡ ΠΏΠ΅ΡΠ΅ΠΊΡΡΡΠΈΠΉ, ΠΏΠΎΠ΄ΠΈΡΠΌΠΎΠ² ΠΈ ΡΠ²Π΅ΡΠ°. ΠΠΎ ΡΡΠΎ ΡΠΆΠ΅ Π½Π° Π²ΠΊΡΡ ΠΈ ΡΠ²Π΅Ρ, ΡΠΎΠ²Π°ΡΠΈΡΠΈ! ΠΠ»Π΅ΠΊΡΠ΅Ρ Π‘ΡΡ ΠΎΠ²Ρ ΠΈ Π½Π°ΡΠΈΠΌ Π·Π°ΠΊΠ°Π·ΡΠΈΠΊΠ°ΠΌ ΡΠ°ΠΊΠΎΠΉ Π²Π°ΡΠΈΠ°Π½Ρ ΠΏΠΎΠΊΠ°Π·Π°Π»ΡΡ Π±ΠΎΠ»Π΅Π΅ ΠΏΡΠΈΠ²Π»Π΅ΠΊΠ°ΡΠ΅Π»ΡΠ½ΡΠΌ ΠΈ ΠΈΠ½ΡΠ΅ΡΠ΅ΡΠ½ΡΠΌ.
ΠΡ ΠΈ ΠΏΠΎΡΠ»Π΅Π΄Π½ΠΈΠΉ ΡΠΎΠ²Π΅Ρ: ΠΡΠΈ ΠΏΠ΅ΡΠ΅ΠΏΠ»Π°Π½ΠΈΡΠΎΠ²ΠΊΠ΅ ΠΊΠ²Π°ΡΡΠΈΡΡ Π² ΡΠΈΠΏΠΎΠ²ΠΎΠΌ ΠΏΠ°Π½Π΅Π»ΡΠ½ΠΎΠΌ Π΄ΠΎΠΌΠ΅ Π½Π΅ Π·Π°Π±ΡΠ΄ΡΡΠ΅ ΠΎ Π·Π²ΡΠΊΠΎΠΈΠ·ΠΎΠ»ΡΡΠΈΠΈ. ΠΡΠΎΠ±Π΅Π½Π½ΠΎ ΡΠ΅Ρ ΡΡΠ΅Π½, ΠΊΠΎΡΠΎΡΡΠ΅ ΡΠ²Π»ΡΡΡΡΡ ΡΠΌΠ΅ΠΆΠ½ΡΠΌΠΈ Ρ ΡΠΎΡΠ΅Π΄ΡΠΌΠΈ. ΠΠ΅Π΄Ρ ΡΠΎΡΠ΅Π΄ΠΈ Π±ΡΠ²Π°ΡΡ ΡΠ°Π·Π½ΡΠ΅ ΠΈ ΠΈΡ , ΠΊΠ°ΠΊ ΠΈ ΠΌΠ½ΠΎΠ³ΠΈΡ Π΄ΡΡΠ³ΠΈΡ , ΠΌΡ, ΠΊ ΡΠΎΠΆΠ°Π»Π΅Π½ΠΈΡ, Π²ΡΠ±ΡΠ°ΡΡ Π½Π΅ ΠΌΠΎΠΆΠ΅ΠΌ. ΠΡΡΡ ΠΎΡΠ΅Π½Ρ ΡΠΌΠ΅ΡΠ½Π°Ρ ΡΡΠ°Π·Π° Π½Π° ΡΡΠΎΡ ΡΡΠ΅Ρ: Π§Π΅Π»ΠΎΠ²Π΅ΠΊ Π½ΠΈΠΊΠΎΠ³Π΄Π° Π½Π΅ ΡΠΌΠΎΠΆΠ΅Ρ ΠΏΠΎΠ½ΡΡΡ ΡΠΎΠ»ΡΠΊΠΎ ΡΡΠΈ Π²Π΅ΡΠΈ: ΠΠΎΠ³Π°, ΠΡΠ΅Π»Π΅Π½Π½ΡΡ ΠΈ Π‘ΠΎΠ²Π΅ΡΡΠΊΠΈΡ ΠΠ½ΠΆΠ΅Π½Π΅ΡΠΎΠ², ΠΊΠΎΡΠΎΡΡΠ΅ ΠΏΡΠΈΠ΄ΡΠΌΠ°Π»ΠΈ ΡΡΠ΅Π½Ρ, ΡΠ΅ΡΠ΅Π· ΠΊΠΎΡΠΎΡΡΡ Π²ΡΡ ΡΠ»ΡΡΠ½ΠΎ, Π½ΠΎ Π³Π²ΠΎΠ·Π΄Ρ Π² Π½Π΅Π΅ Π·Π°Π±ΠΈΡΡ Π½Π΅Π²ΠΎΠ·ΠΌΠΎΠΆΠ½ΠΎ! ΠΡΠΈΡΠΈΠ½ ΡΠ°ΠΊΠΎΠΉ ΠΏΠ»ΠΎΡ ΠΎΠΉ Π·Π²ΡΠΊΠΎΠΈΠ·ΠΎΠ»ΡΡΠΈΠΈ ΠΌΠΎΠΆΠ΅Ρ Π±ΡΡΡ ΠΌΠ°ΡΡΠ°: ΡΡΠΎ ΠΈ ΡΠ»Π΅ΠΊΡΡΠΎΡΡΡΠ½ΠΈΡΡΡΠ°, ΠΈ ΡΡΡΠ±ΠΎΠΏΡΠΎΠ²ΠΎΠ΄, ΠΈ ΠΎΠΊΠ½Π°, ΠΈ Π΄Π²Π΅ΡΠΈ, ΠΈ ΡΡΡΠΊΠΈ ΠΏΠ»ΠΈΡ ΡΡΠ΅Π½Π°-ΠΏΠΎΠ», ΡΡΠ΅Π½Π°-ΠΏΠΎΡΠΎΠ»ΠΎΠΊ, ΡΡΠ΅Π½Π°-ΡΡΠ΅Π½Π°. ΠΠΎΡΡΠΎΠΌΡ Π΅ΡΠ»ΠΈ ΡΠΆΠ΅ ΡΠ΅ΡΠΈΠ»ΠΈΡΡ Π½Π° Π΄Π°Π½Π½ΡΠΉ ΡΠ°Π³, ΡΠΎ ΠΏΠΎΡΠΎΠ²Π΅ΡΡΠΉΡΠ΅ΡΡ ΡΠΎ Π·Π½Π°ΡΡΠΈΠΌΠΈ ΡΠΏΠ΅ΡΠΈΠ°Π»ΠΈΡΡΠ°ΠΌΠΈ, ΠΊΠΎΡΠΎΡΡΠ΅ ΠΏΠΎΠ·Π°Π±ΠΎΡΡΡΡΡ Π½Π΅ ΡΠΎΠ»ΡΠΊΠΎ ΠΎ Π²Π°ΡΠΈΡ ΡΡΠ΅Π½Π°Ρ , Π½ΠΎ ΠΈ ΠΎ Π²Π°ΡΠΈΡ ΠΊΠ°ΡΠΌΠ°Π½Π°Ρ . ΠΠ΅Π΄Ρ ΠΏΡΠΎΠ²Π΅Π΄Π΅Π½ΠΈΠ΅ Π·Π²ΡΠΊΠΎΠΈΠ·ΠΎΠ»ΡΡΠΈΠΎΠ½Π½ΡΡ ΡΠ°Π±ΠΎΡ Π΄Π΅Π»ΠΎ Π½Π΅ Π΄Π΅ΡΠ΅Π²ΠΎΠ΅, Π½ΠΎ ΠΎΡΠ΅Π½Ρ Π½ΡΠΆΠ½ΠΎΠ΅. ΠΠ΅Π΄Ρ ΡΡΠΎ ΠΌΠΎΠΆΠ΅Ρ Π±ΡΡΡ ΠΏΡΠΈΡΡΠ½Π΅Π΅, ΡΠ΅ΠΌ Π²Π°ΡΠ΅ ΡΠΏΠΎΠΊΠΎΠΉΡΡΠ²ΠΈΠ΅ ΠΈ ΡΠ°ΡΡΠ»Π°Π±Π»Π΅Π½Π½ΠΎΡΡΡ, ΠΊΠΎΠ³Π΄Π° Π½Π΅ Π½Π°Π΄ΠΎ ΠΊΠΎΠ½ΡΡΠΎΠ»ΠΈΡΠΎΠ²Π°ΡΡ ΠΊΠ°ΠΆΠ΄ΡΠΉ ΡΠ²ΠΎΠΉ ΡΠ°Π³ ΠΈ ΠΊΠ°ΠΆΠ΄ΠΎΠ΅ Π΄Π΅ΠΉΡΡΠ²ΠΈΠ΅.
Π ΠΏΠΎΠΌΠ½ΠΈΡΠ΅, Π²Ρ ΠΌΠΎΠΆΠ΅ΡΠ΅ ΠΆΠΈΡΡ ΡΠ°ΠΌ, Π³Π΄Π΅ Π²Π°ΠΌ Π½ΡΠ°Π²ΠΈΡΡΡΡ ΠΈ ΡΠ°ΠΌ, Π³Π΄Π΅ Π²Π°ΠΌ Ρ ΠΎΡΠ΅ΡΡΡ. ΠΠ΅ΠΌΠ½ΠΎΠ³ΠΎ ΡΠ°Π½ΡΠ°Π·ΠΈΠΈ, ΡΠΈΡΠΊΠ°, ΡΠ²Π΅ΡΠ΅Π½Π½ΠΎΡΡΠΈ ΠΈ Π²ΡΠ΅ ΠΏΠΎΠ»ΡΡΠΈΡΡΡ Π½Π°ΠΈΠ»ΡΡΡΠΈΠΌ ΠΎΠ±ΡΠ°Π·ΠΎΠΌ!
ΠΡΡ ΠΈΡΠ΅ΠΊΡΡΡΠ½ΠΎΠ΅ Π±ΡΡΠΎ ΠΠ»Π΅ΠΊΡΠ΅Ρ Π‘ΡΡ ΠΎΠ²Π° | arch-buro.com
ΠΠΎ ΠΏΠ΅ΡΠ΅ΠΏΠ»Π°Π½ΠΈΡΠΎΠ²ΠΊΠΈ:

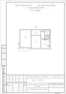
ΠΠ»Π°Π½ ΠΊΠ²Π°ΡΡΠΈΡΡ ΠΏΠΎΡΠ»Π΅ ΠΏΠ΅ΡΠ΅ΠΏΠ»Π°Π½ΠΈΡΠΎΠ²ΠΊΠΈ Π² ΡΡΠ°Π½Π΄Π°ΡΡΠ½ΠΎΠΌ ΠΏΠ°Π½Π΅Π»ΡΠ½ΠΎΠΌ Π΄ΠΎΠΌΠ΅:

ΠΠ°ΡΠΈΠ°Π½Ρ 1 Π΄ΠΈΠ·Π°ΠΉΠ½Π° ΠΈ ΠΏΠ΅ΡΠ΅ΠΏΠ»Π°Π½ΠΈΡΠΎΠ²ΠΊΠΈ ΠΊΠ²Π°ΡΡΠΈΡΡ Π² ΡΡΠ°Π½Π΄Π°ΡΡΠ½ΠΎΠΌ ΠΏΠ°Π½Π΅Π»ΡΠ½ΠΎΠΌ Π΄ΠΎΠΌΠ΅
ΠΡΠΈΡ ΠΎΠΆΠ°Ρ ΠΈ ΠΊΠΎΡΠΈΠ΄ΠΎΡ:
ΠΠΎΡΡΠΈΠ½Π°Ρ, ΡΠΎΠ²ΠΌΠ΅ΡΡΠ½Π½Π°Ρ Ρ ΠΊΡΡ Π½Π΅ΠΉ ΠΈ ΡΡΠΎΠ»ΠΎΠ²ΠΎΠΉ:
Π‘ΠΏΠ°Π»ΡΠ½Ρ:
ΠΠ°ΡΠΈΠ°Π½Ρ 2, Π±ΠΎΠ»Π΅Π΅ ΡΡΠΌΠ½ΡΠ΅ ΡΠ²Π΅ΡΠΎΠ²ΡΠ΅ ΠΏΡΡΠ½Π° Π² ΠΎΡΠ³Π°Π½ΠΈΠ·Π°ΡΠΈΠΈ ΠΈ ΠΏΠ΅ΡΠ΅ΠΏΠ»Π°Π½ΠΈΡΠΎΠ²ΠΊΠ΅ ΠΏΡΠΎΡΡΡΠ°Π½ΡΡΠ²Π° ΡΡΠ°Π½Π΄Π°ΡΡΠ½ΠΎΠΉ ΠΊΠ²Π°ΡΡΠΈΡΡ Π² ΠΏΠ°Π½Π΅Π»ΡΠ½ΠΎΠΌ Π΄ΠΎΠΌΠ΅
ΠΡΠΈΡ ΠΎΠΆΠ°Ρ ΠΈ ΠΊΠΎΡΠΈΠ΄ΠΎΡ:
ΠΠΎΡΡΠΈΠ½Π°Ρ, ΡΠΎΠ²ΠΌΠ΅ΡΡΠ½Π½Π°Ρ Ρ ΠΊΡΡ Π½Π΅ΠΉ ΠΈ ΡΡΠΎΠ»ΠΎΠ²ΠΎΠΉ:
Π‘ΠΏΠ°Π»ΡΠ½Ρ:
ΠΠΎΡ ΠΎΠΆΠΈΠ΅ ΡΠ΅ΠΌΡ ΠΈΠ»ΠΈ ΡΠΎ ΡΡΠΎ Π²Π°ΠΌ Π±ΡΠ΄Π΅Ρ ΠΈΠ½ΡΠ΅ΡΠ΅ΡΠ½ΠΎ ΠΏΠΎΡΠΌΠΎΡΡΠ΅ΡΡ:
Π’ΡΠ³ΠΈ: Π΄ΠΈΠ·Π°ΠΉΠ½ ΠΊΠ²Π°ΡΡΠΈΡΡ Π² ΡΠΎΠ²ΡΠ΅ΠΌΠ΅Π½Π½ΠΎΠΌ ΡΡΠΈΠ»Π΅, ΡΠΎΠ²ΡΠ΅ΠΌΠ΅Π½Π½ΡΠΉ Π΄ΠΈΠ·Π°ΠΉΠ½ ΠΈΠ½ΡΠ΅ΡΡΠ΅ΡΠ°
ΠΠΎΠ½ΡΠ°Π²ΠΈΠ»Π°ΡΡ ΡΡΠ°ΡΡΡ? ΠΠΎΠ΄Π΅Π»ΠΈΡΠ΅ΡΡ Π΅ΠΉ Π² ΡΠΎΡΠΈΠ°Π»ΡΠ½ΡΡ ΡΠ΅ΡΡΡ :
arch-buro.com
30 Π»ΡΡΡΠΈΡ ΠΏΡΠΈΠΌΠ΅ΡΠΎΠ² ΠΎΡ Π΄ΠΈΠ·Π°ΠΉΠ½Π΅ΡΠΎΠ² β INMYROOM
Π‘Π΅Π³ΠΎΠ΄Π½Ρ ΡΠ΅Π΄ΠΊΠΈΠΉ ΡΠ΅ΠΌΠΎΠ½Ρ ΠΎΠ±Ρ ΠΎΠ΄ΠΈΡΡΡ Π±Π΅Π· ΠΏΠ΅ΡΠ΅ΠΏΠ»Π°Π½ΠΈΡΠΎΠ²ΠΊΠΈ. Π£ΠΆΠ΅ Π½ΠΈΠΊΠΎΠ³ΠΎ Π½Π΅ ΡΠ΄ΠΈΠ²ΠΈΡΡ ΡΠ°Π·Π½ΠΎΠΎΠ±ΡΠ°Π·ΠΈΠ΅ΠΌ ΠΏΠ»Π°Π½ΠΈΡΠΎΠ²ΠΎΡΠ½ΡΡ ΡΠ΅ΡΠ΅Π½ΠΈΠΉ Π² ΠΏΡΠΎΡΡΠΎΡΠ½ΡΡ ΠΏΠΎΠΌΠ΅ΡΠ΅Π½ΠΈΡΡ , Π³Π΄Π΅ ΠΊΠ°ΠΆΠ΄ΡΠΉ Π΄Π»Ρ ΡΠ΅Π±Ρ ΡΠ΅ΡΠ°Π΅Ρ, Π³Π΄Π΅ Ρ Π½Π΅Π³ΠΎ Π±ΡΠ΄Π΅Ρ ΡΠΏΠ°Π»ΡΠ½Ρ, Π° Π³Π΄Π΅ Π³ΠΎΡΡΠΈΠ½Π°Ρ. ΠΠΎ ΡΡΠΎ ΠΆΠ΅ Π΄Π΅Π»Π°ΡΡ ΡΠ΅ΠΌ, ΠΊΠΎΠΌΡ ΠΆΠΈΠ»ΡΠ΅ Π΄ΠΎΡΡΠ°Π»ΠΎΡΡ Π² ΡΠΈΠΏΠΎΠ²ΠΎΠΌ ΠΏΠ°Π½Π΅Π»ΡΠ½ΠΎΠΌ Π΄ΠΎΠΌΠ΅, Π΄Π° Π΅ΡΠ΅ ΠΈ ΠΎΠ΄Π½ΠΎΠΊΠΎΠΌΠ½Π°ΡΠ½ΠΎΠ΅?
ΠΡΠΎΡΠ΅ΡΡΠΈΠΎΠ½Π°Π»ΡΠ½ΡΠ΅ Π΄ΠΈΠ·Π°ΠΉΠ½Π΅ΡΡ ΠΏΡΠ΅Π΄Π»ΠΎΠΆΠΈΠ»ΠΈ Π½Π΅ΡΠΊΠΎΠ»ΡΠΊΠΎ Π²Π°ΡΠΈΠ°Π½ΡΠΎΠ² ΠΎΠ±ΡΡΡΡΠΎΠΉΡΡΠ²Π° ΠΎΠ΄Π½ΡΡΠΊΠΈ Π² ΡΠ°Π·Π½ΡΡ ΡΠΈΠΏΠ°Ρ Π΄ΠΎΠΌΠ°Ρ β ΠΏΠ°Π½Π΅Π»ΡΠ½ΡΡ , ΠΊΠΈΡΠΏΠΈΡΠ½ΡΡ , Π±Π»ΠΎΡΠ½ΡΡ β ΠΈ Π΄Π»Ρ ΡΠ°Π·Π½ΡΡ ΡΠΈΠΏΠΎΠ² ΠΆΠΈΠ»ΡΡΠΎΠ². ΠΠ΅ Π·Π°Π±ΡΠ²Π°ΠΉΡΠ΅: Π΄Π°Π½Π½ΡΠ΅ ΠΏΠ΅ΡΠ΅ΠΏΠ»Π°Π½ΠΈΡΠΎΠ²ΠΊΠΈ ΡΡΠ΅Π±ΡΡΡ ΠΈΠ½Π΄ΠΈΠ²ΠΈΠ΄ΡΠ°Π»ΡΠ½ΠΎΠ³ΠΎ ΡΠ°ΡΡΠΌΠΎΡΡΠ΅Π½ΠΈΡ ΠΈ ΡΠΎΠ³Π»Π°ΡΠΎΠ²Π°Π½ΠΈΡ.
32 ΠΊΠ²Π°Π΄ΡΠ°ΡΠ° Π² ΠΏΠ°Π½Π΅Π»ΡΠ½ΠΎΠΌ Π΄ΠΎΠΌΠ΅ II-49
Π‘Π΅ΡΠΈΡ ΠΏΠ°Π½Π΅Π»ΡΠ½ΡΡ Π΄ΠΎΠΌΠΎΠ² II-49 (ΡΠ°ΠΊΠΆΠ΅ ΡΠ°ΡΠΏΡΠΎΡΡΡΠ°Π½Π΅Π½ΠΎ ΠΎΠ±ΠΎΠ·Π½Π°ΡΠ΅Π½ΠΈΠ΅ Π-49) Π±ΡΠ»Π° ΡΠΏΡΠΎΠ΅ΠΊΡΠΈΡΠΎΠ²Π°Π½Π° Π² ΡΠ΅ΡΠ΅Π΄ΠΈΠ½Π΅ 60-Ρ Π΄Π»Ρ Π·Π°ΠΌΠ΅Π½Ρ Ρ ΡΡΡΠ΅Π²ΠΎΠΊ Π-7 ΠΈ ΡΡΡΠΎΠΈΠ»Π°ΡΡ Π΄ΠΎ ΡΠ΅ΡΠ΅Π΄ΠΈΠ½Ρ 80-Ρ Π³ΠΎΠ΄ΠΎΠ². ΠΠ°ΡΡΠΆΠ½ΡΠ΅ ΡΡΠ΅Π½Ρ Π·Π΄Π°Π½ΠΈΡ Π²ΡΠΏΠΎΠ»Π½Π΅Π½Ρ ΠΈΠ· ΠΊΠ΅ΡΠ°ΠΌΠ·ΠΈΡΠΎΠ±Π΅ΡΠΎΠ½Π½ΡΡ ΠΏΠ°Π½Π΅Π»Π΅ΠΉ ΠΌΠ°ΡΠΊΠΈ Π75 ΡΠΎΠ»ΡΠΈΠ½ΠΎΠΉ 300 ΠΌΠΈΠ»Π»ΠΈΠΌΠ΅ΡΡΠΎΠ², Π²Π½ΡΡΡΠ΅Π½Π½ΠΈΠ΅ ΡΡΠ΅Π½Ρ β ΠΈΠ· ΠΊΡΡΠΏΠ½ΡΡ ΠΆΠ΅Π»Π΅Π·ΠΎΠ±Π΅ΡΠΎΠ½Π½ΡΡ ΠΏΠ°Π½Π΅Π»Π΅ΠΉ ΡΠΎΠ»ΡΠΈΠ½ΠΎΠΉ 140 ΠΌΠΈΠ»Π»ΠΈΠΌΠ΅ΡΡΠΎΠ² ΠΈΠ· Π±Π΅ΡΠΎΠ½Π°, ΠΏΠ΅ΡΠ΅Π³ΠΎΡΠΎΠ΄ΠΊΠΈ β Π³ΠΈΠΏΡΠΎΠ±Π΅ΡΠΎΠ½Π½ΡΠ΅ ΠΏΠ°Π½Π΅Π»ΠΈ ΡΠΎΠ»ΡΠΈΠ½ΠΎΠΉ 80 ΠΌΠΈΠ»Π»ΠΈΠΌΠ΅ΡΡΠΎΠ². ΠΠΎΠΌΠ° ΡΡΠΎΠΉ ΡΠ΅ΡΠΈΠΈ ΠΊΡΠΎΠΌΠ΅ ΠΏΡΠΎΠ΄ΠΎΠ»ΡΠ½ΡΡ Π½Π΅ΡΡΡΠΈΡ ΡΡΠ΅Π½ (Π΄Π²Π΅ ΡΠ°ΡΠ°Π΄Π½ΡΠ΅ ΠΈ ΠΎΠ΄Π½Π° Π²Π½ΡΡΡΠ΅Π½Π½ΡΡ) ΠΈΠΌΠ΅ΡΡ Π΅ΡΠ΅ ΠΈ ΠΏΠΎΠΏΠ΅ΡΠ΅ΡΠ½ΡΠ΅ Π½Π΅ΡΡΡΠΈΠ΅ ΡΡΠ΅Π½Ρ.Β
Π ΡΠ»ΡΡΠ°Π΅ Ρ ΠΎΠ΄Π½ΠΎΠΊΠΎΠΌΠ½Π°ΡΠ½ΠΎΠΉ ΠΊΠ²Π°ΡΡΠΈΡΠΎΠΉ, Π½Π΅ΡΡΡΠ΅ΠΉ ΡΠ²Π»ΡΠ΅ΡΡΡ ΡΡΠ΅Π½Π° ΠΌΠ΅ΠΆΠ΄Ρ ΠΊΠΎΠΌΠ½Π°ΡΠΎΠΉ ΠΈ ΠΊΡΡ Π½Π΅ΠΉ. Π’Π°ΠΊΠ°Ρ ΠΎΡΠΎΠ±Π΅Π½Π½ΠΎΡΡΡ ΡΡΠΈΡ Π΄ΠΎΠΌΠΎΠ² Π½Π΅ Π΄Π°Π΅Ρ ΡΠΈΡΠΎΠΊΠΈΡ Π²ΠΎΠ·ΠΌΠΎΠΆΠ½ΠΎΡΡΠ΅ΠΉ ΠΏΠ΅ΡΠ΅ΠΏΠ»Π°Π½ΠΈΡΠΎΠ²ΠΎΠΊ. ΠΠ°ΠΊΡΠΈΠΌΡΠΌ ΡΡΠΎ ΠΌΠΎΠΆΠ½ΠΎ ΡΠ΄Π΅Π»Π°ΡΡ β ΡΡΠΎ ΡΠ²Π΅Π»ΠΈΡΠΈΡΡ ΠΏΠ»ΠΎΡΠ°Π΄Ρ ΡΠ°Π½ΡΠ·Π»Π° Π·Π° ΡΡΠ΅Ρ ΠΊΠΎΡΠΈΠ΄ΠΎΡΠ° ΠΈ ΡΠ΄Π΅Π»Π°ΡΡ ΠΏΡΠΎΠ΅ΠΌ ΡΠΈΡΠΈΠ½ΠΎΠΉ 900 ΠΌΠΈΠ»Π»ΠΈΠΌΠ΅ΡΡΠΎΠ² Π² Π½Π΅ΡΡΡΠ΅ΠΉ ΡΡΠ΅Π½Π΅, Π° ΡΠ°ΠΊΠΆΠ΅ Π²ΠΎΠ·Π²ΠΎΠ΄ΠΈΡΡ Π΄ΠΎΠΏΠΎΠ»Π½ΠΈΡΠ΅Π»ΡΠ½ΡΠ΅ ΠΏΠ΅ΡΠ΅Π³ΠΎΡΠΎΠ΄ΠΊΠΈ. ΠΠΈΠ·Π°ΠΉΠ½Π΅Ρ ΠΠ»ΡΠ³Π° ΠΠΎΠ½Π΄Π°ΡΡ ΠΏΡΠ΅Π΄Π»ΠΎΠΆΠΈΠ»Π° ΡΡΠΈ Π±Π΅ΡΠΏΡΠΎΠΈΠ³ΡΡΡΠ½ΡΡ Π²Π°ΡΠΈΠ°Π½ΡΠ° ΠΏΠ΅ΡΠ΅ΠΏΠ»Π°Π½ΠΈΡΠΎΠ²ΠΊΠΈΒ ΠΎΠ΄Π½ΡΡΠΊΠΈ ΠΏΠ»ΠΎΡΠ°Π΄ΡΡ 32 ΠΊΠ²Π°Π΄ΡΠ°ΡΠ½ΡΡ ΠΌΠ΅ΡΡΠ° Π΄Π»Ρ ΡΠ°Π·Π½ΡΡ ΡΠΈΠΏΠΎΠ² ΠΆΠΈΠ»ΡΡΠΎΠ².
ΠΠ΄Π½ΡΡΠΊΠ° ΠΏΠ»ΠΎΡΠ°Π΄ΡΡ 38 ΠΊΠ²Π°Π΄ΡΠ°ΡΠΎΠ² Π² Π-44
ΠΠ΅ΡΠ²ΡΠ΅ Π΄ΠΎΠΌΠ° ΡΠΈΠΏΠΎΠ²ΠΎΠΉ ΡΠ΅ΡΠΈΠΈ Π-44 Π½Π°ΡΠ°Π»ΠΈ ΡΡΡΠΎΠΈΡΡ Π² 70-Π΅ Π³ΠΎΠ΄Ρ XX Π²Π΅ΠΊΠ°. ΠΡΡ ΠΈΡΠ΅ΠΊΡΡΡΠ½ΡΠΌΠΈ ΡΠ»Π΅ΠΌΠ΅Π½ΡΠ°ΠΌΠΈ ΠΈ ΠΈΠ·Π»ΠΈΡΠ΅ΡΡΠ²Π°ΠΌΠΈ ΠΎΡ ΡΠ²ΠΎΠΈΡ ΠΏΡΠ΅Π΄ΡΠ΅ΡΡΠ²Π΅Π½Π½ΠΈΠΊΠΎΠ² ΠΎΠ½ΠΈ Π½Π΅ ΠΎΡΠ»ΠΈΡΠ°Π»ΠΈΡΡ, Π½ΠΎ ΠΏΠ»Π°Π½ΠΈΡΠΎΠ²ΠΊΠΈ ΠΊΠ²Π°ΡΡΠΈΡ ΠΈ Π½ΠΎΠ²ΡΠ΅ ΡΠ΅Ρ Π½ΠΎΠ»ΠΎΠ³ΠΈΠΈ Π² Π΄ΠΎΠΌΠ°Ρ ΡΡΠΎΠΉ ΡΠ΅ΡΠΈΠΈ Π½Π° ΠΌΠΎΠΌΠ΅Π½Ρ ΡΡΡΠΎΠΈΡΠ΅Π»ΡΡΡΠ²Π° ΡΡΠ°Π»ΠΈ ΠΏΡΠΎΡΡΠΎ ΡΠ΅Π²ΠΎΠ»ΡΡΠΈΠΎΠ½Π½ΡΠΌΠΈ.
ΠΠ· Π½Π΅ΠΊΠΎΡΠΎΡΡΡ ΠΏΠ»ΡΡΠΎΠ² ΠΌΠΎΠΆΠ½ΠΎ ΠΎΡΠΌΠ΅ΡΠΈΡΡ ΡΠ΄ΠΎΠ±Π½ΡΠ΅ ΠΏΠ»Π°Π½ΠΈΡΠΎΠ²ΠΊΠΈ, ΠΏΡΠΎΡΡΠΎΡΠ½ΡΠ΅ ΠΊΡΡ Π½ΠΈ, ΠΏΡΠΈΡ ΠΎΠΆΠΈΠ΅, Π²Π°Π½Π½ΡΠ΅ ΠΊΠΎΠΌΠ½Π°ΡΡ. Π ΠΈΠ· ΠΌΠΈΠ½ΡΡΠΎΠ² β ΡΠΎΡ ΡΠ°ΠΊΡ, ΡΡΠΎ Π·Π΄Π΅ΡΡ Π²ΡΠ΅ ΠΌΠ΅ΠΆΠΊΠ²Π°ΡΡΠΈΡΠ½ΡΠ΅ ΠΈ ΠΌΠ΅ΠΆΠΊΠΎΠΌΠ½Π°ΡΠ½ΡΠ΅ ΡΡΠ΅Π½Ρ β Π½Π΅ΡΡΡΠΈΠ΅. Π’Π΅ΠΌ Π½Π΅ ΠΌΠ΅Π½Π΅Π΅ Π΄ΠΈΠ·Π°ΠΉΠ½Π΅Ρ ΠΡΠΈΠ½Π° Π€Π΅ΡΠ΅Π»ΠΎΠ²Π°Β Π³ΡΠ°ΠΌΠΎΡΠ½ΠΎ ΠΏΡΠΎΠ΄ΡΠΌΠ°Π»Π° ΡΡΠΈ Π²Π°ΡΠΈΠ°Π½ΡΠ° ΠΏΠ΅ΡΠ΅ΠΏΠ»Π°Π½ΠΈΡΠΎΠ²ΠΊΠΈ ΠΊΠ²Π°ΡΡΠΈΡΡ ΠΏΠ»ΠΎΡΠ°Π΄ΡΡ 38 ΠΊΠ²Π°Π΄ΡΠ°ΡΠ½ΡΡ ΠΌΠ΅ΡΡΠΎΠ². ΠΠ΄ΠΈΠ½ ΠΈΠ· Π½ΠΈΡ Π΄ΠΎΡΡΠ°ΡΠΎΡΠ½ΠΎ ΡΠΈΡΠΊΠΎΠ²ΡΠΉ, Π·Π°ΡΠΎ ΠΏΠΎΠ·Π²ΠΎΠ»ΠΈΠ» ΠΏΡΠ΅Π²ΡΠ°ΡΠΈΡΡ ΠΎΠ΄Π½ΡΡΠΊΡ Π² ΠΏΠΎΠ»Π½ΠΎΡΠ΅Π½Π½ΡΡ Π΄Π²ΡΡΠΊΡ.
ΠΠ²Π°ΡΡΠΈΡΠ° Π² ΠΏΠ°Π½Π΅Π»ΡΠ½ΠΎΠΌ Π΄ΠΎΠΌΠ΅ ΡΠ΅ΡΠΈΠΈ Π-79-99
Π‘Π΅ΡΠΈΡ Π-79-99 ΡΠ°Π·ΡΠ°Π±ΠΎΡΠ°Π½Π° Π½Π° Π±Π°Π·Π΅ ΡΠ΅ΡΠΈΠΈ ΡΠΈΡΠΎΠΊΠΎΠΊΠΎΡΠΏΡΡΠ½ΡΡ Π΄ΠΎΠΌΠΎΠ², ΡΠΎΠ²Π΅ΡΡΠΈΠ²ΡΠ΅ΠΉ Π½Π΅ΡΠΊΠΎΠ»ΡΠΊΠΎ Π»Π΅Ρ Π½Π°Π·Π°Π΄ Π½Π°ΡΡΠΎΡΡΠΈΠΉ ΠΏΠ΅ΡΠ΅Π²ΠΎΡΠΎΡ Π² ΠΏΠ°Π½Π΅Π»ΡΠ½ΠΎΠΌ Π΄ΠΎΠΌΠΎΡΡΡΠΎΠ΅Π½ΠΈΠΈ.
ΠΠ²Π°ΡΡΠΈΡΡ ΠΎΡΠ»ΠΈΡΠ°ΡΡΡΡ ΡΠ΄ΠΎΠ±Π½ΡΠΌΠΈ ΠΏΠ»Π°Π½ΠΈΡΠΎΠ²ΠΊΠ°ΠΌΠΈ, Π² ΠΊΠ°ΠΆΠ΄ΠΎΠΉ ΠΏΡΠ΅Π΄ΡΡΠΌΠΎΡΡΠ΅Π½ ΡΡΠΊΠ΅Ρ. ΠΠ±ΡΠ°Ρ ΠΏΠ»ΠΎΡΠ°Π΄Ρ ΠΎΠ΄Π½ΠΎΠΊΠΎΠΌΠ½Π°ΡΠ½ΠΎΠΉ ΠΊΠ²Π°ΡΡΠΈΡΡ ΡΠΎΡΡΠ°Π²Π»ΡΠ΅Ρ ΡΡΡΡ Π±ΠΎΠ»ΡΡΠ΅ 43 ΠΊΠ²Π°Π΄ΡΠ°ΡΠ½ΡΡ ΠΌΠ΅ΡΡΠΎΠ². ΠΠ»ΠΎΡΠ°Π΄Ρ ΠΊΠΎΠΌΠ½Π°ΡΡ β 17,94 ΠΊΠ²Π°Π΄ΡΠ°ΡΠ½ΠΎΠ³ΠΎ ΠΌΠ΅ΡΡΠ°, ΠΏΠ»ΠΎΡΠ°Π΄Ρ ΠΊΡΡ Π½ΠΈ β 10,22 ΠΊΠ²Π°Π΄ΡΠ°ΡΠ½ΠΎΠ³ΠΎ ΠΌΠ΅ΡΡΠ°. ΠΠΈΠ·Π°ΠΉΠ½Π΅Ρ ΠΠ°ΠΊΡΠΈΠΌ ΠΠ°Π½ΠΈΠ½ ΡΠ°ΡΡΠΌΠΎΡΡΠ΅Π» ΡΡΠΈ Π²Π°ΡΠΈΠ°Π½ΡΠ° ΠΏΠ΅ΡΠ΅ΠΏΠ»Π°Π½ΠΈΡΠΎΠ²ΠΊΠΈ ΠΏΠΎΠΌΠ΅ΡΠ΅Π½ΠΈΡ β Π΄Π²Π° ΠΈΠ· Π½ΠΈΡ Π±ΡΠ΄ΡΡ ΠΈΠ΄Π΅Π°Π»ΡΠ½Ρ Π΄Π»Ρ Ρ ΠΎΠ»ΠΎΡΡΡΠΊΠ°, Π° ΠΎΠ΄ΠΈΠ½ β Π΄Π»Ρ ΠΌΠΎΠ»ΠΎΠ΄ΠΎΠΉ ΠΏΠ°ΡΡ.
ΠΠ΄Π½ΠΎΠΊΠΎΠΌΠ½Π°ΡΠ½Π°Ρ ΠΊΠ²Π°ΡΡΠΈΡΠ° Π² ΡΠΈΠΏΠΎΠ²ΠΎΠΌ ΠΏΠ°Π½Π΅Π»ΡΠ½ΠΎΠΌ Π΄ΠΎΠΌΠ΅ ΡΠ΅ΡΠΈΠΈ Π-155
ΠΠ΅ΡΠ΅ΠΏΠ»Π°Π½ΠΈΡΠΎΠ²ΠΊΠ° ΠΎΠ΄Π½ΠΎΠΊΠΎΠΌΠ½Π°ΡΠ½ΠΎΠΉ ΠΊΠ²Π°ΡΡΠΈΡΡ ΡΠ°ΡΡΠΎ ΠΏΡΠ΅ΡΠ»Π΅Π΄ΡΠ΅Ρ ΡΠ΅Π»Ρ Π²ΠΈΠ·ΡΠ°Π»ΡΠ½ΠΎ ΡΠ²Π΅Π»ΠΈΡΠΈΡΡ ΠΏΠ»ΠΎΡΠ°Π΄Ρ ΠΈ ΠΎΡΠ³Π°Π½ΠΈΠ·ΠΎΠ²Π°ΡΡ ΡΠ°Π·Π»ΠΈΡΠ½ΡΠ΅ Π·ΠΎΠ½Ρ β ΠΎΠ±ΡΠ΅ΡΡΠ²Π΅Π½Π½ΡΡ, ΡΠ°Π±ΠΎΡΡΡ, ΠΎΡΠ΄ΡΡ Π°. ΠΠΈΠ·Π°ΠΉΠ½Π΅ΡΡΒ ΠΠΈΠΊΠΎΠ»Π°Ρ Π’Π²Π΅ΡΠ΄ΠΎΠ²Ρ ΡΡΠΎ ΡΠ΄Π°Π»ΠΎΡΡ: ΠΏΡΠ΅Π΄Π»ΠΎΠΆΠ΅Π½Π½ΡΠ΅ ΠΈΠΌΒ 3 Π²Π°ΡΠΈΠ°Π½ΡΠ° ΠΏΠ»Π°Π½ΠΈΡΠΎΠ²ΠΊΠΈ ΠΎΠ΄Π½ΡΡΠΊΠΈ ΠΏΠ»ΠΎΡΠ°Π΄ΡΡ 40 ΠΊΠ²Π°Π΄ΡΠ°ΡΠ½ΡΡ ΠΌΠ΅ΡΡΠΎΠ² Π² Π΄ΠΎΠΌΠ΅ ΡΠ΅ΡΠΈΠΈ Π-155 Π±ΡΠ΄ΡΡ Π°ΠΊΡΡΠ°Π»ΡΠ½Ρ Π΄Π»Ρ ΡΠ΅ΠΌΡΠΈ Ρ ΡΠ΅Π±Π΅Π½ΠΊΠΎΠΌ, ΠΌΠΎΠ»ΠΎΠ΄ΠΎΠΉ ΠΏΠ°ΡΡ ΠΈ Ρ ΠΎΠ»ΠΎΡΡΡΠΊΠ°.
Π‘Π΅ΡΠΈΡ Π΄ΠΎΠΌΠΎΠ² ΡΠΈΠΏΠ° Π-155 Π±ΡΠ»Π° ΡΠ°Π·ΡΠ°Π±ΠΎΡΠ°Π½Π° Π² 2000 Π³ΠΎΠ΄Ρ. ΠΠ»Π°Π²Π½Π°Ρ ΠΎΡΠΎΠ±Π΅Π½Π½ΠΎΡΡΡ Π·Π΄Π°Π½ΠΈΠΉ ΡΠΎΡΡΠΎΠΈΡ Π² ΡΠΎΠΌ, ΡΡΠΎ ΠΏΡΠΈ ΠΎΠ΄Π½ΠΎΠΉ ΠΈ ΡΠΎΠΉ ΠΆΠ΅ ΠΊΠΎΠ½ΡΡΡΡΠΊΡΠΈΠ²Π½ΠΎΠΉ ΡΡ Π΅ΠΌΠ΅ ΠΌΠΎΠΆΠ½ΠΎ ΡΠΎΠ±ΠΈΡΠ°ΡΡ Π΄ΠΎΠΌΠ° ΡΠ°Π·Π½ΡΡ ΠΊΠΎΠ½ΡΠΈΠ³ΡΡΠ°ΡΠΈΠΉ, ΡΠ°Π·Π½ΠΎΠΉ ΡΡΠ°ΠΆΠ½ΠΎΡΡΠΈ ΠΈ Ρ ΡΠ°Π·Π½ΡΠΌΠΈ ΡΠΈΠΏΠ°ΠΌΠΈ ΠΊΠ²Π°ΡΡΠΈΡ. ΠΠΎΠΌΠ° ΠΌΠΎΠ³ΡΡ Π±ΡΡΡ ΠΊΠ°ΠΊ Π±Π°ΡΠ΅Π½Π½ΠΎΠ³ΠΎ ΡΠΈΠΏΠ°, ΡΠ°ΠΊ ΠΈ ΠΌΠ½ΠΎΠ³ΠΎΡΠ΅ΠΊΡΠΈΠΎΠ½Π½ΡΠ΅.
33 ΠΊΠ²Π°Π΄ΡΠ°ΡΠ½ΡΡ ΠΌΠ΅ΡΡΠ° Π² ΠΏΠ°Π½Π΅Π»ΡΠ½ΠΎΠΌ Π΄ΠΎΠΌΠ΅ ΡΠ΅ΡΠΈΠΈ I-507
Π‘ΠΎΠ·Π΄Π°ΡΡ ΠΊΠΎΠΌΡΠΎΡΡΠ½ΠΎΠ΅ ΠΏΡΠΎΡΡΡΠ°Π½ΡΡΠ²ΠΎ Π΄Π»Ρ ΠΆΠΈΠ·Π½ΠΈ Π² ΠΎΠ΄Π½ΡΡΠΊΠ΅ β Π·Π°Π΄Π°ΡΠ°, ΡΡΠ΅Π±ΡΡΡΠ°Ρ ΠΎΡ ΠΏΡΠΎΡΠ΅ΡΡΠΈΠΎΠ½Π°Π»Π° ΠΎΠΏΡΡΠ° ΠΈ ΡΠΌΠ΅Π½ΠΈΡ ΡΠΊΡΠΏΠ΅ΡΠΈΠΌΠ΅Π½ΡΠΈΡΠΎΠ²Π°ΡΡ. ΠΡΠΎΠ±Π΅Π½Π½ΠΎ Π΅ΡΠ»ΠΈ Π² ΠΊΠ²Π°ΡΡΠΈΡΠ΅ ΠΏΡΠΎΠΆΠΈΠ²Π°Π΅Ρ ΡΠ΅ΠΌΡΡ: Π²Π΅Π΄Ρ Π½ΡΠΆΠ½ΠΎ Π½Π΅ ΡΠΎΠ»ΡΠΊΠΎ ΠΏΡΠ΅Π΄ΡΡΠΌΠΎΡΡΠ΅ΡΡ ΠΎΡΠ΄Π΅Π»ΡΠ½ΡΠ΅ ΡΠΏΠ°Π»ΡΠ½ΠΈ Π΄Π»Ρ ΡΠΎΠ΄ΠΈΡΠ΅Π»Π΅ΠΉ ΠΈ ΡΠ΅Π±Π΅Π½ΠΊΠ°, Π½ΠΎ ΠΈ ΠΏΠΎ Π²ΠΎΠ·ΠΌΠΎΠΆΠ½ΠΎΡΡΠΈ ΡΠΏΠ»Π°Π½ΠΈΡΠΎΠ²Π°ΡΡ Π³ΠΎΡΡΠΈΠ½ΡΡ Π·ΠΎΠ½Ρ ΠΈ ΡΡΠ°ΡΠ΅Π»ΡΠ½ΠΎ ΠΏΡΠΎΠ΄ΡΠΌΠ°ΡΡ ΡΠΈΡΡΠ΅ΠΌΡ Ρ ΡΠ°Π½Π΅Π½ΠΈΡ, Π½Π΅ Π·Π°Π³ΡΠΎΠΌΠΎΠΆΠ΄Π°ΡΡΠΈΠ΅ ΠΈΠ½ΡΠ΅ΡΡΠ΅Ρ. ΠΠΈΠ·Π°ΠΉΠ½Π΅Ρ ΠΡΠ΅Π½ΠΈΡ Π§ΡΠΏΠΈΠ½Π° ΠΏΡΠ΅Π΄Π»ΠΎΠΆΠΈΠ»Π° 3 ΠΈΠ½ΡΠ΅ΡΠ΅ΡΠ½ΡΡ Π²Π°ΡΠΈΠ°Π½ΡΠ° ΠΏΠ΅ΡΠ΅ΠΏΠ»Π°Π½ΠΈΡΠΎΠ²ΠΊΠΈ ΠΎΠ΄Π½ΠΎΠΊΠΎΠΌΠ½Π°ΡΠ½ΠΎΠΉ ΠΊΠ²Π°ΡΡΠΈΡΡ: Π΄Π»Ρ Ρ ΠΎΠ»ΠΎΡΡΡΠΊΠ°, ΠΌΠΎΠ»ΠΎΠ΄ΠΎΠΉ ΠΏΠ°ΡΡ ΠΈ ΡΠ΅ΠΌΡΠΈ Ρ ΡΠ΅Π±Π΅Π½ΠΊΠΎΠΌ.
30 ΠΊΠ²Π°Π΄ΡΠ°ΡΠΎΠ² Π² Π±Π»ΠΎΡΠ½ΠΎΠΌ Π΄ΠΎΠΌΠ΅ ΡΠ΅ΡΠΈΠΈ II-68
Π‘Π΅ΡΠΈΡ Π±Π»ΠΎΡΠ½ΡΡ Π΄ΠΎΠΌΠΎΠ² II-68 ΡΡΠ°Π»Π° ΠΎΡΠ½ΠΎΠ²ΠΎΠΉ Π΄Π»Ρ ΡΠΎΠ·Π΄Π°Π½ΠΈΡ ΡΠ΅Π»ΠΎΠ³ΠΎ ΡΡΠ΄Π° ΡΠΈΠΏΠΎΠ²ΡΡ Π·Π΄Π°Π½ΠΈΠΉ: II-68-02, II-68-03. ΠΠ»Π°Π²Π½ΠΎΠ΅ Π΄ΠΎΡΡΠΎΠΈΠ½ΡΡΠ²ΠΎ ΡΡΠΎΠΉ ΡΠ΅ΡΠΈΠΈ Π΄ΠΎΠΌΠΎΠ² β ΠΎΠ±ΡΠΈΡΠ½ΡΠ΅ Π»ΠΎΠ΄ΠΆΠΈΠΈ, ΠΊΠΎΡΠΎΡΡΠ΅ ΠΏΡΠΈ ΠΏΡΠ°Π²ΠΈΠ»ΡΠ½ΠΎΠΌ ΡΡΠ΅ΠΏΠ»Π΅Π½ΠΈΠΈ ΠΌΠΎΠ³ΡΡ Π·Π½Π°ΡΠΈΡΠ΅Π»ΡΠ½ΠΎ ΡΠ²Π΅Π»ΠΈΡΠΈΡΡ ΠΆΠΈΠ»ΡΡ ΠΏΠ»ΠΎΡΠ°Π΄Ρ. Π Π½Π΅ΠΊΠΎΡΠΎΡΡΡ Π΄ΠΎΠΌΠ°Ρ ΠΎΠ΄Π½ΠΎΠΊΠΎΠΌΠ½Π°ΡΠ½ΡΠ΅ ΠΊΠ²Π°ΡΡΠΈΡΡ ΠΈΠΌΠ΅ΡΡ ΠΏΡΠΎΠ΅ΠΌΡ ΠΌΠ΅ΠΆΠ΄Ρ ΠΊΡΡ Π½Π΅ΠΉ ΠΈ ΠΊΠΎΠΌΠ½Π°ΡΠΎΠΉ, ΡΡΠΎ Π·Π½Π°ΡΠΈΡΠ΅Π»ΡΠ½ΠΎ ΡΠΏΡΠΎΡΠ°Π΅Ρ ΠΏΠ΅ΡΠ΅ΠΏΠ»Π°Π½ΠΈΡΠΎΠ²ΠΊΡ ΠΈ ΠΎΡΠΎΠ±Π΅Π½Π½ΠΎ Π°ΠΊΡΡΠ°Π»ΡΠ½ΠΎ ΠΏΡΠΈ ΠΏΠ»ΠΎΡΠ°Π΄ΠΈ ΠΎΠΊΠΎΠ»ΠΎ 30 ΠΊΠ²Π°Π΄ΡΠ°ΡΠ½ΡΡ ΠΌΠ΅ΡΡΠΎΠ². Π£Π΄Π°ΡΠ½ΠΎΠΉ ΠΈΠ½Π½ΠΎΠ²Π°ΡΠΈΠ΅ΠΉ Π΄Π»Ρ Π·Π°ΡΡΡΠΎΠΉΠΊΠΈ ΡΠ΅Ρ Π²ΡΠ΅ΠΌΠ΅Π½ ΡΡΠ°Π»Π° ΠΈ Π³Π°ΡΠ΄Π΅ΡΠΎΠ±Π½Π°Ρ β ΡΠΎΠ³Π΄Π° Π΅Π΅ Π½Π°Π·ΡΠ²Π°Π»ΠΈ ΠΊΠ»Π°Π΄ΠΎΠ²ΠΎΠΉ.
ΠΠΈΠ·Π°ΠΉΠ½Π΅Ρ ΠΠ°ΠΊΡΠΈΠΌ ΠΠ°Π½ΠΈΠ½ ΡΠ°ΡΡΠΌΠΎΡΡΠ΅Π» 3 Π²Π°ΡΠΈΠ°Π½ΡΠ° ΠΏΠ΅ΡΠ΅ΠΏΠ»Π°Π½ΠΈΡΠΎΠ²ΠΊΠΈΒ ΡΠ°ΠΊΠΎΠΉ ΠΊΠ²Π°ΡΡΠΈΡΡ Π΄Π»Ρ ΡΠ°Π·Π½ΡΡ ΡΠΈΠΏΠΎΠ² ΠΆΠΈΠ»ΡΡΠΎΠ² β ΡΠ΅ΠΌΡΠΈ Ρ ΡΠ΅Π±Π΅Π½ΠΊΠΎΠΌ, ΠΌΠΎΠ»ΠΎΠ΄ΠΎΠΉ ΠΏΠ°ΡΡ ΠΈ Ρ ΠΎΠ»ΠΎΡΡΡΠΊΠ°, ΡΠΎΠ·Π΄Π°Π² Π΄Π»Ρ ΠΏΠΎΡΠ»Π΅Π΄Π½Π΅Π³ΠΎ Π³ΡΠ°ΠΌΠΎΡΠ½ΠΎ Π·ΠΎΠ½ΠΈΡΠΎΠ²Π°Π½Π½ΠΎΠ΅ ΠΎΡΠΊΡΡΡΠΎΠ΅ ΠΏΡΠΎΡΡΡΠ°Π½ΡΡΠ²ΠΎ.
ΠΠ΄Π½ΡΡΠΊΠ° Π² Π±Π»ΠΎΡΠ½ΠΎΠΌ Π΄ΠΎΠΌΠ΅ Π-209Π
Π-209Π β Π±Π»ΠΎΡΠ½ΡΠ΅ 14-ΡΡΠ°ΠΆΠ½ΡΠ΅ Π΄ΠΎΠΌΠ° Π±Π°ΡΠ΅Π½Π½ΠΎΠ³ΠΎ ΡΠΈΠΏΠ°, ΠΊΠΎΡΠΎΡΡΠ΅ ΡΠ°Π·Π²ΠΈΠ²Π°ΡΡ ΠΈΠ΄Π΅ΠΈ ΡΠ΅ΡΠΈΠΈ II-18. Π ΠΎΡΠ½ΠΎΠ²Π½ΠΎΠΌ ΡΡΠΈ Π΄ΠΎΠΌΠ° ΡΡΡΠΎΠΈΠ»ΠΈΡΡ Π² 1970β1980 Π³ΠΎΠ΄Π°Ρ . ΠΠ΄Π½ΠΎΠΊΠΎΠΌΠ½Π°ΡΠ½ΡΠ΅ ΠΊΠ²Π°ΡΡΠΈΡΡ Π² Π΄ΠΎΠΌΠ΅ ΡΡΠΎΠΉ ΡΠ΅ΡΠΈΠΈ ΠΈΠΌΠ΅ΡΡ ΡΠΈΡΠΎΠΊΠΈΠ΅ Π²ΠΎΠ·ΠΌΠΎΠΆΠ½ΠΎΡΡΠΈ ΠΏΠ΅ΡΠ΅ΠΏΠ»Π°Π½ΠΈΡΠΎΠ²ΠΊΠΈ Π² ΡΠ²ΡΠ·ΠΈ Ρ ΡΠ΅ΠΌ, ΡΡΠΎ Π½Π΅ΡΡΡΠΈΠΌΠΈ ΡΠ²Π»ΡΡΡΡΡ Π²Π½Π΅ΡΠ½ΠΈΠ΅ ΡΡΠ΅Π½Ρ ΠΊΠ²Π°ΡΡΠΈΡΡ (ΠΈ ΡΡΠ΅Π½Π° ΠΌΠ΅ΠΆΠ΄Ρ ΠΊΠΎΠΌΠ½Π°ΡΠΎΠΉ/ΠΊΡΡ Π½Π΅ΠΉ ΠΈ Π±Π°Π»ΠΊΠΎΠ½ΠΎΠΌ). ΠΡΡΠ°Π»ΡΠ½ΡΠ΅ ΠΏΠ΅ΡΠ΅Π³ΠΎΡΠΎΠ΄ΠΊΠΈ ΠΌΠΎΠΆΠ½ΠΎ Π΄Π΅ΠΌΠΎΠ½ΡΠΈΡΠΎΠ²Π°ΡΡ ΠΈ ΠΏΠ΅ΡΠ΅Π½ΠΎΡΠΈΡΡ. ΠΠΈΠ·Π°ΠΉΠ½Π΅Ρ ΠΠ»ΡΠ³Π° ΠΠΎΠ½Π΄Π°ΡΡ ΠΏΡΠ΅Π΄Π»ΠΎΠΆΠΈΠ»Π°Β ΡΡΠΈ Π²Π°ΡΠΈΠ°Π½ΡΠ° ΠΏΠ»Π°Π½ΠΈΡΠΎΠ²ΠΊΠΈΒ ΠΎΠ΄Π½ΡΡΠΊΠΈ ΠΎΠ±ΡΠ΅ΠΉ ΠΏΠ»ΠΎΡΠ°Π΄ΡΡ 34,8 ΠΊΠ²Π°Π΄ΡΠ°ΡΠ½ΠΎΠ³ΠΎ ΠΌΠ΅ΡΡΠΎΠ² (ΠΆΠΈΠ»ΠΎΠΉ β 19,44 ΠΊΠ²Π°Π΄ΡΠ°ΡΠ½ΠΎΠ³ΠΎ ΠΌΠ΅ΡΡΠ°). ΠΠ΅ Π·Π°Π±ΡΠ²Π°ΠΉΡΠ΅: Π»ΡΠ±ΡΡ ΠΈΠ· ΠΏΡΠ΅Π΄ΡΡΠ°Π²Π»Π΅Π½Π½ΡΡ ΠΏΠΎ ΡΡΡΠ»ΠΊΠ΅ ΠΏΠ΅ΡΠ΅ΠΏΠ»Π°Π½ΠΈΡΠΎΠ²ΠΎΠΊ Π½Π΅ΠΎΠ±Ρ ΠΎΠ΄ΠΈΠΌΠΎ ΡΠ·Π°ΠΊΠΎΠ½ΠΈΡΡ.
ΠΠ΄Π½ΠΎΠΊΠΎΠΌΠ½Π°ΡΠ½Π°Ρ ΠΊΠ²Π°ΡΡΠΈΡΠ° Π² Π½ΠΎΠ²ΠΎΡΡΡΠΎΠΉΠΊΠ΅
ΠΠΎΠΌΠ½Π°ΡΠ° ΠΎΠ΄Π½Π° β Π²ΠΎΠ·ΠΌΠΎΠΆΠ½ΠΎΡΡΠ΅ΠΉ ΠΌΠ½ΠΎΠ³ΠΎ. ΠΡΠΎ ΡΡΠ²Π΅ΡΠΆΠ΄Π΅Π½ΠΈΠ΅ ΡΠΏΡΠ°Π²Π΅Π΄Π»ΠΈΠ²ΠΎ Π΄Π»Ρ ΡΠΎΠ²ΡΠ΅ΠΌΠ΅Π½Π½ΡΡ ΠΎΠ΄Π½ΡΡΠ΅ΠΊ Π² Π½ΠΎΠ²ΠΎΡΡΡΠΎΠΉΠΊΠ°Ρ . Π‘ΡΠ΅Π΄ΠΈ ΡΠ²Π½ΡΡ ΠΏΡΠ΅ΠΈΠΌΡΡΠ΅ΡΡΠ² β ΡΠ²Π΅Π»ΠΈΡΠ΅Π½Π½Π°Ρ ΠΏΠ»ΠΎΡΠ°Π΄Ρ. ΠΠ΄Π½ΠΎΠΊΠΎΠΌΠ½Π°ΡΠ½Π°Ρ ΠΊΠ²Π°ΡΡΠΈΡΠ° ΠΏΠ»ΠΎΡΠ°Π΄ΡΡ 52 ΠΊΠ²Π°Π΄ΡΠ°ΡΠ½ΡΡ ΠΌΠ΅ΡΡΠ° Π² Π-111Π ΡΡΠ°Π²Π½ΠΈΠΌΠ° Ρ Π΄Π²ΡΡΠΊΠΎΠΉ, ΠΏΠΎΡΡΡΠΎΠ΅Π½Π½ΠΎΠΉ Π³ΠΎΠ΄Π°ΠΌΠΈ ΡΠ°Π½ΡΡΠ΅.
ΠΡΡΡ Π² ΡΡΠΎΠΉ ΠΊΠ²Π°ΡΡΠΈΡΠ΅ ΠΈ Π³Π°ΡΠ΄Π΅ΡΠΎΠ±Π½Π°Ρ ΠΊΠΎΠΌΠ½Π°ΡΠ°: Π΅Π΅ Π½Π°Π»ΠΈΡΠΈΠ΅ ΠΈ ΡΠ°ΡΠΏΠΎΠ»ΠΎΠΆΠ΅Π½ΠΈΠ΅ ΠΏΡΠΎΠ΄ΡΠΌΡΠ²Π°ΡΡ Π΅ΡΠ΅ Π·Π°ΡΡΡΠΎΠΉΡΠΈΠΊΠΈ, Π° Π±ΡΠ΄ΡΡΠ΅ΠΌΡ Π²Π»Π°Π΄Π΅Π»ΡΡΡ ΠΎΡΡΠ°Π΅ΡΡΡ ΡΠΎΠ»ΡΠΊΠΎ ΡΠ΅ΡΠΈΡΡ: ΠΈΡΠΏΠΎΠ»ΡΠ·ΠΎΠ²Π°ΡΡ Π³Π°ΡΠ΄Π΅ΡΠΎΠ±Π½ΡΡ ΠΏΠΎ Π½Π°Π·Π½Π°ΡΠ΅Π½ΠΈΡ β Ρ ΡΠ°Π½ΠΈΡΡ ΡΠ°ΠΌ ΠΎΠ΄Π΅ΠΆΠ΄Ρ, ΠΈΠ»ΠΈ Π²ΡΠ΅-ΡΠ°ΠΊΠΈ Π·Π°Π΄Π΅ΠΉΡΡΠ²ΠΎΠ²Π°ΡΡ ΡΡΠΈ Π΄ΡΠ°Π³ΠΎΡΠ΅Π½Π½ΡΠ΅ ΠΊΠ²Π°Π΄ΡΠ°ΡΠ½ΡΠ΅ ΠΌΠ΅ΡΡΡ Π΄Π»Ρ Π΄ΡΡΠ³ΠΈΡ ΠΏΠΎΠ»Π΅Π·Π½ΡΡ ΠΏΡΠΎΡΡΡΠ°Π½ΡΡΠ².Β
Π’ΡΠΈ Π²Π°ΡΠΈΠ°Π½ΡΠ° ΠΏΠ΅ΡΠ΅ΠΏΠ»Π°Π½ΠΈΡΠΎΠ²ΠΊΠΈ ΠΎΠ΄Π½ΡΡΠΊΠΈ Π² Π-111Π ΠΏΡΠ΅Π΄Π»ΠΎΠΆΠΈΠ» Π΄ΠΈΠ·Π°ΠΉΠ½Π΅Ρ ΠΠ°ΠΊΡΠΈΠΌ ΠΠ°Π½ΠΈΠ½.
Π£Π³Π»ΠΎΠ²Π°Ρ ΠΎΠ΄Π½ΠΎΠΊΠΎΠΌΠ½Π°ΡΠ½Π°Ρ ΠΊΠ²Π°ΡΡΠΈΡΠ° Π² 1-511
ΠΠΎ ΠΌΠ½Π΅Π½ΠΈΡ ΠΌΠ½ΠΎΠ³ΠΈΡ ΡΠΏΠ΅ΡΠΈΠ°Π»ΠΈΡΡΠΎΠ², ΡΠ³Π»ΠΎΠ²ΡΠ΅ ΠΎΠ΄Π½ΡΡΠΊΠΈ Π²ΠΎΠ·Π³Π»Π°Π²Π»ΡΡΡ Ρ ΠΈΡ-ΠΏΠ°ΡΠ°Π΄ Π½Π΅ΠΊΠΎΠΌΡΠΎΡΡΠ½ΡΡ Π΄Π»Ρ ΠΏΡΠΎΠΆΠΈΠ²Π°Π½ΠΈΡ ΠΊΠ²Π°ΡΡΠΈΡ: 2 ΠΎΠΊΠΎΠ½Π½ΡΡ ΠΏΡΠΎΠ΅ΠΌΠ° Π² ΠΊΠΎΠΌΠ½Π°ΡΠ΅ Π½Π΅ ΡΠΎΠ»ΡΠΊΠΎ Π½Π΅ ΡΠΏΠΎΡΠΎΠ±ΡΡΠ²ΡΡΡ ΡΠ΅ΠΏΠ»ΠΎΠΈΠ·ΠΎΠ»ΡΡΠΈΠΈ, Π½ΠΎ ΠΈ ΡΠ°ΡΡΠΎ ΡΠΎΠ·Π΄Π°ΡΡ ΠΏΡΠΎΠ±Π»Π΅ΠΌΡ Ρ ΡΠ°ΡΡΡΠ°Π½ΠΎΠ²ΠΊΠΎΠΉ ΠΌΠ΅Π±Π΅Π»ΠΈ. ΠΠΈΠ·Π°ΠΉΠ½Π΅Ρ ΠΠ»ΡΠ³Π° ΠΠΎΠ½Π΄Π°ΡΡ ΠΏΡΠ΅Π΄Π»ΠΎΠΆΠΈΠ»Π° 3 Π²Π°ΡΠΈΠ°Π½ΡΠ° ΠΏΠ΅ΡΠ΅ΠΏΠ»Π°Π½ΠΈΡΠΎΠ²ΠΊΠΈ ΡΠ³Π»ΠΎΠ²ΠΎΠΉ ΠΎΠ΄Π½ΡΡΠΊΠΈ Π² ΡΠΈΠΏΠΎΠ²ΠΎΠΌ Π΄ΠΎΠΌΠ΅ ΡΠ΅ΡΠΈΠΈ 1β511 ΠΈ ΡΠ°Π·Π²Π΅ΡΠ»Π° ΠΌΠΈΡ ΠΎ Π±Π΅Π·Π²ΡΡ ΠΎΠ΄Π½ΠΎΠΌ ΠΏΠΎΠ»ΠΎΠΆΠ΅Π½ΠΈΠΈ Π²Π»Π°Π΄Π΅Π»ΡΡΠ΅Π² ΡΠ°ΠΊΠΈΡ ΠΊΠ²Π°ΡΡΠΈΡ.
ΠΠ΄Π½ΡΡΠΊΠ° Π² ΠΏΠ°Π½Π΅Π»ΡΠ½ΠΎΠΌ Π΄ΠΎΠΌΠ΅ ΡΠ΅ΡΠΈΠΈ Π-43
ΠΠ±ΡΠ°Ρ ΠΏΠ»ΠΎΡΠ°Π΄Ρ ΠΎΠ΄Π½ΠΎΠΊΠΎΠΌΠ½Π°ΡΠ½ΠΎΠΉ ΠΊΠ²Π°ΡΡΠΈΡΡ Π² Π΄ΠΎΠΌΠ΅ ΡΠ΅ΡΠΈΠΈ Π-43 ΡΠΎΡΡΠ°Π²Π»ΡΠ΅Ρ 35β37 ΠΊΠ²Π°Π΄ΡΠ°ΡΠ½ΡΡ ΠΌΠ΅ΡΡΠΎΠ², ΠΆΠΈΠ»Π°Ρ β 18β20 ΠΊΠ²Π°Π΄ΡΠ°ΡΠ½ΡΡ ΠΌΠ΅ΡΡΠΎΠ². Π‘Π°Π½ΡΠ·Π΅Π» Π² ΠΊΠ²Π°ΡΡΠΈΡΠ΅ ΡΠΎΠ²ΠΌΠ΅ΡΠ΅Π½Π½ΡΠΉ, ΡΠΎΠ»ΡΠΈΠ½Π° Π²Π½Π΅ΡΠ½ΠΈΡ ΡΡΠ΅Π½ β 35 ΡΠ°Π½ΡΠΈΠΌΠ΅ΡΡΠΎΠ², Π²Π½ΡΡΡΠ΅Π½Π½ΠΈΡ ΠΆΠ΅Π»Π΅Π·ΠΎΠ±Π΅ΡΠΎΠ½Π½ΡΡ Π½Π΅ΡΡΡΠΈΡ ΠΊΠΎΠ½ΡΡΡΡΠΊΡΠΈΠΉ β 18 ΡΠ°Π½ΡΠΈΠΌΠ΅ΡΡΠΎΠ² ΠΈ ΠΏΠ΅ΡΠ΅Π³ΠΎΡΠΎΠ΄ΠΎΠΊ β 12 ΡΠ°Π½ΡΠΈΠΌΠ΅ΡΡΠΎΠ².
ΠΠΎΠΆΠ°Π»ΡΠΉ, ΡΠ°ΠΌΡΠΉ ΡΡΡΠ΅ΡΡΠ²Π΅Π½Π½ΡΠΉ Π½Π΅Π΄ΠΎΡΡΠ°ΡΠΎΠΊ ΠΏΠ»Π°Π½ΠΈΡΠΎΠ²ΠΊΠΈ ΡΡΠΎΠΉ ΠΊΠ²Π°ΡΡΠΈΡΡ Π·Π°ΠΊΠ»ΡΡΠ°Π΅ΡΡΡ Π² Π½Π΅ΡΡΡΠ΅ΠΉ ΡΡΠ΅Π½Π΅, ΡΠΎΠ΅Π΄ΠΈΠ½ΡΡΡΠ΅ΠΉ ΠΊΡΡ Π½Ρ ΠΈ ΠΆΠΈΠ»ΡΡ ΠΊΠΎΠΌΠ½Π°ΡΡ. Π ΠΎΡΡΠ°Π»ΡΠ½ΠΎΠΌ ΠΏΠ»Π°Π½ΠΈΡΠΎΠ²ΠΊΠ° ΡΠ²ΠΎΠ±ΠΎΠ΄Π½Π°Ρ ΠΈ, ΠΊΠΎΠ½Π΅ΡΠ½ΠΎ, Π±ΠΎΠ»ΡΡΠΎΠΉ ΠΏΠ»ΡΡ β Π½Π°Π»ΠΈΡΠΈΠ΅ Π»ΠΎΠ΄ΠΆΠΈΠΈ. Π§ΡΠΎΠ±Ρ ΡΠ²Π΅Π»ΠΈΡΠΈΡΡ ΠΏΡΠΎΡΡΡΠ°Π½ΡΡΠ²ΠΎ ΡΠ°ΠΊΠΎΠΉ ΠΎΠ΄Π½ΡΡΠΊΠΈ ΠΌΠΎΠΆΠ½ΠΎ ΠΏΡΠΈΡΠΎΠ΅Π΄ΠΈΠ½ΠΈΡΡ Π»ΠΎΠ΄ΠΆΠΈΡ ΠΊ ΠΊΡΡ Π½Π΅, ΡΠ°ΡΡΠΈΡΠΈΡΡ ΠΈΠ»ΠΈ ΠΏΠ΅ΡΠ΅Π½Π΅ΡΡΠΈ ΠΏΡΠΎΠ΅ΠΌ Π² Π½Π΅ΡΡΡΠ΅ΠΉ ΡΡΠ΅Π½Π΅ ΠΈ Π΄Π΅ΠΌΠΎΠ½ΡΠΈΡΠΎΠ²Π°ΡΡ Π²ΡΠ΅ Π½Π΅Π½ΡΠΆΠ½ΡΠ΅ ΠΏΠ΅ΡΠ΅Π³ΠΎΡΠΎΠ΄ΠΊΠΈ. ΠΠ°ΠΊ ΡΡΠΎ ΡΠ΄Π΅Π»Π°ΡΡ, ΠΏΠΎΠΊΠ°Π·Π°Π»Π° Π΄ΠΈΠ·Π°ΠΉΠ½Π΅Ρ ΠΡΠ΅Π½ΠΈΡ Π§ΡΠΏΠΈΠ½Π°.Β
www.inmyroom.ru
ΠΠ΅ΡΠ΅ΠΏΠ»Π°Π½ΠΈΡΠΎΠ²ΠΊΠ° ΠΊΠ²Π°ΡΡΠΈΡΡ Π² ΠΏΠ°Π½Π΅Π»ΡΠ½ΠΎΠΌ Π΄ΠΎΠΌΠ΅
Π‘ΠΏΠ΅ΡΠΈΠ°Π»ΡΠ½ΡΠ΅ ΡΡΠ»ΠΎΠ²ΠΈΡ ΠΏΠΎ ΡΠΎΠ³Π»Π°ΡΠΎΠ²Π°Π½ΠΈΡ ΠΏΠ΅ΡΠ΅ΠΏΠ»Π°Π½ΠΈΡΠΎΠ²ΠΎΠΊ, ΡΠ΅Π·ΠΊΠ΅ ΠΈ ΡΡΠΈΠ»Π΅Π½ΠΈΡ ΠΏΡΠΎΠ΅ΠΌΠΎΠ² Π½Π΅ΡΡΡΠΈΡ ΡΡΠ΅Π½ Π² ΠΏΠ°Π½Π΅Π»ΡΠ½ΡΡ Π΄ΠΎΠΌΠ°Ρ Π°Π²ΡΠΎΡΠ° ΠΠΠΠΠ’ΠΠ
ΠΠΎΠ΄ΡΠΎΠ±Π½Π΅Π΅ Π·Π΄Π΅ΡΡ
ΠΡΡΡΡΠΎ, ΠΊΠ°ΡΠ΅ΡΡΠ²Π΅Π½Π½ΠΎ, Π½ΠΈΠ·ΠΊΠΈΠ΅ ΡΠ΅Π½Ρ, ΠΈΠΌΠ΅Π΅ΡΡΡ Π΄ΠΎΠΏΡΡΠΊ Π‘Π Π.
Β
ΠΠ°ΡΠΈΠ°Π½ΡΠΎΠ² ΠΏΠ΅ΡΠ΅ΠΏΠ»Π°Π½ΠΈΡΠΎΠ²ΠΊΠΈ ΠΊΠ²Π°ΡΡΠΈΡΡ Π² ΠΏΠ°Π½Π΅Π»ΡΠ½ΠΎΠΌ Π΄ΠΎΠΌΠ΅ ΡΡΡΠ΅ΡΡΠ²ΡΠ΅Ρ Π½Π΅ΠΌΠ°Π»ΠΎ, ΠΈ Π±ΠΎΠ»ΡΡΠΈΠ½ΡΡΠ²ΠΎ ΠΈΠ· Π½ΠΈΡ Π½Π°ΠΏΡΠ°Π²Π»Π΅Π½Ρ Π½Π° ΡΠ°ΡΡΠΈΡΠ΅Π½ΠΈΠ΅ ΡΠ°ΠΌΡΡ ΡΠ΅ΡΠ½ΡΡ ΠΏΠΎΠΌΠ΅ΡΠ΅Π½ΠΈΠΉ — ΠΊΡΡ Π½ΠΈ, Π²Π°Π½Π½ΠΎΠΉ ΠΊΠΎΠΌΠ½Π°ΡΡ ΠΈ ΡΠ°Π½ΡΠ·Π»Π°.
ΠΡΠ»ΠΈ Π²Ρ Π½Π°ΠΌΠ΅ΡΠ΅Π²Π°Π΅ΡΠ΅ΡΡ ΠΏΡΠΎΠ²Π΅ΡΡΠΈ Π½Π΅Π·Π½Π°ΡΠΈΡΠ΅Π»ΡΠ½ΡΠ΅ ΠΈΠ·ΠΌΠ΅Π½Π΅Π½ΠΈΡ, Π½Π°ΠΏΡΠΈΠΌΠ΅Ρ, ΠΏΠ΅ΡΠ΅Π½Π΅ΡΡΠΈ ΠΏΡΠΎΠ΅ΠΌ Π² Π³ΠΈΠΏΡΠΎΠΊΠ°ΡΡΠΎΠ½Π½ΠΎΠΉ ΠΏΠ΅ΡΠ΅Π³ΠΎΡΠΎΠ΄ΠΊΠ΅, ΡΠΎ ΡΠΎΠ³Π»Π°ΡΠΎΠ²Π°ΡΡ ΠΏΠ΅ΡΠ΅ΠΏΠ»Π°Π½ΠΈΡΠΎΠ²ΠΊΡ Π²Π°ΡΠ΅ΠΉ ΠΏΠ°Π½Π΅Π»ΡΠ½ΠΎΠΉ ΠΊΠ²Π°ΡΡΠΈΡΡΒ ΠΌΠΎΠΆΠ½ΠΎ Π±ΡΠ΄Π΅Ρ ΠΈ ΡΠ°ΠΌΠΎΡΡΠΎΡΡΠ΅Π»ΡΠ½ΠΎ. ΠΠ΄Π½Π°ΠΊΠΎ Π² Π±ΠΎΠ»ΡΡΠΈΠ½ΡΡΠ²Π΅ ΡΠ»ΡΡΠ°Π΅Π² ΠΏΡΠ΅Π΄ΡΡΠΌΠ°ΡΡΠΈΠ²Π°ΡΡΡΡ ΡΠ»ΠΎΠΆΠ½ΡΠ΅ ΠΏΡΠ΅ΠΎΠ±ΡΠ°Π·ΠΎΠ²Π°Π½ΠΈΡ, Ρ Π·Π°ΡΡΠ°Π³ΠΈΠ²Π°Π½ΠΈΠ΅ΠΌ ΠΊΠ°ΠΏΠΈΡΠ°Π»ΡΠ½ΡΡ ΠΊΠΎΠ½ΡΡΡΡΠΊΡΠΈΠΉ. ΠΡΠΎ ΠΎΠ±ΡΡΠ»ΠΎΠ²Π»Π΅Π½ΠΎ ΡΠ΅ΠΌ, ΡΡΠΎ Π±ΠΎΠ»ΡΡΠΈΠ½ΡΡΠ²Π΅ ΠΏΠ°Π½Π΅Π»ΡΠ½ΡΡ Π΄ΠΎΠΌΠΎΠ² ΡΠΈΠΏΠΎΠ²ΡΡ ΡΠ΅ΡΠΈΠΉ Π±ΠΎΠ»ΡΡΠΈΠ½ΡΡΠ²ΠΎ ΠΌΠ΅ΠΆΠΊΠΎΠΌΠ½Π°ΡΠ½ΡΡ ΡΡΠ΅Π½ ΡΠ²Π»ΡΡΡΡΡ Π½Π΅ΡΡΡΠΈΠΌΠΈ.
Π§ΡΠΎΠ±Ρ ΠΏΠΎΠ½ΡΡΡ, ΡΡΠΎ ΠΌΠΎΠΆΠ½ΠΎ, Π° ΡΡΠΎ Π½Π΅Π»ΡΠ·Ρ Π΄Π΅Π»Π°ΡΡ ΠΏΡΠΈ ΡΠ»ΠΎΠΆΠ½ΠΎΠΉ ΠΏΠ΅ΡΠ΅ΠΏΠ»Π°Π½ΠΈΡΠΎΠ²ΠΊΠ΅ ΠΊΠ²Π°ΡΡΠΈΡΡ Π²Β ΡΠΎΠΌ ΠΈΠ»ΠΈ ΠΈΠ½ΠΎΠΌΒ ΠΏΠ°Π½Π΅Π»ΡΠ½ΠΎΠΌ Π΄ΠΎΠΌΠ΅, ΠΏΠΎΠ½Π°Π΄ΠΎΠ±ΠΈΡΡΡ ΡΠ΅Ρ Π½ΠΈΡΠ΅ΡΠΊΠΎΠ΅ Π·Π°ΠΊΠ»ΡΡΠ΅Π½ΠΈΠ΅ ΠΎ Π²ΠΎΠ·ΠΌΠΎΠΆΠ½ΠΎΡΡΠΈ ΠΏΠ΅ΡΠ΅ΠΏΠ»Π°Π½ΠΈΡΠΎΠ²ΠΊΠΈ. ΠΠ° ΠΎΡΠ½ΠΎΠ²Π°Π½ΠΈΠΈΒ Π΄Π°Π½Π½ΠΎΠ³ΠΎ Π΄ΠΎΠΊΡΠΌΠ΅Π½ΡΠ°Β Π·Π°ΡΠ΅ΠΌ ΡΠΎΡΡΠ°Π²Π»ΡΠ΅ΡΡΡ ΠΏΡΠΎΠ΅ΠΊΡ ΠΏΠ΅ΡΠ΅ΠΏΠ»Π°Π½ΠΈΡΠΎΠ²ΠΊΠΈ ΠΊΠ²Π°ΡΡΠΈΡΡ Π² ΠΏΠ°Π½Π΅Π»ΡΠ½ΠΎΠΌ Π΄ΠΎΠΌΠ΅.
ΠΠΎΠ΄ΡΠΎΠ±Π½Π΅Π΅ ΠΎ ΡΠ΅Ρ Π½ΠΈΡΠ΅ΡΠΊΠΎΠΌ Π·Π°ΠΊΠ»ΡΡΠ΅Π½ΠΈΠΈ Π½Π° ΠΏΠ΅ΡΠ΅ΠΏΠ»Π°Π½ΠΈΡΠΎΠ²ΠΊΡ
ΠΠΎΠ·ΠΌΠΎΠΆΠ½ΠΎΡΡΡ ΠΏΠ΅ΡΠ΅ΠΏΠ»Π°Π½ΠΈΡΠΎΠ²ΠΊΠΈ ΠΊΠ²Π°ΡΡΠΈΡΡ Π² ΠΏΠ°Π½Π΅Π»ΡΠ½ΠΎΠΌ Π΄ΠΎΠΌΠ΅ Ρ Π·Π°ΡΡΠ°Π³ΠΈΠ²Π°Π½ΠΈΠ΅ΠΌ Π½Π΅ΡΡΡΠΈΡ ΠΊΠΎΠ½ΡΡΡΡΠΊΡΠΈΠΉ Π·Π°Π²ΠΈΡΠΈΡ ΠΎΡ ΡΠΎΡΡΠΎΡΠ½ΠΈΡ ΡΠ°ΠΌΠΎΠ³ΠΎ Π·Π΄Π°Π½ΠΈΡ, Π΅Π³ΠΎ ΠΈΠ½ΠΆΠ΅Π½Π΅ΡΠ½ΡΡ ΡΠΈΡΡΠ΅ΠΌ, Π° ΡΠ°ΠΊΠΆΠ΅ Π½Π°Π»ΠΈΡΠΈΡ ΠΏΠ΅ΡΠ΅ΠΏΠ»Π°Π½ΠΈΡΠΎΠ²ΠΎΠΊ Ρ ΡΠΎΡΠ΅Π΄Π΅ΠΉ.
Π ΠΏΡΠΈΠΌΠ΅ΡΡ, Ρ Π²Π°Ρ Π½Π΅ ΠΏΠΎΠ»ΡΡΠΈΡΡΡ ΠΈΠ·ΠΌΠ΅Π½ΠΈΡΡ ΠΏΠ»Π°Π½ΠΈΡΠΎΠ²ΠΊΡ Ρ ΠΏΡΠΎΠ΅ΠΌΠΎΠΌ Π² Π½Π΅ΡΡΡΠ΅ΠΉ ΡΡΠ΅Π½Π΅, Π΅ΡΠ»ΠΈ Π² Π΄ΠΎΠΌΠ΅ ΠΏΠ»Π°Π½ΠΈΡΡΠ΅ΡΡΡ ΠΏΡΠΎΠ²Π΅Π΄Π΅Π½ΠΈΠ΅ ΠΊΠ°ΠΏΠΈΡΠ°Π»ΡΠ½ΠΎΠ³ΠΎ ΡΠ΅ΠΌΠΎΠ½ΡΠ° ΠΈΠ»ΠΈ Ρ ΡΠΎΡΠ΅Π΄Π΅ΠΉ ΡΠ²Π΅ΡΡ Ρ/ΡΠ½ΠΈΠ·Ρ ΡΠΆΠ΅ ΡΠ΄Π΅Π»Π°Π½ Π°Π½Π°Π»ΠΎΠ³ΠΈΡΠ½ΡΠΉ ΠΏΡΠΎΠ΅ΠΌ.
ΠΠ΅ΡΠ΅ΠΏΠ»Π°Π½ΠΈΡΠΎΠ²ΠΊΠ° ΠΊΠΎΡΠΈΠ΄ΠΎΡΠ° Π² ΠΏΠ°Π½Π΅Π»ΡΠ½ΠΎΠΌ Π΄ΠΎΠΌΠ΅
ΠΡΠΈ ΠΏΡΠΎΠ²Π΅Π΄Π΅Π½ΠΈΠΈ ΠΏΠ΅ΡΠ΅ΠΏΠ»Π°Π½ΠΈΡΠΎΠ²ΠΊΠΈ ΠΊΠ²Π°ΡΡΠΈΡΡ Π² ΠΏΠ°Π½Π΅Π»ΡΠ½ΠΎΠΌ Π΄ΠΎΠΌΠ΅ Π½Π΅ΡΠ΅Π΄ΠΊΠΎ Π·Π°ΡΡΠ°Π³ΠΈΠ²Π°Π΅ΡΡΡ ΠΊΠΎΡΠΈΠ΄ΠΎΡ. ΠΡ Π½Π΅Π³ΠΎ Π»ΠΈΠ±ΠΎ ΡΡΠ°ΡΠ°ΡΡΡΡ ΠΈΠ·Π±Π°Π²ΠΈΡΡΡΡ, ΡΠ°ΡΡΠΈΡΠΈΠ² Π½Π° Π½Π΅Π³ΠΎ Π²Π°Π½Π½ΡΡ, Π»ΠΈΠ±ΠΎ ΠΎΠ±ΡΠ΅Π΄ΠΈΠ½ΡΡΡ Ρ ΠΆΠΈΠ»ΠΎΠΉ ΠΊΠΎΠΌΠ½Π°ΡΠΎΠΉ.
ΠΠ΅ΡΠ΅Π΄ΠΊΠΎ ΠΊΠΎΡΠΈΠ΄ΠΎΡ, Π½Π°ΠΎΠ±ΠΎΡΠΎΡ, ΡΠ°ΡΡΠΈΡΡΡΡ Π·Π° ΡΡΠ΅Ρ ΡΠΌΠ΅ΠΆΠ½ΡΡ ΠΆΠΈΠ»ΡΡ ΠΏΠΎΠΌΠ΅ΡΠ΅Π½ΠΈΠΉ Π΄ΠΎ ΠΏΠΎΠ»Π½ΠΎΡΠ΅Π½Π½ΠΎΠΉ Π²Ρ ΠΎΠ΄Π½ΠΎΠΉ Π·ΠΎΠ½Ρ. Π’Π°ΠΊΠΎΠΉ Π²Π°ΡΠΈΠ°Π½Ρ ΠΏΠ΅ΡΠ΅ΠΏΠ»Π°Π½ΠΈΡΠΎΠ²ΠΊΠΈ ΠΊΠΎΡΠΈΠ΄ΠΎΡΠ° Π² ΠΊΠ²Π°ΡΡΠΈΡΠ΅ ΠΏΠ°Π½Π΅Π»ΡΠ½ΠΎΠ³ΠΎ Π΄ΠΎΠΌΠ° Π΄Π°Π΅Ρ Π²ΠΎΠ·ΠΌΠΎΠΆΠ½ΠΎΡΡΡ ΠΎΠ±ΡΡΡΡΠΎΠΈΡΡ ΡΡΠΈΠ»ΡΠ½ΡΡ ΠΈ ΡΠΎΠ²ΡΠ΅ΠΌΠ΅Π½Π½ΡΡ Π³Π°ΡΠ΄Π΅ΡΠΎΠ±Π½ΡΡ.
ΠΠ΅ΡΠ΅ΠΏΠ»Π°Π½ΠΈΡΠΎΠ²ΠΊΠ° ΠΊΡΡ Π½ΠΈ Π² ΠΏΠ°Π½Π΅Π»ΡΠ½ΠΎΠΌ Π΄ΠΎΠΌΠ΅
ΠΡΠ»ΠΈ Π²Ρ Ρ ΠΎΡΠΈΡΠ΅ Π²ΡΠΏΠΎΠ»Π½ΠΈΡΡ Π² ΡΠ²ΠΎΠ΅ΠΉ ΠΏΠ°Π½Π΅Π»ΡΠ½ΠΎΠΉΒ ΠΊΠ²Π°ΡΡΠΈΡΠ΅ Π΄ΠΎΠ²ΠΎΠ»ΡΠ½ΠΎ ΠΏΠΎΠΏΡΠ»ΡΡΠ½ΡΠΉ Π²Π°ΡΠΈΠ°Π½Ρ ΠΏΠ΅ΡΠ΅ΠΏΠ»Π°Π½ΠΈΡΠΎΠ²ΠΊΠΈΒ — ΠΎΠ±ΡΠ΅Π΄ΠΈΠ½Π΅Π½ΠΈΠ΅ ΠΊΡΡ Π½ΠΈ ΠΈ ΠΊΠΎΠΌΠ½Π°ΡΡ, ΡΠΎ ΠΏΠ΅ΡΠ΅Π΄ ΡΠ΅ΠΌ ΠΊΠ°ΠΊ Π½Π°ΡΠΈΠ½Π°ΡΡ ΡΠ°Π±ΠΎΡΡ, ΡΡΠΎΠΈΡ ΠΏΡΠΎΠΊΠΎΠ½ΡΡΠ»ΡΡΠΈΡΠΎΠ²Π°ΡΡΡΡ Ρ ΡΠΏΠ΅ΡΠΈΠ°Π»ΠΈΡΡΠΎΠ² ΠΈΠ· ΠΏΡΠΎΠ΅ΠΊΡΠ½ΠΎΠΉ ΠΎΡΠ³Π°Π½ΠΈΠ·Π°ΡΠΈΠΈ ΠΎ Π²ΠΎΠ·ΠΌΠΎΠΆΠ½ΠΎΡΡΠΈ ΠΎΠ±ΡΠ΅Π΄ΠΈΠ½Π΅Π½ΠΈΡ ΠΏΠΎΠΌΠ΅ΡΠ΅Π½ΠΈΠΉ.
ΠΡΠ»ΠΈ ΡΡΠ΅Π½Π° ΠΌΠ΅ΠΆΠ΄Ρ ΠΏΠΎΠΌΠ΅ΡΠ΅Π½ΠΈΡΠΌΠΈ ΠΎΠΊΠ°ΠΆΠ΅ΡΡΡ Π½Π΅ΡΡΡΠ΅ΠΉ, ΡΠΎ ΠΎΡ ΠΏΠΎΠ»Π½ΠΎΠ³ΠΎ Π΅Π΅ ΡΠ½ΠΎΡΠ° ΠΏΡΠΈΠ΄Π΅ΡΡΡ ΠΎΡΠΊΠ°Π·Π°ΡΡΡΡ, Ρ ΠΎΡΡ ΠΏΠ»ΡΡΡ ΠΎΡ ΠΏΡΠΎΠ²Π΅Π΄Π΅Π½ΠΈΡ ΡΠ°ΠΊΠΎΠΉ ΠΏΠ΅ΡΠ΅ΠΏΠ»Π°Π½ΠΈΡΠΎΠ²ΠΊΠΈ Π² ΡΠΈΠΏΠΎΠ²ΠΎΠΉ ΠΊΠ²Π°ΡΡΠΈΡΠ΅ ΠΏΠ°Π½Π΅Π»ΡΠ½ΠΎΠ³ΠΎ Π΄ΠΎΠΌΠ° ΠΎΡΠ΅Π²ΠΈΠ΄Π½Ρ. ΠΠΎ Π²ΡΠ΅ΠΌΠΈ Π²ΠΎΠ·ΠΌΠΎΠΆΠ½ΠΎΡΡΡΠΌΠΈ, ΠΊΠΎΡΠΎΡΡΠ΅ Π΄Π°Π΅Ρ ΠΎΠ±ΡΠ΅Π΄ΠΈΠ½Π΅Π½ΠΈΠ΅ ΠΏΠΎΠΌΠ΅ΡΠ΅Π½ΠΈΠΉ ΠΊΡΡ Π½ΠΈ ΠΈ ΠΊΠΎΠΌΠ½Π°ΡΡ ΠΌΠΎΠΆΠ½ΠΎ Π±ΡΠ΄Π΅Ρ Π²ΠΎΡΠΏΠΎΠ»ΡΠ·ΠΎΠ²Π°ΡΡΡΡ ΡΠΎΠ»ΡΠΊΠΎ Π² ΡΠΎΠΌ ΡΠ»ΡΡΠ°Π΅, Π΅ΡΠ»ΠΈ ΠΎΠ½ΠΈ ΡΠ°Π·Π΄Π΅Π»Π΅Π½Ρ Π½Π΅Π½Π΅ΡΡΡΠ΅ΠΉ ΠΏΠ΅ΡΠ΅Π³ΠΎΡΠΎΠ΄ΠΊΠΎΠΉ.
ΠΡΠ»ΠΈ Π²ΡΠ΅-ΡΠ°ΠΊΠΈ ΡΡΠ΅Π½Π° ΠΎΠΊΠ°ΠΆΠ΅ΡΡΡ Π½Π΅ΡΡΡΠ΅ΠΉ, ΡΠΎ ΠΏΡΠΈ ΠΎΠΏΡΠ΅Π΄Π΅Π»Π΅Π½Π½ΡΡ ΡΡΠ»ΠΎΠ²ΠΈΡΡ Π²ΠΎΠ·ΠΌΠΎΠΆΠ½ΠΎ Π±ΡΠ΄Π΅Ρ Π»ΠΈΡΡ ΡΡΡΡΠΎΠΈΡΡ Π΄Π²Π΅ΡΠ½ΠΎΠΉ ΠΏΡΠΎΠ΅ΠΌ, ΠΈ ΡΠΎΠ»ΡΠΊΠΎ Ρ ΡΡΠ»ΠΎΠ²ΠΈΠ΅ΠΌ Π΅Π³ΠΎ ΡΡΠΈΠ»Π΅Π½ΠΈΡ ΠΏΡΠΈ ΠΏΠΎΠΌΠΎΡΠΈ ΠΌΠ΅ΡΠ°Π»Π»ΠΎΠΊΠΎΠ½ΡΡΡΡΠΊΡΠΈΠΉ.
ΠΠΈΠ»ΠΈΡΠ½Π°Ρ ΠΈΠ½ΡΠΏΠ΅ΠΊΡΠΈΡ Π½Π΅ Π΄Π°ΡΡ ΡΠ°Π·ΡΠ΅ΡΠ΅Π½ΠΈΠ΅ Π½Π° ΠΏΠ΅ΡΠ΅ΠΏΠ»Π°Π½ΠΈΡΠΎΠ²ΠΊΡ ΠΊΡΡ Π½ΠΈ Π² ΠΏΠ°Π½Π΅Π»ΡΠ½ΠΎΠΌ Π΄ΠΎΠΌΠ΅ ΠΈ Π² ΡΠΎΠΌ ΡΠ»ΡΡΠ°Π΅, Π΅ΡΠ»ΠΈ ΡΠ΅ΡΡ ΠΈΠ΄Π΅Ρ ΠΎΠ± ΠΎΠ΄Π½ΠΎΠΊΠΎΠΌΠ½Π°ΡΠ½ΠΎΠΉ ΠΊΠ²Π°ΡΡΠΈΡΠ΅. ΠΡΠΎ ΠΎΠ³ΡΠ°Π½ΠΈΡΠ΅Π½ΠΈΠ΅ ΠΊΠ°ΡΠ°Π΅ΡΡΡ Π½Π΅ ΡΠΎΠ»ΡΠΊΠΎ ΠΊΠ²Π°ΡΡΠΈΡ Π² ΠΏΠ°Π½Π΅Π»ΡΠ½ΡΡ Π΄ΠΎΠΌΠ°Ρ , Π½ΠΎ ΠΈ Π² Π»ΡΠ±ΡΡ Π΄ΡΡΠ³ΠΈΡ , Π²Π΅Π΄Ρ ΠΏΠΎΠ»ΡΡΠΈΠ²ΡΠ°ΡΡΡ ΠΏΡΠΈ ΠΎΠ±ΡΠ΅Π΄ΠΈΠ½Π΅Π½ΠΈΠΈ ΠΏΠΎΠΌΠ΅ΡΠ΅Π½ΠΈΠΉ Π³ΠΎΡΡΠΈΠ½Π°Ρ Π±ΡΠ΄Π΅Ρ ΠΈΠΌΠ΅ΡΡ ΡΡΠ°ΡΡΡ Π½Π΅ΠΆΠΈΠ»ΠΎΠ³ΠΎ ΠΏΠΎΠΌΠ΅ΡΠ΅Π½ΠΈΡ, Π° ΡΡΠΎ Π·Π½Π°ΡΠΈΡ, ΡΡΠΎ ΠΈ Π²ΡΡ ΠΊΠ²Π°ΡΡΠΈΡΠ° Π±ΡΠ΄Π΅Ρ ΡΡΠΈΡΠ°ΡΡΡΡ Π½Π΅ΠΆΠΈΠ»ΠΎΠΉ.
Π‘Π»ΠΎΠΆΠ½ΠΎΡΡΠΈ Π²ΠΎΠ·Π½ΠΈΠΊΠ½ΡΡ ΠΈ Π² ΡΠΎΠΌ ΡΠ»ΡΡΠ°Π΅, Π΅ΡΠ»ΠΈ Π½Π° ΠΊΡΡ Π½Π΅ ΡΡΠΎΠΈΡ Π³Π°Π·ΠΎΠ²Π°Ρ ΠΏΠ»ΠΈΡΠ° — ΠΏΠΎΠ»Π½ΠΎΠ΅ ΠΎΠ±ΡΠ΅Π΄ΠΈΠ½Π΅Π½ΠΈΠ΅ ΠΏΠΎΠΌΠ΅ΡΠ΅Π½ΠΈΠΉ ΡΠ°ΠΊΠΆΠ΅ Π±ΡΠ΄Π΅Ρ Π½Π΅Π²ΠΎΠ·ΠΌΠΎΠΆΠ½ΠΎ. ΠΡΠΈΠ΄Π΅ΡΡΡ Π»ΠΈΠ±ΠΎ ΠΌΠ΅Π½ΡΡΡ Π³Π°Π·ΠΎΠ²ΡΡ ΠΏΠ»ΠΈΡΡ Π½Π° ΡΠ»Π΅ΠΊΡΡΠΈΡΠ΅ΡΠΊΡΡ, Π»ΠΈΠ±ΠΎ ΡΡΡΠ°Π½Π°Π²Π»ΠΈΠ²Π°ΡΡ Π΄Π²Π΅ΡΡ ΠΈΠ»ΠΈ Π΄ΠΎΠΏΠΎΠ»Π½ΠΈΡΠ΅Π»ΡΠ½ΡΡ ΠΏΠ΅ΡΠ΅Π³ΠΎΡΠΎΠ΄ΠΊΡ, ΡΠΎΡΠΌΠ°Π»ΡΠ½ΠΎ ΡΠ°Π·Π΄Π΅Π»ΡΡΡΡΡ ΠΏΠΎΠΌΠ΅ΡΠ΅Π½ΠΈΡ ΠΊΡΡ Π½ΠΈ ΠΈ ΠΊΠΎΠΌΠ½Π°ΡΡ.
ΠΠ΅ΡΠ΅ΠΏΠ»Π°Π½ΠΈΡΠΎΠ²ΠΊΠ° Π²Π°Π½Π½ΠΎΠΉ ΠΈ ΡΠ°Π½ΡΠ·Π»Π° Π² ΠΏΠ°Π½Π΅Π»ΡΠ½ΠΎΠΌ Π΄ΠΎΠΌΠ΅
ΠΠ±ΡΠ΅Π΄ΠΈΠ½Π΅Π½ΠΈΠ΅ Π²Π°Π½Π½ΠΎΠΉ ΠΊΠΎΠΌΠ½Π°ΡΡ ΠΈ ΡΡΠ°Π»Π΅ΡΠ° — ΡΠ°ΠΊΠΆΠ΅ Π΄ΠΎΠ²ΠΎΠ»ΡΠ½ΠΎ ΡΠ°ΡΠΏΡΠΎΡΡΡΠ°Π½Π΅Π½Π½ΡΠΉ Π²Π°ΡΠΈΠ°Π½Ρ ΠΏΠ΅ΡΠ΅ΠΏΠ»Π°Π½ΠΈΡΠΎΠ²ΠΊΠΈ Π² ΠΏΠ°Π½Π΅Π»ΡΠ½ΠΎΠΌ Π΄ΠΎΠΌΠ΅. ΠΡΠΈ ΠΎΡΠ³Π°Π½ΠΈΠ·Π°ΡΠΈΠΈ ΡΠΎΠ²ΠΌΠ΅ΡΠ΅Π½Π½ΠΎΠ³ΠΎ ΡΠ°Π½ΡΠ·Π»Π° ΠΈΠ·ΠΌΠ΅Π½Π΅Π½ΠΈΡ ΠΏΠΎΡΠΎΠΉ ΠΊΠ°ΡΠ°ΡΡΡΡ Π½Π΅ ΡΠΎΠ»ΡΠΊΠΎ ΡΡΠ΅Π½.
ΠΠ»Ρ Π±ΠΎΠ»Π΅Π΅ ΡΠ°ΡΠΈΠΎΠ½Π°Π»ΡΠ½ΠΎΠ³ΠΎ ΠΈΡΠΏΠΎΠ»ΡΠ·ΠΎΠ²Π°Π½ΠΈΡ Π΅Π³ΠΎ ΠΏΠ»ΠΎΡΠ°Π΄ΠΈ ΡΡΠ΅Π±ΡΠ΅ΡΡΡ ΠΏΠ΅ΡΠ΅ΡΡΠ°Π½ΠΎΠ²ΠΊΠ° ΡΠ°Π½ΡΠ΅Ρ Π½ΠΈΠΊΠΈ, ΠΈΠ»ΠΈ Π·Π°ΠΌΠ΅Π½Π° Π²Π°Π½Π½Ρ Π½Π° Π΄ΡΡΠ΅Π²ΡΡ ΠΊΠ°Π±ΠΈΠ½Ρ.
Π‘ΠΎΠ³Π»Π°ΡΠΎΠ²Π°Π½ΠΈΠ΅ ΡΠ°ΠΊΠΎΠΉ ΠΏΠ΅ΡΠ΅ΠΏΠ»Π°Π½ΠΈΡΠΎΠ²ΠΊΠΈ Π±Π΅Π· Π·Π°ΡΡΠ°Π³ΠΈΠ²Π°Π½ΠΈΡ Π½Π΅ΡΡΡΠΈΡ ΠΊΠΎΠ½ΡΡΡΡΠΊΡΠΈΠΉ, ΠΏΡΠΎΡ ΠΎΠ΄ΠΈΡ ΠΎΠ±ΡΡΠ½ΠΎ Π² ΡΠΏΡΠΎΡΠ΅Π½Π½ΠΎΠΉ ΡΠΎΡΠΌΠ΅, Π±Π΅Π· ΡΠ°Π·ΡΠ°Π±ΠΎΡΠΊΠΈ ΠΏΡΠΎΠ΅ΠΊΡΠ½ΠΎΠΉ Π΄ΠΎΠΊΡΠΌΠ΅Π½ΡΠ°ΡΠΈΠΈ.
ΠΠΎΠ»Π΅Π΅ ΡΠ»ΠΎΠΆΠ½ΡΠΉ Π²Π°ΡΠΈΠ°Π½Ρ — ΠΏΠ΅ΡΠ΅ΠΏΠ»Π°Π½ΠΈΡΠΎΠ²ΠΊΠ° Π²Π°Π½Π½Ρ ΠΈ ΡΠ°Π½ΡΠ·Π»Π° Ρ ΡΠ°ΡΡΠΈΡΠ΅Π½ΠΈΠ΅ΠΌ ΠΏΠΎΠ»ΡΡΠΈΠ²ΡΠ΅Π³ΠΎΡΡ ΠΏΠΎΠΌΠ΅ΡΠ΅Π½ΠΈΡ Π·Π° ΡΡΠ΅Ρ ΡΠΌΠ΅ΠΆΠ½ΠΎΠ³ΠΎ ΠΊΠΎΡΠΈΠ΄ΠΎΡΠ°. Π ΡΡΠΎΠΌ ΡΠ»ΡΡΠ°Π΅ ΡΠ°Π·ΡΠ°Π±ΠΎΡΠΊΠ° ΠΏΡΠΎΠ΅ΠΊΡΠ½ΠΎΠΉ Π΄ΠΎΠΊΡΠΌΠ΅Π½ΡΠ°ΡΠΈΠΈ ΠΎΠ±ΡΠ·Π°ΡΠ΅Π»ΡΠ½Π° ΠΈΠ·-Π·Π° Π½Π΅ΠΎΠ±Ρ ΠΎΠ΄ΠΈΠΌΠΎΡΡΠΈ ΡΠΊΠ»Π°Π΄ΠΊΠΈ Π³ΠΈΠ΄ΡΠΎΠΈΠ·ΠΎΠ»ΡΡΠΈΠΎΠ½Π½ΠΎΠ³ΠΎ ΠΏΠΎΠΊΡΡΡΠΈΡ,Β ΠΊΠΎΡΠΎΡΠΎΠ΅ ΠΎΠ·Π½Π°ΡΠ°Π΅Ρ ΠΈΠ·ΠΌΠ΅Π½Π΅Π½ΠΈΠ΅ ΠΊΠΎΠ½ΡΡΡΡΠΊΡΠΈΠΈ ΠΏΠΎΠ»Π°.
ΠΡΠΈΠΌΠ΅Ρ ΠΏΠ΅ΡΠ΅ΠΏΠ»Π°Π½ΠΈΡΠΎΠ²ΠΊΠΈΒ Π΄Π²ΡΡ ΠΊΠΎΠΌΠ½Π°ΡΠ½ΠΎΠΉΒ ΠΏΠ°Π½Π΅Π»ΡΠ½ΠΎΠΉ ΠΊΠ²Π°ΡΡΠΈΡΡ
ΠΡΠΎΠ΅ΠΊΡ ΠΏΠ΅ΡΠ΅ΠΏΠ»Π°Π½ΠΈΡΠΎΠ²ΠΊΠΈ Π²Π°Π½Π½ΠΎΠΉ ΠΈ ΡΠ°Π½ΡΠ·Π»Π° Π² ΠΏΠ°Π½Π΅Π»ΡΠ½ΠΎΠΌ Π΄ΠΎΠΌΠ΅ ΡΠ΅ΡΠΈΠΈ Π-3:
ΠΡΠΎΠ΅ΠΊΡ ΠΏΠ΅ΡΠ΅ΠΏΠ»Π°Π½ΠΈΡΠΎΠ²ΠΊΠΈΒ Π² ΠΏΠ°Π½Π΅Π»ΡΠ½ΠΎΠΌ Π΄ΠΎΠΌΠ΅
ΠΡΠ°ΠΊ, Π±ΠΎΠ»ΡΡΠΈΠ½ΡΡΠ²ΠΎ ΠΏΠ΅ΡΠ΅ΠΏΠ»Π°Π½ΠΈΡΠΎΠ²ΠΎΠΊ Π² Π΄ΠΎΠΌΠ°Ρ ΠΏΠ°Π½Π΅Π»ΡΠ½ΠΎΠ³ΠΎ ΡΠΈΠΏΠ° Π² ΡΠΈΠ»Ρ ΠΊΠΎΠ½ΡΡΡΡΠΊΡΠΈΠ²Π½ΡΡ ΠΎΡΠΎΠ±Π΅Π½Π½ΠΎΡΡΠ΅ΠΉ Π·Π΄Π°Π½ΠΈΠΉ ΡΡΠ΅Π±ΡΡΡ ΡΠ°Π·ΡΠ°Π±ΠΎΡΠΊΠΈ ΠΏΡΠΎΠ΅ΠΊΡΠ½ΠΎΠΉ Π΄ΠΎΠΊΡΠΌΠ΅Π½ΡΠ°ΡΠΈΠΈ Ρ ΡΠ΅Ρ Π½ΠΈΡΠ΅ΡΠΊΠΈΠΌ Π·Π°ΠΊΠ»ΡΡΠ΅Π½ΠΈΠ΅ΠΌ .
ΠΠ΅ΡΠ΅Π΄ΠΊΠΎ ΡΠΊΠ»Π°Π΄ΡΠ²Π°ΡΡΡΡ ΡΠΈΡΡΠ°ΡΠΈΠΈ, ΠΊΠΎΠ³Π΄Π° Π²Π»Π°Π΄Π΅Π»Π΅Ρ ΠΆΠΈΠ»ΡΡ ΠΎΠ±ΡΠ°ΡΠ°Π΅ΡΡΡ ΠΊ Π΄ΠΈΠ·Π°ΠΉΠ½Π΅ΡΡ Π·Π° ΡΠ°Π·ΡΠ°Π±ΠΎΡΠΊΠΎΠΉ ΠΏΡΠΎΠ΅ΠΊΡΠ° Π΄Π»Ρ ΡΠ²ΠΎΠ΅ΠΉ ΠΊΠ²Π°ΡΡΠΈΡΡ, ΡΠΎΡ Π³ΠΎΡΠΎΠ²ΠΈΡ Π²Π°ΡΠΈΠ°Π½Ρ, ΡΡΠΈΡΡΠ²Π°ΡΡΠΈΠΉ Π²ΡΠ΅ ΠΏΠΎΠΆΠ΅Π»Π°Π½ΠΈΡ Π·Π°ΠΊΠ°Π·ΡΠΈΠΊΠ°, Π½ΠΎ Π² Π΄Π°Π»ΡΠ½Π΅ΠΉΡΠ΅ΠΌ ΠΏΠΎΠΏΡΡΠΊΠΈ ΡΠΎΠ³Π»Π°ΡΠΎΠ²Π°ΡΡ Π΅Π³ΠΎ ΠΎΠ±ΡΠ΅ΡΠ΅Π½Ρ Π½Π° ΠΏΡΠΎΠ²Π°Π». ΠΠΎΡΠ΅ΠΌΡ ΡΠ°ΠΊ ΠΏΡΠΎΠΈΡΡ ΠΎΠ΄ΠΈΡ?
ΠΠ΅Π»ΠΎ Π² ΡΠΎΠΌ, ΡΡΠΎ ΡΡΠΈΠ΄ΠΈΡΠ΅ΡΠΊΡΡ ΡΠΈΠ»Ρ ΠΈΠΌΠ΅ΡΡ ΡΠΎΠ»ΡΠΊΠΎ ΠΏΡΠΎΠ΅ΠΊΡΡ, ΡΠ°Π·ΡΠ°Π±ΠΎΡΠ°Π½Π½ΡΠ΅ ΠΏΡΠΎΠ΅ΠΊΡΠ½ΡΠΌ ΠΈΠ½ΡΡΠΈΡΡΡΠΎΠΌ-Π°Π²ΡΠΎΡΠΎΠΌ Π΄ΠΎΠΌΠ° ΠΈΠ»ΠΈ ΠΊΠΎΠΌΠΌΠ΅ΡΡΠ΅ΡΠΊΠΈΠΌΠΈ ΠΎΡΠ³Π°Π½ΠΈΠ·Π°ΡΠΈΡΠΌΠΈ Ρ Π΄ΠΎΠΏΡΡΠΊΠΎΠΌ Π‘Π Π. ΠΡΠ±ΡΠ°Π½Π½Π°Ρ Π²Π°ΠΌΠΈ ΠΎΡΠ³Π°Π½ΠΈΠ·Π°ΡΠΈΡ, Π½Π° ΠΎΡΠ½ΠΎΠ²Π°Π½ΠΈΠΈ ΡΠ΅Ρ Π½ΠΈΡΠ΅ΡΠΊΠΎΠ³ΠΎ ΠΎΠ±ΡΠ»Π΅Π΄ΠΎΠ²Π°Π½ΠΈΡ ΠΈ ΠΈΠ½ΠΆΠ΅Π½Π΅ΡΠ½ΡΡ ΡΠ°ΡΡΠ΅ΡΠΎΠ² Π² ΡΠΎΠΎΡΠ²Π΅ΡΡΡΠ²ΠΈΠΈ Ρ Π΄Π΅ΠΉΡΡΠ²ΡΡΡΠΈΠΌΠΈ Π½ΠΎΡΠΌΠ°ΡΠΈΠ²Π°ΠΌΠΈ, ΡΠ°Π·ΡΠ°Π±ΠΎΡΠ°Π΅Ρ ΡΠ°ΠΊΠΎΠΉ ΠΏΡΠΎΠ΅ΠΊΡ ΠΏΠ΅ΡΠ΅ΠΏΠ»Π°Π½ΠΈΡΠΎΠ²ΠΊΠΈ, ΠΊΠΎΡΠΎΡΡΠΉ Π·Π°ΡΠ΅ΠΌ ΠΌΠΎΠΆΠ½ΠΎ Π±ΡΠ΄Π΅Ρ Π±Π΅Π· ΡΡΡΠ΄Π° ΡΠΎΠ³Π»Π°ΡΠΎΠ²Π°ΡΡ Π² ΠΆΠΈΠ»ΠΈΡΠ½ΠΎΠΉ ΠΈΠ½ΡΠΏΠ΅ΠΊΡΠΈΠΈ.
Π‘ΠΎΠ³Π»Π°ΡΠΎΠ²Π°Π½ΠΈΠ΅ ΠΏΠ΅ΡΠ΅ΠΏΠ»Π°Π½ΠΈΡΠΎΠ²ΠΊΠΈ ΠΊΠ²Π°ΡΡΠΈΡΡΒ Π² ΠΏΠ°Π½Π΅Π»ΡΠ½ΠΎΠΌ Π΄ΠΎΠΌΠ΅
Π‘ΠΎΠ³Π»Π°ΡΠΎΠ²ΡΠ²Π°ΡΡ ΠΏΠ΅ΡΠ΅ΠΏΠ»Π°Π½ΠΈΡΠΎΠ²ΠΊΡ Π² ΠΏΠ°Π½Π΅Π»ΡΠ½ΠΎΠΌ Π΄ΠΎΠΌΠ΅ ΠΌΠΎΠΆΠ½ΠΎ ΡΠ°ΠΌΠΎΡΡΠΎΡΡΠ΅Π»ΡΠ½ΠΎ, Π° ΠΌΠΎΠΆΠ½ΠΎ ΠΎΠ±ΡΠ°ΡΠΈΡΡΡΡ ΠΊΒ ΠΏΠΎΡΡΠ΅Π΄Π½ΠΈΡΠ΅ΡΠΊΠΈΠΌ ΠΎΡΠ³Π°Π½ΠΈΠ·Π°ΡΠΈΡΠΌ. ΠΠ°ΠΊ ΠΏΡΠ°Π²ΠΈΠ»ΠΎ, ΠΏΡΠΎΡΡΡΠ΅ ΡΠ°Π±ΠΎΡΡ ΠΏΠΎ ΠΏΠ΅ΡΠ΅ΠΏΠ»Π°Π½ΠΈΡΠΎΠ²ΠΊΠ΅, Π½Π΅ Π·Π°ΡΡΠ°Π³ΠΈΠ²Π°ΡΡΠΈΠ΅ Π½Π΅ΡΡΡΠΈΠ΅ ΡΡΠ΅Π½Ρ ΠΈ ΠΈΠ½ΠΆΠ΅Π½Π΅ΡΠ½ΡΠ΅ ΠΊΠΎΠΌΠΌΡΠ½ΠΈΠΊΠ°ΡΠΈΠΈ, ΠΌΠΎΠΆΠ½ΠΎ ΡΠΎΠ³Π»Π°ΡΠΎΠ²Π°ΡΡ Π² ΡΠ²Π΅Π΄ΠΎΠΌΠΈΡΠ΅Π»ΡΠ½ΠΎΠΌ ΠΏΠΎΡΡΠ΄ΠΊΠ΅, Ρ ΠΌΠΈΠ½ΠΈΠΌΠ°Π»ΡΠ½ΡΠΌ ΠΊΠΎΠ»ΠΈΡΠ΅ΡΡΠ²ΠΎΠΌ ΡΠ°Π·ΡΠ΅ΡΠ΅Π½ΠΈΠΉ ΠΈ Π΄ΠΎΠΊΡΠΌΠ΅Π½ΡΠΎΠ². ΠΠ±ΡΡΠ½ΠΎ ΡΠ°ΠΊΠΈΠ΅ ΡΠΎΠ³Π»Π°ΡΠΎΠ²Π°Π½ΠΈΡ ΠΏΡΠΎΡ ΠΎΠ΄ΡΡ Π² Π΄ΠΎΡΡΠ°ΡΠΎΡΠ½ΠΎ ΠΊΠΎΡΠΎΡΠΊΠΈΠΉ ΡΡΠΎΠΊ (1-2 ΠΌΠ΅ΡΡΡΠ°).
ΠΠΎΠ΄ΡΠΎΠ±Π½Π΅Π΅ ΠΎ Π΄ΠΎΠΊΡΠΌΠ΅Π½ΡΠ°Ρ Π½Π° ΠΏΠ΅ΡΠ΅ΠΏΠ»Π°Π½ΠΈΡΠΎΠ²ΠΊΡ
ΠΠΎ Π΅ΡΠ»ΠΈ Π½Π° ΡΠ°ΠΌΠΎΡΡΠΎΡΡΠ΅Π»ΡΠ½ΠΎΠ΅ ΡΠΎΠ³Π»Π°ΡΠΎΠ²Π°Π½ΠΈΠ΅ — ΡΠ±ΠΎΡ Π΄ΠΎΠΊΡΠΌΠ΅Π½ΡΠΎΠ², ΠΏΡΠΎΡ ΠΎΠΆΠ΄Π΅Π½ΠΈΠ΅ ΠΈΠ½ΡΡΠ°Π½ΡΠΈΠΉ, Ρ Π²Π°Ρ Π½Π΅Ρ Π½ΠΈ Π²ΡΠ΅ΠΌΠ΅Π½ΠΈ, Π½ΠΈ ΡΠ΅ΡΠΏΠ΅Π½ΠΈΡ, ΠΈΠ»ΠΈ Π²Π°ΡΠ° ΠΏΠ΅ΡΠ΅ΠΏΠ»Π°Π½ΠΈΡΠΎΠ²ΠΊΠ° ΡΡΠ΅Π±ΡΠ΅Ρ ΡΠ°Π·ΡΠ°Π±ΠΎΡΠΊΠΈ ΠΏΡΠΎΠ΅ΠΊΡΠ° ΠΏΠ΅ΡΠ΅ΠΏΠ»Π°Π½ΠΈΡΠΎΠ²ΠΊΠΈ Ρ Π’Π, ΡΠΎ Π»ΡΡΡΠΈΠΌ ΡΠ΅ΡΠ΅Π½ΠΈΠ΅ΠΌ Π±ΡΠ΄Π΅Ρ ΠΎΠ±ΡΠ°ΡΠ΅Π½ΠΈΠ΅ ΠΊ ΠΏΠΎΡΡΠ΅Π΄Π½ΠΈΠΊΠ°ΠΌ.
ΠΡΠ±ΠΈΡΠ°Ρ ΠΏΠΎΠ΄Ρ ΠΎΠ΄ΡΡΡΡ ΠΎΡΠ³Π°Π½ΠΈΠ·Π°ΡΠΈΡ, ΠΎΠ±ΡΠ°ΡΠΈΡΠ΅ Π²Π½ΠΈΠΌΠ°Π½ΠΈΠ΅, ΠΏΡΠ΅ΠΆΠ΄Π΅ Π²ΡΠ΅Π³ΠΎ Π½Π° Π΅Π΅ ΠΎΠΏΡΡ ΡΠ°Π±ΠΎΡΡ Π² Π΄Π°Π½Π½ΠΎΠΉ ΡΡΠ΅ΡΠ΅, ΠΎΡΠ·ΡΠ²Ρ ΠΊΠ»ΠΈΠ΅Π½ΡΠΎΠ², ΠΊΠΎΡΠΎΡΡΠ΅ ΡΠΆΠ΅ Π²ΠΎΡΠΏΠΎΠ»ΡΠ·ΠΎΠ²Π°Π»ΠΈΡΡ Π΄Π°Π½Π½ΠΎΠΉ ΡΡΠ»ΡΠ³ΠΎΠΉ.
ΠΠΏΡΡ ΠΏΠΎΠΊΠ°Π·ΡΠ²Π°Π΅Ρ, ΡΡΠΎ ΠΏΡΠΈ ΡΠΎΠ³Π»Π°ΡΠΎΠ²Π°Π½ΠΈΠΈ ΡΠ»ΠΎΠΆΠ½ΡΡ ΠΏΠ΅ΡΠ΅ΠΏΠ»Π°Π½ΠΈΡΠΎΠ²ΠΎΠΊ ΠΏΠΎ ΠΏΡΠΎΠ΅ΠΊΡΡ Π² ΠΏΠ°Π½Π΅Π»ΡΠ½ΠΎΠΌ Π΄ΠΎΠΌΠ΅, ΠΎΠ±ΡΠ°ΡΠ΅Π½ΠΈΠ΅ ΠΊ ΠΏΠΎΡΡΠ΅Π΄Π½ΠΈΠΊΠ°ΠΌ ΠΏΠΎΠ·Π²ΠΎΠ»ΡΠ΅Ρ ΠΏΠΎΠ»ΡΡΠΈΡΡ ΡΠ°Π·ΡΠ΅ΡΠ΅Π½ΠΈΡ Π² ΠΌΠΈΠ½ΠΈΠΌΠ°Π»ΡΠ½ΡΠΉ ΡΡΠΎΠΊ, Π° ΠΏΠΎΡΠΎΠΉ Π΄Π°ΠΆΠ΅ ΡΡΠΊΠΎΠ½ΠΎΠΌΠΈΡΡ Π½Π° ΡΡΠ°ΠΏΠ΅ ΠΏΠΎΠ΄Π³ΠΎΡΠΎΠ²ΠΊΠΈ ΠΊ ΡΠ°Π±ΠΎΡΠ°ΠΌ.
ΠΠ΅ΡΠ΅ΠΏΠ»Π°Π½ΠΈΡΠΎΠ²ΠΊΠ° Π² ΠΏΠ°Π½Π΅Π»ΡΠ½ΠΎΠΌ Π΄ΠΎΠΌΠ΅ ΡΠΎΡΠΎ:
ΠΠ΅ΡΠ΅ΠΏΠ»Π°Π½ΠΈΡΠΎΠ²ΠΊΠ° ΡΡΠ΅Ρ ΠΊΠΎΠΌΠ½Π°ΡΠ½ΠΎΠΉ ΠΊΠ²Π°ΡΡΠΈΡΡ ΠΏΠ°Π½Π΅Π»ΡΠ½ΠΎΠ³ΠΎ Π΄ΠΎΠΌΠ°
ΠΠ°Π½Π½ΡΠΉ ΠΏΡΠΎΠ΅ΠΊΡ ΠΏΠ΅ΡΠ΅ΠΏΠ»Π°Π½ΠΈΡΠΎΠ²ΠΊΠΈ Π±ΡΠ» ΡΠ΅Π°Π»ΠΈΠ·ΠΎΠ²Π°Π½ Π² ΡΡΠ΅ΡΠΊΠ΅ ΠΏΠ°Π½Π΅Π»ΡΠ½ΠΎΠ³ΠΎ Π΄ΠΎΠΌΠ° Π-49Π. ΠΡΠΎΠ΅ΠΊΡΠΎΠΌ ΠΏΡΠ΅Π΄ΡΡΠΌΠ°ΡΡΠΈΠ²Π°Π»ΡΡ ΠΏΡΠΎΠ΅ΠΌ ΠΌΠ΅ΠΆΠ΄Ρ ΠΊΡΡ Π½Π΅ΠΉ ΠΈ ΠΊΠΎΠΌΠ½Π°ΡΠΎΠΉ, Π΄Π΅ΠΌΠΎΠ½ΡΠ°ΠΆ ΠΏΠΎΠ΄ΠΎΠΊΠΎΠ½Π½ΠΎΠ³ΠΎ Π±Π»ΠΎΠΊΠ° Ρ Π·Π°ΠΌΠ΅Π½ΠΎΠΉ Π΅Π³ΠΎ Π½Π° ΡΡΠ΅ΠΊΠ»ΡΠ½Π½ΡΡ ΠΏΠ΅ΡΠ΅Π³ΠΎΡΠΎΠ΄ΠΊΡ ΠΈ ΠΎΠ±ΡΠ΅Π΄ΠΈΠ½Π΅Π½ΠΈΠ΅ ΡΡΠ°Π»Π΅Ρ Ρ Π²Π°Π½Π½ΠΎΠΉ. Π ΡΠΎΠ²ΠΌΠ΅ΡΠ΅Π½Π½ΠΎΠΌ ΡΠ°Π½ΡΠ·Π»Π΅ ΠΌΠ΅Π½ΡΠ»Π°ΡΡ ΡΠ°ΡΡΡΠ°Π½ΠΎΠ²ΠΊΠ° ΡΠ°Π½ΡΠ΅Ρ Π½ΠΈΠΊΠΈ, Π° Π½Π° ΠΊΡΡ Π½Π΅ ΠΏΠ΅ΡΠ΅Π΄Π²ΠΈΠ½ΡΠ»ΠΈ ΡΠ»Π΅ΠΊΡΡΠΎΠΏΠ»ΠΈΡΡ ΠΈ ΡΠ°ΠΊΠΎΠ²ΠΈΠ½Ρ.
ΠΠ΅ΡΠ΅ΠΏΠ»Π°Π½ΠΈΡΠΎΠ²ΠΊΠ° ΡΡΠ΅Ρ ΠΊΠΎΠΌΠ½Π°ΡΠ½ΠΎΠΉ ΠΊΠ²Π°ΡΡΠΈΡΡ Π² Π΄ΠΎΠΌΠ΅ ΡΠ΅ΡΠΈΠΈ Π-44:



ΠΠΈΠ΄Π΅ΠΎ ΠΎ ΠΏΠ΅ΡΠ΅ΠΏΠ»Π°Π½ΠΈΡΠΎΠ²ΠΊΠ΅ Π² Π΄ΠΎΠΌΠ΅ ΡΠ΅ΡΠΈΠΈ Π-44:
www.pereplanirovkamos.ru
ΠΠ΅ΡΠ΅ΠΏΠ»Π°Π½ΠΈΡΠΎΠ²ΠΊΠ° Π² ΠΏΠ°Π½Π΅Π»ΡΠ½ΠΎΠΌ Π΄ΠΎΠΌΠ΅
ΠΡΡ ΠΈΡΠ΅ΠΊΡΡΡΠ½ΠΎ-ΠΏΡΠΎΠ΅ΠΊΡΠ½ΠΎΠ΅ Π±ΡΡΠΎ β1 ΡΠ°Π·ΡΠ°Π±Π°ΡΡΠ²Π°Π΅Ρ ΠΏΡΠΎΠ΅ΠΊΡΡ ΠΏΠ΅ΡΠ΅ΠΏΠ»Π°Π½ΠΈΡΠΎΠ²ΠΎΠΊ ΠΊΠ²Π°ΡΡΠΈΡ Π² ΠΏΠ°Π½Π΅Π»ΡΠ½ΡΡ Π΄ΠΎΠΌΠ°Ρ Π²ΡΠ΅Ρ ΡΠ΅ΡΠΈΠΉ! ΠΡ ΡΠ°ΠΊΠΆΠ΅ ΠΊΠΎΠ½ΡΡΠ»ΡΡΠΈΡΡΠ΅ΠΌ ΠΏΠΎ Π»ΡΠ±ΡΠΌ Π²ΠΎΠΏΡΠΎΡΠ°ΠΌ, ΡΠ²ΡΠ·Π°Π½Π½ΡΠΌ Ρ ΠΏΠ΅ΡΠ΅ΠΏΠ»Π°Π½ΠΈΡΠΎΠ²ΠΊΠΎΠΉ ΠΆΠΈΠ»ΡΡ ΠΈ Π½Π΅ΠΆΠΈΠ»ΡΡ ΠΏΠΎΠΌΠ΅ΡΠ΅Π½ΠΈΠΉ Π² ΠΏΠ°Π½Π΅Π»ΡΠ½ΡΡ Π΄ΠΎΠΌΠ°Ρ ΠΈ ΠΏΠΎΠΌΠΎΠ³Π°Π΅ΠΌ Ρ ΡΠΎΠ³Π»Π°ΡΠΎΠ²Π°Π½ΠΈΠ΅ΠΌΒ Π²Β ΠΠΎΡΠΆΠΈΠ»ΠΈΠ½ΡΠΏΠ΅ΠΊΡΠΈΠΈΒ ΠΈ ΠΠ’Π.
Π Π°ΡΠΏΡΠΎΡΡΡΠ°Π½Π΅Π½Π½ΠΎΡΡΡ ΡΠΈΠΏΠΎΠ²ΡΡ Β Π΄ΠΎΠΌΠΎΠ² ΠΈΠ· ΠΆΠ΅Π»Π΅Π·ΠΎΠ±Π΅ΡΠΎΠ½Π½ΡΡ ΠΏΠ»ΠΈΡΒ ΠΎΠ±ΡΡΡΠ½ΡΠ΅ΡΡΡ Π΄Π΅ΡΠ΅Π²ΠΈΠ·Π½ΠΎΠΉ ΠΈ Π±ΡΡΡΡΠΎΡΠΎΠΉ ΠΈΡ ΡΠΎΠΎΡΡΠΆΠ΅Π½ΠΈΡ. ΠΠΎ Ρ ΡΠΎΡΠΊΠΈ Π·ΡΠ΅Π½ΠΈΡ ΠΏΡΠΎΠ²Π΅Π΄Π΅Π½ΠΈΡ ΠΏΠ΅ΡΠ΅ΠΏΠ»Π°Π½ΠΈΡΠΎΠ²ΠΎΠΊ ΠΏΠ°Π½Π΅Π»ΡΠ½ΡΠ΅ Π΄ΠΎΠΌΠ° ΡΠ²Π»ΡΡΡΡΡ ΡΠ°ΠΌΡΠΌΠΈ ΠΏΡΠΎΠ±Π»Π΅ΠΌΠ½ΡΠΌΠΈ: Π±ΡΠ΄ΡΡΠ΅ Π³ΠΎΡΠΎΠ²Ρ, ΡΡΠΎ Π΄Π°Π»Π΅ΠΊΠΎ Π½Π΅ Π²ΡΠ΅ Π²Π°ΡΠΈ ΠΏΠΎΠΆΠ΅Π»Π°Π½ΠΈΡ ΡΠ΄Π°ΡΡΡΡ Π²ΠΎΠΏΠ»ΠΎΡΠΈΡΡ Π² ΠΆΠΈΠ·Π½Ρ.Β ΠΠ΅Π»ΠΎ Π² ΡΠΎΠΌ, ΡΡΠΎ Π±ΠΎΠ»ΡΡΠΈΠ½ΡΡΠ²ΠΎ Π²Π½ΡΡΡΠ΅Π½Π½ΠΈΡ ΠΏΠΎΠΏΠ΅ΡΠ΅ΡΠ½ΡΡ ΡΡΠ΅Π½ Π² ΡΠΈΠΏΠΎΠ²ΠΎΠΉ ΠΏΠ°Π½Π΅Π»ΠΈ β Π½Π΅ΡΡΡΠΈΠ΅, ΡΠ»Π΅Π΄ΠΎΠ²Π°ΡΠ΅Π»ΡΠ½ΠΎ, ΠΈΡ ΠΏΠΎΠ»Π½ΡΠΉ ΠΈΠ»ΠΈ ΡΠ°ΡΡΠΈΡΠ½ΡΠΉ Π΄Π΅ΠΌΠΎΠ½ΡΠ°ΠΆ ΠΊΠ°ΡΠ΅Π³ΠΎΡΠΈΡΠ΅ΡΠΊΠΈ Π·Π°ΠΏΡΠ΅ΡΡΠ½, ΠΈ ΠΌΠ°ΠΊΡΠΈΠΌΡΠΌ, Π½Π° ΡΡΠΎ ΠΌΠΎΠΆΠ½ΠΎ ΡΠ°ΡΡΡΠΈΡΡΠ²Π°ΡΡ β ΡΠΎΠΎΡΡΠΆΠ΅Π½ΠΈΠ΅ ΠΏΡΠΎΠ΅ΠΌΠΎΠ², Π΄Π° ΠΈ ΡΠΎ Π½Π΅ Π²ΡΠ΅Π³Π΄Π°. ΠΠΎΡΡΠΎΠΌΡ ΠΏΠ΅ΡΠ΅ΠΏΠ»Π°Π½ΠΈΡΠΎΠ²ΠΊΠ° ΠΊΠ²Π°ΡΡΠΈΡΡ Π² ΠΏΠ°Π½Π΅Π»ΡΠ½ΠΎΠΌ Π΄ΠΎΠΌΠ΅ ΡΠ΅Π΄ΠΊΠΎ ΠΏΡΠΎΡ ΠΎΠ΄ΠΈΡ ΠΏΠΎ ΡΠΏΡΠΎΡΠ΅Π½Π½ΠΎΠΉ ΡΡ Π΅ΠΌΠ΅ — ΠΊΠ°ΠΊ ΠΏΡΠ°Π²ΠΈΠ»ΠΎ, ΠΏΡΠΈΡ ΠΎΠ΄ΠΈΡΡΡ Π·Π°ΠΊΠ°Π·ΡΠ²Π°ΡΡ ΡΠ°Π·ΡΠ°Π±ΠΎΡΠΊΡ ΠΏΡΠΎΠ΅ΠΊΡΠ° Ρ ΡΠ΅Ρ Π½ΠΈΡΠ΅ΡΠΊΠΈΠΌΒ Π·Π°ΠΊΠ»ΡΡΠ΅Π½ΠΈΠ΅ΠΌ.
ΠΠ»Π°Π½ ΡΠ΅ΠΊΡΠΈΠΈ ΡΠΎΠ²ΡΠ΅ΠΌΠ΅Π½Π½ΠΎΠ³ΠΎ ΠΏΠ°Π½Π΅Π»ΡΠ½ΠΎΠ³ΠΎ Π΄ΠΎΠΌΠ° ΡΠ΅ΡΠΈΠΈ Π-44Π’: ΠΏΠΎΡΡΠΈ Π²ΡΠ΅ ΡΡΠ΅Π½Ρ Π½Π΅ΡΡΡΠΈΠ΅. ΠΡΠ½ΠΎΠ²Π½Π°Ρ ΠΌΠ°ΡΡΠ° ΠΏΠ°Π½Π΅Π»ΡΠ½ΡΡ ΠΌΠ½ΠΎΠ³ΠΎΠΊΠ²Π°ΡΡΠΈΡΠ½ΡΡ Π΄ΠΎΠΌΠΎΠ² ΠΈΠΌΠ΅Π΅Ρ ΡΡ ΠΎΠΆΡΡ ΠΊΠΎΠ½ΡΡΡΡΠΊΡΠΈΠ²Π½ΡΡ ΡΡ Π΅ΠΌΡ

ΠΠΈΡΡ Ρ ΡΡΡΠ΅Π²ΠΊΠΈ ΠΈ Π½Π΅ΠΊΠΎΡΠΎΡΡΠ΅ ΡΠ°Π½Π½ΠΈΠ΅ ΠΏΠ°Π½Π΅Π»ΡΠ½ΡΠ΅Β ΠΌΠ½ΠΎΠ³ΠΎΡΡΠ°ΠΆΠΊΠΈ Π½Π° ΠΎΡΠ½ΠΎΠ²Π΅ Ρ ΡΡΡΠ΅Π²ΠΎΠΊ ΠΈΠΌΠ΅ΡΡ ΠΌΠΈΠ½ΠΈΠΌΡΠΌ Π½Π΅ΡΡΡΠΈΡ ΡΡΠ΅Π½ Π² ΠΊΠ²Π°ΡΡΠΈΡΠ΅, ΡΡΠΎ ΠΎΡΠ΅Π½Ρ ΠΎΠ±Π»Π΅Π³ΡΠ°Π΅Ρ ΠΈ ΡΠ΄Π΅ΡΠ΅Π²Π»ΡΠ΅Ρ ΠΏΡΠΎΠ΅ΠΊΡΠΈΡΠΎΠ²Π°Π½ΠΈΠ΅ ΠΈ ΡΠΎΠ³Π»Π°ΡΠΎΠ²Π°Π½ΠΈΠ΅ ΠΏΠ΅ΡΠ΅ΠΏΠ»Π°Π½ΠΈΡΠΎΠ²ΠΎΠΊ:
ΠΠ»Π°Π½ ΡΡΠ΄ΠΎΠ²ΠΎΠΉ ΡΠ΅ΠΊΡΠΈΠΈ ΡΡΠ°ΡΠΎΠΉ ΠΏΠ°Π½Π΅Π»ΡΠ½ΠΎΠΉ ΡΠ΅ΡΠΈΠΈ 1-515/9: Π²ΡΠ΅ ΡΡΠ΅Π½Ρ ΠΊΡΠΎΠΌΠ΅ ΠΌΠ΅ΠΆΠΊΠ²Π°ΡΡΠΈΡΠ½ΡΡ Β — ΡΡΠΎ ΠΏΠ΅ΡΠ΅Π³ΠΎΡΠΎΠ΄ΠΊΠΈ

ΠΡΠΎΠ±Π΅Π½Π½ΠΎΡΡΠΈ ΠΏΠ΅ΡΠ΅ΠΏΠ»Π°Π½ΠΈΡΠΎΠ²ΠΊΠΈ ΠΊΠ²Π°ΡΡΠΈΡ Π² ΠΏΠ°Π½Π΅Π»ΡΠ½ΡΡ Π΄ΠΎΠΌΠ°Ρ
ΠΠ°Π΄ΡΠΌΡΠ²Π°Ρ ΠΏΠ΅ΡΠ΅ΠΏΠ»Π°Π½ΠΈΡΠΎΠ²ΠΊΡ Π² ΠΏΠ°Π½Π΅Π»ΡΠ½ΠΎΠΌ Π΄ΠΎΠΌΠ΅Β Ρ ΠΎΠ±ΡΠ΅Π΄ΠΈΠ½Π΅Π½ΠΈΠ΅ΠΌΒ ΠΏΠΎΠΌΠ΅ΡΠ΅Π½ΠΈΠΉ, ΠΏΠ΅ΡΠ²ΡΠΌ Π΄Π΅Π»ΠΎΠΌ ΠΎΠΏΡΠ΅Π΄Π΅Π»ΠΈΡΠ΅, ΠΊΠ°ΠΊΠΈΠ΅ ΡΡΠ΅Π½Ρ Π² ΠΊΠ²Π°ΡΡΠΈΡΠ΅ ΡΠ²Π»ΡΡΡΡΡ Π½Π΅ΡΡΡΠΈΠΌΠΈ, Π° ΠΊΠ°ΠΊΠΈΠ΅ β Π½Π΅Ρ. ΠΠ°ΠΈΠ±ΠΎΠ»Π΅Π΅ ΠΏΡΠΎΡΡΠΎΠΉ ΡΠΏΠΎΡΠΎΠ± ΡΡΠΎ ΡΠ΄Π΅Π»Π°ΡΡΒ β ΠΈΠ·ΠΌΠ΅ΡΠΈΡΡ ΠΈΡ ΡΠΈΡΠΈΠ½Ρ: Π΅ΡΠ»ΠΈ ΠΎΠ½Π° ΠΏΡΠ΅Π²ΡΡΠ°Π΅Ρ 12-14 ΡΠΌ, ΡΠΎ ΡΠΊΠΎΡΠ΅Π΅ Π²ΡΠ΅Π³ΠΎ ΡΡΠ΅Π½Π° ΠΊΠ°ΠΏΠΈΡΠ°Π»ΡΠ½Π°Ρ, Π΅ΡΠ»ΠΈ ΠΌΠ΅Π½ΡΡΠ΅ —Β ΠΏΠ΅ΡΠ΅Π³ΠΎΡΠΎΠ΄ΠΊΠ°.
ΠΡΠΈ Π·Π°ΡΡΠ°Π³ΠΈΠ²Π°Π½ΠΈΠΈ Π½Π΅ΡΡΡΠΈΡ ΡΡΠ΅Π½Β ΠΏΡΠΈΠ΄ΡΡΡΡ Π·Π°ΠΊΠ°Π·ΡΠ²Π°ΡΡ ΠΈΠ½ΠΆΠ΅Π½Π΅ΡΠ½ΠΎΠ΅ ΠΎΠ±ΡΠ»Π΅Π΄ΠΎΠ²Π°Π½ΠΈΠ΅ Ρ ΠΎΡΠΎΡΠΌΠ»Π΅Π½ΠΈΠ΅ΠΌ ΡΠ΅Ρ Π½ΠΈΡΠ΅ΡΠΊΠΎΠ³ΠΎ Π·Π°ΠΊΠ»ΡΡΠ΅Π½ΠΈΡ ΠΎ Π²ΠΎΠ·ΠΌΠΎΠΆΠ½ΠΎΡΡΠΈ ΠΏΠ΅ΡΠ΅ΠΏΠ»Π°Π½ΠΈΡΠΎΠ²ΠΊΠΈ Π²Β ΠΎΡΠ³Π°Π½ΠΈΠ·Π°ΡΠΈΠΈ, Π·Π°Π½ΠΈΠΌΠ°Π²ΡΠ΅ΠΉΡΡ ΡΠ°Π·ΡΠ°Π±ΠΎΡΠΊΠΎΠΉ ΠΏΡΠΎΠ΅ΠΊΡΠ° Π΄ΠΎΠΌΠ°. Π‘ΠΊΠΎΡΠ΅Π΅ Π²ΡΠ΅Π³ΠΎ, ΡΡΠΎ Π±ΡΠ΄Π΅Ρ ΠΈΠ½ΡΡΠΈΡΡΡ ΠΠ£Π ΠΠΠΠΠ’ΠΠ, Ρ ΠΎΡΡ Π½Π΅ΠΊΠΎΡΠΎΡΡΠΉ ΠΏΡΠΎΡΠ΅Π½Ρ ΠΏΠ°Π½Π΅Π»ΡΠ½ΡΡ Π΄ΠΎΠΌΠΎΠ² ΡΠ°Π·ΡΠ°Π±Π°ΡΡΠ²Π°Π»ΡΡ ΠΈ Π΄ΡΡΠ³ΠΈΠΌΠΈ ΠΈΠ½ΡΡΠΈΡΡΡΠ°ΠΌΠΈ — ΠΠΎΡΠΏΡΠΎΠ΅ΠΊΡ, Π¦ΠΠΠΠΠ ΠΠΈΠ»ΠΈΡΠ°,Β ΠΈ Π΄Ρ.
ΠΠΎΠΌΠΈΠΌΠΎ ΡΠ΅ΠΊΡΡΠ΅Π³ΠΎΒ ΡΠΎΡΡΠΎΡΠ½ΠΈΡ Π·Π΄Π°Π½ΠΈΡ ΠΈ Π΅Π³ΠΎ ΠΊΠΎΠ½ΡΡΡΡΠΊΡΠΈΠ²Π½ΡΡ ΠΎΡΠΎΠ±Π΅Π½Π½ΠΎΡΡΠ΅ΠΉ, Π½Π° Π²ΠΎΠ·ΠΌΠΎΠΆΠ½ΠΎΡΡΡ ΠΏΠ΅ΡΠ΅ΠΏΠ»Π°Π½ΠΈΡΠΎΠ²ΠΊΠΈ Π² ΠΏΠ°Π½Π΅Π»ΡΠ½ΠΎΠΌ Π΄ΠΎΠΌΠ΅ Π²Π»ΠΈΡΡΡ ΠΈ Π΄ΡΡΠ³ΠΈΠ΅ ΡΠ°ΠΊΡΠΎΡΡ, Π½Π°ΠΏΡΠΈΠΌΠ΅Ρ, ΡΡΠ°ΠΆ. Π§Π΅ΠΌ Π²ΡΡΠ΅ ΡΠ°ΡΠΏΠΎΠ»ΠΎΠΆΠ΅Π½Π° ΠΊΠ²Π°ΡΡΠΈΡΠ°, ΡΠ΅ΠΌ ΠΌΠ΅Π½ΡΡΠ°Ρ Π½Π°Π³ΡΡΠ·ΠΊΠ° ΠΏΡΠΈΡ ΠΎΠ΄ΠΈΡΡΡ Π½Π° ΡΡΠ΅Π½Ρ ΠΈ ΠΏΠ΅ΡΠ΅ΠΊΡΡΡΠΈΡ, ΠΈ ΡΠΎΠΎΡΠ²Π΅ΡΡΡΠ²Π΅Π½Π½ΠΎ, ΠΏΡΠΎΠ΅ΠΌΒ Π² Π½Π΅ΡΡΡΠ΅ΠΉ ΡΡΠ΅Π½Π΅ ΠΎΡΠ³Π°Π½ΠΈΠ·ΠΎΠ²Π°ΡΡ ΠΏΡΠΎΡΠ΅. Π ΡΠΎ ΠΆΠ΅ Π²ΡΠ΅ΠΌΡ Π½Π° Π½ΠΈΠΆΠ½ΠΈΡ ΡΡΠ°ΠΆΠ°Ρ Π°Π½Π°Π»ΠΎΠ³ΠΈΡΠ½ΡΠΉΒ ΠΏΡΠΎΠ΅ΠΌ ΠΌΠΎΠ³ΡΡ ΠΈ Π½Π΅ ΡΠ°Π·ΡΠ΅ΡΠΈΡΡ, Π»ΠΈΠ±ΠΎ Β«ΡΡΠ΅ΠΆΡΡΒ» Π΅Π³ΠΎ Π΄ΠΎ ΠΌΠΈΠ½ΠΈΠΌΠ°Π»ΡΠ½ΠΎΠ³ΠΎ ΡΠ°Π·ΠΌΠ΅ΡΠ°. ΠΡΠ΅ ΠΎΠ΄Π½ΠΈΠΌ Π²Π°ΠΆΠ½ΡΠΌ ΡΠ°ΠΊΡΠΎΡΠΎΠΌ, ΠΊΠΎΡΠΎΡΡΠΉ ΠΌΠΎΠΆΠ΅Ρ Π²Π°ΠΌ ΠΏΠΎΠΌΠ΅ΡΠ°ΡΡ, ΡΠ²Π»ΡΠ΅ΡΡΡ Π½Π°Π»ΠΈΡΠΈΠ΅ ΠΏΠΎΠ΄ΠΎΠ±Π½ΡΡ ΠΏΠ΅ΡΠ΅ΠΏΠ»Π°Π½ΠΈΡΠΎΠ²ΠΎΠΊΒ Ρ ΡΠΎΡΠ΅Π΄Π΅ΠΉ ΡΠ²Π΅ΡΡ Ρ ΠΈΠ»ΠΈ ΡΠ½ΠΈΠ·Ρ.
ΠΡΠΈΠΌΠ΅Ρ ΠΏΡΠΎΠ΅ΠΊΡΠ° ΠΏΠ΅ΡΠ΅ΠΏΠ»Π°Π½ΠΈΡΠΎΠ²ΠΊΠΈΒ ΠΊΠ²Π°ΡΡΠΈΡΡ Π½Π° 14 ΡΡΠ°ΠΆΠ΅Β ΠΏΠ°Π½Π΅Π»ΡΠ½ΠΎΠ³ΠΎΒ Π΄ΠΎΠΌΠ°Β ΠΠ-4 Ρ Π΄Π²ΡΠΌΡ ΠΏΡΠΎΠ΅ΠΌΠ°ΠΌΠΈ Π² Π½Π΅ΡΡΡΠΈΡ ΡΡΠ΅Π½Π°Ρ ΡΠΈΡΠΈΠ½ΠΎΠΉ 1 ΠΌΠ΅ΡΡ
ΠΡΡΠ°ΡΠΈ ΡΠΊΠ°Π·Π°ΡΡ, ΠΠ£Π ΠΠΠΠΠ’ΠΠΒ Π·Π°ΠΏΡΠ΅ΡΠ°Π΅Ρ ΡΡΡΡΠ°ΠΈΠ²Π°ΡΡ Π»ΡΠ±ΡΠ΅ ΠΏΡΠΎΠ΅ΠΌΡ Π² Π½Π΅ΡΡΡΠΈΡ ΡΡΠ΅Π½Π°Ρ Π½Π΅ΠΊΠΎΡΠΎΡΡΡ ΡΠ²ΠΎΠΈΡ Π΄ΠΎΠΌΠΎΠ², ΠΏΠΎΡΡΡΠΎΠ΅Π½Π½ΡΡ ΠΏΠΎΡΠ»Π΅ 2007 Π³ΠΎΠ΄Π°, Π·Π° ΠΈΡΠΊΠ»ΡΡΠ΅Π½ΠΈΠ΅ΠΌ ΡΠΏΠ΅ΡΠΈΠ°Π»ΡΠ½ΠΎ ΡΠ°Π·ΠΌΠ΅ΡΠ΅Π½Π½ΡΡ Β ΠΏΡΠΈ ΡΡΡΠΎΠΈΡΠ΅Π»ΡΡΡΠ²Π΅ ΠΏΡΠΎΠ΅ΠΊΡΠ½ΡΡ Π½ΠΈΡ (Π² Ρ.Π½. Β«ΡΡΠ΅Π½Π°Ρ -ΡΡΠ°Π½ΡΡΠΎΡΠΌΠ΅ΡΠ°Ρ Β»).
(ΠΡΠΈΠΌΠ΅Ρ ΠΏΠ΅ΡΠ΅ΠΏΠ»Π°Π½ΠΈΡΠΎΠ²ΠΊΠΈ ΠΏΠ°Π½Π΅Π»ΡΠ½ΠΎΠΉ ΠΊΠ²Π°ΡΡΠΈΡΡ Π΄ΠΎΠΌΠ° ΡΠ΅ΡΠΈΠΈ Π44Π’ Ρ ΠΏΡΠΎΠ΅ΠΊΡΠ½ΠΎΠΉ Π½ΠΈΡΠ΅ΠΉ)
ΠΡΠΎΠ΅ΠΊΡ ΠΏΠ΅ΡΠ΅ΠΏΠ»Π°Π½ΠΈΡΠΎΠ²ΠΊΠΈ ΠΊΠ²Π°ΡΡΠΈΡΡ Π²Β ΠΏΠ°Π½Π΅Π»ΡΠ½ΠΎΠΌΒ Π΄ΠΎΠΌΠ΅Β Π΄ΠΎΠ»ΠΆΠ΅Π½Β ΡΠ°Π·ΡΠ°Π±Π°ΡΡΠ²Π°ΡΡΡΡ ΠΏΡΠΎΠ΅ΠΊΡΠ½ΡΠΌ ΠΈΠ½ΡΡΠΈΡΡΡΠΎΠΌ, ΠΈΠ»ΠΈΒ ΠΎΡΠ³Π°Π½ΠΈΠ·Π°ΡΠΈΠ΅ΠΉ, Ρ Π΄ΠΎΠΏΡΡΠΊΠΎΠΌ «ΠΏΡΠΎΠ΅ΠΊΡΠ½ΠΎΠ³ΠΎ» Π‘Π Π. ΠΡΠΎ Π³Π°ΡΠ°Π½ΡΠΈΡΡΠ΅Ρ ΡΠΎΠ±Π»ΡΠ΄Π΅Π½ΠΈΠ΅ Π‘ΠΠΈΠΠΎΠ², Π‘Π°Π½ΠΠΈΠΠΎΠ², ΠΠΠ‘Π’ΠΎΠ², Π° ΡΠ°ΠΊΠΆΠ΅ ΠΏΠΎΠ»ΠΎΠΆΠ΅Π½ΠΈΠΉ ΠΆΠΈΠ»ΠΈΡΠ½ΠΎΠ³ΠΎ Π·Π°ΠΊΠΎΠ½ΠΎΠ΄Π°ΡΠ΅Π»ΡΡΡΠ²Π° Π² ΠΏΡΠΎΡΠ΅ΡΡΠ΅ ΡΠ°Π±ΠΎΡΡ Π½Π°Π΄ ΠΏΡΠΎΠ΅ΠΊΡΠΎΠΌ. Π£ Π½Π°ΡΠ΅ΠΉ ΠΎΡΠ³Π°Π½ΠΈΠ·Π°ΡΠΈΠΈ Π΄Π°Π½Π½ΡΠΉΒ Π΄ΠΎΠΏΡΡΠΊ ΠΈΠΌΠ΅Π΅ΡΡΡ. Π Π°Π·ΡΠ°Π±ΠΎΡΠ°Π½Π½ΡΠ΅ Π½Π°ΠΌΠΈ ΠΏΡΠΎΠ΅ΠΊΡΡ ΠΎΡΠ²Π΅ΡΠ°ΡΡ Π²ΡΠ΅ΠΌ Π·Π°ΠΊΠΎΠ½Π°ΠΌ ΠΈ Π½ΠΎΡΠΌΠ°ΡΠΈΠ²Π°ΠΌ, ΠΈ Π½Π°ΡΠΈΠΌ Π·Π°ΠΊΠ°Π·ΡΠΈΠΊΠ°ΠΌ Π² Π΄Π°Π»ΡΠ½Π΅ΠΉΡΠ΅ΠΌΒ ΡΠ΄Π°Π΅ΡΡΡ Π±Π΅Π· ΠΏΡΠΎΠ±Π»Π΅ΠΌ ΡΠΎΠ³Π»Π°ΡΠΎΠ²Π°ΡΡ ΠΈΡ Ρ ΠΠΎΡΠΆΠΈΠ»ΠΈΠ½ΡΠΏΠ΅ΠΊΡΠΈΠ΅ΠΉ.
ΠΠΎΠΌΠ½ΠΈΡΠ΅, ΡΡΠΎ ΠΏΡΠΈΠ²Π»Π΅ΡΠ΅Π½ΠΈΠ΅ ΠΊ ΡΠ°Π·ΡΠ°Π±ΠΎΡΠΊΠ΅ ΠΏΡΠΎΠ΅ΠΊΡΠ° Π½Π΅ΡΠΏΠ΅ΡΠΈΠ°Π»ΠΈΡΡΠΎΠ² Π³ΡΠΎΠ·ΠΈΡ ΠΎΡΠΊΠ°Π·ΠΎΠΌ Π² Π²ΡΠ΄Π°ΡΠ΅ ΡΠ°Π·ΡΠ΅ΡΠ΅Π½ΠΈΡ Π½Π° ΠΏΠ΅ΡΠ΅ΠΏΠ»Π°Π½ΠΈΡΠΎΠ²ΠΊΡ. (ΠΠΎΠ΄ΡΠΎΠ±Π½Π΅Π΅ ΠΎΠ± ΠΎΡΠΊΠ°Π·Π΅ Π² ΡΠΎΠ³Π»Π°ΡΠΎΠ²Π°Π½ΠΈΠΈ ΠΏΠ΅ΡΠ΅ΠΏΠ»Π°Π½ΠΈΡΠΎΠ²ΠΊΠΈ ΡΡΡ)
ΠΠΎΠΌΠΈΠΌΠΎ ΡΠ°Π·ΡΠ°Π±ΠΎΡΠΊΠΈ ΠΏΡΠΎΠ΅ΠΊΡΠ½ΠΎΠΉ Π΄ΠΎΠΊΡΠΌΠ΅Π½ΡΠ°ΡΠΈΠΈ, Π΄Π»Ρ ΡΠΎΠ³Π»Π°ΡΠΎΠ²Π°Π½ΠΈΡ ΠΏΠ΅ΡΠ΅ΠΏΠ»Π°Π½ΠΈΡΠΎΠ²ΠΊΠΈ Π² ΠΏΠ°Π½Π΅Π»ΡΠ½ΠΎΠΌ Π΄ΠΎΠΌΠ΅, Π²Π°ΠΌ ΠΏΠΎΡΡΠ΅Π±ΡΠ΅ΡΡΡ ΡΠΎΠ±ΡΠ°ΡΡ ΠΊΠΎΠΌΠΏΠ»Π΅ΠΊΡ Π΄ΠΎΠΊΡΠΌΠ΅Π½ΡΠΎΠ² (ΡΠΏΠΈΡΠΎΠΊ ΡΠΌ. Π²Β ΠΏ.ΠΏ. 2.10 ΠΈ 2.11 ΠΠΠ β 508 Π² ΡΠ΅Π΄Π°ΠΊΡΠΈΠΈ 840) ΠΈ ΡΠ΄Π°ΡΡ Π΅Π³ΠΎ Π² ΠΠΎΡΠΆΠΈΠ»ΠΈΠ½ΡΠΏΠ΅ΠΊΡΠΈΡ. ΠΡΠ»ΠΈ ΠΊ Π΄ΠΎΠΊΡΠΌΠ΅Π½ΡΠ°ΠΌ ΠΈ ΠΏΡΠΎΠ΅ΠΊΡΡ Π½Π΅ Π±ΡΠ΄Π΅Ρ ΠΏΡΠ΅ΡΠ΅Π½Π·ΠΈΠΉ, Π²Π°ΠΌ Π²ΡΠ΄Π°Π΄ΡΡ ΡΠ°ΡΠΏΠΎΡΡΠΆΠ΅Π½ΠΈΠ΅ Ρ Β ΡΠ°Π·ΡΠ΅ΡΠ΅Π½ΠΈΠ΅ΠΌ Π½Π° ΠΏΠ΅ΡΠ΅ΠΏΠ»Π°Π½ΠΈΡΠΎΠ²ΠΊΡΒ Π²Π°ΡΠ΅ΠΉ ΠΏΠ°Π½Π΅Π»ΡΠ½ΠΎΠΉ ΠΊΠ²Π°ΡΡΠΈΡΡ.
ΠΠΎΠ»ΡΡΠΈΠ² Π΄Π°Π½Π½ΡΠΉ Π΄ΠΎΠΊΡΠΌΠ΅Π½Ρ Π½Π° ΡΡΠΊΠΈ, ΠΌΠΎΠΆΠ½ΠΎΒ ΠΏΡΠΈΡΡΡΠΏΠ°ΡΡ ΠΊ ΡΠ°Π±ΠΎΡΠ°ΠΌ, Π²ΡΠΏΠΎΠ»Π½ΡΡΡ ΠΊΠΎΡΠΎΡΡΠ΅ Π΄ΠΎΠ»ΠΆΠ½Π° ΡΡΡΠΎΠΈΡΠ΅Π»ΡΠ½Π°Ρ ΠΎΡΠ³Π°Π½ΠΈΠ·Π°ΡΠΈΡ Ρ Π΄ΠΎΠΏΡΡΠΊΠΎΠΌ Π‘Π Π Π² ΡΡΡΠΎΠΈΡΠ΅Π»ΡΡΡΠ²Π΅. ΠΡΠΎ Π΄Π°ΡΡ Π³Π°ΡΠ°Π½ΡΠΈΡ, ΡΡΠΎ Π² ΠΏΡΠΎΡΠ΅ΡΡΠ΅ ΠΏΡΠΎΠΈΠ·Π²ΠΎΠ΄ΡΡΠ²Π° ΡΠ°Π±ΠΎΡ Π½Π΅ Π±ΡΠ΄Π΅Ρ Π΄ΠΎΠΏΡΡΠ΅Π½ΠΎ Π½Π°ΡΡΡΠ΅Π½ΠΈΠΉ Π‘ΠΠΈΠΠΎΠ² ΠΈ Π‘Π°Π½ΠΠΈΠΠΎΠ², Π° ΡΠ°ΠΊΠΆΠ΅ Π½Π΅ ΠΏΡΠΎΠΈΠ·ΠΎΠΉΠ΄Π΅Ρ ΠΎΡΡΡΡΠΏΠ»Π΅Π½ΠΈΠΉ ΠΎΡ ΡΠΎΠ³Π»Π°ΡΠΎΠ²Π°Π½Π½ΠΎΠ³ΠΎ ΠΏΡΠΎΠ΅ΠΊΡΠ°. ΠΡΠΎΠΌΠ΅ ΡΠΎΠ³ΠΎ,Β ΡΠΎΠ»ΡΠΊΠΎ ΡΠ΅ΡΡΠΈΡΠΈΡΠΈΡΠΎΠ²Π°Π½Π½ΡΠ΅ ΠΏΠΎΠ΄ΡΡΠ΄ΡΠΈΠΊΠΈ ΠΈΠΌΠ΅ΡΡ ΠΏΡΠ°Π²ΠΎ ΠΎΡΠΎΡΠΌΠ»ΡΡΡΒ Π°ΠΊΡΡ ΡΠΊΡΡΡΡΡ ΡΠ°Π±ΠΎΡΒ ΠΏΠΎΡΠ»Π΅ ΠΌΠΎΠ½ΡΠ°ΠΆΠ° ΡΡΠΈΠ»Π΅Π½ΠΈΡ ΠΏΡΠΎΠ΅ΠΌΠΎΠ² ΠΈΠ»ΠΈ ΡΠΊΠ»Π°Π΄ΠΊΠΈ Π³ΠΈΠ΄ΡΠΎΠΈΠ·ΠΎΠ»ΡΡΠΈΠΈ. ΠΠΎΠ΄ΠΏΠΈΡΡΠ²Π°ΡΡ ΡΡΠΈ Π°ΠΊΡΡ Π΄ΠΎΠ»ΠΆΠ½Ρ ΠΏΡΠ΅Π΄ΡΡΠ°Π²ΠΈΡΠ΅Π»ΠΈ ΠΏΠΎΠ΄ΡΡΠ΄ΡΠΈΠΊΠ° ΠΈ ΠΏΡΠΎΠ΅ΠΊΡΠ½ΠΎΠ³ΠΎ Π±ΡΡΠΎ. ΠΠΎΡΠ»Π΅Π΄Π½ΠΈΠ΅ ΡΠ°ΠΊΠΆΠ΅ ΠΎΡΡΡΠ΅ΡΡΠ²Π»ΡΡΡΒ Π°Π²ΡΠΎΡΡΠΊΠΈΠΉ Π½Π°Π΄Π·ΠΎΡ,Β Ρ.Π΅. ΠΊΠΎΠ½ΡΡΠΎΠ»ΠΈΡΡΡΡΒ ΡΠΎΠΎΡΠ²Π΅ΡΡΡΠ²ΠΈΠ΅ ΠΏΡΠΎΠ²ΠΎΠ΄ΠΈΠΌΡΡ ΡΠ°Π±ΠΎΡ ΠΏΡΠΎΠ΅ΠΊΡΡ ΠΏΠ΅ΡΠ΅ΠΏΠ»Π°Π½ΠΈΡΠΎΠ²ΠΊΠΈ.
ΠΠΎΡΠΎΠ²ΡΠΉ ΡΠ΅ΠΌΠΎΠ½Ρ ΡΠ΄Π°Π΅ΡΡΡ ΠΏΡΠΈΠ΅ΠΌΠΎΡΠ½ΠΎΠΉ ΠΊΠΎΠΌΠΈΡΡΠΈΠΈ ΠΠΎΡΠΆΠΈΠ»ΠΈΠ½ΡΠΏΠ΅ΠΊΡΠΈΠΈ. ΠΡΠ»ΠΈ Π²ΡΠ΅ ΠΏΡΠΎΠΈΠ·Π²Π΅Π΄ΡΠ½Π½ΡΠ΅ ΡΠ°Π±ΠΎΡΡ ΡΠΎΠΎΡΠ²Π΅ΡΡΡΠ²ΡΡΡ ΡΠ΅ΠΌ, ΡΡΠΎ Π±ΡΠ»ΠΈ ΡΠΊΠ°Π·Π°Π½Ρ Π² ΠΏΡΠΎΠ΅ΠΊΡΠ΅, ΠΈ ΠΏΡΠΈΡΡΡΡΡΠ²ΡΠ΅Ρ Π²ΡΡ Π½Π΅ΠΎΠ±Ρ ΠΎΠ΄ΠΈΠΌΠ°Ρ Π΄ΠΎΠΊΡΠΌΠ΅Π½ΡΠ°ΡΠΈΡ, ΠΊΠΎΡΠΎΡΠ°Ρ ΠΏΠΎ Π²ΡΠ΅ΠΌ ΠΏΡΠ°Π²ΠΈΠ»Π°ΠΌ Π·Π°ΠΏΠΎΠ»Π½ΡΠ»Π°ΡΡ Π½Π° ΠΏΡΠΎΡΡΠΆΠ΅Π½ΠΈΠΈ Π²ΡΠ΅Π³ΠΎ ΠΏΡΠΎΡΠ΅ΡΡΠ° ΠΏΠ΅ΡΠ΅ΡΡΡΡΠΎΠΉΡΡΠ²Π°, ΡΠΎ ΠΊΠΎΠΌΠΈΡΡΠΈΡ ΠΏΠΎΠ΄ΠΏΠΈΡΠ΅Ρ Π°ΠΊΡ ΠΎ Π·Π°Π²Π΅ΡΡΠ΅Π½Π½ΠΎΠΉ ΠΏΠ΅ΡΠ΅ΠΏΠ»Π°Π½ΠΈΡΠΎΠ²ΠΊΠ΅. ΠΠ° Π΅Π³ΠΎ ΠΎΡΠ½ΠΎΠ²Π°Π½ΠΈΠΈ ΠΠ’Π ΠΎΡΠΎΡΠΌΠΈΡ Π½ΠΎΠ²ΡΠΉ ΡΠ΅Ρ ΠΏΠ°ΡΠΏΠΎΡΡ ΠΊΠ²Π°ΡΡΠΈΡΡ,Β Π½Π° ΠΏΠ»Π°Π½Π΅ ΠΊΠΎΡΠΎΡΠΎΠ³ΠΎ Π±ΡΠ΄ΡΡ Π·Π°ΡΠΈΠΊΡΠΈΡΠΎΠ²Π°Π½Ρ Π²ΡΠ΅Β ΠΈΠ·ΠΌΠ΅Π½Π΅Π½ΠΈΡΒ ΠΏΠ»Π°Π½ΠΈΡΠΎΠ²ΠΊΠΈ. Π’ΠΎΠ»ΡΠΊΠΎ ΠΏΠΎΡΠ»Π΅ ΡΡΠΎΠ³ΠΎ ΠΏΠ΅ΡΠ΅ΠΏΠ»Π°Π½ΠΈΡΠΎΠ²ΠΊΠ° Π² ΠΏΠ°Π½Π΅Π»ΡΠ½ΠΎΠΌ Π΄ΠΎΠΌΠ΅, ΡΠ°Π²Π½ΠΎ ΠΊΠ°ΠΊ ΠΈ Π² Π»ΡΠ±ΠΎΠΌ Π΄ΡΡΠ³ΠΎΠΌ, Π±ΡΠ΄Π΅Ρ ΡΡΠΈΡΠ°ΡΡΡΡ ΠΏΠΎΠ»Π½ΠΎΡΡΡΡ Π·Π°ΠΊΠΎΠ½Π½ΠΎΠΉ. ΠΠ°Π½Π½ΡΠΉ ΠΏΠΎΡΡΠ΄ΠΎΠΊ Π΅Π΄ΠΈΠ½ Π΄Π»Ρ Π²ΡΠ΅Ρ ΡΠΈΠΏΠΎΠ² ΠΆΠΈΠ»ΡΡ ΠΌΠ½ΠΎΠ³ΠΎΠΊΠ²Π°ΡΡΠΈΡΠ½ΡΡ Π΄ΠΎΠΌΠΎΠ².
ΠΠΎΠ΄ΡΠΎΠ±Π½Π΅Π΅ ΠΎΒ ΡΠ°Π·ΡΠ΅ΡΠ΅Π½ΠΈΠΈ Π½Π° ΠΏΠ΅ΡΠ΅ΠΏΠ»Π°Π½ΠΈΡΠΎΠ²ΠΊΡ
ΠΠ΅ΡΠ΅ΠΏΠ»Π°Π½ΠΈΡΠΎΠ²ΠΊΠ° ΠΏΠ°Π½Π΅Π»ΡΠ½ΠΎΠΉ Ρ ΡΡΡΠ΅Π²ΠΊΠΈ
ΠΠ°ΠΊ ΠΌΡ ΠΎΡΠΌΠ΅ΡΠ°Π»ΠΈ Π²ΡΡΠ΅,Β Π½Π΅ Π²ΠΎ Π²ΡΠ΅Ρ ΠΏΠ°Π½Π΅Π»ΡΠ½ΡΡ Π΄ΠΎΠΌΠ°Ρ Π²ΡΠ΅ ΠΌΠ΅ΠΆΠΊΠΎΠΌΠ½Π°ΡΠ½ΡΠ΅ ΡΡΠ΅Π½Ρ β Π½Π΅ΡΡΡΠΈΠ΅. ΠΡΡΡ ΡΠ΅ΡΠΈΠΈ, Π³Π΄Π΅Β ΠΊΠΎΠΌΠ½Π°ΡΡ ΠΎΡΠ΄Π΅Π»ΡΡΡΡΡ Π΄ΡΡΠ³ ΠΎΡ Π΄ΡΡΠ³Π° ΡΠΎΠ½ΠΊΠΈΠΌΠΈ ΠΏΠ΅ΡΠ΅Π³ΠΎΡΠΎΠ΄ΠΊΠ°ΠΌΠΈ, ΠΊΠΎΡΠΎΡΡΠ΅ ΠΌΠΎΠΆΠ½ΠΎ Π±Π΅Π·Π±ΠΎΠ»Π΅Π·Π½Π΅Π½Π½ΠΎ ΡΠ½ΠΎΡΠΈΡΡ ΠΈΠ»ΠΈ Π΄Π΅Π»Π°ΡΡ Π² Π½ΠΈΡ ΠΏΡΠΎΠ΅ΠΌΡ. Π ΡΠ°ΠΊΠΈΠΌ Π΄ΠΎΠΌΠ°ΠΌ ΠΎΡΠ½ΠΎΡΡΡΡΡ ΠΏΡΠ΅ΠΆΠ΄Π΅ Π²ΡΠ΅Π³ΠΎ, Ρ ΡΡΡΠ΅Π²ΠΊΠΈ, Π½Π°ΠΏΡΠΈΠΌΠ΅Ρ, ΡΠ°ΡΠΏΡΠΎΡΡΡΠ°Π½Π΅Π½Π½ΡΠ΅ ΡΠ΅ΡΠΈΠΈ Π-7, 1-510, 1-511, II-32 ΠΈ Π΄ΡΡΠ³ΠΈΠ΅. ΠΠ΅ΡΡΡΡΡ ΡΡΠ½ΠΊΡΠΈΡ Π² Π½ΠΈΡ Π²ΡΠΏΠΎΠ»Π½ΡΡΡ ΡΠ°ΡΠ°Π΄Π½ΡΠ΅ ΡΡΠ΅Π½Ρ ΠΈ ΠΎΠ΄Π½Π° ΠΏΡΠΎΠ΄ΠΎΠ»ΡΠ½Π°Ρ ΡΡΠ΅Π½Π° ΠΏΠΎ ΡΠ΅Π½ΡΡΡ Π΄ΠΎΠΌΠ°, Π° ΠΌΠ΅ΠΆΠΊΠ²Π°ΡΡΠΈΡΠ½ΡΠ΅ ΡΡΠ΅Π½Ρ ΠΈΠ³ΡΠ°ΡΡ ΡΠΎΠ»Ρ Π΄ΠΈΠ°ΡΡΠ°Π³ΠΌ ΠΆΠ΅ΡΡΠΊΠΎΡΡΠΈ. ΠΠΎΠ»ΡΡΠΈΠ½ΡΡΠ²ΠΎ ΠΌΠ΅ΠΆΠΊΠΎΠΌΠ½Π°ΡΠ½ΡΡ ΡΡΠ΅Π½ ΠΈΡΠΊΠ»ΡΡΠ΅Π½Ρ ΠΈΠ· ΡΠΈΠ»ΠΎΠ²ΠΎΠΉ ΡΡ Π΅ΠΌΡ ΠΈ Π²ΡΠΏΠΎΠ»Π½ΡΡΡΡΡ ΠΈΠ· Π»Π΅Π³ΠΊΠΈΡ ΠΌΠ°ΡΠ΅ΡΠΈΠ°Π»ΠΎΠ². ΠΡ Π΄Π΅ΠΌΠΎΠ½ΡΠ°ΠΆ ΠΌΠΎΠΆΠ½ΠΎ ΡΠΎΠ³Π»Π°ΡΠΎΠ²Π°ΡΡ ΠΏΠΎ ΡΡΠΊΠΈΠ·Ρ,Β Π±Π΅Π· ΡΠ΅Ρ Π·Π°ΠΊΠ»ΡΡΠ΅Π½ΠΈΡ ΠΈ ΠΏΡΠΎΠ΅ΠΊΡΠ°.
ΠΡΠΎΠ΅ΠΊΡ ΠΏΠ΅ΡΠ΅ΠΏΠ»Π°Π½ΠΈΡΠΎΠ²ΠΊΠΈ ΠΏΠ°Π½Π΅Π»ΡΠ½ΠΎΠΉ Ρ ΡΡΡΠ΅Π²ΠΊΠΈ, 3 ΠΊΠΎΠΌΠ½Π°ΡΡ (ΡΠ΅ΡΠΈΡ 1605ΠΠ):
ΠΊΠ²Π°ΡΡΠΈΡΠ° 56 ΠΊΠ².ΠΌ
Π‘ΠΌΠΎΡΡΠΈΡΠ΅ ΡΠ°ΠΊΠΆΠ΅: ΠΎΠ±ΡΠΈΡΠ½ΡΠΉ ΠΌΠ°ΡΠ΅ΡΠΈΠ°Π» ΠΎ ΠΏΠ΅ΡΠ΅ΠΏΠ»Π°Π½ΠΈΡΠΎΠ²ΠΊΠ°Ρ Ρ ΡΡΡΠ΅Π²ΠΎΠΊ
ΠΠ΅ΡΠ΅ΠΏΠ»Π°Π½ΠΈΡΠΎΠ²ΠΊΠ° ΠΊΡΡ Π½ΠΈ Π² ΠΏΠ°Π½Π΅Π»ΡΠ½ΠΎΠΌ Π΄ΠΎΠΌΠ΅
ΠΠΎΡΡΠΈ Π²ΠΎ Π²ΡΠ΅Ρ Ρ ΡΡΡΠ΅Π²ΠΊΠ°Ρ , Π° ΡΠ°ΠΊΠΆΠ΅ Π²ΠΎ ΠΌΠ½ΠΎΠ³ΠΈΡ Π±ΠΎΠ»Π΅Π΅ ΠΏΠΎΠ·Π΄Π½ΠΈΡ ΡΠ΅ΡΠΈΡΡ ΠΏΠ°Π½Π΅Π»ΡΠ½ΡΡ Π΄ΠΎΠΌΠΎΠ², Π½Π° ΠΊΡΡ Π½ΡΡ ΡΡΠΎΡΡ Π³Π°Π·ΠΎΠ²ΡΠ΅ ΠΏΠ»ΠΈΡΡ. ΠΠ°Π½Π½ΠΎΠ΅ ΠΎΠ±ΡΡΠΎΡΡΠ΅Π»ΡΡΡΠ²ΠΎ Π½Π΅ ΠΏΠΎΠ·Π²ΠΎΠ»ΡΠ΅Ρ ΡΠΎΠ±ΡΡΠ²Π΅Π½Π½ΠΈΠΊΠ°ΠΌ ΠΏΠΎΠ»Π½ΠΎΡΡΡΡ ΠΎΠ±ΡΠ΅Π΄ΠΈΠ½ΡΡΡ ΡΠ°ΠΊΠΈΠ΅ ΠΊΡΡ Π½ΠΈ Ρ ΠΊΠΎΠΌΠ½Π°ΡΠ°ΠΌΠΈ. ΠΠ°ΠΆΠ΅ ΠΊΠΎΠ³Π΄Π° Π΅ΡΡΡ Π²ΠΎΠ·ΠΌΠΎΠΆΠ½ΠΎΡΡΡ ΡΠ»ΠΎΠΌΠ°ΡΡ ΡΠ°Π·Π΄Π΅Π»ΡΡΡΡΡ ΠΏΠΎΠΌΠ΅ΡΠ΅Π½ΠΈΡ ΡΡΠ΅Π½ΠΊΡ ΠΈΠ»ΠΈ ΡΡΡΡΠΎΠΈΡΡ Π² Π½Π΅ΠΉ ΠΏΡΠΎΠ΅ΠΌ, Π²Π°ΠΌ Π²ΡΠ΅ ΡΠ°Π²Π½ΠΎ ΠΏΡΠΈΠ΄Π΅ΡΡΡ ΡΡΡΠ°Π½ΠΎΠ²ΠΈΡΡ Π²Π·Π°ΠΌΠ΅Π½ ΡΠ½Π΅ΡΠ΅Π½Π½ΠΎΠΉ ΡΡΠ΅Π½ΡΒ ΡΠ°Π·Π΄Π²ΠΈΠΆΠ½ΡΡ ΠΏΠ΅ΡΠ΅Π³ΠΎΡΠΎΠ΄ΠΊΡ, Π° Π½Π° ΠΏΡΠΎΠ΅ΠΌ ΠΏΠΎΡΡΠ°Π²ΠΈΡΡ Π΄Π²Π΅ΡΡ. ΠΡΠΎΠ³ΠΎ ΡΡΠ΅Π±ΡΠ΅Ρ ΠΆΠΈΠ»ΠΈΡΠ½ΠΎΠ΅ Π·Π°ΠΊΠΎΠ½ΠΎΠ΄Π°ΡΠ΅Π»ΡΡΡΠ²ΠΎ (ΡΠΌ. ΠΏ. 11.17 ΠΈ 11.18 ΠΡΠΈΠ»ΠΎΠΆΠ΅Π½ΠΈΡ 1 ΠΠΠ β 508 Π² ΡΠ΅Π΄Π°ΠΊΡΠΈΠΈ 840). Π’Π°ΠΊΠΆΠ΅ Π½Π΅ ΡΡΠΎΠΈΡ Π·Π°Π±ΡΠ²Π°ΡΡ ΠΈ ΠΎ Π·Π°ΠΏΡΠ΅ΡΠ΅ Π½Π° ΠΏΠ΅ΡΠ΅Π½ΠΎΡ ΠΊΡΡ Π½ΠΈ Π½Π°Π΄ ΠΆΠΈΠ»ΡΠΌΠΈ ΠΊΠΎΠΌΠ½Π°ΡΠ°ΠΌΠΈ ΡΠΎΡΠ΅Π΄Π΅ΠΉ ΡΠ½ΠΈΠ·Ρ (ΠΠ Π Π€ 2006Π³. β47).
Π‘ΡΡΠ΅ΡΡΠ²ΡΠ΅Ρ ΡΠ°ΠΊΠΆΠ΅ ΠΎΠ³ΡΠ°Π½ΠΈΡΠ΅Π½ΠΈΠ΅ Π΄Π»Ρ Β«ΠΎΠ΄Π½ΡΡΠ΅ΠΊΒ»:Β ΠΊΡΡ Π½Ρ Ρ ΠΊΠΎΠΌΠ½Π°ΡΠΎΠΉ ΠΏΠΎΠ»Π½ΠΎΡΡΡΡ ΡΠΎΠ΅Π΄ΠΈΠ½ΡΡΡ Π½Π΅Π»ΡΠ·Ρ, ΠΏΠΎΡΠΊΠΎΠ»ΡΠΊΡ Π΅Π΄ΠΈΠ½ΡΡΠ²Π΅Π½Π½ΠΎΠ΅ ΠΆΠΈΠ»ΠΎΠ΅ ΠΏΠΎΠΌΠ΅ΡΠ΅Π½ΠΈΠ΅ Π² ΠΊΠ²Π°ΡΡΠΈΡΠ΅Β ΡΡΡΠ°ΡΠΈΡ ΠΏΡΠΈ ΡΡΠΎΠΌ ΡΠ²ΠΎΠΉ ΡΡΠ°ΡΡΡ ΠΈ Π±ΡΠ΄Π΅Ρ ΡΡΠΈΡΠ°ΡΡΡΡ Π½Π΅ΠΆΠΈΠ»ΡΠΌ. ΠΡΠΈ ΠΏΠ΅ΡΠ΅ΠΏΠ»Π°Π½ΠΈΡΠΎΠ²ΠΊΠ΅ ΡΡΠ΅Ρ ΠΊΠΎΠΌΠ½Π°ΡΠ½ΠΎΠΉ ΠΊΠ²Π°ΡΡΠΈΡΡ ΠΏΠ°Π½Π΅Π»ΡΠ½ΠΎΠ³ΠΎ Π΄ΠΎΠΌΠ°, ΡΠ°Π²Π½ΠΎ ΠΊΠ°ΠΊ ΠΈ Π΄Π²ΡΡ ΠΊΠΎΠΌΠ½Π°ΡΠ½ΠΎΠΉ, ΠΊΡΡ Π½Ρ Ρ ΠΊΠΎΠΌΠ½Π°ΡΠΎΠΉ ΡΠΎΠ΅Π΄ΠΈΠ½ΡΡΡ ΠΌΠΎΠΆΠ½ΠΎ β Π½ΠΎ Ρ ΡΠΎΠ±Π»ΡΠ΄Π΅Π½ΠΈΠ΅ΠΌ Π²ΡΠ΅Ρ ΡΡΠ»ΠΎΠ²ΠΈΠΉ ΠΈ ΠΎΠ³ΡΠ°Π½ΠΈΡΠ΅Π½ΠΈΠΉ, ΠΊΠ°ΡΠ°ΡΡΠΈΡ ΡΡ Π½Π΅ΡΡΡΠΈΡ ΡΡΠ΅Π½, Π³Π°Π·ΠΎΠ²ΡΡ ΠΏΠ»ΠΈΡ ΠΈ ΠΏΡΠΎΡΠ΅Π³ΠΎ. ΠΡΠ½ΠΎΡΠΈΡΠ΅Π»ΡΠ½ΠΎ Β«ΠΏΡΠΎΡΠ΅Π³ΠΎΒ» ΠΏΡΠΈΠ²Π΅Π΄Π΅ΠΌ ΡΠ°ΠΊΠΎΠΉ ΠΏΡΠΈΠΌΠ΅Ρ: Π±ΡΠ²Π°Π΅Ρ ΡΠ°ΠΊ, ΡΡΠΎ Π² ΡΡΠ΅Π½Π΅ ΠΌΠ΅ΠΆΠ΄Ρ ΠΊΡΡ Π½Π΅ΠΉ ΠΈ ΠΊΠΎΠΌΠ½Π°ΡΠΎΠΉ ΠΌΠΎΠ³ΡΡ Π½Π°Ρ ΠΎΠ΄ΠΈΡΡΡΡ ΡΠΈΡΡΠ΅ΠΌΡ ΠΎΡΠΎΠΏΠ»Π΅Π½ΠΈΡ ΠΈ (ΡΠ΅Π΄ΠΊΠΎ) Π²Π΅Π½ΡΠΈΠ»ΡΡΠΈΠΈ β Π² ΡΡΠΎΠΌ ΡΠ»ΡΡΠ°Π΅ ΠΏΡΠΎΠ΅ΠΌ Π² Π½Π΅ΠΉ Π»ΠΈΠ±ΠΎ Π½Π΅ ΡΠ°Π·ΡΠ΅ΡΠ°Ρ, Π»ΠΈΠ±ΠΎ Π°Π²ΡΠΎΡ Π΄ΠΎΠΌΠ° Π²Π²Π΅Π΄Π΅Ρ Π² ΠΏΡΠΎΠ΅ΠΊΡ ΠΌΠ½ΠΎΠΆΠ΅ΡΡΠ²ΠΎ ΡΡΠ»ΠΎΠ²ΠΈΠΉ ΠΏΠΎ Π³Π°Π±Π°ΡΠΈΡΠ°ΠΌ ΠΏΡΠΎΠ΅ΠΌΠ° ΠΈ ΡΠ»ΠΎΠΆΠ½ΠΎΠΌΡ ΡΡΠΈΠ»Π΅Π½ΠΈΡ ΠΏΡΠΎΡΡΠ΅Π½ΠΊΠΎΠ² ΠΌΠ΅ΡΠ°Π»Π»ΠΈΡΠ΅ΡΠΊΠΈΠΌΠΈ ΠΏΡΠΎΡΠΈΠ»ΡΠΌΠΈ.
ΠΡΠΈΠΌΠ΅Ρ ΠΏΠ΅ΡΠ΅ΠΏΠ»Π°Π½ΠΈΡΠΎΠ²ΠΊΠΈ ΠΊΡΡ Π½ΠΈ Π² ΠΏΠ°Π½Π΅Π»ΡΠ½ΠΎΠΉ ΠΎΠ΄Π½ΠΎΠΊΠΎΠΌΠ½Π°ΡΠ½ΠΎΠΉ ΠΊΠ²Π°ΡΡΠΈΡΠ΅ 35 ΠΊΠ². ΠΌ:
(ΠΏΠΎΠ΄ΡΠΎΠ±Π½Π΅Π΅ ΠΎ ΠΏΠ΅ΡΠ΅ΠΏΠ»Π°Π½ΠΈΡΠΎΠ²ΠΊΠ°Ρ 1 ΠΊΠΎΠΌΠ½Π°ΡΠ½ΡΡ ΠΊΠ²Π°ΡΡΠΈΡ)
ΠΠ΅ΡΠ΅ΠΏΠ»Π°Π½ΠΈΡΠΎΠ²ΠΊΠ° Π²Π°Π½Π½ΠΎΠΉΒ Π² ΠΏΠ°Π½Π΅Π»ΡΠ½ΠΎΠΌ Π΄ΠΎΠΌΠ΅Β Β Β Β Β Β Β Β Β
ΠΠ΅ΡΠ΅ΠΏΠ»Π°Π½ΠΈΡΠΎΠ²ΠΊΠ° Π²Π°Π½Π½ΠΎΠΉ ΠΈ ΡΠ°Π½ΡΠ·Π»Π°Β ΠΎΠ±ΡΡΠ½ΠΎ ΡΠ²ΡΠ·Π°Π½Π° Ρ ΠΎΠ±ΡΠ΅Π΄ΠΈΠ½Π΅Π½ΠΈΠ΅ΠΌ ΠΈΠ»ΠΈ ΡΠ°ΡΡΠΈΡΠ΅Π½ΠΈΠ΅ΠΌ ΡΡΠΈΡ ΠΏΠΎΠΌΠ΅ΡΠ΅Π½ΠΈΠΉ. ΠΡΠΎ Π΄ΠΎΡΡΠΈΠ³Π°Π΅ΡΡΡ ΠΏΡΡΠ΅ΠΌ ΡΠ½ΠΎΡΠ° ΡΠ°Π·Π΄Π΅Π»ΡΡΡΠ΅ΠΉ ΠΈΡ ΠΏΠ΅ΡΠ΅Π³ΠΎΡΠΎΠ΄ΠΊΠΈ ΠΈΠ»ΠΈ ΡΠ°Π½ΡΠ΅Ρ ΠΊΠ°Π±ΠΈΠ½Ρ, Π° ΡΠ°ΠΊΠΆΠ΅ ΠΏΡΠΈΡΠΎΠ΅Π΄ΠΈΠ½Π΅Π½ΠΈΠ΅ΠΌΒ ΠΏΠ»ΠΎΡΠ°Π΄ΠΈ ΡΠΌΠ΅ΠΆΠ½ΠΎΠ³ΠΎ Π½Π΅ΠΆΠΈΠ»ΠΎΠ³ΠΎ ΠΏΠΎΠΌΠ΅ΡΠ΅Π½ΠΈΡ (ΠΊΠΎΡΠΈΠ΄ΠΎΡ, Ρ ΠΎΠ»Π», ΡΠ΅ΠΌΠ½Π°Ρ ΠΊΠΎΠΌΠ½Π°ΡΠ°, Π³Π°ΡΠ΄Π΅ΡΠΎΠ±). Π Π°ΡΡΠΈΡΡΡΡ Β«ΠΌΠΎΠΊΡΡΠ΅ ΡΠΎΡΠΊΠΈΒ» Ρ Π·Π°Ρ ΠΎΠ΄ΠΎΠΌ Π½Π° ΠΆΠΈΠ»ΡΡ ΠΏΠ»ΠΎΡΠ°Π΄Ρ ΠΈΠ»ΠΈ ΠΏΠ΅ΡΠ΅Π½ΠΎΡΠΈΡΡ ΠΈΡ ΡΠ°ΠΊ, ΡΡΠΎΠ±Ρ ΠΎΠ½ΠΈ Π½Π°Ρ ΠΎΠ΄ΠΈΠ»ΠΈΡΡ Π½Π°Π΄ ΠΆΠΈΠ»ΡΠΌΠΈ ΠΊΠΎΠΌΠ½Π°ΡΠ°ΠΌΠΈ ΠΈ ΠΊΡΡ Π½ΡΠΌΠΈ ΡΠΎΡΠ΅Π΄Π΅ΠΉ β Π½Π΅Π»ΡΠ·Ρ. ΠΡΠΎ Π·Π°ΠΏΡΠ΅ΡΠ΅Π½ΠΎ Π½ΠΎΡΠΌΠ°ΡΠΈΠ²Π°ΠΌΠΈ — Π‘Π°ΠΠΠΈΠ2.1.2.2645-10 ΠΈ Π‘ΠΠΈΠ 31-03-2003. ΠΡΠΎΠΌΠ΅ ΡΠΎΠ³ΠΎ, ΡΠ°ΡΡΠΈΡΠ΅Π½ΠΈΠ΅ Π²Π°Π½Π½ΠΎΠΉ ΠΈ ΡΠ±ΠΎΡΠ½ΠΎΠΉΒ ΡΡΠ΅Π±ΡΠ΅Ρ ΠΎΠ±ΡΠ·Π°ΡΠ΅Π»ΡΠ½ΠΎΠΉ ΡΠΊΠ»Π°Π΄ΠΊΠΈ Π³ΠΈΠ΄ΡΠΎΠΈΠ·ΠΎΠ»ΡΡΠΈΠΈ, ΡΡΠΎ ΡΠ²Π»ΡΠ΅ΡΡΡ Π²ΠΌΠ΅ΡΠ°ΡΠ΅Π»ΡΡΡΠ²ΠΎΠΌ Π² ΠΊΠΎΠ½ΡΡΡΡΠΊΡΠΈΡ ΠΏΠΎΠ»ΠΎΠ² ΠΈ ΡΠΎΠ³Π»Π°ΡΡΠ΅ΡΡΡ ΠΏΠΎ ΠΏΡΠΎΠ΅ΠΊΡΡ,Β ΠΊΠ°ΠΊ ΠΈ ΠΏΡΠΎΠ΅ΠΌΡ Π² Π½Π΅ΡΡΡΠΈΡ ΡΡΠ΅Π½Π°Ρ , Π·Π°ΡΡΠ°Π³ΠΈΠ²Π°Π½ΠΈΠ΅ ΠΈΠ½ΠΆΠ΅Π½Π΅ΡΠ½ΡΡ ΠΊΠΎΠΌΠΌΡΠ½ΠΈΠΊΠ°ΡΠΈΠΉ ΠΈ Π΄ΡΡΠ³ΠΈΠ΅ ΡΠ»ΠΎΠΆΠ½ΡΠ΅ ΠΈ ΠΏΠΎΡΠ΅Π½ΡΠΈΠ°Π»ΡΠ½ΠΎ ΠΎΠΏΠ°ΡΠ½ΡΠ΅ ΡΠ°Π±ΠΎΡΡ.Β
ΠΏΠ΅ΡΠ΅ΠΏΠ»Π°Π½ΠΈΡΠΎΠ²ΠΊΠ° Π²Π°Π½Π½ΠΎΠΉ ΠΈ ΠΏΠ΅ΡΠ΅Π½ΠΎΡ ΡΠ°Π½ΡΠ·Π»Π°Β Π² ΡΡΠ΅Ρ ΠΊΠΎΠΌΠ½Π°ΡΠ½ΠΎΠΉ ΠΊΠ²Π°ΡΡΠΈΡΠ΅ 72 ΠΊΠ².ΠΌ ΠΏΠ°Π½Π΅Π»ΡΠ½ΠΎΠ³ΠΎ Π΄ΠΎΠΌΠ° Π-44:
ΠΠΎΠ΄ΡΠΎΠ±Π½Π΅Π΅ ΠΎ ΠΏΠ΅ΡΠ΅ΠΏΠ»Π°Π½ΠΈΡΠΎΠ²ΠΊΠ°Ρ 3 ΠΊΠΎΠΌΠ½Π°ΡΠ½ΡΡ ΠΊΠ²Π°ΡΡΠΈΡ
Π’ΠΈΠΏΠΎΠ²ΡΠ΅ ΠΏΠ΅ΡΠ΅ΠΏΠ»Π°Π½ΠΈΡΠΎΠ²ΠΊΠΈ ΠΏΠ°Π½Π΅Π»ΡΠ½ΡΡ ΠΊΠ²Π°ΡΡΠΈΡ
Π‘ ΡΠ΅Ρ ΠΏΠΎΡ, ΠΊΠ°ΠΊ Π² ΠΎΡΠΊΡΡΡΠΎΠΌ Π΄ΠΎΡΡΡΠΏΠ΅ ΠΏΠΎΡΠ²ΠΈΠ»ΡΡ ΠΊΠ°ΡΠ°Π»ΠΎΠ³ ΡΠΈΠΏΠΎΠ²ΡΡ ΠΏΠ΅ΡΠ΅ΠΏΠ»Π°Π½ΠΈΡΠΎΠ²ΠΎΠΊ, ΡΠ°Π·ΡΠ°Π±ΠΎΡΠ°Π½Π½ΡΠΉ ΠΠ£Π ΠΠΠΠΠ’ΠΠ Π΄Π»Ρ ΡΠ²ΠΎΠΈΡ Π΄ΠΎΠΌΠΎΠ², Ρ ΡΠΎΠ±ΡΡΠ²Π΅Π½Π½ΠΈΠΊΠΎΠ² ΠΏΠΎΡΠ²ΠΈΠ»Π°ΡΡ Π΅ΡΠ΅ ΠΎΠ΄Π½Π° Π²ΠΎΠ·ΠΌΠΎΠΆΠ½ΠΎΡΡΡ ΡΠΎΠ³Π»Π°ΡΠΎΠ²Π°ΡΡ ΠΏΠ΅ΡΠ΅ΠΏΠ»Π°Π½ΠΈΡΠΎΠ²ΠΊΡ Π² ΠΏΠ°Π½Π΅Π»ΡΠ½ΠΎΠΌ Π΄ΠΎΠΌΠ΅, Π½Π΅ ΠΎΠ±ΡΠ°ΡΠ°ΡΡΡ ΠΊ ΠΏΡΠΎΠ΅ΠΊΡΠΈΡΠΎΠ²ΡΠΈΠΊΠ°ΠΌ. ΠΠ΄Π½Π°ΠΊΠΎ Π΄Π»Ρ ΡΡΠΎΠ³ΠΎ Π²Π°ΡΠ° ΠΈΠ·Π½Π°ΡΠ°Π»ΡΠ½Π°Ρ ΠΏΠ»Π°Π½ΠΈΡΠΎΠ²ΠΊΠ° Π΄ΠΎΠ»ΠΆΠ½Π° ΡΠΎΠ²ΠΏΠ°Π΄Π°ΡΡ Ρ ΠΊΠ°ΡΠ°Π»ΠΎΠΆΠ½ΠΎΠΉ, ΡΠ°Π²Π½ΠΎ ΠΊΠ°ΠΊ ΠΈ Π±ΡΠ΄ΡΡΠ°Ρ β Ρ ΠΏΡΠ΅Π΄Π»ΠΎΠΆΠ΅Π½Π½ΡΠΌ ΡΠ°ΠΌ Π²Π°ΡΠΈΠ°Π½ΡΠΎΠΌ. ΠΠ³ΠΎΠ²ΠΎΡΠΈΠΌΡΡ, ΡΡΠΎ ΠΈΠ·ΠΌΠ΅Π½Π΅Π½ΠΈΡ Π·Π΄Π΅ΡΡ ΠΏΡΠ΅Π΄Π»Π°Π³Π°ΡΡΡΡ Π²Π΅ΡΡΠΌΠ° ΠΎΠ³ΡΠ°Π½ΠΈΡΠ΅Π½Π½ΡΠ΅. ΠΠΎ Π΅ΡΠ»ΠΈ ΠΏΡΠΎΠ΅ΠΊΡΠ½ΠΎΠ΅ ΡΠ΅ΡΠ΅Π½ΠΈΠ΅ Π²Π°Ρ ΡΡΡΡΠ°ΠΈΠ²Π°Π΅Ρ, Π²Ρ ΠΌΠΎΠΆΠ΅ΡΠ΅ ΠΏΡΠΈ ΠΏΠΎΠ΄Π°ΡΠ΅ Π΄ΠΎΠΊΡΠΌΠ΅Π½ΡΠΎΠ² Π² ΠΠΎΡΠΆΠΈΠ»ΠΈΠ½ΡΠΏΠ΅ΠΊΡΠΈΡ, ΡΠΎΡΠ»Π°ΡΡΡΡ Π½Π° ΠΏΠΎΠ΄Ρ ΠΎΠ΄ΡΡΠΈΠΉ ΡΠΈΠΏΠΎΠ²ΠΎΠΉ ΠΏΡΠΎΠ΅ΠΊΡ (ΠΏ. 21 ΠΡΠΈΠ»ΠΎΠΆΠ΅Π½ΠΈΡ 1 ΠΠΠ β 508 Π² ΡΠ΅Π΄Π°ΠΊΡΠΈΠΈ 840).
ΠΏΠ°Π½Π΅Π»ΡΠ½ΡΠ΅ ΠΊΠ²Π°ΡΡΠΈΡΡ: 2 ΠΊΠΎΠΌΠ½Π°ΡΠ½Π°Ρ Π44Π’, 3 ΠΊΠΎΠΌΠ½Π°ΡΠ½Π°Ρ Π44Π’, ΡΡΠ΅ΡΠΊΠ° Π² II-49 ΠΈ Π΄Π²ΡΡΠΊΠ° Π² 1-515/9
ΠΠΎΠ΄ΡΠΎΠ±Π½Π΅Π΅ ΠΎ ΡΠΈΠΏΠΎΠ²ΡΡ ΠΏΡΠΎΠ΅ΠΊΡΠ°Ρ .
Π€ΠΎΡΠΎ ΠΏΠ΅ΡΠ΅ΠΏΠ»Π°Π½ΠΈΡΠΎΠ²ΠΊΠΈ Π² ΠΏΠ°Π½Π΅Π»ΡΠ½ΠΎΠΌ Π΄ΠΎΠΌΠ΅ (ΠΏΡΠΎΠ΅ΠΌ ΠΌΠ΅ΠΆΠ΄Ρ ΠΊΡΡ Π½Π΅ΠΉ ΠΈ ΠΊΠΎΠΌΠ½Π°ΡΠΎΠΉ ΠΈ Π΄Π΅ΠΌΠΎΠ½ΡΠ°ΠΆ ΠΎΠ±ΡΠ΅ΠΌΠ½ΠΎΠΉ ΡΠ°Π½ΡΠ΅Ρ ΠΊΠ°Π±ΠΈΠ½Ρ Π² ΡΡΠ΅ΡΠΊΠ΅ Π44Π’)
ΠΏΠΎΠ΄ΡΠΎΠ±Π½Π΅Π΅ ΠΎ ΠΏΠ΅ΡΠ΅ΠΏΠ»Π°Π½ΠΈΡΠΎΠ²ΠΊΠ°Ρ Π² ΡΠ΅ΡΠΈΠΈ Π44Π’
Π§ΠΈΡΠ°ΠΉΡΠ΅ ΡΠ°ΠΊΠΆΠ΅: ΠΡΠΎΠ΅ΠΊΡ ΠΏΠ΅ΡΠ΅ΠΏΠ»Π°Π½ΠΈΡΠΎΠ²ΠΊΠΈ ΠΊΠ²Π°ΡΡΠΈΡΡ
ΠΠ΅ΡΠ΅ΠΏΠ»Π°Π½ΠΈΡΠΎΠ²ΠΊΠ° ΠΊΠ²Π°ΡΡΠΈΡ Π² Π±Π»ΠΎΡΠ½ΡΡ Π΄ΠΎΠΌΠ°Ρ
ΠΠ΅ΡΠ΅ΠΏΠ»Π°Π½ΠΈΡΠΎΠ²ΠΊΠ° Π² ΠΌΠΎΠ½ΠΎΠ»ΠΈΡΠ½ΠΎΠΌ Π΄ΠΎΠΌΠ΅
ΠΠ΅ΡΠ΅ΠΏΠ»Π°Π½ΠΈΡΠΎΠ²ΠΊΠ° Π² ΠΊΠΈΡΠΏΠΈΡΠ½ΠΎΠΌ Π΄ΠΎΠΌΠ΅
apb1.ru
ΠΊΠ°ΠΊ ΠΎΡΠΎΡΠΌΠΈΡΡ ΠΈ ΡΠΊΠΎΠ»ΡΠΊΠΎ ΡΡΠΎΠΈΡ? β ΠΡΠΎΡΠ°Π±ΠΎΡΡ.ΡΡ
ΠΠ΅ΡΠ΅ΠΏΠ»Π°Π½ΠΈΡΠΎΠ²ΠΊΠ° ΠΊΠ²Π°ΡΡΠΈΡ, ΠΊΠΎΡΠΎΡΡΠ΅ Π½Π°Ρ ΠΎΠ΄ΡΡΡΡ Π² ΠΏΠ°Π½Π΅Π»ΡΠ½ΡΡ Π΄ΠΎΠΌΠ°Ρ , ΠΈΠΌΠ΅Π΅Ρ ΡΡΡΠ΅ΡΡΠ²Π΅Π½Π½ΡΠ΅ ΠΎΡΠ»ΠΈΡΠΈΡ ΠΎΡ ΠΏΠΎΠ΄ΠΎΠ±Π½ΠΎΠ³ΠΎ ΠΏΡΠΎΡΠ΅ΡΡΠ° Π² Π΄ΠΎΠΌΠ°Ρ Π΄ΡΡΠ³ΠΎΠ³ΠΎ ΡΠΈΠΏΠ° ΡΠΎ ΡΡΠ΅Π½ΠΎΠ²ΡΠΌΠΈ ΠΊΠΎΠ½ΡΡΡΡΠΊΡΠΈΡΠΌΠΈ ΠΈ ΠΈΠ½ΡΠΌ Π²ΠΈΠ΄ΠΎΠΌ ΠΏΠ΅ΡΠ΅ΠΊΡΡΡΠΈΠΉ.
Π‘ΡΡΠ΅ΡΡΠ²ΡΠ΅Ρ Π½Π΅ΡΠΊΠΎΠ»ΡΠΊΠΎ Π³Π»Π°Π²Π½ΡΡ ΠΎΡΠ»ΠΈΡΠΈΠΉ:
β’ ΠΡΠΆΠ½ΠΎ ΡΡΠ°ΡΠ΅Π»ΡΠ½ΠΎ ΡΠ°ΡΡΡΠΈΡΡΠ²Π°ΡΡ ΡΠ°Π·ΠΌΠ΅ΡΡ ΠΏΡΠΎΠ΅ΠΌΠ°. ΠΡΠΎΠΌΠ΅ ΡΡΠΎΠ³ΠΎ, ΡΡΡΠ΅ΡΡΠ²ΡΠ΅Ρ Π½Π΅ΠΎΠ±Ρ ΠΎΠ΄ΠΈΠΌΠΎΡΡΡ Π² ΡΡΠΈΠ»Π΅Π½ΠΈΠΈ ΠΏΡΠΎΠ΅ΠΌΠ°, ΡΡΠΎΠ±Ρ Π½Π΅ Π΄ΠΎΠΏΡΡΡΠΈΡΡ ΡΠ½ΠΈΠΆΠ΅Π½ΠΈΠ΅ ΠΈΠ·Π½Π°ΡΠ°Π»ΡΠ½ΠΎΠΉ Π½Π΅ΡΡΡΠ΅ΠΉ ΡΠΏΠΎΡΠΎΠ±Π½ΠΎΡΡΠΈ;
β’ Π‘Π»Π΅Π΄ΡΠ΅Ρ ΡΡΡΠΎΠ³ΠΎ ΡΠΎΠ±Π»ΡΠ΄Π°ΡΡ ΡΠΏΠ΅ΡΠΈΠ°Π»ΡΠ½ΡΠ΅ ΡΠ΅Ρ Π½ΠΎΠ»ΠΎΠ³ΠΈΠΈ Π²ΡΡΠ΅Π·Π°Π½ΠΈΡ ΠΏΡΠΎΠ΅ΠΌΠ° ΠΈ Π΅Π³ΠΎ ΡΡΠΈΠ»Π΅Π½ΠΈΡ;
β’ ΠΠ°Π΄ΠΎ ΠΏΠΎΠ»ΡΡΠΈΡΡ ΡΠ΅Ρ Π½ΠΈΡΠ΅ΡΠΊΠΎΠ΅ Π·Π°ΠΊΠ»ΡΡΠ΅Π½ΠΈΠ΅ ΠΎΠ± ΠΎΡΡΡΡΡΡΠ²ΠΈΠΈ ΠΈΠ·ΠΌΠ΅Π½Π΅Π½ΠΈΠΉ ΡΠΎΡΡΠΎΡΠ½ΠΈΡ Π½Π΅ΡΡΡΠ΅ΠΉ ΡΠΏΠΎΡΠΎΠ±Π½ΠΎΡΡΠΈ ΡΡΠ΅Π½ ΠΈ ΠΏΠ΅ΡΠ΅ΠΊΡΡΡΠΈΠΉ, ΠΊΠΎΡΠΎΡΡΠ΅ Π·Π°ΡΡΠ°Π³ΠΈΠ²Π°ΡΡΡΡ Π² ΠΏΡΠΎΡΠ΅ΡΡΠ΅ ΠΏΠ΅ΡΠ΅ΠΏΠ»Π°Π½ΠΈΡΠΎΠ²ΠΊΠΈ.
β’ Π’ΡΠ΅Π±ΡΠ΅ΡΡΡ Π΄ΠΎΠΊΡΠΌΠ΅Π½ΡΠ°Π»ΡΠ½ΠΎΠ΅ ΠΎΡΠΎΡΠΌΠ»Π΅Π½ΠΈΠ΅ ΠΏΡΠΎΡΠ΅Π΄ΡΡΡ ΠΏΠ΅ΡΠ΅ΠΏΠ»Π°Π½ΠΈΡΠΎΠ²ΠΊΠΈ ΠΊΠ²Π°ΡΡΠΈΡΡ Π² ΠΏΠ°Π½Π΅Π»ΡΠ½ΠΎΠΌ Π΄ΠΎΠΌΠ΅.
ΠΠ° Π½Π°ΡΠ°Π»ΡΠ½ΠΎΠΉ ΡΡΠ°Π΄ΠΈΠΈ ΡΠΎΠ³Π»Π°ΡΠΎΠ²Π°Π½ΠΈΡ ΠΏΠ΅ΡΠ΅ΠΏΠ»Π°Π½ΠΈΡΠΎΠ²ΠΊΠΈ ΡΠ»Π΅Π΄ΡΠ΅Ρ ΠΏΠΎΠ΄Π°ΡΡ ΠΏΠΈΡΡΠΌΠ΅Π½Π½ΠΎΠ΅ ΠΎΠ±ΡΠ°ΡΠ΅Π½ΠΈΠ΅ Π² ΡΠΏΠ΅ΡΠΈΠ°Π»ΡΠ½ΡΡ ΠΊΠΎΠΌΠΈΡΡΠΈΡ ΠΌΠ΅ΡΡΠ½ΠΎΠΉ Π°Π΄ΠΌΠΈΠ½ΠΈΡΡΡΠ°ΡΠΈΠΈ, Π·Π°Π½ΠΈΠΌΠ°ΡΡΡΡΡΡ ΡΠ°ΡΡΠΌΠΎΡΡΠ΅Π½ΠΈΠ΅ΠΌ Π²ΠΎΠΏΡΠΎΡΠΎΠ² ΠΈΡΠΏΠΎΠ»ΡΠ·ΠΎΠ²Π°Π½ΠΈΡ ΠΎΠ±ΡΠ΅ΠΊΡΠΎΠ² ΠΆΠΈΠ»ΠΎΠ³ΠΎ ΡΠΎΠ½Π΄Π°. ΠΠ»Ρ ΡΡΠΎΠ³ΠΎ Π½ΡΠΆΠ½ΠΎ ΡΠ°ΡΠΏΠΎΠ»Π°Π³Π°ΡΡ ΠΎΠΏΡΠ΅Π΄Π΅Π»Π΅Π½Π½ΡΠΌ ΠΏΠ°ΠΊΠ΅ΡΠΎΠΌ Π΄ΠΎΠΊΡΠΌΠ΅Π½ΡΠΎΠ²:
β’ ΠΠ°ΡΠ²Π»Π΅Π½ΠΈΠ΅ ΡΡΡΠ°Π½ΠΎΠ²Π»Π΅Π½Π½ΠΎΠ³ΠΎ ΠΎΠ±ΡΠ°Π·ΡΠ°;
β’ ΠΠΎΠΊΡΠΌΠ΅Π½ΡΡ, Π²ΡΡΡΡΠΏΠ°ΡΡΠΈΠ΅ ΠΏΠΎΠ΄ΡΠ²Π΅ΡΠΆΠ΄Π΅Π½ΠΈΠ΅ΠΌ Π½Π°Π»ΠΈΡΠΈΡ ΠΏΡΠ°Π² Π²Π»Π°Π΄Π΅Π½ΠΈΡ ΠΊΠ²Π°ΡΡΠΈΡΠΎΠΉ, Π² ΠΊΠΎΡΠΎΡΠΎΠΉ ΠΏΠ»Π°Π½ΠΈΡΡΠ΅ΡΡΡ ΠΏΠ΅ΡΠ΅ΠΏΠ»Π°Π½ΠΈΡΠΎΠ²ΠΊΠ°;
β’ ΠΡΠΏΠΎΠ»Π½Π΅Π½Π½ΡΠΉ ΠΎΡΠΎΠ±ΠΎΠΉ ΠΎΡΠ³Π°Π½ΠΈΠ·Π°ΡΠΈΠ΅ΠΉ ΠΏΡΠΎΠ΅ΠΊΡ ΠΏΡΠΎΠ²Π΅Π΄Π΅Π½ΠΈΡ ΠΏΠ΅ΡΠ΅ΠΏΠ»Π°Π½ΠΈΡΠΎΠ²ΠΊΠΈ;
β’ Π’Π΅Ρ Π½ΠΈΡΠ΅ΡΠΊΠΈΠΉ ΠΏΠ°ΡΠΏΠΎΡΡ;
β’ ΠΡΠΎΡΠΌΠ»Π΅Π½Π½ΠΎΠ΅ Π² ΠΏΠΈΡΡΠΌΠ΅Π½Π½ΠΎΠΌ Π²ΠΈΠ΄Π΅ ΡΠΎΠ³Π»Π°ΡΠΈΠ΅ Π²ΡΠ΅Ρ Π»ΡΠ΄Π΅ΠΉ, ΠΏΡΠΎΠΆΠΈΠ²Π°ΡΡΠΈΡ Π² ΡΠ°ΡΡΠΌΠ°ΡΡΠΈΠ²Π°Π΅ΠΌΠΎΠΉ ΠΊΠ²Π°ΡΡΠΈΡΠ΅, Π½Π° ΠΏΡΠΎΠ²Π΅Π΄Π΅Π½ΠΈΠ΅ ΠΏΠ΅ΡΠ΅ΠΏΠ»Π°Π½ΠΈΡΠΎΠ²ΠΊΠΈ. ΠΡΠΎ ΠΊΠ°ΡΠ°Π΅ΡΡΡ ΠΊΠ²Π°ΡΡΠΈΡ, ΠΊΠΎΡΠΎΡΡΠ΅ ΡΠΊΡΠΏΠ»ΡΠ°ΡΠΈΡΡΡΡΡΡ ΠΏΠΎ ΠΎΡΠΎΠ±ΠΎΠΌΡ Π΄ΠΎΠ³ΠΎΠ²ΠΎΡΡ ΡΠΎΡΠΈΠ°Π»ΡΠ½ΠΎΠΉ Π°ΡΠ΅Π½Π΄Ρ;
β’ Π‘ΠΏΡΠ°Π²ΠΊΠ°, ΠΏΠΎΠ»ΡΡΠ΅Π½Π½Π°Ρ Π² ΡΡΡΠ΅ΠΆΠ΄Π΅Π½ΠΈΠΈ, Π·Π°Π½ΠΈΠΌΠ°ΡΡΠ΅ΠΌΡΡ Π²ΠΎΠΏΡΠΎΡΠ°ΠΌΠΈ ΠΊΡΠ»ΡΡΡΡΡ, ΠΈΡΡΠΎΡΠΈΠΈ ΠΈ ΠΏΠ°ΠΌΡΡΠ½ΠΈΠΊΠΎΠ² Π°ΡΡ ΠΈΡΠ΅ΠΊΡΡΡΡ. ΠΡΠΎΡ Π΄ΠΎΠΊΡΠΌΠ΅Π½Ρ Π²Π°ΠΆΠ½ΠΎ ΠΈΠΌΠ΅ΡΡ ΠΏΡΠΈ ΠΏΡΠΎΠ²Π΅Π΄Π΅Π½ΠΈΠΈ ΠΏΠ΅ΡΠ΅ΠΏΠ»Π°Π½ΠΈΡΠΎΠ²ΠΊΠΈ Π² ΠΊΠ²Π°ΡΡΠΈΡΠ°Ρ , ΠΊΠΎΡΠΎΡΡΠ΅ Π½Π°Ρ ΠΎΠ΄ΡΡΡΡ Π² ΡΠΊΠ°Π·Π°Π½Π½ΡΡ Π·Π΄Π°Π½ΠΈΡΡ .
ΠΠΎΠ΄Π³ΠΎΡΠΎΠ²Π»Π΅Π½Π½ΡΠ΅ Π΄ΠΎΠΊΡΠΌΠ΅Π½ΡΡ Π½ΡΠΆΠ½ΠΎ ΠΏΠ΅ΡΠ΅Π΄Π°ΡΡ ΡΠΏΠ΅ΡΠΈΠ°Π»ΠΈΡΡΡ ΠΊΠΎΠΌΠΈΡΡΠΈΠΈ, ΠΊΠΎΡΠΎΡΡΠΉ Π΄ΠΎΠ»ΠΆΠ΅Π½ ΠΎΠ±ΡΠ·Π°ΡΠ΅Π»ΡΠ½ΠΎ ΡΠΎΡΡΠ°Π²ΠΈΡΡ ΠΎΠΏΠΈΡΡ ΠΏΠΎΠ»ΡΡΠ΅Π½Π½ΠΎΠΉ Π΄ΠΎΠΊΡΠΌΠ΅Π½ΡΠ°ΡΠΈΠΈ. ΠΠ°Π»ΡΡΠ΅ Π½ΡΠΆΠ½ΠΎ Π΄ΠΎΠΆΠ΄Π°ΡΡΡΡ ΡΠ΅ΡΠ΅Π½ΠΈΡ ΠΊΠΎΠΌΠΈΡΡΠΈΠΈ, ΠΊΠΎΡΠΎΡΠΎΠ΅ Π½Π°ΠΏΡΠ°Π²Π»ΡΠ΅ΡΡΡ ΠΎΡΠΎΡΠΌΠΈΡΠ΅Π»Ρ Π·Π°ΡΠ²Π»Π΅Π½ΠΈΡ Π² ΡΠ΅ΡΠ΅Π½ΠΈΠ΅ ΠΏΠΎΠ»ΡΡΠΎΡΠ° ΠΌΠ΅ΡΡΡΠ° ΠΏΠΎΡΠ»Π΅ ΠΏΡΠΎΠ²Π΅Π΄Π΅Π½ΠΈΡ ΠΎΠΏΠΈΡΠΈ Π΄ΠΎΠΊΡΠΌΠ΅Π½ΡΠ°ΡΠΈΠΈ.
ΠΠ°ΠΆΠ½ΠΎ Π·Π½Π°ΡΡ, ΡΡΠΎ Π½Π°ΡΠΈΠ½Π°ΡΡ ΠΏΠ΅ΡΠ΅ΠΏΠ»Π°Π½ΠΈΡΠΎΠ²ΠΊΡ Π΄ΠΎ ΠΏΠΎΠ»ΡΡΠ΅Π½ΠΈΡ ΠΏΠΎΠ»ΠΎΠΆΠΈΡΠ΅Π»ΡΠ½ΠΎΠ³ΠΎ ΡΠ΅ΡΠ΅Π½ΠΈΡ ΠΊΠΎΠΌΠΈΡΡΠΈΠΈ Π½Π΅Π»ΡΠ·Ρ. ΠΡΠ»ΠΈ ΠΆΠ΅ ΠΎΡΠ²Π΅Ρ ΠΎΡΡΠΈΡΠ°ΡΠ΅Π»ΡΠ½ΡΠΉ, Π² ΡΠ΅ΠΊΡΡΠ΅ ΠΎΠ±ΡΠ·Π°ΡΠ΅Π»ΡΠ½ΠΎ ΡΠΊΠ°Π·ΡΠ²Π°ΡΡΡΡ ΠΏΡΠΈΡΠΈΠ½Ρ ΠΎΡΠΊΠ°Π·Π°. ΠΡΠΈΠΌΠ΅ΡΠ°ΡΠ΅Π»ΡΠ½ΠΎ, ΡΡΠΎ ΠΏΠΎ Π½ΠΎΠ²ΠΎΠΌΡ Π·Π°ΠΊΠΎΠ½ΠΎΠ΄Π°ΡΠ΅Π»ΡΡΡΠ²Ρ Π² Π°ΠΊΡΠ°Ρ ΡΠΊΠ°Π·ΡΠ²Π°Π΅ΡΡΡ Π²ΡΠ΅Π³ΠΎ ΠΎΠ΄Π½Π° ΠΎΠ±ΡΠ°Ρ ΠΏΡΠΈΡΠΈΠ½Π° ΠΎΡΠΊΠ°Π·Π°, Π° ΠΈΠΌΠ΅Π½Π½ΠΎ Π½Π΅ΡΠΎΠΎΡΠ²Π΅ΡΡΡΠ²ΠΈΠ΅ ΡΡΠ΅Π±ΠΎΠ²Π°Π½ΠΈΡΠΌ Π·Π°ΠΊΠΎΠ½ΠΎΠ΄Π°ΡΠ΅Π»ΡΡΡΠ²Π°. ΠΠΏΡΠΎΡΠ΅ΠΌ, ΡΡΡΠ΅ΡΡΠ²ΡΠ΅Ρ ΡΡΠ΄ Π½Π°ΠΈΠ±ΠΎΠ»Π΅Π΅ ΡΠ°ΡΡΡΡ ΠΏΡΠΈΡΠΈΠ½ ΠΎΡΠΊΠ°Π·Π°:
β’ ΠΠ΅ΡΠ΅ΠΌΠ΅ΡΠ΅Π½ΠΈΠ΅ ΡΠ°Π½ΡΠ·Π»Π° Π² ΠΏΠΎΠΌΠ΅ΡΠ΅Π½ΠΈΠ΅, Π½Π°Π΄ ΠΈΠ»ΠΈ ΠΏΠΎΠ΄ ΠΊΠΎΡΠΎΡΡΠΌ Π½Π°Ρ ΠΎΠ΄ΠΈΡΡΡ ΠΆΠΈΠ»Π°Ρ ΠΊΠΎΠΌΠ½Π°ΡΠ°;
β’ Π£ΠΊΠ°Π·Π°Π½ΠΈΠ΅ Π² ΠΏΡΠΎΠ΅ΠΊΡΠ΅ ΠΏΠ΅ΡΠ΅ΠΏΠ»Π°Π½ΠΈΡΠΎΠ²ΠΊΠ΅ ΠΏΡΠΎΠ΅ΠΌΠΎΠ² Π±ΠΎΠ»ΡΡΠΎΠ³ΠΎ ΡΠ°Π·ΠΌΠ΅ΡΠ° Π² ΡΡΠ΅Π½Π°Ρ , ΠΊΠΎΡΠΎΡΡΠ΅ ΡΡΠΈΡΠ°ΡΡΡΡ Π½Π΅ΡΡΡΠΈΠΌΠΈ ΠΊΠΎΠ½ΡΡΡΡΠΊΡΠΈΡΠΌΠΈ;
β’ ΠΠ΅ΡΠ΅ΠΌΠ΅ΡΠ΅Π½ΠΈΠ΅ ΠΊΡΡ Π½ΠΈ Π½Π° ΠΏΠ»ΠΎΡΠ°Π΄Ρ ΠΆΠΈΠ»ΠΎΠ³ΠΎ ΠΏΠΎΠΌΠ΅ΡΠ΅Π½ΠΈΡ;
β’ ΠΠ°Π»ΠΈΡΠΈΠ΅ Π² ΠΏΡΠΎΠ΅ΠΊΡΠ΅ Π΄Π°Π½Π½ΡΡ ΠΎΠ± ΠΈΠ·ΠΌΠ΅Π½Π΅Π½ΠΈΡΡ , Π΄Π΅ΠΌΠΎΠ½ΡΠ°ΠΆΠ΅ ΠΈΠ»ΠΈ ΡΠΌΠ΅Π½ΡΡΠ΅Π½ΠΈΠΈ ΡΡΠΎΡΠΊΠΎΠ² ΠΈ Π²Π΅Π½ΡΠΈΠ»ΡΡΠΈΠΎΠ½Π½ΡΡ ΠΊΠΎΡΠΎΠ±ΠΎΠ².
ΠΠ°ΡΠΈΠ°Π½ΡΡ ΠΏΠ΅ΡΠ΅ΠΏΠ»Π°Π½ΠΈΡΠΎΠ²ΠΊΠΈ ΠΊΠ²Π°ΡΡΠΈΡΡ Π² ΠΏΠ°Π½Π΅Π»ΡΠ½ΠΎΠΌ Π΄ΠΎΠΌΠ΅
ΠΠ°Π½Π΅Π»ΡΠ½ΡΠ΅ Π·Π΄Π°Π½ΠΈΡ ΠΌΠΎΠ³ΡΡ ΠΎΡΠ½ΠΎΡΠΈΡΡΡΡ ΠΊ ΡΠ°Π·Π½ΡΠΌ ΡΠΈΠΏΠ°ΠΌ. Π’Π°ΠΊ, ΡΡΡΠ΅ΡΡΠ²ΡΡΡ Β«Ρ ΡΡΡΠ΅Π²ΠΊΠΈΒ», Π΄ΠΎΠΌΠ° ΡΠ»ΡΡΡΠ΅Π½Π½ΠΎΠΉ ΠΏΠ»Π°Π½ΠΈΡΠΎΠ²ΠΊΠΈ ΠΈ ΠΏΡΠΎΡΠΈΠ΅ ΡΡΡΠΎΠ΅Π½ΠΈΡ ΠΏΠ°Π½Π΅Π»ΡΠ½ΠΎΠ³ΠΎ ΡΠΈΠΏΠ°. ΠΠΎΡΡΠΎΠΌΡ Π²Π°ΡΠΈΠ°Π½ΡΡ ΠΏΠ΅ΡΠ΅ΠΏΠ»Π°Π½ΠΈΡΠΎΠ²ΠΊΠΈ ΠΊΠ²Π°ΡΡΠΈΡ, ΡΠ°ΡΠΏΠΎΠ»ΠΎΠΆΠ΅Π½Π½ΡΡ Π² ΡΡΠΈΡ Π΄ΠΎΠΌΠ°Ρ , ΡΠΎΠΆΠ΅ ΠΈΠΌΠ΅ΡΡ Π½Π΅ΠΊΠΎΡΠΎΡΡΠ΅ ΠΎΡΠ»ΠΈΡΠΈΡ. Π Π³Π»Π°Π²Π½ΡΠΌ ΠΎΡΠ»ΠΈΡΠΈΡΠΌ ΠΌΠΎΠΆΠ½ΠΎ ΠΎΡΠ½Π΅ΡΡΠΈ ΡΠ²Π΅Π»ΠΈΡΠ΅Π½ΠΈΠ΅ ΠΆΠΈΠ»ΡΡ ΠΏΠΎΠΌΠ΅ΡΠ΅Π½ΠΈΠΉ, ΠΎΠ±ΡΠ΅Π΄ΠΈΠ½Π΅Π½ΠΈΠ΅ ΠΊΡΡ ΠΎΠ½Ρ Ρ ΠΊΠΎΠΌΠ½Π°ΡΠ°ΠΌΠΈ ΠΈΠ»ΠΈ Π»ΠΎΠ΄ΠΆΠΈΡΠΌΠΈ, ΠΈΠ·ΠΌΠ΅Π½Π΅Π½ΠΈΡ ΠΊΠ²Π°Π΄ΡΠ°ΡΡΡΡ ΡΠΌΠ΅ΠΆΠ½ΡΡ ΠΏΠΎΠΌΠ΅ΡΠ΅Π½ΠΈΠΉ, Π° ΡΠ°ΠΊΠΆΠ΅ ΠΎΠ±ΡΠ΅Π΄ΠΈΠ½Π΅Π½ΠΈΠ΅ ΡΠ°Π·Π΄Π΅Π»ΡΠ½ΠΎΠ³ΠΎ ΡΠ°Π½ΡΠ·Π»Π°. ΠΡΠ»ΠΈ ΠΏΡΠΈ ΠΏΠ΅ΡΠ΅ΠΏΠ»Π°Π½ΠΈΡΠΎΠ²ΠΊΠ΅ Π½Π΅ ΠΏΡΠΎΠΈΠ·Π²ΠΎΠ΄ΠΈΡΡΡ ΠΈΠ·ΠΌΠ΅Π½Π΅Π½ΠΈΠ΅ Π½Π΅ΡΡΡΠΈΡ ΠΊΠΎΠ½ΡΡΡΡΠΊΡΠΈΠΉ ΠΈ ΠΏΠ΅ΡΠ΅ΠΊΡΡΡΠΈΠΉ, Π²ΡΠΏΠΎΠ»Π½ΠΈΡΡ ΡΠ°Π±ΠΎΡΡ Π±ΡΠ΄Π΅Ρ Π½Π΅ΡΠ»ΠΎΠΆΠ½ΠΎ, Π΄Π° ΠΈ ΠΏΠΎΠ»ΡΡΠΈΡΡ ΡΠ°Π·ΡΠ΅ΡΠ΅Π½ΠΈΠ΅ Π² ΡΠΏΠ΅ΡΠΈΠ°Π»ΡΠ½ΠΎΠΌ ΡΡΡΠ΅ΠΆΠ΄Π΅Π½ΠΈΠΈ Π±ΡΠ΄Π΅Ρ Π΄ΠΎΡΡΠ°ΡΠΎΡΠ½ΠΎ ΠΏΡΠΎΡΡΠΎ. ΠΡΠ»ΠΈ ΠΆΠ΅ ΠΏΡΠ΅Π΄ΡΡΠΌΠ°ΡΡΠΈΠ²Π°Π΅ΡΡΡ ΠΎΠ±ΡΠ°Π·ΠΎΠ²Π°Π½ΠΈΠ΅ Π½ΠΎΠ²ΡΡ ΠΏΡΠΎΠ΅ΠΌΠΎΠ² Π² Π½Π΅ΡΡΡΠΈΡ ΡΡΠ΅Π½Π°Ρ , ΠΏΠ΅ΡΠ΅ΠΏΠ»Π°Π½ΠΈΡΠΎΠ²ΠΊΡ Π±ΡΠ΄Π΅Ρ ΡΠ»ΠΎΠΆΠ½ΠΎ Π½Π΅ ΡΠΎΠ»ΡΠΊΠΎ ΡΠΎΠ³Π»Π°ΡΠΎΠ²Π°ΡΡ, Π½ΠΎ ΠΈ Π²ΡΠΏΠΎΠ»Π½ΠΈΡΡ. ΠΠΏΡΠΎΡΠ΅ΠΌ, ΠΎΡΠΎΠ±Π΅Π½Π½ΠΎΡΡΠΈ ΠΏΠ΅ΡΠ΅ΠΏΠ»Π°Π½ΠΈΡΠΎΠ²ΠΊΠΈ Π²ΡΠ΅Π³Π΄Π° Π·Π°Π²ΠΈΡΡΡ ΡΠΎΠ»ΡΠΊΠΎ ΠΎΡ ΠΏΠΎΠΆΠ΅Π»Π°Π½ΠΈΠΉ ΡΠΎΠ±ΡΡΠ²Π΅Π½Π½ΠΈΠΊΠΎΠ², Π° ΡΠ°ΠΊΠΆΠ΅ ΡΠ΅Ρ Π½ΠΈΡΠ΅ΡΠΊΠΈΡ Ρ Π°ΡΠ°ΠΊΡΠ΅ΡΠΈΡΡΠΈΠΊ ΠΊΠ²Π°ΡΡΠΈΡΡ.
Π‘ΠΏΠ΅ΡΠΈΠ°Π»ΠΈΡΡΡ ΡΡΠΈΡΠ°ΡΡ Π½Π°ΠΈΠ±ΠΎΠ»Π΅Π΅ ΠΏΡΠ°Π²ΠΈΠ»ΡΠ½ΡΠΌ Π²Π°ΡΠΈΠ°Π½ΡΠΎΠΌ ΠΈΠ·Π½Π°ΡΠ°Π»ΡΠ½ΠΎΠ΅ ΠΎΡΠΎΡΠΌΠ»Π΅Π½ΠΈΠ΅ ΡΠ΅Ρ Π½ΠΈΡΠ΅ΡΠΊΠΎΠ³ΠΎ Π·Π°ΠΊΠ»ΡΡΠ΅Π½ΠΈΡ ΠΎ Π²ΠΎΠ·ΠΌΠΎΠΆΠ½ΠΎΡΡΠΈ ΡΠ»ΠΎΠΆΠ½ΠΎΠΉ ΠΏΠ΅ΡΠ΅ΠΏΠ»Π°Π½ΠΈΡΠΎΠ²ΠΊΠΈ ΠΈ ΡΠΎΡΡΠΎΡΠ½ΠΈΠΈ Π½Π΅ΡΡΡΠΈΡ ΡΡΠ΅Π½. Π’Π°ΠΊΠΎΠ΅ Π·Π°ΠΊΠ»ΡΡΠ΅Π½ΠΈΠ΅ Π²ΡΠ΄Π°Π΅Ρ ΡΠΏΠ΅ΡΠΈΠ°Π»ΡΠ½Π°Ρ ΠΏΡΠΎΠ΅ΠΊΡΠ½Π°Ρ ΠΎΡΠ³Π°Π½ΠΈΠ·Π°ΡΠΈΡ, Π·Π°Π½ΠΈΠΌΠ°ΡΡΠ°ΡΡΡ ΠΏΡΠΎΠ΅ΠΊΡΠΈΡΠΎΠ²Π°Π½ΠΈΠ΅ΠΌ Π·Π΄Π°Π½ΠΈΡ. ΠΠ»Π°Π³ΠΎΠ΄Π°ΡΡ ΡΡΠΎΠΌΡ Π·Π°ΠΊΠ»ΡΡΠ΅Π½ΠΈΡ ΠΌΠΎΠΆΠ½ΠΎ ΡΠΎΡΡΠ°Π²ΠΈΡΡ ΠΏΡΠΎΠ΄ΡΠΌΠ°Π½Π½ΡΠΉ ΠΏΡΠΎΠ΅ΠΊΡ ΠΏΠ΅ΡΠ΅ΠΏΠ»Π°Π½ΠΈΡΠΎΠ²ΠΊΠΈ, ΡΡΠΈΡΡΠ²Π°ΡΡΠΈΠΉ Π³Π»Π°Π²Π½ΡΠ΅ Ρ Π°ΡΠ°ΠΊΡΠ΅ΡΠΈΡΡΠΈΠΊΠΈ:
β’ ΠΡΠ΄Π΅Π»ΡΠ½ΡΠ΅ ΠΎΡΠΎΠ±Π΅Π½Π½ΠΎΡΡΠΈ Π·Π΄Π°Π½ΠΈΡ;
β’ ΠΠΎΠΊΠ°Π·Π°ΡΠ΅Π»Ρ ΠΈΠ·Π½ΠΎΡΠ΅Π½Π½ΠΎΡΡΠΈ ΡΡΠ΅Π½, Π²ΡΡΡΡΠΏΠ°ΡΡΠΈΡ Π½Π΅ΡΡΡΠΈΠΌΠΈ ΠΊΠΎΠ½ΡΡΡΡΠΊΡΠΈΡΠΌΠΈ;
β’ ΠΠΎΠ·ΠΌΠΎΠΆΠ½ΡΠ΅ ΠΈΠ·ΠΌΠ΅Π½Π΅Π½ΠΈΡ Π½Π°Π³ΡΡΠ·ΠΊΠΈ Π½Π° Π½Π΅ΡΡΡΠΈΠ΅ ΡΡΠ΅Π½Ρ ΠΏΠΎΡΠ»Π΅ ΠΏΠ΅ΡΠ΅ΠΏΠ»Π°Π½ΠΈΡΠΎΠ²ΠΊΠΈ ΠΈ ΠΏΡΠΎΡΠΈΠ΅.
β’ Π‘ΡΠΎΠΈΠΌΠΎΡΡΡ ΠΏΠ΅ΡΠ΅ΠΏΠ»Π°Π½ΠΈΡΠΎΠ²ΠΊΠΈ ΠΊΠ²Π°ΡΡΠΈΡΡ Π² ΠΏΠ°Π½Π΅Π»ΡΠ½ΠΎΠΌ Π΄ΠΎΠΌΠ΅.
Π ΠΊΠ°ΠΆΠ΄ΠΎΠΌ ΠΎΡΠ΄Π΅Π»ΡΠ½ΠΎΠΌ ΡΠ»ΡΡΠ°Π΅ ΡΠ°ΡΡ ΠΎΠ΄Ρ Π½Π° ΠΏΡΠΎΠ²Π΅Π΄Π΅Π½ΠΈΡ ΠΏΠ΅ΡΠ΅ΠΏΠ»Π°Π½ΠΈΡΠΎΠ²ΠΊΠΈ ΡΠ²Π»ΡΡΡΡΡ ΡΠ°Π·Π½ΡΠΌΠΈ. ΠΡ ΡΠ°Π·ΠΌΠ΅Ρ Π²ΠΎ ΠΌΠ½ΠΎΠ³ΠΎΠΌ Π·Π°Π²ΠΈΡΠΈΡ ΠΎΡ ΠΎΡΠΎΠ±Π΅Π½Π½ΠΎΡΡΠ΅ΠΉ ΠΏΡΠΎΠ΅ΠΊΡΠ°, ΠΈ ΡΠΎΡΡΠΎΠΈΡ ΠΈΠ· Π½ΠΈΠΆΠ΅ΡΠΊΠ°Π·Π°Π½Π½ΡΡ ΡΠΎΡΡΠ°Π²Π»ΡΡΡΠΈΡ :
β’ Π‘ΡΠΎΠΈΠΌΠΎΡΡΡ ΠΏΠΎΠ»ΡΡΠ΅Π½ΠΈΡ ΡΠ΅Ρ Π½ΠΈΡΠ΅ΡΠΊΠΎΠ³ΠΎ Π·Π°ΠΊΠ»ΡΡΠ΅Π½ΠΈΡ;
β’ Π Π°ΡΡ ΠΎΠ΄Ρ Π½Π° ΠΏΠΎΠ΄Π³ΠΎΡΠΎΠ²ΠΊΡ ΠΏΡΠΎΠ΅ΠΊΡΠ½ΡΡ Π΄ΠΎΠΊΡΠΌΠ΅Π½ΡΠΎΠ², Π²ΠΊΠ»ΡΡΠ°Ρ ΠΏΡΠΎΠ΅ΠΊΡ, Π΄ΠΈΠ·Π°ΠΉΠ½-ΠΏΡΠΎΠ΅ΠΊΡ ΠΈ ΡΡΠΊΠΈΠ·Ρ;
β’ Π Π°ΡΡ ΠΎΠ΄Ρ Π½Π° ΠΏΠΎΠΊΡΠΏΠΊΡ ΠΌΠ°ΡΠ΅ΡΠΈΠ°Π»ΠΎΠ²;
β’ Π Π°ΡΡ ΠΎΠ΄Ρ Π½Π° ΠΎΠΏΠ»Π°ΡΡ ΡΡΠ»ΡΠ³ ΡΠΏΠ΅ΡΠΈΠ°Π»ΠΈΡΡΠΎΠ² (ΡΡΡΠΎΠΈΡΠ΅Π»ΡΠ½ΠΎ-ΠΌΠΎΠ½ΡΠ°ΠΆΠ½ΡΠ΅ ΡΠ°Π±ΠΎΡΡ), Π½Π°ΠΏΡΠ°Π²Π»Π΅Π½Π½ΡΡ ΠΈΠΌΠ΅ΡΡΠ΅ΠΉ ΡΠΏΠ΅ΡΠΈΠ°Π»ΡΠ½ΡΡ Π»ΠΈΡΠ΅Π½Π·ΠΈΡ ΠΎΡΠ³Π°Π½ΠΈΠ·Π°ΡΠΈΠ΅ΠΉ.
xn--80ac1bcbgb9aa.xn--p1ai
