ΠΠ»Π°Π½ ΠΊΠ²Π°ΡΡΠΈΡΡ Π΄Π²ΡΡ ΠΊΠΎΠΌΠ½Π°ΡΠ½ΠΎΠΉ β ΠΠ»Π°Π½ΠΈΡΠΎΠ²ΠΊΠ° 2Ρ ΠΠΎΠΌΠ½Π°ΡΠ½ΠΎΠΉ ΠΠ²Π°ΡΡΠΈΡΡ: 215+ (Π€ΠΎΡΠΎ) ΠΠΎΡΡΡΠΏΠ½ΡΡ Π‘Ρ Π΅ΠΌ
ΠΡΡΡΠ°Ρ ΠΏΠ»Π°Π½ΠΈΡΠΎΠ²ΠΊΠ° Π΄Π²ΡΡ ΠΊΠΎΠΌΠ½Π°ΡΠ½ΠΎΠΉ ΠΊΠ²Π°ΡΡΠΈΡΡ (ΡΠΎΡΠΎ, ΠΏΡΠΎΠ΅ΠΊΡΡ)
ΠΠ΅ΠΌΠ°Π»ΠΎΠ²Π°ΠΆΠ½ΡΡ ΡΠΎΠ»Ρ ΠΏΡΠΈ ΠΏΠΎΠΊΡΠΏΠΊΠ΅ ΠΊΠ²Π°ΡΡΠΈΡΡ ΠΈΠ³ΡΠ°Π΅Ρ Π΅Π΅ ΠΏΠ»Π°Π½ΠΈΡΠΎΠ²ΠΊΠ°. ΠΡ Π½Π΅Π΅ Π·Π°Π²ΠΈΡΠΈΡ ΠΊΠΎΠΌΡΠΎΡΡ Π΄Π°Π»ΡΠ½Π΅ΠΉΡΠ΅Π³ΠΎ ΠΏΡΠΎΠΆΠΈΠ²Π°Π½ΠΈΡ Π² Π½Π΅ΠΉ, ΠΏΠΎΡΡΠΎΠΌΡ, Π² ΠΏΠ΅ΡΠ²ΡΡ ΠΎΡΠ΅ΡΠ΅Π΄Ρ, Π±Π΅ΡΡΡΡΡ Π²ΠΎ Π²Π½ΠΈΠΌΠ°Π½ΠΈΠ΅ ΡΠ°ΡΠΏΠΎΠ»ΠΎΠΆΠ΅Π½ΠΈΠ΅ ΠΊΠΎΠΌΠ½Π°Ρ, ΠΏΠ»ΠΎΡΠ°Π΄Ρ, ΠΊΠΎΠ»ΠΈΡΠ΅ΡΡΠ²ΠΎ ΠΈ ΡΠ°Π·ΠΌΠ΅ΡΠ΅Π½ΠΈΠ΅ ΠΎΠΊΠΎΠ½ ΠΎΡΠ½ΠΎΡΠΈΡΠ΅Π»ΡΠ½ΠΎ ΡΡΠΎΡΠΎΠ½ ΡΠ²Π΅ΡΠ°. Π§Π°ΡΠ΅ Π²ΡΠ΅Π³ΠΎ ΠΈΠΌΠ΅Π½Π½ΠΎ ΡΡΠΈ ΡΠ°ΠΊΡΠΎΡΡ Π²Π»ΠΈΡΡΡ Π½Π° Π²ΡΠ±ΠΎΡ ΠΊΠ²Π°ΡΡΠΈΡΡ. ΠΠ° ΠΏΠΎΡΠ»Π΅Π΄Π½ΠΈΠ΅ Π³ΠΎΠ΄Ρ ΠΏΠ»Π°Π½ΠΈΡΠΎΠ²ΠΊΠ° ΠΊΠ²Π°ΡΡΠΈΡ Π·Π°ΠΌΠ΅ΡΠ½ΠΎ ΡΡΠ°Π»Π° Π»ΡΡΡΠ΅, Π½ΠΎ Π½Π΅Π΄ΠΎΡΡΠ°ΡΠΊΠΈ Π²ΡΠ΅ ΠΆΠ΅ ΠΈΠΌΠ΅ΡΡΡΡ. ΠΡΠΈΡΠΈΠ½ΠΎΠΉ ΡΡΠΎΠΌΡ ΡΠ²Π»ΡΠ΅ΡΡΡ ΡΠΊΠΎΠ½ΠΎΠΌΠΈΡ Π²ΡΠ΅ΠΌΠ΅Π½ΠΈ ΠΈ ΡΡΠ΅Π΄ΡΡΠ² Π½Π° Π²ΠΎΠ·Π²Π΅Π΄Π΅Π½ΠΈΠ΅ Π΄ΠΎΠΌΠΎΠ². ΠΠ΅Π΄Ρ Π·Π°ΡΡΡΠΎΠΉΡΠΈΠΊΠ°ΠΌ, ΡΡΠΈΡΡΠ²Π°Ρ ΠΏΡΠΈΠΌΠ΅Π½Π΅Π½ΠΈΠ΅ Π½ΠΎΠ²ΡΡ
ΡΠ΅Ρ
Π½ΠΎΠ»ΠΎΠ³ΠΈΠΉ Π² ΡΡΡΠΎΠΈΡΠ΅Π»ΡΡΡΠ²Π΅, ΡΠ»Π΅Π΄ΠΎΠ²Π°Π»ΠΎ Π±Ρ Π²ΠΎΡΠΏΠΎΠ»ΡΠ·ΠΎΠ²Π°ΡΡΡΡ ΡΡΠ»ΡΠ³Π°ΠΌΠΈ Π°ΡΡ
ΠΈΡΠ΅ΠΊΡΠΎΡΠΎΠ² Π΄Π»Ρ ΠΏΡΠΎΠ΅ΠΊΡΠΈΡΠΎΠ²Π°Π½ΠΈΡ Π²Π½ΡΡΡΠ΅Π½Π½Π΅ΠΉ ΠΏΠ»Π°Π½ΠΈΡΠΎΠ²ΠΊΠΈ ΠΊΠ²Π°ΡΡΠΈΡ, Π° ΡΡΠΎ ΠΎΠ·Π½Π°ΡΠ°Π»ΠΎ Π±Ρ Π΄ΠΎΠΏΠΎΠ»Π½ΠΈΡΠ΅Π»ΡΠ½ΡΠ΅ ΡΠ°ΡΡ
ΠΎΠ΄Ρ ΠΈ Π·Π°ΡΡΠ°ΡΡ Π²ΡΠ΅ΠΌΠ΅Π½ΠΈ, ΡΡΠΎ ΠΎΡΠ΅Π½Ρ Π½Π΅Π²ΡΠ³ΠΎΠ΄Π½ΠΎ.
Π Π½Π°ΡΠ΅ Π²ΡΠ΅ΠΌΡ ΠΎΡΠ΅Π½Ρ ΡΠ°ΡΡΠΎ ΡΠ»ΡΡΠ°Π΅ΡΡΡ, ΠΊΠΎΠ³Π΄Π° ΡΡΡΠΎΡΡΡΡ Π΄ΠΎΠΌΠ° Ρ Π±ΠΎΠ»ΡΡΠΈΠΌΠΈ ΠΏΠΎ ΠΏΠ»ΠΎΡΠ°Π΄ΠΈ ΠΊΠ²Π°ΡΡΠΈΡΠ°ΠΌΠΈ, Π½ΠΎ Ρ ΠΏΠ»ΠΎΡ ΠΎ ΠΏΡΠΎΠ΄ΡΠΌΠ°Π½Π½ΠΎΠΉ Π½Π΅ΠΏΡΠΎΠΏΠΎΡΡΠΈΠΎΠ½Π°Π»ΡΠ½ΠΎΠΉ ΠΏΠ»Π°Π½ΠΈΡΠΎΠ²ΠΊΠΎΠΉ. ΠΠ°ΠΏΡΠΈΠΌΠ΅Ρ, ΠΏΡΠΈ ΡΠΎΠΌ, ΡΡΠΎ ΠΆΠΈΠ»ΡΠ΅ ΠΊΠΎΠΌΠ½Π°ΡΡ Π΄ΠΎΡΡΠ°ΡΠΎΡΠ½ΠΎ ΠΏΡΠΎΡΡΠΎΡΠ½ΡΠ΅, Π½Π° ΠΊΡΡ Π½Π΅ Ρ Π²Π°Π½Π½ΠΎΠΉ Π½Π΅Ρ, Π³Π΄Π΅ ΡΠ°Π·Π²Π΅ΡΠ½ΡΡΡΡΡ.
ΠΡΠΈΡΠ΅ΡΠΈΠΈ Π½Π°ΠΈΠ±ΠΎΠ»Π΅Π΅ Π²ΡΠ³ΠΎΠ΄Π½ΠΎΠΉ ΠΏΠ»Π°Π½ΠΈΡΠΎΠ²ΠΊΠΈ Π΄Π²ΡΡ ΠΊΠΎΠΌΠ½Π°ΡΠ½ΡΡ ΠΊΠ²Π°ΡΡΠΈΡ
Π£ΡΠΈΡΡΠ²Π°Ρ Π²ΡΠ΅ Π½ΡΠ°Π½ΡΡ Π΄Π²ΡΡ ΠΊΠΎΠΌΠ½Π°ΡΠ½ΠΎΠΉ ΠΊΠ²Π°ΡΡΠΈΡΡ, ΠΌΠΎΠΆΠ½ΠΎ Π²ΡΠ΄Π΅Π»ΠΈΡΡ Π½Π΅ΡΠΊΠΎΠ»ΡΠΊΠΎ ΠΊΡΠΈΡΠ΅ΡΠΈΠ΅Π² Π΅Π΅ ΡΠ΄Π°ΡΠ½ΠΎΠΉ ΠΏΠ»Π°Π½ΠΈΡΠΎΠ²ΠΊΠΈ. ΠΡΠ½ΠΎΠ²Π½ΡΠΌ ΠΊΡΠΈΡΠ΅ΡΠΈΠ΅ΠΌ ΡΠ΄ΠΎΠ±ΡΡΠ²Π° ΠΊΠ²Π°ΡΡΠΈΡΡ ΡΡΠΈΡΠ°Π΅ΡΡΡ Π±ΠΎΠ»ΡΡΠ°Ρ ΠΏΡΠΎΡΡΠΎΡΠ½Π°Ρ ΠΊΡΡ Π½Ρ. ΠΠΎΠ½ΡΡΠΈΠ΅ ΠΏΡΠΎΡΡΠΎΡΠ½ΠΎΠΉ ΠΊΡΡ Π½ΠΈ ΠΊΠ°ΠΆΠ΄ΡΠΉ ΡΠ΅Π»ΠΎΠ²Π΅ΠΊ ΠΏΠΎΠ½ΠΈΠΌΠ°Π΅Ρ ΠΏΠΎ-ΡΠ²ΠΎΠ΅ΠΌΡ. ΠΠΎ ΠΎΠΏΡΠΈΠΌΠ°Π»ΡΠ½ΡΠΌ Π²Π°ΡΠΈΠ°Π½ΡΠΎΠΌ Π΄Π»Ρ Π΄Π²ΡΡ ΠΊΠΎΠΌΠ½Π°ΡΠ½ΠΎΠΉ ΠΊΠ²Π°ΡΡΠΈΡΡ Π±ΡΠ΄Π΅Ρ ΠΏΠ»ΠΎΡΠ°Π΄Ρ ΠΎΠΊΠΎΠ»ΠΎ 13 ΠΌΠ΅ΡΡΠΎΠ² ΠΊΠ²Π°Π΄ΡΠ°ΡΠ½ΡΡ . Π§ΡΠΎ ΠΊΠ°ΡΠ°Π΅ΡΡΡ ΠΊΡΡ Π½ΠΈ, ΡΠΎ ΡΡΠΎΠΈΡ ΠΎΡΠΌΠ΅ΡΠΈΡΡ, ΡΡΠΎ ΠΏΡΠΈ Π²Π½ΡΡΡΠ΅Π½Π½Π΅ΠΉ ΠΏΠ»Π°Π½ΠΈΡΠΎΠ²ΠΊΠ΅, Π²Π΅Π½ΡΠΈΠ»ΡΡΠΈΡ Π΄ΠΎΠ»ΠΆΠ½Π° Π²ΡΡ ΠΎΠ΄ΠΈΡΡ Π·Π° Π΅Π΅ ΠΏΡΠ΅Π΄Π΅Π»Ρ.

ΠΡΠ΅Π½Ρ Ρ ΠΎΡΠΎΡΠΈΠΌ ΠΏΠΎΠΊΠ°Π·Π°ΡΠ΅Π»Π΅ΠΌ ΠΏΠ»Π°Π½ΠΈΡΠΎΠ²ΠΊΠΈ ΡΠ²Π»ΡΠ΅ΡΡΡ Π½Π°Π»ΠΈΡΠΈΠ΅ ΠΏΠΎΠ΄ΡΠΎΠ±Π½ΡΡ ΠΏΠΎΠΌΠ΅ΡΠ΅Π½ΠΈΠΉ ΠΈ ΠΊΠ»Π°Π΄ΠΎΠ²ΡΡ Π² ΠΊΠ²Π°ΡΡΠΈΡΠ΅, ΠΊΠΎΡΠΎΡΡΠ΅ Π·Π½Π°ΡΠΈΡΠ΅Π»ΡΠ½ΠΎ ΡΠΏΡΠΎΡΡΡΡ Π·Π°Π΄Π°ΡΡ Ρ ΡΠ°Π½Π΅Π½ΠΈΡ Ρ ΠΎΠ·ΡΠΉΡΡΠ²Π΅Π½Π½ΡΡ ΠΏΡΠΈΠ½Π°Π΄Π»Π΅ΠΆΠ½ΠΎΡΡΠ΅ΠΉ ΠΈ Π΄ΡΡΠ³ΠΈΡ Π²Π΅ΡΠ΅ΠΉ.
Π ΠΈΠ΄Π΅Π°Π»Π΅ ΠΏΠ»Π°Π½ΠΈΡΠΎΠ²ΠΊΠ° Π΄Π²ΡΡ ΠΊΠΎΠΌΠ½Π°ΡΠ½ΠΎΠΉ ΠΊΠ²Π°ΡΡΠΈΡΡ Π½Π΅ Π΄ΠΎΠ»ΠΆΠ½Π° ΠΈΠΌΠ΅ΡΡ Π½Π΅ΡΡΠ½ΠΊΡΠΈΠΎΠ½Π°Π»ΡΠ½ΡΠ΅ Π·ΠΎΠ½Ρ, Π²ΡΡΠΎΡΠ° ΠΏΠΎΡΠΎΠ»ΠΊΠΎΠ² Π² ΠΊΠ²Π°ΡΡΠΈΡΠ΅ Π΄ΠΎΠ»ΠΆΠ½Π° Π±ΡΡΡ Π½Π΅ ΠΌΠ΅Π½Π΅Π΅ 2,8 ΠΌΠ΅ΡΡΠ°
, ΠΊΠ²Π°ΡΡΠΈΡΠ° Π΄ΠΎΠ»ΠΆΠ½Π° Π½Π΅ΠΏΠ»ΠΎΡ ΠΎ ΠΎΡΠ²Π΅ΡΠ°ΡΡΡΡ Π΅ΡΡΠ΅ΡΡΠ²Π΅Π½Π½ΡΠΌ Π΄Π½Π΅Π²Π½ΡΠΌ ΡΠ²Π΅ΡΠΎΠΌ, ΡΡΠΎ Π·Π°Π²ΠΈΡΠΈΡ ΠΎΡ ΡΠ°ΡΠΏΠΎΠ»ΠΎΠΆΠ΅Π½ΠΈΡ ΠΈ ΡΠ°Π·ΠΌΠ΅ΡΠ° ΠΎΠΊΠΎΠ½, Π° ΡΠ°ΠΊΠΆΠ΅ Π±Π°Π»ΠΊΠΎΠ½ ΠΈ Π»ΠΎΠ΄ΠΆΠΈΡ Π½Π΅ Π΄ΠΎΠ»ΠΆΠ½Ρ Π±ΡΡΡ ΡΠ΅ΡΠ½ΡΠΌΠΈ.ΠΠΈΠ΄Ρ ΠΏΠ»Π°Π½ΠΈΡΠΎΠ²ΠΎΠΊ Π΄Π²ΡΡ ΠΊΠΎΠΌΠ½Π°ΡΠ½ΡΡ ΠΊΠ²Π°ΡΡΠΈΡ
ΠΠ²ΡΡ ΠΊΠΎΠΌΠ½Π°ΡΠ½ΡΠ΅ ΠΊΠ²Π°ΡΡΠΈΡΡ ΠΏΠΎΠ»ΡΠ·ΡΡΡΡΡ Π±ΠΎΠ»ΡΡΠΈΠΌ ΡΠΏΡΠΎΡΠΎΠΌ, ΠΊΠ°ΠΊ Π½Π° ΠΏΠ΅ΡΠ²ΠΈΡΠ½ΠΎΠΌ, ΡΠ°ΠΊ ΠΈ Π½Π° Π²ΡΠΎΡΠΈΡΠ½ΠΎΠΌ ΡΡΠ½ΠΊΠ΅ Π½Π΅Π΄Π²ΠΈΠΆΠΈΠΌΠΎΡΡΠΈ. Π‘Π°ΠΌΡΠ΅ ΠΏΠΎΠΏΡΠ»ΡΡΠ½ΡΠ΅ ΠΊΠ²Π°ΡΡΠΈΡΡ β ΡΡΠΎ ΠΊΠ²Π°ΡΡΠΈΡΡ Π² ΠΏΠ°Π½Π΅Π»ΡΠ½ΡΡ Π΄ΠΎΠΌΠ°Ρ , ΠΏΠ»Π°Π½ΠΈΡΠΎΠ²ΠΊΠ° ΠΆΠΈΠ»ΡΡ Π² ΠΊΠΎΡΠΎΡΡΡ Π½ΠΎΡΠΈΡ Π΄ΠΎΡΡΠ°ΡΠΎΡΠ½ΠΎ ΡΠΈΠΏΠΈΡΠ½ΡΠΉ Ρ Π°ΡΠ°ΠΊΡΠ΅Ρ.
ΠΠ»Π°Π½ΠΈΡΠΎΠ²ΠΊΠ° Π΄Π²ΡΡ ΠΊΠΎΠΌΠ½Π°ΡΠ½ΡΡ ΠΊΠ²Π°ΡΡΠΈΡ Π² ΠΌΠ½ΠΎΠ³ΠΎΡΡΠ°ΠΆΠ½ΡΡ Π΄ΠΎΠΌΠ°Ρ
ΠΠ»Π°Π½ΠΈΡΠΎΠ²ΠΊΠ° ΡΡΠ°Π½Π΄Π°ΡΡΠ½ΠΎΠΉ Π΄Π²ΡΡ ΠΊΠΎΠΌΠ½Π°ΡΠ½ΠΎΠΉ ΠΊΠ²Π°ΡΡΠΈΡΡ ΠΎΡΠ»ΠΈΡΠ°Π΅ΡΡΡ ΡΠ²Π΅Π»ΠΈΡΠ΅Π½ΠΈΠ΅ΠΌ ΠΎΠ±ΡΠ΅ΠΉ ΠΏΠ»ΠΎΡΠ°Π΄ΠΈ Π·Π° ΡΡΠ΅Ρ ΠΈΡΠΊΠ»ΡΡΠ΅Π½ΠΈΡ ΠΈΠ· ΠΏΠ»Π°Π½ΠΈΡΠΎΠ²ΠΊΠΈ Π²ΡΠ΅Ρ ΠΏΠΎΠ΄ΡΠΎΠ±Π½ΡΡ ΠΏΠΎΠΌΠ΅ΡΠ΅Π½ΠΈΠΉ ΠΈ ΠΊΠ»Π°Π΄ΠΎΠ²ΡΡ , Π° ΡΠ°ΠΊΠΆΠ΅ ΡΠΎΠΊΡΠ°ΡΠ΅Π½ΠΈΡ ΠΏΠ»ΠΎΡΠ°Π΄ΠΈ Π»ΠΎΠ΄ΠΆΠΈΠΉ, ΠΊΠΎΡΠΈΠ΄ΠΎΡΠΎΠ², ΠΊΡΡ ΠΎΠ½Π½ΠΎΠΉ Π·ΠΎΠ½Ρ ΠΈ Π²Π°Π½Π½ΠΎΠΉ. ΠΡΠΎ ΠΏΡΠΈΠ²ΠΎΠ΄ΠΈΡ ΠΊ ΡΠ°ΡΡΡΠΌ ΠΏΠ΅ΡΠ΅ΠΏΠ»Π°Π½ΠΈΡΠΎΠ²ΠΊΠ°ΠΌ ΡΡΠ°Π½Π΄Π°ΡΡΠ½ΡΡ ΠΊΠ²Π°ΡΡΠΈΡ Π½Π΅Π·Π°Π²ΠΈΡΠΈΠΌΠΎ ΠΎΡ ΡΠΈΠΏΠ° Π΄ΠΎΠΌΠ°, ΠΌΠΎΠ½ΠΎΠ»ΠΈΡΠ½ΡΠΉ ΠΎΠ½ ΠΈΠ»ΠΈ ΠΏΠ°Π½Π΅Π»ΡΠ½ΡΠΉ.
ΠΠ΅ΡΠ΅ΠΏΠ»Π°Π½ΠΈΡΠΎΠ²ΠΊΠ° Π΄Π²ΡΡ ΠΊΠΎΠΌΠ½Π°ΡΠ½ΠΎΠΉ ΠΊΠ²Π°ΡΡΠΈΡΡ Π² ΠΏΡΡΠΈΡΡΠ°ΠΆΠΊΠ΅
ΠΠ°ΡΡΡΠΎΠΉΡΠΈΠΊ Π² ΡΠ΅Π»ΡΡ ΡΠΎΠ±ΡΡΠ²Π΅Π½Π½ΠΎΠΉ Π²ΡΠ³ΠΎΠ΄Ρ Π·Π° ΡΡΠ΅Ρ ΠΌΠ½ΠΎΠ³ΠΈΡ Π»ΠΈΡΠ΅Π½ΠΈΠΉ, Π·Π½Π°ΡΠΈΡΠ΅Π»ΡΠ½ΠΎ ΡΠ½ΠΈΠΆΠ°Π΅Ρ ΡΡΠ½ΠΊΡΠΈΠΎΠ½Π°Π»ΡΠ½ΠΎΡΡΡ ΠΊΠ²Π°ΡΡΠΈΡΡ Π² ΡΠ΅Π»ΠΎΠΌ, ΡΡΠΎ Π΄ΠΎΡΡΠ°Π²Π»ΡΠ΅Ρ Π·Π½Π°ΡΠΈΡΠ΅Π»ΡΠ½ΡΡ Π½Π΅ΡΠ΄ΠΎΠ±ΡΡΠ² ΠΈ Π΄ΠΈΡΠΊΠΎΠΌΡΠΎΡΡΠ° Π²ΠΎ Π²ΡΠ΅ΠΌΡ ΠΏΡΠΎΠΆΠΈΠ²Π°Π½ΠΈΡ Π² ΡΠ°ΠΊΠΎΠΉ ΠΊΠ²Π°ΡΡΠΈΡΠ΅.
Π‘ΡΠ΅Π΄ΠΈ ΡΡΠ°Π½Π΄Π°ΡΡΠ½ΡΡ Π΄Π²ΡΡ ΠΊΠΎΠΌΠ½Π°ΡΠ½ΡΡ ΠΊΠ²Π°ΡΡΠΈΡ Π½Π°ΠΈΠ±ΠΎΠ»ΡΡΠ΅ΠΉ ΠΏΠΎΠΏΡΠ»ΡΡΠ½ΠΎΡΡΡΡ ΡΡΠ΅Π΄ΠΈ ΠΏΠΎΠΊΡΠΏΠ°ΡΠ΅Π»Π΅ΠΉ ΠΏΠΎΠ»ΡΠ·ΡΡΡΡΡ ΠΊΠ²Π°ΡΡΠΈΡΡ Π² Π΄ΠΎΠΌΠ°Ρ Π-44, ΠΏΠ»ΠΎΡΠ°Π΄Ρ ΠΊΠΎΡΠΎΡΡΡ ΡΠΎΡΡΠ°Π²Π»ΡΠ΅Ρ ΠΎΡ 50 Π΄ΠΎ 58 ΠΌΠ΅ΡΡΠΎΠ² ΠΊΠ²Π°Π΄ΡΠ°ΡΠ½ΡΡ . Π ΠΏΠ»Π°Π½ΠΈΡΠΎΠ²ΠΊΠ΅ ΡΠ°ΠΊΠΎΠ³ΠΎ ΡΠΈΠΏΠ° ΠΊΠ²Π°ΡΡΠΈΡ Π΅ΡΡΡ ΡΠΎΠ»ΡΠΊΠΎ Π΄Π²Π΅ ΠΆΠΈΠ»ΡΠ΅ ΠΊΠΎΠΌΠ½Π°ΡΡ ΠΈ ΠΊΡΡ Π½Ρ ΡΡΠ΅Π΄Π½ΠΈΡ ΡΠ°Π·ΠΌΠ΅ΡΠΎΠ² (ΠΎΡ 8 Π΄ΠΎ 10 ΠΌΠ΅ΡΡΠΎΠ² ΠΊΠ²Π°Π΄ΡΠ°ΡΠ½ΡΡ ).
ΠΠΠΠ-Π Π΄Π²ΡΡ ΠΊΠΎΠΌΠ½Π°ΡΠ½Π°Ρ ΠΊΠ²Π°ΡΡΠΈΡΠ°
Π Π±ΠΎΠ»Π΅Π΅ Π½ΠΎΠ²ΡΡ Π΄ΠΎΠΌΠ°Ρ ΡΠ΅ΡΠΈΠΉ Π-155 ΠΈ ΠΠΠΠ-Π Π²Π½ΡΡΡΠ΅Π½Π½ΡΡ ΠΏΠ»Π°Π½ΠΈΡΠΎΠ²ΠΊΠ° ΠΊΠ²Π°ΡΡΠΈΡ Π²ΡΠΏΠΎΠ»Π½Π΅Π½Π° Π½Π΅ΠΌΠ½ΠΎΠ³ΠΎ ΡΠ΄Π°ΡΠ½Π΅Π΅. ΠΠ»Ρ ΠΊΡΡ ΠΎΠ½Π½ΠΎΠΉ Π·ΠΎΠ½Ρ Π² ΡΠ°ΠΊΠΈΡ ΠΊΠ²Π°ΡΡΠΈΡΠ°Ρ ΠΎΡΠ²Π΅Π΄Π΅Π½ΠΎ 10-12 ΠΊΠ²Π°Π΄ΡΠ°ΡΠ½ΡΡ ΠΌΠ΅ΡΡΠΎΠ² ΠΎΠ±ΡΠ΅ΠΉ ΠΏΠ»ΠΎΡΠ°Π΄ΠΈ, ΠΊΠΎΡΠΎΡΠ°Ρ Π² Π·Π°Π²ΠΈΡΠΈΠΌΠΎΡΡΠΈ ΠΎΡ ΡΠ°ΡΠΏΠΎΠ»ΠΎΠΆΠ΅Π½ΠΈΡ ΠΊΠ²Π°ΡΡΠΈΡΡ Π² Π΄ΠΎΠΌΠ΅ ΠΊΠΎΠ»Π΅Π±Π»Π΅ΡΡΡ Π² ΡΠ°ΠΉΠΎΠ½Π΅ ΠΎΡ 50 Π΄ΠΎ 75 ΠΌΠ΅ΡΡΠΎΠ² ΠΊΠ²Π°Π΄ΡΠ°ΡΠ½ΡΡ .

ΠΠΠΠ-Π Π΄Π²ΡΡ ΠΊΠΎΠΌΠ½Π°ΡΠ½Π°Ρ ΠΊΠ²Π°ΡΡΠΈΡΠ°
Π Π΄ΠΎΠΌΠ°Ρ , ΡΠ°ΠΊ Π½Π°Π·ΡΠ²Π°Π΅ΠΌΠΎΠ³ΠΎ Π±ΠΈΠ·Π½Π΅Ρ-ΠΊΠ»Π°ΡΡΠ°, Π²Π½ΡΡΡΠ΅Π½Π½ΠΈΠ΅ ΠΏΠ»Π°Π½ΠΈΡΠΎΠ²ΠΊΠΈ ΡΠ°ΠΌΡΠ΅ ΡΠ°Π·Π½ΠΎΠΎΠ±ΡΠ°Π·Π½ΡΠ΅. ΠΡΠΈΡΠΈΠ½ΠΎΠΉ ΡΡΠΎΠΌΡ ΡΠ²Π»ΡΠ΅ΡΡΡ ΠΈΡΠΏΠΎΠ»ΡΠ·ΠΎΠ²Π°Π½ΠΈΠ΅ Π½ΠΎΠ²Π΅ΠΉΡΠΈΡ ΡΡΡΠΎΠΈΡΠ΅Π»ΡΠ½ΡΡ ΡΠ΅Ρ Π½ΠΎΠ»ΠΎΠ³ΠΈΠΉ ΠΈ ΡΠΏΠ΅ΡΠΈΠ°Π»ΡΠ½ΡΡ ΠΏΡΠΎΠ΅ΠΊΡΠΎΠ² ΠΏΡΠΈ Π²ΠΎΠ·Π²Π΅Π΄Π΅Π½ΠΈΠΈ ΠΊΠΈΡΠΏΠΈΡΠ½ΠΎ-ΠΌΠΎΠ½ΠΎΠ»ΠΈΡΠ½ΡΡ Π΄ΠΎΠΌΠΎΠ². ΠΡΠΎ ΠΎΠ±ΡΡΠΎΡΡΠ΅Π»ΡΡΡΠ²ΠΎ ΠΏΠΎΠ·Π²ΠΎΠ»ΡΠ΅Ρ Π΄Π΅Π»Π°ΡΡ ΠΏΠ΅ΡΠ΅ΠΏΠ»Π°Π½ΠΈΡΠΎΠ²ΠΊΡ Π½Π° ΡΠ²ΠΎΠ΅ ΡΡΠΌΠΎΡΡΠ΅Π½ΠΈΠ΅, ΡΠ΅ΠΌ Π±ΠΎΠ»Π΅Π΅, ΡΡΠΎ ΠΈΠ·Π½Π°ΡΠ°Π»ΡΠ½Π°Ρ ΠΏΠ»Π°Π½ΠΈΡΠΎΠ²ΠΊΠ° Π΄Π°Π΅Ρ Π²ΠΎΠ·ΠΌΠΎΠΆΠ½ΠΎΡΡΡ Π²ΠΎΡΡΠΎΠ΅Π΄ΠΈΠ½ΠΈΡΡ ΠΊΡΡ Π½Ρ Ρ ΠΊΠΎΠΌΠ½Π°ΡΠΎΠΉ ΠΈΠ»ΠΈ ΠΏΡΠΎΡΡΠΎ ΡΠ²Π΅Π»ΠΈΡΠΈΡΡ ΠΊΡΡ ΠΎΠ½Π½ΠΎΠ΅ ΠΏΡΠΎΡΡΡΠ°Π½ΡΡΠ²ΠΎ. ΠΠΎΠΌΠ° Π±ΠΈΠ·Π½Π΅Ρ-ΠΊΠ»Π°ΡΡΠ° ΠΎΡΠ»ΠΈΡΠ°ΡΡΡΡ ΠΎΠΏΡΠΈΠΌΠ°Π»ΡΠ½ΠΎΠΉ ΠΏΡΠΎΠΏΠΎΡΡΠΈΠΎΠ½Π°Π»ΡΠ½ΠΎΡΡΡΡ Π²Π½ΡΡΡΠ΅Π½Π½ΠΈΡ ΠΏΠ»Π°Π½ΠΈΡΠΎΠ²ΠΎΠΊ ΠΊΠ²Π°ΡΡΠΈΡ, ΡΡΠΎ Π΄Π΅Π»Π°Π΅Ρ ΠΏΠΎΠΌΠ΅ΡΠ΅Π½ΠΈΠ΅ Π±ΠΎΠ»Π΅Π΅ ΡΡΠ½ΠΊΡΠΈΠΎΠ½Π°Π»ΡΠ½ΡΠΌ ΠΈ ΠΊΠΎΠΌΡΠΎΡΡΠ½ΡΠΌ. Π£ΡΠΈΡΡΠ²Π°Ρ ΡΠΎΡ ΡΠ°ΠΊΡ, ΡΡΠΎ ΡΠ°ΠΊΠΈΠ΅ Π΄ΠΎΠΌΠ° ΡΠ°ΡΡΡΠΈΡΠ°Π½Ρ Π½Π° ΡΠΎΡΡΠΎΡΡΠ΅Π»ΡΠ½ΡΡ Π»ΡΠ΄Π΅ΠΉ, ΡΠΎ ΡΠΏΠΎΡ Π² ΡΡΡΠΎΠΈΡΠ΅Π»ΡΡΡΠ²Π΅ Π΄Π΅Π»Π°Π΅ΡΡΡ ΠΈΠΌΠ΅Π½Π½ΠΎ Π½Π° ΠΊΠ°ΡΠ΅ΡΡΠ²ΠΎ ΠΊΠ²Π°ΡΡΠΈΡ, Π½Π° ΡΠ΄ΠΎΠ±ΡΡΠ²ΠΎ ΠΏΠ»Π°Π½ΠΈΡΠΎΠ²ΠΊΠΈ ΠΈ ΠΊΠΎΠΌΡΠΎΡΡ.

ΠΠΠΠ-Π Π΄Π²ΡΡ ΠΊΠΎΠΌΠ½Π°ΡΠ½Π°Ρ ΠΊΠ²Π°ΡΡΠΈΡΠ°
ΠΡΠ½ΠΎΠ²Π½ΠΎΠΉ ΠΎΡΠΎΠ±Π΅Π½Π½ΠΎΡΡΡΡ Π²ΠΎΠ·Π²Π΅Π΄Π΅Π½ΠΈΡ ΠΌΠΎΠ½ΠΎΠ»ΠΈΡΠ½ΡΡ Π΄ΠΎΠΌΠΎΠ² ΡΠ»ΠΈΡ-ΠΊΠ»Π°ΡΡΠ° ΡΠ²Π»ΡΠ΅ΡΡΡ ΡΠΎΡ ΡΠ°ΠΊΡ, ΡΡΠΎ Π² ΠΏΡΠΎΠ΅ΠΊΡΠ΅ Π²Π½ΡΡΡΠ΅Π½Π½Π΅ΠΉ ΠΏΠ»Π°Π½ΠΈΡΠΎΠ²ΠΊΠΈ ΠΊΠ²Π°ΡΡΠΈΡ ΠΈΠ·Π½Π°ΡΠ°Π»ΡΠ½ΠΎ Π΄ΠΎΠ»ΠΆΠ½Ρ ΠΎΡΡΡΡΡΡΠ²ΠΎΠ²Π°ΡΡ ΠΊΠ°ΠΊΠΈΠ΅-Π»ΠΈΠ±ΠΎ ΠΏΠ΅ΡΠ΅Π³ΠΎΡΠΎΠ΄ΠΊΠΈ. ΠΡΠΎ ΡΠ°ΠΊ Π½Π°Π·ΡΠ²Π°Π΅ΠΌΠ°Ρ ΡΠ²ΠΎΠ±ΠΎΠ΄Π½Π°Ρ ΠΏΠ»Π°Π½ΠΈΡΠΎΠ²ΠΊΠ°, ΠΊΠΎΡΠΎΡΠ°Ρ ΠΏΠΎΠ·Π²ΠΎΠ»ΡΠ΅Ρ ΠΎΡΡΡΠ΅ΡΡΠ²ΠΈΡΡ ΠΏΠ»Π°Π½ΠΈΡΠΎΠ²Π°Π½ΠΈΠ΅ Π² Π·Π°Π²ΠΈΡΠΈΠΌΠΎΡΡΠΈ ΠΏΡΠ΅Π΄ΠΏΠΎΡΡΠ΅Π½ΠΈΠΉ Ρ ΠΎΠ·ΡΠ΅Π² ΠΆΠΈΠ»ΡΡ.
ΠΠ²ΡΡ ΠΊΠΎΠΌΠ½Π°ΡΠ½Π°Ρ ΠΊΠ²Π°ΡΡΠΈΡΠ° Π² ΠΏΠ°Π½Π΅Π»ΡΠ½ΠΎΠΌ Π΄ΠΎΠΌΠ΅
Π ΠΊΠ²Π°ΡΡΠΈΡΠ°Ρ Π΄ΠΎΠΌΠΎΠ² Π±ΠΎΠ»Π΅Π΅ Π΄Π΅ΡΠ΅Π²ΠΎΠΉ ΡΠ΅Π½ΠΎΠ²ΠΎΠΉ ΠΊΠ°ΡΠ΅Π³ΠΎΡΠΈΠΈ ΠΎΡΡΡΡΡΡΠ²ΡΠ΅Ρ Π²ΠΎΠ·ΠΌΠΎΠΆΠ½ΠΎΡΡΡ ΠΊΠ°ΡΠ΄ΠΈΠ½Π°Π»ΡΠ½ΡΡ ΠΈΠ·ΠΌΠ΅Π½Π΅Π½ΠΈΠΉ Π²Π½ΡΡΡΠ΅Π½Π½Π΅ΠΉ ΠΏΠ»Π°Π½ΠΈΡΠΎΠ²ΠΊΠΈ, ΠΏΠΎΡΠΊΠΎΠ»ΡΠΊΡ Π½Π° ΡΡΠ΅Π½Ρ Π²ΠΎΠ·Π»ΠΎΠΆΠ΅Π½Π° ΠΎΡΠ½ΠΎΠ²Π½Π°Ρ Π½Π°Π³ΡΡΠ·ΠΊΠ°, ΠΈ ΠΎΠ½ΠΈ ΡΠ²Π»ΡΡΡΡΡ Π½Π΅ΡΡΡΠΈΠΌΠΈ. ΠΠΎΡΡΠΎΠΌΡ Π²Π½ΡΡΡΠ΅Π½Π½ΡΡ ΠΏΠ»Π°Π½ΠΈΡΠΎΠ²ΠΊΠ° ΡΠ°ΠΊΠΈΡ ΠΊΠ²Π°ΡΡΠΈΡ ΠΏΡΠΎΠ΅ΠΊΡΠΈΡΡΠ΅ΡΡΡ Π΅ΡΠ΅ Π΄ΠΎ Π½Π°ΡΠ°Π»Π° ΡΡΡΠΎΠΈΡΠ΅Π»ΡΡΡΠ²Π°. ΠΠ° ΠΈ ΡΠ²ΠΎΠ±ΠΎΠ΄Π½ΠΎΠ΅ ΠΏΠ»Π°Π½ΠΈΡΠΎΠ²Π°Π½ΠΈΠ΅ Π΄Π²ΡΡ ΠΊΠΎΠΌΠ½Π°ΡΠ½ΡΡ ΠΊΠ²Π°ΡΡΠΈΡ Π² ΡΠ»ΠΈΡΠ½ΡΡ Π΄ΠΎΠΌΠ°Ρ ΡΡΠΈΡΠ°Π΅ΡΡΡ ΡΠΎΡΠΌΠ°Π»ΡΠ½ΡΠΌ, ΠΏΠΎΡΠΊΠΎΠ»ΡΠΊΡ ΠΏΠ»Π°Π½ ΠΆΠΈΠ»ΡΡ Π΄ΠΎΠ»ΠΆΠ΅Π½ Π±ΡΡΡ Π΄ΠΎΠΊΡΠΌΠ΅Π½ΡΠ°Π»ΡΠ½ΠΎ ΡΡΠ²Π΅ΡΠΆΠ΄Π΅Π½ Π² ΠΠ’Π, ΠΊΠ°ΠΊ ΠΈ Π»ΡΠ±ΠΎΠ΅ ΠΈΠ·ΠΌΠ΅Π½Π΅Π½ΠΈΠ΅ ΠΏΠ»Π°Π½ΠΈΡΠΎΠ²ΠΊΠΈ Π² Π±ΡΠ΄ΡΡΠ΅ΠΌ.

ΠΠ»Π°Π½ΠΈΡΠΎΠ²ΠΊΠ° ΠΊΠ²Π°ΡΡΠΈΡ Π² ΠΌΠ½ΠΎΠ³ΠΎΡΡΠ°ΠΆΠ½ΡΡ Π΄ΠΎΠΌΠ°Ρ
ΠΠ»Π°Π½ΠΈΡΠΎΠ²ΠΊΠ° ΠΊΠ²Π°ΡΡΠΈΡ Π² ΠΌΠ½ΠΎΠ³ΠΎΡΡΠ°ΠΆΠ½ΡΡ Π΄ΠΎΠΌΠ°Ρ
ΠΠ°ΠΊ ΠΏΡΠ°Π²ΠΈΠ»ΠΎ, ΠΏΠ»Π°Π½ΠΈΡΠΎΠ²ΠΊΠ° Π΄Π²ΡΡ ΠΊΠΎΠΌΠ½Π°ΡΠ½ΠΎΠΉ ΠΊΠ²Π°ΡΡΠΈΡΡ Π² ΠΏΡΡΠΈΡΡΠ°ΠΆΠΊΠ΅ ΠΌΠ°Π»ΠΎ ΡΠ΅ΠΌ ΠΎΡΠ»ΠΈΡΠ°Π΅ΡΡΡ ΠΎΡ ΠΏΠ»Π°Π½ΠΈΡΠΎΠ²ΠΊΠΈ Π² Π΄Π΅Π²ΡΡΠΈΡΡΠ°ΠΆΠΊΠ΅. ΠΠ»Π°Π½ΠΈΡΠΎΠ²Π°Π½ΠΈΠ΅ ΠΊΠ²Π°ΡΡΠΈΡ Π² ΠΌΠ½ΠΎΠ³ΠΎΡΡΠ°ΠΆΠ½ΡΡ Π΄ΠΎΠΌΠ°Ρ , ΠΊΠ°ΠΊ ΠΏΡΠ°Π²ΠΈΠ»ΠΎ, ΠΎΡΡΡΠ΅ΡΡΠ²Π»ΡΠ΅ΡΡΡ ΠΏΠΎ ΠΎΠ΄Π½ΠΎΠΌΡ ΠΏΡΠΈΠ½ΡΠΈΠΏΡ. ΠΠ»Π°Π½ΠΈΡΠΎΠ²ΠΊΠ° Π΄Π²ΡΡ ΠΊΠΎΠΌΠ½Π°ΡΠ½ΠΎΠΉ ΠΊΠ²Π°ΡΡΠΈΡΡ Π² Π΄Π΅Π²ΡΡΠΈΡΡΠ°ΠΆΠΊΠ΅
ΠΌΠΎΠΆΠ΅Ρ ΠΎΡΠ»ΠΈΡΠ°ΡΡΡΡ ΠΎΡ ΠΏΡΡΠΈΡΡΠ°ΠΆΠΊΠΈ ΡΠΎΠ»ΡΠΊΠΎ ΡΠ΅ΠΌ, ΡΡΠΎ Π² ΠΏΠ΅ΡΠ²ΠΎΠΌ ΡΠ»ΡΡΠ°Π΅ Π²ΠΎΠ·ΠΌΠΎΠΆΠ½Π° ΠΎΠ±ΡΠ°Ρ ΡΡΠ΅Π½Π° Ρ Π»ΠΈΡΡΠΎΠΌ, ΡΡΠΎ Π½Π΅ ΠΎΡΠ΅Π½Ρ Ρ ΠΎΡΠΎΡΠΎ. Π ΠΏΡΡΠΈΡΡΠ°ΠΆΠΊΠ°Ρ Π»ΠΈΡΡΡ Π½Π΅ ΠΏΡΠ΅Π΄ΡΡΠΌΠΎΡΡΠ΅Π½Ρ ΠΈ Π²ΡΠ΅ ΠΊΠ²Π°ΡΡΠΈΡΡ Π² ΡΠ°ΠΊΠΈΡ Π΄ΠΎΠΌΠ°Ρ ΡΠ°Π²Π½ΠΎΠΏΡΠ°Π²Π½Ρ, Π² ΡΠΎ Π²ΡΠ΅ΠΌΡ ΠΊΠΎΠ³Π΄Π° Π² Π΄Π΅Π²ΡΡΠΈΡΡΠ°ΠΆΠ½ΠΎΠΌ Π·Π΄Π°Π½ΠΈΠΈ Π½Π΅ΠΊΠΎΡΠΎΡΡΠ΅ ΠΊΠ²Π°ΡΡΠΈΡΡ Π±ΡΠ΄ΡΡ ΠΌΠ΅Π½Π΅Π΅ ΡΠ΄Π°ΡΠ½Ρ, ΠΏΠΎΡΠΊΠΎΠ»ΡΠΊΡ ΠΎΠ΄Π½Π° ΠΈΡ ΡΡΠ΅Π½Π° Π±ΡΠ΄Π΅Ρ Π²ΡΡ ΠΎΠ΄ΠΈΡΡ ΠΊ Π»ΠΈΡΡΡ.
ΠΠ»Π°Π½ΠΈΡΠΎΠ²ΠΊΠ° Π΄Π²ΡΡ ΠΊΠΎΠΌΠ½Π°ΡΠ½ΠΎΠΉ ΠΊΠ²Π°ΡΡΠΈΡΡ Π² ΠΏΡΡΠΈΡΡΠ°ΠΆΠΊΠ΅ (Ρ ΡΡΡΠ΅Π²ΠΊΠ°)
ΠΠ΅ΡΠΌΠΎΡΡΡ Π½Π° ΡΠΎ, ΡΡΠΎ Π±ΠΎΠ»ΡΡΠΈΠ½ΡΡΠ²ΠΎ ΠΊΠ²Π°ΡΡΠΈΡ Π² ΠΌΠ½ΠΎΠ³ΠΎΡΡΠ°ΠΆΠ½ΡΡ Π΄ΠΎΠΌΠ°Ρ ΡΠ΄Π΅Π»Π°Π½Ρ Π² ΠΎΠ΄ΠΈΠ½Π°ΠΊΠΎΠ²ΠΎΠΌ ΡΡΠΈΠ»Π΅, ΠΏΠ»Π°Π½ΠΈΡΠΎΠ²ΠΊΡ ΠΌΠΎΠΆΠ½ΠΎ ΡΠΌΠ΅Π½ΠΈΡΡ Π½Π° ΡΠ²ΠΎΠ΅ ΡΡΠΌΠΎΡΡΠ΅Π½ΠΈΠ΅, ΡΡΠΈΡΡΠ²Π°Ρ ΠΎΡΠΎΠ±Π΅Π½Π½ΠΎΡΡΠΈ ΠΊΠΎΠ½ΠΊΡΠ΅ΡΠ½ΠΎΠ³ΠΎ Π΄ΠΎΠΌΠ°. ΠΠ»Ρ ΠΈΠ·ΠΌΠ΅Π½Π΅Π½ΠΈΡ Π²Π½ΡΡΡΠ΅Π½Π½Π΅ΠΉ ΠΏΠ»Π°Π½ΠΈΡΠΎΠ²ΠΊΠΈ, ΠΊΠΎΡΠΎΡΠ°Ρ ΠΈΠ·Π½Π°ΡΠ°Π»ΡΠ½ΠΎ Π·Π°Π»ΠΎΠΆΠ΅Π½Π° Π² ΠΏΡΠΎΠ΅ΠΊΡΠ΅ Π·Π°ΡΡΡΠΎΠΉΡΠΈΠΊΠΎΠΌ, Π½Π΅ΠΎΠ±Ρ ΠΎΠ΄ΠΈΠΌΠΎ ΠΏΠΎΠ»ΡΡΠΈΡΡ Π΄ΠΎΠΊΡΠΌΠ΅Π½ΡΠ°Π»ΡΠ½ΠΎΠ΅ ΡΠ°Π·ΡΠ΅ΡΠ΅Π½ΠΈΠ΅ ΠΡΡΠΎ ΡΠ΅Ρ Π½ΠΈΡΠ΅ΡΠΊΠΎΠΉ ΠΈΠ½Π²Π΅Π½ΡΠ°ΡΠΈΠ·Π°ΡΠΈΠΈ, ΠΏΠΎΡΠΊΠΎΠ»ΡΠΊΡ ΡΠ°ΠΌΠΎΠΏΡΠΎΠΈΠ·Π²ΠΎΠ»ΡΠ½ΠΎΠ΅ ΠΈΠ·ΠΌΠ΅Π½Π΅Π½ΠΈΠ΅ ΠΏΠ»Π°Π½Π° ΠΊΠ²Π°ΡΡΠΈΡΡ ΠΌΠΎΠΆΠ΅Ρ ΠΏΡΠΈΠ²Π΅ΡΡΠΈ ΠΊ ΡΠ°Π·ΡΡΡΠ΅Π½ΠΈΡ ΠΎΠ±ΡΠ΅Π³ΠΎ Π·Π΄Π°Π½ΠΈΡ. ΠΡΠ½ΠΎΠ²Π½Π°Ρ ΠΌΠ°ΡΡΠ° ΠΏΠΎΠΊΡΠΏΠ°ΡΠ΅Π»Π΅ΠΉ ΠΊΠ²Π°ΡΡΠΈΡ Π² ΠΌΠ½ΠΎΠ³ΠΎΡΡΠ°ΠΆΠ½ΡΡ Π΄ΠΎΠΌΠ°Ρ Π½Π΅Π΄ΠΎΠ²ΠΎΠ»ΡΠ½Π° ΠΈΠ·Π½Π°ΡΠ°Π»ΡΠ½ΠΎΠΉ ΠΏΠ»Π°Π½ΠΈΡΠΎΠ²ΠΊΠΎΠΉ ΡΠ²ΠΎΠ΅ΠΉ Π΄Π²ΡΡ ΠΊΠΎΠΌΠ½Π°ΡΠ½ΠΎΠΉ ΠΊΠ²Π°ΡΡΠΈΡΡ, ΠΏΠΎΡΡΠΎΠΌΡ 90% ΠΈΠ· Π²ΡΠ΅Ρ ΠΏΡΠΈΠΎΠ±ΡΠ΅ΡΠ΅Π½Π½ΡΡ ΠΊΠ²Π°ΡΡΠΈΡ ΠΏΠΎΠ΄Π²Π΅ΡΠ³Π°ΡΡΡΡ ΠΊΠ°ΡΠ΄ΠΈΠ½Π°Π»ΡΠ½ΡΠΌ ΠΏΠ΅ΡΠ΅ΠΏΠ»Π°Π½ΠΈΡΠΎΠ²ΠΊΠ°ΠΌ.

ΠΠ»Π°Π½ΠΈΡΠΎΠ²ΠΊΠ° ΠΊΠ²Π°ΡΡΠΈΡ Π² ΠΌΠ½ΠΎΠ³ΠΎΡΡΠ°ΠΆΠ½ΡΡ Π΄ΠΎΠΌΠ°Ρ
ΠΠΎΠ»ΡΡΠΎΠΉ ΠΎΡΠΈΠ±ΠΊΠΎΠΉ Π·Π°ΡΡΡΠΎΠΉΡΠΈΠΊΠΎΠ² Π² ΠΏΡΠΎΠ΅ΠΊΡΠΈΡΠΎΠ²Π°Π½ΠΈΠΈ ΠΊΠ²Π°ΡΡΠΈΡ ΡΠ²Π»ΡΠ΅ΡΡΡ Π½Π΅Π΄ΠΎΡΡΠ°ΡΠΎΡΠ½ΠΎ ΡΠ΄Π΅Π»Π΅Π½Π½ΠΎΠ΅ Π²Π½ΠΈΠΌΠ°Π½ΠΈΠ΅ ΠΏΡΠΎΠ΅ΠΊΡΡ, ΠΆΠ΅Π»Π°Π½ΠΈΠ΅ ΡΡΠΊΠΎΡΠΈΡΡ ΠΏΡΠΎΡΠ΅ΡΡ Π²ΠΎΠ·Π²Π΅Π΄Π΅Π½ΠΈΡ Π΄ΠΎΠΌΠ° ΠΈ ΠΏΡΠ΅ΡΠ»Π΅Π΄ΠΎΠ²Π°Π½ΠΈΠ΅ ΡΠ΅Π»Π΅ΠΉ ΡΠΊΠΎΠ½ΠΎΠΌΠΈΡΠ½ΠΎΠΉ Π²ΡΠ³ΠΎΠ΄Ρ. ΠΠ·-Π·Π° ΡΠ°ΠΊΠΈΡ ΡΠΏΡΡΠ΅Π½ΠΈΠΉ Π΄ΠΎΠ²ΠΎΠ»ΡΠ½ΠΎ ΡΠ°ΡΡΠΎ ΡΠ»ΡΡΠ°Π΅ΡΡΡ, ΡΡΠΎ ΠΏΠ»Π°Π½ΠΈΡΠΎΠ²ΠΊΠ° Π΄ΠΎΠΌΠ° ΠΎΡΠ΅Π½Ρ Π½Π΅ΠΏΠ»ΠΎΡ Π°Ρ, Π½ΠΎ Π²ΡΠ΅ ΠΏΠΎΡΡΠΈΡ Π½Π°Π»ΠΈΡΠΈΠ΅ Β«ΡΠ»Π΅ΠΏΡΡ Β» ΠΊΠΎΠΌΠ½Π°Ρ Π² ΠΊΠ²Π°ΡΡΠΈΡΠ΅, ΠΎΡΡΡΡΡΡΠ²ΠΈΠ΅ ΠΎΠΊΠΎΠ½ Π² ΠΊΠΎΡΠΎΡΡΡ Π΄Π΅Π»Π°Π΅Ρ ΠΈΡ ΡΠ³ΡΡΠΌΡΠΌΠΈ ΠΈ Π½Π΅ΠΊΠΎΠΌΡΠΎΡΡΠ½ΡΠΌΠΈ Π΄Π»Ρ ΠΏΡΠΎΠΆΠΈΠ²Π°Π½ΠΈΡ Π² Π½ΠΈΡ .

ΠΠ»Π°Π½ΠΈΡΠΎΠ²ΠΊΠ° ΠΊΠ²Π°ΡΡΠΈΡ Π² ΠΌΠ½ΠΎΠ³ΠΎΡΡΠ°ΠΆΠ½ΡΡ Π΄ΠΎΠΌΠ°Ρ
ΠΡΠ΅Π½Ρ ΡΠ°ΡΡΠΎ Π² Π½Π°ΡΠ΅ Π²ΡΠ΅ΠΌΡ ΡΠ»ΡΡΠ°Π΅ΡΡΡ, ΡΡΠΎ Π² ΠΏΠΎΠ³ΠΎΠ½Π΅ Π·Π° Π²ΡΠ³ΠΎΠ΄ΠΎΠΉ, Π·Π°ΡΡΡΠΎΠΉΡΠΈΠΊΠΈ ΡΠΏΡΡΠΊΠ°ΡΡ ΠΎΡΠ΅Π½Ρ Π²Π°ΠΆΠ½ΡΠΉ ΠΌΠΎΠΌΠ΅Π½Ρ Π² ΠΏΠ»Π°Π½ΠΈΡΠΎΠ²Π°Π½ΠΈΠΈ ΠΊΠ²Π°ΡΡΠΈΡ, ΠΏΡΡΠ°ΡΡΡ ΠΈΡΠΏΠΎΠ»ΡΠ·ΠΎΠ²Π°ΡΡ ΠΏΠ»ΠΎΡΠ°Π΄Ρ ΠΏΠΎ ΠΌΠ°ΠΊΡΠΈΠΌΡΠΌΡ, ΡΡΠΎ Π² ΠΈΡΠΎΠ³Π΅ ΠΏΡΠΈΠ²ΠΎΠ΄ΠΈΡ ΠΊ ΡΠΎΠΌΡ, ΡΡΠΎ Π² ΠΊΠ²Π°ΡΡΠΈΡΠ΅ ΠΎΠ³ΡΠΎΠΌΠ½ΠΎΠΉ ΠΏΠ»ΠΎΡΠ°Π΄ΠΈ Π½Π°ΡΡΠΈΡΡΠ²Π°Π΅ΡΡΡ Π²ΡΠ΅Π³ΠΎ Π΄Π²Π° β ΡΡΠΈ ΠΎΠΊΠ½Π°. ΠΡΠΎ Π΄Π΅Π»Π°Π΅Ρ ΠΊΠ²Π°ΡΡΠΈΡΡ ΡΠ΅ΠΌΠ½ΠΎΠΉ, ΡΡΠΎ ΠΌΠΎΠΆΠ½ΠΎ ΠΈΡΠΏΡΠ°Π²ΠΈΡΡ ΡΠΎΠ»ΡΠΊΠΎ ΠΏΡΠ°Π²ΠΈΠ»ΡΠ½ΠΎ ΠΏΠΎΠ΄ΠΎΠ±ΡΠ°Π½Π½ΠΎΠΉ ΡΠΈΡΡΠ΅ΠΌΠΎΠΉ ΠΈΡΠΊΡΡΡΡΠ²Π΅Π½Π½ΠΎΠ³ΠΎ ΠΎΡΠ²Π΅ΡΠ΅Π½ΠΈΡ.
ΠΠΎΠ½ΡΡΠΈΠ΅ Π»ΡΡΡΠ΅ΠΉ ΠΏΠ»Π°Π½ΠΈΡΠΎΠ²ΠΊΠΈ ΠΊΠ²Π°ΡΡΠΈΡΡ Π΄Π»Ρ ΠΊΠ°ΠΆΠ΄ΠΎΠ³ΠΎ ΡΠ΅Π»ΠΎΠ²Π΅ΠΊΠ° ΠΈΠΌΠ΅Π΅Ρ ΡΠ°Π·Π½ΠΎΠ΅ Π·Π½Π°ΡΠ΅Π½ΠΈΠ΅. ΠΠΎ ΠΏΡΠΈ Π²ΡΠ±ΠΎΡΠ΅ ΠΆΠΈΠ»ΡΡ Π²ΡΠ΅ ΡΠ°Π²Π½ΠΎ ΡΡΠΈΡΡΠ²Π°Π΅ΡΡΡ ΡΡΠ½ΠΊΡΠΈΠΎΠ½Π°Π»ΡΠ½ΠΎΡΡΡ, Π°Π΄Π΅ΠΊΠ²Π°ΡΠ½Π°Ρ ΠΏΡΠΎΠΏΠΎΡΡΠΈΠΎΠ½Π°Π»ΡΠ½ΠΎΡΡΡ ΠΊΠΎΠΌΠ½Π°Ρ ΠΈ Ρ ΠΎΡΠΎΡΠ΅Π΅ Π΅ΡΡΠ΅ΡΡΠ²Π΅Π½Π½ΠΎΠ΅ ΠΎΡΠ²Π΅ΡΠ΅Π½ΠΈΠ΅.
rumpus.ru
ΠΠ»Π°Π½ΠΈΡΠΎΠ²ΠΊΠ° Π΄Π²ΡΡ ΠΊΠΎΠΌΠ½Π°ΡΠ½ΠΎΠΉ ΠΊΠ²Π°ΡΡΠΈΡΡ — Π³ΠΎΡΠΎΠ²ΡΠ΅ ΡΡ Π΅ΠΌΡ ΠΈ ΠΏΠ»Π°Π½Ρ Ρ ΡΠ°Π·ΠΌΠ΅ΡΠ°ΠΌΠΈ
ΠΠ΅ΠΌΠ°Π»Π°Ρ ΡΠ°ΡΡΡ Π΄ΠΎΠΌΠΎΠ² Π±ΡΠ»ΠΈ ΠΏΠΎΡΡΡΠΎΠ΅Π½Ρ Π΅ΡΡ Π² ΡΠΎΠ²Π΅ΡΡΠΊΠΎΠ΅ Π²ΡΠ΅ΠΌΡ, ΠΏΠΎΡΡΠΎΠΌΡ Π½Π° ΡΠ΅Π³ΠΎΠ΄Π½ΡΡΠ½ΠΈΠΉ Π΄Π΅Π½Ρ Π½Π΅ ΡΠ»ΠΈΡΠΊΠΎΠΌ ΡΠ°ΡΠΈΠΎΠ½Π°Π»ΡΠ½Π°Ρ ΠΏΠ»Π°Π½ΠΈΡΠΎΠ²ΠΊΠ° Π΄Π²ΡΡ ΠΊΠΎΠΌΠ½Π°ΡΠ½ΡΡ ΠΊΠ²Π°ΡΡΠΈΡ ΡΠ²Π»ΡΠ΅ΡΡΡ Π΄ΠΎΡΡΠ°ΡΠΎΡΠ½ΠΎ ΠΎΡΡΡΠΎΠΉ ΠΏΡΠΎΠ±Π»Π΅ΠΌΠΎΠΉ. ΠΠΎΠ½Π΅ΡΠ½ΠΎ, Π² ΡΠΎΠ²ΡΠ΅ΠΌΠ΅Π½Π½ΡΡ Π·Π΄Π°Π½ΠΈΡΡ ΠΏΠ»Π°Π½ΠΈΡΠΎΠ²ΠΊΠ° ΡΠΎΠ·Π΄Π°ΡΡΡΡ Π±ΠΎΠ»Π΅Π΅ ΡΡΠ½ΠΊΡΠΈΠΎΠ½Π°Π»ΡΠ½ΠΎΠΉ, Π½ΠΎ ΡΠΈΡΡΠ°ΡΠΈΠΈ, ΠΊΠΎΠ³Π΄Π° Π·Π°ΡΡΡΠΎΠΉΡΠΈΠΊΠΈ ΠΌΠ΅ΠΆΠ΄Ρ ΡΠΎΠ±ΡΡΠ²Π΅Π½Π½ΠΎΠΉ Π²ΡΠ³ΠΎΠ΄ΠΎΠΉ ΠΈ ΡΠ΄ΠΎΠ±ΡΡΠ²ΠΎΠΌ Π±ΡΠ΄ΡΡΠΈΡ ΠΆΠΈΠ»ΡΡΠΎΠ² Π²ΡΠ±ΠΈΡΠ°ΡΡ ΠΏΠ΅ΡΠ²ΡΠΉ Π²Π°ΡΠΈΠ°Π½Ρ, ΠΏΠΎ-ΠΏΡΠ΅ΠΆΠ½Π΅ΠΌΡ, Π½Π΅ ΡΠ΅Π΄ΠΊΠΈ.
ΠΠΎΠ»ΡΡΠ°Ρ ΡΠ°ΡΡΡ ΠΊΠ²Π°ΡΡΠΈΡ Π² Π΄ΠΎΠΌΠ°Ρ Π±ΠΈΠ·Π½Π΅Ρ- ΠΈ ΡΠ»ΠΈΡ-ΠΊΠ»Π°ΡΡΠ° ΠΈΠ΄ΡΡ Π±Π΅Π· ΠΏΠ΅ΡΠ΅Π³ΠΎΡΠΎΠ΄ΠΎΠΊ, ΡΠΎ Π΅ΡΡΡ ΠΎΠ±Π»Π°Π΄Π°ΡΡ ΡΠ°ΠΊ Π½Π°Π·ΡΠ²Π°Π΅ΠΌΠΎΠΉ Β«ΡΠ²ΠΎΠ±ΠΎΠ΄Π½ΠΎΠΉΒ» ΠΏΠ»Π°Π½ΠΈΡΠΎΠ²ΠΊΠΎΠΉ. Π Π΄ΠΎΠΌΠ°Ρ ΡΠΈΠΏΠΎΠ²ΡΡ ΡΠ΅ΡΠΈΠΉ, ΠΊΠ°ΠΊ ΠΏΡΠ°Π²ΠΈΠ»ΠΎ, Π½Π° ΠΏΡΠΎΠ΄Π°ΠΆΡ Π²ΡΡΡΠ°Π²Π»ΡΡΡΡΡ ΠΊΠ²Π°ΡΡΠΈΡΡ Ρ Π³ΠΎΡΠΎΠ²ΠΎΠΉ ΠΏΠ»Π°Π½ΠΈΡΠΎΠ²ΠΊΠΎΠΉ, Π° Π² Π½Π΅ΠΊΠΎΡΠΎΡΡΡ ΡΠ»ΡΡΠ°ΡΡ β Ρ Π³ΠΎΡΠΎΠ²ΠΎΠΉ ΠΎΡΠ΄Π΅Π»ΠΊΠΎΠΉ.
ΠΠ²ΡΡ
ΠΊΠΎΠΌΠ½Π°ΡΠ½Π°Ρ ΠΊΠ²Π°ΡΡΠΈΡΠ° ΡΠΎ ΡΠ²ΠΎΠ±ΠΎΠ΄Π½ΠΎΠΉ ΠΏΠ»Π°Π½ΠΈΡΠΎΠ²ΠΊΠΎΠΉΠΠ»Ρ ΠΏΠΎΠ»ΡΡΠ΅Π½ΠΈΡ ΡΠ²ΠΈΠ΄Π΅ΡΠ΅Π»ΡΡΡΠ²Π° ΠΎ ΡΠΎΠ±ΡΡΠ²Π΅Π½Π½ΠΎΡΡΠΈ, Π² ΡΠΎΠΎΡΠ²Π΅ΡΡΡΠ²ΠΈΠΈ Ρ ΡΠΎΡΡΠΈΠΉΡΠΊΠΈΠΌ Π·Π°ΠΊΠΎΠ½ΠΎΠ΄Π°ΡΠ΅Π»ΡΡΡΠ²ΠΎΠΌ, Π² ΠΠ’Π Π½Π΅ΠΎΠ±Ρ ΠΎΠ΄ΠΈΠΌΠΎ ΠΏΡΠ΅Π΄ΠΎΡΡΠ°Π²ΠΈΡΡ ΠΏΠ»Π°Π½ (ΠΏΠ»Π°Π½ΠΈΡΠΎΠ²ΠΊΠ°, ΠΊΠΎΡΠΎΡΠ°Ρ Π±ΡΠ»Π° Π·Π°Π΄Π°Π½Π° Π½Π΅ΠΏΠΎΡΡΠ΅Π΄ΡΡΠ²Π΅Π½Π½ΠΎ ΡΠ°ΠΌΠΈΠΌ Π·Π°ΡΡΡΠΎΠΉΡΠΈΠΊΠΎΠΌ).
Β
ΠΡΠΈΠΌΠ΅Ρ ΡΠ²ΠΎΠ±ΠΎΠ΄Π½ΠΎΠΉ ΠΏΠ»Π°Π½ΠΈΡΠΎΠ²ΠΊΠΈ Π΄Π²ΡΡ
ΠΊΠΎΠΌΠ½Π°ΡΠ½ΠΎΠΉ ΠΊΠ²Π°ΡΡΠΈΡΡΠ Π±ΠΎΠ»ΡΡΠΈΠ½ΡΡΠ²Π΅ ΡΠ»ΡΡΠ°Π΅Π² Π½Π° ΠΏΠΎΠ»Ρ Π² Π²ΠΈΠ΄Π΅ ΠΊΠΈΡΠΏΠΈΡΠ½ΠΎΠΉ Π΄ΠΎΡΠΎΠΆΠΊΠΈ Π²ΡΠΊΠ»Π°Π΄ΡΠ²Π°ΡΡ ΠΏΠ»Π°Π½ ΠΊΠ²Π°ΡΡΠΈΡΡ, ΠΊΠΎΡΠΎΡΡΠΉ ΡΡΠ²Π΅ΡΠΆΠ΄Π°Π΅ΡΡΡ ΠΠ’Π. ΠΠΎΠΊΡΠΏΠ°ΡΠ΅Π»Ρ, Π½Π° ΡΠ²ΠΎΡ ΡΡΠΌΠΎΡΡΠ΅Π½ΠΈΠ΅, ΠΌΠΎΠΆΠ΅Ρ ΠΏΡΠΈΠ΄Π΅ΡΠΆΠΈΠ²Π°ΡΡΡΡ ΡΡΠΎΠ³ΠΎ ΠΏΠ»Π°Π½Π° ΠΈΠ»ΠΈ ΠΈΠ·ΠΌΠ΅Π½ΠΈΡΡ ΠΏΠ»Π°Π½ΠΈΡΠΎΠ²ΠΊΡ (ΡΡΠΎ, Π΅ΡΡΠ΅ΡΡΠ²Π΅Π½Π½ΠΎ, Π΄ΠΎΠ»ΠΆΠ½ΠΎ Π±ΡΡΡ ΡΠ·Π°ΠΊΠΎΠ½Π΅Π½ΠΎ Π² ΠΠ’Π). ΠΠ°ΠΊ ΠΏΡΠ°Π²ΠΈΠ»ΠΎ, ΠΎΡΠ½ΠΎΠ²Π½Π°Ρ ΡΠ°ΡΡΡ Π»ΡΠ΄Π΅ΠΉ ΠΎΡΠ΄Π°ΡΡ ΠΏΡΠ΅Π΄ΠΏΠΎΡΡΠ΅Π½ΠΈΠ΅ Π²ΡΠΎΡΠΎΠΌΡ Π²Π°ΡΠΈΠ°Π½ΡΡ, Π° ΠΈΠ½ΠΎΠ³Π΄Π° Π΄Π°ΠΆΠ΅ Π΄Π΅Π»Π°ΡΡ ΠΏΠ΅ΡΠ΅ΠΏΠ»Π°Π½ΠΈΡΠΎΠ²ΠΊΡ Π΄Π²ΡΡ ΠΊΠΎΠΌΠ½Π°ΡΠ½ΠΎΠΉ ΠΊΠ²Π°ΡΡΠΈΡΡ Π² ΡΡΡΡ ΠΊΠΎΠΌΠ½Π°ΡΠ½ΡΡ, ΡΡΠΎ Π²ΡΠ·Π²Π°Π½ΠΎ ΡΡΠ΄ΠΎΠΌ ΠΎΠΏΡΠ΅Π΄Π΅Π»ΡΠ½Π½ΡΡ ΠΏΡΠΈΡΠΈΠ½.
ΠΠ΅ΡΠ½ΡΡΡΡΡ ΠΊ ΠΎΠ³Π»Π°Π²Π»Π΅Π½ΠΈΡΠ‘ΠΎΠ΄Π΅ΡΠΆΠ°Π½ΠΈΠ΅ ΠΌΠ°ΡΠ΅ΡΠΈΠ°Π»Π°
ΠΡΠΎΠ±Π΅Π½Π½ΠΎΡΡΠΈ ΠΏΠ»Π°Π½ΠΈΡΠΎΠ²ΠΊΠΈ Π΄Π²ΡΡ ΠΊΠΎΠΌΠ½Π°ΡΠ½ΠΎΠΉ ΠΊΠ²Π°ΡΡΠΈΡΡ Π² ΠΏΠ°Π½Π΅Π»ΡΠ½ΠΎΠΌ Π΄ΠΎΠΌΠ΅
ΠΡΠ½ΠΎΠ²Π½ΡΠ΅ ΠΏΡΠΎΠ±Π»Π΅ΠΌΡ, ΠΊΠΎΡΠΎΡΡΠ΅ ΡΠ²ΡΠ·Π°Π½Ρ Ρ ΠΏΠ»Π°Π½ΠΈΡΠΎΠ²ΠΊΠΎΠΉ Π΄Π²ΡΡ ΠΊΠΎΠΌΠ½Π°ΡΠ½ΡΡ ΠΊΠ²Π°ΡΡΠΈΡ, Π²ΠΎΠ·Π½ΠΈΠΊΠ°ΡΡ ΠΈΠ·-Π·Π° ΠΎΠΊΠΎΠ½. ΠΠ΅ΡΠ΅Π΄ΠΊΠΎ Π² ΠΏΡΠΎΡΠ΅ΡΡΠ΅ ΠΏΡΠΎΠ΅ΠΊΡΠΈΡΠΎΠ²Π°Π½ΠΈΡ ΠΊΡΠ°ΡΠΈΠ²ΡΡ Π·Π΄Π°Π½ΠΈΠΉ ΠΈΠ·-Π·Π° Π½Π΅ΠΊΠΎΡΠΎΡΡΡ Π°ΡΡ ΠΈΡΠ΅ΠΊΡΡΡΠ½ΡΡ ΠΈΠ·Π»ΠΈΡΠ΅ΡΡΠ² ΠΌΠΎΠ³ΡΡ ΠΎΠ±ΡΠ°Π·ΠΎΠ²Π°ΡΡΡΡ ΡΠ°ΠΊ Π½Π°Π·ΡΠ²Π°Π΅ΠΌΡΠ΅ Β«Π³Π»ΡΠ±ΠΎΠΊΠΈΠ΅Β» ΠΈΠ»ΠΈ Β«ΡΠ»Π΅ΠΏΡΠ΅Β» ΠΊΠ²Π°ΡΡΠΈΡΡ. ΠΠ·-Π·Π° ΠΎΡΡΡΡΡΡΠ²ΠΈΡ ΠΎΠΊΠΎΠ½ Π² Π½ΠΈΡ ΠΊΡΠ°ΠΉΠ½Π΅ ΡΡΡΠ΄Π½ΠΎ ΠΎΠ±ΡΡΡΡΠΎΠΈΡΡ Π½ΡΠΆΠ½ΠΎΠ΅ ΠΊΠΎΠ»ΠΈΡΠ΅ΡΡΠ²ΠΎ ΡΠΏΠ°Π»Π΅Π½, Π³ΠΎΡΡΠΈΠ½ΡΡ ΠΈ Π΄ΡΡΠ³ΠΈΡ ΠΏΠΎΠΌΠ΅ΡΠ΅Π½ΠΈΠΉ, ΠΊΠΎΡΠΎΡΡΠΌ ΡΡΠ΅Π±ΡΠ΅ΡΡΡ ΠΎΡΠ²Π΅ΡΠ΅Π½ΠΈΠ΅. ΠΡΠ° ΠΏΡΠΎΠ±Π»Π΅ΠΌΠ° Π²ΠΎΠ·Π½ΠΈΠΊΠ°Π΅Ρ, Π² ΠΎΡΠ½ΠΎΠ²Π½ΠΎΠΌ, ΠΈΡΠΊΠ»ΡΡΠΈΡΠ΅Π»ΡΠ½ΠΎ ΠΏΠΎ Π²ΠΈΠ½Π΅ Π·Π°ΡΡΡΠΎΠΉΡΠΈΠΊΠ°, ΠΆΠ΅Π»Π°ΡΡΠ΅Π³ΠΎ ΠΏΠΎΠ»ΡΡΠΈΡΡ ΠΊΠ²Π°ΡΡΠΈΡΡ Ρ Π±ΠΎΠ»ΡΡΠΈΠΌ ΠΌΠ΅ΡΡΠ°ΠΆΠΎΠΌ, Π½ΠΎ ΠΏΡΠ°ΠΊΡΠΈΡΠ΅ΡΠΊΠΈ Π½Π΅ΡΡΠ½ΠΊΡΠΈΠΎΠ½Π°Π»ΡΠ½ΡΠ΅.
Π’Π°ΠΊΠΈΠ΅ ΡΠΈΡΡΠ°ΡΠΈΠΈ, ΠΊ ΡΠΎΠΆΠ°Π»Π΅Π½ΠΈΡ, Π½Π΅ ΡΠ΅Π΄ΠΊΠΎ Π²ΡΡΡΠ΅ΡΠ°ΡΡΡΡ Π΄Π°ΠΆΠ΅ Π² Π΄ΠΎΠΌΠ°Ρ ΡΠ»ΠΈΡΠ½ΠΎΠ³ΠΎ ΠΊΠ»Π°ΡΡΠ°. ΠΡΡΡΠ΅ΡΠ°ΡΡΡΡ ΡΠ°ΠΊΠΈΠ΅ Π²Π°ΡΠΈΠ°Π½ΡΡ, ΠΊΠΎΠ³Π΄Π° ΠΏΠ»ΠΎΡΠ°Π΄Ρ ΠΊΠ²Π°ΡΡΠΈΡΡ ΡΠΎΡΡΠ°Π²Π»ΡΠ΅Ρ ΠΏΠΎΡΡΠ΄ΠΊΠ° 100-200 ΠΊΠ². ΠΌ, ΠΊΠΎΠ»ΠΈΡΠ΅ΡΡΠ²ΠΎΠΌ ΠΎΠΊΠΎΠ»ΠΎ ΠΎΡ 1 Π΄ΠΎ 3, Π° ΡΠ°ΠΊΠΆΠ΅ ΡΠ°ΠΊΠΎΠΉ ΠΏΠ»Π°Π½ΠΈΡΠΎΠ²ΠΊΠΎΠΉ, ΠΊΠΎΡΠΎΡΠ°Ρ Π½Π΅ ΠΏΠΎΠ΄Π΄Π°ΡΡΡΡ ΠΏΡΠ°ΠΊΡΠΈΡΠ΅ΡΠΊΠΈ Π½ΠΈΠΊΠ°ΠΊΠΈΠΌ ΠΈΠ·ΠΌΠ΅Π½Π΅Π½ΠΈΡΠΌ.
ΠΡΠΎΠΌΠ΅ ΡΡΠΎΠ³ΠΎ, Π΄ΠΎΠ²ΠΎΠ»ΡΠ½ΠΎ-ΡΠ°ΠΊΠΈ Π½Π΅ΡΠ΄Π°ΡΠ½ΡΠΌ Π²Π°ΡΠΈΠ°Π½ΡΠΎΠΌ ΠΌΠΎΠΆΠ½ΠΎ ΡΡΠΈΡΠ°ΡΡ ΠΏΠ»Π°Π½ΠΈΡΠΎΠ²ΠΊΡ ΠΊΠΎΡΠΈΠ΄ΠΎΡΠ½ΠΎΠ³ΠΎ ΡΠΈΠΏΠ°, ΠΏΡΠΈ ΠΊΠΎΡΠΎΡΠΎΠΉ Π΄Π»ΠΈΠ½Π½ΡΠ΅ ΡΠ·ΠΊΠΈΠ΅ ΠΏΡΠΎΡ ΠΎΠ΄Ρ Π²Π΅Π΄ΡΡ ΠΈΠ· ΠΎΠ΄Π½ΠΎΠ³ΠΎ ΠΏΠΎΠΌΠ΅ΡΠ΅Π½ΠΈΡ Π² Π΄ΡΡΠ³ΠΎΠ΅.Β Π’Π°ΠΊΠΆΠ΅ Π² ΠΏΠ»Π°Π½ΠΈΡΠΎΠ²ΠΊΠ°Ρ ΠΊΠ²Π°ΡΡΠΈΡ Π² ΠΏΠ°Π½Π΅Π»ΡΠ½ΡΡ Π΄ΠΎΠΌΠ°Ρ ΡΠ°ΡΡΠΎ Π²ΡΡΡΠ΅ΡΠ°ΡΡΡΡ ΠΊΠΎΠΌΠ½Π°ΡΡ-ΠΏΠ΅Π½Π°Π»Ρ Π²ΡΡΡΠ½ΡΡΠΎΠΉ ΡΠΎΡΠΌΡ, ΠΊΠΎΡΠΎΡΡΠ΅ Π½Π΅ ΡΠ»ΠΈΡΠΊΠΎΠΌ-ΡΠΎ ΡΠ΄ΠΎΠ±Π½Ρ Π² ΡΠ²ΠΎΠ΅ΠΉ ΡΠΊΡΠΏΠ»ΡΠ°ΡΠ°ΡΠΈΠΈ.
ΠΠ»Π°Π½ΠΈΡΠΎΠ²ΠΊΠ° Π½Π΅Π±ΠΎΠ»ΡΡΠΎΠΉ Π΄Π²ΡΡ
ΠΊΠΎΠΌΠ½Π°ΡΠ½ΠΎΠΉ Π±ΡΠ΅ΠΆΠ½Π΅Π²ΠΊΠΈΠΡΡΠ³ΠΎΠΉ Π½Π΅ ΠΌΠ΅Π½Π΅Π΅ ΡΠ°ΡΠΏΡΠΎΡΡΡΠ°Π½ΡΠ½Π½ΠΎΠΉ ΠΎΡΠΈΠ±ΠΊΠΎΠΉ ΡΠ²Π»ΡΠ΅ΡΡΡ Π½Π΅Π΄ΠΎΡΡΠ°ΡΠΎΡΠ½ΠΎΠ΅ Π²Π½ΠΈΠΌΠ°Π½ΠΈΠ΅ ΠΊ Π΄ΠΎΠΏΠΎΠ»Π½ΠΈΡΠ΅Π»ΡΠ½ΡΠΌ ΠΏΠΎΠΌΠ΅ΡΠ΅Π½ΠΈΡΠΌ Π² ΠΊΠ²Π°ΡΡΠΈΡΠ΅. ΠΠ° ΠΏΡΠ°ΠΊΡΠΈΠΊΠ΅, Π½Π°Π»ΠΈΡΠΈΠ΅ ΠΏΡΠΈΡ ΠΎΠΆΠ΅ΠΉ ΠΈ ΠΏΡΠΎΡΡΠΎΡΠ½ΠΎΠΉ ΠΊΡΡ Π½ΠΈ Π΄Π»Ρ ΡΠ΄ΠΎΠ±Π½ΠΎΠ³ΠΎ ΠΏΡΠΎΠΆΠΈΠ²Π°Π½ΠΈΡ ΠΊΡΠ΄Π° Π±ΠΎΠ»Π΅Π΅ Π²Π°ΠΆΠ½ΠΎ, ΡΠ΅ΠΌ Π½Π΅ΡΠΊΠΎΠ»ΡΠΊΠΎ Β«ΠΏΡΡΡΡΡ Β» Π»ΠΈΡΠ½ΠΈΡ ΠΊΠ²Π°Π΄ΡΠ°ΡΠ½ΡΡ ΠΌΠ΅ΡΡΠΎΠ². ΠΡΠΈ ΡΡΠΎΠΌ ΡΠΈΡΠ»ΠΎ Π±Π°Π»ΠΊΠΎΠ½ΠΎΠ² ΠΈ Π»ΠΎΠ΄ΠΆΠΈΠΉ Π΄ΠΎΠ»ΠΆΠ½ΠΎ ΡΠΎΠΎΡΠ²Π΅ΡΡΡΠ²ΠΎΠ²Π°ΡΡΒ ΠΊΠΎΠ»ΠΈΡΠ΅ΡΡΠ²Ρ ΠΊΠΎΠΌΠ½Π°Ρ. ΠΠ½ΠΎΠΉ ΡΠ°Π· Π±ΡΠ²Π°ΡΡ ΡΠ°ΠΊΠΈΠ΅ ΡΠΈΡΡΠ°ΡΠΈΠΈ, ΠΊΠΎΠ³Π΄Π° ΡΡΡΡ ΠΊΠΎΠΌΠ½Π°ΡΠ½ΡΠ΅ ΠΊΠ²Π°ΡΡΠΈΡΡ, ΡΠ°ΡΠΏΠΎΠ»ΠΎΠΆΠ΅Π½Π½ΡΠ΅ Π½Π° ΠΏΠ΅ΡΠ²ΠΎΠΌ ΡΡΠ°ΠΆΠ΅, ΠΈΠ΄ΡΡ Π±Π΅Π· Π±Π°Π»ΠΊΠΎΠ½ΠΎΠ², Π° ΠΎΠ΄Π½ΠΎΠΊΠΎΠΌΠ½Π°ΡΠ½ΡΠ΅, Π² ΡΠ²ΠΎΡ ΠΎΡΠ΅ΡΠ΅Π΄Ρ, ΡΠ°ΡΠΏΠΎΠ»Π°Π³Π°ΡΡΠΈΠ΅ΡΡ Π²ΡΡΠ΅, ΠΎΠ±Π»Π°Π΄Π°ΡΡ ΡΡΠ°Π·Ρ Π½Π΅ΡΠΊΠΎΠ»ΡΠΊΠΈΠΌΠΈ Π±Π°Π»ΠΊΠΎΠ½Π°ΠΌΠΈ ΠΈΠ»ΠΈ Π»ΠΎΠ΄ΠΆΠΈΡΠΌΠΈ.
Π’ΠΈΠΏΠΎΠ²Π°Ρ ΠΏΠ»Π°Π½ΠΈΡΠΎΠ²ΠΊΠ° Π΄Π²ΡΡ
ΠΊΠΎΠΌΠ½Π°ΡΠ½ΠΎΠΉ ΠΊΠ²Π°ΡΡΠΈΡΡΠΠ΅ΡΠ½ΡΡΡΡΡ ΠΊ ΠΎΠ³Π»Π°Π²Π»Π΅Π½ΠΈΡΠΠ΅Π΄ΠΎΡΡΠ°ΡΠΊΠΈ ΡΠΎΠ²ΡΠ΅ΠΌΠ΅Π½Π½ΡΡ ΠΏΠ»Π°Π½ΠΈΡΠΎΠ²ΠΎΠΊ Π΄Π²ΡΡ ΠΊΠΎΠΌΠ½Π°ΡΠ½ΡΡ ΠΊΠ²Π°ΡΡΠΈΡ
ΠΠΎΠΆΠ°Π»ΡΠΉ, ΠΎΠ΄Π½ΠΈΠΌ ΠΈΠ· ΡΠ°ΠΌΡΡ Π²Π°ΠΆΠ½ΡΡ ΠΊΡΠΈΡΠ΅ΡΠΈΠ΅Π² ΠΊΠΎΠΌΡΠΎΡΡΠ½ΠΎΡΡΠΈ Π΄ΠΎΠΌΠ° ΠΌΠΎΠΆΠ½ΠΎ ΡΡΠΈΡΠ°ΡΡ ΡΠΈΡΠ»ΠΎ ΠΊΠ²Π°ΡΡΠΈΡ Π½Π° Π»Π΅ΡΡΠ½ΠΈΡΠ½ΠΎΠΉ ΠΏΠ»ΠΎΡΠ°Π΄ΠΊΠ΅. ΠΠ°ΠΈΠ±ΠΎΠ»Π΅Π΅ ΡΠ΄ΠΎΠ±Π½ΡΠΉ ΠΈ ΡΠ°ΡΠΏΡΠΎΡΡΡΠ°Π½ΡΠ½Π½ΡΠΉ Π²Π°ΡΠΈΠ°Π½Ρ β 4 ΠΊΠ²Π°ΡΡΠΈΡΡ Π½Π° ΠΎΠ΄Π½ΠΎΠΉ ΠΏΠ»ΠΎΡΠ°Π΄ΠΊΠ΅. ΠΠ΅ ΡΠ°ΠΌΡΠΉ ΡΠ΄ΠΎΠ±Π½ΡΠΉ Π²Π°ΡΠΈΠ°Π½Ρ β ΠΌΠ°Π»ΠΎΡΠ΅ΠΌΠ΅ΠΉΠΊΠΈ, Π² ΠΊΠΎΡΠΎΡΡΡ ΠΊΠΎΠ»ΠΈΡΠ΅ΡΡΠ²ΠΎ ΠΊΠ²Π°ΡΡΠΈΡ Π½Π° ΠΎΠ΄Π½ΠΎΠΉ ΠΏΠ»ΠΎΡΠ°Π΄ΠΊΠ΅ Π΄ΠΎΡ ΠΎΠ΄ΠΈΡ Π΄ΠΎ 10. ΠΠ½ΠΎΠ³Π΄Π° ΡΠ°ΠΊΠΎΠ΅ ΡΠ°ΡΠΏΠΎΠ»ΠΎΠΆΠ΅Π½ΠΈΠ΅ ΠΌΠΎΠΆΠ½ΠΎ Π²ΡΡΡΠ΅ΡΠΈΡΡ ΠΈ Π² ΡΠΎΠ²ΡΠ΅ΠΌΠ΅Π½Π½ΡΡ Π΄ΠΎΠΌΠ°Ρ Π²ΡΡΠΎΠΊΠΎΠΉ ΡΡΠΎΠΈΠΌΠΎΡΡΠΈ. ΠΠ°ΠΊ Π½Π΅ ΡΡΡΠ΄Π½ΠΎ Π΄ΠΎΠ³Π°Π΄Π°ΡΡΡΡ, ΠΎΡΠ½ΠΎΠ²Π½Π°Ρ ΠΏΡΠΈΡΠΈΠ½Π° ΡΠ°ΠΊΠΎΠΉ ΠΏΠ»Π°Π½ΠΈΡΠΎΠ²ΠΊΠΈ β ΠΈΠ³Π½ΠΎΡΠΈΡΠΎΠ²Π°Π½ΠΈΠ΅ Π·Π°ΡΡΡΠΎΠΉΡΠΈΠΊΠ°ΠΌΠΈ ΠΆΠΈΠ»ΡΡ ΡΡΠ΅Π±ΠΎΠ²Π°Π½ΠΈΠΉ Π±ΡΠ΄ΡΡΠΈΡ ΠΆΠΈΠ»ΡΡΠΎΠ² ΠΎΡΠ½ΠΎΡΠΈΡΠ΅Π»ΡΠ½ΠΎ ΠΌΠ΅ΡΡ ΠΎΠ±ΡΠ΅Π³ΠΎ ΠΏΠΎΠ»ΡΠ·ΠΎΠ²Π°Π½ΠΈΡ.
ΠΠ»Π°Π½ Π½Π΅Π±ΠΎΠ»ΡΡΠΎΠΉ 2-ΠΊΠΎΠΌΠ½Π°ΡΠ½ΠΎΠΉ ΠΊΠ²Π°ΡΡΠΈΡΡ ΠΌΠ°Π»ΠΎΡΠ΅ΠΌΠ΅ΠΉΠΊΠΈΠΠ΄Π½Π° ΠΈΠ· ΡΠ°ΠΌΡΡ Π³ΡΡΠ±ΡΡ ΠΎΡΠΈΠ±ΠΎΠΊ, ΠΊΠΎΡΠΎΡΠ°Ρ Π²ΡΡΡΠ΅ΡΠ°Π΅ΡΡΡ Π² ΡΡΡΠΎΠΈΡΠ΅Π»ΡΡΡΠ²Π΅ Π΄ΠΎΠΌΠΎΠ² β ΡΠ°ΡΠΏΠΎΠ»ΠΎΠΆΠ΅Π½ΠΈΠ΅ Π³ΡΡΠ·ΠΎΠ²ΠΎΠΉ ΡΠ°Ρ ΡΡ Π»ΠΈΡΡΠ°, Π³ΡΠ°Π½ΠΈΡΠ°ΡΠ΅ΠΉ ΡΠΎ ΡΡΠ΅Π½ΠΎΠΉ ΡΠ°ΠΌΠΎΠΉ Π±ΠΎΠ»ΡΡΠΎΠΉ ΠΏΠΎ ΠΏΠ»ΠΎΡΠ°Π΄ΠΈ ΠΊΠ²Π°ΡΡΠΈΡΡ. Π’Π°ΠΊΠΆΠ΅ ΠΊ Π½Π°ΠΈΠ±ΠΎΠ»Π΅Π΅ Π½Π΅ΠΏΡΠΈΡΡΠ½ΡΠΌ ΠΎΡΠΈΠ±ΠΊΠ°ΠΌ ΠΎΡΠ½ΠΎΡΠΈΡΡΡ ΡΠ°ΡΠΏΠΎΠ»ΠΎΠΆΠ΅Π½ΠΈΠ΅ ΡΠ°Π½ΡΠ·Π»ΠΎΠ² Π΄ΡΡΠ³ Π½Π°ΠΏΡΠΎΡΠΈΠ² Π΄ΡΡΠ³Π°, Π½Π΅ΡΠ΄Π°ΡΠ½ΠΎΠ΅ ΡΠΎΠΎΡΠ½ΠΎΡΠ΅Π½ΠΈΠ΅ ΠΏΠ»ΠΎΡΠ°Π΄Π΅ΠΉ, ΠΊΡΡ ΠΎΠ½Π½ΡΠ΅ ΠΏΠΎΠΌΠ΅ΡΠ΅Π½ΠΈΡ Π±Π΅Π· ΠΎΠΊΠΎΠ½.
ΠΠ΅ΡΠ½ΡΡΡΡΡ ΠΊ ΠΎΠ³Π»Π°Π²Π»Π΅Π½ΠΈΡΒ ΠΠΎΡΡΠΎΠΈΠ½ΡΡΠ²Π° ΡΠΎΠ²ΡΠ΅ΠΌΠ΅Π½Π½ΡΡ ΠΏΠ»Π°Π½ΠΈΡΠΎΠ²ΠΎΠΊ ΠΊΠ²Π°ΡΡΠΈΡ
ΠΠ½ΠΎΠ³ΠΈΠ΅ Π·Π°ΡΡΡΠΎΠΉΡΠΈΠΊΠΈ, ΠΏΠΎΠ½ΠΈΠΌΠ°Ρ Π½ΡΠ½Π΅ΡΠ½ΠΈΠ΅ ΡΡΠ»ΠΎΠ²ΠΈΡ ΠΊΠΎΠ½ΠΊΡΡΠ΅Π½ΡΠΈΠΈ, ΡΡΠ°ΡΠ°ΡΡΡΡ Π΄Π΅Π»Π°ΡΡ ΠΏΠ»Π°Π½ΠΈΡΠΎΠ²ΠΊΡ ΠΊΠ²Π°ΡΡΠΈΡ Π±ΠΎΠ»Π΅Π΅ ΡΠ΄ΠΎΠ±Π½ΠΎΠΉ ΠΈ ΡΡΠ½ΠΊΡΠΈΠΎΠ½Π°Π»ΡΠ½ΠΎΠΉ Π΄Π»Ρ ΡΠ²ΠΎΠΈΡ ΠΏΠΎΡΠ΅Π½ΡΠΈΠ°Π»ΡΠ½ΡΡ ΠΏΠΎΠΊΡΠΏΠ°ΡΠ΅Π»Π΅ΠΉ. ΠΠΎΡΡΠΎΠΌΡ ΡΠΎΠ²ΡΠ΅ΠΌΠ΅Π½Π½ΡΠ΅ ΠΊΠ²Π°ΡΡΠΈΡΡ ΡΠ°ΡΡΠΎ ΠΎΠ±Π»Π°Π΄Π°ΡΡ ΠΏΡΠΎΡΡΠΎΡΠ½ΡΠΌΠΈ ΠΊΡΡ Π½ΡΠΌΠΈ, Π²Π΅Π½ΡΠΈΠ»ΡΡΠΈΠ΅ΠΉ, Π²ΡΠ½Π΅ΡΠ΅Π½Π½ΠΎΠΉ Π·Π° ΠΏΡΠ΅Π΄Π΅Π»Ρ ΠΊΡΡ Π½ΠΈ, Π±ΠΎΠ»ΡΡΠΈΠΌ ΠΊΠΎΠ»ΠΈΡΠ΅ΡΡΠ²ΠΎΠΌ ΡΠ°Π½ΡΠ·Π»ΠΎΠ² ΠΈ ΠΏΠΎΠ΄ΡΠΎΠ±Π½ΡΡ ΠΏΠΎΠΌΠ΅ΡΠ΅Π½ΠΈΠΉ, Π° ΡΠ°ΠΊΠΆΠ΅ ΠΏΡΠΎΡΡΠΎΡΠ½ΡΠΌ Π±Π°Π»ΠΊΠΎΠ½ΠΎΠΌ ΠΈΠ»ΠΈ Π»ΠΎΠ΄ΠΆΠΈΠ΅ΠΉ.
ΠΡΠΈΠΌΠ΅Ρ ΡΠΎΠ²ΡΠ΅ΠΌΠ΅Π½Π½ΠΎΠΉ ΠΏΠ»Π°Π½ΠΈΡΠΎΠ²ΠΊΠΈ 2-ΠΊΠΎΠΌΠ½Π°ΡΠ½ΠΎΠΉ ΠΊΠ²Π°ΡΡΠΈΡΡΠΡΠΎΠΌΠ΅ ΡΡΠΎΠ³ΠΎ, Π²ΡΡ Π±ΠΎΠ»Π΅Π΅ ΠΏΠΎΠΏΡΠ»ΡΡΠ½ΡΠΌ ΡΡΠ°Π½ΠΎΠ²ΠΈΡΡΡ Π½Π°Π»ΠΈΡΠΈΠ΅ ΠΏΡΠ°ΡΠ΅ΡΠ½ΡΡ ΠΈ Π³Π°ΡΠ΄Π΅ΡΠΎΠ±Π½ΡΡ Π½Π΅ ΡΠΎΠ»ΡΠΊΠΎ Π² ΡΠ»ΠΈΡΠ½ΡΡ Π΄ΠΎΠΌΠ°Ρ , Π½ΠΎ ΠΈ Π² Π΄ΠΎΠΌΠ°Ρ Π±ΠΈΠ·Π½Π΅Ρ-ΠΊΠ»Π°ΡΡΠ°. ΠΠ½ΠΎΠ³ΠΈΠ΅ Π·Π°ΡΡΡΠΎΠΉΡΠΈΠΊΠΈ ΠΏΡΠ΅Π΄Π»Π°Π³Π°ΡΡ ΡΠ²ΠΎΠΈΠΌ ΠΊΠ»ΠΈΠ΅Π½ΡΠ°ΠΌ Π½Π΅ΡΠΊΠΎΠ»ΡΠΊΠΎ Π΄ΠΈΠ·Π°ΠΉΠ½-ΠΏΡΠΎΠ΅ΠΊΡΠΎΠ² ΠΊΠ²Π°ΡΡΠΈΡΡ, ΡΡΠΎ ΠΏΠΎΠ·Π²ΠΎΠ»ΡΠ΅Ρ ΡΡΠ°Π·Ρ ΠΆΠ΅ ΡΠΌΠ΅Π½ΠΈΡΡ Π²Π½ΡΡΡΠ΅Π½Π½Π΅Π΅ ΠΏΡΠΎΡΡΡΠ°Π½ΡΡΠ²ΠΎ, ΠΏΠΎΡΠ»Π΅ ΡΠ΅Π³ΠΎ ΠΏΠΎΠ»ΡΡΠΈΡΡ ΠΏΠ΅ΡΠ²ΠΈΡΠ½ΡΠ΅ Π΄ΠΎΠΊΡΠΌΠ΅Π½ΡΡ Π½Π° ΠΆΠΈΠ»ΡΡ Ρ Π½ΠΎΠ²ΠΎΠΉ ΠΏΠ»Π°Π½ΠΈΡΠΎΠ²ΠΊΠΎΠΉ.
ΠΠ΅ΡΠ½ΡΡΡΡΡ ΠΊ ΠΎΠ³Π»Π°Π²Π»Π΅Π½ΠΈΡΠΠΏΡΠΈΠΌΠ°Π»ΡΠ½Π°Ρ ΠΏΠ»Π°Π½ΠΈΡΠΎΠ²ΠΊΠ° Π΄Π²ΡΡ ΠΊΠΎΠΌΠ½Π°ΡΠ½ΠΎΠΉ ΠΊΠ²Π°ΡΡΠΈΡΡ
ΠΠ»Π°Π½ΠΈΡΠΎΠ²ΠΊΠ° Π΄Π²ΡΡ
ΠΊΠΎΠΌΠ½Π°ΡΠ½ΠΎΠΉ ΠΊΠ²Π°ΡΡΠΈΡΡ 70 ΠΊΠ². ΠΌ- ΠΠ»ΠΎΡΠ°Π΄Ρ ΠΊΠ²Π°ΡΡΠΈΡΡ (ΠΊΠ°ΠΊ ΠΏΡΠ°Π²ΠΈΠ»ΠΎ, ΠΏΠΎΡΡΠ΄ΠΊΠ° 70 ΠΊΠ². ΠΌ) Π΄ΠΎΠ»ΠΆΠ½Π° Π±ΡΡΡ ΡΠΎΡΠ°Π·ΠΌΠ΅ΡΠ½Π° ΡΠΈΡΠ»Ρ ΠΊΠΎΠΌΠ½Π°Ρ.
- ΠΠ»ΠΎΡΠ°Π΄Ρ ΠΊΠΎΡΠΈΠ΄ΠΎΡΠΎΠ², Ρ ΠΎΠ»Π»ΠΎΠ², ΡΡΠ»Π°Π½ΠΎΠ² ΠΈ Π΄ΡΡΠ³ΠΈΡ ΠΏΠΎΠ΄ΡΠΎΠ±Π½ΡΡ ΠΏΠΎΠΌΠ΅ΡΠ΅Π½ΠΈΠΉ Π½Π΅ Π΄ΠΎΠ»ΠΆΠ½Π° ΠΏΡΠ΅Π²ΡΡΠ°ΡΡ 20% ΠΎΡ ΠΎΠ±ΡΠ΅ΠΉ ΠΏΠ»ΠΎΡΠ°Π΄ΠΈ ΠΊΠ²Π°ΡΡΠΈΡΡ.
- ΠΠ»ΠΎΡΠ°Π΄Ρ ΠΊΡΡ Π½ΠΈ Π΄ΠΎΠ»ΠΆΠ½Π° ΡΠΎΡΡΠ°Π²Π»ΡΡΡ ΠΏΠΎΡΡΠ΄ΠΊΠ° 10-12 ΠΊΠ². ΠΌ;
- ΠΡΡΠΌΡΠ΅ ΡΠ³Π»Ρ Π΄ΠΎΠ»ΠΆΠ½Ρ Π±ΡΡΡ ΠΌΠ°ΠΊΡΠΈΠΌΠ°Π»ΡΠ½ΠΎ ΠΏΡΠΈΠ±Π»ΠΈΠΆΠ΅Π½Ρ ΠΊ ΠΊΠ²Π°Π΄ΡΠ°ΡΡ;
- ΠΠ°Π»ΠΈΡΠΈΠ΅ Π² ΠΊΠΎΠΌΠ½Π°ΡΠ΅ ΠΈΠ»ΠΈ ΠΊΡΡ Π½Π΅ Π΅ΡΡΡ ΡΡΠΊΠ΅Ρ;
- ΠΡΡΠΎΡΠ° ΠΏΠΎΡΠΎΠ»ΠΊΠΎΠ² Π΄ΠΎΠ»ΠΆΠ½Π° ΡΠΎΡΡΠ°Π²Π»ΡΡΡ ΠΎΠΊΠΎΠ»ΠΎ 2,8 ΠΌΠ΅ΡΡΠΎΠ²;
- Π ΠΊΠ²Π°ΡΡΠΈΡΠ΅ ΠΎΠ±ΡΠ·Π°ΡΠ΅Π»ΡΠ½ΠΎ Π΄ΠΎΠ»ΠΆΠ½Ρ ΠΏΡΠΈΡΡΡΡΡΠ²ΠΎΠ²Π°ΡΡ ΠΏΠΎΠ΄ΡΠΎΠ±Π½ΡΠ΅ ΠΏΠΎΠΌΠ΅ΡΠ΅Π½ΠΈΡ;
- ΠΠΊΠ½Π° ΠΏΠΎΠΌΠ΅ΡΠ΅Π½ΠΈΠΉ Π΄ΠΎΠ»ΠΆΠ½Ρ Π²ΡΡ ΠΎΠ΄ΠΈΡΡ Π½Π° Π½Π΅ΡΠΊΠΎΠ»ΡΠΊΠΎ ΡΡΠΎΡΠΎΠ½;
- ΠΠ±ΡΠ·Π°ΡΠ΅Π»ΡΠ½ΠΎ Π΄ΠΎΠ»ΠΆΠ½Ρ Π±ΡΡΡ ΠΏΡΠ΅Π΄ΡΡΠΌΠΎΡΡΠ΅Π½Ρ Π±Π°Π»ΠΊΠΎΠ½Ρ ΠΈ Π»ΠΎΠ΄ΠΆΠΈΠΈ ΡΡΠ΅Π΄Π½ΠΈΡ ΡΠ°Π·ΠΌΠ΅ΡΠΎΠ²;
- ΠΠΎΠ»ΠΈΡΠ΅ΡΡΠ²ΠΎ ΡΠ°Π½ΡΠ·Π»ΠΎΠ² Π΄ΠΎΠ»ΠΆΠ½ΠΎ ΡΠΎΠΎΡΠ²Π΅ΡΡΡΠ²ΠΎΠ²Π°ΡΡ ΠΊΠΎΠ»ΠΈΡΠ΅ΡΡΠ²Ρ ΡΠΏΠ°Π»Π΅Π½.
ΠΠ°ΡΠΈΠ°Π½ΡΡ ΠΏΠ΅ΡΠ΅ΠΏΠ»Π°Π½ΠΈΡΠΎΠ²ΠΊΠΈ Π΄Π²ΡΡ ΠΊΠΎΠΌΠ½Π°ΡΠ½ΠΎΠΉ ΠΊΠ²Π°ΡΡΠΈΡΡ
Π Π±ΠΎΠ»ΡΡΠΈΠ½ΡΡΠ²Π΅ ΡΠ»ΡΡΠ°Π΅Π² ΠΏΠ΅ΡΠ΅ΠΏΠ»Π°Π½ΠΈΡΠΎΠ²ΠΊΠ° ΠΏΠΎΠ΄ΡΠ°Π·ΡΠΌΠ΅Π²Π°Π΅Ρ ΡΠ°Π·Π΄Π΅Π»Π΅Π½ΠΈΠ΅ ΠΎΠ΄Π½ΠΎΠΉ Π±ΠΎΠ»ΡΡΠΎΠΉ ΠΊΠΎΠΌΠ½Π°ΡΡ Π½Π° Π΄Π²Π΅ ΠΏΠΎΠΌΠ΅Π½ΡΡΠ΅. ΠΠ΄Π½Π°ΠΊΠΎ Π² ΠΏΡΠΎΡΠ΅ΡΡΠ΅ ΠΏΠ΅ΡΠ΅ΠΏΠ»Π°Π½ΠΈΡΠΎΠ²ΠΊΠΈ ΡΠ»Π΅Π΄ΡΠ΅Ρ ΠΏΠΎΠΌΠ½ΠΈΡΡ, ΡΡΠΎ, ΠΊ ΠΏΡΠΈΠΌΠ΅ΡΡ, ΠΏΠ»ΠΎΡΠ°Π΄Ρ Π΄Π΅ΡΡΠΊΠΎΠΉ ΠΊΠΎΠΌΠ½Π°ΡΡ Π΄ΠΎΠ»ΠΆΠ½Π° Π±ΡΡΡ Π½Π΅ ΠΌΠ΅Π½Π΅Π΅ 9 ΠΊΠ². ΠΌ. ΠΡΠΎΠΌΠ΅ ΡΡΠΎΠ³ΠΎ, Π½ΠΎΠ²ΡΠ΅ ΠΏΠΎΠ»ΡΡΠ΅Π½Π½ΡΠ΅ ΠΏΠΎΠΌΠ΅ΡΠ΅Π½ΠΈΡ Π½Π΅ Π΄ΠΎΠ»ΠΆΠ½Ρ ΠΎΡΡΠ°Π²Π°ΡΡΡΡ Π±Π΅Π· Π΅ΡΡΠ΅ΡΡΠ²Π΅Π½Π½ΠΎΠ³ΠΎ ΠΎΡΠ²Π΅ΡΠ΅Π½ΠΈΡ.
ΠΡΠΈΠΌΠ΅Ρ ΠΎΠ±ΠΎΡΡΠ΄ΠΎΠ²Π°Π½ΠΈΡ Π½Π΅Π±ΠΎΠ»ΡΡΠΎΠ³ΠΎ ΠΊΠ°Π±ΠΈΠ½Π΅ΡΠ° Π΄Π»Ρ ΡΠ°Π±ΠΎΡΡ ΠΏΠΎΡΠ»Π΅ ΠΏΠ΅ΡΠ΅ΠΏΠ»Π°Π½ΠΈΡΠΎΠ²ΠΊΠΈ 2-ΠΊΠΎΠΌΠ½Π°ΡΠ½ΠΎΠΉ ΠΊΠ²Π°ΡΡΠΈΡΡΠΡΡΠ³ΠΈΠΌ Π²Π°ΡΠΈΠ°Π½ΡΠΎΠΌ ΠΏΠ΅ΡΠ΅ΠΏΠ»Π°Π½ΠΈΡΠΎΠ²ΠΊΠΈ, ΠΊΠΎΡΠΎΡΡΠΉ ΠΏΠΎΠ·Π²ΠΎΠ»ΡΠ΅Ρ Π²ΡΠΈΠ³ΡΠ°ΡΡ Π½Π΅ΡΠΊΠΎΠ»ΡΠΊΠΎ Π΄ΠΎΠΏΠΎΠ»Π½ΠΈΡΠ΅Π»ΡΠ½ΡΡ ΠΊΠ²Π°Π΄ΡΠ°ΡΠ½ΡΡ ΠΌΠ΅ΡΡΠΎΠ², ΡΠ²Π»ΡΠ΅ΡΡΡ ΠΎΠ±ΡΠ΅Π΄ΠΈΠ½Π΅Π½ΠΈΠ΅ ΡΠ°Π½ΡΠ·Π»Π°. ΠΡΠΈ ΠΏΡΠΎΠ²Π΅Π΄Π΅Π½ΠΈΠΈ ΡΡΠΈΡ ΡΠ°Π±ΠΎΡ ΠΏΠΎΠΌΠ½ΠΈΡΠ΅ ΠΎ ΡΠΎΠΌ, ΡΡΠΎ Π»ΡΠ±ΠΎΠ΅ Π΄Π΅ΠΉΡΡΠ²ΠΈΠ΅, ΡΠΎΠΏΡΠΎΠ²ΠΎΠΆΠ΄Π°ΡΡΠ΅Π΅ΡΡ ΠΏΠ΅ΡΠ΅Π½ΠΎΡΠΎΠΌ ΡΡΠ°Π»Π΅ΡΠ° ΠΈ Π²Π°Π½Π½ΠΎΠΉ, Π΄ΠΎΠ»ΠΆΠ½ΠΎ ΡΠΎΠΏΡΠΎΠ²ΠΎΠΆΠ΄Π°ΡΡΡΡ Π½Π°Π½Π΅ΡΠ΅Π½ΠΈΠ΅ΠΌ Π³ΠΈΠ΄ΡΠΎΠΈΠ·ΠΎΠ»ΡΡΠΈΠΎΠ½Π½ΡΡ ΠΏΠΎΠΊΡΡΡΠΈΠΉ, ΡΡΠΎ Π±ΡΠ΄Π΅Ρ Π·Π°Π΄Π΅ΡΠΆΠΈΠ²Π°ΡΡ ΡΠ°ΡΠΏΡΠΎΡΡΡΠ°Π½Π΅Π½ΠΈΠ΅ Π²Π»Π°ΠΆΠ½ΠΎΠ³ΠΎ Π²ΠΎΠ·Π΄ΡΡ Π° ΠΈ Π²Π»Π°Π³ΠΈ Π·Π° ΠΏΡΠ΅Π΄Π΅Π»Ρ ΠΊΠ²Π°ΡΡΠΈΡΡ.
Π’ΡΠ΅ΡΡΠΈΠΌ Π²Π°ΡΠΈΠ°Π½ΡΠΎΠΌ ΠΏΠ΅ΡΠ΅ΠΏΠ»Π°Π½ΠΈΡΠΎΠ²ΠΊΠΈ Π΄Π²ΡΡ ΠΊΠΎΠΌΠ½Π°ΡΠ½ΠΎΠΉΒ ΠΊΠ²Π°ΡΡΠΈΡΡ ΡΠ²Π»ΡΠ΅ΡΡΡ Π²ΠΊΠ»ΡΡΠ΅Π½ΠΈΠ΅ Π² ΠΆΠΈΠ»ΠΎΠ΅ ΠΏΡΠΎΡΡΡΠ°Π½ΡΡΠ²ΠΎ Π»ΠΎΠ΄ΠΆΠΈΠΈ, ΡΡΠΎ ΡΠΎΠΏΡΠΎΠ²ΠΎΠΆΠ΄Π°Π΅ΡΡΡ Π²ΡΠΏΠΎΠ»Π½Π΅Π½ΠΈΠ΅ΠΌ ΡΠ΅ΡΡΡΠ·Π½ΡΡ ΡΠ°Π±ΠΎΡ ΠΏΠΎ ΡΠ½ΠΎΡΡ ΡΡΠ΅Π½Ρ, ΡΠ°Π·Π΄Π΅Π»ΡΡΡΠ΅ΠΉ Π»ΠΎΠ΄ΠΆΠΈΡ ΠΈ ΠΊΠΎΠΌΠ½Π°ΡΡ.proekt-sam.ru
ΠΡΠ°ΠΌΠΎΡΠ½Π°Ρ ΠΏΠ»Π°Π½ΠΈΡΠΎΠ²ΠΊΠ° Π΄Π²ΡΡ ΠΊΠΎΠΌΠ½Π°ΡΠ½ΠΎΠΉ ΠΊΠ²Π°ΡΡΠΈΡΡ: 3 Π²Π°ΡΠΈΠ°Π½ΡΠ° β INMYROOM
Π ΠΊΠ°ΡΠ΅ΡΡΠ²Π΅ ΠΎΡΠ½ΠΎΠ²Ρ Π΄Π»Ρ ΠΏΠ΅ΡΠ΅ΠΏΠ»Π°Π½ΠΈΡΠΎΠ²ΠΊΠΈ Π°ΡΡ-Π΄ΠΈΡΠ΅ΠΊΡΠΎΡΡΒ Β«Π‘ΡΡΠ΄ΠΈΠΈ 3.14Β» ΠΡΠΈΠ½Π΅ ΠΠ΅Π³ΠΎΡΠΊΠΈΠ½ΠΎΠΉ Π΄ΠΎΡΡΠ°Π»Π°ΡΡ ΡΠΊΠΎΠ½ΠΎΠΌΠΈΡΠ½Π°Ρ ΠΈ ΡΠΊΡΠΎΠΌΠ½Π°Ρ ΠΏΠΎ ΠΏΠ»ΠΎΡΠ°Π΄ΠΈ Π΄Π²ΡΡΠΊΠ° Ρ ΡΡΠ³ΠΎΠ½ΠΎΠΌΠΈΡΠ½ΠΎΠΉ ΠΏΠ»Π°Π½ΠΈΡΠΎΠ²ΠΊΠΎΠΉ, Π½Π΅Π±ΠΎΠ»ΡΡΠΈΠΌ Ρ ΠΎΠ»Π»ΠΎΠΌ ΠΈ ΠΏΡΠΎΡΡΠΎΡΠ½ΡΠΌΠΈ ΠΈΠ·ΠΎΠ»ΠΈΡΠΎΠ²Π°Π½Π½ΡΠΌΠΈ ΠΊΠΎΠΌΠ½Π°ΡΠ°ΠΌΠΈ, ΠΊΠΎΡΠΎΡΡΠ΅ Π²ΡΡ ΠΎΠ΄ΡΡ Π½Π° Π΄Π²Π΅ ΡΡΠΎΡΠΎΠ½Ρ ΡΠ²Π΅ΡΠ°.Β
ΠΠΎ Π³Π»Π°Π²Π½ΠΎΠ΅ Π΄ΠΎΡΡΠΎΠΈΠ½ΡΡΠ²ΠΎ ΡΡΠΎΠΉ ΠΊΠ²Π°ΡΡΠΈΡΡ β Π±Π΅Π· ΠΌΠ°Π»ΠΎΠ³ΠΎ 18-ΠΌΠ΅ΡΡΠΎΠ²Π°Ρ Π³ΠΎΡΡΠΈΠ½Π°Ρ Ρ Π±ΠΎΠ»ΡΡΠΈΠΌ ΠΏΠΎΠ»ΡΠΊΡΡΠ³Π»ΡΠΌ ΠΎΠΊΠ½ΠΎΠΌ. Π ΡΠΎΠΌΡ ΠΆΠ΅ Π²ΡΠ΅ ΡΡΠ΅Π½Ρ Π½Π΅Π½Π΅ΡΡΡΠΈΠ΅, Π° ΠΏΠΎΡΠΎΠΌΡ ΠΌΠΎΠΆΠ½ΠΎ ΡΡΠ°Π½ΡΡΠΎΡΠΌΠΈΡΠΎΠ²Π°ΡΡ ΠΏΡΠΎΡΡΡΠ°Π½ΡΡΠ²ΠΎ ΠΏΠΎ ΡΠ²ΠΎΠ΅ΠΌΡ ΡΡΠΌΠΎΡΡΠ΅Π½ΠΈΡ. Π’ΡΠΈ Π²Π°ΡΠΈΠ°Π½ΡΠ° ΠΏΠ»Π°Π½ΠΈΡΠΎΠ²ΠΊΠΈ ΠΏΠΎΠ΄ΠΎΠΉΠ΄ΡΡ ΠΊΠ°ΠΊ Π΄Π»Ρ Ρ ΠΎΠ»ΠΎΡΡΡΠΊΠ°, ΡΠ°ΠΊ ΠΈ Π΄Π»Ρ ΡΠ΅ΠΌΠ΅ΠΉΠ½ΠΎΠΉ ΠΏΠ°ΡΡ ΠΈΠ»ΠΈ ΡΠ΅ΠΌΡΠΈ Ρ ΡΠ΅Π±Π΅Π½ΠΊΠΎΠΌ.
ΠΡΠ°ΡΠΊΠ°Ρ ΠΈΠ½ΡΠΎΡΠΌΠ°ΡΠΈΡ
Π ΠΌΠ°ΡΡΡΠ°Π±Π½ΠΎΠΉ ΠΏΠ΅ΡΠ΅ΠΏΠ»Π°Π½ΠΈΡΠΎΠ²ΠΊΠ΅ ΡΡΠ° ΠΊΠ²Π°ΡΡΠΈΡΠ° Π² ΠΠ Β«Π‘ΠΈΠΌΠ²ΠΎΠ»Β» ΠΏΠ»ΠΎΡΠ°Π΄ΡΡ 57 ΠΊΠ². ΠΌΒ Π½Π΅ Π½ΡΠΆΠ΄Π°Π΅ΡΡΡ: Π²ΡΠ΅ ΠΊΠΎΠΌΠ½Π°ΡΡ ΠΈ ΡΠ°ΠΊ Π½Π° ΡΠ²ΠΎΠ΅ΠΌ ΠΌΠ΅ΡΡΠ΅, Π² ΠΊΠ°ΠΆΠ΄ΠΎΠΉ Π΄ΠΎΡΡΠ°ΡΠΎΡΠ½ΠΎ Π΅ΡΡΠ΅ΡΡΠ²Π΅Π½Π½ΠΎΠ³ΠΎ ΠΎΡΠ²Π΅ΡΠ΅Π½ΠΈΡ. ΠΠΎΡΡΠ΅Π±ΡΠ΅ΡΡΡ Π»ΠΈΡΡ ΡΠΎΠ·Π΄Π°ΡΡ Π½ΠΈΡΠΈ Π΄Π»Ρ Π²ΡΡΡΠΎΠ΅Π½Π½ΡΡ ΡΠΊΠ°ΡΠΎΠ² ΠΈ ΠΊΡΡ ΠΎΠ½Π½ΠΎΠ³ΠΎ Π³Π°ΡΠ½ΠΈΡΡΡΠ°. ΠΡΠΎΠΌΠ΅ ΡΠΎΠ³ΠΎ, ΠΌΠΎΠΆΠ½ΠΎ ΠΎΠ±ΡΠ΅Π΄ΠΈΠ½ΠΈΡΡ Π³ΠΎΡΡΠΈΠ½ΡΡ ΠΈ ΠΊΡΡ Π½Ρ, Π° ΡΠ°ΠΊΠΆΠ΅ ΡΠΎΠ²ΠΌΠ΅ΡΡΠΈΡΡ ΡΠ°Π·Π΄Π΅Π»ΡΠ½ΡΠΉ ΡΠ°Π½ΡΠ·Π΅Π».
ΠΠ²Π°ΡΡΠ°Π» Β«Π‘ΠΈΠΌΠ²ΠΎΠ»Β» β ΡΡΠΎ ΡΠΎΠ²ΡΠ΅ΠΌΠ΅Π½Π½ΠΎΠ΅ ΠΆΠΈΠ»ΡΠ΅ Π±ΠΈΠ·Π½Π΅Ρ-ΠΊΠ»Π°ΡΡΠ° Ρ ΠΊΠΎΠΌΡΠΎΡΡΠ½ΠΎΠΉ ΠΎΠΊΡΡΠΆΠ°ΡΡΠ΅ΠΉ ΡΡΠ΅Π΄ΠΎΠΉ. ΠΠ³ΠΎ ΡΠ°Π·ΡΠ°Π±ΠΎΡΠ°Π»ΠΈ Π±ΡΠΈΡΠ°Π½ΡΠΊΠΈΠ΅ Π°ΡΡ ΠΈΡΠ΅ΠΊΡΡΡΠ½ΡΠ΅ Π±ΡΡΠΎ LDA Design ΠΈ UHA London Π΄Π»Ρ Π²Π΅Π΄ΡΡΠ΅Π³ΠΎ Π·Π°ΡΡΡΠΎΠΉΡΠΈΠΊΠ° ΠΠΎΡΠΊΠ²Ρ β ΠΊΠΎΠΌΠΏΠ°Π½ΠΈΠΈ ΠΠΠΠ‘Π’Π ΠΠ. ΠΠ½ΠΈ ΠΏΡΠΎΠ΄ΡΠΌΠ°Π»ΠΈ ΡΠΎΡΠΈΠ°Π»ΡΠ½ΡΡ, ΡΠΏΠΎΡΡΠΈΠ²Π½ΡΡ ΠΈ ΠΊΡΠ»ΡΡΡΡΠ½ΡΡ ΠΈΠ½ΡΡΠ°ΡΡΡΡΠΊΡΡΡΡ. Π ΡΠΎΠ±ΡΡΠ²Π΅Π½Π½ΡΠΉ ΠΏΠ°ΡΠΊΒ Β«ΠΠ΅Π»Π΅Π½Π°Ρ ΡΠ΅ΠΊΠ°Β» ΠΏΡΠΎΡΡΠΆΠ΅Π½Π½ΠΎΡΡΡΡ 2 ΠΊΠΌ Π² ΡΠ΅Π½ΡΡΠ΅ ΠΠΎΡΠΊΠ²Ρ ΠΈ Π²ΠΎΠ²ΡΠ΅ ΠΏΡΠΈΡΡΠ½ΠΎ ΡΠ΄ΠΈΠ²Π»ΡΠ΅Ρ, Π²Π΅Π΄Ρ ΠΊΠ²Π°ΡΡΠ°Π» ΡΠ°ΡΠΏΠΎΠ»ΠΎΠΆΠ΅Π½ Π²ΡΠ΅Π³ΠΎ Π² 5 ΠΌΠΈΠ½ΡΡΠ°Ρ Ρ ΠΎΠ΄ΡΠ±Ρ ΠΎΡ ΠΌΠ΅ΡΡΠΎ Β«ΠΠ»ΠΎΡΠ°Π΄Ρ ΠΠ»ΡΠΈΡΠ°Β».
ΠΠ°ΡΠΈΠ°Π½Ρ 1: Π΄Π»Ρ ΡΠ΅ΠΌΡΠΈ Ρ ΡΠ΅Π±Π΅Π½ΠΊΠΎΠΌ
ΠΠ»Π°Π²Π½ΠΎΠ΅ Π΄ΠΎΡΡΠΎΠΈΠ½ΡΡΠ²ΠΎ Π³ΠΎΡΡΠΈΠ½ΠΎΠΉ β Π΄Π²Π° ΠΎΠΊΠ½Π°, ΠΎΠ΄Π½ΠΎ ΠΈΠ· ΠΊΠΎΡΠΎΡΡΡ Π±ΠΎΠ»ΡΡΠΎΠ΅, ΠΏΠΎΠ»ΡΠΊΡΡΠ³Π»ΠΎΠΉ ΡΠΎΡΠΌΡ. ΠΡΡΠ°Π²Π»ΡΠ΅ΠΌ ΠΈΡ ΠΎΡΠΊΡΡΡΡΠΌΠΈ, ΡΡΠΎΠ±Ρ ΠΌΠΎΠΆΠ½ΠΎ Π±ΡΠ»ΠΎ Π»ΡΠ±ΠΎΠ²Π°ΡΡΡΡ ΠΆΠΈΠ²ΠΎΠΏΠΈΡΠ½ΡΠΌΠΈ Π²ΠΈΠ΄Π°ΠΌΠΈ. Π ΠΏΡΠΎΡΡΠ΅Π½ΠΊΠ΅ ΠΌΠ΅ΠΆΠ΄Ρ Π½ΠΈΠΌΠΈ ΡΠ°ΡΠΏΠΎΠ»ΠΎΠΆΠΈΠΌ ΡΡΠΌΠ±Ρ Ρ ΡΠ΅Π»Π΅Π²ΠΈΠ·ΠΎΡΠΎΠΌ, Π° Π½Π°ΠΏΡΠΎΡΠΈΠ² β Π±ΠΎΠ»ΡΡΠΎΠΉ ΡΠ°ΡΠΊΠ»Π°Π΄ΡΠ²Π°ΡΡΠΈΠΉΡΡ ΡΠ³Π»ΠΎΠ²ΠΎΠΉ Π΄ΠΈΠ²Π°Π½ ΠΈ ΠΊΡΠ΅ΡΠ»ΠΎ. Π ΡΡΠΎΠΌ ΠΏΡΠΎΡΡΡΠ°Π½ΡΡΠ²Π΅ Π±ΡΠ΄Π΅Ρ ΠΏΡΠΈΡΡΠ½ΠΎ ΠΏΡΠΈΠ½ΠΈΠΌΠ°ΡΡ Π³ΠΎΡΡΠ΅ΠΉ ΠΈ ΡΠΎΠ±ΠΈΡΠ°ΡΡ Π΄ΡΡΠ·Π΅ΠΉ.
ΠΠΈΡΠΈ ΠΏΠΎΠ·Π²ΠΎΠ»ΡΡΡ Π²ΡΡΡΠΎΠΈΡΡ ΡΠΊΠ°Ρ Π΄Π»Ρ Π²Π΅ΡΡ Π½Π΅ΠΉ ΠΎΠ΄Π΅ΠΆΠ΄Ρ Π² Ρ ΠΎΠ»Π»Π΅ ΠΈ Π½Π΅Π±ΠΎΠ»ΡΡΠΎΠΉ ΡΠ³Π»ΠΎΠ²ΠΎΠΉ Π³Π°ΡΠ½ΠΈΡΡΡ Π½Π° ΠΊΡΡ Π½Π΅. ΠΡΠ΅ ΠΎΠ΄Π½Π° Π½ΠΈΡΠ° ΠΈΠ΄Π΅Π°Π»ΡΠ½ΠΎ ΠΏΠΎΠ΄Ρ ΠΎΠ΄ΠΈΡ Π΄Π»Ρ ΡΡΡΠ°Π½ΠΎΠ²ΠΊΠΈ ΡΡΠΌΠ±Ρ Ρ ΡΠ΅Π»Π΅Π²ΠΈΠ·ΠΎΡΠΎΠΌ Π½Π° ΠΊΡΡ Π½Π΅ ΠΈ Π±ΠΎΠ»ΡΡΠΎΠ³ΠΎ ΡΠ³Π»ΠΎΠ²ΠΎΠ³ΠΎ Π΄ΠΈΠ²Π°Π½Π° Π² Π³ΠΎΡΡΠΈΠ½ΠΎΠΉ.
ΠΠΎΡΠΊΠΎΠ»ΡΠΊΡ Π³ΠΎΡΡΠΈΠ½Π°Ρ Π²ΡΠΏΠΎΠ»Π½ΡΠ΅Ρ ΡΠΎΠ»Ρ ΡΠΏΠ°Π»ΡΠ½ΠΈ, ΠΏΡΠ΅Π΄ΡΡΠΌΠΎΡΡΠΈΠΌ ΠΏΠ»Π°ΡΡΠ½ΠΎΠΉ ΡΠΊΠ°Ρ Π΄Π»Ρ ΡΠΎΠ΄ΠΈΡΠ΅Π»Π΅ΠΉ. Π Π΄Π΅ΡΡΠΊΠΎΠΉ ΠΏΠΎΡΠ²ΠΈΡΡΡ ΡΠΊΠ°Ρ Π΄Π»Ρ ΠΎΠ΄Π΅ΠΆΠ΄Ρ ΠΈ ΡΡΠ΅Π»Π»Π°ΠΆ Π΄Π»Ρ ΡΡΠ΅Π±Π½ΠΈΠΊΠΎΠ² ΠΈ ΠΊΠ½ΠΈΠ³ ΡΠΊΠΎΠ»ΡΠ½ΠΈΠΊΠ° Π²ΠΎΠ·Π»Π΅ ΡΠ°Π±ΠΎΡΠ΅Π³ΠΎ ΡΡΠΎΠ»Π°. ΠΠΎΡΠΎΠ»ΠΊΠΈ Π²ΡΡΠΎΡΠΎΠΉ 3 ΠΌΠ΅ΡΡΠ° ΠΏΠΎΠ·Π²ΠΎΠ»ΡΡΡ Π΄ΠΎΠΏΠΎΠ»Π½ΠΈΡΠ΅Π»ΡΠ½ΠΎ ΡΡΡΠ°Π½ΠΎΠ²ΠΈΡΡ Π°Π½ΡΡΠ΅ΡΠΎΠ»Ρ Π½Π°Π΄ ΠΊΡΠΎΠ²Π°ΡΡΡ Π΄Π»Ρ ΡΠ΅Π΄ΠΊΠΎ ΠΈΡΠΏΠΎΠ»ΡΠ·ΡΠ΅ΠΌΡΡ Π²Π΅ΡΠ΅ΠΉ.
ΠΠ΄Π΅ΠΈ Π΄Π»Ρ ΠΈΠ½ΡΠ΅ΡΡΠ΅ΡΠ°: ΠΌΠ΅Π±Π΅Π»Ρ ΠΈ Π΄Π΅ΠΊΠΎΡ
ΠΠ°ΡΠΈΠ°Π½Ρ 2: Π΄Π»Ρ Ρ ΠΎΠ»ΠΎΡΡΡΠΊΠ°
ΠΠ»Ρ Π±ΠΈΠ·Π½Π΅ΡΠΌΠ΅Π½Π° ΠΈ ΡΠ΅Π½ΠΈΡΠ΅Π»Ρ ΠΊΠΎΠΌΡΠΎΡΡΠ° ΡΠ΅ΡΠΊΠΎ ΡΠ°Π·Π΄Π΅Π»ΠΈΠΌ ΠΎΠ±ΡΠ΅ΡΡΠ²Π΅Π½Π½ΠΎΠ΅ ΠΈ ΠΏΡΠΈΠ²Π°ΡΠ½ΠΎΠ΅ ΠΏΡΠΎΡΡΡΠ°Π½ΡΡΠ²ΠΎ. ΠΠ±ΡΠ΅Π΄ΠΈΠ½ΠΈΠΌ ΠΊΡΡ Π½Ρ ΠΈ Π³ΠΎΡΡΠΈΠ½ΡΡ: Π΄Π»Ρ ΡΡΠΎΠ³ΠΎ Π·Π°Π»ΠΎΠΆΠΈΠΌ Π΄Π²Π΅ΡΠ½ΠΎΠΉ ΠΏΡΠΎΠ΅ΠΌ ΠΈΠ· Ρ ΠΎΠ»Π»Π° ΠΈ ΡΠ½Π΅ΡΠ΅ΠΌ Π²ΡΠΎΡΡΡ ΡΡΠ΅Π½Ρ β Π²ΠΌΠ΅ΡΡΠΎ Π½Π΅Π΅ ΠΏΠΎΡΠ²ΠΈΡΡΡ ΡΡΠΈΠ»Π΅Π½Π½Π°Ρ ΠΊΠΎΠ½ΡΡΡΡΠΊΡΠΈΡ Ρ ΡΠ°Π·Π΄Π²ΠΈΠΆΠ½ΡΠΌΠΈ ΠΏΠ΅ΡΠ΅Π³ΠΎΡΠΎΠ΄ΠΊΠ°ΠΌΠΈ, Π±Π»Π°Π³ΠΎΠ΄Π°ΡΡ ΡΠ΅ΠΌΡ ΠΌΠΎΠΆΠ½ΠΎ Π·Π°ΠΊΡΡΡΡ Π·ΠΎΠ½Ρ Π³ΠΎΡΠΎΠ²ΠΊΠΈ ΠΎΡ ΠΏΠΎΡΡΠΎΡΠΎΠ½Π½ΠΈΡ Π³Π»Π°Π·.
ΠΠΎ Π΄Π°ΠΆΠ΅ Π΅ΡΠ»ΠΈ ΠΏΠ΅ΡΠ΅Π³ΠΎΡΠΎΠ΄ΠΊΠΈ ΠΎΡΠΊΡΡΡΡ, ΡΠΈΠ΄ΡΡΠΈΠ΅ Π½Π° ΠΎΠ³ΡΠΎΠΌΠ½ΠΎΠΌ Π΄ΠΈΠ²Π°Π½Π΅ Π³ΠΎΡΡΠΈ ΡΠ²ΠΈΠ΄ΡΡ Π»ΠΈΡΡ ΡΡΠΈΠ»ΡΠ½ΡΠ΅ Π²ΡΡΠΎΠΊΠΈΠ΅ ΡΠΊΠ°ΡΡ ΠΏΠΎΠ΄ ΠΏΠΎΡΠΎΠ»ΠΎΠΊ. Π Π°Π±ΠΎΡΡΡ Π·ΠΎΠ½Ρ Ρ ΡΠ°ΠΊΠΎΠ²ΠΈΠ½ΠΎΠΉ ΠΈ Π²Π°ΡΠΎΡΠ½ΠΎΠΉ ΠΏΠΎΠ²Π΅ΡΡ Π½ΠΎΡΡΡΡ Β«ΡΠΏΡΡΡΠ΅ΠΌΒ» Π²Π΄ΠΎΠ»Ρ Π±ΠΎΠΊΠΎΠ²ΠΎΠΉ ΡΡΠ΅Π½Ρ, Π° Π½Π°ΠΏΡΠΎΡΠΈΠ² Π³ΠΎΡΡΠΈΠ½ΠΎΠΉ ΠΏΠΎΡΠ²ΡΡΡΡ ΠΊΠΎΠ»ΠΎΠ½Π½Ρ ΡΠΎ Π²ΡΡΡΠΎΠ΅Π½Π½ΡΠΌ Ρ ΠΎΠ»ΠΎΠ΄ΠΈΠ»ΡΠ½ΠΈΠΊΠΎΠΌ, Π΄ΡΡ ΠΎΠ²ΠΊΠΎΠΉ ΠΈ Π΄ΡΡΠ³ΠΎΠΉ Π½Π΅ΠΎΠ±Ρ ΠΎΠ΄ΠΈΠΌΠΎΠΉ Π±ΡΡΠΎΠ²ΠΎΠΉ ΡΠ΅Ρ Π½ΠΈΠΊΠΎΠΉ. ΠΠ±Π΅Π΄Π΅Π½Π½ΡΠΉ ΡΡΠΎΠ» ΠΌΠΎΠΆΠ½ΠΎ Π΄ΠΎΠΏΠΎΠ»Π½ΠΈΡΠ΅Π»ΡΠ½ΠΎ ΡΠ°Π·Π»ΠΎΠΆΠΈΡΡ Π΄Π»Ρ Π±ΠΎΠ»ΡΡΠΎΠΉ ΠΊΠΎΠΌΠΏΠ°Π½ΠΈΠΈ.
Π ΠΈΠ·ΠΎΠ»ΠΈΡΠΎΠ²Π°Π½Π½ΠΎΠΉ ΡΠΏΠ°Π»ΡΠ½Π΅ ΠΏΡΠ΅Π΄ΡΡΠΌΠΎΡΡΠΈΠΌ Π±ΠΎΠ»ΡΡΡΡ Π΄Π²ΡΡΠΏΠ°Π»ΡΠ½ΡΡ ΠΊΡΠΎΠ²Π°ΡΡ ΠΈ ΠΏΠ°ΡΡ ΡΠ·ΠΊΠΈΡ ΡΠΊΠ°ΡΠΎΠ² ΠΏΠΎ ΠΎΠ±Π΅ ΡΡΠΎΡΠΎΠ½Ρ ΠΎΡ Π½Π΅Π΅, ΠΊΠΎΡΠΎΡΡΠ΅ ΠΎΠ±ΡΠ΅Π΄ΠΈΠ½ΠΈΠΌ Π°Π½ΡΡΠ΅ΡΠΎΠ»ΡΡ ΠΏΠΎΠ΄ ΠΏΠΎΡΠΎΠ»ΠΊΠΎΠΌ. ΠΠ°ΠΏΡΠΎΡΠΈΠ² β ΠΊΠΎΠΌΠΎΠ΄ ΠΈ ΡΠ΅Π»Π΅Π²ΠΈΠ·ΠΎΡ. ΠΠΌΠ΅ΡΡΠΈΡΠ΅Π»ΡΠ½ΡΠΉ ΡΠΊΠ°Ρ Π΄Π»Ρ Π²Π΅ΡΡ Π½Π΅ΠΉ ΠΈ ΡΠ΅Π·ΠΎΠ½Π½ΠΎΠΉ ΠΎΠ΄Π΅ΠΆΠ΄Ρ ΡΡΡΠ°Π½ΠΎΠ²ΠΈΠΌ Π² Ρ ΠΎΠ»Π»Π΅, ΡΡΠ΄ΠΎΠΌ β ΠΌΠΈΠ½ΠΈ-Π΄ΠΈΠ²Π°Π½. ΠΠ°Π½Π½ΡΡ Π²ΡΠ±Π΅ΡΠ΅ΠΌ ΡΠ³Π»ΠΎΠ²ΡΡ β ΠΎΠ½Π° Π±ΠΎΠ»ΡΡΠ΅ ΠΈ ΠΊΠΎΠΌΡΠΎΡΡΠ½Π΅Π΅, ΡΠ΅ΠΌ ΠΎΠ±ΡΡΠ½Π°Ρ.Β
ΠΠ΄Π΅ΠΈ Π΄Π»Ρ ΠΈΠ½ΡΠ΅ΡΡΠ΅ΡΠ°: ΠΌΠ΅Π±Π΅Π»Ρ ΠΈ Π΄Π΅ΠΊΠΎΡ
ΠΠ°ΡΠΈΠ°Π½Ρ 3: Π΄Π»Ρ ΡΡΠΏΡΡΠΆΠ΅ΡΠΊΠΎΠΉ ΠΏΠ°ΡΡ
Π§ΡΠΎΠ±Ρ ΡΠΎΠ·Π΄Π°ΡΡ ΠΎΡΠΊΡΡΡΠΎΠ΅ ΠΏΡΠΎΡΡΡΠ°Π½ΡΡΠ²ΠΎ, ΠΎΠ±ΡΠ΅Π΄ΠΈΠ½ΠΈΠΌ Π³ΠΎΡΡΠΈΠ½ΡΡ ΠΈ ΠΊΡΡ Π½Ρ Π±Π΅Π· ΠΈΡΠΏΠΎΠ»ΡΠ·ΠΎΠ²Π°Π½ΠΈΡ ΠΊΠ°ΠΊΠΈΡ -Π»ΠΈΠ±ΠΎ ΠΏΠ΅ΡΠ΅Π³ΠΎΡΠΎΠ΄ΠΎΠΊ. ΠΡΠΎ ΠΏΠΎΡΡΠ΅Π±ΡΠ΅Ρ ΡΠΎΠ³Π»Π°ΡΠΎΠ²Π°Π½ΠΈΡ, Π½ΠΎ ΠΏΠΎΠ»ΡΡΠΈΠ²ΡΠΈΠΉΡΡ ΡΠ΅Π·ΡΠ»ΡΡΠ°Ρ ΡΠΎΠ³ΠΎ ΡΡΠΎΠΈΡ! Π£Π³Π»ΠΎΠ²ΠΎΠΉ Π³Π°ΡΠ½ΠΈΡΡΡ Π΄ΠΎΡΡΠ°ΡΠΎΡΠ½ΠΎ Π²ΠΌΠ΅ΡΡΠΈΡΠ΅Π»ΡΠ½ΡΠΉ, Ρ Π±ΠΎΠ»ΡΡΠΎΠΉ ΡΠ°Π±ΠΎΡΠ΅ΠΉ ΠΏΠΎΠ²Π΅ΡΡ Π½ΠΎΡΡΡΡ. ΠΠ»Π°ΡΡΠΈΡΠ΅ΡΠΊΠΈΠΉ ΡΠ°Π·Π΄Π²ΠΈΠΆΠ½ΠΎΠΉ ΠΎΠ²Π°Π»ΡΠ½ΡΠΉ ΠΎΠ±Π΅Π΄Π΅Π½Π½ΡΠΉ ΡΡΠΎΠ» ΠΎΠ±ΡΠ΅Π΄ΠΈΠ½ΡΠ΅Ρ ΠΎΠ±Π° ΠΏΡΠΎΡΡΡΠ°Π½ΡΡΠ²Π°, Π±Π»Π°Π³ΠΎΠ΄Π°ΡΡ ΡΠ΅ΠΌΡ ΡΠΈΠ΄ΡΡΠΈΠ΅ Π·Π° Π½ΠΈΠΌ Π³ΠΎΡΡΠΈ ΠΌΠΎΠ³ΡΡ ΠΎΠ±ΡΠ°ΡΡΡΡ ΠΈ Ρ ΡΠ΅ΠΌ, ΠΊΡΠΎ Π³ΠΎΡΠΎΠ²ΠΈΡ Π½Π° ΠΊΡΡ Π½Π΅, ΠΈ Ρ ΡΠ΅ΠΌΠΈ, ΠΊΡΠΎ ΠΎΡΠ΄ΡΡ Π°Π΅Ρ Π² Π³ΠΎΡΡΠΈΠ½ΠΎΠΉ. ΠΠ΄Π΅ΡΡ ΠΌΠ΅ΡΡΠ° Ρ Π²Π°ΡΠΈΡ Π΄Π»Ρ ΡΠ³Π»ΠΎΠ²ΠΎΠ³ΠΎ Π΄ΠΈΠ²Π°Π½Π° ΠΈ ΠΊΡΠ΅ΡΠ»Π°, ΡΡΠΌΠ±Ρ ΠΏΠΎΠ΄ ΡΠ΅Π»Π΅Π²ΠΈΠ·ΠΎΡ, ΠΆΡΡΠ½Π°Π»ΡΠ½ΠΎΠ³ΠΎ ΡΡΠΎΠ»ΠΈΠΊΠ° ΠΈ ΡΠΎΡΡΠ΅ΡΠ°. ΠΡΠΈ ΡΡΠΎΠΌ ΠΎΠΊΠ½Π° Ρ ΠΆΠΈΠ²ΠΎΠΏΠΈΡΠ½ΡΠΌ Π²ΠΈΠ΄ΠΎΠΌ ΠΎΡΡΠ°ΡΡΡΡ ΠΎΡΠΊΡΡΡΡΠΌΠΈ, Π½ΠΎ ΠΏΡΠΎΡΡΡΠ°Π½ΡΡΠ²ΠΎ Π²ΠΎΠ·Π»Π΅ Π½ΠΈΡ Π·Π°Π΄Π΅ΠΉΡΡΠ²ΠΎΠ²Π°Π½ΠΎ.
Π‘ΠΏΠ°Π»ΡΠ½Ρ ΡΠ²Π΅Π»ΠΈΡΠΈΠΌ Π·Π° ΡΡΠ΅Ρ ΠΏΠ΅ΡΠ΅Π½ΠΎΡΠ° ΡΡΠ΅Π½Ρ ΠΌΠ΅ΠΆΠ΄Ρ Π½Π΅ΠΉ ΠΈ Π³ΠΎΡΡΠΈΠ½ΠΎΠΉ. ΠΡΠΎ ΠΏΠΎΠ·Π²ΠΎΠ»ΠΈΡ Π½Π°ΠΉΡΠΈ ΠΌΠ΅ΡΡΠΎ Π½Π΅ ΡΠΎΠ»ΡΠΊΠΎ Π΄Π»Ρ ΠΏΠΎΠ»Π½ΠΎΡΠ°Π·ΠΌΠ΅ΡΠ½ΠΎΠΉ Π΄Π²ΡΡΠΏΠ°Π»ΡΠ½ΠΎΠΉ ΠΊΡΠΎΠ²Π°ΡΠΈ ΠΈ ΠΏΠ°ΡΡ ΡΡΠΌΠ±ΠΎΡΠ΅ΠΊ, Π½ΠΎ ΠΈ Π΄Π»Ρ ΠΏΠ»Π°ΡΡΠ½ΠΎΠ³ΠΎ ΡΠΊΠ°ΡΠ°, ΡΠΎΠ²ΠΌΠ΅ΡΠ΅Π½Π½ΠΎΠ³ΠΎ Ρ ΡΡΠ°Π»Π΅ΡΠ½ΡΠΌ ΡΡΠΎΠ»ΠΈΠΊΠΎΠΌ.
Π Ρ ΠΎΠ»Π»Π΅ ΡΡΡΠ°Π½ΠΎΠ²ΠΈΠΌ Π΄Π²Π° ΡΠΊΠ°ΡΠ° Π΄Π»Ρ Π²Π΅ΡΡ Π½Π΅ΠΉ ΠΎΠ΄Π΅ΠΆΠ΄Ρ ΠΏΠΎ ΠΎΠ±Π΅ ΡΡΠΎΡΠΎΠ½Ρ ΠΎΡ ΠΊΡΡΠ΅ΡΠΊΠΈ. Π Π²ΡΡΠΎΠΊΠΈΠ΅ ΠΏΠΎΡΠΎΠ»ΠΊΠΈ ΠΏΠΎΠ·Π²ΠΎΠ»ΡΡΡ ΠΎΠ±ΡΠ΅Π΄ΠΈΠ½ΠΈΡΡ ΠΈΡ ΠΎΠ±ΡΠ΅ΠΉ Π°Π½ΡΡΠ΅ΡΠΎΠ»ΡΡ Π΄Π»Ρ ΡΠ΅Π΄ΠΊΠΎ ΠΈΡΠΏΠΎΠ»ΡΠ·ΡΠ΅ΠΌΡΡ Π²Π΅ΡΠ΅ΠΉ. ΠΠΎΡΠΊΠΎΠ»ΡΠΊΡ ΠΏΡΠ΅Π΄ΠΏΠΎΠ»Π°Π³Π°Π΅ΡΡΡ, ΡΡΠΎ Π² ΠΊΠ²Π°ΡΡΠΈΡΠ΅ Π±ΡΠ΄Π΅Ρ ΠΆΠΈΡΡ ΡΠΎΠ»ΡΠΊΠΎ ΡΠ΅ΠΌΠ΅ΠΉΠ½Π°Ρ ΠΏΠ°ΡΠ°, ΡΠ°Π½ΡΠ·Π΅Π» ΠΌΠΎΠΆΠ½ΠΎ ΠΎΠ±ΡΠ΅Π΄ΠΈΠ½ΠΈΡΡ. ΠΡΠΎ ΠΏΠΎΠ·Π²ΠΎΠ»ΠΈΡ ΡΡΡΠ°Π½ΠΎΠ²ΠΈΡΡ Π²ΡΡ Π½Π΅ΠΎΠ±Ρ ΠΎΠ΄ΠΈΠΌΡΡ ΡΠ°Π½ΡΠ΅Ρ Π½ΠΈΠΊΡ ΠΈ ΡΠΈΡΡΠ΅ΠΌΡ Ρ ΡΠ°Π½Π΅Π½ΠΈΡ Π΄Π»Ρ ΠΊΠΎΡΠΌΠ΅ΡΠΈΠΊΠΈ, Π±ΡΡΠΎΠ²ΠΎΠΉ Ρ ΠΈΠΌΠΈΠΈ ΠΈ Π±Π°Π½Π½ΡΡ ΠΏΡΠΈΠ½Π°Π΄Π»Π΅ΠΆΠ½ΠΎΡΡΠ΅ΠΉ.
ΠΠ΄Π΅ΠΈ Π΄Π»Ρ ΠΈΠ½ΡΠ΅ΡΡΠ΅ΡΠ°: ΠΌΠ΅Π±Π΅Π»Ρ ΠΈ Π΄Π΅ΠΊΠΎΡ
ΠΠ° ΠΎΠ±Π»ΠΎΠΆΠΊΠ΅: Π΄ΠΈΠ·Π°ΠΉΠ½-ΠΏΡΠΎΠ΅ΠΊΡ Β«Π‘ΡΡΠ΄ΠΈΠΈ 3.14Β».
www.inmyroom.ru
ΠΠ»Π°Π½ΠΈΡΠΎΠ²ΠΊΠ° Π΄Π²ΡΡ ΠΊΠΎΠΌΠ½Π°ΡΠ½ΠΎΠΉ ΠΊΠ²Π°ΡΡΠΈΡΡ: ΡΡΡ Π±Π΅Π· ΡΠ΅ΡΠ½ΠΎΡΡ
ΠΠ²ΡΡ ΠΊΠΎΠΌΠ½Π°ΡΠ½ΡΠ΅ ΠΊΠ²Π°ΡΡΠΈΡΡ Π΄ΠΎΠ»Π³ΠΎΠ΅ Π²ΡΠ΅ΠΌΡ ΠΎΡΡΠ°ΡΡΡΡ ΡΠ°ΠΌΡΠΌΠΈ Π²ΠΎΡΡΡΠ΅Π±ΠΎΠ²Π°Π½Π½ΡΠΌΠΈ Π½Π° ΡΡΠ½ΠΊΠ΅ Π½ΠΎΠ²ΠΎΡΡΡΠΎΠ΅ΠΊ ΠΈ Π²ΡΠΎΡΠΈΡΠ½ΠΎΠ³ΠΎ ΠΆΠΈΠ»ΡΡ, ΡΡΠΎ ΠΎΠ±ΡΡΠ»ΠΎΠ²Π»Π΅Π½ΠΎ ΡΠΎΠΎΡΠ½ΠΎΡΠ΅Π½ΠΈΠ΅ΠΌ ΡΠ΅Π½Π° β ΠΊΠ°ΡΠ΅ΡΡΠ²ΠΎ ΠΈ ΠΏΠΎΡΡΠ΅Π±Π½ΠΎΡΡΡΠΌ ΠΏΠΎΠΊΡΠΏΠ°ΡΠ΅Π»Π΅ΠΉ.Β ΠΠ»Π°Π½ΠΈΡΠΎΠ²ΠΊΠ° Π΄Π²ΡΡ ΠΊΠΎΠΌΠ½Π°ΡΠ½ΠΎΠΉ ΠΊΠ²Π°ΡΡΠΈΡΡΒ Π΄ΠΎΠ»ΠΆΠ½Π° Π½Π΅Π·Π°Π²ΠΈΡΠΈΠΌΠΎ ΠΎΡ ΠΏΠ»ΠΎΡΠ°Π΄ΠΈ ΡΠ΄ΠΎΠ²Π»Π΅ΡΠ²ΠΎΡΡΡΡ ΠΏΠΎΡΡΠ΅Π±Π½ΠΎΡΡΠΈ ΡΠ΅ΠΌΡΠΈ ΠΈΠ· 2-4 ΡΠ΅Π»ΠΎΠ²Π΅ΠΊ, ΠΎΠ±Π΅ΡΠΏΠ΅ΡΠΈΠ²Π°Ρ ΠΊΠ°ΠΆΠ΄ΠΎΠΌΡ Π»ΠΈΡΠ½ΠΎΠ΅ ΠΏΡΠΎΡΡΡΠ°Π½ΡΡΠ²ΠΎ.

ΠΠ²ΡΡ ΠΊΠΎΠΌΠ½Π°ΡΠ½ΡΠ΅ ΠΊΠ²Π°ΡΡΠΈΡΡ ΡΡΠ½ΠΊΠ° Π²ΡΠΎΡΠΈΡΠ½ΠΎΠΉ Π½Π΅Π΄Π²ΠΈΠΆΠΈΠΌΠΎΡΡΠΈ
Π Π°ΡΡΠΌΠΎΡΡΠΈΠΌΒ Π²Π°ΡΠΈΠ°Π½ΡΡ ΠΏΠ»Π°Π½ΠΈΡΠΎΠ²ΠΊΠΈ Π΄Π²ΡΡ ΠΊΠΎΠΌΠ½Π°ΡΠ½ΠΎΠΉ ΠΊΠ²Π°ΡΡΠΈΡΡΒ ΡΠ°Π·Π½ΡΡ ΠΏΠ΅ΡΠΈΠΎΠ΄ΠΎΠ² ΡΡΡΠΎΠΈΡΠ΅Π»ΡΡΡΠ²Π°. Π ΠΊΠ°ΡΠ΅Π³ΠΎΡΠΈΠΈ Π²ΡΠΎΡΠΈΡΠ½ΠΎΠ³ΠΎ ΠΆΠΈΠ»ΡΡ ΠΎΡΠ½ΠΎΡΡΡΡΡ ΠΊΠ²Π°ΡΡΠΈΡΡ Β«Ρ ΠΈΡΡΠΎΡΠΈΠ΅ΠΉΒ» Π² ΠΎΠ±ΠΆΠΈΡΡΡ ΡΠ°ΠΉΠΎΠ½Π°Ρ , ΡΠ°ΠΊ Π½Π°Π·ΡΠ²Π°Π΅ΠΌΡΠ΅:
- Π‘ΡΠ°Π»ΠΈΠ½ΠΊΠΈ;
- Π₯ΡΡΡΠ΅Π²ΠΊΠΈ;
- ΠΡΠ΅ΠΆΠ½Π΅Π²ΠΊΠΈ;
- ΠΠ΅ΡΠΈΠΎΠ΄Π° Ρ 1991 Π³.
Π‘ΡΠ°Π»ΠΈΠ½ΠΊΠΈ
Π‘ΡΠ°Π»ΠΈΠ½ΠΊΠΈ ΡΡΡΠΎΠΈΠ»ΠΈΡΡ ΠΏΠΎ ΡΠ°Π·Π½ΡΠΌ, ΡΠ°ΡΠ΅ ΠΈΠ½Π΄ΠΈΠ²ΠΈΠ΄ΡΠ°Π»ΡΠ½ΡΠΌ ΠΏΡΠΎΠ΅ΠΊΡΠ°ΠΌ Π΄Π»Ρ ΡΠ°Π·Π»ΠΈΡΠ½ΡΡ ΠΊΠ°ΡΠ΅Π³ΠΎΡΠΈΠΉ Π³ΡΠ°ΠΆΠ΄Π°Π½, ΠΏΠΎΡΡΠΎΠΌΡ ΡΡΠ΅Π΄ΠΈ Π½ΠΈΡ Π²ΡΡΡΠ΅ΡΠ°ΡΡΡΡ ΠΊΠ°ΠΊ ΡΠ»ΠΈΡΠ½ΠΎΠ΅ ΠΏΠΎΠ»Π½ΠΎΠ³Π°Π±Π°ΡΠΈΡΠ½ΠΎΠ΅ ΠΆΠΈΠ»ΡΠ΅, ΡΠ°ΠΊ ΠΈ ΠΌΠ°Π»ΠΎΠ³Π°Π±Π°ΡΠΈΡΠ½ΠΎΠ΅. ΠΠΎΠΌΠ° Π² ΡΡΠΎΡ ΠΏΠ΅ΡΠΈΠΎΠ΄ ΡΡΡΠΎΠΈΠ»ΠΈ ΠΈΠ· ΠΊΠΈΡΠΏΠΈΡΠ° Ρ Π½Π΅ΡΡΡΠΈΠΌΠΈ ΡΡΠ΅Π½Π°ΠΌΠΈ, ΡΡΠΎ ΠΌΠΎΠΆΠ΅Ρ ΡΠΎΠ·Π΄Π°Π²Π°ΡΡ ΡΠ»ΠΎΠΆΠ½ΠΎΡΡΠΈ ΠΏΡΠΈ ΠΏΠ΅ΡΠ΅ΠΏΠ»Π°Π½ΠΈΡΠΎΠ²ΠΊΠ΅. ΠΠ±ΡΠΈΠΌ Π΄Π»Ρ ΡΡΠ°Π»ΠΈΠ½ΠΎΠΊ ΡΠ²Π»ΡΠ΅ΡΡΡ Π²ΡΡΠΎΠΊΠΈΠΉ ΠΏΠΎΡΠΎΠ»ΠΎΠΊ ΠΈ Π½Π°Π»ΠΈΡΠΈΠ΅ Π³ΠΈΠΏΡΠΎΠ²ΠΎΠΉ Π»Π΅ΠΏΠ½ΠΈΠ½Ρ Π½Π° Π½Π΅ΠΌ. Π Π΄ΠΎΠΌΠ°Ρ , ΠΏΠΎΡΡΡΠΎΠ΅Π½Π½ΡΡ Π΄ΠΎ 1941 Π³ΠΎΠ΄Π° ΠΏΠ΅ΡΠ΅ΠΊΡΡΡΠΈΡ ΡΠ°ΡΡΠΎ Π΄Π΅Π»Π°Π»ΠΈ ΠΏΠΎ Π΄Π΅ΡΠ΅Π²ΡΠ½Π½ΡΠΌ Π±Π°Π»ΠΊΠ°ΠΌ, Π° ΡΡΡΠΊΠ°ΡΡΡΠΊΡ ΡΡΠ΅Π½ ΠΈ ΠΏΠΎΡΠΎΠ»ΠΊΠ° β ΠΏΠΎ Π΄ΡΠ°Π½ΠΊΠ΅.
ΠΠ»Π°Π½ΠΈΡΠΎΠ²ΠΊΠ° 2 ΠΊΠΎΠΌΠ½Π°ΡΠ½ΠΎΠΉ ΠΊΠ²Π°ΡΡΠΈΡΡ 54 ΠΊΠ². ΠΌ. Π² ΡΡΠ°Π»ΠΈΠ½ΡΠΊΠΎΠΌ Π΄ΠΎΠΌΠ΅ ΠΏΡΠ΅Π΄ΡΡΠΌΠ°ΡΡΠΈΠ²Π°Π»Π° Ρ Π±ΠΎΠ»ΡΡΡΡ ΠΊΡΡ Π½Ρ, Π½Π°Π±ΠΎΡ ΠΏΠΎΠ΄ΡΠΎΠ±Π½ΡΡ ΠΏΠΎΠΌΠ΅ΡΠ΅Π½ΠΈΠΉ, ΠΏΡΠΎΡΡΠΎΡΠ½ΡΠ΅ ΠΊΠΎΠΌΠ½Π°ΡΡ Ρ Π±Π°Π»ΠΊΠΎΠ½ΠΎΠΌ. Π Π½Π΅Π΄ΠΎΡΡΠ°ΡΠΊΠ°ΠΌ ΠΌΠΎΠΆΠ½ΠΎ ΠΎΡΠ½Π΅ΡΡΠΈ Π½Π΅Π΄ΠΎΡΡΠ°ΡΠΎΡΠ½ΡΡ ΠΎΡΠ²Π΅ΡΠ΅Π½Π½ΠΎΡΡΡ ΠΏΠΎΠΌΠ΅ΡΠ΅Π½ΠΈΠΉ ΠΈΠ·-Π·Π° ΠΎΠΊΠΎΠ½ ΠΌΠ°Π»ΠΎΠΉ ΠΏΠ»ΠΎΡΠ°Π΄ΠΈ.
ΠΠ°ΡΠΈΠ°Π½ΡΡ ΠΏΠ»Π°Π½ΠΈΡΠΎΠ²ΠΊΠΈ Π΄Π²ΡΡ ΠΊΠΎΠΌΠ½Π°ΡΠ½ΠΎΠΉ ΠΊΠ²Π°ΡΡΠΈΡΡΒ Π½Π΅Π±ΠΎΠ»ΡΡΠΎΠΉ ΠΏΠ»ΠΎΡΠ°Π΄ΠΈ ΠΎΡΠ»ΠΈΡΠ°ΡΡΡΡ ΠΌΠ°Π»Π΅Π½ΡΠΊΠΎΠΉ ΠΊΡΡ Π½Π΅ΠΉ, ΡΠ΅ΡΠ½ΡΠΌ ΠΊΠΎΡΠΈΠ΄ΠΎΡΠΎΠΌ ΠΈ ΠΊΠΎΠΌΠ½Π°ΡΠ°ΠΌΠΈ-ΠΏΠ΅Π½Π°Π»Π°ΠΌΠΈ, ΠΊΠΎΡΠΎΡΡΠ΅ ΠΏΡΠΈ ΡΠΈΡΠΈΠ½Π΅ Π² 2,2β¦2,5 ΠΌ ΠΈ Π΄Π»ΠΈΠ½Π΅ 5β¦6 ΠΌ Π² Π²ΡΡΠΎΡΡ Π±ΡΠ»ΠΈ ΠΎΠΊΠΎΠ»ΠΎ 4 ΠΌ.
Π’Π°ΠΊ ΠΊΠ°ΠΊ Π΄ΠΎΠΌΠ° ΡΡΠ°Π»ΠΈΠ½ΡΠΊΠΎΠΉ ΡΠΏΠΎΡ ΠΈ ΠΎΡΠ½ΠΎΡΡΡ ΡΠ΅ΠΏΠ΅ΡΡ ΠΊ ΠΏΠ°ΠΌΡΡΠ½ΠΈΠΊΠ°ΠΌ Π°ΡΡ ΠΈΡΠ΅ΠΊΡΡΡΡ, ΡΡΠΎ ΡΠΎΠ·Π΄Π°Π΅Ρ Π΄ΠΎΠΏΠΎΠ»Π½ΠΈΡΠ΅Π»ΡΠ½ΡΠ΅ ΡΡΡΠ΄Π½ΠΎΡΡΠΈ ΠΏΡΠΈ ΡΠ΅ΠΌΠΎΠ½ΡΠ΅ ΠΈ ΠΏΠ΅ΡΠ΅ΡΡΡΡΠΎΠΉΡΡΠ²Π΅: Π½Π΅ΠΎΠ±Ρ ΠΎΠ΄ΠΈΠΌΠΎ ΡΠΎΠ³Π»Π°ΡΠΎΠ²Π°Π½ΠΈΠ΅ ΠΏΡΠΎΠ΅ΠΊΡΠ° Π² Π½Π΅ΡΠΊΠΎΠ»ΡΠΊΠΈΡ ΠΎΡΠ³Π°Π½ΠΈΠ·Π°ΡΠΈΡΡ .
Π₯ΡΡΡΠ΅Π²ΠΊΠΈ
ΠΠ΅ΡΠ²ΠΎΠ΅ ΠΌΠ°ΡΡΠΎΠ²ΠΎΠ΅ ΡΠΈΠΏΠΎΠ²ΠΎΠ΅ ΠΆΠΈΠ»ΡΠ΅, ΠΏΠΎΡΡΡΠΎΠ΅Π½Π½ΠΎΠ΅ Π²ΠΎ Π²ΡΠ΅ΠΌΠ΅Π½Π° Π±ΠΎΡΡΠ±Ρ Ρ ΠΈΠ·Π»ΠΈΡΠ΅ΡΡΠ²ΠΎΠΌ Π² Π°ΡΡ ΠΈΡΠ΅ΠΊΡΡΡΠ΅, ΠΎΡΠ»ΠΈΡΠ°Π΅ΡΡΡ Π½Π΅Π²ΡΡΠΎΠΊΠΈΠΌ ΠΏΠΎΡΡΠ΅Π±ΠΈΡΠ΅Π»ΡΡΠΊΠΈΠΌ ΠΊΠ°ΡΠ΅ΡΡΠ²ΠΎΠΌ: ΠΎΡΡΡΡΡΡΠ²ΠΈΠ΅ ΠΏΠΎΠ΄ΡΠΎΠ±Π½ΡΡ ΠΏΠΎΠΌΠ΅ΡΠ΅Π½ΠΈΠΉ, ΠΌΠ°Π»Π΅Π½ΡΠΊΠΈΠ΅ ΠΊΡΡ Π½ΠΈ, ΠΏΡΠΎΡ ΠΎΠ΄Π½Π°Ρ ΠΊΠΎΠΌΠ½Π°ΡΠ°, ΡΠΌΠ΅ΠΆΠ½ΡΠΉ ΡΠ°Π½ΡΠ·Π΅Π», Π½ΠΈΠ·ΠΊΠΈΠ΅ ΠΏΠΎΡΠΎΠ»ΠΊΠΈ, β Π²ΠΎΡ Ρ Π°ΡΠ°ΠΊΡΠ΅ΡΠ½Π°ΡΒ ΠΊΠ²Π°ΡΡΠΈΡΠ° ΡΠ°ΡΠΏΠ°ΡΠΎΠ½ΠΊΠ° 2 ΠΊΠΎΠΌΠ½Π°ΡΠ½Π°Ρ ΠΏΠ»Π°Π½ΠΈΡΠΎΠ²ΠΊΠ°.Β ΠΠΎΡΠΊΠΎΠ»ΡΠΊΡ ΠΏΡΠ°Π²ΠΈΡΠ΅Π»ΡΡΡΠ²ΠΎ ΠΠΎΡΠΊΠ²Ρ ΠΏΡΠΎΠ²ΠΎΠ΄ΠΈΡ ΠΌΠ°ΡΡΠΎΠ²ΡΠΉ ΡΠ½ΠΎΡ Ρ ΡΡΡΠ΅Π²ΠΎΠΊ, ΠΏΠΎΠΊΡΠΏΠΊΠ° ΠΊΠ²Π°ΡΡΠΈΡ Π² ΡΡΠΈΡ Π΄ΠΎΠΌΠ°Ρ ΡΠ΅ΡΡΠ΅Ρ Π°ΠΊΡΡΠ°Π»ΡΠ½ΠΎΡΡΡ.
ΠΡΠ΅ΠΆΠ½Π΅Π²ΠΊΠΈ
ΠΠ° ΠΏΠ΅ΡΠΈΠΎΠ΄ Π½Π°Ρ ΠΎΠΆΠ΄Π΅Π½ΠΈΡ Ρ Π²Π»Π°ΡΡΠΈ Π.Π. ΠΡΠ΅ΠΆΠ½Π΅Π²Π° (1966β1984) ΠΈ ΠΏΡΠΈΠΌΠ΅ΡΠ½ΠΎ Π΄ΠΎ 1991Π³. ΠΏΠΎΡΡΠ΅ΠΏΠ΅Π½Π½ΠΎ ΠΌΠ΅Π½ΡΠ»ΠΎΡΡ ΠΏΡΠ΅Π΄ΡΡΠ°Π²Π»Π΅Π½ΠΈΠ΅ ΠΎ ΠΊΠΎΠΌΡΠΎΡΡΠ΅ ΠΆΠΈΠ»ΡΡ. ΠΡΠ»ΠΈ ΠΏΠ΅ΡΠ²ΠΎΠ½Π°ΡΠ°Π»ΡΠ½ΠΎ ΡΠ΅ΡΡ ΡΠ»Π° ΡΠΎΠ»ΡΠΊΠΎ ΠΎ Π½Π΅Π±ΠΎΠ»ΡΡΠΎΠΌ ΡΠ»ΡΡΡΠ΅Π½ΠΈΠΈ ΠΏΠ»Π°Π½ΠΈΡΠΎΠ²ΠΎΠΊ Π² Ρ ΡΡΡΠ΅Π²ΠΊΠ°Ρ Π·Π° ΡΡΠ΅Ρ ΡΠ°Π·Π΄Π΅Π»Π΅Π½ΠΈΡ ΡΠ°Π½ΡΠ·Π»Π° Π½Π° ΡΡΠ°Π»Π΅Ρ ΠΈ Π²Π°Π½Π½ΡΡ ΠΊΠΎΠΌΠ½Π°ΡΡ, ΠΈ ΠΈΠ·ΠΎΠ»ΠΈΡΠΎΠ²Π°Π½Π½ΠΎΡΡΠΈ ΠΊΠΎΠΌΠ½Π°Ρ, ΡΠΎ Ρ ΡΠ°Π·Π²ΠΈΡΠΈΠ΅ΠΌ ΠΊΡΡΠΏΠ½ΠΎΠΏΠ°Π½Π΅Π»ΡΠ½ΠΎΠ³ΠΎ Π΄ΠΎΠΌΠΎΡΡΡΠΎΠ΅Π½ΠΈΡ ΠΏΡΠΎΠΈΡΡ ΠΎΠ΄ΠΈΠ»ΠΎ ΡΠ²Π΅Π»ΠΈΡΠ΅Π½ΠΈΠ΅ ΠΎΠ±ΡΠ΅ΠΉ ΠΏΠ»ΠΎΡΠ°Π΄ΠΈ ΠΊΠ²Π°ΡΡΠΈΡ ΠΈ ΠΏΠΎΠ΄ΡΠΎΠ±Π½ΡΡ ΠΏΠΎΠΌΠ΅ΡΠ΅Π½ΠΈΠΉ Π² Π½ΠΈΡ . ΠΡΠ»ΠΎ ΡΠΎΠ·Π΄Π°Π½ΠΎ ΠΌΠ½ΠΎΠΆΠ΅ΡΡΠ²ΠΎ ΡΠΈΠΏΠΎΠ²ΡΡ ΠΏΡΠΎΠ΅ΠΊΡΠΎΠ² ΠΆΠΈΠ»ΡΡ Π² ΠΏΠ°Π½Π΅Π»ΡΠ½ΡΡ Π΄ΠΎΠΌΠ°Ρ , ΠΌΠ½ΠΎΠ³ΠΈΠ΅ ΠΈΠ· Π΄Π²ΡΡΠ΅ΠΊ ΠΈΠΌΠ΅ΡΡ ΠΎΡΠ»ΠΈΡΠ½ΠΎΠ΅ ΠΏΠ»Π°Π½ΠΈΡΠΎΠ²ΠΎΡΠ½ΠΎΠ΅ ΡΠ΅ΡΠ΅Π½ΠΈΠ΅.
ΠΠ°ΡΠΈΠ°Π½ΡΡ ΠΏΠ»Π°Π½ΠΈΡΠΎΠ²ΠΊΠΈ Π΄Π²ΡΡ ΠΊΠΎΠΌΠ½Π°ΡΠ½ΠΎΠΉ ΠΊΠ²Π°ΡΡΠΈΡΡΒ ΠΏΡΠ΅Π΄ΡΡΠΌΠ°ΡΡΠΈΠ²Π°Π»ΠΈ ΠΊΡΡ Π½Ρ ΠΎΡ 7 Π΄ΠΎ 15 ΠΌ2, ΠΊΠΎΠΌΠ½Π°ΡΡ ΠΏΠ»ΠΎΡΠ°Π΄ΡΡ 10β20 ΠΌ2, ΠΏΡΠΈΡ ΠΎΠΆΡΡ ΠΈ ΡΠΈΡΠΎΠΊΠΈΠΉ ΠΊΠΎΡΠΈΠ΄ΠΎΡ Ρ ΠΊΠ»Π°Π΄ΠΎΠ²ΠΎΠΉ. ΠΠ°ΠΊ ΠΏΡΠ°Π²ΠΈΠ»ΠΎ, Π² ΡΠ°ΠΊΠΎΠΉ Π΄Π²ΡΡΠΊΠ΅ Π±ΡΠ» Π±Π°Π»ΠΊΠΎΠ½ ΠΈ Π»ΠΎΠ΄ΠΆΠΈΡ. ΠΠ΅Π΄ΠΎΡΡΠ°ΡΠΎΠΊ β Π½Π΅ΡΡΡΠΈΠ΅ ΠΏΠ°Π½Π΅Π»ΡΠ½ΡΠ΅ ΡΡΠ΅Π½Ρ, ΡΡΠ΅Π±ΡΡΡΠΈΠ΅ ΡΡΠΈΠ»Π΅Π½ΠΈΡ ΠΏΡΠΈ ΠΏΠ΅ΡΠ΅ΠΏΠ»Π°Π½ΠΈΡΠΎΠ²ΠΊΠ΅, Π½ΠΈΠ·ΠΊΠΈΠ΅ ΠΏΠΎΡΠΎΠ»ΠΊΠΈ β ΠΎΡ 2,4 Π΄ΠΎ 2,8 ΠΌ.
ΠΠ°ΡΠΈΠ°Π½ΡΡ ΠΏΠ»Π°Π½ΠΈΡΠΎΠ²ΠΊΠΈ Π΄Π²ΡΡ ΠΊΠΎΠΌΠ½Π°ΡΠ½ΠΎΠΉ ΠΊΠ²Π°ΡΡΠΈΡΡ ΠΏΠΎΡΡΡΠΎΠΉΠΊΠΈ ΠΏΠΎΡΠ»Π΅ 1991Π³.
ΠΠΎΡΠ»Π΅ ΡΠ°Π·Π²Π°Π»Π° Π‘Π‘Π‘Π , ΠΊΠΎΠ³Π΄Π° Π±ΡΠ»ΠΈ ΡΠ²Π΅Π΄Π΅Π½Ρ ΠΊ ΠΌΠΈΠ½ΠΈΠΌΡΠΌΡ ΠΏΡΠΎΠ³ΡΠ°ΠΌΠΌΡ ΡΡΡΠΎΠΈΡΠ΅Π»ΡΡΡΠ²Π° Π±Π΅ΡΠΏΠ»Π°ΡΠ½ΠΎΠ³ΠΎ ΠΆΠΈΠ»ΡΡ, Π½Π°ΡΠ°Π»ΠΎΡΡ ΠΊΠΎΠΌΠΌΠ΅ΡΡΠ΅ΡΠΊΠΎΠ΅ ΡΡΡΠΎΠΈΡΠ΅Π»ΡΡΡΠ²ΠΎ Π±Π΅Π· ΠΎΠ³ΡΠ°Π½ΠΈΡΠ΅Π½ΠΈΡ ΠΏΠ»ΠΎΡΠ°Π΄ΠΈ ΠΏΠΎΠΌΠ΅ΡΠ΅Π½ΠΈΠΉ. Π‘Π΅ΠΉΡΠ°Ρ Π½Π° Π²ΡΠΎΡΠΈΡΠ½ΠΎΠΌ ΡΡΠ½ΠΊΠ΅ ΠΌΠΎΠΆΠ½ΠΎ ΡΠ²ΠΈΠ΄Π΅ΡΡ Π΄Π²ΡΡΠΊΠΈ, ΠΏΠΎΡΡΡΠΎΠ΅Π½Π½ΡΠ΅ Π² ΡΡΠΎ Π²ΡΠ΅ΠΌΡ, ΠΈ ΠΏΠΎ Π±ΡΠ΅ΠΆΠ½Π΅Π²ΡΠΊΠΈΠΌ Π½ΠΎΡΠΌΠ°ΠΌ ΠΏΠΎΡΡΠ΄ΠΊΠ° 54 ΠΌ2 Π² ΠΏΠ°Π½Π΅Π»ΡΠ½ΡΡ Π΄ΠΎΠΌΠ°Ρ , ΠΈ Π±ΠΎΠ»ΡΡΠΈΠ΅, ΡΠ²ΠΎΠ±ΠΎΠ΄Π½ΠΎΠΉ ΠΏΠ»Π°Π½ΠΈΡΠΎΠ²ΠΊΠΈ ΠΏΡΠΎΡΡΡΠ°Π½ΡΡΠ²Π° Π±ΠΎΠ»Π΅Π΅ 70 ΠΌ2 Π² ΠΊΠ°ΡΠΊΠ°ΡΠ½ΠΎ-ΠΌΠΎΠ½ΠΎΠ»ΠΈΡΠ½ΡΡ ΠΏΠΎΡΡΡΠΎΠΉΠΊΠ°Ρ .
ΠΠ²ΡΡ ΠΊΠΎΠΌΠ½Π°ΡΠ½ΡΠ΅ ΠΊΠ²Π°ΡΡΠΈΡΡ Π² Π½ΠΎΠ²ΠΎΡΡΡΠΎΠΉΠΊΠ°Ρ
ΠΠ΄Π΅Π°Π»ΡΠ½Π°Ρ ΠΏΠ»Π°Π½ΠΈΡΠΎΠ²ΠΊΠ° Π΄Π²ΡΡ ΠΊΠΎΠΌΠ½Π°ΡΠ½ΠΎΠΉ ΠΊΠ²Π°ΡΡΠΈΡΡΒ Π² Π½ΠΎΠ²ΠΎΡΡΡΠΎΠΉΠΊΠ΅ ΠΏΡΠ΅Π΄ΠΏΠΎΠ»Π°Π³Π°Π΅Ρ ΠΎΡΡΡΡΡΡΠ²ΠΈΠ΅ ΠΏΠ΅ΡΠ΅Π³ΠΎΡΠΎΠ΄ΠΎΠΊ: ΠΏΠΎΠΌΠ΅ΡΠ΅Π½ΠΈΠ΅ ΡΠ΄Π°Π΅ΡΡΡ Π±Π΅Π· ΡΠΈΡΡΠΎΠ²ΠΎΠΉ ΠΎΡΠ΄Π΅Π»ΠΊΠΈ, Π±Π΅Π· ΡΠ°Π½ΡΠ΅Ρ Π½ΠΈΠΊΠΈ, ΡΠΎΠ»ΡΠΊΠΎ Ρ ΠΏΠΎΠ΄Π²ΠΎΠ΄ΠΊΠΎΠΉ ΠΊΠΎΠΌΠΌΡΠ½ΠΈΠΊΠ°ΡΠΈΠΉ. Π Π°Π·ΠΌΠ΅ΡΠ΅Π½ΠΈΠ΅ ΠΊΠΎΠΌΠ½Π°Ρ ΠΊΠ°ΠΆΠ΄ΡΠΉ ΠΆΠΈΠ»Π΅Ρ Π²ΡΡΡΡΠ°ΠΈΠ²Π°Π΅Ρ ΠΏΠΎΠ΄ ΡΠ΅Π±Ρ ΠΈΠ»ΠΈ ΠΏΠΎΡΡΠ΅Π±Π½ΠΎΡΡΠΈ ΡΠ²ΠΎΠ΅ΠΉ ΡΠ΅ΠΌΡΠΈ. Π’Π°ΠΊΠΎΠΉ ΠΏΠΎΠ΄Ρ ΠΎΠ΄ ΠΏΠΎΠ·Π²ΠΎΠ»ΡΠ΅Ρ ΡΠΎΠ·Π΄Π°ΡΡ ΡΡΠ½ΠΊΡΠΈΠΎΠ½Π°Π»ΡΠ½ΠΎΠ΅ ΠΏΡΠΎΡΡΡΠ°Π½ΡΡΠ²ΠΎ Π² Π»ΡΠ±ΠΎΠΌ ΡΡΠΈΠ»Π΅, ΠΎΠ΄Π½Π°ΠΊΠΎ ΡΠ°ΡΠ΅ Π²ΡΠ΅Π³ΠΎ ΠΏΡΠ΅Π΄ΠΏΠΎΠ»Π°Π³Π°Π΅ΡΡΡ ΠΊΠ²Π°ΡΡΠΈΡΠ°-ΡΡΡΠ΄ΠΈΡ Π±Π΅Π· ΠΏΠ΅ΡΠ΅Π³ΠΎΡΠΎΠ΄ΠΎΠΊ, Π·ΠΎΠ½ΠΈΡΠΎΠ²Π°Π½ΠΈΠ΅ Π²ΡΠΏΠΎΠ»Π½ΡΠ΅ΡΡΡ ΡΠ°ΡΡΡΠ°Π½ΠΎΠ²ΠΊΠΎΠΉ ΠΌΠ΅Π±Π΅Π»ΠΈ ΠΈ ΠΎΡΠ²Π΅ΡΠ΅Π½ΠΈΠ΅ΠΌ.
ΠΠ²ΡΠΎ Π΄Π²ΡΡ ΠΊΠΎΠΌΠ½Π°ΡΠ½Π°Ρ ΠΊΠ²Π°ΡΡΠΈΡΠ° ΠΏΠ»Π°Π½ΠΈΡΠΎΠ²ΠΊΠ°
ΠΠΎΡΠ»Π΅Π΄Π½Π΅Π΅ Π²ΡΠ΅ΠΌΡ Π½Π°Π±ΠΈΡΠ°Π΅Ρ ΠΎΠ±ΠΎΡΠΎΡΡ ΡΡΡΠΎΠΈΡΠ΅Π»ΡΡΡΠ²ΠΎ ΠΏΠΎ Π΅Π²ΡΠΎ ΡΡΠ°Π½Π΄Π°ΡΡΡ. Π‘Π½ΠΈΠΆΠ΅Π½ΠΈΠ΅ ΡΡΠΎΠ²Π½Ρ Π΄ΠΎΡ ΠΎΠ΄ΠΎΠ² ΠΏΠΎ ΡΡΡΠ°Π½Π΅ ΠΈ ΠΏΠΎΡΡΠΎΡΠ½Π½ΡΠΉ ΡΠΎΡΡ ΡΡΠΎΠΈΠΌΠΎΡΡΠΈ ΠΆΠΈΠ»ΠΈΡΠ½ΠΎ-ΠΊΠΎΠΌΠΌΡΠ½Π°Π»ΡΠ½ΡΡ ΡΡΠ»ΡΠ³ ΡΠ½ΠΈΠΆΠ°Π΅Ρ ΠΏΠΎΠΏΡΠ»ΡΡΠ½ΠΎΡΡΡ ΠΆΠΈΠ»ΡΡ Π±ΠΎΠ»ΡΡΠΎΠΉ ΠΏΠ»ΠΎΡΠ°Π΄ΠΈ, Π·Π°ΡΡΠ°Π²Π»ΡΡ ΡΠΊΠΎΠ½ΠΎΠΌΠΈΡΡ. ΠΠ° ΠΏΠ΅ΡΠ²ΡΠΉ ΠΏΠ»Π°Π½ Π²ΡΡ ΠΎΠ΄ΡΡ Π΄Π²ΡΡ ΠΊΠΎΠΌΠ½Π°ΡΠ½ΠΎΠ΅ ΠΆΠΈΠ»ΡΠ΅ Π½Π΅Π±ΠΎΠ»ΡΡΠΎΠΉ ΠΏΠ»ΠΎΡΠ°Π΄ΠΈ.
ΠΠ²ΡΠΎ Π΄Π²ΡΡ ΠΊΠΎΠΌΠ½Π°ΡΠ½Π°Ρ ΠΊΠ²Π°ΡΡΠΈΡΠ° ΠΏΠ»Π°Π½ΠΈΡΠΎΠ²ΠΊΠ°Β ΠΈΠΌΠ΅Π΅Ρ ΠΎΡΠ»ΠΈΡΠΈΡΠ΅Π»ΡΠ½ΡΠ΅ ΠΎΡΠΎΠ±Π΅Π½Π½ΠΎΡΡΠΈ:
- ΠΠ΅Π±ΠΎΠ»ΡΡΠ°Ρ ΠΏΠ»ΠΎΡΠ°Π΄Ρ;
- Π‘ΠΎΠ²ΠΌΠ΅ΡΠ΅Π½ΠΈΠ΅ ΡΡΠ½ΠΊΡΠΈΠΉ ΠΊΡΡ Π½ΠΈ-ΡΡΠΎΠ»ΠΎΠ²ΠΎΠΉ-Π³ΠΎΡΡΠΈΠ½ΠΎΠΉ Π² ΠΎΠ΄Π½ΠΎΠΌ ΠΏΡΠΎΡΡΠΎΡΠ½ΠΎΠΌ ΠΏΠΎΠΌΠ΅ΡΠ΅Π½ΠΈΠΈ;
- ΠΠ΅Π±ΠΎΠ»ΡΡΠ°Ρ ΡΠΏΠ°Π»ΡΠ½Ρ.
ΠΠ΅Π±ΠΎΠ»ΡΡΠ°Ρ ΠΏΠ»ΠΎΡΠ°Π΄Ρ (Π΄Π²ΡΡ ΠΊΠΎΠΌΠ½Π°ΡΠ½Π°Ρ ΠΏΠΎΡΡΠ΄ΠΊΠ° 40ΠΌ2) ΠΏΡΠΈΡΠ»Π°ΡΡ ΠΏΠΎ Π΄ΡΡΠ΅ ΠΌΠΎΠ»ΠΎΠ΄ΡΠΌ ΡΠ΅ΠΌΡΡΠΌ Π±Π΅Π· Π΄Π΅ΡΠ΅ΠΉ ΠΈΠ»ΠΈ Ρ ΠΎΠ΄Π½ΠΈΠΌ ΠΌΠ°Π»Π΅Π½ΡΠΊΠΈΠΌ ΡΠ΅Π±Π΅Π½ΠΊΠΎΠΌ. Π’Π°ΠΊ ΠΊΠ°ΠΊ ΡΠΈΠ½Π°Π½ΡΠΎΠ²ΡΠ΅ Π²ΠΎΠ·ΠΌΠΎΠΆΠ½ΠΎΡΡΠΈ Ρ ΠΌΠΎΠ»ΠΎΠ΄ΠΎΠΉ ΡΠ΅ΠΌΡΠΈ, ΠΊΠ°ΠΊ ΠΏΡΠ°Π²ΠΈΠ»ΠΎ, Π½Π΅ ΠΏΠΎΠ·Π²ΠΎΠ»ΡΡΡ ΡΡΡΠΎΠΈΡΡ ΠΆΠΈΠ»ΡΠ΅ Π±ΠΎΠ»ΡΡΠΎΠΉ ΠΏΠ»ΠΎΡΠ°Π΄ΠΈ, Π²Π°ΡΠΈΠ°Π½ΡΡΒ Π΅Π²ΡΠΎ Π΄Π²ΡΡ ΠΊΠΎΠΌΠ½Π°ΡΠ½ΡΡ ΠΊΠ²Π°ΡΡΠΈΡ ΠΏΠ»Π°Π½ΠΈΡΠΎΠ²ΠΊΠΈ,Β ΠΏΡΠΈ ΠΎΠ±ΡΠ΅ΠΌ ΡΠ½ΠΈΠΆΠ΅Π½ΠΈΠΈ Π΄ΠΎΡ ΠΎΠ΄ΠΎΠ², ΠΏΠΎΠ»ΡΠ·ΡΠ΅ΡΡΡ Π±ΠΎΠ»ΡΡΠΈΠΌ ΡΠΏΡΠΎΡΠΎΠΌ.
ΠΠ²ΡΠΎ Π΄Π²ΡΡ ΠΊΠΎΠΌΠ½Π°ΡΠ½Π°Ρ ΠΊΠ²Π°ΡΡΠΈΡΠ° ΠΏΠ»Π°Π½ΠΈΡΠΎΠ²ΠΊΠ°Β β Π²ΡΠ³ΠΎΠ΄Π½ΡΠΉ Π²Π°ΡΠΈΠ°Π½Ρ Π΄Π»Ρ ΠΌΠΎΠ»ΠΎΠ΄Π΅ΠΆΠΈ, ΠΏΠΎΠΊΡΠΏΠ°ΡΡΠ΅ΠΉ ΡΠ²ΠΎΠ΅ ΠΏΠ΅ΡΠ²ΠΎΠ΅ ΠΆΠΈΠ»ΡΠ΅, ΠΈΠ»ΠΈ ΠΏΠΎΠΆΠΈΠ»ΠΎΠΉ ΠΏΠ°ΡΡ, ΡΡΠΈ Π΄Π΅ΡΠΈ ΡΠ°Π·ΡΠ΅Ρ Π°Π»ΠΈΡΡ ΠΈ ΠΎΠ±Π·Π°Π²Π΅Π»ΠΈΡΡ ΡΠΎΠ±ΡΡΠ²Π΅Π½Π½ΡΠΌΠΈ ΡΠ΅ΠΌΡΡΠΌΠΈ.
ΠΡΠ΅Π΄ΡΡΠ°Π²Π»Π΅Π½Π½Π°Ρ Π½Π° ΡΠΈΡΡΠ½ΠΊΠ΅Β Π΅Π²ΡΠΎ Π΄Π²ΡΡ ΠΊΠΎΠΌΠ½Π°ΡΠ½Π°Ρ ΠΊΠ²Π°ΡΡΠΈΡΠ° ΠΏΠ»Π°Π½ΠΈΡΠΎΠ²ΠΊΠ°Β ΠΏΠ»ΠΎΡΠ°Π΄ΡΡ 40 ΠΊΠ². ΠΌ. Π΄Π΅ΠΌΠΎΠ½ΡΡΡΠΈΡΡΠ΅Ρ Π²ΡΠ΅ ΠΏΡΠΈΠΌΠ΅ΡΡ ΡΡΠΈΠ»Ρ β ΠΊΡΡ Π½Ρ Π±Π΅Π· Π΅ΡΡΠ΅ΡΡΠ²Π΅Π½Π½ΠΎΠ³ΠΎ ΡΠ²Π΅ΡΠ°, ΡΠΎΠ²ΠΌΠ΅ΡΠ΅Π½Π½ΡΠΉ ΡΠ°Π½ΡΠ·Π΅Π», Π½Π΅Π±ΠΎΠ»ΡΡΠ°Ρ ΡΠΏΠ°Π»ΡΠ½Ρ ΠΈ ΠΎΠ±ΡΠΈΡΠ½ΠΎΠ΅ ΠΏΡΠΎΡΡΡΠ°Π½ΡΡΠ²ΠΎ ΠΎΠ±ΡΠ΅ΠΉ Π·ΠΎΠ½Ρ. ΠΠΎ ΠΏΠ»ΠΎΡΠ°Π΄ΠΈ ΡΠ°ΠΊΠ°Ρ Π΄Π²ΡΡΠΊΠ° ΡΠΎΠΎΡΠ²Π΅ΡΡΡΠ²ΡΠ΅Ρ ΠΎΠ΄Π½ΠΎΠΊΠΎΠΌΠ½Π°ΡΠ½ΠΎΠΉ Π±ΡΠ΅ΠΆΠ½Π΅Π²ΠΊΠ΅.
Π Π°ΡΡΠΌΠΎΡΡΠΈΠΌΒ ΠΏΡΠΈΠΌΠ΅ΡΡ ΠΏΠ»Π°Π½ΠΈΡΠΎΠ²ΠΊΠΈ Π΄Π²ΡΡ ΠΊΠΎΠΌΠ½Π°ΡΠ½ΠΎΠΉ ΠΊΠ²Π°ΡΡΠΈΡΡΒ Π²ΡΠ΅Ρ ΡΠΈΠΏΠΎΠ² ΠΈ Π²ΡΠ΅ΠΌΠ΅Π½ΠΈ ΠΏΠΎΡΡΡΠΎΠΉΠΊΠΈ Π±ΠΎΠ»Π΅Π΅ Π΄Π΅ΡΠ°Π»ΡΠ½ΠΎ, ΠΎΡΠ΅Π½ΠΈΠ²Π°Ρ ΡΡΠ½ΠΊΡΠΈΠΎΠ½Π°Π»ΡΠ½ΠΎΡΡΡ ΠΈ Π²ΠΎΠ·ΠΌΠΎΠΆΠ½ΠΎΡΡΠΈ ΠΏΠ΅ΡΠ΅ΠΏΠ»Π°Π½ΠΈΡΠΎΠ²ΠΊΠΈ.
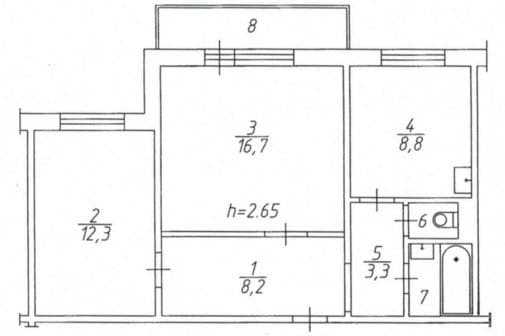
ΠΠ»Π°Π½ΠΈΡΠΎΠ²ΠΊΠ° 2 ΠΊΠΎΠΌΠ½Π°ΡΠ½ΠΎΠΉ ΠΊΠ²Π°ΡΡΠΈΡΡ 54 ΠΊΠ². ΠΌ.
ΠΠ²Π°ΡΡΠΈΡΠ° ΡΠ°ΡΠΏΠ°ΡΠΎΠ½ΠΊΠ° ΠΏΠ»Π°Π½ΠΈΡΠΎΠ²ΠΊΠ° 2Β ΠΊΠΎΠΌΠ½Π°ΡΠ½Π°Ρ ΠΏΠ»ΠΎΡΠ°Π΄ΡΡ 54 ΠΊΠ². ΠΌ. ΠΈΠΌΠ΅Π΅Ρ ΠΌΠ°Π»Π΅Π½ΡΠΊΡΡ ΠΊΡΡ
Π½Ρ ΠΎΡ 6 ΠΌ2, ΡΠΎΠ²ΠΌΠ΅ΡΠ΅Π½Π½ΡΠΉ ΡΠ°Π½ΡΠ·Π΅Π», ΠΏΡΠΈΡ
ΠΎΠΆΡΡ Ρ Π²ΡΡΡΠΎΠ΅Π½Π½ΡΠΌ ΡΠΊΠ°ΡΠΎΠΌ ΠΈ ΠΊΠΎΠΌΠ½Π°ΡΡ ΠΏΠ»ΠΎΡΠ°Π΄ΡΡ 12 ΠΈ 18 ΠΌ2.
Π Π°ΡΠΏΠΎΠ»ΠΎΠΆΠ΅Π½ΠΈΠ΅ ΠΊΡΡ Π½ΠΈ ΠΈ ΡΠ°Π½ΠΈΡΠ°ΡΠ½ΠΎΠ³ΠΎ Π±Π»ΠΎΠΊΠ° ΠΏΠΎΠ·Π²ΠΎΠ»ΡΠ΅Ρ Π²ΡΠΏΠΎΠ»Π½ΠΈΡΡ ΠΏΠ΅ΡΠ΅ΠΏΠ»Π°Π½ΠΈΡΠΎΠ²ΠΊΡ, ΠΏΡΠ΅Π²ΡΠ°ΡΠΈΠ² Π΅Π΅ Π² 2 ΠΊΠΎΠΌΠ½Π°ΡΠ½ΡΡ ΠΊΠ²Π°ΡΡΠΈΡΡ-ΡΡΡΠ΄ΠΈΡ Ρ Π²ΡΠ΄Π΅Π»Π΅Π½Π½ΠΎΠΉ ΠΏΠ΅ΡΠ΅Π³ΠΎΡΠΎΠ΄ΠΊΠ°ΠΌΠΈ ΡΠΏΠ°Π»ΡΠ½Π΅ΠΉ.
ΠΠ²Π°ΡΡΠΈΡΠ° ΡΠ°ΡΠΏΠ°ΡΠΎΠ½ΠΊΠ° ΠΏΠ»Π°Π½ΠΈΡΠΎΠ²ΠΊΠ° 2 ΠΊΠΎΠΌΠ½Π°ΡΠ½Π°Ρ ΠΏΠ»ΠΎΡΠ°Π΄ΡΡ 54 ΠΊΠ². ΠΌ. ΠΏΡΠΈΠΎΠ±ΡΠ΅Π»Π° ΠΏΠΎΡΠ»Π΅ ΠΏΠ΅ΡΠ΅ΠΏΠ»Π°Π½ΠΈΡΠΎΠ²ΠΊΠΈ ΠΏΡΠΎΡΡΠΎΡΠ½ΠΎΠ΅ ΠΏΠΎΠΌΠ΅ΡΠ΅Π½ΠΈΠ΅, ΠΎΠ±ΡΠ΅Π΄ΠΈΠ½ΠΈΠ²ΡΠ΅Π΅ ΠΊΡΡ Π½Ρ, Π³ΠΎΡΡΠΈΠ½ΡΡ ΠΈ ΠΊΠΎΡΠΈΠ΄ΠΎΡ. ΠΠ΅Π΄ΠΎΡΡΠ°ΡΠΎΠΊ ΡΠ°ΠΊΠΎΠΉ ΠΏΠ΅ΡΠ΅ΠΏΠ»Π°Π½ΠΈΡΠΎΠ²ΠΊΠΈ β ΠΌΠ°Π»Π΅Π½ΡΠΊΠ°Ρ ΠΏΡΠΈΡ ΠΎΠΆΠ°Ρ, Π³Π΄Π΅ Π½Π΅ ΡΠ°Π·ΠΎΠΉΠ΄Π΅ΡΡΡ Π΄Π²Π° ΡΠ΅Π»ΠΎΠ²Π΅ΠΊΠ° ΠΈ Π·Π½Π°ΡΠΈΡΠ΅Π»ΡΠ½ΠΎΠ΅ ΡΠ°ΡΡΡΠΎΡΠ½ΠΈΠ΅ ΠΎΡ ΠΏΡΠΈΠ²Π°ΡΠ½ΠΎΠΉ Π·ΠΎΠ½Ρ β ΡΠΏΠ°Π»ΡΠ½ΠΈ Π΄ΠΎ Π²Π°Π½Π½ΠΎΠΉ ΠΊΠΎΠΌΠ½Π°ΡΡ, ΠΊΠΎΡΠΎΡΠ°Ρ, ΠΊ ΡΠΎΠΌΡ ΠΆΠ΅, ΡΠΎΠ²ΠΌΠ΅ΡΠ΅Π½Π° Ρ ΡΡΠ°Π»Π΅ΡΠΎΠΌ.
ΠΡΠΎΡΠΎΠΉ Π²Π°ΡΠΈΠ°Π½ΡΒ ΠΏΠ»Π°Π½ΠΈΡΠΎΠ²ΠΊΠΈ 2 ΠΊΠΎΠΌΠ½Π°ΡΠ½ΠΎΠΉ ΠΊΠ²Π°ΡΡΠΈΡΡ 54 ΠΊΠ². ΠΌ. Π² Π΄ΠΎΠΌΠ΅ Π±ΡΠ΅ΠΆΠ½Π΅Π²ΡΠΊΠΈΡ Π²ΡΠ΅ΠΌΠ΅Π½ ΠΎΡΠ»ΠΈΡΠ°Π΅ΡΡΡ ΠΎΡ ΠΏΠ΅ΡΠ²ΠΎΠ³ΠΎ Π½Π°Π»ΠΈΡΠΈΠ΅ΠΌ ΡΠ°Π·Π΄Π΅Π»ΡΠ½ΠΎΠ³ΠΎ ΡΠ°Π½ΡΠ·Π»Π°, Π±ΠΎΠ»Π΅Π΅ ΠΏΡΠΎΡΡΠΎΡΠ½ΠΎΠΉ ΠΊΡΡ Π½Π΅ΠΉ ΠΏΠ»ΠΎΡΠ°Π΄ΡΡ ΠΏΠΎΡΡΠΈ 9 ΠΌ2.
ΠΠ°Π½Π΅Π»ΡΠ½Π°Ρ ΡΡΠ΅Π½Π° ΠΌΠ΅ΠΆΠ΄Ρ ΠΆΠΈΠ»ΡΠΌΠΈ ΠΊΠΎΠΌΠ½Π°ΡΠ°ΠΌΠΈ ΠΈ ΠΆΠ΅Π»Π΅Π·ΠΎΠ±Π΅ΡΠΎΠ½Π½Π°Ρ ΡΠ°Π½ΠΈΡΠ°ΡΠ½Π°Ρ ΠΊΠ°Π±ΠΈΠ½Π° Π½Π΅ ΠΏΠΎΠ·Π²ΠΎΠ»ΠΈΡ ΠΊΠ°ΡΠ΄ΠΈΠ½Π°Π»ΡΠ½ΠΎ ΠΏΠ΅ΡΠ΅ΡΡΡΠΎΠΈΡΡ Π΄Π²ΡΡΠΊΡ, ΠΎΠ΄Π½Π°ΠΊΠΎ Π΄Π΅ΠΌΠΎΠ½ΡΠΈΡΠΎΠ²Π°Π² ΠΏΠ΅ΡΠ΅Π³ΠΎΡΠΎΠ΄ΠΊΡ ΠΌΠ΅ΠΆΠ΄Ρ ΠΊΡΡ
Π½Π΅ΠΉ ΠΈ ΠΌΠ΅Π½ΡΡΠ΅ΠΉ ΠΏΠΎ ΠΏΠ»ΠΎΡΠ°Π΄ΠΈ ΠΊΠΎΠΌΠ½Π°ΡΠΎΠΉ, ΠΏΠΎΠ»ΡΡΠΈΠΌ Π²Π°ΡΠΈΠ°Π½Ρ Π΅Π²ΡΠΎΠΏΠ»Π°Π½ΠΈΡΠΎΠ²ΠΊΠΈ Ρ ΠΏΡΠΎΡΡΠΎΡΠ½ΠΎΠΉ ΠΎΠ±ΡΠ΅ΠΉ Π·ΠΎΠ½ΠΎΠΉ ΠΈ ΠΎΡΠ΄Π΅Π»ΡΠ½ΠΎΠΉ ΡΠΏΠ°Π»ΡΠ½Π΅ΠΉ.
Π‘ ΡΠΎΡΠΊΠΈ Π·ΡΠ΅Π½ΠΈΡ ΠΌΠ½ΠΎΠ³ΠΎΡΡΠ½ΠΊΡΠΈΠΎΠ½Π°Π»ΡΠ½ΠΎΠΉ ΠΏΠ΅ΡΠ΅ΠΏΠ»Π°Π½ΠΈΡΠΎΠ²ΠΊΠΈ ΠΈΠ½ΡΠ΅ΡΠ΅ΡΠ½Π°Β ΠΏΠ»Π°Π½ΠΈΡΠΎΠ²ΠΊΠ° 2 ΠΊΠΎΠΌΠ½Π°ΡΠ½ΠΎΠΉ ΠΊΠ²Π°ΡΡΠΈΡΡ 54 ΠΊΠ². ΠΌ.,Β ΠΊΠΎΡΠΎΡΡΡ ΠΌΠΎΠΆΠ½ΠΎ ΠΏΡΠ΅Π²ΡΠ°ΡΠΈΡΡ ΠΏΠ΅ΡΠ΅Π½ΠΎΡΠΎΠΌ ΠΏΠ΅ΡΠ΅Π³ΠΎΡΠΎΠ΄ΠΊΠΈ ΠΌΠ΅ΠΆΠ΄Ρ ΠΊΡΡ Π½Π΅ΠΉ ΠΈ ΠΊΠΎΠΌΠ½Π°ΡΠΎΠΉ Π² ΠΆΠΈΠ»ΡΠ΅ Ρ Π΄Π²ΡΠΌΡ ΡΠΏΠ°Π»ΡΠ½ΡΠΌΠΈ ΠΈ ΠΊΡΡ Π½Π΅ΠΉ-ΡΡΠΎΠ»ΠΎΠ²ΠΎΠΉ-Π³ΠΎΡΡΠΈΠ½ΠΎΠΉ, ΡΡΠΎ ΠΌΠΎΠΆΠ΅Ρ Π±ΡΡΡ Π°ΠΊΡΡΠ°Π»ΡΠ½ΠΎ Π΄Π»Ρ ΡΠ΅ΠΌΡΠΈ Ρ ΠΎΠ΄Π½ΠΈΠΌ ΡΠ΅Π±Π΅Π½ΠΊΠΎΠΌ ΠΈΠ»ΠΈ Π΄Π²ΡΠΌΡ ΠΎΠ΄Π½ΠΎΠΏΠΎΠ»ΡΠΌΠΈ Π΄Π΅ΡΡΠΌΠΈ. ΠΡΠ°Π²Π΄Π°, ΡΠ°ΠΊΠ°Ρ ΠΏΠ΅ΡΠ΅ΠΏΠ»Π°Π½ΠΈΡΠΎΠ²ΠΊΠ° ΠΏΠΎΡΡΠ΅Π±ΡΠ΅Ρ ΡΠΎΠ³Π»Π°ΡΠΎΠ²Π°Π½ΠΈΡ.
ΠΠ»Π°Π½ΠΈΡΠΎΠ²ΠΊΠ° 2 ΠΊΠΎΠΌΠ½Π°ΡΠ½ΠΎΠΉ ΠΊΠ²Π°ΡΡΠΈΡΡ 56 ΠΊΠ². ΠΌ.
ΠΠΎΠΌΠΏΠ°ΠΊΡΠ½Π°ΡΒ ΠΏΠ»Π°Π½ΠΈΡΠΎΠ²ΠΊΠ° 2 ΠΊΠΎΠΌΠ½Π°ΡΠ½ΠΎΠΉ ΠΊΠ²Π°ΡΡΠΈΡΡ ΠΏΠ»ΠΎΡΠ°Π΄ΡΡ 56 ΠΊΠ². ΠΌ. Ρ
Π°ΡΠ°ΠΊΡΠ΅ΡΠ½Π° Π΄Π»Ρ Π΄ΠΎΠΌΠΎΠ² ΡΡΠ°Π»ΠΈΠ½ΡΠΊΠΎΠΉ ΠΏΠΎΡΡΡΠΎΠΉΠΊΠΈ: ΠΊΠΈΡΠΏΠΈΡΠ½ΡΠ΅ ΡΡΠ΅Π½Ρ ΠΈ ΠΏΠ΅ΡΠ΅Π³ΠΎΡΠΎΠ΄ΠΊΠΈ, Π±ΠΎΠ»ΡΡΠ°Ρ ΠΊΡΡ
Π½Ρ, ΠΏΡΠΎΡΡΠΎΡΠ½ΡΠΉ ΠΊΠΎΡΠΈΠ΄ΠΎΡ, Π³Π΄Π΅ Π»Π΅Π³ΠΊΠΎ ΠΌΠΎΠΆΠ½ΠΎ ΡΠ°Π·ΠΌΠ΅ΡΡΠΈΡΡ ΡΠΊΠ°ΡΡ ΠΈ ΠΌΠ΅ΡΡΠ° Ρ
ΡΠ°Π½Π΅Π½ΠΈΡ, Π²ΡΡΠΎΠΊΠΈΠ΅ ΠΏΠΎΡΠΎΠ»ΠΊΠΈ.
ΠΠΎΡΠ»Π΅ Π½Π΅Π±ΠΎΠ»ΡΡΠΎΠ³ΠΎ ΡΠ΅ΠΌΠΎΠ½ΡΠ°Β ΠΏΠ»Π°Π½ΠΈΡΠΎΠ²ΠΊΠ° 2 ΠΊΠΎΠΌΠ½Π°ΡΠ½ΠΎΠΉ ΠΊΠ²Π°ΡΡΠΈΡΡ 56 ΠΊΠ². ΠΌ. ΠΏΡΠ΅Π²ΡΠ°ΡΠΈΡΡΡ Π² ΡΡΡΠ΄ΠΈΡ Ρ ΠΎΠ±ΠΎΡΠΎΠ±Π»Π΅Π½Π½ΠΎΠΉ ΡΠΏΠ°Π»ΡΠ½Π΅ΠΉ ΠΈ ΠΏΡΠΈΠ²Π°ΡΠ½ΡΠΌ ΡΠ°Π½ΡΠ·Π»ΠΎΠΌ Π΄Π»Ρ Ρ ΠΎΠ·ΡΠ΅Π², Π΄Π»Ρ Π³ΠΎΡΡΠ΅ΠΉ ΠΎΡΠ΄Π΅Π»ΡΠ½ΡΠΉ ΡΡΠ°Π»Π΅Ρ.
ΠΠ»Π°Π½ΠΈΡΠΎΠ²ΠΊΠ° 2 ΠΊΠΎΠΌΠ½Π°ΡΠ½ΠΎΠΉ ΠΊΠ²Π°ΡΡΠΈΡΡ 60 ΠΊΠ². ΠΌ.
ΠΠ»Π°Π½ΠΈΡΠΎΠ²ΠΊΠ° 2 ΠΊΠΎΠΌΠ½Π°ΡΠ½ΠΎΠΉ ΠΊΠ²Π°ΡΡΠΈΡΡ 60 ΠΊΠ². ΠΌ. Π² ΠΏΠ°Π½Π΅Π»ΡΠ½ΠΎΠΌ Π΄ΠΎΠΌΠ΅ ΠΌΠ°Π»ΠΎ ΠΏΡΠΈΠ³ΠΎΠ΄Π½Π° Π΄Π»Ρ ΠΏΠ΅ΡΠ΅ΠΏΠ»Π°Π½ΠΈΡΠΎΠ²ΠΊΠΈ, ΠΎΠ΄Π½Π°ΠΊΠΎ Π΄Π°Π΅Ρ ΡΠΈΡΠΎΠΊΠΈΠ΅ Π²ΠΎΠ·ΠΌΠΎΠΆΠ½ΠΎΡΡΠΈ Π΄Π»Ρ ΠΈΠ·ΠΌΠ΅Π½Π΅Π½ΠΈΡ Π΄ΠΈΠ·Π°ΠΉΠ½Π°. Π Π΅Π°Π»ΡΠ½Π°Ρ Π²ΠΎΠ·ΠΌΠΎΠΆΠ½ΠΎΡΡΡ Π΅Π΅ ΠΎΡΠΎΠ²ΡΠ΅ΠΌΠ΅Π½ΠΈΡΡ β ΠΏΠΎΠΌΠ΅Π½ΡΡΡ ΠΌΠ΅ΡΡΠ°ΠΌΠΈ ΠΊΡΡ
Π½Ρ ΠΈ ΡΠΏΠ°Π»ΡΠ½Ρ, Π½ΠΎ ΡΠ°ΠΊΠΎΠ΅ ΡΠ΅ΡΠ΅Π½ΠΈΠ΅ ΠΏΠΎΡΡΠ΅Π±ΡΠ΅Ρ ΠΏΡΠΎΠ΅ΠΊΡΠ° ΠΈ ΠΎΡΠΈΡΠΈΠ°Π»ΡΠ½ΠΎΠ³ΠΎ ΡΠΎΠ³Π»Π°ΡΠΎΠ²Π°Π½ΠΈΡ.
ΠΠ»Π°Π½ΠΈΡΠΎΠ²ΠΊΠ°Β ΡΡΠΎΠΉΒ 2 ΠΊΠΎΠΌΠ½Π°ΡΠ½ΠΎΠΉ ΠΊΠ²Π°ΡΡΠΈΡΡΒ ΠΏΠ»ΠΎΡΠ°Π΄ΡΡΒ 60 ΠΊΠ². ΠΌ. ΠΎΡΡΠ°Π»Π°ΡΡ ΠΏΡΠ°ΠΊΡΠΈΡΠ΅ΡΠΊΠΈ Π±Π΅Π· ΠΈΠ·ΠΌΠ΅Π½Π΅Π½ΠΈΠΉ, Ρ ΠΎΠ·ΡΠ΅Π²Π° ΠΏΠΎΡΠ»ΠΈ Π½Π° ΡΠ²Π΅Π»ΠΈΡΠ΅Π½ΠΈΠ΅ ΠΌΠ΅ΡΡ Ρ ΡΠ°Π½Π΅Π½ΠΈΡ Π·Π° ΡΡΠ΅Ρ Π³ΠΎΡΡΠ΅Π²ΠΎΠ³ΠΎ ΡΡΠ°Π»Π΅ΡΠ°.
ΠΠ»Π°Π½ΠΈΡΠΎΠ²ΠΊΠ° 2 ΠΊΠΎΠΌΠ½Π°ΡΠ½ΠΎΠΉ ΠΊΠ²Π°ΡΡΠΈΡΡ 62 ΠΊΠ². ΠΌ.
ΠΠ»Π°Π½ΠΈΡΠΎΠ²ΠΊΠ° 2 ΠΊΠΎΠΌΠ½Π°ΡΠ½ΠΎΠΉ ΠΊΠ²Π°ΡΡΠΈΡΡ 62 ΠΊΠ². ΠΌ. ΠΏΡΠ°ΠΊΡΠΈΡΠ΅ΡΠΊΠΈ ΠΏΠΎΠ²ΡΠΎΡΡΠ΅Ρ ΠΏΠ»Π°Π½ΠΈΡΠΎΠ²ΠΎΡΠ½ΠΎΠ΅ ΡΠ΅ΡΠ΅Π½ΠΈΠ΅ Π΄Π²ΡΡΠΊΠΈ 60 ΠΊΠ². ΠΌ. Π² ΡΡΠ°Π»ΠΈΠ½ΠΊΠ΅ ΠΈ ΡΡΠ΅Π±ΡΠ΅Ρ ΠΊ ΡΠ΅Π±Π΅ Π°Π½Π°Π»ΠΎΠ³ΠΈΡΠ½ΠΎΠ³ΠΎ ΠΏΠΎΠ΄Ρ
ΠΎΠ΄Π°: ΡΠΎΠ·Π΄Π°Π½ΠΈΠ΅ ΠΏΡΠΈΠ²Π°ΡΠ½ΠΎΠΉ Ρ
ΠΎΠ·ΡΠΉΡΠΊΠΎΠΉ Π·ΠΎΠ½Ρ Ρ ΡΠΎΠ²ΠΌΠ΅ΡΠ΅Π½Π½ΡΠΌ ΡΠ°Π½ΡΠ·Π»ΠΎΠΌ ΠΏΠ΅ΡΠ΅Π½ΠΎΡΠΎΠΌ ΠΏΠ΅ΡΠ΅Π³ΠΎΡΠΎΠ΄ΠΊΠΈ Π² ΠΏΡΠΎΠ΄ΠΎΠ»ΠΆΠ΅Π½ΠΈΠ΅ ΡΡΠ΅Π½Ρ ΠΊΠΎΡΠΈΠ΄ΠΎΡΠ°, ΡΠΎΠ·Π΄Π°Π½ΠΈΠ΅ ΠΎΠ±ΡΠ΅ΠΉ Π·ΠΎΠ½Ρ ΠΊΡΡ
Π½Ρ-Π³ΠΎΡΡΠΈΠ½Π°Ρ-ΡΡΠΎΠ»ΠΎΠ²Π°Ρ ΡΠ½ΠΎΡΠΎΠΌ ΠΏΠ΅ΡΠ΅Π³ΠΎΡΠΎΠ΄ΠΎΠΊ Π² ΠΏΡΠ°Π²ΠΎΠΉ ΡΠ°ΡΡΠΈ ΠΊΠ²Π°ΡΡΠΈΡΡ, Ρ Π³ΠΎΡΡΠ΅Π²ΡΠΌ ΡΠ°Π½ΡΠ·Π»ΠΎΠΌ.
ΠΠ»Π°Π½ΠΈΡΠΎΠ²ΠΊΠ° 2 ΠΊΠΎΠΌΠ½Π°ΡΠ½ΠΎΠΉ ΠΊΠ²Π°ΡΡΠΈΡΡ 62 ΠΊΠ². ΠΌ. ΡΠ°ΠΊΠΆΠ΅ ΠΏΡΠ΅Π΄ΠΎΡΡΠ°Π²Π»ΡΠ΅Ρ Π²ΠΎΠ·ΠΌΠΎΠΆΠ½ΠΎΡΡΡ ΡΡΡΡΠΎΠΉΡΡΠ²Π° ΡΠΏΠ°Π»ΡΠ½ΠΈ ΡΠΎΠ΄ΠΈΡΠ΅Π»Π΅ΠΉ Π² ΠΎΠ±ΡΠ΅ΠΉ Π·ΠΎΠ½Π΅ Π·Π° ΡΡΠ°Π½ΡΡΠΎΡΠΌΠΈΡΡΠ΅ΠΌΠΎΠΉ ΠΏΠ΅ΡΠ΅Π³ΠΎΡΠΎΠ΄ΠΊΠΎΠΉ, ΠΈ ΠΊΠΎΠΌΠ½Π°ΡΡ ΡΠ΅Π±Π΅Π½ΠΊΠ° β ΠΏΠΎΠ΄ΡΠΎΡΡΠΊΠ° Π½Π°ΠΏΡΠΎΡΠΈΠ² ΠΊΡΡ Π½ΠΈ.
ΠΠ»Π°Π½ΠΈΡΠΎΠ²ΠΊΠ° 2 ΠΊΠΎΠΌΠ½Π°ΡΠ½ΠΎΠΉ ΠΊΠ²Π°ΡΡΠΈΡΡ 64 ΠΊΠ². ΠΌ.
ΠΠ»Π°Π½ΠΈΡΠΎΠ²ΠΊΠ° 2 ΠΊΠΎΠΌΠ½Π°ΡΠ½ΠΎΠΉ ΠΊΠ²Π°ΡΡΠΈΡΡ 64 ΠΊΠ². ΠΌ. Ρ Π»ΠΎΠ΄ΠΆΠΈΠ΅ΠΉ, ΠΊΠΎΡΠΎΡΡΡ ΡΡΠ΅ΠΏΠ»ΡΡΡ ΠΈ ΠΈΡΠΏΠΎΠ»ΡΠ·ΡΡΡ ΠΊΠ°ΠΊ ΠΊΠ°Π±ΠΈΠ½Π΅Ρ β ΡΠ°ΡΡΠΎΠ΅ ΡΠ΅ΡΠ΅Π½ΠΈΠ΅, ΠΊΠΎΠ³Π΄Π° Π΄ΠΎΠΌΠ° ΡΡΠ΅Π±ΡΠ΅ΡΡΡ ΡΠ°Π±ΠΎΡΠ΅Π΅ ΠΌΠ΅ΡΡΠΎ. ΠΠ»ΠΎΡΠ°Π΄Ρ Π»ΠΎΠ΄ΠΆΠΈΠΈ ΠΏΠΎΠ·Π²ΠΎΠ»ΡΠ΅Ρ ΡΠ°Π·ΠΌΠ΅ΡΡΠΈΡΡ ΡΠ°ΠΌ ΠΊΠΎΠΌΠΏΡΡΡΠ΅ΡΠ½ΡΠΉ ΡΡΠΎΠ» ΠΈ ΠΌΠ΅ΡΡΠ° Ρ
ΡΠ°Π½Π΅Π½ΠΈΡ, Π° ΡΠΎΠ²ΡΠ΅ΠΌΠ΅Π½Π½ΡΠ΅ ΡΠ΅ΠΏΠ»ΠΎΠΈΠ·ΠΎΠ»ΡΡΠΈΠΎΠ½Π½ΡΠ΅ ΠΌΠ°ΡΠ΅ΡΠΈΠ°Π»Ρ ΡΠ½ΠΈΠΆΠ°ΡΡ Π΄ΠΎ ΠΌΠΈΠ½ΠΈΠΌΡΠΌΠ° Π΄ΠΎΠΏΠΎΠ»Π½ΠΈΡΠ΅Π»ΡΠ½ΡΠ΅ Π·Π°ΡΡΠ°ΡΡ ΡΠ΅ΠΏΠ»Π°.
Π Π΄Π°Π½Π½ΠΎΠΌ ΡΠ΅ΡΠ΅Π½ΠΈΠΈ Π½Π° ΡΡΠ΅ΠΏΠ»Π΅Π½Π½ΠΎΠΉ Π»ΠΎΠ΄ΠΆΠΈΠΈ ΡΠΎΠ·Π΄Π°Π½Π° Π·ΠΎΠ½Π° ΠΎΡΠ΄ΡΡ Π°. ΠΡΠΈ ΠΏΠ΅ΡΠ΅ΠΏΠ»Π°Π½ΠΈΡΠΎΠ²ΠΊΠ΅ ΠΊΠ²Π°ΡΡΠΈΡΡ Π½Π°Π΄ΠΎ ΠΏΠΎΠΌΠ½ΠΈΡΡ, ΡΡΠΎ Π½ΡΠ½Π΅ΡΠ½ΠΈΠ΅ ΡΡΡΠΎΠΈΡΠ΅Π»ΡΠ½ΡΠ΅ Π½ΠΎΡΠΌΡ Π·Π°ΠΏΡΠ΅ΡΠ°ΡΡ Π΄Π΅ΠΌΠΎΠ½ΡΠ°ΠΆ ΠΎΠΊΠΎΠ½Π½ΠΎ-Π±Π°Π»ΠΊΠΎΠ½Π½ΠΎΠ³ΠΎ Π±Π»ΠΎΠΊΠ° ΠΈ ΠΏΡΠΈΡΠΎΠ΅Π΄ΠΈΠ½Π΅Π½ΠΈΠ΅ Π»ΠΎΠ΄ΠΆΠΈΠΈ ΠΊ ΠΆΠΈΠ»ΠΎΠΌΡ ΠΏΠΎΠΌΠ΅ΡΠ΅Π½ΠΈΡ ΠΈΠ»ΠΈ ΠΊΡΡ Π½Π΅.
ΠΠ»Π°Π½ΠΈΡΠΎΠ²ΠΊΠ° 2 ΠΊΠΎΠΌΠ½Π°ΡΠ½ΠΎΠΉ ΠΊΠ²Π°ΡΡΠΈΡΡ 64 ΠΊΠ². ΠΌ. Π²ΠΎΒ Π²ΡΠΎΡΠΎΠΌ Π²Π°ΡΠΈΠ°Π½ΡΠ΅ Π΄Π°Π΅Ρ Π±ΠΎΠ»ΡΡΠ΅ Π²ΠΎΠ·ΠΌΠΎΠΆΠ½ΠΎΡΡΠ΅ΠΉ Π΄Π»Ρ ΠΏΠ΅ΡΠ΅ΡΡΡΡΠΎΠΉΡΡΠ²Π°: ΡΠ΄Π΅ΡΠΆΠΈΠ²Π°ΡΡΠΈΠΌ ΡΠ°ΠΊΡΠΎΡΠΎΠΌ Π·Π΄Π΅ΡΡ ΡΠ²Π»ΡΠ΅ΡΡΡ ΡΠΎΠ»ΡΠΊΠΎ Π½Π΅ΡΡΡΠ°Ρ ΠΊΠΎΠ»ΠΎΠ½Π½Π° Π½Π° ΡΡΡΠΊΠ΅ ΠΏΠ΅ΡΠ΅Π³ΠΎΡΠΎΠ΄ΠΎΠΊ. ΠΠ°Π»ΠΈΡΠΈΠ΅ Π² Π½ΡΠ½Π΅ΡΠ½Π΅ΠΉ Π³ΠΎΡΡΠΈΠ½ΠΎΠΉ Π΄Π²ΡΡ ΠΎΠΊΠΎΠ½ ΠΏΠΎΠ·Π²ΠΎΠ»ΠΈΡ Π² Π±ΡΠ΄ΡΡΠ΅ΠΌ Π»Π΅Π³ΠΊΠΎ ΠΏΡΠ΅Π²ΡΠ°ΡΠΈΡΡ 2 ΠΊΠΎΠΌΠ½Π°ΡΡ Π² 3 Π±Π΅Π· ΠΏΠΎΡΠ΅ΡΠΈ ΠΊΠΎΠΌΡΠΎΡΡΠ°.
ΠΠ»Π°Π½ΠΈΡΠΎΠ²ΠΊΠ° 2 ΠΊΠΎΠΌΠ½Π°ΡΠ½ΠΎΠΉ ΠΊΠ²Π°ΡΡΠΈΡΡ 64 ΠΊΠ². ΠΌ. Π·Π°ΠΈΠ½ΡΠ΅ΡΠ΅ΡΡΠ΅Ρ ΡΠ΅ΠΌΡΠΈ, ΠΏΠ»Π°Π½ΠΈΡΡΡΡΠΈΠ΅ Π΄ΠΎΠ»Π³ΠΎΠ΅ Π²ΡΠ΅ΠΌΡ ΠΆΠΈΡΡ Π½Π° ΠΎΠ±Π»ΡΠ±ΠΎΠ²Π°Π½Π½ΠΎΠΉ ΠΆΠΈΠ»ΠΏΠ»ΠΎΡΠ°Π΄ΠΈ.
ΠΠ»Π°Π½ΠΈΡΠΎΠ²ΠΊΠΈ Π΄Π²ΡΡ ΠΊΠΎΠΌΠ½Π°ΡΠ½ΡΡ ΠΊΠ²Π°ΡΡΠΈΡ Π² Π½ΠΎΠ²ΠΎΡΡΡΠΎΠΉΠΊΠ°Ρ
ΠΠ»Π°Π½ΠΈΡΠΎΠ²ΠΊΠΈ Π΄Π²ΡΡ
ΠΊΠΎΠΌΠ½Π°ΡΠ½ΡΡ
ΠΊΠ²Π°ΡΡΠΈΡ Π² Π½ΠΎΠ²ΠΎΡΡΡΠΎΠΉΠΊΠ°Ρ
Β ΠΏΡΠ°ΠΊΡΠΈΡΠ΅ΡΠΊΠΈ ΠΏΠΎΠ²ΡΠΎΡΡΡΡ Π»ΡΡΡΠΈΠ΅ ΡΠ΅ΡΠ΅Π½ΠΈΡ Π°ΡΡ
ΠΈΡΠ΅ΠΊΡΠΎΡΠΎΠ² Π±ΡΠ΅ΠΆΠ½Π΅Π²ΡΠΊΠΈΡ
Π²ΡΠ΅ΠΌΠ΅Π½ ΠΏΠΎ ΠΏΠ»ΠΎΡΠ°Π΄ΠΈ ΠΈ ΡΡΠ½ΠΊΡΠΈΠΎΠ½Π°Π»ΡΠ½ΡΠΌ ΡΠ²ΡΠ·ΡΠΌ ΠΏΠΎΠΌΠ΅ΡΠ΅Π½ΠΈΠΉ. Π§Π°ΡΡΠ°Ρ Π½ΠΎΠ²Π°ΡΠΈΡ β ΠΏΠ΅ΡΠ΅Π½ΠΎΡ ΠΊΡΡ
Π½ΠΈ Π² ΡΠ΅Π½ΡΡ Π½Π°ΠΏΡΠΎΡΠΈΠ² Π²Ρ
ΠΎΠ΄Π°, ΡΡΠΎ Π΄Π°Π΅Ρ Π²ΠΎΠ·ΠΌΠΎΠΆΠ½ΠΎΡΡΡ Π»ΡΡΡΠ΅Π³ΠΎ ΡΡΠ½ΠΊΡΠΈΠΎΠ½Π°Π»ΡΠ½ΠΎΠ³ΠΎ Π·ΠΎΠ½ΠΈΡΠΎΠ²Π°Π½ΠΈΡ Π½Π° ΠΏΡΠΈΠ²Π°ΡΠ½ΡΡ ΠΈ Π³ΠΎΡΡΠ΅Π²ΡΡ ΡΠ°ΡΡΡ ΠΆΠΈΠ»ΡΡ.
Π‘Π΅ΠΉΡΠ°Ρ, ΠΊΠΎΠ³Π΄Π° ΠΏΡΠ΅Π΄Π»ΠΎΠΆΠ΅Π½ΠΈΠ΅ Π½Π°ΡΠΈΠ½Π°Π΅Ρ ΠΎΠΏΠ΅ΡΠ΅ΠΆΠ°ΡΡ ΡΠΏΡΠΎΡ Π½Π° ΠΊΠΎΠΌΠΌΠ΅ΡΡΠ΅ΡΠΊΠΎΠ΅ ΠΆΠΈΠ»ΡΠ΅, Π½Π° ΠΏΠ΅ΡΠ²ΡΠΉ ΡΡΠΎΠ²Π΅Π½Ρ Π·Π°ΠΏΡΠΎΡΠΎΠ² Π²ΡΡ ΠΎΠ΄ΠΈΡ Π½Π΅Π±ΠΎΠ»ΡΡΠ°Ρ ΠΏΠ»ΠΎΡΠ°Π΄Ρ, Π° ΠΏΠ»Π°Π½ΠΈΡΠΎΠ²ΠΎΡΠ½ΠΎΠ΅ ΡΠ΅ΡΠ΅Π½ΠΈΠ΅ ΠΈ ΡΠΊΠΎΠ½ΠΎΠΌΠΈΡΠ½ΠΎΡΡΡ.Β ΠΠ»Π°Π½ΠΈΡΠΎΠ²ΠΊΠΈ Π΄Π²ΡΡ ΠΊΠΎΠΌΠ½Π°ΡΠ½ΡΡ ΠΊΠ²Π°ΡΡΠΈΡ Π² Π½ΠΎΠ²ΠΎΡΡΡΠΎΠΉΠΊΠ°Ρ Β ΡΡΡΠ΅ΠΌΡΡΡΡ ΠΊ ΡΠΎΠΊΡΠ°ΡΠ΅Π½ΠΈΡ ΠΏΠ»ΠΎΡΠ°Π΄Π΅ΠΉ ΠΏΠΎΠ΄ΡΠΎΠ±Π½ΡΡ ΠΏΠΎΠΌΠ΅ΡΠ΅Π½ΠΈΠΉ, Π° ΡΠΎ ΠΈ Π²ΠΎΠ²ΡΠ΅ ΠΈΡ Π½Π΅ ΠΏΡΠ΅Π΄ΡΡΠΌΠ°ΡΡΠΈΠ²Π°ΡΡ.
ΠΠ½ΡΠ΅ΡΠ΅ΡΠ½Π°Ρ ΠΏΠ»Π°Π½ΠΈΡΠΎΠ²ΠΊΠ° Π΄Π²ΡΡ ΠΊΠΎΠΌΠ½Π°ΡΠ½ΠΎΠΉ ΠΊΠ²Π°ΡΡΠΈΡΡΒ ΠΏΡΠ΅Π΄ΠΏΠΎΠ»Π°Π³Π°Π΅Ρ Π½Π΅ΠΊΠΎΡΠΎΡΡΡ ΠΈΠ·Π»ΠΈΡΠ½ΡΡ ΠΏΠ»ΠΎΡΠ°Π΄Ρ, Π² ΡΠΎ Π²ΡΠ΅ΠΌΡ, ΠΊΠ°ΠΊ ΠΏΠΎΠΊΡΠΏΠ°ΡΠ΅Π»ΠΈ ΠΈ Π·Π°ΡΡΡΠΎΠΉΡΠΈΠΊΠΈ ΡΡΡΠ΅ΠΌΡΡΡΡ ΠΊ ΠΎΠΏΡΠΈΠΌΠΈΠ·Π°ΡΠΈΠΈ ΠΈ ΡΠΎΠΊΡΠ°ΡΠ΅Π½ΠΈΡ Π·Π°ΡΡΠ°Ρ.Β ΠΠΈΠ·Π°ΠΉΠ½ ΠΏΠ»Π°Π½ΠΈΡΠΎΠ²ΠΊΠΈ Π΄Π²ΡΡ ΠΊΠΎΠΌΠ½Π°ΡΠ½ΡΡ ΠΊΠ²Π°ΡΡΠΈΡ Π² Π½ΠΎΠ²ΠΎΡΡΡΠΎΠΉΠΊΠ°Ρ Β Π² ΡΡΠΈΡ ΡΡΠ»ΠΎΠ²ΠΈΡΡ ΠΏΡΠΈΠ±Π»ΠΈΠΆΠ°Π΅ΡΡΡ ΠΊ ΠΏΠ»Π°Π½ΠΈΡΠΎΠ²ΠΊΠ°ΠΌ Π±ΡΠ΅ΠΆΠ½Π΅Π²ΡΠΊΠΈΡ Π²ΡΠ΅ΠΌΠ΅Π½.
ΠΠ΄Π½Π°ΠΊΠΎΒ ΠΈΠ½ΡΠ΅ΡΠ΅ΡΠ½ΡΡ ΠΏΠ»Π°Π½ΠΈΡΠΎΠ²ΠΊΡ Π΄Π²ΡΡ
ΠΊΠΎΠΌΠ½Π°ΡΠ½ΠΎΠΉ ΠΊΠ²Π°ΡΡΠΈΡΡΒ ΠΌΠΎΠΆΠ½ΠΎ Π²ΡΡΡΠ΅ΡΠΈΡΡ Π² Π΄ΠΎΠΌΠ°Ρ
Π±ΠΈΠ·Π½Π΅Ρ ΠΊΠ»Π°ΡΡΠ°.
Π ΠΊΠ°ΡΠ΅ΡΡΠ²Π΅ ΠΏΡΠΈΠΌΠ΅ΡΠ° ΠΏΡΠΈΠ²Π΅Π΄Π΅Π½Π° Π΄Π²ΡΡΠΊΠ° Ρ ΡΠ΅Π½ΡΡΠ°Π»ΡΠ½ΡΠΌ ΡΠ°ΡΠΏΠΎΠ»ΠΎΠΆΠ΅Π½ΠΈΠ΅ΠΌ ΠΊΡΡ Π½ΠΈ ΠΈ ΡΠ³Π»ΠΎΠ²ΡΠΌ ΡΡΠΊΠ΅ΡΠΎΠΌ Π² Π³ΠΎΡΡΠΈΠ½ΠΎΠΉ. ΠΠ°ΠΊ Π²Π°ΡΠΈΠ°Π½Ρ Π²ΠΎΠ·ΠΌΠΎΠΆΠ½Π° Π·Π°ΠΌΠ΅Π½Π° ΡΡΠ°ΡΠΈΠΎΠ½Π°ΡΠ½ΠΎΠΉ ΠΏΠ΅ΡΠ΅Π³ΠΎΡΠΎΠ΄ΠΊΠΈ ΠΌΠ΅ΠΆΠ΄Ρ ΠΊΡΡ Π½Π΅ΠΉ ΠΈ ΡΡΠΎΠ»ΠΎΠ²ΠΎΠΉ Π½Π° ΡΡΠ°Π½ΡΡΠΎΡΠΌΠΈΡΡΡΡΡΡΡΡ, Ρ Π²ΠΎΠ·ΠΌΠΎΠΆΠ½ΠΎΡΡΡΡ ΠΎΠ±ΡΠ΅Π΄ΠΈΠ½Π΅Π½ΠΈΡ ΠΊΡΡ Π½ΠΈ ΠΈ ΡΡΠΎΠ»ΠΎΠ²ΠΎΠΉ Π² Π΅Π΄ΠΈΠ½ΠΎΠ΅ ΠΏΡΠΎΡΡΡΠ°Π½ΡΡΠ²ΠΎ Π½Π° Π²ΡΠ΅ΠΌΡ ΠΏΡΠΈΠ΅ΠΌΠ° Π³ΠΎΡΡΠ΅ΠΉ.
ΠΠ»Π°Π½ΠΈΡΠΎΠ²ΠΊΠ° Π±ΠΎΠ»ΡΡΠΎΠΉ Π΄Π²ΡΡ ΠΊΠΎΠΌΠ½Π°ΡΠ½ΠΎΠΉ ΠΊΠ²Π°ΡΡΠΈΡΡ
ΠΠ»Π°Π½ΠΈΡΠΎΠ²ΠΊΠ° Π±ΠΎΠ»ΡΡΠΎΠΉ Π΄Π²ΡΡ
ΠΊΠΎΠΌΠ½Π°ΡΠ½ΠΎΠΉ ΠΊΠ²Π°ΡΡΠΈΡΡΒ ΠΏΡΠ΅Π΄ΠΏΠΎΠ»Π°Π³Π°Π΅Ρ ΠΏΡΠΎΡΡΠΎΡΠ½ΡΠ΅ ΠΊΠΎΠΌΠ½Π°ΡΡ Π±ΠΎΠ»ΡΡΠΎΠΉ ΠΏΠ»ΠΎΡΠ°Π΄ΠΈ, Π΄Π²Π° ΡΠ°Π½ΡΠ·Π»Π°, Π³Π°ΡΠ΄Π΅ΡΠΎΠ±Π½ΡΡ, ΡΠ΅ΡΠΊΠΎΠ΅ ΡΠ°Π·Π΄Π΅Π»Π΅Π½ΠΈΠ΅ Π½Π° Ρ
ΠΎΠ·ΡΠΉΡΠΊΡΡ ΠΈΒ Π³ΠΎΡΡΠ΅Π²ΡΡ Π·ΠΎΠ½Ρ. ΠΠ΄Π½Π°ΠΊΠΎ Π±ΠΎΠ»ΡΡΠ°Ρ ΠΏΠ»ΠΎΡΠ°Π΄Ρ β Π΅ΡΠ΅ Π½Π΅ Π³Π°ΡΠ°Π½Ρ ΠΊΠΎΠΌΡΠΎΡΡΠ½ΠΎΠΉ ΠΆΠΈΠ·Π½ΠΈ, Π°, Ρ ΡΡΠ΅ΡΠΎΠΌ ΡΡΠΎΠΈΠΌΠΎΡΡΠΈ ΡΡΠ»ΡΠ³ ΠΠΠ₯, ΠΊΠ²Π°ΡΡΠΈΡΡ Π±ΠΎΠ»ΡΡΠΎΠΉ ΠΏΠ»ΠΎΡΠ°Π΄ΠΈ ΡΠ°Π·ΠΎΡΠΈΡΠ΅Π»ΡΠ½Ρ.
Π Π΄Π°Π½Π½ΠΎΠΌ ΡΠ΅ΡΠ΅Π½ΠΈΠΈ Π½Π΅ Π»ΠΎΠ³ΠΈΡΠ΅Π½ Π³ΠΎΡΡΠ΅Π²ΠΎΠΉ ΡΠΎΠ²ΠΌΠ΅ΡΠ΅Π½Π½ΡΠΉ ΡΠ°Π½ΡΠ·Π΅Π» Π±ΠΎΠ»ΡΡΠΎΠΉ ΠΏΠ»ΠΎΡΠ°Π΄ΠΈ Ρ Π²Π°Π½Π½ΠΎΠΉ ΠΏΡΠΈ ΠΎΡΡΡΡΡΡΠ²ΠΈΠΈ Π³ΠΎΡΡΠ΅Π²ΠΎΠΉ ΡΠΏΠ°Π»ΡΠ½ΠΈ, Π° ΡΠΏΠ°Π»ΡΠ½Ρ ΠΏΠ»ΠΎΡΠ°Π΄ΡΡ 34 ΠΌ2 Π²ΡΠ³Π»ΡΠ΄ΠΈΡ ΠΊΠ°ΠΊ ΡΡΠ΅ΠΌΠΎΡΠ½Π°Ρ ΠΏΠ»ΠΎΡΠ°Π΄ΠΊΠ° ΠΊΠΈΠ½ΠΎ, Π° Π½Π΅ ΡΡΡΠ½ΠΎΠ΅ ΠΏΡΠΈΠ²Π°ΡΠ½ΠΎΠ΅ ΠΏΠΎΠΌΠ΅ΡΠ΅Π½ΠΈΠ΅.
ΠΠ΄Π΅Π°Π»ΡΠ½Π°Ρ ΠΏΠ»Π°Π½ΠΈΡΠΎΠ²ΠΊΠ° Π΄Π²ΡΡ ΠΊΠΎΠΌΠ½Π°ΡΠ½ΠΎΠΉ ΠΊΠ²Π°ΡΡΠΈΡΡ
ΠΠ΄Π΅Π°Π»ΡΠ½Π°Ρ ΠΏΠ»Π°Π½ΠΈΡΠΎΠ²ΠΊΠ° Π΄Π²ΡΡ ΠΊΠΎΠΌΠ½Π°ΡΠ½ΠΎΠΉ ΠΊΠ²Π°ΡΡΠΈΡΡΒ β ΡΠΎ, ΡΡΠΎ ΠΏΠΎΠ΄Ρ ΠΎΠ΄ΠΈΡ ΠΈΠΌΠ΅Π½Π½ΠΎ Π²Π°ΡΠ΅ΠΉ ΡΠ΅ΠΌΡΠ΅, Π·Π°Π²ΠΈΡΠΈΡ ΠΈΠ΄Π΅Π°Π» ΠΎΡ ΠΊΠΎΠ»ΠΈΡΠ΅ΡΡΠ²Π° ΠΈ Π²ΠΎΠ·ΡΠ°ΡΡΠ° ΡΠ»Π΅Π½ΠΎΠ² ΡΠ΅ΠΌΡΠΈ, ΡΠ°ΡΠΏΠΎΠ»ΠΎΠΆΠ΅Π½ΠΈΡ Π΄ΠΎΠΌΠ°, ΠΈΠ½ΡΠΎΠ»ΡΡΠΈΠΈ ΠΈ ΠΌΠ½ΠΎΠ³ΠΈΡ Π΄ΡΡΠ³ΠΈΡ ΡΠ°ΠΊΡΠΎΡΠΎΠ².
Π£Π΄ΠΎΠ±Π½Π°Ρ ΠΏΠ»Π°Π½ΠΈΡΠΎΠ²ΠΎΡΠ½ΠΎΠ΅ ΡΠ΅ΡΠ΅Π½ΠΈΠ΅, Π½Π°Π»ΠΈΡΠΈΠ΅ Π»ΠΈΡΠ½ΠΎΠ³ΠΎ ΠΏΡΠΎΡΡΡΠ°Π½ΡΡΠ²Π° Π΄Π»Ρ Π²ΡΠ΅Ρ ΠΆΠΈΠ»ΡΡΠΎΠ² ΠΈ ΠΎΠ±ΡΠ΅ΠΉ ΡΠ΅ΡΡΠΈΡΠΎΡΠΈΠΈ, Π³Π΄Π΅ ΡΠΎΠ±ΠΈΡΠ°Π΅ΡΡΡ Π²ΡΡ ΡΠ΅ΠΌΡΡ Π΄Π»Ρ ΡΠ°Π·Π³ΠΎΠ²ΠΎΡΠΎΠ², ΠΈΠ³ΡΡ, ΠΏΡΠΎΡΠΌΠΎΡΡΠ° ΡΠ΅Π»Π΅Π²ΠΈΠ·ΠΈΠΎΠ½Π½ΡΡ ΠΏΡΠΎΠ³ΡΠ°ΠΌΠΌ βΒ ΠΈΠ΄Π΅Π°Π»ΡΠ½ΠΎΠΉΒ ΡΡΠ°Π½Π΅ΡΒ ΠΏΠ»Π°Π½ΠΈΡΠΎΠ²ΠΊΠ° Π΄Π²ΡΡ ΠΊΠΎΠΌΠ½Π°ΡΠ½ΠΎΠΉ ΠΊΠ²Π°ΡΡΠΈΡΡ,Β Π² ΠΊΠΎΡΠΎΡΠΎΠΉ ΡΠ°ΡΠΈΡ ΡΡΡ ΠΈ ΠΏΠΎΠΊΠΎΠΉ.
ΠΠΈΠ·Π°ΠΉΠ½ Π΄Π²ΡΡ ΠΊΠΎΠΌΠ½Π°ΡΠ½ΡΡ ΠΊΠ²Π°ΡΡΠΈΡ
ΠΠ»Π°Π½ΠΈΡΠΎΠ²ΠΊΠΈ Π΄Π²ΡΡ ΠΊΠΎΠΌΠ½Π°ΡΠ½ΡΡ ΠΊΠ²Π°ΡΡΠΈΡ Π² Π½ΠΎΠ²ΠΎΡΡΡΠΎΠΉΠΊΠ°Ρ Π΄ΠΈΠ·Π°ΠΉΠ½Β ΡΠ°ΡΠ΅ Π²ΡΠ΅Π³ΠΎ ΡΠ΅ΡΠ°ΡΡΡΡ Π² Π°ΠΊΡΡΠ°Π»ΡΠ½ΡΡ ΡΡΠΈΠ»ΡΡ ΡΠ΅Ρ Π½ΠΎ, Π»ΠΎΡΡ ΠΈΠ»ΠΈ ΡΠΊΠ°Π½Π΄ΠΈΠ½Π°Π²ΡΠΊΠΈΠΉ, ΠΊΠΎΡΠΎΡΡΠ΅ ΠΎΠ±ΡΠ΅Π΄ΠΈΠ½ΡΠ΅Ρ ΡΠΈΡΡΠΎΡΠ° Π»ΠΈΠ½ΠΈΠΉ, ΡΠ²Π΅ΡΠ»ΡΠ΅ ΡΠΎΠ½Π°, ΡΠΎΡΠ΅ΡΠ°Π½ΠΈΠ΅ ΡΡΠ΅ΠΊΠ»Π°, Π΄Π΅ΡΠ΅Π²Π°, ΠΌΠ΅ΡΠ°Π»Π»Π° ΠΈ Π½Π΅ΠΎΡΡΡΠΊΠ°ΡΡΡΠ΅Π½Π½ΠΎΠ³ΠΎ ΠΊΠΈΡΠΏΠΈΡΠ°.
Π‘ΡΠΈΠ»Ρ ΡΠ΅Ρ Π½ΠΎ ΠΏΡΠ΅Π΄ΠΏΠΎΠ»Π°Π³Π°Π΅Ρ Π½Π°ΡΡΡΠ΅Π½ΠΈΠ΅ ΠΏΡΠΎΡΡΡΠ°Π½ΡΡΠ²Π° ΡΠ°Π·Π»ΠΈΡΠ½ΡΠΌΠΈ Π³Π°Π΄ΠΆΠ΅ΡΠ°ΠΌΠΈ, ΠΊΠΎΠΌΡΠΎΡΡΠ½ΠΎΠΉ ΠΈ ΠΏΡΠΎΡΡΠΎΠΉ ΠΏΠΎ ΡΠΎΡΠΌΠ΅ ΠΌΠ΅Π±Π΅Π»ΡΡ, ΠΎΡΠΎΠ±Π΅Π½Π½ΠΎ ΠΎΠ½ ΠΏΠΎΠ΄Ρ ΠΎΠ΄ΠΈΡ Π΄Π»Ρ ΠΌΠΎΠ»ΠΎΠ΄Π΅ΠΆΠΈ.
ΠΠ»Ρ ΠΏΠ΅ΡΠ΅ΡΡΡΡΠΎΠΉΡΡΠ²Π° Π² ΡΡΠΈΠ»Π΅ Π»ΠΎΡΡ Π±ΠΎΠ»ΡΡΠ΅ ΠΏΠΎΠ΄ΠΎΠΉΠ΄ΡΡ ΡΡΠ°Π»ΠΈΠ½ΠΊΠΈ: Π²ΡΡΠΎΠΊΠΈΠ΅ ΠΏΠΎΡΠΎΠ»ΠΊΠΈ Π΄Π°ΡΡ Π²ΠΎΠ·ΠΌΠΎΠΆΠ½ΠΎΡΡΡ Π·ΠΎΠ½ΠΈΡΠΎΠ²Π°Π½ΠΈΡ ΠΏΡΠΎΡΡΡΠ°Π½ΡΡΠ²Π° Π½Π΅ ΡΠΎΠ»ΡΠΊΠΎ Π² ΠΏΠ»Π°Π½Π΅, Π½ΠΎ ΠΈ ΠΏΠΎ Π²Π΅ΡΡΠΈΠΊΠ°Π»ΠΈ. ΠΡΡΠΎΡΠ° ΠΏΠΎΠ·Π²ΠΎΠ»ΠΈΡ Π²ΡΡΡΡΠΎΠΈΡΡ Π°Π½ΡΡΠ΅ΡΠΎΠ»Ρ, ΡΠ°ΡΠΏΠΎΠ»ΠΎΠΆΠΈΠ² ΡΠ°ΠΌ ΠΊΠ°Π±ΠΈΠ½Π΅Ρ, Π±ΠΈΠ±Π»ΠΈΠΎΡΠ΅ΠΊΡ ΠΈΠ»ΠΈ Π·ΠΎΠ½Ρ ΠΎΡΠ΄ΡΡ Π°. Π‘ΠΎΡΠ΅ΡΠ°Π½ΠΈΠ΅ ΡΠ΅ΡΠ½ΠΎΠ³ΠΎ ΠΌΠ΅ΡΠ°Π»Π»Π°, ΡΠΎΡΡΠ°ΡΠ΅Π½Π½ΠΎΠ³ΠΎ Π΄Π΅ΡΠ΅Π²Π° ΠΈ ΡΡΠ΅ΠΊΠ»Π° ΠΊΠ°ΠΊ Π½Π΅Π»ΡΠ·Ρ Π»ΡΡΡΠ΅ Ρ Π°ΡΠ°ΠΊΡΠ΅ΡΠΈΠ·ΡΠ΅Ρ Π±Π°Π·ΠΈΡ ΡΡΠΈΠ»Ρ Π»ΠΎΡΡ.
Π‘ΠΊΠ°Π½Π΄ΠΈΠ½Π°Π²ΡΠΊΠΈΠΉ ΡΡΠΈΠ»Ρ ΡΡΠ°Π» ΠΊΠ»Π°ΡΡΠΈΠΊΠΎΠΉ ΠΊΠ²Π°ΡΡΠΈΡΠ½ΠΎΠ³ΠΎ Π΄ΠΈΠ·Π°ΠΉΠ½Π°: ΡΠΎΡΠ΅ΡΠ°Π½ΠΈΠ΅ ΠΏΡΠΎΡΡΠΎΡΡ, ΡΡΠ½ΠΊΡΠΈΠΎΠ½Π°Π»ΡΠ½ΠΎΡΡΠΈ ΠΈ ΠΊΠΎΠΌΡΠΎΡΡΠ° ΠΏΡΠΈΠ΄Π΅ΡΡΡ ΠΏΠΎ Π΄ΡΡΠ΅ Π»ΡΠ±ΠΎΠΌΡ Π³ΠΎΡΠΎΠΆΠ°Π½ΠΈΠ½Ρ.
ΠΠ°ΠΊΠ»ΡΡΠ΅Π½ΠΈΠ΅
ΠΠ»Π°Π½ΠΈΡΠΎΠ²ΠΊΠ° Π±ΠΎΠ»ΡΡΠΎΠΉ Π΄Π²ΡΡ ΠΊΠΎΠΌΠ½Π°ΡΠ½ΠΎΠΉ ΠΊΠ²Π°ΡΡΠΈΡΡΒ ΠΌΠΎΠΆΠ΅Ρ ΠΎΠΊΠ°Π·Π°ΡΡΡΡ Π½Π΅ ΡΡΠΎΠ»Ρ ΡΠ΄ΠΎΠ±Π½ΠΎΠΉ ΠΈ ΡΡΡΠ½ΠΎΠΉ, ΠΊΠ°ΠΊ ΠΊΠ²Π°ΡΡΠΈΡΠ° ΠΌΠ°Π»Π΅Π½ΡΠΊΠ°Ρ ΠΈΠ»ΠΈ ΡΡΠ΅Π΄Π½Π΅ΠΉ ΠΏΠ»ΠΎΡΠ°Π΄ΠΈ. ΠΠΎΠΌΡΠΎΡΡ β ΡΡΠΎ ΠΏΡΠ°Π²ΠΈΠ»ΡΠ½Π°Ρ ΡΠ°ΡΡΡΠ°Π½ΠΎΠ²ΠΊΠ° ΠΌΠ΅Π±Π΅Π»ΠΈ, ΡΠΌΠ΅Π»ΠΎ ΠΏΠΎΠ΄ΠΎΠ±ΡΠ°Π½Π½ΡΠΉ Π΄ΠΈΠ·Π°ΠΉΠ½, ΡΠ΅ΠΊΡΡΠΈΠ»Ρ ΠΈ Π°ΠΊΡΠ΅ΡΡΡΠ°ΡΡ.
vashblok.ru
ΠΠ»Π°Π½ΠΈΡΠΎΠ²ΠΊΠ° ΠΌΠ΅Π»ΠΊΠΎΠΉ 2 ΠΊΠΎΠΌΠ½Π°ΡΠ½ΠΎΠΉ ΠΊΠ²Π°ΡΡΠΈΡΡ: Π΄ΠΈΠ·Π°ΠΉΠ½Π΅ΡΡΠΊΠΈΠ΅ ΠΏΠΎΠ΄ΡΠΊΠ°Π·ΠΊΠΈ
ΠΠ±ΡΡΡΡΠΎΠΉΡΡΠ²ΠΎ Π΄Π°ΠΆΠ΅ Π½Π΅Π±ΠΎΠ»ΡΡΠΎΠΉ ΠΆΠΈΠ»ΠΏΠ»ΠΎΡΠ°Π΄ΠΈ ΠΏΠΎΠ·Π²ΠΎΠ»ΡΠ΅Ρ ΡΠ΄Π΅Π»Π°ΡΡ Π΅Π΅ ΠΌΠ°ΠΊΡΠΈΠΌΠ°Π»ΡΠ½ΠΎ ΠΊΠΎΠΌΡΠΎΡΡΠ½ΠΎΠΉ Π΄Π»Ρ ΠΆΠΈΠ·Π½ΠΈ. ΠΡΠ°ΠΌΠΎΡΠ½Π°Ρ ΡΠ°ΡΡΡΠ°Π½ΠΎΠ²ΠΊΠ° Π°ΠΊΡΠ΅Π½ΡΠΎΠ² ΠΈ ΠΌΠ΅Π±Π΅Π»ΠΈ, Π²ΡΠ±ΠΎΡ ΠΌΠ°ΡΠ΅ΡΠΈΠ°Π»Π° Π΄Π»Ρ ΠΎΡΠ΄Π΅Π»ΠΊΠΈ ΠΏΠΎΠ·Π²ΠΎΠ»ΡΡΡ Π²ΠΈΠ·ΡΠ°Π»ΡΠ½ΠΎ ΠΏΠ΅ΡΠ΅ΠΊΡΠΎΠΈΡΡ Π³Π΅ΠΎΠΌΠ΅ΡΡΠΈΡ ΠΏΠΎΠΌΠ΅ΡΠ΅Π½ΠΈΡ, ΡΠ΄Π΅Π»Π°ΡΡ Π΅Π³ΠΎ ΡΡΡΠ½ΡΠΌ ΠΈ ΠΊΠΎΠΌΡΠΎΡΡΠ½ΡΠΌ Π΄Π»Ρ ΠΏΡΠΎΠΆΠΈΠ²Π°Π½ΠΈΡ.Β ΠΠ»Π°Π½ΠΈΡΠΎΠ²ΠΊΠ° ΠΌΠ°Π»Π΅Π½ΡΠΊΠΎΠΉ 2 ΠΊΠΎΠΌΠ½Π°ΡΠ½ΠΎΠΉ ΠΊΠ²Π°ΡΡΠΈΡΡΒ Π²ΡΠΏΠΎΠ»Π½ΡΠ΅ΡΡΡ Ρ ΡΡΠ΅ΡΠΎΠΌ ΠΏΠ°ΡΠ°ΠΌΠ΅ΡΡΠΎΠ² ΠΆΠΈΠ»ΠΏΠ»ΠΎΡΠ°Π΄ΠΈ, Π³Π΅ΠΎΠΌΠ΅ΡΡΠΈΠΈ ΠΈ ΡΠ°ΡΠΏΠΎΠ»ΠΎΠΆΠ΅Π½ΠΈΠ΅ΠΌ ΠΏΠΎΠΌΠ΅ΡΠ΅Π½ΠΈΠΉ.
ΠΠ»Π°Π½ΠΈΡΠΎΠ²ΠΊΠ° 2Β Ρ ΠΊΠΎΠΌΠ½Π°ΡΠ½ΡΡ ΠΊΠ²Π°ΡΡΠΈΡ Π΄Π»Ρ ΠΌΠΎΠ»ΠΎΠ΄ΠΎΠΉ ΠΏΠ°ΡΡ

Π§Π°ΡΡΠΎ Π·Π° ΡΠ²Π°Π΄ΡΠ±ΠΎΠΉ ΡΠ»Π΅Π΄ΡΠ΅Ρ Π²ΡΠ±ΠΎΡ ΠΏΠΎΠ΄Ρ ΠΎΠ΄ΡΡΠ΅ΠΉ Π΄Π»Ρ ΠΆΠΈΠ·Π½ΠΈ ΠΆΠΈΠ»ΠΏΠ»ΠΎΡΠ°Π΄ΠΈ. Π§ΡΠΎΠ±Ρ ΡΡΠΊΠΎΠ½ΠΎΠΌΠΈΡΡ Π΄Π΅Π½ΡΠ³ΠΈ, ΠΌΠΎΠ»ΠΎΠ΄ΡΠ΅ Π²ΡΠ±ΠΈΡΠ°ΡΡ Π½Π΅Π±ΠΎΠ»ΡΡΠΎΠ΅ ΠΏΡΠΎΡΡΡΠ°Π½ΡΡΠ²ΠΎ Π΄Π»Ρ ΠΆΠΈΠ·Π½ΠΈ. ΠΠ°Π»Π΅Π΅ Π΅Π³ΠΎ ΠΏΡΠΈΠ΄Π΅ΡΡΡ ΠΏΠ΅ΡΠ΅ΠΊΡΠ°ΠΈΠ²Π°ΡΡ. Π Π½ΠΎΠ²ΠΎΡΡΡΠΎΠΉΠΊΠ°Ρ , Π΄Π° ΠΈ Π² ΡΡΠ°ΡΡΡ Π΄ΠΎΠΌΠ°Ρ ΡΠ°ΡΡΠΎ ΠΏΡΠ΅Π΄Π»ΠΎΠΆΠ΅Π½Π°Β Π΄Π²ΡΡ ΠΊΠΎΠΌΠ½Π°ΡΠ½Π°Ρ ΠΊΠ²Π°ΡΡΠΈΡΠ° 40 ΠΊΠ². ΠΌ β ΠΏΠ»Π°Π½ΠΈΡΠΎΠ²ΠΊΠ°Β ΡΠ°ΠΊΠΎΠ³ΠΎ ΠΏΠΎΠΌΠ΅ΡΠ΅Π½ΠΈΡ Π΄ΠΎΠ»ΠΆΠ½Π° ΡΡΠΈΡΡΠ²Π°ΡΡ ΡΠ°ΠΊΠΈΠ΅ ΠΎΡΠΎΠ±Π΅Π½Π½ΠΎΡΡΠΈ:
- ΠΠ΄Π΅Π°Π»ΡΠ½ΠΎΠ΅ ΡΠ΅ΡΠ΅Π½ΠΈΠ΅ β ΡΡΠΎ ΠΎΠ±ΡΠ΅Π΄ΠΈΠ½Π΅Π½ΠΈΠ΅ ΠΎΠ΄Π½ΠΎΠΉ ΠΊΠΎΠΌΠ½Π°ΡΡ Ρ ΠΏΠΎΠ²Π°ΡΠ΅Π½Π½ΠΎΠΉ Π·ΠΎΠ½ΠΎΠΉ ΠΈ ΡΠ°Π·Π΄Π΅Π»Π΅Π½ΠΈΠ΅ Π΅Π΅ ΡΠΎΠ»ΡΠΊΠΎ ΠΏΠ΅ΡΠ΅Π³ΠΎΡΠΎΠ΄ΠΊΠ°ΠΌΠΈ, ΠΌΠΎΠΆΠ½ΠΎ ΠΈ ΠΏΠ΅ΡΠ΅Π½ΠΎΡΠ½ΡΠΌΠΈ. Π Π½ΠΎΠ²ΠΎΡΡΡΠΎΠΉΠΊΠ°Ρ ΠΌΠΎΠΆΠ½ΠΎ Π½Π°ΠΉΡΠΈ Π΅Π²ΡΠΎΠ΄Π²ΡΡΠΊΠΈ, Π² ΠΊΠΎΡΠΎΡΡΡ Π½Π΅ ΠΏΡΠΈΠ΄Π΅ΡΡΡ Π΄Π°ΠΆΠ΅ ΡΠ½ΠΎΡΠΈΡΡ ΡΡΠ΅Π½Ρ.Β ΠΠ»Π°Π½ΠΈΡΠΎΠ²ΠΊΠΈ 2 Ρ ΠΊΠΎΠΌΠ½Π°ΡΠ½ΡΡ ΠΊΠ²Π°ΡΡΠΈΡΒ Π² ΡΡΠΎΠΌ ΡΠ»ΡΡΠ°Π΅ Π²ΡΠΏΠΎΠ»Π½ΡΡΡΡΡ Π² ΡΡΠΈΠ»Π΅ Π»ΠΎΡΡ. ΠΠΈΠ·ΡΠ°Π»ΡΠ½ΠΎ ΡΠΎΠ·Π΄Π°Π΅ΡΡΡ ΠΎΡΡΡΠ΅Π½ΠΈΠ΅ Π±ΠΎΠ»ΡΡΠΎΠ³ΠΎ ΠΏΡΠΎΡΡΡΠ°Π½ΡΡΠ²Π° ΠΈ ΡΠ²ΠΎΠ±ΠΎΠ΄Ρ.
- Π Π°ΡΡΠ΅Ρ ΡΡΠ½ΠΊΡΠΈΠΎΠ½Π°Π»ΡΠ½ΡΡ Π·ΠΎΠ½ β ΡΠ°ΡΡΠΎ ΡΠ°ΠΊΠ°ΡΒ ΠΏΠ»Π°Π½ΠΈΡΠΎΠ²ΠΊΠ° 2 ΠΊΠΎΠΌΠ½Π°ΡΠ½ΠΎΠΉ ΠΊΠ²Π°ΡΡΠΈΡΡ ΡΠ»ΡΡΡΠ΅Π½Π½ΠΎΠΉ ΠΏΠ»Π°Π½ΠΈΡΠΎΠ²ΠΊΠΈΒ Π²ΡΠΏΠΎΠ»Π½ΡΠ΅ΡΡΡ Π² Π½ΠΎΠ²ΠΎΡΡΡΠΎΠΉΠΊΠ°Ρ . Π‘ΡΠ°ΡΡΠ΅ Π΄ΠΎΠΌΠ° ΡΠ°ΠΊΠΆΠ΅ ΠΌΠΎΠΆΠ½ΠΎ ΡΠ°Π·Π΄Π΅Π»ΠΈΡΡ Π½Π° ΠΎΡΠ΄Π΅Π»ΡΠ½ΡΠ΅ Π·ΠΎΠ½Ρ, Π²ΡΠ΄Π΅Π»ΠΈΠ² ΠΎΡΠ΄Π΅Π»ΡΠ½ΠΎ ΠΎΠ±Π΅Π΄Π΅Π½Π½ΡΡ, ΡΠ°Π±ΠΎΡΡΡ, ΡΠ΅ΠΌΠ΅ΠΉΠ½ΡΡ, ΠΎΠ±ΡΡΡ ΠΈ ΠΈΠ½Π΄ΠΈΠ²ΠΈΠ΄ΡΠ°Π»ΡΠ½ΡΡ. ΠΡΠΎ ΠΎΠΏΡΠΈΠΌΠ°Π»ΡΠ½ΡΠΉ Π²Π°ΡΠΈΠ°Π½Ρ Π΄Π»Ρ 2β3 ΡΠ΅Π»ΠΎΠ²Π΅ΠΊ.
ΠΡΠ»ΠΈ Π²ΡΠ±ΡΠ°Π½ΡΒ ΡΡΠ°Π½Π΄Π°ΡΡΠ½ΡΠ΅ ΠΏΠ»Π°Π½ΠΈΡΠΎΠ²ΠΊΠΈ 2 Ρ ΠΊΠΎΠΌΠ½Π°ΡΠ½ΡΡ ΠΊΠ²Π°ΡΡΠΈΡ, ΡΠ»Π΅Π΄ΡΠ΅Ρ ΡΡΠ°Π·Ρ ΠΎΠ±ΠΎΠ·Π½Π°ΡΠΈΡΡ ΠΌΠ΅ΡΡΠ° Π΄Π»Ρ ΠΎΠ±Π΅Π΄Π΅Π½Π½ΠΎΠΉ ΠΈ ΠΎΠ±ΡΠ΅ΠΉ Π·ΠΎΠ½Ρ, ΡΠΏΠ°Π»ΡΠ½ΠΈ Π΄Π»Ρ ΠΏΠ°ΡΡ ΠΈ Π΄Π΅ΡΡΠΊΠΎΠΉ ΠΊΠΎΠΌΠ½Π°ΡΡ.
ΠΡΠΎΠ±Π΅Π½Π½ΠΎΡΡΠΈ ΠΏΠ»Π°Π½ΠΈΡΠΎΠ²ΠΊΠΈ 2Ρ ΠΊΠΎΠΌΠ½Π°ΡΠ½ΡΡ ΠΊΠ²Π°ΡΡΠΈΡ Π½Π° 45 ΠΊΠ². ΠΌ Π΄Π»Ρ ΡΠ΅ΠΌΡΠΈ Ρ ΠΌΠ°Π»Π΅Π½ΡΠΊΠΈΠΌ ΡΠ΅Π±Π΅Π½ΠΊΠΎΠΌ

ΠΠ»Π°Π½ΠΈΡΠΎΠ²ΠΊΠ° Π΄Π²ΡΡ ΠΊΠΎΠΌΠ½Π°ΡΠ½ΠΎΠΉ ΠΊΠ²Π°ΡΡΠΈΡΡ 45 ΠΊΠ². ΠΌΒ Π΄Π»Ρ ΡΠ΅ΠΌΡΠΈ Ρ ΡΠ΅Π±Π΅Π½ΠΊΠΎΠΌ ΠΈΠ»ΠΈ ΡΠΎΠΉ, ΠΊΠΎΡΠΎΡΠ°Ρ ΡΠΊΠΎΡΠΎ ΠΏΠΎΠΏΠΎΠ»Π½ΠΈΡΡΡ ΠΌΠ°Π»ΡΡΠΎΠΌ ΠΏΡΠ΅Π΄ΠΏΠΎΠ»Π°Π³Π°Π΅Ρ:
- ΠΡΠ΄Π΅Π»ΠΈΡΡ Π·ΠΎΠ½Ρ Π΄Π»Ρ Π³Π°ΡΠ΄Π΅ΡΠΎΠ±Π½ΠΎΠΉ. ΠΡΠΎ ΠΏΠΎΠΌΠ΅ΡΠ΅Π½ΠΈΠ΅ ΡΡΠ°Π½ΠΎΠ²ΠΈΡΡΡ ΠΎΠΏΡΠΈΠΌΠ°Π»ΡΠ½ΡΠΌ Π΄Π»Ρ Ρ ΡΠ°Π½Π΅Π½ΠΈΡ Π²Π΅ΡΠ΅ΠΉ ΠΈ ΡΠ°Π·Π³ΡΡΠ·ΠΊΠΈ ΠΎΠ±ΡΠ΅Π³ΠΎ ΠΏΡΠΎΡΡΡΠ°Π½ΡΡΠ²Π°. ΠΠΏΡΠΈΠΌΠ°Π»ΡΠ½ΡΠΉ Π²Π°ΡΠΈΠ°Π½Ρ Π²ΡΠ½Π΅ΡΡΠΈ ΡΠΊΠ°ΡΡ ΠΈ ΡΡΠΌΠ±Ρ, ΠΊΠΎΠΌΠΎΠ΄Ρ Π·Π° ΠΏΡΠ΅Π΄Π΅Π»Ρ Π΄Π΅ΡΡΠΊΠΎΠΉ ΠΈ ΡΠΏΠ°Π»ΡΠ½ΠΈ ΡΠΎΠ΄ΠΈΡΠ΅Π»Π΅ΠΉ, ΡΡΠΎΠ±Ρ Π½Π΅ Π·Π°Π³ΡΠΎΠΌΠΎΠΆΠ΄Π°ΡΡ ΠΈ Π±Π΅Π· ΡΠΎΠ³ΠΎ Π½Π΅Π±ΠΎΠ»ΡΡΠΎΠ΅ ΠΏΡΠΎΡΡΡΠ°Π½ΡΡΠ²ΠΎ. ΠΡΠ΄Π΅Π»ΠΈΡΡ Π³Π°ΡΠ΄Π΅ΡΠΎΠ±Π½ΡΡ ΠΌΠΎΠΆΠ½ΠΎ Π΄Π²Π΅ΡΡΡ-Π³Π°ΡΠΌΠΎΡΠΊΠΎΠΉ, ΠΏΠ»ΠΎΡΠ½ΠΎΠΉ ΡΠ΅ΠΊΡΡΠΈΠ»ΡΠ½ΠΎΠΉ Π·Π°Π½Π°Π²Π΅ΡΠΊΠΎΠΉ, Π·Π΅ΡΠΊΠ°Π»ΡΠ½ΠΎΠΉ ΡΠ°Π·Π΄Π²ΠΈΠΆΠ½ΠΎΠΉ ΠΊΠΎΠ½ΡΡΡΡΠΊΡΠΈΠ΅ΠΉ Π½Π° Π½Π°ΠΏΡΠ°Π²Π»ΡΡΡΠΈΡ .
- ΠΠΎΠ΄ΠΎΠ±ΡΠ°ΡΡ ΠΌΠ΅ΡΡΠΎ Π΄Π»Ρ Π΄Π΅ΡΡΠΊΠΎΠΉ ΠΊΡΠΎΠ²Π°ΡΠΊΠΈ.Β ΠΠ»Π°Π½ΠΈΡΠΎΠ²ΠΊΠ° Π΄Π²ΡΡ ΠΊΠΎΠΌΠ½Π°ΡΠ½ΠΎΠΉ ΠΊΠ²Π°ΡΡΠΈΡΡ 45 ΠΊΠ². ΠΌΒ ΠΏΠΎΠ·Π²ΠΎΠ»ΡΠ΅Ρ Π²ΡΠ΄Π΅Π»ΠΈΡΡ Π΄Π»Ρ ΡΡΠΎΠ³ΠΎ ΠΎΡΠ΄Π΅Π»ΡΠ½ΡΡ ΠΊΠΎΠΌΠ½Π°ΡΡ ΠΈΠ»ΠΈ ΠΎΠΏΡΠ΅Π΄Π΅Π»ΠΈΡΡ ΠΌΠ΅ΡΡΠΎ Π΄Π»Ρ ΠΆΠΈΠ·Π½ΠΈ Π²ΠΌΠ΅ΡΡΠ΅ Ρ ΡΠΎΠ΄ΠΈΡΠ΅Π»ΡΠΌΠΈ. ΠΠ΅ΡΠ²ΡΠΉ Π²Π°ΡΠΈΠ°Π½Ρ ΠΏΡΠ΅Π΄ΠΏΠΎΡΡΠΈΡΠ΅Π»ΡΠ½Π΅Π΅, ΠΎΡΠΎΠ±Π΅Π½Π½ΠΎ Π΅ΡΠ»ΠΈ ΠΏΠ»Π°Π½ΠΈΡΡΠ΅ΡΡΡ ΡΡΡΠ°Π½Π°Π²Π»ΠΈΠ²Π°ΡΡ ΠΏΠ΅Π»Π΅Π½Π°Π»ΡΠ½ΡΠΉ ΡΡΠΎΠ»ΠΈΠΊ, ΡΠΊΠ°Ρ Π΄Π»Ρ ΠΏΡΠΈΠ½Π°Π΄Π»Π΅ΠΆΠ½ΠΎΡΡΠ΅ΠΉ ΠΈ Π²Π΅ΡΠΈΡΠ΅ΠΊ.
ΠΠ»Π°Π½ΠΈΡΠΎΠ²ΠΊΠ° 2Ρ ΠΊΠΎΠΌΠ½Π°ΡΠ½ΠΎΠΉ ΠΌΠ°Π»Π΅Π½ΡΠΊΠΎΠΉ ΠΊΠ²Π°ΡΡΠΈΡΡΒ ΠΏΠΎΠ·Π²ΠΎΠ»ΡΠ΅Ρ ΡΠ΄Π΅Π»Π°ΡΡ ΠΊΡΡ ΠΎΠ½Π½ΡΡ Π·ΠΎΠ½Ρ ΠΌΠ½ΠΎΠ³ΠΎΡΡΠ½ΠΊΡΠΈΠΎΠ½Π°Π»ΡΠ½ΠΎΠΉ.Β ΠΠ»Π°Π½ΠΈΡΠΎΠ²ΠΊΠ° Π΄Π²ΡΡ ΠΊΠΎΠΌΠ½Π°ΡΠ½ΠΎΠΉ ΠΊΠ²Π°ΡΡΠΈΡΡ 45 ΠΊΠ². ΠΌΒ ΡΠ°ΡΡΠΎ Π½Π΅ ΠΏΡΠ΅Π΄ΡΡΠΌΠ°ΡΡΠΈΠ²Π°Π΅Ρ Π±ΠΎΠ»ΡΡΠΎΠΉ ΠΏΠΎΠ²Π°ΡΠ΅Π½Π½ΠΎΠΉ Π·ΠΎΠ½Ρ, Π° ΠΏΠΎΡΠΎΠΌΡ Π»ΡΡΡΠΈΠΌ Π²Π°ΡΠΈΠ°Π½ΡΠΎΠΌ ΡΡΠ°Π½Π΅Ρ:
- Π»ΠΈΠ½Π΅ΠΉΠ½ΡΠΉ ΠΊΡΡ ΠΎΠ½Π½ΡΠΉ Π³Π°ΡΠ½ΠΈΡΡΡ,
- ΠΌΠ΅ΡΡΠΎ Π΄Π»Ρ ΠΎΡΠ΄ΡΡ Π° ΠΈ ΠΏΠΎΠ²Π°ΡΠ΅Π½Π½Π°Ρ Π·ΠΎΠ½Π°, ΡΠ°ΡΠΏΠΎΠ»ΠΎΠΆΠ΅Π½Π½Π°Ρ Π½Π°ΠΏΡΠΎΡΠΈΠ² ΠΌΠ΅Π±Π΅Π»ΡΠ½ΠΎΠ³ΠΎ ΠΊΠΎΠΌΠΏΠ»Π΅ΠΊΡΠ°.
ΠΠ΅ Π²ΡΠ΅Π³Π΄Π° ΠΏΠΎΠ·Π²ΠΎΠ»ΡΠ΅Ρ ΡΠ°Π·Π³ΡΠ»ΡΡΡΡΡΒ Π΄Π²ΡΡ ΠΊΠΎΠΌΠ½Π°ΡΠ½Π°Ρ ΠΊΠ²Π°ΡΡΠΈΡΠ° 40 ΠΊΠ². ΠΌ β ΠΏΠ»Π°Π½ΠΈΡΠΎΠ²ΠΊΠ°Β ΡΠ°ΡΡΠΎ ΡΡΠ΅Π·Π°Π΅Ρ ΠΈΠΌΠ΅Π½Π½ΠΎ ΠΌΠ΅ΡΡΠΎ Π΄Π»Ρ ΠΏΡΠΈΠ³ΠΎΡΠΎΠ²Π»Π΅Π½ΠΈΡ ΠΏΠΈΡΠΈ. Π ΡΡΠΎΠΌ ΡΠ»ΡΡΠ°Π΅ ΠΈΠ΄Π΅Π°Π»ΡΠ½ΠΎ ΠΏΠΎΠ΄ΠΎΠΉΠ΄Π΅Ρ ΡΠ³ΠΎΠ»ΠΎΠΊ, ΠΊΠΎΡΠΎΡΡΠΉ ΠΏΠΎΠ·Π²ΠΎΠ»ΡΠ΅Ρ Π·Π°Π΄Π΅ΠΉΡΡΠ²ΠΎΠ²Π°ΡΡ ΠΏΠ°ΡΡΠΈΠ²Π½ΡΡ ΡΠ°ΡΡΡ ΠΏΠΎΠΌΠ΅ΡΠ΅Π½ΠΈΡ β ΡΠ³ΠΎΠ».
ΠΡΠΎΠ±Π΅Π½Π½ΠΎΡΡΠΈ ΠΏΠ»Π°Π½ΠΈΡΠΎΠ²ΠΊΠΈ 2Β ΠΊΠΎΠΌΠ½Π°ΡΠ½ΠΎΠΉ ΠΊΠ²Π°ΡΡΠΈΡΡ Π΄Π»Ρ ΡΠ΅ΠΌΡΠΈ Ρ 2-ΠΌΡ Π΄Π΅ΡΡΠΌΠΈ

Π§Π°ΡΡΠΎ Π²Π½ΠΈΠΌΠ°Π½ΠΈΡ Π·Π°ΡΠ»ΡΠΆΠΈΠ²Π°Π΅Ρ Π±ΠΎΠ»Π΅Π΅ ΠΏΡΠΎΡΡΠΎΡΠ½Π°ΡΒ 2 ΠΊΠΎΠΌΠ½Π°ΡΠ½Π°Ρ ΠΊΠ²Π°ΡΡΠΈΡΠ° 50 ΠΊΠ². ΠΌ β ΠΏΠ»Π°Π½ΠΈΡΠΎΠ²ΠΊΠ°Β Π½Π΅ΡΠ΅Π΄ΠΊΠΎ Π΄ΠΎΠ»ΠΆΠ½Π° ΠΏΡΠ΅Π΄ΡΡΠΌΠΎΡΡΠ΅ΡΡ ΠΌΠ΅ΡΡΠΎ Π΄Π»Ρ ΠΏΡΠΎΠΆΠΈΠ²Π°Π½ΠΈΡ ΠΎΠ΄Π½ΠΎΠ³ΠΎ ΠΈΠ»ΠΈ Π΄Π²ΡΡ Π΄Π΅ΡΠ΅ΠΉ. Π ΡΡΠΎΠΌ ΡΠ»ΡΡΠ°Π΅ ΡΠ»Π΅Π΄ΡΠ΅Ρ Π΄Π΅ΠΉΡΡΠ²ΠΎΠ²Π°ΡΡ ΠΏΠΎ ΠΏΡΠ°Π²ΠΈΠ»Π°ΠΌ:
- ΠΠ°ΠΉΡΠΈ ΠΌΠ΅ΡΡΠΎ ΠΏΡΠΈ Π²Ρ ΠΎΠ΄Π΅ Π΄Π»Ρ Β«Π³ΡΡΠ·Π½ΠΎΠΉ Π·ΠΎΠ½ΡΒ». ΠΠ°ΠΆΠ½ΠΎ, ΡΡΠΎΠ±Ρ Π² ΡΠ°ΠΊΠΎΠΌ ΠΏΠΎΠΌΠ΅ΡΠ΅Π½ΠΈΠΈ Π±ΡΠ»ΠΎ ΠΎΠ±ΡΠ΅Π΅ ΠΌΠ΅ΡΡΠΎ, Π³Π΄Π΅ Π²ΡΠ΅ ΡΠ»Π΅Π½Ρ ΡΠ΅ΠΌΡΠΈ ΡΠΌΠΎΠ³Ρ Π² ΠΊΠΎΠΌΡΠΎΡΡΠ½ΡΡ ΡΡΠ»ΠΎΠ²ΠΈΡΡ ΡΠ°Π·Π΄Π΅Π²Π°ΡΡΡΡ ΠΈ ΠΎΠ΄Π΅Π²Π°ΡΡΡΡ. ΠΠΏΠΎΠ»Π½Π΅ ΠΏΠΎΠ·Π²ΠΎΠ»ΡΠ΅Ρ Π½Π°ΠΉΡΠΈ ΡΠ³ΠΎΠ»ΠΎΠΊ ΠΈΒ 2 ΠΊΠΎΠΌΠ½Π°ΡΠ½Π°Ρ ΠΊΠ²Π°ΡΡΠΈΡΠ° 50 ΠΊΠ². ΠΌ β ΠΏΠ»Π°Π½ΠΈΡΠΎΠ²ΠΊΠ°Β ΠΏΠΎΠ·Π²ΠΎΠ»ΡΠ΅Ρ ΡΡΡΠ°Π½ΠΎΠ²ΠΈΡΡ ΠΈΠ»ΠΈ Π·Π°ΡΠΈΡΡ Π² ΡΡΠ΅Π½Ρ Π½Π΅Π±ΠΎΠ»ΡΡΠΎΠΉ ΡΠΊΠ°Ρ ΠΈ Π½Π°ΠΉΡΠΈ ΠΌΠ΅ΡΡΠΎ Π΄Π»Ρ Π±Π°Π½ΠΊΠ΅ΡΠΊΠΈ. Π§ΡΠΎΠ±Ρ ΡΠΏΡΠΎΡΡΠΈΡΡ ΡΠ±ΠΎΡΠΊΡ, ΡΠ»Π΅Π΄ΡΠ΅Ρ ΠΏΠΎΠ·Π°Π±ΠΎΡΠΈΡΡΡΡ ΠΎ Π½Π°ΠΏΠΎΠ»ΡΠ½ΠΎΠΌ ΠΏΠΎΠΊΡΡΡΠΈΠΈ. Π’Π΅ΠΌΠ½Π°Ρ ΠΏΠ»ΠΈΡΠΊΠ° Π΄Π»Ρ ΡΡΠΎΠ³ΠΎ Π²ΠΏΠΎΠ»Π½Π΅ ΠΏΠΎΠ΄Ρ ΠΎΠ΄ΠΈΡ.
- ΠΡΠ΄Π°ΡΡ Π΄Π΅ΡΡΠΌ ΡΠ°ΠΌΡΡ Π±ΠΎΠ»ΡΡΡΡ ΠΊΠΎΠΌΠ½Π°ΡΡ. ΠΠ΅ΡΠ΅Π΄ΠΊΠΎ Π² ΡΠ°ΠΊΠΎΠΌ ΠΆΠΈΠ»ΡΠ΅ Π΅ΡΡΡ Π±ΠΎΠ»ΡΡΠ°Ρ ΠΈ ΠΌΠ°Π»Π°Ρ ΠΊΠΎΠΌΠ½Π°ΡΡ. Π§ΡΠΎΠ±Ρ Π±ΡΠ»Π° ΠΏΡΠ°Π²ΠΈΠ»ΡΠ½ΠΎ ΡΠ°Π·Π΄Π΅Π»Π΅Π½Π°Β 2 ΠΊΠΎΠΌΠ½Π°ΡΠ½Π°Ρ ΠΊΠ²Π°ΡΡΠΈΡΠ° 50 ΠΊΠ². ΠΌ, ΠΏΠ»Π°Π½ΠΈΡΠΎΠ²ΠΊΠ°Β Π΄ΠΎΠ»ΠΆΠ½Π° ΠΏΡΠ΅Π΄ΡΡΠΌΠ°ΡΡΠΈΠ²Π°ΡΡ ΠΏΡΠΎΠΆΠΈΠ²Π°Π½ΠΈΠ΅ Π² ΠΏΡΠΎΡΡΠΎΡΠ½ΠΎΠΌ ΠΏΠΎΠΌΠ΅ΡΠ΅Π½ΠΈΠΈ Π΄Π΅ΡΠ΅ΠΉ.Β ΠΠ»Π°Π½ΠΈΡΠΎΠ²ΠΊΠ° ΠΌΠ°Π»Π΅Π½ΡΠΊΠΎΠΉ 2 ΠΊΠΎΠΌΠ½Π°ΡΠ½ΠΎΠΉ ΠΊΠ²Π°ΡΡΠΈΡΡΒ ΠΏΠΎΠ·Π²ΠΎΠ»ΡΠ΅Ρ Π½Π°ΠΉΡΠΈ ΠΌΠ΅ΡΡΠΎ Π΄Π»Ρ ΠΈΠ³Ρ, ΡΡΠ΅Π±Ρ, ΠΎΡΠ΄ΡΡ Π°. ΠΠ·ΡΠΎΡΠ»ΡΠΌ ΡΠ°ΡΡΠΎ ΡΡΠΎΠ»ΡΠΊΠΎ ΠΏΡΠΎΡΡΡΠ°Π½ΡΡΠ²Π° Π½Π΅ Π½ΡΠΆΠ½ΠΎ.
- ΠΡΠ΄Π΅Π»ΠΈΡΡ Π΄Π²Π΅ ΡΠ°Π½ΠΈΡΠ°ΡΠ½ΡΠ΅ ΠΊΠΎΠΌΠ½Π°ΡΡ. Π‘ΠΎΠ²ΡΠ΅ΠΌΠ΅Π½Π½Π°ΡΒ ΠΏΠ»Π°Π½ΠΈΡΠΎΠ²ΠΊΠ° 2 ΠΊΠΎΠΌΠ½Π°ΡΠ½ΠΎΠΉ ΠΊΠ²Π°ΡΡΠΈΡΡ Ρ 2 Π΄Π΅ΡΡΠΌΠΈΒ Π²ΠΏΠΎΠ»Π½Π΅ ΠΏΠΎΠ·Π²ΠΎΠ»ΡΠ΅Ρ ΠΎΡΠ΄Π΅Π»ΠΈΡΡ ΡΠ°Π½ΡΠ·Π»Ρ Π΄Π»Ρ Π΄Π΅ΡΠ΅ΠΉ ΠΈ Π²Π·ΡΠΎΡΠ»ΡΡ . Π ΠΎΠ΄Π½ΠΎΠΉ Π²Π°Π½Π½ΠΎΠΉ ΠΊΠΎΠΌΠ½Π°ΡΠ΅ ΠΌΠΎΠΆΠ½ΠΎ ΡΡΡΠ°Π½ΠΎΠ²ΠΈΡΡ Π΄ΡΡΠ΅Π²ΡΡ ΠΊΠ°Π±ΠΈΠ½Ρ, Π² Π΄ΡΡΠ³ΠΎΠΉ β Π²Π°Π½Π½Ρ. ΠΡΡΡ ΠΈ Π΄ΡΡΠ³ΠΎΠΉ Π²Π°ΡΠΈΠ°Π½Ρ β ΡΡΡΠ°Π½ΠΎΠ²ΠΈΡΡ Π²Π°Π½Π½Ρ, Π½ΠΎ Π΄ΠΎΠΏΠΎΠ»Π½ΠΈΡΡ Π΅Π΅ ΠΌΠ°Π»Π΅Π½ΡΠΊΠΎΠΉ ΡΠ°ΠΊΠΎΠ²ΠΈΠ½ΠΎΠΉ. Π Π΄ΡΡΠ³ΠΎΠΌ ΡΠ°Π½ΡΠ·Π»Π΅ ΠΌΠΎΠΆΠ΅Ρ ΡΠ°Π·ΠΌΠ΅ΡΡΠΈΡΡΡΡ ΡΡΠΈΡΠ°Π»ΡΠ½Π°Ρ ΠΌΠ°ΡΠΈΠ½ΠΊΠ°.
ΠΠ»Π°Π½ΠΈΡΠΎΠ²ΠΊΠ° 2 ΠΊΠΎΠΌΠ½Π°ΡΠ½ΠΎΠΉ ΠΊΠ²Π°ΡΡΠΈΡΡ Ρ 2 Π΄Π΅ΡΡΠΌΠΈΒ Π² ΡΠ»ΡΡΠ°Π΅ ΠΈΡΠΏΠΎΠ»ΡΠ·ΠΎΠ²Π°Π½ΠΈΡ Π΄Π²ΡΡ ΡΠ°Π½ΡΠ·Π»ΠΎΠ² ΠΏΠΎΠ·Π²ΠΎΠ»ΡΠ΅Ρ ΡΡΡΠ°Π½ΠΎΠ²ΠΈΡΡ ΡΡΠΈΠΊ Π΄Π»Ρ ΡΠ±ΠΎΡΠ° Π³ΡΡΠ·Π½ΠΎΠ³ΠΎ Π±Π΅Π»ΡΡ ΠΏΡΡΠΌΠΎ Π² Π²Π°Π½Π½ΠΎΠΉ. ΠΠ°ΠΆΠ½ΠΎ, ΡΡΠΎΠ±Ρ ΡΠ°Π½ΡΠ·Π»Ρ ΡΠ°ΡΠΏΠΎΠ»Π°Π³Π°Π»ΠΈΡΡ Π½Π΅Π΄Π°Π»Π΅ΠΊΠΎ ΠΎΡ Π²Ρ ΠΎΠ΄Π°. Π ΡΡΠΎΠΌ ΡΠ»ΡΡΠ°Π΅ ΠΏΠΎΡΠ»Π΅ ΠΏΡΠΎΠ³ΡΠ»ΠΎΠΊ Π½Π΅Ρ Π½Π°Π΄ΠΎΠ±Π½ΠΎΡΡΠΈ ΠΏΠ΅ΡΠ΅ΡΠ΅ΠΊΠ°ΡΡ Π²ΡΠ΅ ΠΏΠΎΠΌΠ΅ΡΠ΅Π½ΠΈΡ, ΡΡΠΎΠ±Ρ ΠΎΡΠ½Π΅ΡΡΠΈ ΠΈΡΠΏΠ°ΡΠΊΠ°Π½Π½ΡΠ΅ Π²Π΅ΡΠΈ Π² ΡΡΠΈΡΠΊΡ.
ΠΠ²Π°ΡΡΠΈΡΠ° 2 ΠΊΠΎΠΌΠ½Π°ΡΠ½Π°Ρ ΠΡΠ΅ΠΆΠ½Π΅Π²ΠΊΠ°: ΠΊΠ°ΠΊΠ°Ρ ΠΏΠ»Π°Π½ΠΈΡΠΎΠ²ΠΊΠ° ΠΏΠΎΠ΄Ρ ΠΎΠ΄ΠΈΡ?

ΠΡΠ»ΠΈΡΠΈΡΠ΅Π»ΡΠ½ΡΡ ΡΠ΅ΡΡΡ ΠΈΠΌΠ΅Π΅ΡΒ ΠΊΠ²Π°ΡΡΠΈΡΠ° ΠΡΠ΅ΠΆΠ½Π΅Π²ΠΊΠ° β ΠΏΠ»Π°Π½ΠΈΡΠΎΠ²ΠΊΠ° 2 ΠΊΠΎΠΌΠ½Π°ΡΠ½Π°Ρ, Π³Π΄Π΅ Π΅ΡΡΡ ΠΌΠ΅ΡΡΠΎ Π΄Π»Ρ Π΄ΠΎΡΡΠ°ΡΠΎΡΠ½ΠΎ Π²ΠΌΠ΅ΡΡΠΈΡΠ΅Π»ΡΠ½ΠΎΠΉ ΠΊΡΡ Π½ΠΈ. Π§Π°ΡΡΠΎ Π΅Π΅ ΠΊΠ²Π°Π΄ΡΠ°ΡΡΡΠ° Π΄ΠΎΡΡΠΈΠ³Π°Π΅Ρ 7β8 ΠΊΠ²Π°Π΄ΡΠ°ΡΠ½ΡΡ ΠΌΠ΅ΡΡΠΎΠ². ΠΠΎΡΠΎΠ»ΠΊΠΈ Π² ΡΠ°ΠΊΠΎΠΉ ΠΆΠΈΠ»ΠΏΠ»ΠΎΡΠ°Π΄ΠΈ Π΄ΠΎΠ²ΠΎΠ»ΡΠ½ΠΎ Π²ΡΡΠΎΠΊΠΈΠ΅, ΡΡΠΎ ΡΠ΄ΠΎΠ±Π½ΠΎ ΠΏΡΠΈ ΠΏΠ»Π°Π½ΠΈΡΠΎΠ²Π°Π½ΠΈΠΈ Π³Π°ΡΠ΄Π΅ΡΠΎΠ±Π½ΠΎΠΉ β Π±ΠΎΠ»ΡΡΠ΅ ΠΏΠΎΠ»Π΅Π·Π½ΠΎΠ³ΠΎ ΠΌΠ΅ΡΡΠ°. ΠΡΡΠ°Π΅ΡΡΡ ΠΏΠΎΠΊΠ° ΡΡΠΎ ΡΠ°ΡΠΏΡΠΎΡΡΡΠ°Π½Π΅Π½Π½ΠΎΠΉΒ ΠΊΠ²Π°ΡΡΠΈΡΠ° ΠΡΠ΅ΠΆΠ½Π΅Π²ΠΊΠ° β ΠΏΠ»Π°Π½ΠΈΡΠΎΠ²ΠΊΠ° 2 ΠΊΠΎΠΌΠ½Π°ΡΠ½Π°ΡΒ ΠΏΡΠ΅Π΄ΠΏΠΎΠ»Π°Π³Π°Π΅Ρ:
- ΠΠΎΠ»ΡΡΠΎΠ΅ ΠΊΠΎΠ»ΠΈΡΠ΅ΡΡΠ²ΠΎ Π½Π΅ΡΡΡΠΈΡ ΡΡΠ΅Π½. ΠΡ ΡΡΠΎΠ³Π°ΡΡ Π½Π΅Π»ΡΠ·Ρ.
- ΠΠ±ΡΠ΅Π΄ΠΈΠ½Π΅Π½ΠΈΠ΅ ΡΠ°Π½ΡΠ·Π»Π°. ΠΠ΄Π΅ΡΡ Π½Π΅Ρ Π½Π΅ΡΡΡΠ΅ΠΉ ΠΊΠΎΠ½ΡΡΡΡΠΊΡΠΈΠΈ, Π° ΠΏΠΎΡΠΎΠΌΡ ΠΌΠΎΠΆΠ½ΠΎ Π²ΡΠΊΡΠΎΠΈΡΡ Π½Π΅ΠΌΠ½ΠΎΠ³ΠΎ ΠΌΠ΅ΡΡΠ° Π΄Π»Ρ ΡΡΠΈΡΠ°Π»ΡΠ½ΠΎΠΉ ΠΌΠ°ΡΠΈΠ½ΠΊΠΈ ΠΈ ΡΡΠΈΠΊΠ° Π΄Π»Ρ Π±Π΅Π»ΡΡ Π½Π°Π΄ Π½Π΅Ρ.
- Π£ΡΠ΅Π·Π°Π½ΠΈΠ΅ ΠΊΠΎΡΠΈΠ΄ΠΎΡΠ° Π΄Π»Ρ ΠΎΡΠ³Π°Π½ΠΈΠ·Π°ΡΠΈΠΈ Π³Π°ΡΠ΄Π΅ΡΠΎΠ±Π½ΠΎΠΉ.
ΠΡΠ°ΠΌΠΎΡΠ½Π°ΡΒ ΠΏΠ»Π°Π½ΠΈΡΠΎΠ²ΠΊΠ° ΠΌΠ°Π»Π΅Π½ΡΠΊΠΎΠΉ 2 ΠΊΠΎΠΌΠ½Π°ΡΠ½ΠΎΠΉ ΠΊΠ²Π°ΡΡΠΈΡΡΒ ΠΎΠ±ΡΠ·Π°ΡΠ΅Π»ΡΠ½ΠΎ ΠΏΡΠ΅Π΄ΡΡΠΌΠ°ΡΡΠΈΠ²Π°Π΅Ρ ΠΌΠ΅ΡΡΠΎ Π΄Π»Ρ Ρ ΡΠ°Π½Π΅Π½ΠΈΡ Π²Π΅ΡΠ΅ΠΉ. ΠΠ»ΠΈΠ½Π½ΡΠΉ ΠΊΠΎΡΠΈΠ΄ΠΎΡ ΠΎΡΠΎΠ±ΠΎ Π½ΠΈΠΊΠΎΠΌΡ Π½Π΅ Π½ΡΠΆΠ΅Π½. Π ΡΡΠ΅Π·Π°Π½Π½ΠΎΠΌ ΡΠΎΡΡΠΎΡΠ½ΠΈΠΈ ΠΎΠ½ ΠΏΠΎΠ·Π²ΠΎΠ»ΠΈΡ Π½ΠΎΡΠΌΠ°Π»ΡΠ½ΠΎ ΡΠ°Π·Π΄Π΅ΡΡΡΡ ΠΈ ΠΎΠ΄Π΅ΡΡΡΡ, ΠΏΠΎΠΌΠ΅ΡΡΠΈΡΡ Π·Π΅ΡΠΊΠ°Π»ΠΎ Ρ Π±Π°Π½ΠΊΠ΅ΡΠΊΠΎΠΉ Π½Π΅Π΄Π°Π»Π΅ΠΊΠΎ ΠΎΡ Π²Ρ ΠΎΠ΄Π°.
ΠΠ½ΡΠ΅ΡΠ΅ΡΠ½ΡΠ΅Β ΠΈΠ΄Π΅ΠΈ ΠΏΠ»Π°Π½ΠΈΡΠΎΠ²ΠΊΠΈ Π΄Π²ΡΡ ΠΊΠΎΠΌΠ½Π°ΡΠ½ΠΎΠΉ ΠΊΠ²Π°ΡΡΠΈΡΡΒ ΠΏΡΠ΅Π΄ΠΏΠΎΠ»Π°Π³Π°ΡΡ Π²ΠΎΠ·ΠΌΠΎΠΆΠ½ΠΎΡΡΡ Π²ΡΠΊΡΠ°ΠΈΠ²Π°Π½ΠΈΡ ΠΌΠ΅ΡΡΠ° Π΄Π»Ρ Ρ ΡΠ°Π½Π΅Π½ΠΈΡ Π²Π΅ΡΠ΅ΠΉ. ΠΠ΄Π΅ΡΡ ΠΌΠΎΠΆΠ½ΠΎ ΡΡΡΠ°Π½ΠΎΠ²ΠΈΡΡ Π½Π°ΠΏΡΠ°Π²Π»ΡΡΡΠΈΠ΅ ΠΈ ΡΠ΄Π΅Π»Π°ΡΡ ΠΏΠΎΠ»ΠΎΡΠΊΠΈ, Π²ΡΠ΄Π²ΠΈΠΆΠ½ΡΠ΅ ΡΡΠΈΡΠΊΠΈ Π΄Π»Ρ Π²Π΅ΡΡ Π½Π΅ΠΉ ΠΈ Π΄ΡΡΠ³ΠΎΠΉ ΠΎΠ΄Π΅ΠΆΠ΄Ρ.Β ΠΠ»Π°Π½ΠΈΡΠΎΠ²ΠΊΠ° 2 ΠΊΠΎΠΌΠ½Π°ΡΠ½ΠΎΠΉ ΠΊΠ²Π°ΡΡΠΈΡΡΒ ΠΏΡΠ΅Π΄ΠΏΠΎΠ»Π°Π³Π°Π΅Ρ, ΡΡΠΎ ΠΌΠ΅ΡΡΠΎ ΠΈΡΠΏΠΎΠ»ΡΠ·ΡΠ΅ΡΡΡ Π΄ΠΎ ΡΠ°ΠΌΠΎΠ³ΠΎ ΠΏΠΎΡΠΎΠ»ΠΊΠ°, ΡΡΠΎΠ±Ρ ΡΠΊΠΎΠ½ΠΎΠΌΠΈΡΡ Π΄ΡΠ°Π³ΠΎΡΠ΅Π½Π½ΠΎΠ΅ ΠΏΡΠΎΡΡΡΠ°Π½ΡΡΠ²ΠΎ.
ΠΠ°ΡΠΈΠ°Π½ΡΡ ΠΏΠ»Π°Π½ΠΈΡΠΎΠ²ΠΎΠΊ ΠΌΠ°Π»ΠΎΠ³Π°Π±Π°ΡΠΈΡΠ½ΠΎΠΉ Π΄Π²ΡΡ ΠΊΠΎΠΌΠ½Π°ΡΠ½ΠΎΠΉ ΠΊΠ²Π°ΡΡΠΈΡΡ Π½Π° 45 ΠΊΠ². ΠΌ

ΠΠ»Π°Π½ΠΈΡΠΎΠ²ΠΊΠ° 2 ΠΊΠΎΠΌΠ½Π°ΡΠ½ΠΎΠΉ ΠΊΠ²Π°ΡΡΠΈΡΡ 45 ΠΊΠ². ΠΌΒ ΠΏΡΠ΅Π΄ΠΏΠΎΠ»Π°Π³Π°Π΅Ρ ΠΎΠ±ΡΠ·Π°ΡΠ΅Π»ΡΠ½ΠΎΠ΅ Π·ΠΎΠ½ΠΈΡΠΎΠ²Π°Π½ΠΈΠ΅ ΠΏΡΠΎΡΡΡΠ°Π½ΡΡΠ²Π°. ΠΡΠΎΠ±Π΅Π½Π½ΠΎ ΡΡΠΎ Π²Π°ΠΆΠ½ΠΎ, Π΅ΡΠ»ΠΈ Π·Π΄Π΅ΡΡ ΠΏΡΠΎΠΆΠΈΠ²Π°Π΅Ρ Π½Π΅Π±ΠΎΠ»ΡΡΠ°Ρ ΡΠ΅ΠΌΡΡ. ΠΡΠΎΡΠ΅ΡΡ ΡΠ°Π·Π΄Π΅Π»Π΅Π½ΠΈΡ ΠΏΡΠ΅Π΄ΠΏΠΎΠ»Π°Π³Π°Π΅Ρ Π΄ΡΠΎΠ±Π»Π΅Π½ΠΈΠ΅ ΠΏΠΎΠΌΠ΅ΡΠ΅Π½ΠΈΡ Π½Π° Π½Π΅Π±ΠΎΠ»ΡΡΠΈΠ΅ ΡΠ°ΡΡΠΈ β ΠΊΠ°ΠΆΠ΄Π°Ρ Π±ΡΠ΄Π΅Ρ Π²ΡΠΏΠΎΠ»Π½ΡΡΡ ΠΎΠΏΡΠ΅Π΄Π΅Π»Π΅Π½Π½ΡΡ ΡΠΎΠ»Ρ.Β ΠΠ»Π°Π½ΠΈΡΠΎΠ²ΠΊΠ° 2 ΠΊΠΎΠΌΠ½Π°ΡΠ½ΠΎΠΉ ΠΊΠ²Π°ΡΡΠΈΡΡ 45 ΠΊΠ². ΠΌΒ ΠΏΠΎΠ·Π²ΠΎΠ»ΡΠ΅Ρ ΡΠ΄Π΅Π»Π°ΡΡ:
- ΠΠΎΡΡΠΈΠ½ΡΡ-ΡΠΏΠ°Π»ΡΠ½Ρ. ΠΠ΄Π½Π° ΠΊΠΎΠΌΠ½Π°ΡΠ° Π±ΡΠ΄Π΅Ρ Π²ΡΠΏΠΎΠ»Π½ΡΡΡ ΡΠΎΠ»Ρ ΡΠΏΠ°Π»ΡΠ½ΠΈ ΠΈ ΠΌΠ΅ΡΡΠ° Π΄Π»Ρ ΡΠ±ΠΎΡΠ° Π²ΡΠ΅ΠΉ ΡΠ΅ΠΌΡΠΈ. Π§Π°ΡΡΠΎ Π·Π΄Π΅ΡΡ ΡΡΡΠ°Π½Π°Π²Π»ΠΈΠ²Π°ΡΡ ΡΠ°ΡΠΊΠ»Π°Π΄Π½ΠΎΠΉ Π΄ΠΈΠ²Π°Π½. ΠΠΎΠΆΠ½ΠΎ ΡΠ°Π·Π΄Π΅Π»ΠΈΡΡ ΠΏΠΎΠΌΠ΅ΡΠ΅Π½ΠΈΠ΅ ΠΏΠ΅ΡΠ΅Π³ΠΎΡΠΎΠ΄ΠΊΠ°ΠΌΠΈ Π² Π²ΠΈΠ΄Π΅ ΠΏΡΠΎΠ·ΡΠ°ΡΠ½ΡΡ ΡΠΊΠ°ΡΠΎΠ² ΡΠΎ ΡΠΊΠ²ΠΎΠ·Π½ΡΠΌΠΈ ΠΎΡΠ²Π΅ΡΡΡΠΈΡΠΌΠΈ. ΠΡΠΎ ΠΏΠΎΠ·Π²ΠΎΠ»ΠΈΡ ΡΡΡΠ°Π½Π°Π²Π»ΠΈΠ²Π°ΡΡ ΠΊΠ½ΠΈΠ³ΠΈ ΠΈ ΡΠ°Π·Π³ΡΠ°Π½ΠΈΡΠΈΡΡ ΠΏΡΠΎΡΡΡΠ°Π½ΡΡΠ²ΠΎ. Π ΡΠΏΠ°Π»ΡΠ½ΠΎΠΉ Π·ΠΎΠ½Π΅ Π²ΠΏΠΎΠ»Π½Π΅ ΠΌΠΎΠΆΠ΅Ρ ΠΏΠΎΠΌΠ΅ΡΡΠΈΡΡΡΡ Π½Π΅ΡΠΈΡΠΎΠΊΠ°Ρ ΠΊΡΠΎΠ²Π°ΡΡ, ΡΡΠΎ Π³ΠΎΡΠ°Π·Π΄ΠΎ ΡΠ΄ΠΎΠ±Π½Π΅Π΅ Π΄Π»Ρ ΡΠ½Π°.Β ΠΠ»Π°Π½ΠΈΡΠΎΠ²ΠΊΠ° 2 ΠΊΠΎΠΌΠ½Π°ΡΠ½ΠΎΠΉ ΠΊΠ²Π°ΡΡΠΈΡΡ 45 ΠΊΠ². ΠΌΒ ΠΏΡΠ΅Π΄ΠΏΠΎΠ»Π°Π³Π°Π΅Ρ, ΡΡΠΎ Π² ΠΏΠΎΠΌΠ΅ΡΠ΅Π½ΠΈΠΈ Π½Π°ΠΉΠ΄Π΅ΡΡΡ ΠΌΠ΅ΡΡΠΎ Π΄Π»Ρ ΠΌΠΎΠ΄ΡΠ»ΡΠ½ΠΎΠΉ ΠΌΠ΅Π±Π΅Π»ΠΈ, ΡΠΈΡΠΌΡ, ΠΏΠ΅ΡΠ΅Π³ΠΎΡΠΎΠ΄ΠΎΠΊ β Π²ΡΠ΅ Π½Π° ΡΡΠΌΠΎΡΡΠ΅Π½ΠΈΠ΅ Ρ ΠΎΠ·ΡΠΈΠ½Π°.
- ΠΠΎΡΡΠΈΠ½Π°Ρ-ΠΊΠ°Π±ΠΈΠ½Π΅Ρ.Β ΠΠ»Π°Π½ΠΈΡΠΎΠ²ΠΊΠ° ΠΌΠ°Π»Π΅Π½ΡΠΊΠΎΠΉ 2 ΠΊΠΎΠΌΠ½Π°ΡΠ½ΠΎΠΉ ΠΊΠ²Π°ΡΡΠΈΡΡΒ ΠΏΠΎΠ·Π²ΠΎΠ»ΡΠ΅Ρ ΠΎΠ±ΡΡΡΡΠΎΠΈΡΡ Π² ΡΠ°ΠΌΠΎΠΉ Π±ΠΎΠ»ΡΡΠΎΠΉ ΠΊΠΎΠΌΠ½Π°ΡΡ ΠΎΡΠ΄Π΅Π»ΡΠ½ΡΠΉ ΠΊΠ°Π±ΠΈΠ½Π΅Ρ Π΄Π»Ρ ΠΎΡΠ΄ΡΡ Π°, ΡΡΠ΅Π½ΠΈΡ, ΡΠ°Π±ΠΎΡΡ, ΡΠ²ΠΎΡΡΠ΅ΡΡΠ²Π°, ΡΡΠ΅Π±Ρ. ΠΠ΅ΠΎΠ±ΡΠ·Π°ΡΠ΅Π»ΡΠ½ΠΎ ΠΎΡΠ΄Π΅Π»ΡΡΡ ΠΏΠΎΠΌΠ΅ΡΠ΅Π½ΠΈΠ΅ ΡΡΡΠΎΠ³ΠΎ ΠΏΠΎ ΡΠ΅Π½ΡΡΡ, ΠΌΠΎΠΆΠ½ΠΎ ΠΎΡΠ΄Π°ΡΡ ΠΏΠΎΠ΄ Π½ΡΠΆΠ΄Ρ Π΄ΠΎΠΌΠΎΡΠ°Π΄ΡΠ΅Π² ΡΠΈΡΠΎΠΊΠΈΠΉ ΡΠ³ΠΎΠ». Π’Π°ΠΊΠΈΠ΅Β ΡΠΈΠΏΡ ΠΏΠ»Π°Π½ΠΈΡΠΎΠ²ΠΎΠΊ Π΄Π²ΡΡ ΠΊΠΎΠΌΠ½Π°ΡΠ½ΡΡ ΠΊΠ²Π°ΡΡΠΈΡΒ ΠΏΠΎΠ·Π²ΠΎΠ»ΡΡΡ ΡΡΡΠ°Π½Π°Π²Π»ΠΈΠ²Π°ΡΡ ΡΡΠ΅Π»Π»Π°ΠΆΠΈ ΠΈ ΠΏΠ΅ΡΠ΅Π³ΠΎΡΠΎΠ΄ΠΊΠΈ ΠΈΠ»ΠΈ ΠΏΡΠΎΡΡΠΎ ΠΈΡΠΏΠΎΠ»ΡΠ·ΠΎΠ²Π°ΡΡ ΡΠ°Π·Π½ΡΠΉ ΡΠΈΠΏ ΠΎΡΠ΄Π΅Π»ΠΎΡΠ½ΡΡ ΠΌΠ°ΡΠ΅ΡΠΈΠ°Π»ΠΎΠ², ΡΡΡΠ°Π½ΠΎΠ²ΠΈΡΡ ΡΡΡΠΏΠ΅Π½ΡΠΊΠΈ, ΡΠ°Π·Π³ΡΠ°Π½ΠΈΡΠΈΡΡ ΠΏΡΠΎΡΡΡΠ°Π½ΡΡΠ²ΠΎ ΡΠΈΡΠΌΠΎΠΉ.
- Π‘ΠΏΠ°Π»ΡΠ½Ρ-ΠΊΠ°Π±ΠΈΠ½Π΅Ρ. ΠΡΠΏΠΎΠ»ΡΠ·ΡΡ ΠΈΠ½ΡΠ΅ΡΠ΅ΡΠ½ΡΠ΅Β ΠΈΠ΄Π΅ΠΈ ΠΏΠ»Π°Π½ΠΈΡΠΎΠ²ΠΊΠΈ Π΄Π²ΡΡ ΠΊΠΎΠΌΠ½Π°ΡΠ½ΠΎΠΉ ΠΊΠ²Π°ΡΡΠΈΡΡ, Π½Π΅ ΡΡΠΎΠΈΡ Π·Π°Π±ΡΠ²Π°ΡΡ, ΡΡΠΎ Π·ΠΎΠ½Π° Π΄Π»Ρ ΡΠ½Π° Π΄ΠΎΠ»ΠΆΠ½Π° ΠΎΡΡΠ°Π²Π°ΡΡΡΡ ΠΏΡΠΈΠ²Π°ΡΠ½ΠΎΠΉ. ΠΠΌΠ΅Π½Π½ΠΎ ΠΏΠΎΡΠΎΠΌΡ ΠΌΠΎΠΆΠ½ΠΎ Π²ΡΠ΄Π΅Π»ΠΈΡΡ ΠΌΠ΅ΡΡΠΎ Π΄Π»Ρ ΠΊΠ°Π±ΠΈΠ½Π΅ΡΠ°, Π½ΠΎ Π½Π΅ Π·Π°Π±ΠΈΡΡ ΠΎΡΠ³ΠΎΡΠΎΠ΄ΠΈΡΡ Π΅Π³ΠΎ ΡΠΈΡΠΌΠΎΠΉ, ΡΠΊΠ°ΡΠΎΠΌ-ΠΊΡΠΏΠ΅Β ΠΈΠ»ΠΈ ΠΏΠΎΠ»ΠΊΠ°ΠΌΠΈ Π²Π΄ΠΎΠ»Ρ ΡΡΠ΅Π½Ρ.
- Π‘ΠΏΠ°Π»ΡΠ½Ρ-ΠΈΠ³ΡΠΎΠ²Π°Ρ.Β ΠΠ»Π°Π½ΠΈΡΠΎΠ²ΠΊΠΈ Π½Π΅Π±ΠΎΠ»ΡΡΠΈΡ 2Ρ ΠΊΠΎΠΌΠ½Π°ΡΠ½ΡΡ ΠΊΠ²Π°ΡΡΠΈΡΒ ΠΏΡΠ΅Π΄ΠΏΠΎΠ»Π°Π³Π°ΡΡ, ΡΡΠΎ Π² Π΄Π΅ΡΡΠΊΠΎΠΉ ΠΌΠΎΠΆΠ½ΠΎ ΡΡΡΠ°Π½ΠΎΠ²ΠΈΡΡ ΡΠ³ΠΎΠ»ΠΎΠΊ Π΄Π»Ρ Π·Π°Π½ΡΡΠΈΠΉ ΡΠΏΠΎΡΡΠΎΠΌ, ΠΈΠ³Ρ, ΡΠΈΡΠΎΠ²Π°Π½ΠΈΡ ΠΈ Ρ ΠΎΠ±Π±ΠΈ. ΠΠ΄Π΅ΡΡ ΡΠ΅Π±Π΅Π½ΠΎΠΊ ΡΠ½Π°ΡΠ°Π»Π° ΠΌΠΎΠΆΠ΅Ρ Π·Π°Π½ΠΈΠΌΠ°ΡΡΡΡ Π»ΡΠ±ΠΈΠΌΡΠΌ Π΄Π΅Π»ΠΎΠΌ. ΠΡΠΈ Π½Π΅ΠΎΠ±Ρ ΠΎΠ΄ΠΈΠΌΠΎΡΡΠΈ ΡΠ°ΠΊΠ°Ρ Π·ΠΎΠ½Π° Π»Π΅Π³ΠΊΠΎ ΠΏΠ΅ΡΠ΅ΡΡΡΠ°ΠΈΠ²Π°Π΅ΡΡΡ Π² ΡΡΠ΅Π±Π½ΡΡ.
- Π‘ΠΏΠ°Π»ΡΠ½Ρ-Π³Π°ΡΠ΄Π΅ΡΠΎΠ±Π½Π°Ρ. Π’Π°ΠΊΠΎΠΉ ΠΆΠ΅ ΡΡΠΏΠ΅Ρ ΠΈΠΌΠ΅Π΅Ρ ΠΈ Π³ΠΎΡΡΠΈΠ½Π°Ρ-Π³Π°ΡΠ΄Π΅ΡΠΎΠ±. ΠΡΠΈ Π²ΡΠ±ΠΎΡΠ΅ ΡΠ°ΠΊΠΎΠΉΒ ΠΏΠ»Π°Π½ΠΈΡΠΎΠ²ΠΊΠΈ 2Ρ ΠΊΠΎΠΌΠ½Π°ΡΠ½ΡΡ ΠΊΠ²Π°ΡΡΠΈΡΒ ΡΠ»Π΅Π΄ΡΠ΅Ρ ΠΎΡΠ΄Π΅Π»ΡΡΡ ΠΏΡΠΎΡΡΡΠ°Π½ΡΡΠ²ΠΎ Π½Π΅ ΠΏΡΠΎΡΡΠΎ ΡΡΠΎΡΠΎΠΉ, Π½ΠΎ Π΄Π²Π΅ΡΡΠ°ΠΌΠΈ, Π»ΡΡΡΠ΅ ΠΏΠΎΡΠ°ΠΉΠ½ΡΠΌΠΈ ΠΈΠ»ΠΈ Π·Π΅ΡΠΊΠ°Π»ΡΠ½ΡΠΌΠΈ. Π ΠΏΠ΅ΡΠ²ΠΎΠΌ ΡΠ»ΡΡΠ°Π΅ Π½Π΅ Π±ΡΠ΄Π΅Ρ Π΄Π°ΠΆΠ΅ Π·Π°ΠΌΠ΅ΡΠ½ΠΎ ΠΎΡΠ΄Π΅Π»ΡΠ½ΠΎΠ³ΠΎ ΠΏΠΎΠΌΠ΅ΡΠ΅Π½ΠΈΡ, Π²ΠΎ Π²ΡΠΎΡΠΎΠΌ β ΠΌΠΎΠΆΠ½ΠΎ Π·ΡΠΈΡΠ΅Π»ΡΠ½ΠΎ ΡΠ²Π΅Π»ΠΈΡΠΈΡΡ ΠΏΡΠΎΡΡΡΠ°Π½ΡΡΠ²ΠΎ ΠΈ Π½Π°ΠΉΡΠΈ ΠΌΠ΅ΡΡΠΎ Π΄Π»Ρ ΠΏΡΠΈΠΌΠ΅ΡΠΎΠΊ.
ΠΠΎΠ΄ΡΠΊΠ°Π·ΠΊΠΈ
ΠΡΠ΅ ΡΠΊΠ°Π·Π°Π½Π½ΡΠ΅ Π²Π°ΡΠΈΠ°Π½ΡΡ ΠΌΠΎΠ³ΡΡ Π±ΡΡΡ ΠΈΡΠΏΠΎΠ»ΡΠ·ΠΎΠ²Π°Π½Ρ Π΄Π»Ρ Π½ΠΎΠ²ΠΎΡΡΡΠΎΠ΅ΠΊ ΠΈ ΡΡΠ°ΡΡΡ Π΄ΠΎΠΌΠΎΠ², Π³Π΄Π΅ ΠΏΡΠ΅Π΄ΡΡΠΌΠΎΡΡΠ΅Π½ΡΒ ΡΡΠ°Π½Π΄Π°ΡΡΠ½ΡΠ΅ ΠΏΠ»Π°Π½ΠΈΡΠΎΠ²ΠΊΠΈ 2Ρ ΠΊΠΎΠΌΠ½Π°ΡΠ½ΡΡ ΠΊΠ²Π°ΡΡΠΈΡ. Π Β«Ρ ΡΡΡΠΎΠ²ΠΊΠ΅Β» Π΄ΠΎΠΏΠΎΠ»Π½ΠΈΡΠ΅Π»ΡΠ½ΠΎ ΠΌΠΎΠΆΠ½ΠΎ ΠΎΠ±ΡΠ΅Π΄ΠΈΠ½ΡΡΡ ΠΊΠΎΠΌΠ½Π°ΡΡ ΠΈ ΠΊΡΡ Π½Ρ, Π΅ΡΠ»ΠΈ ΡΠ½ΠΎΡΠΈΡΡ Π½Π΅ Π½ΡΠΆΠ½ΠΎ Π½Π΅ΡΡΡΡΡ ΡΡΠ΅Π½Ρ. Π§Π°ΡΡΠΎ ΠΌΠΎΠΆΠ½ΠΎ ΡΠ°ΠΊΠΆΠ΅ Π΄Π΅ΠΌΠΎΠ½ΡΠΈΡΠΎΠ²Π°ΡΡ ΠΌΠ΅ΠΆΠΊΠΎΠΌΠ½Π°ΡΠ½ΡΠ΅ ΠΏΠ΅ΡΠ΅Π³ΠΎΡΠΎΠ΄ΠΊΠΈ, ΡΡΠΎΠ±Ρ ΠΏΠΎΠ»ΡΡΠΈΡΡ Π±ΠΎΠ»ΡΡΠΎΠ΅ ΠΏΡΠΎΡΡΡΠ°Π½ΡΡΠ²ΠΎ Π΄Π»Ρ ΠΆΠΈΠ·Π½ΠΈ, ΡΠ²ΠΎΡΡΠ΅ΡΡΠ²Π°, ΡΠ°Π±ΠΎΡΡ. Π Π°ΡΡΠΈΡΡΡΡ ΠΎΠ΄Π½ΠΎ ΠΏΠΎΠΌΠ΅ΡΠ΅Π½ΠΈΠ΅ Π·Π° ΡΡΠ΅Ρ Π΄ΡΡΠ³ΠΎΠ³ΠΎ ΠΏΠΎΠ·Π²ΠΎΠ»ΡΠ΅Ρ ΠΈΒ ΡΠ΅ΡΡΠΊΠ°Ρ ΠΏΠ»Π°Π½ΠΈΡΠΎΠ²ΠΊΠ° Π΄Π²ΡΡ ΠΊΠΎΠΌΠ½Π°ΡΠ½ΠΎΠΉ ΠΊΠ²Π°ΡΡΠΈΡΡ. ΠΠ΄Π΅ΡΡ Π΄ΠΎΡΡΠ°ΡΠΎΡΠ½ΠΎ ΡΠ°ΡΡΠΎ ΠΏΡΠΎΡΡΠΎΡΠ½ΡΠ΅ ΠΈ Π΄Π»ΠΈΠ½Π½ΡΠ΅ ΠΊΠΎΡΠΈΠ΄ΠΎΡΡ.Β Π§Π΅ΡΡΠΊΠ°Ρ ΡΡΠ°Π½Π΄Π°ΡΡΠ½Π°Ρ ΠΏΠ»Π°Π½ΠΈΡΠΎΠ²ΠΊΠ° Π΄Π²ΡΡ ΠΊΠΎΠΌΠ½Π°ΡΠ½ΠΎΠΉ ΠΊΠ²Π°ΡΡΠΈΡΡΒ ΠΏΠΎΠ·Π²ΠΎΠ»ΡΠ΅Ρ Π²ΡΠ΄Π΅Π»ΠΈΡΡ ΠΌΠ΅ΡΡΠΎ Π΄Π»Ρ Π³Π°ΡΠ΄Π΅ΡΠΎΠ±Π½ΠΎΠΉ.
2Ρ ΠΊΠΎΠΌΠ½Π°ΡΠ½Π°Ρ ΠΊΠ²Π°ΡΡΠΈΡΠ° Π½Π° 50 ΠΊΠ². ΠΌ: ΠΎΡΠΎΠ±Π΅Π½Π½ΠΎΡΡΠΈ ΠΏΠ»Π°Π½ΠΈΡΠΎΠ²ΠΊΠΈ

ΠΠ»Π°Π½ΠΈΡΠΎΠ²ΠΊΠ° 2 ΠΊΠΎΠΌΠ½Π°ΡΠ½ΠΎΠΉ ΠΊΠ²Π°ΡΡΠΈΡΡΒ Π½Π° 50 ΠΊΠ²Π°Π΄ΡΠ°ΡΠΎΠ² ΡΠ°ΡΡΠΎ ΡΠ°ΡΡΠΌΠ°ΡΡΠΈΠ²Π°Π΅ΡΡΡ Π² ΡΠ°Π·ΡΠ΅Π·Π΅ ΠΊΠ°ΠΆΠ΄ΠΎΠΉ ΠΊΠΎΠΌΠ½Π°ΡΡ. ΠΡΠΎ ΠΈΠ΄Π΅Π°Π»ΡΠ½ΡΠΉ Π²Π°ΡΠΈΠ°Π½Ρ, Π΅ΡΠ»ΠΈ ΡΠ°ΡΡΠΌΠ°ΡΡΠΈΠ²Π°Π΅ΡΡΡΒ ΠΏΠ»Π°Π½ΠΈΡΠΎΠ²ΠΊΠ° 2 ΠΊΠΎΠΌΠ½Π°ΡΠ½ΠΎΠΉ ΠΊΠ²Π°ΡΡΠΈΡΡ ΡΠ»ΡΡΡΠ΅Π½Π½ΠΎΠΉ ΠΏΠ»Π°Π½ΠΈΡΠΎΠ²ΠΊΠΈ. ΠΠ°ΡΠΈΠ°Π½ΡΠΎΠ² Π΄Π»Ρ ΠΎΡΠΎΡΠΌΠ»Π΅Π½ΠΈΡ ΠΏΡΠΎΡΡΡΠ°Π½ΡΡΠ²Π° Π΄ΠΎΡΡΠ°ΡΠΎΡΠ½ΠΎ.
ΠΠΎΡΡΠΈΠ½Π°Ρ
Π Π°Π·Π»ΠΈΡΠ½ΡΠ΅Β ΡΠΈΠΏΡ ΠΏΠ»Π°Π½ΠΈΡΠΎΠ²ΠΎΠΊ Π΄Π²ΡΡ ΠΊΠΎΠΌΠ½Π°ΡΠ½ΡΡ ΠΊΠ²Π°ΡΡΠΈΡΒ ΡΠ°ΡΡΠΎ ΠΏΡΠ΅Π΄ΠΏΠΎΠ»Π°Π³Π°ΡΡ, ΡΡΠΎ ΡΠΌΠ΅ΠΆΠ½Π°Ρ Ρ ΠΊΡΡ Π½Π΅ΠΉ ΡΡΠ΅Π½Π° Π½Π΅ΡΡΡΠ°Ρ. ΠΡΠΎ ΠΈΡΠΊΠ»ΡΡΠ°Π΅Ρ Π²ΠΎΠ·ΠΌΠΎΠΆΠ½ΠΎΡΡΡ ΠΎΠ±ΡΠ΅Π΄ΠΈΠ½ΠΈΡΡ ΠΏΠΎΠΌΠ΅ΡΠ΅Π½ΠΈΡ. ΠΠ΄Π½Π°ΠΊΠΎ ΠΊΠΎΠΌΠ½Π°ΡΡ Ρ ΠΏΡΠ°Π²ΠΈΠ»ΡΠ½ΡΠΌΠΈ ΡΠΎΡΠΌΠ°ΠΌΠΈ ΠΈ ΠΏΡΡΠΌΡΠΌΠΈ ΡΡΠ΅Π½Π°ΠΌΠΈ ΠΌΠΎΠ³ΡΡ Π±ΡΡΡ ΠΊΡΠ°ΡΠΈΠ²ΠΎ ΠΎΡΠΎΡΠΌΠ»Π΅Π½Ρ. Π‘Π»Π΅Π΄ΡΠ΅Ρ ΠΏΡΠ°Π²ΠΈΠ»ΡΠ½ΠΎ ΡΠ°ΡΡΡΠ°Π²ΠΈΡΡ ΡΠ²Π΅ΡΠΎΠ²ΡΠ΅ Π°ΠΊΡΠ΅Π½ΡΡ, ΡΠ°Π·Π΄Π΅Π»ΠΈΡΡ ΠΏΡΠΎΡΡΡΠ°Π½ΡΡΠ²ΠΎ ΠΌΠ΅Π±Π΅Π»ΡΡ, Π²ΡΠ΄Π΅Π»ΠΈΠ² ΠΌΠ΅ΡΡΠΎ Π΄Π»Ρ ΡΠ°Π·Π²Π»Π΅ΡΠ΅Π½ΠΈΠΉ ΠΈ ΠΎΡΠ΄ΡΡ Π°. Π ΡΠ³ΠΎΠ»ΠΊΠ΅ ΠΌΠΎΠΆΠ½ΠΎ Π½Π°ΠΉΡΠΈ ΠΌΠ΅ΡΡΠΎ Π΄Π»Ρ ΠΆΡΡΠ½Π°Π»ΡΠ½ΠΎΠ³ΠΎ ΡΡΠΎΠ»ΠΈΠΊΠ°, ΡΠΎΡΡΠ΅ΡΠ°, ΠΌΡΠ³ΠΊΠΎΠ³ΠΎ ΠΊΡΠ΅ΡΠ»Π°.
Π‘ΠΏΠ°Π»ΡΠ½Ρ
ΠΠ»Π°Π½ΠΈΡΠΎΠ²ΠΊΠ° Π½Π΅Π±ΠΎΠ»ΡΡΠΎΠΉ 2 ΠΊΠΎΠΌΠ½Π°ΡΠ½ΠΎΠΉ ΠΊΠ²Π°ΡΡΠΈΡΡΒ ΠΏΠ»ΠΎΡΠ°Π΄ΡΡ Π² 50β60 ΠΊΠ²Π°Π΄ΡΠ°ΡΠ½ΡΡ ΠΌΠ΅ΡΡΠΎΠ² ΡΡΠ΅Π±ΡΠ΅Ρ Π²ΡΠ΄Π΅Π»Π΅Π½ΠΈΡ ΠΌΠ°Π»Π΅Π½ΡΠΊΠΎΠΉ ΠΊΠΎΠΌΠ½Π°ΡΡ Π΄Π»Ρ ΡΠ½Π°. Π ΠΊΠΎΠΌΠ½Π°ΡΠ΅ Π² 12 ΠΊΠ²Π°Π΄ΡΠ°ΡΠ½ΡΡ ΠΌΠ΅ΡΡΠΎΠ² ΠΏΠΎΠΌΠ΅ΡΡΠΈΡΡΡ ΠΊΡΠΎΠ²Π°ΡΡ, ΡΡΡΠΌΠΎ, ΠΏΡΠΈΠΊΡΠΎΠ²Π°ΡΠ½ΡΠ΅ ΡΡΠΌΠ±ΠΎΡΠΊΠΈ, ΠΊΡΠ΅ΡΠ»ΠΎ Ρ ΡΠΎΡΡΠ΅ΡΠΎΠΌ ΠΈ ΡΡΠΎΠ»ΠΈΠΊΠΎΠΌ.Β Π§Π΅ΡΡΠΊΠ°Ρ ΠΏΠ»Π°Π½ΠΈΡΠΎΠ²ΠΊΠ° Π½Π΅Π±ΠΎΠ»ΡΡΠΎΠΉ Π΄Π²ΡΡ ΠΊΠΎΠΌΠ½Π°ΡΠ½ΠΎΠΉ ΠΊΠ²Π°ΡΡΠΈΡΡΒ ΠΏΠΎΠ·Π²ΠΎΠ»ΡΠ΅Ρ Π²ΡΡΡΠΎΠΈΡΡ ΡΠΊΠ°Ρ Π² ΡΡΠ΅Π½Ρ ΠΈΠ»ΠΈ ΠΎΡΠ²Π΅ΡΡΠΈ Π΄Π»Ρ Π³Π°ΡΠ΄Π΅ΡΠΎΠ±Π° ΡΠ°ΡΡΡ ΡΠΏΠ°Π»ΡΠ½ΠΈ.
ΠΡΡ Π½Ρ
ΠΠ»Π°Π½ΠΈΡΠΎΠ²ΠΊΠ° 2 ΠΊΠΎΠΌΠ½Π°ΡΠ½ΠΎΠΉ ΠΊΠ²Π°ΡΡΠΈΡΡΒ ΡΠ°ΡΡΠΎ Π²ΠΊΠ»ΡΡΠ°Π΅Ρ ΠΏΠΎΠ²Π°ΡΠ΅Π½Π½ΠΎΠ΅ ΠΏΠΎΠΌΠ΅ΡΠ΅Π½ΠΈΠ΅ Π² Π³ΠΎΡΡΠΈΠ½ΡΡ. ΠΡΠΎ ΠΊΠ²Π°ΡΡΠΈΡΡ-ΡΡΡΠ΄ΠΈΠΈ ΠΈΠ»ΠΈ Π΅Π²ΡΠΎΠΆΠΈΠ»ΡΠ΅. ΠΠ°ΠΆΠ½ΠΎ, ΡΡΠΎΠ±Ρ Π΄ΠΈΠ·Π°ΠΉΠ½ Π² ΠΏΠ΅ΡΠ²ΠΎΠΌ ΡΠ»ΡΡΠ°Π΅ ΠΏΠ΅ΡΠ΅ΠΊΠ»ΠΈΠΊΠ°Π»ΡΡ ΡΠΎ ΡΡΠΈΠ»ΠΈΡΡΠΈΠΊΠΎΠΉ Π²ΡΠ΅Π³ΠΎ ΠΏΠΎΠΌΠ΅ΡΠ΅Π½ΠΈΡ. ΠΡΠ»ΠΈ ΠΊΡΡ Π½Ρ ΡΠΎΠ΅Π΄ΠΈΠ½Π΅Π½Π° Ρ Π³ΠΎΡΡΠΈΠ½ΠΎΠΉ, ΠΈΠ΄Π΅Π°Π»ΡΠ½ΠΎ ΡΠ΄Π΅Π»Π°ΡΡ Π΅Π΅ Π² ΠΏΠ°ΡΡΠ΅Π»ΡΠ½ΡΡ ΡΠΎΠ½Π°Ρ , ΡΡΠΎΠ±Ρ Π½Π΅ ΠΊΠΎΠ½ΡΠ΅Π½ΡΡΠΈΡΠΎΠ²Π°ΡΡ Π²Π½ΠΈΠΌΠ°Π½ΠΈΡ.
ΠΠ»Π°Π½ΠΈΡΠΎΠ²ΠΊΠ° ΠΌΠ°Π»Π΅Π½ΡΠΊΠΎΠΉ 2 ΠΊΠΎΠΌΠ½Π°ΡΠ½ΠΎΠΉ ΠΊΠ²Π°ΡΡΠΈΡΡΒ ΠΏΠΎΠ·Π²ΠΎΠ»ΡΠ΅Ρ Π½Π°ΠΉΡΠΈ ΠΌΠ΅ΡΡΠΎ Π΄Π»Ρ ΠΎΡΠ΄ΡΡ Π° ΠΈ ΡΠ½Π°, ΡΠ°Π±ΠΎΡΡ ΠΈ ΡΡΠ΅Π±Ρ. ΠΡΠ»ΠΈ Π³ΡΠ°ΠΌΠΎΡΠ½ΠΎ ΡΠ°ΡΠΏΠΎΡΡΠ΄ΠΈΡΡΡΡ ΠΊΠ²Π°Π΄ΡΠ°ΡΠ½ΡΠΌΠΈ ΠΌΠ΅ΡΡΠ°ΠΌΠΈ, ΠΌΠΎΠΆΠ½ΠΎ ΠΎΠΏΡΠ΅Π΄Π΅Π»ΠΈΡΡ ΠΏΠ΅ΡΡΠΎΠ½Π°Π»ΡΠ½ΠΎΠ΅ ΠΏΡΠΎΡΡΡΠ°Π½ΡΡΠ²ΠΎ Π΄Π»Ρ ΠΊΠ°ΠΆΠ΄ΠΎΠ³ΠΎ ΡΠ»Π΅Π½Π° ΡΠ΅ΠΌΡΠΈ. Π ΡΠ΄Π΅Π»Π°ΡΡ Π²ΡΠ΅, ΡΡΠΎ ΠΏΠΎΠ»ΡΠ·ΠΎΠ²Π°ΡΡΡΡ ΠΎΠ±ΡΠΈΠΌΠΈ ΠΏΠΎΠΌΠ΅ΡΠ΅Π½ΠΈΡΠΌΠΈ Π±ΡΠ»ΠΎ ΠΊΠΎΠΌΡΠΎΡΡΠ½ΠΎ.
vashblok.ru
ΡΠ΅ΡΠΈΠΈ Π΄ΠΎΠΌΠΎΠ² (ΠΏ44Ρ, ΠΏ3, 121 ΡΠ΅ΡΠΈΡ, 97, Π-155) ΠΏΠ»Π°Π½ΠΈΡΠΎΠ²ΠΊΠ° ΡΠ°ΡΠΏΠ°ΡΠΎΠ½ΠΊΠ° ΠΈ Π»ΠΈΠ½Π΅ΠΉΠ½Π°Ρ
Π ΠΊΠ²Π°ΡΡΠΈΡΠ΅ ΡΡΠ°Π½ΠΎΠ²ΠΈΡΡΡ ΠΊΠΎΠΌΡΠΎΡΡΠ½Π΅Π΅, ΠΊΠΎΠ³Π΄Π° ΠΏΠ»Π°Π½ΠΈΡΠΎΠ²ΠΊΠ° ΡΠ΄Π΅Π»Π°Π½Π° ΠΏΡΠ°ΠΊΡΠΈΡΠ½ΠΎ ΠΈ Π³Π°ΡΠΌΠΎΠ½ΠΈΡΠ½ΠΎ. ΠΠ²ΡΡ ΠΊΠΎΠΌΠ½Π°ΡΠ½Π°Ρ ΠΊΠ²Π°ΡΡΠΈΡΠ° β ΡΡΠΎ Π²Π°ΡΠΈΠ°Π½Ρ Π΄Π»Ρ ΠΌΠΎΠ»ΠΎΠ΄ΠΎΠΉ ΠΏΠ°ΡΡ (Ρ ΡΠ΅Π±ΡΠ½ΠΊΠΎΠΌ ΠΈΠ»ΠΈ Π±Π΅Π·) Π»ΠΈΠ±ΠΎ Π΄Π»Ρ ΡΠ΅ΠΌΡΠΈ Π½Π° 3β4 ΡΠ΅Π»ΠΎΠ²Π΅ΠΊΠ°. Π ΡΠ°ΠΊΠΎΠΌ ΠΆΠΈΠ»ΡΠ΅ Ρ Π²Π°ΡΠΈΡ ΠΌΠ΅ΡΡΠ° Π΄Π»Ρ ΠΎΡΠ³Π°Π½ΠΈΠ·Π°ΡΠΈΠΈ ΡΡΠ½ΠΊΡΠΈΠΎΠ½Π°Π»ΡΠ½ΠΎΠ³ΠΎ ΠΏΡΠΎΡΡΡΠ°Π½ΡΡΠ²Π° Π΄Π»Ρ ΠΊΠ°ΠΆΠ΄ΠΎΠ³ΠΎ ΡΠ»Π΅Π½Π° ΡΠ΅ΠΌΡΠΈ: ΠΌΠΎΠΆΠ½ΠΎ ΡΠ°Π·Π³ΡΠ°Π½ΠΈΡΠΈΡΡ Π΄Π΅ΡΡΠΊΡΡ, ΡΠΏΠ°Π»ΡΠ½Ρ ΠΈΠ»ΠΈ Π·Π°Π»-Π³ΠΎΡΡΠΈΠ½ΡΡ. ΠΠ΅ΡΠ΅Π΄ Π²ΡΠ±ΠΎΡΠΎΠΌ ΠΏΠ»Π°Π½ΠΈΡΠΎΠ²ΠΊΠΈ Π΄Π²ΡΡ ΠΊΠΎΠΌΠ½Π°ΡΠ½ΠΎΠΉ ΠΊΠ²Π°ΡΡΠΈΡΡ ΡΠ΅ΠΊΠΎΠΌΠ΅Π½Π΄ΡΠ΅ΡΡΡ ΠΎΠ·Π½Π°ΠΊΠΎΠΌΠΈΡΡΡΡ Ρ Π²ΠΈΠ΄Π°ΠΌΠΈ Π΄ΠΎΠΌΠΎΠ² ΠΈ ΠΏΠΎΠΌΠ΅ΡΠ΅Π½ΠΈΠΉ.

ΠΡΠΈΠΌΠ΅Ρ ΠΏΠ»Π°Π½ΠΈΡΠΎΠ²ΠΊΠΈ
Π§Π΅ΠΌ ΠΊΠ²Π°ΡΡΠΈΡΠ° ΡΠ½ΠΈΠ²Π΅ΡΡΠ°Π»ΡΠ½Π΅Π΅ β ΡΠ΅ΠΌ ΠΏΡΠΎΡΠ΅ Π³ΡΠ°ΠΌΠΎΡΠ½ΠΎ ΡΠ°ΡΠΏΡΠ΅Π΄Π΅Π»ΠΈΡΡ ΠΏΡΠΎΡΡΡΠ°Π½ΡΡΠ²ΠΎ ΠΈ ΡΠ΄Π΅Π»Π°ΡΡ ΠΏΠ΅ΡΠ΅ΠΏΠ»Π°Π½ΠΈΡΠΎΠ²ΠΊΡ, ΡΠ°ΠΊ ΠΊΠ°ΠΊ ΠΌΠ½ΠΎΠ³ΠΎ ΡΠΈΠΏΠΎΠ²ΡΡ ΠΏΡΠΎΠ΅ΠΊΡΠΎΠ². ΠΠΎΠ΄ΡΠΎΠ±Π½Π΅Π΅ ΠΎΠ± ΡΡΠΎΠΌ ΠΏΠΎΡΠΈΡΠ°ΠΉΡΠ΅ Π² ΡΡΠ°ΡΡΠ΅: ΠΏΡΠΎΠ΅ΠΊΡ ΠΏΠ΅ΡΠ΅ΠΏΠ»Π°Π½ΠΈΡΠΎΠ²ΠΊΠΈ ΠΊΠ²Π°ΡΡΠΈΡΡ.
ΠΡΠ±ΡΠ°ΡΡ ΠΏΡΠ°Π²ΠΈΠ»ΡΠ½ΡΠΉ Π²Π°ΡΠΈΠ°Π½Ρ Π΄Π»Ρ ΡΠ΅Π±Ρ Π½Π΅ΡΠ»ΠΎΠΆΠ½ΠΎ, Π΅ΡΠ»ΠΈ Π·Π½Π°ΡΡ ΠΊΡΠΈΡΠ΅ΡΠΈΠΈ, ΠΏΠΎ ΠΊΠΎΡΠΎΡΡΠΌ ΠΎΠΏΡΠ΅Π΄Π΅Π»ΡΠ΅ΡΡΡ ΡΠ΄ΠΎΠ±ΡΡΠ²ΠΎ ΠΏΠ»Π°Π½ΠΈΡΠΎΠ²ΠΊΠΈ.
ΠΡΠΈΡΠ΅ΡΠΈΠΈ Π²ΡΠ³ΠΎΠ΄Π½ΠΎΠΉ ΠΏΠ»Π°Π½ΠΈΡΠΎΠ²ΠΊΠΈ
ΠΡΠΈΡΠ΅ΡΠΈΠΈ ΠΏΠ»Π°Π½ΠΈΡΠΎΠ²ΠΊΠΈ ΡΠ½ΠΈΠ²Π΅ΡΡΠ°Π»ΡΠ½Ρ, ΠΎΠ·Π½Π°ΠΊΠΎΠΌΠΈΠ²ΡΠΈΡΡ Ρ Π½ΠΈΠΌΠΈ, ΠΏΠΎΠ΄Π±Π΅ΡΠ΅ΡΠ΅ ΠΆΠΈΠ»ΡΠ΅ ΠΈ ΠΏΠΎΠΉΠΌΠ΅ΡΠ΅ Π½Π° ΡΡΠΎ Π² ΠΏΠ΅ΡΠ²ΡΡ ΠΎΡΠ΅ΡΠ΅Π΄Ρ ΡΠΌΠΎΡΡΠ΅ΡΡ ΠΏΡΠΈ ΡΠ°ΡΡΠΌΠΎΡΡΠ΅Π½ΠΈΠΈ Π²Π°ΡΠΈΠ°Π½ΡΠΎΠ². ΠΠ·Π½Π°ΠΊΠΎΠΌΠΈΠΌΡΡ Ρ Π½ΠΈΠΌΠΈ ΠΏΠΎ ΠΏΠΎΡΡΠ΄ΠΊΡ:
- ΠΠ°Π»ΠΈΡΠΈΠ΅ ΠΊ ΠΊΠ²Π°ΡΡΠΈΡΠ΅ ΠΏΠΎΠ΄ΡΠΎΠ±Π½ΠΎΠ³ΠΎ ΠΏΠΎΠΌΠ΅ΡΠ΅Π½ΠΈΡ, Β«ΡΡΠΌΠ½ΠΎΠΉ ΠΊΠΎΠΌΠ½Π°ΡΡΒ». Π Π½Π΅ΠΌ Π±ΡΠ΄Π΅Ρ ΡΠ΄ΠΎΠ±Π½ΠΎ Ρ ΡΠ°Π½ΠΈΡΡ Π²ΡΠ΄ΡΠ°, ΡΠ²Π°Π±ΡΡ, ΠΏΡΠ»Π΅ΡΠΎΡΡ ΠΈ ΡΠ°ΠΊ Π΄Π°Π»Π΅Π΅. ΠΡΠ»ΠΈ ΠΏΠ»ΠΎΡΠ°Π΄Ρ ΠΊΠ»Π°Π΄ΠΎΠ²ΠΊΠΈ ΠΏΠΎΠ·Π²ΠΎΠ»ΡΠ΅Ρ (ΠΎΡ 1,2β1,5 ΠΊΠ². ΠΌ) β ΠΎΠ±ΠΎΡΡΠ΄ΡΠΉΡΠ΅ ΡΠ°ΠΌ Π³Π°ΡΠ΄Π΅ΡΠΎΠ±Π½ΡΡ;
- ΠΠΎΠ»ΡΡΠ°Ρ ΠΏΠ»ΠΎΡΠ°Π΄Ρ ΠΊΡΡ Π½ΠΈ. Π’Π°ΠΊ, Π΄Π»Ρ Π΄Π²ΡΡ ΠΊΠΎΠΌΠ½Π°ΡΠ½ΠΎΠΉ ΠΊΠ²Π°ΡΡΠΈΡΡ 50 ΠΊΠ². ΠΌ ΠΏΡΠΎΡΡΠΎΡΠ½ΠΎΠΉ ΡΡΠΈΡΠ°Π΅ΡΡΡ ΠΊΡΡ Π½Ρ9 ΠΊΠ². ΠΌ. ΠΡΠ»ΠΈ ΡΠ°Π·ΠΌΠ΅ΡΡ Π±ΡΠ΄ΡΡ Π±ΠΎΠ»ΡΡΠ΅, ΡΠΎ ΡΠ΄Π΅Π»Π°ΠΉΡΠ΅ Π·ΠΎΠ½Ρ ΠΎΡΠ΄ΡΡ Π°;
- ΠΡΡΠΎΠΊΠΈΠ΅ ΠΏΠΎΡΠΎΠ»ΠΊΠΈ. ΠΠΎΡΠΌΠ°Π»ΡΠ½Π°Ρ Π²ΡΡΠΎΡΠ° β 2,5 β 2,8 ΠΌ;
- ΠΠ°Π»ΠΈΡΠΈΠ΅ Π΄ΠΎΡΡΠ°ΡΠΎΡΠ½ΠΎΠ³ΠΎ Π΄Π½Π΅Π²Π½ΠΎΠ³ΠΎ ΡΠ²Π΅ΡΠ° Π² ΠΊΠΎΠΌΠ½Π°ΡΠ°Ρ , ΠΊΠΎΡΠΎΡΡΠΉ ΠΏΠΎΠ»Π΅Π·Π΅Π½ Π΄Π»Ρ ΠΎΡΠ³Π°Π½ΠΈΠ·ΠΌΠ° ΠΈ ΡΠΊΠΎΠ½ΠΎΠΌΠΈΡ ΡΠ»Π΅ΠΊΡΡΠΎΡΠ½Π΅ΡΠ³ΠΈΡ. ΠΡΠ»ΠΈ ΠΎΠΊΠ½Π° ΠΌΠ°Π»Π΅Π½ΡΠΊΠΈΠ΅ ΠΈ ΡΠ²Π΅ΡΠ° ΠΏΠΎΠΏΠ°Π΄Π°Π΅Ρ ΠΌΠ°Π»ΠΎ β ΠΏΡΠΈΠ΄ΡΡΡΡ ΠΈΡΠΏΠΎΠ»ΡΠ·ΠΎΠ²Π°ΡΡ Π² ΠΎΡΠ½ΠΎΠ²Π΅ ΠΈΡΠΊΡΡΡΡΠ²Π΅Π½Π½ΠΎΠ΅ ΠΎΡΠ²Π΅ΡΠ΅Π½ΠΈΠ΅;
- ΠΡΠΎΡΡΠΎΡΠ½Π°Ρ Π»ΠΎΠ΄ΠΆΠΈΡ, Π±Π°Π»ΠΊΠΎΠ½. Π ΡΠ°ΠΊΠΎΠΌ ΠΏΠΎΠΌΠ΅ΡΠ΅Π½ΠΈΠΈ ΠΏΡΠΈΡΡΠ½ΠΎ ΠΏΠΎΠ΄ΡΡΠ°ΡΡ ΡΠ²Π΅ΠΆΠΈΠΌ Π²ΠΎΠ·Π΄ΡΡ ΠΎΠΌ Π½Π΅ Π²ΡΡ ΠΎΠ΄Ρ ΠΈΠ· Π΄ΠΎΠΌΠ° ΠΈ Ρ ΡΠ°Π½ΠΈΡΡ Π³Π°Π±Π°ΡΠΈΡΠ½ΡΠ΅ Π²Π΅ΡΠΈ: ΡΠ°Π½ΠΊΠΈ, Π²Π΅Π»ΠΎΡΠΈΠΏΠ΅Π΄Ρ, ΠΎΠ΄Π΅ΡΠ»Π° Π΄Π»Ρ Π³ΠΎΡΡΠ΅ΠΉ, Π±Π°Π½ΠΊΠΈ Ρ ΡΠΎΠ»Π΅Π½ΡΡΠΌΠΈ;
- ΠΠΊΠ½Π° Π²ΡΡ ΠΎΠ΄ΡΡΠΈΠ΅ Π½Π° ΡΠ°Π·Π½ΡΠ΅ ΡΡΠΎΡΠΎΠ½Ρ, ΡΡΠΎ ΠΏΠΎΠ·Π²ΠΎΠ»ΠΈΡ ΡΠΎΡ ΡΠ°Π½ΠΈΡΡ Π΄Π½Π΅Π²Π½ΠΎΠΉ ΡΠ²Π΅Ρ Π½Π° ΠΏΡΠΎΡΡΠΆΠ΅Π½ΠΈΠΈ Π΄Π½Ρ;
- Π¨ΠΈΡΠΎΠΊΠΈΠ΅ ΠΊΠΎΡΠΈΠ΄ΠΎΡΡ.

ΠΠΎΠ½ΠΈΡΠΎΠ²Π°Π½ΠΈΠ΅ ΠΏΠ»ΠΎΡΠ°Π΄ΠΈ Π΄Π²ΡΡ ΠΊΠΎΠΌΠ½Π°ΡΠ½ΠΎΠΉ ΠΊΠ²Π°ΡΡΠΈΡΡ
Π€ΡΠ½ΠΊΡΠΈΠΎΠ½Π°Π»ΡΠ½ΡΠ΅ Π·ΠΎΠ½Ρ
ΠΠ΄Π΅Π°Π»ΡΠ½Π°Ρ ΠΏΠ»Π°Π½ΠΈΡΠΎΠ²ΠΊΠ° Π΄Π²ΡΡ ΠΊΠΎΠΌΠ½Π°ΡΠ½ΠΎΠΉ ΠΊΠ²Π°ΡΡΠΈΡΡ ΠΏΡΠ΅Π΄ΠΏΠΎΠ»Π°Π³Π°Π΅Ρ Π³Π°ΡΠΌΠΎΠ½ΠΈΡΠ½ΠΎΠ΅ ΡΠ°ΡΠΏΡΠ΅Π΄Π΅Π»Π΅Π½ΠΈΠ΅ Π·ΠΎΠ½. Π€ΡΠ½ΠΊΡΠΈΠΎΠ½Π°Π»ΡΠ½ΠΎΡΡΡ ΠΎΠΏΡΠ΅Π΄Π΅Π»ΡΠ΅ΡΡΡ Π½Π°Π»ΠΈΡΠΈΠ΅ΠΌ ΡΠ»Π΅Π΄ΡΡΡΠΈΡ ΡΠ°ΠΊΡΠΎΡΠΎΠ²:
- ΠΡΡ Π½Ρ β ΠΌΠ΅ΡΡΠΎ Π΄Π»Ρ ΠΏΡΠΈΠ³ΠΎΡΠΎΠ²Π»Π΅Π½ΠΈΡ ΠΈ ΠΏΡΠΈΠ΅ΠΌΠ° ΠΏΠΈΡΠΈ. ΠΠ΅Π½ΡΠΊΠ°Ρ ΡΠ°ΡΡΡ Π½Π°ΡΠ΅Π³ΠΎ ΠΎΠ±ΡΠ΅ΡΡΠ²Π° ΠΏΡΠΎΠ²ΠΎΠ΄ΠΈΡ ΡΠ°ΠΌ ΠΌΠ½ΠΎΠ³ΠΎ Π²ΡΠ΅ΠΌΠ΅Π½ΠΈ ΠΈ ΠΏΠΎΡΡΠΎΠΌΡ ΠΎΡΠΎΠ±ΠΎ ΡΡΠ΅ΠΏΠ΅ΡΠ½ΠΎ ΠΎΡΠ½ΠΎΡΠΈΡΡΡ ΠΊ Π²ΡΠ±ΠΎΡΡ ΠΊΡΡ ΠΎΠ½Π½ΠΎΠ³ΠΎ ΠΏΡΠΎΡΡΡΠ°Π½ΡΡΠ²Π°. ΠΡΠ»ΠΈ ΡΠ°Π·ΠΌΠ΅ΡΡ ΠΈ ΠΏΠ»Π°Π½ΠΈΡΠΎΠ²ΠΊΠ° ΠΊΠ²Π°ΡΡΠΈΡΡ ΠΏΠΎΠ·Π²ΠΎΠ»ΡΡΡ (53 ΠΊΠ². ΠΌ. ΠΈ Π±ΠΎΠ»ΡΡΠ΅), ΡΠΎ ΡΡΠΎΠΈΡ ΡΡΠ΅ΡΡΡ ΡΡΠ΄ ΡΠ°ΠΊΡΠΎΡΠΎΠ² ΠΏΡΠΈ Π²ΡΠ±ΠΎΡΠ΅ ΠΊΡΡ Π½ΠΈ. ΠΠΎΠ΄ΡΠΎΠ±Π½Π΅Π΅ ΠΎΠ± ΡΡΠΎΠΌ Π² ΡΡΠ°ΡΡΠ΅: ΠΏΠ»Π°Π½ΠΈΡΠΎΠ²ΠΊΠ° ΠΊΡΡ Π½ΠΈ.
- Π‘ΠΏΠ°Π»ΡΠ½Π°Ρ Π·ΠΎΠ½Π° β ΠΌΠ΅ΡΡΠΎ Π΄Π»Ρ ΠΎΡΠ΄ΡΡ Π° ΠΈ Π²ΠΎΡΡΡΠ°Π½ΠΎΠ²Π»Π΅Π½ΠΈΡ ΠΏΠΎΡΠ»Π΅ ΡΠ°Π±ΠΎΡΠ΅Π³ΠΎ Π΄Π½Ρ. ΠΡΠ»ΠΈ Π² ΡΠ΅ΠΌΡΠ΅ Π΄Π΅ΡΠΈ ΠΈ ΠΏΠ»Π°Π½ΠΈΡΠΎΠ²ΠΊΠ° ΠΆΠΈΠ»ΡΡ ΡΠ΄Π°ΡΠ½Π°Ρ β ΠΎΡΠ³Π°Π½ΠΈΠ·Π°ΡΠΈΡ Π½Π΅ΡΠΊΠΎΠ»ΡΠΊΠΈΡ ΡΠΏΠ°Π»ΡΠ½ΡΡ Π·ΠΎΠ½ Π±ΡΠ΄Π΅Ρ ΡΠ°Π·ΡΠΌΠ½ΡΠΌ ΡΠ΅ΡΠ΅Π½ΠΈΠ΅ΠΌ.
- Π‘Π°Π½ΡΠ·Π΅Π» β ΡΠ°Π·Π΄Π΅Π»Π΅Π½Π½ΡΠΉ ΠΈΠ»ΠΈ ΡΠΎΠ²ΠΌΠ΅ΡΠ΅Π½Π½ΡΠΉ. Π§Π°ΡΠ΅ Π»ΡΠ΄ΠΈ ΡΠΊΠ»ΠΎΠ½ΡΡΡΡΡ ΠΊ ΠΏΠ΅ΡΠ²ΠΎΠΌΡ Π²Π°ΡΠΈΠ°Π½ΡΡ, Π΅ΡΠ»ΠΈ ΠΊΠ²Π°ΡΡΠΈΡΠ° ΠΏΡΠΎΡΡΠΎΡΠ½Π°Ρ, ΡΠΎ ΠΏΠΎΠΏΡΠΎΠ±ΡΠΉΡΠ΅ ΡΠ°Π·ΠΌΠ΅ΡΡΠΈΡΡ ΠΎΡΠ΄Π΅Π»ΡΠ½ΡΡ ΡΠ°ΠΊΠΎΠ²ΠΈΠ½Ρ Π΄Π»Ρ ΠΌΡΡΡΡ ΡΡΠΊ Π² ΡΡΠ°Π»Π΅ΡΠ΅.
ΠΡΠ»ΠΈ Π²ΡΠ΅ Π·ΠΎΠ½Ρ ΠΏΡΠΈΡΡΡΡΡΠ²ΡΡΡ, Π½ΠΎ ΡΠ°ΠΊΠΎΠ΅ ΡΠ°ΡΠΏΠΎΠ»ΠΎΠΆΠ΅Π½ΠΈΠ΅ Π½Π΅ Π΄Π°Π΅Ρ Π΄ΠΎΡΡΠ°ΡΠΎΡΠ½ΠΎΠ³ΠΎ ΠΎΠ±ΡΠ΅ΠΌΠ° ΠΏΡΠΎΡΡΡΠ°Π½ΡΡΠ²Π° Π΄Π»Ρ ΠΊΠΎΠΌΡΠΎΡΡΠ½ΠΎΠ³ΠΎ ΠΏΡΠΎΠΆΠΈΠ²Π°Π½ΠΈΡ β ΡΠΌΠ΅Π»ΠΎ ΠΏΠ΅ΡΠ΅Ρ ΠΎΠ΄ΠΈΡΠ΅ ΠΊ ΡΠ°ΡΡΠΌΠΎΡΡΠ΅Π½ΠΈΡ ΠΎΡ Π΄Π²ΡΡΠΊΠΈ ΠΊ ΡΡΠ΅ΡΠΊΠ΅ Π»ΠΈΠ±ΠΎ Π·Π°ΡΠ°Π½Π΅Π΅ ΠΎΠ±Π΄ΡΠΌΠ°ΠΉΡΠ΅ Π²Π°ΡΠΈΠ°Π½ΡΡ ΠΏΠ΅ΡΠ΅ΠΏΠ»Π°Π½ΠΈΡΠΎΠ²ΠΊΠΈ Π±ΡΠ΄ΡΡΠ΅Π³ΠΎ ΠΆΠΈΠ»ΡΡ. ΠΠΎΠ΄ΡΠΎΠ±Π½Π΅Π΅ ΠΎΠ± ΡΡΠΎΠΌ Π² ΡΡΠ°ΡΡΠ΅: ΠΏΠ΅ΡΠ΅ΠΏΠ»Π°Π½ΠΈΡΠΎΠ²ΠΊΠ° Π΄Π²ΡΡ ΠΊΠΎΠΌΠ½Π°ΡΠ½ΠΎΠΉ ΠΊΠ²Π°ΡΡΠΈΡΡ.
Π’ΠΈΠΏΠΎΠ²ΡΠ΅ ΠΏΠ»Π°Π½ΠΈΡΠΎΠ²ΠΊΠΈ
ΠΠ»Π°Π½ΠΈΡΠΎΠ²ΠΎΠΊ Π΄Π²ΡΡ ΠΊΠΎΠΌΠ½Π°ΡΠ½ΡΡ ΠΊΠ²Π°ΡΡΠΈΡ β ΠΌΠ½ΠΎΠΆΠ΅ΡΡΠ²ΠΎ. ΠΠΎΠΌΠ΅ΡΠ΅Π½ΠΈΡ ΠΎΡΠ»ΠΈΡΠ°ΡΡΡΡ Π΄ΡΡΠ³ ΠΎΡ Π΄ΡΡΠ³Π° ΠΏΠ»ΠΎΡΠ°Π΄ΡΡ ΠΈ ΡΠ°ΡΠΏΠΎΠ»ΠΎΠΆΠ΅Π½ΠΈΠ΅ΠΌ ΠΊΠΎΠΌΠ½Π°Ρ. ΠΠΎΠΏΡΠ»ΡΡΠ½ΡΠΌΠΈ ΡΠ²Π»ΡΡΡΡΡ ΠΊΠ²Π°ΡΡΠΈΡΡ Ρ ΠΏΠ»Π°Π½ΠΈΡΠΎΠ²ΠΊΠΎΠΉ ΡΠΈΠΏΠ° Β«ΡΠ°ΡΠΏΠ°ΡΠΎΠ½ΠΊΠ°Β» ΠΈ Β«Π»ΠΈΠ½Π΅ΠΉΠ½Π°ΡΒ». Π Π°ΡΡΠΌΠΎΡΡΠΈΠΌ ΡΠ΅ΡΠΈΠΈ ΡΠ°Π·Π»ΠΈΡΠ½ΡΡ Π΄ΠΎΠΌΠΎΠ² ΠΈ ΠΈΡ ΠΎΡΠΎΠ±Π΅Π½Π½ΠΎΡΡΠΈ.
Π‘Π΅ΡΠΈΡ ΠΏ-44
ΠΠ²ΡΡΠΊΠΈ Π² ΠΏΠ°Π½Π΅Π»ΡΠ½ΡΡ Π΄ΠΎΠΌΠ°Ρ ΡΠ΅ΡΠΈΠΈ Π-44 ΡΡΠ°Π½Π΄Π°ΡΡΠ½Ρ. ΠΠ»ΠΎΡΠ°Π΄Ρ ΡΠ°ΠΊΠΈΡ ΠΊΠ²Π°ΡΡΠΈΡ Π΄Π²ΡΡ Π²ΠΈΠ΄ΠΎΠ²: 50,2 ΠΊΠ².ΠΌ. Π»ΠΈΠ±ΠΎ 57,8 Π² Β«ΡΠ°ΡΠΏΠ°ΡΠΎΠ½ΠΊΠ°Ρ Β». Π‘ΡΠΎΠΊ ΡΠΊΡΠΏΠ»ΡΠ°ΡΠ°ΡΠΈΠΈ Ρ ΡΠ°ΠΊΠΈΡ Π΄ΠΎΠΌΠΎΠ² Π±ΠΎΠ»ΡΡΠΎΠΉ, ΠΏΠΎΡΡΠΎΠΌΡ Π² Π±Π»ΠΈΠΆΠ°ΠΉΡΠ΅Π΅ Π²ΡΠ΅ΠΌΡ ΡΠ½ΠΎΡΡ ΠΏΠΎΠΌΠ΅ΡΠ΅Π½ΠΈΡ Π½Π΅ ΠΏΠΎΠ΄Π»Π΅ΠΆΠ°Ρ.

ΠΠΎΡΡΠΎΠΈΠ½ΡΡΠ²Π°ΠΌΠΈ ΡΠ°ΠΊΠΆΠ΅ ΡΠ²Π»ΡΡΡΡΡ ΡΠ»Π΅Π΄ΡΡΡΠΈΠ΅ ΡΠ°ΠΊΡΠΎΡΡ: Π΅ΡΡΡ ΠΌΠ΅ΡΡΠΎ Π΄Π»Ρ ΠΊΠΎΠ½ΡΡΠ΅ΡΠΆΠ°, Π³ΡΡΠ·ΠΎΠ²ΡΠ΅ Π»ΠΈΡΡΡ, ΠΏΡΠΎΠ΄ΡΠΌΠ°Π½Π° ΡΠΈΡΡΠ΅ΠΌΠ° ΡΠ΄Π°Π»Π΅Π½ΠΈΡ Π΄ΡΠΌΠ°, Π»Π΅Π³ΠΊΠΎ ΡΠ²Π΅ΡΠ»ΡΡΡΡ ΡΡΠ΅Π½Ρ, Π² Π½ΠΈΡ ΠΎΡΡΡΡΡΡΠ²ΡΠ΅Ρ ΠΊΠ΅ΡΠ°ΠΌΠ·ΠΈΡ .
Π ΠΎΡΡΠΈΡΠ°ΡΠ΅Π»ΡΠ½ΡΠΌ ΠΌΠΎΠΌΠ΅Π½ΡΠ°ΠΌ ΠΎΡΠ½ΠΎΡΠΈΡΡΡ ΡΠ»Π΅Π΄ΡΡΡΠ΅Π΅: Π΅ΡΠ»ΠΈ ΠΏΠ»ΠΎΡ Π°Ρ Π³Π΅ΡΠΌΠ΅ΡΠΈΠ·Π°ΡΠΈΡ ΠΌΠ΅ΠΆΠΏΠ°Π½Π΅Π»ΡΠ½ΡΡ ΡΠ²ΠΎΠ², ΡΠΎ Π²ΠΎΠ·ΠΌΠΎΠΆΠ½ΠΎ ΠΏΠΎΠΏΠ°Π΄Π°Π½ΠΈΠ΅ Π²Π»Π°Π³ΠΈ, ΡΠ°ΡΡΠΎ ΠΏΠ°Π½Π΅Π»ΠΈ ΡΡΠ΅ΡΠΊΠ°ΡΡΡΡ, ΡΠΎ Π²ΡΠ΅ΠΌΠ΅Π½Π΅ΠΌ ΠΏΡΠΎΠΈΡΡ ΠΎΠ΄ΠΈΡ ΠΎΡΡΠ΅Π»ΡΡΠΈΠ²Π°Π½ΠΈΠ΅ ΠΊΡΠ°ΡΠΊΠΈ;
Π‘Π΅ΡΠΈΡ ΠΏ-44Ρ
ΠΠ»ΠΈΠΆΠ΅ ΠΊ 2000 Π³ΠΎΠ΄Π°ΠΌ ΡΡΠ°Π»Π° ΠΏΠΎΡΠ²Π»ΡΡΡΡΡ ΡΠ»Π΅Π΄ΡΡΡΠ°Ρ ΡΠ΅ΡΠΈΡ Π΄ΠΎΠΌΠΎΠ² Π-44Π’. Π’Π°ΠΊΠΈΠ΅ ΠΆΠΈΠ»ΡΠ΅ ΠΏΠΎΠΌΠ΅ΡΠ΅Π½ΠΈΡ ΠΈΠΌΠ΅ΡΡ ΡΠ»ΡΡΡΠ΅Π½Π½ΡΡ ΠΏΠ»Π°Π½ΠΈΡΠΎΠ²ΠΊΡ. ΠΠΊΠ½Π° ΠΊΡΡ Π½ΠΈ β ΡΡΠΊΠ΅ΡΡ ΡΡΠ°ΠΏΠ΅ΡΠΈΠ΅Π²ΠΈΠ΄Π½ΠΎΠΉ ΡΠΎΡΠΌΡ. ΠΠ»ΠΎΡΠ°Π΄ΠΈ Π²ΠΏΠ΅ΡΠ°ΡΠ»ΡΡΡ ΡΠ°Π·ΠΌΠ΅ΡΠ°ΠΌΠΈ: ΠΎΠ±ΡΠ°Ρ β 52 β 64 ΠΊΠ². ΠΌ, ΠΆΠΈΠ»Π°Ρ β 19 β 34, ΠΊΡΡ Π½ΠΈ β 8,3 β 13,2. ΠΡΡΠΎΡΠ° ΠΏΠΎΡΠΎΠ»ΠΊΠΎΠ² ΡΠΎΠΆΠ΅ ΠΏΠΎΡΠ°Π΄ΡΠ΅Ρ Π±ΡΠ΄ΡΡΠΈΡ ΠΆΠΈΠ»ΡΡΠΎΠ² ΠΈ ΡΠΎΡΡΠ°Π²Π»ΡΠ΅Ρ 2,7 ΠΌ. Π‘ΠΎ Π²ΡΠΎΡΠΎΠ³ΠΎ ΡΡΠ°ΠΆΠ° ΠΏΠΎΡΠ²Π»ΡΡΡΡΡ Π·Π°ΡΡΠ΅ΠΊΠ»Π΅Π½Π½ΡΠ΅ Π»ΠΎΠ΄ΠΆΠΈΠΈ.

Π3
ΠΠΎΠΌΠ° ΡΠ΅ΡΠΈΠΈ ΠΏ3 ΡΡΡΠΎΠΈΠ»ΠΈΡΡ Π² 70-Ρ Π³ΠΎΠ΄Π°Ρ . Π ΡΡΠΎΠΉ ΡΠ΅ΡΠΈΠΈ ΠΏΠ°Π½Π΅Π»ΡΠ½ΡΡ Π΄ΠΎΠΌΠΎΠ² ΠΏΠ»Π°Π½ΠΈΡΠΎΠ²ΠΊΠ° Π΄Π²ΡΡΠΊΠΈ ΡΠ΄ΠΎΠ±Π½Π° Π΄Π»Ρ ΠΏΡΠΎΠΆΠΈΠ²Π°Π½ΠΈΡ: ΠΆΠΈΠ»ΡΠ΅ ΠΊΠΎΠΌΠ½Π°ΡΡ ΠΈΠ·ΠΎΠ»ΠΈΡΠΎΠ²Π°Π½Ρ Π΄ΡΡΠ³ ΠΎΡ Π΄ΡΡΠ³Π°. Π Π°Π·ΠΌΠ΅ΡΠ°ΠΌΠΈ ΡΡΠ°Π½Π΄Π°ΡΡΠ½ΡΠ΅: ΠΏΠ»ΠΎΡΠ°Π΄Ρ β 53,4 ΠΊΠ². ΠΌ; ΠΆΠΈΠ»Π°Ρ β 32,1; ΠΊΡΡ Π½Ρ β 9,2. Π‘Π°Π½ΡΠ·Π΅Π» ΡΠ°Π·Π΄Π΅Π»ΡΠ½ΡΠΉ.
121 ΡΠ΅ΡΠΈΡ
121 ΡΠ΅ΡΠΈΡ Π΄ΠΎΠΌΠ° Π±ΡΠ²Π°Π΅Ρ 5, 9 ΠΈ 10 ΡΡΠ°ΠΆΠ½ΡΠΌΠΈ. ΠΠ»Π°Π½ΠΈΡΠΎΠ²ΠΊΠΈ 121 ΡΠ΅ΡΠΈΠΈ Π²ΠΊΠ»ΡΡΠ°ΡΡ ΠΏΠΎΠ΄ΡΠΎΠ±Π½ΡΠ΅ ΠΏΠΎΠΌΠ΅ΡΠ΅Π½ΠΈΡ, ΡΡΠΎΠΈΠΌΠΎΡΡΡ ΠΈ Π·Π²ΡΠΊΠΎΠΈΠ·ΠΎΠ»ΡΡΠΈΡ ΡΠΎΠΆΠ΅ ΠΏΠΎΡΠ°Π΄ΡΠ΅Ρ. ΠΠ»ΠΎΡΠ°Π΄ΠΈ Π²Π°ΡΡΠΈΡΡΡΡΡΡ ΠΎΡ 54 Π΄ΠΎ 66 ΠΈ Π²ΡΡΠ΅ ΠΊΠ². ΠΌ. ΠΡΠ»ΠΈΡΠΈΡΠ΅Π»ΡΠ½Π°Ρ ΡΠ΅ΡΡΠ° β Π±ΠΎΠ»ΡΡΠ°Ρ ΠΊΡΡ Π½Ρ: 9 ΠΊΠ²Π°Π΄ΡΠ°ΡΠ½ΡΡ ΠΌΠ΅ΡΡΠΎΠ².

97 ΡΠ΅ΡΠΈΡ
Π‘Ρ Π΅ΠΌΠ° 97 ΡΠ΅ΡΠΈΠΈ Π±ΡΠ²Π°Π΅Ρ Π΄Π²ΡΡ Π²ΠΈΠ΄ΠΎΠ² ΠΏΠ»Π°Π½ΠΈΡΠΎΠ²ΠΎΠΊ: Ρ ΠΊΡΡ Π½Π΅ΠΉ 8,69 ΠΊΠ². ΠΌ, ΠΈ ΠΊΡΡ Π½Π΅ΠΉ 13,66. ΠΡΠ΅ΠΈΠΌΡΡΠ΅ΡΡΠ²Π°: Π»ΠΎΠ΄ΠΆΠΈΠΈ ΠΏΠΎ 5 ΠΊΠ². ΠΌ ΠΈ ΡΠ°Π·Π΄Π΅Π»ΡΠ½ΡΠ΅ Π²Π°Π½Π½Π°Ρ ΠΈ ΡΡΠ°Π»Π΅Ρ.

ΠΡΠΈΠ²Π΅Π΄Π΅ΠΌ ΡΠ°ΠΊΠΆΠ΅ ΠΏΡΠΈΠΌΠ΅ΡΡ ΡΠ»Π΅Π΄ΡΡΡΠΈΡ ΠΏΠ»Π°Π½ΠΈΡΠΎΠ²ΠΎΠΊ:
Π-155



Π‘Π΅ΡΠΈΡ 103


ΠΠ°ΡΠΊΠ°ΡΠ½ΠΎ-ΠΏΠ°Π½Π΅Π»ΡΠ½ΡΠ΅ Π΄ΠΎΠΌΠ° Π½Π° ΠΎΡΠ½ΠΎΠ²Π΅ 1-335Π

ΠΠΠ

ΠΠΠ‘-3


ΠΠ»Π°Π½ΠΈΡΠΎΠ²ΠΊΠ° Π² Π΄ΠΎΠΌΠ°Ρ ΡΠ΅ΡΠΈΠΈ 101
ΠΠ°ΠΊΠ»ΡΡΠ΅Π½ΠΈΠ΅
ΠΡΠ±ΠΈΡΠ°Ρ ΠΏΠΎΠ΄Ρ ΠΎΠ΄ΡΡΡΡ ΠΏΠ»Π°Π½ΠΈΡΠΎΠ²ΠΊΡ Π΄Π²ΡΡ ΠΊΠΎΠΌΠ½Π°ΡΠ½ΠΎΠΉ ΠΊΠ²Π°ΡΡΠΈΡΡ, ΠΎΠ±ΡΠ°ΡΠ°ΠΉΡΠ΅ Π²Π½ΠΈΠΌΠ°Π½ΠΈΠ΅ Π½Π° Π²Π°ΠΆΠ½ΡΠ΅ ΠΌΠΎΠΌΠ΅Π½ΡΡ: ΡΠ°ΡΠΏΠΎΠ»ΠΎΠΆΠ΅Π½ΠΈΠ΅ ΠΊΠΎΠΌΠ½Π°Ρ, ΠΏΠ»ΠΎΡΠ°Π΄ΠΈ ΡΡΠ½ΠΊΡΠΈΠΎΠ½Π°Π»ΡΠ½ΡΡ Π·ΠΎΠ½, Π²ΡΡΠΎΡΠ° ΠΏΠΎΡΠΎΠ»ΠΊΠΎΠ², Π΄ΠΎΡΡΠ°ΡΠΎΡΠ½ΠΎΠ΅ ΠΊΠΎΠ»ΠΈΡΠ΅ΡΡΠ²ΠΎ Π΄Π½Π΅Π²Π½ΠΎΠ³ΠΎ ΡΠ²Π΅ΡΠ°, Π½Π°Π»ΠΈΡΠΈΠ΅ Π±Π°Π»ΠΊΠΎΠ½Π° ΠΈΠ»ΠΈ Π»ΠΎΠ΄ΠΆΠΈΠΈ. ΠΠ΄Π΅Π°Π»ΡΠ½Π° ΡΠ° Π΄Π²ΡΡΠΊΠ°, Π² ΠΊΠΎΡΠΎΡΠΎΠΉ ΡΠ΄ΠΎΠ±Π½ΠΎ ΡΡΠ²ΡΡΠ²ΡΡΡ ΡΠ΅Π±Ρ Π²ΡΠ΅ ΡΠ»Π΅Π½Ρ ΡΠ΅ΠΌΡΠΈ.
skedraft.ru
ΠΠ»Π°Π½ΠΈΡΠΎΠ²ΠΊΠ° 2-Ρ ΠΊΠΎΠΌΠ½Π°ΡΠ½ΡΡ ΠΊΠ²Π°ΡΡΠΈΡ: ΡΠΎΡΠΎ, ΡΡ Π΅ΠΌΠ°
ΠΠ²ΡΡ ΠΊΠΎΠΌΠ½Π°ΡΠ½ΡΠ΅ ΠΊΠ²Π°ΡΡΠΈΡΡ β ΡΠ°ΠΌΠΎΠ΅ Π²ΠΎΡΡΡΠ΅Π±ΠΎΠ²Π°Π½ΠΈΠ΅ ΠΆΠΈΠ»ΠΎΠ΅ ΠΏΠΎΠΌΠ΅ΡΠ΅Π½ΠΈΠ΅. ΠΠ°ΠΊ ΠΏΡΠ°Π²ΠΈΠ»ΠΎ, ΠΈΡ ΡΠ°Π·ΠΌΠ΅ΡΡ ΠΈ ΡΠ΅Π½Π° Π½Π°ΠΈΠ±ΠΎΠ»Π΅Π΅ ΠΏΡΠΈΠ΅ΠΌΠ»Π΅ΠΌΡ. ΠΠ΄Π΅ΡΡ Π·Π°ΠΏΡΠΎΡΡΠΎ ΡΠ°Π·ΠΌΠ΅ΡΡΠΈΡΡΡ ΡΠ΅ΠΌΡΡ ΠΈΠ· ΡΠ΅ΡΡΡΠ΅Ρ ΡΠ΅Π»ΠΎΠ²Π΅ΠΊ. ΠΠ΄Π½Π°ΠΊΠΎ, ΠΊΠ°ΠΊ ΠΏΠΎΠΊΠ°Π·ΡΠ²Π°Π΅Ρ ΠΏΡΠ°ΠΊΡΠΈΠΊΠ°, ΠΏΠ»Π°Π½ΠΈΡΠΎΠ²ΠΊΠ° 2-Ρ ΠΊΠΎΠΌΠ½Π°ΡΠ½ΡΡ ΠΊΠ²Π°ΡΡΠΈΡ Π½Π΅ΡΠΎΠ²Π΅ΡΡΠ΅Π½Π½Π°, ΠΈ Π΄Π»Ρ ΠΎΠ±ΡΠ΅ΡΠ΅Π½ΠΈΡ ΠΌΠ°ΠΊΡΠΈΠΌΠ°Π»ΡΠ½ΠΎΠ³ΠΎ ΡΡΡΠ° ΠΈ ΠΊΠΎΠΌΡΠΎΡΡΠ° Π²ΡΠ΅ ΡΠ°Π²Π½ΠΎ ΠΏΡΠΈΡ ΠΎΠ΄ΠΈΡΡΡ ΡΡΠΎ-ΡΠΎ ΠΌΠ΅Π½ΡΡΡ, ΠΎΡΠΎΠ±Π΅Π½Π½ΠΎ ΡΡΠΎ ΠΊΠ°ΡΠ°Π΅ΡΡΡ ΡΡΠ°ΡΡΡ ΠΏΠΎΡΡΡΠΎΠ΅ΠΊ.
Π ΡΠΎΠ²Π΅ΡΡΠΊΠΈΠ΅ Π²ΡΠ΅ΠΌΠ΅Π½Π° Π΄ΠΎΠΌΠ° ΡΠ°ΡΠ΅ Π²ΡΠ΅Π³ΠΎ ΡΡΡΠΎΠΈΠ»ΠΈΡΡ Π±Π΅Π· ΡΡΠ΅ΡΠ° ΠΏΠΎΡΡΠ΅Π±Π½ΠΎΡΡΠ΅ΠΉ ΠΆΠΈΠ»ΡΡΠΎΠ², ΠΏΠΎΡΡΠΎΠΌΡ ΠΎ ΡΠ°ΡΠΈΠΎΠ½Π°Π»ΡΠ½ΠΎΡΡΠΈ ΡΠ°ΡΠΏΡΠ΅Π΄Π΅Π»Π΅Π½ΠΈΡ ΠΆΠΈΠ»ΠΎΠΉ ΠΏΠ»ΠΎΡΠ°Π΄ΠΈ ΠΌΠΎΠΆΠ½ΠΎ Π±ΡΠ»ΠΎ ΡΠΎΠ»ΡΠΊΠΎ ΠΌΠ΅ΡΡΠ°ΡΡ. ΠΠ°ΠΊ ΠΏΡΠ°Π²ΠΈΠ»ΠΎ, ΡΡΠΎ ΠΊΡΠΎΡ ΠΎΡΠ½ΡΠ΅ ΠΊΡΡ Π½ΠΈ, ΡΠ·ΠΊΠΈΠΉ, Π½ΠΎ Π΄Π»ΠΈΠ½Π½ΡΠΉ ΠΊΠΎΡΠΈΠ΄ΠΎΡ, ΡΠΎΠ²ΠΌΠ΅ΡΠ΅Π½Π½ΡΠ΅ ΡΠ°Π½ΡΠ·Π»Ρ ΠΈΠ»ΠΈ ΡΠ°Π·Π΄Π΅Π»ΡΠ½ΡΠ΅, Π½ΠΎ ΠΌΠ°Π»Π΅Π½ΡΠΊΠΈΠ΅, ΠΏΡΠΎΡ ΠΎΠ΄Π½ΡΠ΅ ΠΊΠΎΠΌΠ½Π°ΡΡ ΠΈ ΠΌΠ½ΠΎΠ³ΠΎΠ΅ Π΄ΡΡΠ³ΠΎΠ΅.
Π‘ΠΎΠ²ΡΠ΅ΠΌΠ΅Π½Π½ΡΠ΅ Π΄ΠΎΠΌΠ°, ΠΊΠ°ΠΊ ΠΏΠΎΠΊΠ°Π·ΡΠ²Π°Π΅Ρ ΡΡ Π΅ΠΌΠ° ΠΏΠ»Π°Π½ΠΈΡΠΎΠ²ΠΊΠΈ 2-Ρ ΠΊΠΎΠΌΠ½Π°ΡΠ½ΠΎΠΉ ΠΊΠ²Π°ΡΡΠΈΡΡ, Π±ΠΎΠ»Π΅Π΅ ΠΊΠΎΠΌΡΠΎΡΡΠ°Π±Π΅Π»ΡΠ½ΡΠ΅, ΠΎΠ΄Π½Π°ΠΊΠΎ ΠΈ Π² Π½ΠΈΡ , ΠΊ ΡΠΎΠΆΠ°Π»Π΅Π½ΠΈΡ, Π½Π°Ρ ΠΎΠ΄ΡΡΡΡ Π½Π΅Π΄ΠΎΡΡΠ°ΡΠΊΠΈ. Π§Π°ΡΠ΅ Π²ΡΠ΅Π³ΠΎ Π² ΠΎΡΠ½ΠΎΠ²Π΅ ΠΈΡ Π½Π°Ρ ΠΎΠ΄ΠΈΡΡΡ ΡΠ°ΠΊΡΠΎΡ ΠΈΠ½Π΄ΠΈΠ²ΠΈΠ΄ΡΠ°Π»ΡΠ½ΠΎΡΡΠΈ, ΠΏΠΎΡΡΠΎΠΌΡ ΠΌΠ½ΠΎΠ³ΠΈΠ΅ ΠΏΡΠΈΠ±Π΅Π³Π°ΡΡ ΠΊ ΠΏΠ΅ΡΠ΅ΠΏΠ»Π°Π½ΠΈΡΠΎΠ²ΠΊΠ΅. ΠΠ΄Π½Π°ΠΊΠΎ Π΄Π»Ρ ΡΠΎΠ³ΠΎ, ΡΡΠΎΠ±Ρ Π²ΠΏΠΎΡΠ»Π΅Π΄ΡΡΠ²ΠΈΠΈ Π½Π΅ Π²ΠΎΠ·Π½ΠΈΠΊΠ»ΠΈ ΠΏΡΠΎΠ±Π»Π΅ΠΌΡ Ρ ΠΏΠ΅ΡΠ΅Π½ΠΎΡΠΎΠΌ ΠΌΠ΅ΠΆΠΊΠΎΠΌΠ½Π°ΡΠ½ΡΡ ΠΏΠ΅ΡΠ΅Π³ΠΎΡΠΎΠ΄ΠΎΠΊ, ΠΏΠΎΠ½Π°Π΄ΠΎΠ±ΠΈΡΡΡ ΡΠ·Π°ΠΊΠΎΠ½ΠΈΡΡ Π΄Π°Π½Π½ΡΠ΅ Π΄Π΅ΠΉΡΡΠ²ΠΈΡ Π² ΡΠΎΠΎΡΠ²Π΅ΡΡΡΠ²ΡΡΡΠ΅ΠΉ ΠΎΡΠ³Π°Π½ΠΈΠ·Π°ΡΠΈΠΈ (ΠΠ’Π). Π ΡΠ°ΠΊΠΆΠ΅ ΡΡΠΎΠΈΡ ΠΎΠ±ΡΠ°ΡΠΈΡΡ Π²Π½ΠΈΠΌΠ°Π½ΠΈΠ΅ Π΅ΡΠ΅ Π½Π° ΠΎΠ΄ΠΈΠ½ ΠΎΡΠ΅Π½Ρ Π²Π°ΠΆΠ½ΡΠΉ Π½ΡΠ°Π½Ρ: Π½ΠΈ Π² ΠΊΠΎΠ΅ΠΌ ΡΠ»ΡΡΠ°Π΅ Π½Π΅Π»ΡΠ·Ρ ΠΏΡΠΎΠ²ΠΎΠ΄ΠΈΡΡ ΠΊΠ°ΠΊΠΈΠ΅-Π»ΠΈΠ±ΠΎ ΠΌΠ°Π½ΠΈΠΏΡΠ»ΡΡΠΈΠΈ Ρ Π½Π΅ΡΡΡΠΈΠΌΠΈ ΡΡΠ΅Π½Π°ΠΌΠΈ, ΡΠ°ΠΊ ΠΊΠ°ΠΊ ΡΡΠΎ ΠΌΠΎΠΆΠ΅Ρ ΠΏΡΠΈΠ²Π΅ΡΡΠΈ ΠΊ ΡΠ°Π·ΡΡΡΠ΅Π½ΠΈΡ Π²ΡΠ΅Π³ΠΎ Π·Π΄Π°Π½ΠΈΡ.

ΠΠ΅Π΄ΠΎΡΡΠ°ΡΠΊΠΈ ΠΏΠ»Π°Π½ΠΈΡΠΎΠ²ΠΊΠΈ Π΄Π²ΡΡ ΠΊΠΎΠΌΠ½Π°ΡΠ½ΡΡ ΠΊΠ²Π°ΡΡΠΈΡ
ΠΠ»Ρ ΡΠΎΠ³ΠΎ ΡΡΠΎΠ±Ρ ΠΆΠΈΠ»ΠΎΠ΅ ΠΏΠΎΠΌΠ΅ΡΠ΅Π½ΠΈΠ΅ Π±ΡΠ»ΠΎ ΠΌΠ°ΠΊΡΠΈΠΌΠ°Π»ΡΠ½ΠΎ ΠΊΠΎΠΌΡΠΎΡΡΠ½ΡΠΌ ΠΈ ΡΠ°ΡΠΈΠΎΠ½Π°Π»ΡΠ½ΡΠΌ, Π½Π΅ΠΎΠ±Ρ ΠΎΠ΄ΠΈΠΌΠΎ Π΅ΡΠ΅ Π½Π° Π½Π°ΡΠ°Π»ΡΠ½ΡΡ ΡΡΠ°ΠΏΠ°Ρ ΠΏΠΎΡΡΠ°ΡΠ°ΡΡΡΡ ΠΏΠΎ Π²ΠΎΠ·ΠΌΠΎΠΆΠ½ΠΎΡΡΠΈ Π½Π΅ΠΉΡΡΠ°Π»ΠΈΠ·ΠΎΠ²Π°ΡΡ Π²ΡΠ΅ ΠΌΠΈΠ½ΡΡΡ. ΠΠ°Π΄ΠΎ Π·Π°ΠΌΠ΅ΡΠΈΡΡ, ΡΡΠΎ Π½Π΅ΠΊΠΎΡΠΎΡΡΠ΅ ΠΈΠ· Π½ΠΈΡ Π²ΠΈΠ΄Π½Ρ ΡΡΠ°Π·Ρ, Π° Π΄ΡΡΠ³ΠΈΠ΅ (ΡΠΊΡΡΡΡΠ΅) Π²ΡΠΏΠ»ΡΠ²Π°ΡΡ ΡΠΎΠ»ΡΠΊΠΎ ΠΏΠΎΡΠ»Π΅ ΠΎΠΊΠΎΠ½ΡΠ°Π½ΠΈΡ ΡΠ°Π±ΠΎΡ.
ΠΡΠ°ΠΊ, Π΄Π°Π²Π°ΠΉΡΠ΅ ΠΏΠΎΠΏΡΠΎΠ±ΡΠ΅ΠΌ ΡΠ°Π·ΠΎΠ±ΡΠ°ΡΡΡΡ Ρ Π½Π΅Π΄ΠΎΡΡΠ°ΡΠΊΠ°ΠΌΠΈ Π΄Π²ΡΡ ΠΊΠΎΠΌΠ½Π°ΡΠ½ΡΡ ΠΊΠ²Π°ΡΡΠΈΡ:
- Π‘Π°Π½ΡΠ·Π΅Π». Π Π°ΡΡΠΌΠ°ΡΡΠΈΠ²Π°Ρ ΡΠΎΡΠΎ ΠΏΠ»Π°Π½ΠΈΡΠΎΠ²ΠΎΠΊ 2-Ρ ΠΊΠΎΠΌΠ½Π°ΡΠ½ΡΡ ΠΊΠ²Π°ΡΡΠΈΡ, ΠΌΠΎΠΆΠ½ΠΎ Π·Π°ΠΌΠ΅ΡΠΈΡΡ Π½Π΅ΠΊΠΎΡΠΎΡΡΡ ΡΠ΅Π½Π΄Π΅Π½ΡΠΈΡ. ΠΠ·Π½Π°ΡΠ°Π»ΡΠ½ΠΎ ΡΠ°ΠΊΠΈΠ΅ ΠΏΠΎΠΌΠ΅ΡΠ΅Π½ΠΈΡ ΠΈΠΌΠ΅ΡΡ ΡΠ°Π·Π΄Π΅Π»Π΅Π½Π½ΡΠ΅ ΡΡΠ°Π»Π΅Ρ ΠΈ Π²Π°Π½Π½ΡΡ. ΠΠ΄Π½Π°ΠΊΠΎ Π½Π΅ΠΊΠΎΡΠΎΡΠΎΠ΅ ΠΆΠΈΠ»ΡΠ΅ ΡΠ°ΠΊ Π½Π°Π·ΡΠ²Π°Π΅ΠΌΠΎΠ³ΠΎ Π²ΡΠΎΡΠΈΡΠ½ΠΎΠ³ΠΎ ΡΡΠ½ΠΊΠ° ΡΠ°ΡΠ΅ ΠΏΠΎΠΏΠ°Π΄Π°Π΅ΡΡΡ Ρ ΡΠΎΠ²ΠΌΠ΅ΡΠ΅Π½Π½ΠΎΠΉ ΠΏΠ»Π°Π½ΠΈΡΠΎΠ²ΠΊΠΎΠΉ. Π£Π΄ΠΎΠ±Π½ΠΎ Π»ΠΈ ΡΡΠΎ? Π Π΄Π°, ΠΈ Π½Π΅Ρ. ΠΠ°ΠΏΡΠΈΠΌΠ΅Ρ, Π΄Π»Ρ Π±ΠΎΠ»ΡΡΠΎΠΉ ΡΠ΅ΠΌΡΠΈ ΠΎΠ΄Π½ΠΎΠ·Π½Π°ΡΠ½ΠΎ Π½Π΅Ρ, Π° Π²ΠΎΡ Π΄Π»Ρ Π΄Π²ΡΡ ΠΏΡΠΎΠΆΠΈΠ²Π°ΡΡΠΈΡ Π²ΠΏΠΎΠ»Π½Π΅ ΠΏΡΠΈΠ΅ΠΌΠ»Π΅ΠΌΠΎ.
- ΠΡΡ
Π½Ρ. ΠΡΠΎΠ±Π΅Π½Π½ΠΎ ΠΎΡΡΡΠΎ ΡΠ°Π·ΠΌΠ΅ΡΡ Π΄Π°Π½Π½ΠΎΠΉ ΠΊΠΎΠΌΠ½Π°ΡΡ ΠΎΡΡΡΠ°ΡΡΡΡ Π² Ρ
ΡΡΡΠ΅Π²ΠΊΠ°Ρ
. Π§Π°ΡΠ΅ Π²ΡΠ΅Π³ΠΎ Π² ΡΡΠ°ΡΡΡ
ΠΏΠΎΡΡΡΠΎΠΉΠΊΠ°Ρ
ΠΏΠ»ΠΎΡΠ°Π΄Ρ ΠΊΡΡ
Π½ΠΈ Π²Π°ΡΡΠΈΡΡΠ΅ΡΡΡ ΠΎΡ 4 Π΄ΠΎ 6 ΠΊΠ². ΠΌ, ΡΡΠΎ Π·Π½Π°ΡΠΈΡΠ΅Π»ΡΠ½ΠΎ ΠΎΡΠ»ΠΎΠΆΠ½ΡΠ΅Ρ Π·Π°Π΄Π°ΡΡ ΠΏΠΎ ΡΠ°ΡΠΈΠΎΠ½Π°Π»ΡΠ½ΠΎΠΌΡ ΡΠ°Π·ΠΌΠ΅ΡΠ΅Π½ΠΈΡ Π½Π΅ΠΎΠ±Ρ
ΠΎΠ΄ΠΈΠΌΠΎΠΉ ΠΌΠ΅Π±Π΅Π»ΠΈ ΠΈ Π±ΡΡΠΎΠ²ΠΎΠΉ ΡΠ΅Ρ
Π½ΠΈΠΊΠΈ. ΠΠΈΠ·ΡΠ°Π»ΡΠ½ΡΠ΅ ΡΡΡΠ΅ΠΊΡΡ Π² ΡΡΠΎΠΌ ΡΠ»ΡΡΠ°Π΅ ΠΌΠ°Π»ΠΎ ΡΠ΅ΠΌ ΠΌΠΎΠ³ΡΡ ΠΏΠΎΠΌΠΎΡΡ. Π’ΡΡ Π½Π°Π΄ΠΎ Π΄Π΅ΠΉΡΡΠ²ΠΎΠ²Π°ΡΡ ΠΊΠ°ΡΠ΄ΠΈΠ½Π°Π»ΡΠ½ΠΎ. ΠΠ°ΠΏΡΠΈΠΌΠ΅Ρ, ΠΌΠΎΠΆΠ½ΠΎ ΠΎΠ±ΡΠ΅Π΄ΠΈΠ½ΠΈΡΡ ΠΊΡΡ
Π½Ρ Ρ Π³ΠΎΡΡΠΈΠ½ΠΎΠΉ ΠΈΠ»ΠΈ ΠΏΡΠΈΡ
ΠΎΠΆΠ΅ΠΉ.

- ΠΠΎΡΠΈΠ΄ΠΎΡ. ΠΠ΅Π΄ΠΎΡΡΠ°ΡΠΊΠΈ ΠΏΠ»Π°Π½ΠΈΡΠΎΠ²ΠΊΠΈ ΡΡΠΎΠΉ ΠΊΠΎΠΌΠ½Π°ΡΡ Π²ΡΡΡΠ΅ΡΠ°ΡΡΡΡ Π΄ΠΎΡΡΠ°ΡΠΎΡΠ½ΠΎ ΡΠ°ΡΡΠΎ. Π ΠΎΡΠ½ΠΎΠ²Π½ΠΎΠΌ ΠΎΠ½ ΠΈΠ»ΠΈ Π΄Π»ΠΈΠ½Π½ΡΠΉ, Π½ΠΎ ΡΠ·ΠΊΠΈΠΉ, ΠΈΠ»ΠΈ ΠΏΡΠ°ΠΊΡΠΈΡΠ΅ΡΠΊΠΈ ΠΏΠΎΠ»Π½ΠΎΡΡΡΡ ΠΎΡΡΡΡΡΡΠ²ΡΠ΅Ρ. ΠΠΎΠ½Π΅ΡΠ½ΠΎ ΠΆΠ΅, ΡΠ°ΡΡΡΠ°Π²ΠΈΡΡ Π² Π½Π΅ΠΌ ΠΊΠ°ΠΊΡΡ-Π»ΠΈΠ±ΠΎ ΠΌΠ΅Π±Π΅Π»Ρ ΡΡΠ°Π½ΠΎΠ²ΠΈΡΡΡ Π½Π΅ΠΏΠΎΡΠΈΠ»ΡΠ½ΠΎΠΉ Π·Π°Π΄Π°ΡΠ΅ΠΉ. ΠΠ»Ρ ΡΠΎΠ³ΠΎ ΡΡΠΎΠ±Ρ ΠΏΠΎΡΡΠ°ΡΠ°ΡΡΡΡ Π²ΠΈΠ΄ΠΎΠΈΠ·ΠΌΠ΅Π½ΠΈΡΡ ΠΊΠΎΡΠΈΠ΄ΠΎΡ, Π½Π΅ΠΎΠ±Ρ ΠΎΠ΄ΠΈΠΌΠΎ ΠΎΡΡΠ°Π»ΠΊΠΈΠ²Π°ΡΡΡΡ ΠΎΡ Π²ΠΎΠ·ΠΌΠΎΠΆΠ½ΠΎΡΡΠ΅ΠΉ, ΠΊΠΎΡΠΎΡΡΠ΅ Π΄Π°Π΅Ρ ΠΏΠ΅ΡΠ²ΠΎΠ½Π°ΡΠ°Π»ΡΠ½Π°Ρ ΠΏΠ»Π°Π½ΠΈΡΠΎΠ²ΠΊΠ° 2-Ρ ΠΊΠΎΠΌΠ½Π°ΡΠ½ΡΡ ΠΊΠ²Π°ΡΡΠΈΡ. ΠΠ°ΠΏΡΠΈΠΌΠ΅Ρ, ΡΠ°ΡΠΏΠΎΠ»ΠΎΠΆΠ΅Π½ΠΈΠ΅ ΡΠ°Π½ΡΠ·Π»Π°, ΠΊΡΡ Π½ΠΈ, Π³ΠΎΡΡΠΈΠ½ΠΎΠΉ, Π° ΡΠ°ΠΊΠΆΠ΅ ΠΈΡ ΡΠ°Π·ΠΌΠ΅ΡΠΎΠ².
- ΠΠ°ΡΡΡΠ΅Π½ΠΈΠ΅ Π³Π΅ΠΎΠΌΠ΅ΡΡΠΈΡΠ΅ΡΠΊΠΈΡ ΠΏΡΠΎΠΏΠΎΡΡΠΈΠΉ. Π‘ ΠΊΠΎΠΌΠ½Π°ΡΠ°ΠΌΠΈ ΠΏΡΡΠΌΠΎΡΠ³ΠΎΠ»ΡΠ½ΠΎΠΉ ΠΈΠ»ΠΈ ΠΊΠ²Π°Π΄ΡΠ°ΡΠ½ΠΎΠΉ ΡΠΎΡΠΌΡ Π²ΡΠ΅ ΠΏΡΠ΅Π΄Π΅Π»ΡΠ½ΠΎ ΡΡΠ½ΠΎ. ΠΠ΄Π½Π°ΠΊΠΎ ΠΈΠ½ΠΎΠ³Π΄Π° Π²ΡΡΡΠ΅ΡΠ°ΡΡΡΡ ΠΏΠΎΠΌΠ΅ΡΠ΅Π½ΠΈΡ Ρ ΠΏΠΎΠ»ΡΠΊΡΡΠ³Π»ΡΠΌ ΡΠ°ΡΠΏΠΎΠ»ΠΎΠΆΠ΅Π½ΠΈΠ΅ΠΌ ΡΡΠ΅Π½, Ρ Π½Π΅ΡΠΊΠΎΠ»ΡΠΊΠΈΠΌΠΈ ΠΊΠ»Π°Π΄ΠΎΠ²ΠΊΠ°ΠΌΠΈ ΠΈ Π²Π½ΡΡΡΠ΅Π½Π½ΠΈΠΌΠΈ ΡΠ³Π»Π°ΠΌΠΈ. Π ΡΠ°ΠΊΠΈΡ ΠΊΠ²Π°ΡΡΠΈΡΠ°Ρ ΠΎΠ±ΡΠΈΠΉ ΠΈΠ½ΡΠ΅ΡΡΠ΅Ρ Π±ΡΠ΄Π΅Ρ Π²ΡΠ΅ΡΠ΅Π»ΠΎ Π·Π°Π²ΠΈΡΠ΅ΡΡ ΠΎΡ ΠΈΡΠΏΠΎΠ»ΡΠ·ΡΠ΅ΠΌΡΡ Π΄ΠΈΠ·Π°ΠΉΠ½Π΅ΡΡΠΊΠΈΡ ΠΏΡΠΈΠ΅ΠΌΠΎΠ². ΠΡΠ΅ΠΆΠ΄Π΅ Π²ΡΠ΅Π³ΠΎ ΡΡΠΎ Π·ΠΎΠ½ΠΈΡΠΎΠ²Π°Π½ΠΈΠ΅, Π΄ΠΎΠΏΠΎΠ»Π½ΠΈΡΠ΅Π»ΡΠ½ΠΎΠ΅ ΠΎΡΠ²Π΅ΡΠ΅Π½ΠΈΠ΅, Π½ΠΈΡΠΈ ΠΈ ΠΏΡΠΎΡΠ΅Π΅.
- ΠΡΡΠΎΡΠ° ΠΏΠΎΡΠΎΠ»ΠΊΠΎΠ². ΠΡΠΏΡΠ°Π²ΠΈΡΡ ΠΊΠ°ΡΠ΄ΠΈΠ½Π°Π»ΡΠ½ΠΎ Π΄Π°Π½Π½ΡΠΉ ΠΏΠ°ΡΠ°ΠΌΠ΅ΡΡ ΡΠΎΠ²Π΅ΡΡΠ΅Π½Π½ΠΎ Π½Π΅Π²ΠΎΠ·ΠΌΠΎΠΆΠ½ΠΎ. Π Π΅ΠΊΠΎΠΌΠ΅Π½Π΄ΡΠ΅ΡΡΡ Π²ΠΎΡΠΏΠΎΠ»ΡΠ·ΠΎΠ²Π°ΡΡΡΡ Π²ΠΈΠ·ΡΠ°Π»ΡΠ½ΡΠΌΠΈ ΡΡΡΠ΅ΠΊΡΠ°ΠΌΠΈ, ΠΊΠΎΡΠΎΡΡΠ΅ ΡΠΏΠΎΡΠΎΠ±Π½Ρ ΠΏΠΎΠ²Π»ΠΈΡΡΡ Π½Π° Π·ΡΠΈΡΠ΅Π»ΡΠ½ΠΎΠ΅ Π²ΠΎΡΠΏΡΠΈΡΡΠΈΠ΅.
- ΠΠ΅Π±ΠΎΠ»ΡΡΠΈΠ΅ ΡΠ°Π·ΠΌΠ΅ΡΡ. ΠΠΎΠ³Π΄Π° Π΄Π²ΡΡ ΠΊΠΎΠΌΠ½Π°ΡΠ½Π°Ρ ΠΊΠ²Π°ΡΡΠΈΡΠ° Π΄ΠΎΡΡΠ°ΡΠΎΡΠ½ΠΎ ΠΌΠ°Π»Π΅Π½ΡΠΊΠ°Ρ, ΡΠΎ ΡΠ²Π΅Π»ΠΈΡΠΈΡΡ ΠΏΠ»ΠΎΡΠ°Π΄Ρ ΠΊΠ°ΠΊΠΎΠ³ΠΎ-ΡΠΎ ΠΎΠΏΡΠ΅Π΄Π΅Π»Π΅Π½Π½ΠΎΠ³ΠΎ ΠΏΠΎΠΌΠ΅ΡΠ΅Π½ΠΈΡ Π·Π° ΡΡΠ΅Ρ Π΄ΡΡΠ³ΠΈΡ Π½Π΅ ΠΏΠΎΠ»ΡΡΠΈΡΡΡ. ΠΠ΄Π΅ΡΡ ΠΌΠΎΠΆΠ½ΠΎ Π²ΠΎΡΠΏΠΎΠ»ΡΠ·ΠΎΠ²Π°ΡΡΡΡ Π΄ΠΎΡΡΠ°ΡΠΎΡΠ½ΠΎ ΡΠ°ΡΠΏΡΠΎΡΡΡΠ°Π½Π΅Π½Π½ΡΠΌ ΠΏΡΠΈΠ΅ΠΌΠΎΠΌ β ΡΠ½Π΅ΡΡΠΈ Π²ΡΠ΅ ΠΌΠ΅ΠΆΠΊΠΎΠΌΠ½Π°ΡΠ½ΡΠ΅ ΠΏΠ΅ΡΠ΅Π³ΠΎΡΠΎΠ΄ΠΊΠΈ. Π ΡΡΠΎΠΌ ΡΠ»ΡΡΠ°Π΅ ΠΏΠΎΠ»ΡΡΠΈΡΡΡ ΠΏΡΠΎΡΡΠΎΡΠ½Π°Ρ ΠΊΠ²Π°ΡΡΠΈΡΠ°-ΡΡΡΠ΄ΠΈΡ. ΠΠ΄Π½Π°ΠΊΠΎ ΡΠ°ΠΊΠΈΠ΅ ΡΠ°Π±ΠΎΡΡ Π½ΡΠΆΠ½ΠΎ ΠΎΠ±ΡΠ·Π°ΡΠ΅Π»ΡΠ½ΠΎ ΡΠΎΠ³Π»Π°ΡΠΎΠ²ΡΠ²Π°ΡΡ Ρ ΠΏΡΠΎΡΠ΅ΡΡΠΈΠΎΠ½Π°Π»Π°ΠΌΠΈ ΠΈ ΡΠ·Π°ΠΊΠΎΠ½ΠΈΠ²Π°ΡΡ Π² ΡΠΎΠΎΡΠ²Π΅ΡΡΡΠ²ΡΡΡΠΈΡ ΡΡΡΡΠΊΡΡΡΠ°Ρ .
Π‘ ΡΠ΅Π³ΠΎ Π½Π°ΡΠΈΠ½Π°Π΅ΡΡΡ ΠΏΠ΅ΡΠ΅ΠΏΠ»Π°Π½ΠΈΡΠΎΠ²ΠΊΠ°?
Π‘ΡΠ°Π½Π΄Π°ΡΡΠ½Π°Ρ ΠΏΠ»Π°Π½ΠΈΡΠΎΠ²ΠΊΠ° 2-Ρ ΠΊΠΎΠΌΠ½Π°ΡΠ½ΠΎΠΉ ΠΊΠ²Π°ΡΡΠΈΡΡ ΡΠΊΠ°Π·ΡΠ²Π°Π΅ΡΡΡ Π² Π΄ΠΎΠΊΡΠΌΠ΅Π½ΡΠ°Ρ Π½Π° Π΄Π°Π½Π½ΠΎΠ΅ ΠΆΠΈΠ»ΡΠ΅. Π’Π°ΠΌ Π΅ΡΡΡ ΠΈΠ½ΡΠΎΡΠΌΠ°ΡΠΈΡ ΠΎ ΡΠΎΡΠ½ΡΡ ΡΠ°Π·ΠΌΠ΅ΡΠ°Ρ , ΡΠ°ΡΠΏΠΎΠ»ΠΎΠΆΠ΅Π½ΠΈΠΈ ΠΊΠΎΠΌΠΌΡΠ½ΠΈΠΊΠ°ΡΠΈΠΉ ΠΈ Π΄Ρ. ΠΡΡΠ΅ΡΡΠ²Π΅Π½Π½ΠΎ, ΠΏΠ΅ΡΠ΅Π΄ Π½Π°ΡΠ°Π»ΠΎΠΌ ΡΠ°Π±ΠΎΡ Π½Π΅ΠΎΠ±Ρ ΠΎΠ΄ΠΈΠΌΠΎ ΠΏΠΎΠ»Π½ΠΎΡΡΡΡ ΠΈΠ·ΡΡΠΈΡΡ ΠΈ ΠΏΡΠΎΠ°Π½Π°Π»ΠΈΠ·ΠΈΡΠΎΠ²Π°ΡΡ Π²ΡΠ΅ ΡΡΠΈ ΠΏΠ°ΡΠ°ΠΌΠ΅ΡΡΡ. Π’Π°ΠΊΠΆΠ΅ ΡΡΠΎΠΈΡ ΡΡΠ΅ΡΡΡ ΠΏΠΎΠΆΠ΅Π»Π°Π½ΠΈΡ Π²ΡΠ΅Ρ ΠΏΡΠΎΠΆΠΈΠ²Π°ΡΡΠΈΡ Π·Π΄Π΅ΡΡ Π»ΡΠ΄Π΅ΠΉ. ΠΠ°Π΄Π΅ΠΆΠ½ΡΠΉ Π²Π°ΡΠΈΠ°Π½Ρ β Π΄ΠΎΠ²Π΅ΡΠΈΡΡ ΡΠΎΡΡΠ°Π²Π»Π΅Π½ΠΈΠ΅ ΠΏΡΠΎΠ΅ΠΊΡΠ° ΠΊΠ²Π°Π»ΠΈΡΠΈΡΠΈΡΠΎΠ²Π°Π½Π½ΡΠΌ ΠΏΡΠΎΡΠ΅ΡΡΠΈΠΎΠ½Π°Π»Π°ΠΌ. ΠΡΠΎ ΠΏΠΎΠΌΠΎΠΆΠ΅Ρ ΠΏΠΎΠ»Π½ΠΎΡΡΡΡ ΠΈΠ·Π±Π΅ΠΆΠ°ΡΡ ΡΠΈΠΏΠΈΡΠ½ΡΡ ΠΎΡΠΈΠ±ΠΎΠΊ.

ΠΠΈΠΆΠ΅ ΡΠ°ΡΡΠΌΠΎΡΡΠΈΠΌ ΡΠ΅ΡΡΡΠ΅ Π²ΠΈΠ΄Π° ΡΠ°ΠΌΡΡ ΡΠ°ΡΠΏΡΠΎΡΡΡΠ°Π½Π΅Π½Π½ΡΡ ΠΏΠ»Π°Π½ΠΈΡΠΎΠ²ΠΎΠΊ Π΄Π²ΡΡ ΠΊΠΎΠΌΠ½Π°ΡΠ½ΡΡ ΠΊΠ²Π°ΡΡΠΈΡ.
Π‘ΡΠ°Π»ΠΈΠ½ΠΊΠ°
ΠΠΎΠΌΠ°, ΠΊΠΎΡΠΎΡΡΠ΅ ΡΡΡΠΎΠΈΠ»ΠΈΡΡ Π² 40-50-Ρ Π³Π³., Π½ΠΎΡΡΡ Π½Π°Π·Π²Π°Π½ΠΈΠ΅ Β«ΡΡΠ°Π»ΠΈΠ½ΠΊΠΈΒ». ΠΡ ΠΏΠ»Π°Π½ΠΈΡΠΎΠ²ΠΊΠ΅ ΠΌΠΎΠΆΠ½ΠΎ ΠΏΠΎΠ·Π°Π²ΠΈΠ΄ΠΎΠ²Π°ΡΡ: Π²ΡΡΠΎΠΊΠΈΠ΅ ΠΏΠΎΡΠΎΠ»ΠΊΠΈ, Π±ΠΎΠ»ΡΡΠΈΠ΅ ΡΠ°Π·ΠΌΠ΅ΡΡ ΠΊΠΎΠΌΠ½Π°Ρ, ΡΠ΄ΠΎΠ±Π½ΠΎΠ΅ ΡΠ°ΡΠΏΠΎΠ»ΠΎΠΆΠ΅Π½ΠΈΠ΅. ΠΠ°ΠΊ ΠΏΡΠ°Π²ΠΈΠ»ΠΎ, Π½Π΅ΡΡΡΠΈΠ΅ ΡΡΠ΅Π½Ρ ΡΠΎΠ»ΡΠΊΠΎ Π½Π°ΡΡΠΆΠ½ΡΠ΅, Π° ΡΡΠΎ ΠΎΡΠΊΡΡΠ²Π°Π΅Ρ Π±ΠΎΠ»ΡΡΠΈΠ΅ Π²ΠΎΠ·ΠΌΠΎΠΆΠ½ΠΎΡΡΠΈ ΠΏΡΠΈ Π²ΡΠ±ΠΎΡΠ΅ Π΄ΠΈΠ·Π°ΠΉΠ½Π°. Π§Π°ΡΡΠΎ ΠΏΠ»Π°Π½ΠΈΡΠΎΠ²ΠΊΠ° 2-Ρ ΠΊΠΎΠΌΠ½Π°ΡΠ½ΡΡ ΠΊΠ²Π°ΡΡΠΈΡ Π² ΡΠ°ΠΊΠΈΡ Π΄ΠΎΠΌΠ°Ρ ΠΏΠΎΠ·Π²ΠΎΠ»ΡΠ΅Ρ Π±Π΅Π· ΠΎΡΠΎΠ±ΠΎΠ³ΠΎ ΡΡΠ΅ΡΠ±Π° Π²ΠΈΠ΄ΠΎΠΈΠ·ΠΌΠ΅Π½ΡΡΡ ΠΏΠΎΠΌΠ΅ΡΠ΅Π½ΠΈΠ΅, Π½Π°ΠΏΡΠΈΠΌΠ΅Ρ ΡΠ°Π·Π΄Π΅Π»ΠΈΡΡ ΠΎΠ΄Π½Ρ Π±ΠΎΠ»ΡΡΡΡ ΡΠΏΠ°Π»ΡΠ½Ρ Π½Π° Π΄Π²Π΅ ΠΏΠΎΠΌΠ΅Π½ΡΡΠ΅. Π’Π°ΠΊΠΎΠ΅ ΡΠ΅ΡΠ΅Π½ΠΈΠ΅ Π΄Π°ΡΡ Π²ΠΎΠ·ΠΌΠΎΠΆΠ½ΠΎΡΡΡ ΠΎΠ±ΡΡΡΡΠΎΠΈΡΡ Π΄Π΅ΡΡΠΊΡΡ ΠΈΠ»ΠΈ ΠΊΠ°Π±ΠΈΠ½Π΅Ρ.

ΠΡΠ΅ΠΆΠ½Π΅Π²ΠΊΠ°
ΠΠΎΠΌΠ°, ΠΏΠΎΡΡΡΠΎΠ΅Π½Π½ΡΠ΅ Π·Π° Π³ΠΎΠ΄Ρ ΠΏΡΠ°Π²Π»Π΅Π½ΠΈΡ Π. ΠΡΠ΅ΠΆΠ½Π΅Π²Π°, Π² ΡΡΠ°Π²Π½Π΅Π½ΠΈΠΈ ΡΠΎ ΡΡΠ°Π»ΠΈΠ½ΡΠΊΠΈΠΌΠΈ Π²ΡΠ΅ΠΌΠ΅Π½Π°ΠΌΠΈ Π½Π΅ΡΠΊΠΎΠ»ΡΠΊΠΎ ΡΠΌΠ΅Π½ΡΡΠΈΠ»ΠΈΡΡ Π² ΡΠ°Π·ΠΌΠ΅ΡΠ°Ρ . ΠΠ΄Π½Π°ΠΊΠΎ ΡΡΠΎ Π½Π΅ ΡΠ°ΠΌΡΠΉ Ρ ΡΠ΄ΡΠΈΠΉ Π²Π°ΡΠΈΠ°Π½Ρ ΡΡΠ°ΡΡΡ ΠΏΠΎΡΡΡΠΎΠ΅ΠΊ. ΠΠΎΠΌΠ½Π°ΡΡ Π½Π΅ Π³ΠΈΠ³Π°Π½ΡΡΠΊΠΈΠ΅, Π½ΠΎ Π²ΠΏΠΎΠ»Π½Π΅ ΠΏΡΠΎΡΡΠΎΡΠ½ΡΠ΅, ΡΠ°Π½ΡΠ·Π΅Π» ΡΠ°Π·Π΄Π΅Π»ΡΠ½ΡΠΉ, ΠΊΡΡ Π½Ρ 7-8 ΠΊΠ². ΠΌ. Π’Π°ΠΊΠ°Ρ ΠΏΠ»Π°Π½ΠΈΡΠΎΠ²ΠΊΠ° 2-Ρ ΠΊΠΎΠΌΠ½Π°ΡΠ½ΠΎΠΉ ΠΊΠ²Π°ΡΡΠΈΡΡ Π΄ΠΎΡΡΠ°ΡΠΎΡΠ½ΠΎ ΠΏΡΠΈΠ΅ΠΌΠ»Π΅ΠΌΠ°. ΠΡΠΈ Π½Π΅ΠΎΠ±Ρ ΠΎΠ΄ΠΈΠΌΠΎΡΡΠΈ ΠΌΠΎΠΆΠ½ΠΎ ΠΏΠ΅ΡΠ΅Π½Π΅ΡΡΠΈ Π½Π΅ΠΊΠΎΡΠΎΡΡΠ΅ ΠΏΠ΅ΡΠ΅Π³ΠΎΡΠΎΠ΄ΠΊΠΈ, ΠΎΠ΄Π½Π°ΠΊΠΎ ΡΡΠΎΠΈΡ ΡΡΠ΅ΡΡΡ, ΡΡΠΎ Π² ΡΡΠΈΡ Π΄ΠΎΠΌΠ°Ρ Π½Π΅ΡΡΡΠΈΠ΅ ΡΡΠ΅Π½Ρ ΠΌΠΎΠ³ΡΡ ΠΏΡΠΎΡ ΠΎΠ΄ΠΈΡΡ Π²Π½ΡΡΡΠΈ ΠΊΠ²Π°ΡΡΠΈΡΡ. ΠΠΎΡΡΠΎΠΌΡ ΡΠ΅ΠΊΠΎΠΌΠ΅Π½Π΄ΡΠ΅ΡΡΡ ΠΏΠ΅ΡΠ΅Π΄ ΠΏΡΠΎΠ²Π΅Π΄Π΅Π½ΠΈΠ΅ΠΌ ΡΠ°Π±ΠΎΡ ΠΏΡΠΎΠΊΠΎΠ½ΡΡΠ»ΡΡΠΈΡΠΎΠ²Π°ΡΡΡΡ Π² ΠΏΡΠΎΠ΅ΠΊΡΠ½ΠΎΠΉ ΠΎΡΠ³Π°Π½ΠΈΠ·Π°ΡΠΈΠΈ.

Π₯ΡΡΡΠ΅Π²ΠΊΠ°
ΠΠ½ΡΠ΅ΡΠ΅ΡΠ΅Π½ ΡΠΎ ΡΠ°ΠΊΡ, ΡΡΠΎ Ρ ΡΡΡΠ΅Π²ΠΊΠΈ Π²ΠΎΠ·Π²ΠΎΠ΄ΠΈΠ»ΠΈΡΡ ΠΊΠ°ΠΊ Π²ΡΠ΅ΠΌΠ΅Π½Π½ΠΎΠ΅ ΠΆΠΈΠ»ΡΠ΅, ΠΎΠ΄Π½Π°ΠΊΠΎ Π½Π° ΡΠ΅Π³ΠΎΠ΄Π½ΡΡΠ½ΠΈΠΉ ΠΌΠΎΠΌΠ΅Π½Ρ ΡΠ°ΠΊΠΎΠΉ Π²ΠΈΠ΄ Π΄ΠΎΠΌΠΎΠ² — ΠΎΠ΄ΠΈΠ½ ΠΈΠ· ΡΠ°ΠΌΡΡ ΡΠ°ΡΠΏΡΠΎΡΡΡΠ°Π½Π΅Π½Π½ΡΡ . ΠΠ½ΠΈ ΡΡΠΈΡΠ°ΡΡΡΡ Π½Π°ΠΈΠ±ΠΎΠ»Π΅Π΅ Π½Π΅ΡΠ΄ΠΎΠ±Π½ΡΠΌΠΈ ΠΈ ΠΏΡΠΎΠ±Π»Π΅ΠΌΠ°ΡΠΈΡΠ½ΡΠΌΠΈ. ΠΡΠΎ ΠΊΡΠΈΡΠΈΡΠ΅ΡΠΊΠΈ ΠΌΠ°Π»Π΅Π½ΡΠΊΠ°Ρ ΠΊΡΡ Π½Ρ, ΡΠΎΠ²ΠΌΠ΅ΡΠ΅Π½Π½ΡΠΉ ΡΠ°Π½ΡΠ·Π΅Π» Π½Π΅Π±ΠΎΠ»ΡΡΠΈΡ ΡΠ°Π·ΠΌΠ΅ΡΠΎΠ², ΡΠ·ΠΊΠΈΠΉ ΠΊΠΎΡΠΈΠ΄ΠΎΡ, ΠΏΡΠΎΡ ΠΎΠ΄Π½ΡΠ΅ ΠΊΠΎΠΌΠ½Π°ΡΡ ΠΈ ΠΏΡ. ΠΠ΅ΡΠ΅ΡΠΈΡΠ»ΡΡΡ ΠΌΠΎΠΆΠ½ΠΎ Π΄ΠΎ Π±Π΅ΡΠΊΠΎΠ½Π΅ΡΠ½ΠΎΡΡΠΈ, ΡΠ°ΠΊ ΠΊΠ°ΠΊ ΠΏΠ»Π°Π½ΠΈΡΠΎΠ²ΠΊΠ° 2-Ρ ΠΊΠΎΠΌΠ½Π°ΡΠ½ΠΎΠΉ ΠΊΠ²Π°ΡΡΠΈΡΡ Π² Ρ ΡΡΡΠ΅Π²ΠΊΠ΅ ΠΈΠΌΠ΅Π΅Ρ Π±ΠΎΠ»ΡΡΠ΅ Π½Π΅Π΄ΠΎΡΡΠ°ΡΠΊΠΎΠ², ΡΠ΅ΠΌ Π΄ΠΎΡΡΠΎΠΈΠ½ΡΡΠ². ΠΠ΄Π½Π°ΠΊΠΎ Π½Π΅ ΡΡΠΎΠΈΡ ΡΠ°ΡΡΡΡΠ°ΠΈΠ²Π°ΡΡΡΡ ΡΠ°Π½ΡΡΠ΅ Π²ΡΠ΅ΠΌΠ΅Π½ΠΈ. Π‘ΠΎΠ²ΡΠ΅ΠΌΠ΅Π½Π½ΡΠ΅ Π΄ΠΈΠ·Π°ΠΉΠ½Π΅ΡΡ ΠΏΡΠ΅Π΄Π»Π°Π³Π°ΡΡ ΠΌΠ½ΠΎΠ³ΠΎ ΡΠ΄Π°ΡΠ½ΡΡ ΠΏΡΠΎΠ΅ΠΊΡΠΎΠ², ΠΊΠΎΡΠΎΡΡΠ΅ ΠΏΠΎΠΌΠΎΠ³ΡΡ ΠΊΠ°ΡΠ΄ΠΈΠ½Π°Π»ΡΠ½ΠΎ ΠΏΡΠ΅ΠΎΠ±ΡΠ°Π·ΠΈΡΡ ΠΈΠ½ΡΠ΅ΡΡΠ΅Ρ ΡΠ°ΠΊΠΎΠΉ ΠΊΠ²Π°ΡΡΠΈΡΡ. ΠΡΠ½ΠΎΠ²Π½ΡΠ΅ ΠΌΠΎΠΌΠ΅Π½ΡΡ ΡΡΠΈΡ ΡΠ°Π±ΠΎΡ:
- ΠΡΠΎΡΡΡΠ°Π½ΡΡΠ²ΠΎ ΠΊΠΎΡΠΈΠ΄ΠΎΡΠ° ΡΠ°ΡΡΠΈΡΠ½ΠΎ ΠΏΡΠΈΡΠΎΠ΅Π΄ΠΈΠ½ΠΈΡΡ ΠΊ ΠΆΠΈΠ»ΠΎΠΉ ΠΊΠΎΠΌΠ½Π°ΡΠ΅.
- ΠΡΡ Π½Ρ ΠΎΠ±ΡΠ΅Π΄ΠΈΠ½ΠΈΡΡ Ρ ΡΠΎΡΠ΅Π΄Π½Π΅ΠΉ ΠΊΠΎΠΌΠ½Π°ΡΠΎΠΉ.
- ΠΠ° ΡΡΠ΅Ρ Ρ
ΠΎΠ»Π»Π° ΡΠ²Π΅Π»ΠΈΡΠΈΡΡ ΠΈΠ»ΠΈ Π΄Π°ΠΆΠ΅ ΡΠ°Π·Π΄Π΅Π»ΠΈΡΡ ΡΠ°Π½ΡΠ·Π΅Π».

ΠΠΎΠ²ΠΎΡΡΡΠΎΠΉΠΊΠ°
ΠΠ»Π°Π½ΠΈΡΠΎΠ²ΠΊΠ° 2-Ρ ΠΊΠΎΠΌΠ½Π°ΡΠ½ΡΡ ΠΊΠ²Π°ΡΡΠΈΡ Π² Π½ΠΎΠ²ΠΎΡΡΡΠΎΠΉΠΊΠ°Ρ ΡΠΆΠ΅ ΠΌΠ°ΠΊΡΠΈΠΌΠ°Π»ΡΠ½ΠΎ ΡΠ°ΡΠΈΠΎΠ½Π°Π»ΡΠ½Π°Ρ, ΠΎΡΠΎΠ±Π΅Π½Π½ΠΎ Π² ΡΡΠ°Π²Π½Π΅Π½ΠΈΠΈ Ρ Ρ ΡΡΡΠ΅Π²ΠΊΠ°ΠΌΠΈ. ΠΠ΄Π΅ΡΡ Π²ΡΠ΅ ΠΊΠΎΠΌΠ½Π°ΡΡ ΠΈΠ·ΠΎΠ»ΠΈΡΠΎΠ²Π°Π½Π½ΡΠ΅, ΡΠ°Π·Π΄Π΅Π»ΡΠ½ΡΠΉ ΡΠ°Π½ΡΠ·Π΅Π» Π΄ΠΎΡΡΠ°ΡΠΎΡΠ½ΡΡ ΡΠ°Π·ΠΌΠ΅ΡΠΎΠ², Π²ΠΌΠ΅ΡΡΠΈΡΠ΅Π»ΡΠ½Π°Ρ ΠΈ ΡΠ΄ΠΎΠ±Π½Π°Ρ ΠΏΡΠΈΡ ΠΎΠΆΠ°Ρ, Π±ΠΎΠ»ΡΡΠ°Ρ ΠΊΡΡ Π½Ρ 8-10 ΠΊΠ². ΠΌ. ΠΠ΄Π½Π°ΠΊΠΎ Π΅ΡΠ»ΠΈ ΡΠ°ΠΊΠΎΠ΅ ΡΠ°ΡΠΏΠΎΠ»ΠΎΠΆΠ΅Π½ΠΈΠ΅ ΡΠ΅ΠΌ-ΡΠΎ Π½Π΅ ΡΡΡΡΠ°ΠΈΠ²Π°Π΅Ρ, ΡΠΎ ΠΌΠΎΠΆΠ½ΠΎ, Π½Π°ΠΏΡΠΈΠΌΠ΅Ρ, ΠΎΡΠ³Π°Π½ΠΈΠ·ΠΎΠ²Π°ΡΡ ΠΊΠ²Π°ΡΡΠΈΡΡ-ΡΡΡΠ΄ΠΈΡ ΠΈΠ»ΠΈ ΠΏΡΠΈΡΠΎΠ΅Π΄ΠΈΠ½ΠΈΡΡ ΠΏΠ»ΠΎΡΠ°Π΄Ρ Π»ΠΎΠ΄ΠΆΠΈΠΈ ΠΊ ΡΠΌΠ΅ΠΆΠ½ΠΎΠΉ ΠΊΠΎΠΌΠ½Π°ΡΠ΅.
fb.ru
