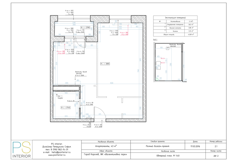
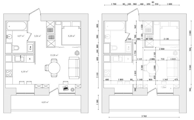
План однокомнатной квартиры с размерами: Проект однокомнатной квартиры с размерами (40 фото)
Планировка однокомнатной квартиры — готовые планы и чертежи с размерами
Однокомнатные квартиры благодаря своей невысокой стоимости являются на рынке недвижимости одним из самых востребованных вариантов. На рисунке ниже представлена типовая планировка однокомнатной квартиры, которая очень популярна среди молодых семей без детей, вчерашних студентов, а также начинающих предпринимателей.
Естественно, для того, чтобы получить комфортное и удобное место проживания, наличия четырёх стен недостаточно. Планировка и дизайн помещений должны быть как можно более функциональными.
Однокомнатные квартиры, как правило, обладают следующим зонированием: кухня
, жилая комната, совмещённый санузел, в некоторых случаях – небольшая кладовка. Чтобы сделать планировку жилья более функциональной, потребуется заручиться помощью специалиста, который поможет решить все сопутствующие вопросы.
Пример планировки новой однокомнатной квартирыПри желании, из простой однокомнатной квартиры можно создать роскошную квартиру-студию.
Или же, наоборот, небольшую, но функциональную «двушку». Чтобы получить последний вариант, можно сделать следующее: кухонную зону перенести в кладовую, а на месте бывшей кухни обустроить спальню. Несущая стена, которая находится между прежней кухней и прихожей, остаётся на месте, что позволяет сделать планировку более удобной.
Содержание материала
- 0.1 Дизайн и планировка однокомнатной квартиры
- 1 Ремонт однокомнатной квартиры
- 1.0.1 Рекомендации по ремонту кухни
- 1.0.2 Рекомендации по ремонту гостиной
Дизайн и планировка однокомнатной квартиры
Однокомнатная квартира со стандартной планировкой представляет собой весьма сложную задачу в плане дизайнерского оформления. Владельцу жилья приходится решать огромное количество вопросов: каким образом отделать стены помещения, как правильно расставить мебель, как недостатки планировки сделать преимуществами?
На пример дизайна интерьера типовой однокомнатной квартиры вы можете посмотреть на этом видео
Прежде всего, дизайн однокомнатной квартиры должен в себя включать:
- Планировку всех помещений с нанесёнными конструкционными недостатками: вентиляционные шахты, ниши и прочее.
- План размещения имеющихся инженерных коммуникаций: газо- и водоснабжения, электросетей.
- Предполагаемая меблировка и её стоимость.
- Оценка расхода материала и расчёт площадей поверхностей помещений.
После того, как создан подходящий эскиз планировки, можно приступать к работам, которые включают в себя:
- замену окон и дверей, утепление стен;
- подготовку рабочих поверхностей (стен, полов и потолков), в которую входят чистка, шпатлевание и грунтовка;
- замену труб и сантехнического оборудования.
Выбрав подходящее дизайнерское направление, можно приобретать необходимые аксессуары, мебель и строительные материалы.
Вернуться к оглавлению
Начинать ремонт желательно с кухни. Зонирование кухни должно включать в себя две зоны: для приготовления пищи и обеденную, в каждой из которых будут находиться все необходимые предметы интерьера.
Рекомендации по ремонту кухни
- Обеденная зона должна обладать уютной атмосферой и хорошим освещением, поэтому её рекомендуется располагать около окна, используя в оформлении мягкие, пастельные оттенки.
- Пол в столовой желательно покрывать ламинатом, паркетом или ковролином, которые смотрятся идеально в дизайне практически любого помещения.
- Потолок желательно сделать многоуровневым, а над самой обеденной зоной можно сделать красивую композицию из различных светильников.
- Не рекомендуется использовать плотные шторы, так как основная часть света в обеденной зоне должна идти от окон.

- Рабочую зону следует обустроить таким образом, что она занимала минимум места и при этом была удобной и многофункциональной.
- Стандартным покрытием для рабочей зоны является плитка, которая обладает хорошей устойчивостью к механическим нагрузкам.
- Стены на кухне следует оклеивать моющимися обоями, а зону над рабочей поверхностью оформить с использованием плитки.
- Кухонный гарнитур в идеале должен быть выполнен на заказ, так как это позволит учесть все нюансы вашего жилья.
Рекомендации по ремонту гостиной
Единственная жилая комната однокомнатной квартиры должна одновременно выполнять функции места для отдыха и места для приёма гостей.
- Спальную зону рекомендуется располагать с наиболее тёмном и тихом месте помещения. В таких случаях идеально подойдёт место за шкафом, ниша в стене или специально отгороженный угол.

- Для обстановки желательно использовать многофункциональную мебель, например, кресло-трансформер, которое при необходимости может стать полноценным спальным местом.
- Чтобы визуально увеличить помещение, при оформлении следует отдавать предпочтение светлым оттенкам. Кроме этого, зрительно сделать помещение больше поможет напольное покрытие с рисунком по диагонали.
- Можно использовать большие зеркала, которые так же хорошо справляются с поставленной задачей.Выполнив все эти рекомендации, вы получите уютную и функциональную квартиру.
Планировки однокомнатной квартиры фото с размерами
Типовая планировка реализуется в нескольких вариантах:
- Стандартная.
- Угловая квартира с окнами.
- Квартира с нишей (нишами).
- Нестандартная архитектура.
- Студия.
Площадь может быть разной: от 30-38 м2 до 40-45 м2 и более.
При обустройстве квартиры c типовой планировкой решаются такие строительно-ремонтные и дизайнерские проблемы, как:
- Отделка всех внутренних поверхностей, включая стены, потолки, перегородки, пол.

- Расстановка мебели и бытовой электроники.
- Преобразование всех отрицательных моментов планировки в преимущества помещения.
Типовая схема однокомнатной квартиры устроена таким образом, что в ней комфортно 1-3 людям, но чаще в стесненных условиях живут семьи с несколькими детьми или престарелыми родителями. При большом количестве человек зонирование площади проводится более тщательно, и для этого составляется архитектурный и дизайнерский план. Пример перепланировки большой квартиры с одним главным помещением
Дизайн-проект состоит из таких пунктов, как:
- План помещений квартиры с учетом архитектуры (наличие ниш, вентиляционных каналов, и т.д.).
- Схема инженерных коммуникаций.
- Расположение мебели и других предметов интерьера.
- Оценка стройматериалов для перепланировки и ремонта помещений.
- Оценка стоимости трудозатрат – собственных или нанятой бригады.
Подготовленный дизайнерский план предполагает начало работ по ремонту и перепланировке.
Содержание
- Особенности планировки
- Угловая
- Прямоугольная
- Квадратная
- Квартира с одной комнатой площадью 20 кв. м
- Проектирование квартир по кв. м
- Жилье 20 кв. м
- Квартиры 25 кв. м
- Жилая площадь 31 кв. м
- Комната 32 кв. м
- Проект 33 кв. м
- Жилая площадь 35 кв. м
- Квартира 36 кв. м
- Жилое пространство 38 кв. м
- Площадь 39 кв. м
- Проект 40 кв. м
- Студия для одного человека
- Квартира для семейной пары
- Жилье для семьи с одним ребенком
- Рекомендации по выбору стиля и функционала жилья
- Как расставить мебель в помещении
Особенности планировки
Недостатки планировки 1-комнатной квартиры:
- Небольшая жилая площадь.

- Очень часто – низкий потолок.
- Маленький туалет, ванная комната и кухня.
- Маленький коридор или прихожая.
- Нет антресолей.
- Часто нет балкона или лоджии.
Главное преимущество квартиры, расположенной не на углу дома, а внутри, является ее намного лучшее сохранение тепла. Кроме того, существует несколько непреложных правил, которые применяются при планировке:
- Старый дизайнерский прием – необходимо визуально показать как можно больше свободного места в комнате.
- Обильное искусственное освещение даже при наличии достаточного естественного освещения.
- Использование комбинаций цвета. Например, потолок всегда должен быть светлее остальных поверхностей, но его не обязательно делать белым – он может быть любого цвета. Более светлый потолок визуально приподнимется и сделает помещение просторнее.
- Зеркала и глянцевые отражающие поверхности в интерьере также позволят визуально увеличить комнату.

- В однушке предпочтительнее использовать стиль дизайна минимализм – он сделает комнату просторнее и сохранит ее функциональные особенности.
- Встроенная или мобильная мебель.
- Вместо стационарной внутренней перегородки между помещениями рекомендуется установить мебель – шкаф, стеллаж. Она будет выполнять не только роль перегородки, но и свои непосредственные функции.
Угловая
Обязательное правило, которое должно быть отражено, – реализация светлого дизайна. Это не значит, что все предметы и поверхности должны быть белыми – тона и оттенки могут компоноваться и даже контрастировать друг с другом, но преобладающий цвет – светлый. Яркие цвета в небольших количествах также великолепно дополнят дизайн маленькой квартиры. Глянцевые, зеркальные и стеклянные поверхности визуально увеличат площадь комнаты, так как отражают интерьер, расширяя границы квартиры.
Стеклянная, пластиковая прозрачная мебель сделает пространство воздушным, незагроможденным, поэтому дизайнеры настоятельно рекомендуют ее к эксплуатации.
Высокие шкафы с антресолями увеличат функциональность и сэкономят пространство в квартире, а также послужат элементом зонирования помещения, отделяя, например, спальню от зоны дневного отдыха. Этажерки или стеллажи с полками без задних стенок для угловой квартиры – находка, ведь они зонируют пространство, сохраняя общую функциональность.
Схема угловой однушки
Прямоугольная
Квартиры с открытым дизайном – это идеальный вариант для проживания одного человека или семьи без детей. Чтобы обеспечить максимальное удобство, необходимо составить план расположения мебели, осветительных приборов и прокладки инженерных коммуникаций. Студии наиболее востребованы на рынке недвижимости, так как имеют множество преимуществ.
Однокомнатные квартиры прямоугольной формы – это:
- Свободная архитектура.
- Стандартная планировка.
- Квартира-студия.
Достоинства и недостатки студий:
| Достоинства | Недостатки |
| Обильное естественное освещение | Маленькая площадь |
| Нет внутренних перегородок | Отсутствие балкона |
| Монопространство | Сложный дизайн и архитектура |
| Подходящие акустические характеристики | Подходящие акустические характеристики |
| Облегченная уборка помещения | Наличие сквозняков, что требует монтажа дополнительной вентиляции |
| Выгодная аренда комнаты |
Чтобы квартира-студия не только служила жильем, но и была при этом комфортной, в ее дизайне применяют самые современные технологии.
Прежде всего, это зонирование, которое позволит без изолирования разделить одну комнату на несколько – рабочую, зону отдыха, приема и приготовления пищи и т.д.
Зона отдыха традиционно обустраивается рядом с окном, обеденная – около стены, спальню можно изолировать неполной перегородкой, как и ванную. Прихожую обозначают вешалкой, столиком, комодом для обуви, небольшим шкафом для верхней одежды. 3-D визуализация однокомнатной прямоугольной квартиры-студии
Квадратная
Квадратная квартира – это жилье в хрущевке с прямоугольной комнатой в 16-18 м2, кухней, коридором и туалетом, совмещенным с ванной. Обычно они подвергаются радикальной перепланировке. Например, кухню совмещают с основной комнатой, ванную – с туалетом, если они разделены.
Здесь очень маленький коридор, поэтому часто перегородку между ним и комнатой сносят для свободного доступа на кухню. Мебель подойдет минималистичная, лучше светлая.
Хороший дизайнерский прием – совмещение разных типов отделки поверхностей: штукатурка, плитка, обои.
Стандартная квадратная однушкаВажно: Покупайте отделочные и ремонтные стройматериалы во влагостойком варианте, потому что близкое соседство ванной комнаты и туалета (помещений с повышенной влажностью) может вызвать деформации остальных стройматериалов и даже мебели.
Квартира с одной комнатой площадью 20 кв. м
Некоторые из методов планировки:
- Совмещение разных зон в одной комнате.
- Визуальное увеличение пространства.
- Минимализм во всем.
- Использование мебели-трансформера.
Основные помещения:
- Прихожая со встроенной мебелью.
- Совмещенный санузел.
- Кухня-столовая.
- Жилая зона с диваном-трансформером.
Проектирование квартир по кв. м
Варианты на первичном и вторичном рынке недвижимости:
- Сталинка – общая площадь 32-50 м2 у однушки. Потолок высотой (3 м) и встроенные шкафы.
Санузел раздельный или совмещенный. - Хрущевка – малогабаритное жилье с некомфортной планировкой. Потолок высотой 2,5-2,7 м, санузел, совмещенный с ванной, внутренние перегородки с плохой шумоизоляцией. Общая площадь – до 33 м2.
- Брежневка имеет изолированные помещения с окнами по разным сторонам дома. Есть место для встраивания прихожей. В однушке обычно совмещенный санузел, стены дома – ж/б, общая площадь – до 40 м2.
- Стандартная квартира имеет удобную планировку, часто с эркерами. Потолок высотой 2,5-2,8 м, раздельный санузел, большая кухня, лоджия, встроенные шкафы и кладовки-ниши, общая площадь – до 50 м2.
- Квартира улучшенной планировки имеет потолок высотой 2,5 м, помещения изолированные, раздельный санузел, лоджия, встроенные шкафы и антресоли, общая площадь – до 50 м2.
- Современная квартира имеет просторные помещения в панельном доме независимо от их функционального предназначения. Потолок высотой 2,8 м, санузел раздельный, общая площадь – до 80 м2.

Жилье 20 кв. м
Зональность:
- Зал может служить спальной комнатой.
- Гостиную совмещают с кухней, рабочим кабинетом или спальней.
- На кухне, в гостиной и столовой располагают зону отдыха.
- Рабочий кабинет можно оборудовать на балконе.
Квартиры 25 кв. м
Функциональные зоны: гостиная, кухня, место для прихожей и спальни. Санузел совмещенный. В таких небольших комнатах спальню невозможно отгородить от гостиной, поэтому чаще всего используют диван-трансформер. Хороший прием – напротив окна расположить зеркало или другую отражающую поверхность, даже большой телевизор или стеклянный журнальный столик. Квартира 25 м2
Жилая площадь 31 кв. м
Основная задача в малогабаритных квартирах – деление пространства на зоны. Для предварительной визуализации существует специальная программа, например, АвтоКАД или 3D MAX.
На площади в 31 м2 можно разместить гостиную, кухню с электроплитой, столовую зону. В санузле, на полу и отдельных стенах можно положить кафель большого размера. Существующие ниши используют для гардеробной и зоны хранения.
Комната 32 кв. м
Увеличить пространство можно объединением кухонной зоны и жилого помещения. Для планировки квартиры 32 кв. м необходимо:
- Обозначить места нахождения функциональных зон.
- Выбрать концепцию дизайна, чтобы разработать линию интерьера.
Проект 33 кв. м
Как и в предыдущих вариантах, предпочтительнее сделать квартиру-студию. Дизайнерские приемы позволяют совмещать как отдельные предметы мебели, так и помещения.
Существует решение по трансформации стен, используются приподнимающиеся раскладные кровати, убирающиеся в шкафы телевизоры, а мебель используется для хранения самых разных предметов.
Стены-трансформеры в небольшом помещении
Жилая площадь 35 кв. м
Визуальное расширение предусматривает некоторую перепланировку: снос перегородок и дверей, исключая туалет. Если есть балкон или лоджия, их можно утеплить, убрать часть стены и провести отопление. Получится удобный рабочий кабинет, детская комната или помещение для хранения вещей. Расширение квартиры за счет лоджии
Квартира 36 кв. м
Мелкие элементы интерьера можно подобрать потом, а основным стилем считается минимализм или хай-тек. Это простые и лаконичные формы, маленькая площадь занятости, универсальность и строгость линий. Для кухонной зоны мебель изготавливают на заказ, чтобы не терять ни сантиметра площади. В квартире останется еще много места для комфортного проживания. Зеркальные поверхности в минималистичном интерьере
Жилое пространство 38 кв.
мВ квартирах площадью 38 кв. м можно получить маленькую спальню и большую кухню или гостиную либо наоборот. Такой вариант больше подойдет для проживания одного человека или семьи без детей. Если есть балкон или лоджия, то их совмещение с кухней даст больше пространства, и можно сделать детскую комнату. При таком решении бытовую технику и рабочие поверхности размещают в районе лоджии, а столовую или гостиную зоны можно отделить барной стойкой. Зонирование барной стойкой
Площадь 39 кв. м
В таком дизайне часто используются раздвижные двери (скрытый пенал), значительно экономящие пространство. Ниши в стенах позволяют обустроить встроенные системы хранения. При наличии лоджии устанавливают мебель-трансформер для экономии места, то же самое делается и на кухне. Санузел обычно совмещенный, поэтому используется компактная мебель и сантехника. Вся электропроводка делается скрытой, для бытовой техники на кухне устанавливается отдельный электрощит. Раздвижные двери в интерьере однушки
Проект 40 кв.
мЧтобы помещение выглядело просторнее, все отдельные зоны необходимо связать друг с другом. Кухню объединяют с залом, в ванную комнату установлена прозрачная дверь, а спальное место отгорожено вертикальными полупрозрачными жалюзи. Здесь же можно поставить и детскую кроватку, оборудовать спальню для родителей. Расположение помещений в большой однокомнатной квартире
Студия для одного человека
Во всех однокомнатных квартирах, где общая и полезная площадь ограничена, рекомендуется изготавливать мебель на заказ. Нерациональное расположение типовой мебели лишь потратит ваши квадратные метры.
Даже при проживании одного человека лучше использовать мебель-трансформер, а лишнее пространство задействовать на свое усмотрение. Диван-трансформер в интерьере квартиры
Квартира для семейной пары
Светлые цвета и оттенки в дизайне помещений разрешают создать на маленькой площади полный комфорт, а также визуально увеличить пространство. В жилом помещении площадью в 20 м2 можно комфортно расположить многофункциональные зоны. Например, зону отдыха ночью трансформировать в спальню, а кресло-трансформер и книжный стеллаж – в рабочий уголок.
Полуперегородки в квартире
Жилье для семьи с одним ребенком
Даже при дефиците полезной площади дизайн 1-комнатной квартиры для пары с ребенком нужно организовать предельно комфортно. Спальная зона для родителей так же необходима, как и место для сна ребенка, поэтому следует добиться размещения двух отдельных спальных мест. Это можно сделать, установив не двуспальную кровать, а раскладной диван-трансформер, днем превращающийся в небольшую софу.
Дизайн маленькой квартиры для семьи с одним ребенком – одна комната площадью 17 м2
Рекомендации по выбору стиля и функционала жилья
Наиболее эффективные рекомендации по созданию комфортного интерьера 1-комнатного жилья:
- Минимализм. Покупка многофункциональной мебели и предметов интерьера – главный прием для получения максимума пространства. Это может быть диван с выдвигающейся столешницей, складной стол и т.д. Такую мебель изготавливают на заказ.
- Ненавязчивый интерьер. Чтобы визуально расширить пространство, используют зеркальные или глянцевые поверхности, помещение зонируется легкими тканевыми или стеклянными перегородками. Также можно применять перегородки высотой до 1 м – главное, подобрать подходящий стройматериал. Полы в разных зонах также должны отличаться, например, плитка на кухне и линолеум в зале. В спальне уместным будет ковер или ковролин. В каждой зоне устанавливается отдельный электрический светильник, прокладка проводки – скрытая.

- Акцентирование и контраст. Один тон использовать не рекомендуется – лучше выделить пару-тройку главных и правильно распределить оттенки по поверхностям. Много темного цвета визуально сожмет пространство, светлые тона – расширят.
- Перепланировка. Внутренние перегородки (если они есть) в маленькой комнате уменьшают или вообще убирают, заменяя их перегородками в японском стиле – бумажными или тканевыми.
- Многофункциональная кладовая. В старых квартирах (сталинках, хрущевках) всегда строили кладовку, и ее можно использовать функционально. Например, в качестве встроенного шкафа или гардеробного помещения.
- Трехметровый потолок позволит разместить так называемую кровать-чердак, устанавливаемую на подиум. Под кроватью оборудуется шкаф для хранения вещей. Этот прием объединит два элемента мебели в один.
- Правильное использование элементов декора и текстиля. Не нагружайте маленькую квартиру небольшими предметами интерьера – игрушками, шкатулками, вазочками, статуэтками.
На окна повесьте тканевые жалюзи или легкие полупрозрачные шторы, например, рулонного типа.
Как расставить мебель в помещении
Каждая зона в помещении имеет свое назначение, расположение дверей и окон, размеры и освещение. Поэтому рекомендуется придерживаться общепринятых правил расстановки мебели в каждой зоне:
- Предварительно стоит узнать размеры каждой зоны и мебели. Можно на миллиметровке расчертить площадь квартиры в выбранном масштабе. Затем вырезать из картона фигурки интерьера в верной пропорции и расставить их на чертеже.
- Для правильной организации пространства определяется главный элемент. В гостиной это может быть телевизор или шкаф. В спальне – кровать или диван, на кухне – стол.
- Расчетное расстояние между мебелью – 1,8-2,4 м.

- Углы в комнате заполняют не привлекающими внимание предметами.
- Между столом, стульями, диваном соблюдается расстояние 60-80 см.
- В помещении с двумя разнесенными окнами вешают зеркала, чтобы визуально увеличить пространство.
- Если помещение узкое и длинное, то нужна светлая компактная мебель. Окна рекомендуется завесить плотными шторами и пользоваться искусственным освещением. Полки и другие горизонтальные поверхности нельзя заставлять маленькими предметами и украшениями.
П-44 планировка с размерами для 1 комнатной квартиры: основные варианты дизайна
П 44 т – это типовые многоэтажки, которые стали активно возводиться в конце XX века. Попробуем оформить однокомнатную квартиру такого типа стильно и функционально, принимая во внимание ноу-хау XXI века.
Жилые здания серии П-44 – одни из самых массовых типовых домов
Особенности планировки
Содержание
- Особенности планировки
- Варианты перепланировки
- Спальня, рабочий кабинет, гостиная (для одного человека)
- Гардеробная, большая гостиная и маленькая спальня (для молодой семьи)
- Детская комната, место для учебы, взрослая спальня (семья с двумя детьми)
- Гостиная, место для учебы, детская (мама с двумя детьми)
- Гостиная, детская, место для учебы и взрослая спальня (для семьи с подростком)
- Варианты дизайна
- Лофт
- Скандинавский
- Минимализм
- Видео: Обзор торцевой однушки в доме серии П-44Т
- Фото-идеи оформления интерьера
Планировка квартир зависит от расположения и типа секции: угловое или рядовое. Если серия рядовая, то на одном этаже располагается четыре квартиры: две двухкомнатные, одна однокомнатная и одна трехкомнатная. А в угловой секции располагаются только двух- и трехкомнатные апартаменты.
Планировка рядовой секции этажа дома серии П-44
Прежде всего, отметим, что планировка однокомнатных квартир П 44 и технические характеристики помещения далеко не самые худшие. Например, такие квартиры отличаются хорошей теплоизоляцией и зачастую высокими потолками. А срок эксплуатации жилых многоэтажек, по мнению экспертов, составит не менее 100 лет. В общем, совсем неплохо. И хотя такие квартиры сложно поддаются перепланировке по причине наличия внутри несущих стен, площадь апартаментов достаточно велика, чтобы на ней спокойно проживали два, три, а иногда даже четыре человека.
Типовая планировка однокомнатной квартиры в доме П-44
Главное грамотно оформить интерьер. Конечно, вряд ли кто-то отказался бы от большой жилплощади, на которой легко выделить каждому члену семьи личное пространство. Но, за неимением такового, попробуем правильно зонировать однушку П 44.
Варианты перепланировки
Совершенно очевидно, что перепланировка осуществляется тогда, когда возникает необходимость в более комфортном пребывании в квартире.
Это, может быть, появление в семье детей, переезд пожилого родственника, или создание семьи.
Существует немало дизайнерских решений, позволяющих создать в однушке удобное и функциональное пространство
А иногда возникает острая необходимость в организации отдельного рабочего кабинета, даже если в квартире проживает только один человек. И каждую из вышеописанных ситуаций поможет разрешить перепланировка или зонирование имеющегося пространства.
Рабочий кабинет на утепленном балконе – отличная идея расширения полезной площади квартиры
Итак, приступим к рассмотрению вариантов.
Спальня, рабочий кабинет, гостиная (для одного человека)
Для организации кабинета присоедините балкон к комнате и поставьте в широком проеме пару кресел.
Для того, чтобы отделить спальное пространство от гостиной, воспользуйтесь сквозным стеллажом. Этот «ход конем» не утяжелит пространство, но создаст четкое представление о границах.
Вариант перепланировки с утеплением и присоединением балкона
Перегородку между кухней и санузлом перенесите и замените ее нишей для установки мойки и холодильника.
Чтобы увеличить площадь прихожей и санузла, «скосите» угол.
Наконец, в прихожей для экономии места установите встроенный шкаф. Кстати, в подобных «скромных габаритах» шкаф в прихожей предназначается не только для хранения верхней одежды, но и для остальных вещей. В данном случае его расположение роли не играет.
Для визуального расширения пространства прихожей створки шкафа лучше сделать зеркальными
Гардеробная, большая гостиная и маленькая спальня (для молодой семьи)
И снова лоджию рекомендуется соединить с комнатой. Спальное место разместите в самом дальнем углу помещения, а перед ним установите легкую перегородку (возможно, вы отдадите предпочтение стеклянному варианту, или стеллажу).
При такой планировке появляется отдельная спальная зона с широкой кроватью
В углу получившейся спальни поставьте компьютерный стол и книжный шкаф. И стол, и шкаф могут быть далеки от общепринятых стандартных габаритов. Выбирайте модели, которые понравятся вам и подойдут для вашего помещения.
Гардеробную организуйте в прихожей. Там же оставьте место для установки стиральной машины и стеллажей для вещей.
На фото пример обустройства гардеробной комнаты в прихожей
Детская комната, место для учебы, взрослая спальня (семья с двумя детьми)
Мебель для детей, особенно если их двое, лучше покупать двухъярусную или модели -трансформеры. Учебное пространство займет место лоджии. Кстати, не пренебрегайте подоконником на лоджии, его можно использовать в качестве стеллажа для книг.
Комната разделяется на три небольшие, но самостоятельные зоны: спальню, гостиную и детскую
Для того, чтобы отделить взрослую спальню, воспользуйтесь раздвижной перегородкой. А на кухне установите диванчик подходящего размера.
Гостиная, место для учебы, детская (мама с двумя детьми)
В этом варианте гостиная и мамина спальня – это одно. Спальное место появляется благодаря раскладному дивану. Спальное место детям обеспечит двухъярусная кровать, а благодаря открытому стеллажу детская и гостиная становятся «автономными» помещениями.
Планировка однокомнатной квартиры для семьи с ребенком
Гардеробную расположите за перегородкой в гостиной. Кухню слегка расширяем за счет санузла и ставим в ней диван.
Гостиная, детская, место для учебы и взрослая спальня (для семьи с подростком)
При помощи раздвижной перегородки-трансформера отделите взрослую спальню. Остальную часть комнату вместе с лоджией оборудуйте под детскую и место для учебы. А гостиная и кухня получатся два в одном, за счет расширения: пространство санузла сделайте меньше. Тогда на кухне можно расположить телевизор и диванчик.
Вариант планировки квартиры с отделением спальню с помощью легкой перегородки
Варианты дизайна
Для оформления интерьера однокомнатной квартиры лучше всего использовать современные стилевые решения
Лофт
Попробуем создать лофтовый интерьер, в котором в рамках одной комнаты организованы спальня и гостиная.
Для зонирования пространства используется прозрачная перегородка. Лучше, если это будет не белое «стекло», а серое, тогда оно не будет «выпадать» из общей дизайнерской концепции.
Кроме этого, прозрачность придаст легкости, и визуально не сделает пространство меньше. Наконец, для установки стеклянной перегородки в квартире типа П44т не потребуется дополнительных разрешений, а значит, это, действительно один из самых подходящих вариантов.
Гостиная зона отделена от спальни полупрозрачной перегородкой из тонированного стекла
Для отделки использованы обои с имитацией кирпича и бетона
Выбирая отделочные материалы, отдайте предпочтение светлым тонам и грубым фактурам. Как вариант, можно скомбинировать белые обои и темную штукатурку.
Еще один дизайнерский ход – использование отделки под кирпич. Одну или несколько стен (а возможно, лишь фрагмент стены) оформляют обоями или панелями, имитирующими кирпичную кладку.
Цветовое решение для пола – серое. Это и не марко, и не совсем мрачно. На кухне и в санузле предпочтительнее плитка, а в гостиной неплохо смотрится ламинат. Для потолка обычно выбирается натяжная конструкция.
Под общий дизайн комнаты прекрасно подойдет ламинат серого цвета
Пол в коридоре сделан из серой керамической плитки, а вот стены здесь оформлены в белый цвет для визуального увеличения пространства
Мебель в стиле лофт отличается простыми формами и максимальной функциональностью.
Для проекта квартиры П 44 это самый подходящий вариант. Если говорить о функциональной составляющей, то она должна быть особенно заметна на кухне. Контрастное цветовое решение визуально увеличит помещение, например, темный низ и светлый верх. Для санузла можно выбрать яркую мебель, которая будет особенно эффектно смотреться на фоне «скучной» серой плитки.
Скандинавский
Вообще, традиционный скандинавский стиль – это свобода и пространство. На первый взгляд кажется, что организовать нечто подобное в планировке однокомнатной квартиры П 44 просто невозможно. Однако, стоит попробовать.
Удобство, комфорт, функциональность, простота, красота и особая эстетичность – слова, определяющие суть нордического интерьера
Дизайнеры утверждают, что сканди – это некий микс лофта, минимализма, прованса и этно
Прежде всего, цветовая гамма. Ни для кого не секрет, что белый цвет визуально расширяет помещение. А значит, не нужно стесняться его использовать. Светлые натуральные материалы (например, беленый дуб, керамика, хлопок) должны присутствовать в интерьере.
А широкие дверные проемы добавят пространства. Даже мебель выбирайте исключительно белую, и максимально простую.
Основной цвет скандинавского интерьера – это белый либо светло-серый
Чтобы интерьер не выглядел унылым, можно разбавить обстановку парочкой ярких акцентов
Функцию ярких акцентов пусть выполняют игрушки и декоративные подушки на диване.
Минимализм
Это направление набирает все большую популярность. Его девиз таков: минимум предметов и максимум комфорта. В таком интерьере вы не найдете множества дорогих сердцу вещиц, которые украшают каждый свободный сантиметр. Все: от сувениров до одежды спрятано от посторонних глаз.
Минимализм станет подходящим выбором для деловых и динамичных людей
В минимализме господствуют правильные геометрические формы, удобство и комфорт в расположении предметов быта
Планируя интерьер однокомнатной квартиры П 44, уделите особое внимание гардеробной. Не исключено, что именно она станет тем «волшебным сундучком», из которого в нужный момент достают любую вещь.
В таком интерьере окна «украшают» обычные жалюзи, а обивка мебели исключительно однотонная. В качестве отделочных материалов подойдут, как традиционные, так и современные полимерные варианты.
Мебель желательно использовать встроенную, сделанную по индивидуальным размерам
Для создания статусного дизайна можно использовать отделку из натурального дерева
Конечно, есть планировки более удобные и просторные, нежели однокомнатные квартиры П44. Но, как показывает практика, скромные квадратные метры – это еще не повод отказываться от стильного и удобного интерьера. Современные дизайнерские решения, а также обилие отделочных материалов гарантирует, что сделать квадратные метры уютным гнездышком вполне возможно. И даже если у вас нет возможности произвести перепланировку, простые идеи зонирования частично решат эту проблему.
Видео: Обзор торцевой однушки в доме серии П-44Т
Фото-идеи оформления интерьера
Планы этажей квартир с одной спальней (с чертежами) — Модернизированный дом
Жилая площадь в США сильно различается в зависимости от вашего бюджета и места проживания.
Для многих одиноких людей и пар, которые арендуют квартиру с одной спальней, часто достаточно места. Тем не менее, квартира с одной спальней может оказаться сложной для семей или нескольких соседей по комнате.
Средняя площадь квартиры с одной спальней в США составляет от 675 до 715 квадратных футов. Тем не менее, есть апартаменты с одной спальней, площадь которых может легко превысить 1000 квадратных футов и более. Когда дело доходит до того, чтобы квартира работала на вас, планировка играет важную роль.
В большинстве квартир с одной спальней вы обычно найдете кухню, гостиную/обеденную зону, ванную комнату и спальню. В некоторых номерах также может быть патио или балкон для открытого пространства. Затем оставшееся пространство в квартире уходит на такие вещи, как кладовая и, возможно, прачечная.
Как заставить квартиру с одной спальней работать на вас
Самое важное, что вы можете сделать при выборе места для проживания, — это тщательно продумать свой образ жизни.
Например, если вы готовите большую часть еды дома, первостепенное значение имеет поиск места с большой кухней. Тем не менее, большая кухня не так важна, если ваше представление о изысканной еде требует доставки пиццы.
В любом случае, если вы выберете квартиру с одной спальней, у вас вряд ли будет много места. Поэтому частая расхламление — отличная идея, чтобы не утонуть в вещах. Кроме того, когда у вас меньше вещей в меньшем пространстве, вам легче поддерживать его опрятный вид.
Как правило, в квартире с одной спальней достаточно открытого пространства как для гостиной, так и для столовой. Если вы предпочитаете иметь больше отдельных зон для этих занятий, вы можете создать зоны с помощью мебели.
Если односпальная спальня меньшего размера, вы можете выбрать специально разработанные предметы мебели, такие как кровать Murphy. Тогда ваша спальня может стать офисом или мастерской днем и спальней ночью. Все дело в творчестве и нестандартном мышлении.
Как сделать квартиру с одной спальней удобной для нескольких человек
Если вы живете более чем с одним человеком в однокомнатной квартире, вам нужно изменить ситуацию. Кровать в стенной нише или диван-кровать в гостиной могут ночью превратить пространство во вторую спальню. Это может быть хорошим вариантом для детей, которые живут в квартире или если вы живете с соседом по комнате.
Конечно, это также означает, что вы должны стать еще более изобретательными с хранилищем. Удивительно, но многие квартиры с одной спальней на самом деле предлагают достаточно места для хранения, но они делают это с расчетом на одного (максимум двух) человека. Поэтому, когда небольшая семья или три человека пытаются разделить пространство, хранение становится очень ценным.
Мебель, которая выполняет несколько функций, может сделать небольшие жилые помещения более эффективными и удобными. Подумайте о таких вещах, как пуфики для хранения, которые можно использовать как журнальные столики, или книжные полки, которые действуют как перегородки.
Вы также можете добавить больше вертикальных полок на стены и создать скрытое хранилище под кроватью.
Идеи планировки квартиры с одной спальней
То, где вы ищете квартиру, повлияет на ваши доступные варианты, как и на ваш бюджет. Тем не менее, большинство планов этажей с одной спальней имеют довольно стандартную планировку. Хотя некоторые из них могут быть более уникальными, чем другие.
В конце концов, вы всегда можете изменить ситуацию так, чтобы она работала на вас. Например, в спальне нет номера , предназначенного для отдельной спальни. Но вы в значительной степени женаты на расположении таких вещей, как кухня, ванная и механические помещения.
Общая планировка квартиры с одной спальней
Эта планировка ниже от ZoDev Design имеет довольно распространенный дизайн, который можно найти в квартирах с одной спальней. Вы входите в одно большое пространство, которое включает в себя кухню, гостиную и столовую.
Остров с барными стульями отделяет кухню от остального пространства, концепция, встречающаяся во многих квартирах.
Жильцы использовали диван, чтобы разделить гостиную и столовую. Ванная комната доступна из основной гостиной, а спальня спрятана в углу квартиры. Большое патио обеспечивает идеальное место для отдыха и расширения жилого пространства в приятный день.
Хранилище в этом блоке тоже довольно стандартное. У входа есть шкаф, большой шкаф в спальне, затем штабелируемая стиральная машина с сушкой.
На кухне достаточно места для шкафов, которые также нужно использовать как кладовую. Вы также можете добавить стоячую кладовую у стены между обеденной зоной и концом столешницы.
Эта квартира также имеет довольно обычную планировку, вход в кухню и гостиную, а спальня спрятана.
Убежище мастеров
Большинство арендаторов однокомнатных квартир — одинокие или семейные пары. Таким образом, многие квартиры будут иметь тенденцию создавать более просторные главные ванные комнаты, чтобы привлечь внимание этого рынка.
В приведенном ниже примере кухня, гостиная и столовая снова делят одно большое пространство.
Есть красивая открытая терраса, которая помогает увеличить полезную площадь квартиры. Существует также ванная комната, доступная из основной гостиной. Однако спальня, также спрятанная в дальнем углу квартиры, как и выше, немного отличается.
Этот мастер имеет гардеробную, которая обеспечивает прямой доступ в ванную комнату. В ванной комнате есть ванна и дополнительный шкаф для хранения вещей. Кроме того, есть шкаф для белья, а не просто штабелируемый блок, который также обеспечивает дополнительное место для хранения.
Маленькая кухня
В некоторых апартаментах с одной спальней кухня немного меньше, чтобы не жертвовать слишком большим пространством в жилых помещениях. Это будет отличным вариантом для вас, если вам больше нравится еда на вынос, чем готовка. В этом блоке кухня, прачечная и ванная комната спрятаны в одном углу.
Однако, поскольку из спальни можно напрямую попасть в ванную комнату, планировка работает. Вам не нужно ходить по коридору, через кухню, чтобы попасть из своей комнаты в ванную. В этом номере также имеется небольшой квадратный внутренний дворик для отдыха на свежем воздухе.
Апартаменты «Гранд» с одной спальней (студия)
Если вам нравится развлекаться, вы, вероятно, предпочтете такой номер с просторной гостиной и кухней. Компромисс — немного меньшая (хотя и приличного размера) спальня.
На самом деле это студия; если присмотреться, в спальне нет двери. Однако при таком четко выраженном ощущении разделения он ощущается как двухкомнатный.
Почти 1000 квадратных футов, это также вдвое больше средней студии и намного больше, чем средняя квартира с одной спальней. Кроме того, добавление занавески или перегородки может добавить еще больше разделения.
В этом конкретном случае кровать Мерфи была бы отличной идеей.
Когда вы не в режиме спальни, вся площадь может стать дополнительным развлекательным пространством.
Дополнительные соображения при проживании в квартире с 1 спальней
Если вы планируете назвать квартиру с одной спальней домом, следует помнить о нескольких дополнительных вещах.
- Однокомнатные номера обычно подходят для одного или двух человек. Если вы планируете, чтобы там жили три человека, тщательно подумайте, прежде чем переезжать.
- К тому же, по закону в отряде может быть не больше трех человек. Хотя в некоторых случаях могут быть исключения, скажем, семья из четырех человек, вам необходимо знать правила. Как правило, это два человека на спальню плюс еще один; три человека в однокомнатной, пять человек в двухкомнатной и т. д.
- В настоящее время во многих однокомнатных квартирах есть хотя бы штабелируемые стиральная машина и сушилка. Однако не все это делают, поэтому проверьте, есть ли в комплексе прачечная или ближайший прачечный автомат.

- Если в спальне вы только и делаете, что спите, выберите более просторную гостиную. Кроме того, не стоит недооценивать возможности хранения и обращайте внимание на место для хранения в квартире. Наличие достаточного места для размещения ваших вещей является ключом к тому, чтобы маленькое пространство было спокойным и аккуратным.
Связанные вопросы
Сколько стоит двухкомнатная квартира?
Средняя арендная плата за квартиру с одной спальней в США составляет примерно 930 долларов. Тем не менее, это число может увеличиваться или уменьшаться в зависимости от того, где вы живете.
Например, квартира с одной спальней в Сан-Франциско, штат Калифорния, стоит в среднем 2197 долларов в месяц. И наоборот, квартира с одной спальней в Гейнсвилле, штат Флорида, стоит около 790 долларов в месяц.
Сумма, которую вы платите, также зависит от различных других факторов, таких как удобства в комплексе и парковка. В некоторых местах есть такие вещи, как фитнес-центр, бассейн, клуб, охрана и другие дополнительные услуги.
Все эти бонусы складываются и отображаются в вашей арендной плате.
У вас также может быть специальное парковочное место, связанное с вашей квартирой. Поэтому тщательно продумайте все, что входит в стоимость аренды. Если у вас есть домашнее животное, вам, возможно, придется платить дополнительную ежемесячную плату сверх арендной платы.
Какие плюсы и минусы проживания в двухкомнатной квартире?
Жизнь в небольшой квартире, как и в большинстве квартир с одной спальней, имеет свои плюсы и минусы. У вас определенно меньше места для уборки и поддержания порядка. Кроме того, арендная плата, как правило, дешевле, и она не будет стоить вам столько же за коммунальные услуги.
Комнаты с одной спальней обеспечивают вам некоторую конфиденциальность, несмотря на их небольшую площадь, хотя, как только вы нажмете на трех человек, вы достигнете максимума. Кроме того, вы должны убедиться, что прилагаете усилия, чтобы регулярно просматривать свои вещи и выбрасывать беспорядок.
Если вы живете в однокомнатной квартире со своим партнером и планируете создать семью, вы очень быстро перерастете свое пространство. Квартиры такого размера обычно не предлагают много места для роста, а это означает, что вам нужно будет переехать в ближайшее время.
Недавно опубликовано
ссылка на Сколько времени нужно, чтобы вырастить дерево бонсайСколько времени нужно, чтобы вырастить дерево бонсай
Выращивание дерева бонсай — древнее искусство, требующее определенных навыков и терпения. Хотя этот процесс требует времени, многие находят искусство бонсай расслабляющей и даже посреднической задачей. Его награда в работе…
Продолжить чтение
ссылка на У всех ли домов есть водоотливные насосы?Во всех ли домах есть водоотливные насосы?
Есть большая вероятность, что даже если вы не видите дренажный насос в подвале, он где-то там прячется. Дренажные насосы часто остаются вне поля зрения и внимания. Однако они незаменимы.
..
Продолжить чтение
План дома с 1 спальней — Дизайн Truoba Architect
800 $
570 кв. футов
1 кровать 1 ванная800 $
532 кв. фута
1 кровать 1 ванная800 $
500 кв. футов 1 кровать 1 ванная
400 $
285 кв. футов
1 кровать 1 ванная1000 $
1031 кв. фут
1 кровать 1 ваннаяГлавные причины выбрать проект небольшого дома с одной спальней
Если вам грозит выход на пенсию или вы являетесь домовладельцем, который только начинает строить свой дом, вы, вероятно, рассматриваете множество различных вариантов для своего дома. Многим может быть сложно определить, хотят ли они иметь в своем доме одну или две спальни. Итак, как вы можете решить, какой вариант лучше для вас? Взгляните на преимущества планов дома с 1 спальней с мансардой и причины, по которым вы должны выбрать один из них.
Бюджетный вариант . Одним из самых больших преимуществ планов домов с одной спальней является то, что они гораздо более доступны по цене. Это потому, что они, как правило, меньше и обычно имеют меньше ванных комнат. Чем меньше квадратных метров требуется, тем меньше будет стоить дом. Вы можете сэкономить много денег на ипотеке, которые затем вы можете положить на пенсию. Если вы только начинаете, вы можете положить эту сумму на сбережения, чтобы потом купить дом побольше.
Кроме того, простые проекты домов с одной спальней обойдутся дешевле в обогреве и охлаждении и будут потреблять меньше электроэнергии. Чем меньше дом, тем меньше будут ежедневные расходы. Это определенно то, о чем стоит подумать тем, у кого ограниченный бюджет. Кроме того, если вы выберете небольшие проекты домов, вам понадобится меньше мебели и техники в доме.
Меньше обслуживания – планы небольших домов с 1 спальней имеют небольшие квадратные метры, что означает, что обслуживание дома будет намного более управляемым.
Поддерживать чистоту в маленьком доме намного проще, поэтому вы можете справиться с этим самостоятельно, если живете один.
Никакого лишнего пространства, которое тратится впустую – Когда вы строите план небольшого одноэтажного дома для престарелых, вы получаете ровно столько дома, сколько вам нужно. Лишней площади не будет много, поэтому не нужно тратить деньги на неиспользуемые домашние площади. Планы дома с одной комнатой гарантируют, что вы получите количество дома, которое вы будете использовать, независимо от того, являетесь ли вы одиноким человеком или живете со своим супругом.
Безопаснее для домашних животных и внуков – Одноэтажные дома с одной спальней безопаснее для детей, чем многоэтажные дома. Это связано с тем, что лестница может быть опасна для маленьких детей и младенцев, а также для мелких домашних животных. Если они упадут, то могут серьезно пораниться. В небольшом доме без лестниц вам не придется об этом беспокоиться.
Вам также не придется беспокоиться о подъеме и спуске по лестнице, что становится проблематичным с возрастом.
Если вы планируете жить на пенсии в доме меньшего размера или у вас небольшая семья и вам не нужно много дополнительного пространства, рассмотрите планы дома с 1 спальней, работающие круглосуточно и круглосуточно, для вашего нового дома. Вы по-прежнему можете получить все необходимые удобства, не имея тонны дополнительного пространства, которое вам не нужно.
Кто живет в простых планах дома с 1 спальней?
Планы домов с 1 спальней используются для строительства домов, полезных для самых разных жителей. Это отличные первые дома. Стартовые дома для молодежи, возможно. Простые дома с одной спальней также идеально подходят для отдыха. Они относительно недорогие, так что вам не нужно грабить банк, чтобы устроить себе приятный маленький отпуск домой. Дома, построенные по планам гостевого дома с 1 спальней, могут служить жильем для свекрови, а также так называемым жильем для бабушек.
Если то, чем вы зарабатываете на жизнь, требует студии или домашнего офиса, простой план дома с одной спальней может стать идеальным решением. Здание, посвященное определенной цели, например работе, почти автоматически увеличивает производство.
Наконец, если у вас есть небольшой участок земли, который вы хотели бы превратить в источник дохода, а не просто в налоговое бремя, простой дом с одной спальней может превратить этот участок в сдаваемую в аренду единицу, источник дохода. Поскольку нехватка доступного жилья выходит на первый план в новостях, многие населенные пункты становятся более открытыми в отношении зонирования небольших домов.
Особенности планов этажей с одной спальней Одной из рекомендуемых особенностей домов с одной спальней является открытая планировка. Открытая планировка хорошо подходит для домов с одной спальней. Поскольку стен в качестве барьеров меньше, открытые планы этажей могут сделать дом с одной спальней больше.
Внутренние дворики, веранды и террасы — другие возможные особенности небольших загородных домов. Как и открытая планировка, эти надстройки позволяют максимально использовать ограниченное пространство. Они обращаются на улицу для большего жизненного пространства.
Лофты – еще один вариант для домов с 1 спальней. Чердаки, особенно подходящие для А-образных каркасов и коттеджей, позволяют максимально использовать ограниченное пространство. Лофт — это, по сути, дополнительная комната с видом на открытую планировку ниже. Это способствует ощущению открытости и простора.
Возможно, вы хотите построить надстройку к существующему дому. Дома с одной спальней могут помочь. Приложив немного изобретательности, можно сделать так, чтобы дополнительный крошечный дом выглядел так, будто он пристроен к основному дому. Рекомендуется добавить любые архитектурные отличительные черты основного дома к новому меньшему дому.
Если все сделано правильно, то жилье с одной спальней — это предел минимализма.
Дома, построенные по плану дома с одной спальней, могут быть сердцем жизни, полной простоты, сдержанности, уединения и элегантности.
Дома, построенные на основе планов домов с одной спальней, привлекательны и полезны для людей в самых разных ситуациях. Они идеально подходят для людей с ограниченными физическими возможностями — это одноэтажные дома, поэтому в них не нужно подниматься по лестнице. Эта функция также понравится семьям с маленькими детьми, которые могут упасть с лестницы. Если вы строите план этажа дома с 1 спальней, применяются те же преимущества.
Планировка дома с 1 спальней подходит для нескольких стилей. Вы можете пойти с коттеджным стилем, сделав уютный дом для себя и своих домочадцев. Также можно построить домик с одной спальней. Бунгало и ранчо также являются вариантами плана дома с одной спальней. Есть даже варианты гаражей с квартирами!
Лучшие планы небольшого дома с 1 спальней
Планы дома Драммонда
По коллекции
Планы по количеству спален
Дома с одной (1) спальней — посмотреть все
Наши планы домов с 1 спальней и планы кают с 1 спальней могут быть привлекательными для вас, независимо от того, являетесь ли вы пустым домом или ограничены в передвижении, или просто хотите иметь одну спальню на первом этаже (основной уровень) для удобства.






Санузел раздельный или совмещенный.

На окна повесьте тканевые жалюзи или легкие полупрозрачные шторы, например, рулонного типа.
