Проекты бань с мансардой из пеноблоков: фото, схемы и чертежи с мансардой, верандой, террасой
Баня из пеноблоков проекты и фото, 6х4 с мансардой, поэтапное строительство своими руками
|
Содержание: |
Неплохой альтернативой деревянной, станет баня из пеноблоков, изготавливаемых из ячеистого бетона. Он не содержит вредных веществ и имеет высокие эксплуатационные свойства.
Особенности пеноблоков
Данный стройматериал недорогой и легкий. Пеноблоки удерживают тепло в 2/3 раза более эффективно, чем кирпич. Их характеристики близки к древесине, однако они огнеустойчивы.
Блоки имеют небольшую массу при крупных размерах — это удобно для транспортирования и монтажа материала. Возводятся бани из пеноблоков достаточно легко, т. к. они отлично режутся, пилятся и стругаются ножовкой и топором. Единственный минус материала – его пористость, т.е. — неустойчивость к влаге.
Исходя из этого, блоки необходимо защищать влагостойкими материалами.
Фундамент для бани из пеноблоков
Фундамент для бани из пеноблоков должен быть плитный монолитный. Под него выкрывается котлован, глубиной 60/70см. Предварительно с помощью лазерного необходимо разметить местность и забить колышки по периметру будущего фундамента, с шагом в 2м, клинья обязательно должны находиться и по углам разметки. Далее по колышкам натягивается шнур.
Далее в котловане монтируется арматурный каркас, толщина металла которого должна быть 12мм. Затем сбивается опалубка из обрезных досок, толщиной 2.5см. После этого заливается бетон.
Полученной высоты фундамента в 70см будет достаточно, если осуществляется проект бани из пеноблоков, имеющей небольшие размеры и массу.
Возведение стен
После того, как будет уложена на фундамент гидроизоляция, можно начинать сооружать стены бани. Для их возведения, в данном случае, оптимальны блоки марки М25, имеющие плотность Д700.
Сначала, при помощи уровня находится наиболее высокий угол здания. С него и начинается монтаж стен. Пеноблоки нужно класть «на ребок». Швы меж ними делайте как можно более тонкими, так вы избежите теплопотерь.
Наиболее важный момент – укладка первого из рядов. Блоки в нем скрепляются с помощью обычного цементного раствора. Когда ряд будет уложен – его поверхность надо тщательно выровнять при помощи металлической шарошки, компенсировав все перепады высот.
От качества укладки первого ряда зависит то, насколько будет легкой работа в дальнейшем. Исходя из этого – пользуйтесь уровнем постоянно, блоки же сажайте по их месту резиновой киянкой. С тем, чтобы возводить стены было удобно, натяните контрольный шнур меж углами здания.
Начиная со второго ряда, баня из пеноблоков своими руками строится поэтапно и с применением особого клея. Он реализуется в виде сухой смеси, водой затворяется на стройплощадке. Расход смеси минимален, т.
Блоки кладутся по 3 ряда, затем меж ними прокладывается армирующая прослойка из стальной, имеющей мелкие ячейки, сетки. Перекрытия окон и дверей делаются с использованием готовых доборных деталей.
Баня из пеноблоков: возведение крыши
После сооружения стен монтируется стропильная система для кровли из досок, сечением 10х4см и опорных брусьев, сечением 15х5см. Далее ставится обрешетка из бруса, с шагом в 50см.
Черновой потолок, из необрезных досок, толщиной в 2.5см, фиксируется меж матками, на него укладывается утеплитель. Затем настилается чистовой пол второго этажа, мансарды или чердака.
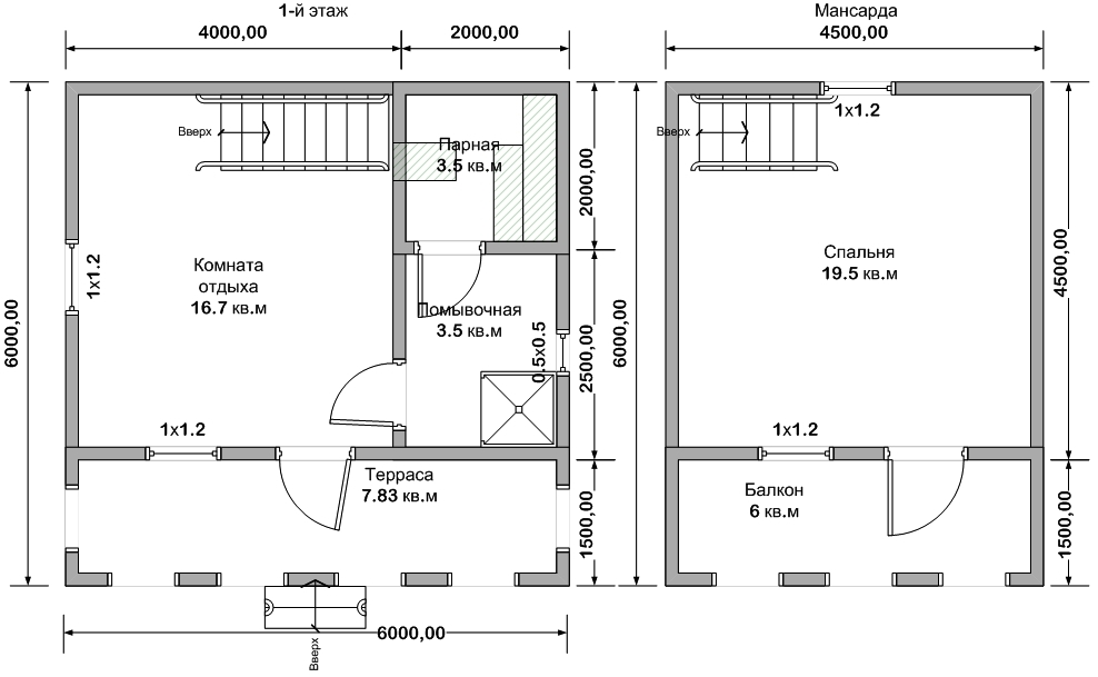
Проекты бань с мансардой 5×5
Соорудите проект баня из пеноблоков своими руками. Фото, видео, отзывы помогут определиться и с типом кровли. Ее можно покрыть любым материалом – черепицей, металлочерепицей, профнастилом и пр.
Отделка бани внутри
Далее осуществляется гидроизоляция блочных стен парной. Снаружи они пропитываются гидрофобизирующим составом, внутри прокладывается изолирующая пленка.
Оптимальный выбор для наружной отделки пеноблочных стен – вентилируемый навесной фасад. Он позволит избытку влаги уходить в атмосферу. Лучший стройматериал для вентилируемого фасада – виниловый и цокольный сайдинг, собираемый на каркасе. Внутренние помещения парной, в зависимости от их предназначения, обшиваются деревом, красятся либо облицовываются плиткой.
При постройке бани своими руками, парилку лучше всего обшить липой либо осиной, они нагреваются не сильно при больших температурах.
Баня из пеноблоков: видео
Строительство бани из пеноблока
Сравнение газобетона и пеноблока
Баня из пеноблоков проекты и фото, 6х4 с мансардой, поэтапное строительство своими руками
|
Содержание: |
Неплохой альтернативой деревянной, станет баня из пеноблоков, изготавливаемых из ячеистого бетона.
Он не содержит вредных веществ и имеет высокие эксплуатационные свойства.
Особенности пеноблоков
Данный стройматериал недорогой и легкий. Пеноблоки удерживают тепло в 2/3 раза более эффективно, чем кирпич. Их характеристики близки к древесине, однако они огнеустойчивы.
Блоки имеют небольшую массу при крупных размерах — это удобно для транспортирования и монтажа материала. Возводятся бани из пеноблоков достаточно легко, т. к. они отлично режутся, пилятся и стругаются ножовкой и топором. Единственный минус материала – его пористость, т.е. — неустойчивость к влаге. Исходя из этого, блоки необходимо защищать влагостойкими материалами.
Фундамент для бани из пеноблоков
Фундамент для бани из пеноблоков должен быть плитный монолитный. Под него выкрывается котлован, глубиной 60/70см. Предварительно с помощью лазерного необходимо разметить местность и забить колышки по периметру будущего фундамента, с шагом в 2м, клинья обязательно должны находиться и по углам разметки.
Далее по колышкам натягивается шнур.
Далее в котловане монтируется арматурный каркас, толщина металла которого должна быть 12мм. Затем сбивается опалубка из обрезных досок, толщиной 2.5см. После этого заливается бетон.
Полученной высоты фундамента в 70см будет достаточно, если осуществляется проект бани из пеноблоков, имеющей небольшие размеры и массу.
Возведение стен
После того, как будет уложена на фундамент гидроизоляция, можно начинать сооружать стены бани. Для их возведения, в данном случае, оптимальны блоки марки М25, имеющие плотность Д700. Их размеры – 10×30×60см.
Сначала, при помощи уровня находится наиболее высокий угол здания. С него и начинается монтаж стен. Пеноблоки нужно класть «на ребок». Швы меж ними делайте как можно более тонкими, так вы избежите теплопотерь.
Наиболее важный момент – укладка первого из рядов. Блоки в нем скрепляются с помощью обычного цементного раствора. Когда ряд будет уложен – его поверхность надо тщательно выровнять при помощи металлической шарошки, компенсировав все перепады высот.
От качества укладки первого ряда зависит то, насколько будет легкой работа в дальнейшем. Исходя из этого – пользуйтесь уровнем постоянно, блоки же сажайте по их месту резиновой киянкой. С тем, чтобы возводить стены было удобно, натяните контрольный шнур меж углами здания.
Начиная со второго ряда, баня из пеноблоков своими руками строится поэтапно и с применением особого клея. Он реализуется в виде сухой смеси, водой затворяется на стройплощадке. Расход смеси минимален, т.к. толщина швов меж пеноблоками составляет 5мм.
Блоки кладутся по 3 ряда, затем меж ними прокладывается армирующая прослойка из стальной, имеющей мелкие ячейки, сетки. Перекрытия окон и дверей делаются с использованием готовых доборных деталей.
Баня из пеноблоков: возведение крыши
После сооружения стен монтируется стропильная система для кровли из досок, сечением 10х4см и опорных брусьев, сечением 15х5см. Далее ставится обрешетка из бруса, с шагом в 50см.
Черновой потолок, из необрезных досок, толщиной в 2.
5см, фиксируется меж матками, на него укладывается утеплитель. Затем настилается чистовой пол второго этажа, мансарды или чердака.
Проекты бань с мансардой 5×5
Соорудите проект баня из пеноблоков своими руками. Фото, видео, отзывы помогут определиться и с типом кровли. Ее можно покрыть любым материалом – черепицей, металлочерепицей, профнастилом и пр.
Отделка бани внутри
Далее осуществляется гидроизоляция блочных стен парной. Снаружи они пропитываются гидрофобизирующим составом, внутри прокладывается изолирующая пленка.
Оптимальный выбор для наружной отделки пеноблочных стен – вентилируемый навесной фасад. Он позволит избытку влаги уходить в атмосферу. Лучший стройматериал для вентилируемого фасада – виниловый и цокольный сайдинг, собираемый на каркасе. Внутренние помещения парной, в зависимости от их предназначения, обшиваются деревом, красятся либо облицовываются плиткой.
При постройке бани своими руками, парилку лучше всего обшить липой либо осиной, они нагреваются не сильно при больших температурах.
Баня из пеноблоков: видео
Строительство бани из пеноблока
Сравнение газобетона и пеноблока
Баня из пеноблоков проекты и фото, 6х4 с мансардой, поэтапное строительство своими руками
|
Содержание: |
Неплохой альтернативой деревянной, станет баня из пеноблоков, изготавливаемых из ячеистого бетона. Он не содержит вредных веществ и имеет высокие эксплуатационные свойства.
Особенности пеноблоков
Данный стройматериал недорогой и легкий. Пеноблоки удерживают тепло в 2/3 раза более эффективно, чем кирпич.
Их характеристики близки к древесине, однако они огнеустойчивы.
Блоки имеют небольшую массу при крупных размерах — это удобно для транспортирования и монтажа материала. Возводятся бани из пеноблоков достаточно легко, т. к. они отлично режутся, пилятся и стругаются ножовкой и топором. Единственный минус материала – его пористость, т.е. — неустойчивость к влаге. Исходя из этого, блоки необходимо защищать влагостойкими материалами.
Фундамент для бани из пеноблоков
Фундамент для бани из пеноблоков должен быть плитный монолитный. Под него выкрывается котлован, глубиной 60/70см. Предварительно с помощью лазерного необходимо разметить местность и забить колышки по периметру будущего фундамента, с шагом в 2м, клинья обязательно должны находиться и по углам разметки. Далее по колышкам натягивается шнур.
Далее в котловане монтируется арматурный каркас, толщина металла которого должна быть 12мм. Затем сбивается опалубка из обрезных досок, толщиной 2.
5см. После этого заливается бетон.
Полученной высоты фундамента в 70см будет достаточно, если осуществляется проект бани из пеноблоков, имеющей небольшие размеры и массу.
Возведение стен
После того, как будет уложена на фундамент гидроизоляция, можно начинать сооружать стены бани. Для их возведения, в данном случае, оптимальны блоки марки М25, имеющие плотность Д700. Их размеры – 10×30×60см.
Сначала, при помощи уровня находится наиболее высокий угол здания. С него и начинается монтаж стен. Пеноблоки нужно класть «на ребок». Швы меж ними делайте как можно более тонкими, так вы избежите теплопотерь.
Наиболее важный момент – укладка первого из рядов. Блоки в нем скрепляются с помощью обычного цементного раствора. Когда ряд будет уложен – его поверхность надо тщательно выровнять при помощи металлической шарошки, компенсировав все перепады высот.
От качества укладки первого ряда зависит то, насколько будет легкой работа в дальнейшем. Исходя из этого – пользуйтесь уровнем постоянно, блоки же сажайте по их месту резиновой киянкой.
С тем, чтобы возводить стены было удобно, натяните контрольный шнур меж углами здания.
Начиная со второго ряда, баня из пеноблоков своими руками строится поэтапно и с применением особого клея. Он реализуется в виде сухой смеси, водой затворяется на стройплощадке. Расход смеси минимален, т.к. толщина швов меж пеноблоками составляет 5мм.
Блоки кладутся по 3 ряда, затем меж ними прокладывается армирующая прослойка из стальной, имеющей мелкие ячейки, сетки. Перекрытия окон и дверей делаются с использованием готовых доборных деталей.
Баня из пеноблоков: возведение крыши
После сооружения стен монтируется стропильная система для кровли из досок, сечением 10х4см и опорных брусьев, сечением 15х5см. Далее ставится обрешетка из бруса, с шагом в 50см.
Черновой потолок, из необрезных досок, толщиной в 2.5см, фиксируется меж матками, на него укладывается утеплитель. Затем настилается чистовой пол второго этажа, мансарды или чердака.
Проекты бань с мансардой 5×5
Соорудите проект баня из пеноблоков своими руками.
Фото, видео, отзывы помогут определиться и с типом кровли. Ее можно покрыть любым материалом – черепицей, металлочерепицей, профнастилом и пр.
Отделка бани внутри
Далее осуществляется гидроизоляция блочных стен парной. Снаружи они пропитываются гидрофобизирующим составом, внутри прокладывается изолирующая пленка.
Оптимальный выбор для наружной отделки пеноблочных стен – вентилируемый навесной фасад. Он позволит избытку влаги уходить в атмосферу. Лучший стройматериал для вентилируемого фасада – виниловый и цокольный сайдинг, собираемый на каркасе. Внутренние помещения парной, в зависимости от их предназначения, обшиваются деревом, красятся либо облицовываются плиткой.
При постройке бани своими руками, парилку лучше всего обшить липой либо осиной, они нагреваются не сильно при больших температурах.
Баня из пеноблоков: видео
Строительство бани из пеноблока
Сравнение газобетона и пеноблока
youtube.com/embed/Qqo_nGLivFE?list=PLVcV7nDlYSAstiAtfqVTaFh4mP0k-G0UT»>Проекты домов из пеноблоков с мансардой
Строительство дома с мансардой из пеноблоков ежегодно набирает обороты, и этому явлению есть естественное объяснение. В результате владелец получает функциональное жилье привлекательного вида. Сокращение материальных затрат по сравнению со строительством полноценного этажа при одновременном увеличении полезной площади – желание большинства семей.
Выигрышные стороны зданий с мансардой
Устройство чердачного помещения под жилье предусмотрено на стадии проектирования.
В сочетании с применением пеноблоков собственник получает следующие преимущества от такого решения:
- Расширение жилой площади. Увеличение площади, пригодной для применения, напрямую зависит от конструкции крыши, заложенной в проект.
- Строительство мансарды требует меньше труда и материалов, нежели проект со следующим этажом.

- Проект коттеджа с мансардой обеспечивает эффективное использование земельного участка, отведенного под застройку.
- Снижение тепловых потерь дома путем установки тепло- и гидроизоляции.
- При необходимости завершающие работы по отделке мансарды проводятся после заселения 1 этажа.
С учетом сокращения сроков строительства заслуженной популярностью пользуются проекты домов из пеноблоков с мансардой.
Что дает применение пеноблоков
Внедрение современных разработок в производство строительных материалов обеспечило актуальность пенобетона как основного основания коттеджей. Технологические характеристики материала обладают следующими преимуществами:
- Гладкая поверхность обеспечивает качественную кладку с минимальными потерями тепла через швы.
- Большие енабариты пеноблока способствуют ускорению процесса строительства коттеджа.
- Высокие параметры энергосбережения. Низкая теплопроводность материала создает условия для облицовки стен без предварительного утепления.

- Дом проекта из пеноблока сохраняет прохладу в летний зной и не теряет тепло в зимние холода. Высокие теплоизоляционные характеристики материала способствуют снижению затрат на обогрев помещения в холодный период.
- Экологическая безопасность в связи с отсутствием сброса вредных веществ. Материал соответствует всем нормативным требованиям и имеет сертификаты качества.
- Устойчивость к высоким температурам и воздействию грибка. Пеноблок не горит, на нем не развивается плесень, его не поражают насекомые.
- Пенобетон не боится перепадов температур и взаимодействия с влагой. Сохраняет свои качества в любое время года.
- Проект дома из пеноблока прослужит в одном поколении, сохранив свои свойства и привлекательный внешний вид.
- За счет больших размеров блоков снижен расход раствора.
Внимание! Кроме строительства домов существуют проекты из пеноблоков
3.
Технологические особенности строительства коттеджа из пеноблока с мансардой
Черновики с мансардой обладают некоторыми технологическими особенностями благоустройства кровли .
Их соблюдение обеспечит дальнейший комфорт использования мансарды и всей конструкции в целом. Проект помещений с мансардой является основой для расчета потребности в материалах.
Итак, на что обратить внимание при выборе проекта с мансардой:
- Монтаж каркаса осуществляется из сухого древесного материала высокого качества. Это предотвратит последующую деформацию конструкции и обеспечит ее устойчивость на протяжении длительного периода.
- Грамотный подбор тепло- и гидроизоляционных материалов. Специалисты отдают предпочтение базальтовому утеплителю и минеральной вате, зарекомендовавшим себя с лучшей стороны.
- Внутреннее покрытие крыши рекомендуется делать из фанеры. В результате гарантируется легкая установка в сочетании с отличными характеристиками.
- Декоративная кровля. В качестве отделочного материала мансарды оптимально подходит металлический конструктор, обеспечивающий эстетичный внешний вид и отличные эксплуатационные свойства.
Чтобы проект коттеджа с мансардой успешно воплотился в жизнь, выбор качественных строительных материалов должен сопровождаться профессиональным монтажом всех составляющих элементов.
Выбор проекта
Современные технологии позволяют подобрать жилье из пеноблоков с мансардой любой сложности. При изучении проектов учитывают индивидуальные потребности проживания и руководствуются следующими критериями:
- Учитывая размеры участка, определить необходимую площадь фундамента дома из пеноблоков с мансардой.
- Рассчитать величину жилплощади. Свободное пространство мансарды напрямую зависит от формы крыши, предусмотренной проектом.
- Планировка дома с мансардой. Количество жилых комнат напрямую зависит от количества проживающих в коттедже.
- Внешний вид дома. Использование пеноблоков позволяет выбрать любую форму строения.
Всегда сложно сделать правильный выбор проекта, ведь нужно учитывать множество факторов.
Внимание! В зависимости от планируемых затрат выбирается типовой проект или заказывается индивидуальная планировка, которая обойдется дороже стандартных вариантов.
Особенностью строительства по типовым проектам является отсутствие сложной облицовки.
Чтобы придать фасаду здания эстетичный вид, пенопласт достаточно покрасить. Индивидуальный подход подразумевает разнообразие способов отделки: декоративный камень, виниловая плитка или сайдинг – выбор зависит от пожеланий заказчика проекта.
Типовая планировка не всегда покрывает потребности всех проживающих в доме с мансардой. Удовлетворить многочисленные пожелания способен индивидуальный проект дома 8х8 или 8х10. Минусом такого решения будет увеличение сметы строительства коттеджа с мансардой из пеноблоков.
Создание проекта по индивидуальному заказу
Разработкой индивидуального проекта занимается целая команда профессионалов, состоящая из дизайнеров, инженеров и проектировщиков. Такой подход максимально увеличивает вероятность ошибок и неточностей. Преимущества строительства жилья с мансардой из пеноблоков по индивидуальному проекту следующие:
- Определение всех параметров осуществляется с учетом многих сопутствующих факторов: климатических условий региона, свойств почвы, окружающей ландшафт.

- Специалисты дадут квалифицированную консультацию по выбору экстерьера дома, его органичному сочетанию с окружающей средой и модными тенденциями в оформлении интерьера.
- Профессиональный подход предполагает максимальное удовлетворение требований и пожеланий заказчика проекта и членов его семьи. Это обеспечит комфортные условия проживания в доме с мансардой из пеноблоков.
Привлечение к разработке проекта узкопрофильных специалистов позволит обеспечить соответствие отношения с мансардой всем нормативным требованиям.
Варианты проектов домов из пеноблоков с мансардой
На этапе проектирования обязательно обсуждается вопрос временного или постоянного проживания для грамотной организации отопления. В зависимости от планов дальнейшей эксплуатации строения из пеноблоков с мансардой рассматриваются различные варианты проекта:
- Для комфортного отдыха лучше остановиться на варианте компактной конструкции 6х6 или 6х8. Этого будет достаточно, чтобы разместить на первом этаже кухню, гостиную, санузел и одну спальню.
Обустройство мансарды зависит от личных потребностей хозяев. Большой семье нужны дополнительные спальные места, трудоголик не обойдется без рабочего кабинета, а спортсмену захочется иметь уголок для регулярных тренировок. - Планировка жилья из пеноблоков площадью 8х8 может включать просторный холл, плавно переходящий в гостиную. Тогда спальни располагаются исключительно на верхнем ярусе. Практично установить второй санузел.
- Дополнительные номера позволяют оснастить проект ядерными 9х7,5 и 9х9. Терраса у входа — отличное место для отдыха теплыми вечерами, а также взбодриться приятным утренним кофе на свежем воздухе.
- Побаловать себя и друзей позволит просторная гостиная проекта 9х10. При этом мансарда в этом случае заполняется исключительно жилыми помещениями.
- При наличии достаточных средств на строительство и последующее содержание можно обратиться к проекту 10х10. Очень эффектно в этом случае выглядит комбинированная наружная отделка здания с мансардой из пеноблоков.

Совет! Кроме предложенных вариантов планировки, верхний этаж часто дополняется зимним садом, естественно, при условии постоянного проживания в доме.
Мансардная крыша – практичное решение, если вы желаете увеличить полезную площадь дома без значительных затрат на строительство. Грамотный подбор материалов и квалифицированный монтаж обеспечат комфортное проживание длительного периода времени.
Можно ли использовать пенопласт на чердаке? Варианты утепления – Руководство по эффективности дома
Если вы думаете об утеплении чердака, есть несколько вариантов. Самый модный вариант — напыляемая пена, но он может быть дорогостоящим и не является проектом «сделай сам». Пенокартон дешевле, но можно ли его смело использовать на чердаке?
На чердаке можно использовать пенопласт. Это отличный вариант установки на чердаке, потому что он легкий, с ним легко работать и он обладает высокими значениями теплопроводности.
Часто значение R изоляции из стекловолокна слишком низкое и требует переоборудования стропил, что делает пенопласт лучшим выбором.
При строительстве моего нынешнего дома я столкнулся с дилеммой, как утеплить дополнительную комнату, которая должна была находиться наверху. Поскольку стены будут примыкать к чердачному пространству, я хотел убедиться, что смогу правильно изолировать и герметизировать их, чтобы предотвратить потери энергии.
Ознакомьтесь с портативным двухтопливным генератором Champion мощностью 4375/3500 Вт — готов для автодома! (ссылка на Amazon)
Напыляемая пена была смехотворно дорогой, и хотя с точки зрения теплоизоляционных свойств у нее были явные преимущества, я просто не мог уговорить себя на это. Но пенопласт предлагал некоторые реальные преимущества, в том числе возможность установить его самостоятельно.
По данным Агентства по охране окружающей среды, изоляция чердака может сэкономить вам в среднем 15% ваших затрат на охлаждение и обогрев вашего дома.
Давайте посмотрим, что такое жесткая пена и какие бывают ее типы, несколько советов по ее установке и особые соображения, о которых следует помнить.
Что такое жесткая пенопластовая плита?
Жесткая пенопластовая плита, также известная как пенопластовая плита или изоляционная плита, может быть отличным вариантом для изоляции. Он легкий и удобный в работе. Доска 4 на 8 почти ничего не весит и ее можно легко обрезать по размеру.
Стандартная толщина варьируется от ½ дюйма до 2 дюймов, при расчетных значениях R-3 от ½ дюйма до R-10 для 2-дюймовой доски.
Часто можно услышать, что жесткая пена является продуктом с закрытыми порами .
В изоляционном продукте с открытыми порами , таком как стекловолокно, воздух удерживается внутри волокна. Однако стекловолокно можно сжать, уменьшив размер воздушных карманов.
При установке стекловолокна люди часто сжимают обычные стекловолоконные плиты, что снижает эффективность продукта.
С пенопластовой изоляцией это не проблема.
Как работает жесткая пенопластовая плита?
Жесткая пенопластовая плита задерживает воздух, затрудняя теплопроводность. Тепло может передаваться тремя способами: излучением, конвекцией и теплопроводностью .
Когда солнечные лучи падают на крышу, это тепло распространяется по крыше. Чтобы это тепло попало на ваш чердак, оно должно проходить через кровельные материалы.
Использование жесткой пены для создания воздушной полости затрудняет проникновение тепла в жилое пространство.
В этом коротком видеоролике от производителя пенопластовых плит демонстрируется установка пенопластовых плит для создания этих воздушных полостей.
Изоляция R-TECH на чердаке или потолке
Посмотрите это видео на YouTube
Существуют ли различные типы жестких пенопластовых плит?
В настоящее время существует три типа плит из жесткого пенопласта.
Формованная плита из вспененного полистирола
MEPS представляет собой жесткую плиту, изготовленную путем формования плит из полистирола. Из полистирола можно делать различные предметы, в том числе транспортировочные материалы, такие как упаковка арахиса и кофейные чашки, а также листы пенопластовой изоляции.
- MEPS, также называемый картоном, изготавливается путем насыпания шариков полистирола в контейнер. Шарики нагреваются и расширяются. Затем шарики выливают в форму, где под воздействием тепла и давления они формируются в блоки.
- Бизиборд изготавливается различной плотности и ширины. Denser MEPS используется для кровли, поэтому она не будет повреждена, когда монтажники будут ходить по ней. Брусчатка, используемая для стен, обычно толще, но не такая плотная.
- Плиты из вспененного полистирола могут использоваться выше или ниже уровня грунта и обладают хорошей влагостойкостью. Эти доски обычно белые и имеют серебристую облицовку.
- Значение R варьируется от 3,8 до 4,4 на дюйм
Плита из экструдированного вспененного полистирола
XEPS или XPS также изготавливается из гранул полистирола.
- Гранулы плавятся, как в MEPS, но вместо заливки в форму жидкость выдавливается через фильеру, формирующую плиту.
- XEPS имеет более постоянную плотность и менее подвержен давлению, что делает его лучшим выбором для крыш. Экструдированный полистирол также лучше сопротивляется влаге, чем MEPS.
- Плиты из экструдированного пенопласта дороже, чем вспененные, но значение R составляет около 5 рандов на дюйм.
- Розовый Owens Corning Foamular представляет собой экструдированный картон, как и Dow Styrofoam синего цвета.
Плита из полиизоцианурата и пенополиуретана
Обе плиты изготовлены на основе уретана. Этот изоляционный материал позволяет более тонким плитам обеспечивать одинаковые значения изоляции. Дюйм изоляции полиизо имеет значение R 6 до R 8.
- Пенопластовые плиты Polyiso идеально подходят для крыш, поскольку они остаются стабильными в более широком диапазоне температур, чем другие плиты.
- Покрытие из алюминиевой фольги, добавленное к плитам Polyiso, создает пароизоляцию.
Тем не менее, полиизо не рекомендуется для применения ниже сорта, потому что он легко поглощает жидкости.
Что выбрать?
Если вы работаете с пенопластом на чердаке, вам необходимо учитывать свой бюджет. Но пространство и функциональность также являются важными факторами.
Если у вас много места для работы и вы пытаетесь только улучшить теплоизоляцию своего дома, тогда вам может подойти формованная или картонная доска. Это уменьшит утечку тепла зимой и сохранит тепло летом, что позволит вам обогревать и охлаждать дом с меньшими затратами.
Однако, если вы планируете превратить часть или весь чердак в жилое помещение, вам, вероятно, следует выбрать экструдированный. Во-первых, он прочнее и лучше держится. Во-вторых, он тоньше, что упрощает установку в ограниченном пространстве и дает вам больше места.
Какие проблемы может создать жесткая пенопластовая плита?
Чаще всего упоминаются следующие проблемы:
- Влага.
Вода может конденсироваться внутри стенных полостей, если в них может проникать воздух. Конденсат может возникать как зимой — когда теплый воздух из дома просачивается в полости, так и зимой, когда в полостях конденсируется солнечное тепло. В любом случае, если вода остается в полостях, могут возникнуть проблемы, связанные с влажностью, такие как плесень и гниение. - Пожар . Как только пенопластовая изоляция загорается, она быстро сгорает. Кроме того, дым, исходящий от жесткой пены, густой и насыщен токсичными газами. По этой причине вам нужно будет использовать огненный барьер. Для этой цели обычно используется гипсокартон толщиной в полдюйма.
- Насекомые . Хотя насекомые могут прорываться сквозь пенопластовые плиты, если вы читаете об этом как о потенциальной проблеме, это обычно относится к установке фундамента. Пенопластовые плиты, обработанные боратным составом, предотвращают эту проблему.
Как установить жесткую пенопластовую плиту?
Если вы не планируете отделку мансарды, то процесс установки будет простым.
- Измерьте расстояние между стропилами и отрежьте доску по размеру.
- С помощью меловой линии или Т-образного угольника отметьте место, где его нужно разрезать.
- Вы можете использовать универсальный нож для резки, используя тот же процесс резки и защелкивания, который используется для гипсокартона. Настольная пила тоже разрежет доску, но поднимет больше пыли.
- Вставьте доску между стропилами. Вы можете использовать клей для пенопласта, чтобы приклеить его на место. Не прибивайте доску к крыше.
Если вы планируете отделку мансарды, то устанавливать ее напрямую нельзя.
- Ваша доска должна оставлять зазор не менее ½ дюйма между доской и крышей.
- Используйте полоски обрешетки, прибитые к бокам стропил, чтобы было к чему прикрепить доску.
- Для герметичности используйте ленту из фольги.
- Установите плиты из пенопласта лицевой стороной к себе.
Другой способ установки – прикрепить доску к стропилам так же, как гипсокартон.
Когда вы будете готовы повесить гипсокартон, ваши винты должны быть как минимум на один дюйм длиннее, чем ширина гипсокартона и пенокартона вместе взятых.
Поскольку боковые вентиляционные отверстия будут закрыты, когда вы закончите ремонт, вам потребуются вентиляционные отверстия на потолке и коньке крыши, чтобы горячий воздух мог выходить.
Этот короткий видеоролик Owens Corning даст вам общее представление о процессе установки:
Посмотрите это видео на YouTube
Bottom Line
Если вы можете легко попасть на чердак, то утепление чердака пенопластом — отличный способ либо превратить его в дополнительное жилое пространство, либо сократить расходы на электроэнергию.
Это более крупный проект, поэтому вы можете подумать о найме профессионала, который сделает работу вдвое быстрее. Я нанял молодого человека из нашего района, чтобы он помог мне с установкой, но это потребовало некоторой работы, в основном в узких углах чердака.
Проведите бесплатный энергоаудит дома своими руками, используя наше руководство и рабочий лист.
Рекомендуем прочитать:
- Плюсы и минусы мансардных спален
Как устранить утечки воздуха на чердаке (сделай сам)
Обновлено: 24 июня 2019 г.
Это пыльная и грязная работа, но это самый быстрый и дешевый способ сэкономить на счетах за электроэнергию.
Следующий проект›
Семейный мастер на все руки
Небольшие утечки воздуха в неизолированные чердачные помещения являются основным источником потерь тепла во многих домах. Вот как найти места утечки и заткнуть их, не тратя много денег.
от экспертов по DIY в журнале Family Candyman
- Время
- Сложность
- Стоимость
- Стоимость
- . эквивалент 2 футов.
квадратная дыра, которая действует как дымоход, выбрасывая дорогой нагретый воздух на ваш чердак и всасывая холодный воздух вокруг ваших окон и дверей. Вы не можете видеть отверстие, потому что это сумма множества меньших отверстий. Эти щели вокруг сантехнических труб, осветительных приборов, дымоходов и других обходов чердака скрыты под вашим утеплителем.С помощью недорогих материалов и одного рабочего дня вы можете ежегодно экономить много денег на отоплении, заделывая эти отверстия. Мы покажем вам, где найти байпасы на вашем чердаке, и покажем простые способы их заглушки и герметизации.
Вы найдете все необходимое в любом хозяйственном магазине с полным спектром услуг, домашнем центре или на лесопилке. Если вы не можете найти изоляцию из отражающей фольги (фото 3), замените ее гипсокартоном или кусками, вырезанными из 4 x 8 футов. листы жесткого фольгированного утеплителя. Подгонка жесткого материала требует более точных измерений, но результат тот же.
Рисунок A: Распространенные утечки воздуха на чердаке
Теплый воздух выходит через крошечные щели в потолке и стенах, что приводит к появлению сквозняков вокруг окон, дверей и других негерметичных мест.

Ориентируйтесь снизу
Прежде чем лезть на чердак, сделайте быстрый набросок плана этажа. Обратите внимание на заниженные потолки над кухонными шкафами или туалетными столиками, наклонные потолки над лестницами или любые другие области с заниженными потолками. В этих помещениях обычно есть открытые полости для стоек, ведущие прямо на чердак, которые являются огромными источниками утечек воздуха (фото 1 – 3). Найдите основную водопроводную трубу, дымоход печи или дымоход и отметьте это на своем эскизе в качестве ориентира, когда вы попадете на чердак.
Создайте давление в доме
Когда будете готовы, поместите вентилятор в окно, чтобы он дул воздухом в дом, и закройте все оставшиеся окна и двери. Обмотайте вентилятор картонной лентой, чтобы закрыть большие зазоры. Когда вы включаете вентилятор на полную мощность, в доме создается давление, как в надутом воздушном шаре. И так же, как вы можете почувствовать воздух из дырявого воздушного шара, вы сможете подтвердить протечки на чердаке, почувствовав сквозняк рукой.
Возможно, вы даже сможете определить местонахождение байпаса визуально, посмотрев на поврежденную изоляцию. Закройте за собой чердачную дверь или люк, чтобы добиться максимального эффекта. Собери припасы и оденься. Чердаки — жалкое место для работы.Сначала заткните большие отверстия
Фото 1. Оберните изоляцию пластиком
Отрежьте 16-дюймовую трубку. длинный кусок необработанного стекловолоконного утеплителя и сложите его на дне 13-галлонного пластикового мешка для мусора. Полиэтиленовый пакет создает пароизоляцию.
Фото 2. Заглушки открытых полостей для шипов
Сложите пакет один раз и засуньте его в открытые полости для шипов. Убедитесь, что в сумке достаточно изоляции, чтобы плотно прилегать к полости.
Фото 3: Накрыть открытые потолки
Ножницами отрежьте кусок изоляции из фольги примерно на 6 дюймов длиннее закрываемого отверстия. Нанесите полоску латексного герметика вокруг отверстия. Вставьте фольгу в герметик и закрепите ее скобами.

Заманчиво взять баллончик с пенопластом и залить его во все маленькие отверстия, но больше всего вы сэкономите, затыкая большие отверстия. Найдите водопроводную трубу или дымоход в качестве ориентира. Затем используйте свой эскиз, чтобы определить местонахождение софитов, лестничных клеток или других областей с подвесным потолком. Вам, вероятно, придется копаться в изоляции, чтобы обнаружить их. Софиты могут быть заполнены утеплителем или покрыты картоном или стекловолокном. Отодвиньте изоляцию и выньте ее из софитов. Теперь заткните открытые места для шипов (фото 1 и 2) и заклейте верхнюю часть полостей отражающей фольгой (фото 3). Когда закончите, снова покройте участок изоляцией.
ВНИМАНИЕ!Некоторые чердаки имеют вермикулитовую изоляцию, которая может содержать опасный для здоровья асбест. Вермикулит представляет собой легкий, размером с горошину, чешуйчатый минерал серого цвета. Не нарушайте вермикулитовую изоляцию, если только вы не проверили ее в утвержденной лаборатории, чтобы убедиться, что она не содержит асбеста.
Обратитесь в местный отдел здравоохранения, чтобы узнать название утвержденной лаборатории.Мешки с начинкой также герметизируют пространство между балками
Фото 4. Заглушка открытых пространств между балками
Заделка всех открытых пространств между балками под изолированными боковыми стенками. Вырежьте 24-дюймовый. длинный кусок изоляционного материала из стекловолокна и положите его на дно 13-галлонного пластикового мешка для мусора. Сложите сумку и запихните ее в пространство между балками под стеной.
Отапливаемые помещения, встроенные в чердаки, часто имеют открытые полости в перекрытии пола под стенами. Несмотря на то, что изоляция может быть сложена или забита в эти пространства, они все равно могут пропускать воздух. На фото 4 показано, как заполнить эти промежутки заглушками того же типа, что и мешки для мусора, которые мы использовали для герметизации полостей шпилек.
Дымоходы печей требуют специальной техники
Фото 5: Установка обшивки вокруг дымохода
Вырежьте алюминиевую обшивку для установки вокруг дымохода.
Для круглых дымоходов, таких как наш, вырежьте полукруги из двух частей, чтобы они перекрывались примерно на 3 дюйма посередине. Вдавите сверкающий металл в шарик латексного герметика и прикрепите его на место. Если нет дерева, прикрепите его прямо к гипсокартону. 9№ 0003Фото 6: Заделка зазора
Заделайте зазор между дымоходом и металлическим накладным элементом с помощью специального высокотемпературного силиконового герметика. Не используйте аэрозольную пену здесь.
Фото 7: Отделите изоляцию от трубы
Сформируйте изоляционную дамбу, чтобы предотвратить контакт изоляции с дымоходом. Отрежьте достаточное количество алюминия от катушки, чтобы обернуть дымоход плюс 6 дюймов. Вырежьте прорези глубиной 1 дюйм и расстоянием в несколько дюймов вдоль верхней части и загните выступы внутрь. Вырежьте прорези глубиной около 2 дюймов вдоль дна и отогните выступы. . Оберните плотину вокруг дымохода и закрепите дно, скрепив скобами язычки.
Отверстие вокруг дымохода печи или водонагревателя является основным источником поступления теплого воздуха на чердак (Фото 5).
Поскольку труба нагревается, строительные нормы и правила требуют зазора в 1 дюйм от дымоходов класса B (2 дюйма от каменных дымоходов) до любого горючего материала, включая изоляцию. На фото 5 и 6 показано, как герметизировать этот зазор с помощью легкого алюминиевого фартука и специального высокотемпературного силиконового герметика. Перед тем, как вернуть изоляцию на место, соорудьте металлическую дамбу (фото 7), чтобы она не касалась трубы. Используйте эту же технику для кладки дымоходов.Используйте пену и герметик для герметизации небольших отверстий
Фото 8: Используйте пену вокруг труб
Вставьте небольшой кусок изоляционного материала из стекловолокна в пространство вокруг водопроводной вентиляционной трубы в качестве подложки для расширяющейся пены (убедитесь, что это огнезащитный материал). тип). Затем следуйте указаниям на баллончике, чтобы заполнить пространство вокруг трубы расширяющейся изоляцией из пенопласта.
Фото 9: Заполните отверстия для проводки
Заполните монтажные и сантехнические отверстия монтажной пеной.
Загерметизируйте электрические распределительные коробки и заполните отверстия в коробке герметиком.Заделайте отверстия вокруг вентиляционных отверстий и электрических проводов монтажной пеной (фото 8 и 9). Однако будьте осторожны; этот материал очень липкий, и его почти невозможно снять с одежды и кожи. Наденьте одноразовые перчатки и защитные очки. Загерметизируйте электрические коробки герметиком (Фото 9).
Контрольные признаки: поиск обходных путей на чердаке
Несмотря на то, что большинство щелей, через которые теплый воздух попадает на ваш чердак, скрыты в изоляции, вы все равно увидите следы утечки воздуха. Находясь на чердаке, поищите места, где изоляция затемнена (см. фото) в результате фильтрации запыленного воздуха из дома. В холодную погоду вы можете увидеть участки инея на изоляции, вызванные конденсацией и замерзанием теплого влажного воздуха при попадании на холодный воздух чердака. В более теплую погоду вы обнаружите пятна от воды в этих же местах.
Если вы создадите давление в доме с помощью оконного вентилятора, вы сможете почувствовать утечки рукой, когда воздух попадет на чердак.Встраиваемые светильники для банок — непростое решение
отверстие в потолке и добавить 100-ваттную лампочку — достаточно тепла, чтобы испечь печенье — и у вас есть рецепт огромных потерь тепла, а также основной фактор образования ледяных дамб. Вот что делает встроенный свет. Вот решения, которые мы рекомендуем, если у вас есть утопленные светильники, выступающие на чердак:- Замените лампы накаливания компактными люминесцентными лампами с более низким температурным режимом.
- Замените старые встраиваемые светильники герметичными моделями из термоизолированных банок (доступны в домашних центрах и магазинах осветительных приборов). Это лучшее решение для тех, кто имеет навыки работы с электричеством. Новые банки относительно недороги, и обычно их можно установить за несколько часов.
Завершите работу, запечатав люк
Фото 10: Закройте доступ на чердак
Уплотните люк или дверь доступа на чердак.
Отрежьте доски 1×3 по периметру проема и прибейте их финишными гвоздями 6d. Нанесите самоклеящуюся уплотняющую ленту из вспененного материала на верхний край упора.Фото 11: Плотно затяните дверцу
Прикрепите застежки-липучки к дверце и упорам. Расположите проушины так, чтобы уплотнитель сжимался при защелкивании крючков.
Когда вы закончите герметизацию чердачных байпасов, задвиньте изоляцию на место с помощью старой ручки от метлы или палки, возвращаясь с чердака. Затем в завершение заклейте люк самоклеящимся уплотнителем из пеноматериала (фото 10 и 11). Если ваш люк опирается непосредственно на молдинги, как у нас, добавьте упоры шириной 2-1/2 дюйма вокруг отверстия. Упоры обеспечивают более широкую поверхность для крепления уплотнителя и место для установки застежек-липучек. Расположите проушины для винтов таким образом, чтобы уплотнитель был слегка сжат при защелкивании крюков.
Проверка на обратную тягу
Всякий раз, когда вы проводите улучшения в области энергетики, например, герметизирует чердачные байпасы, что приводит к более герметичному дому, устанавливайте датчики угарного газа (CO), если они у вас еще не установлены.
Разрешить по одному на этаж. Также попросите профессионала проверить ваши приборы сгорания на наличие обратной тяги при следующем обслуживании.Советы по работе на чердаке
- Начинайте работу утром, когда прохладно. Если возможно, выберите прохладный пасмурный день. Не проводите более 15-20 минут на раскаленном чердаке.
- Наденьте легкий одноразовый комбинезон (можно приобрести в отделах покраски), перчатки и шапку, чтобы защитить одежду и кожу от зудящего утеплителя.
- Всегда носите пылезащитную маску с двойным ремешком или респиратор, одобренный OSHA.
- Носите наколенники, если они у вас есть. Ползание по балкам становится болезненным. Используйте обрезки фанеры, чтобы встать на колени и использовать их в качестве платформы для ваших припасов.
- Купите лампочку для грубой эксплуатации и накладной светильник, которые можно приобрести в хозяйственных магазинах. Имейте под рукой фонарик на всякий случай.
- Сведите к минимуму количество поездок на чердак и обратно, собрав все свои инструменты и расходные материалы и разместив их на чердаке перед подъемом.

- Полный день
- Начальник




Обустройство мансарды зависит от личных потребностей хозяев. Большой семье нужны дополнительные спальные места, трудоголик не обойдется без рабочего кабинета, а спортсмену захочется иметь уголок для регулярных тренировок.
Тем не менее, полиизо не рекомендуется для применения ниже сорта, потому что он легко поглощает жидкости.
Вода может конденсироваться внутри стенных полостей, если в них может проникать воздух. Конденсат может возникать как зимой — когда теплый воздух из дома просачивается в полости, так и зимой, когда в полостях конденсируется солнечное тепло. В любом случае, если вода остается в полостях, могут возникнуть проблемы, связанные с влажностью, такие как плесень и гниение.
квадратная дыра, которая действует как дымоход, выбрасывая дорогой нагретый воздух на ваш чердак и всасывая холодный воздух вокруг ваших окон и дверей. Вы не можете видеть отверстие, потому что это сумма множества меньших отверстий. Эти щели вокруг сантехнических труб, осветительных приборов, дымоходов и других обходов чердака скрыты под вашим утеплителем.
Возможно, вы даже сможете определить местонахождение байпаса визуально, посмотрев на поврежденную изоляцию. Закройте за собой чердачную дверь или люк, чтобы добиться максимального эффекта. Собери припасы и оденься. Чердаки — жалкое место для работы.
Обратитесь в местный отдел здравоохранения, чтобы узнать название утвержденной лаборатории.
Для круглых дымоходов, таких как наш, вырежьте полукруги из двух частей, чтобы они перекрывались примерно на 3 дюйма посередине. Вдавите сверкающий металл в шарик латексного герметика и прикрепите его на место. Если нет дерева, прикрепите его прямо к гипсокартону. 9№ 0003
Поскольку труба нагревается, строительные нормы и правила требуют зазора в 1 дюйм от дымоходов класса B (2 дюйма от каменных дымоходов) до любого горючего материала, включая изоляцию. На фото 5 и 6 показано, как герметизировать этот зазор с помощью легкого алюминиевого фартука и специального высокотемпературного силиконового герметика. Перед тем, как вернуть изоляцию на место, соорудьте металлическую дамбу (фото 7), чтобы она не касалась трубы. Используйте эту же технику для кладки дымоходов.
Загерметизируйте электрические распределительные коробки и заполните отверстия в коробке герметиком.
Если вы создадите давление в доме с помощью оконного вентилятора, вы сможете почувствовать утечки рукой, когда воздух попадет на чердак.
Отрежьте доски 1×3 по периметру проема и прибейте их финишными гвоздями 6d. Нанесите самоклеящуюся уплотняющую ленту из вспененного материала на верхний край упора.
Разрешить по одному на этаж. Также попросите профессионала проверить ваши приборы сгорания на наличие обратной тяги при следующем обслуживании.