Планирование гардеробной схемы – размеры и планировка — Бест Ремонт
Планировка гардеробной — особенности стильного и необычного дизайна (60 фото)
Гардеробная всегда внешне напоминает целую комнату.

Формы гардеробной варьируются от угловой конструкции до большого шкафа купе.

Все это зависит от дизайна и размера вашей квартиры, ну и, конечно, от вашего вкуса. Но, спешить совсем не стоит. Давайте рассмотрим идеальное планирование.

Планирование
Чтобы заранее спланировать то, как будет выглядеть ваша гардеробная, стоит изначально учесть определенные факторы:

- Место. Всегда стоит сразу же определяться с тем, где будет размещаться гардероб. В противном случае, будет не очень комфортно решать это в последний момент.
- Площадь. Ее необходимо посчитать для самого помещения.
- Материалы. Выбирать то, из чего будет состоять гардеробная лучше всего, опираясь на дизайн комнаты.
Как рассчитать гардеробную
Чтобы грамотно рассчитать гардеробную и в дальнейшем комфортно ее устроить, необходимо подготовить чертежи.

В дальнейшем будет удобнее, если заранее все расположить на бумаге, подписывая, что где расположится. Таким образом, вы сможете гармонично использовать пространство.

Также будет удобно находить вещи. Ведь можно сразу пометить места расположения вещей по различным критериям. Поэтому планировка гардеробной является важной.

Конструкция
Гардеробная комната планировка которой будет смотреться не дается легко. Нужно подумать и над конструкциями.

Очень важно понимать, что гардеробная должна располагаться не возле прохода. Лучше всего поместить ее в самое отдаленное, угловое место вашей квартиры.

Тогда данная территория не будет «мешать», она будет всегда на своем месте. Насчет этого, также, лучше подумать заранее и выбрать самое подходящее место.

Несмотря на то, что многие хотели бы в данном вопросе дать выход силе воображения и спроектировать оригинальную выделяющуюся гардеробную, этого делать не стоит.

Здесь нужен рационализм инженера. Ведь гардеробная не только должна не выделяться, а быть функционально использовать площадью. Также, и сама она должна быть функциональной.

Зато, в проектировании гардеробной есть другая интересная сторона. Это то, что будет находиться внутри.

Если у вас в доме есть мебель, от которой вы давно хотите избавиться, но вам жалко ее выбрасывать, то можете с легкостью обустроить ей гардеробную. Таким образом, она получит уют и станет чуть ли не полноценной комнатой.

Если вы собираетесь обустроить гардеробную в большом загородном доме, то лучше всего подойдут верхние этажи.

Так, гардеробная будет рационально занимать пространство и, конечно, вам будет удобнее, если ваш гардероб будет находиться на более личной территории.

Теперь стоит все-таки затронуть вопрос функциональности гардеробной. Как распределить вещи?

Гардеробная это не склад, вы должны это помнить. Будет лучше всего разложить все вещи по полкам, обустроить что-то вроде шкафа «купе». Кстати, гардеробную можно оформить и в небольшой квартире. Планировка квартиры с гардеробной тоже представляется возможной.

Даже планировка маленькой гардеробной будет интересным решением. Для этого достаточно будет площади в 4 квадратных метров.

Площадь под гардеробную
Планировка гардеробной 3 кв. м, конечно, подходит не всем. Несмотря на выше описанные рекомендации по размещению гардеробной, вы можете схитрить и расположить свои вещи в гостиной. Множество людей желают иметь гардеробную.

Но, не всем позволяет квартира. Поэтому, очень часто выходит, что в спальне просто нет свободного места. Гардеробная комната планировка с размерами, здесь нужно не ошибиться.

Можно, к тому же, сделать удобные конструкции из таких материалов, как натуральное дерево, алюминий, ДСП. Тем более интересным решением будет ширма из простой занавески. Если постараться, то это можно сделать оригинально. Занавеску можно легко подобрать к любому дизайну по цвету и материалу ткани.

Также можно использовать различное стекло и свет. Они вместе будут визуально увеличивать комнатное пространство. От такого эффекта вы и сами поверите в то, что у вас крупная гардеробная.

Поэтому стоит смело придумывать интересные решения для конструкции и дизайна. Можете, к примеру посмотреть фото планировки гардеробной, всегда можно сделать хорошую гардеробную.

Глубина конструкции
Если вы желаете установить комфортную и широкую гардеробную, но у вас не хватает пространства, то следует держаться некоторых правил.

При установке необходимо учесть глубину полок и расстояние между ними.

Следует выбрать самый оптимальный вариант, который лучше всего подходит для вас и вашей одежды.

Также, вы можете применять не только конструкции, но и различные предметы интерьера вроде специальных контейнеров для одежды.

Фото идей планировки гардеробной





































topdizajn.ru
Программа для проектирования гардеробной — 3D проектирование гардеробной комнаты
Может показаться, что отдельное помещение для хранения одежды и обуви – ненужная роскошь. И уж тем более ни к чему целая программа для проектирования гардеробной. Но разве кто-нибудь считает излишеством платяной шкаф? Гардеробная – по сути, то же самое, только организованное с большим удобством. Она даёт возможность не только аккуратно хранить множество вещей, но и легко находить нужные, и даже прямо там переодеваться.
Несмотря на то, что гардеробная – это совсем маленькое помещение, спланировать её не так просто. Органично вписать дополнительную комнатку в ограниченное пространство, а также грамотно продумать её обустройство поможет программа-конструктор «Дизайн Интерьера 3D». Из статьи вы узнаете, как с её помощью сделать проект идеальной гардеробной своими руками.
Создание нового проекта гардеробной
Бесплатно скачайте программу «Дизайн Интерьера 3D» на русском языке, а потом запустите установку софта. Спустя несколько минут уже можно начать работу по созданию собственного проекта гардеробной комнаты.
![]()
Скачайте программу Дизайн Интерьера 3D
Обустройте гардеробную всего за 5 минут
и тут же оцените результат в 3D
СКАЧАТЬ СЕЙЧАСЯзык интерфейса:Русский
Размер дистрибутива:85 МБ
При помощи удобного инструмента «Нарисовать комнату» необходимо выстроить помещение, где вы планируете организовать место хранения одежды. Если хотите отделить его от основной части стенами той же отделки, то нажмите кнопку «Нарисовать перегородку». Если внутри гардеробной будут обои другого цвета, лучше создать две разные комнаты – большую и маленькую.

Готовая комната с местом под гардеробную
Если вы собираетесь нарисовать две отдельные комнаты, не делайте новую конструкцию внутри другой, уже существующей. Не сработает. Помещения должны соприкасаться только внешними стенами.
Теперь добавьте окна и двери, выбрав соответствующие пункты меню. Программа для создания гардеробной комнаты предлагает множество разнообразных вариантов. Помимо внешнего вида окон и дверей, можно настроить их расцветку, размер и материал, перейдя во вкладку «Свойства».

Каталог дверей
Осталось освещение. Выберите люстру или светильники в каталоге программы. Готово. У вас получился макет помещения, с которым мы дальше будем работать!

Готовый макет гардеробной без отделки
Функции отделки
Чтобы гардеробная приобрела индивидуальные черты, необходимо провести отделочные работы. Не волнуйтесь, ничего сложного!
- ✔ Стены. Кликните на гардеробную в списке объектов, перейдите во вкладку «Свойства». Настройте внешний вид стен, выбрав нужный материал: обои, плитку, деревянные панели или любой другой. Можно использовать собственный шаблон, загрузив его с помощью кнопки «Добавить свои материалы».
- ✔ Пол. Во вкладке «Свойства» подберите тип напольного покрытия. В каталоге программы вы найдете различные варианты ламината, паркета, линолеума, керамической плитки и отделочного камня.
- ✔ Потолок. Настраивается аналогично стенам и полу. В 2D редакторе и 3D обзоре потолок не видно, но оценить его позволит функция «Виртуальный визит».

Отделка гардеробной
Планировка гардеробной комнаты
Чтобы хранить вещи было удобно, потребуются разнообразные шкафы, стеллажи и полки. В каталоге мебели «Дизайн Интерьера 3D» найдите походящие и расставьте в гардеробной. Каждый предмет можно вращать, делать выше, шире и длиннее, менять материал и расцветку. Все эти настройки производятся через «Свойства».
Постелите на пол мягкий коврик, при необходимости добавьте декор – теперь гардеробная будет выглядеть привлекательно и уютно.

Готовая гардеробная
Кстати, «Дизайн Интерьера 3D» предлагает не только проектирование гардеробной комнаты, но и удобный расчёт сметы. Благодаря ему появляется возможность сразу узнать, сколько примерно будет стоить создание гардеробной.
Сохранение и печать документа
Работая в программе-планировщике, не забывайте почаще сохранять проект. Это позволит избежать досадных случайностей, при которых можно потерять результат трудов. Нажмите на изображение дискеты в верхнем меню. Сохранить можно как в виде проекта, так и в виде изображения или в формате PDF.

Сохранение проекта в PDF
Вы можете попробовать создать несколько версий дизайна гардеробной, чтобы остановиться на наиболее удачном. Сравнивать варианты удобнее всего на бумаге. Распечатайте получившиеся, покажите людям, чьему вкусу доверяете. Удобная функция печати в программе позволит вывести дизайн-проект на принтер всего парой нажатий кнопки мыши. Щёлкните по иконке с изображением принтера и выберите вид, который нужно напечатать.

Печать документа
С хорошо продуманным помещением хранить одежду и обувь дома станет ещё удобнее. Наша программа для планировки гардеробной поможет организовать её наилучшим образом. Даже в маленькой квартире обязательно найдётся идеальное место для ваших вещей! Найдите его вместе с «Дизайн Интерьера 3D»!
Понравилась статья? Расскажите друзьям:
interior3d.su
с размерами, проектом, выбором мебели и фото
Содержание статьи

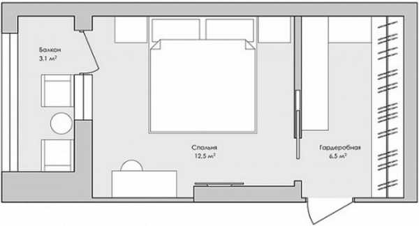
Правильно спроектированная планировка гардеробной комнаты – именно от нее зависят комфорт и функциональность любого помещения. Перед тем, как обустроить гардеробную комнату, необходимо детально продумать все нюансы: ее размеры, тип мебели, принцип освещения и вентиляции, предполагаемое количество вещей, которые будут там храниться. Проект гардеробной комнаты не может быть создан за пару часов или даже дней. Это кропотливый труд, которому необходимо уделить достаточное количество времени. Иногда изменения вносятся постепенно, спонтанность здесь неуместна. Должны учитываться потребности каждого, кто будет пользоваться новым помещением.
Прежде всего нужно создать точный чертеж гардеробной комнаты. Естественно, в уменьшенном масштабе, но с учетом точных параметров и соотношений. Это необходимо для того, чтобы просчитать размеры мебели, которая будет установлена в дальнейшем.

Схема гардеробной комнаты и систем хранения
Важно: Планировка гардеробной комнаты с размерами – это первый и самый важный шаг в ее создании.
Подобные помещения могут быть:
- Линейными
- Угловыми
- П-образными
- Проходными
Размеры гардеробной комнаты – главный параметр, формирующий ее содержимое (тип и габариты мебели) и количество вещей, которые можно будет в ней разместить. После того, как определен тип, можно перейти к следующему шагу – наполнению гардеробной комнаты.
Типы гардеробной: плюсы и минусы
Самый неудобный тип подобных помещений – это угловые гардеробные комнаты. Конструкцию и размеры мебели для них очень сложно просчитать. Узкая гардеробная комната также требует к себе особого внимания. Прежде всего определяется площадь свободного пространства, а потом – габариты всех предметов мебели по отдельности.

Решение для угловой гардеробной
Линейная гардеробная располагается вдоль стены одной из комнат вашего дома. Минус ее в том, что стеллажи для гардеробных комнат такого типа должны быть с фасадами.

Линейная система хранения с матовыми фасадами
П-образные помещения для хранения одежды, обуви и аксессуаров обустраивать проще всего, но и места в доме они занимают достаточно. Обратите внимание на встраиваемые гардеробные комнаты. Здесь вы сможете использовать любой тип двери, размещать сколько угодно вещей – от одежды до постельных принадлежностей, обуви, спортинвентаря и т.д.

Просторная гардеробная
Гардеробная комната 2, 3 или 4 кв. м – для каждой из них необходимо создавать индивидуальный проект, кропотливо подбирать мебель. Как мы уже сказали ранее, должны быть составлены схемы гардеробных комнат, просчитаны размеры всех предметов, которые предполагается там установить. Если обустраивается гардеробная в нише комнаты, туда просто устанавливаются полки и выдвижные ящики.


Вместительное и просторное помещение, например, гардеробная комната с окном, позволяет устанавливать готовые гарнитуры. Для их выбора достаточно знать основные параметры – общую площадь гардеробной комнаты, ее длину и ширину.
Как выбирать мебель
Шкафы-купе для гардеробной комнаты и другие типы подобной мебели имеют свои особенности. В них предусмотрены места для размещения каждого типа вещей:
- Обуви и головных уборов
- Белья
- Вертикального хранения пальто, платья, рубашек
Прежде чем отдать предпочтение тому или иному оборудованию, необходимо поразмыслить, удобно ли будет им пользоваться в обычной жизни.

На заметку: По такому же принципу выбираются и готовые дизайн проекты гардеробных комнат – исходя из собственных требований и конкретных особенностей последующей эксплуатации.
Если приобретаются полки для гардеробной комнаты небольшого размера или целые стеллажи, их нужно дополнять легкими ящиками или секциями с выдвижными коробками.

Пример оснащения гардеробной комнаты

Значимые комплектующие для гардеробной комнаты – это источники света. Их должно быть достаточно для того, чтобы помещение не было темным, и все вещи хорошо просматривались из любой точки. Даже шкаф в гардеробную комнату должен быть освещен внутри. Для этой цели можно использовать точечные автономные светильники. Самый простой вариант в этом плане – это полки для гардеробной комнаты из прозрачных материалов, например, стекла или поликарбоната.

Количество источников света и их тип зависят и от того, какой будет глубина и ширина гардеробной комнаты. Если площадь позволяет, можно провести ветку электроснабжения или несколько, чтобы при необходимости освещать только один из ее участков. Но важно учесть, что в будущем при ремонте в гардеробной комнате можно повредить сеть. Поэтому важно относиться к проведению линии максимально внимательно, сделать ее безопасной и незаметной, сохранить схему проводки.

Если вы не знаете, как сделать гардеробную в комнате или отдельном помещении, просмотрите нашу фотогалерею. На фото вы увидите несколько удачных решений для любых квартир.
dafix.ru
Проектируем гардеробную в онлайн планировщике
Планировщик гардеробной онлайн — универсальный инструмент, позволяющий самостоятельно спроектировать интерьер. Существуют разные виды таких конструкторов, каждый из которых имеет свой набор опций.
Выбор подходящей мебели для гардеробной комнаты — задача приятная, но непростая. Приходится решать множество вопросов: как лучше расставить шкафы в небольшом помещении, будут ли они сочетаться с обоями, как в целом станет выглядеть комната. Можно воспользоваться услугами дизайнеров, но у каждого из них свой взгляд на вещи, и искать компромисс иногда приходится долго. Решить проблему поможет планировщик гардеробной онлайн.
Что такое конструктор гардеробной
Планировщик гардеробной комнаты онлайн — это программа, которая дает возможность спланировать интерьер будущей гардеробной, воссоздать обстановку в формате 3-D и выполнить расчет необходимых материалов. С ее помощью можно самостоятельно разработать дизайн, расставив мебель так, как нужно для максимального комфорта. Результат проектирования распечатывается и предоставляется изготовителю для выполнения заказа мебели.
Прежде чем садиться за компьютер и проектировать гардеробную, желательно создать идею. Это может быть вариант, выполненный на бумаге, в котором будут учтены необходимые мелочи: вешалки для верхней одежды, полки для нижнего белья и небольшие ящики для аксессуаров. Грамотное планирование гардероба поможет создать в доме чистоту и уют, рационально разместить вещи и выбрать удачный дизайн.
Планировщик гардеробной ИКЕА

Одной из самых удобных программ является разработка ИКЕА — планировщик ПАКС. Чтобы спроектировать гардеробную, нужно зайти на сайт компании и выбрать вариант «Самостоятельные программы для систем хранения». Вот основные этапы работы с программой:
- На экране появится несколько комбинаций, из которых выбирается нужная.
- Можно скорректировать один из них или создать собственный дизайн, перенося предметы мебели в свою виртуальную комнату. Для этого в одной из вкладок в правом верхнем углу выбирают необходимые комплектующие: полки, ящики, корзины для белья. Можно даже поэкспериментировать с виртуальным ремонтом гардеробной.
- Когда нужный результат будет достигнут, его надо сохранить и распечатать. В верхней части окна появится стоимость проекта. Также проект получит код, который нужно записать, чтобы потом доработать или передать сотрудникам ИКЕА для изготовления.
Порядок действий можно наглядно видеть на следующих рисунках:



Такая планировка гардеробной комнаты онлайн позволит решить несколько задач:
- Создать дизайн помещения практически с нуля.
- Развесить одежду в виртуальных шкафах.
- Представить, как будет располагаться мебель и другие предметы интерьера.
Сайт: www.ikea.com
Другие конструкторы
ИКЕА ПАКС — не единственный онлайн планировщик, существуют и другие виды таких программ.
Конструктор мебели ELFA

Подготовка проекта со спецификацией здесь займет 10-15 минут. Существенным минусом программы является то, что в открытом доступе ее нет, для работы с ней необходим специальный ключ.
Сайт: mebelmne.ru
Планировщик Ларвидж

который ценится за идеальную привязку элементов друг к другу. Перед началом планирования можно воспользоваться видеоинструкцией, которая есть на сайте. Сами гардеробы Lavrij просты в сборке, вместительны и лаконичны.
Сайт: larvij.com
ARISTO

Эти гардеробы выполняются из высококачественной стали и позволяют разместить обувь и одежду даже в маленькой комнате. Кроме того, они подходят для хранения хозяйственного и спортивного инвентаря. Конструкции легко монтировать и моделировать путем перестановки полок.
Сайт: www.aristo.ru
Программа для создания гардероба — ресурс, с помощью которого можно спроектировать комнату в режиме реального времени. Она поможет рационально расставить мебель, рассчитать стоимость необходимых материалов и спроектировать помещение, комфортное для семьи.
kuppe.ru
планировка с размерами, как обустроить и спланировать
Гардеробная комната уже давно считается не показателем благосостояния, а необходимым атрибутом. Она поможет сэкономить пространство и разместить все ваши вещи в одном месте, а не в нескольких расставленных по всему дому шкафах. Для ее создания необходимо знать какая бывает гардеробная комната, планировка с размерами и внутренняя отделка. Располагаться она может как в отдельном помещении, так и в нише стены.

СодержаниеРаскрыть
Типы помещений
Гардеробная комната бывает нескольких видов: угловая, П-образная, линейная и параллельная. П-образное помещения подходит для вытянутых комнат большой площади, а угловое – для небольших. Отличительной особенностью параллельной гардеробной является расположение полок и ящиков напротив друг друга, а линейной – сходство со шкафом-купе.
Несмотря на то, что эта гардеробное помещение будет скрыто от посторонних глаз, его дизайн очень важен, так как вы будете проводить там довольно много времени. Располагаться она может по:
- Одной стене
- Двум стенам
- Трем стенам

Определенных стандартов для гардеробной нет, так как каждый человек подгоняет количество шкафов и полок под свои нужды. Но минимальная площадь может составлять всего 1,5-2 кв.м.
СОВЕТ! Для малогабаритных комнат лучше всего выбирать угловую гардеробную, так как она занимает меньше места.
Варианты расположения
До того как обустроить гардеробную, следует тщательно обдумать где она будет располагаться. Одним из самых популярных вариантов является кладовка. При этом вам даже не придется ничего строить, а лишь сменить двери да установить внутри полки со стеллажами. Также можно использовать для этих целей лоджию, замостив одну ее часть кирпичом или застеклив непрозрачным стеклом. Но в этом случае обязательно следует утеплить пространство.
В некоторых случаях гардеробные располагают в прихожей или коридоре. Угловое помещение можно расположить даже между двух дверей или окон на смежных стенах, которые не позволяют рационально использовать данное пространство. Однако самым частым вариантом является спальня, потому что большинство людей переодевается именно там.

Первые шаги
Если у вас отсутствует отдельное помещение или ниша, то сделать гардеробную можно всего лишь отгородив часть комнаты дверьми-купе или создав перекрытия из ДСП, которые в дальнейшем можно будет замаскировать под книжные полки. Поверхность панелей ДСП зачастую ламинируется. Можно также использовать ГВП или ГКЛ, но требуемая для них двойная обшивка «украдет» лишние сантиметры. Однако при одинарной обшивке с внутренней стороны будут обнаженные профили, на которые можно повестить сетчатые корзины. Самым оптимальным вариантом является отделение части комнаты от одной стены до другой дверьми-купе, за которым и расположатся шкафы и полки.
ПОМНИТЕ! Прежде чем приступать к строительству перегородки или установки дверей, следует набросать чертеж будущей гардеробной комнаты с расчетом всех параметров.
Установить двери можно как обыкновенные панельные «под дерево», так и модели с витражом или фотопечатью. Кроме того, следует определиться с их размером: для просторной гардеробной подойдут двери большого размера, а для компактного помещения, являющегося частью комнаты – двери-гармошка.
Планировка гардеробной комнаты также включает в себя организацию вентиляции. Если в помещении нет окна, то следует сделать вытяжной канал, так как иначе от вещей может появиться затхлый запах. В комнате должна преобладать умеренная температура не более 20 градусов.

Варианты отделки
При отделке можно использовать дерево, ДСП, плиты МДФ, ОСБ, шпон, пластик, ламинат, стекло и обои. Все материалы должны быть практичными, чтобы их можно было мыть. Нежелательно использовать на стенах текстильного покрытия, так как на нем будет собираться пыль. Для стен можно использовать:
- Пластиковые панели.
- Водоэмульсионную краску.
- Виниловые или стеклообои.
- МДФ.
- ПВХ-пленку.
- Керамическую плитку.
- Эко-кожу.
Гардеробную также можно отделать деревом, которое не только создаст респектабельный внешний вид, но и поддержит оптимальную влажность воздуха. Бюджетная альтернатива отделке деревом – ламинат, который в эксплуатации ничем не уступает древесине.

На пол можно уложить керамическую плитку, линолеум, ламинат или наливные полы, а сверху постелить мягкий ковер. Маленький диванчик, пуф или кресло сделают помещение более комфортным и удобным.
Внутреннее оснащение
Гардеробная должна быть оснащена несколькими зеркалами разного размера, включая и большое во весь рост. Также можно расположить зеркала сразу с нескольких сторон, чтобы иметь возможность оценить свой наряд со всех ракурсов.
Одним из главных аспектов такого типа помещений является освещение. Не рекомендуется устанавливать висящие люстры, которые могут мешать при переодевании. Идеальным вариантом считаются лампочки, расположенные по всей площади потолка. Для усиления освещения можно также использовать светильники, установленные возле большого зеркала. Чтобы вещи разных людей не были перепутаны, можно сделать зонирование, которое обеспечит всем членам семьи свой личный уголок. К тому же, там можно хранить не только одежду и обувь, но и, например, пылесос или гладильную доску.

ОБРАТИТЕ ВНИМАНИЕ! Если это будет общее помещение, то для переодевания понадобиться ширма.
Места для хранения
Самым важным моментов при создании гардеробной являются места для расположения вещей, обуви и аксессуаров. Различают два вида систем хранения – панельная и металло-каркасная. Панельные системы более дешевые и теплые, а в металло-каркасных можно самому переставлять корзины и полки на желаемую высоту. Чтобы выбрать один из вариантов, можно предварительно просмотреть их в интернете, выбрав затем одно из наиболее понравившихся фото в качестве ориентира для создания своей комнаты. Для хранения можно использовать следующее:
- Шкафы
- Стеллажи
- Полки
- Ящики
- Пантограф
При наличии большого количества мелких вещей (белье, носки и т.д.) понадобиться больше горизонтальных полок, а для хранения одежды на вешалках требуются шкафы или система из штанг, закрепленная вертикально и позволяющая использовать каждый сантиметр помещения. Универсальным вариантом для хранения коротких вещей на плечиках являются две расположенные друг над другом штанги. Также можно использовать для брюк и юбок специальные брючницы/юбочницы, представленные в виде направляющих со специальными поперечными планками с клипсами или без них. Более дешевый вариант для хранения таких вещей – это вешалка с расположенными друг над другом перекладинами.

Полки помогают организовать пространство
Мелочь, бижутерия и другие аксессуары гардероба хранятся в выдвижных ящичках, которые могут быть различного размера и формы. Для галстуков существует специальная выдвижная конструкция, но не все считают ее удобной. При хранении обуви на обыкновенных полках (в коробках или расположив в два ряда) можно сэкономить пространство. Но если площадь позволяет, то можно поставить для обуви сетчатые полки, выдвижные системы или мини-комоды. Полки и стеллажи можно крепить к стене или составлять из отдельных модулей, если вы не желаете портить стены.
При планировании гардеробной также можно использовать пантограф. Он выполнен в виде трубы, которая может опускаться. Благодаря этому пространство комнатки может быть максимально использовано до потолка. Существует два вида крепления пантографа: к стене или боковым стенкам. Но такие устройства не обладают большой грузоподъемностью, поэтому не подойдут для тяжелых вещей.
Распространенные параметры помещения
Если вы решили делать гардеробную самостоятельно, то первоначально вам следует изучить, как правильно создать функциональное пространство без потери места и удобства. Рекомендуется делать общую высоту стеллажей ниже уровня потолка на 40-50 см, так как это позволит использовать поверхность шкафов для хранения крупных предметов и коробок. Выдвижные корзины и ящики не стоит располагать выше 120 см от пола, иначе их будет тяжело выдвигать. Расстояние между полками по высоте должно достигать 30-40 см, глубина полки – 40-45 см, а ширина – 50-60 см.

Вариант для маленькой квартиры, в том числе хрущевки
Наиболее оптимальное расстояние между двумя штангами для короткой одежды составляет 80-100 см, а расстояние от пола до штанги для платьев и верхней одежды – 160-190 см. Глубина отсека со штангами обычно достигает 50-60 см. Расположить полки и штанги для одежды лучше на разных стенах.
Онлайн программы
Существует несколько онлайн-программ, которые помогут вам детально распланировать свою будущую гардеробную. Теперь создать проект любого помещения может даже пользователь без специального опыта. С их помощью вы сможете создать визуальную картинку того, как будет выглядеть ваша гардеробная. В них предусмотрена функция смены отделки, подбирающая наиболее подходящую для вас.
Sweet Home 3D
С данной программой можно легко спроектировать любое помещение вашего жилья, включая и гардеробную. Ее интерфейс понятен даже начинающим пользователям. Для создания плана будущего помещения необходимо просто перетаскивать мышью предметы. Но здесь вы сможете визуализировать не все свои идеи, потому что набор объектов стандартен и не может быть изменен.
Ikea home planner

Данный бесплатный онлайн-сервис позволяет самостоятельно создать желаемый интерьер, подбирая мебель и аксессуары. На выбор представлены все модели мебели от этой компании. Преимуществом программы является возможность расчета примерной стоимости созданного интерьера. Сохранив подобранный дизайн гардеробной, вы сможете затем заказать в ближайшем магазине Ikea весь комплект мебели.
Google Sketchup
Эта программа предоставляет возможность бесплатно или платно обучиться 3D-графике. Создать полноценный интерьер можно и в бесплатной версии, подобрав все необходимые элементы.
Planner 5D
В этой программе предусмотрен большой выбор мебели, текстуры и материалов. К тому же платно можно приобрести дополнительный набор элементов. Сервис позволяет создавать сразу несколько проектов, затем их распечатав.
PRO100
Полноценная программа-проектировщик, в которой предметы можно не только подбирать, но и поворачивать, передвигать и выравнивать. У каждого предмета есть определенные характеристики, которые можно менять. Преимуществами программы является семикратная проекция и графические эффекты (прозрачность, выделение контура, растушевка и т.д.).
Гардеробная комната становится все более популярной, причем не только в просторных апартаментах или домах, но и в небольших квартирах. Они позволяют сэкономить пространство и время на розыски нужной вещи по разным шкафам, собрав в одном месте гардероб всей семьи. Варианты планировок:
trendyremonta.ru
Как спланировать гардеробную? Советы по планировке гардеробных.
Поиск по сайту:Онлайн конструктор для самостоятельного 3d моделирования шкафа!
Гардеробная комната — представляет собой отдельную комнату, глубокую нишу в стене, либо отделенная дверями купе часть помещения, вдоль стен которой можно расположить полки и перегородки, а так же аксессуары для обуви, брюк, галстуков.
Использование отдельных комнат под хранение одежды и белья, особенно в большой семье, избавляет от необходимости покупать и нагромождать жилое помещение большим количеством шкафов.
При отсутствии ниши или отдельного помещения, гардеробную можно соорудить практически в любом месте, отгородив комнату дверями купе либо использовать в качестве перекрытия панели ДСП, можно замаскировать их под книжные стеллажи, либо какой-либо другой конструкцией, за которой и будет располагаться вся гардеробная.
Но самый оптимальный вариант — это перекрыть часть комнаты дверями купе от стены до стены, а за ними расположить сами стеллажи гардеробной. Оформить двери купе можно сотнями способами — от простых панельных дверей с древесной фактурой, зеркал до пескоструя, витражей, фотопечати. Красивые двери купе будут украшением для Вашего интерьера.
Гардеробные в жилой комнате отделенные дверями купе:

При планировании гардеробных надо учесть то факт, что главное здесь не столько красота, сколько удобство и правильное распределение отсеков, недопустимы пустоты, каждый сантиметр должен быть задействован.
Стеллажная конструкция может располагаться вдоль одной стены, под углом по двум стенам, либо по трем стенам. Часто используются «П» или «Г» — образные конструкции вдоль 3х или 2х стен.
Гардеробная по одной стене: -по двум стенам:

-по трем стенам:
Нет никаких стандартов при проектировании гардеробных, каждый отсек, каждая полка рассчитывается под определенные нужды заказчика. Если у вас много белья, дизайнер спланирует для вас больше горизонтальных полок, либо сетчатые корзины/ полки.
Для одежды с плечиками, можно соорудить целые системы из штанг. -Одно и -двух уровневые штанги закрепленные к вертикальным позволят максимально задействовать каждый см помещения.
Для хранения мелочей — выдвижные ящики, их количество, размеры, формы — любые!
Для хранения обуви, ремней, галстуков, брюк существуют специальные аксессуары как недорогие, так и дорогие известных производителей. Для экономии средств все аксессуары можно заменить обычными полками или штангами.
Аксессуары.
Гардеробные бывают металло-каркасные, панельные. В обоих случаях есть и плюсы и минусы. Металло-каркасные системы позволяют самостоятельно переставлять сетчатые полки и корзины на любую высоту, но металл не обладает такой теплотой, которой обладают панельные ( из ДСП) гардеробные, да и стоимость металлических гардеробных гораздо выше из-за эксклюзивности. В металлических гардеробных фурнитура только своя, в отличии от панельных гардеробных, к которой можно закупить любой аксессуар.
Поверхность панелей в гардеробных из Дсп покрыта высококачественным ламинатом под фактурой дерева. Дсп фирмы Egger (Германия) имеет свыше 150 древесных фактур. А торцы панелей обрабатываются 2х миллиметровым кромочным материалом из ПВХ, что надежно защищает торцы от внешних физических воздействий.
Информация о вреде формальдегида содержащегося в современных древесно-стружечных материалах является устаревшей. Современные технологии изготовления Дсп позволяют получать плиты по экологичности не уступающие древесине.
Строгих канонов по обустройству гардеробных не существует, главное продумать каждый отсек изделия, для того чтобы было все «под рукой» и не было пустых и незадействованных отсеков.
Гардеробные стеллажи из Дсп можно «встроить», т.е. всю конструкцию закрепить к стенам, к полу и потолку. Если не хотите «портить» стены , гардеробная проектируется по модулям, которые можно отодвигать, переносить и т.д. Задняя стенка в гардеробных не обязательна.
Из своего опыта я скажу, что в 99% случаев гардеробные встраивают, так как в этом случае мы избегаем естественных щелей между отдельно стоящими модулями и стенами, куда забивается постоянно пыль. Так же существенно снижается стоимость изделия без ненужных деталей. Все можно закрепить к стенам.
А теперь несколько советов по планированию гардеробных.

- Нижнее белье удобнее всего хранить в выдвижных ящика на уровне 1 м от пола, 2-3 ящика вполне хватает на среднюю семью.
- Для хранения коротких вещей используйте 2 штанги друг над другом. Больше умещается одежды.
- Общую высоту стеллажной конструкции делайте на 45-50 см ниже потолка. В этом случае крышу изделия сможете использовать в качестве антресоли для крупногабаритных вещей.
- Выдвижные ящики и корзины делайте на высоте не выше 120 см, иначе будет неудобно ими пользоваться.
- Оптимальный проем между полками по высоте 35-40 см. Это, исходя из практики, самый удобный проем для хранения белья.
- Штангу лучше вешать на высоте 170-190 от пола, выше не достанете, ниже не очень удобно. Если расположить 2 штанги под короткую одежду друг над другом, то самое оптимально расстояние между ними 80-100 см.
- Отсеки под полки и отсеки для штанг под одежду лучше распределить по разным стенам, если есть такая возможность. Для полок оптимальная глубина 40-45 см, для отсеков со штангами 50-60 (из за ширины плечиков). Используя по одной стене полки 40 см а по другой штанги глубиной 50-60 см вы увеличите пространство для собственного перемещения вдоль гардеробной.
- Знайте, что аксессуары (обувницы, галстучницы, брючницы) всегда умещают в себе меньше вещей, чем обычная полка, это, конечно удобно и красиво, но красота в гардеробной, которая скрыта от сторонних взглядов, не главное.
- Для хранения обуви лучше использовать обычные полки, на которых обувь можно расположить в 2 ряда или в коробках. Сравните, в отсеке с полкой шириной 60 см можно поставить 6-7 пар обуви, а на наклонную сетчатую полку для обуви — 3 пары.
- Используйте по одной стене систему вертикальных и горизонтальных соединенных между собой обычных штанг для одежды. Это сильно удешевляет конструкцию и делает более сквозной, удобной для использования.
- Оптимальная ширина полки — 50-60 см для того, чтобы белье лежало аккуратно стопочкой.
У каждого мастера свои наработки в разработке гардеробных. Поэтому лучше доверьте эту работу специалистам.
Фото гардеробных.
Аксессуары.
Если у вас возникли вопросы, звоните по телефону 8 499 409 60 55, мы с удовольствием проконсультируем вас по вопросам планирования мебели.
Cloudim — онлайн консультант для сайта бесплатно.shkafi-zet.ru
чертежи и схемы, дизайн + фото
Вам ещё не надоело складывать все вещи в узкий шкаф, или по 20 минут искать потерявшийся среди носков галстук? Если вам знакомо чувство гнева от невозможности найти нужную вещь, тогда пришло время подумать о проекте гардеробной комнаты.
Важно! Гардеробная комната не должна быть большой. При умелом планировании её можно сделать даже в коморке коридора.
Современные технологии позволяют расположить в замкнутом пространстве множество полочек, вешалок, зеркал и даже пуфиков. Главное, всё верно спроектировать и уже через несколько дней у вас появится полноценная гардеробная комната. Навсегда исчезнет необходимость бегать из гостиной в спальню, в поисках подходящих к пиджаку штанов. Теперь все вещи будут сложены в одном месте.
Компактная гардеробная комната
Первое на что обращает внимание профессиональный дизайнер при создании чертежа гардеробной комнаты — это метраж. Именно от этого параметра зависит, насколько вы сможете развернуть свою фантазию.
Итак, дизайн проекта маленькой гардеробной комнаты начинается с некоторой константы, точнее, с четырёх метров свободной площади. Именно столько нужно, чтобы создать помещение, в котором будет комфортно находить нужную одежду.
Важно! Возможны и более компактные варианты организации внутреннего пространства в гардеробной, но тогда полноценной комнатой данное помещение назвать не получится.
Чтобы сделать гардеробную комнату достаточно перегородить часть гостиной. Также можно занять чулан в коридоре. Интересным является вариант треугольного зонирования, позволяющий максимально эффективно использовать имеющуюся площадь. Действительно, угловые гардеробные пользуются сейчас невероятной популярностью.
Дизайн-проект угловой гардеробной комнаты
Создание проекта гардеробной комнаты начинается с подбора помещения нужного метража. Главный плюс пространства, обустроенного в таком формате — это компактность. Уникальная планировка позволяет нарушить канон в четыре метра, теперь достаточно 1,5х1,5 м.
Уникальность проекта гардеробной комнаты с угловой планировкой заключается в отсечении одного угла комнаты перегородкой из гипсокартона от общего помещения. В результате при минимальном метраже удаётся добиться максимального объёма свободного пространства.
Важно! Для создания перегородки лучше всего использовать именно гипсокартон, он прост в монтаже и после него практически не остаётся мусора. Дополнительным плюсом выступает то, что вес конструкции крайне мал, и это создаёт минимальную нагрузку на перекрытия.
Внутри можно расставить мебель по двум схемам. В первом варианте, все полки и шкафчики будут выстроены вдоль одной стены, во втором по обеим сторонам. Второй вариант предпочтительнее, так как даёт возможность с большей эффективностью использовать имеющееся в наличии пространство.
Специальные угловые элементы позволяют не только придать помещению необычный вид, но и обеспечивают максимальную эргономику на одном квадратном метре пространства.
Ещё один хороший вариант — это спиралевидная перемычка между полочками. Если создавать проект гардеробной комнаты с этим элементом, то удастся сгладить углы, тем самым внешне увеличив имеющиеся в наличии пространство.
Совет! Стеллажи лучше всего делать открытыми. Это в значительной мере позволяет сэкономить свободное пространство.
В проект угловой гардеробной комнаты нужно включить широкий вход. Идеальный вариант — это дверь-гармошка. К тому же при такой планировке можно не заботиться о стенах.
Раздвижная дверь позволяет полностью открыть внутреннее пространство гардеробной комнаты. Всего одно движение и вы соедините гостиную и гардеробную. Подобное решение, включённое в проект, позволяет со значительно большим комфортом выбирать вещи и делать примерку.
Другие популярные проекты маленьких гардеробных
Дизайн-проект линейной планировки
Подобные проекты пользуются сейчас особой популярностью из-за своей простоты и компактности. Обустройство гарнитура возле одной стены позволяет значительно сократить необходимое для размещения всей мебели пространство.
Чтобы понять, что собой представляет готовый проект линейной гардеробной комнаты, посмотрите на фото сверху. Это не столько комната, сколько ниша. Тем не менее достаточно одного движения руки, чтоб дверь гармошка отъехала в сторону и перед вами открылся целый мир одежды.
Особой популярностью в подобных проектах гардеробных комнат пользуются выдвижные вешалки. Одно лёгкое движение и все ваши пиджаки прямо перед вами. Это крайне удобно.
Глубина угловой гардеробной комнаты должна быть не менее полутора метра. Ширина зависит исключительно от метража комнаты. Но лучше не пытаться заузить свободное пространство посредством перегородок. Больше места в комнате от этого не станет, а часть свободного пространства будет навсегда утеряна.
Важно! В гардеробной линейного типа вы легко сможете хранить всю одежду. Но место для пылесоса или гладильной доски здесь вряд ли найдётся.
В проект гардеробной комнаты углового типа лучше всего включать открытые стеллажи. Стойки также позволяют сэкономить пространство. Если стена длинная, и вы можете себе позволить увеличить глубину помещения, используйте простые шкафы с дверцами.
Г-образная планировка
Данный проект гардеробной комнаты имеет свою специфику. Во-первых, нет необходимости в каких-либо перегородках. Фактически гардеробная является частью общей комнаты. Во-вторых, в данном проекте широко используются открытые стеллажи. Они позволяют увеличить свободное пространство.
Важно! Стоимость возведения перегородки может достигать стоимость половины всего проекта гардеробной. Поэтому отсутствие перегородок позволяет значительно сэкономить.
Проект гардеробной в форме буквы «П»
Считается, что гардеробная в форме буквы «П» возможна исключительно в больших помещениях. Но это совершенно не так, что доказывает рисунок сверху. Как видите, данный проект носит некий футуристический оттенок. Тем не менее такая планировка, несмотря на экстравагантность, отличается высокой эргономичностью.
Гарнитур в данном проекте представляет собой единственный монолит. Это не просто полочки, размещённые по бокам. Данный комплекс имеет все необходимые для каждой гардеробной комнаты элементы, такие как:
- вешалки,
- закрытые ящики,
- специальные секции.
Дизайнеру при создании проекта удалось добиться максимально рационального использования пространства. Но его заслуга кроется совершенно в другом. Ему удалось создать светлое и просторное помещение при крайне ограниченном метраже.
Гардеробная комната в форме буквы «П» по факту является самостоятельным помещением, которое полностью отделено от гостиной. Тем не менее подобная планировка не везде уместна. Её лучше всего использовать в длинных узких помещениях.
Если же брать во внимание выше представленный проект, то в него можно внести некоторые изменения, позволяющие добиться ещё более эффективного использования свободного места.
Можно увеличить ширину верхних полок до 60 сантиметров. Это никоим образом не отразится на удобстве передвижения внутри, но позволит хранить наверху чемоданы и сезонную или специальную одежду.
Параллельная гардеробная
Данный проект пользуется большой популярностью из-за своей простоты и функциональности. Всё что нужно для его создания это перегородка и разделённый гарнитур.
Тем не менее параллельную планировку не везде разумно использовать. К примеру, если вы хотите организовать место для хранения вещей в проходном помещении, то это просто идеальный вариант. Но если речь заходит о глухой комнате, от него лучше отказаться. Потому что более практичной будет П-образная планировка.
Крайне важный параметр в данном помещении — это ширина от стенки до стенки. Она не должна быть меньше 1,6 метра. В противном случае вы будете испытывать немалые трудности во время прохождения с одного конца в другой.
Важно! Расстояние между стеллажами не может быть меньше 80 см.
Для оптимального использования пространства лучше всего установить торцевые вешалки. Более компактного и удобного варианта просто не найти. Шкафы можно сделать традиционными, с выдвижными панелями.
Совет! Небольшой туалетный столик и зеркало также будут крайне уместны.
Делаем гардеробную своими руками
Чтобы создать комфортное и удобное помещение для хранения одежды, нужно учесть множество нюансов. Начать необходимо с подбора мебели. Лучшим вариантом является готовый гарнитур. По факту это цельный комплекс, который нужно всего лишь установить.
Также можно собирать корпусную мебель и из отдельных модулей. Плюс такого решения заключается в том, что вы можете подобрать какую угодно конфигурацию, оптимально подходящую под ваши задачи.
При создании проекта гардеробной комнаты также нельзя выпускать из внимания освещение. В маленьком помещении лучшим вариантом являются точечные светильники, расположенные в правильно выбранных местах. От навесных плафонов лучше отказаться.
Важно! Также вам придётся подумать о системе вентиляции. Можно установить кондиционер, обычную вытяжку или полноценную систему.
Итоги
Чтобы создать проект гардеробной комнаты в первую очередь нужно ориентироваться на параметры помещения. Если комната вытянута, лучшим вариантом будет П-образная планировка, также можно просто расположить стеллажи по обеим сторонам без перемычки. Конечно же, существуют и другие проекты, к примеру, угловые или Г-образные гардеробные.
bouw.ru
