Планировка маленьких квартир – 15 классных планировок маленьких квартир — Roomble.com
Планировка маленьких квартир: секреты дизайнера
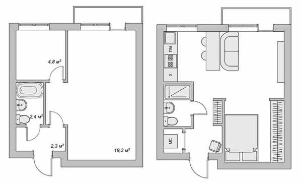
Павел Герасимов, дизайнер интерьера, соруководитель студии Geometrium, делится с читателями журнала ЦИАН секретами и нюансами планировки маленьких квартир (около 30 кв. м) и раскроет специальные приемы, которыми можно воспользоваться при их планировании.
Диктатура закона и желаний Давайте подумаем, что влияет на расположение зон в маленьких квартирах. Первое – требования законодательства, второй – привычки, образ жизни и пожелания владельцев.
Нормы и законы о перепланировке. В первую очередь нас волнуют нормы, которые определяют расположение зон в жилых объектах недвижимости. Главные ограничение – запрет на увеличение кухни за счет жилых комнат и санузла, а также увеличение санузла за счет кухни. Зоны кухни и санузла определены планом БТИ и их нельзя перемещать. Но при этом разрешено увеличивать кухню и санузел за счет коридора и других нежилых помещений.
Расписать распорядок дня
Основная цель планировки всегда состоит в том, чтобы создать для людей удобное пространство, которое будет отвечать всем их запросам. Такие требования складываются из привычек, распорядка дня и ежедневных действий в квартире.
На начальных этапах планирования своей квартиры, подробно распишите распорядок дня каждого члена семьи и каким образом он совершает те или иные действия. К примеру, в квартире холостяка, вероятно, будет менее приоритетна зона кухни, так как он редко готовит и вообще мало бывает дома из-за работы. Или, возможно, наоборот, он работает дома. Исходя из всех этих нюансов можно логически выстроить планировку квартиры и расставить приоритеты в ней.
Также надо продумать сценарии выходных дней. Возможно, к вам приходят друзья, и потребуется пространство с учетом приема гостей. Если вы любите играть в настольные игры, будет актуальна определенная расстановка мебели.

Те, кто смотрел сериал «Друзья», могли заметить у них в гостиной журнальный столик, окруженный мягкой мебелью. Это связано с их традициями и образом жизни – они часто собираются вместе, общаются, смотрят ТВ, играют в настольные игры.
Если в квартире нужно рабочее место, логично разместить его возле окна, чтобы был естественный свет.

Возможно, вы работаете только вечером и вам не нужен естественный свет. Но важно, чтобы свет из окна попадал на кровать.
То есть, распределение мебели по квартире должно подстраиваться под ваш распорядок дня, образ жизни и привычки.
Зонирование
Зоны в небольших квартирах необязательно должны быть ограждены перегородками. Зонирование может быть выполнено легкими стеклянными конструкциями или определенной расстановкой мебели. Квартира может быть даже одним помещением, в котором есть спальня, кухня, столовая и гостиная с условным зонированием. Преимущество такого зонирования в том, что жильцы могут сами определять расположение частей, исходя из своих пожеланий.

Минимум мебели максимум пространства
Удобная планировка – это также максимальное количество пространства для свободного перемещения. Поэтому стоит свести к минимуму наличие отдельностоящей мебели и других предметов. Опять же, вспомните ваш распорядок дня и подумайте, какие предметы мебели можно оптимизировать. К примеру, барную стойку можно использовать как обеденную зону и как рабочее место.
Или, если хочется масштабной оптимизации пространства, используйте мебельные предметы-трансформеры. Таким образом можно предусмотреть в своей квартире шкаф, который используется под хранение и также вмещает в себя встроенную кровать или диван.

Поэтому важно стараться по максимуму убрать всё лишнее, а оставшиеся предметы мебели оптимизировать, соединив несколько их функций в одном. Постарайтесь сделать так, чтобы проходы между мебелью были как можно шире для максимальной свободы передвижения.
Организация хранения
Важный момент в маленьких квартирах – это организация хранения, чтобы лишние предметы не загромождали и без того небольшую площадь. Сначала представьте, сколько у вас вещей, для которых необходимо предусмотреть хранение. Вспомните, сколько было в прошлом жилье, хватало ли вам того объема для хранения? Исходя из этого можно предположить, сколько систем хранения понадобится вам в вашей новой небольшой квартире. Можно померить длину имеющегося шкафа и, если необходимо больше, взять дополнительную длину с запасом.
После этого важно правильно распределить шкафы по пространству. Лучшим вариантом для маленькой квартиры будут встроенные шкафы – со стороны они выглядят как сплошная стена. Это может быть шкаф от пола до потолка или специальная ниша, которая выстраивается под шкаф.

Основная задача на небольшой площади – это встроить системы хранения таким образом, чтобы они не уменьшали пространство, то есть избегать отдельностоящих предметов. О том, как визуально увеличить пространство, в том числе за счет хранения, мы поговорим далее.
«Оквадратить» помещение
Давайте подумаем о том, как правильно расположить шкафы и другую мебель, чтобы скорректировать форму помещения. Логика проста: вытянутое помещение нужно стремиться сделать более квадратным. Такое помещение лучше воспринимается человеческим глазом, а также визуально кажется больше. Каким образом это можно сделать? Например, в прямоугольном помещении можно встроить шкаф по меньшей стене, сделав таким образом комнату более квадратной.
Учитывайте форму комнаты также при расстановке мебели. Не стоит расставлять предметы в вытянутом помещении по стенке. Имеет смысл поставить диванную группу таким образом, чтобы кресла стояли рядом с диваном, либо установить два дивана друг напротив друга по перпендикулярной стороне. Эти правила актуальны и при расстановке мебели на кухне.
Визуально увеличить площадь
Помимо минимального количества мебели и правильной формы помещения есть также и другие приемы для визуального увеличения небольшой квартиры.
Отделка. Если у вас однокомнатная квартира или квартира-студия, то нужно использовать максимум 3-4 вида отделочных материалов. К примеру, одна паркетная доска по всем помещениям, два вида плитки на полу и на стенах, а также покраска стен. Можно сделать акцент, выделив, например, одну стену. Использование одного вида плитки в санузле и на кухне также даст увеличение пространства. Как это работает? Выложив санузел такой же плиткой, как и на кухне, мы делаем его не отдельным помещением, а как бы частью кухни. За счет этого приема у нас складывается впечатление, что мы находимся в одном слитном помещении.
Цветовые решения. При выборе мебели и отделочных материалов также есть свои тонкости, и заключаются они в выборе цвета. Например, светлые поверхности увеличивают пространство, а темные – уменьшают. Но в очень маленьких помещениях, например, в санузлах, светлая отделка может не работать. В таком пространстве можно сделать светлую отделку и выделить одну стену акцентным или темным цветом.
Логика в том, что при таком приеме мы как бы отделяем от темного элемента все остальное светлое пространство, и помещение визуально расширяется. Обратите внимание, что матовые поверхности сужают пространство, а глянцевые – увеличивают. Важно помнить, что в этом тоже нужна мера. Например, можно сделать матовую отделку во всех помещениях, а кухню выполнить белым глянцем. Таким образом вы визуально увеличите пространство и сделаете некий акцент.
Легкие перегородки. Как уже говорили ранее, необязательно выстраивать полноценные стены между зонами. Попробуйте использовать вместо них легкие конструкции, например, прозрачные стеклянные «шторки» или деревянные рейки. Второе мы часто используем в наших проектах. Фокус реек в том, что если смотреть на них прямо, то они прозрачные, а если под углом, то они будто становятся глухой перегородкой. Также можно использовать в качестве зонирующей перегородки панно или какие-то элементы, свисающие с потолка. Если в помещениях необходима дверь, то также можно предусмотреть стеклянную раздвижную перегородку или какую-либо другую светопрозрачную конструкцию.
Зеркала. Ни для кого не секрет, что зеркала отлично визуально увеличивают помещение. Но это не значит, что их нужно устанавливать везде и всюду. Суть зеркал в том, что их лучше использовать в тех местах, где они будут продолжать помещение. Например, зеркало, установленное на углу может визуально создать ощущение проема, продолжающего комнату. Хорошим решением будет выделить зеркальным покрытием стену в маленькой прихожей. Не забываем о правиле помещения правильной формы: стремитесь увеличить пространство в ту сторону, в которую оно будет казаться более квадратным.
Стоит ли обращаться к дизайнеру?
Важно понимать, что работа над маленькой квартирой гораздо сложнее, чем над проектом с большой площадью: нужно разместить максимальное количество функционала в небольшом помещении с максимальным удобством. И зачастую такая работа требует больше времени, чем над большими квартирами.
Вероятнее всего, дизайнер при проектировании маленькой квартиры будет использовать нестандартные решения и заказные позиции, так как небольшое пространство диктует свои правила. Но такие решения всегда дороже традиционных, для реализации такого интерьера потребуется бюджет, который может равняться стоимости самой квартиры. А если речь идет о регионах, то может даже превышать ее стоимость.
Если вы не готовы к таким тратам, то необязательно заказывать у дизайнера полноценный дизайн-проект, лучше обратиться за консультацией. Поскольку главная сложность в проектировании таких квартир – это планировка, ее можно разработать в формате двухчасовой платной консультации. На встрече вы сможете продумать интерьер с дизайнером, создать планировку, нарисовать концепцию. Дизайнер даже сможет вам подсказать, как правильно распределить бюджет и какую мебель
приобрести, чтобы его оптимизировать. При этом стоит обращаться именно к тем дизайнерам, у которых был опыт реализации небольших квартир.Надеюсь, эта статья поможет вам понять основной смысл планирования и реализации небольшой квартиры и поспособствует вашей комфортной жизни даже на небольшой площади!
памятка по планированию маленькой квартиры- Законодательство о перепланировке запрещает увеличивать площадь кухни за счет жилых комнат и санузла.
- Составьте распорядок дня всех членов семьи и отдельно – сценарий выходных дней.
- Получите у дизайнера консультацию по планировке квартиры.
- Зонирование может быть выполнено легкими и прозрачными перегородками или мебелью.
- Используйте мебель-трансформер.
- Используйте встроенные системы хранения вещей. Максимум пустого пространства!
- Визуально расширьте пространство: сделайте из прямоугольного квадратное помещение, используйте всего несколько видов отделочных материалов, зеркала, цвет.
Иллюстрации предоставлены Geometrium.ru
www.cian.ru
Секреты планировки маленьких квартир — Мой дом
Все мы мечтаем жить во дворцах, и не считать метры свободной площади, однако реальность зачастую диктует нам совершенно иные правила игры. Однокомнатные и двухкомнатные апартаменты, а то и вовсе квартиры-студии — вот условия, из которых многим приходится исходить при обустройстве своего жизненного пространства. Впрочем, квартиры с небольшой площадью это вовсе не приговор! Я постараюсь рассказать вам, как правильно организовать планировку маленькой квартиры, подборать отделочные материалы, освещение, декор и поделюсь некоторыми профессиональными секретами дизайнеров.

Пропорции
Гармония пропорций в помещении — то, о чем зачастую не задумываются многие из нас, и что обязательно учитывают в работе профессиональные дизайнеры. Соотношение высоты и площади помещения, перегородок, проемов и других элементов имеет первостепенное значение, когда речь идет о зрительном восприятии пространства. Это надо учитывать, если вы, например, планируете сделать в маленькой квартире перепланировку.
Так, при небольшой высоте потолков около 2,5 м большое свободное пространство (свыше 40 м2) будет визуально еще сильнее снижать потолки, превращая просторную комнату в тесное и давящее пространство. Таким образом, при низких потолках сносить все перегородки, создавая студийное пространство, нежелательно, лофт все равно не получится.
Планировка
Прекрасно, если у вас есть возможность сделать перепланировку или расположить межкомнатные перегородки удобным образом еще на стадии строительства дома. Разумеется, консультации профессионалов, как с точки зрения дизайна, так и инженерных и юридических аспектов вопроса, будут необходимы, однако в итоге вы сможете получить комфортное и зрительно привлекательное пространство. Дадим лишь несколько общих рекомендаций.

Компактная кухня-гостиная
Советы по перепланировке маленьких квартир:
- категорически нельзя трогать несущие стены, колонны и другие конструкции
- практически никогда нельзя перемещать или расширять влажные зоны (санузлы, зону кухни)
- нельзя менять фасадную часть здания
- следует крайне осторожно относиться к сносу перегородок между комнатой и балконом
- определите свои основные пути по квартире и постарайтесь не загромождать их, чтобы потом постоянно не натыкаться на углы
- подумайте, в каком помещении вы проводите больше всего времени и выделите ему наиболее выигрышное пространство. Это может быть рабочий кабинет, кухня или любая другая комната
- если в спальне вы находитесь только во время сна, отдавать ей больше всего свободного пространства смысла не имеет
- используйте нестандартные решения, иногда чтобы выиграть несколько свободных метров, стоит расположить стену по диагонали или вообще радиально
- совмещение санузла и ванны позволит выиграть немного места, которое можно использовать, например, для установки стиральной машины
- в небольшом помещении уделяете повышенное внимание межкомнатным дверям. От некоторых из них, например, между кухней и коридором, можно вообще отказаться, а в остальных помещениях заменить распашные модели на двери-купе или книжки, это позволит существенно сэкономить свободное место
- беспорядок — главный бич маленьких пространств, поэтому тщательно продумайте зоны хранения, чтобы у каждого предмета было свое место. От вещей, которыми не пользуетесь более года, беспощадно избавляйтесь
- часто стационарные стены можно заменить этажерками, ширмами или мобильными перегородками, помните об этом
- если в квартире высокие потолки, используйте это, например, организовав спальное место на втором ярусе

Светлая кухня малого метража
Памятка: помните, что любая перепланировка требует обязательного согласования и консультаций со специалистами!
Некоторые помещения в доме, например, санузлы или кухня, потребуют особого внимания, ведь в этих зонах есть своя функциональная специфика и особенно остро чувствуется нехватка свободного места.
Цвет и орнамент
Цветовая гамма интерьера очень сильно влияет на наше восприятие пространства.
Не секрет, что светлые тона отражают свет и заставляют помещение казаться просторнее, чем активно пользуются дизайнеры. При этом теплые тона (красный, желтый, оранжевый) заставляют предметы казаться ближе, а холодные (синий, зеленый, лиловый), наоборот, отдаляют. Соответственно, идеальным решением для небольшой комнаты будут холодная цветовая гамма пастельных тонов.

Классический вариант полосатых обоев в интерьере, Wall & Deco
Столь же распространенный, однако от этого не менее действенный прием визуального расширения пространства — вертикальные и горизонтальные полосы. Узкие вертикальные полосы на обоях или в виде предметов обстановки заставят потолки казаться выше, а горизонтальные помогут «вытянуть» стены в длину.
Совет: в узкие комнатах с высокими потолками, которые часто встречаются в старом фонде, горизонтальные полосы противопоказаны. А вот стену напротив двери можно оклеить темными обоями, чтобы сгладить неправильные пропорции.
Стены
Маленькие помещения требуют гораздо более продуманного и внимательного отношения к декору, нежели просторные пространства. Особенно, когда речь идет об оформлении больших плоскостей: стен, пола и потолка. Приведем несколько базовых советов по выбору обоев и окраске стен в небольших комнатах.
Обои для небольших помещений
- стены в небольших помещениях не должны слишком сильно привлекать к себе внимание
- лучше отдать предпочтение мелкому рисунку, так как крупные орнаменты будут визуально уменьшать пространство
- не используйте дойные обои, разделенные бордюром
- не используйте слишком яркие и контрастные орнаменты

Подчеркиваем горизонтали с помощью обоев-акцентов, Wall&Deco
Ю Совет: в случае, если есть сильное желание оживить интерьер, выберете одну акцентную стену, которая хорошо просматривается в помещении, и только на ней оклейте обои с крупным узором или покрасть ее яркой краской.
Окраска стен в небольших помещениях:
- избегайте резких цветовых границ и контрастов
- лучше окрашивать стены и потолок в один цвет, разумеется, светлый
- в действительной небольших квартирах имеет смысл покрасить все стены в один цвет, возможно, кроме 1-2 акцентов
Полы
Напольное покрытие влияет на восприятие интерьера столь же активно, как и декор стен. Для небольшой комнаты лучше выбрать также светлое напольное покрытие: ламинат или паркет из клена, березы, светлого дуба и т.п.. Для влажных зон используйте светлую плитку или глянцевый керамогранит.
В однокомнатных квартирах или квартирах-студиях лучше делать одинаковое напольное покрытие без стыков, плавно переходящее из одной зоны в другую.

Светлый паркет с плашками удлиненной формы — наиболее подходящее решение для небольшой квартиры, Tarkett
Совет: паркетные плашки в маленьких комнатах лучше выбирать узкие и относительно длинные и располагать продольно.
Освещение
Чем больше света будет в помещении, тем более просторным оно будет казаться. Именно поэтому постарайтесь впустить в квартиру как можно больше солнечных лучей и выбирать максимально легкие шторы, оставив тяжелые портьеры только для создания комфорта во время сна.

Сочетание бра и настольных светильников с неяркими текстильными абажурами, Ph Collection. Удлиненной формы зеркала расширяют пространство и создают дополнительную вертикальную доминанту
Не меньшее значение имеет правильный выбор светильников. Помимо центральной люстры, от которой желательно вовсе отказаться, важно организовать различные световые сценарии, особенно, если комната одновременно используется для различных целей: работы, приема гостей, отдыха и т.д. Бра, торшеры, несколько настольных светильников не только создадут правильное настроение для разных видов времяпрепровождения, но и помогут визуально обогатить интерьер и сделать его более уютным.
Совет: в небольших помещениях, по-возможности, максимально используйте нижнюю подсветку плинтусов, мебели и т.п.
Мебель
Три основных характеристики идеального предмета мебели для небольших пространств: компактность, мобильность и многофункциональность. Откажитесь от громоздких шкафов, а зоны хранения постарайтесь равномерно распределить по всей квартире. Дополнительные полочки и шкафчики могут поместиться в прихожей или коридоре, спрятаться под откидной крышкой пуфика, кофейного столика или выдвижного ящика под кроватью.

Парящая над полом мебель кажется более воздушной, шкафчик MisuraEmme
Совет:максимально используйте подвесную мебель без ножек с дополнительной нижней подсветкой. Она кажется во много раз более легкой и воздушной чем аналогичные по материалу и размерам аналоги с массивным основанием.
Идеально, если один и тот же предмет можно будет легко перемещать по квартире (например, с помощью колесиков) или использовать несколькими способами — это существенно сэкономит как затраты, так и столь ценные метры площади.Подкатные тумбы, столы-секретеры на стене, убирающееся в стену спальное место — современная мебель имеет гораздо больше различных модификаций и необычных решений, чем кажется на первый взгляд.

Вариант компактной кухни в студийном пространства с глянцевой отделкой фасадов и фартука
Кроме конструкции, материал, из которого изготовлена мебель, имеет не меньшее значение. Наилучшим образом для маленьких квартир подходят светлые, глянцевые фасады, стекло, прозрачный пластик. Такая мебель кажется воздушной и невесомой, отражает свет, не загромождая пространство.
Зеркала
Крупные зеркала — излюбленный прием для визуального расширения пространства, однако и использовать его надо с умом, так как отражаться в таких зеркалах должны в первую очередь не вы, а квартира. Зеркальный шкаф-купе в узкой прихожей вряд ли существенно улучшит ситуацию, а вот если разместить зеркала на откосах окон и дверных проемов, эффект будет более весомый. Зеркальные панели также можно пустить вдоль потолочного плинтуса или использовать зеркальную плитку для оформления кухонного фартука.

Вертикальное зеркало, зрительно поднимающее высоту потолка, Rexa Design
Я перечислила лишь некоторые базовые приемы, которые можно использовать для того, чтобы небольшое по площади помещение не создавала ощущение давящего, замкнутого пространства и было максимально функциональным. Ведь комфорт — это не только красивый декор, но и, прежде всего, удобство ежедневного использования.
moidomik.info
Советы по грамотной планировке маленькой квартиры

На качество жилья влияет не только его площадь. Если грамотно продумать интерьер, удобными и вместительными можно сделать комнаты даже небольшого размера. Мы попытаемся доказать эту теорию. И конечно, будем рады услышать ваши мнения и предложения по этому животрепещущему вопросу.
Японский интерьер
Если вы стремитесь к простору, а теснота является вашим главным врагом, предпочтите декору функциональность. В маленьком помещении будут неуместными бронзовые канделябры, роскошные ковры и бархатные драпировки.
Находите вдохновение в традиционном японском интерьере. В первую очередь избавьтесь от лишних вещей – а они найдутся обязательно, стоит лишь хорошо подумать. Ничего случайного в маленькой квартире быть не должно.

Красота на виду
Если вы совсем уж не можете выделить место для гардеробной, отгородите драпировкой угол и поместите туда вещи необходимые, но не достаточно красивые, оставив на виду лишь радующие глаз предметы.
Не перегружайте пространство крупногабаритными предметами – но одна крупная вещь, отвлекающая на себя внимание, все же должна присутствовать.

Меняем функции
Как правило, под гостиную отдается самая большая площадь. В скромной же квартире стоит сделать как раз наоборот – для гостиной отвести маленькую площадь, а на большой совместить спальню с гардеробной либо небольшим домашним офисом.
Гардеробная, кстати, хотя и несколько уменьшает полезную площадь, позволяет воцариться порядку. В ней можно разместить все то, что прежде располагалось в нескольких шкафах, а то и просто где попало.

Кладовки
«Золотым кладом» скромного жилища являются кладовки, чуланы и прочие подсобные вариации – не пытайтесь избавиться от них в стремлении к простору, иначе в кладовку превратится все остальное.
Корпусный шкаф, используемый, как правило, лишь на 50%, целесообразно заменить на неглубокий (именно такой используется на 100%) комод.

Объемы и углы
Объем стоит использовать не только по горизонтали, но и по вертикали, создавая дополнительные уровни. Например, если в узкой прихожей шкафы поставить невозможно, то вполне реально устроить наверху полки наподобие антресольных.
На них можно разместить книги и другие вещи, которыми редко пользуются. Если позволяет высота, устраивайте антресоли в любых приемлемых местах.
Внимательно изучите углы. Пустующие места – непростительное упущение. Вариантов здесь несколько: угловая мебель, мини-кладовка, треугольный тайник за стоящим по диагонали диваном или комодом. Диагональная планировка оптически расширяет объем.

Трансформируем подоконник, сооружаем подиум
Весьма удобную и полезную вещь позволит соорудить конструкция подоконника – если приложить некоторые усилия, он станет полноценным рабочим местом в жилой комнате, плавно перейдет в обеденный стол-полуостров в кухне, станет верхней частью шкафчика и даже подиумом.
Подиум, кстати, даже устроенный без использования подоконника, будет отличной находкой – под него можно при желании задвинуть кровать или использовать внутреннее пространство по удобному для вас варианту.

Дополнительные нюансы
Визуально расширить пространство помогут однородное напольное покрытие, идентичный цвет стен в соседних помещениях, использование зеркал. Более светлый, чем стены, потолок, визуально увеличит высоту.
Решающую роль играет освещение – оно должно быть локальным. Совмещающая несколько функций мобильная и трансформируемая мебель будет в небольшой квартире как нельзя кстати.
Выиграть полезную площадь помогает отказ от некоторых предметов. Например, если вы не пользуетесь духовкой, достаточно будет варочной поверхности, если не любите или не желаете нежиться в ванне – замените ее душевой кабиной. Громоздкую кровать можно заменить матрасом-футоном.

Любите свою квартиру и превращайте ее в уютную и красивую обитель.
interiorsmall.ru
Планировка маленькой квартиры — лучшие фото-идеи и советы оформления интерьера
Ремонтируя небольшую по размерам квартиру, мы зачастую встречаем проблему нехватки свободного места. В такой ситуации приходится делать выбор между удобством расположения мебели и красотой и уютом интерьера. Но есть выход, способ сохранить равновесие, удержать золотую середину между эстетикой и практичностью. С советами на эту тему вы и сможете ознакомиться в данной статье, где вы узнаете, как сделать маленькую квартиру не менее удобной и красивой, нежели другую с большей площадью.

При продумывании интерьера маленькой квартиры одним из важнейших аспектов является направленность всех деталей на визуальное увеличение пространства. Например, не стоит использовать обилие блестящих глянцевых поверхностей или темных цветов в дизайне жилых комнат, поскольку подобное окружение будет «давить» на вас после длительного нахождения в такой комнате. С другой стороны, известны случаи, когда в дизайне маленькой квартиры не были соблюдены какие-либо правила создания интерьера, и она все равно оказывается достаточно уютной. Самое важное – чувствовать меру и не переусердствовать с добавлением различных деталей.
Если у вас маленькая квартира-студия, и вы хотели бы расширить ее пространство, вам следует знать несколько основных принципов о которых мы поговорим ниже.

Стоит ли делать перепланировку в маленькой квартире?
Перепланировка маленькой квартиры может помочь увеличить свободное пространство не только визуально. Например, снос стены между гостиной комнатой и кухней расширит пространство и даст возможность переставить мебель так, чтобы у вас в квартире было больше свободного, ничем не занятого места. Вместо обычных дверей установите раздвижные или даже полностью от них избавьтесь. Попробуйте разделить квартиру на несколько зон с помощью ширм, тонких перегородок, контрастных цветов, шкафов. Не ограничивайте свою фантазию!

Следующий прием знаком многим и, в общем-то, считается совершенно беспроигрышным способом визуального расширения пространства. Как вы возможно уже догадались, речь идет о добавлении зеркал в дизайн маленькой квартиры. Зеркала могут висеть не только на стенах: добавляйте их на двери шкафов, тумбочек, хоть на потолок.

В маленькой квартире лучше отказаться от использования тяжелых массивных источников света. Гораздо более предпочтительны будут светильники, встроенные в стены, направленные лампы, даже гирлянды и светодиоды. Светлая квартира визуально выглядит больше, к тому же, обилие источников света добавит в ваш интерьер яркости, тепла и уюта.

Помните, что ваша задача – расширить пространство, поэтому откажитесь от обилия декора в пользу функциональности. Например, не стоит использовать такие громоздкие и непрактичные детали, как драпировки, тяжелые шторы и тому подобное. Также контролируйте количество мелких деталей – фигурок и различных красивых безделушек – «пылесборников», которые, к тому же, требуют для себя достаточно много места.

Обязательно регулярно делайте в доме уборку, в конце концов, что наиболее сильно захламляет квартиру, как не раскиданные в беспорядке вещи. Отличным решением будет приобретение шкафа-купе, чтобы хранить вещи в нем.

Купите прозрачные легкие шторы или обходитесь без штор вовсе, комната от этого только выиграет, в ней прибавится света. Повесьте жалюзи или римские шторы, которые днем можно держать полностью открытыми.

Помните, что в планировке интерьера обязательно нужно тщательно подбирать цвета. Когда вы делаете ремонт маленькой квартиры, стоит выбирать яркие или же, напротив, темные оттенки цветов, чтобы подчеркнуть контраст и добавить глубины, но оставлять светлым общий фон.

На что обратить внимание в дизайне маленькой квартиры
Потолок в маленьких квартирах, как правило, низкий, так что, дабы визуально увеличить его высоту, постарайтесь сделать его цвет светлее, чем у стен и общего убранства комнаты.

Напольное покрытие лучше сделать монолитным, отсутствие неровностей вроде порожков не только заставит квартиру лучше выглядеть, но и убережет вас от спотыканий ночью в темноте. При отделке стен также разумнее использовать однотонные покрытия.

При выборе цвета мебели отдавайте предпочтение светлым оттенкам дерева, такая мебель выглядит легче и менее массивной. Рекомендую обратить внимание мебель из стекла и металла.

Расстановка мебели является не менее интересным пунктом, чем ее выбор. Стандартным решением является поставить всю мебель вдоль стен, оставив в центре комнаты некое подобие «островка» свободного пространства, но это не слишком рационально.

Гораздо лучше будет, к примеру, сделать в кладовой полки до потолка, освободив таким образом место в жилых комнатах.
Какую выбрать мебель для маленькой квартиры?

Используйте мебель, не занимающую большого количества пространства и при этом не уступающую в функциональности обычной. Таковыми являются:

Итак, задействуйте свою фантазию, выбирайте самые невероятные решения, и это сделает дизайн вашей квартиры не только приятным глазу, но и уникальным, отражающим ваш вкус. В конце концов, для правильной планировки интерьера достаточно знать базовые правила и принципы, а финальный результат ограничен только вашим воображением. Ищите примеры в интернете, в литературе, придумывайте некоторые изюминки сами, и останетесь довольны результатом.
Еще больше вариантов оформления и планировки квартиры можно посмотреть на этом сайте — http://indizajn.ru
100 фото-идей как обустроить дизайн интерьера маленькой квартиры
interior of the apartment, interior design.
rusolymp.ru
Профессиональные секреты дизайнеров: планировка и интерьер маленькой квартиры (обои, мебель, освещение, зеркала)
Все мы мечтаем жить во дворцах, и не считать метры свободной площади, однако реальность зачастую диктует нам совершенно иные правила игры. Однокомнатные и двухкомнатные апартаменты, а то и вовсе квартиры-студии — вот условия, из которых многим приходится исходить при обустройстве своего жизненного пространства. Впрочем, квартиры с небольшой площадью это вовсе не приговор! Я постараюсь рассказать вам, как правильно организовать планировку маленькой квартиры, подборать отделочные материалы, освещение, декор и поделюсь некоторыми профессиональными секретами дизайнеров.

Пропорции
Гармония пропорций в помещении — то, о чем зачастую не задумываются многие из нас, и что обязательно учитывают в работе профессиональные дизайнеры. Соотношение высоты и площади помещения, перегородок, проемов и других элементов имеет первостепенное значение, когда речь идет о зрительном восприятии пространства. Это надо учитывать, если вы, например, планируете сделать в маленькой квартире перепланировку.
Так, при небольшой высоте потолков около 2,5 м большое свободное пространство (свыше 40 м2) будет визуально еще сильнее снижать потолки, превращая просторную комнату в тесное и давящее пространство. Таким образом, при низких потолках сносить все перегородки, создавая студийное пространство, нежелательно, лофт все равно не получится.
Планировка
Прекрасно, если у вас есть возможность сделать перепланировку или расположить межкомнатные перегородки удобным образом еще на стадии строительства дома. Разумеется, консультации профессионалов, как с точки зрения дизайна, так и инженерных и юридических аспектов вопроса, будут необходимы, однако в итоге вы сможете получить комфортное и зрительно привлекательное пространство. Дадим лишь несколько общих рекомендаций.

Компактная кухня-гостиная
Советы по перепланировке маленьких квартир:
- категорически нельзя трогать несущие стены, колонны и другие конструкции
- практически никогда нельзя перемещать или расширять влажные зоны (санузлы, зону кухни)
- нельзя менять фасадную часть здания
- следует крайне осторожно относиться к сносу перегородок между комнатой и балконом
- определите свои основные пути по квартире и постарайтесь не загромождать их, чтобы потом постоянно не натыкаться на углы
- подумайте, в каком помещении вы проводите больше всего времени и выделите ему наиболее выигрышное пространство. Это может быть рабочий кабинет, кухня или любая другая комната
- если в спальне вы находитесь только во время сна, отдавать ей больше всего свободного пространства смысла не имеет
- используйте нестандартные решения, иногда чтобы выиграть несколько свободных метров, стоит расположить стену по диагонали или вообще радиально
- совмещение санузла и ванны позволит выиграть немного места, которое можно использовать, например, для установки стиральной машины
- в небольшом помещении уделяете повышенное внимание межкомнатным дверям. От некоторых из них, например, между кухней и коридором, можно вообще отказаться, а в остальных помещениях заменить распашные модели на двери-купе или книжки, это позволит существенно сэкономить свободное место
- беспорядок — главный бич маленьких пространств, поэтому тщательно продумайте зоны хранения, чтобы у каждого предмета было свое место. От вещей, которыми не пользуетесь более года, беспощадно избавляйтесь
- часто стационарные стены можно заменить этажерками, ширмами или мобильными перегородками, помните об этом
- если в квартире высокие потолки, используйте это, например, организовав спальное место на втором ярусе

Светлая кухня малого метража
Памятка: помните, что любая перепланировка требует обязательного согласования и консультаций со специалистами!
Некоторые помещения в доме, например, санузлы или кухня, потребуют особого внимания, ведь в этих зонах есть своя функциональная специфика и особенно остро чувствуется нехватка свободного места.
Цвет и орнамент
Цветовая гамма интерьера очень сильно влияет на наше восприятие пространства.
Не секрет, что светлые тона отражают свет и заставляют помещение казаться просторнее, чем активно пользуются дизайнеры. При этом теплые тона (красный, желтый, оранжевый) заставляют предметы казаться ближе, а холодные (синий, зеленый, лиловый), наоборот, отдаляют. Соответственно, идеальным решением для небольшой комнаты будут холодная цветовая гамма пастельных тонов.

Классический вариант полосатых обоев в интерьере, Wall & Deco
Столь же распространенный, однако от этого не менее действенный прием визуального расширения пространства — вертикальные и горизонтальные полосы. Узкие вертикальные полосы на обоях или в виде предметов обстановки заставят потолки казаться выше, а горизонтальные помогут «вытянуть» стены в длину.
Совет: в узкие комнатах с высокими потолками, которые часто встречаются в старом фонде, горизонтальные полосы противопоказаны. А вот стену напротив двери можно оклеить темными обоями, чтобы сгладить неправильные пропорции.
Стены
Маленькие помещения требуют гораздо более продуманного и внимательного отношения к декору, нежели просторные пространства. Особенно, когда речь идет об оформлении больших плоскостей: стен, пола и потолка. Приведем несколько базовых советов по выбору обоев и окраске стен в небольших комнатах.
Обои для небольших помещений
- стены в небольших помещениях не должны слишком сильно привлекать к себе внимание
- лучше отдать предпочтение мелкому рисунку, так как крупные орнаменты будут визуально уменьшать пространство
- не используйте дойные обои, разделенные бордюром
- не используйте слишком яркие и контрастные орнаменты

Подчеркиваем горизонтали с помощью обоев-акцентов, Wall&Deco
Ю Совет: в случае, если есть сильное желание оживить интерьер, выберете одну акцентную стену, которая хорошо просматривается в помещении, и только на ней оклейте обои с крупным узором или покрасть ее яркой краской.
Окраска стен в небольших помещениях:
- избегайте резких цветовых границ и контрастов
- лучше окрашивать стены и потолок в один цвет, разумеется, светлый
- в действительной небольших квартирах имеет смысл покрасить все стены в один цвет, возможно, кроме 1-2 акцентов
Полы
Напольное покрытие влияет на восприятие интерьера столь же активно, как и декор стен. Для небольшой комнаты лучше выбрать также светлое напольное покрытие: ламинат или паркет из клена, березы, светлого дуба и т.п.. Для влажных зон используйте светлую плитку или глянцевый керамогранит.
В однокомнатных квартирах или квартирах-студиях лучше делать одинаковое напольное покрытие без стыков, плавно переходящее из одной зоны в другую.

Светлый паркет с плашками удлиненной формы — наиболее подходящее решение для небольшой квартиры, Tarkett
Совет: паркетные плашки в маленьких комнатах лучше выбирать узкие и относительно длинные и располагать продольно.
Освещение
Чем больше света будет в помещении, тем более просторным оно будет казаться. Именно поэтому постарайтесь впустить в квартиру как можно больше солнечных лучей и выбирать максимально легкие шторы, оставив тяжелые портьеры только для создания комфорта во время сна.

Сочетание бра и настольных светильников с неяркими текстильными абажурами, Ph Collection. Удлиненной формы зеркала расширяют пространство и создают дополнительную вертикальную доминанту
Не меньшее значение имеет правильный выбор светильников. Помимо центральной люстры, от которой желательно вовсе отказаться, важно организовать различные световые сценарии, особенно, если комната одновременно используется для различных целей: работы, приема гостей, отдыха и т.д. Бра, торшеры, несколько настольных светильников не только создадут правильное настроение для разных видов времяпрепровождения, но и помогут визуально обогатить интерьер и сделать его более уютным.
Совет: в небольших помещениях, по-возможности, максимально используйте нижнюю подсветку плинтусов, мебели и т.п.
Мебель
Три основных характеристики идеального предмета мебели для небольших пространств: компактность, мобильность и многофункциональность. Откажитесь от громоздких шкафов, а зоны хранения постарайтесь равномерно распределить по всей квартире. Дополнительные полочки и шкафчики могут поместиться в прихожей или коридоре, спрятаться под откидной крышкой пуфика, кофейного столика или выдвижного ящика под кроватью.

Парящая над полом мебель кажется более воздушной, шкафчик MisuraEmme
Совет:максимально используйте подвесную мебель без ножек с дополнительной нижней подсветкой. Она кажется во много раз более легкой и воздушной чем аналогичные по материалу и размерам аналоги с массивным основанием.
Идеально, если один и тот же предмет можно будет легко перемещать по квартире (например, с помощью колесиков) или использовать несколькими способами — это существенно сэкономит как затраты, так и столь ценные метры площади.Подкатные тумбы, столы-секретеры на стене, убирающееся в стену спальное место — современная мебель имеет гораздо больше различных модификаций и необычных решений, чем кажется на первый взгляд.

Вариант компактной кухни в студийном пространства с глянцевой отделкой фасадов и фартука
Кроме конструкции, материал, из которого изготовлена мебель, имеет не меньшее значение. Наилучшим образом для маленьких квартир подходят светлые, глянцевые фасады, стекло, прозрачный пластик. Такая мебель кажется воздушной и невесомой, отражает свет, не загромождая пространство.
Зеркала
Крупные зеркала — излюбленный прием для визуального расширения пространства, однако и использовать его надо с умом, так как отражаться в таких зеркалах должны в первую очередь не вы, а квартира. Зеркальный шкаф-купе в узкой прихожей вряд ли существенно улучшит ситуацию, а вот если разместить зеркала на откосах окон и дверных проемов, эффект будет более весомый. Зеркальные панели также можно пустить вдоль потолочного плинтуса или использовать зеркальную плитку для оформления кухонного фартука.

Вертикальное зеркало, зрительно поднимающее высоту потолка, Rexa Design
Я перечислила лишь некоторые базовые приемы, которые можно использовать для того, чтобы небольшое по площади помещение не создавала ощущение давящего, замкнутого пространства и было максимально функциональным. Ведь комфорт — это не только красивый декор, но и, прежде всего, удобство ежедневного использования.
www.diy.ru
Секреты планировки маленьких квартир | Мой дом
Все мы мечтаем жить во дворцах, и не считать метры свободной площади, однако реальность зачастую диктует нам совершенно иные правила игры. Однокомнатные и двухкомнатные апартаменты, а то и вовсе квартиры-студии — вот условия, из которых многим приходится исходить при обустройстве своего жизненного пространства. Впрочем, квартиры с небольшой площадью это вовсе не приговор! Я постараюсь рассказать вам, как правильно организовать планировку маленькой квартиры, подборать отделочные материалы, освещение, декор и поделюсь некоторыми профессиональными секретами дизайнеров.

Пропорции
Гармония пропорций в помещении — то, о чем зачастую не задумываются многие из нас, и что обязательно учитывают в работе профессиональные дизайнеры. Соотношение высоты и площади помещения, перегородок, проемов и других элементов имеет первостепенное значение, когда речь идет о зрительном восприятии пространства. Это надо учитывать, если вы, например, планируете сделать в маленькой квартире перепланировку.
Так, при небольшой высоте потолков около 2,5 м большое свободное пространство (свыше 40 м2) будет визуально еще сильнее снижать потолки, превращая просторную комнату в тесное и давящее пространство. Таким образом, при низких потолках сносить все перегородки, создавая студийное пространство, нежелательно, лофт все равно не получится.
Планировка
Прекрасно, если у вас есть возможность сделать перепланировку или расположить межкомнатные перегородки удобным образом еще на стадии строительства дома. Разумеется, консультации профессионалов, как с точки зрения дизайна, так и инженерных и юридических аспектов вопроса, будут необходимы, однако в итоге вы сможете получить комфортное и зрительно привлекательное пространство. Дадим лишь несколько общих рекомендаций.

Компактная кухня-гостиная
Советы по перепланировке маленьких квартир:
- категорически нельзя трогать несущие стены, колонны и другие конструкции
- практически никогда нельзя перемещать или расширять влажные зоны (санузлы, зону кухни)
- нельзя менять фасадную часть здания
- следует крайне осторожно относиться к сносу перегородок между комнатой и балконом
- определите свои основные пути по квартире и постарайтесь не загромождать их, чтобы потом постоянно не натыкаться на углы
- подумайте, в каком помещении вы проводите больше всего времени и выделите ему наиболее выигрышное пространство. Это может быть рабочий кабинет, кухня или любая другая комната
- если в спальне вы находитесь только во время сна, отдавать ей больше всего свободного пространства смысла не имеет
- используйте нестандартные решения, иногда чтобы выиграть несколько свободных метров, стоит расположить стену по диагонали или вообще радиально
- совмещение санузла и ванны позволит выиграть немного места, которое можно использовать, например, для установки стиральной машины
- в небольшом помещении уделяете повышенное внимание межкомнатным дверям. От некоторых из них, например, между кухней и коридором, можно вообще отказаться, а в остальных помещениях заменить распашные модели на двери-купе или книжки, это позволит существенно сэкономить свободное место
- беспорядок — главный бич маленьких пространств, поэтому тщательно продумайте зоны хранения, чтобы у каждого предмета было свое место. От вещей, которыми не пользуетесь более года, беспощадно избавляйтесь
- часто стационарные стены можно заменить этажерками, ширмами или мобильными перегородками, помните об этом
- если в квартире высокие потолки, используйте это, например, организовав спальное место на втором ярусе

Светлая кухня малого метража
Памятка: помните, что любая перепланировка требует обязательного согласования и консультаций со специалистами!
Некоторые помещения в доме, например, санузлы или кухня, потребуют особого внимания, ведь в этих зонах есть своя функциональная специфика и особенно остро чувствуется нехватка свободного места.
Цвет и орнамент
Цветовая гамма интерьера очень сильно влияет на наше восприятие пространства.
Не секрет, что светлые тона отражают свет и заставляют помещение казаться просторнее, чем активно пользуются дизайнеры. При этом теплые тона (красный, желтый, оранжевый) заставляют предметы казаться ближе, а холодные (синий, зеленый, лиловый), наоборот, отдаляют. Соответственно, идеальным решением для небольшой комнаты будут холодная цветовая гамма пастельных тонов.

Классический вариант полосатых обоев в интерьере, Wall & Deco
Столь же распространенный, однако от этого не менее действенный прием визуального расширения пространства — вертикальные и горизонтальные полосы. Узкие вертикальные полосы на обоях или в виде предметов обстановки заставят потолки казаться выше, а горизонтальные помогут «вытянуть» стены в длину.
Совет: в узкие комнатах с высокими потолками, которые часто встречаются в старом фонде, горизонтальные полосы противопоказаны. А вот стену напротив двери можно оклеить темными обоями, чтобы сгладить неправильные пропорции.
Стены
Маленькие помещения требуют гораздо более продуманного и внимательного отношения к декору, нежели просторные пространства. Особенно, когда речь идет об оформлении больших плоскостей: стен, пола и потолка. Приведем несколько базовых советов по выбору обоев и окраске стен в небольших комнатах.
Обои для небольших помещений
- стены в небольших помещениях не должны слишком сильно привлекать к себе внимание
- лучше отдать предпочтение мелкому рисунку, так как крупные орнаменты будут визуально уменьшать пространство
- не используйте дойные обои, разделенные бордюром
- не используйте слишком яркие и контрастные орнаменты

Подчеркиваем горизонтали с помощью обоев-акцентов, Wall&Deco
Ю Совет: в случае, если есть сильное желание оживить интерьер, выберете одну акцентную стену, которая хорошо просматривается в помещении, и только на ней оклейте обои с крупным узором или покрасть ее яркой краской.
Окраска стен в небольших помещениях:
- избегайте резких цветовых границ и контрастов
- лучше окрашивать стены и потолок в один цвет, разумеется, светлый
- в действительной небольших квартирах имеет смысл покрасить все стены в один цвет, возможно, кроме 1-2 акцентов
Полы
Напольное покрытие влияет на восприятие интерьера столь же активно, как и декор стен. Для небольшой комнаты лучше выбрать также светлое напольное покрытие: ламинат или паркет из клена, березы, светлого дуба и т.п.. Для влажных зон используйте светлую плитку или глянцевый керамогранит.
В однокомнатных квартирах или квартирах-студиях лучше делать одинаковое напольное покрытие без стыков, плавно переходящее из одной зоны в другую.

Светлый паркет с плашками удлиненной формы — наиболее подходящее решение для небольшой квартиры, Tarkett
Совет: паркетные плашки в маленьких комнатах лучше выбирать узкие и относительно длинные и располагать продольно.
Освещение
Чем больше света будет в помещении, тем более просторным оно будет казаться. Именно поэтому постарайтесь впустить в квартиру как можно больше солнечных лучей и выбирать максимально легкие шторы, оставив тяжелые портьеры только для создания комфорта во время сна.

Сочетание бра и настольных светильников с неяркими текстильными абажурами, Ph Collection. Удлиненной формы зеркала расширяют пространство и создают дополнительную вертикальную доминанту
Не меньшее значение имеет правильный выбор светильников. Помимо центральной люстры, от которой желательно вовсе отказаться, важно организовать различные световые сценарии, особенно, если комната одновременно используется для различных целей: работы, приема гостей, отдыха и т.д. Бра, торшеры, несколько настольных светильников не только создадут правильное настроение для разных видов времяпрепровождения, но и помогут визуально обогатить интерьер и сделать его более уютным.
Совет: в небольших помещениях, по-возможности, максимально используйте нижнюю подсветку плинтусов, мебели и т.п.
Мебель
Три основных характеристики идеального предмета мебели для небольших пространств: компактность, мобильность и многофункциональность. Откажитесь от громоздких шкафов, а зоны хранения постарайтесь равномерно распределить по всей квартире. Дополнительные полочки и шкафчики могут поместиться в прихожей или коридоре, спрятаться под откидной крышкой пуфика, кофейного столика или выдвижного ящика под кроватью.

Парящая над полом мебель кажется более воздушной, шкафчик MisuraEmme
Совет:максимально используйте подвесную мебель без ножек с дополнительной нижней подсветкой. Она кажется во много раз более легкой и воздушной чем аналогичные по материалу и размерам аналоги с массивным основанием.
Идеально, если один и тот же предмет можно будет легко перемещать по квартире (например, с помощью колесиков) или использовать несколькими способами — это существенно сэкономит как затраты, так и столь ценные метры площади.Подкатные тумбы, столы-секретеры на стене, убирающееся в стену спальное место — современная мебель имеет гораздо больше различных модификаций и необычных решений, чем кажется на первый взгляд.

Вариант компактной кухни в студийном пространства с глянцевой отделкой фасадов и фартука
Кроме конструкции, материал, из которого изготовлена мебель, имеет не меньшее значение. Наилучшим образом для маленьких квартир подходят светлые, глянцевые фасады, стекло, прозрачный пластик. Такая мебель кажется воздушной и невесомой, отражает свет, не загромождая пространство.
Зеркала
Крупные зеркала — излюбленный прием для визуального расширения пространства, однако и использовать его надо с умом, так как отражаться в таких зеркалах должны в первую очередь не вы, а квартира. Зеркальный шкаф-купе в узкой прихожей вряд ли существенно улучшит ситуацию, а вот если разместить зеркала на откосах окон и дверных проемов, эффект будет более весомый. Зеркальные панели также можно пустить вдоль потолочного плинтуса или использовать зеркальную плитку для оформления кухонного фартука.

Вертикальное зеркало, зрительно поднимающее высоту потолка, Rexa Design
Я перечислила лишь некоторые базовые приемы, которые можно использовать для того, чтобы небольшое по площади помещение не создавала ощущение давящего, замкнутого пространства и было максимально функциональным. Ведь комфорт — это не только красивый декор, но и, прежде всего, удобство ежедневного использования.
Ксения
moidom.boltai.com
Планировка маленькой квартиры
29 квадратных метров — не приговор. Если за дело берутся дизайнеры-профессионалы, даже в таком небольшом пространстве может легко поместиться кухня, спальня, гостиная и гардероб.
Это прекрасный пример того, как можно переоборудовать однокомнатную квартиру в двухкомнатную и сделать помещение чрезвычайно функциональным. Черпай вдохновение из этих идей и никогда не переставай обустраивать собственный дом!

Как обустроить маленькую квартиру
Главная проблема, с которой приходиться сталкиваться дизайнерам при перепланировке, — точные расчеты. Стоит немного ошибиться, и этот промах может оказаться роковым: в маленькой квартире каждый сантиметр на счету. Перегородки в данной квартире оказались не несущими, потому фантазия проектировщиков не была ограничена ничем.

Вся мебель сделана под заказ, специально для крошечной квартиры. Обрати внимание, как чудесно сочетаются цвета в интерьере: все оттенки бежевого, серого, золотистого, кремового очень удачны. Создается атмосфера такой непринужденной роскоши, что невольно воспринимаешь это помещение гораздо большим, чем оно есть на самом деле!

Удобный кухонный уголок украшают большие окна. Свет расширяет пространство, рядом с такими окнами чувствуешь себя комфортно. Представь себя на этой шикарной кухоньке, как думаешь, тебе бы там понравилось?

Светильники придают интерьеру завершенность. Такие круглые люстры прекрасно выглядят в любой зоне квартиры.



Спальня спрятана от лишних глаз с помощью встроенного шкафа. Все детали продуманы, место для сна получилось очень гармоничным!


Санузел очень опрятный, но при этом не выглядит слишком простым и скучным. Всё решают акценты, черные вкрапления в плитке — превосходны!


Зеркало при входе в помещение — главный и очень выразительный акцент. Стеганое кресло и светильник также смотрятся очень стильно.

Чтобы квартира соответствовала твоим представлениям о красоте и функциональности, стоит потратить на ее обустройство немало сил. Зато в шикарном доме очень хочется быть счастливым! Всегда помни о том, что твое состояние напрямую зависит от места, где ты находишься, от вещей, которые тебя окружают. Содержи свой дом в чистоте и красоте, обязательно меняй что-то в интерьере периодически. Увидишь, насколько лучше ты себя будешь чувствовать!
Поделись этими дизайнерскими идеями с друзьями, им они наверняка понравятся.
Автор статьи
Редакция «Так Просто!»
Это настоящая творческая лаборатория! Команда истинных единомышленников, каждый из которых специалист в своем деле, объединенных общей целью: помогать людям. Мы создаем материалы, которыми действительно стоит делиться, а источником неиссякаемого вдохновения служат для нас любимые читатели!
takprosto.cc
