Планировка огорода 10 соток – фото, проекты с домом, баней и гаражом, ландшафтный дизайн, схемы, готовые планы и чертежи, примеры территории прямоугольной формы
Планировка сада и огорода на участках 6, 10 и 15 соток
Многие наши соотечественники имеют собственные загородные участки или дачи. Редко какой владелец земли не пользуется возможностью вырастить собственные сельскохозяйственные культуры, чтобы побаловать себя натуральной пищей. Однако не всегда дачники довольны расположением насаждений на своих сотках, которое влияет на удобность ухаживания за огородом, и соответственно, на урожай.

Разработка проекта участка и планировки огорода на 6-ти сотках
Планировка сада и огорода на загородном участке важна так же, как и правильное расположение дома, поэтому этому шагу на пути к обустройству загородного жилища необходимо уделить особое внимание. Чтобы успешно произвести проектирование сада и огорода необходимо составить на бумаге план земельного участка.
На плане помимо дома или дачного сооружения необходимо расположить все необходимые насаждения, которые планируется выращивать.
Здесь должно быть место и для фруктовых деревьев и кустарников, и для овощей, а также для декоративных цветов. Для удобства сбора урожая и ухаживания за растениями земельный участок рекомендуется разделить на несколько частей.
Декоративная площадка должна располагаться ближе всего, дабы постоянно радовать хозяев и украшать дом, а плодово-ягодную и овощную площадку следует отдалить от дома на некоторое расстояние.

Вариант устройства ландшафтного дизайна участка
Вернуться к оглавлениюСодержание материала
Как правильно выбрать место для сада
Планировка сада и огорода начинается с выбора подходящего места около дома. Для того чтобы выбор был произведён правильно следует проанализировать некоторые имеющиеся условия:
- Лучше всего если грунтовые воды будут располагаться не ближе чем 1,5 метра от поверхности земли. Выбирая место под огород или сад с расположением грунтовых вод выше допустимого уровня необходимо быть готовым к тому, что придётся проводить специальные мероприятия, заключающиеся в организации дренажной системы. Опытными садоводами замечено, что рост деревьев на земле с высоким расположением грунтовых вод заметно уменьшается. Кроме этого растения плохо плодоносят, замерзают в сильные морозы и чаще болеют. Имея в распоряжении участок 15 соток, владелец вряд ли сможет перенести насаждения в другое место, однако на более крупных участках это вполне реально;
Подробная планировка участка 10 соток
- Немаловажным для выращивания сельскохозяйственных культур является кислотность земли. Для того чтобы узнать тип почвы достаточно обратить внимание, какие культуры произрастают на нём. Обилие злаковых и бобовых культур на заветных сотках, наличие на участке яблонь, кленов и рябины говорит о том, что почва идеальна для организации на ней сада и огорода. Если же на участке в 10 соток земли прекрасно чувствуют себя осока, щавель или хвощ, то почва является кислой, и многие растения на ней не приживутся. Если случилось, что выбранный участок земли имеет высокую кислотность, рекомендуется исправлять эту ситуацию с помощью извести. Имея в собственности около 10 соток, подготовительные мероприятия не будут затратными;

Вариант планировки участка 15 соток
- Проектирование сада должно обеспечивать защиту деревьев от северного ветра;
- Если участок под сад имеет сложный рельеф, необходимо знать что южные и западные склоны являются наиболее благоприятными для выращивания деревьев, а северные, наоборот. Нужно иметь в виду и расположение площадки на склоне, ведь низина будет более холодной, что отрицательно скажется на многих деревьях;
- Необходимо учитывать, что деревья должны получать достаточное количество света, поэтому их затенение от дома или других предметов на участке недопустимо.
Выбор места для плодово-ягодных культур
Сумбур при выборе места для тех или иных кустарников крайне нежелателен, и может привести к плохому урожаю, поэтому составление плана расположения плодово-ягодных насаждений поможет избежать этого. При составлении плана огорода на 10-15 соток необходимо учитывать следующее:
- Для того чтобы быть уверенным в том что растения приживутся на участке, необходимо приобретать саженцы в той местности, где планируется их высаживать, ведь многие растения очень сильно зависят от климатических условий;
- Определяясь с количеством саженцев необходимо обратить внимание на их урожайность;
- Если расположить насаждения с одинаковым сроком созревания, можно достичь перекрёстного опыления, что позволит увеличить урожай;
- Немаловажной при составлении плана является осведомлённость о сроке жизни тех или иных культур;

- Планируя участок своими руками, следует учитывать предпочтения растений относительно освещённости. К примеру, удачной можно назвать посадку черешни, яблони и сливы друг за другом. Черешня наиболее требовательна к условиям освещённости, а слива – наименее, поэтому её можно затенять другим деревьями без ущерба для урожая;
- Разрабатывая план сада в программе, необходимо рассчитать оптимальное расстояние между деревьями, которое будет способствовать их нормальному росту. Для примера можно привести оптимальные промежутки между рядами и отдельными деревьями для яблони. Для качественного роста необходимо предусмотреть около пяти метров между рядами и отдельными деревьями. Соответственно, для карликовых растений эти промежутки заметно сокращаются;
- Занимаясь выращиванием высокорослых деревьев, можно значительно сэкономить место на участке, расположив грядки с овощами и ягодами прямо между деревьями.
Временное расположение грядок не повредит росту деревьев.
Расположение на участке декоративных насаждений
Для многих дачников, загородный участок это не только место для выращивания сельскохозяйственных культур. Большинство городских жителей выбираются за город для отдыха от повседневной суеты, поэтому благоприятная обстановка им очень необходима.
Для того чтобы восстановление сил после тяжёлой трудовой недели проходило наиболее продуктивно, следует ответственно отнестись к планировке декоративного сада. Рассмотрим ключевые моменты, на которые необходимо обратить внимание при организации участка:
- Очень важно определиться со стилем оформления сада.
- После выбора стиля оформления необходимо заняться подбором растений. Выбор будет основываться на индивидуальных предпочтениях, особенностях почвы, климатических условий, а также наличии достаточной освещённости.

Вариант подборки растений для обустройства участка
- Есть несколько основных типов оформления. Первый заключается в использовании прямых линий и прямоугольных участков. Второй тип оформления, напротив, основывается на плавных линиях, с обилием круглых клумб и грядок. Третий тип планировки участка 6 соток заключается в использовании диагональных линий, которые визуально увеличивают владения, поэтому применение такого оформления будет кстати на малогабаритных дачах. Последний тип применяется в тех случаях, когда общий стиль участка подразумевает сохранение натурального вида. Насаждения располагаются произвольно, создавая ощущение нетронутости земли.
- Дополнение участка беседкой, скамейками, альпийскими горками и прочим значительно украсят его и сделают отдых более продуктивным.
- Особое внимание следует обратить на высадку цветов, которые способны сделать ярким даже самый неприметный участок.
Планировка огорода
Без огорода не обходиться ни один участок для загородного дома.

Оригинальный вариант обустройства огорода на даче
Особо трудолюбивые выращивают на нём все, что возможно вместить, а другие лишь обеспечивают себя свежей зеленью к летнему столу. Как бы то ни было, при планировании овощных грядок без составления плана не обойтись. Рассмотрим основные особенности планировки огорода:
- Принимая во внимание, что большинство овощей являются светолюбивыми, необходимо обеспечить их достаточным светом;
- Особое внимание следует уделить поливу грядок. Для этого необходимо предусмотреть систему автоматического полива, или просто установить ёмкости для сбора дождевой воды;
- Продумывать расположение насаждений необходимо таким образом, чтобы было удобно доставать до середины грядки. Оптимальная ширина – 1,2 метра;
- Расстояние между грядками должно быть удобным для передвижения. Как правило, ширину дорожек делают не меньше полуметра;
- Для того чтобы не захламлять участок срезанной ботвой и листьями, следует задуматься о создании компостной ямы.
Расположение овощных насаждений
Рассмотрим особенности выращивания некоторых сельскохозяйственных культур:
- Самый популярный овощ – картофель, лучше всего растёт на лёгких типах почвы. Удобрять эти растения лучше всего золой и органическими составами;
- Кабачки и огурцы прекрасно себя чувствуют на куче перегноя;
- Лук и чеснок не требуют большого количества органических удобрений;
- Морковь и свёкла удобряется несколько раз: осенью – навозом, а весной – перегноем.
Для того чтобы урожай радовал своим изобилием необходимо правильно совмещать различные виды сельскохозяйственных культур. Планировка огорода должна производиться со знанием их совместимости:

- Многолетние культуры, к примеру, лук, щавель и хрен, следует рассаживать на отдельные грядки;
- Зелень допускается рассаживать между рядами других растений, что позволит сэкономить место на огороде;
- Недопустимым считается соседство таких растений, как капуста и картофель, огурцы и помидоры, лук и горох;
- Благоприятным считается совместное расположение кабачков и гороха, помидоров с морковью, кукурузы и щавеля.
planvsem.ru
особенности оформления садового участка 10, 15 соток своими руками, фото и видео
Счастливые обладатели собственных земельных участков, будь то дача или частный дом, практически сразу сталкиваются с проблемой грамотного зонирования территории. Сейчас существует масса специалистов по ландшафтному дизайну, но нашему человеку ближе планировка сада своими руками. Дом, сад и огород — это свое родное и здесь важно изначально учесть все нюансы, потому как переделать будет проблематично или вообще невозможно.

Фото участка с искусственным водоемом.
Распространенные виды планирования
Совет: в подавляющем большинстве случаев при проектировании стандартного сада и огорода своими руками, специалисты придерживаются пропорций, согласно которым на жилые строения приходится 10% территории, 15% забирают зона отдыха и хозяйственные постройки, 75% отдается растениям.
Несмотря на кажущееся разнообразие, планировка участка садового может быть выполнена четырьмя основными способами.

Эскиз дачи.
- Самым распространенным является прямолинейный или параллельно-перпендикулярный вариант. Выбирают его не потому, что он обладает какой-то особой красотой, а скорее потому, что так проще. Плюс такое расположение подсознательно ассоциируется с порядком.
Важно: параллельно-перпендикулярные формы, в плане ландшафтного дизайна, создают эффект уменьшения пространства.
Поэтому, таким образом, может выполняться планировка садового участка 10 соток и более.

Круговой вариант на 6 сотках.
- Прямой противоположностью будет вариант кругового расположения. Скажем сразу, что это достаточно специфический метод обустройства дачного участка, и он требует определенных познаний в ландшафтном дизайне. Плодовый сад и цветники таким образом вписать можно, но с огородом будет сложнее.
- Диагональное расположение можно в какой-то мере назвать универсальным. Таким образом, может быть выполнена как планировка садового участка 15 соток или больше. Так и расстановка на стандартных шести сотках. Диагональная направленность создает визуальный объем и вместе с тем дает возможность легко скомпоновать своими руками расположение различных зон на участке.
- Четвертый вариант можно смело назвать творческим. Здесь нет определенных законов, как правило, он является симбиозом нескольких выше описанных типов. Чаще всего он применяется на участках с не правильной конфигурацией и ломаными линиями периметра.

Схема с домом по центру.
Совет: перед началом реализации своего проекта нужно обязательно прорисовать его на бумаге.
Если вы приобрели готовый участок, на котором уже есть какие-то строения и насаждения, которые вы не планируете убирать, их следует отметить в первую очередь и далее отталкиваться от получившейся картины.
Законы рационального распределения
Безусловно, спланировать расположение построек, сада и огорода на 10 сотках намного проще, это та самая критическая квадратура, на которой уже уместно будут смотреться такие ландшафтные изыски как открытый водоем или отдельная детская площадка. Но владельцам меньших наделов также не стоит расстраиваться, при грамотном подходе из любой территории можно сделать шедевр.

Параллельная компоновка.
В любом проекте дом является основным объектом, на него обращают внимание в первую очередь, поэтому начинать следует именно с него. Подход здесь может быть двояким, в зависимости от общей направленности.
Если участок обустраивается с целью выращивания хорошего урожая и в дальнейшем он должен обрасти плодовыми деревьями и богатым огородом, то строения лучше расположить на окраине. Причем с северной или северо-западной стороны, дабы не загораживать солнце растениям.
На территории предназначенной исключительно для отдыха, с газонами и цветниками, более разумно расположить жилье по центру или ближе к фасадной части. Хозяйственные постройки, в обоих случаях, рекомендуется спрятать в глубине территории, если нет такой возможности, то их следует задекорировать на дачном участке живой изгородью, кустарником или виноградником.

Смешанное расположение.
Зону отдыха с мангалом и соответствующей мебелью лучше располагать ближе к дому, на маленьких участках уместно сделать крытую террасу, примыкающую к дому, на больших территориях можно обустроить беседку. Так будет удобнее подводить необходимые коммуникации. Но, несомненно, такая зона должна быть скрыта от любопытных глаз.
Если вы желаете регулярно получать хорошие урожаи и весь сезон любоваться красотой своих цветников, то все зеленые насаждения должны получать как можно больше солнечного света. Также большое значение имеет схема планировки плодового сада и огорода своими руками, потому как цена неправильной посадки это отсутствие урожая.
Обустройство плодового сада
Предположим, что все муки творчества связанные с расстановкой различных зон на вашей даче или в частном домовладении, уже позади и настало время для закупки саженцев. Самой распространенной ошибкой молодых хозяев является стремление насадить всего и побольше.
Но не стоит забывать о том, что плодородная земля не безразмерная и на одной сотке может поместиться не более 7 высокорослых, плодоносящих деревьев.

Низкорослые яблони.
При низкой или плоской посадке можно вместить до 15 здоровых деревьев и при этом еще останется место на небольшой виноградник и кустарники. В данном случае гораздо лучше посадить меньше, нежели вложить деньги в качественные саженцы, цена на которые может быть немаленькой, и спустя пару сезонов выкорчевывать деревья, потому как они плохо развиваются и мешают росту соседних насаждений.
Проведите ревизию своего списка.
Подумайте, так ли вам необходимы все растения, которые вы планируете посадить.
- Облепиха безусловно полезна, но после снятия первого урожая, интерес к ней резко падает. Интенсивный рост, колючки и проблемный сбор, быстро отобьют охоту ее выращивать, проще купить 1 – 2 банки на рынке.
- Культивированный низкорослый грецкий орех редкость, в 80% случаев вам продадут обычный. Его крона закроет большую территорию, а корни способны вырвать легкий ленточный фундамент. Он уместен на больших участках или рядом с капитальным коттеджем, создавая тень над зоной барбекю.
- Фундук займет четверть сотки и даст много поросли.
- Калины достаточно одной, садить ее лучше на окраине, возле забора. Растение неприхотливое и нормально переносит тень.
- Черноплодная рябина или арония, на большого любителя. Плоды хорошо помогают от давления, но это растение любит солнце.

Куст облепихи.
- Яблони, груши и айва для нашей страны универсальный вариант. Они легко поддаются формовке и прекрасно плодоносят. Но учтите, что груша, перекрестно опыляемая и сажать нужно минимум 2 дерева.
- Семейство сливовых плодоносит хорошо, но требует регулярного ухода и защиты от паразитов и грибков.
- За вишней нужно следить, иначе она может вырасти достаточно большой. Урожайные низкорослые сорта лучше покупать в питомнике.
- Черешня дерево урожайное, но не любит влажности, в болотистой местности плодоносит плохо.
- Абрикос персик и виноград, культуры южные и экспериментировать с ними в средней полосе рискованно.
Любое растение тянется к свету, и пока оно не достигнет своей цели, нормально плодоносить оно не станет. Поэтому посадив саженец в заведомо затененную область, вы тем самым обрекаете себя на отсутствие урожая, а растение на вечную борьбу. В этом случае даже самые лучшие, привитые саженцы вас не спасут.

Смешанная высадка.
Размер тени составляет примерно половину высоты дерева. Условно затененным считается участок, где нет солнца половина дня или более. Но не переживайте в этих местах можно разместить дорожки, элементы дизайна или цветники.
Важно: деревья, высаженные возле высоких стен, будут от них «шарахаться», их нужно будет подформовывать.
Исключение составляет только южное направление.
Если целью является большой урожай то деревья лучше формировать высотой не более 2м, в некоторых случаях высота может доходить до 4м. Комфортное расстояние между стволами должно составлять две высоты дерева, иными словами между двухметровыми растениями должно быть не менее 4м.

Совмещение на участке.
Линии деревьев, шпалеры виноградников и ряды кустарника старайтесь располагать с севера на юг. Таким образом, вы получаете дополнительную возможность высадки между рядами высоких растений еще и низкорослые культуры, солнца всем хватит.
Несколько слов об огороде
На огороде важно удобство передвижения. Комфортный размер дорожек делается не менее 40 см. По ним должно быть удобно не только ходить, но и завозить удобрения или собирать урожай.
Исходя из многолетнего опыта, можно смело утверждать, что параллельно-перпендикулярное расположение дорожек, в данном случае неудобно. Вы постоянно будете спотыкаться о прямые углы, и ругать крутые повороты.

Круглая клумба.
На овощных грядках работает закон, чем короче путь, тем лучше. Поэтому смело комбинируйте диагонали, полукруги или любые другие удобные для вас конфигурации.
Ширина грядок может быть разной, но хорошая грядка должна быть поднята на высоту порядка 20 – 30 см и окантована бордюром. Внутренне пространство, при этом, полностью заполняется плодоносным, удобренным грунтом.
Капуста, корнеплоды и некоторые бобовые кустиковые любят грядки шириной не менее 1 метра. Грядки под плетистую фасоль, высокие развесистые томаты, огурцы или дыни можно делать по 60 см.

Диагональные грядки.
Также следует учесть взаимную любовь или неприязнь культур.
- Ревень, щавель, многолетний лук и хрен рекомендуется высаживать отдельно от общего массива.
- Разнообразная зелень, такая как укроп, петрушка, шпинат, рукала и прочие салатные, найдет свое место между основными грядками.
- Капуста не выносит соседства с помидорами, земляникой, луком или картофелем. Лук негативно относится к бобовым или репе. Огурцы не нужно соединять с томатами, ревенем или морковью.
- Если говорить о благоприятном сочетании, то с кабачками прекрасно уживаются бобовые, кукуруза и щавель. Томаты любят расти рядом с петрушкой, фасолью, морковью или луком.
Важно: не забывайте о севообороте.
Родственные растения не должны высаживаться в одном месте более чем 3 года, после чего следует провести перепланировку.
В противном случае, может произойти истощение земли.

Компоновка огорода.
На видео в этой статье раскрываются некоторые секреты ландшафтного дизайна и планирования сада и огорода своими руками.
Вывод

Ухоженный огород.
Планировка сада и огорода на 15 сотках относится к разряду компоновки больших территорий. В отличие от миниатюрных 6 соток здесь уже есть, где разгуляться творческой мысли. Но пренебрегать вышеизложенными рекомендациями мы вам не советуем, на исправление ошибок может уйти много времени.
Добавить в избранное Версия для печатиОтличная статья 0
9dach.ru
Планировка участка 10 соток (6, 12, 15 соток): правила, примеры

Во многих городах наблюдается активное строительство различных коттеджных поселков и частных домов. Люди, которым надоело проживать в условиях «клетки», расположенной на одном из этажей многоквартирной высотки, с удовольствием переселяются в свой дом. Некоторые выбирают готовые варианты, а кто-то предпочитает строить все с нуля.
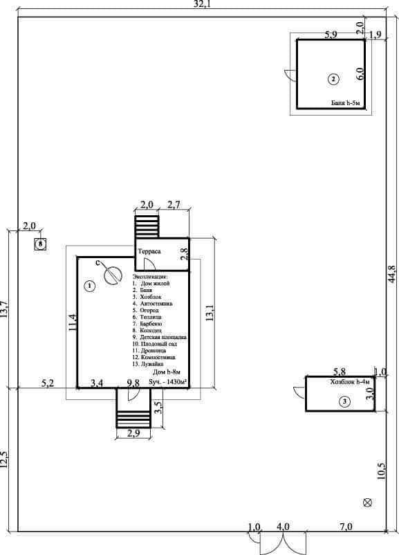
Важно обеспечить грамотную планировку участка 10 соток, соответствующую определенным правилам и позволяющую удобно разместить дом, различные хозяйственные постройки, гараж, баню, детскую площадку.
Целью планировки является не только создание максимально комфортного пространства для проживания, но и необходимость учитывать нормы законодательства, чтобы потом не возникло необходимости сносить постройки.
Участок 10 соток, планировка, фото которой представлено ниже, включает в себя огород и декоративные насаждения. Такой вариант размещения является для многих людей актуальным.
Внимание! Все фото увеличиваются по клику.

планировка участка 10 соток
Некоторые предпочитают отвести специальное место под большой бассейн или пруд. Это сложно, но вполне реально осуществить на участке указанной площади.
Кто-то мечтает сделать небольшое поле для футбола, организовывает зеленую площадку и устанавливает баскетбольное кольцо – в общем, старается создать зону активного отдыха.

Общие правила планировки участка
Прежде чем заниматься планировкой участка 10 соток с домом и баней, гаражом и другими постройками, следует обязательно составить подробный план в масштабе 1:500 самостоятельно, нарисовав схему на бумаге, или с помощью специальных компьютерных программ. Это позволит наглядно увидеть расположение всех необходимых элементов на участке.

Согласно законодательству в строительстве и нормам противопожарной безопасности, нужно соблюдать определенные правила:
- При планировке участка 12 соток или другой площади минимальное расстояние между двумя жилыми домами на различных участках должно составлять не менее шести метров. Соответственно, дом следует располагать за три метра до забора или дальше.
- Разнообразные хозяйственные постройки должны располагаться на расстоянии минимум один метр до соседского забора, 5 м до садовых насаждений и 8 м до жилого дома.
- Чтобы не пришлось в соответствии с новыми законами платить дополнительный налог на недвижимость, площадь построек для хозяйственных нужд должна быть менее 50 м².
- При планировке участка 6 соток и другого размера минимальное допустимое расстояние от окон дома до сараев, в которых содержатся курочки, уточки, другая птица или скот, – 15 метров.
- Между хозяйственными постройками, расположенными на соседнем приусадебном участке, и окнами дома должно быть расстояние не менее 6 м.
- Минимальное расстояние от выгребной ямы или септика при планировке участка 12 соток с домом и баней, фото которого представлено ниже, должно составлять: до своего или соседского жилого дома – 20 м; до хозяйственных построек – 10-15 м; до центрального водопровода – 10 м; до скважины или колодца – 50 м, в крайних случаях допустимо расстояние в 20 м; до забора или дороги – 2-5 м; до сада и огорода – 20 м; до декоративных зеленых насаждений – 3 м.
- Уличный туалет без канализации следует располагать при планировке участка 10 соток с домом, гаражом и баней на таких же расстояниях от всех хозпостроек, колодца и огорода, как выгребную яму или септик. Важно соблюдать этот пункт, чтобы не спровоцировать загрязнение питьевой воды, овощей и фруктов болезнетворными бактериями.
- Если улица выходит на красную линию, то дом и остальные постройки должны располагаться от нее на расстоянии минимум 5 м.





Следует учитывать высотность территории. При расположении участка в низине необходимо предусмотреть наличие дренажа. Планировка дачного участка 10 соток, схемы которого предполагают учет перепадов высот на местности, должна осуществляться так, чтобы грунтовые воды не стекали к порогу дома и огороду. Бассейны или водоемы следует размещать в самой высокой части.

Планировка с учетом сторон света и розы ветров
Жилые комнаты частного дома должны располагаться в соответствии с определенными правилами инсоляции, показывающей определенное время попадания солнечных лучей в помещения.
Планировка участка 15 соток схема, варианты расположения построек на которой показаны ниже, обусловлена необходимостью создания наиболее благоприятного микроклимата в жилище и минимизации тепловых потерь в холодное время года.



В соответствии со сторонами света должны учитываться нормы непрерывного периода инсоляции жилых помещений:
- Больше 2,5 часа с северной стороны дома – с 22 апреля по 22 августа;
- Более 2 часов в центральной части дома – с 22 марта по 22 сентября;
- Больше полутора часов с южной стороны дома – с 22 февраля по 22 октября.

В планировке участка 12 соток схема, варианты которой представлены ниже, спальни расположены на восточной стороне дома, считающейся самой подходящей для жилых помещений.
Комнаты на южной стороне дома подойдут тем, кто любит тепло и солнечный свет.
Северную сторону лучше сделать глухой, а гараж, кухню, санузлы и кладовую располагать в северо-западном и северо-восточном направлении.

Участок 6 соток планировка, фото которой представлено ниже, учитывает розу ветров. Она составляется для каждого региона России и рассчитывается отдельно для конкретного дома.
На большинстве территорий страны неблагоприятными являются северная, западная и северо-западная стороны. Там не рекомендуется размещать жилые комнаты.


Планировка широкого и узкого участка
Особенности создания схемы во многом зависят от конфигурации территории. Планировку участка 15 соток прямоугольной формы или квадратной осуществить проще всего, поскольку площадь позволяет размещать различные строения по-разному, с учетом нормативных требований.
Дом лучше немного сдвигать по отношению к улице, что позволяет оптимально использовать пространство, уменьшить количество пыли и шумов.


Если планируется создание ландшафтного дизайна дачного участка 10 соток, следует на этапе проектирования предусмотреть наиболее удобное расположение клумб, миксбодеров, газонов и различных зеленых насаждений так, чтобы они служили разделителем между разными зонами.

Планировка участка 15 соток с домом и баней, гаражом, фото которой представлено ниже, показывает, как именно можно разместить на отведенной территории все необходимые для комфортной жизни элементы.
При создании собственной схемы лучше соблюдать правила, согласно которым не рекомендуется размещать рядом детскую игровую площадку и гараж или сарай, огород и сад рядом с бассейном, а различные хозяйственные постройки – рядом с местами отдыха.


Сложнее обстоят дела с узким вытянутым участком. Дом в таком случае лучше строить небольшой и размещать его в глубине двора, слегка наискось, что позволит соблюсти нормы.
Планировка дачного участка 6 соток схемы, фото которой представлены ниже, демонстрирует вариант расположения дома ближе ко входу на территорию, но все равно немного в стороне.



Создать план участка нестандартной конфигурации весьма проблематично. Необходимо учитывать множество параметров и делать расчеты, позволяющие расположить постройки согласно всем требованиям.
Есть два метода организации пространства на такой территории: выбирать строения стандартных геометрических форм или создать дом и хозпостройки необычной конфигурации, что позволит максимально использовать каждый квадратный метр площади.


Собственный приусадебный участок, планировка, обустройство, дизайн, фото вариантов составления схемы которого были рассмотрены в этой статье, может стать жилищем мечты, куда приятно возвращаться после работы и отдыхать с максимальным комфортом.
Чтобы все так и получилось, лучше показать проект перед воплощением в жизнь грамотному специалисту, способному указать на ошибки и посоветовать методы их исправления.
4homes.ru
Дачный участок 10 соток: как распланировать и обустроить?
Каждый счастливчик, обзаведшийся садовым или дачным участком, да еще с достаточно большой площадью, начинает ломать голову в предвкушении того, как он разобьет там сад и как будет отдыхать на даче вдали от городских забот и проблем. Но для того, чтобы эта мечта осуществилась в идеале, необходимо приобретенный участок правильно распланировать и обустроить. Можно конечно не заморачиваться и пригласить опытного ландшафтного дизайнера, который может создать 3 D план, да бригаду рабочих, но как быть, если денег на это уже нет или хочется самостоятельно создать свой райский сад. Для примера возьмем дачный участок 10 соток: как распланировать и обустроить его, рассмотрим в данной статье.

3 D план садового участка – может быть создан, как в виде эскиза вручную, так и с помощью программных продуктов
Правильное планирование участка
Если после постройки дачи или загородного дома в вашем распоряжении осталось еще приличное количество земли, а 10 соток – это более чем приличная площадь, то необходимо произвести ее правильную планировку. Для этого требуется учесть несколько очень важных факторов:
- Климатические особенности региона и конкретно взятой местности.
- Почвенный состав и показатели ее плодородности.
- Геологические особенности строения верхних слоев грунта и рельеф.
- Сроки, продолжительность и другие особенности вегетации растений в данной природной зоне.
Крупные камни, овраги или водоемы тоже являются существенными факторами, влияющими на будущий дизайн и планировку участка. Важно, чтобы вся планировка подчинялась одной дизайнерской мысли, вокруг которой формируется облако более мелких решений, связанных с оформлением зеленых насаждений, клумб, зонированием, созданием малых архитектурных форм. Нельзя забывать и о том, что весь дизайн участка должен соответствовать стилистике, в которой реализован сам дом и придомовые постройки.
План участка
Первым делом для реализации поставленных задач составляют подробный план всего участке. Делать это лучше всего в масштабе, поэтому нужно обзавестись миллиметровой бумагой. Выбрать масштаб можно по своему усмотрению. При этом стоит понимать, что чем крупнее масштаб, тем больше деталей на плане можно прочертить. План можно рисовать подробно или схематически, но на нем обязательно должны в масштабе присутствовать: дом с указанием входа в него, другие хозяйственные постройки, дорожки, забор по периметру и так далее.

План можно рисовать подробно или схематически, но на нем обязательно должны в масштабе присутствовать: дом с указанием входа в него, другие хозяйственные постройки, дорожки, забор по периметру и так далее
Если на садовом участке планируется выращивание растений, а тем более овощных культур, то следует учитывать расположение сторон света и розу ветров. Правильно спроектированные, эти обстоятельства обеспечат хороший рост растений и высокие урожаи овощей.
Для выяснения и нанесения на план зон инсоляции нужно в 8 часов утра перенести на бумагу все затененные участки какой-либо штриховкой. Эту же процедуру следует повторить в обед и ближе к вечеру. Направление штриховки нужно всегда менять. В конце дня будет видно, где участок затенен сильно (там, где пересекутся 3 типа штриховки), где умеренно (2 типа штриховки), а где слабо или вообще не затенен (штриховка одна или ее вообще нет). Эта вся процедура необходима для правильной высадки растений.
Наш план необходимо дополнить геодезической картиной участка, то есть изобразить на нем все подземные инженерные коммуникации и сделать отметку об уровне подземных вод. Это нужно, чтобы над трубой не посадить большие деревья, которые могут впоследствии своими корнями повредить ее или погибнуть сами. Учесть нужно и относительные высоты, так как находящийся в низине участок даже при хорошей освещенности будет иметь более влажную почву и несколько иные погодные условия, отличающиеся от участков, находящихся на возвышенности.

Профессионально выполненный топографический план участка с геодезическим данными на нем
Учитывать нужно еще и те объекты, которые находятся за пределами участка, но в непосредственной близости от него. Например, некрасивый соседский забор можно задекорировать живой изгородью или густыми зарослями кустарников. Напротив, если взору открывается живописный пейзаж, то ни в коем случае не стоит его закрывать какими-то объектами.
Все перечисленное должно быть отражено на плане. При его составлении нужно знать следующие нормативы расположения границы участка от различных объектов:
- От садового домика – 3 м.
- От стаи для содержания скота и домашней птицы – 4 м.
- От иных построек – 1 м.
- От высоких деревьев 4 м.
- От кустарников – 1 м.
После того, как отмечены все основные моменты в соответствии с предъявляемыми требованиями, можно приступить к зонированию участка.
Зонирование участка
Зонированием называется разделение участка на зоны, в соответствии с их назначением: для отдыха, для ведения хозяйства, для выращивания овощей. Здесь же можно выделить детскую или спортивную площадку, теплицу беседку, фонтан или водоем, сад или альпинарий. Планируя перечисленные объекты, необходимо учитывать все их особенности. Например, любой водный объект непременно должен располагаться в самой низко точке участка. Детская площадка должна быть хорошо видима из дома и с любого места на участке. Сад стоит располагать в северной части во избежание затенения им овощных культур. Это, кроме того, позволит оградить участок от холодных арктических ветров. Цветники и клумбы лучше запланировать на самых плоских местах. Это позволит воде скапливаться на одном месте.

Пример продуманного зонирования садового участка
На освещенной стороне дома лучше всего разместить вьющиеся растения, что обеспечит ему не только декоративный вид, но и создаст более комфортные прохладные условия в знойное время года. Вьющийся дикий виноград позволяет задекорировать и не слишком привлекательные надворные постройки. Ни один квадратный метр из имеющихся 10 соток не должен простаивать без дела. Все должно использоваться эффективно. При планировании посадок деревьев и кустарников следует видеть перспективу их роста. Иначе при слишком плотной посадке через несколько лет ваш сад станет непроходимыми джунглями. Следует также оставлять место и для ухода за растениями.
При планировании участка нужно учитывать свои реальные возможности. Поэтому составление примерной сметы расходов на все мероприятия является вынужденной необходимостью. В ней нужно учесть расходы не только на создание основных объектов, но и на поддержание в дальнейшем сада в нормативном состоянии.
В качестве физических границ между зонами нужно использовать, как естественные природные объекты: овраги, водоемы, возвышенности, так и искусственные сооружения, к которым, главным образом относятся дорожки. Планировать дорожки нужно так, чтобы они наиболее оптимально соединяли объекты на участке. Для этого нужно выйти с планом на местность и походить там. Не обязательно дорожки должны быть прямыми. Главное, чтобы идти хотелось именно по ним, а не мимо них, чтобы срезать путь.
Дренирование участка
Если залегание подземных вод очень мелкое постоянно или только весной, то стоит задуматься о эффективной дренажной системе. При планировании участка этот вопрос необходимо обязательно урегулировать. Ведь иногда сооружение какого-либо объекта нарушает естественный сток воды так, что это приводит к затоплению подвала или другим неблагоприятным последствиям. Поэтому дренажная система должна строиться на участке в первую очередь, а значит ее проектирование должно вестись изначально. При сооружении дренажа необходимо учитывать следующие правила:
- Минимальный уклон дренажных канав или труб – 3 см на каждые 10 м дренажа.
- Горизонтальный участок не должен быть длиннее 10 м.
- Обратный уклон в дренажной системе недопустим.

Схема дренажа подземных вод на дачном участке
Для отвода дождевой воды необходимо делать самостоятельную систему параллельную основной по периметру фундамента дома. Она тоже должна быть спроектирована заранее. Для создания дренажных систем сегодня с успехом используются специальные полиэтиленовые трубы различного сечения и геотекстиль.
Учет рельефа при планировании и декорировании участка
Как планирование, так и последующие декорирование участка должны учитывать особенности рельефа местности, на которой он расположен. Например, если за пределами участка располагается пустырь или просто дикая местность, то переход от участка этому месту не должен бросаться в глаза. Это, в дополнении ко всему, еще и границы участка расширит. Находящийся на склоне участок позволяет проявить всю дизайнерскую фантазию и сделать его совсем не похожим на другие. Используя подпорки и лестницы, можно спроектировать ступенчатый сад, который будет заполнен террасами и уровнями с различным видовым составом растений. Закрытый высоким забором участок следует в одном или двух местах сделать просматриваемым, чтобы создать позитивную зрительную ось, которая позволит визуально его расширить.
Высота и массивность создаваемых на участке объектов не должна находиться в диссонансе с его размерами. Небольшие участки нельзя огораживать высокими деревьями или заборами. Это зрительно еще сильнее его уменьшает. Участок в 10 соток достаточно большой, поэтому для его ограждения вполне можно использовать указанные выше объекты. Для разграничения зон, помимо дорожек можно использовать декоративные стенки небольшой высоты или шпалерники, установленные по границе перепада высот. Не плохо для этой цели подойдут и кустарники, которые тоже могут подчеркнуть особенности рельефа участка.

Пример террасирования земельного участка с применением различных искусственных и естественных объектов
Находящийся на равнинной местности участок можно преобразовать в разноуровневый искусственно. Это делают тоже для разграничение его на зоны. Яркий пример рукотворного изменения морфологии рельефа – создание наклонного сада. Эта технология предполагает создание углубления в центре участка, так, что он начинает напоминать конусообразную воронку или амфитеатр. Высокие растения, которые составляют основную часть всего оформления участка тоже служат естественными разграничителями его на зоны. Также они могут играть роль ограждения по всему периметру.
Экономическая сторона вопроса
Разбивка и благоустройство сада на участке требует немалых финансовых и трудовых вложений. План будущей территории позволяет более точно составить смету будущих расходов. Общая сумма всех затрат не должна превышать ваши возможности. План поможет определиться, какими способами и методами можно дешевле и эффективнее добиться требуемого результата. Чтобы сделать все правильно можно воспользоваться знаниями и умениями специалистов. Примерная стоимость их услуг на сегодняшний день:
- Выезд на участок, проведение замеров, фотосъемки, обсуждение целостной концепции дизайна может обойтись примерно в 100 у.е.
- Составление геодезического плана с проведением геодезической съемки – от 20 у.е. за одну сотку, что для 10 соток будет составлять уже 200 у.е.
- Создание проекта озеленения и благоустройства, включая рисование эскизов, оформления генплана и дендроплана, разбивочного чертежа и сметной документации – 50 у.е.
Итого, комплекс услуг специалистов может обойтись в 350 у.е. в лучшем случае. Поэтому, если вы не готовы отдавать такие деньги, то нужно заняться всеми этими делами самостоятельно, изучив массу пособий по ландшафтному дизайну. Однако самостоятельное создание своего сада с нуля – дело очень интересное, и при наличии желания, фантазии и массы свободного времени может быть реализовано в действительно «райский уголок». На нем можно будет не только эффективно выращивать разнообразные овощные, плодовые и декоративные культуры, но и отдыхать с семьей и друзьями от долгих рабочих будней. Участок, площадью 10 соток, способен уместить на себе дом со всеми необходимыми надворными постройками, сад с террасами лестницами, фонтаном или прудом, огород с грядками и полем под картофель. При этом может еще остаться немного места для выгула небольших домашних животных и птицы.
stroyvopros.net
Дачный участок 10 соток: как распланировать и обустроить?
После выделения в садовом товариществе дачного участка в 10 соток или просто после покупки заброшенного участка того же размера, первый вопрос, который встает перед любым садоводом и огородником, это – что же, собственно, делать с данным участком?

Как его лучше и эффективнее всего распланировать таким образом, чтобы после того, как здесь будет воздвигнуто небольшое дачное строение, осталось еще достаточно места для огорода и для небольшой зоны отдыха, где могли бы порезвиться уставшие от заключения в городских квартирах ребятишки. Варианты планировки и обустройства таких небольших участков и будут рассмотрены в данном материале.
Планировка участка площадью в 10 соток
Стоит заметить, что участок в 10 соток необязательно должен быть четырехугольником в стиле 10X100 или квадратом 33 х 33. Это может быть и трапецевидный и любой другой геометрической формы участок, главное, что общая площадь его будет не меньше и не больше 1000 кв м.
Дачный участок 10 соток с жилой зонойПеред тем, как начать планировку, стоит ознакомиться с основными принципами расположения и обустройства объектов на территории участка. Согласно правилам градостроительства и пожарной безопасности:
- запрещается строить жилые дома и прочие строения менее чем в 5 м от уличной красной линии если это специально не предусмотрено специальным планом, утвержденным властными структурами;
- расстояние между домами и границами соседних участков не должно быть менее 3 м;
- расстояние между хоз. постройками и границами соседних участков не должно быть менее 1 м;
- расстояние между границ окон жилого помещения и хоз. постройками (сараями, гаражами, банями) соседних участков не должно быть менее 6 м;
- расстояние от хоз. построек, в которых намечается содержать птиц, скот, свиней, нутрий и пр. и окнами жилого дома не должно быть менее 15 м;
- расстояние между жилыми домами в зависимости от уровня огнестойкости построек не должны быть менее чем 6-15 м.
Расстояние от дома до соседнего участка или улицы должно быть не менее 5 метровТеперь исходя из данных правил можно приступать к планировке участка и его ландшафта. На план-схеме нужно отметить все жилые и хоз. постройки, которые планируется создать на данном участке. Лучше делать все это исходя из реального масштабирования, так,впоследствии, легче всего будетпривязывать одни элементы ландшафта к другим.
После нанесения на план-схему построек можно приступить к распределению незанятого пространства. Ведь разместить на участке в 10 соток жилой домик и пару хоз. построек легко, но гораздо труднее правильно распределить в дальнейшем зону отдыха и участок под огород, не нарушив при этом целостность и эстетичность общего ландшафта.
Зона отдыха в тени деревьевЧасто люди для планировки участка прибегают к услугам специалистов-дизайнеров, но общее количество дачников предпочитают планировать свои участки исходя из личных предпочтений.
Каждый сам себе дизайнер
Для успешного дизайнерского обустройства участка впоследствии, необходимо четко представлять и занести в специальный список все, что по мнению хозяина, должно иметься на участке. Также необходимо определиться со стилистикой, от которой в большой степени будет зависеть окончательный результат.
Для клумб и обустройства участка при помощи древесных посадок необходимо определиться с посадочным материалом, чтобы он соответствовал местным климатическим условиям. Ведь приятного мало, если с любовью высаженное у тщательно выхаживаемое на протяжении всего теплого сезона растение зимой погибнет из-за того, что данный экземпляр оказался не столь морозостойким, как надеялся хозяин.

Лучше смотрятся участки, выполненные в одном русле и не перегруженные многообразием. Не стоит так же забывать, что все спланированные строения, дорожки, бассейны (водоемы) будут требовать впоследствии должного ухода, без которого они попросту обветшают и будут представлять из себя унылое зрелище. Формировать ландшафт стоит поэтапно, лучше всего не хвататься за все и сразу, а производить обустройство участка 10 соток пошагово. Сегодня доделал это, завтра взялся за то.

В наше время большинство дачников предпочитает видеть в своей даче не только чистый огород с грядками и торчащей посередине хозяйственной постройкой для хранения инвентаря, как это было принято в советские годы, а умело распланированную зону, где можно и отдохнуть и посадить что-то из огородных культур, и построить небольшой жилой домик, словом, некую загородную усадьбу в миниатюре. И сделать это, на самом деле, не так уж и трудно и затратно, как это кажется со стороны.
Чтобы легче было сформировать в голове участок визуально, с расположенными на нем постройками и обустроенными зоной отдыха и огородническим разделом, можно ознакомиться со следующими примерами.
Стили ландшафтного дизайна дачных участков на 10 соток
Стиль «японский сад»
В случае, когда границы участка выходят к лесной зоне, естественным будет создать уголок в стиле «дикой» природы. Ведь нет ничего эстетичнее, чем гармонично растущие бок о бок дикие и искусственно подобранные и посаженные декоративные растения. Здесь главное не переусердствовать и прочувствовать изначальный дух дикого ландшафта.

Под сенью лесных деревьев хорошо смогут чувствовать себя лишь тенелюбивые растения, такие к примеру, как папоротники. Открытые места можно использовать для того, чтобы расположить на них цветочные клумбы или обширные полянки с такими цветами, как васильки и пр. Такая поляночная композиция будет превосходно смотреться, если в ней будут использованы цветковые растения, созревающие друг за другом на протяжении всего дачного сезона.
На участках с уклоном хорошо будут смотреться своеобразные террасы различных модификаций.
Интересное по теме:

В некоторые подобные сады уместно будет вписать небольшой водоем, а рядом с ним можно будет обустроить уютную беседку с деревянным мостиком, словом, восхитительное место для барбекю или шашлыков. Неплохо впишется в интерьер и скамья из цельного ствола дерева.

Стиль Кантри на 10 соток
Деревенский ландшафт должен быть полон атрибутикой и элементами деревенской жизни. Это должен быть участок, как бы слегка призапущеный и простой, но, между тем, весьма эстетичный и ухоженный, хот и требующий в уходе гораздо меньшего к себе внимания.

Чтобы создать диковинные и нестандартные цветочные композиции можно воспользоваться различными деревянными ящиками, бочонками и прочими емкостями. Хорошо будут в таком интерьере смотреться и высокие грядки, сработанные из досок.

Довершить и усилить деревенский ландшафт дачи можно мебелью из поддонов, забором плетнем, глиняной посудой, побелкой дачных построек. В деревенский стиль отлично впишутся мавританские газоны, цветочные луга в миниатюре, которые будут увести и радовать своими красками на протяжении всего теплого сезона вплоть до самых заморозков.
Стиль «Хай-тек»
Такой стиль больше подойдет тем, кому еще не наскучила городская стилистика. В этом случае можно сделать в стиле хай-тек не только дачные строения, но и само обустройство ландшафта оформить в том же русле.

Особенностями данного стиля являются чрезвычайная строгость и точная разметка буквально всего, что так или иначе может являться элементом ландшафта, а именно – садовая мебель, дорожки, клумбы и площадки, включая подчас и сами растения.

Такие сады и дачные участки, как правило, просторны, светлы, чисты и опрятны. Все газончики и деревья в его черте тщательно острижены и имеют четкие геометрические очертания.
Стиль «Средиземноморский»
Такой стиль навеян отдыхом в жарких тропических странах средиземноморского побережья. В последнее время данный стиль дачного ландшафтного дизайна приобретает все большую популярность среди жителей нашей страны.

Как правило, основой тут выступает уютно обставленный плетеной или кованной мебелью дворик-патио, находящийся в обрамлении тенистых уголков, клумбочек, источающих пряные ароматы, и мощеного природным камнем светлых оттенков. Довершает приятную идиллию гамак и шезлонги для удобного отдыха.

Открытые лужайки с цветочными растениями там и тут прорезаны мощеными дорожками, создающими гармоничный и эстетичный контраст.

В саду не лишней окажется и беседка с парой-тройкой скульптур, перемежающихся с колоннами, выполненными под античную стилистику. Восхитительно среди всего этого разнообразия будет смотреться и небольшой фонтанчик.
Участки 10 соток в стиле английского или французского сада
Как ни странно, если постараться, то и такие сады вполне можно уместить на дачном участке в 10 соток.

Хотя преимущественно данные сады обустраиваются вокруг загородных домов и требуют к себе огромного и постоянного внимания, тщательного ухода и гораздо большей площади.
[av_video src=’https://youtu.be/Hpu6vMJzFTY’ format=’16-9′ width=’16’ height=’9′]ideiddachi.ru
Планировка участка 10 соток, как разместить дом
Земельный участок 10 соток — наиболее распространенный вариант. Такая площадь позволяет вместить просторный загородный коттедж и баню, сад и огород, место для отдыха с беседкой, игровой площадкой и даже небольшим водоемом. При рациональной планировке и правильном зонировании останется территория и для размещения домика для гостей или летней кухни. В этой статье мы рассмотрим, как правильно спланировать ландшафтный дизайн дачного участка 10 соток.

Принципы планировки участка
Многие не уделяют должного внимания планированию и дизайну загородного участка, а зря. Рациональная планировка и зонирование сделает площадь практичной и эстетичной. На проект, схемы и зонирование загородного участка влияют следующие факторы:
- Рельеф местности, характеристика почвы и грунта. Учтите, что на бедной почве не вырастут многие культуры. Если вы планируете обустройство сада или огорода, тщательно продумайте, где он будет располагаться, и какие растения подойдут для участка;
- Размещение участка относительно сторон света поможет определить степень солнечной освещенности той или иной территории. Знание этих особенностей позволят добиться хорошего урожая, а также оптимального расположения дома и других построек;
- Расположение и установка инженерных систем. Большое значение при зонировании играет проведение на садовом участке коммуникаций, среди которых водопровод и газопровод, электричество (если вводный кабель проходит под землей) и канализация;
- Формы и виды загородного участка напрямую влияют на проект. Наиболее рациональными являются прямоугольник или квадрат. Но круглая или треугольная форма, территория в виде буквы Г или трапеции предоставляет много возможностей для реализации самых необычных и интересных идей. Наименее выгодным и удобным считается узкий вытянутый участок, но и здесь можно найти оригинальные решения;
- Присутствие рядом с участком насаждений и естественного водоема (озера, пруда или реки) обязывает соблюдать санитарные и строительные нормы. Кроме того, такое соседство повышает риск затопления во время половодья.

Проект начинают с анализа грунта и почвы. Исследования проводят не только для планирования, но и для выбора фундамента будущих построек. Затем территорию разделяют на функциональные зоны и составляют план с учетом застройки, размещения сада и огорода, места для отдыха. И уже в последнюю очередь подбирают декоративные элементы и растения.
Зонирование и стили планирования участка
Спланировать и обустроить участок поможет зонирование. Для этого территорию делят на функциональные области. Конечно, это только условное и рекомендуемое разделение. По желанию можно увеличить ту или иную зону:
- Жилая зона составляет 10% всей площади и включает жилой дом и пристройки, типа террасы, гаража или веранды;
- Зона отдыха занимает 25% и включает игровую площадку, бассейн или искусственный водоем, беседку или летнюю кухню;
- Садово-огородная зона предполагает расположение грядок и цветов, деревьев и кустарников. Она занимает до 50%;
- Хозяйственная зона вмещает хозяйственные и подсобные постройки, вольеры для животных и пр. Она составляет 15%.
Планировка участка 10 соток бывает разных стилей. Геометрический стиль предполагает четкую геометрию построек, дорожек и сада. Он подходит для ровного рельефа и прямоугольных участков. Деревья и кустарники при этом располагают в шахматном, квадратном или прямоугольном порядке.

Ландшафтный или живописный стиль предполагает свободное расположение построек и насаждений, извилистые дорожки и усложненный дизайн. Такие схемы подходят для ассиметричных участков, визуально увеличивают пространство и делают территорию оригинальной.


Смешанный дизайн участка 10 соток — популярный вариант, в котором объединяется живописный и геометрический стили. Такой проект сочетает оригинальные элементы обустройства и рациональную планировку.
10 советов по проектированию и дизайну садового участка
- Хозяйственные постройки могут примыкать к жилой зоне, однако при этом они не должны бросаться в глаза;
- Жилой дом располагают в северной части участка. Это обеспечит комфортное освещение для огорода и защитит насаждения от холодного ветра;
- Для территории 10 соток подходящим вариантом станет загородный дом 10Х10. Интересные варианты таких коттеджей вы найдете в каталоге “МариСруб”;
- Обустройство садовой зоны делают в центре участка, а вот деревья можно высадить по периметру территории;
- Грядки и растения принято располагать на солнечной южной стороне;Зону отдыха лучше разместить между домом и баней, либо за домом.
Для участка в виде буквы Г место для отдыха лучше обустроить на выступающей части, которую затем скрыть живой изгородью; - Элементы зоны отдыха не обязательно располагать в одном месте. Так, детскую площадку лучше разместить рядом с домом, чтобы наблюдать за маленькими детьми. Пруд или бассейн — разместить в центре участка;
- На территории нестандартной формы в виде треугольника или трапеции территории оригинально смотрится ассиметричный сад. Внутри такого сада удобно разместить компактный прудик;
- Много хлопот приносит узкий вытянутый участок. В данном случае дизайнеры советуют выделять отдельные объекты ярким или контрастным цветом, а зонирование — выполнить при помощи растений. Такое решение упорядочит территорию. Интересные примеры проектов загородного дома для узкого участка, вы найдете по ссылке http://marisrub.ru/proekts/doma-dlya-uzkikh-uchastkov/;
- Дорожки обустраивают так, чтобы они вели от основного дома к каждому важному объекту. При этом они не должны быть слишком длинными и узкими.

Декорирование участка и обустройство пруда
Проект дачного участка должен обязательно включать элементы декора, среди которых растения и лестницы, скульптуры и кованые изделия, освещение и мостики. Но не переборщите! Переизбыток декоративных деталей отяжелит дизайн и сделает территорию вычурной.
Учтите, что постройки и объекты должны гармонировать друг с другом и создавать единую композицию. Используйте различные цветовые гаммы и подчеркивайте детали при помощи освещения. Оригинально смотрится скрытое освещение в виде ламп в деревьях или в лестничных ступенях. Обязательно используйте в дизайне яркие цвета, чтобы разбавить типичную для сада зелено-коричневую гамму.

Пруд — мечта многих владельцев загородных участков. Причем обустроить водоем можно самостоятельно, и это не так сложно, как кажется на первый взгляд. Особенно повезет тем, чьи участки имеют неровный рельеф с ямами. Для устройства используют естественные углубления. Если же такого углубления нет, а местность ровная, роют котлован.
Перед организацией пруда учтите, что водоем располагают под естественным освещением. Но объект нельзя располагать под прямым солнцем и рядом с деревьями. В первом случае солнечные лучи быстро осушат пруд, что спровоцирует возникновение бактерий и тины. Во втором случае воду засорят падающие листья.
Глубина котлована составляет не менее 60-80 сантиметров, угол склона берега — 45о. Стенки водоема уплотняют мягкой глиной и покрывают гидроизоляционным материалом (геотекстиль, пленка ПВХ или гидростеклоизол), а затем выкладывают кирпичом, камнем или заливают бетонной смесью. Берега водоема украшают растениями или декоративными камнями.
Вы можете упростить монтаж и купить готовую форму для пруда, которую просто помещают в котлован. Но будьте готовы, что такой материал прослужит не более 10 лет. Пруд можно сделать функционально полезным, если поместить в котлован стоки из дренажа.
Дизайн и планировка загородного участка — ответственный процесс. Особые трудности может вызвать обустройство водоема. Чтобы правильно спланировать садовый участок, обратитесь к профессионалам! Проектировщики “МариСруб” составят рациональный план территории с учетом зонирования, установки коммуникационных систем и оборудования водоема.
blog.marisrub.ru
Планировка дачного участка 10 соток схемы | Участок
» Участок
Планировка участка 10 соток: полезные советы и фото. Схема и планировка дачного участка 10 соток
December 20,
Приобретать загородные участки сегодня модно. Кто-то стремится стать владельцем небольшой территории. Кто-то, наоборот, любит простор и свободу. Считается, что чем больше площадь участка, тем легче его обустроить. Так ли это? Разберемся с этим на примере территории в 10 соток. 
Проект: общие сведения
Именно с него начинается планировка приусадебного участка. 10 соток – это достаточно большая территория. Здесь можно разместить множество элементов. Схема планировки участка 10 соток составляется с учетом предпочтений владельца и особенностей ландшафта. Для составления проекта можно воспользоваться карандашом и бумагой. Очень наглядно выглядит планировка участка 10 соток в различных компьютерных программах. Множество из них предназначены для начинающих и не представляют собой ничего сложного. При наличии проекта, даже самого простого, нарисованного от руки на бумаге, намного проще работать над воплощением всех идей.
Что должно быть в проекте
Сначала следует разместить все объекты, которые уже присутствуют на территории. При этом желательно как можно точнее соблюдать масштаб. После прорисовки всех имеющихся насаждений можно приступать к заполнению оставшегося пространства. При этом следует помнить, что часть участка будет отведена под постройки. Что можно уместить на территории? Во-первых, следует провести зонирование участка. На территории должно быть место для отдыха, огород, кустарниковые или древесные насаждения и непременно цветники. 
Распределение элементов
Планировка участка 10 соток может проводиться следующим образом:
- 150 м2 – детская площадка, декоративные насаждения, гараж, веранда
- 150 м2 – альпийская горка, беседка, бассейн
- около 127 м2 – грядки овощных культур
- 22 м2 – теплица.
Оставшееся пространство целесообразно распределить между хозпостройками, дорожками, садами.
Примеры планировки участка 10 соток
В вопросе стилизации и оформления территории, прежде всего, необходимо определиться с типом размещения объектов на местности. Сегодня существуют следующие виды планировок:
- Прямоугольная. Такая планировка участка 10 соток отличается строгой геометрией положения ландшафтных объектов. Дорожки проходят по территории под прямым углом. В целом на местности преобладают прямые линии. Такая планировка участка 10 соток считается традиционной и достаточно распространена.
- Круглая. Такая планировка дачного участка 10 соток потребует определенного опыта в сочетании различных ландшафтных элементов и объединении их в оригинальную композицию. На территории в этом случае преобладают округлые формы клумб, цветников и других компонентов.
- Диагональная. Такая планировка дачного участка 10 соток позволит визуально увеличить пространство. Диагональные линии прекрасно подойдут для такой площади.
- Свободная. Основной задачей при оформлении местности таким образом является рациональное использование имеющегося пространства. Свободные линии характерны как для построек, так и для насаждений. Такая планировка садового участка 10 соток представляет собой гармоничное сочетание всех ландшафтных элементов — от водоема до декоративных растений. Стоит отметить, что территория, обустроенная таким образом, достаточно проста в уходе. В первую очередь это обусловлено отсутствием необходимости пристально отслеживать размножение растений из попадающих в землю семян. При планировании участка в свободном стиле необходимо определить места для ключевых композиций ландшафта. На оформленной таким образом территории прекрасно будут смотреться цветочные клумбы, беседки, малые архитектурные формы.

Какой вариант выбрать
Имея представление о том, какой может быть планировка садового участка 10 соток, нужно выбрать наиболее подходящее решение конкретно к местности. Чтобы облегчить задачу, можно снова обратиться к листу бумаги. На нем можно изобразить участок в разных видах планировки. Визуализация поможет определиться с выбором. С рисунком будет понятнее, что больше радует взор – классически оформленное пространство с симметрично распределенными элементами либо свободный стиль с композициями, созданными в случайном порядке. Как один из вариантов можно использовать и смешанную планировку. Она используется, как правило, на местности неправильной формы. Если отсутствует возможность размещения композиций целиком, вполне можно использовать и их фрагменты.
Расположение построек
Зонирование пространства
Территорию для отдыха лучше всего размещать с боковой или задней стороны дома. В этом случае с площадки будет открываться великолепный вид на пейзаж. Особенно тщательно следует продумать зону для детей. Игровая площадка должна просматриваться из окон дома, чтобы малыши находились под присмотром. Парковочное место предусматривают обычно возле жилого сооружения. Эта зона оборудуется так, чтобы автомобиль не загораживал фасад и не мешал проходу. Все указанные территории нужно располагать так, чтобы они по возможности были скрыты от посторонних глаз и прямых солнечных лучей. 
Обустройство сада
При оформлении этой части территории необходимо учитывать отличительные черты растений, способность уживаться тех или иных видов друг с другом. Немаловажное значение имеет и степень приспособленности насаждений к климатическим условиям региона. Необходимо помнить, что в северной части сада лучше разместить растения, предпочитающие тень. А вот плодовые деревья и кустарники лучше всего высадить на южной территории. Правильная планировка земельного участка (10 соток) позволит решить несколько практических задач. При грамотном размещении растений можно получать вполне достойный урожай ежегодно. Кроме того, создается спасительная тень в жаркое лето. На участке в 10 соток можно высадить за домом малиновые кусты, клубнику, землянику. Здесь главное – терпение и желание, необходимые для ухода за насаждениями. 
Важные моменты
Планировка загородного участка 10 соток должна быть в первую очередь удобной. Речь в данном случае идет не только о владельцах территории, но и о соседях. Чтобы не причинять никому неудобств, кустарники высаживают на расстоянии не менее 1.5 метра от границы участка, а деревья – дальше. Это необходимо для того, чтобы насаждения не отбрасывали тень на соседские растения. Если такое размещение по каким-либо причинам невозможно, то можно попробовать разместить карликовые культуры. При размещении растения нужно помнить, что ему нужно определенное свободное пространство. Куст или дерево не должны чувствовать себя стесненными. Только в этом случае насаждения будут приятно удивлять своим внешним видом и урожайностью.
Водоем
Этот элемент вполне можно включить в проект участка. Для устройства водоема прекрасно подойдет место, скрытое от прямых лучей. Этот момент важен, поскольку при постоянном солнце вода будет цвести , а растения плохо развиваться. Для обустройства водоема можно воспользоваться готовыми конструкциями. Некоторые владельцы сооружают водоем самостоятельно, как говорится, с нуля . В искусственный пруд заселяются влаголюбивые растения, нетребовательные к уходу. 
Дорожки и клумбы
Форма этих элементов должна сочетаться с общим направлением стиля участка, вида планировки. К примеру, если преобладают прямоугольные мотивы, то и клумбы с дорожками должны иметь строгие и четкие линии, располагаться относительно строений и друг друга симметрично. Круглые формы, соответственно, предполагают изгибы, закругленные дорожки и клумбы.
Газон и терраса
Эти два элемента присутствуют практически на каждом участке большой площади. Террасу лучше всего расположить на южной стороне. Газон целесообразнее разместить на территории около зоны отдыха. Им можно также заполнить пространство, свободное от насаждений и построек. Оригинально выглядят композиции из камней, растений, небольших водопадов и фонтанов, размещенных на газоне.
В заключение
Выполнить планировку участка в 10 соток в целом относительно несложно. Главное — перед началом проведения работ четко определиться со стилем территории, назначением той или иной зоны. Существенную помощь в этом окажет проект. Его составлением можно заниматься самостоятельно, а можно доверить это дело профессиональным ландшафтным дизайнерам. При обустройстве местности необходимо учитывать множество факторов. Среди основных следует назвать климатические особенности территории, свойства почвы, месторасположение участка, его ровность. Также при зонировании следует обратить внимание на степень освещенности того или другого уголка. С учетом этих факторов осуществляется распределение культурных насаждений. При обустройстве участка не стоит бояться проявить фантазию. Однако всего должно быть в меру. Элементы ландшафтного дизайна должны гармонично вписываться в территорию и сочетаться с общим стилем дома.
Начало начал — готовая планировка садового участка
Тем, кто начинает осваивать или реконструировать участок, приходится решать множество вопросов. Среди них такие: что, сколько и как посадить? Именно в этом садовод часто допускает ошибки, которые потом постоянно напоминают о себе. В предлагаемом варианте планировки участка размером 6 соток четко решена группировка по культурам, намечено место для автомашины, отведены площади под строения. На участке площадью 600м 2 (20м х 30м) под сад отведено 347м 2. Посажено 10 яблонь, 2 груши, 3 вишни, 2 сливы, 2 рябины, 1 дерево облепихи (позже привить на него одну ветку мужского растения), 7 кустов черной смородины, по кусту красной и белой, 3 крыжовника, около 50 малины и 48 м 2 земляники. Кроме того, размещено 25м 2 цветника. Общая площадь насаждений 450м 2. Если садовод не имеет возможности или желания формировать малообъемную уплощенную крону яблонь, следует посадить не 10, а 6 или 8 деревьев, оставив только два ряда, или посадить в среднем ряду 2, а не З дерева. И еще одна рекомендация. По каждой плодовой и ягодной культуре наиболее целесообразно иметь набор сортов разных сроков созревания и съема — от ранних до поздних.
Опыт окрестных садоводов может многое вам подсказать. Помогает сориентироваться и районированный сортимент, который есть для каждой области. В нем названы плодовые и ягодные культуры, рекомендуемые специалистами для выращивания в условиях области.
Не следует перегружать участок деревьями и кустами. Все садовые культуры очень светолюбивы, поэтому загущение крайне отрицательно сказывается на продуктивности сада и качестве урожая. Регулировать световой режим сада можно количеством выращиваемых деревьев и кустарников, рациональным размещением их на участке и последующей обрезкой, то есть созданием определенной формы и размеров кроны деревьев и кустов.

Правила застройки участка согласно СНиП 30-02-97:
Согласно противопожарным требованиям соседние дома могут располагаться на расстоянии не менее:
6 метров — каменный от каменного
10 метров — каменный от деревянного
15 метров — деревянный от деревянного.
Нельзя также строить дом ближе:
5 метров — от улицы
3 метров — от проезда
Хозяйственные постройки — не ближе, чем в 5 метрах от проезжей части.
Сток дождевой воды с крыш построек не должен производиться на соседний участок.
Хозяйственная постройка может примыкать к дому, но помещение для мелкого скота и птицы должно иметь отдельный вход, расположенный на расстоянии минимум 7 метров от входа в дом.
Гараж может стоять отдельно, может быть пристроен или встроен в хозяйственную постройку или дом при условии соблюдения всех санитарных и противопожарных норм.
Минимальным расстоянием от забора:
до садового домика должно быть 3 м
до постройки для содержания мелкого скота и птицы – 4м
до других построек и кустарников – 1 м
до высокорослых деревьев – 4 м, до среднерослых – 2 м.
Дачные участки должны быть огорожены таким образом, чтобы как можно меньше затенять соседние участки. Подойдут сетчатые или решетчатые ограды высотой 1,5 м, глухие заборы можно устанавливать со стороны проезжей части по решению общего собрания СНТ.
Минимальное расстояние от границы соседнего участка до хоз.построек не менее 1 м.
Расстояние между колодцем и компостной ямой, уборной должно быть не менее 8 м.
При нарушении строительных, санитарных и противопожарных норм грозит административная ответственность.
Как обустроить ландшафтный дизайн 10 соток
Если вы владеете большим дачным участком, важно продумать проект ландшафтного дизайна, который позволит обустроить имеющуюся площадь. Вариантов оформления участка 10 соток, может быть множество. Большая территория позволяет создать несколько функциональных зон, которые будут формировать один интересный дизайн. В процессе обустройства необходимо проделать колоссальную работу, включающую в себя планировку, разбивку на зоны, размещение либо сооружение необходимых элементов. Каждый этап работы требует индивидуального подхода. Для воплощения идей, рекомендуется ознакомиться с советами профессионалов, которые помогут создать неповторимый ландшафтный дизайн 10 соток своими руками на фото.

Этап первый: планировка
Создавая проект дизайна дачного участка, необходимо помнить, что существуют законодательные нормы расположения построек и насаждений. Их следует изучить, чтобы знать на каком расстоянии от соседнего участка и дороги можно располагать элементы ландшафтного дизайна. Не забываем, что придомовая территория должна обустраиваться таким образом, чтобы на ней располагались пожарные выходы на случай возникновения экстренных ситуаций. Для наглядного примера, свой проект следует запечатлеть на бумаге.

То есть составить подробный план, на котором будет видно расположение каждого элемента на дачном участке. Создав схему планировки, будет проще учитывать необходимые детали обустройства.
После нанесения на план проект имеющихся строений, можно приступать к планировке свободной площади.

В данном случае, следует расположить удобную зону отдыха, садовый участок, при желании огородные грядки, другие декоративные элементы, не нарушая при этом целостности территории. Это значит, что все сооружения должны гармонировать между собой и создавать красивую картинку.

Этап второй: учитываем детали
Предварительно нужно составить перечень того, что конкретно будет располагаться на дачном участке. На данном же этапе определяется стиль, и выбираются зеленые насаждения, которые будут украшать территорию. Важно подобрать растения, идеально подходящие к условиям данного климата и почве. Планируя ландшафтный дизайн дачного участка 10 соток своими руками, не старайтесь перегрузить его деталями.

Есть вероятность того, что территория не будет иметь гармоничный внешний вид. Сегодня все чаще, обладатели загородных домов, предпочитают располагаться на участке 10 соток, не огородные грядки, а красивый сад и оригинальные зоны активного и пассивного отдыха.

Если вы относитесь к таким ценителям оригинальности, действуйте планомерно, тщательно изучая возможные варианты на фото.

Этап третий: определяемся со стилем
Дизайнеры рекомендуют выбирать проекты ландшафтных дизайнов 10 соток, из следующих вариантов:
- Сад в японском стиле.
- Дикая природа.
- Деревенский стиль.
- Современный сад хай-тек.
- Средиземноморская стилистика.
- Европейский вариант обустройства.

Ландшафтный дизайн 10 соток в японском стиле, предполагает создание уютного, необычайно красивого сада. Данный вариант предпочитают люди, работа которых связана с постоянным стрессом, повышенной активностью. Японский сад даст возможность максимально расслабиться, насытиться энергией. Для создания дизайна используется камень, как основа дизайна, источники воды, хвойные насаждения.

Непременным элементом обустройства, является уютная беседка из дерева и мостик через искусственный, а быть может и природный водоем. Если нет возможности создать водоем, можно использовать ручей сухого типа из морской гальки.

Для тех, у кого загородный дом граничит с лесными насаждениями, лучшим вариантом станет ландшафтный дизайн участка 10 соток в диком стиле. Изучите, как природа расставила растения, создавая совершенный дизайн территории. Под кронами тенистых деревьев, следует расположить папоротники или другие тенелюбивые растения. На солнечном открытом участке – цветочные клумбы. Подбирая виды цветов, помните, что композиция должна сохранять цветущий вид на протяжении всего весенне-осеннего периода. Если территория расположена под уклоном, для украшения своими руками, используйте натуральные камни. На фоне дикой природы замечательно будут смотреться водоем, деревянная беседка, барбекю, дополнительное место для отдыха в виде широкой скамьи.

Ландшафтный дизайн участка 10 соток на фото, созданный в деревенском стиле, должен быть простым. Для высадки зеленых насаждений используются деревянные ящики, кадки. Для ограждения территории – изгородь-плетень. Садовая мебель должна создаваться вручную из древесных заготовок. Превосходным выбором, является красивый газон, украшенный множеством цветущих насаждений, которые будут радовать обилием красок с ранней весны до первых заморозков.

Если загородный дом создан в современной стилистике, вполне логично оформить участок в стиле хай-тек. Он предполагает использование четких линий, лаконичных форм и строгих цветовых решений в разбивке клумб, садовых дорожек, площадок для отдыха. Декоративная отделка осуществляется с применением современных материалов. Растения обладают строгими формами, которые поддерживаются регулярной стрижкой.

Таким образом, проектов оформления дачного участка существует много. На чем именно остановить свой выбор, решает владелец участка индивидуально, руководствуясь стилистическим направлением и особенностями архитектуры дома. Гармонично сочетая, оформление придомового участка с дизайном экстерьера, создаются превосходные варианты ландшафтного дизайна.

Занимаясь обустройством, помните, что первоначально следует создать план проект, который поможет правильно расположить все элементы. Следуя плану, вы не потеряете изначальную идею оформления дачного участка, и конечный результат будет радовать вас долгие годы.
Источники: http://fb.ru/article/161852/planirovka-uchastka-sotok-poleznyie-sovetyi-i-foto-shema-i-planirovka-dachnogo-uchastka-sotok, http://vparnike.ru/article/202, http://furniturelab.ru/landshaftnyj-dizajn-2/
Комментариев пока нет!
www.restart24.ru



Временное расположение грядок не повредит росту деревьев.
