Построить детскую площадку городок на даче своими руками – Детская площадка своими руками: фото-идеи
Детская площадка своими руками фото пошаговая инструкция из дерева
Многие родители желают сделать детскую площадку своими руками на загородном участке. Это позволит занять ребенка и обезопасить его.
Чтобы возвести детскую площадку на даче, необходимо разметить территорию, определить количество элементов и их взаимное расположение. Если детские игровые площадки находятся в пределах приусадебного участка, то отдельное ограждение для них не обязательно. Если же площадка располагается за пределами участка, то ее надо огородить.
детская площадка своими руками фото пошаговой инструкции
После определения площади, которая может быть выделена под игровую зону, выбирают конкретные элементы. Чем меньше пространства, тем меньшее количество элементов можно разместить.
Если строительство детской площадки выполняется в первый раз, то процесс нельзя будет назвать простым. Специальная подготовка и наличие определенных знаний упростят работы, но ими владеют далеко не все. Надо быть готовым к определенным сложностям.
Обязательно следует определить функциональное назначение конструкции. Имеются отличия между сооружениями для детей дошкольного возраста и для подростков. Если дети дошкольного и младшего школьного возраста, то детская площадка на даче должна включать песочницу, качели, горку и небольшое количество лестниц. Такая детская площадка своими руками делается достаточно легко.


детская площадка своими руками фото пошаговой инструкции

Во втором случае игровая конструкция должна быть более сложной. Уже оказывается не нужна песочница, но требуются зоны для игры в баскетбол или другие игры с мячом. Устанавливаются тренажеры, сложные приспособления для лазания. Такую детскую площадку на даче возвести уже сложнее.


Детская площадка на даче своими руками. Пошаговые фото

После того, как необходимые элементы будут определены, требуется сделать план. Надо выполнить чертеж с разметкой всех основных частей и можно приступать к постройке детской площадки своими руками.



При строительстве детской площадки обязательно следует учесть, что запрещено следующее:
- ставить песочницу рядом с качелями;
- размещать горку таким образом, чтобы спуск вел к проезжей части;
- устанавливать конструкции за пределами придомовой территории без ограждения.


детская площадка корабль своими руками. Фото



После создания чертежа производится расчет и закупка необходимых материалов. Сделать детскую площадку своими руками непросто, в том числе и рассчитать материалы, но фотографии станут подсказками в этой работе. Когда расчеты будут выполнены, материалы закуплены и собраны самые простые основные детали, то можно переходить к более сложным элементам. Преимущество детской площадки на даче состоит в том, что ее можно постепенно изменять и достраивать.






Самое главное при строительстве детской площадки своими руками, необходимо позаботиться о ее безопасности. Все элементы должны быть тщательно проверены и надежно соединены. У деталей не должно быть острых углов, выступающих соединений и других потенциально опасных элементов.


детская площадка своими руками из дерева




Далее представлены варианты оформления и оснащения детских площадок. Можно взять готовый вариант или собрать оригинальную конструкцию, позаимствовав идеи из нескольких.














Детская площадка своими руками. Вариант 2
На своем приусадебном участке можно построить своими руками игровой комплекс для детей. В проекте могут быть предусмотрены следующие элементы: горка с лестницами, домик в виде балкона, вертикальные лестницы с канатами, качели и т.д.
Пошаговая инструкция сооружения детской площадки своими руками
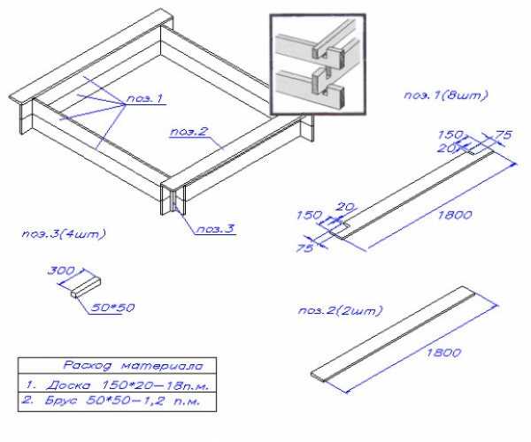
Составление проекта и закупка необходимого материала. Для строительства площадки необходимо приобрести лесоматериал, а именно сосновые доски и брусья различного сечения. Для этого проекта понадобится лесоматериал следующего сечения: 100х100мм, 100х50мм, 50х20мм, 150х20мм, 50х50мм.
детская площадка своими руками. Фото шаг за шагом
Из брусьев вырезаем будущие опоры и поперечки. Далее обрабатываем их при помощи шлифовальной машинки и шлифшкурки. После этого брусья необходимо покрыть антисептическим раствором.
детская площадка на даче. Инструкция мастер-класс
Из готовых опор собирают каркас. Для соединения применяют шурупы по дереву диаметром 8 мм.
Далее необходимо выкопать ямы глубиной около одного метра и установить в них каркас. Над поверхностью земли должно оставаться 10–15 см. Выполнять эту работу в одиночку невозможно. Необходимо будет взять в помощь еще двух-трех человек. Каркас должен быть выставлен по уровню. После этого следует привалить его щебнем и, удерживая в таком состоянии, прикрепить к каркасу поперечные балки. В завершение, установленные опоры необходимо залить бетонной смесью.
Совет: для того чтобы площадка не провалилась, необходимо под опоры положить кирпичи.
Пока бетонная смесь застывает – можно приступать к сборке лестницы и установки перил. На нашей игровой площадке будет предусмотрено два ряда перил, расположенных на разных уровнях. Таким образом пользоваться играть на такой площадке будет удобно детям любого возраста. Все деревянные элементы покрываем лаком или краской.
Для пола понадобятся доски 250х25 мм. Из них необходимо сделать сплошной настил. Размеры пола верхнего этажа, согласно нашего проекта, составили 100х250 см. Для придания жесткости под полом были уложены брусья сечением 50х100 мм.
После можно приступать к изготовлению опоры для балки, на которой будут расположены канат и качели. Для большей устойчивости было принято решение делать их накрест. Опоры соединяют с выборкой и фиксируют болтами. Далее необходимо сделать разметку и выкопать ямы. После этого изготавливают поперечную балку на опоре. Готовую конструкцию устанавливают в яму, засыпают щебнем и заливают бетонной смесью.
Пока бетон застывает – можно приступать к изготовлению лаза. Для этого понадобится лист ОСБ, брус 50х50 мм и поперечные ребра жесткости из бруса сечением 50х20 мм.
Приступаем к изготовлению балкона на втором этаже. На таком балконе можно установить стол и стулья чтобы дети могли отдохнуть и перекусить. Для изготовления такой конструкции понадобятся листы ОСБ.
На завещающем этапе строительства своими руками игрового комплекса, необходимо проверить площадку на наличие острых углов, выступающих частей и дефектов. Если таковы имеются, то их необходимо убрать, чтобы дети не травмировались.
Фото детских площадок
Современные, в том числе самодельные, детские игровые площадки очень разнообразны. Существует множество интересных вариантов их оформления. Рассмотрим некоторые.
• Игровой комплекс состоит из двух веревочных качелей, домика, песочницы, лесенки и горки. Домик расположен на втором ярусе, от него отходит горка. Под домиком располагается песочница, защищенная от солнца. Сбоку располагается веревочная лесенка.

детский площадка своими руками из дерева
• Игровая площадка в форме рыцарского замка, имеющая несколько игровых элементов. Сбоку расположены веревочные качели. На нижнем ярусе находится домик и емкости для песочницы. Для подъема наверх есть деревянная и веревочная лестницы, а также наклонная доска с упорами и канатом. Для спуска установлена горка.

• Площадка для самых маленьких. Представляет собой обширное пространство для песочницы, по бортикам которой располагаются лавочки. Один из углов занят игровым домиком, в котором можно прятаться или укрываться от солнца.

• Игровой комплекс с домиком на нижнем ярусе. С одной стороны от домика находится небольшой столик с лавочками. С другой стороны располагается приспособление для лазания. Сбоку расположены качели и детские гимнастические кольца.

• Небольшой комплекс, состоящий из двух качелей, горки и лесенок. Качели находятся сбоку, чтобы качающиеся не задевали других детей. Лесенки представлены двух видов: деревянная с упорами для лазания и веревочная. Верхняя площадка закрыта крышей, позволяющей спрятаться от солнца или дождя.

• Разнообразный и компактный игровой комплекс, включающий множество элементов. Внизу под верхним домиком можно засыпать песочницу. Сбоку находятся столик и лавочки. Забраться наверх можно по доске с упорами и канатом, по сетке или по веревочной лестнице. Для спуска имеется пластиковая волнистая горка.

• Деревянный городок, состоящий из двух башен. Они соединены дугообразной лесенкой, к которой прикреплены качели. На одной башне есть парадная лестница с перилами, горка и другие детали. Вторая башня оснащена канатом и дугообразным мостиком с упорами.

• Детская площадка выполнена в нарочито грубом стиле. Она оснащена верхним помостом, с которого спускается горка. Забраться можно по деревянной лестнице, по веревочной вертикальной сетке, по доске с упорами или по канату.

детский площадка своими руками из дерева
• Деревянный игровой комплекс с пластиковой горкой, качелями на цепях и гимнастическими кольцами. Добраться до горки можно забравшись по деревянным перекладинам или же преодолев наклонную доску с упорами, а затем перебравшись на руках по гимнастическим кольцам.

• Относительно простая, но разнообразная площадка, предназначенная для детей разных возрастов. Есть песочница и удобная пологая лестница, широкая горка. Детей постарше заинтересует доска с отверстиями для упора и подобие металлической лестницы по бокам.

• Очень интересный по форме и своеобразный детский комплекс, который может украсить участок. Для развлечений есть горка, деревянная вертикальная лестница, лазалка с упорами, сетка, расположенная под верхним игровым домиком.

• Просторная детская площадка с тремя видами качелей, одни из которых предназначены для самых маленьких. Есть две башни разной высоты, соединенные мостиком. От меньшей спускается металлическая горка. Подняться на башни можно несколькими способами.

• Игровой комплекс в виде корабля смотрится оригинально и будет интересен большинству детей. У него есть рубка, несколько конструкций, по которым можно забраться на верхнюю площадку. Для спуска предусмотрена горка.

• Относительно простая по конструкции площадка. Под верхним домиком находится песочница, защищенная дополнительно от солнца сбоку. Горка пластиковая, слегка изогнутая. Площадка оснащена качелями двух видов. Одни из них предназначены для раскачивания вдвоем.

• Площадка, которую можно назвать: для детей и родителей. Качели в виде кресел понравятся и взрослым. Подвешены они на прочных металлических цепях. Дети могут покататься с горки или забраться на смотровую площадку, которая находится с противоположной стороны от горки.

• Детская площадка в «бревенчатом» стиле имеет множество уголков, где можно спрятаться на нижнем ярусе. Наверху расположены разноуровневые площадки, на которые забираться надо по лестнице с набитыми планками. Спуститься можно по горке.

• Максимально простая детская площадка, состоящая из столбов, поставленных треугольником и перекладин между ними. На перекладины повешены качели, сетки, веревочные лестницы. Есть также площадка, от которой спускается горка.

postroiv.ru
Детский городок своими руками — описание и фото
Любой взрослый знает, насколько непоседливы дети. Порой удивляешься, как им удается целый день прыгать, бегать, кувыркаться и совсем не уставать. Заставить ребенка тихо и мирно сидеть практически невозможно, да и не нужно — недостаток двигательной активности может обернуться отставанием в развитии. А вот что действительно необходимо, так это направить бьющую фонтаном энергию в нужное русло. Поможет в этом детская площадка или даже целый городок. Именно здесь ребенок может поиграть со сверстниками, покачаться на качелях, съехать с горки, повисеть на турнике. Проблема в том, что не всегда игровые площадки и детские городки можно найти недалеко от дома.
Если у вас есть немного места на приусадебном участке или даче и желание подарить ребенку возможность с интересом и пользой проводить досуг, самое время подумать о постройке детской спортивной площадки. Уже готовые детские городки можно найти в магазине, выбор их достаточно широк. Но лучше все-таки обустроить детский городок своими руками. Так вы учтете все пожелания своего ребенка и сэкономите семейный бюджет. Используя подручные материалы и проявив фантазию, вы можете создать неповторимый уголок, в котором ребенок с удовольствием и пользой будет проводить время. Да и представьте себе радость детей, придумывающих и обустраивающих вместе со взрослыми свое будущее место для игр – маленький детский городок.

Самый простой способ получить красивую лужайку перед домом
Вы, конечно же, видели идеальный газон в кино, на аллее, а возможно, и на соседской лужайке. Те, кто хоть раз пытался вырастить зеленую площадку у себя на участке, без сомнений скажут, что это огромный труд. Газон требует тщательной посадки, ухода, удобрения, полива. Однако так думают только неопытные садоводы, профессионалы давно знают про инновационное средство — жидкий газон AquaGrazz.
Читать далее>>
Создаем проект детского городка для дачи
Как и в любом строительстве, перед тем, как приступать к работе, нужно создать проект. Вначале рисуем полный план дачи или приусадебного участка, затем отмечаем на нем место, выделенное для детской площадки. Теперь важно определиться, какие элементы необходимо внести в наш проект.

Схема детского городка
Выбор площадки
Выбор элементов будет зависеть от возраста ребенка.
- Детские городки для малышей обязательно должны состоять из песочницы, различных качелей, домика, горки;
- Для старших детей и подростков будут интересны детская площадка или городок со спортивными снарядами, турником, баскетбольным кольцом.
Создавая проект, следует помнить, что дети быстро растут, и также быстро меняются их интересы. Поэтому планировать детский городок для дачи нужно на перспективу. Например, сегодня это будут качели для малыша, а завтра можно будет снять сидение, и останется турник, на который еще можно будет подвесить канат или кольца.
Выбор материала
Самым подходящим материалом, из которого мы будем воплощать наш проект, является дерево. Оно легко в обработке и безвредно. Кроме того, площадка или детский городок из дерева прекрасно смотрится, как на фото. Дополнить дерево можно металлом (перекладина для турника) и автомобильными покрышками (лабиринт, качели).

Подготовка площадки
Последним предварительным этапом постройки будет подготовка площадки. Место, на котором будет располагаться детский игровой городок, должно быть тщательно убрано и очищено от растений. Грунт необходимо выровнять, убрать ямы и холмики. Лучшим покрытием для площадки будет трава.
Безопасность превыше всего
Чтобы построенный вами детский городок стал местом для безопасных игр и развлечений, особое внимание следует обратить на технику безопасности. Составляя проект и выполняя работы, продумывайте каждую деталь с этой точки зрения.
- Прежде всего, играющих детей необходимо защитить от ветра и палящего солнца. Уберечь разгоряченного ребенка от порывов ветра поможет декоративный забор или высаженный с подветренной стороны кустарник. Если детская площадка или городок не затенен деревьями, стоит подумать о грибке над песочницей и навесом над качелями;

- Как уже говорилось, лучшим покрытием для площадки является трава: возможность получить травму, упав на газон, намного меньше, чем при падении на твердое покрытие;
- Детская площадка (городок) не должна находиться вблизи хозяйственных построек, иначе во время активных игр кто-нибудь может пораниться. Размещая элементы, следует помнить, что возле качелей и горки должна быть свободная зона не менее 2 метров;
- Все сварочные швы и места соединения следует тщательно проверить. Несущие конструкции и движущиеся детали должны быть изготовлены из высококачественных материалов и надежно закреплены. Опоры качелей необходимо вкопать в землю не меньше, чем на полметра.
- Проектируя детский городок для дачи, следует помнить, что размер различных конструкций напрямую зависит от возраста ребенка. Так, для малыша до 5 лет высота горки не должна превышать 1,2 метра (как на фото), для более взрослых детей можно строить горку высотой до 3,5, а качели – до 2,5 метра.
Перед тем, как приступать к строительству, еще раз пересмотрите свой проект и убедитесь, что ваша детская площадка или городок по-настоящему безопасны для ребенка.
Элементы детского городка
Песочница
Самым распространенным игровым элементом, без которого трудно себе представить детские городки, является песочница. Игры с песком – одно из интереснейших занятий для ребенка. Можно лепить куличики, строить замки, дороги и целые города. Песочница – это не только развлекательный элемент, игры с песком способствуют развитию мелкой моторики и фантазии у маленьких детей.
Самую простую песочницу можно сделать из ненужной большой автомобильной покрышки. Достаточно срезать верх, покрасить снаружи и засыпать чистый песок. Если есть возможность сделать что-то более основательное, стоит построить песочницу из дерева. Это может быть обычный квадратный бортик из четырех досок со скамейками или же выставленные кругом пенечки. Детская площадка или детский городок с такой необычной песочницей не может не понравиться вашему ребенку.

Неплохо было бы перед закладкой песочницы предусмотреть дренаж, тогда песок после дождя будет значительно быстрее высыхать. Для этого нужно снять верхний слой грунта на 25-30 сантиметров, сверху накрыть 10-сантиметровым слоем мелкого щебня или гальки и сверху засыпать песок.
Качели-качалка
Вторым не менее популярным элементом детской площадки для дачи являются качели. Их довольно много, рассмотрим самые простые в изготовлении варианты.
Если мы строим детский городок для ребенка до 5 лет, самой подходящей качелей будет качалка. Инструкция по установке очень проста. В вырытую яму вставляем большую пружину и заливаем бетонным раствором. На второй конец пружины устанавливаем сидение. Его можно сделать в виде сказочного героя или какого-нибудь животного. Главное условие – сидение должно быть хорошо закреплено на пружине. Для удобства на декоративной фигурке нужно предусмотреть ручки, за которые можно держаться.На следующем фото представлен еще один несложный вариант качелей, которыми обустроены практически все детские городки (на фото).

Чтобы изготовить такие качели, потребуется два крепких деревянных бруса сечением не меньше 100х100 мм, доска из мягких пород древесины сечением не менее 25 мм, стальной стержень диаметром 20-25 мм и небольшая планка (80х25 мм) для дополнительного закрепления доски. Столбы закапываем в землю на 0,5 м, ширина между ними должна быть чуть больше ширины доски. Над землей должно остаться еще 40-50 см бруса. На каждом из них сверху делаем вырез для металлического стержня, который будет осью качели. Снизу доски крепим деревянную планку.
Помня о том, что наш детский городок — самое безопасное место дачи, внимательно проверяем качество шлифовки доски. Она должна быть гладкой, без сколов. Возле мест для сидения неплохо было бы придумать ручки, а внизу, как на фото, вкопать шины для смягчения удара.

Традиционные качели
И какая же детская площадка или городок без традиционных качелей? Самая простая конструкция, известная многим с детства – перекладина на веревках, привязанных к ветке дерева. Такой вариант небезопасен, поэтому рассмотрим более надежные конструкции.
Качели можно изготовить следующим образом:
- вкапываем в землю два деревянных бруса сечением минимум 50х50 мм;
- сверху закрепляем перекладину из металлической трубы или стержня;
- а к нему крепим на цепях или веревках сидение.
Для маленького ребенка должно быть предусмотрено крепление, которое будет фиксировать его на сидении. Помним также о зависимости высоты конструкции от возраста. Немного увеличив расстояние между брусьями, можно превратить развлекательный элемент в спортивный, довесив на свободное место веревочную лестницу, кольца или канат, как на фото.

Горка
В проект детской площадки для дачи следует включить и горку. Конструкции этого игрового элемента очень разнообразны. Тут все зависит от фантазии и финансовых возможностей. Это может быть просто спуск с лесенкой, а можно построить и целый детский городок с домиком.
Если вы будете делать спуск своими руками, очень важно помнить о закруглении внизу горки. Ровный край спуска может привести к травме позвоночника. Лучше всего приобрести уже готовый спуск из пластика или металла. Выбрать и купить его можно в любом магазине, где продают готовые детские городки.

При изготовлении горки из дерева, необходимо тщательно отшлифовать все детали, надежно закрепить опоры в земле, все площадки на высоте оградить перилами или бортиками. Если в постройке горки использованы металлические трубы, в них обязательно должны быть вставлены заглушки.
Игровой домик
Ваш детский городок будет неполным без игрового домика. Конструкция его полностью зависит от вашей фантазии и возможностей. Главное, предусмотреть даже в самом маленьком домике скамейки. Ведь именно здесь так приятно отдохнуть от игр и поболтать с друзьями и подружками. На фото ниже возможные варианты игровых домиков для дачи.

Спортивные снаряды
Чтобы из вашей площадки получилось не просто место для игр, а настоящий детский спортивный городок, следует разместить на нем различные спортивные снаряды.
- Для самых маленьких сорвиголов можно построить дорожку из пенечков разной высоты или лабиринт;
- Для лабиринта можно использовать и другой материал, например, те же автомобильные покрышки;
- Для подростков детский городок можно обустроить турником, брусьями, кольцами и канатом;
- Чтобы наша детская площадка или городок выглядели по-настоящему ярко и весело, следует добавить красок и поселить каких-нибудь сказочных персонажей.

Чтобы содержать в ухоженном и безопасном состоянии детские игровые городки, необходимо регулярно проверять устойчивость конструкций и соединений. Необходимо проверять детали конструкций в местах возможного перетирания. На зимний период с площадки следует убирать все веревочные детали, а песочницу надежно укрывать.
Тщательный уход позволит не только продлить срок службы игровых элементов, но и будет залогом того, что ваша детская площадка или городок будет безопасным.
Автор: Т. Розанова
rozarii.ru
Как обустроить детскую площадку на даче: размеры, дизайн + фото
Дача — это место, где отдыхаешь всей душой. Красивые виды, чистый воздух овощи из собственного огорода и фрукты делают дачу незаменимой для каждого жителя мегаполиса. Возможность после тяжёлой рабочей недели выехать на природу и отдохнуть с семьёй — бесценна.
Особенно начинаешь ценить домик за городом, когда появляются дети. Здесь им настоящее раздолье. И на велосипеде можно вдоволь накататься, и в лес за грибами сходить, и на речку. Вот только есть один маленький нюанс. Взрослым тоже нужно время чтобы отдохнуть, а что может лучше отвлечь малыша, чем детская площадка на даче?
Делаем детскую площадку своими руками
Если вы думаете, что построить детскую площадку на даче своими руками просто, то вы заблуждаетесь. Нужно учесть множество нюансов, составить проект, сделать разметку и только после поставить снаряды, наполнить песочницу песком и установить качели. Главное при этом придерживаться стандартов, которые гарантируют вашему малышу безопасное времяпрепровождение.
Как сделать площадку безопасной
Есть довольно простые и действенные правила, которые гарантируют детям безопасность. В первую очередь детская площадка для дачи должна располагаться на приличном удалении от опасных мест, к таким относят:
- декоративные электросветильники,
- колючую изгородь,
- глубокий пруд или бассейн,
- парник,
- колодец и так далее.
Особое внимание нужно уделить расположению детской площадки на даче. Для начала дети должны иметь возможность играть когда угодно, поэтому нужно, чтобы солнце освещало площадь только с утра и вечером.
Внимание! Нельзя допустить, чтобы в полдень лучи солнца освещали детскую площадку для дачи. Это может вызвать у детей тепловой удар.
Нужно так рассчитать местоположение объекта, чтобы в полдень его накрывала тень. А на незатенённой части площадки можно установить бассейн. Это поспособствует максимально быстрому нагреву воды.
Внимание! Детская площадка должна быть размещена таким образом, чтобы родитель с любой точки участка мог видеть детей.
Строителями детских игровых площадок для дачи в процессе их работы был выработан ряд правил, которым стоит следовать, чтобы не беспокоиться о здоровье своих малышей:
- Территория будущей площадки должна быть тщательно выровнена. Уберите кочки, крупные камни, позаботьтесь, чтобы не было больших корней.
- Основные конструкционные элементы должны быть углублены в землю не менее чем на 50 сантиметров. К ним относятся опоры для горок, домиков, качелей и так далее. Также их нужно забетонировать.
- У качелей спереди и сзади должны быть зоны безопасности. Это приблизительно два метра свободного пространства.
- Каждый деревянный элемент конструкции должен быть хорошо отшлифован.
- Краска, которая используется для покрытия, должна быть нетоксичной.
- Состояние карабина, которым качели крепятся к крюку, должно проверяться раз в полгода.
Отдельно нужно поговорить о покрытии детской площадки для дачи. Его необходимо сделать мягким. Во время игры дети часто падают. И это необходимо учитывать. Также поверхность должна быть быстросохнущей, так как чрезмерная влажность может вызвать у ребёнка простуду.
Лучше всего подходят покрытия для детских площадок на резиновой основе. Они гарантируют полную безопасность даже при падении. К тому же данное покрытие минимизирует риск поскользнуться.
Единственный минус резинового покрытия для детской площадки на даче — это его стоимость. Мало того, на природе хочется чего-то более натурального и аутентичного, а прорезиненная площадка будет смотреться не очень гармонично на фоне деревьев и помидоров.
Намного дешевле и практичнее постелить газон из стойких сортов травы. Её амортизационного эффекта вполне достаточно, чтобы уберечь детей от разбитых коленок. Также можно использовать комбинированные покрытия для детских площадок на даче.
Совет! Возле горки, шведской стенки и других гимнастических снарядов можно также насыпать песок. Он отлично смягчает удары при падении.
Большой популярностью сейчас пользуется наливной бесшовный пол из цветной резиновой крошки. Он может иметь любую конфигурацию и укладываться на любой рельеф. Покрытие имеет долгий срок службы, к тому же в строительных магазинах можно найти какую угодно цветовую гамму.
Толщина наливного покрытия для детской площадки должна быть не менее 1—2 см. В зонах с повышенной травмоопасностью рекомендуется увеличить этот параметр до 10 сантиметров. Таким образом вы создадите подушки безопасности для детей.
К дополнительным преимуществам резиновой крошки для детской площадки на даче, можно причислить упругую поверхность и отсутствие швов. За таким покрытием не требуется дополнительный уход. Достаточно смести песок и ополоснуть поверхность водой из шланга.
Важно! Так как покрытие пористое, оно пропускает воду, а значит, дети могут играть сразу после дождя.
Размер детской площадки для дачи
При расчёте площади учитывается количество и габариты игровых снарядов. Особое значение нужно уделить расстоянию между ними. Необходимо сделать так, чтобы детям было удобно передвигаться.
Есть довольно простая и действенная форма, позволяющая рассчитать площадь детской площадки для дачи. На каждого ребёнка до 7 лет необходимо как минимум 8—9 квадратных метров, от 7 до 12 — 13—15 м2.
При расчёте пространства необходимо ещё в проекте предусмотреть полоску для свободного забега. Вокруг качелей и качалки должна быть безопасная зона не менее чем два метра.
Чтобы установить качели на детской площадке для дачи нужно как минимум пятнадцать квадратных метров. Для пружинной конструкции этот параметр можно уменьшить до 10. Горка также занимает не менее 15 м2. При условии, что она не является элементом общей конструкции.
Делаем горку
Горка для детской площадки на даче — довольно сложное изделие. Чтобы изготовить его согласно стандартам нужно учесть множество нюансов. Огромную роль играет возраст малыша. Если ему от двух до пяти лет, высота горки не может превышать полтора метра. Для младшеклассников этот параметр составляет не более чем 3,5 м. Лестница должна иметь широкие ступени. При этом они должны быть расположены близко друг к другу.
Важно! Не забудьте позаботиться о специальном противоскользящем покрытии.
Если рядом с горкой находится бассейн, ступеньки без специального покрытия могут стать причиной травмы. К тому же не стоит забывать про изменчивые погодные условия. А дети ведь хотят гулять всегда, и им абсолютно неважно, что недавно прошёл дождь.
Чтобы лестница на детской площадке отвечала всем нормам, к конструкции должны крепиться поручни. Верхняя площадка, в свою очередь, ограждается перилами по бокам. Также на ней необходимо создать достаточное пространство для игр.
Конечно же, существуют весьма необычные варианты лестниц для детских площадок на даче. Как пример, посмотрите фотографии снизу. В первом варианте в роли перил выступает основа самой конструкции. Во втором вместо привычной деревянной лестницы верёвочная конструкция.
Совет! Конструкторские инновации пользуются большой популярностью у детей.
Больше всего сложностей возникает при создании ската для горки на детской площадке. Дело в том, что вариантов конструкции существует множество, и выбрать лучший действительно непростая задача.
Начать нужно с подбора материала. Практичнее всего использовать специальный пластик. Его легко монтировать, он устойчив к любым климатическим условиям и имеет приятный внешний вид.
В качестве альтернативного материала для ската детской площадки можно применить многослойную фанеру. Но её нужно предварительно покрыть лаком. Тем не менее по эргономическим свойствам она значительно уступает пластику.
Внимание! Покупая пластиковый скат, вы можете выбрать как винтовую, так и прямую форму.
Делаем песочницу
На детской площадке для дачи песочница играет очень важную роль. Это место, в котором малыш будет проводить массу времени, создавая высокие замки или лепя выпечку. Именно поэтому к планированию объекта нужно отнестись максимально ответственно.
Вначале установки песочницы для детской площадки на даче нужно снять грунт на 30 сантиметров. Потом необходимо насыпать дренирующий материал, к примеру, гальку или щебень. Для детей от двух до пяти лет размер манежа должен быть не менее чем 1700х1700 мм.
Совет! Сейчас особой популярностью пользуются закрытые песочницы. Подобная предосторожность не даст домашним или бродячим животным сделать здесь туалет.
Дополнительные элементы
На вашей детской площадке на даче вы можете воссоздать определённую сказочную сценку. В этом вам могут помочь декоративные домики, в которых дети будут с удовольствием играть. К интересным идеям также можно причислить столик для поделок и машинку в песке.
Итоги
Детская площадка на даче позволяет организовать малышу нормальный здоровый досуг на природе. Главное сделать всё согласно нормам, чтобы обеспечить полную безопасность.
bouw.ru
идеи по обустройству и оформление детского городка
Трудно найти человека, равнодушного к детской непосредственности. Детские площадки желанны не только для детей, но и для их родителей. Пока ребёнок увлечённо катается с горки или играет в песочнице, можно успеть сделать много важных дел на даче. Детская площадка, созданная своими руками, на приусадебном участке — мечта многих родителей.
Подготовка к строительству
Прежде чем начать строительство, необходимо многое предусмотреть:
Место постройки. Учитывайте освещённость участка. Он должен хорошо просматриваться из дома. Уделяйте особое внимание безопасности детей — выбранное место должно максимально удовлетворять это требование. Размеры территории могут быть определяющим в выборе строения: будет ли это детский уголок на даче или целая детская спортивная площадка.- Ограда. Сразу продумайте, как и чем будете огораживать площадку: будет это деревянный забор или забор из металлической рабицы. Если вы решите не огораживать объект, то этот пункт пропустите.
Проект строительства. Заранее выбирайте и делайте эскиз будущей детской площадки своими руками. Фото и идеи различных самодельных вариантов можете найти в Интернете. Можете сразу набросать вид сверху будущего сооружения. Продумайте все детали и постарайтесь решить спорные вопросы ещё на стадии картинки или макета на бумаге, нежели потом исправлять всё на реальном объекте. Чем необычнее и красивее будет ваш выбор, тем больше шансов, что будущее строение понравится вашим детишкам.- Материалы для строительства. Заранее приготовьте все инструменты, оборудование и расходный материал для будущего строительства. Выбирайте только экологически чистые и безопасные для здоровья материалы. Не забывайте о подручном материале. Продумайте, что из того, что у вас есть, можно использовать для изготовления определённых поделок в вашем игровом комплексе.
- Схема постройки объекта. Заранее продумайте не только дизайн будущего строения, но и последовательность работ. Распишите подробно, что и в какое время будете делать. План будущих работ и подробное описание помогут обустроить всё вовремя и с наилучшим качеством.
Этапы постройки площадки
Оборудование детской площадки может быть самым разнообразным. Однако, этапы постройки любого строения одинаковы:
- Изготовьте все детали будущего строения.
- Подготовьте места для установки строения.
- Соберите сооружение.
- Постарайтесь ярко раскрасить оборудование и украсить его так, чтобы было интересно детям.
- Испытайте сооружение на прочность и безопасность.
Выбор и особенности оборудования
Все детские площадки отличаются друг от друга набором оборудования. Кому, как не вам, знать чего хотят ваши дети. Поэтому заранее продумайте, какие строения будут на их площадке. Определяющим критерием здесь является возраст и предпочтения ребёнка. Наиболее подходящий набор элементов оборудования для самых маленьких: песочница, бассейн, качели, карусель, домик, горка. Для детей младшего и среднего возраста большой интерес представляет спортплощадка, на которой есть место тем же качелям, горкам и домику.

Песочницы и бассейны
Всем хорошо известен классический квадратный вариант песочницы с разрисованным грибком посередине. Но фантазия и творчество не стоят на месте, поэтому поройтесь в Интернете и найдите массу оригинальных и самых невероятных вариантов. Например, песочница в виде машины или в виде качающегося корабля, песочница—поддон под домиком на столбах и другие конструкции.
Сегодня можно просто купить бассейн для ребёнка и тогда будет достаточно оборудовать для него место. Можете сделать бассейн своими руками, выкопав его лопатой. Обложите его кирпичом и керамической плиткой или зацементируйте. Можно закопать готовую ванну или установить её на специальном помосте.
Качели и карусель
Для качелей тоже есть много интересных решений. Простейший вариант — дощечка на двух верёвках, подвязанная на крепкой ветке дерева. Однако, такие качели небезопасны, так как верёвка быстро выходит из строя. Более надёжны качели на цепях, обтянутых шлангом или чехлом из брезента. Металлические стержни гладкой арматуры тоже могут служить материалом для качелей. Стойки можно сделать из труб большого диаметра или прочных столбов, которые должны быть забетонированы.
Карусель можно сделать из автомобильного или тракторного колеса или соорудить собственную конструкцию, применив большой подшипник. При строительстве карусели подумайте о безопасности ребёнка, соорудите необходимые для удержания ограничители и рукоятки.
Домики и горки
Трудно представить детскую площадку без горки. Для неё лучше используйте фабричные желоба из пластика. Они хорошо скользят, имеют яркую раскраску и легко устанавливаются. Если с этим проблема, можно сделать спуск горки своими руками. Для этого лучше всего подойдёт оцинкованное железо, но можно сделать горку из досок и покрыть их куском линолеума. Учтите, что такой вид покрытия годится только на один сезон. Поэтому менять его вам придётся часто. Детская горка своими руками из дерева, чертежей которой много в Интернете, может стать замечательным подарком вашему ребёнку.

Строительство домика довольно кропотливое дело. Однако, стройплощадка во дворе это само по себе отличное приключение и развлечение для ваших детей на долгое время — что может быть интереснее создания будущего собственного центра игр и развлечений. Выбор будущего строения будет зависеть от состояния семейного бюджета и предпочтений ребёнка.
Спортивные городки
Наконец, площадка — игровая территория, актуальность которой не утрачивается с годами. Отличная физическая форма ещё не повредила ни одному человеку. Хорошее настроение и юношеский задор — мечта большинства людей. Всем хочется вернуться в беззаботное детство. Чтобы поддерживать себя и детей в нужном тонусе, обязательно оснастите свой двор спортгородком.
Обычно спортивную площадку оснащают гимнастическими брёвнами, верёвочными и деревянными лестницами, турниками, брусьями, кольцами. Это классические снаряды подобных сооружений. Можете подумать о полосе препятствий по образцу тренировочных центров доблестной морской пехоты или пожарников. Чем больше будете фантазировать и экспериментировать, тем интереснее будет вашим детям потом играть на таких площадках.
Помните, что время, силы и средства, потраченные на строительство детской площадки, окупятся смехом и хорошим настроением вашего ребёнка в тысячу раз! Ваш частный дом или дача надолго станут любимым местом времяпровождения дорого чада.
Детская площадка своими руками
1001fermer.ru
Как сделать детскую игровую площадку своими руками на даче
С чего начать оборудование площадки?
1. Выбираем место для игр
Все имеет свое место, а детская площадка тем более. И не простое, а защищенное от ветра, достаточно открытое и просторное (размер зависит от количества предметов), быть и солнечное, но иметь и тень (зонт, дерево, тент).
Находиться она должна недалеко от дома для присмотра родителями, но вдалеке от хозяйственной зоны, где хранятся инструменты, стойматериалы и прочие предметы, не подходящие для игр.
Также не стоить располагать место для игр возле стеклянных теплиц или вблизи окон.
2. Подготовка территории площадки
Площадку необходимо выровнять, чтобы не было ямок или других неровностей, которые могут привести к травме при беге.
Лучшим покрытием считают газон. Остановитесь на спортивных или стойких к утаптыванию смесей. Отсутствие колючек, мелких камешков позволит детишкам бегать босиком в летний период.
Будьте бдительными с растениями, которые окружают площадку. Плоды ландыша, жасмина, жимолости, пузыреплодника, тиса ядовиты. Также не приветствуется наличие поблизости крапивы и колючих растений типа боярышника, ежевики, барбариса, елей, роз.
Если времени готовить почву и сеять газон у вас нет, можно стричь обычную «аборигенную» траву, проследив, чтоб среди нее не было колючек или паслена с ядовитыми ягодами.
Хорошим вариантом являются современные резиновые покрытия, но дети интуитивно тянутся к природе, поэтому, если очень хочется использовать наливную резину или мягкие специальные материалы, ограничьтесь только спортивными зонами.
3. Подбор элементов площадки
Итак, место площадки определено, теперь нужно подобрать необходимые элементы, согласно возрастных потребностей ребенка. Начнем с игровых снарядов для самых маленьких и закончим для подросткового оборудования
1. Песочница
Это прекрасное изобретение для развития малыша с 2 до 7 лет просто необходимо. Если ребенку постарше стационарная горка не интересна, можно насыпать на площадку достаточную песчаную дюну, из которой он может создавать замки или скульптуры.
К сооружению песочницы, да и других игровых элементов, можно применить фразу «если бы вы знали, из какого сора…», так как берется любой подручный стройматериал.
Виды песочниц
- Из старого тракторного колеса
- На деревянном каркасе
- Огражденная спилами бревен, которые могут быть разной длины и ступенчатыми. Малыши будут по ним еще и прыгать.
- Огражденная кирпичной кладкой. Можно использовать старый и битый кирпич, или цветной, чтоб выложить орнаменты. Не подходит камень-бут, имеющий острые края.
Песок лучше брать мелкий и просеянный от мусора. Под него очень удобно подстелить нетканый материал или что-нибудь другое, чтобы песок не смешивался с землей. Очень практично сразу сделать и крышку, которой вы будете закрывать песочницу на ночь от проделок котов и в осенне-зимний период.
Не бойтесь делать постоянную хорошую песочницу, ведь, когда дети вырастут, из нее очень просто сделать оригинальную клумбу.
2. Деревянные или металлические стилизованные средства передвижения
Это могут быть ракеты, машины, поезда, выполненные из ненужных старых дверей и досок. Умелый сварщик сможет из арматуры сделать для детей чудеса, которые необходимо оборудовать деревянными или пластиковыми скамеечками, и можно смело отправляться с друзьями в далекие края.
3. Лошадки на больших пружинах
Пружину большого диаметра заливают частично в бетон, а верх оборудуют как седлушку в виде животного, на котором можно покататься. Его лучше делать деревянное и крепко прикрепить к пружине, так как дети очень любят подобные качалки.
4. Качели
Тут следует позаботиться о безопасности креплений и места, куда будут крепиться веревки, цепочки и т.д. Еще необходимо рассчитать место впереди и сзади качели. Как минимум, должно быть 2 м. Качество креплений проверяйте на собственном весе: выдержало вас – выдержит и ребенка.
Качели можно крепить к дереву на здоровую толстую ветку или сделать металлический или деревянный каркас, который для стойкости хорошенько укрепите снизу, чтоб качели не перевернулись.
5. Домик
Нужен для детей любого возраста. Чем старше ребенок, тем он должен быть более обособленный, тайный.
Для малышей подойдут магазинные палатки или шалашики из гладких прутов, вигвамчики из старых покрывал на шестах (ни в коем случае не пленки). Единственное условие – достаточно свежего воздуха.
Домик на дереве – вообще сказочная мечта, но здесь правила безопасности нужно соблюдать очень тщательно и не поднимать его на большую высоту.
Домик можно вписать в общий игровой комплекс, если участок маленький.
6. «Лазилки» и лабиринты
Благодатный материал – старые шины, которые красятся и подвешиваюся, вкапываются и т.д. Усложнить задание можно веревками, сетками с крупной ячейкой, лесенками и проч.
7. Гамаки
Этот предмет на игровой площадке может быть использованный как детьми, так и взрослыми, поэтому выберите больший и крепкий вариант и подвесьте не высоко, чтоб ребенок не травмировался в случае падения.
8. Столик для поделок
Возможен самый простой вариант из вкопанных бревен как стульчиков, и столешницы из фанеры для стола, обернутой плотной клеенкой от влаги. Дети любят вырезать или рисовать, и лучше это делать на воздухе. Если не хотите морочится, купите пластиковые предметы детской мебели.
9. Грядка или маленький цветник
Помогут постигать детям тайну природы, когда из семечка вырастает большой куст цветов или овощей. Тем более, дети любят все делать как взрослые и так приучаются к труду.
10. Источник воды
Для малышей достаточно ведерка для «песочных работ» или переливания возле горки, маленького надувного или пластикового бассейна.
11. Спортивные снаряды
Для детей-подростков площадка должна ассоциироваться с подвижными играми, поэтому ее оборудуют баскетбольным кольцом, волейбольной сеткой, площадкой для бадминтона, теннисным столом под навесом, турником для мальчиков и маленькими футбольными воротами.
Любые приспособления для детской площадки по силам любому мужчине, а некоторые даже и женщинам.
Не забудьте о птицах, и установите для них кормушки или домики, чтоб дети за ними могли наблюдать.
Дизайнерские самоделки из шин, бутылок, фанерных выпиленных фигур, декоративные элементы способны оживить и сделать сказочной не только детскую площадку, но и стать украшением всей усадьбы.
Главное, чтоб вы захотели проявить заботу о малыше, принести ребенку радость на долгие годы, потратив на сооружение площадки немного сил, фантазии и творчества и простых материалов, которые превратятся в замки, поля сражений и преодоления преград. Очень интересно это делать с детьми, которые сами подадут идеи для оборудования их самого любимого места для игр.
И еще несколько идей для оформления детской площадки.
babushkinadacha.ru
Детская площадка на даче своими руками — примеры, советы, фото и видео
Дача – это популярное место для отдыха и семейного досуга. Чаще всего такие дома расположены за пределами города и здесь прекрасно можно отдохнуть от городской суеты, проблем, подышать свежим воздухом и насладиться соседством природы. Здесь хорошо провести время с друзьями и знакомыми. Но дача – это место где проводят летние каникулы также и дети. И необходимо и для них создать особые условия для игры и весёлого времяпрепровождения. Как это сделать эффективно и достаточно экономично?
Современных детей достаточно сложно оторвать от просмотра телевизора, компьютерных игр, планшетов или мобильных телефонов. Игра на улице – это уже не престижно. Именно поэтому стоит хорошо постараться, чтобы завлечь ребёнка игрой в саду на свежем воздухе. Это должно быть, что-то по-настоящему увлекательное! И потому, попробуйте создать на своём дачном участке игровую площадку.

Детские игровые площадки для дачи – это целый мир для ребёнка. Здесь можно бегать, прыгать, качаться на верёвке, лазать по шведской стенке, спускаться с горки и качаться на качелях. Эти занятия станут вдвойне интересней, если пригласить с собой друзей. Сделайте приятное своему ребёнку — создайте ему подарок своими руками! И первым шагом в достижении этой цели станет выбор места для расположения детской игровой площадки и подбор материалов.
Техника безопасности и выбор места
Игровые площадки для дачи должны быть в первую очередь надёжными. Этот фактор в большей степени зависит от родителей, и потому детская площадка должна располагаться в непосредственной видимости взрослых. Так вы сможете контролировать все то, что происходит на площадке и с вашим ребёнком.

Следите за тем, чтобы в месторасположении детской игровой площадки детям не было доступно электричество и электрические приборы, а также различные коммуникации. Не располагайте детскую площадку на берегу водоёма – это может представлять угрозу для ваших детей. Детские игровые площадки для дачи должны быть хорошо освещены в вечернее время, но днём желательно создать некоторую тень, чтобы дети были защищены от воздействия прямых солнечных лучей.
Выбор материала
Самым популярным материалом для детских принадлежностей является дерево. Этот продукт экологически чист, не токсичен, практичен в использовании и из него можно сделать множество интересных вещей.

Деревянные площадки для дачи – это возможность дать волю фантазии и своему творчеству, а также порадовать своих детей приятным подарком, сделанным своими руками. Для того чтобы все хорошо организовать, предварительно создайте проект на бумаге, тогда вы сможете увидеть конечный результат своего предприятия.
Составляющие детской площадки
Оформление детской площадки на даче зависит от возраста детей, которые будут на ней играть. Это может быть песочница, качели, лестницы для лазанья, горки, разного рода карусели – все, что даст возможность детям вести активную игру и получать от игры удовольствие. Вот самые главные составляющие детской площадки, которые можно сделать своими руками.
Песочница

Это один из основных элементов детской игровой площадки. К её созданию следует подойти ответственно. При соблюдении всех правил и замеров, достижение этой цели не составит труда.

Горка

Порадуйте малышей увлекательным занятием, но при создании горки не забывайте о безопасности. Деревянная поверхность должна быть хорошо обработана, на ней не должно быть шероховатостей и заноз, а также сама горка должна быть достаточно устойчивой и прочной.

Для деток постарше, лет с 6, можно установить детский спортивный комплекс. В его состав могут входить лестницы, брусья, кольца, качели. Все на ваше усмотрение.
Рекомендации
Создавая детскую игровую площадку для дачи своими руками, помните, что все работы должны быть выполнены качественно, ведь от этого зависит безопасность и здоровье ваших детей. Которые станут проводить здесь своё время.

Древесина должна быть зашкурена, покрашена, гвозди качественно забиты. Не создавайте конструкций с острыми углами и торчащими частями. Ну и последний момент – это покрытие для площадок на даче. Оно может быть разным в зависимости от ситуации и ваших предпочтений: песок, газонная трава, искусственные покрытия, созданные из синтетических материалов. Они безопасные, экологически чистые, удобные и мягкие. Ребёнок не травмируется, даже упав на такое покрытие.
Качественно созданная детская площадка – это возможность для вашего ребёнка правильно развиваться, поддерживать необходимую спортивную форму и вести здоровый образ жизни. Это все будет стимулировать полноценное развитие подрастающего организма, а ребёнок сможет радоваться весёлым играм с друзьями в летний период на даче.
Фотографии различных детских площадок




























Посмотрите небольшое видео, про детские площадки на даче
home-ideas.ru




