Проект баня маленькая – Проекты маленьких одноэтажных бань: 2х2, 3х3, 3х4
Бани небольшие проекты. Проект маленькой бани: основные особенности и рекомендации
Небольшая баня своими руками — как построить небольшую баню + фото

Если вы желаете приятно проводить время на даче, то вам обязательно нужна баня. Небольшая баня своими руками, построенная на участке, позволит сэкономить и деньги, и квадратные метры, если у вас не так много свободного места для сооружения бани. В этой статье речь пойдет о том, как спроектировать и как построить малогабаритную баню собственноручно.
Определение размеров небольшой бани

Размер бани следует определять в зависимости от количества людей, которые будут регулярно ее посещать в одно время. Если ваша семья состоит из 2–4 человек, то вы можете обойтись бюджетным вариантом этого строения. В таком случае длина бани будет составлять 6 м, высота – 2 м, а ширина 2,2 м. Внутри должны быть четыре отдельные комнаты. Каждое из них будет выполнять свою функцию, и иметь определенные размеры. Так, например, каждое помещение будет иметь определенные размеры. Ширина по размеру бани 2,2 м, а длина:
- предбанник 1300 мм;
- комната отдыха –2100 мм;
- душевая –1000 мм;
- парилка –1600 мм.
Для парилки и душевой необходимо будет выполнить отдельные расчеты по площади, потому как в парилке должны быть размещены полки, а в душевой – поддон.
Небольшая баня должна быть построена в обычной последовательности. Правила строительства для ее возведения ничем не отличаются от тех, по которым возводятся и остальные здания.
Строительство фундамента

Строительство каждого здания начинается с возведения фундамента. Чтобы определить, какой фундамент уложить как основание бани, вначале определите качество почвы, на который он будет укладываться. Если грунт достаточно твердый и отличается сухостью, то вы можете построить фундамент упрощенного типа. Для этого по намеченному периметру выложите плоские камни. Далее, аналогичными камнями заполните внутреннюю часть фундамента. Щели следует заполнить глиной и утрамбовать. Сверху уложите слой брусьев из дерева, предварительно обработанных горячим битумом. Вы можете, по сути, не использовать глину. Для этого можно изготовить гидроизоляционный слой, который накроет выложенные камни.
Как правило, для бани преимущественно выбирают столбчатый фундамент. Для этих целей можно использовать камень, готовые бетонные трубы, кирпичи, или асбестобетонные трубы, внутреннее пространство которых заполнено бетоном.
Еще один вариант – установить баню на деревянные, металлические либо бетонные сваи. Однако при таком раскладе нужно будет позаботиться о теплоизоляции пола.

Ленточный фундамент самый распространенный и надежный. Для его строительства нужно будет вырыть траншею и сделать подушку из щебня и мокрого утрамбованного песка. После следует сделать вязку арматуры и залить бетонным раствором. Для гидроизоляционного слоя можно использовать рубероид.
Если в грунте преобладает песок, грунтовые воды очень высоко, то для обустройства основания бани следует применять железобетонные конструкции блочного типа. Для бани мини-размера достаточно будет использовать десять таких блоков, размеры которых равняются 20×20×40 см.
Строительство стен

После того как фундамент будет готов, установите каркас банного домика и возведите его стены, потом перегородки, разделяющие предбанник. Комнату отдыха и душевую следует утеплить смесью из опилок и керамзита. Утеплитель следует закрыть листами полистирола, после чего стены следует обшить вагонкой. Для предотвращения проникновения грызунов внутрь бани, в керамзит можно добавить битое стекло. Перед укладкой вагонки нужно провести тепло- и пароизоляцию, а также утеплить стены минеральной ватой. После этого обшить их вагонкой.
Стены в душевой сделайте из полистирола или оцинковки. Эти материалы долговечнее, чем деревянная вагонка, они лучше переносят перепады температуры и влаги.
Подача и слив воды. Как правильно сделать?

Если вы обустраиваете баню для дачи, но у вас отсутствует напорный водопровод, можно организовать самотечную подачу воды. Для этого необходимо соорудить конструкцию, которая будет состоять из:
Бак с горячей водой по отношению к холодному нужно установить на полметра ниже. Один конец шланга закрепите внизу бака с холодной водой, а второй подключите к верхней части бака с горячей водой. Циркуляция воды будет возможна за счет разницы температуры в трубах. Чтобы организовать подачу воды в душевую, баки необходимо соединить отдельной трубой. На конце трубы в обязательном порядке устанавливается смеситель.
Для организации слива воды вып
skalice.ru
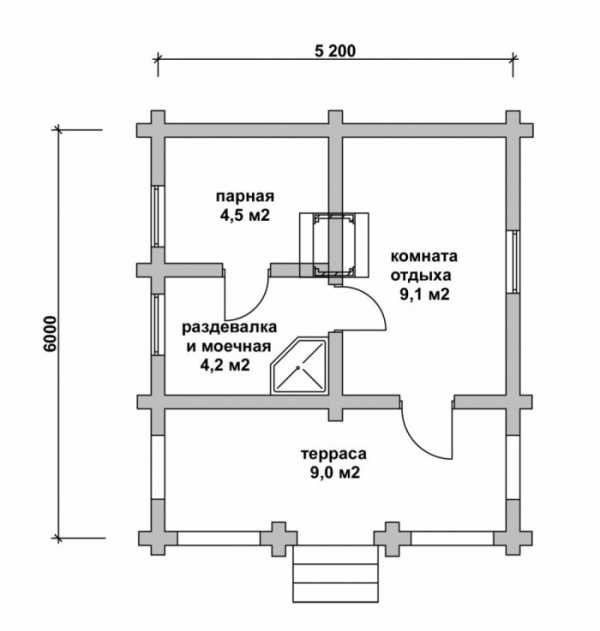
Проекты небольших бань
Разработка проектов небольших бань
Проекты небольших бань станут необходимы, если нужно возвести баню на небольшом участке. Если территория позволяет, справиться с этой задачей, как правило, труда не составляет. Но при недостатке свободной площади появляется необходимость правильно спроектировать и разместить строение, чтобы оно могло выполнять все свои функции, не мешая при этом спокойно передвигаться по участку и вписывалось в общий дизайн участка. К тому же даже при небольших размерах баня должна быть достаточно вместительной.
Помимо небольшой площади могут быть и другие причины, по которым именно небольшие бани более предпочтительны. В первую очередь, возведение стандартной постройки 6х6 м обойдется гораздо дороже.
Еще одна вероятная причина – сложность возведения большой бани. Некоторые владельцы участка просто не видят необходимости в больших постройках, небольшие же гораздо удобнее. Что еще немаловажно, уход за ними проще, ведь конструкция весит меньше и меньше воздействует на фундамент.Как можно увидеть на фото проектов небольших бань, даже такие бани являются функциональными. Вместе с тем, они выглядят очень компактно и обладают некоторым изяществом. При правильной планировке, несмотря на свою компактность, баня будет иметь все основные помещения: парную, предбанник, мойку.
Чтобы подчеркнуть лишний раз красоту домика, можно расположить его ближе к берегу естественного или искусственного пруда на участке, если таковой имеется на участке.Составление проекта бани
Процесс проектирования по праву считается самым ответственным этапом строительства бани, ведь от того, насколько точно составлен проект небольшого дома бани, будет зависеть ее долговечность и прочность.В первую очередь, нужно определиться со своими финансовыми возможностями. Самый дешевый материал, пригодный для возведения бани, – брус прямоугольный формы.
superbany.ru
Небольшая баня: проект, планировка, виды, фото
В статье вы узнаете о том, как самостоятельно построить небольшую баню и что для этого необходимо. Почему баня должна быть маленькой? Дело в том, что большая часть дачных участков имеет малую площадь. Следовательно, расположить там полноразмерную баню проблематично. Впрочем, даже при наличии большого участка выделить землю под строительство бани оказывается сложно. Поэтому многие дачники задумываются о том, чтобы построить небольших размеров парную. И первое, что придется сделать – это составить план, а далее только следуйте инструкции по всем этапам строительства.
Выбор приемлемого варианта
Для определения размеров бани необходимо учитывать основные правила, по которым расстанавливается оборудование в ней. Если вы обратитесь к справочникам, то узнаете, что площади всех помещений бани должны соотноситься в пропорции 2:1 и 5:1. Минимальные размеры комнат можно посчитать, зная, в каком положении будет находиться человек в парной комнате (лежа или сидя).

Кроме того, размеры парной должны выбираться исходя из того, какое количество людей одновременно будет париться. Как правило, для варианта бани экономкласса хватит двух небольших комнат. В одной располагается предбанник. Его использовать также можно в качестве зоны отдыха и раздевалки. Вторая комната – это непосредственно моечная и парная.
Размеры помещений
Обратите внимание на то, что для комфортного пребывания одного человека нужно как минимум 1,2 кв. м. площади. Следовательно, для двух человек нужно помещение не менее 2,5 кв. м. А это парилка, размеры которой 1,5х1,4 м. При планировке строительства бани нужно предусмотреть, в каком месте будет установлена печь. Ее нужно ставить в таком месте, чтобы вокруг обязательно было свободное пространство. Так как температура печи высокая, возможно воспламенение.
Парилка: размеры и расчет
При проведении расчетов нужно брать во внимание площадь парилки и остальных комнат. Для парной комнаты, в которой будет одновременно находиться 4 человека, нужно выбрать такие параметры:
- Минимальная ширина помещения – 1,8 м.
- Полоки должны иметь длину не менее 1,8 м, ширину – около 0,6 м.
- Общее число полок в парной – 3 шт.
- Суммарное значение ширины полок – 1,8 м.
- Возле печи должно быть безопасное пространство около 0,7 м.
Площадь парной можно вычислить, умножив число человек на произведение 1,8х2,4. Это 17,28 кв. м.
Размеры моечной
В том случае, если нет в мойке душа, то размер помещения должен быть примерно 1,8х1,8 м. Можно увеличить размеры стен, но при этом площадь всего сооружения также станет больше. Если вы планируете душевую без бассейна, то учтите, что размер у нее должен быть больше, нежели у парной, как минимум в два раза. Для комфортного пребывания двух человек баня должна иметь площадь как минимум 9,6 кв. м.

С учетом всего оборудования, в небольшой бане на даче остается на каждого посетителя около 0,9 кв. м. На этом месте должна быть установлена душевая кабина или поддон. Кроме того, обязательно ставится одна или две лавки. Оборудование в моечной комнате должно занимать примерно 2,25 кв. м. от всей площади. Это при расчете на двух человек. Если планируете делать баню на четырех посетителей, то необходимо оставить примерно 4,25 кв. м. под установку оборудования.
Предбанник
Стоит отметить, что в бане небольших размеров допускается предбанник использовать в качестве зоны отдыха и раздевалки. В том случае, если вы размещаете раздевалку, рекомендуется придерживаться правила, чтобы на каждого человека приходилось около 1,2 кв. м. площади. Если есть возможность, то стоит увеличить площадь комнаты и в ней оборудовать зону отдыха.

Обратите внимание на то, что печка всегда располагается в предбаннике. По этой причине в нем необходимо оборудовать место для дров. Поэтому приходится увеличить площадь комнаты примерно на 30%. Минимальное значение площади – 3,44 кв. м. Но если печь будет работать на газу, то это окажется лишним.
Какой вариант бани выбрать?
Построить небольшую баню своими руками можно по любому плану, но все зависит от конкретных условий и ваших предпочтений. Первым делом следует определиться с тем, в каком месте будет располагаться баня:
- Отдельно от всех строений. В этом случае можно вообще приобрести готовую деревянную баню (например, бочку). Такие строения достаточно престижны, в продаже можно встретить как маленькие экземпляры для 1-2 человек, так и комплексы с бассейнами. Они могут устанавливаться и рядом с естественными водоемами.
- Пристройка к дому. Хороша такая баня тем, что есть шанс соединения двух частей строения – например, с террасой. Кроме того, снижаются затраты на отопление бани.
- Обустройство в доме. Это считается неплохим вариантом, так как не потребуется тратить средства для подведения коммуникаций и монтажа отопления.
Популярностью пользуются среди дачников небольшие бани (фото приведены в статье) неспроста. Но какой вид окажется самым подходящим для вас? На этот вопрос ответить достаточно сложно, так как во внимание нужно брать не только потребности, но и материальные возможности. Если у вас мало свободных средств – откажитесь от затеи строить баню отдельно, попробуйте оборудовать какое-нибудь свободное помещение.
Баня-бытовка
Если у вас необустроенный дачный участок, то приходится идти на хитрость. Вполне возможно, что на нем нет даже элементарных удобств – туалета и канализации. Главное, чтобы был водопровод и доступ к электроэнергии. Из бытовки можно сделать неплохую баню, которая будет содержать все, что необходимо для удобного пользования нею.

Можно привести несколько примеров:
- Сауна. Такая бытовка оборудуется обычной печью на дровах или электрической, лавками, столом, подходящей емкостью для воды. Рекомендуется подключать бытовку к центральной канализации (если таковая имеется) или к домовой. В строении имеется три отдела – парная, моечная и предбанник.
- Душевая должна соответствовать всем требованиям. Изготавливается только из материалов, стойких к воздействию влаги. Внутри устанавливается все нужное оборудование.
- Сборные бани – в них совмещается санузел, подключаемый к центральной канализации.
Возвести и оборудовать бани-бытовки можно довольно быстро, но обязательно учитывайте требования пожарной безопасности. Ведь внутри прокладывается электропроводка, которая может стать причиной возникновения пожара. Внутри бани размещается оборудование, сантехника, мебель, различные стеллажи, и проч.
Миниатюрные бани
Такого типа небольшие дома-бани очень удобны и неприхотливы. Возвести такое строение на своем дачном участке окажется очень просто, так как не нужно к ней подводить коммуникации. А самое главное – не потребуется наличие прочного и надежного фундамента. Суммарная масса всей постройки не более полутонны. Но в ней есть все, что нужно – душ, парная, предбанник, моечная. Другими словами, именно то, что необходимо для полноценного парения.

При желании можно установить ее на колеса и использовать в качестве прицепа к автомобилю. Для устойчивости потребуется наличие подставки, а для нагрева элекропечки – удлинитель. Преимущество такой конструкции очевидно – она дешевая и функциональная. А самое главное – мобильная, ее можно перевезти в любое место. Даже на берег какого-нибудь озера, чтобы попариться на лоне природы.
Летние бани
А теперь давайте поговорим о том, как построить небольшую баню на летнее время. В качестве основы можно взять мини-баню, рассмотренную выше. Монтаж можно выполнить каркасным способом, а зоны разделить перегородками. Невзирая на малую площадь строения, одновременно в парной может находиться два человека. Чтобы увеличить свободную площадь, используется небольшая по размерам печь.
Стены и потолок необходимо обшивать тепло- и гидроизоляционными материалами. При условии, если будет сделана правильно гидроизоляция, а также применена пароизоляционная мембрана, вы сможете максимально защитить все элементы конструкции от воздействия влаги и температуры. Разрешается использовать такую баню по прямому назначению круглый год. От качества материалов зависит то, как долго прослужит баня. Поэтому старайтесь все работы по изоляции выполнять не только качественно, но и из хороших материалов.
Бани-бочки
Большую популярность приобрели бани-бочки. Выполненные по грамотному проекту небольшие бани такого типа очень похожи на бочонок, но в ней есть один большой минус. В этой бочке располагается только парилка, канализации нет. Именно по этой причине не получится в ней помыться как следует. Но ничто не мешает самостоятельно установить небольшой поддон и сделать слив.

Парную комнату лучше всего устанавливать на возвышенности. В этом случае сливная система будет работать максимально эффективно. Неплохое размещение – возле пруда или реки. Контрастные процедуры пойдут на пользу организму. Но грязную воду не рекомендуется сливать в водоемы. Для этого лучше всего оборудовать канализацию.
Как правило, для строительства небольших бань (из бруса, кирпича, газоблока) не требуются больших вложений средств. Деревянные легкие конструкции возводятся буквально за несколько дней. Но если нужен фундамент, то лучше всего использовать плитный, ленточный или столбчатый. Впрочем, масса конструкций не очень большая, поэтому с нагрузками справится даже столбчатый. О нем и стоит поговорить.
Фундамент
Для установки стационарной небольшой бани потребуется наличие фундамента. Достаточно столбчатого, у которого 4-6 точек опоры. Также можно сделать углубление в грунте и уложить железобетонную плиту, на которой и установить конструкцию бани. Для возведения же столбчатого фундамента нужно сделать в четырех местах скважины диаметром 30 см и глубиной 50-70 см. На дно нужно засыпать щебень и песок, тщательно утрамбовать слой.

Затем производится монтаж опалубки из рубероида и армирования. Достаточно 5-7 прутьев арматуры диаметром 12 мм. Они устанавливаются в скважину и выравниваются. После этого скважины заполняются бетоном. После застывания бетона (а длиться это может до месяца) опоры готовы к эксплуатации, можно устанавливать конструкцию.
Вместо столбов или бетонной плиты можно использовать и более простую конструкцию – плитную. По сути, это железобетонная плита, но изготовленная самостоятельно. Для этого выкапываете площадку под баню – глубина 40-50 см. На дне укладываете слой песка и щебня, затем сверху оборудуете опалубку и монтируете арматуру. Сварку использовать нельзя, только вязальную проволоку. Вся площадка после заливается бетоном, по истечении 3-4 недель на нее устанавливается каркас бани и закрепляется при помощи анкеров.
fb.ru
Баня на даче своими руками
Сегодня баня все больше набирает популярности среди людей, мчащихся в круговороте современной жизни.
Полезные свойства банных процедур на организм человека, давно доказаны наукой, поэтому многие обладатели приусадебных участков стремятся возвести данное сооружение у себя во дворе.

В данной статье вашему вниманию предлагается материал, с помощью которого вы ознакомитесь с современными подходами, используемыми в строительстве для данных помещений.

Для наглядного убеждения, достаточно взглянуть на подборку фото, на которых представлены готовые решения, касающиеся строительства каркаса целиком, так и внутренней отделки.

Виды проектов бани
Любое строительство начинается с проекта, который позволит представить, какой конечный вид будет иметь данное сооружение, и какое количество необходимых материалов вам для этого понадобится.
Помимо этого, разработка проекта включает в себя и такие параметры, как выбор места под строительство, габариты, а также информацию об используемом декоре и оформлении.

Наиболее распространенными видами проектов бани является:
- Строительство сооружения 3*3 м, состоящей из стандартного набора помещений – предбанника и парной;
- Возведение сооружения 3*5 м, здесь к стандартному набору помещений добавляется комната отдыха с небольшой кухней;

- План с размерами 4*4 м, подразумевает наличие к вышеописанному виду пристройки терассы;
- Проект бани с размерами 5*4, включает весь комплекс помещений современной парной, где могут быть и отдельно туалет, игровая комната, а также соляная комната.

В основном выбор проекта зависит от имеющегося места на приусадебном участке и финансовых возможностей.

Выбор фундамента для бани
Зачастую при строительстве данного сооружения используют один из трех основных видов фундамента. Это может быть ленточный, столбчатый или свайный фундамент.

Ленточный. Является самым распространенным видом фундамента для возведения большинства сооружений включая баню.

Преимуществом данного фундамента заключается в том, что он способен выдержать большие нагрузки, следовательно, если ваше будущие строение будет иметь относительно внушительные размеры из кирпича, то данный вариант фундамента идеально подойдет для строительства.

Столбчатый. Имеет отличительные черты, связанные с простым устройством данного фундамента и небольшими финансовыми вложениями, в основном применяется для относительно легких сооружений из бруса.

Возводится исключительно в местах возникновения больших нагрузок, которые в основном возникают по углам здания и местах пересечения несущих конструкций.

Свайный. Данный вид фундамента необходим тем, кто вынужден строить свою баньку на «подвижном» грунте.

Это надежный вид с довольно трудоемким процессом возведения, и оправдывается именно в тех регионах, в которых доминирует данный вид грунта.

Ошибки, допускаемые при строительстве бани
Несмотря на наличие разработанного проекта и серьезности отношения к данному делу, все же случаются ошибки, которые свойственны человеку при строительстве собственными руками.

Необходимо обратить внимание на следующие моменты при строительстве.
Необходимо грамотное планирование размеров внутренних помещений. Баня, рассчитанная на 2-3 человека, не должна быть менее 10м2;

Приемлемой высотой потолков для такого сооружения считается высота 2-2,5 м. В случае отклонения от данной цифры в меньшую сторону, посетители будут ощущать дискомфорт, а если в большую сторону, то будет происходить перерасход теплоносителей;

С целью уменьшения теплопотерь, окна рекомендуется использовать небольшого размера, а двери подобрать в расчете на такие размеры 0,75*1,8 м;

Материалы, используемые для постройки бани на даче или приусадебном участке, рекомендуется выбирать из числа легких и энергосберегающих.

Особое внимание необходимо уделить основному банному оборудованию. Оно не только должно красиво смотреться, но и отвечать всем нормам безопасности для подобного рода сооружений.

Фото бани на дачном участке

inctanh.com
Проект маленькой бани из бруса
Вы давно мечтаете о бане, но не хотите тратить много ресурсов на возведение больших бань. Ведь если разобраться, баня нужна только для того, что бы попариться и помыться в свое удовольствие. И тут совсем не обязательно тратиться на на бани с кучей лишних помещений. Да и во всех деревнях с давних пор строились бани размером 3 на 4 метра. И не с проста, ведь этого пространства вполне достаточно для оборудования полноценной бани. Тем более в наши дни оборудование для бань стало гораздо компактнее.
Итак представляем вашему вниманию проект маленькой баньки, размером 3 на 4 метра. Под такую баньку всегда найдется уголок на вашем дачном участке. Прилегающую территорию можно оборудовать колодцем и дровником. Так же можно разместить летнюю мебель для отдыха после приема бани и мытья.

Брус можно окрасить в серо-голубой цвет — это сделает внешний вид бани завершенным и утонченным. С цветом можно смело экспериментировать, ориентируясь на цветовое решение прочих построек вашего участка. Для объективности и сравнения проект выполнен в двух вариантах цветового решения.









Планировка проста и логична. Предбанник, площадью 3,25 метра квадратных, позволяет разместить большую скамью и при желании его можно оборудовать откидным столиком.

Парилка, площадью 6,35 метров квадратных имеет стандартное расположение полков и печи. Места хватит чтоб помыться и попариться в свое удовольствие. Конечно при строительстве вы можете создать внутреннюю планировку бани именно под свои требования и необходимое оборудование.
Проекты домов на любой вкус
dom-brus-proekt.com
