Проекты бань каркасного типа – проекты бань размером 3х4 и пошаговая инструкция изготовления своими руками, отзывы владельцев
Проекты каркасных бань, варианты под ключ, фото и видео
Баня не относится к капитальным строениям, но её функциональные особенности не позволяют приступить к постройке без проекта. Каркасная технология идеально подходит для этого вида строения: быстро возводится, применяются экологически чистые материалы, не требует больших материальных и людских ресурсов, легко проектируется.
Проектируем самостоятельно: современные типы бань
Готовую проектную документацию бани из бруса с мансардой или любой другой можно приобрести в специальных бюро или выполнить самостоятельно. Во втором случае в помощь придет любой типовой проект для выбранного размера строения.
Перед началом проектирования бани на основе каркаса решаются ключевые вопросы:
- найти самое рациональное месторасположение здания, с учетом удобства и простоты для подведения водо-канализационных, осветительных коммуникаций;
- спланировать размеры будущего здания;
- на выбранном месте, изучить состав почвы и перепады поверхности грунта. Эти факторы станут решающими в выборе типа фундамента;
- решить необходимость возведения 2-х этажей, мансарды и постройку внешних элементов, таких как веранда, терраса;
- определить тип крыши. Рассматриваются варианты односкатной, двускатной, многоскатной конструкции.

При выборе количества скатов крыши, учитывается размеры бани, климатические особенности местности, расстояние до других построек, тип покрытия.
Готовый проект станет помощником в рациональном распределении пространств, выборе строительных материалов. Определиться с предпочтениями помогут и фото бань.
Предварительно продумать внутреннюю планировку бани с точки зрения функциональности. Определить место установки печки. От него зависит, как будут располагаться дымоходы и вентиляция.

На этапе проектирования решается вопрос выбора материалов, из которых будет возводиться строение и обсчитывается примерная стоимость строительства. Ч ем более подробно разработан проект каркасной бани своими руками, тем легче вносить в него коррективы при возникновении непредвиденных обстоятельств.
Вариант 4*5 м
Строение размером в 20 м2 компактно, подходит для бани состоящей из трех помещений:
При определении размеров внутренних помещений расчет делается не для «чистого» размера, а с учетом толщины перегородок и стен.

Наиболее подходящая площадь для комнаты отдыха 7-8,5 м2, для парной – до 5 м2, для санузла – не менее 2,2 м2. Небольшие размеры строения не предполагают предбанника. В парной располагается каменка и вся основная поверхность печи. В комнату отдыха выносится топка, играющая роль еще и отопительного прибора. Чтобы в баню с улицы не попадал холодный воздух, необходимо предусмотреть наличие закрытого крыльца.
Расходные материалы и элементы бани 4*5 м:
- Фундамент ленточный заглубленный на 70 см и высотой цоколя 40 см. Для его обустройства требуется подушка из гравия толщиной до 20 см.
- Каркас состоит из стоек и обвязки по верхнему и нижнему краю строения. Оптимально использовать доски 100*50 мм.
- Крыша двускатная со стропильной системой из доски 150*50 мм. Шаг укладки 580 мм.

Обшивка выбирается в зависимости от требуемого уровня теплоизоляции.
Вариант 6*6 м с верандой, балконом
Размер 6*6 м дает пространство для фантазии. В проект такой бани можно включить такие помещения:
- террасу или тамбур;
- комнату отдыха и спальную;
- парилку;
- полноценный санузел;
- моечную.
Линейные размеры предполагают использование пиломатериалов стандартной длины, что удешевляет строительство из-за малого количества отходов.
Моечную комнату можно сделать предельно большой с прямым выходом из парилки и в ней разместить лежаки для отдыха. В другом варианте проекта предполагается разделить моечную и парную небольшим коридором соединенным с комнатой отдыха. В этом случае в комната для мытья будет несколько меньше.
Вариант 6*3 м: дизайн с террасой
Проект бани 6*3 м с террасой встречается в двух вариантах:
- Терраса не входит в площадь строения и ей размер планируется отдельно. В этом случае общий размер здания увеличится на площадь веранды.
- Терраса является частью общего здания. Тогда все внутренние помещения будут иметь меньший размер.

Небольшие размеры бани не позволят обустроить полноценный санузел. Печь будет топиться из комнаты для отдыха.
Выбрать печь компактную, возможно модель будет узкая и вытянутая вверх.
Вынос террасы за фундамент основного строения позволит выделить небольшое пространство от комнаты отдыха для тамбура. Тогда возможно попариться и в зимнее время. Примерные размеры внутренних помещений:
- комната-парилка – 3,5 м2;
- душевая/моечная – 1,8 м2;
- комната релакса – 8,5 м2;
- тамбур – 2,6 м2;
- выносная терраса – 11 м2.

Для формирования каркаса понадобится брус 100*150 мм. Их него делается обвязка и устанавливаются лаги пола. Для крыши используют брус 150*40 мм для потолочного перекрытия. Стропильная система укладывается из обрезной доски. Для этого подходит доска с размером 100*50 мм. Материал для обшивки и кровли выбирается в зависимости от личных предпочтений и климатических условий.
Вариант 4*4 м с террасой
Такой размер строения предполагает только выносную, пристроенную террасу, но под общей крышей и на общем фундаменте.Площадь 4*4 м подход больше для сухих саун. Для русских бань не самый комфортный вариант.

Проект предполагает разделение общего пространства на две части по 8 м2 и добавление террасы размером до 6 м2:
- Релаксационное помещение после парной, оно же предбанник.
- Парилка и мойка.
Комнату-парную стоит сделать больше моечной. Тогда в ней возможно будет разместить два человека.
Вариант 5,4*6,3 м
Баня с общей площадью 34 м2 может иметь встроенную террасу. В этом случае на внутренние помещения отводится до 2/3 всей площади. Типовой проект предлагает размер помещений:
- для отдыха в 11-12 м2;
- для парилки – 5 м2;
- для санитарных нужд – до 6 м2.

Все остальное пространство будет занимать терраса. Удобно часть террасы сделать закрытой, что бы теплый воздух сразу не выходил на улицу.
Если веранда не предполагается, тогда делается предбанник площадью 5,4 м2 и можно спланировать наличие санузла.
Основные плюсы каркасной технологии
Преимущества каркасных строений:
- конструкция простая и возможно проектирование, строительство своими руками;
- здание не дает усадки и к отделочным работам, установке оборудования приступают сразу после основного строительства;
- стройка проходит быстро, без ограничений по времени года;
- легкость конструкции дает возможность устанавливать любой тип фундамента;
- материалы для обшивки подходят любые. Все зависит от материальных возможностей;
- экологичность постройки;
- экономическая выгода в сравнении с каменными, кирпичными зданиями.

Для выполнения работ не требуется привлечения тяжелой техники и целой бригады работников. Подойдут простые строительные инструменты и максимум один помощник.
Какие минусы учитываем при строительстве
Как у всех зданий из дерева, у каркасной бани будет повышенная пожароопасность. В проекте следует учесть дополнительную обработку специальными составами, которые позволят снизить горючесть. С точки зрения устойчивости к горению подбираются материалы для утепления.
При строительстве каркасных бань нельзя экономить на качестве электромонтажных работ. Электропроводка укладывается в негорючие кожухи. При установке любых электрических приборов, требуется заземление.
Повышенная влажность в бане может привести к разрушению минеральных утеплителей, если их не закрыть пароизоляцией. Поэтому, в качестве утеплителя рекомендуется использовать более функциональные материалы.
Все перечисленные недостатки ведут к удорожанию строительства.
Необходимые материалы.
Здание, построенное на основе каркаса, состоит из таких элементов:
- каркас из бруса;
- обшивка из отделочных материалов с внутренней и внешней стороны;
- прокладки утеплителя, пароизоляции между частями обшивки;
- фундамент любого типа. Наиболее часто используют мелкозаглубленный ленточный или свайный. В зависимости от проекта можно использовать другие типы.
Каждый элемент может удешевить или наоборот сделать более дорогим конечный продукт, за счет выбранных материалов.
Для сборки каркаса, стропильной системы лаг пола используют брус из высококачественных пород деревьев параметрами 100*150 мм. Повысить устойчивость конструкции можно применением брусков 150*150 мм. Современные технологии предлагают клееный брус. Для остальных элементов выбираются брусья меньшего размера. Для обрешетки подойдет любой пиломатериал или фанера.
В качестве кровельного материала можно использовать:
- рубероид;
- профнастил;
- фальцевое покрытие;
- металлочерепица;
- еврошифер.
Керамическая черепица сильно тяжелая и создаст дополнительное усилие на фундамент.
Пол кроме лаг имеет черновое покрытие. Это может быть фанера, любой вид доски, специальные плиты. В качестве внешней обшивки хорошо себя зарекомендовали материалы, имитирующие натуральное бревно. Внутри можно использовать различные типы вагонки.
Все деревянные элементы обязательно обрабатываются антипиренами и антибактериальными смесями.
Утеплители выбираются устойчивые к гниению и горению. В основном это минеральные ваты. Слой утеплителя определяется климатом региона, где ведется строительство. Если выбираются другие виды, необходимо ознакомиться с инструкцией, чтобы они были устойчивы к действию высокой температуры, не поддерживали горение.
Дополнительно приобретаются крепежные материалы и внутренняя отделка. Принцип выбора: легкие, устойчивые к действию влаги, пожаробезопасные.
Каркасная баня своими руками, видео
Построить каркасную баню не сложно. Если ответственно подойти к этапу планирования, стройка пройдет быстро и с минимальными затратами. И уже через несколько недель, можно заходить и получать удовольствие.
landsdecor.com
Проекты каркасных бань
Каркасные технологии на сегодняшний день бьют рекорды по популярности. По этой методике теперь строят не только дома, но и хозяйственные помещения, производственные объекты и многое другое. Большим спросом пользуются проекты каркасных бань разного размера и планировки, которые можно изготовить своими руками на территории загородного участка.

С чего начать
Прежде чем приступить к строительству каркасной бани своими руками, необходимо тщательно спланировать расположение и тип будущей постройки. На что следует обратить внимание:
- важно решить, будет ли каркасная баня пристройкой к дому или хозпостройке или станет отдельным объектом;
- подобрать место для строительства с учётом пролегания инженерных сетей и наметить пути прохождения коммуникаций;
- разобраться с особенностями грунта для определения типа фундамента бани;
- разработать или купить готовый проект с учётом индивидуальных требований (наличия мансарды, крыльца, чердака).
Совет! Чем подробнее разработан проект, тем легче будет его реализовать своими руками.
Готовый проект каркасной бани можно купить во многих строительных организациях, в них же можно заказать индивидуальную разработку. Минимальный размер площади бани – 3х4 метра. Оптимальной считается площадь 5х5 метров.

Проект своими руками
Чтобы напрасно не ломать голову над созданием чертежей с нуля, можно взять за основу любой готовый проект, с планировкой, соответствующей необходимой площадки застройки и просто внести в неё коррективы. К примеру, планировка каркасной бани размером 5 на 5 метров, как на фото:

Что будет важно для будущего индивидуального проекта:
- разумная внутренняя планировка бани;
- снижение расходов на строительство и содержание объекта;
- небольшие сроки работ;
- максимально облегчённый, но надёжный фундамент.
Внутренние помещения каркасной бани должны быть спроектированы так, чтобы вмещать необходимые предметы мебели. К примеру, планируя парную в бане важно заранее определиться с размерами печи и лавочек. В комнате отдыха нужно предусмотреть пространство, достаточное для установки стола и кресел или диванов. Необходимо продумать наличие предбанника, который предотвратит попадание холодного воздуха в зимнее время. В помывочной важно заранее определиться с габаритами душа и наличием бассейна или бочки.
Для каркасной бани на даче идеальным было бы наличие веранды или террасы размером 3х4 метра, на которой летом можно отдыхать после парной. Для некоторых важно наличие тёплого чердака, на котором удобно хранить и сушить веники.
Так и рождаются самые разные чертежи для бани каркасного типа с одинаковой площадью. Примеры чертежей на следующих фото:



Немного о преимуществах каркасных конструкций
Строение бани каркасного типа состоит из несущей конструкции из бруса или металла, обшитой листами ОСБ. Между внутренним и наружным слоем обшивки укладывается утеплитель и пароизоляционные материалы.
Совет! При желании, можно максимально удешевить строительство, используя в качестве утеплителя опилки, солому и другие доступные материалы.
Каркасная баня из таких строительных материалов весит совсем немного, а потому не требует основательного фундамента. Его легко изготовить своими руками, используя свайную или ростверковую технологию.
Таким образом, очевидны плюсы каркасного строительства:
- минимальные затраты на обустройство фундамента;
- все работы могут быть выполнены своими руками, без использования тяжёлой специальной техники;
- короткие сроки строительства.

Есть у этой технологии и свои минусы, о которых нельзя не упомянуть. Главный недостаток – повышенная пожароопасность конструкций. Именно поэтому специалисты настоятельно рекомендуют тщательно обрабатывать все детали огнеупорными составами и использовать для электропроводки специальные негорючие кожухи.
Важно! В каркасной бане нужно особое внимание уделить влагоизоляции стен, потому что минераловатные утеплители очень чувствительны к пару и теряют свои свойства при малейшем проникновении воды.
Пароизоляцию нужно делать очень тщательно, не экономя на материалах.
Бани, изготовленные в заводских условиях
Взяться за строительство каркасной конструкции своими руками решится не каждый. Можно выйти из положения, сделав выбор в пользу готового комплекта. В состав готовой бани входят:
- монтажный брус;
- комплект крепежей;
- материал для пола;
- внешние и внутренние стеновые панели;
- кровля;
- комплект технических документов.
В пакете документов должны быть чертежи проекта и подробная инструкция по сборке.
Чертёж бани размером 3х4 метра с верандой:

Комплект готовой бани производится на заводе в соответствии со строительными нормами и правилами. В документации должно быть указано, что панели и каркас прошли специальную обработку антипиренами.
Материалы для бани
Если планируется построить каркасную баню своими руками, понадобятся следующие материалы:
- Материалы для каркаса бани: брус с сечением 10 на 15 сантиметров или 15 на 15. Для поперечных опор и укосов понадобится брус 8 на 8.
- Для кровли: брус 15 на 15, кровельный материал (ондулин, мягкая кровля, металлопрофиль). Не рекомендуется использовать керамическую черепицу, она слишком тяжёлая для каркасных стен.
- Материалы для обрешётки стен и крыши бани: рейки или доска толщиной 2 сантиметра.
- Для стен каркасной конструкции: ОСБ панели. Они же понадобятся для покрытия крыши мягкой черепицей.
- Материалы для пола бани– обрезная доска с обработкой антипиреном и противогрибковыми средствами.
- Материалы для внутренней и наружной обшивки: вагонка (обычно используется для обшивки внутри помещений), и имитация бруса для наружного оформления строения.
- Для утепления конструкции бани: негорючая минеральная вата. Толщина слоя зависит от климата региона. Оптимальным считается применение базальтовой ваты толщиной слоя от пятнадцати до двадцати пяти сантиметров.

Кроме перечисленного, потребуются саморезы и гвозди разных размеров. Учитывая повышенную влажность помещений бани, лучше использовать оцинкованные крепежи.
Алгоритм строительства
Для каркасной бани легче всего установить своими руками столбчатый фундамент. Для него потребуются трубы из асбестоцемента диаметром 20 сантиметров и длиной два метра. Их заглубляют в полутораметровые скважины и заливают бетонно-щебеночной смесью. Количество столбов зависит от размеров бани, для маленького помещения 3х4 достаточно 12 штук, для бани 5х5 – около 18.
После установки опорных столбов, на них закрепляется обвязка из бруса. Детали скрепляются между собой гвоздями. Под обвязку обязательно монтируется гидроизоляция из рубероида. Как на фото:

Важно! Чтобы материал обвязки прочно «сидел» на фундаменте, его крепят к столбам при помощи металлических уголков и пластин.
На обвязку крепятся доски — лаги для будущего пола бани.
Каркас основания нужно тщательно обработать средствами от гнили и насекомых, противопожарной пропиткой.
Монтаж стен бани выполняется в следующей последовательности:
- на углах закрепляются угловые стойки и между ними – промежуточные;
- к стойкам крепятся при помощи саморезов листы обшивки, начиная с угла;
- в процессе монтажа оформляются оконные и дверные проёмы

Важно! Правильное положение каждого листа нужно проверять при помощи строительного уровня.
Стропильная конструкция крыши каркасной бани собирается на земле и затем поднимается наверх. Затем производится крепление обрешётки и укладка кровельного материала.
После того, как основной каркас установлен, осуществляется монтаж окон и дверей.
Таким образом, на строительство каркасной бани своими руками в среднем потребуется:
- 3 дня на установку фундамента;
- 3 дня на установку обвязки и стен;
- 2 дня на стропильную конструкцию;
- 2 дня на монтаж кровли, дверных и оконных конструкций, отделку.

Внутренняя отделка каркасной бани
Для наружной отделки каркасной бани используется имитация брёвен или обычный сайдинг.
Внутренняя отделка требует особого подхода. Прежде всего – нужно правильно выбрать вагонку. Для комнаты отдыха и предбанника подойдёт сосновая вагонка. Она не требовательна к уходу и выглядит довольно привлекательно, как на этом фото:

Помещение в парной и душевой лучше отделать липой или лиственницей. Эти породы выдерживают высокие температуры и сохраняют при этом цвет и форму. Кроме этих пород, для бани можно использовать:
- кедр – выделяет при нагревании эфирные вещества, благотворно влияющие на организм;
- абаши – тропическое дерево, отличается минимальной теплопроводностью;
- осина – устойчива к гниению и образованию плесневого налёта, выделяет при нагревании вещества, полезные для здоровья.
Важно! Вагонка монтируется на пароизолирующий слой так, чтобы оставалось небольшое пространство между деревом и фольгой.

Советы мастера
- Важно особенно тщательно выполнить пароизоляцию на стыках стен и пола каркасной бани – от этого зависит долговечность всей конструкции.
- Для дополнительного утепления бани снаружи под обшивку закрепляется дополнительный гидроизоляционный и теплоизоляционный материал.
- Внутренняя обшивка бани не покрывается лаком или краской, они будут выделять токсины при нагревании.
Потолки и полы бани нужно утеплить на совесть теми же материалами, что применялись на стенах.

Баня каркасного типа – доступное и практичное решение для загородного участка. Ее не сложно построить самостоятельно или купить в готовом варианте. Если подойти к разработке проекта и строительству с душой и фантазией, этот объект станет предметом зависти соседей и любимым местом отдыха для домочадцев.
bouw.ru
Проекты каркасной бани с мансардой размерами 6х6, 6х5, 6х8
Выбор в пользу проектов каркасных бань с мансардами является отличным решением при желании поставить у себя баню на загородном участке. В обычной русской бане по традиции находятся лишь парное отделение и предбанник. В наше время благодаря новым технологиям в строительстве все большую популярность завоевывают бани с мансардой, в том числе и построенные каркасным способом.
Процесс сборки каркасной бани с мансардой

Внешняя отделка каркаса здания доскойГлавное место в таких постройках занимает именно мансарда. Она выполняет не только функции дополнительной комнаты для отдыха, но и впечатляет своим внешним видом, придает бане еще более значимый вид. К тому же на возведение мансарды не требуется такого большого количества денежных средств по сравнению с постройкой над баней второго этажа.
В наше время есть множество проектов бань с мансардой. Размеры этих построек отличаются друг от друга. Благодаря этому баню можно построить абсолютно на любых участках независимо от их площади.
Проект и схема в разрезе каркасной бани с мансардой
Вернуться к оглавлениюСодержание материала
Причины выбора в пользу этих видов проектов
Существует целый ряд причин, по которым человек отдает предпочтение именно таким проектам строений с мансардным этажом. К ним можно отнести:
- Удобство строения. Бани с мансардами идеально подходят тем, кто начинает строительство дома на участке самостоятельно или наняв для этого специальную бригаду строителей. В этом случае баня выполняет две функции. Это место для принятия водных процедур и место для постоянного проживания.

- Такое строение с мансардой можно порекомендовать тем, кто любит принимать у себя много гостей. В этом случае мансарду можно будет превратить в комнату для гостей.
- Баня с мансардой идеально подходит для любителей посещать парную целыми компаниями. Здесь мансарда служит еще одной комнатой для проведения досуга.
Достоинства каркасных бань
Каркасные бани с мансардами имеют и целый ряд своих преимуществ. Из-за них и стоит сделать выбор в пользу именно этих проектов.

К таким достоинствам относятся такие плюсы, как:
- Относительно быстрое возведение бани;
- Каркасная баня не подвержена усадке;
- Для отделки бани подойдут любые материалы;
- Простота и легкость конструкции;
- Экономичность строения;
- Строительство бани не зависит от времени года.
Виды проектов каркасных бань
Все проекты каркасных бань с мансардами похожи друг на друга и отличаются они в основном только своими размерами.
Проект деревянной бани с навесом
К основным и самым популярным видам проектов можно отнести:
Проект каркасной бани с мансардой размером 6*4
Этот вид проекта относится к категории компактных строений. Баня занимает относительно немного места. Но в то же время в ней все есть: моечная, парилка, отделанный предбанник, комната для отдыха, просторная мансарда, то есть все то что и должно быть в этом проекте бани.
Крышу здесь предпочтительней делать двускатной. Это делает мансардное помещение еще более просторным.
Вариант планировки бани размером 6 на 4
Все без исключения внутренние перегородки делают каркасными. Для обшивки перегородок и стен внутри помещения используют вагонку. Для стен в парном отделении — вагонку из осины.
Такая баня при желании может стать небольшим, но уютным дачным домиком.

Проект каркасной бани с мансардой размером 6*6
Этот вид проекта среди множества других, завоевал наибольшую популярность, так как обладает своими неоспоримыми преимуществами:
- Невысокая стоимость. Это возможно благодаря отсутствию переплаты за лишние кубометры древесины.
- Для строительства используется только профилированный брус.
- Разнообразие конфигураций постройки. Брус относительно легко можно обработать. Из него вырезаются любые по форме и размеру фигуры. Несущая способность строения при этом совсем не страдает.
Планировка всех этажей каркасной бани с мансардой 6 на 6 метров
Такая баня не нуждается в дополнительных работах, связанных с внешней отделкой стен здания. Это позволяет существенно сэкономить деньги и не тратить лишнее время.
Проект каркасных бань 6*8 с мансардой
Этот вид проекта отлично подойдет тем, у кого на участке в наличии есть довольно много свободного места. Такая баня хоть и не занимает много места, но является довольно просторной постройкой.
Стены в этом проекте делают, как правило, из профилированного или модульного бруса. Помещение мансарды позволяет размещать там не одну комнату для отдыха. Их можно обставить мягкой мебелью, разместить там телевизор и даже бильярдный стол для игры.
Планировка и проект бани 6х8 с террасой
Мансарду можно использовать и в виде кладовки, убрать туда вещи для хранения. В такой бане можно временно проживать, в теплое время или использовать в качестве дачи для летнего отдыха.


Проект каркасной бани 3*4
Это самая компактная каркасная баня из всех существующих проектов на сегодня. Составить самостоятельно проект этой постройки совсем нетрудно. Просто очень важно с точностью подходить к самому процессу разработки проекта.
В этом проекте бани предусмотрены следующие виды помещений: предбанник (его при необходимости можно совсем не делать), моечная, парилка, мансарда. Все эти помещения необходимы в первую очередь.
Затем следует все как следует проанализировать и решить вопрос об улучшении проекта.
Вариант планировки и проекта каркасной бани 3*4 метраСтандартные проекты таких бань не предусматривают наличия внутри печки-каменки для отопления. Вопрос о способе обогрева придется решать самостоятельно.
Можно обратиться в компанию, где был сделан заказ проекта. В этом случае фирма может предложить свой вариант или претворить в жизнь пожелания заказчика. Рекомендуется проект бани таких размеров составлять самостоятельно. Предварительно можно изучить уже готовые типовые проекты. В интернете их можно найти огромное количество.
Вариант проекта каркасной бани с двускатной кровлей
Кроме этих перечисленных проектов существуют бани размерами 5*5, 4*4. Их проекты аналогичны проектам бань размером 6*6.
Какой именно проект выберет хозяин участка, зависит только от его предпочтений, размера этого самого участка и его финансовых возможностей.
Сходства и различия проектов
Все проекты по внешнему виду мало чем отличаются друг от друга. Единственное различие — это то, что встречаются бани с террасой и верандой. Эти пристройки можно сделать и самостоятельно через некоторое время после возведения самой бани.
Планировка всех этажей каркасной бани
Все сходства проектов можно объединить и описать следующим образом:
- Во всех проектах мансарды находятся под крышами ломанного типа в некоторых случаях под двускатными кровлями. Кровельные материалы используются только современные, отвечающие всем стандартам качества.
- При строительстве бань используется только древесина хвойных и лиственных пород, предварительно обработанная. Стены бани делают из бруса, стропила, пол и потолок выполнены из досок разных размеров и толщины. Для внутренней обшивки бани применяется вагонка из осины или хвойных пород древесины.
Готовый проект каркасной бани с мансардой - Утепление каркаса бани делают минеральной ватой или пенополистеролом. Стены парилки дополнительно обивают фольгой.
- Фундамент бань разных проектов делают из бетонных блоков, вне зависимости от того какой его тип был выбран.
- Высота потолков как на первом этаже, так и на мансарде выдержана в одинаковом диапазоне.
- Лестница с первого этажа на второй находится внутри здания. Она расположена или в предбаннике или в комнате для отдыха.
Вариант устройства деревянной лестницы в каркасной бане

Цена всех проектов довольно приемлема. Возведение каркасных бань с мансардой обходится всегда намного дешевле, чем построек того же типа рубленных из бревен. Поэтому они все больше пользуются спросом, особенно среди дачников.
Технология строительства каркасных бань
Технология строительства каркасных бань с мансардой в разных проектах одинаковая. Ее можно разделить на следующие этапы:
- Закладка фундамента.
- Сбор каркаса.
- Обшивка стен каркаса досками и плитами ОСП.
- Утепление стен.
- Отделочные работы внутри бани.
- Отделка стен снаружи.
Несмотря на кажущуюся простоту возведения бани, ее легко можно сделать и своими руками, все равно перед началом строительства необходимо разработать подробный проект.
Процесс обшивки каркасной бани с мансардой
И неважно, какого размера будет будущая баня (6*6, 6*8, 6*4, 5*4 или 3*4). Если есть цель построить у себя на участке каркасную баню с мансардой прочную, надежную и долговечную, то без проекта строительство лучше и не начинать.
Готовые типовые проекты бань, где заказать
Самым простым правильным решением будет заказ готового проекта в компании, специализирующейся именно в этом направлении. Разработка проектных документов требует профессионального, квалифицированного подхода.
Проект каркасной бани с террасой
Проект, разработанный профессионалами фирмы, в которую человек обратился за помощью, несет в себе ряд неоспоримых преимуществ. Среди них можно отметить такие плюсы, как:
- Длительный срок эксплуатации будущего объекта. Это возможно за счет того, что при разработке проекта будут рассчитаны все нагрузки, оказываемые на каркас строения в процессе его эксплуатации.
- Подбор правильного строительного материала исходя из тех же расчетов нагрузок на каркас бани.
Схема устройства каркасной бани с названиями элементов - Составление сметы. Грамотное ее составление помогает существенно сэкономить финансы и одновременно предотвратить ненужный перерасход материалов для строительства.
- Регистрация готового строения в кадастровой организации. При ее осуществлении не возникает никаких сложностей.
- Профессионально разработанный проект увеличивает стоимость готовой бани в случае ее продажи вместе с домом на вторичном рынке недвижимости.

Второй способ покупки готового проекта – это получение его вместе с собранным комплектом бани каркасного типа.
В его состав входят стеновые теплокаркасы (иногда сип-панели), кровельные материалы, половые доски, брус для монтажа каркаса, составные части крепежных элементов, сопроводительные документы.
Вариант проекта бани покрытой металлической черепицей

В перечень документов должны входить сам проект бани и подробная инструкция по сборке строения. Все документы обязаны отвечать правилам по безопасности при строительстве каркасных сооружений. В этом случае в процессе сборки бани остается лишь следовать приложенной инструкции и соблюдать все правила безопасности. Смотрите в видео: обзор проекта и строительства каркасной бани 4х5 с мансардой.
Самостоятельная работа над проектом
Если начать работу над созданием проекта бани самостоятельно, то можно столкнуться с целым рядом непредвиденных трудностей. И в первую очередь – это, конечно же, нехватка знаний в области проектирования. При разработке проекта своими силами необходимо хорошо продумать и просчитать следующие моменты.
Чертеж с размерами каркасной бани и мансарды
Вариант планировки бани с мансардой 6 на 4 метра
К ним относятся:
- Анализ состава грунта на месте предполагаемого строительства. Определение глубины прохождения грунтовых вод. Этот этап довольно сложно выполнить самому. Лучшее решение – это вызов квалифицированного специалиста на место.
- Выбор в пользу того или иного вида фундамента и способа его установки. После получения всех результатов по грунту будет понятно, какой именно вид фундамента стоит выбрать, а также определиться со способом его монтажа и глубиной его залегания.
Схема и варианты устройства фундамента под каркасной баней

- Каркас бани. В этом разделе следует указать, как будет возводиться каркас, какой толщины должен быть брус, из какой древесины (хвойные или лиственные породы деревьев).
- Обшивка готового каркаса. Указание на те виды материала, которыми планируется обшить каркас. Это может быть доска или плиты OSB. Также здесь делается расчет количества необходимого материала для обшивки.
- Утеплитель. В этом пункте необходимо сделать выбор в пользу определенного вида утеплителя. Рассчитать его стоимость.
Процесс сборки стен бани

- Материалы для внутренней отделки стен, пола и потолка бани. Здесь также делается выбор в пользу тех или иных материалов для отделочных работ исходя из потребностей и возможностей владельца бани.
- Материалы для внешней отделки бани.
В проекте обязательно должны быть планы первого этажа, а также мансарды, выполненные на бумаге. Обязательно должен быть указан масштаб плана, размеры всех отделений внутри помещения, указан вход, месторасположение лестницы на второй этаж.

Вариант проекта и планировки бани с мансардой
Бани каркасного типа с мансардами, их проекты доступны почти всем категориям граждан. Выбор в пользу таких построек у себя на участке является правильным и вполне оправданным решением, как для себя, так и для своих домочадцев.
Обшивка доской каркасного строения
Такие бани совсем не трудно построить самому. Можно также купить баню и в готовом виде. Но если разработать проект бани самостоятельно, вложив туда свою душу, использовав всю свою фантазию, то можно воплотить в жизнь все свои задумки. И тогда баня станет просто любимым местом для отдыха всех членов семьи.
proekt-sam.ru
Бесплатные проекты для строительства каркасной бани
Сегодня многие владельцы частного жилья отдают предпочтение в пользу строительства каркасной бани. Это и неудивительно, ведь это очень надёжное, долговечное и комфортное строение, при строительстве которого можно существенно сэкономить стройматериалы не в ущерб надёжности. К тому же каркасная баня своими руками, проекты которых можно видеть на фото позволяет сэкономить не только деньги, но и время, возвести её можно всего за месяц.
Идеи и варианты проектов каркасной бани
Технология каркасного строительства даёт возможность сделать строение экономным. Временные затраты на строительство такой бани небольшие, при этом строение получается красивым, прочным и долговечным. Ниже мы рассмотрим несколько проектов каркасных бань, каждый из которых отличается своими преимуществами. Их строительство позволит не только облагородить территорию, но и обеспечит комфортный отдых вам, вашей семье и друзьям.
Проект бани с прилегающей террасой открытого типа
Данный проект каркасной бани отлично подойдёт для строительства строения на небольшом участке. Здесь мы предусмотрим всё необходимое для проведения полноценного отдыха. Итак, размеры строения будут такими: по короткой стороне бани они составляют 6.55 метров, а по длине – 6.68 метров.
По длинной стороне будет расположена терраса открытого типа, её площадь составляет 9.68 квадратных метров, с неё предусмотрен вход, который будет вести в комнату отдыха, где есть раздевалка и окно. С комнаты отдыха вход ведёт в душевую и в парную (4.37 квадратных метров). Каркасная баня, проект которой здесь предложен имеет небольшие размеры, но при этом она очень удобная и уютная, в ней может комфортно отдохнуть сразу три-четыре человека.
Чтобы построит баню такого типа нам потребуются следующие стройматериалы:
- Брус деревянный. Его мы будем использовать для создания каркаса бани.
- Утеплитель. Можно взять минеральную вату.
- Цементно — стружечные плиты (ЦСП) или ориентированно-стружечные плиты (ОСП). Они нам потребуются для наружной обшивки стен.
- Евро – шифер. Его мы будем использовать для внешней отделки фасада.
- Битумная черепица. Она нам необходима для устройства кровли. Данный материал имеет привлекательный внешний вид и невысокую цену.
- Пароизоляционные мембраны и балки. Эти материалы необходимы для создания конструкции крыши.
Готовая конструкция будет компактной и очень красивой. Такой проект бани отлично впишется в любой ландшафтный дизайн. Строительство такой бани своими руками будет быстрым и недорогим.
Проект каркасной бани с душевой, террасой и дровяником
Этот проект позволит нам построить баню с удобной планировкой и большой террасой, где можно будет комфортно отдохнуть. Размеры такого строения по короткой стороне составляют 8.24 метра, а по длинной- 9.47 метра. По проекту баня будет иметь террасу, её площадь составляет 15.44 квадратных метров. Дровник площадью на 4.6 квадратных метров располагается у входа в строение. От входа мы попадаем в уютную прихожую, а уже оттуда в небольшой предбанник.
В проекте предусмотрена комната отдыха, её площадь составляет 18.05 квадратных метров, душевая и парная на 3 квадратных метров. Представленная здесь планировка является наиболее оптимальной, тут имеется всё необходимое для полноценного отдыха в комфортных условиях. В такой бане может отдыхать небольшая компания.
Возведение такой бани может быть выполнено по каркасно-панельной или же по каркасно-щитовой технологии. Строительство этого типа бани своими руками не займёт много времени, однако для этого нам потребуется наличие следующих комплектующих:
- Лёгкий железобетонный столбчатый фундамент.
- Металлочерепица. Она нужна для создания кровли.
- Каркасные стены.
- Утеплитель. Подойдёт минеральная вата.
- Окна металлопластиковые.
- Внешняя дверь. Можно приобрести металлическую.
- Внутренние двери должны быть изготовлены строго из дерева.
- Лестница из дерева.
- Для фасадной облицовки строения можно использовать облицовочный кирпич или вагонку виниловую.
- Для внутренней отделки помещений можно применить вагонку. А вот облицовку санузла лучше всего делать с использование плитки керамической.
- Для отделки террасы подойдёт натуральная доска, предварительно обработанная.
Этот проект отличается максимальным удобством для отдыха. В такой бане может комфортно отдохнуть вся семья или небольшая компания.
Проект бюджетной каркасной бани своими руками
Такой проект бани является самым простым и недорогим. Здесь предусмотрена комната отдыха, парная и душевая. Данный проект представляет классическую планировку без прилегающей террасы, но зато есть небольшое крыльцо. Длинная сторона составляет пять метров, короткая – четыре метра. Общая площадь строения составляет всего двадцать квадратных метров. По короткой стороне расположен вход, вдоль неё располагается комната отдыха. С главного входа мы сразу оказываемся в комнате отдыха, отсюда попадаем в душевое помещение, а с него уже в парную.
Так как в данном проекте не предусмотрена прихожая, но она необходима, в этом случае можно визуально разделить комнату на две части с помощью вешалки для одежды. В каждом помещении располагаются окна, в душевой – небольшое окошко, которое располагается под потолком, в парной – окошко имеет чуть большие размеры. Этот проект предусматривает обычную двускатную крышу, которая сверху покрыта металлочерепицей. Стены снаружи можно отделать натуральным бревном, будет смотреться очень красиво.
Данный тип бани не нуждается в устройстве тяжёлого, дорогостоящего фундамента, что позволяет существенно сэкономить деньги на строительстве каркасной бани своими руками. Фундамент можно сделать столбчатым, его основой служат винтовые свои из металла, которые заливаются бетоном. Преимущество данного типа фундамента состоит также в том, что его можно делать на любом грунте. Крышу лучше делать вентилируемой – между контробрешёткой и стропилами укладывается паропроницаемая мембрана в один слой. Материал для кровли можно приобретать любой, но лучше если это будет ондулин или металлочерепица.
Для строительства такой бани своими руками нам потребуются следующие стройматериалы:
- Бетон, гравий, сваи металлические винтовые, песок. Данные материалы нам потребуются для создания фундамента.
- Рубероид.
- Брус из дерева. Из него мы будем создавать каркас.
- Гидроизоляционная и пароизоляционная мембрана.
- Утеплитель. Подойдёт минеральная вата.
- Пергамин для устройства внутренней теплоизоляции.
- Утеплитель фольгированный.
- Вагонка. Этот материала нам потребуется для внутренней обшивки.
- Цементно — стружечные плиты (ЦСП) или ориентированно-стружечные плиты (ОСП). Их мы будем использовать для обшивки стен.
- Крепёжные элементы.
Процесс возведения каркасной бани своими руками предусматривает следующее:
- Делаем на участке фундамент (основание его будет столбчатым).
- После того как будут поставлены столбы необходимо сделать железобетонный ростверк, его сверху накрываем гидроизоляцией – слой рубероида. На готовый ростверк кладём лаги под незначительным уклоном – для чернового пола. Уклон необходим для обеспечения свободного стока воды.
- Каркас стен делаем из бруса. Брус нужно предварительно обработать специальными антипиринами и септиками.
- Стеновые панели нужно собирать на предварительно очищенной от грязи и камней земле.
Пол черновой обшиваем досками, далее начинаем поднимать стеновые панели и устанавливать их на места. Нужно сделать временный крепёж с помощью распорок, потом их уберём. Стеновые балки между собой закрепляются при помощи брусков или саморезов, также можно использовать зубчатые пластины из металла.- Ориентировано — стружечными плитами зашиваем стены, которые находятся наружи, заблаговременно нужно предусмотреть прокладку нужных инженерных сетей, таких как канализация, электрика и другие. В гофре прокладываем электрические кабеля.
- Между стойками кладём утеплитель минеральную вату. Её следует класть очень плотно, чтобы не было зазоров и полостей.
- Выполняем внутреннюю обшивку стен с помощью цементно – стружечных плит. Такие плиты отличаются высокой устойчивостью к воздействию влаги.
Делаем перекрытие потолка строения, выполняем сборку стопил, потом их поднимаем наверх и устанавливаем.- Как только крыша будет готова, начинаем укладывать кровельный материал, одновременно занимаемся установкой внутренних перегородок.
- В том месте где будет расположена печка нужно сделать кирпичный экран. В случае если печка будет иметь большой вес, тогда во время строительства фундамента нужно будет делать бетонную подушку под печку.
- Как только каменка будет готова, можно выполнять отделочные работы. Для этого следует дополнительно обшить каркас следующими материалами: фольгированный материал (один слой), минеральная вата и пергамин. Далее устанавливаем вагонку.
При строительстве каркасной бани своими руками нужно обязательно предусмотреть чтобы внутри помещения были расположены вытяжные отверстия, они позволяют создать в помещении нужный теплообмен и обеспечивают вывод лишней влаги.- На последнем этапе можно приступать к отделке фасада. Внешнюю отделку можно выполнить из любого материала: блок – хаус, сайдинг виниловый и другие.
Итог
Все вышеперечисленные проекты строительства каркасных бань позволяют своими руками возвести надёжное и недорогое строение, которое прослужит вам долгие годы.
Каркасные бани своими руками: фото
bane.guru
Проекты каркасных бань бесплатно чертежи и фото
Проекты бань по каркасной технологии, их строительство своими руками
Строительство домов и бань по каркасной технологии становится все более популярным. Все потому, что методика такова, что даже в одиночку можно построить, не только баню, а даже приличных размеров дом. При том, что строение получается теплым (при достаточном утеплении), оно еще и легкое, и недорогое. Пожалуй, единственный его недостаток — высокая пожароопасность, но это — беда любого деревянного строения, а не только каркасника.
Проекты каркасных бань своими руками
Часто строительство стопориться из-за того, что вы не знаете, как правильно распланировать баню, чтобы было удобно и безопасно. В этом могут помочь готовые проекты планировок. Идеально, если какой-то из них подходит вам полностью: не нужно ломать голову. Хотя при необходимости можно внести коррективы. А иногда достаточно просто идеи, чтобы у вас все «встало на место» и вырисовался план вашей каркасной бани, которую вы будете строить своими руками. Для этого мы отобрали несколько проектов каркасных бань разного размера с различным расположением комнат.
Планировка бани 4*5 м
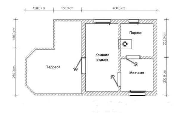
Это баня с обширной комнатой отдыха, небольшим санузлом и парилкой на 4,8м2. Фундамент — ленточный мелкозаглубленный — глубина 70 см, цоколь высотой 40 см (общая высота фундамента с цоколем 110 см), гравийная подушка 20 см. есть небольшое крыльцо, которое при круглогодичном использовании можно обшить и превратить в тамбур. Тогда холодный воздух не будет попадать в помещения при каждом открывании дверей.

Готовый чертеж каркасной бани 4*5 м
Общая площадь 20 м2, помещения и их размеры:
- Комната отдыха 8,5 м2;
- Парилкой на 4,8 м2;
- Санузел 2,2 м2
Необходимые материалы для создания каркаса:
- стойки, нижняя и верхняя обвязки выполняются из доски 100*50 мм;
- половые балки — из доски 150*50 мм с шагом 0,58 м;
- стропильная система — из доски 150*50 мм с шагом 0,58 м.
superbany.ru
Каркасные бани под ключ, проекты с ценами и фото
Малоэтажное каркасное домостроение на сегодняшний день уверенно вышло в лидеры на рынке строительства загородных домов, благодаря целому ряду ощутимых преимуществ, основными из которых является скорость строительства и цена. Постепенно фокус внимания заказчиков смещается к строениям второго плана и проекты каркасных бань в этом ряду занимают центральное место.
Принципы выбора проекта
Перед тем как выбирать проект, хозяин загородного участка должен определиться с целым комплексом параметров, чтобы этот выбор был полностью оправдан:
- дизайн и размеры загородного участка определяют этажность и площадь внутреннего пространства каркасной бани;
- близость или удаленность коммуникаций на участке определяют функциональные возможности, как самой бани, так включенных в нее помещений;
- структура почвы загородного участка накладывает свой отпечаток на фундамент будущего строения;
- исходя из желаний и возможностей будущего владельца бани, формируется количество и назначение внутренних помещений;
для окончательного решения об этажности и планировке заказчик должен определить варианты использования бани во время, не связанное с использованием ее по прямому назначению. К примеру – гостевая функция помещений.
Преимущества каркасной бани
Оценивая общие принципы каркасного домостроения, можно выделить ряд существенных преимуществ и особенностей проекта каркасной бани под ключ:
- так как само строение не обладает большим весом, то для его возведения можно использовать фундаменты облегченного типа, что существенно удешевляет стоимость строительства;
- высокая скорость строительства позволяет возвести полностью готовую баню всего за один сезон, а монтаж бани из сборных панелей сокращает этот срок до одного месяца;
- каркасный способ формирования обвязки и возведения стен позволяет спрятать все внутренние коммуникации помещений, что благоприятно сказывается на их внешнем виде;
- цена проекта каркасной бани уже входит в стоимость строительства, что опять же положительно влияет на общую стоимость строительства;
- еще одним положительным свойством каркасного проекта является возможность оформить внешний вид бани в полном соответствии со вкусом и желаниями заказчика, поскольку для этого существует масса доступных вариантов.
Заключение
Изложив в сжатом виде особенности выбора и преимущества каркасной бани, мы надеемся, что нашим клиентам не составит труда выбрать проект, наиболее подходящий для них как по финансовым возможностям, так и по функциональным удобствам и потребительским качествам.
sk-karkas.ru
4 варианта проекта каркасной бани [+5 ФОТО]
Многие застройщики среди великого множества вариантов выбирают проекты каркасных бань – своими руками их возводить значительно проще, чем здания из кирпича или бревен. Кроме того, этот вариант гораздо быстрее в реализации и дешевле по стоимости, при этом эксплуатационные качества на самом высоком уровне.

На фото — этап устройства каркаса бани
Примеры проектов
На самом деле, можно представлять примеры проектов еще очень долго, разница чаще всего заключается в следующих факторах:

Проект щитовой бани 6х6
- Размер здания, этот фактор зависит от ваших предпочтений, размера участка и финансовых возможностей, ведь с изменением габаритов цена может отличаться очень значительно.
- Планировка помещений, как правило, проект каркасной бани учитывает все до мельчайших деталей, поэтому не стоит пренебрегать этой деталью.
- Наличие в здании дополнительных помещений: кухни, санузла, спален.
Обратите внимание! Здание может быть оборудовано мансардным этажом, иметь в конструкции беседку, террасу и другие объекты.
Проект бани 5х4.25
- Материалы, из которых возводится конструкция. Они могут быть различными, от этого зависит не только стоимость, простота возведения, но и срок службы, поэтому экономить на этом факторе не стоит.
Основные материалы, применяемые при возведении зданий
Независимо от проекта, размеров и особенностей конструкции, данный тип зданий возводится из следующих основных материалов:
- Деревянный брус, из которого собирается основной несущий каркас. Сечение его может быть самым различным, оптимальный размер определяется в зависимости от того, какой вы выберете проект бани из каркаса.
- Материал для обшивки каркаса. Чаще всего для этого используется влагостойкая фанера или влагостойкая ориентированно-стружечная плита.
- Утеплительный материал – минвата, которая применяется как при внутреннем, так и наружном утеплении, этот материал не подвержен повреждению грызунами, обладает отличными физическими свойствами и сохраняет их на протяжении многих лет.
- Специальные пленки для паро-гидроизоляции. Различные пленки защищают строение и препятствуют появлению конденсата, что очень благотворно сказывается на долговечности конструкции.
- Материалы для наружной отделки, в зависимости от ее вида это может быть плоский шифер или специальная сетка и штукатурный раствор для наружных работ.
- Различные герметики, монтажная пена и другие уплотнительные материалы. Их характер и количество зависят от специфики здания и климатических условий, в которых возводится здание.
- Балки для перекрытий, они могут быть как деревянные, так и металлические.
- Кровельные материалы. Это может быть шифер, металлопрофиль, металлочерепица, мягкая кровля, глиняная черепица, ондулин и многое другое. В зависимости от выбранного типа отличается и тип обрешетки, необходимой для устройства крыши.
Особенности проектирования
Проекты бань по каркасной технологии, особенно на стадии разработки, требуют самого пристального внимания в силу многих причин, которые будут рассмотрены ниже.
Для чего нужен качественный проект

На фото — еще один проект 6х6
- Еще на предварительной стадии вы будете знать основные характеристики и особенности возводимого сооружения. Это поможет максимально обезопасить себя от возможных ошибок и просчетов.
- Проект позволяет рассчитать необходимое количество материалов для строительства здания. Это позволит сэкономить значительные средства на приобретении материалов. Кроме того, хороший план – это готовая инструкция по возведению бани.
- Необходимо соблюдать многочисленные нормы пожарной безопасности, а также правила устройства электрической сети и других коммуникаций. Это позволит избежать переделок и без проблем пройти проверку надзорных органов перед вводом здания в эксплуатацию.
Полезный совет. Если вы решили сделать проект самостоятельно, после его подготовки необходимо обратиться к специалисту для проверки плана на предмет соответствия многочисленным правилам и строительным нормам. Это позволит избежать больших проблем в дальнейшем.
Наиболее интересные типы проектов

Грамотный проект позволит построить хорошую баньку
О многообразии планировок каркасных зданий было сказано выше, давайте рассмотрим самые интересные варианты, которые оптимально подойдут для бани:
- Двухэтажная баня может включать в себя не только парилку, моечную и комнату отдыха, но и многое другое: кухню, спальню, спортивный зал и балкон. Такой вариант часто используется в качестве летнего домика или комнаты для гостей.
- Баня с просторной мансардой очень удобна для отдыха, этот вариант очень хорошо подходит для мест с красивым видом, которым можно любоваться сидя в удобном кресле после отличного отдыха (читайте также статью «Проекты бань с мансардой – возможность расширить полезную площадь»).
- Конструкция, включающая в себя бассейн, позволит окунуться в прохладную воду после банных процедур. Стоит отметить, что это значительно удорожает стоимость реализации проекта, но для некоторых застройщиков наличие бассейна так же обязательно, как хорошая парилка и комната отдыха (см.также статью «Оригинальные проекты бань с бассейном»).
- Существуют и проекты каркасных домов с баней. Это решение выбирают те, кто не хочет строить отдельное здание, а предпочитает отдыхать в бане, не выходя из дома. Подобные решения требуют особенно тщательного проектирования, поэтому их выполнение лучше всего поручить специалистам.
Вывод
Не стоит слушать мнение многих несведущих людей о легкости возведения каркасных строений без необходимых знаний. Конструкция хоть и достаточно проста, но требует тщательного подхода на каждом из этапов.
Только в этом случае можно быть уверенным в надежности и безопасности здания. Советуем просмотреть видео в этой статье, чтобы понять суть процесса еще лучше.
9ban.ru
