Проекты угловых бань с барбекю – Проект угловой бани с террасой и барбекю
Проекты угловых бань — схема и планировка строений
Особенностью угловых бань является их необычная форма. В классическом угловом варианте основная часть помещения (парилка и моечная) строится перпендикулярно, под углом 90⁰ к дополнительным комнатам для проведения досуга.
Зачем строить угловую баню, и какие преимущества она имеет перед прямоугольным строением?
- Печь в таких строениях находится посередине между парной и комнатой отдыха, так что она способна обогревать все помещение целиком, что особенно актуально в зимнюю пору.
- Угловые бани разработаны специально для установки на участках небольших размеров либо во дворах, где уже присутствуют дополнительные постройки, клумбы, садовая мебель и другие элементы декора. Здание размещается обязательно в одном из углов участка, а потому не занимает много места и не нарушает общей композиции.
- Здание, которое по своей форме напоминает угол либо треугольник – довольно необычное и интересное архитектурное решение.
Кроме всех своих дополнительных преимуществ, компактные угловые бани, изготовленные опытными специалистами, отлично справятся со своей основной целью – помочь человеку либо компании людей хорошо провести время.
Угловая бани из бруса
Компактное строение оснащено тамбурным помещением, что дополнительно способствует сохранению теплой температуры в здании даже в самую морозную пору.

Баня угловая
Данный проект занимает совсем немного места на участке, но в то же время здание является довольно вместительным и практичным.

Комната отдыха и помывочная здесь совмещены, что позволяет сохранить больше свободного пространства в помещении и сэкономить на затратах на строительные материалы.

Двухэтажная угловая баня
Представленный проект имеет очень интересную треугольную форму и будет оригинально смотреться на любом дачном участке.

На первом этаже расположены все основные составляющие (парная, помывочная, тамбур и санузел), а на втором этаже находятся дополнительная комната отдыха, где можно обустроить кухню, бильярдную или даже мастерскую и очень вместительный балкон, на котором в летнее время хорошо проводить романтические свидания и дружеские посиделки.

Данный проект очень примечателен благодаря необычному дизайну и просторной открытой веранде.
Пример углового размещения бани с досуговым комплексом

На веранде установлена печь-барбекю, так что в теплое время года, здесь можно проводить барбекю-вечеринки.

Внутри здания размещены парилка, раздельные помывочная и санузел и три комнаты для отдыха и досуга, которые можно обставить на собственный вкус.

Угловая баня с террасой и барбекю
Проект с террасой и барбекю придется по душе всем любителям бани и традиционного отдыха на природе, поскольку здесь совмещаются все компоненты для идеального проведения досуга.

Угловая бани на 10 человек
Прекрасный проект с вместительной парилкой и открытой террасой, где может свободно разместится компания до 10 человек.

Баня с бассейном на 129 кв. м.
Элегантное строение гарантировано украсит ваш участок и придаст ему статусности. Обустроенная внутри здания комната с бассейном в более чем 40 квадратных метров с комфортом охладится после водных процедур.

Здание имеет основной (с террасы) и дополнительный (с крыльца) вход, обустроено отдельными кухней и гостевой комнатой, раздельным санузлом и комфортной парной.

На втором этаже располагается дополнительная гостевая комната, где можно обустроить спальню или бильярдную комнату, что позволит использовать здание, как гостевой домик либо даже основной дом.

Баня с верандой и барбекю 8×9
Удивительно компактный и в то же время очень миловидный и вместительный проект строения с барбекю – идеальный выбор для людей, которые озабочены вопросом комфортного проведения досуга.

Закрытая веранда с большими окнами позволяет комфортно проводить время в бане и в летнюю и в зимнюю пору. Также здание вмещает в себя небольшую комнату отдыха, помывочную, парную и санузел.

Баня с верандой и барбекю 8×10
Небольшую баню с отдельной комнатой барбекю смело можно назвать удачным архитектурным решением, поскольку здание размерами 8х10 фактически умещает в себя просторную кухню, совмещенную со столовой, гостиную, раздельный санузел и парилку.

Разработчиками предлагается также установка камина в комнате для отдыха для поддержания атмосферы уюта и возможности автономного отопления всех помещений бани.

Фактически в таком здании можно не только с комфортом проводить время досуга, но даже устраивать праздничные вечеринки, размещать неожиданно приехавших гостей и жить самостоятельно.

Двухэтажная баня из клееного бруса 94 кв.м.
Здании из клееного бруса отличаются не только своей надежностью, но и большой скоростью сборки строения. Заказав постройку данного проекта, вы сможете наслаждаться процедурами на собственном участке в самые короткие сроки.

Двухэтажная баня с отдельной котельной комнатой очень удобна спроектирована с учетом в первую очередь комфортности и гигиеничности посещения парилки и проживания в доме.

На первом этаже размещены все основные помещения, включая туалетную комнату, кухня и гостиная, а второй этаж идеально подойдет для оборудования на нем спальни. Таким образом, данное строение может прекрасно исполнять не только свои основные функции, но и служить прекрасным местом для проживания небольшой семьи.

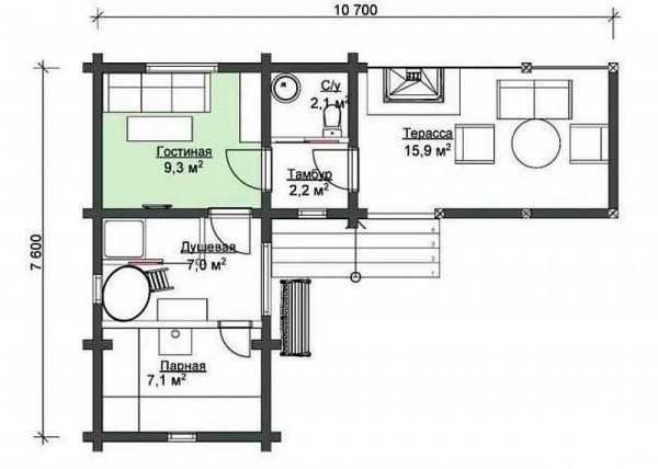
Баня г-образной формы
Проект г-образной формы разработан специально для размещения в углу участка. Строение объединяет в себе отдельные раздевалку, парную, помывочную, санузел и тамбур, также просторную комнату для отдыха.

proekt-banya.ru
Проекты бань с террасой и барбекю: фото, планировка, месторасположение
27 Августа 2018 2018-08-27
1534
Время чтения 9 минут
Прочитать позжеОтправим материал на почту
РаспечататьПроекты бань
Количество проектов 703- 2 комнаты
- 2 санузла
- 60.62² Общая площадь
- 7 x 5м Площадь застройки
от 634 880 р.
Срок возведения 37 дней

- 2 комнаты
- 1 санузел
- 30² Общая площадь
- 6 x 6м Площадь застройки
от 533 760 р.
Срок возведения 24 дня

- 1 комната
- 3 санузла
- 54² Общая площадь
- 7 x 8м Площадь застройки
индивидуальный расчет
Срок возведения индивидуально

- 3 комнаты
- 2 санузла
- 128.85² Общая площадь
- 7 x 10м Площадь застройки
от 1 878 633 р.
Срок возведения 68 дней
Проект Бани Забава- 14² Общая площадь
- 5 x 3м Площадь застройки
от 320 000 р.
Срок возведения индивидуально

- 3 комнаты
- 2 санузла
- 58² Общая площадь
- 8 x 7м Площадь застройки
индивидуальный расчет
Срок возведения индивидуально

- 1 комната
- 1 санузел
- 61.79² Общая площадь
- 4 x 8м Площадь застройки
от 819 840 р.
Срок возведения 38 дней

- 1 комната
- 1 санузел
- 30² Общая площадь
- 5 x 6м Площадь застройки
от 195 000 р.
Срок возведения индивидуально

- 3 комнаты
- 2 санузла
- 83.65² Общая площадь
- 6 x 10м Площадь застройки
от 1 317 186 р.
Срок возведения 48 дней

- 2 комнаты
- 3 санузла
- 105.4² Общая площадь
- 11 x 9м Площадь застройки
от 1 536 192 р.
Срок возведения 57 дней

- 1 комната
- 1 санузел
- 12.2² Общая площадь
- 3 x 5м Площадь застройки
от 240 619 р.
Срок возведения 13 дней

- 3 комнаты
- 1 санузел
- 60² Общая площадь
- 6 x 8м Площадь застройки
индивидуальный расчет
Смотреть все проектыБаня с террасой и барбекю – прекрасный вариант для компенсации маленького участка на даче. Подобное объединение позволит получить многофункциональное место комфортного времяпровождения. Из этой статьи Вы узнаете какие материалы лучше использовать и увидите красивые и креативные варианты, которые подогреют интерес к постройке комфортной зоны отдыха.

Особенности
Современную баню делают из бруса, кирпича и быстровозводимого каркаса. Рынок предлагает и иные материалы, и методы постройки, но перечисленные варианты популярные.
Зачастую баня возводится с террасой или верандой. Террасу иногда снабжают печью для барбекю. Но даже простейший гостевой домик с баней и барбекю рядом сделают загородный отдых более комфортным.
Наилучшие вариации планировки загородных сооружений на участках получаются при совмещении двух этих комплексов. Помимо бани появляется место, закрытое от солнца для отдыха после порки.
Террасы иногда делают со стеклянными стенами. Что позволяет в буквальном смысле не отделяться от окружающей природы, и не испытывать неблагоприятные перемены погоды, вроде дождя или сильного ветра.
Совмещённая с баней терраса не только придаст комфорта отдыху, но ускорит процедуру строительства, а также сэкономит время и место на участке. Отдельно беседку и баню выстраивать дольше, и по отдельности занимают они куда больше площади.

Лучшее расположение для постройки
По своему устройству веранда является лишь пристройкой к бане (как к основному строению). Помимо объединённой с баней крышей, зона барбекю служит защитой от ветров, так как у неё одна общая стена с постройкой и по периметру небольшие перегородки.
При расположении бани стоит принимать в расчет следующие факторы:
-
когда жилье и баня строятся как отдельные здания, необходимо отделить их друг от друга минимум на восемь метров. Если баня загорится, огонь не перейдет на другие объекты;
-
желательно построить в том местечке, где и направление ветра, и баня стояла за другими объектами. Причина этому те же, как и в пункте выше;
-
строить нужно как можно дальше от дороги. Этого требует Земельный кодекс. Нужно соблюсти расстояние минимум 5 метров.
Если терраса летняя необходимо сделать капитальный пол. Выполняют зачастую из дерева, иногда выкладывается плиткой или другим отделочным материалом. Будет не лишним расположить на террасе лавки, пару стульев, кресло-качалку и небольшой столик.

Благодаря удобству в бытовом отношении и при возведении, терраса делается вдоль фасада. Так обустроенное место отлично подходит для релакса после парной, и можно подышать воздухом. Прохладительные напитки и пища принимаются тут.
Нужно знать! Нет никакого ограничения в размере веранды с барбекю. Её проект делается с учётом количества постоянных гостей и удобства.
Материалы
Предложения по типу баня с барбекю под ключ встречаются довольно часто. Однако будет не лишним если будущий владелец будет знать основные материалы и их преимущества. Базовые знания помогут избежать обмана со стороны строительной компании.
На нашем сайте Вы можете ознакомиться с самыми популярными проектами бань, саун и прочих «архитектурных малых форм» для загородного дома – от строительных компаний, представленных на выставке домов «Малоэтажная Страна».
Дерево
При строительстве бани практически всегда используется дерево. Обычного из него складывают сруб из бруса.

У дерева следующие преимущества:
-
отлично сохраняет тепло. Это позволит сэкономить на дополнительных материалах для утепления;
-
в деревянных постройках особая атмосфера и аромат, без которых сложно представить русские бани, созданные в рамках традиций;
-
из-за того, что дерево дышит, внутри бани происходит естественное регулирование влажности;
-
данный материал позволяет создавать строения самых разных форм, объединяя оригинальные решения архитекторов;
-
экологически чистый материал. Из-за отсутствия химии, дерево полностью безопасно для людей. В конкретном случае это создаст оздоровительный эффект.
Единственный недостаток деревянного строения – это подверженность гниению и плесени.
Важно! В случае неправильного обращения с огнём, вероятность загорания высокая. Этот недостаток с лихвой компенсирует следующий материал.
Кирпич
Возможность пожара в кирпичных постройках в разы меньше. Однако помещение будет прогревать дольше. Следовательно, потребуется потратить больше дров.

В кирпичных банях обязательно следует делать хорошую систему вентиляции, так как конденсат, появляющийся в процессе использования здания, станет причиной размножения и появления грибка.
Будущий владелец должен знать, что кирпич один из более экологичных стройматериалов для постройки любых сооружении. Ещё одно преимущество – это срок службы. Кирпич прослужит в разы дольше бруса. Выполнять отделку также необязательно.
Это может быть интересно! В статье по следующей ссылке читайте про кирпичные печи для бани.
Газосиликат
Иногда следует не зацикливаться на традиционном материале, а выбрать для бани что-то по современнее. К примеру, газосиликатный блок отлично подойдёт. Создают их при помощи новейших технологий. У них достаточно много преимуществ, из-за чего их всё чаще используют для банных комплексов.
Газосиликат отличается:
-
длительным сроком службы;
-
огнестойкостью;
-
отличной теплоизоляцией;
-
надёжностью;
-
монтажные работы проводятся легко;
-
относительно недорогая цена.

Газосилекатные блоки не подвержены гниению.
Создание проекта
После того как выбран материал и участок, где планируется возводить строение, необходимо перейти к следующему этапу – созданию проекта.


Чтобы проект полностью удовлетворял владельце, нужно уделить внимание на следующие пункты:
-
сколько людей планируют отдыхать в бане одновременно;
-
планируется ли эксплуатировать в зимнее время;
-
какая планировка подойдёт. Если нет достаточно места, проект угловой бани с террасой и барбекю отлично подойдёт;
-
какая сумма будет потрачена.


Если баня строится для летней эксплуатации, утеплять предбанник и тратить на это финансы нет смысла. При круглогодичном использовании нужно уделить особое внимание входу в неё. Хороший проект поможет уменьшить расход на возведение сооружения. Удобная и открытая площадка для барбекю, в которой поместятся все гости делает ненужной гостевую комнату. Это отлично показано на рисунке ниже.

Это может быть интересно! В статье по следующей ссылке читайте про способы отделки бани.
В некоторых случаях вполне достаточно пристроить веранду к имеющемуся банному комплексу, если срок её службы не подразумевает ремонта в ближайшие годы. При наличии старой бани, место под крышей для отдыха необходимо разместить между домом и баней. Важно подобрать форму, которая не исказит стилистическую и архитектурную идею.
Размер бани выбирается исходя из финансов и свободного места. Большим семья отлично подойдёт размер 6 на 9 м, куда легко поместится многочисленная компания. В сооружение такого размера запросто поместится кухня, санузел, место отдыха, моечная, парилка и даже бильярдная.
Иногда проектируют двухэтажные бани.

На верхнем этаже размещаются гости, а террасу снабжают печью или камином для придания атмосферы.
Для постройки подобных мини оздоровительных комплексов отлично подходит оцилиндрованные бревна. При планировке следует учитывать несколько факторов. Если гостиную отделить стеклянной стеной от веранды и перенести на первый этаж, терраса будет лучше выглядеть, а в комнате будет отличное освещение. В плохую погоду гостям станет проще добираться с гостиной в открытую площадку.
При создании бани с мансардной крышей необходимо добавить внешнюю лестницу со стороны террасы на верхний этаж. Это поможет сэкономить немного места внутри.

На проекте видна баня из бруса с террасой и барбекю, лестница которого сбоку.
В некоторых случаях баню проще присоединить к дому. В таких случаях, если баня с верандой и барбекю подойдёт размер в 5х6 метров. Потребуется разработать новый проект, с учётом размеров дома. При правильном подходе это позволит сэкономить место, не повредив вместительности. Лучшим решением станет угловая баня с верандой и барбекю.
Выглядит такая пристройка следующим образом:

Обзор готового проекта бани с террасой и барбекю в видео:
Современный рынок предлагает большое количество бань на любой вкус. Если нанять хорошего планировшика и архитектора, рассказать им о своих предпочтениях, они создадут хороший проект, который полностью удовлетворит владельца. Необходимо лишь знать некоторые особенности материалов, рассчитать бюджет и описать важные для себя моменты.
Это может быть интересно! В статье по следующей ссылке читайте про сауну в форме золотого яйца.
Заключение – коротко о главном
Современные бани делают не только из дерева. Еще это может быть, например, камень или каркас.
Высокие требования предъявляются к комфорту. Это выражается не только в размерах и конструкции комнаты отдыха, но и наличию террасы с печью для барбекю.
При строительстве бани надо знать и выполнять требования по размещению постройки на участке.
Не существует единого правильного проекта бани — расположение и размер комнат надо подбирать на свой вкус.
|
Еще немного внимания Современные бани все больше становятся похожими на комплексы для отдыха. Как думаете — так и должно быть, или все же надо разделять банные процедуры и готовку барбекю? |
Прочитать позже
Отправим материал на почту
Распечататьm-strana.ru
Проект угловой бани с террасой и барбекю
Проекты угловых бань: подборка
Особенностью угловых бань является их необычная форма. В классическом угловом варианте основная часть помещения (парилка и моечная) строится перпендикулярно, под углом 90⁰ к дополнительным комнатам для проведения досуга.
Зачем строить угловую баню, и какие преимущества она имеет перед прямоугольным строением?
- Печь в таких строениях находится посередине между парной и комнатой отдыха, так что она способна обогревать все помещение целиком, что особенно актуально в зимнюю пору.
- Угловые бани разработаны специально для установки на участках небольших размеров либо во дворах, где уже присутствуют дополнительные постройки, клумбы, садовая мебель и другие элементы декора. Здание размещается обязательно в одном из углов участка, а потому не занимает много места и не нарушает общей композиции.
- Здание, которое по своей форме напоминает угол либо треугольник – довольно необычное и интересное архитектурное решение.
Кроме всех своих дополнительных преимуществ, компактные угловые бани, изготовленные опытными специалистами, отлично справятся со своей основной целью – помочь человеку либо компании людей хорошо провести время.
Угловая бани из бруса
Компактное строение оснащено тамбурным помещением, что дополнительно способствует сохранению теплой температуры в здании даже в самую морозную пору.

Баня угловая
Данный проект занимает совсем немного места на участке, но в то же время здание является довольно вместительным и практичным.

Комната отдыха и помывочная здесь совмещены, что позволяет сохранить больше свободного пространства в помещении и сэкономить на затратах на строительные материалы.

Двухэтажная угловая баня
Представленный проект имеет очень интересную треугольную форму и будет оригинально смотреться на любом дачном участке.

На первом этаже расположены все основные составляющие (парная, помывочная, тамбур и санузе
superbany.ru
Проект угловой бани с террасой и зоной барбекю: фасад и внутренняя планировка
19.07.2017 | Рубрика: Архитектура, Проекты бань

Архитектурное бюро Алексея Сухова разработало оригинальный проект угловой бани, который будет воплощен в жизнь в подмосковном коттеджном поселке Белый Берег. Поскольку общий облик этого населенного пункта с его водоемами и естественными лесными зонами воспринимается как уголок дикой природы с вкраплениями цивилизации, наша задача заключалась в том, чтобы органично вписать объект в ландшафт, не забыв при этом о его практичности, комфортности и функциональности. Подробно о результате – ниже.
Стильная угловая баня: планировка помещений
Итак, наша угловая баня в проекте состоит из небольшого тамбура, просторной комнаты отдыха с кухней, где есть все для того, чтобы приготовить практически любое блюдо и накрыть стол для многолюдной компании, уютным камином и телевизором, а также обустроенной соответствующим образом раздевалки, из которой можно попасть в душевую, а затем – в сауну, а можно – сразу в комнату с большой джакузи (она выступает равноценной заменой традиционному бассейну).

Кроме того, в строении имеются санузел и подсобное помещение. Поскольку одним из пожеланий клиента была угловая баня с барбекю – мы соорудили полуоткрытую веранду-беседку с основательной кирпичной печью, в которой можно приготовить не только барбекю, но и любое другое блюдо, требующее жарки, тушения или томления. А прямо из беседки – выход на открытую солнечную террасу, со всех сторон продуваемую теплым летним ветерком. Здесь комфортно загорать в жаркий полдень или наслаждаться окружающим пейзажем за чашкой чая или бокалом вина теплым летним вечером.
Материалы и приемы в строительстве и отделке угловой бани с террасой
Для реализации проекта мы выбрали прочные, долговечные и энергоэффективные SIP-панели. Строиться угловая баня будет по канадской каркасно-панельной технологии – это быстро, недорого, удобно и надежно.
Для покрытия двускатной крыши наши специалисты остановились на гибкой битумной черепице шоколадно-коричневого цвета. На ее фоне особенно аристократично и элегантно выглядят узкие дымоходы, укрытые лаконичными зонтами.

Цоколь здания отделан коричневым облицовочным кирпичом, а стены и пол – натуральным термодеревом. Стены веранды – наполовину открытые, благодаря чему свежий воздух свободно проникает в помещение, при этом добротная крыша обеспечивает всем, кто находится внутри беседки, надежную защиту от осадков и солнечных лучей.

Фасадное остекление нашей бани с террасой спроектировано по типу французских окон – во всю высоту стены. На самом деле это не окна, а раздвижные стеклянные двери, позволяющие быстро перейти с улицы прямо в комнату отдыха и обеспечивающие помещение для релакса полноценным естественным освещением.

Согласно проекту, баня будет защищена от непрошеных гостей и досужих взглядов элегантной оградой из деревянных штакетин и столбов из дикого камня на таком же основании. Подходы к строению должны быть выложены тротуарной плиткой, а вот окружающую территорию мы решили оставить максимально приближенной к естественному ландшафту – с зеленой травой и незначительным количеством одиночных кустовых посадок. В таком облике спроектированная нашим архитектурным бюро угловая баня сможет гармонировать с общим видом коттеджного поселка.
Архитектурное бюро Алексея Сухова. https://arch-buro.com/
Планировка угловой бани:

Экстерьеры:
Похожие темы или то что вам будет интересно посмотреть:
Тэги: проект бани, угловая баня с террасой
Понравилась статья? Поделитесь ей в социальных сетях:
arch-buro.com
Угловая баня с верандой и барбекю: варианты постройки
Все квадратные бани похожи на клеть: взглянешь – и становится ясно, что это за сооружение. Угловое здание смотрится гораздо интересней: оно напоминает терем. Сложная конфигурация стен, стоящих углом, оригинальная крыша, узорчатая веранда, терраса или травяная лужайка или – каждый из этих элементов придает саду новый, уникальный, облик. Угловая баня с верандой и барбекю превращает дальний, заброшенный, заросший лопухами угол в уютное местечко для комфортного отдыха с симпатичным пейзажем.
Угловые бани: планировка, веранды, барбекю
Проектировщики утверждают: угловые бани становятся популярней, чем традиционные. На это есть особые причины. Угловое строение предоставляет владельцу преимущества:
- Закрывает сад от излишне любопытных взглядов.
- Оставляет место для создания уютного патио – внутреннего дворика с зоной отдыха.
- Позволяет обустроить дополнительное, жилое помещение сделать из баньки романтическую заимку, спрятавшуюся в глубине сада.
- При желании над таким домом легко надстроить мансарду, и тем самым еще больше расширить эксплуатационные возможности сруба.
Проекты угловых зданий привлекают архитектурной завершенностью конструкции и комфортной планировкой. Внутренний интерьер состоит из четырех основных помещений:
- парное отделение;
- гостиную для отдыха;
- раздевальню;
- веранду – площадку для отдыха, на которой можно установить барбекю или встроить другое, функционально полезное помещение.
Такие бани отличаются хорошей теплосберегающей способностью: хоть сруб стоит и отдельно, но парная в нем находится во внутреннем помещении. В простенок между парилкой и комнатой отдыха обычно помещают печь, и она обогревает все помещения. Зачастую в углу между крыльями здания устанавливают круглую террасу: площадка придает дополнительный шарм сооружению. Если ее закрыть легким простенком, то получается удобный тамбур, предотвращающий попадание холодного воздуха извне в нагретые помещения.
- Крыша над баней может быть шатровой, один угол которой нависает над террасой.
- Выразительно выглядит сложная двускатная крыша, два шпица которой смыкаются под прямым углом. Дополнительную выразительность такой к конструкции придает оригинальный козырек – навес, прикрывающий крыльцо.
Угловой банькой удобно пользоваться:
- Затопленная печь обогревает сразу два-три помещения.
- В бане часто обустраивают два входа, двери которых выходят на разные стороны дома здание.
- Делают и отдельные двери в каждое помещение с террасы или веранды.
Стильный вариант: установить на террасе или веранде барбекю. Это – печь. Симбиоз камина и мангала – красивая печь для обжаривания мяса. Такой очаг способен придать оттенок роскоши самой скромной, в архитектурном плане, бане.
Мнение эксперта
Сергей Юрьевич
Строительство домов, пристроек, террас и веранд.
Задать вопрос экспертуКорпус барбекю изготавливают из шамота. По общей конструкции барбекю похож на все очаги.
В нем присутствует:- топка;
- камера для притока воздуха;
- вытяжная труба.
Мнение эксперта
Сергей Юрьевич
Строительство домов, пристроек, террас и веранд.
Задать вопрос экспертуОбязательный атрибут – широкая стойка для размещения ингредиентов блюд и столовых принадлежностей.
Полагается место и для дополнительных аксессуаров – основного достоинства барбекю. Сюда относятся магические предметы для приготовления настоящего, уникального шашлыка.
Среди них:
- кованный каркас для шампуров;
- нержавеющая решетка – жарочная поверхность;
- две кочерги – изогнутая и прямая;
- щипцы.
Однако самый важный элемент барбекю – безопасность. Печь открытого типа – источник жара и искр. К ее сооружению относятся с максимальной тщательностью.
Кроме общеизвестных требования, связанных с противопожарной защитой, при строительстве барбекю учитывают розу ветров: очаг должен быть защищен от сквозняков.
Преимущественное направление ветров учитывают и при строительстве углового здания. Желательно баню с верандой располагать так, чтобы открытые площадки и двери были закрыты от сильных порывов воздуха.

Угловая баня с закрытой верандой и хозяйственным блоком
В пользу угловой конструкции говорит один из важнейших аргументов: Г-образное сооружение, экономит место, а это существенное преимущество, которое выходит на первое место при планировке садового участка малой площади. В условиях жесткой экономии пространства баню с верандой можно совместить со строительством хозблока.
Сарай может примыкать к бане как со стороны основных помещений, так и со стороны веранды или комнаты отдыха. Строительство хозблока позволяет решить еще одну задачу – создать закрытую зону на веранде и на лужайке перед баней. В помещение обустраивают отдельный вход. В большинстве случаев баню с хозяйственным отделением накрывают общей крышей, чтобы не допустить протечек и обеспечить лучшую теплоизоляцию всего комплекса.
Угловая баня с мансардным этажом и верандой
Угловое здание прекрасно впишется в уже созданный ландшафт. Если на участке разбиты клумбы, высажены плодовые деревья, обустроен газон, в одном из углов всегда найдется место для новой небольшой постройки, такой как баня. Интересный момент: если в угловой бане сделать ломаную крышу, а в холе установить лестницу, то с минимальными затратами вы получите дополнительный гостевой домик. Достоинства отдельного коттеджика в стиле мини оценят подрастающие или взрослые дети, решившие посетить родителей. По вкусу он придется и приятелям, заехавшим отдохнуть на выходные.
Мнение эксперта
Сергей Юрьевич
Строительство домов, пристроек, террас и веранд.
Задать вопрос экспертуВажный момент: стоимость всего сооружения увеличится незначительно, а возможно и останется той же, что и стоимость одноэтажной бани.
Ведь ломаную крышу строят из обычного двухметрового бруса. Цена материала гораздо ниже, чем стропильные ноги из длинномеров. Баня получится двухэтажной, но вес конструкции также практически не изменится: следовательно, фундамент можно использовать тот же.Отдельным элементам строительства придется все же уделить повышенное внимание.
- Первый такой элемент – это гидроизоляция. Потолок со стороны парной следует тщательно укрыть влагоотталкивающим материалом, иначе в помещении поселится плесень.
- Второй момент – пароизоляция. Между перекрытием и полом мансарды нужно предусмотреть вентиляцию. Нагревающиеся от высоких температур брусья или плиты станут местом образования повышенного конденсата. Возможно потребуются затраты на паропропускающую мембрану.
Угловая баня с застекленной верандой – проект барбекю
Веранда может располагаться между функциональными помещениями и зоной барбекю или примыкать к обоим отделениям – помывочному и развлекательному. Во втором случае ее ставят во внутреннем углу: получается зона, объединяющая все помещения.
Мнение эксперта
Сергей Юрьевич
Строительство домов, пристроек, террас и веранд.
Задать вопрос экспертуПечь для барбекю обычно устанавливают на открытой террасе под крышей: так безопаснее.
Но, если одну из стен очага – грубу пристыковать к веранде, получится отличная кают-компания для задушевных бесед.Возможен и вариант строительства мангала в кирпичном корпусе внутри веранды. В этом случае следует уделить серьезное внимание вентиляции: нужно конструировать и устанавливать вытяжной устройство. Выполнить его без отдельного проекта крайне сложно. Ведь конструкция должна быть:
- безопасной – защитить от воздействия углекислого и угарного газов;
- красивой – как в настоящем тереме;
- функциональной – удобной для пользования и повару, и гостям.
Угловая одноэтажная баня с верандой
Подводя итоги, можно сказать, что застекленная веранда рядом с баней – это отличная идея. В помещении на открытом воздухе, защищенном от дождя и ветра можно проводить семейные вечера и дружеские вечеринки. Можно вечерок-другой скоротать в философском одиночестве: интерьер позволяет.
На застекленной веранде можно отдыхать в любую погоду, а если ее обогревает печь барбекю, то и в любое время года. Застекленная веранда – это практично:
на ней можно оставлять мебель без опаски за ее сохранность. Если остекление сделать съемным, то такую веранду легко превратить в настоящую открытую террасу.
Дом из какого материала Вам нравится больше всего?
можно выбрать до 3 вариантов ответа
Дом из бруса
29
283
Дом из кирпича
16
201
Бревенчатый дом
18
172
Дом по канадской технологии
15
151
Дом из газобетонных блоков
19
122
Дом из оцилиндрованного бревна
4
53
Монолитный дом
10
40
Дом из пеноблоков
14
39
Дом из сип-панелей
12
36
Угловые бани с верандой: профилированный брус
Остается нераскрытым один вопрос – из чего сделать такую баню? Ответ очевиден: из профилированного бруса. Материал дешевле, чем кирпич, технологичней, чем бревно. Для строительства бани – идеальный вариант: ведь помещения внутри должны быть сделаны из дерева. Брус позволит сэкономить на отделочных материалах.
Велики и дизайнерские, архитектурные возможности бруса. Используя профилированную древесину, можно создать и галерею, и веранду, и парилку, и уютную комнату отдыха.
Рекомендуем к прочтению
Рейтинг автора
Автор статьи
Строительство домов, пристроек, террас и веранд. Стаж 15 лет
Написано статей
zbbr.ru
Проекты бань с террасой и барбекю, фото, строительство своими руками. Проект бани из кирпича с террасой и барбекю
беседка под одной крышей, с большой односкатной, угловая с верандой
Проекты бань с террасой и барбекю можно сделать самостоятельно или найти в интернете уже готовыеПроекты бань бывают разные. Это может быть дом и беседка с террасой, мангалом и барбекю под одной односкатной большой общей крышей, где находится пристроенная сауна из сруба с крыльцом, и комнаты отдыха с бассейном и верандой. Баня может быть совмещенной 3х4 из пеноблоков с пристроем из кирпича и угловая треугольная крыша вместе с низкой летней зоной, навесом и хозблоком. Рядом можно построить гараж, сарай и дровяник. Дешево получится пристройка из блоков с плоской низкой крышей, если нарисовать план своими руками. Пристрой может быть в виде кухни с дровником и деревянные окна.
Проект бани с беседкой под одной крышей с комнатой отдыха и барбекю: 4 в 1
Что может быть лучше бани с отдельной комнатой для отдыха и площадкой для барбекю? Это настоящая зона для релакса, которая может быть разных размеров, а материал, из которого она сделано, может быть, как деревом, так и камнем.
Проект, сочетающий в себе баню и террасу, станет отличным вариантом для шумной и веселой компании гостей.
Собираясь устроить на своей даче комфортабельное и универсальное место отдыха, хозяева стремятся сделать его таким, чтобы всем членам семьи было там удобно и комфортно. Не стоит и о гостях забывать, которым полноценный релакс, комфорт и развлечения на свежем воздухе тоже нужно обеспечить.
Преимущества проекта 4 в 1:
- Экономия территории. Экономится место для строений, плюс не нужно соединять дополнительные постройки между собой дорожками.
- Сокращение строительных расходов. Баня и терраса могут иметь одну стену. Одна крыша тоже сэкономит ваши деньги.
- Комплексный отдых. Можно приготовить ужин, потом попариться и после всего этого сделать барбекю.
- Единство стиля. Не всегда при возведении отдельных построек хозяева придерживаются одного стиля, что сказывается на общей гармоничности. Совмещая все в одном, легче придерживаться одного стиля и есть где разгуляться дизайнеру.
В проектах бань с беседкой под одной крышей указаны размеры всех помещений
Баня, терраса, комната отдыха и барбекю – отличное проектное решение. Оно позволит воплотить разнообразнейшие задумки, объединяя их в единый дачный комплекс.
Отличное дополнение – пристройка к бане комнаты отдыха
Величина земельного участка, обычно, определяет выбор проекта. Например, классическим вариантом террасы и бани будет размер 6х9 м. Такое строение могут позволить те хозяева, у которых в наличии есть большая площадь. Такой комплекс вместит не только большую семью, но и большую компанию друзей.
Двухэтажное здание станет отличным вариантом отделения парной зоны от оны отдыха.
В таком случае для террасы и бани предусматривается общий фундамент. Если здание будет иметь два этажа, то внизу, обычно располагают барбекю и парилку, а второй этаж отводится для комнаты отдыха, или гостевой.
2 вида величин земельных участков:
- Классический, прямоугольный 6х9;
- Квадратный 6х6 для пристройки к дому.
Если есть желание или необходимость в пристройке к дому бани, нужно использовать проект 6х6. Такие пропорции отлично впишут вашу баню в дизайн участка. Благодаря этому, вы сильно расширите площадь жилого дома и бонусом станет уютное открытое место для отдыха. Оно станет идеальным местом, из которого вы в любую погоду
skalice.ru
Проекты бань с террасой и барбекю
Баня и шашлык в компании друзей и домочадцев — удачное завершение рабочей недели. Но что делать, если дождь собирается нарушить планы и испортить отдых? Объединив зону отдыха с баней, можно избежать неприятностей с погодой, и отказываться от трапезы на природе не придётся. Представляем подборку бань с террасой и барбекю, наглядные примеры с фото.
Терраса — это пристройка, возведённая у одной из стен бани. Она может быть открытой или закрытой. Чаще всего в качестве материалов при сооружении террасы используют дерево или кирпич.

Кирпичные бани надёжнее в плане пожарной безопасности. Однако следует иметь в виду, что прогреваться они будут дольше.

В следующем варианте стены выполнены из дерева. Отделка — из натурального камня.

Баня из двойного бруса.

Вариант угловой бани также может быть очень интересным.

Интересным решением будет устройство искусственного водоёма или бассейна рядом с баней. После сауны охладиться под открытым небом — непередаваемое удовольствие!



Баня может быть выполнена из клеёного бруса, а терраса — из натурального камня.

Также довольно широко распространено использование газосиликатных блоков. Такие бани отличаются экологичностью, огнестойкостью, хорошими теплоизоляционными свойствами и сравнительно небольшой ценой.

tvoya-banya.ru
