ΠΡΠΎΠ³ΡΠ°ΠΌΠΌΠ° ΠΏΡΠΎΠ΅ΠΊΡ ΡΠ΅ΠΌΠΎΠ½ΡΠ° ΠΊΠ²Π°ΡΡΠΈΡΡ β RemPlanner β ΠΎΠ½Π»Π°ΠΉΠ½-ΠΏΠ»Π°Π½ΠΈΡΠΎΠ²ΡΠΈΠΊ ΠΊΠ²Π°ΡΡΠΈΡΡ | ΠΡΠΎΠ³ΡΠ°ΠΌΠΌΠ° Π΄Π»Ρ ΠΏΠ»Π°Π½ΠΈΡΠΎΠ²ΠΊΠΈ ΠΈ Π΄ΠΈΠ·Π°ΠΉΠ½Π° Ρ ΠΏΠΎΠΌΠΎΡΡΡ ΠΊΠΎΡΠΎΡΠΎΠΉ Π²Ρ ΡΠΌΠΎΠΆΠ΅ΡΠ΅ ΡΠ°ΠΌΠΈ Π½Π°ΡΠΈΡΠΎΠ²Π°ΡΡ ΠΏΠ»Π°Π½ ΡΠ²ΠΎΠ΅ΠΉ ΠΌΠΎΡΠΊΠΎΠ²ΡΠΊΠΎΠΉ ΠΊΠ²Π°ΡΡΠΈΡΡ Ρ ΡΠ°Π·ΠΌΠ΅ΡΠ°ΠΌΠΈ ΠΈ ΠΏΠΎΠ»ΡΡΠΈΡΡ Π΄ΠΈΠ·Π°ΠΉΠ½-ΠΏΡΠΎΠ΅ΠΊΡ Π±Π΅ΡΠΏΠ»Π°ΡΠ½ΠΎ
ΠΡΠΎΠ³ΡΠ°ΠΌΠΌΠ° Π΄Π»Ρ ΠΏΡΠΎΠ΅ΠΊΡΠΈΡΠΎΠ²Π°Π½ΠΈΡ ΠΊΠ²Π°ΡΡΠΈΡΡ ΠΈ ΠΏΠ»Π°Π½ΠΈΡΠΎΠ²Π°Π½ΠΈΡ ΡΠ΅ΠΌΠΎΠ½ΡΠ°
Π‘ΠΏΡΠΎΠ΅ΠΊΡΠΈΡΠΎΠ²Π°ΡΡ Π΄ΠΈΠ·Π°ΠΉΠ½ Π»ΡΠ±ΠΎΠ³ΠΎ ΠΏΠΎΠΌΠ΅ΡΠ΅Π½ΠΈΡ ΡΠ΅Π³ΠΎΠ΄Π½Ρ ΠΌΠΎΠΆΠ΅Ρ Π½Π΅ ΡΠΎΠ»ΡΠΊΠΎ Π΄ΠΈΠ·Π°ΠΉΠ½Π΅Ρ, Π½ΠΎ ΠΈ Π»ΡΠ±ΠΈΡΠ΅Π»Ρ. ΠΠ»Ρ ΡΡΠΎΠ³ΠΎ ΡΠ°ΡΡΠΎ ΠΈΡΠΏΠΎΠ»ΡΠ·ΡΡΡ ΠΏΡΠΎΠ³ΡΠ°ΠΌΠΌΡ Π΄Π»Ρ ΠΏΡΠΎΠ΅ΠΊΡΠΈΡΠΎΠ²Π°Π½ΠΈΡ ΠΊΠ²Π°ΡΡΠΈΡΡ ΠΈ ΠΏΠ»Π°Π½ΠΈΡΠΎΠ²Π°Π½ΠΈΡ ΡΠ΅ΠΌΠΎΠ½ΡΠ°. ΠΠΎΠ΄ΠΎΠ±Π½ΡΠ΅ ΡΠΎΡΡΡ Π·Π½Π°ΡΠΈΡΠ΅Π»ΡΠ½ΠΎ ΡΠΏΡΠΎΡΠ°ΡΡ ΡΠ°Π±ΠΎΡΡ. ΠΠ½ΠΎΠ³ΠΈΠ΅ ΠΈΠ· ΠΏΡΠΎΠ³ΡΠ°ΠΌΠΌ ΠΈΠΌΠ΅ΡΡ ΠΊΠ°ΡΠ°Π»ΠΎΠ³ΠΈ Π²ΡΠ΅Π²ΠΎΠ·ΠΌΠΎΠΆΠ½ΡΡ
ΠΎΡΠ΄Π΅Π»ΠΎΡΠ½ΡΡ
ΠΌΠ°ΡΠ΅ΡΠΈΠ°Π»ΠΎΠ² ΠΈ ΠΏΡΠ΅Π΄ΠΌΠ΅ΡΠΎΠ² ΠΈΠ½ΡΠ΅ΡΡΠ΅ΡΠ°. ΠΠ»Π°Π³ΠΎΠ΄Π°ΡΡ ΡΡΠΎΠΌΡ ΠΌΠΎΠΆΠ½ΠΎ Π»Π΅Π³ΠΊΠΎ ΠΏΠΎΠ΄ΠΎΠ±ΡΠ°ΡΡ Π½Π΅ ΡΠΎΠ»ΡΠΊΠΎ ΡΠ²Π΅ΡΠΎΠ²ΡΡ Π³Π°ΠΌΠΌΡ, Π½ΠΎ ΠΈ ΡΠ°ΠΊΡΡΡΡ ΠΏΠΎΠ²Π΅ΡΡ
Π½ΠΎΡΡΠ΅ΠΉ.
ΠΠΎΠ·ΠΌΠΎΠΆΠ½ΠΎΡΡΠΈ ΡΠΎΡΡΠ°
ΠΡΠΎΠ³ΡΠ°ΠΌΠΌΠ° Π΄Π»Ρ ΠΏΡΠΎΠ΅ΠΊΡΠΈΡΠΎΠ²Π°Π½ΠΈΡ ΠΊΠ²Π°ΡΡΠΈΡΡ — ΡΡΠΎ ΡΠ²ΠΎΠ΅ΠΎΠ±ΡΠ°Π·Π½ΡΠΉ ΠΏΠ»Π°Π½ΠΈΡΠΎΠ²ΡΠΈΠΊ. ΠΠ°Π½Π½ΡΠΉ ΡΠΎΡΡ ΠΏΠΎΠ·Π²ΠΎΠ»ΡΠ΅Ρ ΡΠΎΠ·Π΄Π°ΡΡ ΠΏΡΠΎΠ΅ΠΊΡ Π±ΡΠ΄ΡΡΠ΅Π³ΠΎ ΠΏΠΎΠΌΠ΅ΡΠ΅Π½ΠΈΡ ΠΈ Π²ΠΈΠ·ΡΠ°Π»ΡΠ½ΠΎ Π²ΠΎΡΠΏΡΠΎΠΈΠ·Π²Π΅ΡΡΠΈ ΠΊΠΎΠ½Π΅ΡΠ½ΡΠΉ ΡΠ΅Π·ΡΠ»ΡΡΠ°Ρ. ΠΡΠΈ Π½Π΅ΠΎΠ±Ρ ΠΎΠ΄ΠΈΠΌΠΎΡΡΠΈ Π²Π°ΡΠΈΠ°Π½ΡΡ ΠΎΡΠ΄Π΅Π»ΠΊΠΈ ΠΌΠΎΠΆΠ½ΠΎ Π»Π΅Π³ΠΊΠΎ ΠΌΠ΅Π½ΡΡΡ. ΠΡΠΎ Π·Π½Π°ΡΠΈΡΠ΅Π»ΡΠ½ΠΎ Π»Π΅Π³ΡΠ΅, ΡΠ΅ΠΌ ΠΎΡΡΡΠ΅ΡΡΠ²Π»ΡΡΡ ΠΏΠΎΠ΄ΠΎΠ±Π½ΡΠ΅ ΠΌΠ°Π½ΠΈΠΏΡΠ»ΡΡΠΈΠΈ Π² ΡΠ΅Π°Π»ΡΠ½ΠΎΡΡΠΈ. Π‘ ΠΏΠΎΠ΄ΠΎΠ±Π½ΡΠΌΠΈ ΠΏΠ»Π°Π½ΠΈΡΠΎΠ²ΡΠΈΠΊΠ°ΠΌΠΈ ΠΌΠΎΠΆΠ½ΠΎ ΡΠΎΠ·Π΄Π°ΡΡ Π΄ΠΈΠ·Π°ΠΉΠ½ Π½Π΅ ΡΠΎΠ»ΡΠΊΠΎ ΠΎΠ΄Π½ΠΎΠΉ ΠΊΠΎΠΌΠ½Π°ΡΡ, Π½ΠΎ ΠΈ Π²ΡΠ΅ΠΉ ΠΊΠ²Π°ΡΡΠΈΡΡ ΠΈΠ»ΠΈ Π΄ΠΎΠΌΠ°. Π‘ΡΠΎΠΈΡ ΠΎΡΠΌΠ΅ΡΠΈΡΡ, ΡΡΠΎ ΠΏΡΠΎΠ³ΡΠ°ΠΌΠΌΠ° ΠΏΠΎΠ΄ΠΎΠΉΠ΄Π΅Ρ Π΄Π»Ρ ΡΠ΅Ρ , ΠΊΡΠΎ Π½Π΅ Ρ ΠΎΡΠ΅Ρ ΡΠΈΠ»ΡΠ½ΠΎ ΡΡΠ°ΡΠΈΡΡΡΡ Π½Π° ΡΡΠ»ΡΠ³ΠΈ ΠΏΡΠΎΡΠ΅ΡΡΠΈΠΎΠ½Π°Π»ΡΠ½ΡΡ Π΄ΠΈΠ·Π°ΠΉΠ½Π΅ΡΠΎΠ².
Π‘ΠΎΡΡ Sweet Home 3D
ΠΠ° Π΄Π°Π½Π½ΡΠΉ ΠΌΠΎΠΌΠ΅Π½Ρ ΡΡΡΠ΅ΡΡΠ²ΡΠ΅Ρ ΠΎΠ³ΡΠΎΠΌΠ½ΠΎΠ΅ ΠΊΠΎΠ»ΠΈΡΠ΅ΡΡΠ²ΠΎ Π²ΡΠ΅Π²ΠΎΠ·ΠΌΠΎΠΆΠ½ΡΡ ΠΏΡΠΎΠ³ΡΠ°ΠΌΠΌ, ΠΊΠΎΡΠΎΡΡΠ΅ ΠΏΠΎΠ·Π²ΠΎΠ»ΡΡΡ ΠΏΠ»Π°Π½ΠΈΡΠΎΠ²Π°ΡΡ ΠΆΠΈΠ»ΡΠ΅ ΠΏΠΎΠΌΠ΅ΡΠ΅Π½ΠΈΡ ΠΈ ΠΎΡΠΈΡΡ. ΠΠΎ Π½Π΅ Π²ΡΠ΅ ΡΠΎΡΡΡ ΠΏΠΎΠ΄Ρ ΠΎΠ΄ΡΡ Π΄Π»Ρ Π½Π°ΡΠΈΠ½Π°ΡΡΠΈΡ Π΄ΠΈΠ·Π°ΠΉΠ½Π΅ΡΠΎΠ². ΠΠ°ΠΊΡΡ Π²ΡΠ±ΡΠ°ΡΡ? ΠΡΠΎ Π·Π°Π²ΠΈΡΠΈΡ Π½Π΅ ΡΠΎΠ»ΡΠΊΠΎ ΠΎΡ ΡΠΌΠ΅Π½ΠΈΠΉ ΠΏΠΎΠ»ΡΠ·ΠΎΠ²Π°ΡΡΡΡ ΠΊΠΎΠΌΠΏΡΡΡΠ΅ΡΠΎΠΌ, Π½ΠΎ ΠΈ ΠΎΡ Π»ΠΈΡΠ½ΡΡ ΠΏΡΠ΅Π΄ΠΏΠΎΡΡΠ΅Π½ΠΈΠΉ. ΠΠΎΠ»ΡΡΠΎΠΉ ΠΏΠΎΠΏΡΠ»ΡΡΠ½ΠΎΡΡΡΡ ΠΏΠΎΠ»ΡΠ·ΡΠ΅ΡΡΡ Sweet Home 3D Π½Π° ΡΡΡΡΠΊΠΎΠΌ ΡΠ·ΡΠΊΠ΅. ΠΡΠΎ ΠΏΡΠΎΠ³ΡΠ°ΠΌΠΌΠ° ΠΎΡΠ΅Π½Ρ ΠΏΡΠΎΡΡΠ° Π² ΠΈΡΠΏΠΎΠ»ΡΠ·ΠΎΠ²Π°Π½ΠΈΠΈ. Π‘ Π΅Π΅ ΠΏΠΎΠΌΠΎΡΡΡ ΡΠΏΠ»Π°Π½ΠΈΡΠΎΠ²Π°ΡΡ ΡΠ΅ΠΌΠΎΠ½Ρ Π² ΡΠΎΠ±ΡΡΠ²Π΅Π½Π½ΠΎΠΉ ΠΊΠ²Π°ΡΡΠΈΡΠ΅ ΡΠΌΠΎΠΆΠ΅Ρ Π΄Π°ΠΆΠ΅ ΡΡΠ΄ΠΎΠ²ΠΎΠΉ ΠΏΠΎΠ»ΡΠ·ΠΎΠ²Π°ΡΠ΅Π»Ρ. ΠΠ»Ρ ΡΡΠΎΠ³ΠΎ Π½Π΅ ΠΎΠ±ΡΠ·Π°ΡΠ΅Π»ΡΠ½ΠΎ ΠΎΠ±Π»Π°Π΄Π°ΡΡ ΠΎΠΏΡΠ΅Π΄Π΅Π»Π΅Π½Π½ΡΠΌΠΈ Π½Π°Π²ΡΠΊΠ°ΠΌΠΈ.
Π§ΡΠΎΠ±Ρ ΡΠΎΠ·Π΄Π°ΡΡ Π½Π΅ΠΏΠΎΠ²ΡΠΎΡΠΈΠΌΡΠΉ Π΄ΠΈΠ·Π°ΠΉΠ½ ΠΈΠ½ΡΠ΅ΡΡΠ΅ΡΠ°, Π΄ΠΎΡΡΠ°ΡΠΎΡΠ½ΠΎ ΠΏΠ΅ΡΠ΅ΡΠ°ΡΠΈΡΡ ΡΠ»Π΅ΠΌΠ΅Π½ΡΡ ΠΈ ΡΠ°Π·ΠΌΠ΅ΡΡΠΈΡΡ ΠΈΡ
Π² ΠΏΠΎΠΌΠ΅ΡΠ΅Π½ΠΈΠΈ. ΠΡΠ»ΠΈ Π΅ΡΡΡ ΠΊΠ°ΠΊΠΈΠ΅-ΡΠΎ ΠΈΠ΄Π΅ΠΈ ΠΈ Π½Π΅ΠΎΠ±ΡΡΠ°ΠΉΠ½ΡΠ΅ ΡΠ°Π½ΡΠ°Π·ΠΈΠΈ, ΡΠΎ ΠΏΡΠΎΠ³ΡΠ°ΠΌΠΌΠ° Π΄Π»Ρ ΠΏΡΠΎΠ΅ΠΊΡΠΈΡΠΎΠ²Π°Π½ΠΈΡ ΠΊΠ²Π°ΡΡΠΈΡΡ ΠΏΠΎΠ·Π²ΠΎΠ»ΠΈΡ Π²ΠΎΠΏΠ»ΠΎΡΠΈΡΡ ΠΈΡ
Π² ΡΠ΅Π°Π»ΡΠ½ΠΎΡΡΡ. ΠΡΠΈ ΡΡΠΎΠΌ ΠΊΠΎΠ½Π΅ΡΠ½ΡΠΉ ΡΠ΅Π·ΡΠ»ΡΡΠ°Ρ ΠΌΠΎΠΆΠ½ΠΎ Π±ΡΠ΄Π΅Ρ Π²ΠΈΠ·ΡΠ°Π»ΡΠ½ΠΎ ΠΎΡΠ΅Π½ΠΈΡΡ Π±Π»Π°Π³ΠΎΠ΄Π°ΡΡ ΡΠΎΡΡΡ. Π‘ΠΎΠ·Π΄Π°ΡΡ ΠΏΡΠΎΠ΅ΠΊΡ Π±ΡΠ΄ΡΡΠ΅ΠΉ ΠΊΠΎΠΌΠ½Π°ΡΡ ΠΌΠΎΠΆΠ½ΠΎ Π²ΡΠ΅Π³ΠΎ Π·Π° ΠΏΠΎΠ»ΡΠ°ΡΠ°. ΠΡΠ°Π²Π΄Π°, ΡΡΠΎΠΈΡ ΡΡΠ΅ΡΡΡ, ΡΡΠΎ ΠΌΠ½ΠΎΠ³ΠΈΠ΅ ΡΠ»Π΅ΠΌΠ΅Π½ΡΡ ΠΈΠ½ΡΠ΅ΡΡΠ΅ΡΠ° Π² ΠΊΠ°ΡΠ°Π»ΠΎΠ³Π΅ Π·Π°ΡΠΈΠΊΡΠΈΡΠΎΠ²Π°Π½Ρ ΠΈ ΠΎΠ±Π»Π°Π΄Π°ΡΡ ΡΡΠ°Π½Π΄Π°ΡΡΠ½ΡΠΌΠΈ ΠΏΠ°ΡΠ°ΠΌΠ΅ΡΡΠ°ΠΌΠΈ.
ΠΡΠΎΠ³ΡΠ°ΠΌΠΌΠ° Ikea Home Planner
ΠΡΠΎ Π΅ΡΠ΅ ΠΎΠ΄ΠΈΠ½ ΠΏΠΎΠΏΡΠ»ΡΡΠ½ΡΠΉ ΠΈ Π΄ΠΎΡΡΠ°ΡΠΎΡΠ½ΠΎ ΠΈΠ·Π²Π΅ΡΡΠ½ΡΠΉ ΡΠΎΡΡ ΠΎΡ ΠΏΡΠΎΠΈΠ·Π²ΠΎΠ΄ΠΈΡΠ΅Π»Ρ ΠΌΠ΅Π±Π΅Π»ΠΈ «ΠΠΊΠ΅Π°». ΠΠ½ Π±ΡΠ» ΡΠΏΠ΅ΡΠΈΠ°Π»ΡΠ½ΠΎ ΡΠ°Π·ΡΠ°Π±ΠΎΡΠ°Π½ Π΄Π»Ρ ΠΊΠ»ΠΈΠ΅Π½ΡΠΎΠ² ΠΈ ΠΏΠΎΠΊΠ»ΠΎΠ½Π½ΠΈΠΊΠΎΠ². ΠΠΎΠ΄ΠΎΠ±Π½Π°Ρ ΠΏΡΠΎΠ³ΡΠ°ΠΌΠΌΠ° Π΄Π»Ρ ΠΏΡΠΎΠ΅ΠΊΡΠΈΡΠΎΠ²Π°Π½ΠΈΡ ΠΊΠ²Π°ΡΡΠΈΡΡ Π½Π° ΡΡΡΡΠΊΠΎΠΌ ΡΠ·ΡΠΊΠ΅ ΡΠ²Π»ΡΠ΅ΡΡΡ Π°Π±ΡΠΎΠ»ΡΡΠ½ΠΎ Π±Π΅ΡΠΏΠ»Π°ΡΠ½ΡΠΌ ΠΏΡΠΈΠ»ΠΎΠΆΠ΅Π½ΠΈΠ΅ΠΌ, ΠΊΠΎΡΠΎΡΠΎΠ΅ ΡΠ°Π±ΠΎΡΠ°Π΅Ρ ΡΠΎΠ»ΡΠΊΠΎ Π² ΡΠ΅ΠΆΠΈΠΌΠ΅ ΠΎΠ½Π»Π°ΠΉΠ½. ΠΠ΄Π½Π°ΠΊΠΎ Π΄Π»Ρ ΡΠ°Π±ΠΎΡΡ Ρ ΡΠ΅ΡΡΡΡΠΎΠΌ Π½Π΅ ΡΡΠ΅Π±ΡΠ΅ΡΡΡ Π½Π°Π»ΠΈΡΠΈΡ ΡΠΏΠ΅ΡΠΈΠ°Π»ΡΠ½ΡΡ Π½Π°Π²ΡΠΊΠΎΠ². ΠΠ½ΡΠ΅ΡΡΠ΅ΠΉΡ ΠΏΡΠΈΠ»ΠΎΠΆΠ΅Π½ΠΈΡ Π΄ΠΎΡΡΠ°ΡΠΎΡΠ½ΠΎ ΠΏΡΠΎΡΡ ΠΈ ΡΠ΄ΠΎΠ±Π΅Π½.
ΠΡΠ½ΠΎΠ²Π½ΠΎΠΉ ΡΠΏΠΎΡ Π² ΠΏΡΠΎΠ³ΡΠ°ΠΌΠΌΠ΅ Ikea Home Planner ΡΠ΄Π΅Π»Π°Π½ Π½Π° ΡΠ°ΡΡΡΠ°Π½ΠΎΠ²ΠΊΡ Π² ΠΏΠΎΠΌΠ΅ΡΠ΅Π½ΠΈΠΈ Π°ΠΊΡΠ΅ΡΡΡΠ°ΡΠΎΠ² ΠΈ ΠΌΠ΅Π±Π΅Π»ΠΈ. Π Π΅ΡΡΡΡ ΠΏΡΠ΅Π΄ΠΎΡΡΠ°Π²Π»ΡΠ΅Ρ ΠΏΠΎΠ»ΡΠ·ΠΎΠ²Π°ΡΠ΅Π»ΡΠΌ Π²ΡΠ΅ ΠΊΠΎΠ»Π»Π΅ΠΊΡΠΈΠΈ ΠΌΠ΅Π±Π΅Π»ΠΈ «ΠΠΊΠ΅Π°». ΠΠΎΠΌΠΈΠΌΠΎ ΡΡΠΎΠ³ΠΎ, ΡΠΎΡΡ ΠΏΠΎΠ·Π²ΠΎΠ»ΡΠ΅Ρ ΠΏΠΎΠ΄ΡΡΠΈΡΠ°ΡΡ ΡΡΠΌΠΌΡ, ΠΊΠΎΡΠΎΡΡΡ ΠΏΡΠΈΠ΄Π΅ΡΡΡ Π·Π°ΡΡΠ°ΡΠΈΡΡ Π½Π° ΠΏΠΎΠΊΡΠΏΠΊΡ ΠΏΡΠ΅Π΄ΠΌΠ΅ΡΠΎΠ² ΠΈΠ½ΡΠ΅ΡΡΠ΅ΡΠ°. ΠΠΎΡΠ»Π΅ ΡΠΎΠ³ΠΎ ΠΊΠ°ΠΊ ΠΏΡΠΎΠ΅ΠΊΡ Π±ΡΠ΄Π΅Ρ ΡΠΎΡ
ΡΠ°Π½Π΅Π½, ΠΏΡΠΈ ΠΆΠ΅Π»Π°Π½ΠΈΠΈ ΠΌΠΎΠΆΠ½ΠΎ Π·Π°ΠΊΠ°Π·Π°ΡΡ ΠΊΠΎΠΌΠΏΠ»Π΅ΠΊΡ ΠΌΠ΅Π±Π΅Π»ΠΈ. ΠΠ³ΠΎ Π΄ΠΎΡΡΠ°Π²ΡΡ ΠΈΠ· Π±Π»ΠΈΠΆΠ°ΠΉΡΠ΅Π³ΠΎ ΡΠΈΡΠΌΠ΅Π½Π½ΠΎΠ³ΠΎ ΠΌΠ°Π³Π°Π·ΠΈΠ½Π°.
Google Sketchup
ΠΡΠΎ ΠΏΡΠΎΠ³ΡΠ°ΠΌΠΌΠ° — Π½Π΅ ΠΏΡΠΎΡΡΠΎ ΠΏΠ»Π°Π½ΠΈΡΠΎΠ²ΡΠΈΠΊ. ΠΡΠΎΡ ΡΠΎΡΡ ΡΠ²Π»ΡΠ΅ΡΡΡ Π½Π°ΡΡΠΎΡΡΠ΅ΠΉ Π½Π°Ρ ΠΎΠ΄ΠΊΠΎΠΉ Π΄Π»Ρ ΡΠ΅Ρ , ΠΊΡΠΎ ΠΏΠ»Π°Π½ΠΈΡΡΠ΅Ρ Π·Π°Π½ΡΡΡΡΡ ΠΎΠ±ΡΡΠ΅Π½ΠΈΠ΅ΠΌ Π² ΡΠ°ΠΊΠΎΠΌ Π½Π°ΠΏΡΠ°Π²Π»Π΅Π½ΠΈΠΈ, ΠΊΠ°ΠΊ 3D-Π³ΡΠ°ΡΠΈΠΊΠ°. ΠΠ° Π΄Π°Π½Π½ΡΠΉ ΠΌΠΎΠΌΠ΅Π½Ρ ΡΡΡΠ΅ΡΡΠ²ΡΠ΅Ρ Π½Π΅ΡΠΊΠΎΠ»ΡΠΊΠΎ Π²Π΅ΡΡΠΈΠΉ ΠΏΡΠΎΠ³ΡΠ°ΠΌΠΌΡ: ΠΏΠ»Π°ΡΠ½Π°Ρ ΠΈ Π±Π΅ΡΠΏΠ»Π°ΡΠ½Π°Ρ. ΠΠΎΡΠ»Π΅Π΄Π½ΠΈΠΉ Π²Π°ΡΠΈΠ°Π½Ρ ΠΏΡΠ΅Π΄ΡΡΠ°Π²Π»ΡΠ΅Ρ ΡΠΎΠ±ΠΎΠΉ ΠΊΠ°ΡΠ΅ΡΡΠ²Π΅Π½Π½ΠΎΠ΅ ΠΏΡΠΈΠ»ΠΎΠΆΠ΅Π½ΠΈΠ΅, ΠΊΠΎΡΠΎΡΠΎΠ΅ ΡΠΎΠ΄Π΅ΡΠΆΠΈΡ Π²ΡΠ΅ Π½Π΅ΠΎΠ±Ρ ΠΎΠ΄ΠΈΠΌΡΠ΅ ΠΈΠ½ΡΡΡΡΠΌΠ΅Π½ΡΡ Π΄Π»Ρ ΡΠ°Π±ΠΎΡΡ Π½Π°Π΄ ΠΏΡΠΎΠ΅ΠΊΡΠ°ΠΌΠΈ. ΠΡΠΎΠ³ΡΠ°ΠΌΠΌΠ° Google Sketchup ΠΏΠΎΠ·Π²ΠΎΠ»ΡΠ΅Ρ ΡΠΎΠ·Π΄Π°ΡΡ ΠΏΠΎΠ»Π½ΠΎΡΠ΅Π½Π½ΡΠΉ ΠΈΠ½ΡΠ΅ΡΡΠ΅Ρ. ΠΡΠΈ ΡΡΠΎΠΌ ΠΈΠ½ΡΠ΅ΡΡΠ΅ΠΉΡ ΠΏΡΠΈΠ»ΠΎΠΆΠ΅Π½ΠΈΡ Π΄ΠΎΡΡΠ°ΡΠΎΡΠ½ΠΎ ΠΏΡΠΎΡΡ ΠΈ ΠΏΠΎΠ½ΡΡΠ΅Π½. ΠΡΠ²ΠΎΠ΅Π½ΠΈΠ΅ Google Sketchup Π½Π΅ ΠΎΡΠ½ΠΈΠΌΠ΅Ρ ΠΌΠ½ΠΎΠ³ΠΎ ΡΡΠΈΠ»ΠΈΠΉ ΠΈ Π²ΡΠ΅ΠΌΠ΅Π½ΠΈ. ΠΠ° ΠΊΠΎΡΠΎΡΠΊΠΈΠ΅ ΡΡΠΎΠΊΠΈ ΠΌΠΎΠΆΠ½ΠΎ Ρ Π»Π΅Π³ΠΊΠΎΡΡΡΡ Π²ΠΈΠ·ΡΠ°Π»ΠΈΠ·ΠΈΡΠΎΠ²Π°ΡΡ Π½Π΅ΠΎΠ±Ρ ΠΎΠ΄ΠΈΠΌΡΠΉ ΠΎΠ±ΡΠ΅ΠΊΡ, ΠΏΡΠΈΠ΄Π°Π² Π΅ΠΌΡ ΠΎΠΏΡΠ΅Π΄Π΅Π»Π΅Π½Π½ΡΠ΅ ΠΏΠ°ΡΠ°ΠΌΠ΅ΡΡΡ ΠΈ ΡΠΎΡΠΌΡ.
Planner 5D
ΠΡΠ° ΠΏΡΠΎΠ³ΡΠ°ΠΌΠΌΠ° ΠΏΡΠΎΠ΅ΠΊΡΠΈΡΠΎΠ²Π°Π½ΠΈΡ ΠΊΠ²Π°ΡΡΠΈΡΡ ΠΏΠΎΠ΄Ρ ΠΎΠ΄ΠΈΡ Π΄Π»Ρ ΠΏΡΠΎΡΠ΅ΡΡΠΈΠΎΠ½Π°Π»ΠΎΠ². ΠΡΠΈΠ»ΠΎΠΆΠ΅Π½ΠΈΠ΅ ΠΎΠ±Π»Π°Π΄Π°Π΅Ρ Π΄ΠΎΡΡΠ°ΡΠΎΡΠ½ΠΎ ΡΠΈΡΠΎΠΊΠΈΠΌ Π²ΡΠ±ΠΎΡΠΎΠΌ ΠΌΠ°ΡΠ΅ΡΠΈΠ°Π»ΠΎΠ², ΠΌΠ΅Π±Π΅Π»ΠΈ ΠΈ ΡΠ΅ΠΊΡΡΡΡ. ΠΡΠ»ΠΈ Π²ΠΎΠ·Π½ΠΈΠΊΠ½Π΅Ρ Π½Π΅ΠΎΠ±Ρ ΠΎΠ΄ΠΈΠΌΠΎΡΡΡ, ΡΠΎ ΠΏΠΎΡΠ»Π΅ Π²Π½Π΅ΡΠ΅Π½ΠΈΡ ΠΎΠΏΡΠ΅Π΄Π΅Π»Π΅Π½Π½ΠΎΠΉ ΠΏΠ»Π°ΡΡ ΠΊΠΎΠ»ΠΈΡΠ΅ΡΡΠ²ΠΎ ΠΏΡΠ΅Π΄ΠΌΠ΅ΡΠΎΠ² ΠΈΠ½ΡΠ΅ΡΡΠ΅ΡΠ° ΠΈ ΠΎΡΠ΄Π΅Π»ΠΊΠΈ ΠΌΠΎΠΆΠ½ΠΎ ΡΠ²Π΅Π»ΠΈΡΠΈΡΡ. Π‘ΡΠΎΠΈΡ ΠΎΡΠΌΠ΅ΡΠΈΡΡ, ΡΡΠΎ Planner 5D ΠΏΠΎΠ·Π²ΠΎΠ»ΡΠ΅Ρ ΡΠΏΡΠΎΠ΅ΠΊΡΠΈΡΠΎΠ²Π°ΡΡ Π½Π΅ ΡΠΎΠ»ΡΠΊΠΎ ΠΎΠ΄Π½ΠΎ ΠΏΠΎΠΌΠ΅ΡΠ΅Π½ΠΈΠ΅, Π½ΠΎ ΠΈ Π²ΡΡ ΠΊΠ²Π°ΡΡΠΈΡΡ ΡΡΠ°Π·Ρ. ΠΡΠΎ ΡΠΏΡΠΎΡΠ°Π΅Ρ ΡΠ°Π±ΠΎΡΡ ΠΏΠΎ ΡΠΎΠ·Π΄Π°Π½ΠΈΡ ΠΏΠ»Π°Π½Π°.
ΠΠΎΠΌΠΈΠΌΠΎ ΡΡΠΎΠ³ΠΎ, ΠΏΡΠΎΠ³ΡΠ°ΠΌΠΌΠ° ΡΠΎΠ΄Π΅ΡΠΆΠΈΡ ΠΊΠ°ΡΠ°Π»ΠΎΠ³ ΡΠΆΠ΅ Π³ΠΎΡΠΎΠ²ΡΡ
ΠΏΡΠΎΠ΅ΠΊΡΠΎΠ². ΠΠ° ΠΈΡ
ΠΎΡΠ½ΠΎΠ²Π΅ ΠΌΠΎΠΆΠ½ΠΎ ΡΠΎΠ·Π΄Π°ΡΡ ΡΠ²ΠΎΠΉ Π΄ΠΈΠ·Π°ΠΉΠ½ ΠΏΠΎΠΌΠ΅ΡΠ΅Π½ΠΈΡ, ΡΠΎΡ
ΡΠ°Π½ΠΈΡΡ Π΅Π³ΠΎ Π² Π³Π°Π»Π΅ΡΠ΅ΠΈ, Π° Π·Π°ΡΠ΅ΠΌ ΡΠ°ΡΠΏΠ΅ΡΠ°ΡΠ°ΡΡ. Π€ΡΠ½ΠΊΡΠΈΠΉ Ρ ΠΏΡΠΈΠ»ΠΎΠΆΠ΅Π½ΠΈΡ ΠΎΡΠ΅Π½Ρ ΠΌΠ½ΠΎΠ³ΠΎ. Π ΡΠΎ ΠΆΠ΅ Π²ΡΠ΅ΠΌΡ ΡΠ°Π±ΠΎΡΠ° Ρ ΠΏΡΠΎΠ³ΡΠ°ΠΌΠΌΠΎΠΉ Π½Π΅ Π²ΡΠ·ΡΠ²Π°Π΅Ρ Π·Π°ΡΡΡΠ΄Π½Π΅Π½ΠΈΠΉ.
ΠΡΠΈΠ»ΠΎΠΆΠ΅Π½ΠΈΠ΅ PRO100
PRO100 β ΡΡΠΎ ΡΠ΄ΠΎΠ±Π½Π°Ρ ΠΈ ΠΏΡΠΎΡΡΠ°Ρ ΠΏΡΠΎΠ³ΡΠ°ΠΌΠΌΠ° Π΄Π»Ρ ΠΏΡΠΎΠ΅ΠΊΡΠΈΡΠΎΠ²Π°Π½ΠΈΡ ΠΊΠ²Π°ΡΡΠΈΡΡ, ΠΊΠΎΡΠΎΡΠ°Ρ ΠΏΠΎΠ·Π²ΠΎΠ»ΡΠ΅Ρ Π²ΡΠ΅Π³ΠΎ Π·Π° ΠΏΠΎΠ»ΡΠ°ΡΠ° ΡΠΎΠ·Π΄Π°ΡΡ ΠΈΠ½ΡΠ΅ΡΠ΅ΡΠ½ΡΠΉ ΠΈ ΠΎΡΠΈΠ³ΠΈΠ½Π°Π»ΡΠ½ΡΠΉ Π΄ΠΈΠ·Π°ΠΉΠ½ ΠΈΠ½ΡΠ΅ΡΡΠ΅ΡΠ°. Π Π°Π±ΠΎΡΠ° Ρ ΡΠΎΡΡΠΎΠΌ Π½Π΅ ΠΎΡΠ½ΠΈΠΌΠ°Π΅Ρ ΠΌΠ½ΠΎΠ³ΠΎ Π²ΡΠ΅ΠΌΠ΅Π½ΠΈ. ΠΠΎΡΡΠ°ΡΠΎΡΠ½ΠΎ ΠΏΡΠΎΡΡΠΎ ΡΠΌΠ΅ΡΡ ΠΏΠΎΠ»ΡΠ·ΠΎΠ²Π°ΡΡΡΡ ΠΊΠΎΠΌΠΏΡΡΡΠ΅ΡΠ½ΠΎΠΉ ΠΌΡΡΠΊΠΎΠΉ. Π Π΄Π°Π½Π½ΠΎΠΌ ΠΏΡΠΈΠ»ΠΎΠΆΠ΅Π½ΠΈΠΈ ΠΈΠΌΠ΅Π΅ΡΡΡ ΡΡΠ½ΠΊΡΠΈΠΎΠ½Π°Π»ΡΠ½ΠΎ Π½Π°ΠΏΠΎΠ»Π½Π΅Π½Π½Π°Ρ ΠΏΠ°Π½Π΅Π»Ρ ΠΈΠ½ΡΡΡΡΠΌΠ΅Π½ΡΠΎΠ², ΡΡΠΎ ΠΏΠΎΠ·Π²ΠΎΠ»ΡΠ΅Ρ ΠΏΠΎΠ²ΠΎΡΠ°ΡΠΈΠ²Π°ΡΡ, ΠΏΠ΅ΡΠ΅Π΄Π²ΠΈΠ³Π°ΡΡ Π²ΠΎ Π²ΡΠ΅ ΡΡΠΎΡΠΎΠ½Ρ, Π° ΡΠ°ΠΊΠΆΠ΅ ΠΏΠΎΠ·ΠΈΡΠΈΠΎΠ½ΠΈΡΠΎΠ²Π°ΡΡ ΡΠ»Π΅ΠΌΠ΅Π½ΡΡ.
ΠΠ°ΠΆΠ΄ΡΠΉ ΠΎΠ±ΡΠ΅ΠΊΡ ΠΏΡΠΎΠ³ΡΠ°ΠΌΠΌΡ ΠΎΠ±Π»Π°Π΄Π°Π΅Ρ ΠΎΠΏΡΠ΅Π΄Π΅Π»Π΅Π½Π½ΡΠΌΠΈ ΠΏΠ°ΡΠ°ΠΌΠ΅ΡΡΠ°ΠΌΠΈ ΠΈ Ρ
Π°ΡΠ°ΠΊΡΠ΅ΡΠΈΡΡΠΈΠΊΠ°ΠΌΠΈ, ΠΊΠΎΡΠΎΡΡΠ΅ ΠΌΠΎΠΆΠ½ΠΎ ΠΈΠ·ΠΌΠ΅Π½ΡΡΡ, Π·Π°ΠΉΠ΄Ρ Π² ΡΠΎΠΎΡΠ²Π΅ΡΡΡΠ²ΡΡΡΠ΅Π΅ ΠΌΠ΅Π½Ρ. ΠΠΎΠΌΠΈΠΌΠΎ ΡΡΠΎΠ³ΠΎ, ΠΏΡΠΈΠ»ΠΎΠΆΠ΅Π½ΠΈΠ΅ PRO100 ΠΈΠΌΠ΅Π΅Ρ ΡΠ°ΠΊΡΡ ΡΠ½ΠΈΠΊΠ°Π»ΡΠ½ΡΡ ΡΡΠ½ΠΊΡΠΈΡ, ΠΊΠ°ΠΊ ΡΠ΅ΠΌΠΈΠΊΡΠ°ΡΠ½Π°Ρ ΠΏΡΠΎΠ΅ΠΊΡΠΈΡ. ΠΡΠΈ ΠΆΠ΅Π»Π°Π½ΠΈΠΈ ΠΌΠΎΠΆΠ½ΠΎ ΠΈΡΠΏΠΎΠ»ΡΠ·ΠΎΠ²Π°ΡΡ Π΄ΠΎΠΏΠΎΠ»Π½ΠΈΡΠ΅Π»ΡΠ½ΡΠ΅ Π³ΡΠ°ΡΠΈΡΠ΅ΡΠΊΠΈΠ΅ ΡΡΡΠ΅ΠΊΡΡ, Π½Π°ΠΏΡΠΈΠΌΠ΅Ρ, ΠΏΡΠΎΠ·ΡΠ°ΡΠ½ΠΎΡΡΡ, Π²ΡΠ΄Π΅Π»Π΅Π½ΠΈΠ΅ ΠΊΠΎΠ½ΡΡΡΠ°, ΡΡΡΠ΅Π²Π°Π½ΠΈΠ΅ ΠΈ ΡΠ°ΠΊ Π΄Π°Π»Π΅Π΅. PRO100 ΠΏΡΠΈΠ΄Π΅ΡΡΡ ΠΏΠΎ Π΄ΡΡΠ΅ Π½Π΅ ΡΠΎΠ»ΡΠΊΠΎ Π½ΠΎΠ²ΠΈΡΠΊΠ°ΠΌ, Π½ΠΎ ΠΈ Π΄ΠΈΠ·Π°ΠΉΠ½Π΅ΡΠ°ΠΌ-ΠΏΡΠΎΡΠ΅ΡΡΠΈΠΎΠ½Π°Π»Π°ΠΌ.
ΠΡΠΎΠ³ΡΠ°ΠΌΠΌΠ° «ΠΠ»Π°Π½ΠΎΠΏΠ»Π°Π½»
«ΠΠ»Π°Π½ΠΎΠΏΠ»Π°Π½» ΠΏΡΠ΅Π΄ΡΡΠ°Π²Π»ΡΠ΅Ρ ΡΠΎΠ±ΠΎΠΉ ΠΎΠ½Π»Π°ΠΉΠ½-ΡΠ΅ΡΠ²ΠΈΡ, ΠΊΠΎΡΠΎΡΡΠΉ ΠΏΠΎΠ·Π²ΠΎΠ»ΡΠ΅Ρ Π±Π΅Π· ΠΎΡΠΎΠ±ΡΡ ΡΡΠΈΠ»ΠΈΠΉ ΡΠΎΠ·Π΄Π°ΡΡ ΠΈΠ½ΡΠ΅ΡΡΠ΅Ρ Π»ΡΠ±ΠΎΠ³ΠΎ ΠΏΠΎΠΌΠ΅ΡΠ΅Π½ΠΈΡ. ΠΠ½ΡΠ΅ΡΡΠ΅ΠΉΡ Π±ΡΠ΄Π΅Ρ ΠΏΠΎΠ½ΡΡΠ΅Π½ Π΄Π°ΠΆΠ΅ ΡΠ΅ΠΌ, ΠΊΡΠΎ ΡΠΎΠ²Π΅ΡΡΠ΅Π½Π½ΠΎ Π½Π΅ ΡΠ°Π·Π±ΠΈΡΠ°Π΅ΡΡΡ Π² ΠΊΠΎΠΌΠΏΡΡΡΠ΅ΡΠ°Ρ . Π§ΡΠΎ ΠΊΠ°ΡΠ°Π΅ΡΡΡ ΠΏΠ°Π½Π΅Π»ΠΈ ΠΈΠ½ΡΡΡΡΠΌΠ΅Π½ΡΠΎΠ², ΡΠΎ ΠΎΠ½Π° ΠΎΠ±Π»Π°Π΄Π°Π΅Ρ ΠΎΠ³ΡΠΎΠΌΠ½ΡΠΌ Π²ΡΠ±ΠΎΡΠΎΠΌ ΡΠ»Π΅ΠΌΠ΅Π½ΡΠΎΠ². ΠΠ΄Π΅ΡΡ ΠΈΠΌΠ΅ΡΡΡΡ ΡΠ°Π·Π½ΡΠ΅ ΡΠΎΡΠΌΡ ΠΏΠΎΠΌΠ΅ΡΠ΅Π½ΠΈΠΉ ΠΈ ΠΊΠ²Π°ΡΡΠΈΡ, ΡΠ°Π·Π½ΠΎΠΎΠ±ΡΠ°Π·Π½ΡΠ΅ ΠΎΡΠ΄Π΅Π»ΠΎΡΠ½ΡΠ΅ ΠΌΠ°ΡΠ΅ΡΠΈΠ°Π»Ρ Π΄Π»Ρ ΠΏΠΎΠ»Π°, ΡΡΠ΅Π½ ΠΈ ΠΏΠΎΡΠΎΠ»ΠΊΠ°, ΠΌΠ½ΠΎΠΆΠ΅ΡΡΠ²ΠΎ Π°ΠΊΡΠ΅ΡΡΡΠ°ΡΠΎΠ² ΠΈ ΡΠ»Π΅ΠΌΠ΅Π½ΡΠΎΠ² ΠΈΠ½ΡΠ΅ΡΡΠ΅ΡΠ°. ΠΡΠΎ Π΄Π°Π΅Ρ Π²ΠΎΠ·ΠΌΠΎΠΆΠ½ΠΎΡΡΡ ΡΠΎΠ·Π΄Π°ΡΡ ΠΎΡΠΈΠ³ΠΈΠ½Π°Π»ΡΠ½ΡΠΉ Π΄ΠΈΠ·Π°ΠΉΠ½.
ΠΡΠΈ Π½Π΅ΠΎΠ±Ρ ΠΎΠ΄ΠΈΠΌΠΎΡΡΠΈ ΠΏΡΠΎΠ³ΡΠ°ΠΌΠΌΠ° ΠΏΠΎΠ·Π²ΠΎΠ»ΡΠ΅Ρ Π²ΠΈΠ·ΡΠ°Π»ΡΠ½ΠΎ ΠΎΡΠ΅Π½ΠΈΡΡ Π³ΠΎΡΠΎΠ²ΡΠΉ ΠΏΡΠΎΠ΅ΠΊΡ Π² ΡΠ΅ΠΆΠΈΠΌΠ΅ 3D ΠΈ Π΄Π°ΠΆΠ΅ Π½Π΅ΠΌΠ½ΠΎΠ³ΠΎ ΠΏΠΎΠ³ΡΠ»ΡΡΡ ΠΏΠΎ Π½Π΅ΠΌΡ. ΠΡΠ΅ΠΈΠΌΡΡΠ΅ΡΡΠ²ΠΎΠΌ ΠΏΠΎΠ΄ΠΎΠ±Π½ΠΎΠ³ΠΎ ΡΠ΅ΡΡΡΡΠ° ΡΠ²Π»ΡΠ΅ΡΡΡ Π²ΠΎΠ·ΠΌΠΎΠΆΠ½ΠΎΡΡΡ Π·Π°Π³ΡΡΠΆΠ°ΡΡ ΡΠΎΠ±ΡΡΠ²Π΅Π½Π½ΡΠ΅ ΡΠ°ΠΊΡΡΡΡ, Π° ΡΠ°ΠΊΠΆΠ΅ ΡΠΈΡΡΠ½ΠΊΠΈ. ΠΠ΄Π½Π°ΠΊΠΎ Π΄Π»Ρ ΡΠ°Π±ΠΎΡΡ Ρ ΠΏΡΠΈΠ»ΠΎΠΆΠ΅Π½ΠΈΠ΅ΠΌ ΡΡΠ΅Π±ΡΠ΅ΡΡΡ Π΄ΠΎΡΡΠ°ΡΠΎΡΠ½ΠΎ ΠΌΠΎΡΠ½ΡΠΉ ΠΊΠΎΠΌΠΏΡΡΡΠ΅Ρ, ΠΊΠΎΡΠΎΡΡΠΉ ΠΏΠΎΠ·Π²ΠΎΠ»ΠΈΡ Π½ΠΎΡΠΌΠ°Π»ΡΠ½ΠΎ ΡΠ°Π±ΠΎΡΠ°ΡΡ Ρ ΠΏΠΎΠ΄ΠΎΠ±Π½ΡΠΌ ΡΠ°Π·Π½ΠΎΠΎΠ±ΡΠ°Π·ΠΈΠ΅ΠΌ.
fb.ru
ΠΡΠΎΠ³ΡΠ°ΠΌΠΌΠ° Π΄Π»Ρ ΡΠ΅ΠΌΠΎΠ½ΡΠ° ΠΊΠ²Π°ΡΡΠΈΡΡ, ΠΏΡΠΎΠ³ΡΠ°ΠΌΠΌΠ° Π΄Π»Ρ Π²ΠΈΡΡΡΠ°Π»ΡΠ½ΠΎΠ³ΠΎ ΡΠ΅ΠΌΠΎΠ½ΡΠ° ΠΊΠ²Π°ΡΡΠΈΡΡ
ΠΠ°ΡΡ Π΄Π΅ΡΡΡΠΈΠ»Π΅ΡΠΈΠΉ Π½Π°Π·Π°Π΄ ΡΠ΅ΠΌΠΎΠ½Ρ Π² ΠΊΠ²Π°ΡΡΠΈΡΠ°Ρ Π±ΡΠ» ΡΡΡΠ΅ΡΡΠ²Π΅Π½Π½ΠΎ ΠΎΠ³ΡΠ°Π½ΠΈΡΠ΅Π½ ΡΠΊΡΠ΄Π½ΡΠΌ Π²ΡΠ±ΠΎΡΠΎΠΌ ΠΌΠ°ΡΠ΅ΡΠΈΠ°Π»ΠΎΠ². Π ΡΡΠΈΠ»ΡΡ ΠΈΠ½ΡΠ΅ΡΡΠ΅ΡΠΎΠ² ΡΠΎΠ³Π΄Π° ΠΏΡΠΎΡΡΡΠ΅ Π»ΡΠ΄ΠΈ Π΄Π°ΠΆΠ΅ ΠΈ Π½Π΅ Π΄ΠΎΠ³Π°Π΄ΡΠ²Π°Π»ΠΈΡΡ β Π»ΠΈΡΡ Π² Π½Π°ΡΠΈ Π΄Π½ΠΈ ΠΎΠ½ΠΈ ΡΡΠ°Π»ΠΈ ΠΎΠ±ΡΠ΄Π΅Π½Π½ΡΠΌΠΈ ΠΏΡΠΈ ΡΠ΅ΠΌΠΎΠ½ΡΠ΅. Π‘ Π½ΠΎΠ²ΡΠΌΠΈ ΡΠ΅Ρ Π½ΠΎΠ»ΠΎΠ³ΠΈΡΠΌΠΈ ΠΏΡΠΈΡ ΠΎΠ΄ΡΡ Π½ΠΎΠ²ΡΠ΅ Π²ΠΎΠ·ΠΌΠΎΠΆΠ½ΠΎΡΡΠΈ, ΠΈ ΡΠ΅Π³ΠΎΠ΄Π½Ρ ΠΌΠΎΠΆΠ½ΠΎ ΡΠ΄Π΅Π»Π°ΡΡ Π½Π°Π±ΡΠΎΡΠΎΠΊ ΠΆΠ΅Π»Π°Π΅ΠΌΠΎΠ³ΠΎ ΠΈΠ½ΡΠ΅ΡΡΠ΅ΡΠ° Π½Π° ΠΊΠΎΠΌΠΏΡΡΡΠ΅ΡΠ΅, ΡΠΊΠ°ΡΠ°Π² ΠΏΡΠΎΠ³ΡΠ°ΠΌΠΌΡ Π΄Π»Ρ ΡΠ°ΡΡΠ΅ΡΠ° ΡΠ΅ΠΌΠΎΠ½ΡΠ° ΠΊΠ²Π°ΡΡΠΈΡΡ ΠΈ Π΄Π»Ρ Π²ΠΈΠ·ΡΠ°Π»ΠΈΠ·Π°ΡΠΈΠΈ ΠΈΠ½ΡΠ΅ΡΡΠ΅ΡΠ°.
ΠΠΎΠ½Π΅ΡΠ½ΠΎ, ΡΠ°Π±ΠΎΡΠ°ΡΡ Ρ ΠΏΡΠΎΠ³ΡΠ°ΠΌΠΌΠ°ΠΌΠΈ Π΄Π»Ρ ΡΠΎΠ·Π΄Π°Π½ΠΈΡ Π΄ΠΈΠ·Π°ΠΉΠ½ ΠΏΡΠΎΠ΅ΠΊΡΠΎΠ² ΡΠΌΠΎΠΆΠ΅Ρ Π½Π΅ ΠΊΠ°ΠΆΠ΄ΡΠΉ β ΡΡΠΎ ΡΠ΄Π΅Π» Π½Π°ΡΡΠΎΡΡΠΈΡ Π΄ΠΈΠ·Π°ΠΉΠ½Π΅ΡΠΎΠ², Π° Π²ΠΎΡ ΡΠΏΡΠ°Π²ΠΈΡΡΡΡ Ρ ΠΏΡΠΎΡΡΠ΅ΠΉΡΠΈΠΌΠΈ ΠΊΠΎΠ½ΡΡΡΡΠΊΡΠΎΡΠ°ΠΌΠΈ ΠΏΠΎΠ΄ ΡΠΈΠ»Ρ Π»ΡΠ±ΠΎΠΌΡ ΠΏΠΎΠ»ΡΠ·ΠΎΠ²Π°ΡΠ΅Π»Ρ.
ΠΠ°ΡΠ΅ΠΌ Π½ΡΠΆΠ½Ρ ΠΏΡΠΎΠ³ΡΠ°ΠΌΠΌΡ Π΄Π»Ρ ΡΠ΅ΠΌΠΎΠ½ΡΠ° ΠΊΠ²Π°ΡΡΠΈΡ?
ΠΠ΅ΡΠ΅Π΄ ΠΎΠ±ΡΠ°ΡΠ΅Π½ΠΈΠ΅ΠΌ ΠΊ ΡΠΏΠ΅ΡΠΈΠ°Π»ΠΈΡΡΡ, ΠΊΠΎΡΠΎΡΡΠΉ ΡΠ°Π·ΡΠ°Π±ΠΎΡΠ°Π΅Ρ ΠΊΠ°ΡΠ΅ΡΡΠ²Π΅Π½Π½ΡΠΉ Π΄ΠΈΠ·Π°ΠΉΠ½-ΠΏΡΠΎΠ΅ΠΊΡ, ΠΆΠ΅Π»Π°ΡΠ΅Π»ΡΠ½ΠΎ ΡΠΎΡΡΠ°Π²ΠΈΡΡ ΡΠΎΠ±ΡΡΠ²Π΅Π½Π½ΠΎΠ΅ ΠΏΡΠΈΠ±Π»ΠΈΠ·ΠΈΡΠ΅Π»ΡΠ½ΠΎΠ΅ ΠΏΡΠ΅Π΄ΡΡΠ°Π²Π»Π΅Π½ΠΈΠ΅ ΠΎ Π²Π½Π΅ΡΠ½Π΅ΠΌ Π²ΠΈΠ΄Π΅ ΠΎΡΡΠ΅ΠΌΠΎΠ½ΡΠΈΡΠΎΠ²Π°Π½Π½ΠΎΠΉ ΠΊΠ²Π°ΡΡΠΈΡΡ. ΠΠ»Ρ ΡΠ°ΠΌΠΎΡΡΠΎΡΡΠ΅Π»ΡΠ½ΡΡ Π²ΠΈΡΡΡΠ°Π»ΡΠ½ΡΡ ΡΠΊΡΠΏΠ΅ΡΠΈΠΌΠ΅Π½ΡΠΎΠ² Ρ Π΄ΠΈΠ·Π°ΠΉΠ½ΠΎΠΌ ΡΠΎΠ·Π΄Π°Π½Π° Π½Π΅ ΠΎΠ΄Π½Π° ΠΏΡΠΎΠ³ΡΠ°ΠΌΠΌΠ° Π΄Π»Ρ ΡΠ΅ΠΌΠΎΠ½ΡΠ° ΠΊΠ²Π°ΡΡΠΈΡΡ. Π’Π°ΠΊΠΈΠΌΠΈ ΠΏΡΠΎΠ³ΡΠ°ΠΌΠΌΠ°ΠΌΠΈ ΡΡΡΡ ΠΌΠ΅ΡΠ½ΠΎΠ³ΠΎ ΠΏΡΠΎΠ΅ΠΊΡΠΈΡΠΎΠ²Π°Π½ΠΈΡ ΡΠ°ΡΡΠΎ ΠΏΠΎΠ»ΡΠ·ΡΡΡΡΡ ΠΈ ΡΠ°ΠΌΠΈ Π΄ΠΈΠ·Π°ΠΉΠ½Π΅ΡΡ, ΠΌΠ΅Π±Π΅Π»ΡΠ½ΡΠ΅ ΡΠ°Π±ΡΠΈΠΊΠΈ ΠΈ ΡΠ΅ΠΌΠΎΠ½ΡΠ½ΡΠ΅ ΠΎΡΠ³Π°Π½ΠΈΠ·Π°ΡΠΈΠΈ, Ρ ΠΎΡΡ Π±Ρ Π΄Π»Ρ ΡΠΎΠ³ΠΎ, ΡΡΠΎΠ±Ρ ΠΊΠ»ΠΈΠ΅Π½ΡΡ ΠΏΠΎ Π²ΠΈΠ·ΡΠ°Π»ΡΠ½ΠΎΠΉ ΠΊΠ°ΡΡΠΈΠ½ΠΊΠ΅ Π±ΡΠ»ΠΎ ΠΏΡΠΎΡΠ΅ ΠΎΡΠ΅Π½ΠΈΡΡ Π²Π°ΡΠΈΠ°Π½ΡΡ. Π‘ΡΠ°Π²Π½ΠΈΠΌ Π½Π΅ΠΊΠΎΡΠΎΡΡΠ΅ ΠΏΡΠΎΠ³ΡΠ°ΠΌΠΌΡ.
Sweet home 3D

Π‘ ΠΏΠΎΠΌΠΎΡΡΡ ΡΡΠΎΠΉ ΠΏΡΠΎΡΡΠΎΠΉ ΠΏΡΠΎΠ³ΡΠ°ΠΌΠΌΡ ΠΈΠ½ΡΠ΅ΡΡΠ΅ΡΡ ΠΌΠΎΠΆΠ½ΠΎ ΡΠΌΠΎΠ΄Π΅Π»ΠΈΡΠΎΠ²Π°ΡΡ Π½Π° Π΄ΠΎΠΌΠ°ΡΠ½Π΅ΠΌ ΠΊΠΎΠΌΠΏΡΡΡΠ΅ΡΠ΅. ΠΡΠΈ Π΅Ρ Π²ΠΊΠ»ΡΡΠ΅Π½ΠΈΠΈ ΠΎΠΊΠ½ΠΎ ΡΠ°Π·Π΄Π΅Π»ΡΠ΅ΡΡΡ Π½Π° 4 ΡΠ΅ΠΊΡΠΎΡΠ°, ΡΠΎΠ΄Π΅ΡΠΆΠ°ΡΠΈΠ΅ Π²ΠΈΠ΄Ρ ΡΠ²Π΅ΡΡ Ρ ΠΈ ΡΠ±ΠΎΠΊΡ, Π° ΡΠ°ΠΊΠΆΠ΅ ΡΠΏΡΠ°Π²Π»Π΅Π½ΠΈΠ΅ ΡΠ»Π΅ΠΌΠ΅Π½ΡΠ°ΠΌΠΈ ΠΈ ΠΊΠ°ΡΠ°Π»ΠΎΠ³ΠΈ. ΠΡΠΎΠ³ΡΠ°ΠΌΠΌΠ° ΠΏΠΎΠ·Π²ΠΎΠ»ΡΠ΅Ρ ΠΈΠ·ΠΌΠ΅Π½ΡΡΡ ΡΠ΅ΠΊΡΡΡΡΡ, ΡΠ²Π΅Ρ, ΠΏΡΠΎΠ·ΡΠ°ΡΠ½ΠΎΡΡΡ ΡΡΠ΅Π½, ΡΠ°ΡΡΡΠ°Π²Π»ΡΡΡ Π² ΠΏΠΎΠΌΠ΅ΡΠ΅Π½ΠΈΠΈ ΠΌΠ΅Π±Π΅Π»Ρ Ρ ΠΎΡΡΠ°ΠΆΠ΅Π½ΠΈΠ΅ΠΌ ΡΠ΅Π·ΡΠ»ΡΡΠ°ΡΠ° Π² ΡΡΡΡ ΠΌΠ΅ΡΠ½ΠΎΠΌ Π²ΠΈΠ΄Π΅.
Π ΠΏΡΠ΅ΠΈΠΌΡΡΠ΅ΡΡΠ²Π°ΠΌ ΠΏΡΠΎΠ³ΡΠ°ΠΌΠΌΡ ΠΎΡΠ½ΠΎΡΡΡΡΡ:
- ΡΠ²ΠΎΠ±ΠΎΠ΄Π½ΠΎ ΡΠΊΠ°ΡΠΈΠ²Π°Π΅ΠΌΠΎΠ΅ Ρ ΠΎΡΠΈΡΠΈΠ°Π»ΡΠ½ΠΎΠ³ΠΎ ΡΠ°ΠΉΡΠ° Π±Π΅ΡΠΏΠ»Π°ΡΠ½ΠΎΠ΅ ΠΏΡΠΈΠ»ΠΎΠΆΠ΅Π½ΠΈΠ΅;
- Π΅Ρ Π½Π΅Π±ΠΎΠ»ΡΡΠΎΠΉ ΠΎΠ±ΡΡΠΌ;
- ΡΡΡΠΈΡΠΈΡΠΈΡΠΎΠ²Π°Π½Π½ΠΎΠ΅ ΠΌΠ΅Π½Ρ.
ΠΠ΅Π΄ΠΎΡΡΠ°ΡΠΊΠΈ ΡΠ»Π΅Π΄ΡΡΡΠΈΠ΅:
- Π½Π΅Π±ΠΎΠ»ΡΡΠΎΠΉ Π²ΡΠ±ΠΎΡ Π³ΠΎΡΠΎΠ²ΡΡ ΡΠ»Π΅ΠΌΠ΅Π½ΡΠΎΠ² Π² Π±ΠΈΠ±Π»ΠΈΠΎΡΠ΅ΠΊΠ°Ρ ;
- Π½Π΅Π²ΠΎΠ·ΠΌΠΎΠΆΠ½ΠΎΡΡΡ ΡΠΎΡΡΠ°Π²Π»Π΅Π½ΠΈΡ ΡΠΌΠ΅ΡΡ ΠΌΠ°ΡΠ΅ΡΠΈΠ°Π»ΡΠ½ΡΡ ΡΠ°ΡΡ ΠΎΠ΄ΠΎΠ²;
- Π΄ΠΎΠΏΠΎΠ»Π½ΠΈΡΠ΅Π»ΡΠ½ΠΎ Π·Π°Π³ΡΡΠΆΠ°Π΅ΠΌΡΠ΅ Π±ΠΈΠ±Π»ΠΈΠΎΡΠ΅ΠΊΠΈ ΡΠΎΠ΄Π΅ΡΠΆΠ°Ρ ΡΠ°ΡΡΠΎ Π½Π΅ΡΡΡΠΈΡΠΈΡΠΈΡΠΎΠ²Π°Π½Π½ΡΠ΅ Π½Π°Π·Π²Π°Π½ΠΈΡ, ΡΡΠΎ Π΄Π»Ρ ΠΌΠ½ΠΎΠ³ΠΈΡ Π·Π°ΡΡΡΠ΄Π½ΠΈΡΠ΅Π»ΡΠ½ΠΎ.
Google ScketchUp

ΠΠ°Π½Π½Π°Ρ ΠΏΡΠΎΠ³ΡΠ°ΠΌΠΌΠ° Π΄Π»Ρ Π²ΠΈΡΡΡΠ°Π»ΡΠ½ΠΎΠ³ΠΎ ΡΠ΅ΠΌΠΎΠ½ΡΠ° ΠΊΠ²Π°ΡΡΠΈΡΡ ΡΠ΄ΠΎΠ±Π½Π° Π΄Π»Ρ Π½ΠΎΠ²ΠΈΡΠΊΠΎΠ² Π² ΡΡΡΡ ΠΌΠ΅ΡΠ½ΠΎΠΉ Π³ΡΠ°ΡΠΈΠΊΠ΅. ΠΡ ΠΌΠΎΠΆΠ΅ΡΠ΅ ΡΠΊΠ°ΡΠ°ΡΡ ΠΏΡΠΎΠ³ΡΠ°ΠΌΠΌΡ Π΄Π»Ρ ΠΈΠ½ΡΠ΅ΡΡΠ΅ΡΠ° ΡΠ΅ΠΌΠΎΠ½ΡΠ° ΠΊΠ²Π°ΡΡΠΈΡ Π±Π΅ΡΠΏΠ»Π°ΡΠ½ΠΎ Π»ΠΈΠ±ΠΎ Π²Π·ΡΡΡ ΠΏΠ»Π°ΡΠ½ΡΠΉ ΠΊΠΎΠ½ΡΡΡΡΠΊΡΠΎΡ, Π½ΠΎ Π±ΠΎΠ»Π΅Π΅ ΠΏΡΠΎΡΠ΅ΡΡΠΈΠΎΠ½Π°Π»ΡΠ½ΡΠΉ ΠΈ Ρ Π±ΠΎΠ»ΡΡΠΈΠΌΠΈ Π²ΠΎΠ·ΠΌΠΎΠΆΠ½ΠΎΡΡΡΠΌΠΈ. ΠΠ°ΠΆΠ΅ Π² ΠΏΡΠΎΡΡΠ΅ΠΉΡΠ΅ΠΌ Π²Π°ΡΠΈΠ°Π½ΡΠ΅ Π΅ΡΡΡ Π΄ΠΎΡΡΠ°ΡΠΎΡΠ½ΠΎ ΠΈΠ½ΡΡΡΡΠΌΠ΅Π½ΡΠΎΠ² Π΄Π»Ρ ΡΠΎΡΠΌΠΈΡΠΎΠ²Π°Π½ΠΈΡ ΠΈΡΠΊΠΎΠΌΠΎΠ³ΠΎ ΠΈΠ½ΡΠ΅ΡΡΠ΅ΡΠ°, ΡΠ΅ΠΌΡ Π² ΠΏΠΎΠΌΠΎΡΡ ΠΈ ΠΌΠ½ΠΎΠ³ΠΎΡΠΈΡΠ»Π΅Π½Π½ΡΠ΅ Β«ΠΎΠ±ΡΡΠ°Π»ΠΊΠΈΒ» Π² ΠΏΡΠΎΠ³ΡΠ°ΠΌΠΌΠ΅.
ΠΠΎΡΡΠΎΠΈΠ½ΡΡΠ²Π° ΠΏΡΠΎΠ³ΡΠ°ΠΌΠΌΡ Π²:
- Π»Π΅Π³ΠΊΠΎΠΌ ΠΈ Π΄ΠΎΡΡΡΠΏΠ½ΠΎΠΌ ΠΈΠ½ΡΠ΅ΡΡΠ΅ΠΉΡΠ΅;
- ΠΌΠ½ΠΎΠΆΠ΅ΡΡΠ²Π΅ ΠΏΠΎΠ΄ΡΠΊΠ°Π·ΠΎΠΊ ΠΈ Π²ΠΈΠ΄Π΅ΠΎΡΠΎΠ»ΠΈΠΊΠΎΠ²;
- ΠΏΠΎΡΠ°Π³ΠΎΠ²ΡΡ ΠΈΠ½ΡΡΡΡΠΊΡΠΈΡΡ .
ΠΠ΅Π΄ΠΎΡΡΠ°ΡΠΊΠΈ Π·Π°ΠΊΠ»ΡΡΠ°ΡΡΡΡ Π² ΡΠ»Π°Π±ΠΎΠΉ Π²ΠΈΠ·ΡΠ°Π»ΠΈΠ·Π°ΡΠΈΠΈ ΠΈ ΠΌΠΈΠ½ΠΈΠΌΠ°Π»ΡΠ½ΠΎΠΌ Π½Π°Π±ΠΎΡΠ΅ Π±Π°Π·ΠΎΠ²ΡΡ ΡΠ»Π΅ΠΌΠ΅Π½ΡΠΎΠ², ΠΏΠΎΠΏΠΎΠ»Π½ΡΡΡ ΠΊΠΎΡΠΎΡΡΠΉ ΠΏΡΠΈΡ ΠΎΠ΄ΠΈΡΡΡ ΡΠΊΠ°ΡΠΈΠ²Π°Π½ΠΈΠ΅ΠΌ Π΄ΠΎΠΏΠΎΠ»Π½ΠΈΡΠ΅Π»ΡΠ½ΡΡ Π±ΠΈΠ±Π»ΠΈΠΎΡΠ΅ΠΊ.
Color Style Studio
ΠΠ»Ρ ΠΏΠΎΠ΄Π±ΠΎΡΠ° ΡΠ²Π΅ΡΠΎΠ² ΠΈΠ½ΡΠ΅ΡΡΠ΅ΡΠ° ΡΡΠΎ ΠΎΡΠ»ΠΈΡΠ½Π°Ρ ΠΏΡΠΎΠ³ΡΠ°ΠΌΠΌΠ°. ΠΠ½Π°ΡΠ°Π»Π΅ Π·Π°Π΄Π°ΡΡΡΡ ΠΏΠ°ΡΠ°ΠΌΠ΅ΡΡΡ ΠΈ ΠΏΠΎ Β«ΠΏΠΎΠΌΠ΅ΡΠ΅Π½ΠΈΡΒ» ΡΠ°ΡΡΡΠ°Π²Π»ΡΠ΅ΡΡΡ Π²ΠΈΡΡΡΠ°Π»ΡΠ½Π°Ρ ΠΌΠ΅Π±Π΅Π»Ρ. ΠΠΎΠΆΠ½ΠΎ Π·Π°Π³ΡΡΠ·ΠΈΡΡ Π³ΠΎΡΠΎΠ²ΠΎΠ΅ ΡΠΎΡΠΎ ΠΈ ΠΏΠΎΠ΄Π±ΠΈΡΠ°ΡΡ ΡΠ²Π΅ΡΠ° ΠΏΠΎ Π½Π΅ΠΌΡ. ΠΠ°Π΄Π°Π² ΠΎΠ΄ΠΈΠ½ Π±Π°Π·ΠΎΠ²ΡΠΉ ΠΎΡΡΠ΅Π½ΠΎΠΊ ΠΈΠ½ΡΠ΅ΡΡΠ΅ΡΠ°, ΠΌΠΎΠΆΠ½ΠΎ, ΠΏΠΎΠ»ΡΠ·ΡΡΡΡ ΠΊΠ°ΡΠ°Π»ΠΎΠ³Π°ΠΌΠΈ, ΠΏΠΎΠ΄ΠΎΠ±ΡΠ°ΡΡ ΠΎΠΏΡΠΈΠΌΠ°Π»ΡΠ½ΡΡ ΠΏΠ°Π»ΠΈΡΡΡ Π΄Π»Ρ ΠΏΠΎΠΌΠ΅ΡΠ΅Π½ΠΈΡ.
ΠΠΎΡΡΠΎΠΈΠ½ΡΡΠ²Π°:
- ΡΠ΄ΠΎΠ±ΡΡΠ²ΠΎ ΡΠΏΡΠ°Π²Π»Π΅Π½ΠΈΡ ΠΊΠ°ΡΠ΅Π³ΠΎΡΠΈΡΠΌΠΈ ΠΌΠΎΠ΄Π΅Π»Π΅ΠΉ ΠΈ ΡΠ²Π΅ΡΠ°ΠΌΠΈ;
- Π²ΡΠ΅ Π²ΡΠ±ΠΈΡΠ°Π΅ΠΌΡΠ΅ ΠΎΡΡΠ΅Π½ΠΊΠΈ ΡΠ΅Π°Π»ΡΠ½ΠΎ ΡΡΡΠ΅ΡΡΠ²ΡΡΡ Π½Π° ΠΊΠΎΠ»Π΅ΡΠ½ΡΡ ΠΊΠ°ΡΡΠ°Ρ ;
- ΠΌΠΎΠΆΠ½ΠΎ Π½Π° ΡΠΊΡΠ°Π½Π΅ ΠΎΠ΄Π½ΠΎΠ²ΡΠ΅ΠΌΠ΅Π½Π½ΠΎ ΠΎΡΡΠ°Π·ΠΈΡΡ ΡΠ°Π·Π½ΡΠ΅ ΡΠ²Π΅ΡΠΎΠ²ΡΠ΅ ΡΠ΅ΡΠ΅Π½ΠΈΡ ΠΏΠΎΠΌΠ΅ΡΠ΅Π½ΠΈΡ.
ΠΠΎ ΡΡΠ° ΠΏΡΠΎΠ³ΡΠ°ΠΌΠΌΠ° Π½Π΅ Π±Π΅ΡΠΏΠ»Π°ΡΠ½Π°Ρ.
ΠΡΠ΅ ΡΡΠ°Π²Π½ΠΈΠ²Π°Π΅ΠΌΡΠ΅ ΠΏΡΠΎΠ³ΡΠ°ΠΌΠΌΡ β Π² ΠΏΠ΅ΡΠ²ΡΡ ΠΎΡΠ΅ΡΠ΅Π΄Ρ ΠΎΡΠΈΠ΅Π½ΡΠΈΡΠΎΠ²Π°Π½Ρ Π½Π° ΠΌΠΎΠ΄Π΅Π»ΠΈΡΠΎΠ²Π°Π½ΠΈΠ΅ Π²Π°ΡΠΈΠ°Π½ΡΠΎΠ² ΠΏΡΠΈ ΠΏΡΠΎΠ²Π΅Π΄Π΅Π½ΠΈΠΈ ΡΠ΅ΠΌΠΎΠ½ΡΠ°. ΠΠΎ Π΅ΡΡΡ Π΅ΡΡ ΠΎΠ΄Π½Π° ΠΏΡΠΎΠ³ΡΠ°ΠΌΠΌΠ° Π΄Π»Ρ ΡΠ΅ΠΌΠΎΠ½ΡΠ° ΠΊΠ²Π°ΡΡΠΈΡΡ, ΡΠΎΠ·Π΄Π°Π½Π½Π°Ρ ΠΈΠ·Π½Π°ΡΠ°Π»ΡΠ½ΠΎ Π΄Π»Ρ ΠΌΠ΅Π±Π΅Π»ΡΡΠΈΠΊΠΎΠ², ΡΡΡ ΠΏΡΠΎΡΡΠΎΡΠ° ΠΈΡΠΏΠΎΠ»ΡΠ·ΠΎΠ²Π°Π½ΠΈΡ ΡΠ΄Π΅Π»Π°Π»Π° Π΅Ρ ΠΏΠΎΠΏΡΠ»ΡΡΠ½ΠΎΠΉ Ρ Π΄ΠΈΠ·Π°ΠΉΠ½Π΅ΡΠΎΠ²-Π»ΡΠ±ΠΈΡΠ΅Π»Π΅ΠΉ.
PRO-100
Π€ΡΠ½ΠΊΡΠΈΠΈ ΠΌΠΎΠ΄Π΅Π»ΠΈΡΠΎΠ²Π°Π½ΠΈΡ Π·Π΄Π΅ΡΡ, ΠΊΠ°ΠΊ ΠΈ ΠΏΠΎΠ»ΡΠ·ΠΎΠ²Π°ΡΠ΅Π»ΡΡΠΊΠΈΠΉ ΠΈΠ½ΡΠ΅ΡΡΠ΅ΠΉΡ, ΠΎΡΠ΅Π½Ρ ΠΏΠΎΠ½ΡΡΠ½Ρ. ΠΠ½Π° ΠΏΠΎΠ·Π²ΠΎΠ»ΡΠ΅Ρ Π²ΠΈΡΡΡΠ°Π»ΡΠ½ΠΎ ΡΠ°ΡΡΡΠ°Π²ΠΈΡΡ ΡΠ°Π·Π½ΠΎΠΎΠ±ΡΠ°Π·Π½ΡΡ ΠΊΠΎΡΠΏΡΡΠ½ΡΡ ΠΌΠ΅Π±Π΅Π»Ρ, ΡΡΡ ΠΈΠ·ΠΎΠ±ΡΠ°ΠΆΠ΅Π½ΠΈΠ΅ Π΄Π΅ΡΠ°Π»ΠΈΠ·ΠΈΡΠΎΠ²Π°Π½ΠΎ Π²ΠΏΠ»ΠΎΡΡ Π΄ΠΎ ΡΠΈΡΠ»Π° Π²ΡΠ΄Π²ΠΈΠΆΠ½ΡΡ ΡΡΠΈΡΠΊΠΎΠ² ΠΈ ΠΏΠΎΠ»ΠΎΡΠ΅ΠΊ.
ΠΡΠΎΠ³ΡΠ°ΠΌΠΌΠ° ΠΎΡΠΎΠ±Π΅Π½Π½ΠΎ ΡΠ΄ΠΎΠ±Π½Π° Π΄Π»Ρ ΡΠ΅Ρ ΠΏΠΎΠ»ΡΠ·ΠΎΠ²Π°ΡΠ΅Π»Π΅ΠΉ, ΠΊΠΎΡΠΎΡΡΠ΅ ΡΠΆΠ΅ Π·Π°Π²Π΅ΡΡΠΈΠ»ΠΈ ΡΠ΅ΠΌΠΎΠ½Ρ ΠΈ ΠΎΠ·Π°Π±ΠΎΡΠ΅Π½Ρ ΠΏΠΎΠ΄Π±ΠΎΡΠΎΠΌ ΠΈ ΡΠ°ΡΡΡΠ°Π½ΠΎΠ²ΠΊΠΎΠΉ ΠΌΠ΅Π±Π΅Π»ΠΈ.
ΠΡΠΎ ΠΎΡΠ»ΠΈΡΠ½Π°Ρ ΠΏΡΠΎΠ³ΡΠ°ΠΌΠΌΠ° ΡΠ°ΡΡΠ΅ΡΠ° ΠΌΠ°ΡΠ΅ΡΠΈΠ°Π»ΠΎΠ² Π΄Π»Ρ ΡΠ΅ΠΌΠΎΠ½ΡΠ° ΠΊΠ²Π°ΡΡΠΈΡΡ, ΡΡΠΎ ΡΠ²Π»ΡΠ΅ΡΡΡ ΠΎΠ΄Π½ΠΈΠΌ ΠΈΠ· Π΅Ρ ΠΎΡΠ½ΠΎΠ²Π½ΡΡ Π΄ΠΎΡΡΠΎΠΈΠ½ΡΡΠ², ΠΏΠΎΡΠΊΠΎΠ»ΡΠΊΡ, ΡΠ°Π±ΠΎΡΠ°Ρ Ρ Π½Π΅ΠΉ, ΠΌΠΎΠΆΠ½ΠΎ ΠΎΡΠ΅Π½ΠΈΡΡ ΡΠ°ΡΡ ΠΎΠ΄ ΠΌΠ°ΡΠ΅ΡΠΈΠ°Π»ΠΎΠ², ΡΡΠΎ Π²Π°ΠΆΠ½ΠΎ ΠΏΡΠΈ ΠΈΠ·Π³ΠΎΡΠΎΠ²Π»Π΅Π½ΠΈΠΈ ΠΌΠ΅Π±Π΅Π»ΠΈ ΠΏΠΎΠ΄ Π·Π°ΠΊΠ°Π·.
Π Π΅Ρ ΡΠ»Π°Π±ΡΠ΅ ΡΡΠΎΡΠΎΠ½Ρ Π² ΡΠΎΠΌ, ΡΡΠΎ Π½Π΅Π²Π΅Π»ΠΈΠΊ Π²ΡΠ±ΠΎΡ ΠΎΡΠ΄Π΅Π»ΠΎΡΠ½ΡΡ ΠΌΠ°ΡΠ΅ΡΠΈΠ°Π»ΠΎΠ² ΠΈ ΠΎΠ½ΠΈ ΠΎΡΠΎΠ±ΡΠ°ΠΆΠ°ΡΡΡΡ ΠΊΠ°ΠΊ ΠΎΠ±ΡΠΈΠΉ ΡΠΎΠ½ β Π²ΡΡ ΡΡΠΎ ΠΏΠΎΡΠΎΠΌΡ, ΡΡΠΎ ΠΏΡΠΎΠ³ΡΠ°ΠΌΠΌΠ° Π½Π°ΡΠ΅Π»Π΅Π½Π° Π½Π° ΠΏΡΠΎΡΠ°Π±ΠΎΡΠΊΡ ΠΌΠ΅Π±Π»ΠΈΡΠΎΠ²ΠΊΠΈ.
ΠΡΠΈΠΌΠ΅Ρ ΡΠ°Π±ΠΎΡΡ Ρ ΠΏΡΠΎΠ³ΡΠ°ΠΌΠΌΠΎΠΉ PRO-100 Π΄Π»Ρ Π²Π°Π½Π½ΠΎΠΉ ΠΊΠΎΠΌΠ½Π°ΡΡ
- ΠΠ΅ΠΎΠ±Ρ ΠΎΠ΄ΠΈΠΌΠΎ Π·Π°ΠΏΠΎΠ»Π½ΠΈΡΡ ΠΏΡΠ΅Π΄Π»Π°Π³Π°Π΅ΠΌΡΠ΅ ΠΏΡΠΎΠ³ΡΠ°ΠΌΠΌΠΎΠΉ ΠΏΠΎΠ»Ρ Ρ ΠΏΠ°ΡΠ°ΠΌΠ΅ΡΡΠ°ΠΌΠΈ ΠΏΠΎΠΌΠ΅ΡΠ΅Π½ΠΈΡ, Π½Π°Π·Π²Π°Π½ΠΈΠ΅ΠΌ ΠΏΡΠΎΠ΅ΠΊΡΠ° ΠΈ ΠΏΡ.

- ΠΠΎΡΠ»Π΅ Π½Π°ΠΆΠ°ΡΠΈΡ ΠΊΠ½ΠΎΠΏΠΊΠΈ Π²Π²ΠΎΠ΄Π° ΠΏΠΎΡΠ²Π»ΡΠ΅ΡΡΡ ΡΠ΅ΡΠΊΠ° ΠΏΠΎΠΌΠ΅ΡΠ΅Π½ΠΈΡ, ΠΌΠ°ΡΡΡΠ°Π± ΠΊΠΎΡΠΎΡΠΎΠΉ ΠΌΠΎΠΆΠ½ΠΎ ΠΌΠ΅Π½ΡΡΡ ΠΈ ΠΏΠΎΠ²ΠΎΡΠ°ΡΠΈΠ²Π°ΡΡ Π΅Ρ Π½Π° Π»ΡΠ±ΠΎΠΉ ΡΠ³ΠΎΠ». ΠΠ° Π²Π΅ΡΡ Π½Π΅ΠΉ ΠΏΠ»Π°Π½ΠΊΠ΅ ΠΌΠ΅Π½Ρ Π² ΡΠ°Π·Π΄Π΅Π»Π΅ Β«ΠΠ½ΡΡΡΡΠΌΠ΅Π½ΡΡΒ» Π²ΡΠ±ΠΈΡΠ°ΡΡΡΡ ΠΏΠΎΡΠ»Π΅Π΄ΠΎΠ²Π°ΡΠ΅Π»ΡΠ½ΠΎ ΠΏΡΠ½ΠΊΡΡ Β«ΠΠΈΠ±Π»ΠΈΠΎΡΠ΅ΠΊΠΈΒ», Β«ΠΠ°ΡΠ΅ΡΠΈΠ°Π»ΡΒ», Β«ΠΠΎΠΊΡΡΡΠΈΡΒ», Β«ΠΠΎΠ»ΡΒ» ΠΈ, Π½Π°ΠΊΠΎΠ½Π΅Ρ, Β«ΠΠ°ΡΠ΅Π»ΡΒ». ΠΠΎΠ½ΡΠ°Π²ΠΈΠ²ΡΠ°ΡΡΡ ΠΏΠ»ΠΈΡΠΊΠ° ΠΏΠ΅ΡΠ΅ΡΡΠ³ΠΈΠ²Π°Π΅ΡΡΡ Π½Π° ΡΠ΅ΡΠΊΡ Π² Π·ΠΎΠ½Ρ ΠΏΠΎΠ»Π°. Π’Π°ΠΊΠΆΠ΅ Π·Π°ΠΊΡΠ°ΡΠΈΠ²Π°ΡΡΡΡ ΠΈ Π²Π΅ΡΡΠΈΠΊΠ°Π»ΡΠ½ΡΠ΅ ΠΏΠΎΠ²Π΅ΡΡ Π½ΠΎΡΡΠΈ.

- ΠΠ»Ρ ΡΠ°Π±ΠΎΡΡ Ρ ΠΎΠ±ΡΡΠ°Π½ΠΎΠ²ΠΊΠΎΠΉ Π² ΠΌΠ΅Π½Ρ Β«ΠΠΈΠ±Π»ΠΈΠΎΡΠ΅ΠΊΠΈΒ» ΡΠ΅ΡΠ΅Π· Β«ΠΠ»Π΅ΠΌΠ΅Π½ΡΡΒ» Π½Π°Ρ ΠΎΠ΄ΠΈΡΡΡ Β«ΠΠ°Π½Π½Π°ΡΒ», Π³Π΄Π΅ Π²ΡΠ±ΠΈΡΠ°Π΅ΡΡΡ ΠΎΡΠ½ΠΎΠ²Π½ΠΎΠΉ ΠΏΡΠ΅Π΄ΠΌΠ΅Ρ Π΄Π»Ρ Π½Π΅Ρ β Π²Π°Π½Π½Π°, ΡΠ³ΠΎΠ»ΠΎΠΊ ΠΈΠ»ΠΈ Π΄ΡΡΠ΅Π²Π°Ρ ΠΊΠ°Π±ΠΈΠ½Π°. ΠΠ±ΡΠ΅ΠΊΡ Π°ΠΊΡΠΈΠ²ΠΈΠ·ΠΈΡΡΠ΅ΡΡΡ ΠΏΡΠ°Π²ΠΎΠΉ ΠΊΠ»Π°Π²ΠΈΡΠ΅ΠΉ ΠΌΡΡΠΊΠΈ, ΠΏΡΠΈ ΡΡΠΎΠΌ ΠΎΡΠΊΡΡΠ²Π°Π΅ΡΡΡ ΠΌΠ΅Π½Ρ, ΠΏΠΎΠ·Π²ΠΎΠ»ΡΡΡΠ΅Π΅ Π΅Π³ΠΎ ΡΠ°Π·Π»ΠΈΡΠ½ΡΠ΅ ΠΏΠΎΠ²ΠΎΡΠΎΡΡ, ΡΡΠΎΠ±Ρ ΠΏΡΠΈΠΊΠΈΠ½ΡΡΡ Π½Π°ΠΈΠ»ΡΡΡΠΈΠΉ Π²Π°ΡΠΈΠ°Π½Ρ ΡΠ°Π·ΠΌΠ΅ΡΠ΅Π½ΠΈΡ.

- ΠΡΠΎΠ³ΡΠ°ΠΌΠΌΠ° Π΄Π»Ρ ΡΠ΅ΠΌΠΎΠ½ΡΠ° ΠΊΠ²Π°ΡΡΠΈΡΡ ΠΏΠΎΠ·Π²ΠΎΠ»ΡΠ΅Ρ ΡΠ°ΡΡΡΠ°Π²ΠΈΡΡ ΠΈ ΠΌΠ΅Π½Π΅Π΅ ΠΌΠ°ΡΡΡΠ°Π±Π½ΡΠ΅ ΡΠ»Π΅ΠΌΠ΅Π½ΡΡ: ΡΠ°ΠΊΠΎΠ²ΠΈΠ½Ρ, ΡΠ½ΠΈΡΠ°Π·, ΡΡΠΈΡΠ°Π»ΡΠ½ΡΡ ΠΌΠ°ΡΠΈΠ½Ρ ΠΈ Ρ.Π΄. ΠΠ΅ ΡΠ»Π΅Π΄ΡΠ΅Ρ Π·Π°Π±ΡΠ²Π°ΡΡ ΠΏΡΠΎ Π΄Π²Π΅ΡΠ½ΠΎΠΉ ΠΈ (Π²ΠΎΠ·ΠΌΠΎΠΆΠ½ΠΎ) ΠΎΠΊΠΎΠ½Π½ΡΠΉ ΠΏΡΠΎΡΠΌ.
- ΠΠΊΠ»Π°Π΄ΠΊΠΈ Π² Π½ΠΈΠΆΠ½Π΅ΠΌ ΠΌΠ΅Π½Ρ ΠΏΠΎΠ·Π²ΠΎΠ»ΡΡΡ ΡΠ°ΡΡΠΌΠΎΡΡΠ΅ΡΡ Π² ΡΠ°Π·Π»ΠΈΡΠ½ΡΡ ΡΠ°ΠΊΡΡΡΠ°Ρ ΡΠΎΠ·Π΄Π°Π½Π½ΡΠΉ ΠΏΡΠΎΠ΅ΠΊΡ. Π’Π°ΠΊ ΠΏΠΎΠ»Π΅ Β«ΠΠ»Π°Π½Β» ΠΎΡΠΊΡΡΠ²Π°Π΅Ρ Π²ΠΈΠ΄ Π½Π° Π²Π°Π½Π½ΡΡ ΠΊΠΎΠΌΠ½Π°ΡΡ ΡΠ²Π΅ΡΡ Ρ, ΠΏΡΠΈ ΡΡΠΎΠΌ ΡΠΊΠ°Π·Π°Π½Ρ ΡΠ°Π·ΠΌΠ΅ΡΡ ΠΊΠΎΠΌΠ½Π°ΡΡ ΠΈ Π²ΡΠ±ΡΠ°Π½Π½ΡΡ ΡΠ»Π΅ΠΌΠ΅Π½ΡΠΎΠ².
- ΠΠ°Π»ΡΠ½Π΅ΠΉΡΠΈΠ΅ ΡΠΊΡΠΏΠ΅ΡΠΈΠΌΠ΅Π½ΡΡ ΠΏΠΎΠΌΠΎΠ³ΡΡ ΠΏΠΎΠ΄ΠΎΠ±ΡΠ°ΡΡ Π²Π°ΡΠΈΠ°Π½ΡΡ ΠΎΡΠ²Π΅ΡΠ΅Π½ΠΈΡ ΠΏΠΎΠΌΠ΅ΡΠ΅Π½ΠΈΡ, Π²ΡΠ±ΡΠ°ΡΡ Π³ΠΈΠΏΡΠΎΠΊΠ°ΡΡΠΎΠ½Π½ΡΠΉ ΠΏΠΎΡΠΎΠ»ΠΎΠΊ (Π΄Π°ΠΆΠ΅ ΡΠΎ ΡΠ»ΠΎΠΆΠ½ΠΎΠΉ ΠΊΠΎΠ½ΡΠΈΠ³ΡΡΠ°ΡΠΈΠ΅ΠΉ), ΠΎΡΠ΅Π½ΠΈΡΡ Π½Π° ΡΠΊΡΠ°Π½Π΅ ΡΡΡΠ΅ΠΊΡΠΈΠ²Π½ΠΎΡΡΡ ΠΏΠΎΠ΄ΡΠ²Π΅ΡΠΊΠΈ.

ΠΡΠΎΠ΅ΠΊΡ ΠΌΠΎΠΆΠ½ΠΎ ΡΠΎΡ ΡΠ°Π½ΠΈΡΡ Π΄Π»Ρ Π΄Π°Π»ΡΠ½Π΅ΠΉΡΠ΅ΠΉ ΡΠ°Π±ΠΎΡΡ.
remonta-v-kvartire.net
ΠΡΠΎΠ΅ΠΊΡ ΡΠ΅ΠΌΠΎΠ½ΡΠ° ΠΊΠ²Π°ΡΡΠΈΡΡ ΠΎΠ½Π»Π°ΠΉΠ½ β Π Π΅ΠΌΠΎΠ½Ρ Π² Π΄ΠΎΠΌΠ΅
ΠΡΠ΅ Π²Π»Π°Π΄Π΅Π»ΡΡΡ ΠΊΠ²Π°ΡΡΠΈΡ ΠΈ Π΄ΠΎΠΌΠΎΠ² ΡΠ°Π½ΠΎ ΠΈΠ»ΠΈ ΠΏΠΎΠ·Π΄Π½ΠΎ Π²ΡΡΡΠΏΠ°ΡΡ Π² ΡΡΠ°Π΄ΠΈΡ ΡΠ΅ΠΌΠΎΠ½ΡΠ°, ΠΏΠ΅ΡΠ΅ΠΏΠ»Π°Π½ΠΈΡΠΎΠ²ΠΊΠΈ ΠΈΠ»ΠΈ ΠΏΡΠΎΡΡΠΎΠΉ ΡΠΌΠ΅Π½Ρ Π΄Π΅ΠΊΠΎΡΠ°ΡΠΈΠΉ Π² ΡΠ²ΠΎΠ΅ΠΌ ΠΆΠΈΠ»ΠΈΡΠ΅. ΠΠ° ΡΠΎΠ±ΡΡΠ²Π΅Π½Π½ΠΎΠΌ ΠΎΠΏΡΡΠ΅ ΠΏΡΠΎΠ± ΠΈ ΠΎΡΠΈΠ±ΠΎΠΊ Π΄Π΅Π»Π°ΡΡ ΡΠ΅ΠΌΠΎΠ½Ρ Π±ΡΠ²Π°Π΅Ρ Π·Π°ΡΡΠ°ΡΠ½ΠΎ ΠΈ Π½Π΅ΠΏΡΠ΅Π΄ΡΠΊΠ°Π·ΡΠ΅ΠΌΠΎ. ΠΡΠ΅Π΄Π²ΠΈΠ΄Π΅ΡΡ Π²ΠΎΠΏΠ»ΠΎΡΠ΅Π½ΠΈΠ΅ ΡΠ²ΠΎΠΈΡ ΠΈΠ΄Π΅ΠΉ, ΠΈΠ·Π±Π΅ΠΆΠ°ΡΡ ΠΌΠ½ΠΎΠ³ΠΈΡ ΠΎΡΠΈΠ±ΠΎΠΊ, Π½Π΅ΠΎΠ±Π΄ΡΠΌΠ°Π½Π½ΡΡ ΡΠ°ΡΡ ΠΎΠ΄ΠΎΠ² Π²ΠΎΠ·ΠΌΠΎΠΆΠ½ΠΎ. ΠΠ»Ρ ΡΡΠΎΠ³ΠΎ ΠΏΠΎΠ΄ΠΎΠΉΠ΄Π΅Ρ Π΄ΠΈΠ·Π°ΠΉΠ½ ΠΏΡΠΎΠ΅ΠΊΡ ΠΎΠ½Π»Π°ΠΉΠ½. ΠΠ°ΠΆΠ΅ ΡΠ°ΠΌΡΠΉ Π½Π΅ΠΎΠΏΡΡΠ½ΡΠΉ ΠΏΠΎΠ»ΡΠ·ΠΎΠ²Π°ΡΠ΅Π»Ρ ΠΌΠΎΠΆΠ΅Ρ ΡΠΎΠ·Π΄Π°ΡΡ ΡΡΠΊΠΈΠ· ΠΈΠ½ΡΠ΅ΡΡΠ΅ΡΠ° ΡΠ²ΠΎΠ΅ΠΉ Π±ΡΠ΄ΡΡΠ΅ΠΉ ΠΊΠ²Π°ΡΡΠΈΡΡ. ΠΠΎΡΠΏΠΎΠ»ΡΠ·ΠΎΠ²Π°ΡΡΡΡ ΠΏΡΠ΅Π΄Π»ΠΎΠΆΠ΅Π½ΠΈΠ΅ΠΌ ΠΏΡΠΎΡΡΠΎ, Π΅ΡΠ»ΠΈ Π²Ρ ΠΈΠΌΠ΅Π΅ΡΠ΅ Π±Π°Π·ΠΎΠ²ΡΠ΅ Π½Π°Π²ΡΠΊΠΈ ΡΠ°Π±ΠΎΡΡ Ρ ΠΊΠΎΠΌΠΏΡΡΡΠ΅ΡΠΎΠΌ.
ΠΠ° ΡΡΡΠ°Π½ΠΈΡΠ°Ρ ΠΈΠ½ΡΠ΅ΡΠ½Π΅ΡΠ° ΠΌΠ½ΠΎΠΆΠ΅ΡΡΠ²ΠΎ ΡΠ°ΠΉΡΠΎΠ² ΠΏΡΠ΅Π΄Π»Π°Π³Π°ΡΡ ΡΠ²ΠΎΠΈ ΡΡΠ»ΡΠ³ΠΈ Π΄ΠΈΠ·Π°ΠΉΠ½ ΠΎΠ½Π»Π°ΠΉΠ½ Π±Π΅ΡΠΏΠ»Π°ΡΠ½ΠΎ. ΠΠΎΠ²ΡΠ΅ ΡΠ΅Ρ Π½ΠΎΠ»ΠΎΠ³ΠΈΠΈ ΠΈ ΠΏΡΠΎΠ³ΡΠ΅ΡΡ ΠΏΡΠΈΠ²ΠΎΠ΄ΡΡ ΠΊ ΡΠΎΠΌΡ, ΡΡΠΎ ΡΠ°ΠΌΡΠ΅ Π½Π΅ΡΠ΅Π°Π»ΡΠ½ΡΠ΅ ΠΏΡΠΎΠ΅ΠΊΡΡ ΠΈ ΠΈΠ΄Π΅ΠΈ Π½Π΅ ΡΠΎΠ»ΡΠΊΠΎ Π²ΠΎΠΏΠ»ΠΎΡΠ°ΡΡΡΡ Π² ΠΆΠΈΠ·Π½Ρ, Π½ΠΎ ΠΈ ΠΏΠΎΡΠ°ΠΆΠ°ΡΡ ΡΠ²ΠΎΠΈΠΌ ΠΌΠ½ΠΎΠ³ΠΎΠΎΠ±ΡΠ°Π·ΠΈΠ΅ΠΌ. ΠΡΠΎΠ³ΡΠ°ΠΌΠΌΡ ΠΏΠΎΠ΄ΠΎΠ±Π½ΠΎΠ³ΠΎ ΡΠΈΠΏΠ° Π½Π°Π·ΡΠ²Π°ΡΡ β ΠΏΠ»Π°Π½ΠΈΡΠΎΠ²ΡΠΈΠΊΠ°ΠΌΠΈ. ΠΠ½ΠΈ ΠΏΠΎΠΌΠΎΠ³Π°ΡΡ Π²ΠΎΡΠΏΡΠΎΠΈΠ·Π²Π΅ΡΡΠΈ Π²ΠΈΡΡΡΠ°Π»ΡΠ½ΠΎ ΡΠΎ, ΠΊΠ°ΠΊ Π² Π±ΡΠ΄ΡΡΠ΅ΠΌ Π±ΡΠ΄Π΅Ρ ΠΎΡΠΎΡΠΌΠ»Π΅Π½Π° ΡΠ° ΠΈΠ»ΠΈ ΠΈΠ½Π°Ρ ΠΊΠΎΠΌΠ½Π°ΡΠ°. ΠΠΎΠ΄ΠΎΠ±Π½ΡΠ΅ ΠΈΠ½ΡΠ΅Π»Π»Π΅ΠΊΡΡΠ°Π»ΡΠ½ΡΠ΅ ΠΏΡΠΎΠ΄ΡΠΊΡΡ Π½Π΅Π·Π°ΠΌΠ΅Π½ΠΈΠΌΡ Π΄Π»Ρ ΡΠ΅Ρ , ΠΊΡΠΎ Ρ ΠΎΡΠ΅Ρ ΡΠ°ΠΌΠΎΡΡΠΎΡΡΠ΅Π»ΡΠ½ΠΎ ΡΠ΄Π΅Π»Π°ΡΡ Π΄ΠΈΠ·Π°ΠΉΠ½ ΠΎΠ½Π»Π°ΠΉΠ½, Π½Π΅ ΠΏΡΠΈΠ±Π΅Π³Π°Ρ ΠΊ ΠΏΠΎΠΌΠΎΡΠΈ ΠΏΡΠΎΡΠ΅ΡΡΠΈΠΎΠ½Π°Π»ΡΠ½ΠΎΠ³ΠΎ Π΄ΠΈΠ·Π°ΠΉΠ½Π΅ΡΠ°.
ΠΠΈΠ·Π°ΠΉΠ½ ΠΈΠ½ΡΠ΅ΡΡΠ΅ΡΠ° Π² 3D ΠΎΠ½Π»Π°ΠΉΠ½
ΠΠΈΠ·Π°ΠΉΠ½ ΠΎΠ½Π»Π°ΠΉΠ½ ΠΌΠΎΠΆΠ΅Ρ Π±ΡΡΡ ΡΠ΄Π΅Π»Π°Π½ ΠΏΡΠΈ ΠΏΠΎΠΌΠΎΡΠΈ ΡΠ°Π·Π½ΡΡ ΠΏΡΠΎΠ³ΡΠ°ΠΌΠΌ, ΠΊΠΎΡΠΎΡΡΠ΅ ΠΏΠΎΠ·Π²ΠΎΠ»ΡΡΡ ΠΌΠ΅Π½ΡΡΡ Π²Π°ΡΠΈΠ°Π½ΡΡ ΠΎΡΠ΄Π΅Π»ΠΊΠΈ, ΠΏΠΎΠ΄Π±ΠΈΡΠ°ΡΡ Π½Π°ΠΈΠ±ΠΎΠ»Π΅Π΅ ΠΏΠΎΠ΄Ρ ΠΎΠ΄ΡΡΠΈΠ΅ Π½Π΅ ΡΠΎΠ»ΡΠΊΠΎ Π΄Π»Ρ ΠΎΠΏΡΠ΅Π΄Π΅Π»Π΅Π½Π½ΠΎΠΉ ΠΊΠΎΠΌΠ½Π°ΡΡ, Π½ΠΎ ΠΈ Π΄Π»Ρ ΠΊΠ²Π°ΡΡΠΈΡΡ ΠΈΠ»ΠΈ ΠΊΠΎΡΡΠ΅Π΄ΠΆΠ° Π² ΡΠ΅Π»ΠΎΠΌ. ΠΠΎΠ»ΡΠ·ΠΎΠ²Π°ΡΠ΅Π»ΡΠΌ ΠΏΡΠΈΠ»ΠΎΠΆΠ΅Π½ΠΈΡ ΠΎΠ½Π»Π°ΠΉΠ½ Planner5D, 3d Π΄ΠΈΠ·Π°ΠΉΠ½ ΠΎΠ½Π»Π°ΠΉΠ½ ΠΏΠΎΠ·Π²ΠΎΠ»ΡΠ΅Ρ ΡΠΎΠ·Π΄Π°Π²Π°ΡΡ Ρ Π½ΡΠ»Ρ Π²ΠΈΡΡΡΠ°Π»ΡΠ½ΠΎ Π»ΡΠ±ΠΎΠ΅ ΠΈΠ·ΠΎΠ±ΡΠ°ΠΆΠ΅Π½ΠΈΠ΅ Π°ΡΡ ΠΈΡΠ΅ΠΊΡΡΡΠ½ΠΎΠ³ΠΎ ΠΎΠ±ΡΠ΅ΠΊΡΠ°. ΠΡΠΎΠ³ΡΠ°ΠΌΠΌΠ° Π΄Π°Π΅Ρ Π²ΠΎΠ·ΠΌΠΎΠΆΠ½ΠΎΡΡΡ Π²ΠΎΠ·Π²ΠΎΠ΄ΠΈΡΡ ΡΡΠ΅Π½Ρ ΡΠ°ΠΌΠΎΠΌΡ ΠΈΠ»ΠΈ Π²ΠΎΡΠΏΠΎΠ»ΡΠ·ΠΎΠ²Π°ΡΡΡΡ ΡΠΆΠ΅ Π³ΠΎΡΠΎΠ²ΡΠΌ ΠΈΠ·ΠΎΠ±ΡΠ°ΠΆΠ΅Π½ΠΈΠ΅ΠΌ Π΄Π»Ρ Π²Π°ΡΠ΅Π³ΠΎ Π΄ΠΎΠΌΠ°. ΠΠ½Π° Π±ΡΠ΄Π΅Ρ ΠΈΠ½ΡΠ΅ΡΠ΅ΡΠ½Π° Π½Π΅ ΡΠΎΠ»ΡΠΊΠΎ ΠΏΡΠΎΡΠ΅ΡΡΠΈΠΎΠ½Π°Π»Π°ΠΌ, Π½ΠΎ ΠΈ ΠΏΡΠΎΡΡΡΠΌ Π»ΡΠ΄ΡΠΌ, ΠΏΠ»Π°Π½ΠΈΡΡΡΡΠΈΠΌ Π²ΡΠΏΠΎΠ»Π½ΡΡΡ ΡΠ΅ΠΌΠΎΠ½Ρ ΡΠ²ΠΎΠΈΠΌΠΈ ΡΡΠΊΠ°ΠΌΠΈ.
Π ΠΏΡΠΎΠ³ΡΠ°ΠΌΠΌΠ΅ 3d Π΄ΠΈΠ·Π°ΠΉΠ½ ΠΈΠ½ΡΠ΅ΡΡΠ΅ΡΠ° ΠΈΠΌΠ΅Π΅ΡΡΡ Π±ΠΎΠ»ΡΡΠΎΠΉ ΠΊΠ°ΡΠ°Π»ΠΎΠ³ ΡΠΈΠΏΠΎΠ²ΡΡ ΠΏΡΠΎΠ΅ΠΊΡΠΎΠ², Π° ΡΠ°ΠΊΠΆΠ΅ ΡΠΎΠ±ΡΠ°Π½ ΠΎΠ³ΡΠΎΠΌΠ½ΡΠΉ Π°ΡΡ ΠΈΠ² ΡΠ°Π±ΠΎΡ ΠΏΠΎΠ»ΡΠ·ΠΎΠ²Π°ΡΠ΅Π»Π΅ΠΉ. ΠΡΠ΄Π΅Π»ΠΊΠ° ΠΊΠΎΠΌΠ½Π°Ρ ΠΏΡΠ΅Π΄ΠΏΠΎΠ»Π°Π³Π°Π΅Ρ Π²ΡΠ±ΠΎΡ ΠΌΠ°ΡΠ΅ΡΠΈΠ°Π»ΠΎΠ²: ΠΎΠ±ΠΎΠΈ ΠΈΠ»ΠΈ ΠΏΠ»ΠΈΡΠΊΠ°, ΠΏΠΎΠΊΡΠ°ΡΠΊΠ° ΠΈΠ»ΠΈ ΡΡΡΠΊΠ°ΡΡΡΠΊΠ°. ΠΠΈΠ·Π°ΠΉΠ½ ΠΏΠΎΠΌΠ΅ΡΠ΅Π½ΠΈΡ ΠΎΠ½Π»Π°ΠΉΠ½ ΠΏΠΎΠΌΠΎΠΆΠ΅Ρ Π½Π°ΠΏΠΎΠ»Π½ΠΈΡΡ ΠΊΠΎΠΌΠ½Π°ΡΡ ΠΌΠ΅Π±Π΅Π»ΡΡ, Π±ΡΡΠΎΠ²ΠΎΠΉ ΡΠ΅Ρ Π½ΠΈΠΊΠΎΠΉ, ΡΠ°Π·ΠΌΠ΅ΡΡΠΈΡΡ ΠΈΡΡΠΎΡΠ½ΠΈΠΊΠΈ ΡΠ²Π΅ΡΠ° ΠΈ ΠΏΡΠ΅Π΄ΠΌΠ΅ΡΡ ΠΈΠ½ΡΠ΅ΡΡΠ΅ΡΠ°. ΠΠΎΠΆΠ½ΠΎ Π²ΠΎΡΠΏΠΎΠ»ΡΠ·ΠΎΠ²Π°ΡΡΡΡ Π³ΠΎΡΠΎΠ²ΡΠΌ ΠΎΠ±ΡΠ΅ΠΊΡΠΎΠΌ ΠΈ ΠΏΠΎΡΠΌΠΎΡΡΠ΅ΡΡ Π΅Π³ΠΎ ΡΠΎ Π²ΡΠ΅Ρ ΡΡΠΎΡΠΎΠ½, ΠΏΠΎΡΠ°Π±ΠΎΡΠ°ΡΡ Ρ ΡΠ΅Π½ΡΠΌΠΈ ΠΈ ΡΠ²Π΅ΡΠΎΠΌ ΠΈΠ»ΠΈ ΡΠ°ΠΌΠΎΠΌΡ Π½Π°ΡΠΈΡΠΎΠ²Π°ΡΡ ΠΏΡΠ΅Π΄ΠΌΠ΅ΡΡ ΠΈΠ½ΡΠ΅ΡΡΠ΅ΡΠ°, ΠΏΠ΅ΡΠ΅ΠΏΠ»Π°Π½ΠΈΡΠΎΠ²Π°ΡΡ ΠΈΠ»ΠΈ ΠΏΠ΅ΡΠ΅ΡΡΠ°Π²ΠΈΡΡ ΠΌΠ΅Π±Π΅Π»Ρ, ΠΈΠ·ΠΌΠ΅Π½ΠΈΡΡ ΠΎΡΠΎΡΠΌΠ»Π΅Π½ΠΈΠ΅ ΠΊΠ²Π°ΡΡΠΈΡΡ, ΠΏΠΎΠ΄ΠΎΠ±ΡΠ°ΡΡ ΡΠ²Π΅Ρ ΡΡΠ΅Π½ ΠΈΠ»ΠΈ ΠΎΠ±ΠΎΠ΅Π².
Π§ΡΠΎ ΠΏΠΎΠ·Π²ΠΎΠ»ΡΠ΅Ρ Π΄Π΅Π»Π°ΡΡ ΠΏΡΠΎΠ³ΡΠ°ΠΌΠΌΠ°
ΠΡΠΎΠ³ΡΠ°ΠΌΠΌΠ° Planner5D β ΡΡΠΎ ΡΠ°ΠΌΡΠΉ ΠΏΡΠΎΡΡΠΎΠΉ ΠΈ Π»ΡΡΡΠΈΠΉ ΡΠΏΠΎΡΠΎΠ± ΡΠΎΠ·Π΄Π°ΡΡ Π΄ΠΈΠ·Π°ΠΉΠ½ ΠΎΠ½Π»Π°ΠΉΠ½. Π‘ Π΅Π΅ ΠΏΠΎΠΌΠΎΡΡΡ ΠΌΠΎΠΆΠ½ΠΎ Π² Π½Π΅ΡΠΊΠΎΠ»ΡΠΊΠΎ ΠΊΠ»ΠΈΠΊΠΎΠ² Π²ΠΎΡΡΠΎΠ·Π΄Π°ΡΡ ΡΠ²ΠΎΠΉ Π΄ΠΎΠΌ, Π΄Π²ΠΎΡ, ΠΎΠ³ΠΎΡΠΎΠ΄ ΠΈ Π½Π°ΠΏΠΎΠ»Π½ΠΈΡΡ ΠΈΡ ΠΎΠ±ΡΠ΅ΠΊΡΠ°ΠΌΠΈ ΠΈΠ· ΠΎΠ³ΡΠΎΠΌΠ½ΠΎΠΉ Π±ΠΈΠ±Π»ΠΈΠΎΡΠ΅ΠΊΠΈ. ΠΠ½Π° Π² ΠΏΠ΅ΡΠ²ΡΡ ΠΎΡΠ΅ΡΠ΅Π΄Ρ ΠΏΠΎΠΌΠΎΠΆΠ΅Ρ ΡΠ΅ΠΌ, ΠΊΡΠΎ ΡΠΎΠ±ΠΈΡΠ°Π΅ΡΡΡ ΠΏΡΠΎΠ²Π΅ΡΡΠΈ ΠΏΠ΅ΡΠ΅ΠΏΠ»Π°Π½ΠΈΡΠΎΠ²ΠΊΡ ΠΆΠΈΠ»ΠΈΡΠ° ΠΈΠ»ΠΈ Π΄Π²ΠΎΡΠ°, ΠΏΠ΅ΡΠ΅ΡΡΠ°Π½ΠΎΠ²ΠΊΡ ΠΌΠ΅Π±Π΅Π»ΠΈ, ΡΠ΅ΠΊΡΡΠΈΠΉ ΠΈΠ»ΠΈ ΠΊΠΎΡΠΌΠ΅ΡΠΈΡΠ΅ΡΠΊΠΈΠΉ ΡΠ΅ΠΌΠΎΠ½Ρ.
ΠΠΈΠ·Π°ΠΉΠ½ ΠΏΠΎΠΌΠ΅ΡΠ΅Π½ΠΈΡ ΠΎΠ½Π»Π°ΠΉΠ½ Π±Π΅ΡΠΏΠ»Π°ΡΠ½ΠΎ ΠΏΠΎΠ·Π²ΠΎΠ»ΡΠ΅Ρ ΡΠΎΠ·Π΄Π°Π²Π°ΡΡ Π²ΠΈΡΡΡΠ°Π»ΡΠ½ΡΡ ΠΎΠ±ΡΡΠ°Π½ΠΎΠ²ΠΊΡ Π² ΠΊΠ²Π°ΡΡΠΈΡΠ΅, Π΄ΠΎΠΌΠ΅ ΠΈΠ»ΠΈ ΠΎΡΠ΄Π΅Π»ΡΠ½ΠΎΠΉ ΠΊΠΎΠΌΠ½Π°ΡΠ΅. ΠΠ΄Π½ΠΎΠ²ΡΠ΅ΠΌΠ΅Π½Π½ΠΎ Π°Π²ΡΠΎΠΌΠ°ΡΠΈΡΠ΅ΡΠΊΠΈ ΠΏΡΠΎΠΈΠ·Π²ΠΎΠ΄ΠΈΡΡΡ ΡΠ°ΡΡΠ΅Ρ ΡΡΠΎΠΈΠΌΠΎΡΡΠΈ ΠΌΠ°ΡΠ΅ΡΠΈΠ°Π»ΠΎΠ² ΠΈ ΠΌΠ΅Π±Π΅Π»ΠΈ, ΠΊΠΎΡΠΎΡΡΠ΅ ΠΈΡΠΏΠΎΠ»ΡΠ·ΡΡΡΡΡ Π² ΠΏΡΠΎΠ΅ΠΊΡΠ΅. ΠΡΠ°ΡΠΈΠΊΠ° ΠΏΡΠΎΠ³ΡΠ°ΠΌΠΌΡ ΠΏΠΎΠ·Π²ΠΎΠ»ΡΠ΅Ρ ΠΏΡΠΎΠ²Π΅ΡΡΠΈ Π²ΠΈΡΡΡΠ°Π»ΡΠ½ΡΡ ΡΠΊΡΠΊΡΡΡΠΈΡ ΠΈ ΡΠ²ΠΈΠ΄Π΅ΡΡ ΡΠΎ ΡΡΠΎΡΠΎΠ½Ρ ΠΊΠΎΠ½Π΅ΡΠ½ΡΠΉ ΡΠ΅Π·ΡΠ»ΡΡΠ°Ρ, ΡΠ΄Π΅Π»Π°ΡΡ ΡΠ°Π·Π²Π΅ΡΡΠΊΡ ΡΡΠ΅Π½ ΠΈ ΠΎΠΏΡΠ΅Π΄Π΅Π»ΠΈΡΡ ΠΌΠ΅ΡΡΠ° ΡΡΡΠ°Π½ΠΎΠ²ΠΊΠΈ ΠΎΠΊΠΎΠ½, Π΄Π²Π΅ΡΠ΅ΠΉ, ΡΠΎΠ·Π΅ΡΠΎΠΊ.
Π§ΡΠΎΠ±Ρ ΡΠ°ΠΌΠΎΠΌΡ ΡΠ΄Π΅Π»Π°ΡΡ ΠΎΠ½Π»Π°ΠΉΠ½ Π΄ΠΈΠ·Π°ΠΉΠ½ ΠΏΡΠΎΠ΅ΠΊΡΠΈΡΠΎΠ²Π°Π½ΠΈΠ΅, Π΄ΠΎΡΡΠ°ΡΠΎΡΠ½ΠΎ ΠΈΠ·ΡΡΠΈΡΡ ΠΎΠ±ΡΠΈΠ΅ ΠΏΡΠΈΠ½ΡΠΈΠΏΡ ΡΠ°Π±ΠΎΡΡ ΠΏΡΠΎΠ³ΡΠ°ΠΌΠΌ. ΠΠ°Π΄ ΡΡΠΈΠΌ ΠΈΠ½ΡΠ΅ΡΠ΅ΡΠ½ΡΠΌ Π·Π°Π½ΡΡΠΈΠ΅ΠΌ ΠΏΡΠΎΠ΅ΠΊΡΠΈΡΠΎΠ²Π°Π½ΠΈΡ ΡΠΎΠ±ΡΡΠ²Π΅Π½Π½ΠΎΠ³ΠΎ Π΄ΠΎΠΌΠ° ΠΌΠΎΠΆΠ½ΠΎ ΡΠ°Π±ΠΎΡΠ°ΡΡ ΡΠ°ΡΠ°ΠΌΠΈ, ΠΏΠΎΠΊΠ° Π½Π΅ ΠΏΠΎΠ»ΡΡΠΈΡΡΡ ΡΠ΅Π·ΡΠ»ΡΡΠ°Ρ, ΠΎΡΠ²Π΅ΡΠ°ΡΡΠΈΠΉ Π²Π°ΡΠΈΠΌ ΡΡΠ΅Π±ΠΎΠ²Π°Π½ΠΈΡΠΌ. ΠΠΎ Π²ΡΠ΅ΠΌ Π½ΡΠ°Π½ΡΠ°ΠΌ Π² ΡΠ°Π±ΠΎΡΠ΅ ΠΏΡΠΈΠ»ΠΎΠΆΠ΅Π½ΠΈΡ ΠΌΠΎΠΆΠ½ΠΎ Π·Π°Π΄Π°ΡΡ Π²ΠΎΠΏΡΠΎΡ ΠΈΠ»ΠΈ ΠΏΠΎΠΈΡΠΊΠ°ΡΡ ΠΈΠ½ΡΠΎΡΠΌΠ°ΡΠΈΡ Π½Π° ΡΠΎΡΡΠΌΠ°Ρ ΠΈΠ»ΠΈ Π² Π±Π»ΠΎΠ³Π°Ρ . ΠΡΠΎΠ³ΡΠ°ΠΌΠΌΠ° ΡΠ°Π·ΡΠ°Π±ΠΎΡΠ°Π½Π° Π½Π° ΡΡΡΡΠΊΠΎΠΌ ΡΠ·ΡΠΊΠ΅, ΡΡΠΎ ΠΎΠ±Π»Π΅Π³ΡΠ°Π΅Ρ ΡΠ°Π±ΠΎΡΡ Ρ Π½Π΅ΠΉ.
ΠΠ½ΠΎΠΆΠ΅ΡΡΠ²ΠΎ ΠΊΠ°ΡΠ΅Π³ΠΎΡΠΈΠΉ ΠΏΠΎΠΌΠ΅ΡΠ΅Π½ΠΈΠΉ, ΠΊΠΎΡΠΎΡΡΠ΅ ΠΌΠΎΠΆΠ½ΠΎ Π²ΠΈΠ·ΡΠ°Π»ΠΈΠ·ΠΈΡΠΎΠ²Π°ΡΡ Ρ ΠΏΠΎΠΌΠΎΡΡΡ ΠΏΡΠΎΠ³ΡΠ°ΠΌΠΌΡ, Π²ΠΊΠ»ΡΡΠ°Ρ Π²Π½Π΅ΡΠ½Π΅Π΅ ΠΎΡΠΎΡΠΌΠ»Π΅Π½ΠΈΠ΅ (Π½Π°ΠΏΡΠΈΠΌΠ΅Ρ, Π»Π°Π½Π΄ΡΠ°ΡΡΠ½ΡΠΉ Π΄ΠΈΠ·Π°ΠΉΠ½) Π΄Π°ΡΡ Π²ΠΎΠ·ΠΌΠΎΠΆΠ½ΠΎΡΡΡ ΠΎΠ±ΡΡΡΡΠΎΠΉΡΡΠ²Π° Π½Π΅ ΡΠΎΠ»ΡΠΊΠΎ ΠΊΠ²Π°ΡΡΠΈΡ, ΡΠ°ΡΡΠ½ΡΡ Π΄ΠΎΠΌΠΎΠ², Π½ΠΎ ΠΈ ΠΎΡΠΈΡΠΎΠ², Π³Π°ΡΠ°ΠΆΠ΅ΠΉ, ΠΊΠ°ΡΠ΅, ΡΡΡΠ΄ΠΈΠΉ ΠΈ Π΄ΡΡΠ³ΠΈΡ ΠΎΠ±ΡΠ΅ΠΊΡΠΎΠ². ΠΠΎΡΡΠ°ΡΠΎΡΠ½ΠΎ ΠΎΠ΄ΠΈΠ½ ΡΠ°Π· ΠΏΠΎΠΏΡΠΎΠ±ΠΎΠ²Π°ΡΡ ΠΏΡΠΎΠ΅ΠΊΡΠΈΡΠΎΠ²Π°Π½ΠΈΠ΅ Π΄ΠΈΠ·Π°ΠΉΠ½Π° ΠΎΠ½Π»Π°ΠΉΠ½, ΡΡΠΎΠ±Ρ ΠΏΠΎΡΠΎΠΌ ΡΠΎΠ²Π΅ΡΡΠ΅Π½ΡΡΠ²ΠΎΠ²Π°ΡΡ ΡΠ²ΠΎΠΈ ΡΠΌΠ΅Π½ΠΈΡ ΠΈ ΡΠ°ΡΡΠΈΡΡΡΡ Π΄ΠΈΠ°ΠΏΠ°Π·ΠΎΠ½ ΠΏΡΠΎΠ³ΡΠ°ΠΌΠΌ ΠΎΡ ΠΏΡΠΎΡΡΡΡ ΠΊ ΡΠ»ΠΎΠΆΠ½ΡΠΌ.
www.rusposter.ru
Sweet Home 3D
ΠΡΠ³ΠΊΠ°Ρ ΠΏΡΠΎΠ³ΡΠ°ΠΌΠΌΠΊΠ° Π΄Π»Ρ Π²Π½ΡΡΡΠ΅Π½Π½Π΅ΠΉ ΠΏΠ»Π°Π½ΠΈΡΠΎΠ²ΠΊΠΈ ΠΊΠ²Π°ΡΡΠΈΡ ΠΈ Π΄ΠΎΠΌΠΎΠ². ΠΠ½Π° ΠΏΠΎΠ΄ΠΎΠΉΠ΄ΡΡ Π΄Π°ΠΆΠ΅ Π½Π°ΡΠΈΠ½Π°ΡΡΠΈΠΌ ΠΏΠΎΠ»ΡΠ·ΠΎΠ²Π°ΡΠ΅Π»ΡΠΌ ΠΠ. ΠΠΎΡΡΠ°ΡΠΎΡΠ½ΠΎ ΠΏΡΠΎΡΡΠΎΠΉ ΠΈ Π²ΠΏΠΎΠ»Π½Π΅ Π΄ΠΎΡΡΡΠΏΠ½ΡΠΉ ΠΈΠ½ΡΠ΅ΡΡΠ΅ΠΉΡ ΠΏΠΎΠΌΠΎΠΆΠ΅Ρ Π·Π° ΠΌΠΈΠ½ΠΈΠΌΠ°Π»ΡΠ½ΡΠΉ ΡΡΠΎΠΊ ΡΠΎΠ·Π΄Π°ΡΡ Π²ΠΈΡΡΡΠ°Π»ΡΠ½ΡΠΉ ΠΈΠ½ΡΠ΅ΡΡΠ΅Ρ ΠΊΠΎΠΌΠ½Π°ΡΡ. ΠΡΠ΅, ΡΡΠΎ ΠΏΠΎΡΡΠ΅Π±ΡΠ΅ΡΡΡ, ΡΡΠΎ Ρ ΠΏΠΎΠΌΠΎΡΡΡ ΠΌΡΡΠΈ ΠΏΠ΅ΡΠ΅ΡΠ°ΡΠΊΠΈΠ²Π°ΡΡ ΡΠ»Π΅ΠΌΠ΅Π½ΡΡ ΠΈΠ½ΡΠ΅ΡΡΠ΅ΡΠ° Π² Π²ΠΈΡΡΡΠ°Π»ΡΠ½ΡΡ ΠΊΠΎΠΌΠ½Π°ΡΡ. ΠΠ΄Π΅ΡΡ Π²Ρ Π²ΡΡΠ΄ Π»ΠΈ ΡΠΌΠΎΠΆΠ΅ΡΠ΅ Π²ΠΈΠ·ΡΠ°Π»ΠΈΠ·ΠΈΡΠΎΠ²Π°ΡΡ Π²ΡΠ΅ ΡΠ²ΠΎΠΈ ΡΠΌΠ΅Π»ΡΠ΅ ΠΈ Π½Π΅ΡΡΠ°Π½Π΄Π°ΡΡΠ½ΡΠ΅ ΠΆΠ΅Π»Π°Π½ΠΈΡ, ΡΠ°ΠΊ ΠΊΠ°ΠΊ Π²ΡΠ΅ ΠΎΠ±ΡΠ΅ΠΊΡΡ ΡΡΠ°Π½Π΄Π°ΡΡΠ½Ρ ΠΈ Π·Π°ΡΠΈΠΊΡΠΈΡΠΎΠ²Π°Π½Ρ, ΠΎΠ΄Π½Π°ΠΊΠΎ Π½Π°ΠΊΠΈΠ΄Π°ΡΡ Π±ΡΡΡΡΡΠΉ ΠΈ ΠΏΡΠΎΡΡΠΎΠΉ ΠΏΠ»Π°Π½ Π²ΡΠ΅Π³ΠΎ Π·Π° Π½Π΅ΡΠΊΠΎΠ»ΡΠΊΠΎ ΠΌΠΈΠ½ΡΡ ΠΏΠΎΠ»ΡΡΠΈΡΡΡ.

http://www.sweethome3d.eu/ru
Ikea home planner
ΠΠΎΡΡΠ°ΡΠΎΡΠ½ΠΎ ΠΈΠ·Π²Π΅ΡΡΠ½ΡΠΉ ΠΈ ΠΏΠΎΠΏΡΠ»ΡΡΠ½ΡΠΉ ΠΏΡΠΎΠΈΠ·Π²ΠΎΠ΄ΠΈΡΠ΅Π»Ρ ΠΌΠ΅Π±Π΅Π»ΠΈ ΠΠΊΠ΅Π° ΡΠΏΠ΅ΡΠΈΠ°Π»ΡΠ½ΠΎ Π΄Π»Ρ ΡΠ²ΠΎΠΈΡ ΠΏΠΎΠΊΠ»ΠΎΠ½Π½ΠΈΠΊΠΎΠ² ΠΈ ΠΊΠ»ΠΈΠ΅Π½ΡΠΎΠ² ΡΠΎΠ·Π΄Π°Π» Π±Π΅ΡΠΏΠ»Π°ΡΠ½ΡΠΉ ΠΎΠ½Π»Π°ΠΉΠ½-ΡΠ΅ΡΡΡΡ, ΠΏΠΎΠ·Π²ΠΎΠ»ΡΡΡΠΈΠΉ ΡΠ°ΠΌΠΎΡΡΠΎΡΡΠ΅Π»ΡΠ½ΠΎ ΡΠΎΠ·Π΄Π°Π²Π°ΡΡ ΠΈΠ½ΡΠ΅ΡΡΠ΅ΡΡ. ΠΠ»Ρ ΡΠ°Π±ΠΎΡΡ Π² ΠΏΡΠΎΠ³ΡΠ°ΠΌΠΌΠ΅ Π½Π΅ Π½ΡΠΆΠ½Ρ ΠΊΠ°ΠΊΠΈΠ΅-Π»ΠΈΠ±ΠΎ ΠΎΡΠΎΠ±Π΅Π½Π½ΡΠ΅ ΡΠΌΠ΅Π½ΠΈΡ, Π²ΡΠ΅ ΠΏΡΠΎΡΡΠΎ ΠΈ ΡΠ΄ΠΎΠ±Π½ΠΎ. ΠΡΠ½ΠΎΠ²Π½ΠΎΠΉ ΡΠΏΠΎΡ ΠΈΠ΄ΡΡ Π½Π° ΠΏΠΎΠ΄Π±ΠΎΡ ΠΌΠ΅Π±Π΅Π»ΠΈ ΠΈ Π°ΠΊΡΠ΅ΡΡΡΠ°ΡΠΎΠ². ΠΠ°ΠΌ Π΄ΠΎΡΡΡΠΏΠ½Ρ Π²ΡΠ΅ ΠΊΠΎΠ»Π»Π΅ΠΊΡΠΈΠΈ ΠΌΠ΅Π±Π΅Π»ΠΈ ΠΎΡ Π±ΡΠ΅Π½Π΄Π° ΠΠΊΠ΅Π°, Π·Π΄Π΅ΡΡ ΠΆΠ΅ Π²Π°ΠΌ ΠΏΡΠ΅Π΄Π»ΠΎΠΆΠ°Ρ ΠΏΠΎΠ΄ΡΡΠΈΡΠ°ΡΡ ΠΏΡΠΈΠ±Π»ΠΈΠ·ΠΈΡΠ΅Π»ΡΠ½ΡΡ ΡΡΠΎΠΈΠΌΠΎΡΡΡ, ΡΠΎΠ·Π΄Π°Π½Π½ΠΎΠ³ΠΎ Π²Π°ΠΌΠΈ ΠΎΡΠΎΡΠΌΠ»Π΅Π½ΠΈΡ. Π ΡΠΎΡ ΡΠ°Π½ΠΈΠ² ΠΏΡΠΎΠ΅ΠΊΡ, ΠΌΠΎΠΆΠ½ΠΎ Π·Π°ΠΊΠ°Π·Π°ΡΡ Π²Π΅ΡΡ ΠΊΠΎΠΌΠΏΠ»Π΅ΠΊΡ ΠΈΠ· Π±Π»ΠΈΠΆΠ°ΠΉΡΠ΅Π³ΠΎ ΠΊ Π²Π°ΠΌ ΡΠΈΡΠΌΠ΅Π½Π½ΠΎΠ³ΠΎ ΠΌΠ°Π³Π°Π·ΠΈΠ½Π°. ΠΠ°ΠΊ ΠΈ ΠΏΡΠ΅Π΄ΡΠ΄ΡΡΠ°Ρ ΠΏΡΠΎΠ³ΡΠ°ΠΌΠΌΠ°, Ikea home planner Π½Π΅ Π΄Π°ΡΡ ΡΠ°Π½ΡΠ°Π·ΠΈΠΈ ΡΠ°Π·ΡΠ³ΡΠ°ΡΡΡΡ, Π²Π΅Π΄Ρ, Π½Π΅ΡΠΌΠΎΡΡΡ Π½Π° ΠΎΠ³ΡΠΎΠΌΠ½ΡΠΉ Π°ΡΡΠΎΡΡΠΈΠΌΠ΅Π½Ρ, Π°Π±ΡΠΎΠ»ΡΡΠ½ΠΎΠΉ ΡΠ²ΠΎΠ±ΠΎΠ΄Ρ ΠΏΠΎΠ»ΡΡΠΈΡΡ Π½Π΅ ΡΠ΄Π°ΡΡΡΡ.

http://www.ikea.com/ms/ru_RU/rooms_ideas/splashplanners.html
Google Sketchup
ΠΡΠ° ΠΏΡΠΎΠ³ΡΠ°ΠΌΠΌΠ° β Π½Π°Ρ ΠΎΠ΄ΠΊΠ° Π΄Π»Ρ Π½ΠΎΠ²ΠΈΡΠΊΠΎΠ² ΠΈ ΠΆΠ΅Π»Π°ΡΡΠΈΡ Π½Π°ΡΠ°ΡΡ ΠΎΠ±ΡΡΠ΅Π½ΠΈΠ΅ Π² ΠΎΠ±Π»Π°ΡΡΠΈ 3D-Π³ΡΠ°ΡΠΈΠΊΠΈ. Π‘ΡΡΠ΅ΡΡΠ²ΡΠ΅Ρ Π΄Π²Π° Π²Π°ΡΠΈΠ°Π½ΡΠ° ΠΏΡΠΎΠ³ΡΠ°ΠΌΠΌΡ β Π±Π΅ΡΠΏΠ»Π°ΡΠ½ΡΠΉ ΠΈ ΠΏΠ»Π°ΡΠ½ΡΠΉ. ΠΠ΅ΡΠΏΠ»Π°ΡΠ½Π°Ρ Π²Π΅ΡΡΠΈΡ ΠΊΠ°ΡΠ΅ΡΡΠ²Π΅Π½Π½Π°Ρ ΠΈ ΡΠΎΠ΄Π΅ΡΠΆΠΈΡ Π²ΡΠ΅ Π½Π΅ΠΎΠ±Ρ ΠΎΠ΄ΠΈΠΌΡΠ΅ ΠΈΠ½ΡΡΡΡΠΌΠ΅Π½ΡΡ Π΄Π»Ρ ΡΠΎΠ·Π΄Π°Π½ΠΈΡ ΠΏΠΎΠ»Π½ΠΎΡΠ΅Π½Π½ΠΎΠ³ΠΎ ΠΈΠ½ΡΠ΅ΡΡΠ΅ΡΠ°. ΠΡΠ²ΠΎΠ΅Π½ΠΈΠ΅ Sketchup Π½Π΅ Π·Π°ΠΉΠΌΡΡ ΠΌΠ½ΠΎΠ³ΠΎ Π²ΡΠ΅ΠΌΠ΅Π½ΠΈ ΠΈ ΡΡΠΈΠ»ΠΈΠΉ, Π²Ρ ΡΠΌΠΎΠΆΠ΅ΡΠ΅ Π·Π° ΠΊΠΎΡΠΎΡΠΊΠΈΠ΅ ΡΡΠΎΠΊΠΈ Π²ΠΈΠ·ΡΠ°Π»ΠΈΠ·ΠΈΡΠΎΠ²Π°ΡΡ Π²ΡΠ΅ Π½ΡΠΆΠ½ΡΠ΅ ΡΠΎΡΠΌΡ ΠΈ ΠΎΠ±ΡΠ΅ΠΊΡΡ Π΄Π»Ρ Π±ΡΠ΄ΡΡΠ΅Π³ΠΎ ΡΠ΅ΠΌΠΎΠ½ΡΠ°.

http://sketchup.google.com/intl/ru/
Planner 5D
Π₯ΠΎΡΠΎΡΠ°Ρ ΠΏΡΠΎΠ³ΡΠ°ΠΌΠΌΠ°, ΠΏΠΎΠ΄Ρ ΠΎΠ΄ΠΈΡ Π΄Π°ΠΆΠ΅ ΠΏΡΠΎΡΠ΅ΡΡΠΈΠΎΠ½Π°Π»Π°ΠΌ, ΠΈΠΌΠ΅Π΅Ρ ΡΠΈΡΠΎΠΊΠΈΠΉ Π²ΡΠ±ΠΎΡ ΠΌΠ°ΡΠ΅ΡΠΈΠ°Π»ΠΎΠ², ΡΠ΅ΠΊΡΡΡΡ, ΠΌΠ΅Π±Π΅Π»ΠΈ. ΠΡΠΈ Π½Π΅ΠΎΠ±Ρ ΠΎΠ΄ΠΈΠΌΠΎΡΡΠΈ Π·Π° Π½Π΅Π±ΠΎΠ»ΡΡΡΡ ΠΏΠ»Π°ΡΡ ΠΌΠΎΠΆΠ½ΠΎ ΠΏΡΠΈΠΎΠ±ΡΠ΅ΡΡΠΈ Π΅ΡΡ Π±ΠΎΠ»ΡΡΠ΅ ΡΠ»Π΅ΠΌΠ΅Π½ΡΠΎΠ². Planner 5D ΠΏΠΎΠ·Π²ΠΎΠ»ΡΠ΅Ρ ΠΎΡΠΎΡΠΌΠ»ΡΡΡ ΠΈΠ½ΡΠ΅ΡΡΠ΅Ρ Π½Π΅ ΡΠΎΠ»ΡΠΊΠΎ ΠΎΠ΄Π½ΠΎΠ³ΠΎ ΠΏΠΎΠΌΠ΅ΡΠ΅Π½ΠΈΡ, Π° ΡΡΠ°Π·Ρ Π²ΡΠ΅ΠΉ ΠΊΠ²Π°ΡΡΠΈΡΡ ΠΈΠ»ΠΈ Π΄ΠΎΠΌΠ°. Π’Π°ΠΊΠΆΠ΅ Π·Π΄Π΅ΡΡ ΠΌΠΎΠΆΠ½ΠΎ ΡΠΎΠ·Π΄Π°Π²Π°ΡΡ Π½Π΅ΠΎΠ³ΡΠ°Π½ΠΈΡΠ΅Π½Π½ΠΎΠ΅ ΠΊΠΎΠ»ΠΈΡΠ΅ΡΡΠ²ΠΎ ΠΏΡΠΎΠ΅ΠΊΡΠΎΠ², ΡΠΎΡ ΡΠ°Π½ΡΡΡ Π² Π³Π°Π»Π΅ΡΠ΅Π΅ ΠΈ ΡΠ°ΡΠΏΠ΅ΡΠ°ΡΡΠ²Π°ΡΡ. ΠΠ΅ΡΠΌΠΎΡΡΡ Π½Π° ΡΠΎ ΡΡΠΎ ΡΡΠ½ΠΊΡΠΈΠΉ Ρ ΠΏΡΠΎΠ³ΡΠ°ΠΌΠΌΡ ΠΌΠ½ΠΎΠ³ΠΎ ΠΈ ΠΎΠ½ΠΈ ΡΠ°Π·Π½ΠΎΠΎΠ±ΡΠ°Π·Π½Ρ, ΠΊΠ°ΠΊΠΈΡ -Π»ΠΈΠ±ΠΎ ΡΠΌΠ΅Π½ΠΈΠΉ Π΄Π»Ρ ΡΠ°Π±ΠΎΡΡ Ρ Π½Π΅ΠΉ Π½Π΅ Π½ΡΠΆΠ½ΠΎ.

https://planner5d.com
PRO100
Π£Π΄ΠΎΠ±Π½ΡΠΉ ΠΈ ΠΏΡΠΎΡΡΠΎΠΉ ΠΏΡΠΎΠ΅ΠΊΡΠΈΡΠΎΠ²ΡΠΈΠΊ, Π² ΠΊΠΎΡΠΎΡΠΎΠΌ ΡΠΎΠ»ΡΠΊΠΎ Ρ ΠΏΠΎΠΌΠΎΡΡΡ ΠΌΡΡΠΈ ΠΌΠΎΠΆΠ½ΠΎ ΡΠΎΠ·Π΄Π°ΡΡ ΠΏΠΎΠ»Π½ΠΎΡΠ΅Π½Π½ΡΠ΅ ΠΈΠ½ΡΠ΅ΡΡΠ΅ΡΡ. ΠΡΠ΅Π½Ρ ΡΡΠ½ΠΊΡΠΈΠΎΠ½Π°Π»ΡΠ½ΠΎ Π½Π°ΠΏΠΎΠ»Π½Π΅Π½Π½Π°Ρ ΠΏΠ°Π½Π΅Π»Ρ ΠΈΠ½ΡΡΡΡΠΌΠ΅Π½ΡΠΎΠ² ΠΏΠΎΠ·Π²ΠΎΠ»ΠΈΡ Π²ΡΡΠ°Π²Π½ΠΈΠ²Π°ΡΡ, ΠΏΠ΅ΡΠ΅Π΄Π²ΠΈΠ³Π°ΡΡ, ΠΏΠΎΠ²ΠΎΡΠ°ΡΠΈΠ²Π°ΡΡ Π² ΡΠ°Π·Π½ΡΠ΅ ΡΡΠΎΡΠΎΠ½Ρ ΠΈ Π²ΡΡΡΠ΅ΡΠΊΠΈ ΠΏΠΎΠ·ΠΈΡΠΈΠΎΠ½ΠΈΡΠΎΠ²Π°ΡΡ ΠΎΠ±ΡΠ΅ΠΊΡΡ. ΠΠ°ΠΆΠ΄ΡΠΉ ΡΠ»Π΅ΠΌΠ΅Π½Ρ ΠΈΠΌΠ΅Π΅Ρ ΡΡΠ΄ Ρ Π°ΡΠ°ΠΊΡΠ΅ΡΠΈΡΡΠΈΠΊ, ΠΊΠΎΡΠΎΡΡΠ΅ ΠΏΠΎ Π½Π΅ΠΎΠ±Ρ ΠΎΠ΄ΠΈΠΌΠΎΡΡΠΈ ΠΌΠΎΠΆΠ½ΠΎ ΠΈΠ·ΠΌΠ΅Π½ΡΡΡ. ΠΡΠΎΠ³ΡΠ°ΠΌΠΌΠ° ΠΈΠΌΠ΅Π΅Ρ ΡΠ½ΠΈΠΊΠ°Π»ΡΠ½ΡΡ ΡΡΠ½ΠΊΡΠΈΡ β ΡΠ΅ΠΌΠΈΠΊΡΠ°ΡΠ½ΡΡ ΠΏΡΠΎΠ΅ΠΊΡΠΈΡ, Π° ΡΠ°ΠΊΠΆΠ΅ Π²ΡΠ΅Π²ΠΎΠ·ΠΌΠΎΠΆΠ½ΡΠ΅ Π³ΡΠ°ΡΠΈΡΠ΅ΡΠΊΠΈΠ΅ ΡΡΡΠ΅ΠΊΡΡ, Π½Π°ΠΏΡΠΈΠΌΠ΅Ρ, ΡΡΡΠ΅Π²Π°Π½ΠΈΠ΅, Π²ΡΠ΄Π΅Π»Π΅Π½ΠΈΠ΅ ΠΊΠΎΠ½ΡΡΡΠ°, ΠΏΡΠΎΠ·ΡΠ°ΡΠ½ΠΎΡΡΡ ΠΈ Ρ. ΠΏ. PRO100 ΠΎΡΠ΅Π½ΡΡ Π½Π΅ ΡΠΎΠ»ΡΠΊΠΎ Π»ΡΠ±ΠΈΡΠ΅Π»ΠΈ ΠΈ Π½Π°ΡΠΈΠ½Π°ΡΡΠΈΠ΅ Π΄ΠΈΠ·Π°ΠΉΠ½Π΅ΡΡ, Π½ΠΎ ΠΈ ΠΏΡΠΎΡΠ΅ΡΡΠΈΠΎΠ½Π°Π»Ρ.

http://spb-pro100.ru/
ΠΠ»Π°Π½ΠΎΠΏΠ»Π°Π½
ΠΡΠΎΡ ΠΎΠ½Π»Π°ΠΉΠ½-ΡΠ΅ΡΠ²ΠΈΡ β ΠΏΡΠΎΡΡΠΎ Π½Π°Ρ ΠΎΠ΄ΠΊΠ°, Π΄Π»Ρ ΡΠ΅Ρ , ΡΡΠΎ ΡΠ΅ΡΠΈΠ» ΡΠΎΠ·Π΄Π°ΡΡ ΠΈΠ½ΡΠ΅ΡΡΠ΅Ρ ΠΊΠ²Π°ΡΡΠΈΡΡ ΠΎΠ½Π»Π°ΠΉΠ½, Π²Π΅Π΄Ρ ΠΎΠ½ ΠΏΠΎΠ·Π²ΠΎΠ»ΡΠ΅Ρ ΠΎΡΠΎΡΠΌΠΈΡΡ ΠΏΡΠ°ΠΊΡΠΈΡΠ΅ΡΠΊΠΈ Π»ΡΠ±ΠΎΠ΅ ΠΏΠΎΠΌΠ΅ΡΠ΅Π½ΠΈΠ΅. ΠΠ°ΠΌ Π½Π΅ ΠΏΠΎΡΡΠ΅Π±ΡΡΡΡΡ ΠΊΠ°ΠΊΠΈΠ΅-Π»ΠΈΠ±ΠΎ Π΄ΠΎΠΏΠΎΠ»Π½ΠΈΡΠ΅Π»ΡΠ½ΡΠ΅ Π·Π½Π°Π½ΠΈΡ ΠΈ ΡΠΌΠ΅Π½ΠΈΡ, Π²ΡΠ΅ Π΄ΠΎΡΡΠ°ΡΠΎΡΠ½ΠΎ ΠΏΡΠΎΡΡΠΎ. ΠΠ°Π½Π΅Π»Ρ ΠΈΠ½ΡΡΡΡΠΌΠ΅Π½ΡΠΎΠ² ΠΈΠΌΠ΅Π΅Ρ ΠΎΠ³ΡΠΎΠΌΠ½ΡΠΉ Π²ΡΠ±ΠΎΡ ΡΠ»Π΅ΠΌΠ΅Π½ΡΠΎΠ²: ΡΠ°Π·Π½ΡΠ΅ ΡΠΎΡΠΌΡ ΠΊΠΎΠΌΠ½Π°Ρ ΠΈΠ»ΠΈ Π΄Π°ΠΆΠ΅ ΠΊΠ²Π°ΡΡΠΈΡ, Π²ΡΠ΅Π²ΠΎΠ·ΠΌΠΎΠΆΠ½ΡΠ΅ ΠΎΡΠ΄Π΅Π»ΠΎΡΠ½ΡΠ΅ ΠΌΠ°ΡΠ΅ΡΠΈΠ°Π»Ρ, Ρ ΠΎΡΠΎΡΠΈΠΉ Π²ΡΠ±ΠΎΡ ΠΌΠ΅Π±Π΅Π»ΠΈ ΠΈ Π΄ΡΡΠ³ΠΈΡ Π°ΠΊΡΠ΅ΡΡΡΠ°ΡΠΎΠ². Π Π»ΡΠ±ΠΎΠΉ ΠΌΠΎΠΌΠ΅Π½Ρ Π²Ρ ΠΌΠΎΠΆΠ΅ΡΠ΅ ΠΎΡΠ΅Π½ΠΈΡΡ ΡΠΎΠ·Π΄Π°Π½Π½ΡΠΉ ΠΈΠ½ΡΠ΅ΡΡΠ΅Ρ Π² ΡΠ΅ΠΆΠΈΠΌΠ΅ 3D ΠΈ Π΄Π°ΠΆΠ΅ Β«ΠΏΡΠΎΠ³ΡΠ»ΡΡΡΡΡΒ» ΠΏΠΎ Π½Π΅ΠΌΡ. ΠΡΠ΅ΠΈΠΌΡΡΠ΅ΡΡΠ²ΠΎΠΌ ΡΠ²Π»ΡΠ΅ΡΡΡ Π²ΠΎΠ·ΠΌΠΎΠΆΠ½ΠΎΡΡΡ Π·Π°Π³ΡΡΠΆΠ°ΡΡ ΡΠΎΠ±ΡΡΠ²Π΅Π½Π½ΡΠ΅ ΡΠΈΡΡΠ½ΠΊΠΈ ΠΈ ΡΠ΅ΠΊΡΡΡΡΡ ΠΌΠ°ΡΠ΅ΡΠΈΠ°Π»ΠΎΠ². ΠΠ΄Π½Π°ΠΊΠΎ ΡΡΠΎΠ±Ρ ΠΏΠΎΡΡΠ½ΡΡΡ Π²ΡΠ΅ ΡΡΠΎ ΡΠ°Π·Π½ΠΎΠΎΠ±ΡΠ°Π·ΠΈΠ΅, Π½Π΅ΠΎΠ±Ρ ΠΎΠ΄ΠΈΠΌ Π΄ΠΎΡΡΠ°ΡΠΎΡΠ½ΠΎ ΠΌΠΎΡΠ½ΡΠΉ ΠΊΠΎΠΌΠΏΡΡΡΠ΅Ρ.

http://planoplan.com
ΠΠ»Π°Π½ΠΈΡΡΠΉ
ΠΡΠΎΡΡΠ΅Π½ΡΠΊΠ°Ρ ΠΏΡΠΎΠ³ΡΠ°ΠΌΠΌΠΊΠ° ΠΏΠΎΠ΄ΠΎΠΉΠ΄ΡΡ Π΄Π»Ρ Π»ΡΠ±ΠΈΡΠ΅Π»Π΅ΠΉ ΠΈ ΡΠ΅Ρ , ΠΊΠΎΠΌΡ ΠΏΡΠΎΡΡΠΎ Π½ΡΠΆΠ½ΠΎ Π±ΡΡΡΡΠΎ Π½Π°ΠΊΠΈΠ΄Π°ΡΡ ΠΏΠ»Π°Π½. ΠΡΠ±ΠΎΡ ΠΌΠ°ΡΠ΅ΡΠΈΠ°Π»ΠΎΠ², ΠΌΠ΅Π±Π΅Π»ΠΈ ΠΈ ΠΏΡΠΎΡΠΈΡ ΠΈΠ½ΡΠ΅ΡΡΠ΅ΡΠ½ΡΡ ΡΠ»Π΅ΠΌΠ΅Π½ΡΠΎΠ² Π΄ΠΎΡΡΠ°ΡΠΎΡΠ½ΠΎ ΡΠΊΡΠ΄Π½ΡΠΉ. ΠΡΡΡΡΡΡΠ²ΡΠ΅Ρ 3D-ΡΠ΅ΠΆΠΈΠΌ, ΡΠΎ Π΅ΡΡΡ ΠΎΠΊΠΎΠ½ΡΠ°ΡΠ΅Π»ΡΠ½ΡΠΉ Π²Π°ΡΠΈΠ°Π½Ρ Π²Ρ ΡΠΌΠΎΠΆΠ΅ΡΠ΅ ΠΎΡΠ΅Π½ΠΈΡΡ Π»ΠΈΡΡ Π² ΠΏΠ»ΠΎΡΠΊΠΎΡΡΠΈ. Π ΠΏΡΠΎΠ³ΡΠ°ΠΌΠΌΠ΅ Π΅ΡΡΡ ΡΠ΄ΠΎΠ±Π½Π°Ρ ΡΡΠ½ΠΊΡΠΈΡ ΡΠΌΠ΅ΡΡ, ΠΏΠΎ ΠΈΡΠΎΠ³Ρ, ΠΌΠΎΠΆΠ½ΠΎ ΡΠ·Π½Π°ΡΡ ΠΏΡΠΈΠ±Π»ΠΈΠ·ΠΈΡΠ΅Π»ΡΠ½ΡΡ ΡΡΠΎΠΈΠΌΠΎΡΡΡ Π±ΡΠ΄ΡΡΠ΅Π³ΠΎ ΡΠ΅ΠΌΠΎΠ½ΡΠ°. Π’Π°ΠΊΠΆΠ΅ Β«ΠΠ»Π°Π½ΠΈΡΡΠΉΒ» ΠΏΡΠ΅Π΄Π»ΠΎΠΆΠΈΡ ΡΠΏΠΈΡΠΎΠΊ ΠΌΠ°Π³Π°Π·ΠΈΠ½ΠΎΠ², Π³Π΄Π΅ ΠΏΠΎΠ»ΡΡΠΈΡΡΡ ΠΏΡΠΈΠΎΠ±ΡΠ΅ΡΡΠΈ Π²ΡΠ΅ Π½Π΅ΠΎΠ±Ρ ΠΎΠ΄ΠΈΠΌΠΎΠ΅, Π½ΠΎ Π΅ΡΡΠ΅ΡΡΠ²Π΅Π½Π½ΠΎ, ΡΡΠΎ ΠΌΠ°Π³Π°Π·ΠΈΠ½Ρ-ΠΏΠ°ΡΡΠ½ΡΡΡ ΠΏΡΠΎΠ³ΡΠ°ΠΌΠΌΡ.
http://www.planirui.ru
ΠΠΎΡΡΠΎΠΉΠ½ΡΡ ΠΎΠ½Π»Π°ΠΉΠ½-ΡΠ΅ΡΠ²ΠΈΡΠΎΠ² Π±ΠΎΠ»Π΅Π΅ Π΄Π΅ΡΡΡΠΊΠ°. ΠΡΠ±ΠΈΡΠ°ΠΉΡΠ΅ ΠΈΠΌΠ΅Π½Π½ΠΎ ΡΠΎΡ, ΠΊΠΎΡΠΎΡΡΠΉ Π²Π°ΠΌ ΠΌΠ°ΠΊΡΠΈΠΌΠ°Π»ΡΠ½ΠΎ ΡΠ΄ΠΎΠ±Π΅Π½ ΠΈ ΡΠΎΠ·Π΄Π°Π²Π°ΠΉΡΠ΅ ΡΠ΅Π΄Π΅Π²ΡΡ! ΠΠ½Π°Π΅ΡΠ΅ Π΅ΡΡ Ρ ΠΎΡΠΎΡΠΈΠ΅ ΠΏΡΠΎΠ³ΡΠ°ΠΌΠΌΡ Π΄Π»Ρ Π΄ΠΈΠ·Π°ΠΉΠ½Π°? ΠΠΎΠ΄Π΅Π»ΠΈΡΠ΅ΡΡ ΡΡΡΠ»ΠΊΠ°ΠΌΠΈ Ρ Π½Π°ΠΌΠΈ, ΠΎΡΡΠ°Π²ΠΈΠ² ΠΈΡ Π² ΠΊΠΎΠΌΠΌΠ΅Π½ΡΠ°ΡΠΈΡΡ .
www.weareart.ru
1. ArchiCAD
ΠΡΠΎΠ³ΡΠ°ΠΌΠΌΠ° ΠΏΠΎΠ΄ΠΎΠΉΠ΄Π΅Ρ ΠΏΡΠΎΡΠ΅ΡΡΠΈΠΎΠ½Π°Π»ΡΠ½ΡΠΌ Π΄ΠΈΠ·Π°ΠΉΠ½Π΅ΡΠ°ΠΌ ΠΈ Π°ΡΡ ΠΈΡΠ΅ΠΊΡΠΎΡΠ°ΠΌ, ΠΏΠΎΡΠΊΠΎΠ»ΡΠΊΡ ΠΎΠ±Π»Π°Π΄Π°Π΅Ρ ΡΠ΅Π»ΡΠΌ ΠΊΠΎΠΌΠΏΠ»Π΅ΠΊΡΠΎΠΌ Π²ΡΠ΅Π²ΠΎΠ·ΠΌΠΎΠΆΠ½ΡΡ ΠΎΠΏΡΠΈΠΉ β ΠΎΡ ΠΏΠΎΡΡΠ°ΠΆΠ½ΠΎΠ³ΠΎ ΠΏΠ»Π°Π½Π° Π΄ΠΎ ΡΡΡΠΎΠΈΡΠ΅Π»ΡΠ½ΠΎΠΉ Π΄ΠΎΠΊΡΠΌΠ΅Π½ΡΠ°ΡΠΈΠΈ ΠΈ ΡΠΏΠ΅ΡΠΈΡΠΈΠΊΠ°ΡΠΈΠΈ.


Π£ΡΠ»ΠΎΠ²Π½ΠΎ-Π±Π΅ΡΠΏΠ»Π°ΡΠ½Π°Ρ. ΠΡΠΎΠ±Π½ΡΠΉ ΡΡΠΎΠΊ ΠΏΠΎΠ»ΡΠ·ΠΎΠ²Π°Π½ΠΈΡ β ΠΌΠ΅ΡΡΡ. ΠΠΎΡΠΎΠΌ Π½ΡΠΆΠ½ΠΎ ΠΏΡΠΈΠΎΠ±ΡΠ΅ΡΡΠΈ Π»ΠΈΡΠ΅Π½Π·ΠΈΡ, ΡΡΠΎΠ±Ρ ΠΎΠΏΠ΅ΡΠΈΡΠΎΠ²Π°ΡΡ Π²ΡΠ΅ΠΌ ΡΡΠ½ΠΊΡΠΈΠΎΠ½Π°Π»ΠΎΠΌ. Π‘Π΅ΠΉΡΠ°Ρ ΠΏΡΠ°Π²Π° Π½Π° ΠΏΡΠΎΠ³ΡΠ°ΠΌΠΌΡ ΠΏΡΠΈΠ½Π°Π΄Π»Π΅ΠΆΠ°Ρ ΠΊΠΎΠΌΠΏΠ°Π½ΠΈΠΈ Grasshopper.
ΠΡΠ΅ΠΈΠΌΡΡΠ΅ΡΡΠ²Π°: Π²ΡΠ΅ ΡΠ°ΡΡΠΈ ΠΏΡΠΎΠ΅ΠΊΡΠ° Π½Π΅ ΡΠ°Π·ΡΠΎΠ·Π½Π΅Π½Ρ, Π° Π²Π·Π°ΠΈΠΌΠΎΡΠ²ΡΠ·Π°Π½Ρ. ΠΡΠ»ΠΈ ΠΈΠ·ΠΌΠ΅Π½Π΅Π½ΠΈΡ Π²Π½Π΅ΡΡΠΈ Π² ΠΎΠ΄Π½Ρ ΠΈΠ· Π½ΠΈΡ , ΡΡΠΎ ΡΠΎΡΡΠ°Ρ ΠΎΡΠΎΠ±ΡΠ°Π·ΠΈΡΡΡ Π½Π° ΠΎΠ±ΡΠ΅ΠΌ ΠΏΠ»Π°Π½Π΅, Π² ΡΠ°Π·ΡΠ΅Π·Π΅, Π½Π° Π²ΠΈΠ΄Π°Ρ , Π³Π΄Π΅ ΡΡΠ° ΡΠ°ΡΡΡ Π·Π°Π΄Π΅ΠΉΡΡΠ²ΠΎΠ²Π°Π½Π°.
ΠΠ΅Π΄ΠΎΡΡΠ°ΡΠΊΠΈ: Π½Π΅Ρ ΠΌΠ½ΠΎΠ³ΠΎΡ ΠΎΠ΄ΠΎΠ²ΠΊΠΈ. Π’ΠΎ Π΅ΡΡΡ ΡΠΎΠ·Π΄Π°Π½Π½ΡΠΉ ΠΏΡΠΎΠ΅ΠΊΡ Π½Π΅Π»ΡΠ·Ρ ΡΠΎΠ·Π΄Π°ΡΡ Π² Π½Π΅ΡΠΊΠΎΠ»ΡΠΊΠΈΡ Π²Π°ΡΠΈΠ°Π½ΡΠ°Ρ ΡΡΠ°Π·Ρ. Π‘Π»ΠΎΠΆΠ½Π°Ρ Π³Π΅ΠΎΠΌΠ΅ΡΡΠΈΡ ΡΠΎΠΆΠ΅ Β«Π½Π΅ ΠΏΠΎ Π·ΡΠ±Π°ΠΌΒ» ΠΏΡΠΎΠ³ΡΠ°ΠΌΠΌΠ΅. ΠΠΎΠΆΠ½ΠΎ Π²ΠΎΡΠΏΠΎΠ»ΡΠ·ΠΎΠ²Π°ΡΡΡΡ ΠΏΠΎΠΌΠΎΡΡΡ Π΄ΡΡΠ³ΠΎΠ³ΠΎ ΡΠΎΡΡΠ° β Π° Π½Π°Π΄ΠΎ Π»ΠΈ?
Π‘Π°ΠΉΡ: http://www.graphisoft.ru/
dizainmania.com

Π Π°ΡΡΡΠ°Π½ΠΎΠ²ΠΊΠ° ΠΌΠ΅Π±Π΅Π»ΠΈ Π² ΠΊΠ²Π°ΡΡΠΈΡΠ΅ ΠΈ ΠΏΠ»Π°Π½ΠΈΡΠΎΠ²Π°Π½ΠΈΠ΅ Π΅Π΅ Π΄ΠΈΠ·Π°ΠΉΠ½Π° ΠΌΠΎΠΆΠ΅Ρ ΠΎΠΊΠ°Π·Π°ΡΡΡΡ Π΄ΠΎΠ²ΠΎΠ»ΡΠ½ΠΎΠΉ ΡΠ»ΠΎΠΆΠ½ΠΎΠΉ Π·Π°Π΄Π°ΡΠ΅ΠΉ, Π΅ΡΠ»ΠΈ Π½Π΅ ΠΈΡΠΏΠΎΠ»ΡΠ·ΠΎΠ²Π°ΡΡ Π΄ΠΎΠΏΠΎΠ»Π½ΠΈΡΠ΅Π»ΡΠ½ΡΠ΅ ΠΈΠ½ΡΡΡΡΠΌΠ΅Π½ΡΡ. ΠΠΈΡ ΡΠΈΡΡΠΎΠ²ΡΡ ΡΠ΅Ρ Π½ΠΎΠ»ΠΎΠ³ΠΈΠΉ Π½Π΅ ΠΎΡΡΠ°Π΅ΡΡΡ Π² ΡΡΠΎΡΠΎΠ½Π΅ ΠΈ ΠΏΡΠ΅Π΄Π»Π°Π³Π°Π΅Ρ ΡΡΠ΄ ΠΏΡΠΎΠ³ΡΠ°ΠΌΠΌΠ½ΡΡ ΡΠ΅ΡΠ΅Π½ΠΈΠΉ Π΄Π»Ρ ΠΏΡΠΎΠ΅ΠΊΡΠΈΡΠΎΠ²Π°Π½ΠΈΡ ΠΈΠ½ΡΠ΅ΡΡΠ΅ΡΠ°. Π§ΠΈΡΠ°ΠΉΡΠ΅ Π΄Π°Π»ΡΡΠ΅, ΠΈ Π²Ρ ΡΠ·Π½Π°Π΅ΡΠ΅ ΠΎ Π»ΡΡΡΠΈΡ ΠΏΡΠΎΠ³ΡΠ°ΠΌΠΌΠ°Ρ Π΄Π»Ρ ΠΏΠ»Π°Π½ΠΈΡΠΎΠ²ΠΊΠΈ Π΄ΠΎΠΌΠ°, ΠΊΠΎΡΠΎΡΡΠ΅ ΠΌΠΎΠΆΠ½ΠΎ ΡΠΊΠ°ΡΠ°ΡΡ Π°Π±ΡΠΎΠ»ΡΡΠ½ΠΎ Π±Π΅ΡΠΏΠ»Π°ΡΠ½ΠΎ.
ΠΠ°Π·ΠΎΠ²ΡΠ΅ ΡΡΠ½ΠΊΡΠΈΠΈ, ΡΠ°ΠΊΠΈΠ΅ ΠΊΠ°ΠΊ ΠΈΠ·ΠΌΠ΅Π½Π΅Π½ΠΈΠ΅ ΠΏΠ»Π°Π½Π° ΠΏΠΎΠΌΠ΅ΡΠ΅Π½ΠΈΡ (ΡΡΠ΅Π½, Π΄Π²Π΅ΡΠ΅ΠΉ, ΠΎΠΊΠΎΠ½) ΠΈ ΡΠ°ΡΡΡΠ°Π½ΠΎΠ²ΠΊΠ° ΠΌΠ΅Π±Π΅Π»ΠΈ Π΅ΡΡΡ ΠΏΡΠ°ΠΊΡΠΈΡΠ΅ΡΠΊΠΈ Π² ΠΊΠ°ΠΆΠ΄ΠΎΠΉ ΠΏΡΠΎΠ³ΡΠ°ΠΌΠΌΠ΅ Π΄Π»Ρ ΠΏΡΠΎΠ΅ΠΊΡΠΈΡΠΎΠ²Π°Π½ΠΈΡ ΠΈΠ½ΡΠ΅ΡΡΠ΅ΡΠ°. ΠΠΎ ΠΏΡΠ°ΠΊΡΠΈΡΠ΅ΡΠΊΠΈ Π² ΠΊΠ°ΠΆΠ΄ΠΎΠΉ ΠΈΠ· ΠΏΡΠΎΠ³ΡΠ°ΠΌΠΌ Π΄Π»Ρ ΡΠ°ΡΡΡΠ°Π½ΠΎΠ²ΠΊΠΈ ΠΌΠ΅Π±Π΅Π»ΠΈ Π² ΠΊΠΎΠΌΠ½Π°ΡΠ΅ Π΅ΡΡΡ ΠΊΠ°ΠΊΠ°Ρ-ΡΠΎ ΡΠ²ΠΎΡ ΡΠΈΡΠΊΠ°, ΡΠ½ΠΈΠΊΠ°Π»ΡΠ½Π°Ρ Π²ΠΎΠ·ΠΌΠΎΠΆΠ½ΠΎΡΡΡ. ΠΠ΅ΠΊΠΎΡΠΎΡΡΠ΅ ΠΏΡΠΎΠ³ΡΠ°ΠΌΠΌΡ Π²ΡΠ΄Π΅Π»ΡΡΡΡΡ ΡΠ²ΠΎΠΈΠΌ ΡΠ΄ΠΎΠ±ΡΡΠ²ΠΎΠΌ ΠΈ ΠΏΡΠΎΡΡΠΎΡΠΎΠΉ ΠΎΠ±ΡΠ°ΡΠ΅Π½ΠΈΡ Ρ Π½ΠΈΠΌΠΈ.
ΠΠΈΠ·Π°ΠΉΠ½ ΠΠ½ΡΠ΅ΡΡΠ΅ΡΠ° 3D

ΠΠΈΠ·Π°ΠΉΠ½ ΠΠ½ΡΠ΅ΡΡΠ΅ΡΠ° 3D β ΡΡΠΎ ΠΏΡΠ΅Π²ΠΎΡΡ ΠΎΠ΄Π½Π°Ρ ΠΏΡΠΎΠ³ΡΠ°ΠΌΠΌΠ° Π΄Π»Ρ ΡΠ°ΡΡΡΠ°Π½ΠΎΠ²ΠΊΠΈ ΠΌΠ΅Π±Π΅Π»ΠΈ Π² ΠΊΠΎΠΌΠ½Π°ΡΠ΅ ΠΎΡ ΡΠΎΡΡΠΈΠΉΡΠΊΠΈΡ ΡΠ°Π·ΡΠ°Π±ΠΎΡΡΠΈΠΊΠΎΠ². ΠΡΠΈΠ»ΠΎΠΆΠ΅Π½ΠΈΠ΅ ΠΏΡΠΎΡΡΠΎ Π² ΠΈΡΠΏΠΎΠ»ΡΠ·ΠΎΠ²Π°Π½ΠΈΠΈ, Π½ΠΎ Π² ΡΠΎ ΠΆΠ΅ Π²ΡΠ΅ΠΌΡ ΠΎΠ±Π»Π°Π΄Π°Π΅Ρ ΠΏΡΠΎΡΡΠΎ Π²ΠΏΠ΅ΡΠ°ΡΠ»ΡΡΡΠΈΠΌ ΠΊΠΎΠ»ΠΈΡΠ΅ΡΡΠ²ΠΎΠΌ ΡΡΠ½ΠΊΡΠΈΠΉ. ΠΡΠΎΠ³ΡΠ°ΠΌΠΌΠΎΠΉ ΠΏΡΠΎΡΡΠΎ ΠΏΡΠΈΡΡΠ½ΠΎ ΠΏΠΎΠ»ΡΠ·ΠΎΠ²Π°ΡΡΡΡ.

Π€ΡΠ½ΠΊΡΠΈΡ Π²ΠΈΡΡΡΠ°Π»ΡΠ½ΡΠΉ ΡΡΡ β Π²Π·Π³Π»ΡΠ½ΠΈΡΠ΅ Π½Π° ΠΊΠΎΠΌΠ½Π°ΡΡ ΠΎΡ ΠΏΠ΅ΡΠ²ΠΎΠ³ΠΎ Π»ΠΈΡΠ°!
Π‘ΠΎΠ·Π΄Π°ΠΉΡΠ΅ Π²ΠΈΡΡΡΠ°Π»ΡΠ½ΡΡ ΠΊΠΎΠΏΠΈΡ ΡΠ²ΠΎΠ΅Π³ΠΎ Π΄ΠΎΠΌΠ°: ΠΊΠ²Π°ΡΡΠΈΡΡ, Π΄Π°ΡΠΈ ΠΈ Ρ.ΠΏ. ΠΠΎΠ΄Π΅Π»ΠΈ ΠΌΠ΅Π±Π΅Π»ΠΈ ΠΌΠΎΠΆΠ½ΠΎ Π³ΠΈΠ±ΠΊΠΎ ΠΈΠ·ΠΌΠ΅Π½ΡΡΡ (ΡΠ°Π·ΠΌΠ΅ΡΡ, ΡΠ²Π΅Ρ), ΡΡΠΎ ΠΏΠΎΠ·Π²ΠΎΠ»ΡΠ΅Ρ Π²ΠΎΡΡΠΎΠ·Π΄Π°ΡΡ Π»ΡΠ±ΡΡ ΡΡΡΠ΅ΡΡΠ²ΡΡΡΡΡ Π² ΠΆΠΈΠ·Π½ΠΈ ΠΌΠ΅Π±Π΅Π»Ρ. ΠΡΠΎΠΌΠ΅ ΡΡΠΎΠ³ΠΎ ΠΏΡΠΎΠ³ΡΠ°ΠΌΠΌΠ° ΠΏΠΎΠ·Π²ΠΎΠ»ΡΠ΅Ρ ΡΠΎΠ·Π΄Π°Π²Π°ΡΡ ΠΌΠ½ΠΎΠ³ΠΎΡΡΠ°ΠΆΠ½ΡΠ΅ ΠΏΠΎΠΌΠ΅ΡΠ΅Π½ΠΈΡ.
ΠΡΠΎΠ³ΡΠ°ΠΌΠΌΠ° ΠΏΠΎΠ·Π²ΠΎΠ»ΡΠ΅Ρ ΡΠ²ΠΈΠ΄Π΅ΡΡ ΡΠ²ΠΎΡ ΠΊΠΎΠΌΠ½Π°ΡΡ Ρ ΡΠ°ΡΡΡΠ°Π²Π»Π΅Π½Π½ΠΎΠΉ Π² Π½Π΅ΠΉ ΠΌΠ΅Π±Π΅Π»ΡΡ Π² Π½Π΅ΡΠΊΠΎΠ»ΡΠΊΠΈΡ ΠΏΡΠΎΠ΅ΠΊΡΠΈΡΡ : 2D, 3D ΠΈ ΠΎΡ ΠΏΠ΅ΡΠ²ΠΎΠ³ΠΎ Π»ΠΈΡΠ°.
ΠΠΈΠ½ΡΡΠΎΠΌ ΠΏΡΠΎΠ³ΡΠ°ΠΌΠΌΡ ΡΠ²Π»ΡΠ΅ΡΡΡ Π΅Π΅ ΠΏΠ»Π°ΡΠ½ΠΎΡΡΡ. ΠΠ΅ΡΠΏΠ»Π°ΡΠ½ΠΎΠ΅ ΠΈΡΠΏΠΎΠ»ΡΠ·ΠΎΠ²Π°Π½ΠΈΠ΅ ΠΎΠ³ΡΠ°Π½ΠΈΡΠ΅Π½ΠΎ ΡΡΠΎΠΊΠΎΠΌ Π² 10 Π΄Π½Π΅ΠΉ.
Π‘ΠΊΠ°ΡΠ°ΡΡ ΠΏΡΠΎΠ³ΡΠ°ΠΌΠΌΡ ΠΠΈΠ·Π°ΠΉΠ½ ΠΠ½ΡΠ΅ΡΡΠ΅ΡΠ° 3D
Π£ΡΠΎΠΊ: Π Π°ΡΡΡΠ°Π²Π»ΡΠ΅ΠΌ ΠΌΠ΅Π±Π΅Π»Ρ Π² ΠΠΈΠ·Π°ΠΉΠ½ ΠΠ½ΡΠ΅ΡΡΠ΅ΡΠ° 3D
Stolplit

Π‘Π»Π΅Π΄ΡΡΡΠ°Ρ ΠΏΡΠΎΠ³ΡΠ°ΠΌΠΌΠ° Π½Π°ΡΠ΅Π³ΠΎ ΠΎΠ±Π·ΠΎΡΠ° β Π‘ΡΠΎΠ»ΠΏΠ»ΠΈΡ. ΠΡΠΎ ΡΠΎΠΆΠ΅ ΠΏΡΠΎΠ³ΡΠ°ΠΌΠΌΠ° ΠΎΡ ΡΠΎΡΡΠΈΠΉΡΠΊΠΈΡ ΡΠ°Π·ΡΠ°Π±ΠΎΡΡΠΈΠΊΠΎΠ², ΠΊΠΎΡΠΎΡΡΠ΅ ΠΏΠΎ ΡΠΎΠ²ΠΌΠ΅ΡΡΠΈΡΠ΅Π»ΡΡΡΠ²Ρ Π²Π»Π°Π΄Π΅ΡΡ ΠΈΠ½ΡΠ΅ΡΠ½Π΅Ρ-ΠΌΠ°Π³Π°Π·ΠΈΠ½ΠΎΠΌ ΠΏΠΎ ΠΏΡΠΎΠ΄Π°ΠΆΠ΅ ΠΌΠ΅Π±Π΅Π»ΠΈ.
ΠΡΠΎΠ³ΡΠ°ΠΌΠΌΠ° ΠΎΡΠ»ΠΈΡΠ½ΠΎ ΡΠΏΡΠ°Π²Π»ΡΠ΅ΡΡΡ Ρ ΡΠΎΠ·Π΄Π°Π½ΠΈΠ΅ΠΌ ΠΏΠ»Π°Π½ΠΈΡΠΎΠ²ΠΊΠΈ ΠΏΠΎΠΌΠ΅ΡΠ΅Π½ΠΈΡ ΠΈ ΡΠ°ΡΡΡΠ°Π½ΠΎΠ²ΠΊΠΎΠΉ ΠΌΠ΅Π±Π΅Π»ΠΈ. ΠΡΡ Π΄ΠΎΡΡΡΠΏΠ½Π°Ρ ΠΌΠ΅Π±Π΅Π»Ρ ΡΠ°Π·Π±ΠΈΡΠ° ΠΏΠΎ ΠΊΠ°ΡΠ΅Π³ΠΎΡΠΈΡΠΌ β ΠΏΠΎΡΡΠΎΠΌΡ Π²Ρ Π»Π΅Π³ΠΊΠΎ ΠΎΡΡΡΠΈΡΠ΅ ΠΏΠΎΠ΄Ρ ΠΎΠ΄ΡΡΠΈΠΉ ΡΠΊΠ°Ρ ΠΈΠ»ΠΈ Ρ ΠΎΠ»ΠΎΠ΄ΠΈΠ»ΡΠ½ΠΈΠΊ. ΠΠ»Ρ ΠΊΠ°ΠΆΠ΄ΠΎΠΉ Π²Π΅ΡΠΈ ΡΠΊΠ°Π·Π°Π½Π° Π΅Π΅ ΡΡΠΎΠΈΠΌΠΎΡΡΡ Π² ΠΌΠ°Π³Π°Π·ΠΈΠ½Π΅ Stolplit, ΠΊΠΎΡΠΎΡΠ°Ρ ΠΎΡΡΠ°ΠΆΠ°Π΅Ρ ΠΏΡΠΈΠΌΠ΅ΡΠ½ΡΡ ΡΡΠΎΠΈΠΌΠΎΡΡΡ Π΄Π°Π½Π½ΠΎΠΉ ΠΌΠ΅Π±Π΅Π»ΠΈ Π½Π° Π²ΡΠ΅ΠΌ ΡΡΠ½ΠΊΠ΅. ΠΡΠΈΠ»ΠΎΠΆΠ΅Π½ΠΈΠ΅ ΠΏΠΎΠ·Π²ΠΎΠ»ΡΠ΅Ρ ΡΠΎΠ·Π΄Π°ΡΡ ΡΠΏΠ΅ΡΠΈΡΠΈΠΊΠ°ΡΠΈΡ ΠΏΠΎΠΌΠ΅ΡΠ΅Π½ΠΈΡ β ΡΡ Π΅ΠΌΠ° ΠΆΠΈΠ»ΠΈΡΠ°, Ρ Π°ΡΠ°ΠΊΡΠ΅ΡΠΈΡΡΠΈΠΊΠΈ ΠΊΠΎΠΌΠ½Π°Ρ, ΠΈΠ½ΡΠΎΡΠΌΠ°ΡΠΈΡ ΠΎ Π΄ΠΎΠ±Π°Π²Π»Π΅Π½Π½ΠΎΠΉ ΠΌΠ΅Π±Π΅Π»ΠΈ.
ΠΡ ΡΠΌΠΎΠΆΠ΅ΡΠ΅ ΠΏΠΎΡΠΌΠΎΡΡΠ΅ΡΡ Π½Π° ΡΠ²ΠΎΡ ΠΊΠΎΠΌΠ½Π°ΡΡ Π² ΡΡΠ΅Ρ ΠΌΠ΅ΡΠ½ΠΎΠΌ Π½Π°Π³Π»ΡΠ΄Π½ΠΎΠΌ ΡΠΎΡΠΌΠ°ΡΠ΅ β ΠΏΡΡΠΌΠΎ ΠΊΠ°ΠΊ Π² ΡΠ΅Π°Π»ΡΠ½ΠΎΠΉ ΠΆΠΈΠ·Π½ΠΈ.
ΠΠ΅Π΄ΠΎΡΡΠ°ΡΠΊΠΎΠΌ ΡΠ²Π»ΡΠ΅ΡΡΡ ΠΎΡΡΡΡΡΡΠ²ΠΈΠ΅ Π²ΠΎΠ·ΠΌΠΎΠΆΠ½ΠΎΡΡΠΈ Π½Π°ΡΡΡΠ°ΠΈΠ²Π°ΡΡ ΠΌΠΎΠ΄Π΅Π»Ρ ΠΌΠ΅Π±Π΅Π»ΠΈ β Π½Π΅Π»ΡΠ·Ρ ΠΏΠΎΠΌΠ΅Π½ΡΡΡ Π΅Π΅ ΡΠΈΡΠΈΠ½Ρ, Π΄Π»ΠΈΠ½Ρ ΠΈ Ρ.ΠΏ.
ΠΠ°ΡΠΎ ΠΏΡΠΎΠ³ΡΠ°ΠΌΠΌΠ° Π°Π±ΡΠΎΠ»ΡΡΠ½ΠΎ Π±Π΅ΡΠΏΠ»Π°ΡΠ½Π°Ρ β ΠΏΠΎΠ»ΡΠ·ΡΠΉΡΠ΅ΡΡ ΡΠΊΠΎΠ»ΡΠΊΠΎ ΡΠ³ΠΎΠ΄Π½ΠΎ.
Π‘ΠΊΠ°ΡΠ°ΡΡ ΠΏΡΠΎΠ³ΡΠ°ΠΌΠΌΡ Stolplit
ArchiCAD

ArchiCAD β ΡΡΠΎ ΠΏΡΠΎΡΠ΅ΡΡΠΈΠΎΠ½Π°Π»ΡΠ½Π°Ρ ΠΏΡΠΎΠ³ΡΠ°ΠΌΠΌΠ° Π΄Π»Ρ ΠΏΡΠΎΠ΅ΠΊΡΠΈΡΠΎΠ²Π°Π½ΠΈΡ Π΄ΠΎΠΌΠΎΠ² ΠΈ ΠΏΠ»Π°Π½ΠΈΡΠΎΠ²ΠΊΠΈ ΠΆΠΈΠ»ΡΡ ΠΏΠΎΠΌΠ΅ΡΠ΅Π½ΠΈΠΉ. ΠΠ½Π° ΠΏΠΎΠ·Π²ΠΎΠ»ΡΠ΅Ρ ΡΠΎΠ·Π΄Π°ΡΡ ΠΏΠΎΠ»Π½ΠΎΡΠ΅Π½Π½ΡΡ ΠΌΠΎΠ΄Π΅Π»Ρ Π΄ΠΎΠΌΠ°. ΠΠΎ Π² Π½Π°ΡΠ΅ΠΌ ΡΠ»ΡΡΠ°Π΅ ΠΌΠΎΠΆΠ½ΠΎ ΠΎΠ³ΡΠ°Π½ΠΈΡΠΈΡΡΡΡ ΠΈ Π½Π΅ΡΠΊΠΎΠ»ΡΠΊΠΈΠΌΠΈ ΠΊΠΎΠΌΠ½Π°ΡΠ°ΠΌΠΈ.
ΠΠΎΡΠ»Π΅ ΡΡΠΎΠ³ΠΎ ΠΌΠΎΠΆΠ½ΠΎ ΡΠ°ΡΡΡΠ°Π²ΠΈΡΡ Π² ΠΊΠΎΠΌΠ½Π°ΡΠ΅ ΠΌΠ΅Π±Π΅Π»Ρ ΠΈ ΠΏΠΎΡΠΌΠΎΡΡΠ΅ΡΡ, ΠΊΠ°ΠΊ ΡΠΌΠΎΡΡΠΈΡΡΡ Π²Π°ΡΠ΅ ΠΆΠΈΠ»ΠΈΡΠ΅. ΠΡΠΈΠ»ΠΎΠΆΠ΅Π½ΠΈΠ΅ ΠΏΠΎΠ΄Π΄Π΅ΡΠΆΠΈΠ²Π°Π΅Ρ 3D Π²ΠΈΠ·ΡΠ°Π»ΠΈΠ·Π°ΡΠΈΡ ΠΊΠΎΠΌΠ½Π°Ρ.
Π Π½Π΅Π΄ΠΎΡΡΠ°ΡΠΊΠ°ΠΌ ΠΌΠΎΠΆΠ½ΠΎ ΠΎΡΠ½Π΅ΡΡΠΈ ΡΠ»ΠΎΠΆΠ½ΠΎΡΡΡ ΠΎΠ±ΡΠ°ΡΠ΅Π½ΠΈΡ Ρ ΠΏΡΠΎΠ³ΡΠ°ΠΌΠΌΠΎΠΉ β ΠΎΠ½Π° Π²ΡΠ΅ ΠΆΠ΅ ΡΠ°ΡΡΡΠΈΡΠ°Π½Π° Π½Π° ΠΏΡΠΎΡΠ΅ΡΡΠΈΠΎΠ½Π°Π»ΠΎΠ². ΠΡΠ΅ ΠΎΠ΄Π½ΠΈΠΌ ΠΌΠΈΠ½ΡΡΠΎΠΌ ΡΠ²Π»ΡΠ΅ΡΡΡ Π΅Π΅ ΠΏΠ»Π°ΡΠ½ΠΎΡΡΡ.
Π‘ΠΊΠ°ΡΠ°ΡΡ ΠΏΡΠΎΠ³ΡΠ°ΠΌΠΌΡ ArchiCAD
Sweet Home 3D

Sweet Home 3D β ΡΠΎΠ²ΡΠ΅ΠΌ Π΄ΡΡΠ³ΠΎΠ΅ Π΄Π΅Π»ΠΎ. ΠΡΠΎΠ³ΡΠ°ΠΌΠΌΠ° ΡΠΎΠ·Π΄Π°Π½Π° Π΄Π»Ρ ΠΌΠ°ΡΡΠΎΠ²ΠΎΠ³ΠΎ ΠΈΡΠΏΠΎΠ»ΡΠ·ΠΎΠ²Π°Π½ΠΈΡ. ΠΠΎΡΡΠΎΠΌΡ Π² Π½Π΅ΠΉ ΡΠ°Π·Π±Π΅ΡΠ΅ΡΡΡ Π΄Π°ΠΆΠ΅ ΠΌΠ°Π»ΠΎΠΎΠΏΡΡΠ½ΡΠΉ ΠΏΠΎΠ»ΡΠ·ΠΎΠ²Π°ΡΠ΅Π»Ρ ΠΠ. 3D ΡΠΎΡΠΌΠ°Ρ ΠΏΠΎΠ·Π²ΠΎΠ»ΡΠ΅Ρ Π²Π·Π³Π»ΡΠ½ΡΡΡ Π½Π° ΠΊΠΎΠΌΠ½Π°ΡΡ ΠΏΠΎΠ΄ ΠΏΡΠΈΠ²ΡΡΠ½ΡΠΌ ΡΠ³Π»ΠΎΠΌ.
Π Π°ΡΡΡΠ°Π²Π»Π΅Π½Π½ΡΡ ΠΌΠ΅Π±Π΅Π»Ρ ΠΌΠΎΠΆΠ½ΠΎ ΠΌΠ΅Π½ΡΡΡ β Π·Π°Π΄Π°Π²Π°ΡΡ ΡΠ°Π·ΠΌΠ΅ΡΡ, ΡΠ²Π΅Ρ, Π΄ΠΈΠ·Π°ΠΉΠ½ ΠΈ Ρ.ΠΏ.
Π£Π½ΠΈΠΊΠ°Π»ΡΠ½ΠΎΠΉ ΡΡΠ½ΠΊΡΠΈΠ΅ΠΉ Π‘Π²ΠΈΡ Π₯ΠΎΡΠΌ 3Π ΡΠ²Π»ΡΠ΅ΡΡΡ Π²ΠΎΠ·ΠΌΠΎΠΆΠ½ΠΎΡΡΡ Π·Π°ΠΏΠΈΡΠΈ Π²ΠΈΠ΄Π΅ΠΎ. ΠΡ ΡΠΌΠΎΠΆΠ΅ΡΠ΅ Π·Π°ΠΏΠΈΡΠ°ΡΡ Π²ΠΈΡΡΡΠ°Π»ΡΠ½ΡΠΉ ΡΡΡ ΠΏΠΎ ΡΠ²ΠΎΠ΅ΠΉ ΠΊΠΎΠΌΠ½Π°ΡΠ΅.
Π‘ΠΊΠ°ΡΠ°ΡΡ ΠΏΡΠΎΠ³ΡΠ°ΠΌΠΌΡ Sweet Home 3D
Planner 5D

Planner 5D β ΡΡΠΎ Π΅ΡΠ΅ ΠΎΠ΄Π½Π° ΠΏΡΠΎΡΡΠ°Ρ, Π½ΠΎ ΡΡΠ½ΠΊΡΠΈΠΎΠ½Π°Π»ΡΠ½Π°Ρ ΠΈ ΡΠ΄ΠΎΠ±Π½Π°Ρ ΠΏΡΠΎΠ³ΡΠ°ΠΌΠΌΠ° Π΄Π»Ρ ΠΏΠ»Π°Π½ΠΈΡΠΎΠ²ΠΊΠΈ Π΄ΠΎΠΌΠ°. ΠΠ°ΠΊ ΠΈ Π² Π΄ΡΡΠ³ΠΈΡ ΠΏΠΎΠ΄ΠΎΠ±Π½ΡΡ ΠΏΡΠΎΠ³ΡΠ°ΠΌΠΌΠ°Ρ , Π²Ρ ΡΠΌΠΎΠΆΠ΅ΡΠ΅ ΡΠΎΠ·Π΄Π°ΡΡ ΠΈΠ½ΡΠ΅ΡΡΠ΅Ρ ΠΆΠΈΠ»ΠΎΠ³ΠΎ ΠΏΠΎΠΌΠ΅ΡΠ΅Π½ΠΈΡ.
Π Π°Π·ΠΌΠ΅ΡΡΠΈΡΠ΅ ΡΡΠ΅Π½Ρ, ΠΎΠΊΠ½Π°, Π΄Π²Π΅ΡΠΈ. ΠΡΠ±Π΅ΡΠΈΡΠ΅ ΠΎΠ±ΠΎΠΈ, ΠΏΠΎΠ» ΠΈ ΠΏΠΎΡΠΎΠ»ΠΎΠΊ. Π Π°ΡΡΡΠ°Π²ΡΡΠ΅ ΠΌΠ΅Π±Π΅Π»Ρ ΠΏΠΎ ΠΊΠΎΠΌΠ½Π°ΡΠ°ΠΌ β ΠΈ Π²Ρ ΠΏΠΎΠ»ΡΡΠΈΡΠ΅ ΠΈΠ½ΡΠ΅ΡΡΠ΅Ρ ΡΠ²ΠΎΠ΅ΠΉ ΠΌΠ΅ΡΡΡ.
Planner 5D β Π²Π΅ΡΡΠΌΠ° Π³ΡΠΎΠΌΠΊΠΎΠ΅ Π½Π°Π·Π²Π°Π½ΠΈΠ΅. Π Π΄Π΅ΠΉΡΡΠ²ΠΈΡΠ΅Π»ΡΠ½ΠΎΡΡΠΈ ΠΏΡΠΎΠ³ΡΠ°ΠΌΠΌΠ° ΠΏΠΎΠ΄Π΄Π΅ΡΠΆΠΈΠ²Π°Π΅Ρ 3D ΠΎΠ±Π·ΠΎΡ ΠΊΠΎΠΌΠ½Π°Ρ. ΠΠΎ ΡΡΠΎΠ³ΠΎ Π²ΠΏΠΎΠ»Π½Π΅ Π΄ΠΎΡΡΠ°ΡΠΎΡΠ½ΠΎ, ΡΡΠΎΠ±Ρ ΡΠ²ΠΈΠ΄Π΅ΡΡ, ΠΊΠ°ΠΊ Π±ΡΠ΄Π΅Ρ Π²ΡΠ³Π»ΡΠ΄Π΅ΡΡ Π²Π°ΡΠ° ΠΊΠΎΠΌΠ½Π°ΡΠ°.
ΠΡΠΈΠ»ΠΎΠΆΠ΅Π½ΠΈΠ΅ Π΄ΠΎΡΡΡΠΏΠ½ΠΎ Π½Π΅ ΡΠΎΠ»ΡΠΊΠΎ Π½Π° ΠΠ, Π½ΠΎ ΠΈ Π½Π° ΡΠ΅Π»Π΅ΡΠΎΠ½Π°Ρ ΠΈ ΠΏΠ»Π°Π½ΡΠ΅ΡΠ°Ρ ΠΏΠΎΠ΄ ΡΠΏΡΠ°Π²Π»Π΅Π½ΠΈΠ΅ΠΌ Android ΠΈ iOS.
Π ΠΌΠΈΠ½ΡΡΠ°ΠΌ ΠΏΡΠΎΠ³ΡΠ°ΠΌΠΌΡ ΠΌΠΎΠΆΠ½ΠΎ ΠΎΡΠ½Π΅ΡΡΠΈ ΡΡΠ΅Π·Π°Π½Π½ΡΠΉ ΡΡΠ½ΠΊΡΠΈΠΎΠ½Π°Π» ΠΏΡΠΎΠ±Π½ΠΎΠΉ Π²Π΅ΡΡΠΈΠΈ.
Π‘ΠΊΠ°ΡΠ°ΡΡ ΠΏΡΠΎΠ³ΡΠ°ΠΌΠΌΡ Planner 5D
IKEA Home Planner

IKEA Home Planner β ΡΡΠΎ ΠΏΡΠΎΠ³ΡΠ°ΠΌΠΌΠ° ΠΎΡ ΠΈΠ·Π²Π΅ΡΡΠ½ΠΎΠΉ Π²ΠΎ Π²ΡΠ΅ΠΌ ΠΌΠΈΡΠ΅ ΡΠΎΠ·Π½ΠΈΡΠ½ΠΎΠΉ ΡΠ΅ΡΠΈ ΠΏΠΎ ΠΏΡΠΎΠ΄Π°ΠΆΠ΅ ΠΌΠ΅Π±Π΅Π»ΠΈ. ΠΡΠΈΠ»ΠΎΠΆΠ΅Π½ΠΈΠ΅ Π±ΡΠ»ΠΎ ΡΠΎΠ·Π΄Π°Π½ΠΎ Π΄Π»Ρ ΠΏΠΎΠΌΠΎΡΠΈ ΠΏΠΎΠΊΡΠΏΠ°ΡΠ΅Π»ΡΠΌ. Π‘ ΠΏΠΎΠΌΠΎΡΡΡ Π½Π΅Π΅ ΠΌΠΎΠΆΠ½ΠΎ ΠΎΠΏΡΠ΅Π΄Π΅Π»ΠΈΡΡ β Π²Π»Π΅Π·Π΅Ρ Π»ΠΈ Π½ΠΎΠ²ΡΠΉ Π΄ΠΈΠ²Π°Π½ Π² ΠΊΠΎΠΌΠ½Π°ΡΡ ΠΈ ΠΏΠΎΠ΄ΠΎΠΉΠ΄Π΅Ρ Π»ΠΈ ΠΎΠ½ ΠΊ Π΄ΠΈΠ·Π°ΠΉΠ½Ρ ΠΈΠ½ΡΠ΅ΡΡΠ΅ΡΠ°.
Ikea Home Planner ΠΏΠΎΠ·Π²ΠΎΠ»ΡΠ΅Ρ ΡΠΎΠ·Π΄Π°ΡΡ ΡΡΠ΅Ρ ΠΌΠ΅ΡΠ½ΡΡ ΠΏΡΠΎΠ΅ΠΊΡΠΈΡ ΠΏΠΎΠΌΠ΅ΡΠ΅Π½ΠΈΡ, ΠΏΠΎΡΠ»Π΅ ΡΠ΅Π³ΠΎ ΠΎΠ±ΡΡΠ°Π²ΠΈΡΡ Π΅Π΅ ΠΌΠ΅Π±Π΅Π»ΡΡ ΠΈΠ· ΠΊΠ°ΡΠ°Π»ΠΎΠ³Π°.
ΠΠ΅ΠΏΡΠΈΡΡΠ½ΡΠΌ ΡΠ°ΠΊΡΠΎΠΌ ΡΠ²Π»ΡΠ΅ΡΡΡ ΡΠΎ, ΡΡΠΎ ΠΏΠΎΠ΄Π΄Π΅ΡΠΆΠΊΠ° ΠΏΡΠΎΠ³ΡΠ°ΠΌΠΌΡ ΠΏΡΠ΅ΠΊΡΠ°ΡΠΈΠ»Π°ΡΡ Π² Π΄Π°Π»Π΅ΠΊΠΎΠΌ 2008 Π³ΠΎΠ΄Ρ. ΠΠΎΡΡΠΎΠΌΡ ΠΏΡΠΈΠ»ΠΎΠΆΠ΅Π½ΠΈΠ΅ ΠΎΠ±Π»Π°Π΄Π°Π΅Ρ ΡΠ»Π΅Π³ΠΊΠ° Π½Π΅ΡΠ΄ΠΎΠ±Π½ΡΠΌ ΠΈΠ½ΡΠ΅ΡΡΠ΅ΠΉΡΠΎΠΌ. Π‘ Π΄ΡΡΠ³ΠΎΠΉ ΡΡΠΎΡΠΎΠ½Ρ β Ikea Home Planner Π±Π΅ΡΠΏΠ»Π°ΡΠ½ΠΎ Π΄ΠΎΡΡΡΠΏΠ΅Π½ Π»ΡΠ±ΠΎΠΌΡ ΠΏΠΎΠ»ΡΠ·ΠΎΠ²Π°ΡΠ΅Π»Ρ.
Π‘ΠΊΠ°ΡΠ°ΡΡ ΠΏΡΠΎΠ³ΡΠ°ΠΌΠΌΡ IKEA Home Planner
ΠΡΡΡΠΎΠ½ ΠΠΈΠ·Π°ΠΉΠ½

ΠΡΡΡΠΎΠ½ ΠΠΈΠ·Π°ΠΉΠ½ β Π±Π΅ΡΠΏΠ»Π°ΡΠ½Π°Ρ ΠΏΡΠΎΠ³ΡΠ°ΠΌΠΌΠ° Π΄Π»Ρ ΠΏΡΠΎΠ΅ΠΊΡΠΈΡΠΎΠ²Π°Π½ΠΈΡ ΠΈΠ½ΡΠ΅ΡΡΠ΅ΡΠ°. ΠΠ½Π° ΠΏΠΎΠ·Π²ΠΎΠ»ΠΈΡ Π²Π°ΠΌ ΡΠΎΠ·Π΄Π°ΡΡ Π²ΠΈΠ·ΡΠ°Π»ΡΠ½ΠΎΠ΅ ΠΏΡΠ΅Π΄ΡΡΠ°Π²Π»Π΅Π½ΠΈΠ΅ Π½ΠΎΠ²ΠΎΠΉ ΠΌΠ΅Π±Π΅Π»ΠΈ Π² ΠΊΠ²Π°ΡΡΠΈΡΠ΅ Π΄ΠΎ Π΅Π΅ ΠΏΠΎΠΊΡΠΏΠΊΠΈ. ΠΡΠΈΡΡΡΡΡΠ²ΡΠ΅Ρ Π±ΠΎΠ»ΡΡΠΎΠ΅ ΡΠΈΡΠ»ΠΎ Π²ΠΈΠ΄ΠΎΠ² ΠΌΠ΅Π±Π΅Π»ΠΈ: ΠΊΡΠΎΠ²Π°ΡΠΈ, ΡΠΊΠ°ΡΡ, ΡΡΠΌΠ±ΠΎΡΠΊΠΈ, Π±ΡΡΠΎΠ²Π°Ρ ΡΠ΅Ρ Π½ΠΈΠΊΠ°, ΡΠ»Π΅ΠΌΠ΅Π½ΡΡ ΠΎΡΠ²Π΅ΡΠ΅Π½ΠΈΡ, ΡΠ»Π΅ΠΌΠ΅Π½ΡΡ Π΄Π΅ΠΊΠΎΡΠ°.
ΠΡΠΎΠ³ΡΠ°ΠΌΠΌΠ° ΡΠΏΠΎΡΠΎΠ±Π½Π° ΠΏΠΎΠΊΠ°Π·Π°ΡΡ Π²Π°ΡΡ ΠΊΠΎΠΌΠ½Π°ΡΡ Π² ΠΏΠΎΠ»Π½ΠΎΠΌ 3D. ΠΡΠΈ ΡΡΠΎΠΌ ΠΊΠ°ΡΠ΅ΡΡΠ²ΠΎ ΠΊΠ°ΡΡΠΈΠ½ΠΊΠΈ ΠΏΡΠΎΡΡΠΎ ΠΏΠΎΡΠ°ΠΆΠ°Π΅Ρ ΡΠ²ΠΎΠ΅ΠΉ ΡΠ΅Π°Π»ΠΈΡΡΠΈΡΠ½ΠΎΡΡΡΡ.

ΠΠΎΠΌΠ½Π°ΡΠ° Π²ΡΠ³Π»ΡΠ΄ΠΈΡ ΠΊΠ°ΠΊ Π½Π°ΡΡΠΎΡΡΠ°Ρ!
ΠΡ ΡΠΌΠΎΠΆΠ΅ΡΠ΅ Π²Π·Π³Π»ΡΠ½ΡΡΡ Π½Π° ΡΠ²ΠΎΡ ΠΊΠ²Π°ΡΡΠΈΡΡ Ρ Π½ΠΎΠ²ΠΎΠΉ ΠΌΠ΅Π±Π΅Π»ΡΡ Π½Π° ΡΠΊΡΠ°Π½Π΅ ΡΠ²ΠΎΠ΅Π³ΠΎ ΠΌΠΎΠ½ΠΈΡΠΎΡΠ°.
Π ΠΌΠΈΠ½ΡΡΠ°ΠΌ ΠΌΠΎΠΆΠ½ΠΎ ΠΎΡΠ½Π΅ΡΡΠΈ Π½Π΅ΡΡΠ°Π±ΠΈΠ»ΡΠ½ΡΡ ΡΠ°Π±ΠΎΡΡ ΠΏΡΠΎΠ³ΡΠ°ΠΌΠΌΡ Π½Π° Windows 7 ΠΈ 10.
Π‘ΠΊΠ°ΡΠ°ΡΡ ΠΏΡΠΎΠ³ΡΠ°ΠΌΠΌΡ ΠΡΡΡΠΎΠ½ ΠΠΈΠ·Π°ΠΉΠ½
Room Arranger

Room Arranger β Π΅ΡΠ΅ ΠΎΠ΄Π½Π° ΠΏΡΠΎΠ³ΡΠ°ΠΌΠΌΠ° Π΄Π»Ρ Π΄ΠΈΠ·Π°ΠΉΠ½Π° ΠΏΠΎΠΌΠ΅ΡΠ΅Π½ΠΈΡ ΠΈ ΡΠ°ΡΡΡΠ°Π½ΠΎΠ²ΠΊΠΈ ΠΌΠ΅Π±Π΅Π»ΠΈ Π² ΠΊΠΎΠΌΠ½Π°ΡΠ΅. ΠΡ ΡΠΌΠΎΠΆΠ΅ΡΠ΅ Π·Π°Π΄Π°ΡΡ Π²Π½Π΅ΡΠ½ΠΈΠΉ Π²ΠΈΠ΄ ΠΊΠΎΠΌΠ½Π°ΡΡ, Π²ΠΊΠ»ΡΡΠ°Ρ Π½Π°ΠΏΠΎΠ»ΡΠ½ΠΎΠ΅ ΠΏΠΎΠΊΡΡΡΠΈΠ΅, ΡΠ²Π΅Ρ ΠΈ ΡΠ°ΠΊΡΡΡΡ ΠΎΠ±ΠΎΠ΅Π² ΠΈ Ρ.ΠΏ. ΠΡΠΎΠΌΠ΅ ΡΡΠΎΠ³ΠΎ ΠΌΠΎΠΆΠ½ΠΎ Π½Π°ΡΡΡΠΎΠΈΡΡ ΠΎΠΊΡΡΠΆΠ΅Π½ΠΈΠ΅ (Π²ΠΈΠ΄ Π·Π° ΠΎΠΊΠ½ΠΎΠΌ).
ΠΠ°Π»Π΅Π΅ Π²Ρ ΠΌΠΎΠΆΠ΅ΡΠ΅ ΡΠ°ΡΡΡΠ°Π²ΠΈΡΡ ΠΌΠ΅Π±Π΅Π»Ρ Π² ΠΏΠΎΠ»ΡΡΠ΅Π½Π½ΠΎΠΌ ΠΈΠ½ΡΠ΅ΡΡΠ΅ΡΠ΅. ΠΠ°Π΄Π°ΠΉΡΠ΅ ΡΠ°ΡΠΏΠΎΠ»ΠΎΠΆΠ΅Π½ΠΈΠ΅ ΠΌΠ΅Π±Π΅Π»ΠΈ ΠΈ Π΅Π΅ ΡΠ²Π΅Ρ. ΠΡΠΈΠ΄Π°ΠΉΡΠ΅ ΠΊΠΎΠΌΠ½Π°ΡΠ΅ Π·Π°Π²Π΅ΡΡΠ΅Π½Π½ΡΠΉ Π²ΠΈΠ΄ Ρ ΠΏΠΎΠΌΠΎΡΡΡ Π΄Π΅ΠΊΠΎΡΠ°ΡΠΈΠΉ ΠΈ ΡΠ»Π΅ΠΌΠ΅Π½ΡΠΎΠ² ΠΎΡΠ²Π΅ΡΠ΅Π½ΠΈΡ.
Room Arranger ΠΏΠΎΠ΄Π΄Π΅ΡΠΆΠΈΠ²Π°Π΅Ρ ΡΡΠ°Π½Π΄Π°ΡΡΡ ΠΏΡΠΎΠ³ΡΠ°ΠΌΠΌ Π΄Π»Ρ ΠΏΡΠΎΠ΅ΠΊΡΠΈΡΠΎΠ²Π°Π½ΠΈΡ ΠΈΠ½ΡΠ΅ΡΡΠ΅ΡΠ° ΠΈ ΠΏΠΎΠ·Π²ΠΎΠ»ΡΠ΅Ρ Π²Π·Π³Π»ΡΠ½ΡΡΡ Π½Π° ΠΊΠΎΠΌΠ½Π°ΡΡ Π² ΡΡΠ΅Ρ ΠΌΠ΅ΡΠ½ΠΎΠΌ ΡΠΎΡΠΌΠ°ΡΠ΅.
ΠΠΈΠ½ΡΡ β ΠΏΠ»Π°ΡΠ½ΠΎΡΡΡ. ΠΠ΅ΡΠΏΠ»Π°ΡΠ½ΡΠΉ ΡΠ΅ΠΆΠΈΠΌ Π΄Π΅ΠΉΡΡΠ²ΡΠ΅Ρ 30 Π΄Π½Π΅ΠΉ.
Π‘ΠΊΠ°ΡΠ°ΡΡ ΠΏΡΠΎΠ³ΡΠ°ΠΌΠΌΡ Room Arranger
Google SketchUp

Google SketchUp ΡΠ²Π»ΡΠ΅ΡΡΡ ΠΏΡΠΎΠ³ΡΠ°ΠΌΠΌΠΎΠΉ Π΄Π»Ρ Π΄ΠΈΠ·Π°ΠΉΠ½Π° ΠΌΠ΅Π±Π΅Π»ΠΈ. ΠΠΎ Π² ΠΊΠ°ΡΠ΅ΡΡΠ²Π΅ Π΄ΠΎΠΏΠΎΠ»Π½ΠΈΡΠ΅Π»ΡΠ½ΠΎΠΉ ΡΡΠ½ΠΊΡΠΈΠΉ Π² Π½Π΅ΠΉ ΠΏΡΠΈΡΡΡΡΡΠ²ΡΠ΅Ρ Π²ΠΎΠ·ΠΌΠΎΠΆΠ½ΠΎΡΡΡ ΡΠΎΠ·Π΄Π°Π½ΠΈΡ ΠΏΠΎΠΌΠ΅ΡΠ΅Π½ΠΈΡ. ΠΡΠΎ ΠΌΠΎΠΆΠ½ΠΎ ΠΈΡΠΏΠΎΠ»ΡΠ·ΠΎΠ²Π°ΡΡ Π΄Π»Ρ Π²ΠΎΡΡΠΎΠ·Π΄Π°Π½ΠΈΡ ΡΠ²ΠΎΠ΅ΠΉ ΠΊΠΎΠΌΠ½Π°ΡΡ ΠΈ Π΄Π°Π»ΡΠ½Π΅ΠΉΡΠ΅Π³ΠΎ ΡΠ°ΡΡΡΠ°Π²Π»Π΅Π½ΠΈΡ Π² Π½Π΅ΠΉ ΠΌΠ΅Π±Π΅Π»ΠΈ.
ΠΠ·-Π·Π° ΡΠΎΠ³ΠΎ, ΡΡΠΎ Π‘ΠΊΠ΅ΡΡΠΠ Π² ΠΏΠ΅ΡΠ²ΡΡ ΠΎΡΠ΅ΡΠ΅Π΄Ρ ΡΠ°ΡΡΡΠΈΡΠ°Π½ Π½Π° ΠΌΠΎΠ΄Π΅Π»ΠΈΡΠΎΠ²Π°Π½ΠΈΠ΅ ΠΌΠ΅Π±Π΅Π»ΠΈ, Π²Ρ ΡΠΌΠΎΠΆΠ΅ΡΠ΅ ΡΠΎΠ·Π΄Π°ΡΡ Π°Π±ΡΠΎΠ»ΡΡΠ½ΠΎ Π»ΡΠ±ΡΡ ΠΌΠΎΠ΄Π΅Π»Ρ Π΄ΠΎΠΌΠ°ΡΠ½Π΅Π³ΠΎ ΠΈΠ½ΡΠ΅ΡΡΠ΅ΡΠ°.
Π ΠΌΠΈΠ½ΡΡΠ°ΠΌ ΠΎΡΠ½ΠΎΡΠΈΡΡΡ ΠΎΠ³ΡΠ°Π½ΠΈΡΠ΅Π½Π½Π°Ρ ΡΡΠ½ΠΊΡΠΈΠΎΠ½Π°Π»ΡΠ½ΠΎΡΡΡ Π±Π΅ΡΠΏΠ»Π°ΡΠ½ΠΎΠΉ Π²Π΅ΡΡΠΈΠΈ.
Π‘ΠΊΠ°ΡΠ°ΡΡ ΠΏΡΠΎΠ³ΡΠ°ΠΌΠΌΡ Google SketchUp
Pro100

ΠΡΠΎΠ³ΡΠ°ΠΌΠΌΠ° Ρ ΠΈΠ½ΡΠ΅ΡΠ΅ΡΠ½ΡΠΌ Π½Π°Π·Π²Π°Π½ΠΈΠ΅ΠΌ Pro100 ΡΠ²Π»ΡΠ΅ΡΡΡ ΠΎΡΠ»ΠΈΡΠ½ΡΠΌ ΡΠ΅ΡΠ΅Π½ΠΈΠ΅ΠΌ Π΄Π»Ρ ΠΏΡΠΎΠ΅ΠΊΡΠΈΡΠΎΠ²Π°Π½ΠΈΡ ΠΈΠ½ΡΠ΅ΡΡΠ΅ΡΠ°.
Π‘ΠΎΠ·Π΄Π°Π½ΠΈΠ΅ 3D ΠΌΠΎΠ΄Π΅Π»ΠΈ ΠΏΠΎΠΌΠ΅ΡΠ΅Π½ΠΈΡ, ΡΠ°ΡΡΡΠ°Π½ΠΎΠ²ΠΊΠ° ΠΌΠ΅Π±Π΅Π»ΠΈ, Π΅Π΅ Π΄Π΅ΡΠ°Π»ΡΠ½Π°Ρ Π½Π°ΡΡΡΠΎΠΉΠΊΠ° (ΡΠ°Π·ΠΌΠ΅ΡΡ, ΡΠ²Π΅Ρ, ΠΌΠ°ΡΠ΅ΡΠΈΠ°Π») β Π²ΠΎΡ Π½Π΅ΠΏΠΎΠ»Π½ΡΠΉ ΠΏΠ΅ΡΠ΅ΡΠ΅Π½Ρ Π²ΠΎΠ·ΠΌΠΎΠΆΠ½ΠΎΡΡΠ΅ΠΉ ΠΏΡΠΎΠ³ΡΠ°ΠΌΠΌΡ.
Π ΡΠΎΠΆΠ°Π»Π΅Π½ΠΈΡ, Π±Π΅ΡΠΏΠ»Π°ΡΠ½Π°Ρ ΡΡΠ΅Π·Π°Π½Π½Π°Ρ Π²Π΅ΡΡΠΈΡ ΠΎΠ±Π»Π°Π΄Π°Π΅Ρ ΡΠΈΠ»ΡΠ½ΠΎ ΠΎΠ³ΡΠ°Π½ΠΈΡΠ΅Π½Π½ΡΠΌ Π½Π°Π±ΠΎΡΠΎΠΌ ΡΡΠ½ΠΊΡΠΈΠΉ.
Π‘ΠΊΠ°ΡΠ°ΡΡ ΠΏΡΠΎΠ³ΡΠ°ΠΌΠΌΡ Pro100
FloorPlan 3D
Π€Π»ΠΎΡΠΠ»Π°Π½ 3Π β Π΅ΡΠ΅ ΠΎΠ΄Π½Π° ΡΠ΅ΡΡΠ΅Π·Π½Π°Ρ ΠΏΡΠΎΠ³ΡΠ°ΠΌΠΌΠ° Π΄Π»Ρ ΠΏΡΠΎΠ΅ΠΊΡΠΈΡΠΎΠ²Π°Π½ΠΈΡ Π΄ΠΎΠΌΠΎΠ². ΠΠ°ΠΊ ΠΈ ArchiCAD ΠΎΠ½Π° ΠΏΠΎΠ΄Ρ ΠΎΠ΄ΠΈΡ ΠΈ Π΄Π»Ρ ΠΏΠ»Π°Π½ΠΈΡΠΎΠ²Π°Π½ΠΈΡ Π²Π½ΡΡΡΠ΅Π½Π½Π΅Π³ΠΎ ΡΠ±ΡΠ°Π½ΡΡΠ²Π° ΠΏΠΎΠΌΠ΅ΡΠ΅Π½ΠΈΠΉ. ΠΡ ΡΠΌΠΎΠΆΠ΅ΡΠ΅ ΡΠΎΠ·Π΄Π°ΡΡ ΠΊΠΎΠΏΠΈΡ ΡΠ²ΠΎΠ΅ΠΉ ΠΊΠ²Π°ΡΡΠΈΡΡ, Π° Π·Π°ΡΠ΅ΠΌ ΡΠ°ΡΡΡΠ°Π²ΠΈΡΡ Π² Π½Π΅ΠΉ ΠΌΠ΅Π±Π΅Π»Ρ.
Π’Π°ΠΊ ΠΊΠ°ΠΊ ΠΏΡΠΎΠ³ΡΠ°ΠΌΠΌΠ° ΡΠ°ΡΡΡΠΈΡΠ°Π½Π° Π½Π° Π±ΠΎΠ»Π΅Π΅ ΡΠ»ΠΎΠΆΠ½ΡΡ Π·Π°Π΄Π°ΡΡ (ΠΏΡΠΎΠ΅ΠΊΡΠΈΡΠΎΠ²Π°Π½ΠΈΠ΅ Π΄ΠΎΠΌΠΎΠ²), ΡΠΎ ΠΎΠ½Π° ΠΌΠΎΠΆΠ΅Ρ ΠΏΠΎΠΊΠ°Π·Π°ΡΡΡΡ ΡΠ»ΠΎΠΆΠ½ΠΎΠΉ Π² ΠΎΠ±ΡΠ°ΡΠ΅Π½ΠΈΠΈ.
Π‘ΠΊΠ°ΡΠ°ΡΡ ΠΏΡΠΎΠ³ΡΠ°ΠΌΠΌΡ FloorPlan 3D
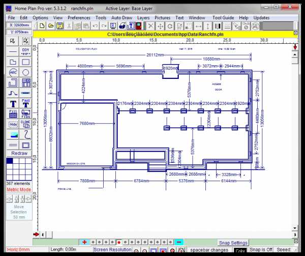
Home Plan Pro

Home Plan Pro ΡΠΎΠ·Π΄Π°Π½ Π΄Π»Ρ ΡΠ΅ΡΡΠ΅Π½ΠΈΡ ΠΏΠ»Π°Π½ΠΎΠ² ΠΏΠΎΠΌΠ΅ΡΠ΅Π½ΠΈΠΉ. ΠΡΠΎΠ³ΡΠ°ΠΌΠΌΠ° ΠΏΠ»ΠΎΡ ΠΎ ΡΠΏΡΠ°Π²Π»ΡΠ΅ΡΡΡ Ρ Π·Π°Π΄Π°ΡΠ΅ΠΉ Π΄ΠΈΠ·Π°ΠΉΠ½Π° ΠΈΠ½ΡΠ΅ΡΡΠ΅ΡΠ°, ΡΠ°ΠΊ ΠΊΠ°ΠΊ Π² Π½Π΅ΠΉ Π½Π΅Ρ Π²ΠΎΠ·ΠΌΠΎΠΆΠ½ΠΎΡΡΠΈ Π΄ΠΎΠ±Π°Π²Π»Π΅Π½ΠΈΡ ΠΌΠ΅Π±Π΅Π»ΠΈ Π½Π° ΡΠ΅ΡΡΠ΅ΠΆ (ΠΏΡΠΈΡΡΡΡΡΠ²ΡΠ΅Ρ ΡΠΎΠ»ΡΠΊΠΎ Π΄ΠΎΠ±Π°Π²Π»Π΅Π½ΠΈΠ΅ ΡΠΈΠ³ΡΡ) ΠΈ ΠΎΡΡΡΡΡΡΠ²ΡΠ΅Ρ ΡΠ΅ΠΆΠΈΠΌ 3D Π²ΠΈΠ·ΡΠ°Π»ΠΈΠ·Π°ΡΠΈΠΈ ΠΊΠΎΠΌΠ½Π°Ρ.
Π ΡΠ΅Π»ΠΎΠΌ, ΡΡΠΎ Ρ ΡΠ΄ΡΠ΅Π΅ ΠΈΠ· ΡΠ΅ΡΠ΅Π½ΠΈΠΉ Π΄Π»Ρ Π²ΠΈΡΡΡΠ°Π»ΡΠ½ΠΎΠΉ ΡΠ°ΡΡΡΠ°Π½ΠΎΠ²ΠΊΠΈ ΠΌΠ΅Π±Π΅Π»ΠΈ Π² Π΄ΠΎΠΌΠ΅ ΠΈΠ· ΠΏΡΠ΅Π΄ΡΡΠ°Π²Π»Π΅Π½Π½ΡΡ Π² Π΄Π°Π½Π½ΠΎΠΌ ΠΎΠ±Π·ΠΎΡΠ΅.
Π‘ΠΊΠ°ΡΠ°ΡΡ ΠΏΡΠΎΠ³ΡΠ°ΠΌΠΌΡ Home Plan Pro
Visicon

ΠΠΎΡΠ»Π΅Π΄Π½Π΅ΠΉ (Π½ΠΎ ΡΡΠΎ Π½Π΅ Π·Π½Π°ΡΠΈΡ ΡΠ°ΠΌΠΎΠΉ Ρ ΡΠ΄ΡΠ΅ΠΉ) ΠΏΡΠΎΠ³ΡΠ°ΠΌΠΌΠΎΠΉ Π² Π½Π°ΡΠ΅ΠΌ ΠΎΠ±Π·ΠΎΡΠ΅ ΡΡΠ°Π½Π΅Ρ Visicon. Visicon β ΡΡΠΎ ΠΏΡΠΎΠ³ΡΠ°ΠΌΠΌΠ° Π΄Π»Ρ ΠΏΠ»Π°Π½ΠΈΡΠΎΠ²ΠΊΠΈ Π΄ΠΎΠΌΠ°.
Π‘ ΠΏΠΎΠΌΠΎΡΡΡ Π½Π΅Π΅ Π²Ρ ΡΠΌΠΎΠΆΠ΅ΡΠ΅ ΡΠΎΠ·Π΄Π°ΡΡ ΡΡΠ΅Ρ
ΠΌΠ΅ΡΠ½ΡΡ ΠΌΠΎΠ΄Π΅Π»Ρ ΠΏΠΎΠΌΠ΅ΡΠ΅Π½ΠΈΡ ΠΈ ΡΠ°ΡΡΡΠ°Π²ΠΈΡΡ ΠΌΠ΅Π±Π΅Π»Ρ ΠΏΠΎ ΠΊΠΎΠΌΠ½Π°ΡΠ°ΠΌ. ΠΠ΅Π±Π΅Π»Ρ ΡΠ°Π·Π΄Π΅Π»Π΅Π½Π° ΠΏΠΎ ΠΊΠ°ΡΠ΅Π³ΠΎΡΠΈΡΠΌ ΠΈ ΠΏΠΎΠ΄Π΄Π°Π΅ΡΡΡ Π³ΠΈΠ±ΠΊΠΎΠΉ Π½Π°ΡΡΡΠΎΠΉΠΊΠ΅ ΡΠ°Π·ΠΌΠ΅ΡΠΎΠ² ΠΈ Π²Π½Π΅ΡΠ½Π΅Π³ΠΎ Π²ΠΈΠ΄Π°.
ΠΠΈΠ½ΡΡ ΠΎΠΏΡΡΡ Π²ΡΠ΅ ΡΠΎΡ ΠΆΠ΅, ΡΡΠΎ ΠΈ Ρ Π±ΠΎΠ»ΡΡΠΈΠ½ΡΡΠ²Π° ΠΏΠΎΠ΄ΠΎΠ±Π½ΡΡ
ΠΏΡΠΎΠ³ΡΠ°ΠΌΠΌ β ΡΡΠ΅Π·Π°Π½Π½Π°Ρ Π±Π΅ΡΠΏΠ»Π°ΡΠ½Π°Ρ Π²Π΅ΡΡΠΈΡ.
Π‘ΠΊΠ°ΡΠ°ΡΡ ΠΏΡΠΎΠ³ΡΠ°ΠΌΠΌΡ Visicon
ΠΠΎΡ ΠΈ ΠΏΠΎΠ΄ΠΎΡΠ΅Π» ΠΊ ΠΊΠΎΠ½ΡΡ Π½Π°Ρ ΠΎΠ±Π·ΠΎΡ Π»ΡΡΡΠΈΡ ΠΏΡΠΎΠ³ΡΠ°ΠΌΠΌ Π΄Π»Ρ ΠΏΡΠΎΠ΅ΠΊΡΠΈΡΠΎΠ²Π°Π½ΠΈΡ ΠΈΠ½ΡΠ΅ΡΡΠ΅ΡΠ°. ΠΠ½ ΠΏΠΎΠ»ΡΡΠΈΠ»ΡΡ Π½Π΅ΡΠΊΠΎΠ»ΡΠΊΠΎ Π·Π°ΡΡΠ½ΡΡΡΠΌ, Π½ΠΎ Π·Π°ΡΠΎ Π²Π°ΠΌ Π±ΡΠ΄Π΅Ρ ΠΈΠ· ΡΠ΅Π³ΠΎ Π²ΡΠ±ΡΠ°ΡΡ. ΠΠΎΠΏΡΠΎΠ±ΡΠΉΡΠ΅ ΠΎΠ΄Π½Ρ ΠΈΠ· ΠΏΡΠ΅Π΄ΡΡΠ°Π²Π»Π΅Π½Π½ΡΡ ΠΏΡΠΎΠ³ΡΠ°ΠΌΠΌ, ΠΈ ΡΠ΅ΠΌΠΎΠ½Ρ ΠΈΠ»ΠΈ ΠΏΠΎΠΊΡΠΏΠΊΠ° Π½ΠΎΠ²ΠΎΠΉ ΠΌΠ΅Π±Π΅Π»ΠΈ Π΄Π»Ρ Π΄ΠΎΠΌΠ° ΠΏΡΠΎΠΉΠ΄ΡΡ Π½Π΅ΠΎΠ±ΡΡΠ°ΠΉΠ½ΠΎ Π³Π»Π°Π΄ΠΊΠΎ.
lumpics.ru
ΠΠΎΡΠ΅ΠΌΡ ΡΡΠΎΠΈΡ Π²ΡΠ±ΡΠ°ΡΡ Β«ΠΠΈΠ·Π°ΠΉΠ½ ΠΠ½ΡΠ΅ΡΡΠ΅ΡΠ° 3DΒ»
Π Π΅Π΄Π°ΠΊΡΠΎΡ ΠΏΠΎΠ·Π²ΠΎΠ»ΠΈΡ Π²ΠΎΡΡΠΎΠ·Π΄Π°ΡΡ ΠΏΠΎΠ»Π½ΠΎΡΠ΅Π½Π½ΡΡ Π²ΠΈΡΡΡΠ°Π»ΡΠ½ΡΡ ΠΌΠΎΠ΄Π΅Π»Ρ ΠΏΠΎΠΌΠ΅ΡΠ΅Π½ΠΈΡ Π² ΡΡΡΡ ΠΌΠ΅ΡΠ½ΠΎΠΌ ΡΠ΅ΠΆΠΈΠΌΠ΅. ΠΠ²Π°ΡΡΠΈΡΡ, ΠΎΡΠΈΡΡ, ΡΠ°ΡΡΠ½ΡΠ΅ Π΄ΠΎΠΌΠ° β Π΄ΠΎΡΡΡΠΏΠ½Ρ ΠΏΠΎΡΡΡΠΎΠΉΠΊΠΈ ΡΠΎΠ²Π΅ΡΡΠ΅Π½Π½ΠΎΠ³ΠΎ Π»ΡΠ±ΠΎΠ³ΠΎ ΡΠΈΠΏΠ°. Π‘ΠΎΡΡ ΠΏΡΠΈΠ³ΠΎΠ΄ΠΈΡΡΡ Π² Π»ΡΠ±ΡΡ Π²ΠΎΠΏΡΠΎΡΠ°Ρ , ΡΠ²ΡΠ·Π°Π½Π½ΡΡ Ρ ΠΏΡΠΎΠ΅ΠΊΡΠΈΡΠΎΠ²Π°Π½ΠΈΠ΅ΠΌ ΠΈΠ½ΡΠ΅ΡΡΠ΅ΡΠΎΠ², β ΡΠ°Π·ΡΠ°Π±ΠΎΡΠΊΠ° Π΄ΠΈΠ·Π°ΠΉΠ½Π° Ρ Π½ΡΠ»Ρ, ΠΏΠ΅ΡΠ΅ΠΏΠ»Π°Π½ΠΈΡΠΎΠ²ΠΊΠ° ΠΈΠ»ΠΈ ΠΆΠ΅ ΠΏΡΠΎΡΡΠΎΠΉ ΠΊΠΎΡΠΌΠ΅ΡΠΈΡΠ΅ΡΠΊΠΈΠΉ ΡΠ΅ΠΌΠΎΠ½Ρ.
ΠΡΠΎ, ΠΏΠΎΠΆΠ°Π»ΡΠΉ, Π΅Π΄ΠΈΠ½ΡΡΠ²Π΅Π½Π½Π°Ρ ΠΏΡΠΎΠ³ΡΠ°ΠΌΠΌΠ° 3d Π΄ΠΈΠ·Π°ΠΉΠ½Π° ΠΈΠ½ΡΠ΅ΡΡΠ΅ΡΠ° Π½Π° ΡΡΡΡΠΊΠΎΠΌ, ΠΊΠΎΡΠΎΡΠ°Ρ ΠΏΠΎΠ΄ΠΎΠΉΠ΄ΡΡ Π°Π±ΡΠΎΠ»ΡΡΠ½ΠΎ ΠΊΠ°ΠΆΠ΄ΠΎΠΌΡ. ΠΠ΅Π²Π°ΠΆΠ½ΠΎ, Π΅ΡΡΡ Π»ΠΈ Ρ Π²Π°Ρ ΠΎΠΏΡΡ ΡΠ°Π±ΠΎΡΡ Ρ ΠΏΠΎΠ΄ΠΎΠ±Π½ΡΠΌΠΈ ΠΏΡΠΈΠ»ΠΎΠΆΠ΅Π½ΠΈΡΠΌΠΈ, β Π² ΠΈΠ½ΡΠ΅ΡΡΠ΅ΠΉΡΠ΅ Β«ΠΠΈΠ·Π°ΠΉΠ½Π° ΠΠ½ΡΠ΅ΡΡΠ΅ΡΠ°Β» Π»Π΅Π³ΠΊΠΎ ΠΎΡΠ²ΠΎΠΈΡΡΡ Π΄Π°ΠΆΠ΅ Π½ΠΎΠ²ΠΈΡΠΎΠΊ.

Β«ΠΠΈΠ·Π°ΠΉΠ½ ΠΠ½ΡΠ΅ΡΡΠ΅ΡΠ° 3DΒ» β ΡΠ΄ΠΎΠ±Π½ΡΠΉ ΠΏΠ»Π°Π½ΠΈΡΠΎΠ²ΡΠΈΠΊ ΠΊΠ²Π°ΡΡΠΈΡΡ Π² ΡΠ΅ΠΆΠΈΠΌΠ΅ 3D
ΠΠ»Ρ ΡΠ΄ΠΎΠ±ΡΡΠ²Π° ΠΎΠΊΠ½ΠΎ ΡΠ°Π·Π΄Π΅Π»Π΅Π½ΠΎ Π½Π° Π΄Π²Π° ΠΏΠΎΠ»Ρ β 2D- ΠΈ 3D-ΡΠ΅Π΄Π°ΠΊΡΠΎΡΡ. Π Π°Π±ΠΎΡΠ°Π΅ΡΠ΅ Π²Ρ Π½Π΅ΠΏΠΎΡΡΠ΅Π΄ΡΡΠ²Π΅Π½Π½ΠΎ Ρ ΠΏΡΠΎΡΡΠΎΠΉ Π΄Π²ΡΡ ΠΌΠ΅ΡΠ½ΠΎΠΉ ΡΡ Π΅ΠΌΠΎΠΉ β ΡΠ΅ΡΡΠΈΡΠ΅ ΠΏΠ»Π°Π½ ΠΏΠΎΠΌΠ΅ΡΠ΅Π½ΠΈΡ, ΡΠ΅Π³ΡΠ»ΠΈΡΡΠ΅ΡΠ΅ ΡΠ°Π·ΠΌΠ΅Ρ ΠΈ ΡΠΎΡΠΌΡ ΠΊΠΎΠΌΠ½Π°Ρ, Π·Π°ΠΏΠΎΠ»Π½ΡΠ΅ΡΠ΅ ΠΏΡΠΎΡΡΡΠ°Π½ΡΡΠ²ΠΎ ΠΌΠ΅Π±Π΅Π»ΡΡ, ΠΏΠΎΠ΄Π±ΠΈΡΠ°Π΅ΡΠ΅ ΠΎΡΠ΄Π΅Π»ΠΎΡΠ½ΡΠ΅ ΠΌΠ°ΡΠ΅ΡΠΈΠ°Π»Ρ. ΠΡΠΈ ΡΡΠΎΠΌ ΠΈΠ·ΠΌΠ΅Π½Π΅Π½ΠΈΡ ΠΌΠΎΠΌΠ΅Π½ΡΠ°Π»ΡΠ½ΠΎ ΠΎΡΠΎΠ±ΡΠ°ΠΆΠ°ΡΡΡΡ Π½Π° ΠΌΠΎΠ΄Π΅Π»ΠΈ Π² ΡΡΡΡ ΠΌΠ΅ΡΠ½ΠΎΠΌ ΠΏΡΠΎΡΡΡΠ°Π½ΡΡΠ²Π΅. ΠΡΠΎ ΠΏΠΎΠ·Π²ΠΎΠ»ΡΠ΅Ρ Ρ Π±ΠΎΠ»ΡΡΠ΅ΠΉ ΡΠ΅Π°Π»ΠΈΡΡΠΈΡΠ½ΠΎΡΡΡΡ ΠΎΡΠ΅Π½ΠΈΡΡ ΡΠ΅Π·ΡΠ»ΡΡΠ°Ρ ΠΏΡΠΎΠ΄Π΅Π»Π°Π½Π½ΠΎΠΉ ΡΠ°Π±ΠΎΡΡ.
ΠΡΠ°ΠΏΡ ΠΏΠ»Π°Π½ΠΈΡΠΎΠ²ΠΊΠΈ ΠΊΠ²Π°ΡΡΠΈΡΡ
ΠΡΠΎΠ΅ΠΊΡΠΈΡΠΎΠ²Π°Π½ΠΈΠ΅ ΠΊΠ²Π°ΡΡΠΈΡΡ Π² 3D ΡΠ΅Π΄Π°ΠΊΡΠΎΡΠ΅ ΠΌΠΎΠΆΠ΅Ρ Π·Π°Π½ΡΡΡ Π²ΡΠ΅Π³ΠΎ Π½Π΅ΡΠΊΠΎΠ»ΡΠΊΠΎ ΠΌΠΈΠ½ΡΡ. Π Π°Π±ΠΎΡΠ° Π½Π°Π΄ ΠΏΡΠΎΠ΅ΠΊΡΠΎΠΌ ΡΠΎΡΡΠΎΠΈΡ ΠΈΠ· ΡΡΡΡ ΠΊΠ»ΡΡΠ΅Π²ΡΡ ΡΡΠ°ΠΏΠΎΠ² β ΠΏΠΎΠ΄Π³ΠΎΡΠΎΠ²ΠΊΠ° ΠΌΠ°ΠΊΠ΅ΡΠ°, Π²ΡΠ±ΠΎΡ ΠΎΡΠ΄Π΅Π»ΠΊΠΈ ΠΈ ΡΠ°ΡΡΡΠ°Π½ΠΎΠ²ΠΊΠ° ΠΏΡΠ΅Π΄ΠΌΠ΅ΡΠΎΠ² ΠΈΠ½ΡΠ΅ΡΡΠ΅ΡΠ°.
Π‘ΠΎΡΡ ΠΏΡΠ΅Π΄Π»Π°Π³Π°Π΅Ρ Π½Π΅ΡΠΊΠΎΠ»ΡΠΊΠΎ ΡΠ΄ΠΎΠ±Π½ΡΡ ΡΠΏΠΎΡΠΎΠ±ΠΎΠ² ΡΠΎΠ·Π΄Π°ΡΡ ΡΡ Π΅ΠΌΡ ΠΆΠΈΠ»ΠΈΡΠ°.
- β ΠΡΠΏΠΎΠ»ΡΠ·ΡΠΉΡΠ΅ ΠΊΠ°ΡΠ°Π»ΠΎΠ³ ΠΏΠ»Π°Π½ΠΈΡΠΎΠ²ΠΎΠΊ. ΠΡΠ»ΠΈ Π²Π°ΡΠ° ΠΊΠ²Π°ΡΡΠΈΡΠ° ΠΈΠΌΠ΅Π΅Ρ ΡΠΈΠΏΠΎΠ²ΠΎΠ΅ ΡΡΡΠΎΠ΅Π½ΠΈΠ΅ β ΡΡΠ°Π»ΠΈΠ½ΠΊΠ°, Ρ ΡΡΡΠ΅Π²ΠΊΠ° ΠΈΠ»ΠΈ Π±ΡΠ΅ΠΆΠ½Π΅Π²ΠΊΠ° β ΠΌΠ°ΠΊΠ΅Ρ Π±ΡΠ΄Π΅Ρ Π³ΠΎΡΠΎΠ² Π±ΡΠΊΠ²Π°Π»ΡΠ½ΠΎ Π² ΠΎΠ΄ΠΈΠ½ ΠΊΠ»ΠΈΠΊ. ΠΠ»Ρ ΡΡΠΎΠ³ΠΎ Π½ΡΠΆΠ½ΠΎ ΠΎΡΠΊΡΡΡΡ Π²ΡΡΡΠΎΠ΅Π½Π½ΡΡ ΠΊΠΎΠ»Π»Π΅ΠΊΡΠΈΡ ΠΈ Π·Π°Π³ΡΡΠ·ΠΈΡΡ Π½ΡΠΆΠ½ΡΠΉ Π²Π°ΡΠΈΠ°Π½Ρ. ΠΠΎΠΌΠ΅ΡΠ΅Π½ΠΈΡ ΡΡΡ ΠΆΠ΅ ΠΏΠΎΡΠ²ΡΡΡΡ Π½Π° ΡΡ Π΅ΠΌΠ΅ Ρ ΡΠΊΠ°Π·Π°Π½ΠΈΠ΅ΠΌ ΠΈΡ ΡΠ΅Π°Π»ΡΠ½ΡΡ ΠΏΠ°ΡΠ°ΠΌΠ΅ΡΡΠΎΠ².
- β Π‘ΠΎΠ·Π΄Π°ΠΉΡΠ΅ ΠΏΠ»Π°Π½ Π½Π° ΠΎΡΠ½ΠΎΠ²Π΅ Π³ΠΎΡΠΎΠ²ΠΎΠ³ΠΎ ΡΠ΅ΡΡΠ΅ΠΆΠ°. ΠΡΠ»ΠΈ Ρ Π²Π°Ρ Π΅ΡΡΡ Π³ΠΎΡΠΎΠ²ΡΠΉ ΠΏΠ»Π°Π½, ΠΎΡΡΠΊΠ°Π½ΠΈΡΡΠΉΡΠ΅ Π΅Π³ΠΎ ΠΈ ΠΈΡΠΏΠΎΠ»ΡΠ·ΡΠΉΡΠ΅ Π² ΠΊΠ°ΡΠ΅ΡΡΠ²Π΅ ΠΎΠ±ΡΠ°Π·ΡΠ° Π΄Π»Ρ ΠΏΡΠΎΡΠΈΡΠΎΠ²ΠΊΠΈ ΠΊΠΎΠΌΠ½Π°Ρ. ΠΠ±Π²Π΅Π΄ΠΈΡΠ΅ ΠΊΠ°ΠΆΠ΄ΡΡ ΡΡΠ΅Π½Ρ ΠΈ ΠΏΠ΅ΡΠ΅Π³ΠΎΡΠΎΠ΄ΠΊΡ. Π§ΡΠΎΠ±Ρ ΠΌΠ°ΠΊΠ΅Ρ Β«ΠΏΠΎΠ΄ΡΡΡΠΎΠΈΠ»ΡΡΒ» ΠΏΠΎΠ΄ Π½ΡΠΆΠ½ΡΠΉ ΠΌΠ°ΡΡΡΠ°Π±, Π²Π°ΠΌ Π½ΡΠΆΠ½ΠΎ ΡΠΊΠ°Π·Π°ΡΡ Π΄Π»ΠΈΠ½Ρ Π²ΡΠ΅Π³ΠΎ ΠΎΠ΄Π½ΠΎΠΉ ΡΡΠ΅Π½Ρ β ΠΏΠ»ΠΎΡΠ°Π΄Ρ ΠΎΡΡΠ°Π»ΡΠ½ΡΡ ΠΏΠΎΠΌΠ΅ΡΠ΅Π½ΠΈΠΉ ΠΏΡΠΎΠ³ΡΠ°ΠΌΠΌΠ° ΠΏΠΎΡΡΠΈΡΠ°Π΅Ρ Π°Π²ΡΠΎΠΌΠ°ΡΠΈΡΠ΅ΡΠΊΠΈ.
- β ΠΠ°ΡΠ΅ΡΡΠΈΡΠ΅ Π²ΡΡΡΠ½ΡΡ. ΠΠΎΠ±Π°Π²ΡΡΠ΅ ΠΊΠΎΠΌΠ½Π°ΡΡ Ρ ΠΏΠΎΠΌΠΎΡΡΡ ΡΠΈΠ³ΡΡ ΠΈΠ· Π½Π°Π±ΠΎΡΠ° ΠΈΠ»ΠΈ ΠΏΡΠΎΡΠΈΡΡΠΉΡΠ΅ Ρ ΠΏΠΎΠΌΠΎΡΡΡ Π»ΠΈΠ½ΠΈΠΉ. Π Π΅Π΄Π°ΠΊΡΠΎΡ ΡΡΠ°Π·Ρ ΠΆΠ΅ ΡΠΊΠ°ΠΆΠ΅Ρ ΠΏΠ»ΠΎΡΠ°Π΄Ρ ΠΏΠΎΠ»ΡΡΠ΅Π½Π½ΠΎΠ³ΠΎ ΠΏΠΎΠΌΠ΅ΡΠ΅Π½ΠΈΡ, ΡΠ°ΠΊ ΡΡΠΎ Π²Ρ ΠΌΠΎΠΆΠ΅ΡΠ΅ Π΄Π²ΠΈΠ³Π°ΡΡ ΡΡΠ΅Π½Ρ, ΡΠΌΠ΅Π½ΡΡΠ°Ρ ΠΈΠ»ΠΈ ΡΠ²Π΅Π»ΠΈΡΠΈΠ²Π°Ρ ΠΏΡΠΎΡΡΡΠ°Π½ΡΡΠ²ΠΎ, Π΄Π»Ρ Π΄ΠΎΡΡΠΈΠΆΠ΅Π½ΠΈΡ Π±ΠΎΠ»Π΅Π΅ ΡΠΎΡΠ½ΠΎΠ³ΠΎ ΡΠ΅Π·ΡΠ»ΡΡΠ°ΡΠ°.
ΠΠ°Π»Π΅Π΅ ΡΠ°ΡΠΏΠΎΠ»ΠΎΠΆΠΈΡΠ΅ Π½Π° Π³ΠΎΡΠΎΠ²ΠΎΠΉ ΡΡ Π΅ΠΌΠ΅ Π΄Π²Π΅ΡΠΈ ΠΈ ΠΎΠΊΠ½Π°, ΠΏΡΠΈ ΠΆΠ΅Π»Π°Π½ΠΈΠΈ ΠΌΠΎΠΆΠ΅ΡΠ΅ Π΄ΠΎΠ±Π°Π²ΠΈΡΡ Π°ΡΠΊΠΈ ΠΈΠ»ΠΈ ΠΏΡΠΎΡΠΌΡ.

Π ΠΏΡΠΎΠ³ΡΠ°ΠΌΠΌΠ΅ ΠΏΡΠ΅Π΄ΡΡΠ°Π²Π»Π΅Π½ ΠΊΠ°ΡΠ°Π»ΠΎΠ³ ΡΠΈΠΏΠΎΠ²ΡΡ ΠΏΠ»Π°Π½ΠΈΡΠΎΠ²ΠΎΠΊ ΠΊΠ²Π°ΡΡΠΈΡ: Β«Ρ ΡΡΡΠ΅Π²ΠΊΠ°Β», Β«ΡΡΠ°Π»ΠΈΠ½ΠΊΠ°Β» ΠΈ ΠΏΡ.
Π‘Π»Π΅Π΄ΡΡΡΠΈΠΌ ΡΠ°Π³ΠΎΠΌ Π½Π°ΡΡΡΠΎΠΉΡΠ΅ ΠΎΡΠΎΡΠΌΠ»Π΅Π½ΠΈΠ΅ ΡΡΠ΅Π½, ΠΏΠΎΡΠΎΠ»ΠΊΠ° ΠΈ ΠΏΠΎΠ»Π°. Π ΡΡΠΎΠΌ ΠΏΠΎΠΌΠΎΠΆΠ΅Ρ ΡΠ½ΠΈΠ²Π΅ΡΡΠ°Π»ΡΠ½Π°Ρ ΠΊΠΎΠ»Π»Π΅ΠΊΡΠΈΡ ΡΠ΅ΠΊΡΡΡΡ, ΠΈΠΌΠΈΡΠΈΡΡΡΡΠΈΡ Π²ΡΠ΅ ΠΈΠ·Π²Π΅ΡΡΠ½ΡΠ΅ ΠΎΡΠ΄Π΅Π»ΠΎΡΠ½ΡΠ΅ ΠΌΠ°ΡΠ΅ΡΠΈΠ°Π»Ρ. ΠΠ»Ρ ΠΊΠ°ΠΆΠ΄ΠΎΠΉ ΠΊΠΎΠΌΠ½Π°ΡΡ Π²Ρ ΠΌΠΎΠΆΠ΅ΡΠ΅ Π²ΡΠ±ΡΠ°ΡΡ ΡΠ°Π·Π½ΡΠΉ Π΄ΠΈΠ·Π°ΠΉΠ½, Π² Π·Π°Π²ΠΈΡΠΈΠΌΠΎΡΡΠΈ ΠΎΡ Π²Π°ΡΠΈΡ Π²ΠΊΡΡΠΎΠ² ΠΈ ΠΏΡΠ΅Π΄ΠΏΠΎΡΡΠ΅Π½ΠΈΠΉ.
ΠΠ°ΠΏΠΎΠ»Π½ΠΈΡΠ΅ ΠΏΡΠΎΡΡΡΠ°Π½ΡΡΠ²ΠΎ ΠΌΠ΅Π±Π΅Π»ΡΡ. Β«ΠΠΈΠ·Π°ΠΉΠ½ ΠΠ½ΡΠ΅ΡΡΠ΅ΡΠ°Β» ΠΏΡΠ΅Π΄Π»Π°Π³Π°Π΅Ρ ΠΊΠΎΠ»Π»Π΅ΠΊΡΠΈΡ ΡΡΡΡ ΠΌΠ΅ΡΠ½ΡΡ ΠΌΠΎΠ΄Π΅Π»Π΅ΠΉ Π²ΡΠ΅Ρ Π±Π°Π·ΠΎΠ²ΡΡ ΠΎΠ±ΡΠ΅ΠΊΡΠΎΠ², Π½Π΅ΠΎΠ±Ρ ΠΎΠ΄ΠΈΠΌΡΡ Π΄Π»Ρ ΠΊΠ°ΠΆΠ΄ΠΎΠ³ΠΎ Π΄ΠΎΠΌΠ°. ΠΡΠ΅Π΄ΠΌΠ΅ΡΡ ΡΠ°Π·Π±ΠΈΡΡ ΠΏΠΎ Π³ΡΡΠΏΠΏΠ°ΠΌ, ΡΠΎΠ³Π»Π°ΡΠ½ΠΎ ΡΠ²ΠΎΠ΅ΠΌΡ Π½Π°Π·Π½Π°ΡΠ΅Π½ΠΈΡ. ΠΡΠΎΠ²Π°ΡΠΈ Π²Ρ Π½Π°ΠΉΠ΄ΡΡΠ΅ Π² Π³ΡΡΠΏΠΏΠ΅ Β«Π‘ΠΏΠ°Π»ΡΠ½ΡΒ», ΠΊΡΠ΅ΡΠ»Π° ΠΈ Π΄ΠΈΠ²Π°Π½Ρ β Π² Π½Π°Π±ΠΎΡΠ΅ Β«ΠΠΎΡΡΠΈΠ½Π°ΡΒ» ΠΈ Ρ.Π΄.
Π’Π°ΠΊ ΠΊΠ°ΠΊ ΠΏΠΎΡΠ»Π΅Π΄Π½ΠΈΠ΅ Π΄Π²Π° ΡΡΠ°ΠΏΠ° Π·Π°Π½ΠΈΠΌΠ°ΡΡ Π±ΠΎΠ»ΡΡΡΡ ΡΠ°ΡΡΡ ΡΠ°Π±ΠΎΡΡ Π½Π°Π΄ ΠΏΡΠΎΠ΅ΠΊΡΠΎΠΌ, ΡΠ°ΡΡΠΌΠΎΡΡΠΈΠΌ ΠΈΡ ΠΏΠΎΠ΄ΡΠΎΠ±Π½Π΅Π΅.
ΠΠΎΠ·ΠΌΠΎΠΆΠ½ΠΎΡΡΠΈ ΠΎΡΠΎΡΠΌΠ»Π΅Π½ΠΈΡ
Π Π΅Π΄Π°ΠΊΡΠΎΡ ΠΏΠΎΠ·Π²ΠΎΠ»ΡΠ΅Ρ Π² Π΄Π΅ΡΠ°Π»ΡΡ ΡΠ°Π·ΡΠ°Π±ΠΎΡΠ°ΡΡ Π΄ΠΈΠ·Π°ΠΉΠ½ ΠΊΠΎΠΌΠ½Π°ΡΡ ΡΠ²ΠΎΠΈΠΌΠΈ ΡΡΠΊΠ°ΠΌΠΈ. ΠΡΠΎΡΠ΅ΡΡ Π°Π²ΡΠΎΠΌΠ°ΡΠΈΠ·ΠΈΡΠΎΠ²Π°Π½ βΠ²ΡΠ±Π΅ΡΠΈΡΠ΅ ΡΠ΅ΠΊΡΡΡΡΡ ΠΈΠ· ΠΊΠ°ΡΠ°Π»ΠΎΠ³Π° ΠΈ ΠΏΡΠΈΠΌΠ΅Π½ΠΈΡΠ΅ Π΄Π²ΠΎΠΉΠ½ΡΠΌ ΡΠ΅Π»ΡΠΊΠΎΠΌ ΠΌΡΡΠΈ. ΠΠΎΠ»Π»Π΅ΠΊΡΠΈΡ ΡΠ½ΠΈΠ²Π΅ΡΡΠ°Π»ΡΠ½Π° ΠΈ ΡΡΡΡΠΊΡΡΡΠΈΡΠΎΠ²Π°Π½Π°. ΠΠ»Ρ ΠΊΠ°ΠΆΠ΄ΠΎΠ³ΠΎ ΠΎΠ±ΡΠ΅ΠΊΡΠ° β ΡΠ²ΠΎΡ Π³ΡΡΠΏΠΏΠ° ΡΠ΅ΠΊΡΡΡΡ. Π ΠΏΡΠΈΠΌΠ΅ΡΡ, Π΄Π»Ρ ΠΎΡΠΎΡΠΌΠ»Π΅Π½ΠΈΡ ΡΡΠ΅Π½ Π²Ρ ΠΌΠΎΠΆΠ΅ΡΠ΅ ΠΈΡΠΏΠΎΠ»ΡΠ·ΠΎΠ²Π°ΡΡ ΠΎΠ±ΠΎΠΈ, ΠΊΡΠ°ΡΠΊΡ, ΠΊΠΈΡΠΏΠΈΡ, ΠΏΠ»ΠΈΡΠΊΡ ΠΈΠ»ΠΈ Π΄Π°ΠΆΠ΅ ΠΊΠ°ΠΌΠ΅Π½Ρ, Π° Π΄Π»Ρ ΠΏΠΎΠ»Π° β ΠΊΠΎΠ²ΡΠΎΠ»ΠΈΠ½, ΠΏΠ°ΡΠΊΠ΅Ρ ΠΈΠ»ΠΈ Π»Π°ΠΌΠΈΠ½Π°Ρ.

Π ΠΏΡΠΎΠ³ΡΠ°ΠΌΠΌΠ΅ ΠΈΠΌΠ΅Π΅ΡΡΡ 120+ ΠΌΠ°ΡΠ΅ΡΠΈΠ°Π»ΠΎΠ² ΠΎΡΠ΄Π΅Π»ΠΊΠΈ: ΠΏΠ»ΠΈΡΠΊΠ°, Π»Π°ΠΌΠΈΠ½Π°Ρ, Π»ΠΈΠ½ΠΎΠ»Π΅ΡΠΌ, ΠΊΠ°ΠΌΠ΅Π½Ρ ΠΈ ΠΏΡ.
Π§ΡΠΎΠ±Ρ ΡΠ°Π·ΠΌΠ΅ΡΡΠΈΡΡ ΠΌΠ΅Π±Π΅Π»Ρ, Π²ΡΠ΄Π΅Π»ΠΈΡΠ΅ ΠΎΠ±ΡΠ΅ΠΊΡ ΠΈΠ· Π½Π°Π±ΠΎΡΠ° ΠΈ ΠΏΠ΅ΡΠ΅Π½Π΅ΡΠΈΡΠ΅ Π΅Π³ΠΎ Π½Π° ΠΏΠ»Π°Π½. ΠΡΠ΅ ΡΠ°Π·ΠΌΠ΅ΡΡ ΠΏΠΎΡΡΠΈΡΠ°Π½Ρ Π·Π°ΡΠ°Π½Π΅Π΅, Π½ΠΎ ΠΏΡΠΈ Π½Π΅ΠΎΠ±Ρ ΠΎΠ΄ΠΈΠΌΠΎΡΡΠΈ Π²Ρ ΠΌΠΎΠΆΠ΅ΡΠ΅ ΡΠΊΠΎΡΡΠ΅ΠΊΡΠΈΡΠΎΠ²Π°ΡΡ Π³Π°Π±Π°ΡΠΈΡΡ Π»ΡΠ±ΠΎΠ³ΠΎ ΠΏΡΠ΅Π΄ΠΌΠ΅ΡΠ°. ΠΠ½Π΅ΡΠ½ΠΈΠΉ Π²ΠΈΠ΄ ΠΌΠ΅Π±Π΅Π»ΠΈ Π²Ρ ΡΠΎΠΆΠ΅ Π½Π°ΡΡΡΠ°ΠΈΠ²Π°Π΅ΡΠ΅ ΠΏΠΎ ΡΠ²ΠΎΠ΅ΠΌΡ Π²ΠΊΡΡΡ. Π’ΠΊΠ°Π½Ρ, ΠΊΠΎΠΆΠ°, Π΄Π΅ΡΠ΅Π²ΠΎ ΠΈΠ»ΠΈ ΠΌΠ΅ΡΠ°Π»Π» β Π²Π°ΡΠΈΠ°Π½ΡΡ ΠΎΡΠ΄Π΅Π»ΠΊΠΈ Π½Π° Π»ΡΠ±ΠΎΠΉ Π²ΠΊΡΡ. Π ΠΊΠ°ΡΠ°Π»ΠΎΠ³Π΅ ΡΠ°ΠΊΠΆΠ΅ ΠΏΡΠ΅Π΄ΡΡΠ°Π²Π»Π΅Π½Ρ ΡΠ°ΡΡΠ΅Π½ΠΈΡ, ΠΊΠ°ΡΡΠΈΠ½Ρ, ΠΏΡΠ΅Π΄ΠΌΠ΅ΡΡ ΠΎΡΠ²Π΅ΡΠ΅Π½ΠΈΡ, ΡΡΠΎΡΡ ΠΈ Π΄ΡΡΠ³ΠΈΠ΅ Π΄Π΅ΡΠ°Π»ΠΈ, ΠΊΠΎΡΠΎΡΡΠ΅ ΠΏΠΎΠ·Π²ΠΎΠ»ΡΡ ΡΠ΄Π΅Π»Π°ΡΡ ΠΌΠΎΠ΄Π΅Π»Ρ ΠΌΠ°ΠΊΡΠΈΠΌΠ°Π»ΡΠ½ΠΎ ΠΏΡΠΈΠ±Π»ΠΈΠΆΠ΅Π½Π½ΠΎΠΉ ΠΊ ΡΠ΅Π°Π»ΡΠ½ΠΎΡΡΠΈ.

Π Π²Π°ΡΠ΅ΠΌ ΡΠ°ΡΠΏΠΎΡΡΠΆΠ΅Π½ΠΈΠΈ β 50+ ΠΏΡΠ΅Π΄ΠΌΠ΅ΡΠΎΠ² ΠΌΠ΅Π±Π΅Π»ΠΈ Π½Π° Π»ΡΠ±ΠΎΠΉ Π²ΠΊΡΡ!
Π€ΡΠ½ΠΊΡΠΈΠΈ ΠΏΠ΅ΡΠ°ΡΠΈ ΠΈ ΡΠΎΡ ΡΠ°Π½Π΅Π½ΠΈΡ ΠΌΠ°ΠΊΠ΅ΡΠ°
ΠΠ°Π²Π΅ΡΡΠΈΠ² 3Π ΠΌΠΎΠ΄Π΅Π»ΠΈΡΠΎΠ²Π°Π½ΠΈΠ΅ ΠΊΠ²Π°ΡΡΠΈΡΡ, ΡΠΎΡ ΡΠ°Π½ΠΈΡΠ΅ ΠΏΡΠΎΠ΅ΠΊΡ ΠΊΠ°ΠΊ ΡΠ°ΠΉΠ» Π²ΠΎ Π²Π½ΡΡΡΠ΅Π½Π½Π΅ΠΌ ΡΠΎΡΠΌΠ°ΡΠ΅ β ΡΠ°ΠΊ Π²Ρ ΡΠΌΠΎΠΆΠ΅ΡΠ΅ Π²Π΅ΡΠ½ΡΡΡΡΡ ΠΊ Π΅Π³ΠΎ ΡΠ΅Π΄Π°ΠΊΡΠΈΡΠΎΠ²Π°Π½ΠΈΡ Π² Π»ΡΠ±ΠΎΠ΅ Π²ΡΠ΅ΠΌΡ. ΠΠ»Ρ Π±ΠΎΠ»ΡΡΠ΅ΠΉ Π½Π°Π³Π»ΡΠ΄Π½ΠΎΡΡΠΈ ΠΏΡΠΈ ΠΏΠ»Π°Π½ΠΈΡΠΎΠ²Π°Π½ΠΈΠΈ ΡΠ΅ΠΌΠΎΠ½ΡΠ° ΡΠΎΡ ΡΠ°Π½ΠΈΡΠ΅ Π΄ΠΈΠ·Π°ΠΉΠ½ Π² Π²ΠΈΠ΄Π΅ ΠΊΠ°ΡΡΠΈΠ½ΠΊΠΈ Π² ΡΠ°ΡΡΠΈΡΠ΅Π½ΠΈΠΈ JPEG ΠΈΠ»ΠΈ ΡΠ°ΡΠΏΠ΅ΡΠ°ΡΠ°ΠΉΡΠ΅ ΠΌΠ°ΠΊΠ΅Ρ Π½Π° Π»ΠΈΡΡΠ΅. ΠΡΠΈ ΡΠΎΡ ΡΠ°Π½Π΅Π½ΠΈΠΈ Π²Ρ ΠΌΠΎΠΆΠ΅ΡΠ΅ Π΄ΠΎΠ±Π°Π²ΠΈΡΡ Π½Π° Π»ΠΈΡΡ ΠΈΠ½ΡΠ΅ΡΡΠ΅Ρ ΠΊΠ°ΠΊ Π² Π²ΠΈΠ΄Π΅ ΡΠ΅ΡΡΠ΅ΠΆΠ°, ΡΠ°ΠΊ ΠΈ Π² Π²ΠΈΠ΄Π΅ ΠΎΠ±ΡΡΠΌΠ½ΠΎΠ³ΠΎ ΠΈΠ·ΠΎΠ±ΡΠ°ΠΆΠ΅Π½ΠΈΡ.
ΠΠΊΡΠΏΠ΅ΡΠΈΠΌΠ΅Π½ΡΠΈΡΡΠΉΡΠ΅ Ρ ΡΠ°Π·Π½ΡΠΌΠΈ ΡΡΠΈΠ»ΡΠΌΠΈ, ΡΡΠΎΠ±Ρ Π½Π°ΠΉΡΠΈ ΡΠΎΡ Π²Π°ΡΠΈΠ°Π½Ρ, Ρ ΠΊΠΎΡΠΎΡΡΠΌ Π²Π°ΡΠ° ΠΊΠ²Π°ΡΡΠΈΡΠ° Π½Π°ΠΏΠΎΠ»Π½ΠΈΡΡΡ ΡΠ΅ΠΏΠ»ΠΎΠΌ ΠΈ ΡΡΡΠΎΠΌ. ΠΡΡ, ΡΡΠΎ Π½ΡΠΆΠ½ΠΎ, ΡΡΠΎ β ΡΠΊΠ°ΡΠ°ΡΡ ΠΏΡΠΎΠ³ΡΠ°ΠΌΠΌΡ Π΄Π»Ρ Π΄ΠΈΠ·Π°ΠΉΠ½Π° ΠΈΠ½ΡΠ΅ΡΡΠ΅ΡΠ° ΠΈ Π½Π°ΡΠ°ΡΡ Π²ΠΎΠΏΠ»ΠΎΡΠ°ΡΡ ΠΊΡΠ΅Π°ΡΠΈΠ²Π½ΡΠ΅ ΠΈΠ΄Π΅ΠΈ Π² ΠΆΠΈΠ·Π½Ρ.
interior3d.su
ΠΠΎΡΡΠ²ΡΡΠ²ΡΠΉΡΠ΅ ΡΠ΅Π±Ρ Π΄ΠΈΠ·Π°ΠΉΠ½Π΅ΡΠΎΠΌ ΠΈΠ½ΡΠ΅ΡΡΠ΅ΡΠΎΠ², Π²ΠΎΡΠΏΠΎΠ»ΡΠ·ΡΠΉΡΠ΅ΡΡ Π±Π΅ΡΠΏΠ»Π°ΡΠ½ΡΠΌ ΠΎΠ½Π»Π°ΠΉΠ½ ΠΏΡΠΈΠ»ΠΎΠΆΠ΅Π½ΠΈΠ΅ΠΌ Autodesk Homestyler (ΠΈΠΌΠ΅Π½ΡΠ΅ΠΌΠΎΠ΅ ΡΠ°Π½ΡΡΠ΅ Project Dragonfly), ΡΠΎΠ·Π΄Π°ΠΉΡΠ΅ Ρ Π½ΡΠ»Ρ 3D Π΄ΠΈΠ·Π°ΠΉΠ½ ΠΊΠΎΠΌΠ½Π°ΡΡ ΠΈΠ»ΠΈ Π²ΡΠ΅ΠΉ ΠΊΠ²Π°ΡΡΠΈΡΡ.
ΠΡ ΡΠΌΠΎΠΆΠ΅ΡΠ΅ ΡΠΎΠ·Π΄Π°ΡΡ 3D ΠΈΠ·ΠΎΠ±ΡΠ°ΠΆΠ΅Π½ΠΈΡ Π»ΡΠ±ΠΎΠ³ΠΎ Π°ΡΡ ΠΈΡΠ΅ΠΊΡΡΡΠ½ΠΎΠ³ΠΎ ΠΎΠ±ΡΠ΅ΠΊΡΠ°, Π±ΡΠ΄Ρ ΡΠΎ ΠΊΠ²Π°ΡΡΠΈΡΠ° ΠΈΠ»ΠΈ Π΄ΠΎΠΌ. ΠΡΠΈ ΠΏΡΠΎΠ΅ΠΊΡΠΈΡΠΎΠ²Π°Π½ΠΈΠΈ Π²ΠΎΠ·ΠΌΠΎΠΆΠ½Π° ΡΠ°Π±ΠΎΡΠ° Π² Π΄Π²ΡΡ ΠΎΡΠ½ΠΎΠ²Π½ΡΡ ΡΠ΅ΠΆΠΈΠΌΠ°Ρ : 2D ΠΈ 3D ΠΌΠΎΠ΄Π΅Π»ΠΈΡΠΎΠ²Π°Π½ΠΈΠ΅.
Π 2D ΡΠ΅ΠΆΠΈΠΌΠ΅ ΠΡ ΡΠ°ΠΌΠΎΡΡΠΎΡΡΠ΅Π»ΡΠ½ΠΎ ΡΠ°Π·ΡΠ°Π±ΠΎΡΠ°Π΅ΡΠ΅ ΠΏΠ»Π°Π½ΠΈΡΠΎΠ²ΠΊΡ, Π·Π°ΠΉΠΌΠ΅ΡΠ΅ΡΡ Π²ΠΎΠ·Π²Π΅Π΄Π΅Π½ΠΈΠ΅ΠΌ ΡΡΠ΅Π½ ΠΈ ΡΡΡΠ°Π½ΠΎΠ²ΠΊΠΎΠΉ Π΄Π²Π΅ΡΠ΅ΠΉ ΠΈ ΠΎΠΊΠΎΠ½, ΡΠΌΠΎΠΆΠ΅ΡΠ΅ Π΄ΠΎΠ±Π°Π²Π»ΡΡΡ ΠΏΠ΅ΡΠ΅Π³ΠΎΡΠΎΠ΄ΠΊΠΈ, ΠΈΠ·ΠΌΠ΅Π½ΡΡΡ ΡΠ°Π·ΠΌΠ΅ΡΡ, ΡΠΎΡΠΌΡ ΡΡΠ΅Π½ ΠΈ ΠΊΠΎΠΌΠ½Π°Ρ (ΠΎΠ½ΠΈ ΠΌΠΎΠ³ΡΡ Π±ΡΡΡ ΠΈΠ·ΠΎΠ³Π½ΡΡΡΠ΅ ΠΈΠ»ΠΈ ΡΠ³Π»ΠΎΠ²Π°ΡΡΠ΅).

ΠΠΎΠ·Π²ΠΎΠ΄ΠΈΡΡ ΡΡΠ΅Π½Ρ ΠΌΠΎΠΆΠ½ΠΎ Π²ΡΡΡΠ½ΡΡ Ρ Π½ΡΠ»Ρ ΠΈΠ»ΠΈ Π·Π°Π³ΡΡΠ·ΠΈΡΠ΅ ΠΏΠΎΠ΄Π³ΠΎΡΠΎΠ²Π»Π΅Π½Π½ΠΎΠ΅ ΠΈΠ·ΠΎΠ±ΡΠ°ΠΆΠ΅Π½ΠΈΠ΅ Π²Π°ΡΠ΅Π³ΠΎ ΠΏΠ»Π°Π½Π° ΡΡΠ°ΠΆΠ°, ΠΊΠΎΡΠΎΡΡΠΉ ΠΈΡΠΏΠΎΠ»ΡΠ·ΡΠ΅ΡΡΡ ΠΊΠ°ΠΊ ΠΏΠΎΠ΄Π»ΠΎΠΆΠΊΠ° Π΄Π»Ρ ΠΌΠΎΠ΄Π΅Π»ΠΈΡΠΎΠ²Π°Π½ΠΈΡ Π² ΠΏΡΠΎΠ³ΡΠ°ΠΌΠΌΠ΅.
Π ΠΏΡΠΎΠ³ΡΠ°ΠΌΠΌΠ΅ Π΄Π»Ρ Π΄ΠΈΠ·Π°ΠΉΠ½Π° ΠΈΠ½ΡΠ΅ΡΡΠ΅ΡΠ° Π΅ΡΡΡ ΠΎΠ³ΡΠΎΠΌΠ½ΡΠΉ ΠΊΠ°ΡΠ°Π»ΠΎΠ³ ΡΠΈΠΏΠΎΠ²ΡΡ ΠΏΡΠΎΠ΅ΠΊΡΠΎΠ² ΠΈ Π°ΡΡ ΠΈΠ² Π³ΠΎΡΠΎΠ²ΡΡ ΡΠ°Π±ΠΎΡ Π΄ΡΡΠ³ΠΈΡ ΠΏΠΎΠ»ΡΠ·ΠΎΠ²Π°ΡΠ΅Π»Π΅ΠΉ. Π‘Π»Π΅Π΄ΡΡΡΠΈΠΌ ΡΠ°Π³ΠΎΠΌ ΠΈΠ΄Π΅Ρ ΠΏΡΠ΅Π΄ΡΠΈΡΡΠΎΠ²Π°Ρ ΠΎΡΠ΄Π΅Π»ΠΊΠ° ΠΊΠΎΠΌΠ½Π°Ρ, Π²ΡΠ±ΠΈΡΠ°Π΅ΡΠ΅ ΠΌΠ°ΡΠ΅ΡΠΈΠ°Π»Ρ ΠΎΡΠ΄Π΅Π»ΠΊΠΈ: ΡΡΡΠΊΠ°ΡΡΡΠΊΠ° ΠΊΠΎΠΌΠ½Π°Ρ, ΠΏΠΎΠΊΡΠ°ΡΠΊΠ°, ΠΎΠ±ΠΎΠΈ ΠΈΠ»ΠΈ Π²ΠΎΠ·ΠΌΠΎΠΆΠ½ΠΎ ΠΏΠ»ΠΈΡΠΊΠ° Π΄Π»Ρ ΡΡΠ΅Π½?

ΠΠ°ΡΠ΅ΠΌ Π½Π°ΠΏΠΎΠ»Π½ΠΈΠΌ Π΄ΠΎΠΌ ΠΏΡΠ΅Π΄ΠΌΠ΅ΡΠ°ΠΌΠΈ ΠΌΠ΅Π±Π΅Π»ΠΈ ΠΈΠ· ΠΏΡΠ΅Π΄Π»Π°Π³Π°Π΅ΠΌΠΎΠΉ Π±ΠΈΠ±Π»ΠΈΠΎΡΠ΅ΠΊΠΈ: ΠΌΡΠ³ΠΊΠ°Ρ ΠΌΠ΅Π±Π΅Π»Ρ, Π±ΡΡΠΎΠ²Π°Ρ ΡΠ΅Ρ Π½ΠΈΠΊΠ°, ΡΠ²Π΅ΡΠΈΠ»ΡΠ½ΠΈΠΊΠΈ, ΡΠΊΠ°ΡΡ ΠΈ Π΄ΡΡΠ³ΠΈΠ΅ ΠΏΡΠ΅Π΄ΠΌΠ΅ΡΡ Π±ΡΡΠ°.
Π§ΡΠΎΠ±Ρ ΡΠ²Π΅ΠΆΠΈΠΉ ΡΠ΅ΠΌΠΎΠ½Ρ ΠΈΠ»ΠΈ Π½ΠΎΠ²Π°Ρ ΡΠ°ΡΡΡΠ°Π½ΠΎΠ²ΠΊΠ° ΠΌΠ΅Π±Π΅Π»ΠΈ Π΄Π΅ΠΉΡΡΠ²ΠΈΡΠ΅Π»ΡΠ½ΠΎ ΡΠ°Π΄ΠΎΠ²Π°Π»ΠΈ, Π²Ρ Π΄ΠΎΠ»ΠΆΠ½Ρ Π²ΡΠ΅ ΠΏΡΠΎΠ΄ΡΠΌΠ°ΡΡ ΠΈ ΡΠΏΠ»Π°Π½ΠΈΡΠΎΠ²Π°ΡΡ Π±ΡΠ΄ΡΡΠΈΠΉ Π΄ΠΈΠ·Π°ΠΉΠ½ ΠΏΠΎΠΌΠ΅ΡΠ΅Π½ΠΈΡ.
ΠΠΎΡΠΎΠ²ΡΠΉ Π΄ΠΈΠ·Π°ΠΉΠ½ ΠΌΠΎΠΆΠ½ΠΎ Π½Π°Π³Π»ΡΠ΄Π½ΠΎ ΠΏΠΎΡΠΌΠΎΡΡΠ΅ΡΡ Π² 3D ΡΠ΅ΠΆΠΈΠΌΠ΅, ΡΠ΄ΠΎΠ±Π½ΠΎ ΠΏΠΎΠΊΡΡΡΠΈΡΡ Π³ΠΎΡΠΎΠ²ΡΠΉ ΠΎΠ±ΡΠ΅ΠΊΡ, ΠΏΡΠΈΠ±Π»ΠΈΠ·ΠΈΡΡ, ΠΏΡΠΎΠΈΠ³ΡΠ°ΡΡΡΡ ΡΠΎ ΡΠ²Π΅ΡΠΎΠΌ ΠΈ ΡΠ΅Π½ΡΠΌΠΈ.
3D-ΡΠ΅Π΄Π°ΠΊΡΠΎΡ, ΡΠ°Π±ΠΎΡΠ°Π΅Ρ Π½Π΅ΠΏΠΎΡΡΠ΅Π΄ΡΡΠ²Π΅Π½Π½ΠΎ Π² Π±ΡΠ°ΡΠ·Π΅ΡΠ΅, Π²Ρ ΡΠ°ΠΌΠΎΡΡΠΎΡΡΠ΅Π»ΡΠ½ΠΎ ΠΌΠΎΠΆΠ΅ΡΠ΅ ΠΏΡΠΎΠ΅ΠΊΡΠΈΡΠΎΠ²Π°ΡΡ Π΄ΠΎΠΌΠ° ΠΈ ΠΊΠ²Π°ΡΡΠΈΡΡ. ΠΠ½Π»Π°ΠΉΠ½ ΠΏΡΠΎΠ΅ΠΊΡΠΈΡΠΎΠ²Π°Π½ΠΈΠ΅ ΠΎΡΠ»ΠΈΡΠ½ΠΎ ΠΏΠΎΠ΄ΠΎΠΉΠ΄Π΅Ρ Π΄Π»Ρ ΠΏΠ΅ΡΠ΅ΠΏΠ»Π°Π½ΠΈΡΠΎΠ²ΠΊΠΈ ΠΏΠΎΠΌΠ΅ΡΠ΅Π½ΠΈΡ, ΠΏΠ΅ΡΠ΅ΡΡΠ°Π½ΠΎΠ²ΠΊΠΈ ΠΌΠ΅Π±Π΅Π»ΠΈ ΠΈΠ»ΠΈ ΠΈΠ·ΠΌΠ΅Π½Π΅Π½ΠΈΡ ΠΎΡΠΎΡΠΌΠ»Π΅Π½ΠΈΡ Π΄ΠΎΠΌΠ°.
ΠΠΈΠΆΠ΅ Π½Π° ΡΠΎΡΠΎ Π²Ρ ΠΌΠΎΠΆΠ΅ΡΠ΅ ΡΠ²ΠΈΠ΄Π΅ΡΡ Π½Π°ΡΡΠ΅Π½Π½ΡΠ΅ ΡΠΊΠ°ΡΡ Π΄Π»Ρ ΠΊΡΡ Π½ΠΈ, ΠΈ ΡΠ°ΠΊΠΈΡ ΡΠ°Π·Π΄Π΅Π»ΠΎΠ² ΠΎΡΠ΅Π½Ρ ΠΌΠ½ΠΎΠ³ΠΎ, ΠΏΠΎΡΡΠΎΠΌΡ ΠΈΠ½ΡΠ΅ΡΡΠ΅ΡΡ ΠΏΠΎΠ»ΡΡΠ°ΡΡΡ ΡΠ°Π·Π½ΠΎΠΎΠ±ΡΠ°Π·Π½ΡΠΌΠΈ, Π΅ΡΡΡ ΠΏΠΎΠ»Π΅ Π΄Π΅ΡΡΠ΅Π»ΡΠ½ΠΎΡΡΠΈ Π΄Π»Ρ ΡΠ°Π½ΡΠ°Π·ΠΈΠΈ.

Π₯ΠΎΡΠΈΡΠ΅ Π·Π½Π°ΡΡ ΠΊΠ°ΠΊ Π±ΡΠ΄Π΅Ρ Π²ΡΠ³Π»ΡΠ΄Π΅ΡΡ ΠΊΠΎΠΌΠ½Π°ΡΠ° ΠΈΠ»ΠΈ Π΄ΠΎΠΌ ΠΏΠΎΡΠ»Π΅ ΡΠ΅ΠΌΠΎΠ½ΡΠ°?
Π£Π΄ΠΎΠ±Π½Π°Ρ ΠΈ ΠΈΠ½ΡΡΠΈΡΠΈΠ²Π½ΠΎ ΠΏΠΎΠ½ΡΡΠ½Π°Ρ ΠΏΡΠΎΠ³ΡΠ°ΠΌΠΌΠ° β ΡΠΏΡΠ°Π²ΠΈΡΡΡΡ Π΄Π°ΠΆΠ΅ Π½ΠΎΠ²ΠΈΡΠΎΠΊ. ΠΠΎΠΏΡΠΎΠ±ΡΠΉΡΠ΅ Π±Π΅ΡΠΏΠ»Π°ΡΠ½ΠΎ ΠΎΠ½Π»Π°ΠΉΠ½ ΠΊΠΎΠ½ΡΡΡΡΠΊΡΠΎΡ, ΡΠΎΠ·Π΄Π°Π΅ΡΠ΅ ΠΏΡΠΎΠ΅ΠΊΡ ΡΠ²ΠΎΠ΅ΠΉ ΠΌΠ΅ΡΡΡ!
Π‘ΡΠ°ΡΡΡ ΠΎΠΊΠ°Π·Π°Π»Π°ΡΡ ΠΏΠΎΠ»Π΅Π·Π½ΠΎΠΉ? ΠΠΎΠ΄Π΅Π»ΠΈΡΠ΅ΡΡ ΡΡΡΠ»ΠΊΠΎΠΉ Ρ Π΄ΡΡΠ·ΡΡΠΌΠΈ!
2we.ru
remontdoma.guru
ΠΡΠΎΠ³ΡΠ°ΠΌΠΌΠ° Π΄Π»Ρ Π΄ΠΈΠ·Π°ΠΉΠ½Π° ΠΊΠ²Π°ΡΡΠΈΡΡ ΠΈ ΠΏΠ»Π°Π½ΠΈΡΠΎΠ²Π°Π½ΠΈΡ ΡΠ΅ΠΌΠΎΠ½ΡΠ°
ΠΠ½ΡΠ΅ΡΡΠ΅ΠΉΡ Π΄ΠΎΡΠΎΠ³ΠΎΠ³ΠΎ ΠΏΡΠΎΡΠ΅ΡΡΠΈΠΎΠ½Π°Π»ΡΠ½ΠΎΠ³ΠΎ ΡΠΎΡΡΠ° ΡΠ°ΡΡΠΎ Π±ΡΠ²Π°Π΅Ρ Π²Π΅ΡΡΠΌΠ° Π·Π°ΠΏΡΡΠ°Π½Π½ΡΠΌ, ΠΈ ΠΎΠ±ΡΡΠ½ΠΎΠΌΡ ΠΏΠΎΠ»ΡΠ·ΠΎΠ²Π°ΡΠ΅Π»Ρ Π² Π½Π΅ΠΌ Π½Π΅ ΡΠ°Π·ΠΎΠ±ΡΠ°ΡΡΡΡ. ΠΠ΄Π½Π°ΠΊΠΎ Ρ ΠΎΡΠΎΡΠ°Ρ ΠΏΡΠΎΠ³ΡΠ°ΠΌΠΌΠ° Π΄Π»Ρ Π΄ΠΈΠ·Π°ΠΉΠ½Π° ΠΊΠ²Π°ΡΡΠΈΡΡ ΠΈ ΠΏΠ»Π°Π½ΠΈΡΠΎΠ²Π°Π½ΠΈΡ ΡΠ΅ΠΌΠΎΠ½ΡΠ° Π΄ΠΎΠ»ΠΆΠ½Π° Π΄Π΅Π»Π°ΡΡ ΡΠ°Π·ΡΠ°Π±ΠΎΡΠΊΡ ΠΈΠ½ΡΠ΅ΡΡΠ΅ΡΠ° ΠΌΠ°ΠΊΡΠΈΠΌΠ°Π»ΡΠ½ΠΎ ΠΏΡΠΎΡΡΠΎΠΉ. Π ΡΠΎΠΌΡ ΠΆΠ΅, ΠΏΠΎΠ»Π½ΠΎΡΠ΅Π½Π½Π°Ρ Π΄ΠΈΠ·Π°ΠΉΠ½Π΅ΡΡΠΊΠ°Ρ ΡΠ°Π±ΠΎΡΠ° ΡΡΠ΅Π±ΡΠ΅Ρ ΠΌΠ½ΠΎΠ³ΠΎ ΠΊΡΠΎΠΏΠΎΡΠ»ΠΈΠ²ΠΎΠ³ΠΎ ΡΡΡΠ΄Π°, ΠΈ ΡΡΠ»ΠΎΠΆΠ½ΡΡΡ ΡΡΡ Π·Π°Π΄Π°ΡΡ Π½ΠΈ ΠΊ ΡΠ΅ΠΌΡ. Β«ΠΠΈΠ·Π°ΠΉΠ½ ΠΠ½ΡΠ΅ΡΡΠ΅ΡΠ° 3DΒ» β ΡΡΠΎ ΡΠΎΡΡ, Π² ΠΊΠΎΡΠΎΡΠΎΠΌ Π²ΡΠ΅ ΡΡΠ½ΠΊΡΠΈΠΈ ΡΠ΅Π°Π»ΠΈΠ·ΠΎΠ²Π°Π½Ρ ΠΌΠ°ΠΊΡΠΈΠΌΠ°Π»ΡΠ½ΠΎ ΠΏΡΠΎΡΡΡΠΌ ΡΠΏΠΎΡΠΎΠ±ΠΎΠΌ. ΠΠ½ ΠΏΠΎΠ»Π½ΠΎΡΡΡΡ Π½Π° ΡΡΡΡΠΊΠΎΠΌ, Π° Π·Π½Π°ΡΠΈΡ, ΠΎΡΠ²ΠΎΠΈΡΡ Π΅Π³ΠΎ ΡΠΌΠΎΠΆΠ΅Ρ Π΄Π°ΠΆΠ΅ Π½ΠΎΠ²ΠΈΡΠΎΠΊ.
Π‘ΠΎΠ·Π΄Π°Π΅ΠΌ ΠΏΡΠΎΠ΅ΠΊΡ Ρ Π½ΡΠ»Ρ
ΠΠ»Ρ Π½Π°ΡΠ°Π»Π° Π½Π΅ΠΎΠ±Ρ ΠΎΠ΄ΠΈΠΌΠΎ ΡΡΡΠ°Π½ΠΎΠ²ΠΈΡΡ Π½Π° ΠΊΠΎΠΌΠΏΡΡΡΠ΅Ρ ΠΏΡΠΎΠ³ΡΠ°ΠΌΠΌΡ Β«ΠΠΈΠ·Π°ΠΉΠ½ ΠΠ½ΡΠ΅ΡΡΠ΅ΡΠ° 3DΒ». ΠΡΠΎ ΠΌΠΎΠΆΠ½ΠΎ ΡΠ΄Π΅Π»Π°ΡΡ ΡΠΎΠ²Π΅ΡΡΠ΅Π½Π½ΠΎ Π±Π΅ΡΠΏΠ»Π°ΡΠ½ΠΎ, ΠΏΠΎΡΡΠΎΠΌΡ Π²Π°ΠΌ Π½Π΅ ΠΏΡΠΈΠ΄Π΅ΡΡΡ ΡΡΠ°ΡΠΈΡΡ Π΄Π΅Π½ΡΠ³ΠΈ Π΄Π»Ρ ΠΎΠ·Π½Π°ΠΊΠΎΠΌΠ»Π΅Π½ΠΈΡ Ρ Π²ΠΎΠ·ΠΌΠΎΠΆΠ½ΠΎΡΡΡΠΌΠΈ ΡΠΎΡΡΠ°. Π§ΡΠΎΠ±Ρ Π·Π°Π³ΡΡΠ·ΠΈΡΡ ΡΡΡΠ°Π½ΠΎΠ²ΠΎΡΠ½ΡΠΉ ΡΠ°ΠΉΠ» Π½Π° ΠΠ ΠΈΠ»ΠΈ Π½ΠΎΡΡΠ±ΡΠΊ, ΠΏΠ΅ΡΠ΅ΠΉΠ΄ΠΈΡΠ΅ Π½Π° Π½Π°ΡΠ΅ΠΌ ΡΠ°ΠΉΡΠ΅ Π² ΡΠ°Π·Π΄Π΅Π» Β«Π‘ΠΊΠ°ΡΠ°ΡΡΒ».

Π’Π°ΠΊ Π²ΡΠ³Π»ΡΠ΄ΠΈΡ ΠΌΠ°ΠΊΠ΅Ρ ΠΊΠ²Π°ΡΡΠΈΡΡ Π² ΠΏΡΠΎΠ³ΡΠ°ΠΌΠΌΠ΅ Β«ΠΠΈΠ·Π°ΠΉΠ½ ΠΠ½ΡΠ΅ΡΡΠ΅ΡΠ° 3DΒ»
ΠΠΎΡΠ»Π΅ Π·Π°Π²Π΅ΡΡΠ΅Π½ΠΈΡ ΡΡΡΠ°Π½ΠΎΠ²ΠΊΠΈ ΡΠΎΡΡΠ° Π·Π°ΠΏΡΡΡΠΈΡΠ΅ Π΅Π³ΠΎ ΡΠ΅ΡΠ΅Π· ΡΡΠ»ΡΠΊ Π½Π° ΡΠ°Π±ΠΎΡΠ΅ΠΌ ΡΡΠΎΠ»Π΅. ΠΠ°ΡΠ΅ΠΌ Π²ΡΠ±Π΅ΡΠΈΡΠ΅ Π² ΠΏΡΠΎΠ³ΡΠ°ΠΌΠΌΠ΅ Π΄Π»Ρ Π΄ΠΈΠ·Π°ΠΉΠ½Π° ΠΊΠ²Π°ΡΡΠΈΡΡ ΠΈ ΠΏΠ»Π°Π½ΠΈΡΠΎΠ²Π°Π½ΠΈΡ ΡΠ΅ΠΌΠΎΠ½ΡΠ° ΠΏΡΠ½ΠΊΡ Β«Π‘ΠΎΠ·Π΄Π°ΡΡ ΠΏΡΠΎΠ΅ΠΊΡΒ» Π² ΡΡΠ°ΡΡΠΎΠ²ΠΎΠΌ ΠΌΠ΅Π½Ρ, Π° Π² ΠΏΠΎΡΠ²ΠΈΠ²ΡΠ΅ΠΌΡΡ ΠΏΠΎΡΠ»Π΅ ΡΡΠΎΠ³ΠΎ Π½ΠΎΠ²ΠΎΠΌ ΠΎΠΊΠ½Π΅ ΠΊΠ»ΠΈΠΊΠ½ΠΈΡΠ΅ Π½Π° Π²Π°ΡΠΈΠ°Π½Ρ Β«ΠΠ°ΡΠ°ΡΡ Ρ Π½ΡΠ»ΡΒ», ΠΊΠΎΡΠΎΡΡΠΉ ΠΏΠΎΠ·Π²ΠΎΠ»ΡΠ΅Ρ ΠΏΠ΅ΡΠ΅ΠΉΡΠΈ Π² ΡΠ΅Π΄Π°ΠΊΡΠΎΡ.

Π‘ΠΎΠ·Π΄Π°Π½ΠΈΠ΅ ΠΏΡΠΎΠ΅ΠΊΡΠ° Ρ Π½ΡΠ»Ρ
ΠΠΎΡΠ»Π΅ ΠΏΠ΅ΡΠ΅Ρ ΠΎΠ΄Π° Π² ΡΠ΅ΠΆΠΈΠΌ ΡΠ΅Π΄Π°ΠΊΡΠΈΡΠΎΠ²Π°Π½ΠΈΡ Π² Π²Π΅ΡΡ Π½Π΅ΠΉ ΠΏΠΎΠ»ΠΎΠ²ΠΈΠ½Π΅ ΠΎΠΊΠ½Π° ΠΏΠΎΡΠ²ΠΈΡΡΡ Π½ΠΎΠ²ΠΎΠ΅ ΠΌΠ΅Π½Ρ. ΠΠ»ΠΈΠΊΠ½ΠΈΡΠ΅ Π½Π° ΠΏΡΠ½ΠΊΡ Β«ΠΠ°ΡΠΈΡΡΠΉΡΠ΅ ΠΊΠΎΠΌΠ½Π°ΡΡ Π²Π°ΡΠ΅ΠΉ ΠΊΠ²Π°ΡΡΠΈΡΡΒ» ΠΈ Π½Π°ΡΠ΅ΡΡΠΈΡΠ΅ ΡΡ Π΅ΠΌΡ Π²Π°ΡΠ΅Π³ΠΎ ΠΆΠΈΠ»ΡΡ. Π§ΡΠΎΠ±Ρ ΠΎΡΠΌΠ΅ΡΠΈΡΡ ΡΠ³Π»Ρ ΠΊΠΎΠΌΠ½Π°Ρ, Π½Π΅ΠΎΠ±Ρ ΠΎΠ΄ΠΈΠΌΠΎ ΠΊΠ»ΠΈΠΊΠ°ΡΡ Π»Π΅Π²ΠΎΠΉ ΠΊΠ½ΠΎΠΏΠΊΠΎΠΉ ΠΌΡΡΠΊΠΈ ΠΏΠΎ ΡΠ΅ΡΠΊΠ΅. ΠΡΠΈ Π·Π°ΠΌΡΠΊΠ°Π½ΠΈΠΈ ΠΊΠΎΠ½ΡΡΡΠ° ΠΏΡΠΎΡΡΠ°Ρ ΠΏΡΠΎΠ³ΡΠ°ΠΌΠΌΠ° Π΄Π»Ρ ΡΠ°ΡΡΡΠ°Π½ΠΎΠ²ΠΊΠΈ ΠΌΠ΅Π±Π΅Π»ΠΈ Π² ΠΊΠ²Π°ΡΡΠΈΡΠ΅ Π°Π²ΡΠΎΠΌΠ°ΡΠΈΡΠ΅ΡΠΊΠΈ ΡΠΎΠ·Π΄Π°ΡΡ ΡΡΠ΅Ρ ΠΌΠ΅ΡΠ½ΡΠΉ ΠΌΠ°ΠΊΠ΅Ρ Π²ΡΠ΅Ρ ΠΏΠΎΠΌΠ΅ΡΠ΅Π½ΠΈΠΉ. ΠΡΠ΅Π½ΠΈΡΠ΅ ΡΠ΅Π·ΡΠ»ΡΡΠ°Ρ Π² ΠΎΠΊΠ½Π΅ ΠΏΡΠ΅Π΄ΠΏΡΠΎΡΠΌΠΎΡΡΠ°.

Π ΠΈΡΡΠ΅ΠΌ ΡΡ Π΅ΠΌΡ ΠΊΠ²Π°ΡΡΠΈΡΡ
ΠΡΠ»ΠΈ Π½ΡΠΆΠ½ΠΎ ΡΠ΄Π΅Π»Π°ΡΡ Π΄ΠΎΠΏΠΎΠ»Π½ΠΈΡΠ΅Π»ΡΠ½ΡΠ΅ ΠΊΠΎΠΌΠ½Π°ΡΡ, Π½Π°ΠΆΠΌΠΈΡΠ΅ Β«ΠΠΎΠ±Π°Π²ΠΈΡΡΒ» Π² Π²Π΅ΡΡ Π½Π΅ΠΌ ΠΌΠ΅Π½Ρ ΠΈ Π²ΡΠ±Π΅ΡΠΈΡΠ΅ Β«ΠΠ°ΡΠΈΡΠΎΠ²Π°ΡΡ ΠΊΠΎΠΌΠ½Π°ΡΡΒ» ΠΈΠ»ΠΈ Β«ΠΠΎΠ±Π°Π²ΠΈΡΡ ΠΊΠΎΠΌΠ½Π°ΡΡ ΠΈΠ· ΠΊΠ°ΡΠ°Π»ΠΎΠ³Π°Β». ΠΡΠΈ ΠΎΠΏΡΠΈΠΈ ΠΏΠΎΠΌΠΎΠ³ΡΡ ΡΠ²Π΅Π»ΠΈΡΠΈΡΡ ΠΊΠΎΠ»ΠΈΡΠ΅ΡΡΠ²ΠΎ ΠΏΠΎΠΌΠ΅ΡΠ΅Π½ΠΈΠΉ Π² ΠΊΠ²Π°ΡΡΠΈΡΠ΅, Π΅ΡΠ»ΠΈ Π²Ρ Π·Π°ΠΌΠΊΠ½ΡΠ»ΠΈ ΠΊΠΎΠ½ΡΡΡ Π΄ΠΎ ΡΠΎΠ³ΠΎ, ΠΊΠ°ΠΊ ΡΠ΄Π°Π»ΠΎΡΡ ΠΎΡΠΎΠ±ΡΠ°Π·ΠΈΡΡ Π½Π° ΡΡ Π΅ΠΌΠ΅ Π²ΡΠ΅ Π½Π΅ΠΎΠ±Ρ ΠΎΠ΄ΠΈΠΌΠΎΠ΅.

ΠΠΏΡΠΈΠΈ Π΄Π»Ρ Π΄ΠΎΠ±Π°Π²Π»Π΅Π½ΠΈΡ Π΄ΠΎΠΏΠΎΠ»Π½ΠΈΡΠ΅Π»ΡΠ½ΡΡ ΠΊΠΎΠΌΠ½Π°Ρ
ΠΠ΅ ΡΡΠΎΠΈΡ Π·Π°Π±ΡΠ²Π°ΡΡ ΠΎΠ± ΠΎΠΊΠ½Π°Ρ ΠΈ Π΄Π²Π΅ΡΡΡ . Β«ΠΠΈΠ·Π°ΠΉΠ½ ΠΠ½ΡΠ΅ΡΡΠ΅ΡΠ° 3DΒ» ΡΠΎΠ΄Π΅ΡΠΆΠΈΡ 2 ΠΏΠΎΠ»Π½ΠΎΡΠ΅Π½Π½ΡΡ ΠΊΠ°ΡΠ°Π»ΠΎΠ³Π°, Π² ΠΊΠΎΡΠΎΡΡΡ ΠΏΡΠ΅Π΄ΡΡΠ°Π²Π»Π΅Π½Ρ ΠΎΠΊΠΎΠ½Π½ΡΠ΅ Π±Π»ΠΎΠΊΠΈ (Π² ΡΠΎΠΌ ΡΠΈΡΠ»Π΅ Π±Π°Π»ΠΊΠΎΠ½Π½ΡΠ΅), Π΄Π²Π΅ΡΠΈ, Π°ΡΠΊΠΈ ΠΈ ΠΏΡΠΎΠ΅ΠΌΡ. ΠΠ»Ρ ΡΠ°Π·ΠΌΠ΅ΡΠ΅Π½ΠΈΡ Π΄Π°Π½Π½ΡΡ ΡΠ»Π΅ΠΌΠ΅Π½ΡΠΎΠ² Π½Π° ΡΡ Π΅ΠΌΠ΅, Π²ΠΎΡΠΏΠΎΠ»ΡΠ·ΡΠΉΡΠ΅ΡΡ ΠΊΠ½ΠΎΠΏΠΊΠ°ΠΌΠΈ Β«ΠΠΎΠ±Π°Π²ΠΈΡΡ Π΄Π²Π΅ΡΡΒ» ΠΈ Β«ΠΠΎΠ±Π°Π²ΠΈΡΡ ΠΎΠΊΠ½ΠΎΒ» Π² ΡΠ°Π·Π΄Π΅Π»Π΅ Β«ΠΡΠΎΠ΅ΠΊΡΒ» Π½Π° ΠΏΡΠ°Π²ΠΎΠΉ ΠΏΠ°Π½Π΅Π»ΠΈ. ΠΡΠ΅ ΠΈΠ·ΠΌΠ΅Π½Π΅Π½ΠΈΡ ΡΡΠ°Π·Ρ ΠΆΠ΅ Π±ΡΠ΄ΡΡ Π²ΠΈΠ΄Π½Ρ Π½Π° ΡΠΊΡΠ°Π½Π΅.

ΠΠ°ΡΠ°Π»ΠΎΠ³ Π΄Π²Π΅ΡΠ΅ΠΉ, Π°ΡΠΎΠΊ ΠΈ ΠΏΡΠΎΠ΅ΠΌΠΎΠ² Π² ΠΏΡΠΎΠ³ΡΠ°ΠΌΠΌΠ΅ Β«ΠΠΈΠ·Π°ΠΉΠ½ ΠΠ½ΡΠ΅ΡΡΠ΅ΡΠ° 3DΒ»
Π ΠΏΡΠΎΠ³ΡΠ°ΠΌΠΌΠ΅ ΡΠ°ΠΊΠΆΠ΅ ΠΏΡΠ΅Π΄ΡΡΠΌΠΎΡΡΠ΅Π½Ρ ΡΠ°Π±Π»ΠΎΠ½Ρ Ρ ΡΠΈΠΏΠΎΠ²ΡΠΌΠΈ ΠΏΠ»Π°Π½ΠΈΡΠΎΠ²ΠΊΠ°ΠΌΠΈ ΠΊΠ²Π°ΡΡΠΈΡ. ΠΡΠ»ΠΈ Π²Π°ΡΠ΅ ΠΆΠΈΠ»ΡΠ΅ ΠΎΡΠ½ΠΎΡΠΈΡΡΡ ΠΊ ΡΠ°ΠΊΠΈΠΌ, Π²Ρ ΠΌΠΎΠΆΠ΅ΡΠ΅ Π²ΡΠ±ΡΠ°ΡΡ ΠΎΠΏΡΠΈΡ Β«Π’ΠΈΠΏΠΎΠ²ΡΠ΅ ΠΏΠ»Π°Π½ΠΈΡΠΎΠ²ΠΊΠΈΒ», ΡΡΠΎΠ±Ρ Π·Π°Π³ΡΡΠ·ΠΈΡΡ Π³ΠΎΡΠΎΠ²ΡΠΉ ΡΠ°Π±Π»ΠΎΠ½ Π² ΡΠ΅Π΄Π°ΠΊΡΠΎΡ ΠΈ ΡΡΠΊΠΎΠ½ΠΎΠΌΠΈΡΡ Π΄ΡΠ°Π³ΠΎΡΠ΅Π½Π½ΠΎΠ΅ Π²ΡΠ΅ΠΌΡ Π΄Π»Ρ ΡΠ΅ΡΠ΅Π½ΠΈΡ Π΄ΡΡΠ³ΠΈΡ ΠΏΡΠΎΠ±Π»Π΅ΠΌ.

Π’ΠΈΠΏΠΎΠ²ΡΠ΅ ΠΏΠ»Π°Π½ΠΈΡΠΎΠ²ΠΊΠΈ ΠΊΠ²Π°ΡΡΠΈΡ
Π£Π΄ΠΎΠ±Π½Π°Ρ ΠΎΡΠ΄Π΅Π»ΠΊΠ° ΡΡΠ΅Π½ ΠΈ ΠΏΠΎΠ»Π°
ΠΠ°ΠΊΠΎΠ½ΡΠΈΠ² ΡΠΎΠ·Π΄Π°Π½ΠΈΠ΅ ΡΡ Π΅ΠΌΡ, ΠΏΠ΅ΡΠ΅Ρ ΠΎΠ΄ΠΈΡΠ΅ ΠΊ ΠΏΠΎΠ΄Π±ΠΎΡΡ ΠΎΡΠ΄Π΅Π»ΠΎΡΠ½ΡΡ ΠΌΠ°ΡΠ΅ΡΠΈΠ°Π»ΠΎΠ². ΠΠ»ΠΈΠΊΠ½ΠΈΡΠ΅ ΠΏΠΎ ΡΠ΅ΡΠΎΠΌΡ ΡΠ΅Π½ΡΡΡ Π½ΡΠΆΠ½ΠΎΠΉ ΠΊΠΎΠΌΠ½Π°ΡΡ, ΡΡΠΎΠ±Ρ ΠΎΠ½Π° ΠΏΠΎΠ΄ΡΠ²Π΅ΡΠΈΠ»Π°ΡΡ Π·Π΅Π»Π΅Π½ΡΠΌ ΠΏΠΎ ΠΊΠΎΠ½ΡΡΡΡ, ΠΈ Π²ΡΠ±Π΅ΡΠΈΡΠ΅ Π²ΠΊΠ»Π°Π΄ΠΊΡ Β«Π‘Π²ΠΎΠΉΡΡΠ²Π°Β» Π½Π° ΠΏΡΠ°Π²ΠΎΠΉ ΠΏΠ°Π½Π΅Π»ΠΈ. ΠΠ΄Π΅ΡΡ ΡΠ°ΡΠΏΠΎΠ»ΠΎΠΆΠ΅Π½Ρ Π½Π°ΡΡΡΠΎΠΉΠΊΠΈ ΠΌΠ°ΡΠ΅ΡΠΈΠ°Π»ΠΎΠ² ΠΎΡΠ΄Π΅Π»ΠΊΠΈ ΠΏΠΎΠ»Π°, ΡΡΠ΅Π½ ΠΈ ΠΏΠΎΡΠΎΠ»ΠΊΠ°. ΠΡΠΎΠΌΠ΅ ΡΠΎΠ³ΠΎ, Π²ΠΊΠ»Π°Π΄ΠΊΠ° Β«ΠΡΠΎΡΠ΅Π΅Β» ΠΏΠΎΠ·Π²ΠΎΠ»ΡΠ΅Ρ Π²ΠΊΠ»ΡΡΠΈΡΡ ΠΈΠ»ΠΈ Π²ΡΠΊΠ»ΡΡΠΈΡΡ ΠΎΡΠΎΠ±ΡΠ°ΠΆΠ΅Π½ΠΈΠ΅ ΠΏΠ»ΠΈΠ½ΡΡΡΠΎΠ², ΠΏΠΎΡΠΎΠ»ΠΊΠ° ΠΈ ΠΏΠ»ΠΎΡΠ°Π΄ΠΈ ΠΏΠΎΠΌΠ΅ΡΠ΅Π½ΠΈΠΉ.

ΠΠ°ΡΡΡΠΎΠΉΠΊΠΈ ΠΎΡΠ΄Π΅Π»ΠΎΡΠ½ΡΡ ΠΌΠ°ΡΠ΅ΡΠΈΠ°Π»ΠΎΠ²
ΠΠ°ΡΠ°Π»ΠΎΠ³ ΠΎΡΠΊΡΡΠ²Π°Π΅ΡΡΡ ΠΏΠΎ ΠΊΠ»ΠΈΠΊΡ Π½Π° Π·Π½Π°ΡΠΎΠΊ ΠΏΠ°ΠΏΠΊΠΈ ΠΎΠΊΠΎΠ»ΠΎ ΡΠ΅ΠΊΡΡΡΡΡ ΠΌΠ°ΡΠ΅ΡΠΈΠ°Π»Π°. ΠΡΠΎΠ³ΡΠ°ΠΌΠΌΠ° Π΄Π»Ρ Π΄ΠΈΠ·Π°ΠΉΠ½Π° ΠΊΠ²Π°ΡΡΠΈΡΡ ΠΈ ΠΏΠ»Π°Π½ΠΈΡΠΎΠ²Π°Π½ΠΈΡ ΡΠ΅ΠΌΠΎΠ½ΡΠ° ΠΏΡΠ΅Π΄Π»Π°Π³Π°Π΅Ρ ΡΠΎΡΠ½ΠΈ Π²ΠΈΠ΄ΠΎΠ² ΠΎΠ±ΠΎΠ΅Π², Π»ΠΈΠ½ΠΎΠ»Π΅ΡΠΌΠ°, ΠΏΠΎΡΠΎΠ»ΠΎΡΠ½ΠΎΠΉ ΠΈ ΠΊΠ΅ΡΠ°ΠΌΠΈΡΠ΅ΡΠΊΠΎΠΉ ΠΏΠ»ΠΈΡΠΊΠΈ, Π»Π°ΠΌΠΈΠ½Π°ΡΠ°, ΠΏΠ°ΡΠΊΠ΅ΡΠ° ΠΈ Π΄ΡΡΠ³ΠΈΡ Π²ΠΈΠ΄ΠΎΠ² ΠΎΡΠ΄Π΅Π»ΠΊΠΈ. ΠΡΠ±ΡΠ°Π² ΠΏΠΎΠ΄Ρ ΠΎΠ΄ΡΡΠΈΠΉ Π²Π°ΡΠΈΠ°Π½Ρ, ΠΊΠ»ΠΈΠΊΠ½ΠΈΡΠ΅ ΠΏΠΎ Π½Π΅ΠΌΡ ΠΈ ΠΏΠΎ ΠΊΠ½ΠΎΠΏΠΊΠ΅ Β«ΠΡΠΈΠΌΠ΅Π½ΠΈΡΡΒ». ΠΡΠ΄Π΅Π»ΠΎΡΠ½ΡΠΉ ΠΌΠ°ΡΠ΅ΡΠΈΠ°Π» ΡΡΠ°Π·Ρ ΠΎΡΠΎΠ±ΡΠ°Π·ΠΈΡΡΡ Π½Π° 3Π-ΡΡ Π΅ΠΌΠ΅.

ΠΠ°ΡΠ°Π»ΠΎΠ³ ΠΎΡΠ΄Π΅Π»ΠΊΠΈ Π² ΠΏΡΠΎΠ³ΡΠ°ΠΌΠΌΠ΅ Β«ΠΠΈΠ·Π°ΠΉΠ½ ΠΠ½ΡΠ΅ΡΡΠ΅ΡΠ° 3DΒ»
Π€ΡΠ½ΠΊΡΠΈΠΎΠ½Π°Π» ΠΏΡΠΎΠ³ΡΠ°ΠΌΠΌΡ ΠΏΠΎΠ·Π²ΠΎΠ»ΡΠ΅Ρ ΡΠ°ΠΊΠΆΠ΅ Π·Π°Π³ΡΡΠΆΠ°ΡΡ Π² ΠΊΠ°ΡΠ°Π»ΠΎΠ³ Π½ΠΎΠ²ΡΠ΅ ΠΌΠ°ΡΠ΅ΡΠΈΠ°Π»Ρ. ΠΠ»Ρ ΡΡΠΎΠ³ΠΎ Π½ΡΠΆΠ½ΠΎ Π½Π°ΠΆΠ°ΡΡ Π² ΠΊΠ°ΡΠ°Π»ΠΎΠ³Π΅ ΠΊΠ½ΠΎΠΏΠΊΡ Β«ΠΠΎΠ±Π°Π²ΠΈΡΡ ΡΠ²ΠΎΠΈ ΠΌΠ°ΡΠ΅ΡΠΈΠ°Π»ΡΒ» ΠΈ Π²ΡΠ±ΡΠ°ΡΡ ΠΈΠ·ΠΎΠ±ΡΠ°ΠΆΠ΅Π½ΠΈΠ΅ ΡΠ΅ΠΊΡΡΡΡΡ ΠΎΡΠ΄Π΅Π»ΠΊΠΈ, Π·Π°ΡΠ°Π½Π΅Π΅ ΡΠΎΡ ΡΠ°Π½Π΅Π½Π½ΠΎΠ΅ Π½Π° Π²Π°ΡΠ΅ΠΌ ΠΊΠΎΠΌΠΏΡΡΡΠ΅ΡΠ΅. ΠΠΎΡΠ»Π΅ ΡΠΎΠ³ΠΎ, ΠΊΠ°ΠΊ ΠΌΠ°ΡΠ΅ΡΠΈΠ°Π» ΠΏΠΎΠΏΠ°Π΄Π΅Ρ Π² ΠΊΠ°ΡΠ°Π»ΠΎΠ³, Π΅Π³ΠΎ ΠΌΠΎΠΆΠ½ΠΎ ΠΈΡΠΏΠΎΠ»ΡΠ·ΠΎΠ²Π°ΡΡ Π²ΠΎ Π²ΡΠ΅Ρ Π΄Π°Π»ΡΠ½Π΅ΠΉΡΠΈΡ ΠΏΡΠΎΠ΅ΠΊΡΠ°Ρ , ΠΊΠΎΡΠΎΡΡΠ΅ Π²Ρ Π±ΡΠ΄Π΅ΡΠ΅ ΡΠΎΠ·Π΄Π°Π²Π°ΡΡ Π² Π½Π°ΡΠ΅ΠΌ ΡΠΎΡΡΠ΅.

ΠΠΎΠ±Π°Π²Π»Π΅Π½ΠΈΠ΅ Π½ΠΎΠ²ΡΡ ΠΎΡΠ΄Π΅Π»ΠΎΡΠ½ΡΡ ΠΌΠ°ΡΠ΅ΡΠΈΠ°Π»ΠΎΠ² Π² ΠΊΠ°ΡΠ°Π»ΠΎΠ³
Π€ΡΠ½ΠΊΡΠΈΠΈ ΡΠ°ΡΡΡΠ°Π½ΠΎΠ²ΠΊΠΈ ΠΌΠ΅Π±Π΅Π»ΠΈ
ΠΠ°ΠΊΠΎΠ½ΡΠΈΠ² ΡΠ°Π·Π±ΠΈΡΠ°ΡΡΡΡ Ρ ΠΎΡΠ΄Π΅Π»ΠΎΡΠ½ΡΠΌΠΈ ΠΌΠ°ΡΠ΅ΡΠΈΠ°Π»Π°ΠΌΠΈ Π²ΠΎ Π²ΡΠ΅Ρ ΠΊΠΎΠΌΠ½Π°ΡΠ°Ρ , ΠΌΠΎΠΆΠ½ΠΎ ΠΏΠ΅ΡΠ΅ΠΉΡΠΈ ΠΊ ΠΎΡΠ½ΠΎΠ²Π½ΠΎΠΉ Π΄ΠΈΠ·Π°ΠΉΠ½Π΅ΡΡΠΊΠΎΠΉ Π·Π°Π΄Π°ΡΠ΅ β ΡΠ°ΡΡΡΠ°Π½ΠΎΠ²ΠΊΠ΅ ΠΌΠ΅Π±Π΅Π»ΠΈ ΠΏΠΎ ΠΌΠ°ΠΊΠ΅ΡΡ Π΄ΠΎΠΌΠ°. Π§ΡΠΎΠ±Ρ ΠΎΡΠΊΡΡΡΡ ΠΊΠ°ΡΠ°Π»ΠΎΠ³, Π² ΠΊΠΎΡΠΎΡΠΎΠΌ ΡΠΎΠ΄Π΅ΡΠΆΠ°ΡΡΡ ΠΏΡΠ΅Π΄ΠΌΠ΅ΡΡ ΠΎΠ±ΡΡΠ°Π½ΠΎΠ²ΠΊΠΈ, ΠΏΠ΅ΡΠ΅ΠΉΠ΄ΠΈΡΠ΅ Π½Π° Π²ΠΊΠ»Π°Π΄ΠΊΡ Β«ΠΡΠΎΠ΅ΠΊΡΒ» Π½Π° ΠΏΡΠ°Π²ΠΎΠΉ ΠΏΠ°Π½Π΅Π»ΠΈ ΠΈ Π½Π°ΠΆΠΌΠΈΡΠ΅ Β«ΠΠΎΠ±Π°Π²ΠΈΡΡ ΠΌΠ΅Π±Π΅Π»ΡΒ».

ΠΠ°ΠΊΠ΅Ρ Ρ ΠΎΡΠ΄Π΅Π»ΠΊΠΎΠΉ
Π ΠΊΠ°ΡΠ°Π»ΠΎΠ³Π΅ ΠΏΡΠ΅Π΄ΡΡΠ°Π²Π»Π΅Π½Ρ ΡΠΎΡΠ½ΠΈ ΠΎΠ±ΡΠ΅ΠΊΡΠΎΠ², ΡΠ°ΡΡΠΎΡΡΠΈΡΠΎΠ²Π°Π½Π½ΡΠ΅ Π΄Π»Ρ ΡΠ΄ΠΎΠ±ΡΡΠ²Π° Π½Π° 9 ΠΊΠ°ΡΠ΅Π³ΠΎΡΠΈΠΉ. ΠΡΠΎΠΌΠ΅ ΡΠ°ΠΌΠΎΠΉ ΠΌΠ΅Π±Π΅Π»ΠΈ, Π·Π΄Π΅ΡΡ ΡΠ°ΡΠΏΠΎΠ»ΠΎΠΆΠ΅Π½Π° ΡΠ°Π·Π»ΠΈΡΠ½Π°Ρ Π±ΡΡΠΎΠ²Π°Ρ ΡΠ΅Ρ Π½ΠΈΠΊΠ°, ΡΡΠ΅Π½Π°ΠΆΠ΅ΡΡ, Π΄Π΅ΠΊΠΎΡΠ°ΡΠΈΠ²Π½ΡΠ΅ ΡΠ»Π΅ΠΌΠ΅Π½ΡΡ, Π²ΡΠΊΠ»ΡΡΠ°ΡΠ΅Π»ΠΈ ΠΈ Π΄Π°ΠΆΠ΅ ΡΡΠΎΡΡ. Π§ΡΠΎΠ±Ρ ΠΏΠ΅ΡΠ΅Π½Π΅ΡΡΠΈ ΡΠ»Π΅ΠΌΠ΅Π½Ρ Π² ΠΌΠ°ΠΊΠ΅Ρ, Π²ΡΠ΄Π΅Π»ΠΈΡΠ΅ Π΅Π³ΠΎ ΠΌΡΡΠΊΠΎΠΉ ΠΈ Π½Π°ΠΆΠΌΠΈΡΠ΅ ΠΊΠ½ΠΎΠΏΠΊΡ Β«ΠΠΎΠ±Π°Π²ΠΈΡΡ Π½Π° ΡΡΠ΅Π½ΡΒ».

ΠΠ°ΡΠ°Π»ΠΎΠ³ ΠΌΠ΅Π±Π΅Π»ΠΈ Π² ΠΏΡΠΎΠ³ΡΠ°ΠΌΠΌΠ΅ Β«ΠΠΈΠ·Π°ΠΉΠ½ ΠΠ½ΡΠ΅ΡΡΠ΅ΡΠ° 3DΒ»
ΠΠ°ΡΠ΅ΠΌ ΠΏΠΎΠΌΠ΅ΡΡΠΈΡΠ΅ Π΅Π³ΠΎ Π² Π½ΡΠΆΠ½ΠΎΠΌ ΠΏΠΎΠ»ΠΎΠΆΠ΅Π½ΠΈΠΈ Π½Π° Π΄Π²ΡΡ ΠΌΠ΅ΡΠ½ΠΎΠΉ ΠΏΠ»Π°Π½ΠΈΡΠΎΠ²ΠΊΠ΅ ΠΈ ΡΠ°Π·Π²Π΅ΡΠ½ΠΈΡΠ΅, Π·Π°ΠΆΠ°Π² Π»Π΅Π²ΡΡ ΠΊΠ½ΠΎΠΏΠΊΡ ΠΌΡΡΠΊΠΈ Π½Π° ΠΆΠ΅Π»ΡΠΎΠΌ ΠΊΡΡΠΆΠΊΠ΅ (ΠΎΠ½ ΠΏΠΎΡΠ²Π»ΡΠ΅ΡΡΡ, Π΅ΡΠ»ΠΈ ΠΊΠ»ΠΈΠΊΠ½ΡΡΡ ΠΏΠΎ ΠΌΠ΅Π±Π΅Π»ΠΈ). ΠΠ»Ρ ΠΊΠ°ΠΆΠ΄ΠΎΠ³ΠΎ ΡΠ»Π΅ΠΌΠ΅Π½ΡΠ° ΠΌΠ΅Π±Π΅Π»ΠΈ Π΅ΡΡΡ ΡΡΠ΄ Π½Π°ΡΡΡΠΎΠ΅ΠΊ. Π§ΡΠΎΠ±Ρ ΠΏΠΎΠΌΠ΅Π½ΡΡΡ ΠΈΡ , ΠΊΠ»ΠΈΠΊΠ½ΠΈΡΠ΅ ΠΏΠΎ ΠΎΠ±ΡΠ΅ΠΊΡΡ ΠΈ Π²ΡΠ±Π΅ΡΠΈΡΠ΅ ΡΠΏΡΠ°Π²Π° Π²ΠΊΠ»Π°Π΄ΠΊΡ Β«Π‘Π²ΠΎΠΉΡΡΠ²Π°Β». ΠΠ΄Π΅ΡΡ ΠΏΡΠ΅Π΄ΡΡΠ°Π²Π»Π΅Π½Π° ΠΈΠ½ΡΠΎΡΠΌΠ°ΡΠΈΡ ΠΎ Π³Π°Π±Π°ΡΠΈΡΠ°Ρ , ΠΌΠ΅ΡΡΠΎΠΏΠΎΠ»ΠΎΠΆΠ΅Π½ΠΈΠΈ ΠΈ ΠΎΡΠΎΡΠΌΠ»Π΅Π½ΠΈΠΈ ΠΏΡΠ΅Π΄ΠΌΠ΅ΡΠ°.

ΠΠ°ΡΡΡΠΎΠΉΠΊΠΈ Π΄Π»Ρ ΠΌΠ΅Π±Π΅Π»ΠΈ
ΠΠ»Ρ Π½Π΅ΡΡΠ°Π½Π΄Π°ΡΡΠ½ΠΎΠΉ ΠΌΠ΅Π±Π΅Π»ΠΈ ΠΈΡΠΏΠΎΠ»ΡΠ·ΡΠΉΡΠ΅ Π½Π°ΡΡΡΠΎΠΉΠΊΠΈ ΡΠ°Π·ΠΌΠ΅ΡΠΎΠ², ΡΡΠΎΠ±Ρ ΠΏΡΠΈΠ΄Π°ΡΡ Π²ΡΠ±ΡΠ°Π½Π½ΠΎΠΌΡ ΠΎΠ±ΡΠ΅ΠΊΡΡ Π½ΡΠΆΠ½ΡΠ΅ ΠΏΠ°ΡΠ°ΠΌΠ΅ΡΡΡ. ΠΡΠΈ Π½Π°ΡΡΡΠΎΠΉΠΊΠ΅ ΠΏΠΎΠ·ΠΈΡΠΈΠΈ Π²Ρ ΠΌΠΎΠΆΠ΅ΡΠ΅ Π·Π°Π΄Π°ΡΡ ΠΏΠΎΠ»ΠΎΠΆΠ΅Π½ΠΈΠ΅ ΠΏΡΠ΅Π΄ΠΌΠ΅ΡΠ° Ρ ΡΠΎΡΠ½ΠΎΡΡΡΡ Π΄ΠΎ ΠΌΠΈΠ»Π»ΠΈΠΌΠ΅ΡΡΠ°, Π²ΠΊΠ»ΡΡΠ°Ρ Π²ΡΡΠΎΡΡ Π½Π°Π΄ ΠΏΠΎΠ»ΠΎΠΌ. ΠΠΎΡΠ»Π΅Π΄Π½Π΅Π΅ ΠΎΡΠΎΠ±Π΅Π½Π½ΠΎ Π°ΠΊΡΡΠ°Π»ΡΠ½ΠΎ Π΄Π»Ρ Π½Π°ΡΡΠ΅Π½Π½ΡΡ ΡΠ°ΡΠΎΠ², ΠΊΠΎΠ½Π΄ΠΈΡΠΈΠΎΠ½Π΅ΡΠΎΠ², ΡΠΎΠ·Π΅ΡΠΎΠΊ ΠΈ Π²ΡΠΊΠ»ΡΡΠ°ΡΠ΅Π»Π΅ΠΉ, ΠΊΠΎΡΠΎΡΡΠ΅ Π² ΠΊΠ°ΠΆΠ΄ΠΎΠΌ Π΄ΠΎΠΌΠ΅ ΡΡΡΠ°Π½Π°Π²Π»ΠΈΠ²Π°ΡΡΡΡ ΠΏΠΎ-ΡΠ°Π·Π½ΠΎΠΌΡ. Π ΡΠ΅ΠΊΡΠΈΠΈ Β«ΠΠΈΠ·Π°ΠΉΠ½Β» ΡΠ°ΡΠΏΠΎΠ»ΠΎΠΆΠ΅Π½Ρ Π½Π°ΡΡΡΠΎΠΉΠΊΠΈ, ΠΊΠΎΡΠΎΡΡΠ΅ ΠΏΠΎΠ·Π²ΠΎΠ»ΡΡΡ ΠΌΠ΅Π½ΡΡΡ ΡΠ²Π΅Ρ ΠΈ ΠΌΠ°ΡΠ΅ΡΠΈΠ°Π» ΠΎΠ±ΠΈΠ²ΠΊΠΈ Π΄Π»Ρ ΠΌΡΠ³ΠΊΠΎΠΉ ΠΌΠ΅Π±Π΅Π»ΠΈ, ΠΈΠ·ΠΌΠ΅Π½ΠΈΡΡ ΠΎΡΡΠ΅Π½ΠΎΠΊ ΠΈ ΡΠ΅ΠΊΡΡΡΡΡ Π΄Π΅ΡΠ΅Π²Π° Ρ ΡΠΊΠ°ΡΠ° ΠΈΠ»ΠΈ ΡΡΠΎΠ»Π°.

ΠΠΎΡΠΎΠ²ΡΠΉ ΠΌΠ°ΠΊΠ΅Ρ ΠΊΠ²Π°ΡΡΠΈΡΡ Ρ ΠΌΠ΅Π±Π΅Π»ΡΡ ΠΈ ΠΎΡΠ΄Π΅Π»ΠΊΠΎΠΉ
Π‘ΠΎΡ ΡΠ°Π½Π΅Π½ΠΈΠ΅ ΠΈ ΠΏΠ΅ΡΠ°ΡΡ
ΠΠΎΡΠ»Π΅ ΡΠΎΠ³ΠΎ, ΠΊΠ°ΠΊ ΡΠ°Π±ΠΎΡΡ Π½Π°Π΄ ΠΏΡΠΎΠ΅ΠΊΡΠΎΠΌ ΠΊΠ²Π°ΡΡΠΈΡΡ Π±ΡΠ΄ΡΡ Π·Π°Π²Π΅ΡΡΠ΅Π½Ρ, Π½ΡΠΆΠ½ΠΎ ΡΠΎΡ ΡΠ°Π½ΠΈΡΡ ΠΏΠΎΠ»ΡΡΠΈΠ²ΡΠΈΠΉΡΡ ΠΌΠ°ΠΊΠ΅Ρ Π² ΡΠ΄ΠΎΠ±Π½ΠΎΠΌ Π΄Π»Ρ Π΄Π°Π»ΡΠ½Π΅ΠΉΡΠ΅Π³ΠΎ ΠΈΡΠΏΠΎΠ»ΡΠ·ΠΎΠ²Π°Π½ΠΈΡ Π²ΠΈΠ΄Π΅. ΠΠ°ΡΠ° 3D ΠΏΡΠΎΠ³ΡΠ°ΠΌΠΌΠ° Π΄Π»Ρ Π΄ΠΈΠ·Π°ΠΉΠ½Π° ΠΊΠ²Π°ΡΡΠΈΡΡ ΠΈ ΠΏΠ»Π°Π½ΠΈΡΠΎΠ²Π°Π½ΠΈΡ ΡΠ΅ΠΌΠΎΠ½ΡΠ° ΠΏΡΠ΅Π΄Π»Π°Π³Π°Π΅Ρ Π΄Π»Ρ ΡΡΠΎΠ³ΠΎ ΡΠ΅Π»ΡΠΉ ΡΡΠ΄ ΠΎΠΏΡΠΈΠΉ, ΠΊΠΎΡΠΎΡΡΠ΅ Π½Π°Ρ ΠΎΠ΄ΡΡΡΡ Π² ΠΏΡΠ½ΠΊΡΠ΅ ΠΌΠ΅Π½Ρ Β«Π€Π°ΠΉΠ»Β».

ΠΠΏΡΠΈΠΈ ΡΠΎΡ ΡΠ°Π½Π΅Π½ΠΈΡ
ΠΠ°ΡΠΈΠ°Π½Ρ Β«Π‘ΠΎΡ ΡΠ°Π½ΠΈΡΡ ΠΏΡΠΎΠ΅ΠΊΡΒ» ΠΏΠΎΠΌΠΎΠΆΠ΅Ρ ΡΠΎΠ·Π΄Π°ΡΡ ΡΠ°ΠΉΠ» ΠΏΡΠΎΠ΅ΠΊΡΠ° Π² ΡΠΎΡΠΌΠ°ΡΠ΅, Π½Π΅ΠΎΠ±Ρ ΠΎΠ΄ΠΈΠΌΠΎΠΌ Π΄Π»Ρ Π΄Π°Π»ΡΠ½Π΅ΠΉΡΠ΅Π³ΠΎ ΠΏΡΠΎΡΠΌΠΎΡΡΠ° ΠΈ ΡΠ΅Π΄Π°ΠΊΡΠΈΡΠΎΠ²Π°Π½ΠΈΡ Π² ΠΏΡΠΎΠ³ΡΠ°ΠΌΠΌΠ΅. Β«Π‘ΠΎΡ ΡΠ°Π½ΠΈΡΡ ΠΊΠ°ΠΊ ΠΈΠ·ΠΎΠ±ΡΠ°ΠΆΠ΅Π½ΠΈΠ΅Β» ΠΈ Β«Π‘ΠΎΡ ΡΠ°Π½ΠΈΡΡ Π² PDFΒ» — ΡΡΠΈ ΠΎΠΏΡΠΈΠΈ ΠΏΡΠ΅Π΄Π½Π°Π·Π½Π°ΡΠ΅Π½Ρ Π΄Π»Ρ ΡΠΎΡ ΡΠ°Π½Π΅Π½ΠΈΡ Π³ΠΎΡΠΎΠ²ΠΎΠ³ΠΎ ΠΌΠ°ΠΊΠ΅ΡΠ° Π² Π³ΡΠ°ΡΠΈΡΠ΅ΡΠΊΠΎΠΌ ΡΠΎΡΠΌΠ°ΡΠ΅ ΠΈΠ»ΠΈ Π² PDF-ΡΠ°ΠΉΠ»Π΅.

Π‘ΠΎΡ ΡΠ°Π½Π΅Π½ΠΈΠ΅ Π² Π³ΡΠ°ΡΠΈΡΠ΅ΡΠΊΠΎΠΌ ΡΠΎΡΠΌΠ°ΡΠ΅
ΠΡΠ½ΠΊΡ Β«ΠΠΊΡΠΏΠΎΡΡ Π² 3D-ΡΠ΅Π΄Π°ΠΊΡΠΎΡΡΒ» ΠΏΠΎΠ·Π²ΠΎΠ»ΡΠ΅Ρ ΡΠΎΡ ΡΠ°Π½ΠΈΡΡ ΠΏΡΠΎΠ΅ΠΊΡ Π² ΡΠΎΡΠΌΠ°Ρ DAE, ΠΊΠΎΡΠΎΡΡΠΉ ΠΈΡΠΏΠΎΠ»ΡΠ·ΡΠ΅ΡΡΡ ΠΏΡΠΎΠ³ΡΠ°ΠΌΠΌΠ°ΠΌΠΈ Π΄Π»Ρ ΡΠ΅Π΄Π°ΠΊΡΠΈΡΠΎΠ²Π°Π½ΠΈΡ 3D. Π€ΡΠ½ΠΊΡΠΈΡ Β«ΠΠ΅ΡΠ°ΡΡΒ» ΡΠ°ΠΊΠΆΠ΅ ΡΠ°ΡΠΏΠΎΠ»ΠΎΠΆΠ΅Π½Π° Π² ΠΌΠ΅Π½Ρ Β«Π€Π°ΠΉΠ»Β». Π‘ Π΅Π΅ ΠΏΠΎΠΌΠΎΡΡΡ Π²Ρ ΠΌΠΎΠΆΠ΅ΡΠ΅ ΡΠ°ΡΠΏΠ΅ΡΠ°ΡΠ°ΡΡ ΠΌΠ°ΠΊΠ΅Ρ Π½Π° ΠΏΡΠΈΠ½ΡΠ΅ΡΠ΅, ΠΏΠΎΠ΄ΠΊΠ»ΡΡΠ΅Π½Π½ΠΎΠΌ ΠΊ Π²Π°ΡΠ΅ΠΌΡ ΠΊΠΎΠΌΠΏΡΡΡΠ΅ΡΡ. ΠΠ΅ΡΠ΅Π΄ ΠΏΠ΅ΡΠ°ΡΡΡ Π΅ΡΡΡ Π²ΠΎΠ·ΠΌΠΎΠΆΠ½ΠΎΡΡΡ Π½Π°ΡΡΡΠΎΠΈΡΡ ΠΎΡΠΈΠ΅Π½ΡΠ°ΡΠΈΡ ΠΈΠ·ΠΎΠ±ΡΠ°ΠΆΠ΅Π½ΠΈΡ, ΡΠ°Π·ΠΌΠ΅Ρ Π±ΡΠΌΠ°Π³ΠΈ ΠΈ ΠΎΡΡΡΡΠΏΡ, Π° ΡΠ°ΠΊΠΆΠ΅ ΡΠΊΠ°Π·Π°ΡΡ, ΡΡΠΎ ΠΊΠ°ΠΆΠ΄ΡΡ ΡΡΠ΅Π½Ρ Π½ΡΠΆΠ½ΠΎ ΠΏΠ΅ΡΠ°ΡΠ°ΡΡ Π½Π° Π½ΠΎΠ²ΠΎΠΌ Π»ΠΈΡΡΠ΅.

ΠΠ°ΡΡΡΠΎΠΉΠΊΠΈ ΠΏΠ΅ΡΠ°ΡΠΈ Π΄Π»Ρ ΠΌΠ°ΠΊΠ΅ΡΠ° ΠΊΠ²Π°ΡΡΠΈΡΡ
ΠΠ°ΠΊ Π²ΠΈΠ΄ΠΈΡΠ΅, ΠΏΡΠΎΠ³ΡΠ°ΠΌΠΌΠ° ΠΏΠΎΠΌΠΎΠ³Π°Π΅Ρ Π»Π΅Π³ΠΊΠΎ ΡΠΏΡΠ°Π²ΠΈΡΡΡΡ Ρ ΡΠ°ΠΊΠΎΠΉ ΡΠ»ΠΎΠΆΠ½ΠΎΠΉ Π·Π°Π΄Π°ΡΠ΅ΠΉ, ΠΊΠ°ΠΊ ΡΠ°Π·ΡΠ°Π±ΠΎΡΠΊΠ° Π΄ΠΈΠ·Π°ΠΉΠ½Π° ΠΊΠ²Π°ΡΡΠΈΡΡ ΠΈ ΠΏΠ»Π°Π½ΠΈΡΠΎΠ²Π°Π½ΠΈΠ΅ ΡΠ΅ΠΌΠΎΠ½ΡΠ°. Π£ΡΡΠ°Π½ΠΎΠ²ΠΈΡΠ΅ Β«ΠΠΈΠ·Π°ΠΉΠ½ ΠΠ½ΡΠ΅ΡΡΠ΅ΡΠ° 3DΒ» Π½Π° ΠΊΠΎΠΌΠΏΡΡΡΠ΅Ρ, ΠΈ Π²Ρ ΡΠΌΠΎΠΆΠ΅ΡΠ΅ ΡΠΎΠ·Π΄Π°ΡΡ Π½ΠΎΠ²ΡΠΉ ΠΎΠ±Π»ΠΈΠΊ Π΄Π»Ρ Π»ΡΠ±ΠΎΠ³ΠΎ ΠΆΠΈΠ»ΡΡ.
ΠΠΎΠ½ΡΠ°Π²ΠΈΠ»Π°ΡΡ ΡΡΠ°ΡΡΡ? Π Π°ΡΡΠΊΠ°ΠΆΠΈΡΠ΅ Π΄ΡΡΠ·ΡΡΠΌ:
interior3d.su
ΠΡΠΎΠ΅ΠΊΡ ΠΊΠ²Π°ΡΡΠΈΡΡ ΡΠ²ΠΎΠΈΠΌΠΈ ΡΡΠΊΠ°ΠΌΠΈ ΠΏΡΠΎΠ³ΡΠ°ΠΌΠΌΠ° β Π Π΅ΠΌΠΎΠ½Ρ ΠΊΠ²Π°ΡΡΠΈΡ
ΠΠ΅Π²Π°ΠΆΠ½ΠΎ Π΄Π»Ρ Π½Π°ΡΠΈΠ½Π°ΡΡΠ΅Π³ΠΎ Π΄ΠΈΠ·Π°ΠΉΠ½Π΅ΡΠ° ΠΈΠ»ΠΈ Π»ΡΠ±ΠΈΡΠ΅Π»Ρ, Π·Π°ΠΏΠ»Π°Π½ΠΈΡΠΎΠ²Π°Π²ΡΠ΅Π³ΠΎ ΡΠ΅ΠΌΠΎΠ½Ρ Π² ΡΠΎΠ±ΡΡΠ²Π΅Π½Π½ΠΎΠΉ ΠΊΠ²Π°ΡΡΠΈΡΠ΅, ΠΏΡΠΎΠ³ΡΠ°ΠΌΠΌΡ Π΄Π»Ρ ΠΎΠ½Π»Π°ΠΉΠ½-ΠΏΠ»Π°Π½ΠΈΡΠΎΠ²ΠΊΠΈ ΠΏΠΎΠΌΠ΅ΡΠ΅Π½ΠΈΡ ΡΡΠ°Π½ΡΡ Π½Π°ΡΡΠΎΡΡΠ΅ΠΉ Π½Π°Ρ ΠΎΠ΄ΠΊΠΎΠΉ Π΄Π»Ρ ΠΊΠ°ΠΆΠ΄ΠΎΠ³ΠΎ. Π‘Π΅Π³ΠΎΠ΄Π½Ρ Π½Π°ΡΡΠ½ΡΠΉ ΠΏΡΠΎΠ³ΡΠ΅ΡΡ Π·Π°ΡΡΠ» ΡΠ°ΠΊ Π΄Π°Π»Π΅ΠΊΠΎ, ΡΡΠΎ Π½Π΅ΠΊΠΎΡΠΎΡΡΠ΅ ΡΠ΅Ρ Π½ΠΎΠ»ΠΎΠ³ΠΈΠΈ, ΠΊΠ°Π·Π°Π²ΡΠΈΠ΅ΡΡ ΡΠ°Π½Π΅Π΅ Π°Π±ΡΠΎΠ»ΡΡΠ½ΠΎ Π½Π΅ ΡΠ΅Π°Π»ΡΠ½ΡΠΌΠΈ, Π½Π΅ ΡΠΎΠ»ΡΠΊΠΎ Π²ΠΎΠΏΠ»ΠΎΡΠ΅Π½Ρ Π² ΠΆΠΈΠ·Π½Ρ, Π½ΠΎ ΠΈ Π±Π»Π΅ΡΡΡ ΡΠ°Π·Π½ΠΎΠΎΠ±ΡΠ°Π·ΠΈΠ΅ΠΌ. ΠΠ°ΠΆΠ΅ ΡΠ°ΠΌΡΠΉ ΠΌΠ°Π»ΠΎΠΎΠΏΡΡΠ½ΡΠΉ ΠΏΠΎΠ»ΡΠ·ΠΎΠ²Π°ΡΠ΅Π»Ρ ΡΠ΅Π³ΠΎΠ΄Π½Ρ ΠΌΠΎΠΆΠ΅Ρ ΡΠΎΠ·Π΄Π°ΡΡ ΠΏΡΠΎΠ΅ΠΊΡ ΠΈΠ½ΡΠ΅ΡΡΠ΅ΡΠ° ΡΠ²ΠΎΠ΅ΠΉ Π±ΡΠ΄ΡΡΠ΅ΠΉ ΠΊΡΡ Π½ΠΈ, ΡΠΏΠ°Π»ΡΠ½ΠΈ ΠΈΠ»ΠΈ Π»ΡΠ±ΠΎΠ³ΠΎ Π΄ΡΡΠ³ΠΎΠ³ΠΎ ΠΏΠΎΠΌΠ΅ΡΠ΅Π½ΠΈΡ.
- Sweet Home 3D
- Ikea home planner
- Google Sketchup
- Planner 5D
- PRO100
- ΠΠ»Π°Π½ΠΎΠΏΠ»Π°Π½
- ΠΠ»Π°Π½ΠΈΡΡΠΉ
ΠΡΠΎΠ³ΡΠ°ΠΌΠΌΡ ΡΠ°ΠΊΠΎΠ³ΠΎ ΡΠΎΠ΄Π° Π½Π°Π·ΡΠ²Π°ΡΡΡΡ ΠΏΡΠΎΠ³ΡΠ°ΠΌΠΌΠ°ΠΌΠΈ-ΠΏΠ»Π°Π½ΠΈΡΠΎΠ²ΡΠΈΠΊΠ°ΠΌΠΈ. ΠΠ½ΠΈ ΠΏΠΎΠ·Π²ΠΎΠ»ΡΡΡ Π²ΠΈΠ·ΡΠ°Π»ΡΠ½ΠΎ Π²ΠΎΡΠΏΡΠΎΠΈΠ·Π²Π΅ΡΡΠΈ ΡΠΎ, ΠΊΠ°ΠΊ ΠΎΠΊΠΎΠ½ΡΠ°ΡΠ΅Π»ΡΠ½ΠΎ Π±ΡΠ΄Π΅Ρ Π²ΡΠ³Π»ΡΠ΄Π΅ΡΡ ΡΠ° ΠΈΠ»ΠΈ ΠΈΠ½Π°Ρ ΠΊΠΎΠΌΠ½Π°ΡΠ°. ΠΠ°ΡΠΈΠ°Π½ΡΡ ΠΎΡΠ΄Π΅Π»ΠΊΠΈ Ρ Π»ΡΠ³ΠΊΠΎΡΡΡΡ ΠΌΠΎΠΆΠ½ΠΎ ΠΌΠ΅Π½ΡΡΡ, ΠΏΠΎΠ΄Π±ΠΈΡΠ°Ρ Π½Π°ΠΈΠ±ΠΎΠ»Π΅Π΅ ΠΏΠΎΠ½ΡΠ°Π²ΠΈΠ²ΡΠΈΠΉΡΡ Π²Π°ΡΠΈΠ°Π½Ρ. Π‘ ΡΠ°ΠΊΠΈΠΌΠΈ ΠΏΡΠΎΠ³ΡΠ°ΠΌΠΌΠ°ΠΌΠΈ ΠΌΠΎΠΆΠ½ΠΎ ΡΠΏΠ»Π°Π½ΠΈΡΠΎΠ²Π°ΡΡ Π½Π΅ ΡΠΎΠ»ΡΠΊΠΎ ΠΎΠ΄Π½ΠΎ ΠΏΠΎΠΌΠ΅ΡΠ΅Π½ΠΈΠ΅, Π° ΠΈ Π²ΡΡ ΠΊΠ²Π°ΡΡΠΈΡΡ ΠΈΠ»ΠΈ ΡΠ°ΡΡΠ½ΡΠΉ ΠΎΡΠΎΠ±Π½ΡΠΊ. ΠΡΠΎΠ±Π΅Π½Π½ΠΎ ΠΏΡΠΈΠ³ΠΎΠ΄ΡΡΡΡ ΠΏΠ»Π°Π½ΠΈΡΠΎΠ²ΡΠΈΠΊΠΈ ΡΠ΅ΠΌ, ΠΊΡΠΎ Π½Π΅ Ρ ΠΎΡΠ΅Ρ ΠΏΠΎΠ»ΡΠ·ΠΎΠ²Π°ΡΡΡΡ ΡΡΠ»ΡΠ³Π°ΠΌΠΈ ΠΏΡΠΎΡΠ΅ΡΡΠΈΠΎΠ½Π°Π»ΡΠ½ΠΎΠ³ΠΎ Π΄ΠΈΠ·Π°ΠΉΠ½Π΅ΡΠ°.
ΠΠ° ΡΠ΅Π³ΠΎΠ΄Π½ΡΡΠ½ΠΈΠΉ Π΄Π΅Π½Ρ ΠΎΠ½Π»Π°ΠΉΠ½-ΠΏΠ»Π°Π½ΠΈΡΠΎΠ²ΠΊΠ° ΠΏΠΎΠΌΠ΅ΡΠ΅Π½ΠΈΡ ΠΌΠΎΠΆΠ΅Ρ Π±ΡΡΡ Π²ΡΠΏΠΎΠ»Π½Π΅Π½Π° ΠΌΠ½ΠΎΠΆΠ΅ΡΡΠ²ΠΎΠΌ ΠΏΡΠΎΠ³ΡΠ°ΠΌΠΌ. ΠΠ΄Π½Π°ΠΊΠΎ Π²ΠΎΠ·Π½ΠΈΠΊΠ°Π΅Ρ Π²ΠΎΠΏΡΠΎΡ, ΠΊΠ°ΠΊΡΡ ΠΈΠ· Π½ΠΈΡ Π»ΡΡΡΠ΅ Π²ΡΠ΅Π³ΠΎ Π²ΡΠ±ΡΠ°ΡΡ? ΠΡΠ΅ ΠΈΠ½Π΄ΠΈΠ²ΠΈΠ΄ΡΠ°Π»ΡΠ½ΠΎ, ΠΈ Π·Π°Π²ΠΈΡΠΈΡ, ΠΏΡΠ΅ΠΆΠ΄Π΅ Π²ΡΠ΅Π³ΠΎ, ΠΎΡ Π²Π°ΡΠΈΡ Π»ΠΈΡΠ½ΡΡ ΠΏΡΠ΅Π΄ΠΏΠΎΡΡΠ΅Π½ΠΈΠΉ. ΠΠ»Ρ ΡΠΎΠ³ΠΎ ΡΡΠΎΠ±Ρ ΠΎΠ±Π»Π΅Π³ΡΠΈΡΡ Π²Π°ΠΌ Π²ΡΠ±ΠΎΡ ΠΌΡ ΠΏΠΎΠ΄ΠΎΠ±ΡΠ°Π»ΠΈ Π½Π΅ΠΊΠΎΡΠΎΡΡΠ΅ ΠΏΠΎΠΏΡΠ»ΡΡΠ½ΡΠ΅ ΠΏΡΠΎΠ³ΡΠ°ΠΌΠΌΡ, ΠΊΠΎΡΠΎΡΡΠ΅ ΡΠ°Π±ΠΎΡΠ°ΡΡ ΠΎΠ½Π»Π°ΠΉΠ½, Π±Π΅ΡΠΏΠ»Π°ΡΠ½ΠΎ ΠΈΠ»ΠΈ ΠΏΠ»Π°ΡΠ½ΠΎ ΠΈ ΠΏΠΎΠ΄Ρ ΠΎΠ΄ΡΡ ΠΏΡΠ°ΠΊΡΠΈΡΠ΅ΡΠΊΠΈ Π΄Π»Ρ Π»ΡΠ±ΡΡ ΠΏΠΎΠΌΠ΅ΡΠ΅Π½ΠΈΠΉ.
Sweet Home 3D
ΠΡΠ³ΠΊΠ°Ρ ΠΏΡΠΎΠ³ΡΠ°ΠΌΠΌΠΊΠ° Π΄Π»Ρ Π²Π½ΡΡΡΠ΅Π½Π½Π΅ΠΉ ΠΏΠ»Π°Π½ΠΈΡΠΎΠ²ΠΊΠΈ ΠΊΠ²Π°ΡΡΠΈΡ ΠΈ Π΄ΠΎΠΌΠΎΠ². ΠΠ½Π° ΠΏΠΎΠ΄ΠΎΠΉΠ΄ΡΡ Π΄Π°ΠΆΠ΅ Π½Π°ΡΠΈΠ½Π°ΡΡΠΈΠΌ ΠΏΠΎΠ»ΡΠ·ΠΎΠ²Π°ΡΠ΅Π»ΡΠΌ ΠΠ. ΠΠΎΡΡΠ°ΡΠΎΡΠ½ΠΎ ΠΏΡΠΎΡΡΠΎΠΉ ΠΈ Π²ΠΏΠΎΠ»Π½Π΅ Π΄ΠΎΡΡΡΠΏΠ½ΡΠΉ ΠΈΠ½ΡΠ΅ΡΡΠ΅ΠΉΡ ΠΏΠΎΠΌΠΎΠΆΠ΅Ρ Π·Π° ΠΌΠΈΠ½ΠΈΠΌΠ°Π»ΡΠ½ΡΠΉ ΡΡΠΎΠΊ ΡΠΎΠ·Π΄Π°ΡΡ Π²ΠΈΡΡΡΠ°Π»ΡΠ½ΡΠΉ ΠΈΠ½ΡΠ΅ΡΡΠ΅Ρ ΠΊΠΎΠΌΠ½Π°ΡΡ. ΠΡΠ΅, ΡΡΠΎ ΠΏΠΎΡΡΠ΅Π±ΡΠ΅ΡΡΡ, ΡΡΠΎ Ρ ΠΏΠΎΠΌΠΎΡΡΡ ΠΌΡΡΠΈ ΠΏΠ΅ΡΠ΅ΡΠ°ΡΠΊΠΈΠ²Π°ΡΡ ΡΠ»Π΅ΠΌΠ΅Π½ΡΡ ΠΈΠ½ΡΠ΅ΡΡΠ΅ΡΠ° Π² Π²ΠΈΡΡΡΠ°Π»ΡΠ½ΡΡ ΠΊΠΎΠΌΠ½Π°ΡΡ. ΠΠ΄Π΅ΡΡ Π²Ρ Π²ΡΡΠ΄ Π»ΠΈ ΡΠΌΠΎΠΆΠ΅ΡΠ΅ Π²ΠΈΠ·ΡΠ°Π»ΠΈΠ·ΠΈΡΠΎΠ²Π°ΡΡ Π²ΡΠ΅ ΡΠ²ΠΎΠΈ ΡΠΌΠ΅Π»ΡΠ΅ ΠΈ Π½Π΅ΡΡΠ°Π½Π΄Π°ΡΡΠ½ΡΠ΅ ΠΆΠ΅Π»Π°Π½ΠΈΡ, ΡΠ°ΠΊ ΠΊΠ°ΠΊ Π²ΡΠ΅ ΠΎΠ±ΡΠ΅ΠΊΡΡ ΡΡΠ°Π½Π΄Π°ΡΡΠ½Ρ ΠΈ Π·Π°ΡΠΈΠΊΡΠΈΡΠΎΠ²Π°Π½Ρ, ΠΎΠ΄Π½Π°ΠΊΠΎ Π½Π°ΠΊΠΈΠ΄Π°ΡΡ Π±ΡΡΡΡΡΠΉ ΠΈ ΠΏΡΠΎΡΡΠΎΠΉ ΠΏΠ»Π°Π½ Π²ΡΠ΅Π³ΠΎ Π·Π° Π½Π΅ΡΠΊΠΎΠ»ΡΠΊΠΎ ΠΌΠΈΠ½ΡΡ ΠΏΠΎΠ»ΡΡΠΈΡΡΡ.

http://www.sweethome3d.eu/ru
Ikea home planner
ΠΠΎΡΡΠ°ΡΠΎΡΠ½ΠΎ ΠΈΠ·Π²Π΅ΡΡΠ½ΡΠΉ ΠΈ ΠΏΠΎΠΏΡΠ»ΡΡΠ½ΡΠΉ ΠΏΡΠΎΠΈΠ·Π²ΠΎΠ΄ΠΈΡΠ΅Π»Ρ ΠΌΠ΅Π±Π΅Π»ΠΈ ΠΠΊΠ΅Π° ΡΠΏΠ΅ΡΠΈΠ°Π»ΡΠ½ΠΎ Π΄Π»Ρ ΡΠ²ΠΎΠΈΡ ΠΏΠΎΠΊΠ»ΠΎΠ½Π½ΠΈΠΊΠΎΠ² ΠΈ ΠΊΠ»ΠΈΠ΅Π½ΡΠΎΠ² ΡΠΎΠ·Π΄Π°Π» Π±Π΅ΡΠΏΠ»Π°ΡΠ½ΡΠΉ ΠΎΠ½Π»Π°ΠΉΠ½-ΡΠ΅ΡΡΡΡ, ΠΏΠΎΠ·Π²ΠΎΠ»ΡΡΡΠΈΠΉ ΡΠ°ΠΌΠΎΡΡΠΎΡΡΠ΅Π»ΡΠ½ΠΎ ΡΠΎΠ·Π΄Π°Π²Π°ΡΡ ΠΈΠ½ΡΠ΅ΡΡΠ΅ΡΡ. ΠΠ»Ρ ΡΠ°Π±ΠΎΡΡ Π² ΠΏΡΠΎΠ³ΡΠ°ΠΌΠΌΠ΅ Π½Π΅ Π½ΡΠΆΠ½Ρ ΠΊΠ°ΠΊΠΈΠ΅-Π»ΠΈΠ±ΠΎ ΠΎΡΠΎΠ±Π΅Π½Π½ΡΠ΅ ΡΠΌΠ΅Π½ΠΈΡ, Π²ΡΠ΅ ΠΏΡΠΎΡΡΠΎ ΠΈ ΡΠ΄ΠΎΠ±Π½ΠΎ. ΠΡΠ½ΠΎΠ²Π½ΠΎΠΉ ΡΠΏΠΎΡ ΠΈΠ΄ΡΡ Π½Π° ΠΏΠΎΠ΄Π±ΠΎΡ ΠΌΠ΅Π±Π΅Π»ΠΈ ΠΈ Π°ΠΊΡΠ΅ΡΡΡΠ°ΡΠΎΠ². ΠΠ°ΠΌ Π΄ΠΎΡΡΡΠΏΠ½Ρ Π²ΡΠ΅ ΠΊΠΎΠ»Π»Π΅ΠΊΡΠΈΠΈ ΠΌΠ΅Π±Π΅Π»ΠΈ ΠΎΡ Π±ΡΠ΅Π½Π΄Π° ΠΠΊΠ΅Π°, Π·Π΄Π΅ΡΡ ΠΆΠ΅ Π²Π°ΠΌ ΠΏΡΠ΅Π΄Π»ΠΎΠΆΠ°Ρ ΠΏΠΎΠ΄ΡΡΠΈΡΠ°ΡΡ ΠΏΡΠΈΠ±Π»ΠΈΠ·ΠΈΡΠ΅Π»ΡΠ½ΡΡ ΡΡΠΎΠΈΠΌΠΎΡΡΡ, ΡΠΎΠ·Π΄Π°Π½Π½ΠΎΠ³ΠΎ Π²Π°ΠΌΠΈ ΠΎΡΠΎΡΠΌΠ»Π΅Π½ΠΈΡ. Π ΡΠΎΡ ΡΠ°Π½ΠΈΠ² ΠΏΡΠΎΠ΅ΠΊΡ, ΠΌΠΎΠΆΠ½ΠΎ Π·Π°ΠΊΠ°Π·Π°ΡΡ Π²Π΅ΡΡ ΠΊΠΎΠΌΠΏΠ»Π΅ΠΊΡ ΠΈΠ· Π±Π»ΠΈΠΆΠ°ΠΉΡΠ΅Π³ΠΎ ΠΊ Π²Π°ΠΌ ΡΠΈΡΠΌΠ΅Π½Π½ΠΎΠ³ΠΎ ΠΌΠ°Π³Π°Π·ΠΈΠ½Π°. ΠΠ°ΠΊ ΠΈ ΠΏΡΠ΅Π΄ΡΠ΄ΡΡΠ°Ρ ΠΏΡΠΎΠ³ΡΠ°ΠΌΠΌΠ°, Ikea home planner Π½Π΅ Π΄Π°ΡΡ ΡΠ°Π½ΡΠ°Π·ΠΈΠΈ ΡΠ°Π·ΡΠ³ΡΠ°ΡΡΡΡ, Π²Π΅Π΄Ρ, Π½Π΅ΡΠΌΠΎΡΡΡ Π½Π° ΠΎΠ³ΡΠΎΠΌΠ½ΡΠΉ Π°ΡΡΠΎΡΡΠΈΠΌΠ΅Π½Ρ, Π°Π±ΡΠΎΠ»ΡΡΠ½ΠΎΠΉ ΡΠ²ΠΎΠ±ΠΎΠ΄Ρ ΠΏΠΎΠ»ΡΡΠΈΡΡ Π½Π΅ ΡΠ΄Π°ΡΡΡΡ.

http://www.ikea.com/ms/ru_RU/rooms_ideas/splashplanners.html
Google Sketchup
ΠΡΠ° ΠΏΡΠΎΠ³ΡΠ°ΠΌΠΌΠ° β Π½Π°Ρ ΠΎΠ΄ΠΊΠ° Π΄Π»Ρ Π½ΠΎΠ²ΠΈΡΠΊΠΎΠ² ΠΈ ΠΆΠ΅Π»Π°ΡΡΠΈΡ Π½Π°ΡΠ°ΡΡ ΠΎΠ±ΡΡΠ΅Π½ΠΈΠ΅ Π² ΠΎΠ±Π»Π°ΡΡΠΈ 3D-Π³ΡΠ°ΡΠΈΠΊΠΈ. Π‘ΡΡΠ΅ΡΡΠ²ΡΠ΅Ρ Π΄Π²Π° Π²Π°ΡΠΈΠ°Π½ΡΠ° ΠΏΡΠΎΠ³ΡΠ°ΠΌΠΌΡ β Π±Π΅ΡΠΏΠ»Π°ΡΠ½ΡΠΉ ΠΈ ΠΏΠ»Π°ΡΠ½ΡΠΉ. ΠΠ΅ΡΠΏΠ»Π°ΡΠ½Π°Ρ Π²Π΅ΡΡΠΈΡ ΠΊΠ°ΡΠ΅ΡΡΠ²Π΅Π½Π½Π°Ρ ΠΈ ΡΠΎΠ΄Π΅ΡΠΆΠΈΡ Π²ΡΠ΅ Π½Π΅ΠΎΠ±Ρ ΠΎΠ΄ΠΈΠΌΡΠ΅ ΠΈΠ½ΡΡΡΡΠΌΠ΅Π½ΡΡ Π΄Π»Ρ ΡΠΎΠ·Π΄Π°Π½ΠΈΡ ΠΏΠΎΠ»Π½ΠΎΡΠ΅Π½Π½ΠΎΠ³ΠΎ ΠΈΠ½ΡΠ΅ΡΡΠ΅ΡΠ°. ΠΡΠ²ΠΎΠ΅Π½ΠΈΠ΅ Sketchup Π½Π΅ Π·Π°ΠΉΠΌΡΡ ΠΌΠ½ΠΎΠ³ΠΎ Π²ΡΠ΅ΠΌΠ΅Π½ΠΈ ΠΈ ΡΡΠΈΠ»ΠΈΠΉ, Π²Ρ ΡΠΌΠΎΠΆΠ΅ΡΠ΅ Π·Π° ΠΊΠΎΡΠΎΡΠΊΠΈΠ΅ ΡΡΠΎΠΊΠΈ Π²ΠΈΠ·ΡΠ°Π»ΠΈΠ·ΠΈΡΠΎΠ²Π°ΡΡ Π²ΡΠ΅ Π½ΡΠΆΠ½ΡΠ΅ ΡΠΎΡΠΌΡ ΠΈ ΠΎΠ±ΡΠ΅ΠΊΡΡ Π΄Π»Ρ Π±ΡΠ΄ΡΡΠ΅Π³ΠΎ ΡΠ΅ΠΌΠΎΠ½ΡΠ°.

http://sketchup.google.com/intl/ru/
Planner 5D
Π₯ΠΎΡΠΎΡΠ°Ρ ΠΏΡΠΎΠ³ΡΠ°ΠΌΠΌΠ°, ΠΏΠΎΠ΄Ρ ΠΎΠ΄ΠΈΡ Π΄Π°ΠΆΠ΅ ΠΏΡΠΎΡΠ΅ΡΡΠΈΠΎΠ½Π°Π»Π°ΠΌ, ΠΈΠΌΠ΅Π΅Ρ ΡΠΈΡΠΎΠΊΠΈΠΉ Π²ΡΠ±ΠΎΡ ΠΌΠ°ΡΠ΅ΡΠΈΠ°Π»ΠΎΠ², ΡΠ΅ΠΊΡΡΡΡ, ΠΌΠ΅Π±Π΅Π»ΠΈ. ΠΡΠΈ Π½Π΅ΠΎΠ±Ρ ΠΎΠ΄ΠΈΠΌΠΎΡΡΠΈ Π·Π° Π½Π΅Π±ΠΎΠ»ΡΡΡΡ ΠΏΠ»Π°ΡΡ ΠΌΠΎΠΆΠ½ΠΎ ΠΏΡΠΈΠΎΠ±ΡΠ΅ΡΡΠΈ Π΅ΡΡ Π±ΠΎΠ»ΡΡΠ΅ ΡΠ»Π΅ΠΌΠ΅Π½ΡΠΎΠ². Planner 5D ΠΏΠΎΠ·Π²ΠΎΠ»ΡΠ΅Ρ ΠΎΡΠΎΡΠΌΠ»ΡΡΡ ΠΈΠ½ΡΠ΅ΡΡΠ΅Ρ Π½Π΅ ΡΠΎΠ»ΡΠΊΠΎ ΠΎΠ΄Π½ΠΎΠ³ΠΎ ΠΏΠΎΠΌΠ΅ΡΠ΅Π½ΠΈΡ, Π° ΡΡΠ°Π·Ρ Π²ΡΠ΅ΠΉ ΠΊΠ²Π°ΡΡΠΈΡΡ ΠΈΠ»ΠΈ Π΄ΠΎΠΌΠ°. Π’Π°ΠΊΠΆΠ΅ Π·Π΄Π΅ΡΡ ΠΌΠΎΠΆΠ½ΠΎ ΡΠΎΠ·Π΄Π°Π²Π°ΡΡ Π½Π΅ΠΎΠ³ΡΠ°Π½ΠΈΡΠ΅Π½Π½ΠΎΠ΅ ΠΊΠΎΠ»ΠΈΡΠ΅ΡΡΠ²ΠΎ ΠΏΡΠΎΠ΅ΠΊΡΠΎΠ², ΡΠΎΡ ΡΠ°Π½ΡΡΡ Π² Π³Π°Π»Π΅ΡΠ΅Π΅ ΠΈ ΡΠ°ΡΠΏΠ΅ΡΠ°ΡΡΠ²Π°ΡΡ. ΠΠ΅ΡΠΌΠΎΡΡΡ Π½Π° ΡΠΎ ΡΡΠΎ ΡΡΠ½ΠΊΡΠΈΠΉ Ρ ΠΏΡΠΎΠ³ΡΠ°ΠΌΠΌΡ ΠΌΠ½ΠΎΠ³ΠΎ ΠΈ ΠΎΠ½ΠΈ ΡΠ°Π·Π½ΠΎΠΎΠ±ΡΠ°Π·Π½Ρ, ΠΊΠ°ΠΊΠΈΡ -Π»ΠΈΠ±ΠΎ ΡΠΌΠ΅Π½ΠΈΠΉ Π΄Π»Ρ ΡΠ°Π±ΠΎΡΡ Ρ Π½Π΅ΠΉ Π½Π΅ Π½ΡΠΆΠ½ΠΎ.

https://planner5d.com
PRO100
Π£Π΄ΠΎΠ±Π½ΡΠΉ ΠΈ ΠΏΡΠΎΡΡΠΎΠΉ ΠΏΡΠΎΠ΅ΠΊΡΠΈΡΠΎΠ²ΡΠΈΠΊ, Π² ΠΊΠΎΡΠΎΡΠΎΠΌ ΡΠΎΠ»ΡΠΊΠΎ Ρ ΠΏΠΎΠΌΠΎΡΡΡ ΠΌΡΡΠΈ ΠΌΠΎΠΆΠ½ΠΎ ΡΠΎΠ·Π΄Π°ΡΡ ΠΏΠΎΠ»Π½ΠΎΡΠ΅Π½Π½ΡΠ΅ ΠΈΠ½ΡΠ΅ΡΡΠ΅ΡΡ. ΠΡΠ΅Π½Ρ ΡΡΠ½ΠΊΡΠΈΠΎΠ½Π°Π»ΡΠ½ΠΎ Π½Π°ΠΏΠΎΠ»Π½Π΅Π½Π½Π°Ρ ΠΏΠ°Π½Π΅Π»Ρ ΠΈΠ½ΡΡΡΡΠΌΠ΅Π½ΡΠΎΠ² ΠΏΠΎΠ·Π²ΠΎΠ»ΠΈΡ Π²ΡΡΠ°Π²Π½ΠΈΠ²Π°ΡΡ, ΠΏΠ΅ΡΠ΅Π΄Π²ΠΈΠ³Π°ΡΡ, ΠΏΠΎΠ²ΠΎΡΠ°ΡΠΈΠ²Π°ΡΡ Π² ΡΠ°Π·Π½ΡΠ΅ ΡΡΠΎΡΠΎΠ½Ρ ΠΈ Π²ΡΡΡΠ΅ΡΠΊΠΈ ΠΏΠΎΠ·ΠΈΡΠΈΠΎΠ½ΠΈΡΠΎΠ²Π°ΡΡ ΠΎΠ±ΡΠ΅ΠΊΡΡ. ΠΠ°ΠΆΠ΄ΡΠΉ ΡΠ»Π΅ΠΌΠ΅Π½Ρ ΠΈΠΌΠ΅Π΅Ρ ΡΡΠ΄ Ρ Π°ΡΠ°ΠΊΡΠ΅ΡΠΈΡΡΠΈΠΊ, ΠΊΠΎΡΠΎΡΡΠ΅ ΠΏΠΎ Π½Π΅ΠΎΠ±Ρ ΠΎΠ΄ΠΈΠΌΠΎΡΡΠΈ ΠΌΠΎΠΆΠ½ΠΎ ΠΈΠ·ΠΌΠ΅Π½ΡΡΡ. ΠΡΠΎΠ³ΡΠ°ΠΌΠΌΠ° ΠΈΠΌΠ΅Π΅Ρ ΡΠ½ΠΈΠΊΠ°Π»ΡΠ½ΡΡ ΡΡΠ½ΠΊΡΠΈΡ β ΡΠ΅ΠΌΠΈΠΊΡΠ°ΡΠ½ΡΡ ΠΏΡΠΎΠ΅ΠΊΡΠΈΡ, Π° ΡΠ°ΠΊΠΆΠ΅ Π²ΡΠ΅Π²ΠΎΠ·ΠΌΠΎΠΆΠ½ΡΠ΅ Π³ΡΠ°ΡΠΈΡΠ΅ΡΠΊΠΈΠ΅ ΡΡΡΠ΅ΠΊΡΡ, Π½Π°ΠΏΡΠΈΠΌΠ΅Ρ, ΡΡΡΠ΅Π²Π°Π½ΠΈΠ΅, Π²ΡΠ΄Π΅Π»Π΅Π½ΠΈΠ΅ ΠΊΠΎΠ½ΡΡΡΠ°, ΠΏΡΠΎΠ·ΡΠ°ΡΠ½ΠΎΡΡΡ ΠΈ Ρ. ΠΏ. PRO100 ΠΎΡΠ΅Π½ΡΡ Π½Π΅ ΡΠΎΠ»ΡΠΊΠΎ Π»ΡΠ±ΠΈΡΠ΅Π»ΠΈ ΠΈ Π½Π°ΡΠΈΠ½Π°ΡΡΠΈΠ΅ Π΄ΠΈΠ·Π°ΠΉΠ½Π΅ΡΡ, Π½ΠΎ ΠΈ ΠΏΡΠΎΡΠ΅ΡΡΠΈΠΎΠ½Π°Π»Ρ.

http://spb-pro100.ru/
ΠΠ»Π°Π½ΠΎΠΏΠ»Π°Π½
ΠΡΠΎΡ ΠΎΠ½Π»Π°ΠΉΠ½-ΡΠ΅ΡΠ²ΠΈΡ β ΠΏΡΠΎΡΡΠΎ Π½Π°Ρ ΠΎΠ΄ΠΊΠ°, Π΄Π»Ρ ΡΠ΅Ρ , ΡΡΠΎ ΡΠ΅ΡΠΈΠ» ΡΠΎΠ·Π΄Π°ΡΡ ΠΈΠ½ΡΠ΅ΡΡΠ΅Ρ ΠΊΠ²Π°ΡΡΠΈΡΡ ΠΎΠ½Π»Π°ΠΉΠ½, Π²Π΅Π΄Ρ ΠΎΠ½ ΠΏΠΎΠ·Π²ΠΎΠ»ΡΠ΅Ρ ΠΎΡΠΎΡΠΌΠΈΡΡ ΠΏΡΠ°ΠΊΡΠΈΡΠ΅ΡΠΊΠΈ Π»ΡΠ±ΠΎΠ΅ ΠΏΠΎΠΌΠ΅ΡΠ΅Π½ΠΈΠ΅. ΠΠ°ΠΌ Π½Π΅ ΠΏΠΎΡΡΠ΅Π±ΡΡΡΡΡ ΠΊΠ°ΠΊΠΈΠ΅-Π»ΠΈΠ±ΠΎ Π΄ΠΎΠΏΠΎΠ»Π½ΠΈΡΠ΅Π»ΡΠ½ΡΠ΅ Π·Π½Π°Π½ΠΈΡ ΠΈ ΡΠΌΠ΅Π½ΠΈΡ, Π²ΡΠ΅ Π΄ΠΎΡΡΠ°ΡΠΎΡΠ½ΠΎ ΠΏΡΠΎΡΡΠΎ. ΠΠ°Π½Π΅Π»Ρ ΠΈΠ½ΡΡΡΡΠΌΠ΅Π½ΡΠΎΠ² ΠΈΠΌΠ΅Π΅Ρ ΠΎΠ³ΡΠΎΠΌΠ½ΡΠΉ Π²ΡΠ±ΠΎΡ ΡΠ»Π΅ΠΌΠ΅Π½ΡΠΎΠ²: ΡΠ°Π·Π½ΡΠ΅ ΡΠΎΡΠΌΡ ΠΊΠΎΠΌΠ½Π°Ρ ΠΈΠ»ΠΈ Π΄Π°ΠΆΠ΅ ΠΊΠ²Π°ΡΡΠΈΡ, Π²ΡΠ΅Π²ΠΎΠ·ΠΌΠΎΠΆΠ½ΡΠ΅ ΠΎΡΠ΄Π΅Π»ΠΎΡΠ½ΡΠ΅ ΠΌΠ°ΡΠ΅ΡΠΈΠ°Π»Ρ, Ρ ΠΎΡΠΎΡΠΈΠΉ Π²ΡΠ±ΠΎΡ ΠΌΠ΅Π±Π΅Π»ΠΈ ΠΈ Π΄ΡΡΠ³ΠΈΡ Π°ΠΊΡΠ΅ΡΡΡΠ°ΡΠΎΠ². Π Π»ΡΠ±ΠΎΠΉ ΠΌΠΎΠΌΠ΅Π½Ρ Π²Ρ ΠΌΠΎΠΆΠ΅ΡΠ΅ ΠΎΡΠ΅Π½ΠΈΡΡ ΡΠΎΠ·Π΄Π°Π½Π½ΡΠΉ ΠΈΠ½ΡΠ΅ΡΡΠ΅Ρ Π² ΡΠ΅ΠΆΠΈΠΌΠ΅ 3D ΠΈ Π΄Π°ΠΆΠ΅ Β«ΠΏΡΠΎΠ³ΡΠ»ΡΡΡΡΡΒ» ΠΏΠΎ Π½Π΅ΠΌΡ. ΠΡΠ΅ΠΈΠΌΡΡΠ΅ΡΡΠ²ΠΎΠΌ ΡΠ²Π»ΡΠ΅ΡΡΡ Π²ΠΎΠ·ΠΌΠΎΠΆΠ½ΠΎΡΡΡ Π·Π°Π³ΡΡΠΆΠ°ΡΡ ΡΠΎΠ±ΡΡΠ²Π΅Π½Π½ΡΠ΅ ΡΠΈΡΡΠ½ΠΊΠΈ ΠΈ ΡΠ΅ΠΊΡΡΡΡΡ ΠΌΠ°ΡΠ΅ΡΠΈΠ°Π»ΠΎΠ². ΠΠ΄Π½Π°ΠΊΠΎ ΡΡΠΎΠ±Ρ ΠΏΠΎΡΡΠ½ΡΡΡ Π²ΡΠ΅ ΡΡΠΎ ΡΠ°Π·Π½ΠΎΠΎΠ±ΡΠ°Π·ΠΈΠ΅, Π½Π΅ΠΎΠ±Ρ ΠΎΠ΄ΠΈΠΌ Π΄ΠΎΡΡΠ°ΡΠΎΡΠ½ΠΎ ΠΌΠΎΡΠ½ΡΠΉ ΠΊΠΎΠΌΠΏΡΡΡΠ΅Ρ.

http://planoplan.com
ΠΠ»Π°Π½ΠΈΡΡΠΉ
ΠΡΠΎΡΡΠ΅Π½ΡΠΊΠ°Ρ ΠΏΡΠΎΠ³ΡΠ°ΠΌΠΌΠΊΠ° ΠΏΠΎΠ΄ΠΎΠΉΠ΄ΡΡ Π΄Π»Ρ Π»ΡΠ±ΠΈΡΠ΅Π»Π΅ΠΉ ΠΈ ΡΠ΅Ρ , ΠΊΠΎΠΌΡ ΠΏΡΠΎΡΡΠΎ Π½ΡΠΆΠ½ΠΎ Π±ΡΡΡΡΠΎ Π½Π°ΠΊΠΈΠ΄Π°ΡΡ ΠΏΠ»Π°Π½. ΠΡΠ±ΠΎΡ ΠΌΠ°ΡΠ΅ΡΠΈΠ°Π»ΠΎΠ², ΠΌΠ΅Π±Π΅Π»ΠΈ ΠΈ ΠΏΡΠΎΡΠΈΡ ΠΈΠ½ΡΠ΅ΡΡΠ΅ΡΠ½ΡΡ ΡΠ»Π΅ΠΌΠ΅Π½ΡΠΎΠ² Π΄ΠΎΡΡΠ°ΡΠΎΡΠ½ΠΎ ΡΠΊΡΠ΄Π½ΡΠΉ. ΠΡΡΡΡΡΡΠ²ΡΠ΅Ρ 3D-ΡΠ΅ΠΆΠΈΠΌ, ΡΠΎ Π΅ΡΡΡ ΠΎΠΊΠΎΠ½ΡΠ°ΡΠ΅Π»ΡΠ½ΡΠΉ Π²Π°ΡΠΈΠ°Π½Ρ Π²Ρ ΡΠΌΠΎΠΆΠ΅ΡΠ΅ ΠΎΡΠ΅Π½ΠΈΡΡ Π»ΠΈΡΡ Π² ΠΏΠ»ΠΎΡΠΊΠΎΡΡΠΈ. Π ΠΏΡΠΎΠ³ΡΠ°ΠΌΠΌΠ΅ Π΅ΡΡΡ ΡΠ΄ΠΎΠ±Π½Π°Ρ ΡΡΠ½ΠΊΡΠΈΡ ΡΠΌΠ΅ΡΡ, ΠΏΠΎ ΠΈΡΠΎΠ³Ρ, ΠΌΠΎΠΆΠ½ΠΎ ΡΠ·Π½Π°ΡΡ ΠΏΡΠΈΠ±Π»ΠΈΠ·ΠΈΡΠ΅Π»ΡΠ½ΡΡ ΡΡΠΎΠΈΠΌΠΎΡΡΡ Π±ΡΠ΄ΡΡΠ΅Π³ΠΎ ΡΠ΅ΠΌΠΎΠ½ΡΠ°. Π’Π°ΠΊΠΆΠ΅ Β«ΠΠ»Π°Π½ΠΈΡΡΠΉΒ» ΠΏΡΠ΅Π΄Π»ΠΎΠΆΠΈΡ ΡΠΏΠΈΡΠΎΠΊ ΠΌΠ°Π³Π°Π·ΠΈΠ½ΠΎΠ², Π³Π΄Π΅ ΠΏΠΎΠ»ΡΡΠΈΡΡΡ ΠΏΡΠΈΠΎΠ±ΡΠ΅ΡΡΠΈ Π²ΡΠ΅ Π½Π΅ΠΎΠ±Ρ ΠΎΠ΄ΠΈΠΌΠΎΠ΅, Π½ΠΎ Π΅ΡΡΠ΅ΡΡΠ²Π΅Π½Π½ΠΎ, ΡΡΠΎ ΠΌΠ°Π³Π°Π·ΠΈΠ½Ρ-ΠΏΠ°ΡΡΠ½ΡΡΡ ΠΏΡΠΎΠ³ΡΠ°ΠΌΠΌΡ.
http://www.planirui.ru
ΠΠΎΡΡΠΎΠΉΠ½ΡΡ ΠΎΠ½Π»Π°ΠΉΠ½-ΡΠ΅ΡΠ²ΠΈΡΠΎΠ² Π±ΠΎΠ»Π΅Π΅ Π΄Π΅ΡΡΡΠΊΠ°. ΠΡΠ±ΠΈΡΠ°ΠΉΡΠ΅ ΠΈΠΌΠ΅Π½Π½ΠΎ ΡΠΎΡ, ΠΊΠΎΡΠΎΡΡΠΉ Π²Π°ΠΌ ΠΌΠ°ΠΊΡΠΈΠΌΠ°Π»ΡΠ½ΠΎ ΡΠ΄ΠΎΠ±Π΅Π½ ΠΈ ΡΠΎΠ·Π΄Π°Π²Π°ΠΉΡΠ΅ ΡΠ΅Π΄Π΅Π²ΡΡ! ΠΠ½Π°Π΅ΡΠ΅ Π΅ΡΡ Ρ ΠΎΡΠΎΡΠΈΠ΅ ΠΏΡΠΎΠ³ΡΠ°ΠΌΠΌΡ Π΄Π»Ρ Π΄ΠΈΠ·Π°ΠΉΠ½Π°? ΠΠΎΠ΄Π΅Π»ΠΈΡΠ΅ΡΡ ΡΡΡΠ»ΠΊΠ°ΠΌΠΈ Ρ Π½Π°ΠΌΠΈ, ΠΎΡΡΠ°Π²ΠΈΠ² ΠΈΡ Π² ΠΊΠΎΠΌΠΌΠ΅Π½ΡΠ°ΡΠΈΡΡ .
www.weareart.ru
1. ArchiCAD
ΠΡΠΎΠ³ΡΠ°ΠΌΠΌΠ° ΠΏΠΎΠ΄ΠΎΠΉΠ΄Π΅Ρ ΠΏΡΠΎΡΠ΅ΡΡΠΈΠΎΠ½Π°Π»ΡΠ½ΡΠΌ Π΄ΠΈΠ·Π°ΠΉΠ½Π΅ΡΠ°ΠΌ ΠΈ Π°ΡΡ ΠΈΡΠ΅ΠΊΡΠΎΡΠ°ΠΌ, ΠΏΠΎΡΠΊΠΎΠ»ΡΠΊΡ ΠΎΠ±Π»Π°Π΄Π°Π΅Ρ ΡΠ΅Π»ΡΠΌ ΠΊΠΎΠΌΠΏΠ»Π΅ΠΊΡΠΎΠΌ Π²ΡΠ΅Π²ΠΎΠ·ΠΌΠΎΠΆΠ½ΡΡ ΠΎΠΏΡΠΈΠΉ β ΠΎΡ ΠΏΠΎΡΡΠ°ΠΆΠ½ΠΎΠ³ΠΎ ΠΏΠ»Π°Π½Π° Π΄ΠΎ ΡΡΡΠΎΠΈΡΠ΅Π»ΡΠ½ΠΎΠΉ Π΄ΠΎΠΊΡΠΌΠ΅Π½ΡΠ°ΡΠΈΠΈ ΠΈ ΡΠΏΠ΅ΡΠΈΡΠΈΠΊΠ°ΡΠΈΠΈ.


Π£ΡΠ»ΠΎΠ²Π½ΠΎ-Π±Π΅ΡΠΏΠ»Π°ΡΠ½Π°Ρ. ΠΡΠΎΠ±Π½ΡΠΉ ΡΡΠΎΠΊ ΠΏΠΎΠ»ΡΠ·ΠΎΠ²Π°Π½ΠΈΡ β ΠΌΠ΅ΡΡΡ. ΠΠΎΡΠΎΠΌ Π½ΡΠΆΠ½ΠΎ ΠΏΡΠΈΠΎΠ±ΡΠ΅ΡΡΠΈ Π»ΠΈΡΠ΅Π½Π·ΠΈΡ, ΡΡΠΎΠ±Ρ ΠΎΠΏΠ΅ΡΠΈΡΠΎΠ²Π°ΡΡ Π²ΡΠ΅ΠΌ ΡΡΠ½ΠΊΡΠΈΠΎΠ½Π°Π»ΠΎΠΌ. Π‘Π΅ΠΉΡΠ°Ρ ΠΏΡΠ°Π²Π° Π½Π° ΠΏΡΠΎΠ³ΡΠ°ΠΌΠΌΡ ΠΏΡΠΈΠ½Π°Π΄Π»Π΅ΠΆΠ°Ρ ΠΊΠΎΠΌΠΏΠ°Π½ΠΈΠΈ Grasshopper.
ΠΡΠ΅ΠΈΠΌΡΡΠ΅ΡΡΠ²Π°: Π²ΡΠ΅ ΡΠ°ΡΡΠΈ ΠΏΡΠΎΠ΅ΠΊΡΠ° Π½Π΅ ΡΠ°Π·ΡΠΎΠ·Π½Π΅Π½Ρ, Π° Π²Π·Π°ΠΈΠΌΠΎΡΠ²ΡΠ·Π°Π½Ρ. ΠΡΠ»ΠΈ ΠΈΠ·ΠΌΠ΅Π½Π΅Π½ΠΈΡ Π²Π½Π΅ΡΡΠΈ Π² ΠΎΠ΄Π½Ρ ΠΈΠ· Π½ΠΈΡ , ΡΡΠΎ ΡΠΎΡΡΠ°Ρ ΠΎΡΠΎΠ±ΡΠ°Π·ΠΈΡΡΡ Π½Π° ΠΎΠ±ΡΠ΅ΠΌ ΠΏΠ»Π°Π½Π΅, Π² ΡΠ°Π·ΡΠ΅Π·Π΅, Π½Π° Π²ΠΈΠ΄Π°Ρ , Π³Π΄Π΅ ΡΡΠ° ΡΠ°ΡΡΡ Π·Π°Π΄Π΅ΠΉΡΡΠ²ΠΎΠ²Π°Π½Π°.
ΠΠ΅Π΄ΠΎΡΡΠ°ΡΠΊΠΈ: Π½Π΅Ρ ΠΌΠ½ΠΎΠ³ΠΎΡ ΠΎΠ΄ΠΎΠ²ΠΊΠΈ. Π’ΠΎ Π΅ΡΡΡ ΡΠΎΠ·Π΄Π°Π½Π½ΡΠΉ ΠΏΡΠΎΠ΅ΠΊΡ Π½Π΅Π»ΡΠ·Ρ ΡΠΎΠ·Π΄Π°ΡΡ Π² Π½Π΅ΡΠΊΠΎΠ»ΡΠΊΠΈΡ Π²Π°ΡΠΈΠ°Π½ΡΠ°Ρ ΡΡΠ°Π·Ρ. Π‘Π»ΠΎΠΆΠ½Π°Ρ Π³Π΅ΠΎΠΌΠ΅ΡΡΠΈΡ ΡΠΎΠΆΠ΅ Β«Π½Π΅ ΠΏΠΎ Π·ΡΠ±Π°ΠΌΒ» ΠΏΡΠΎΠ³ΡΠ°ΠΌΠΌΠ΅. ΠΠΎΠΆΠ½ΠΎ Π²ΠΎΡΠΏΠΎΠ»ΡΠ·ΠΎΠ²Π°ΡΡΡΡ ΠΏΠΎΠΌΠΎΡΡΡ Π΄ΡΡΠ³ΠΎΠ³ΠΎ ΡΠΎΡΡΠ° β Π° Π½Π°Π΄ΠΎ Π»ΠΈ?
Π‘Π°ΠΉΡ: http://www.graphisoft.ru/
dizainmania.com
ΠΠ»Π°Π½ ΠΏΡΠΎΠ΅ΠΊΡΠ° ΠΊΠ²Π°ΡΡΠΈΡΡ
ΠΠ»Ρ Π½Π°ΡΠ°Π»Π° ΡΠ°Π±ΠΎΡΡ Π²Π°ΠΌ Π½Π΅ΠΎΠ±Ρ ΠΎΠ΄ΠΈΠΌΠΎ Π·Π°Π³ΡΡΠ·ΠΈΡΡ ΠΏΡΠΎΠ³ΡΠ°ΠΌΠΌΡ Π΄Π»Ρ Π΄ΠΈΠ·Π°ΠΉΠ½Π° ΠΈΠ½ΡΠ΅ΡΡΠ΅ΡΠ° Π½Π° Π²Π°Ρ ΠΊΠΎΠΌΠΏΡΡΡΠ΅Ρ. ΠΠ°ΡΡΠ΅Ρ Π£ΡΡΠ°Π½ΠΎΠ²ΠΊΠΈ ΡΠΏΡΠ°Π²ΠΈΡΡΡ Π±ΡΠΊΠ²Π°Π»ΡΠ½ΠΎ Π·Π° ΠΏΠ°ΡΡ ΠΌΠΈΠ½ΡΡ, ΠΈ ΠΏΠΎΡΠ»Π΅ Π²Ρ ΡΠΆΠ΅ ΡΠΌΠΎΠΆΠ΅ΡΠ΅ ΠΏΡΠΈΡΡΡΠΏΠΈΡΡ ΠΊ ΡΠΎΠ·Π΄Π°Π½ΠΈΡ ΠΏΡΠΎΠ΅ΠΊΡΠ°. ΠΠΎΡΠ»Π΅ Π·Π°ΠΏΡΡΠΊΠ° ΡΠΎΡΡ ΠΏΡΠ΅Π΄Π»ΠΎΠΆΠΈΡ Π²Π°ΠΌ Π½Π΅ΡΠΊΠΎΠ»ΡΠΊΠΎ ΡΠ΅ΠΆΠΈΠΌΠΎΠ² ΠΏΡΠΎΠ΅ΠΊΡΠΈΡΠΎΠ²Π°Π½ΠΈΡ β ΠΊΠ°ΠΆΠ΄ΡΠΉ ΠΈΠ· Π½ΠΈΡ ΡΠ΄ΠΎΠ±Π΅Π½ ΠΏΠΎ-ΡΠ²ΠΎΠ΅ΠΌΡ, Π²ΡΠ±Π΅ΡΠΈΡΠ΅ ΡΠΎΡ, ΠΊΠΎΡΠΎΡΡΠΉ ΠΏΠΎΠ΄ΠΎΠΉΠ΄ΡΡ ΠΈΠΌΠ΅Π½Π½ΠΎ Π²Π°ΠΌ.
Π‘ΠΎΠ·Π΄Π°Π½ΠΈΠ΅ ΠΏΠ»Π°Π½ΠΈΡΠΎΠ²ΠΊΠΈ ΠΊΠ²Π°ΡΡΠΈΡΡ
ΠΡΠΎΡ ΡΠ΅ΠΆΠΈΠΌ ΠΏΠΎΠ΄ΠΎΠΉΠ΄ΡΡ Π΄Π»Ρ ΡΠ΅Ρ , Ρ ΠΊΠΎΠ³ΠΎ ΡΠΎΡ ΡΠ°Π½ΠΈΠ»ΡΡ Π½Π° ΡΡΠΊΠ°Ρ ΠΏΠ»Π°Π½ ΠΊΠ²Π°ΡΡΠΈΡΡ Π² Π±ΡΠΌΠ°ΠΆΠ½ΠΎΠΌ ΠΈΠ»ΠΈ ΡΠ»Π΅ΠΊΡΡΠΎΠ½Π½ΠΎΠΌ Π²ΠΈΠ΄Π΅. ΠΡΠΎΠ³ΡΠ°ΠΌΠΌΠ° ΠΏΡΠ΅Π΄Π»ΠΎΠΆΠΈΡ Π·Π°Π³ΡΡΠ·ΠΈΡΡ ΠΎΡΡΠΊΠ°Π½ΠΈΡΠΎΠ²Π°Π½Π½ΡΠΉ ΡΡΠΊΠΈΠ·, ΡΡΠΎΠ±Ρ Π²Ρ ΠΌΠΎΠ³Π»ΠΈ Π²ΠΎΡΠΏΠΎΠ»ΡΠ·ΠΎΠ²Π°ΡΡΡΡ ΡΡΠΎΠΉ ΡΡ Π΅ΠΌΠΎΠΉ Π² ΠΊΠ°ΡΠ΅ΡΡΠ²Π΅ ΠΎΡΠ½ΠΎΠ²Ρ. Π Π΅Π΄Π°ΠΊΡΠΎΡ Π½Π°Π»ΠΎΠΆΠΈΡ ΠΏΠΎΠ»ΡΡΠ΅Π½Π½ΡΡ ΠΊΠ°ΡΡΠΈΠ½ΠΊΡ Π½Π° ΡΠ°Π±ΠΎΡΠ΅Π΅ ΠΏΠΎΠ»Π΅ Π² ΠΏΠΎΠ»ΡΠΏΡΠΎΠ·ΡΠ°ΡΠ½ΠΎΠΌ ΡΠ΅ΠΆΠΈΠΌΠ΅ β Π²Π°ΠΌ Π½ΡΠΆΠ½ΠΎ Π±ΡΠ΄Π΅Ρ ΠΏΡΠΎΡΡΠΎ ΠΎΠ±Π²Π΅ΡΡΠΈ ΡΡΠ΅Π½Ρ ΠΈ ΠΌΠ΅ΠΆΠΊΠΎΠΌΠ½Π°ΡΠ½ΡΠ΅ ΠΏΠ΅ΡΠ΅Π³ΠΎΡΠΎΠ΄ΠΊΠΈ. ΠΠ»Ρ ΡΠΎΠ±Π»ΡΠ΄Π΅Π½ΠΈΡ ΠΏΡΠΎΠΏΠΎΡΡΠΈΠΉ Β«ΠΠΈΠ·Π°ΠΉΠ½ ΠΠ½ΡΠ΅ΡΡΠ΅ΡΠ°Β» ΠΏΠΎΠΏΡΠΎΡΠΈΡ Π²Π°Ρ ΡΠΊΠ°Π·Π°ΡΡ Π΄Π»ΠΈΠ½Ρ ΠΎΠ΄Π½ΠΎΠΉ ΡΡΠ΅Π½Ρ, Π»ΡΠ±ΠΎΠΉ Π½Π° Π²Π°Ρ Π²ΡΠ±ΠΎΡ. ΠΡΡ ΠΎΠ΄Ρ ΠΈΠ· ΡΡΠΈΡ ΡΠ°Π·ΠΌΠ΅ΡΠΎΠ², ΠΏΡΠΈΠ»ΠΎΠΆΠ΅Π½ΠΈΠ΅ ΠΎΠΏΡΠ΅Π΄Π΅Π»ΠΈΡ ΡΠ°Π·ΠΌΠ΅ΡΡ ΠΎΡΡΠ°Π»ΡΠ½ΡΡ ΠΎΠ±ΡΠ΅ΠΊΡΠΎΠ² ΠΈ ΠΏΠΎΡΡΠΈΡΠ°Π΅Ρ ΠΎΠ±ΡΡΡ ΠΏΠ»ΠΎΡΠ°Π΄Ρ ΠΊΠ²Π°ΡΡΠΈΡΡ.
ΠΡΠΏΠΎΠ»ΡΠ·ΠΎΠ²Π°Π½ΠΈΠ΅ ΡΠΈΠΏΠΎΠ²ΡΡ ΠΏΠ»Π°Π½ΠΈΡΠΎΠ²ΠΎΠΊ
ΠΡΠΎΡΠΎΠΉ ΡΠ΅ΠΆΠΈΠΌ β ΠΈΠ΄Π΅Π°Π»ΡΠ½ΡΠΉ Π²Π°ΡΠΈΠ°Π½Ρ Π΄Π»Ρ Π²Π»Π°Π΄Π΅Π»ΡΡΠ΅Π² ΠΊΠ²Π°ΡΡΠΈΡ ΠΈΠ· Β«ΡΠ΅ΡΠΈΠΉΠ½ΡΡ Β» ΠΏΠΎΡΡΡΠΎΠ΅ΠΊ. Π‘ΠΎΡΡ ΠΏΡΠ΅Π΄Π»Π°Π³Π°Π΅Ρ ΠΊΠ°ΡΠ°Π»ΠΎΠ³ Π³ΠΎΡΠΎΠ²ΡΡ ΠΏΠ»Π°Π½ΠΈΡΠΎΠ²ΠΎΠΊ, ΠΊΠΎΡΠΎΡΡΠΉ Π²ΠΊΠ»ΡΡΠ°Π΅Ρ Π² ΡΠ΅Π±Ρ ΡΠ°Π·Π»ΠΈΡΠ½ΡΠ΅ Π²Π°ΡΠΈΠ°Π½ΡΡ ΠΆΠΈΠ»ΡΡ, Π½Π°ΡΠΈΠ½Π°Ρ ΡΠΊΡΠΎΠΌΠ½ΡΠΌΠΈ ΠΎΠ΄Π½ΠΎΠΊΠΎΠΌΠ½Π°ΡΠ½ΡΠΌΠΈ ΡΠΈΠΏΠΎΠ²ΡΠΌΠΈ ΠΊΠ²Π°ΡΡΠΈΡΠ°ΠΌΠΈ, Π·Π°ΠΊΠ°Π½ΡΠΈΠ²Π°Ρ ΠΏΡΠΎΡΡΠΎΡΠ½ΡΠΌΠΈ ΠΌΠ½ΠΎΠ³ΠΎΠΊΠΎΠΌΠ½Π°ΡΠ½ΡΠΌΠΈ ΡΡΠ°Π»ΠΈΠ½ΠΊΠ°ΠΌΠΈ ΠΈ Ρ ΡΡΡΠ΅Π²ΠΊΠ°ΠΌΠΈ. ΠΡΠ»ΠΈ Π²Ρ Π½Π°ΡΠ»ΠΈ Π² ΠΊΠΎΠ»Π»Π΅ΠΊΡΠΈΠΈ ΡΠ²ΠΎΡ ΠΊΠ²Π°ΡΡΠΈΡΡ, ΡΠΎ Π²Π°Ρ Π΄ΠΈΠ·Π°ΠΉΠ½-ΠΏΡΠΎΠ΅ΠΊΡ Π±ΡΠ΄Π΅Ρ ΠΌΠΎΠΌΠ΅Π½ΡΠ°Π»ΡΠ½ΠΎ Π³ΠΎΡΠΎΠ². ΠΡΠΎΡΡΠΎ Π·Π°Π³ΡΡΠ·ΠΈΡΡ ΠΎΠ΄Π½ΠΈΠΌ Π½Π°ΠΆΠ°ΡΠΈΠ΅ΠΌ Π½ΡΠΆΠ½ΡΠΉ Π²Π°ΡΠΈΠ°Π½Ρ ΠΈΠ· ΡΠΏΠΈΡΠΊΠ° β ΠΈ Π³ΠΎΡΠΎΠ²Π°Ρ ΡΡ Π΅ΠΌΠ° ΡΡΡ ΠΆΠ΅ ΠΏΠΎΡΠ²ΠΈΡΡΡ Π² ΡΠ΅Π΄Π°ΠΊΡΠΎΡΠ΅. ΠΠ°ΠΌ ΠΎΡΡΠ°Π½Π΅ΡΡΡ Π»ΠΈΡΡ ΠΎΠ±ΡΡΠ°Π²ΠΈΡΡ ΠΏΡΠΎΡΡΡΠ°Π½ΡΡΠ²ΠΎ ΠΌΠ΅Π±Π΅Π»ΡΡ ΠΈ Π²ΡΠ±ΡΠ°ΡΡ ΠΎΡΠ΄Π΅Π»ΠΊΡ ΠΏΠΎ Π²ΠΊΡΡΡ.
Π§Π΅ΡΡΠ΅ΠΆ Ρ Π½ΡΠ»Ρ
ΠΡΠ»ΠΈ ΠΏΠ΅ΡΠ²ΡΠ΅ Π΄Π²Π° Π²Π°ΡΠΈΠ°Π½ΡΠ° Π½Π΅ ΠΏΠΎΠ΄ΠΎΡΠ»ΠΈ, ΡΠΎ Π΅ΡΡΡ Π΅ΡΡ ΠΎΠ΄ΠΈΠ½ ΡΠΏΠΎΡΠΎΠ± ΡΠ΄Π΅Π»Π°ΡΡ Π΄ΠΈΠ·Π°ΠΉΠ½-ΠΏΡΠΎΠ΅ΠΊΡ ΠΊΠ²Π°ΡΡΠΈΡΡ β Π½Π°ΡΠ΅ΡΡΠΈΡΡ Π²ΡΠ΅ ΠΊΠΎΠΌΠ½Π°ΡΡ Π²ΡΡΡΠ½ΡΡ. Π’Π°ΠΊ ΠΊΠ°ΠΊ ΡΡΠΎΡ ΡΠ΅ΠΆΠΈΠΌ ΡΠ°Π±ΠΎΡΡ ΡΡΠ΅Π±ΡΠ΅Ρ ΡΡΡΡ Π±ΠΎΠ»ΡΡΠ΅ ΡΡΠΈΠ»ΠΈΠΉ ΠΈ ΠΏΠΎΠ΄Π³ΠΎΡΠΎΠ²ΠΊΠΈ, ΠΎΡΡΠ°Π½ΠΎΠ²ΠΈΠΌΡΡ Π½Π° Π½ΡΠΌ Π½Π΅ΡΠΊΠΎΠ»ΡΠΊΠΎ ΠΏΠΎΠ΄ΡΠΎΠ±Π½Π΅Π΅.
Π‘ΠΎΠ·Π΄Π°Π½ΠΈΠ΅ ΠΏΠ»Π°Π½ΠΈΡΠΎΠ²ΠΊΠΈ ΠΊΠ²Π°ΡΡΠΈΡΡ
ΠΡΠ±ΡΠ°Π² ΡΠ΅ΠΆΠΈΠΌ ΡΠΎΠ·Π΄Π°Π½ΠΈΡ ΠΏΡΠΎΠ΅ΠΊΡΠ° Ρ Π½ΡΠ»Ρ, Π²Ρ ΠΏΠΎΠΏΠ°Π΄ΡΡΠ΅ Π² ΡΠ΄ΠΎΠ±Π½ΡΠΉ 2D-ΡΠ΅Π΄Π°ΠΊΡΠΎΡ. ΠΡΠ΅ΠΆΠ΄Π΅, ΡΠ΅ΠΌ Π½Π°ΡΠΈΡΠΎΠ²Π°ΡΡ ΠΊΠΎΠΌΠ½Π°ΡΡ, Π²Π°ΠΌ Π½ΡΠΆΠ½ΠΎ ΠΎΡΡΠ΅Π³ΡΠ»ΠΈΡΠΎΠ²Π°ΡΡ ΡΠ°Π³ ΡΠ΅ΡΠΊΠΈ. ΠΡΠΎ Π½ΡΠΆΠ½ΠΎ Π΄Π»Ρ ΡΠ΅Π³ΡΠ»ΠΈΡΠΎΠ²Π°Π½ΠΈΡ ΠΌΠ°ΡΡΡΠ°Π±Π° ΡΠ΅ΡΡΠ΅ΠΆΠ°, ΡΠ°ΠΊ ΡΡΠΎ ΠΎΡ Π²Π°Ρ ΠΏΠΎΡΡΠ΅Π±ΡΠ΅ΡΡΡ ΠΈΠ·ΠΌΠ΅ΡΠΈΡΡ Π΄Π»ΠΈΠ½Ρ ΠΈ ΡΠΈΡΠΈΠ½Ρ ΠΊΠ°ΠΆΠ΄ΠΎΠΉ ΠΊΠΎΠΌΠ½Π°ΡΡ. ΠΠ°Π΄Π°ΠΉΡΠ΅ ΠΏΠ°ΡΠ°ΠΌΠ΅ΡΡΡ ΡΠ΅ΡΠΊΠΈ ΠΏΡΠΎΡΡΠΎΠΉ ΠΏΡΠΎΠΊΡΡΡΠΊΠΎΠΉ ΠΊΠΎΠ»Π΅ΡΠ° ΠΌΡΡΠΈ. ΠΠ΄Π½Π° ΠΊΠ»Π΅ΡΠΊΠ° ΠΌΠΎΠΆΠ΅Ρ Π±ΡΡΡ ΡΠ°Π²Π½Π° 1-ΠΌΡ, 2-ΡΠΌ, 4-ΡΠΌ ΠΌΠ΅ΡΡΠ°ΠΌ ΠΈ Π΄Π°Π»Π΅Π΅ ΠΏΠΎ Π²ΠΎΠ·ΡΠ°ΡΡΠ°Π½ΠΈΡ, Π² Π·Π°Π²ΠΈΡΠΈΠΌΠΎΡΡΠΈ ΠΎΡ Π²Π°ΡΠΈΡ Π½ΡΠΆΠ΄.
Π§ΡΠΎΠ±Ρ Π΄ΠΎΠ±Π°Π²ΠΈΡΡ ΠΏΠΎΠΌΠ΅ΡΠ΅Π½ΠΈΠ΅ Π½Π° ΠΏΠ»Π°Π½, Π²ΠΎΡΡΠΎΠ·Π΄Π°ΠΉΡΠ΅ Π΅Π³ΠΎ ΡΠΎΡΠΌΡ Ρ ΠΏΠΎΠΌΠΎΡΡΡ ΠΏΡΡΠΌΡΡ Π»ΠΈΠ½ΠΈΠΉ. ΠΠΎ ΠΌΠ΅ΡΠ΅ ΠΏΡΠΎΡΠΈΡΠΎΠ²ΠΊΠΈ ΡΠΎΡΡ Π±ΡΠ΄Π΅Ρ ΡΠΊΠ°Π·ΡΠ²Π°ΡΡ ΡΠ°Π·ΠΌΠ΅Ρ ΠΊΠ°ΠΆΠ΄ΠΎΠΉ ΡΡΠ΅Π½Ρ. Π§ΡΠΎΠ±Ρ ΠΎΡΠΌΠ΅ΡΠΈΡΡ ΡΠ³ΠΎΠ», Π΄ΠΎΡΡΠ°ΡΠΎΡΠ½ΠΎ ΠΏΡΠΎΡΡΠΎ ΡΡΠ»ΠΊΠ½ΡΡΡ Π»Π΅Π²ΠΎΠΉ ΠΊΠ½ΠΎΠΏΠΊΠΎΠΉ ΠΌΡΡΠΈ ΠΈ ΠΏΡΠΎΠ΄ΠΎΠ»ΠΆΠΈΡΡ ΡΠ΅ΡΡΠ΅ΠΆ. ΠΠ°Π²Π΅ΡΡΠΈΡΡ ΡΠΎΠ·Π΄Π°Π½ΠΈΠ΅ ΠΊΠΎΠΌΠ½Π°ΡΡ Π²Ρ ΠΌΠΎΠΆΠ΅ΡΠ΅, Π·Π°ΠΌΠΊΠ½ΡΠ² ΡΠ³ΠΎΠ» ΠΏΠ΅ΡΠ²ΠΎΠΉ ΠΈ ΠΏΠΎΡΠ»Π΅Π΄Π½Π΅ΠΉ ΡΡΠ΅Π½Ρ. ΠΠ½Π°Π»ΠΎΠ³ΠΈΡΠ½ΡΠΌ ΠΎΠ±ΡΠ°Π·ΠΎΠΌ Π΄ΠΎΠ±Π°Π²ΡΡΠ΅ ΠΈ ΠΎΡΡΠ°Π»ΡΠ½ΡΠ΅ ΠΏΠΎΠΌΠ΅ΡΠ΅Π½ΠΈΡ. Π‘ΡΠ΅Π½Ρ ΠΏΡΠΈΠ»Π΅Π³Π°ΡΡΠΈΡ ΠΊΠΎΠΌΠ½Π°Ρ ΡΠΈΡΡΠΉΡΠ΅ Π΄ΡΡΠ³ Π½Π° Π΄ΡΡΠ³Π΅, Π±Π΅Π· ΠΎΡΡΡΡΠΏΠΎΠ². ΠΠΎΡΠ»Π΅ ΠΎΡΡΠ°Π½Π΅ΡΡΡ Π΄ΠΎΠ±Π°Π²ΠΈΡΡ ΠΎΠΊΠ½Π°, Π΄Π²Π΅ΡΠΈ ΠΈ, ΠΏΡΠΈ Π½Π΅ΠΎΠ±Ρ ΠΎΠ΄ΠΈΠΌΠΎΡΡΠΈ, Π±Π°Π»ΠΊΠΎΠ½Π½ΡΠ΅ Π±Π»ΠΎΠΊΠΈ. ΠΡΠ½ΠΎΠ²Π° ΠΏΡΠΎΠ΅ΠΊΡΠ° Π³ΠΎΡΠΎΠ²Π°!
ΠΡΠ±ΠΎΡ ΠΎΡΠ΄Π΅Π»ΠΎΡΠ½ΡΡ ΠΌΠ°ΡΠ΅ΡΠΈΠ°Π»ΠΎΠ²
Π‘Π»Π΅Π΄ΡΡΡΠΈΠΉ ΡΡΠ°ΠΏ Π²Π΄ΠΎΡ Π½ΡΡ ΠΆΠΈΠ·Π½Ρ Π² Π²Π°Ρ Π΄ΠΈΠ·Π°ΠΉΠ½-ΠΏΡΠΎΠ΅ΠΊΡ, Π²Π΅Π΄Ρ Π²Π°ΠΌ ΠΏΡΠ΅Π΄ΡΡΠΎΠΈΡ ΠΏΠΎΠ΄ΠΎΠ±ΡΠ°ΡΡ ΠΏΠΎΠ΄Ρ ΠΎΠ΄ΡΡΡΡ ΠΎΡΠ΄Π΅Π»ΠΊΡ Π΄Π»Ρ ΠΊΠ°ΠΆΠ΄ΠΎΠΉ ΠΊΠΎΠΌΠ½Π°ΡΡ. ΠΡΠ΄Π΅Π»ΠΈΡΠ΅ Π² ΡΠΏΠΈΡΠΊΠ΅ ΠΎΠ±ΡΠ΅ΠΊΡΠΎΠ² Π½ΡΠΆΠ½ΠΎΠ΅ ΠΏΠΎΠΌΠ΅ΡΠ΅Π½ΠΈΠ΅ ΠΈ ΠΏΠ΅ΡΠ΅ΠΉΠ΄ΠΈΡΠ΅ Π²ΠΎ Π²ΠΊΠ»Π°Π΄ΠΊΡ Β«Π‘Π²ΠΎΠΉΡΡΠ²Π°Β». Π Π±Π»ΠΎΠΊΠ΅ Π½Π°ΡΡΡΠΎΠ΅ΠΊ Π²Ρ ΡΠΌΠΎΠΆΠ΅ΡΠ΅ Π²ΡΠ±ΡΠ°ΡΡ ΠΎΡΠΎΡΠΌΠ»Π΅Π½ΠΈΠ΅ Π΄Π»Ρ ΡΡΠ΅Π½, ΠΏΠΎΠ»Π° ΠΈ ΠΏΠΎΡΠΎΠ»ΠΊΠ°. ΠΡΠΊΡΠΎΠΉΡΠ΅ ΠΈΠ½ΡΠ΅ΡΠ΅ΡΡΡΡΠΈΠΉ Π²Π°Ρ ΡΠ°Π·Π΄Π΅Π» ΠΈ Π½Π°ΠΆΠΌΠΈΡΠ΅ Π½Π° ΠΊΠ°ΡΡΠΈΠ½ΠΊΡ Π²ΠΎΠ·Π»Π΅ ΡΡΡΠΎΠΊΠΈ Β«ΠΠ°ΡΠ΅ΡΠΈΠ°Π»Β».
Β«ΠΠΈΠ·Π°ΠΉΠ½ ΠΠ½ΡΠ΅ΡΡΠ΅ΡΠ° 3DΒ» ΡΠΎΠ΄Π΅ΡΠΆΠΈΡ Π±ΠΎΠ³Π°ΡΡΠΉ ΠΊΠ°ΡΠ°Π»ΠΎΠ³ ΡΠ΅ΠΊΡΡΡΡ, ΠΈΠΌΠΈΡΠΈΡΡΡΡΠΈΡ ΡΠ°ΠΊΠΈΠ΅ ΠΌΠ°ΡΠ΅ΡΠΈΠ°Π»Ρ ΠΊΠ°ΠΊ Π±ΡΠΌΠ°Π³Π°, ΡΠΊΠ°Π½Ρ, Π΄Π΅ΡΠ΅Π²ΠΎ, ΠΊΠ°ΠΌΠ΅Π½Ρ, ΠΊΠ΅ΡΠ°ΠΌΠΈΠΊΠ° ΠΈ ΠΌΠ½ΠΎΠ³ΠΈΠ΅ Π΄ΡΡΠ³ΠΈΠ΅. ΠΡΠ΅ Π²Π°ΡΠΈΠ°Π½ΡΡ Π΄Π»Ρ ΡΠ΄ΠΎΠ±ΡΡΠ²Π° ΡΠ°Π·Π΄Π΅Π»Π΅Π½Ρ Π½Π° ΡΡΠ½ΠΊΡΠΈΠΎΠ½Π°Π»ΡΠ½ΡΠ΅ ΠΊΠ°ΡΠ΅Π³ΠΎΡΠΈΠΈ. ΠΠ°ΠΏΡΠΈΠΌΠ΅Ρ, ΠΊΠΎΠ»Π»Π΅ΠΊΡΠΈΡ ΠΎΠ±ΠΎΠ΅Π², ΠΏΠ»ΠΈΡΠΎΡΠ½ΠΎΠΉ ΠΈ ΠΊΠΈΡΠΏΠΈΡΠ½ΠΎΠΉ ΠΊΠ»Π°Π΄ΠΊΠΈ Π²Ρ Π½Π°ΠΉΠ΄Π΅ΡΠ΅ Π² Π³ΡΡΠΏΠΏΠ΅ Β«Π‘ΡΠ΅Π½ΡΒ», Π° ΠΊΠ°ΠΌΠ΅Π½Π½ΡΡ ΠΊΠ»Π°Π΄ΠΊΡ, ΠΊΠΎΠ²ΡΠΎΠ»ΠΈΠ½ ΠΈ ΠΏΠ°ΡΠΊΠ΅Ρ β Π² Π³ΡΡΠΏΠΏΠ΅ Β«ΠΠΎΠ»Β». ΠΠΎΡΠΊΡΠΏΠ΅ΡΠΈΠΌΠ΅Π½ΡΠΈΡΡΠΉΡΠ΅ Ρ ΡΠ°Π·Π½ΡΠΌΠΈ ΡΠ΅ΠΊΡΡΡΡΠ°ΠΌΠΈ ΠΈ Π²ΡΠ±Π΅ΡΠΈΡΠ΅ ΡΡ, ΠΊΠΎΡΠΎΡΠ°Ρ ΠΏΠΎΠ΄ΠΎΠΉΠ΄ΡΡ ΡΡΠΈΠ»Ρ Π²Π°ΡΠ΅ΠΉ ΠΊΠ²Π°ΡΡΠΈΡΡ.
Π Π°ΡΡΡΠ°Π½ΠΎΠ²ΠΊΠ° ΠΌΠ΅Π±Π΅Π»ΠΈ Π² ΠΏΡΠΎΠ³ΡΠ°ΠΌΠΌΠ΅
ΠΠ°Π²Π΅ΡΡΠ°ΡΡΠΈΠ΅ ΡΡΡΠΈΡ ΠΈ Π² ΠΏΠΎΠ΄Π³ΠΎΡΠΎΠ²ΠΊΠ΅ Π΄ΠΈΠ·Π°ΠΉΠ½-ΠΏΡΠΎΠ΅ΠΊΡΠ° β ΡΡΠΎ ΡΠ°ΡΡΡΠ°Π½ΠΎΠ²ΠΊΠ° ΠΌΠ΅Π±Π΅Π»ΠΈ, Π²ΡΠ±ΠΎΡ ΠΈΡΡΠΎΡΠ½ΠΈΠΊΠΎΠ² ΠΎΡΠ²Π΅ΡΠ΅Π½ΠΈΡ ΠΈ Π΄ΡΡΠ³ΠΈΡ Π΄Π΅ΠΊΠΎΡΠ°ΡΠΈΠ²Π½ΡΡ ΡΠ»Π΅ΠΌΠ΅Π½ΡΠΎΠ². Π‘ ΠΏΡΠΎΠ³ΡΠ°ΠΌΠΌΠΎΠΉ Β«ΠΠΈΠ·Π°ΠΉΠ½ ΠΠ½ΡΠ΅ΡΡΠ΅ΡΠ°Β» β ΡΡΠΎ Π½Π΅Π²Π΅ΡΠΎΡΡΠ½ΠΎ Π»Π΅Π³ΠΊΠΎ, Π²Π΅Π΄Ρ Π±Π»Π°Π³ΠΎΠ΄Π°ΡΡ Π²ΡΡΡΠΎΠ΅Π½Π½ΠΎΠΌΡ ΠΊΠ°ΡΠ°Π»ΠΎΠ³Ρ ΠΌΠ΅Π±Π΅Π»ΠΈ ΠΈ ΡΠ΅Ρ Π½ΠΈΠΊΠΈ Π²Π°ΠΌ Π½Π΅ ΠΏΡΠΈΠ΄ΡΡΡΡ ΡΡΠ°ΡΠΈΡΡ Π²ΡΠ΅ΠΌΡ Π½Π° ΠΏΠΎΠΈΡΠΊ ΠΈ ΡΠΊΠ°ΡΠΈΠ²Π°Π½ΠΈΠ΅ Π΄ΠΎΠΏ. ΠΌΠ°ΡΠ΅ΡΠΈΠ°Π»ΠΎΠ².
Π Π±Π»ΠΎΠΊΠ΅ Β«ΠΠΈΠ·Π°ΠΉΠ½Β» Π²ΠΎΡΠΏΠΎΠ»ΡΠ·ΡΠΉΡΠ΅ΡΡ ΠΎΠΏΡΠΈΠ΅ΠΉ Β«ΠΠΎΠ±Π°Π²ΠΈΡΡ ΠΌΠ΅Π±Π΅Π»ΡΒ». Π ΠΏΠΎΡΠ²ΠΈΠ²ΡΠ΅ΠΌΡΡ ΠΎΠΊΠ½Π΅ Π²Ρ Π½Π°ΠΉΠ΄ΡΡΠ΅ ΡΠ΄ΠΎΠ±Π½ΡΠΉ, ΡΠ°Π·Π±ΠΈΡΡΠΉ Π½Π° ΡΠ΅ΠΌΠ°ΡΠΈΡΠ΅ΡΠΊΠΈΠ΅ ΠΊΠ°ΡΠ΅Π³ΠΎΡΠΈΠΈ ΠΊΠ°ΡΠ°Π»ΠΎΠ³. ΠΠΎΠ»Π»Π΅ΠΊΡΠΈΡ ΠΏΡΠ΅Π΄ΡΡΠ°Π²Π»Π΅Π½Π½ΡΡ ΠΎΠ±ΡΠ΅ΠΊΡΠΎΠ² β ΡΠ½ΠΈΠ²Π΅ΡΡΠ°Π»ΡΠ½Π° ΠΈ ΡΠΎΠ΄Π΅ΡΠΆΠΈΡ Π²ΡΡ Π½Π΅ΠΎΠ±Ρ ΠΎΠ΄ΠΈΠΌΠΎΠ΅ Π΄Π»Ρ ΠΏΠΎΠ»Π½ΠΎΡΠ΅Π½Π½ΠΎΠ³ΠΎ ΠΌΠ΅Π±Π΅Π»ΠΈΡΠΎΠ²Π°Π½ΠΈΡ Π²ΡΠ΅ΠΉ ΠΊΠ²Π°ΡΡΠΈΡΡ. ΠΠ±ΡΡΡΡΠΎΠΈΡΡ ΡΠΏΠ°Π»ΡΠ½Ρ, Π΄Π΅ΡΡΠΊΡΡ, ΠΊΡΡ Π½Ρ, ΠΏΠΎΠ΄Π³ΠΎΡΠΎΠ²ΠΈΡΡ Π΄ΠΈΠ·Π°ΠΉΠ½ ΠΈΠ½ΡΠ΅ΡΡΠ΅ΡΠ° Π³ΠΎΡΡΠΈΠ½ΠΎΠΉ Π² ΡΠΎΠ²ΡΠ΅ΠΌΠ΅Π½Π½ΠΎΠΌ ΡΡΠΈΠ»Π΅ β Π²ΡΡ ΡΡΠΎ ΡΠ»Π΅ΠΌΠ΅Π½ΡΠ°ΡΠ½ΠΎ. ΠΡΠΎΡΡΠΎ Π²ΡΠ±Π΅ΡΠΈΡΠ΅ ΠΈΠ· ΠΊΠ°ΡΠ°Π»ΠΎΠ³Π° Π½ΡΠΆΠ½ΡΠΉ ΠΎΠ±ΡΠ΅ΠΊΡ, Π½Π°ΠΆΠΌΠΈΡΠ΅ Β«ΠΠΎΠ±Π°Π²ΠΈΡΡ Π½Π° ΡΡΠ΅Π½ΡΒ» ΠΈ ΡΠ°Π·ΠΌΠ΅ΡΡΠΈΡΠ΅ ΡΠ»Π΅ΠΌΠ΅Π½Ρ Π½Π° ΡΡ Π΅ΠΌΠ΅. ΠΡΠΈ ΠΆΠ΅Π»Π°Π½ΠΈΠΈ Π²Ρ ΠΌΠΎΠΆΠ΅ΡΠ΅ ΠΈΠ·ΠΌΠ΅Π½ΠΈΡΡ Π²Π½Π΅ΡΠ½ΠΈΠΉ Π²ΠΈΠ΄ Π»ΡΠ±ΠΎΠ³ΠΎ ΠΏΡΠ΅Π΄ΠΌΠ΅ΡΠ°, ΠΏΠ΅ΡΠ΅ΠΉΠ΄Ρ Π²ΠΎ Π²ΠΊΠ»Π°Π΄ΠΊΡ Β«Π‘Π²ΠΎΠΉΡΡΠ²Π°Β».
Π‘ΠΎΡ ΡΠ°Π½Π΅Π½ΠΈΠ΅ ΠΏΡΠΎΠ΅ΠΊΡΠ°
Π’Π΅ΠΏΠ΅ΡΡ Π²Ρ Π·Π½Π°Π΅ΡΠ΅, ΡΡΠΎ ΡΠ΄Π΅Π»Π°ΡΡ Π΄ΠΈΠ·Π°ΠΉΠ½ ΠΏΡΠΎΠ΅ΠΊΡ ΠΊΠ²Π°ΡΡΠΈΡΡ ΡΠ°ΠΌΠΎΡΡΠΎΡΡΠ΅Π»ΡΠ½ΠΎ β Π²ΠΎΠ²ΡΠ΅ Π½Π΅ ΡΠ°ΠΊ ΡΠ»ΠΎΠΆΠ½ΠΎ, ΠΊΠ°ΠΊ ΠΌΠΎΠ³Π»ΠΎ ΠΏΠΎΠΊΠ°Π·Π°ΡΡΡΡ. ΠΡΡΠ°Π»ΠΎΡΡ Π»ΠΈΡΡ ΡΠΎΡ ΡΠ°Π½ΠΈΡΡ ΠΏΠΎΠ»ΡΡΠΈΠ²ΡΠΈΠΉΡΡ ΠΏΡΠΎΠ΅ΠΊΡ. ΠΠ΅ΡΠ΅Π΄ ΡΠΊΡΠΏΠΎΡΡΠΎΠΌ Π²Ρ ΠΌΠΎΠΆΠ΅ΡΠ΅ ΠΎΡΠ΅Π½ΠΈΡΡ ΡΠ΅Π·ΡΠ»ΡΡΠ°Ρ Ρ ΠΏΠΎΠΌΠΎΡΡΡ ΡΡΠ½ΠΊΡΠΈΠΈ Β«ΠΠΈΡΡΡΠ°Π»ΡΠ½ΡΠΉ Π²ΠΈΠ·ΠΈΡΒ». ΠΡΠΎΠ³ΡΠ°ΠΌΠΌΠ° ΠΏΠ΅ΡΠ΅Π½Π΅ΡΡΡ Π²Π°Ρ Π²Π½ΡΡΡΡ 3D ΠΌΠΎΠ΄Π΅Π»ΠΈ, Π³Π΄Π΅ Π²Ρ ΡΠΌΠΎΠΆΠ΅ΡΠ΅ ΠΎΡΠΌΠΎΡΡΠ΅ΡΡ ΠΏΠΎΠΌΠ΅ΡΠ΅Π½ΠΈΠ΅ Ρ ΡΠ°Π·Π½ΡΡ ΡΠΎΡΠ΅ΠΊ Π·ΡΠ΅Π½ΠΈΡ, ΡΠ»ΠΎΠ²Π½ΠΎ Π΄Π΅ΠΉΡΡΠ²ΠΈΡΠ΅Π»ΡΠ½ΠΎ Π½Π°Ρ ΠΎΠ΄ΠΈΡΠ΅ΡΡ Π² Π½ΡΠΌ.
Β«ΠΠΈΠ·Π°ΠΉΠ½ ΠΠ½ΡΠ΅ΡΡΠ΅ΡΠ° 3DΒ» ΠΏΡΠ΅Π΄Π»Π°Π³Π°Π΅Ρ Π½Π΅ΡΠΊΠΎΠ»ΡΠΊΠΎ ΡΠΏΠΎΡΠΎΠ±ΠΎΠ² ΡΠΎΡ ΡΠ°Π½ΠΈΡΡ Π³ΠΎΡΠΎΠ²ΡΠΉ ΠΌΠ°ΠΊΠ΅Ρ β Π² Π²ΠΈΠ΄Π΅ JPEG-ΠΊΠ°ΡΡΠΈΠ½ΠΊΠΈ, PDF-ΡΠ°ΠΉΠ»Π° ΠΈ ΡΠ°ΠΉΠ»Π°-ΠΏΡΠΎΠ΅ΠΊΡΠ° Π²ΠΎ Π²Π½ΡΡΡΠ΅Π½Π½Π΅ΠΌ ΡΠΎΡΠΌΠ°ΡΠ΅. ΠΠ»Ρ ΡΡΠΎΠ³ΠΎ Π½ΡΠΆΠ½ΠΎ ΠΊΠ»ΠΈΠΊΠ½ΡΡΡ Π½Π° ΠΈΠΊΠΎΠ½ΠΊΡ Ρ ΠΈΠ·ΠΎΠ±ΡΠ°ΠΆΠ΅Π½ΠΈΠ΅ΠΌ Π΄ΠΈΡΠΊΠ΅ΡΡ Π½Π° Π²Π΅ΡΡ Π½Π΅ΠΉ ΠΏΠ°Π½Π΅Π»ΠΈ ΠΈ Π²ΡΠ±ΡΠ°ΡΡ ΠΎΠ΄ΠΈΠ½ ΠΈΠ· ΡΡΡΡ Π²Π°ΡΠΈΠ°Π½ΡΠΎΠ². ΠΡΠΈ ΠΆΠ΅Π»Π°Π½ΠΈΠΈ Π²Ρ ΠΌΠΎΠΆΠ΅ΡΠ΅ ΡΡΠ°Π·Ρ Π²ΡΠ²Π΅ΡΡΠΈ ΡΡ Π΅ΠΌΡ Π½Π° ΠΏΠ΅ΡΠ°ΡΡ.
ΠΡΠΎΠ΅ΠΊΡΠΈΡΠΎΠ²Π°Π½ΠΈΠ΅ ΠΏΠΎΠΌΠ΅ΡΠ΅Π½ΠΈΠΉ Ρ ΠΏΠΎΠΌΠΎΡΡΡ ΠΏΡΠΎΠ³ΡΠ°ΠΌΠΌΡ Β«ΠΠΈΠ·Π°ΠΉΠ½ ΠΠ½ΡΠ΅ΡΡΠ΅ΡΠ° 3DΒ» ΠΎΡΡΡΠΈΠΌΠΎ ΡΠΊΠΎΠ½ΠΎΠΌΠΈΡ Π²Π°ΡΠ΅ Π²ΡΠ΅ΠΌΡ ΠΈ ΡΡΠ΅Π΄ΡΡΠ²Π°. Π‘ΠΊΠ°ΡΠ°ΠΉΡΠ΅ ΡΠ΅Π΄Π°ΠΊΡΠΎΡ ΠΈ Π²ΠΎΠΏΠ»ΠΎΡΠ°ΠΉΡΠ΅ ΡΠ²ΠΎΠΈ ΠΎΡΠΈΠ³ΠΈΠ½Π°Π»ΡΠ½ΡΠ΅ Π΄ΠΈΠ·Π°ΠΉΠ½Π΅ΡΡΠΊΠΈΠ΅ Π·Π°Π΄ΡΠΌΠΊΠΈ Π»Π΅Π³ΠΊΠΎ ΠΈ Ρ ΡΠ΄ΠΎΠ²ΠΎΠ»ΡΡΡΠ²ΠΈΠ΅ΠΌ!
interior3d.su
ΠΡΠ½ΠΎΠ²Π½ΡΠ΅ Π²ΠΎΠ·ΠΌΠΎΠΆΠ½ΠΎΡΡΠΈ ΠΏΡΠΎΠ³ΡΠ°ΠΌΠΌΡ
Π£Π΄ΠΎΠ±Π½Π°Ρ ΠΏΠ»Π°Π½ΠΈΡΠΎΠ²ΠΊΠ° ΠΊΠ²Π°ΡΡΠΈΡ ΠΈ ΠΎΡΠΈΡΠΎΠ²

Π‘ΠΎΠ·Π΄Π°Π½ΠΈΠ΅ ΠΏΠΎΠ΄ΡΠΎΠ±Π½ΠΎΠ³ΠΎ ΠΏΠ»Π°Π½Π° ΠΏΠΎΠΌΠ΅ΡΠ΅Π½ΠΈΡ, Π² ΠΏΡΠ°Π²ΠΈΠ»ΡΠ½ΠΎΠΌ ΠΌΠ°ΡΡΡΠ°Π±Π΅. ΠΡΠΎΡΡΠΎ ΡΠ°ΡΡΡΠ°Π²Π»ΡΠΉΡΠ΅ ΠΌΠ΅Π±Π΅Π»Ρ Π² Π»ΡΠ±ΠΎΠΉ ΠΊΠΎΠΌΠ½Π°ΡΠ΅, ΡΠΌΠΎΡΠΈΡΠ΅ ΠΎΠ±Π»ΠΈΠΊ ΠΈΠ½ΡΠ΅ΡΡΠ΅ΡΠ° Π² ΡΡΠ΅Ρ ΠΌΠ΅ΡΠ½ΠΎΠΌ Π²ΠΈΠ΄Π΅ ΠΈ ΡΡΡ ΠΆΠ΅ Π²Π½ΠΎΡΠΈΡΠ΅ ΠΏΡΠ°Π²ΠΊΠΈ. ΠΠ΄ΠΈΠ½ ΠΈΠ· ΠΏΡΠΎΡΡΠ΅ΠΉΡΠΈΡ ΠΈΠ½ΡΡΡΡΠΌΠ΅Π½ΡΠΎΠ² Π΄Π»Ρ ΡΠΎΠ·Π΄Π°Π½ΠΈΡ ΡΡΠ΅Ρ ΠΌΠ΅ΡΠ½ΡΡ Π΄ΠΈΠ·Π°ΠΉΠ½ΠΎΠ² ΠΏΠΎΠΌΠ΅ΡΠ΅Π½ΠΈΠΉ.
ΠΡΡΡΡΠΎ ΠΈ ΡΠ΄ΠΎΠ±Π½ΠΎ ΡΠ°ΡΡΡΠ°Π²ΠΈΡΡ ΠΌΠ΅Π±Π΅Π»Ρ

ΠΠ΅ΡΠ΅Π΄Π²ΠΈΠ³Π°ΠΉΡΠ΅ ΠΌΠ΅Π±Π΅Π»Ρ ΠΈΠ· ΠΊΠΎΠΌΠ½Π°ΡΡ Π² ΠΊΠΎΠΌΠ½Π°ΡΡ ΠΏΡΠΈ ΠΏΠΎΠΌΠΎΡΠΈ ΠΌΡΡΠΈ. Π’Π΅ΠΏΠ΅ΡΡ ΡΡΡΠ°Π½ΠΎΠ²ΠΈΡΡ Π΄ΠΈΠ²Π°Π½, Ρ ΠΎΠ»ΠΎΠ΄ΠΈΠ»ΡΠ½ΠΈΠΊ ΠΈΠ»ΠΈ Π·Π΅ΡΠΊΠ°Π»ΠΎ ΠΏΡΠΎΡΠ΅, ΡΠ΅ΠΌ ΠΊΠΎΠ³Π΄Π° Π»ΠΈΠ±ΠΎ.
Π‘ΠΎΠ·Π΄Π°ΠΉΡΠ΅ ΠΏΠΎΠΌΠ΅ΡΠ΅Π½ΠΈΠ΅ ΠΏΠΎ Π²Π°ΡΠΈΠΌ ΡΠ°Π·ΠΌΠ΅ΡΠ°ΠΌ ΠΈ Π»Π΅Π³ΠΊΠΎ ΡΠ°Π·ΠΌΠ΅ΡΡΠΈΡΠ΅ ΠΌΠ΅Π±Π΅Π»Ρ, Π² ΡΠ²ΠΎΠΉΡΡΠ²Π°Ρ ΠΌΠ΅Π±Π΅Π»ΠΈΒ ΠΌΠΎΠΆΠ½ΠΎ ΡΠΊΠ°Π·Π°ΡΡ ΠΏΡΠΎΠΈΠ·Π²ΠΎΠ»ΡΠ½ΡΠ΅ ΡΠ°Π·ΠΌΠ΅ΡΡ ΡΠΈΡΠΈΠ½Ρ, Π΄Π»ΠΈΠ½Ρ ΠΈ Π²ΡΡΠΎΡΡ. ΠΡΠΈ ΠΏΠΎΠΌΠΎΡΠΈ ΠΏΡΠΎΠ³ΡΠ°ΠΌΠΌΡ Π²Ρ ΡΠΌΠΎΠΆΠ΅ΡΠ΅ ΡΠ°ΡΡΡΠ°Π²ΠΈΡΡ ΠΌΠ΅Π±Π΅Π»Ρ Ρ ΡΠΎΡΠ½ΠΎΡΡΡΡ Π΄ΠΎ ΠΌΠΈΠ»Π»ΠΈΠΌΠ΅ΡΡΠ°. ΠΡΠ΅ ΡΠ°Π·ΠΌΠ΅ΡΡ ΠΈ ΡΠ°ΡΡΡΠΎΡΠ½ΠΈΡ Π² ΡΠ΄ΠΎΠ±Π½ΠΎΠΌ Π²ΠΈΠ΄Π΅ΠΎ ΠΏΠΎΠΊΠ°Π·ΡΠ²Π°ΡΡΡΡ Π½Π° ΡΠ°Π±ΠΎΡΠ΅ΠΉ ΠΏΠΎΠ²Π΅ΡΡ Π½ΠΎΡΡΠΈ ΠΏΡΠΈ ΠΏΠ΅ΡΠ΅ΠΌΠ΅ΡΠ΅Π½ΠΈΠΈ ΠΈ ΡΠΎΠ·Π΄Π°Π½ΠΈΠΈ ΡΠ»Π΅ΠΌΠ΅Π½ΡΠΎΠ².
ΠΠΈΠ·Π°ΠΉΠ½ ΠΈΠ½ΡΠ΅ΡΡΠ΅ΡΠ° ΡΡΠΎ ΠΎΡΠ΅Π½Ρ ΠΏΡΠΎΡΡΠΎ

Π‘ΠΎΠ·Π΄Π°Π²Π°ΠΉΡΠ΅ ΡΠ½ΠΈΠΊΠ°Π»ΡΠ½ΡΠ΅ Π΄ΠΈΠ·Π°ΠΉΠ½Ρ ΠΈΠ½ΡΠ΅ΡΡΠ΅ΡΠ°, Π΄Π°ΠΆΠ΅ Π΅ΡΠ»ΠΈ Π²Ρ Π½ΠΈΠΊΠΎΠ³Π΄Π° Π½Π΅ Π·Π°Π½ΠΈΠΌΠ°Π»ΠΈΡΡ Π΄ΠΈΠ·Π°ΠΉΠ½ΠΎΠΌ.Β Π ΠΏΡΠΎΠ³ΡΠ°ΠΌΠΌΠ΅ ΠΏΡΠ΅Π΄ΡΡΠ°Π²Π»Π΅Π½ ΠΎΠ±ΡΠΈΡΠ½ΡΠΉ ΠΊΠ°ΡΠ°Π»ΠΎΠ³ ΠΌΠ΅Π±Π΅Π»ΠΈ ΠΈ ΡΠ΅Ρ Π½ΠΈΠΊΠΈ Π΄Π»Ρ ΡΠ°Π·Π½ΡΡ Π²ΠΈΠ΄ΠΎΠ² ΠΏΠΎΠΌΠ΅ΡΠ΅Π½ΠΈΠΉ.
ΠΡ ΡΠΌΠΎΠΆΠ΅ΡΠ΅ ΠΌΠ΅Π½ΡΡΡ Π·Π°Π»ΠΈΠ²ΠΊΡ ΠΈ ΡΠ΅ΠΊΡΡΡΡΡ Π²ΡΠ±ΡΠ°Π½Π½ΡΡ ΠΎΠ±ΡΠ΅ΠΊΡΠΎΠ². Π ΡΠ°ΡΠΏΠΎΡΡΠΆΠ΅Π½ΠΈΠΈ ΡΠ°Π·ΡΠ°Π±ΠΎΡΠΊΠ° ΡΠ°ΠΌΡΠ΅ ΠΏΠΎΠΏΡΠ»ΡΡΠ½ΡΠ΅ Π²ΠΈΠ΄Ρ ΠΌΠ°ΡΠ΅ΡΠΈΠ°Π»ΠΎΠ² Π² ΡΠ°Π·Π½ΡΡ Π²Π°ΡΠΈΠ°Π½ΡΠ°Ρ ΠΈΡΠΏΠΎΠ»Π½Π΅Π½ΠΈΡ: ΠΊΠ°ΠΌΠ΅Π½Ρ, ΠΌΠ΅ΡΠ°Π»Π», Π΄Π΅ΡΠ΅Π²ΠΎ, ΡΠΊΠ°Π½Ρ. ΠΠ΅ Π½ΡΠ°Π²ΡΡΡΡ ΠΎΠ±ΠΎΠΈ, ΠΏΠΎΠ» ΠΈ ΡΡΠ΅Π½Ρ, ΠΏΡΠΎΡΡΠΎ ΡΠ΄Π΅Π»Π°ΠΉΡΠ΅ Π½Π΅ΡΠΊΠΎΠ»ΡΠΊΠΎ ΠΊΠ»ΠΈΠΊΠΎΠ² ΠΌΡΡΠΈ ΠΈ ΠΏΡΠ΅ΠΎΠ±ΡΠ°Π·ΠΈΡΠ΅ ΡΠ²ΠΎΠ΅ ΠΏΠΎΠΌΠ΅ΡΠ΅Π½ΠΈΠ΅.
Π‘Π²ΡΡΠ΅ 120 Π²ΡΡΡΠΎΠ΅Π½Π½ΡΡ ΠΌΠ°ΡΠ΅ΡΠΈΠ°Π»ΠΎΠ² ΠΎΡΠ΄Π΅Π»ΠΊΠΈ (ΡΠ°Π·Π»ΠΈΡΠ½ΡΠ΅ Π²ΠΈΠ΄Ρ ΠΎΠ±ΠΎΠ΅Π², Π»Π°ΠΌΠΈΠ½Π°Ρ, ΠΏΠ°ΡΠΊΠ΅Ρ, Π»ΠΈΠ½ΠΎΠ»Π΅ΡΠΌ, ΠΏΠ»ΠΈΡΠΊΠ° ΠΈ Ρ.ΠΏ.)
ΠΡΡΡΠΎΠ΅Π½Π½ΡΠΉ Π½Π°Π±ΠΎΡ ΡΠΈΠΏΠΎΠ²ΡΡ
ΠΏΠ»Π°Π½ΠΈΡΠΎΠ²ΠΎΠΊ

ΠΠ΅Ρ ΠΆΠ΅Π»Π°Π½ΠΈΡ ΠΈΠ»ΠΈ Π²ΠΎΠ·ΠΌΠΎΠΆΠ½ΠΎΡΡΠΈ ΡΠ°ΠΌΠΎΡΡΠΎΡΡΠ΅Π»ΡΠ½ΠΎ Π½Π°ΡΠΈΡΠΎΠ²Π°ΡΡ ΠΏΠ»Π°Π½ΠΈΡΠΎΠ²ΠΊΡ ΠΊΠ²Π°ΡΡΠΈΡΡ? ΠΠΎΠΆΠ½ΠΎ ΠΏΡΠΎΡΡΠΎ Π²ΠΎΡΠΏΠΎΠ»ΡΠ·ΠΎΠ²Π°ΡΡΡΡ Π²ΡΡΡΠΎΠ΅Π½Π½ΡΠΌΠΈ Π½Π°Π±ΠΎΡΠ°ΠΌΠΈ ΠΏΠ»Π°Π½ΠΈΡΠΎΠ²ΠΎΠΊ, ΠΊΠΎΡΠΎΡΡΠ΅ ΠΏΠΎΡΡΠΎΡΠ½Π½ΠΎ ΠΎΠ±Π½ΠΎΠ²Π»ΡΡΡΡΡ ΠΈ Π΄ΠΎΠΏΠΎΠ»Π½ΡΡΡΡΡ ΡΠ°Π·ΡΠ°Π±ΠΎΡΡΠΈΠΊΠ°ΠΌΠΈ ΠΏΡΠΎΠ³ΡΠ°ΠΌΠΌΡ.
Π Π½Π°Π±ΠΎΡΠ°Ρ ΠΏΡΠ΅Π΄ΡΡΠ°Π²Π»Π΅Π½Ρ ΡΠΈΠΏΠΎΠ²ΡΠ΅ ΡΠ΅ΡΠ΅Π½ΠΈΡ ΠΎΡ ΠΎΠ΄Π½ΠΎΠΊΠΎΠΌΠ½Π°ΡΠ½ΡΡ Π΄ΠΎ ΡΠ΅ΡΡΡΠ΅Ρ ΠΊΠΎΠΌΠ½Π°ΡΠ½ΡΡ ΠΊΠ²Π°ΡΡΠΈΡ. ΠΡΠ±ΠΈΡΠ°ΠΉΡΠ΅ ΠΏΠΎΠ΄Ρ ΠΎΠ΄ΡΡΠΈΠΉ Π²Π°ΡΠΈΠ°Π½Ρ ΡΠΈΠΏΠΎΠ²ΠΎΠΉ ΠΏΠ»Π°Π½ΠΈΡΠΎΠ²ΠΊΠΈ, ΠΊΠΎΡΠΎΡΡΠΉ ΡΠΆΠ΅ ΡΠ΄Π΅Π»Π°Π½ Ρ ΡΠΎΠ±Π»ΡΠ΄Π΅Π½ΠΈΠ΅ΠΌ Π²ΡΠ΅Ρ ΠΏΡΠΎΠΏΠΎΡΡΠΈΠΉ ΠΈ ΡΠ°ΡΡΡΠ°Π²Π»ΡΠΉΡΠ΅ ΠΌΠ΅Π±Π΅Π»Ρ, ΡΠ΅Ρ Π½ΠΈΠΊΡ ΠΈ ΠΎΡΠΎΡΠΌΠ»ΡΠΉΡΠ΅ ΠΏΠΎΠΌΠ΅ΡΠ΅Π½ΠΈΠ΅ ΠΏΠΎ ΡΠ²ΠΎΠ΅ΠΌΡ Π²ΠΊΡΡΡ.
Π‘ΠΎΡ
ΡΠ°Π½Π΅Π½ΠΈΠ΅ ΠΈ ΡΠ°ΡΠΏΠ΅ΡΠ°ΡΠΊΠ° ΠΏΡΠΎΠ΅ΠΊΡΠΎΠ²

Π£Π΄ΠΎΠ±ΡΡΠ²ΠΎ ΠΏΡΠΎΠ΅ΠΊΡΠΈΡΠΎΠ²Π°Π½ΠΈΡ Π² ΠΏΡΠΎΠ³ΡΠ°ΠΌΠΌΠ΅ ΠΎΠ±Π΅ΡΠΏΠ΅ΡΠΈΠ²Π°Π΅ΡΡΡ Π²ΠΎΠ·ΠΌΠΎΠΆΠ½ΠΎΡΡΡΡ ΠΏΡΠΎΡΠΌΠ°ΡΡΠΈΠ²Π°ΡΡ ΠΈ ΡΠ΅Π΄Π°ΠΊΡΠΈΡΠΎΠ²Π°ΡΡ ΠΎΡ ΡΠ°Π½Π΅Π½Π½ΡΠ΅ ΠΏΡΠΎΠ΅ΠΊΡΡ.
Π‘ΠΎΠ·Π΄Π°Π½Π½ΡΠ΅ ΠΏΡΠΎΡΠΎΡΠΈΠΏΡ ΠΈΠ½ΡΠ΅ΡΡΠ΅ΡΠΎΠ² ΠΌΠΎΠΆΠ½ΠΎ ΡΠΎΡ ΡΠ°Π½ΡΡΡ Π² ΡΠΈΠΏΠΎΠ²ΡΠ΅ ΠΏΡΠΎΠ΅ΠΊΡΡ ΠΈ ΡΠ°ΡΠΏΠ΅ΡΠ°ΡΡΠ²Π°ΡΡ Π½Π° ΠΏΡΠΈΠ½ΡΠ΅ΡΠ΅.Β Π’Π°ΠΊΠΆΠ΅, ΠΏΡΠΎΠ³ΡΠ°ΠΌΠΌΠ° ΡΠΌΠ΅Π΅Ρ ΡΠΊΡΠΏΠΎΡΡΠΈΡΠΎΠ²Π°ΡΡ ΠΏΡΠΎΠ΅ΠΊΡΡ Π² jpeg ΠΈΠ·ΠΎΠ±ΡΠ°ΠΆΠ΅Π½ΠΈΡ ΠΈ PDF ΡΠΎΡΠΌΠ°ΡΡ.
Π‘ΠΊΠ°ΡΠ°ΡΡ ΠΠΈΠ·Π°ΠΉΠ½ ΠΠ½ΡΠ΅ΡΡΠ΅ΡΠ° 3D
ΠΠ΅ΡΠΊΠ°Π»ΠΎ ΠΠΈΠ·Π°ΠΉΠ½ ΠΠ½ΡΠ΅ΡΡΠ΅ΡΠ° 3D
blogosoft.com
remontkvartiri.me
ΠΡΠΎΠ³ΡΠ°ΠΌΠΌΠ° Π΄Π»Ρ ΡΠΎΠ·Π΄Π°Π½ΠΈΡ Π΄ΠΈΠ·Π°ΠΉΠ½ ΠΏΡΠΎΠ΅ΠΊΡΠ° ΠΊΠ²Π°ΡΡΠΈΡΡ β Π Π΅ΠΌΠΎΠ½Ρ ΠΊΠ²Π°ΡΡΠΈΡ
Π Π΅ΠΌΠΎΠ½Ρ Π²ΡΠ΅Π³Π΄Π° ΠΏΡΠ΅Π΄ΠΏΠΎΠ»Π°Π³Π°Π΅Ρ ΠΏΡΠΎΠ²Π΅Π΄Π΅Π½ΠΈΠ΅ Π΄ΠΎΠ²ΠΎΠ»ΡΠ½ΠΎ Π·Π°ΡΡΡΠ΄Π½ΠΈΡΠ΅Π»ΡΠ½ΡΡ ΡΠ°Π±ΠΎΡ. ΠΠ΅ΠΌΠ°Π»ΠΎΠ²Π°ΠΆΠ½ΡΠΌ Π°ΡΠΏΠ΅ΠΊΡΠΎΠΌ Π·Π΄Π΅ΡΡ ΡΠ²Π»ΡΠ΅ΡΡΡ ΠΏΡΠΎΠ΅ΠΊΡΠΈΡΠΎΠ²Π°Π½ΠΈΠ΅ Π½ΠΎΠ²ΠΎΠ³ΠΎ Π΄ΠΈΠ·Π°ΠΉΠ½Π° ΠΏΠΎΠΌΠ΅ΡΠ΅Π½ΠΈΡ, ΠΏΠΎΡΠΎΠΌΡ ΠΊΠ°ΠΊ ΠΏΡΠ΅ΠΆΠ½ΠΈΠΉ ΠΈΠ½ΡΠ΅ΡΡΠ΅Ρ ΠΏΠ΅ΡΠ΅ΡΡΠ°Π» Π΄ΠΎΡΡΠ°Π²Π»ΡΡΡ ΡΠ°Π΄ΠΎΡΡΠΈ, Π° ΠΈΠ½ΠΎΠ³Π΄Π° ΡΠΆΠ΅ ΠΏΡΠΎΡΡΠΎ Π½Π΅ ΠΏΠΎΠ΄Ρ ΠΎΠ΄ΠΈΡ Π΄Π»Ρ Π±ΠΎΠ»ΡΡΠΎΠΉ ΠΈ Π΄ΡΡΠΆΠ½ΠΎΠΉ ΡΠ΅ΠΌΡΠΈ. Π Π°Π·ΡΠ°Π±ΠΎΡΠ°ΡΡ Π½ΠΎΠ²ΡΠΉ Π΄ΠΈΠ·Π°ΠΉΠ½-ΠΏΡΠΎΠ΅ΠΊΡ ΠΊΠ°ΠΆΠ΅ΡΡΡ Π½Π΅ΡΡΡΠ΄Π½ΡΠΌ Π·Π°Π½ΡΡΠΈΠ΅ΠΌ, Π½ΠΎ ΡΠΆΠ΅ Π½Π° ΠΏΠ΅ΡΠ²ΠΎΠ½Π°ΡΠ°Π»ΡΠ½ΡΡ ΡΡΠ°ΠΏΠ°Ρ ΠΏΡΠΈΡ ΠΎΠ΄ΠΈΡΡΡ ΠΎΠ±ΡΠ°ΡΠ°ΡΡΡΡ ΠΊ ΡΠΏΠ΅ΡΠΈΠ°Π»ΠΈΡΡΠ°ΠΌ Π·Π° ΠΏΠΎΠΌΠΎΡΡΡ. ΠΠΊΠ°Π·Π°Π½ΠΈΠ΅ ΡΡΠ»ΡΠ³ ΠΏΡΠΎΡΠ΅ΡΡΠΈΠΎΠ½Π°Π»Π° ΠΏΡΠΈΠ²ΠΎΠ΄ΠΈΡ ΠΊ ΠΌΠ°ΡΠ΅ΡΠΈΠ°Π»ΡΠ½ΡΠΌ ΠΏΠΎΡΠ΅ΡΡΠΌ, ΡΡΠΎ Π·Π°ΡΠ°ΡΡΡΡ Π½Π΅ ΠΏΡΠ΅Π΄ΡΡΠ°Π²Π»ΡΠ΅ΡΡΡ Π²ΠΎΠ·ΠΌΠΎΠΆΠ½ΡΠΌ. Π§ΡΠΎ ΠΆΠ΅ Π΄Π΅Π»Π°ΡΡ? ΠΡΠ²Π΅Ρ ΠΎΠ΄ΠΈΠ½ β ΡΠ°ΠΌΠΎΡΡΠΎΡΡΠ΅Π»ΡΠ½ΠΎ Π²ΠΎΡΠΏΠΎΠ»ΡΠ·ΠΎΠ²Π°ΡΡΡΡ ΠΏΡΠΎΠ³ΡΠ°ΠΌΠΌΠΎΠΉ Π΄Π»Ρ ΡΠΎΠ·Π΄Π°Π½ΠΈΡ Π΄ΠΈΠ·Π°ΠΉΠ½-ΠΏΡΠΎΠ΅ΠΊΡΠ° ΠΈ ΠΏΠ»Π°Π½ΠΈΡΠΎΠ²Π°Π½ΠΈΡ ΡΠ΅ΠΌΠΎΠ½ΡΠ°, ΠΊΠΎΡΠΎΡΡΡ Π½Π° ΡΠ΅Π³ΠΎΠ΄Π½ΡΡΠ½ΠΈΠΉ Π΄Π΅Π½Ρ ΡΡΡΠ΅ΡΡΠ²ΡΠ΅Ρ ΠΌΠ½ΠΎΠ³ΠΎ.
ΠΡΠ΅ΠΈΠΌΡΡΠ΅ΡΡΠ²Π° ΠΏΡΠΎΠ³ΡΠ°ΠΌΠΌ Π΄Π»Ρ ΡΠΎΠ·Π΄Π°Π½ΠΈΡ Π΄ΠΈΠ·Π°ΠΉΠ½-ΠΏΡΠΎΠ΅ΠΊΡΠΎΠ²
ΠΡΠΎΠ³ΡΠ°ΠΌΠΌΡ Π΄Π»Ρ Π΄ΠΈΠ·Π°ΠΉΠ½Π° ΠΊΠ²Π°ΡΡΠΈΡΡ ΠΈ ΠΏΠ»Π°Π½ΠΈΡΠΎΠ²Π°Π½ΠΈΡ ΡΠ΅ΠΌΠΎΠ½ΡΠ° ΠΌΠΎΠ³ΡΡ ΠΈΠ·Π±Π°Π²ΠΈΡΡ Π²Π°Ρ ΠΎΡ ΡΠ°ΠΊΠΈΡ ΠΏΡΠΎΠ±Π»Π΅ΠΌ, ΠΊΠ°ΠΊ Π²ΡΠ±ΠΎΡ ΠΎΡΡΠ΅Π½ΠΊΠ° Π΄Π»Ρ ΠΎΡΠΎΡΠΌΠ»Π΅Π½ΠΈΡ ΡΡΠ΅Π½, ΡΠ°ΠΌΠΎΡΡΠΎΡΡΠ΅Π»ΡΠ½ΠΎΠ³ΠΎ ΡΠ°ΡΡΠ΅ΡΠ° ΡΡΡΠΎΠΉΠΌΠ°ΡΠ΅ΡΠΈΠ°Π»ΠΎΠ² ΠΈ ΠΏΡΠΎΡΠΈΡ Π½Π΅ΡΡΡΠ΄ΠΈΡ. ΠΠ»Π°Π³ΠΎΠ΄Π°ΡΡ ΠΈΠΌ Π²Ρ ΡΠ΅ΠΏΠ΅ΡΡ ΡΠΌΠΎΠΆΠ΅ΡΠ΅ Π²ΠΎΡΡΠΎΠ·Π΄Π°ΡΡ ΡΠ²ΠΎΠΈ Π·Π°Π΄ΡΠΌΠΊΠΈ Π² Π΄Π΅Π»Π΅, Π° ΠΈΠΌΠ΅Π½Π½ΠΎ, Ρ ΡΠ΅Π±Ρ Π² ΠΊΠ²Π°ΡΡΠΈΡΠ΅. ΠΡΠΎΠΌΠ΅ ΡΠΎΠ³ΠΎ, Ρ ΠΏΠΎΠΌΠΎΡΡΡ ΡΡΠ΄Π° ΡΡΠ½ΠΊΡΠΈΠΉ Π²Ρ ΠΏΠΎΡΠΊΡΠΏΠ΅ΡΠΈΠΌΠ΅Π½ΡΠΈΡΡΠΉΡΠ΅ Π½Π΅ ΡΠΎΠ»ΡΠΊΠΎ Ρ ΠΊΠ°ΡΠ΄ΠΈΠ½Π°Π»ΡΠ½ΠΎΠΉ ΠΏΠ΅ΡΠ΅ΡΡΠ°Π½ΠΎΠ²ΠΊΠΎΠΉ ΠΌΠ΅Π±Π΅Π»ΠΈ, Π½ΠΎ ΠΈ ΡΠΌΠΎΠΆΠ΅ΡΠ΅ Β«ΠΎΠΏΡΠΎΠ±ΠΎΠ²Π°ΡΡΒ» ΠΏΠ΅ΡΠ΅Π΄Π΅Π»ΠΊΡ Π²ΡΠ΅Π³ΠΎ ΠΏΠΎΠΌΠ΅ΡΠ΅Π½ΠΈΡ β ΠΏΠ΅ΡΠ΅ΠΌΠ΅ΡΡΠΈΡΡ Π΄Π²Π΅ΡΡ, ΡΠΎΠ·Π΄Π°ΡΡ ΠΊΠ²Π°ΡΡΠΈΡΡ ΡΡΡΠ΄ΠΈΡ, ΡΠ°ΡΡΡΠ°Π²ΠΈΡΡ Π΄ΠΎΠΏΠΎΠ»Π½ΠΈΡΠ΅Π»ΡΠ½ΡΠ΅ ΠΏΠ΅ΡΠ΅Π³ΠΎΡΠΎΠ΄ΠΊΠΈ ΠΈ ΠΏΡΠΎΡΠΈΠ΅ ΠΌΠ°Π½ΠΈΠΏΡΠ»ΡΡΠΈΠΈ.
ΠΠ΅ΡΠ΅ΡΠΈΡΠ»Π΅Π½Π½ΡΠ΅ Π°ΡΠΏΠ΅ΠΊΡΡ Π½Π΅ Π΅Π΄ΠΈΠ½ΡΡΠ²Π΅Π½Π½ΡΠ΅ Π² ΠΈΡΠΏΠΎΠ»ΡΠ·ΠΎΠ²Π°Π½ΠΈΠΈ ΠΏΡΠΎΠ³ΡΠ°ΠΌΠΌΡ. ΠΠ΄Π΅ΡΡ ΠΌΠΎΠΆΠ½ΠΎ Π²ΡΠ΄Π΅Π»ΠΈΡΡ ΡΡΠ΄ ΠΏΠΎΠ»Π΅Π·Π½ΡΡ ΠΎΡΠΎΠ±Π΅Π½Π½ΠΎΡΡΠ΅ΠΉ:
- Π‘ ΠΏΠΎΠΌΠΎΡΡΡ ΠΏΡΠΎΠ΅ΠΊΡΠΈΡΠΎΠ²Π°Π½ΠΈΡ Π²Ρ ΡΠΌΠΎΠΆΠ΅ΡΠ΅ ΡΠ°Π·ΠΌΠ΅ΡΡΠΈΡΡ Π½Π΅ΠΎΠ±Ρ ΠΎΠ΄ΠΈΠΌΡΠ΅ ΠΊΠΎΠΌΠΌΡΠ½ΠΈΠΊΠ°ΡΠΈΠΈ β ΡΠ»Π΅ΠΊΡΡΠΈΡΠ΅ΡΡΠ²ΠΎ, Π²ΠΎΠ΄ΠΎΠΏΡΠΎΠ²ΠΎΠ΄Π½ΡΠ΅ ΠΈ ΠΊΠ°Π½Π°Π»ΠΈΠ·Π°ΡΠΈΠΎΠ½Π½ΡΠ΅ ΡΡΡΠ±Ρ, Π΅ΡΠ»ΠΈ ΠΏΠ»Π°Π½ΠΈΡΡΠ΅ΡΡΡ ΠΏΠ΅ΡΠ΅Π½ΠΎΡ ΠΈΠ»ΠΈ ΠΈΡ ΠΏΠ΅ΡΠ²ΠΎΠ½Π°ΡΠ°Π»ΡΠ½ΠΎΠ΅ ΡΠ°ΡΠΏΠΎΠ»ΠΎΠΆΠ΅Π½ΠΈΠ΅ ΠΏΡΠΈ ΡΡΡΠΎΠΈΡΠ΅Π»ΡΡΡΠ²Π΅ ΡΠ°ΡΡΠ½ΠΎΠΉ ΠΏΠΎΡΡΡΠΎΠΉΠΊΠΈ.
- ΠΠ°ΠΊ ΠΏΡΠ°Π²ΠΈΠ»ΠΎ, Π²ΡΠ΅ ΠΏΡΠΎΠ³ΡΠ°ΠΌΠΌΡ ΠΏΠΎΠ·Π²ΠΎΠ»ΡΡΡ ΡΠ°ΡΡΠΌΠΎΡΡΠ΅ΡΡ Π΄ΠΈΠ·Π°ΠΉΠ½ Π² ΡΡΠ΅Ρ ΠΌΠ΅ΡΠ½ΠΎΠΌ ΠΈΠ·ΠΌΠ΅ΡΠ΅Π½ΠΈΠΈ. Π‘ Π΅Π³ΠΎ ΠΏΠΎΠΌΠΎΡΡΡ ΠΌΠΎΠΆΠ½ΠΎ Π²ΡΡΠ²ΠΈΡΡ Π½Π΅Π΄ΠΎΡΠ΅ΡΡ Π΅ΡΠ΅ Π½Π° ΡΡΠ°ΠΏΠ΅ ΠΏΡΠΎΠ΅ΠΊΡΠΈΡΠΎΠ²Π°Π½ΠΈΡ β ΡΡΠΎ ΠΈΠ·Π±Π°Π²ΠΈΡ ΠΎΡ Π΄Π°Π»ΡΠ½Π΅ΠΉΡΠΈΡ ΠΏΡΠΎΠ±Π»Π΅ΠΌ.
- ΠΡ ΠΎΠ΄Π½ΠΎΠ²ΡΠ΅ΠΌΠ΅Π½Π½ΠΎ ΡΠΌΠΎΠΆΠ΅ΡΠ΅ Β«ΡΠ°ΡΡΡΠ°Π²ΠΈΡΡΒ» ΠΌΠ΅Π±Π΅Π»Ρ Π² Π½Π΅ΡΠΊΠΎΠ»ΡΠΊΠΈΡ ΠΊΠΎΠΌΠ½Π°ΡΠ°Ρ , ΡΡΠΎ ΠΏΠΎΠ·Π²ΠΎΠ»ΠΈΡ ΠΏΡΠΎΠ²Π΅ΡΡΠΈ ΠΎΠΏΡΠ΅Π΄Π΅Π»Π΅Π½Π½ΠΎΠ΅ ΡΠΎΠΎΡΠ²Π΅ΡΡΡΠ²ΠΈΠ΅. Π ΠΏΡΠΈΠΌΠ΅ΡΡ, Π΅ΡΠ»ΠΈ Π²Ρ ΡΠΎΠ·Π΄Π°Π΅ΡΠ΅ Π΄ΠΈΠ·Π°ΠΉΠ½-ΠΏΡΠΎΠ΅ΠΊΡ ΠΊΠ²Π°ΡΡΠΈΡΡ ΡΡΡΠ΄ΠΈΠΈ.
Π ΠΏΡΠΎΠ³ΡΠ°ΠΌΠΌΠ°Ρ Π½Π΅ ΠΏΡΠΈΡ ΠΎΠ΄ΠΈΡΡΡ ΡΠ°ΠΌΠΎΡΡΠΎΡΡΠ΅Π»ΡΠ½ΠΎ ΠΏΡΠΎΠ²ΠΎΠ΄ΠΈΡΡ ΡΠ°ΡΡΠ΅ΡΡ ΠΈΠ»ΠΈ Π·Π°Π½ΠΈΠΌΠ°ΡΡΡΡ ΡΠΈΡΠΎΠ²Π°Π½ΠΈΠ΅ΠΌ. ΠΠ½Π° Π²ΡΠ΅ Π΄Π΅Π»Π°Π΅Ρ ΡΠ°ΠΌΠ°.
ΠΠΎΠ»Π΅Π΅ ΡΠΎΠ³ΠΎ, Π΅ΡΡΡ Π½Π΅ΠΊΠΎΡΠΎΡΡΠ΅ ΠΏΡΠΎΠ³ΡΠ°ΠΌΠΌΠ½ΡΠ΅ ΠΎΠ±Π΅ΡΠΏΠ΅ΡΠ΅Π½ΠΈΡ, ΠΏΡΠ΅Π΄Π»Π°Π³Π°ΡΡΠΈΠ΅ ΡΠΆΠ΅ ΡΡΡΠΎΡΠ²ΡΠΈΠΉΡΡ ΡΡΠΈΠ»Ρ ΠΈΠ½ΡΠ΅ΡΡΠ΅ΡΠ°. ΠΠ°ΠΌ Π½Π΅ΠΎΠ±Ρ ΠΎΠ΄ΠΈΠΌΠΎ ΡΠΎΠ»ΡΠΊΠΎ Π²ΠΎΡΡΠΎΠ·Π΄Π°ΡΡ ΡΠ²ΠΎΠ΅ ΠΏΠΎΠΌΠ΅ΡΠ΅Π½ΠΈΠ΅ Ρ Π²ΠΊΠ»ΡΡΠ΅Π½ΠΈΠ΅ΠΌ Π΄Π»ΠΈΠ½Ρ ΠΈ Π²ΡΡΠΎΡΡ ΡΡΠ΅Π½, ΠΏΡΠΎΠ΅ΠΌΠ° Π΄Π²Π΅ΡΠΈ ΠΈΠ»ΠΈ ΠΎΠΊΠ½Π°.
ΠΡΠ±ΠΎΡ ΠΏΡΠΎΠ³ΡΠ°ΠΌΠΌΡ Π΄Π»Ρ Π΄ΠΈΠ·Π°ΠΉΠ½Π° ΠΈ ΠΏΠ»Π°Π½ΠΈΡΠΎΠ²Π°Π½ΠΈΡ
Π‘Π΅Π³ΠΎΠ΄Π½Ρ ΠΌΠΎΠΆΠ½ΠΎ Π²ΡΠ΄Π΅Π»ΠΈΡΡ ΡΡΠ΄ ΡΠΏΡΠΎΡΠ΅Π½Π½ΡΡ ΠΏΡΠΎΠ³ΡΠ°ΠΌΠΌΠ½ΡΡ ΠΎΠ±Π΅ΡΠΏΠ΅ΡΠ΅Π½ΠΈΠΉ ΠΈ Ρ Π΄ΠΎΠΏΠΎΠ»Π½ΠΈΡΠ΅Π»ΡΠ½ΡΠΌ ΠΏΠ°ΠΊΠ΅ΡΠΎΠΌ ΡΡΠ½ΠΊΡΠΈΠΉ. Π£ΠΏΡΠΎΡΠ΅Π½Π½ΡΠ΅ Π²Π°ΡΠΈΠ°Π½ΡΡ ΠΏΠΎΠ΄ΠΎΠΉΠ΄ΡΡ Π΄Π»Ρ Π΄ΠΈΠ·Π°ΠΉΠ½Π°, Π° Π²ΠΎΡ Π΄ΠΎΠΏΠΎΠ»Π½ΠΈΡΠ΅Π»ΡΠ½ΡΠ΅ ΡΡΠ½ΠΊΡΠΈΠΈ ΠΏΠΎΠ½Π°Π΄ΠΎΠ±ΡΡΡΡ Π΄Π»Ρ ΠΏΡΠΎΠ΅ΠΊΡΠΈΡΠΎΠ²Π°Π½ΠΈΡ Π½ΠΎΠ²ΠΎΠΉ ΠΏΠΎΡΡΡΠΎΠΉΠΊΠΈ, ΠΏΡΠΎΠ²Π΅Π΄Π΅Π½ΠΈΡ ΠΏΠ΅ΡΠ΅ΠΏΠ»Π°Π½ΠΈΡΠΎΠ²ΠΊΠΈ ΠΈ ΠΏΡΠΎΡΠΈΡ ΡΠ΅ΡΡΠ΅Π·Π½ΡΡ Π΄Π΅ΠΉΡΡΠ²ΠΈΠΉ, ΡΡΠ΅Π±ΡΡΡΠΈΠ΅ ΡΡΠ°ΡΠ΅Π»ΡΠ½ΠΎΠ³ΠΎ ΠΏΡΠΎΡΡΠ΅ΡΠ° Π²ΠΎ ΠΈΠ·Π±Π΅ΠΆΠ°Π½ΠΈΠ΅ Π½Π΅ΠΏΡΠΈΡΡΠ½ΠΎΡΡΠ΅ΠΉ ΠΈ Π΄Π»Ρ Π±Π΅Π·ΠΎΠΏΠ°ΡΠ½ΠΎΡΡΠΈ Π²ΡΠ΅ΠΉ ΡΠ΅ΠΌΡΠΈ.
Π ΠΎΡΠ½ΠΎΠ²Π½ΡΠΌ ΠΊΡΠΈΡΠ΅ΡΠΈΡΠΌ Π²ΡΠ±ΠΎΡΠ° ΠΏΡΠΎΠ³ΡΠ°ΠΌΠΌΡ ΠΌΠΎΠΆΠ½ΠΎ ΠΎΡΠ½Π΅ΡΡΠΈ:
- ΠΡΠ±ΠΈΡΠ°ΠΉΡΠ΅ ΡΠΎΡ ΠΏΠ°ΠΊΠ΅Ρ Π²ΠΎΠ·ΠΌΠΎΠΆΠ½ΠΎΠ³ΠΎ ΠΎΠ±Π΅ΡΠΏΠ΅ΡΠ΅Π½ΠΈΡ, ΠΊΠΎΡΠΎΡΡΠΉ ΠΌΠΎΠΆΠ½ΠΎ ΡΡΡΠ°Π½ΠΎΠ²ΠΈΡΡ Π½Π° Π²Π°ΡΠ΅ΠΌ ΠΊΠΎΠΌΠΏΡΡΡΠ΅ΡΠ΅ Π² ΡΠΈΠ»Ρ ΡΠΎΠΎΡΠ²Π΅ΡΡΡΠ²ΠΈΡ ΡΠΈΡΡΠ΅ΠΌΠ½ΡΠΌ ΡΡΠ΅Π±ΠΎΠ²Π°Π½ΠΈΡΠΌ. ΠΡΠΈ Π½Π°Π»ΠΈΡΠΈΠΈ Ρ ΠΎΡΡ Π±Ρ ΠΎΠ΄Π½ΠΎΠ³ΠΎ Π½Π΅ΡΠΎΠ²ΠΏΠ°Π΄Π΅Π½ΠΈΡ ΠΏΡΠΎΠ³ΡΠ°ΠΌΠΌΠ° Π½Π΅ ΡΡΡΠ°Π½ΠΎΠ²ΠΈΡΡΡ ΠΈΠ»ΠΈ Π½Π΅ Π·Π°ΠΏΡΡΡΠΈΡΡΡ.
- ΠΡΠ±ΠΈΡΠ°ΠΉΡΠ΅ Π΄ΠΎΡΡΡΠΏΠ½ΠΎΡΡΡ ΠΈΠ½ΡΠ΅ΡΡΠ΅ΠΉΡΠ° ΡΠΎΠ³Π»Π°ΡΠ½ΠΎ Π²Π°ΡΠΈΠΌ ΠΊΠΎΠΌΠΏΡΡΡΠ΅ΡΠ½ΡΠΌ Π·Π½Π°Π½ΠΈΡΠΌ. ΠΡΠ΅Π½Ρ ΠΌΠ½ΠΎΠ³ΠΎ ΠΏΡΠΎΠ³ΡΠ°ΠΌΠΌ ΡΠΎΡΡΠ°Π²Π»Π΅Π½Ρ Π½Π° Π°Π½Π³Π»ΠΈΠΉΡΠΊΠΎΠΌ ΡΠ·ΡΠΊΠ΅, ΡΡΠΎ Π΄Π»Ρ Π½Π΅ΠΊΠΎΡΠΎΡΡΡ Π½Π΅ ΠΏΡΠ΅Π΄ΡΡΠ°Π²Π»ΡΠ΅ΡΡΡ Π²ΠΎΠ·ΠΌΠΎΠΆΠ½ΡΠΌ Π΄Π»Ρ ΡΠ°Π±ΠΎΡΡ. ΠΠΎΠ½Π΅ΡΠ½ΠΎ ΠΆΠ΅, ΠΈΠ·ΡΡΠΈΡΡ ΠΏΡΠΈ ΠΆΠ΅Π»Π°Π½ΠΈΠΈ ΠΌΠΎΠΆΠ½ΠΎ Π»ΡΠ±ΠΎΠΉ ΠΈΠ½ΡΠ΅ΡΡΠ΅ΠΉΡ, Π½ΠΎ ΡΡΠΎ Π·Π°ΠΉΠΌΠ΅Ρ ΡΠ»ΠΈΡΠΊΠΎΠΌ ΠΌΠ½ΠΎΠ³ΠΎ Π²ΡΠ΅ΠΌΠ΅Π½ΠΈ, ΡΡΠΎ Π²Π΅ΡΡΠΌΠ° Π½Π΅Π²ΡΠ³ΠΎΠ΄Π½ΠΎ. ΠΡΠ±ΠΈΡΠ°ΠΉΡΠ΅ ΡΡΡΡΠΊΠΎΡΠ·ΡΡΠ½ΡΠ΅ Π²Π΅ΡΡΠΈΠΈ.
- ΠΠ΅ ΡΡΠ°ΡΠ°ΠΉΡΠ΅ΡΡ ΠΈΡΠΏΠΎΠ»ΡΠ·ΠΎΠ²Π°ΡΡ ΠΏΡΠΎΡΠ΅ΡΡΠΈΠΎΠ½Π°Π»ΡΠ½ΡΠ΅ ΠΏΡΠΎΠ³ΡΠ°ΠΌΠΌΡ. ΠΠ½ΠΈ Π±ΠΎΠ»ΡΡΠ΅ ΡΠ°ΡΡΡΠΈΡΠ°Π½Ρ Π΄Π»Ρ Π΄ΠΈΠ·Π°ΠΉΠ½Π΅ΡΠΎΠ² ΠΈ ΠΌΠ΅Π½Π΅Π΄ΠΆΠ΅ΡΠΎΠ² ΡΡΡΠΎΠΈΡΠ΅Π»ΡΠ½ΡΡ ΠΈ ΡΠ΅ΠΌΠΎΠ½ΡΠ½ΡΡ ΠΎΡΠ³Π°Π½ΠΈΠ·Π°ΡΠΈΠΉ. ΠΠ΄Π΅ΡΡ ΠΏΡΠΎΠ²ΠΎΠ΄ΠΈΡΡΡΡ ΡΠ°ΡΡΠ΅Ρ ΡΠΌΠ΅ΡΡ ΠΈ ΠΏΡΠΎΡΠΈΠ΅ ΠΏΠΎΠ΄ΠΎΠ±Π½ΡΠ΅ Π΄Π΅ΠΉΡΡΠ²ΠΈΡ. Π Π°Π·ΠΎΠ±ΡΠ°ΡΡΡΡ Π½ΠΎΠ²ΠΈΡΠΊΡ Π² ΡΠ°ΠΊΠΎΠΌ ΠΏΡΠΎΠ³ΡΠ°ΠΌΠΌΠ½ΠΎΠΌ ΠΎΠ±Π΅ΡΠΏΠ΅ΡΠ΅Π½ΠΈΠΈ Π±ΡΠ΄Π΅Ρ Π·Π°ΡΡΡΠ΄Π½ΠΈΡΠ΅Π»ΡΠ½ΠΎ.
ΠΡΠΈ Π²ΡΠ±ΠΎΡΠ΅ ΠΏΡΠΎΠ³ΡΠ°ΠΌΠΌΡ ΠΏΠ»Π°Π½ΠΈΡΠΎΠ²Π°Π½ΠΈΡ Π΄ΠΈΠ·Π°ΠΉΠ½Π° ΠΈ ΡΠ΅ΠΌΠΎΠ½ΡΠ°, Π² ΠΏΠ΅ΡΠ²ΡΡ ΠΎΡΠ΅ΡΠ΅Π΄Ρ, ΠΎΠ±ΡΠ°ΡΠ°ΠΉΡΠ΅ Π²Π½ΠΈΠΌΠ°Π½ΠΈΠ΅ Π½Π° Π»Π΅Π³ΠΊΠΎΡΡΡ Π² ΠΈΡΠΏΠΎΠ»ΡΠ·ΠΎΠ²Π°Π½ΠΈΠΈ. Π ΠΏΡΠΈΠΌΠ΅ΡΡ, ΠΌΠ½ΠΎΠ³ΠΈΠ΅ ΠΈΠ½ΡΠ΅ΡΡΠ΅ΠΉΡΡ, ΡΠΎΡΡΠ°Π²Π»Π΅Π½Π½ΡΠ΅ Π½Π° Π°Π½Π³Π»ΠΈΠΉΡΠΊΠΎΠΌ ΡΠ·ΡΠΊΠ΅ Π² ΡΠ°Π±ΠΎΡΠ΅ ΠΏΡΠΎΡΠ΅, Π½Π΅ΠΆΠ΅Π»ΠΈ ΡΠΏΡΠΎΡΠ΅Π½Π½ΡΠ΅ ΡΡΡΡΠΊΠΎΡΠ·ΡΡΠ½ΡΠ΅ Π²Π°ΡΠΈΠ°Π½ΡΡ. Π Π°Π½Π³Π»ΠΈΠΉΡΠΊΠΎΠΉ ΠΏΡΠΎΠ³ΡΠ°ΠΌΠΌΠ΅ Π»ΡΠ±ΡΠ΅ ΠΎΠ±ΠΎΠ·Π½Π°ΡΠ΅Π½ΠΈΡ ΠΈ Π²ΠΎΠ·ΠΌΠΎΠΆΠ½Π°Ρ ΠΊ ΠΈΡΠΏΠΎΠ»ΡΠ·ΠΎΠ²Π°Π½ΠΈΡ ΡΡΠ½ΠΊΡΠΈΡ ΠΎΠ±ΠΎΠ·Π½Π°ΡΠ°Π΅ΡΡΡ ΠΏΡΠΎΡΡΡΠΌ Π·Π½Π°ΡΠΊΠΎΠΌ. Π’Π°ΠΊΠΈΠΌ ΠΎΠ±ΡΠ°Π·ΠΎΠΌ, Π²Ρ Π±ΡΡΡΡΠ΅Π΅ ΡΠ°Π·Π±Π΅ΡΠ΅ΡΠ΅ΡΡ Π² ΠΏΡΠΎΠ³ΡΠ°ΠΌΠΌΠ΅.
ΠΠΎΠΏΡΠ»ΡΡΠ½ΡΠ΅ ΠΏΡΠΎΠ³ΡΠ°ΠΌΠΌΡ Π΄Π»Ρ ΡΠΎΠ·Π΄Π°Π½ΠΈΡ ΠΏΡΠΎΠ΅ΠΊΡΠ°
Π ΡΠ΅ΡΠΈ ΠΈΠ½ΡΠ΅ΡΠ½Π΅Ρ ΠΌΠΎΠΆΠ½ΠΎ Π½Π°ΠΉΡΠΈ ΠΎΠ³ΡΠΎΠΌΠ½ΠΎΠ΅ ΠΊΠΎΠ»ΠΈΡΠ΅ΡΡΠ²ΠΎ ΠΏΡΠΎΠ³ΡΠ°ΠΌΠΌ, ΠΊΠΎΡΠΎΡΡΠ΅ Π»Π΅Π³ΠΊΠΎ ΠΈ ΠΏΡΠΎΡΡΠΎ ΡΠΊΠ°ΡΠ°ΡΡ, ΡΡΡΠ°Π½ΠΎΠ²ΠΈΡΡ ΠΈ ΠΏΡΠΈΠ½ΠΈΠΌΠ°ΡΡΡΡ Π·Π° ΡΠ°Π±ΠΎΡΡ. ΠΠΎ ΠΊΠ°ΠΊ ΡΡΠ΅Π΄ΠΈ ΠΏΡΠ΅Π΄Π»ΠΎΠΆΠ΅Π½Π½ΠΎΠ³ΠΎ ΠΈΠ·ΠΎΠ±ΠΈΠ»ΠΈΡ Π²ΡΠ±ΡΠ°ΡΡ ΠΏΠΎΠ΄Ρ ΠΎΠ΄ΡΡΠ΅Π΅ ΠΎΠ±Π΅ΡΠΏΠ΅ΡΠ΅Π½ΠΈΠ΅ Π΄Π»Ρ ΠΏΠ»Π°Π½ΠΈΡΠΎΠ²Π°Π½ΠΈΡ Π΄ΠΈΠ·Π°ΠΉΠ½Π° ΠΈ ΡΠ΅ΠΌΠΎΠ½ΡΠ°? ΠΠΎΡΠΈΡΠ°ΠΉΡΠ΅ ΠΌΠ½ΠΎΠ³ΠΎΡΠΈΡΠ»Π΅Π½Π½ΡΠ΅ ΠΎΡΠ·ΡΠ²Ρ ΠΎΡ ΠΏΠΎΠ»ΡΠ·ΠΎΠ²Π°ΡΠ΅Π»Π΅ΠΉ ΡΠΎΠΉ ΠΈΠ»ΠΈ ΠΈΠ½ΠΎΠΉ ΠΏΡΠΎΠ³ΡΠ°ΠΌΠΌΡ. ΠΡ ΡΠΌΠΎΠΆΠ΅ΡΠ΅ ΠΏΡΠΎΠ°Π½Π°Π»ΠΈΠ·ΠΈΡΠΎΠ²Π°ΡΡ Π²ΠΎΠ·ΠΌΠΎΠΆΠ½ΠΎΡΡΠΈ ΠΈ Π»Π΅Π³ΠΊΠΎΡΡΡ Π² ΠΈΡΠΏΠΎΠ»ΡΠ·ΠΎΠ²Π°Π½ΠΈΠΈ ΠΊΠ°ΠΆΠ΄ΠΎΠΉ ΠΏΡΠΎΠ³ΡΠ°ΠΌΠΌΡ, ΡΡΠΎ Π²ΠΏΠΎΡΠ»Π΅Π΄ΡΡΠ²ΠΈΠΈ ΠΏΠΎΠΌΠΎΠΆΠ΅Ρ ΡΠ΄Π΅Π»Π°ΡΡ Π²ΡΠ±ΠΎΡ ΠΈ Π½Π°ΡΠ°ΡΡ ΡΠ°Π±ΠΎΡΡ.
Π’Π°ΠΊΠΆΠ΅ Π½Π΅ΠΌΠ°Π»ΠΎΠ²Π°ΠΆΠ½ΡΠΌ Π°ΡΠΏΠ΅ΠΊΡΠΎΠΌ ΡΠ²Π»ΡΠ΅ΡΡΡ ΠΏΠΎΠΏΡΠ»ΡΡΠ½ΠΎΡΡΡ ΠΏΡΠΎΠ³ΡΠ°ΠΌΠΌΠ½ΠΎΠ³ΠΎ ΠΎΠ±Π΅ΡΠΏΠ΅ΡΠ΅Π½ΠΈΡ, ΡΡΠΎ ΠΌΠΎΠΆΠ½ΠΎ ΠΏΠΎΡΠΌΠΎΡΡΠ΅ΡΡ Π² ΠΏΠΎΠΈΡΠΊΠΎΠ²ΠΈΠΊΠ΅ Π»ΡΠ±ΠΎΠ³ΠΎ Π±ΡΠ°ΡΠ·Π΅ΡΠ°. ΠΠΎΠΌΠΎΡΡ ΡΠ΄Π΅Π»Π°ΡΡ ΠΏΡΠ°Π²ΠΈΠ»ΡΠ½ΡΠΉ Π²ΡΠ±ΠΎΡ ΠΌΠΎΠΆΠ΅Ρ ΠΈ ΠΏΡΠ΅Π΄ΡΡΠ°Π²Π»Π΅Π½Π½ΡΠΉ Π½ΠΈΠΆΠ΅ ΠΏΠ΅ΡΠ΅ΡΠ΅Π½Ρ ΡΠ°ΠΌΡΡ ΠΈΡΠΏΠΎΠ»ΡΠ·ΡΠ΅ΠΌΡΡ ΠΏΡΠΎΠ³ΡΠ°ΠΌΠΌ.
ΠΡΠΎΠ³ΡΠ°ΠΌΠΌΠ° Π΄Π»Ρ Π΄ΠΈΠ·Π°ΠΉΠ½Π° Π΄ΠΎΠΌΠΎΠ² ΠΈ ΠΊΠ²Π°ΡΡΠΈΡ Β«ΠΠΈΠ·Π°ΠΉΠ½ ΠΠ½ΡΠ΅ΡΡΠ΅ΡΠ° 3DΒ»
ΠΡΠ»ΠΈ Π²Ρ ΠΈΡΠ΅ΡΠ΅ ΡΠ½ΠΈΠ²Π΅ΡΡΠ°Π»ΡΠ½ΡΠΉ ΠΈΠ½ΡΡΡΡΠΌΠ΅Π½Ρ Π΄Π»Ρ ΠΏΠΎΠ΄Π³ΠΎΡΠΎΠ²ΠΊΠΈ ΠΊ ΡΠ΅ΠΌΠΎΠ½ΡΡ ΠΈ ΠΏΠ΅ΡΠ΅ΠΏΠ»Π°Π½ΠΈΡΠΎΠ²ΠΊΠ΅, ΡΠΎ ΠΎΠ±ΡΠ°ΡΠΈΡΠ΅ Π²Π½ΠΈΠΌΠ°Π½ΠΈΠ΅ Π½Π° Β«ΠΠΈΠ·Π°ΠΉΠ½ ΠΠ½ΡΠ΅ΡΡΠ΅ΡΠ° 3DΒ». ΠΡΠΎ ΡΡΡΡΠΊΠΎΡΠ·ΡΡΠ½Π°Ρ ΠΏΡΠΎΠ³ΡΠ°ΠΌΠΌΠ° Π΄Π»Ρ Π΄ΠΈΠ·Π°ΠΉΠ½Π° Π΄ΠΎΠΌΠΎΠ², Π² ΠΊΠΎΡΠΎΡΠΎΠΉ ΠΎΡΠ΅Π½Ρ Π»Π΅Π³ΠΊΠΎ ΠΊΠ°ΡΠ΄ΠΈΠ½Π°Π»ΡΠ½ΠΎ ΠΏΡΠ΅ΠΎΠ±ΡΠ°Π·ΠΈΡΡ Π»ΡΠ±ΡΠ΅ ΠΏΠΎΠΌΠ΅ΡΠ΅Π½ΠΈΡ. ΠΠ΄Π΅ΡΡ Π²Ρ ΡΠΌΠΎΠΆΠ΅ΡΠ΅ Π΄ΠΎΠ±Π°Π²ΠΈΡΡ ΠΏΠ΅ΡΠ΅Π³ΠΎΡΠΎΠ΄ΠΊΠΈ ΠΈ ΠΏΡΠΈΡΡΡΠΎΠΉΠΊΠΈ, Π΄ΠΎΠΏΠΎΠ»Π½ΠΈΡΠ΅Π»ΡΠ½ΡΠ΅ Π΄Π²Π΅ΡΠΈ ΠΈ ΠΎΠΊΠ½Π°, Π²ΡΠ±ΡΠ°ΡΡ Π½ΠΎΠ²ΡΠ΅ ΠΎΠ±ΠΎΠΈ ΠΈ ΠΎΡΠ΄Π΅Π»ΠΊΡ Π΄Π»Ρ ΠΏΠΎΡΠΎΠ»ΠΊΠ° ΠΈ ΠΏΠΎΠ»Π°. Π ΠΊΠΎΠ»Π»Π΅ΠΊΡΠΈΡΡ ΡΠΎΡΡΠ° ΡΠΎΠ±ΡΠ°Π½ΠΎ ΡΠ²ΡΡΠ΅ 120 Π²Π°ΡΠΈΠ°Π½ΡΠΎΠ² ΡΠ΅ΠΊΡΡΡΡ, Π° ΡΠ°ΠΊΠΆΠ΅ ΠΏΡΠΎΠ³ΡΠ°ΠΌΠΌΠ° ΠΏΠΎΠ·Π²ΠΎΠ»ΡΠ΅Ρ Π·Π°Π³ΡΡΠΆΠ°ΡΡ ΡΠΎΠ±ΡΡΠ²Π΅Π½Π½ΡΠ΅ Π²Π°ΡΠΈΠ°Π½ΡΡ ΠΎΡΠ΄Π΅Π»ΠΎΡΠ½ΡΡ ΠΌΠ°ΡΠ΅ΡΠΈΠ°Π»ΠΎΠ².
ΠΠΈΠ·Π°ΠΉΠ½ ΠΠ½ΡΠ΅ΡΡΠ΅ΡΠ° 3DΠΡΠΈ Π½Π°ΡΠ°Π»Π΅ ΡΠ°Π±ΠΎΡΡ Π²Ρ Ρ Π»Π΅Π³ΠΊΠΎΡΡΡΡ ΡΠΌΠΎΠΆΠ΅ΡΠ΅ Π²ΠΎΡΡΠΎΠ·Π΄Π°Π²Π°ΡΡ ΡΠΎΡΠ½ΡΠ΅ ΠΊΠΎΠΏΠΈΠΈ Π½ΡΠΆΠ½ΡΡ Π²Π°ΠΌ ΠΏΠΎΠΌΠ΅ΡΠ΅Π½ΠΈΠΉ ΠΈ ΠΏΠΎΡΠ»Π΅ ΠΈΡΠΏΠΎΠ»ΡΠ·ΠΎΠ²Π°ΡΡ Π³ΠΎΡΠΎΠ²ΡΠΉ ΠΏΠ»Π°Π½ ΠΊΠ°ΠΊ ΠΏΠΎΠ»Π½ΠΎΡΠ΅Π½Π½ΠΎΠ΅ ΡΡΠΊΠΎΠ²ΠΎΠ΄ΡΡΠ²ΠΎ Π²ΠΎ Π²ΡΠ΅ΠΌΡ ΡΠ΅Π°Π»ΡΠ½ΠΎΠ³ΠΎ ΡΠ΅ΠΌΠΎΠ½ΡΠ°. ΠΡΠΎΠ³ΡΠ°ΠΌΠΌΠ° Π΄Π»Ρ Π΄ΠΈΠ·Π°ΠΉΠ½Π° Π΄ΠΎΠΌΠΎΠ² ΠΏΡΠ΅Π΄ΠΎΡΡΠ°Π²Π»ΡΠ΅Ρ Π²ΠΎΠ·ΠΌΠΎΠΆΠ½ΠΎΡΡΡ ΡΠ°Π±ΠΎΡΠ°ΡΡ ΠΊΠ°ΠΊ Ρ ΠΎΠ΄Π½ΠΎΡΡΠ°ΠΆΠ½ΡΠΌΠΈ ΠΏΠΎΡΡΡΠΎΠΉΠΊΠ°ΠΌΠΈ, ΡΠ°ΠΊ ΠΈ Ρ Π½Π°ΡΡΠΎΡΡΠΈΠΌΠΈ ΠΌΠ½ΠΎΠ³ΠΎΡΡΠ°ΠΆΠ½ΡΠΌΠΈ Π΄ΠΎΠΌΠ°ΠΌΠΈ. ΠΡΠΎΡΡΠΎ Π·Π°Π³ΡΡΠ·ΠΈΡΠ΅ Π² ΡΠΎΡΡ ΠΏΠ»Π°Π½ ΡΠ²ΠΎΠ΅Π³ΠΎ ΠΆΠΈΠ»ΠΈΡΠ°, Π²ΡΠ±Π΅ΡΠΈΡΠ΅ ΡΠΈΠΏΠΎΠ²ΡΡ ΠΏΠ»Π°Π½ΠΈΡΠΎΠ²ΠΊΡ ΠΊΠ²Π°ΡΡΠΈΡΡ ΠΈΠ· ΠΊΠ°ΡΠ°Π»ΠΎΠ³Π° ΡΠΎΡΡΠ° ΠΈΠ»ΠΈ ΡΠ°ΠΌΠΎΡΡΠΎΡΡΠ΅Π»ΡΠ½ΠΎ Π½Π°ΡΠΈΡΡΠΉΡΠ΅ Π»ΡΠ±ΠΎΠ΅ ΠΊΠΎΠ»ΠΈΡΠ΅ΡΡΠ²ΠΎ ΠΊΠΎΠΌΠ½Π°Ρ Π½ΡΠΆΠ½ΠΎΠ³ΠΎ ΡΠ°Π·ΠΌΠ΅ΡΠ° Π²ΠΎ Π²ΡΡΡΠΎΠ΅Π½Π½ΠΎΠΌ ΡΠ΅Π΄Π°ΠΊΡΠΎΡΠ΅.
ΠΡΠ΅ΠΈΠΌΡΡΠ΅ΡΡΠ²Π°:
- ΠΡΡΡΡΠΎΠ΅ ΡΠΎΠ·Π΄Π°Π½ΠΈΠ΅ ΠΆΠΈΠ»ΡΡ ΠΏΠΎΠΌΠ΅ΡΠ΅Π½ΠΈΠΉ
- ΠΡΡΡΠΎΠ΅Π½Π½ΡΠ΅ ΠΊΠ°ΡΠ°Π»ΠΎΠ³ΠΈ ΠΌΠ°ΡΠ΅ΡΠΈΠ°Π»ΠΎΠ² ΠΎΡΠ΄Π΅Π»ΠΊΠΈ ΠΈ ΠΌΠ΅Π±Π΅Π»ΠΈ
- ΠΠΈΠ±ΠΊΠ°Ρ Π½Π°ΡΡΡΠΎΠΉΠΊΠ° Π²ΡΠ΅Ρ Π΄ΠΎΠ±Π°Π²Π»Π΅Π½Π½ΡΡ ΡΠ»Π΅ΠΌΠ΅Π½ΡΠΎΠ²
- ΠΡΠΎΡΠΌΠΎΡΡ Π³ΠΎΡΠΎΠ²ΠΎΠ³ΠΎ ΠΏΡΠΎΠ΅ΠΊΡΠ° Π² Π½Π΅ΡΠΊΠΎΠ»ΡΠΊΠΈΡ ΡΠ΅ΠΆΠΈΠΌΠ°Ρ
ΠΠ΅Π΄ΠΎΡΡΠ°ΡΠΊΠΈ ΡΠΎΡΡΠ°:
- ΠΠ΅Π»ΡΠ·Ρ Π΄ΠΎΠ±Π°Π²Π»ΡΡΡ ΡΠ²ΠΎΠΈ ΠΏΡΠ΅Π΄ΠΌΠ΅ΡΡ ΠΌΠ΅Π±Π΅Π»ΠΈ
- ΠΠ³ΡΠ°Π½ΠΈΡΠ΅Π½Π½ΡΠΉ ΡΡΠ½ΠΊΡΠΈΠΎΠ½Π°Π» Π² ΠΏΡΠΎΠ±Π½ΠΎΠΉ Π²Π΅ΡΡΠΈΠΈ
Π‘Π»Π΅Π΄ΡΠ΅Ρ ΠΎΠ³ΠΎΠ²ΠΎΡΠΈΡΡΡΡ, ΡΡΠΎ ΠΏΠ΅ΡΠ²ΡΠΉ ΠΌΠΈΠ½ΡΡ ΡΠ²Π»ΡΠ΅ΡΡΡ Π²Π΅ΡΡΠΌΠ° ΡΡΠ»ΠΎΠ²Π½ΡΠΌ, ΡΠ°ΠΊ ΠΊΠ°ΠΊ Π² ΠΊΠΎΠ»Π»Π΅ΠΊΡΠΈΠΈ Β«ΠΠΈΠ·Π°ΠΉΠ½Π° ΠΠ½ΡΠ΅ΡΡΠ΅ΡΠ° 3DΒ» ΠΏΡΠΈΡΡΡΡΡΠ²ΡΠ΅Ρ Π±ΠΎΠ»Π΅Π΅ 50 ΠΏΡΠ΅Π΄ΠΌΠ΅ΡΠΎΠ² ΠΌΠ΅Π±Π΅Π»ΠΈ, ΠΏΡΠ΅Π΄Π½Π°Π·Π½Π°ΡΠ΅Π½Π½ΡΡ Π΄Π»Ρ ΠΈΡΠΏΠΎΠ»ΡΠ·ΠΎΠ²Π°Π½ΠΈΡ Π²ΠΎ Π²ΡΠ΅ΠΌΡ ΡΠΎΠ·Π΄Π°Π½ΠΈΡ ΠΏΡΠΎΠ΅ΠΊΡΠ°. ΠΠ°ΠΆΠ΄ΡΠΉ Π΄ΠΎΠ±Π°Π²Π»Π΅Π½Π½ΡΠΉ ΡΠ»Π΅ΠΌΠ΅Π½Ρ Π²Ρ ΠΌΠΎΠΆΠ΅ΡΠ΅ Π½Π°ΡΡΡΠΎΠΈΡΡ, ΠΏΠΎΡΠΊΡΠΏΠ΅ΡΠΈΠΌΠ΅Π½ΡΠΈΡΠΎΠ²Π°ΡΡ Π½Π΅ ΡΠΎΠ»ΡΠΊΠΎ Ρ Π΅Π³ΠΎ ΡΠ°ΡΠΏΠΎΠ»ΠΎΠΆΠ΅Π½ΠΈΠ΅ΠΌ, Π½ΠΎ ΠΈ Ρ Π΅Π³ΠΎ ΡΠ°Π·ΠΌΠ΅ΡΠΎΠΌ ΠΈ Π²Π½Π΅ΡΠ½ΠΈΠΌ Π²ΠΈΠ΄ΠΎΠΌ.
ΠΠΎΡΠΎΠ²ΡΠΉ ΠΏΠ»Π°Π½ ΠΌΠΎΠΆΠ½ΠΎ ΡΠΎΡ ΡΠ°Π½ΠΈΡΡ Π½Π° ΠΊΠΎΠΌΠΏΡΡΡΠ΅ΡΠ΅ ΠΊΠ°ΠΊ ΠΏΡΠΎΠ΅ΠΊΡ ΠΈΠ»ΠΈ ΠΈΠ·ΠΎΠ±ΡΠ°ΠΆΠ΅Π½ΠΈΠ΅, Π° ΡΠ°ΠΊΠΆΠ΅ ΠΌΠΎΠΌΠ΅Π½ΡΠ°Π»ΡΠ½ΠΎ ΡΠ°ΡΠΏΠ΅ΡΠ°ΡΠ°ΡΡ. Π, ΠΊΠΎΠ½Π΅ΡΠ½ΠΎ ΠΆΠ΅, ΡΠΎΠ·Π΄Π°Π½Π½ΡΡ ΠΏΠ»Π°Π½ΠΈΡΠΎΠ²ΠΊΡ ΠΌΠΎΠΆΠ½ΠΎ ΠΎΡΠ΅Π½ΠΈΡΡ Π² ΡΠ΅ΠΆΠΈΠΌΠ΅ 3D ΠΈΠ»ΠΈ Β«Π²ΠΈΡΡΡΠ°Π»ΡΠ½ΠΎΠ³ΠΎ Π²ΠΈΠ·ΠΈΡΠ°Β». Π‘ΠΊΠ°ΡΠ°ΡΡ Β«ΠΠΈΠ·Π°ΠΉΠ½ ΠΠ½ΡΠ΅ΡΡΠ΅ΡΠ° 3DΒ» ΠΌΠΎΠΆΠ½ΠΎ Π½Π° ΠΎΡΠΈΡΠΈΠ°Π»ΡΠ½ΠΎΠΌ ΡΠ°ΠΉΡΠ΅ ΠΏΡΠΎΠ³ΡΠ°ΠΌΠΌΡ.
Sweet Home 3D
ΠΡΠΎΠ³ΡΠ°ΠΌΠΌΠ° SweetΒ HomeΒ 3D ΠΏΡΠ΅Π΄ΡΡΠ°Π²Π»ΡΠ΅Ρ ΡΠΎΠ±ΠΎΠΉ Π½Π΅ΡΠΊΠΎΠ»ΡΠΊΠΎ ΡΠΏΡΠΎΡΠ΅Π½Π½ΡΠΉ Π²Π°ΡΠΈΠ°Π½Ρ ΠΈΠ½ΡΠ΅ΡΡΠ΅ΠΉΡΠ°, Ρ ΠΊΠΎΡΠΎΡΡΠΌ ΡΠΏΡΠ°Π²ΠΈΡΡΡΡ Π»ΡΠ±ΠΎΠΉ ΠΆΠ΅Π»Π°ΡΡΠΈΠΉ, Π΅ΡΠ»ΠΈ Ρ ΠΎΡΡ ΠΊΠ°ΠΊ-ΡΠΎ Π²Π»Π°Π΄Π΅Π΅Ρ ΠΊΠΎΠΌΠΏΡΡΡΠ΅ΡΠΎΠΌ. ΠΡΠ΅Π΄ΡΡΠ°Π²Π»Π΅Π½Π½ΠΎΠ΅ ΠΎΠ±Π΅ΡΠΏΠ΅ΡΠ΅Π½ΠΈΠ΅ ΠΌΠΎΠΆΠ΅Ρ ΡΠΎΠ·Π΄Π°Π²Π°ΡΡ Π»ΡΠ±ΡΠ΅ Π²Π°ΡΠΈΠ°Π½ΡΡ Π΄ΠΈΠ·Π°ΠΉΠ½Π° ΠΈΠ½ΡΠ΅ΡΡΠ΅ΡΠ°, ΠΊΠ°ΠΊΠΈΠ΅ ΠΏΠΎΠΆΠ΅Π»Π°Π΅Ρ ΠΏΠΎΠ»ΡΠ·ΠΎΠ²Π°ΡΠ΅Π»Ρ. Π‘ΡΠ°Π·Ρ ΠΆΠ΅ ΠΏΡΠΈ Π·Π°ΠΏΡΡΠΊΠ΅ ΠΎΡΠΊΡΡΠ²Π°Π΅ΡΡΡ ΡΠ΅ΡΡΡΠ΅ ΠΎΠΊΠ½Π° β Π΄Π²Π° ΠΎΡΠ΄Π΅Π»Π° Ρ Π²ΠΎΠ·ΠΌΠΎΠΆΠ½ΠΎΡΡΡΡ ΡΠ°ΡΡΠΌΠΎΡΡΠ΅ΡΡ ΡΠΎΠ·Π΄Π°Π½Π½ΡΠΉ ΠΏΡΠΎΠ΅ΠΊΡ Ρ Π΄Π²ΡΡ ΡΡΠΎΡΠΎΠ½ (ΡΠ²Π΅ΡΡ Ρ ΠΈ ΡΠ±ΠΎΠΊΡ), ΠΊΠ°ΡΠ°Π»ΠΎΠ³ Ρ ΡΡΠ½ΠΊΡΠΈΡΠΌΠΈ, ΠΈ ΡΠΏΡΠ°Π²Π»Π΅Π½ΠΈΠ΅ ΠΈΡΠΏΠΎΠ»ΡΠ·ΡΠ΅ΠΌΡΠΌΠΈ ΡΠ»Π΅ΠΌΠ΅Π½ΡΠ°ΠΌΠΈ.
ΠΠΎΠ»ΡΠ·ΠΎΠ²Π°ΡΠ΅Π»Ρ ΠΌΠΎΠΆΠ΅Ρ ΡΠ°ΠΌΠΎΡΡΠΎΡΡΠ΅Π»ΡΠ½ΠΎ ΠΏΠΎΠ΄ΠΎΠ±ΡΠ°ΡΡ ΡΠ°ΡΡΠ²Π΅ΡΠΊΡ ΡΡΠ΅Π½Π°ΠΌ, ΡΠ΅ΠΊΡΡΡΡΡ, ΠΏΡΠΎΠ·ΡΠ°ΡΠ½ΠΎΡΡΡ ΠΈ ΠΏΡΠΎΡΠΈΠ΅ ΠΊΠΎΠΌΠ±ΠΈΠ½Π°ΡΠΈΠΈ, Π½Π° ΡΡΠΎ ΡΠΎΠ»ΡΠΊΠΎ Ρ Π²Π°ΡΠΈΡ ΡΠ°Π½ΡΠ°Π·ΠΈΠΈ.
Π‘ΡΠ΅Π΄ΠΈ ΠΏΡΠ΅ΠΈΠΌΡΡΠ΅ΡΡΠ² ΠΏΡΠ΅Π΄ΡΡΠ°Π²Π»Π΅Π½Π½ΠΎΠ³ΠΎ ΠΈΠ½ΡΠ΅ΡΡΠ΅ΠΉΡΠ° ΠΌΠΎΠΆΠ½ΠΎ Π²ΡΠ΄Π΅Π»ΠΈΡΡ ΡΠ°ΠΊΠΈΠ΅ Π°ΡΠΏΠ΅ΠΊΡΡ, ΠΊΠ°ΠΊ ΡΠ²ΠΎΠ±ΠΎΠ΄Π½ΡΠΉ Π΄ΠΎΡΡΡΠΏ ΠΈ Π½Π΅Π²ΡΡΠΎΠΊΠΈΠ΅ ΡΠΈΡΡΠ΅ΠΌΠ½ΡΠ΅ ΡΡΠ΅Π±ΠΎΠ²Π°Π½ΠΈΡ, Π±Π»Π°Π³ΠΎΠ΄Π°ΡΡ ΠΊΠΎΡΠΎΡΡΠΌ ΡΡΡΠ°Π½ΠΎΠ²ΠΊΠ° ΠΏΡΠΎΠ³ΡΠ°ΠΌΠΌΡ ΠΎΡΡΡΠ΅ΡΡΠ²ΠΈΡΡΡΡ Π½Π° Π»ΡΠ±ΠΎΠΌ ΠΊΠΎΠΌΠΏΡΡΡΠ΅ΡΠ΅. ΠΡΠΎΠΌΠ΅ ΡΠΎΠ³ΠΎ, ΡΠ°ΠΌΠΎ ΡΠΊΠ°ΡΠΈΠ²Π°Π½ΠΈΠ΅ ΠΎΠ±Π΅ΡΠΏΠ΅ΡΠ΅Π½ΠΈΡ Π½Π΅ Π·Π°ΠΉΠΌΠ΅Ρ ΠΌΠ½ΠΎΠ³ΠΎ Π²ΡΠ΅ΠΌΠ΅Π½ΠΈ, ΠΏΠΎΡΠΎΠΌΡ ΠΊΠ°ΠΊ ΡΠ°Π·ΠΌΠ΅Ρ ΠΏΡΠΎΠ³ΡΠ°ΠΌΠΌΡ ΡΠΎΡΡΠ°Π²Π»ΡΠ΅Ρ ΠΎΠΊΠΎΠ»ΠΎ 35 ΠΠ±Π°ΠΉΡ. Π ΡΡΡΠΊΠ°Ρ Π²Π΅ΡΡΠΈΡ ΠΏΠΎΠΌΠΎΠ³Π°Π΅Ρ ΠΏΠΎΠ»ΡΠ·ΠΎΠ²Π°ΡΠ΅Π»ΡΠΌ Π±ΡΡΡΡΠ΅Π΅ ΠΎΡΠ²ΠΎΠΈΡΡ Π²ΡΠ΅ ΠΏΡΠ΅Π΄Π»ΠΎΠΆΠ΅Π½Π½ΡΠ΅ Π²ΠΎΠ·ΠΌΠΎΠΆΠ½ΠΎΡΡΠΈ.
Sweet Home 3DΠΠ΅Π΄ΠΎΡΡΠ°ΡΠΊΠΈ Ρ ΠΏΡΠΎΠ³ΡΠ°ΠΌΠΌΡ ΡΠ»Π΅Π΄ΡΡΡΠΈΠ΅:
- ΠΌΠ°Π»ΡΠΉ Π²ΡΠ±ΠΎΡ Π² ΠΊΠ°ΡΠ°Π»ΠΎΠ³Π΅ β Π½Π΅Π΄ΠΎΡΡΠ°ΡΠΎΠΊ ΡΠ°ΠΊΡΡΡ ΠΌΠΎΠΆΠ΅Ρ ΡΡΠ³ΡΠ°ΡΡ ΠΎΡΡΠΈΡΠ°ΡΠ΅Π»ΡΠ½ΡΡ ΡΠΎΠ»Ρ Π² ΡΠΎΠ·Π΄Π°Π½ΠΈΠΈ ΠΏΡΠΎΠ΅ΠΊΡΠ°;
- Π΅ΡΠ»ΠΈ Π²Ρ ΠΏΠΎΠΏΡΡΠ°Π΅ΡΠ΅ΡΡ Π²ΠΊΠ»ΡΡΠΈΡΡ Π΄ΠΎΠΏΠΎΠ»Π½ΠΈΡΠ΅Π»ΡΠ½ΡΠ΅ ΡΠ»Π΅ΠΌΠ΅Π½ΡΡ ΠΈΠ· Π΄ΡΡΠ³ΠΈΡ ΠΈΡΡΠΎΡΠ½ΠΈΠΊΠΎΠ², ΠΎΠ½ΠΈ ΠΌΠΎΠ³ΡΡ Π±ΡΡΡ Π½Π° Π°Π½Π³Π»ΠΈΠΉΡΠΊΠΎΠΌ ΡΠ·ΡΠΊΠ΅, ΡΡΠΎ ΠΏΡΠΈΠ²Π΅Π΄Π΅Ρ ΠΊ Π½Π΅ΡΠ΄ΠΎΠ±ΡΡΠ²Ρ, ΠΏΠΎΡΠΊΠΎΠ»ΡΠΊΡ ΠΏΡΠΈΠ΄Π΅ΡΡΡ Π΄ΠΎΠ³Π°Π΄ΡΠ²Π°ΡΡΡΡ ΠΎ Π½Π°Π·Π½Π°ΡΠ΅Π½ΠΈΠΈ ΠΏΡΠ΅Π΄ΠΌΠ΅ΡΠΎΠ² ΠΏΠΎ ΠΊΠ°ΡΡΠΈΠ½ΠΊΠ΅;
- Ρ ΠΏΠΎΠΌΠΎΡΡΡ ΡΡΠΎΠΉ ΠΏΡΠΎΠ³ΡΠ°ΠΌΠΌΡ ΠΌΠΎΠΆΠ½ΠΎ ΡΠΏΠ»Π°Π½ΠΈΡΠΎΠ²Π°ΡΡ ΡΠΎΠ»ΡΠΊΠΎ Π΄ΠΈΠ·Π°ΠΉΠ½, Π° ΠΎ ΡΠ°ΡΡΠ΅ΡΠ΅ ΠΌΠ°ΡΠ΅ΡΠΈΠ°Π»ΠΎΠ² Π³ΠΎΠ²ΠΎΡΠΈΡΡ Π½Π΅ ΠΏΡΠΈΡ ΠΎΠ΄ΠΈΡΡΡ.
ΠΠ΅Π·ΡΡΠ»ΠΎΠ²Π½ΠΎ, ΠΏΡΠΎΠ³ΡΠ°ΠΌΠΌΠ° ΠΏΠΎΠ»ΡΠ·ΡΠ΅ΡΡΡ ΠΏΠΎΠΏΡΠ»ΡΡΠ½ΠΎΡΡΡΡ, Π±Π»Π°Π³ΠΎΠ΄Π°ΡΡ Π²ΠΎΠ·ΠΌΠΎΠΆΠ½ΠΎΡΡΠΈ ΡΠΊΠ°ΡΠΈΠ²Π°Π½ΠΈΡ Ρ ΠΎΡΠΈΡΠΈΠ°Π»ΡΠ½ΠΎΠ³ΠΎ ΡΠ°ΠΉΡΠ°. ΠΡΠΎΡΡΠΎΡΠ° Π² ΡΠ°Π±ΠΎΡΠ΅ ΠΈΠ³ΡΠ°Π΅Ρ Π½Π΅ΠΌΠ°Π»ΠΎΠ²Π°ΠΆΠ½ΡΡ ΡΠΎΠ»Ρ. ΠΡΠ»ΠΈ Π²Π°Ρ Π½Π΅ ΡΠΌΡΡΠ°Π΅Ρ ΠΎΡΡΡΡΡΡΠ²ΠΈΠ΅ ΡΠ°ΡΡΠ΅ΡΠ° Π½Π΅ΠΎΠ±Ρ ΠΎΠ΄ΠΈΠΌΡΡ ΡΡΡΠΎΠΉΠΌΠ°ΡΠ΅ΡΠΈΠ°Π»ΠΎΠ², ΠΌΠΎΠΆΠ΅ΡΠ΅ ΡΠΌΠ΅Π»ΠΎ Π΅Ρ Π²ΠΎΡΠΏΠΎΠ»ΡΠ·ΠΎΠ²Π°ΡΡΡΡ.
Google ScketchUp
ΠΡΠΎΠ³ΡΠ°ΠΌΠΌΠ° GoogleΒ ScketchUp ΡΠ²Π»ΡΠ΅ΡΡΡ ΡΠ°ΠΌΡΠΌ ΠΏΡΠΎΡΡΡΠΌ ΠΈΠ½ΡΠ΅ΡΡΠ΅ΠΉΡΠΎΠΌ Π΄Π»Ρ Π½ΠΎΠ²ΠΈΡΠΊΠΎΠ², Ρ ΠΏΠΎΠΌΠΎΡΡΡ ΠΊΠΎΡΠΎΡΠΎΠ³ΠΎ ΠΌΠΎΠΆΠ½ΠΎ ΡΠΎΡΡΠ°Π²Π»ΡΡΡ ΠΏΡΠΎΠ΅ΠΊΡΡ ΠΈ ΡΠ°ΡΡΠΌΠ°ΡΡΠΈΠ²Π°ΡΡ ΠΈΡ ΠΏΠΎΠ΄ ΡΠ°Π·Π»ΠΈΡΠ½ΡΠΌΠΈ ΡΠ°ΠΊΡΡΡΠ°ΠΌΠΈ Π² ΡΡΠ΅Ρ ΠΌΠ΅ΡΠ½ΠΎΠΌ ΠΈΠ·ΠΌΠ΅ΡΠ΅Π½ΠΈΠΈ. ΠΠ΄Π΅ΡΡ ΠΈΠΌΠ΅ΡΡΡΡ Π΄Π²Π° Π²Π°ΡΠΈΠ°Π½ΡΠ° β ΡΠΏΡΠΎΡΠ΅Π½Π½ΡΠΉ ΠΈ Ρ Π΄ΠΎΠΏΠΎΠ»Π½ΠΈΡΠ΅Π»ΡΠ½ΡΠΌΠΈ Π²ΠΎΠ·ΠΌΠΎΠΆΠ½ΠΎΡΡΡΠΌΠΈ. Π£ΠΏΡΠΎΡΠ΅Π½Π½ΡΠΉ Π²Π°ΡΠΈΠ°Π½Ρ GoogleΠΏΡΠ΅Π΄Π»Π°Π³Π°Π΅Ρ Π΄Π»Ρ ΡΠΊΠ°ΡΠΈΠ²Π°Π½ΠΈΡ Π±Π΅ΡΠΏΠ»Π°ΡΠ½ΠΎ, Π° ΡΠ°ΡΡΠΈΡΠ΅Π½Π½ΡΠ΅ Π²ΠΎΠ·ΠΌΠΎΠΆΠ½ΠΎΡΡΠΈ Π·Π° ΡΠΈΠΌΠ²ΠΎΠ»ΠΈΡΠ΅ΡΠΊΡΡ ΠΏΠ»Π°ΡΡ. ΠΠ΅ΡΠΌΠΎΡΡΡ Π½Π° ΡΠΏΡΠΎΡΠ΅Π½Π½ΠΎΡΡΡ Π²Π΅ΡΡΠΈΠΈ, ΠΎΠ½Π° Π½Π°Π΄Π΅Π»Π΅Π½Π° Π΄ΠΎΠ²ΠΎΠ»ΡΠ½ΠΎ ΡΠΈΡΠΎΠΊΠΈΠΌ Π²ΡΠ±ΠΎΡΠΎΠΌ ΡΠ°Π·Π»ΠΈΡΠ½ΡΡ ΡΠ»Π΅ΠΌΠ΅Π½ΡΠΎΠ² ΠΈ Π°ΡΡΠΈΠ±ΡΡΠΎΠ². ΠΠ»Ρ ΡΠ°Π±ΠΎΡΡ Ρ ΠΏΡΠΎΠ³ΡΠ°ΠΌΠΌΠΎΠΉ ΠΌΠΎΠΆΠ½ΠΎ ΠΏΡΠΎΡΠΌΠΎΡΡΠ΅ΡΡ ΠΌΠ½ΠΎΠ³ΠΎ Π²ΠΈΠ΄Π΅ΠΎ-ΡΡΠΎΠΊΠΎΠ², ΠΏΡΠ΅Π΄ΡΡΠ°Π²Π»Π΅Π½Π½ΡΡ Π² Π±ΡΠ°ΡΠ·Π΅ΡΠ΅ Google. Π Π·Π°ΠΊΠ°ΡΠ΅Π½Π½ΠΎΠΌ Π²Π°ΡΠΈΠ°Π½ΡΠ΅ Π²Ρ ΡΠ°ΠΊΠΆΠ΅ Π½Π°ΠΉΠ΄Π΅ΡΠ΅ ΠΏΠΎΡΠ°Π³ΠΎΠ²ΡΠ΅ ΠΈΠ½ΡΡΡΡΠΊΡΠΈΠΈ ΡΠ°Π±ΠΎΡΡ Π² ΠΈΠ½ΡΠ΅ΡΡΠ΅ΠΉΡΠ΅.
Google ScketchUpΠ Π½Π΅Π΄ΠΎΡΡΠ°ΡΠΊΠ°ΠΌ ΠΏΡΠΎΠ³ΡΠ°ΠΌΠΌΡ ΠΎΡΠ½ΠΎΡΡΡ:
- ΠΎΡΠΌΠ΅ΡΠ°Π΅ΡΡΡ ΡΠ»Π°Π±Π°Ρ Π²ΠΈΠ·ΡΠ°Π»ΠΈΠ·Π°ΡΠΈΡ Π³ΠΎΡΠΎΠ²ΠΎΠ³ΠΎ ΠΏΡΠΎΠ΅ΠΊΡΠ°;
- ΠΈΠ·ΠΎΠ±ΠΈΠ»ΠΈΠ΅ Π°ΡΡΠΈΠ±ΡΡΠΎΠ² ΠΈ Π΄ΠΎΠΏΠΎΠ»Π½ΠΈΡΠ΅Π»ΡΠ½ΡΡ ΡΠ»Π΅ΠΌΠ΅Π½ΡΠΎΠ² Π½Π΅ΠΎΠ±Ρ ΠΎΠ΄ΠΈΠΌΠΎ ΡΠΊΠ°ΡΠΈΠ²Π°ΡΡ Π² ΠΎΡΠ΄Π΅Π»ΡΠ½ΠΎΡΡΠΈ, Π½Π΅ΠΊΠΎΡΠΎΡΡΠ΅ ΠΈΠ· Π½ΠΈΡ Π·Π°ΡΠΈΡΠ΅Π½Ρ Π°Π²ΡΠΎΡΡΠΊΠΈΠΌ ΠΏΡΠ°Π²ΠΎΠΌ ΠΈ ΡΠΊΠ°ΡΠΈΠ²Π°Π½ΠΈΠ΅ Π·Π°ΡΡΡΠ΄Π½ΡΠ΅ΡΡΡ.
ΠΠ°ΠΊ ΠΎΡΠΌΠ΅ΡΠ°ΡΡ ΠΌΠ½ΠΎΠ³ΠΎΡΠΈΡΠ»Π΅Π½Π½ΡΠ΅ ΠΏΠΎΠ»ΡΠ·ΠΎΠ²Π°ΡΠ΅Π»ΠΈ, ΡΡΠΎ ΠΏΡΠΎΠ³ΡΠ°ΠΌΠΌΠ½ΠΎΠ΅ ΠΎΠ±Π΅ΡΠΏΠ΅ΡΠ΅Π½ΠΈΠ΅ ΠΏΠΎΠ·Π²ΠΎΠ»ΡΠ΅Ρ Π·Π° Π½Π΅ΡΠΊΠΎΠ»ΡΠΊΠΎ ΠΌΠΈΠ½ΡΡ ΡΠΎΠ·Π΄Π°ΡΡ Π½Π°Π±ΡΠΎΡΠΊΠΈ ΠΏΠ»Π°Π½ΠΈΡΡΠ΅ΠΌΠΎΠ³ΠΎ Π΄ΠΈΠ·Π°ΠΉΠ½Π° Π΄Π°ΠΆΠ΅ Π½ΠΎΠ²ΠΈΡΠΊΠ°ΠΌ.
ColorΒ StyleΒ Studio
ΠΡΠΎΠ³ΡΠ°ΠΌΠΌΠ°Β ColorΒ StyleΒ StudioΒ ΠΏΠΎΠΌΠΎΠ³Π°Π΅Ρ ΠΎΠΏΡΠ΅Π΄Π΅Π»ΠΈΡΡΡΡ Ρ ΡΠ°ΡΡΠ²Π΅ΡΠΊΠΎΠΉ Π΄Π»Ρ ΠΎΡΠΎΡΠΌΠ»Π΅Π½ΠΈΡ ΡΡΠ΅Π½ ΠΈ ΠΏΠΎΠ²Π΅ΡΡ Π½ΠΎΡΡΠ΅ΠΉ Π±ΡΠ΄ΡΡΠ΅Π³ΠΎ Π΄ΠΈΠ·Π°ΠΉΠ½Π° ΠΊΠΎΠΌΠ½Π°ΡΡ. ΠΡΡ ΡΠ°Π±ΠΎΡΠ° ΡΠ²ΠΎΠ΄ΠΈΡΡΡ ΠΊ Β«ΡΠ°ΡΡΡΠ°Π½ΠΎΠ²ΠΊΠ΅Β» ΠΌΠ΅Π±Π΅Π»ΠΈ ΠΈ ΡΡΡΠ°Π½ΠΎΠ²ΠΊΠ΅ ΠΎΠΏΡΠ΅Π΄Π΅Π»Π΅Π½Π½ΠΎΠΉ ΠΏΠ°Π»ΠΈΡΡΡ ΠΊΡΠ°ΡΠΎΠΊ. Π‘ ΠΏΠΎΠΌΠΎΡΡΡ ΡΠΏΠ΅ΡΠΈΠ°Π»ΡΠ½ΠΎΠ³ΠΎ ΠΏΠ°ΠΊΠ΅ΡΠ° ΠΏΠΎΠ»ΡΠ·ΠΎΠ²Π°ΡΠ΅Π»Ρ ΡΠ²ΠΈΠ΄ΠΈΡ Π½Π΅ΡΠΊΠΎΠ»ΡΠΊΠΎ ΠΏΠΎΠ΄Ρ ΠΎΠ΄ΡΡΠΈΡ Π²Π°ΡΠΈΠ°Π½ΡΠΎΠ² Π΄Π»Ρ ΠΈΠ½ΡΠ΅ΡΡΠ΅ΡΠ°, ΠΊΠΎΡΠΎΡΡΠ΅ ΠΎΡΠΎΠ±ΡΠ°Π·ΡΡ Π²ΠΎΠ·ΠΌΠΎΠΆΠ½ΠΎΠ΅ ΡΠΎΡΠ΅ΡΠ°Π½ΠΈΠ΅ ΠΎΡΡΠ΅Π½ΠΊΠΎΠ².
Color Style StudioΠΠΎ Π½Π΅ΠΎΠ±Ρ ΠΎΠ΄ΠΈΠΌΠΎ ΡΡΠΎΡΠ½ΠΈΡΡ β ΡΠ°Π±ΠΎΡΠ° ΠΏΡΠ΅Π΄ΡΡΠ°Π²Π»Π΅Π½Π½ΠΎΠ³ΠΎ ΠΏΡΠΎΠ³ΡΠ°ΠΌΠΌΠ½ΠΎΠ³ΠΎ ΠΎΠ±Π΅ΡΠΏΠ΅ΡΠ΅Π½ΠΈΡ Π² ΠΎΡΠ½ΠΎΠ²Π½ΠΎΠΌ ΡΠ²ΠΎΠ΄ΠΈΡΡΡ ΠΊ ΡΠ°Π±ΠΎΡΠ΅ ΡΠ°ΡΡΠ²Π΅ΡΠΊΠΎΠΉ ΠΈ Β«ΠΈΠ³ΡΠΎΠΉΒ» Ρ ΡΠΎΡΠ΅ΡΠ°Π½ΠΈΠ΅ΠΌ ΠΎΡΡΠ΅Π½ΠΊΠΎΠ² (ΠΈΡΠΏΠΎΠ»ΡΠ·ΡΠ΅ΡΡΡ Π±ΠΎΠ»Π΅Π΅ 57 ΡΡΡ. ΠΎΡΡΠ΅Π½ΠΊΠΎΠ²). ΠΠ°ΠΊΠ΅Ρ ΠΈΡΠΏΠΎΠ»ΡΠ·ΡΠ΅ΠΌΡΡ Π΄Π»Ρ ΡΠ°Π±ΠΎΡΡ Π°ΡΡΠΈΠ±ΡΡΠΎΠ² Π½Π΅ΡΠΊΠΎΠ»ΡΠΊΠΎ ΡΠΊΡΠ΄Π΅Π½. ΠΡΠ»ΠΈ ΠΆΠ΅ Π²Π°ΡΠ° Π·Π°Π΄Π°ΡΠ° Π² ΡΠΎΠ·Π΄Π°Π½ΠΈΠΈ ΠΏΡΠΎΠ΅ΠΊΡΠ° ΡΠ²ΠΎΠ΄ΠΈΡΡΡ ΠΊ ΠΏΠΎΠ΄Π±ΠΎΡΡ ΠΏΠΎΠ½ΡΠ°Π²ΠΈΠ²ΡΠ΅ΠΉΡΡ ΡΠ²Π΅ΡΠΎΠ²ΠΎΠΉ Π³Π°ΠΌΠΌΡ, Π²Ρ Π²ΠΏΠΎΠ»Π½Π΅ ΡΠΏΡΠ°Π²ΠΈΡΠ΅ΡΡ Ρ Π·Π°Π΄Π°ΡΠ΅ΠΉ Π·Π° Π½Π΅ΡΠΊΠΎΠ»ΡΠΊΠΎ ΠΌΠΈΠ½ΡΡ Ρ ΠΏΠΎΠΌΠΎΡΡΡΒ ColorΒ StyleΒ Studio.
ΠΠ΅Π΄ΠΎΡΡΠ°ΡΠΊΠΎΠ² Ρ ΠΏΡΠΎΠ³ΡΠ°ΠΌΠΌΡ ΠΏΡΠ°ΠΊΡΠΈΡΠ΅ΡΠΊΠΈ Π½Π΅Ρ, Π·Π° ΠΈΡΠΊΠ»ΡΡΠ΅Π½ΠΈΠ΅ΠΌ Π·Π°ΠΏΡΠ°ΡΠΈΠ²Π°Π΅ΠΌΠΎΠΉ ΠΎΠΏΠ»Π°ΡΡ Π΄Π»Ρ ΠΏΠΎΠ»ΡΠ·ΠΎΠ²Π°Π½ΠΈΡ ΠΈΠ½ΡΠ΅ΡΡΠ΅ΠΉΡΠΎΠΌ. Π‘ΡΠΎΠΈΠΌΠΎΡΡΡ ΡΠ°Π·ΡΠ΅ΡΠ΅Π½ΠΈΡ Π΄Π»Ρ ΡΠΊΠ°ΡΠΈΠ²Π°Π½ΠΈΡ ΡΠΎΡΡΠ°Π²Π»ΡΠ΅Ρ ΠΎΠΊΠΎΠ»ΠΎ 70$ Π½Π° ΠΎΡΠΈΡΠΈΠ°Π»ΡΠ½ΠΎΠΌ ΡΠ°ΠΉΡΠ΅. ΠΠ° Π½Π΅ΠΈΠΌΠ΅Π½ΠΈΠ΅ΠΌ ΡΡΠ΅Π΄ΡΡΠ² ΠΈΠ»ΠΈ Π½Π΅ΠΆΠ΅Π»Π°Π½ΠΈΠ΅ΠΌ ΠΎΠΏΠ»Π°ΡΠΈΠ²Π°ΡΡ ΡΡΠ»ΡΠ³ΠΈ Π²ΠΎΡΠΏΠΎΠ»ΡΠ·ΡΠΉΡΠ΅ΡΡ Π΄Π΅ΠΌΠΎ-Π²Π΅ΡΡΠΈΠ΅ΠΉ.
Home Plan Pro
ΠΡΠΎΠ³ΡΠ°ΠΌΠΌΠ½ΠΎΠ΅ ΠΎΠ±Π΅ΡΠΏΠ΅ΡΠ΅Π½ΠΈΠ΅ Home Plan Pro ΠΏΠΎΠ·Π²ΠΎΠ»ΡΠ΅Ρ Π²ΠΎΡΡΠΎΠ·Π΄Π°ΡΡ Π±ΡΠ΄ΡΡΠ΅Π΅ ΡΠ°ΡΡΠ½ΠΎΠ΅ ΡΡΡΠΎΠ΅Π½ΠΈΠ΅ ΠΈΠ»ΠΈ ΠΏΡΠΎΠ²Π΅ΡΡΠΈ ΠΏΠ΅ΡΠ΅ΠΏΠ»Π°Π½ΠΈΡΠΎΠ²ΠΊΡ ΠΈΠΌΠ΅ΡΡΠ΅ΠΉΡΡ ΠΊΠ²Π°ΡΡΠΈΡΡ. ΠΡΠΎΠ³ΡΠ°ΠΌΠΌΠ° ΠΏΡΠΎΡΡΠ° Π² ΠΈΡΠΏΠΎΠ»ΡΠ·ΠΎΠ²Π°Π½ΠΈΠΈ, Ρ ΠΎΡΡ ΠΈ Π½Π΅ ΠΈΠΌΠ΅Π΅Ρ ΡΡΡΡΠΊΠΎΡΠ·ΡΡΠ½ΠΎΠΉ Π²Π΅ΡΡΠΈΠΈ. ΠΠ΅ Π²ΡΠ΅Π³Π΄Π° ΠΌΠΎΠΆΠ½ΠΎ ΡΠΊΠ°ΡΠ°ΡΡ Π½Π° ΠΎΡΠΈΡΠΈΠ°Π»ΡΠ½ΠΎΠΌ ΡΠ°ΠΉΡΠ΅. ΠΠ΄ΠΈΠ½ΡΡΠ²Π΅Π½Π½ΡΠΉ ΠΌΠΈΠ½ΡΡ Π² ΠΈΠ½ΡΠ΅ΡΡΠ΅ΠΉΡΠ΅ Π΄Π»Ρ ΠΌΠ½ΠΎΠ³ΠΈΡ β ΡΡΠΎ Π΅Π΅ Π²ΡΠ΅ΠΌΠ΅Π½Π½ΠΎΠ΅ ΠΈΡΠΏΠΎΠ»ΡΠ·ΠΎΠ²Π°Π½ΠΈΠ΅. Π‘ΠΊΠ°ΡΠ΅Π½Π½Π°Ρ Π²Π΅ΡΡΠΈΡ ΠΈΡΠΏΠΎΠ»ΡΠ·ΡΠ΅ΡΡΡ Π² ΡΠ΅ΡΠ΅Π½ΠΈΠ΅ 30 Π΄Π½Π΅ΠΉ. ΠΠΎ ΠΈΡΡΠ΅ΡΠ΅Π½ΠΈΠΈ Π²ΡΠ΅ΠΌΠ΅Π½ΠΈ ΠΏΠΎΠ»ΡΠ·ΠΎΠ²Π°ΡΠ΅Π»Ρ ΠΈΠΌΠ΅Π΅Ρ Π²ΠΎΠ·ΠΌΠΎΠΆΠ½ΠΎΡΡΡ ΡΠΊΠ°ΡΠ°ΡΡ ΠΏΠΎΠ²ΡΠΎΡΠ½ΠΎ ΠΎΠ±Π΅ΡΠΏΠ΅ΡΠ΅Π½ΠΈΠ΅ Π²ΡΠ΅Π³ΠΎ Π·Π° 39$.
Home Plan ProΠΠΎΠ»ΡΠ·ΠΎΠ²Π°ΡΠ΅Π»ΠΈ ΠΏΡΠΎΠ³ΡΠ°ΠΌΠΌΡ Home Plan Pro ΠΎΡΠΌΠ΅ΡΠ°ΡΡ ΠΏΡΠΎΡΡΠΎΡΡ ΠΈΠ½ΡΠ΅ΡΡΠ΅ΠΉΡΠ°, Ρ ΠΊΠΎΡΠΎΡΡΠΌ ΠΌΠΎΠΆΠ΅Ρ ΡΠΏΡΠ°Π²ΠΈΡΡΡΡ ΠΊΠ°ΠΆΠ΄ΡΠΉ, Π½Π΅ΡΠΌΠΎΡΡΡ Π½Π° ΡΠ·ΡΠΊΠΎΠ²ΠΎΠΉ Π±Π°ΡΡΠ΅Ρ. ΠΠΎ ΡΠ²ΠΎΠ΅ΠΌΡ ΡΡΡΠΎΠ΅Π½ΠΈΡ ΠΏΡΠΎΠ³ΡΠ°ΠΌΠΌΠ° ΠΏΠΎΡ ΠΎΠΆΠ° Π½Π° ΠΎΠ±ΡΡΠ½ΡΠΉ Π³ΡΠ°ΡΠΈΡΠ΅ΡΠΊΠΈΠΉ ΡΠ΅Π΄Π°ΠΊΡΠΎΡ, Π±Π»Π°Π³ΠΎΠ΄Π°ΡΡ ΠΊΠΎΡΠΎΡΠΎΠΌΡ Π²Ρ ΡΠ°ΠΌΠΈ ΠΌΠΎΠΆΠ΅ΡΠ΅ ΡΠΈΡΠΎΠ²Π°ΡΡ Π±ΡΠ΄ΡΡΠΈΠ΅ ΡΡΠ΅Π½Ρ, ΠΎΡΠΌΠ΅ΡΠ°ΡΡ Π΄Π²Π΅ΡΠ½ΡΠ΅ ΠΈ ΠΎΠΊΠΎΠ½Π½ΡΠ΅ ΠΏΡΠΎΠ΅ΠΌΡ. ΠΠΈΠ½ΡΡΠΎΠΌ ΠΌΠΎΠΆΠ½ΠΎ ΠΏΠΎΠΌΠ΅ΡΠΈΡΡ ΠΎΡΡΡΡΡΡΠ²ΠΈΠ΅ ΡΠ»Π΅ΠΌΠ΅Π½ΡΠΎΠ² ΠΌΠ΅Π±Π΅Π»ΠΈ ΠΈ Π²ΠΎΠ·ΠΌΠΎΠΆΠ½ΠΎΡΡΠΈ ΡΠΎΠ·Π΄Π°ΡΡ ΡΠ²ΠΎΠΉ Π΄ΠΈΠ·Π°ΠΉΠ½-ΠΏΡΠΎΠ΅ΠΊΡ. ΠΡΠ°Π²Π΄Π°, ΠΏΡΠΎΠ³ΡΠ°ΠΌΠΌΠ° ΠΈΠ·Π½Π°ΡΠ°Π»ΡΠ½ΠΎ ΡΠ°ΡΡΡΠΈΡΠ°Π½Π° Π½Π° ΡΠ°Π±ΠΎΡΡ ΠΏΡΠΎΡΠ΅ΡΡΠΈΠΎΠ½Π°Π»ΠΎΠ².
VisiCon
ΠΡΠΎ ΠΏΡΠΎΠ³ΡΠ°ΠΌΠΌΠ½ΠΎΠ΅ ΠΎΠ±Π΅ΡΠΏΠ΅ΡΠ΅Π½ΠΈΠ΅ ΠΎΡΠ½ΠΎΡΠΈΡΡΡ ΠΊ ΡΠΏΡΠΎΡΠ΅Π½Π½ΡΠΌ Π²Π°ΡΠΈΠ°Π½ΡΠ°ΠΌ ΠΈ ΠΈΡΠΏΠΎΠ»ΡΠ·ΡΠ΅ΡΡΡ Π΄Π»Ρ Β«Π΄ΠΎΠΌΠ°ΡΠ½Π΅Π³ΠΎΒ» ΠΏΠΎΠ»ΡΠ·ΠΎΠ²Π°Π½ΠΈΡ. Π‘ ΠΏΠΎΠΌΠΎΡΡΡ VisiCon ΠΌΠΎΠΆΠ½ΠΎ ΡΠΎΠ·Π΄Π°ΡΡ ΠΈΠ½ΡΠ΅ΡΠ΅ΡΠ½ΡΠΉ Π΄ΠΈΠ·Π°ΠΉΠ½ ΡΠΎΠ±ΡΡΠ²Π΅Π½Π½ΠΎΠΉ ΠΊΠ²Π°ΡΡΠΈΡΡ, Π·Π°ΡΡΠ°ΡΠΈΠ² Π½Π° ΡΠ°Π±ΠΎΡΡ Π²ΡΠ΅Π³ΠΎ Π½Π΅ΡΠΊΠΎΠ»ΡΠΊΠΎ ΠΌΠΈΠ½ΡΡ. Π ΠΏΡΠ΅Π΄Π»ΠΎΠΆΠ΅Π½Π½ΠΎΠΌ ΠΈΠ½ΡΠ΅ΡΡΠ΅ΠΉΡΠ΅ ΠΈΠΌΠ΅ΡΡΡΡ ΠΏΠΎΠ΄ΡΠ°Π·Π΄Π΅Π»Π΅Π½ΠΈΡ β Π΄Π»Ρ Π½ΠΎΠ²ΠΈΡΠΊΠΎΠ² ΠΈ ΠΏΡΠΎΠ΄Π²ΠΈΠ½ΡΡΡΡ ΠΏΠΎΠ»ΡΠ·ΠΎΠ²Π°ΡΠ΅Π»Π΅ΠΉ. ΠΡΠΈΡΠ΅ΠΌ ΠΏΠΎΠ΄ΠΎΠ±Π½ΡΠ΅ ΡΠ°Π·Π³ΡΠ°Π½ΠΈΡΠ΅Π½ΠΈΡ ΠΏΡΠ΅Π΄ΡΡΠ°Π²Π»ΡΡΡΡΡ, ΠΊΠ°ΠΊ Π²ΠΎΠ·ΠΌΠΎΠΆΠ½ΠΎΡΡΡ ΡΠΎΠ·Π΄Π°Π²Π°ΡΡ Π΄ΠΈΠ·Π°ΠΉΠ½ ΠΊΠ²Π°ΡΡΠΈΡΡ ΠΈ ΠΎΡΠ³Π°Π½ΠΈΠ·Π°ΡΠΈΠΉ ΡΠΎΠΎΡΠ²Π΅ΡΡΡΠ²Π΅Π½Π½ΠΎ.
VisiConΠΠ΄Π΅ΡΡ ΠΈΠΌΠ΅Π΅ΡΡΡ ΡΠΈΡΠΎΠΊΠΈΠΉ Π²ΡΠ±ΠΎΡ ΠΈΡΠΏΠΎΠ»ΡΠ·ΡΠ΅ΠΌΡΡ Π² Π΄Π°Π»ΡΠ½Π΅ΠΉΡΠ΅ΠΌ ΡΠ°ΡΡΠ²Π΅ΡΠΎΠΊ Π΄Π»Ρ ΡΠ°Π±ΠΎΡΡ, Π° ΡΠ°ΠΊΠΆΠ΅ ΡΠ°ΡΡΠΈΡΠ΅Π½Π½ΡΠΉ ΠΊΠ°ΡΠ°Π»ΠΎΠ³ Π΄ΠΎΡΡΡΠΏΠ½ΠΎΠΉ ΠΌΠ΅Π±Π΅Π»ΠΈ ΠΈ Π°ΠΊΡΠ΅ΡΡΡΠ°ΡΠΎΠ². ΠΠΎΠ»ΡΠ·ΠΎΠ²Π°ΡΠ΅Π»Ρ Π½Π΅Ρ Π½Π΅ΠΎΠ±Ρ ΠΎΠ΄ΠΈΠΌΠΎΡΡΠΈ ΠΎΠ±ΡΠ°ΡΠ°ΡΡΡΡ ΠΊ Π΄ΠΎΠΏΠΎΠ»Π½ΠΈΡΠ΅Π»ΡΠ½ΡΠΌ ΠΏΠ°ΠΊΠ΅ΡΠ°ΠΌ Ρ ΡΠ΅Π»ΡΡ ΡΠ°ΡΡΠΈΡΠΈΡΡ ΡΠΏΠ΅ΠΊΡΡ ΠΏΡΠ΅Π΄ΡΡΠ°Π²Π»Π΅Π½Π½ΠΎΠΉ Π°ΡΡΠΈΠ±ΡΡΠΈΠΊΠΈ, Ρ ΠΎΡΡ ΠΏΠΎΠ΄ΠΎΠ±Π½ΡΠΉ Π²Π°ΡΠΈΠ°Π½Ρ Π΄Π΅ΠΉΡΡΠ²ΠΈΠΉ ΡΠ°ΠΊΠΆΠ΅ Π²ΠΎΠ·ΠΌΠΎΠΆΠ΅Π½. ΠΠΌΠ΅Π΅ΡΡΡ Π²ΠΎΠ·ΠΌΠΎΠΆΠ½ΠΎΡΡΡ Π΄Π²ΡΡ ΠΌΠ΅ΡΠ½ΠΎΠ³ΠΎ ΠΈ ΡΡΠ΅Ρ ΠΌΠ΅ΡΠ½ΠΎΠ³ΠΎ ΠΏΡΠ΅Π΄ΡΡΠ°Π²Π»Π΅Π½ΠΈΡ, ΡΠΎΠ·Π΄Π°Π½Π½ΠΎΠ³ΠΎ Π²Π°ΠΌΠΈ ΠΏΡΠΎΠ΅ΠΊΡΠ°. ΠΠ½ΡΠ΅ΡΡΠ΅ΠΉΡ ΡΠΊΠ°ΡΠΈΠ²Π°Π΅ΡΡΡ Π±Π΅ΡΠΏΠ»Π°ΡΠ½ΠΎ Ρ ΠΎΡΠΈΡΠΈΠ°Π»ΡΠ½ΠΎΠ³ΠΎ ΡΠ°ΠΉΡΠ°.
IKEA Home Planner
ΠΠ° ΠΎΡΠΈΡΠΈΠ°Π»ΡΠ½ΠΎΠΌ ΡΠ°ΠΉΡΠ΅ ΠΈΠ·Π²Π΅ΡΡΠ½ΠΎΠ³ΠΎ ΠΌΠ°Π³Π°Π·ΠΈΠ½Π°, ΠΏΡΠ΅Π΄Π»Π°Π³Π°ΡΡΠ΅Π³ΠΎ ΠΏΠΎΠΊΡΠΏΠ°ΡΠ΅Π»ΡΠΌ ΠΎΠ±Π·Π°Π²Π΅ΡΡΠΈΡΡ ΡΡΠΈΠ»ΡΠ½ΠΎΠΉ ΠΌΠ΅Π±Π΅Π»ΡΡ ΠΈ ΠΏΡΠΎΡΠΈΠΌΠΈ Π΄Π΅ΡΠ°Π»ΡΠΌΠΈ ΠΈΠ½ΡΠ΅ΡΡΠ΅ΡΠ°, ΠΈΠΌΠ΅Π΅ΡΡΡ ΡΠ²ΠΎΠ΅ ΡΠΎΠ±ΡΡΠ²Π΅Π½Π½ΠΎΠ΅ ΠΏΡΠΎΠ³ΡΠ°ΠΌΠΌΠ½ΠΎΠ΅ ΠΎΠ±Π΅ΡΠΏΠ΅ΡΠ΅Π½ΠΈΠ΅ Π΄Π»Ρ ΡΠΎΠ·Π΄Π°Π½ΠΈΡ Π΄ΠΈΠ·Π°ΠΉΠ½-ΠΏΡΠΎΠ΅ΠΊΡΠ°. ΠΠΎΠ»ΡΠ·ΠΎΠ²Π°ΡΠ΅Π»ΠΈ ΠΌΠΎΠ³ΡΡ ΠΏΠ΅ΡΠ΅Π΄ ΠΏΠΎΡ ΠΎΠ΄ΠΎΠΌ Π² ΠΌΠ°Π³Π°Π·ΠΈΠ½ Π²ΠΈΠ·ΡΠ°Π»ΠΈΠ·ΠΈΡΠΎΠ²Π°ΡΡ ΡΠ²ΠΎΡ ΠΊΠ²Π°ΡΡΠΈΡΡ, ΠΈΡΠΏΠΎΠ»ΡΠ·ΠΎΠ²Π°Π² Π²ΡΡ ΠΏΡΠΎΠ΄ΡΠΊΡΠΈΡ ΠΌΠ°Π³Π°Π·ΠΈΠ½Π°. ΠΠΎ ΠΎΠΊΠΎΠ½ΡΠ°Π½ΠΈΠΈ ΡΠ°Π±ΠΎΡΡ ΠΌΠΎΠΆΠ½ΠΎ ΡΠ°ΡΠΏΠ΅ΡΠ°ΡΠ°ΡΡ ΡΠΎΡΡΠ°Π²Π»Π΅Π½Π½ΡΠΉ ΠΏΡΠΎΠ΅ΠΊΡ ΠΈ ΡΠΏΠΈΡΠΎΠΊ Π²ΡΠ΅Ρ Π°ΡΡΠΈΠ±ΡΡΠΎΠ², ΠΊΠΎΡΠΎΡΡΠ΅ Π±ΡΠ»ΠΈ Π·Π°Π΄Π΅ΠΉΡΡΠ²ΠΎΠ²Π°Π½Ρ Π΄Π»Ρ ΡΠΎΠ·Π΄Π°Π½ΠΈΡ Π½ΠΎΠ²ΠΎΠ³ΠΎ ΠΈΠ½ΡΠ΅ΡΡΠ΅ΡΠ°. Π ΠΌΠ°Π³Π°Π·ΠΈΠ½Π΅ Π΄ΠΎΡΡΠ°ΡΠΎΡΠ½ΠΎ ΠΏΡΠ΅Π΄ΡΡΠ°Π²ΠΈΡΡ ΡΠΏΠΈΡΠΎΠΊ ΠΌΠ΅Π½Π΅Π΄ΠΆΠ΅ΡΡ, ΠΊΠΎΡΠΎΡΡΠΉ Π² ΡΠ΅ΡΠ΅Π½ΠΈΠ΅ Π½Π΅ΡΠΊΠΎΠ»ΡΠΊΠΈΡ ΠΌΠΈΠ½ΡΡ ΠΏΡΠ΅Π΄ΠΎΡΡΠ°Π²ΠΈΡ ΡΠ΅ΠΊ Π΄Π»Ρ ΠΎΠΏΠ»Π°ΡΡ ΠΈ ΡΠΎΠ±Π΅ΡΠ΅Ρ Π²ΡΡ Π²Π°ΡΡ ΠΏΠΎΠΊΡΠΏΠΊΡ Π² ΡΠ΄ΠΎΠ±Π½ΡΠ΅ ΠΏΠ°ΠΊΠ΅ΡΡ.
ΠΠ΄ΠΈΠ½ΡΡΠ²Π΅Π½Π½ΡΠΌ ΠΎΠ³ΡΠ°Π½ΠΈΡΠ΅Π½ΠΈΠ΅ΠΌ Π² ΡΠ°Π±ΠΎΡΠ΅ Ρ ΠΏΡΠΎΠ³ΡΠ°ΠΌΠΌΠΎΠΉ IKEA Home Planner Π²ΡΡΡΡΠΏΠ°Π΅Ρ Π²ΠΎΠ·ΠΌΠΎΠΆΠ½ΠΎΡΡΡ ΠΈΡΠΏΠΎΠ»ΡΠ·ΠΎΠ²Π°Π½ΠΈΡ ΡΠΎΠ»ΡΠΊΠΎ ΡΠΎΠ²Π°ΡΠΎΠ² ΠΌΠ°Π³Π°Π·ΠΈΠ½Π°, ΠΏΠΎΡΡΠΎΠΌΡ ΠΏΡΠΈΠΌΠ΅Π½ΡΡΡ Π΅Π΅ Π½Π°Π΄ΠΎ Π² ΡΠ»ΡΡΠ°Π΅ ΠΈΡ ΠΏΡΠ΅Π΄ΠΏΠΎΡΡΠ΅Π½ΠΈΡ ΠΈ Π½Π°ΡΠ΅Π»Π΅Π½Π½ΠΎΡΡΠΈ ΡΠΎΠ·Π΄Π°ΡΡ Π½ΠΎΠ²ΡΠΉ ΠΈΠ½ΡΠ΅ΡΡΠ΅Ρ Ρ ΠΈΡ ΠΈΡΠΏΠΎΠ»ΡΠ·ΠΎΠ²Π°Π½ΠΈΠ΅ΠΌ.
ΠΠ°ΠΊΡΡ Π±Ρ ΠΏΡΠΎΠ³ΡΠ°ΠΌΠΌΡ Π²Ρ Π½ΠΈ Π²ΡΠ±ΡΠ°Π»ΠΈ, ΠΏΠΎΠ»ΡΠ·ΡΠΉΡΠ΅ΡΡ Π΅Ρ Π² ΠΏΠΎΠ»Π½ΠΎΠΌ ΡΠΎΠΎΡΠ²Π΅ΡΡΡΠ²ΠΈΠΈ Ρ Π²Π°ΡΠΈΠΌΠΈ ΠΏΡΠ΅Π΄ΠΏΠΎΡΡΠ΅Π½ΠΈΡΠΌΠΈ ΠΈ ΠΏΡΠΎΡΠ²Π»Π΅Π½ΠΈΠ΅ΠΌ ΡΠ°Π½ΡΠ°Π·ΠΈΠΈ.
abvmaster.ru
ΠΠΈΠ·Π°ΠΉΠ½ ΠΠ½ΡΠ΅ΡΡΠ΅ΡΠ° 3D β ΠΏΡΠΎΠ³ΡΠ°ΠΌΠΌΠ°, Π² ΠΊΠΎΡΠΎΡΠΎΠΉ ΠΊΠ°ΠΆΠ΄ΡΠΉ ΠΏΠΎΠ»ΡΠ·ΠΎΠ²Π°ΡΠ΅Π»Ρ ΠΠ ΠΌΠΎΠΆΠ΅Ρ Π³ΡΠ°ΠΌΠΎΡΠ½ΠΎ ΡΠΏΠ»Π°Π½ΠΈΡΠΎΠ²Π°ΡΡ ΠΈΠ½ΡΠ΅ΡΡΠ΅Ρ ΠΊΠ²Π°ΡΡΠΈΡΡ, ΡΠ°ΡΡΠ½ΠΎΠ³ΠΎ Π΄ΠΎΠΌΠ° ΠΈΠ»ΠΈ ΠΎΡΠΈΡΠ°.
Π£ΡΡΠ°Π½ΠΎΠ²ΠΈΠ² ΠΏΡΠΈΠ»ΠΎΠΆΠ΅Π½ΠΈΠ΅ Π½Π° ΡΠ²ΠΎΠΉ ΠΊΠΎΠΌΠΏΡΡΡΠ΅Ρ ΠΌΠΎΠΆΠ½ΠΎ Π·Π° ΡΡΠΈΡΠ°Π½Π½ΡΠ΅ ΠΌΠΈΠ½ΡΡΡ ΡΠΎΠ·Π΄Π°ΡΡ Π½ΡΠΆΠ½ΡΠ΅ ΠΏΠΎΠΌΠ΅ΡΠ΅Π½ΠΈΡ, ΡΠ°ΡΡΡΠ°Π²ΠΈΡΡ ΠΌΠ΅Π±Π΅Π»Ρ, Π° Π·Π°ΡΠ΅ΠΌ Π½Π°ΡΡΡΠΎΠΈΡΡ Π΄ΠΈΠ·Π°ΠΉΠ½ ΠΈ ΠΏΡΠΎΡΠΌΠΎΡΡΠ΅ΡΡ Π³ΠΎΡΠΎΠ²ΡΠΉ ΡΠ΅Π·ΡΠ»ΡΡΠ°Ρ Π² ΡΠ΅ΠΆΠΈΠΌΠ΅ 3D.
ΠΡΠ½ΠΎΠ²Π½ΡΠ΅ ΠΏΡΠ΅ΠΈΠΌΡΡΠ΅ΡΡΠ²Π° ΡΠΎΡΡΠ°:
- ΡΠ΄ΠΎΠ±Π½ΡΠΉ ΡΡΡΡΠΊΠΎΡΠ·ΡΡΠ½ΡΠΉ ΠΈΠ½ΡΠ΅ΡΡΠ΅ΠΉΡ;
- ΡΠΎΡΠ½ΠΎΠ΅ ΠΈ ΠΏΡΠΎΡΡΠΎΠ΅ ΡΠΎΠ·Π΄Π°Π½ΠΈΠ΅ ΠΏΠΎΠΌΠ΅ΡΠ΅Π½ΠΈΠΉ;
- 120+ ΠΎΡΠ΄Π΅Π»ΠΎΡΠ½ΡΡ ΠΌΠ°ΡΠ΅ΡΠΈΠ°Π»ΠΎΠ²;
- ΡΠ²ΡΡΠ΅ 50 ΠΏΡΠ΅Π΄ΠΌΠ΅ΡΠΎΠ² ΠΌΠ΅Π±Π΅Π»ΠΈ;
- Π±ΡΡΡΡΠ°Ρ ΠΏΠ΅ΡΠ°ΡΡ Π³ΠΎΡΠΎΠ²ΠΎΠ³ΠΎ ΠΏΡΠΎΠ΅ΠΊΡΠ°.
ΠΡΠΎΠ³ΡΠ°ΠΌΠΌΠ° ΠΏΠΎΠ·Π²ΠΎΠ»ΡΠ΅Ρ ΡΠΎΠ·Π΄Π°Π²Π°ΡΡ ΠΊΠ°ΠΊ ΠΎΠ΄Π½ΠΎΡΡΠ°ΠΆΠ½ΡΠ΅ ΠΏΠΎΡΡΡΠΎΠΉΠΊΠΈ, ΡΠ°ΠΊ ΠΈ ΠΏΡΠΎΠ΅ΠΊΡΠΈΡΠΎΠ²Π°ΡΡ Π΄ΠΎΠΌΠ° ΠΈΠ· Π΄Π²ΡΡ ΠΈ Π±ΠΎΠ»Π΅Π΅ ΡΡΠ°ΠΆΠ΅ΠΉ. Π ΡΠΊΠ°ΡΠ°ΡΡ ΠΠΈΠ·Π°ΠΉΠ½ ΠΠ½ΡΠ΅ΡΡΠ΅ΡΠ° 3D ΠΏΠΎΠ»Π½ΡΡ Π²Π΅ΡΡΠΈΡ Π½Π° ΡΡΡΡΠΊΠΎΠΌ ΡΠ·ΡΠΊΠ΅ Π²ΠΎΠ·ΠΌΠΎΠΆΠ½ΠΎ Ρ ΠΎΡΠΈΡΠΈΠ°Π»ΡΠ½ΠΎΠ³ΠΎ ΡΠ°ΠΉΡΠ° ΠΏΠΎ ΡΡΡΠ»ΠΊΠ΅ Π½ΠΈΠΆΠ΅ Π½Π° soft-file.ru ΡΡΠ°Π·Ρ ΠΏΠΎΡΠ»Π΅ ΠΎΠΏΠΈΡΠ°Π½ΠΈΡ.
ΠΠ»Ρ Π½Π°ΡΠ°Π»Π° ΡΠ°Π±ΠΎΡΡ Π²Π°ΠΌ ΠΏΠΎΡΡΠ΅Π±ΡΠ΅ΡΡΡ Π·Π°Π³ΡΡΠ·ΠΈΡΡ ΠΏΠ»Π°Π½ Π΄ΠΎΠΌΠ° ΠΈΠ»ΠΈ ΠΊΠ²Π°ΡΡΠΈΡΡ Π² ΠΏΡΠΎΠ³ΡΠ°ΠΌΠΌΡ. ΠΡΠ»ΠΈ Π΅Π³ΠΎ Π½Π΅Ρ ΠΏΠΎΠ΄ ΡΡΠΊΠΎΠΉ, ΡΠΎ Π²ΡΡΡΠ½ΡΡ Π½Π°ΡΠΈΡΡΠΉΡΠ΅ Π²ΡΠ΅ ΠΊΠΎΠΌΠ½Π°ΡΡ Π²ΠΎ Π²ΡΡΡΠΎΠ΅Π½Π½ΠΎΠΌ ΡΠ΅Π΄Π°ΠΊΡΠΎΡΠ΅ ΠΈΠ»ΠΈ Π²ΡΠ±Π΅ΡΠΈΡΠ΅ ΠΏΠΎΠ΄Ρ ΠΎΠ΄ΡΡΡΡ ΠΏΠ»Π°Π½ΠΈΡΠΎΠ²ΠΊΡ Π² ΠΊΠ°ΡΠ°Π»ΠΎΠ³Π΅ ΠΏΡΠΈΠ»ΠΎΠΆΠ΅Π½ΠΈΡ.
Π’ΠΎΠ»ΡΠΊΠΎ ΠΏΠΎΡΠ»Π΅ ΡΡΠΎΠ³ΠΎ Π²Ρ ΡΠΌΠΎΠΆΠ΅ΡΠ΅ ΠΏΠ΅ΡΠ΅ΠΉΡΠΈ ΠΊ ΡΠΎΠ·Π΄Π°Π½ΠΈΡ ΠΈΠ½ΡΠ΅ΡΡΠ΅ΡΠ°. Π ΠΏΡΠΎΠ³ΡΠ°ΠΌΠΌΠ΅ ΡΠΎΠ±ΡΠ°Π½Ρ ΠΏΡΠ΅Π΄ΠΌΠ΅ΡΡ Π΄Π»Ρ Π²ΡΠ΅Ρ ΠΎΡΠ½ΠΎΠ²Π½ΡΡ ΠΆΠΈΠ»ΡΡ ΠΈ ΡΠ°Π±ΠΎΡΠΈΡ ΠΏΠΎΠΌΠ΅ΡΠ΅Π½ΠΈΠΉ. Π‘ ΠΈΡ ΠΏΠΎΠΌΠΎΡΡΡ Π²Ρ ΠΎΠ±ΡΡΡΡΠΎΠΈΡΠ΅ Π³ΠΎΡΡΠΈΠ½ΡΡ, ΡΠΏΠ°Π»ΡΠ½Ρ, ΠΊΡΡ Π½Ρ, ΠΊΠ°Π±ΠΈΠ½Π΅Ρ, Π΄Π΅ΡΡΠΊΡΡ, Π²Π°Π½Π½ΡΡ, ΠΏΡΠΈΡ ΠΎΠΆΡΡ, Π° ΡΠ°ΠΊΠΆΠ΅ ΠΏΡΠΎΠ΄ΡΠΌΠ°Π΅ΡΠ΅ Π΄Π΅ΠΊΠΎΡ, Π΄ΠΎΠΏΠΎΠ»Π½ΠΈΠ² ΠΏΠΎΠΌΠ΅ΡΠ΅Π½ΠΈΡ ΠΊΠ°ΡΡΠΈΠ½Π°ΠΌΠΈ, ΡΠ²Π΅ΡΠ°ΠΌΠΈ ΠΈ Π΄ΡΡΠ³ΠΈΠΌΠΈ Π΄ΠΎΡΡΡΠΏΠ½ΡΠΌΠΈ ΡΠ»Π΅ΠΌΠ΅Π½ΡΠ°ΠΌΠΈ.
- ΠΠΈΠ±ΠΊΠ°Ρ Π½Π°ΡΡΡΠΎΠΉΠΊΠ° Π²ΡΠ΅Ρ ΡΠ»Π΅ΠΌΠ΅Π½ΡΠΎΠ² ΠΏΠ»Π°Π½Π°.
- Π£Π΄ΠΎΠ±Π½ΡΠΉ ΠΏΡΠΎΡΠΌΠΎΡΡ ΠΈ ΡΠΎΡ ΡΠ°Π½Π΅Π½ΠΈΠ΅ ΠΏΡΠΎΠ΅ΠΊΡΠ°.
Β«ΠΠΈΠ·Π°ΠΉΠ½ ΠΠ½ΡΠ΅ΡΡΠ΅ΡΠ° 3DΒ» ΠΏΠΎΠ·Π²ΠΎΠ»ΡΠ΅Ρ ΠΈΠ·ΠΌΠ΅Π½ΡΡΡ Π²Π½Π΅ΡΠ½ΠΈΠΉ Π²ΠΈΠ΄ Π²ΡΠ΅Ρ ΡΠΎΡΡΠ°Π²Π»ΡΡΡΠΈΡ ΠΏΡΠΎΠ΅ΠΊΡΠ°. ΠΠ»Ρ ΡΡΠΎΠ³ΠΎ Π΄ΠΎΡΡΠ°ΡΠΎΡΠ½ΠΎ Π²ΡΠ΄Π΅Π»ΠΈΡΡ Π½ΡΠΆΠ½ΡΠΉ ΡΠ»Π΅ΠΌΠ΅Π½Ρ ΠΈ ΠΎΠ±ΡΠ°ΡΠΈΡΡΡΡ ΠΊ Π΅Π³ΠΎ ΡΠ²ΠΎΠΉΡΡΠ²Π°ΠΌ. ΠΠ°ΠΏΡΠΈΠΌΠ΅Ρ, ΡΠ°ΠΊ Π»Π΅Π³ΠΊΠΎ ΠΌΠΎΠΆΠ½ΠΎ ΡΠΊΠΎΡΡΠ΅ΠΊΡΠΈΡΠΎΠ²Π°ΡΡ ΠΎΡΠ΄Π΅Π»ΠΊΡ ΠΏΠΎΠΌΠ΅ΡΠ΅Π½ΠΈΠΉ: Π²ΡΠ±ΡΠ°ΡΡ Π΄ΡΡΠ³ΠΈΠ΅ ΠΎΠ±ΠΎΠΈ, ΠΏΠΎΠ΄Ρ ΠΎΠ΄ΡΡΠΈΠ΅ ΠΌΠ°ΡΠ΅ΡΠΈΠ°Π»Ρ Π΄Π»Ρ ΠΎΡΠΎΡΠΌΠ»Π΅Π½ΠΈΡ ΠΏΠΎΡΠΎΠ»ΠΊΠ° ΠΈ Π½ΠΎΠ²ΠΎΠ΅ ΠΏΠΎΠΊΡΡΡΠΈΠ΅ Π΄Π»Ρ ΠΏΠΎΠ»Π°. ΠΠ½Π°Π»ΠΎΠ³ΠΈΡΠ½ΠΎ Π½Π°ΡΡΡΠ°ΠΈΠ²Π°Π΅ΡΡΡ ΠΈΠ½ΡΠ΅ΡΡΠ΅Ρ: Π²ΡΠ΅Π³ΠΎ Π½Π΅ΡΠΊΠΎΠ»ΡΠΊΠΎ ΠΊΠ»ΠΈΠΊΠΎΠ² β ΠΈ ΠΏΠ΅ΡΠ΅Π΄ Π²Π°ΠΌΠΈ Π½Π° ΡΠΊΡΠ°Π½Π΅ ΡΠΎΠ²Π΅ΡΡΠ΅Π½Π½ΠΎ Π½ΠΎΠ²ΡΠΉ ΠΏΡΠ΅Π΄ΠΌΠ΅Ρ, ΠΏΠΎΠ»Π½ΠΎΡΡΡΡ ΡΠΎΠΎΡΠ²Π΅ΡΡΡΠ²ΡΡΡΠΈΠΉ Π²Π°ΡΠΈΠΌ Π·Π°Π΄ΡΠΌΠΊΠ°ΠΌ.
ΠΠ΄ΠΈΠ½ ΠΈΠ· Π³Π»Π°Π²Π½ΡΡ ΠΏΠ»ΡΡΠΎΠ² ΠΏΡΠΎΠ³ΡΠ°ΠΌΠΌΡ β ΡΡΠΎ Π²ΠΎΠ·ΠΌΠΎΠΆΠ½ΠΎΡΡΡ Π²ΠΈΠ΄Π΅ΡΡ Π½Π° ΡΠΊΡΠ°Π½Π΅ 3D-ΠΌΠ°ΠΊΠ΅Ρ ΠΏΠΎΠΌΠ΅ΡΠ΅Π½ΠΈΡ Π½Π° Π²ΡΠ΅Ρ ΡΡΠ°ΠΏΠ°Ρ ΡΠ°Π±ΠΎΡΡ. ΠΡΠΎ ΠΏΠΎΠ·Π²ΠΎΠ»ΠΈΡ Π²Π°ΠΌ Π²ΠΎΠ²ΡΠ΅ΠΌΡ Π·Π°ΠΌΠ΅ΡΠΈΡΡ Π²ΡΠ΅ ΠΎΡΠΈΠ±ΠΊΠΈ ΠΈ ΠΎΠΏΠ΅ΡΠ°ΡΠΈΠ²Π½ΠΎ ΡΡΡΡΠ°Π½ΠΈΡΡ ΠΈΡ . ΠΠΎΠ³Π΄Π° ΡΠ°Π±ΠΎΡΠ° Π±ΡΠ΄Π΅Ρ Π·Π°Π²Π΅ΡΡΠ΅Π½Π°, Π·Π°Π³Π»ΡΠ½ΠΈΡΠ΅ Π²ΠΎ Π²ΠΊΠ»Π°Π΄ΠΊΡ Β«ΠΠΈΡΡΡΠ°Π»ΡΠ½ΡΠΉ Π²ΠΈΠ·ΠΈΡΒ». Β«ΠΠΈΠ·Π°ΠΉΠ½ ΠΠ½ΡΠ΅ΡΡΠ΅ΡΠ° 3DΒ» ΠΏΡΠ΅Π΄Π»ΠΎΠΆΠΈΡ ΡΠΎΠ²Π΅ΡΡΠΈΡΡ Β«ΠΏΡΠΎΠ³ΡΠ»ΠΊΡΒ» ΠΏΠΎ ΠΎΠ±Π½ΠΎΠ²Π»Π΅Π½Π½ΡΠΌ ΠΊΠΎΠΌΠ½Π°ΡΠ°ΠΌ ΠΈ ΠΎΡΠ΅Π½ΠΈΡΡ ΡΠ΅ΠΌΠΎΠ½Ρ ΠΈ ΠΎΠ±ΡΡΠ°Π½ΠΎΠ²ΠΊΡ ΠΈΠ·Π½ΡΡΡΠΈ.
Π‘ΠΊΠ°ΡΠ°ΡΡ ΠΠΈΠ·Π°ΠΉΠ½ ΠΠ½ΡΠ΅ΡΡΠ΅ΡΠΎΠ² 3Π Π½Π° ΡΡΡΡΠΊΠΎΠΌ ΡΠ·ΡΠΊΠ΅ Π½Π° ΠΊΠΎΠΌΠΏΡΡΡΠ΅Ρ Π²ΠΎΠ·ΠΌΠΎΠΆΠ½ΠΎ Π±Π΅ΡΠΏΠ»Π°ΡΠ½ΠΎ ΠΏΠΎ ΠΎΡΠΈΡΠΈΠ°Π»ΡΠ½ΡΠΌ ΡΡΡΠ»ΠΊΠ°ΠΌ, ΠΏΡΠ΅Π΄ΡΡΠ°Π²Π»Π΅Π½Π½ΡΠ΅ ΠΏΠΎΡΠ»Π΅ Ρ Π°ΡΠ°ΠΊΡΠ΅ΡΠΈΡΡΠΈΠΊ ΠΊ ΠΏΡΠΎΠ³ΡΠ°ΠΌΠΌΠ΅. ΠΠΎΡΠΎΠ²ΡΠΉ ΠΏΠ»Π°Π½ ΠΌΠΎΠΆΠ½ΠΎ ΡΠΎΡ ΡΠ°Π½ΠΈΡΡ Π½Π° ΠΊΠΎΠΌΠΏΡΡΡΠ΅ΡΠ΅ ΠΈΠ»ΠΈ Π²ΡΠ²Π΅ΡΡΠΈ Π½Π° Π±ΡΠΌΠ°Π³Ρ ΡΠ΅ΡΠ΅Π· ΡΠ΄ΠΎΠ±Π½ΡΠΉ ΠΌΠΎΠ΄ΡΠ»Ρ ΠΏΠ΅ΡΠ°ΡΠΈ ΠΈ ΠΈΡΠΏΠΎΠ»ΡΠ·ΠΎΠ²Π°ΡΡ ΠΊΠ°ΠΊ ΠΏΠΎΠ»Π½ΠΎΡΠ΅Π½Π½ΠΎΠ΅ ΡΡΠΊΠΎΠ²ΠΎΠ΄ΡΡΠ²ΠΎ Π²ΠΎ Π²ΡΠ΅ΠΌΡ ΡΠ΅ΠΌΠΎΠ½ΡΠ° ΠΈ ΠΏΠ΅ΡΠ΅ΠΏΠ»Π°Π½ΠΈΡΠΎΠ²ΠΊΠΈ.
soft-file.ru
ΠΡΠ΅ Π²Π»Π°Π΄Π΅Π»ΡΡΡ ΠΊΠ²Π°ΡΡΠΈΡ ΠΈ Π΄ΠΎΠΌΠΎΠ² ΡΠ°Π½ΠΎ ΠΈΠ»ΠΈ ΠΏΠΎΠ·Π΄Π½ΠΎ Π²ΡΡΡΠΏΠ°ΡΡ Π² ΡΡΠ°Π΄ΠΈΡ ΡΠ΅ΠΌΠΎΠ½ΡΠ°, ΠΏΠ΅ΡΠ΅ΠΏΠ»Π°Π½ΠΈΡΠΎΠ²ΠΊΠΈ ΠΈΠ»ΠΈ ΠΏΡΠΎΡΡΠΎΠΉ ΡΠΌΠ΅Π½Ρ Π΄Π΅ΠΊΠΎΡΠ°ΡΠΈΠΉ Π² ΡΠ²ΠΎΠ΅ΠΌ ΠΆΠΈΠ»ΠΈΡΠ΅. ΠΠ° ΡΠΎΠ±ΡΡΠ²Π΅Π½Π½ΠΎΠΌ ΠΎΠΏΡΡΠ΅ ΠΏΡΠΎΠ± ΠΈ ΠΎΡΠΈΠ±ΠΎΠΊ Π΄Π΅Π»Π°ΡΡ ΡΠ΅ΠΌΠΎΠ½Ρ Π±ΡΠ²Π°Π΅Ρ Π·Π°ΡΡΠ°ΡΠ½ΠΎ ΠΈ Π½Π΅ΠΏΡΠ΅Π΄ΡΠΊΠ°Π·ΡΠ΅ΠΌΠΎ. ΠΡΠ΅Π΄Π²ΠΈΠ΄Π΅ΡΡ Π²ΠΎΠΏΠ»ΠΎΡΠ΅Π½ΠΈΠ΅ ΡΠ²ΠΎΠΈΡ ΠΈΠ΄Π΅ΠΉ, ΠΈΠ·Π±Π΅ΠΆΠ°ΡΡ ΠΌΠ½ΠΎΠ³ΠΈΡ ΠΎΡΠΈΠ±ΠΎΠΊ, Π½Π΅ΠΎΠ±Π΄ΡΠΌΠ°Π½Π½ΡΡ ΡΠ°ΡΡ ΠΎΠ΄ΠΎΠ² Π²ΠΎΠ·ΠΌΠΎΠΆΠ½ΠΎ. ΠΠ»Ρ ΡΡΠΎΠ³ΠΎ ΠΏΠΎΠ΄ΠΎΠΉΠ΄Π΅Ρ Π΄ΠΈΠ·Π°ΠΉΠ½ ΠΏΡΠΎΠ΅ΠΊΡ ΠΎΠ½Π»Π°ΠΉΠ½. ΠΠ°ΠΆΠ΅ ΡΠ°ΠΌΡΠΉ Π½Π΅ΠΎΠΏΡΡΠ½ΡΠΉ ΠΏΠΎΠ»ΡΠ·ΠΎΠ²Π°ΡΠ΅Π»Ρ ΠΌΠΎΠΆΠ΅Ρ ΡΠΎΠ·Π΄Π°ΡΡ ΡΡΠΊΠΈΠ· ΠΈΠ½ΡΠ΅ΡΡΠ΅ΡΠ° ΡΠ²ΠΎΠ΅ΠΉ Π±ΡΠ΄ΡΡΠ΅ΠΉ ΠΊΠ²Π°ΡΡΠΈΡΡ. ΠΠΎΡΠΏΠΎΠ»ΡΠ·ΠΎΠ²Π°ΡΡΡΡ ΠΏΡΠ΅Π΄Π»ΠΎΠΆΠ΅Π½ΠΈΠ΅ΠΌ ΠΏΡΠΎΡΡΠΎ, Π΅ΡΠ»ΠΈ Π²Ρ ΠΈΠΌΠ΅Π΅ΡΠ΅ Π±Π°Π·ΠΎΠ²ΡΠ΅ Π½Π°Π²ΡΠΊΠΈ ΡΠ°Π±ΠΎΡΡ Ρ ΠΊΠΎΠΌΠΏΡΡΡΠ΅ΡΠΎΠΌ.
ΠΠ° ΡΡΡΠ°Π½ΠΈΡΠ°Ρ ΠΈΠ½ΡΠ΅ΡΠ½Π΅ΡΠ° ΠΌΠ½ΠΎΠΆΠ΅ΡΡΠ²ΠΎ ΡΠ°ΠΉΡΠΎΠ² ΠΏΡΠ΅Π΄Π»Π°Π³Π°ΡΡ ΡΠ²ΠΎΠΈ ΡΡΠ»ΡΠ³ΠΈ Π΄ΠΈΠ·Π°ΠΉΠ½ ΠΎΠ½Π»Π°ΠΉΠ½ Π±Π΅ΡΠΏΠ»Π°ΡΠ½ΠΎ. ΠΠΎΠ²ΡΠ΅ ΡΠ΅Ρ Π½ΠΎΠ»ΠΎΠ³ΠΈΠΈ ΠΈ ΠΏΡΠΎΠ³ΡΠ΅ΡΡ ΠΏΡΠΈΠ²ΠΎΠ΄ΡΡ ΠΊ ΡΠΎΠΌΡ, ΡΡΠΎ ΡΠ°ΠΌΡΠ΅ Π½Π΅ΡΠ΅Π°Π»ΡΠ½ΡΠ΅ ΠΏΡΠΎΠ΅ΠΊΡΡ ΠΈ ΠΈΠ΄Π΅ΠΈ Π½Π΅ ΡΠΎΠ»ΡΠΊΠΎ Π²ΠΎΠΏΠ»ΠΎΡΠ°ΡΡΡΡ Π² ΠΆΠΈΠ·Π½Ρ, Π½ΠΎ ΠΈ ΠΏΠΎΡΠ°ΠΆΠ°ΡΡ ΡΠ²ΠΎΠΈΠΌ ΠΌΠ½ΠΎΠ³ΠΎΠΎΠ±ΡΠ°Π·ΠΈΠ΅ΠΌ. ΠΡΠΎΠ³ΡΠ°ΠΌΠΌΡ ΠΏΠΎΠ΄ΠΎΠ±Π½ΠΎΠ³ΠΎ ΡΠΈΠΏΠ° Π½Π°Π·ΡΠ²Π°ΡΡ β ΠΏΠ»Π°Π½ΠΈΡΠΎΠ²ΡΠΈΠΊΠ°ΠΌΠΈ. ΠΠ½ΠΈ ΠΏΠΎΠΌΠΎΠ³Π°ΡΡ Π²ΠΎΡΠΏΡΠΎΠΈΠ·Π²Π΅ΡΡΠΈ Π²ΠΈΡΡΡΠ°Π»ΡΠ½ΠΎ ΡΠΎ, ΠΊΠ°ΠΊ Π² Π±ΡΠ΄ΡΡΠ΅ΠΌ Π±ΡΠ΄Π΅Ρ ΠΎΡΠΎΡΠΌΠ»Π΅Π½Π° ΡΠ° ΠΈΠ»ΠΈ ΠΈΠ½Π°Ρ ΠΊΠΎΠΌΠ½Π°ΡΠ°. ΠΠΎΠ΄ΠΎΠ±Π½ΡΠ΅ ΠΈΠ½ΡΠ΅Π»Π»Π΅ΠΊΡΡΠ°Π»ΡΠ½ΡΠ΅ ΠΏΡΠΎΠ΄ΡΠΊΡΡ Π½Π΅Π·Π°ΠΌΠ΅Π½ΠΈΠΌΡ Π΄Π»Ρ ΡΠ΅Ρ , ΠΊΡΠΎ Ρ ΠΎΡΠ΅Ρ ΡΠ°ΠΌΠΎΡΡΠΎΡΡΠ΅Π»ΡΠ½ΠΎ ΡΠ΄Π΅Π»Π°ΡΡ Π΄ΠΈΠ·Π°ΠΉΠ½ ΠΎΠ½Π»Π°ΠΉΠ½, Π½Π΅ ΠΏΡΠΈΠ±Π΅Π³Π°Ρ ΠΊ ΠΏΠΎΠΌΠΎΡΠΈ ΠΏΡΠΎΡΠ΅ΡΡΠΈΠΎΠ½Π°Π»ΡΠ½ΠΎΠ³ΠΎ Π΄ΠΈΠ·Π°ΠΉΠ½Π΅ΡΠ°.
ΠΠΈΠ·Π°ΠΉΠ½ ΠΈΠ½ΡΠ΅ΡΡΠ΅ΡΠ° Π² 3D ΠΎΠ½Π»Π°ΠΉΠ½
ΠΠΈΠ·Π°ΠΉΠ½ ΠΎΠ½Π»Π°ΠΉΠ½ ΠΌΠΎΠΆΠ΅Ρ Π±ΡΡΡ ΡΠ΄Π΅Π»Π°Π½ ΠΏΡΠΈ ΠΏΠΎΠΌΠΎΡΠΈ ΡΠ°Π·Π½ΡΡ ΠΏΡΠΎΠ³ΡΠ°ΠΌΠΌ, ΠΊΠΎΡΠΎΡΡΠ΅ ΠΏΠΎΠ·Π²ΠΎΠ»ΡΡΡ ΠΌΠ΅Π½ΡΡΡ Π²Π°ΡΠΈΠ°Π½ΡΡ ΠΎΡΠ΄Π΅Π»ΠΊΠΈ, ΠΏΠΎΠ΄Π±ΠΈΡΠ°ΡΡ Π½Π°ΠΈΠ±ΠΎΠ»Π΅Π΅ ΠΏΠΎΠ΄Ρ ΠΎΠ΄ΡΡΠΈΠ΅ Π½Π΅ ΡΠΎΠ»ΡΠΊΠΎ Π΄Π»Ρ ΠΎΠΏΡΠ΅Π΄Π΅Π»Π΅Π½Π½ΠΎΠΉ ΠΊΠΎΠΌΠ½Π°ΡΡ, Π½ΠΎ ΠΈ Π΄Π»Ρ ΠΊΠ²Π°ΡΡΠΈΡΡ ΠΈΠ»ΠΈ ΠΊΠΎΡΡΠ΅Π΄ΠΆΠ° Π² ΡΠ΅Π»ΠΎΠΌ. ΠΠΎΠ»ΡΠ·ΠΎΠ²Π°ΡΠ΅Π»ΡΠΌ ΠΏΡΠΈΠ»ΠΎΠΆΠ΅Π½ΠΈΡ ΠΎΠ½Π»Π°ΠΉΠ½ Planner5D, 3d Π΄ΠΈΠ·Π°ΠΉΠ½ ΠΎΠ½Π»Π°ΠΉΠ½ ΠΏΠΎΠ·Π²ΠΎΠ»ΡΠ΅Ρ ΡΠΎΠ·Π΄Π°Π²Π°ΡΡ Ρ Π½ΡΠ»Ρ Π²ΠΈΡΡΡΠ°Π»ΡΠ½ΠΎ Π»ΡΠ±ΠΎΠ΅ ΠΈΠ·ΠΎΠ±ΡΠ°ΠΆΠ΅Π½ΠΈΠ΅ Π°ΡΡ ΠΈΡΠ΅ΠΊΡΡΡΠ½ΠΎΠ³ΠΎ ΠΎΠ±ΡΠ΅ΠΊΡΠ°. ΠΡΠΎΠ³ΡΠ°ΠΌΠΌΠ° Π΄Π°Π΅Ρ Π²ΠΎΠ·ΠΌΠΎΠΆΠ½ΠΎΡΡΡ Π²ΠΎΠ·Π²ΠΎΠ΄ΠΈΡΡ ΡΡΠ΅Π½Ρ ΡΠ°ΠΌΠΎΠΌΡ ΠΈΠ»ΠΈ Π²ΠΎΡΠΏΠΎΠ»ΡΠ·ΠΎΠ²Π°ΡΡΡΡ ΡΠΆΠ΅ Π³ΠΎΡΠΎΠ²ΡΠΌ ΠΈΠ·ΠΎΠ±ΡΠ°ΠΆΠ΅Π½ΠΈΠ΅ΠΌ Π΄Π»Ρ Π²Π°ΡΠ΅Π³ΠΎ Π΄ΠΎΠΌΠ°. ΠΠ½Π° Π±ΡΠ΄Π΅Ρ ΠΈΠ½ΡΠ΅ΡΠ΅ΡΠ½Π° Π½Π΅ ΡΠΎΠ»ΡΠΊΠΎ ΠΏΡΠΎΡΠ΅ΡΡΠΈΠΎΠ½Π°Π»Π°ΠΌ, Π½ΠΎ ΠΈ ΠΏΡΠΎΡΡΡΠΌ Π»ΡΠ΄ΡΠΌ, ΠΏΠ»Π°Π½ΠΈΡΡΡΡΠΈΠΌ Π²ΡΠΏΠΎΠ»Π½ΡΡΡ ΡΠ΅ΠΌΠΎΠ½Ρ ΡΠ²ΠΎΠΈΠΌΠΈ ΡΡΠΊΠ°ΠΌΠΈ.
Π ΠΏΡΠΎΠ³ΡΠ°ΠΌΠΌΠ΅ 3d Π΄ΠΈΠ·Π°ΠΉΠ½ ΠΈΠ½ΡΠ΅ΡΡΠ΅ΡΠ° ΠΈΠΌΠ΅Π΅ΡΡΡ Π±ΠΎΠ»ΡΡΠΎΠΉ ΠΊΠ°ΡΠ°Π»ΠΎΠ³ ΡΠΈΠΏΠΎΠ²ΡΡ ΠΏΡΠΎΠ΅ΠΊΡΠΎΠ², Π° ΡΠ°ΠΊΠΆΠ΅ ΡΠΎΠ±ΡΠ°Π½ ΠΎΠ³ΡΠΎΠΌΠ½ΡΠΉ Π°ΡΡ ΠΈΠ² ΡΠ°Π±ΠΎΡ ΠΏΠΎΠ»ΡΠ·ΠΎΠ²Π°ΡΠ΅Π»Π΅ΠΉ. ΠΡΠ΄Π΅Π»ΠΊΠ° ΠΊΠΎΠΌΠ½Π°Ρ ΠΏΡΠ΅Π΄ΠΏΠΎΠ»Π°Π³Π°Π΅Ρ Π²ΡΠ±ΠΎΡ ΠΌΠ°ΡΠ΅ΡΠΈΠ°Π»ΠΎΠ²: ΠΎΠ±ΠΎΠΈ ΠΈΠ»ΠΈ ΠΏΠ»ΠΈΡΠΊΠ°, ΠΏΠΎΠΊΡΠ°ΡΠΊΠ° ΠΈΠ»ΠΈ ΡΡΡΠΊΠ°ΡΡΡΠΊΠ°. ΠΠΈΠ·Π°ΠΉΠ½ ΠΏΠΎΠΌΠ΅ΡΠ΅Π½ΠΈΡ ΠΎΠ½Π»Π°ΠΉΠ½ ΠΏΠΎΠΌΠΎΠΆΠ΅Ρ Π½Π°ΠΏΠΎΠ»Π½ΠΈΡΡ ΠΊΠΎΠΌΠ½Π°ΡΡ ΠΌΠ΅Π±Π΅Π»ΡΡ, Π±ΡΡΠΎΠ²ΠΎΠΉ ΡΠ΅Ρ Π½ΠΈΠΊΠΎΠΉ, ΡΠ°Π·ΠΌΠ΅ΡΡΠΈΡΡ ΠΈΡΡΠΎΡΠ½ΠΈΠΊΠΈ ΡΠ²Π΅ΡΠ° ΠΈ ΠΏΡΠ΅Π΄ΠΌΠ΅ΡΡ ΠΈΠ½ΡΠ΅ΡΡΠ΅ΡΠ°. ΠΠΎΠΆΠ½ΠΎ Π²ΠΎΡΠΏΠΎΠ»ΡΠ·ΠΎΠ²Π°ΡΡΡΡ Π³ΠΎΡΠΎΠ²ΡΠΌ ΠΎΠ±ΡΠ΅ΠΊΡΠΎΠΌ ΠΈ ΠΏΠΎΡΠΌΠΎΡΡΠ΅ΡΡ Π΅Π³ΠΎ ΡΠΎ Π²ΡΠ΅Ρ ΡΡΠΎΡΠΎΠ½, ΠΏΠΎΡΠ°Π±ΠΎΡΠ°ΡΡ Ρ ΡΠ΅Π½ΡΠΌΠΈ ΠΈ ΡΠ²Π΅ΡΠΎΠΌ ΠΈΠ»ΠΈ ΡΠ°ΠΌΠΎΠΌΡ Π½Π°ΡΠΈΡΠΎΠ²Π°ΡΡ ΠΏΡΠ΅Π΄ΠΌΠ΅ΡΡ ΠΈΠ½ΡΠ΅ΡΡΠ΅ΡΠ°, ΠΏΠ΅ΡΠ΅ΠΏΠ»Π°Π½ΠΈΡΠΎΠ²Π°ΡΡ ΠΈΠ»ΠΈ ΠΏΠ΅ΡΠ΅ΡΡΠ°Π²ΠΈΡΡ ΠΌΠ΅Π±Π΅Π»Ρ, ΠΈΠ·ΠΌΠ΅Π½ΠΈΡΡ ΠΎΡΠΎΡΠΌΠ»Π΅Π½ΠΈΠ΅ ΠΊΠ²Π°ΡΡΠΈΡΡ, ΠΏΠΎΠ΄ΠΎΠ±ΡΠ°ΡΡ ΡΠ²Π΅Ρ ΡΡΠ΅Π½ ΠΈΠ»ΠΈ ΠΎΠ±ΠΎΠ΅Π².
Π§ΡΠΎ ΠΏΠΎΠ·Π²ΠΎΠ»ΡΠ΅Ρ Π΄Π΅Π»Π°ΡΡ ΠΏΡΠΎΠ³ΡΠ°ΠΌΠΌΠ°
ΠΡΠΎΠ³ΡΠ°ΠΌΠΌΠ° Planner5D β ΡΡΠΎ ΡΠ°ΠΌΡΠΉ ΠΏΡΠΎΡΡΠΎΠΉ ΠΈ Π»ΡΡΡΠΈΠΉ ΡΠΏΠΎΡΠΎΠ± ΡΠΎΠ·Π΄Π°ΡΡ Π΄ΠΈΠ·Π°ΠΉΠ½ ΠΎΠ½Π»Π°ΠΉΠ½. Π‘ Π΅Π΅ ΠΏΠΎΠΌΠΎΡΡΡ ΠΌΠΎΠΆΠ½ΠΎ Π² Π½Π΅ΡΠΊΠΎΠ»ΡΠΊΠΎ ΠΊΠ»ΠΈΠΊΠΎΠ² Π²ΠΎΡΡΠΎΠ·Π΄Π°ΡΡ ΡΠ²ΠΎΠΉ Π΄ΠΎΠΌ, Π΄Π²ΠΎΡ, ΠΎΠ³ΠΎΡΠΎΠ΄ ΠΈ Π½Π°ΠΏΠΎΠ»Π½ΠΈΡΡ ΠΈΡ ΠΎΠ±ΡΠ΅ΠΊΡΠ°ΠΌΠΈ ΠΈΠ· ΠΎΠ³ΡΠΎΠΌΠ½ΠΎΠΉ Π±ΠΈΠ±Π»ΠΈΠΎΡΠ΅ΠΊΠΈ. ΠΠ½Π° Π² ΠΏΠ΅ΡΠ²ΡΡ ΠΎΡΠ΅ΡΠ΅Π΄Ρ ΠΏΠΎΠΌΠΎΠΆΠ΅Ρ ΡΠ΅ΠΌ, ΠΊΡΠΎ ΡΠΎΠ±ΠΈΡΠ°Π΅ΡΡΡ ΠΏΡΠΎΠ²Π΅ΡΡΠΈ ΠΏΠ΅ΡΠ΅ΠΏΠ»Π°Π½ΠΈΡΠΎΠ²ΠΊΡ ΠΆΠΈΠ»ΠΈΡΠ° ΠΈΠ»ΠΈ Π΄Π²ΠΎΡΠ°, ΠΏΠ΅ΡΠ΅ΡΡΠ°Π½ΠΎΠ²ΠΊΡ ΠΌΠ΅Π±Π΅Π»ΠΈ, ΡΠ΅ΠΊΡΡΠΈΠΉ ΠΈΠ»ΠΈ ΠΊΠΎΡΠΌΠ΅ΡΠΈΡΠ΅ΡΠΊΠΈΠΉ ΡΠ΅ΠΌΠΎΠ½Ρ.
ΠΠΈΠ·Π°ΠΉΠ½ ΠΏΠΎΠΌΠ΅ΡΠ΅Π½ΠΈΡ ΠΎΠ½Π»Π°ΠΉΠ½ Π±Π΅ΡΠΏΠ»Π°ΡΠ½ΠΎ ΠΏΠΎΠ·Π²ΠΎΠ»ΡΠ΅Ρ ΡΠΎΠ·Π΄Π°Π²Π°ΡΡ Π²ΠΈΡΡΡΠ°Π»ΡΠ½ΡΡ ΠΎΠ±ΡΡΠ°Π½ΠΎΠ²ΠΊΡ Π² ΠΊΠ²Π°ΡΡΠΈΡΠ΅, Π΄ΠΎΠΌΠ΅ ΠΈΠ»ΠΈ ΠΎΡΠ΄Π΅Π»ΡΠ½ΠΎΠΉ ΠΊΠΎΠΌΠ½Π°ΡΠ΅. ΠΠ΄Π½ΠΎΠ²ΡΠ΅ΠΌΠ΅Π½Π½ΠΎ Π°Π²ΡΠΎΠΌΠ°ΡΠΈΡΠ΅ΡΠΊΠΈ ΠΏΡΠΎΠΈΠ·Π²ΠΎΠ΄ΠΈΡΡΡ ΡΠ°ΡΡΠ΅Ρ ΡΡΠΎΠΈΠΌΠΎΡΡΠΈ ΠΌΠ°ΡΠ΅ΡΠΈΠ°Π»ΠΎΠ² ΠΈ ΠΌΠ΅Π±Π΅Π»ΠΈ, ΠΊΠΎΡΠΎΡΡΠ΅ ΠΈΡΠΏΠΎΠ»ΡΠ·ΡΡΡΡΡ Π² ΠΏΡΠΎΠ΅ΠΊΡΠ΅. ΠΡΠ°ΡΠΈΠΊΠ° ΠΏΡΠΎΠ³ΡΠ°ΠΌΠΌΡ ΠΏΠΎΠ·Π²ΠΎΠ»ΡΠ΅Ρ ΠΏΡΠΎΠ²Π΅ΡΡΠΈ Π²ΠΈΡΡΡΠ°Π»ΡΠ½ΡΡ ΡΠΊΡΠΊΡΡΡΠΈΡ ΠΈ ΡΠ²ΠΈΠ΄Π΅ΡΡ ΡΠΎ ΡΡΠΎΡΠΎΠ½Ρ ΠΊΠΎΠ½Π΅ΡΠ½ΡΠΉ ΡΠ΅Π·ΡΠ»ΡΡΠ°Ρ, ΡΠ΄Π΅Π»Π°ΡΡ ΡΠ°Π·Π²Π΅ΡΡΠΊΡ ΡΡΠ΅Π½ ΠΈ ΠΎΠΏΡΠ΅Π΄Π΅Π»ΠΈΡΡ ΠΌΠ΅ΡΡΠ° ΡΡΡΠ°Π½ΠΎΠ²ΠΊΠΈ ΠΎΠΊΠΎΠ½, Π΄Π²Π΅ΡΠ΅ΠΉ, ΡΠΎΠ·Π΅ΡΠΎΠΊ.
Π§ΡΠΎΠ±Ρ ΡΠ°ΠΌΠΎΠΌΡ ΡΠ΄Π΅Π»Π°ΡΡ ΠΎΠ½Π»Π°ΠΉΠ½ Π΄ΠΈΠ·Π°ΠΉΠ½ ΠΏΡΠΎΠ΅ΠΊΡΠΈΡΠΎΠ²Π°Π½ΠΈΠ΅, Π΄ΠΎΡΡΠ°ΡΠΎΡΠ½ΠΎ ΠΈΠ·ΡΡΠΈΡΡ ΠΎΠ±ΡΠΈΠ΅ ΠΏΡΠΈΠ½ΡΠΈΠΏΡ ΡΠ°Π±ΠΎΡΡ ΠΏΡΠΎΠ³ΡΠ°ΠΌΠΌ. ΠΠ°Π΄ ΡΡΠΈΠΌ ΠΈΠ½ΡΠ΅ΡΠ΅ΡΠ½ΡΠΌ Π·Π°Π½ΡΡΠΈΠ΅ΠΌ ΠΏΡΠΎΠ΅ΠΊΡΠΈΡΠΎΠ²Π°Π½ΠΈΡ ΡΠΎΠ±ΡΡΠ²Π΅Π½Π½ΠΎΠ³ΠΎ Π΄ΠΎΠΌΠ° ΠΌΠΎΠΆΠ½ΠΎ ΡΠ°Π±ΠΎΡΠ°ΡΡ ΡΠ°ΡΠ°ΠΌΠΈ, ΠΏΠΎΠΊΠ° Π½Π΅ ΠΏΠΎΠ»ΡΡΠΈΡΡΡ ΡΠ΅Π·ΡΠ»ΡΡΠ°Ρ, ΠΎΡΠ²Π΅ΡΠ°ΡΡΠΈΠΉ Π²Π°ΡΠΈΠΌ ΡΡΠ΅Π±ΠΎΠ²Π°Π½ΠΈΡΠΌ. ΠΠΎ Π²ΡΠ΅ΠΌ Π½ΡΠ°Π½ΡΠ°ΠΌ Π² ΡΠ°Π±ΠΎΡΠ΅ ΠΏΡΠΈΠ»ΠΎΠΆΠ΅Π½ΠΈΡ ΠΌΠΎΠΆΠ½ΠΎ Π·Π°Π΄Π°ΡΡ Π²ΠΎΠΏΡΠΎΡ ΠΈΠ»ΠΈ ΠΏΠΎΠΈΡΠΊΠ°ΡΡ ΠΈΠ½ΡΠΎΡΠΌΠ°ΡΠΈΡ Π½Π° ΡΠΎΡΡΠΌΠ°Ρ ΠΈΠ»ΠΈ Π² Π±Π»ΠΎΠ³Π°Ρ . ΠΡΠΎΠ³ΡΠ°ΠΌΠΌΠ° ΡΠ°Π·ΡΠ°Π±ΠΎΡΠ°Π½Π° Π½Π° ΡΡΡΡΠΊΠΎΠΌ ΡΠ·ΡΠΊΠ΅, ΡΡΠΎ ΠΎΠ±Π»Π΅Π³ΡΠ°Π΅Ρ ΡΠ°Π±ΠΎΡΡ Ρ Π½Π΅ΠΉ.
ΠΠ½ΠΎΠΆΠ΅ΡΡΠ²ΠΎ ΠΊΠ°ΡΠ΅Π³ΠΎΡΠΈΠΉ ΠΏΠΎΠΌΠ΅ΡΠ΅Π½ΠΈΠΉ, ΠΊΠΎΡΠΎΡΡΠ΅ ΠΌΠΎΠΆΠ½ΠΎ Π²ΠΈΠ·ΡΠ°Π»ΠΈΠ·ΠΈΡΠΎΠ²Π°ΡΡ Ρ ΠΏΠΎΠΌΠΎΡΡΡ ΠΏΡΠΎΠ³ΡΠ°ΠΌΠΌΡ, Π²ΠΊΠ»ΡΡΠ°Ρ Π²Π½Π΅ΡΠ½Π΅Π΅ ΠΎΡΠΎΡΠΌΠ»Π΅Π½ΠΈΠ΅ (Π½Π°ΠΏΡΠΈΠΌΠ΅Ρ, Π»Π°Π½Π΄ΡΠ°ΡΡΠ½ΡΠΉ Π΄ΠΈΠ·Π°ΠΉΠ½) Π΄Π°ΡΡ Π²ΠΎΠ·ΠΌΠΎΠΆΠ½ΠΎΡΡΡ ΠΎΠ±ΡΡΡΡΠΎΠΉΡΡΠ²Π° Π½Π΅ ΡΠΎΠ»ΡΠΊΠΎ ΠΊΠ²Π°ΡΡΠΈΡ, ΡΠ°ΡΡΠ½ΡΡ Π΄ΠΎΠΌΠΎΠ², Π½ΠΎ ΠΈ ΠΎΡΠΈΡΠΎΠ², Π³Π°ΡΠ°ΠΆΠ΅ΠΉ, ΠΊΠ°ΡΠ΅, ΡΡΡΠ΄ΠΈΠΉ ΠΈ Π΄ΡΡΠ³ΠΈΡ ΠΎΠ±ΡΠ΅ΠΊΡΠΎΠ². ΠΠΎΡΡΠ°ΡΠΎΡΠ½ΠΎ ΠΎΠ΄ΠΈΠ½ ΡΠ°Π· ΠΏΠΎΠΏΡΠΎΠ±ΠΎΠ²Π°ΡΡ ΠΏΡΠΎΠ΅ΠΊΡΠΈΡΠΎΠ²Π°Π½ΠΈΠ΅ Π΄ΠΈΠ·Π°ΠΉΠ½Π° ΠΎΠ½Π»Π°ΠΉΠ½, ΡΡΠΎΠ±Ρ ΠΏΠΎΡΠΎΠΌ ΡΠΎΠ²Π΅ΡΡΠ΅Π½ΡΡΠ²ΠΎΠ²Π°ΡΡ ΡΠ²ΠΎΠΈ ΡΠΌΠ΅Π½ΠΈΡ ΠΈ ΡΠ°ΡΡΠΈΡΡΡΡ Π΄ΠΈΠ°ΠΏΠ°Π·ΠΎΠ½ ΠΏΡΠΎΠ³ΡΠ°ΠΌΠΌ ΠΎΡ ΠΏΡΠΎΡΡΡΡ ΠΊ ΡΠ»ΠΎΠΆΠ½ΡΠΌ.
www.rusposter.ru
ΠΠ°ΠΊ Π½Π°ΡΠ°ΡΡ ΠΏΡΠΎΠ΅ΠΊΡΠΈΡΠΎΠ²Π°Π½ΠΈΠ΅ ΠΊΠ²Π°ΡΡΠΈΡΡ Π² Β«ΠΠΈΠ·Π°ΠΉΠ½ ΠΠ½ΡΠ΅ΡΡΠ΅ΡΠ° 3DΒ»
Π Π΅ΠΌΠΎΠ½Ρ Π²ΡΠ΅Π³Π΄Π° Π½ΡΠΆΠ΄Π°Π΅ΡΡΡ Π² ΡΡΠ°ΡΠ΅Π»ΡΠ½ΠΎΠΌ ΠΏΠ»Π°Π½ΠΈΡΠΎΠ²Π°Π½ΠΈΠΈ. ΠΡΠΎΠ΅ΠΊΡΠΈΡΡΠ΅ΡΠ΅ Π»ΠΈ Π²Ρ ΠΊΠ²Π°ΡΡΠΈΡΡ Ρ Π½ΡΠ»Ρ ΠΈΠ»ΠΈ ΠΏΡΠΎΡΡΠΎ ΠΌΠ΅Π½ΡΠ΅ΡΠ΅ ΠΌΠ΅Π±Π΅Π»Ρ Π½Π° Π½ΠΎΠ²ΡΡ β Π²Π°ΠΌ Π½ΡΠΆΠ½ΠΎ ΠΏΡΠΎΠ΄ΡΠΌΠ°ΡΡ Π²ΡΡ, ΠΎΡ ΡΠ°Π·ΠΌΠ΅ΡΠΎΠ² Π΄ΠΎ ΡΠ²Π΅ΡΠΎΠ²ΡΡ ΡΠ΅ΡΠ΅Π½ΠΈΠΉ. Π ΠΏΡΠΎΡΠΈΠ²Π½ΠΎΠΌ ΡΠ»ΡΡΠ°Π΅ Π²Ρ ΠΏΠΎΡΠ΅ΡΡΠ΅ΡΠ΅ ΡΡΠ°Π·Ρ ΠΈ Π²ΡΠ΅ΠΌΡ, ΠΈ Π΄Π΅Π½ΡΠ³ΠΈ. ΠΠ΅ ΠΊΠ°ΠΆΠ΄ΡΠΉ ΠΌΠΎΠΆΠ΅Ρ ΠΏΠΎΠ·Π²ΠΎΠ»ΠΈΡΡ ΡΡΠ»ΡΠ³ΠΈ ΠΏΡΠΎΡΠ΅ΡΡΠΈΠΎΠ½Π°Π»ΡΠ½ΠΎΠ³ΠΎ Π΄ΠΈΠ·Π°ΠΉΠ½Π΅ΡΠ°, Π΄Π° ΠΈ Π½ΠΈΠΊΡΠΎ Π½Π΅ Π΄Π°ΡΡ Π³Π°ΡΠ°Π½ΡΠΈΠΈ, ΡΡΠΎ ΡΠΏΠ΅ΡΠΈΠ°Π»ΠΈΡΡ Π±Π΅Π·ΡΠΏΡΠ΅ΡΠ½ΠΎ Π²ΠΎΠΏΠ»ΠΎΡΠΈΡ Π² ΠΆΠΈΠ·Π½Ρ Π²Π°ΡΠΈ Π·Π°Π΄ΡΠΌΠΊΠΈ.
Π‘Π°ΠΌΠΎΠ΅ ΠΏΡΠΎΡΡΠΎΠ΅ ΠΈ Π²ΡΠ³ΠΎΠ΄Π½ΠΎΠ΅ ΡΠ΅ΡΠ΅Π½ΠΈΠ΅ β ΡΠ΄Π΅Π»Π°ΡΡ Π²ΡΡ ΡΠ²ΠΎΠΈΠΌΠΈ ΡΡΠΊΠ°ΠΌΠΈ Ρ ΠΏΠΎΠΌΠΎΡΡΡ ΠΏΡΠΎΠ΄Π²ΠΈΠ½ΡΡΠΎΠ³ΠΎ ΡΠ΅Π΄Π°ΠΊΡΠΎΡΠ°. ΠΡΠΎΠ³ΡΠ°ΠΌΠΌΠ° Β«ΠΠΈΠ·Π°ΠΉΠ½ ΠΠ½ΡΠ΅ΡΡΠ΅ΡΠ° 3DΒ» Π±Π΅ΡΠΏΠ»Π°ΡΠ½ΠΎ ΠΈ Π±ΡΡΡΡΠΎ ΡΠ΅ΡΠΈΡ Π²ΡΠ΅ ΠΊΠ»ΡΡΠ΅Π²ΡΠ΅ Π²ΠΎΠΏΡΠΎΡΡ Π² ΠΏΠ»Π°Π½ΠΈΡΠΎΠ²Π°Π½ΠΈΠΈ ΡΠ΅ΠΌΠΎΠ½ΡΠ°. Π‘ΠΎΠ·Π΄Π°ΠΉΡΠ΅ 3D-ΠΌΠΎΠ΄Π΅Π»Ρ ΠΊΠ²Π°ΡΡΠΈΡΡ ΠΈ ΠΏΡΠ΅ΠΎΠ±ΡΠ°Π·ΠΈΡΠ΅ Π΅Ρ Π² Π²ΠΈΡΡΡΠ°Π»ΡΠ½ΠΎΠΌ ΠΏΡΠΎΡΡΡΠ°Π½ΡΡΠ²Π΅ β ΡΡΡΡΠΎΠΉΡΠ΅ ΠΏΠ΅ΡΠ΅ΡΡΠ°Π½ΠΎΠ²ΠΊΡ, ΡΡΡΠ°Π½ΠΎΠ²ΠΈΡΠ΅ ΠΏΠ΅ΡΠ΅Π³ΠΎΡΠΎΠ΄ΠΊΠΈ, ΠΏΠ΅ΡΠ΅ΠΊΡΠ°ΡΡΡΠ΅ ΡΡΠ΅Π½Ρ ΠΈΠ»ΠΈ Π΄ΠΎΠ±Π°Π²ΡΡΠ΅ Π½ΠΎΠ²ΡΡ ΠΌΠ΅Π±Π΅Π»Ρ.
ΠΠΎΡΡΠ²ΡΡΠ²ΠΎΠ²Π°ΡΡ ΡΠ΅Π±Ρ Π² ΡΠΎΠ»ΠΈ Π΄ΠΈΠ·Π°ΠΉΠ½Π΅ΡΠ° Π²Ρ ΡΠΌΠΎΠΆΠ΅ΡΠ΅ ΡΡΠ°Π·Ρ ΠΆΠ΅ ΠΏΠΎΡΠ»Π΅ ΡΠΊΠ°ΡΠΈΠ²Π°Π½ΠΈΡ ΠΈ ΠΏΠ΅ΡΠ²ΠΎΠ³ΠΎ Π·Π°ΠΏΡΡΠΊΠ° ΡΠ΅Π΄Π°ΠΊΡΠΎΡΠ°. ΠΡΠΈ ΡΡΠΎΠΌ ΡΠΎΠ²ΡΠ΅ΠΌ Π½Π΅ΠΎΠ±ΡΠ·Π°ΡΠ΅Π»ΡΠ½ΠΎ Π²Π»Π°Π΄Π΅ΡΡ Π½Π°Π²ΡΠΊΠ°ΠΌΠΈ ΠΌΠΎΠ΄Π΅Π»ΠΈΡΠΎΠ²Π°Π½ΠΈΡ β ΠΏΡΠΎΠ³ΡΠ°ΠΌΠΌΠ° ΡΠΎΠ·Π΄Π°Π½Π° Π΄Π»Ρ Π½Π°ΡΠΈΠ½Π°ΡΡΠΈΡ ΠΏΠΎΠ»ΡΠ·ΠΎΠ²Π°ΡΠ΅Π»Π΅ΠΉ. ΠΠΎΠ»ΡΡΠΈΠ½ΡΡΠ²ΠΎ ΠΈΠ½ΡΡΡΡΠΌΠ΅Π½ΡΠΎΠ² ΡΠ°Π±ΠΎΡΠ°Π΅Ρ Π² Π°Π²ΡΠΎΠΌΠ°ΡΠΈΡΠ΅ΡΠΊΠΎΠΌ ΡΠ΅ΠΆΠΈΠΌΠ΅, Π΄ΠΎΠ±Π°Π²ΠΈΡΡ ΠΈΠ»ΠΈ ΡΠ±ΡΠ°ΡΡ ΠΊΠ°ΠΊΠΎΠΉ-Π»ΠΈΠ±ΠΎ ΠΎΠ±ΡΠ΅ΠΊΡ ΠΌΠΎΠΆΠ½ΠΎ ΠΎΠ΄Π½ΠΈΠΌ ΠΊΠ»ΠΈΠΊΠΎΠΌ ΠΌΡΡΠΊΠΈ. ΠΡΠ΅ ΡΡΠ°ΠΏΡ ΠΏΡΠΎΠ΅ΠΊΡΠΈΡΠΎΠ²Π°Π½ΠΈΡ β ΠΏΠΎΠ»Π½ΠΎΡΡΡΡ Π² Π²Π°ΡΠΈΡ ΡΡΠΊΠ°Ρ , ΡΠΈΡΡΠΉΡΠ΅ ΠΊΠΎΠΌΠ½Π°ΡΡ, Π²ΡΠ±ΠΈΡΠ°ΠΉΡΠ΅ ΠΎΡΠ΄Π΅Π»ΠΊΡ ΠΈ ΠΌΠ΅Π±Π΅Π»Ρ.
3D ΠΌΠΎΠ΄Π΅Π»Ρ Π²Π°ΡΠ΅ΠΉ ΠΊΠ²Π°ΡΡΠΈΡΡ Π² ΡΠ΅ΠΆΠΈΠΌΠ΅ ΡΠ΅Π°Π»ΡΠ½ΠΎΠ³ΠΎ Π²ΡΠ΅ΠΌΠ΅Π½ΠΈ
ΠΠΎΠ΄ΡΠΎΠ±Π½ΡΠΉ Π΄ΠΈΠ·Π°ΠΉΠ½-ΠΏΡΠΎΠ΅ΠΊΡ ΡΡΠ°Π½Π΅Ρ Π΄Π»Ρ Π²Π°Ρ ΡΡΡΠ΅ΠΊΡΠΈΠ²Π½ΡΠΌ ΠΏΠΎΠΌΠΎΡΠ½ΠΈΠΊΠΎΠΌ, Π²Π΅Π΄Ρ ΠΊΠ°ΡΡΠΈΠ½ΠΊΠ° ΡΠΏΠΎΡΠΎΠ±Π½Π° ΠΏΡΠ΅Π΄ΡΡΠ°Π²ΠΈΡΡ Π·Π°Π΄ΡΠΌΠΊΡ Π»ΡΡΡΠ΅ ΠΈ ΡΠΎΡΠ½Π΅Π΅, ΡΠ΅ΠΌ ΠΏΡΠΎΡΡΠΎ ΡΠ»ΠΎΠ²Π°. ΠΠΈΠ·ΡΠ°Π»ΠΈΠ·ΠΈΡΡΠΉΡΠ΅ ΠΈΠ΄Π΅ΠΈ Π² ΠΏΡΠΎΠ³ΡΠ°ΠΌΠΌΠ΅ Β«ΠΠΈΠ·Π°ΠΉΠ½ ΠΠ½ΡΠ΅ΡΡΠ΅ΡΠ° 3DΒ»!
Π Π°Π±ΠΎΡΠ° Π½Π°Π΄ ΠΏΡΠΎΠ΅ΠΊΡΠΎΠΌ ΠΏΡΠΎΠΈΡΡ ΠΎΠ΄ΠΈΡ Π² ΡΠ΄ΠΎΠ±Π½ΠΎΠΌ ΡΠ΅Π΄Π°ΠΊΡΠΎΡΠ΅. Π§Π΅ΡΡΠΈΡΠ΅ ΠΊΠΎΠΌΠ½Π°ΡΡ Ρ ΠΏΠΎΠΌΠΎΡΡΡ Π»ΠΈΠ½ΠΈΠΉ, ΡΠ°ΠΊ, ΠΊΠ°ΠΊ Π²Ρ ΡΠ΄Π΅Π»Π°Π»ΠΈ Π±Ρ ΡΡΠΎ Π½Π° Π±ΡΠΌΠ°Π³Π΅. Π ΠΏΡΠΎΠ³ΡΠ°ΠΌΠΌΠ΅ Π²Π°ΡΠΈ ΠΈΠ½ΡΡΡΡΠΌΠ΅Π½ΡΡ Π±ΡΠ΄ΡΡ Π²ΠΈΡΡΡΠ°Π»ΡΠ½ΡΠΌΠΈ. ΠΠ΅ Π΄ΡΠΌΠ°ΠΉΡΠ΅ ΠΎ ΡΠΎΠ±Π»ΡΠ΄Π΅Π½ΠΈΠΈ ΠΏΡΠΎΠΏΠΎΡΡΠΈΠΉ β ΡΠ΅Π΄Π°ΠΊΡΠΎΡ ΠΏΠΎ ΡΠΌΠΎΠ»ΡΠ°Π½ΠΈΡ ΡΠΊΠ°ΠΆΠ΅Ρ Π½Π° ΠΈΠ·ΠΌΠ΅Π½Π΅Π½ΠΈΠ΅ Π΄Π»ΠΈΠ½Ρ ΡΠΈΡΡΠ΅ΠΌΠΎΠΉ ΡΡΠ΅Π½Ρ ΠΈΠ»ΠΈ ΠΏΠ΅ΡΠ΅Π³ΠΎΡΠΎΠ΄ΠΊΠΈ.
ΠΡΡ, ΡΡΠΎ Π²Ρ Π΄ΠΎΠ±Π°Π²Π»ΡΠ΅ΡΠ΅ Π½Π° Π΄Π²ΡΡ ΠΌΠ΅ΡΠ½ΡΠΉ ΠΏΠ»Π°Π½, Π² ΡΠ΅ΠΆΠΈΠΌΠ΅ ΡΠ΅Π°Π»ΡΠ½ΠΎΠ³ΠΎ Π²ΡΠ΅ΠΌΠ΅Π½ΠΈ ΠΏΠΎΡΠ²ΠΈΡΡΡ Π½Π° ΠΎΠ±ΡΡΠΌΠ½ΠΎΠΉ ΠΌΠΎΠ΄Π΅Π»ΠΈ Π² 3Π-ΡΠ΅Π΄Π°ΠΊΡΠΎΡΠ΅. ΠΠΎΠ»ΡΡΠ΅Π½Π½ΡΡ ΠΏΡΠΎΠ΅ΠΊΡΠΈΡ Π²Ρ ΠΌΠΎΠΆΠ΅ΡΠ΅ Π΄Π΅ΡΠ°Π»ΡΠ½ΠΎ ΡΠ°ΡΡΠΌΠΎΡΡΠ΅ΡΡ, ΠΏΡΠΈΠ±Π»ΠΈΠ·ΠΈΠ² ΡΠΎΡΠΊΡ ΠΎΠ±Π·ΠΎΡΠ°. Β«ΠΠΈΠ·Π°ΠΉΠ½ ΠΠ½ΡΠ΅ΡΡΠ΅ΡΠ° 3DΒ» ΠΏΡΠ΅Π΄Π»Π°Π³Π°Π΅Ρ ΡΠ½ΠΈΠΊΠ°Π»ΡΠ½ΡΡ ΡΡΠ½ΠΊΡΠΈΡ β Π²ΠΈΡΡΡΠ°Π»ΡΠ½ΡΠΉ Π²ΠΈΠ·ΠΈΡ. Π‘ Π΅Ρ ΠΏΠΎΠΌΠΎΡΡΡ Π²Ρ ΡΠΌΠΎΠΆΠ΅ΡΠ΅ Β«ΠΏΡΠΎΠΉΡΠΈΡΡΒ» ΠΏΠΎ ΠΊΠΎΠΌΠ½Π°ΡΠ°ΠΌ ΠΈ ΠΊΠΎΡΠΈΠ΄ΠΎΡΠ°ΠΌ Π±ΡΠ΄ΡΡΠ΅ΠΉ ΠΊΠ²Π°ΡΡΠΈΡΡ, ΡΠΎΡΠ½ΠΎ Π½Π°Ρ ΠΎΠ΄ΠΈΡΠ΅ΡΡ Π²Π½ΡΡΡΠΈ.
ΠΠ°ΠΊ ΡΠΊΠ°ΡΠ°ΡΡ ΠΏΡΠΎΠ³ΡΠ°ΠΌΠΌΡ
Β«ΠΠΈΠ·Π°ΠΉΠ½ ΠΠ½ΡΠ΅ΡΡΠ΅ΡΠ° 3DΒ» β ΡΠ°ΠΌΠ°Ρ ΠΏΡΠΎΡΡΠ°Ρ ΠΈ ΡΡΠ½ΠΊΡΠΈΠΎΠ½Π°Π»ΡΠ½Π°Ρ ΠΏΡΠΎΠ³ΡΠ°ΠΌΠΌΠ° Π΄Π»Ρ ΠΏΡΠΎΠ΅ΠΊΡΠΈΡΠΎΠ²Π°Π½ΠΈΡ ΠΈΠ½ΡΠ΅ΡΡΠ΅ΡΠΎΠ² ΠΈΠ· ΡΠ΅Ρ , ΡΡΠΎ Π΅ΡΡΡ Π½Π° ΡΡΡΡΠΊΠΎΠΌ ΡΠ·ΡΠΊΠ΅. Π‘ΠΎΡΡ ΡΠΎΠ΄Π΅ΡΠΆΠΈΡ ΠΊΠ°ΡΠ°Π»ΠΎΠ³ ΠΌΠΎΠ΄Π΅Π»Π΅ΠΉ ΠΌΠ΅Π±Π΅Π»ΠΈ ΠΈ Π±ΡΡΠΎΠ²ΠΎΠΉ ΡΠ΅Ρ Π½ΠΈΠΊΠΈ. ΠΡΠΎΠ²Π°ΡΠΈ ΠΈ Π΄ΠΈΠ²Π°Π½Ρ, ΡΡΠΎΠ»Ρ ΠΈ ΡΡΡΠ»ΡΡ, ΠΊΡΡ ΠΎΠ½Π½ΡΠ΅ ΠΏΠ»ΠΈΡΡ ΠΈ Π΄ΡΡΠ΅Π²ΡΠ΅ ΠΊΠ°Π±ΠΈΠ½Ρ β Π²ΡΠ΅ 3D-ΡΠ»Π΅ΠΌΠ΅Π½ΡΡ ΡΠΎΠΎΡΠ²Π΅ΡΡΡΠ²ΡΡΡ ΡΠ΅Π°Π»ΡΠ½ΡΠΌ ΠΏΡΠ΅Π΄ΠΌΠ΅ΡΠ°ΠΌ ΠΈΠ½ΡΠ΅ΡΡΠ΅ΡΠ°. ΠΠΎΠΏΠΎΠ»Π½ΠΈΡΠ΅Π»ΡΠ½ΠΎ ΡΠΎΡΡ ΠΏΡΠ΅Π΄Π»Π°Π³Π°Π΅Ρ ΠΎΠ±ΡΠΈΡΠ½ΡΡ ΠΊΠΎΠ»Π»Π΅ΠΊΡΠΈΡ ΡΠ΅ΠΊΡΡΡΡ, ΠΈΠΌΠΈΡΠΈΡΡΡΡΠΈΡ ΡΠ°Π·Π»ΠΈΡΠ½ΡΠ΅ ΠΌΠ°ΡΠ΅ΡΠΈΠ°Π»Ρ Π΄Π»Ρ Π²Π½ΡΡΡΠ΅Π½Π½Π΅ΠΉ ΠΈ Π²Π½Π΅ΡΠ½Π΅ΠΉ ΠΎΡΠ΄Π΅Π»ΠΊΠΈ ΠΏΠΎΠΌΠ΅ΡΠ΅Π½ΠΈΠΉ β Π±ΠΎΠ»Π΅Π΅ 100 Π²Π°ΡΠΈΠ°Π½ΡΠΎΠ² Π½Π° Π²Π°Ρ Π²ΠΊΡΡ.
Π‘ΠΊΠ°ΡΠ°ΡΡ Β«ΠΠΈΠ·Π°ΠΉΠ½ ΠΠ½ΡΠ΅ΡΡΠ΅ΡΠ° 3DΒ» Π±Π΅ΡΠΏΠ»Π°ΡΠ½ΠΎ ΠΈ ΠΏΠΎΠΏΡΠΎΠ±ΠΎΠ²Π°ΡΡ Π΅Π³ΠΎ Π²ΠΎΠ·ΠΌΠΎΠΆΠ½ΠΎΡΡΠΈ Π²Ρ ΠΌΠΎΠΆΠ΅ΡΠ΅ ΡΠΆΠ΅ ΡΠ΅ΠΉΡΠ°Ρ! ΠΠ°ΠΏΡΡΡΠΈΡΠ΅ ΡΡΡΠ°Π½ΠΎΠ²ΠΎΡΠ½ΡΠΉ ΡΠ°ΠΉΠ» ΠΈ ΡΠ»Π΅Π΄ΡΠΉΡΠ΅ ΠΏΠΎΠ΄ΡΠΊΠ°Π·ΠΊΠ°ΠΌ ΠΠ°ΡΡΠ΅ΡΠ°. ΠΡΠΎΠ³ΡΠ°ΠΌΠΌΠ° Π±ΡΠ΄Π΅Ρ Π³ΠΎΡΠΎΠ²Π° ΠΊ ΡΠ°Π±ΠΎΡΠ΅ ΡΠΆΠ΅ ΡΠ΅ΡΠ΅Π· ΠΏΠ°ΡΡ ΠΌΠΈΠ½ΡΡ! ΠΡΠ΅Π½ΠΈΠ² ΡΠ΅Π΄Π°ΠΊΡΠΎΡ, Π²Ρ ΡΠΌΠΎΠΆΠ΅ΡΠ΅ ΠΏΡΠΈΠΎΠ±ΡΠ΅ΡΡΠΈ ΠΊΠ»ΡΡ ΠΊ ΠΏΠΎΠ»Π½ΠΎΠΉ Π²Π΅ΡΡΠΈΠΈ ΠΏΠΎ ΠΏΡΠΈΠ²Π»Π΅ΠΊΠ°ΡΠ΅Π»ΡΠ½ΠΎΠΉ ΡΠ΅Π½Π΅ ΠΈ Π½Π°ΡΠ»Π°ΠΆΠ΄Π°ΡΡΡΡ Π΄ΠΎΡΡΡΠΏΠ½ΡΠΌ ΠΏΡΠΎΠ΅ΠΊΡΠΈΡΠΎΠ²Π°Π½ΠΈΠ΅ΠΌ Π±Π΅Π· ΠΎΠ³ΡΠ°Π½ΠΈΡΠ΅Π½ΠΈΠΉ.
interior3d.su
remontkvartiri.me
ΠΠ΅ΡΠΏΠ»Π°ΡΠ½Π°Ρ ΠΏΡΠΎΠ³ΡΠ°ΠΌΠΌΠ° ΠΏΠ»Π°Π½ΠΈΡΠΎΠ²ΠΊΠΈ ΠΊΠ²Π°ΡΡΠΈΡΡ β ΠΎΠ½Π»Π°ΠΉΠ½ ΡΠ΅ΡΠ²ΠΈΡΡ Π΄ΠΈΠ·Π°ΠΉΠ½Π° ΠΈΠ½ΡΠ΅ΡΡΠ΅ΡΠ°
Π ΠΏΡΠΎΠ³ΡΠ°ΠΌΠΌΠ΅ Π΄Π»Ρ ΠΏΠ»Π°Π½ΠΈΡΠΎΠ²ΠΊΠΈ ΠΊΠ²Π°ΡΡΠΈΡΡ ΠΏΡΠ΅Π΄ΡΡΠ²Π»ΡΠ΅ΡΡΡ ΠΌΠ΅Π½ΡΡΠ΅ ΡΡΠ΅Π±ΠΎΠ²Π°Π½ΠΈΠΉ, ΡΠ΅ΠΌ ΠΊ ΠΏΡΠΎΠ΄ΡΠΊΡΠ°ΠΌ, ΠΊΠΎΡΠΎΡΡΠ΅ ΠΏΡΠ΅Π΄Π½Π°Π·Π½Π°ΡΠ΅Π½Ρ Π΄Π»Ρ ΡΠΎΡΡΠ°Π²Π»Π΅Π½ΠΈΡ ΠΏΡΠΎΠ΅ΠΊΡΠΎΠ² ΡΠ°ΡΡΠ½ΡΡ
Π΄ΠΎΠΌΠΎΠ². Π‘Π²ΡΠ·Π°Π½ΠΎ ΡΡΠΎ Ρ ΡΠ΅ΠΌ, ΡΡΠΎ Π΄Π»Ρ ΡΠΎΠ·Π΄Π°Π½ΠΈΡ ΠΌΠΎΠ΄Π΅Π»ΠΈ ΠΊΠ²Π°ΡΡΠΈΡΡ Π΄ΠΎΡΡΠ°ΡΠΎΡΠ½ΠΎ Π»ΠΈΡΡ ΠΏΠΎΡΡΠ°Π²ΠΈΡΡ ΡΡΠ΅Π½Ρ ΠΈ ΠΏΠΎΡΠ°Π±ΠΎΡΠ°ΡΡ Π½Π°Π΄ Π²Π½ΡΡΡΠ΅Π½Π½ΠΈΠΌ Π΄ΠΈΠ·Π°ΠΉΠ½ΠΎΠΌ: Π²Π°ΠΆΠ΅Π½ ΡΠΎΠ»ΡΠΊΠΎ ΠΈΠ½ΡΠ΅ΡΡΠ΅Ρ.
Π Π²ΠΎΡ Π΄Π»Ρ ΡΠΎΠ³ΠΎ, ΡΡΠΎΠ±Ρ ΠΏΡΠ΅Π΄ΡΡΠ°Π²ΠΈΡΡ, ΠΊΠ°ΠΊ Π±ΡΠ΄Π΅Ρ Π²ΡΠ³Π»ΡΠ΄Π΅ΡΡ Π΄ΠΎΠΌ, ΠΏΡΠΈΡ ΠΎΠ΄ΠΈΡΡΡ ΠΏΡΠΎΡΠ°Π±Π°ΡΡΠ²Π°ΡΡ Π½Π΅ ΡΠΎΠ»ΡΠΊΠΎ Π²Π½ΡΡΡΠ΅Π½Π½ΡΡ ΠΏΠ»Π°Π½ΠΈΡΠΎΠ²ΠΊΡ Π΄ΠΎΠΌΠ°, Π½ΠΎ ΠΈ ΠΏΠΎΠ»Π½ΠΎΡΡΡΡ ΡΠΊΡΡΠ΅ΡΡΠ΅Ρ ΠΈ Π΄Π°ΠΆΠ΅ ΠΎΠ±Π»Π°Π³ΠΎΡΠ°ΠΆΠΈΠ²Π°ΡΡ ΠΏΡΠΈΠ»Π΅Π³Π°ΡΡΡΡ ΡΠ΅ΡΡΠΈΡΠΎΡΠΈΡ.

ΠΡΠΈΠ³ΠΈΠ½Π°Π»ΡΠ½Π°Ρ 3d ΠΏΠ»Π°Π½ΠΈΡΠΎΠ²ΠΊΠ° ΠΊΠ²Π°ΡΡΠΈΡΡ
ΠΠ΅Π½ΡΡΠ΅ ΡΡΠ½ΠΊΡΠΈΠΎΠ½Π°Π»Π°, ΡΠΊΡΠΎΠΌΠ½Π΅Π΅ Π±ΠΈΠ±Π»ΠΈΠΎΡΠ΅ΠΊΠΈ, Π° Π·Π½Π°ΡΠΈΡ, Π±ΠΎΠ»ΡΡΠ΅Π΅ ΠΊΠΎΠ»ΠΈΡΠ΅ΡΡΠ²ΠΎ ΠΏΡΠΎΠ³ΡΠ°ΠΌΠΌ Π΄Π»Ρ ΠΏΠ»Π°Π½ΠΈΡΠΎΠ²ΠΊΠΈ ΠΊΠ²Π°ΡΡΠΈΡ ΠΈΠΌΠ΅ΡΡ Π±Π΅ΡΠΏΠ»Π°ΡΠ½ΡΠ΅ Π²Π΅ΡΡΠΈΠΈ, ΠΈ ΡΠ°Π±ΠΎΡΠ°Ρ Π΄Π°ΠΆΠ΅ Π±Π΅Π· ΠΏΡΠ΅Π΄Π²Π°ΡΠΈΡΠ΅Π»ΡΠ½ΠΎΠΉ ΡΡΡΠ°Π½ΠΎΠ²ΠΊΠΈ, Π² ΠΎΠ½Π»Π°ΠΉΠ½.
Π ΡΠΎΠΌΡ ΠΆΠ΅, Π² ΠΎΡΠ»ΠΈΡΠΈΠ΅ ΠΎΡ Π·Π°Π³ΠΎΡΠΎΠ΄Π½ΠΎΠ³ΠΎ ΠΊΠΎΡΡΠ΅Π΄ΠΆΠ°, ΠΊΠ²Π°ΡΡΠΈΡΡ Π·Π°ΡΠ°ΡΡΡΡ ΠΈΠΌΠ΅ΡΡ ΡΠΈΠΏΠΎΠ²ΡΠ΅ ΠΏΠ»Π°Π½ΠΈΡΠΎΠ²ΠΊΠΈ, Π° Π·Π½Π°ΡΠΈΡ Π²Π΅ΡΡΠΌΠ° ΠΎΠ³ΡΠ°Π½ΠΈΡΠ΅Π½Π½ΡΠ΅ Π²ΠΎΠ·ΠΌΠΎΠΆΠ½ΠΎΡΡΠΈ Π΄Π»Ρ ΠΎΡΠΈΠ³ΠΈΠ½Π°Π»ΡΠ½ΠΎΠΉ ΠΎΠ±ΡΡΠ°Π½ΠΎΠ²ΠΊΠΈ ΠΈ ΡΠΎΠ·Π΄Π°Π½ΠΈΡ ΠΈΠ½ΡΠ΅ΡΡΠ΅ΡΠ°. ΠΠΈΠ½ΡΡ Π½Π° ΠΏΡΠ°ΠΊΡΠΈΠΊΠ΅ ΡΠ°Π·ΡΠ°Π±ΠΎΡΡΠΈΠΊΠΈ ΡΠΎΡΡΠ° ΠΏΡΠ΅Π²ΡΠ°ΡΠΈΠ»ΠΈ Π² ΠΏΠ»ΡΡ Π΄Π»Ρ ΠΏΠΎΠ»ΡΠ·ΠΎΠ²Π°ΡΠ΅Π»Π΅ΠΉ ΠΈΡ ΠΏΡΠΎΠ΄ΡΠΊΡΠ°.
Π‘ΠΎΠ·Π΄Π°Π»ΠΈ ΡΠ΅Π»ΡΠ΅ Π±ΠΈΠ±Π»ΠΈΠΎΡΠ΅ΠΊΠΈ Ρ ΡΠ°Π±Π»ΠΎΠ½Π½ΡΠΌΠΈ Π²Π°ΡΠΈΠ°Π½ΡΠ°ΠΌΠΈ ΠΎΡΠΎΡΠΌΠ»Π΅Π½ΠΈΡ ΠΈ ΡΠ°ΡΡΡΠ°Π½ΠΎΠ²ΠΊΠΎΠΉ ΠΌΠ΅Π±Π΅Π»ΠΈ. Π§Π΅Π»ΠΎΠ²Π΅ΠΊ Ρ ΠΏΠ»ΠΎΡ ΠΎΠΉ ΡΠ°Π½ΡΠ°Π·ΠΈΠ΅ΠΉ ΠΌΠΎΠΆΠ΅Ρ Π²ΡΠ±ΡΠ°ΡΡ ΡΠ΅Π±Π΅ ΠΏΠΎΠ΄Ρ ΠΎΠ΄ΡΡΠΈΠΉ ΡΠΆΠ΅ Π³ΠΎΡΠΎΠ²ΡΠΉ Π²Π°ΡΠΈΠ°Π½Ρ ΠΈ Π΄ΠΎΡΠ°Π±ΠΎΡΠ°ΡΡ Π΅Π³ΠΎ ΠΏΠΎ ΠΌΠ΅Π»ΠΎΡΠ°ΠΌ, ΡΡΠΎ ΠΎΡΠ΅Π½Ρ ΡΠ΄ΠΎΠ±Π½ΠΎ.
ΠΠ΅ΡΠ½ΡΡΡΡΡ ΠΊ ΠΎΠ³Π»Π°Π²Π»Π΅Π½ΠΈΡΠ‘ΠΎΠ΄Π΅ΡΠΆΠ°Π½ΠΈΠ΅ ΠΌΠ°ΡΠ΅ΡΠΈΠ°Π»Π°
Π‘ΠΏΠΈΡΠΎΠΊ ΠΏΠΎΠ΄Ρ ΠΎΠ΄ΡΡΠΈΡ ΠΏΡΠΎΠ³ΡΠ°ΠΌΠΌ
ΠΠ΅ΡΠΌΠΎΡΡΡ Π½Π° ΡΠΎ, ΡΡΠΎ ΠΏΡΠΎΠ³ΡΠ°ΠΌΠΌΠ° Π΄Π»Ρ ΠΏΠ»Π°Π½ΠΈΡΠΎΠ²ΠΊΠΈ ΠΊΠ²Π°ΡΡΠΈΡΡ ΠΌΠΎΠΆΠ΅Ρ ΠΎΠ±Π»Π°Π΄Π°ΡΡ Π±ΠΎΠ»Π΅Π΅ ΠΏΡΠΎΡΡΡΠΌ ΡΡΠ½ΠΊΡΠΈΠΎΠ½Π°Π»ΠΎΠΌ, ΡΠ΅ΠΌ Π΄Π»Ρ ΠΏΠ»Π°Π½ΠΈΡΠΎΠ²ΠΊΠΈ ΡΠ°ΡΡΠ½ΠΎΠ³ΠΎ Π΄ΠΎΠΌΠ°, Π·Π°ΡΠ°ΡΡΡΡ ΠΏΡΠΎΡΠ΅ΡΡΠΈΠΎΠ½Π°Π»ΡΠ½ΡΠ΅ ΡΡΡΠ΄ΠΈΠΈ Π΄ΠΈΠ·Π°ΠΉΠ½Π° ΠΈΡΠΏΠΎΠ»ΡΠ·ΡΡΡ ΠΎΠ΄ΠΈΠ½ ΠΈ ΡΠΎΡ ΠΆΠ΅ ΡΠΎΡΡ Π΄Π»Ρ ΡΡΠΈΡ ΡΠ΅Π»Π΅ΠΉ.

ΠΠ»Π°Π½ΠΈΡΠΎΠ²ΠΊΠ° ΠΊΠ²Π°ΡΡΠΈΡΡ Ρ Π²ΠΈΠ·ΡΠ°Π»ΠΈΠ·Π°ΡΠΈΠ΅ΠΉ
ΠΡΠΎΠ³ΡΠ°ΠΌΠΌΡ Π΄Π»Ρ ΠΊΠΎΠΌΠΌΠ΅ΡΡΠ΅ΡΠΊΠΎΠ³ΠΎ ΠΈΡΠΏΠΎΠ»ΡΠ·ΠΎΠ²Π°Π½ΠΈΡ Π±ΠΎΠ»Π΅Π΅ ΡΠ»ΠΎΠΆΠ½Ρ Π² ΠΎΡΠ²ΠΎΠ΅Π½ΠΈΠΈ, ΡΠ°ΠΊ ΠΊΠ°ΠΊ ΠΎΠ±Π»Π°Π΄Π°ΡΡ ΡΡΠ΄ΠΎΠΌ ΡΠΏΠ΅ΡΠΈΡΠΈΡΠ΅ΡΠΊΠΈΡ ΡΡΠ½ΠΊΡΠΈΠΉ, ΠΏΠΎΠ»ΡΠ·ΠΎΠ²Π°ΡΡΡΡ ΠΊΠΎΡΠΎΡΡΠΌΠΈ ΠΌΠΎΠΆΠ½ΠΎ ΡΠΎΠ»ΡΠΊΠΎ ΠΏΠΎΡΠ»Π΅ ΡΠΏΠ΅ΡΠΈΠ°Π»ΡΠ½ΠΎΠ³ΠΎ ΠΎΠ±ΡΡΠ΅Π½ΠΈΡ ΠΈΠ»ΠΈ ΠΏΠΎΠ»ΡΡΠ΅Π½ΠΈΡ ΠΏΡΠΎΡΠΈΠ»ΡΠ½ΠΎΠ³ΠΎ ΠΎΠ±ΡΠ°Π·ΠΎΠ²Π°Π½ΠΈΡ. Π ΡΠΎΠΌΡ ΠΆΠ΅ ΡΠ°ΠΊΠΈΠ΅ ΠΏΡΠΎΠ΄ΡΠΊΡΡ Π½Π΅ ΠΎΡΠ΅Π½Ρ Π΄ΠΎΡΡΡΠΏΠ½Ρ, Π»ΠΈΡΠ΅Π½Π·ΠΈΡ Π΄ΠΎΡΠΎΠ³Π°Ρ, Π° Π±Π΅ΡΠΏΠ»Π°ΡΠ½ΡΠ΅ Π²Π΅ΡΡΠΈΠΈ ΡΠΈΠ»ΡΠ½ΠΎ ΡΡΠ΅Π·Π°Π½Ρ Π² Π²ΠΎΠ·ΠΌΠΎΠΆΠ½ΠΎΡΡΡΡ ΠΈΠ»ΠΈ Π΄Π΅ΠΉΡΡΠ²ΡΡΡ ΠΎΠ³ΡΠ°Π½ΠΈΡΠ΅Π½Π½ΡΠΉ ΠΏΠ΅ΡΠΈΠΎΠ΄ Π²ΡΠ΅ΠΌΠ΅Π½ΠΈ.
Π Π΅ΡΠ΅Π½ΠΈΠ΅ Π΄Π»Ρ ΡΠ°ΡΡΠ½ΡΡ Π»ΠΈΡ β ΠΏΡΠΈΠΌΠ΅Π½Π΅Π½ΠΈΠ΅ Π±ΡΡΠΎΠ²ΡΡ ΠΈ Π±Π΅ΡΠΏΠ»Π°ΡΠ½ΡΡ ΠΏΡΠΎΠ³ΡΠ°ΠΌΠΌ, ΠΊΠΎΡΠΎΡΡΠ΅ ΠΌΠΎΠΆΠ½ΠΎ ΡΠΊΠ°ΡΠ°ΡΡ Π² ΡΠ΅ΡΠΈ.
ΠΠΎΠ»Π΅Π΅ ΡΠ»ΠΎΠΆΠ½ΡΠ΅ ΠΈΠ· Π½ΠΈΡ ΠΈΠΌΠ΅ΡΡ Π½Π°ΡΡΠΎΡΡΠΈΠ΅ ΡΠ°Π½-ΠΊΠ»ΡΠ±Ρ, ΠΈΠΌ ΠΏΠΎΡΠ²ΡΡΠ΅Π½Ρ Π±Π»ΠΎΠ³ΠΈ, Π³Π΄Π΅ ΠΏΡΠ±Π»ΠΈΠΊΡΡΡΡΡ Π²ΠΈΠ΄Π΅ΠΎΡΡΠΎΠΊΠΈ, ΠΈΠ½ΡΡΡΡΠΊΡΠΈΠΈ ΠΈ ΡΠ΅ΠΊΠΎΠΌΠ΅Π½Π΄Π°ΡΠΈΠΈ ΠΏΠΎ ΠΈΡΠΏΠΎΠ»ΡΠ·ΠΎΠ²Π°Π½ΠΈΡ.
ΠΠΎΡΡΠΎΠΌΡ ΠΎΡΠ²ΠΎΠΈΡΡ ΠΈΡ Π½Π°ΠΌΠ½ΠΎΠ³ΠΎ ΠΏΡΠΎΡΠ΅, ΡΠ΅ΠΌ ΠΏΡΠΎΡΠ΅ΡΡΠΈΠΎΠ½Π°Π»ΡΠ½ΡΠΉ ΡΠΎΡΡ.
Roomle
ΠΠ΅ΡΠΏΠ»Π°ΡΠ½Π°Ρ ΠΏΡΠΎΠ³ΡΠ°ΠΌΠΌΠ° Π½Π° Π°Π½Π³Π»ΠΈΠΉΡΠΊΠΎΠΌ ΡΠ·ΡΠΊΠ΅. ΠΡΠ»ΠΈ ΠΏΠΎΡΡΠ°ΡΠ°ΡΡΡΡ, ΡΠΎ Π² ΡΠ΅ΡΠΈ ΠΌΠΎΠΆΠ½ΠΎ Π½Π°ΠΉΡΠΈ ΡΡΡΠΈΡΠΈΠΊΠ°ΡΠΎΡ, Π½ΠΎ ΠΏΠΎ Π±ΠΎΠ»ΡΡΠΎΠΌΡ ΡΡΠ΅ΡΡ ΠΎΠ½ Π½Π΅ ΠΏΠΎΡΡΠ΅Π±ΡΠ΅ΡΡΡ Π΄Π°ΠΆΠ΅ ΡΠ΅ΠΌ, ΠΊΡΠΎ ΠΏΠ»ΠΎΡ ΠΎ Π²Π»Π°Π΄Π΅Π΅Ρ ΡΠ·ΡΠΊΠΎΠΌ ΠΈΠ»ΠΈ Π½Π΅ Π·Π½Π°ΠΊΠΎΠΌ Ρ Π½ΠΈΠΌ ΡΠΎΠ²ΡΠ΅ΠΌ. ΠΠ½ΡΠ΅ΡΡΠ΅ΠΉΡ ΠΏΡΠΎΡΡΠΎΠΉ ΠΈ ΠΈΠ½ΡΡΠΈΡΠΈΠ²Π½ΠΎ ΠΏΠΎΠ½ΡΡΠ½ΡΠΉ.

Π‘ΠΎΠ·Π΄Π°Π½ΠΈΠ΅ ΠΏΠ»Π°Π½ΠΈΡΠΎΠ²ΠΊΠΈ Π² ΠΏΡΠΎΠ³ΡΠ°ΠΌΠΌΠ΅ Roomle
Π€ΡΠ½ΠΊΡΠΈΠΎΠ½Π°Π» ΠΎΡΠ΅Π½Ρ ΠΏΡΠΈΠΌΠΈΡΠΈΠ²Π½ΡΠΉ, Π½ΠΎ Π΅Π³ΠΎ Π²ΠΏΠΎΠ»Π½Π΅ Π΄ΠΎΡΡΠ°ΡΠΎΡΠ½ΠΎ, ΡΡΠΎΠ±Ρ ΡΠ΄Π΅Π»Π°ΡΡ ΠΏΠ»Π°Π½ΠΈΡΠΎΠ²ΠΊΡ ΠΊΠ²Π°ΡΡΠΈΡΡ.
ΠΡΡ ΡΠ°Π±ΠΎΡΠ° Π½Π°ΡΠ½Π΅ΡΡΡ Ρ ΡΠΎΠ·Π΄Π°Π½ΠΈΡ ΠΏΠ»Π°Π½Π° ΠΏΠΎΠΌΠ΅ΡΠ΅Π½ΠΈΡ. ΠΠ²Π°ΡΡΠΈΡΡ, Π΄Π»Ρ ΠΊΠΎΡΠΎΡΠΎΠΉ Π½ΡΠΆΠ½ΠΎ ΠΏΠΎΠ΄ΠΎΠ±ΡΠ°ΡΡ Π½ΠΎΠ²ΡΡ ΠΏΠ»Π°Π½ΠΈΡΠΎΠ²ΠΊΡ, ΠΏΡΠΈΠ΄Π΅ΡΡΡ ΠΎΡΡΠΈΡΠΎΠ²Π°ΡΡ Π½Π° ΡΠΊΡΠ°Π½Π΅, Ρ ΡΠΎΠ±Π»ΡΠ΄Π΅Π½ΠΈΠ΅ΠΌ Π²ΡΠ΅Ρ
ΡΠ°Π·ΠΌΠ΅ΡΠΎΠ² ΠΈ ΠΏΡΠΎΠΏΠΎΡΡΠΈΠΉ.
ΠΠ±ΡΠ·Π°ΡΠ΅Π»ΡΠ½ΡΠΌ ΡΡΠ»ΠΎΠ²ΠΈΠ΅ΠΌ Π±ΡΠ΄Π΅Ρ ΡΠΊΠ°Π·Π°Π½ΠΈΠ΅ Π½Π°Π»ΠΈΡΠΈΡ Π²ΡΠ΅Ρ Π΄Π²Π΅ΡΠ΅ΠΉ, ΠΎΠΊΠΎΠ½ ΠΈ ΡΠ»Π΅ΠΌΠ΅Π½ΡΠΎΠ² ΠΎΡΠΎΠΏΠ»Π΅Π½ΠΈΡ. Π ΡΠΎΠΌ ΡΠ»ΡΡΠ°Π΅, Π΅ΡΠ»ΠΈ ΠΎΡΠ΄Π΅Π»ΠΊΠ° ΠΏΠΎΠΌΠ΅ΡΠ΅Π½ΠΈΡ Π½Π΅Π²Π°ΠΆΠ½Π°, ΠΌΠΎΠΆΠ½ΠΎ ΡΠΊΠ°Π·Π°ΡΡ ΠΏΠ΅ΡΠ²ΡΠ΅ ΠΏΠΎΠΏΠ°Π²ΡΠΈΠ΅ΡΡ ΠΌΠ°ΡΠ΅ΡΠΈΠ°Π»Ρ ΠΈ ΡΡΠ°Π·Ρ ΠΏΠ΅ΡΠ΅ΠΉΡΠΈ ΠΊ ΠΌΠ΅Π±Π»ΠΈΡΠΎΠ²ΠΊΠ΅. ΠΡΠ»ΠΈ ΠΆΠ΅ ΡΠΎΡΡΠ°Π²Π»ΡΠ΅ΡΡΡ Π΄Π΅ΡΠ°Π»ΡΠ½ΡΠΉ Π΄ΠΈΠ·Π°ΠΉΠ½-ΠΏΡΠΎΠ΅ΠΊΡ, ΡΠΎ Π΅ΡΡΡ Π²ΠΎΠ·ΠΌΠΎΠΆΠ½ΠΎΡΡΡ ΠΏΠΎΠ΄ΠΎΠ±ΡΠ°ΡΡ ΡΠ°Π·Π»ΠΈΡΠ½ΡΠ΅ ΠΌΠ°ΡΠ΅ΡΠΈΠ°Π»Ρ ΠΈ ΡΠ²Π΅ΡΠΎΠ²ΡΠ΅ ΡΠΎΡΠ΅ΡΠ°Π½ΠΈΡ.
ΠΠ½Π°ΡΠΈΡΠ΅Π»ΡΠ½Π°Ρ ΡΠ°ΡΡΡ ΡΠ°Π±ΠΎΡΡ ΠΎΡΡΡΠ΅ΡΡΠ²Π»ΡΠ΅ΡΡΡ ΠΌΡΡΠΊΠΎΠΉ, ΠΏΠΎΠ»ΡΠ·ΠΎΠ²Π°ΡΠ΅Π»ΡΠΌ Π΄ΠΎΡΡΡΠΏΠ΅Π½ ΠΎΠ±ΡΠ΅ΠΌΠ½ΡΠΉ ΠΊΠ°ΡΠ°Π»ΠΎΠ³ Π³ΠΎΡΠΎΠ²ΡΡ ΡΠ΅ΡΠ΅Π½ΠΈΠΉ, ΠΊΠΎΡΠΎΡΡΠ΅ Π² ΡΠΎΠΎΡΠ²Π΅ΡΡΡΠ²ΠΈΠΈ Ρ Π·Π°Π΄ΡΠΌΠΊΠΎΠΉ ΠΏΡΠΎΠ΅ΠΊΡΠΈΡΠΎΠ²ΡΠΈΠΊΠ° ΠΏΡΠΎΡΡΠΎ ΠΏΠΎΡΠ²Π»ΡΡΡΡΡ Π½Π° ΡΠΊΡΠ°Π½Π΅. ΠΠΈΠ½ΡΡ ΠΏΡΠΎΠ³ΡΠ°ΠΌΠΌΡ β Π½Π΅Π΄ΠΎΡΠ°Π±ΠΎΡΠ°Π½Π½ΡΠ΅ ΡΡΠ½ΠΊΡΠΈΠΈ ΠΏΡΠΎΡΠΌΠΎΡΡΠ° ΠΏΠΎΠ»ΡΡΠΈΠ²ΡΠ΅Π³ΠΎΡΡ ΠΏΡΠΎΠ΅ΠΊΡΠ°. ΠΠΎΠ»Π½ΠΎΡΠ΅Π½Π½ΠΎΠΉ 3D ΠΊΠ°ΡΡΠΈΠ½ΠΊΠΈ ΡΠ²ΠΈΠ΄Π΅ΡΡ Π½Π΅ ΡΠ΄Π°ΡΡΡΡ, ΡΠΌΠΎΡΡΠ΅ΡΡ Π½Π° ΠΊΠΎΠΌΠ½Π°ΡΡ ΠΌΠΎΠΆΠ½ΠΎ ΡΠΎΠ»ΡΠΊΠΎ ΡΠ²Π΅ΡΡ Ρ.

ΠΡΠΈΠΌΠ΅Ρ ΠΏΠ»Π°Π½ΠΈΡΠΎΠ²ΠΊΠΈ ΡΠΎΠ·Π΄Π°Π½Π½ΠΎΠΉ Π² ΠΏΡΠΎΠ³ΡΠ°ΠΌΠΌΠ΅ Roomle
Π’Π°ΠΊΠΆΠ΅ Π½Π΅ΡΡΠΊΠΈΠ΅ ΠΈ Π½Π΅Π²ΡΡΠ°Π·ΠΈΡΠ΅Π»ΡΠ½ΡΠ΅ ΡΠ²Π΅ΡΠ° ΠΈ Π΄ΠΎΡΡΠ°ΡΠΎΡΠ½ΠΎ ΠΌΠ΅Π»ΠΊΠΎΠ΅ ΠΈΠ·ΠΎΠ±ΡΠ°ΠΆΠ΅Π½ΠΈΠ΅ ΠΌΠΎΠΆΠ΅Ρ ΡΠ°ΠΊΠΆΠ΅ ΠΈΡΠΏΠΎΡΡΠΈΡΡ Π²ΠΏΠ΅ΡΠ°ΡΠ»Π΅Π½ΠΈΠ΅.
Home Plan Pro
ΠΡΠ΅ ΠΎΠ΄Π½Π° ΠΏΡΠΎΠ³ΡΠ°ΠΌΠΌΠ° Π½Π° Π°Π½Π³Π»ΠΈΠΉΡΠΊΠΎΠΌ ΡΠ·ΡΠΊΠ΅. ΠΠ½Π° ΠΏΠΎΠ΄ΠΎΠΉΠ΄Π΅Ρ Π΄Π»Ρ ΡΠΎΠ·Π΄Π°Π½ΠΈΡ ΠΏΠ»Π°Π½ΠΈΡΠΎΠ²ΠΊΠΈ ΠΊΠ²Π°ΡΡΠΈΡΡ Π² Π΄Π²ΡΡ ΠΌΠ΅ΡΠ½ΠΎΠΌ ΠΏΡΠΎΡΡΡΠ°Π½ΡΡΠ²Π΅. Π’ΡΠ΅Ρ ΠΌΠ΅ΡΠ½ΡΡ ΠΌΠΎΠ΄Π΅Π»Ρ ΠΈΠ·ΠΎΠ±ΡΠ°ΠΆΠ΅Π½ΠΈΡ ΠΏΡΠΎΠ³ΡΠ°ΠΌΠΌΠ° ΠΏΡΠΎΡΠΈΡΠΎΠ²ΡΠ²Π°Π΅Ρ ΡΠ°ΠΌΠ°, ΡΠΎ Π΅ΡΡΡ ΠΏΠΎΠ»ΡΠ·ΠΎΠ²Π°ΡΠ΅Π»Ρ Π½Π΅ Π½Π°Π΄ΠΎ Π²Π½ΠΈΠΊΠ°ΡΡ Π² ΡΠ»ΠΎΠΆΠ½ΠΎΡΡΡ ΠΏΠΎΡΡΡΠΎΠ΅Π½ΠΈΡ ΠΎΠ±ΡΠ΅ΠΌΠ½ΡΡ ΠΈΠ·ΠΎΠ±ΡΠ°ΠΆΠ΅Π½ΠΈΠΉ.
ΠΠ½ΡΡΡΡΠΌΠ΅Π½ΡΡ ΠΏΠΎΠ·Π²ΠΎΠ»ΡΡΡ ΡΠ°Π±ΠΎΡΠ°ΡΡ Ρ Π½Π΅ΡΠΊΠΎΠ»ΡΠΊΠΈΠΌΠΈ ΠΌΠ΅ΡΡΠΈΡΠ΅ΡΠΊΠΈΠΌΠΈ ΡΠΈΡΡΠ΅ΠΌΠ°ΠΌΠΈ, ΡΠΎΠ·Π΄Π°Π²Π°ΡΡ ΠΌΠ½ΠΎΠ³ΠΎΡΠ»ΠΎΠΉΠ½ΡΠ΅ ΠΏΡΠΎΠ΅ΠΊΡΡ. ΠΡΠΎΠ³ΡΠ°ΠΌΠΌΠ° ΠΏΠΎΠ΄Ρ
ΠΎΠ΄ΠΈΡ Π½Π΅ ΡΠΎΠ»ΡΠΊΠΎ Π΄Π»Ρ ΠΏΠΎΠ΄Π±ΠΎΡΠ° ΠΈ ΡΠ°ΡΡΡΠ°Π½ΠΎΠ²ΠΊΠΈ ΠΌΠ΅Π±Π΅Π»ΠΈ, Π² Π½Π΅ΠΉ ΠΌΠΎΠΆΠ½ΠΎ ΡΠΎΠ·Π΄Π°ΡΡ ΠΏΡΠΎΠ΅ΠΊΡ Π³Π»ΠΎΠ±Π°Π»ΡΠ½ΠΎΠΉ ΠΏΠ΅ΡΠ΅ΠΏΠ»Π°Π½ΠΈΡΠΎΠ²ΠΊΠΈ ΠΊΠ²Π°ΡΡΠΈΡΡ, ΡΠ½Π΅ΡΡΠΈ Π²Π½ΡΡΡΠ΅Π½Π½ΠΈΠ΅ ΡΡΠ΅Π½Ρ, Π΄ΠΎΠ±Π°Π²ΠΈΡΡ Π½ΠΎΠ²ΡΠ΅ ΠΏΠ΅ΡΠ΅Π³ΠΎΡΠΎΠ΄ΠΊΠΈ. ΠΡΡΡ ΠΎΡΠ΄Π΅Π»ΡΠ½ΡΠΉ Π±Π»ΠΎΠΊ, ΠΏΠΎΠ·Π²ΠΎΠ»ΡΡΡΠΈΠΉ ΠΏΠΎΠ΄ΠΎΠ±ΡΠ°ΡΡ ΠΏΠΎΠ΄Ρ
ΠΎΠ΄ΡΡΠΈΠ΅ ΠΎΠΊΠ½Π°, Π΄Π²Π΅ΡΠΈ, Π±Π°Π»ΠΊΠΎΠ½Π½ΡΠ΅ Π±Π»ΠΎΠΊΠΈ.

Sweet home 3D
ΠΠ΄Π½Π° ΠΈΠ· ΡΠ°ΠΌΡΡ ΡΠ΄ΠΎΠ±Π½ΡΡ ΠΈ Π²ΠΎΡΡΡΠ΅Π±ΠΎΠ²Π°Π½Π½ΡΡ ΠΏΡΠΎΠ³ΡΠ°ΠΌΠΌ. Π‘ ΠΏΠΎΠΌΠΎΡΡΡ Π½Π΅Π΅ ΠΌΠΎΠΆΠ½ΠΎ ΠΎΡΡΡΠ΅ΡΡΠ²ΠΈΡΡ ΡΠ΅Π»ΡΠΉ ΠΊΠΎΠΌΠΏΠ»Π΅ΠΊΡ ΡΠ°Π±ΠΎΡ ΠΏΠΎ ΠΏΠ»Π°Π½ΠΈΡΠΎΠ²ΠΊΠ΅ ΠΊΠ²Π°ΡΡΠΈΡΡ. ΠΠ³ΡΠΎΠΌΠ½ΡΠΌΠΈ ΠΏΡΠ΅ΠΈΠΌΡΡΠ΅ΡΡΠ²Π°ΠΌΠΈ Π΄Π°Π½Π½ΠΎΠ³ΠΎ ΡΠΎΡΡΠ° ΡΠ²Π»ΡΠ΅ΡΡΡ Π΅Π³ΠΎ ΠΏΠΎΠ»Π½Π°Ρ Π΄ΠΎΡΡΡΠΏΠ½ΠΎΡΡΡ β ΡΡΠΎ Π±Π΅ΡΠΏΠ»Π°ΡΠ½Π°Ρ ΠΏΡΠΎΠ³ΡΠ°ΠΌΠΌΠ°, Π° ΡΠ°ΠΊΠΆΠ΅ ΠΏΠΎΠ΄Π΄Π΅ΡΠΆΠΊΠ° ΡΡΡΡΠΊΠΎΡΠ·ΡΡΠ½ΠΎΠ³ΠΎ ΠΏΠ°ΠΊΠ΅ΡΠ°.
ΠΡΡ ΡΠ°Π±ΠΎΡΠ°Ρ ΠΎΠ±Π»Π°ΡΡΡ ΡΠ°Π·Π΄Π΅Π»Π΅Π½Π° Π½Π° ΡΠ΅ΡΡΡΠ΅ Π·ΠΎΠ½Ρ. ΠΠ΅Π²ΡΠΉ Π²Π΅ΡΡ Π½ΠΈΠΉ ΡΠ³ΠΎΠ» β ΡΡΡΡΠΊΡΡΡΠΈΡΠΎΠ²Π°Π½Π½ΡΠΉ ΡΠ΄ΠΎΠ±Π½ΡΠΉ ΠΊΠ°ΡΠ°Π»ΠΎΠ³, ΠΏΡΠ°Π²Π°Ρ Π²Π΅ΡΡ Π½ΡΡ Π·ΠΎΠ½Π° β ΠΏΠΎΠ»Π΅ Π΄Π»Ρ ΡΠΎΠ·Π΄Π°Π½ΠΈΡ ΡΠ΅ΡΡΠ΅ΠΆΠ°, ΠΊΠΎΡΠΎΡΡΠΉ Π² Π°Π²ΡΠΎΠΌΠ°ΡΠΈΡΠ΅ΡΠΊΠΎΠΌ ΡΠ΅ΠΆΠΈΠΌΠ΅ ΠΏΡΠ΅ΠΎΠ±ΡΠ°Π·ΡΠ΅ΡΡΡ Π² 3D ΠΌΠΎΠ΄Π΅Π»Ρ. ΠΠ΅ ΠΌΠΎΠΆΠ½ΠΎ ΡΠ²ΠΈΠ΄Π΅ΡΡ Π½Π΅ΠΏΠΎΡΡΠ΅Π΄ΡΡΠ²Π΅Π½Π½ΠΎ ΠΏΠΎΠ΄ ΡΠ°Π±ΠΎΡΠΈΠΌ ΡΠ΅ΡΡΠ΅ΠΆΠ½ΡΠΌ Π»ΠΈΡΡΠΎΠΌ.
Π Π² Π½ΠΈΠΆΠ½Π΅ΠΌ Π»Π΅Π²ΠΎΠΌ ΡΠ³Π»Ρ ΠΎΡΠΊΡΡΠ²Π°Π΅ΡΡΡ ΠΌΠ΅Π½Ρ ΠΈ ΠΎΠΊΠ½ΠΎ Π½Π°ΡΡΡΠΎΠΉΠΊΠΈ Π°ΠΊΡΠΈΠ²Π½ΠΎΠ³ΠΎ ΠΎΠ±ΡΠ΅ΠΊΡΠ°, Π½Π°Π΄ ΠΊΠΎΡΠΎΡΡΠΌ Π²Ρ Π² Π΄Π°Π½Π½ΡΠΉ ΠΌΠΎΠΌΠ΅Π½Ρ ΡΠ°Π±ΠΎΡΠ°Π΅ΡΠ΅. ΠΡΠΎ ΠΌΠΎΠΆΠ΅Ρ Π±ΡΡΡ ΡΡΠ΅Π½Π°, ΠΎΠΊΠ½ΠΎ, Π΄Π²Π΅ΡΡ, ΠΌΠ°ΡΠ΅ΡΠΈΠ°Π»Ρ Π΄Π»Ρ ΠΎΡΠ΄Π΅Π»ΠΊΠΈ, ΠΏΡΠ΅Π΄ΠΌΠ΅ΡΡ ΠΌΠ΅Π±Π΅Π»ΠΈ ΠΈ Π΄Π΅ΠΊΠΎΡΠ°.
ΠΠΎΡΠ»Π΅ ΡΠΎΠ·Π΄Π°Π½ΠΈΡ ΠΊΠΎΡΠΎΠ±ΠΊΠΈ ΠΈΠ· ΡΡΠ΅Π½, ΠΌΠΎΠΆΠ½ΠΎ ΠΏΡΠΈΡΡΡΠΏΠ°ΡΡ ΠΊ ΠΌΠ΅Π±Π»ΠΈΡΠΎΠ²ΠΊΠ΅ ΠΈ ΡΠΎΠ·Π΄Π°Π½ΠΈΡ ΠΈΠ½ΡΠ΅ΡΡΠ΅ΡΠ°. ΠΠ»Ρ ΡΡΠΎΠ³ΠΎ ΠΈΠ· ΠΊΠ°ΡΠ°Π»ΠΎΠ³Π° Π½ΡΠΆΠ½ΠΎ Π²ΡΠ±ΡΠ°ΡΡ ΠΏΠΎΠ΄Ρ ΠΎΠ΄ΡΡΠΈΠ΅ ΠΏΡΠ΅Π΄ΠΌΠ΅ΡΡ, ΠΊΠ°ΠΆΠ΄ΡΠΉ ΠΈΠ· Π½ΠΈΡ ΠΎΡΠ½Π°ΡΠ΅Π½ ΡΠ΅Π°Π»ΠΈΡΡΠΈΡΠ½ΠΎΠΉ ΡΠΎΡΠΎΠ³ΡΠ°ΡΠΈΠ΅ΠΉ.

Π‘ΠΎΠ·Π΄Π°Π½ΠΈΠ΅ ΠΏΠ»Π°Π½ΠΈΡΠΎΠ²ΠΊΠΈ ΠΈ Π΄Π΅ΠΊΠΎΡΠ° ΠΊΠ²Π°ΡΡΠΈΡΡ Π² Sweet home 3D
Π ΠΈΠΌΠ΅Π½Π½ΠΎ ΡΡΠΎ ΡΠΎΡΠΎ ΠΏΠΎΠΌΠ΅ΡΡΠΈΡΡ Π½Π° ΡΠ²ΠΎΠΉ ΡΠ΅ΡΡΠ΅ΠΆ Π² ΡΡ ΠΎΠ±Π»Π°ΡΡΡ, Π³Π΄Π΅ ΠΎΠ½ Π΄ΠΎΠ»ΠΆΠ΅Π½ ΡΠ°ΡΠΏΠΎΠ»Π°Π³Π°ΡΡΡΡ Π² ΡΠ΅Π°Π»ΡΠ½ΠΎΡΡΠΈ. Π Π²ΡΠΏΠ°Π΄Π°ΡΡΠ΅ΠΌ ΠΌΠ΅Π½Ρ ΠΌΠΎΠΆΠ½ΠΎ ΠΈΠ½Π΄ΠΈΠ²ΠΈΠ΄ΡΠ°Π»ΠΈΠ·ΠΈΡΠΎΠ²Π°ΡΡ ΠΊΠ°ΠΆΠ΄ΡΠΉ ΠΏΡΠ΅Π΄ΠΌΠ΅Ρ, Π·Π°Π΄Π°Π² Π΅ΠΌΡ Π½ΡΠΆΠ½ΡΠ΅ ΡΠ°Π·ΠΌΠ΅ΡΡ, ΡΠ²Π΅Ρ, ΡΠΈΠΏ ΠΌΠ°ΡΠ΅ΡΠΈΠ°Π»Π° ΠΈ ΡΠ°ΠΊ Π΄Π°Π»Π΅Π΅. Π ΡΠΎΠΌ ΡΠ»ΡΡΠ°Π΅, Π΅ΡΠ»ΠΈ Π² ΠΎΠ΄Π½ΠΎΠΌ ΡΠ³Π»Ρ ΠΊΠΎΠΌΠ½Π°ΡΡ Π΄ΠΎΠ»ΠΆΠ½Ρ ΡΠ°ΡΠΏΠΎΠ»Π°Π³Π°ΡΡΡΡ ΡΡΠ°Π·Ρ Π½Π΅ΡΠΊΠΎΠ»ΡΠΊΠΎ Π²Π΅ΡΠ΅ΠΉ, ΡΠΎ ΡΠΎΡΠΎ ΠΏΡΠΎΡΡΠΎ Π½Π°ΠΊΠ»Π°Π΄ΡΠ²Π°Π΅ΡΡΡ ΠΎΠ΄Π½Π° Π½Π° Π΄ΡΡΠ³ΡΡ.
ΠΠ΄Π½ΠΎΠ²ΡΠ΅ΠΌΠ΅Π½Π½ΠΎ Ρ ΠΏΠΎΡΡΡΠΎΠ΅Π½ΠΈΠ΅ΠΌ ΡΠ²ΠΎΠ΅ΠΎΠ±ΡΠ°Π·Π½ΠΎΠ³ΠΎ Π³ΡΠ°ΡΠΈΠΊΠ° Π² Π²Π΅ΡΡ Π½Π΅ΠΉ ΡΠ°ΡΡΠΈ ΡΠ°Π±ΠΎΡΠ΅ΠΉ Π·ΠΎΠ½Ρ, Π²Π½ΠΈΠ·Ρ, Π½Π° 3D ΠΌΠΎΠ΄Π΅Π»ΠΈ Π²ΡΡ ΠΌΠ΅Π±Π΅Π»Ρ ΠΈ Π½Π΅ΠΎΠ±Ρ ΠΎΠ΄ΠΈΠΌΡΠ΅ ΠΏΡΠ΅Π΄ΠΌΠ΅ΡΡ ΡΠ°ΡΡΡΠ°Π²Π»ΡΡΡΡΡ ΠΈΠΌΠ΅Π½Π½ΠΎ ΡΠ°ΠΊ, ΠΊΠ°ΠΊ ΠΎΠ½ΠΈ Π±ΡΠ΄ΡΡ Π²ΡΠ³Π»ΡΠ΄Π΅ΡΡ Π² Π΄Π΅ΠΉΡΡΠ²ΠΈΡΠ΅Π»ΡΠ½ΠΎΡΡΠΈ. Π’ΠΎ Π΅ΡΡΡ ΡΠ³Π»ΠΎΠ²ΠΎΠΉ Π΄ΠΈΠ²Π°Π½ Π²ΡΡΠ°Π΅Ρ ΡΠΏΠΈΠ½ΠΊΠΎΠΉ ΠΊ ΡΡΠ΅Π½Π΅, Π² ΡΠ³ΠΎΠ», ΠΏΠΎΠ΄ Π½Π΅Π³ΠΎ Π»ΠΎΠΆΠΈΡΡΡΡ ΠΊΠΎΠ²Π΅Ρ, Π° ΡΠ²Π΅ΡΡ Ρ Π½Π° ΠΊΠΎΠ²Π΅Ρ ΠΈ ΡΡΠ΄ΠΎΠΌ Ρ Π΄ΠΈΠ²Π°Π½ΠΎΠΌ Π²ΡΡΠ°Π΅Ρ ΠΆΡΡΠ½Π°Π»ΡΠ½ΡΠΉ ΡΡΠΎΠ»ΠΈΠΊ.
ΠΠ»ΡΡ ΠΏΡΠΎΠ³ΡΠ°ΠΌΠΌΡ Π² ΡΠΎΠΌ, ΡΡΠΎ ΡΠ°ΡΡΠΌΠΎΡΡΠ΅ΡΡ ΡΠΎΠ·Π΄Π°Π½Π½ΡΡ ΠΏΠ»Π°Π½ΠΈΡΠΎΠ²ΠΊΡ ΠΌΠΎΠΆΠ½ΠΎ ΡΠΎ Π²ΡΠ΅Π²ΠΎΠ·ΠΌΠΎΠΆΠ½ΡΡ ΡΠ°ΠΊΡΡΡΠΎΠ². ΠΡΠΈΡΠ΅ΠΌ ΡΠ°Π·Π³Π»ΡΠ΄ΡΠ²Π°ΡΡ ΠΌΠΎΠΆΠ½ΠΎ Π½Π΅ ΡΠΎΠ»ΡΠΊΠΎ Π²ΡΡ ΠΊΠΎΠΌΠ½Π°ΡΡ ΡΠ΅Π»ΠΈΠΊΠΎΠΌ, Π½ΠΎ ΠΈ ΠΊΠ°ΠΆΠ΄ΡΡ Π·ΠΎΠ½Ρ Π² ΠΎΡΠ΄Π΅Π»ΡΠ½ΠΎΡΡΠΈ, ΠΈ Π΄Π°ΠΆΠ΅ ΠΊΠ°ΠΆΠ΄ΡΠΉ ΠΏΡΠ΅Π΄ΠΌΠ΅Ρ. ΠΠ΅ΡΠ°ΡΡ ΠΈΠ· ΠΏΡΠΎΠ³ΡΠ°ΠΌΠΌΡ Π΄ΠΎΡΡΡΠΏΠ½Π° ΡΠΎΠΆΠ΅ Π² ΡΠ°Π·Π»ΠΈΡΠ½ΡΡ ΠΏΡΠΎΠ΅ΠΊΡΠΈΡΡ .
ΠΡΠΎ ΠΎΠ΄Π½Π° ΠΈΠ· Π»ΡΡΡΠΈΡ ΠΏΡΠΎΠ³ΡΠ°ΠΌΠΌ Π΄Π»Ρ ΡΠΎΠ·Π΄Π°Π½ΠΈΡ Π΄ΠΈΠ·Π°ΠΉΠ½Π° ΠΈΠ½ΡΠ΅ΡΡΠ΅ΡΠ°.
ΠΠ»Π°Π½ΠΈΡΠΎΠ²ΡΠΈΠΊ ΠΎΡ Ikea
Π‘ΡΡΠ΅ΡΡΠ²ΡΠ΅Ρ Π² Π΄Π²ΡΡ Π²Π΅ΡΡΠΈΡΡ : ΠΌΠΎΠΆΠ½ΠΎ ΡΠ°Π±ΠΎΡΠ°ΡΡ ΠΏΡΡΠΌΠΎ Π½Π° ΡΠ°ΠΉΡΠ΅, Π° ΠΌΠΎΠΆΠ½ΠΎ ΡΠΊΠ°ΡΠ°ΡΡ ΠΈ ΡΡΡΠ°Π½ΠΎΠ²ΠΈΡΡ ΠΊ ΡΠ΅Π±Π΅ Π½Π° ΠΊΠΎΠΌΠΏΡΡΡΠ΅Ρ. Π ΡΡΡΠΊΠΈΠΉ ΡΠ·ΡΠΊ ΠΏΡΠΈΡΡΡΡΡΠ²ΡΠ΅Ρ, ΠΈΠ½ΡΠ΅ΡΡΠ΅ΠΉΡ Π½Π΅ΡΠ»ΠΎΠΆΠ½ΡΠΉ. Π Π°Π±ΠΎΡΠ° ΠΎΡΠ΅Π½Ρ ΠΏΡΠΎΡΡΠ°Ρ. Π‘Π½Π°ΡΠ°Π»Π° ΡΠΎΠ·Π΄Π°Π΅ΡΡΡ ΠΏΠ»Π°Π½ ΠΈΠΌΠ΅ΡΡΠ΅ΠΉΡΡ ΠΊΠΎΠΌΠ½Π°ΡΡ ΠΈΠ»ΠΈ ΠΊΠ²Π°ΡΡΠΈΡΡ, Π° Π·Π°ΡΠ΅ΠΌ ΡΠΆΠ΅ ΠΏΠ»Π°Π½ΠΈΡΡΠ΅ΡΡΡ ΠΌΠ΅Π±Π΅Π»Ρ. ΠΠΈΠ·Π°ΠΉΠ½ ΠΈΠ½ΡΠ΅ΡΡΠ΅ΡΠ° ΠΌΠΎΠΆΠ½ΠΎ ΡΠΎΠ·Π΄Π°ΡΡ Π΄Π»Ρ ΡΠ°Π·Π»ΠΈΡΠ½ΡΡ ΠΏΠΎΠΌΠ΅ΡΠ΅Π½ΠΈΠΉ. ΠΠ»Ρ ΠΊΠ°ΠΆΠ΄ΠΎΠ³ΠΎ ΠΈΠ· Π½ΠΈΡ Π΅ΡΡΡ ΡΠ²ΠΎΠΈ ΡΠ°Π·Π΄Π΅Π»Ρ, ΡΠΏΠ΅ΡΠΈΡΠΈΡΠ½Π°Ρ ΠΌΠ΅Π±Π΅Π»Ρ, Π°ΠΊΡΠ΅ΡΡΡΠ°ΡΡ ΠΈ ΠΏΡΠ΅Π΄ΠΌΠ΅ΡΡ Π΄Π΅ΠΊΠΎΡΠ°.
ΠΡΠ΄Π΅Π»ΡΠ½ΠΎ Π²ΡΠ΄Π΅Π»Π΅Π½Ρ ΡΠ΅ΡΡΡΠ΅ ΠΏΠΎΠ·ΠΈΡΠΈΠΈ:
ΠΠ»ΡΡΠΎΠΌ ΠΈ ΠΌΠΈΠ½ΡΡΠΎΠΌ ΠΏΡΠΎΠ³ΡΠ°ΠΌΠΌΡ ΠΎΠ΄Π½ΠΎΠ²ΡΠ΅ΠΌΠ΅Π½Π½ΠΎ ΡΠ²Π»ΡΠ΅ΡΡΡ ΠΆΠ΅ΡΡΠΊΠ°Ρ ΠΏΡΠΈΠ²ΡΠ·ΠΊΠ° Π±Π°Π·Ρ Π΄Π°Π½Π½ΡΡ
ΠΏΠ»Π°Π½ΠΈΡΠΎΠ²ΡΠΈΠΊΠ° ΠΊ ΡΠΎΠ²Π°ΡΠ°ΠΌ ΠΠΊΠ΅Ρ, ΡΡΠΎ Π²ΠΏΠΎΠ»Π½Π΅ ΠΏΠΎΠ½ΡΡΠ½ΠΎ ΠΈ Π»ΠΎΠ³ΠΈΡΠ½ΠΎ. ΠΠ΅Π΄ΠΎΡΡΠ°ΡΠΎΠΊ β ΠΏΠΎΡΠΎΠΌΡ, ΡΡΠΎ Π²ΡΠ±ΠΎΡ ΠΏΡΠ΅Π΄ΠΌΠ΅ΡΠΎΠ², ΡΠ°ΠΊ ΠΈΠ»ΠΈ ΠΈΠ½Π°ΡΠ΅, ΠΎΠ³ΡΠ°Π½ΠΈΡΠ΅Π½. Π ΠΏΠ»ΡΡ Π² ΡΠΎΠΌ, ΡΡΠΎ ΡΠ°Π·ΡΠ°Π±ΠΎΡΠ°Π² ΡΠ°ΠΊΠΎΠΉ ΠΈΠ½ΡΠ΅ΡΡΠ΅Ρ, ΠΌΠΎΠΆΠ½ΠΎ Π±ΡΡΡ ΡΠ²Π΅ΡΠ΅Π½Π½ΡΠΌ, ΡΡΠΎ Π²ΡΠ΅ Π½Π΅ΠΎΠ±Ρ
ΠΎΠ΄ΠΈΠΌΡΠ΅ ΡΠ»Π΅ΠΌΠ΅Π½ΡΡ ΡΠ΅Π°Π»ΡΠ½ΠΎ ΡΡΡΠ΅ΡΡΠ²ΡΡΡ, ΠΈΡ
ΠΌΠΎΠΆΠ½ΠΎ ΠΏΡΠΈΠΎΠ±ΡΠ΅ΡΡΠΈ Π² Π±Π»ΠΈΠΆΠ°ΠΉΡΠ΅ΠΌ ΠΌΠ°Π³Π°Π·ΠΈΠ½Π΅ ΠΈ Π½Π΅ ΠΏΠ΅ΡΠ΅ΠΆΠΈΠ²Π°ΡΡ, ΡΡΠΎ ΡΠ°Π·ΠΌΠ΅ΡΡ Π½Π΅ ΠΏΠΎΠ΄ΠΎΠΉΠ΄ΡΡ.

Google Sketchup
ΠΡΠ΅Π΄Π»Π°Π³Π°Π΅Ρ Π²ΡΠ±ΡΠ°ΡΡ ΠΏΠ»Π°ΡΠ½ΡΡ ΠΈ Π±Π΅ΡΠΏΠ»Π°ΡΠ½ΡΡ Π²Π΅ΡΡΠΈΡ ΠΏΡΠΎΠ³ΡΠ°ΠΌΠΌΡ, Π² ΠΊΠΎΡΠΎΡΠΎΠΉ ΠΌΠΎΠΆΠ½ΠΎ ΡΠΎΠ·Π΄Π°Π²Π°ΡΡ 3D ΠΏΡΠΎΠ΅ΠΊΡΡ ΠΏΠ»Π°Π½ΠΈΡΠΎΠ²ΠΊΠΈ ΠΊΠ²Π°ΡΡΠΈΡΡ. ΠΠΎΠ·ΠΌΠΎΠΆΠ½ΠΎΡΡΠ΅ΠΉ Π±Π΅ΡΠΏΠ»Π°ΡΠ½ΠΎΠΉ ΠΏΡΠΎΠ³ΡΠ°ΠΌΠΌΡ Ρ Π²Π°ΡΠΈΡ Π΄Π»Ρ ΡΠΎΠ³ΠΎ, ΡΡΠΎΠ±Ρ Π½Π°ΡΠ΅ΡΡΠΈΡΡ ΡΠΎΠ±ΡΡΠ²Π΅Π½Π½ΡΠΉ ΠΏΠ»Π°Π½ ΠΊΠΎΠΌΠ½Π°ΡΡ ΠΈΠ»ΠΈ ΠΊΠ²Π°ΡΡΠΈΡΡ, ΡΠ΄Π΅Π»Π°ΡΡ ΡΠ°ΠΌ Π°Π²ΡΠΎΡΡΠΊΠΈΠΉ ΡΠ΅ΠΌΠΎΠ½Ρ ΠΈ ΠΏΠ΅ΡΠ΅Π±ΡΠ°ΡΡ Π½Π΅ΡΠΊΠΎΠ»ΡΠΊΠΎ Π²Π°ΡΠΈΠ°Π½ΡΠΎΠ² ΡΠ°ΡΡΡΠ°Π½ΠΎΠ²ΠΊΠΈ ΠΌΠ΅Π±Π΅Π»ΠΈ. ΠΡΠΎΠ³ΠΎΠ²ΡΠΉ Π²Π°ΡΠΈΠ°Π½Ρ ΠΌΠΎΠΆΠ½ΠΎ ΡΠΎΡ ΡΠ°Π½ΠΈΡΡ ΠΈΠ»ΠΈ ΡΠ°ΡΠΏΠ΅ΡΠ°ΡΠ°ΡΡ, ΡΡΠΎΠ±Ρ Π² Π΄Π°Π»ΡΠ½Π΅ΠΉΡΠ΅ΠΌ ΠΏΡΠ΅ΡΠ²ΠΎΡΠΈΡΡ Π² ΠΆΠΈΠ·Π½Ρ.
ΠΠ»Π°ΡΠ½Π°Ρ Π²Π΅ΡΡΠΈΡ ΠΏΠΎΠ½Π°Π΄ΠΎΠ±ΠΈΡΡΡΡ ΡΠ΅ΠΌ, ΠΊΡΠΎ ΠΏΡΠΎΡΠ΅ΡΡΠΈΠΎΠ½Π°Π»ΡΠ½ΠΎ Π·Π°Π½ΠΈΠΌΠ°Π΅ΡΡΡ Π΄ΠΈΠ·Π°ΠΉΠ½ΠΎΠΌ ΠΈΠ½ΡΠ΅ΡΡΠ΅ΡΠΎΠ². ΠΡΠΈΡΠ΅ΠΌ Π² Google Sketchup ΠΌΠΎΠΆΠ½ΠΎ ΡΠΎΠ·Π΄Π°Π²Π°ΡΡ ΠΏΠ»Π°Π½ΠΈΡΠΎΠ²ΠΊΡ Π½Π΅ ΡΠΎΠ»ΡΠΊΠΎ ΡΠΈΠΏΠΎΠ²ΡΡ ΠΊΠ²Π°ΡΡΠΈΡ, Π½ΠΎ ΠΈ ΡΠ°ΡΡΠ½ΡΡ Π΄ΠΎΠΌΠΎΠ², Π·Π°Π³ΠΎΡΠΎΠ΄Π½ΡΡ ΠΊΠΎΡΡΠ΅Π΄ΠΆΠ΅ΠΉ, ΠΎΡΠΈΡΠΎΠ². ΠΠΎΡΡΡΠΏΠ½Ρ ΡΠ°Π·Π»ΠΈΡΠ½ΡΠ΅ ΠΌΠΎΠ΄ΡΠ»ΠΈ ΠΈ ΠΏΡΠΈΠ»ΠΎΠΆΠ΅Π½ΠΈΡ, Π² ΡΠΎΠΌ ΡΠΈΡΠ»Π΅ Π΄Π»Ρ Π»Π°Π½Π΄ΡΠ°ΡΡΠ½ΠΎΠ³ΠΎ Π΄ΠΈΠ·Π°ΠΉΠ½Π° ΠΈ ΡΠ°Π·ΡΠ°Π±ΠΎΡΠΊΠΈ ΠΏΡΠΎΠ΅ΠΊΡΠ° ΠΎΠ·Π΅Π»Π΅Π½Π΅Π½ΠΈΡ.

ΠΠΈΠ·ΡΠ°Π»ΠΈΠ·Π°ΡΠΈΡ Π΄ΠΈΠ·Π°ΠΉΠ½Π° ΠΈΠ½ΡΠ΅ΡΡΠ΅ΡΠ° Π² Google Sketchup
Astron ΠΠΈΠ·Π°ΠΉΠ½
ΠΠΎΠ»Π½ΠΎΡΠ΅Π½Π½Π°Ρ ΠΈ ΠΌΠ½ΠΎΠ³ΠΎΡΡΠ½ΠΊΡΠΈΠΎΠ½Π°Π»ΡΠ½Π°Ρ ΠΏΡΠΎΠ³ΡΠ°ΠΌΠΌΠ° ΠΏΡΠΈΠ³ΠΎΠ΄Π½Π°Ρ Π΄Π»Ρ ΡΠ°Π·ΡΠ°Π±ΠΎΡΠΊΠΈ Π΄ΠΈΠ·Π°ΠΉΠ½Π° ΠΈΠ½ΡΠ΅ΡΡΠ΅ΡΠ° ΠΎΠ΄Π½ΠΎΠΉ ΠΊΠΎΠΌΠ½Π°ΡΡ ΠΈΠ»ΠΈ ΡΠ΅Π»ΠΎΠΉ ΠΊΠ²Π°ΡΡΠΈΡΡ. Π ΡΡΡΠΊΠΈΠΉ ΡΠ·ΡΠΊ ΠΈ Π²ΡΡΠΎΠΊΠ°Ρ ΠΈΠ·Π²Π΅ΡΡΠ½ΠΎΡΡΡ Π² ΡΡΠ½Π΅ΡΠ΅ ΡΠ΄Π΅Π»Π°ΡΡ ΡΠ°Π±ΠΎΡΡ Ρ ΡΡΠΈΠΌ ΡΠΎΡΡΠΎΠΌ ΠΏΡΠΎΡΡΡΠΌ ΠΈ ΠΊΠΎΠΌΡΠΎΡΡΠ½ΡΠΌ. ΠΡΠΎΠΌΠ΅ ΠΌΠ½ΠΎΠ³ΠΎΡΠΈΡΠ»Π΅Π½Π½ΡΡ ΠΏΠΎΠ΄ΡΠΎΠ±Π½ΡΡ ΠΈΠ½ΡΡΡΡΠΊΡΠΈΠΉ, ΠΌΠΎΠΆΠ½ΠΎ Π½Π°ΠΉΡΠΈ ΠΏΠΎΠ΄ΡΠΎΠ±Π½ΡΠ΅ Π²ΠΈΠ΄Π΅ΠΎΡΡΠΎΠΊΠΈ, ΠΊΠΎΡΠΎΡΡΠ΅ ΠΏΠΎΠΌΠΎΠ³ΡΡ ΡΠ΅Π°Π»ΠΈΠ·ΠΎΠ²Π°ΡΡ Π½Π° Π±Π°Π·Π΅ ΠΏΡΠΎΠ³ΡΠ°ΠΌΠΌΡ ΡΠ»ΠΎΠΆΠ½ΡΠ΅ ΠΏΡΠΎΠ΅ΠΊΡΡ.
Π Π°Π±ΠΎΡΠ° Π½Π°ΡΠΈΠ½Π°Π΅ΡΡΡ Ρ ΡΡΡΠ°Π½ΠΎΠ²ΠΊΠΈ ΠΊ ΡΠ΅Π±Π΅ Π½Π° ΠΊΠΎΠΌΠΏΡΡΡΠ΅Ρ Π½Π΅ΠΎΠ±Ρ ΠΎΠ΄ΠΈΠΌΡΡ ΡΠ°ΠΉΠ»ΠΎΠ², ΡΠΎΠ·Π΄Π°Π½ΠΈΡ ΠΎΡΠ΅ΡΡΠ°Π½ΠΈΠΉ ΠΊΠ²Π°ΡΡΠΈΡΡ, ΠΈ ΡΠΎΠ»ΡΠΊΠΎ ΠΏΠΎΡΠ»Π΅ ΡΡΠΎΠ³ΠΎ ΠΌΠΎΠΆΠ½ΠΎ ΠΏΡΠΈΡΡΡΠΏΠ°ΡΡ ΠΊ ΡΠ²ΠΎΡΡΠ΅ΡΡΠ²Ρ. ΠΡΠΎΠΌΠ΅ ΠΌΠ΅Π±Π»ΠΈΡΠΎΠ²ΠΊΠΈ, ΠΌΠΎΠΆΠ½ΠΎ Π²ΡΠ±ΡΠ°ΡΡ ΠΌΠ°ΡΠ΅ΡΠΈΠ°Π»Ρ Π΄Π»Ρ ΠΎΡΠ΄Π΅Π»ΠΊΠΈ ΠΏΠΎΠΌΠ΅ΡΠ΅Π½ΠΈΡ, ΠΏΠΎΠ΄ΠΎΠ±ΡΠ°ΡΡ ΡΠ°Π·Π»ΠΈΡΠ½ΡΠ΅ ΡΠ²Π΅ΡΠΎΠ²ΡΠ΅ ΡΠ΅ΡΠ΅Π½ΠΈΡ ΠΈ ΠΊΠΎΠΌΠ±ΠΈΠ½Π°ΡΠΈΠΈ, ΡΠ°ΡΡΡΠ°Π²ΠΈΡΡ ΠΌΠ΅Π±Π΅Π»Ρ, ΡΠ²Π΅ΡΡ, ΡΠ°Π·Π²Π΅ΡΠ°ΡΡ ΡΠ²Π΅ΡΠΈΠ»ΡΠ½ΠΈΠΊΠΈ ΠΈ Π»ΡΡΡΡΡ, Π΄ΠΎΠ±Π°Π²ΠΈΡΡ Π½Π° ΡΡΠ΅Π½Ρ ΠΊΠ°ΡΡΠΈΠ½Ρ ΠΈ ΠΏΠΎΡΡΠ΅ΡΡ.
ΠΠ°ΡΠ°Π»ΠΎΠ³ ΠΏΡΠΎΠ΄ΡΠΌΠ°Π½ Π΄ΠΎ ΠΌΠ΅Π»ΠΎΡΠ΅ΠΉ, ΠΈ, Π½Π΅ΡΠΌΠΎΡΡΡ Π½Π° ΡΠΎ, ΡΡΠΎ ΠΎΠ±ΡΠ°Ρ ΠΊΠ°ΡΡΠΈΠ½ΠΊΠ° ΠΏΠΎΠ»ΡΡΠ°Π΅ΡΡΡ ΠΈΠ·Π»ΠΈΡΠ½Π΅ ΡΠΈΡΠΎΠ²Π°Π½Π½ΠΎΠΉ, ΠΎΠ½Π° Π²ΠΏΠΎΠ»Π½Π΅ ΠΏΠΎΡ ΠΎΠΆΠ° Π½Π° ΠΏΡΠ°Π²Π΄Ρ.

ΠΠ½ΡΠ΅ΡΡΠ΅ΠΉΡ ΠΏΡΠΎΠ³ΡΠ°ΠΌΠΌΡ Astron ΠΠΈΠ·Π°ΠΉΠ½
PRO100
PRO100 β ΠΎΠ³ΡΠΎΠΌΠ½Π°Ρ ΠΏΠ»Π°ΡΡΠΎΡΠΌΠ°, ΠΊΠΎΡΠΎΡΠ°Ρ ΠΌΠΎΠΆΠ΅Ρ ΠΈΡΠΏΠΎΠ»ΡΠ·ΠΎΠ²Π°ΡΡΡΡ ΠΊΠ°ΠΊ Π² Π΄ΠΎΠΌΠ°ΡΠ½ΠΈΡ ΡΡΠ»ΠΎΠ²ΠΈΡΡ , ΡΠ°ΠΊ ΠΈ ΠΏΡΠΎΡΠ΅ΡΡΠΈΠΎΠ½Π°Π»ΡΠ½ΡΠΌΠΈ Π΄ΠΈΠ·Π°ΠΉΠ½Π΅ΡΠ°ΠΌΠΈ ΠΈΠ»ΠΈ Π²Π»Π°Π΄Π΅Π»ΡΡΠ°ΠΌΠΈ Π½Π΅Π±ΠΎΠ»ΡΡΠΈΡ ΠΌΠ΅Π±Π΅Π»ΡΠ½ΡΡ ΠΏΡΠΎΠΈΠ·Π²ΠΎΠ΄ΡΡΠ². ΠΠ΅ΠΎΠ±Ρ ΠΎΠ΄ΠΈΠΌΡΠΉ Π½Π°Π±ΠΎΡ ΠΈΠ½ΡΡΡΡΠΌΠ΅Π½ΡΠΎΠ² ΠΈ Π΅ΡΠ΅ ΡΡΡΡ-ΡΡΡΡ ΠΏΠΎΠ·Π²ΠΎΠ»ΡΠ΅Ρ Π²ΡΠΏΠΎΠ»Π½ΡΡΡ ΡΠ°Π±ΠΎΡΡ Π΄ΠΎΡΡΠ°ΡΠΎΡΠ½ΠΎ Π±ΡΡΡΡΠΎ ΠΈ ΡΠΎΡΠ½ΠΎ.
ΠΠ»Ρ ΠΏΠ»Π°Π½ΠΈΡΠΎΠ²ΠΊΠΈ ΠΊΠ²Π°ΡΡΠΈΡΡ Π΄ΠΎΡΡΡΠΏΠ½Ρ Π²ΡΠΈΡΡΠ΅ Π±Π°Π·Ρ Π΄Π°Π½Π½ΡΡ . ΠΠ΄Π΅ΡΡ Π΅ΡΡΡ Π²ΡΠ΅: ΠΊΠΎΡΠΏΡΡΠ½Π°Ρ ΠΈ ΠΌΠΎΠ΄ΡΠ»ΡΠ½Π°Ρ ΠΌΠ΅Π±Π΅Π»Ρ, ΠΌΡΠ³ΠΊΠ°Ρ ΠΌΠ΅Π±Π΅Π»Ρ, ΠΏΡΠ΅Π΄ΠΌΠ΅ΡΡ, ΠΏΡΠ΅Π΄Π½Π°Π·Π½Π°ΡΠ΅Π½Π½ΡΠ΅ ΡΠΎΠ»ΡΠΊΠΎ Π΄Π»Ρ ΠΊΠΎΠ½ΠΊΡΠ΅ΡΠ½ΡΡ ΠΊΠΎΠΌΠ½Π°Ρ ΠΈΠ»ΠΈ ΠΏΠΎΠΌΠ΅ΡΠ΅Π½ΠΈΠΉ. Π Π² ΡΠ»ΡΡΠ°Π΅ ΠΎΡΡΡΡΡΡΠ²ΠΈΡ ΠΏΠΎΠ΄Ρ ΠΎΠ΄ΡΡΠ΅Π³ΠΎ ΡΠΊΠ·Π΅ΠΌΠΏΠ»ΡΡΠ° Π΅Π³ΠΎ ΠΌΠΎΠΆΠ½ΠΎ ΡΠΌΠΎΠ΄Π΅Π»ΠΈΡΠΎΠ²Π°ΡΡ ΠΈ Π²ΠΎΡΡΠΎΠ·Π΄Π°ΡΡ Π² ΡΠΌΠ΅ΠΆΠ½ΠΎΠΌ ΠΏΡΠΈΠ»ΠΎΠΆΠ΅Π½ΠΈΠΈ.
FloorPlan 3D
Π‘ΠΎΡΡ Π±ΠΎΠ»ΡΡΠ΅ ΠΎΡΠΈΠ΅Π½ΡΠΈΡΠΎΠ²Π°Π½ Π½Π° ΠΏΡΠΎΡΠ΅ΡΡΠΈΠΎΠ½Π°Π»ΠΎΠ², ΡΠ΅ΠΌ Π½Π° ΡΡΠ΄ΠΎΠ²ΡΡ ΠΏΠΎΠ»ΡΠ·ΠΎΠ²Π°ΡΠ΅Π»Π΅ΠΉ. ΠΠΎ, ΡΠ΅ΠΌ Π½Π΅ ΠΌΠ΅Π½Π΅Π΅, ΠΏΡΠΎΠ³ΡΠ°ΠΌΠΌΠ° Π΄ΠΎΡΡΠ°ΡΠΎΡΠ½ΠΎ ΠΏΠΎΠ½ΡΡΠ½Π° ΠΈ ΠΏΡΠΎΡΡΠ° Π² ΠΈΡΠΏΠΎΠ»ΡΠ·ΠΎΠ²Π°Π½ΠΈΠΈ. ΠΠ³ΡΠΎΠΌΠ½ΡΠΌ ΠΏΡΠ΅ΠΈΠΌΡΡΠ΅ΡΡΠ²ΠΎΠΌ, ΠΊΠΎΡΠΎΡΠΎΠ΅ Π²ΡΠ³ΠΎΠ΄Π½ΠΎ ΠΎΡΠ»ΠΈΡΠ°Π΅Ρ FloorPlan 3D ΠΎΡ ΠΊΠΎΠ½ΠΊΡΡΠ΅Π½ΡΠΎΠ², ΡΠ²Π»ΡΠ΅ΡΡΡ Π²ΡΡΠΎΠΊΠ°Ρ ΡΠ΅Π°Π»ΠΈΡΡΠΈΡΠ½ΠΎΡΡΡ ΠΈΠ·ΠΎΠ±ΡΠ°ΠΆΠ΅Π½ΠΈΡ. Π’ΠΎ Π΅ΡΡΡ ΡΠΎΠ·Π΄Π°Π²Π°Π΅ΠΌΡΠ΅ ΠΈΠ½ΡΠ΅ΡΡΠ΅ΡΡ Π²ΡΠ³Π»ΡΠ΄ΡΡ ΠΊΠ°ΠΊ Π½Π°ΡΡΠΎΡΡΠΈΠ΅, ΡΡΠΎΡΠΎΠ³ΡΠ°ΡΠΈΡΠΎΠ²Π°Π½Π½ΡΠ΅, Π° Π½Π΅ ΠΊΠ°ΠΊ Π½Π°ΡΠΈΡΠΎΠ²Π°Π½Π½ΡΠ΅.
Π’Π΅ΠΌ, ΠΊΡΠΎ Π½Π΅ Ρ ΠΎΡΠ΅Ρ ΡΠ°Π·Π±ΠΈΡΠ°ΡΡΡΡ ΠΈ Π²Π½ΠΈΠΊΠ°ΡΡ Π²ΠΎ Π²ΡΠ΅ ΡΠΎΠ½ΠΊΠΎΡΡΠΈ ΠΏΠ»Π°Π½ΠΈΡΠΎΠ²ΠΊΠΈ, ΡΠΊΡΡΠΏΡΠ»ΡΠ·Π½ΠΎ ΠΏΠΎΠ΄Π±ΠΈΡΠ°ΡΡ ΠΌΠ΅Π±Π΅Π»Ρ ΠΈ ΠΏΡΠ΅Π΄ΠΌΠ΅ΡΡ ΠΈΠ½ΡΠ΅ΡΡΠ΅ΡΠ°, ΠΌΠΎΠΆΠ½ΠΎ Π²ΠΎΡΠΏΠΎΠ»ΡΠ·ΠΎΠ²Π°ΡΡΡΡ Π³ΠΎΡΠΎΠ²ΡΠΌΠΈ ΡΠ΅ΡΠ΅Π½ΠΈΡΠΌΠΈ Π΄Π»Ρ ΡΠΈΠΏΠΎΠ²ΡΡ ΠΏΠΎΠΌΠ΅ΡΠ΅Π½ΠΈΠΉ.
ΠΡΠΎ ΠΎΡΠ΅Π½Ρ ΡΠ΄ΠΎΠ±Π½ΠΎ ΠΎΠ±Π»Π°Π΄Π°ΡΠ΅Π»ΡΠΌ Ρ ΡΡΡΠ΅Π²ΠΎΠΊ, ΠΊΠΎΡΠΎΡΡΠ΅ Π½Π΅ Π΄Π΅Π»Π°Π»ΠΈ ΠΏΠ΅ΡΠ΅ΠΏΠ»Π°Π½ΠΈΡΠΎΠ²ΠΎΠΊ.
ΠΠ·ΡΠ² Π·Π° ΠΎΡΠ½ΠΎΠ²Ρ ΡΠ°Π·ΡΠ°Π±ΠΎΡΠ°Π½Π½ΡΠ΅ Π΄ΠΈΠ·Π°ΠΉΠ½Π΅ΡΠ°ΠΌΠΈ ΠΏΡΠΎΠ΅ΠΊΡΡ, Π½Π° ΠΈΡ Π±Π°Π·Π΅ ΠΌΠΎΠΆΠ½ΠΎ ΡΠΎΠ·Π΄Π°ΡΡ ΡΠ²ΠΎΠΉ ΡΠ½ΠΈΠΊΠ°Π»ΡΠ½ΡΠΉ ΠΈΠ½ΡΠ΅ΡΡΠ΅Ρ ΠΈΠ»ΠΈ Π½Π°ΠΉΡΠΈ ΠΏΠΎΠ΄Ρ ΠΎΠ΄ΡΡΡΡ ΠΈΠ΄Π΅Ρ Π΄Π»Ρ ΠΏΡΠΎΠ±Π»Π΅ΠΌΠ½ΠΎΠΉ Π·ΠΎΠ½Ρ.

ΠΡΠΈΠΌΠ΅Ρ Π³ΠΎΡΠΎΠ²ΠΎΠΉ ΠΏΠ»Π°Π½ΠΈΡΠΎΠ²ΠΊΠΈ ΠΊΠ²Π°ΡΡΠΈΡΡ Π² FloorPlan 3D
ΠΠ΅ΡΠ½ΡΡΡΡΡ ΠΊ ΠΎΠ³Π»Π°Π²Π»Π΅Π½ΠΈΡΠΠ½Π»Π°ΠΉΠ½ ΠΏΡΠΎΠ³ΡΠ°ΠΌΠΌΡ Π΄Π»Ρ ΠΏΠ»Π°Π½ΠΈΡΠΎΠ²ΠΊΠΈ ΠΊΠ²Π°ΡΡΠΈΡ
ΠΡΠΎΠΌΠ΅ ΠΏΡΠΎΠ³ΡΠ°ΠΌΠΌ Π΄Π»Ρ ΠΏΠ»Π°Π½ΠΈΡΠΎΠ²ΠΊΠΈ ΠΊΠ²Π°ΡΡΠΈΡ, ΠΊΠΎΡΠΎΡΡΠ΅ ΡΡΠ΅Π±ΡΡΡ ΠΏΡΠ΅Π΄Π²Π°ΡΠΈΡΠ΅Π»ΡΠ½ΠΎΠΉ ΡΡΡΠ°Π½ΠΎΠ²ΠΊΠΈ, ΡΠ°Π±ΠΎΡΠ°ΡΡ ΠΌΠΎΠΆΠ½ΠΎ Ρ ΠΎΠ½Π»Π°ΠΉΠ½ ΠΏΡΠΎΠ΄ΡΠΊΡΠ°ΠΌΠΈ. ΠΡΠ΅Π½Ρ ΡΠ΄ΠΎΠ±Π½Ρ Π΄Π»Ρ ΡΠΎΠ·Π΄Π°Π½ΠΈΡ Π±ΡΡΡΡΡΡ ΠΏΠ»Π°Π½ΠΎΠ², ΡΡ Π΅ΠΌ ΠΈ ΠΏΡΠΎΡΡΡΡ 3D ΠΌΠΎΠ΄Π΅Π»Π΅ΠΉ.
ΠΠ΅ ΠΏΠΎΠ΄Ρ ΠΎΠ΄ΡΡ Π΄Π»Ρ Π΄Π΅ΡΠ°Π»ΡΠ½ΠΎΠΉ ΡΠ°Π·ΡΠ°Π±ΠΎΡΠΊΠΈ ΡΠ»ΠΎΠΆΠ½ΡΡ Π΄ΠΈΠ·Π°ΠΉΠ½-ΠΏΡΠΎΠ΅ΠΊΡΠΎΠ², Ρ ΠΏΠΎΡΠ»Π΅Π΄ΡΡΡΠΈΠΌ ΡΠΎΡ ΡΠ°Π½Π΅Π½ΠΈΠ΅ΠΌ ΠΈ ΡΠ°ΡΠΏΠ΅ΡΠ°ΡΡΠ²Π°Π½ΠΈΠ΅ΠΌ. ΠΠ³ΡΠ°Π½ΠΈΡΠ΅Π½Π½ΡΠΉ ΡΡΠ½ΠΊΡΠΈΠΎΠ½Π°Π», Π½ΠΎ ΠΎΡΠ΅Π½Ρ ΠΏΡΠΎΡΡΠΎΠΉ Π°Π»Π³ΠΎΡΠΈΡΠΌ ΡΠ°Π±ΠΎΡΡ ΠΈ Ρ ΠΎΡΠΎΡΠ°Ρ ΠΏΡΠΎΠΈΠ·Π²ΠΎΠ΄ΠΈΡΠ΅Π»ΡΠ½ΠΎΡΡΡ.
Π‘ΡΠ΅Π΄ΠΈ Π½Π°ΠΈΠ±ΠΎΠ»Π΅Π΅ ΠΏΠΎΠΏΡΠ»ΡΡΠ½ΡΡ ΠΌΠΎΠΆΠ½ΠΎ ΠΎΡΠΌΠ΅ΡΠΈΡΡ:
- modernlinefurniture.planningwiz.com/ β ΠΏΡΠΎΠ³ΡΠ°ΠΌΠΌΠ° Π½Π° Π°Π½Π³Π»ΠΈΠΉΡΠΊΠΎΠΌ ΡΠ·ΡΠΊΠ΅, ΠΏΡΠ΅ΠΆΠ΄Π΅, ΡΠ΅ΠΌ Π½Π°ΡΠ°ΡΡ ΡΠ°Π±ΠΎΡΡ, ΡΡΠ΅Π±ΡΠ΅Ρ ΠΎΠ±ΡΠ·Π°ΡΠ΅Π»ΡΠ½ΠΎΠΉ ΡΠ΅Π³ΠΈΡΡΡΠ°ΡΠΈΠΈ Π°Π²ΡΠΎΡΠΈΠ·Π°ΡΠΈΠΈ;
- gliffy.com β Π΄ΠΎΡΡΡΠΏΠ½ΠΎ, ΠΏΡΠΎΡΡΠΎ ΠΈ Π±ΡΡΡΡΠΎ, Π½ΠΎ Π½Π° Π°Π½Π³Π»ΠΈΠΉΡΠΊΠΎΠΌ ΡΠ·ΡΠΊΠ΅. Π Π°Π±ΠΎΡΡ ΠΌΠΎΠΆΠ½ΠΎ Π½Π°ΡΠ°ΡΡ ΡΡΠ°Π·Ρ ΠΏΠΎΡΠ»Π΅ Π°Π²ΡΠΎΡΠΈΠ·Π°ΡΠΈΠΈ;
- planirui.ru β ΠΏΡΠΎΠ³ΡΠ°ΠΌΠΌΠ° Π½Π° ΡΡΡΡΠΊΠΎΠΌ ΡΠ·ΡΠΊΠ΅, ΡΠ°Π±ΠΎΡΠ°ΡΡ ΠΌΠΎΠΆΠ½ΠΎ Π½Π°ΡΠΈΠ½Π°ΡΡ ΡΡΠ°Π·Ρ ΠΏΠΎΡΠ»Π΅ ΠΏΠ΅ΡΠ΅Ρ ΠΎΠ΄Π° Π½Π° ΡΠ°ΠΉΡ;
- stolplit.ruprogramma-rasstanovki-mebeli-v-3d β ΠΏΡΠΎΠ³ΡΠ°ΠΌΠΌΠ° ΠΈΡΠΊΠ»ΡΡΠΈΡΠ΅Π»ΡΠ½ΠΎ Π΄Π»Ρ ΡΠ°ΡΡΡΠ°Π½ΠΎΠ²ΠΊΠΈ ΠΌΠ΅Π±Π΅Π»ΠΈ, ΠΈΠΌΠ΅Π΅Ρ ΠΆΠ΅ΡΡΠΊΡΡ ΠΏΡΠΈΠ²ΡΠ·ΠΊΡ ΠΊ ΠΎΠ΄Π½ΠΎΠΈΠΌΠ΅Π½Π½ΠΎΠΌΡ ΠΈΠ½ΡΠ΅ΡΠ½Π΅Ρ-ΠΌΠ°Π³Π°Π·ΠΈΠ½Ρ;
- planoplan.com/ β ΠΏΡΠΎΠ³ΡΠ°ΠΌΠΌΠ° Π½Π° ΡΡΡΡΠΊΠΎΠΌ ΡΠ·ΡΠΊΠ΅, ΠΊΠΎΡΠΎΡΠ°Ρ ΠΏΠΎΠ·Π²ΠΎΠ»ΡΠ΅Ρ Π²ΡΠΏΠΎΠ»Π½ΠΈΡΡ Π²Π΅ΡΡ ΠΊΠΎΠΌΠΏΠ»Π΅ΠΊΡ ΡΠ°Π±ΠΎΡ ΠΏΠΎ ΠΏΠ»Π°Π½ΠΈΡΠΎΠ²ΠΊΠ΅ ΠΊΠ²Π°ΡΡΠΈΡΡ, Π² Π·Π°Π²Π΅ΡΡΠ΅Π½ΠΈΠΈ Π²Ρ ΠΏΠΎΠ»ΡΡΠΈΡΠ΅ ΠΎΡΠ΅Π½Ρ ΡΠ΅Π°Π»ΠΈΡΡΠΈΡΠ½ΠΎΠ΅ 3D ΠΈΠ·ΠΎΠ±ΡΠ°ΠΆΠ΅Π½ΠΈΠ΅.

3d Π΄ΠΈΠ·Π°ΠΉΠ½ ΠΈΠ½ΡΠ΅ΡΡΠ΅ΡΠ° ΡΠΎΠ·Π΄Π°Π½Π½ΠΎΠ³ΠΎ Π² ΠΎΠ½Π»Π°ΠΉΠ½ ΡΠ΅ΡΠ²ΠΈΡΠ΅
Π ΡΠΎΠΌ ΡΠ»ΡΡΠ°Π΅, Π΅ΡΠ»ΠΈ Π²Ρ Ρ ΠΎΡΠΎΡΠΎ Π²Π»Π°Π΄Π΅Π΅ΡΠ΅ ΠΊΠΎΠΌΠΏΡΡΡΠ΅ΡΠΎΠΌ ΠΈΠ»ΠΈ Ρ ΠΎΡΠΈΡΠ΅ ΠΎΡ ΠΏΡΠΎΠ³ΡΠ°ΠΌΠΌΡ Π±ΠΎΠ»ΡΡΠ΅Π³ΠΎ, ΡΠ΅ΠΌ ΠΌΠΎΠΆΠ΅Ρ ΠΏΡΠ΅Π΄Π»ΠΎΠΆΠΈΡΡ Π±ΡΡΠΎΠ²ΠΎΠΉ ΡΠΎΡΡ, ΡΡΠΎΠΈΡ ΠΎΠ±ΡΠ°ΡΠΈΡΡΡΡ ΠΊ ΠΏΡΠΎΡΠ΅ΡΡΠΈΠΎΠ½Π°Π»ΡΠ½ΡΠΌ ΠΏΠ°ΠΊΠ΅ΡΠ°ΠΌ. Π’Π°ΠΊΠΈΠΌ ΠΊΠ°ΠΊ ΠΡΡ ΠΈΠΊΠ°Π΄, 3D max ΠΈ Π΄ΡΡΠ³ΠΈΠΌ ΠΏΡΠΎΠ³ΡΠ°ΠΌΠΌΠ°ΠΌ, ΠΏΡΠ΅Π΄Π½Π°Π·Π½Π°ΡΠ΅Π½Π½ΡΠΌ Π΄Π»Ρ Π»ΡΠ΄Π΅ΠΉ ΡΠΎ ΡΠΏΠ΅ΡΠΈΠ°Π»ΡΠ½ΡΠΌ ΠΎΠ±ΡΠ°Π·ΠΎΠ²Π°Π½ΠΈΠ΅ΠΌ, Π·Π½Π°Π½ΠΈΡΠΌΠΈ ΠΈ Π½Π°Π²ΡΠΊΠ°ΠΌΠΈ.
planvsem.ru
