Расчет лестницы онлайн 3d – Расчет лестницы онлайн калькулятор 3D +чертежи. Просто!
3D Расчет винтовой лестницы — онлайн калькулятор
Параметры винтовой лестницы

Рис. 1 Общий чертеж лестницы
- H — высота лестницы — как правило определяется высотой этажей Вашего дома
- D1 — диаметр лестницы — габарит лестницы, зависит от того, сколько места Вы можете выделить в своём доме для лестницы
- D1 — внутренний диаметр — габарит стержня, к которому монтируются ступени
- A — угол поворота — зависит от взаиморазмещения начала лестницы и «принимающей» площадки верхнего этажа
- Z — толщина ступеней — геометрический параметр материала (например, досок), из которых Вы планируете строить лестницу
- C — количество ступеней — за сколько шагов Вам будет комфортней всего переместится с этажа на этаж
Функция «Черно-белый чертеж:»

Рис. 2 Черно-белый чертеж лестницы
Использовать данную функцию целесообразно в двух случаях:
- Если Вы привыкли работать со стандартными ГОСТироваными чертежами, и, соответственно, лучше воспринимаете графику без цветового наполнения.
- Если Вы собираетесь распечатать результаты расчёта винтовой лестницы онлайн. Тогда и меньше краски/тонера потратите и визуальное восприятие рисунков на бумаге будет лучше. И, конечно же, данная функция используется при печати на чёрно-белом принтере.
Главный результат работы данного калькулятора — чертёж и расчёт винтовых ступеней.
По этому чертежу изготавливаются детали, из которых собирается конструкция.

Рис. 3 Пример чертежа ступени
Все остальные чертежи показывают конечный вид конструкции после состыковки ступеней со стержнем.
Как сделать эффектным переход на второй и третий этаж? Какой из вариантов дизайна выбрать, чтобы Ваш дом получил свою изюминку? Обратите внимание на винтовые лестницы разных размеров и форм, которые можно собрать своими руками или доверить их изготовление профессионалам своего дела. Расчет винтовой лестниц на второй этаж с помощью нашего сервиса позволит не только уточнить стоимость будущего изделия, но и определиться с выбором параметров.
В самостоятельном оснащении дома лестницей поможет онлайн калькулятор для расчета винтовой лестницы на второй этаж, а если доверить профессионалам эту работу, то весь перечень работ будет выполнен без вашего участия, но с учётом всех Ваших требований и пожеланий. Важно отметить, что по сравнению с другими видами лестниц, именно винтовая обойдётся дешевле, а в дизайне и надёжности не будет уступать остальным. Она может быть выполнена з деревянных или металлических ступеней, но в общей стилистике с дизайном интерьера.
Расчет винтовой лестницы на второй этаж
Решение сделать самостоятельно лестницу должно начинаться с просчёта особенностей будущего изделия, маршей, размера и формы ступенек и других нюансов, которые в итоге нарисуют общую картину. Удобный калькулятор винтовой лестницы в онлайне поможет рассчитать абсолютно все важные параметры и определиться с количеством материала, который понадобится в процессе реализации данного проекта, а также увидеть параметры в чертежах.
Рассчитать винтовую лестницу с помощью нашего сервиса легко: интерфейс калькулятора достаточно прост в применении и интуитивно понятен для проводимых расчётов.
perpendicular.pro
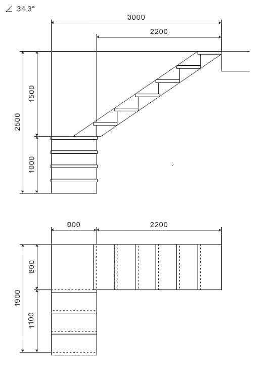
3D Онлайн калькулятор расчет лестницы на косоурах с поворотом на 90, чертежи
Онлайн калькулятор Kalk.pro выполнит расчет лестницы с поворотом на 90 и площадкой по вашим исходным данным.
В итоге вы получите все необходимые чертежи двухмаршевой лестницы с поворотом на 90 градусов с обозначениями, подробные расчетные данные и 3D модель вашей будущей лестницы.
Расчет деревянной лестницы с поворотом на 90 градусов производится онлайн калькулятором Kalk.pro на основании современных строительных требований за считанные секунды в режиме реального времени.
Попробуйте сами, это легко!
Отличие поворотной лестницы на 90 градусов от прямой заключается в том, что у поворотной лестницы есть два марша, расположенные под углом в 90 градусов и одна площадка, которая их соединяет. Лестница с поворотом на 90 градусов по форме Г-образная.
Данные для расчета лестницы с поворотом на 90 градусов и площадкой
Для начала вам необходимо измерить высоту проема для будущей лестницы на косоурах — расстояние между чистовым полом первого и второго этажей. Также необходимо ввести предполагаемую длину, ширину лестницы, параметры ступеней, косоура и подступенков, если вы предполагаете их использование в конструкции вашей лестницы.
Если вы не знаете все исходные данные, необходимые для расчета поворотной лестницы на 90, ниже мы приводим оптимальные размеры при строительстве деревянных лестниц в частных домах. Обязательно прочитайте.
Оптимальные размеры для удобной и безопасной лестницы с поворотом
Для строительства лестниц существуют определенные строительные нормативы и положения, регламентирующие способы расчета нагрузок и прочности, размерность, качество материалов и прочее. Проектировать лестницу нужно только согласно этим правилам, к которым относятся различные СНИПы и ГОСТы, во избежание обрушения конструкции, либо повышенной ее травмоопасности.
Для расчета деревянных лестниц выведены целые «формулы удобства». В строительной практике сформированы общепринятые наиболее часто используемые параметры для комфортных, прочных и безопасных лестниц.
Например, при расчетах часто прибегают к формуле «идеальной безопасной лестницы», выведенной несколько столетий назад архитектором Франсуа Блонделем: 2 высоты ступени + ширина ступени = 63 см (стандартная длина шага 60 — 63 см).
- Ширина лестницы. За оптимальный размер ширины пролета одного марша в частном доме принимают 90 — 110 см. При стесненном пространстве в частном доме лестницу можно сделать уже, но не меньше 80 см.
- Высота и ширина ступенек. Согласно практике идеальная высота ступеней находится в диапазоне 15 — 17 см. Оптимальная ширина ступени 27 — 30 см. Максимальная высота ступенек не может превышать 200 мм.
- Угол наклона лестницы. Удобный угол наклона деревянной лестницы — между 29 — 35 градусами.
- Ступени и подступени изготавливают из деревянных досок, для подступенка толщиной около 3 см, а для ступеней — 4 см.
- Минимальный свес — выступ ступени над подступенком — 30 мм, максимальный для деревянной лестницы — 40 мм.
- Количество ступеней для одного пролета лестницы — не более 18 штук. В среднем 10 — 12, но, конечно, это зависит от длины марша.
- В целях безопасности высоту перил следует делать выше 90 см.
- Минимальная высота лестницы в проходе — от любой ступеньки до ближайшего препятствия по вертикали, например пола верхнего этажа, должна составлять не менее двух метров.
Что вы получите после расчета деревянной лестницы с поворотом на 90 градусов
Калькулятор лестницы с поворотом на 90 градусов рассчитает данные:
- количество необходимого материала,
- угол наклона лестницы,
- параметры косоуров для двух маршей лестницы по отдельности,
- длину, ширину и высоту ступеней,
- параметры подступенек, если вы решили их использовать,
- размеры площадки, соединяющей оба марша лестницы.
Онлайн калькулятор подготовит для вас 5 чертежей лестницы с площадкой — различные виды на лестницу: сбоку, сверху, чертеж косоуров, чертеж ступеней — все с подробными обозначениями.
Обратите внимание на вкладки — 3D — просмотра, сохранения и виджета. Они помогают вам более гибко и удобно работать с калькулятором лестницы с поворотом на 90 градусов, и с другими версиями. 3D модель позволит вам лучше рассмотреть проектируемую лестницу и смоделировать самый удобный ее вариант. Виджет увеличит качество посещений и количество посетителей на ваш сайт, не уводя их на наш.
Пользуйтесь и проектируйте отличные лестницы, расчеты производятся бесплатно!
kalk.pro
Онлайн конструктор лестниц с калькулятором
Воспользуйтесь нашим конструктором, для того, чтобы спроектировать и заказать деревянную лестницу. Выбирая необходимые параметры, вы увидите эскиз лестницы, меняющийся в режиме реального времени, а также стоимость готового изделия. После введения всех данных, нажмите «Показать 3D» и вам станет доступен вид будущего изделия в 3D. При нажатии кнопки «Чертеж» вы сможете увидеть чертежи конструкции с указанием всех необходимых размеров.
Срок комплектации заказа составляет 15-20 дней.
Внимание! Стоимость лестницы в калькуляторе рассчитывается без учета скидок.
Самостоятельное проектирование лестниц – просто!
Создавая дом своей мечты, нужно прагматично и точно рассчитывать свои силы и средства. Используя конструктор лестниц на нашем сайте, за десять минут можно не только создать проект, но и рассчитать стоимость лестницы онлайн.
Используя простые и нехитрые инструменты нашего онлайн конструктора лестниц вы сможете:
- С точностью до миллиметра построить 3D чертеж лестницы по таким параметрам, как высота, ширина лестницы и ступеней, количество ступеней и поворотов, необходимых для создания прочной и красивой лестницы.
- Выбрать ограждения для всех маршей и обозначить наличие пригласительной ступени, подступенников и балюстрады.
- Калькулятор лестниц онлайн дает возможность выбрать материал, из которого будет сделана лестница целиком либо её отдельные элементы. При производстве лестниц мы используем: бук, дуб, сосну и березу.
- Задать параметр, по которому будет выполненная окраска или тонировка каждого элемента лестницы. Можно выбрать вариант и без отделки, если есть такая необходимость.
При расчете программа для конструирования лестниц предложить выбрать Вам регион доставки и сборки, что так же влияет на итоговую стоимость проекта.
Не удивляйтесь, если итоговая стоимость, полученная в результате расчетов на нашем конструкторе лестниц будет ниже, чем другие предложения на рынке. Современный парк оборудования с программным обеспечением нашего производства позволяет рационально минимизировать затраты на материалах и энергетических ресурсах, по сравнению с кустарными столярными и плотницкими мастерскими. Использование современных технологий в производстве, позволяет нам сокращать сроки изготовления и доставки до минимально возможных в каждом конкретном случае.
После того, как Вы смогли создать и рассчитать стоимость лестницы по своим параметрам, мы готовы выполнить ваши задумки в течении десяти дней и доставить их к Вам.
Если Вы столкнулись с какими-либо трудностями на любом этапе проектирования, позвоните нам 8 800 775 26 76 и наши специалисты с радостью Вам помогут.
stairshop.ru
Расчет лестницы на второй этаж онлайн: программа, калькулятор, как рассчитать
Самостоятельно проектируя дачу или загородный дом, обязательно придется столкнуться с проблемой расчета лестницы. Задача не такая уж и сложная, но базовые технические приемы для обсчета разных видов лестниц следует знать.
Рассмотрим, как рассчитать лестницу на второй этаж онлайн при помощи калькулятора и специальных программ.
От каких параметров зависит техника расчета
Благодаря грамотному расчету ваша лестница будет комфортной и безопасной- с типом конструкции;
- углом наклона;
- количеством ступеней;
- шириной ступеней;
- другими особенностями конструкции.
Прежде всего, понадобятся такие параметры:
- Высота лестницы.
- Наличие достаточного места под конструкцию определенного типа.
- Вид материала, используемого для строительства лестницы.
- Условия эксплуатации, зависящие от состава семьи. Если есть пожилые люди, то крутой подъем, они просто не одолеют. Опасна такая конструкция и для маленьких детей.
- Предполагается ли переносить по лестнице тяжелую габаритную мебель. Винтовая конструкция полностью исключает такую возможность.
Прежде всего нужно решить какую лестницу конкретно вы хотите видеть в своем доме, а уже после этого вводить данные для расчета. Выбирать придется среди таких типов:
- винтовая со ступенями, расположенными вокруг стержня по спирали;
- забежная, где нет промежуточной площадки;
- прямая с поворотом на 900 с промежуточной площадкой;
- с поворотом на 180° с обязательным присутствием промежуточной площадки.
Учитывать следует и такие нюансы, как расположение стен, перегородок, дверных проемов, площадь комнаты, дистанция между полом первого этажа и потолком.
Все обозначенные моменты следует учитывать на первоначальном этапе проектирования лестницы на второй этаж
Типы лестниц
Элегантная прямая лестница на 2 этаж. Стоимость ее зависит от высоты и материала. Колеблется в пределах 50,0-160,0 т.р.
Лестница поворотная (90 градусов) стоимостью около 45 т. р. 
Раскошная разворотная лестница. Каркас металлический, ступени из бука. Стоимость 108,3 т.р.
Лестница с поворотом, примыкающая к одной стене. Дерево и металл. Обойдется примерно в 109 т. р.
Лестница прямая, выполненная в стиле «Модерн». Стоимость ее в пределах 116 т. р.
Лестница в стиле «Модерн» поворотная стоимостью 120 т. р.
Винтовая лестница — отличное решение для небольшого проема. Стоимость около 50 т. р.Расчет лестницы на 2-й этаж при помощи онлайн калькулятора
В сети есть множество онлайн калькуляторов, максимально облегчающих задачу по выполнению расчета лестницы и оперативно решающих все вопросы.
Основой программ для онлайн калькуляторов служат требования к лестничным конструкциям и нормы, регламентируемые ГОСТом. Пример одного из хороших калькуляторов — zamer-doma.ru.
Работает он просто, достаточно ввести такие данные, как высота, длина проема, количество, толщина ступеней, высота их края, наибольшая ширина косоура, а также направление подъема и ориентация первой ступени относительно пола 2 этажа, чтобы получить:
• чертеж лестницы;
• длину верхней тетивы;
• угол наклона конструкции;
• величину шага между запилами под ступени на тетиве;
• высоту и глубину ступеней;
• высоту подтупенка;
• рекомендации по изменению параметров для повышения комфортности лестницы.
Параметры лестницы, необходимые для расчета на калькулятореЕще один бесплатный онлайн калькулятор lestnicmir.ru. С его помощью можно рассчитать наиболее приемлемую конструкцию, получить рекомендации по улучшению ее эргономики.
Для этого нужно только выбрать вид лестницы, ввести требуемые габаритные размеры и данные по ступеням, все остальное калькулятор выполнит сам.
Эскиз к расчету лестницы с поворотом
Шаблон ступеней
Расчетные размеры тетивы лестницыХороший калькулятор лестниц domaizbrusa-pestovo.ru. Пользоваться им легко — следует только обращать внимание на подсказки и вводить требуемые системой параметры.
Этот онлайн сервис позволяет выполнить расчет конструкции. Есть здесь и калькулятор расчета материалов.
Программа выдаст и чертеж лестницы, где будут обозначены основные размеры, разметка верхних точек ступеней на тетиве, величины углов, под которыми расположены ступени относительно к тетиве, другие определяющие размеры.
Калькулятор расчета лестницы domaizbrusa-pestovo.ru
Калькулятор o-builder.ru быстро рассчитает прямую лестницуФормула для расчета удобства лестницы
Иногда онлайн программы для расчета лестничных конструкций выдают вердикт, что лестница, выполненная по введенным вами размерами будет неудобной.
Такие выводы можно сделать и самому, сделав простое вычисление, основанное на средней длине шага.
Обычно человек делает шаг длиной 600-660 мм, значит, среднее значение — 630 мм. Параметры удобной конструкции должны соответствовать следующей формуле:
2h + S = 630±30 мм, где:
- h – высота ступени, колеблющаяся в пределах 200-250 мм;
- S – ее глубина, соответствующая 45 размеру ноги, что составляет от 280 до 300 мм.
Что касается наиболее удобного наклона, то это 30-40°.
Недостатки глубины лестницы легко убираются за счет выступа.
Для получения точных данных, все вводимые в программу онлайн калькулятор параметры замеряйте одним инструментом.
При определении основных размеров ступеней можно пользоваться таблицей, составленной специалистами на основе собственного опыта и нормативных требований:
В таблицу сведены основные рекомендуемые размеры ступеней
Условное обозначение требуемых параметров прямой лестницы из дерева
Основные параметры прямой лестницы
Обычно в онлайн калькуляторе параметры обозначаются так:
Y — высота проема.
X — ширина проема.
H — минимальная ширина косоура
Z —толщина ступени.
F — выступ ступени.
SP — расположение 1-й ступени, относительно пола на втором этаже.Программа онлайн конструктор лестниц
Существует программа Consultec Staircon, разработанная в Швеции по которой можно не только рассчитать лестницу на второй этаж, но и создать ее проект в формате 3D.А кроме того:
- Введя такие параметры, как ширина, высота лестницы, число ступеней и поворотных площадок, сможете построить очень точный чертеж.
- Выбрать ограждение.
- Подобрать материал для лестницы в целом или для отдельных ее элементов.
- Выбрать вариант отделки.
Программа Consultec Staircon поможет создать 3-мерную модель лестницы и рассчитать ее параметры
Для разработки проекта удобно пользоваться программой Mastercam, позволяющей среди прочих видов работ, моделировать лестничные марши. Есть много подобных разработок, но не все могут вывести на готовый результат.
Интерфейс программы Mastercam, позволяющей выполнять многие виды работ
Программа онлайн конструктор позволяет выбрать параметры ограждающих конструкций
Рассчитывая высоту балясин, не забудьте добавить глубину паза
После создания проекта и расчета лестницы вы можете сделать заказ на сайте lestnicymaster.ru. Техническое оснащение нашего производства позволяет снизить себестоимость, сократить сроки изготовления лестниц при неизменно высоком их качестве.
11 полезных советов
Специалисты рекомендуют:
- Избегать перепадов высоты ступеней лестницы. Все они должны быть абсолютно одинаковыми.
- Лестничная площадка по ширине должна быть эквивалентной ширине марша.
- Прямолинейный фрагмент со степенями по длине не должен быть менее 1,5 м и не превышать 3 м.
- Размер ступеней зависит от их количества.
- Минимальная ширина лестницы — 0,7 м, что обеспечивает пропуск 1 человека.
- Формирование угла наклона зависит от параметров ступеней, но он обязательно должен обеспечивать пропорциональное продвижение человека вперед.
- Меньше места занимает лестница с большим углом наклона, но подыматься по ней сложнее.
- В идеале ширина перил должна быть эквивалентной 10 см.
- Оптимальная высота перил — 90 см, а высота балясины — 80 см. При этом, если предполагается устанавливать ее в паз, то эту цифру немного увеличивают, прибавляя глубину паза.
- Опорные стойки по высоте должны равняться соответствующему размеру балясин, но если они устанавливаются не на ступеньки, а на пол, то к этой высоте прибавляется расстояние от ступенек до пола.
- Длина перил и лестничного марша эквивалентны друг другу.
Таблица, демонстрирующая взаимосвязь между параметрами ступеней и углом наклона
Зависимость высоты подступенка от количества ступеней и высоты потолка
Грамотный расчет убережет вас от ошибок и ненужных переделок, сэкономит время и финансы.
lestnicymaster.ru
Проектирование лестницы онлайн 3D — расчеты на KALK.PRO своими руками
Если вы занимаетесь строительством, то, наверняка, сталкивались с трудностями при создании моделей будущих конструкций, их просчете. Наш сайт создан специально для того, чтобы облегчить выполнение этих задач. Здесь вы можете самостоятельно подготовить проект лестницы онлайн с учетом основных параметров конструкции, получить расчет нужного количества материалов и другую важную информацию, нужную для воплощения идеи в жизнь. Вам не потребуется обращение к узкопрофильным специалистам, ведь все есть на нашем сайте абсолютно бесплатно.
Визуализация поможет понять, какой тип и вид конструкции наиболее подходящий для вашего дома. При этом точная калькуляция позволит сэкономить на строительных материалах, не приобретая лишних. Наша программа для проектирования лестниц в равной степени окажется полезной как тем, кто выполняет строительство самостоятельно, так и компаниям, оказывающим подобный вид услуг.
Особенности нашего сервиса
Многим кажется, что проектирование лестниц своими руками — это сложное и излишне времязатратное занятие. Сайт Kalk.PRO является опровержением этому мнению. С его помощью проектирование лестницы онлайн — задача, которая под силу даже неподготовленному человеку.
Мы собрали воедино строительные калькуляторы и справочники. У нас вы можете получить советы профессионалов в этой области, ознакомившись с полезными материалами сайта и изучив наглядные чертежи. Наш конструктор лестниц представит точные параметры, как технического, так и экономического значения:
- количество необходимых материалов;
- расходы на приобретение их;
- параметры конструкции;
- несущую способность (в планах автоматизация расчетов на прогиб).
Благодаря этому проектирование лестницы в частном доме больше не будет вызывать трудностей и большое число сложных вопросов.
Кроме того, вы можете воспользоваться готовыми чертежами, что дополнительно облегчит вашу работу. Если вы желаете создать уникальную конструкцию, которая идеально впишется в дом и не хотите пользоваться типовыми решениями, то предлагаем вам спроектировать лестницу онлайн с помощью нашего 3D-визуализатора. Это весьма удобная опция для тех, кто самостоятельно занимается воплощением своих идей, а также для мастера или компании, занимающихся производством таких конструкций. Созданную модель можно использовать при дальнейшем общении с заказчиком и наглядной демонстрации предмета разговора.
Строительные компании и частные мастера с помощью нашего сервиса могут упростить себе рутинную задачу создания просчетов. С помощью сервиса Kalk.PRO можно выполнять проектирование по СНИП, а также сохранять и печатать полученные чертежи и данные в одно движение.
Преимущества нашего сервиса
Используя Kalk.PRO, вы существенно облегчаете себе многие задачи. С помощью нашего сервиса можно с легкостью создать проект лестницы на 2 этаж, или любого другого назначения, не тратя при этом много времени и сил.
Наш сервис, обладает рядом преимуществ, которые делают его использование просто незаменимым при строительстве своего дома или объекта заказчика.
- Экономия финансовых средств и времени.
- Простота и удобство использования без детального погружения в математические расчеты.
- Возможность воплотить в жизнь свою мечту, не прибегая к услугам подрядных организаций.
Для тех, кто занимается производством и реализацией лестниц, есть еще одно важное преимущество нашего сервиса. Вы можете установить на свой сайт виджет с любым необходимым калькулятором, что существенно повысит продажи.
Используйте Kalk.PRO и воплощайте свои идеи просто!
kalk.pro
Проф расчет лестницы с забежными ступенями с поворотом на 90 градусов Г образная
Многие частные дома, квартиры, офисы имеют необычную планировку, либо ограниченное пространство для размещения лестницы, что затрудняет и сужает выбор ее типа – стандартные прямые лестницы или поворотные с площадками могут попросту не поместиться.
Для комфорта была придумана лестница с забежными ступенями, которую легко подстроить под любые особенности планировки и размеры зданий. Она экономит полезное пространство, выглядит очень элегантно, если соблюсти все строительные требования по ширине ступеней, то такая лестница с поворотными ступенями еще и не травмоопасна.
Особенности забежной лестницы
Качественно изготовленная лестница способна служить как практичным решением, так и уникальным элементом интерьера. Лестница Г-образная с забежными ступенями изготавливается из натуральных пород древесины, либо высокопрочного алюминиевого материала. Кроме того, она обладает уникальной формой и компактностью, что делает ее незаменимой в частных домах и других объектах.
Правильно рассчитанная лестница выдерживает значительные нагрузки и имеет высокий срок службы. Наш сервис KALK.PRO, предлагает вам провести качественный расчет лестницы с забежными ступенями, учитывая специфические характеристики вашего дома, квартиры, либо другого объекта.
В чем особенности калькулятора?
С KALK.PRO вы произведете полноценный расчет лестницы с забежными ступенями на 90 градусов. Помимо этого, автоматически формируется 3D модель с применением полученных расчетов. На объемной модели отражаются удобность/неудобность прохода, позволяя оценить возможные риски. На выходе вы получаете готовые инженерные чертежи для собственноручного изготовления.
С нами вы экономите деньги. Калькулятор расчета лестницы с забежными ступенями произведет точные расчеты объема, количества ступенек, размеров и материалов строительства. Вам не придется вызывать мастера и дополнительно оплачивать его услуги, либо обращаться в мебельную компанию и заказывать изготовление лестницы.
Экономия времени. Зачем вам тратить время на сложные расчеты, когда есть наш калькулятор расчета лестницы? От вас потребуется ввести размеры и нажать кнопку «Рассчитать». Больше не нужно тратить силы на то, чтобы все сделать самостоятельно, либо воспользоваться другими программами и мучаться, пытаясь сохранить расчеты – с нами вы сможете отправить или сохранить все необходимые файлы в один клик.
Как сделать расчеты?
Прежде всего, измерьте высоту проема для лестницы на косоурах – между полом 1-го и 2-го этажа. Все предельно просто. Введите единицы измерения – см, м. Затем выберите цвет, в котором будет формироваться чертеж (для просмотра удобен цветной, для печати – черно-белый).
После чего нужно ввести координатные точки пролета: высоту, длину, ширину лестницы, количество ступенек, указать их параметры (толщину, выступ). После чего нажмите на кнопку «Рассчитать».
В итоге Вы получите расчётные данные по необходимым материалам, по элементам лестницы: косоурам, ступеням, подступенкам, чертеж лестницы с забежными ступенями. Нажав на кнопку «Вид в 3D» сможете просмотреть объемную модель 3D конструкции забежной лестницы.
Благодаря калькулятору вы получите как точные общие значения косоуров, так и каждого по отдельности. А именно ширину запила как по горизонтали, так и по вертикали, угол наклона. Помимо этого, вам предоставляются данные об оптимальном объеме и параметрах материалов: ширине, длине, толщине, количестве и объеме, благодаря чему поворотная лестница с забежными ступенями будет максимально соответствовать вашим и строительным требованиям.
Что вы получите? Подробные чертежи, 3D модель, расчет конструкции лестницы с поворотными ступенями
Вы получаете практичное решение для произведения точных расчетов лестницы с поворотными ступенями. Кроме того, с помощью наших калькуляторов вы сможете самостоятельно проектировать и рассчитывать другие виды лестниц, различные типы крыш. В ближайшее время появится возможность рассчитать и другие необходимые конструктивные элементы дома – фундамент, стены, и не только. Подписывайтесь на новости в наших группах в социальных сетях, чтобы быть в курсе выхода нового функционального калькулятора.
Пользоваться kalk.pro очень просто – от вас не требуется специальных знаний, всего лишь нужно ввести пару значений, и вы сможете получить профессиональный проект лестницы с забежными ступенями, а также расчет другого типа лестниц, либо крыши совершенно бесплатно!
kalk.pro
Расчет деревянной лестницы с поворотом через забежные ступени
Расчет деревянной лестницы с поворотом на 90 через забежные ступени на второй этаж своими руками
Лестницу с поворотом на 90 градусов называют Г-образной. Такие лестницы располагают вплотную к смежным стенам. Площадка может разделять неодинаковые по длине лестничные марши. Поворот на 90 градусов наиболее распространен при изготовлении лестниц, которые становятся одинаково хорошо для размещения на даче или в двухэтажной квартире.

Лестница с поворотом на 90 градусов
Как между собой разделяются Г-образные лестницы?
Лестницы различаются по материалу, вектору поворота, внешнему виду. Второй пункт расшифровывается просто: либо лестница поворачивается направо, либо налево.
Лестницы могут изготавливать из дерева, металла и бетона. Встречаются комбинированные варианты дерева с металлом.

Комбинированная Г-образная лестница
Особенности лестниц с поворотом на 90 градусов:
Такие модели не отличаются от одномаршевых по наличию косоура или тетивы, ступеней и ограждений, в виде балясин, перил, поручней.

Чертеж поворотной лестницы с забежными ступенями
Чертеж поворотной лестницы с площадкой
Однако, у одномаршевых лестниц отсутствуют площадка и забежные ступени.
Чертеж одномаршевой лестницы
При создании чертежа поворотной конструкции предпочтение отдают либо площадке, либо забежным ступеням. Выбор зависит от количества имеющейся площади в комнате.
Второй вариант выбирается при дефиците места, причем обычно такие ступени делаются без проступей, что придает лестнице воздушность.

Лестница без проступей
Этапы строительства:
- Выбор материала.
- Выбор места монтажа. Оно должно быть ровным и прочным, пол не должен шататься и скрипеть.
- Выполнение измерений и вычислений длины, ширины, количества ступеней, их толщины и толщины перекрытия, площади, которую займет лестница.
- Расчеты проще всего провести через онлайн калькулятор.
- Создание проекта лестницы.

Проект поворотной лестницы
- Покупка материалов и инструментов.
- Воплощение проекта.
Как рассчитать высоту и ширину забежных ступеней
При собственных расчетах лучше всего опираться на достоверные данные оптимальных значений. Ширина марша – 90 см, ширина средней части забежной ступени – от 20 см, высота ступеней – от 10 см, угол наклона лестницы – не более 45 градусов, ширина узкого места забежной ступени – от 10 см.
Расчет забежных ступеней
Вместо лестницы устанавливают пандус, когда угол наклона более 23 градусов невозможен. При угле наклона более 45 градусов альтернативой лестнице станет раскладная конструкция, так как по такой крутой лестнице придется спускаться спиной вперед.

Углы наклона лестниц
Изготовление деталей
- Из древесины вырезают подступенки и ступени. На забежных ступенях в узкой части вырезается уголок.

Конструкция лестницы с забежными ступенями
- К каждой и степеней делают две подпорки из бруса и по четыре крепежных уголка.
- С помощью лекала на косоур наносятся отметки.

Нанесение отметок на косоур
- Изготовлением опорных столбов завершается создание всех деталей.

Крепление опорного столба
Монтаж
Обычно монтаж начинают с самого верхнего марша.
Последовательность:
- Сначала на стене закрепляют косоур.

Крепление косоура к стене
- После бетонируют опорные столбы.
- Внешний косоур скрепляется с опорным столбом.

Крепление косоура к опорному столбу
- Ступени соединяются с косоурами при помощи подпорок и крепежных уголков.

Варианты крепления ступеней к косоурам
- После монтируются забежные ступени, которые должны прочно «сесть» на место.

Монтаж забежных ступеней
- После устанавливаются подступенки.

Установка подступенков
- После монтируются балясины с перилами.

Монтаж балясин
Расчет деревянной лестницы с поворотом на 180 через забежные ступени на второй этаж своими руками
Лестницы с поворотом на 180 градусов именуют П-образными. В её основе лежит прямоугольная площадка, разделяющая лестницу на два марша. Конструкция занимает больше места, чем поворотная лестница на 90 градусов.

П-образная лестница
Главное, что учитывается при проектирование лестниц с поворотом на 180 градусов – это то, что высота ступеней не должна быть больше их ширины. Высота от лестницы до потолка должна быть как минимум 1,9 м.

Высота лестничного проема
Лестницу с поворотом на 180 можно рассчитать с включением в конструкцию забежных ступеней:
- Сначала нужно начертить окружность, радиус которой равен сумме ширины лестницы и 0,5 от расстояния между маршами.
- С двух сторон от окружности чертятся марши с заданной шириной и длиной. Через них проводится линия, по которой человек будет идти, а также отмечаются прямые ступени.
- Далее нужно провести отрезок ВС, который начинается от высшей точки окружности, заканчиваясь низшей. Его разметка должна проходить через середину главной забежной ступени. Именно от неё будут снисходить другие ступени.
- Конечная прямая ступень помечается как отрезок DE.

Расчет П-образной лестницы
Программа 3d расчета, онлайн конструктор
Существует около десятка программ, способных по имеющимся данным осуществить расчеты будущей лестницы. Некоторые из них проектируют 3D-модели, создают полноценную графическую картинку и общий лестничный интерьер. Такие программы здорово облегчают жизнь, позволяя увидеть будущий результат наиболее реалистичным.
Существуют платные программы на дисках, такие как ArCon Eleco 2010, её лицензия платная и стоит порядка 40 000 тысяч, применение такой программы целесообразно для ландшафтных дизайнеров и проектировщиков. Её возможности разворачиваются на профессиональном уровне и позволяют проектировать лестницы разной формы и дизайна, зимние сады, коттеджи и ландшафт.
StairCon также является программой с платной лицензией, получила широкое распространение при создании проектов лестниц. Среди её возможностей дизайн 3D, подсчет количества и конечной стоимости материалов, создание ведомости по материалам.
Существуют два бесплатных онлайн сервиса, предназначенных для расчета и проектировки лестниц.
«Лесенка — online проектирование лестниц» позволяет создать проект за четыре шага. Нужно указать желаемую форму, размеры лестницы и на выходе получить готовый проект. Кроме того, имеется функция выбора компании, которая может воплотить эскиз лестницы в реальность.
«Расчет лестницы WeBsr» сервис позволяет вычислить оптимальный наклон, размер проема в перекрытии, величину проступи и подступенка, а также выбрать вид лестницы и вид проема.
Расчет деревянной лестницы с поворотом на 90, 180 через забежные ступени на второй этаж своими руками, программа 3d расчета, онлайн конструктор, размеры поворотной лестницы из дерева, фото
lestnicypro.ru

В таблицу сведены основные рекомендуемые размеры ступеней
Основные параметры прямой лестницы
Программа Consultec Staircon поможет создать 3-мерную модель лестницы и рассчитать ее параметры
Интерфейс программы Mastercam, позволяющей выполнять многие виды работ
Программа онлайн конструктор позволяет выбрать параметры ограждающих конструкций
Рассчитывая высоту балясин, не забудьте добавить глубину паза
Таблица, демонстрирующая взаимосвязь между параметрами ступеней и углом наклона
Зависимость высоты подступенка от количества ступеней и высоты потолка