Расчет внутриквартирной лестницы – Расчет деревянной лестницы на второй этаж: калькуляторы и их описание
Расчет лестницы
При компоновке планов необходимо определить местоположение лестниц из соображений удобства связей и возможности расположить лестницу в заданном пролете. Для определения минимального необходимого пролета, в которой впишется выбранная лестница, производится ее расчет.
Лестница состоит из маршей и площадок и называется по количеству маршей в пределах этажа. Наиболее распространены в зданиях с высотой этажа до 3 м двухмаршевые лестницы.
Наклонный марш состоит из ступеней. Ступени в свою очередь состоят из горизонтальной проступи и вертикального подступенка (рис. П.В.1).
Рисунок 1 — Элементы ступени
Размеры ступени должны соответствовать уклону марша. Учитывая, что при подъеме шаг уменьшается, а + h = 450 мм.
Ширина проступи принимается для внутриквартирной лестницы — 270 мм, Для лестницы в изолированной лестничной клетке -300 мм, высота подступенка 180 мм — для внутриквартирной лестницы и 150 мм — для лестницы с изолированной лестничной клеткой.
Величина горизонтальной проекции марша l зависит от высоты этажа и размера проступи. Для определения горизонтальной проекции двухмаршевой лестницы, высоту этажа делят пополам, получают высоту одного марша Н/-2=h м. Высоту марша делят на высоту подступенка, получают количество подступенков. Количество проступей будет на одну меньше, чем подступенков, так как одна ступень входит в площадку. Эта ступень называется фризовой. Полученное количество проступей умножают на принятую величину подступенка, полученный результат и есть горизонтальная проекция маршаl(рисунок ПВ.2).
Число ступеней в марше должно быть не менее трех и не более шестнадцати. Ширину лестничного марша принимают: для внутриквартирных лестниц 0,9 м, для лестниц с изолированной лестничной клеткой 1,05 м.
Ширина лестничной клетки состоит из ширины одного, двух, трех маршей и разора между ними от 50 до 2СО мм для пропуска пожарного шланга.
Лестничные площадки размещаются в уровне этажей и между ними. Ширина этажных лестничных площадок не менее. 1,2 м, междуэтажных — не менее ширины марша.
Высота ограждений лестничных маршей принимается не менее 0,9 м (по вертикали).

Рисунок 2 — Построение разреза по лестнице
Приложение Г
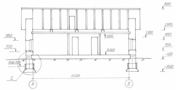
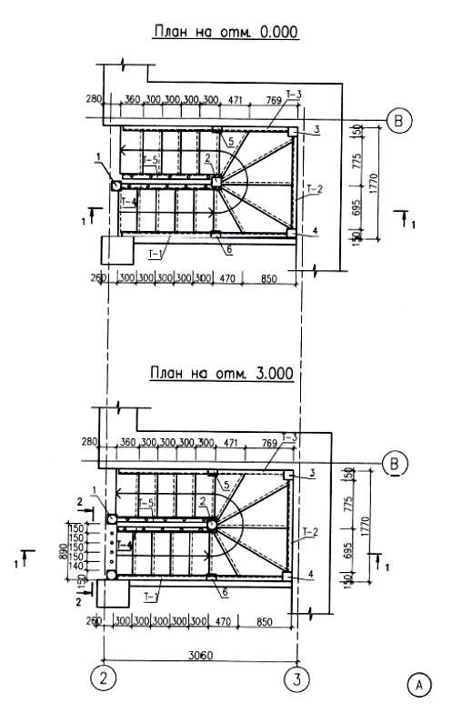
План 1-го этажа
Приложение Д
1-1

Окончание приложения Д
2-2

Приложение Е
ФАСАД 1-3
Приложение Ж
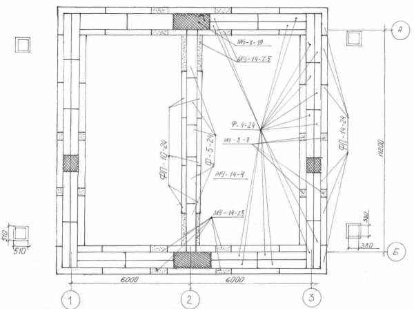
ПЛАН
ФУНДАМЕНТОВ
Приложение И
ПЛАН
ПЕРЕКРЫТИЯ
Приложение К
ПЛАН
СТРОПИЛ
Приложение Л
ПЛАН КРОВЛИ

Приложение М

Окончание приложения М

studfiles.net
Правила, требования,нормы проектирования и строительства лестниц
Что бы правильно спроектировать лестницу, необходимо не только грамотно выбрать её местоположение, но и учесть нормы проектирования лестниц, изложенные в соответствующих главах СНиП.
Далее приводятся основные нормы, правила и требования, которые необходимо учитывать при проектировании и строительстве лестниц.
Параметры лестничных площадок и маршей.
Ширина маршей и площадок определяет пропускную способность лестницы и зависит от требований пожарной безопасности (эвакуации) и предполагаемых габаритов переносимых вещей.
- Минимальная ширина лестничного марша: для внутриквартирных лестниц – 80 см, для 2-этажных зданий – 90 см, для жилых зданий большей этажности – 105 см, для общественных зданий – 135 см
- Максимальная ширина марша: для жилых зданий – 140 см, для общественных – 240 см.
- Полезная ширина марша поворотной лестницы и лестницы, соединяющей более 2-х этажей должна быть не менее 1.0 м, что бы обеспечить одновременный проход двух человек и пронос крупногабаритных предметов.
- Ширина многомаршевых лестниц должна быть одинаковой на всем протяжении лестницы.
- Между лестничными маршами, расположенными во встречном друг к другу направлении, должен быть зазор не менее 50 мм.
- Ширина лестничных площадок должна быть не менее 120 см и не менее ширины марша.
- Длина лестничных площадок между маршами должна быть не менее 1,3 – 1,4 м (это средняя длина двух шагов взрослого человека)
- Длина лестничных площадок у входных дверей может быть 1м, если двери раздвижные или открываются в противоположную от лестницы сторону. В противном случае длина площадки равна ширине дверного полотна + минимум 60см.
Уклон лестницы, расчет ступеней
При проектировании лестницы одновременно учитываются два: удобство (безопасность) передвижения по лестнице и минимизация занимаемой лестницей площади. Безопасность лестницы зависит от её уклона и параметров ступеней.
- Количество ступеней в одном марше лестницы должно быть не менее 3-х и не более 16. При меньшем количестве легко оступиться, большее делает лестницу «утомляемой» и требуется устройство промежуточной площадки.
- Число ступеней в марше желательно предусматривать нечетное, так как человеку удобнее начинать и заканчивать движение по лестнице с одной и той же ноги.
- Рекомендуемый уклон лестницы находится в пределах 1:2 – 1:1,75 (от 20 до 26,7 градусов).
- Максимальный уклон лестницы для ходьбы 1:0,85 (50 градусов)
- Минимальный уклон лестницы для ходьбы 1:2,75 (20 градусов)
- Максимальная высота ступеней лестниц
: в жилых и общественных зданиях –19 см, для внутриквартирных лестниц – 20 см, для подвальных и чердачных – 21 см. - Минимальная высота ступеней – 12 см.
- Максимальная ширина ступеней лестниц: в жилых и общественных зданиях –26 см, для внутриквартирных лестниц – 23 см, для подвальных и чердачных – 21 см.
- Минимальная ширина ступеней – 25 см. Для лестниц ведущих в нежилые помещения (подвал, чердак) минимальная ширина ступеней – 20 см.
- Высота ступеней лестницы в переделах одного марша не должна различаться более чем на 5 мм.
- При ширине ступени до 26 см величина её свеса не должна превышать 3 см.
- Забежные (клиновидные) ступени на внутренней границе полезной ширины должны иметь проступь шириной не менее 10 см и 26 см на средней линии марша.
- Радиус кривизны средней линии марша с забежными ступенями должен быть не менее 30 см.
- Расстояние между любой ступенью лестницы и потолком должно быть не менее 2-х метров.
Рекомендуемые отношения ширины ступени к её высоте
Что бы спроектировать удобную и безопасную лестницу, нужно воспользоваться Формулой уклона марша, определяемую как коэффициент отношения ширины ступени к её высоте: k=b/a
При ширине ступени от 26 до 30 см и величине коэффициента в пределах от 1,75 до 2 – лестница считается удобной. Удобными будут такие соотношения ширины ступени к её высоте как 30/15 (k=2), 31/16 (k=1,94) и 29/17 (k=1,70).

Рекомендуемые отношения ширины ступени к её высоте
Параметры перил (ограждений)
- Высота перил междуэтажных лестниц должна быть не менее 90 см, для лестниц высотой более 12 м – 110 см.
- Для лестниц, используемых детьми, высота ограждений рекомендуется 150 см.
- Высота ограждений наружных входных лестниц при подъеме на 3 и более ступеней должна быть не менее 80 см.
- Лестницы, имеющие более 5 ступеней, при ширине марша до 125 см оборудуются поручнем с одной стороны, при ширине марша 125 – 250 см с двух сторон. Лестничные марши шире 250 см оборудуются дополнительными перилами по центру марша.
- Отсутствие ограждений допустимо для лестниц из 5 ступеней и меньше.
- Расстояние между балясинами (стойками перил) не должно быть больше 12 см при высоте лестницы от пола свыше 150 см.
- Перила лестницы должны выдерживать нагрузку 100 кг/м.
Схематическое изображение лестницы и её составляющие

Рекомендуемое применение различных пород древесины для строительства лестниц

Статьи по теме “Дизайн лестниц”
Поделиться ссылкой:
www.live-design.ru
Пример 2. Решение внутриквартирной лестницы
Поиск ЛекцийПроектирование лестниц и лестничных клеток
(практическая работа 2)
Основные положения:
-модульная координация размеров в строительстве;
— координационные и конструктивные размеры строительных элементов.
Цели:
1. Знакомство с положениями модульной координации размеров в строительстве на примере проектирования и конструирования различных типов лестниц.
2. Научиться рассчитывать количество ступеней в лестничном марше
3. Знакомство с правилами построения лестниц и лестничных клеток.
Этапы:
1. Проектирование лестничной клетки многоэтажного жилого дома под руководством преподавателя. Для этого: а) провести расчет количества ступеней в лестничном марше, исходя из условий задания (см. пример 1), и вычертить план; б) вычертить схематический разрез с объяснением роли каждого конструктивного элемента, их примерных сечений.
2. Выбрать схему внутриквартирной лестницы (согласно индивидуальному заданию) по двум последним цифрам № зачетной книжки (см. табл. 2.1), выполнить расчет и вычертить план и разрез (пример 2). Например, две последние цифры зачетной книжки – 07, где 0 – вариант схемы; 7 –высота этажа.
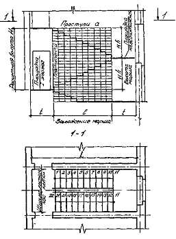
Пример 1. Решение лестничной клетки в многоэтажных зданиях
Определим размеры элементов двухмаршевой лестницы при высоте этажа Н = 3,30 м. Размеры ступени: проступь в = 300 мм, подступенок а = 150 мм. Уклон лестничного марша 1:2 (в + 2 а = 600 мм)
· Высота одного марша составит: Н/2 = 3300 мм : 2 = 1650 мм.
· Число подступенков в марше: n = 1650 мм : 150 мм = 11 шт.
· Число ступеней в марше на единицу меньше расчетного числа подступенков, из-за включения верхней (фризовой) проступи в плоскость лестничной площадки: n – 1 = 11 — 1 = 10 шт.
· Длина заложения лестничного марша Д = в х 10 = 300 х 10 = 3000 мм.
· Габариты лестничной клетки: ширина В = в + с + в =1350 + 100 + 1350 = 2800 мм, где в – ширина одного марша, с – зазор между лестничными маршами для пропуска пожарных рукавов; длина L= Е + Д + Е = 1300 + 3000 +1300 = 5600 мм, где Е – глубина лестничной площадки (должна быть не менее ширины марша).
Рис. 2. Удобная длина шага и подъема ноги
Рис. 3. Диаграмма соотношения между размерами ступеней и углом наклона марша
Пример 2. Решение внутриквартирной лестницы
Внутриквартирные лестницы допускается делать довольно крутыми с размерами проступи 230 мм и подступенка 200 мм. Минимальная ширина марша 900 мм. Для сокращения длины марша прибегают к устройству забежных ступеней. Расчет количества ступеней проводим исходя из высоты этажа (от пола до пола). Например, при высоте этажа 3,0 м и высоте подступенка 0,2 м количество подъемов будет равно: 3,0:0,2=15. Тогда (считая, что верхняя проступь совпадает с плоскостью лестничной площадки) получим: 15-1=14 проступей. При ширине проступи 23 см длина лестничного марша составит 23х14=322 см. К длине марша следует прибавить два размера глубины лестничной площадки (2х90 см), что составляет: 322+180=502 см.
Рис. 4. Ширина лестничного марша
Таблица 2.1



Рекомендуемые страницы:
Поиск по сайту
poisk-ru.ru
ВНУТРИКВАРТИРНЫЕ ЛЕСТНИЦЫ
Советы строителям
В зависимости от количества подъемов внутриквар — тирные лестницы в жилых домах, расположенных в двух уровнях, бывают одно-, двух — и трехмаршевые. Ширина марша должна быть не менее 0,8—0,9 м (до ограждения), а крутизна—не более 45°. При ширине менее 0,8 м на лестнице трудно размн-
нуться двум человекам и пронести мебель, а при крутизне более 45° неудобно спускаться.
Традиционными являются деревянные лестницы. При качественном выполнении они становятся украшением квартиры. Открытая фактура древесины, защищенная прозрачным слоем лака или олифы, хорошо сочетается с мебелью.
При выборе конструктивной схемы лестницы следует учитывать, что независимо от крутизны подъема величина, получаемая от сложения значений высоты h и ширины b ступени (рис. 37) должна быть в пределах 450 мл (150+300; 200 + 250; 120+330 мм и т. д.). Эти отношения позволя ют выбрать размеры ступенек і зависимости от уклона марша Рекомендуемый уклон марша дл? квартир в двух уровнях 1 : 1,25
Рис. 37. Основные элементы внутри квартирной лестницы-
) —поручень; 2 — стойка ограждения; 3- тетива; 4 — ступень, 5 — подступенок
Что соответствует ступеням высотой 200 мм при ширине проступи 250 мм.
Ширина площадок должна быть не менее ширины марша (0,8—0,9 м). Количество ступеней в одном марше должно составлять от 5 до 18, считая фризовые (верхнюю и нижнюю). Площадки могут быть этажными, оборудованными на уровне пола каждого этажа, и промежуточными, устраиваемыми между этажами.
Высота прохода между двумя площадками или над и под маршами определяется не менее чем в 2,1 м.
Тетивы деревянных лестниц, поддерживающие ступени и ограждения из перил, изготовляют из брусьев сечением 60—100Х Х180—220 мм. Их опирают концами на площадочные балки или иа стеиы лестничной клетки. Ступени изготовляют из досок толщиной 44 мм, а подступенки — из досок толщиной 20 мм. Тетивы лестниц и балки площадок снизу подшивают профилированными досками, а места соединения их с оштукатуренными поверхностями оформляют раскладками. Подшивку производят по балкам площадки, уложенным для настила пола. Ее можно покрасить или оштукатурить.
Марши лестниц необходимо располагать таким образом, чтобы поручни перил при подъеме находились с правой стороны. Перила лестниц устраивают по стойкам из брусков, досок или
точеными. Высоту перил на маршах делают в пределах 0,8, а на площадках — 0,9 м.
Внутриквартирные деревянные лестницы делают также с за — бежными ступенями, т. е. винтовыми.
Пространство под лестницами можно использовать для устройства кладовых.
Строительный процесс — работа сложная и требующая огромного терпения. Кроме того, это процесс, в котором просто необходимы партнеры. Поэтому если Вы решили присоединиться к этому процессу — Вам будет необходим …
Технология приготовления обоев под клинкерный кирпич или облицовочный камень: Возьмите 20…25 г пластифицированной » типографской краски, например розовой, зеленой или голубой, и растворите ее в — 400…500 г бензина или …
msd.com.ua
Методы расчета и проектирования лестниц Методика проектирования лестниц
Проектирование лестниц заключается в выборе местоположения лестничной клетки или лестницы в объемно-планировочной структуре здания и в расчете ее конструктивных элементов.
Особого внимания требует выбор места для лестницы в индивидуальных жилых домах или квартирах и в интерьере помещений общественного назначения.
К примеру, выбор места для лестницы зависит прежде всего, от плана дома или квартиры Обычно помещения входной группы (прихожая, вестибюль, холл) размещаются на первом этаже. Поэтому вход на лестницу логично предусмотреть из этих помещений.
Можно увязывать вопрос о положении лестницы с местоположением, например, ванной и туалета в доме. Если ванная находится на втором этаже, лестницу лучше иметь в прихожей — это приближает ванную ко входу. Если туалет предусматривается только на первом этаже, то лестница должна находиться в том помещении, из которого предполагается вход в него.
Устройство лестницы в общей комнате, хотя и широко практикуется, неудобно в быту, так как комната становится проходной, т.е. вопрос выбора местоположения лестницы требует серьезного анализа структуры взаимосвязей помещений, а уже затем встает вопрос расчета и конструирования лестницы. В любом случае важно учитывать следующие условия:
— лестница или лестничная клетка должны быть максимально приближены ко входу в дом;
— лестница должна занимать минимум полезного пространства помещения;
— проход от входа к лестнице или лестничной клетке должен быть смещен к одной из стен помещения, а не пересекать его посередине или по диагонали;
— лестница должна быть обращена ступенями ко входу в помещение, в котором находится, если не всеми, то непременно несколькими первыми;
— лестница, ведущая в подвал, должна быть максимально приближена как к основной лестнице дома, так и ко входу в дом.
Для того чтобы правильно запроектировать лестницу, необходимо не только правильно выбрать ее местоположение, но и знать нормы проектирования лестниц, изложенные в соответствующих главах СНиП.
Далее приводятся основные нормы, правила и требования, которые следует соблюдать при проектировании и строительстве лестниц.
· Ширина маршей и площадок определяет пропускную способность лестницы. Ширина отдельного марша назначается в зависимости от требований пожарной безопасности (эвакуации) и предполагаемых габаритов переносимых вещей. Минимальная ширина марша: для внутриквартирных лестниц — 800 мм, для 2-этажных зданий — 900 мм, для жилых зданий большей этажности — 1050 мм, для общественных зданий — 1350 мм. Максимальная ширина марша: для жилых зданий — 1400 мм, для общественных — 2400 мм.
·
· Ширина лестничных площадок должна быть не менее ширины марша и не менее 1200 мм.
·
· Полезная ширина марша поворотной лестницы и лестницы, соединяющей более двух этажей, должна быть рассчитана на одновременный проход не менее двух человек, т.е. составлять не менее 1,0 м. Кроме того, при полезной ширине марша менее 1,0 м затрудняется перенос крупногабаритных вещей.
·
· Ширина маршей двух- и многомаршевых лестниц должна быть одинакова на всем протяжении лестницы.
·
Между маршами лестницы, расположенными во встречном друг к другу направлении, должен быть зазор не менее 50 мм.
· Количество ступеней в одном марше должно быть не менее 3 и не более 16.
·
При меньшем числе ступеней легко оступиться, при большем — лестница становится «утомляемой» и в этом случае требуется устраивать промежуточную площадку.
· Число ступеней в марше желательно предусматривать нечетное, так как человеку удобнее начинать и заканчивать движение по лестнице одной ногой — левой или правой.
·
· Рекомендуемый уклон лестницы находится в пределах 1:2-1:1,75 (20° — 26°7’). Предельные уклоны лестниц, предназначенных для ходьбы, имеют верхнюю границу 1:0,85 (50°) и нижнюю границу 1:2,75 (20°).
·
· Размеры ступеней лестниц в жилых и общественных зданиях: «Н» — не более 19 см, «В» — не менее 26 см. Для внутриквартирных лестниц соответственно 20 и 23 см. Для подвальных и чердачных лестниц — 21 и 21см.
·
Высота ступеней в пределах одного марша не должна различаться более чем на 5 мм, что обеспечивает равномерный уклон по всему маршу, и должна быть не более 200 и не менее 120 мм. Ширина ступени основных лестниц должна быть не менее 250 мм. Для лестниц, ведущих в нежилые помещения, высота и ширина ступеней может быть 200 мм. При ширине ступени до 260 мм величина ее выступа над нижележащей ступенью (величина «с» на рис.4) не должна превышать 30 мм. Забежные (клиновидные) ступени на внутренней границе полезной ширины должны иметь проступь шириной не менее 100 мм, а на средней линии марша — не менее 260 мм.
Радиус кривизны средней линии марша с забежными ступенями должен быть не менее 30 см. Полезная ширина лестничных площадок должна быть не менее полезной ширины примыкающих к ней маршей.
Длина лестничных площадок, находящихся между маршами, должна быть не менее 2 величин длины среднего шага взрослого человека, т.е. не менее 1,3-1,4 м. Длина лестничных площадок у входных дверей должна быть не менее 1,0 м в том случае, если дверь раздвижная или открывается в противоположную от лестницы сторону.
Длина и ширина лестничных площадок перед дверями, открывающимися в сторону лестницы, рассчитывается с учетом ширины дверного полотна и безопасного положения человека у двери в момент ее открытия.
· Высота ограждений (перил) междуэтажных лестниц должна быть не менее 0,9 м, для лестниц высотой более 12 м — 1,1 м.
·
· Для лестниц, используемых детьми, высота ограждений рекомендуется 1,5 м.
·
· Высота ограждения наружных входных лестниц при подъеме на 3 и более ступеней должна быть не менее 0,8 м.
·
· Лестницы, имеющие более 5 ступеней, при ширине марша до 1,25 м оборудуются поручнем с одной стороны, при ширине марша от 1,25 до 2,5 м поручни должны быть с двух сторон. Лестничные марши шириной более 2,5 м необходимо оборудовать дополнительными перилами посередине марша.
·
· Отсутствие ограждений допускается только для лестниц, состоящих из 5 ступеней и менее.
·
· Расстояние между стойками (балясинами) перил не должно превышать 12 см при высоте от уровня пола свыше 1,5 м.
·
· Расстояние между любой ступенью лестницы и потолком должно быть не менее 2,0 м, чтобы по лестнице мог свободно пройти взрослый человек.
·
· Лестницы должны быть хорошо освещены, особенно первые и последние ступени маршей.
·
В заключение приводятся некоторые предварительные ориентировочные габариты лестниц.
Необходимая площадь для сооружения лестницы (в горизонтальной проекции) составляет ориентировочно:
— винтовая лестница с центральной стойкой — не менее 3,6 м;
— лестница с площадкой — 3,1 м;
— лестница с двумя поворотами на 90° — 2,1 м;
— прямая одномаршевая лестница — 2,5-3,0 м.
Стандартная двухмаршевая лестница из индустриальных крупноэлементных железобетонных конструкций (лестничная клетка) имеет в плане оптимальные размеры 3,0 х 6,0 м.
Размеры проемов в междуэтажных перекрытиях:
— для прямых одномаршевых лестниц — 1,0 х 2,5 м;
— для винтовых лестниц с центральной стойкой — диаметром 1,7-2,2 м;
— для лестниц с поворотом на 180° — 2,1-2,5 м.
studfiles.net
Расчет лестницы – необходимая процедура в строительстве + видео
Warning: count(): Parameter must be an array or an object that implements Countable in /var/www/remoskop/data/www/remoskop.ru/wp-content/plugins/wp-creator-calculator/wp-creator-calculator.php on line 1807
Warning: preg_replace(): The /e modifier is no longer supported, use preg_replace_callback instead in /var/www/remoskop/data/www/remoskop.ru/wp-content/plugins/wp-creator-calculator/wp-creator-calculator.php on line 2662
Warning: count(): Parameter must be an array or an object that implements Countable in /var/www/remoskop/data/www/remoskop.ru/wp-content/plugins/wp-creator-calculator/wp-creator-calculator.php on line 1807
Warning: preg_replace(): The /e modifier is no longer supported, use preg_replace_callback instead in /var/www/remoskop/data/www/remoskop.ru/wp-content/plugins/wp-creator-calculator/wp-creator-calculator.php on line 2662
Для перемещения между этажами многоквартирного дома удобнее всего пользоваться лифтом, в частном же доме необходимы надежные марши достаточно широких и в меру высоких ступенек, для чего следует выполнить расчет лестницы.
Что нужно для того, чтобы сделать расчет лестницы?
В процессе строительных работ прорубить проем в перекрытии второго этажа не составит труда. Главное – найти подходящее место, чтобы в дальнейшем, после установки винтовой или Г-образной лестницы, было удобно ею пользоваться. Определить, какую именно форму должны принять объединенные маршем ступеньки, можно, исходя из тех параметров, которыми вы владеете на момент завершения строительства второго этажа с готовым проемом. В первую очередь вас должны интересовать габариты последнего, то есть его длина и ширина, от этого будет зависеть комфортность использования лестницы.
В отношении расположения ступеней высота первого этажа называется подъемом, от нее и от длины проема зависит просвет между краем перекрытия и расположенным под ним пролетом. Поскольку других данных нет, будем оперировать имеющимися в плане, создавая калькулятор расчета лестницы. Для начала нужно выяснить, какие именно длина и ширина проступи (верхней плоскости ступени, на которую ступает ваша нога) будут наиболее комфортны для идущего спокойным шагом человека. Также нужно определить высоту подступенка, то есть той вертикальной плоскости, в которую обычно упирается носок вашей обуви, когда вы поднимаетесь на второй этаж.
Длина шага медленно движущегося взрослого человека среднего роста составляет 63 сантиметра от пятки толкающей до носка опорной ступни. Именно этой величине должна быть равна сумма высоты подступенка (обозначим как h) и удвоенной ширины проступи (обозначим как b), то есть, h + 2b = 63. Также существует так называемая формула комфорта, когда h – b = 12. Придерживаться такого результата сложно, но стремиться к нему не лишне, особенно, если в доме живут дети и пожилые люди. Есть и формула безопасности, согласно которой h + b = 45. В целом же нужно исходить из того, что носок обуви взрослого человека при спуске с лестницы должен лишь слегка нависать над краем ступеньки.
Не проще ли рассчитать лестницу онлайн?
С помощью формул можно получить наиболее точный результат, однако далеко не все любят математику, кому-то она не дается, из-за чего могут возникнуть сложности с вычислениями. Поэтому намного проще для тех, кто затеял строительство, не имея собственного опыта, воспользоваться готовыми шаблонами, которых предостаточно в интернете. Для типовых решений это действительно очень удобно [тут будет код плагина калькулятора]. Прямой, а в некоторых случаях и спиральный марш будет рассчитан, исходя из таких параметров, как расстояние до перекрытия и размеры проема. Однако, вполне возможно, вы хотите более широкие ступени, или более высокие, а может вас не устроит стандартная крутизна лестницы.
Комфортный наклон пролета – 30°, такие марши делаются для соединений террас в саду или при входе в дом, внутри удобнее уклоны в 40°, наибольшая допустимая крутизна – 45°, уместна в подвале и для подъема на чердак.
Иногда нелишне знать несколько формул, которые основаны на все тех же значениях, которые были перечислены ранее. Например, вы знаете высоту первого этажа H, на котором, собственно, и будет располагаться лестница, ведущая наверх. Исходя из этого параметра, можно вычислить количество ступенек n, зная наиболее комфортную их высоту h. Для этого нужно лишь воспользоваться формулой n = H/h. Впрочем, существует и готовая таблица, в которой не сложно найти наиболее удовлетворяющее вашим желаниям соотношение.
Высота и ширина ступеней при различном количестве ступеней и разном уклоне
Помимо прочего, правильно рассчитать лестницу онлайн нужно уметь для определения крутизны пролета. Но есть отдельные типы маршей, которые рассчитать довольно сложно. Например, вариант со ступенями «гусиный шаг» требует индивидуального подхода, поскольку только тщательная подгонка размеров обеспечит комфортность такой лестницы. Поэтому нелишне уметь рассчитывать угол наклона пролета самостоятельно. Для вычислений нужно всего лишь знать длину L проекции марша на поверхность пола первого этажа и высоту помещения. Формула крутизны лестницы K тогда будет выглядеть так K = H/L. Исходя из полученного результата и высоты подступенка, определяется и удобная ширина проступи: b = h/K. Оптимальные параметры можно взять из таблицы.
Размеры ступеней в зависимости от угла наклона, см
Как рассчитать винтовую лестницу на второй этаж легче всего?
Что вообще можно понимать под спиральным маршем, какие характерные черты ему свойственны? В целом, любой пролет, изгибающийся по определенной дуге, пусть даже и не представляющий в проекции полную окружность, уже может считаться винтовым. Но ведь форма расположения ступеней может отличаться от типовых, например – вариант «змейка» или «волна». Поэтому перед тем, как рассчитать винтовую лестницу на второй этаж, нужно определить ее проекцию L, по формуле L = mπR(n+1)/n, здесь m – количество полуокружностей, π – число «пи», R – радиус внешней линии марша, а n – количество ступеней. Ну, а вычисление наклона приведено выше.
Спиральные лестницы, равно как и варианты с разворотом на 180 градусов (полукруг), сооружаются в основном в тех случаях, когда пространство сильно ограничено. Чаще всего, это либо небольшая площадка на первом этаже – в пределах 1300 миллиметров в длину, либо маленький проем – от 800 миллиметров. Однако следует учитывать, что ширина марша должна быть не менее 90 сантиметров, согласно строительным нормативам, при отсутствии стен, ограничивающих лестничную клетку, допускается 80 сантиметров. Ширину ступеней для винтового марша рассчитать сложно, поскольку они чаще всего являются забежными, клиновидной формы.
Как рассчитать ступени лестницы с учетом всех нюансов?
Правил строительства маршей существует много. Некоторые из них обязательные, другие больше напоминают традиции, например, что количество ступеней в пролете должно быть нечетным. Существует норма, согласно которой в пролете следует делать не больше 18 проступей, из элементарных соображений удобства. Оптимальный вариант – 15 ступеней, дальше нагрузка на ноги пожилого человека или ребенка превысит допустимые пределы, и для отдыха понадобится разделительная площадка между маршами. Поэтому, до того, как рассчитать ступени лестницы, желательно заранее определить, сколько в ней будет пролетов, возможно, лучшим решением станет наличие пары площадок.
Соотношение ширины ступеней и уклона лестницы должно подчиняться определенному правилу – чем меньше крутизна, тем шире проступи. Дело в том, что двигаясь под углом менее 30°, человек делает большие шаги, и нога обязательно должна опускаться приблизительно на край очередной ступеньки. Однако нельзя и превысить некий предел, за которым придется либо ограничивать свое движение, либо стараться сделать еще больший шаг, рискуя при этом оступиться. До 30° соотношение высоты пролета к его проекции на плоскость должно быть от 1:2 до 1:1.75, для 40° будет комфортнее пропорция 1:1,25, а при 45° – 1:1.
remoskop.ru
Методы расчета лестниц
После выбора типа лестницы и места ее расположения определяются ее параметры, а именно: количество маршей, полезная ширина, длина горизонтального заложения каждого марша, количество и длина лестничных площадок.
Существует несколько формул определения оптимального соотношения размеров проступей и подступенков, которые служат для правильного расчета лестниц.
1. Формула, основанная на длине шага. Длина шага человека составляет от 60 до 66 см, в среднем — 63 см. Исходя из этого удобство лестницы определяет формула
2Н + В = 63 ± 3 см.
При увеличении высоты подступенка «Н» на 1 см надо сокращать ширину проступи «В» на 2 см, при этом уклон увеличится. При большем уклоне проступь становится слишком узкой, а при меньшем уклоне проступь излишне широкая.
2. Формула удобства позволяет определить уклон, который требует наименьших затрат сил при подъеме по лестнице:
В — Н = 12см.
3. Формула безопасности
В + Н = 46 ± 1 см.
Безопасность спуска по лестнице зависит в первую очередь от правильного определения размеров проступи. При слишком маленькой ширине проступи возникает опасность соскальзывания ноги, при слишком широкой проступи при спуске человек как бы «зависает» на краю ступени.
Зависимость ширины проступи от высоты подступенка хорошо иллюстрирует график на рис.5. Можно воспользоваться и данными табл.1.

Рис.5. График зависимости ширины проступи от высоты подступенка
Параметры марша определяются уровнем его уклона, длиной горизонтального заложения, размером и количеством ступеней в нем и зависят от двух условий: удобства передвижения по лестнице; минимума занимаемой лестницей площади.
Таблица1
Рекомендуемые отношения ширины ступени к ее высоте
#G0Отношение ширины ступени к ее высоте | Коэффициент уклона | Угол подъема марша, в градусах |
37/14 | 2,64 | 20,8 |
30/12 | 2,50 | 21,8 |
35/15 | 2,33 | 23,2 |
30/15 | 2,00 | 26,6 |
31/16 | 1,93 | 27,4 |
29/17 | 1,70 | 30,5 |
28/17,5 | 1,60 | 32,0 |
27/18 | 1,50 | 33,7 |
26/19 | 1,36 | 36,3 |
23/20 | 1,15 | 41,0 |
21/21 | 1,00 | 45,0 |
20/23 | 0,85 | 49,6 |
Для расчета параметров лестницы, удобной для ходьбы, принимается уклон марша в пределах 1:2-1:1,75.
Зная уклон и высоту марша Н, определяем длину его горизонтального заложения В.
Примечание.При расчете количества ступеней во внимание принимается ширина ступени, определяемая расстоянием между внешними крайними точками ступени, а не ширина проступи, которая может отличаться от ширины ступени на величину выступа «с» (см. рис.4).
Если необходимо, чтобы лестница занимала минимальную площадь, то за исходные принимаются допустимый максимальный уклон марша (1:1 — для лестниц, ведущих в жилые помещения; 1:0,85 — для лестниц, ведущих в нежилые помещения) и допустимая минимальная ширина ступени 200 мм.
При ширине ступени от 26 до 30 см и величине коэффициента в пределах от 1,75 до 2 — лестница считается удобной. Аналогично удобной считается лестница с соотношениями ширины ступени к ее высоте как 30/15 (к = 2), 31/16 (к = 1,94) и 29/17 (к = 1,70). Последнее соотношение идеально для лестниц в жилых домах.
studfiles.net
