Распашные ворота своими руками чертежи: Чертежи, фото и видео изготовления распашных ворот из различных материалов своими руками
особенности изготовления калиток, фото и установка своими руками
В изготовлении ворот используется большое количество разных материалов: листы металла, древесина, изделия ковки и т.д. Но с развитием строительных технологий начали, появляться более современные материалы, которые упростили изготовление заградительных сооружений, и одним из таких изделий является профнастил – листовая оцинкованная сталь, покрытая полимерными составами.
- Ворота из профлиста – плюсы и минусы
- Особенности конструкции ворот распашного типа
- Расходные материалы и инструменты
- Монтаж опор для ворот
- Рама для ворот из профлиста своими руками
- Как обшить раму профнастилом?
- Усовершенствование распашных ворот
Ворота, в изготовлении которых используется профнастил, обладают небольшим весом, высокими техническими и эксплуатационными характеристиками, а главное, простотой изготовления и установки, которые позволяют выполнить все работы своими руками.
Но для начала хотелось бы рассмотреть самые популярные разновидности ограждений и особенности поэтапной самостоятельной сборки ворот из профлиста.
Ворота из профлиста – плюсы и минусы
Самой популярной моделью ворот считается металлическая распашная конструкция, представленная на фото, которая открывается на обе стороны. При этом для обшивки каркаса используют крашеный профнастил, который можно украсить элементами ковки. Полы оградительной системы имеют облегчённую конструкцию с калиткой, расположенной, по соседству. Такая разновидность ворот получила популярность в домах частного сектора.
Такая популярность была достигнута большим эксплуатационным ресурсом изделия без необходимости проведения регулярных ремонтов в отличие от деревянных аналогов. Современные модели ворот из профлиста часто дополняются автоматической системой открывания, что очень удобно. При этом профилированный лист, используемый для изготовления ограждений, имеет целый ряд следующих преимуществ:
- сравнительно невысокая стоимость профлиста;
- простой процесс изготовления и установки ворот, как с калиткой, так и без неё;
- длительный эксплуатационный ресурс и простота в уходе;
- многофункциональность материала;
- привлекательный внешний вид окрашенного профнастила.

Если рассматривать недостатки такого материала, то хочется выделить следующие проблемы:
- для открывания распашной конструкции ворот нужно большое свободное пространство вокруг оградительной конструкции;
- из-за большой площади створок ворот на них действует повышенная ветровая нагрузка, которую необходимо учитывать в зависимости от региона, в котором устанавливается заграждение.
Но всё-таки достоинства распашной конструкции ворот с калиткой, приведённые на фото перечёркивают незначительные недостатки такого изделия. Тем более что проблемы не столь критичны и их, можно устранить в процессе проведения монтажных работ своими руками. А как стало известно из практики, ворота из профлиста являются самыми надёжными среди подобных конструкций.
Особенности конструкции ворот распашного типа
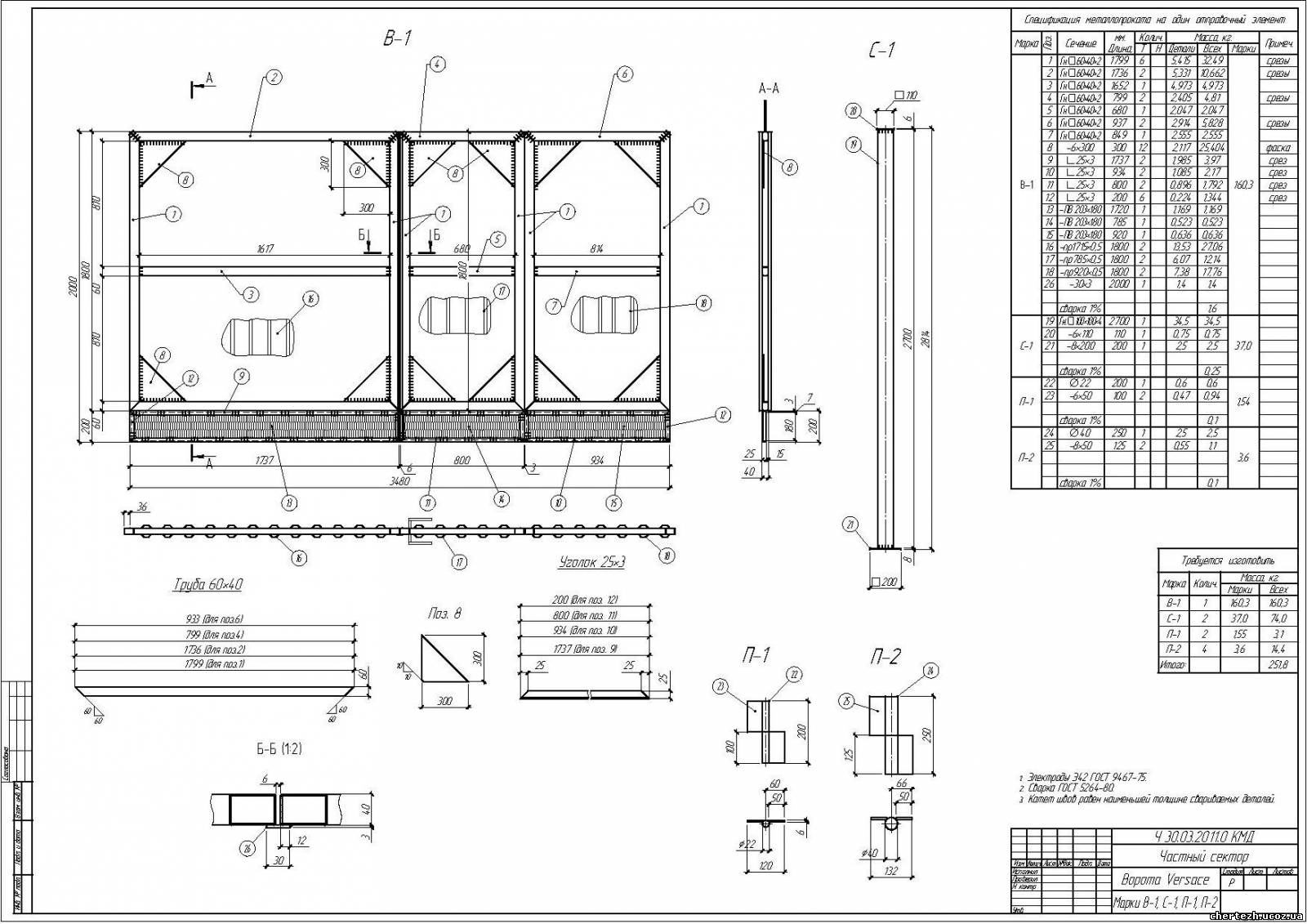
Рассматривая чертёж стандартных ворот из профлиста, можно понять, что в основе такого заграждения лежит каркас из квадратного металлического профиля или толстостенной трубы с 30 мм диаметром.
При этом для усиления створок используют горизонтально расположенные прожилины из металла. Благодаря такому усилению будет удерживаться геометрия ворот.
Изготовление распашной конструкции ворот из профнастила вполне под силу самостоятельно даже при отсутствии навыков работы с изделиями из металла. Всё что понадобится это минимальные познания использования сварки, бура, электроболгарки, шуруповёрта и строительной рулетки.
Крепление створок распашного заграждения выполняется при помощи саморезов по металлу или электросваркой непосредственно к столбу. Из-за сравнительной лёгкости профлиста для удержания полы ворот достаточно двух прочных металлических петель 20 мм диаметра. В качестве несущих опор используются металлические трубы диаметром от 60 до 100 мм.
В зависимости от забора, которым обнесено домостроение крепление створок ворот может выполняться к кирпичным опорам. Но для этого необходимо ещё на стадии возведения ограждения предусмотреть установку закладных в швы между кирпичами, к которым и будут приварены навесные опоры ворот.
Из практики стало известно, что оптимальными габаритами въездных ворот, используемых в частном домостроительстве, являются показатели ширины в 3 м. Таких параметров вполне хватает для въезда во двор, как легкового автомобиля, так и грузовой машины. Поэтому даже с целью экономии не стоит уменьшать ширину створок более чем на 20 см. Если рассматривать высоту заграждения, то согласно чертежам стандартные конструкции изготавливаются не выше 2 метров от земли.
В качестве запорного механизма для ворот используют штыри по форме, напоминающие букву «Г», которые располагаются снизу на каждой створке. В поверхности земли или другого покрытия двора устанавливаются фиксаторы – металлические трубки с внутренним диаметром, немного большим толщины стопорных механизмов. При этом каких-либо жёстких требований к запорному механизму не предъявляется. В качестве дополнения к стопорам устанавливают горизонтальную задвижку в месте размещения поперечен.
Использование профнастила в качестве финишной отделки каркаса распашных ворот позволит оградительной конструкции гармонично вписаться в общую стилизацию забора.
Обычно профлисты к каркасу створок ворот прикрепляют на расстоянии 50-70 мм от земли, чтобы они не чиркали по поверхности в процессе открывания и закрывания.
Расходные материалы и инструменты
Ворота из профнастила, фото которых можно увидеть в статье, могут иметь разнообразную конструкцию и оснащаться калиткой. При желании их можно украсить элементами ковки и вскрыть лакокрасочным покрытием в тон забору. При этом желательно продумать, как будет выглядеть готовая конструкция, и разработать чертёж, в котором указать все параметры ворот. Тогда будет проще понять, какие инструменты и материалы потребуются для изготовления заградительной конструкции своими руками:
- профлисты для створок и трубы для опор;
- уголки или трубы для создания рёбер жёсткости;
- профилированная труба или металлический квадрат для каркаса;
- грунтовка и лакокрасочные материалы;
- затворы или замковый механизм.
Из инструментов нужно подготовить следующие:
- капроновый строительный шнур;
- сварочный аппарат;
- молот;
- электродрель и шуруповёрт;
- электроболгарка;
- ножницы для резки металла.

В процессе планировки конструкции ворот для изготовления своими руками особого внимания заслуживают её размеры и наличие или отсутствие калитки. Большие створки значительно увеличивают вес всей заградительной конструкции и поэтому рама должна изготавливаться из усиленных материалов.
Монтаж опор для ворот
Если земельный участок уже ограждён забором из металлических опорных столбов и калиткой, то петли для створок можно зафиксировать сваркой непосредственно на них. В случае с необходимостью монтажа отдельных опор следует выполнить ряд несложных действий.
- Металлические опоры обрабатываются грунтовкой и вскрываются краской.
- В соответствии с шириной ворот из профнастила вырываются две ямы 1,5 м глубины.
- На дне ямы обустраивается подушка из щебёнки и песка.
- Подготовленные опоры устанавливаются в ямы и фиксируются арматурой.
- Опоры выравниваются по отвесу и заливаются бетоном.

Установка петель выполняется только после того, как бетон полностью затвердеет.
Рама для ворот из профлиста своими руками
Чтобы правильно создать каркас для ворот из профлиста с калиткой, нужно ознакомиться с чертежами сборки металлической конструкции и придерживаться определённой последовательности проведения работ своими руками.
- В соответствии с размерами, указанными в чертеже металлическая труба нарезается под углом в 45°.
- Рама складывается на ровной поверхности и прихватывается сваркой.
- Выполняется проверка внутренних размеров, и сравниваются диагонали полученного каркаса.
- После внесения корректировок каркас обваривается окончательно.
- В одной створке, где не предусмотрена калитка, внутри каркаса привариваются уголки для усиления.
- В другой створке собирается специальный проём, к которому будет прикрепляться дверь калитки.
- После подготовки проёма для калитки, собирают дверь.
По готовым размерам собирается каркас калитки прямоугольной формы. - Жёсткость двери калитки желательно делать на одном уровне с рёбрами на створке.
- Для придания дополнительной жёсткости конструкции в её углах привариваются металлические треугольники – «косынки».
- К каркасу привариваются две поперечины.
- Согласно составленному чертежу на свои места привариваются навесы и засовы.
- Окалину после сварки шлифуют, грунтуют и всю конструкцию красят.
Если остались вопросы о том, как сварить распашную конструкцию ворот из профлиста, можно просмотреть видео. Плюс ко всему существует способ сборки без использования сварочного аппарата с помощью крепёжных элементов.
Как обшить раму профнастилом?
После окончательного высыхания окрашенной рамы можно начинать обшивку каркаса профнастилом. Профилированный лист укладывается на раму и аккуратно прикрепляется при помощи саморезов или заклёпок. При этом заклёпки имеют более привлекательный внешний вид.
Саморезы или заклёпки обязательно крепятся только в углублениях профнастила. Для крепления 1 кв.м. материала используют не менее 6 саморезов или заклёпок. Это, в первую очередь, обусловлено тем, что створки ворот, помимо собственного веса, должны выдерживать дополнительную ветровую нагрузку. После того как листы профлиста закреплены, ворота навешиваются на петли.
Усовершенствование распашных ворот
Ранее нами была рассмотрена схема стандартных ворот распашного типа. Но учитывая современные реалии постоянно вручную открывать их не совсем удобно. Поэтому можно автоматизировать данный процесс. При этом придумывать что-то новое не придётся, так как в продаже существуют линейные электроприводы.
В комплект автоматизированного оборудования также входит блок управления, электромагнитный запорный механизм и сигнальная лампа. Подключение распашных автоматических ворот из профнастила выполняется в типичную розетку переменного тока. На фото можно увидеть, как все элементы дополняют общий вид конструкции.
В зависимости, в какую сторону будет происходить открывание створок, можно выделить два варианта установки автоматической конструкции: наружный и внутренний. Но вне зависимости от способа открытия, монтаж автоматики одинаковый. Если рассматривать блок управления системой, то он может иметь левостороннее или правостороннее размещение.
Из-за конструктивной особенности автоматизированного привода нужно предусмотреть монтажный зазор от створок ворот до несущей опоры. Если этого не было сделано заранее, то при внутреннем открывании створок нужно аккуратно подготовить и оформить места под их крепление.
Самостоятельное изготовление распашных ворот из профлиста – экономичный и надёжный способ оградить свой приусадебный участок от нежелательных гостей. При этом всю систему можно автоматизировать, что в значительной мере улучшит функциональность и практичность использования ворот.
Несколько примеров готовых ворот
Распашные Ворота (Схема — Чертеж): Сделать Ворота Самостоятельно По Инструкции.
Цена. ОтзывыРаспашные ворота — это классика конструкций. Они появились еще в древности и не теряют популярности до сих пор.
Монтаж распашных ворот состоит в том, что их нужно просто навесить на петли опорных столбов, и эта статья написана именно для тех, кто собирается изготовить такую конструкцию самостоятельно.
Содержание статьи:
- Плюсы и минусы распашных ворот
- Подготовка площадки
- Рытье ям под фундаменты для столбов
- Подготовка металлических элементов перед заливкой фундаментов
- Бетонирование
- Устройство закладных деталей и металлических накладок
- Изготовление каркаса створки
- Установка замка
- Крепление створок к опорам
- Монтаж дополнительных элементов
Плюсы и минусы распашных ворот:
Распашные ворота не единственный вариант воротной конструкции, зато самый дешевый в изготовлении, поскольку не требует дополнительной фурнитуры, цена которой «стартует» от 2500 грн.
(для откатного типа конструкции).
Плюсы:
- Простая конструкция.
- Можно изготовить самостоятельно в домашних условиях.
- Самый дешевый вариант по сравнению с другими типами.
Минусы:
- Открытые створки могут стать причиной неудобного въезда и выезда со двора. У откатных конструкций такой проблемы нет, так как их створка движется вдоль забора.
- Ворота обязательно нужно фиксировать, потому что при порывах ветра створка может произвести удар.
- Если установлена автоматика, нужно обязательно убирать снег на пути движения створок, иначе нагрузка на привод резко возрастает.
Самостоятельное изготовление таких ворот процесс доступный каждому, а экономия денег на услугах монтажников реально ощутима.
Можно приблизительно посчитать, во сколько обойдется стоимость распашных створок при собственноручном их изготовлении.
Возьмем створку шириной 3 м и высотой 2 м, то есть площадь ее составит 6 м2. Вам понадобятся такие материалы:
- труба прямоугольная 60х30 мм – 28 кг;
- труба прямоугольная 30х20 мм – 18 кг;
- профнастил окрашенный – 6 м2.
В среднем цена металла на рынке составляет 20 000 грн за тонну, а профнастила – 110 грн/м2.
Рассчитаем стоимость необходимых материалов:
- труба прямоугольная 60х30 мм: 0,028 т*20000 грн = 560 грн;
- труба прямоугольная 30х20 мм: 0,018 т*20000 грн = 360 грн;
- профнастил окрашенный: 6 м2*110 грн = 660 грн.
Сумма: 560 грн + 360 грн + 660 грн = 1580 грн.
Две створки: 1580 грн*2 = 3160 грн.
Стоимость приблизительная, и не учитывает приобретение краски, грунтовки, электродов, саморезов.
Все это обойдется Вам для двух створок не дороже 1000 гривен, поэтому общая стоимость изготовления двух створок не превысит 4160 гривен.
Для сравнения заказ ворот у наемного специалиста составит приблизительно 10-12 тысяч гривен. Экономия денег очевидна. На сэкономленные деньги можно купить автоматику.
Подготовка площадки:
Для начала нужно сделать подробную разбивку опорных столбов. Необходимо снять растительный грунт в месте устройства ворот, чтобы ничего не мешало разметке и выполнению работ. После чего разбить основные и вспомогательные оси — для этого можно использовать арматуру диаметром 8-12 мм, длиной 80 – 90 см.
Арматура забивается в землю таким образом, чтобы создать четыре угла прямоугольника или квадрата, внутри которого и будут располагаться будущие столбы ворот. После того как Вы выставили прямоугольник, необходимо проверить его диагонали, которые должны обязательно совпадать по размерам. После корректировки диагоналей арматуру можно забить глубже, оставив на поверхности около 15 см.
Между (осями) арматурой можно будет натянуть шпагат или леску для обозначения краев ямы. В качестве вспомогательных (временных) осей можно также использовать арматуру или электроды. Все оси рекомендуется перепроверить несколько раз, чтобы избежать ошибки, так как при установленных столбах будет уже тяжело что-либо исправить.
Количество необходимых материалов будет зависеть от ширины Вашего проезда.
Рытье ям под фундаменты для столбов:
Следующий этап после разбивки — земляные работы: рытье ям под столбы, траншеи для прокладки кабеля и ленточного фундамента.
Ямы под столбы должны быть в плане на несколько сантиметров больше. Например, для столба 50х50 см, размер должен быть 52х52 см. Это делается для облегчения начала работ по кирпичной кладке. Глубина ямы должна быть не менее нормативной глубины промерзания, которая для Украины составляет в среднем около одного метра. Если не выполнить это требование, со временем опора может «покоситься».
Если края ямы осыпаются, необходимо сделать опалубку из досок, фанеры и т.п. Через неделю после бетонирования опалубку можно будет убрать.
Траншея для прокладки кабеля. Для дальнейшего подключения автоматики прокладывается пластиковая труба диаметром 25-30 мм, в которую затягивается электрические провода. Глубина прокладки согласно требованиям СНиП должна быть не менее 0,9 м.
Если Вы пока не планируете автоматизировать ворота, рекомендую гильзу с проводами все равно заложить – после не придется ломать покрытие проезда. Первая труба прокладывается между опорами. Вторая труба прокладывается к одной из опор и к месту подключения электричества. Отверстия трубы закройте, чтобы туда не попали влага и грунт.
Траншея для дополнительного фундамента. Для связки опор между собой можно сделать дополнительный фундамент (рекомендуется). Ширина траншеи обычно берется равной ширине фундаментных столбов.
Подготовленные ямы и траншеи необходимо уплотнить и пролить водой. При большом перерыве в работе перед заливкой бетоном, необходимо все приямки и траншеи накрыть щитами для защиты от дождя.
Подготовка металлических элементов перед заливкой фундаментов:
Для усиления кирпичной кладки и для того, чтобы столбам можно было прикрепить закладные детали в фундамент перед заливкой вставляется металлическая опора. Это может быть труба, швеллер, арматурная сетка, уголок. Для примера будем рассматривать квадратную трубу, размеры которой могут быть от 80х80 мм до 100х100 мм. Подземную часть трубы необходимо покрыть битумной краской для защиты от коррозии. Нижняя часть трубы не должна доходить до дна фундамента, чтобы образовался защитный слой бетона толщиной 50–100 мм во избежание коррозии.
Каркас дополнительного ленточного фундамента желательно делать для связки опор, особенно если грунт глинистый, который при замачивании начинает «плыть».
Глубина заложения фундамента – на глубину промерзания — согласно СНиП для Украины 1 м (такая же, как и у столбов).
Каркас выполняется объемным, в продольном направлении имеет четыре стержня арматуры диаметром 8-12 мм, а для поперечного подойдет проволока диаметром 6-8 мм длиной 20 см, шагом 20-30 см.
Посчитаем, во сколько нам обойдется арматура для изготовления каркаса. Для примера возьмем ширину проема ворот три метра, а так как нам нужно связать каркас ленты с фундаментами столбов, добавим напуски по 20 см для каждого фундамента, получиться, что длина каркаса 3,4 м.
Общая длина продольных стержней составит: 3,4 м х 4 шт. = 13,6 м.п. Общий вес продольной арматуры диаметром 12 мм (учитывая, что вес одного ее погонного метра составляет 0,888 кг): 13,6 м.п. х 0,888 кг = 12 кг.
Посчитаем, необходимое количество проволоки для поперечных стержней: 3,4 м / 0,2 м х 4 = 68 м,где:
- 3,4 м — длина каркаса;
- 0,2 м – шаг стрежней проволоки;
-
4 шт.
– количество сторон каркаса.
Общий вес и длина проволоки:
Длина: 68 м х 0,2 м = 13,6 м.п. Вес: 13,6 м.п. х 0,395 кг/м = 5,372 кг.
Средняя цена металлопроката на рынке составляет около 20 000 грн за тонну, соответственно покупка необходимого количества материала для изготовления каркаса будет стоить:
- арматура диам. 12 мм: 0,012 т х 20000 грн/т = 240 грн;
- проволока диам. 8 мм: 0,005 т х 20000 грн/т = 100 грн.
Общая стоимость металла: 240 грн. + 100 грн. = 340 грн. Полученная сумма для дополнительного фундамента невелика, зато прочность всей конструкции ворот значительно возрастет.
Бетонирование:
Бетонировать фундамент необходимо до наступления морозов поскольку прочность смеси определяется не только качеством самого бетона, но и погодными условиями, в которых ведется укладка.
Именно то, пpи какой температуре заливают бетон, может повлиять на прочность и долговечность будущего строения.
При температуре ниже +5°С процесс гидратации цемента практически останавливается, поэтому необходимо применять противоморозные добавки или ускорители набора прочности бетона, и если хотите, чтобы в короткие сроки бетон набрал прочность, лучше повысить класс бетона (марку).
Можно купить готовый бетон с доставкой на участок, а можно сделать самостоятельно. Для заливки фундаментов ворот используют бетон марки М200, для изготовления которого нужно соблюдать такую пропорцию: на одно ведро цемента, 3 ведра песка, 3 ведра щебня (фракция 20х20, 20х40) и ориентировочно 20% воды от общего объема замеса.
Перед заливкой бетона в подготовленные приямки нужно точно по уровню установить все металлические элементы — трубы столбов и каркас для ленточного фундамента. Закладные детали необходимо закрепить, чтобы при заливке бетоном они не сместились.
После заливки следует проверить вертикаль закладной трубы, а если необходимо, подправить и зафиксировать ее положение.
Во время укладки бетон нужно трамбовать для исключения появлений в нем пустот. Желательно накрыть залитый фундамент для защиты от прямых солнечных лучей. Первые несколько дней после заливки бетон нужно увлажнять водой. При температуре +20ºС через 28 дней бетон наберет окончательную прочность. Но кирпичный столб можно начинать возводить уже через неделю после заливки. Квадратную трубу в фундаменте сверху также нужно закрыть на случай дождя.
Устройство закладных деталей и металлических накладок:
Закладные детали предназначены для крепления металлических накладок, на которых в дальнейшем будут держаться створки. Закладные детали для крепления накладок необходимо вывести на грани столбов, но с фиксацией к сердечнику. Есть много вариантов из чего делать эти элементы, я предлагаю их изготовить из металлического уголка 50х50 мм длиной 65-70 мм, а также арматуры диаметром 8 мм.
На каждом столбе устанавливают не меньше трех закладных для металлических планок.
Нижняя закладная деталь устанавливается после первых трех рядов кирпичной кладки. Верхняя деталь, ниже верха стойки на 5 см, а средняя посредине между верхней и нижней закладной. Для надежного крепления закладные необходимо приварить к металлической трубе столба.
Металлические накладки крепятся к установленным закладным сваркой. Рекомендую использовать прямоугольную трубу 60х30 мм, так как ее проще крепить. Вверху трубу нужно закрыть заглушками, или просто заварить, это исключает проникновение осадков внутрь и защищает металл от коррозии.
Если Вы в дальнейшем планируете автоматизировать свои ворота, при кладке столбов необходимо сразу установить закладные детали для монтажа приводов.
Если столбы уже готовы, можно на опорах закрепить металлические пластины при помощи анкерных болтов.
На схеме видна такая пластина для крепления привода по центру створки ворот.
После крепления накладок к закладным, устанавливаем (привариваем) навесы (петли).
Приварка петли к металлическим накладкам и створкам должна выполняться сплошны швом. Петли желательно использовать с металлическим шариком внутри, что облегчит ход ворот. Расстояние между петлями должно быть максимально возможным, что также сделает более легким ход створки.
Изготовление каркаса створки:
Опишу далее изготовление створки без калитки, так как в большинстве случаев при высоте ворот 2-2,2 м высота проема калитки будет составлять не более 1,8 м. При высоком росте человека возможен удар головой о верхнюю перекладину, поэтому в ряде случаев калитка, встроенная в створку, не практична. Если же Вы захотите изготовить створку с калиткой, можно посмотреть отдельную статью.
Каркас ворот изготавливается из прямоугольных труб, так как это самый удобный вариант.
Для ворот шириной 3-3,5 м и высотой 2-2,5 м, понадобится труба 60х30 мм для несущего каркаса, и 30х20 мм для вспомогательного. При большем проеме понадобится более мощный несущий каркас.
Изготовление каркаса удобнее производить на монтажном столе или на плоской ровной поверхности. В процессе сварки каркаса, после прихватки проверяйте уровнем и линейкой, правильность размеров и только затем делайте окончательную сварку.
Вначале привариваем одну стойку к нижней трубе каркаса под прямым углом:
Далее вторую:
Потом крепим перекладину:
Когда несущая рама готова необходимо проверить диагонали, чтобы они были одинаковыми, иначе ворота будут перекошены.
После того как несущий каркас сварен, по его внутреннему периметру привариваем вспомогательный, из трубы 20х30 мм. Он нужен для того чтобы к нему прикрепить профнастил. Сваривать нужно не сплошным швом (чтобы раму не повело), а прихватками длиной шва 15-20 мм с шагом 20-30 см – при этом Вы сэкономите электроды и время.
Когда Вы варите трубы внутреннего каркаса старайтесь, чтобы его край находился точно по центру трубы наружного каркаса — тогда можно будет прикрутить профнастил, чтобы он был слегка утоплен в створку.
Когда по внутреннему периметру приварен вспомогательный каркас, привариваем горизонтальную перемычку из трубы 20х30 мм.
Затем из такой же трубы крепим вертикальную перемычку. Что Вы прикрепите первым: горизонталь или вертикаль — значения не имеет.
Если Вы планируете в дальнейшем устанавливать автоматику на свои ворота, необходимо предусмотреть специальную перемычку на створке, к которой будет крепиться кронштейн привода. При креплении привода по центру створки используется центральная перемычка. Если расположение автоматики планируется вверху или внизу дополнительная перемычка так же не нужна, так как используется верхняя или нижняя труба каркаса створки. Если выбрано другое место крепления, нужна дополнительная перемычка из трубы 60х30 мм.
Поэтому Вам сразу нужно определить высоту установки привода.
После завершения сварочных работ необходимо зашлифовать швы болгаркой, очистить каркас от ржавчины, обезжирить и только потом его прогрунтовать. Профнастил можно крепить к каркасу, когда створка еще не закреплена на петлях (навесах) или же после ее установки. Крепить профнастил нужно отдельными листами как можно плотнее к каркасу.
Кроме того, сейчас появился альтернативный вариант — изготовление каркаса из Т-профиля.
Установка замка:
При изготовлении каркаса, нужно заранее продумать каким будет замок – накладной или врезной. Можно воспользоваться обычным врезным механическим замком.
Использование электромеханического замка позволит открыть ворота на расстоянии. К нему необходимо будет подвести электропитание, и сам замок стоит дороже обычного.
Изготовление вырезов в каркасе зависит от конкретной модели замка.
Болгаркой прорезают соответствующие вырезы под место установки.
В большинстве случаев замок устанавливают на высоте 80-90 см от земли.
Крепление створок к опорам:
После сварки всего каркаса к нему, как и к металлическим накладкам, нужно приварить петли. Затем створку можно «вешать» на столбы. Предварительно петли нужно смазать и проверить качество их исполнения — хорошие петли должны легко вращаться вокруг своей оси.
Если створка очень тяжелая для монтажа используют кран. После того как створки установлены, к их каркасу можно прикрепить профнастил при помощи саморезов по металлу длиной 19 мм.
Монтаж дополнительных элементов:
Механический упор, штыри для фиксации створок и прижимная планка это необходимые элементы ворот.
Механический упор служит для остановки и фиксирования ворот в конечных точках и представляет собой две металлических пластины, одна из которых приваривается к створке, а вторая крепится в основании проезда.
Толщина металла этих пластин обычно берется 3-4 мм. Нижнюю (ответную) пластину устанавливают, когда выполняется твердое покрытие проезда.
Штыри фиксации створок устанавливаются чтобы была возможность зафиксировать створки в открытом или закрытом положении.
Для изготовления штыря обычно используют кругляк диаметром 10-12 мм. Стержню нужно предать Г-образную форму. Длинный его отрезок должен быть около 50 см, а короткий приблизительно 15 см.
Штырь должен перемещаться в трубе диаметром 12-15 мм — этот отрезок трубы сваркой нужно прикрепить к створке на высоте 30-40 см от уровня земли.
В основании проезда тоже нужно заподлицо установить трубы диаметром 12-15 мм, в которые будет входить штырь.
Прижимная планка представляет собой металлическую полосу, которая крепится к одной из створок со стороны двора. Когда одна створка прижимает другую в закрытом положении, зазор между ними закрывается.
Планку крепят участками по 10-15 мм, через 20-30 см – так каркас створки не поведет. В качестве материала прижимной планки обычно используют металлическую полосу толщиной не менее чем 1 мм. Ее ширина должна быть такой, чтобы был обеспечен нахлест на прижимаемую створку не менее 5 мм.
Установка автоматики
Также на распашные ворота можно поставить автоматику которая будет открывать ворота с пульта всего одним нажатием
Вообще существует 2 типа установки автоматики: внутрь и наружу. Поверьте, в установке автоматики нет ничего сложного и это вполне можно сделать своими руками
Более детально про установку автоматики для распашных ворот, можно прочитать в следующих материалах:
- Установка автоматики чтобы створки открывались внутрь
- Установка автоматики чтобы створки открывались наружу
Кроме того, рекомендуем Вам ознакомится и с таким материалом как: Как выбрать автоматику для распашных ворот. Эта информация позволит вам сделать правильный выбор автоматики которая идеально подойдет под ваши ворота
Рекомендуемые способы постройки прочного забора и ворот
Изучите лучшие методы столярных работ для садовых ворот без провисания.
- Автор:
- Патрисия Пур
- Дата публикации:
- Обновлено 16 июня 2021 г.
Почему провисают садовые ворота?
Садовые ворота провисают, потому что квадратная (или прямоугольная) рама неустойчива. Ворота, построенные со стандартными самодельными соединениями по дереву, будут крутиться, если их не растянуть или не натянуть. Эта тенденция преувеличена, потому что ворота удерживаются только с одной стороны; расшатанная, свободная сторона провисает от собственного веса и травмы от удара. (А вы помните, как в детстве качались на воротах заднего двора?)
Используйте качественные материалы и профессиональные принципы деревообработки, чтобы спроектировать садовую калитку, которая не провиснет.
Дуглас Кейстер
Передовая практика
Всегда используйте передовые методы для заборов и ворот, иначе они не прослужат и пяти лет.
- Использовать устойчивые к гниению и коррозии материалы
- Сборка для водоотвода
- Избегайте торцевых кромок и водоуловителей
Сила важна, потому что садовые ворота двигаются.
- Стойки для раковины в бетон
- Используйте прочные крепежные детали
- Сделать хорошие, крепкие суставы
Что касается выбора древесины, лучше всего выбирать устойчивые к гниению породы (кедр, красное дерево, тик, красное дерево).
- Кедр выигрывает, потому что тик очень дорог и имеет высокий коэффициент отходов
- Красное дерево следует использовать только в том случае, если оно является переработанным старовозрастным пиломатериалом
- Менее прочное красное дерево требует финишного покрытия
- Обработанная под давлением древесина меньшего размера находится в немилости, потому что теперь мы знаем, что консерванты действительно переносятся (на ощупь и в грунтовые воды), а также потому, что спилы требуют высокотоксичной обработки на месте.

Две стратегии создания ворот с защитой от провисания
Первые две стратегии построения ворот без провисания основаны на принципе триангуляции: введение диагонали для стабилизации квадратной рамы.
Натяжной стержень с талрепом. В решении для натяжения используется стержень или трос и талреп, как показано на рисунке, чтобы предотвратить искривление рамы.
Rob Leanna
- Решение для натяжения: В решении для натяжения используется стержень или трос и талреп, как показано на рисунке, чтобы предотвратить искривление рамы. Но «диагональные распорки стабильны ровно настолько, насколько прочно основное соединение, к которому они крепятся», — говорит столяр Чарльз Проуэлл. «Трос талрепа требует периодической регулировки».
- Компрессионное решение: В этом решении используется сплошная скоба вдоль противоположной диагонали.
Диагональная распорка на сжатие. Диагональные связи столь же стабильны, как и основное соединение.
Роб Леанна
Столярные изделия
Чтобы обеспечить плотное соединение врезки и шипа, просверлите отверстия в шипе немного от центра от отверстий, которые вы просверлили в боковой части стойки.
Роб Леанна
Жесткие соединения по дереву также предотвратят провисание ворот. Жесткость удерживает раму от скручивания. Врезное шиповидное соединение прочное. Вы должны попытаться точно вырезать паз для плотного прилегания, но если есть какой-либо люфт, проложите вокруг шипа. Обратите внимание, что палки (пикеты) вставляются через отверстия, просверленные в рельсах.
Прекрасным вариантом является соединение типа «ласточкин хвост».
Rob Leanna
Чтобы обеспечить действительно плотное соединение врезки и шипа, просверлите отверстия в шипе немного от центра от отверстий, которые вы просверлили в боковой части стойки. Таким образом, когда вы будете вбивать колышки, они будут действовать как клин, стягивая соединение.
Это называется шарнирным соединением. Сузьте концы колышков, чтобы они легче входили. Вырежьте паз немного глубже, чтобы обеспечить тягу.
Легче всего резать соединение внахлестку.
Роб Леанна
Соединение типа «ласточкин хвост» — второй вариант. Легче всего резать, но не так прочно, как другие, соединение внахлестку. Для сминаемой древесины, такой как красное дерево, используйте большую плоскую шайбу с гайкой и болтом.
Как построить затвор ворот
Цепь и грузик.
Роб Леанна
Не используйте пружинный доводчик для сетчатой двери! На одном из них слишком много напряжения; хлопанье приведет к разрушению и вибрации ворот в мгновение ока. Самое простое решение — полностью отказаться от автоматических доводчиков — просто закройте ворота вручную за собой. Или установите навесную стойку ворот немного отвесно, чтобы ворота закрывались сами.
Раннее решение (до сих пор наиболее живописно используемое в колониальном Вильямсбурге) — груз на цепи.
Независимо от используемого закрывающего механизма или типа защелки очень важно добавить упор на всю высоту ворот. Если распашные ворота прижаты к стойке только в точке защелки, они будут ломаться при каждом закрывании.
Садовые ворота, построенные на века
Садовые ворота провисают, потому что квадратная (или прямоугольная) рама неустойчива.
Посты
Установите столбы ворот в бетонную оболочку, обычно в три раза превышающую диаметр столба. Используйте анкерные столбы там, где распространены термиты, или в очень влажных почвах. Общее эмпирическое правило заключается в том, чтобы погрузить треть общей длины столба в землю (две трети над уровнем земли).
Закройте вершины стоек или, по крайней мере, срежьте верхушки, чтобы слить воду.
Крепеж
Передовая практика: латунные винты с потайной головкой и заглушками. По крайней мере, используйте горячеоцинкованные крепежные детали.
Отделка
Белила и прозрачная морилка поддаются подкрашиванию и не отслаиваются. Необработанный кедр и красное дерево превращаются в натуральный серый цвет.
Оборудование
Используйте замки и петли, предназначенные для наружного применения, с непритязательными механизмами, допускающими смещение. Железо традиционное, но оно окрашивается, когда ржавеет. Бронзовая фурнитура для наружного использования теперь доступна. Латунная фурнитура, доступная у морских поставщиков, не ржавеет, и вы можете покрасить ее, если хотите.
Аппаратные источники
Береговая бронза
Дом антикварной фурнитуры
Бронза Солнечной долины
Металлическая фурнитура Скалистых гор
Реставраторы Ван Дайка
Ресурсы для ворот см.
в нашем каталоге продуктов и услуг.
Теги: Gates OHJ Август 2014 г. Журнал Old-House Патриция Пур Роб Леанна
Основные принципы планирования и установки ворот включают: в POCKET , т.е. расстояние ворот от поворота до вашего дорога, ПРЯМОУГОЛЬНОСТЬ , т.е. угол ворот к приводу путь, IN-SWING/OUT-SWING и HANDING , т.е. с какой стороны ворота имеют петли. Позвоните сейчас, чтобы поговорить с одним из наших знающих сотрудников об установке ваших ворот, 1-877-313-8901 | ||||||||||||||||||||||||
Желательно иметь небольшой «кармашек» в перед твоими воротами. Если ворота должны быть прямо против вашей дороги, следует рассмотреть более широкое открытие, если это возможно.
Так как автоматические ворота приоткрываются лишь слегка
более 90 градусов, важно сделать ворота перпендикулярными
к вашему пути привода. Изогнутые подъездные пути требуют особого ухода в макете. Никто не хочет, чтобы их ворота сбила машина.
Наиболее желательная конфигурация для распашные ворота должны качаться внутрь. Тем не менее, определенный подъезд условия могут потребовать открывания ворот наружу. В первом случае ниже распашные ворота открывается в место на диске .
Еще одно условие, которое может заставить вас качаться
ваши ворота наружу подъездная дорога с уклоном вверх .
В зависимости от того, распахнутся ли ворота или вне, Привод ворот , который вы выберете, должен будет быть соответствующим образом настроены.
Представьте, что вы стоите за воротами, а затем спросите себя, петли справа или слева? См. четыре примера здесь.
Распашные ворота – лучший выбор, если возможный. Распашные ворота, как правило, дешевле, лучше выглядит и безопаснее, чем откатные ворота. Однако, если у вас есть одно из следующих условий, вы можете рассмотреть а раздвижные ворота :
Для получения дополнительной информации о раздвижных воротах см. Скользящий Ворота раздел.
|




По готовым размерам собирается каркас калитки прямоугольной формы.
– количество сторон каркаса.