Ремонт 1 комнатной квартиры 35 кв м фото – Дизайн проект однокомнатной квартиры 35-40 кв м — дизайн интерьера маленькой квартиры с ребенком — студии — новинки
Дизайн однокомнатной квартиры 35 кв. м
Пришла пора ремонта однокомнатной квартиры. Понятно желание владельцев изменить ее так, чтобы вместе с предоставлением комфорта для проживания всех членов семьи, она имела красивый интерьер, выполненный по всем правилам любимого стиля.
Содержание:
- Решения от дизайнеров
- Способы улучшения дизайна
- Зонирование пространства
- Стиль в интерьере
- Выбор мебели
- Организация освещения
- Цветовое решение
Решения от дизайнеров
Благодаря работам профессиональных архитекторов, оформителей, существуют разнообразные фото дизайна однокомнатной квартиры 35 кв. м, выполненного в разных направлениях, цветовых сочетаниях, уровнях бюджета. Используя их, несложно выбрать понравившуюся модель для обустройства собственного жилья.


Способы улучшения дизайна

В тех случаях, когда убирать перегородки не получается или не хочется, существуют правила оформления интерьера, способные в значительной мере изменить восприятие комнаты, улучшить ее эргономику и практическое использование.

Зонирование пространства
Для семьи с ребенком, проживающей в однокомнатной квартире, требуется организация мест с четко обозначенным назначением:
- для проведения досуга, встреч с гостями, необходимо выделить часть помещения, организовав в ней гостиную, установив мягкую мебель, телевизор, музыкальный центр;

- работа и личные увлечения предусматривают создание кабинетной зоны со столом, компьютером, книжным шкафом или полками;

- из-за необходимости восстанавливать потраченные в течение дня силы, следует найти защищенный участок для организации спального места с комфортной кроватью;

- для того, чтобы не мешать ребенку играть, отдыхать, желательно выделить ему отдельную часть комнаты, где бы его ничего не тревожило, позволяя спокойно спать не только ночью, но и днем.

Чтобы иметь возможность удовлетворить все потребности в одном помещении, производится анализ особенностей его планировки и деление на части разными способами:
- использованием разных отделочных материалов стен, потолка и пола;

- выделением цветом;

- расстановкой мебели;

- устройством фальш перегородок.

Стиль в интерьере
Значительно улучшить восприятие, помогает использование определенных стилей, которые одновременно делают помещение красивым и решают практические вопросы. Для малогабаритной квартиры подходят направления, не требующие громоздких, темных и массивных предметов обстановки.

Часто выбор делается в пользу минимализма, хай-тек, модерна, лофт, скандинавского, японского стилей. Они предусматривают организацию свободного пространства с минимальным количеством мебели, ярким освещением, светлым окрашиванием стен.

Отгородить детскую спальню можно с помощью островной установки шкафа, декоративной перегородки. В результате ребенок получит уютный уголок для сна и игр, а родители смогут в это время спокойно заниматься своими делами.

Выбор мебели
Каким бы удобным ни казался мебельный гарнитур, от него придется отказаться в пользу предметов, изготовленных на заказ. Чтобы комната казалась просторнее, необходимо использовать угловые шкафы, или расположенные вдоль одной из стен, окрашенные в общем тоне с ними.

В квартире с нишей, используют эту особенность с максимальной пользой. В ней устанавливают вместительный и незаметный шкаф-купе, размещают стеллажи для хранения большого количества книг, хозяйственных предметов, аксессуаров, декоративных элементов.

Хороший эффект визуального увеличения пространства дают открытые полки, которые устанавливают вдоль стен. В них размещается большое количество мелких, но необходимых в хозяйстве, мелочей. При желании сделать их закрытыми, можно использовать стеклянные матовые или прозрачные раздвижные дверки.
Организация освещения
Даже если в квартире большое окно, следует предусмотреть хорошее разноплановое освещение. Помимо общего светильника или люстры, нужно организовать подсветку в зоне кабинета, гостиной, детском углу.


Цветовое решение
Общеизвестным фактом является способность светлых оттенков раздвигать границы помещения, делать его зрительно шире и выше. Поэтому потолки чаще всего окрашивают в белый цвет.

В небольшой комнате при выборе цвета стен и мебели, следует остановиться на бежевых, кремовых оттенках, шампань, светлом хаки, других пастельных разновидностях. Мебель, сливаясь со стенами, кажется незаметной, в отличие от темных предметов, которые загромождают и «утяжеляют» интерьер.



Учитывая профессиональные советы по оформлению интерьера однокомнатной квартиры, можно сделать ее комфортной, стильной, пригодной для полноценного отдыха, работы, встреч с друзьями.
Читайте также: Дизайн однокомнатных квартир, Дизайн малогабаритной квартиры, Варианты ремонта однокомнатной квартиры: Фото, Дизайн интерьера однокомнатной квартиры для семьи с ребенком, Сочетание цветов пола и дверей
soloremont.com
Дизайн квартиры 35 кв. м.
Некоторые квартиры имеют немного места для проживания, но они обязательно должны быть со всеми удобствами. В маленькой однушке нужно правильно разместить мебельные предметы и бытовую технику.

На первый взгляд проблема просто не решаемая. Но иногда учитывая все правила планировки, маленькое помещение в 35 кв. м. обустраивают таким образом, что получается довольно уютное жилье.

И если сделать правильную планировку, получается пространство, которое ни как не повлияет на функциональность комнаты.

В нашем деле главное создать дизайн квартиры 35 кв. м. таким образом, чтобы не было ограничений для всех членов семьи.

Существуют самые разные направления, которые помогут спланировать будущий вид Вашего жилья. Фото дизайна квартиры 35 кв. м. показывают, как лучше организовать небольшое пространство.

Предметы обихода для комфорта
Планировка квартиры 35 кв. м. – это занятие, которое не каждому под силу здесь нужно тщательно продумывать каждую деталь.

Для начала определитесь с необходимой мебелью и бытовой техникой, но зависит такой перечень от количества людей проживающих в квартире.

Для каждого отдельного члена семейства нужны разные условия. Не нужно акцентировать внимание на полочках и журнальных столах они не считаются основными предметами, обычно ими дополняют интерьер и устанавливают на свободное место.

Расширение малогабаритной квартиры: возможно ли это?
Увеличить пространство помогают перегородки и двери. Чтобы воплотить такую задумку по увеличению помещения, нужно создать проект однокомнатной квартиры 35 кв. м., он поможет осуществить перепланировку.
В тех помещениях, где можно обойтись без дверей их снимают, конечно же, кроме санузла. Следуя проекту, убираются ненужные стены, соединяя комнаты в одно целое.

Таким образом, у Вас может получиться квартира студия 35 кв. м. На сегодняшний день это очень удобное и современное применение малогабаритных жилищ. Также увеличить размеры маленького помещения можно с помощью балкона, если он имеется.

Для начала в нем проводят монтажные работы по утеплению и уже, потом соединяют с квартирой или же обустраивают отдельную комнату.

Хороший вариант детской, особенно когда ребенок небольшого возраста. А можно сделать там кладовую для хранения овощей. У Вас может получиться довольно неплохой дизайн однокомнатной квартиры 35 кв. м.

Отдельные функциональные зоны малогабаритной квартиры
Дизайн проект квартиры 35 кв. м. обязательно учитывайте и совмещайте все для комфортного и удобного обитания. А для этого помещение разделяют на зоны.

После проведения ремонта квартиры 35 кв. м. и сноса стен получится одна комната, вот в ней и предусматривают отдельные пространства для членов семьи.

Чтобы провести правильное зонирование существует несколько способов. Рабочую зону кухни можно отделить от гостиной с помощью барной стойки или дивана.
Посмотрите еще здесь:

Таким образом, получится два функциональных пространства, а квартира станет намного просторней и уютной.

Спальную зону отделяют перегородкой, например, из гипсокартона или ширмой, чтобы максимально скрыться от посторонних взоров. Тканевые стенки считаются самым бюджетным вариантом.

Создавая интерьер квартир 35 кв. м. проявляйте фантазию. Не забывайте, что только при правильной планировке получится желаемый результат.

Если самостоятельно не получается обустроить малогабаритную квартиру обратитесь за помощью к дизайнерам.

Они помогут составить проект будущего помещения, проконсультируют, какой именно дизайн подойдет, чтобы максимально сэкономить и так важные квадратные метры. У Вас все получится.
Посмотрите еще здесь:

Фото дизайна квартиры 35 кв. м.









Посмотрите еще здесь:




















dizajnadvice.ru
Дизайн однокомнатной квартиры 35 кв м фото: увеличение пространства, зонирование
В доме места лишнего никогда не бывает! А как же быть, когда квартира с одной комнатой и необходимо уместить в ней все необходимое? Хозяева часто продумывают дизайн своей однокомнатной квартиры в 35 кв. м, основываясь на фото интерьеров в интернете. Оформление любой однокомнатной квартиры зависит от функциональных зон, которые в ней предусмотрены, и от количества проживающих людей и наличия детей.
Увеличение пространства
Лишние стены всегда зрительно уменьшают площадь, и утяжеляют пространство. Устранение перегородок внутри квартиры считается одним из способов его расширения. Чтобы реализовать такую задумку, необходимо грамотно сделать перепланировку жилья.
Можно убрать двери, которые разделяют кухню и комнату, оставив в квартире только двери на санузле. Причём желательно чтобы они были светлого тона либо стеклянные матовые. Этот приём поможет визуально облегчить пространство.
Совет: можно рассмотреть вариант сноса стены, объединив, таким образом, комнаты в единую. Однако несущие типы конструкций ни в коем случае затрагивать нельзя!

Работая над созданием дизайнерского проекта квартиры, стоит разработать вариант объединения нескольких зон, например, кухни и комнаты. Так, запахи с кухни распространятся по квартире, но этот аспект будет не главным, когда вы получите освободившееся пространство.
Ещё одним вариантом объединения становится совмещение санузла. Такая перемена поможет создать дополнительную площадь для примыкающего помещения, например, прихожей. Когда санузел по площади остаётся прежним, в объединённом варианте удобнее располагать бытовую технику и специальную мебель.

Зонирование квартиры
Сегодня стало модным применять различные перегородки для зонирования пространства однокомнатной квартиры.
- Разделение перегородками – очень лаконичный метод, отделяющий спальню от гостиной. Место для спальни размещают у окна, чтобы при установлении перегородки оно не было проходимым. Перегородкой может выступить мебель и всевозможные ширмы;
- Благодаря широкому распространению экологичного материала – гипсокартон, перегородки между зонами комнаты делают очень стильными и функциональными. Они бывают нестандартной геометрической формы, причём в них делают ниши с подсветкой;
- Раздвижные перегородки – современный популярный приём. Данные панели изготавливаются абсолютно глухими либо прозрачными. Когда они закрыты, помещение будет эстетично поделено на две комнаты;
- Зонирование при помощи подиума – неординарный вариант, ведь присутствие разных уровней в комнате привлекает внимание и обладает функциональной нагрузкой. Здесь можно расположить кровать либо стандартный матрас. С таким же успехом подиум служит островком для кабинета.

Цветовые и световые решения
С целью создания в однокомнатной квартире ощущения лёгкости и лаконичности, важно грамотно подобрать размещение приборов освещения и гамму стен и мебели.
Совет: в маленьком помещении необходимо предусмотреть больше света!
Зону отдыха необходимо обеспечить точечным рассеянным освещением, помогающим расслабиться и отдохнуть. В целях освещения кухонной и рабочей зоны дизайнеры рекомендуют применять много светильников. В кабинете будет уместна люстра, а на кухню выгоднее приобрести точечные светильники, характеризующиеся интенсивностью света.
Спектр цветов для однокомнатной квартиры должен состоять из светлых оттенков.

Знаете ли вы: когда в помещении хватает солнечного света, можно использовать краску «холодного» тона, однако, непременно светлую палитру.
Чтобы выделить конкретные зоны в интерьере дизайнеры используют яркие либо тёмные цвета, играющие роль акцента. Однако здесь не следует переусердствовать, поскольку большое число тёмных предметов и краски визуально сделает пространство меньше.
Увеличения комнаты зрительно добиваются благодаря панорамным 3D фотообоям. В зависимости от выбранного изображения они создают особую атмосферу.

Многофункциональная мебель-трансформер
В малогабаритной квартире, чтобы сэкономить пространство, следует использовать трансформирующиеся детали интерьера. В современных магазинах представлен огромный выбор мебели, которая становится идеальным украшением комнаты.
Популярные разновидности трансформеров:
- Кровать – это может быть выдвижная софа, раскладушка, подиум. Каждый из данных вариантов помогает сэкономить пространство;
- Шкаф – этот предмет мебели характеризуется наличием большого количества полок, которые можно при необходимости выдвигать, менять местами;
- Стулья и столы – раскладные варианты кухонной мебели идеально прячутся, а при необходимости быстро раскладываются.
Тот, кто не определился с организацией дополнительного спального места и рабочей зоны, должен обратить внимание на эксклюзивный вариант – стол-кровать. Для превращения рабочей поверхности в удобную кровать, необходимо лёгким движением опустить столешницу вниз.

Гостеприимные люди обязательно приобретут журнальный стол-трансформер, который при случае быстро становится обеденным.
Дизайн «хрущёвки»
Однокомнатная «хрущёвка»… Прихожая, компактная комната, миниатюрная кухня, санузел, маленькая кладовка – вот и все, чем может «порадовать» квартира, созданная ещё в постсоветский период. Как же умело размесить на таком маленьком пространстве самое необходимое? Здесь главное определиться с функциональной нагрузкой квартиры, а потом приступать к переделке.
- Прихожая – представляет собой узкий коридор, где неудобно даже раздеться. Если вы хотите получить в «хрущёвке» более просторную прихожую, необходимо принять следующие решения:
- Если имеется кладовка, её стоит переоборудовать в шкаф, а к стене можно прикрепить крючки для ежедневной одежды. С помощью зеркала можно визуально увеличить ширину пространства. Пуфы с пустотами либо узкий обувной шкафчик с сиденьями наверху – станут отличным вариантом экономии места.
- Поскольку геометрическая форма коридора в «хрущёвках» может быть различной, для длинного помещения подойдёт угловой либо миниатюрный шкаф-купе. Отделку прихожей лучше выполнить в светлых тонах и обеспечить максимум освещения.

Совет: источник света лучше расположить ближе к зеркалу.
- Кухня – ещё одно помещение, требующее рационализаторского подхода к оформлению. Как правило, кухня занимает около 6 м2, и отсутствует возможность переноса канализации и газа. В таком случае можно подобрать мебельный комплект со встраиваемой техникой. Возле окна лучше расположить обеденную зону, причём столешницу стоит закрепить на стену, чтобы при необходимости её раскладывать. Подоконник – обязательно нужно задействовать и при грамотном подходе из него выйдет функциональная рабочая зона.
- Комната – наиболее «лакомый» кусок. Её задача может быть решена в двух направлениях:
- Спальня и гостиная;
- Зона отдыха и рабочая (детская).
Для дизайна комнаты подбирают единое стилевое решение, причём стоит обратить внимание на применение зонирования.
Совет: для небольшого помещения лучше выбирать стиль Хай-Тек либо минимализм.
Мебель подбирают маленького размера, а декоративных изделий – минимум.

Что касается цвета, его не должно быть много, а потому от покрытий с мелким рисунком нужно отказаться. Если хотите акцентировать внимание на конкретной стене – выбирайте яркий тон краски либо обоев.
Более органично будет выглядеть комната с единым покрытием, разделённым на зоны перегородками и светом.
Однокомнатная квартира-студия
Популярным вариантом дизайнерского решения при оформлении однокомнатной квартиры считается перепланировка в квартиру-студию. Конечно, у такого дизайна имеются как преимущества, так и недостатки. Главным достоинством считается дополнительная свободная площадь.

В квартире-студии удобно размещается гарнитур для кухни большого размера. Обеденный стол легко заменяется стильной барной стойкой, служащей своеобразным разделителем между зоной кухни и комнаты.
Знаете ли вы: объединив кухню и комнату необязательно, чтобы они были оформлены одинаково. Лёгкий контраст будет выглядеть намного интереснее.
Как правило, в кухонной зоне от остального помещения отличается не только дизайн стен и потолка, но и освещение. Если для комнаты на пол выбран ламинат, то на кухню стоит приобрести плитку. Мозаичный вариант будет гармонировать с настенным фартуком.
Освещение двух зон также должно быть разным:
- в комнате – шикарная люстра;
- на кухне – точечное освещение по периметру и дополнительные светильники на шкафчиках.
Интерьер для семьи с детьми

Обустройство однокомнатной квартиры для тех, у кого есть ребёнок – задача не из простых. В такой ситуации ориентиром служат возраст ребёнка и потребности всех членов семьи.
Очень важно использовать каждый угол в квартире по максимуму. Для начала можно продумать о размещении системы хранения:
- открывающийся подиум;
- шкаф-купе;
- подвесные полки.
Для ребёнка отлично подойдут так называемые кровати-чердаки, у которых имеется выдвижной письменный стол либо шкаф. Так, ребёнок получит свой уголок, и не будет мешать родителям.

В кладовке и прихожей нужно предусмотреть наличие полок и достаточное количество осветительных приборов. В небольшой квартире можно предусмотреть раздвижной вариант дверей, а если предпочтительнее распашной, то открываться они должны наружу. Полотно двери подбирается максимально приближенно к цвету общего оформления комнаты. Так, оно не будет бросаться в глаза, и не уменьшит комнату зрительно.
Дизайн для однокомнатной квартиры 35 кв.метров 42 фото идеи:
couo.ru
Проекты и дизайн однокомнатной квартиры 35 кв м — фото в современном стиле с описанием способов отделки
Приступая к планированию однокомнатной квартиры необходимо решить трудную задачу по достижению максимального комфорта и уюта, имея всего одно жилое помещение. Как сделать так, чтобы здесь было удобно принимать гостей, проводить свободное время и полноценно отдыхать? Самым оптимальным вариантом для выхода из этой ситуации будет применение всех возможных современных средств для создания многофункционального интерьера. Это и материалы отделки, и мебель, и аксессуары, и световое решение. Зонирование пространства на целевые участки. При этом не обязательно строить перегородки. Достаточно будет разделить площадь дизайнерскими акцентами.

Как с помощью дизайна однокомнатной квартиры можно зонировать площадь
Оптимизация всего объема жилья должна стать целью. Важно на стадии проекта заложить все функции и опции. Для понимания возможностей, которые может дать оригинальный дизайн однокомнатной квартиры 35 кв м — фото в современном стиле. Необходимо предварительно определить, что конкретно желаете видеть в помещении из функциональных требований. Нужно ли здесь обустраивать рабочее место, или квартира предназначена не для этого. Количество жильцов обязывает подумать о достаточном месте для здорового сна. Где будет проходить прием пищи. Возможно, что размеры кухни и ее возможности позволят это делать исключительно там.

Что касается технических вопросов, то для облегчения планирования можно условно разделить весь процесс на несколько отдельных задач, решая которые легче добиться удовлетворительного результата в финале:
whitestrip.ru
Интерьер однокомнатной квартиры 35 кв м в фотографиях
Посмотрите интерьер однокомнатной квартиры 35 кв м в фотографиях и сделайте также, главное следовать советам и внимательно смотреть на фото.
Дизайн квартиры студии 35 кв м: фото кухня гостиная
Обладая небольшой площадью, лучше использовать дополнительные метры кухни, что визуально расширить пространство.
Дизайн квартиры 35 кв м
Квартира с такой площадью может быть и в новом (студия) и в старом доме. Если приобрели новую квартиру-студию, то обустроить ее очень просто. Здесь мы подобрали много вариантов, которые станут основой для вашей идеи. Основное требование к маленькому пространству в 35 квадратов – это все та же функциональность. Нам может и не много нужно, но все же есть та мебель, без которой не обойтись.
Читайте также:
| Самое необходимое | Где можно установить в квартире студии? |
|---|---|
| Обеденная зона | Ею может стать барная стойка, зрительно разграничивающая помещение на 2 части. В качестве обеденного стола можно использовать стол-трансформер, при небольшом количестве людей это может быть просто журнальный столик, а когда нужно, его можно легко и быстро раздвинуть. |
| Спальня | Полноценное спальное место на 30 квадратах можно отделить перегородкой или ширмой, лучше всего использовать пространство рационально и остановиться на диване-трансформере. |
| Гостевая зона | В качестве кресел можно использовать мягкие пуфы, которые не занимают много места. Если конструкция жесткая, то выбирать надо те, в которых есть дополнительное отделение для хранения мелочей. На пол в зоне гостевой лучше всего постелить небольшой ковер, чтобы было более уютно. ТВ надо размещать на кронштейнах, желательно круговых, чтобы и с кухни и с остальных мест можно было спокойно его смотреть. Или же купите обычные поворотные кронштейны. |
| Рабочая зона | Я настаиваю на том, чтобы подоконники были использованы в новом качестве – надо только установить новый и широкий подоконник, а под ним можно разместить узкие выдвигающиеся ящики. Рядом обязательно понадобятся розетки, поэтому при ремонте нужно это учесть. |
Дизайн 1 комнатной квартиры 35 кв м с выделенным спальным местом
Не смотря на размеры, в небольшой квартиры удается поставить кровать и выделить спальное место, это трудно, но возможно.
Советы дизайнеров
В этом разделе собраны самые интересные советы дизайнеров, которые значительно облегчат вашу головную боль по поводу интерьера в малогабаритке. Итак, начнем:
Наилучшим стилем для оформления интерьера маленькой квартиры можно считать минимализм. И это совершенно не означает, что из мебели в доме будет только стол и диван, а еще хуже матрас на полу. Нет, это совершенно не относится к направлению минимализм. Мебели действительно много не нужно, но каждый предмет должен совмещать в себе несколько назначений одновременно. При выборе мебели обратите внимание на трансформирующиеся предметы. Это может быть стол, который превращается к вечеру в кровать. Или диван со встроенной столешницей вместо журнального стола. И конечно, идеальным вариантом для маленьких квартир, станет изготовление мебели на заказ. Это значительно увеличит свободную площадь, так как мебель будет занимать только ту часть комнаты, которую необходимо.

Интерьер должен быть «воздушным» — нам обязательно пригодятся зеркальные поверхности, перегородки из тонкой полупрозрачной ткани или же из матового закаленного стекла. Малогабаритку нужно зонировать грамотно!!! Если нет необходимости в перегородках, мы можем разграничить комнату при отделке. Только комбинировать отделочные материалы тоже надо правильно. Пол тоже можно застелить разными материалами – например, на кухне и в прихожей плитка, а гостевая зона отделена ламинатом. При этом неплохо было бы еще и постелить небольшой коврик в «спальном пятачке». Это один из возможных вариантов зонирования в малогабаритке. Нам еще нужно подчеркнуть разные зоны в квартире светом, тогда общая картинка в доме станет точной.

Темные оттенки или наоборот, слишком яркие в маленькой квартире нельзя использовать повсеместно. Даже если очень хочется — можно и даже нужно сделать пару акцентов. Очень необычно смотрится интерьер, в котором потолок выполнен в насыщенном темном цвете, а стены и пол сделаны белыми. Или более традиционный вариант, когда все наоборот. Потолок и стены светлые или белые, а пол выполнен в темных цветах. Ну и естественно, лучше отдать предпочтение светлым оттенкам.

Если в квартире есть не несущие стены, которые можно разобрать без разрешения, то это лучше сделать. Они режут пространство, и делают маленькое — еще меньшим. Квартиры студии, может, и не всем подходят, зато на площади в 36 квадратов помещается куча полезных предметов, которые при правильной расстановке превратят квартиру в 56 квадратов… Только, к сожалению, зрительно.

В хрущевках есть малюсенькое помещение – волшебная кладовка, в которой у многих еще храниться разный хлам. Вот ее можно самостоятельно переделать в шкаф. И это может быть не просто шкаф-купе, но и полноценная система хранения, если подойти к вопросу с умом. Тогда в комнате нам уже не придется устанавливать громоздкий ящик под названием гардероб! И вот у нас еще пару метров и освободится.

В квартирах с высокими потолками можно устроить спальное место над землей!!! И это не шутка. Кровать чердак для взрослых и солидных дядь и теть вполне уместна. А для большей прочности, основание нашего гнезда может быть выполнено как открытый или закрытый шкаф. Но каркас должен быть прочным, лучше всего заказать такое чудо-гнездо у опытных мебельщиков, которые рассчитают нагрузку соответственно нашим, не побоюсь этого слова, габаритам.

Чтобы наши однушки визуально стали просторнее надо избегать перегруженности одного единственного помещения – хватит уже покупать статуэтки в поездках! Окна также не стоит перегружать тканью, лучше использовать тонкие вуали или римские шторы, чем ламбрекены. От соседских глаз можно укрыться, если установить рулонные шторы на стекла из плотной ткани. Да и кстати, я забыла сказать про бытовую технику. Маленькие квартиры должны иметь мобильную технику, точнее хозяева, то есть мы с вами, должны ее иметь. Телевизор лучше устанавливать на поворотном кронштейне, а акустику сразу монтировать по потолку комнаты.
к содержанию ↑Интерьер хрущевки 35 кв метров
Комната, кухня, прихожая, совмещенный санузел, маленькая кладовая и балкон, если этаж не первый – вот и все пространство однокомнатной хрущёвки в Москве и других городах на постсоветском пространстве. Всего около 28 квадратом площади, на которой мы должны разместить всё необходимое. Уже вижу округлившиеся глаза читателей, и немой вопрос – как?!? Организация пространства в таких квартирах стоит наравне с функционалом. Нет ничего невозможного – и это действительно так.
Начну от входа. Первое помещение – прихожая. Обычно это узкий коридор, в котором всего полно, а наступить негде. Чтобы сделать прихожую в хрущевке просторной и при этом сохранить возложенные на нее функции, можно поступить так:
- При наличии смежной кладовки, переделываем ее во вместительный шкаф, а на стене прихожей можно повесить пару крючков для повседневной одежды. Зеркало визуально расширит пространство, и перед выходом из дома его удобно использовать. Можно установить узкую обувницу с сиденьем сверху или поставить пуфы с пустотами внутри.
- Геометрия прихожей в хрущёвке может быть различной. Для вытянутых помещений можно использовать компактный шкаф-купе или угловой шкаф. Но зеркало, желательно высокое, должно быть в любом доме. А вот от лишних деталей (вазы, полки для мелочей и пр.) надо отказаться. Помещение лучше сделать светлым, и это касается не только цвета отделки прихожей, но и освещения. Наиболее выгодно установить источник света недалеко от зеркала.
Второе помещение, которое нуждается в рационализации, это кухня хрущёвки. Обычно шесть квадратов, возможности переноса коммуникаций (газ, канализация) у нас нет. Поэтому обычно подбирают комплект мебели со встраиваемой техникой. Обеденную зону лучше всего разместить около окна, а стол может крепиться к стене и убираться при необходимости. Подоконник на кухне надо обязательно задействовать. Причем и из него, если установить широкий подоконник, можно сделать стол или дополнительное рабочее пространство. Гарнитур ставят либо на 2 стены, или же вдоль одной. Последний вариант мне лично давно наскучил.
По материалам сайтов: designmyhome.ru,
prof-kirpich.ru
Дизайн однокомнатной квартиры 35 кв м
На самом деле квартира, в которой всего лишь 1 комната, достаточно компактна. В тоже время ее следует оборудовать всем необходимым, чтобы жить было комфортно и уютно. Все предметы мебели и техники должны быть расставлены довольно-таки грамотно. В некоторых случаях моет показаться, что это совершенно невозможно. Ну а на самом деле. Главное правильно и ответственно подойти к вопросу оформления интерьера. Тогда у Вас точно всё получится! При этом совершенно нет смысла, сколько именно квадратных метров в Вашем жилье – главное, что оно есть и оно Ваше! А варианты оформлений дизайна квартиры 35 кв. м в фото, для вдохновения смотрите у нас на сайте.

Необходимые предметы
Грамотно создать дизайн жилья, да еще и малогабаритного – ответственное и сложное дело. Здесь необходимо продумывать все до мелочей. Следует начинать с составления списка всех необходимых предметов мебели через интернет-магазин mebel-vek.ru, а также техники, без которых Вам не обойдись в обыденности. Также важно понимать, какое количество людей проживает в квартире (к примеру, для одного человека или для семейной пары, а может даже с ребенком или детьми).

Полочки или журнальные столы – являются второстепенными предметами. Их в список вносить не нужно. Этими предметами уже по окончании работ можно дополнить общий интерьер жилья, когда Вы будете видеть, сколько места свободного осталось и есть ли оно вообще.

Как расширить пространство в дизайне интерьера квартиры 35 м?
Главный способ – удалить любые перегородки и межкомнатные двери в квартире. Ведь из-за них очень уменьшаются визуальные размеры жилья, при этом пространство еще и утяжеляется. В данном случае следует производить перепланировку.

Все двери, которые отделяют между собой комнаты, следует убрать. Оставляйте только необходимую в санузел. И вообще прекрасно будет, если они будут сделаны из светлого, легкого материала, может быть использовано много матового стекла. Это позволит Вам визуально сделать пространство больше.

Чтобы объединить пространство воедино, следует изучить план квартирного помещения и решить какие из стен можно вовсе убрать. Но учтите, что несущие стены трогать нельзя, поскольку это может привести к серьезным негативным последствиям не только Вашего жилья, но и всего дома.

Также важно продумать какими способами будут объединены разные зоны. К примеру, кухня будет объединена с залом, поэтому между ними потребуется удалить стену. Хотя такое объединение может доставить некий дискомфорт. Ведь те же запахи с кухни, которые будут выделяться во время приготовления еды, распространяются, в том числе и по жилой комнате.

Также можно объединить ванну с туалетом. Это позволит освободить пространство, например, для обустройства прихожей или гардероба.

Если у Вас есть балкон, то можно увеличить и за счет него пространство, создавая дизайн квартиры 35 кв. м. Его следует хорошенько утеплить, поскольку там также может быть дополнительная комната для отдыха или тот же рабочий кабинет. Также отличный вариант – создать в нем большую систему хранения, где Вы сможете размещать как крупные предметы, так и всякие мелочи.

Как оформить дизайн квартиры в 35 квадратов — зонирование
Основное, что следует создать в таком жилье, это функциональность, практичность и уют. К тому же следует учесть, что в квартире должна быть рабочая зона, кухня, место для приема гостей, а если нужен еще и детский уголочек. После того, как Вы убрали стены и объединили комнату, следует сделать правильно зонирование.

При помощи барной стойки, дивана или обеденного стола можно отделить кухню от зала. Возможно установить и стационарную перегородку в таком случае.

Чтобы отделить как-то зону отдыха, следует применить ширму или какую другую перегородку. Она может быть сделана из витража, ткани, плетёнки, тонированного стекла. Напомним, зеркальные поверхности прекрасно использовать в небольших квартирах, поскольку они визуально увеличивают пространство.

Если Ваша квартира по типу – хрущёвка, в ней важно рационально использовать буквально каждый сантиметр свободного пространства. Из «старинных» кладовых необходимо сделать вместительный гардероб, благодаря чему Вы сможете сэкономить немало пространства.

Выбор мебели
Наилучшие стили для благоустройства небольших квартир – это Хайтек или минимализм. Они просты и лаконичны, при этом позволяют разместить все необходимое на своих местах.

В частности, касается это таких предметов мебели, которые наделены строгими и правильными линиями. Поскольку классические варианты мебели достаточно габаритны, для маленьких квартир – это далеко не самый подходящий вариант. Важно, чтобы она была функциональной. Например, та же кровать или диван, с ящиками для хранения, а стол для работы или приема трапез – в виде трансформера, который удобно сложить, или разложить очень компактно.

Кухонную мебель стоит делать на заказ, навесные шкафчики лучше делать высокими, до самого потолка, а все остальные предметы с тем расчетом, чтобы в них вместилось все необходимое для использования на кухне. Задействуйте подоконник, к примеру, он может использоваться в качестве столешницы.

Если в семье есть ребенок, имеет смысл обзаводиться двухъярусной современной модульной системой. Так, у ребенка будет своя собственная территория.
Освещение и выбор цвета
Это далеко не самые последние вопросы, ведь они играют особо важную роль в оформлении жилья. Поскольку квартира небольшая, в ней должно быть много света.. Но он должен быть в то же время правильно организован для каждой из зон. Например, место для сна и отдыха необходимо оформить так, чтобы свет был спокойным. В рабочей и кухонной зоне свет должен быть яркий и много.

Цвета следует выбирать светлых и теплых оттенков. Правда, если комната хорошо освещается естественным светом, можно применить и холодные оттенки, но обязательно светлые!

Теперь Вы знаете как оформить дизайн квартиры в 35 квадратов и можете смело приступать к воплощению своих идей в реальность! Опирайтесь на собственные вкусовые качества и у Вас всё получится!

50 фото дизайна квартиры 35 кв. м.
mydesignclub.info
Дизайн однокомнатной квартиры 35 кв. м. 5 фото — проектов
Казалось бы, что дизайн однокомнатной квартиры 35 кв. м. не может быть комфортным, гармоничным и привлекательным. Но гуру дизайнерского искусства доказывают на примерах своих работ, что даже на крошечной площади можно сотворить прекрасный шедевр.
Идеи дизайна однокомнатной квартиры 35 кв.м.
Кто сказал, что однокомнатная квартира не может быть красивой, практичной и многофункциональной? Просмотрев чудесные работы маэстро, можно разбить в пух и прах этот миф. Вооружившись вдохновением и фото изумительных работ дизайнеров, уютное гнездышко можно наградить не только эффектным одеянием, но и характером.
Фото-проект №1. Дизайн с мужским характером и женской привлекательностью
Квартира выглядит элитно, строго и в то же время очаровательно.
Цветовая гамма представлена:
- цветом «маренго», который привносит эффектности;
- дымчатым оттенком, наделяющим интерьер мягкостью и нежностью;
- салатным, придающим интерьеру яркости;
- белым, наполняющим комнату свежестью, чистотой;
- ярко-алым, придающим пикантности;
- черным, награждающим презентабельностью и фешенебельностью.
Квартира состоит из функциональных зон:
- главной комнаты, выполняющей роль кабинета, спальни, гостиной;
- санузла;
- кухни.
Общая комната привлекательна и практична. Ее изюминкой является стена с изображением ночного города, притягивающая взгляд, тем самым не позволяя концентрировать внимание на миниатюрных размерах помещения. Кроме того, дизайнер использовал хитрость, которая визуально расширила стены. Фото 3D с изображением небоскреба на заднем плане, зрительно отодвигает стену, а глянцевые поверхности, создающие оптические иллюзии, увеличивают размеры комнаты.
Предметы интерьера идеально вписались в маленькую комнату. Стол и кресло, гармонично расположившееся у окна, создают рабочую область. Зона отдыха и сна представлена мягким диваном в деревянном «обрамлении», практичным гарнитуром с множеством шкафчиков и полочек, оригинальным журнальным столиком и ультрасовременным телевизором.
Кухня выглядит не менее привлекательно. Многофункциональная мебель и инновационная бытовая техника составляют отличный дуэт.
Ванная комната невероятно комфортна и просторна. Такой эффект дарят блестящие поверхности мебели, кафеля и прозрачные дверцы душевой кабинки.
В целом дизайн представленной однокомнатной квартиры получился современным, харизматическим и привлекательным. Дизайнер Юлия Швед.







Прямые диваны для гостиной
[affegg id=23]
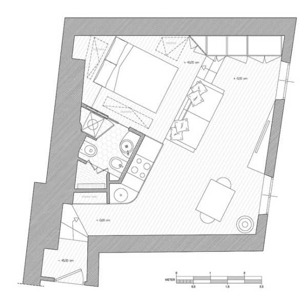
Фото-проект №2. 35 кв. м. дерзкой простоты!
Дизайн однокомнатной квартиры площадью 35 кв.м. прост, светел, легок и в то же время вызывающ!
Цветовая гамма представлена молочными, белоснежными, песочными, дымчатыми и винными тонами. Каждый оттенок, гармонично переплетаясь, создает воздушную композицию.
Квартира-студия состоит из рабочей области, спальни-гостиной, кухни-столовой и санузла.
Область отдыха и сна отделена от кухни и ванной перегородкой, а кабинет гармонично «восседает» на подиуме.
В гостиной-спальне чувствуется безграничная свобода, благодаря минимуму предметов интерьера. Кабинет практичен, все нужные атрибуты для работы собраны в одном месте, что значительно облегчает жизнь хозяину квартиры. Мебель, облицовочный материал соответствуют духу лофта: экстравагантно, но в то же время просто.
Особого внимания заслуживает кухня. Традиционный мебельный гарнитур заменен на металлические полочки, под оригинальной мойкой взору открывается водопроводная труба. Металл и дерево в кухне создают удивительное впечатление.
Ванная комната не менее оригинальна: блеск металла, тепло и аромат дерева, минимум мебели, открытые трубы идеально подчеркивают характер стилевого направления, делая помещение невероятно просторным.
Дизайн этой однокомнатной квартиры квартиры подойдет людям творческих профессий, любящим свободу действий и не терпящим рамок, границ, стереотипов. Наталья Галонская, г.Минск.







Подвесные светильники
[affegg id=24]
Фото-проект №3. Дизайн, окутанный тайной
Дизайн представленной однокомнатной квартиры загадочен, привлекателен и интересен.
Цветовая палитра представлена:
- шоколадным тоном, придающим благородства;
- кристально-белоснежным цветом, прибавляющим объемов;
- дымчатым оттенком, привносящим мягкости;
- светло-бежевым тоном, делающим интерьер уютным и теплым.
В качестве акцентов выступили насыщенно-бирюзовые и глубокие розовые оттенки.
Благодаря сносу стен квартиру удалось разделить на функциональные зоны:
- спальню;
- гостиную;
- кухню;
- санузел.
Дизайнеры предусмотрели даже спальную зону для гостей и множество скрытых мест для хранения всевозможных вещей.
Жемчужиной квартиры является стена, оформленная декоративным кирпичом. Не менее эффектно смотрится потолок с грубыми балками из древесины.
Гостиная балует безграничным простором, благодаря белым предметам интерьера: шикарный снежный диван с шоколадным столом и стульями составляют элегантную и аристократичную пару. А экстравагантный шкаф – снаружи девственно-белый, а внутри ярок, удивительным образом настраивает на позитивный лад, заряжая прекрасными эмоциями с самого утра.
Кухня представлена белым гарнитуром с встроенной бытовой техникой, идеально гармонирующим с мягкой мебелью в гостиной.
В квартире-студии удалось выделить место даже под огромную кровать, гордо стоящую на подиуме. Конструкция не только практичная, но и содержит секрет! Кроме безграничных мест хранения, в подиуме имеется объемный ящик-кровать для гостей.
В санузле приятно не только осуществлять гигиенические процедуры, но и подумать, расслабиться. Огромное зеркало – во всю стену прекрасно корректирует помещение, прибавляя желанных объемов. Прозрачные дверцы душевой кабинки также играют роль искусного корректора, увеличивая пространство, а современная санитарная техника чудесно вписалась в интерьер, подчеркивая общую концепцию стиля.
В целом дизайн интерьера балует хозяев многофункциональностью, практичностью и грациозностью. Архитекторы: Sara Cimarelli и Giorgio Opolka бюро Archifacturing Место: Рим, Трастевере.








Эксклюзивные бра
[affegg id=25]
Фото-проект №4. Практичный и стильный дизайн
Дизайн интерьера этой однокомнатной квартиры многофункционален, прост, но в то же время невероятно эффектен.
Цветовая гамма представлена:
- белоснежным тоном, придающим свежести, чистоты и объемов;
- дымчатым оттенком, делающим интерьер нежным;
- песочным цветом, привносящим ноток спокойствия и умиротворения;
- золотисто-белым тоном, прибавляющим лоска и шика;
- антрацитовым цветом, создающим строгие мотивы.
Перепланировка позволила поделить квартиру на множество зон:
- спальню;
- гостиную;
- кухню;
- ванную;
- прихожую;
- гардеробную.
В уютной и радушной гостиной гармонично расположены предметы обстановки, которые прекрасно дополняют друг друга. Журнальный столик идеально сочетается с огромной люстрой и мебельным гарнитуром с множеством полочек и шкафчиков. Мягкий диван составляет прекрасную пару оригинальным стульям. А экстравагантный стол чудесен в дуэте с напольным покрытием из дерева. Каждая деталь продумана и учтена, благодаря чему дизайн квартиры многофункционален, скромен, но в то же время необычайно красив.
Спальня зонирована с помощью подиума. Конструкция непроста, при необходимости из нее выдвигается лестница, которая исполняет роль стола, посадочных мест, полок.
Кухня, на первый взгляд, кажется скромной, но в многочисленных ящичках скрывается инновационная техника, значительно облегчающая жизнь своей хозяйке.
Изюминка ванной комнаты — кирпичная стена, покрашенная золотисто-белой краской, что прибавляет интерьеру сказочности. Гармоничное размещение предметов мебели и компактной сантехники позволило сделать санузел просторным, а чудесная цветовая гамма привнесла роскошных, теплых и уютных ноток. Марина Измайлова. Дизайн бюро Archwood.






Сантехника для однокомнатной квартиры
[affegg id=26]
Фото-проект №5. 35 кв. м. очаровательного сияния!
Несмотря на непростую планировку квартиры, дизайнерам удалось создать настоящий шедевр: стильный, сияющий, уютный и изысканный.
Цветовая гамма состоит из таких тонов:
- белого, визуально прибавляющего объемов и дарящего чистоту;
- шоколадного, привносящего ноток благородства и шарма;
- темно-бирюзового, придающего свежести;
- зеленого, делающего интерьер колдовским и сочным;
- нежно-серого, создающего нежное очарование в квартире;
- желтого, привносящего солнечных ноток.
Квартира состоит из гостиной, кухни, санузла и прихожей.
Гостиная отделена от кухни с помощью барной стойки и мягкой мебели. Огромный диван с множеством декоративных подушек прекрасно сочетается с мебельным гарнитуром, а оригинальный коврик подчеркивает роскошь штор. Даже журнальный столик сливается в элегантном танце с барной стойкой, служащей в качестве обеденного стола. Кухонный гарнитур компактен, но невероятно удобен, практичен и современен.
Особого внимания заслуживает ванная комната. Она просторна, в ней нет ничего лишнего, оформление нежное, невесомое. Подвесная санитарная техника и мебель идеально подчеркивают изысканность друг друга, создавая невероятную атмосферу. Студия Am-interior, г.Москва.
Дизайн однокомнатной квартиры 35 кв. м., несмотря на скромные размеры, может быть по-настоящему сказочным!







harthaus.ru
