Ремонт квартиры с дизайн проектом – как сделать самому, как самостоятельно воплотить идеи и создать эксклюзивный интерьер, простые бюджетные варианты
55 фото-идей для оригинального интерьера — INMYROOM
Каждый хочет иметь жилье своей мечты. Чтобы каждая мелочь была на своем идеальном месте. Но жить приходится чаще всего в неудобном помещении с ремонтом на троечку. Если вы решили исправить положение, в первую очередь нужно начать с подготовки.

Настроить себя на полномасштабный ремонт, который должен начаться в назначенное время, пройти без трудностей и проблем, и наконец-то закончится, полностью удовлетворив вас результатом. Так же подумайте, будете ли вы нанимать для работы дизайнера и строителей или справитесь сами.

Как самому сделать дизайн проект квартиры? На деле это не так сложно как может показаться. Даже если вы не разбираетесь в дизайнерских и архитектурных программах, их всегда можно освоить или пригласить знающего человека, чтобы он вам помог разобраться в них.

Но если вы решили все делать сами, начиная от проведения замеров и нанесения их на планы, и до создания визуализаций готового проекта и написания сметы, то вам понадобится поэтапный план разработки.

Что включает дизайн-проект
В первую очередь дизайн проект включает в себя идею создания чего-то нового. Но это «новое» всегда заложено в строгие рамки стиля и оформления. Прежде чем начинать «ломать стены», пересмотрите аналоги уже готовых работ с дизайном и оформлением.

Выберите интересные моменты и запишите, что именно вам понравилось, чтобы потом воссоздать нечто похожее у себя в квартире. После просмотра аналогов почитайте литературу по стилям и оформлению квартир. Это важно, так как для разных по размеру помещений подходят разные стили и их оформление.
К примеру, чем меньше комната, тем светлее должен быть ее дизайн и наоборот. Продумайте так же размер окон и дверей. Если в комнате недостаточно дневного света, установите несколько дополнительных розеток для декоративных, искусственных источников света.

Что касается света, продумайте так же наличие подсветки над всеми рабочими поверхностями на кухне, в ванной и спальных комнатах (если они там нужны).

Этапы создания дизайн-проекта квартиры:
1. Идея;
2. Подбор аналогов;
3. Выбор стиля;
4. Подбор цветовой гаммы;
5. Создание плана пола и потолка;
6. Создание разверток и разрезов;
7. Расчет размеров;
8. Выбор участков под санузлы, раковины, ванные;
9. Выбор места под розетки;
10. После создания окончательного плана нужно отстроить 3D модель в специальных программах, таких как:ArchiCAD, Autodesk 3ds Max, SketchUp и других;
11. Сделать визуализацию готового проекта и начинать ремонт, зная, как он должен выглядеть в конечном виде.

Проведение замеров
В замеры входит:
1. Общий размер пространства всей квартиры;
2. Высота потолков;
3. Высота и ширина всех окон, их высота от пола до подоконника
и от потолка до начала окна;
4. Высота и ширина всех дверей, и их высота от потолка;
5. Толщина наружных, внутренних стен и всех перегородок;
6. Толщина перекрытия потолка и пола;
7. Замеры расстояния розеток к местам, где будет стоять
техника.

Все эти размеры нужно занести в программу. Без них вы не сможете отстроить модель своей будущей квартиры. Для чего нужно делать повторные замеры, если они уже есть в плане и документах? К примеру, бывшие жильцы могли делать перепланировку, утеплять стены, делать ниши и т.д. Так же узнайте, какие стены несущие, чтобы в разгаре перепланировки и ремонта не нанести вред зданию и соседним квартирам.

Анализ полученных результатов
Проведение замеров в дизайн-проекте квартиры нужно для расчета материалов, покупки подходящей по размеру мебели, и вообще созданию стиля, который впишется в габариты вашего пространства. Обратите внимание, отмечая места для розеток, выбирайте глухие, где всегда будет стоять компьютерный стол или тумба с телевизором, кухонные приборы и т.д.

Это нужно для того, чтобы закрыть не передвигаемыми приборами серые зоны, на месте которых, больше ничего не может стоять. Зная высоту потолков и толщину всех стен можно задуматься об утеплении и звукоизоляции, а также о натяжных потолках (если они нужны), чтобы потом ничего не переделывать. Из расчета замеров уже можно определиться с материалами и их количеством.

Базовый проект
Прежде чем начинать создавать базу, определитесь со стилем для всей квартиры и каждой комнаты по отдельности. Выслушайте советы специалистов и предпочтения каждого члена семьи. Обратите внимание на освещение.

В каждой комнате должны быть основные и дополнительные источники света. Основными могут быть:
- Точечные светильники;
- Потолочные лампы;
- Люстры;
- Шинные светильники;
- Трековые светильники.

Дополнительными могут быть:
- Настенные бра;
- Напольные лампы;
- Настенные светильники;
- Свечи;
- Встроенные точечные светильники в полу, стенах и над рабочими поверхностями;
- Торшеры.

Создавая базовый дизайн проект квартиры в компьютерной программе, сперва обозначьте места, где будут находиться розетки, раковины, ванная и туалеты, то есть элементы, которые устанавливаются навсегда. Еще вы можете сами спроектировать нужную вам мебель, и потом сделать ее под заказ. Если хотите выбрать мебель из уже готового набора какой-то компании, можете просто скачать их 3D модель.

Мебельные компании часто дают модели своей мебели, чтобы дизайнеры могли располагать ими при создании проектов. Так вы сможете посмотреть, как смотрится в вашем проекте мебель, которую в дальнейшем вы купите и установите.

Планы стен, потолка, пола, схемы электрики
Если в вашей квартире есть сложный уровневый пол или многоуровневый потолок – вы должны показать это на планах. Три разных плана имеющие свои размеры в дальнейшем упростят работу строителей. На плане потолка обязательно покажите с размерами, где будут находиться источники света, на плане пола обозначьте уровни, ступени, размеры дверей и окон, толщину всех стен и перегородок.

Схемы электрики оформляются тоже отдельно. На них обозначаются все розетки и провода. Совет, обозначайте эти схемы как можно точнее, потому что с ними всегда больше всего путаницы.

Развертка стен
Для создания разверток стен нужно использовать специальную функцию в графической программе. Обратите внимание, нужно делать развертки каждой стены в каждой комнате. По разверткам с размерами, строители поймут, где и на каком расстоянии должны устанавливаться окна, двери и на каком расстоянии от стен и друг друга будет стоять мебель. По разверткам вы сможете определиться с количеством материалов, так, чтобы не купить их в избытке.

Примерный дизайн
Создавая проект в программе, вы можете использовать текстуры и фактуры. То есть, можно воссоздать свою квартиру в программе используя материалы, которые будете закупать. Это также касается мебели, декора и освещения. Просто добавьте в библиотеку выбранной программы нужную мебель, источники света, декоративные элементы и технику – вы увидите серые зоны в проекте и лишние элементы. Уберите все ненужное, ведь если вам некомфортно в компьютерной модели пространства, что будет в настоящей квартире?

Смета
В компьютерной графической программе ArchiCAD есть уже готовая смета, которую вам просто нужно заполнить. К примеру, создавая напольное покрытие из паркета, вы сразу записываете в смету количество нужного материала, основываясь на расчетах программы. Совет, создайте отдельный журнал, в котором будете записывать всю смету для каждой отдельной комнаты. Так вы не запутаетесь в расчетах и закажете нужное количество материалов. К тому же, вам будет проще идти с таким журналом в специализированный магазин или на строительный рынок.

Компьютерная визуализация
После окончания разработки дизайн-проекта квартиры в компьютерной программе вы можете создать 3D визуализацию. Таким образом узнаете, как будет смотреться выбранная мебель, текстуры на стенах и фактуры на полу. Во время проектирования вы можете поставить в проект человека и походить им по комнатам. Это поможет увидеть все кривые углы в квартире, слепые, серые зоны и если что-то на этом этапе не вписывается в вашу идею – все исправить.
Все еще задумываетесь, как сделать дизайн проект квартиры самостоятельно? Все очень просто. Главное придерживаться правил, знать графические программы, иметь вкус и навыки, не сносить несущих стен и четко следовать плану с размерами вашего помещения. Удачи вам с вашим ремонтом!

Фото галерея
55 фото идей для реализации дизайн-проекта вашей квартиры.
www.inmyroom.ru
Дизайн квартир, портфолио проектов, дизайн-проект под ключ 1600 руб/м2
Дизайн проект квартиры
Декорирование, обустройство и ремонт неразрывно связаны с дизайн проектом квартиры. Дизайнер прорабатывает схематичные наброски планировок для иллюстрации расположения комнат и функциональных помещений.
Ремонт – связан с материальными затратами на прораба, ремонтную бригаду и строительные материалы, поэтому допущение ошибок в дизайн проекте приведет к дополнительным расходам и увеличению конечной стоимости. Заключение договора между заказчиком и компанией гарантирует качество работ и контроль соблюдения проектной документации (авторский надзор).
Визуализация в виде трехмерной модели позволяет оценить планировку с разных ракурсов и подобрать композицию цветов в одном из стилевых направлений и заняться дизайном интерьера квартиры. 3D моделирование – фотографичная или схематичная репродукция дизайнерской задумки в объемный объект. В зависимости от уровня детализации накладываются слои с расстановкой мебели, палитрой и элементами декора.
Специалисты дизайн студии KV-Design сталкиваются с типовыми и эксклюзивными проектными работами стандартной/нестандартной планировки, а также имеют опыт реализации дизайна и ремонта квартиры под ключ. Спектр деятельности студии не ограничивается перепланировкой и оформлением помещений, ознакомиться с ним подробнее можно в разделе услуги и цены.
Создавая дизайн интерьера, мы ориентируемся на пожелания клиентов и соблюдение СНиП. Сотрудники нашей команды помогут сформировать конструктивное техническое задание на основе консультаций и обсуждений ваших предпочтений. Сформированная концепция ложится в основу дизайна квартиры и в несколько этапов обретает законченную форму с набором необходимой технической документации.
Многие ошибочно думают, что услуги дизайнера не нужны при работе с маленькой квартирой, поверьте, это не так. Продуманный дизайн сделает помещение визуально больше, и поможет значительно расширить полезную площадь.
www.kv-design.ru
Как сделать дизайн-проект самому: пошаговая инструкция — INMYROOM
Создать грамотный интерьер по силам не только человеку с профессиональным образованием в области архитектуры и дизайна, но и дилетанту. Достаточно уметь чертить и читать чертежи, выполнять работы последовательно, переходя от общего к частному, считает Екатерина Саламандра из бюро «Общая площадь», и все получится. Запоминайте последовательность действий!

Екатерина Саламандра
Дизайнер
Сооснователь бюро «Общая площадь», которое занимается проектированием индивидуальных домов и созданием частных интерьеров.
Замер
Любая фантазия может столкнуться с невозможностью вписать ее в существующие габариты квартиры. Поэтому грамотный замер помещений – основа основ будущего проекта.
Нарисуйте или распечатайте планировку своей квартиры и укажите на ней все реальные размеры вашей квартиры. Помечайте на плане коммуникации, проемы, высоты. Используя компас, укажите стороны света.

План в масштабе
Теперь следует вычертить планировку квартиры в масштабе, например, 1:50. Это можно сделать «по старинке», при помощи линеек и карандашей, а можно сделать план в специальных программах на компьютере.
Отметим, что первые два этапа требуют максимального внимания от начинающего дизайнера. Даже маленькая ошибка может в итоге перерасти в головную боль в процессе ремонта.

Техническое задание
Техническое задание – это ваш план для дальнейшей работы над проектом. В нем вы указываете свои пожелания по стилю, составу и наполнению помещений и прочую информацию, которая поможет сделать интерьер максимально логичным и соответствующим всем вашим требованиям.
Помимо текстовой части, подберите фотографии интерьеров, которыми вы бы хотели вдохновиться в процессе работы. Это можно сделать и до выполнения замеров помещения.

Дизайн-проект бюро «Общая площадь»
Планировочное решение
Настало время взять план квартиры и попытаться разместить на нем свои пожелания, описанные в техническом задании. Если требуется перепланировка, первым делом изучите, как сделать ее законно. В получившихся помещениях обозначьте функциональные зоны и расставьте необходимую мебель.
Чтобы планировка была эргономичной, советуем изучить «Библию проектировщика квартир» – труд Петера Нойферта и Людвига Неффа «Проектирование и строительство».

Объемная модель
Пора превращать плоскую планировку квартиры в объемную модель и вдумчиво в ней прогуляться! Я выполняю такую модель в программе SketchUp. В результате возникает понимание, насколько «плоские» идеи будут удобны в жизни, приходит понимание грамотного использования различных видов отделочных материалов, прорабатываются детали мебели и многое другое. На полученный «каркас» вы затем без колебаний сможете подобрать отделочные материалы и все необходимое.

Дизайн-проект бюро «Общая площадь»
Стилистическое решение
Перед началом этого этапа вы имеете четкое функциональное и эргономичное понимание своего будущего интерьера. Теперь пора перечитать техническое задание, пересмотреть картинки вдохновляющих интерьеров и приступить к дизайну в узком понимании этого слова.
Подбирая отделочные материалы, мебель, предметы освещения, элементы декора не забывайте о параметрах вашей квартиры. Низкие потолки, скудность естественного освещения и прочие факторы могут воспрепятствовать красивому воплощению ваших идей. Кстати, подобранные материалы затем будет несложно перевести в примерный бюджет на их закупку.

Дизайн-проект бюро «Общая площадь»
Чертежи
Пора перевести свои идеи в грамотный план работы по их реализации! На копиях планировки квартиры нужно создать чертежи для демонтажа, монтажа, размещению отделочных материалов, обозначить точки осветительных приборов, расставить розетки и выключатели, вычертить раскладку плитки в санузлах.
Вы должны создать четкий план работы, который позволит вам спокойно перенести процесс ремонта и остаться довольным его результатом. Да, с рабочими чертежами ремонт имеет свой конец!

www.inmyroom.ru
Как сделать ДИЗАЙН ПРОЕКТ квартиры самому в 2017, разработка дизайн-проектов интерьера
Многие начинающие специалисты и любители дизайна неизбежно задаются одним и тем же важным вопросом: как сделать дизайн проект квартиры, который бы отвечал не только эстетическим требованиям, но и был функционально и композиционно грамотным. Уж прости за такие высокопарные банальности, но, согласись, без теоретических знаний и понимания законов пространства просто невозможно создать качественный проект квартиры. Не путать с банальной расстановкой мебели, рисунками в карандаше своими руками и выбором штор!
Этапы разработки дизайн-интерьера квартиры:
- План проекта квартиры
- Эскиз дизайн проекта квартиры
- Создание дизайна интерьера квартиры
- Чертеж дизайна интерьера
- Мебель и освещение

Фото проекта интерьера: Jake Curtis
План проекта квартиры
Итак, с чего же все-таки начать. Помним, что дизайнерский проект квартиры всегда делается на основе реального помещения — и, само собой, до начала ремонта. Поэтому и начинаем все с обмерочного плана комнат, и сделать его лучше самому, так как размеры интерьера имеют решающее значение.
Необходимо нарисовать дизайн квартиры самостоятельно, план всех помещений и хорошенько подумать над его дальнейшим улучшением. Речь идет о планировке, ведь план проекта квартиры является половиной успеха будущего интерьера.
Как же разобраться с планом квартиры?
В первую очередь, необходимо разобраться с функциональным назначением каждого помещения.
Здесь нужно принимать во внимание все нюансы: от количества проживающих в квартире до их привычек, хобби и образа жизни. Но помни — какими бы замысловатыми не были причуды хозяев квартиры, неизменным остается то, что планировка всегда делится на две зоны: дневную и ночную (зону сна). Они не должны пересекаться, а лишь грамотно объединяться и быть взаимосвязанными.
Как сделать грамотный план проекта квартиры?
Необходимо создать эскиз интерьера комнат, в котором ты сможешь «набросать» возможные варианты расстановки мебели, линии транзитов между зонами (проще говоря то, как люди чаще всего будут ходить по квартире) — все это концептуально, без деталей. Можно сделать это самому вручную. Кстати, нет ничего лучше на начальном этапе проектирования интерьера, чем скетчи, созданные своими руками.

Фото проекта кухни: Stefan Wolf Lucks
После этого нужно перевести план интерьера в специальные дизайнерские программы, вычертить проект квартиры и начинать работу над более точным чертежом. Очень важно при проектировании следовать размерам, разработанным тобой ранее.
Эскиз дизайн проекта квартиры
Важно, чтобы уже на стадии проектирования, ты понимал общие дизайнерские приемы и стилистику будущего интерьера.
Определились с окончательным вариантом планировки — делаем эскиз дизайн проекта квартиры. Как?
Для начала ты должен разобраться с общей концепцией интерьера. Определись со стилем, который появится в пространстве после ремонта. В идеале, хорошенько изучить особенности выбранного тобой дизайнерского направления, чтобы проект дизайна интерьера был гармоничным.
Определился? Отлично. Теперь нужно, используя дизайнерские программы, к примеру 3d max, разработать более подробную концепцию по каждому из помещений и сделать макет комнаты. Создай объемно-пространственную модель интерьера, который существует сейчас, еще до ремонта, и начинай наполнять его твоими самостоятельными дизайнерскими решениями.
Вот мы постепенно и начали разрабатывать непосредственно сам дизайн проект квартиры.
Разрабатывая дизайн интерьера помещения, действуй самостоятельно от общего к частному.
Создание дизайна интерьера квартиры
Секрет успешного проектирования заключается именно в целостности, а этого можно добиться только при условии грамотного проекта в общем, а детали уже потом.
Как создать дизайн интерьера комнаты, который был бы гармоничным?
Все очень просто — нужно определиться с общей концепцией. Идеей, которая была бы нитью всего проекта, пронизывающего интерьер насквозь. Этот общий концепт должен ощущаться в каждом помещении квартиры, в выбранной цветовой гамме, в каждом элементе мебели.
В общем-то, для того, чтобы создать дизайн интерьера теперь тебе нужно самому придумать наполнение каждого помещения, нуждающегося в ремонте, подобрать соответствующую по стилю мебель, поработать с освещением, текстурами и цветом. Необходимо разработать каждый уголок квартиры и наполнить его еще и декором.
Тебе необходимо создать дизайн интерьера, в котором будет уютно и комфортно, и для лучшего понимания объема для тебя же самого, здорово пригодятся макеты помещений, созданные в компьютере (а когда-то мы делали это из бумаги или пластилина своими руками. Ох уж эта ностальгия).
Отрендерилось? Здорово! Двигаемся дальше.
Читай также:
Дизайн однокомнатной квартиры
Чертеж дизайна интерьера
Проект дизайна интерьера не был бы полным, если бы не сопутствующие ему чертежи, без которых макет бы был просто картинкой в журнале.
И пусть прорабы утверждают, что могут повторить ремонт по картинке с легкостью фокусника, без грамотных чертежей, более вероятно, дизайн не будет таким, как нужно.
Пришло время важнейшей части, которая пригодится при самом ремонте, разработки чертежей. Что нужно?
В первую очередь, для ремонта необходимы образмеренные планы интерьера, планы освещения, электрики, сантехники, напольного покрытия, потолков, отопления и так далее. Список можно продолжать и дальше, ведь объем чертежей для хорошего дизайнерского ремонта не так уж и мал!

Фото проекта гостиной: Dwell
Не стоит пренебрегать этой частью проекта комнаты, ведь без него твой красивый дизайн превратится в некую «пародию», созданную своими руками.
Мебель и освещение
Что дальше? А настало-то время для самого захватывающего и творческого процесса, а по совместительству еще и завершающего этапа проекта — подбора дизайнерских элементов, мебели, освещения и аксессуаров твоего интерьера. Здесь тебе нужно подобрать составляющие дизайна, и созданные ранее визуализации будут здесь в помощь.
К слову о творчестве, здесь ты можешь выбирать не только промышленные объекты, но и создать собственную индивидуальную мебель. Для этого можно воспользоваться эскизами и скетчами, созданными своими руками, для дальнейшей их реализации.
После того, как все составляющие проекта завершены, у тебя получится полноценный альбом, показывающий все составляющие дизайна: от обмеров до подбора мебели и аксессуаров.
А это и есть полноценный грамотный дизайн интерьера!
thearchitect.pro
Дизайн проект ремонта квартир в Москве и МО
Дизайн-проект квартиры — Начертим!
Смету на ремонт квартиры — Составим!
Смету на черновые материалы — Рассчитаем!
… и всё дадим в ПОДАРОК!
Став клиентом «Строй-Комфорт», вы сможете заказать проект ремонта квартиры совершенно бесплатно! Для этого нужно всего лишь позвонить нам по телефону. В процессе работы над проектной документацией опытные дизайнеры компании обязательно учтут ваши требования и увяжут их в единый, четкий и понятный план.
Хороший ремонт квартир сопровождается не только разработкой дизайн-проекта, но и расчетом расходов. Составление сметы на черновые стройматериалы и проведение ремонтных мероприятий тоже выполняется бесплатно. Сотрудничая с нами, вы отлично экономите на сопутствующих услугах и доверяете жилье мастерам с огромным опытом работы в строительной сфере.
Наша компания ведет деятельность на территории Москвы и МО. Клиентам доступен ремонт квартир в г. Котельники, Мытищи, Дзержинский, Химки и др. Ваше месторасположение не имеет для нас значения. Бригады мастеров готовы приехать в любой район столицы или областной населенный пункт, чтобы работать над обустройством вашего жилья круглую неделю без выходных дней!
Начав работу с нами, Вы получаете бесплатно: а) дизайн-проект квартиры и б) сметы на работы и материалы для успешного проведения работ! Чтобы узнать подробности оказания ремонтно-строительных услуг, позвоните нам по номеру +7 (495) 78-234-78!
Назначение дизайн-проекта
Качественный ремонт квартиры под студию или жилых помещений с межкомнатными перегородками должен выполняться по проработанному до мельчайших деталей плану. Иначе мастера начнут работать по собственному усмотрению, что приведет к непредсказуемым результатам. Наличие дизайн-проекта поставит их в жесткие рамки и позволит с высокой точностью реализовать идеи хозяев.
Профессионально составленный дизайн-проект ремонта квартиры решает 2 важные задачи. Во-первых, позволяет визуально оценить обстановку будущих помещений. Во-вторых, предусматривает размещение розеток, выключателей, предметов обстановки и др. Проектирование сводится к формированию детального плана, по которому следует выполнять ремонтные работы и обустраивать интерьер помещений.
Хороший ремонт квартир без дизайн-проекта возможен, но наличие чертежей позволяет избежать ошибок в процессе ремонта. Если у вас его до сих пор нет, наши специалисты бесплатно и профессионально спланируют обстановку жилья в короткие сроки!
Этапы работы над проектом
- Приезд прораба для оценки и замера помещений.
- Консультация заказчика по подбору материалов и последовательности работ.
- Составление подробных смет на черновые стройматериалы и ремонт:
- Разработка дизайн-проекта.
Сметы формируются в течение 1-2 дней. Проект квартир с ремонтом «под ключ» создается примерно столько же или чуть дольше. Окончательный срок зависит от сложности поставленных заказчиком задач.
Что включает дизайн-проект?
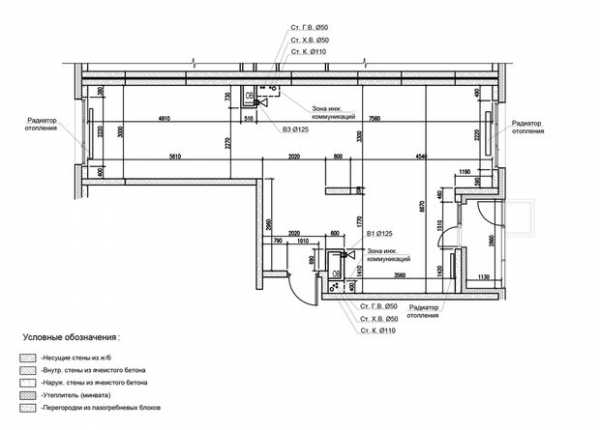
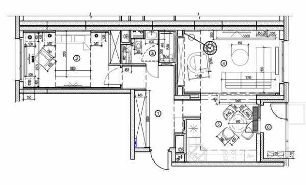
После заказа ремонта вам предоставляется бесплатно дизайн-проект квартиры, который состоит из обмерного чертежа, группы включения светильников и плана:
- Сноса/возведения перегородок.
- Межкомнатных дверей.
- Расстановки предметов обстановки и бытовой техники.
- Потолка с привязкой к осветительным приборам.
- Сети розеток.
- Установки теплых полов.
- Укладки линолеума, ламината, паркета или других напольных покрытий.
- Отделки жилых и служебных помещений.
а также Дизайн-проект:
- Обмерный чертеж.
Обмерный чертеж - План демонтажа перегородок.
План демонтажа перегородок - План возводимых перегородок/ приложение с разрезами перегородок, если необходимо/ Ведомость межкомнатных дверей.
План возводимых перегородок - План расстановки мебели и оборудования.
План расстановки мебели и оборудования - План потолка с привязкой светильников/ разрезы потолков, если необходимо.
План потолка с привязкой светильников - Группы включения светильников.
Группы включения светильников - План розеточной сети.
План розеточной сети - План укладки теплого пола.
План укладки теплого пола - План укладки напольных покрытий.
План укладки напольных покрытий - План отделки помещений.
План отделки помещений
Далее если Вас устраивают и чертежи, и смета, то заключается договор, передаете ключи и мы начинаем ремонт.
БЕЗ ПРЕДОПЛАТЫ за работы.
БЕЗ ПРЕДОПЛАТЫ за черновые материалы.
БЕЗ ОПЛАТЫ дизайн-проекта.
Хотите заказать дизайн-проект квартиры? Доверьте ремонт нашей компании и получите его бесплатно!
Обратившись в ремонтно-строительную компанию «Строй-Комфорт», вам гарантированы следующие уникальные преимущества:
- Доступная стоимость комплексного ремонта квартиры.
- Предоставление гарантии 12 месяцев и вывоз мусор с объекта.
- Мастера высокой квалификации.
- Ремонт любых частных или коммерческих объектов.
- Выполнение работ в короткие сроки.
- Оплата по факту и материалы без аванса.
- Возможность заказать дизайн-проект ремонта квартиры в Москве и МО бесплатно при условии подписания договора на оказание ремонтных услуг.
Готовы начать ремонт?
Сделать заявку на ремонт квартиры вы можете любым из 3 способов:
Напишите нам сообщение с вашими пожеланиями по ремонту здесь — и мы вам ответим!www.s-komf.ru
Дизайн проекты квартир: правильное составление
empstenup/ Февраль 29, 2016/ Оформление/ 0 comments
Практически каждый глава семьи в определённый момент жизни покупает новую квартиру или решается затеять долгожданный капитальный ремонт. При этом их пугают мысли о предстоящем «ужасе», о нелёгком выборе стиля и материалов, цветовой палитры и мебели для своего жилья. Сегодня существует отличный выход из сложившейся ситуации – профессиональные дизайнеры помогут вам сделать так, чтобы обычная бетонная коробка превратилась в уютный и стильный уголок, где можно расслабиться после тяжёлых рабочих будней.

- Зачем нужны дизайн проекты квартир? Профессиональные дизайнерские проекты квартир помогают чётко визуализировать интерьер будущего жилья, понять, как правильно расположить мебель и элементы декора в той или иной комнате, какие цвета лучше всего применять. Благодаря этому сокращается риск возникновения ошибок, экономится время и деньги. Дизайн проект квартиры ещё до начала ремонтных работ позволяет составить смету и проконтролировать её соответствие каждому этапу при реализации проекта.

- Если вы закажете дизайнерский проект вашего жилья у профессиональных дизайнеров, вам предоставят точные подсчёты объёма необходимых стройматериалов, благодаря чему вы избежите непредвиденных денежных затрат. Проектирование дизайна интерьера позволяет создавать неповторимые образы будущей квартиры, разбивая помещение на функциональные зоны.
- Проекты дизайна квартир от компании «RIO» – это индивидуальный подход к проектированию каждого жилья и чётко продуманные функциональные особенности помещений. Благодаря существенной технической базе и сочетанию архитектурных стилей мы быстро и максимально качественно реализуем проекты точно по задумкам заказчиков.

Лучше заранее получить технический паспорт и первоначальный план квартиры. Там обычно отображается расположение всех коммуникаций. Это касается и проблемной электропроводки, батарей, которые постоянно подтекают. От них дизайн тоже зависит.
Разметка
Если дизайн-проекты касаются всей квартиры, то лучшим решением будет нанесение цифр на старые планы. Обязательно наличие схематических изображений с расположением переключателей и розеток.
Перепланировка и ремонт – отличная возможность изменить дизайн, поставить в каждой комнате столько розеток, сколько нужно. Установить выключатели на высоте, которая обеспечит эффективную работу в любых условиях.
Лучше ставить как можно больше розеток. Они никогда не бывают лишними. Пусть некоторые из них останутся нерабочими. Это удобнее, чем покупать тройники и переходники.
Телефонный провод
При составлении дизайн-проекта можно подумать и о том, куда надо протянуть телефонный кабель. Есть большая вероятность, что недостающий шнур придётся докупить. Это необходимо и в том случае, когда в доме интернет установлен от телефонной сети.
Система вентиляции
Прописанная заранее схема квартир поможет грамотно разместить все элементы, просчитать проекты. Обычно комнатами, где нужна наиболее мощная вентиляция, становятся кухня, ванная, туалет. А вот складские помещения подобные требования предъявляют достаточно редко.

Трёхмерная проработка интерьера
Решение этого вопроса часто занимает больше всего времени. Особенно, если используются компьютерные программы для квартир. Сроки могут растянуться на месяц и больше.
Помещения прорабатываются в ручной графике, либо с помощью технологий 3D-визуализации. На каждом из этапов работы задействованы грамотные дизайнеры с высоким уровнем квалификации. Лучше доверить проработку дизайна квартир именно им, это защитит от ошибок в ближайшем будущем. Перед клиентом в итоге предстаёт детальная обстановка жилого или офисного помещения, в масштабе.

Виртуальное воплощение поможет определиться с сочетанием между собой реальных элементов обстановки. Визуализация предполагает применение не выдуманных, а реальных элементов, позволяет уточнить любые интересующие параметры. После чего переходят к составлению строительной документации. Автор проекта или заказчик ставят свою подпись и печать, если их всё устраивает.
Готовые дизайн-проекты
Авторский надзор для квартир становится последним этапом в разработке дизайна. Эта работа не обязательна, дизайнеры занимаются ей только по согласованию с заказчиками. Если заказчик уверен в своих силах полностью, он может не тратить средства на этот этап. И не изучать портфолио специалистов.

Дизайнер выезжает на объект два раза в неделю при осуществлении авторского надзора. При необходимости, ему даётся возможность вносить свои корректировки в реализацию проекта. Рабочие процессы контролируются полностью с его стороны, он смотрит, насколько они соответствуют утверждённой ранее документации. Иногда в ходе этой работы создаются авторские декоративные элементы для квартир. Специалисты помогут подобрать элементы интерьера, материалы для внутренней или внешней отделки, внести корректировки в дизайн.

Надо учесть, что первоначальные эскизы редко полностью совпадают с тем, что получается в реальности. Отхождение от первоначального плана вероятно в любой ситуации. Иногда дизайнеры сами предлагают решения, которые отличаются от первоначальной задумки. Например, берут идеи из имеющегося портфолио.
Главное – выбрать правильных исполнителей для квартир. Лучше дизайн-проекты заказывать не по отдельным комнатам, а по всей квартире сразу. Только грамотные специалисты найдут такие решения, где каждая деталь будет гармонировать с другими. Наличие 3D визуализации – дополнительный плюс. Многим не хватает одних схем, чтобы быстро сориентироваться. 3D визуализация поможет сделать так, что видение дизайнера будут полностью совпадать с пожеланиями клиента. Портфолио тоже никогда не бывает лишним. Лучший вариант по ценам – в среднем диапазоне. Слишком дешёвых и слишком дорогих рекомендуется избегать.
2 видео по правильному созданию и заказу дизайн-проекта
Проекты на фото (30 штук)
Что читают другие люди:
lost-empire.ru
Дизайн-проекты интерьеров квартир | Идеи для ремонта
Как планировать ремонт?
Итак, вы решили сделать ремонт в квартире. Как подступиться к этой непростой задаче и с чего начать?
Первое, о чем следует задуматься любому человеку, — это стоимость ремонта в квартире. Определите для себя, какую сумму вы готовы вложить в реализацию своих желаний, и, уже отталкиваясь от этого, составляйте проект ремонта, однако всегда оставляйте запас финансов на неожиданные расходы – они неизбежно возникают, поскольку ремонт квартиры рассчитать крайне сложно (особенно новичку).
Далее, определитесь, включает ли ваш проект ремонта квартиры перепланировку. Перепланировка всегда сопряжена с дополнительными расходами, кроме того, к решению этого вопроса следует подходить осторожно: непродуманный проект перепланировки может обернуться не только дискомфортом, но и более серьезными проблемами – например, снос несущих стен угрожает устойчивости дома, а разрушение балконного блока нарушает тепловой контура здания. Поэтому проект перепланировки квартиры лучше поручить профессионалу – дизайнеру или архитектору, но даже если вы взялись за дело самостоятельно, прежде чем крушить стены, получите согласования в соответствующих инстанциях.
Для людей, которые больше всего ценят свое время, удобнее поручить дизайнеру не только разработку дизайн-проекта «на бумаге», но и авторский надзор.
Однако полезно знать, что дизайн-проект квартиры далеко не всегда представляет собой дорогое удовольствие, доступное только толстосумам. Нередко заказывают и проект однокомнатной квартиры, а в условиях экономии ограничиваются планировочным решением, без визуализации и детальной проработки вариантов отделки. Такой подход позволяет избежать ошибок на начальной стадии, а значит, лишних трат на их исправление в дальнейшем. Имея проект перед глазами, владелец жилища может самостоятельно изучить образцы ремонтов квартир, варианты внутренней отделки, фото помещений в разных интерьерных стилях, и затем, вооружившись знаниями, приступить к подбору материалов и мебели.
При подборе декора и мебели чаще обращайтесь к тематическим сайтам и журналам, где представлена отделка, фото квартир, лучшие дизайнерские проекты. Как минимум, вы почерпнете там некоторые идеи для своего дома.
К тому же, гораздо проще разобраться, просмотрев фото, отделка камнем вам импонирует или штукатурка, устраивает вас отделка стен фото-обоями, ярким панно и т.п., или вы сторонник более традиционных решений – мелких цветочных рисунков, абстрактных геометрически орнаментов, однотонных стен. Собирайте наиболее понравившиеся изображения в специальную папку, чтобы позже сохранить лучшее и отсеять ненужное. Попутно вы определите цветовую гамму и стилистическое решение будущего интерьера, — не случайно одним из популярных приемов в работе дизайнера является составление коллажа, который позволяет лучше понять эстетические предпочтения заказчика.
В выборе специалистов вам поможет портал мастеров ремонта и отделки, где можно не только получить советы по ремонту, но и познакомиться с потенциальными исполнителями. Стоит отметить, что найти прораба и строительную бригаду зачастую не менее трудно, чем дизайнера или архитектора. В процессе поиска лучше ориентироваться на портфолио мастеров, альбомы, где представлена отделка квартир, фото санузлов, жилых помещений и др. Богатое портфолио указывает на опыт мастера, но благодаря Интернету и форумам вы можете также заочно пообщаться с кандидатом: настоящий специалист способен многое рассказать о самых прозаических вещах, таких, например, как отделка балкона, фото которого вы увидели на его странице, или монтаж унитаза. Знание деталей и внятные объяснения служат лучшим подтверждением профессионализма.
Любые ремонтные работы требуют тщательной подготовки, иначе вы рискуете оказаться в неприятной ситуации, когда деньги потрачены, а результат далек от ваших ожиданий. Чтобы вы могли спланировать ремонт квартиры, дизайн и заранее узнать о «подводных камнях», изучив реальные примеры ремонта, приглашаем вас заглянуть в раздел «Профессионалы» на нашем сайте. Здесь вы найдете дизайнеров, прорабов, специалистов по ремонту широкого профиля и мастеров узкой специализации, узнаете, как рассчитать ремонт (составить смету на ремонт квартиры), сравните образцы отделки разными материалами, проекты квартир и получите советы профессионалов.
ideas.vdolevke.ru
