Рулонные шторы какие бывают – виды, размеры, цены, монтаж (фото)
Варианты рулонных штор, виды категорий моделей и открытого и закрытого типа
Рулонные шторы – это тканевая вариация жалюзи. Прежде всего, это конструкция, представляющая собой систему направляющих и тканое полотно. При поднятии они скручиваются в рулон. Существуют разные виды рулонных штор, разделение на которые происходит в зависимости от разнообразных характеристик.
Виды штор в зависимости от конструкции
Рулонные шторы могут иметь два вида конструкции:
- с открытой системой
- с закрытой системой
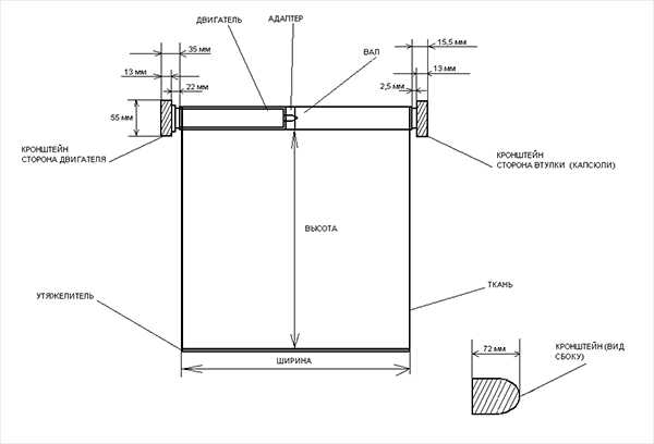
Первый вид не имеет короба и состоит из валика, на который наматывается ткань, а также нижней планки и направляющих механизмов. Подобные шторы работают одинаково, на это не влияет ни форма кронштейна, ни диаметр вала, ни ширина нижней планки. Подобная конструкция используется для того, чтобы завесить или весь проем окна или отдельную створку. Данный вид занавесей используют, когда хотят подчеркнуть декор.
Система закрытого вида имеет короб кроме составляющих, характерных также и для открытых систем. Именно короб закрывает ткань, фиксируя ее и предотвращая провисание. Подобные шторы имеют ряд преимуществ. Особенно это касается их применения в наклонном положении окна, когда ткань максимально прилегает к нему и не деформируется, полностью блокирую солнечные лучи.
Виды рулонных штор в зависимости от вида стеклянной поверхности
Согласно тому, на какой стеклянной поверхности применяются шторы, их делят на несколько типов:
- открытые
- кассетные
- ролло
- миникассетные
- мини
- большие рулонные шторы
Открытые рулонные занавески
Данный вид является наиболее распространенным и простым в использовании, что связано с отсутствием кассеты. Благодаря этому фактору, происходит открытое наматывание полотна рулонной щторы на валик, который прикреплён на крепежные уголки окна. При этом на ткани не появляется неровностей или сборки вдоль створки благодаря нижнему отвесу, который выступает как утяжеляющий грузик. За самой тканью находится леска или направляющие, по которым и скользит данный отвес. В результате, даже в наклонном положении окна или при сильном сквозняке, данная разновидность штор плотно прилегает к окну. Как видно на фото, данная модель идеально ложится в оконном проёме.

Такие рулонные шторы станут изюминкой в декоре вашего дома
Кассетные
Занавески данного вида наматываются на вал, который полностью закрывается коробом кассеты. Кассеты бывают нескольких моделей: угловыми или круглыми. Какой бы тип вы не выбрали, это не влияет на эстетичный вид самой шторы. Производители выбирают наилучшие современные материалы для изготовления кассет, при этом обращая внимание на их размеры и пытаясь придать им компактность. По цветовой гамме они так же бывают довольно разнообразными. Вы легко сможете подобрать необходимые вам модели, которые будут гармонировать с цветом окна или общим дизайном комнаты, как, например, на фото ниже.

Кассета остается незаметной и словно сливается с самим окном
Ролло
Шторы данной категории чаще всего используются для затемнения окон мансардного типа. По конструкции данные модели очень похожи на миникассетные, но имеется веское отличие, а именно использование исключительно пружинного механизма и модернизированные направляющие. Для изготовления этого вида ролло используется специальная ткань Blackout, которая позволит почти полностью затемнять комнату.
Миникассетные
Этот вид жалюзи используется при монтаже на створку алюминиевого или деревянного окна. Конструкция данной модели достаточно проста, это тоненький валик, в диаметре не превышающий 15 мм, и ткань, наматывающаяся на него. Здесь снова используется закрытый короб, в который ткань прячется при наматывании, по бокам есть направляющие, которые предотвращают провисание ткани. При выборе данной версии штор, помните о главном преимуществе: даже при режиме окна «Проветривание», жалюзи можно оставить закрытым, они будут плотно прилегать даже к откинутому окну.
Рулонные шторы мини
Данный вид жалюзи так же как и предыдущий крепится на створку окна. Это подобная система, отличием которой является рулон и отсутствие направляющих. Именно этот фактор значительно снижает их стоимость и делает более доступными для покупателей. Существует несколько способов монтирования штор мини, без сверления рамы, с использованием пластиковых кронштейнов и со сверлением, что чаще всего и делают при их установке. Второй вариант подходит для любых створок, в том числе неоткрывающихся, а первый лишь для открывающихся.
Большие рулонные шторы
Для затемнения достаточно больших окон используются довольно тяжелые эксклюзивные ткани. Сюда входят большие стеклянные поверхности, панорамные и витринные окна. Они могут иметь разный уровень прозрачности, начиная от прозрачных и заканчивая теми, что затеняют около 90% освещения.
Виды штор в зависимости от типа рисунка
Согласно данной характеристике шторы делятся на 2 вида:
- однотонные
- с рисунками
Как понятно из названий, однотонные шторы имеют один цвет или оттенок, в то время как второй вид представлен в огромном разнообразии, начиная детскими мультипликационными героями, заканчивая витиеватыми узорами и изысканными сплетениями. Однотонные ткани чаще всего сочетают с тюлями, а ткани с рисунками выбирают, чтобы сделать акцент на них, без других штор, тюлей и т.п.
Виды штор в зависимости от светопроникновения
Одним из важных критериев при выборе штор, является их светонепроницаемость. Согласно этому они делятся на 4 вида:
- прозрачные
- полупрозрачные
- Dim-out
- Black-out
С первыми двумя видами все ясно из самого названия. Третий же, обеспечивает 90% затенения, а четвертый может полностью ограничить попадание дневного света в комнату, создавая светоизоляцию.
Виды штор в зависимости от направления движения
- сверху вниз
- снизу вверх
Первый вариант является наиболее распространенным и привычным для большинства людей. Особое внимание стоит обратить на рулонные занавеси, которые можно регулировать в другом направлении, а именно снизу вверх. Короб, благодаря особому строению системы, двигается вдоль направляющих лесок в обратном направлении. Сам короб с тканевой основой можно установить снизу, а не как в большинстве случаев сверху. Чаще всего такой вариант особенно удобен для помещений на первых этажах, где люди хотят защититься от постороннего внимания и взглядов, при этом освещение будет попадать через просвет в верхней части окна. Чаще всего данная система используется на мансардных окнах.
Тканевые роллы типа день-ночь
Не попадают ни в какие категории и выделяются отдельным типом жалюзи типа день-ночь, выполненные из тканей. Как видно на фото, вы можете регулировать естественное освещение с помощью подобных занавесей.

Шторы день-ночь являются экономичным и современным аналогом для традиционных жалюзи
Довольно часто чрезмерное освещение становится проблемой для многих людей. В зимний период это безусловно помогает сохранять тепло в комнате, в то время как в летний, делает просто невыносимым нахождение в таком помещении. Шторы день-ночь являются оптимальным решением и имеют рад преимуществ. Прежде всего, это эргономичность. Когда вы сворачиваете шторы, они становятся незаметными благодаря небольшому тубусу в верхнем основании, где и прячется ткань, наматываясь на валик. Вторым преимуществом является управление освещённостью с помощью регулирования открытости горизонтальных тканевых полосок. Здесь их две: прозрачная и плотная, их пересечение и наложение регулирует степень освещения.
Похожие статьи
shtorymax.ru
Какие бывают рулонные шторы на пластиковые окна
Солнцезащита всех типов и систем
Современный мир стал более требователен к комфорту и дизайну интерьеров: будь-то офис или кабинет, квартира или загородный дом.
Рулонные шторы на алюминиевые окна
Все мы стараемся обустроить помещения такими, какими мы видим, в которых хотелось бы находиться каждый день, при этом испытывать комфорт и уют.
Солнцезащита в домеиграет не менее важную ежедневную роль — защищает нас от прямых солнечных лучей, а ночью может гарантировать спокойствие от чужих глаз. При этом разнообразие систем и способов защиты от солнца — огромное множество: рулонные шторы (мини, стандарт, с коробом), жалюзи горизонтальные и вертикальные, «зебра», плиссе, деревянные или волнистые жалюзи.
А материалы, из которых они изготовлены, так же не меньшее количество: пластиковые, алюминиевые, деревянные, тканевые! Помимо всего каждое из изделий имеет свою палитру цветов в каталоге. Любой тип солнцезащиты изготавливается по индивидуальным размерам окна, что гарантирует точную установку в любой оконный проем или на любую створку окна.
Такое разнообразие типов, материалов и цветов обещает, что каждый сможет выбрать себе, то, что требует его интерьер!

Всем привет!
Семь раз отмерь, один раз отрежь: стандартные и не очень размеры рулонных штор
Рулонные шторы – практичный и эстетичный вариант декорирования пластиковых окон. Они способны не только надежно защищать комнату от прямых солнечных лучей, рассеивая их или полностью блокируя, но и могут органично дополнять интерьер. А вот как правильно выбрать рулонные шторы, что – бы не пожалеть о приобретении мы и поговорим далее.
Основные виды рулонных штор
Задавшись вопросом, какие рулонные шторы выбрать, прежде всего, обратите внимание на их конструкцию.
Они бывают двух типов – открытые и закрытые.

Открытый вариант подразумевает крепление вала со свободно свисающей шторой вверху над перекрываемым проемом. К нижней части полотна крепится специальная планка для утяжеления.

Закрытая конструкция дополнительно имеет короб в верхней части и боковые направляющие, благодаря которым проем перекрывается полностью, в таком исполнении штора плотно прилегает к оконной раме и свет не проникает сбоку от полотна.

Существует три вида регулировки механизма рулонных штор:
- Цепочный шнур.
С одной из сторон (пользователь имеет возможность самостоятельно выбрать, с какой стороны ему удобнее управлять шторой) крепится специальная деталь, которая позволяет вручную опускать полотно или поднимать его, заставляя наматываться на вал.
- Пружинный держатель. Обеспечивает легкое управление, автоматически фиксирует полотно в нужном положении. К недостаткам такого управления относится ухудшение фиксации, если пружина растянулась из-за активной длительной эксплуатации.
- Электрический привод.
Использование электромотора и блока управления дает возможность управлять шторами дистанционно.

Для изготовления рулонных штор производители используют широкий спектр материалов с различными функциональными особенностями.
Дерево. Полотно, состоящее из тонких деревянных планок, удачно вписывается в большинство стилистических решений.
К преимуществам таких изделий относится привлекательность фактуры натурального дерева, устойчивость к выгоранию и воздействию влаги.

Бамбук. Полотно из бамбуковых ламелей отличается легкостью и прочностью, эстетичным внешним видом и практичностью.
Подходит для современных интерьеров и для оформления помещений в восточном стиле.

Ткань светопропускающая.
Полупрозрачные ткани рассеивают яркие лучи, делая комфортным естественное освещение в комнате. Широкий ассортимент тканей различной светопропускной способности, в том числе с рисунком, позволяет подобрать подходящий вариант для любого интерьера.
Ткань блэкаут. Полностью блокирует световой поток.
Такие шторы помогут создать идеальную обстановку для сна независимо от времени суток и уровня освещенности на улице.

На что обратить внимание при выборе
Сначала определитесь, куда вы собираетесь повешать шторы.
Рулонные шторы можно смонтировать непосредственно на оконных створках, а также установить внутри проема окна либо над проемом. В первых двух случаях важно проверить, чтобы фурнитура оконного блока не мешала свободно закрывать и открывать шторы.

Затем определите, какой вариант конструкции лучше выбрать, и какой тип управления вам больше подходит.
На створки рекомендуется крепить конструкции закрытого типа – полотно не будет свешиваться, когда створка пластикового окна приоткрыта на проветривании. Шторы блэкаут нужно приобретать в обязательном порядке с закрытой конструкцией, чтобы обеспечить полноценное затемнение помещения.

Также важно правильно рассчитать размер конструкции – производители предлагают широкий выбор рулонных штор, которые различаются диаметром и шириной вала.
При расчете длины шторы лучше предусмотреть небольшой запас, поскольку недостаток длины выглядит не эстетично и снижает функциональность шторы.

На следующем этапе следует правильно выбрать ткань.
Для изготовления рулонных штор используются различные ткани, в том числе нейлон, хлопок, фибергласс. Материал проходит специальную обработку, после которой он не притягивает и не накапливает пыль, и не выгорает под воздействием солнечных лучей.

Цвет, фактура и рисунок ткани подбирается с учетом общей цветовой гаммы помещения и его назначения.
К примеру:
- для использования в офисах и учреждениях подходят светлые однотонные ткани приятного оттенка;
- для создания эффекта витража выбирают полупрозрачную ткань с подходящим рисунком;
- джутовое полотно подходит для окон в кухне, на лоджии, поскольку добавляет спокойного уюта;
- для детской можно подобрать ткань с веселым рисунком;
- цвет и фактура полотна штор в гостиной или спальне может перекликаться с текстильным оформлением помещения;
- шторы блэкаут незаменимы при создании домашнего кинотеатра.

Заключение
Выбирая рулонные шторы, обратите внимание на принцип установки конструкции.
К примеру, производители предлагают модели для крепления на створки окон, монтаж которых не требует сверления рамы. Короб шторы, которая крепится снаружи оконного проема, может быть установлен на стену или на потолок – выбор зависит от особенностей архитектуры и интерьера конкретного помещения.
Можно сочетать рассеивающие рулонные шторы на створках окна со шторой блэкаут, полностью закрывающей проем.

Рулонные шторы для пластиковых окон пользуются высоким спросом благодаря своей практичности. К преимуществам рулонных штор также можно отнести оригинальный внешний вид, компактность, простоту и удобство использования, многофункциональность.
Видео по теме «как выбрать рулонные шторы на пластиковые окна»:
Чтобы жалюзи на окнах полноценно выполняли свою функциональную роль, служили дизайнерским украшением комнаты, их изначально следует выбирать правильно. Выбор штор диктуется различными условиями от вида помещения и типа открывания окна до его конструкции, размера штапика оконной рамы. Рассмотрим несколько особенностейрулонных штор Mini и Uni, в чем разница между ними, каковы их конструктивные характеристики.
Кассетные тканевые жалюзи


Практически универсальным, а потому одним из популярных можно назвать тип кассетных рулонных штор Uni. Характеристика «кассетные» им присвоена благодаря наличию полукруглой кассеты — короба, который крепится к верхнему штапику.
Короб прячет внутри небольшой вал диаметром до 15 мм. Полотно при поднятии наматывается на вал, уходя в кассету полностью, что имеет дизайнерские преимущества: количество цветовых и фактурных решений позволяет приобрести жалюзи под цвет оконной рамы, идеально вписывающиеся в интерьер комнаты. Направляющие по бокам удерживают полотно от провисания и выпадания при открывании окна.

Усовершенствованным вариантом системы Uni является механизм Uni 2, который позволяет крепить рольшторы на окна с очень тонкими штапиками.
Механизм можно оборудовать пружинным управлением. Алюминиевые направляющие делают возможным их использование на мансардных окнах, а выбор фактур существенно увеличен.
Специальные крепления позволяют устанавливать жалюзи без сверления рамы. Минусом систем Uni может стать их стоимость. Именно ценовая категория определяет разницу между Uni и Mini.
Тканевые шторы типа Mini

Отличиерулонных жалюзи Мини от предыдущего типа состоит в отсутствии боковых направляющих и короба, благодаря чему стоимость этой системы существенно ниже.
Механизм управления, способ крепления, включая прочие особенности рулонных штор Мини позволяют устанавливать их на окнах практически любого типа, кроме раздвижных. Установка на окна может производиться как при помощи просверливания рамы, так и с использованием специальных креплений.
Как замерить рулонные шторы на пластиковые окна
Полотно удерживается от провисания магнитами, крепящимися на нижний штапик окна.

Устанавливая тип Мини следует учесть тот факт, что отсутствие боковых направляющих может влиять на степень затемнения помещения — оно не будет полным. Проверить степень затемнения лучше еще до покупки, приложив полотно к стеклу в светлое время суток. Оценив все плюсы и минусы рулонных штор Mini и Uni, вы сможете определиться с покупкой нужного вам типа.
Какой материал подходит для рулонных штор, которые планируется установить на пластиковые окна? Какой вид крепления вызывает больше доверия – закрытый или открытый? Ответы на эти и другие вопросы вы узнаете, если прочтете нашу статью. Кроме того, предлагаем вашему вниманию фотогалерею с образцами оформления дизайна с использованием всевозможных видов рулонных штор.
Большой ассортимент материалов для штор пестрит разнообразием цветовых оттенков и фактур. В рамках нашей статьи рассмотрим 4 вида, наиболее часто применяемых для окон жилых помещений.
Это:
Ознакомиться детальнее с каждым из названных видов вы можете в интернет-магазине ИКЕА, там же имеются фотопримеры, наглядно демонстрирующие конечный результат декорирования окна. Различия подвидов, их недостатки и преимущества, мы постараемся донести всем заинтересованным.
Первыми в списке значатся бамбуковые шторы.
Именно они способны придать экзотической нотки вашему дому и разнообразить интерьер. Изготавливаются их полос бамбука либо соломинок, закрепленных между собой прочными нитями. Преимущества:
Минусов у бамбуковых штор практически нет. Добавить к существующему списку можно и то, что ими легко управлять, они функциональны и прослужат без поломок длительное время.
Часто встречающимся материалом для рулонных штор считается ткань, богатству ее цветовых оттенков и фактур нет равных.
Используя это преимущество, вы выберите тот вариант, который подойдет и по стилю, и по ценовой категории. Важными плюсами текстильных штор являются такие:
Среди минусов хочется отметить неустойчивость к выгоранию и неудовлетворительную прочность материала.
Однако современные технологии позволяют избавиться от этих недостатков путем обработки ткани особыми составами.
Шторы из древесины относятся к экологически чистым предметам интерьера, они все чаще наблюдаются в домах и квартирах наших сограждан.
Натуральный и безопасный для здоровья материал приглянулся многим, и вот из-за чего:
И последними в списке идут рулонные шторы rollite, относящиеся скорей к разновидности, чем материалу, используемому в производстве. Их достоинства:
Незначительный минус состоит в неосуществимости изготовления этого вида штор в домашней обстановке. Но вызов мастера поможет вам решить проблему в короткое время.
Способы креплений
По своей сути рулонные шторы это отрезок ткани, прикрывающий определенную часть окна.
За полотном находятся направляющие, задействованные при ходе нижней планки, не позволяющей отклоняться ткани от стекла при колебаниях воздушной массы. Присоединения штор подразделяются на два типа:
Предназначение рулонных штор состоит в рассеивании солнечного света или полном затемнении комнаты.
Рулонные шторы на пластиковые окна: открытые и кассетного типа
Еще одна их роль – декоративное украшение оконного проема.
Закрытый тип
Его еще называют кассетным, так как он содержит короб для скрытия вала с накрученной тканью. При монтаже рулонных штор следует помнить, что ширина полотна зависит от размеров оконного проема и должна быть его уже на ту ширину, которой обладают направляющие.





Нельзя сказать, что закрытый вид креплений придаст всей конструкции воздушности, но если главным приоритетом является надежность и долговечность рулонных штор, это самый лучший вариант.
Открытый тип
Этот тип изготовлен из вала, на который наматывается ткань, механизма и нижней планочки.
Различия конструкции продиктованы диаметром вала и габаритами планки. Функциональные особенности крепления при этом никак не отличаются. Выбирая открытую систему фиксации, необходимо учитывать ширину рулонных штор, поскольку от этого зависит диаметр вала. Она не запрещает запирать отдельные створки окна и стоит в Леруа Мерлен довольно недорого.





Выбираем рулонные шторы, учитывая их тип
Хоть рулонные шторы и несут декоративную нагрузку, их основное предназначение – это затемнять помещение и рассеивать дневной свет.
Предлагаем вам рассмотреть их типы.
Светоотражающие
Такому виду присущи светонепроницаемые свойства, позволяющие блокировать попадание солнечных лучей в помещение. Таким образом достигается полная темнота, необходимая в детской комнате либо спальне в любое время суток.






Светорассеивающие
Солнечные лучи, проникающие с улицы в помещение, рассеиваются и становятся уже не такими яркими благодаря рулонным шторам.
Этот вид причисляется к декоративным элементам интерьера, и хорошо смотрятся в паре как с портьерами или гардинами, так и с легким тюлем.







День-ночь
Совместный проект вышеупомянутых видов рулонных штор получил название «день-ночь».
Он изготавливается из плотных и легких полос ткани, благодаря чему можно осветить или затемнить комнату.






Выбираем рулонные шторы для различных помещений
Комфортная обстановка в любой комнате формируется из нескольких составляющих, одной из которых является декор на окнах, в нашем случае – это рулонные шторы.
От правильного выбора зависит, насколько они способны украсить комнату и защитить нас от яркого солнца.
В гостиную
Тип «день-ночь» как нельзя лучше сгодятся для гостиной. Их преимущество перед остальными состоит в регулировании потока солнечных лучей, попадающих в оконный проем. Приличной альтернативой послужат рулонные шторы, изготовленные из непроницаемых тканей, они известны своим свойством создавать уютную обстановку. В не очень просторной гостиной повесьте шторы в тон стен, но чтобы комната выглядела свежей и неординарной, на них должен быть красочный рисунок или орнамент.
Светоотражающий тип штор рекомендуем приобрести в спальню – помещение, требующее постоянного полумрака.
Плотный материал воспрепятствует яркому свету, разрушающему интимную обстановку в комнате. Кроме полезных качеств такой декор для окна будет стильным дополнением к интерьеру. Выбирайте шторы, по цветовому оттенку совпадающие со стенами или мебелью, иначе вы испортите весь дизайн.
Другими словами, пусть они сочетаются с другими предметами интерьера, дополняя и украшая всю обстановку в целом.







В кухню
На кухне востребованность в рулонных шторах ощущается более всего, ведь здесь они несут значительную функциональную нагрузку.
Правильно подобранные, с водоотталкивающим эффектом, они прослужат долгое время. Кухонные рулонные шторы пусть не будут слишком длинными, полотно средней длины подойдет идеально. Главное, чтобы они составляли единый ансамбль со всей обстановкой в помещении и были изготовлены из натурального материала. Последнее требование особенно актуально, так как оно позволяет тщательно ухаживать за декором.
Устанавливая в кухне рулонные шторы, отталкивайтесь от их практичности и надежности, а декоративная роль будет второстепенным фактором.





Делаем рулонные шторы собственноручно
Видео с массой нужных рекомендаций, поэтапными руководствами и примерами, бесспорно, пригодится тем, кто хотел бы изготовить рулонные шторы своими руками.
Если вы решили не прибегать к помощи профессиональных мастеров или покупать готовое изделие в торговой сети, вот видеоролики, которые вам нужно посмотреть. Перед тем, как взяться за инструменты и материалы, взгляните, как с ними управляются специалисты.
Каталог и фото подскажут вам примеры оформления оконных проемов с помощью рулонных штор. Идеи, которые предлагают дизайнеры, вдохновят вас на создание стильных интерьеров, которые можно воплотить в вашей квартире в самое ближайшее время.
Несколько универсальных советов, которые сделают процесс выбора рулонных штор или жалюзи еще проще и приятнее.
Старая маркетинговая мудрость гласит, что продавать нужно не дрель, а дырку в стене. Покупая что-то, мы приобретаем не вещь саму по себе, а решение определенной проблемы. В случае со шторами покупатель ориентируется на три основных задачи:
- они должны надежно защищать помещение от прямых солнечных лучей и от посторонних взглядов;
- гармонично вписываться в интерьер и украшать его;
- быть максимально удобными в использовании и уходе.
Соответственно, при выборе рулонных штор и жалюзи стоит обратить внимание на три параметра.
Тип материала
От него зависит, насколько хорошо шторы будут защищать комнату.
Как определить размер рулонной шторы на пластиковые окна? Правильный подбор
В случае с горизонтальными жалюзи все просто – их ламели, как правило, изготавливаются из полностью непрозрачных материалов – пластика, алюминия, дерева. Ткань же для вертикальные жалюзи и классических рулонных штор бывает разной плотности – от плотных, полностью блокирующих солнечные лучи, до полупрозрачных, которые только рассеивают и смягчают свет.
А в рулонных шторах «Зебра» используются два слоя ткани с различной степенью прозрачности – это дает потрясающую гибкость при управлении световым потоком.
Плотность ткани нужно выбирать, исходя из специфики помещения. Например, для офиса лучше выбирать полупрозрачные шторы – они спасают от ярких солнечных лучей, но при этом обеспечивают хорошее естественное освещение в течение всего дня.
А для класса, в котором проводятся семинары и регулярно используется видеопроектор, больше подойдут плотные ткани, которые позволят полностью затемнить помещение даже в светлое время суток.
О долговечности ткани и об уходе за ней можно не беспокоиться – подавляющее большинство современных рулонных штор изготавливается из тканей, обработанных специальными составами, которые придают им водоотталкивающий, пылеотталкивающий и даже антибактериальный эффект, препятствуют выгоранию на солнце, снижают риск возгорания.
Особого ухода им не требуется – нужно лишь время от времени протирать их влажной губкой.
Цветовая гамма, рисунок
Штора – довольно крупная деталь в масштабе комнаты, поэтому в любом случае является важной частью интерьера.
Дизайнеры советуют обязательно учитывать при выборе цвета штор общую цветовую гамму помещения, цвет мебели, обоев.
В комнатах со светлыми однотонными стенами очень выигрышно будет смотреть штора с ярким контрастным принтом. Для спальни лучше выбрать пастельные тона – после активного дня в такой комнате будет проще расслабиться и отдохнуть.
Если штора достаточно большого размера, то не стоит делать её однотонной – в закрытом положении она будет смотреться как экран для проектора.
Поэтому лучше использовать ткань с узором или фотопечать на рулонных шторах. При этом к выбору рисунка стоит подойти со всей серьезностью, поскольку это выбор не на один год.
Не забывайте, что с помощью рисунка на шторе можно скорректировать недостатки помещения – например, пейзаж с правильно подобранной перспективой визуально расширит пространство, за счет рисунка с вертикальными полосами потолок будет смотреться выше, и так далее.
Тип крепления и управления
Как рулонные шторы, так и жалюзи предусматривают несколько видов крепления – поверх оконного проема, внутри него, или вплотную к стеклу.
Каждый вид крепления имеет свои преимущества в разных ситуациях. Например, выбирая кассетные рулонные шторы или шторы системы «компакт», которые устанавливаются непосредственно на оконную раму, вы оставляете в свободном доступе подоконник и остальной оконный проем. Это очень актуально для небольших помещений – пространство визуально расширяется, плюс вы можете использовать подоконник в качестве полки.
Классическое же крепление – когда полотно шторы полностью закрывает весь оконный проем и некоторое пространство вокруг него – позволяет полностью затемнять помещение, а благодаря большим размерам полотна штора становится значимым элементом декора, с помощью которого даже можно визуально расширить пространство.
Управляются все шторы и жалюзи с помощью простого и надежного цепочного механизма, который позволяет гибко и быстро варьировать положение полотна или ламелей.
При этом некоторые модели рулонных штор могут снабжаться электроприводом и управляться с пульта. Это существенно повышает стоимость конструкции, но во многих случаях такой выбор оправдан.
stroitel12.ru
Какие бывают размеры рулонных штор и какой выбрать
Размеры рулонных штор бывают разными. Они прекрасно подходят для обычных и для панорамных окон. В отличие от жалюзи, рулонными шторами окна закрываются полностью, по системе blackout. Они могут создавать и мягкий полумрак в помещении — все зависит от выбора ткани. Большой выбор материала и широкая цветовая гамма позволяют этому виду штор быть актуальными для любого дизайна.
Содержание статьи
Чем отличаются рулонные шторы?
Рынок предлагает тканевые рулонные шторы больших размеров, но и для маленьких окон можно подобрать модели. Они отличаются простотой и удобством эксплуатации. Плотные занавеси не накапливают пыль, их легко очищать, они не вызывают аллергических реакций.
С началом применения стеклопакетов для остекления появились рулонные шторы на пластиковые окна. Их специфика в том, что полотна крепятся непосредственно на рамах и ткань закрывает только стекло. Это уменьшает расходы на материал и облегчает уход за ними.

Занавеси данного вида отличаются долговечностью. Этому способствует простота механизма управления и прочность применяемого материала. Он обрабатывается пропитками, препятствующими выгоранию ткани на солнечном свету, отталкивающими пыль и улучшающими жесткость полотна.
Купить готовые рулонные шторы или заказать их по индивидуальным размерам можно на сайте Textile.shop.
Отличительные характеристики:
- применение плотных тканей обеспечивает максимальный защитный эффект;
- в нерабочем состоянии не является препятствием для проникновения солнечного света в помещение;
- простота ухода за полотнищами;
- в сложенном виде не нарушает дизайн комнаты;
- возможность заказать рулонные шторы больших размеров;
- использование как отдельного типа занавесей и в комплекте с другими видами портьер.
Какими бывают рулонные шторы?
Конструкция занавесей с рулонным механизмом — это полотно, вырезанное по размерам окна из жесткой ткани. Материалом для них служит полиэстер высокого качества. Иногда к нему добавляется хлопок или лен. Вверху полотно наматывается на вал, внизу штора оборудована утяжелительной планкой-отвесом. Ее предназначение — легко и без деформаций скручивать полотно. Механизм управления может быть цепным, пружинным или электромеханическим.
Промышленность выпускает рулонные шторы разных систем:
- открытые;
- миникассетные;
- открытые на окно больших размеров;
- кассетные;
- мансардные;
- система Зебра «день-ночь».

Открытые системы Стандарт оборудованы валом ø25-30 мм. Они устанавливаются на окно стандартных размеров. Ширина полотна — 170-180 см, высота — 200 см. Изделие имеет 2 вида крепления:
- на стену поверх откоса;
- в оконном проеме.
Открытые системы Стандарт имеют палитру: белый, черный, серебряный, бронзовый и прозрачный оттенки.
Миникассетные системы занавесей называют светофильтрами. Они монтируются непосредственно на створки окон из пластика и дерева. Они оборудованы валом диаметром 15 мм, который спрятан в полукруглый короб из алюминия. С боков система имеет направляющие для правильного натяжения ткани. Они препятствуют ее провисанию.
Миникассетные жалюзи открываются вместе со створками окна, подоконник остается свободным. Изделия удобны для использования в небольших комнатах для экономии пространства.
Большие рулонные шторы укомплектованы валом ø35-70 мм. Он позволяет удерживать полотнища с размерами: ширина 3,5 м, высота 4,5 м. Эта система используется для тяжелых светонепроницаемых тканей торговой марки Blackout. Эта система занавесей применяется для кинотеатров, офисов, производственных помещений.
Кассетные роллеты имеют схожесть с миникассетными системами. Их отличие в отсутствии специального короба над валом и боковых направляющих. Эта система дешевле, чем миникассетные жалюзи.
Кассетные роллеты устанавливают на окна двумя способами: со сверлением рамы и на пластиковые скобы (кронштейны). Способ с кронштейнами подходит для использования на открывающихся створках. В остальных случаях системы монтируются на саморезы.
Занавеси для мансардных окон работают по тому же принципу, что и миникассетные системы. Отличие между ними в использовании пружинного механизма и улучшенных направляющих. Это позволяет применять ткань Blackout для почти полного затемнения помещения.

Система Зебра использует двухслойные полосатые ткани с прозрачными и полупрозрачными вставками. С помощью цепочки полоски смещаются, и таким образом регулируется степень освещенности комнаты.
Выбор рулонных штор
Прежде чем выбирать, следует решить задачу, как замерить рулонные шторы. Правильно проведенные манипуляции позволяют сделать точные расчеты стоимости изделий и избежать проблем с установкой штор.
Выполняются процедуры с помощью измерительной рулетки. Вначале нужно выбрать систему занавесей, под которые будут делаться замеры и способ установки. Замеры делают в нескольких местах, чтобы учитывать все возможные неровности откосов.
При установке на стену нужно вымерить ширину проема и добавлять по 10 мм с каждой стороны, чтобы исключить проникновение солнечного света по бокам полотнища. К высоте проема добавляют 50 мм. Если подоконник выступает от стены, то тканевую роллету делают не достигающей его.
При установке в проем от его ширины и высоты отнимают по 10 мм или больше. При установке на раму ширина и высота замеряется между наружными краями штапиков. К высоте добавляют 40 мм.
Как выбрать рулонные шторы по размеру окна, чтобы они подошли и хорошо эксплуатировались? Следует учитывать несколько критериев:
- особенности конструкции;
- характеристики тканей;
- размеры.
Первые 2 критерия для рулонных штор можно определять по каталогам или непосредственно в магазине. Если они зависят от желания и фантазии покупателя, то для получения замеров окна лучше привлекать специалистов.
На выбор влияют такие параметры:
- стиль дизайна;
- материал;
- уровень прозрачности.
Особое внимание уделяется тканям, которые используются для пошива полотнищ. По уровню проникновения света они бывают следующих видов:
- прозрачные;
- полупрозрачные;
- светоотражающие;
- полузатемняющие;
- ткани Blackout.
Они могут быть однотонными, с рисунками и принтами. Полотнища первого типа выбирают для окон со шторами и тюлем. Ткани с рисунком используют для окон, на которых будут только рулонные шторы.
Рынок предлагает много разных видов рисунков и принтов для светофильтров на пластиковые окна. Для декора помещений в качестве тюля используются прозрачные и полупрозрачные ткани. Они имеют прозрачные полосы или перфорацию, при этом хорошо защищают помещение от солнечных лучей, позволяя видеть все, что происходит за окном. Правда, у них есть один недостаток — выбранный материал при включенном электричестве не закрывает происходящее в комнате от посторонних глаз. Обычно такие занавеси дополняются классическими портьерами.
Сохранить
Сохранить
kakieshtory.ru
Рулонные шторы: виды, особенности, преимущества конструкций
Многофункциональные, практичные и уникальные по своему дизайну, рулонные шторы обладают длинным перечнем достоинств. Конструкции даже после длительного использования сохраняют изначальную форму и размеры, не склонны к линьке, не накапливают грязь, отталкивают пыль, не содержат вредных веществ. Если учесть все факторы, влияющие на эксплуатацию систем, можно получить эргономичный и красивый вариант декора, который прослужит долгие годы.

Рулонные конструкции с полупрозрачными полотнами
Виды конструкций
Рулонные шторы – это солнцезащитная система, представленная единым полотном из гладкого и плотного материала, которое закрывает площадь окна и при необходимости сворачивается в рулон. Рулонные системы располагаются отдельно на каждом стекле. Под ткань штор устанавливаются направляющие, которые обеспечивают нижней планке равномерное и плавное скольжение. Такой тип крепления обеспечивает полотну хорошее прилегание к стеклу, материал не отходит даже при сквозняках или наклонном положении рулонных штор. Уникальные свойства используют при установке систем на балкон или мансарду.
Условно шторы рулонного типа можно поделить на две группы.
- Открытая система (без короба). Конструкция состоит из вала, на который намотана ткань, направляющего механизма и плотной нижней планки. Принцип работы таких штор одинаков, независимо от формы кронштейна, диаметра вала, ширины нижней части. Используется для завешивания отдельных створок или всего проема окна. Этот вариант предпочтительнее в тех случаях, когда основной акцент делается не на практичность, а на внешний вид конструкции. Кроме того, это более дешевый вид декора.
- Закрытая система (с коробом). Помимо составляющих, характерных для предыдущего типа, такие рулонные шторы имеют короб. Он закрывает материал, фиксирует его, не давая провисать. Данная конструкция обладает большим количеством плюсов с практической стороны. Наклонное положение окна не приводит к деформации системы, материал максимально плотно прилегает к стеклу, обеспечивая полную блокировку солнечных лучей. Такие шторы меньше пачкаются.
От выбора типа системы зависит принцип снятия мерок с окна, проема, дополнительных показателей при установке изделия на балкон или дверь. При выборе сложных конструкций снятие мерок и монтаж лучше доверить профессионалам.
Типы управления системами
Существуют следующие основные типы механического управления полотном рулонных штор:
- Цепочный шнур. Самый простой вариант регулировки, устанавливаемой на рулонные шторы. Он основан на управлении положением материала с помощью обычного шнура (может быть выполнен из разных составляющих), прикрепленного к полотнищу. Шторы поднимаются и опускаются вручную, могут фиксироваться в необходимом положении. Шнур устанавливается с любой стороны от механизма. При бережном использовании такая конструкция служит долго, не ослабевает и не доставляет хлопот.
- Пружинный держатель. Данный механизм устанавливают на классические варианты солнцезащитных фильтров и рулонные шторы снизу вверх. Управление очень легкое, ткань (или другой материал) фиксируется автоматически при достижении необходимого уровня окна. Основной недостаток конструкций – быстрая изнашиваемость системы. Пружина постепенно растягивается, слабеет, шторы фиксируются с трудом, приходится менять либо весь механизм, либо его управляющую часть. Подобные рулонные системы рекомендуется устанавливать на окна, не нуждающиеся в постоянной регулировке просвета штор.
- Электропривод. Самая сложная по принципу работы и простая по эксплуатации система. Работа рулонных полотнищ регулируется с помощью электромотора. Чаще всего данный вариант применяется для управления шторами, расположенными в труднодоступных местах. Это может быть потолок или скошенные стены мансарды.

Цепочный механизм управления

Шторы на пружинных держателях

Схема конструкции шторы с электроприводом
У всех механизмов есть свои достоинства и недостатки, поэтому, прежде чем устанавливать рулонные системы, необходимо оценить все их особенности.

Материал для штор можно подобрать любой степени прозрачности
Материалы для изготовления штор
Самыми популярными и практически выгодными материалами, применяемыми для изготовления рулонных штор, являются полиэстер, хлопок, фибергласс, нейлон. Они могут быть бархатистой фактуры с принтами или оформлены под металлик с абсолютно гладкой поверхностью. Готовые рулонные шторы делают прозрачными или светонепроницаемыми. Для оригинальности дизайна добавляют тесьму, кисти или бахрому.
Основные требования к материалам:
- долговечность;
- устойчивость к перепадам температуры;
- простота ухода;
- дополнительные свойства в виде способности создавать антистатический эффект, отталкивать пыль, уничтожать бактерии, отражать тепло.
- возможность создавать воздушную прослойку между поверхностью окна и материалом, которая летом сохраняет прохладу, а зимой не пропускает холодный воздух.
Тип материала играет не последнюю роль в способностях рулонных штор пропускать свет и создавать в помещении особую атмосферу.
- Прозрачные рулонные шторы хорошо рассеивают солнечный свет. Чаще всего изготавливаются из ткани и применяются для декоративных целей. Прекрасно комбинируются с гардинами и портьерами.
- Димаут. Солнце пропускается только частично, тепло при этом задерживается. Подобные рулонные шторы можно применять для затемнения офисных помещений, жилых комнат, зимних садов и оранжерей.
- Блэкаут. Рулонные шторы, изготовленные из светонепроницаемой ткани. Идеальное решение для спален, детских комнат, домашних кинотеатров. Часто устанавливаются на потолочные или мансардные окна.
- День-ночь. Сочетание прозрачных и непрозрачных полос позволяет регулировать степень затемненности помещения без необходимости открывать и закрывать рулонные шторы.
Сегодня на рынке можно найти следующие виды материалов, которые применяются при создании рулонных штор:
- Дерево (чаще всего – бамбук). Горизонтальные системы из экологически чистого, гипоаллергенного материала отличаются уникальным внешним видом и приятной фактурой. Материал не выгорает, устойчив к влаге. Единственный недостаток – его вес. Несмотря на использование легких пород дерева, нередко возникает необходимость сверления дополнительных, более глубоких отверстий для фиксации конструкции. Не рекомендуется устанавливать на балкон, т. к. при сквозняке может создаваться легкий шумовой эффект.
- Ткань. Рулонные шторы из правильно подобранной ткани позволяют добиться любой степени освещенности помещения и даже абсолютного мрака. Широчайший выбор расцветок, декоративных элементов, металлических вставок и аппликаций позволяет подобрать подходящий декор для окна в любом помещении. Такое оформление позволяет не использовать в декоре плотные и тяжелые ткани, которые раньше выступали в качестве единственного доступного солнцезащитного элемента.

Полотнище кухонной шторы во время уборки лучше поднимать
Практические советы по эксплуатации
Эксплуатация рулонных штор не доставляет больших хлопот, но придерживаться определенных правил все-таки необходимо.
- В отличие от традиционных гардин и портьер, рулонные шторы, пропитанные антистатиками, практически не накапливают пыль и отталкивают грязь. Несмотря на такие характеристики, рулонные конструкции необходимо периодически протирать мягкой, слегка влажной тряпкой.
- При декорировании кухонного окна необходимо учитывать фактор жира и копоти. От таких пятен так просто не избавиться, поэтому во время приготовления пищи или генеральной уборки полотнище рулонной системы рекомендуется заворачивать.
- Для регулярной чистки штор можно применять обычный мыльный раствор. Для более тщательного ухода подойдет концентрированный стиральный порошок.
- Рулонные шторы нельзя чистить с помощью отбеливателя, это приведет к образованию пятен. Деревянные модели можно подвергать сухой чистке. С этой целью используют пылесос со щеткой для мягкой мебели.
- Единственный функциональный недостаток систем – если полотнище закрывают окно, открыть форточку не удастся.
Если система установки простая и не требует сверления отверстий в оконной раме или стене, ее можно смонтировать самостоятельно.
Рулонные шторы обладают многочисленными преимуществами, которые делают их очень популярным вариантом декорирования. Они могут крепиться на окна и двери, использоваться в разных плоскостях, раскрываться во всех направлениях. Многообразие материалов и управляющих механизмов позволяет подобрать оптимальный функциональный или декоративный тип изделия.
gidshtor.ru
Рулонные шторы — виды рулонных штор и их конструкция
Рулонные шторы считают самым функциональным способом декорирования окна. Такие портьеры могут затемнить комнату, отлично смотрятся в помещениях, где слишком много солнечного света. Кроме того, такой вариант подходит в том случае, если окна видны соседям или выходят во дворы многоквартирных домов.
Содержание статьи
Варианты рулонных штор
Рулонные солнцезащитные гардины делят на несколько типов. Самые распространенные типы рулонных штор:
- Кассетный. В этом варианте вал спрятан под кассетным коробом. Он может быть круглый или угловой, а шторы на его фоне не будут выделяться, поскольку цвет короба идеально совпадет с оттенком ткани.
- Открытый. Его считают наиболее популярным вариантом. Открытые рулонные шторы просты в своем управлении, их конструкция состоит из вала, который крепится с помощью специальных уголков. Нижний отвес по краю полотна нужен для сохранения ровности ткани во время ее открытия. Полотно по бокам крепят при помощи дополнительной направляющей в форме простой лески, а это позволяет полотну сохранить неизменное положение и не улетать с места даже во время сквозняков.
- Ролло. Главное их предназначение — для мансардных окон, поскольку такие поверхности не должны чересчур освещаться солнцем. По этой причине и надо выбирать рулонные шторы на окна, не пропускающие солнечный свет.
- Большие рулонные гардины. Их конструкции рассчитаны для применения на огромных открытых поверхностях, к примеру, на стеклянных лоджиях или витринах торговых центров. Выделяют полупрозрачные, затемняющие и солнцезащитные модели.
- День-ночь. Эти шторы дают возможность регулировать естественное освещение в комнате, их второе название — двойные рулонные шторы. Главные преимущества модели заключаются в эргономичности и легком управлении с помощью цепочек.
- Мини. Размещают такие шторы на оконных проемах, а это значительно экономит пространство в комнате, облегчает конструкцию и снижает растрату ткани. Для монтажа используют вал маленького размера, поэтому его почти не видно.
- Рулонные шторы автоматические. Это модели на дистанционном управлении, которые позволяют мгновенно создавать затемненный эффект.



Как устроены рулонные шторы
Откуда появились такие портьеры? Ответ на этот вопрос точно неизвестен, но выдвигаются две главные версии. Первая говорит о том, что такими гардинами закрывались ковбои, когда играли в карты и проигрывали золотые слитки. Вторая теория считается более правдоподобной и заключается в том, что изобретение таких гардин принадлежит немцам. По мнению ученых, немцы хотели продавать синтетические ткани собственного производства и придумали для них новое применение в виде рулонных портьер.
Рулонные шторы закрытого типа или открытого крепят к стенам, над оконными проемами или непосредственно к окну. Минимальное количество пространства понадобится для последнего варианта крепления, поскольку короб для представленной конструкции делают практически незаметным.
Закрывать и открывать такие портьеры очень просто: необходимо тянуть за специальный шнурок и ткань будет наматываться на вал, а остановить этот процесс легко в любом положении. Благодаря этому шторы можно подстроить и блокировать под желаемое освещение.

Светонепроницаемые рулонные шторы пропитывают специальным веществом, чтобы они лучше защищали от солнечных лучей. Кроме того, пропитка защитит гардины от выгорания, а это очень необходимо для помещений, которые расположены с южной стороны.
Рулонные шторы на деревянные окна крепят с помощью саморезов. После выполнения разметки и определения мест, где будут крепиться кронштейны, необходимо просверлить отверстия и прикрутить держатели с использованием саморезов. Затем в кронштейны вставляют трубу, надавливают и устанавливают специальные крышки.
Этот способ наиболее прочный и надежно блокирующий конструкцию, но существует и другой вариант — с использованием скотча. Такой метод подходит для крепления на оконные рамы. Необходимо защелкнуть насадки для приклеивания, затем обезжирить поверхность, на которую будет выполняться монтаж, нагреть феном скотч, снять защитную пленку и плотно прижать к выбранному месту. После закрепления кронштейнов вставляют трубу с гардиной.
Выбор материала и цвета
Современные производители предлагают много интересных вариантов, среди которых пластиковые рулонные шторы, бамбуковые, противопожарные рулонные гардины и тканевые модели. Вопрос, как выбрать портьеры, стоит перед каждым покупателем, но отталкиваться необходимо от дизайна комнаты и ее расположения. Если необходимо выбрать тканевые варианты, то следует обратить внимание на плотность, а при покупке противопожарных моделей учитывают желаемый огнезащитный эффект.
Дизайнеры считают, что разобраться с тканевыми гардинами очень просто, если исходить из типа комнаты. Таким образом, кухню делают максимально светлой, по этой причине выбирают полупрозрачные или прозрачные рулонные шторы.

Гостиная или спальная требуют максимально плотных гардин, которые в утреннее время будут защищать от солнечного света, а ночью — от фонарей, рекламы или вывесок. Для помещений, в которых есть домашние кинотеатры, также надо покупать плотные модели портьер. При выборе штор учитывают и естественное освещение комнаты. Северное и западное расположение требует легких прозрачных вариантов, а южное — плотных моделей.

При покупке рулонных портьер необходимо подумать и о цвете изделий. Если в комнате однотонные стены, то отличным дополнением интерьера станут цветные модели. В случае разноцветных обоев выбирают однотонные гардины. Интересный вариант — подобрать шторы и мебель в одинаковом текстиле.
Плюсы рулонных гардин
Разобравшись с тем, как выбрать портьеры, необходимо рассмотреть и их преимущества:
- Непревзойденный внешний вид, благодаря которому можно отлично дополнить любой интерьер, прибавить помещению комфорта и уюта.
- Возможность сэкономить пространство, что понадобится в маленьких комнатках.
- Легкость в уходе и обращении. Можно без проблем опускать рулонные шторы снизу вверх, для этого достаточно потянуть за крючок или шнурок, затемнить или осветлить комнату.
- Такой вид штор гарантирует качественные солнцезащитные функции и будет пропускать столько света, сколько потребуется их владельцу.
Кроме того, с помощью рулонных гардин создают интересные дизайнерские решения в помещениях, ведь шторы не должны портить комнату, а наоборот — гармонично дополнять.
Сохранить
Сохранить
Сохранить
Сохранить
Сохранить
kakieshtory.ru
Виды рулонных штор, Стандарт, Люкс, Уни, Мини, R-lite, Зебра, Комбо.
Напомним, рулонные шторы представляют собой прямое полотно из специального, жесткого тканого материала, по составу, как правило, это высококачественный полиэстер, иногда с добавлением хлопка или льна. Этот материал обработан специальной пропиткой, предотвращающей собирание пыли и дающий необходимую жесткость самой ткани. Внизу полотна устанавливается утяжелительная планка — отвес. За счет этого ткань с легкостью и без деформаций наматывается ровно на вал при помощи цепочного, пружинного или электромеханического управления. В зависимости от размера изделия, способа крепления и типа ткани рулонные шторы бывают нескольких типов.
В этой статье мы постараемся описать все возможные виды рулонных штор
Рулонные шторы «Стандарт»
В данных изделиях используется вал диаметром от 25 до 30 мм. Максимальная ширина такого изделия не должна превышать 1,7 — 1,8 м., а максимальная высота изделия ограничена 2-мя метрами. Такие роликовые шторы подходят для стандартных небольших двухстворчатых окон, устанавливаются в оконный проем или на стену над откосом. Отдельно стоит отметить варианты цвета креплений и фурнитуры рулонных штор «Стандарт»: классический белый, черный, серебро, бронза, прозрачный.
Рулонные шторы «Люкс»
Также мы их называем большие рулонные шторы — в отличие от стандартных рулонных штор здесь используется труба диаметром от 35 и до 70 мм. Это позволяет изготавливать изделия больших размеров, вплоть до 3,5 метров по ширине и до 4,5 по высоте. При всем при этом можно использовать тяжелые светонепроницаемые ткани Blackout. Чаще такие системы устанавливаются в офисах, бизнес-центрах, производственных помещениях, в общем, везде, где требуется закрыть оконные проемы огромных размеров.
В свою очередь рулонные шторы «Люкс» и «Стандарт» можно дополнить специальным коробом, в который прячется сам рулончик с тканью. Короб, собственно как и остальная фурнитура может быть разного дизайна, размера и цвета. Основное преимущество данной системы в том, что в собранном положении ткань защищена от воздействия внешних факторов, например собирания пыли сверху рулона. Мы изготавливаем рулонные шторы только именитых и проверенных производителей: рулонные шторы «Стандарт» — Bamar (Польша), рулонные шторы «Люкс» — Coulisse (Германия), большие рулонные шторы — система LVT Louvolite (Англия).
Миникассетные рулонные шторы
Или как мы их еще называем светофильтры на окна или системы «Уни». Данный вид жалюзи предназначен для монтажа на створки пластиковых алюминиевых или деревянных окон. Конструктивно они представляют собой довольно тоненький вал, как правило не больше 15 мм. в диаметре, на который наматывается ткань. При этом все это прячется в специальный алюминиевый полукруглый короб, а по бокам проходят направляющие, препятствующие провисанию ткани на поворотно-откидных створках. Основное преимущество данной системы в том, что вы можете открывать и откидывать окна для проветривания вместе со шторами, функционально использовать подоконник, т.к. он останется открытым. Все это существенно экономит пространство, особенно в небольших помещениях.
Открытые рулонные шторы «Мини»
Так же как и миникассетные рулонные шторы предназначены для крепления на створки окон. По сути это такая же система солнцезащиты, только с открытым рулоном и без направляющих. За счет этого рулонные шторы мини существенно дешевле кассетных жалюзи. Монтировать рулонные шторы мини можно как со сверлением рамы, что предпочтительно, так и без сверления, при помощи специальных пластиковых скоб — кронштейнов. Обращаем ваше внимание, что вариант крепления без сверления подходит только для открывающихся створок, т.к. скоба кронштейна крепиться сверху на торец створки. На «глухие» неоткрывающиеся створки в любом случае придется использовать крепления на саморезы.
Рулонные шторы для мансардных окон
Это специальная система спроектированная для монтажа на всевозможные типы мансардных окон, таких производителей как Fakro, Velux, Roto и др. Конструктивно рулонные шторы для мансардных окон схожи с миникассетными рулонными шторами, главное отличие в том, что в данных системах используется исключительно пружинный механизм и улучшенные направляющие. Система R-lite с использовании ткани Blackout из-за улучшенных направляющих позволяет до 95% затемнить помещение.
Отдельно стоит отметить систему рулонных штор «Зебра день-ночь»
Главное отличие данного вида жалюзи в том, что здесь используется двухслойная полосатая ткань с прозрачными и полупрозрачными полосками разной ширины. Потянув за цепочку, вы смещаете полоски относительно друг друга, тем самым регулируете степень освещенности в комнате. Рулонные шторы «Зебра день-ночь», так же как и классические рулонные шторы могут быть открытыми, кассетными, миникассетными и системами открытого типа «мини». А вот здесь мы постарались описать 10 причин купить рулонные шторы «день-ночь».
Классификация тканей для рулонных штор
Ткани для рулонных штор могут быть однотонными и иметь различный рисунок или принт. Как правило, однотонные ткани светлых оттенков чаще используют в сочетании с классическими шторами или тюлем, ткани с рисунком выбирают, когда декор окна ограничивается только рулонными шторами. В наших каталогов представлено огромное количество тканей с рисунком, начиная от классических принтов растительной тематики, замысловатых азиатских сплетений и заканчивая минималистичным скандинавским дизайном. При изготовлении рулонных штор мы используем ткани таких компаний как Coulisse (Германия), JM (Германия), Louvolite (Англия), Almedahls (Финляндия), Stromma (Швеция) и др.
sun-technology.ru
Как выбрать рулонные, тканевые шторы (жалюзи, роллеты) на окна для интерьера
Выбор занавесок – это широчайший простор для фантазии. Одним из ярких трендов в декорировании можно назвать рулонные шторы. По степени популярности они превзошли даже жалюзи. Что делает рулонные шторы в интерьере столь востребованными? Какими они бывают и на что обратить внимание при выборе?

Содержание статьи
Что такое рулонные шторы и какие у них преимущества?
Рулонные шторы имеют множество названий – тканевые роллеты, рольшторы и т.д. Их особенность заключается в наличии специального механизма скручивания. Благодаря ему шторка может быстро свернуться в рулон.
Тканевые роллеты обладают множеством неоспоримых преимуществ:
- Большое разнообразие. В отличие от жалюзи, рольшторы могут быть выполнены из различных тканей, иметь всевозможную фактуру, цвет, рисунок;
- Универсальность. Тканевые роллеты можно использовать для оформления практически любого интерьера;
- Простота управления. Управлять роллетами можно при помощи обычной цепочки. Она легко поднимает штору и фиксирует на нужной высоте;
- Компактность. В скрученном виде рольшторы почти не заметны. Они не занимают ни сантиметра лишнего пространства, а потому являются идеальным решением для тесных комнат;
- Пропускают свет. Если тканевая роллета свернута, свет беспрепятственно проникает внутрь помещения. А вот классические жалюзи и тюль будут значительно уменьшать световой поток;
- Простота ухода. Полотна не требуется стирать, они не собирают пыль. Все, что нужно для ухода за ними – периодическая влажная уборка.
И конечно, не стоит упускать из внимания, что рулонные шторы – очень красивые! Они станут настоящим украшением для помещений самого разного назначения.
Для каких помещений подходят рулонные шторы?
Тканевые роллеты – это превосходное решение, если речь идет о создании дизайна в современном стиле. Функциональный и динамичный минимализм, модерн, hi-tech – рольшторы будут смотреться в таких интерьерах просто безупречно! Впрочем, существуют тканевые жалюзи, которые способны украсить даже классический интерьер.
Что касается типа помещений, то тут полет фантазии никак не ограничен. Рулонные шторы хорошо смотрятся в интерьере гостиной и кухни, рабочего кабинета и детской.
Выбрать рольшторы стоит для тех помещений, где важно постоянно поддерживать чистоту. К примеру, в кухне они не будут собирать грязь и жир. В детской тканевые роллеты не будут собирать вредную для ребенка пыль. В интерьере спальни тоже пригодятся рулонные шторы – они помогут создать интимную атмосферу, защитив помещение от ярких солнечных лучей.
Тканевые роллеты – невероятно удобный и максимально практичный оконный декор. Объединив в себе преимущества жалюзи и классических портьер, они заслуженно получили любовь дизайнеров и право красоваться на окнах в интерьерах любых стилей.
Какими бывают рулонные шторы?
То, насколько уместными будут рулонные шторы в интерьере, во многом зависит от их типа. Рольшторы бывают нескольких разновидностей.
Открытые системы
Такой механизм отличается максимальной простотой и компактностью. Ткань сматывается внутрь катушки, которая не прячется в кассету. Именно поэтому система именуется открытой. В ней применяются свободновисящие тканевые полотна, не провисающие при дуновении ветра. В нижней части полотна находится балка-утяжелитель, благодаря которой ткань плотно прилегает к оконной створке.

Закрытые системы
Изделий данной конструкции отличаются предельной эстетичностью и надежностью. Они выглядят аккуратно, поскольку рулон, на который наматывается ткань, прячется в кассете.
Рольшторы кассетного типа безупречно закрывают оконный проем. Они не болтаются даже при сильном ветре. Края полотен помещены в специальные вставки, благодаря чему световые зазоры полностью отсутствуют.
Закрытые системы отличаются простотой монтажа. Для их установки не потребуется сверлить отверстий. Как правило, кассету закрепляют, используя монтажную ленту.

Системы «День/Ночь»
Рольшторы такого типа отличаются оригинальным внешним видом, а также являются максимально функциональными. Главной их особенностью является наличие двух типов роллетных полос – из прозрачных сеток и непрозрачной ткани.
Шторы можно сложить вдвое. Благодаря этому прозрачные полосы чередуются с непрозрачными. Это дает возможность регулировать уровень освещенности помещении, используя один из трех режимов.

Электроприводные системы
Наиболее прогрессивная разновидность рольштор. Их особенность заключается в наличии двигателя, который установлен внутри вала. Управление может осуществляться при помощи выключателя или пульта.
Чаще всего такие системы используют для оформления окон офисов, зимних садов, остекленных террас и т.п. Открывание и закрывание осуществляется бесшумно. Двигатели являются достаточно экономичными, а потому не затрачивают большого количества электроэнергии.

Римские шторы
Такие изделия представляют собой карниз с закрепленным на нем тканевым полотном. С одной стороны на полотно прикреплены прутья с кольцами, сквозь которые протянут шнур. За счет этого создаются равномерные складки.
В карниз встроен цепочный механизм, за счет которого осуществляется поднятие тканного полотна. Ткань, складываясь, образует красивые ровные волны. Поднимаясь полностью, она образует балахон.

Шторы-плиссе
Одна из дизайнерских новинок, при помощи которой можно создать креативный интерьер. Такое изделие представляет собой плиссированную ткань, напоминающую гармошку. Складки, как правило, имеют ширину 2-5 см.
На верхней и нижней части располагаются алюминиевые карнизы. Таким образом, рольшторы может быть подвижны частично или полностью. При полной подвижности они способны закрываться не только сверху вниз, но и снизу вверх.

Как определиться с цветом рулонных штор?
Одно из важнейших достоинств тканевых жалюзи заключается в их огромнейшем разнообразии. Можно подобрать модели всевозможных цветов. При выборе оттенка стоит учитывать несколько параметров.
Так, большое значение играет расположение окна:
- Северная сторона. Дизайнеры рекомендуют отдать предпочтение светлым теплым оттенкам – кремовому, золотистому. Это позволит создать солнечную атмосферу;
- Южная сторона. Здесь наиболее уместной будет холодная цветовая гамма – оттенки синего и зеленого. Также можно выбрать нейтральный серый оттенок.
Чрезвычайно важно учитывать общее цветовое оформление помещения. Шторки рулонного типа можно выбрать под цвет общего оформления или подобрать контрастные решения. Многие предпочитают выбирать шторки, по цвету сочетающиеся с отделкой стен, однако за счет этого стена сольется с окном. Даже если выбирается одна и та же цветовая гамма, тканевые роллеты лучше подбирать на несколько тонов темнее или, напротив, светлее, чем стены.
Если отделка стен в помещении однотонная, ничего не мешает поэкспериментировать и подобрать тканевые роллеты с принтами. Размеры картинок зависят от размера окон – крупные рисунки не очень хорошо выглядят, если окна маленькие.

Рисунок может обыгрывать любой элемент интерьера. Самый же необычный вариант – нанести на шторы фото. Окно сразу же станет главным акцентом интерьера, на который просто невозможно не обратить внимания.
loveshtory.com
