Сайт узо – uzalo48.lipetsk
Астро-УЗО
УЗО применяются для комплектации вводно-распределительных устройств (ВРУ), распределительных щитов (РЩ), групповых щитков (квартирных и этажных), а также для защиты отдельных потребителей электроэнергии.
Для правильного выбора УЗО ознакомьтесь с материалом: Как выбрать УЗО

Широкое применение в Российской Федерации получили комбинированные устройства, совмещающие в себе УЗО и устройство защиты от сверхтока, правильно такие устройства называются УЗО со встроенной защитой от сверхтоков, автоматический выключатель дифференциального тока (АВДТ), либо просто дифавтомат – такое название обычно применяется в торговле.

Данное устройство предназначено для применения в электроустановках с нагрузкой большой мощности, при значительном сечении питающих проводников. Выносной трансформатор тока имеет большой диаметр окна (70 мм) и позволяет пропустить через окно проводники крупного сечения.
УЗО на большие токи нагрузки в комплекте: выносной дифференциальный трансформатор и дифференциальное реле. Технические параметры его приведены в таблице, габаритные и установочные размеры на рис. 1-3.
| № | Наименование | Номинальное значение |
| 1 | Номинальное напряжение Un, В | 220/38 |
| 2 | Номинальный ток нагрузки дифференциального реле In, А | 25 |
| 3 | Номинальный отключающий дифференциальный ток IΔn, мА | 300,500 * |
| 4 | Номинальный неотключающий дифференциальный ток IΔnо | 0,5 IΔn |
| 5 | Время отключения при номинальном дифференциальном токе (без учета времени срабатывания контактора) Tn, не более, мс | 30 |
| 6 | Диаметр окна выносного дифференциального трансформатора, мм | 60 |
| 7 | Диапазон рабочих температур, °С | от -25 до +40 |
| 8 | Максимальное сечение подключаемых проводников к дифференциальному реле, мм2 | 25 |
| 9 | Срок службы:
— электрических циклов, не менее — механических циклов, не менее |
10 000 10 000 |
* — в зависимости от модификации
УЗО на большие токи применяются в одно- и трехфазных сетях. На рисунке приведен пример схемы подключения такого УЗО в трехфазной сети в комплекте с четырехполюсным контактором.
Рис. 3. Схема подключения в комплекте с четырехполюсным контактором.
Автоматический выключатель, «автомат» — это механический коммутационный аппарат, способный включать, проводить и отключать токи в нормальном режиме электроустановки, а также включать, проводить в течение заданного времени и автоматически отключать токи в возникающих по разным причинам аномальных режимах, таких, как короткие замыкания или перегрузка. Автоматические выключатели предназначены для многоразовой защиты электрических установок от перегрузок и коротких замыканий.
Время-токовые характеристики (ВТХ) — зависимости времени отключения от тока нагрузки — автоматических выключателей типов B, C и D показаны на картинке:
Контактор — специальное электромагнитное реле, предназначенное для:
- дистанционного управления электроприборами.
- использования в схемах электроприводов, цепях освещения и т.п.
Контакторы монтируются на стандартную DIN-рейку. Контакторы (кроме IK21) управляются переменным или постоянным током.
Технические параметры:
1. Рабочие контакты
| Тип | IK21 | IK22 | IK24 | IK40 | IK63 |
| Рабочее напряжение | 415 | 440 | 440 | 500 | 500 |
| Ток теплового реле, А | 20 | 20 | 24 | 40 | 63 |
| Номинальная мощность, кВт
220В / АС1 380В / АС7а 220В / AC3 380В / C7b |
7,5 13 1,1 2,2 |
4 1,3
|
9кВт 16кВт 2,2 4 |
16кВт 26кВт 5,5 11 |
24кВт 40кВт 8,5 15 |
| Максимальная частота оперирования циклов/час | 360 | 120 | 120 | 120 | 120 |
| Последовательная плавкая вставка, А | 25 | 20 | 35 | 63 | 80 |
2. Управление
| Тип | IK21 | IK22 | IK24 | IK40 | IK63 |
| Номинальное напряжение управления, В | AC, 220 | AC, DC, 220 | AC, DC, 220 | AC, DC, 220 | AC, DC, 220 |
| Мощность потребления катушки, Вт | 32ВА / 1,5 Вт | 2,2 | 4 | 5 | 5 |
| Время задержки, мс:
включения отключения |
7÷20 10÷20 |
40÷45 |
25÷35 30÷40 |
15÷20 35÷40 |
15÷20 35÷45 |
Типовые схемы контактных групп
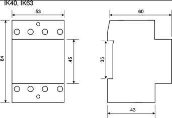
Габаритные размеры:


Гарантированная защита человека от поражения электрическим током!
Устройство защитного отключения Ф-1271 предназначено:
- для защиты человека от поражения электрическим током при случайном непреднамеренном прикосновении к токоведущим частям электроустановок при повреждениях изоляции;
- предотвращения пожаров вследствие протекания токов утечки на землю.
- Электроводонагреватели
- Насосы
- Стиральные, посудомоечные машины, электроплиты
- Холодильники
- Моющие пылесосы
- Электроинструмент
- Бетоносмесители
- Сварочные аппараты
- Станки
- Любое другое электрооборудование без двойной изоляции или без заземления
Ф-1271 подходит как для стационарного, так и для переносного оборудования, работающего как в помещении, так и на улице (например, на стройке), даже в условиях повышенной запылённости, влажности, жары или холода.
Основные преимущества:
- Ударопрочный корпус из ABS-пластика: не сломается при транспортировке и хранении оборудования (Производитель оставляет за собой право изменять цвет корпуса поставляемой продукции, не меняя при этом технические характеристики изделий)
- Высокая пыле- и влагозащита (IP54): важно для строительного и инженерного оборудования
- Усиленные контакты: можно подключать нагрузку до 16 А (3500 Вт)
- Коммутирует токи до 250 А: важно для оборудования с большими пусковыми токами
- Широкий диапазон рабочих температур — от -25 до +40 С
Астро-УЗО предлагает услуги по изготовлению электрощитов бытового назначения (квартира, дом, дача, и т.д.) по типовым и индивидуальным схемам и/или эскизам Заказчика.
Все работы выполняются квалифицированными специалистами нашего предприятия на оборудовании европейского качества.
Электрощиты — ключевые элементы системы электроснабжения здания или сооружения, в т.ч. городской квартиры и загородного дома. От качества их проектирования и сборки зависит надёжность и безопасность всей системы, поэтому ошибки здесь недопустимы. Необходимы чёткое знание электротехники и нормативно-правовой базы, а также навыки и опыт выполнения электромонтажных работ.
Если Вы не уверены в своих силах, не пытайтесь выполнить эту работу самостоятельно! Обратитесь к профессионалам!
С примерами наших работ Вы можете ознакомиться здесь:







Устройство АСТРО*IΔ предназначено для измерения дифференциального тока (тока утечки на землю) в одно- и трехфазных цепях переменного тока находящихся под номинальным напряжением при включенных электроприемниках.
Устройство АСТРО*IΔ позволяет:
- оценить качество проведенных электромонтажных работ;
- контролировать состояние изоляции;
- определить правильность выбора уставки (номинального отключающего дифференциального тока In) УЗО;
- выявить дефектную цепь или электроприемник с недопустимо низким сопротивлением изоляции;
- определить порог срабатывания – дифференциальный отключающий ток IDn УЗО (при использовании дополнительного магазина сопротивлений).
Индикация значения тока утечки на жидкокристаллическом дисплее.
Это устройство незаменимо при выборе УЗО для электромонтажа на объекте, так как позволяет оценить текущее состояние электропроводки.
Устройство автоматического контроля изоляции «Астро*ИЗО-470» предназначено для ведения непрерывного автоматического контроля (мониторинга) сопротивления изоляции относительно земли одно- и трехфазных электроустановок и сетей переменного тока, изолированных от земли. Возможен мониторинг отключённых установок (например, обмоток двигателей аварийных систем, находящихся в состоянии готовности).
Режим работы электрической сети, изолированной от земли (режим изолированной нейтрали, IT-системы), широко применяется в электроустановках, требующих повышенной надёжности энергоснабжения, а также в особо опасных по условиям электропоражения электроустановках.
К таким электроустановкам относятся системы энергоснабжения медицинских учреждений, больниц, судов, предприятий железнодорожной, горной, нефтедобывающей, сталеплавильной, химической промышленности, испытательного, лабораторного, взрывоопасного производства и многие другие.
Ограничитель перенапряжений нелинейный АСТРО*ОПН — 12/0,4 предназначен для защиты от грозовых и коммутационных перенапряжений в электроустановках жилых, общественных, административных и бытовых зданий при воздушном вводе.
АСТРО*ОПН — 12/0,4 представляет собой разрядник без искровых промежутков, активная часть которого состоит из металлооксидного нелинейного резистора (МНР) с высоконелинейной вольтамперной характеристикой. Защитное действие состоит в протекании импульсного тока через АСТРО*ОПН — 12/0,4 на заземляющее устройство, что обеспечивает снижение перенапряжений до безопасного значения, при котором не происходит пробоя изоляции электрооборудования.
Производство фирмы ELKO ep (Чехия)
Автоматический выключатель освещения предназначен для управления освещением в зависимости от внешней освещенности. При снижении освещенности (ниже порогового значения) устройство включает осветительные приборы, при повышении освещенности отключает. Порог срабатывания регулируется подстроечным резистором.
Переносной щиток для питания электрического инструмента в опасной зоне. Прочный герметичный корпус, многовариантность исполнения.
Внимание! Новинка!
Рекомендуется всем учебным заведениям электротехнического профиля
Устройство защитного отключения (УЗО) – современное, высокоэффективное, во многих случаях безальтернативное средство защиты человека от поражения электрическим током.
УЗО также осуществляют защиту электроустановок от возгораний и пожаров, возникающих вследствие протекания токов утечки.
УЗО прочно вошли в практику электромонтажа, их применение предписывается Правилами устройства электроустановок.
УЗО – сложное техническое устройство, характеризующееся многими параметрами.
Вашему вниманию предлагается разработанный нашим предприятием уникальный, не имеющий аналогов, лабораторный стенд, предназначенный для ознакомления обучаемых с принципом действия УЗО, схемами включения этих устройств в электроустановках и для изучения основных технических характеристик этого устройства – чувствительности, быстродействия, помехоустойчивости.
Конструктивно стенд выполнен из двух блоков, лицевые панели представлены на фотографиях.
Блок «А» предназначен для исследования характеристик двухполюсного УЗО, на блоке «Б» изучается работа четырехполюсного УЗО в составе электроустановки.
Панель «А» лабораторного стенда

Панель «Б» лабораторного стенда
Стенд изготавливается на современной элементной базе, с применением микроконтроллеров на нашем предприятии.
В целях обеспечения условий электробезопасности, питание стенда осуществляется от автономного источника питания, имеющего гальваническую развязку с сетью.
Поставка осуществляется по заказу по следующему адресу…
В поставку входят техническое описание, схема и методическая разработка (руководство по лабораторной работе).
as — Schwabe GmbH является производителем и поставщиком электротехнического оборудования высочайшего качества уже более 30 лет.
Ассортимент продуктов поставщика представлен устройством УЗО-вилка-переходник, предназначенным для:
- Защиты человека от поражения электрическим током при случайном непреднамеренном прикосновении к токоведущим частям электроустановок при повреждении изоляции;
- предотвращения пожаров вследствие протекания токов утечки на землю.
Устройство применяется при эксплуатации бытовых электроприборов: фенов, холодильников, элетронагревателей, стиральных и посудомоечных машин, насосов, электроинструмента и т.п.
Технические параметры:|
№ |
Наименование |
Номинальное значение |
|
1 |
Номинальное напряжение Un, В |
220 ± 22 |
|
2 |
Номинальный ток нагрузки In, А |
16 |
|
3 |
Номинальная частота сети fn, Гц |
50 |
|
4 |
Номинальный отключающий дифференциальный ток IDn, мА |
30 |
|
5 |
Номинальный неотключающий дифференциальный ток IDnо, мА |
15 |
|
6 |
Потребляемая мощность, не более, кВт |
3,5 |
|
7 |
Номинальная включающая и отключающая способность Im, А |
250 |
|
8 |
Номинальная включающая и отключающая способность по дифференциальному току I∆m, А |
250 |
|
9 |
Номинальный условный ток короткого замыкания , Inc, А |
1 000 |
|
10 |
Номинальный условный дифференциальный ток короткого замыкания I∆c, А |
1 000 |
|
11 |
Время отключения при номинальном дифференциальном токе Tn, не более, мс |
30 |
|
12 |
Диапазон рабочих температур, °С |
-25 … 40 |
|
13 |
Срок службы: – электрических циклов, не менее – механических циклов, не менее |
4 000 10 000 |
|
14 |
Класс защиты |
IР 44 |
www.uzo.ru
| Отдел организации медицинской помощи взрослому населению | ||
| Начальник отдела | Коротеева Светлана Валентиновна | 25-75-25 |
| Заместитель начальника отдела | Быстрицкая Елена Игоревна | 23-80-39 |
| Заместитель начальника отдела | 23-80-51 | |
| Главный консультант | Толмачева Татьяна Алексеевна | 25-75-02 |
| Ведущий консультант | Журавлева Наталья Васильевна | 23-80-11 |
| Консультант | Фэрымэ Анжелика Анатольевна | 23-80-09 |
| Консультант | Квасова Ирина Ивановна | 23-80-97 |
| Консультант | Сможная Елена Евгеньевна | 23-80-51 |
| Отдел организации медицинской помощи детям и службы родовспоможения | ||
| Начальник отдела | Никифоров Роман Владимирович | 25-75-03 |
| Главный консультант | Мальцева Татьяна Григорьевна | 23-80-70 |
| Главный консультант | Окунцова Евгения Аркадьевна | 23-80-93 |
| Консультант | Красных Людмила Витальевна | 23-80-99 |
| Отдел программно-целевого планирования развития здравоохранения | ||
| Начальник отдела | Ражина Галина Анатольевна | 23-80-18 |
| Главный консультант | Семушина Елена Васильевна | 23-80-54 |
| Консультант | Торшина Елена Александровна | 23-80-55 |
| Старший экономист | Усенко Вера Алексеевна | 23-80-17 |
| Отдел информатизации здравоохранения (программисты) | ||
| Начальник отдела | Карноза Владимир Викторович | 23-80-23 |
| Главный консультант | Бондарев Олег Вячеславович | 23-80-74 |
| Ведущий консультант | Новиков Владислав Евгеньевич | 23-80-52 |
| Консультант | Скорикова Людмила Александровна | 25-75-16 |
| Ведущий специалист-эксперт | Плотникова Елена Борисовна | 25-75-26 |
| Старший программист | Литвиненко Павел Борисович | 25-75-15 |
| Отдел кадров | ||
| Начальник отдела | Двуреченская Марина Сергеевна | 23-80-12 |
| Ведущий консультант | Горлова Екатерина Викторовна | 25-75-14 |
| Ведущий консультант | Гнатюк Оксана Александровна | 23-80-49 |
| Консультант | Филонова Лилия Ивановна | 23-80-48 |
| Консультант | Повод Наталия Юрьевна | 25-75-27 |
| Ведущий специалист-эксперт | Николаенко Елена Анатольевна | 23-80-45 |
| Старший статистик | Чеснокова Тамара Васильевна | 23-80-50 |
| Финансово-экономический отдел | ||
| Начальник отдела | Домнышева Ирина Владимировна | 23-80-71 |
| Главный консультант | Часовских Лариса Александровна | 23-80-21 |
| Ведущий консультант | Русак Галина Васильевна | 23-80-20 |
| Консультант | Пастухова Лариса Евгеньевна | 23-80-94 |
| Консультант | Торопцева Ирина Владимировна | 23-80-19 |
| Старший экономист | Косолапова Наталия Ивановна | 25-75-24 |
| Старший экономист | Зайцева Ольга Николаевна | 23-80-16 |
| Отдел бухгалтерского учета и отчетности | ||
| Начальник отдела — главный бухгалтер | Кравец Наталья Александровна | 23-80-14 |
| Заместитель начальника отдела | Кузнецова Наталия Васильевна | 23-80-60 |
| Ведущий консультант | Пичугин Алексей Владимирович | 23-80-56 |
| Старший специалист | Иванова Татьяна Николаевна | 23-80-59 |
| Старший бухгалтер | Емельяненко Светлана Анатольевна | 23-80-59 |
| Старший бухгалтер | Стебенева Светлана Вячеславовна | 23-80-96 |
| Старший бухгалтер | Ряжских Наталия Владимировна | 23-80-57 |
| Старший бухгалтер | Рогова Юлия Вячеславовна | 25-75-17 |
Контрольно-ревизионный отдел (располагается в здании г.Липецк, ул.Зегеля,2, 4 этаж, каб.№40а) | ||
| Начальник отдела | Касьянова Лариса Анатольевна | 57-11-39 |
| Ведущий консультант | Дорохин Константин Владимирович | 57-11-38 |
| Консультант | Васильева Наталья Юрьевна | 57-11-38 |
| Ведущий специалист-эксперт | Иванов Александр Павлович | 57-11-43 |
| Отдел лекарственного обеспечения | ||
| Начальник отдела | Родионова Наталья Александровна | 23-80-66 |
| Заместитель начальника отдела | Новикова Галина Александровна | 23-80-00 |
| Ведущий консультант | Чурилова Светлана Павловна | 23-80-69 |
| Ведущий консультант | Дейников Денис Сергеевич | 23-80-67 |
| Консультант | Байдакова Елена Николаевна | 25-75-20 |
| Консультант | Мирохина Виктория Александровна | 23-80-65 |
| Старший экономист | Пчелинцева Ольга Анатольевна | 25-75-01 |
| Отдел материально-технического обеспечения | ||
| Начальник отдела | 23-80-15 | |
| Заместитель начальника отдела | Ефремова Галина Михайловна | 23-80-41 |
| Ведущий консультант | Подчепаева Ирина Борисовна | 23-80-38 |
| Консультант | Скворцова Ольга Лонгиновна | 25-75-18 |
| Консультант | Валяева Анна Александровна | |
| Ведущий консультант | Щедрина Анна Сергеевна | 23-80-43 |
| Главный консультант | Ануфриева Ирина Анатольевна | 23-80-42 |
| Старший инспектор | Татаринова Рита Ивановна | 23-80-28 |
| Старший инспектор | Кунакова Ольга Анатольевна | 23-80-37 факс 23-80-36 |
| Старший инспектор | Попова Елена Васильевна | 23-80-29 |
| Старший экономист | Милованова Фрешта Александровна | 23-80-44 |
| Старший инспектор | Беляева Светлана Викторовна | 23-80-92 |
| Отдел мобилизационной подготовки и защиты государственной тайны | ||
| Начальник отдела | 23-80-26 | |
| Старший специалист | Мороз Юлия Владимировна | 23-80-25 |
Отдел лицензирования, контроля качества и безопасности медицинской деятельности (располагается в здании г.Липецк, ул.Зегеля,2, 4 этаж, каб.№34 и каб.№35) | ||
| Начальник отдела | Васильева Наталия Валентиновна | 57-11-28 |
| Заместитель начальника отдела | Петров Вадим Владимирович | 57-11-34 |
| Консультант | Бурлакова Наталья Егоровна | 57-11-36 |
| Консультант | Седых Наталья Николаевна | 57-11-24 |
| Консультант | Бахтина Елена Викторовна | 57-11-23 |
| Старший инспектор | Васильева Анастасия Геннадьевна | 57-11-29 |
Специалисты по приему документов по оказанию высокотехнологичной медицинской помощи (ВМП)- (располагается в здании г.Липецк, ул.Зегеля,2, 1 этаж, каб.5) | ||
| Специалист | Чуносова Диана Радиковна (дети) | 57-11-42 |
| Специалист | Рудченко Анастасия Николаевна | 57-27-13 |
uzalo48.lipetsk.ru
Устройство защитного отключения — УЗО назначение, принцип работы, подключение
- Автор: Электрик в доме
- 53
Все розеточные линии электропроводки должны иметь дифференциальные устройства (УЗО, АВДТ) защиты с током утечки не более 30 мА. Это требование присутствует во многих нормативных документах включая ПУЭ. Нужно ли УЗО на освещение и какие ожидают опасности если оставить линии освещения без защиты …
- Автор: Электрик в доме
- 346
Наряду с номинальным рабочим током УЗО характеризуется еще таким параметром как дифференциальный ток утечки. Для защиты человека от поражений электрическим током этот параметр должен быть не более 30 мА. Встречаются также устройства защитного отключения с током утечки на 10 мА. С каким током отключения установить УЗО …
- Автор: Электрик в доме
- 263
Устройства защитного отключения могут применяться как в однофазных так и в трехфазных сетях. Основное отличие между ними в количестве полюсов. Так однофазное УЗО имеет два полюса, трехфазное – четыре. В данной статье читатели сайта «Электрик в доме» мы рассмотрим принцип работы трехфазного УЗО, а также основные компоненты …
- Автор: Электрик в доме
- 352
Для защиты от утечки электрического тока применяют УЗО. Эти устройства реагируют на малейшие появления утечки, которая может возникнуть от повреждения изоляции и появления напряжения на корпусе бытового электроприбора. Как же работают эти устройства? Основным рабочим органом является тороидальный сердечник …
- Автор: Электрик в доме
- 234
Любой современный электромонтаж нельзя представить без надежной и функциональной автоматики. Сегодня в состав электрощита входит не только электросчетчик и две пробки. Помимо автоматических выключателей необходимо использовать УЗО и реле напряжения. Мифы относительно эксплуатации устройство защитного отключения …
- Автор: Электрик в доме
- 190
Друзья мы с вами рассматривали много интересных тем связанный с УЗО — это и принцип работы и схемы подключения. Сегодня я решил сделать небольшой обзор устройств защитного отключения в плане их внутреннего исполнения. Ключевым механизмом в работе узо является диф. трансформатор. Разберем УЗО и посмотрим…
- Автор: Электрик в доме
- 1173
Для правильной работы УЗО его необходимо не только выбрать по всем техническим характеристикам то и правильно подключить с автоматическим выключателем. В какой последовательность необходимо подключать связку узо — автомат. Как все-таки правильно подключать устройство защитного отключения до автомата или после …
- Автор: Электрик в доме
- 658
Рад всех приветствовать на сайте «Электрик в доме». Сегодняшняя тема будет посвящена техническим характеристикам устройства защитного отключения. Как известно для надежной и правильной работы УЗО необходимо правильно подобрать его характеристики. Все характеристики обозначаются на корпусе устройства …
- Автор: Электрик в доме
- 651
Каждому электрику рано или поздно приходится сталкиваться с проектной документацией объекта. В частности с однолинейными схемами электроснабжения. Новичкам бывает очень трудно разобраться с большим количеством графических элементов изображенных на схемах. В статье разберем как обозначаются на схемах УЗО и диф.автоматы …
- Автор: Электрик в доме
- 1389
Устройства защитного отключения стали неотъемлемой частью современного электрощита. Рассмотрим вопросы группового подключения устройств защиты. В каких случаях подключения узо необходимо устанавливать защитный автомат перед ним. Что учитывать, если к одному узо подключается группа автоматических выключателей …
- Автор: Электрик в доме
- 952
Существует несколько типов устройств защитного отключения. Одни срабатывают на переменный ток утечки, другие на постоянный пульсирующий ток, третьи способны уловить даже постоянный ток утечки. Какие из них необходимо устанавливать у себя дома УЗО типа А или АС? Как будут реагировать эти два типа на разную утечку …
- Автор: Электрик в доме
- 757
В сегодняшней статье рассмотрим электромеханическое и электронное узо. Многие электрики даже не подозревают, что есть определенные особенности в работе электромеханических и электронных защитных устройств. Как будут работать два типа устройств в определенных аварийных ситуациях …
- Автор: Электрик в доме
- 1275
Собственно сам вопрос, который мы сегодня разберем, заключается в названии темы. Какое из этих двух устройств выбрать для установки. У многих мастеров мнения на счет качества и надежности разделились. Некоторые предпочитают устанавливать УЗО, другие отдают предпочтение дифавтоматам. Хочу сказать одно …
- Автор: Электрик в доме
- 1348
Многие электрики дискутируют о том, есть ли необходимость устанавливать УЗО в двухпроводную сеть, в которой нет заземляющего проводника. Будет ли устройство защитного отключения работать без заземления. Уверяю вас, что УЗО не только можно, но и нужно устанавливать в системах без защитных заземляющих проводников …
- Автор: Электрик в доме
- 1329
Многие пользователи, установив УЗО, удивляются, почему оно часто срабатывает. Устройство защитного отключения умный прибор и при неправильном подключении возможны не только его ложные срабатывания, но и полный отказ всех функций. Чтобы понять ошибки подключения УЗО необходимо разобраться с его принципом работы …
- Автор: Электрик в доме
- 883
Сегодня существует множество вариантов такого процесса, как проверка срабатывания УЗО. Ведь исправность устройства защитного отключения — залог безопасности. В данной статье рассмотрим самые понятные и распространенные способы данной процедуры, которые сопряжены с различной мерой экстремальности…
electricvdome.ru
Техническая литература — Астро-УЗО
Расчёт коротких замыканий и выбор электрооборудования
И.П. Крючков, Б.Н. Неклепаев, В.А. Старшинов, М.В. Пираторов, Ю.П. Гусев, А.И. Пойдо, В.В. Жуков, В.К. Монаков, Ю.П. Кузнецов.
Под ред. проф. И.П. Крючкова и проф. В.А. Старшинова
Издательский центр «Академия», 2005.
Рецензенты:
- д. т. н., проф. МЭИ А. В. Шунтов;
- зав. лаб. ОАО «ВНИИЭ», д. т. н. Ю. Н. Львов
В учебном пособии рассмотрены методы расчетов коротких замыканий в электроэнергетических системах при различных режимах и условиях, а также методы выбора и проверки применяемого в электроустановках электрооборудования. Подробно изложены электромагнитные переходные процессы в электрических и электромагнитных цепях, синхронных и асинхронных машинах и трансформаторов, обусловленные короткими замыканиями и другими причинами. Рассмотрены методы анализа несимметричных режимов трехфазных электрических цепей параметры составляющих элементов электроэнергетических систем по отношению к токам прямой, обратной и нулевой последовательностей. Это относится к электроустановкам напряжением до 1 кВ и свыше 1 кВ, а также электроустановкам постоянного тока.
Впервые в общем контексте расчетов коротких замыканий изложены особенности этих расчетов на компьютере с представлением некоторых программ по типовым задачам.
Наиболее сложные моменты проиллюстрированы практическими расчетами и примерами, что позволило более полно и доступно изложить материал.
Большая и, в своем роде, уникальная глава посвящена вопросам применения устройств защитного отключения для электроустановок производственных, жилых и общественных зданий и сооружений.
При подготовке настоящего пособия учтен опыт применения разработанных авторами руководящих указаний по расчетам токов короткого замыкания и выбору электрооборудования; учебно-справочного пособия по проектированию, монтажу, наладке и эксплуатации электроустановок при применении устройств защитного отключения; положений действующих ГОСТов и других нормативно-технических документов, а также многолетний опыт организации и проведения учебного процесса на кафедре «Электрические станции» Московского энергетического института (технического университета).
ISBN 978-5-7695-5281-6
Цена: нет в наличии
www.uzo.ru
