Самодельный из кирпича котел – Твердотопливные котлы своими руками из кирпича: этапы работы
Твердотопливные котлы своими руками из кирпича: этапы работы
Для обогрева частных домов хорошо зарекомендовал себя твердотопливный котел, выполненный из кирпича. Такой теплогенератор можно с легкостью сделать своими руками, имея необходимые материалы, инструменты, представление о тонкостях конструкции и производственном процессе. Доступность информации позволяет не испытывать сложностей при сборке котла. Поэтому вооружившись готовым чертежом, удастся без труда и с выгодой для бюджета изготовить отопительное оборудование.

Механизм работы
Существуют различные виды твердотопливных котлов и теплообменников к ним, которые могут быть сконструированы самостоятельно. Пользуются популярностью вертикальные и горизонтальные кирпичные конструкции. Работают они следующим образом:
- Посредством сжигания топлива нагревается воздух и, поднимаясь, выводится через дымоход.
- При движении нагретый воздух передает тепло ТО, который, в свою очередь, нагревает воду.
- Происходит циркуляция Н2О (холодная вода замещается горячей).
Существует еще один вид отопительного устройства — кирпичный шахтный котел, отличительной чертой которого является загрузка топлива через специальный люк. Для его сооружения применяются теплообменники прямоугольной формы, которые выполнены из листового металла, оснащенного в несколько рядов вертикальными трубами, пропускающими через себя пламя и нагретый газ. Эта разновидность котла позволяет изменять длительность горения с помощью регулировки высоты загрузочного места (шахты) и подачи воздуха.
Вернуться к оглавлениюПроцесс изготовления твердотопливного котла из кирпича своими руками
Какие необходимы материалы и инструменты для строительства?
Для постройки понадобится колосниковая решетка.Чтобы соорудить твердотопливный котел своими руками, нужно обладать малейшими знаниями в сварочных работах, навыками каменщика и уметь пользоваться газовым резаком. Желательно разбираться в разметке и раскройке рабочего материала, а также иметь представление о работе с электроинструментами. С таким багажом знаний удастся быстро соорудить качественный твердотопливный котел за минимальную цену. Для этого потребуются следующие материалы:
- глина, кирпич;
- колосниковая решетка;
- трубы;
- гравий;
- вода;
- листовой металл;
- дверцы;
- водный насос и устройство для нагрева воды.
Необходимо подготовить и такие инструменты:
- сварочный аппарат;
- болгарка;
- газовый резак;
- маркер, который хорошо виден на металле;
- лопатка для шпаклевки;
- уровень;
- плоскогубцы;
- рулетка;
- электродрель.
Вернуться к оглавлениюЧтобы обезопасить себя, важно подготовить средства индивидуальной персональной защиты (очки и маска) и только после этого приступать к изготовлению кирпичного котла.
Этапы работы
Сначала нужно заложить фундамент для будущей постройки.Популярностью пользуются вертикальные твердотопливные отопительные приборы, сконструировать которые можно самостоятельно следующим образом:
- Подготовить теплообменник и снять с него размеры для изготовления топочной камеры.
- Соорудить фундамент из кирпичной кладки или бутового камня.
- Проложить основу котла гидроизолированной рубероидной прокладкой.
- Низ камеры и поддувало с дверцей выложить печным кирпичом и разделить их между собой решеткой из чугуна.
- Установить ТО и выложить из кирпича стенки, оставив зазор в 1,5—2 см.
- Впереди крепится дверца, закрывающая уложенное топливо, а сзади оставляется отверстие для дымохода.
- Сверху камерных стенок прокладывается чугунная варочная плита либо толстый металлический лист, обложенный слоем из кирпича, если не планируется использовать котел для приготовления пищи.
- Канал для выхода дыма располагают сбоку или сверху топочной камеры, сделав его из металлической трубы или стройматериала.
- Когда кладка хорошо просохнет, патрубки теплообменника крепят к трубопроводу, используя соединительные муфты или приваривая сваркой.
- В завершение производят пробную топку и проверяют работу отопительного устройства.
Преимущества
Если теплообменник купить, то необходимости в проведении сварочных работ не будет.Котел, выполненный из кирпича, считается простой и эффективной обогревательной конструкцией, которую целесообразно использовать для отопления частных домов. Плюсом такого сооружения считается возможность собственноручного изготовления, что позволяет значительно сэкономить, а также быть уверенным в качестве используемых материалов и готового котла. Сам процесс изготовления состоит из минимального количества этапов, не требующих большого количества сварочных работ. Купив готовый теплообменник, не применяют сварку. Кирпичный котел является многофункциональным, так как его можно применять в качестве обогревающего устройства для помещений. Дополнительно, как варочную плиту для приготовления пищи.
Кроме этого, такой котел обладает способностью поддерживать необходимую температуру теплоносителя на протяжении долгого времени, позволяя сохранять атмосферу в помещении здоровой и комфортной. Кирпичная печь позволяет сжигать даже отходы из пластмассы или резины Однако важно знать, что в топке утиля не должно быть более 1/3 части от общего количества топлива.
etokirpichi.ru
Котел в печке схема. Твердотопливные котлы своими руками из кирпича и металла
Твердотопливные котлы своими руками из кирпича с водяным контуром можно изготовить с теплообменниками разной формы и конструкции из отрезков труб или полос листового железа. С некоторыми вариантами таких котлов можете ознакомиться в данной статье.
Как сделать кирпичный твердотопливный котел своими руками
Такой твердотопливный котёл своими руками может изготовить даже новичок. Для этого понадобится болгарка и навыки работы с ней, а также умение проводить сварочные и печные работы (кладку кирпича). Хотя можно подготовить все элементы теплообменника котла, подогнать, а сами сварочные работы поручить опытному сварщику. Так как в твердотопливном котле будет циркулировать вода сварочные швы должны быть качественными.
Существует множество конструкций твердотопливных котлов и теплообменников к ним, которые можно изготовить своими руками. Каждая конструкция имеет свои преимущества и недостатки. В данной статье мы рассмотрим изготовление разных теплообменников для твердотопливных котлов из кирпича. От полностью металлических их отличает то, что из металла изготавливается только теплообменник (регистр, змеевик), а сам корпус — из кирпича.
Вам будут предложены несколько конструкций, в том числе первый теплообменник, который я изготовил своими руками, когда пришлось менять твердотопливный котёл заводского изготовления. На протяжении уже пяти сезонов отопления он доказал свою эффективность, в крайнем случае, работает не хуже твердотопливного котла заводского изготовления, который был до него. Кроме того, такая конструкция котла позволяет топить поленьями как короткими так и достаточно большой длинны — до 70 см
Такой котёл целесообразно установить в сельском доме или на даче, потому что эта конструкция предусматривает установку плиты для приготовления пищи или кормов для животных. Если же нет необходимости в установке плиты можно над теплообменником соорудить свод из кирпича или установить «глухую» плиту и заложить её кирпичом. Кирпич будет выполнять роль аккумулятора тепла и ещё некоторое время будет отдавать его в систему, когда топливо в котле уже сгорит.
Можно такой теплообменник устанавливать и в отопительных печах для повышения их КПД и подключения их к водяному отоплению дома. Существуют горизонтальные и вертикальные разновидности таких котлов и соответственно, теплообменников к ним, которые мы и рассмотрим ниже.
Горизонтальный твердотопливный котел своими руками (теплообменник)- вариант 1
Основой конструкции предлагаемого твердотопливного котла является прямоугольный теплообменник (регистр) из труб прямоугольного профиля 60х40 мм и круглых, диаметром 40 и 50 мм с толщиной стенки 3-5 мм. Трубы прямоугольного профиля используются для облегчения стыка труб, так как круглые трубы стыковать намного сложнее.
Теплообменник монтируется в корпус (топливник) из кирпича, лучше огнеупорного или тугоплавкого.
Изготовление такого теплообменника своими руками начинаем с заготовки отрезков необходимой длинны их труб прямоугольного и круглого профиля.

Рис.1 Горизонтальный теплообменник (вариант 1): 1 — трубы 60х40х4 мм; 2 — трубы 50х5(4-3) мм; 3 — трубы 40х4(3) мм; 4 — труба выхода нагретой воды 50х5(4) мм; 5 — труба входа холодной воды (обратки) 50х5(4) мм;
Размеры: а — 360 мм; б — 400 мм; в — 300 мм; г — 800 мм.
В отрезках труб, которые будут служить вертикальными стойками вырезаем круглые отверстия под трубы. В передних (от топочной дверки) стойках вырезаем с помощью газового резака или обычного сварочного по 4 отверстия под трубы диаметром 50 мм, а в задних стойках – по 4 отверстия 50 мм (в грани шириной 60мм) и по 4 отверстия по 40 мм (в грани, шириной 40 мм). Кроме этого вырезаем отверстия 50 мм под трубы для подвода холодной (обратки) в нижней передней части котла и отвода горячей воды из верхней части котла в сеть отопления дома. Работу эту необходимо выполнить аккуратно, чтобы отверстия получились по возможности ровными. Все наплывы, образовавшиеся при резке, необходимо удалить с помощью болгарки.
После того, как отверстия будут готовы, свариваем переднюю и заднюю части котла. Для этого стойки и трубы необходимо выставить перпендикулярно на ровной поверхности. Когда эта работа будет закончена, привариваем боковые трубы, следя за перпендикулярностью граней. Работу эту лучше всего, проделывать вдвоём: один удерживает трубы в необходимом положении, а другой выполняет сварочные работы.
После того, когда боковые трубы будут на месте, привариваем отрезки труб для подвода и отвода воды и завариваем торцы труб прямоугольного профиля, которые остались не закрытыми, с помощью вырезанных заранее кусочков металла 60х40 мм.
После окончания сварочных работ, прежде чем монтировать теплообменник, необходимо проверить его на герметичность. Для этого можно закрыть нижнее отверстие для воды любым способом, а через верхнее залить в котёл воду, предварительно установив конструкцию вертикально. Если протечек не будет, теплообменник можно монтировать.
Самодельный теплообменник из листовой стали и труб — вариант 2
При наличии листового металла, толщиной 3-5 мм можно изготовить теплообменник для твердотопливного котла или печного водяного отопления следующей конструкции:

Рис.2 Теплообменник из листовой стали и труб (вариант 2): 1 — труба обратки диам. 50 мм; 2 — профильная труба 60х40 мм; 3 — выходящая труба 50 мм; 4 — труба 60х40 мм; 5 — трубы диаметром 32-40 мм; 6 — боковины из листовой стали толщиной 3-5 мм; 7 — перемычка из трубы 60х40 мм.
Размеры теплообменника могут быть изменены, в зависимости от необходимой мощности котла.
Монтаж теплообменника и кладка корпуса твердотопливного котла своими руками (варианты 1 и 2)
Готовый теплообменник (вариант 1 или 2) монтируется в корпус из кирпича, кладка которого выполняется, по тем жеправилам, что и кладка печей или кухонных плит. Размеры кирпичного корпуса рассчитываются так, чтобы обеспечить зазор между кирпичом и теплообменником не менее 1 см.
Размеры теплообменника и всего котла могут изменяться, в зависимости от площади дома, которую необходимо отапливать. Здесь приведены размеры котла для дома площадью 90-100 м 2 в системе отопления которого 6 стандартных (7 секций) чугунных радиаторов, двухтрубная разводка выполнена с уклонами стальными трубами диаметром от 50 до 25 мм (наружный диаметр). Схема обвязки котла выбирается в зависимости от сложности системы, количества контуров и используемого дополнительного оборудования.
Кладка стенок котла выполняется на бетонном фундамента, который сооружается по размеру котла. При кладке этого твердотопливного котла сам теплообменник необходимо выставить так чтобы он был установлен не горизонтально а с подъёмом к точке выхода горячей воды. С помощью уровня выставля
Печь с котлом водяного отопления своими руками: конструктивные особенности
Отличный вариант организации автономной системы отопления в частном доме или бане – стационарная печь с котлом водяного отопления.
Подобное устройство отличается практичностью и экономичностью, высокой теплоотдачей и КПД, что позволяет эффективно отапливать помещения различной площади в короткий промежуток времени.
Подобную систему достаточно просто организовать собственноручно, не привлекая дорогостоящих специалистов.

Содержание статьи
Конструктивные особенности печи с контуром
Печка с отопительным контуром обеспечивает равномерный и быстрый нагрев помещения благодаря теплоносителю (вода или другая жидкость), который находится внутри системы. Тепловая энергия, выделяемая при топке, используется для обогрева помещения и нагрева воды в системе.

Отопительное оборудование такого типа оснащается металлическим нагревательным контуром. Он представляет собой резервуар со штуцерами и подведенными к ним трубами.
Современные печи с контуром для отопления выполняются из металла или огнеупорного кирпича, с различным размещением каменки, а также с водяной емкостью.
Конструктивно печной котел представлен двумя видами:
- Котел в дымоходе. Подобное устройство отличается высокими эксплуатационными характеристиками, продолжительным сроком службы и простотой использования. Единственный недостаток конструкции – невозможность обогреть большие помещения.
- Котел в топке. Он предназначается для обогрева больших площадей, отличается доступностью и долговечностью. К недостаткам можно отнести близкий контакт с открытым огнем, что приводит к сильному перегреву и разрушению металлических элементов конструкции. Кроме того, высокая температура отопительного контура приводит к быстрому образованию сажи и снижению КПД устройства.

Разновидности теплообменников для печи
При создании автономной системы отопления используется два типа теплообменников: плоские и трубчатые.

Теплообменник плоского типа
Печные котлы с теплообменником плоской конфигурации – практичный вариант для загородных домов, частных дач и бань. Их легко изготавливать, устанавливать и обслуживать.
Такие устройства монтируются вертикально и горизонтально, имеют высокий коэффициент полезного действия. Плоская конструкция котла отличается большим объемом камеры, что обеспечивает быстрый нагрев воды, необходимой для отопления и проведения водных процедур.

Существенным недостатком оборудования является снижение тепловой отдачи от стеновых конструкций печи. Теплообменник представлен в П-образной форме, монтируется по всему периметру топки. Это приводит к снижению температуры нагрева внешних стен печи и увеличению времени на обогрев помещения. Это проблематично только в тех случаях, когда отопительная печь установлена внутри жилых помещений, где процесс топки осуществляется постоянно.
Увеличить скорость нагрева плоского котла можно несколькими способами: удлинить каменку и расположить ее над топкой или использовать дымоход из металла, предварительно увеличив его длину.

Теплообменник трубчатого типа
Трубчатый котел в печку отличается типом и размерами конструкции, способом монтажа. При необходимости ремонта или замены теплообменник можно легко демонтировать из печи.

Чтобы изготовить трубчатый регистр для печи из кирпича, используются бесшовные водяные трубы, поэтому он считается самым надежным, безопасным и долговечным.
При выборе или изготовлении теплообменника нужно помнить, что его конструкция и габариты должны полностью соответствовать форме топки, что позволит нагревать максимальное количество воды. Качественно выполненный регистр обеспечивает большую площадь теплового обмена.

Основные эксплуатационные характеристики печей
Обустроенная печь с котлом водяного отопления своими руками предназначена для выполнения двух важных функций: обогрева помещений и нагрева воды. К тому же она может быть оборудована варочной поверхностью и духовкой, что позволит использовать ее для приготовления еды.

Отопительное оборудование обладает рядом преимуществ:
- Традиционная печь за 1 час работы выделяет до 7 тысяч Ккал тепловой энергии, которой достаточно для обогрева дачного домика. Котел отопления имеет более высокий КПД, что позволяет обогреть большой жилой дом и баню. При этом низкий расход топлива приводит к существенной экономии.
- Комбинированная система отопления, состоящая из печи и котла, обеспечивает максимальную производительность при минимальных расходах.
- Основным топливом является древесный уголь, дрова или пеллеты. Подобные материалы доступны в цене, удобны в транспортировке и хранении.
- Печи, оснащенные водяным контуром, не требуют беспрерывной топки. Достаточно одной закладки топливного материала в сутки, чтобы обеспечить быстрый прогрев помещений и горячее водоснабжение.
- КПД комбинированных устройств по сравнению с традиционными печами достигает 85 %.
- Организовать автономную систему отопления, комбинированную, с водяным контуром, под силу любому домовладельцу, подготовив необходимые инструменты и материалы.
Правила безопасности эксплуатации печей с водяным контуром
Чтобы обеспечить исправную работу печи с котлом, рекомендуется соблюдать важные правила безопасности, а также рекомендации по уходу за оборудованием:
- Устройства с водяным отоплением должны эксплуатироваться под надзором человека. Это относится к закладке топлива и регулярной чистке камеры от сажи и золы.
- Безопасная работа печи предусматривает контроль над дымоотводными каналами. Перед началом топки необходимо проверять техническое состояние каналов и положение задвижек. В момент разведения огня задвижки должны быть полностью открытыми.
- Подобная система рекомендована к использованию в зимний период, когда требуется обеспечить быстрый нагрев помещений и горячее водоснабжение. Использование печи с водяным контуром летом только для приготовления пищи и подогрева воды нерационально. В этом случае рекомендуется выбрать более экономные тепловые источники.
- Открытый огонь приводит к чрезмерному нагреву печной конструкции, что может стать основной причиной поломки теплообменника.
- При использовании самодельной системы отопления можно установить насосную установку для нагнетания жидкости и приборы для контроля над уровнем давления.

Возведение кирпичной печи с отопительным котлом
Строительные работы начинаются после подготовки типового проекта и изготовления теплообменника, по габаритам которого выполняется кирпичная кладка печи.
Печь с водяным контуром может размещаться в удобном для эксплуатации и обслуживания месте.
После строительства фундамента готовится порядовка печи с учетом водяного контура – план расположения поддувальной и топливной камеры, дымоотвода и варочной поверхности (если она присутствует).
Для возведения печи с котлом используется жаростойкий кирпич без сколов, трещин и повреждений.

Возведение печи проводится поэтапно:
- Подготовка печного раствора из глины, песка и воды. Можно приобрести готовую смесь, но опытные мастера замешивают раствор для кирпичной кладки собственноручно.
- На фундамент укладывается слой гидроизоляции из рубероида или пленки.
- На гидроизоляцию равномерно наносится печной раствор и укладывается начальный кирпичный ряд. Далее согласно схеме выполняются последующие ряды, а в топку монтируется теплообменник.
- Обустраивается зольник и топочное отделение. Правильность кладки проверяется строительным уровнем.
- Фиксируется дверка в топочное отделение, выкладывается печной свод и дымоотвод. Для обкладки внутренних стен топки и дымоотвода применяются скругленные кирпичи.
- После завершения кладки выполняется монтаж водяного контура. К теплообменнику подводятся водяные трубы, соединенные с радиатором отопления. Монтируется расширительный резервуар, а готовая система наполняется водой или другой жидкостью.
Завершающий этап – декоративная отделка печи штукатурным составом или изразцами, а также тестовая топка, чтобы выявить и устранить недостатки конструкции.
Экономичную печь с отопительным контуром можно возвести собственноручно. Такая конструкция безопасна, практична и долговечна, с высоким КПД, к тому же независима от централизованных источников энергии.
sdelatbanyu.ru
Вдвое больше пользы! Кладка печи с котлом водяного отопления: особенности, схема

Котёл для организации центрального отопления можно приобрести в специализированном магазине.
Промышленные котлы изготавливаются из стали или чугуна, имеют различные характеристики КПД и длительности горения, занимают мало места.
Недостаток — высокая стоимость.
Google+
Vkontakte
Odnoklassniki
Особенности дровяного котла отопления с водяным контуром

Правильный котёл обладает следующими характеристиками:
- Безопасность. Стенки и дверца котла не должны нагреваться выше 150 °C.
- Лёгкость эксплуатации. В конструкции котла не допускается «заумных» систем, большого количества задвижек.
- Долговечность. Печь должна служить без ремонтов длительное время.
- Управляемость. Интенсивность пламени регулируется не только количеством дров.
- Эффективность. По максимуму использовать тепло от сгорания топлива.
Для того, чтобы построить котёл есть два пути — постройка нового или встраивание теплообменника в уже имеющуюся печь.
Кирпичная печь-котёл состоит из:
- Топливника — в нём сжигаются дрова, которые греют теплоноситель.
- Теплообменника — где циркулирует теплоноситель, который отдаёт жар из камеры сгорания к батареям.
- Дымовых каналов — они служат для удаления продуктов горения.
- Фурнитуры — дверцы, поддувало, колосниковая решётка, шиберы или вьюшки.
В практике встречаются различные виды организации твердотопливных печей-котлов.
- Топливник, вокруг которого смонтирован теплообменник. Продукты горения уходят прямо в трубу. Преимущества этой схемы — простота и дешевизна. Сложить такой котёл сможет человек, не обладающий навыками каменщика. Температура теплоносителя быстро набирается и падает в зависимости от интенсивности пламени, поэтому возле котла приходится постоянно дежурить.
- Теплообменник также
ogon.guru
Как сделать печь со встроенным котлом своими руками
Такие печи целесообразно ставить в больших банях, имеющих отдельную душевую, комнату отдыха, раздевалку и т. д. Они позволят во время топки парной создать комфортную температуру в остальных помещениях. Решать вопросы с выбором типа котла и его линейными размерами нужно еще во время проектирования печи, при этом следует учитывать все особенности ее эксплуатации и конструктивные изменения. Сделать точный расчет тепловой мощности самодельного котла практически невозможно, слишком много существует индивидуальных факторов.

Как сделать печь со встроенным котлом
Содержание материала
Краткий обзор вариантов печей с встроенным котлом
Печи для бани могут быть металлическими и кирпичными, с различным расположением каменки, с наличием котла подогрева воды для мытья. По размерам нет никаких ограничений, конкретные параметры выбираются с учетом размеров помещений, материалов строительства бани и климатической зоны проживания. Рассмотрим конструктивные особенности двух видов печей с отопительными котлами.
- Отопительный котел встроен в дымоход. Преимущества – длительное время эксплуатации, относительно низкие температуры нагрева положительно влияют на устойчивость металлических конструкций. Кроме того, такая установка отопительного котла не влияет на скорость обогрева парной, тепло из топки полностью передается на стенки печки, показатели теплоотдачи не изменяются. Недостаток – низкая продуктивность и небольшая площадь контакта отопительного котла с горячими газами не позволяют эффективно обогревать большие помещения.

Варианты теплообменников для дымоходов
- Отопительный котел располагается непосредственно в топке.
Преимущества – обогреваются большие по площади помещения, отопление функционирует сразу после начала топки печи, появляется возможность использования различных типов теплообменников.
Недостатки – прямой контакт с огнем металлических элементов теплообменника негативно влияет на показатели их физической прочности. Стенки теплообменника имеют относительно низкую температуру, это способствует появлению конденсата влаги, а к влажным поверхностям прилипает большое количество сажи. Налет сажи толщиной в один миллиметр понижает коэффициент полезного действия теплообменника приблизительно на 10%. Приходится его часто чистить или мириться с недостаточным нагревом воды в котле. Еще один недостаток – возрастают габариты топки и как следствие, общие размеры печки. Не в каждой бане есть возможность устанавливать большие печки.
Стальной теплообменник в печи

Установка теплообменника в топку. Фото
Несколько слов следует сказать о типах теплообменников, это очень интересный вопрос, ошибки во время выбора инженерной конструкции могут иметь весьма печальные последствия.
Виды теплообменников, их преимущества и недостатки
Самостоятельно можно изготовить два вида теплообменников: плоские и трубчатые. Для того чтобы было легче принимать взвешенное решение, нужно ознакомиться с их эксплуатационными характеристиками и особенностями.

Трубчатый и плоский теплообменники
Плоские теплообменники
Довольно распространенный вид, часто используются во время строительства печей различного назначения, и не только для бани.

Плоский теплообменник

Плоский теплообменник
Преимущества
Самые простые в изготовлении, поверхности легко очищаются от налипшей сажи, допускается установка как в вертикальном, так и в горизонтальном положении, имеют довольно высокий КПД.

Теплообменник плоский, установлен вертикально
Плоские котлы, в отличие от трубчатых, могут иметь большой объем, что в некоторых случаях позволяет делать забор горячей воды для мытья из системы отопления.

Встраиваемый теплообменник
Устанавливается расширительный бачок с увеличенными линейными размерами, в который постоянно добавляется вода после понижения уровня ниже критического.

Открытый расширительный бак для отопления
Вариант довольно удобный, решает сразу несколько задач. Но есть одно обязательное условие – в бане в зимний период времени температура в бане не должна понижаться до минусовых значений. Если условие не соблюдается, то воду следует заменить морозостойким теплоносителем.

Теплоноситель для систем отопления
Недостатки
На них следует остановиться подробнее, многие строители не уделяют им должного внимания. Главный недостаток – резко снижается теплоотдача стенок печки. Дело в том, что плоские теплообменники изготавливаются в виде буквы П, устанавливаются по периметру топки, кроме дверки. Это значит, что внешние стенки печки имеют низкую температуру, нагрев не превышает +40÷50°. Такие параметры значительно увеличивают время прогрева парной, подготовка по приему водных процедур занимает много времени. Есть еще более странные предложения – для увеличения срока эксплуатации котла делать между ним и топкой футеровку.

Футеровка теплообменника
Не спорим, дополнительный ряд кирпичей защитит теплообменник от негативного воздействия прямого пламени. Только какой ценой? Время начала эффективной работы отопительной системы намного увеличится, а обогрев печкой парной в разы уменьшится. Для того чтобы париться в парной и обогреть комнату отдыха и душевую придется много часов топить печь. На разговоры о том, что котел долго держит тепло, не обращайте внимания, никой выгоды от этого нет. Никто не может отменить законы физики. Раз печь с котлом долго держит тепло, значит, она столь же долго нагревается. Время уходит на прогрев большой массы кирпичей. Кроме того, внешние стенки банной печки остаются холодными. Такой вариант еще можно себе представить во время устройства печи для обогрева жилых помещений, но для бань категорически не рекомендуем его использовать.

Кирпичная печь в бане, сделанная своими руками
В жилых домах печка топится постоянно и увеличение времени нагрева помещений на несколько часов никакой роли не играет. Как, кстати, и время остывания воды в котле.
Практический совет. Если вы планируете в банной печи устанавливать плоский котел по сторонам топки, то продумайте, за счет чего удастся ускорить прогрев парной. Есть несколько вариантов, Можно значительно увеличить каменку, расположить ее непосредственно над топкой. Другой вариант – использовать дымоход для обогрева помещений. Делать его только металлическим, немного увеличить длину за счет различных колен и т. д. Сразу заметим, что перечисленные варианты, кроме положительных сторон, имеют и отрицательные. Нужно на месте самостоятельно сориентироваться и принимать взвешенные решения.
Трубчатые теплообменники

Трубчатые теплообменники (устанавливаются непосредственно в топку)
Наиболее удачное решение, могут быть различных размеров и форм, от довольно простых до сложных.

Простой регистр
Такие регистры изготавливаются с различными размерами, могут устанавливаться как с одной стороны топки, так и с двух или трех. Теплообменники легко обслуживаются, при возникновении аварийных ситуаций их можно вынуть из печи без разборки кирпичной кладки. Практики не советуют гнаться за слишком сложными конструкциями теплообменников, такие стремления часто приносят результат, обратный ожидаемому.

Трубчатый теплообменник «паук»
Очень важно. Для изготовления теплообменников применяйте только бесшовные трубы. Отличить их от шовных довольно просто – у них нет продольной линии сварки. Шовные трубы при нагреве могут давать трещины, как следствие – полная замена теплообменника с обязательной разборкой печи.
Почему мы рекомендуем ставить в печь трубные теплообменники? По двум равнозначно важным причинам.
Первая. Длина окружности трубы C = π×d.

Формула длины окружности

Труба стальная ГОСТ 12132-66 50 мм
К примеру, труба диаметром 50 мм в развернутом состоянии имеет длину окружности 3,14×50= 157 мм. Занимает всего 50 мм по длине места в топке, а обогревается в три раза больше поверхности. Для того чтобы эффективность плоского теплообменника была такой же, как и у трубчатого, его размеры должны быть в три раза больше. С этим все понятно, но не все однозначно. Трубы нельзя крепить вплотную друг к другу, а зазор между ними уменьшает эффективную площадь теплообмена, это существенно нивелирует преимущество. Но даже при таком устройстве трубчатые теплообменники эффективнее плоских.

Пример трубчатого теплообменника в печи
Вторая. Об этой причине никто не вспоминает, а она имеет большое значение. За счет наличия зазоров между трубами теплообменника появляется возможность не только очищать трубы от сажи, хотя и это очень важно. Есть еще один плюс – открытый огонь через зазоры напрямую нагревает стенки печки, парная быстро прогревается. Плоские теплообменники полностью изолируют стенки печки от огня со всеми негативными последствиями.

Имеющиеся зазоры позволяют печи быстрее прогреваться
Надеемся, что мы убеди вас делать трубные теплообменники, пусть они и намного сложнее в изготовлении. Не имеете достаточного опыта сделать его самостоятельно – обратитесь за помощью к квалифицированному сварщику, а сами займетесь установкой готового изделия в топку. Можете быть уверенными, что некоторое удорожание выполнения работ окупится в полной мере за счет надежности и эффективности функционирования котла.

Если у вас нет опыта, доверьте сварку профессионалу
Видео – Котел для твердого топлива
Использование в качестве котлов старых чугунных радиаторов
Есть и такие советы. Отдельные секции радиаторов собираются в батареи, количество секций ничем не ограничивается. Батареи вмуровываются в топку и отопление помещений бани решено. Все красиво и на первый взгляд вполне убедительно.

Использование в качестве котлов старых чугунных радиаторов
Что по этому поводу говорят профессионалы?
- Во-первых, чугунные радиаторы имеют очень большой вес, это значительное увеличение нагрузки на небольшие банные печки.

Чугунный радиатор очень тяжелый
Некоторые из них строятся на половых балках перекрытия, увеличивать вес конструкции невозможно. Нужно делать бетонный фундамент, а это обходится дорого.
- Во-вторых, такие радиаторы можно устанавливать только в каменных печках, а трубчатые или плоские теплообменники универсального применения, могут монтироваться как в кирпичных, так и в металлических печках.

Схема печи с чугунным радиатором в качестве теплообменника

Схема подключения теплообменника
- В-третьих, чугун крайне негативно реагирует на открытое пламя, устанавливать в топке котлы из чугунных радиаторов инженерами не рекомендуется. Где тогда их устанавливать, в дымоходе? Большой вопрос.
- В-четвертых. Чугунные радиаторы имеют много различных ребер для увеличения площади теплообмена, поверхность неровная и т. д. Такие особенности конструкции способствуют ускоренному отложению на них сажи, ее наличие становится причиной резкого понижения эффективности функционирования. Кроме того, очистить поверхности радиаторов не просто трудно, а невозможно.

На чугунных радиаторах быстро откладывается сажа
Практический совет. Если у вас после ремонта старой отопительной системы остались чугунные батареи, то сдайте их в пункт приема металлолома, а на вырученные деньги купите металлические трубы, не пытайтесь экономить себе в убыток.

Чугунный радиатор
Как вмуровывать радиатор в печь
Мы постараемся дать пошаговую инструкцию кладки печи, подробную универсальную порядовку рассказать невозможно, слишком много существует вариантов как по размерам и типам теплообменников, так и по характеристикам печей. Но зная общие принципы, этапы и особенности можно будет делать печи по индивидуальным чертежам. Исходные данные. Печь кирпичная с верхним расположением каменки, котел плоский или трубчатый с размещением в топке, фундамент бетонный армированный, дымоход кирпичный или совмещенный с трубчатым.

Основание для печи
Шаг 1. Изготовьте котел (теплообменник) понравившегося типа, габариты согласовывайте с размерами печки и топки. Занесите в помещение кирпичи, дверки поддувала и топки, шибер, элементы каменки. Приготовьте раствор для кладки. Для кладки можно использовать только глину с песком или добавлять еще немного цемента для прочности. Оба варианта почти равнозначны, но мы советуем второй – уменьшаются риски вымывания раствора в швах печи из-за попадания воды.

Теплообменник чугунный – фото
Шаг 2. Проверьте горизонтальность фундамента, при необходимости выровняйте его. Разброс по горизонтали менее одного сантиметра – не обращайте внимания, такие погрешности без проблем ликвидируются во время кладки кирпичей за счет разности толщины раствора.

Схема кладки печи и установки теплообменника в ней
Шаг 3. Без раствора выложите кирпичами основание печи, еще раз проверьте правильность сделанных расчетов. На порядовке основания уже можно приблизительно разметить количество кирпичей для топки, толщину стен, конкретное место расположения котла.

Пример кладки первых рядов
Шаг 4. Кладите первый ряд на раствор, он будет сплошным. Второй ряд уже должен учитывать расположение и размеры поддувала.
Практический совет. Есть варианты современных печей, способных длительное время поддерживать горение дров. В таких конструкциях зольник с колосниками в большинстве случаев не делается, интенсивность сгорания топлива регулируется количеством подаваемого воздуха через специальные продухи. Мы не советуем для бани использовать этот вариант. Длительное горение топлива не увеличивает его теплоотдачу, а растягивает ее во времени. Печь будет длительное время теплой, но горячей никогда. А парную нужно максимально быстро прогревать до высокой температуры.
Шаг 5. Для высоты зольника достаточно три ряда кирпичей, конкретные размеры нужно согласовывать с размерами дверцы. Под колосник следует выбирать боковины кирпичей, делайте это болгаркой с алмазным диском. Последний ряд под колосники лучше класть из огнеупорного кирпича. Всю внутреннюю поверхность топки и несколько первых рядов дымохода делайте из огнеупорного материала. Если нет возможности – не расстраивайтесь. Практика показывает, что печи из обыкновенного кирпича не рассыпаются 5÷8 лет. И это при ежедневной топке. О сколько раз в год будет топиться печь в бане? Прибавьте к этому защиту стенок топки котлом, выполните простейшие арифметические расчеты, полученный результат успокоит вас.

Начало кладки печи – выложена часть топливника и установлен колосник
Первые ряды печки сделаны, пора приступать к укладке котла (теплообменника). Это уже более сложный процесс, требует повышенной внимательности.
Кладка котла (теплообменника)
Топка печки должна вмещать котел и по объему позволять делать одновременно несколько закладок дров.
Шаг 1. Поставьте бак на верхний ряд кирпичей. Отрегулируйте его положение с таким расчетом, чтобы пришлось подрезать минимальное количество кирпичей. Если вы сделали теплообменник плоским в виде буквы П, то постарайтесь его разместить в максимальной близости к внешним стенкам. Одновременно посмотрите на положение входных/выходных патрубков, их длина должна быть примерно на 5÷10 см больше толщины топки. Не делайте плоский теплообменник с верхней нагревающейся поверхностью, это намного усложнит процесс нагрева каменки до высоких температур. Ее придется делать в дымоходе, а достичь большой температуры нагрева в этом месте довольно трудно. Кроме того, ограничивается объем камней, что непременно уменьшит скорость нагрева парной и длительность поддержания необходимой температуры.

Внутри шамотного ядра установлен теплообменник
Шаг 2. Начинайте обкладывать котел кирпичами. Для плоского котла можно использовать обыкновенные красные кирпичи, температура нагрева стен будет минимальной. Для трубчатых теплообменников лучше использовать по периметру топки огнеупорный материал. Мы уже упоминали одно из важных преимуществ котлов такого типа – внешние поверхности печки могут сильно нагреваться. Это значит, что боковины топки следует защищать от теплового разрушения.
Шаг 3. Через два ряда начинайте оставлять отверстие под дверку топки, размеры стандартные или отрегулируйте самостоятельно. Переднюю стенку топки следует делать также и шамотного кирпича.
Шаг 4. Если печка большая, то делайте каналы для очистки и закрывайте их дверцами, для небольших конструкций это необязательно. Периодическую очистку можно без проблем сделать через монтажное место установки каменки. Убираются камни, вынимается металлическая плита, на которой они лежали, и открывается доступ для полного удаления из печки сажи.
Шаг 5. Кладите ряды кирпичей по высоте котла, постоянно проверяйте уровнем их положение. Если вы правильно делаете перевязку и соблюдаете пространственное положение кирпичей, то швы между ними будут постоянно одинаковыми по толщине. На уровне дверки топки нужно положить металлическую полоску для закрытия кирпичами ее верхней части.
Шаг 6. Начинайте подготовку к установке каменки. Располагаться каменка может на толстом (примерно 4÷5 мм) стальном листе, размеры должны отвечать размерам топки с установленным в ней теплообменником. Если трудно достать такой металл, то можно приобрести в магазине варочную чугунную плиту с комплектом колец для закрытия отверстий.
Важно. Размеры варочных плит стандартные, не всегда соответствуют размерам сделанного вами котла. Если плита немного больше, то нет проблем, сделайте в кирпичах углубления по толщине металла и ставьте плиту. Если она меньше, то нужно суживать просвет над топкой. Делать это следует за несколько рядов, конкретное количество зависит от величины плиты и топки.
Кирпичи не должны выступать более одной трети длины, только в таком положении их можно надежно зафиксировать следующим рядами. Не получается так? Тогда используйте металлические пластины или прутки, вмуровывайте их в шов и кладите на них часть выступающих кирпичей. Во время кладки боковых поверхностей топки делайте отверстия под трубы теплообменника.

Перекрытие
Шаг 7. Начинайте класть дымоход. Место его расположения должно определяться перед началом кладки печи. Размеры внутреннего прохода обязаны обеспечивать постоянную и достаточную тягу.

Труба и ее части

Порядовка выдры и распушки дымовой трубы сечением 270х140 мм

Выбор длины дымовой трубы
Важно. Обращайте внимание, чтобы дымоход не располагался под балками потолочного перекрытия или стропилами. Это большая ошибка, для ее исправления придется потерять много времени.
В дымоходе следует обязательно поставить шибер. При желании можно не делать весь дымоход из кирпича, а после шибера установить металлическую трубу.
Видео – Отопительная печь
Видео – Проект кирпичной печи для бани + порядовка
Финишные работы и практические советы
Осталось сделать каменку. Для этого нужно изготовить небольшое ограждение из металлической проволоки по периметру стального листа или варочной плиты. Высота ограждения примерно 25÷30 см. Чем больше будет камней, тем дольше в парной будет поддерживаться оптимальная температура.

Каменка – фото
Настоятельно советуем подбирать металлический лист или варочную плиту с размерами, превышающими котел. Это позволит в случае необходимости вынимать его из печки без снятия кирпичей.
Чтобы во время демонтажа не мешали патрубки входа/выхода теплоносителя, сделайте на торцах резьбовые соединения. Приварите к выходам теплообменника гайки соответствующего диметра и газовым ключом закручивайте патрубки. Для герметизации желательно применять алюминиевые или бронзовые шайбы. Если их нет, то можете пользоваться любыми другими уплотнителями. Соединение патрубков с теплообменником выполняется в недоступном для огня месте, температура нагрева резьбового соединения не будет превышать +60÷70°С.

Способ нарезки резьбы плашками

Схема подключения патрубков к теплообменнику
Баня используется периодически, в зимнее время вода в системе отопления может замерзать. Чтобы исключить разрывы системы отопления применяйте в качестве теплоносителя антифриз. Категорически запрещается заменять его соляркой.
Отопление бани такими котлами не может быть естественным за счет разности температуры, в обязательном порядке нужно устанавливать циркуляционный насос. К выбору насоса следует подходить очень внимательно. Нужно смотреть не только на его технические характеристики, но и на возможность работать с антифризом. Дело в том, что не все резиновые сальники могут работать с таким жидкостями, требуется специальная маслоустойчивая резина. Поинтересуйтесь этим вопросом у реализаторов.
banya-expert.com
инструкция, фото и видео-уроки, цена
Для парной лучшим видом топлива служат дрова, и при разных конструкциях обогревателей получается разный расход этого материала. Если вы хотите создать оптимальные условия для расхода энергоресурсов, то вам понадобится самодельная кирпичная печь с водяным котлом. Хотя такой котёл очень компактен, он обладает высокой теплоотдачей, что и нужно именно в вашем случае.

Печь из кирпича с водяным котлом
Монтаж печи и котла
Ниже мы рассмотрим, как выгнать кирпичную печь-камин и встроить в неё котёл. Также мы рассмотрим, как сделать такой котёл из подручных материалов. В качестве дополнения будет продемонстрировано видео в этой статье.
Используем чугунный радиатор

Чугунный радиатор М 140
- Если взять одну секцию чугунного радиатора М 140, то она будет вмещать в себя 1,5л воды и по площади занимать 0,254м2. Значит, двенадцать таких секций составят в сумме котёл площадью 3м2, который вместит в себя 18л воды. Чтобы сварить такую ёмкость из листовой нержавеющей стали, вам понадобится много времени, к тому же цена на такое изделие будет значительно выше.
- Самодельный водяной котел для кирпичной печи из радиатора сможет отопить достаточно большую площадь, но для того чтобы эффект получился максимальным, секции нужно отделить друг от друга, тщательно почистить и вымыть 6%-ым раствором соляной кислоты, а затем собрать заново. Ведь, скорее всего такую конструкцию вы не будете покупать, а возьмёте из старой системы отопления.
Совет. Во время переборки батареи обязательно нужно заменить картонные прокладки, ведь температура при отоплении дровами может достигать 500⁰ C -600⁰ C , а при отоплении углём – и того больше. Но вместо картона вам нужно будет вставить асбестовый шнур, предварительно пропитав его граффити с олифой. Совет. Котёл-радиатор нужно устанавливать не в саму печь, а позади топки, чтобы она нагревалась горячими газами и дымом, а не огнём. Подачу и обратку лучше всего монтировать перпендикулярно полу.
Особенности кладки печей

Топку обязательно выкладывают шамотным кирпичом
- Для возведения печи можно использовать декоративный и строительный кирпич, а также двойной силикатный кирпич М 150. Но если вы хотите построить качественный отопитель, то вам понадобится огнеупорный и шамотный кирпич, который необходимо использовать для наиболее горячих мест конструкции. Так, саму топку лучше всего выкладывать именно из шамотного камня, а стены котла и трубу из огнеупорного.
- Кладку нельзя укладывать шов в шов, потому что она растрескается. Поэтому каждый кирпич верхнего ряда должен перекрывать стык на нижнем ряду. В данном случае уместна ложковая перевязка.
- Использование цементного раствора при возведении кирпичной печи уместно лишь на низ и на дымоход. То есть, начиная со второго ряда, следует переходить на глинисто-песочный раствор и использовать его до самой крыши. Заделывать дымоход сверху глиной нельзя из-за влаги, поэтому здесь опять не обойтись без цементно-песочного раствора.

Резка кирпича
- Раньше кирпич просто разбивали кирочкой или топориком, а затем подтёсывали, но при такой огранке экземпляры получались неровными, и вывести точный размер было практически невозможно. Сейчас для этого используют алмазные диски, которые можно установить либо на электроциркулярку, либо на болгарку (угловую шлифовальную машину). Если циркуляркой можно сделать только прямые резы, то болгарка позволяет обрабатывать также круглые грани, вырезая камень для усложнённого дизайна наружной части конструкции.

Подвод воды к болгарке
- Когда печь складывается из цельного кирпича, то это говорит о том, что её хотят сделать качественно и красиво, что влечёт за собой много резки цельных образцов. Чтобы избежать большого количества пыли, неизбежной при этом процессе – можно сделать дополнение к болгарке – подвести от электронасоса шланг к кожуху диска. Сзади кожуха приваривается трубка, на которую и надевается этот шланг, только нужно быть аккуратным, чтобы не залить электродвигатель, что приведёт к короткому замыканию.
Кладка печи

Фундамент с рубероидом
- В первую очередь производится заливка фундамента глубиной от 50 до 70 см (зависит от глубины промерзания почвы). На основание засыпается слой песка 10-15 см, а на него – гравий, щебень или строительный мусор, но с таким расчётом, чтобы оставить 25-30 см для заливки цемента.
- Раствор на фундамент лучше всего делать не с песком, а с отсевом, только соотношение, естественно, изменится и будет, примерно, 1/6. Под стяжку и на неё настелите рубероид для гидроизоляции.
- Делаем раствор глины с песком в соотношении 1глины/2,5песка, но пропорция может измениться, в зависимости от жирности материала. Важно, чтобы не оставалось комков, поэтому глину нужно замачивать с вечера, а возможные комки размять руками. Концентрация будет хорошей тогда, когда смесь будет сползать с мастерка, оставляя на нём лишь небольшие полоски.
- Перед началом кладки кирпичной печи-камина стелем рубероид по площади залитого фундамента и замазываем его раствором. Первый ряд можно выложить в виде поддона, то есть, полностью из кирпича, на котором уже будет кладка самой печи. Затем кладётся первый ряд контура печи, на него второй и так далее.

Установка кирпича клином
- Делаете топку и зольное отделение, а также поддувало. Дверцы нужно крепить на оцинкованную проволоку или полоски оцинкованной жести. Кирпич над дверцами нужно подрезать болгаркой, но один из них лучше всего сделать в виде клина, как на фото вверху – это позволит кладке не растрескиваться.

Котёл выставляют по уровню
- Для котла нужно заранее сделать выступы на кирпиче – их можно вырезать при помощи болгарки и на место установки укрепить металлический уголок, куда и будет смонтирован сам котёл. Не забывайте о том, что инструкция требует ровной установки, поэтому его необходимо нивелировать уровнем (во избежание воздушных пробок). В этом же месте ставите топочную дверцу, закрепляя её оцинкованной проволокой.

Схема кирпичной печи с котлом
- После всего ставится топка и задняя часть конструкции – дымоход с прочисткой. Высота дымохода будет зависеть от высоты банного помещения, но труба, которая будет возвышаться над крышей, должна быть выше не менее чем на 0,5м от верхней точки (от конька).
Заключение
Печи из кирпича с котлами водяного отопления, сделанные своими руками, достаточно универсальны и имеют высокий коэффициент теплоотдачи. Они автономны, то есть, не зависят от внешних источников энергии и к тому же, их можно делать любого размера, в зависимости от величины вашей парной (читайте также статью «Кирпичные печи для бани — чертежи с порядовками»).
Добавить в избранное Версия для печатиklademkirpich.ru
Самодельный пиролизный котёл: чертежи, расчёт, наладка, видео
Пиролизные котлы давно завоевали популярность у владельцев частных домов — по значению КПД они приближаются к газовому оборудованию, при этом могут быть установлены даже в любом доме и не зависят от наличия газа и электричества. Пиролизный котел можно сделать самостоятельно, сэкономив немало денег.
Отличия и преимущества
В обычных дровяных котлах и печах с водяным отоплением древесина сгорает довольно быстро, и одной загрузки дров хватает на 3-4 часа. Отопительное оборудование при этом требует постоянного внимания, ведь если огонь в топке потухнет, то теплоноситель остынет, и в доме станет холодно. Эта особенность твердотопливных котлов часто вынуждает домовладельцев устанавливать дополнительный электрообогрев или устанавливать котел длительного горения.
Котлы пиролизного типа, отличаются длительным временем работы на одной загрузке. Они могут использовать в качестве топлива дрова или пеллеты — прессованные отходы деревообработки. Длительность работы таких моделей обусловлена особым режимом работы, основанном на пиролизе.
Видео: принцип работы котла
Пиролиз — что это такое, и как его используют в котлах
Процесс горения древесины достаточно сложен. Она состоит из волокон целлюлозы, скрепленных связующим веществом — лизином. При нагреве эти связи разрушаются, и начинается выделение газа, а древесные волокна начинают темнеть и обугливаться. Газ, называемый пиролизным, содержит горючие элементы, в том числе водород. Нагреваясь от горячей поверхности тлеющего полена, он воспламеняется и образует яркий огонь.
Повышенное содержание кислорода в зоне горения увеличивает размер пламени. Это можно заметить при открывании топочной дверки — дрова сразу начинают гореть ярче. Сгорание пиролизных газов сопровождается активным выделением тепла, от чего тление дров усиливается, и очень скоро они сгорают до углей. Пламя при этом может достигать высоты более метра, при этом греется не только печь, но и дымоход, а горячие, не до конца прогоревшие газы с высоким содержанием сажи выходят в трубу.
Конструкция пиролизного котла позволяет сжигать дымовые газы в отдельной зоне дожига. При этом дрова в зоне газогенерации тлеют долго и равномерно, с постоянной температурой. Чтобы избежать активного горения топлива, поступление воздуха в загрузочную камеру ограничивают с помощью заслонки. К зоне дожигания газов воздух, напротив, нагнетают, иногда с помощью вентилятора, но чаще — с использованием естественной тяги.
Конструкция
Внешне котел пиролизного типа не сильно отличается от твердотопливного аналога. В корпусе из стали или чугуна расположена топка, оснащенная дверкой или люком для загрузки топлива. Топка может быть разделена на камеры газогенерации и дожига с помощью перегородок, но иногда деление условное, и процессы происходят в разных зонах топки.
Для чистки от золы в нижней части камеры загрузки топлива расположен колосник, а ниже — зольник с дверцей или ящиком для сбора золы. Отдельной дверцей для прочистки оснащается также зона дожига, так как в ней часто образуется сажа, и требуется ее прочистка.
Рядом с топкой расположен теплообменник, по которому циркулирует выбранный для системы отопления теплоноситель: антифриз, тосол или специально подготовленная вода. Он оснащен двумя штуцерами для подключения труб отопительного контура.
Для отвода дыма предназначен подключаемый к дымоходу патрубок, подсоединенный к топке в зоне дожига. Он может быть оснащен датчиками температуры и шибером для регулирования тяги.
Уровень автоматизации котла зависит от модели, при этом стоит отметить, что котлы с регулированием процесса горения энергозависимы, их установка возможна только при наличии бесперебойного электроснабжения.Видео: конструкция пиролизного котла
Достоинства и недостатки
- Несомненное преимущество, благодаря которому пиролизные котлы по удобству использования приближаются к газовым — это эффективность и высокий КПД. Но этим перечень достоинств котла не ограничивается, их отличают также:
- длительная работа на одной загрузке топливника — до 48 часов в мощных моделях, до 18 часов — в бытовых;
- доступность и разнообразие потребляемого топлива — пиролизные котлы могут работать также на пеллетах, брикетах, стружке и обрезках досок, а некоторые модели даже на опиле;
- котлы имеют компактные размеры, для их установки достаточно небольшого отдельного помещения;
- температура дыма на выходе из котла невысока, максимум 200 градусов в режиме растопки, что позволяет использовать недорогой и удобный в сборке металлический сэндвич-дымоход;
- дым содержит незначительное количество сажи, не загрязняет атмосферу и кровельное покрытие;
- современные модели оснащены автоматическим регулятором тяги, позволяющим установить режим отопления и не тратить время на регулирование режима;
- срок использования котла — от 15 лет.
Недостатки котлов пиролизного типа:
- требовательны к влажности используемой древесины, она не должна превышать 20 процентов;
- требуют правильного монтажа отопительного контура, о чем будет рассказано ниже;
- покупные котлы, особенно чугунные модели, довольно дорогие, по цене сравнимы с газовым оборудованием.
Как можно заметить, все недостатки пиролизных котлов устранимы за счет правильной эксплуатации. А уменьшить стоимость отопительного оборудования можно, сделав самодельный котел — это вполне реально, если провести расчет тепловой мощности, а также найти готовые чертежи или сделать их своими руками по эскизам опробованных моделей.
Чертежи и описание

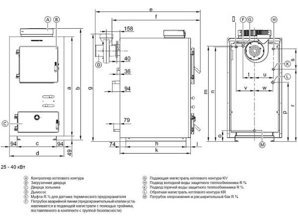
Предлагаемый для сборки самодельный котел, представленный на чертеже, выполнен своими руками по типу пиролизного котла верхнего горения с принудительным наддувом воздуха в камеру сгорания.
Принцип его действия таков:
- в топливник через дверку, расположенную в верхней части корпуса, закладывают разовую порцию топлива и разжигают их сверху;
- вентилятор-дымосос, установленный в верхней части корпуса, направляет выделяющийся при горении дым в камеру дожигания;
- там происходит окончательное догорание газов и содержащихся в них горючих включений;
- дым отводится через дымовой патрубок, расположенный в задней части котла, в дымоход;
- зола, образующаяся при топке, через колосниковую решетку попадает в зольник, который находится ниже топочной камеры;
- топку окружает водяная рубашка, играющая роль теплообменника и термоизоляции стенок котла;
- вода в теплообменник поступает через нижний штуцер, расположенный в задней части котла, а отводится в систему — через верхний;
- на верхней плоскости котла расположен контроллер, позволяющий регулировать режим, а внутри теплообменника — температурный датчик.
На чертеже представлены размеры котла и обозначения его конструктивных частей. Часть размеров обозначена буквенным кодом — их уточняют по таблице и выбирают по желаемой мощности котла. Эти размеры определены тепловым расчетом, от них зависит правильная и бесперебойная его работа.


Материалы и инструмент, необходимые для сборки
- Корпус котла делают своими руками из листовой стали и металлических труб с помощью сварки. Поэтому перед его изготовлением необходимо подготовить:
- сварочный инвертор, электроды;
- болгарка с отрезными и шлифовальными кругами;
- дрель с набором сверл по металлу;
- электролобзик.
Материалы и их примерное количество:
- 3 листа стали стандартного размера 1250х2500 мм, толщина 4-5 мм, лучше холодный прокат — его меньше ведет при скачках температуры;
- 2 листа оцинкованной стали 1250х2500 мм, толщина 1,5-2 мм;
- металлическая труба Ø32 мм, толщина стенок 3,2 мм;
- металлические трубы Ø57 мм, толщина стенок 3,5 мм;
- металлическая труба Ø159 мм, толщина стенок 4,5 м, общая длина 0,5 м;
- профильная труба двух сортотипов: 60х30х2 и 80х40х2;
- фурнитуру для дверок — ручки, задвижки;
- метизы;
- шамотный кирпич для футеровки топки;
- асбестовый шнур для термоизоляции дверцы.
Точное количество материала необходимо уточнить по рабочим чертежам. Кроме этого, необходимо подготовить дымосос — вентилятор необходимой мощности, термодатчик, контроллер и источник бесперебойного питания на ~220 В. Мощность вентилятора определяется с помощью расчета.
Для уменьшения веса котла для внешних стенок теплообменника можно взять сталь толщиной 2 мм. Они нагреваются меньше, чем до 100 градусов, поэтому не подвержены деформации.Технология сборки
- Последовательность операций может быть различной, но опыт мастеров показывает, что сборку котла своими руками лучше проводить так:
- По приведенному базовому чертежу выполняют рабочий, с размерами, уточненными по таблице и расчету.
- Из листов металла и труб болгаркой вырезают заготовки для сборки агрегата. Отверстия для труб и штуцеров выполняют с помощью дрели и электролобзика или плазмореза — второй вариант предпочтительнее, так как позволяет сделать идеально ровный срез.
- Сваривают топочную камеру из металла 4-5 мм толщиной. Вваривают перегородку, образующую дымооборот в задней части топки. Между загрузочной камерой и зоной дожига из уголка или стальной полосы делают опору для колосника. Колосник лучше устанавливать чугунный — он прослужит дольше, а при деформации или прогорании можно легко его снять и заменить.
- К камере в верхней его части приваривают дымовой патрубок и трубу с заслонкой для подачи воздуха. На выходе предусматривают посадочные места для дымососа.
- Выполняют проемы для дверок топочной и зольной камеры из обрезков металла.
- Наваривают перемычки, которые будут соединять внутреннюю и внешнюю стенки теплообменника и компенсировать перепады давления. Их можно сделать из стальной полосы. Перемычки должны располагаться вертикально, чтобы не мешать естественной циркуляции теплоносителя.
- Постепенно приваривают внешние стенки теплобменника, соединяя их с перемычками. В отверстия на задней стенке котла приваривают штуцера для подачи воды в систему.
- Делают из листового металла дверцы. Их выполняют двойными со слоем теплоизоляции — асбестовой тканью. Дверки крепят к котлу на петли или продумывают другой тип крепления.
- Топку в зоне дожига футеруют шамотным кирпичом в четверть кирпича на жаропрочный раствор.
- К котлу приваривают или крепят на болты регулируемые ножки, позволяющие выставить его строго горизонтально.
- Корпус шлифуют, удаляют окалину, после чего своими руками покрывают его жаропрочной краской из баллона.
- Устанавливают дымосос между дымовым патрубком и дымоходом, подключают его к сети.
- На верхней части котла устанавливают контроллер, а датчик размещают в теплообменнике рядом с выходным штуцером.
На этом сборка котла закончена, и можно подключать его к системе отопления и приступать к наладке.
Подключение котла к отопительному контуру
Котлы длительного горения, сделанные своими руками, могут работать в системах с естественной или принудительной циркуляцией — их конструкция достаточно надежна. Системы с естественной циркуляцией монтируются с соблюдением угла наклона труб, с принудительной — с подключением циркуляционного насоса нужной мощности, которая определяется расчетом.
Из-за склонности к низкотемпературной коррозии теплообменника рекомендуется обязательно контролировать температуру воды на входном штуцере. Она не должна опускаться ниже 60 градусов Цельсия. Для того, чтобы поддержать ее в этих пределах, между прямой и обратной трубой делают перемычку, с помощью которой обратку разбавляют горячей водой до нужной температуры.
Наладка и включение
Перед включением котла в работу необходимо заполнить систему теплоносителем. Наладка заключается в выборе режима подачи воздуха в камеру дожига, тем самым регулируется интенсивность горения газов и температура в топке.
Косвенно можно определить оптимальность режима работы по дыму, выходящему из трубы: если он не имеет резкого запаха и серого оттенка, значит, топливо сгорает полностью, и режим выбран правильно.Первые несколько дней самодельный котел работает в режиме тестирования. В это время лучше не оставлять его без присмотра и использовать только качественное топливо, а камеру загружать на 2/3 загрузки. После тестирования котел можно запускать на полную мощность и наслаждаться теплом в доме.
gidpopechkam.ru
