Санузел совместный фото – .
Красивый дизайн совмещенного санузла — как спланировать ванную и туалет вместе

Создать красивый дизайн совмещенного санузла не так просто, как кажется на первый взгляд. Учитывая, что помещение будет выполнять минимум две функции — ванной комнаты и туалета (не говоря уже о постирочной), придётся продумать планировку и функциональное наполнение каждого сантиметра.
Ежедневно мы посещаем санузел по несколько раз: собираемся на работу, приводим себя в порядок перед важными мероприятиями, готовимся вечером ко сну. Как объединить ванную с туалетом, чтобы в помещении было комфортно находиться и принимать все гигиенические процедуры?
Плюсы и минусы ванной, объединённой с туалетом
Как говорят, сколько людей – столько и мнений. Для одних объединение двух влажных комнат является необходимостью сэкономить несколько драгоценных сантиметров, для других — нерушимый запрет, имеющий под собой немало оснований. Но, как ни странно, решить, стоит ли объединять ванную с туалетом, можно лишь разобрав все достоинства и недостатки такого планировочного решения.
Основной минус совмещенного санузла для многих — невозможность для большой семьи пользоваться одновременно туалетом и ванной. Хотя найдутся жильцы, которых такое ограничение вовсе не смущает. Тем более, что разграничить функциональные зоны можно мобильными перегородками и шторками.


Конечно, этот недостаток может смутить многих пользователей, которые и даже не будут рассматривать достоинства такого объединения. А вот мы об этом и поговорим.
Одним из преимуществ совмещенного санузла можно назвать увеличение полезной площади гигиенической комнаты за счёт сноса перегородки. Ведь, она занимает достаточно места. А эту стену ещё и отделать, и задекорировать нужно — вот вам ещё плюс (экономия на отделочных материалах).
Второе по значимости преимущество — это психологическая составляющая. Человеку свойственно воспринимать просторные помещения как более комфортные и элитные. Да и напрягаться с вопросом о декоре маленькой комнатушки не придётся, так как подобрать стилевое направление для просторного санузла намного легче.
В типовых квартирах чаще всего ванная и туалет раздельные, но планировка маленького санузла оставляет желать лучшего: в туалете коленки упираются в дверь, а в ванной некуда поставить стиральную машину… Вот и задумываются многие про объединение двух комнат. Конечно, любую перепланировку придется узаконить: заказать проект, побегать по инстанциям, собрать разрешения и подписи. Но полученный результат того стоит.


Планировка совмещённого санузла
Если говорить про квартиры в хрущевках или сталинках, то даже после перепланировки вряд ли удастся получить большое помещение, но мы постараемся рассмотреть варианты планировок для санузлов площадью от 3 до 5 кв. метров. В квартирах улучшенной планировки, как правило, можно рассчитывать на площадь от 5 квадратных метров, что дает огромную возможность для полета фантазии в плане оформления и дизайна.
Планировка санузла 3 м2
Гармоничную обстановку и функциональный интерьер маленькой ванной, объединенной с туалетом, можно получить, лишь грамотно спланировав каждый сантиметр пространства. Конечно, обставить 3 метра — это не то же самое, что колдовать над одним метровым туалетом, но и в эту крохотную комнатушку придется впихнуть все самое необходимое: раковину, унитаз, ванну или душевую кабинку, по возможности стиральную машину и места для хранения. Если хочется получить что-то побольше, нужно что-то другое сделать поменьше, но не в ущерб функционалу.
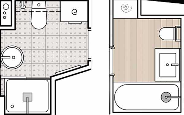
Ниже приведем несколько планировочных решений для ванной комнаты вместе с туалетом площадью около 3 кв.метров. Обратите внимание, что комната может быть как квадратной, так и прямоугольной или трапециевидной. Габариты каждой из стен колеблются от 1,2 кв.метров до 2,5. Длинная сторона может находиться как напротив двери, так и соприкасаться с ней.

И в первом, и во втором варианте на площади 3 метра уместились все необходимые предметы для осуществления гигиенических процедур. Ванна или душевая кабина — это личный выбор каждого. Чаще всего владельцы предпочитают поставить маленькую, но полноценную ванну. Душевая кабина открывает больше возможностей в плане размещения дополнительных предметов, например, стиральной машины или увеличения мест хранения.
Совет: отдельно стоящие душевые кабины уже давно вышли из моды, а вот строительный поддон, оборудованный трапом и стеклянными дверцами — довольно популярное решение у современных дизайнеров.
Визуально увеличить площадь помещения помогут пастельные тона и коммуникации, спрятанные в стену.


Планировка санузла 4 кв.метра
Достаточно часто встречается именно такая площадь совмещенного санузла. Такие габариты позволяют вместить полноценную ванну и даже компактную стиральную машину, разместить которую можно как под раковиной, так и в отдельно отведенной постирочной зоне.


Обратите внимание: унитаз-инсталляция позволяет сэкономить место и сделает совмещенный санузел аккуратней. Современные встраиваемые системы слива достаточно удобны в обслуживании и не требуют частого ремонта.


Большинство дизайнеров предпочитают в своих проектах использовать предметы мебели, сделанные на заказ по их собственным эскизам. Такой подход гарантирует, что все компоненты в комнате найдут свое место и будет задействован каждый полезный сантиметр. Для ванной комнаты, которую совместили с туалетом, возможны такие решения, как столешница для раковины, отделанная плиткой или мозаикой, а также шкафы и полочки, сделанные по индивидуальным размерам. Под столешницу легко поместится корзина для белья или даже стиральная машина.
Учтите: если вы используете прозрачное стекло для душевой кабины, то помещение станет визуально меньше, но на нем будут видны капли от высохшей воды.


Планировка совмещенного санузла площадью 5-6 м2
В зависимости от формы помещения планировка совмещенного санузла площадью от 5 квадратных метров может быть нескольких типов: угловая, П-образная, линейная. Первые две применяются в квадратных комнатах, а линейная — это удел вытянутой ванной. В такой комнате уже можно поразмыслить не только об удобной, но и о красивой сантехнике, дизайнерских элементах и разграничении функциональных зон.
Так, для отделения туалета от самой ванной можно воспользоваться перегородкой с матовым стеклом или нишей-стеллажом из гипсокартона. Саму ванну можно выбирать полноразмерную, а не компактную. А стиральную машину ставить отдельно. Найдется место и для мест хранения, полотенцесушителя, корзины для белья. Ниже приведем примеры планировок, чтобы показать на примере, как обставить ванную комнату с туалетом на 5-6 квадратных метрах:







Какую сантехнику выбрать для совмещенного санузла
На психологическое восприятие интерьера влияет два фактора: цветовое оформление и расположение предметов мебели и сантехники. Про цвет мы поговорим позднее, а сейчас остановимся на тех нюансах, которые помогут выбрать сантехнику, подходящую по размеру и функционалу. В дизайне существуют определенные правила размещения и подбора предметов для конкретного интерьера.
- В маленьких гигиенических комнатах отдавайте предпочтение подвесным раковинам и унитазам, создающим парящий эффект и оставляющим под собой свободное место.
- При ремонте в ванной комнате обязательно замените все трубы и шланги, чтобы надолго забыть проблему протекших кранов.
- Если вы решили разместить стиральную машину под раковиной, выбирайте специальный «плоский» сифон.
- Самые износостойкие сантехнические приборы — из камня и композитного материала.
- При выборе унитаза обратите внимание на угол канализационной трубы.
- Значительно сэкономить место помогут угловые модели ванн, раковин и унитазов.
При выборе любого объекта в санузле придется отталкиваться от разведенных коммуникаций. Даже самый красивый интерьер совмещенного санузла может на практике оказаться весьма не функциональным и неудобным, который в дальнейшем потребует переделок.



Материалы для отделки
Качественные материалы для отделки помещения — непременное условие, чтобы получить красивый и стильный дизайн совмещенного санузла. Ванная комната — помещение с повышенной влажностью, и следовательно, отделка должна соответствовать требованиям износо- и влагостойкости. Тем более, что ванная, совмещенная с туалетом, вдвойне подвержена эксплуатационным нагрузкам. Следовательно, сэкономить вряд ли удастся.
Самым практичным материалом для ванной была и остается керамическая плитка или керамогранит, причем, как для стен, так и для пола.
Стены
Керамическая плитка — хоть и распространенное решение для ванной комнаты, но не единственное. Так, в целях сокращения бюджета на отделку можно прибегнуть к следующему: нижнюю часть всей комнаты, а также душевую зону обложить керамической плиткой или керамогранитом, а верхнюю — покрасить влагостойкой краской. Пластиковые панели — это из области суперэконом варианта, но о долговечности в этом случае речи не идет. И уж тем более не стоит использовать обои в ванной комнате, даже если они влагостойкие.
Что касается выбора оттенков, то цветовая палитра и широкий ассортимент текстуры облегчают выбор даже самого привередливого покупателя.
Пол
Полы в совмещенном санузле требуют еще более тщательного подхода. И не только с точки зрения отделки. Во-первых, во время ремонта стоит позаботиться о гидроизоляции и качественной стяжке. Возможно, принять решение о монтаже теплого пола (либо в саму стяжку, либо под плиточный клей).
Ну и вторым этапом — выбор напольного покрытия. Проверенными временем вариантами считаются керамическая плитка и искусственный камень. Линолеум, даже самый дорогой, относится к эконом-вариантам и прослужит меньше, чем самая простая плитка. И все же, если решитесь на покупку линолеума, то выбирайте не скользкое покрытие.
Потолок
Влажность и перепады температур — основные условия экс
sunrem.ru
Интерьер маленького санузла: креативные идеи оформления

Красивый и функциональный интерьер санузла, прежде всего, определяется его планировкой и метражом. Это могут быть раздельный или совмещённый варианты, совсем маленькое или вместительное помещение с окном или без. В любом случае необходимо тщательно продумать план расположения всей техники, аксессуаров и дополнительных предметов мебели.
Начать следует с выбора оптимальных моделей купели или душевой кабины и другого сантехнического оборудования. Вторым шагом должен стать грамотный подбор отделочных материалов и цветовой гаммы, которая может визуально сделать комнату просторнее и светлее.
Далее нужно обратить внимание на монтаж правильной системы освещения и оформление окна, если таковое имеется. В последнюю очередь можно заняться подбором декоративных украшений, организацией удобной и вместительной системы хранения, а также покупкой кресел, пуфиков и шкафчиков, если размер вашего санузла позволяет разместить все эти предметы.
Не стоит забывать о зеркальных поверхностях и прозрачных стеклянных элементах. Их способность отражать световые лучи может сослужить вам хорошую службу и зрительно расширить границы санузла, сделав его более объёмным и привлекательным.

interiorsmall.ru
Интерьер совмещенного санузла фото
Практически каждый человек сталкивается с весьма серьёзной проблемой в собственном жилище – скромные размеры ванной. Эта многофункциональная комната с огромным количеством предметов декора, увы, не может «похвастаться» квадратными метрами. Миниатюрная ванная «забитая» мебелью, гигиеническими средствами, аксессуарами, сантехникой похожа на унылую кладовку Плюшкина.
Совмещённый санузел является не только идеальным вариантом для увеличения полезного пространства за счёт, снесённой перегородки, но и дизайн его намного интереснее и оригинальнее. Зачастую интерьер совмещенного санузла оформляют в каком-то популярном стиле. Только подумайте, ванная, в которую лишний раз не хотелось заходить, словно по мановению волшебной палочки, превратится в просторное помещение с «характером». Стилевых направлений огромное количество, поэтому каждый может выбрать именно тот интерьер, который даже в самых смелых мечтах увидеть не могли.
Интерьер совмещенного санузла фотоПланировка совмещённого санузла
Хорошо смотрится квадратный санузел. В комнату можно поставить прекрасную ванну, в которой вы сможете расслабиться после повседневных забот и побыть в одиночестве, предаваясь чудесным воспоминаниям или мечтам. Если вы человек практичный, можете поставить душевую кабинку, но для романтических натур такой вариант не подойдёт. Ведь романтики любят понежиться в воздушной пене, с чудесной россыпью ярких лепестков роз в окружении, благоухающих восхитительным ароматом свечей. Незаменимая помощница в быту – стиральная машина также сможет удобно «расположиться» в санузле. Если вы не хотите «любоваться» унитазом, устроив романтическое рандеву, установите ширму с прекрасным пейзажем. А повесив огромное зеркало, в котором будут отображаться живые цветы, вы визуально увеличите пространство, наполнив его свежестью. Из этой статьи вы узнаете какая лучше планировка ванной комнаты совмещенной с туалетом фото в частном доме.
Дизайн интерьера ванной комнаты и санузла фотоПрямоугольный санузел – самый простой и незамысловатый вариант дизайна. Идеально впишется ванна возле самой короткой и отдалённой стены. Унитаз и раковину можно установить рядом, а на противоположной стене прикрепить зеркало. Стену, на которой самым прекрасным образом «расположилось» зеркало, можно оформить мозаикой разнообразных цветов и оттенков. Такой вариант восхитителен.
Интерьер санузла с душевой кабинойПомещение со скруглёнными углами смотрится весьма оригинально, особенно если интерьер оформлен в пастельных тонах. Ванную можно установить в полукруглой нише, а раковину поставить на столешницу овальной формы. Добавьте в интерьер шарообразное зеркало, и картина станет завершённой.
Узкий санузел тоже сможет «похвастаться» свободным пространством. Напротив входа установите душевую кабинку из прозрачного стекла. Такая кабина не будет казаться громоздкой. Стиральную машину можно спрятать под раковиной за «фальшивой» панелью. В такой комнате уместно узкое, от потолка до пола, зеркало.
Узкий длинный санузелСовмещённый санузел небольших размеров желательно оформить в светлых оттенках. Превосходна ванная комната в белом цвете. Этот тон максимально сможет расширить пространство, наполняя его светом, прохладой и свежестью. Если такой интерьер кажется, вам скучным добавьте ярких акцентов в умеренном количестве. А если же вам захотелось чего-то необычного, то оттенки розового, голубого, зелёного, кремового и песочного помогут в осуществлении ваших желаний.
Проявите фантазию, составьте план перепланировки, учитывая каждый сантиметр комнаты, если у вас возникли какие-либо сомнения, обратитесь к дизайнерам. Они помогут создать идеальную ванную, которая будет приводить гостей и домочадцев в безумный восторг.
Популярные стилевые решения в совмещённом санузле
Чтобы ванная комната была с душой, позаботьтесь о её стиле. Не нужно смешивать все стилевые направления. Можно, конечно, их комбинировать, но в пределах допустимых норм и только тогда, когда хозяин квартиры неординарная личность.
Примечание
Наиболее популярные стилевые направления: античный, классический, и прованс подходят для больших ванных комнат, а хай-тек и японский — для миниатюрных санузлов.
Классика «любит» дорогие предметы интерьера. Преобладают светлые цвета и оттенки в сочетании с тёплыми тонами. Изысканное золото, благородный шоколад и мягкий беж отличные «компаньоны». Мраморная ванна на ножках, которая гордо «восседает» на пьедестале смотрится божественно. Читайте еще нашу статью дизайн ванной комнаты в классическом стиле фото.
Совмещенный санузел в классическом стилеВеликолепен античный стиль. Главным атрибутом, без сомнения, является шикарная круглая ванна. В отделке стен используют искусственно состаренный кафель, который покрывают кремовым тоном с белоснежными размытыми узорами. Амфоры и высокие напольные вазы станут незаменимыми «помощниками» в оформлении интерьера. Создав ванную в таком изысканном стиле, вы перенесётесь в эпоху Возрождения.
Стиль прованс прибавит ванной комнате ноток изящной французской глубинки. Цветовая палитра — белая с вкраплениями природных оттенков. В таком интерьере используется кирпичная кладка, кованые детали и натуральные предметы декора – вязаные коврики из овечьей шерсти, плетёные корзинки из лозы, живые цветы и текстиль изо льна. Стиль прованс в интерьере ванной фото
интерьер совмещенного санузла маленького размера в стиле ПровансХай-тек отобразит современный взгляд на дизайн санузла. В чёрном цвете подвесной унитаз и душевая кабинка выглядят очень стильно. В ванной комнате этого стилевого направления приемлемо точечное освещение и глянцевые поверхности. Косметологические и гигиенические средства должны быть спрятаны в «глубинах» незаметных шкафчиков.
дизайн интерьера ванной комнаты и санузла в стиле хай-текЯпонский стиль не терпит громоздкой мебели. Отделочные материалы должны состоять из бамбука, камня и дерева. Комнату необходимо украсить иероглифами, изображениями лотоса, сакуры или хризантем. В ванной уместна даже икебана! Ванная в японском стиле: гармония и дзэн
Подходить к перепланировке и оформлению ванных комнат нужно ответственно, так как любое помещение в доме отображает душевные качества человека.
moyavanna.com
идеи по планировке и оформлению, фото
Совмещенный санузел – уже не новая, но неизменно популярная тенденция в интерьерном дизайне. И это неудивительно, ведь такое решение значительно увеличивает площадь комнаты и позволяет установить в ней мебель или ту же стиральную машинку, которая раньше банально не помещалась. Рассмотрим, как спланировать новый дизайн санузла и правильно расположить сантехнику максимально удобно и компактно. А заодно — и какие подводные камни могут встретиться на пути к ванной комнате вашей мечты.
Вместе или раздельно: достоинства и недостатки совмещенных санузлов
Прежде чем решиться на перепланировку, стоит хорошо взвесить все «за» и «против» такого решения. Поговорим сначала о недостатках. Главный минус совмещенного санузла очевиден: невозможность одновременного пользования ванной и туалетом, что является ощутимой проблемой для большой семьи. Кроме того, такая перепланировка потребует документального оформления, которое всегда отнимает много времени и сил.
Но есть еще один важный момент: плохая вентиляция в старых квартирах. И если объединить санузел без модернизации воздуховода нет возможности, придется бороться с неприятными запахами с помощью освежителей, а они, как известно, не устраняют проблему, а лишь частично ее маскируют.
Но преимущества перепланировки очень заманчивы:
• В большом помещении проще обновить все системы коммуникаций и грамотно провести их монтаж.
• Можно сэкономить на материалах для отделки внутренней стены и второй двери.
• В совмещенном санузле есть возможность осуществить мечту многих чистюль – установить дополнительно душевую кабинку или заменить стандартную ванну на джакузи.
И последняя деталь: дизайн даже маленького совмещенного санузла всегда выглядит более привлекательным и эффектным, чем ремонт в отдельной, но небольшой ванной и туалете, где просто негде развернуться фантазии.
Что нужно знать о перепланировке
Как уже упоминалось, изменение внутреннего пространства квартиры должно быть узаконено. Конечно, можно на свой риск выбить стену, но такая самодеятельность обязательно «аукнется». И не обязательно для этого перепродавать квартиру – жалоба соседей на незаконную перепланировку приведет в ваш дом инспекцию, а вместе с ней и восстановление разрушенной стены, вдобавок к весьма ощутимому штрафу.
Если речь идет о самой простой перепланировке – сносе перегородки между туалетом и ванной, перед погружением в увлекательный мир бюрократии стоит удостовериться, что стена не является несущей. Иначе овчинка того не стоит – шансы получить разрешение практически равны нулю. Если же это обычная межкомнатная стена и не планируется вынос сантехники за пределы ванной/туалета – проблем возникнуть не должно. Только подготовьте эскиз будущего помещения (можно и от руки).
Но если вы запланировали «захватить» под ванную часть других помещений, учтите следующие нюансы:
• Расширение нужно спланировать таким образом, чтобы новый санузел не находился над/под жилыми комнатами соседских квартир.
• Не стоит трогать прихожую – по санитарным нормам выход из дома не может быть с территории санузла.
• Нельзя расширять санузел за счет жилых комнат и кухни. Перепланировку можно сделать, только объединив ванную с кладовой или частью коридора.
Чтобы согласовать такой вариант дизайна в проектной организации, эскиз уже не пройдет. Придется подготовить детальный проект перепланировки, расчеты по дополнительной нагрузке на перекрытия и документацию по разводке инженерных коммуникаций, если ваш ремонт совмещенного санузла предусматривает изменений местоположения сантехники.
Особенности дизайна в санузлах площадью до 4 м2
Маленький санузел – настоящий бич большинства старых домов. Главная проблема, с которой сталкиваются дизайнеры – как правильно выбрать и расположить сантехнику на ограниченной площади.
Существует несколько решений для оптимизации пространства:
1. Заменить ванную душевой кабинкой. В результате такой рокировки освобождается масса места, например, для шкафчика или стиральной машинки. Но такой вариант может оказаться неудобным для семей с маленькими детьми.
2. Выбрать «сидячую» ванную. Компактная модель, конечно, не сравнится с полноценной ванной, но если выбрать конструкцию душевой кабины с глубоким поддоном, ее можно использовать для того же купания ребенка или косметических процедур.
3. Угловой умывальник с тумбой и встроенные полки для хранения вещей – занимают минимум места.
4. Подвесной унитаз – компактная конструкция со скрытыми коммуникациями выглядит эффектно, соответствует всем правилам эргономики и позволяет грамотно использовать пространство в верхней части стены.
5. Для душевого уголка можно заказать конструкцию с прозрачными створками и без поддона – такая маскировка зрительно нивелирует массивность кабины.
Что же касается расположения сантехники – все зависит от формы самой комнаты и стилистического оформления. Например, вытянутый совмещенный санузел, дизайн которого построен на принципах минимализма, может выглядеть более объемным и просторным, если использовать линейное размещение всех стратегически-важных приборов.
При такой планировке можно отыскать место для небольшого пенала с зеркалом и даже стиральной машины, которую всегда проблемно вписать в маленький санузел.
А вот в квадратной комнате логично будет расставить всю сантехнику по угловым зонам, освободив центр. Таким образом на площади менее 3 м2 можно разместить все необходимое, и не возникнет ощущение перегруженности мебелью. Обратите внимание на следующую планировку – здесь все продумано. При входе сразу попадаете в зону умывальника, прозрачная кабина компактно занимает угол, пенал спрятан за дверью, да и унитаз не вылезает на передний план.
При расстановке сантехники учтите рекомендуемые расстояния и габариты:
• От переднего края унитаза до других предметов – не менее 38 см.
• Габариты душевой – минимальный размер 76*76, оптимальный — 90*90, комфортный – 120*120см.
• От слива раковины до ближайшей стены – минимум 50 ми, от фронтальной части умывальника до других предметов – не менее 55 см (оптимально – 75 см).
• От дверцы душевой кабины до стены – минимум 60 см.
Решения для совмещенного санузла площадью 5 м2 и более
В планировку ванной комнаты от 5 м2 уже легко впишется полноценная прямая или небольшая угловая ванная и стиральная машина. Здесь уже используют не только необходимую мебель и сантехнику, а и элементы декора – плетеные корзины для белья, вазы, навесные полочки с косметическими аксессуарами.
В комнатах от 6 м2 можно выделить несколько функциональных зон и подумать о дополнительных удобствах. Например, установить биде, умывальник с двумя раковинами, душевой уголок в придачу к ванной.
А в комнате площадью от 9 м2 найдется место для ширмы или перегородки, ограждающей унитаз, бельевого шкафа, туалетного столика, кабинки с инфракрасной сауной или шикарной джакузи, вмонтированной в подиум.
Выбор цветовой гаммы и интерьерного стиля
Когда проблема планировки и перепланировки уже решена, осталось самое увлекательное – определить стиль и цветовое оформление для вашего нового санузла. Но так как у большинства тематических оформлений есть определенные требования к виду мебели, отделки и декора, рассмотрим самые популярные решения для комнат различных размеров
1. Для небольших санузлов площадью до 5 м2 оптимальным вариантом будет выбрать лаконичный минимализм или скандинавский стиль. Оптимальные цвета – белый и светлые холодные оттенки, зрительно расширяющие пространство (голубой, изумрудный, жемчужно-серый, пепельно-розовый). В качестве акцентов можно использовать панно, мебель или фрагменты отделки более насыщенных тонов той же гаммы или темных цветов.
2. Если размеры ванной варьируют от 5 до 7 м2, выбор становится более широким: можно обустроить практически любой интерьерный стиль, кроме тех, где нужна объемная отделка и простор (например, лофт, картри, ретро). Здесь уже можно «поиграть» с цветами, комбинировать различные оттенки и фактуры, выделить акцентную стену, выступы, ниши.
3. А если же вы – счастливый обладатель просторной ванной, можно развернуться с любым цветом и стилем – от элегантной классики до модного хай-тека. Для любителей домашнего уюта идеально подойдет кантри, прованс или эко-стиль. А ценители эпатажа могут замахнуться на ретро или поп-арт. И не забудьте рассмотреть варианты размещения «изюминки», которую можно себе позволить только в просторном санузле – отдельностоящей ванне.
При оформлении ванной обязательно учитывайте дизайн других комнат, ведь есть несопоставимые стили, которые сложно объединить в пределах одной квартиры. И если гостиная, к примеру, утопает в роскоши барокко или ярких красках индийского интерьера, будет странно попасть в санузел, дизайн которого оформлен в строгом хай-теке. Но есть один универсальный вариант – морской стиль. Такое оформление всегда актуально для ванной комнаты, смотрится эффектно и прекрасно дополняет любой интерьер.
samsmogy-remont.ru
Дизайн совмещенного санузла — фото, интерьер ванной комнаты и туалета

Планируя ремонт в ванной комнате, если она совмещена с туалетом, нужно для начала обдумать дизайн совмещенного санузла и его стиль. Хорошенько продумайте набор сантехники для этого помещения, просчитайте интерьер ванной комнаты и туалета, исходя из точных размеров пространства комнаты. Чем больше площадь комнаты для водных процедур, тем у вас будет возможность разгуляться вашей фантазии по совмещению санузла с ванной.
Как правило, дизайн совмещенного санузла у нас появляется в воображении после просмотра картинок в интернете или журналах, но некоторые не доверяют своему вкусу. Поэтому прибегают к помощи дизайнеров.
Особенно важна правильная планировка в случае, если интерьер ванны совмещенной с туалетом вы собираетесь делать «нестандартным», хотите выделиться на фоне остальных квартир, домов и домиков.
Интерьер ванной и туалета – фото нестандартного совмещения:

В нашей статье мы постараемся рассмотреть несколько вариантов планировки этих помещений, интерьеры ванных комнат и туалетов, совмещенных друг с другом, а также важные моменты и принципы. Ну, и не обойтись без поэтапного планирования всех работ.
Главное в планировке санузла – при максимальной функциональности достичь максимального комфорта, так как эта комната должна заряжать утром энергией каждого члена семьи, чтобы этой энергии хватило на весь день, а вечером – настраивать на расслабление и отдых.
Требования к планировке
Как правило, в ванной комнате хорошо бы иметь окно, которое позволит получать помещению естественную инсоляцию и вентилирование. Только такая возможность появится у хозяев, если у них частный дом, они смогут спланировать интерьер «туалет ванна вместе» с большим окном.
Также обязательно необходимо позаботиться о принудительной вентиляции, которая поможет избавиться от конденсата, образовывающегося от сильного парообразования.
Если планировать расположение сантехнического оборудования, то нужно иметь в виду, что совмещенный интерьер ванной комнаты и туалета накладывает определенные ограничения:
- Перед ванной и душевой свободного пространства должно быть не менее 70 см, лучше – 110 см.
- Расстояние между ванной или душевой и полотенцесушкой должно быть не менее 70 см.
- Перед унитазом должно быть не менее 60 см пространства, а по бокам – не менее 40 см.
- Умывальник располагается на высоте 80 см от пола.
- Умывальник должен находиться на расстоянии 20-25 см от стены, а от унитаза – не меньше 25 см.
Посмотрите на дизайн совмещенного узла — фото показывает, насколько плотно можно скомпоновать сантехнику:

После этапа планировки, когда мы разместили сантехнические приборы, можно продвигаться далее и планировать интерьер ванной комнаты и туалета, совмещенных в одном помещении.
Варианты дизайна совмещённой ванной
Чтобы увеличить пространство ванной комнаты, некоторые хозяева принимают решение снести стену между туалетом и ванной. Сейчас, благодаря огромному выбору сантехнических приспособлений и приборов, ванная комната может превратиться в настоящее произведение искусства.
Тем более что примеры расстановки сантехники и мебели можно рассмотреть в картинках интернета или журналов.
Если вам пространство комнаты позволяет, то почему бы не купить шкафчик для белья в ванную или современную угловую ванну-джакузи.
Выбор стиля совмещенного санузла
Так как каждый человек имеет свой вкус и стиль, то и дизайн совмещенного санузла необходимо планировать таким образом, чтобы там можно было утром зарядиться энергией или ночью расслабиться.
Вот такой интерьер ванны совмещенной с туалетом, например, НЕ ИМЕЕТ НИКАКОГО СТИЛЯ:

Главное, если ваша ванная комната имеет большую площадь, не переусердствовать с расстановкой сантехники и ванной мебели, чтобы не перегрузить пространство.
В наше время пользуются популярностью такие стили:
- Модерн – это простые линии и прямые углы. Цветовая гамма, как правило, чистая, без полутонов. Это могут быть такие цвета: красный, синий, жёлтый, зелёный, коричневый, черно-белый. Сантехнику необходимо к этому стилю подбирать простую, без излишеств, которая имеет чёткие формы и функциональна. Простота всегда выглядит оригинально, элегантно и сдержанно.
- Классика – это натуральные и приглушенные тона, а материалы лучше брать натуральные: гранит, мрамор, можно правда использовать и их имитацию. Сантехника может подойти и округлых форм. Лучше, если отделка выполнена бронзовыми и золотыми оттенками.
- Восточный стиль – это многообразие: мозаика, орнамент, цветочные мотивы. Цвета, как правило, тёплые и насыщенные: красный, жёлтый, золотой, бирюзовый, синий.
- Японский стиль — это простая и лаконичная направленность. Но, если вы посмотрите на японский интерьер ванной комнаты и туалета, то в японском стиле не располагают унитаз и душевую в одном помещении, поэтому вряд ли вам подойдёт именно этот стиль под ваши задачи.
Дизайн совмещенного санузла – фото в классическом стиле:

Выбор сантехники для совмещенного санузла
Важным этапом наших работ будет выбор мебели и сантехники для ванной комнаты. Если пространство позволяет, то можно покупать ванную, душевую, биде, шкафчик для белья и т.д.
Если позволяют средства, тогда хозяева могут приобрести ванную с гидромассажером и гидробоксом. Дизайн совмещенного санузла может все-таки быть выполнен самостоятельно. Или же обратитесь к специалисту, к опытному дизайнеру.
Совмещенный санузел – плюсы и минусы
Достоинства, которые предоставляет интерьер, где туалет и ванна находятся в одном помещении:
- Увеличение визуального пространства;
- Экономия на отделочных и строительных материалах в ходе работ;
- Вам понадобится одна дверь вместо двух.
Минусом совмещённой ванной комнаты с санузлом является только то, что если ваша семья большая, тогда будет трудно посетить санузел, особенно утром, когда все собираются.
Если площадь вашей ванной комнаты, совмещённой с санузлом, имеет довольно приличные показатели, вы можете располагать ванную или джакузи необязательно в углу, чтобы сэкономить пространство. Она может находиться, например, посредине комнаты.
Как обустроить такую ванную – зависит от вас, главное, чтобы вы и ваша семья чувствовали себя в ней комфортно и уютно.
Дизайн совмещенного санузла ФОТО:







Автор: Ксения Синицына, г. Москва
dompraktika.ru
