Сауна своими руками на даче видео – Сауна своими руками на даче
Сауна своими руками на даче
Домашняя сауна имеет самую простую конструкцию и небольшие размеры, что значительно облегчает ее строительство. Наиболее ответственным процессом является обустройство печи и вентиляции, все остальное не потребует много усилий и материальных затрат. Недорогая и удобная сауна своими руками на даче – это не только возможность хорошего отдыха, но и повод для гордости.

Сауна своими руками на даче
Содержание пошаговой инструкции:
Подготовка места и материалов
Для строительства сауны выбирают расположенный недалеко от дома участок, на котором есть возможность выкопать яму для септика. Нежелательно, чтобы поблизости росли большие деревья, разрушающие своими корнями фундамент строения. Для удобства парящихся в сауне на 1 человека должно приходиться минимум 2 кубических метра помещения.
Если еще прибавить размеры раздевалки и комнаты для мытья, то минимальная площадь постройки займет 10 кв. м. Яма для слива воды может располагаться под комнатой для мытья, что сэкономит место.

Сауна своими руками на даче
Корпус сауны может быть из кирпича, бруса и даже металлического каркаса, утепленного и обшитого сайдингом. Внутри помещения обязательно обивают вагонкой или обычными досками. Выбор дерева очень важен: самым удачным вариантом является липа или ольха. Хвойные породы очень полезны, недорогие и обладают приятным запахом, но при высокой температуре выделяют смолу.
Основным элементом сауны является печь. Лучше всего, если она настоящая, выложена из красного кирпича и топится дровами. Но строительство такой печи под силу только опытному мастеру, поэтому без специальных знаний браться за ее сооружение не стоит. Оптимальным решением будет приобретение готовой металлической печи со встроенным теплообменником и баком для нагрева воды.
Печь для сауны
Строительство фундамента
Для строительства столбчатого фундамента потребуются:
- опорные столбы;
- садовый бур и лопата;
- рулетка и уровень;
- емкость для септика;
- щебень и песок;
- бетонный раствор.
Шаг 1. Разметка участка

Разметка под фундамент для сауны
Сначала делают разметку: определяют расположение угловой опоры, вбивают колышек и отмеряют расстояние до второго угла. Далее перпендикулярным

Разметка
Кроме расположения угловых столбов следует сразу определить место для сливной ямы. Если имеется большая емкость для септика, размеры ямы должны соответствовать объему емкости, в противном случае нужно выкопать квадратный котлован со стороной 1 м и глубиной примерно 1,2 м. Отверстия под опорные столбы легче всего сделать с помощью ручного бура. Для легкой деревянной сауны глубина отверстий под столбы фундамента составляет 40-50 см.
Шаг 2. Подготовка ямы

Котлован
На дно котлована насыпают песок слоем 15 см, утрамбовывают и насыпают слой щебня. После этого устанавливают емкость с перфорированными стенками, выравнивают и укрепляют верх. При отсутствии бочки стены ямы выкладывают кирпичом, оставляя в кладке небольшие равномерные зазоры для просачивания воды. Начиная от половины ямы и до верха, кладку нужно делать монолитной, чтобы избежать осыпания грунта.
Шаг 3. Возведение фундамента
Для опорных стоек подойдут бревна, металлические трубы и бетонные столбики. Дерево обязательно выбирают самое плотное, желательно сосну. Чтобы избежать гниения, поверхность бревен густо обмазывают битумной мастикой и просушивают.
Металлические трубы сначала обрабатывают грунтовкой с антикоррозийными свойствами. На дно отверстий насыпают щебень, после чего устанавливают столбы и выравнивают их по высоте и вертикали. Далее отверстия засыпают грунтом, смешанным с песком, проливают водой для большего уплотнения и трамбуют.

Столбчатый фундамент
Верх столбов закрывают рубероидом и укладывают балки основы по периметру будущей постройки. Закрепляют балки скобами или гвоздями к опорным стойкам. Внутри периметра монтируют дополнительные брусья с шагом 20 см и параллельно друг другу. Это будет основа для напольного покрытия. Можно заменить брус арматурной решеткой, установить опалубку и залить бетоном.
Строительство каркаса сауны

Строительство каркаса сауны
Кирпичные постройки даже небольших габаритов требуют мастерства, особенно при возведении углов. Намного проще построить каркас из бруса и обшить его досками. После утепления такая постройка будет ничуть не хуже кирпичной. Можно собрать каркас из клееного или профилированного бруса, что для дачной сауны является наиболее популярным вариантом.
Итак, для сборки каркаса понадобится:
- брус 100х150 мм;
- деревянные рейки 40х60 мм;
- опорные балки;
- уровень;
- саморезы или гвозди;
- грунтовка;
- металлические скобы;
- пергамин;
- минеральная вата;
- фольгированная пароизоляция;
- доски для обшивки.
Шаг 1. Установка несущих конструкций
Сначала монтируют угловые опорные балки: закрепляют их с помощью распорок, выравнивают по вертикали с помощью уровня и крепят к основанию металлическими скобами. Сверху по периметру скрепляют каркас брусьями. Далее вдоль стен через каждый метр устанавливают промежуточные вертикальные брусья и фиксируют их скобами к нижней и верхней обвязке.
Между стойками монтируют дверные и оконные коробки, прибивают поперечные рейки для упрочнения конструкции. По углам устанавливают раскосы из бруса, направленные в разные стороны.
Шаг 2. Наружная обшивка каркаса

Наружная обшивка каркаса
Деревянный каркас обшивают досками толщиной от 3 см. Начинают работу от угла и снизу: первую доску прикладывают к опорам параллельно земле, выравнивают, чтобы край не выходил за угол, и прибивают. Нежелательно стыковать доски посреди пролета, их края должны сходиться на одной из вертикальных стоек. Последними обшиваются стропила, при этом необходимо оставить в крыше отверстие под дымоход.
Шаг 3. Утепление стен, пола и потолка

Утепление стен, пола и потолка
Изнутри стены обивают пергамином или полиэтиленовой пленкой для гидроизоляции утеплителя. По краям пленка укладывается внахлест на 10-12 см, швы заклеивают строительным скотчем. Между брусьями каркаса плотно вставляют плиты минеральной ваты, толщина слоя утеплителя минимум 10 см.
Сверху вата закрывается фольгированным материалом, выполняющим функции пароизоляции. Фольгированная сторона обязательно располагается сверху для отражения тепла изнутри помещения.

Утепление
Пол и потолок можно утеплить с помощью пенопласта толщиной 10 см. Доски основания покрываются полиэтиленовой пленкой, края которой должны выходить на стены примерно на 3-5 см. Между лагами укладывают пенопласт, щели и просветы на швах задувают монтажной пеной, а сверху заливают стяжку. Можно сделать и деревянный пол, хотя доски прослужат меньше в таких условиях. По стяжке можно уложить плитку – она легко моется и не боится перепадов температуры и влаги.
Там, где будет установлена печь, обязательно делают несгораемое основание: на пол прибивают квадратный металлический лист, размеры которого превышают площадь печи, а сверху выкладывают кирпич на ребро плотными рядами. В качестве связуемого раствора служит глиняно-песчаная смесь. Кирпич используют только красный обожженный, другие виды не подходят.
Потолок утепляют стандартно: между перекрытиями вставляют пенопласт, задувают пеной все щели, с помощью степлера крепят пароизоляционный слой фольгой наверх. После этого прокладывают проводку, стены и потолок обшивают вагонкой.
Обустройство внутренних помещений
После возведения и теплоизоляции постройки можно приступать к основной части – установке печи и внутреннему обустройству сауны. Очень важно правильно изолировать деревянные поверхности, расположенные рядом с печью. Для примыкающего к печи простенка идеально подходит красный кирпич и газобетонные блоки, в крайнем случае, можно использовать обшивку из листов оцинковки.

Внутренняя отделка сауны
Для обустройства сауны потребуется:
- металлическая печь;
- бак из нержавеющей стали;
- соединительные трубы и кран;
- доски для лавочек;
- саморезы;
- рулетка;
- шуруповерт;
- дымовая труба с защитным колпаком.
Шаг 1. Монтаж печи

Установка печи
Выкладывают простенок из кирпича или газобетонных блоков, по ширине соответствующий ширине печи. Если нет желания возиться с кирпичами, можно оббить прилегающие стены и часть потолка специальным войлоком, а затем обшить все это оцинковкой. На кирпичное основание устанавливается печь, дымовая труба выводится на чердак, к печи подсоединяются трубы и бак для воды.

Дымоотводная система
Чтобы избежать возгорания стропильной системы, вокруг дымовой трубы сбивают из досок короб и наполняют его смесью песка и глины. Труба оказывается посередине короба и не может нагревать деревянные элементы постройки. Вокруг печи также сооружают защитный каркас из обрезков пиломатериала. Деревянное ограждение может быть круглым, квадратным или прямоугольным; оно не должно возвышаться над тэнами больше чем на 5 см. Между нагревателем и ограждением оставляют расстояние 7-10 см.
Шаг 2. Установка полок и дверей

Установка полок
Нижнюю полку крепят к стенам на уровне 50-65 см от пола, верхнюю – на расстоянии 1 м от потолка сауны. Обычно делают 3 полки шириной от 30 см, в зависимости от сложения домочадцев. Для изготовления полок используют такие же доски, что и для внутренней обшивки. Предварительно они хорошенько шлифуются, пропитываются антисептиком, затем специальным лаком.

Стеклянные двери в сауне
Двери в сауне рекомендуется делать открывающимися наружу. В дверное полотно можно установить окно из матового стекла. Нижний край двери обязательно подрезают на 5 см, чтобы обеспечить приток воздуха. В качестве замков используют роликовые или магнитные защелки, которые в случае необходимости открываются очень легко.
Шаг 3. Укладка камней

Укладка камней
Для сауны выбирают камни округлой формы, без трещин и глубоких выбоин. Перед укладкой их необходимо хорошо вымыть и просушить. Сначала укладывают большие камни, стараясь не оставлять между ними просветов, а потом заполняют оставшееся пространство мелкими камнями. В процессе эксплуатации сауны камни придется периодически осматривать, промывать и удалять отколовшиеся куски.
Шаг 4. Завершающая отделка

Светильники для сауны
На завершающем этапе устанавливают светильники, крючки для полотенец, вешалку для одежды. Лампочки лучше всего крепить над дверным проемом или в углу, противоположном полкам. Чтобы не обжечься о светильник в тесном помещении, рекомендуется закрыть его декоративной решеткой. При этом следует учитывать, что все приборы освещения должны быть влагоустойчивыми

Сауна на даче своими руками
Видео — Сауна своими руками на даче
svoimi-rykami.ru
Как построить сауну своими руками
Сегодня многие хотят иметь у себя в доме сауну, так как конструкция обладает большим количеством преимуществ. Это и удовольствие, и польза для здоровья, и возможность провести время с родными и друзьями. И построить сауну можно своими руками.
Устройство и особенности сауны
Сауна может быть влажной или сухой. Во втором варианте воздух будет прогреваться до 80–120°С и иметь влажность 7–20%. Во влажной же сауне максимальная температура составляет 55–70°С при влажности 95–100%.

Схема устройства сауны поможет правильно рассчитать материал и спланировать работу
Особенности конструкции, которые нужно знать:
- Если скамейки размещены в несколько ярусов, то расстояние между ними должно составить 40 см.
- По углам комнаты нужно установить осветительные приборы.
- За скамейками можно сделать спинки или вертикальную обшивку.
- В качестве покрытия пола рекомендуется использовать керамическую плитку или другой материал, который способен выдержать повышенную температуру и влажность. Однако трапы должны быть сделаны из дерева.

Многоуровневое размещение скамеек
- Печка может быть расположена на полу или на стенке. Если второй вариант предпочтительнее, то рекомендуется выбрать место рядом с дверью.

Расположение печи в сауне
- Дверь в большинстве случаев изготавливается из дерева или закалённого стекла. Это касается и ручек.

Дверь может быть изготовлена из тонированного стекла
Важно соблюдать правильное соотношение температуры и влажности.

Расположение элементов сауны можно обозначить на схеме
Если сауна расположена внутри дома или квартиры, то окно можно не делать. Однако для отдельно стоящей постройки нужно сделать его с двойными стёклами.
Помывочную, душ или бассейн нужно обустраивать отдельно от парилки, потому воду в помещение проводить не требуется. Обязательно нужно предусмотреть сток канализации.
Вокруг печки надо обустроить заграждение.

Заграждение печки должно быть обязательно
Тип печки не имеет значения.
Особенностью сауны является то, что температура в помещении достигает 120°С. Однако её с лёгкостью можно перенести, так как в парной сухой воздух. По этой же причине разогрев тела происходит практически моментально. Когда на камни попадает вода, в воздухе появляется много горячего пара. Но через небольшой промежуток времени воздух снова становится сухим.
Фотогалерея: сауна в доме
Подготовительные работы
Прежде всего понадобится составить чертёж.
Наличие стабильного воздушного потока в постройке даёт возможность выбирать размеры исходя из числа пользователей и удобства. Возможная высота потолка — 1,9–2,1 м. Увеличивать этот параметр не стоит, поскольку это может повлечь за собой появление «эффекта трубки», за счёт которого повышается тяга, и возникает сквозняк.
Помимо этого, возле потолка воздух будет самым горячим. Соответственно, верхнюю полку надо делать на максимальной высоте. Важно учесть, что у человека должна быть возможность присесть на неё, не упираясь головой в потолок. Рекомендуемое расстояние — 1–1,1 м от него.

Пример расположения полок и их размеры
Оптимальная высота полки — 45 см. При необходимости этот параметр можно увеличить до 65 см, но сидеть на ней может быть неудобно. Чтобы это исправить, можно соорудить ступень высотой 25 см.
Лавка для отдыха двухъярусная. Высота нижнего яруса — 65 см, верхнего — 105 см. Ширина 35 и 70 см соответственно.
Сауна имеет меньшие габариты, если сравнивать с русской баней. Для 3–4 человека будет достаточно помещения 3,3 м2. Полки должны быть установлены в несколько ярусов вдоль стенок. При этом оптимальная высота потолков — 2,1 м.
Длина стенки напротив входа — минимум 2 м. Чтобы воздух правильно циркулировал, важно соблюдать соотношение размеров. Если произвести правильный расчёт, то полки с местами для лежания на верхнем ярусе смогут обдаваться жаром от печки с приемлемой влажностью воздуха.
Какими должны быть размеры парной: составление проекта
Основная задача парной — обеспечение высокой температуры. В сауне она достигает 120°С. Для этого нужен определённый прогрев печки. Однако тепло в парной будет передаваться не только от неё, но и от окружающего воздуха. Поэтому нельзя размещать металлические печи поблизости с лавками. Они способны сильно нагревать воздух, что может привести к ожогам.
Обустраивать парную небольших размеров печью из металла также не рекомендуется, так как это опасно для здоровья. Высота потолков в этом случае не сможет решить проблему.

Размеры парной зависят от количества человек, которые будут одновременно в ней находиться
Обустройство большой парной с электрической печкой является бессмысленной затеей, так как затраты на электроэнергию не будут окупаться никаким комфортом.
Чтобы определить оптимальные размеры помещения, нужно учитывать следующий факт: излучение тепла в пространстве расходится так, что его интенсивность через некоторое время ослабевает обратно пропорционально значению, равному квадрату расстояния от устройства излучения. Соответственно, люди, которые будут расположены на расстоянии 3 м от печки, смогут получить в 4 раза меньше тепла, чем если бы они располагались в 1,5 м от устройства. Создать
В этом и есть недостаток парных больших размеров — чтобы тепло доходило в необходимом количестве, понадобится слишком раскалять печку или перегревать воздух. Оба варианты оказывают вред человеческому здоровью. Стоит помнить и о том, что главным условием высокой эффективности процедур в сауне является рассеивание тепла. Чем больше размеры парной, тем лучше будет происходить этот процесс. Поэтому рекомендуется выбирать средние значения площади данного помещения.
Чтобы оптимизировать пространство внутри парной, понадобится минимизировать основание пола и увеличить площадь полок. Пространство под ними рекомендуется заглушить, чтобы уменьшить прогреваемый объём. Это даст возможность сэкономить топливо для печки, и сократить время прогрева сауны.
Обозначит все необходимые размеры рекомендуется в специальной технологической карте.
Видео: можно ли построить сауну/баню в подвале частного дома
Выбор материалов для сауны
На следующем этапе нужно определиться с материалами, которые будут использоваться в процессе возведения сауны. Необходимо подготовить:
- кирпич;
- трубы;
- бруски;
- брёвна;
- песок;
- цемент;
- материалы для кровли;
- стекло;
- глина;
- гравий;
- материалы для теплоизоляции.
Можно соорудить сауну, которая состоит из одной парилки с местом для раздевалки, либо подготовить ещё и помещение для мытья или комнату отдыха. От этого будет зависеть набор материалов.
Рекомендуется выделить место под коридор, который поможет исключить проникновение охлаждённого воздуха в помещение.
Главным материалом для сауны является дерево. Это могут быть брёвна, бруски или доски. Можно выбрать исключительно древесину для возведения всей конструкции полностью, включая основание и крышу. Другой вариант — использование блоков или кирпичей.

Сруб из брёвен используется для возведения бани чаще всего
Дополнительно сруб можно облицевать кирпичом, чтобы сделать его более износостойким и снизить теплопроводность.
Сруб — брёвна со специально подготовленными пазами. Они используются для продольной фиксации. Для перпендикулярного крепления необходимы врубки. Ряд уложенных брёвен называется венцом. Для соединения венцов необходимы пазы (имеют круглую форму) и врубки. Если всё сделано правильно, то теплопотери исключены.
Для изготовления конструкции подходят брёвна сосны и лиственницы. На внутренней их части не должно быть смоляных мешков. Нижний венец рекомендуется изготавливать из высушенных брёвен дуба, верхние из брёвен липы или белой ели. Волокна должны располагаться прямо, а не наклонно.

Прямое расположение волокон оптимально для бани
Если волокна располагаются под наклоном, то в процессе сушки это может привести к существенной деформации материала. В результате чего древесина растрескается.
Сейчас можно встретить сауны из клееного профилированного бруса.

Конструкция из клееного бруса достаточно надёжна
Преимущества такой конструкции:
- прочность постройки;
- ровная и гладкая поверхность стенок, в связи с чем нет необходимости в отделке;
- отсутствует усадка и деформация;
- устойчивость к гниению и повреждению грибком и вредителями.
Недостатком является высокая стоимость.
Сауну из такого материала легко изготовить своими руками, при этом процесс занимает гораздо меньше времени. Теплопотери при этом отсутствуют полностью, так как нет зазоров и трещин.
Какую выбрать печь для деревянной бани
Чаще всего используется каменка, поскольку она может обеспечить оптимальную температуру и влажность.

Оптимальная печь для сауны — каменка
Выбрать местоположение кирпичной конструкции нужно на этапе составления чертежа. В процессе укладки основания надо подготовить место для печки. Также рекомендуется специальное место для хранения дров.
Для кладки конструкции будет необходим кирпич М75 или М150. Количество материала зависит от теплопроводности стенок и планировки помещения. В среднем на 1 м2 нужно 35–40 кирпичей. Для хорошей тяги устройство дымохода должно выступать над кровлей минимум на 0,5 м.
В саунах устанавливают печки непрерывного и временного действия. Последние способны более эффективно отапливать постройку благодаря нагреву камней горячим дымом. Пар от печки непрерывного действия чище.
Каменки могут быть с закрытой и открытой камерой засыпки. Это влияет на качество пара.

Печь с закрытой камерой более экологична
Далее нужно определиться с материалом для крыши. На это влияет климат местности.
Видео: как можно оборудовать инфракрасную сауну в квартире
Расчёт материала для возведения постройки
Прежде всего нужно подсчитать, какое количество досок для пола потребуется. Для примера будет рассмотрена сауна размером 3,7х3,7 м. Чтобы сделать в ней пол, нужно подготовить 25 обрезных досок.

Обрезная доска для пола
Стандартные размеры доски: толщина — 0,5 см, ширина — 15 см, длина — 4 м.
Соответственно, 4 х 0,15 х 0,5 = 0,03 м3 — площадь одной доски.
Ширина и длина сауны составляет 3,7 м, поэтому для устройства напольного основания нужно подготовить 25 досок шириной 15 см и длиной 4 м.
Чтобы обустроить потолок в бане, нужна вагонка в количестве 38 досок. Расчёт материала производится по такой же схеме. Толщина одной доски — 22 мм, ширина — 100 мм.
Для того чтобы выполнить внутреннюю отделку сауны и устройство перегородок, нужна вагонка толщиной 22 мм.

Для сауны подойдёт вагонка из липы
Если планируется располагать доски вертикально, то понадобится приблизительно 153 доски.
Стандартные размеры: длина доски — 3 м, ширина — 10 см, толщина — 2,2 см.
3 х 0,01 х 0,22 = 0,01 м3 — площадь одной доски.
Далее нужно рассчитать площадь стенок сауны: высота составляет 2,1 м, а длина с учётом перегородок — 24 м.
2,1 х 24 = 51 м2
В 1 м2 3 доски, соответственно 51 х 3 = 153 доски вагонки на всю парную.
Чтобы выполнить пароизоляцию внутренних стенок и потолочной конструкции можно применить различные материалы, среди которых особой популярностью пользуются пароизоляционная плёнка и дышащая мембрана.

Пароизоляция стенок сауны обязательна
Для сауны 3,7х3,7 м потребуется 44 м2 материала.
Для выполнения расчёта нужно узнать суммарную площадь потолочной конструкции и стенок, при этом перегородки учитывать не нужно.
Длина без учёта перегородок — 14,1 м.
2,1х14,1=29,61 м2.
Ширина и длина потолочной конструкции — 3,7 м. Площадь равна 3,7х3,7 = 13,69 м2.
Далее нужно сложить площадь стенок и потолка: 29,61+13,69=43,3 м2.
На следующем этапе выполняется расчёт материалов для фундамента. Потребность цемента, щебня, песка и других элементов будет зависеть от того, какой тип основания планируется изготовить.
Если это будет столбчатый фундамент, то понадобятся трубы из асбестоцемента диаметром 20 см и длиной 150 см. В центре каждой из них надо смонтировать 2 прута арматуры диаметром 5 мм.
Необходимые инструменты
Для сооружения основания сауны нужны:
- столярный инструмент;
- лопата;
- кельма;
- строительный уровень;
- бетономешалка;
- тачка;
- ёмкость для приготовления раствора.

Бетономешалку можно арендовать
Если планируется замешивать раствор вручную, то надо подготовить ёмкость из металла и совковую лопату. Также можно применить строительный миксер или электродрель большой мощности со специальной насадкой.

Насадка в виде миксера поможет облегчить процесс замешивания цемента
В процессе строительства сауны не получится обойтись без электрического лобзика. С помощью этого инструмента можно делать пропилы и надрезы для получения необычных форм в разных материалах.

Электрический лобзик позволит вырезать из дерева кусок любой формы
Как правильно сделать сауну в коттедже своими руками: пошаговая инструкция
Строительство нужно начинать с заливки основания. Рекомендуется для сауны изготавливать ленточный фундамент. Его нужно будет заглубить минимум на 75 см. Ширина конструкции должна быть примерно 26–30 см, высота части над землёй — 20–25 см. В цокольной половине нужно сделать маленькие отверстия для вентиляции воздуха. Это позволит защитить изделие от сырости и повышенной влажности.
Далее следует устройство пола.
Черновой пол сауны состоит из нескольких слоёв
Конструкция может быть изготовлена из досок, однако лаком покрывать их не нужно. Другим вариантом является использование кафельной плитки, под которую может быть установлена система обогрева.

Система тёплого пола в сауне практически необходима
Недостатком является то, что такой пол скользит. Однако специальная решётка из дерева решит эту проблему.
Необходимо предусмотреть систему слива.
Строительства каркаса на дачном участке
Если вы планируете строить сауну из деревянного бруса, то нужно сделать пятиуровневую обвязку. Понадобится выполнить такие шаги:
- Следует сделать план фиксации бруса.

Возможны различные варианты фиксации бруса
- Когда будет выбран вариант крепления, можно переходить к фиксации деталей.
- Нужно просверлить отверстия под брус перфоратором.
- Каркасные бруски необходимо фиксировать с помощью специальных пробок из дерева, шурупов или дюбелей.
- Потолочный каркас следует монтировать из досок большой ширины параллельно друг к другу и стенкам здания.

Потолочный каркас сауны монтируется из досок
- В каркасной конструкции нужно подготовить место для двери. Над этим местом надо смонтировать горизонтальную перемычку.

Горизонтальная перемычка над дверным проёмом обязательна
- Выполнить укладку теплоизоляционного материала. Рекомендуется использовать минеральную вату, поскольку она идеально подходит для помещений с повышенной температурой.
- На данном этапе надо выполнить прокладку влагоизоляционного материала. Стенки следует покрыть специальной фольгой, зеркальная часть которой поворачивается внутрь.
- Места стыков фольги нужно скрепить алюминиевым скотчем.

Стены сауны нужно не только утеплить, но и защитить от воздействия влаги
Обшивка стен внутри сауны
Если вентиляция будет спроектирована некорректно, то в будущем в постройке может появиться сырость и образоваться грибок. Также возможен перегрев, что может повлечь за собой пожар.
Для правильного устройства вентиляции важно предусмотреть впускные и вытяжные отверстия.

Правильное расположение отверстий очень важно для циркуляции воздуха
Размер отверстия для вентиляции можно рассчитать. На каждый 1 м3 парной нужно отверстие площадью 24 см2.
Отдушины для вентиляции следует располагать так:
- Одна из них на расстоянии 30 см от пола в районе печки. Она нужна для того, чтобы обеспечить приток воздуха в топочную камеру.
- Другая располагается на противоположной стенке на расстоянии 30 см от потолка.

Размеры отдушины зависят от площади парной
Воздух, который поступает через первое отверстие, будет проходить поблизости с печкой, нагреваться и подниматься к потолку. Через верхнее отверстие будет поступать свежий воздух, который сможет заменить застоявшийся на верхней полке.
Не допускается использование вентиляторов для принудительной циркуляции, так как это может спровоцировать ожоги.
Проводка в сауне устанавливается с учётом высоких мер электрической безопасности. Допускается использование термостойкого провода с двойной изоляцией. Электрик должен произвести расчёт требуемой мощности электросети.
Все осветительные приборы должны быть оборудованы герметичными колпаками. Их следует устанавливать на стенках или под потолком.

Правильное расположение светильников в сауне очень важно для её безопасности
Нельзя располагать осветительные приборы над печкой.
На следующем этапе нужно соорудить обрешётку и обшить стенки. Последовательность действий такова:
- Перед обшивкой надо установить горизонтальную обрешётку. Рекомендуется использовать бруски 3х4 см. Оптимальное расстояние между элементами составляет 40 см.

Для обшивки стен необходим монтаж горизонтальной обрешётки
- Для фиксации лавок нужен поперечный каркас.
- Далее необходимо выполнить обшивку стенок вагонкой. Материал фиксируется с помощью гвоздей.

Крепить вагонку можно гвоздями
- Шляпки крепёжных деталей не должны быть открытыми, так как в случае сильного накаливания ими легко обжечься. Решить проблему можно, накрыв их специальными накладками.
Видео: технология обустройства вентиляции в парной
Установка двери и оборудования
Размер нужно выбирать исходя из подготовленного проёма. Высота от нижней части двери до напольного основания должна быть минимум 12–15 см. Никаких замков и защёлок при этом не должно быть. Можно использовать только магнитные крепления.

Для сауны можно использовать магнитные фиксаторы двери
Оборудование можно устанавливать только после отделки. Если конструкция будет располагаться в отдельном здании, то можно установить настоящую печку. Однако если планируется использование каменки, то надо сначала установить её, а после этого перейти к отделке.
Надо сделать ограждение для печки. Идеально подойдут для этого доски, которые использовались для изготовления лавок. Расстояние от планок до печки должно быть минимум 5 см. Высота забора может быть больше каменки максимум на 4–5 см.

Печку рекомендуется оградить
Какие камни укладывать
Важно правильно подобрать камни. Их форма и качество влияют на уровень комфорта. Камень должен быть ровным, гладким и круглым.

Выбор камней для сауны очень важен
Булыжник с трещинками и выщербленными участками не подходит.
Первым делом на каменку выкладываются камни большого размера. На них — камешки поменьше. Их следует тщательно промывать водой и сушить каждые 6 месяцев. Для сауны подойдёт:
- жадеит;
- диабаз;
- талькохлорит;
- порфирит.
Можно использовать любой из них.
Видео: как оборудовать сауну в квартире своими руками
Полезные советы по отделке
Завершающим этапом строительства является внутренняя и внешняя отделка. Обшивать сауну лучше всего вагонкой. Каждый сорт дерева имеет свои преимущества:
- Липа имеет отличный внешний вид и хорошо пахнет.
- Ольха способна хорошо удерживать тепло, при этом она практически не нагревается. Имеет разнообразную палитру цветов и красивый рисунок.
- Сосна используется чаще всего. Выделяет полезные для здоровья элементы в процессе нагревания.
Недостатком ольхи является то, что она мягкая. Следовательно, от ударов могут появиться вмятины.
Инструкция по отделке является следующей:
- Первым делом надо нарезать материал по высоте помещения.
- Далее выполнить обшивку. Начинать нужно с угла, после чего плавно передвигаться по периметру.
- Рекомендуется покрыть их воском или натуральными маслами, предназначенными для саун.

Обработка вагонки воском продлит срок эксплуатации сауны
Обрабатывать вагонку внутри сауны не нужно.
Советы по эксплуатации частной сауны на даче
Перед тем как использовать сауну, нужно узнать, как это делать правильно. Основные рекомендации:
- Перед тем как заходить в помещение, рекомендуется принять тёплый душ, при этом использовать мыло нельзя.
- Не стоит торопиться залезать на верхнюю полку. Сначала надо подготовить кожу к высокой температуре.
- Не рекомендуется сидеть или стоять в сауне. Процедуру лучше проводить в положении лёжа.
- Если появилось ощущение дискомфорта, нужно покинуть парную.
- Оптимальная продолжительность сеанса — 7–15 минут.
- После использования парной нужно смыть пот под душем. Только после этого можно погружаться в бассейн.
- Полезным будет сеанс массажа, который способен улучшать кровообращение.
- Рекомендуется пить много воды.
- Нельзя употреблять алкогольные напитки.
- Одеваться можно после того, как тело окончательно обсохнет. На это потребуется минимум 15–20 минут.
- Детям до 4-х лет посещение парной противопоказано.
Если придерживаться этих рекомендаций, то посещение парилки будет максимально полезным для здоровья.
Построить сауну своими руками возможно, однако важно учитывать все нюансы, а также подготовить качественные материалы и инструменты. При это нужно строго следовать пошаговым инструкциям и прислушиваться к советам профессионалов.
Оцените статью: Поделитесь с друзьями!maja-dacha.ru
маленькая сауна в дачном доме своими руками, мини бани, фото и видео
Содержание:
Самостоятельное возведение сауны на дачном участке – это процедура, выполняемая достаточно просто при соблюдении основных этапов и особенностей строительных работ. В статье речь пойдет о том, как отстраивается сауна на даче своими руками, а также приводятся основные рекомендации специалистов для тех, кто желает в результате получить качественное, надежно и безопасное строение, где каждый посетитель будет с комфортом и удовольствием принимать банные процедуры.

Сауна на дачном участке
Стандартная сауна для дачи должна соответствовать основному условию: максимальная закрытость с полной герметичностью конструкции. Такое здание должно быть оборудовано основными коммуникациями: вентиляционная система, электрическая проводка и водоснабжение.

Линейные пропорции подбираются таким образом, чтобы на каждого посетителя отводилось не менее 3 кубометров пространства. Только при соблюдении таких пропорций можно получить сауну, которая будет эстетично смотреться на фото и при визуальном осмотре, а также будет комфортна в эксплуатации.
Если во владении отсутствует постройка подходящих размеров, то можно задумать о таком явлении, как сауна в дачном доме, но опять же стоит учитывать различные риски. Непосредственно статья посвящена поэтапному возведению сауны на дачном участке.
Строительство сауны на даче
Здание сауны может быть возведено с использованием различных материалов: древесина, кирпич, шлакоблок и т.д. На сегодняшний день выбор материала является прерогативой владельца. Опираться при выборе материала можно лишь на то, как строение будет выглядеть на фото и при визуальном осмотре, а также на конечную смету проведения строительных работ. Подробного рассмотрения процесса строительных работ не будет, но основные этапы будут затронуты. Для начала каждому владельцу придется определиться с тем, какие линейные размеры будет иметь их маленькая сауна на даче, если конечно не захочется сделать постройку более габаритной.

Немало трудностей возникает при внутренней отделке и оснастке сауны. К примеру, отделывая полы, лучше всего не прибегать к использованию деревянных облицовочных материалов. При использовании дощатого настила стоит учесть множество нюансов. В первую очередь необходимо отказаться от использования защитных лакокрасочных материалов в пределах кабинки, где будет осуществляться прием процедур. Лучше всего использовать кафель с подогревом, поскольку именно такое покрытие создает комфортные условия для находящихся в парном отсеке посетителей. Работы начинаются с отделки полов и только после этого можно приступать к покрытию стен облицовочным материалом. Читайте также: «Как правильно выполняется отделка сауны – пошаговое руководство».
После отделки полов мини сауны для дачи можно приступать к облицовке стен. На кирпичную кладку вначале укладывается пергамин, но такое условие касается исключительно указанного материала для создания стен. Указанный материал обладает гидроизоляционным и пароизоляционным эффектами, а продается в виде рулонов. Также пергамин может быть заменен на битумированную бумагу. В качестве крепежей для пергамина используются специальные рейки. Укладка материала производится внахлест с заступом в 10-15 сантиметров.

Затем над стенами и под потолком монтируется сплошной каркас из деревянных брусьев с площадью сечения 5х5 или 4х6 сантиметров. Также можно использовать металлоконструкцию, которая естественно будет более прочной. На каркас под потолком можно уложить электрическую проводку, монтировать системы вентиляции и пожаротушения.

Когда мини сауна своими руками на даче строится с дополнительной установкой системы безопасности, то используется технология «сухотруб». Заключается она в том, чтобы расположить трубы под стенами вдоль всего периметра сауны. В трубах делаются специальные угловые отверстия, направленные непосредственно в центр помещения. Также для локализованного устранения пожара можно не вывести специальные раструбы внутрь помещения с закладкой всей остальной системы под обшивку каркаса.
Также важным элементом система пожаротушения является клапан на систему вентиляции. Назначение его довольно просто. Очаги возгорания обычно находятся внутри помещений бани сауны дачи или прочих построек, а любой знающий человек скажет, что подача кислорода поддерживает процесс горения.
Когда система пожаротушения автоматически закрывает клапан, дым не распространяется за пределы помещения. Особенно важен вентиляционный клапан в тех случаях, когда сауна совмещена с частным домом.
Теплоизоляция стен
Естественно, для комфортного нахождения в сауне необходимо произвести ее качественное утепление. Только в этом случае теплопотери помещения будут минимальными. Используются в качестве утеплителя следующие материалы: базальтовая или минвата. Укладываются они в пустоты между каркасом и стеной. Также можно поверх каркаса наложить фольгированный слой, что сделает из помещения своеобразный термос.

Фольга фиксируется таким образом, чтобы блестящая отражающая сторона была направлена внутрь помещения. Отражая тепловую энергию, данный слой не дает помещению быстро остывать и способствует быстрому его нагреванию. Фиксируется фольга при помощи кнопок, скобок или специального скотча. При правильном утеплении можно любую сауну сделать комфортной для посетителей.
Финишная потолочная и стенная отделка
Обычно в качестве отделочного материала для внутренних помещений сауны на дачном участке используется вагонка. Однако фиксировать ее можно исключительно на горизонтальный каркас из брусьев с сечением 3х3 сантиметра. Устанавливаются брусья с интервалом в 40 сантиметров. Стоит учесть, что для фиксации лавочек в парном отсеке необходимо использовать брусья с сечением большим, чем те, что используются для создания каркаса (лучше всего 3х6 сантиметра). Читайте также: «Как сделать сауну на балконе – этапы обустройства».

После того как деревянной вагонкой обиты стены и потолок помещения необходимо осуществить монтаж клапана вентиляции поверх того места, где установлена печь. В диаметре клапан должен быть в пределах от 10 до 15 сантиметров. Закрепляя вагонку на потолке необходимо уложить утеплитель в самом конце.

Выбирая вагонку необходимо изучить характеристики основных разновидностей материала:
- липовая – имеет розоватый оттенок, приятный запах и оказывает благотворное воздействие на человеческий организм. У материала низкая теплопроводность, что позволяет добиться в помещении тепла и уюта;
- ольховая – самый практичный материал с большой историей применения. Имеет большую палитру цветов от бледного розоватого до выраженного красного;
- абашевая – делается из африканской породы древесины, по структуре напоминающей пенопласт. Материал приятен на ощупь, а также имеет примечательно свойство: он адаптирует к температуре тела, с которым взаимодействует. Таким образом, лучше всего с помощью абашевой вагонки обивать лавочки, чтобы сидеть на них было приятно;
- сосновая – присуща саунам, пришедшим со Скандинавского полуострова. У такого материала имеется характерный хвойный аромат. Недостатком хвойного материала является выделение смолы при нагревании древесины. Раскаленная смола при взаимодействии с телом человека может привести к образованию ожогов. При правильном сочетании различных материалов можно добиться оригинальной отделки в сауне.
Установок лавок и прочей оснастки сауны
Правильная сауна должна иметь высоту помещения от 1,9 до 2,1 метра. Устанавливая лавки, необходимо учесть, что человек, сидящей на верхнем ярусе, должен чувствовать себя комфортно не упираясь макушкой в потолок (детальнее: «Как сделать лавки в баню своими руками – от чертежей до готовых лавок»). Тогда нижняя полоса лавок будет иметь высоту в 65 сантиметров. Если такая конструкция создает дискомфорт для посетителей, то под лавкой можно сделать ступеньку высотой в 20-25 сантиметров.


Прочие условия обустройства парного отсека:
- для устранения эффекта замкнутого пространства можно установить комбинированные двери со стеклами или тонировкой. Очень важно, чтобы дверь была без каких-либо запоров и отворялась в сторону из парного отделения;
- стоит учесть, что дровяная каменка очень сложна в закладке, а потому лучше всего сделать выбор в пользу электрических печей, которые можно приобрести во многих магазинах. Размещается такая печь с зазором от пола в 20 сантиметров, а к стене крепит шурупами;
- для увеличения безопасности печку необходимо огородить деревянным заборчиком на расстоянии в 5 сантиметров. В пустоты между трубчатыми электронагревателями закладываются камни на минимальном расстоянии;
- в последнюю очередь монтируются осветительные приборы и выключатели, после установки которых можно вводить сауну в эксплуатацию.
Особенности подбора и закладки камней
Эффективность оздоровительного эффекта сауны зависит от того, насколько качественные используются камни. Важно, чтобы их поверхность была идеально гладкой, а экземпляры камней, лопнувших при эксплуатации, необходимо подвергать оперативной замене. После того как камни уложены может возникнуть треск при их эксплуатации, но это не страшно.

Самые популярные виды камней:
- лучше всего в сауне использовать диабаз, выдерживающий около 360 циклов накаливания и последующего остывания;
- также очень эффективным считается порфирит, снимающий головные боли и благоприятно влияющий на работу легких и кожные покровы человеческого тела;
- талькохлорит нагревает до очень высоких температур и в дальнейшем сохраняет тепло в течение продолжительного времени. Камень считается очень полезным для нормализации артериального давления и укрепления иммунной системы;
- жадеит является камнем дорогостоящим и считается полудрагоценным. При его нагревании выделяются ионы серебра, положительно влияющие на работу нервной системы человека. Читайте также: «Варианты бани для дачи – какую выбрать или построить».
Итог
В статье приведен достаточный объем информации для того, чтобы понять, как оборудовать сауну на дачном участке по всем правилам. Не стоит отказываться от советов профессионалов, поскольку они с уверенностью смогут подсказать, как именно сделать сауну комфортной и уютной.
banyaspec.com
Мини сауна своими руками на даче
В городской суете и повседневных заботах совершенно нет времени на должный отдых. Но если выкроить свободный вечер, то лучшим местом релаксации будет баня с друзьями. И если у вас есть загородный дом, то постройка сауны крайне важна. Узнайте, в чем заключаются секреты постройки мини сауны для дачи своими руками для нескольких человек из строительного пенопласта.
СОВЕТЫ, КАК ПОСТРОИТЬ БАНЮ СВОИМИ РУКАМИ ДЕШЕВО И КРАСИВО. ПРОЕКТЫ
Где построить мини сауну своими руками на даче?
Безусловно, чтобы начать строить мини сауну своими руками, нужно определить, где расположится ваша парилка. От местоположения зависит площадь вашей постройки. На небольшом дачном участке можно соорудить баню в доме. Если же вы обладаете обширным земельным участком, то стройку лучше начинать отдельно от жилья.

Сначала выберите проект, начертите план и укажите соответствующие размеры. Благодаря этим простым действиям вы сможете предотвратить ошибки при строительстве. Тем более, при помощи плана можно удобно расположить печь и лавочки внутри сауны. Наилучшим вариантом под стройку подойдёт подвал с отличной вентиляцией.
Как сделать мини сауну своими руками на даче поэтапно?
Первым этапом самостоятельного строительства мини сауны на вашем дачном участке будет разметка прямоугольной площади.

- Вбейте колья по углам на площади 2500х3000 миллиметров.
- Разметьте площадку под фундамент примерно 750х600 миллиметров.
- Выкопайте углубления в 1.5 метра.
- На этих углублениях постройте опалубку шириной 300х300 и высотой 200х250 миллиметров и залейте бетоном.
- Для гидроизоляции необходимо наклеить рубероид.
Затем приступайте к сборке каркаса конструкции. Прикрепите стропила и доски для изготовления кровли здания. Установите окна и двери и прибейте доски внутри вашей сауны. Уложите пол в бане, предварительно оставив место под печь.

Возьмите заранее купленный строительный пенопласт и сделайте необходимые разметки. Размечать нужно с учётом периметра будущего сооружения. Когда разметка подошла к концу, вырежьте кусочки пенопласта по чертежам. Пустоту следует заполнять монтажной пеной.
Оббиваете досками постройку снаружи. Для хорошей теплоизоляции в парной необходимо наклеить на потолок и стены фольгу, после чего отделайте их вагонкой. В окончании сделайте своими руками печь для парилки. Она может быть неординарной конструкции или же по стандартным чертежам. Уделите особое внимание электропроводке, чтобы не произошло коротких замыканий и возгораний. Если вы собираетесь устанавливать в вашей мини сауне электрооборудование, то лучше доверить эту процедуру специально подготовленным людям. Но если вы имеете определённый опыт в работе с электроприборами, то вам это не доставит хлопот.

Интерьер зависит от ваших пожеланий. Для отделки бани подключите фантазию и проявите креатив.
КАКИЕ КАМНИ ДЛЯ БАНИ ВЫБРАТЬ?
После соблюдения всех советов и рекомендаций вы построите мини сауну на даче своими руками без особых вложений и тщательной планировки.
Смотрите также видео, как построить мини сауну своими руками на даче
remontick.ru
Мини-сауна на даче: как сделать своими руками

Содержание статьи
Современные дачные или загородные дома сложно представить без бани, ставшей обязательной составляющей дачного отдыха. Но, что делать, если на строительство полноценной парилки недостаточно средств или очень маленький земельный участок, на котором не удастся разместить отдельно стоящее здание? Для тех, кто испытывает аналогичные проблемы, существует единственный выход – мини-сауна своими руками на даче.
Выбор места в загородном доме для возведения мини-сауны
Как правило, парную обустраивают в одном из помещений дома, главное, чтобы оно подходило по размерам, и в нем было возможно организовать электроснабжение и вентиляцию. Например, мини-сауна своими руками на даче может быт размещена на чердаке, в подвале или на балконе, если дом двухэтажный. Идеальный вариант, если есть возможность сделать прямой выход из сауны к берегу искусственного или природного водоема.

Выбор места для мини-сауны
Оборудуя мини-баню в загородном доме, удается сэкономить значительные средства на монтаже коммуникаций: канализации, водопровода, электропроводки, но при этом не терять квадратные метры внутреннего пространства.
Планировка и размеры мини-саны в дачном доме
Устройство сауны своими руками на первых этапах включает разработку схемы и определения габаритов будущей домашней бани. Размер небольшой парилки проектируется из расчета, что в ней будет париться один-два человека. На каждого в кабинке должен приходиться объем не менее 2 м3. При этом высота потолка должна быть не ниже 2 м. Наиболее удачный минимальный размер составляет 2 х 1,8 м, когда по каждой из сторон можно установить скамейку для лежаний.

Планировка и размеры мини-сауны
Мини-сауна своими руками на даче, чертежи которой включают минимально допустимую высоту и площадь, позволяют существенно экономить на электроэнергии и времени прогревания парной. Поскольку, чем объемнее кабинка, тем больше потребуется электричества на ее функционирования.
Отделка полов в сауне
Возведение домашней бани начинаем с отделки полов. Для их основы используют бетон, облицованный натуральными или искусственными камнями. Также, можно в парной пол выложить кафельной плиткой – практичный, недорогой и распространенный вариант.
По своим характеристикам для устройства пола в сауне отлично подойдет террасная доска (термодерево), прекрасно переносящая высокие температуры, изменение влажности, динамические нагрузки и имеющая рифленую поверхность, красивую текстуру и стойкий оттенок.
Установка деревянного каркаса
Перед тем, как делать каркас, необходимо убедиться в прямоугольности помещения, замерив и сравнив его диагонали – они должны быть одинаковыми. При необходимости, проведите корректировку брусьями каркаса, отступая на нужное расстояние от стен.
Элементами каркаса служат сухие сосновые брусья, сечением 5х5 см. В зависимости от того, как будет производиться облицовка стен вагонкой, их располагают вертикально или горизонтально, с шагом в 400 мм. На толщину теплоизоляционного материала производится отступ от основной стены (50 – 100 мм).
Для того, чтобы впоследствии осуществить корректный монтаж электрической каменки, которая устанавливается на чистовую стенку, следует предусмотреть закладные элементы (дополнительные бруски каркаса).
Организация вентиляции в мини-сауне
Для корректной работы парной требуется грамотно выполненная схема устройства вентиляции в сауне своими руками, способная в час обеспечить не менее, чем шестикратную замену воздуха в кабине.
С этой целью вблизи каменки и пола делается приточное отверстие для поступления внутрь бани свежего воздуха. На противоположной стенке ближе к потолку размещается вытяжной проем, сквозь который горячий воздух будет попадать в общий воздуховод. В потолке делают еще одно вентиляционное отверстие, закрытое шибером, предназначенное для быстрого и абсолютного проветривания сауны между сеансами. Данный вариант организации вентилирования является самым распространенным.
В зависимости от конструкции парной и особенностей ее расположения, вентиляционная схема может изменяться.
Электроснабжение мини-бани
Поскольку парная – помещение с повышенной опасностью и высокими температурами, то требуется уделить особое внимание обустройству электроснабжения. Для скрытой электропроводки нужно использовать провода с надежной термостойкой изоляцией, выдерживающей до 170 – 1800 С. Внутри бани не допускается соединять провода, устанавливать электророзетки и выключатели, а также устройства управления.

Электроснабжение мини-сауны
Светильники следует использовать только специализированные – термостойкие (степень защиты IP 65). Практичным является их размещение под лавками.
Все электрооборудование домашней бани нужно подключать через высококачественные автоматы защиты, предохраняющие цепи электросети от короткого замыкания.
Организация теплоизоляции мини-бани
Утепление сауны изнутри своими руками необходимо для обеспечения быстрого нагрева парной и экономии на энергоресурсах, а, соответственно, и на мощности каменки. Большое распространение приобрела теплоизоляция из минеральной ваты на основе базальта, поскольку она не впитывает влагу и обладает паропроницаемыми и негорючими свойствами.
Минеральная вата вкладывается в каркасы стенок матами толщиной от 5 см. Особое внимание уделите тепловой изоляции потолка, так как через него происходят большие теплопотери. Толщина минваты должна быть не меньше 10 см. Вату следует крепить к черновому деревянному потолку при помощи длинных саморезов.
Завершив монтаж минваты, весь каркас нужно покрыть специальной фольгированной бумагой. Она обладает отличными отражающими свойствами, а также прекрасно сохраняет лучевую энергию и создает «эффект термоса».
После окончания процесса утепления домашней парилки ее необходимо обшить вагонкой.
Выбор и сборка печки своими руками для мини-сауны
Электрокаменка для сауны, своими руками изготовленная, поможет существенно сэкономить деньги на обустройстве мини-парилки, а подключение готового устройства правильнее будет доверить профессиональным электрикам. Она очень компактная, поэтому идеально подходит для небольших парилок. Кроме того, каменка достаточно проста в монтаже и не требует для этого закупки дорогостоящих материалов.

Электропечь для сауны
Для того, чтобы собрать электропечь для сауны своими руками, необходимо осуществить следующие действия:
- составляем чертеж будущей печки, с учетом размеров клети для камней;
- рассчитываем число ТЭНов, в зависимости от необходимой мощности;
- осуществляем сборку печи – ТЭНы фиксируем на раме, соединяем перемычками. Лист стали толщиной 3 мм используем в качестве основы, к нему крепим остальные детали, используя болты и сварку;
- в готовый каркас максимально плотно сверху укладываем камни;
- устанавливаем защитный кожух из стального листа;
- подключаем электропечь с использованием последовательного, параллельного соединения ТЭНов;
- проверяем работоспособность печи.
Также, можно изготовить печь для сауны на дровах своими руками, которая является классическим вариантом. Она обладает универсальными свойствами, позволяющими поддерживать температурный режим в бане на необходимом уровне с минимальными затратами.
Печка для сауны на дровах своими руками может быть собрана в таких вариантах:
- каркас печки сваривают из листовой стали толщиной 4 – 5 мм, и установив его на место монтажа, обкладывают огнеупорным кирпичом;
- печка выкладывается из специального огнеупорного кирпича.
Установка лавок
Полки в сауне своими руками можно соорудить из строганного бруса сечением от 5х5 см. Его конструкция будет полностью зависеть от габаритов и типа лавок. Если высота потолка 2 м, верхнюю полку следует делать на уровне 1 м. Ширина такого лежака должна быть не меньше 70 см. Нижняя полка устанавливается на высоте 60 – 70 см, ее ширина может быть 40 – 50 см, поскольку она предназначается для сидения.
Если вы не можете определиться с выбором проекта и дизайном парной в загородном доме, то представленные в этой статье фото саун на даче своими руками помогут вам в этом.
paneligid.ru
Сауна своими руками на даче
Баня на даче своими руками — пошаговая инструкция!
Самостоятельное возведение и обустройство бани на даче – это сложное, но вполне выполнимое мероприятие. В первую очередь хозяин должен выбрать подходящий материал для возведения бани.

Баня на даче своими руками
Начинающим строителям рекомендуется отдавать предпочтение брусу. Этот материал имеет прекрасные эксплуатационные свойства и не доставляет особых проблем и неудобств в процессе работы.

Баня на даче своими руками
Выбор места для возведения бани
Начните с выбора подходящего места для расположения постройки. В этом вам помогут следующие рекомендации:
Общие рекомендации по планированию бани
Перед началом любых строительных мероприятий подготовьте проект бани.

Проект бани
Определите оптимальный размер сооружения. На одного отдыхающего должно приходиться не менее 5 м2 от общей площади постройки. К примеру, если вы возводите баню для 4 человек, ее площадь должна быть не менее 20 м2.

Баня с бассейном
Стандартно баня состоит из парилки, моечного отделения, предбанника и комнаты отдыха. Установите удобные для вас габариты и особенности пространственного размещения перечисленных помещений.

Проект бани из 3х помещений
Подготовьте следующие чертежи:
Все эти чертежи вы можете сделать самостоятельно либо же найти в открытом источнике. В целом проекты бань из бруса остаются практически одинаковыми. При наличии желания и достаточного бюджета, закажите подготовку чертежей профессионалу.

Проект небольшой бани
Материалы для строительства бани
Кстати, на нашем сайте мы Вы можете почитать историю про строительство бани от А до Я более подробнее в этой статье — https://stroyday.ru/istorii-polzovateley/kak-ya-stroil-karkasnuyu-banyu.html
Для строительства бани из бруса понадобится целый набор различных материалов и приспособлений, а именно:
- брус. Традиционно используется материал сечением 150х150 мм;
Брус 150х150
- доски для пола. Лучший вариант – четырехметровая обрезная доска 15х5 см;

Доска пола, сосна
- доски для потолка. Обычно используется вагонка шириной от 10 см и толщиной от 2 см;

Настильный потолок в бане кликните по картинке для увеличения)
- материалы для отделки внутренних помещений. Прекрасно подойдет вагонка;

Вагонка для сауны и бани
- пароизоляционный материал. Лучший вариант – современные пароизоляционные пленки;

Пароизоляционный материал
- гидроизоляционный материал. По возможности используйте пенофол. Также подойдет полиэтиленовая пленка;

Гидроизоляция стен бани
- утеплитель для потолка. Хорошо подходят минераловатные материалы;

Утеплитель для потолка
- листовой асбест. С его помощью вы изолируете деревянные элементы постройки от высокой температуры. Листы изоляции должны быть закреплены на стены возле банной печи. Также в изоляции нуждаются деревянные элементы, установленные в непосредственной близости к дымоходу;

Асбест листовой
- сыпучие материалы для обустройства фундамента. Набор стандартный: цемент, песок и щебенка;

Цемент, песок и щебенка
- материал для финишной отделки кровли. Ориентируйтесь на свои предпочтения. Главное, чтобы крыша бани хорошо смотрелась в окружении крыш других построек на участке;

Соломенная крыша – удобно, необычно и дешево

Кровля бани

Для небольшой по размерам баньки подобная крыша из поликарбоната – идеальное решение
- утеплитель для межвенцового пространства. Используйте джут. Также подходит пакля и мох.

Льноволокно для конопатки
Строительство бани лучше всего начинать весной, т.к. после завершения основных мероприятий древесину нужно будет оставить на полугодовую «зимовку». За это время материал высохнет и даст требуемую усадку.
Цемент покупайте непосредственно перед началом строительства.
Руководство по строительству бани
Работа выполняется поэтапно – от подготовки строительной площадки до оснащения бани различными аксессуарами.
Первый этап – Подготовка местности
Очистите строительный участок от разного рода мусора, кустарников, крупных корней и в целом всего, что способно помешать на этапе обустройства фундамента.

Подготовка участка

Подготовка участка
Второй этап – Заливка фундамента
Лучший вариант фундамента для брусовой бани – это столбчатая опорная конструкция.

Столбчатый фундамент с ростверком
Подготовьте необходимое количество ям для установки опор. Столбы обязательно устанавливаются под углами строения, в местах пересечения стен, а также по периметру.

Как сделать столбчатый фундамент
Оптимальный шаг установки столбов подбирается индивидуально в зависимости от типа грунта на участке и предполагаемой нагрузки на опорную конструкцию.
Рекомендованная глубина ям – 100-150 см. Приведенные значения могут меняться в зависимости от глубины промерзания грунта на участке.
Засыпьте дно каждой ямы 10-15-сантиметровым слоем песчано-щебеночной смеси.
Установите строго вертикально в каждую яму асбестоцементную трубу. Внутри труб поместите армирующие пруты. Залейте трубы с арматурой бетоном. Оставшееся свободным пространство вокруг труб в ямах также залейте бетонным раствором.

Как сделать столбчатый фундамент

Арматура фундамента

Как сделать столбчатый фундамент

Столбчатый фундамент своими руками
Оставьте столбы на несколько дней, а затем выложите между ними стенку в половину кирпича.

Столбчатый фундамент из пластиковых труб
Третий этап – Стены и кровля
Для строительства стен традиционно применяется брус 150х150 мм. На предварительно гидроизолированный фундамент уложите первый венец. Обязательно выровняйте его по всем параметрам. Брусья чаще всего укладываются по методу «в лапу».

Соединение бруса в лапу

Кладка стен из бруса: первый венец
Выложите из бруса стены необходимой высоты, не забывая оставлять проемы для дальнейшего монтажа дверей и стеклопакетов. Для скрепления венцов используйте деревянные нагели. Каждый венец обязательно утепляйте джутом или другим подходящим материалом.

Возведение стен бани из бруса
Подведя стены бани под кровлю, зафиксируйте стропила в соответствии с особенностями выбранной конфигурации крыши. Стропила крепите к последнему венцу при помощи скоб.

Строительство бани из бруса
В случае возведения односкатной крыши, закрепляйте стропила двумя внешними либо же внутренней и внешней опорами. При обустройстве двускатной системы нижние концы стропил нужно надежно опирать на стены. Верхние же концы элементов соединяются друг с другом, создавая кровельный конек.

Балки перекрытия

Крыша изнутри

Как сделать шиферную кровлю (схема)

Как утеплить крышу бани
Прикрепите к стропилам доски обрешетки. Уложите гидро-, тепло- и пароизоляционные материалы, утепление бани одно из самых важных элементов её строительства от этого будет напрямую будет зависеть качество построенной бани. Смонтируйте выбранное финишное кровельное покрытие.
Четвертый этап – Внутреннее оснащение
Начните с обустройства необходимых коммуникаций.

Схема внутренней канализации
О монтаже канализации вы должны позаботиться еще на этапе создания фундамента. Для этого за границами бани создайте приямок либо дренажный колодец, соединенный с баней трубой, уложенной с уклоном.

Схема канализации
После завершения обустройства канализации сделайте пол. Он может быть бетонным либо деревянным. Бетонные полы обычно облицовываются кафелем. Такое покрытие более долговечно.
Деревянный пол традиционно делается протекающим. Технология предельно простая: устанавливаются лаги, к ним прибиваются доски пола с некоторым зазором. Также можно создать небольшой люк для отведения стоков и закрыть его перфорированной решеткой. Пол в данном случае должен быть выполнен с некоторым уклоном. В результате влага с пола будет попадать в люк, а оттуда по трубе отводиться в дренажный колодец или приямок.

Как правильно сделать деревянные полы в бане

Монтаж канализации в бане
Чтобы древесина прослужила как можно дольше, тщательно проветривайте баню после каждого посещения.
Выполните изоляцию потолка и стен строения с применением подходящих для этого влаго-, тепло- и пароизоляционных материалов. Установите двери и стеклопакеты. Подведите в баню водопровод и электричество. Установите необходимые электроприборы.

Внутренняя отделка

Внутренняя отделка

Внутренняя отделка
Пятый этап – Печь и полки
Конструкцию полок подбирайте на свое усмотрение. Строятся они в одинаковом порядке: сначала монтируется опорный каркас из прочного бруса, после чего к опорам прибиваются доски.
Печь также выбирайте на свое усмотрение. Можете выложить традиционную каменку, установить удобный металлический агрегат либо же современный электрический нагреватель.

Установка печи для бани
Тяжелые печи требуют обязательного обустройства индивидуального фундамента. В этом моменте все также определяется в отдельном порядке с учетом особенностей конкретной печи.
Шестой этап – Дополнительные аксессуары

Аксессуары для бани

Аксессуары для бани
В завершение вам останется лишь дополнить свою дачную баню разного рода аксессуарами, а именно:
- вениками;
- деревянной кружкой для добавления воды;
- ведрами;
- разного рода деревянными решетками и т.д.
Внутреннее обустройство дополнительных помещений бани остается на ваше усмотрение.

Табличка для бани
Удачной работы!
Видео – Баня на даче своими руками
stroyday.ru
Сауна своими руками на даче
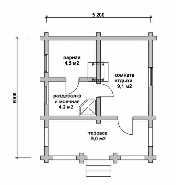
Домашняя сауна имеет самую простую конструкцию и небольшие размеры, что значительно облегчает ее строительство. Наиболее ответственным процессом является обустройство печи и вентиляции, все остальное не потребует много усилий и материальных затрат. Недорогая и удобная сауна своими руками на даче – это не только возможность хорошего отдыха, но и повод для гордости.
Сауна своими руками на даче
Подготовка места и материалов
Для строительства сауны выбирают расположенный недалеко от дома участок, на котором есть возможность выкопать яму для септика. Нежелательно, чтобы поблизости росли большие деревья, разрушающие своими корнями фундамент строения. Для удобства парящихся в сауне на 1 человека должно приходиться минимум 2 кубических метра помещения.
Если еще прибавить размеры раздевалки и комнаты для мытья, то минимальная площадь постройки займет 10 кв. м. Яма для слива воды может располагаться под комнатой для мытья, что сэкономит место.
Сауна своими руками на даче
Корпус сауны может быть из кирпича, бруса и даже металлического каркаса, утепленного и обшитого сайдингом. Внутри помещения обязательно обивают вагонкой или обычными досками. Выбор дерева очень важен: самым удачным вариантом является липа или ольха. Хвойные породы очень полезны, недорогие и обладают приятным запахом, но при высокой температуре выделяют смолу.
Основным элементом сауны является печь. Лучше всего, если она настоящая, выложена из красного кирпича и топится дровами. Но строительство такой печи под силу только опытному мастеру, поэтому без специальных знаний браться за ее сооружение не стоит. Оптимальным решением будет приобретение готовой металлической печи со встроенным теплообменником и баком для нагрева воды.
Печь для сауны
Строительство фундамента
Для строительства столбчатого фундамента потребуются:
- опорные столбы;
- садовый бур и лопата;
- рулетка и уровень;
- емкость для септика;
- щебень и песок;
- бетонный раствор.
Шаг 1. Разметка участка
Разметка под фундамент для сауны
Сначала делают разметку: определяют расположение угловой опоры, вбивают колышек и отмеряют расстояние до второго угла. Далее перпендикулярными линиями отмечают боковые стороны и еще 2 угла постройки. Должен получиться правильный прямоугольник. Периметр будущей сауны и внутренние перегородки размечают с помощью натянутой между колышков веревки. Опорные стойки обязательно устанавливают на каждом углу, под несущими стенами на расстоянии 2 м и под пересечением внутренних перегородок.
Разметка
Кроме расположения угловых столбов следует сразу определить место для сливной ямы. Если имеется большая емкость для септика, размеры ямы должны соответствовать объему емкости, в противном случае нужно выкопать квадратный котлован со стороной 1 м и глубиной примерно 1,2 м. Отверстия под опорные столбы легче всего сделать с помощью ручного бура. Для легкой деревянной сауны глубина отверстий под столбы фундамента составляет 40-50 см.
Шаг 2. Подготовка ямы
Котлован
На дно котлована насыпают песок слоем 15 см, утрамбовывают и насыпают слой щебня. После этого устанавливают емкость с перфорированными стенками, выравнивают и укрепляют верх. При отсутствии бочки стены ямы выкладывают кирпичом, оставляя в кладке небольшие равномерные зазоры для просачивания воды. Начиная от половины ямы и до верха, кладку нужно делать монолитной, чтобы избежать осыпания грунта.
Шаг 3. Возведение фундамента
Для опорных стоек подойдут бревна, металлические трубы и бетонные столбики. Дерево обязательно выбирают самое плотное, желательно сосну. Чтобы избежать гниения, поверхность бревен густо обмазывают битумной мастикой и просушивают.
Металлические трубы сначала обрабатывают грунтовкой с антикоррозийными свойствами. На дно отверстий насыпают щебень, после чего устанавливают столбы и выравнивают их по высоте и вертикали. Далее отверстия засыпают грунтом, смешанным с песком, проливают водой для большего уплотнения и трамбуют.
Столбчатый фундамент
Верх столбов закрывают рубероидом и укладывают балки основы по периметру будущей постройки. Закрепляют балки скобами или гвоздями к опорным стойкам. Внутри периметра монтируют дополнительные брусья с шагом 20 см и параллельно друг другу. Это будет основа для напольного покрытия. Можно заменить брус арматурной решеткой, установить опалубку и залить бетоном.
Строительство каркаса сауны
Строительство каркаса сауны
Кирпичные постройки даже небольших габаритов требуют мастерства, особенно при возведении углов. Намного проще построить каркас из бруса и обшить его досками. После утепления такая постройка будет ничуть не хуже кирпичной. Можно собрать каркас из клееного или профилированного бруса, что для дачной сауны является наиболее популярным вариантом.
Итак, для сборки каркаса понадобится:
- брус 100х150 мм;
- деревянные рейки 40х60 мм;
- опорные балки;
- уровень;
- саморезы или гвозди;
- грунтовка;
- металлические скобы;
- пергамин;
- минеральная вата;
- фольгированная пароизоляция;
- доски для обшивки.
Шаг 1. Установка несущих конструкций
Сначала монтируют угловые опорные балки: закрепляют их с помощью распорок, выравнивают по вертикали с помощью уровня и крепят к основанию металлическими скобами. Сверху по периметру скрепляют каркас брусьями. Далее вдоль стен через каждый метр устанавливают промежуточные вертикальные брусья и фиксируют их скобами к нижней и верхней обвязке.
Между стойками монтируют дверные и оконные коробки, прибивают поперечные рейки для упрочнения конструкции. По углам устанавливают раскосы из бруса, направленные в разные стороны.
Шаг 2. Наружная обшивка каркаса
Наружная обшивка каркаса
Деревянный каркас обшивают досками толщиной от 3 см. Начинают работу от угла и снизу: первую доску прикладывают к опорам параллельно земле, выравнивают, чтобы край не выходил за угол, и прибивают. Нежелательно стыковать доски посреди пролета, их края должны сходиться на одной из вертикальных стоек. Последними обшиваются стропила, при этом необходимо оставить в крыше отверстие под дымоход.
Шаг 3. Утепление стен, пола и потолка
Утепление стен, пола и потолка
Изнутри стены обивают пергамином или полиэтиленовой пленкой для гидроизоляции утеплителя. По краям пленка укладывается внахлест на 10-12 см, швы заклеивают строительным скотчем. Между брусьями каркаса плотно вставляют плиты минеральной ваты, толщина слоя утеплителя минимум 10 см.
Сверху вата закрывается фольгированным материалом, выполняющим функции пароизоляции. Фольгированная сторона обязательно располагается сверху для отражения тепла изнутри помещения.
Утепление
Пол и потолок можно утеплить с помощью пенопласта толщиной 10 см. Доски основания покрываются полиэтиленовой пленкой, края которой должны выходить на стены примерно на 3-5 см. Между лагами укладывают пенопласт, щели и просветы на швах задувают монтажной пеной, а сверху заливают стяжку. Можно сделать и деревянный пол, хотя доски прослужат меньше в таких условиях. По стяжке можно уложить плитку – она легко моется и не боится перепадов температуры и влаги.
Там, где будет установлена печь, обязательно делают несгораемое основание: на пол прибивают квадратный металлический лист, размеры которого превышают площадь печи, а сверху выкладывают кирпич на ребро плотными рядами. В качестве связуемого раствора служит глиняно-песчаная смесь. Кирпич используют только красный обожженный, другие виды не подходят.
Потолок утепляют стандартно: между перекрытиями вставляют пенопласт, задувают пеной все щели, с помощью степлера крепят пароизоляционный слой фольгой наверх. После этого прокладывают проводку, стены и потолок обшивают вагонкой.
Обустройство внутренних помещений
После возведения и теплоизоляции постройки можно приступать к основной части – установке печи и внутреннему обустройству сауны. Очень важно правильно изолировать деревянные поверхности, расположенные рядом с печью. Для примыкающего к печи простенка идеально подходит красный кирпич и газобетонные блоки, в крайнем случае, можно использовать обшивку из листов оцинковки.
Внутренняя отделка сауны
Для обустройства сауны потребуется:
- металлическая печь;
- бак из нержавеющей стали;
- соединительные трубы и кран;
- доски для лавочек;
- саморезы;
- рулетка;
- шуруповерт;
- дымовая труба с защитным колпаком.
Шаг 1. Монтаж печи
Установка печи
Выкладывают простенок из кирпича или газобетонных блоков, по ширине соответствующий ширине печи. Если нет желания возиться с кирпичами, можно оббить прилегающие стены и часть потолка специальным войлоком, а затем обшить все это оцинковкой. На кирпичное основание устанавливается печь, дымовая труба выводится на чердак, к печи подсоединяются трубы и бак для воды.
Дымоотводная система
Чтобы избежать возгорания стропильной системы, вокруг дымовой трубы сбивают из досок короб и наполняют его смесью песка и глины. Труба оказывается посередине короба и не может нагревать деревянные элементы постройки. Вокруг печи также сооружают защитный каркас из обрезков пиломатериала. Деревянное ограждение может быть круглым, квадратным или прямоугольным; оно не должно возвышаться над тэнами больше чем на 5 см. Между нагревателем и ограждением оставляют расстояние 7-10 см.
Шаг 2. Установка полок и дверей
Установка полок
Нижнюю полку крепят к стенам на уровне 50-65 см от пола, верхнюю – на расстоянии 1 м от потолка сауны. Обычно делают 3 полки шириной от 30 см, в зависимости от сложения домочадцев. Для изготовления полок используют такие же доски, что и для внутренней обшивки. Предварительно они хорошенько шлифуются, пропитываются антисептиком, затем специальным лаком.
Стеклянные двери в сауне
Двери в сауне рекомендуется делать открывающимися наружу. В дверное полотно можно установить окно из матового стекла. Нижний край двери обязательно подрезают на 5 см, чтобы обеспечить приток воздуха. В качестве замков используют роликовые или магнитные защелки, которые в случае необходимости открываются очень легко.
Шаг 3. Укладка камней
Укладка камней
Для сауны выбирают камни округлой формы, без трещин и глубоких выбоин. Перед укладкой их необходимо хорошо вымыть и просушить. Сначала укладывают большие камни, стараясь не оставлять между ними просветов, а потом заполняют оставшееся пространство мелкими камнями. В процессе эксплуатации сауны камни придется периодически осматривать, промывать и удалять отколовшиеся куски.
Шаг 4. Завершающая отделка
Светильники для сауны
На завершающем этапе устанавливают светильники, крючки для полотенец, вешалку для одежды. Лампочки лучше всего крепить над дверным проемом или в углу, противоположном полкам. Чтобы не обжечься о светильник в тесном помещении, рекомендуется закрыть его декоративной решеткой. При этом следует учитывать, что все приборы освещения должны быть влагоустойчивыми.
Сауна на даче своими руками
Видео — Сауна своими руками на даче
tolkostroyka.ru
Баня на даче своими руками -инструкция от мастеров! 95 фото готовых идей по дизайну!
Сегодня баня все больше набирает популярности среди людей, мчащихся в круговороте современной жизни.
Полезные свойства банных процедур на организм человека, давно доказаны наукой, поэтому многие обладатели приусадебных участков стремятся возвести данное сооружение у себя во дворе.

В данной статье вашему вниманию предлагается материал, с помощью которого вы ознакомитесь с современными подходами, используемыми в строительстве для данных помещений.

Для наглядного убеждения, достаточно взглянуть на подборку фото, на которых представлены готовые решения, касающиеся строительства каркаса целиком, так и внутренней отделки.

Виды проектов бани
Любое строительство начинается с проекта, который позволит представить, какой конечный вид будет иметь данное сооружение, и какое количество необходимых материалов вам для этого понадобится. 






Помимо этого, разработка проекта включает в себя и такие параметры, как выбор места под строительство, габариты, а также информацию об используемом декоре и оформлении.

Наиболее распространенными видами проектов бани является:
- Строительство сооружения 3*3 м, состоящей из стандартного набора помещений – предбанника и парной;
- Возведение сооружения 3*5 м, здесь к стандартному набору помещений добавляется комната отдыха с небольшой кухней;

- План с размерами 4*4 м, подразумевает наличие к вышеописанному виду пристройки терассы;
- Проект бани с размерами 5*4, включает весь комплекс помещений современной парной, где могут быть и отдельно туалет, игровая комната, а также соляная комната.

В основном выбор проекта зависит от имеющегося места на приусадебном участке и финансовых возможностей.

Выбор фундамента для бани
Зачастую при строительстве данного сооружения используют один из трех основных видов фундамента. Это может быть ленточный, столбчатый или свайный фундамент.

Ленточный. Является самым распространенным видом фундамента для возведения большинства сооружений включая баню.

Преимуществом данного фундамента заключается в том, что он способен выдержать большие нагрузки, следовательно, если ваше будущие строение будет иметь относительно внушительные размеры из кирпича, то данный вариант фундамента идеально подойдет для строительства.

Столбчатый. Имеет отличительные черты, связанные с простым устройством данного фундамента и небольшими финансовыми вложениями, в основном применяется для относительно легких сооружений из бруса.

Возводится исключительно в местах возникновения больших нагрузок, которые в основном возникают по углам здания и местах пересечения несущих конструкций.

Свайный. Данный вид фундамента необходим тем, кто вынужден строить свою баньку на «подвижном» грунте.

Это надежный вид с довольно трудоемким процессом возведения, и оправдывается именно в тех регионах, в которых доминирует данный вид грунта.

Ошибки, допускаемые при строительстве бани
Несмотря на наличие разработанного проекта и серьезности отношения к данному делу, все же случаются ошибки, которые свойственны человеку при строительстве собственными руками.

Необходимо обратить внимание на следующие моменты при строительстве.
Необходимо грамотное планирование размеров внутренних помещений. Баня, рассчитанная на 2-3 человека, не должна быть менее 10м2;

Приемлемой высотой потолков для такого сооружения считается высота 2-2,5 м. В случае отклонения от данной цифры в меньшую сторону, посетители будут ощущать дискомфорт, а если в большую сторону, то будет происходить перерасход теплоносителей;

С целью уменьшения теплопотерь, окна рекомендуется использовать небольшого размера, а двери подобрать в расчете на такие размеры 0,75*1,8 м;

Материалы, используемые для постройки бани на даче или приусадебном участке, рекомендуется выбирать из числа легких и энергосберегающих.

Особое внимание необходимо уделить основному банному оборудованию. Оно не только должно красиво смотреться, но и отвечать всем нормам безопасности для подобного рода сооружений.

Фото бани на дачном участке

































inctanh.com
Строим сауну на даче своими руками
Чтобы сделать пребывание на даче более комфортным, многие мечтают построить сауну. Но на пути появляется много пугающих факторов: цена, наличие специального образования, время. Все же построить уютную, удобную баню не так уж сложно, главное – решиться и начать работу.
Сауна своими руками на даче – это сложная задумка, требующая много сил и средств, но польза и положительные эмоции стоят того. Финны уверены в том, что их баня более целебна, чем остальные ее виды, благодаря сухому пару, высокой температуре (до 130°) и низкой влажности (4-5%).
Конструкция и параметры сауны
Конструкция и параметры сауныОпытные строители не рекомендуют строить помещение больше, чем 2,5 м·2·2 м с высотой более 230 см. Для отопления встраивают металлические печи, а полки устанавливают в несколько рядов. Чтобы париться было комфортно и полезно, стенки изготавливают исключительно из дерева, а покрывать его поверхность лаком необходимости нет.
Немаловажный аспект – утепление пола, потолка, двери, которая не будет пропускать пар. Планировка бани на даче это не просто. Как правило, сауну проектируют так, чтобы она включала не только помещение для парки, но и душ, комнату отдыха.
Алгоритм создания саун разных типов
Технология строительства напрямую зависит от вида сауны – бревенчатой или панельной. Помещения первой категории намного качественней и функциональней второй.
Алгоритм создания саун разных типовБревенчатый тип помещений
Одно из главных преимуществ таких саун – это естественное поступление воздуха сквозь бревна. К тому же это обеспечивает оптимальный уровень влажности. Если бревна подобраны правильно, очень хорошо чувствуется запах дерева. Они обязательно должны быть выдержанными и высушенными до уровня влажности не менее 10%. Их нужно качественно проконопатить и плотно подогнать друг к другу.
Свайно-столбчатая технология предусматривает такую последовательность работ: закапывание свай, забутовка, заливка их бетоном, строительство слива, деревянного каркаса, напольное покрытие, отделка стен, электрика, утеплитель.
Напольное покрытие нужно обязательно обработать средством от гниения и только после этого устанавливать деревянные каркасы.Сауны из деревянных панелей своими руками
Технология стройки предполагает сбор каркаса помещения из стоек на расстоянии не менее 60 см. Внутри комнату оббивают толстыми шпунтированными досками внахлест. Если использовать тонкий материал, появится высокая вероятность того, что он не будет качественно впитывать пар и не сохранит полноценную структуру дерева. Прибивают доски потайными гвоздями с помощью шпунта.
В качестве изоляции чаще всего используют строительную бумагу на алюминиевой фольге, стекловолокно. Для утепления потолка можно брать сыпучие материалы. Влагостойкая вагонка – один из самых популярных вариантов внутренней отделки стен
Тонкости постройки домашней сауны на даче
Построить сауну можно в нескольких вариациях:
- пристройка;
- хозяйственная постройка;
- сауна внутри дома.
Но в любом случае место строительства нужно согласовать с органами государственного архитектурно-строительного контроля, пожарной инспекцией, санэпидстанцией. Кроме того, работы должны проводиться в соответствии с генеральным планом застройки.
Алгоритм создания саун разных типов Ни один деревянный дом нельзя построить без разрешения исполнительного органа района проживания.Идеальное место для создания сауны – это берег реки или защищенное от ветра место. Если помещение планируется разместить на территории приусадебного участка, то лучше продумать создание неглубокого бассейна для купания.
Также при проектировании сауны нужно учитывать место для хранения дров, инструментов. Минимальное расстояние между другим домом должно составлять 8 м.
Построить сауну на даче хоть и нелегко, но вполне возможно. Знание технологии процесса и предусмотрительность при оформлении бумаг гарантируют создание отличной парной в кратчайшие сроки.
Если наша статья оказалась для Вас полезной, нажмите на одну из кнопок ниже. Это поможет нам развивать проект.
houseadvice.ru
ydachadacha.ru
Сауна на даче своими руками: строительство, чертежи, видео
Сауна – это финская традиция, в переводе означает «парная». Исконно русскую баню можно отнести к нашим национальным традициям. В последние десятилетия парную охотно заменяют сауной. Если вы захотели у себя на участке такое сооружение – сделать это легко. Главное – обладать умелыми руками. Без труда можно найти множество проектов мини-парной, каркасной, деревянной. Сауна на даче своими руками – это гордость хозяина и зависть соседей.
Польза парной
Преимуществ у сауны довольно большое количество, вот несколько самых значимых:
- улучшается кровообращение в конечностях;
- улучшается цвет, состояние кожи;
- происходит тренировка сердечно-сосудистой системы, сердца;
- происходит стимуляция иммунной системы на выделения антител для борьбы с болезнью;
- снимается напряжение в мышцах после сильной физической нагрузки;
- создается состояние полной релаксации вашего тела, ума.
Отличие сауны от бани
Главными отличиями между сауной и баней является температура и показатель влажности, ведь баню относят к паровым сооружениям. Для нее характерны такие показатели:
- температура – 40-70 градусов;
- относительная влажность – 90-100%,
в то время как в сауне при температуре 90-110 градусов влажность составляет всего 10-25%, от этого ее относят к суховоздушным конструкциям. Когда мы разобрали отличия и оценили преимущества сауны, стоит поговорить, о том, как ее построить самостоятельно.
Читайте также: Как сделать садовые фигуры своими руками
Рассмотрим этот процесс пошагово.
Самостоятельное строительство
Для строительства сауны стоит выбрать место минимальной площадью 10 м² недалеко от дома. Корпус бани чаще возводят из кирпича, а в середине обшивают вагонкой. Стоит серьезно отнестись к выбору дерева, для сауны лучше подойдет ольха, липа. Главным элементом такого сооружения является печь, в идеале лучше сделать ее самостоятельно из кирпича и топить на дровах. Если вы не обладаете для этого специальными навыками, можно приобрести металлическую. Приступим к пошаговой инструкции по постройке дачной сауны:
- Для начала мы размечаем место для строительства, копаем яму под фундамент. Не забудьте на 15-сантиметровый слой песка и щебня следует установить бак с перфорированными стенками, это нужно для обеспечения слива воды. Далее устанавливаются деревянные либо металлические столбы. Их выравнивают и утрамбовывают грунтом. Сверху балок кладут рубероид, укладывают балки по периметру. Их закрепляют гвоздями к опорам. Внутри периметра монтируются брусья параллельно друг к другу.
- Следом стоит определиться с напольным покрытием. Лучше не использовать дерево, и уж тем более его нельзя покрывать лаком или любым другим покрытием. Лучше отдать предпочтение кафелю. Во-первых, его можно сделать отапливаемым, а во-вторых, его намного легче дезинфицировать. Самое главное, что такой пол полностью соответствует требованиям пожарной безопасности. Запомните, напольное покрытие для сауны нужно выложить до того, как вы начнете возводить деревянную конструкцию.
- Установка вертикальных каркасов. Самым простым вариантом будет возвести каркас из бруса и обшить его досками либо собрать его из клееного или перфорированного бруса.
- Утепление. Чаще всего используют минеральную вату, которую аккуратно закладывают в каркас.
- Укладка фольги. Алюминиевая фольга позволяет сохранить тепло внутри помещения, создавая эффект термоса. Ее устанавливают на стены, потолок под вагонку.
- Монтаж печи. На месте, где будет установлена печь, стену и потолок выкладывают кирпичом либо просто обшивают оцинковкой. Далее монтируют печь, выводят дымовую трубу на чердак, присоединяют бак для воды.
- Потолок и стены сауны обшивают вагонкой.
- Установка лавок и двери. Нижнюю полку нужно прикрепить к стенам на уровне 55-65 сантиметров от пола, а верхнюю – на 1 метр от потолка. Доски для этого предварительно шлифуют, обрабатывают антисептиком.
- Монтаж оборудования. Вы можете выбрать каменку на дровах, но установку стоит такого прибора стоит доверить специалисту. Или же выбрать электрокаменку, ее монтаж намного проще. Ее нужно будет прикрутить специальными болтами (они идут в фабричной комплектации) к стене сауны. Следите, чтобы нижняя часть нагревателя оказалась в 20 см от напольного покрытия. Вокруг печи нужно сделать ограждение из досок.
- Проводится электричество, к стенам крепятся светильники, электрический выключатель, термометр (гигрометр), часы, вентиляционные задвижки.
- Укладка камней. Для сауны стоит выбрать круглые, ровные камни. Перед укладкой их нужно хорошо вымыть, просушить. Сначала выкладывают крупные камни, а потом засыпают оставшиеся просветы мелкими.
Если все этапы установки соблюдены, то сауна полностью готова к использованию. Можете смело звать гостей и париться. Только не забудьте о важных правилах безопасности. Скажите нет алкоголю во время посещения сауны. Нельзя также переедать перед тем, как вы собрались париться, иначе вам может стать плохо. Учитывайте, что нужно пить много воды во время нахождения в сауне.
dachavremya.ru





















