Станок из фанеры своими руками – Станки из фанеры для резки, соединения, сверления и отделки
Шлифовальный станок своими руками из фанеры

Если у вас до сих пор нет шлифовального станка, то предлагаю вам изготовить его самостоятельно! Данный станок состоит из двух абразивных кругов, а это значит что можно поставить одновременно круг более крупнозернистый и с мелкими зёрнами, для финишной шлифовки. Приводом данного станка будет служить обычная дрель или шуруповёрт с регулятором оборотов.
Что необходимо для изготовления станка.
- Шуруповёрт с регулятором оборотов
- Зубчатый ремень
- Два абразивных круга с мелкими и крупными зёрнами
- Длинная резьба с гайками
- Шайбы металлические
- Два подшипника
- Кусок фанеры (подставка) 45-35 см
- Два куска фанеры по меньше
- Вспомогательный инструмент

Изготовление станка
Внимание! Все размеры необходимо подбирать самостоятельно, в зависимости от того, какие детали вы будете использовать. В статье будет описана сама конструкция и инструкция по её изготовлению.
Первым делом из фанеры нужно вырезать два бруска, форма может быть квадратной или в виде пирамиды. Эти бруски будут выполнять роль держателей оси, на которую будут установлены абразивные круги, так что размеры и их высоту подбираем отталкиваясь от размеров используемых кругов. В фанере с помощью пера вырезаем два отверстия куда будут установлены подшипники, соответственно перо нужно подобрать по диаметру подшипников.

Затем эти отверстия промазываем суперклеем и впрессовываем в них подшипники.

Подшипники подбираются очень просто, всё зависит от того, какую резьбу для оси вы будете использовать, желательно брать толщиной не менее 12 мм, соответственно диаметр внутреннего кольца подшипника должен быть примерно такой же.
Теперь приступаем к установки подставки оси. Для этого, как на фото ниже, делаем разметку, устанавливая бруски ровно друг на против друга, отступая от края основания примерно по 5-10 см. Сразу же делаем по два отверстия мелким сверлом, для шурупов.
Обмазываем места разметки клеем ПВА и ставим на места подготовленные опоры. С обратной стороны фиксируем их шурупами.
Следующим шагом нужно будет изготовить два шкива для ремня. Для этого необходимо вырезать из толстой фанеры два круга, один 50 мм другой около 80 мм. Высверливать нужно коронками по дереву с направляющим сверлом, что бы у нас получилось дополнительно отверстие ровно по центры шкива.

При помощи самодельного токарного станка, делаем посадочное место для ремня. Если токарного станка нет, можно зажать заготовку в дрели и так же сделать канавку, этот способ немного сложнее, но всё же осуществим.


Далее берём резьбу и отпиливаем длинный кусок, что бы с обеих сторон стояк она выпирала по 8-12 см.

Теперь нужно установить ось на стойки, зафиксировать шкив и продеть ремень. С помощью гаек фиксируем большой шкив ровно по центру оси между стойками, а непосредственно ось крепим к подшипникам. Делать это нужно последовательно, сначала продев резьбу через один подшипник и накручивая гайки, устанавливать шкив и фиксировать ось.
Следующим шагом необходимо установить направляющую стойку, куда будет крепиться дрель (привод станка). Для этого в небольшом куске толстой фанеры, коронкой делаем отверстие чуть больше чем патрон на дрели, что бы дрель заходила в это отверстие и фиксировалась там своим пластиковым основание.

Затем отпиливаем лишнее. Должна получиться стойка, куда свободно будет фиксироваться дрель, высоту стойки нужно подбирать по размерам вашей дрели.

Теперь очерчиваем готовую стойку так, что бы она находилась с боку от шкива который установлен на оси и просверливаем два отверстия для шурупов. В патрон дрели будет крепиться шкив привода, поэтому нужно что бы оба шкива находились друг на против друга. Расстояние выбирать произвольно, по длине используемого ремня и по его натяжки.

Затем промазываем место соединения клеем ПВА и ставим стойку на место. С обратной стороны фиксируем стойку шурупами.
Устанавливаем дрель в посадочное место.

Во второй шкив вкручиваем болт и фиксируем его гайкой. Затем одеваем ремень и зажимаем шкив в патроне дрели.


Далее фиксируем дрель при помощи скобы, вырезанной из жести.

Регулятор оборотов (фиксированную кнопку) можно изготовить очень просто, для этого в небольшой брусок помещаем гайку и вкручиваем туда болт, эту конструкцию устанавливаем напротив кнопки дрели, по мере вкручивания болта, он будет давить на кнопку и мы получим непрерывные фиксированные обороты.

Теперь устанавливаем абразивные круги. Для этого вставляем в круг направляющие пластиковые шайбы и одеваем его на ось, фиксируем гайкой.
Тоже самое проделываем с другой стороной..

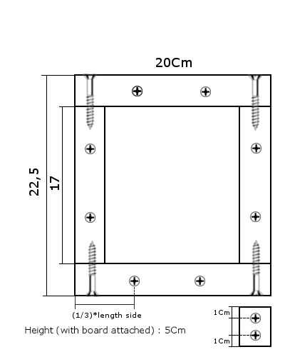
На против рабочей области делаем не сквозные отверстия и вставляем туда шпильки необходимой длины.

Затем вырезаем подставку из фанеры примерно такую, как на фото ниже. После чего делаем в ней так же не сквозные отверстия и надеваем на шпильки.


Отверстия нежно в подставке и на основании нужно делать по заранее подготовленному лекалу, что бы отверстия совпадали.

Затем делаем из тонкой фанеры защитный кожух. Делается он очень просто, вырезаются два полукруга немного больше что диаметр абразива и длиная полоска из листового алюминия или жести, всё это соединяется вместе и получается кожух. Крепим его как на фото ниже и проводим покрасочные работы для придания эстетического вида.
В Принципе станок готов к использованию.
Получился вполне функциональный станок, с двумя абразивами и регулировкой оборотов. Стоимость такого станка не высокая, учитывая что все детали корпуса можно найти у себя в запасах, включаю старую дрель и абразивы.
Всем спасибо за внимание, пока!
Видео самоделки:
Источник
Доставка новых самоделок на почтуПолучайте на почту подборку новых самоделок. Никакого спама, только полезные идеи!
*Заполняя форму вы соглашаетесь на обработку персональных данных Становитесь автором сайта, публикуйте собственные статьи, описания самоделок с оплатой за текст. Подробнее здесь.usamodelkina.ru
Токарный станок по дереву самодельный из фанеры


В этой статье, рассмотрим очередную модель токарного станка по дереву. 15-летний мастер-самодельщик изготовил станок из лома. Для изготовления мастер использовал следующие
Инструменты и материалы:
-Фанера;
-Клей;
-Циркулярная пила;
-Карандаш;
-Линейка;
-Струбцины;
-Торцовочная пила;
-Сверлильный станок;
-Ленточнопильный станок;
-Болты с гайками и шайбами;
-Подшипники;
-Шурупы;
-Металлическая пластина;
-Электродвигатель;
-Шкив;
-Барашковый винт;
-Ротор электродрели с патроном;
-Петля;
-Краска;
-Кисточка;
-Конус металлический;
-Ремень;
Шаг первый: основание
Основание станка выполнено из клееной 12 мм фанеры. Отрезает три фанерных прямоугольника. Склеивает их. Торцует край.
По всей длине основания делает два параллельных паза.


В эти пазы, на всю длину, должны вставляться фанерные стойки. Сверху их будет установлена направляющая. Отрезает две стойки.

Отрезает две детали для направляющей. Склеивает их. Торцевые части отрезает под углом 20°. Делает на направляющей два паза.
Склеивает основание.


Шаг второй: передняя бабка
Из фанеры изготавливает переднюю бабку. Отрезает два прямоугольных куска фанеры. Вырезает у них полукругом верхнюю часть. Сверлит отверстие для подшипника. Устанавливает подшипник в отверстие на клей.
Вырезает три фанерных квадрата. Склеивает их. По бокам этого квадрата будут крепится две детали передней бабки.
Шаг третий: нижняя часть бабки
Отрезает две прямоугольных заготовки (зажимы). Торцовые части заготовок отрезаны под углом 20°. Посередине заготовок сделан паз. В пазе делает два отверстия, для установки гайки и шайбы и сквозные отверстия под болт. Гайку и шайбу приклеивает клеем. В паз зажимов прикручивает металлическую полоску. Изготавливает платформу по ширине направляющей. Прикручивает к платформе, с двух сторон, зажимы. платформа с зажимами свободно перемещается по направляющей. Для фиксации достаточно закрутить болты на зажимах. металлическая пластинка прижимается к направляющей, и платформа фиксируется.
Шаг четвертый: сборка передней бабки
К блоку прикручивает две части с подшипниками.


Прикручивает бабку к платформе.


Устанавливает шкив.


Шаг пятый: изготовление задней бабки и подручника
Принцип изготовления задней бабки такой же, как и передней. В качестве пиноли мастер использует ротор с патроном от дрели.
Подручник мастер изготавливает из фанеры со вставкой металлического уголка в верхней части.

Шаг шестой: двигатель, защита бабок, шпиндель
Двигатель крепится на фанерной доске соединенной с основанием петлей.

На заднюю и переднюю бабки устанавливает защиту.


Шпиндель мастер изготовил, сварив две гайки и шайбу. Затем в гайках сделал «зубы».
Шаг седьмой: окраска
Красит части станка.
Станок готов. Осталось установить заготовку и попробовать его в работе.
Видео по изготовлению и сборке станка.
Источник
Доставка новых самоделок на почтуПолучайте на почту подборку новых самоделок. Никакого спама, только полезные идеи!
*Заполняя форму вы соглашаетесь на обработку персональных данных
Становитесь автором сайта, публикуйте собственные статьи, описания самоделок с оплатой за текст. Подробнее здесь.usamodelkina.ru
Самодельные станки из фанеры: инструменты и материалы
На сегодняшний день народные умельцы часто используют изготовленное собственноручно оборудование. При этом для удешевления такового с успехом можно использовать фанеру, изготовив из нее некоторые детали самодельных станков.

Чтобы избежать пыли при работе со станком в помещении, установите защитное ограждение.
Свойства фанеры
Фанера — материал весьма универсальный. Она обладает достаточной прочностью, проста в работе, общедоступна и относительно недорого стоит. Именно поэтому фанеру часто используют не только для изготовления мебели или предметов декора своими руками, но и для того, чтобы изготовить самодельные станки.
Физико – механические характеристики и типоразмеры строительной фанеры марок ФСФ и ФБС
Некоторые детали станка можно прекрасно заменить изготовленными из фанеры частями. Например, прекрасно используется фанерный стол для раскройки материала, кожухи и подвижные опоры, изготовленные из фанеры, тоже замечательно себя зарекомендовали в применении. И это далеко не все детали, которые могут быть сделаны из фанеры, для того, чтобы сделать станок своими руками.
При выборе материала стоит отталкиваться от того, на какую нагрузку фанера и детали из нее рассчитаны. В большинстве случаев, изготавливая самодельный станок, оптимально использовать фанеру средней толщины. Так, самодельные станки предназначены для использования в домашних условиях без перепада температур и влажности. Толстая используется, если станок или его элементы, например, стол для раскроя материала, требуют повышенной крепости, тогда лучше использовать более прочную, толщиной от 10 мм. Однако, делая любые домашние станки, изначально стоит отказаться от использования тонкой фанеры, потому как она слишком непрочна для такой работы и непригодна для применения при производстве самодельного станка.
При вырезании деталей до 6-мм толщины можно применять ручной или электрический лобзик. Если есть необходимость разрезать толстый лист, превышающий толщину 6 мм, используется дисковая пила.
При распиливании фанеры поперек волокон делаются специальные надрезы ножом для того, чтобы снять напряжение на древесине.
Как сделать самодельный станок из фанеры?
Следует сразу оговориться, что имеется в виду домашний станок, который вряд ли подойдет для производственных условий, но для дома это оптимальный баланс соотношения цены и качества с учетом относительно небольшой нагрузки на него. Чтобы изготовить самодельный станок из фанеры, нужны станки для различных нужд, но наиболее популярен станок ЧПУ.
Для того чтобы изготовить ЧПУ станок из фанеры, понадобиться не только сама фанера, но также другие инструменты и материалы:
Фурнитуру для сборки станка нужно приобрести заранее в любом строительном магазине.
- специальные валы и держатели;
- различные подшипники;
- винты;
- контроллер;
- ремни и закрепляющие элементы в виде шурупов, гаек, винтов и шайб.
Для раскроя и разрезания понадобится:
- линейка, угольник;
- нож;
- лобзик или дисковая пила исходя от того, какой толщины фанера будет применяться.
Так как станки ЧПУ предполагают использование частей, в которых фанера выпиливается фигурно и должна очень плотно прилегать друг к другу, настолько, чтобы не было ни малейшего зазора, то и подходить к раскрою и распиловке, делая будущий станок, стоит весьма ответственно и соблюдая определенные правила.
Изготавливая собственноручно станки для домашнего применения, нужно помнить, что этот материал не переносит сильного механического воздействия. Поэтому скрепление деталей проводится при помощи использования пазов и шипов, которые дополнительно промазываются для крепости клеем. Для того чтобы соединение было надежным, шип и паз должны идеально подходить друг к другу без каких-либо зазоров и щелей. Никакие гвозди или саморезы не могут применяться в качестве соединительных элементов. Станки и их детали из фанеры подвергаются в процессе работы воздействию вибрации и при неправильном креплении могут развалиться в самый ответственный момент, потому креплению нужно уделить особое внимание.
Поскольку, изготавливая станки с деталями из фанеры, приходится применять сверло, то нужно также соблюсти небольшую хитрость, чтобы не испортить материал. Для того чтобы в месте выхода сверла не образовались сколы, под рабочий лист нужно подложить с другой стороны другой кусок того же материала, оптимально при этом использовать остатки фанеры после раскроя и разрезания.
Проще и быстрее всего использовать для вырезки деталей электролобзик.
После того как детали вырезаны, их обязательно нужно обработать, иначе фанера может начать расслаиваться и разрушаться. Особое внимание нужно уделить обработке края, который наиболее подвержен воздействию перепада температур или влажности. Как правило, изначально каждую деталь нужно тщательно отшлифовать наждачной бумагой с мелким зерном, начинать шлифовку нужно от углов по ходу волокон. Углы обрабатываются наждачной бумагой отдельно, им уделяется особо тщательное внимание, при необходимости перед обработкой их можно острогать.
После завершения тщательной шлифовки мелкозернистой наждачной бумагой всех деталей, можно переходить к их грунтованию специальным составом, предотвращающим от воздействия перепада температур и влажности, в результате чего фанера может начать расслаиваться и нарушить работоспособность станка. На заключительном этапе, который делается по желанию, можно провести окраску деталей станка из фанеры.
Советы по правильной распиловке фанеры
Обязательно распиливать нужно сухой материал, так как он меньше подвержен сопротивлению. Использование влажной фанеры может привести к расслоению материала.
Если появляются признаки того, что зубья в режущем полотне затупились, его сразу же нужно менять, это поможет избежать появления растрескиваний и некрасивого края, а также порчи материала.
Вдоль волокон лучше всего работать электролобзиком, а вот при поперечном разрезании больше подойдет ручная пилка, которая хоть и сделает край более неровным, зато гарантирует отсутствие зажатия инструмента или ухода в сторону от намеченной линии пропила.
При работе с толстой фанерой для выпиливания дуги или круга лучше всего использовать мебельный фрезер. Для того чтобы максимально избежать сколов и прочих повреждений, на место будущего распила лучше всего приклеить скотч, а затем уже разрезать фанеру.
1poderevu.ru
Самодельный сверлильный станок, сделанный из дрели, фанеры и других материалов
В столярном деле не обойтись без сверления отверстий, поэтому одним из самых востребованных инструментов столяра является дрель, электрическая или ручная.
Таким инструментом удобно работать с заготовками небольшой толщины, сверлить листовой материал, фанеру, но проделать отверстие в толстой заготовке, не испортив его геометрию, сложно.
С этой задачей справится самодельный сверлильный станок. Сделанный своими руками, он не ляжет тяжким бременем на семейный бюджет и станет надежным помощником домашнему мастеру.
Не забудь поделиться с друзьями!Содержание статьи
Сверлильный станок, зачем он нужен
Просверлить тонкий материал не проблема. Достаточно взять в руки дрель, несколько секунд – и работа выполнена. Но что делать, если необходимо точно выверенное отверстие в толстом брусе? Ручной инструмент не подойдет, велик риск испортить заготовку. Результатом будет смещение центра отверстия, изменение геометрии, рваные края. Избежать подобных недочетов и создать отверстие с заданными параметрами поможет сверлильный станок.

Благодаря надежной фиксации обрабатываемой детали и центровке инструмента обеспечивается точность сверления, которую не удастся добиться, работая дрелью. Точность – обязательное условие при изготовлении мебели в домашней мастерской. Для создания самодельного присадочного станка для мебели придется слегка доработать уже готовый инструмент. Изготовление не потребует особых усилий и времени.
Не стоит забывать и об универсальности данного станка: меняя сверла, можно работать с любым материалом, от мягкой древесины до металла, легко просверливая листовую сталь. Вместо сверла можно использовать фрезу, тогда устройство заменит фрезерный станок небольшой мощности. Помимо всего прочего, сверлильный станок заметно облегчит труд мастеру. Работать со стационарным устройством легче, нет необходимости держать на весу тяжелый инструмент.
Стационарный станок из ручной дрели
Практически у любого домашнего мастера имеется электрическая дрель. Это один из наиболее универсальных электроинструментов. Меняя насадки, кроме сверления, она может бурить стены, зачищать швы, очищать поверхность материала. Помимо всего прочего, на базе дрели умельцы изготавливают ряд настольных станков, в том числе сверлильный.

Инструменты, которые потребуются для работы:
- циркулярная пила;
- электролобзик;
- болгарка;
- крупнозернистая наждачная бумага;
- простенький набор ручного инструмента;
- линейка и карандаш.

Также потребуется сама электродрель. Она поможет в сборке устройства, а после займет свое место на станине. Дополнительный плюс от подобной конструкции – дрель в любой момент можно будет снять и использовать по прямому назначению.
Сверлильный станок из электродрели отличается простотой, потому материала потребуется немного. Надо подготовить отрезок доски, фанеру толщиной от 15 мм, направляющие для мебели, а также саморезы и болты с гайками.
Доска, из которой изготавливается станина, должна быть сухой, без трещин и механических повреждений, с минимальным количеством сучков. Перед началом работы ее циклюют, при необходимости обрабатывают шкуркой.
Инструкция по изготовлению станка
Основа конструкции самодельного станка – рама. Она состоит из вертикальной стойки и горизонтальной опоры. На стойке крепится столешница и шпиндельная коробка. Пошаговая инструкция по сборке выглядит следующим образом.
Стойка
В качестве материала для стойки самодельного сверлильного станка используются рейки, вырезанные из сосновой доски. Понадобятся две заготовки сечением 30х40 мм и две 20х20 мм. Длина каждой из них 60 см. Резать доску удобно циркулярной пилой, предварительно отрегулировав боковой упор. Готовые рейки обрабатывают шкуркой, чтобы убрать заусенцы.

Бруски скрепляют попарно, выравнивая по одной из граней. Места соединения промазывают столярным клеем, для фиксации используют саморезы. В результате получатся два одинаковых уголка из дерева.

Стойки соединяют между собой двумя перемычками, брусками размерами 80х40х20 мм. Они устанавливаются с внутренней стороны уголков, с наружной конструкцию усиливают вставками, вырезанными из той же доски.
Шпиндельная коробка
Вторым шагом будет изготовление шпиндельной коробки. Она удерживает электродрель, при этом обеспечивает ее перемещение в вертикальной плоскости. Коробка собирается из фанеры. Необходимо вырезать две заготовки 155х55 мм и одну 140х155 мм.
Подвижность узла обеспечивают мебельные направляющие. Понадобится 4 шт. длиной 120 мм. На концах, используя плоскогубцы, выгибают стопоры. Направляющие прикручивают на фанерные заготовки, две на широкую, по одной на узкие.

Собирают шпиндельную коробку. Она имеет форму буквы П, направляющие – на внутренних поверхностях. С помощью саморезов коробка крепится на вертикальную раму. Полученная конструкция должна перемещаться легко, но без перекосов и люфтов.
Фиксатор дрели
Далее изготавливается фиксатор дрели. Это один из самых ответственных узлов станка. Чтобы обеспечить достаточную прочность, его делают из двух склеенных между собой фанерных заготовок размером 165х85 мм. В заготовке вырезается круглое отверстие. Его диаметр зависит от модели дрели. В любом случае дрель должна входить свободно, но без большого зазора. Правильно изготовленный фиксатор позволит использовать устройство в качестве пазовального станка, им можно будет делать продольные пазы в мягком материале.

С наружной стороны фиксатора делают пропил, позволяющий зажимать дрель, в его щечках сверлят отверстие, внутри которого устанавливается стопорный винт. Фиксатор крепят на подвижной коробке с помощью саморезов, для большей надежности снизу усиливают уголком из фанеры.
Опора
Станок должен устойчиво стоять на верстаке, для этого служит горизонтальная опора. Она изготавливается из той же фанеры. Надо вырезать заготовки размерами 260х240 мм и 50х240 мм.

Сначала соединяют вертикальную раму и узкую деталь основания, место соединения проклеивают, для фиксации используют саморезы.
Полученную конструкцию крепят на опору. Лучше всего использовать болты М6, гайки которых запрессованы в фанерное основание снизу. Также можно использовать болты под подтай, тогда гайки будут расположены вверху.
Столешница
Столик станка изготавливается из фанеры, можно использовать ламинированную древесно-стружечную плиту (ЛДСП). Размеры рабочей поверхности 260х240 мм. Для ее крепления потребуется отрезок фанеры 260х50 мм и уголки со сторонами 60 мм.

С помощью саморезов соединяют стол для сверлильного станка с боковой планкой. Соединение должно быть надежным, рекомендуется его проклеить. Надежности конструкции добавят треугольные вставки, приклеенные по углам.
Работать со станком будет удобнее, если столешница подвижна. Обеспечить ее вертикальное перемещение несложно, надо лишь предусмотреть направляющий брусок на планке, просверлить сквозное отверстие, пропустить сквозь него длинный болт.

Подпружинивание и подача сверла
В нормальном состоянии шпиндельная коробка с установленной на ней дрелью должна находиться в верхней точке вертикальной рамы. Чтобы этого добиться, используют пружину с подходящими параметрами. Она устанавливается между уголками рамы, для ее фиксации в верхнюю перемычку ввинчивают шуруп с кольцом, а в корпус коробки – саморез.
Принудительное опускание дрели осуществляют с помощью подвижной рукояти. Ее изготавливают из бруска, один конец которого закрепляют в верхней части рамы. Рычаг желательно усилить, в месте его крепления в дерево запрессовывается металлическая втулка подходящего диаметра. Фиксируют рычаг болтом.
Для передачи усилия используется металлическая планка с отверстиями на концах. Ее длина выбирается опытным путем, фиксация – обычными саморезами.

Остается установить дрель, закрепить ее и выполнить пробное сверление. Как раз в ходе него будет просверлено технологическое отверстие в столешнице, в месте выхода сверла, которое позволит работать с материалом любой толщины.
Готовый станок необходимо покрыть несколькими слоями лака или покрасить. Тем самым удастся не только придать ему законченный вид, но и обеспечить долговечность и безопасность эксплуатации.
Варианты самодельных сверлильных станков
Полноценный сверлильный станок можно сделать из отслужившей свое рулевой рейки автомобиля. По ее размерам изготавливают станину, на которой крепят электродвигатель. Отлично подойдет двигатель от старой стиральной машины. Передача вращения осуществляется с помощью ременной передачи. Лучше использовать шкив с несколькими ручьями, это позволит регулировать скорость, тем самым работать с материалом разной твердости. По такой же схеме делают своими руками присадочные станки.

Сверлить отверстия небольшого диаметра можно на маленьком станке, изготовленном из остова старого микроскопа, на который установлен электродвигатель от магнитофона. Он гарантированно справится с тонким листовым материалом. Единственная трудность в изготовлении подобного устройства – сложно подобрать подходящий патрон.
Сверлильный станок в мастерской заметно облегчит жизнь домашнему мастеру. Даже простое самодельное устройство, изготовленное из электродрели, способно открыть перед ним новые горизонты. Сверлить дерево, металл, проделывать пазы, изготавливать мебель – все это станет возможным с самодельным сверлильным станком.
drevogid.com
Как изготавливать самодельные станки из фанеры?
На сегодняшний день народные умельцы часто используют изготовленное собственноручно оборудование. При этом для удешевления такового с успехом можно использовать фанеру, изготовив из нее некоторые детали самодельных станков.

Чтобы избежать пыли при работе со станком в помещении, установите защитное ограждение.
Свойства фанеры
Фанера — материал весьма универсальный. Она обладает достаточной прочностью, проста в работе, общедоступна и относительно недорого стоит. Именно поэтому фанеру часто используют не только для изготовления мебели или предметов декора своими руками, но и для того, чтобы изготовить самодельные станки.

Физико – механические характеристики и типоразмеры строительной фанеры марок ФСФ и ФБС
Некоторые детали станка можно прекрасно заменить изготовленными из фанеры частями. Например, прекрасно используется фанерный стол для раскройки материала, кожухи и подвижные опоры, изготовленные из фанеры, тоже замечательно себя зарекомендовали в применении. И это далеко не все детали, которые могут быть сделаны из фанеры, для того, чтобы сделать станок своими руками.
При выборе материала стоит отталкиваться от того, на какую нагрузку фанера и детали из нее рассчитаны. В большинстве случаев, изготавливая самодельный станок, оптимально использовать фанеру средней толщины. Так, самодельные станки предназначены для использования в домашних условиях без перепада температур и влажности. Толстая используется, если станок или его элементы, например, стол для раскроя материала, требуют повышенной крепости, тогда лучше использовать более прочную, толщиной от 10 мм. Однако, делая любые домашние станки, изначально стоит отказаться от использования тонкой фанеры, потому как она слишком непрочна для такой работы и непригодна для применения при производстве самодельного станка.
При вырезании деталей до 6-мм толщины можно применять ручной или электрический лобзик. Если есть необходимость разрезать толстый лист, превышающий толщину 6 мм, используется дисковая пила.
При распиливании фанеры поперек волокон делаются специальные надрезы ножом для того, чтобы снять напряжение на древесине.
Как сделать самодельный станок из фанеры?
Следует сразу оговориться, что имеется в виду домашний станок, который вряд ли подойдет для производственных условий, но для дома это оптимальный баланс соотношения цены и качества с учетом относительно небольшой нагрузки на него. Чтобы изготовить самодельный станок из фанеры, нужны станки для различных нужд, но наиболее популярен станок ЧПУ.
Для того чтобы изготовить ЧПУ станок из фанеры, понадобиться не только сама фанера, но также другие инструменты и материалы:

Фурнитуру для сборки станка нужно приобрести заранее в любом строительном магазине.
- специальные валы и держатели;
- различные подшипники;
- винты;
- контроллер;
- ремни и закрепляющие элементы в виде шурупов, гаек, винтов и шайб.
Для раскроя и разрезания понадобится:
- линейка, угольник;
- нож;
- лобзик или дисковая пила исходя от того, какой толщины фанера будет применяться.
Так как станки ЧПУ предполагают использование частей, в которых фанера выпиливается фигурно и должна очень плотно прилегать друг к другу, настолько, чтобы не было ни малейшего зазора, то и подходить к раскрою и распиловке, делая будущий станок, стоит весьма ответственно и соблюдая определенные правила.
Изготавливая собственноручно станки для домашнего применения, нужно помнить, что этот материал не переносит сильного механического воздействия. Поэтому скрепление деталей проводится при помощи использования пазов и шипов, которые дополнительно промазываются для крепости клеем. Для того чтобы соединение было надежным, шип и паз должны идеально подходить друг к другу без каких-либо зазоров и щелей. Никакие гвозди или саморезы не могут применяться в качестве соединительных элементов. Станки и их детали из фанеры подвергаются в процессе работы воздействию вибрации и при неправильном креплении могут развалиться в самый ответственный момент, потому креплению нужно уделить особое внимание.
Поскольку, изготавливая станки с деталями из фанеры, приходится применять сверло, то нужно также соблюсти небольшую хитрость, чтобы не испортить материал. Для того чтобы в месте выхода сверла не образовались сколы, под рабочий лист нужно подложить с другой стороны другой кусок того же материала, оптимально при этом использовать остатки фанеры после раскроя и разрезания.

Проще и быстрее всего использовать для вырезки деталей электролобзик.
После того как детали вырезаны, их обязательно нужно обработать, иначе фанера может начать расслаиваться и разрушаться. Особое внимание нужно уделить обработке края, который наиболее подвержен воздействию перепада температур или влажности. Как правило, изначально каждую деталь нужно тщательно отшлифовать наждачной бумагой с мелким зерном, начинать шлифовку нужно от углов по ходу волокон. Углы обрабатываются наждачной бумагой отдельно, им уделяется особо тщательное внимание, при необходимости перед обработкой их можно острогать.
После завершения тщательной шлифовки мелкозернистой наждачной бумагой всех деталей, можно переходить к их грунтованию специальным составом, предотвращающим от воздействия перепада температур и влажности, в результате чего фанера может начать расслаиваться и нарушить работоспособность станка. На заключительном этапе, который делается по желанию, можно провести окраску деталей станка из фанеры.
Советы по правильной распиловке фанеры
Обязательно распиливать нужно сухой материал, так как он меньше подвержен сопротивлению. Использование влажной фанеры может привести к расслоению материала.
Если появляются признаки того, что зубья в режущем полотне затупились, его сразу же нужно менять, это поможет избежать появления растрескиваний и некрасивого края, а также порчи материала.
Вдоль волокон лучше всего работать электролобзиком, а вот при поперечном разрезании больше подойдет ручная пилка, которая хоть и сделает край более неровным, зато гарантирует отсутствие зажатия инструмента или ухода в сторону от намеченной линии пропила.
При работе с толстой фанерой для выпиливания дуги или круга лучше всего использовать мебельный фрезер. Для того чтобы максимально избежать сколов и прочих повреждений, на место будущего распила лучше всего приклеить скотч, а затем уже разрезать фанеру.
dekormyhome.ru
Токарный станок из фанеры — Проекты в работе
Токарный станок из фанеры — Проекты в работе — Металлический форум Перейти к публикацииAlexSnake 202
- Members
- 202
- 639 публикаций
- Город: Msk
- Имя: Алексей Алексейкин
AlexSnake 202
- Members
- 202
- 639 публикаций
- Город: Msk
- Имя: Алексей Алексейкин
Leksin 139
- слесарь- пессимист
- Members
- 139
- 1 158 публикаций
- Город: Каганат Хазария,сектор М…
- Имя: Антон,но все называют по фамилии.
AlexSnake 202
- Members
- 202
- 639 публикаций
- Город: Msk
- Имя: Алексей Алексейкин
Leksin 139
- слесарь- пессимист
- Members
- 139
- 1 158 публикаций
- Город: Каганат Хазария,сектор М…
- Имя: Антон,но все называют по фамилии.
AlexSnake 202
- Members
- 202
- 639 публикаций
- Город: Msk
- Имя: Алексей Алексейкин
Leksin 139
- слесарь- пессимист
- Members
- 139
- 1 158 публикаций
- Город: Каганат Хазария,сектор М…
- Имя: Антон,но все называют по фамилии.
AlexSnake 202
- Members
- 202
- 639 публикаций
- Город: Msk
- Имя: Алексей Алексейкин
zaicev_yura 60
- Members
- 60
- 205 публикаций
- Город: Рівненська область, місто Березне
- Имя: zaicev_yura
Leksin 139
- слесарь- пессимист
- Members
- 139
- 1 158 публикаций
- Город: Каганат Хазария,сектор М…
- Имя: Антон,но все называют по фамилии.
AlexSnake 202
- Members
- 202
- 639 публикаций
- Город: Msk
- Имя: Алексей Алексейкин
Leksin 139
- слесарь- пессимист
- Members
- 139
- 1 158 публикаций
- Город: Каганат Хазария,сектор М…
- Имя: Антон,но все называют по фамилии.
MMS 544
- зверь
- Members
- 544
- 2 303 публикации
- Город: Россия
zaicev_yura 60
- Members
- 60
- 205 публикаций
- Город: Рівненська область, місто Березне
- Имя: zaicev_yura
Leksin 139
- слесарь- пессимист
- Members
- 139
- 1 158 публикаций
- Город: Каганат Хазария,сектор М…
- Имя: Антон,но все называют по фамилии.
zaicev_yura 60
- Members
- 60
- 205 публикаций
- Город: Рівненська область, місто Березне
- Имя: zaicev_yura
www.chipmaker.ru
Сверлильный станок своими руками 1500 фото, чертежи, инструкции
самодельный сверлильный станокПервую дрель придумали еще в эпоху неолита, уже тогда без этого инструмента было никуда – дерево просверлить, в камне отверстие сделать, да даже огонь развести. С тех пор ничего не изменилось, дрель все так же популярна, только ее немного усовершенствовали. Сегодня большинство работ по сверлению, в зависимости от сложности, выполняют или на специальных станках или ручным инструментом.
Понятно, что заводские станки, предназначенные для выполнения серийных операций в домашней мастерской ни к чему, но с другой стороны, иногда необходима особая точность сверления. Вот тогда мастера и задумываются, как сделать сверлильный станок своими руками и желательно, из подручных материалов. Просто найти нужные детали в магазине вряд ли получится, поэтому для изготовления необходима особая фантазия.
Здесь представлены десятки самодельных сверлильных станков – лучшие идеи, которые удалось найти в интернете. А также узнаете, как сделать стол для сверлильного станка, тиски, органайзер для хранения сверл, тумбочку под самодельный станок и даже устройство для охлаждения сверла.
Как сделать сверлильный станок своими руками
Каждый мастер, кто работает с деревом, знает, что невозможно вручную сделать сотни отверстий совершенно прямо и с одинаковой глубиной. Этот подробный мастер класс с пошаговыми фотографиями покажет, как сделать сверлильный станок своими руками, который поможет сэкономить много времени и усилий при сверлении точных отверстий по дереву, пластику, металлу или в любом другом материале, с чем вы работаете. Инструмент очень полезен для сверления прямых отверстий с минимальным усилием, в сочетании с высокой
скоростью может быть хорошим подспорьем, чтобы вырезать границы на ту же высоту, как показано на картинке. Также благодаря регулируемой высоте инструмента можно вырезать участки определенного размера в древесине, например, заготовки квадратной формы.
По желанию, можно внести некоторые усовершенствования, например, добавить пружину в верхней части основания, чтобы получить автоматический подъем дрели. Здесь показаны только фото, если интересует подробное описание процесса, необходимые материалы и инструменты, под галереей находится ссылка на сайт первоисточника.
Источник фото www.instructables.com/id/Drill-press-for-20-21/
Безпроводной сверлильный станок из дерева
Интересная идея самодельного сверлильного станка, изготовленного только из дерева. Установка полностью портативная, так как автор использовал беспроводную дрель на аккумуляторах. Конструкция включает в себя деревянную коробку, которую удобно использовать для сверления прямолинейных отверстий в заготовках большого размера. Предоставлять конкретный чертеж автор посчитал нецелесообразным, так как станок изготовлен под определенную дрель, которая была у автора, так что, возможно, придется внести некоторые изменения в размеры, которые будут соответствовать вашей дрели.
Источник фото www.instructables.com/id/The-Cordless-Drill-Press/
Мини сверлильный станок своими руками
Точный, прочный и недорогой самодельный мини сверлильный станок, который без труда можно сделать с помощью простых инструментов. Все дрели разные, поэтому вам для начала надо нарисовать детали будущей конструкции. Автор использовал МДФ толщиной 1,8 см, рекомендую вам тоже использовать этот материал. Чтобы прикрепить дрель, надо просверлить 4 отверстия в МДФ для крепления хомутов. Сложить левую и правую сторону и выровнять заднюю часть (смотрите на фото). Как только это сделано, просверлить еще 4 отверстия для винтов, и склейте все части, дальше надо установить мини дрель и прикрутить нижнюю часть. Для рычага подойдет обычная деревянная палка, как ручка ложки. А чтобы подтянуть мини дрели, можно использовать резиновые жгуты из старой воздушной камеры. В перспективе автор планирует добавить светодиодные лампочки и сделать маленькие тиски для крепления печатной платы при сверлении.
Источник фото www.instructables.com/id/Easy-Mini-Drill-Press
Самодельный сверлильный станок
Дрель, инструмент многофункциональный, но на весу, без хорошего упора, долбится высокой точности, мягко говоря, довольно затруднительно. Хороший выход из ситуации, самодельный сверлильный станок, в общем, любая стойка, чтобы закрепить инструмент. Обычно мастера используют те детали и подручный материал, которые имеются в любом частном гараже. Как видите, представленный здесь вариант особой сложностью не отличается, автор использовал трубу, уголки и два фланца. Стойка для дрели просто крепиться к столу болтами. Алюминиевые дорожки взяты из картинной рамы, для распорок использовались палочки от эскимо. Дрель закреплена обычными хомутами.
В общем, на фото все хорошо показано, пожалуй, ни у кого не возникнет трудностей с изготовлением такой конструкции.
Источник фото www.instructables.com/id/Drill-press
Похожий вариант, только крепится на деревянной основе. Саморезами прикрепляем мебельную направляющую. В доске делаем отверстия по диаметру дрели, крепим уголок и металлическую пластину. Всю конструкцию прикручиваем к направляющей. Затем крепим стальную пластину на платформе, делаем ручку и прикрепляем саморезами. Хомутами зажимаем дрель, фиксируем пружину. Возможно, немного путано, но по фотографиям разберетесь, ничего сложного.
Источник фото usamodelkina.ru/4288-delaem-sverlilnyy-stanok-iz-dreli.html
Простой сверлильный станок своими руками


Простая конструкция самодельного сверлильного станка, можете взять ее за образец. Вам понадобится любой толщины фанера, механизм выдвижного ящика, широкая доска или ПВХ, металлический стержень и необходимой длины винты. Да и клей, обязательно. Фанера нужна для базы, поэтому желательно, чтобы она была гладкой и ровной. Вертикальную заднюю стенку можно сделать как деревянной, так и металлической. Дрель устанавливается на ползуне ящика со спейсером. С электрикой здесь вопрос особый, автор придумал, чтобы дрель включалась при опускании ручки. Этот шаг необязательный и очень не рекомендуется, если вы не знаете, как это делать, а если разбираетесь, то конечно можно попробовать, правда, автор подробной схемы не предоставил, а по фотографиям понять сложно.
Источник фото www.instructables.com/id/Easy-Drill-Press
Самодельный сверлильный станок с подвеской
Если столярное дело для вас хобби, а не бизнес, профессиональный станок не нужен. Но чтобы сделать самодельный сверлильный станок, нужен творческий подход. Но не важно, профессионал вы или любитель, при выполнении сверлильных работ необходима точность. Автор проекта решил преобразовать проводную дрель в сверлильный станок и вот что у него получилось. Основной материал, из которого изготовлена конструкция, можно найти в любом гараже, главная фишка, чем автор очень гордится, четыре мощные резинки. Обычно дрель довольно тяжелая, но с четырьмя резинками она будет колебаться примерно на 20 см выше поверхности стола. В общем, стоит попробовать, если интересуют подробности, ссылка на сайт автора под галереей.
Источник фото www.instructables.com/id/DIY-Drill-Press-with-Rubber-Band-Suspension
Как сделать дешевый сверлильный станок своими руками
Этот простой самодельный станок сделан из деревянных отходов (кусок доски, несколько брусков и лист толстой фанеры для основания) и старой проводной дрели. Еще вам понадобится зажим для шлангов и шурупы. Вначале нарисуйте схему и разметьте детали, Затем соедините все это вместе, как на фотографии, используйте бумагу в качестве прокладок между деревянными деталями. Натрите воском скользящие поверхности. Прикрепите хомуты для шлангов и закрепите дрель на скользящей дощечке, при необходимости используйте клинья. Добавьте ручку для подачи дрели и пружину, чтобы работал механизм возврата. Все это можно сделать за 2 – 3 часа и финансово обойдется практически бесплатно.
Источник фото www.instructables.com/id/Cheap-Drill-Press-DIY/
Самодельный сверлильный станок из труб ПВХ
Трубы ПВХ, это материал, который без труда можно найти. Они подходят не только для водопровода, из них можно сделать много полезных вещей, даже самодельный сверлильный станок. Все материалы можно купить в магазине, главное, правильно подобрать комплектацию. Ниже на фото показаны необходимые материалы и инструменты.


Порядок сборки стойки смотрите на пошаговых фото, никаких сложных операций, рама собирается, как конструктор. Немного усовершенствовать и можно работать использовать, как стойку для фрезера.
Источник фото www.instructables.com/id/PVC-Dremel-drill-press
Как сделать самодельный сверлильный станок
Данный станок можно назвать универсальным, так как по этому проекту вы можете изготовить различные варианты по размерам и производительности. Для этой стойки подойдет любая ручная дрель вне зависимости от мощности. Конечно, представленные выше самодельные модели из дерева сделать легче, но металл, само собой, надежней, хотя без сварочного аппарата не обойтись. Для изготовления понадобится металлическая пластина для основы и уголки для подставок.
Стойка для подъемного механизма сделана из квадратной металлической трубы.
Для изготовления механизма регулировки применяют разные способы, в данном случае сделан тросиковый привод, для чего нужно изготовить скобу для крепления и вращающийся барабан. Для крепления петли тросика в основу приваривается болт. Рукоятку можно сделать любую, из подручных материалов, главное, чтобы удобно было пользоваться. Для фиксирующего устройства использовалась обычная струбцина, закрепленная на металлической пластине. После завершения работы покрасьте все детали, чтобы защитить от ржавчины, а трущиеся поверхности смажьте технической смазкой.
novamett.ru
