Строительство купелей – Строительство купелей под ключ — цены
Купель для бани своими руками
Традиционно после высоких температур русской парной принято было окунаться в холодную воду, поэтому бани и старались устанавливать на берегу реки или другого водоема. Подобные традиции сохранились и до наших дней, но сегодня все чаще любители бани предпочитают, выйдя из парной прыгнуть, в устроенную под крышей купель, а не бежать по морозу к ближайшему водоему.

Купель для бани своими руками
Можно ли соорудить купель для бани своими руками? Если есть желание, то, конечно же, это вполне возможно. Она может быть изготовлена из древесины, залита из бетона или же установлена готовая чаша из специального пластика, которая впоследствии облицовывается декоративным материалом.

Купель в традициях японской бани-офуро
Интересная параллель — в японской культуре существует своя традиционная баня, которая называется офуро. Она, в принципе, состоит из деревянной бочки. Отличается офуро от обычной купели тем, что она подогревается при помощи установленной рядом с бочкой или даже внутри нее металлической печи. Построив подобный вариант, можно получить еще одну баню и купель одновременно.
Содержание статьи
Форма и материал изготовления купели
Купель чаще всего изготавливают в четырех геометрических формах — это квадратная, круглая, треугольная или овальная.
- Самой популярной формой деревянной купели является овал. Такое сооружение — самое компактное из всех, и может быть установлено даже в небольшом помещении. Кроме этого, овальная форма имеет хорошую жесткость, и такую конструкцию легко собирать.
Купель овальной формы хорошо вписывается даже в тесном помещении
- Круглая форма хорошо подойдет для изготовления деревянной японской бани, так как в ней нужно сделать отделение для установки печи.

- Квадратную купель из дерева делают крайне редко, так как она не очень удобна в эксплуатации, и ее конструкция не имеет достаточной жесткости. Кроме того, углы квадратных конструкций дольше просыхают, и процесс проходит неравномерно, а это весьма нежелательно для деревянных конструкций. Поэтому часто мастера просто скругляют внутренние углы купели.

Сложная в изготовлении купель квадратного сечения
- Треугольная купель может быть изготовлена из дерева или пластика. Она удобна тем, что компактно устанавливается в угол комнаты и не занимает значительной площади бани. Смотрится такая конструкция очень аккуратно и достаточно респектабельно, и, наверное, подойдет для любого интерьера банного помещения.

Бетонная купель, устроенная в полу бани, может иметь самые произвольные формы, так как жесткость ей обеспечивают укрепленные армированием стенки и дно.

Бетонная купель , мини-бассейн
Пластиковые купели также имеют разные геометрические формы. Такие мини-бассейны устанавливают обычно на банном полу (на поверхности или в сделанный приямок). Формы купели никак не влияют на ее эксплуатационные характеристики, и можно выбрать любую из них на вкус владельца бани.

Многие проблемы решаются очень просто установкой пластиковой купели
Деревянная купель
Если принято решение сделать деревянную купель самостоятельно, то сначала нужно выбрать подходящий для нее материал, так как не каждая древесина пригодна для изготовления емкостей, постоянно соприкасающихся с водой.
Для таких изделий подходит древесина твердых пород, которая по минимуму впитывает в свою структуру влагу, а значит, прослужит максимально возможный срок.
Давно известно, что определенные деревья обладают благоприятными оздоравливающими возможностями, придающими человеку дополнительные жизненные силы. Поэтому именно такие породы выбирают для изготовления не только купелей, но и других аксессуаров, которые используются в бане.
К деревьям, которым свойственны подобные качества, относятся лиственница, сибирский кедр, бук и дуб.
Лиственница
Древесина лиственницы – это прекрасный выбор для любых аксессуаров бани, так как она обладает специфическими свойствами, благоприятно влияющими на здоровье человека. Так, замечено, что ароматы и настои лиственницы повышают общий тонус организма, активизируют защитные реакции, а также очищают и омолаживают кожу.

Отличный вариант — лиственница. Древесина не боится воды и обладает оздоровительными свойствами
Лиственница хорошо выдерживает и экстремально высокие температуры, и их перепады, обладает твердой структурой, поэтому прочна и долговечна, так как отлично сопротивляется проникновению излишней влаги в толщу дерева. Благодаря особым антисептическим свойствам, она не подвержена гнилостным процессам и образованию грибка.
Кедр
Древесина кедра имеет даже большую плотность, чем лиственница, и обладает ничуть не худшими характеристиками по сопротивлению внешней среде. Кроме того, она является источником фитонцидов, которые подавляют рост бактерий, что исключает появления плесени и колоний грибка.

Кедровая купель. Помимо высокой прочности — еще и насыщенность ароматическими смолами и эфирными маслами
Кедровая древесина обогащена эфирными маслами, которые оздоравливающе работают даже на клеточном уровне. Кедр имеет свойство нормализовать работу сердечно-сосудистой и нервной системы, успокаивает и помогает расслабиться, а кроме этого — считается сильным афродизиаком.
Бук
Буковая древесина имеет плотную и прочную структуру, что помогает ей сопротивляться внешним негативным воздействием и стойко переносить влажность и перепады температуры в весьма широком диапазоне. Бук обладает терпким ароматом, укрепляющими иммунитет человека свойствами. Купель, изготовленная из этого дерева, прослужит очень длительный срок.

Древесина бука не стареет, имеет свойство повышать иммунитет человека
Дуб
Дубовая древесина известна своими замечательными свойствами не одну сотню лет. Дуб всегда являлся символом крепости и отменного здоровья, так как само дерево имеет плотную и прочную структуру. Имея дубовую купель, можно при каждом походе в баню получать заряд бодрости и энергии. Кроме того, эта древесина способствует заживлению ран, улучшению сна, нормализации обмена веществ, нейтрализации воспалительных процессов.

И все же лидером по популярности среди всех пород древесины был и остается дуб
Дуб можно смело назвать самым популярным материалом для изготовления банных аксессуаров, поэтому чаще всего любители бань выбирают именно эту древесину.
Есть у купелей из древесины и свои минусы — это сложность в эксплуатации и уходе. Нельзя допускать пересыхания деталей, поэтому после использования и промывания емкости в нее необходимо налить небольшое количество воды, а сверху закрыть крышкой, чтобы она испарялась медленнее, но постоянно поддерживала внутри определенный уровень влажности.
Для установки деревянных бочек-купелей необходимо подготовить идеально ровную поверхность во избежание перекоса и деформации конструкции. При невозможности найти такую площадку, можно выровнять по уровню саму купель, подложив под нужную ее сторону деревянные подкладки необходимой толщины.
Обливная купель
Кроме устанавливаемых на пол и вмуровываемых в него купелей для помывки, изготавливают и обливные купели. Их обычно используют в тех случаях, когда места в бане недостаточно, и невозможно установить полноценный мини-бассейн, куда смог бы забраться человек. Прочем, обливные купели часто устанавливают в русских банях и в саунах просто для любителей принять мгновенной холодный душ.
Обливная купель — возможный выход, если для большой емкости просто нет места
Видео: разнообразие банных купелей
Монтаж деревянной купели
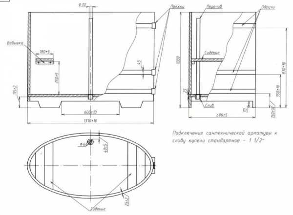
Чертеж купели и материалы для ее изготовления
Прежде чем покупать материалы для изготовления купели, необходимо составить качественный сборочный чертеж этой емкости с точными расчетами размеров и количества деталей.

Чертеж деревянной купели (в данном случае размеры проставлены в дюймах)
Рекомендовано выполнить чертеж в нескольких проекциях — тогда легче будет просчитать все параметры необходимых комплектующих – деталей стенок, днища, лестницы.

Схема подгонки стенок купели
Лестница может иметь ступеньки, как на представленном чертеже, или просто деревянные перекладины. Но в последнем случае, в целях безопасности, необходимо, чтобы приставная лестница зацеплялась за край купели.
- Доски будут необходимы для стенок и дна купели, подставок под нее, внутренних скамеек и лестницы. Обычно используется материал сечением 20 × 120 мм, с учетом того, что края доски будут фрезероваться. Длина доски будет зависеть от выбранной высоты купели.
- Для подставок под купель, нужен будет брус 100 × 100 или 150 × 150 мм. Его длина будет зависеть от ширины и длины купели.
- Кроме досок потребуются металлические полосы и болты, которыми будут стягиваться установленные доски. Металл для полосок нужно выбирать достаточно гибкий, но очень прочный.
- Для скрепления отдельных деталей дна и прикручивания ножек будут необходимы саморезы. Но нужно учесть и то, что внутри купели не должно быть ни одной металлической детали.
Изготовление деталей для деревянной купели
Изготовить деревянные элементы для сборки купели не так просто, как кажется, так как они должны будут создать единую прочную, и в то же время — герметичную конструкцию, которая не будет протекать ни в одном месте. Доски должны плотно стыковаться между собой, создавая цельную, без щелей поверхность на стенках и на плоскости дна. Кроме этого, стенки купели должны быть плотно состыкованы с донной плоскостью.
- Доски распиливаются на одинаковые отрезки (в соответствии с чертежом), равные высоте стенок плюс 100 ÷ 120 мм. Это расстояние, на которое дно купели поднимется над полом. Нижняя часть досок при этом закроет это пространство от сквозняка.
- Затем каждая из досок по краям фрезеруется. С одной формируется полукруглый шип, а с другой вырезается полукруглый паз, имеющий точно такой же радиус, как и у шипа — они должны идеально подходить друг к другу.

Доски для стенок купели фрезеруются так, чтобы идеально прилегать друг к другу полукруглыми пазами
- Доски для днища тоже должны быть отфрезерованы под соединение шип-паз без боковых фасок, таким образом, чтобы поверхность пола была идеально ровной и не имела даже маленьких щелей.

Для днища можно использовать шпунтованные доски …
- Другой вариант — доски должны быть ровными, идеально подогнанными, без шпунтованных соединений.

… или просто идеально подогнанные друг к другу по всей длине
- Далее, на каждой из досок, предназначенных для стенок купели, от нижнего их края отмеряется одинаковое расстояние, например, в 100 мм. Выше его отмечается точная толщина доски, из которой будет монтироваться днище, например, 25 или 30 мм.
- На отмеченном участке аккуратно фрезеруется квадратный паз, глубиной в одну треть толщины доски, в данном случае – 8 ÷ 10 мм.
- Закончив изготовление деталей по рассчитанным размерам, их подвергают тщательной шлифовке. Так, доски для стенок должны быть идеально гладкими с обеих сторон, а детали днища – по меньшей мере с той стороны, которая обращена внутрь купели.
Этапы монтажа
Принцип монтажа деревянной купели схож с изготовлением бочек. Разница в этом процессе заключается в форме и толщине деревянных элементов, образующих стенки получаемой емкости. Доски для купели — абсолютно ровные, а для бочки они сужаются к донной и верхней открытой части емкости.

Самостоятельный монтаж деревянной купели — задача повышенного уровня сложности!
Монтаж купели осуществляется поэтапно, следующим образом:
- Первым этапом идет монтаж щита из досок. Он послужит затем заготовкой, из которой будет формироваться дно купели. Доски склеиваются между собой столярным клеем и сжимаются струбцинами до полной готовности этого деревянного щита.

Собранный и склеенный деревянный щит для изготовления днища
Понятно, что для овальной купели собирается прямоугольный щит, для круглой — квадратный.

Пример разметки заготовки дна
- После просыхания клея, на деревянной поверхности размечается и вычерчивается нужная фигура с размерами, соответствующими чертежу. Затем очень аккуратно выпиливается сборная деталь дна. Погрешности при вырезании этой криволинейной фигуры допускать нельзя – лучше не торопиться, чтобы не допустить фатальной ошибки. Край готового днища необходимо тщательно обработать наждачной бумагой, чтобы избавиться от заусенцев и мелких неровностей.
- Далее, получившийся щит нужно дополнительно укрепить с нижней стороны дна брусками 20 × 30 мм. Их прикручивают саморезами, которые ни в коем случае не должны пройти насквозь, иначе их острые концы будут торчать в полу купели, что может привести к травмам.
Дополнительно можно закрепить опорные бруски, которые будут впоследствии выполнять роль ножек — они устанавливаются по краям донной плоскости.
Если приобретаются готовые купели, то обычно в комплекте дно разделено на три части. Это делается лишь для удобства транспортировки. Детали из комплекта собирают в целую плоскость также, как было указано выше — при помощи клея, брусков и саморезов.
- Далее, для комфортного слива воды из емкости, ближе к краю днища, просверливается отверстие нужного диаметра, в которое устанавливается сифон со шлангом.

В готовом днище вырезается отверстие под слив …
Если нет возможности установить сливную трубу из-за отсутствия канализации, то воду можно откачивать из купели с помощью насоса, но этот вариант, правда, станет более сложным и неудобным.

в которое позднее будет подсоединен сифон со шлангом
- Следующим шагом можно переходить к сборке стенок. Для этого донную часть поднимают на рабочий стол, имеющий такую же высоту, как и стенки купели — так будет удобнее монтировать доски на край донного щита.
- Вначале делается примерка — на край щита плотно устанавливается одна из подготовленных досок. Ее надевают квадратным пазом на щит и пристукивают до упора резиновым молотком.

Первая доска
- Далее, по установленной первой доске делают отметку карандашом, а затем по всему краю щита продлевают полученную линию. Она станет ориентиром для установки остальных досок.
Очень важно правильно установить доски на полукруглых поворотах, соблюдая при этом угол, который должен быть определен заранее и отмечен в чертеже купели.

Последовательный монтаж стенок купели
- Доски устанавливаются максимально плотно друг к другу и также подбиваются резиновым молотком.

Почти все — осталась последняя доска …
- Последнюю доску начинают монтировать сверху, между двух уже установленных элементов. Она аккуратно вбивается в общий ряд. При этом соседние доски могут даже немного отойти от поверхности дна.

… которую потихоньку забивают сверху в оставшийся для нее просвет
Не страшно — после того, как последняя деталь будет продвинута на один уровень с остальными элементами стенок, ее и рядом стоящие доски подбивают сбоку для того, чтобы они плотно сели своими пазами на донную плоскость.
- Следующим этапом собранную купель нужно стянуть металлическими полосами. В них по краям сделаны специальные ушки, в которые будет устанавливаться стягивающий болт. После установки болта, на его резьбу наживляется гайка, поворачивая которую стягивают металлический обруч, тем самым прижимая доски максимально плотно друг к другу.

Скрепление конструкции купели металлическими обручами
Таких полос-обручей должно быть, как минимум, три. Их располагают в нижней и средней части купели, а также на расстоянии 100 ÷ 250 мм от верха конструкции.

Готовая купель подвергается очень тщательной зачистке
- После этого купель переворачивается и устанавливается на донную часть. Сверху все детали обрабатываются мелкозернистой наждачной бумагой, а затем шлифуются до идеальной гладкости, чтобы абсолютно исключить возможность травм кожи.
- Следующий этап – это изготовление приставной лестницы. Самый простой вариант состоит из двух хорошо обработанных досок, устанавливаемых вертикально, и горизонтальных ступеней-перекладин. Желательно на верхнюю часть лестницы установить крючки или закрепить сзади опорных досок деревянные подпорки.

При изготовлении лестницы можно проявить собственную фантазию
- Внутри купели устанавливаются готовые деревянные сиденья, а при желании на боковую внешнюю стенку емкости можно закрепить полку-столик.
Кроме этого, в готовую купель нередко устанавливают системы подачи воды, ее фильтрации, подогрева или принудительной циркуляции для создания массажных струй – по типу джакузи. Но это уже – задачи другого уровня сложности, ми в настоящей статье не рассматриваются.
- Последним этапом, после установки купели в помещении или на улице на свое штатное место, шланг для отвода воды соединяется с трубой канализации.
Видео: работа мастера по изготовлению деревянной купели
Монтаж японской бани офуро проводится практически таким же образом. Однако, есть и характерная особенность — дополнительно в купели должна быть еще и деревянная решетка, которая должна отделить часть пространства для специальной печи, устанавливаемой непосредственно в воду.

Вариант офуро с расположением печи непосредственно в купели, в отгороженном решеткой пространстве
Печь имеет специальную, абсолютно герметичную конструкцию, во избежание попадания в ее топку воды. Дрова в такую печь закладываются через верхнее ее отделение, а поддув осуществляется через отверстие, которое выводится через стенку купели наружу.

Купель-офуро с внешним расположением печки
Используют и другой вариант установки печи – в непосредственной близости от купели. Печь в этом случае оборудована водяным контуром, через который циркулирует вода, нагреваясь и возвращаясь обратно в купель. Это несколько отличается от японской традиции, но тем не менее эффект дает практически такой же.
Баню офуро обычно устанавливают на улице, желательно — под навесом. В том случае, если ее монтируют в помещении, то трубу от печи подключают к дымоходу или выводят через стену или крышу.
Как сделать бетонную купель
Бетонная купель, по сути, представляет собой мини-бассейн, поэтому и устраивают ее по тому же принципу.

Бетонная купель — это, по сути, миниатюрный бассейн
- Строительство такой купели – это достаточно тяжелый труд, так как первое, что необходимо сделать — вырыть под нее котлован. Он должен иметь глубину чуть меньше, чем рост среднего человека, то есть приблизительно в 1500 ÷ 1600 мм, плюс 170 ÷ 200 мм для укладки песчаной подушки, армирования и заливки цемента. Ширина купели делается по желанию владельца бани и по реальной возможности имеющегося пространства.

Выкопанный котлован
- Котлован по длине и ширине в каждую сторону (или по радиусу – если планируется круглая купель) роется больше выбранного размера на 150 ÷ 170 мм, так как именно такую толщину будут иметь бетонные стенки.
- Если планируется на дне бассейна сделать сток для отвода воды, то необходимо в стене, расположенной ближе к сточной яме, прорыть траншею такой же глубины, что и котлован, а затем проложить туда с нужным уклоном отводную трубу. Но обычно в такой купели используют для откачки воды насос.
- После того, как котлован будет готов, на его дно засыпается песок, который обязательно увлажняется и хорошо утрамбовывается. Толщина этой песчаной подушки должна составлять 80 ÷ 100 мм.

Армирование стенок и дна
- Далее, на дно и стены закрепляется арматурная решетка из прута диаметром 8 ÷ 10 мм. К стенам ее закрепляют с помощью скобок, изготовленных из проволоки в 5 мм. При этом нужно помнить, что решетка должна располагаться на расстоянии в 50 ÷ 70 мм от грунтовых стенок.
- Для заливки ровных стен вертикально устанавливается сплошная опалубка из фанеры, которая дополнительно укрепляется брусками и распорными уголками.
Опалубку устанавливают по уровню, на расстоянии в 150 ÷ 170 мм от земляных стен. Она обычно поднимается на 120 ÷ 150 мм над поверхностью пола — для создания бортиков, которые не позволят воде разливаться по поверхности.

Установленная опалубка из листов ОСП
Дополнительно фанерные стены опалубки распирают брусками, которые не позволят им прогнуться под тяжестью залитого раствора.
- В устроенную опалубку заливается раствор, который по мере застывания образует надежные бетонные стены купели.
Поверхность бортиков хорошо выравнивается, и вся конструкция оставляется застывать, для чего понадобится около 25 ÷ 28 дней.

Стенки купели залиты и ждут набора прочности
- После набора бетоном необходимой прочности, нужно снять опалубку и сделать стяжку на полу купели. Она должна иметь общую толщину в 60 ÷ 80 мм.
- Далее, после того как пол будет готов, можно приступить к выравниванию стен с помощью штукатурных смесей. Штукатурка накладывается таким слоем, чтобы надежно заполнить все возможные раковины, возникшие от воздушных пузырей, и другие неровности поверхности стен.

Готовые подровненные стены и бортики купели
- Следующим шагом можно переходить к гидроизоляционным работам. Гидроизолировать нужно не только стены и пол бассейна, но и стены помещения вокруг него, если купель к ним примыкает.
Для гидроизоляции обычно используется специальная пропитка глубокого проникновения, которая наносится в несколько слоев с помощью широкой кисти или валика. Причем с каждым последующим слоем пропитка проникает все глубже в стену, и способна пропитать ее на толщину до 200 мм. Этот гидроизолирующий состав проникает во все поры штукатурки и бетонной стены, надежно закупоривая их от последующего проникновения влаги.
- Далее, после просыхания гидроизоляционного состава, на стенах вокруг купели и на ее бортиках нужно сразу же положить декоративную плитку.
- После облицовки стен вокруг купели и ее выступающих бортиков, можно переходить к нанесению жидкой резины или кладке керамической плитки на стенки внутри получившегося мини-бассейна.
— Если выбирается керамическая облицовка, то рекомендовано выбрать вариант в виде мелкой плитки, которая укладывается на поверхность на водостойкий плиточный клей. Затирку для заделывания швов тоже нужно выбирать только водостойкую.
— Жидкую резину обычно наносят методом напыления, но можно это сделать и с помощью валика. Главное — создать сплошную поверхность на стенах и на полу купели. Этот материал образует ровную эластичную и прочную пленку, которая не боится механических повреждений и в то же время — не позволит воде соприкасаться с бетонными стенами.
- Последней монтируется лестница, ведущая в купель. Ее можно зацепить за бортик бассейна, а можно вмуровать в пол рядом с ней, в зависимости от выбранной модели.

Готовая купель после полной гидроизоляции
- Рекомендуется около бассейна сделать сливную канавку, по которой будет отводиться вода, стекающая с человека при выходе его из купели. Сток закрывают сверху решеткой.
Пластиковая купель
Чтобы избавиться от лишних хлопот, можно приобрести готовую пластиковую емкость купели, тем более, что их производят самой разной формы, и можно не только выбрать наиболее подходящую, но и заказать изготовителю свой эксклюзивный вариант с конкретными размерами.

Отличный вариант — пластиковая купель
Пластиковую купель можно углубить в пол — этот процесс проводится почти таким же образом, как и постройка бетонного мини-бассейна. Отличие — вместо укладки керамического декоративного покрытия или напыления резиновой пленки устанавливается пластиковая ёмкость.
Другой вариант ее установки — это монтаж в построенный по ее форме каркас и дальнейшая обшивка панелями (например, деревянными).

Пластиковая купель до и после установки на каркас и отделки
- Очень важно качественно подготовить поверхность под установку купели — она должна быть ровная и достаточно гладкая. На нее выставляется пластиковая емкость, в которой заранее проделывается отверстие для слива. При установке отводной трубы, ее соединение с купелью нужно хорошо гидроизолировать.
- Далее, вокруг купели монтируется каркас из деревянных брусков, на которые и будут крепиться деревянные или пластиковые панели. Сами панели в данном случае не играют никакой несущей роли – они только выполняют декоративную функцию. Все нагрузки должен взять на себя каркас из бруса, поэтому его нужно делать надежным и жестким.
- Для каркаса нужно подготовить брусья сечением не менее, чем 50 × 50 мм, а для внешней обшивки – тонкие доски (можно даже порядка 10 ÷ 15 мм толщиной), но обязательно обработанные водоотталкивающими составами. Вполне применимы пластиковые панели или вагонка с рисунком, имитирующим фактуру древесины. Монтаж отделочного материала проводится в зависимости от его вида.
Если выбрана деревянная или пластиковая вагонка, то обрешетка под нее делается более частая, а закрепляется она к ее брускам с помощью кляммеров, которые могут прикручиваться, прибиваться или пристреливаться скобами.

Деревянная вагонка с кляммерами
Если выбраны деревянные панели, то они прикручиваются к каркасу саморезами в отверстия, высверленные «под потай», а сверху шляпки замазываются изготовленным из смеси столярного клея и опилок составом.
Если при обшивке необходимо облицевать углы, то их можно закрыть специальными фурнитурными уголками — их в данном случае можно будет попросту приклеить на «жидкие гвозди».
Монтаж обливной купели
Принцип изготовления обливной купели такой же, как и большой деревянной «посудины», но для нее в крайнем случае можно использовать даже обычное жесткое пластиковое ведро, которое можно для красоты обшить сверху деревянными рейками и стянуть их металлическими обручами.

Изготовить обливную купель сможет, наверное, любой домашний мастер
Устанавливается обливная купель на стене с помощью деревянных кронштейнов. Две полуоси-цапфы обеспечивают подвижность крепления. Для опрокидывания купели с холодной водой на себя необходимо закрепить веревку.

Поплавковый механизм для поддержания нужного уровня холодной воды в обливной купели
Вовнутрь купели может устанавливается специальный поплавковый механизм, который контролирует наличие воды в емкости. После опорожнения ведра производится автоматическое его наполнение из водопроводной трубы. В принципе, конструкции по принципу работы сопоставима со сливным бачком. Подобный вариант купели не потребует больших затрат, легок в изготовлении и монтаже, и доказал свою эффективность при принятии банных процедур.
Изготовить самостоятельно купель для бани — достаточно сложное занятие. Но при желании даже это — возможно. Используя пошаговые инструкции и применив все свои творческие способности, можно справиться и с подобной задачей. Если же нет уверенности в ее удачном завершении, то, наверное, разумнее будет приобрести готовые изделия или же пригласить для постройки купели квалифицированных мастеров.
stroyday.ru
Строительство бассейнов и купелей под ключ
Строительство бассейнов и купелей под ключ с нашей компанией это в первую очередь организованный и четкий процесс с начала работ и до ее окончания. Стараемся сделать индивидуальный подход к нашему клиенту. Именно этого от нас ожидают и за это нас благодарят.
Содержание:
1. Строительство бассейнов и купелей под ключ – что это для нас.
2. Варианты работ, которые мы можем предложить в строительстве и проектировании бассейнов и купелей.
3. Полный цикл организации нашей работы, принцип работы.
Строительство бассейнов и купелей под ключ – что это для нас.
Строительство бассейна или купели – задача не из легких и требует ответственного подхода. Проектирование бассейна и составление рабочих чертежей должна проходить обязательно, дабы все виды работ выполнить правильно, от разработки котлована под бассейн и заливки бетонной чаши с четким обозначением нулевой отметки, правильным размещением закладных элементов до гидроизоляции и облицовки бассейна или купели.
Строительство бассейна или купели под ключ для нас обозначает, что клиент приходит с полотенцем и начинает в нем плавать, а не думает, что что-то у него еще не работает или подсветку забыли включить в стоимость.
Строительство бассейнов и купелей под ключВсегда можно часть работ, например выемку грунта под чашу бассейна или сделать приямок для технологического оборудования бассейна переложить на общестроительную организацию, которая обойдется дешевле заказчику по месту. Но нельзя точно делать заливку чаши одной организации, а гидроизоляцию и облицовку другой. Чаша – это основа купели и бассейна, именно она должна выполняться четко под руководством профессионального прораба и человека читающего чертежи.
Не забывайте, что именно в чашу закладываются все закладные детали, а это почти 50% оборудования.
Самое главное еще помнить, что менять коней на переправе нельзя.
Варианты работ, которые мы можем предложить в строительстве и проектировании бассейнов и купелей.
Здесь предоставим вам основные модели купелей, которые больше всего пользуются спросом в нашем проектировании и строительстве. Часть очень такие купели и мини бассейны покупают, заказывают при строительстве бани или чана чугунного.
Купели из полипропилена бывают разные:
– круглые;
круглая купель 1500 х 1500
круглая купель– квадратные с закругленными краями;
квадратная купель с закругленными краями– прямоугольные;
прямоугольная купель
– как кусок пирога или четверть круга;
купель – четверть круга– овальные;
овальная купель– и в общем то такими, как вы пожелаете. Любой каприз за ваши деньги.
купель оббитая деревом
квадратная купель
прямоугольная купель
Купель пластиковая для баниКупели так же могут быть отделаны деревом, смотрится гораздо красивее и богаче, но не так практично как встроенная купель в бетон. Смотрите сами.
круглая купель в дереве
купель – бассейн
купель с отделкой под дерево овал
купель с отделкой деревом
купель с Led подсветкой
купель отделка деревом – дуб
круглая купель отделка дубТак же купели еще интегрируются в саму постройку и вот как это смотрится на эскизах, которые мы выдаем своим потенциальным клиентам:
купель – бассейн по спецзаказу
интеграция купели в банеУ нас очень много примеров работ и всего не обхватишь. Даже представленные здесь основные работы, могут дать вам понять, что и как мы делаем и что реально воплотить в жизнь. Если вас заинтересовала эта статьи и информация далее, ниже сможете прочитать еще наш полный цикл работы и как мы его осуществляем.
Так же есть для вас полезная информация в нашей статье о ценах на полипропиленовые бассейны и купели.
А если вы заядлый любитель парилок, то почитайте отличную статью про новый вид парения и про баню в чане, ее скоро назовут Баня Афродиты. Она не просто экзотична, но и делает ваше тело здоровым, а значит красивым. Как нам известно Афродита была богиней красоты, вот и возродилась эта легенда и воплощается в жизнь именно в таком виде парения.
Полный цикл организации нашей работы, принцип работы.
Существует 2 вида общения с нашей организацией:
1. Бесплатно — телефонный разговор или по интернету (email, skype, viber).
Сюда входит:
а) общение и консультирование по-мере возможности,
б) ответы на все вопросы по интернету, составление предварительных смет, изучение документации.
строительство бассейна для аквапарка
2. Платно — выезд на объект (по Киеву — эквивалент 100 у.е., по Украине — 500 у.е., За рубеж выезжаем по стоимости — 1500 — 3000 у.е.)
В выезд входит сам выезд и после, в течении 3 рабочих дней, составление предпроектного решения:
а) Выезд двух специалистов на объект,
б) Привязка к местности, изучаем, снимаем замеры (лучше иметь на руках план местности, карту-генплан или чертежи объекта),
в) Консультируем до 2 часов на объекте,
г) Составление эскизов до 3 вариантов с привязкой к местности, зонирование — очень важный аспект при проектировании,
д) Составление предварительной сметы.
строительство уличного бассейнаНам всегда приятно общаться с людьми, которые ценят свое и наше время и понимают, что бесплатно может быть только мало дельный совет.
Данную сумму выезда всегда можно включить в общую стоимость договора, если эта работа комплексная под ключ и в десятки раз превышает стоимость выезда. Для нас оплата клиентом стоимости выезда – это лишь показание, что клиент настроен серьезно и хочет свой вопрос решить с профессионалами своего дела.
бетоннирование бассейнаОбращайтесь, будем рады помочь.
Читайте статью про переливные бассейны и в чем отличие от скиммерного.
heatmaster.com.ua
Деревянная купель для бани: разновидности, монтаж, стоимость
31 Мая 2018 2018-05-31
1120
Время чтения 10 минут
Прочитать позжеОтправим материал на почту
РаспечататьКупель является отличным решением для бани. Она позволяет довольно сильно разнообразить процесс купания. Деревянная купель для бани при этом поможет неплохо сэкономить, так как ее можно будет без труда построить собственноручно. Существует также большое количество уже готовых проектов бань с купелью. Такое разнообразие позволит выбрать наиболее подходящий вариант, учитывая стоимость и личные предпочтения.

Виды банных купелей
Баня с купелью на основе дерева является наиболее традиционным решением. Конструкция представляет собой простую большую бочку, стянутую металлическими обручами. Их высота может варьироваться от 1,3 до 1,7 м.
Такая разновидность довольно сложная в эксплуатации, так как заливать и выливать в нее воду нужно собственноручно. Часто она используется просто в качестве декоративного украшения для придания бане русской стилистики. Но подобный тип не занимает много свободного пространства и оставляет место для обустройства душевой кабины. Сегодня изготавливаются более современные купели, которые комплектуются системой подачи и отвода воды, подогревом, гидромассажной функцией.

Купель может иметь следующую форму:
- Круглую. Наиболее распространенный вариант.
- Прямоугольную.
- Угловую.
- Овальную.
- В виде ванной.

Согласно русским обычаям, купаться нужно в ледяной воде. Бочки с функцией подогрева были разработаны японцами и стали довольно популярны во всем мире. Именно такой вариант используют многие проекты бань с купелью. Минусом такой конструкции можно считать уменьшение свободного пространства из-за установленной подогревающей системы. Из-за этого большинство производителей стали устанавливать теплогенератор с наружной стороны изделия.
Подробнее о разных типах купелей для бани можно узнать из этого видео:
На нашем сайте Вы можете ознакомиться с самыми популярными проектами бань от строительных компаний, представленных на выставке домов «Малоэтажная Страна».
Выбор проекта
Если имеется уже готовый проект или он будет заказываться в какой-либо кампании, понадобится отдельное внимание уделить внешнему виду изделия. Таким образом, если разрабатывается баня из бруса с купелью и помещение будет выполнено в русской стилистике, нужно подобрать наиболее подходящую породу древесины. От этого фактора будет зависеть будущий интерьер постройки.
В последнее время большую популярность стали приобретать купели из других материалов. Разрабатываются даже проекты с пластиковыми конструкциями. Их экстерьер изначально не самый привлекательный, но внешне они декорируются под древесину, что позволяет им отлично вписаться в интерьер. Также пластиковые ванны отличаются простотой ухода и продолжительным сроком эксплуатации.

При выборе купели понадобится тщательно изучить проект, чтобы подобрать наиболее подходящий размер изделия. Довольно распространенными, хоть и необычными являются проекты бань, включающие в себя бильярдную. Они позволят не только расслабиться, но и неплохо развлечься. Отдавать предпочтение большим моделям не рекомендуется, так как они будут занимать много свободного пространства, но их функциональность от этого не увеличится. Свободное место можно выделить для монтажа полезных изделий. Многие производят установку стиральной машины или душа, развлекательные приспособления также станут отличным решением.
Выбор места для бани
Баня с купелью должна строиться с учетом определенных факторов, которые должны быть предусмотрены при проектировании. Постройка должна располагаться не ближе 2,5 м от забора соседнего участка. Во избежание осложнений данный нюанс рекомендуется обсудить с соседями. Также нужно учитывать следующие нюансы:
- Сооружение должно находиться на расстоянии не меньше 10 м от жилых зданий.
- Нельзя возводить баню с интервалом меньше 20 м от участка водоснабжения.
- Специалисты рекомендуют вход постройки располагать с южной стороны, а окна с западной.
- Строительные процедуры лучше вести на более высокой местности, чтобы обеспечить природный сток воды.

От этих факторов напрямую зависит удобство эксплуатации постройки и ее характеристики. При проектировании их нужно обязательно учитывать.
Выбор места для монтажа купели
При разработке проекта и перед покупкой изделия понадобится тщательно обдумать вопрос расположения купели. Этот фактор напрямую влияет на модель, размер и вид конструкции.
Зачастую монтаж осуществляется в моечной. Это место можно назвать наиболее подходящим, так как комната имеет отличные показатели влагостойкости, а вода, которая может пролиться из ванны, не причинит вреда мебели и поверхностям. Стоит учитывать, что если проект бани включает в себя развлекательную зону, установку конструкции нужно производить как можно дальше от нее.

На нашем сайте Вы можете найти контакты строительных компаний, которые предлагают услугу строительства бани. Напрямую пообщаться с представителями можно посетив выставку домов «Малоэтажная Страна».
Многие пользователи устанавливают купели и в других комнатах. Довольно распространенным решением является монтаж в парной, но такой вариант не всегда удобен, так как часто свободного пространства в этом помещении крайне мало.
Бывают случаи, когда проект бани предусматривает возведение небольшой постройки, в которой расположить даже маленькую купель не получится. При таких раскладах монтаж конструкции можно выполнить на улице недалеко от основного помещения или прямо возле входа. Но при этом понадобится выбирать максимально прочные изделия, так как ванна будет постоянно подвергаться влиянию окружающей среды. Оптимальным решением станет использование приспособления на основе пластика с дополнением в виде крышки. Она позволит защитить конструкцию от попадания осадков или загрязнений и значительно увеличит срок службы.

Процесс возведения купели
При необходимости конструкцию можно собрать без привлечения специалистов. Это позволит неплохо сэкономить. Сборка деревянной конструкции требует минимального набора инструментов:
- Циркулярная пила.
- Дрель.
- Болгарка.
- Электрический лобзик.
- Станки для работы с металлом.
- Натяжная конструкция с лентой.
Подготовительные процедуры включают следующие этапы:
- Сборка дна на основе шпунтованных досок.
- Нарезание планок, которые будут использоваться в качестве стенок сооружения.
- Производство обручей на основе стали, которые будут стягивать конструкцию.
Количество планок напрямую зависит от размера ванной. Расчет можно легко выполнить, начертив на щите контур дна будущей конструкции.

Форма стыковочного участка досок должна гарантировать плотное сцепление материалов. Чаще всего при самостоятельном изготовлении отдают предпочтение овальным или полукруглым конструкциям.
После того как количество планок для стенок изделия будет рассчитано, с помощью электрического лобзика нужно будет аккуратно вырезать днище. Затем с использованием фрезера по всей окружности дна на торце нарезаются шипы. После того как обручи с затяжными конструкциями будут готовы, можно переходить к сборке изделия.
Это может быть интересно! В статье по следующей ссылке читайте про то, из чего строить баню.
Процесс сборки деревянной конструкции
Чтобы создать качественную купель, перед сборкой все швы нужно обязательно обработать силиконовым составом. Он обеспечит защиту от протечки конструкции при деформации или повреждении панелей.
Чтобы гарантировать достаточное свободное пространство для установки системы слива воды, длина досок должна быть увеличена на 10 см. Это поможет создать им контур опоры ниже уровня дна. При этом в днище проделывается сливное отверстие. Затем нижняя часть устанавливается на опору и поочередно соединяется с панелями стенок. Последняя доска присоединяется при помощи киянки с резиновым наконечником.
Финальной процедурой станет монтаж обручей из стали. Для этого потребуется сжать стенки купели специальным оборудованием – широкой лентой с механизмом натягивания. После того как конструкция будет стянута, на нее аккуратно устанавливаются обручи. Их потребуется хорошо затянуть ключом, и на этом процесс можно считать завершенным.
Печка для купели создается на основе нержавеющей стали. Конструкция отличается простотой и представляет собой герметичный бак с дымовой трубой. Топливо будет загружать сверху. Можно создать и наружный теплогенератор, но такая работа будет более трудоемкой, поскольку понадобится позаботиться о теплообменнике. Горячая вода будет подаваться при помощи циркуляционного насоса.
Процесс сборки купели показан в этом видео:
Процедура создания купели на бетонной основе
Ванну высокого качества можно соорудить и на основе монолитного бетона. Ее можно установить снаружи или внутри бани. Этапы создания такой конструкции во многом напоминают заливку фундамента и выглядят следующим образом:
- Вырывание траншеи.
- Монтаж опалубки.
- Создание гидроизоляции.
- Установка арматуры.
- Заливка бетонного раствора.
- Отделка поверхности.

Перед заливкой бетона понадобится выполнить монтаж арматуры, водопроводных труб и канализации. Чтобы уменьшить теплоотдачу, с наружной стороны опалубки применяются материалы на основе пенопласта. На улице бетонное сооружение должно тщательно углубляться в почву. Внутри постройки можно поступить таким же способом или поднять конструкцию выше напольной поверхности.
Построить дощатую конструкцию на основе монолитного бетона можно быстро и легко. После выкапывания траншеи осуществляется монтаж дощатого дна, а поперек стенок устанавливаются деревянные панели. Свободное пространство между купелью и почвой понадобится тщательно засыпать песком и хорошо утрамбовать его. Финальным процессом станет монтаж наружной или внешней подогревающей конструкции.
Стоимость купелей
Цена купелей может довольно сильно варьироваться. Стоимость изделий на основе натуральной древесины самая высокая. Зачастую подобные конструкции производятся из дуба, лиственницы или кедра. К бюджетным решениям можно отнести пластиковые модели, обшитые древесиной. Такой вариант имеет привлекательный внешний вид и неплохое качество.

Пластиковые аналоги имеют практически такой же функционал, как и деревянные решения, но при этом их срок эксплуатации значительно выше. Древесина довольно часто подвергается гниению и деформации под воздействием влаги, пластику такие проблемы не грозят. Для повышения привлекательности пластиковые купели после монтажа можно облицевать кафелем или вагонкой.

На стоимость изделия напрямую влияет его размер и наличие дополнительных функций. При сооружении больших конструкций будет использоваться много материала, что непременно приведет к дополнительным затратам. Так что при проектировании бани размеру купелей нужно уделять отдельное внимание.
Если есть желание сэкономить за счет самостоятельного изготовления емкостей, то в первую очередь надо оценить свои плотницкие навыки и знание технологии, ведь купель будет стоять в горячем и влажном месте. Если такие навыки есть, то отлично, но если нет, то обращайтесь к специалистам – результат будет быстрее, качественнее и надежнее.
Это может быть интересно! В статье по следующей ссылке читайте про дымоход для бани.
Заключение – коротко о главном
В бане не обязательно делать большой бассейн — не менее эффективно окунуться после парилки можно в купели.
По форме и размерам у купелей нет ограничений — они просто подбираются в зависимости от размера бани.
Так как купели достаточно требовательны к качеству монтажа, то установку лучше заказывать у профессионалов.
|
Еще немного внимания Деревянная купель это очень красивая, самобытная, но, скорее всего, все-таки архаика? Напишите в комментариях, если бы была полная свобода, то вы бы предпочли соблюдать традиции и установить в бане купель, или все же обустроить, например, современную джакузи? |
Прочитать позже
Отправим материал на почту
Распечататьm-strana.ru
Строительство купелей | ЭлитСаунаСтрой — Строительство Бань и Саун
Стихия воды — основа основ и всего живого. Её магическое влияние на человека трудно оценить. Именно вода помогает нам взбодриться и расслабиться, закалиться и обрести гармонию. Увлажнение кожи — одна из тайн сохранения молодости и красоты. Омовение водой, погружение в купель— символ духовного очищения в христианстве.

Банные купели завоевали сердца людей с древнеримской эпохи. Античные термы рекомендовали купели как средство омовения и источник наслаждения. Путешественников, торговцев и крестоносцев так восхитили купели, что они разрекламировали их в Европе. Компактные деревянные даже возили с собой, чтобы смыть с себя дорожную пыль. У богатых европейцев вскоре появилась мода на изящные фаянсовые и дорогие фарфоровые купели. Им суждено было стать прообразом современных ванн.
Интересно происхождение слова «купель».Мы считаем, что берёт свои корни оно от славянского слова «купаться», а французы утверждают, что соuреllе (чашечка) — это их открытие.
Ледяная купель и горячая парная баня с веничком — вот в чём дух русской бани! Русские бани, горячо любимые Петром I и воспетые В.А. Гиляровским, без проруби или деревянной купели немыслимы. В 20 веке их стали вытеснять ванны, но сейчас купели переживают пик возрождения в загородных домах, банях и SPA-комплексах.
Самые экзотические купели подарили нам японцы. Древний обычай мыться без мыла в обжигающе горячей воде стал возможен благодаря деревянным ваннам-купелям. Их традиционное название — офуро. Такая ванна с собственным подогревом — основа японской бани.
Скандинавы же любят устанавливать купели на открытых террасах саун, чтобы зимой греться в горячей воде и наблюдать за заснеженным озером.
Купель — произведение бондарного мастерства. Современные технологии позволяют делать их любых форм и объёмов. Чаще всего заказывают купели из натурального дерева, которые пережили века и по-прежнему популярны.
Классика для производства купелей — дуб, кедр, лиственница и бук. Выбор легко обосновать: эти породы славятся прочностью, их даже используют корабелы. С годами хорошая дубовая купель лишь становится лучше. И заметьте: 100 процентная экологическая чистота!
Семейные или общественные купели вместят до 6 кубометров воды. Компактные на одного человека или в баню или сауну начинают измерять объём от 350 литров. Круглые и овальные купели — это дань традициям, но не ограничивайте себя. Часто заказывают изготовление угловых купелей и даже прямоугольных.
Всегда возможно изготовить купель на заказ с учётом капризов клиента. Только следует помнить, что удовольствие на заказ обходится владельцам дороже стандартных вариантов.
Также деревянные купели могут иметь автономные или погружаемые печи для нагрева воды. Печи прославленных марок проверенны и надёжны. Системы форсунок для бурления воды, подсветка, душевые стойки — дополнительные удобства, повышающие Ваш комфорт.
Компания «ЭлитСаунаСтрой» — честный партнёр и исполнитель, который поможет выбрать в многообразии нужную именно Вам купель и сопутствующее оборудование. При желании мы изготовим для Вас оригинальные лесенки и приступки, разработаем дизайн-проект бани с купелями. Наши специалисты помогут подобрать даже специальные полимеры для защиты дерева — всё для Вашего удобства!
ess-spa.ru
Нюансы обустройства бассейна или купели в частном доме
Экология потребления.Усадьба:Возможные проблемы строительства бассейна или купели в коттедже и способы их решений.
Сложно найти владельца загородного дома, который хоть раз не задумывался о строительстве бассейна или купели в доме. Это желание понятно. Подкупает возможность поплавать независимо от времени года и погодных условий, и ни с чем не сравнимое удовольствие от принятия водных процедур.

Многие начинающие застройщики полагают, что сделать бассейн или купель не очень сложно. Достаточно желания, свободных средств, и мечта осуществилась. При этом из вида упускается множество «подводных» камней и особенностей, таящихся в «мокрой» зоне, обустроенной в доме. Именно об этом мы и расскажем в сегодняшнем материале, из которого вы узнаете:
- Чем бассейн отличается от обычной купели.
- Стоит ли строить «мокрую» зону в доме.
- О каких нюансах следует узнать перед началом строительства бассейна в доме.
- Во сколько обойдётся строительство бассейна в доме.
Бассейн и купель: сходства и отличия
Но, прежде чем перейти к особенностям обустройства купели или бассейна в частном доме, надо разобраться с этими понятиями, т.к. уже на данном, начальном этапе возникает путаница, ведь часто купель называют бассейном, и наоборот.
Бассейн – это сложное инженерное и гидротехническое сооружение, включающее в себя чашу, фильтрационное оборудование, предназначенное для водоподготовки, насосное оборудование, необходимое для рециркуляции (смены и, при необходимости, слива воды), систему нагрева воды.

Классическая купель – это сравнительно небольшая ёмкость (иногда мобильная, сделанная из дерева), наполненная холодной водой, предназначенная для принятия контрастных водных процедур. Традиционно купель — атрибут бани, а небольшой бассейн — сауны. При этом в купели, в отличие от бассейна, происходит более частая смена воды.

Бассейн в первую очередь предназначен для развлечения, плаванья, а бассейн, оснащённый аттракционами — водопадами, гейзерами, гидромассажем, противотоком (искусственным течением) – зачастую становится центром притяжения для всей семьи.

Конечно, сделать в доме полноценный плавательный бассейн «в три дорожки по 25 метров» могут позволить себе немногие. Поэтому зачастую застройщики выбирают лечебно-оздоровительные, маленькие бассейны (иногда их также называют купели), оснащённые оборудованием СПА с объёмом воды в чаше 1-3 м3.
Второй вариант — санитарно-оздоровительные бассейны, объёмом от 3 до 8 м3, так же, как и первый вид домашнего «водоёма», используются как дополнение к сауне, хамаму или банному комплексу.

Чтобы поплавать, строят более масштабное сооружение — бассейн на 15-50 м3, глубиной 1.5 метра (что достаточно для плавания). Соответственно, требования к таким сооружениям, а также их цена, увеличиваются прямо пропорционально их размерам.

Но даже при желании построить в доме сравнительно небольшой бассейн, с размером чаши 3х5 метров, следует заранее приготовиться к большим расходам. Поэтому, прежде чем приступить к его возведению, следует задать себе вопрос: «А так ли нужен бассейн в доме?». Чтобы на него ответить и принять осознанное решение, надо понять, какие требования предъявляются к помещению под «мокрую» зону.
Строительство бассейна и купели в доме: плюсы и минусы
Плюсы размещения бассейна в доме очевидны — пользуешься им, когда захочешь. Именно это становится главным движителем желания его построить.
Если плюсы размещения бассейна в доме очевидны, то минусы зачастую становятся настоящим «подводными рифами», о которые может разбиться желание его построить.
Нюансы строительства бассейна или купели в доме
Уже из названия «мокрая» зона понятно, что это помещение должно отвечать целому ряду специфических характеристик. Это — надёжная гидроизоляция, использование водостойких материалов и составов для отделки «мокрой» зоны, подведение всех необходимых коммуникаций, грамотно рассчитанная система вентиляции.
Помимо этого, бассейн или купель в доме — это всегда дополнительный и большой вес. Каменная чаша, на строительство которой ушли десятки кубометров бетона, плюс вода в ней, оказывают существенную нагрузку на нижележащие конструкции или слои грунта.
Есть проекты домов, где бассейн размещён в подвале, на первом этаже, или находится на втором этаже (в этом случае на перекрытия и стены ложится дополнительная нагрузка).
Исходя из этого, запоминаем такое правило — бассейн проектируется вместе с домом. Главная ошибка — возвести здание, а потом думать, как в нём разместить бассейн, или пытаться «запихнуть» большую купель в цокольный этаж. Плита основания в этом случае может просто не выдержать нагрузку и треснуть.
Бассейн и дом должны быть двумя независимыми друг от друга конструкциями. Чашу бассейна нельзя связывать со стенами дома, перекрытия здания или стены нельзя опирать на чашу.
Особое внимание следует уделить прочности и герметичности чаши, а такженадёжной гидроизоляции «мокрой» зоны. Армировка, марка бетона, добавки, придающие смеси повышенную водонепроницаемость, гидроизоляция, дополнительное оборудование, которым планируется оснастить бассейн, наличие всех необходимых инженерных коммуникаций — всё это учитывается заранее, а не после.

Гидроизоляция чаши должна быть непрерывной по всей поверхности. При отливке чаши из бетона (если выбран это вариант строительства) нежелательно делать холодные швы — в будущем они могут стать возможным местом протечки. Отсюда — стенки чаши заливаются за один приём.
Помимо этого, если планируется строительство бассейна в доме, необходимо выяснить, выдержит ли грунт совокупную массу здания и чаши, наполненной водой, или грунт может со временем дать неравномерную осадку, что приведёт к аварийной ситуации. Например, стены коттеджа или чаша треснет, а вода из неё начнёт вытекать наружу, подмывая фундамент. В этом случае потребуется дорогостоящий ремонт.
Желание построить бассейн или купель в доме автоматически приводит к необходимости решения целого ряда инженерных и конструкторских задач. Причём, строительство чаши не всегда является одной из самых трудных задач.
«Мокрая» зона в доме – проблемы обустройства
Организация помещения под бассейн или купель и наличие свободной площади – одни из главных факторов, влияющих на принятие окончательного решения их строительства. Т.е. — к площади жилых и нежилых помещений дома прибавляется дополнительное помещение, где будет размещён бассейн или купель.
Учитывая, что в бассейне плавают не каждый день, приходим к тому, что в коттедже появится помещение, которое фактически будет простаивать большое количество времени. При этом сам коттедж придётся строить увеличенной площади, а все его инженерные системы проектировать и завязывать на обслуживание бассейна.

Как правило, полноценные внутренние бассейны строятся в коттеджах площадью от 300-400 кв. м и более.
Но даже приняв решение о строительстве огромного дома (который ещё надо обслуживать и отопить), надо поинтересоваться мнением домочадцев — как часто они будут пользоваться бассейном, и не превратится ли он со временем в дорогую и бесполезную игрушку, требующую постоянных вложений.
Кроме этого, многие застройщики упускают такой важный момент обустройства «мокрой» зоны, как вентиляция. В одной из своих прошлых статей мы уже рассказывали об особенностях вентиляции во «влажных» помещениях, но повторим — большой объем воды, постоянно находящийся в доме — это источник повышенной влажности.

С 1 кв. м бассейна за сутки испаряется примерно 0.25 (цифра приведена для ориентира) литров жидкости. Без монтажа приточно-вытяжной вентиляции (которая рассчитывается в привязке к площади зеркала воды в чаше бассейна или купели и температуры воды и воздуха в помещении), бассейн в доме превратится в постоянную головную боль.
При отсутствии вентиляции испарённая вода сконденсируется и выпадет в виде капель на поверхностях «мокрой» зоны. Со временем это приведёт к порче отделки, сырости, возникновению грибков и неприятного запаха.

И это лишь один из множества факторов, усложняющих обустройство бассейна в «мокрой» зоне дома. Добавим необходимость монтажа инженерного и фильтрационного оборудования, подогрева воды, обустройства в помещении закладных под дополнительные коммуникации.

Также надо заранее продумать, куда сливать воду из бассейна или купели. Септик или ливневая канализация могут не выдержать сброса большого объёма. Т.е., все системы в доме и помещении под бассейн надо рассчитать с запасом на его долговременную эксплуатацию. Не забываем приплюсовать расходы на прокладку в «мокром» помещении дополнительных трасс под электрокабели, монтаж ещё одного электрощитка, затраты на покупку влагозащищённых включателей и выключателей, насосов и затрат на электроэнергию. Ведь для функционирования бассейна необходимо оснастить его соответствующим оборудованием, работающим от электросети. Просчитываем, хватит ли выделенной мощности для нормальной работы «мокрой» зоны в доме. Для ориентира, воспользуемся следующими приблизительными цифрами, приведёнными пользователем с ником Besrom:
- Система фильтрации — 0.55 кВт.
- Подсветка две светодиодных лампы на 12 вольт — 100 Вт.
- Система управления, клапан — 0.50 кВт.
- Противоток — 3.5 кВт.
- Водопад — 2 кВт.
Причём, лучше всего, если сеть будет трёхфазной в 380В. Неудивительно, что денежная составляющая становится решающим фактором при ответе на вопрос «быть или не быть в доме купели или бассейну».
Стоимость строительства и содержания «мокрой» зоны в загородном доме
«Мокрая» зона в доме может стать существенной статьёй расходов, ведь бассейн или купель надо наполнить водой, поддерживать её постоянный уровень (вода постоянно испаряется; чтобы уменьшить уровень испарения, бассейн укрывают специальным покрывалом или жалюзи). Придется потратиться на «химию» для обеззараживания воды и главное — поддерживать приемлемую плюсовую температуру зимой. Т.е. воду для бассейна придётся подогревать. Справится ли с этим система отопления дома? Учитывая, что климат в нашей стране суровый, а отопительный сезон, в зависимости от региона проживания, может длиться 6-8 месяцев, то удовольствие от водных процедур может влететь в копеечку.

Подведение итогов
Бесспорно, иметь бассейн в доме и престижно, и полезно, но, лишь при условии достаточных средств для его строительства и, что немаловажно, постоянной эксплуатации и содержания. В иных случаях надо десять раз подумать, прежде чем решиться на его возведение. Поэтому при обустройстве «мокрой» зоны или помещения для принятия водных процедур, в первую очередь, надо руководствоваться здравым смыслом и, как вариант, вместо полноценного большого плавательного бассейна — построить небольшой бассейн или купель. Тем более, что на нашем портале накоплен обширный опыт строительства подобных сооружений. опубликовано econet.ru
econet.ru
постройка, отделка и советы по уходу (115 фото)
Купель в бане в современном представлении это маленький бассейн с прохладной водой, в которую можно окунуться после парилки. Значение его для здоровья и удовольствия трудно переоценить. Сделать купель в помещении оснащенном водопроводом и устройством для нагрева и отопления не трудно, при этом она может служить как в качестве атрибута в контрастных водных процедурах, так и автономно – в качестве емкости для принятия ванн.

На фото — интерьеры бань с купелью в различном стиле: это может быть бетонный котлован на уровне пола или большая деревянная бочка с лесенкой. Выбор моделей зависит от индивидуальных предпочтений, но наличие бетонного бассейна в котловане нужно предусмотреть еще на этапе проектирования здания для бани.
Напольные емкости из дерева и пластика можно легко добавить в любое время: монтаж труб для подачи и отвода воды не составит особого труда.

По традиции, глубина емкости для окунания должна составлять полтора метра, другие габариты зависят от того, на сколько человек она рассчитана. Задумка сделать купель своими руками или на заказ дает определенную свободу в выборе размеров и формы.

Бетонная купель
Наиболее простая в исполнении форма котлована – прямоугольная, его роют на установленном участке, до того, как приступить к половому покрытию. После уборки лишнего грунта и выравнивания стен, в удобном по планировке угле на дне котлована делается отверстие для сливной трубы, которая выводится в канализацию.

При необходимости слив оснащается насосом. Длину трубы нужно рассчитать с запасом, лишняя ее часть срезается после заливки бетона.

В зависимости от особенностей монтажа, трубу для поступления воды можно встроить в стену, или предусмотреть установку отдельного смесителя.

Для гидроизоляционной подушки дно покрывается слоем песка, который замачивается и трамбуется, затем засыпается равномерный слой гравия. На дне и стенах закрепляется решетка арматуры с ячейками 20х20 или 30х30 см, затем по периметру выкладывается опалубка из листов ДСП или ОСБ с подпорками из бруса, которая формирует бортик бассейна нужной высоты. Внутреннюю поверхность опалубки нужно изолировать пленочным материалом.

Для строительства купели нужно использовать бетон высокого качества, с кондициями водостойкости и прочности. Цемент марки 500 и выше, строительный песок – очищенный крупнозернистый, щебень с фракцией от 10 до 20 мм.

Замес делается в пропорции на 1 часть цемента — 3 частями песка и 5 частей щебня с постепенным добавлением воды, затем, по пропорциям указанным на упаковке, вводятся специальные добавки, повышающие водостойкость бетона.

Смесь заливается сначала в проемы стен, затем на пол котлована, после чего проводится уплотнение вибратором. Для полного скрепления и высыхания бетона нужно не менее 7 дней. Через неделю можно снять опалубку, заделать дефекты и сделать тонкую лицевую стяжку пола.
Следующий этап – отделка. Внутреннюю часть емкости можно покрыть керамической плиткой или покрасить краской для бассейна.

Купель для бани из бетона нужно оснастить удобной и безопасной лестницей с поручнями.

Купель из дерева
Для того, чтобы сделать купель для бани из дерева своими руками, нужно обладать опытом и знаниями. Эта простая, на первый взгляд, конструкция из большой бочки с отводами для воды и примыкающей снаружи лестницей должна обладать прочностью и герметичностью.

На первом этапе нужен профессиональный чертеж в нескольких проекциях с точным раскладом размеров и количества нужных заготовок. Доски для стенок распиливаются, затем фрезеруются по краям для создания полукруглых щипов и пазов, которые будут скреплять их по радиусу.
Также по системе щип-паз делаются заготовки для днища, при этом нужно обеспечить идеальное примыкание и ровную поверхность сборных частей.

При вырезании дна и сборке стенок также требуется точный расчет и аккуратность. На последнем этапе собранный цилиндр стягивается как минимум тремя металлическими ободками, которые закрепляются накручиванием болта. Затем остается соорудить лестницу и установить внутри бочки небольшую скамейку.

Менее трудоемкий вариант с сохранением особого уюта деревянной отделки – приобрести пластиковую емкость купели для бани и отделать ее снаружи декоративными рейками.
Фото купели для бани





































Также рекомендуем посетить:
mojdominfo.ru
Строительство купели: заглублять или нет?
Полноценную баню или сауну тяжело себе представить без купели. Она делает пребывание в бане еще более приятным и полезным. Но при строительстве купели стоит обращать внимание на многие факторы, учет которых поможет избежать ошибок при монтаже.
После выбора материала купели, ее формы и отделки, необходимо определиться с типом установки – купель можно как ставить на пол, так и заглублять так, чтобы верхняя часть купели была на уровне с полом.
Заглубленные купели, как правило, лучше вписываются в интерьер бани, визуально обеспечивают больше свободного пространства, в них легко садиться и они позволяют скрыть с глаз все коммуникации подведенные к купели. Единственным существенным минусом заглубленных купелей является сложность их монтажа.
Не заглубленные купели не могут похвастаться преимуществами заглубленных, но их легче устанавливать и они предъявляют меньше требований к монтажу.
Но для того, чтобы определиться с типом установки купели надо опираться не только на личные предпочтения, но и учитывать ряд технических особенностей вашей бани или сауны.
Во-первых, естественно, надо учитывать высоту потолка в бане или сауне. Если потолок очень низкий, то залезание в купель стоящую на полу может быть чревато ушибом головы о потолок.
Во-вторых, если вы хотите углубить купель и сделать ее на одном уровне с полом, то надо обязательно выяснить уровень грунтовых вод в месте установки купели. Если грунтовые воды низкие, то купель можно устанавливать. Если высокие, то проблема решается установкой дополнительной гидроизоляции.
В-третьих, немало важную роль играет материал пола бани. Например, если он из непрочного дерева, то тяжелая купель может его продавить, либо вовсе провалиться. Или, если пол, например, бетонный, то монтаж купели на уровне с полом может быть затруднительным т.к. сделать необходимое для купели отверстие в бетонном полу не просто.
В-четвертых, не стоит забывать, что для купели должна быть установлена система водопровода и канализации. При монтировании купели в пол нужно убедиться, что от нее можно провести все необходимые коммуникации.
Естественно это не полный перечень моментов, на которые стоит обратить внимание. Мы привели только самые популярные аспекты актуальные для всех типов бань. Но при монтаже купели могут возникнуть и другие факторы индивидуальные для каждого проекта.
Установка купели это достаточно сложный процесс, требующий работы квалифицированных специалистов. В нашей компании работают люди отлично разбирающиеся в этом вопросе, поэтому обращайтесь в компанию «Аква Холд» и вы не пожалеете!
www.basseyny-akvahold.ru
