Студия 35 кв м дизайн фото – 75 фото лучших интерьерных идей
Дизайн квартиры 35 кв. м. [60+ фото] планировки 1-комнатных, студий и евродвушек
Планировка 35 кв. метров
Существует несколько планировочных вариантов.
Однокомнатная квартира
Подобное малогабаритное жилое пространство, должно одновременно отличаться стилем и функциональностью. Для того, чтобы недостаток свободного места, не вызывал дискомфорт при проживании, следует особенно тщательно подойти к составлению плана по разделению квартиры на определенные участки.
В однушке, как правило, находится одна полноценная комната, площадь которой можно увеличить за счет присоединения балкона или части коридора. Здесь будут уместны более компактные мебельные предметы, минимальное количества декора, пестрых и крупных принтов в отделке.

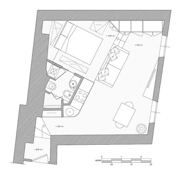
На фото вид сверху на планировку однокомнатной квартиры 35 квадратных метров.


В таких миниатюрных малосемейках в основном бывают низкие потолки, поэтому в данном случае, не рекомендуется использование лепного декора, цветных поверхностей, ярких рисунков и рельефной текстуры, так как, подобные решения поспособствуют еще большему усугублению такого недостатка.
Прекрасным вариантом станет потолок белого цвета с глянцевой или матовой фактурой, который наделит обстановку воздухом и невесомостью.
Также лучше если в помещении будет минимальное количество дверей с распашным механизмом, скрадывающим полезную площадь. Для оформления дверных проемов отлично подойдут раздвижные конструкции или модели-пенал.


Студия
Иногда кватира-студия может является грамотным преобразованием однушки. Основным достоинством студийных помещений со свободной планировкой, является достаточное количество места в проходах. Подбирая меблировку для данного жилья, важно правильно определиться с размерами пространства.
Например, в студии будет намного рациональней установка кухонного гарнитура практически до потолка, таким образом получится увеличить вместительность и скрыть за фасадом, такие предметы, как посуда, бытовая техника и прочая утварь. Достаточно актуальными для оформления помещения, считаются разнообразные перегородки или барная стойка.

На фото дизайн квартиры-студии 35 кв., с узким длинным коридором.


Для реальной экономии квадратных метров, выбирают комфортные многоместные диваны, которые могут с легкостью трансформироваться в просторное спальное ложе. Таким образом получается объединить гостевую зону и место для сна. Также в помещении размещают удобные кресла, телевизионную панель, столовый гарнитур, обеденный стол и оборудуют рабочий уголок.

Евродвушка
Данное жилье отличается наличием санузла, отдельной спальней и небольшой кухней-гостиной. Несмотря на то, что евродвушки имеют более маленькие габариты по сравнению с обычными двушками, они являются очень удобными и функциональными. Такая планировка станет хорошим выбором для холостяка или молодой семьи.


Варианты зонирования
В дизайне данных квартир, без такого приема, как зонирование и перепланировка, обойтись практически невозможно. Прекрасным разграничителем пространства является барная стойка, отделяющая зону кухни от гостиной.
Не менее выгодное решение представляют собой стационарные перегородки, имеющие прозрачное исполнение или выполненные из легких материалов. В качестве разделителя, также уместно применение ширм или красивых витражных конструкций, добавляющих в обстановку интересных бликов и новых красок. Для условного отделения спального места, часто используют стеллажи или шторы.

На фото спальная зона в дизайне квартиры 35 кв., отделенная тканевой шторой серого оттенка.


Особенно оригинальным интерьерным решением считается зонирование за счет разного уровня подвесных потолков и пола, например, в виде подиума или отделочных материалов, отличающихся по цвету или наличию рисунка.


Как обустроить квартиру?
Квартиру 35 квадратов, будет лучше обставить максимально функциональной мебелью, например, отличным вариантом станет установка кровати-транстформера, совмещенной со шкафом или выдвижных и складных столов.
Не менее рациональным решением считается кровать, размещенная на подиуме, который представляет собой вместительное место для хранения различных вещей. В данном жилище, следует располагать только самые необходимые мебельные предметы, чтобы исключить лишнюю захламленность и перегруженность.
В качестве шкафов, желательно применять купейные конструкции или переоборудовать под него, кладовку, которая станет удобной гардеробной. Для визуального увеличения пространства, для фасадов выбирают зеркальное исполнение.


Для отделки помещения чаще всего используют материалы в пастельных оттенках, особенно уместно такое оформление будет для жилья с северной ориентацией. Стены в основном облицовывают монохромными обоями в сочетании с яркими акцентами, в виде картин, диванных подушек или фотообоев, размещенных на одной стене.
Покрытие пола может быть также выполнено в природных бежевых, серых, коричневых или светло-кофейных тонах, за счет комбинации светлого пола и стен, получается добиться значительного увеличения пространства.
Для потолка, особенно интересное дизайнерское решение, представляют одноуровневые, многоуровневые натяжные или подвесные конструкции в матовом или глянцевом исполнении, со встроенной осветительной системой. По цветовой гамме, потолочная плоскость не должна отличаться излишней яркостью.



В оформлении окон более уместно использование облегченных занавесок, римских или рулонных штор. Не следует украшать оконные проемы тяжелыми ламбрекенами, шторными ансамблями с декоративными кисточками и прочими элементами, так как, такое решение подходит только для большого и просторного жилища.
Остальной текстиль в помещении должен обладать сдержанным оформлением, чтобы окружающий дизайн выглядел светлее и объемнее. Для создания по-настоящему эргономичного интерьера, рекомендуется применять минимальное количество мелкого декора, например, обстановку лучше дополнить картинами, фотографиями, напольными вазами или гипсовыми статуэтками, имеющими средние размеры.

На фото дизайн квартиры 35 квадратов с окном, оформленным гардинами и портьерами в светлых тонах.
Дизайн функциональных зон
Варианты оформления обособленных комнат и отдельных сегментов.
Кухня
Кухонный гарнитур должен полностью соответствовать индивидуальным размерам комнаты. Довольно удачное решение представляет собой установка шкафчиков до потолка, что позволяет значительно повысить вместимость конструкции.
Отличной практичной столешницей, может стать переоборудованный подоконник, а барная стойка послужит прекрасной заменой обеденному столу. При наличии ниши, в ней можно оборудовать кухню или разместить раскладной диван, предоставляющий дополнительное спальное место.

На фото интерьер современной кухни-гостиной в дизайне евродвушки 35 квадратных метров.


Очень выгодно на кухне использование раздвижной и откидной мебели, например, стола, который из небольшой конструкции с легкостью трансформируется во вместительную модель. В данной комнате можно оборудовать отдельную подсветку над рабочей поверхностью, повесить люстру или несколько плафонов над обеденным столом.

На фото дизайн отдельной кухни, выполненный в светлых тонах в однокомнатной квартире 35 квадратных метров.
Детская
Для семьи с ребенком, вне зависимости от его возраста, требуется обустройство целой комнаты или личного уголка для учебы, игр и отдыха. В случае с однушкой или квартирой-студией, для детской выбирают самое светлое и хорошо освещенное место в помещении. Данный участок оборудуют рабочим столом, кроватью, шкафами, полочками и отделяют с помощью ширмы, шторы или перегородки.



На фото вариант оформления однушки 35 кв., для молодой семьи с ребенком.
Гостиная и зона отдыха
Гостиную в основном оформляют небольшим удобным диваном, предпочтительно в светлых оттенках, журнальным столиком, комодом, креслами или пуфиками. В дизайне не применяют крупные и слишком громоздкие предметы и большое количество украшений. Здесь гораздо уместнее использование встроенных конструкций и небольших ярких акцентов, в виде такого декора, как подушки, пледы, покрывала или шторы.



Спальня
В жилом пространстве 35 квадратов, практически невозможно размещение большой кровати. Для обеспечения полноценного отдыха, возможно оборудование отдельной спальни, в которой также устанавливают кровать, тумбочки, столики, пуфики и иногда вешают телевизор.

На фото интерьер небольшой отдельной спальни в дизайне квартиры-евродвушки 35 кв. м.


В квартирах-студиях или однушках, можно оборудовать спальное место под потолком или расположить кровать в нише и тем самым добиться более рационального использования площади. При достаточных размерах углубление дополняют комодом, шкафчиками или полочками, а также вешают бра в изголовье кровати.

На фото дизайн однокомнатной квартиры 35 кв., с кроватью, расположенной в нише.
Ванная комната и туалет
Дизайн квартиры 35 квадратов, чаще всего предполагает совмещенный санузел. В данной комнате прекрасно размещается стильная душевая кабина, а остальная свободная площадь оборудуется узкой умывальной тумбой, компактной сантехникой и стиральной машинкой. Для небольшого санузла в хрущевке, желательно выбирать более минималистичное оформление, не предполагающее много лишних деталей и декора.


Рабочее место
Наиболее удачным вариантом для рабочей зоны, является совмещенная лоджия или место возле окна, где иногда подоконник переоборудуют под письменный или компьютерный стол. Данный функциональный участок оснащают стеллажами, ящиками, полками для различной канцелярии, документов и прочего, а также дополняют с помощью настольной лампы или точечных светильников.
В качестве зонирования выбирают перегородки, мебельные предметы или контрастную отделку стен, чтобы рабочее место смотрелось отдельно выделенным сектором помещения.


Фото в различных стилях
Стиль лофт является достаточно популярным в настоящее время и очень часто применяется для оформления различных жилых пространств. Данное направление предполагает простую, но при этом функциональную меблировку, небрежную, немного неаккуратную облицовку и в основном прохладную цветовую палитру. Для зонирования редко выбирают ширмы и раздвижные двери, в этом случае предпочитают разграничение помещения за счет смены фактур или оттеночной гаммы.
Классика считается основательным, элегантным и практичным стилем, интерьер которого следует обустраивать мебелью из дорогих материалов, украшать антикварными предметами и выполнять в мягкой однотонной оттеночной палитре.

На фото квартира-студия 35 квадратов, выполненная в стиле лофт.


Современный дизайн отличается четкой структурой, лаконичными геометрическими формами, яркими цветовыми акцентами и смелыми фактурными комбинациями, а скандинавский интерьер характеризуется особой эргономичностью, удобством, комфортом, красотой и настоящей эстетичностью.
В таком стиле в приоритете использование натуральных материалов в стеновой, напольной, потолочной отделке и в изготовлении предметов мебели, а также оформление в пастельных оттенках в сочетании с насыщенными вкраплениями.


Фотогалерея
Дизайн квартиры 35 кв., может представлять собой достаточно уютное и функциональное пространство, предоставляющее максимально комфортные условия проживания.
design-homes.ru
Дизайн Квартиры Студии 35 кв м: Приемы Зонирования + Фото

Рациональное использование свободного пространства в интерьере небольших апартаментов
Выполняя планировку пространства, не многие могут сделать это правильно. Дизайн квартиры студии 35 кв м – это достаточно большое пространство, требующее особой организации и профессионального подхода. На данной площади необходимо разместить всё самое нужное, и при этом сделать интерьер максимально функциональным и удобным для проживания.
Об этом и многом другом, вы можете узнать, просмотрев видео в этой статье, или прочитав все полезные советы и рекомендации описанные далее.
Содержание статьи
Как оформить квартиру студию
Дизайн однокомнатной квартиры студии 35 кв м можно оформить в любом стиле. Однако не многие знают, что применение того или иного стилевого оформления, зависит от различных индивидуальных особенностей апартаментов.
Какие зоны должны присутствовать в студии:
- Прихожая;
- Санузел;
- Кухня и столовая;
- Рабочий сектор;
- Спальня;
- Гостиная.
Совет: в случае, если пространство не позволяет разместить каждый сектор отдельно, некоторые зоны можно совместить между собой. Например, совместить кухню и столовую, гостиную и спальню. Это позволит выгодно экономить свободное пространство, и не загромождать его различными мебельными гарнитурами.
Фото апартаментов с различными вариациями зонирования, можно увидеть в данной статье.
Советы по обустройству от профессионалов
Квартира студия 35 кв м, будет выглядеть стильно и функционально, при соблюдении следующих советов и рекомендаций от профессиональных дизайнеров:
- Выполните оформление и обустройство апартаментов в стиле минимализм. Использование этого стилевого оформления не означает, что придётся ограничиться только самыми необходимыми мебельными гарнитурами и минимумом аксессуаров. Выбирайте функциональную мебель, которая может совмещать в себе сразу несколько элементов. Например, кровать-чердак, стенка с множеством различных ящиков, секций, или шкаф со столом и комодом (см. Комоды подчеркивают стиль интерьера), большой угловой диван с небольшим встроенным столиком, позволяют не только купить комплект мебели в одном стиле, но и выгодно сэкономить свободное пространство. Не менее подходящими являются различные раскладные и модульные конструкции (кровать, трансформирующаяся в шкаф, выдвижные конструкции).
Совет: если апартаменты имеют неправильную форму с большим количеством углов, в целях экономии свободного пространства и создания гармоничного дизайна, можно сделать необходимую мебель на заказ. Цена на заказные мебельные гарнитуры является достаточно высокой, однако выбрав такой вариант, вы гарантированно сможете сэкономить не один квадратный метр площади.
- Если площадь квартиры составляет менее 35 квадратов, рекомендуется придерживаться принципа минимализма, и использовать только самые необходимые детали и аксессуары. Квартира студия 31 кв м, дизайн которой не перегружен различными предметами и элементами декора, всегда будет выглядеть более светлой и просторной, нежели аналогичное по размеру, но загромождённое пространство. Для того чтобы добиться лёгкости и воздушности, в интерьере используйте преимущественно светлые, теплые, природные и нежные оттенки. Не менее важно позаботится о наличии качественного естественного освещения. Используйте лёгкий текстиль. Шторы и тюль могут быть полупрозрачными. Отдавайте предпочтение исключительно натуральным и экологичным материалам;
- Визуально увеличить пространство позволяют различные глянцевые, отражающие и зеркальные поверхности. Для этого используйте для оформления интерьера зеркала, которые можно просто повесить на стену или купить раздвижной шкаф купе с зеркальными створками. Потолок можно покрыть краской, образующей глянцевую поверхность, или установить навесную конструкцию;
- Интерьер квартир студий 35 кв м, должен иметь минимум перегородок и стен. Если таковые имеются, по возможности уберите их или частично демонтируйте. Оставьте стены только в тех частях помещения, в которых они действительно будут полезны и необходимы (рабочий и спальный сектор). Для разделения пространства используйте различную мобильную мебель. Разграничить кухню и гостиную можно барной стойкой. Такой разделитель будет служить небольшим столиком, за которым вполне может обедать несколько человек. В качестве отделочных материалов можно использовать любые, в зависимости от выбранного стиля и оформления. Если вы хотите выполнить отделку каждой зоны различными материалами, необходимо чтобы цвета и фактуры стеновых и напольных покрытий соседствовали гармонично. Для этого не выполняйте резких переходов, используйте различные изгибы и закругления, декоративную окантовку. Подберите хорошее искусственное освещение (бра, настольные лампы, подвесные конструкции). Важно и то, как и где будет располагаться это освещение. Узнать больше об этом, вы можете в статье «Квартиры студии освещение»;
- Использование тёмных, ярких и холодных оттенков вполне допустимо. Но не стоит оформлять апартаменты только в тёмной цветовой гамме. Разбавьте её более нежными, темными и спокойными тонами. Используйте аксессуары и текстиль в разумных пределах. Это могут быть небольшие декоративные подушки, мягкий плед, небольшой коврик, картина, настенные часы, растения в больших горшках.
Дополнительная информация
Важно: для того чтобы не терять драгоценный метраж, старайтесь размещать некоторые конструкции и аксессуары на стенах или встраивать в мебель. Расставьте цветы не на полу, а на подоконнике, подвесьте телевизор на кронштейн.
Совет: для того чтобы выполнить ремонт и оформление студии с максимальной точностью своими руками, создайте предварительный дизайн-проект. Сделать это можно самостоятельно, или воспользовавшись услугами опытного дизайнера.
Интерьер квартиры студии 34 кв м – это не достаточно большое пространство для того, чтобы экспериментировать с громоздкой мебелью. Также для таких апартаментов нежелательно островное размещение конструкций. Расположите их максимально близко к стенам или вдоль них.

Совмещённая гостиная и прихожая
Минимализм в апартаментах площадью 35 квадратных метров
Проектирование и дизайн студии 35 кв м
Данная инструкция и советы, подходят для помещений общей площадью от 30 до 40 квадратных метров.
Применив их на практике, вы сможете получить удобное, креативное и функциональное жильё:
- Обеденная зона. Данный сектор может дополнить барная стойка. Для помещений с ограниченным пространством, она может стать обеденным столом. Хорошим решением станет покупка трансформирующегося раскладного стола. В сложенном состоянии он не занимает много места, и при этом за ним может разместиться несколько человек. С помощью раскладного механизма, обеденный стол становится большим и прекрасно подходит для приёма гостей и проведения торжеств. Сделать обеденную зону можно и с использованием подоконника. Для этого необходимо просто удлинить его;
- Спальное место. В спальне определённо должно присутствовать уединение и спокойствие. Если место позволяет, выделите для неё небольшой уголок и установите перегородку. Она может быть как капитальной (из кирпича или блоков), так и декоративной гипсокартонной или деревянной. Также отделить спальную зону можно мебельным гарнитуром или шторой. По возможности установите удобную кровать. Однако в целях экономии свободного пространства можно заменить кровать на раскладной диван;
- Зона для отдыха. Вместо массивных кресел, можно использовать не менее удобные пуфы, бескаркасную мебель и тканые кресла-мешки. Такой вариант обеспечивает комфортный отдых, а данная мебель не занимает много места. Таким образом, гостиная будет максимально светлой и просторной. Для придания дополнительного уюта, устелите зону отдыха небольшим ковриком, установите телевизор, аквариум, живые растения, небольшой туалетный столик;
- Рабочее пространство. Любая квартира должна иметь рабочую зону. Желательно чтобы она располагалась около окна, так как именно в этом случае, в дневное время рабочее пространство будет иметь хорошее естественное освещение. Установите около окна письменный стол, удобный стул, настольную лампу и компьютер. Для хранения часто используемой канцелярии и документов, используйте папки, скоросшиватели, подставки и стаканы.
Важно: для хранения одежды также понадобится отдельное пространство. Для того чтобы гардеробная не занимала много места, для данных целей можно купить удобный шкаф-купе. Не менее популярны и функциональны встраиваемые шкафы. Для хранения книг, канцелярии и других аксессуаров и мелочей, используйте отдельный стеллаж. Для дополнительного удобства разделите его на несколько зон, в каждой из которых будет храниться определенная категория вещей.
Особенности оформления студии для семьи с детьми
Если в квартире будет проживать не один человек, а целая семья из трёх или четырёх человек с детьми, при выполнении планировки и оформлении, необходимо учитывать дополнительные особенности и важные моменты.
Инструкция и важные советы:
- У каждого из детей должен быть свой отдельный уголок. Выбирайте максимально освещённое место, с хорошей вентиляцией и обогревом. Для уединения можно оборудовать детскую перегородками или ширмой;
- Выбирайте для ребёнка функциональную и полезную мебель. Это может быть кровать-чердак, стол, совмещённый с кроватью, шкафами или комодами, выдвижное спальное место, растущая парта, трансформирующаяся в мольберт;
- Выполните декорирование и стилевое оформление в том стиле, который выбрал ребёнок. Не переусердствуйте с яркими и холодными цветами. Для увеличения пространства, одну стену детской можно оклеить фотообоями;
- Отдавайте предпочтение прочной, экологичной и безопасной мебели. Она не должна содержать острых углов, и выделять токсичные вещества при повышении температуры в помещении.
Дизайн квартиры студии 35 кв м, выполненный с учётом данных советов и рекомендаций, сделает её максимально просторной, светлой и уютной. Правильная расстановка мебели и зонирование пространства, позволит разместить всё необходимое для комфортного проживания каждого из членов семьи.
dizain.guru
46 фото, дизайн 1-комнатного жилья, студии в хрущевке, обзор лучших вариантов
Ремонт на небольшой площади часто становится проблемой для хозяев жилья. Планировка однокомнатной квартиры 35 кв. м начинается с разработки индивидуального эскиза. Для проекта необходим подбор отделочных материалов, мебели, декора.
Важно во время ремонта всеми способами придать небольшому помещению зрительного пространства. Для этого дизайнеры советуют использовать светлые тона, зеркальные поверхности, встроенные шкафы, столешницы. Чтобы повысить комфорт жильцов, используется зонирование. Также для малогабаритки важно освещение, цвета стен и потолков.
Подготовка
Перед ремонтом в однокомнатной квартире необходимо составить список мебели и техники, которая будет стоять в спальне, на кухне. Для этого на листе или ватмане чертится подробная схема расположения каждого элемента. Можно воспользоваться 3D-проектировщиком на компьютере. В зависимости от количества человек в семье необходимо рассчитывать количество спальных мест, систем хранения.

При планировке необходимо обратить внимание на следующие пункты:
- Возьмите технический план квартиры для изучения расположения несущих стен. Перепланировка проводится с учетом допустимых изменений. Осуществляют расширение пространства, объединения жилой комнаты, коридора и кухни. Очень удобны квартиры-студии, где коридор, жилая комната и кухня объединяются в одно пространство. Любая перепланировка должна быть согласована с БТИ.
- Определите, где будет стоять бытовая техника. От этого зависит расположение розеток. Правильная планировка позволит избежать использование удлинителя или переноски.
- Используйте зонирование. Для этого выделите спальное, рабочее, учебное место. Можно комбинировать обои с разным цветом, узором, сочетайте паркет и ковролин.
- Выбирайте дизайн, рекомендуемый для малогабаритных квартир. Лучше будет смотреться современный минимализм. Данному стилю характерно использование встроенных шкафов, складных и раздвижных дверей, многофункциональной мебели.
При планировке квартиры-студии уделите особое внимание зоне отдыха. Кровать можно отделить от общей площади стенкой из гипсокартона, шторами, сделать подиум. Важно установить хорошую вытяжку на кухню, чтобы при готовке запахи не распространялись по всей площади. Двери устанавливаются в ванную комнату, на остальной площади используются перегородки.
Зонирование пространства
При планировке квартиры площадью 35 кв. м обязательно выделяется зона гостиной, спальня и кухня. Если в семье есть ребенок, необходимо обустроить детский уголок.
Если в квартире есть лоджия, ее стены утепляются, переносится радиатор и новые метры используются как дополнительное пространство под учебную или рабочую зону. Если в квартире балкон, его можно оборудовать полками. Кладовые в «хрущевках» выделяются под гардероб, что позволяет отказаться от большого шкафа.
Чтобы гостиная отделялась от спальной зоны, устанавливается перегородка. Наиболее дешевый вариант – это текстильная ширма. Она создает уют, не пропускает свет, легко стирается. В месте, где будет стоять кровать можно постелить ковролин или установить подиум.
При перепланировке малогабаритки можно сделать квартиру-студию. Зона для приема гостей и отдыха отделяется от кухни передвижной перегородкой. Стеклянная, витражная и зеркальная ширма будет красиво смотреться, зрительно увеличивать пространство.Устанавливается барная стойка, которая делит площадь и используется в качестве обеденного стола.
Для экономии места на кухне вместо подоконника устанавливается широкая столешница. Однако за таким столом неудобно обедать семье из 3-4 человек и принимать гостей.
На фото видна грамотная планировка однокомнатной квартиры площадью 35 кв. м. На каждом примере можно увидеть 3-4 основных зоны, которые выделяются с помощью отделочных материалов: гипсокартонных, стеклянных перегородок, тканевых ширм.

Цветовая гамма и отделка
Дизайн квартиры не должен быть перегружен и содержать большое количество деталей, декора. Рекомендуется все пространство выполнять в одном стиле. С помощью правильной цветовой гаммы можно зрительно увеличить пространство.

Идеи для интерьера берутся из следующих стилей: минимализм, хай-тек, лофт. При этом используют пастельные, светлые или природные тона. Не рекомендуется декорирование с помощью лепнины, колонн, гипсокартонных конструкций.

Стены могут отличаться цветом и рельефом в зависимости от зоны. При планировке можно выделить места, где будут уместны дизайнерские элементы: настенный ламинат, кирпичная или каменная кладка. Обои можно комбинировать, но они должны сочетаться по всей квартире по цвету и стилю. Также используется декоративная штукатурка.

Потолок квартиры обклеивается глянцевыми или матовыми обоями. В гостиной зоне можно использовать зеркальный верх. Если хозяин квартиры любит темные цвета, при планировке они используются для декорирования стен.

Выбор мебели
Студия 35 кв. м обустраивается функциональной мебелью, которая должна занимать минимум жилой площади. Лучше отказаться от объемных полок, комодов, журнальных столиков, тумбочек. Во время планировки сразу выделите место под основные элементы:
- Шкаф-купе на большую часть стены будет вместительным, при этом он не занимает много площади. Для зрительного увеличения пространства используют зеркальные дверцы.
- Спальное место. Дизайнеры рекомендуют выбирать кровать-трансформер, которая днем поднимается и становится шкафом. Кровать можно сделать в виде подиума, а в нише установить выдвижные ящики для хранения постельного, одежды, полотенец.
- Для экономии пространства выбирается небольшой стол, который встраивается вместо подоконника, либо используют барную стойку. Для встречи гостей и учебы можно приобрести стол, который трансформируется в больший или раскладывается.
- Кухня. При планировке данная зона оборудуется высокими подвесными шкафчиками, бытовая техника встраивается в нижние шкафы. Добавляет пространства и освежает интерьер кухни гарнитур с глянцевыми поверхностями.
- Диван. Небольшой диван или пуфы располагаются в гостиной зоне. Также он может служить спальным местом.
Можно приобрести пуфы, которые не занимают много места, а некоторые имеют ниши и используются для хранения вещей. Если в семье есть ребенок, для планировки детской зоны приобретается специальная мебель. Можно установить кровать над столом для учебы, а шкафчики спрятать за прикроватной лестницей.

Освещение
При планировке малогабаритной квартиры важно разбираться в особенностях освещения. Светлое помещение кажется просторней и уютней. Поэтому каждая функциональная зона должна иметь свой источник света.

В спальной зоне необходим умеренный и рассеянный свет, который достигается с помощью светодиодной ленты или пары софитов. В рабочей или учебной зоне устанавливается настольная лампа, при включении которой не будет освещаться остальная площадь комнаты. Для детского уголка рекомендуется установить ночник.

Для кухни подойдет точечный светильник, небольшие люстры над столешницей для готовки и за обеденным столом. Также освещается угол, где установлена печка и мойка.

Примеры готовых проектов
Дизайнеры, разрабатывая варианты планировки квартиры, стараются сэкономить отведенную площадь и сделать практичным каждый элемент. При правильном зонировании и расположении мебели можно сделать стильную, комфортную квартиру. Пространство позволит компактно разместить спальную, гостиную, рабочую и детскую зону. Ниже приведены фото лучших интерьеров, на примере которых можно создать собственный неповторимый дизайн.

Заключение
Планировка малогабаритной квартиры требует тщательной подготовки, составления эскиза, подбора функциональной, вместительной мебели. С помощью необычного дизайна можно сэкономить площадь. В результате однокомнатное жилье имеет достаточное пространство для отдыха, работы, приема гостей, детских игр. Небольшое помещение должно служить домом для целой семьи, поэтому во время ремонта стоит воспользоваться советами дизайнеров.
skedraft.ru
Дизайн однокомнатной квартиры 35 кв. м.
Обустройство однокомнатной квартиры 35 кв м – это довольно проблематичный процесс. На такой малой площади необходимо уместить всё необходимое для комфортного проживания. Мы берём на себя задачу помочь вам в оформлении интерьера однокомнатной квартиры 35 кв м.

Часто, при планировке маленьких квартир у людей не выходит самостоятельно разработать дизайн интерьера.
Это заставляет обращаться за помощью к дизайнерам. Не имея особых навыков, будет трудно на площади 35 кв м разместить коридор, гостиную, кухню и прочие зоны. Однако, мы нашли способы решения этой непростой задачи.

Оглавление статьи:
Советы специалистов
Во-первых, используйте минималистичный дизайн однокомнатной квартиры 35 кв м. Не загружайте помещение ненужной мебелью и аксессуары. Поместите в комнаты только необходимые и компактные вещи, которые способны трансформироваться. Например, диван-кровать.

Во-вторых, зеркала отлично создадут иллюзию пространства в помещении. Визуально квартира станет казаться больше и просторнее. Также, лишние стены можно заменить на перегородку из ткани или, например, барную стойку. Такие решения освободят пространство маленькой квартиры.

Третье – цветовая гамма. Светлые пастельные тона гармонично впишутся в интерьер современной однокомнатной квартиры 35 кв м. Цвета помещения сильно влияют на визуальное восприятие.

Нужно быть аккуратным в выборе оттенков для пола, стен, потолка и мебели, чтобы не навредить внешнему виду квартиры.

Четвертое – это шкафы-купе. Эти шкафы великолепно дополняют интерьер маленькой и уютной «однушки». Только представьте сколько полезного пространства вы сэкономите, используя встроенный шкаф, вместо громоздкого обычного гардероба! А если сделать зеркальные двери – помещение визуально станет гораздо просторнее!

Планировка квартиры-сутдии
Поскольку в квартире-студии очень мало пространства, то использовать его нужно с умом. Важно правильно разграничить зоны помещения. Разделить пространство на зоны можно с помощью мебели, перегородок или тюлей.

Кухонная зона. С помощью барной стойки можно отлично отделить кухню от остальной квартиры. К тому же, стойка может заменить и обеденный стол. Другой вариант – это складной стол. Он будет обычным журнальным столиком, а при необходимости раскладываться в большой, полноценный стол, за которым уместиться много гостей;

Спальня. Для этой зоны рекомендуется использовать раскладной диван, который трансформируется в большую и удобную кровать. Отделить спальню можно при помощи шкафа или ширмы;

Гостиная. Прекрасным решением станут мягкие пуфики. Они создадут атмосферу уюта в доме и великолепно заменят привычные кресла. Ковер будет хорошим дополнением гостиной. Он сделает квартирку еще более уютной. Для экономии пространства, повесьте телевизор на стену;

Рабочая зона. Широкий подоконник – это хорошая альтернатива рабочему столу. Под ним можно сделать ящики, в которых будут храниться документы и прочие нужные в работе вещи. Установив жалюзи, Вы сможете заниматься делами в теплых солнечных лучах, либо закрыться от лишнего света.

Детская комната в «однушке»
Важным фактором является то, что дети быстро вырастают. При планировке нужно учесть это, чтобы через 3-4 года детская была также актуальна.

Существует несколько рекомендации для создания комнаты ребенка:
- Следует выбрать ту часть квартиры, в которой больше света и тепла;
- Разумно используйте каждый миллиметр комнаты. Ребенку необходимо много пространства для игр, уроков, развлечений;
- В выборе обоев учитывайте мнение чада;
- Рассмотрите вариант особой детской мебели, в которой поэтажно совмещены стол и кровать.
Заключение
Несомненно, в небольшой квартире тяжело расположить все, что хотелось бы. Используя наши советы Вы сможете правильно оформить свое уютное гнездышко. В нем может находиться все необходимое для комфортной жизни и квартира не потеряет внешний уют.

Фото дизайна однокомнатной квартиры 35 кв. м.

































mirdizajna.ru
как все уместить на 35 квадратных метрах (43 фото)

Многие интересуются вопросом, как обустроить интерьер однокомнатной квартиры 35 кв.м, когда она имеет совсем небольшую площадь — стандартная для панельных домов.. Достаточно популярная дилемма, ведь не все могут позволить себе варианты дома с большой площадью, но, несомненно, каждому хотелось бы создать максимальный уют и комфортную атмосферу.





Советы дизайнеров для интерьера квартиры 35 кв.м.
Если не знаете с чего начать, ознакомьтесь с мнением профессионалов на этот счёт. И так, вот какие рекомендации дают дизайнеры для создания интерьера небольших однокомнатных квартир до 35 квадратных метров.
- Первый и неоспоримый факт – использование стиля минимализма. Это предусматривает собой приобретение минимума вещей и мебели, а также выбор именно таких вариантов, которые будут, не только удобны, но и максимально функциональны. Популярной мебелью в данном варианте будут трансформеры. К примеру, кровать со встроенным столиком, на котором можно спокойно позавтракать или поужинать. Таким образом, у нас уже освободится часть пространства в комнате.
- Второй приём – это воздушность и лёгкость помещения. Для этой задачи отлично подойдёт использование зеркала, можно даже с небольшим матовым рисунком.
- Чтобы поделить пространство на необходимые зоны (кухня, гостиная, спальня) нам понадобятся условные перегородки. Для этого можно воспользоваться гипсокартоном, лёгкой тканью или стеллажом. Для зонирования помещения также можно использовать акцентные моменты, и выделить каждую из зон разными цветовыми решениями.
- Ещё одной из главных задач, которую нужно хорошо продумать – это освещение. Лучше всего воспользоваться вариантом точечных светильников и отдельной подсветки каждой из зон квартиры. Таким образом, будет достаточно удобно использовать освещение, ведь когда в комнате находится один единственный светильник, свет рассевается и не может полностью охватить все нужные участки вашей однокомнатной квартиры площадью 35 квадратных метров.
- В квартирах с небольшой площадью (до 35м2) стоит комбинировать некоторые объекты. К примеру, подоконник может служить барной стойкой. Он займёт совсем мало места, зато будет фантастически выглядеть и функционально работать.
- Если говорить о цветовой политике, то однозначно это должны быть светлые тона, желательно пастельных оттенков. Ни для кого не секрет, что именно светлые цвета условно расширяют пространство и делают его визуально больше.
Теоретически можно использовать и тёмные оттенки, но в меру. Это может быть тёмный пол и плинтуса, но однозначно светлые стены и потолок.
Использование ярких акцентов в однокомнатной квартире до 35 м2 также приветствуется. Подчеркнуть интерьер яркими аксессуарами можно с помощью цветных штор, подушек и мелких деталей.
- Вместо больших громоздких шкафов, которые занимают много места, используйте шкаф купе, который можно приобрести в магазине, или сделать под заказ. Рекомендуется использовать стеклянные двери, чтобы комната визуально стала больше.
- При высоте квартиры от 2,8- 3 метров вы можете создать неповторимую вещь в виде спального места под потолком. Это не только уникально в том плане, что такой вариант редко встречается, и вы будете оригинальны, но при этом ещё экономится существенная площадь для оборудования других зон. К примеру, под потолком у вас будет спальня, а снизу можно сделать рабочую зону, где поместить компьютерный столик и другие нужные предметы быта.
- Вместо обычных распашных дверей рекомендуется использовать складные или раздвижные варианты. Они будут выглядеть достаточно стильно и современно, вместе с этим не «украдут» пространство.
- Главным правилом оформления помещений, которые не имеют много места, будет ограничение от всего ненужного хлама. Помните, что чем меньше мелких вещей будет у вас дома, тем больше места создастся для личного пространства. Избегайте перезагруженности деталями и габаритными вещами.
- Не рекомендуется использовать грубые шторы или ламбрекены. Лучше купить минималистические римские шторы или полупрозрачную ткань. Как вариант, ещё можно повесить горизонтальные жалюзи.
- Если в однокомнатной квартире есть балкон или лоджия – считайте, что вам несказанно повезло, ведь это дополнительное пространство, которое можно использовать с умом. Обустройте там зону отдыха, рабочую зону или даже небольшую игровую комнату, если есть маленькие детки. Конечно, придётся потрудиться и хорошенько утеплить балкон, чтобы можно было без опаски находиться там в любое время.
Ещё можно обустроить там кладовую, где дополнительно хранить все вещи.
Некоторые люди сносят перегородку и таким образом расширяют площадь помещения за счёт балкона. Но это нужно делать весьма аккуратно, и прежде стоит проконсультироваться со специалистами в данном направлении.





Интерьер однокомнатной квартиры 35 м2
Итак, с основными советами дизайнеров мы ознакомились, теперь можно подумать, как спланировать интерьер, выбрать дизайн и правильно оформить и расположить мебель, чтобы все смогло уместиться на площади в 35 квадратных метров.
Основным принципом здесь будет соотношение целостности пространства вместе с разграничением зон. Продумать тут всё нужно действительно до мелочей и главной задачей будет правильная расстановка мебели.




Кухня в однокомнатной квартире 35 м2
Не всегда есть возможность поставить настоящую перегородку, и сделать кухню отдельной комнатой, ведь это может смотреться нелепо, и украдёт лишнюю площадь.

Поэтому мы будем отделять эту зону другим способом. Для этого воспользуйтесь барной стойкой, которая станет альтернативой обеденному столу и поделит пространство в однокомнатной квартире на две части (кухня и зона гостиной).
Можно использовать стол-трансформер, который станет обеденным столом. Другими словами — это будет обычный небольшой столик, который может раздвигаться до нужных размеров, когда к вам придут гости.
Ещё одним вариантом для стола будет подоконник, который можно сделать по типу барной стойки.
Спальня в одкономнатной квартире 35 кв.м.
Для того, чтобы получить полноценную зону спальни, её необходимо обязательно отделить ширмой, перегородкой или шкафом. Более рационально в случае небольших квартир до 35 квадратных метров покупать диван, а не полноценную кровать. Но тут уже будет зависеть от вашего желания, чем лучше пожертвовать – кроватью или пространством.




Зона отдыха в «однушке» на 35 квадратных метров
Зону отдыха можно совместить в зоной гостиной, обустроив её соответствующим образом. К примеру, поставить пару небольших мягких пуфиков, которые не займут много места в однушке, но будут служить вместо больших массивных кресел. Более того, внутри каждого из пуфиков можно хранить какие-то мелкие вещи.




Конечно, ни одна зона отдыха не будет полноценной без такого предмета, как телевизор. Его рекомендуется разместить на стенке так, чтобы можно было смотреть с гостиной и кухни. Для этого используйте поворотные конструкции.
Рабочее место в маленькой однокомнатной квартире
Подоконник может стать не только барной стойкой, но и отличным рабочим местом, которое можно обустроить на свой лад. Конечно, пространства будет здесь не очень много, но зато всегда можно прийти и спокойно поработать, чтобы никто не отвлекал. Неплохое решение для маленьких однокомнатных квартир.




Под подоконником дополнительно установите ящик для бумаг и канцелярии. Не забудьте продумать наличие розетки, куда будет возможность подключить компьютер.
Интерьер однокомнатной квартиры с детским уголком
Если у вас есть дети, тогда стоит продумать некоторые моменты и для них. Важно учесть тот факт, что дети очень быстро растут, потому этот момент тоже учитывается.
Несколько принципов, которые стоит соблюдать при планировании небольшой однокомнатной квартиры для себя и ребёнка, чтобы и себе место оставить, и ему сделать комфортный детский уголок для игр и занятий.
- Каждый малыш обязан иметь хоть не большой, но свой детский уголок. Для этого лучше всего выбрать светлую и солнечную часть однокомнатной квартиры, где обустройте детскую зону.
- Детский уголок должен отличаться максимальной функциональностью, каждый сантиметр площади должен использоваться максимально эффективно, ведь ребёнок будет здесь спать, играть и заниматься уроками.
- Конечно, детям не нравятся обычные обои, им больше по душе что-то весёлое и мультяшное. Стоит учесть пожелание ребёнка, и подобрать детские обои так, чтобы они сочетались с общим интерьером. Как вариант, в этой зоне можно поклеить выбранные обои совместно с ребёнком, а сама стенка будет обыграна как акцентная. Может получиться достаточно интересно и неординарно.
- Мебель для детской в «однушке» однозначно лучше всего брать по типу трансформера.
Фото однокомнатных квартир 35 к.в.
Как видим, обустроить современный красивый интерьер в однокомнатной квартире в 35 кв.м. не так уж и сложно, главное подойти к этому заданию с умом и фантазией, а также воспользоваться некоторыми советами опытных дизайнеров. Вот вам еще фото дизайна для таких небольших «однушек».
















dekormyhome.ru
Интерьер однокомнатной квартиры 35 кв м в фотографиях
Посмотрите интерьер однокомнатной квартиры 35 кв м в фотографиях и сделайте также, главное следовать советам и внимательно смотреть на фото.
Дизайн квартиры студии 35 кв м: фото кухня гостиная
Обладая небольшой площадью, лучше использовать дополнительные метры кухни, что визуально расширить пространство.
Дизайн квартиры 35 кв м
Квартира с такой площадью может быть и в новом (студия) и в старом доме. Если приобрели новую квартиру-студию, то обустроить ее очень просто. Здесь мы подобрали много вариантов, которые станут основой для вашей идеи. Основное требование к маленькому пространству в 35 квадратов – это все та же функциональность. Нам может и не много нужно, но все же есть та мебель, без которой не обойтись.
Читайте также:
| Самое необходимое | Где можно установить в квартире студии? |
|---|---|
| Обеденная зона | Ею может стать барная стойка, зрительно разграничивающая помещение на 2 части. В качестве обеденного стола можно использовать стол-трансформер, при небольшом количестве людей это может быть просто журнальный столик, а когда нужно, его можно легко и быстро раздвинуть. |
| Спальня | Полноценное спальное место на 30 квадратах можно отделить перегородкой или ширмой, лучше всего использовать пространство рационально и остановиться на диване-трансформере. |
| Гостевая зона | В качестве кресел можно использовать мягкие пуфы, которые не занимают много места. Если конструкция жесткая, то выбирать надо те, в которых есть дополнительное отделение для хранения мелочей. На пол в зоне гостевой лучше всего постелить небольшой ковер, чтобы было более уютно. ТВ надо размещать на кронштейнах, желательно круговых, чтобы и с кухни и с остальных мест можно было спокойно его смотреть. Или же купите обычные поворотные кронштейны. |
| Рабочая зона | Я настаиваю на том, чтобы подоконники были использованы в новом качестве – надо только установить новый и широкий подоконник, а под ним можно разместить узкие выдвигающиеся ящики. Рядом обязательно понадобятся розетки, поэтому при ремонте нужно это учесть. |
Дизайн 1 комнатной квартиры 35 кв м с выделенным спальным местом
Не смотря на размеры, в небольшой квартиры удается поставить кровать и выделить спальное место, это трудно, но возможно.
Советы дизайнеров
В этом разделе собраны самые интересные советы дизайнеров, которые значительно облегчат вашу головную боль по поводу интерьера в малогабаритке. Итак, начнем:
Наилучшим стилем для оформления интерьера маленькой квартиры можно считать минимализм. И это совершенно не означает, что из мебели в доме будет только стол и диван, а еще хуже матрас на полу. Нет, это совершенно не относится к направлению минимализм. Мебели действительно много не нужно, но каждый предмет должен совмещать в себе несколько назначений одновременно. При выборе мебели обратите внимание на трансформирующиеся предметы. Это может быть стол, который превращается к вечеру в кровать. Или диван со встроенной столешницей вместо журнального стола. И конечно, идеальным вариантом для маленьких квартир, станет изготовление мебели на заказ. Это значительно увеличит свободную площадь, так как мебель будет занимать только ту часть комнаты, которую необходимо.

Интерьер должен быть «воздушным» – нам обязательно пригодятся зеркальные поверхности, перегородки из тонкой полупрозрачной ткани или же из матового закаленного стекла. Малогабаритку нужно зонировать грамотно!!! Если нет необходимости в перегородках, мы можем разграничить комнату при отделке. Только комбинировать отделочные материалы тоже надо правильно. Пол тоже можно застелить разными материалами – например, на кухне и в прихожей плитка, а гостевая зона отделена ламинатом. При этом неплохо было бы еще и постелить небольшой коврик в «спальном пятачке». Это один из возможных вариантов зонирования в малогабаритке. Нам еще нужно подчеркнуть разные зоны в квартире светом, тогда общая картинка в доме станет точной.

Темные оттенки или наоборот, слишком яркие в маленькой квартире нельзя использовать повсеместно. Даже если очень хочется – можно и даже нужно сделать пару акцентов. Очень необычно смотрится интерьер, в котором потолок выполнен в насыщенном темном цвете, а стены и пол сделаны белыми. Или более традиционный вариант, когда все наоборот. Потолок и стены светлые или белые, а пол выполнен в темных цветах. Ну и естественно, лучше отдать предпочтение светлым оттенкам.

Если в квартире есть не несущие стены, которые можно разобрать без разрешения, то это лучше сделать. Они режут пространство, и делают маленькое – еще меньшим. Квартиры студии, может, и не всем подходят, зато на площади в 36 квадратов помещается куча полезных предметов, которые при правильной расстановке превратят квартиру в 56 квадратов… Только, к сожалению, зрительно.

В хрущевках есть малюсенькое помещение – волшебная кладовка, в которой у многих еще храниться разный хлам. Вот ее можно самостоятельно переделать в шкаф. И это может быть не просто шкаф-купе, но и полноценная система хранения, если подойти к вопросу с умом. Тогда в комнате нам уже не придется устанавливать громоздкий ящик под названием гардероб! И вот у нас еще пару метров и освободится.

В квартирах с высокими потолками можно устроить спальное место над землей!!! И это не шутка. Кровать чердак для взрослых и солидных дядь и теть вполне уместна. А для большей прочности, основание нашего гнезда может быть выполнено как открытый или закрытый шкаф. Но каркас должен быть прочным, лучше всего заказать такое чудо-гнездо у опытных мебельщиков, которые рассчитают нагрузку соответственно нашим, не побоюсь этого слова, габаритам.

Чтобы наши однушки визуально стали просторнее надо избегать перегруженности одного единственного помещения – хватит уже покупать статуэтки в поездках! Окна также не стоит перегружать тканью, лучше использовать тонкие вуали или римские шторы, чем ламбрекены. От соседских глаз можно укрыться, если установить рулонные шторы на стекла из плотной ткани. Да и кстати, я забыла сказать про бытовую технику. Маленькие квартиры должны иметь мобильную технику, точнее хозяева, то есть мы с вами, должны ее иметь. Телевизор лучше устанавливать на поворотном кронштейне, а акустику сразу монтировать по потолку комнаты.
Интерьер хрущевки 35 кв метров
Комната, кухня, прихожая, совмещенный санузел, маленькая кладовая и балкон, если этаж не первый – вот и все пространство однокомнатной хрущёвки в Москве и других городах на постсоветском пространстве. Всего около 28 квадратом площади, на которой мы должны разместить всё необходимое. Уже вижу округлившиеся глаза читателей, и немой вопрос – как?!? Организация пространства в таких квартирах стоит наравне с функционалом. Нет ничего невозможного – и это действительно так.
Начну от входа. Первое помещение – прихожая. Обычно это узкий коридор, в котором всего полно, а наступить негде. Чтобы сделать прихожую в хрущевке просторной и при этом сохранить возложенные на нее функции, можно поступить так:
- При наличии смежной кладовки, переделываем ее во вместительный шкаф, а на стене прихожей можно повесить пару крючков для повседневной одежды. Зеркало визуально расширит пространство, и перед выходом из дома его удобно использовать. Можно установить узкую обувницу с сиденьем сверху или поставить пуфы с пустотами внутри.
- Геометрия прихожей в хрущёвке может быть различной. Для вытянутых помещений можно использовать компактный шкаф-купе или угловой шкаф. Но зеркало, желательно высокое, должно быть в любом доме. А вот от лишних деталей (вазы, полки для мелочей и пр.) надо отказаться. Помещение лучше сделать светлым, и это касается не только цвета отделки прихожей, но и освещения. Наиболее выгодно установить источник света недалеко от зеркала.
Второе помещение, которое нуждается в рационализации, это кухня хрущёвки. Обычно шесть квадратов, возможности переноса коммуникаций (газ, канализация) у нас нет. Поэтому обычно подбирают комплект мебели со встраиваемой техникой. Обеденную зону лучше всего разместить около окна, а стол может крепиться к стене и убираться при необходимости. Подоконник на кухне надо обязательно задействовать. Причем и из него, если установить широкий подоконник, можно сделать стол или дополнительное рабочее пространство. Гарнитур ставят либо на 2 стены, или же вдоль одной. Последний вариант мне лично давно наскучил.
По материалам сайтов: designmyhome.ru,
prof-kirpich.ru
Дизайн однокомнатной квартиры 35 кв. м. 5 фото — проектов
Казалось бы, что дизайн однокомнатной квартиры 35 кв. м. не может быть комфортным, гармоничным и привлекательным. Но гуру дизайнерского искусства доказывают на примерах своих работ, что даже на крошечной площади можно сотворить прекрасный шедевр.
Идеи дизайна однокомнатной квартиры 35 кв.м.
Кто сказал, что однокомнатная квартира не может быть красивой, практичной и многофункциональной? Просмотрев чудесные работы маэстро, можно разбить в пух и прах этот миф. Вооружившись вдохновением и фото изумительных работ дизайнеров, уютное гнездышко можно наградить не только эффектным одеянием, но и характером.
Фото-проект №1. Дизайн с мужским характером и женской привлекательностью
Квартира выглядит элитно, строго и в то же время очаровательно.
Цветовая гамма представлена:
- цветом «маренго», который привносит эффектности;
- дымчатым оттенком, наделяющим интерьер мягкостью и нежностью;
- салатным, придающим интерьеру яркости;
- белым, наполняющим комнату свежестью, чистотой;
- ярко-алым, придающим пикантности;
- черным, награждающим презентабельностью и фешенебельностью.
Квартира состоит из функциональных зон:
- главной комнаты, выполняющей роль кабинета, спальни, гостиной;
- санузла;
- кухни.
Общая комната привлекательна и практична. Ее изюминкой является стена с изображением ночного города, притягивающая взгляд, тем самым не позволяя концентрировать внимание на миниатюрных размерах помещения. Кроме того, дизайнер использовал хитрость, которая визуально расширила стены. Фото 3D с изображением небоскреба на заднем плане, зрительно отодвигает стену, а глянцевые поверхности, создающие оптические иллюзии, увеличивают размеры комнаты.
Предметы интерьера идеально вписались в маленькую комнату. Стол и кресло, гармонично расположившееся у окна, создают рабочую область. Зона отдыха и сна представлена мягким диваном в деревянном «обрамлении», практичным гарнитуром с множеством шкафчиков и полочек, оригинальным журнальным столиком и ультрасовременным телевизором.
Кухня выглядит не менее привлекательно. Многофункциональная мебель и инновационная бытовая техника составляют отличный дуэт.
Ванная комната невероятно комфортна и просторна. Такой эффект дарят блестящие поверхности мебели, кафеля и прозрачные дверцы душевой кабинки.
В целом дизайн представленной однокомнатной квартиры получился современным, харизматическим и привлекательным. Дизайнер Юлия Швед.







Прямые диваны для гостиной
[affegg id=23]
Фото-проект №2. 35 кв. м. дерзкой простоты!
Дизайн однокомнатной квартиры площадью 35 кв.м. прост, светел, легок и в то же время вызывающ!
Цветовая гамма представлена молочными, белоснежными, песочными, дымчатыми и винными тонами. Каждый оттенок, гармонично переплетаясь, создает воздушную композицию.
Квартира-студия состоит из рабочей области, спальни-гостиной, кухни-столовой и санузла.
Область отдыха и сна отделена от кухни и ванной перегородкой, а кабинет гармонично «восседает» на подиуме.
В гостиной-спальне чувствуется безграничная свобода, благодаря минимуму предметов интерьера. Кабинет практичен, все нужные атрибуты для работы собраны в одном месте, что значительно облегчает жизнь хозяину квартиры. Мебель, облицовочный материал соответствуют духу лофта: экстравагантно, но в то же время просто.
Особого внимания заслуживает кухня. Традиционный мебельный гарнитур заменен на металлические полочки, под оригинальной мойкой взору открывается водопроводная труба. Металл и дерево в кухне создают удивительное впечатление.
Ванная комната не менее оригинальна: блеск металла, тепло и аромат дерева, минимум мебели, открытые трубы идеально подчеркивают характер стилевого направления, делая помещение невероятно просторным.
Дизайн этой однокомнатной квартиры квартиры подойдет людям творческих профессий, любящим свободу действий и не терпящим рамок, границ, стереотипов. Наталья Галонская, г.Минск.







Подвесные светильники
[affegg id=24]
Фото-проект №3. Дизайн, окутанный тайной
Дизайн представленной однокомнатной квартиры загадочен, привлекателен и интересен.
Цветовая палитра представлена:
- шоколадным тоном, придающим благородства;
- кристально-белоснежным цветом, прибавляющим объемов;
- дымчатым оттенком, привносящим мягкости;
- светло-бежевым тоном, делающим интерьер уютным и теплым.
В качестве акцентов выступили насыщенно-бирюзовые и глубокие розовые оттенки.
Благодаря сносу стен квартиру удалось разделить на функциональные зоны:
- спальню;
- гостиную;
- кухню;
- санузел.
Дизайнеры предусмотрели даже спальную зону для гостей и множество скрытых мест для хранения всевозможных вещей.
Жемчужиной квартиры является стена, оформленная декоративным кирпичом. Не менее эффектно смотрится потолок с грубыми балками из древесины.
Гостиная балует безграничным простором, благодаря белым предметам интерьера: шикарный снежный диван с шоколадным столом и стульями составляют элегантную и аристократичную пару. А экстравагантный шкаф – снаружи девственно-белый, а внутри ярок, удивительным образом настраивает на позитивный лад, заряжая прекрасными эмоциями с самого утра.
Кухня представлена белым гарнитуром с встроенной бытовой техникой, идеально гармонирующим с мягкой мебелью в гостиной.
В квартире-студии удалось выделить место даже под огромную кровать, гордо стоящую на подиуме. Конструкция не только практичная, но и содержит секрет! Кроме безграничных мест хранения, в подиуме имеется объемный ящик-кровать для гостей.
В санузле приятно не только осуществлять гигиенические процедуры, но и подумать, расслабиться. Огромное зеркало – во всю стену прекрасно корректирует помещение, прибавляя желанных объемов. Прозрачные дверцы душевой кабинки также играют роль искусного корректора, увеличивая пространство, а современная санитарная техника чудесно вписалась в интерьер, подчеркивая общую концепцию стиля.
В целом дизайн интерьера балует хозяев многофункциональностью, практичностью и грациозностью. Архитекторы: Sara Cimarelli и Giorgio Opolka бюро Archifacturing Место: Рим, Трастевере.








Эксклюзивные бра
[affegg id=25]
Фото-проект №4. Практичный и стильный дизайн
Дизайн интерьера этой однокомнатной квартиры многофункционален, прост, но в то же время невероятно эффектен.
Цветовая гамма представлена:
- белоснежным тоном, придающим свежести, чистоты и объемов;
- дымчатым оттенком, делающим интерьер нежным;
- песочным цветом, привносящим ноток спокойствия и умиротворения;
- золотисто-белым тоном, прибавляющим лоска и шика;
- антрацитовым цветом, создающим строгие мотивы.
Перепланировка позволила поделить квартиру на множество зон:
- спальню;
- гостиную;
- кухню;
- ванную;
- прихожую;
- гардеробную.
В уютной и радушной гостиной гармонично расположены предметы обстановки, которые прекрасно дополняют друг друга. Журнальный столик идеально сочетается с огромной люстрой и мебельным гарнитуром с множеством полочек и шкафчиков. Мягкий диван составляет прекрасную пару оригинальным стульям. А экстравагантный стол чудесен в дуэте с напольным покрытием из дерева. Каждая деталь продумана и учтена, благодаря чему дизайн квартиры многофункционален, скромен, но в то же время необычайно красив.
Спальня зонирована с помощью подиума. Конструкция непроста, при необходимости из нее выдвигается лестница, которая исполняет роль стола, посадочных мест, полок.
Кухня, на первый взгляд, кажется скромной, но в многочисленных ящичках скрывается инновационная техника, значительно облегчающая жизнь своей хозяйке.
Изюминка ванной комнаты – кирпичная стена, покрашенная золотисто-белой краской, что прибавляет интерьеру сказочности. Гармоничное размещение предметов мебели и компактной сантехники позволило сделать санузел просторным, а чудесная цветовая гамма привнесла роскошных, теплых и уютных ноток. Марина Измайлова. Дизайн бюро Archwood.






Сантехника для однокомнатной квартиры
[affegg id=26]
Фото-проект №5. 35 кв. м. очаровательного сияния!
Несмотря на непростую планировку квартиры, дизайнерам удалось создать настоящий шедевр: стильный, сияющий, уютный и изысканный.
Цветовая гамма состоит из таких тонов:
- белого, визуально прибавляющего объемов и дарящего чистоту;
- шоколадного, привносящего ноток благородства и шарма;
- темно-бирюзового, придающего свежести;
- зеленого, делающего интерьер колдовским и сочным;
- нежно-серого, создающего нежное очарование в квартире;
- желтого, привносящего солнечных ноток.
Квартира состоит из гостиной, кухни, санузла и прихожей.
Гостиная отделена от кухни с помощью барной стойки и мягкой мебели. Огромный диван с множеством декоративных подушек прекрасно сочетается с мебельным гарнитуром, а оригинальный коврик подчеркивает роскошь штор. Даже журнальный столик сливается в элегантном танце с барной стойкой, служащей в качестве обеденного стола. Кухонный гарнитур компактен, но невероятно удобен, практичен и современен.
Особого внимания заслуживает ванная комната. Она просторна, в ней нет ничего лишнего, оформление нежное, невесомое. Подвесная санитарная техника и мебель идеально подчеркивают изысканность друг друга, создавая невероятную атмосферу. Студия Am-interior, г.Москва.
Дизайн однокомнатной квартиры 35 кв. м., несмотря на скромные размеры, может быть по-настоящему сказочным!







harthaus.ru

