Π‘Ρ Π΅ΠΌΠ° ΠΎΡΠΊΠ°ΡΠ½ΡΡ Π²ΠΎΡΠΎΡ ΡΠΎΠ»ΡΡΠΊ β Π Π΅ΠΊΠΎΠΌΠ΅Π½Π΄Π°ΡΠΈΠΈ
Π Π΅ΠΊΠΎΠΌΠ΅Π½Π΄Π°ΡΠΈΠΈ
Π‘ΠΊΠ°ΡΠ°ΡΡ ΡΠ΅ΠΊΠΎΠΌΠ΅Π½Π΄Π°ΡΠΈΠΈ
Π Π΅ΠΊΠΎΠΌΠ΅Π½Π΄Π°ΡΠΈΠΈ Π ΠΠΠ’ΠΠ ΠΊ ΠΌΠΎΠ½ΡΠ°ΠΆΡ ΠΎΡΠΊΠ°ΡΠ½ΡΡ ΠΏΠΎΠ΄Π²Π΅ΡΠ½ΡΡ Π²ΠΎΡΠΎΡΠ Π΅ΠΊΠΎΠΌΠ΅Π½Π΄Π°ΡΠΈΠΈ Π ΠΠΠ’ΠΠ ΠΊ ΠΌΠΎΠ½ΡΠ°ΠΆΡ ΠΎΡΠΊΠ°ΡΠ½ΡΡ ΡΠ°ΠΌΠΎΠ½Π΅ΡΡΡΠΈΡ Π²ΠΎΡΠΎΡ
ΠΡ Π³ΠΎΡΠΎΠ²ΠΈΠΌ Π΄Π»Ρ ΠΠ°Ρ Π½ΠΎΠ²ΡΡ Π²Π΅ΡΡΠΈΡ ΡΠ΅ΠΊΠΎΠΌΠ΅Π½Π΄Π°ΡΠΈΠΉ
ΠΡΠΊΡΡΡΡ ΠΏΡΠ΅Π΄ΡΠ΄ΡΡΠΈΠΉ Π²Π°ΡΠΈΠ°Π½Ρ
ΠΠ΅ΡΠΎΠ΄ΠΈΠΊΠ° ΡΠ°ΡΡΠ΅ΡΠ° ΠΏΠ°ΡΠ°ΠΌΠ΅ΡΡΠΎΠ² ΠΎΡΠΊΠ°ΡΠ½ΡΡ Π²ΠΎΡΠΎΡ
ΠΠ΅ΡΠΎΠ΄ΠΈΠΊΠ° ΡΠ°Π·ΡΠ°Π±ΠΎΡΠ°Π½Π° ΠΊΠΎΠΌΠΏΠ°Π½ΠΈΠ΅ΠΉ Π ΠΠΠ’ΠΠ Π² 2003 Π³ΠΎΠ΄Ρ ΠΈ ΠΏΡΠ΅Π΄Π½Π°Π·Π½Π°ΡΠ΅Π½Π° Π΄Π»Ρ Π²ΡΠ±ΠΎΡΠ° ΠΎΠΏΡΠΈΠΌΠ°Π»ΡΠ½ΠΎΠΉ ΡΠΈΡΡΠ΅ΠΌΡ ΠΎΡΠΊΠ°ΡΠ½ΡΡ Π²ΠΎΡΠΎΡ ΠΏΡΠΎΠΈΠ·Π²ΠΎΠ΄ΡΡΠ²Π° ΠΊΠΎΠΌΠΏΠ°Π½ΠΈΠΈ Π ΠΠΠ’ΠΠ.

1. Π ΠΠ‘Π§ΠΠ’ ΠΠΠΠΠ ΠΠ’ΠΠ ΠΠ’ΠΠΠ’ΠΠ«Π₯ ΠΠΠ ΠΠ’
ΠΡΠΎΠΈΠ·Π²Π΅Π΄ΠΈΡΠ΅ ΡΠ°ΡΡΠ΅ΡΡ Π΄Π»Ρ Π½Π΅ΡΠΊΠΎΠ»ΡΠΊΠΈΡ
ΡΠΈΡΡΠ΅ΠΌ ΠΎΡΠΊΠ°ΡΠ½ΡΡ
ΡΠ°ΠΌΠΎΠ½Π΅ΡΡΡΠΈΡ
Π²ΠΎΡΠΎΡ. ΠΡΠ±Π΅ΡΠΈΡΠ΅ ΡΠΈΡΡΠ΅ΠΌΡ, ΡΠ΄ΠΎΠ²Π»Π΅ΡΠ²ΠΎΡΡΡΡΡΡ Π²Π°ΡΠΈΠΌ ΡΡΠ»ΠΎΠ²ΠΈΡΠΌ.
ΠΡΠΈ ΡΠ°ΡΡΠ΅ΡΠ΅ Π³Π°Π±Π°ΡΠΈΡΠΎΠ² Π²ΠΎΡΠΎΡ ΠΈΡΠΏΠΎΠ»ΡΠ·ΡΠΉΡΠ΅ ΡΠΎΡΠΌΡΠ»Ρ:
Π³Π΄Π΅ [F2] — ΠΌΠ°ΠΊΡΠΈΠΌΠ°Π»ΡΠ½ΠΎ Π΄ΠΎΠΏΡΡΡΠΈΠΌΠ°Ρ Π½Π°Π³ΡΡΠ·ΠΊΠ° Π½Π° ΠΎΠΏΠΎΡΡ.
ΠΡΠΈ ΠΈΡΠΏΠΎΠ»ΡΠ·ΠΎΠ²Π°Π½ΠΈΠΈ ΠΊΠΎΠΌΠΏΠ»Π΅ΠΊΡΡΡΡΠΈΡ
Π ΠΠΠ’ΠΠ Π½Π΅ΠΎΠ±Ρ
ΠΎΠ΄ΠΈΠΌΠΎ ΡΡΠΈΡΡΠ²Π°ΡΡ ΡΠ΅Ρ
Π½ΠΎΠ»ΠΎΠ³ΠΈΡΠ΅ΡΠΊΠΈΠ΅ ΠΎΡΡΡΡΠΏΡ:
| ΠΠΠΠ Π | ΠΠΠ | ΠΠΠ Π | ΠΠΠΠ‘ | |
| a | 0,1 ΠΌ | 0,1 ΠΌ | 0,1 ΠΌ | 0,16 ΠΌ |
| b | 0,22 ΠΌ | 0,25 ΠΌ | 0,28 ΠΌ | 0,35 ΠΌ |
| c | 0,1 ΠΌ | 0,11 ΠΌ | 0,14 ΠΌ | 0,25 ΠΌ |
| d | 0,05 ΠΌ | 0,14 ΠΌ | 0,14 ΠΌ | 0,1 ΠΌ |
Π£ΡΠ»ΠΎΠ²Π½ΡΠ΅ ΠΎΠ±ΠΎΠ·Π½Π°ΡΠ΅Π½ΠΈΡ:
P — Π²Π΅Ρ ΡΡΠ²ΠΎΡΠΊΠΈ, ΠΊΠ³
F1 — Π½Π°Π³ΡΡΠ·ΠΊΠ°, Π΄Π΅ΠΉΡΡΠ²ΡΡΡΠ°Ρ Π½Π° ΠΎΠΏΠΎΡΡ f, ΠΊΠ³ (Π²Π΅ΡΠΎΠ²Π°Ρ)
F2 — Π½Π°Π³ΡΡΠ·ΠΊΠ°, Π΄Π΅ΠΉΡΡΠ²ΡΡΡΠ°Ρ Π½Π° ΠΎΠΏΠΎΡΡ t, ΠΊΠ³ (ΡΠ΅Π°ΠΊΡΠΈΠΎΠ½Π½Π°Ρ)
L — Π΄Π»ΠΈΠ½Π° ΡΡΠ²ΠΎΡΠΊΠΈ, ΠΌ
Π — ΡΠΈΡΠΈΠ½Π° ΠΏΡΠΎΠ΅Π·Π΄Π°, ΠΌ
I — ΠΌΠΈΠ½ΠΈΠΌΠ°Π»ΡΠ½ΠΎΠ΅ ΡΠ°ΡΡΡΠΎΡΠ½ΠΈΠ΅ ΠΌΠ΅ΠΆΠ΄Ρ ΡΠ΅Π½ΡΡΠ°ΠΌ ΠΎΠΏΠΎΡ, ΠΌ
a, b, c, d — ΡΠ΅Ρ
Π½ΠΎΠ»ΠΎΠ³ΠΈΡΠ΅ΡΠΊΠΈΠ΅ ΠΎΡΡΡΡΠΏΡ, ΠΌ
ΠΠ°ΠΊΡΠΈΠΌΠ°Π»ΡΠ½ΠΎ Π΄ΠΎΠΏΡΡΡΠΈΠΌΡΠ΅ Π½Π°Π³ΡΡΠ·ΠΊΠΈ Π½Π° ΠΎΠΏΠΎΡΡ:
| Π‘ΠΈΡΡΠ΅ΠΌΠ° | ΠΠ΅Ρ Π²ΠΎΡΠΎΡ | [F1] | [F2] |
| ΠΠΠΠ Π | 350 ΠΊΠ³ | 650 ΠΊΠ³ | 300 ΠΊΠ³ |
| ΠΠΠ | 500 ΠΊΠ³ | 800 ΠΊΠ³ | 350 ΠΊΠ³ |
| ΠΠΠ Π | 800 ΠΊΠ³ | 1500 ΠΊΠ³ | 650 ΠΊΠ³ |
| ΠΠΠΠ‘ | 2000 ΠΊΠ³ | 3400 ΠΊΠ³ | 1500 ΠΊΠ³ |
2. Π ΠΠ‘Π§ΠΠ’ ΠΠΠΠΠΠΠΠ¬ΠΠ ΠΠΠΠ£Π‘Π’ΠΠΠΠΠ Π ΠΠ‘Π‘Π’ΠΠ―ΠΠΠ― ΠΠΠΠΠ£ Π¦ΠΠΠ’Π ΠΠΠ ΠΠΠΠ
ΠΠ»Ρ ΡΠ΄ΠΎΠ±ΡΡΠ²Π° ΡΠ΅ΠΊΠΎΠΌΠ΅Π½Π΄ΡΠ΅ΠΌ ΠΏΡΠΎΠΈΠ·Π²ΠΎΠ΄ΠΈΡΡ ΡΠ°ΡΡΠ΅ΡΡ ΠΏΡΠΈ ΠΏΠΎΠΌΠΎΡΠΈ ΠΌΠΎΠ±ΠΈΠ»ΡΠ½ΠΎΠ³ΠΎ ΠΏΡΠΈΠ»ΠΎΠΆΠ΅Π½ΠΈΡ «Π ΠΠΠ’ΠΠ.Π Π°ΡΡΠ΅Ρ»
www.rolls.ru
ΠΡΠΊΠ°ΡΠ½ΡΠ΅ Π²ΠΎΡΠΎΡΠ° Β«Π ΠΎΠ»ΡΡΠΊΒ»
ΠΠ½ΠΎΠΆΠ΅ΡΡΠ²ΠΎ ΠΊΠΎΠΌΠΏΠ°Π½ΠΈΠΉ ΡΠ΅Π³ΠΎΠ΄Π½Ρ ΠΈΠΌΠ΅Π΅Ρ Π½Π°Π»Π°ΠΆΠ΅Π½Π½ΡΠΉ Π²ΡΠΏΡΡΠΊ ΡΠ°Π·Π»ΠΈΡΠ½ΡΡ Π΄Π΅ΡΠ°Π»Π΅ΠΉ Π΄Π»Ρ ΠΎΡΠΊΠ°ΡΠ½ΡΡ Π²ΠΎΡΠΎΡ. ΠΡΠΎΠ±ΠΎΠΉ ΠΏΠΎΠΏΡΠ»ΡΡΠ½ΠΎΡΡΡΡ ΠΏΠΎΠ»ΡΠ·ΡΠ΅ΡΡΡ ΠΏΡΠΎΠ΄ΡΠΊΡΠΈΡ ΡΠΈΡΠΌΡ Β«Π ΠΎΠ»ΡΡΠΊΒ». Π Π°Π·Π»ΠΈΡΠ½ΡΠ΅ ΡΠΈΡΡΠ΅ΠΌΡ ΠΈ ΡΠ»Π΅ΠΌΠ΅Π½ΡΡ Π²ΠΎΡΠΎΡ ΠΎΡΠ»ΠΈΡΠ°ΡΡΡΡ Π²ΡΡΠΎΠΊΠΎΠΉ Π½Π°Π΄Π΅ΠΆΠ½ΠΎΡΡΡΡ ΠΈ ΡΡΠ½ΠΊΡΠΈΠΎΠ½Π°Π»ΡΠ½ΠΎΡΡΡΡ. ΠΡ ΠΌΠΎΠΆΠ½ΠΎ ΠΈΡΠΏΠΎΠ»ΡΠ·ΠΎΠ²Π°ΡΡ Π΄Π°ΠΆΠ΅ Π² ΡΡΠ»ΠΎΠ²ΠΈΡΡ ΠΆΠ΅ΡΡΠΊΠΎΠ³ΠΎ ΠΊΠ»ΠΈΠΌΠ°ΡΠ°. ΠΡΠ΅ΠΈΠΌΡΡΠ΅ΡΡΠ²Π° ΠΈΡΠΏΠΎΠ»ΡΠ·ΠΎΠ²Π°Π½ΠΈΡ ΠΎΡΠΊΠ°ΡΠ½ΡΡ Π²ΠΎΡΠΎΡ Β«Π ΠΎΠ»ΡΡΠΊΒ» ΠΌΠΎΠΆΠ½ΠΎ ΠΏΠΎΠ½ΡΡΡ ΠΏΡΠΈ ΠΈΠ·ΡΡΠ΅Π½ΠΈΠΈ ΠΏΡΠ΅ΠΈΠΌΡΡΠ΅ΡΡΠ² ΠΊΠΎΠΌΠΏΠ°Π½ΠΈΠΈ.

ΠΡΠ΅ΠΈΠΌΡΡΠ΅ΡΡΠ²Π° ΠΊΠΎΠΌΠΏΠ°Π½ΠΈΠΈ
Π ΠΏΡΠΎΠΈΠ·Π²ΠΎΠ΄ΡΡΠ²ΠΎ ΠΊΠΎΠΌΠΏΠ°Π½ΠΈΠΈ Β«Π ΠΎΠ»ΡΡΠΊΒ» ΠΏΠΎΡΡΠΎΡΠ½Π½ΠΎ Π²Π½Π΅Π΄ΡΡΡΡΡΡ Π½ΠΎΠ²ΡΠ΅ ΡΠ°Π·ΡΠ°Π±ΠΎΡΠΊΠΈ. ΠΠ°ΠΏΡΠΈΠΌΠ΅Ρ, Π΄Π»Ρ Π³Π΅ΡΠΌΠ΅ΡΠΈΡΠ½ΡΡ ΠΏΠΎΠ΄ΡΠΈΠΏΠ½ΠΈΠΊΠΎΠ² ΠΈΡΠΏΠΎΠ»ΡΠ·ΡΡΡ Π½ΠΈΠ·ΠΊΠΎΡΠ΅ΠΌΠΏΠ΅ΡΠ°ΡΡΡΠ½ΡΡ ΡΠΌΠ°Π·ΠΊΡ. ΠΠ½Π° ΠΈΠΌΠ΅Π΅Ρ ΡΠ²ΠΎΠΉΡΡΠ²ΠΎ Π½Π΅ Π²ΠΏΠΈΡΡΠ²Π°ΡΡ Π²Π»Π°Π³Ρ. Π’Π°ΠΊΠΆΠ΅ ΡΡΡΠ΅ΡΡΠ²ΡΡΡ ΠΈ Π΄ΡΡΠ³ΠΈΠ΅ ΠΎΡΠ»ΠΈΡΠΈΡΠ΅Π»ΡΠ½ΡΠ΅ ΡΠ΅ΡΡΡ ΠΏΡΠΎΠ΄ΡΠΊΡΠΈΠΈ. Π‘ΠΈΡΡΠ΅ΠΌΡ ΠΈ ΡΠ»Π΅ΠΌΠ΅Π½ΡΡ Π΄Π»Ρ ΠΎΡΠΊΠ°ΡΠ½ΡΡ Π²ΠΎΡΠΎΡ Β«Π ΠΎΠ»ΡΡΠΊΒ» ΡΠΏΠΎΡΠΎΠ±Π½Ρ ΡΠΎΡ ΡΠ°Π½ΡΡΡ ΡΡΠ½ΠΊΡΠΈΠΎΠ½Π°Π»ΡΠ½ΠΎΡΡΡ Π² ΡΠ΅ΠΌΠΏΠ΅ΡΠ°ΡΡΡΠ½ΠΎΠΌ Π΄ΠΈΠ°ΠΏΠ°Π·ΠΎΠ½Π΅ ΠΎΡ -60 Π΄ΠΎ + 90 Π³ΡΠ°Π΄ΡΡΠΎΠ². ΠΠ°ΡΠ°Π½ΡΠΈΠΉΠ½ΡΠΉ ΡΡΠΎΠΊ ΡΠ»ΡΠΆΠ±Ρ ΡΠ°ΠΊΠΈΡ ΠΈΠ·Π΄Π΅Π»ΠΈΠΉ ΡΠΎΡΡΠ°Π²Π»ΡΠ΅Ρ ΠΎΠΊΠΎΠ»ΠΎ 5 Π»Π΅Ρ.
ΠΡΠΈ ΠΈΡΠΏΠΎΠ»ΡΠ·ΠΎΠ²Π°Π½ΠΈΠΈ ΡΠ»Π΅ΠΌΠ΅Π½ΡΠΎΠ² Β«Π ΠΎΠ»ΡΡΠΊΒ» Π΄Π»Ρ ΠΎΡΠΊΠ°ΡΠ½ΡΡ Π²ΠΎΡΠΎΡ ΠΊΠΎΠΌΠΏΠ°Π½ΠΈΠΈ Β«Π ΠΎΠ»ΡΡΠΊΒ» ΠΌΠΎΠΆΠ½ΠΎ Π±ΡΡΡ Π² ΠΏΠΎΠ»Π½ΠΎΠΉ ΡΠ²Π΅ΡΠ΅Π½Π½ΠΎΡΡΠΈ, ΡΡΠΎ ΠΎΠ½ΠΈ Π±ΡΠ΄ΡΡ ΡΠΊΡΠΏΠ»ΡΠ°ΡΠΈΡΠΎΠ²Π°ΡΡΡΡ Π΄ΠΎΠ»Π³ΠΈΠ΅ Π³ΠΎΠ΄Ρ Π±Π΅Π· ΠΊΠ°ΠΊΠΈΡ -Π»ΠΈΠ±ΠΎ Π½Π΅ΠΈΡΠΏΡΠ°Π²Π½ΠΎΡΡΠ΅ΠΉ. ΠΠ°Π΄Π΅ΠΆΠ½ΡΠ΅ ΡΠΎΡΡΠΈΠΉΡΠΊΠΈΠ΅ ΠΊΠΎΠΌΠΏΠ»Π΅ΠΊΡΡΡΡΠΈΠ΅ Π·Π°Π²ΠΎΠ΅Π²Π°Π»ΠΈ Π±ΠΎΠ»ΡΡΡΡ ΠΏΠΎΠΏΡΠ»ΡΡΠ½ΠΎΡΡΡ Π½Π° ΡΡΡΠΎΠΈΡΠ΅Π»ΡΠ½ΠΎΠΌ ΡΡΠ½ΠΊΠ΅.
ΠΡΠΎΠ±Π΅Π½Π½ΠΎΡΡΠΈ ΠΊΠΎΠΌΠΏΠ»Π΅ΠΊΡΠΎΠ² Π΄Π»Ρ ΠΎΡΠΊΠ°ΡΠ½ΡΡ Π²ΠΎΡΠΎΡ Β«Π ΠΎΠ»ΡΡΠΊΒ»
- ΠΠ΅ ΡΠ°ΠΊ Π΄Π°Π²Π½ΠΎ ΠΊΠΎΠΌΠΏΠ°Π½ΠΈΡ Π½Π°ΡΠ°Π»Π° Π²ΡΠΏΡΡΠΊΠ°ΡΡ Π»ΠΈΠ½Π΅ΠΉΠΊΡ Β«ΠΠΠΠ ΠΒ», ΠΊΠΎΡΠΎΡΠ°Ρ ΠΏΡΠ΅Π΄Π½Π°Π·Π½Π°ΡΠ°Π»Π°ΡΡ Π΄Π»Ρ Π²ΠΎΡΠΎΡ ΠΎΡΠΊΠ°ΡΠ½ΠΎΠ³ΠΎ ΡΠΈΠΏΠ° Π²Π΅ΡΠΎΠΌ Π΄ΠΎ 350 ΠΊΠ³. Π’Π°ΠΊΠΈΠ΅ ΠΊΠΎΠ½ΡΡΡΡΠΊΡΠΈΠΈ ΠΎΠ±ΡΡΠ½ΠΎ Π·Π°ΠΊΡΡΠ²Π°ΡΡ ΠΏΡΠΎΠ΅ΠΌ ΡΠΈΡΠΈΠ½ΠΎΠΉ 4 ΠΌ. ΠΡΠΏΡΡΠΊΠ°Π΅ΠΌΡΠ΅ ΡΠ»Π΅ΠΌΠ΅Π½ΡΡ Π±ΡΡΡΡΠΎ Π·Π°Π²ΠΎΠ΅Π²Π°Π»ΠΈ ΠΏΠΎΠΏΡΠ»ΡΡΠ½ΠΎΡΡΡ ΡΡΠ΅Π΄ΠΈ ΠΏΠΎΡΡΠ΅Π±ΠΈΡΠ΅Π»Π΅ΠΉ Π±Π»Π°Π³ΠΎΠ΄Π°ΡΡ ΡΠ²ΠΎΠ΅ΠΉ ΡΠΊΠΎΠ½ΠΎΠΌΠΈΡΠ½ΠΎΡΡΠΈ, ΡΠ΄ΠΎΠ±ΡΡΠ²Ρ ΠΈ ΠΎΡΠΌΠ΅Π½Π½ΠΎΠΌΡ ΠΊΠ°ΡΠ΅ΡΡΠ²Ρ ΠΊΠ°ΠΆΠ΄ΠΎΠΉ Π΄Π΅ΡΠ°Π»ΠΈ.
- ΠΠΈΠ½Π΅ΠΉΠΊΠ° ΡΠΈΡΡΠ΅ΠΌ, Π½Π΅ΠΎΠ±Ρ ΠΎΠ΄ΠΈΠΌΡΡ Π΄Π»Ρ ΡΠ°Π±ΠΎΡΡ ΠΏΠΎΠ΄Π²Π΅ΡΠ½ΡΡ Π²ΠΎΡΠΎΡ, Π²ΠΊΠ»ΡΡΠ°Π΅Ρ Π² ΡΠ΅Π±Ρ Π»Π΅Π³ΠΊΠΈΠ΅, ΠΏΡΠΎΡΠ½ΡΠ΅ ΠΈ ΡΡΠ½ΠΊΡΠΈΠΎΠ½Π°Π»ΡΠ½ΡΠ΅ Π΄Π΅ΡΠ°Π»ΠΈ.
- ΠΠΎΡΠΎΡΠ°, ΠΊΠΎΡΠΎΡΡΠ΅ Π²ΡΠΏΠΎΠ»Π½ΡΡΡΡΡ Π½Π° Π±Π°Π·Π΅ ΡΠ°Π·Π»ΠΈΡΠ½ΡΡ ΠΊΠΎΠΌΠΏΠ»Π΅ΠΊΡΠΎΠ² Β«Π ΠΎΠ»ΡΡΠΊΒ», ΠΎΡΠ»ΠΈΡΠ°ΡΡΡΡ ΠΏΡΠΎΠ΄ΠΎΠ»ΠΆΠΈΡΠ΅Π»ΡΠ½ΠΎΠΉ ΡΠ°Π±ΠΎΡΠΎΠΉ ΠΈ ΡΠΏΠΎΡΠΎΠ±Π½ΠΎΡΡΡΡ ΡΠΊΡΠΏΠ»ΡΠ°ΡΠΈΡΠΎΠ²Π°ΡΡΡΡ Π² ΡΡΠ»ΠΎΠ²ΠΈΡΡ ΠΈΠ½ΡΠ΅Π½ΡΠΈΠ²Π½ΠΎΠΉ Π½Π°Π³ΡΡΠ·ΠΊΠΈ.
- ΠΠΏΠΎΡΡ, ΠΈΡΠΏΠΎΠ»ΡΠ·ΡΠ΅ΠΌΡΠ΅ Π΄Π»Ρ ΠΎΡΠΊΠ°ΡΠ½ΡΡ Π²ΠΎΡΠΎΡ, Π²ΡΠΏΠΎΠ»Π½ΡΡΡΡΡ ΡΠΎΠ»ΡΠΊΠΎ Ρ 8 ΡΠΎΠ»ΠΈΠΊΠ°ΠΌΠΈ ΠΈ Ρ ΡΠ΅Π»ΡΠ½ΠΎΠΉ ΠΏΠ»ΠΈΡΠΎΠΉ.

ΠΠΎΠΌΠΏΠ°Π½ΠΈΡ ΡΠ²Π»ΡΠ΅ΡΡΡ Π΅Π΄ΠΈΠ½ΡΡΠ²Π΅Π½Π½ΡΠΌ ΠΏΡΠΎΠΈΠ·Π²ΠΎΠ΄ΠΈΡΠ΅Π»Π΅ΠΌ ΠΊΠΎΠΌΠΏΠ»Π΅ΠΊΡΠΎΠ² Π°Π²ΡΠΎΠΌΠ°ΡΠΈΠΊΠΈ Π΄Π»Ρ ΠΎΡΠΊΠ°ΡΠ½ΡΡ Π²ΠΎΡΠΎΡ, ΠΊΠΎΡΠΎΡΡΠΉ ΠΏΠΎΡΡΠ°Π²Π»ΡΠ΅Ρ Π½Π°ΠΏΡΠ°Π²Π»ΡΡΡΠΈΠ΅ ΠΎΠΏΡΠ΅Π΄Π΅Π»Π΅Π½Π½ΡΡ Π΄Π»ΠΈΠ½.
ΠΡΠΎΠ΄ΡΠΊΡΠΈΡ Β«Π ΠΎΠ»ΡΡΠΊΒ» Π½Π°ΡΠ»ΠΈ ΡΠΈΡΠΎΠΊΠΎΠ΅ ΠΏΡΠΈΠΌΠ΅Π½Π΅Π½ΠΈΠ΅:
- Π»Π΅Π³ΠΊΠΈΠ΅ ΠΊΠΎΠ½ΡΡΡΡΠΊΡΠΈΠΈ Ρ ΠΈΠ½Π΄ΠΈΠ²ΠΈΠ΄ΡΠ°Π»ΡΠ½ΡΠΌ Π΄ΠΈΠ·Π°ΠΉΠ½ΠΎΠΌ;
- ΠΊΠΎΠ²Π°Π½ΡΠ΅ ΠΈΠ·Π΄Π΅Π»ΠΈΡ;
- ΠΎΡΠΊΠ°ΡΠ½ΡΠ΅ ΠΊΠΎΠ½ΡΡΡΡΠΊΡΠΈΠΈ;
- Π²ΠΎΡΠΎΡΠ°, ΠΊΠΎΡΠΎΡΡΠ΅ ΡΡΡΠ°Π½Π°Π²Π»ΠΈΠ²Π°ΡΡΡΡ Π½Π° ΡΡΠ°ΡΡΠΊΠ°Ρ ΠΈΠ½ΡΠ΅Π½ΡΠΈΠ²Π½ΠΎΠΉ ΡΠΊΡΠΏΠ»ΡΠ°ΡΠ°ΡΠΈΠΈ;
- ΡΡΠΆΠ΅Π»ΡΠ΅ ΠΏΡΠΎΠΌΡΡΠ»Π΅Π½Π½ΡΠ΅ ΠΈΠ·Π΄Π΅Π»ΠΈΡ;
- ΡΡΠ°Π΄ΠΈΡΠΈΠΎΠ½Π½ΡΠ΅ ΠΊΠΎΠ½ΡΡΡΡΠΊΡΠΈΠΈ Ρ Π·Π°ΠΏΠΎΠ»Π½Π΅Π½ΠΈΠ΅ΠΌ.
Π ΠΎΡΡΠΈΠΉΡΠΊΠ°Ρ ΠΊΠΎΠΌΠΏΠ°Π½ΠΈΡ ΠΏΠΎΡΡΠΎΡΠ½Π½ΠΎ ΡΠΎΠ²Π΅ΡΡΠ΅Π½ΡΡΠ²ΡΠ΅Ρ ΡΠ²ΠΎΠ΅ ΠΎΡΠ½Π°ΡΠ΅Π½ΠΈΠ΅, ΡΡΠΎ ΠΏΠΎΠ·Π²ΠΎΠ»ΡΠ΅Ρ ΠΏΡΠΎΠΈΠ·Π²ΠΎΠ΄ΠΈΡΡ ΠΎΠ±ΠΎΡΡΠ΄ΠΎΠ²Π°Π½ΠΈΠ΅ Π²ΡΡΠΎΠΊΠΎΠ³ΠΎ ΠΊΠ»Π°ΡΡΠ°. ΠΠ»Π°Π³ΠΎΠ΄Π°ΡΡ ΡΠΎΠ²ΡΠ΅ΠΌΠ΅Π½Π½ΠΎΠΌΡ ΠΎΡΠ½Π°ΡΠ΅Π½ΠΈΡ ΠΊΠΎΠΌΠΏΠ°Π½ΠΈΡ ΡΠΏΠΎΡΠΎΠ±Π½Π° ΡΠ΄ΠΎΠ²Π»Π΅ΡΠ²ΠΎΡΡΡΡ ΠΏΠΎΡΡΠ΅Π±Π½ΠΎΡΡΠΈ ΠΏΠΎΡΡΠ΅Π±ΠΈΡΠ΅Π»Ρ Π² ΡΡΠ»ΠΎΠ²ΠΈΡ ΠΌΠ΅Π½ΡΡΡΠ΅Π³ΠΎΡΡ ΡΡΠ½ΠΊΠ°.

ΠΠ·Π³ΠΎΡΠΎΠ²Π»Π΅Π½ΠΈΠ΅ ΡΡΠ²ΠΎΡΠΊΠΈ Π΄Π»Ρ ΠΎΡΠΊΠ°ΡΠ½ΡΡ Π²ΠΎΡΠΎΡ
Π‘ΡΠ²ΠΎΡΠΊΠΈ Π²ΡΠΏΠΎΠ»Π½Π΅Π½Π½ΡΠ΅ ΠΏΠΎ ΠΏΡΠ°Π²ΠΈΠ»ΡΠ½ΠΎΠΉ ΡΠ΅Ρ Π½ΠΎΠ»ΠΎΠ³ΠΈΠΈ, ΠΎΠ±Π΅ΡΠΏΠ΅ΡΠΈΠ²Π°ΡΡ Π΄Π»ΠΈΡΠ΅Π»ΡΠ½ΡΠΉ ΡΡΠΎΠΊ ΡΠ»ΡΠΆΠ±Ρ Π²ΠΎΡΠΎΡ Π»ΡΠ±ΠΎΠΉ ΠΊΠΎΠ½ΡΡΡΡΠΊΡΠΈΠΈ. Π§Π°ΡΠ΅ Π²ΡΠ΅Π³ΠΎ ΠΎΠ½ΠΈ Π²ΡΠΏΠΎΠ»Π½ΡΡΡΡΡ ΠΏΠΎ ΠΌΠ΅ΡΠΎΠ΄Ρ ΠΈΠ·Π³ΠΎΡΠΎΠ²Π»Π΅Π½ΠΈΡ ΡΠ΅Π»ΡΠ½ΠΎΡΠ²Π°ΡΠ½ΡΡ ΠΈΠ·Π΄Π΅Π»ΠΈΠΉ. ΠΠ°ΠΆΠ΄Π°Ρ ΡΡΠ²ΠΎΡΠΊΠ° ΠΏΡΠ΅Π΄ΡΡΠ°Π²Π»Π΅Π½Π° ΡΠ°ΠΌΠΎΠΉ, Π½Π° ΠΊΠΎΡΠΎΡΡΡ ΠΊΡΠ΅ΠΏΠΈΡΡΡ ΡΠΏΠ»ΠΎΡΠ½ΠΎΠΉ Π»ΠΈΡΡ ΠΌΠ΅ΡΠ°Π»Π»Π° Π»ΠΈΠ±ΠΎ ΡΠ΅ΡΠ΅ΡΠΊΠ°. Π ΠΊΠ°ΡΠ΅ΡΡΠ²Π΅ Π½Π΅ΡΡΡΠΈΡ ΡΠ»Π΅ΠΌΠ΅Π½ΡΠΎΠ² ΠΈΡΠΏΠΎΠ»ΡΠ·ΡΡΡ ΠΏΡΠΎΡΠΈΠ»ΡΠ½ΡΠ΅ ΡΡΡΠ±Ρ ΡΠ°Π·Π»ΠΈΡΠ½ΠΎΠ³ΠΎ ΡΠ΅ΡΠ΅Π½ΠΈΡ.
Π‘Π²Π°ΡΠΊΠ° ΡΠ°ΠΌΡ ΠΏΡΠΎΠΈΠ·Π²ΠΎΠ΄ΠΈΡΡΡ Π½Π° ΡΠΏΠ΅ΡΠΈΠ°Π»ΡΠ½ΡΡ ΡΡΠΎΠ»Π°Ρ . ΠΡΠΎ ΠΎΠ±Π΅ΡΠΏΠ΅ΡΠΈΠ²Π°Π΅Ρ ΠΌΠ°ΠΊΡΠΈΠΌΠ°Π»ΡΠ½ΡΡ ΡΠΎΡΠ½ΠΎΡΡΡ ΠΏΠΎΠ»ΡΡΠ΅Π½Π½ΠΎΠ³ΠΎ ΡΠ΅Π·ΡΠ»ΡΡΠ°ΡΠ°. Π‘Π²Π°ΡΠΈΠ²Π°ΡΡΡΡ ΡΠ³Π»Ρ ΠΏΡΡΠΌΠΎΡΠ³ΠΎΠ»ΡΠ½ΠΈΠΊΠ° ΠΈ Π²Π½ΡΡΡΠ΅Π½Π½ΠΈΠ΅ ΡΠ»Π΅ΠΌΠ΅Π½ΡΡ.
ΠΡΠΎΡΠ΅ΡΡΠΈΠΎΠ½Π°Π», Π·Π°Π½ΠΈΠΌΠ°ΡΡΠΈΠΉΡΡ ΡΠ²Π°ΡΠΊΠΎΠΉ, ΠΊΠΎΠ½ΡΡΠΎΠ»ΠΈΡΡΠ΅Ρ ΡΠ΅ΠΏΠ»ΠΎΠ²ΡΠ΅ ΠΏΠΎΠ²ΠΎΠ΄ΠΊΠΈ ΡΠ²ΠΎΠ². ΠΡΠΎ Π½Π΅ΠΎΠ±Ρ ΠΎΠ΄ΠΈΠΌΠΎ Π΄Π»Ρ ΠΏΠΎΠ²ΡΡΠ΅Π½ΠΈΡ ΡΠΎΡΠ½ΠΎΡΡΠΈ ΠΊΠΎΠ½ΡΡΡΡΠΊΡΠΈΠΈ. ΠΡΠ»ΠΈ ΡΠ°ΠΌΡ Π½Π°ΡΠΈΠ½Π°Π΅Ρ Π²Π΅ΡΡΠΈ, Π½Π΅ΠΎΠ±Ρ ΠΎΠ΄ΠΈΠΌΠΎ Π²ΠΎΠ²ΡΠ΅ΠΌΡ Π²ΡΠΏΠΎΠ»Π½ΠΈΡΡ ΡΠΈΡ ΡΠΎΠ²ΠΊΡ. ΠΠΎ ΠΎΠΊΠΎΠ½ΡΠ°Π½ΠΈΠΈ ΡΠ°Π±ΠΎΡ ΡΠ²Π°ΡΠΎΡΠ½ΡΠ΅ ΡΠ²Ρ ΠΎΠ±ΡΠ·Π°ΡΠ΅Π»ΡΠ½ΠΎ Π·Π°ΡΠΈΡΠ°ΡΡΡΡ.

ΠΠ»ΠΎΡΠ°Π΄Ρ ΡΠ°ΠΌΡ Π·Π°ΡΠΈΠ²Π°ΡΡ Π»ΠΈΡΡΠΎΠ²ΡΠΌ ΠΌΠ°ΡΠ΅ΡΠΈΠ°Π»ΠΎΠΌ. Π§Π°ΡΠ΅ Π²ΡΠ΅Π³ΠΎ ΠΏΡΠΈΠΌΠ΅Π½ΡΠ΅ΡΡΡ ΠΌΠ΅ΡΠ°Π»Π»ΠΎΠΏΡΠΎΡΠΈΠ»Ρ β Π΅Π³ΠΎ ΡΡΡΠ°Π½Π°Π²Π»ΠΈΠ²Π°ΡΡ Π½Π° Π΄ΠΎΠΏΠΎΠ»Π½ΠΈΡΠ΅Π»ΡΠ½ΡΠ΅ ΡΠ»Π΅ΠΌΠ΅Π½ΡΡ.
ΠΡΠΎΠ±Π΅Π½Π½ΠΎΡΡΠΈ ΡΡΠ²ΠΎΡΠΎΠΊ Β«Π ΠΎΠ»ΡΡΠΊΒ»
ΠΠ°ΠΆΠ΄Π°Ρ ΡΡΠ²ΠΎΡΠΊΠ° Π΄Π»Ρ ΠΎΡΠΊΠ°ΡΠ½ΡΡ Π²ΠΎΡΠΎΡ Π΄ΠΎΠ»ΠΆΠ½Π° ΠΈΠΌΠ΅ΡΡ Π΄ΠΎΡΡΠ°ΡΠΎΡΠ½ΡΡ ΠΆΠ΅ΡΡΠΊΠΎΡΡΡ, ΡΡΠΎΠ±Ρ Π²ΡΠ΄Π΅ΡΠΆΠΈΠ²Π°ΡΡ ΡΠ°Π·Π»ΠΈΡΠ½ΡΠ΅ Π½Π°Π³ΡΡΠ·ΠΊΠΈ. ΠΠ΄Π½Π°ΠΊΠΎ ΠΎΠ½Π° Π½Π΅ Π΄ΠΎΠ»ΠΆΠ½Π° Π±ΡΡΡ ΠΏΠ΅ΡΠ΅Π³ΡΡΠΆΠ΅Π½Π° Π΄ΠΎΠΏΠΎΠ»Π½ΠΈΡΠ΅Π»ΡΠ½ΡΠΌΠΈ ΡΠ»Π΅ΠΌΠ΅Π½ΡΠ°ΠΌΠΈ, ΡΠ²Π΅Π»ΠΈΡΠΈΠ²Π°ΡΡΠΈΠΌΠΈ Π΅Π΅ Π²Π΅Ρ.
ΠΠ°ΠΆΠ΄Π°Ρ ΡΡΠ²ΠΎΡΠΊΠ° Π²ΠΎΡΠΎΡ Π²ΡΠΏΠΎΠ»Π½ΡΠ΅ΡΡΡ Π² Π²ΠΈΠ΄Π΅ ΡΠ΅ΡΠΌΡ, ΡΠΎΠ±ΡΠ°Π½Π½ΠΎΠΉ ΠΈΠ· Π²Π΅ΡΡΠΈΠΊΠ°Π»ΡΠ½ΡΡ ΠΈ Π΄ΠΈΠ°Π³ΠΎΠ½Π°Π»ΡΠ½ΡΡ ΡΠ»Π΅ΠΌΠ΅Π½ΡΠΎΠ². Π ΠΏΠ΅ΡΠ²ΡΡ ΠΎΡΠ΅ΡΠ΅Π΄Ρ ΠΏΡΠΈ ΡΠΎΡΡΠ°Π²Π»Π΅Π½ΠΈΠΈ ΠΏΡΠΎΠ΅ΠΊΡΠ° ΡΠ΅ΡΠΌΡ ΡΡΠΈΡΡΠ²Π°ΡΡ Π²Π΅Ρ Π½Π°ΠΏΡΠ°Π²Π»ΡΡΡΠ΅ΠΉ. Π§ΡΠΎΠ±Ρ Π»ΡΠ±ΡΠ΅ ΠΊΠΎΠ½ΡΡΡΡΠΊΡΠΈΠΈ ΠΈΡΠΏΡΠ°Π²Π½ΠΎ ΡΠ°Π±ΠΎΡΠ°Π»ΠΈ Π² Π»ΡΠ±ΡΡ ΡΡΠ»ΠΎΠ²ΠΈΡΡ , ΠΈΡ ΡΠ΅Ρ Π½ΠΎΠ»ΠΎΠ³ΠΈΡΠ΅ΡΠΊΡΡ ΡΠ°ΡΡΡ Π΄Π΅Π»Π°ΡΡ Π±ΠΎΠ»Π΅Π΅ ΠΆΠ΅ΡΡΠΊΠΎΠΉ. ΠΡΠΎ ΠΏΠΎΠ·Π²ΠΎΠ»ΡΠ΅Ρ ΡΡΠ²ΠΎΡΠΊΠ°ΠΌΠΈ ΡΠΎΡ ΡΠ°Π½ΡΡΡ ΠΆΠ΅ΡΡΠΊΠΎΡΡΡ Π΄Π°ΠΆΠ΅ ΠΏΡΠΈ ΡΠΈΠ»ΡΠ½ΡΡ Π²Π΅ΡΡΠΎΠ²ΡΡ Π½Π°Π³ΡΡΠ·ΠΊΠ°Ρ .
Π§ΡΠΎΠ±Ρ Π²ΠΎΡΠΎΡΠ° Π½Π΅ ΠΏΡΠΎΠ²ΠΈΡΠ°Π»ΠΈ, Π² ΠΊΠ°ΠΆΠ΄ΠΎΠΉ ΡΡΠ²ΠΎΡΠΊΠ΅ ΡΡΡΠ°Π½Π°Π²Π»ΠΈΠ²Π°ΡΡΡΡ ΡΠΏΠ΅ΡΠΈΠ°Π»ΡΠ½ΡΠ΅ Π½Π°ΡΡΠΆΠΈΡΠ΅Π»ΠΈ, ΠΊΠΎΡΠΎΡΡΠ΅ ΠΏΠΎΠ·Π²ΠΎΠ»ΡΡΡ ΡΠΎΡ ΡΠ°Π½ΠΈΡΡ ΠΈΡ ΡΠΎΡΠΌΡ. Π’Π°ΠΊΠΆΠ΅ ΡΠ΅ΡΠΌΡ ΠΎΠ±ΠΎΡΡΠ΄ΡΡΡΡΡ Π΄ΠΎΠΏΠΎΠ»Π½ΠΈΡΠ΅Π»ΡΠ½ΡΠΌΠΈ ΡΠ»Π΅ΠΌΠ΅Π½ΡΠ°ΠΌΠΈ, ΠΊΠΎΡΠΎΡΡΠ΅ ΠΏΡΠ΅Π΄ΠΎΡΠ²ΡΠ°ΡΠ°ΡΡ ΠΏΡΠΎΠ³ΠΈΠ± Π½ΠΈΠΆΠ½Π΅Π³ΠΎ Π³ΠΎΡΠΈΠ·ΠΎΠ½ΡΠ°Π»ΡΠ½ΠΎΠ³ΠΎ ΠΏΡΠΎΡΠΈΠ»Ρ. Π’ΠΎΠ»ΡΠΊΠΎ ΠΏΡΠ°Π²ΠΈΠ»ΡΠ½ΡΠΉ Π²ΡΠ±ΠΎΡ Π½Π°Π±ΠΎΡΠ° Π½Π΅ΠΎΠ±Ρ ΠΎΠ΄ΠΈΠΌΡΡ ΠΊΠΎΠΌΠΏΠ»Π΅ΠΊΡΡΡΡΠΈΡ ΠΏΠΎΠ·Π²ΠΎΠ»ΠΈΡ ΠΏΡΠΎΠ²Π΅ΡΡΠΈ ΠΌΠΎΠ½ΡΠ°ΠΆ Π²ΠΎΡΠΎΡ Π±Π΅Π· ΠΏΠΎΡΠ΅ΡΠΈ Π²ΡΠ΅ΠΌΠ΅Π½ΠΈ.

ΠΡΠ΅ΠΏΠ»Π΅Π½ΠΈΠ΅ Π½Π°ΠΏΡΠ°Π²Π»ΡΡΡΠ΅ΠΉ
ΠΡΠ΅ΠΏΠ»Π΅Π½ΠΈΠ΅ ΡΡΠ²ΠΎΡΠΊΠΈ ΠΊ ΡΠ΅Π»ΡΡΡ ΠΎΡΡΡΠ΅ΡΡΠ²Π»ΡΠ΅ΡΡΡ Π±Π΅Π· Π΅Π΅ ΠΎΡΡΠ΅Π·Π°Π½ΠΈΡ ΠΎΡ ΡΡΠΎΠ»Π° Π΄ΠΎ ΠΌΠΎΠΌΠ΅Π½ΡΠ° ΠΎΠΊΠΎΠ½ΡΠ°Π½ΠΈΡ ΡΠ²Π°ΡΠΊΠΈ. Π£ΡΠΈΡΡΠ²Π°Ρ, ΡΡΠΎ Π½Π°ΠΏΡΠ°Π²Π»ΡΡΡΠ°Ρ Π²ΡΡΡΠ°Π²Π»ΡΠ΅ΡΡΡ ΠΏΠΎ ΡΡΠΎΠ²Π½Ρ, Π²Π΅ΡΡΠΈΠΊΠ°Π»ΡΠ½ΠΎ Π·Π°ΠΊΡΠ΅ΠΏΠΈΡΡ ΡΡΠ²ΠΎΡΠΊΡ Π½Π΅ ΡΠΎΡΡΠ°Π²ΠΈΡ ΡΡΡΠ΄Π°.
ΠΠ°ΡΠ΅ΡΡΠ²Π΅Π½Π½ΡΠ΅ Π²ΠΎΡΠΎΡΠ° Β«Π ΠΎΠ»ΡΡΠΊΒ» ΡΠ°ΠΌΠΈ ΡΡΠΎΡΡ Π½Π° ΡΠΎΠ²Π½ΠΎΠΉ ΠΏΠΎΠ²Π΅ΡΡ Π½ΠΎΡΡΠΈ, ΠΎΠΏΠΈΡΠ°ΡΡΡ Π½Π° ΡΠΎΠ»ΠΈΠΊΠΎΠ²ΡΠ΅ ΠΎΠΏΠΎΡΡ. Π₯ΡΠ°Π½ΡΡΡΡ Π²ΠΎΡΠΎΡΠ° Ρ ΠΈΡΠΏΠΎΠ»ΡΠ·ΠΎΠ²Π°Π½ΠΈΠ΅ΠΌ ΡΠΈΠΊΡΠΈΡΡΡΡΠΈΡ ΡΠ»Π΅ΠΌΠ΅Π½ΡΠΎΠ². ΠΡΠΎ ΠΈΡΠΊΠ»ΡΡΠ°Π΅Ρ ΡΠ°ΠΌΠΎΠΏΡΠΎΠΈΠ·Π²ΠΎΠ»ΡΠ½ΠΎΠ΅ Π΄Π²ΠΈΠΆΠ΅Π½ΠΈΠ΅ ΡΡΠ²ΠΎΡΠΎΠΊ.
ΠΠΎΠ½ΡΠ°ΠΆ ΠΊΠΎΠ½ΡΡΡΡΠΊΡΠΈΠΈ
Π£ΡΡΠ°Π½ΠΎΠ²ΠΊΠ° Π²ΠΎΡΠΎΡ Π½Π°ΡΠΈΠ½Π°Π΅ΡΡΡ Ρ ΠΏΠΎΠ΄Π³ΠΎΡΠΎΠ²ΠΊΠΈ ΠΏΡΠΎΠ΅ΠΌΠ°. Π€ΡΠ½Π΄Π°ΠΌΠ΅Π½Ρ Π΄ΠΎΠ»ΠΆΠ΅Π½ Π±ΡΡΡ Π²ΡΠΏΠΎΠ»Π½Π΅Π½ Ρ ΡΡΠ΅ΡΠΎΠΌ ΠΏΡΠ΅Π΄ΡΡΠΎΡΡΠΈΡ Π½Π°Π³ΡΡΠ·ΠΎΠΊ. Π’Π°ΠΊΠΆΠ΅ ΡΠ»Π΅Π΄ΡΠ΅Ρ Π²ΡΠΆΠ΄Π°ΡΡ Π²ΡΠ΅ΠΌΡ, ΠΊΠΎΠ³Π΄Π° Π±Π΅ΡΠΎΠ½ ΠΏΠΎΠ»Π½ΠΎΡΡΡΡ ΡΡ Π²Π°ΡΠΈΡΡΡ. ΠΠ°ΡΠ°Π½Π΅Π΅ ΠΎΡΡΡΠ΅ΡΡΠ²Π»ΡΠ΅ΡΡΡ ΠΌΠΎΠ½ΡΠ°ΠΆ Π·Π°ΠΊΠ»Π°Π΄Π½ΡΡ ΡΡΡΠ±, ΠΏΠΎ ΠΊΠΎΡΠΎΡΡΠΌ Π±ΡΠ΄ΡΡ ΠΏΡΠΎΡΡΠ½ΡΡΡ ΠΏΠΈΡΠ°ΡΡΠΈΠ΅ ΠΏΡΠΎΠ²ΠΎΠ΄Π°. Π’Π°ΠΊΠΆΠ΅ ΡΡΠΎΠΈΡ ΠΏΠΎΠ·Π°Π±ΠΎΡΠΈΡΡΡΡ ΠΎ ΠΌΠΎΠ½ΡΠ°ΠΆΠ΅ ΡΠ²Π΅Π»Π»Π΅ΡΠΎΠ².

ΠΠ° ΠΏΠ΅ΡΠ²ΠΎΠΌ ΡΡΠ°ΠΏΠ΅ ΡΡΡΠ°Π½Π°Π²Π»ΠΈΠ²Π°ΡΡ ΡΡΠΎΠ»Π±Ρ Π-ΠΎΠ±ΡΠ°Π·Π½ΠΎΠΉ ΡΠΎΡΠΌΡ. ΠΡ ΠΊΡΠ΅ΠΏΡΡ ΠΊ Π·Π°ΠΊΠ»Π°Π΄Π½ΡΠΌ ΡΠ²Π΅Π»Π»Π΅ΡΠ°ΠΌ ΠΏΡΠΈ ΠΏΠΎΠΌΠΎΡΠΈ ΡΠ²Π°ΡΠΊΠΈ. ΠΠ°ΠΊ ΡΠΎΠ»ΡΠΊΠΎ ΠΎΠΏΠΎΡΡ Π±ΡΠ΄ΡΡ ΡΡΡΠ°Π½ΠΎΠ²Π»Π΅Π½Ρ, ΠΌΠΎΠΆΠ½ΠΎ Π½Π°ΡΠΈΠ½Π°ΡΡ ΠΌΠΎΠ½ΡΠ°ΠΆ ΡΡΠ²ΠΎΡΠΎΠΊ. ΠΡ ΠΏΠΎΠΌΠ΅ΡΠ°ΡΡ Π½Π°Π΄ Π½Π΅ΡΡΡΠΈΠΌ ΡΡΠ½Π΄Π°ΠΌΠ΅Π½ΡΠΎΠΌ Π² Π-ΠΎΠ±ΡΠ°Π·Π½ΡΠ΅ ΡΠ°ΠΌΡ. ΠΠΎΡΠ»Π΅ ΡΡΠΎΠ³ΠΎ ΠΏΡΠΎΠ²Π΅ΡΡΠ΅ΡΡΡ Π²Π΅ΡΡΠΈΠΊΠ°Π»ΡΠ½ΠΎΡΡΡ Π²ΡΡΡΠ°Π²Π»Π΅Π½ΠΈΡ ΡΡΠ²ΠΎΡΠΊΠΈ.
ΠΠ°ΠΆΠ½ΠΎ! ΠΡΠ΅ΠΏΠΈΡΡ ΡΠΎΠ»ΠΈΠΊΠΎΠ²ΡΠ΅ ΠΎΠΏΠΎΡΡ ΠΊ ΡΡΠ½Π΄Π°ΠΌΠ΅Π½ΡΡ ΠΊΠ°ΡΠ΅Π³ΠΎΡΠΈΡΠ΅ΡΠΊΠΈ Π·Π°ΠΏΡΠ΅ΡΠ°Π΅ΡΡΡ.
Π Π΅Π³ΡΠ»ΠΈΡΠΎΠ²ΠΊΠ° ΠΎΠΏΠΎΡ
Π Π΅Π³ΡΠ»ΠΈΡΠΎΠ²ΠΊΠ° ΡΡΠ²ΠΎΡΠΊΠΈ Π²ΡΠΏΠΎΠ»Π½ΡΠ΅ΡΡΡ Π΄Π»Ρ ΠΏΡΠ°Π²ΠΈΠ»ΡΠ½ΠΎΠΉ ΡΠΈΠΊΡΠ°ΡΠΈΠΈ ΠΊΠΎΠ½ΡΠ΅Π²ΠΎΠ³ΠΎ ΡΠΎΠ»ΠΈΠΊΠ°. ΠΡΠΈ ΡΠΎΠ±Π»ΡΠ΄Π΅Π½ΠΈΠΈ Π²ΡΠ΅Ρ ΡΠΎΠ½ΠΊΠΎΡΡΠ΅ΠΉ Π½Π°ΡΡΡΠΎΠΉΠΊΠΈ ΠΎΠ½ Π΄ΠΎΠ»ΠΆΠ΅Π½ Π·Π°Ρ ΠΎΠ΄ΠΈΡΡ Π² Π»ΠΎΠ²ΠΈΡΠ΅Π»ΡΒ Π½Π΅ ΠΏΠ΅ΡΠ΅ΠΊΠ°ΡΠΈΠ²Π°ΡΡΡ. ΠΠΎΠ³Π΄Π° ΡΠΎΠ»ΠΈΠΊ Π·Π°Π΅Π·ΠΆΠ°Π΅Ρ Π² Π»ΠΎΠ²ΠΈΡΠ΅Π»Ρ, Π²ΠΎΡΠΎΡΠ° Π΄ΠΎΠ»ΠΆΠ½Ρ ΠΏΠΎΠ΄Π½ΠΈΠΌΠ°ΡΡΡΡ Π½Π° 1 ΠΌΠΌ Π²Π²Π΅ΡΡ . ΠΡΠΎ ΠΎΠ±ΡΠ·Π°ΡΠ΅Π»ΡΠ½ΠΎΠ΅ ΡΡΠ»ΠΎΠ²ΠΈΠ΅ ΠΏΡΠ°Π²ΠΈΠ»ΡΠ½ΠΎΠΉ ΡΡΡΠ°Π½ΠΎΠ²ΠΊΠΈ. ΠΠ΅Π»ΡΠ·Ρ Π΄ΠΎΠΏΡΡΠΊΠ°ΡΡ, ΡΡΠΎΠ±Ρ ΠΊΠΎΠ½ΡΠ΅Π²ΠΎΠΉ ΡΠΎΠ»ΠΈΠΊ ΠΎΡΡΠ°Π²Π°Π»ΡΡ Π² ΠΏΠΎΠ΄Π²Π΅ΡΠ΅Π½Π½ΠΎΠΌ ΡΠΎΡΡΠΎΡΠ½ΠΈΠΈ ΠΏΡΠΈ Π·Π°ΠΊΡΡΡΡΡ Π²ΠΎΡΠΎΡΠ°Ρ .
ΠΠ°ΠΆΠ½ΠΎ! ΠΡΠ½ΠΎΠ²Π½ΡΠΌ ΡΠ»Π΅ΠΌΠ΅Π½ΡΠΎΠΌ Π²ΠΎΡΠΎΡ, ΠΊΠΎΡΠΎΡΡΠΉ ΡΡΠ΅Π±ΡΠ΅Ρ ΡΠΎΡΠ½ΠΎΠΉ Π½Π°ΡΡΡΠΎΠΉΠΊΠΈ, ΡΠ²Π»ΡΠ΅ΡΡΡ ΡΠΎΠ»ΠΈΠΊΠΎΠ²Π°Ρ ΠΎΠΏΠΎΡΠ°. Π Π΅Π΅ ΡΡΡΠ°Π½ΠΎΠ²ΠΊΠ΅ ΡΠ»Π΅Π΄ΡΠ΅Ρ Π΄ΠΎΠΏΡΡΠΊΠ°ΡΡ ΡΠΎΠ»ΡΠΊΠΎ ΠΏΡΠΎΡΠ΅ΡΡΠΈΠΎΠ½Π°Π»ΠΎΠ².
ΠΠ΅ΡΠ΅ΠΊΠΎΡ ΡΠΎΠ»ΠΈΠΊΠΎΠ²ΡΡ ΠΎΠΏΠΎΡ ΡΡΡΠ΅ΡΡΠ²Π΅Π½Π½ΠΎ ΡΠΎΠΊΡΠ°ΡΠ°Π΅Ρ ΡΡΠΎΠΊ ΡΠ»ΡΠΆΠ±Ρ Π²ΠΎΡΠΎΡ Π² ΡΠ΅Π»ΠΎΠΌ. ΠΠ΄Π½Π°ΠΊΠΎ ΠΎΠ½ Π½Π΅ ΠΎΡΡΠ°ΠΆΠ°Π΅ΡΡΡ Π½Π° ΡΡΠ½ΠΊΡΠΈΠΎΠ½Π°Π»ΡΠ½ΠΎΡΡΠΈ ΠΊΠΎΠ½ΡΡΡΡΠΊΡΠΈΠΈ, Π½Π΅ Π²Π»ΠΈΡΠ΅Ρ Π½Π° ΡΡΠΈΠ»ΠΈΠ΅, ΠΊΠΎΡΠΎΡΠΎΠ΅ ΠΏΡΠΈΠ»Π°Π³Π°Π΅ΡΡΡ ΠΊ ΡΡΠ²ΠΎΡΠΊΠ΅. ΠΡΠ»ΠΈ ΡΠ΅Π³ΡΠ»ΡΡΠ½ΠΎ ΠΏΡΠΎΠ²ΠΎΠ΄ΠΈΡΡ ΠΏΡΠΎΠ²Π΅ΡΠΊΡ ΠΏΠΎΠ»ΠΎΠΆΠ΅Π½ΠΈΡ ΡΠΎΠ»ΠΈΠΊΠΎΠ²ΡΡ ΠΎΠΏΠΎΡ, ΠΌΠΎΠΆΠ½ΠΎ Π·Π½Π°ΡΠΈΡΠ΅Π»ΡΠ½ΠΎ ΡΠ²Π΅Π»ΠΈΡΠΈΡΡ ΡΡΠΎΠΊ ΡΠΊΡΠΏΠ»ΡΠ°ΡΠ°ΡΠΈΠΈ Π²ΠΎΡΠΎΡ. ΠΡΠΈ Π²ΡΠ±ΠΎΡΠ΅ ΠΊΠΎΠΌΠΏΠ»Π΅ΠΊΡΠ° Π²ΠΎΡΠΎΡ Π²Π°ΠΆΠ½ΠΎ ΡΡΠΈΡΡΠ²Π°ΡΡ ΡΠ°Π·ΠΌΠ΅ΡΡ ΠΏΡΠΎΠ΅ΠΌΠ°.

ΠΡΠΎΠ³ΠΈ
ΠΠΎΠ½ΡΡΡΡΠΊΡΠΈΡ Π²ΠΎΡΠΎΡ Β«Π ΠΎΠ»ΡΡΠΊΒ» ΠΏΠΎΠ·Π²ΠΎΠ»ΡΠ΅Ρ ΠΈΡΠΏΠΎΠ»ΡΠ·ΠΎΠ²Π°ΡΡ ΠΈΡ Π² ΡΠ°Π·Π»ΠΈΡΠ½ΡΡ ΡΡΠ»ΠΎΠ²ΠΈΡΡ . ΠΠΎΠΌΠΏΠ°Π½ΠΈΡ ΠΏΠΎΡΡΠΎΡΠ½Π½ΠΎ Π²Π½Π΅Π΄ΡΡΠ΅Ρ Π² ΠΏΡΠΎΠΈΠ·Π²ΠΎΠ΄ΡΡΠ²ΠΎ ΠΏΠ΅ΡΠ΅Π΄ΠΎΠ²ΡΠ΅ ΡΠ΅Ρ Π½ΠΎΠ»ΠΎΠ³ΠΈΠΈ. Π’Π°ΠΊΠΆΠ΅ Π½Π° Π·Π°Π²ΠΎΠ΄Π°Ρ ΠΏΠΎ ΠΈΠ·Π³ΠΎΡΠΎΠ²Π»Π΅Π½ΠΈΡ ΠΊΠΎΠΌΠΏΠ»Π΅ΠΊΡΠΎΠ² Π΄Π»Ρ Π²ΠΎΡΠΎΡ ΡΠ΅Π³ΡΠ»ΡΡΠ½ΠΎ ΠΎΠ±Π½ΠΎΠ²Π»ΡΠ΅ΡΡΡ ΠΎΠ±ΠΎΡΡΠ΄ΠΎΠ²Π°Π½ΠΈΠ΅. ΠΡΠΎ ΠΏΠΎΠ·Π²ΠΎΠ»ΡΠ΅Ρ Π²ΡΠΏΡΡΠΊΠ°ΡΡ ΠΊΠ°ΡΠ΅ΡΡΠ²Π΅Π½Π½ΡΠ΅ ΠΈΠ·Π΄Π΅Π»ΠΈΡ, ΠΊΠΎΡΠΎΡΡΠ΅ ΠΈΡΠΏΡΠ°Π²Π½ΠΎ ΡΠ»ΡΠΆΠ°Ρ Π΄ΠΎΠ»Π³ΠΈΠ΅ Π³ΠΎΠ΄Ρ. Π’Π°ΠΊΠΆΠ΅ Π±Π»Π°Π³ΠΎΠ΄Π°ΡΡ ΠΌΠ½ΠΎΠΆΠ΅ΡΡΠ²Ρ ΠΏΡΠ΅ΠΈΠΌΡΡΠ΅ΡΡΠ² ΠΊΠΎΠΌΠΏΠ°Π½ΠΈΠΈ Π²ΠΎΡΠΎΡΠ° ΠΌΠΎΠ³ΡΡ ΡΠΊΡΠΏΠ»ΡΠ°ΡΠΈΡΠΎΠ²Π°ΡΡΡΡ Π² ΡΠ°ΠΌΡΡ ΠΆΠ΅ΡΡΠΊΠΈΡ ΠΊΠ»ΠΈΠΌΠ°ΡΠΈΡΠ΅ΡΠΊΠΈΡ ΡΡΠ»ΠΎΠ²ΠΈΡΡ .
bouw.ru
Π’Π΅Ρ Π½ΠΈΡΠ΅ΡΠΊΠ°Ρ ΠΈΠ½ΡΠΎΡΠΌΠ°ΡΠΈΡ
ΠΠ½ΡΡΡΡΠΊΡΠΈΡ ΠΏΠΎ ΡΡΡΠ°Π½ΠΎΠ²ΠΊΠ΅ ΠΏΡΠΈΠ²ΠΎΠ΄Π° Π΄Π»Ρ ΠΎΡΠΊΠ°ΡΠ½ΡΡ Π²ΠΎΡΠΎΡ RUN
Π’ΠΈΠΏ ΠΈΠ½ΡΠΎΡΠΌΠ°ΡΠΈΠΈ:Β ΠΠ½ΡΡΡΡΠΊΡΠΈΡ PDF
Π‘ΠΊΠ°ΡΠ°ΡΡ
ΠΡΠ΅ΠΈΠΌΡΡΠ΅ΡΡΠ²Π° ΡΠΎΠ»ΡΡΡΠ°Π²Π΅Π½ ΠΠ»ΡΡΠ΅Ρ
Π’ΠΈΠΏ ΠΈΠ½ΡΠΎΡΠΌΠ°ΡΠΈΠΈ:Β
ΠΠΏΠΈΡΠ°Π½ΠΈΠ΅
Π‘ΠΊΠ°ΡΠ°ΡΡ
ΠΠΎΡΠ΅ΠΌΡ Π΅ΡΠ»ΠΈ ΡΠΎΠ»ΡΡΡΠ°Π²Π½ΠΈ, ΡΠΎ ΡΠΎΠ»ΡΠΊΠΎ ΠΠ»ΡΡΠ΅Ρ
Π’ΠΈΠΏ ΠΈΠ½ΡΠΎΡΠΌΠ°ΡΠΈΠΈ:Β
ΠΠΏΠΈΡΠ°Π½ΠΈΠ΅
Π‘ΠΊΠ°ΡΠ°ΡΡ
ΠΡΠΎΠ±Π΅Π½Π½ΠΎΡΡΠΈ Π²ΡΠ΅Π·Π΄Π½ΡΡ
Π²ΠΎΡΠΎΡ ΠΈ ΠΊΠ°Π»ΠΈΡΠΊΠΈ. Π‘Π΅ΡΠΈΡ ADS400
Π’ΠΈΠΏ ΠΈΠ½ΡΠΎΡΠΌΠ°ΡΠΈΠΈ:Β
ΠΠΏΠΈΡΠ°Π½ΠΈΠ΅
Π‘ΠΊΠ°ΡΠ°ΡΡ
ΠΠΎΠ½ΠΊΡΡΠ΅Π½ΡΠ½ΡΠ΅ ΠΏΡΠ΅ΠΈΠΌΡΡΠ΅ΡΡΠ²Π° ΡΠ΅ΠΊΡΠΈΠΎΠ½Π½ΡΡ
Π²ΠΎΡΠΎΡ ΠΠ»ΡΡΠ΅Ρ
Π’ΠΈΠΏ ΠΈΠ½ΡΠΎΡΠΌΠ°ΡΠΈΠΈ:Β
ΠΠΏΠΈΡΠ°Π½ΠΈΠ΅
Π‘ΠΊΠ°ΡΠ°ΡΡ
ΠΠΎΠ½ΡΠ°ΠΆ ΠΈ ΡΠΊΡΠΏΠ»ΡΠ°ΡΠ°ΡΠΈΡ ΡΠ»Π°Π³Π±Π°ΡΠΌΠ° ASB6000
Π’ΠΈΠΏ ΠΈΠ½ΡΠΎΡΠΌΠ°ΡΠΈΠΈ:Β
ΠΠ½ΡΡΡΡΠΊΡΠΈΡ
ΠΠ½ΡΡΡΡΠΊΡΠΈΡ ΠΏΠΎ ΠΌΠΎΠ½ΡΠ°ΠΆΡ ΡΠΈΠ³Π΅Π»ΡΠ½ΠΎΠ³ΠΎ Π·Π°ΠΌΠΊΠ° Π΄Π»Ρ ΡΠ΅ΠΊΡΠΈΠΎΠ½Π½ΡΡ
Π°Π²ΡΠΎΠΌΠ°ΡΠΈΡΠ΅ΡΠΊΠΈΡ
Π²ΠΎΡΠΎΡ ΠΠ»ΡΡΠ΅Ρ
Π’ΠΈΠΏ ΠΈΠ½ΡΠΎΡΠΌΠ°ΡΠΈΠΈ:Β
ΠΠ½ΡΡΡΡΠΊΡΠΈΡ
ΠΠΈΠ½ΠΈΠ±Π»ΠΎΠΊΠΈ ΡΠ°Π΄ΠΈΠΎΡΠΏΡΠ°Π²Π»Π΅Π½ΠΈΡ ΡΠΎΠ»ΡΡΡΠ°Π²Π½ΡΠΌΠΈ ΠΈ ΠΎΡΠ²Π΅ΡΠ΅Π½ΠΈΠ΅ΠΌ TT2L ΠΈ TT2D
Π’ΠΈΠΏ ΠΈΠ½ΡΠΎΡΠΌΠ°ΡΠΈΠΈ:Β
ΠΠ½ΡΡΡΡΠΊΡΠΈΡ
ΠΠ½ΡΡΡΡΠΊΡΠΈΡ ΠΏΠΎ ΡΡΡΠ°Π½ΠΎΠ²ΠΊΠ΅ ΠΈ ΠΏΡΠΎΠ³ΡΠ°ΠΌΠΌΠΈΡΠΎΠ²Π°Π½ΠΈΡ ΡΠ»Π΅ΠΊΡΡΠΎΠΏΡΠΈΠ²ΠΎΠ΄ΠΎΠ² Π΄Π»Ρ ΠΎΡΠΊΠ°ΡΠ½ΡΡ
Π²ΠΎΡΠΎΡ ΡΠ΅ΡΠΈΠΈ RB600_1000
Π’ΠΈΠΏ ΠΈΠ½ΡΠΎΡΠΌΠ°ΡΠΈΠΈ:Β
ΠΠ½ΡΡΡΡΠΊΡΠΈΡ
Π ΡΠΊΠΎΠ²ΠΎΠ΄ΡΡΠ²ΠΎ ΠΏΠΎ ΡΠΊΡΠΏΠ»ΡΠ°ΡΠ°ΡΠΈΠΈ ΡΠΎΡΠΎΡΠ»Π΅ΠΌΠ΅Π½ΡΠΎΠ² ΡΠ΅ΡΠΈΠΈ FE-FEP-FI-BF
Π’ΠΈΠΏ ΠΈΠ½ΡΠΎΡΠΌΠ°ΡΠΈΠΈ:Β
ΠΠ½ΡΡΡΡΠΊΡΠΈΡ
ΠΠ½ΡΡΡΡΠΊΡΠΈΡ ΠΏΠΎ ΡΡΡΠ°Π½ΠΎΠ²ΠΊΠ΅ Π±Π»ΠΎΠΊΠ° ΡΠΏΡΠ°Π²Π»Π΅Π½ΠΈΡ A60
Π’ΠΈΠΏ ΠΈΠ½ΡΠΎΡΠΌΠ°ΡΠΈΠΈ:Β
ΠΠ½ΡΡΡΡΠΊΡΠΈΡ
ΠΠ½ΡΡΡΡΠΊΡΠΈΡ ΠΏΠΎ ΠΌΠΎΠ½ΡΠ°ΠΆΡ ΡΠΎΠ»ΡΡΡΠ°Π²Π½ΠΈ ΡΠ²ΠΎΠΈΠΌΠΈ ΡΡΠΊΠ°ΠΌΠΈ
Π’ΠΈΠΏ ΠΈΠ½ΡΠΎΡΠΌΠ°ΡΠΈΠΈ:Β
ΠΠ½ΡΡΡΡΠΊΡΠΈΡ
Π ΡΠΊΠΎΠ²ΠΎΠ΄ΡΡΠ²ΠΎ ΠΏΠΎ Π½Π°ΡΡΡΠΎΠΉΠΊΠ΅ ΠΏΡΠΈΠ΅ΠΌΠ½ΠΈΠΊΠΎΠ² Π΄ΠΈΡΡΠ°Π½ΡΠΈΠΎΠ½Π½ΠΎΠ³ΠΎ ΡΠΏΡΠ°Π²Π»Π΅Π½ΠΈΡ ΡΠ΅ΡΠΈΠΉ SMXI SMIF SMXIS
Π’ΠΈΠΏ ΠΈΠ½ΡΠΎΡΠΌΠ°ΡΠΈΠΈ:Β
ΠΠ½ΡΡΡΡΠΊΡΠΈΡ
ΠΡΠΈΠ²ΠΎΠ΄ Π΄Π»Ρ Π³Π°ΡΠ°ΠΆΠ½ΡΡ
ΡΠ΅ΠΊΡΠΈΠΎΠ½Π½ΡΡ
Π²ΠΎΡΠΎΡ SHEL-ΠΈΠ½ΡΡΡΡΠΊΡΠΈΡ ΠΏΠΎ Π½Π°ΡΡΡΠΎΠΉΠΊΠ΅ ΠΈ ΠΏΡΠΎΠ³ΡΠ°ΠΌΠΌΠΈΡΠΎΠ²Π°Π½ΠΈΡ
Π’ΠΈΠΏ ΠΈΠ½ΡΠΎΡΠΌΠ°ΡΠΈΠΈ:Β
ΠΠ½ΡΡΡΡΠΊΡΠΈΡ
ΠΠ½ΡΡΡΡΠΊΡΠΈΡ ΠΏΠΎ ΡΡΡΠ°Π½ΠΎΠ²ΠΊΠ΅ ΡΠ»Π΅ΠΊΡΡΠΎΠΏΡΠΈΠ²ΠΎΠ΄ΠΎΠ² Π΄Π»Ρ ΡΠ°ΡΠΏΠ°ΡΠ½ΡΡ
Π²ΠΎΡΠΎΡ WINGO2024KIT WINGO3524KIT
Π’ΠΈΠΏ ΠΈΠ½ΡΠΎΡΠΌΠ°ΡΠΈΠΈ:Β
ΠΠ½ΡΡΡΡΠΊΡΠΈΡ
ΠΠ½ΡΡΡΡΠΊΡΠΈΡ ΠΏΠΎ ΡΡΡΠ°Π½ΠΎΠ²ΠΊΠ΅ ΡΠ»Π΅ΠΊΡΡΠΎΠΏΡΠΈΠ²ΠΎΠ΄ΠΎΠ² Π΄Π»Ρ ΡΠ°ΡΠΏΠ°ΡΠ½ΡΡ
Π²ΠΎΡΠΎΡ ΡΠ΅ΡΠΈΠΈ TOONA
Π’ΠΈΠΏ ΠΈΠ½ΡΠΎΡΠΌΠ°ΡΠΈΠΈ:Β
ΠΠ½ΡΡΡΡΠΊΡΠΈΡ
ΠΠ½ΡΡΡΡΠΊΡΠΈΡ ΠΏΠΎ Π½Π°ΡΡΡΠΎΠΉΠΊΠ΅ ΠΈ ΠΏΡΠΎΠ³ΡΠ°ΠΌΠΌΠΈΡΠΎΠ²Π°Π½ΠΈΡ ΡΠ»Π΅ΠΊΡΡΠΎΠΏΡΠΈΠ²ΠΎΠ΄Π° Π΄Π»Ρ Π³Π°ΡΠ°ΠΆΠ½ΡΡ
ΡΠ΅ΠΊΡΠΈΠΎΠ½Π½ΡΡ
Π²ΠΎΡΠΎΡ SPIN11
Π’ΠΈΠΏ ΠΈΠ½ΡΠΎΡΠΌΠ°ΡΠΈΠΈ:Β
ΠΠ½ΡΡΡΡΠΊΡΠΈΡ
ΠΠΈΠ΄Π΅ΠΎ-ΠΈΠ½ΡΡΡΡΠΊΡΠΈΡ ΠΏΠΎ ΡΡΡΠ°Π½ΠΎΠ²ΠΊΠ΅ ΡΠΎΠ»ΡΡΡΠ°Π²Π΅Π½ Alutech
Π’ΠΈΠΏ ΠΈΠ½ΡΠΎΡΠΌΠ°ΡΠΈΠΈ:Β ΠΠ½ΡΡΡΡΠΊΡΠΈΡ
ΠΠ²ΡΠΎΠΌΠ°ΡΠΈΠΊΠ° Π΄Π»Ρ ΠΎΡΠΊΠ°ΡΠ½ΡΡ
Π²ΠΎΡΠΎΡ ΡΠ΅ΡΠΈΠΈ ASL — AN-Motors
Π’ΠΈΠΏ ΠΈΠ½ΡΠΎΡΠΌΠ°ΡΠΈΠΈ:Β
ΠΠ½ΡΡΡΡΠΊΡΠΈΡ
ΠΠ²ΡΠΎΠΌΠ°ΡΠΈΠΊΠ° Π΄Π»Ρ ΡΠ°ΡΠΏΠ°ΡΠ½ΡΡ
Π²ΠΎΡΠΎΡ ΡΠ΅ΡΠΈΠΈ ASW 2500 KIT- AN-Motors
Π’ΠΈΠΏ ΠΈΠ½ΡΠΎΡΠΌΠ°ΡΠΈΠΈ:Β
ΠΠ½ΡΡΡΡΠΊΡΠΈΡ
ΠΠ²ΡΠΎΠΌΠ°ΡΠΈΠΊΠ° Π΄Π»Ρ ΡΠ΅ΠΊΡΠΈΠΎΠ½Π½ΡΡ
Π²ΠΎΡΠΎΡ ΡΠ΅ΡΠΈΠΈ ASG — AN-Motors
Π’ΠΈΠΏ ΠΈΠ½ΡΠΎΡΠΌΠ°ΡΠΈΠΈ:Β
ΠΠ½ΡΡΡΡΠΊΡΠΈΡ
MBOX750. Π ΡΠΊΠΎΠ²ΠΎΠ΄ΡΡΠ²ΠΎ ΠΏΠΎ ΡΡΡΠ°Π½ΠΎΠ²ΠΊΠ΅ ΠΈ ΡΠΊΡΠΏΠ»ΡΠ°ΡΠ°ΡΠΈΠΈ
Π’ΠΈΠΏ ΠΈΠ½ΡΠΎΡΠΌΠ°ΡΠΈΠΈ:Β
ΠΠ½ΡΡΡΡΠΊΡΠΈΡ
ΠΠΎΠ½ΡΠ°ΠΆ Π³Π°ΡΠ°ΠΆΠ½ΡΡ
Π²ΠΎΡΠΎΡ ΡΠ²ΠΎΠΈΠΌΠΈ ΡΡΠΊΠ°ΠΌΠΈ ΡΠ΅ΡΠΈΡ Classic
Π’ΠΈΠΏ ΠΈΠ½ΡΠΎΡΠΌΠ°ΡΠΈΠΈ:Β
ΠΠ½ΡΡΡΡΠΊΡΠΈΡ
ΠΠΎΠ½ΡΠ°ΠΆ Π³Π°ΡΠ°ΠΆΠ½ΡΡ
Π²ΠΎΡΠΎΡ ΡΠ²ΠΎΠΈΠΌΠΈ ΡΡΠΊΠ°ΠΌΠΈ ΡΠ΅ΡΠΈΡ Standard
Π’ΠΈΠΏ ΠΈΠ½ΡΠΎΡΠΌΠ°ΡΠΈΠΈ:Β
ΠΠ½ΡΡΡΡΠΊΡΠΈΡ
ΠΠΈΠ΄Π΅ΠΎ ΠΈΠ½ΡΡΡΡΠΊΡΠΈΡ ΠΏΠΎ ΠΌΠΎΠ½ΡΠ°ΠΆΡ Π³Π°ΡΠ°ΠΆΠ½ΡΡ
ΡΠ΅ΠΊΡΠΈΠΎΠ½Π½ΡΡ
Π²ΠΎΡΠΎΡ ΡΠ΅ΡΠΈΠΈ Β«StandardΒ»
Π’ΠΈΠΏ ΠΈΠ½ΡΠΎΡΠΌΠ°ΡΠΈΠΈ:Β
ΠΠ½ΡΡΡΡΠΊΡΠΈΡ
ΠΠ½ΡΡΡΡΠΊΡΠΈΡ ΠΏΠΎ ΠΏΠΎΠ΄ΠΊΠ»ΡΡΠ΅Π½ΠΈΡ ΠΠ£ NiceOne_OX_OXI
Π’ΠΈΠΏ ΠΈΠ½ΡΠΎΡΠΌΠ°ΡΠΈΠΈ:Β
ΠΠ½ΡΡΡΡΠΊΡΠΈΡ
ΠΠ½ΡΡΡΡΠΊΡΠΈΡ ΠΏΠΎ ΡΡΡΠ°Π½ΠΎΠ²ΠΊΠ΅ Π°Π²ΡΠΎΠΌΠ°ΡΠΈΠΊΠΈ Π΄Π»Ρ ΡΠ΅ΠΊΡΠΈΠΎΠ½Π½ΡΡ
Π²ΠΎΡΠΎΡ ΡΠ΅ΡΠΈΠΈ Comfort 50.60 ΠΠ°ΡΠ°Π½ΡΠ΅ΠΊ
Π’ΠΈΠΏ ΠΈΠ½ΡΠΎΡΠΌΠ°ΡΠΈΠΈ:Β
ΠΠ½ΡΡΡΡΠΊΡΠΈΡ
ΠΠ½ΡΡΡΡΠΊΡΠΈΠΈ ΠΏΠΎ ΠΏΠΎΠ΄ΠΊΠ»ΡΡΠ΅Π½ΠΈΡ Π²Π½ΡΡΡΠΈΠ²Π°Π»ΡΠ½ΡΡ
ΡΠ»Π΅ΠΊΡΡΠΎΠΏΡΠΈΠ²ΠΎΠ΄ΠΎΠ² Zomfy
Π’ΠΈΠΏ ΠΈΠ½ΡΠΎΡΠΌΠ°ΡΠΈΠΈ:Β
ΠΠ½ΡΡΡΡΠΊΡΠΈΡ PDF
Π‘ΠΊΠ°ΡΠ°ΡΡ
ΠΠ½ΡΡΡΡΠΊΡΠΈΠΈ ΠΏΠΎ ΠΏΠΎΠ΄ΠΊΠ»ΡΡΠ΅Π½ΠΈΡ Π²Π½ΡΡΡΠΈΠ²Π°Π»ΡΠ½ΡΡ
ΡΠ»Π΅ΠΊΡΡΠΎΠΏΡΠΈΠ²ΠΎΠ΄ΠΎΠ² Nice
Π’ΠΈΠΏ ΠΈΠ½ΡΠΎΡΠΌΠ°ΡΠΈΠΈ:Β
ΠΠ½ΡΡΡΡΠΊΡΠΈΡ PDF
Π‘ΠΊΠ°ΡΠ°ΡΡ
ΠΠ½ΡΡΡΡΠΊΡΠΈΡ ΠΏΠΎ ΡΡΡΠ°Π½ΠΎΠ²ΠΊΠ΅ ΠΏΡΠΈΠ²ΠΎΠ΄Π° Π΄Π»Ρ ΠΎΡΠΊΠ°ΡΠ½ΡΡ Π²ΠΎΡΠΎΡ RO500KCE
Π’ΠΈΠΏ ΠΈΠ½ΡΠΎΡΠΌΠ°ΡΠΈΠΈ:Β ΠΠ½ΡΡΡΡΠΊΡΠΈΡ PDF
Π‘ΠΊΠ°ΡΠ°ΡΡ
ΠΠ½ΡΡΡΡΠΊΡΠΈΡ ΠΏΠΎ ΡΡΡΠ°Π½ΠΎΠ²ΠΊΠ΅ ΠΏΡΠΈΠ²ΠΎΠ΄Π° Π΄Π»Ρ ΠΎΡΠΊΠ°ΡΠ½ΡΡ
Π²ΠΎΡΠΎΡ ROBO
Π’ΠΈΠΏ ΠΈΠ½ΡΠΎΡΠΌΠ°ΡΠΈΠΈ:Β
ΠΠ½ΡΡΡΡΠΊΡΠΈΡ PDF
Π‘ΠΊΠ°ΡΠ°ΡΡ
ΠΠ½ΡΡΡΡΠΊΡΠΈΡ ΠΏΠΎ ΡΡΡΠ°Π½ΠΎΠ²ΠΊΠ΅ Π°Π²ΡΠΎΠΌΠ°ΡΠΈΠΊΠΈ Π΄Π»Ρ ΡΠ΅ΠΊΡΠΈΠΎΠ½Π½ΡΡ
Π²ΠΎΡΠΎΡ ΡΠ΅ΡΠΈΠΈ Comfort 260.270.280 ΠΠ°ΡΠ°Π½ΡΠ΅ΠΊ
Π’ΠΈΠΏ ΠΈΠ½ΡΠΎΡΠΌΠ°ΡΠΈΠΈ:Β
ΠΠ½ΡΡΡΡΠΊΡΠΈΡ PDF
Π‘ΠΊΠ°ΡΠ°ΡΡ
ΠΡΠ°ΡΠΊΠΈΠ΅ ΠΈΠ½ΡΡΡΡΠΊΡΠΈΠΈ ΠΏΠΎ ΠΏΡΠΎΠ³ΡΠ°ΠΌΠΌΠΈΡΠΎΠ²Π°Π½ΠΈΡ ΠΈ Π½Π°ΡΡΡΠΎΠΉΠΊΠ΅ Π°Π²ΡΠΎΠΌΠ°ΡΠΈΠΊΠΈ Comunello
Π’ΠΈΠΏ ΠΈΠ½ΡΠΎΡΠΌΠ°ΡΠΈΠΈ:Β
ΠΠ½ΡΡΡΡΠΊΡΠΈΡ PDF
Π‘ΠΊΠ°ΡΠ°ΡΡ
roltek.ru
Π ΠΠΠ’ΠΠ.Π Π°ΡΡΠ΅Ρ — ΠΠΎΠ±ΠΈΠ»ΡΠ½ΠΎΠ΅ ΠΏΡΠΈΠ»ΠΎΠΆΠ΅Π½ΠΈΠ΅
ΠΠ»Ρ ΠΏΡΠΎΠΈΠ·Π²ΠΎΠ΄ΠΈΡΠ΅Π»Π΅ΠΉ ΠΈ ΡΡΡΠ°Π½ΠΎΠ²ΡΠΈΠΊΠΎΠ² ΠΎΡΠΊΠ°ΡΠ½ΡΡ Π²ΠΎΡΠΎΡ Π½Π° Π±Π°Π·Π΅ ΠΊΠΎΠΌΠΏΠ»Π΅ΠΊΡΡΡΡΠΈΡ Π ΠΠΠ’ΠΠ ΠΌΡ Π²ΡΠΏΡΡΡΠΈΠ»ΠΈ Π±Π΅ΡΠΏΠ»Π°ΡΠ½ΠΎΠ΅ ΠΌΠΎΠ±ΠΈΠ»ΡΠ½ΠΎΠ΅ ΠΏΡΠΈΠ»ΠΎΠΆΠ΅Π½ΠΈΠ΅ Β«Π ΠΠΠ’ΠΠ.Π Π°ΡΡΠ΅ΡΒ».

FAQ — Π§Π°ΡΡΡΠ΅ Π²ΠΎΠΏΡΠΎΡΡ
- ΠΠ»Ρ ΡΠ΅Π³ΠΎ ΠΏΡΠ΅Π΄Π½Π°Π·Π½Π°ΡΠ΅Π½ΠΎ ΠΏΡΠΈΠ»ΠΎΠΆΠ΅Π½ΠΈΠ΅?
ΠΡΠΈΠ»ΠΎΠΆΠ΅Π½ΠΈΠ΅ ΠΏΡΠ΅Π΄Π½Π°Π·Π½Π°ΡΠ΅Π½ΠΎ Π΄Π»Ρ Π±ΡΡΡΡΠΎΠ³ΠΎ ΠΈ ΡΠ΄ΠΎΠ±Π½ΠΎΠ³ΠΎ ΡΠ°ΡΡΠ΅ΡΠ° ΠΏΠ°ΡΠ°ΠΌΠ΅ΡΡΠΎΠ² ΠΎΡΠΊΠ°ΡΠ½ΡΡ Π²ΠΎΡΠΎΡ ΠΈ ΠΏΠΎΠ΄Π±ΠΎΡΠ° ΡΠΈΡΡΠ΅ΠΌΡ ΠΊΠΎΠΌΠΏΠ»Π΅ΠΊΡΡΡΡΠΈΡ Π ΠΠΠ’ΠΠ (ΠΠΠΠ Π, ΠΠΠ, ΠΠΠ Π, ΠΠΠΠ‘). - Π§ΡΠΎ ΠΌΠΎΠΆΠ½ΠΎ ΡΠ°ΡΡΡΠΈΡΠ°ΡΡ ΠΏΡΠΈ ΠΏΠΎΠΌΠΎΡΠΈ ΠΏΡΠΈΠ»ΠΎΠΆΠ΅Π½ΠΈΡ?
— ΠΌΠ°ΠΊΡΠΈΠΌΠ°Π»ΡΠ½ΡΡ ΡΠΈΡΠΈΠ½Ρ ΠΏΡΠΎΠ΅ΠΌΠ°;
— ΠΌΠΈΠ½ΠΈΠΌΠ°Π»ΡΠ½ΠΎ Π΄ΠΎΠΏΡΡΡΠΈΠΌΠΎΠ΅ ΡΠ°ΡΡΡΠΎΡΠ½ΠΈΠ΅ ΠΌΠ΅ΠΆΠ΄Ρ ΡΠ΅Π½ΡΡΠ°ΠΌΠΈ ΠΎΠΏΠΎΡ;
— ΠΌΠ°ΠΊΡΠΈΠΌΠ°Π»ΡΠ½ΠΎ Π΄ΠΎΠΏΡΡΡΠΈΠΌΡΠΉ Π²Π΅Ρ ΡΡΠ²ΠΎΡΠΊΠΈ ΠΎΡΠΊΠ°ΡΠ½ΡΡ Π²ΠΎΡΠΎΡ;
— Π΄Π»ΠΈΠ½Ρ ΡΡΠ²ΠΎΡΠΊΠΈ / Π½Π°ΠΏΡΠ°Π²Π»ΡΡΡΠ΅ΠΉ;
Π ΡΠ°ΠΊΠΆΠ΅ Π²Ρ ΠΌΠΎΠΆΠ΅ΡΠ΅:
— ΠΏΠΎΠ΄ΠΎΠ±ΡΠ°ΡΡ Π½Π΅ΠΎΠ±Ρ ΠΎΠ΄ΠΈΠΌΡΡ ΡΠΈΡΡΠ΅ΠΌΡ ΠΊΠΎΠΌΠΏΠ»Π΅ΠΊΡΡΡΡΠΈΡ ;
— ΠΎΠ·Π½Π°ΠΊΠΎΠΌΠΈΡΡΡΡ Ρ ΠΊΠΎΠΌΠΏΠ»Π΅ΠΊΡΡΡΡΠΈΠΌΠΈ Π ΠΠΠ’ΠΠ Π² ΡΠ°Π·Π΄Π΅Π»Π΅ Β«ΠΠ°ΡΠ°Π»ΠΎΠ³Β»;
— ΡΠ²ΡΠ·Π°ΡΡΡΡ Ρ Π½Π°ΠΌΠΈ, Π½Π΅ ΠΏΠΎΠΊΠΈΠ΄Π°Ρ ΠΏΡΠΈΠ»ΠΎΠΆΠ΅Π½ΠΈΠ΅. - ΠΠΎΠ΄Ρ
ΠΎΠ΄ΠΈΡ Π»ΠΈ ΠΏΡΠΈΠ»ΠΎΠΆΠ΅Π½ΠΈΠ΅ Π΄Π»Ρ ΡΠ°ΡΡΠ΅ΡΠ° ΠΏΠ°ΡΠ°ΠΌΠ΅ΡΡΠΎΠ² ΠΊΠΎΠ½ΡΡΡΡΠΊΡΠΈΠΉ Π½Π° ΠΊΠΎΠΌΠΏΠ»Π΅ΠΊΡΡΡΡΠΈΡ
Π΄ΡΡΠ³ΠΈΡ
ΠΏΡΠΎΠΈΠ·Π²ΠΎΠ΄ΠΈΡΠ΅Π»Π΅ΠΉ?
Π Π°ΡΡΠ΅Ρ ΠΏΡΠ΅Π΄Π½Π°Π·Π½Π°ΡΠ΅Π½ ΡΠΎΠ»ΡΠΊΠΎ Π΄Π»Ρ ΠΊΠΎΠ½ΡΡΡΡΠΊΡΠΈΠΉ Π½Π° ΠΊΠΎΠΌΠΏΠ»Π΅ΠΊΡΡΡΡΠΈΡ Π ΠΠΠ’ΠΠ! - ΠΠΎΠ΄Ρ
ΠΎΠ΄ΠΈΡ Π»ΠΈ ΠΏΡΠΈΠ»ΠΎΠΆΠ΅Π½ΠΈΠ΅ Π΄Π»Ρ ΡΠ°ΡΡΠ΅ΡΠ° ΠΏΠ°ΡΠ°ΠΌΠ΅ΡΡΠΎΠ² ΠΊΠΎΠ½ΡΡΡΡΠΊΡΠΈΠΉ Ρ ΠΏΡΠΈΠΌΠ΅Π½Π΅Π½ΠΈΠ΅ΠΌ ΠΎΠΏΠΎΡ Ρ Π±ΠΎΠΊΠΎΠ²ΡΠΌ ΠΊΡΠ΅ΠΏΠ»Π΅Π½ΠΈΠ΅ΠΌ?
Π Π°ΡΡΠ΅Ρ ΠΏΡΠΎΠΈΠ·Π²ΠΎΠ΄ΠΈΡΡΡ ΡΠΎΠ»ΡΠΊΠΎ Π΄Π»Ρ ΠΊΠΎΠ½ΡΡΡΡΠΊΡΠΈΠΉ Ρ ΠΏΡΠΈΠΌΠ΅Π½Π΅Π½ΠΈΠ΅ΠΌ ΠΎΠΏΠΎΡ Ρ ΠΊΠ»Π°ΡΡΠΈΡΠ΅ΡΠΊΠΈΠΌ ΠΊΡΠ΅ΠΏΠ»Π΅Π½ΠΈΠ΅ΠΌ. - ΠΠ΄Π΅ ΡΠΊΠ°ΡΠ°ΡΡ?
ΠΠ»Ρ ΡΠΎΠ³ΠΎ ΡΡΠΎΠ±Ρ Π·Π°Π³ΡΡΠ·ΠΈΡΡ ΠΏΡΠΈΠ»ΠΎΠΆΠ΅Π½ΠΈΠ΅ Π·Π°ΠΉΠ΄ΠΈΡΠ΅ Π² ΠΌΠ΅Π½Ρ ΡΡΡΡΠΎΠΉΡΡΠ²Π°, Π½Π°ΠΉΠ΄ΠΈΡΠ΅ Π·Π½Π°ΡΠΎΠΊ Google Play (Π΄Π»Ρ Android), App Store (Π΄Π»Ρ iOS) ΠΈΠ»ΠΈ ΠΠ°Π³Π°Π·ΠΈΠ½ (Π΄Π»Ρ Windows Phone), ΠΏΠ΅ΡΠ΅ΠΉΠ΄ΠΈΡΠ΅ Π² ΡΠ°Π·Π΄Π΅Π» Β«ΠΠΎΠΈΡΠΊΒ» ΠΈ Π½Π°Π±Π΅ΡΠΈΡΠ΅ Β«Π ΠΠΠ’ΠΠ.Π Π°ΡΡΠ΅ΡΒ». ΠΠ»ΠΈ Π²ΠΎΡΠΏΠΎΠ»ΡΠ·ΡΠΉΡΠ΅ΡΡ ΡΡΡΠ»ΠΊΠ°ΠΌΠΈ Π½Π° ΡΠΊΠ°ΡΠΈΠ²Π°Π½ΠΈΠ΅, ΡΠ°Π·ΠΌΠ΅ΡΠ΅Π½Π½ΡΠΌΠΈ Π² Π½Π°ΡΠ°Π»Π΅ ΡΡΡΠ°Π½ΠΈΡΡ. - ΠΠΎΡΠ΅ΠΌΡ ΠΏΠ΅ΡΠ΅Π΄ ΡΡΡΠ°Π½ΠΎΠ²ΠΊΠΎΠΉ ΠΏΡΠΈΠ»ΠΎΠΆΠ΅Π½ΠΈΠ΅ Π·Π°ΠΏΡΠ°ΡΠΈΠ²Π°Π΅Ρ ΠΏΡΠ°Π²Π° Π½Π° Π΄ΠΎΡΡΡΠΏ ΠΊ Π²Π°ΡΠΈΠΌ Π΄Π°Π½Π½ΡΠΌ (ΠΌΠ΅ΡΡΠΎΠ½Π°Ρ
ΠΎΠΆΠ΄Π΅Π½ΠΈΠ΅, ΡΠ΅Π»Π΅ΡΠΎΠ½Π½ΡΠ΅ Π·Π²ΠΎΠ½ΠΊΠΈ ΠΈ Ρ.Π΄.)?
ΠΡΠΈΠ»ΠΎΠΆΠ΅Π½ΠΈΡ Π½Π΅ΠΎΠ±Ρ ΠΎΠ΄ΠΈΠΌΡ Π΄Π°Π½Π½ΡΠ΅ ΡΠ°Π·ΡΠ΅ΡΠ΅Π½ΠΈΡ Π΄Π»Ρ ΡΡΠ°Π±ΠΈΠ»ΡΠ½ΠΎΠΉ ΡΠ°Π±ΠΎΡΡ Π²ΡΠ΅Ρ ΡΡΠ½ΠΊΡΠΈΠΉ, ΡΠ°ΠΊΠΈΡ ΠΊΠ°ΠΊ Β«Π‘Π²ΡΠ·Π°ΡΡΡΡ Ρ Π½Π°ΠΌΠΈΒ», Β«ΠΠΎΠ²ΠΎΡΡΠΈ ΠΈ Π°ΠΊΡΠΈΠΈ ΠΊΠΎΠΌΠΏΠ°Π½ΠΈΠΈΒ». ΠΡΠΈΠ»ΠΎΠΆΠ΅Π½ΠΈΠ΅ ΠΏΡΠ΅Π΄ΠΎΡΡΠ°Π²Π»ΡΠ΅ΡΡΡ Π½Π° Π±Π΅ΡΠΏΠ»Π°ΡΠ½ΠΎΠΉ ΠΎΡΠ½ΠΎΠ²Π΅ ΠΈ Π½Π΅ ΠΎΡΡΡΠ΅ΡΡΠ²Π»ΡΠ΅Ρ ΠΏΠ»Π°ΡΠ½ΡΡ ΡΡΠ½ΠΊΡΠΈΠΉ (Π·Π²ΠΎΠ½ΠΊΠΈ, ΠΈΠ½ΡΠ΅ΡΠ½Π΅Ρ) Π±Π΅Π· ΡΠΎΠ³Π»Π°ΡΠΈΡ ΠΏΠΎΠ»ΡΠ·ΠΎΠ²Π°ΡΠ΅Π»Ρ. ΠΠΎΠΌΠΏΠ°Π½ΠΈΡ Π½Π΅ ΠΏΠ΅ΡΠ΅Π΄Π°Π΅Ρ ΠΈΠ½ΡΠΎΡΠΌΠ°ΡΠΈΡ ΠΎ ΠΏΠΎΠ»ΡΠ·ΠΎΠ²Π°ΡΠ΅Π»ΡΡ ΠΏΡΠΈΠ»ΠΎΠΆΠ΅Π½ΠΈΡ ΡΡΠ΅ΡΡΠΈΠΌ Π»ΠΈΡΠ°ΠΌ.
www.rolls.ru
Π§Π΅ΡΡΠ΅ΠΆΠΈ, ΡΡ Π΅ΠΌΡ, ΡΡΠΊΠΈΠ·Ρ ΠΎΡΠΊΠ°ΡΠ½ΡΡ Π²ΠΎΡΠΎΡ β Π΄Π»Ρ ΡΠ΅Ρ , ΠΊΡΠΎ ΡΠ΅ΡΠΈΠ» ΡΠ°ΠΌΠΎΡΡΠΎΡΡΠ΅Π»ΡΠ½ΠΎ ΡΠ΄Π΅Π»Π°ΡΡ Π²ΠΎΡΠΎΡΠ° Π΄Π»Ρ Π΄Π°ΡΠΈ ΠΈΠ»ΠΈ ΡΡΠ°ΡΡΠΊΠ°
ΠΡΠ°ΠΊ, Π²Ρ ΡΠ΅ΡΠΈΠ»ΠΈ ΠΈΠ·Π³ΠΎΡΠΎΠ²ΠΈΡΡ ΠΎΡΠΊΠ°ΡΠ½ΡΠ΅ Π²ΠΎΡΠΎΡΠ° ΡΠ°ΠΌΠΎΡΡΠΎΡΡΠ΅Π»ΡΠ½ΠΎ. ΠΠΎΠ·ΠΌΠΎΠΆΠ½ΠΎ, ΡΠΆΠ΅ ΠΏΡΠΈΠΎΠ±ΡΠ΅Π»ΠΈ ΠΊΠΎΠΌΠΏΠ»Π΅ΠΊΡΠ°ΡΠΈΡ ΠΈ ΠΎΡΡΠ°Π»ΠΎΡΡ ΡΠΎΠ»ΡΠΊΠΎ ΡΠ΄Π΅Π»Π°ΡΡ ΡΠ°ΠΌΡ. ΠΠ° ΡΡΠΎ ΡΡΠΎΠΈΡ ΠΎΠ±ΡΠ°ΡΠΈΡΡ Π²Π½ΠΈΠΌΠ°Π½ΠΈΠ΅ ΠΏΡΠΈ Π΅Π΅ ΠΏΡΠΎΠ΅ΠΊΡΠΈΡΠΎΠ²Π°Π½ΠΈΠΈ, ΠΊΠ°ΠΊΠΈΠ΅ Π°ΡΠΏΠ΅ΠΊΡΡ ΡΡΠ΅ΡΡΡ β ΡΠ°ΡΡΠΊΠ°ΠΆΡ Π² ΡΡΠΎΠΉ ΡΡΠ°ΡΡΠ΅.
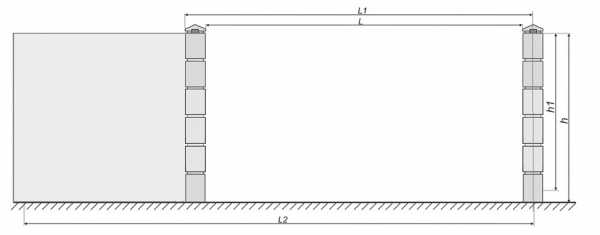
ΠΠΏΡΠ΅Π΄Π΅Π»Π΅Π½ΠΈΠ΅ Π³Π°Π±Π°ΡΠΈΡΠΎΠ² ΠΏΡΠΎΠ΅ΠΌΠ° ΠΈ ΡΠ°Π·ΠΌΠ΅ΡΠΎΠ² Π±ΡΠ΄ΡΡΠ΅ΠΉ ΠΌΠ΅ΡΠ°Π»Π»ΠΎΠΊΠΎΠ½ΡΡΡΡΠΊΡΠΈΠΈ
ΠΠ° Π΄Π°Π½Π½ΠΎΠΌ ΡΡΠΊΠΈΠ·Π΅ ΠΏΡΠΎΠ΅ΠΌΠ° ΠΎΡΠΊΠ°ΡΠ½ΡΡ Π²ΠΎΡΠΎΡ ΠΌΡ Π²ΠΈΠ΄ΠΈΠΌ, ΠΊΠ°ΠΊΠΈΠ΅ ΠΏΠ°ΡΠ°ΠΌΠ΅ΡΡΡ Π½Π°ΠΌ ΠΏΠΎΠ½Π°Π΄ΠΎΠ±ΡΡΡΡ, ΡΡΠΎΠ±Ρ ΡΠ΄Π΅Π»Π°ΡΡ ΠΎΡΠΊΠ°ΡΠ½ΡΠ΅ Π²ΠΎΡΠΎΡΠ° ΡΠ΅ΡΡΠ΅ΠΆ.
`
ΠΡΠΎΠ΅ΠΌ Π²ΠΎΡΠΎΡ, L β ΡΡΠΎ ΡΠ²Π΅ΡΠΎΠ²ΠΎΠΉ ΠΏΡΠΎΠ΅ΠΌ ΠΌΠ΅ΠΆΠ΄Ρ ΡΡΠΎΠ»Π±Π°ΠΌΠΈ.
Π¨ΠΈΡΠΈΠ½Π° ΠΏΠΎΠ»ΠΎΡΠ½Π° Π²ΠΎΡΠΎΡ (ΠΏΠΎΠ΄ ΠΎΠ±ΡΠΈΠ²ΠΊΡ), L1 β Π³ΠΎΡΠΎΠ²ΠΎΠ΅ ΠΏΠΎΠ»ΠΎΡΠ½ΠΎ Π΄ΠΎΠ»ΠΆΠ½ΠΎ ΠΏΠΎΠ»Π½ΠΎΡΡΡΡ ΠΏΠ΅ΡΠ΅ΠΊΡΡΠ²Π°ΡΡ ΠΏΡΠΎΠ΅ΠΌ. ΠΠ°ΠΊ ΠΏΡΠ°Π²ΠΈΠ»ΠΎ, Π΅Π³ΠΎ ΡΠΈΡΠΈΠ½Π° = ΡΠΈΡΠΈΠ½Π° ΡΠ²Π΅ΡΠΎΠ²ΠΎΠ³ΠΎ ΠΏΡΠΎΠ΅ΠΌΠ° +400 ΠΌΠΌ.
ΠΠ±ΡΠ°Ρ Π΄Π»ΠΈΠ½Π° Π²ΠΎΡΠΎΡ Ρ Π½Π΅ΡΡΡΠ΅ΠΉ Π±Π°Π»ΠΊΠΎΠΉ, L2
ΠΠ±ΡΠ°Ρ Π²ΡΡΠΎΡΠ° Π·Π°Π±ΠΎΡΠ°, h β ΠΎΠ±ΡΡΠ½ΠΎ ΠΏΠΎΠ»ΠΎΡΠ½ΠΎ Π²ΠΎΡΠΎΡ Π΄Π΅Π»Π°ΡΡ Π½ΠΈΠΆΠ΅ Π·Π°Π±ΠΎΡΠ°, ΡΡΠΎ ΠΏΠΎΠ·Π²ΠΎΠ»ΡΠ΅Ρ Π²ΡΠ΄Π΅Π»ΠΈΡΡ Π²ΡΠ΅Π·Π΄Π½ΡΡ Π³ΡΡΠΏΠΏΡ ΠΈ ΡΠ°ΡΡΠΈΡΠΈΡΡ Π²ΠΎΠ·ΠΌΠΎΠΆΠ½ΠΎΡΡΡ ΡΠ΅Π³ΡΠ»ΠΈΡΠΎΠ²ΠΎΠΊ ΡΠΆΠ΅ ΡΡΡΠ°Π½ΠΎΠ²Π»Π΅Π½Π½ΡΡ Π²ΠΎΡΠΎΡ.
ΠΡΡΠΎΡΠ° ΠΏΠΎΠ»ΠΎΡΠ½Π° Π²ΠΎΡΠΎΡ Ρ Π½Π΅ΡΡΡΠ΅ΠΉ Π±Π°Π»ΠΊΠΎΠΉ, h2 β ΠΌΡ ΡΠ΅ΠΊΠΎΠΌΠ΅Π½Π΄ΡΠ΅ΠΌ Π΄Π΅Π»Π°ΡΡ Π·Π°Π·ΠΎΡ ΠΏΠΎΠ΄ Π²ΠΎΡΠΎΡΠ°ΠΌΠΈ 80-100 ΠΌΠΌ. Π£Ρ ΠΎΠ΄ Π·Π° ΡΠ°ΠΊΠΈΠΌΠΈ Π²ΠΎΡΠΎΡΠ°ΠΌΠΈ Π² Π·ΠΈΠΌΠ½ΠΈΠΉ ΠΏΠ΅ΡΠΈΠΎΠ΄ ΠΏΡΠΎΡΠ΅.
ΠΡΠΊΠΈΠ· ΠΎΡΠΊΠ°ΡΠ½ΡΡ Π²ΠΎΡΠΎΡ Ρ ΠΏΠ΅ΡΠ΅ΡΠ½Π΅ΠΌ Π½Π΅ΠΎΠ±Ρ ΠΎΠ΄ΠΈΠΌΠΎΠΉ ΠΊΠΎΠΌΠΏΠ»Π΅ΠΊΡΠ°ΡΠΈΠΈ

|
ΠΠΎΠ·. β |
ΠΠΠΠΠΠΠΠΠΠΠΠ |
ΠΠΎΠ»-Π²ΠΎ ΡΡ. |
|
1 |
Π Π°ΠΌΠ° ΠΎΡΠΊΠ°ΡΠ½ΡΡ Π²ΠΎΡΠΎΡ ΠΠ° Π½Π°Π΄Π΅ΠΆΠ½ΠΎΡΡΡ ΠΈ Π΄ΠΎΠ»Π³ΠΎΠ²Π΅ΡΠ½ΠΎΡΡΡ ΠΎΡΠΊΠ°ΡΠ½ΡΡ Π²ΠΎΡΠΎΡ ΠΎΡΠ²Π΅ΡΠ°Π΅Ρ ΡΠΎΡΠ½ΠΎ ΠΏΡΠΎΠ΄ΡΠΌΠ°Π½Π½Π°Ρ Π³Π΅ΠΎΠΌΠ΅ΡΡΠΈΡ ΠΈ Π²ΡΡΠΎΠΊΠΈΠ΅ ΠΏΡΠΎΡΠ½ΠΎΡΡΠ½ΡΠ΅ Ρ Π°ΡΠ°ΠΊΡΠ΅ΡΠΈΡΡΠΈΠΊΠΈ ΠΊΠΎΠ½ΡΡΡΡΠΊΡΠΈΠΈ. |
1 |
|
2 |
ΠΠ΅ΡΡΡΠ°Ρ Π½Π°ΠΏΡΠ°Π²Π»ΡΡΡΠ°Ρ (ΡΠΈΠ½Π°, ΡΠ΅Π»ΡΡ) ΠΡΠ΅Π΄ΡΡΠ°Π²Π»ΡΠ΅Ρ ΡΠΎΠ±ΠΎΠΉ ΠΏΡΠΎΡΠΈΠ»Ρ ΡΠΏΠ΅ΡΠΈΠ°Π»ΡΠ½ΠΎΠΉ ΡΠ»ΠΎΠΆΠ½ΠΎΠΉ Π³Π΅ΠΎΠΌΠ΅ΡΡΠΈΠΈ Ρ ΠΏΡΠΎΡΠ΅Π·ΡΡ Π΄Π»Ρ Π΄Π²ΠΈΠΆΠ΅Π½ΠΈΡ ΡΠ΅Π»Π΅ΠΆΠΊΠΈ. |
1 |
|
3 |
Π ΠΎΠ»ΠΈΠΊΠΎΠ²Π°Ρ ΠΎΠΏΠΎΡΠ° (ΡΠ΅Π»Π΅ΠΆΠΊΠ°) ΡΠΎ ΡΡΠ°Π»ΡΠ½ΡΠΌΠΈ ΡΠΎΠ»ΠΈΠΊΠ°ΠΌΠΈ ΠΡΠ΅Π΄Π½Π°Π·Π½Π°ΡΠ΅Π½Π° Π΄Π»Ρ ΠΏΠ΅ΡΠ΅ΠΌΠ΅ΡΠ΅Π½ΠΈΡ ΡΡΠ²ΠΎΡΠΊΠΈ. ΠΠ° ΡΡΠ°Π»ΡΠ½ΠΎΠΉ ΠΏΠ»Π°ΡΡΠΈΠ½Π΅ Π·Π°ΠΊΡΠ΅ΠΏΠ»Π΅Π½Ρ ΡΠΎΠ»ΠΈΠΊΠΈ Π½Π° ΠΏΠΎΠ΄ΡΠΈΠΏΠ½ΠΈΠΊΠ°Ρ , ΠΊΠΎΡΠΎΡΡΠ΅ ΠΎΠ±Π΅ΡΠΏΠ΅ΡΠΈΠ²Π°ΡΡ ΡΠΈΡ ΠΈΠΉ ΠΈ ΠΏΠ»Π°Π²Π½ΡΠΉ Ρ ΠΎΠ΄ ΡΡΠ²ΠΎΡΠΊΠΈ. |
2 |
|
4 |
ΠΠΎΠ΄ΡΡΠ°Π²ΠΊΠ° ΠΏΠΎΠ΄ ΡΠΎΠ»ΠΈΠΊΠΎΠ²ΡΡ ΠΎΠΏΠΎΡΡ ΠΠΎΠ΄ΡΡΠ°Π²ΠΊΠ° ΠΏΡΠ΅Π΄ΡΡΠ°Π²Π»ΡΠ΅Ρ ΡΠΎΠ±ΠΎΠΉ ΡΡΠ°Π»ΡΠ½ΡΡ ΠΏΠ»Π°ΡΡΠΈΠ½Ρ, Π½Π° ΠΊΠΎΡΠΎΡΠΎΠΉ Π·Π°ΠΊΡΠ΅ΠΏΠ»Π΅Π½Ρ ΡΠ΅ΡΡΡΠ΅Β ΡΠΏΠΈΠ»ΡΠΊΠΈ. ΠΠ° Π½ΠΈΡ ΠΏΡΠΈ ΠΏΠΎΠΌΠΎΡΠΈ Π³Π°Π΅ΠΊ ΠΈ ΡΠ°ΠΉΠ± ΡΠΈΠΊΡΠΈΡΡΠ΅ΡΡΡ ΡΠΎΠ»ΠΈΠΊΠΎΠ²Π°Ρ ΠΎΠΏΠΎΡΠ°. ΠΡΠΏΠΎΠ»ΡΠ·ΡΠ΅ΡΡΡ Π΄Π»Ρ ΡΠ΅Π³ΡΠ»ΠΈΡΠΎΠ²Π°Π½ΠΈΡ ΠΏΠΎΠ»ΠΎΠΆΠ΅Π½ΠΈΡ ΠΏΠΎΠ»ΠΎΡΠ½Π° Π² Π²Π΅ΡΡΠΈΠΊΠ°Π»ΡΠ½ΠΎΠΉ ΠΈ Π³ΠΎΡΠΈΠ·ΠΎΠ½ΡΠ°Π»ΡΠ½ΠΎΠΉ ΠΏΠ»ΠΎΡΠΊΠΎΡΡΡΡ . |
2 |
|
5 |
ΠΠΈΠΆΠ½ΡΡ Π»ΠΎΠ²ΡΡΠΊΠ° Π Π°Π·Π³ΡΡΠΆΠ°Π΅Ρ ΡΠΎΠ»ΠΈΠΊΠΎΠ²ΡΠ΅ ΠΎΠΏΠΎΡΡ, ΠΊΠΎΠ³Π΄Π° Π²ΠΎΡΠΎΡΠ° Π·Π°ΠΊΡΡΡΡ. ΠΠΎΠ»ΠΎΡΠ½ΠΎ ΠΎΠΏΠΈΡΠ°Π΅ΡΡΡ ΠΊΠΎΠ½ΡΠ΅Π²ΡΠΌ ΡΠΎΠ»ΠΈΠΊΠΎΠΌ Π½Π° Π»ΠΎΠ²ΡΡΠΊΡ ΠΈ ΡΠΈΠΊΡΠΈΡΡΠ΅ΡΡΡ ΡΠ°ΠΊΠΈΠΌ ΠΎΠ±ΡΠ°Π·ΠΎΠΌ Π² Π·Π°ΠΊΡΡΡΠΎΠΌ ΠΏΠΎΠ»ΠΎΠΆΠ΅Π½ΠΈΠΈ. |
1 |
|
6 |
Π ΠΎΠ»ΠΈΠΊ ΠΊΠΎΠ½ΡΠ΅Π²ΠΎΠΉ (ΠΎΠΏΠΎΡΠ½ΡΠΉ) ΠΠ°ΠΊΡΡΠ²Π°ΡΡΡ, ΡΡΠ²ΠΎΡΠΊΠ° Π·Π°Π΅Π·ΠΆΠ°Π΅Ρ ΡΠΎΠ»ΠΈΠΊΠΎΠΌ Π½Π° Π½ΠΈΠΆΠ½ΡΡ Π»ΠΎΠ²ΡΡΠΊΡ β ΡΠΎΠ»ΠΈΠΊ ΠΏΠΎΠ·Π²ΠΎΠ»ΡΠ΅Ρ ΡΠ΄Π΅Π»Π°ΡΡ ΠΏΠ°ΡΠΊΠΎΠ²ΠΊΡ ΡΠΈΡ ΠΎΠΉ ΠΈ ΠΌΡΠ³ΠΊΠΎΠΉ. |
1 |
|
7 |
ΠΠ΅ΡΡ Π½ΡΡ Π»ΠΎΠ²ΡΡΠΊΠ° ΠΡΠΈΠ΄Π΅ΡΠΆΠΈΠ²Π°Π΅Ρ Π²Π΅ΡΡ Π½ΠΈΠΉ ΠΊΡΠ°ΠΉ ΡΡΠ²ΠΎΡΠΊΠΈ Π² Π·Π°ΠΊΡΡΡΠΎΠΌ ΠΏΠΎΠ»ΠΎΠΆΠ΅Π½ΠΈΠΈ Π²ΠΎΡΠΎΡ, ΡΠ½ΠΈΠΆΠ°Π΅Ρ ΡΡΠΌ ΠΎΡ Π²ΠΈΠ±ΡΠ°ΡΠΈΠΉ, ΠΊΠΎΠ³Π΄Π° ΡΡΠ²ΠΎΡΠΊΠ° Π·Π°ΠΊΡΡΡΠ°. |
1 |
|
8 |
ΠΡΠΎΠ½ΡΡΠ΅ΠΉΠ½ Π²Π΅ΡΡ Π½ΠΈΠΉΒ Ρ Π΄Π²ΡΠΌΡ ΡΠΎΠ»ΠΈΠΊΠ°ΠΌΠΈ ΠΡΠΈΠ΄Π΅ΡΠΆΠΈΠ²Π°Π΅Ρ ΠΏΠΎΠ»ΠΎΡΠ½ΠΎ Π²ΠΎΡΠΎΡ Π² Π²Π΅ΡΡΠΈΠΊΠ°Π»ΡΠ½ΠΎΠΌ ΠΏΠΎΠ»ΠΎΠΆΠ΅Π½ΠΈΠΈ ΠΏΡΠΈ Π΅Π΅ ΠΏΠ΅ΡΠ΅ΠΌΠ΅ΡΠ΅Π½ΠΈΠΈ. |
1 |
Β
ΠΡΠ°ΠΊ, Π΄Π»Ρ ΠΈΠ·Π³ΠΎΡΠΎΠ²Π»Π΅Π½ΠΈΡ Π²ΠΎΡΠΎΡ Π²Π°ΠΌ ΠΏΠΎΡΡΠ΅Π±ΡΡΡΡΡ Π½Π΅ ΡΠΎΠ»ΡΠΊΠΎ ΡΠ΅ΡΡΠ΅ΠΆΠΈ ΠΈ ΡΡ Π΅ΠΌΡ ΠΎΡΠΊΠ°ΡΠ½ΡΡ Π²ΠΎΡΠΎΡ, Π½ΠΎ ΠΈ Π½Π°Π±ΠΎΡ ΠΊΠΎΠΌΠΏΠ»Π΅ΠΊΡΡΡΡΠΈΡ . ΠΡΡΡΠ΅ Π²ΡΠ±ΡΠ°ΡΡ ΡΡΡΠ½ΠΈΡΡΡΡ Π·Π°Π²ΠΎΠ΄ΡΠΊΠΎΠ³ΠΎ ΠΈΠ·Π³ΠΎΡΠΎΠ²Π»Π΅Π½ΠΈΡ β ΡΡΠΎ Π³Π°ΡΠ°Π½ΡΠΈΡΡΠ΅Ρ Π»Π΅Π³ΠΊΠΎΠ΅ ΠΊΠ°ΡΠ΅Π½ΠΈΠ΅ ΡΡΠ²ΠΎΡΠΊΠΈ ΠΈ Π½Π°Π΄Π΅ΠΆΠ½ΠΎΡΡΡ. Π£ Π½Π°Ρ Π² ΠΌΠ°Π³Π°Π·ΠΈΠ½Π΅ ΠΏΡΠ΅Π΄ΡΡΠ°Π²Π»Π΅Π½Ρ ΠΊΠΎΠΌΠΏΠ»Π΅ΠΊΡΡΡΡΠΈΠ΅ Π΄Π»Ρ Π²ΠΎΡΠΎΡ Π²ΡΠ΅Ρ Π²Π΅Π΄ΡΡΠΈΡ ΠΏΡΠΎΠΈΠ·Π²ΠΎΠ΄ΠΈΡΠ΅Π»Π΅ΠΉ: ΠΊΠΎΠΌΠΏΠ»Π΅ΠΊΡΡ ΠΠ»ΡΡΠ΅Ρ (ΠΠ΅Π»ΠΎΡΡΡΠΈΡ), Π ΠΠΠ’ΠΠ (Π Π€) ΠΈ ΠΠ°ΡΠ° (ΠΠΈΡΠ°ΠΉ). ΠΠΎΡΠ΅ΡΠΈΠ² ΠΌΠ°Π³Π°Π·ΠΈΠ½ Π»ΠΈΡΠ½ΠΎ, Π²Ρ Π½Π΅ ΡΠΎΠ»ΡΠΊΠΎ ΡΠΌΠΎΠΆΠ΅ΡΠ΅ ΠΏΠΎΠ΄ΠΎΠ±ΡΠ°ΡΡ Π½Π΅ΠΎΠ±Ρ ΠΎΠ΄ΠΈΠΌΡΠΉ ΠΊΠΎΠΌΠΏΠ»Π΅ΠΊΡ, Π½ΠΎ ΠΈ ΠΎΠ·Π½Π°ΠΊΠΎΠΌΠΈΡΡΡΡ Ρ ΠΊΠΎΠ½ΡΡΡΡΠΊΡΠΈΠ΅ΠΉ ΡΠ°ΠΌΡ (ΠΎΠ±ΡΠ°Π·ΡΡ Π²ΡΡΡΠ°Π²Π»Π΅Π½Ρ Π² ΡΠΎΡΠ³ΠΎΠ²ΠΎΠΌ Π·Π°Π»Π΅).
Π§Π΅ΡΡΠ΅ΠΆΠΈ ΠΈ ΡΡ Π΅ΠΌΡ ΠΎΡΠΊΠ°ΡΠ½ΡΡ Π²ΠΎΡΠΎΡ ΠΠΠ§Π
ΠΠΈΠΆΠ΅ ΠΏΡΠ΅Π΄ΡΡΠ°Π²Π»Π΅Π½Ρ ΡΠ΅ΡΡΠ΅ΠΆΠΈ ΠΈ ΡΡ Π΅ΠΌΡ ΠΎΡΠΊΠ°ΡΠ½ΡΡ Π²ΠΎΡΠΎΡ, ΠΊΠΎΡΠΎΡΡΠ΅ ΠΈΡΠΏΠΎΠ»ΡΠ·ΡΡΡΡΡ Π½Π°ΠΌΠΈ ΠΏΡΠΈ ΠΈΠ·Π³ΠΎΡΠΎΠ²Π»Π΅Π½ΠΈΠΈ Π²ΠΎΡΠΎΡ ΡΠ΅ΡΠΈΠΈ ΠΠΠ§Π.

Π Π°ΠΌΠ° Π²ΠΎΡΠΎΡ ΡΠ΅ΡΠΈΠΈ ΠΠΠ§Π ΠΏΠΎΠ΄Ρ ΠΎΠ΄ΠΈΡ Π΄Π»Ρ ΠΎΡΠ΄Π΅Π»ΠΊΠΈ Π»ΡΠ±ΡΠΌ ΠΌΠ°ΡΠ΅ΡΠΈΠ°Π»ΠΎΠΌ ΡΠΎΠ»ΡΠΈΠ½ΠΎΠΉ Π½Π΅ Π±ΠΎΠ»Π΅Π΅ 18 ΠΌΠΌ, ΡΠ°ΠΊ ΠΊΠ°ΠΊ ΠΎΡΠ΄Π΅Π»ΠΊΠ° Π²ΡΡΠ°Π²Π»ΡΠ΅ΡΡΡ Π² ΡΠ°ΠΌΠΊΡ, Π° Π½Π΅ ΠΊΡΠ΅ΠΏΠΈΡΡΡ Π²Π½Π°ΠΊΠ»Π°Π΄ΠΊΡ.
ΠΠ»Ρ ΠΎΡΠ΄Π΅Π»ΠΊΠΈ ΠΌΠΎΠΆΠ΅Ρ Π±ΡΡΡ ΠΈΡΠΏΠΎΠ»ΡΠ·ΠΎΠ²Π°Π½ ΠΏΡΠΎΡΠΈΠ»ΡΠ½ΡΠΉ Π»ΠΈΡΡ (ΠΏΡΠΎΡΠΈΠ»Ρ Π‘-18 ΠΈΠ»ΠΈ ΠΠ-18), ΠΌΠ΅ΡΠ°Π»Π»ΠΈΡΠ΅ΡΠΊΠΈΠΉ ΡΠ°ΠΉΠ΄ΠΈΠ½Π³, Π΄ΠΎΡΠΊΠ°.
ΠΠ΅Ρ Π·Π°ΠΏΠΎΠ»Π½Π΅Π½ΠΈΡ ΠΏΡΠΈ ΠΈΡΠΏΠΎΠ»ΡΠ·ΠΎΠ²Π°Π½ΠΈΠΈ ΠΊΠΎΠΌΠΏΠ»Π΅ΠΊΡΡΡΡΠΈΡ ΠΠ°ΡΠ° ΠΈΠ»ΠΈ SGN ΠΏΡΠΈ ΡΠΈΡΠΈΠ½Π΅ ΠΏΡΠΎΠ΅ΠΌΠ° 4 ΠΌ. β Π΄ΠΎ 250 ΠΊΠ³., ΠΏΡΠΈ ΡΠΈΡΠΈΠ½Π΅ ΠΏΡΠΎΠ΅ΠΌΠ° Π΄ΠΎ 5 ΠΌ. β Π½Π΅ Π±ΠΎΠ»Π΅Π΅ 150 ΠΊΠ³.
ΠΡΠ»ΠΈ Π²Ρ ΡΠΎΡΡΠ΅ΡΠ΅ ΠΈΠ·Π³ΠΎΡΠΎΠ²Π»Π΅Π½ΠΈΠ΅ ΡΠ°ΠΌΡ ΡΠ°ΠΌΠΎΡΡΠΎΡΡΠ΅Π»ΡΠ½ΠΎ ΡΠ»ΠΈΡΠΊΠΎΠΌ ΡΠ»ΠΎΠΆΠ½ΡΠΌ, ΠΌΡ Π²ΡΠ΅Π³Π΄Π° ΡΠ°Π΄Ρ ΠΏΡΠ΅Π΄Π»ΠΎΠΆΠΈΡΡ Π²Π°ΠΌ ΠΊΡΠΏΠΈΡΡ Π³ΠΎΡΠΎΠ²ΡΠ΅ ΡΠ°ΠΌΡ ΠΠΠ§Π Π²ΡΡΠΎΠΊΠΎΠ³ΠΎ ΠΊΠ°ΡΠ΅ΡΡΠ²Π° ΠΏΠΎ Π½ΠΈΠ·ΠΊΠΎΠΉ ΡΠ΅Π½Π΅. ΠΡΠ΅ΠΆΠ΄Π΅ ΡΠ΅ΠΌ ΠΏΡΠΈΡΡΡΠΏΠΈΡΡ ΠΊ ΠΈΠ·Π³ΠΎΡΠΎΠ²Π»Π΅Π½ΠΈΡ ΠΈ ΠΏΠΎΠΊΡΠΏΠΊΠ΅ ΠΌΠ°ΡΠ΅ΡΠΈΠ°Π»ΠΎΠ², ΠΏΠΎΡΡΠΈΡΠ°ΠΉΡΠ΅ Π²ΡΠ΅ ΠΏΡΠ΅Π΄ΡΡΠΎΡΡΠΈΠ΅ ΡΠ°ΡΡ ΠΎΠ΄Ρ, Π²ΠΊΠ»ΡΡΠ°Ρ Π·Π°ΡΡΠ°ΡΡ Π½Π° Π΄ΠΎΡΡΠ°Π²ΠΊΡ β Π²ΠΎΠ·ΠΌΠΎΠΆΠ½ΠΎ, Π½Π°ΡΠ° Π³ΠΎΡΠΎΠ²Π°Ρ ΡΠ°ΠΌΠ° Π±ΡΠ΄Π΅Ρ ΡΡΠΎΠΈΡΡ ΠΏΠΎΡΡΠΈ ΡΡΠΎΠ»ΡΠΊΠΎ ΠΆΠ΅.
Π§Π΅ΡΡΠ΅ΠΆ ΠΎΡΠΊΠ°ΡΠ½ΡΡ Π²ΠΎΡΠΎΡ Π½Π° ΠΏΡΠΎΠ΅ΠΌ 4000Ρ 2000 ΠΌΠΌ
ΠΠΎΡΠΎΡΠ° Π½Π° ΠΏΡΠΎΠ΅ΠΌ ΡΠΈΡΠΈΠ½ΠΎΠΉ 4Β 000 ΠΌΠΌ, Π²ΡΡΠΎΡΠΎΠΉ 2Β 000 ΠΌΠΌ. ΠΡΡΠΎΡΠ° ΡΠΊΠ°Π·Π°Π½Π° ΠΎΡ Π΄ΠΎΡΠΎΠΆΠ½ΠΎΠ³ΠΎ ΠΏΠΎΠΊΡΡΡΠΈΡ. ΠΠ°Π·ΠΎΡ ΠΎΡ ΠΏΠΎΠ»ΠΎΡΠ½Π° Π²ΠΎΡΠΎΡ Π΄ΠΎ Π΄ΠΎΡΠΎΠΆΠ½ΠΎΠ³ΠΎ ΠΏΠΎΠΊΡΡΡΠΈΡ β 100 ΠΌΠΌ.

Π§Π΅ΡΡΠ΅ΠΆ ΠΎΡΠΊΠ°ΡΠ½ΡΡ Π²ΠΎΡΠΎΡ Ρ ΠΊΠ°Π»ΠΈΡΠΊΠΎΠΉ Π½Π° ΠΏΡΠΎΠ΅ΠΌ 4000Ρ 2000 ΠΌΠΌ

Β
ΠΠΎΡΠΎΡΠ° Π΄ΠΎΠ»ΠΆΠ½Ρ ΡΠ°Π΄ΠΎΠ²Π°ΡΡ!
xn--b1advnalp3h.xn--p1ai
| ΠΠΎΠΏΡΠΎΡΡ ΠΈ ΠΎΡΠ²Π΅ΡΡ Π Π°ΡΡΠΊΠ°ΠΆΠΈΡΠ΅ ΠΏΡΠΎ ΠΏΡΠ΅ΠΈΠΌΡΡΠ΅ΡΡΠ²Π° ΡΠΎΠ»Π»Π΅ΡΠΎΠ² Π ΠΎΠ»Π»Π΅ΡΡ ΠΏΡΠ΅Π΄ΠΎΡΡΠ°Π²Π»ΡΡΡ ΠΏΠΎΠ»ΡΠ·ΠΎΠ²Π°ΡΠ΅Π»Ρ ΠΌΠ½ΠΎΠΆΠ΅ΡΡΠ²ΠΎ ΠΏΡΠ΅ΠΈΠΌΡΡΠ΅ΡΡΠ²: ΡΠΊΠΎΠ»ΠΎΠ³ΠΈΡΠ½ΠΎΡΡΡ, ΠΏΡΠΈΠ²Π»Π΅ΠΊΠ°ΡΠ΅Π»ΡΠ½ΡΠΉ Π΄ΠΈΠ·Π°ΠΉΠ½, Π½Π°Π΄Π΅ΠΆΠ½ΠΎΡΡΡ ΠΈ Π΄Ρ. ΠΏΠΎΠ΄ΡΠΎΠ±Π½Π΅Π΅ ΠΠΎΠΌΡ ΠΏΠΎΠ΄Ρ ΠΎΠ΄ΡΡ ΠΏΠΎΠ΄ΡΠ΅ΠΌΠ½ΠΎ ΡΠ΅ΠΊΡΠΈΠΎΠ½Π½ΡΠ΅ Π³Π°ΡΠ°ΠΆΠ½ΡΠ΅ Π²ΠΎΡΠΎΡΠ°? ΠΠΎΠΌΠΏΠ°ΠΊΡΠ½ΡΠ΅, Π»Π΅Π³ΠΊΠΈΠ΅ Π² ΡΠΊΡΠΏΠ»ΡΠ°ΡΠ°ΡΠΈΠΈ ΠΏΠΎΠ΄ΡΠ΅ΠΌΠ½ΠΎ ΡΠ΅ΠΊΡΠΈΠΎΠ½Π½ΡΠ΅ Π³Π°ΡΠ°ΠΆΠ½ΡΠ΅ Π²ΠΎΡΠΎΡΠ° β ΠΎΠ΄Π½Π° ΠΈΠ· ΡΠ°ΠΌΡΡ ΠΏΠΎΠ΄Ρ ΠΎΠ΄ΡΡΠΈΡ ΠΌΠΎΠ΄Π΅Π»Π΅ΠΉ ΠΊΠ°ΠΊ Π΄Π»Ρ Π½Π΅Π±ΠΎΠ»ΡΡΠΈΡ ΡΠ°ΡΡΠ½ΡΡ ΠΏΠΎΡΡΡΠΎΠ΅ΠΊ, ΡΠ°ΠΊ ΠΈ ΠΎΠ±ΡΠ΅ΠΊΡΠΎΠ² ΠΏΡΠΎΠΌΡΡΠ»Π΅Π½Π½ΠΎΠ³ΠΎ Π½Π°Π·Π½Π°ΡΠ΅Π½ΠΈΡ. ΠΏΠΎΠ΄ΡΠΎΠ±Π½Π΅Π΅ ΠΠ°ΡΠ°Π½ΡΠΈΡ Π½Π° ΠΊΠΎΠΌΠΏΠ»Π΅ΠΊΡΡΡΡΠΈΠ΅ Π ΠΎΠ»ΡΡΠΊ Π΄Π΅ΠΉΡΡΠ²ΠΈΡΠ΅Π»ΡΠ½ΠΎ 5 Π»Π΅Ρ? Β ΠΠ°ΡΠ°Π½ΡΠΈΡ Π½Π° ΠΠ‘Π ΠΊΠΎΠΌΠΏΠ»Π΅ΠΊΡΡΡΡΠΈΠ΅ Π ΠΠΠ’ΠΠ — 5 Π»Π΅Ρ! ΠΡ Ρ Π³ΠΎΡΠ΄ΠΎΡΡΡΡ Π³ΠΎΠ²ΠΎΡΠΈΠΌ ΠΎΠ± ΡΡΠΎΠΌ, ΠΏΠΎΡΠΎΠΌΡ ΡΡΠΎ ΠΈΡΠΏΠΎΠ»ΡΠ·ΡΠ΅ΠΌ ΡΠΈΡΡΠ΅ΠΌΡ ΡΠΎΠ»ΡΠ΅ΠΊ Π² ΠΏΡΠΎΠΈΠ·Π²ΠΎΠ΄ΡΡΠ²Π΅ Π½Π°ΡΠΈΡ Π²ΠΎΡΠΎΡ Π±ΠΎΠ»Π΅Π΅ 12 Π»Π΅Ρ ΠΈ ΡΠ²Π΅ΡΠ΅Π½Ρ Π² ΠΊΠ°ΡΠ΅ΡΡΠ²Π΅ ΠΏΡΠΎΠ΄ΡΠΊΡΠΈΠΈ Π½Π°ΡΠ΅Π³ΠΎ Π·Π°Π²ΠΎΠ΄Π°. ΠΏΠΎΠ΄ΡΠΎΠ±Π½Π΅Π΅ ![]() | ΠΠ« ΠΠΠΠΠΠ ΠΠΠ ΠΠ’Π Π£ΠΠ 26 ΠΠΠ’! ΠΠ°ΠΊ ΡΠ°ΡΡΡΠΈΡΠ°ΡΡ ΡΠ°ΡΡΡΠΎΡΠ½ΠΈΠ΅ ΠΌΠ΅ΠΆΠ΄Ρ ΡΠΎΠ»ΠΈΠΊΠΎΠ²ΡΠΌΠΈ ΠΎΠΏΠΎΡΠ°ΠΌΠΈ Π² ΡΠΈΡΡΠ΅ΠΌΠ΅ Π΄Π»Ρ ΠΎΡΠΊΠ°ΡΠ½ΡΡ Π²ΠΎΡΠΎΡ Π ΠΠΠ’ΠΠ?
P — Π²Π΅Ρ ΡΡΠ²ΠΎΡΠΊΠΈ, ΠΊΠ³. ΠΡΠΈ ΡΠ°ΡΡΠ΅ΡΠ΅ Π³Π°Π±Π°ΡΠΈΡΠΎΠ² Π²ΠΎΡΠΎΡ ΠΈΡΠΏΠΎΠ»ΡΠ·ΡΠΉΡΠ΅ ΡΠΎΡΠΌΡΠ»Ρ:
, Π³Π΄Π΅ [F2]Β — ΠΌΠ°ΠΊΡΠΈΠΌΠ°Π»ΡΠ½ΠΎ Π΄ΠΎΠΏΡΡΡΠΈΠΌΠ°Ρ Π½Π°Π³ΡΡΠ·ΠΊΠ° Π½Π° ΠΎΠΏΠΎΡΡ. ΠΠ°ΠΊΡΠΈΠΌΠ°Π»ΡΠ½ΠΎ Π΄ΠΎΠΏΡΡΡΠΈΠΌΡΠ΅ Π½Π°Π³ΡΡΠ·ΠΊΠΈ Π½Π° ΠΎΠΏΠΎΡΡ Π² ΠΊΠΎΠ½ΡΠΎΠ»ΡΠ½ΡΡ Π²ΠΎΡΠΎΡΠ°Ρ Π½Π° ΠΊΠΎΠΌΠΏΠ»Π΅ΠΊΡΡΡΡΠΈΡ Π ΠΠΠ’ΠΠ:
ΠΠ΅ΠΎΠ±Ρ ΠΎΠ΄ΠΈΠΌΠΎ ΡΠ°ΠΊΠΆΠ΅ ΡΠ°ΡΡΡΠΈΡΠ°ΡΡ ΠΌΠΈΠ½ΠΈΠΌΠ°Π»ΡΠ½ΠΎ Π΄ΠΎΠΏΡΡΡΠΈΠΌΠΎΠ΅ ΡΠ°ΡΡΡΠΎΡΠ½ΠΈΠ΅ ΠΌΠ΅ΠΆΠ΄Ρ ΠΎΠΏΠΎΡΠ°ΠΌΠΈ:
ΠΡΠΈ ΠΈΡΠΏΠΎΠ»ΡΠ·ΠΎΠ²Π°Π½ΠΈΠΈ ΠΊΠΎΠΌΠΏΠ»Π΅ΠΊΡΡΡΡΠΈΡ Π ΠΠΠ’ΠΠ Π½Π΅ΠΎΠ±Ρ ΠΎΠ΄ΠΈΠΌΠΎ ΡΡΠ΅ΡΡΡ ΡΠ»Π΅Π΄ΡΡΡΠΈΠ΅ ΡΠ΅Ρ Π½ΠΎΠ»ΠΎΠ³ΠΈΡΠ΅ΡΠΊΠΈΠ΅ ΠΎΡΡΡΡΠΏΡ:
Π Π½Π°ΡΠ΅ΠΌ ΠΎΡΠΈΡΠ΅ ΠΏΠΎ Π°Π΄ΡΠ΅ΡΡ Π³. ΠΠΎΡΠΊΠ²Π°, ΠΠ΅ΡΠ΅Π³ΠΎΠ²ΠΎΠΉ ΠΏΡ-Π΄ Π΄. 3 ΡΡΡ. 1 Π²Ρ ΡΠΌΠΎΠΆΠ΅ΡΠ΅ ΠΏΠΎΠ»ΡΡΠΈΡΡ ΠΈΡΡΠ΅ΡΠΏΡΠ²Π°ΡΡΡΡ ΠΊΠΎΠ½ΡΡΠ»ΡΡΠ°ΡΠΈΡ ΠΏΠΎ ΠΏΡΠΈΠΌΠ΅Π½Π΅Π½ΠΈΡ ΠΊΠΎΠΌΠΏΠ»Π΅ΠΊΡΡΡΡΠΈΡ Π ΠΠΠ’ΠΠΠ. ΠΠΡΠΈ ΠΌΠ΅Π½Π΅Π΄ΠΆΠ΅ΡΡ ΡΠ΄Π΅Π»Π°ΡΡ Π΄Π»Ρ ΠΠ°Ρ ΡΠ°ΡΡΡΠ΅Ρ-ΡΡ Π΅ΠΌΡ ΠΈΠΌΠ΅Π½Π½ΠΎ Π΄Π»Ρ ΠΠ°ΡΠΈΡ Π²ΠΎΡΠΎΡ. Π’Π΅Π». 8(495)740-03-85, 795-98-39 ΠΠΎΡΠΎΡΠ° Π΄ΠΎΠ»ΠΆΠ½Ρ ΡΠ°Π΄ΠΎΠ²Π°ΡΡ! | ΠΠ°ΡΠ° ΠΊΠΎΡΠ·ΠΈΠ½Π° |
xn--b1advnalp3h.xn--p1ai
ΠΠ°ΠΊ ΡΠ°ΠΌΠΎΠΌΡ ΡΠ΄Π΅Π»Π°ΡΡ ΠΎΡΠΊΠ°ΡΠ½ΡΠ΅ Π²ΠΎΡΠΎΡΠ° Π² Π΄Π²Π° ΡΠ°Π·Π° Π΄Π΅ΡΠ΅Π²Π»Π΅ Π·Π°Π²ΠΎΠ΄ΡΠΊΠΈΡ ?
ΠΠ±ΡΡΠ½ΡΠ΅ Π²ΠΎΡΠΎΡΠ°-ΡΠ°ΡΠΏΠ°ΡΠΎΠ½ΠΊΠΈ ΡΡ ΠΎΠ΄ΡΡ Π² ΠΏΡΠΎΡΠ»ΠΎΠ΅. Π‘ΠΎΠ²ΡΠ΅ΠΌΠ΅Π½Π½ΠΎΠΌΡ Π΄ΠΎΠΌΠΎΠ²Π»Π°Π΄Π΅Π»ΡΡΡ ΠΏΠΎΠ΄Π°Π²Π°ΠΉ ΠΎΡΠΊΠ°ΡΠ½ΡΠ΅. ΠΠΌΠΈ ΡΠ΄ΠΎΠ±Π½ΠΎ ΠΏΠΎΠ»ΡΠ·ΠΎΠ²Π°ΡΡΡΡ, Π΄Π»Ρ Π½ΠΈΡ ΡΡΡΠ΅ΡΡΠ²ΡΠ΅Ρ Π±ΠΎΠ»ΡΡΠΎΠΉ Π²ΡΠ±ΠΎΡ Π°Π²ΡΠΎΠΌΠ°ΡΠΈΠΊΠΈ, Π½ΠΎ, ΡΠ°ΠΌΠΎΠ΅ Π³Π»Π°Π²Π½ΠΎΠ΅, ΠΎΡΠΊΠ°ΡΠ½ΡΠ΅ Π²ΠΎΡΠΎΡΠ° ΠΌΠΎΠΆΠ½ΠΎ ΡΠΎΠ±ΡΠ°ΡΡ ΡΠ²ΠΎΠΈΠΌΠΈ ΡΡΠΊΠ°ΠΌΠΈ. ΠΠΎΠ΄ΠΎΠ±ΡΠ°Π² ΠΊΠΎΠΌΠΏΠ»Π΅ΠΊΡ ΡΡΡΠ½ΠΈΡΡΡΡ, ΠΏΠΎΠ΄Ρ ΠΎΠ΄ΡΡΠΈΠΉ ΠΏΠΎΠ΄ ΡΠ°Π·ΠΌΠ΅ΡΡ ΠΈ Π²Π΅Ρ Π²ΡΠ΅ΠΉ ΠΊΠΎΠ½ΡΡΡΡΠΊΡΠΈΠΈ Π²ΠΎΡΠΎΡ, ΠΌΠΎΠ½ΡΠ°ΠΆ Π½Π΅ ΡΠ»ΠΎΠΆΠ΅Π½. Π ΡΠΎΠΌΡ ΠΆΠ΅ Π½Π° Π±Π΅Π»ΠΎΡΡΡΡΠΊΠΎΠΌ ΡΡΠ½ΠΊΠ΅ ΠΏΡΠ΅Π΄ΡΡΠ°Π²Π»Π΅Π½Ρ ΠΌΠ΅Ρ Π°Π½ΠΈΠ·ΠΌΡ ΠΊΠ°ΠΊ Π΅Π²ΡΠΎΠΏΠ΅ΠΉΡΠΊΠΈΡ , ΡΠ°ΠΊ Π±Π΅Π»ΠΎΡΡΡΡΠΊΠΈΡ ΠΈ ΡΠΎΡΡΠΈΠΉΡΠΊΠΈΡ ΠΏΡΠΎΠΈΠ·Π²ΠΎΠ΄ΠΈΡΠ΅Π»Π΅ΠΉ. ΠΡΠ΅Π΄ΡΡΠ°Π²Π»ΡΠ΅ΠΌ Π²Π°ΠΌ ΡΠ°ΡΡΡΡ ΡΡΠΎΠΈΠΌΠΎΡΡΠΈ Π²ΠΎΡΠΎΡ Π½Π° ΠΏΡΠΈΠΌΠ΅ΡΠ΅ ΠΊΠΎΠΌΠΏΠ»Π΅ΠΊΡΠΎΠ² Π½Π΅ΡΠΊΠΎΠ»ΡΠΊΠΈΡ ΠΏΡΠΎΠΈΠ·Π²ΠΎΠ΄ΠΈΡΠ΅Π»Π΅ΠΉ.
Π ΡΡΠ°Π½Π΄Π°ΡΡΠ½ΡΠΉ ΠΊΠΎΠΌΠΏΠ»Π΅ΠΊΡ ΡΡΡΠ½ΠΈΡΡΡΡ ΠΎΡΠΊΠ°ΡΠ½ΡΡ Π²ΠΎΡΠΎΡ Π²Ρ ΠΎΠ΄ΡΡ:
- ΠΊΠΎΠ½ΡΠ΅Π²ΠΎΠΉ ΡΠΎΠ»ΠΈΠΊ Π² ΡΠ±ΠΎΡΠ΅ Π΄Π»Ρ Π±Π°Π»ΠΊΠΈ;
- ΠΊΡΡΡΠΊΠ° Π·Π°Π΄Π½ΡΡ Π΄Π»Ρ Π±Π°Π»ΠΊΠΈ;
- Π»ΠΎΠ²ΠΈΡΠ΅Π»Ρ Π½ΠΈΠΆΠ½ΠΈΠΉ Π΄Π»Ρ Π±Π°Π»ΠΊΠΈ;
- ΠΎΠΏΠΎΡΠ° ΡΠΎΠ»ΠΈΠΊΠΎΠ²Π°Ρ Π΄Π»Ρ Π±Π°Π»ΠΊΠΈ;
- Π±Π°Π»ΠΊΠ° ΠΏΡΠΎΠΊΠ°ΡΠ½Π°Ρ;
- ΡΠΈΡΡΠ΅ΠΌΠ° ΡΠΎΠ»ΠΈΠΊΠΎΠ² ΠΈ Π½Π°ΠΏΡΠ°Π²Π»ΡΡΡΠΈΡ Π΄Π»Ρ Π±Π°Π»ΠΊΠΈ.

Π ΡΡΠΎΠ±Ρ Π°Π²ΡΠΎΠΌΠ°ΡΠΈΠ·ΠΈΡΠΎΠ²Π°ΡΡ Π²ΠΎΡΠΎΡΠ°, ΠΏΠΎΠ½Π°Π΄ΠΎΠ±ΠΈΡΡΡ Π΄ΠΎΠΏΠΎΠ»Π½ΠΈΡΠ΅Π»ΡΠ½ΠΎ:
- ΡΠ»Π΅ΠΊΡΡΠΎΠΏΡΠΈΠ²ΠΎΠ΄,
- Π·ΡΠ±ΡΠ°ΡΠ°Ρ ΡΠ΅ΠΉΠΊΠ°,
- ΡΡΡΠ°Π½ΠΎΠ²ΠΎΡΠ½ΡΠΉ ΠΊΠΎΠΌΠΏΠ»Π΅ΠΊΡ Π΄Π»Ρ Π·ΡΠ±ΡΠ°ΡΠΎΠΉ ΡΠ΅ΠΉΠΊΠΈ ΡΠ»Π΅ΠΊΡΡΠΎΠΏΡΠΈΠ²ΠΎΠ΄Π°.
- (Π€ΡΡΠ½ΠΈΡΡΡΠ°Β ΠΈ ΡΠ»Π΅ΠΊΡΡΠΎΠΏΡΠΈΠ²ΠΎΠ΄Ρ ΠΏΠΎΠ΄Π±ΠΈΡΠ°ΡΡΡΡ ΠΏΠΎΠ΄ ΡΠ°Π·ΠΌΠ΅ΡΡ ΠΈ Π²Π΅Ρ Π²ΠΎΡΠΎΡ).

Came (ΠΡΠ°Π»ΠΈΡ)
ΠΠ»Ρ ΡΠ΄Π²ΠΈΠΆΠ½ΡΡ Π²ΠΎΡΠΎΡ ΠΈΡΠ°Π»ΡΡΠ½ΡΠΊΠΎΠ³ΠΎ ΠΏΡΠΎΠΈΠ·Π²ΠΎΠ΄ΠΈΡΠ΅Π»ΡΒ Came Π΅ΡΡΡ ΡΠ»Π΅Π΄ΡΡΡΠΈΠ΅ ΠΊΠΎΠΌΠΏΠ»Π΅ΠΊΡΡ:
Β«SΒ» β ΡΠ΅ΡΠΈΡ (Speed) β ΠΊΠΎΠΌΠΏΠ»Π΅ΠΊΡ Π΄Π»Ρ ΠΎΡΠΊΠ°ΡΠ½ΡΡ
Π²ΠΎΡΠΎΡ Π²Π΅ΡΠΎΠΌ Π΄ΠΎ 500 ΠΊΠ³, Ρ ΡΠΈΡΠΈΠ½ΠΎΠΉ ΡΡΠ²ΠΎΡΠΊΠΈ Π΄ΠΎ 4,5 ΠΌΠ΅ΡΡΠΎΠ²;
Β«ΠΒ» β ΡΠ΅ΡΠΈΡ (Medium) β ΠΊΠΎΠΌΠΏΠ»Π΅ΠΊΡ Π΄Π»Ρ ΠΎΡΠΊΠ°ΡΠ½ΡΡ
Π²ΠΎΡΠΎΡΒ Π²Π΅ΡΠΎΠΌ Π΄ΠΎ 800 ΠΊΠ³, Ρ ΡΠΈΡΠΈΠ½ΠΎΠΉ ΡΡΠ²ΠΎΡΠΊΠΈ Π΄ΠΎ 8 ΠΌΠ΅ΡΡΠΎΠ²;
Β«LΒ» β ΡΠ΅ΡΠΈΡ (Large) β ΠΊΠΎΠΌΠΏΠ»Π΅ΠΊΡ Π΄Π»Ρ ΠΎΡΠΊΠ°ΡΠ½ΡΡ
Π²ΠΎΡΠΎΡ Π²Π΅ΡΠΎΠΌ Π΄ΠΎ 1200 ΠΊΠ³, Ρ ΡΠΈΡΠΈΠ½ΠΎΠΉ ΡΡΠ²ΠΎΡΠΊΠΈ Π΄ΠΎ 13,5 ΠΌΠ΅ΡΡΠΎΠ².
Came (ΠΡΠ°Π»ΠΈΡ) | ||
Π Π°Π·ΠΌΠ΅Ρ Π²ΠΎΡΠΎΡ | ΠΠΎΠΌΠΏΠ»Π΅ΠΊΡ | Π¦Π΅Π½Π°, $ |
| Π¨ΠΈΡΠΈΠ½Π° Π΄ΠΎ 4 ΠΌΠ΅ΡΡΠΎΠ²,ΠΌΠ°ΡΡΠ° Π΄ΠΎ 350 ΠΊΠ³ | Came Speed Eco Ρ ΡΠ΅ΡΠ½ΠΎΠΉ ΡΠΈΠ½ΠΎΠΉCame Speed Eco Ρ ΠΎΡΠΈΠ½ΠΊΠΎΠ²Π°Π½Π½ΠΎΠΉ ΡΠΈΠ½ΠΎΠΉ | ΠΡ 237 ΠΡ 245 |
| Β Π¨ΠΈΡΠΈΠ½Π° Π΄ΠΎ 4,5 ΠΌΠ΅ΡΡΠΎΠ², ΠΌΠ°ΡΡΠ° Π΄ΠΎ 500 ΠΊΠ³ | Came S Ρ ΡΠ΅ΡΠ½ΠΎΠΉ ΡΠΈΠ½ΠΎΠΉCame S Ρ ΠΎΡΠΈΠ½ΠΊΠΎΠ²Π°Π½Π½ΠΎΠΉ ΡΠΈΠ½ΠΎΠΉ | ΠΡ 255 ΠΡ 262 |
| Π¨ΠΈΡΠΈΠ½Π° Π΄ΠΎ 8 ΠΌΠ΅ΡΡΠΎΠ², ΠΌΠ°ΡΡΠ° Π΄ΠΎΒ 800 ΠΊΠ³ | Came M Ρ Π½Π΅ΠΎΡΠΈΠ½ΠΊΠΎΠ²Π°Π½Π½ΠΎΠΉ ΡΠΈΠ½ΠΎΠΉCame M Ρ ΠΎΡΠΈΠ½ΠΊΠΎΠ²Π°Π½Π½ΠΎΠΉ ΡΠΈΠ½ΠΎΠΉ | ΠΡ 500 Π Ρ 530 |
| Π¨ΠΈΡΠΈΠ½Π° Π΄ΠΎ 13,5 ΠΌΠ΅ΡΡΠΎΠ², ΠΌΠ°ΡΡΠ° Π΄ΠΎΒ 1700 ΠΊΠ³ | Came L Ρ ΡΠ΅ΡΠ½ΠΎΠΉ ΡΠΈΠ½ΠΎΠΉ | ΠΡ 2200 |
Β
DEA (ΠΡΠ°Π»ΠΈΡ) | ||
Π Π°Π·ΠΌΠ΅Ρ Π²ΠΎΡΠΎΡ | ΠΠΎΠΌΠΏΠ»Π΅ΠΊΡ | Π¦Π΅Π½Π°, $ |
| Π¨ΠΈΡΠΈΠ½Π° Π΄ΠΎ 3,5 ΠΌ, ΠΌΠ°ΡΡ Π΄ΠΎ 400 ΠΊΠ³ | DEA MINI | ΠΡ 150 |
| Π¨ΠΈΡΠΈΠ½Π° Π΄ΠΎ 5 ΠΌΠ΅ΡΡΠΎΠ², ΠΌΠ°ΡΡΠ° Π΄ΠΎ 500 ΠΊΠ³ | Ρ Π½Π΅ ΠΎΡΠΈΠ½ΠΊΠΎΠ²Π°Π½Π½ΠΎΠΉ ΡΠΈΠ½ΠΎΠΉΡ ΠΎΡΠΈΠ½ΠΊΠΎΠ²Π°Π½Π½ΠΎΠΉ ΡΠΈΠ½ΠΎΠΉ | ΠΡ 205 ΠΡ 215 |
| Π¨ΠΈΡΠΈΠ½Π° Π΄ΠΎ 7 ΠΌΠ΅ΡΡΠΎΠ², ΠΌΠ°ΡΡΠ° Π΄ΠΎ 1000 ΠΊΠ³ | Ρ ΠΎΡΠΈΠ½ΠΊΠΎΠ²Π°Π½Π½ΠΎΠΉ ΡΠΈΠ½ΠΎΠΉ | ΠΡ 500 |
Β
Π ΠΎΠ»ΡΡΠΊ (Π Π€)
Π Π»ΠΈΠ½Π΅ΠΉΠΊΠ΅ ΠΊΠΎΠΌΠΏΠ»Π΅ΠΊΡΡΡΡΠΈΡ Π΄Π»Ρ ΠΎΡΠΊΠ°ΡΠ½ΡΡ Π²ΠΎΡΠΎΡ Β«Π ΠΎΠ»ΡΡΠΊΒ» ΠΏΡΠΈΡΡΡΡΡΠ²ΡΡΡ ΡΠ΅ΡΡΡΠ΅ ΡΠΈΡΡΠ΅ΠΌΡ, ΠΊΠΎΡΠΎΡΡΠ΅ ΠΎΡΠ»ΠΈΡΠ°ΡΡΡΡ Π²ΠΎΠ·ΠΌΠΎΠΆΠ½ΠΎΡΡΡΡ ΠΈΠ·Π³ΠΎΡΠΎΠ²Π»Π΅Π½ΠΈΡ Π²ΠΎΡΠΎΡ ΡΠ°Π·Π»ΠΈΡΠ½ΠΎΠΉ ΠΌΠ°ΡΡΡ ΠΈ ΡΠ°Π·ΠΌΠ΅ΡΠ°:
- ΠΠΠΠ Π Π ΠΠΠ’ΠΠΒ β Π΄Π»Ρ ΠΎΡΠΊΠ°ΡΠ½ΡΡ Π²ΠΎΡΠΎΡ Π²Π΅ΡΠΎΠΌ Π΄ΠΎ 350 ΠΊΠ³, ΡΠΈΡΠΈΠ½ΠΎΠΉ ΠΏΡΠΎΠ΅ΠΌΠ° Π΄ΠΎ 4 ΠΌΠ΅ΡΡΠΎΠ².
- ΠΠΠ Π ΠΠΠ’ΠΠ β Β Π΄Π»Ρ ΠΎΡΠΊΠ°ΡΠ½ΡΡ Β Π²ΠΎΡΠΎΡ Π²Π΅ΡΠΎΠΌ Π΄ΠΎ 500 ΠΊΠ³, ΡΠΈΡΠΈΠ½ΠΎΠΉ ΠΏΡΠΎΠ΅ΠΌΠ° Π΄ΠΎ 5 ΠΌΠ΅ΡΡΠΎΠ².
- ΠΠΠ Π Π ΠΠΠ’ΠΠΒ β Β Π΄Π»Ρ ΠΎΡΠΊΠ°ΡΠ½ΡΡ Π²ΠΎΡΠΎΡ Π²Π΅ΡΠΎΠΌ Π΄ΠΎ 800 ΠΊΠ³, ΡΠΈΡΠΈΠ½ΠΎΠΉ ΠΏΡΠΎΠ΅ΠΌΠ° Π΄ΠΎ 7 ΠΌΠ΅ΡΡΠΎΠ².
- ΠΠΠΠ‘ Π ΠΠΠ’ΠΠ β Β Π΄Π»Ρ ΠΎΡΠΊΠ°ΡΠ½ΡΡ Π²ΠΎΡΠΎΡ Π²Π΅ΡΠΎΠΌ Π΄ΠΎ 2 000 ΠΊΠ³, ΡΠΈΡΠΈΠ½ΠΎΠΉ ΠΏΡΠΎΠ΅ΠΌΠ° Π΄ΠΎ 12 ΠΌΠ΅ΡΡΠΎΠ².
Β
Π ΠΠΠ’ΠΠ | ||
Π Π°Π·ΠΌΠ΅Ρ Π²ΠΎΡΠΎΡ | ΠΠΎΠΌΠΏΠ»Π΅ΠΊΡ | Π¦Π΅Π½Π°, $ |
| Π¨ΠΈΡΠΈΠ½Π° Π΄ΠΎ 4 ΠΌΠ΅ΡΡΠΎΠ², ΠΌΠ°ΡΡΠ° Π΄ΠΎ 350 ΠΊΠ³ | ΠΠΈΠΊΡΠΎ Π ΠΎΠ»ΡΡΠΊ | ΠΡ 120 |
| Π¨ΠΈΡΠΈΠ½Π° Π΄ΠΎ 5 ΠΌΠ΅ΡΡΠΎΠ², ΠΌΠ°ΡΡΠ° Π΄ΠΎ 500 ΠΊΠ³ | ΠΠΊΠΎ Π ΠΎΠ»ΡΡΠΊ | ΠΡ 150 |
| Π¨ΠΈΡΠΈΠ½Π° Π΄ΠΎ 7 ΠΌΠ΅ΡΡΠΎΠ², ΠΌΠ°ΡΡΠ° Π΄ΠΎ 800 ΠΊΠ³ | ΠΠ²ΡΠΎ Π ΠΎΠ»ΡΡΠΊ | ΠΡ 210 |
| Π¨ΠΈΡΠΈΠ½Π° Π΄ΠΎ 12 ΠΌΠ΅ΡΡΠΎΠ², ΠΌΠ°ΡΡΠ° Π΄ΠΎ 2 ΡΠΎΠ½Π½ | Π ΠΎΠ»ΡΡΠΊ ΠΠ°ΠΊΡ | ΠΡ 850 |
Β
Alutech (ΠΠ΅Π»Π°ΡΡΡΡ)
ΠΠ°ΠΈΠ±ΠΎΠ»Π΅Π΅ ΡΠ°ΡΠΏΡΠΎΡΡΡΠ°Π½ΡΠ½Π½ΡΠΌ Π²Π°ΡΠΈΠ°Π½ΡΠΎΠΌ Π½Π°Π±ΠΎΡΠ°Β ΠΊΠΎΠΌΠΏΠ»Π΅ΠΊΡΡΡΡΠΈΡ Π΄Π»Ρ ΠΈΠ·Π³ΠΎΡΠΎΠ²Π»Π΅Π½ΠΈΡ ΠΎΡΠΊΠ°ΡΠ½ΡΡ Π²ΠΎΡΠΎΡ AlutechΒ ΡΠ²Π»ΡΠ΅ΡΡΡ ΡΠ΅ΡΠΈΡ SGN.
Alutech (ΠΠ΅Π»Π°ΡΡΡΡ) | ||
Π Π°Π·ΠΌΠ΅Ρ Π²ΠΎΡΠΎΡ | ΠΠΎΠΌΠΏΠ»Π΅ΠΊΡ | Π¦Π΅Π½Π°, $ |
| Π¨ΠΈΡΠΈΠ½Π° Π΄ΠΎ 4,5 ΠΌΠ΅ΡΡΠΎΠ², ΠΌΠ°ΡΡΠ° Π΄ΠΎ 500 ΠΊΠ³ | SG.01 | ΠΡ 145 |
| Π¨ΠΈΡΠΈΠ½Π° Π΄ΠΎ 6 ΠΌΠ΅ΡΡΠΎΠ², ΠΌΠ°ΡΡΠ° Π΄ΠΎ 1000 ΠΊΠ³ | SG.02 | ΠΡ 330 |
ΠΠΎΠΌΠΏΠ»Π΅ΠΊΡ ΠΏΠ»ΡΡ ΠΊΠ°ΡΠΊΠ°Ρ
-

- ΡΡ Π΅ΠΌΠ° ΠΏΠΎΠ΄Π³ΠΎΡΠΎΠ²ΠΊΠΈ ΠΏΡΠΎΠ΅ΠΌΠ° ΠΏΠΎΠ΄ ΠΎΡΠΊΠ°ΡΠ½ΡΠ΅ Π²ΠΎΡΠΎΡΠ°
-

- ΡΡ Π΅ΠΌΠ° Π±Π΅ΡΠΎΠ½ΠΈΡΠΎΠ²Π°Π½ΠΈΡ Π²ΠΎΡΠΎΡ ΠΎΡΠΊΠ°ΡΠ½ΡΡ ΡΠ΄Π²ΠΈΠΆΠ½ΡΡ
-

- ΠΌΠΎΠ½ΡΠ°ΠΆ
ΠΡΠΎΡ Π²Π°ΡΠΈΠ°Π½Ρ ΠΏΠΎΠ΄Ρ ΠΎΠ΄ΠΈΡ ΡΠ΅ΠΌ, ΠΊΡΠΎ Π½Π΅ Π·Π½Π°ΠΊΠΎΠΌ ΡΠΎ ΡΠ²Π°ΡΠΎΡΠ½ΡΠΌΠΈ ΡΠ°Π±ΠΎΡΠ°ΠΌΠΈ, Π½ΠΎ ΠΎΡΠΊΠ°ΡΠ½ΡΠ΅ Π²ΠΎΡΠΎΡΠ° ΡΠ΅ΡΠΈΠ» ΡΡΠ°Π²ΠΈΡΡ ΡΠΎΠ±ΡΡΠ²Π΅Π½Π½ΡΠΌΠΈ ΡΠΈΠ»Π°ΠΌΠΈ. ΠΠΎΠΆΠ½ΠΎ ΠΏΡΠΈΠΎΠ±ΡΠ΅ΡΡΠΈ Π³ΠΎΡΠΎΠ²ΠΎΠ΅ ΠΊ ΡΡΡΠ°Π½ΠΎΠ²ΠΊΠ΅ ΠΈΠ·Π΄Π΅Π»ΠΈΠ΅ β ΡΠ²Π°ΡΠ½ΠΎΠΉ ΠΊΠ°ΡΠΊΠ°Ρ Π²ΠΎΡΠΎΡ (Π±Π΅Π· Π·Π°ΡΠΈΠ²ΠΊΠΈ) Ρ ΡΠΆΠ΅ ΠΏΡΠΈΠ²Π°ΡΠ΅Π½Π½ΠΎΠΉ Π½Π°ΠΏΡΠ°Π²Π»ΡΡΡΠ΅ΠΉ ΡΠΈΠ½ΠΎΠΉ.
Β

ΠΠ°ΠΏΡΠΈΠΌΠ΅Ρ, Π³ΠΎΡΠΎΠ²ΡΠΉ ΠΊΠ°ΡΠΊΠ°ΡΒ ΠΎΡΠΊΠ°ΡΠ½ΡΡ Π²ΠΎΡΠΎΡ Π½Π° Π±Π°Π·Π΅ ΠΊΠΎΠΌΠΏΠ»Π΅ΠΊΡΡΡΡΠΈΡ Came ΠΈ DEA Π΄Π»Ρ ΡΠ°ΠΌΠΎΡΡΠΎΡΡΠ΅Π»ΡΠ½ΠΎΠ³ΠΎ ΠΌΠΎΠ½ΡΠ°ΠΆΠ° ΠΎΠ±ΠΎΠΉΠ΄Π΅ΡΡΡ Π² $450 (Π΄Π»Ρ ΠΎΡΠΊΠ°ΡΠ½ΡΡ Π²ΠΎΡΠΎΡ Ρ ΠΏΡΠΎΠ΅ΠΌΠΎΠΌ Π΄ΠΎ 4,5 ΠΌΠ΅ΡΡΠΎΠ², ΠΏΠΎΠ΄ Π·Π°ΡΠΈΠ²ΠΊΡ ΡΡΠ°ΠΊΠ΅ΡΠ½ΠΈΠΊΠΎΠΌ ΠΈΠ»ΠΈ ΠΌΠ΅ΡΠ°Π»Π»ΠΎΠΏΡΠΎΡΠΈΠ»Π΅ΠΌ).
ΠΠΎΡΠΎΠ²ΡΠΉ ΠΊΠ°ΡΠΊΠ°Ρ ΠΎΡΠΊΠ°ΡΠ½ΡΡ Π²ΠΎΡΠΎΡ Π½Π° Π±Π°Π·Π΅ ΠΊΠΎΠΌΠΏΠ»Π΅ΠΊΡΡΡΡΠΈΡ Β«Π ΠΎΠ»ΡΡΠΊ ΠΠΈΠΊΡΠΎΒ» Π±ΡΠ΄Π΅Ρ ΡΡΠΎΠΈΡΡ Π΄Π΅ΡΠ΅Π²Π»Π΅ β $325.
ΠΠ°ΡΠΊΠ°Ρ Ρ Π½Π°Π±ΠΎΡΠΎΠΌ ΠΊΠΎΠΌΠΏΠ»Π΅ΠΊΡΡΡΡΠΈΡ Β«ΠΠ»ΡΡΠ΅Ρ Β» SG.01 ΠΎΠ±ΠΎΠΉΠ΄Π΅ΡΡΡ Π² $350.Β Π ΠΎΠ±ΡΠ΅ΠΉ ΡΡΠΎΠΈΠΌΠΎΡΡΠΈ ΡΠ°ΠΊΠΎΠ³ΠΎ ΠΊΠΎΠΌΠΏΠ»Π΅ΠΊΡΠ° ΠΊΠ°ΡΠΊΠ°Ρ (ΠΈΠ· ΠΏΡΠΎΡΠΈΠ»ΠΈΡΠΎΠ²Π°Π½Π½ΠΎΠΉ ΡΡΡΠ±Ρ 60Ρ 40 ΡΠΎΠ»ΡΠΈΠ½ΠΎΠΉ 2 ΠΌΠΌ) ΠΈ Π΅Π³ΠΎ ΠΈΠ·Π³ΠΎΡΠΎΠ²Π»Π΅Π½ΠΈΠ΅ ΡΡΠΎΠΈΡ ΠΏΡΠΈΠΌΠ΅ΡΠ½ΠΎ $200.
ΠΠ°Π΄Π°ΡΡ Π²ΠΎΠΏΡΠΎΡ ΡΠΊΡΠΏΠ΅ΡΡΡdom-expert.by


