Тв антенна своими руками мощная – ТВ антенна своими руками — 6 способов сделать
Как сделать антенну для телевизора своими руками, антенна харченко
Телевидение сегодня, и двадцать лет назад — это две большие разницы. Изменилось количество каналов, диапазон передачи, формат вещания. Но, по сути, принцип передачи телевизионного сигнала остался прежним. По воздуху распространяются радиоволны определенной частоты, их можно принимать с помощью антенны и направлять на тюнер телевизора. Кабельные и оптоволоконные системы передачи TV сигнала рассматривать не будем, равно как и IPTV (вещание с помощью сети интернет и SMART телевизоров).
Как пару десятилетий назад, так и сегодня, у экономных хозяев возникает резонный вопрос: как сделать антенну для телевизора своими руками? И если при СССР, действительно была проблема в приобретении качественной TV антенны (тотальный дефицит), то сегодня телевизионная антенна делается своими руками исключительно из соображений экономии.

Варианты самодельных конструкций: общие принципы
В зависимости от расстояния между вашим TV приемником и передающей антенной телецентра, уровень сигнала будет меняться. Еще один негативный фактор, влияющий на качество распространения телевизионной волны — наличие препятствий. Идеальный прием происходит при прямой видимости между двумя антеннами. То есть, вы можете разглядеть мачту телецентра, пусть даже и в бинокль. Если на пути телесигнала есть строения, или высокие деревья — уверенного приема не будет. Однако волны, отраженные от других объектов, могут быть приняты с помощью антенного усилителя для телевизора. Если же к вашему дому вообще «не пробиваются» даже слабые волны, придется смастерить мачту. Сеть телерадиовещательных станций расположена таким образом, что поймать сигнал можно в любом населенном пункте.
Далее рассмотрим примеры изготовления антенн в домашних условиях с использованием подручных материалов, от простого к сложному.
Пивные банки (из-под «Пепси-Колы» тоже подойдут)
Почему этот материал так популярен?
- во-первых, недостающие размеры сегментов компенсируются большой площадью приема: если развернуть банку в плоскость, получится стандартный лист;
- во-вторых, алюминий имеет отличную проводимость, немного не дотягивая до меди: соответственно потери на сопротивление будут минимальными;
- в-третьих — аэродинамическая форма снижает парусность (что особенно важно при размещении на улице), а легкость конструкции не требует особо прочного крепления;
- и, наконец, это доступное и абсолютно бесплатное сырье, к тому же лакированный алюминий прекрасно противостоит влиянию влаги.

Важно!
Перед тем, как сделать антенну из пивных банок, убедитесь в том, что между телецентром и точкой приема нет высотных зданий, которые могут блокировать сигнал.
Несмотря на относительно высокое качество приема, данная конструкция не обладает высоким коэффициентом собственного усиления. Подключение стандартного усилителя может не дать эффекта, ввиду сложности подбора коэффициентов.
Необходимые материалы:
- Две одинаковые литровые банки из-под пива, отмытые и высушенные. В крайнем случае, можно воспользоваться пол-литровыми, но при этом диапазон приема будет уменьшен.
- Антенный кабель РК-75 необходимой длины (конструкция с протяженностью проводки более 10 метров, скорее всего не обеспечит уверенный прием).
- Антенный штекер, соответствующий вашему телевизору.
- Кронштейн для закрепления из диэлектрика для закрепления банок: деревянный брусок, плечики для одежды, пластиковая труба (металлопластик не подойдет).
- Крепежные элементы: изолента, скотч, или пластиковые хомуты.
- Паяльник, стандартный припой, флюс для пайки алюминия.
- Нож, бокорезы, наждачная бумага.
Расписывать формулы расчета размеров под частоту приема нет смысла, все равно изменить размеры сегментов не удастся. Антенна из пивных банок, выполненная своими руками, неоднократно проверена в различных условиях, поэтому просто воспользуемся готовым образцом.
Разделываем антенный кабель. На одном конце будет штекер, второй конец распускаем таким образом, чтобы от центральной жилы до смотанного в жгут экрана было не менее 100 мм. Чтобы «голая» оплетка не подвергалась воздействию коррозии, ее можно упрятать в термоусадочный кембрик.
Зачищаем площадки для пайки кабеля: на верхних торцах банок. Для этого подойдет мелкая наждачная бумага.
Важно:
Зачистка производится непосредственно перед пайкой и до «голого» металла.
Каждый конец провода сворачиваем в кольцо 3–5 мм диаметром, и тщательно облуживаем припоем. Затем прикручиваем полученную клемму к банке с помощью оцинкованного самореза. После чего, места соединения очищаем флюсом и пропаиваем, до нормального «прилипания» припоя.
Закрепляем банки (с точки зрения теории радиоприема, теперь это симметричные вибраторы) таким образом, чтобы между торцами с кабелем было ровно 75 мм. Это оптимальный зазор для приема аналогового и цифрового телевидения.

Важный этап: настройка изделия на оптимальный прием телесигнала. Скорее всего, вам известно направление на вышку вещательного центра. Если нет — карты «Яндекс» вам в помощь. Находите телецентр, ваш дом, и проводите виртуальную прямую. Если не хочется возиться с азимутом (без компаса это невозможно), определите ориентир направления в зоне видимости. Например, труба котельной или иной объект. Для уверенного приёма, домашняя телеантенна располагается строго перпендикулярно к вектору на вышку, и горизонтально.
Если сигнал принимается уверенно — вам повезло с первого раза. При значительном удалении от передатчика, можно поймать отраженный сигнал. Даже простая антенна, сделанная из банок, требует правильной ориентации в пространстве (хотя это и не спутниковая тарелка). В зоне неуверенного приема, всеволновая технология может неожиданно «стрельнуть» в любом направлении.
«Пивная» дециметровая антенна своими руками позволяет уверенно ловить аналоговые каналы. А как сделать антенну для цифрового ТВ? Никаких дополнительных секретов. Цифровое вещание производится в том же диапазоне. При наличии тюнера DVB-T2 вы можете настроиться на один или два мультиплекса, и принимать бесплатный комплект российских каналов на банки из-под пива.
Информация:
Если мощности сигнала все-таки не хватает, можно сделать антенный усилитель своими руками.
Типовая схема на иллюстрации:

Однако чтобы самому спаять и настроить подобное устройство, требуются элементарные познания в радиотехнике. Все-таки проще купить готовый прибор, тем более что на антенне вы уже сэкономили.
«Восьмерка», она же ромб, она же «Z» образная

Пожалуй, самая популярная конструкция для самодельщиков. Эта достаточно мощная антенна Харченко уверенно принимает метровые и дециметровые частоты в аналоговом и цифровом формате. Когда возникает вопрос: «Как сделать антенну своими руками?», в первую очередь предполагается именно этот вариант.
В чем ее преимущество? При компактных размерах в большинстве случаев не требуется усилитель. Разве что вы хотите принимать сигнал на 1–3 этаже в густо застроенном микрорайоне, где между вами и телецентром расположены десятки многоэтажек.
Как сделать самодельную антенну без проведения сложных расчетов? Для типовой сетки вещания существует базовый размер плеча ромба: это 140 мм. Расстояние между точками подключения провода: 10–15 мм.

Антенна Харченко с такими размерами попадает как раз в середину типового диапазона вещания. Если необходимо захватить другие каналы (в некоторых регионах сетка может работать на нестандартных частотах), можно изготовить проволочную конструкции, в несколько рядов. На иллюстрации изображен чертеж из журнала «Радио» 50-летней давности.

Тогда принимался метровый диапазон, и антенны имели соответствующие гигантские размеры. Из проволоки они делались для уменьшения парусности. Такая технология изготовления требует терпения и большого количества материала. Современные «самоделкины» предпочитают медную трубку либо алюминиевую пластину.

Чтобы сделать комнатную антенну по этой технологии, достаточно куска проволоки. Прибор вешается в оконный проем (в направлении телецентра) и не нужно беспокоиться о том, что его погнет ветром. Можно изготовить несколько ромбов, при этом диапазон приема будет существенно расширен. Идеальный вариант для цифрового телевидения, который можно сделать своими руками на даче или в частном доме.
Усиливаем сигнал без усилителя
Эффективность приема (в первую очередь это касается рассматриваемого варианта) можно повысить без дополнительной электроники. Достаточно установить рефлектор, или экран-отражатель. Он будет возвращать телевизионные волны обратно на антенное поле, повышая уровень практически вдвое. Полотно располагается на расстоянии 100 мм в противоположной стороне от телевышки. Обязательное условие — никакого электрического контакта. Причем рефлектор не обязательно должен быть сплошным. Достаточно ряда металлических трубок или ажурной сетки.

Можно усилить эффект, применив конструкцию «двойной биквадрат». Применяются те же размеры, при этом диапазон остается прежним. Дополнительная длина просто увеличивает мощность сигнала.

И, наконец, самая сложная антенна для цифрового ТВ, которую можно изготовить своими руками
Логопериодическая схема позволяет получить максимум усиления без дополнительных схем.

Принцип действия конструкции: в направлении источника сигнала располагаются две проводящие шины, на которых в строгой последовательности установлены перпендикулярные вибраторы. Их длина и расстояние между собой рассчитываются по строгому алгоритму. Ошибка в 2–5% приведет к полной неработоспособности системы. Зато правильно собранная антенна будет принимать аналоговый и цифровой сигнал с высочайшим качеством.
Примечание:
Этот тип антенны требует тщательной ориентации по направлению к телевышке.
Может использоваться с экраном, который способствует усилению слабого сигнала.
Итог
Изготовление самодельной антенны, не просто экономия средств. Это отличный повод попрактиковаться в радиоделе, без риска испортить дорогостоящие радиоэлементы и материалы. А если ваша точка приема расположена в неблагоприятном месте, всегда можно попробовать иную конфигурацию, не покупая несколько антенн фабричного производства.
Видео по теме
profazu.ru
Простая телевизионная антенна | Мастер-класс своими руками
Это очень простая и эффективная антенна для приема цифрового и аналогового телевидения. Подходит для использования как дома, так и на улице. Антенна представляет собой «би-квадрат» (двойной квадрат) — это самая простая и популярная конструкция для повторения.Для постройки антенны понадобиться самая малость:
- — Коаксиальный кабель.
- — Разъем телевизионный.
- — Медная проволока около метра в длину, диаметром 2 — 4 мм. Подойдет так же любая, даже стальная.
- — Флюс с припоем.
- — Пластиковая круглая распределительная коробка для корпуса. Или любая другая.

Изготовление антенны для приема цифрового телевидения (DVB-T)
Я буду делать антенну для приема каналов цифрового телевидения. Чтобы приступить к изготовлению, для начала необходимо рассчитать размеры будущей антенны. А чтобы рассчитать размеры необходимо знать середину диапазона приема цифровых каналов. Средняя частота примерно равна – 690 МГц. Если вы хотите сделать антенну под аналоговые каналы, то возьмите, скажем – 470 МГц для ДМВ и т.п. (диапазоны каналов телевидения можно глянуть ТУТ)
Далее заходим сюда – РАСЧЕТ АНТЕННЫ
Вводим частоту и нажимаем «CALCULATE» и смотрим чему равно L1. L1 – это плечо квадрата для антенны. В моем случае для частоты 690 МГц оно рано примерно 105 мм. Нужное число найдено, больше ничего не понадобиться.
Теперь приступаем непосредственно к постройке антенны «би-квадрат». Отмеряем примерно 90 см толстого медного провода и откусываем либо кусачками, либо пассатижами.


Далее выпрямляем руками провод, делая его ровным без волн, которые образовались после смотки с катушки.
Отмеряем подряд четыре отрезка по 10,5 см на этом проводе.


Затем сгибаем двойной квадрат. Провод толстый и гнется с трудом и это хорошо – не погнется от случайных воздействий.

Лишний провод откусываем, оставляя припуск примерно сантиметр для того чтобы спаять замкнутый контур.

Зачищаем места подключения и будущей пайки.

Спаиваем контур припоем с флюсом. Тут лучше использовать паяльник помощнее, так как толстый медный провод тяжело прогреть.


Зачищаем телевизионный кабель и припаиваем к антенне как на фото.


В принципе антенне готова к работе. Я на этом не остановлюсь и сделаю корпус для центральной части.
Вот что мне понадобится.

Так как круглая коробка слишком глубокая, то я отпилю ножовкой ровно половину.

Затем проплавлю паяльником пазы под антенну. Это можно сделать той же ножовкой.

Заливаю клеем соединения проводов с корпусом и места пайки.

Все готово. Повешу антенну за окно на гвоздь.

Одену на второй конец кабеля штекер для подключения и воткну в разъем телевизора. В антенное гнездо конечно.

Запущу автоматический поиск каналов.

Результат не заставил себя долго ждать. Прием отличный.


Простая дешевая антенна, которую не жалко даже если её украдут. Я делал такую, когда жил в общежитии и работала он тогда просто на «ура».
Ещё огромным плюсом считаю то, что антенну можно рассчитать практически на любой диапазон, что невероятно удобно.
Сморите видео как сделать антенну для телевизора
sdelaysam-svoimirukami.ru
Антенна из кабеля для цифрового ТВ за 5 минут
Супер простую и супер быструю в изготовлении антенну из коаксиального кабеля для приема каналов цифрового телевидения можно сделать своими руками минут за 5. Для этого вам не потребуется абсолютно ничего, кроме самого кабеля. И это главнейший плюс этой антенны.Без телевизора сейчас никуда.

Эта конструкция вас обязательно выручит, к примеру, когда вы только-только въехали в жилище и ещё успели ни протянуть кабель, ни поставить стационарную антенну. Конечно это не единственный пример где поможет эта по истине простая петлевая антенна.
Сейчас в комментариях кто-нибудь обязательно напишет, что есть антенны ещё проще, типа штыревой. Для изготовления которой будет достаточно просто снять две изоляции с кабеля и всё будет работать. Я конечно с этим соглашусь, но петлевая антенна, которую сделаю я из коаксиального кабеля будет иметь гораздо большее усиление, ввиду своей направленности и резонансно-замкнутого контура.
Изготовление антенны из коаксиального кабеля
Так выглядит вариант сделанный из черного кабеля.

А теперь изготовление антенны по порядку. Все что нам понадобится это менее полуметра коаксиального кабеля любого цвета. Я взял белый.

От края кабеля отступаем 5 см и снимаем верхнюю изоляцию.

Далее снимаем изоляцию с центральной жилы.

Теперь все вместе аккуратно и плотно скручиваем.

Затем, от края со снятой изоляцией отступаем 22 см и вырезаем кусочек 2 см верхней изоляции и экранированной проволоки с фальной, не трогая при этом изоляцию центральной жилы.

Теперь от конца разреза отмеряем ещё 22 см и делаем прорез шириной 1 см только со снятием верхней изоляции. Экран кабеля не трогаем.

Далее берем конец кабеля, с которого начинали. И очень плотно приматываем его у последнему разрезу, формируя круг антенны.


На этом наша антенна готова к работе. Конечно это не обязательно, но если вешать антенну на улицу, то лучше изолентой заизолировать все оголенные места кабеля. Так же можно добавить жесткий каркас, но это по желанию.
Расположение антенны
Антенну направляем на ретранслятор или телевизионную вышку. Направление можно выбрать и опытным путем, вращая антенну.
Лучшем вариантом будет если разместить ее за окном, так как стены дома очень сильно глушат высокочастотный сигнал.

Проверка показала отличный результат работы

Смотрите видео инструкцию изготовления антенны
Если вам все же не понятно, как сделать антенну из кабеля, то посмотрите обязательно видео ниже или задайте вопросы в комментариях.
sdelaysam-svoimirukami.ru
ТВ антенна своими руками: для цифрового, эфирного TV
Покупать хорошую антенну на дачу не всегда целесообразно. Особенно если она посещается время от времени. Дело не столько в затратах, сколько в том, что ее через некоторое время может не оказаться на месте. Поэтому многие предпочитают делать антенну для дачи самостоятельно. Затраты минимальные, качество неплохое. И самый важный момент — ТВ антенна своими руками может быть сделана за полчаса-час и потом, в случае необходимости, легко повторяется…
Содержание статьи
Для цифрового телевидения DVB-T2 — антенна «восьмерка»
Цифровое телевидение в формате DVB-T2 передается в диапазоне ДМВ, причем цифровой сигнал или есть, или его нет. Если сигнал принимается, то картинка получается хорошего качества. В связи с этим. для приема цифрового телевидения подходит любая дециметровая антенна. Многим радиолюбителям знакома телеантенна, которую называют «зигзагообразная» или «восьмерка». Эта ТВ антенна своими руками собирается буквально за считанные минуты.
-

- Для уменьшения количества помех сзади антенны ставят отражатель. Расстояние между антенной и отражателем подбирают экспериментально — по «чистоте» картинки
-

- Можно на стекле прикрепить фольгу и получить неплохой сигнал….
-

- Медная трубка или проволока — оптимальный вариант, хорошо гнется, легко пр
Делать ее очень просто, материал — любой токопроводящий металл: трубка, прут, проволока, полоса, уголок. Принимает она, несмотря на простоту, хорошо. Выглядит как два квадрата (ромба), соединенных между собой. В оригинале за квадратом располагается отражатель — для более уверенного приема сигнала. Но он больше нужен для аналоговых сигналов. Для приема цифрового телевидения вполне можно обойтись и без него или установить потом, если прием будет чересчур слабым.
Материалы
Оптимально для этой самодельной телеантенны подходит медная или алюминиевая проволока диаметром 2-5 мм. В этом случае сделать все можно буквально за час. Также можно использовать трубку, уголок, полосу из меди или алюминия, но надо будет какое-то приспособление чтобы выгнуть рамки нужной формы. Проволоку же можно гнуть молотком, закрепив ее в тисках.

Схема антенны Харченко
Также потребуется коаксиальный антенный кабель требуемой длины, штекер подходящий к разъему на вашем телевизоре, какое-то крепление для самой антенны. Кабель можно брать с сопротивлением 75 Ом и 50 Ом (второй вариант хуже). Если делается ТВ антенна своими руками для установки на улице, обратите внимание на качество изоляции.
Крепление зависит от того, где вы собираетесь повесить самодельную антенну для цифрового телевидения. На верхних этажах можно попробовать использовать ее как домашнюю и повесить на шторы. Тогда нужны крупные булавки. На даче или если выносить самодельную телеантенну на крышу, надо будет крепить ее к шесту. Для этого случая ищите подходящие фиксаторы. Для работы еще понадобится паяльник, наждачная бумага и/или напильник, надфиль.
Нужен ли расчет
Для приема цифрового сигнала нет необходимости считать длину волны. Просто желательно сделать антенну более широкополосной — чтобы принимать как можно больше сигналов. Для этого в оригинальную конструкцию (на фото выше) внесены некоторые изменения (дальше по тексту).
При желании можете сделать расчет. Для этого надо узнать на какой волне транслируется сигнал, разделить на 4 и получить требуемую сторону квадрата. Чтобы получить требуемое расстояние между двумя частями антенны, делайте наружные стороны ромбов чуть длиннее, внутренние — короче.

Чертеж антенны «восьмерки» для приема цифрового ТВ
Если считать не хотите, можно делать по следующим размерам (обозначения взяты с :
- Длина «внутренней» стороны прямоугольника (В2) — 13 см,
- «наружной» (В1) — 14 см.
За счет разницы длин образуется расстояние между квадратами (они соединяться не должны). Два крайних участка делают длиннее на 1 см — чтобы можно было свернуть петлю, к которой припаивается коаксиальный антенный кабель.
Изготовление рамки
Если посчитать все длины, получится 112 см. Отрезаем проволоку или тот материал, который у вас есть, берем пассатижи и линейку, начинаем гнуть. Углы должны быть под 90° или около того. С длинами сторон можно немного ошибаться — это не смертельно. Получается так:
- Первый участок — 13 см + 1 см на петлю. Петлю можно согнуть сразу.
- Два участка по 14 см.
- Два по 13 см, но с поворотом в противоположную сторону — это место перегиба на второй квадрат.
- Снова два по 14 см.
- Последний — 13 см + 1 см на петлю.
Собственно рамка антенны готова. Если все удалось сделать правильно, между двумя половинами в середине получилось расстояние 1,5-2 см. Могут быть небольшие расхождения. Далее петли и место перегиба зачищаем до чистого металла (обработать наждаком с мелким зерном), залудить. Две петли соединить, обжать пассатижами чтобы держались крепко.

Вот так примерно должно получиться
Подготовка кабеля
Берем антенный кабель, осторожно зачищаем. Как это делать показано на пошаговом фото. Зачистить кабель надо с двух сторон. Один край будет крепиться к антенне. Тут зачищаем так, чтобы провод торчал на 2 см. Если получилось больше, лишнее (потом) можно будет отрезать. Экран (фольгу) и оплетку скрутить в жгут. Получилось два проводника. Один — центральная моножила кабеля, второй — скрученный из множества проводков оплетки. Оба нужны и их нужно залудить.

Как зачищать коаксиальный кабель
Ко второму краю подпаиваем штекер. Тут достаточно длины 1 см или около того. Также сформировать два проводника, залудить.
Штекер в тех местах, где будем проводить пайку, протереть спиртом или растворителем, зачистить наждаком (можно надфилем). На кабель надеть пластиковую часть штекера, теперь можно начинать пайку. К центральному выходу штекера припаиваем моножилу, к боковому — многожильную скрутку. Последнее — обжать захват вокруг изоляции.
Зачистить концы кабеля, припаять штекер
Дальше можно просто накрутить пластиковый наконечник, в можно залить клеем или токонепроводящим герметиком (это важно). Пока клей/герметик не застыл, быстро собираем штекер (накручиваем пластиковую часть), убираем излишки состава. Так штекер будет почти вечным.
DVB-T2 ТВ антенна своими руками: сборка
Теперь осталось соединить кабель и рамку. Так как мы не привязывались к конкретному каналу, припаивать кабель будем к средней точке. Это увеличит широкополосность антенны — принимать будет больше каналов. Потому второй разделанный конец кабеля припаиваем к двум сторонам посередине (те, которые зачищали и лудили). Еще одно отличие от «оригинальной версии» — кабель не надо обводить по рамке и припаивать внизу. Это тоже расширит диапазон приема.
Собранную антенну можно проверить. Если прием нормальный, можно закончить сборку — залить герметиком места пайки. Если прием плохой, попробуйте для начала найти место, где ловится лучше. Если положительных изменений нет, можно попробовать заменить кабель. Для простоты эксперимента можно использовать обычную телефонную лапшу. Она стоит копейки. К ней припаять штекер и рамку. Попробовать с ней. Если «ловит» лучше — дело в плохом кабеле. В принципе, можно работать и на «лапше», но недолго — она быстро придет в негодность. Лучше, конечно, поставить нормальный антенный кабель.

ТВ антенна своими руками для цифрового ТВ
Для защиты места соединения кабеля и рамки антенны от атмосферных воздействий, места пайки можно замотать обычной изолентой. Но это способ ненадежный. Если не забудете, можно перед пайкой надеть несколько термоусадочных трубок, чтобы с их помощью заизолировать. Но самый надежный способ — залить все клеем или герметиком (они не должны проводить ток). В качестве «корпуса» можно использовать крышки на 5-6 литровые баллоны с водой, обычные пластиковые крыши на банки и т.п. В нужных местах делаем углубления — чтобы рамка «улеглась» в них, не забываем про вывод кабеля. Заливаем герметизирующим составом, ждем пока схватится. Все, ТВ антенна своими руками для приема цифрового телевидения готова.
Самодельная антенна двойной и тройной квадрат
Это узкополосная антенна, которая используется если принимать надо слабый сигнал. Она может даже помочь, если более слабый сигнал «забивается» более мощным. Единственный недостаток — нужна точная ориентация на источник. Эту же конструкцию можно сделать чтобы принимать цифровое телевидение.
-

- Можно сделать и пять рамок — для более уверенного приема
-

- Красить или лакировать нежелательно — ухудшается прием. Такое возможно только в непосредственной близости с передатчиком
-

- От чертежа до реализации
Достоинства этой конструкции — прием будет уверенным даже на значительном расстоянии от ретранслятора. Только надо будет конкретно узнать частоту вещания, выдержать размеры рамок и согласующего устройства.
Конструкция и материалы
Делают ее из трубок или проволоки:
- 1-5 ТВ канал МВ диапазона — трубки (медь, латунь, алюминий) диаметром 10-20 мм;
- 6-12 ТВ канал МВ диапазона — трубки (медь, латунь, алюминий) 8-15 мм;
- ДМВ диапазон — медная или латунная проволока диаметром 3-6 мм.
Антенна двойной квадрат представляет собой две рамки, соединенных двумя стрелами — верхней и нижней. Меньшая рамка — вибратор, большая — рефлектор. Антенна, состоящая из трех рамок дает больший коэффициент усиления. Третий, самый маленький, квадрат называется директор.

Узкополосная антенна для приема слабых сигналов
Верхняя стрела соединяет середины рамок, может быть сделана из металла. Нижняя — из изоляционного материала (текстолит, геттинакс, деревянная планка). Рамки должны устанавливаться так, чтобы их центры (точки пересечения диагоналей) находились на одной прямой. И направлена эта прямая должна быть на передатчик.
Активная рамка — вибратор — имеет разомкнутый контур. Ее концы прикручиваются к текстолитовой пластине размером 30*60 мм. Если сделаны рамки из трубки, края расплющивают, в ни проделывают отверстия и через них крепят нижнюю стрелу.
Мачта для этой антенны должна быть деревянной. Во всяком случае, верхняя ее часть. Причем деревянная часть должна начинаться на расстоянии не менее 1,5 метров от уровня рамок антенны.
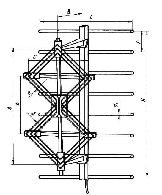
Размеры
Все размеры для изготовления этой ТВ антенны своими руками приведены в таблицах. Первая таблица — для метрового диапазона, вторая — для дециметрового.
Размеры двухрамочной антенны для приема аналоговых и цифровых ТВ каналов
В трехрамочных антеннах расстояние между концами вибраторной (средней) рамки делают больше — 50 мм. Остальные размеры даны в таблицах.

Размеры антенны три рамки для самостоятельного изготовления
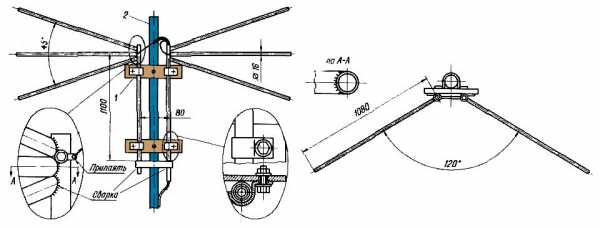
Подключение активной рамки (вибратора) через короткозамкнутый шлейф
Так как рамка — симметричное устройство, а подключить ее надо к несимметричному коаксиальному антенному кабелю, необходимо согласующее устройство. В данном случае обычно используют симметритрующий короткозамкнутый шлейф. Его делают из отрезков антенного кабеля. Правый отрезок называют «шлейф», левый — «фидер». К месту соединения фидера и шлейфа крепится кабель, который идет к телевизору. Длинна отрезков выбирается исходя из длины волн принимаемого сигнала (смотрите таблицу).

Симметрирующий шлейф для рамочных антенн
Короткий отрезок провода (шлейф) разделывают с одного конца, удалив алюминиевый экран и скрутив оплетку в плотный жгут. Его центральный проводник можно срезать до изоляции, так как он не играет значения. Разделывают и фидер. Тут тоже удаляют алюминиевый экран и скручивают оплетку в жгут, но центральный проводник остается.
Дальнейшая сборка происходит так:
- Оплетку шлейфа и центральный проводник фидера припаиваются к левому концу активной рамки (вибратору).
- Оплетка фидера припаивается к правому концу вибратора.
- Нижний конец шлейфа (оплетку) соединяют с оплеткой фидера с помощью жесткой металлической перемычки (можно использовать проволоку, только убедиться в хорошем контакте с оплеткой). Кроме электрического соединения она еще задает расстояние между участками согласующего устройства. Вместо металлической перемычки можно закрутить в жгут оплетку нижней части шлейфа (снять изоляцию на этом участке, удалить экран, свернуть в жгут). Для обеспечения хорошего контакта жгуты спаять между собой легкоплавким припоем.
- Куски кабеля должны быть параллельны. Расстояние между ними — около 50 мм (возможны некоторые отклонения). Для фиксации расстояния используют фиксаторы из диэлектрического материала. Также можно прикрепить согласующее устройство к текстолитовой пластине, например.
- Кабель, идущий к телевизору припаивается к нижней части фидера. Оплетка соединяется с оплеткой, центральный проводник — с центральным проводником. Для уменьшения количества соединений фидер и кабель к телевизору можно сделать единым. Только в том месте, где должен заканчиваться фидер надо снять изоляцию чтобы можно было установить перемычку.
Это согласующее устройство позволяет избавиться от помех, расплывшегося контура, второго размытого изображения. Особенно оно пригодиться на большом расстоянии от передатчика, когда сигнал будет забиваться помехами.
Другой вариант тройного квадрата
Чтобы не подключать короткозамкнутый шлейф, вибратор антенны тройной квадрат делают удлиненным. В этом случае можно подключать кабель напрямую к рамке как показано на рисунке. Только высота, на которой припаивается антенный провод, определяется в каждом случае индивидуально. После сборки антенны проводят «испытания». Подключают кабель к телевизору, центральный проводник и оплетку передвигают вверх/вниз, добиваясь лучшего изображения. В том положении, где картинка будет наиболее четкой, припаивают отводы антенного кабеля, места пайки изолируют. Положение может быть любым — от нижней перемычки, до места перехода на рамку.

Вариант с настройкой без согласующего шлейфа
Иногда одна антенна не дает требуемого эффекта. Сигнал получается слабым изображение — черно-белым. В этом случае стандартное решение — установить усилитель телевизионного сигнала.
Самая проста антенна для дачи — из металлических банок
Для изготовления этой телевизионной антенны кроме кабеля нужны будут только две алюминиевых или жестяных банки да кусок деревянной планки или пластиковой трубы. Банки должны быть металлическими. Можно брать пивные алюминиевые, можно — жестяные. Главное условие — чтобы стенки были ровными (не ребристыми).

Эта ТВ антенна для дачи может быть сделана своими руками за несколько минут
Банки промывают и высушивают. Конец коаксиального провода разделывают — скрутив жилы оплетки и очистив центральную жилу от изоляции получают два проводника. Их крепят к банкам. Если умеете пользоваться паяльником, можно припаять. Нет — берете два маленьких самореза с плоскими шляпками (можно «блошки» для гипсокартона), на концах проводников скручиваете петлю, в нее продеваете саморез с установленной на нем шайбой, прикручиваете к банке. Только перед этим надо металл банки очистить — сняв налет при помощи наждачной бумаги с тонким зерном.

Необходимо предварительно зачистить банку от краски
Банки закрепляют на планке. Расстояние между ними подбирают индивидуально — по лучшей картинке. Не стоит надеяться на чудо — в нормальном качестве будет один-два канала, а может и нет… Зависит от положения ретранслятора, «чистоты» коридора, того, насколько правильно ориентирована антенна… Но как выход в аварийной ситуации — это отличный вариант.
Простая антенна для Wi-Fi из металлической банки
Антенну для приема сигнала Wi-Fi тоже можно сделать из подручных средств — из консервной банки. Эта ТВ антенна своими руками может быть собрана за пол часа. Это если все делать неторопясь. Банка должна быть из металла, с ровными стенками. Отлично подходят высокие и узкие консервные банки. Если ставить самодельную антенну будете на улице, найдите банку с пластиковой крышкой (как на фото). Кабель берут антенный, коаксиальный, сопротивлением 75 Ом.

Так выглядит снаружи баночная антенна для Wi-Fi
Кроме банки и кабеля потребуется еще:
- радиочастотный соединитель RF-N;
- кусок медной или латунной проволоки диаметром 2 мм и длиной 40 мм;
- кабель с гнездом, подходящим к Wi-Fi карте или адаптеру.
Передатчики Wi-Fi работают на частоте 2,4 ГГц с длинной волны 124 мм. Так вот, банку желательно выбрать такую, чтобы ее высота была не менее 3/4 длины волны. Для данного случая лучше чтобы она была больше 93 мм. Диаметр банки должен быть как можно ближе к половине длины волны — 62 мм для данного канала. Некоторые отклонения могут быть, но чем ближе к идеалу — тем лучше.
Размеры и сборка
При сборке в банке делают отверстие. Его надо расположить строго в нужной точке. Тогда сигнал будет усиливаться в несколько раз. Он зависит от диаметра выбранной банки. Все параметры приведены в таблице. Измеряете точно диаметр вашей банки, находите нужную строчку, имеете все нужные размеры.

Как сделать антенну для Wi-Fi своими руками
| D — диаметр | Нижняя граница затухания | Верхняя граница затухания | Lg | 1/4 Lg | 3/4 Lg |
|---|---|---|---|---|---|
| 73 мм | 2407.236 | 3144.522 | 752.281 | 188.070 | 564.211 |
| 74 мм | 2374.706 | 3102.028 | 534.688 | 133.672 | 401.016 |
| 75 мм | 2343.043 | 3060.668 | 440.231 | 110.057 | 330.173 |
| 76 мм | 2312.214 | 3020.396 | 384.708 | 96.177 | 288.531 |
| 77 мм | 2282.185 | 2981.170 | 347.276 | 86.819 | 260.457 |
| 78 мм | 2252.926 | 2942.950 | 319.958 | 79.989 | 239.968 |
| 79 мм | 2224.408 | 2905.697 | 298.955 | 74.738 | 224.216 |
| 80 мм | 2196.603 | 2869.376 | 282.204 | 070.551 | 211.653 |
| 81 мм | 2169.485 | 2833.952 | 268.471 | 67.117 | 201.353 |
| 82 мм | 2143.027 | 2799.391 | 256.972 | 64.243 | 192.729 |
| 83 мм | 2117.208 | 2765.664 | 247.178 | 61.794 | 185.383 |
| 84 мм | 2092.003 | 2732.739 | 238.719 | 59.679 | 179.039 |
| 85 мм | 2067.391 | 2700.589 | 231.329 | 57.832 | 173.497 |
| 86 мм | 2043.352 | 2669.187 | 224.810 | 56.202 | 168.607 |
| 87 мм | 2019.865 | 2638.507 | 219.010 | 54.752 | 164.258 |
| 88 мм | 1996.912 | 2608.524 | 213.813 | 53.453 | 160.360 |
| 89 мм | 1974.475 | 2579.214 | 209.126 | 52.281 | 156.845 |
| 90 мм | 1952.536 | 2550.556 | 204.876 | 51.219 | 153.657 |
| 91 мм | 1931.080 | 2522.528 | 201.002 | 50.250 | 150.751 |
| 92 мм | 1910.090 | 2495.110 | 197.456 | 49.364 | 148.092 |
| 93 мм | 1889.551 | 2468.280 | 194.196 | 48.549 | 145.647 |
| 94 мм | 1869.449 | 2442.022 | 191.188 | 47.797 | 143.391 |
| 95 мм | 1849.771 | 2416.317 | 188.405 | 47.101 | 141.304 |
| 96 мм | 1830.502 | 2391.147 | 185.821 | 46.455 | 139.365 |
| 97 мм | 1811.631 | 2366.496 | 183.415 | 45.853 | 137.561 |
| 98 мм | 1793.145 | 2342.348 | 181.169 | 45.292 | 135.877 |
| 99 мм | 1775.033 | 2318.688 | 179.068 | 44.767 | 134.301 |
Порядок действий такой:
- Срезаем верхнюю часть банки, тщательно моем, высушиваем.
- На боковине отмечаем точку, в которой надо установить излучатель. Ее надо накернить. Берем что-то с острым наконечником (подойдет сверло большого диаметра, например), ставим точно в эту точку, наносим по сверлу удар. Он не должен быть сильным, чтобы не помялась банка. Но и не слишком слабым — должен остаться след.

Этапы изготовления Wi-Fi антенны
- Понадобиться набор сверл — начинать сверлить надо с маленького размера, постепенно увеличивая до 12-16 мм — по размерам приобретенного RF соединителя.
- Напильником или наждачной бумагой обрабатываем края.
- К RF соединителю надо припаять медный или латунный провод заданной длины — 30,5 мм. Для нормального качества пайки конец провода обрабатываем наждачной бумагой до появления чистого металла (без оксидной пленки). Удобнее паять, зажав соединитель в тисках, выставив вывод вертикально вверх. Нагреваем обработанный конец провода паяльником, припаиваем к выходу RF соединителя. Надо следить чтобы излучатель был строго вертикален.

Готовая она выглядит так
- Устанавливаем соединитель в подготовленное место в банке, затягиваем прижимным болтом.
- К обратной стороне соединителя припаиваем кабель.
- Wi-Fi антенна своими руками готова.
Можно обойтись и без RF соединителя, но с ним все намного проще — легче выставить излучатель вертикально вверх, подключить кабель, идущий к роутеру (маршрутизатору) или карте Wi-Fi.
elektroznatok.ru
ТВ-антенна своими руками: ДМВ, цифровая

Когда-то хорошая телевизионная антенна была дефицитом, покупные качеством и долговечностью, мягко говоря, не отличались. Сделать антенну для «ящика» или «гроба» (старого лампового телевизора) своими руками считалось показателем мастерства. Интерес к самодельным антеннам не угасает и в наши дни. Ничего странного тут нет: условия приема ТВ кардинально изменились, а производители, полагая, что в теории антенн ничего существенно нового нет и не будет, чаще всего приспосабливают к давно известным конструкциям электронику, не задумываясь над тем, что главное для любой антенны – ее взаимодействие с сигналом в эфире.
Что изменилось в эфире?
Во-первых, почти весь объем ТВ-вещания в настоящее время осуществляется в диапазоне ДМВ. Прежде всего из экономических соображений, в нем намного упрощается и удешевляется антенно-фидерное хозяйство передающих станций, и, что еще более важно – потребность в его регулярном обслуживании высококвалифицированными специалистами, занятыми тяжелым, вредным и опасным трудом.
Второе – ТВ-передатчики теперь покрывают своим сигналом практически все более-менее населенные места, а развитая сеть связи обеспечивает подачу программ в самые глухие углы. Там вещание в обитаемой зоне обеспечивают маломощные необслуживаемые передатчики.
Третье, изменились условия распространения радиоволн в городах. На ДМВ промышленные помехи просачиваются слабо, но железобетонные многоэтажки для них – хорошие зеркала, многократно переотражающие сигнал вплоть до его полного затухания в зоне, казалось бы, уверенного приема.
Четвертое – ТВ-программ в эфире сейчас очень много, десятки и сотни. Насколько это множество разнообразно и содержательно – другой вопрос, но рассчитывать на прием 1-2-3 каналов ныне бессмысленно.
Наконец, получило развитие цифровое вещание. Сигнал DVB T2 – штука особенная. Там, где он еще хоть чуть-чуть, на 1,5-2 дБ, превышает шумы, прием отличный, как ни в чем ни бывало. А чуть дальше или в стороне – нет, как отрезало. К помехам «цифра» почти не чувствительна, но при рассогласовании с кабелем или фазовых искажениях в любом месте тракта, от камеры до тюнера, картинка может рассыпаться в квадратики и при сильном чистом сигнале.
Требования к антеннам
В соответствии с новыми условиями приема, изменились и основные требования к ТВ-антеннам:
- Такие ее параметры, как коэффициент направленного действия (КНД) и коэффициент защитного действия (КЗД) ныне определяющего значения не имеют: современный эфир очень грязный, и по малюсенькому боковому лепестку диаграммы направленности (ДН), хоть какая-то помеха, да пролезет, и бороться с ней нужно уже средствами электроники.
- Взамен особое значение приобретает собственный коэффициент усиления антенны (КУ). Антенна, хорошо «облавливающая» эфир, а не смотрящая на него сквозь маленькую дырочку, даст запас мощности принятого сигнала, позволяющий электронике очистить его от шумов и помех.
- Современная телевизионная антенна, за редчайшими исключениями, должна быть диапазонной, т.е. ее электрические параметры должны сохраняться естественным образом, на уровне теории, а не втискиваться в приемлемые рамки путем инженерных ухищрений.
- ТВ-антенна должна согласовываться в кабелем во всем своем рабочем диапазоне частот без дополнительных устройств согласования и симметрирования (УСС).
- Амплитудно-частотная характеристика антенны (АЧХ) должна быть возможно более гладкой. Резким выбросам и провалам непременно сопутствуют фазовые искажения.
Последние 3 пункта обусловлены требованиями приема цифровых сигналов. Настроенные, т.е. работающие теоретически на одной частоте, антенны можно «растянуть» по частоте, напр. антенны типа «волновой канал» на ДМВ с приемлемым отношением сигнал/шум захватывают 21-40 каналы. Но их согласование с фидером требует применения УСС, которые либо сильно поглощают сигнал (ферритовые), либо портят фазовую характеристику на краях диапазона (настроенные). И «цифру» такая антенна, отлично работающая на «аналоге», будет принимать плохо.
В связи с этим, из всего великого антенного многообразия, в данной статье будут рассмотрены антенны для телевизора, доступные для самостоятельного изготовления, следующих типов:
- Частотнонезависимая (всеволновая) – не отличается высокими параметрами, но очень проста и дешева, ее можно сделать буквально за час. За городом, где эфир почище, она вполне сможет принимать цифру или достаточно мощный аналог не небольшом удалении от телецентра.
- Диапазонная логопериодическая. Ее, образно выражаясь, можно уподобить рыболовецкому тралу, уже при облавливании сортирующему добычу. Она тоже довольно проста, идеально согласуется с фидером во всем своем диапазоне, абсолютно не меняет в нем параметры. Техпараметры – средние, поэтому более подойдет для дачи, а в городе в качестве комнатной.
- Несколько модификаций зигзагообразной антенны, или Z-антенны. В диапазоне МВ это весьма солидная конструкция, требующая немалого умения и времени. Но на ДМВ она вследствие принципа геометрического подобия (см. далее), настолько упрощается и съеживается, что вполне может быть использована как высокоэффективная комнатная антенна при почти любых условиях приема.
Примечание: Z-антенна, если использовать предыдущую аналогию – частый бредень, сгребающий все, что есть в воде. По мере замусоривания эфира она было вышла из употребления, но с развитием цифрового ТВ вновь оказалась на коне – во всем своем диапазоне она так же отлично согласована и держит параметры, как «логопедка».
Точное согласование и симметрирование почти всех описанных далее антенн достигается благодаря прокладке кабеля через т.наз. точку нулевого потенциала. К ней предъявляются особые требования, о которых подробнее будет сказано далее.
О вибраторных антеннах
В полосе частот одного аналогового канала можно передать до нескольких десятков цифровых. И, как уже сказано, цифра работает при ничтожном отношении сигнал/шум. Поэтому в очень удаленных от телецентра, куда сигнал одного-двух каналов еле добивает, местах, для приема цифрового ТВ может найти применение и старый добрый волновой канал (АВК, антенна волновой канал), из класса вибраторных антенн, так что в конце уделим несколько строк и ей.
О спутниковом приеме
Делать самому спутниковую антенну нет никакого смысла. Головку и тюнер все равно нужно покупать, а за внешней простотой зеркала кроется параболическая поверхность косого падения, которую с нужной точностью может выполнить далеко не всякое промышленное предприятие. Единственное, что под силу самодельщикам – настроить спутниковую антенну, об этом читайте тут.
О параметрах антенн
Точное определение упомянутых выше параметров антенн требует знания высшей математики и электродинамики, но понимать их значение, приступая к изготовлению антенны, нужно. Поэтому дадим несколько грубые, но все же поясняющие смысл определения (см. рис. справа):

К определению параметров антенн
- КУ – отношение принятой антенной на основной (главный) лепесток ее ДН мощности сигнала, к его же мощности, принятой в том же месте и на той же частоте ненаправленной, с круговой, ДН, антенной.
- КНД – отношение телесного угла всей сферы к телесному углу раскрыва главного лепестка ДН, в предположении, что его сечение – круг. Если главный лепесток имеет разные размеры в разных плоскостях, сравнивать нужно площадь сферы и площадь сечения ею главного лепестка.
- КЗД – отношение принятой на главный лепесток мощности сигнала к сумме мощностей помех на той же частоте, принятой всеми побочными (задним и боковыми) лепестками.
Примечания:
- Если антенна диапазонная, мощности считаются на частоте полезного сигнала.
- Поскольку совершенно ненаправленных антенн не бывает, за такую принимают полуволновой линейный диполь, ориентированный по направлению электрического вектора поля (по его поляризации). Его КУ считается равным 1. ТВ программы передаются с горизонтальной поляризацией.
Следует помнить, что КУ и КНД не обязательно взаимосвязаны. Есть антенны (напр. «шпионская» – однопроводная антенна бегущей волны, АБВ) с высокой направленностью, но единичным или меньшим усилением. Такие смотрят вдаль как бы сквозь диоптрический прицел. С другой стороны, существуют антенны, напр. Z-антенна, у которых невысокая направленность сочетается со значительным усилением.
О тонкостях изготовления
Все элементы антенн, по которым протекают токи полезного сигнала (конкретно – в описаниях отдельных антенн), должны соединяться между собой пайкой или сваркой. В любом сборном узле на открытом воздухе электрический контакт скоро нарушится, и параметры антенны резко ухудшатся, вплоть до полной ее негодности.
Особенно это касается точек нулевого потенциала. В них, как говорят специалисты, наблюдается узел напряжения и пучность тока, т.е. его наибольшее значение. Ток при нулевом напряжении? Ничего удивительного. Электродинамика ушла от закона Ома на постоянном токе так же далеко, как Т-50 от воздушного змея.
Места с точками нулевого потенциала для цифровых антенн лучше всего выполнять гнутыми из цельного металла. Небольшой «ползучий» ток на сварке при приеме аналога на картинке, скорее всего, не скажется. Но, если принимается цифра на границе шумов, то тюнер из-за «ползучки» может не увидеть сигнала. Который при чистом токе в пучности дал бы стабильный прием.
О пайке кабеля
Оплетка (да и центральная жила нередко) современных коаксиальных кабелей делаются не из меди, а из стойких к коррозии и недорогих сплавов. Паяются они плохо и, если долго греть, можно пережечь кабель. Поэтому паять кабели нужно 40-Вт паяльником, легкоплавким припоем и с флюс-пастой вместо канифоли или спиртоканифоли. Пасты жалеть не нужно, припой сразу же растекается по жилкам оплетки только под слоем кипящего флюса.

Частотнонезависимая антенна с горизонтальной поляризацией
Виды антенн
Всеволновая
Всеволновая (точнее, частотнонезависимая, ЧНА) антенна показана на рис. Она – две треугольных металлических пластинки, две деревянных рейки, да много медных эмалированных проволок. Диаметр проволоки значения не имеет, а расстояние между концами проволок на рейках – 20-30 мм. Зазор между пластинами, к которым припаяны другие концы проволок – 10 мм.
Примечание: вместо двух металлических пластин лучше взять квадрат из одностороннего фольгированного стеклотекстолита в вырезанными по меди треугольниками.
Ширина антенны равна ее высоте, угол раскрыва полотен – 90 градусов. Схема прокладки кабеля показана там же на рис. Точка, отмеченная желтым – точка квази-нулевого потенциала. Припаивать в ней оплетку кабеля к полотну не нужно, достаточно туго подвязать, для согласования хватит емкости между оплеткой и полотном.
ЧНА, растянутая в окне шириной 1,5 м, принимает все метровые и ДЦМ каналы почти со всех направлений, кроме провала около 15 градусов в плоскости полотна. В этом ее преимущество в местах, где возможен прием сигналов от разных телецентров, не нужно вращать. Недостатки – единичный КУ и нулевой КЗД, поэтому в зоне действия помех и вне зоны уверенного приема ЧНА не годится.
Примечание: есть и другие типы ЧНА, напр. в виде двухвитковой логарифимической спирали. Она компактнее ЧНА из треугольных полотен в том же диапазоне частот, поэтому иногда используется в технике. Но в быту это преимуществ не дает, сделать спиральную ЧНА сложнее, с коаксиальным кабелем согласовать труднее, поэтому не рассматриваем.
На основе ЧНА был создан очень популярный когда-то веерный вибратор (рога, рогулька, рогатка), см. рис. Его КНД и КЗД что-то около 1,4 при довольно гладкой АЧХ и линейной ФЧХ, так что для цифры он подошел бы и сейчас. Но – работает только на МВ (1-12 каналы), а цифровое вещание идет на ДМВ. Впрочем, на селе, при подъеме на 10-12 м, может сгодиться для приема аналога. Мачта 2 может быть из любого материала, но крепежные планки 1 – из хорошего ненамокающего диэлектрика: стеклотекстолита или фторопласта толщиной не менее 10 мм.

Веерный вибратор для приема МВ ТВ
Пивная всеволновка

Антенны из пивных банок
Всеволновая антенна из пивных банок явно не плод похмельных галлюцинаций спившегося радиолюбителя. Это действительно очень хорошая антенна на все случаи приема, нужно только сделать ее правильно. Причем исключительно простая.
В основе ее конструкции следующее явление: если увеличивать диаметр плеч обычного линейного вибратора, то рабочая полоса его частот расширяется, а прочие параметры остаются неизменными. В дальней радиосвязи с 20-х годов используется т.наз. диполь Надененко, основанный на этом принципе. А пивные банки по размерам как раз подходят в качестве плеч вибратора на ДМВ. В сущности, ЧНА и есть диполь, плечи которого неограниченно расширяются до бесконечности.
Простейший пивной вибратор из двух банок годится для комнатного приема аналога в городе даже без согласования с кабелем, если его длина не более 2 м, слева на рис. А если собрать из пивных диполей вертикальную синфазную решетку с шагом в полволны (справа на рис.), согласовать ее и отсимметрировать с помощью усилителя от польской антенны (о нем речь еще пойдет), то благодаря сжатию главного лепестка ДН по вертикали такая антенна даст и хороший КУ.
Усиление «пивнухи» можно еще увеличить, добавив заодно КЗД, если сзади нее поместить экран из сетки на расстоянии, равном половине шага решетки. Монтируется пивная решетка на мачте из диэлектрика; механические связи экрана с мачтой – тоже диэлектрические. Остальное ясно из след. рис.

Синфазная решетка из пивных диполей
Примечание: оптимальное количество этажей решетки – 3-4. При 2-х выигрыш в усилении будет небольшим, а большее трудно согласовать с кабелем.
Видео: изготовление простейшей антенны из пивных банок
«Логопедка»
Логопериодическая антенна (ЛПА) представляет собой собирающую линию, к которой попеременно подключаются половинки линейных диполей (т.е. куски проводника длиной в четверть рабочей волны), длина и расстояние между которыми меняются в геометрической прогрессии с показателем меньше 1, в центре на рис. Линия может быть как настроенной (с КЗ на противоположном от места подключения кабеля конце), так и свободной. ЛПА на свободной (ненастроенной) линии для приема цифры предпочтительнее: она выходит длиннее, но ее АЧХ и ФЧХ гладкие, а согласование с кабелем не зависит от частоты, поэтому на ней мы и остановимся.

Конструкция логопериодической антенны
ЛПА может быть изготовлена на любой, до 1-2 ГГц, наперед заданный диапазон частот. При изменении рабочей частоты ее активная область из 1-5 диполей смещается вперед-назад по полотну. Поэтому, чем ближе показатель прогрессии к 1, и соответственно меньше угол раскрыва антенны, тем большее усиление она даст, но при этом возрастает ее длина. На ДМВ от наружной ЛПА можно добиться 26 дБ, а от комнатной – 12 дБ.
ЛПА, можно сказать, по совокупности качеств идеальная цифровая антенна, поэтому остановимся на ее расчете несколько подробнее. Основное, что нужно знать, что увеличение показателя прогрессии (тау на рис.) дает прирост усиления, а уменьшение угла раскрыва ЛПА (альфа) увеличивает направленность. Экран для ЛПА не нужен, он на ее параметры почти не влияет.
Расчет цифровой ЛПА имеет особенности:
- Начинают его, ради запаса по частоте, со второго по длине вибратора.
- Затем, взяв обратную величину от показателя прогрессии, рассчитывают самый длинный диполь.
- После самого короткого, исходя из заданного диапазона частот, диполя, добавляют еще один.
Поясним на примере. Допустим, наши цифровые программы лежат в диапазоне 21-31 ТВК, т.е. в 470-558 МГц по частоте; длины волн соответственно – 638-537 мм. Также допустим, что нам нужно принимать слабый зашумленный сигнал вдали от станции, поэтому берем максимальный (0,9) показатель прогрессии и минимальный (30 градусов) угол раскрыва. Для расчета понадобится половина угла раскрыва, т.е. 15 градусов в нашем случае. Раскрыв можно еще уменьшить, но длина антенны непомерно, по котангенсу, возрастет.
Считаем В2 на рис: 638/2 = 319 мм, а плечи диполя будут по 160 мм, до 1 мм можно округлять. Расчет нужно будет вести, пока не получится Bn = 537/2 = 269 мм, и затем просчитать еще один диполь.
Теперь считаем А2 как В2/tg15 = 319/0,26795 = 1190 мм. Затем, через показатель прогрессии, А1 и В1: А1 = А2/0,9 = 1322 мм; В1 = 319/0,9 = 354,5 = 355 мм. Далее последовательно, начиная с В2 и А2, умножаем на показатель, пока не дойдем до 269 мм:
- В3 = В2*0,9 = 287 мм; А3 = А2*0,9 = 1071 мм.
- В4 = 258 мм; А4 = 964 мм.
Стоп, у нас уже меньше 269 мм. Проверяем, уложимся ли по усилению, хотя и так ясно, что нет: чтобы получить 12 дБ и более, расстояния между диполями не должны превышать 0,1-0,12 длины волны. В данном случае имеем для В1 А1-А2 = 1322 – 1190 = 132 мм, а это 132/638 = 0,21 длины волны В1. Нужно «подтянуть» показатель к 1, до 0,93-0,97, вот и пробуем разные, пока первая разница А1-А2 не сократится вдвое и более. Для максимума в 26 дБ нужно расстояние между диполями в 0,03-0,05 длины волны, но не менее 2-х диаметров диполя, 3-10 мм на ДМВ.
Примечание: остаток линии за самым коротким диполем, обрезаем, он нужен только для расчета. Поэтому реальная длина готовой антенны получится всего около 400 мм. Если наша ЛПА наружная, это очень хорошо: можно уменьшить раскрыв, получив большую направленность и защиту от помех.
Видео: антенна для цифрового ТВ DVB T2
О линии и мачте
Диаметр трубок линии ЛПА на ДМВ – 8-15 мм; расстояние между их осями – 3-4 диаметра. Учтем еще, что тонкие кабели-«шнурки» дают на ДМВ такое затухание на метр, что все антенно-усилительные ухищрения сойдут на нет. Коаксиал для наружной антенны нужно брать хороший, диаметром по оболочке от 6-8 мм. Т.е., трубки для линии должны быть тонкостенными цельнотянутыми. Подвязывать кабель к линии снаружи нельзя, качество ЛПА резко упадет.
Крепить наружную ЛПА к мачте нужно, разумеется, за центр тяжести, иначе малая парусность ЛПА превратится в огромную и трясущуюся. Но соединять металлическую мачту прямо с линией тоже нельзя: нужно предусмотреть диэлектрическую вставку не менее 1,5 м длиной. Качество диэлектрика большой роли тут не играет, пойдет проолифленное и покрашенное дерево.
Об антенне «Дельта»
Если ДМВ ЛПА согласуется с кабелем усилителем (см. далее, о польских антеннах), то к линии можно пристроить плечи метрового диполя, линейные или веерные, как у «рогатки». Тогда получим универсальную МВ-ДМВ антенну отличного качества. Такое решение использовано в популярной антенне «Дельта», см. рис.

Антенна “Дельта”
Зигзаг в эфире
Z-антенна с рефлектором дает усиление и КЗД такие же, как ЛПА, но главный лепесток ее ДН более чем вдвое шире по горизонтали. Это может быть важно на селе, когда есть прием ТВ с разных направлений. А дециметровая Z-антенна имеет небольшие в плане размеры, что существенно для комнатного приема. Но ее рабочий диапазон теоретически не безграничен, перекрытие по частоте при сохранении приемлемых для цифры параметров – до 2,7.

Z-антенна МВ
Конструкция Z-антенны МВ показана на рис; красным выделен путь прокладки кабеля. Там же слева внизу – более компактный кольцевой вариант, в просторечии – «паук». По нему хорошо видно, что Z-антенна родилась как комбинация ЧНА с диапазонным вибратором; есть в ней кое-что и от ромбической антенны, которая в тему не вписывается. Да, кольцо «паука» не обязательно должно быть деревянным, это может быть обруч из металла. «Паук» принимает 1-12 МВ каналы; ДН без рефлектора – почти круговая.
Классический же зигзаг работает или на 1-5, или на 6-12 каналах, но для его изготовления нужны только деревянные рейки, медный эмалированный провод c d = 0,6-1,2 мм да несколько обрезков фольгированного стеклотекстолита, поэтому даем размеры, через дробь для 1-5/6-12 каналов: А = 3400/950 мм, Б, С = 1700/450 мм, b = 100/28 мм, В = 300/100 мм. В точке Е – нулевой потенциал, здесь нужно оплетку спаять с металлизированной опорной пластиной. Размеры рефлектора, тоже 1-5/6-12: А = 620/175 мм, Б = 300/130 мм, Г = 3200/900 мм.
Диапазонная Z-антенна с рефлектором дает усиление в 12 дБ, настроенная на один канал – 26 дБ. Чтобы на основе диапазонного зигзага построить одноканальный, нужно взять сторону квадрата полотна по середине ее ширины в четверть длины волны и пересчитать пропорционально все прочие размеры.
Народный зигзаг
Как видим, Z-антенна МВ – довольно сложное сооружение. Но ее принцип показывает себя во всем блеске на ДМВ. Z-антенну ДМВ с емкостными вставками, сочетающая в себе достоинства «классики» и «паука», сделать настолько просто, что она еще в СССР заслужила звание народной, см. рис.

Народная ДМВ антенна
Материал – медная трубка или алюминиевый лист толщиной от 6 мм. Боковые квадратики цельные из металла или затянутые сеткой, или закрытые жестянкой. В двух последних случаях их нужно пропаять по контуру. Коаксиал резко гнуть нельзя, поэтому ведем его так, чтобы он дошел до бокового угла, а затем не выходил за пределы емкостной вставки (бокового квадратика). В т. А (точка нулевого потенциала) оплетку кабеля электрически соединяем с полотном.
Примечание: алюминий не паяется обычными припоями и флюсами, поэтому алюминиевая «народная» годится для наружной установки только после герметизации электрических соединений силиконом, в ней ведь все на винтах.
Видео: пример двойной треугольной антенны
Волновой канал

Антенна волновой канал
Антенна волновой канал (АВК), или антенна Удо-Яги из доступных для самостоятельного изготовления способна дать наибольшие КУ, КНД и КЗД. Но принимать цифру на ДМВ она может только на 1 или 2-3 соседних каналах, т.к. относится к классу остро настроенных антенн. Ее параметры за пределами частоты настройки резко ухудшаются. АВК рекомендуется применять с очень плохих условиях приема, причем для каждого ТВК делать отдельную. К счастью, это не очень сложно – АВК проста и дешева.
В основе работы АВК – «сгребание» электромагнитного поля (ЭМП) сигнала к активному вибратору. Внешне небольшая, легкая, с минимальной парусностью, АВК может иметь эффективную апертуру в десятки длин волн рабочей частоты. Укороченные и поэтому имеющие емкостный импеданс (полное сопротивление) директоры (направители) направляют ЭМП к активному вибратору, а рефлектор (отражатель), удлиненный, с индуктивным импедансом, отбрасывает к нему то, что проскочило мимо. Рефлектор в АВК нужен всего 1, но директоров может быть от 1 до 20 и более. Чем их больше, тем выше усиление АВК, но уже полоса ее частот.
От взаимодействия с рефлектором и директорами волновое сопротивление активного (с которого снимается сигнал) вибратора падает тем больше, чем ближе к максимуму усиления настроена антенна, и согласование с кабелем теряется. Поэтому активный диполь АВК делают петлевым, его исходное волновое сопротивление не 73 Ом, как у линейного, а 300 Ом. Ценой его снижения до 75 Ом АВК с тремя директорами (пятиэлементную, см. рис. справа) удается настроить почти что на максимум усиления в 26 дБ. Характерная для АВК ДН в горизонтальной плоскости приведена на рис. в начале статьи.
Элементы АВК соединяются со стрелой в точках нулевого потенциала, поэтому мачта и стрела могут быть любыми. Очень хорошо подходят пропиленовые трубы.
Расчет и настройка АВК под аналог и цифру несколько различны. Под аналог волновой канал нужно рассчитывать на несущую частоту изображения Fи, а под цифру – на середину спектра ТВК Fс. Почему так – здесь объяснять, к сожалению, нет места. Для 21-го ТВК Fи = 471,25 МГц; Fс = 474 МГц. ДМВ ТВК расположены вплотную друг к другу через 8 МГц, поэтому их настроечные частоты для АВК рассчитываются просто: Fn = Fи/Fс(21 ТВК) + 8(N – 21), где N – номер нужного канала. Напр. для 39 ТВК Fи = 615,25 МГц, а Fс = 610 МГц.
Чтобы не записывать множество цифр, удобно размеры АВК выражать в долях длины рабочей волны (она считается как Л = 300/F, МГц). Длину волны принято обозначать малой греческой буквой лямбда, но, поскольку в интернете греческого алфавита по умолчанию нет, мы условно обозначим ее большой русской Л.
Размеры оптимизированной под цифру АВК, по рис., таковы:

U-петля: УСС для АВК
- Р = 0,52Л.
- В = 0,49Л.
- Д1 = 0,46Л.
- Д2 = 0,44Л.
- Д3 = 0,43л.
- a = 0,18Л.
- b = 0,12Л.
- c = d = 0,1Л.
Если не нужно большого усиления, но важнее уменьшение габаритов АВК, то Д2 и Д3 можно убрать. Все вибраторы выполняются из трубки или прутка диаметром 30-40 мм для 1-5 ТВК, 16-20 мм для 6-12 ТВК и 10-12 мм на ДМВ.
АВК требует точного согласования с кабелем. Именно небрежным выполнением устройства согласования и симметрирования (УСС) объясняется большинство неудач любителей. Самое простое УСС для АВК – U-петля из того же коаксиального кабеля. Ее конструкция ясна из рис. справа. Расстояние между сигнальными клеммами 1-1 140 мм для 1-5 ТВК, 90 мм для 6-12 ТВК и 60 мм на ДМВ.
Теоретически длина колена l должна быть в половину длины рабочей волны, так и значится в большинстве публикаций в интернете. Но ЭМП в U-петле сосредоточено внутри заполненного изоляцией кабеля, поэтому нужно обязательно (для цифры – особенно обязательно) учитывать его коэффициент укорочения. Для 75-омных коаксиалов он колеблется в пределах 1,41-1,51, т.е. l нужно брать от 0,355 до 0,330 длины волны, и брать точно, чтобы АВК была АВК, а не набором железок. Точное значение коэффициента укорочения всегда есть в сертификате на кабель.
В последнее время отечественная промышленность начала выпускать перенастраиваемые АВК для цифры, см. рис. Идея, надо сказать, отличная: передвигая элементы по стреле, можно точно настроить антенну под местные условия приема. Лучше, конечно, чтобы это делал специалист – поэлементная настройка АВК взаимозависима, и дилетант непременно запутается.

АВК для цифрового ТВ
О «полячках» и усилителях
У многих пользователей польские антенны, ранее прилично принимавшие аналог, цифру брать отказываются – рвется, а то и вовсе пропадает. Причина, прошу прощения, похабно-коммерческий подход к электродинамике. Стыдно порой бывает за коллег, сляпавших такое «чудо»: АЧХ и ФЧХ похожи то ли на ежа-псориазника, то ли лошадиный гребень с выломанными зубьями.
Единственно, что хорошо в «полячках» – их усилители для антенны. Собственно, они и не дают сим изделиям бесславно помереть. Усилители «поячек», во-первых, широкополосные малошумящие. И, что еще важнее – с высокоомным входом. Это позволяет при той же напряженности ЭМП сигнала в эфире подать на вход тюнера в несколько раз большую его мощность, что дает возможность электронике «выдрать» цифру из совсем уж безобразных шумов. Кроме того, вследствие большого входного сопротивления польский усилитель – идеальное УСС для любых антенн: что ни цепляй ко входу, на выходе – точно 75 Ом без отраженки и ползучки.
Однако при очень плохом сигнале, вне зоны уверенного приема, польский усилитель уже не тянет. Питание на него подается по кабелю, и развязка по питанию отнимает 2-3 дБ отношения сигнал/шум, которых может как раз и не хватить, чтобы цифра пошла в самой глубинке. Тут нужен хороший усилитель ТВ сигнала с раздельным питанием. Располагаться он будет, скорее всего, возле тюнера, а УСС для антенны, если оно требуется, придется делать отдельно.

Усилитель ТВ сигнала ДМВ
Схема такого усилителя, показавшая почти 100% повторяемость даже при выполнении начинающими радиолюбителями, приведена на рис. Регулировка усиления – потенциометром Р1. Дроссели развязки L3 и L4 – стандартные покупные. Катушки L1 и L2 выполняются по размерам на монтажной схеме справа. Они входят в состав полосовых фильтров сигнала, поэтому небольшие отклонения их индуктивности не критичны.
Однако топологию (конфигурацию) монтажа нужно соблюдать точно! И точно также обязателен металлический экран (metal shield), отделяющий выходные цепи от прочей схемы.
С чего начать?
Мы надеемся, что и опытные мастера найдут в этой статье некоторое количество полезных им сведений. А новичкам, еще не чувствующим эфир, начинать лучше всего с пивной антенны. Автор статьи, отнюдь и отнюдь не дилетант в данной области, в свое время был немало удивлен: простейшая «пивнушка» с ферритовым согласованием, как оказалось, и МВ берет не хуже испытанной «рогатки». А что стоит сделать ту и другую – см. текст.
Загрузка…что еще почитать:
Вывести все материалы с меткой:vopros-remont.ru
Как сделать антенну для телевизора своими руками
Несмотря на постоянное развитие телевизионной трансляции (переход в цифровой формат, возможность установки спутникового или кабельного телевидения, интернет-ТВ), использование антенн всё ещё остаётся актуальным. Особенно это касается пригородов и сельской местности. Иногда телеантенна выходит из строя, а рядом нет места, где её можно приобрести. Поэтому информация, как именно можно сделать антенну для телевизора своими руками, может оказаться полезной.
Типы антенн
Антенна – это устройство, которое может принимать или передавать радиоволны. Типы эфирных телеантенн (то есть таких, которые принимают сигнал с вышек или ретрансляторов) можно разделить по месту расположения на:
- Внешние;
- Комнатные.
Комнатные антенны для телевизора имеет смысл использовать только при хорошем сигнале, а на даче или в отдалении от телеретрансляторов применяют внешние. Кроме места расположения, приёмники телесигнала делятся на:
- Пассивные – выполняют приём сигнала только за счёт своей формы;
- Активные – сигнал проходит через преобразователи.
Качество сигнала от пассивной телеантенны будет напрямую зависеть от её размера – чем она больше, тем лучше.

Из преимуществ можно отметить:
- Лёгкость изготовления;
- Малая затратность: возможно сделать из подручных материалов;
- Не нужно отдельное питание.
Тем не менее недостатки довольно весомые:
- Неустойчивость к помехам: очень важно выбрать расположение для хорошего сигнала;
- Требуется большая высота для установки, нужно использовать дополнительные укрепления;
- Громоздкие, не подходят из-за габаритов для установки дома, в основном используются для наружной установки.
В активных антеннах дополнительно используются различные декодеры и усилители, которые позволяют сделать сигнал мощнее. Поэтому их преимущества следующие:
- Может использоваться в любом месте, даже с низким уровнем сигнала;
- Могут быть различных размеров и форм;
- Можно регулировать уровень усиления и подавления шумов;
- Низкое влияние на качество сигнала рельефа, погоды, различных строений.
Из минусов можно отметить:
- Сложное устройство;
- Нужен источник питания;
- Более высокая стоимость;
- Менее надёжна из-за присутствия электроники.

Радиоволны, которые передаются в эфире (среде передачи волн), имеют определённый размер и частоту. Телевизионный канал находится в диапазоне метровых и дециметровых частот:
- Метровые волны (МВ) имеют длину от 1 до 10 м и частоту от 30 до 300 МГц;
- Дециметровые волны (ДМВ) имеют длину от 0.1 до 1 м и частоту от 300 до 3000 МГц.
По частотам принимаемых сигналов телеантенны можно разделить на такие виды:
- Всеволновые. Способны принимать и аналоговый, и цифровой сигнал, но расстояние приёма невелико.
- Логопериодичекие. Могут принять волны метрового и дециметрового диапазона.
- Дециметровые. Предназначены только для коротких волн.
Всеволновые, иначе их называют частотонезависимые, устройства приёма по конструкции крайне просты, поэтому их можно сделать самому. Самые известные из них: «бабочка», из пивных банок, из двух лепестков. Чаще всего применяются на небольшом расстоянии от ретранслятора и с малым уровнем помех.
Логопериодические приёмные устройства состоят из основного стержня и поперечных перекладин с увеличивающейся длиной. В изготовлении гораздо сложнее предыдущих. Для правильной конструкции требует знания всех используемых частот, а также ориентация к ретранслятору. Зато, если расчёты конструкции сделаны правильно, антенна будет очень качественно передавать сигнал.

Дециметровые могут иметь как очень простые, так и очень сложные конструкции. Самые известные: «восьмёрка», кольцевая, рамочная.
Трансляция большинства каналов, в том числе цифровых, происходит в ДМВ-диапазоне. Конструкция таких ретрансляторов проще. Но огибание препятствий волнами такой длины хуже, а отражения и искажения играют сильную роль на качестве сигнала.
Исходя из этих особенностей, нужно разобраться, как могут быть сделаны ТВ-антенны своими силами.

Кроме типизации по приёму волн, расположению, а также наличия электронных элементов, телеантенны различаются ещё по всевозможной конструктивной реализации: волновой канал, бегущей волны, зигзагообразные, рамочные и т.п.
Принцип сборки
Чтобы сделанная ТВ-антенна работала должным образом, нужно придерживаться некоторых принципов.
Вначале нужно определиться, где будет использоваться конструкция: в гараже, на даче, в доме, в квартире и т.п. Исходя из этого, выбрать тип приёмного устройства и из чего можно собрать антенну.
Основными элементами, которые могут понадобиться, – это телевизионный кабель, металлические планки, провода, изоляционные материалы, клейкая лента, паяльник, саморезы.

Элементы приёмного устройства, особенно через которые будет проходить полезный сигнал, лучше соединять пайкой > ё
Наилучший приём сигнала будет, если расстояние от телевышки до приёмника не будет преграждаться строениями, деревьями и прочими помехами. В таком случае для того, чтобы поймать сигнал, достаточно будет простой проволоки. И комнатная телеантенна в такой ситуации будет очень проста в изготовлении и не потребует усилителя.
Уличные антенны могут быть по конструкции аналогичны комнатным, но должны быть изготовлены из более прочных материалов, которые смогут выдержать погодные условия. Размещать следует непосредственно возле окон или на крыше.

При слишком слабом сигнале может потребоваться усилитель.
Итак, как должна быть сделана телевизионная антенна своими руками:
- Устройство должно быть выполнено аккуратно и с наименьшими соединениями, чтобы уменьшить потерю сигнала;
- Телеантенну нужно располагать по оси электромагнитной волны для наилучшего улавливания её составными элементами;
- Должна быть защищена от помех;
- Важно знать частоту вещания телеэфира, от которой будут зависеть и размеры приёмного устройства.
Варианты антенн своими руками
Простую ТВ-антенну возможно сделать из материалов, которые обычно имеются в любом доме.
Например, из фольги, металлической банки, зонта и провода самому можно сделать даже спутниковую антенну.
С помощью фольги можно сделать такой приёмник:
- На дне коробки разравнивается и приклеивается фольга.
- Из 2 кусков телевизионного кабеля нужно снять изоляцию на 2.5 см.
- Оплётку кабеля скрутить в отдельный контакт.
- Из кусков кабеля сделать «восьмёрку», при этом контакты не должны скрепляться в середине и располагаться на 1 см.
- Расположить кабель с наружной стороны коробки (без фольги).
- Берётся ещё кабель, который будет соединять антенну с приёмником.
- Его конец зачищается, оплётка тоже скручивается отдельно.
- В одном месте соединяются 3 центральные жилы и 3 оплётки кабеля.
- Телеантенну располагаем в месте наилучшего приёма.

Рассмотрим простые и популярные варианты телеантенн: из пивных банок, коаксиального кабеля и зигзагообразную.
Из коаксиального кабеля
Это самый элементарный вариант телеантенны из кабеля для приёма цифрового или аналогового сигнала. Самостоятельно такую конструкцию можно выполнить в течение получаса.
Коаксиальный кабель представляет собой электрический провод для передачи радиочастотных сигналов. Состоит из:
- Внешней оболочки;
- Внешнего проводника, который иначе называют экраном или оплёткой;
- Изоляции, которая отделяет центральную жилу от оплётки;
- Внутреннего проводника (центральной жилы).
Такой кабель может быть сопротивлением 50 или 75 Ом. Для изготовления самодельных антенн рекомендуется брать на 75 Ом.

Потребуется кусок кабеля длиной не меньше 0.5 метра. С одной стороны снимаем верхнюю изоляцию и изоляцию центральной жилы на 5 см. Жилу с оплеткой следует скрутить. Теперь от этого конца нужно отступить на 20-22 см и снять всё до изоляции центральной жилы. Длина этого участка будет около 2 см. Дальше отмеряется такое же расстояние, как было до этого участка, то есть 20-22 см. С участка в 1 см снимается только верхняя изоляция. Теперь делается петля: прикручивается оголённый конец к промежутку без внешней изоляции.

Оголённые места лучше обмотать изолентой, особенно если антенна будет использоваться на улице>ё
Устройство нужно направить в сторону вышки.
Можно сделать антенну из медной проволоки.
Для этого концы зачищаются от изоляции. Один конец прикрепляют на телевизор, а другой к отопительной трубе, которая будет выполнять роль усилителя. Такая антенна из проволоки сможет принимать около 5 каналов.
Из проволоки возможно сделать приёмное петлевое устройство для приёма цифрового сигнала. Для этого потребуется рассчитать длину петли. Нужно знать среднюю частоту сигнала. И 300 разделить на эту частоту. Полученное значение будет длиной петли. Кусок проволоки замыкается в кольцо, и к концам припаивается кабель. Вместо проволоки можно использовать коаксиал. Тогда кольцевая антенна будет похожа на описанный выше вариант.

Несмотря на простоту конструкции, этот способ при правильных расчётах снижает помехи и уверенно принимает сигнал.
Для улучшения сигнала можно попробовать выполнить усиление антенны.
Рассмотрим варианты, как усилить телеантенну своими руками:
- Располагать устройство приёма как можно ближе к окну, устраняя препятствия;
- Отрегулировать положение;
- Можно удлинить антенну куском проволоки;
- Добавить в конструкцию усилитель сигнала;
- Внешние располагать как можно выше.
Из пивных банок
Простейшим способом заменить вышедшую из строя ТВ-антенну является создание таковой из пивных банок.
Разберёмся со способом изготовления простой антенны для цифрового ТВ, выполненной из подручных средств, а именно из металлических банок.
Понадобятся такие материалы:
- Пивные банки с гладкой поверхностью (предварительно вымыть и высушить), в самом простом варианте – 2 шт;
- Саморезы;
- Кусок телевизионного кабеля;
- Штекер;
- Изолента или скотч;
- Палка из материала, который не проводит электричество (можно использовать тремпель).
Этапы работ такие:
- Кабель нужно брать такого размера, чтобы его хватило на ту высоту, на которую планируется подвешивать антенну. Если на куске кабеля нет штекера, он зачищается с одной стороны от обмотки и на него насаживается штекер.
- Второй конец также очищается от обмотки. Внутри имеется центральная жила и оплётка (экран).
- В банках с одинаковых сторон проделываются отверстия. Не имеет значения, это будет верхняя или нижняя часть банки.
- К одной банке с помощью самореза прикрепляется центральная жила, а к другой оплётка. При этом нужно сделать петлю, которая обхватит саморез. И он своей шляпкой при ввинчивании должен хорошо ее зажать.
- Вместо саморезов можно припаять контакты.
- К палке нужно примотать банки так, чтобы они были на одной оси. Расстояние между банками берётся обычно от 7 до 10 см.
- Когда оптимальное расстояние выбрано, банки надёжно фиксируются липкой лентой.

Лучше вначале банки зафиксировать резинкой, чтобы удобно было отрегулировать расстояние
Когда вы сделали такую антенну своими руками, при использовании на улице желательно соорудить защитный колпак, например, из пластиковой бутылки. При попадании влаги, контакты будут окисляться и сигнал ухудшаться. Уличный вариант можно усовершенствовать, добавив несколько секций с банками.
Зигзагообразная
Данная телеантенна имеет ещё название «восьмёрка» или антенна Харченко. Показывает один из лучших приёмов сигнала среди устройств, которые можно сделать самостоятельно. Её схема имеет вид:

Dvb t2 – это самый новый цифровой формат телевещания. Цифровой формат имеет множество преимуществ перед аналоговым: большая устойчивость к помехам, сигнал будет более широко доступен, а качество его лучше. Цифровой формат требует меньшего размера антенн и меньшей мощности передающих устройств.
Изготовить антенну для приёма dvb t2 довольно несложно. Следует отметить, что цифровое ТВ передаётся в ДМВ.
Теперь разберём, как может быть сделана антенна для цифрового ТВ своими руками:
Нужен любой материал, который проводит электрический ток. Это может быть трубка, провод, уголок и т.п. Проще всего использовать проволоку из алюминия, латуни или меди (лучше эти 2 варианта), толщиной от 2 до 5 мм. Потребуется сделать из материала 2 ромба, как на рисунке. Можно использовать и сварочные электроды, каждый из которых будет стороной ромба.
Для данной схемы имеются размеры:
– В1=14 см;
– В2=13 см;
– углы желательно около 900.
Внешние стороны должны быть немного длиннее. Это делается для того, чтобы ромбы в середине не соединялись.
Но указанные параметры больше подходят для домашнего использования. Чаще можно встретить рекомендацию брать сторону ромба 45 см.

Можно сделать самостоятельный расчёт размеров антенны для цифрового ТВ. Для этого нужно знать длину волны трансляции сигнала и разделить на 4. Это и будут стороны ромбов
Существуют и калькуляторы для расчёта параметров «би-квадратных» антенн, которые можно найти в интернет-ресурсах.
Когда отмеряется длина проволоки, нужно взять запас 1-2 см для петли, которая замкнёт контур. Можно просто скрутить или спаять оставшийся конец.
После этого берётся коаксиальный кабель, который зачищается. Контакты нужно будет припаять к центральным углам ромба, которые не смыкаются. Центральная жила припаивается к одному углу, а оплётка к другому. Центральную часть можно поместить в пластиковый корпус и залить клеем для надёжности.
Для уменьшения сторонних помех можно установить позади приёмника экран. Это может быть просто фольга, натянутая на фанеру или решётка из металлических трубочек или проволоки. Экран должен располагаться в противоположной стороне от вышки и не контактировать с антенной.
Если антенна будет использоваться снаружи, можно собрать её с усилителем. Усилителем может быть простейшая плата, которая крепится к усам антенны или более габаритное устройство, которому требуется питание от сети.

В случае с усилителем «восьмёрка» крепится к пластине, при этом провод можно расплющить в месте крепления, и в центральной части сразу прикрепить усилитель.
Можно усовершенствовать конструкцию «восьмёрки», добавив симметрично ещё ромбы.
Рассмотрим ещё несколько более сложных устройств телеантенн.
Двойной и тройной квадрат
Такой вариант является узкополосной телеантенной, то есть можно получить всего несколько каналов, но с качественной передачей. Её можно использовать для приёма слабого сигнала или если сигнал подавляется другими, более мощными сигналами. Но важна точная ориентация на источник телеволн.

Для изготовления понадобятся трубки или проволока. Для получения до 5 каналов в метровом диапазоне толщина должна составлять 10-20 мм. Для большего количества – 8-15 мм. Для ДМВ всего 3-6 мм.
В двойном квадрате из материала делаются 2 квадрата, причём один чуть больше другого. Меньший называется вибратор, а больший – рефлектор (отражатель). Вибратор присутствует вообще в каждой антенне и является системой получения колебаний.
Рамки крепятся параллельно друг другу. Сверху и снизу по центрам они закреплены с помощью стрел, которые, в свою очередь, крепятся к вертикальной опоре. Нижняя стрела должна быть сделана из непроводящего материала. Центры обеих рамок должны находиться на одной линии и направлены к телепередатчику. В трёхрамочной конструкции добавляется ещё меньший квадрат.
Ещё одна конструкция для ДМВ – рамочная.

Рамку рекомендуется сделать из полосок алюминия. Скреплять их можно болтами. В центре должен быть зазор, как было в зигзагообразной антенне. Кабель припаивается таким же образом.
Потом эта рамка крепится на вертикальную опору. Можно дополнительно оснастить усилителем или отражателем.
Самостоятельное изготовление антенны поможет сэкономить на покупке таковой. Масса имеющихся вариантов позволяет экспериментировать и найти оптимальный способ для конкретной ситуации.
prosmarttv.ru
Как сделать мощную HDTV антенну для телевизора своими руками
Люди придумали кучу способов улучшить прием сигнала антеннами – от прикреплённой одежной вешалки до намотанной алюминиевой фольги. Поняв, что большинство этих способов не работают на самом деле, я решил сделать нормальную и расскажу вам как собрать антенну для телевизора.
Из-за возросшей стоимости кабельного ТВ, я решил купить антенну. Первая практически не ловила сигнал, вторая работала, но если кот сидел на подоконнике, то сигнал пропадал. И даже то, что я обмотал ее фольгой не помогло.
После поисков в интернете я нашел инструкцию, как сделать телевизионную антенну в домашних условиях для сигнала телевидения высокого разрешения из картона и алюминиевой фольги. Когда я поделился задумкой с отцом, он сначала посмеялся, но теперь тоже просит, чтобы я и ему сделал такую широкополосную уличную телеантенну из проволоки на дачу. Супер мощная антенна для аналогового ТВ достаточно простая для изготовления своими руками, мои фотографии и пояснения помогут вам разобраться в процессе.
Даже не поднимая антенну повыше, я уже поймал больше каналов, чем раньше было по платному кабельному ТВ, и изображение очень чистое. После того, как закрепите самодельную антенну для телевизора на постоянном месте повыше, заново включите поиск каналов, их должно найтись еще больше на большей высоте.
Шаг 1: Необходимые материалы
Материалы:
- Лист картона около метра длиной
- Инструменты для резки картона – ножницы и канцелярский нож
- Алюминиевая фольга
- Клей (я использовал столярный – он очень хорошо склеивает)
- Дрель
- Два винта с гайками и шайбами
- Антенный адаптер 75-300 ОМ UHF/VHF, есть на Амазоне
- Коаксиальный кабель 1-1,2 м, есть на Амазоне, размер не важен, главное, чтобы длины хватало
- Краска, маркеры или самоклейка для облагораживания внешней стороны (опционально)
Шаблон
Шаблоны для вырезания деталей из картона и фольги есть в интернете.
Шаг 2: Вырезаем картонное основание антенны
Сначала вырежьте из картона прямоугольник 33х36 см. Затем нанесите небольшое количество клея на одну сторону и приклейте фольгу, хорошо ее разгладив. Края фольги загните на другую сторона картонного основания и покройте фольгу краской. Можно декорировать внешнюю сторону маркерами или самоклеящейся бумагой, на ваше усмотрение. Отложите основание в сторону, пока клей не просохнет.
Шаг 3: Вырезаем части антенны
Распечатайте скачанные шаблоны и вырежьте их. Затем положите шаблоны на картон, можно закрепить их парой кусочков скотча. Обведите шаблоны и вырежьте их канцелярским ножом. Вам понадобятся две детали крыльев, соединенных перемычкой. Также вырежьте две крепежные пластины.
Вырежьте две детали с крыльями из фольги по шаблону. Для вырезания шаблонов из фольги используйте ножницы, канцелярский нож рвет фольгу.
У вас должны быть две детали с крыльями, две аналогичные детали из фольги, две крепежных пластины. Также есть шаблон для подставки, если собираетесь ставить антенну на подставку, вырежьте деталь из картона.
Шаг 4: Сгибаем крылья антенны
Как вы, наверное, заметили, на шаблоне крыльев антенны нанесены пунктирные линии сгиба. Согните шаблон по этим линиям и на картонной заготовке карандашом отметьте места, где должны быть линии сгиба. Аккуратно и медленно надрежьте картон по этим линиям, будьте осторожны и не прорежьте картон насквозь. Аккуратно сложите все четыре картонных закрылка по надрезанным линиям сгиба. Сгибайте не до конца, а чтобы получился нужный угол, на фото можно рассмотреть детально.
После того, как закрылки согнуты, нанесите клей в надрезы по линиям сгиба, чтобы зафиксировать сгибы. Закрылки должны составлять с плоскостью крыла угол 45°, то есть по отношению друг другу они находятся под углом 90°. Скорее всего, они разойдутся, если их не проклеить, лучший вариант для этого – термоклей.
Шаг 5: Обклеиваем крылья фольгой


Теперь нужно обклеить фольгой крылья с обратной стороны. Из-за того, что лист фольги уже, чем картонная деталь, перекладина детали останется непокрыта фольгой. Фольгу нужно наклеить и разгладить до максимально возможно гладкого состояния, слой клея должен быть тонким. Отложите пока детали в сторону, чтобы клей высох.
Шаг 6: Красим антенну и устанавливаем крепежные пластины
Покрываем крепежные пластины краской, проверяем высох ли клей на основании (прямоугольник 33х36 см). Если клей просох, расположите прямоугольник перед собой по высоте (в книжной ориентации). Используя шаблон, отметьте места, где нужно сделать отверстия для крепежных пластин. Прорежьте эти отверстия.
Затем красим две детали с крыльями. Дадим краске высохнуть. Затем устанавливаем крепежные пластины на места (на фото). Продеть в отверстие пластины нужно боком и затем развернуть их прямо. Они должны быть прижаты к верхнему краю отверстий в основании и вытянуты достаточно далеко от него.
Если прорези в крепежных пластинах слишком узкие и пластины тяжело фиксируются на основании, прорези можно немного расширить. Можно проклеить места соединения крепежных пластин и основания, а также добавить по капле клея в тех местах, где вырезанные прямоугольники картонного основания отгибаются наружу. Это добавит прочности конструкции.
Как только клей и краска высохнут, можно собрать антенну целиком.
Шаг 7: Подключаем антенну
Сначала установите две детали с крыльями в прорези крепежных пластин. Места соединения деталей можно дополнительно усилить клеем. Дайте клею высохнуть.
Подключение проводов на самом деле достаточно простое. На шаблоне перемычки между крыльев отмечено отверстие на расстоянии 3 мм и 6 мм от краев перемычки. С помощью шаблона отметьте эти места на перемычках и просверлите их. В отверстия вставьте винты, на них наденьте шайбы, затем накиньте контакты от антенного адаптера, и закрутите гайки.
Теперь адаптер подключен к антенне и можно подключать его к телевизору. Подключите коаксиальный кабель к штекеру адаптера, а другой конец кабеля подключите к соответствующему разъему телевизора. На этом, собственно, все.
Эта антенна намного превзошла все, купленные мной в магазине.
masterclub.online
