Вибростол своими руками чертежи – Вибростол своими руками – чертеж
Как сделать вибростол своими руками чертежи
Как сделать вибростол своими руками, чертежи, схемы, описание.
Основное назначение вибростолаВибрация стола, позволяет выгнать лишний воздух из бетонного раствора, что в свою очередь улучшает прочностные свойства бетонного изделия.
Из каких же узлов состоит конструкция:
• основание (металлический каркас)
• столешница (рабочая плоскость стола)
• пружины (круглого или прямоугольного сечения)
• вибратор (площадочный однофазный вибратор)
ОСНОВАНИЕ
Подготовим необходимый материал:
• труба металлическая прямоугольная 25х50х3 (мм) ГОСТ 8645-68
• труба металлическая квадратная 50х50х3 (мм) ГОСТ 8639-82
• труба металлическая 63,5х3,5 (мм) ГОСТ 8734-75
• листовой металл толщиной 4 (мм) ГОСТ 19903-74
И так, как сделать вибростол своими руками по представленному чертежу?
Из труб нарежем заготовки необходимой длины. Из листового металла нарежем квадратные заготовки и просверлим в каждой (по углам) четыре сквозных отверстия. Все детали сварим между собой и получим жесткое основание, которое закрепим к поверхности пола при помощи анкерного соединения.
СТОЛЕШНИЦА
Подготовим необходимый материал:
• труба металлическая прямоугольная 25х50х3 (мм)
• труба металлическая 63,5х3,5 (мм)
• уголок металлический горячекатаный равнополочный 25х25х3 (мм) ГОСТ 8509-93
• листовой металл толщиной 3 (мм)
• листовой металл толщиной 5 (мм)
По представленному чертежу

Подготовим заготовки и сварим их между собой. Уголок, приваренный по периметру стола, будет являться его границей, и удерживать форму во время работы механизма.

Снизу стола приварим металлическую пластину с посадочными отверстиями под вибратор.
ПРУЖИНЫ
Выбираем из стандартного ряда производителей ГОСТ 18793-80, жесткость которых принимаем исходя из эксплуатационных нагрузок.
ВИБРАТОР

Выбираем из модельного ряда отечественных производителей, можно использовать марку ИВ-99Е
Технические характеристики:
• рабочее напряжение, В – 220
• сила потребляемого тока, А – 1,9
• потребляемая мощность, Вт – 250
• вес, кг – 14,5
Схема подключения – в руководстве по эксплуатации вибратора.
Порядок сборки:
1. Закрепляем к полу основание.
2. В трубы по углам вставляем пружины.
3. Закрепляем снизу столешницы вибратор.
4. Столешницу устанавливаем на пружины трубами вниз.
Как сделать вибростол своими руками, чертежи и подробное описание конструкции под рукой, осталось только желание, и выделить немного свободного времени.
Заказать чертеж
Поделитесь с друзьями!
kak-cdelat.ru
Как сделать вибростол своими руками? :: SYL.ru
Тротуарная плитка появилась на современном строительном рынке относительно недавно, однако уже успела завоевать лидирующие позиции. Она довольна проста в укладке, достаточно экологична и прочна, поэтому дорожки на вашей даче всегда будут оставаться чистыми и сухими. Тем не менее у этого популярного строительного материала есть один существенный недостаток — она не так уж и дешева.
Если вы хотите сэкономить при обустройстве дачного участка и обладаете хотя бы элементарными навыками в строительстве, можно попробовать изготовить ее самостоятельно. Для этого вам понадобится сварочный аппарат и знания о том, как сделать вибростол своими руками. Об этом и поговорим подробнее.Принцип работы
Прежде чем сооружать вибростол своими руками, давайте для начала выясним, что это такое. Конструкция представляет собой металлическое основание, на которое при помощи пружин или других подвижных соединений крепится абсолютно ровная плита-столешница, куда ставятся формы с бетонной массой. Еще одним элементом конструкции является промышленный вибратор, или электродвигатель с эксцентриками. В момент работы двигателя столешница равномерно вибрирует, при этом из форм, находящихся на ней, выходят пузырьки воздуха, а бетонная смесь плотно спрессовывается.
Изготовление вибростола своими руками — дело несложное. Нужно придерживаться всего двух правил: столешница должна быть идеально плоской, а двигатель подавать равномерные вибрации с маленькой амплитудой колебания. Если пренебречь этими правилами, тротуарная плитка может получиться кривой, из-за чего при ее укладке возникнут проблемы.Какие они бывают
Если вибростол своими руками вы решили изготовить для домашнего пользования, то вам необходимо запастись схемой или чертежом так называемого формовочного стола, то есть такого, на котором производится непосредственное уплотнение смеси в формах. Дело в том, что при промышленном производстве используется еще один вид столов — выбивочный, или расформовочный. Основное его отличие заключается в том, что он оборудован дополнительной насадкой, повторяющей контуры формочки. После того как плитка окончательно высохла, форму переворачивают и помещает в насадку, от вибрации готовое изделие выпадает в руки рабочему или на специальную транспортировочную ленту. В домашних условиях выбивку можно производить вручную или изготовить насадку отдельно.
Материалы
Итак, если вы решили соорудить вибростол своими руками, вам понадобится:- сварочный аппарат;
- дрель;
- болгарка;
- металлический лист толщиной не менее 6–8 мм для столешницы;
- трубы для ножек станины;
- уголок или швеллер для рамы стола;
- металлические пластины;
- мощные металлические пружины необходимого диаметра;
- вибратор промышленный или электродвигатель на 220В;
- болты и шайбы для крепления двигателя;
Собирая вибростол своими руками, чертежи для него тоже лучше изготовить самостоятельно. Конечно, сейчас на тематических ресурсах можно найти все, что угодно, но, во-первых, за хорошие подробные чертежи, скорее всего, придется заплатить, а во-вторых, они не учитывают особенности и размеры именно вашей конструкции. Поэтому готовый чертеж лучше взять за основу и пересчитать его под собственные потребности.
Изготовление станины
Итак, как сделать вибростол своими руками?
- Начать нужно со сборки основания. Размеры его могут быть произвольными, все зависит от того, какое количество формочек вы планируете одновременно размещать на столешнице. Стандартным и наиболее удобным считаются размеры 0,7х0,7 м.
- Ножками служат металлические трубы, хотя если их нет, можно изготовить их из швеллера, уголка, квадрата или того, что есть под рукой. В основании ножек привариваются металлические пластины с отверстиями нужного диаметра, они позволят зафиксировать вибростол при помощи анкерных болтов или просто забетонировать его.
- Высота конструкции — также дело сугубо индивидуальное, основным критерием тут является удобство для мастера, вам должно быть комфортно при работе.
- Ножки соединяются между собой при помощи металлической рамы (квадратной или прямоугольной), выполненной из уголка. В итоге у вас должна получиться конструкция, больше всего напоминающая стол без столешницы.
- По углам конструкции привариваются «стаканы» высотой в 5–6 см, выполненные из трубы диаметром чуть больше, чем диаметр пружин. Если «стаканы» сделать не из чего, пружины можно приварить прямо на станину, а на верхнюю их часть прикрепить пластины с отверстиями для болтов.
Теперь нужна платформа
Как видите, изготовить вибростол своими руками достаточно несложно. Станина уже готова, теперь переходим к платформе-столешнице.
- Берем лист железа нужных размеров и при помощи сварки оснащаем его бортиками из металлического уголка, это нужно для того, чтобы в процессе работы формы с бетоном не соскакивали со стола.
- С обратной стороны листа также привариваем «стаканы», аналогичные тем, что вы прикрепили на станину. Следите за тем, чтобы они находились строго над нижними, так как между ними будут располагаться пружины, обеспечивающие необходимую вибрацию.
- В центре нижней части столешницы также нужно приварить два куска П-образного швеллера с отверстиями для болтов подходящего диаметра — тут будет крепиться эксцентриковый двигатель.
Вот и все, вибростол для плитки своими руками готов, теперь осталось закрепить двигатель, перевернуть столешницу и вставить пружины между стаканами.Подбираем электродвигатель
Конечно, промышленный вибратор или разбалансированный двигатель можно приобрести в магазине. При этом необходимо правильно соотнести вес вашей столешницы и мощность агрегата — слишком слабый не сможет обеспечить достаточной вибрации, а очень мощный может сорвать столешницу с места.
Если вы планируете использовать вибростол недолго, то неплохим решением может стать двигатель от стиральной машины. Он идеально подойдет для этих целей, правда, способен выдержать не более 30 рабочих циклов.
В случае если этого недостаточно, рекомендуется приобрести более долговечную модель, а также оснастить конструкцию потенциометром. Это позволит регулировать уровень вибрации в зависимости от напряжения.
Несколько нюансов
- Для правильной работы вибростола нужно точно рассчитать вес столешницы.
- Амплитуда колебаний должна подбираться исходя из параметров смеси и должна быть одинаковой по всей плоскости стола.
- Необходимо точно отмерять количество смеси, помещаемое в каждую форму, иначе плитки выйдут разными по толщине.
Вибростол из автомобильной покрышки
А можно ли изготовить более простой вибростол? Своими руками чертежи разработать способен далеко не каждый, да и сварочные работы не всем по плечу. Оказывается, можно, правда, он будет не таким долговечным и основательным, да и качество плитки, изготовленной на таком столе, будет немного хуже, но для некоторых это может оказаться неплохим вариантом.
Для такого вибростола вам понадобится столешница, изготовленная из куска фанеры, ДСП или QSB, в центре которой закрепляется двигатель небольшой мощности. Далее конструкция устанавливается на автомобильную покрышку двигателем вниз и закрепляется при помощи шурупов. Для удобства работы и обеспечения лучшей вибрации можно использовать несколько покрышек, поставленных одна на другую и скрепленных между собой.
Изготавливаем плитку
Теперь поговорим о том, как делается тротуарная плитка своими руками. Вибростол у вас уже есть, теперь нужно приобрести или изготовить самостоятельно формы для заливки бетона.
Далее размещаем формы на вибростоле и наполняем их бетонной смесью слоем 3–4 см. Даем постоять на работающем столе около минуты, затем добавляем второй слой, снова включаем вибростол на 40–60 секунд. После этого плитку нужно просушить, не вынимая из формы, в течение 24–48 часов при температуре не менее 15˚С.
Если вы хотите получить разноцветную тротуарную плитку — в бетонную смесь можно добавить специальный краситель нужного оттенка, а для обеспечения дополнительной прочности изделия внести некоторое количество стеклянных или полипропиленовых волокон. Однако не переусердствуйте, иначе плитка может оказаться скользкой.www.syl.ru
Как сделать вибростол своими руками, чертежи
Несмотря на свой «юный» возраст, тротуарная плитка набирает в нашей стране популярность. Причины этого понятны – материал предлагает отличные технические параметры, эстетичность, экологичность, а также более чем доступную цену. Плитку можно изготовить самостоятельно. В связи с тем, что покупка фабричного станка связано со значительными тратами, нами будет рассмотрена сборка вибростола в домашних условиях.
Принцип работы вибростола
Прежде чем переходить непосредственно к изготовлению вибростола, разберёмся, что это такое. Вибростол – приспособление, поверхность которого может совершать колебательные движения с заранее заданной частотой – порядка 3000 колебаний за минуту. Он может быть использован для производства тротуарной плитки и других изделий из бетона, по технологии вибролитья. С его помощью можно проводить следующие работы:
- Трамбовать цементные, асфальтобетонные смеси с разными фракциями;
- Изготавливать памятники, тротуарную плитку, подоконники, еврозаборы и прочее;
- Производить пеноблоки.
Устройство вибростола для производства тротуарной плитки не отличается сложностью – основу составляет надёжная станина, сверху на которой крепится рабочая поверхность, удерживаемая посредством подвесов или пружин. Эта столешница — важнейший компонент, на ней располагаются рабочие формы с бетоном.
В нижней части станины устанавливается электродвигатель нужной мощности, с расположенным на валу эксцентриком. Последний отвечает за радиальное перемещение центра тяжести у мотора, что обеспечивает тому непрерывное вибрирование. Как правило, самодельный вибростол оснащают двигателями марки ИВ-99 или ИВ-98.
От мотора колебания передаются на рабочий стол, дальше к стальным и полимерным формам. Происходит постепенное оседание, уплотнение бетона, с одновременным выходом из него воздушных пузырьков. Это позволяет получить высококачественное изделие, невосприимчивое к нагрузкам и температурным колебаниям.
Материалы и инструменты для работы
Чтобы сделать вибростол нам потребуется:
- Стальная труба;
- Металлический уголок или профиль швеллерный 50х50 мм;
- Стальной лист под столешницу;
- Пластины из стали;
- Электродвигатель требуемой мощности;
- Стальные пружины или рессоры для обеспечения вибрации;
- Крепёжные элементы – болты и шайбы;
- Сварочный аппарат;
- Болгарка;
- Электродрель;
- Измерительный и разметочный инструмент.
Последовательность проведения работ
Что же, переходим к изготовлению стола для производства тротуарной плитки. Для начала свариваем из швеллера или уголка его основание. Габариты вибростола любые – всё зависит от конкретной ситуации и предпочтений мастера, но наиболее часто они имеют размер 700х700 мм (смотрите чертежи для ознакомления). Важно, чем больше стол, тем мощнее должен быть двигатель. В качестве ножек можно использовать металлическую трубу – высота произвольная, главное, чтобы двигатель не касался пола.
Для большей устойчивости под ножки привариваем пластины. Впрочем, подобное решение актуально лишь для переносной вариации вибростола для изготовления тротуарной плитки, в противном случае ножки можно просто вкопать в землю и залить бетонным раствором.
По углам полученной станины, а также по центру продольных боковин устанавливаем стальные пружины. Их потребуется 6 штук, а взять их можно от клапанов. Устанавливать их следует в предварительно сваренные стаканы. Эти пружины и обеспечивают вибрацию при работе. Сверху на пружины мы укладываем стальной лист, толщиной от 8 мм, к нижней плоскости которого прикручиваем электродвигатель, дополнительно фиксируя его к уголку или швеллеру, расположенному поперёк вибростола. Поверх листа укладываем заранее подготовленные формы и заливаем их раствором. Готовые формы можно купить в любом магазине стройматериалов, а в случае необходимости их без проблем можно сделать самостоятельно.
Важно, чтобы мотор имел разбалансировку, иначе никакой вибрации не получится. Регулирование амплитуды колебаний достигается посредством вращения особого болта, зафиксированного в эксцентрике контргайкой.
Заключение
Мы с вами разобрались, как сделать простейший вибростол по производству тротуарной плитки своими руками. Особой сложностью сборка не отличается, главное заранее подготовить всё необходимое для работы, быть внимательным и терпеливым. Удачи!
osnovam.ru
Вибростол своими руками — Дешево и сердито
Вибростол своими руками

В этой статье мы рассмотрим два вида вибростолов:
Первый вид — это вибростол для производства изделий из бетона, в том числе и тротуарной плитки.
Второй — простенький вибростол для борьбы с воздушными пузырьками, которые находятся в гипсовом растворе и при заливке в формы могут портить своим присутствием лицевую поверхность гипсовой плитки.
Вибростол для бетона своими руками
Конструкция вибростола не очень сложная. При необходимости можно даже придумать свою конструкцию, чтобы производство было максимально удобным. Ведь производство тротуарной плитки своими руками дает возможность полностью настроить технологический процесс под себя.
Длинного списка условий к этому оборудованию нет. Нужно лишь, чтобы столешница была гладкой и ровной, а вибрация проходила равномерно. В противном случае самостоятельное производство тротуарной плитки приведет к появлению неровных изделий, которые невозможно будет уложить. Так, в результате чрезмерной вибрации бетон будет отбиваться стенками формы, а кроме того, кипеть. Правильно заданная амплитуда колебаний гарантирует равномерное распределение раствора по виброформе и его постепенное затвердевание. Именно так и должно происходить производство брусчатки.
Что нужно для вибростола?
Обычно вибростол делается из металлических материалов, так как они обладают необходимой прочностью, устойчивостью и долговечностью. Для конструкции понадобятся 4 металлических трубы или уголка — они будут выполнять роль ножек. Трубы могут быть хоть квадратные, хоть круглые, их длина и диаметр тоже могут быть разнообразными: каждый выбирает размеры под себя. Кроме того, потребуется столешница (деревянная, фанерная или из ДСП), но лучше металлическая и (при желании) соединительные элементы между ножками из труб или уголков, которые придадут столу дополнительную ровность и устойчивость. И конечно, работа вибростола невозможна без вибродвигателя. Им может выступать любой двигатель или движок, мощность выбирается изготовителем и покупателем.
Для увеличения нажмите на фото



Сколько времени занимает изготовление вибростола своими руками?
Временные затраты (впрочем, как и все остальное) зависят от мастерства и скорости работы производителя. При желании конструкцию можно собрать буквально за день. Продолжительность работы зависит от конструкции стола. Например, время создания разборного стола немного отличается от времени, требующегося на «монолитную» конструкцию. Если стол будет окрашиваться, то период его ввода в эксплуатацию отложится на день-два (пока краска не высохнет). Установка
С этим процесом вы можете ознакомится перейдя на страницу » тротуарная плитка своими руками«
Вибростол для гипсового раствора
Что делают из гипсового раствора и для чего там не помешает простенький вибростол читайте перейдя по ссылкам:
Искусственный камень из гипса своими руками
Гипсовые 3Д панели своими руками
Гипсовые панно своими руками
Как уже неоднократно говорилось что производство гипсового искусственного камня в отличии от производства бетонных изделий не нуждается в обязательной вибрации смеси, но поможет в борьбе против пузырьков воздуха, которые создают дефекты на лицевой поверхности гипсовой плитки. Дефекты обведены кружками на фото ниже.


Вибростол своими руками делается так: берется любой мотор, можно от вентилятора 50вт/220, на провод ставится бра от лампы, крепится на валу эксцентрик, выточенный на наждаке из куска железа, выпиливается кусок 12мм фанеры 30см*30см, с одной стороны к ней крепятся на клей момент квадраты из 50мм пороллона, на другой стороне делаются держатели для форм и крепится мотор.

Страницы по теме:
Тротуарная плитка, брусчатка своими руками
Бизнес на производстве брусчатки
Интересные статьи для вас
Садовая дорожка своими руками
Печатный бетон своими руками
Топ бетон своимим руками
Гипсовые 3D панели своими руками
Гипсовая плитка своими руками
shapovalov5.ru
Как сделать вибростол для тротуарной плитки своими руками: чертежи, фото, видео, отзывы
Чистые дорожке во дворе частного дома и на приусадебном участке – это не только красота, как на фото, но и удобство: в дом не тащится грязь на обуви, сама обувь остается чистой, и пройтись по саду можно в нарядных туфельках, а не в калошах.
Самым лучшим материалом для дорожек по праву является тротуарная плитка: красиво, надежно и уложить можно своими силами, причем не только уложить, но и сделать самостоятельно. Почти все необходимое для изготовления тротуарной плитки есть либо в магазинах стройматериалов, либо на подворье, кроме вибростола, но и его можно сделать при желании своими руками.
Для чего нужен?
При изготовлении тротуарной плитки своими руками в специальные формы заливается бетонный раствор, состоящий из песка, цемента, мелкозернистого наполнителя и пластификаторов в качестве добавки. Когда смесь вымешивается, в бетон попадают пузырьки воздуха, которые после наполнения формы, начинают выходить из затвердевающего изделия. В итоге у бетона снижается прочность.


Чтобы избавиться от пузырьков воздуха, раствор необходимо постоянно встряхивать в будущей тротуарной плитке. Делать это только при помощи рук, не просто утомительно и непродуктивно, но и невозможно. Так как вибрация должна быть практически постоянно. Вибростол в этом случае прекрасный выход из положения. Можете посмотреть фото и видео, где показано, как работает это устройство при изготовлении тротуарной плитки.
Конструкция и материалы
Сделать чертежи вибростола на пружинах, а затем по ним своими руками соорудить необходимый механизм довольно просто для человека, имеющего навыки работы с металлом и необходимые материалы. В основе конструкции лежит обычный стол на 4 ножках. Только крышка вибростола крепится не на привычных твердых ножках, а на пружинах. При создании чертежей нужно учитывать, что в результате столешница должна располагаться очень ровно по горизонтали.
Снизу к столешнице прикреплен электродвигатель, с прикрепленным к нему эксцентриком. Когда при работе двигателя вращается ротор, положение эксцентрика непрерывно меняется, и начинается вибрация. Формы на столе тоже начинают вибрировать. В результате воздух покидает бетонную смесь, помещенную в них. После того как бетон затвердеет, его изготовитель получает хорошее и качественное изделие, как на фото.


Для создания вибростола понадобятся:
- Сварочный аппарат и все необходимое для его работы: трансформатор, электроды, проволока.
- Металлический уголок 60мм. Его длина равна периметру будущего изделия плюс, если в чертежах предусмотрены дополнительные перемычки для жесткости, их длина.
- Фанера, ОСБ, ДСП, жесть для столешницы соответствующей площади.
- Уголок или трубы для станины.
- Пружины (их можно вытащить из амортизаторов и других элементов автомобилей).
- Однофазный 220 V или трехфазный 380 V пятидесятиватный электродвигатель (провода и пускатель к нему).
- Болгарка, молоток и рулетка.
Делаем стол
Из уголка или труб для ножек вырезаются необходимые элементы: 4 ножки будущего вибростола (высота стола – столешница) согласно сделанному чертежу, а также по 4 отрезка, равных длине и ширине станины. Элементы станины свариваются между собой.
Крышка вибростола делается из выбранного уголка. К ней привариваются крепления для электродвигателя с одной стороны и столешница с другой.
Прикрепить крышку к станине можно несколькими способами. К примеру, приварить к столешнице пружины, а раму станины оборудовать цилиндрическими стаканами. В этом случае столешницу кладут на станину так, чтобы пружины попали в стаканы.


Или поступить наоборот, и поместить пружины на станину, а стаканы на столешницу. Стаканы можно сделать из обрезков труб соответствующего диаметра. Можно также использовать штыри, диаметром меньше внутреннего диаметра пружины вместо стаканов, или приварить пружины и к столешнице, и к станине. Последний вариант приводит к быстрому износу пружин при изготовлении тротуарной плитки.
Крепим электродвигатель
В качестве вибратора, как уже говорилось, можно приобрести двигатель, и закрепить на нем эксцентрик, либо купить уже собранный вибратор. Изготовить эксцентрик своими руками тоже довольно просто.
На втулке с фиксирующим винтом на резьбовом конце крепится болт. Необходимо, чтобы болт имел возможность двигаться в поперечном направлении и при этом имел фиксацию. С таким приспособлением можно регулировать мощность вибрации. Также для этих целей можно воспользоваться родным шкивом, предварительно отрезав от него части и проделав отверстия.
Двигатель надежно крепится на крышки, при этом установленный в горизонтальном положении, он будет давать вертикальную вибрацию, если же «поставить» его, стол буде вибрировать по горизонтали. Самый лучший способ – это установка двигателя под углом 45 градусов. Такое положение распространяет вибрацию на обе плоскости.
Стоит помнить, что во время эксплуатации двигатель постоянно будет вибрировать, поэтому следует убедиться в надежности крепления, и периодически его проверять.
Установка стола
Стол можно установить стационарно. В этом случае его ножки можно поместить в бетонный раствор. Такой вибростол будет надежно стоять и работать, но передвинуть его будет нельзя. Если изделие планируют периодически перемещать, к ножкам нужно приварить стальные круги для устойчивости.
Столешница вибростола должна находиться в горизонтальной плоскости, чтобы бетонный раствор не «пролился» за край форм во время вибрации.


Формы для изготовления тротуарной плитки можно приобрести в специализированных магазинах или также изготовить самостоятельно. В этом случае можно делать не просто дорожки тротуарной плитки, а выкладывать настоящие картины. После того как вибростол готов и установлен, формы подготовлены, до окончания работ остается совсем немного.
Необходимо съездить в магазин стройматериалов, купить необходимые для раствора материалы, и начать изготовлять тротуарную плитку. Ее не обязательно изготавливать серой и скучной. При небольшом добавлении красителей можно получить разноцветные изделия, и дорожки во дворе будут не только выполнять свое функциональное назначение, но также радовать глаза и душу.
stroimdelaem.ru
Как сделать вибростол своими руками
Сегодня все большую популярность обретает тротуарная плитка, появившаяся на отечественном рынке относительно недавно. Это можно объяснить тем, что она не только весьма привлекательная, но еще и абсолютно чистая в экологическом плане. Более того, поверхность, которую выложили подобной плиткой, будет сухой даже после проливного дождя. Такое хорошее достижение промышленности вы сможете изготавливать прямо у себя дома, используя для этого самое нехитрое оборудование, в том числе вибростол.
Для чего нужны вибростолы
Существует несколько основных функций, которые выполняют данные устройства:
- Вибратор, встроенный в оборудование, создается колебания с определенной частотой, передающиеся посредством основы столешницы непосредственно формам со смесью.
- Рабочая поверхность размещается на основе стола при помощи амортизаторов (это способствует поглощению производимых вибраций) или же просто на полу.
Заводская модель стоит очень дорого, гораздо экономнее соорудить себе вибростол своими руками. При этом нужно будет следовать достаточно простым инструкциям, но в этом вопросе, как и во многих других, присутствуют свои нюансы.
Начинаем работу.
Собственно, что собой представляет вибростол? Обычный металлический каркас, на ножках которого установлены специальные вибропружины, двигатель и станина правильной массы. В данной статье вы найдете пошаговую инструкцию касательно процесса изготовления, но при этом вам понадобятся следующие инструменты:
- Электродвигатель.
- Четыре пружины.
- Швеллеры в форме буквы «П».
- Лист стали, из которого мы сделаем стол.

Итак, поехали.

Шаг первый.
Вначале рассмотрим, из каких именно деталей состоит устройство вибростола:
- Собственно рабочая поверхность. Представляет собой жесткое сооружение, больше всего похожее на стол. На него и будут ставиться формы. Размер этой поверхности будет зависеть преимущественно от ваших потребностей.
- Основа вибростола. Еще одна конструкция, на которую мы поставим рабочую поверхность (естественно, если вы не запланировали расположить ее на полу).
- Несколько амортизаторов. Они предназначены для соединения основы вибростола и рабочей поверхности между собой, но это еще не все: благодаря амортизаторам будут поглощаться все производимые устройством колебания, дабы конструкция не смещалась во время работы.
- Наконец, последний пункт — вибратор (или же любой другой прибор, создающий низкочастотные вибрации для того, чтобы утрамбовывать готовый раствор).
Берем швеллеры и свариваем из них два квадрата (это и будет каркас нашей конструкции).
Шаг второй.
Крепим пружины к углам основания, а сверху привариваем лист стали — это наша поверхность стола. Эта поверхность собирается одновременно с фундаментом, а с обратной стороны мы устанавливаем электродвигатель.
В принципе, это все. Оказывается, сделать вибростол своими руками очень просто. Но, несмотря на простоту сооружения и установки, функциональность устройства будет неполной, если не соблюдать при этом определенные правила.
- Самое главное из них — это правильно подобранный вес столешницы. Заметьте, что данный показатель для каждого отдельного случая разный, каких-либо универсальных советов по данном вопросу не существует. При этом будет учитываться не только материал, из которого мы сделаем конструкцию, но и габариты самого стола.
- Материал для изготовления столешницы также играет немаловажную роль. Но при этом вы должны опираться не столько на прочность будущей конструкции, сколько на ее невозмутимости к разного рода вибрациям. Более того, следует учитывать и статично-динамические нагрузки, ведь они тоже будут воздействовать на столешницу самым непосредственным образом.
- Необходимо внимательно рассчитывать амплитуду движения вибростола для того, чтобы изготавливать привлекательные и прочные изделия. А если амплитуду подобрать неправильно, то качество выполняемых работ существенно снизится, как и эффективность агрегата.
- И, наконец, четвертый пункт — выбор электродвигателя. Это необходимо делать по предварительным расчетам. Двигатель при этом будет крепиться по соответствующей схеме. Если сделать это неправильно, то неправильно пойдет технологический процесс, а плитка значительно потеряет в качестве.

О механизме дисбаланса.
Если вы запланировали изготавливать его своими силами, то мы рекомендуем вам обратиться к профессиональному токарю, который сможет подогнать ваш электродвигатель под нужды производства, а также сделает надлежащим образом подшипниковый узел. Благодаря этому наше устройство сможет послужить нам довольно долго.
Вполне очевидно, что, следуя всем нашим рекомендациям, можно без особых усилий изготовить вибростол своими руками.
boldproject.ru
Вибростол: характеристики. Делаем вибростол своими руками.
Вибростол, всё о вибростолах. Чертежи вибростола, как сделать вибростол самому
В этом блоге мы постараемся рассмотреть различные виды вибростолов и выясним, какие бывают вибростолы, где применяются вибростолы, под какое производство какой стол лучше купить, или изготовить
самостоятельно, все о вибростолах и какие бывают вибростолы. Вибростол и изготовление вибростолов по чертежам и эскизам, чертежи и техническая документация для изготовления различных вибростолов будет выложена в этой теме и я надеюсь что данная статья поможет Вам выбрать для своего производства самый производительный и самый оптимальный вид вибростола и при желании Вы сможете изготовить вибростол самостоятельно в домашних условиях или на своем производстве различных изделий
из бетона требующих уплотнения бетона при изготовлении тротуарной плитки, заборов из бетона, памятников из бетона, бетонного искусственного камня, облицовочной тротуарной плитки и других всевозможных изделий, так же вибростолы применяются и при производстве полимер бетонных изделий и при изготовлении искусственного литьевого камня, литьевого мрамора, искусственного гранита и при производстве других полимерных изделий методом вибролитья в формы. на нашем сайте мы постараемся Вам предложить для просмотра на видеороликах какие бывают вибростолы и как сделать вибростол для домашнего производства, а также как сделать самому вибростол для реального производства изделий из бетона методом вибролитья при помощи различных видов вибростолов. Так же выставим для просмотра пошаговое изготовление вибростола
на фото, на фото показано пошагово в очень доступной форме, как сделать вибростол для своего производства изделий из бетона, а также как изготовить самостоятельно не большой самодельный вибростолик дома для самостоятельного производства тротуарной плитки или других необходимых бетонных изделий.
Предлагаем посмотреть пошаговое изготовление вибростола универсального, на фото примерах пошагово показан не сложный вариант и очень удобный производительный вибростол чертежи для изготовления вибростола с горизонтальной вибрацией, для производства искусственного камня, тротуарной плитки и различных бетонных изделий, также на таком вибростоле можно производить всевозможные бетонные заборы и другие архитектурные изделия из различных видов бетона методом вибролитья на вибростоле.
В основном все чертежи и пошаговые фото уроки в интернете держатся в строжайшем секрете и продаются на различных сайтах и интернет магазинах не за очень маленькие деньги, поэтому в этом блоге о вибростолах мы постараемся раскрыть все секреты и чертежи для изготовления вибростолов для того что бы Вы смогли сделать вибростол своими руками и не платили денег за подобное оборудование, которое не представляет большой сложности для самостоятельного производства и вполне доступно для практически всех желающих изготовить вибростол самостоятельно.
Я не делаю секрета с такой элементарной вещи, как вибростол, сам когда-то пытался найти подобные данные схемы и чертежи в интернете, но успехом попытки не увенчались, поэтому пришлось изобретать велосипед, поэтому захотелось сделать такой блог и предоставить возможность здесь скачивать и просматривать различные чертежи и схемы на видео и пошаговом фото уроках. Другими словами этот блог создан для людей, которые ищут в поисковиках подобные запросы вибростол своими руками, или скачать чертежи бесплатно и как правило попадают на сайты где продаются чертежи и не всегда качественные и доступные для самостоятельного производства.
Для начала хочу показать поэтапные фото примеры не сложного вибростола который Вам подойдет для производства тротуарной плитки, памятников, искусственного камня, заборов из бетона и других всевозможных изделий из бетона, такой вибростол подходит под любые технологии, такие как Мрамор из бетона, декоративный бетон, Кевларобетон, Гранилит, Изготовления бетона и окатышей, а также под изготовление полимер бетона и полимерных изделий где необходимо применять вибрацию на вибростолах, вибростол очень компактный, не занимает много места, такой вибростол с вибратором прикрепленным к крышке стола очень легко изготовить самому.
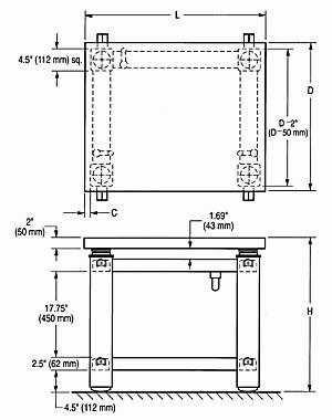
Используемые материалы при изготовлении вибростола
Используется труба диаметр 100мм. длина 800мм. — 4шт. (Можно уголок)
Уголок 65мм. длина 770мм. — 2шт.
Труба 50мм. — 2шт.
Уголок 65мм. — 2шт. (этот уголок приварен к самому низу стола и крепит стол анкерами к полу)
Уголок 55мм. длина 1м. — 4шт.
Уголок 65мм. длина 2010мм. — 2шт.
Кусочки уголка для усиления — 2шт.
На фото показано столешница, косынка для укрепления столешницы, станина вибростола, на столешнице показано как приварить 2 швелера для крепления вибродвигателя, столешница крепится к станине с помощью пружин, пружины устанавливаются по углам вибростола в стаканы изготовленные из кусочков трубы, необходимо 8 кусков трубы немного больше диаметром чем пружины и куски трубы примерно 5 — 7 см. привариваются сверху и снизу столешницы и станины по углам, в эти стаканы изготовленные из кусков трубы вставляются 4 пружины и надевается на пружины столешница, таким образом и работает вибростол. Вибродвигатель прикручивается к приваренным швеллерам под столешницей.
Вибростол заформовочный, формовочный, вибростол распалубочный, для выбивки. Оборудование для вибролитья бетона
Применение вибростола и сферы использования вибростола
Вибростол формовочный используют в производстве широкого спектра отделочных и строительных материалов, в их числе: искусственный декоративный камень, малые архитектурные формы, тротуарной плитки, заборы композитных блоков с пенобетоном, различные фигуры, статуи, подоконники и других элементов методом вибролитья. В производственных линиях вибростол для производства тротуарной плитки нередко используется в тандеме с виброконвейером.
Конструкция вибростола и из чего состоит вибростол формовочный
Вибростол состоит из подвижного стола с вибратором динамического принципа действия, панели управления. Все детали жестко закреплены на станине болтами и гайками. Обслуживание вибростола осуществляют 2 человека. Задача производства вибролитья получить тяжелый литьевой бетон плотностью 2300 кг куб.м. в разных формах на вибростоле. Для изготовления бетонных изделий необходимо иметь формы пластиковые, стальные, или другие формы предназначенные для заливки и вибрации бетона и 2 вибростола, формовочный и распалубочный, расформовочный.
Формовочный вибростол и где применяется заформовочный вибростол
Формовочный вибростол используется для заливки форм, пластиковые, стальные, стекло пластиковые и другие формы помещаются на формовочный вибростол и заполняются бетонной смесью, происходит вибрация приблизительно в течение определенного времени, в результате оседает бетон, пузырьки воздуха поднимаются на поверхность и покидают смесь, получается более качественная уплотненная бетонная смесь и плитка в связи с отсутствием полых областей и воздуха в изделии, далее формы залитые бетоном и отвибрированные на вибростоле снимаются и складируются. Формовочные вибростолы бывают разных конструкций.
Распалубочный, выбивочный вибростол и назначение вибростола
Выбивочный вибростол необходим при производстве тротуарной плитки в пластиковых форм, и существенно увеличивает производительность тротуарной плитки после сушки в естественных условиях на протяжении 2-х суток формы выкладываются на распалубочный вибростол стол, который используется для выбивки тротуарной плитки из пластиковых форм готовые изделия без сколов выпадают на роликовую ленту и складируются. Каждый распалубочный вибростол должен иметь в комплекте набор сменных приспособлений матриц для выбивки под конкретное изделие.
Уважаемые посетители моего блога! Я планирую на этом блоге в дальнейшем, постоянно выставлять различные материалы по вибростолам и буду постоянно дополнять свой блог по описанию оборудования, в частности по вибростолам, здесь Вы сможете находить нужную Вам информацию по изготовлению вибростолов, также планирую выставлять различные чертежи вибростолов для свободного скачивания в свободном доступе. На этом блоге также будет раздел где будет выложена масса видео роликов как самому изготовить вибростол в домашних условиях или на своем реальном производстве у меня есть видео ролики где показано и рассказано как сделать вибростол для производства и как самому изготовить небольшой вибростолик для домашнего использования. Все видео ролики по изготовлению вибростолов Вы сможете просматривать прямо на моем блоге, а также сможете скачать любой видео ролик себе на компьютер для его изготовления в домашних условиях.
Вибростолы
В этом случае опалубка (форма) крепится к вибратору, а не наоборот, но принцип совместного вибрирования бетонной смеси и опалубки остается неизменным.
Источник вибрирования тоже аналогичный. Обычно быстро вращающийся эксцентрический груз сообщает столу вибрирование с круговым движением 1. При наличии двух валов, вращающихся в противоположных направлениях, горизонтальный компонент вибрирования нейтрализуется и столу сообщается только простое гармоничное движение в вертикальном направлении. Существуют также вибростолы, управляемые электромагнитом, питающимся переменным током. Диапазон частот варьирует от 1500 до 7000 циклов/мин. Оптимальное ускорение составляет 4 g— 7 g. Считают, что примерно 1,5 ^ и амплитуда ~4Х Х10~3 см являются необходимым минимумом для уплотнения, но при этих значениях необходимо продолжительное вибрирование. Для простого гармоничного движения связь амплитуды а и частоты f дается следующим уравнением: ускорение равно a(2nf)2.
Если надо вибрировать участки бетона различных размеров, а также в лаборатории, применяют вибростол с меняющейся амплитудой. Меняющаяся частота вибрирования создает дополнительные преимущества.
На практике частоту редко меняют во время процесса уплотнения, но, по крайней мере теоретически, имеются значительные преимущества в увеличении частоты и уменьшении амплитуды в процессе уплотнения бетонной смеси. Основанием для этого является тот факт, что вначале частицы смеси находятся довольно далеко друг от друга и придаваемое им движение должно быть соответствующей величины. После того как уже произошло частичное уплотнение, более высокая частота позволяет добиться большего количества движений в данный отрезок времени; уменьшение амплитуды означает, что движения не являются слишком большими для оставшегося между частицами пространства.
Вибрирование при слишком большой амплитуде по отношению к расстояниям между частицами приводит к тому, что смесь постоянно остается в пластичном состоянии и полное уплотнение никогда не достигается.
Вибростол является надежным методом уплотнения сборного железобетона, его преимущество заключается в том, что он производит одинаковую обработку бетонной смеси.
Вариантом вибростола является ударный стол, применяемый на некоторых заводах сборного бетона в Англии и более часто в Голландии и Дании. Принцип этого процесса уплотнения значительно отличается от высокочастотного вибрирования, описанного выше: на ударном столе производятся резкие вертикальные толчки со скоростью около 200 раз в минуту. Толчки производятся вертикальным падением стола примерно на 1,25 см, достигаемым с помощью кулачков. Бетонная смесь помещается в опалубке тонкими слоями по мере обработки; метод дает чрезвычайно хорошие результаты, но, несмотря на то, что существует уже 40 лет, применяется мало.
Для различных целей были разработаны различные типы вибраторов, о которых будет упомянуто кратко.
В поверхностном вибраторе вибрирование осуществляется через плоскую плиту, помещенную на поверхность бетона. При этом способе бетон сжимается во всех направлениях, способность его к расслоению ограничена, что позволяет применять более интенсивное вибрирование.
Электрический молот может применяться как поверхностный вибратор, если его снабдить большой плоской поверхностью, например 10,2Х Х10,2 см; это один из основных способов уплотнения пробных кубиков.
Виброкаток используют для уплотнения тонких плит. При дорожном строительстве применяют различные вибробрусы и катки. Механическую гладилку применяют в основном для полов из гранолита, чтобы связать слои гранолита с основной массой бетона. Этот способ является скорее способом отделки, чем уплотнения бетона.
Как сделать вибростол своими руками
В настоящее время большинство из нас уделяет качественным материалам большое внимание, а множество из материалов способно улучшить свои качества, если при их производстве будут применятся вибростолы.
Т.к. изготовление различных изделий может осуществляется индивидуальным способом, например тротуарная плитка или небольшие железобетонные изделия, то становится актуальным возможность совершенствования частного производства и тут мы предлагаем информацию и советы для изготовления самодельного вибростола.
Два основных вида вибростолов
Вибростол с обычным электродвигателем и отдельным дебалансом Вибростол с электровибраторами (двигатель совмещённый с дебалансом)
с обычным электродвигателем и отдельным дебалансом с электровибраторами (двигатель совмещённый с дебалансом)
Какой из вариантов сделать, решать Вам, но наше мнение, чем меньше элементов, тем лучше, т.е. с электровибратом, а купить их совсем не проблема, тем более, что электровибратор уже заточен под вибрацию. У вибраторов стоят специальные подшипники, дебалансы регулируются, обмотки со специальной пропиткой и т.д.
Три вида амортизации (подвесов)
Вибростол на пружинах Вибростол на резиновых прокладках Вибростол на цепных подвесах
пружины резиновые проставки цепи, троса
Самый распространённый вариант — это пружины, они и долговечны, и имеют большой запас амплитуды, фактически все столы изготавливаются на пружинных амортизаторах.
Вариант с резиновыми амортизаторам очень редок, но позволяет делать минимально возможную амплитуду колебаний, при больших нагрузках.
Вариант на подвесах, сделанных из цепей или тросов, честно говоря жутковатый, вместо цепей лучше ставить пружины на растяжение, а то цепи производят жуткий грохот, при вертикальных колебаниях. Их можно использовать при круговых (горизонтальных) колебаниях, но тоже не идеальный вариант, пружины лучше.
Рекомендуемые вибраторы к вибростолам
В составе вибростолов под изготовление плитки или в основном используются электромеханические вибраторы с частотой вращения 3000 об./мин. (ЭВ-320, ИВ-98, ИВ-99, ИВ-106, ИВ-107 или их современные аналоги ИВ-01-50, ИВ-05-50, ИВ-11-50, ИВ-20-50). Полный перечень вибраторов можно посмотреть тут (Вибраторы площадочные)
При этом необходимая вынуждающая сила рассчитывается по формулам:
приблизительная необходимая вынуждающая сила
Типовые вибростолы для тротуарной плитки
Уже давно разработана серия вибростолов для изготовления тротуарной плитки, в их основе лежат поверхностные вибраторы ИВ, широкого применения.
Готовые решения вибростолов — нажмите здесь
Вибростол ЭВ-346, (480х480)мм Вибростол ЭВ-345, (1480х980)мм
Вибростол ЭВ-346,
(480х480)мм Вибростол ЭВ-345,
(1480х980)мм
Как правило, если вы решили сами изготовить стол, то есть смысл изучить уже готовые варианты, т.к. чертежей вам бесплатно давать никто не будет, то характеристики, используемые двигатели и массы нагрузок могут помочь, при проектировании своего изделия. Мы советуем их посмотреть, т.к. на практике столы изготавливают довольно больших размеров, с очень легкой массой столешницы, при этом устанавливая на него всего один вибратор, а это как ранее описано в схемах, приводит к не чисто вертикальным вибрациям, плюс большая амплитуда колебаний, а в итоге получаются изделия не идеального качества и вибраторы с пружинами быстро выходят из строя.
Сделать вибростол своими руками — это реально
Для этого нужно лишь сварить каркас стола, с использованием на ножках стола амортизаторов пружинных или резиновых, правильно задать массу станины и подобрать вибраторы.
Самыми ходовыми вибраторами, в данном случае площадочными, являются модели ИВ-98 и ИВ-99. Они изготавливаются в вариантах как на 220В (1Ф) так и 380В (3Ф), и 42В (3Ф). Данные вибраторы всегда имеются в наличии, поэтому ремонт стола не составит проблем, замена двигателя происходит элементарно, в отличии от вибростолов с использованием обычных моторов и последующей ременной передачей на дисбаланс, данный вариант имеет значительно большую надёжность и любое массовое производство, где всё не на коленке сделано, использует на вибростолах только площадочные вибраторы в различном исполнении (фланцевые, с направленными колебаниями и т.д.), ведь именно надёжность, а непрерывность производственного цикла важнейший фактор.
Вибраторы (электродвигатели с дисбалансами) для вибростолов
Большой выбор вибраторов, позволяет изготовить стол фактически под любую задачу, от совсем слабеньких — трясти горох до сверх мощных — это вибрация железнодорожных вагонов, в сталелитейной и горнодобывающей промышленности. Простота использования площадочных вибраторов и позволила им занять лидирующее место в качестве основного элемента на вибростолах.
Мы можем предложить Вам на выбор все выпускаемые в настоящее время вибраторы, мощностью от 0.09 до 6кВт. Когда требуется большая мощность вибраторов, то их устанавливают группой.
Полный перечень электромеханических вибраторов — нажмите здесь
При установке группы вибраторов, главное не допустить резонанса!!!
Поломка вибростола при резонансе вибраторов
Это довольно редкий случай, и обычно касается крупных производств, где используется большое количество вибраторов с большими нагрузками на столы. Для решения этой проблемы существуют шкафы управления вибраторами
Самодельный вибростол — итог
Самодельный вибростол можно изготовить без каких либо расчетов и он будет выполнять нужную задачу, но такой подход приемлем при наличии свободных денег на эксперименты и изготовленная на таком вибростоле продукция выпускаться массово, сможет ли? Т.к. при серийном производстве (постоянной эксплуатации) всплывет множество недочётов. Например, самая распространённая неверный выбор вибраторов приводит к их скорому выходу из строя. Или уже довольно редкий случай — это резонанс вибраторов, приводящей к поломке самого стола. Решение этого вопроса, довольно простое, но не дешевое — это шкафы управления вибраторами.
]]>http://www.stroy-beton.com/vib0/vibrostol_sdelai_sam.html]]>
]]>http://forum.sekretgipsa.com/entry.php/4-%D0%9A%D0%B0%D0%BA-%D1%81%D0%B4…]]>
]]>http://www.bibliotekar.ru/beton-5/82.htm]]>
kazap.ru

