ΠΠΈΠ±ΡΠΎΡΡΠΎΠ» ΡΠ²ΠΎΠΈΠΌΠΈ ΡΡΠΊΠ°ΠΌΠΈ β ΠΠΈΠ±ΡΠΎΡΡΠΎΠ» ΡΠ²ΠΎΠΈΠΌΠΈ ΡΡΠΊΠ°ΠΌΠΈ — Π²ΡΠ±ΠΎΡ ΠΌΠ°ΡΠ΅ΡΠΈΠ°Π»ΠΎΠ², ΠΈΠ·Π³ΠΎΡΠΎΠ²Π»Π΅Π½ΠΈΠ΅, ΠΎΡΠ»Π°Π΄ΠΊΠ°
ΠΠΈΠ±ΡΠΎΡΡΠΎΠ» ΡΠ²ΠΎΠΈΠΌΠΈ ΡΡΠΊΠ°ΠΌΠΈ — Π²ΡΠ±ΠΎΡ ΠΌΠ°ΡΠ΅ΡΠΈΠ°Π»ΠΎΠ², ΠΈΠ·Π³ΠΎΡΠΎΠ²Π»Π΅Π½ΠΈΠ΅, ΠΎΡΠ»Π°Π΄ΠΊΠ°
Π§ΡΠΎΠ±Ρ ΡΠ΄Π΅Π»Π°ΡΡ Π²ΠΈΠ±ΡΠΎΡΡΠΎΠ» ΡΠ²ΠΎΠΈΠΌΠΈ ΡΡΠΊΠ°ΠΌΠΈ Π΄ΠΎΡΡΠ°ΡΠΎΡΠ½ΠΎ Π±ΡΠ΄Π΅Ρ ΡΡΠ°Π½Π΄Π°ΡΡΠ½ΡΡ ΠΈΠ½ΡΡΡΡΠΌΠ΅Π½ΡΠΎΠ², ΠΊΠΎΡΠΎΡΡΠ΅ Π΅ΡΡΡ Ρ Π±ΠΎΠ»ΡΡΠΈΠ½ΡΡΠ²Π° Π΄ΠΎΠΌΠ°ΡΠ½ΠΈΡ ΠΌΠ°ΡΡΠ΅ΡΠΎΠ². Π‘Π°ΠΌΡΠΉ ΡΠ»ΠΎΠΆΠ½ΡΠΉ Π½Π°Π²ΡΠΊ, ΡΡΠΎ ΠΌΠΎΠΆΠ΅Ρ ΠΏΠΎΠ½Π°Π΄ΠΎΠ±ΠΈΡΡΡΡ, ΡΡΠΎ ΡΠΌΠ΅Π½ΠΈΠ΅ ΠΏΠΎΠ»ΡΠ·ΠΎΠ²Π°ΡΡΡΡ ΡΠ²Π°ΡΠΊΠΎΠΉ. Π‘Π°ΠΌΠΎΠ΄Π΅Π»ΡΠ½ΡΠΉ Π²ΠΈΠ±ΡΠΎΡΡΠΎΠ» Π΄Π°ΠΆΠ΅ Π±ΡΠ΄Π΅Ρ Π²ΡΠΈΠ³ΡΡΠ²Π°ΡΡ Π² ΡΡΠ°Π²Π½Π΅Π½ΠΈΠΈ Ρ Π·Π°Π²ΠΎΠ΄ΡΠΊΠΈΠΌ, ΡΠ°ΠΊ ΠΊΠ°ΠΊ Π±ΡΠ΄Π΅Ρ ΡΠ°ΡΡΡΠΈΡΠ°Π½Π° ΠΏΠΎΠ΄ ΡΠ²ΠΎΠ΅ ΡΡΡΠΎΠΈΡΠ΅Π»ΡΡΡΠ²ΠΎ: ΡΠ°Π·ΠΌΠ΅Ρ ΠΏΠ»ΠΈΡΠΎΠΊ ΠΈ ΠΈΡ ΠΊΠΎΠ»ΠΈΡΠ΅ΡΡΠ²ΠΎ ΠΊΠΎΡΠΎΡΠΎΠ΅ Π±ΡΠ΄Π΅Ρ ΠΈΠ·Π³ΠΎΡΠ°Π²Π»ΠΈΠ²Π°ΡΡΡΡ Π·Π° ΠΎΠ΄ΠΈΠ½ ΡΠ°Π·. ΠΡΠΈΠΌΠ΅Π½ΡΡΡΡΡ ΠΌΠΎΠΆΠ΅Ρ Π΄Π»Ρ ΡΠ»Π°ΠΊΠΎΠ±Π»ΠΎΠΊΠΎΠ² ΠΈ ΠΈΠ·Π³ΠΎΡΠΎΠ²Π»Π΅Π½ΠΈΡ Π²ΠΈΠ±ΡΠΎΠ»ΠΈΡΡΠ΅Π²ΠΎΠΉ ΠΏΠ»ΠΈΡΠΊΠΈΒ ΡΠ²ΠΎΠΈΠΌΠΈ ΡΡΠΊΠ°ΠΌΠΈ.

Π§ΡΠΎ Π½ΡΠΆΠ½ΠΎ ΠΏΠΎΠ΄Π³ΠΎΡΠΎΠ²ΠΈΡΡ β ΠΈΠ½ΡΡΡΡΠΌΠ΅Π½ΡΡ ΠΈ ΠΌΠ°ΡΠ΅ΡΠΈΠ°Π»Ρ
ΠΡΠ»ΠΈ Π² ΠΌΠ°ΡΡΠ΅ΡΡΠΊΠΎΠΉ Π΅ΡΡΡ Π²ΡΡ ΠΏΠ΅ΡΠ΅ΡΠΈΡΠ»Π΅Π½Π½ΠΎΠ΅, ΡΠΎ ΠΌΠΎΠΆΠ½ΠΎ Π΄Π΅Π»Π°ΡΡ Π²ΠΈΠ±ΡΠΎΡΡΠ°Π½ΠΎΠΊ Π΄Π»Ρ ΠΈΠ·Π³ΠΎΡΠΎΠ²Π»Π΅Π½ΠΈΡ Π±Π»ΠΎΠΊΠΎΠ²:
- Π‘Π²Π°ΡΠΎΡΠ½ΡΠΉ Π°ΠΏΠΏΠ°ΡΠ°Ρ. ΠΠΎΠΆΠ½ΠΎ ΡΠΎΠ±ΡΠ°ΡΡ Π²ΠΈΠ±ΡΠ°ΡΠΎΡ Π΄Π»Ρ ΡΡΡΡΡΠΊΠΈ Π±Π»ΠΎΠΊΠΎΠ² ΡΠ²ΠΎΠΈΠΌΠΈ ΡΡΠΊΠ°ΠΌΠΈ ΠΈ Π½Π° Π±ΠΎΠ»ΡΠΎΠ²ΡΡ ΡΠΎΠ΅Π΄ΠΈΠ½Π΅Π½ΠΈΡΡ , Π½ΠΎ ΡΠ²Π°ΡΠΊΠΎΠΉΒ Π³ΠΎΡΠ°Π·Π΄ΠΎ Π±ΡΡΡΡΠ΅Π΅.
- ΠΠΎΠ»Π³Π°ΡΠΊΠ° Ρ ΠΎΡΡΠ΅Π·Π½ΡΠΌ ΠΈ ΡΠ»ΠΈΡΠΎΠ²Π°Π»ΡΠ½ΡΠΌ ΠΊΡΡΠ³Π°ΠΌΠΈ.
- ΠΡΠ΅Π»Ρ ΠΈ ΡΠ²Π΅ΡΠ»Π° Π½Π΅ΠΎΠ±Ρ ΠΎΠ΄ΠΈΠΌΡΡ ΡΠ°Π·ΠΌΠ΅ΡΠΎΠ².
- ΠΠΎΠ»ΡΡ Π³Π°ΠΉΠΊΠΈ ΡΠ°ΠΉΠ±Ρ ΠΈ ΠΊΠ»ΡΡΠΈ ΠΏΠΎΠ΄ Π½ΠΈΡ .
- Π ΡΠ»Π΅ΡΠΊΠ° ΠΈ Π»ΠΈΠ½Π΅ΠΉΠΊΠ°, Π΄Π»Ρ ΠΈΠ·ΠΌΠ΅ΡΠ΅Π½ΠΈΠΉ ΠΈ ΡΠ°Π·ΠΌΠ΅ΡΠΊΠΈ.
- ΠΠ΅ΡΠ°Π»Π»ΠΈΡΠ΅ΡΠΊΠΈΠΉ Π»ΠΈΡΡ β ΠΈΠ· Π½Π΅Π³ΠΎ Π±ΡΠ΄Π΅Ρ ΡΠ΄Π΅Π»Π°Π½Π° ΠΊΡΡΡΠΊΠ° Π΄Π»Ρ Π²ΠΈΠ±ΡΠΎΡΡΠΎΠ»Π°. Π Π΄ΠΎΠΌΠ°ΡΠ½ΠΈΡ ΡΡΠ»ΠΎΠ²ΠΈΡΡ ΠΌΠΎΠΆΠ½ΠΎ ΠΈΡΠΏΠΎΠ»ΡΠ·ΠΎΠ²Π°ΡΡ ΠΈ Π΄Π΅ΡΠ΅Π²ΡΠ½Π½ΡΠΉ Π½ΠΎ ΡΠΎΠ»ΡΠΊΠΎ Π΄Π»Ρ ΡΡΡΡΠΎΠΉΡΡΠ²Π° ΠΌΠ°Π»ΠΎΠΉ ΠΌΠΎΡΠ½ΠΎΡΡΠΈ Π² ΠΏΡΠΎΡΠΈΠ²Π½ΠΎΠΌ ΡΠ»ΡΡΠ°Π΅ Π²ΠΈΠ±ΡΠ°ΡΠΈΡ ΠΎΡΠ΅Π½Ρ Π±ΡΡΡΡΠΎ ΡΠ°ΡΡΠ°ΡΠ°Π΅Ρ ΠΊΡΠ΅ΠΏΠ»Π΅Π½ΠΈΡ.
- ΠΠ΅ΡΠ°Π»Π»ΠΈΡΠ΅ΡΠΊΠΈΠ΅ ΡΠ³ΠΎΠ»ΠΊΠΈ ΠΈΠ»ΠΈ ΡΠ²Π΅Π»Π»Π΅ΡΠ° Π΄Π»Ρ ΡΡΠ°Π½ΠΈΠ½Ρ ΠΈΠ»ΠΈ ΠΎΠΊΠ°Π½ΡΠΎΠ²ΠΊΠΈ ΡΡΠΎΠ»Π΅ΡΠ½ΠΈΡΡ, ΡΠ΅ΡΠ΅Π½ΠΈΠ΅ΠΌ 5-10 ΠΌΠΌ. ΠΡ ΠΊΠΎΠ»ΠΈΡΠ΅ΡΡΠ²ΠΎ ΠΈ Π΄Π»ΠΈΠ½Π° Π·Π°Π²ΠΈΡΡΡ ΠΎΡ ΡΠ°ΡΡΠ΅ΡΠ½ΡΡ ΡΠ°Π·ΠΌΠ΅ΡΠΎΠ² ΡΡΠΎΠ»Π°. ΠΠ»Ρ Π²ΠΈΠ±ΡΠΎΡΡΠΎΠ»Π° ΡΠ²ΠΎΠΈΠΌΠΈ ΡΡΠΊΠ°ΠΌΠΈ ΠΏΠΎΠ΄ΠΎΠΉΠ΄ΡΡ ΠΈ ΠΌΠ΅ΡΠ°Π»Π»ΠΈΡΠ΅ΡΠΊΠΈΠ΅ ΡΡΡΠ±Ρ, Π½ΠΎ ΠΈΡ ΡΠ»ΠΎΠΆΠ½Π΅Π΅ ΠΎΠ±ΡΠ°Π±Π°ΡΡΠ²Π°ΡΡ.
ΠΠ° Π²ΠΈΠ΄Π΅ΠΎ Π²ΠΈΠ±ΡΠΎΡΡΠΎΠ», ΡΠΎΠ±ΡΠ°Π½Π½ΡΠΉ ΠΈΠ· ΠΏΠΎΠ΄ΡΡΡΠ½ΡΡ Π΄Π΅ΡΠ°Π»Π΅ΠΉ:
- Π§Π΅ΡΡΡΠ΅ ΠΎΠ΄ΠΈΠ½Π°ΠΊΠΎΠ²ΡΠ΅ ΠΏΡΡΠΆΠΈΠ½Ρ ΠΌΠΎΠΆΠ½ΠΎ Ρ ΠΌΠΎΠΏΠ΅Π΄Π½ΡΡ Π°ΠΌΠΎΡΡΠΈΠ·Π°ΡΠΎΡΠΎΠ², ΠΏΠ»ΠΎΡΠ½ΡΠ΅ ΡΠ΅ΠΌΠ½ΠΈ ΠΈΠ»ΠΈ ΡΠ΅ΠΏΠΈ, ΠΊΠΎΡΠΎΡΡΠ΅ Π²ΡΠ΄Π΅ΡΠΆΠ°Ρ Π²Π΅Ρ ΡΡΠΎΠ»Π΅ΡΠ½ΠΈΡΡ ΠΈ ΠΏΠΎΠ³ΡΡΠΆΠ΅Π½Π½ΡΡ Π½Π° Π½Π΅Π΅ Π±Π΅ΡΠΎΠ½Π½ΡΡ ΡΠΎΡΠΌ.
- ΠΠΈΠ±ΡΠ°ΡΠΈΠΎΠ½Π½ΡΠΉ ΠΈΠ»ΠΈ ΠΎΠ±ΡΠΊΠ½ΠΎΠ²Π΅Π½Π½ΠΎΠΉ ΡΠ»Π΅ΠΊΡΡΠΎΠ΄Π²ΠΈΠ³Π°ΡΠ΅Π»Ρ.
ΠΠ΅ΡΠ°Π»ΠΈ ΠΊΠΎΠ½ΡΡΡΡΠΊΡΠΈΠΈ, ΡΠ΅ΡΡΠ΅ΠΆΠΈ, ΠΌΠ°ΡΠ΅ΡΠΈΠ°Π»Ρ ΠΈ ΠΏΠΎΡΡΠ΄ΠΎΠΊ ΠΈΠ·Π³ΠΎΡΠΎΠ²Π»Π΅Π½ΠΈΡ
ΠΠ°ΠΆΠ΄ΡΠΉ Π²ΠΈΠ±ΡΠΎΡΡΠ°Π½ΠΎΠΊ Π΄Π»Ρ ΠΏΡΠΎΠΈΠ·Π²ΠΎΠ΄ΡΡΠ²Π° Π±Π»ΠΎΠΊΠΎΠ² ΠΈΠΌΠ΅Π΅Ρ ΠΏΡΠΈΠΌΠ΅ΡΠ½ΠΎ ΠΎΠ΄ΠΈΠ½Π°ΠΊΠΎΠ²ΡΡ ΠΊΠΎΠ½ΡΡΡΡΠΊΡΠΈΡ, Π΄Π΅ΡΠ°Π»ΠΈ ΠΊΠΎΡΠΎΡΠΎΠΉ Π»ΠΈΡΡ Π½Π΅ΠΌΠ½ΠΎΠ³ΠΈΠΌ ΠΎΡΠ»ΠΈΡΠ°ΡΡΡΡ Π² ΠΏΠ΅ΡΡΠΎΠ½Π°Π»ΡΠ½ΡΡ ΠΌΠΎΠ΄ΠΈΡΠΈΠΊΠ°ΡΠΈΡΡ . ΠΠ΅ΡΠ΅Π΄ ΡΠ΅ΠΌ, ΠΊΠ°ΠΊ ΡΠ΄Π΅Π»Π°ΡΡ Π²ΠΈΠ±ΡΠΎΡΡΠΎΠ» ΡΠ²ΠΎΠΈΠΌΠΈ ΡΡΠΊΠ°ΠΌΠΈ, Π½Π°Π΄ΠΎ ΠΎΠΏΡΠ΅Π΄Π΅Π»ΠΈΡΡΡΡ Ρ Π΅Π³ΠΎ ΡΠ°Π·ΠΌΠ΅ΡΠ°ΠΌΠΈ. Π§Π΅ΡΡΠ΅ΠΆΠΈ ΠΏΠΎΠ΄Ρ ΠΎΠ΄ΡΡΠ΅ΠΉ ΠΊΠΎΠ½ΡΡΡΡΠΊΡΠΈΠΈ ΠΎΠ±ΡΡΠ½ΠΎ Π½Π°ΠΉΡΠΈ ΠΏΡΠΎΠ±Π»Π΅ΠΌΠ°ΡΠΈΡΠ½ΠΎ β Π»ΡΡΡΠ΅ Π²Π·ΡΡΡ ΠΎΠ±ΡΡΡ ΡΡ Π΅ΠΌΡ ΠΈΠ»ΠΈ ΡΡΠΎΡ ΡΠΈΡΡΠ½ΠΎΠΊ ΠΈ ΠΏΠΎΠ΄ΠΎΠ³Π½Π°ΡΡ Π΅Π΅ ΠΏΠΎΠ΄ ΡΠ²ΠΎΠΈ Π½ΡΠΆΠ΄Ρ.

ΠΡΠ½ΠΎΠ²Π½ΡΠ΅ ΡΠ·Π»Ρ ΠΈ ΡΡΠ΅Π±ΡΠ΅ΠΌΡΠ΅ Π΄Π»Ρ Π½ΠΈΡ ΠΌΠ°ΡΠ΅ΡΠΈΠ°Π»Ρ ΡΠ»Π΅Π΄ΡΡΡΠΈΠ΅:
Π‘ΡΠ°Π½ΠΈΠ½Π°
ΠΡΠ΅Π΄ΡΡΠ°Π²Π»ΡΠ΅Ρ ΡΠΎΠ±ΠΎΠΉ ΡΠ΅ΡΡΡΠ΅ Π²Π΅ΡΡΠΈΠΊΠ°Π»ΡΠ½ΡΠ΅ ΠΎΠΏΠΎΡΡ, ΡΠΎΠ΅Π΄ΠΈΠ½ΡΠ½Π½ΡΠ΅ ΡΠ²Π΅ΡΡ Ρ ΠΈ ΠΏΡΠΈ Π½Π΅ΠΎΠ±Ρ ΠΎΠ΄ΠΈΠΌΠΎΡΡΠΈ ΡΡΠΈΠ»Π΅Π½Π½ΡΠ΅ ΠΏΠ΅ΡΠ΅ΠΌΡΡΠΊΠ°ΠΌΠΈ Π² Π½ΠΈΠΆΠ½Π΅ΠΉ ΡΠ°ΡΡΠΈ. ΠΠΎΠ»ΠΆΠ½Π° Π±ΡΡΡ Π΄ΠΎΡΡΠ°ΡΠΎΡΠ½ΠΎ ΡΡΠΆΠ΅Π»ΠΎΠΉ, ΡΡΠΎΠ±Ρ ΡΠ΄Π΅ΡΠΆΠΈΠ²Π°ΡΡ Π½Π° ΡΠ΅Π±Π΅ Π²ΡΡ ΠΊΠΎΠ½ΡΡΡΡΠΊΡΠΈΡ, ΠΏΠ»ΡΡ, Π²Π΅Ρ ΡΠΎΡΠΌΠΎΡΠ΅ΠΊ Ρ Π±Π΅ΡΠΎΠ½ΠΎΠΌ. ΠΠ°Π²ΠΎΠ΄ΡΠΊΠΎΠΉ ΠΈΠ»ΠΈ ΡΠ°ΠΌΠΎΠ΄Π΅Π»ΡΠ½ΡΠΉ Π²ΠΈΠ±ΡΠΎΡΡΠ°Π½ΠΎΠΊ ΡΠ°ΡΠ΅ Π²ΡΠ΅Π³ΠΎ ΠΈΠ·Π³ΠΎΡΠ°Π²Π»ΠΈΠ²Π°Π΅ΡΡΡ ΠΈΠ· ΡΠ³ΠΎΠ»ΠΊΠΎΠ² Ρ ΡΠΎΠ»ΡΠΈΠ½ΠΎΠΉ ΠΌΠ΅ΡΠ°Π»Π»Π° 5-10 ΠΌΠΌ.
Π‘ΡΠΎΠ»Π΅ΡΠ½ΠΈΡΠ°
ΠΡΠΎ ΠΈΠ΄Π΅Π°Π»ΡΠ½ΠΎ ΡΠΎΠ²Π½Π°Ρ ΠΏΠΎΠ²Π΅ΡΡ Π½ΠΎΡΡΡ Ρ Π·Π°Π³Π½ΡΡΡΠΌΠΈ Π²Π²Π΅ΡΡ ΠΊΡΠ°ΡΠΌΠΈ, ΡΡΠΎΠ±Ρ ΡΠΎΡΠΌΡ Ρ Π±Π΅ΡΠΎΠ½ΠΎΠΌ Π½Π΅ Π²ΡΡΠΊΠ°ΠΊΠΈΠ²Π°Π»ΠΈ ΠΈΠ· Π½Π΅Π΅ Π²ΠΎ Π²ΡΠ΅ΠΌΡ ΡΠ°Π±ΠΎΡΡ. Π Π·Π°Π²ΠΈΡΠΈΠΌΠΎΡΡΠΈ ΠΎΡ ΡΠΎΠ³ΠΎ, Π΄Π»Ρ Π±Π»ΠΎΠΊΠΎΠ² ΠΊΠ°ΠΊΠΎΠ³ΠΎ ΡΠ°Π·ΠΌΠ΅ΡΠ° ΠΈ Π²Π΅ΡΠ° Π½ΡΠΆΠ΅Π½ Π²ΠΈΠ±ΡΠΎΡΡΠΎΠ», Π²ΡΠ±ΠΈΡΠ°Π΅ΡΡΡ ΡΠΎΠ»ΡΠΈΠ½Π° ΡΡΠΎΠ»Π΅ΡΠ½ΠΈΡΡ ΠΈ ΠΌΠ°ΡΠ΅ΡΠΈΠ°Π» ΠΈΠ· ΠΊΠΎΡΠΎΡΠΎΠ³ΠΎ ΠΎΠ½Π° Π±ΡΠ΄Π΅Ρ ΠΈΠ·Π³ΠΎΡΠΎΠ²Π»Π΅Π½Π°. Π§Π°ΡΠ΅ Π²ΡΠ΅Π³ΠΎ Π΄Π»Ρ Π½Π΅Ρ Π²ΡΠ±ΠΈΡΠ°ΡΡ Π»ΠΈΡΡ ΠΆΠ΅Π»Π΅Π·Π° ΡΠΎΠ»ΡΠΈΠ½ΠΎΠΉ ΠΎΡ 3 ΠΌΠΌ. ΠΡΠ»ΠΈ ΡΠ°Π±ΠΎΡΠ° ΠΏΠ»Π°Π½ΠΈΡΡΠ΅ΡΡΡ Ρ ΡΡΠΆΠ΅Π»ΡΠΌΠΈ ΠΏΠ»ΠΈΡΠΊΠ°ΠΌΠΈ Π±ΠΎΠ»ΡΡΠΎΠΉ ΡΠΎΡΠΌΡ, ΡΠΎ ΠΏΠΎ ΠΏΠ΅ΡΠΈΠΌΠ΅ΡΡΡ ΠΈ Π²ΠΎ Π²Π½ΡΡΡΠ΅Π½Π½Π΅ΠΉ ΡΠ°ΡΡΠΈ ΡΡΠΎΠ»Π΅ΡΠ½ΠΈΡΠ° ΠΌΠΎΠΆΠ΅Ρ Π±ΡΡΡ ΡΡΠΈΠ»Π΅Π½Π° ΠΌΠ΅ΡΠ°Π»Π»ΠΈΡΠ΅ΡΠΊΠΈΠΌΠΈ ΡΠ³ΠΎΠ»ΠΊΠ°ΠΌΠΈ. Π Π·Π°Π²ΠΈΡΠΈΠΌΠΎΡΡΠΈ ΠΎΡ Π²ΡΠ±ΡΠ°Π½Π½ΠΎΠΉ ΠΊΠΎΠ½ΡΡΡΡΠΊΡΠΈΠΈ, ΠΊ ΡΡΠΎΠ»Π΅ΡΠ½ΠΈΡΠ΅ ΠΌΠΎΠΆΠ΅Ρ Π±ΡΡΡ ΠΏΡΠΈΠΊΡΠ΅ΠΏΠ»Π΅Π½ Π²ΠΈΠ±ΡΠΎΠ΄Π²ΠΈΠ³Π°ΡΠ΅Π»Ρ.

ΠΡΡΠΆΠΈΠ½Ρ
ΠΠ±Π΅ΡΠΏΠ΅ΡΠΈΠ²Π°ΡΡ Π½Π΅ΠΎΠ±Ρ ΠΎΠ΄ΠΈΠΌΡΡ Π°ΠΌΠΏΠ»ΠΈΡΡΠ΄Ρ Π΄Π²ΠΈΠΆΠ΅Π½ΠΈΠΉ ΡΡΠΎΠ»Π΅ΡΠ½ΠΈΡΡ ΠΎΡΠ½ΠΎΡΠΈΡΠ΅Π»ΡΠ½ΠΎ Π½Π΅ΠΏΠΎΠ΄Π²ΠΈΠΆΠ½ΠΎΠΉ ΡΡΠ°Π½ΠΈΠ½Ρ. ΠΡΠΈ ΠΏΡΠ°Π²ΠΈΠ»ΡΠ½ΠΎΠΌ ΡΠ°ΡΡΠ΅ΡΠ΅ ΠΌΠ°ΡΡΡ ΡΡΠΎΠ»Π΅ΡΠ½ΠΈΡΡ, Π½Π΅ Π½ΡΠΆΠ΄Π°ΡΡΡΡ Π² ΠΊΠ°ΠΊΠΎΠΌ-Π»ΠΈΠ±ΠΎ Π·Π°ΠΊΡΠ΅ΠΏΠ»Π΅Π½ΠΈΠΈ β ΠΏΡΠΎΡΡΠΎ ΡΡΡΠ°Π½Π°Π²Π»ΠΈΠ²Π°ΡΡΡΡ Π² ΡΠΏΠ΅ΡΠΈΠ°Π»ΡΠ½ΠΎ Π·Π°ΠΊΡΠ΅ΠΏΠ»Π΅Π½Π½ΡΠ΅ Π΄Π»Ρ Π½ΠΈΡ ΡΡΠ°ΠΊΠ°Π½Ρ. Π₯ΠΎΡΠΎΡΠΈΠ΅ Π²ΠΈΠ±ΡΠΎΡΡΠ°Π½ΠΊΠΈ ΠΏΠΎΠ»ΡΡΠ°ΡΡΡΡ Π΅ΡΠ»ΠΈ Π² ΠΊΠΎΠ½ΡΡΡΡΠΊΡΠΈΠΈ ΠΈΡΠΏΠΎΠ»ΡΠ·ΠΎΠ²Π°ΡΡ ΠΏΡΡΠΆΠΈΠ½Ρ ΠΎΡ ΠΌΠΎΠΏΠ΅Π΄Π½ΡΡ ΡΠ΅ΡΡΠΎΡ. ΠΠ»ΠΈΠ½Π° ΠΏΠΎΠ΄Π±ΠΈΡΠ°Π΅ΡΡΡ ΡΠ°ΠΊΠΈΠΌ ΠΎΠ±ΡΠ°Π·ΠΎΠΌ, ΡΡΠΎΠ±Ρ ΡΡΠΎΠ»Π΅ΡΠ½ΠΈΡΠ° ΠΌΠΎΠ³Π»Π° Π²ΠΈΠ±ΡΠΈΡΠΎΠ²Π°ΡΡ, Π½ΠΎ ΠΏΡΠΈ ΡΡΠΎΠΌ Π½Π΅ ΡΠ°ΡΠΊΠ°ΡΠΈΠ²Π°ΡΡΡΡ ΠΈΠ· ΡΡΠΎΡΠΎΠ½Ρ Π² ΡΡΠΎΡΠΎΠ½Ρ.
Π‘ΡΠ°ΠΊΠ°Π½Ρ Π΄Π»Ρ ΡΠΈΠΊΡΠ°ΡΠΈΠΈ ΠΏΡΡΠΆΠΈΠ½
ΠΡΠΏΠΎΠ»Π½ΡΡΡΡΡ ΠΈΠ· ΠΎΠ±ΡΠ΅Π·ΠΊΠΎΠ² ΠΌΠ΅ΡΠ°Π»Π»ΠΈΡΠ΅ΡΠΊΠΎΠΉ ΡΡΡΠ±Ρ ΡΠ°Π·ΠΌΠ΅ΡΠ°ΠΌΠΈ Π½Π΅ΠΌΠ½ΠΎΠ³ΠΈΠΌ Π±ΠΎΠ»ΡΡΠΈΠΌΠΈ, ΡΠ΅ΠΌ Π΄ΠΈΠ°ΠΌΠ΅ΡΡ ΠΏΡΡΠΆΠΈΠ½. ΠΡΠ»ΠΈ Π²Π½ΡΡΡΠ΅Π½Π½ΠΈΠΉ ΡΠ°Π·ΠΌΠ΅Ρ ΠΏΠΎΠ΄ΠΎΠ±ΡΠ°ΡΡ ΠΌΠ°Π»Π΅Π½ΡΠΊΠΈΠΉ, ΡΠΎ ΠΏΡΡΠΆΠΈΠ½Ρ Π±ΡΠ΄ΡΡ ΡΡΠΆΠ΅Π»ΠΎ ΡΠ½ΠΈΠΌΠ°ΡΡΡΡ, ΠΊ ΠΏΡΠΈΠΌΠ΅ΡΡ, Π΄Π»Ρ Π·Π°ΠΌΠ΅Π½Ρ ΡΡΠΎΠ»Π΅ΡΠ½ΠΈΡΡ Π½Π° ΡΠ°ΡΡΠΎΡΠΌΠΎΠ²ΠΎΡΠ½ΡΡ. ΠΡΠΈ ΡΠ»ΠΈΡΠΊΠΎΠΌ Π±ΠΎΠ»ΡΡΠΎΠΌ Π΄ΠΈΠ°ΠΌΠ΅ΡΡΠ΅, ΡΡΠΎΠ»Π΅ΡΠ½ΠΈΡΠ° Π±ΡΠ΄Π΅Ρ ΡΠΈΠ»ΡΠ½ΠΎ Β«ΠΈΠ³ΡΠ°ΡΡΒ» ΠΏΠΎΠ΄ Π²ΠΎΠ·Π΄Π΅ΠΉΡΡΠ²ΠΈΠ΅ΠΌ Π²ΠΈΠ±ΡΠ°ΡΠΈΠΈ ΠΈ Π²Π΅ΡΠΎΠΌ ΡΡΡΠΎΠΈΡΠ΅Π»ΡΠ½ΡΡ Π±Π»ΠΎΠΊΠΎΠ² ΠΈ ΠΌΠΎΠΆΠ΅Ρ ΠΏΡΠΎΡΡΠΎ ΡΠ»Π΅ΡΠ΅ΡΡ ΡΠΎ ΡΡΠ°Π½ΠΈΠ½Ρ. Π’Π°ΠΊΠΆΠ΅ Ρ ΠΎΡΠΎΡΠΈΠΉ ΡΠ΅Π·ΡΠ»ΡΡΠ°Ρ ΠΏΠΎΠ»ΡΡΠ°Π΅ΡΡΡ Π΅ΡΠ»ΠΈ ΡΡΠ°ΠΊΠ°Π½Ρ Π½Π°Ρ ΠΎΠ΄ΡΡΡΡ Π²Π½ΡΡΡΠΈ ΠΏΡΡΠΆΠΈΠ½.

ΠΠΈΠ±ΡΠΎΡΡΠΎΠ» Π±Π΅Π· ΠΏΡΡΠΆΠΈΠ½
ΠΠΌΠ΅ΡΡΠΎ ΡΡΠ°Π»ΡΠ½ΡΡ ΠΏΡΡΠΆΠΈΠ½ Π±Π΅Π· ΡΡΠ΅ΡΠ±Π° Π΄Π»Ρ ΠΊΠ°ΡΠ΅ΡΡΠ²Π° ΠΊΠΎΠ½ΡΡΡΡΠΊΡΠΈΠΈ Π²ΠΎΠ·ΠΌΠΎΠΆΠ½ΠΎ ΠΈΡΠΏΠΎΠ»ΡΠ·ΠΎΠ²Π°Π½ΠΈΠ΅ Π²Π΅ΡΠ΅Π²ΠΎΠΊ, ΡΠ΅ΠΏΠ΅ΠΉ ΠΈΠ»ΠΈ ΠΏΠ»ΠΎΡΠ½ΡΡ ΠΆΠ³ΡΡΠΎΠ². Π ΡΠ°ΠΊΠΎΠΌ ΡΠ»ΡΡΠ°Π΅ ΡΡΠΎΠ»Π΅ΡΠ½ΠΈΡΠ° Π΄Π΅Π»Π°Π΅ΡΡΡ Π½Π΅ΡΠΊΠΎΠ»ΡΠΊΠΎ ΡΠΈΡΠ΅ ΡΡΠ°Π½ΠΈΠ½Ρ ΠΈ ΠΊΡΠ΅ΠΏΠΈΡΡΡ ΠΊ Π½Π΅ΠΉ ΡΠ΅ΠΌΠ΅Π½Π½ΡΠΌ Π°ΠΌΠΎΡΡΠΈΠ·Π°ΡΠΎΡΠΎΠΌ. ΠΠ»Ρ ΡΡΠΎΠ³ΠΎ Π²ΠΌΠ΅ΡΡΠΎ ΡΡΠ°ΠΊΠ°Π½ΠΎΠ² ΠΊ ΡΠ³Π»Π°ΠΌ ΠΏΠΎΠ²Π΅ΡΡ Π½ΠΎΡΡΠΈ ΡΡΠΎΠ»Π΅ΡΠ½ΠΈΡΡ ΠΏΡΠΈΠ²Π°ΡΠΈΠ²Π°ΡΡΡΡ Π½Π°ΠΏΡΠ°Π²Π»ΡΡΡΠΈΠ΅, ΡΠΎΠ΅Π΄ΠΈΠ½Π΅Π½Π½ΡΠ΅ ΡΠ΅ΠΌΠ½ΡΠΌΠΈ ΡΠΎ ΡΡΠ°Π½ΠΈΠ½ΠΎΠΉ, ΠΊΠ°ΠΊ ΠΏΠΎΠΊΠ°Π·Π°Π½ΠΎ Π½Π° ΡΡ Π΅ΠΌΠ΅.

ΠΠΈΠ±ΡΠΎ-Π±Π»ΠΎΠΊ
Π Π·Π°Π²ΠΈΡΠΈΠΌΠΎΡΡΠΈ ΠΎΡ Π²ΡΠ±ΡΠ°Π½Π½ΠΎΠΉ ΠΊΠΎΠ½ΡΡΡΡΠΊΡΠΈΠΈ Π²ΠΈΠ±ΡΠΎΡΡΠΎΠ»Π° ΠΌΠΎΠΆΠ΅Ρ ΡΠΎΡΡΠΎΡΡΡ ΠΈΠ· ΠΎΠ΄Π½ΠΎΠ³ΠΎ ΠΈΠ»ΠΈ Π΄Π²ΡΡ ΡΠ»Π΅ΠΌΠ΅Π½ΡΠΎΠ².
- ΠΡΠ»ΠΈ Π² Π½Π°Π»ΠΈΡΠΈΠΈ Π΅ΡΡΡ Π²ΠΈΠ±ΡΠΎΠ΄Π²ΠΈΠ³Π°ΡΠ΅Π»Ρ Π·Π°Π²ΠΎΠ΄ΡΠΊΠΎΠ³ΠΎ ΠΈΠ·Π³ΠΎΡΠΎΠ²Π»Π΅Π½ΠΈΡ, ΡΠΎ ΠΎΠ½ ΡΡΡΠ°Π½Π°Π²Π»ΠΈΠ²Π°Π΅ΡΡΡ Π½Π΅ΠΏΠΎΡΡΠ΅Π΄ΡΡΠ²Π΅Π½Π½ΠΎ Π½Π° ΠΏΠΎΠ²Π΅ΡΡ Π½ΠΎΡΡΡ ΡΡΠΎΠ»Π΅ΡΠ½ΠΈΡΡ. Π’Π°ΠΊΠΎΠΉ Π΄Π²ΠΈΠ³Π°ΡΠ΅Π»Ρ ΠΈΠΌΠ΅Π΅Ρ ΡΠΏΠ΅ΡΠΈΡΠΈΡΠ΅ΡΠΊΡΡ ΠΊΠΎΠ½ΡΡΡΡΠΊΡΠΈΡ β Ρ ΠΎΠ±Π΅ΠΈΡ ΡΡΠΎΡΠΎΠ½ Π½Π° Π΅Π³ΠΎ Π²Π°Π» Π½Π°ΡΠ°ΠΆΠ΅Π½Ρ ΡΠΊΡΡΠ΅Π½ΡΡΠΈΠΊΠΈ. ΠΠ½ΠΈ ΡΠ΄Π΅Π»Π°Π½Ρ Π² Π²ΠΈΠ΄Π΅ Π΄Π²ΡΡ ΠΏΠΎΠ»ΡΠΊΡΡΠ³ΠΎΠ², ΠΊΠΎΡΠΎΡΡΠ΅ ΠΌΠΎΠ³ΡΡ ΡΠΌΠ΅ΡΠ°ΡΡΡΡ ΠΎΡΠ½ΠΎΡΠΈΡΠ΅Π»ΡΠ½ΠΎ Π΄ΡΡΠ³ Π΄ΡΡΠ³Π°, ΡΠ΅ΠΌ ΠΌΠΎΠΆΠ½ΠΎ ΡΠ΅Π³ΡΠ»ΠΈΡΠΎΠ²Π°ΡΡ ΡΠΈΠ»Ρ Π²ΠΈΠ±ΡΠ°ΡΠΈΠΈ. ΠΠ°Π²ΠΎΠ΄ΡΠΊΠΎΠΉ Π²ΠΈΠ±ΡΠΎΠ΄Π²ΠΈΠ³Π°ΡΠ΅Π»Ρ ΡΠΏΠ΅ΡΠΈΠ°Π»ΡΠ½ΠΎ ΡΠΊΠΎΠ½ΡΡΡΡΠΈΡΠΎΠ²Π°Π½ Π΄Π»Ρ ΡΠ°Π±ΠΎΡΡ Π² ΡΡΠ»ΠΎΠ²ΠΈΡΡ ΠΏΠΎΡΡΠΎΡΠ½Π½ΠΎΠΉ Π²ΠΈΠ±ΡΠ°ΡΠΈΠΈ, ΠΏΠΎΡΡΠΎΠΌΡ ΡΠ°Π·ΠΌΠ΅ΡΠ΅Π½ΠΈΠ΅ Π½Π° ΡΡΠΎΠ»Π΅ΡΠ½ΠΈΡΠ΅ Π΅ΠΌΡ Π½Π΅ ΠΎΠΏΠ°ΡΠ½ΠΎ.
ΠΠ°ΠΊ ΠΈΠ·Π³ΠΎΡΠΎΠ²ΠΈΡΡ ΡΠ²ΠΎΠΉ ΡΡΠ°Π½ΠΎΠΊ ΠΈ ΠΏΡΠΈΠΌΠ΅Ρ Π΅Π³ΠΎ ΡΠ°Π±ΠΎΡΡ Π½Π° Π²ΠΈΠ΄Π΅ΠΎ:
- ΠΠΎΠ³Π΄Π° Π΄Π²ΠΈΠ³Π°ΡΠ΅Π»Ρ ΠΏΠΎΠ΄Π±ΠΈΡΠ°Π΅ΡΡΡ ΠΎΠ±ΡΠΊΠ½ΠΎΠ²Π΅Π½Π½ΡΠΉ, Π½Π°ΠΏΡΠΈΠΌΠ΅Ρ, ΡΠΎ ΡΡΠΈΡΠ°Π»ΡΠ½ΠΎΠΉ ΠΌΠ°ΡΠΈΠ½ΠΊΠΈ, ΡΠΎ Π΅Π³ΠΎ Π½Π°Π΄ΠΎ ΠΌΠΎΠ΄Π΅ΡΠ½ΠΈΠ·ΠΈΡΠΎΠ²Π°ΡΡ Ρ ΠΏΠΎΠΌΠΎΡΡΡ ΡΠ°ΠΌΠΎΡΡΠΎΡΡΠ΅Π»ΡΠ½ΠΎ ΠΈΠ·Π³ΠΎΡΠΎΠ²Π»Π΅Π½Π½ΡΡ ΡΠΊΡΡΠ΅Π½ΡΡΠΈΠΊΠΎΠ², Π΄Π»Ρ ΡΠ΅Π³ΠΎ ΠΊ Π²Π°Π»Ρ ΠΏΡΠΈΠ²Π°ΡΠΈΠ²Π°ΡΡΡΡ Π±ΠΎΠ»ΡΡ, Π° ΡΠΈΠ»Ρ Π²ΠΈΠ±ΡΠ°ΡΠΈΠΈ ΠΌΠΎΠΆΠ½ΠΎ ΡΠ΅Π³ΡΠ»ΠΈΡΠΎΠ²Π°ΡΡ, Π³Π°ΠΉΠΊΠ°ΠΌΠΈ Π·Π°ΠΊΡΡΡΠΈΠ²Π°Ρ ΠΈΡ Π±Π»ΠΈΠΆΠ΅ ΠΈΠ»ΠΈ Π΄Π°Π»ΡΡΠ΅ ΠΎΡ ΡΠ΅Π½ΡΡΠ°. ΠΡΠ»ΠΈ Π΄Π²ΠΈΠ³Π°ΡΠ΅Π»Ρ ΠΏΠ»Π°Π½ΠΈΡΡΠ΅ΡΡΡ ΠΈΡΠΏΠΎΠ»ΡΠ·ΠΎΠ²Π°ΡΡ Π΅ΡΠ΅ ΠΈ Π² Π΄ΡΡΠ³ΠΎΠΌ ΠΌΠ΅ΡΡΠ΅, ΡΠΎ Π»ΡΡΡΠ΅ Π·Π°ΠΊΡΠ΅ΠΏΠΈΡΡ ΡΠΊΡΡΠ΅Π½ΡΡΠΈΠΊ Π½Π° Π²Π°Π»Ρ Ρ ΠΎΠΌΡΡΠΎΠ²ΡΠΌ ΡΠΎΠ΅Π΄ΠΈΠ½Π΅Π½ΠΈΠ΅ΠΌ. ΠΠΈΠ½ΡΡ ΡΠ°ΠΊΠΎΠ³ΠΎ ΡΠ΅ΡΠ΅Π½ΠΈΡ Π² ΡΠΎΠΌ, ΡΡΠΎ Π² ΡΡΠΎΠΌ ΡΠ»ΡΡΠ°Π΅ Π΄Π²ΠΈΠ³Π°ΡΠ΅Π»Ρ ΠΏΠΎΡΡΠΎΡΠ½Π½ΠΎ ΠΏΠΎΠ΄Π²Π΅ΡΠ³Π°Π΅ΡΡΡ Π²ΠΎΠ·Π΄Π΅ΠΉΡΡΠ²ΠΈΡ Π²ΠΈΠ±ΡΠ°ΡΠΈΠΈ ΠΈ Π΅ΡΡΡ ΡΠΈΡΠΊ Π΅Π³ΠΎ ΠΏΡΠ΅ΠΆΠ΄Π΅Π²ΡΠ΅ΠΌΠ΅Π½Π½ΠΎΠ³ΠΎ Π²ΡΡ ΠΎΠ΄Π° ΠΈΠ· ΡΡΡΠΎΡ.
- ΠΡΠΏΠΎΠ»ΡΠ·ΠΎΠ²Π°Π½ΠΈΡ ΠΎΡΠ΄Π΅Π»ΡΠ½ΠΎΠ³ΠΎ ΡΠΊΡΡΠ΅Π½ΡΡΠΈΠΊΠ°. Π ΡΡΠΎΠΌ ΡΠ»ΡΡΠ°Π΅ ΡΠ°ΠΊΠΆΠ΅ ΠΏΡΠΈΠΌΠ΅Π½ΡΠ΅ΡΡΡ ΡΡΠ°Π½Π΄Π°ΡΡΠ½ΡΠΉ ΡΠ»Π΅ΠΊΡΡΠΎΠ΄Π²ΠΈΠ³Π°ΡΠ΅Π»Ρ, Π½ΠΎ ΠΊΡΠ΅ΠΏΠΈΡΡΡ ΠΎΠ½ Π½Π° ΡΡΠ°Π½ΠΈΠ½Π΅. Π ΠΏΠΎΠ²Π΅ΡΡ Π½ΠΎΡΡΠΈ Π²ΠΈΠ±ΡΠΎΡΡΠΎΠ»Π° ΠΊΡΠ΅ΠΏΠΈΡΡΡ Π²Π°Π» ΡΠΎ ΡΠΌΠ΅ΡΠ΅Π½Π½ΡΠΌ ΡΠ΅Π½ΡΡΠΎΠΌ ΡΡΠΆΠ΅ΡΡΠΈ, ΡΠΎΠ΅Π΄ΠΈΠ½Π΅Π½Π½ΡΠΉ Ρ Π΄Π²ΠΈΠ³Π°ΡΠ΅Π»Π΅ΠΌ ΡΠ΅ΠΌΠ΅Π½Π½ΠΎΠΉ ΠΏΠ΅ΡΠ΅Π΄Π°ΡΠ΅ΠΉ. ΠΡΠΎ ΡΠ΅ΡΠ΅Π½ΠΈΠ΅ Π·Π°ΡΠΈΡΠ°Π΅Ρ Π΄Π²ΠΈΠ³Π°ΡΠ΅Π»Ρ ΠΎΡ Π²ΠΈΠ±ΡΠ°ΡΠΈΠΈ, Π½ΠΎ ΡΡΠ΅Π±ΡΠ΅Ρ ΡΡΠ°ΡΠ΅Π»ΡΠ½ΠΎΠΉ ΠΊΠ°Π»ΠΈΠ±ΡΠΎΠ²ΠΊΠΈ ΡΠΊΡΡΠ΅Π½ΡΡΠΈΠΊΠΎΠ², ΡΡΠΎ Π·Π°ΡΠ°ΡΡΡΡ Π΄Π΅Π»Π°Π΅ΡΡΡ ΠΌΠ΅ΡΠΎΠ΄ΠΎΠΌ ΠΏΠΎΠ΄Π±ΠΎΡΠ°.

ΠΡΠ΅ ΡΡΠΈ ΠΊΠΎΠ½ΡΡΡΡΠΊΡΠΈΠΈ ΠΏΠΎΠ·Π²ΠΎΠ»ΡΡΡ ΠΏΠΎΠ»ΡΡΠΈΡΡ ΠΏΡΠΈΠ΅ΠΌΠ»Π΅ΠΌΡΠΉ ΡΠ΅Π·ΡΠ»ΡΡΠ°Ρ ΡΠ°Π±ΠΎΡΡ ΡΡΡΡΠΎΠΉΡΡΠ²Π° β Π²ΡΠ±ΠΎΡ ΠΌΠ΅ΠΆΠ΄Ρ Π½ΠΈΠΌΠΈ ΠΏΡΠΎΠΈΠ·Π²ΠΎΠ΄ΠΈΡΡΡ ΠΈΡΡ ΠΎΠ΄Ρ ΠΈΠ· ΡΠΎΠ³ΠΎ, ΠΊΠ°ΠΊΠΎΠΉ Π½ΡΠΆΠ½ΡΠΉ ΠΌΠ°ΡΠ΅ΡΠΈΠ°Π» Π΅ΡΡΡ Π² Π½Π°Π»ΠΈΡΠΈΠΈ. ΠΠΎΡΠ½ΠΎΡΡΡ Π΄Π²ΠΈΠ³Π°ΡΠ΅Π»Ρ Ρ Π·Π°Π²ΠΎΠ΄ΡΠΊΠΈΡ Π²ΠΈΠ±ΡΠΎΡΡΠΎΠ»ΠΎΠ² Π½Π°Ρ ΠΎΠ΄ΠΈΡΡΡ Π² Π΄ΠΈΠ°ΠΏΠ°Π·ΠΎΠ½Π΅ 0,75-2,2 ΠΊΠΡ. ΠΠ»Ρ ΡΠ°ΠΌΠΎΠ΄Π΅Π»ΡΠ½ΠΎΠ³ΠΎ ΠΏΠΎΠ΄Π±ΠΈΡΠ°Π΅ΡΡΡ ΡΠΊΡΠΏΠ΅ΡΠΈΠΌΠ΅Π½ΡΠ°Π»ΡΠ½ΡΠΌ ΠΏΡΡΠ΅ΠΌ. Π‘Π»Π΅Π΄ΡΡΡΠ°Ρ ΡΡ Π΅ΠΌΠ° ΡΡΠΎ ΠΏΡΠΈΠΌΠ΅ΡΠ½ΡΠ΅ ΡΠ΅ΡΡΠ΅ΠΆΠΈ ΡΠ°ΠΌΠΎΠ΄Π΅Π»ΡΠ½ΠΎΠ³ΠΎ Π²ΠΈΠ±ΡΠΎΡΡΠΎΠ»Π°, Π½Π° ΠΊΠΎΡΠΎΡΡΠ΅ ΠΌΠΎΠΆΠ½ΠΎ ΠΎΡΠΈΠ΅Π½ΡΠΈΡΠΎΠ²Π°ΡΡΡΡ ΠΏΡΠΈ ΠΈΠ·Π³ΠΎΡΠΎΠ²Π»Π΅Π½ΠΈΠΈ.

Π Π°ΡΡΠΎΡΠΌΠΎΠ²ΠΎΡΠ½ΡΠΉ Π²ΠΈΠ±ΡΠΎΡΡΠΎΠ»
ΠΡΠΏΠΎΠ»ΡΠ·ΡΠ΅ΡΡΡ Π΄Π»Ρ ΠΈΠ·Π²Π»Π΅ΡΠ΅Π½ΠΈΡ Π²ΡΡΠΎΡ ΡΠ΅ΠΉ ΠΏΠ»ΠΈΡΠΊΠΈ ΠΈΠ· ΡΠΎΡΠΌΡ. ΠΠΎ ΡΡΡΠΈ, ΡΡΠΎ ΠΎΠ±ΡΠΊΠ½ΠΎΠ²Π΅Π½Π½ΡΠΉ Π²ΠΈΠ±ΡΠΎΡΡΠΎΠ», ΡΠ΄Π΅Π»Π°Π½Π½ΡΠΉ ΡΠ²ΠΎΠΈΠΌΠΈ ΡΡΠΊΠ°ΠΌΠΈ, ΡΠΎΠ»ΡΠΊΠΎ Π² Π΅Π³ΠΎ ΠΊΡΡΡΠΊΠ΅ Π΅ΡΡΡ ΠΎΡΠ²Π΅ΡΡΡΠΈΠ΅. ΠΠ° Π½Π΅Π³ΠΎ ΡΠ²Π΅ΡΡ Ρ Π»ΠΎΠΆΠΈΡΡΡ ΡΠΎΡΠΌΠ° ΠΈ ΠΏΠΎΠ΄ Π΄Π΅ΠΉΡΡΠ²ΠΈΠ΅ΠΌ Π²ΠΈΠ±ΡΠ°ΡΠΈΠΈ ΠΏΠ»ΠΈΡΠΊΠ° ΠΈΠ· Π½Π΅Π΅ Π²ΡΠΏΠ°Π΄Π°Π΅Ρ.
Π§ΡΠΎΠ±Ρ ΡΠ°Π±ΠΎΡΠ°ΡΡ Ρ ΡΠ°ΡΡΠΎΡΠΌΠΈΡΠΎΠ²ΠΎΡΠ½ΡΠΌ Π²ΠΈΠ±ΡΠΎΡΡΠΎΠ»ΠΎΠΌ, Π½Π° ΡΠΎΡΠΌΠ΅ Π΄ΠΎΠ»ΠΆΠ½Ρ Π±ΡΡΡ ΡΡΡΠΊΠΈ ΠΈΠ»ΠΈ ΠΏΠΎΠ»Ρ, ΠΊΠΎΡΠΎΡΡΠΌΠΈ ΠΌΠΎΠΆΠ½ΠΎ ΠΎΠΏΠ΅ΡΠ΅ΡΡ Π΅Π΅ ΠΎ ΡΡΠΎΠ». ΠΠ· ΠΊΡΡΡΠ°ΡΠ½ΡΡ ΡΠΎΡΠΌ, Π²ΠΌΠ΅ΡΡΠΎ ΠΊΠΎΡΠΎΡΡΡ ΠΏΡΠΈΠΌΠ΅Π½ΡΡΡΡΡ ΠΏΠ»Π°ΡΡΠΈΠΊΠΎΠ²ΡΠ΅ Π΅ΠΌΠΊΠΎΡΡΠΈ ΠΈΠ·Π²Π»Π΅ΡΡ ΠΏΠ»ΠΈΡΠΊΡ ΡΠ°ΠΊΠΈΠΌ ΡΠΏΠΎΡΠΎΠ±ΠΎΠΌ Π½Π΅ ΠΏΠΎΠ»ΡΡΠΈΡΡΡ, ΡΠ°Π·Π²Π΅ ΡΡΠΎ ΠΏΡΠΎΡΡΠΎ ΠΏΠΎΠ»ΠΎΠΆΠΈΡΡ Π΅Π΅ Π½Π° ΡΡΠΎΠ», ΡΡΠΎΠ±Ρ ΠΎΡ Π²ΠΈΠ±ΡΠ°ΡΠΈΠΈ Π·Π°ΡΠ΅ΠΏΠ»Π΅Π½ΠΈΠ΅ ΠΌΠ΅ΠΆΠ΄Ρ ΡΠΎΡΠΌΠΎΠΉ ΠΈ ΠΏΠ»ΠΈΡΠΊΠΎΠΉ ΡΡΠ°Π»ΠΎ ΠΌΠ΅Π½ΡΡΠΈΠΌ.
ΠΠ° ΠΏΡΠΎΠΈΠ·Π²ΠΎΠ΄ΡΡΠ²Π΅ ΠΏΡΠΈΠΌΠ΅Π½ΡΡΡΡΡ ΠΎΡΠ΄Π΅Π»ΡΠ½ΡΠ΅ ΡΠ°ΡΡΠΎΡΠΌΠΎΠ²ΠΎΡΠ½ΡΠ΅ Π²ΠΈΠ±ΡΠΎΡΡΠΎΠ»Ρ, Π² ΠΊΠΎΡΠΎΡΡΡ ΠΏΠΎΠ΄ ΡΡΠΎΠ»Π΅ΡΠ½ΠΈΡΠ΅ΠΉ Π½Π°Ρ ΠΎΠ΄ΠΈΡΡΡ ΠΏΠΎΠ΄ΡΡΠΊΠ° ΠΈΠ»ΠΈ ΡΡΠ°Π·Ρ ΡΡΠ°Π½ΡΠΏΠΎΡΡΠ΅ΡΠ½Π°Ρ Π»Π΅Π½ΡΠ° Π΄Π»Ρ Π²ΡΠΏΠ°Π΄Π°ΡΡΠ΅ΠΉ ΠΏΠ»ΠΈΡΠΊΠΈ. Π‘Π°ΠΌΠ° ΡΡΠΎΠ»Π΅ΡΠ½ΠΈΡΠ° Π΄Π΅Π»Π°Π΅ΡΡΡ ΡΡΠ΅ΠΌΠ½ΠΎΠΉ, ΠΏΠΎΠ΄ ΡΠ°Π·Π½ΡΠ΅ ΡΠΎΡΠΌΡ ΠΏΠ»ΠΈΡΠΎΠΊ.

ΠΡΠ΅Π²ΡΠ°ΡΠΈΡΡ ΡΠ΄Π΅Π»Π°Π½Π½ΡΠΉ ΡΠ°ΠΌΠΎΡΡΠΎΡΡΠ΅Π»ΡΠ½ΠΎ Π²ΠΈΠ±ΡΠΎΡΡΠΎΠ» Π² ΡΠ°ΡΡΠΎΡΠΌΠΎΠ²ΠΎΡΠ½ΡΠΉ ΠΌΠΎΠΆΠ½ΠΎ Π΄Π²ΡΠΌΡ ΠΏΡΡΡΠΌΠΈ:
- Π‘Π΄Π΅Π»Π°ΡΡ Π΄ΠΎΠΏΠΎΠ»Π½ΠΈΡΠ΅Π»ΡΠ½ΡΡ ΡΡΠΎΠ»Π΅ΡΠ½ΠΈΡΡ. ΠΡΠ»ΠΈ ΠΏΡΡΠΆΠΈΠ½Ρ ΠΏΠ»ΠΎΡΠ½ΠΎ ΡΡΠΎΡΡ Π² ΡΡΠ°ΠΊΠ°Π½Π°Ρ ΠΈ Π½Π΅ ΠΏΡΠΈΠ²Π°ΡΠ΅Π½Ρ, ΡΠΎ Π·Π°ΠΌΠ΅Π½ΠΈΡΡ ΠΏΠΎΠ²Π΅ΡΡ Π½ΠΎΡΡΠΈ Π½Π΅Π΄ΠΎΠ»Π³ΠΎ.
ΠΠ±ΠΎΠΉΡΠΈΡΡ ΠΎΠ΄Π½ΠΎΠΉ ΡΡΠΎΠ»Π΅ΡΠ½ΠΈΡΠ΅ΠΉ, Π½ΠΎ Π² ΠΎΠ΄Π½ΠΎΠΉ ΠΈΠ· ΡΡΠΎΡΠΎΠ½ ΡΠ΄Π΅Π»Π°ΡΡ ΡΡΠ΅ΠΌΠ½ΡΠΉ Π»ΡΠΊ, Π²ΠΌΠ΅ΡΡΠΎ ΠΊΠΎΡΠΎΡΠΎΠ³ΠΎ ΠΌΠΎΠΆΠ½ΠΎ Π²ΡΡΠ°Π²Π»ΡΡΡ Π½ΡΠΆΠ½ΡΠ΅ ΡΠΎΡΠΌΡ. Π’Π°ΠΊΠΆΠ΅ ΠΏΠΎΠ΄ Π»ΡΠΊΠΎΠΌ Π½Π΅ ΠΏΠΎΠΌΠ΅ΡΠ°Π΅Ρ ΡΠ΄Π΅Π»Π°ΡΡ ΠΏΠΎΠ΄ΡΡΠΊΡ β Π΄Π°ΠΆΠ΅ Π΅ΡΠ»ΠΈ ΠΏΠ»Π°Π½ΠΈΡΡΠ΅ΡΡΡ ΠΏΠΎΠ΄Ρ Π²Π°ΡΡΠ²Π°ΡΡ ΠΏΠ»ΠΈΡΠΊΡ, ΡΠ°Π½ΠΎ ΠΈΠ»ΠΈ ΠΏΠΎΠ·Π΄Π½ΠΎ ΠΎΠ½Π° ΠΏΡΠΈΠ³ΠΎΠ΄ΠΈΡΡΡ.
ΠΠ΅ΡΡΠ°Π½Π΄Π°ΡΡΠ½ΡΠ΅ ΠΊΠΎΠ½ΡΡΡΡΠΊΡΠΈΠΈ
ΠΠ°ΡΠ΅ΠΌ Π΄Π»Ρ ΠΎΠ±ΡΠ°Π±ΠΎΡΠΊΠΈ Π΄Π΅ΡΡΡΠΊΠ° Π΄ΡΡΠ³ΠΎΠ³ΠΎ ΠΏΠ»ΠΈΡΠΎΠΊ Π΄Π΅Π»Π°ΡΡ ΠΏΠΎΠ»Π½ΠΎΡΠ΅Π½Π½ΡΠΉ Π²ΠΈΠ±ΡΠΎΡΡΠ°Π½ΠΎΠΊ? ΠΡΠ»ΠΈ ΠΈΠ·Π³ΠΎΡΠΎΠ²Π»Π΅Π½ΠΈΠ΅ ΡΠ²ΠΎΠ΅Π³ΠΎ Π²ΠΈΠ±ΡΠΎΡΡΠΎΠ»Π° Π½ΡΠΆΠ½ΠΎ Π½Π΅ Π΄Π»Ρ ΠΏΠΎΡΡΠΎΡΠ½Π½ΠΎΠΉ ΡΠ°Π±ΠΎΡΡ, ΡΠΎ ΠΌΠΎΠΆΠ½ΠΎ ΠΎΠ±ΡΠ°ΡΠΈΡΡ Π²Π½ΠΈΠΌΠ°Π½ΠΈΠ΅ Π½Π° ΡΠΏΡΠΎΡΠ΅Π½Π½ΡΠ΅ ΠΊΠΎΠ½ΡΡΡΡΠΊΡΠΈΠΈ, ΠΊΠΎΡΠΎΡΡΠ΅ ΠΏΠΎΠ»ΡΡΠΈΡΡΡ ΡΠΎΠ±ΡΠ°ΡΡ Π² ΡΠ΅ΡΠ΅Π½ΠΈΠ΅ ΡΠ°ΡΠ°, Π° Π·Π°Π΄Π°ΡΡ ΡΠ²ΠΎΡ Π²ΡΠΏΠΎΠ»Π½ΡΡ Π½Π° Π΄ΠΎΡΡΠ°ΡΠΎΡΠ½ΠΎ Π²ΡΡΠΎΠΊΠΎΠΌ ΡΡΠΎΠ²Π½Π΅.
ΠΠ° Π²ΠΈΠ΄Π΅ΠΎ ΠΏΡΠΈΠΌΠ΅Ρ ΡΠ°Π±ΠΎΡΡ ΠΎΠ΄Π½ΠΎΠΉ ΠΈΠ· Π½ΠΈΡ :
ΠΠ· Π°Π²ΡΠΎΠΌΠΎΠ±ΠΈΠ»ΡΠ½ΡΡ ΠΏΠΎΠΊΡΡΡΠ΅ΠΊ
ΠΠ»Ρ ΠΏΡΠΎΡΡΠ΅ΠΉΡΠ΅ΠΉ ΠΊΠΎΠ½ΡΡΡΡΠΊΡΠΈΠΈ ΠΏΠΎΠ½Π°Π΄ΠΎΠ±ΡΡΡΡ ΡΠΎΠ»ΡΠΊΠΎ 1-3 ΠΏΠΎΠΊΡΡΡΠΊΠΈ (Π² Π·Π°Π²ΠΈΡΠΈΠΌΠΎΡΡΠΈ ΠΎΡ ΡΡΠ΅Π±ΡΠ΅ΠΌΠΎΠΉ Π²ΡΡΠΎΡΡ), Π΄Π΅ΡΠ΅Π²ΡΠ½Π½ΡΠΉ ΡΠΈΡ (ΡΠ°Π·ΠΌΠ΅Ρ Π½Π° 1-2 ΠΏΠ»ΠΈΡΠΊΠΈ) ΠΈ ΡΠ΅Π·ΠΈΠ½ΠΎΠ²ΡΠΉ ΠΌΠΎΠ»ΠΎΡΠΎΠΊ.
ΠΠΎ ΠΏΠ΅ΡΠΈΠΌΠ΅ΡΡΡ ΡΠΈΡΠ° ΠΌΠΎΠΆΠ½ΠΎ ΡΠ΄Π΅Π»Π°ΡΡ Π±ΠΎΡΡΠΈΠΊΠΈ, ΡΡΠΎΠ±Ρ ΡΠΎΡΠΌΡ Ρ Π½Π΅Π³ΠΎ Π½Π΅ ΡΠ»Π΅ΡΠ°Π»ΠΈ, ΠΠ°Π»ΠΈΠ²Π°Π΅ΡΡΡ ΡΠ°ΡΡΠ²ΠΎΡ, ΡΠΎΡΠΌΡ ΡΡΠ°Π²ΡΡΡΡ Π½Π° ΡΠΈΡ ΠΈ ΠΏΠΎΡΡΡΠΊΠΈΠ²Π°Π½ΠΈΠ΅ΠΌ ΠΌΠΎΠ»ΠΎΡΠΊΠ° Π²ΡΠ·ΡΠ²Π°Π΅ΡΡΡ Π΅Π³ΠΎ Π²ΠΈΠ±ΡΠ°ΡΠΈΡ, ΡΠΈΠ»Π° ΠΊΠΎΡΠΎΡΠΎΠΉ ΡΠ΅Π³ΡΠ»ΠΈΡΡΠ΅ΡΡΡ Π² ΠΏΠΎΠ»Π½ΠΎΠΌ ΡΠΌΡΡΠ»Π΅ ΡΡΠΎΠ³ΠΎ ΡΠ»ΠΎΠ²Π° Β«Π²ΡΡΡΠ½ΡΡΒ». Π©ΠΈΡ, ΠΏΡΠΈ Π½Π΅ΠΎΠ±Ρ ΠΎΠ΄ΠΈΠΌΠΎΡΡΠΈ, ΠΏΠΎΠ»ΡΡΠΈΡΡΡ ΠΏΡΠΈΠΊΡΡΡΠΈΡΡ ΠΊ ΠΏΠΎΠΊΡΡΡΠΊΠ°ΠΌ ΠΏΠ°ΡΠΎΠΉ ΡΡΡΡΠΏΠΎΠ².

ΠΠΎΠ½ΡΡΡΡΠΊΡΠΈΡ ΠΌΠΎΠΆΠ½ΠΎ ΡΡΠ»ΠΎΠΆΠ½ΠΈΡΡ, Π΅ΡΠ»ΠΈ Π² Ρ ΠΎΠ·ΡΠΉΡΡΠ²Π΅ Π΅ΡΡΡ ΡΠ»Π΅ΠΊΡΡΠΎΠ΄Π²ΠΈΠ³Π°ΡΠ΅Π»Ρ. ΠΠ½ ΠΏΡΠΈΠΊΡΡΡΠΈΠ²Π°Π΅ΡΡΡ ΠΊ ΡΠΈΡΡ, Π½Π° Π²Π°Π» ΠΊΡΠ΅ΠΏΠΈΡΡΡ ΡΠΊΡΡΠ΅Π½ΡΡΠΈΠΊβ¦ Π ΠΌΠΎΠ»ΠΎΡΠΎΠΊ ΠΌΠΎΠΆΠ½ΠΎ ΠΎΡΠ»ΠΎΠΆΠΈΡΡ Π² ΡΡΡΠΎΠ½Ρ.
ΠΠ· ΠΏΠ΅ΡΡΠΎΡΠ°ΡΠΎΡΠ° ΠΈΠ»ΠΈ ΡΠ΄Π°ΡΠ½ΠΎΠΉ Π΄ΡΠ΅Π»ΠΈ
ΠΠ° ΡΠ΅Π±ΡΠ΅ Π΄Π΅ΡΠ΅Π²ΡΠ½Π½ΠΎΠ³ΠΎ ΡΠΈΡΠ° ΠΈΠ»ΠΈ Π»ΠΈΡΡΠ° ΠΆΠ΅Π»Π΅Π·Π° (ΠΏΠ΅ΡΠΏΠ΅Π½Π΄ΠΈΠΊΡΠ»ΡΡΠ½ΠΎ ΠΏΠΎΠ²Π΅ΡΡ Π½ΠΎΡΡΠΈ) ΠΊΡΠ΅ΠΏΠΈΡΡΡ ΡΡΠ°Π»ΡΠ½Π°Ρ ΠΏΠ»Π°ΡΡΠΈΠ½Π°. ΠΠ° Π΄ΡΡΠ³ΠΎΠΉ ΠΊΠΎΠ½Π΅Ρ ΠΊΡΠ΅ΠΏΠΈΡΡΡ ΡΡΠΎ-ΡΠΎ ΡΠΏΡΡΠ³ΠΎΠ΅ (ΡΡΡΠΏΠΊΠΈ, ΠΊΡΡΠΎΠΊ ΡΠ΅Π·ΠΈΠ½Ρ) ΠΈ Π²ΡΠ΅ ΡΡΠΎ ΡΠΏΠΈΡΠ°Π΅ΡΡΡ Π² ΡΡΠ΅Π½Ρ. Π ΡΡΠ°Π»ΡΠ½ΠΎΠΉ ΠΏΠ»Π°ΡΡΠΈΠ½Π΅ ΠΏΠΎΠ΄Π²ΠΎΠ΄ΠΈΡΡΡ ΠΏΠ΅ΡΡΠΎΡΠ°ΡΠΎΡ ΠΈ Π²ΠΈΠ±ΡΠ°ΡΠΈΡ ΠΏΠΎΠ»ΡΡΠ°Π΅ΡΡΡ Π½Π΅ Ρ ΡΠΆΠ΅ ΡΠ΅ΠΌ ΠΏΡΠΈ ΡΠΏΠΎΡΠΎΠ±Π΅ Ρ ΠΏΠΎΠΊΡΡΡΠΊΠ°ΠΌΠΈ.
ΠΠΌΠ΅ΡΡΠΎ ΡΠ²Π΅ΡΠ»Π° ΠΌΠΎΠΆΠ½ΠΎ ΠΈΡΠΏΠΎΠ»ΡΠ·ΠΎΠ²Π°ΡΡ ΠΊΡΡΠΎΠΊ ΡΡΡΠ±Ρ β ΡΠΎΠ»ΡΠΈΠ½Π° ΠΏΠΎΠ΄Π±ΠΈΡΠ°Π΅ΡΡΡ Π² Π·Π°Π²ΠΈΡΠΈΠΌΠΎΡΡΠΈ ΠΎΡ Π²ΠΎΠ·ΠΌΠΎΠΆΠ½ΠΎΡΡΠ΅ΠΉ ΠΏΠ°ΡΡΠΎΠ½Π° ΠΏΠ΅ΡΡΠΎΡΠ°ΡΠΎΡΠ°.
Π’Π°ΠΊΠΈΠΌ Π½Π΅Ρ ΠΈΡΡΡΠΌ ΡΠΏΠΎΡΠΎΠ±ΠΎΠΌ ΠΌΠΎΠΆΠ½ΠΎ Π±ΡΡΡΡΠΎ ΡΠ΄Π΅Π»Π°ΡΡ Π²ΠΈΠ±ΡΠΎΡΡΠΎΠ» ΡΠΎΡΠΌΠΎΠ²ΠΎΡΠ½ΡΠΉ ΠΈ Π΄Π»Ρ ΠΈΠ·Π²Π»Π΅ΡΠ΅Π½ΠΈΡ ΠΏΠ»ΠΈΡΠΊΠΈ ΠΈΠ· ΡΠΎΡΠΌ.
zamesbetona.ru
ΠΠΈΠ±ΡΠΎΡΡΠΎΠ» ΡΠ²ΠΎΠΈΠΌΠΈ ΡΡΠΊΠ°ΠΌΠΈ — Π²Π°ΡΠΈΠ°Π½ΡΡ ΠΈΠ·Π³ΠΎΡΠΎΠ²Π»Π΅Π½ΠΈΡ

ΠΡΠΎΡΠ΅ΡΡ ΡΠ°ΠΌΠΎΡΡΠΎΡΡΠ΅Π»ΡΠ½ΠΎΠ³ΠΎ ΠΈΠ·Π³ΠΎΡΠΎΠ²Π»Π΅Π½ΠΈΡ ΡΠ°Π·Π»ΠΈΡΠ½ΡΡ ΠΈΠ·Π΄Π΅Π»ΠΈΠΉ ΠΈΠ· Π±Π΅ΡΠΎΠ½Π°, Π³ΠΈΠΏΡΠ° ΠΈ Π΄ΡΡΠ³ΠΈΡ ΡΠΌΠ΅ΡΠ΅ΠΉ ΡΡΠ΅Π±ΡΠ΅Ρ ΡΡΠ°ΡΠ΅Π»ΡΠ½ΠΎΠ³ΠΎ ΡΠΏΠ»ΠΎΡΠ½Π΅Π½ΠΈΡ ΠΌΠ°ΡΡΡ ΠΈ ΡΠ΄Π°Π»Π΅Π½ΠΈΡ ΠΈΠ· Π½Π΅Π΅ Π²ΠΎΠ·Π΄ΡΡ Π°. ΠΡΡΡΠΈΠΌ ΠΏΠΎΠΌΠΎΡΠ½ΠΈΠΊΠΎΠΌ Π² ΡΡΠΎΠΉ ΡΠΈΡΡΠ°ΡΠΈΠΈ ΡΡΠ°Π½Π΅Ρ Π²ΠΈΠ±ΡΠΎΡΡΠΎΠ».Β Π ΡΠΎΠΌ, ΠΊΠ°ΠΊ ΠΈΠ·Π³ΠΎΡΠΎΠ²ΠΈΡΡ ΡΡΠΎ ΠΏΡΠΈΡΠΏΠΎΡΠΎΠ±Π»Π΅Π½ΠΈΠ΅ ΡΠ²ΠΎΠΈΠΌΠΈ ΡΡΠΊΠ°ΠΌΠΈ ΠΈ ΠΏΠΎΠΉΠ΄Π΅Ρ ΡΠ΅ΡΡ Π² Π½Π°ΡΠ΅ΠΉ ΡΡΠ°ΡΡΠ΅.
Π£ΡΡΡΠΎΠΉΡΡΠ²ΠΎ Π²ΠΈΠ±ΡΠΎΡΡΠΎΠ»Π°, Β ΠΈΠ·Π³ΠΎΡΠΎΠ²Π»Π΅Π½ΠΈΠ΅ ΠΎΡΠ½ΠΎΠ²Π°Π½ΠΈΡ
ΠΡΠ½ΠΎΠ²Ρ ΠΊΠΎΠ½ΡΡΡΡΠΊΡΠΈΠΈ Π²ΠΈΠ±ΡΠΎΡΡΠΎΠ»Π° ΡΠΎΡΡΠ°Π²Π»ΡΠ΅Ρ ΡΠΎΠ±ΡΡΠ²Π΅Π½Π½ΠΎ ΡΠ°ΠΌ ΡΡΠΎΠ», ΡΠΎΡΡΠΎΡΡΠΈΠΉ ΠΈΠ· ΠΎΡΠ½ΠΎΠ²Π°Π½ΠΈΡ ΠΈ Π΄Π²ΠΈΠΆΡΡΠ΅ΠΉΡΡ Π² Π½Π΅Π±ΠΎΠ»ΡΡΠΈΡ ΠΏΡΠ΅Π΄Π΅Π»Π°Ρ ΠΏΠ»Π°ΡΡΠΎΡΠΌΡ-ΡΡΠΎΠ»Π΅ΡΠ½ΠΈΡΡ. ΠΡΡΡΠΈΠΌ ΠΌΠ°ΡΠ΅ΡΠΈΠ°Π»ΠΎΠΌ Π΄Π»Ρ ΠΈΡ ΠΈΠ·Π³ΠΎΡΠΎΠ²Π»Π΅Π½ΠΈΡ, Π±Π΅ΡΡΠΏΠΎΡΠ½ΠΎ, ΡΠ²Π»ΡΡΡΡΡ ΠΌΠ΅ΡΠ°Π»Π»Ρ ΠΈ ΠΈΡ ΡΠΏΠ»Π°Π²Ρ, ΠΈΠΌΠ΅ΡΡΠΈΠ΅ Π²ΡΡΠΎΠΊΡΡ ΠΏΡΠΎΡΠ½ΠΎΡΡΡ. ΠΠ°ΠΈΠ±ΠΎΠ»Π΅Π΅ Π΄ΠΎΡΡΡΠΏΠ½Π° ΠΈΠ· Π½ΠΈΡ ΡΡΠ°Π»Ρ. Π‘ΠΎΠ΅Π΄ΠΈΠ½Π΅Π½ΠΈΠ΅ Π³ΠΎΡΠΎΠ²ΡΡ Π΄Π΅ΡΠ°Π»Π΅ΠΉ ΠΎΡΠ½ΠΎΠ²Π°Π½ΠΈΡ ΠΈ ΡΡΠΎΠ»Π΅ΡΠ½ΠΈΡΡ Π»ΡΡΡΠ΅ ΠΎΡΡΡΠ΅ΡΡΠ²Π»ΡΡΡ Ρ ΠΈΡΠΏΠΎΠ»ΡΠ·ΠΎΠ²Π°Π½ΠΈΠ΅ΠΌ ΡΠ²Π°ΡΠ½ΡΡ ΡΠΎΠ΅Π΄ΠΈΠ½Π΅Π½ΠΈΠΉ.

ΠΡΡ ΠΎΠ΄Ρ ΠΈΠ· Π²ΡΡΠ΅ΠΈΠ·Π»ΠΎΠΆΠ΅Π½Π½ΠΎΠ³ΠΎ, Π΄Π»Ρ ΡΠ°ΠΌΠΎΡΡΠΎΡΡΠ΅Π»ΡΠ½ΠΎΠ³ΠΎ ΠΈΠ·Π³ΠΎΡΠΎΠ²Π»Π΅Π½ΠΈΡ Π²ΠΈΠ±ΡΠΎΡΡΠΎΠ»Π° Π²Π°ΠΌ ΠΏΠΎΡΡΠ΅Π±ΡΠ΅ΡΡΡ:
- Π±ΠΎΠ»Π³Π°ΡΠΊΠ° Ρ ΠΎΡΡΠ΅Π·Π½ΡΠΌΠΈ Π΄ΠΈΡΠΊΠ°ΠΌΠΈ ΠΏΠΎ ΠΌΠ΅ΡΠ°Π»Π»Ρ;
- ΡΠ²Π°ΡΠΎΡΠ½ΡΠΉ Π°ΠΏΠΏΠ°ΡΠ°Ρ;
- Π½Π΅ΡΠΊΠΎΠ»ΡΠΊΠΎ ΠΏΠΎΠ³ΠΎΠ½Π½ΡΡ ΠΌΠ΅ΡΡΠΎΠ² ΡΡΠ°Π»ΡΠ½ΠΎΠ³ΠΎ ΡΠ³ΠΎΠ»ΠΊΠ° 50Ρ 50 ΠΈΠ»ΠΈ ΡΡΠ°Π»ΡΠ½ΠΎΠ³ΠΎ ΠΏΡΡΠΌΠΎΡΠ³ΠΎΠ»ΡΠ½ΠΎΠ³ΠΎ ΠΏΡΠΎΡΠΈΠ»Ρ ΡΠ°ΠΊΠΎΠ³ΠΎ ΠΆΠ΅ ΡΠ΅ΡΠ΅Π½ΠΈΡ;
- ΡΡΠ°Π»ΡΠ½ΠΎΠΉ Π»ΠΈΡΡ ΡΠΎΠ»ΡΠΈΠ½ΠΎΠΉ 3-5 ΠΌΠΈΠ»Π»ΠΈΠΌΠ΅ΡΡΠΎΠ², ΡΠ°Π·ΠΌΠ΅ΡΡ ΠΊΠΎΡΠΎΡΠΎΠ³ΠΎ ΡΠ°Π²Π½Ρ ΡΠ°Π·ΠΌΠ΅ΡΠ°ΠΌ ΡΡΠΎΠ»Π΅ΡΠ½ΠΈΡΡ ΠΈΠ»ΠΈ ΠΏΡΠ΅Π²ΠΎΡΡ ΠΎΠ΄ΡΡ ΠΈΡ .
Π Π°Π±ΠΎΡΡ Π½Π°ΡΠ½Π΅ΠΌ Ρ ΠΈΠ·Π³ΠΎΡΠΎΠ²Π»Π΅Π½ΠΈΡ ΠΎΡΠ½ΠΎΠ²Π°Π½ΠΈΡ. ΠΠ»Ρ ΡΡΠΎΠ³ΠΎ ΠΈΠ· ΡΠ΅ΡΡΡΠ΅Ρ ΠΏΠΎΠΏΠ°ΡΠ½ΠΎ ΡΠ°Π²Π½ΡΡ ΠΎΡΡΠ΅Π·ΠΊΠΎΠ² ΠΏΡΠΎΡΠΈΠ»Ρ ΠΈΠ»ΠΈ ΡΠ³ΠΎΠ»ΠΊΠ° ΠΈΠ·Π³ΠΎΡΠΎΠ²ΡΡΠ΅ ΠΏΡΡΠΌΠΎΡΠ³ΠΎΠ»ΡΠ½ΡΡ ΡΠ°ΠΌΡ, ΡΠΎΠ΅Π΄ΠΈΠ½ΡΡ Π΄Π΅ΡΠ°Π»ΠΈ Π² ΠΌΠ΅ΡΡΠ°Ρ ΡΡΡΠΊΠ° ΡΠ²Π°ΡΠ½ΡΠΌ ΡΠ²ΠΎΠΌ. Π‘Π»Π΅Π΄ΠΈΡΠ΅ Π·Π° ΡΠ΅ΠΌ, ΡΡΠΎΠ±Ρ ΡΠ°ΠΌΠ° ΠΈΠΌΠ΅Π»Π° ΠΈΠ΄Π΅Π°Π»ΡΠ½ΡΡ ΠΏΠ»ΠΎΡΠΊΠΎΡΡΠ½ΠΎΡΡΡ ΠΈ ΠΏΡΡΠΌΠΎΡΠ³ΠΎΠ»ΡΠ½ΠΎΡΡΡ. ΠΠΎΠ±ΠΈΡΡΡΡ ΡΡΠΎΠ³ΠΎ ΠΌΠΎΠΆΠ½ΠΎ, Π²ΡΠΏΠΎΠ»Π½ΡΡ ΡΠ΅Π· Π·Π°Π³ΠΎΡΠΎΠ²ΠΎΠΊ ΡΡΡΠΎΠ³ΠΎ ΠΏΠ΅ΡΠΏΠ΅Π½Π΄ΠΈΠΊΡΠ»ΡΡΠ½ΠΎ ΠΎΡΠΈ ΠΈ ΡΠ²Π°ΡΠΈΠ²Π°Ρ Π΄Π΅ΡΠ°Π»ΠΈ Π½Π° ΠΏΠ»ΠΎΡΠΊΠΎΠΌ ΠΎΡΠ½ΠΎΠ²Π°Π½ΠΈΠΈ, ΠΊΠΎΠ½ΡΡΠΎΠ»ΠΈΡΡΡ ΡΠ°Π²Π΅Π½ΡΡΠ²ΠΎ Π΄ΠΈΠ°Π³ΠΎΠ½Π°Π»Π΅ΠΉ.

ΠΠΎ ΡΠ³Π»Π°ΠΌ ΡΠ°ΠΌΡ ΠΏΡΠΈΡΠΎΠ΅Π΄ΠΈΠ½ΠΈΡΠ΅ ΡΠ΅ΡΡΡΠ΅ ΡΠ°Π²Π½ΡΡ ΠΎΡΡΠ΅Π·ΠΊΠ° β Π½ΠΎΠΆΠΊΠΈ ΠΎΡΠ½ΠΎΠ²Π°Π½ΠΈΡ. ΠΠ»Ρ ΠΏΡΠΈΠ΄Π°Π½ΠΈΡ Π΄ΠΎΠΏΠΎΠ»Π½ΠΈΡΠ΅Π»ΡΠ½ΠΎΠΉ ΠΏΡΠΎΡΠ½ΠΎΡΡΠΈ ΡΠΎΠ΅Π΄ΠΈΠ½Π΅Π½ΠΈΡ, ΡΡΠΎ ΠΎΡΠΎΠ±Π΅Π½Π½ΠΎ Π°ΠΊΡΡΠ°Π»ΡΠ½ΠΎ ΠΏΡΠΈ ΠΈΠ·Π³ΠΎΡΠΎΠ²Π»Π΅Π½ΠΈΠΈ ΠΌΠ°ΡΡΠΈΠ²Π½ΡΡ ΠΈΠ·Π΄Π΅Π»ΠΈΠΉ, Π½Π°ΠΏΡΠΈΠΌΠ΅Ρ, Π±Π΅ΡΠΎΠ½Π½ΡΡ Π±Π»ΠΎΠΊΠΎΠ², Π² ΠΌΠ΅ΡΡΠ°Ρ ΡΠΎΠ΅Π΄ΠΈΠ½Π΅Π½ΠΈΠΉ ΠΏΡΠΈΠ²Π°ΡΠΈΡΠ΅ ΡΡΠ°Π»ΡΠ½ΡΠ΅ ΠΊΠΎΡΡΠ½ΠΊΠΈ ΠΈΠ· Π»ΠΈΡΡΠ° ΡΠΎΠ»ΡΠΈΠ½ΠΎΠΉ 3 ΠΌΠΌ. ΠΠΎΡΠ»Π΅ ΡΠ±ΠΎΡΠΊΠΈ ΠΏΡΠΎΠ²Π΅ΡΡΡΠ΅ Π³ΠΎΡΠΈΠ·ΠΎΠ½ΡΠ°Π»ΡΠ½ΠΎΡΡΡ Π²Π΅ΡΡ Π½Π΅ΠΉ ΡΠ°ΡΡΠΈ ΠΎΡΠ½ΠΎΠ²Π°Π½ΠΈΡ. ΠΡΠΈ Π½Π΅ΠΎΠ±Ρ ΠΎΠ΄ΠΈΠΌΠΎΡΡΠΈ Π±ΠΎΠ»Π³Π°ΡΠΊΠΎΠΉ ΡΠ»Π΅Π³ΠΊΠ° ΠΏΠΎΠ΄ΡΠ΅ΠΆΡΡΠ΅ Π½ΠΈΠΆΠ½ΡΡ ΡΠ°ΡΡΡ Π½ΠΎΠΆΠ΅ΠΊ.

ΠΠ·Π³ΠΎΡΠΎΠ²Π»Π΅Π½ΠΈΠ΅ Π²ΠΈΠ±ΡΠΎΠΏΠ»Π°ΡΡΠΎΡΠΌΡ
ΠΡΠΎΠΌΠ΅ ΠΎΡΠ½ΠΎΠ²Π°Π½ΠΈΡ Π½Π΅ΠΎΠ±Ρ ΠΎΠ΄ΠΈΠΌΠΎ ΠΈΠ·Π³ΠΎΡΠΎΠ²ΠΈΡΡ ΠΏΠΎΠ΄Π²ΠΈΠΆΠ½ΡΡ ΡΡΠΎΠ»Π΅ΡΠ½ΠΈΡΡ. ΠΠ½Π° Π±ΡΠ΄Π΅Ρ ΡΠΎΡΡΠΎΡΡΡ ΠΈΠ· ΠΏΡΡΠΌΠΎΡΠ³ΠΎΠ»ΡΠ½ΠΎΠΉ ΡΠ°ΠΌΡ, ΡΠ°Π·ΠΌΠ΅ΡΡ ΠΊΠΎΡΠΎΡΠΎΠΉ ΠΈΠ΄Π΅Π½ΡΠΈΡΠ½Ρ ΡΠ°Π·ΠΌΠ΅ΡΠ°ΠΌ ΡΠ°ΠΌΡ ΠΎΡΠ½ΠΎΠ²Π°Π½ΠΈΡ ΡΡΠΎΠ»Π°, ΠΈ ΡΡΠ°Π»ΡΠ½ΠΎΠΉ ΡΡΠΎΠ»Π΅ΡΠ½ΠΈΡΡ. ΠΡΠΈ ΠΈΠ·Π³ΠΎΡΠΎΠ²Π»Π΅Π½ΠΈΠΈ Π²ΡΠΎΡΠΎΠΉ ΡΠ°ΠΌΡ Π² Π΅Π΅ ΡΠ΅ΡΠ΅Π΄ΠΈΠ½Π΅ Π½Π΅ΠΎΠ±Ρ ΠΎΠ΄ΠΈΠΌΠΎ Π²Π²Π°ΡΠΈΡΡ Π΄ΠΎΠΏΠΎΠ»Π½ΠΈΡΠ΅Π»ΡΠ½ΡΠΉ ΡΡΠ°Π»ΡΠ½ΠΎΠΉ Π±ΡΡΡΠΎΠΊ, Π½Π° ΠΊΠΎΡΠΎΡΠΎΠΌ ΠΈΠ·Π³ΠΎΡΠΎΠ²ΠΈΠΌ Π½Π΅Π±ΠΎΠ»ΡΡΡΡ ΠΏΠ»ΠΎΡΠ°Π΄ΠΊΡ Π΄Π»Ρ ΠΊΡΠ΅ΠΏΠ»Π΅Π½ΠΈΡ ΠΈΡΡΠΎΡΠ½ΠΈΠΊΠ° Π²ΠΈΠ±ΡΠ°ΡΠΈΠΉ.

ΠΡΠΎΠ±ΠΎΠ΅ Π²Π½ΠΈΠΌΠ°Π½ΠΈΠ΅ ΡΠ»Π΅Π΄ΡΠ΅Ρ ΡΠ΄Π΅Π»ΠΈΡΡ ΡΠΏΠΎΡΠΎΠ±Ρ ΠΊΡΠ΅ΠΏΠ»Π΅Π½ΠΈΡ ΠΏΠΎΠ΄Π²ΠΈΠΆΠ½ΠΎΠΉ ΡΠ°Π±ΠΎΡΠ΅ΠΉ ΠΏΠ»Π°ΡΡΠΎΡΠΌΡ ΡΡΠΎΠ»Π° Ρ Π΅Π³ΠΎ ΠΎΡΠ½ΠΎΠ²Π°Π½ΠΈΠ΅ΠΌ. ΠΠ»Ρ ΡΠΎΡ ΡΠ°Π½Π΅Π½ΠΈΡ ΠΈ ΡΡΠΈΠ»Π΅Π½ΠΈΡ Π²ΠΈΠ±ΡΠ°ΡΠΈΠΉ Π½Π΅ΠΎΠ±Ρ ΠΎΠ΄ΠΈΠΌΠΎ Π΄ΠΎΠ±ΠΈΡΡΡΡ ΠΎΠ³ΡΠ°Π½ΠΈΡΠ΅Π½Π½ΠΎΠΉ ΠΏΠΎΠ΄Π²ΠΈΠΆΠ½ΠΎΡΡΠΈ ΡΡΠΎΠ»Π΅ΡΠ½ΠΈΡΡ. ΠΠ°ΠΈΠ±ΠΎΠ»Π΅Π΅ ΡΠ°ΡΡΠΎ Π΄Π»Ρ ΡΡΠΎΠ³ΠΎ ΠΏΡΠΈΠΌΠ΅Π½ΡΡΡ ΠΏΡΠΎΡΠ½ΡΠ΅ ΡΡΠ°Π»ΡΠ½ΡΠ΅ ΠΏΡΡΠΆΠΈΠ½Ρ, ΡΠ°Π±ΠΎΡΠ°ΡΡΠΈΠ΅ Π½Π° ΡΠΆΠ°ΡΠΈΠ΅, (Ρ Π±ΠΎΠ»ΡΡΠΈΠΌ ΡΠ°ΡΡΡΠΎΡΠ½ΠΈΠ΅ΠΌ ΠΌΠ΅ΠΆΠ΄Ρ Π²ΠΈΡΠΊΠ°ΠΌΠΈ). ΠΠ»Ρ ΡΡΡΠ°Π½ΠΎΠ²ΠΊΠΈ ΠΈ ΠΊΡΠ΅ΠΏΠ»Π΅Π½ΠΈΡ ΡΡΠΈΡ ΡΠ»Π΅ΠΌΠ΅Π½ΡΠΎΠ² Π² Π²Π΅ΡΡ Π½Π΅ΠΉ ΡΠ°ΡΡΠΈ ΡΠ°ΠΌΡ ΠΎΡΠ½ΠΎΠ²Π°Π½ΠΈΡ ΠΈ Π½ΠΈΠΆΠ½Π΅ΠΉ ΡΠ°ΡΡΠΈ ΡΠ°ΠΌΡ ΡΡΠΎΠ»Π΅ΡΠ½ΠΈΡΡ ΠΏΡΠΈΠ²Π°ΡΠΈΠ²Π°ΡΡ ΠΎΠ±ΡΠ΅Π·ΠΊΠΈ ΡΡΠ°Π»ΡΠ½ΠΎΠΉ ΡΡΡΠ±Ρ ΠΏΠΎΠ΄Ρ ΠΎΠ΄ΡΡΠ΅Π³ΠΎ Π΄ΠΈΠ°ΠΌΠ΅ΡΡΠ°. ΠΠΎΠ΄ΠΎΠ±ΡΠ°Π² Π΄ΠΎΡΡΠ°ΡΠΎΡΠ½ΡΡ Π΄Π»ΠΈΠ½Ρ ΠΎΠ±ΡΠ΅Π·ΠΊΠΎΠ² ΠΌΠΎΠΆΠ½ΠΎ Π½Π΅ ΠΏΡΠΈΠ²Π°ΡΠΈΠ²Π°ΡΡ ΠΏΡΡΠΆΠΈΠ½Ρ ΠΊ Π΄Π΅ΡΠ°Π»ΡΠΌ ΡΡΠΎΠ»Π°, ΡΡΠΎ Π·Π½Π°ΡΠΈΡΠ΅Π»ΡΠ½ΠΎ ΠΎΠ±Π»Π΅Π³ΡΠΈΡ ΠΈΡ Π΄Π°Π»ΡΠ½Π΅ΠΉΡΡΡ Π·Π°ΠΌΠ΅Π½Ρ Π² ΡΠ»ΡΡΠ°Π΅ ΠΏΠΎΠ»ΠΎΠΌΠΊΠΈ. ΠΡΡΠΆΠΈΠ½Ρ ΠΌΠΎΠΆΠ½ΠΎ ΠΊΡΠΏΠΈΡΡ Π² ΠΌΠ°Π³Π°Π·ΠΈΠ½Π΅ Π°Π²ΡΠΎΠ·Π°ΠΏΡΠ°ΡΡΠ΅ΠΉ.

ΠΡΠΈ ΠΏΡΠ°Π²ΠΈΠ»ΡΠ½ΠΎΠΉ ΡΡΡΠ°Π½ΠΎΠ²ΠΊΠ΅ ΠΈ ΡΠ°Π²Π΅Π½ΡΡΠ²Π΅ Π΄Π»ΠΈΠ½ ΠΏΡΡΠΆΠΈΠ½ ΠΎΡΠ½ΠΎΠ²Π°Π½ΠΈΠ΅ ΠΈ Π²ΠΈΠ±ΡΠΎΠΏΠ»Π°ΡΡΠΎΡΠΌΠ° ΠΏΠΎΡΠ»Π΅ ΡΠ±ΠΎΡΠΊΠΈ Π΄ΠΎΠ»ΠΆΠ½Ρ Π±ΡΡΡ ΠΏΠ°ΡΠ°Π»Π»Π΅Π»ΡΠ½Ρ Π΄ΡΡΠ³ Π΄ΡΡΠ³Ρ.

ΠΡΠΎΠΌΠ΅ Π²ΠΈΡΡΡ ΠΏΡΡΠΆΠΈΠ½ Π²ΠΏΠΎΠ»Π½Π΅ Π²ΠΎΠ·ΠΌΠΎΠΆΠ½ΠΎ ΠΈΡΠΏΠΎΠ»ΡΠ·ΠΎΠ²Π°Π½ΠΈΠ΅ ΠΏΠ΅ΡΠ΅Π»Ρ ΠΈΠ· ΠΏΡΠΎΡΠ½ΠΎΠ³ΠΎ ΠΆΠ³ΡΡΠ° ΠΈΠ»ΠΈ Π²Π΅ΡΠ΅Π²ΠΊΠΈ. Π§Π΅ΡΡΡΠ΅ Π²Π΅ΡΠ΅Π²ΠΎΡΠ½ΡΡ ΡΠΎΠ΅Π΄ΠΈΠ½Π΅Π½ΠΈΡ ΠΏΠΎ ΡΠ³Π»Π°ΠΌ ΠΎΡΠ½ΠΎΠ²Π°Π½ΠΈΡ Π±ΡΠ΄ΡΡ ΡΠ΅Π½ΡΡΠΈΡΠΎΠ²Π°ΡΡ Π²Π΅ΡΡ Π½ΡΡ ΠΏΠ»Π°ΡΡΠΎΡΠΌΡ.

ΠΠΈΠ±ΡΠ°ΡΠΎΡΡ Π·Π°Π²ΠΎΠ΄ΡΠΊΠΈΠ΅ ΠΈ ΡΠ°ΠΌΠΎΠ΄Π΅Π»ΡΠ½ΡΠ΅
ΠΠ±ΡΠ·Π°ΡΠ΅Π»ΡΠ½ΠΎΠΉ ΡΠ°ΡΡΡΡ Π»ΡΠ±ΠΎΠ³ΠΎ Π²ΠΈΠ±ΡΠΎΡΡΠΎΠ»Π° ΡΠ²Π»ΡΠ΅ΡΡΡ ΠΈΡΡΠΎΡΠ½ΠΈΠΊ Π²ΠΈΠ±ΡΠ°ΡΠΈΠΉ β Π²ΠΈΠ±ΡΠ°ΡΠΎΡ, ΠΊΠΎΡΠΎΡΡΠΉ ΠΌΠΎΠΆΠ΅Ρ Π±ΡΡΡ ΠΏΡΠΎΠΌΡΡΠ»Π΅Π½Π½ΠΎΠ³ΠΎ


ΠΈΠ»ΠΈ ΡΠ°ΠΌΠΎΡΡΠΎΡΡΠ΅Π»ΡΠ½ΠΎΠ³ΠΎ ΠΈΠ·Π³ΠΎΡΠΎΠ²Π»Π΅Π½ΠΈΡ. ΠΠ°ΠΊ ΠΏΡΠ°Π²ΠΈΠ»ΠΎ, ΠΎΠ½ ΠΏΡΠ΅Π΄ΡΡΠ°Π²Π»ΡΠ΅Ρ ΡΠΎΠ±ΠΎΠΉ ΡΠ»Π΅ΠΊΡΡΠΎΠ΄Π²ΠΈΠ³Π°ΡΠ΅Π»Ρ Ρ Π·Π°ΠΊΡΠ΅ΠΏΠ»Π΅Π½Π½ΡΠΌ Π½Π° Π΅Π³ΠΎ Π²Π°Π»Ρ ΡΠΊΡΡΠ΅Π½ΡΡΠΈΠΊΠΎΠΌ β ΡΠ·Π»ΠΎΠΌ, Π²ΡΠ°ΡΠ΅Π½ΠΈΠ΅ ΠΊΠΎΡΠΎΡΠΎΠ³ΠΎ ΠΎΡΡΡΠ΅ΡΡΠ²Π»ΡΠ΅ΡΡΡ Ρ ΠΎΠΏΡΠ΅Π΄Π΅Π»Π΅Π½Π½ΡΠΌ ΡΠΌΠ΅ΡΠ΅Π½ΠΈΠ΅ΠΌ ΠΎΡΠ½ΠΎΡΠΈΡΠ΅Π»ΡΠ½ΠΎ Π³Π΅ΠΎΠΌΠ΅ΡΡΠΈΡΠ΅ΡΠΊΠΎΠ³ΠΎ ΡΠ΅Π½ΡΡΠ° ΠΈΠ»ΠΈ ΡΠ΅Π½ΡΡΠ° ΠΌΠ°ΡΡ.
Π£ΡΡΡΠΎΠΉΡΡΠ²ΠΎ Π·Π°Π²ΠΎΠ΄ΡΠΊΠΈΡ ΡΠΊΡΡΠ΅Π½ΡΡΠΈΠΊΠΎΠ² ΠΌΠΎΠΆΠ΅Ρ Π±ΡΡΡ ΡΠ°Π·Π»ΠΈΡΠ½ΠΎ ΠΈ Π·Π°Π²ΠΈΡΠΈΡ ΠΎΡ Π½Π΅ΠΎΠ±Ρ ΠΎΠ΄ΠΈΠΌΡΡ ΡΠ°Π±ΠΎΡΠΈΡ ΠΏΠ°ΡΠ°ΠΌΠ΅ΡΡΠΎΠ² ΠΏΡΠΈΡΠΏΠΎΡΠΎΠ±Π»Π΅Π½ΠΈΡ. ΠΠΎΠ»Π΅Π΅ ΠΌΠΎΡΠ½ΡΠ΅ Π²ΠΈΠ±ΡΠ°ΡΠΎΡΡ ΠΈΠΌΠ΅ΡΡ ΠΏΠ»ΠΎΡΠΊΠΎΠ΅ ΠΏΠ»Π°ΡΡΠΈΠ½ΡΠ°ΡΠΎΠ΅ ΡΡΡΠΎΠ΅Π½ΠΈΠ΅. Π Π΅Π³ΡΠ»ΠΈΡΠΎΠ²ΠΊΠ° ΠΈΡ ΠΎΡΡΡΠ΅ΡΡΠ²Π»ΡΠ΅ΡΡΡ ΠΏΡΡΠ΅ΠΌ ΡΠΈΠΊΡΠ°ΡΠΈΠΈ ΠΏΠ»Π°ΡΡΠΈΠ½ ΠΌΠ΅ΠΆΠ΄Ρ ΡΠΎΠ±ΠΎΠΉ Ρ ΡΠ°Π·Π»ΠΈΡΠ½ΡΠΌΠΈ ΡΠ³Π»Π°ΠΌΠΈ ΠΏΠΎΠ²ΠΎΡΠΎΡΠ°.

ΠΡΠΈ Β ΠΈΠ·Π³ΠΎΡΠΎΠ²Π»Π΅Π½ΠΈΠΈ ΡΠΊΡΡΠ΅Π½ΡΡΠΈΠΊΠ° Π΄Π»Ρ Π²ΠΈΠ±ΡΠΎΡΡΠΎΠ»Π° ΡΠ²ΠΎΠΈΠΌΠΈ ΡΡΠΊΠ°ΠΌΠΈ ΠΈΡΠΏΠΎΠ»ΡΠ·ΡΡΡ ΡΠ°Π·Π»ΠΈΡΠ½ΡΠ΅ ΡΠΏΠΎΡΠΎΠ±Ρ ΡΠ΅Π³ΡΠ»ΠΈΡΡΠ΅ΠΌΠΎΠ³ΠΎ ΡΠΌΠ΅ΡΠ΅Π½ΠΈΡ ΡΠ΅Π½ΡΡΠ° ΠΌΠ°ΡΡΡ ΠΌΠ°Ρ ΠΎΠ²ΠΈΠΊΠ°. ΠΠ΄ΠΈΠ½ ΠΈΠ· Π½ΠΈΡ β ΠΈΡΠΏΠΎΠ»ΡΠ·ΠΎΠ²Π°Π½ΠΈΠ΅ Π²ΠΈΠ½ΡΠ° Π΄ΠΎΡΡΠ°ΡΠΎΡΠ½ΠΎΠΉ Π΄Π»ΠΈΠ½Ρ, ΡΠΈΠΊΡΠΈΡΡΠ΅ΠΌΠΎΠ³ΠΎ Π² ΡΠ°Π·Π»ΠΈΡΠ½ΡΡ ΠΏΠΎΠ»ΠΎΠΆΠ΅Π½ΠΈΡΡ ΠΊΠΎΠ½ΡΡΠ³Π°ΠΉΠΊΠΎΠΉ. Π£ΡΠΈΠ»Π΅Π½ΠΈΡ Π²ΠΈΠ±ΡΠ°ΡΠΈΠΉ Π΄ΠΎΠ±ΠΈΠ²Π°ΡΡΡΡ Π²ΡΠ²ΠΈΠ½ΡΠΈΠ²Π°Π½ΠΈΠ΅ΠΌ Π±ΠΎΠ»ΡΠ°, Π° ΡΠΌΠ΅Π½ΡΡΠ΅Π½ΠΈΡ β Π΅Π³ΠΎ Π²Π²ΠΈΠ½ΡΠΈΠ²Π°Π½ΠΈΠ΅ΠΌ Π² ΠΎΡΠ²Π΅ΡΡΡΠΈΠ΅ Π² ΠΌΠ°Ρ ΠΎΠ²ΠΈΠΊΠ΅, Π·Π°ΠΊΡΠ΅ΠΏΠ»Π΅Π½Π½ΠΎΠΌ Π½Π° Π²Π°Π»Ρ.

ΠΡΡΠ³ΠΎΠΉ Π²Π°ΡΠΈΠ°Π½Ρ ΠΈΡΠΏΠΎΠ»ΡΠ·ΠΎΠ²Π°Π½ΠΈΡ ΡΠ΅Π·ΡΠ±ΠΎΠ²ΡΡ Π΄Π΅ΡΠ°Π»Π΅ΠΉ ΡΠΎΡΡΠΎΠΈΡ Π² ΠΈΡΠΏΠΎΠ»ΡΠ·ΠΎΠ²Π°Π½ΠΈΠΈ ΠΏΠ°ΡΡ Π³Π°ΠΉΠΊΠ°-Π±ΠΎΠ»Ρ Ρ ΡΠ΅Π·ΡΠ±ΠΎΠΉ Π10-Π14. ΠΠ΅ΡΠ°Π»Ρ Ρ ΠΎΡΠ²Π΅ΡΡΡΠΈΠ΅ΠΌ ΠΏΡΠΈΠ²Π°ΡΠΈΠ²Π°Π΅ΡΡΡ ΠΊ Π²Π°Π»Ρ Π΄Π²ΠΈΠ³Π°ΡΠ΅Π»Ρ, Π² Π½Π΅Π΅ Π²Π²ΠΈΠ½ΡΠΈΠ²Π°Π΅ΡΡΡ Π±ΠΎΠ»Ρ ΠΈ ΠΊΠΎΠ½ΡΡΠΈΡΡΡ Π² ΡΠ°Π·Π»ΠΈΡΠ½ΠΎΠΌ ΠΏΠΎΠ»ΠΎΠΆΠ΅Π½ΠΈΠΈ, Π² Π·Π°Π²ΠΈΡΠΈΠΌΠΎΡΡΠΈ ΠΎΡ ΡΡΠ΅Π±ΡΠ΅ΠΌΡΡ ΡΠ°Π±ΠΎΡΠΈΡ ΠΏΠ°ΡΠ°ΠΌΠ΅ΡΡΠΎΠ².

ΠΠΈΠ±ΡΠΎΡΡΠΎΠ» Π½Π° Π°Π²ΡΠΎΠΏΠΎΠΊΡΡΡΠΊΠ΅
ΠΡΠΎΠΌΠ΅ ΠΎΠΏΠΈΡΠ°Π½Π½ΡΡ Π²Π°ΡΠΈΠ°Π½ΡΠΎΠ² ΡΠ°ΠΌΠΎΡΡΠΎΡΡΠ΅Π»ΡΠ½ΠΎ ΠΈΠ·Π³ΠΎΡΠ°Π²Π»ΠΈΠ²Π°Π΅ΠΌΡΡ Π²ΠΈΠ±ΡΠΎΡΡΠΎΠ»ΠΎΠ² Π½Π° ΠΌΠ΅ΡΠ°Π»Π»ΠΈΡΠ΅ΡΠΊΠΎΠΌ ΠΎΡΠ½ΠΎΠ²Π°Π½ΠΈΠΈ Π΄Π»Ρ ΠΈΠ·Π³ΠΎΡΠΎΠ²Π»Π΅Π½ΠΈΡ Π½Π΅Π±ΠΎΠ»ΡΡΠΈΡ ΠΈΠ·Π΄Π΅Π»ΠΈΠΉ ΠΌΠ΅ΡΠΎΠ΄ΠΎΠΌ Ρ ΠΎΠ»ΠΎΠ΄Π½ΠΎΠ³ΠΎ Π»ΠΈΡΡΡ ΠΌΠΎΠΆΠ½ΠΎ ΠΏΠΎΡΠ΅ΠΊΠΎΠΌΠ΅Π½Π΄ΠΎΠ²Π°ΡΡ Π΄ΠΎΡΡΠ°ΡΠΎΡΠ½ΠΎ ΠΏΡΠΎΡΡΠΎΠΉ Π²Π°ΡΠΈΠ°Π½Ρ ΠΏΡΠΈΡΠΏΠΎΡΠΎΠ±Π»Π΅Π½ΠΈΡ. Π Π΅ΡΡ ΠΈΠ΄Π΅Ρ ΠΎ Π²ΠΈΠ±ΡΠΎΡΡΠΎΠ»Π΅ Π½Π° Π°Π²ΡΠΎΠΌΠΎΠ±ΠΈΠ»ΡΠ½ΠΎΠΉ ΠΏΠΎΠΊΡΡΡΠΊΠ΅.

ΠΠ½ ΠΏΡΠ΅Π΄ΡΡΠ°Π²Π»ΡΠ΅Ρ ΡΠΎΠ±ΠΎΠΉ ΠΏΠ»ΠΎΡΠΊΠΎΠ΅ ΠΎΡΠ½ΠΎΠ²Π°Π½ΠΈΠ΅ ΠΈΠ· ΠΊΡΡΠΊΠ° ΠΠ‘Π, ΠΠ‘Π ΠΈΠ»ΠΈ ΡΠΎΠ»ΡΡΠΎΠΉ ΡΠ°Π½Π΅ΡΡ, Π² ΡΠ΅Π½ΡΡΠ΅ ΠΊΠΎΡΠΎΡΠΎΠ³ΠΎ ΠΊΡΠ΅ΠΏΠΈΡΡΡ ΡΠ°ΠΌΠΎΡΡΠΎΡΡΠ΅Π»ΡΠ½ΡΠΉ Π²ΠΈΠ±ΡΠ°ΡΠΎΡ Π½Π΅Π±ΠΎΠ»ΡΡΠΎΠΉ ΠΌΠΎΡΠ½ΠΎΡΡΠΈ. ΠΡΠ½ΠΎΠ²Π°Π½ΠΈΠ΅ΠΌ ΡΠ°ΠΊΠΎΠ³ΠΎ Π²ΠΈΠ±ΡΠΎΡΡΠΎΠ»Π° ΡΠ²Π»ΡΠ΅ΡΡΡ Π°Π²ΡΠΎΠΏΠΎΠΊΡΡΡΠΊΠ° Π»ΡΠ±ΠΎΠ³ΠΎ Π΄ΠΈΠ°ΠΌΠ΅ΡΡΠ°.

Π ΠΊΠ°ΡΠ΅ΡΡΠ²Π΅ ΠΈΡΡΠΎΡΠ½ΠΈΠΊΠ° Π²ΠΈΠ±ΡΠ°ΡΠΈΠΉ ΠΌΠΎΠΆΠ½ΠΎ ΠΈΡΠΏΠΎΠ»ΡΠ·ΠΎΠ²Π°ΡΡ Π½Π°ΠΈΠ±ΠΎΠ»Π΅Π΅ Π΄ΠΎΡΡΡΠΏΠ½ΡΠ΅ Π²Π°ΡΠΈΠ°Π½ΡΡ ΡΠ»Π΅ΠΊΡΡΠΎΠ΄Π²ΠΈΠ³Π°ΡΠ΅Π»Π΅ΠΉ ΠΎΡ ΡΠ°Π·Π»ΠΈΡΠ½ΡΡ Π±ΡΡΠΎΠ²ΡΡ ΠΏΡΠΈΠ±ΠΎΡΠΎΠ², Π½Π°ΠΏΡΠΈΠΌΠ΅Ρ, ΠΎΡ ΡΡΠΈΡΠ°Π»ΡΠ½ΡΡ ΠΌΠ°ΡΠΈΠ½.

ΠΡΠ΅ΠΏΠ»Π΅Π½ΠΈΠ΅ ΠΏΠΎΠΊΡΡΡΠΊΠΈ ΠΊ ΡΠ°Π±ΠΎΡΠ΅ΠΉ ΠΏΠ»Π°ΡΡΠΎΡΠΌΠ΅ ΠΎΡΡΡΠ΅ΡΡΠ²Π»ΡΠ΅ΡΡΡ Π½Π° Π±ΠΎΠ»ΡΠ°Ρ ΠΈΠ»ΠΈ ΡΠ°ΠΌΠΎΡΠ΅Π·Π°ΠΌΠΈ. Π’Π°ΠΊ ΠΆΠ΅ Π½Π° ΡΡΡΡΠΏΠ°Ρ ΠΌΠΎΠΆΠ½ΠΎ Π·Π°ΠΊΡΠ΅ΠΏΠΈΡΡ ΠΈ ΡΠ°ΠΌΠΎΠ΄Π΅Π»ΡΠ½ΡΠΉ ΠΈΡΡΠΎΡΠ½ΠΈΠΊ Π²ΠΈΠ±ΡΠ°ΡΠΈΠΉ.
Π ΡΠ»ΡΡΠ°Π΅ Π½Π΅ΠΎΠ±Ρ ΠΎΠ΄ΠΈΠΌΠΎΡΡΠΈ ΠΈ ΡΠ΄ΠΎΠ±ΡΡΠ²Π° ΡΠΊΡΠΏΠ»ΡΠ°ΡΠ°ΡΠΈΠΈ Π²ΠΎΠ·ΠΌΠΎΠΆΠ΅Π½ Π²Π°ΡΠΈΠ°Π½Ρ ΠΈΡΠΏΠΎΠ»ΡΠ·ΠΎΠ²Π°Π½ΠΈΡ ΠΏΠΈΡΠ°ΠΌΠΈΠ΄Ρ ΠΈΠ· Π½Π΅ΡΠΊΠΎΠ»ΡΠΊΠΈΡ ΠΏΠΎΠΊΡΡΡΠ΅ΠΊ.

ΠΠ»Ρ Π±ΠΎΠ»ΡΡΠ΅ΠΉ ΡΡΡΠΎΠΉΡΠΈΠ²ΠΎΡΡΠΈ ΠΌΠΎΠΆΠ½ΠΎ Π²Π·ΡΡΡ Π°Π²ΡΠΎΡΠ΅Π·ΠΈΠ½Ρ Ρ ΡΠ°Π·Π»ΠΈΡΠ½ΡΠΌ Π½Π°ΡΡΠΆΠ½ΡΠΌ Π΄ΠΈΠ°ΠΌΠ΅ΡΡΠΎΠΌ.
Π’Π°ΠΊΠΈΠΌ ΠΎΠ±ΡΠ°Π·ΠΎΠΌ, ΠΏΡΠΈ ΠΈΡΠΏΠΎΠ»ΡΠ·ΠΎΠ²Π°Π½ΠΈΠΈ ΠΏΡΠΎΡΡΠ΅ΠΉΡΠΈΡ ΠΌΠ°ΡΠ΅ΡΠΈΠ°Π»ΠΎΠ² ΠΌΠΎΠΆΠ½ΠΎ ΠΈΠ·Π³ΠΎΡΠΎΠ²ΠΈΡΡ ΡΠ°Π±ΠΎΡΠΈΠ΅ ΠΏΡΠΈΡΠΏΠΎΡΠΎΠ±Π»Π΅Π½ΠΈΡ, ΠΊΠΎΡΠΎΡΡΠ΅ Π·Π½Π°ΡΠΈΡΠ΅Π»ΡΠ½ΠΎ ΠΎΠ±Π»Π΅Π³ΡΠ°Ρ ΠΏΡΠΎΡΠ΅ΡΡ ΠΈΠ·Π³ΠΎΡΠΎΠ²Π»Π΅Π½ΠΈΡ Π±Π΅ΡΠΎΠ½Π½ΠΎΠ³ΠΎ ΠΈΠ»ΠΈ Π³ΠΈΠΏΡΠΎΠ²ΠΎΠ³ΠΎ Π»ΠΈΡΡΡ, Π° ΡΠ°ΠΊ ΠΆΠ΅ ΠΏΠΎΠΌΠΎΠ³ΡΡ Π·Π½Π°ΡΠΈΡΠ΅Π»ΡΠ½ΠΎ ΠΏΠΎΠ²ΡΡΠΈΡΡ ΠΈΡ ΠΊΠ°ΡΠ΅ΡΡΠ²ΠΎ.
ΠΠΈΠ΄Π΅ΠΎΠΌΠ°ΡΠ΅ΡΠΈΠ°Π»Ρ ΠΏΠΎ ΡΠ°ΠΌΠΎΡΡΠΎΡΡΠ΅Π»ΡΠ½ΠΎΠΌΡ ΠΈΠ·Π³ΠΎΡΠΎΠ²Π»Π΅Π½ΠΈΡ Π²ΠΈΠ±ΡΠΎΡΡΠΎΠ»Π°:
Π£Π²Π°ΠΆΠ°Π΅ΠΌΡΠ΅ ΡΠΈΡΠ°ΡΠ΅Π»ΠΈ, Π΅ΡΠ»ΠΈ Ρ Π²Π°Ρ ΠΎΡΡΠ°Π»ΠΈΡΡ Π²ΠΎΠΏΡΠΎΡΡ, Π·Π°Π΄Π°Π²Π°ΠΉΡΠ΅ ΠΈΡ , ΠΈΡΠΏΠΎΠ»ΡΠ·ΡΡ ΡΠΎΡΠΌΡ Π½ΠΈΠΆΠ΅. ΠΡ Π±ΡΠ΄Π΅ΠΌ ΡΠ°Π΄Ρ ΠΎΠ±ΡΠ΅Π½ΠΈΡ Ρ Π²Π°ΠΌΠΈ π
Π Π΅ΠΊΠΎΠΌΠ΅Π½Π΄ΡΠ΅ΠΌ Π΄ΡΡΠ³ΠΈΠ΅ ΡΡΠ°ΡΡΠΈ ΠΏΠΎ ΡΠ΅ΠΌΠ΅
stroi-specialist.ru
ΠΠΈΠ±ΡΠΎΡΡΠΎΠ» ΡΠ²ΠΎΠΈΠΌΠΈ ΡΡΠΊΠ°ΠΌΠΈ — ΠΊΠ°ΠΊ ΡΠ΄Π΅Π»Π°ΡΡ
ΠΠ·Π³ΠΎΡΠΎΠ²Π»Π΅Π½ΠΈΠ΅ ΡΡΠΎΡΡΠ°ΡΠ½ΠΎΠΉ ΠΏΠ»ΠΈΡΠΊΠΈ ΡΠ²ΠΎΠΈΠΌΠΈ ΡΡΠΊΠ°ΠΌΠΈ Π΄ΠΎΡΡΠ°ΡΠΎΡΠ½ΠΎ ΠΈΠ½ΡΠ΅ΡΠ΅ΡΠ½ΡΠΉ ΠΏΡΠΎΡΠ΅ΡΡ, Π½ΠΎ Π΄Π»Ρ ΡΡΠΎΠ³ΠΎ Π½ΡΠΆΠ½Ρ ΠΎΠΏΡΠ΅Π΄Π΅Π»Π΅Π½Π½ΡΠ΅ ΠΌΠ°ΡΠ΅ΡΠΈΠ°Π»Ρ ΠΈ ΠΈΠ½ΡΡΡΡΠΌΠ΅Π½ΡΡ. ΠΠ΄Π½ΠΈΠΌ ΠΈΠ· ΡΠ°ΠΊΠΈΡ ΡΠ²Π»ΡΠ΅ΡΡΡ Π²ΠΈΠ±ΡΠΎΡΡΠΎΠ», ΠΎ ΠΊΠΎΡΠΎΡΠΎΠΌ ΠΌΡ ΠΎΠ±Π΅ΡΠ°Π»ΠΈ Π½Π°ΠΏΠΈΡΠ°ΡΡ.
Π ΠΏΡΠ΅Π΄ΡΠ΄ΡΡΠ΅ΠΉ ΡΡΠ°ΡΡΠ΅ ΠΌΡ ΡΠ°ΡΡΠΊΠ°Π·ΡΠ²Π°Π»ΠΈ ΠΎΠ± ΠΈΠ·Π³ΠΎΡΠΎΠ²Π»Π΅Π½ΠΈΠΈ ΠΏΠ»ΠΈΡΠΊΠΈ, ΡΠ°ΠΊ ΡΡΠΎ ΠΎΠ±ΡΠ·Π°ΡΠ΅Π»ΡΠ½ΠΎ ΠΏΡΠΎΡΡΠΈΡΠ΅. Π ΡΠ΅Π³ΠΎΠ΄Π½Ρ Π²Ρ ΡΠ·Π½Π°Π΅ΡΠ΅, ΠΊΠ°ΠΊ ΡΠ΄Π΅Π»Π°ΡΡ Π²ΠΈΠ±ΡΠΎΡΡΠΎΠ» ΡΠΎΠ±ΡΡΠ²Π΅Π½Π½ΠΎΡΡΡΠ½ΠΎ.Π’ΡΠ΅Π±ΠΎΠ²Π°Π½ΠΈΠ΅ ΠΊ ΡΡΡΡΠΎΠΉΡΡΠ²Ρ
ΠΠ°ΡΡΡΠ²Π°Π½ΠΈΠ΅ Π±Π΅ΡΠΎΠ½Π° Π²ΡΠ΅Π³Π΄Π° ΡΠΎΠΏΡΠΎΠ²ΠΎΠΆΠ΄Π°Π΅ΡΡΡ Π½Π΅Π±ΠΎΠ»ΡΡΠΈΠΌΠΈ ΠΊΠΎΠ»Π΅Π±Π°Π½ΠΈΡΠΌΠΈ, ΠΏΡΠΈ ΠΊΠΎΡΠΎΡΡΡ Π²ΡΠ΄Π΅Π»ΡΡΡΡΡ ΠΏΡΠ·ΡΡΡΠΊΠΈ Π²ΠΎΠ·Π΄ΡΡ Π°. ΠΠ»Π°Π³ΠΎΠ΄Π°ΡΡ ΡΡΠΎΠΌΡ, Π±ΡΠ΄ΡΡΠ΅Π΅ ΠΈΠ·Π΄Π΅Π»ΠΈΠ΅ ΡΡΠ°Π½ΠΎΠ²ΠΈΡΡΡ ΠΏΡΠΎΡΠ½ΡΠΌ, Π° ΡΡΡΡΠΊΡΡΡΠ° Π±Π΅ΡΠΎΠ½Π° ΡΠΏΠ»ΠΎΡΠ½Π΅Π½Π½ΠΎΠΉ. ΠΠ°Π±Ρ ΡΡΠΎ ΠΎΠ±Π΅ΡΠΏΠ΅ΡΠΈΡΡ ΠΈ Π½ΡΠΆΠ΅Π½ Π²ΠΈΠ±ΡΠΎΡΡΠΎΠ». ΠΠ½ ΠΊΠΎΠ»Π΅Π±Π»Π΅ΡΡΡ Ρ ΡΠ°ΡΡΠΎΡΠΎΠΉ 3000 Π΄Π²ΠΈΠΆΠ΅Π½ΠΈΠΉ Π² ΠΌΠΈΠ½ΡΡΡ.

ΠΡΠ΅ Π²ΠΈΠ±ΡΠΎΡΡΠΎΠ»Ρ ΠΌΠΎΠΆΠ½ΠΎ ΡΠ°Π·Π΄Π΅Π»ΠΈΡΡ Π½Π° Π΄Π²Π° Π²ΠΈΠ΄Π°:
- ΠΡΠΎΠΌΡΡΠ»Π΅Π½Π½ΡΠΉ Ρ Π³ΠΈΠ΄ΡΠ°Π²Π»ΠΈΠΊΠΎΠΉ;
- ΠΠΎΠΌΠ°ΡΠ½Π΅Π³ΠΎ ΠΏΠΎΠ»ΡΠ·ΠΎΠ²Π°Π½ΠΈΡ, ΡΠΎΠ·Π΄Π°ΡΡΠ΅Π³ΠΎ ΠΊΠΎΠ»Π΅Π±Π°Π½ΠΈΡ Ρ ΠΏΠΎΠΌΠΎΡΡΡ ΡΡΡΠ°Π½ΠΎΠ²Π»Π΅Π½Π½ΠΎΠ³ΠΎ Π½Π° ΡΠ»Π΅ΠΊΡΡΠΎΠ΄Π²ΠΈΠ³Π°ΡΠ΅Π»Ρ, ΡΠΊΡΡΠ΅Π½ΡΡΠΈΠΊΠ°.
ΠΠΌΠ΅Π½Π½ΠΎ ΠΏΠΎΡΠ»Π΅Π΄Π½ΠΈΠΉ ΠΌΡ ΠΈ Π±ΡΠ΄Π΅ΠΌ ΡΠ°ΡΡΠΌΠ°ΡΡΠΈΠ²Π°ΡΡ.
Β
ΠΠ°ΠΆΠ½ΠΎ! Π’Π°ΠΊ ΠΊΠ°ΠΊ Π·Π°Π²Π΅Π΄ΠΎΠΌΠΎ ΠΏΡΠΎΡΡΠΈΡΠ°ΡΡ ΠΊΠΎΠ»ΠΈΡΠ΅ΡΡΠ²ΠΎ ΠΊΠΎΠ»Π΅Π±Π°Π½ΠΈΠΉ Π½Π΅Π²ΠΎΠ·ΠΌΠΎΠΆΠ½ΠΎ, Π²ΠΈΠ±ΡΠΎΡΡΠΎΠ» Π΄ΠΎΠ»ΠΆΠ΅Π½ ΠΈΠΌΠ΅ΡΡ ΡΡΠ½ΠΊΡΠΈΡ ΡΠ΅Π³ΡΠ»ΠΈΡΠΎΠ²ΠΊΠΈ Π°ΠΌΠΏΠ»ΠΈΡΡΠ΄Ρ.
Β
ΠΠΎ ΠΎΠ±ΠΎ Π²ΡΠ΅ΠΌ ΠΏΠΎ ΠΏΠΎΡΡΠ΄ΠΊΡ.
Β
ΠΠ»Ρ ΡΠΎΠ³ΠΎ ΡΡΠΎΠ±Ρ ΡΠ΄Π΅Π»Π°ΡΡ Π²ΠΈΠ±ΡΠΎΡΡΠΎΠ» ΡΠ²ΠΎΠΈΠΌΠΈ ΡΡΠΊΠ°ΠΌΠΈ ΠΏΠΎΡΡΠ΅Π±ΡΠ΅ΡΡΡ:
- ΠΠ΅ΡΠ°Π»Π»ΠΈΡΠ΅ΡΠΊΠΈΠΉ Π»ΠΈΡΡ ΡΠΎΠ»ΡΠΈΠ½ΠΎΠΉ Π½Π΅ ΠΌΠ΅Π½Π΅Π΅ 3 ΠΌΠΌ;
- ΠΡΡΠΆΠΈΠ½Ρ;
- Π¨Π²Π΅Π»Π»Π΅Ρ ΠΈ ΡΠ³ΠΎΠ»ΠΎΠΊ;
- Π’ΡΡΠ±Ρ;
- ΠΠ»Π΅ΠΊΡΡΠΎΠ΄ΡΠ΅Π»Ρ;
- Π‘Π²Π°ΡΠΎΡΠ½ΡΠΉ Π°ΠΏΠΏΠ°ΡΠ°Ρ;
- ΠΠΎΠ»Π³Π°ΡΠΊΠ°;
- ΠΠ°Π΅ΡΠ½ΡΠ΅ ΠΊΠ»ΡΡΠΈ;
- ΠΠ΅ΡΠ°Π»Π»ΠΈΡΠ΅ΡΠΊΠΈΠ΅ Π½ΠΎΠΆΠΊΠΈ;
- ΠΠ²ΠΈΠ³Π°ΡΠ΅Π»Ρ.
Π§Π΅ΡΡΠ΅ΠΆ
ΠΡΠ΅ΠΆΠ΄Π΅ Π²ΡΠ΅Π³ΠΎ, Π²Π°ΠΌ Π½ΡΠΆΠ½ΠΎ Π½Π°ΡΠ΅ΡΡΠΈΡΡ ΡΠ΅ΡΡΠ΅ΠΆ Π±ΡΠ΄ΡΡΠ΅Π³ΠΎ Π²ΠΈΠ±ΡΠΎΡΡΠΎΠ»Π° ΠΈΠ»ΠΈ ΡΠΊΠ°ΡΠ°ΡΡ Π³ΠΎΡΠΎΠ²ΡΠΉ Π² ΠΈΠ½ΡΠ΅ΡΠ½Π΅ΡΠ΅. ΠΠ°ΠΆΠ½ΠΎ, ΡΡΠΎΠ±Ρ Π·Π°ΡΠ°Π½Π΅Π΅ Π±ΡΠ»ΠΈ ΡΠ°ΡΡΡΠΈΡΠ°Π½Ρ Π²ΡΠ΅ ΡΠ°Π·ΠΌΠ΅ΡΡ, Π½Π΅ΠΎΠ±Ρ ΠΎΠ΄ΠΈΠΌΠΎΠ΅ ΡΠ°ΡΡΡΠΎΡΠ½ΠΈΠ΅.

ΠΠ²ΠΈΠ³Π°ΡΠ΅Π»Ρ Π½ΡΠΆΠ½ΠΎ ΠΏΠΎΠΌΠ΅ΡΠ°ΡΡ Π±Π»ΠΈΠΆΠ΅ ΠΊ ΡΠ΅Π½ΡΡΡ. Π‘Π°ΠΌ ΡΠ΅ΡΡΠ΅ΠΆ ΡΠΈΡΡΡΡ, Π½Π°ΡΠΈΠ½Π°Ρ Ρ ΡΡΠ°Π½ΠΈΠ½Ρ. ΠΡΠΈ ΡΠΎΠ·Π΄Π°Π½ΠΈΠΈ ΡΠ΅ΡΡΠ΅ΠΆΠ° Π½Π΅ Π·Π°Π±ΡΠ²Π°ΠΉΡΠ΅ ΡΡΠΈΡΡΠ²Π°ΡΡ Π²ΡΡΠΎΡΡ ΡΡΠΎΠ»Π° ΠΈ ΡΠΏΠΎΡΠΎΠ±Ρ ΠΊΡΠ΅ΠΏΠ»Π΅Π½ΠΈΡ ΠΊ ΠΏΠΎΠ»Ρ.
ΠΠΎΠ΄Π±ΠΎΡ Π΄Π²ΠΈΠ³Π°ΡΠ΅Π»Ρ
ΠΠ΅Π»Π°Ρ Π²ΠΈΠ±ΡΠΎΡΡΠΎΠ» Π΄Π»Ρ ΠΏΠ»ΠΈΡΠΊΠΈ, Π½ΡΠΆΠ½ΠΎ ΠΎΡΠ½Π΅ΡΡΠΈΡΡ Π²Π½ΠΈΠΌΠ°ΡΠ΅Π»ΡΠ½ΠΎ Π½Π΅ ΡΠΎΠ»ΡΠΊΠΎ ΠΊ ΡΠ°ΠΌΠΎΠΉ ΠΊΠΎΠ½ΡΡΡΡΠΊΡΠΈΠΈ, Π½ΠΎ ΠΈ ΠΊ Π΄Π²ΠΈΠ³Π°ΡΠ΅Π»Ρ, Π²Π΅Π΄Ρ Π½Π° Π½Π΅Π³ΠΎ Π±ΡΠ΄Π΅Ρ ΠΏΡΠΈΡ ΠΎΠ΄ΠΈΡΡ Π²ΡΡ Π½Π°Π³ΡΡΠ·ΠΊΠ°. Π ΡΠΎΡΠ½Π΅Π΅, Π½Π° ΠΏΠΎΠ΄ΡΠΈΠΏΠ½ΠΈΠΊΠΈ ΠΈ Π²ΡΡΠ»ΠΊΡ. ΠΠΎΡΡΠΎΠΌΡ, Π²ΡΠ±ΠΈΡΠ°Ρ Π΄Π²ΠΈΠ³Π°ΡΠ΅Π»Ρ, Π½Π΅ ΠΎΠΏΠΈΡΠ°ΠΉΡΠ΅ΡΡ Π½Π° Π΅Π³ΠΎ ΠΌΠΎΡΠ½ΠΎΡΡΡ, Π²Π΅Π΄Ρ Π΄Π»Ρ Π΄ΠΎΠΌΠ°ΡΠ½Π΅Π³ΠΎ ΠΏΠΎΠ»ΡΠ·ΠΎΠ²Π°Π½ΠΈΡ Π΄ΠΎΡΡΠ°ΡΠΎΡΠ½ΠΎ 1-2 ΠΠ²Ρ. Π Π²ΠΎΡ ΠΏΠΎΠ΄ΡΠΈΠΏΠ½ΠΈΠΊΠΈ Π΄ΠΎΠ»ΠΆΠ½Ρ Π±ΡΡΡ ΠΊΠ°ΡΠ΅ΡΡΠ²Π΅Π½Π½ΡΠΌΠΈ ΠΈ Π½Π°Π΄Π΅ΠΆΠ½ΡΠΌΠΈ. Π ΠΊΡΠ°ΠΉΠ½Π΅ΠΌ ΡΠ»ΡΡΠ°Π΅, Π² ΠΏΡΠΎΡΠ΅ΡΡΠ΅ ΡΠΊΡΠΏΠ»ΡΠ°ΡΠ°ΡΠΈΠΈ Π²Ρ ΠΌΠΎΠΆΠ΅ΡΠ΅ ΠΈΡ Π·Π°ΠΌΠ΅Π½ΠΈΡΡ.

ΠΡΠ΅ ΠΎΠ΄ΠΈΠ½ ΡΠΎΠ²Π΅Ρ! Π£ΡΡΠ°Π½Π°Π²Π»ΠΈΠ²Π°Ρ ΡΠΊΡΡΠ΅Π½ΡΡΠΈΠΊ Π½Π΅ΠΏΠΎΡΡΠ΅Π΄ΡΡΠ²Π΅Π½Π½ΠΎ Π½Π° Π²Π°Π», Π²Ρ ΡΡΡΠ΅ΡΡΠ²Π΅Π½Π½ΠΎ ΠΏΡΠΎΠ΄Π»ΠΈΡΠ΅ ΡΡΠΎΠΊ ΡΠ»ΡΠΆΠ±Ρ ΠΌΠΎΡΠΎΡΠ°.
Β
ΠΠ·Π³ΠΎΡΠΎΠ²Π»Π΅Π½ΠΈΠ΅Β Π²ΠΈΠ±ΡΠΎΡΡΠΎΠ»Π°Β Π΄Π»ΡΒ ΡΡΠΎΡΡΠ°ΡΠ½ΠΎΠΉΒ ΠΏΠ»ΠΈΡΠΊΠΈ
- ΠΡΠΈΡΡΡΠΏΠ°Π΅ΠΌ ΠΊ ΡΠ±ΠΎΡΠΊΠ΅ ΡΠΎΠ»ΡΠΊΠΎ ΠΏΠΎΡΠ»Π΅ ΠΏΠΎΠ΄Π³ΠΎΡΠΎΠ²ΠΊΠΈ ΡΠ΅ΡΡΠ΅ΠΆΠ°.
- ΠΡΡ ΠΎΠ΄Ρ ΠΈΠ· Π΅Π³ΠΎ Π΄Π°Π½Π½ΡΡ Π½Π°ΡΠ΅Π·Π°Π΅ΠΌ Π·Π°Π³ΠΎΡΠΎΠ²ΠΊΡ Π΄Π»Ρ Π±ΡΠ΄ΡΡΠ΅ΠΉ ΡΡΠ°Π½ΠΈΠ½Ρ. Β Π£Π³ΠΎΠ»ΠΎΠΊ β 45 ΠΌΠΌ. Π’ΡΡΠ±Ρ Π΄ΠΎΠ»ΠΆΠ½Ρ Π±ΡΡΡ Π΄ΠΈΠ°ΠΌΠ΅ΡΡΠΎΠΌ Π½Π΅ ΠΌΠ΅Π½Π΅Π΅ 65 ΠΌΠΌ. ΠΠ»ΠΈΠ½Π°, Π² Π·Π°Π²ΠΈΡΠΈΠΌΠΎΡΡΠΈ ΠΎΡ ΠΆΠ΅Π»Π°Π΅ΠΌΠΎΠΉ Π²ΡΡΠΎΡΡ ΡΡΠΎΠ»Π°. Π‘Π²Π°ΡΠΈΠ²Π°Π΅ΠΌ Π²ΡΠ΅ Π½Π΅ΠΎΠ±Ρ ΠΎΠ΄ΠΈΠΌΡΠ΅ ΡΠ»Π΅ΠΌΠ΅Π½ΡΡ ΠΈ Π»ΠΈΡΡ, ΠΏΠΎΡΠΎΠΌ ΠΏΡΠΈΠ²Π°ΡΠΈΠ²Π°Π΅ΠΌ ΠΌΠ΅ΡΠ°Π»Π»ΠΈΡΠ΅ΡΠΊΠΈΠΉ Π»ΠΈΡΡ.
- ΠΠΎΡΠ»Π΅ ΡΡΠΎΠ³ΠΎ, Π½ΡΠΆΠ½ΠΎ Π²Π·ΡΡΡ ΠΏΡΡΠΆΠΈΠ½Ρ ΠΈ Π½Π°ΡΠ΅Π·Π°ΡΡ Π΅Π΅ ΠΊΡΡΠΊΠ°ΠΌΠΈ ΠΎΠ΄ΠΈΠ½Π°ΠΊΠΎΠ²ΠΎΠΉ Π΄Π»ΠΈΠ½Ρ, Π² ΠΊΠΎΠ»ΠΈΡΠ΅ΡΡΠ²Π΅ Π΄Π΅ΡΡΡΠΈ ΡΡΡΠΊ.
- ΠΠ°ΡΠ΅ΠΌ, ΠΊ ΡΠΆΠ΅ Π³ΠΎΡΠΎΠ²ΠΎΠΉ ΡΡΠ°Π½ΠΈΠ½Π΅ ΠΏΡΠΈΠ²Π°ΡΠΈΠ²Π°Π΅ΠΌ ΠΏΡΡΠΆΠΈΠ½Ρ: ΠΏΠΎ ΡΠ³Π»Π°ΠΌ, Π² ΡΠ΅Π½ΡΡΠ΅ ΠΈ ΠΌΠ΅ΠΆΠ΄Ρ ΡΠ³Π»ΠΎΠΌ ΠΈ ΡΠ΅Π½ΡΡΠΎΠΌ Π½Π° ΠΎΠ΄ΠΈΠ½Π°ΠΊΠΎΠ²ΠΎΠΌ ΡΠ°ΡΡΡΠΎΡΠ½ΠΈΠΈ.
- ΠΠ· ΠΎΡΡΠ°Π²ΡΠΈΡ ΡΡ ΠΊΡΡΠΊΠΎΠ² ΡΡΡΠ±Ρ Π΄Π΅Π»Π°Π΅ΠΌ ΡΡΠ°ΠΊΠ°Π½Ρ ΠΈ ΠΏΡΠΈΠ²Π°ΡΠΈΠ²Π°Π΅ΠΌ ΠΈΡ Ρ Π½ΠΈΠΆΠ½Π΅ΠΉ ΡΡΠΎΡΠΎΠ½Ρ ΡΡΠΎΠ»Π°. Π Π΄ΠΈΠ°ΠΌΠ΅ΡΡΠ΅ ΠΎΠ½ΠΈ Π΄ΠΎΠ»ΠΆΠ½Ρ Π±ΡΡΡ Π±ΠΎΠ»ΡΡΠ΅ ΠΏΡΡΠΆΠΈΠ½ Π½Π° 3 ΠΌΠΌ ΠΈ ΡΠ°ΡΠΏΠΎΠ»Π°Π³Π°ΡΡΡΡ ΡΠΎΡΠ½ΠΎ ΠΈΡ ΡΠ°Π·ΠΌΠ΅ΡΠ΅Π½ΠΈΡ.
- ΠΠ»Ρ ΠΏΠΎΠ»ΡΡΠ΅Π½ΠΈΡ Π½Π°Π΄Π΅ΠΆΠ½ΠΎΠΉ ΡΠΈΠΊΡΠ°ΡΠΈΠΈ ΠΌΠΎΠΆΠ½ΠΎ ΠΏΡΠΈΠ²Π°ΡΠΈΡΡ ΡΡΠ΅ΡΠΆΠ½ΠΈ.
- ΠΠΎΡΠ»Π΅ ΡΠ²Π°ΡΠΊΠΈ, Π½ΡΠΆΠ½ΠΎ ΡΡΡΠ°Π½ΠΎΠ²ΠΈΡΡ ΡΡΠΎΠ» Π½Π° ΡΡΠ°Π½ΠΈΠ½Ρ.
- ΠΠΊΡΡΠ΅Π½ΡΡΠΈΠΊΠΎΠ²ΡΠΉ ΠΌΠ΅Ρ Π°Π½ΠΈΠ·ΠΌ ΠΏΡΠΈΠ²Π°ΡΠΈΠ²Π°Π΅ΡΡΡ ΡΠ½ΠΈΠ·Ρ, Π² ΡΠ΅Π½ΡΡΠ΅.
- ΠΡΠ΅ΠΏΠ»Π΅Π½ΠΈΠ΅ Π΄Π²ΠΈΠ³Π°ΡΠ΅Π»Ρ ΠΎΡΡΡΠ΅ΡΡΠ²Π»ΡΠ΅ΡΡΡ Π½Π° ΡΠ°ΡΡΡΠΎΡΠ½ΠΈΠΈ, ΠΊΠΎΡΠΎΡΠΎΠ΅ ΡΠΎΠΎΡΠ²Π΅ΡΡΡΠ²ΡΠ΅Ρ Π΄Π»ΠΈΠ½Π΅ ΡΠ΅ΠΌΠ½Ρ.
- Π ΠΊΠΎΠ½ΡΠ΅ Π½ΡΠΆΠ½ΠΎ ΡΡΡΠ°Π½ΠΎΠ²ΠΈΡΡ ΠΊΠ½ΠΎΠΏΠΊΡ Π²ΠΊΠ»ΡΡΠ΅Π½ΠΈΡ\Π²ΡΠΊΠ»ΡΡΠ΅Π½ΠΈΡ, ΠΏΠΎΠ΄ΠΊΠ»ΡΡΠΈΡΡ ΠΏΠΈΡΠ°Π½ΠΈΠ΅.

ΠΠ° ΡΡΠΎΠΌ ΡΠ±ΠΎΡΠΊΠ° ΠΈ ΡΡΡΠ°Π½ΠΎΠ²ΠΊΠ° Π·Π°ΠΊΠΎΠ½ΡΠ΅Π½Π°. ΠΠΎΠΆΠ½ΠΎ Π·Π°ΠΏΡΡΠΊΠ°ΡΡ ΠΈ ΠΎΡΠΊΠ°Π»ΠΈΠ±ΡΠΎΠ²Π°ΡΡ Β Π°ΠΌΠΏΠ»ΠΈΡΡΠ΄Ρ ΠΊΠΎΠ»Π΅Π±Π°Π½ΠΈΠΉ, Π΅ΡΠ»ΠΈ Π½ΡΠΆΠ½ΠΎ. ΠΠ΅Π»Π°Π΅ΡΡΡ ΡΡΠΎ ΠΏΠ΅ΡΠ΅ΠΌΠ΅ΡΠ΅Π½ΠΈΠ΅ΠΌ ΡΠΊΡΡΠ΅Π½ΡΡΠΈΠΊΠ°.
ΠΡΠΈΠ±ΠΊΠΈ ΠΈ ΠΊΠ°ΠΊ ΠΈΡ ΠΈΠ·Π±Π΅ΠΆΠ°ΡΡ
- ΠΠ±ΡΠ·Π°ΡΠ΅Π»ΡΠ½ΠΎ Π½ΡΠΆΠ½ΠΎ ΡΠ΄Π΅Π»Π°ΡΡ Π±ΠΎΡΡΠΈΠΊ ΠΏΠΎ ΠΏΠ΅ΡΠΈΠΌΠ΅ΡΡΡ ΠΏΠΎΠ²Π΅ΡΡ Π½ΠΎΡΡΠΈ ΡΡΠΎΠ»Π°, Π΄Π°Π±Ρ ΠΏΡΠΈ Π΄Π²ΠΈΠΆΠ΅Π½ΠΈΠΈ ΡΠΎΡΠΌΡ Ρ ΠΏΠ»ΠΈΡΠΊΠΎΠΉ Π½Π΅ ΡΠΏΠ°Π»ΠΈ.
- Π§ΡΠΎΠ±Ρ ΠΎΠ³ΡΠ°Π½ΠΈΡΠΈΡΡ Π°ΠΌΠΏΠ»ΠΈΡΡΠ΄Ρ, ΠΌΠΎΠΆΠ½ΠΎ Π²ΠΌΠ΅ΡΡΠΎ ΡΡΠ΅ΡΠΆΠ½Π΅ΠΉ Π΄Π»Ρ ΠΏΡΡΠΆΠΈΠ½ ΠΏΡΠΈΠ²Π°ΡΠΈΡΡ Π±ΠΎΠ»ΡΡ, Π½Π° ΠΊΠΎΡΠΎΡΡΠ΅ Π½ΡΠΆΠ½ΠΎ Π½Π°Π²ΠΈΠ½ΡΠΈΡΡ ΡΠ°ΠΉΠ±Ρ ΠΈ Π³Π°ΠΉΠΊΡ.
- ΠΠ°Π±Ρ Π±ΠΎΠ»Π΅Π΅ ΡΠΎΡΠ½ΠΎ ΡΠ΅Π³ΡΠ»ΠΈΡΠΎΠ²Π°ΡΡ ΠΊΠΎΠ»Π΅Π±Π°Π½ΠΈΡ, ΡΡΡΠ°Π½ΠΎΠ²ΠΈΡΠ΅ Π½Π΅ Π΄Π²ΠΈΠ³Π°ΡΠ΅Π»Ρ, Π° Π²ΠΈΠ±ΡΠ°ΡΠΎΡ ΡΠΈΠΏΠ° ΠΠ-99.
- ΠΠ°Π΄Π΅ΠΆΠ½ΠΎ Π·Π°ΡΠΈΠΊΡΠΈΡΡΠΉΡΠ΅ Π½ΠΎΠΆΠΊΠΈ, Π΄Π°Π±Ρ Π² ΠΏΡΠΎΡΠ΅ΡΡΠ΅ ΡΡΠΎΠ» Β«Π½Π΅ Ρ ΠΎΠ΄ΠΈΠ»Β». ΠΡΡΡΠ΅ Π²ΡΠ΅Π³ΠΎ ΠΈΡ Π·Π°ΡΠ΅ΠΌΠ΅Π½ΡΠΈΡΠΎΠ²Π°ΡΡ.
- ΠΠΎΠΆΠΊΠΈ Π²ΠΈΠ±ΡΠΎΡΡΠΎΠ»Π° Π΄ΠΎΠ»ΠΆΠ½Ρ Π±ΡΡΡ Π΄ΠΎΡΡΠ°ΡΠΎΡΠ½ΠΎ Π²ΡΡΠΎΠΊΠΈΠΌΠΈ, Π΄Π°Π±Ρ Π²Π°ΠΌ Π½Π΅ ΠΏΡΠΈΡΠ»ΠΎΡΡ Π½Π°ΠΊΠ»ΠΎΠ½ΡΡΡΡΡ.
- ΠΠΎΡΠΎΡ Π½Π΅ Π΄ΠΎΠ»ΠΆΠ΅Π½ ΡΠΎΠΏΡΠΈΠΊΠ°ΡΠ°ΡΡΡΡ Ρ Π·Π΅ΠΌΠ»Π΅ΠΉ.
ΠΠ΅Π·ΠΎΠΏΠ°ΡΠ½ΠΎΡΡΡ
Β
ΠΠ·Π³ΠΎΡΠ°Π²Π»ΠΈΠ²Π°Ρ Π²ΠΈΠ±ΡΠΎΡΡΠΎΠ» Π΄Π»Ρ ΡΡΠΎΡΡΠ°ΡΠ½ΠΎΠΉ ΠΏΠ»ΠΈΡΠΊΠΈ ΡΠ²ΠΎΠΈΠΌΠΈ ΡΡΠΊΠ°ΠΌΠΈ, Π½Π΅ ΡΡΠΎΠΈΡ Π·Π°Π±ΡΠ²Π°ΡΡ ΠΎ Π±Π΅Π·ΠΎΠΏΠ°ΡΠ½ΠΎΡΡΠΈ! ΠΡΠ΅ΠΆΠ΄Π΅ Π²ΡΠ΅Π³ΠΎ Π½Π°Π΄Π΅Π½ΡΡΠ΅ ΡΡΠ΅Π΄ΡΡΠ²Π° Π·Π°ΡΠΈΡΡ ΠΏΡΠΈ ΠΏΡΠΎΠ²Π΅Π΄Π΅Π½ΠΈΠΈ ΡΠ²Π°ΡΠΎΡΠ½ΡΡ ΡΠ°Π±ΠΎΡ.
- ΠΡΡΠΎΡΠΎΠΆΠ½ΠΎ ΡΠ°Π±ΠΎΡΠ°ΠΉΡΠ΅ Ρ Π±ΠΎΠ»Π³Π°ΡΠΊΠΎΠΉ, Π΄Π°Π±Ρ Π½Π΅ ΠΏΠΎΠ²ΡΠ΅Π΄ΠΈΡΡ ΡΡΠΊΠΈ.
- ΠΠ΅ Π·Π°Π±ΡΠ΄ΡΡΠ΅ ΠΏΡΠΎΠ²Π΅ΡΡΠΈ Π·Π°Π·Π΅ΠΌΠ»Π΅Π½ΠΈΠ΅ ΠΏΠ΅ΡΠ΅Π΄ Π²ΠΊΠ»ΡΡΠ΅Π½ΠΈΠ΅ΠΌ Π²ΠΈΠ±ΡΠΎΡΡΠΎΠ»Π°.
- ΠΠ°ΠΏΡΡΠΊΠ°Ρ ΡΠ΅Ρ Π½ΠΈΡΠ΅ΡΠΊΠΎΠ΅ ΡΡΡΡΠΎΠΉΡΡΠ²ΠΎ Π²ΠΏΠ΅ΡΠ²ΡΠ΅, ΡΠ½ΠΈΠΌΠΈΡΠ΅ ΠΏΡΠΈΠ²ΠΎΠ΄Π½ΠΎΠΉ ΡΠ΅ΠΌΠ΅Π½Ρ, ΡΡΠΎΠ±Ρ ΠΈΡΠΊΠ»ΡΡΠΈΡΡ Π½Π΅Π³Π°ΡΠΈΠ²Π½ΡΠ΅ ΠΏΠΎΡΠ»Π΅Π΄ΡΡΠ²ΠΈΡ, ΡΠ²ΡΠ·Π°Π½Π½ΡΠ΅ Ρ Π½Π΅ΠΏΡΠ°Π²ΠΈΠ»ΡΠ½ΡΠΌ ΠΏΠΎΠ΄ΠΊΠ»ΡΡΠ΅Π½ΠΈΠ΅ΠΌ.

ΠΠ°ΠΊ Π²ΠΈΠ΄ΠΈΡΠ΅, ΠΈΠ·Π³ΠΎΡΠΎΠ²ΠΈΡΡ Π²ΠΈΠ±ΡΠΎΡΡΠΎΠ» Π΄Π»Ρ ΡΠΎΠ·Π΄Π°Π½ΠΈΡ ΠΏΠ»ΠΈΡΠΊΠΈ Π½Π΅ ΡΠ°ΠΊ ΡΠΆ ΠΈ ΡΠ»ΠΎΠΆΠ½ΠΎ, Π΄ΠΎΡΡΠ°ΡΠΎΡΠ½ΠΎ ΠΏΡΠΈΠ΄Π΅ΡΠΆΠΈΠ²Π°ΡΡΡΡ ΠΎΠΏΡΠ΅Π΄Π΅Π»Π΅Π½Π½ΡΡ ΠΏΡΠ°Π²ΠΈΠ». ΠΡΠΈ ΠΈΡ ΡΠΎΠ±Π»ΡΠ΄Π΅Π½ΠΈΠΈ, ΠΈΠ·Π΄Π΅Π»ΠΈΠ΅ ΠΏΡΠΎΡΠ»ΡΠΆΠΈΡ Π²Π°ΠΌ Π½Π΅ ΠΎΠ΄ΠΈΠ½ Π³ΠΎΠ΄, Π° Π² ΡΠ΅Π·ΡΠ»ΡΡΠ°ΡΠ΅ Π²Ρ ΠΏΠΎΠ»ΡΡΠΈΡΠ΅ ΠΊΠ°ΡΠ΅ΡΡΠ²Π΅Π½Π½ΡΡ ΠΏΠ»ΠΈΡΠΊΡ.
ΠΠΎΠ½Π΅ΡΠ½ΠΎ, ΠΎΡ Π·Π°Π²ΠΎΠ΄ΡΠΊΠΎΠΉ ΠΎΠ½Π° Π² Π»ΡΠ±ΠΎΠΌ ΡΠ»ΡΡΠ°Π΅ Π±ΡΠ΄Π΅Ρ ΠΎΡΠ»ΠΈΡΠ°ΡΡΡΡ, Π½ΠΎ ΠΈ Π²ΡΠΉΠ΄Π΅Ρ Π³ΠΎΡΠ°Π·Π΄ΠΎ Π΄Π΅ΡΠ΅Π²Π»Π΅. ΠΠΊΠΎΠ½ΠΎΠΌΠΈΡ Π² 20%, Π΄Π°ΠΆΠ΅ ΠΏΡΠΈ ΡΠ±ΠΎΡΠΊΠ΅ Π²ΠΈΠ±ΡΠΎΡΡΠΎΠ»Π°.
Β
Π ΡΡΠΎΠ±Ρ Π²Ρ ΡΠ²ΠΈΠ΄Π΅Π»ΠΈ Π½Π°Π³Π»ΡΠ΄Π½ΡΠΉ ΠΏΡΠΈΠΌΠ΅Ρ ΡΠ±ΠΎΡΠΊΠΈ, ΠΏΠΎΡΠΌΠΎΡΡΠΈΡΠ΅ Π²ΠΈΠ΄Π΅ΠΎ Π½ΠΈΠΆΠ΅.
dommovik.ru
ΠΏΠΎΠ½ΡΡΠΈΠ΅, Π½Π°Π·Π½Π°ΡΠ΅Π½ΠΈΠ΅, ΠΎΡΠΎΠ±Π΅Π½Π½ΠΎΡΡΠΈ, ΡΠ΅Ρ Π½ΠΎΠ»ΠΎΠ³ΠΈΡ ΠΈΠ·Π³ΠΎΡΠΎΠ²Π»Π΅Π½ΠΈΡ
ΠΠ°ΡΠ°: 23 ΠΌΠ°Ρ 2017
ΠΡΠΎΡΠΌΠΎΡΡΠΎΠ²: 2701
ΠΠΎΠΌΠ΅Π½ΡΠ°ΡΠΈΠ΅Π²: 0
ΠΠ°ΠΊ ΡΠ΄Π΅Π»Π°ΡΡ Π²ΠΈΠ±ΡΠΎΡΡΠΎΠ» ΡΠ²ΠΎΠΈΠΌΠΈ ΡΡΠΊΠ°ΠΌΠΈ?
ΠΡΠΈ ΠΈΠ·Π³ΠΎΡΠΎΠ²Π»Π΅Π½ΠΈΠΈ Π±Π΅ΡΠΎΠ½Π½ΡΡ ΠΈΠ·Π΄Π΅Π»ΠΈΠΉ, ΡΡΠΎΡΡΠ°ΡΠ½ΠΎΠΉ ΠΏΠ»ΠΈΡΠΊΠΈ, Π° ΡΠ°ΠΊΠΆΠ΅ ΠΏΡΠΎΠ΄ΡΠΊΡΠΈΠΈ ΠΈΠ· Π³ΠΈΠΏΡΠ° ΠΈ ΡΠΏΠ΅ΡΠΈΠ°Π»ΡΠ½ΡΡ ΡΠΌΠ΅ΡΠ΅ΠΉ Π²ΠΎΠ·Π½ΠΈΠΊΠ°Π΅Ρ Π½Π΅ΠΎΠ±Ρ ΠΎΠ΄ΠΈΠΌΠΎΡΡΡ ΡΠΏΠ»ΠΎΡΠ½ΠΈΡΡ ΡΠ°ΡΡΠ²ΠΎΡ, Π² ΠΊΠΎΡΠΎΡΠΎΠΌ ΠΏΡΠΈΡΡΡΡΡΠ²ΡΡΡ Π²ΠΎΠ·Π΄ΡΡΠ½ΡΠ΅ ΠΏΡΠ·ΡΡΡΠΊΠΈ. ΠΠΈΠ±ΡΠ°ΡΠΈΠΎΠ½Π½ΠΎΠ΅ Π²ΠΎΠ·Π΄Π΅ΠΉΡΡΠ²ΠΈΠ΅ ΡΠΏΠΎΡΠΎΠ±ΡΡΠ²ΡΠ΅Ρ ΡΠ°Π²Π½ΠΎΠΌΠ΅ΡΠ½ΠΎΠΌΡ ΡΠ°ΡΠΏΡΠ΅Π΄Π΅Π»Π΅Π½ΠΈΡ ΡΠ°ΡΡΠ²ΠΎΡΠ° ΠΏΠΎ ΡΠΎΡΠΌΠ΅, ΡΠ»ΡΡΡΠ°Π΅Ρ ΡΡΡΡΠΊΡΡΡΡ ΠΌΠ°ΡΠ΅ΡΠΈΠ°Π»Π°, ΠΏΠΎΠ²ΡΡΠ°Π΅Ρ Π΅Π³ΠΎ ΠΏΡΠΎΡΠ½ΠΎΡΡΡ. Π ΠΏΡΠΎΠΌΡΡΠ»Π΅Π½Π½ΡΡ ΡΡΠ»ΠΎΠ²ΠΈΡΡ Π΄Π»Ρ ΡΡΠΎΠ³ΠΎ ΠΈΡΠΏΠΎΠ»ΡΠ·ΡΠ΅ΡΡΡ ΠΌΠ°ΡΡΠΈΠ²Π½ΠΎΠ΅ ΠΈ Π΄ΠΎΡΠΎΠ³ΠΎΡΡΠΎΡΡΠ΅Π΅ ΠΎΠ±ΠΎΡΡΠ΄ΠΎΠ²Π°Π½ΠΈΠ΅. Π¦Π΅Π»Π΅ΡΠΎΠΎΠ±ΡΠ°Π·Π½ΠΎ ΠΈΠ·Π³ΠΎΡΠΎΠ²ΠΈΡΡ ΡΠ²ΠΎΠΈΠΌΠΈ ΡΡΠΊΠ°ΠΌΠΈ Π²ΠΈΠ±ΡΠΎΡΡΠΎΠ» ΠΏΡΠΈ ΠΏΡΠΎΠΈΠ·Π²ΠΎΠ΄ΡΡΠ²Π΅ ΠΈΠ·Π΄Π΅Π»ΠΈΠΉ Π² Π±ΡΡΠΎΠ²ΡΡ ΡΡΠ»ΠΎΠ²ΠΈΡΡ .
Π§ΡΠΎ ΡΠ°ΠΊΠΎΠ΅ Π²ΠΈΠ±ΡΠΎΠΏΠ»ΠΎΡΠ°Π΄ΠΊΠ°
ΠΠΈΠ±ΡΠ°ΡΠΈΠΎΠ½Π½ΡΠΉ ΡΡΠΎΠ» (ΠΏΠ»ΠΎΡΠ°Π΄ΠΊΠ°) ΠΏΡΠ΅Π΄ΡΡΠ°Π²Π»ΡΠ΅Ρ ΡΠΎΠ±ΠΎΠΉ ΡΠ΅Ρ Π½ΠΈΡΠ΅ΡΠΊΠΎΠ΅ ΡΡΡΡΠΎΠΉΡΡΠ²ΠΎ, ΠΏΡΠ΅Π΄Π½Π°Π·Π½Π°ΡΠ΅Π½Π½ΠΎΠ΅ Π΄Π»Ρ ΡΠΏΠ»ΠΎΡΠ½Π΅Π½ΠΈΡ Π² Π΄ΠΎΠΌΠ°ΡΠ½ΠΈΡ ΠΈ ΠΏΡΠΎΠΈΠ·Π²ΠΎΠ΄ΡΡΠ²Π΅Π½Π½ΡΡ ΡΡΠ»ΠΎΠ²ΠΈΡΡ ΡΠ°ΡΡΠ²ΠΎΡΠΎΠ² Π½Π° ΠΎΡΠ½ΠΎΠ²Π΅ Π±Π΅ΡΠΎΠ½Π°, ΡΡΡΠΎΠΈΡΠ΅Π»ΡΠ½ΡΡ ΡΠΌΠ΅ΡΠ΅ΠΉ ΠΈ Π³ΠΈΠΏΡΠ° ΠΏΡΠΈ ΡΠΎΡΠΌΠΎΠ²Π°Π½ΠΈΠΈ. Π€ΠΎΡΠΌΠΎΠ²ΠΎΡΠ½ΡΠΉ ΠΏΡΠΎΡΠ΅ΡΡ, ΠΎΡΡΡΠ΅ΡΡΠ²Π»ΡΠ΅ΠΌΡΠΉ Ρ ΠΏΠΎΠΌΠΎΡΡΡ Π²ΠΈΠ±ΡΠ°ΡΠΈΠΎΠ½Π½ΠΎΠ³ΠΎ ΡΠΏΠ»ΠΎΡΠ½Π΅Π½ΠΈΡ, Π³Π°ΡΠ°Π½ΡΠΈΡΡΠ΅Ρ ΠΏΠΎΠ²ΡΡΠ΅Π½Π½ΡΠ΅ ΠΏΡΠΎΡΠ½ΠΎΡΡΠ½ΡΠ΅ Ρ Π°ΡΠ°ΠΊΡΠ΅ΡΠΈΡΡΠΈΠΊΠΈ ΠΈΠ·Π΄Π΅Π»ΠΈΠΉ, ΡΡΠΎ ΡΠΊΠ°Π·ΡΠ²Π°Π΅ΡΡΡ Π½Π° ΡΡΠΎΠΊΠ΅ ΠΈΡ ΡΠΊΡΠΏΠ»ΡΠ°ΡΠ°ΡΠΈΠΈ.

ΠΠΎΠ½ΡΡΡΡΠΊΡΠΈΡ Π²ΠΈΠ±ΡΠΎΡΡΠΎΠ»Π° Π½Π΅ ΠΎΡΠ΅Π½Ρ ΡΠ»ΠΎΠΆΠ½Π°Ρ
ΠΠ°Π·Π½Π°ΡΠ΅Π½ΠΈΠ΅ ΠΈΠ·Π΄Π΅Π»ΠΈΡ
ΠΠΈΠ±ΡΠ°ΡΠΈΠΎΠ½Π½Π°Ρ ΠΏΠ»ΠΎΡΠ°Π΄ΠΊΠ°, ΠΊΠΎΡΠΎΡΡΡ Π½Π΅ΡΠ»ΠΎΠΆΠ½ΠΎ ΡΠ΄Π΅Π»Π°ΡΡ ΡΠ²ΠΎΠΈΠΌΠΈ ΡΡΠΊΠ°ΠΌΠΈ, ΡΠΎΠ²Π΅ΡΡΠ°Π΅Ρ Π΄ΠΎ 3000 ΠΊΠΎΠ»Π΅Π±Π°Π½ΠΈΠΉ Π·Π° 60 ΡΠ΅ΠΊΡΠ½Π΄ ΠΈ ΠΏΡΠ΅Π΄Π½Π°Π·Π½Π°ΡΠ΅Π½Π° Π΄Π»Ρ ΡΠ»Π΅Π΄ΡΡΡΠΈΡ ΡΠ΅Π»Π΅ΠΉ:
- ΠΈΠ·Π³ΠΎΡΠΎΠ²Π»Π΅Π½ΠΈΡ ΠΌΠ΅Π»ΠΊΠΎΡΠ΅ΡΠΈΠΉΠ½ΠΎΠΉ ΠΏΡΠΎΠ΄ΡΠΊΡΠΈΠΈ ΠΌΠ΅ΡΠΎΠ΄ΠΎΠΌ Π²ΠΈΠ±ΡΠ°ΡΠΈΠΎΠ½Π½ΠΎΠ³ΠΎ Π»ΠΈΡΡΡ;
- ΠΏΡΠΎΠΈΠ·Π²ΠΎΠ΄ΡΡΠ²Π° ΠΏΠ»ΠΈΡΠΊΠΈ Π΄Π»Ρ ΡΡΠΎΡΡΠ°ΡΠΎΠ²;
- ΡΡΠ°ΠΌΠ±ΠΎΠ²ΠΊΠΈ ΠΈΠ·Π΄Π΅Π»ΠΈΡ ΠΈΠ· ΡΠ΅ΠΌΠ΅Π½ΡΠ° ΠΈ Π°ΡΡΠ°Π»ΡΡΠΎΠ±Π΅ΡΠΎΠ½Π½ΡΡ ΡΠΌΠ΅ΡΠ΅ΠΉ;
- ΡΠΎΡΠΌΠΎΠ²Π°Π½ΠΈΡ Π±Π»ΠΎΠΊΠΎΠ² ΠΈΠ· Π²ΡΠΏΠ΅Π½Π΅Π½Π½ΠΎΠ³ΠΎ Π±Π΅ΡΠΎΠ½Π°;
- Π²ΠΈΠ±ΡΠΎΡΠΏΠ»ΠΎΡΠ½Π΅Π½ΠΈΡ ΡΠ»Π΅ΠΌΠ΅Π½ΡΠΎΠ² Π·Π°Π±ΠΎΡΠΎΠ², Π΄Π΅ΠΊΠΎΡΠ°ΡΠΈΠ²Π½ΡΡ ΠΈΠ·Π΄Π΅Π»ΠΈΠΉ, ΠΏΠΎΠ΄ΠΎΠΊΠΎΠ½Π½ΠΈΠΊΠΎΠ²;
- ΠΏΡΠΎΠ²Π΅Π΄Π΅Π½ΠΈΡ ΡΠ°Π·Π»ΠΈΡΠ½ΡΡ Π²ΠΈΠ΄ΠΎΠ² ΠΈΡΠΏΡΡΠ°Π½ΠΈΠΉ ΠΏΡΠΎΠ΄ΡΠΊΡΠΈΠΈ.
Π£Π½ΠΈΠ²Π΅ΡΡΠ°Π»ΡΠ½ΡΠΉ Π²ΠΈΠ±ΡΠΎΡΡΠΎΠ» β ΠΊΠΎΠ½ΡΡΡΡΠΊΡΠΈΠ²Π½ΡΠ΅ ΠΎΡΠΎΠ±Π΅Π½Π½ΠΎΡΡΠΈ
ΠΠΈΠ±ΡΠ°ΡΠΈΠΎΠ½Π½Π°Ρ ΠΏΠ»ΠΎΡΠ°Π΄ΠΊΠ° (ΡΡΠΎΠ») ΡΠ²Π»ΡΠ΅ΡΡΡ ΡΠ΅Ρ Π½ΠΈΡΠ΅ΡΠΊΠΈΠΌ ΡΡΡΡΠΎΠΉΡΡΠ²ΠΎΠΌ, Π²ΠΊΠ»ΡΡΠ°ΡΡΠΈΠΌ ΡΠ»Π΅Π΄ΡΡΡΠΈΠ΅ ΡΠΎΡΡΠ°Π²Π½ΡΠ΅ ΡΠ°ΡΡΠΈ:
- ΠΠΏΠΎΡΠ½ΡΡ ΡΡΠ°Π½ΠΈΠ½Ρ, ΠΈΠ·Π³ΠΎΡΠΎΠ²Π»Π΅Π½Π½ΡΡ Π² Π²ΠΈΠ΄Π΅ ΠΌΠ΅ΡΠ°Π»Π»ΠΈΡΠ΅ΡΠΊΠΎΠΉ ΡΠ°ΠΌΡ. Π‘Π²Π°ΡΠ½Π°Ρ ΠΊΠΎΠ½ΡΡΡΡΠΊΡΠΈΡ ΡΠ°ΠΌΡ Π΄ΠΎΠ»ΠΆΠ½Π° Π±ΡΡΡ ΠΆΠ΅ΡΡΠΊΠΎΠΉ ΠΈ ΠΌΠ°ΡΡΠΈΠ²Π½ΠΎΠΉ, ΡΡΠΎΠ±Ρ ΠΎΠ±Π΅ΡΠΏΠ΅ΡΠΈΡΡ ΡΡΡΠΎΠΉΡΠΈΠ²ΠΎΡΡΡ Π°Π³ΡΠ΅Π³Π°ΡΠ°.
- Π Π°Π±ΠΎΡΡΡ ΠΏΠ»ΠΎΡΠ°Π΄ΠΊΡ Π² Π²ΠΈΠ΄Π΅ ΡΡΠ°Π»ΡΠ½ΠΎΠΉ Π³ΠΎΡΠΈΠ·ΠΎΠ½ΡΠ°Π»ΡΠ½ΠΎ ΡΠ°ΡΠΏΠΎΠ»ΠΎΠΆΠ΅Π½Π½ΠΎΠΉ ΠΈ ΠΈΠ΄Π΅Π°Π»ΡΠ½ΠΎ Π³Π»Π°Π΄ΠΊΠΎΠΉ ΡΡΠΎΠ»Π΅ΡΠ½ΠΈΡΡ. ΠΠΎΠ΄Π²ΠΈΠΆΠ½ΠΎΠ΅ ΠΊΡΠ΅ΠΏΠ»Π΅Π½ΠΈΠ΅ ΠΏΠ»ΠΈΡΡ ΠΊ ΡΠ°ΠΌΠ΅ ΠΎΡΡΡΠ΅ΡΡΠ²Π»ΡΠ΅ΡΡΡ Ρ ΠΏΠΎΠΌΠΎΡΡΡ ΡΠ΅ΡΡΡΠ΅Ρ
ΠΆΠ΅ΡΡΠΊΠΈΡ
ΠΏΡΡΠΆΠΈΠ½.

ΠΡΠΆΠ½ΠΎ , ΡΡΠΎΠ±Ρ ΡΡΠΎΠ»Π΅ΡΠ½ΠΈΡΠ° Π±ΡΠ»Π° Π³Π»Π°Π΄ΠΊΠΎΠΉ ΠΈ ΡΠΎΠ²Π½ΠΎΠΉ, Π° Π²ΠΈΠ±ΡΠ°ΡΠΈΡ ΠΏΡΠΎΡ ΠΎΠ΄ΠΈΠ»Π° ΡΠ°Π²Π½ΠΎΠΌΠ΅ΡΠ½ΠΎ
- ΠΡΠΈΠ²ΠΎΠ΄Π½ΠΎΠΉ ΠΌΠ΅Ρ Π°Π½ΠΈΠ·ΠΌ, ΠΆΠ΅ΡΡΠΊΠΎ Π·Π°ΡΠΈΠΊΡΠΈΡΠΎΠ²Π°Π½Π½ΡΠΉ Π½Π° Π½ΠΈΠΆΠ½Π΅ΠΉ ΡΠ°ΡΡΠΈ ΡΡΠ°Π»ΡΠ½ΠΎΠΉ ΠΏΠ»ΠΈΡΡ. ΠΠ²ΠΈΠ³Π°ΡΠ΅Π»Ρ Π΄Π»Ρ Π²ΠΈΠ±ΡΠΎΡΡΠΎΠ»Π° Π²ΡΠ°ΡΠ°Π΅Ρ ΡΠΊΡΡΠ΅Π½ΡΡΠΈΡΠ½ΠΎ Π·Π°ΠΊΡΠ΅ΠΏΠ»Π΅Π½Π½ΡΠΉ Π³ΡΡΠ·, ΠΏΠ΅ΡΠ΅Π΄Π°Π²Π°Ρ ΠΊΠΎΠ»Π΅Π±Π°Π½ΠΈΡ ΡΠ°Π±ΠΎΡΠ΅ΠΉ ΠΏΠΎΠ²Π΅ΡΡ Π½ΠΎΡΡΠΈ.
- ΠΡΡΠΊΠΎΠ²ΠΎΠ΅ ΡΡΡΡΠΎΠΉΡΡΠ²ΠΎ, ΠΏΡΠ΅Π΄ΡΡΠ°Π²Π»ΡΡΡΠ΅Π΅ ΡΠΎΠ±ΠΎΠΉ ΡΠΎΠ±ΡΠ°Π½Π½ΡΠ΅ Π² ΠΎΠ±ΡΠ΅ΠΌ ΠΊΠΎΡΠΏΡΡΠ΅ ΠΊΠ½ΠΎΠΏΠΊΠΈ ΠΏΡΡΠΊΠ° (ΡΠ΅ΠΆΠΈΠΌ Β«Π²ΠΈΠ±ΡΠΎΒ») ΠΈ ΠΎΡΡΠ°Π½ΠΎΠ²ΠΊΠΈ (ΠΏΠΎΠ»ΠΎΠΆΠ΅Π½ΠΈΠ΅ Β«ΡΡΠΎΠΏΒ»). Π ΡΡ Π΅ΠΌΠ΅ ΠΏΠΎΠ΄ΠΊΠ»ΡΡΠ΅Π½ΠΈΡ ΠΈΡΠΏΠΎΠ»ΡΠ·ΡΠ΅ΡΡΡ ΡΠ°ΠΊΠΆΠ΅ ΡΠ΅ΠΏΠ»ΠΎΠ²ΠΎΠ΅ ΠΈ ΡΠΎΠΊΠΎΠ²ΠΎΠ΅ ΡΠ΅Π»Π΅, Π·Π°ΡΠΈΡΠ°ΡΡΠΈΠ΅ Π²ΠΈΠ±ΡΠΎΠ΄Π²ΠΈΠ³Π°ΡΠ΅Π»Ρ ΠΎΡ ΠΏΠ΅ΡΠ΅Π³ΡΡΠ·ΠΎΠΊ.
ΠΠ°ΠΆΠ½ΠΎΠΉ ΠΊΠΎΠ½ΡΡΡΡΠΊΡΠΈΠ²Π½ΠΎΠΉ ΠΎΡΠΎΠ±Π΅Π½Π½ΠΎΡΡΡΡ Π²ΠΈΠ±ΡΠΎΡΡΠΎΠ»Π° ΡΠ²Π»ΡΠ΅ΡΡΡ:
- ΠΎΠ±Π΅ΡΠΏΠ΅ΡΠ΅Π½ΠΈΠ΅ ΡΠ°Π²Π½ΠΎΠΌΠ΅ΡΠ½ΡΡ ΠΊΠΎΠ»Π΅Π±Π°Π½ΠΈΠΉ ΡΡΠΎΠ»Π΅ΡΠ½ΠΈΡΡ;
- ΠΌΠ°Π»Π°Ρ Π°ΠΌΠΏΠ»ΠΈΡΡΠ΄Π° ΠΊΠΎΠ»Π΅Π±Π°Π½ΠΈΠΉ.
ΠΠ»Ρ ΡΡΠΎΠ³ΠΎ Π½Π΅ΠΎΠ±Ρ ΠΎΠ΄ΠΈΠΌΠΎ ΠΏΡΠ°Π²ΠΈΠ»ΡΠ½ΠΎ ΠΏΠΎΠ΄ΠΎΠ±ΡΠ°ΡΡ Π΄Π²ΠΈΠ³Π°ΡΠ΅Π»Ρ Π΄Π»Ρ Π²ΠΈΠ±ΡΠΎΡΡΠΎΠ»Π°, ΠΎΠΏΡΠ΅Π΄Π΅Π»ΠΈΡΡ ΠΌΠ°ΡΡΡ ΡΠΊΡΡΠ΅Π½ΡΡΠΈΠΊΠ° ΠΈ ΠΌΠ΅ΡΡΠΎ Π·Π°ΠΊΡΠ΅ΠΏΠ»Π΅Π½ΠΈΡ ΠΏΡΠΈΠ²ΠΎΠ΄Π°. ΠΡΠΈ ΠΏΠΎΠ²ΡΡΠ΅Π½Π½ΠΎΠΉ ΡΠ°ΡΡΠΎΡΠ΅ ΠΊΠΎΠ»Π΅Π±Π°Π½ΠΈΠΉ ΠΈ Π½Π΅ΡΠ°Π²Π½ΠΎΠΌΠ΅ΡΠ½ΠΎΠΉ Π²ΠΈΠ±ΡΠ°ΡΠΈΠΈ Π²ΠΎΠ·ΠΌΠΎΠΆΠ½ΠΎ Π½Π°ΡΡΡΠ΅Π½ΠΈΠ΅ ΡΠΎΡΠΌΡΠ΅ΠΌΠΎΠ³ΠΎ ΡΠΎΡΡΠ°Π²Π° Π²ΠΎΠ·Π΄ΡΡ ΠΎΠΌ, ΡΡΠΎ Π²ΡΠ·ΡΠ²Π°Π΅Ρ ΡΠΌΠ΅Π½ΡΡΠ΅Π½ΠΈΠ΅ ΠΏΡΠΎΡΠ½ΠΎΡΡΠΈ ΠΈΠ·Π΄Π΅Π»ΠΈΠΉ.
ΠΡΠΈΠ½ΡΠΈΠΏ ΡΠ°Π±ΠΎΡΡ
Π£Π½ΠΈΠ²Π΅ΡΡΠ°Π»ΡΠ½ΡΠΉ Π°Π³ΡΠ΅Π³Π°Ρ, ΠΎΠ±Π»Π΅Π³ΡΠ°ΡΡΠΈΠΉ ΡΠΎΡΠΌΠΎΠ²ΠΎΡΠ½ΡΠΉ ΠΏΡΠΎΡΠ΅ΡΡ, ΡΡΠ½ΠΊΡΠΈΠΎΠ½ΠΈΡΡΠ΅Ρ ΡΠ»Π΅Π΄ΡΡΡΠΈΠΌ ΠΎΠ±ΡΠ°Π·ΠΎΠΌ:
- ΠΎΡΠ½ΠΎΠ²Π°Π½ΠΈΠ΅ ΡΡΠ°Π½ΠΈΠ½Ρ Π²ΠΈΠ±ΡΠΎΡΡΠΎΠ»Π° ΠΆΠ΅ΡΡΠΊΠΎ ΠΊΡΠ΅ΠΏΠΈΡΡΡ ΠΊ ΠΏΠΎΠ²Π΅ΡΡ Π½ΠΎΡΡΠΈ ΠΏΠΎΠ»Π°;
- ΠΏΠΎΠ΄ΠΊΠ»ΡΡΠ°Π΅ΡΡΡ ΠΏΠΈΡΠ°ΡΡΠΈΠΉ ΠΊΠ°Π±Π΅Π»Ρ;

ΠΡΠ°Π²ΠΈΠ»ΡΠ½ΠΎ Π·Π°Π΄Π°Π½Π½Π°Ρ Π°ΠΌΠΏΠ»ΠΈΡΡΠ΄Π° ΠΊΠΎΠ»Π΅Π±Π°Π½ΠΈΠΉ Π³Π°ΡΠ°Π½ΡΠΈΡΡΠ΅Ρ ΡΠ°Π²Π½ΠΎΠΌΠ΅ΡΠ½ΠΎΠ΅ ΡΠ°ΡΠΏΡΠ΅Π΄Π΅Π»Π΅Π½ΠΈΠ΅ ΡΠ°ΡΡΠ²ΠΎΡΠ° ΠΏΠΎ Π²ΠΈΠ±ΡΠΎΡΠΎΡΠΌΠ΅ ΠΈ Π΅Π³ΠΎ ΠΏΠΎΡΡΠ΅ΠΏΠ΅Π½Π½ΠΎΠ΅ Π·Π°ΡΠ²Π΅ΡΠ΄Π΅Π²Π°Π½ΠΈΠ΅
- ΡΡΡΠ°Π½Π°Π²Π»ΠΈΠ²Π°Π΅ΡΡΡ Π½Π° ΡΠ°Π±ΠΎΡΡΡ ΠΏΠ»ΠΎΡΠ°Π΄ΠΊΡ Π·Π°ΠΏΠΎΠ»Π½Π΅Π½Π½Π°Ρ ΡΠ°ΡΡΠ²ΠΎΡΠΎΠΌ ΡΠΎΡΠΌΠ°;
- Π²ΠΊΠ»ΡΡΠ°Π΅ΡΡΡ Π²ΠΈΠ±ΡΠ°ΡΠΈΠΎΠ½Π½ΡΠΉ ΠΌΠΎΡΠΎΡ ΠΏΡΡΠ΅ΠΌ Π½Π°ΠΆΠ°ΡΠΈΡ Π½Π° ΡΠΎΠΎΡΠ²Π΅ΡΡΡΠ²ΡΡΡΡΡ ΠΊΠ½ΠΎΠΏΠΊΡ ΠΏΡΠ»ΡΡΠ°;
- ΠΎΡΡΡΠ΅ΡΡΠ²Π»ΡΠ΅ΡΡΡ ΠΏΡΠΎΡΠ΅ΡΡ ΠΈΠ½ΡΠ΅Π½ΡΠΈΠ²Π½ΠΎΠ³ΠΎ ΡΠΏΠ»ΠΎΡΠ½Π΅Π½ΠΈΡ, Π² ΡΠ΅Π·ΡΠ»ΡΡΠ°ΡΠ΅ ΠΊΠΎΡΠΎΡΠΎΠ³ΠΎ ΠΈΠ· ΡΠ°ΡΡΠ²ΠΎΡΠ° Π²ΡΡ ΠΎΠ΄ΡΡ Π²ΠΎΠ·Π΄ΡΡΠ½ΡΠ΅ ΠΏΡΠ·ΡΡΡΠΊΠΈ ΠΈ ΡΠΌΠ΅ΡΡ ΠΎΡΠ΅Π΄Π°Π΅Ρ, ΡΡΠ°Π½ΠΎΠ²ΡΡΡ Π±ΠΎΠ»Π΅Π΅ ΠΏΠ»ΠΎΡΠ½ΠΎΠΉ;
- ΠΎΡΠΊΠ»ΡΡΠ°Π΅ΡΡΡ ΠΏΠΎΠ΄Π°ΡΠ° ΡΠ»Π΅ΠΊΡΡΠΈΡΠ΅ΡΠΊΠΎΠΉ ΡΠ½Π΅ΡΠ³ΠΈΠΈ;
- ΡΠ½ΠΈΠΌΠ°ΡΡΡΡ Ρ Π³ΠΎΡΠΈΠ·ΠΎΠ½ΡΠ°Π»ΡΠ½ΠΎΠΉ ΠΏΠ»ΠΈΡΡ Π΅ΠΌΠΊΠΎΡΡΠΈ Ρ Π·Π°ΡΠΎΡΠΌΠΎΠ²Π°Π½Π½ΡΠΌΠΈ ΠΈΠ·Π΄Π΅Π»ΠΈΡΠΌΠΈ;
- ΠΏΡΠΎΠΈΡΡ ΠΎΠ΄ΠΈΡ ΡΠ»Π΅Π΄ΡΡΡΠΈΠΉ ΡΠΈΠΊΠ» Π²ΠΈΠ±ΡΠΎΡΠΏΠ»ΠΎΡΠ½Π΅Π½ΠΈΡ ΠΏΠΎ ΠΏΡΠΈΠ²Π΅Π΄Π΅Π½Π½ΠΎΠΌΡ Π°Π»Π³ΠΎΡΠΈΡΠΌΡ.
ΠΠ·Π³ΠΎΡΠΎΠ²Π»Π΅Π½Π½ΡΠΉ ΡΠ²ΠΎΠΈΠΌΠΈ ΡΡΠΊΠ°ΠΌΠΈ Π²ΠΈΠ±ΡΠΎΡΡΠΎΠ» ΠΈ ΠΏΡΠΎΠΌΡΡΠ»Π΅Π½Π½ΡΠΉ Π°Π³ΡΠ΅Π³Π°Ρ ΡΠ°Π±ΠΎΡΠ°ΡΡ ΠΏΠΎ ΠΎΠ΄ΠΈΠ½Π°ΠΊΠΎΠ²ΠΎΠΌΡ ΠΏΡΠΈΠ½ΡΠΈΠΏΡ.
ΠΠΈΠ±ΡΠ°ΡΠΈΠΎΠ½Π½ΡΠΉ ΡΡΠΎΠ» β ΡΠ°Π·Π½ΠΎΠ²ΠΈΠ΄Π½ΠΎΡΡΠΈ
ΠΠΈΠ±ΡΠ°ΡΠΈΠΎΠ½Π½ΡΠ΅ ΡΡΠΎΠ»Ρ ΡΠ°Π·Π»ΠΈΡΠ°ΡΡΡΡ ΠΏΠΎ ΡΠ»Π΅Π΄ΡΡΡΠΈΠΌ ΠΏΠ°ΡΠ°ΠΌΠ΅ΡΡΠ°ΠΌ:
- ΠΠ»ΠΎΡΠ°Π΄ΠΈ ΠΈ Π³Π°Π±Π°ΡΠΈΡΠ°ΠΌ ΡΠ°Π±ΠΎΡΠ΅ΠΉ ΠΏΠΎΠ²Π΅ΡΡ Π½ΠΎΡΡΠΈ. Π‘ ΡΠ²Π΅Π»ΠΈΡΠ΅Π½ΠΈΠ΅ΠΌ ΡΠ°Π·ΠΌΠ΅ΡΠΎΠ² ΠΎΠ±Π΅ΡΠΏΠ΅ΡΠΈΠ²Π°Π΅ΡΡΡ Π²ΠΎΠ·ΠΌΠΎΠΆΠ½ΠΎΡΡΡ ΠΈΠ·Π³ΠΎΡΠΎΠ²Π»Π΅Π½ΠΈΡ ΡΠ»ΠΎΠΆΠ½ΡΡ ΠΈΠ·Π΄Π΅Π»ΠΈΠΉ, Π° ΡΠ°ΠΊΠΆΠ΅ Π²ΠΎΠ·ΡΠ°ΡΡΠ°Π΅Ρ ΠΊΠΎΠ»ΠΈΡΠ΅ΡΡΠ²ΠΎ ΠΎΠ΄Π½ΠΎΠ²ΡΠ΅ΠΌΠ΅Π½Π½ΠΎ ΡΠΏΠ»ΠΎΡΠ½ΡΠ΅ΠΌΡΡ ΡΠΎΡΠΌ.
- Π£ΡΡΠ°Π½ΠΎΠ²Π»Π΅Π½Π½ΠΎΠΉ ΠΌΠΎΡΠ½ΠΎΡΡΠΈ, ΠΎΠΏΡΠ΅Π΄Π΅Π»ΡΡΡΠ΅ΠΉ ΠΏΡΠΎΠΈΠ·Π²ΠΎΠ΄ΠΈΡΠ΅Π»ΡΠ½ΠΎΡΡΡ Π°Π³ΡΠ΅Π³Π°ΡΠ°. Π Π·Π°Π²ΠΈΡΠΈΠΌΠΎΡΡΠΈ ΠΎΡ ΡΡΠΌΠΌΠ°ΡΠ½ΠΎΠΉ ΠΌΠ°ΡΡΡ ΡΠ°ΡΠΏΠΎΠ»ΠΎΠΆΠ΅Π½Π½ΡΡ
Π½Π° ΡΠ°Π±ΠΎΡΠ΅ΠΉ ΠΏΠ»ΠΎΡΠ°Π΄ΠΊΠ΅ Π·Π°ΡΠΎΡΠΌΠΎΠ²Π°Π½Π½ΡΡ
ΠΈΠ·Π΄Π΅Π»ΠΈΠΉ ΠΏΠΎΠ΄Π±ΠΈΡΠ°Π΅ΡΡΡ Π΄Π²ΠΈΠ³Π°ΡΠ΅Π»Ρ Π΄Π»Ρ Π²ΠΈΠ±ΡΠΎΡΡΠΎΠ»Π°.
ΠΠ΄Π΅ Π²Ρ ΠΏΡΠ΅Π΄ΠΏΠΎΡΠ»ΠΈ Π±Ρ ΠΆΠΈΡΡ: Π² ΡΠ°ΡΡΠ½ΠΎΠΌ Π΄ΠΎΠΌΠ΅, ΠΈΠ»ΠΈ ΠΊΠ²Π°ΡΡΠΈΡΠ΅?
ΠΠ΄Π½ΠΎΠ·Π½Π°ΡΠ½ΠΎ ΠΊΠ²Π°ΡΡΠΈΡΠ°! ΠΠΎΠΌΡΠΎΡΡ, ΡΡΡ ΠΈ ΡΠ΅ΠΏΠ»ΠΎ, Π²ΠΎΠΊΡΡΠ³ Π»ΡΠ΄ΠΈ ΠΈ ΠΈΠ½ΡΡΠ°ΡΡΡΡΠΊΡΡΡΠ° 140 ( 4.71 % )
Π’ΠΎΠ»ΡΠΊΠΎ ΡΠ°ΡΡΠ½ΡΠΉ Π΄ΠΎΠΌ! ΠΠΎΠΊΡΡΠ³ ΡΠΈΡΠΈΠ½Π°, ΠΏΠΎΠΊΠΎΠΉ, ΠΌΠ½ΠΎΠ³ΠΎ ΠΌΠ΅ΡΡΠ° ΠΈ ΠΌΠ°Π»ΠΎ Π»ΡΠ΄Π΅ΠΉ! 1388 ( 46.7 % )
ΠΠ°ΡΠ΅ΠΌ Π²ΡΠ±ΠΈΡΠ°ΡΡ ΡΡΠΎ-ΡΠΎ ΠΎΠ΄Π½ΠΎ? Π Π³ΠΎΡΠΎΠ΄Π΅ ΠΊΠ²Π°ΡΡΠΈΡΠ°, Π° Π·Π° Π³ΠΎΡΠΎΠ΄ΠΎΠΌ — ΡΠ°ΡΡΠ½ΡΠΉ Π΄ΠΎΠΌ. 1345 ( 45.26 % )
Π― — ΡΠ²ΠΎΠ±ΠΎΠ΄Π½ΡΠΉ ΠΡΠ°ΠΆΠ΄Π°Π½ΠΈΠ½ ΠΠ»Π°Π½Π΅ΡΡ ΠΠ΅ΠΌΠ»Ρ! ΠΠ½Π΅ Π½Π΅ Π½ΡΠΆΠ½Π° ΡΡΠΊΠΎΡΠ²ΠΎΡΠ½Π°Ρ ΠΊΠ»Π΅ΡΠΊΠ°! 99 ( 3.33 % )
ΠΠ°Π·Π°Π΄

ΠΠ±ΡΡΠ½ΠΎ Π²ΠΈΠ±ΡΠΎΡΡΠΎΠ» Π΄Π΅Π»Π°Π΅ΡΡΡ ΠΈΠ· ΠΌΠ΅ΡΠ°Π»Π»ΠΈΡΠ΅ΡΠΊΠΈΡ ΠΌΠ°ΡΠ΅ΡΠΈΠ°Π»ΠΎΠ², ΡΠ°ΠΊ ΠΊΠ°ΠΊ ΠΎΠ½ΠΈ ΠΎΠ±Π»Π°Π΄Π°ΡΡ Π½Π΅ΠΎΠ±Ρ ΠΎΠ΄ΠΈΠΌΠΎΠΉ ΠΏΡΠΎΡΠ½ΠΎΡΡΡΡ, ΡΡΡΠΎΠΉΡΠΈΠ²ΠΎΡΡΡΡ ΠΈ Π΄ΠΎΠ»Π³ΠΎΠ²Π΅ΡΠ½ΠΎΡΡΡΡ
- ΠΠΌΠΏΠ»ΠΈΡΡΠ΄Π΅ ΠΊΠΎΠ»Π΅Π±Π°Π½ΠΈΠΉ. ΠΠ°Π»ΠΈΡΠΈΠ΅ ΡΡΡΡΠΎΠΉΡΡΠ²Π° Π΄Π»Ρ ΡΠ΅Π³ΡΠ»ΠΈΡΠΎΠ²ΠΊΠΈ ΡΠ°ΡΡΠΎΡΡ Π²ΠΈΠ±ΡΠ°ΡΠΈΠΈ ΠΏΠΎΠ·Π²ΠΎΠ»ΡΠ΅Ρ ΠΏΠ΅ΡΠ΅Ρ ΠΎΠ΄ΠΈΡΡ Π½Π° ΡΠ°Π·Π»ΠΈΡΠ½ΡΠ΅ ΡΠ΅ΠΆΠΈΠΌΡ ΡΠ°Π±ΠΎΡΡ, ΡΡΠ΅Π±ΡΠ΅ΠΌΡΠ΅ Π΄Π»Ρ ΠΎΠΏΡΠ΅Π΄Π΅Π»Π΅Π½Π½ΡΡ ΠΌΠ°ΡΠ΅ΡΠΈΠ°Π»ΠΎΠ².
ΠΠ»Ρ ΠΎΠ±Π΅ΡΠΏΠ΅ΡΠ΅Π½ΠΈΡ ΡΠ΅Ρ Π½ΠΎΠ»ΠΎΠ³ΠΈΡΠ΅ΡΠΊΠΈΡ ΠΏΠΎΡΡΠ΅Π±Π½ΠΎΡΡΠ΅ΠΉ ΠΈΡΠΏΠΎΠ»ΡΠ·ΡΡΡΡΡ ΡΠ»Π΅Π΄ΡΡΡΠ΅Π΅ ΡΠ°Π·Π½ΠΎΠ²ΠΈΠ΄Π½ΠΎΡΡΠΈ Π²ΠΈΠ±ΡΠΎ ΡΡΠΎΠ»ΠΎΠ²:
- ΡΠΎΡΠΌΠΎΠ²ΠΎΡΠ½ΡΠΉ, ΠΈΡΠΏΠΎΠ»ΡΠ·ΡΠ΅ΠΌΡΠΉ ΠΏΡΠΈ ΠΏΡΠΎΠΈΠ·Π²ΠΎΠ΄ΡΡΠ²Π΅ Π΄Π»Ρ Π²ΠΈΠ±ΡΠ°ΡΠΈΠΎΠ½Π½ΠΎΠ³ΠΎ ΡΠΏΠ»ΠΎΡΠ½Π΅Π½ΠΈΡ ΠΈΠ·Π΄Π΅Π»ΠΈΠΉ, Π½Π°Ρ ΠΎΠ΄ΡΡΠΈΡ ΡΡ Π² ΡΠΎΡΠΌΠ°Ρ ;
- ΡΠ°ΡΡΠΎΡΠΌΠΎΠ²ΠΎΡΠ½ΡΠΉ, ΠΏΠΎΠ·Π²ΠΎΠ»ΡΡΡΠΈΠΉ Ρ ΠΏΠΎΠΌΠΎΡΡΡ ΡΠΏΠ΅ΡΠΈΠ°Π»ΡΠ½ΠΎΠΉ Π½Π°ΡΠ°Π΄ΠΊΠΈ ΠΈΠ·Π²Π»Π΅ΠΊΠ°ΡΡ Π³ΠΎΡΠΎΠ²ΡΠ΅ ΠΈΠ·Π΄Π΅Π»ΠΈΡ ΠΈΠ· ΡΠΎΡΠΌΠΎΠ²ΠΎΡΠ½ΡΡ Π΅ΠΌΠΊΠΎΡΡΠ΅ΠΉ.
Π’Π΅Ρ Π½ΠΎΠ»ΠΎΠ³ΠΈΡ ΠΈΠ·Π³ΠΎΡΠΎΠ²Π»Π΅Π½ΠΈΡ Π²ΠΈΠ±ΡΠΎΡΡΠΎΠ»Π° ΡΠ²ΠΎΠΈΠΌΠΈ ΡΠΈΠ»Π°ΠΌΠΈ
Π Π°ΡΡΠΌΠΎΡΡΠΈΠΌ, ΠΊΠ°ΠΊ ΡΠ΄Π΅Π»Π°ΡΡ ΡΠ°ΠΌΠΎΡΡΠΎΡΡΠ΅Π»ΡΠ½ΠΎ Π²ΠΈΠ±ΡΠ°ΡΠΈΠΎΠ½Π½ΡΠΉ ΡΡΠΎΠ». Π ΠΏΠ΅ΡΠ²ΡΡ ΠΎΡΠ΅ΡΠ΅Π΄Ρ Π½Π΅ΠΎΠ±Ρ ΠΎΠ΄ΠΈΠΌΠΎ ΠΏΠΎΠ΄Π³ΠΎΡΠΎΠ²ΠΈΡΡ ΡΠ΅ΡΡΠ΅ΠΆ Π²ΠΈΠ±ΡΠΎΡΡΠΎΠ»Π°. ΠΡΠ»ΠΈ ΠΈΠΌΠ΅Π΅ΡΡΡ ΡΠΎΠΎΡΠ²Π΅ΡΡΡΠ²ΡΡΡΠ°Ρ ΡΠ΅Ρ Π½ΠΈΡΠ΅ΡΠΊΠ°Ρ ΠΏΠΎΠ΄Π³ΠΎΡΠΎΠ²ΠΊΠ°, ΡΠ΅ΡΡΠ΅ΠΆΠ½ΡΠ΅ Π½Π°Π²ΡΠΊΠΈ, ΠΌΠΎΠΆΠ½ΠΎ ΡΠ°ΠΌΠΎΡΡΠΎΡΡΠ΅Π»ΡΠ½ΠΎ ΡΠ°Π·ΡΠ°Π±ΠΎΡΠ°ΡΡ ΡΠ΅ΡΡΠ΅ΠΆ. ΠΠΎΠ΄ΠΎΠΉΠ΄Π΅Ρ ΡΠ°ΠΊΠΆΠ΅ Π³ΠΎΡΠΎΠ²ΡΠΉ ΡΡΠΊΠΈΠ·, Π½Π° ΠΊΠΎΡΠΎΡΠΎΠΌ ΠΌΠΎΠΆΠ½ΠΎ ΠΏΡΠΎΡΡΠ°Π²ΠΈΡΡ ΡΠ°Π·ΠΌΠ΅ΡΡ ΡΠ²ΠΎΠ΅ΠΉ ΠΊΠΎΠ½ΡΡΡΡΠΊΡΠΈΠΈ. ΠΠΏΡΠΈΠΌΠ°Π»ΡΠ½Π°Ρ Π²ΡΡΠΎΡΠ° ΠΎΡ ΠΎΡΠ½ΠΎΠ²Π°Π½ΠΈΡ Π΄ΠΎ ΠΏΠ»ΠΎΡΠ°Π΄ΠΊΠΈ 0,7β0,8 ΠΌ, Π° Π³Π°Π±Π°ΡΠΈΡΡ β 0,5Ρ 1,0 ΠΌ.
ΠΠ»Ρ Π²ΡΠΏΠΎΠ»Π½Π΅Π½ΠΈΡ ΡΠ°Π±ΠΎΡ ΡΠ»Π΅Π΄ΡΠ΅Ρ ΠΏΠΎΠ΄Π³ΠΎΡΠΎΠ²ΠΈΡΡ ΡΡΠ΅Π±ΡΠ΅ΠΌΡΠ΅ ΠΌΠ°ΡΠ΅ΡΠΈΠ°Π»Ρ, ΠΊΠΎΠΌΠΏΠ»Π΅ΠΊΡΡΡΡΠΈΠ΅, Π½Π΅ΠΎΠ±Ρ ΠΎΠ΄ΠΈΠΌΡΠ΅ ΠΈΠ½ΡΡΡΡΠΌΠ΅Π½ΡΡ ΠΈ ΠΎΠ±ΠΎΡΡΠ΄ΠΎΠ²Π°Π½ΠΈΠ΅:
- Π‘ΡΠ°Π»ΡΠ½ΠΎΠΉ Π»ΠΈΡΡ Π΄Π»Ρ ΠΈΠ·Π³ΠΎΡΠΎΠ²Π»Π΅Π½ΠΈΡ ΡΠ°Π±ΠΎΡΠ΅ΠΉ ΠΏΠ»ΠΈΡΡ (ΡΠΎΠ»ΡΠΈΠ½Π° 6β8 ΠΌΠΌ).
- ΠΠ΅ΡΠ°Π»Π»ΠΈΡΠ΅ΡΠΊΠΈΠ΅ ΠΏΡΡΠΆΠΈΠ½Ρ ΠΎΠ΄ΠΈΠ½Π°ΠΊΠΎΠ²ΠΎΠΉ ΠΆΠ΅ΡΡΠΊΠΎΡΡΠΈ Π² ΠΊΠΎΠ»ΠΈΡΠ΅ΡΡΠ²Π΅ 4 ΡΡΡΠΊ.
- Π’ΡΡΠ±Ρ, ΡΠΎΠΎΡΠ²Π΅ΡΡΡΠ²ΡΡΡΠΈΠ΅ ΡΠ°Π·ΠΌΠ΅ΡΠ°ΠΌ ΠΏΡΡΠΆΠΈΠ½, Π΄Π»Ρ ΠΈΠ·Π³ΠΎΡΠΎΠ²Π»Π΅Π½ΠΈΡ ΠΎΠΏΠΎΡΠ½ΡΡ ΠΏΠΎΠ΄ΡΡΠ°ΠΊΠ°Π½Π½ΠΈΠΊΠΎΠ².
- Π‘ΡΠ°Π»ΡΠ½ΠΎΠΉ ΠΏΡΠΎΠΊΠ°Ρ Π² Π²ΠΈΠ΄Π΅ ΡΠ²Π΅Π»Π»Π΅ΡΠΎΠ², ΡΠ³ΠΎΠ»ΠΊΠΎΠ² ΠΈΠ»ΠΈ ΡΡΡΠ±Ρ Π΄Π»Ρ ΠΈΠ·Π³ΠΎΡΠΎΠ²Π»Π΅Π½ΠΈΡ ΠΌΠ΅ΡΠ°Π»Π»ΠΎΠΊΠΎΠ½ΡΡΡΡΠΊΡΠΈΠΈ ΡΠ°ΠΌΡ.

ΠΡΠΎΠ΄ΠΎΠ»ΠΆΠΈΡΠ΅Π»ΡΠ½ΠΎΡΡΡ ΡΠ°Π±ΠΎΡΡ Π·Π°Π²ΠΈΡΠΈΡ ΠΎΡ ΠΊΠΎΠ½ΡΡΡΡΠΊΡΠΈΠΈ ΡΡΠΎΠ»Π°
- ΠΠ΅ΡΠ°Π»Π»ΠΈΡΠ΅ΡΠΊΠΈΠ΅ ΠΏΠ»Π°ΡΡΠΈΠ½Ρ Π΄Π»Ρ ΡΠΈΠΊΡΠ°ΡΠΈΠΈ ΡΠ°ΠΌΡ ΠΊ ΠΎΡΠ½ΠΎΠ²Π°Π½ΠΈΡ.
- ΠΠΎΠΌΠΏΠ»Π΅ΠΊΡ ΠΌΠ΅ΡΠΈΠ·ΠΎΠ² Π΄Π»Ρ ΠΊΡΠ΅ΠΏΠ»Π΅Π½ΠΈΡ Π²ΠΈΠ±ΡΠΎΠ΄Π²ΠΈΠ³Π°ΡΠ΅Π»Ρ ΠΊ ΡΡΠΎΠ»Π΅ΡΠ½ΠΈΡΠ΅ ΠΈ Π²ΡΠ΅Π³ΠΎ ΠΈΠ·Π΄Π΅Π»ΠΈΡ ΠΊ ΠΏΠΎΠ»Ρ.
- ΠΠΈΠ±ΡΠ°ΡΠΈΠΎΠ½Π½ΡΠΉ ΠΌΠΎΡΠΎΡ Π½Π°ΠΏΡΡΠΆΠ΅Π½ΠΈΠ΅ΠΌ ΠΏΠΈΡΠ°Π½ΠΈΡ 220 Π, ΠΌΠΎΡΠ½ΠΎΡΡΡΡ 0,5β0,7 ΠΊΠΡ.
- Π‘Π²Π°ΡΠΎΡΠ½ΡΠΉ Π°ΠΏΠΏΠ°ΡΠ°Ρ Ρ ΡΠ»Π΅ΠΊΡΡΠΎΠ΄Π°ΠΌΠΈ.
- ΠΠ»Π΅ΠΊΡΡΠΈΡΠ΅ΡΠΊΡΡ Π΄ΡΠ΅Π»Ρ ΡΠΎ ΡΠ²Π΅ΡΠ»Π°ΠΌΠΈ.
- ΠΠΎΠ»Π³Π°ΡΠΊΡ Ρ Π΄ΠΈΡΠΊΠΎΠΌ Π΄Π»Ρ ΡΠ΅Π·ΠΊΠΈ ΠΌΠ΅ΡΠ°Π»Π»Π°.
ΠΡΠ»ΠΈ ΠΏΠ»Π°Π½ΠΈΡΡΠ΅ΡΡΡ ΠΈΡΠΏΠΎΠ»ΡΠ·ΠΎΠ²Π°ΡΡ Π²ΠΈΠ±ΡΠΎΠΏΠ»ΠΎΡΠ°Π΄ΠΊΡ Π΄Π»Ρ ΡΠΎΡΠΌΠΎΠ²Π°Π½ΠΈΡ ΠΈΠ·Π΄Π΅Π»ΠΈΠΉ ΠΈΠ· ΡΠ°Π·Π»ΠΈΡΠ½ΡΡ ΠΌΠ°ΡΠ΅ΡΠΈΠ°Π»ΠΎΠ², ΡΠ΅Π»Π΅ΡΠΎΠΎΠ±ΡΠ°Π·Π½ΠΎ Π΄ΠΎΠ±Π°Π²ΠΈΡΡ ΡΠ»Π΅ΠΊΡΡΠΎΠ½Π½ΡΠΉ ΡΠ΅Π³ΡΠ»ΡΡΠΎΡ ΡΠ°ΡΡΠΎΡΡ Π²ΡΠ°ΡΠ΅Π½ΠΈΡ Π΄Π²ΠΈΠ³Π°ΡΠ΅Π»Ρ Π² ΡΠΈΡΡΠ΅ΠΌΡ ΡΠΏΡΠ°Π²Π»Π΅Π½ΠΈΡ Π²ΠΈΠ±ΡΠΎΠΌΠΎΡΠΎΡΠΎΠΌ.
ΠΠΎΡΠ»Π΅ ΠΏΠΎΠ΄Π³ΠΎΡΠΎΠ²ΠΊΠΈ Π½Π΅ΠΎΠ±Ρ ΠΎΠ΄ΠΈΠΌΡΡ ΠΌΠ°ΡΠ΅ΡΠΈΠ°Π»ΠΎΠ² ΠΈ ΠΊΠΎΠΌΠΏΠ»Π΅ΠΊΡΠ°ΡΠΈΠΈ ΠΌΠΎΠΆΠ½ΠΎ ΠΈΠ·Π³ΠΎΡΠ°Π²Π»ΠΈΠ²Π°ΡΡ ΡΠ²ΠΎΠΈΠΌΠΈ ΡΡΠΊΠ°ΠΌΠΈ Π²ΠΈΠ±ΡΠΎΡΡΠΎΠ», ΡΠΎΠ±Π»ΡΠ΄Π°Ρ ΠΏΠΎΡΠ»Π΅Π΄ΠΎΠ²Π°ΡΠ΅Π»ΡΠ½ΠΎΡΡΡ ΠΎΠΏΠ΅ΡΠ°ΡΠΈΠΉ:
- ΠΠ°ΡΠ΅ΠΆΡΡΠ΅ Π·Π°Π³ΠΎΡΠΎΠ²ΠΊΠΈ Π΄Π»Ρ ΠΈΠ·Π³ΠΎΡΠΎΠ²Π»Π΅Π½ΠΈΡ Π°Π³ΡΠ΅Π³Π°ΡΠ°, ΠΏΡΠΈΠ΄Π΅ΡΠΆΠΈΠ²Π°ΡΡΡ ΡΠΊΠ°Π·Π°Π½Π½ΡΡ Π½Π° ΡΠ΅ΡΡΠ΅ΠΆΠ΅ ΡΠ°Π·ΠΌΠ΅ΡΠΎΠ².
- Π‘Π²Π°ΡΠΈΡΠ΅ ΠΏΡΡΠΌΠΎΡΠ³ΠΎΠ»ΡΠ½ΠΎΠ΅ ΠΎΡΠ½ΠΎΠ²Π°Π½ΠΈΠ΅ ΡΠ°ΠΌΡ, ΠΏΡΠΈΠΌΠ΅Π½ΡΡ ΠΏΠΎΠ΄Π³ΠΎΡΠΎΠ²Π»Π΅Π½Π½ΡΠΉ ΠΌΠ΅ΡΠ°Π»Π»ΠΈΡΠ΅ΡΠΊΠΈΠΉ ΠΏΡΠΎΡΠΈΠ»Ρ.
- ΠΡΠΈΡ Π²Π°ΡΠΈΡΠ΅ ΠΊ ΡΡΠ°Π»ΡΠ½ΠΎΠΉ ΡΠ°ΠΌΠ΅ ΠΎΠΏΠΎΡΠ½ΡΠ΅ ΡΡΠΎΠΉΠΊΠΈ Ρ ΠΏΡΠ΅Π΄Π²Π°ΡΠΈΡΠ΅Π»ΡΠ½ΠΎ ΠΏΡΠΈΠ²Π°ΡΠ΅Π½Π½ΡΠΌΠΈ ΠΏΠ»Π°ΡΡΠΈΠ½Π°ΠΌΠΈ Π΄Π»Ρ Π°Π½ΠΊΠ΅ΡΠ½ΠΎΠ³ΠΎ ΠΊΡΠ΅ΠΏΠ»Π΅Π½ΠΈΡ.
- Π£ΡΠΈΠ»ΡΡΠ΅ ΡΡΡΠΎΠΉΡΠΈΠ²ΠΎΡΡΡ ΠΌΠ΅ΡΠ°Π»Π»ΠΈΡΠ΅ΡΠΊΠΎΠΉ ΠΊΠΎΠ½ΡΡΡΡΠΊΡΠΈΠΈ ΠΏΠΎΠΏΠ΅ΡΠ΅ΡΠ½ΠΎ ΡΠ°ΡΠΏΠΎΠ»ΠΎΠΆΠ΅Π½Π½ΡΠΌΠΈ ΠΏΠ΅ΡΠ΅ΠΌΡΡΠΊΠ°ΠΌΠΈ ΠΈΠ· ΡΡΠ°Π»ΡΠ½ΡΡ
ΡΡΡΠ±ΠΎΠΊ ΠΈΠ»ΠΈ ΡΠ³ΠΎΠ»ΠΊΠΎΠ².

ΠΠΈΠ±ΡΠΎΡΡΠΎΠ»Ρ, ΠΈΠ·Π³ΠΎΡΠΎΠ²Π»Π΅Π½Π½ΡΠ΅ Π² Π΄ΠΎΠΌΠ°ΡΠ½ΠΈΡ ΡΡΠ»ΠΎΠ²ΠΈΡΡ , Π½Π΅ ΠΎΡΠ»ΠΈΡΠ°ΡΡΡΡ Π²ΡΡΠΎΠΊΠΎΠΉ ΠΏΡΠΎΠΈΠ·Π²ΠΎΠ΄ΠΈΡΠ΅Π»ΡΠ½ΠΎΡΡΡΡ ΠΈ Π·Π°ΠΏΠ°ΡΠΎΠΌ ΠΏΡΠΎΡΠ½ΠΎΡΡΠΈ
- Π£ΡΡΠ°Π½ΠΎΠ²ΠΈΡΠ΅ ΠΌΠ΅ΡΠ°Π»Π»ΠΎΠΊΠΎΠ½ΡΡΡΡΠΊΡΠΈΡ Π²ΠΈΠ±ΡΠ°ΡΠΈΠΎΠ½Π½ΠΎΠΉ ΠΏΠ»ΠΎΡΠ°Π΄ΠΊΠΈ Π½Π° ΡΠΎΠ²Π½ΠΎΠ΅ ΠΎΡΠ½ΠΎΠ²Π°Π½ΠΈΠ΅, ΠΏΡΠΎΠ²Π΅ΡΡΡΠ΅ ΡΠΎΠΎΡΠ²Π΅ΡΡΡΠ²ΠΈΠ΅ ΡΠ°Π·ΠΌΠ΅ΡΠΎΠ², ΠΎΠΊΠΎΠ½ΡΠ°ΡΠ΅Π»ΡΠ½ΠΎ Π·Π°ΡΠΈΠΊΡΠΈΡΡΠΉΡΠ΅ Π΄Π΅ΡΠ°Π»ΠΈ ΠΎΡΠ½ΠΎΠ²Π°Π½ΠΈΡ ΡΠ²Π°ΡΠΊΠΎΠΉ.
- ΠΡΠΈΠ²Π°ΡΠΈΡΠ΅ ΠΏΠΎΠ΄ΡΡΠ°ΠΊΠ°Π½Π½ΠΈΠΊΠΈ, ΠΏΡΠ΅Π΄ΡΡΠ°Π²Π»ΡΡΡΠΈΠ΅ ΡΠΎΠ±ΠΎΠΉ ΡΡΠ°Π³ΠΌΠ΅Π½ΡΡ ΡΡΡΠ± Π²ΡΡΠΎΡΠΎΠΉ 50β70 ΠΌΠΌ (Π΄ΠΈΠ°ΠΌΠ΅ΡΡ Π΄ΠΎΠ»ΠΆΠ΅Π½ ΠΏΡΠ΅Π²ΡΡΠ°ΡΡ ΡΠ°Π·ΠΌΠ΅Ρ ΡΠ΅ΡΠ΅Π½ΠΈΡ ΠΏΡΡΠΆΠΈΠ½Ρ Π½Π° 3β5 ΠΌΠΌ).
- ΠΠ°ΠΊΡΠ΅ΠΏΠΈΡΠ΅ ΡΠ²Π°ΡΠΊΠΎΠΉ ΠΏΠΎ ΠΏΠ΅ΡΠΈΠΌΠ΅ΡΡΡ Π²Π΅ΡΡ Π½Π΅ΠΉ ΡΠ°ΡΡΠΈ Π»ΠΈΡΡΠ° ΡΡΠΎΠ»Π΅ΡΠ½ΠΈΡΡ ΠΎΡΠ±ΠΎΡΡΠΎΠ²ΠΊΡ ΠΈΠ· ΡΠ³ΠΎΠ»ΠΊΠΎΠ² 45Ρ 45 ΠΌΠΌ.
- ΠΠ°ΡΠΈΠΊΡΠΈΡΡΠΉΡΠ΅ ΡΠ²Π°ΡΠΊΠΎΠΉ ΠΊ Π½ΠΈΠΆΠ½Π΅ΠΉ ΠΏΠ»ΠΎΡΠΊΠΎΡΡΠΈ ΡΠ°Π±ΠΎΡΠ΅ΠΉ ΠΏΠ»ΠΈΡΡ ΡΠ²Π΅Π»Π»Π΅ΡΠ° Π΄Π»Ρ ΠΊΡΠ΅ΠΏΠ»Π΅Π½ΠΈΡ Π²ΠΈΠ±ΡΠ°ΡΠΈΠΎΠ½Π½ΠΎΠ³ΠΎ Π΄Π²ΠΈΠ³Π°ΡΠ΅Π»Ρ ΠΈ ΠΏΠΎΠΏΠ΅ΡΠ΅ΡΠ½ΡΠ΅ ΡΠ³ΠΎΠ»ΠΊΠΈ Π΄Π»Ρ ΡΡΠΈΠ»Π΅Π½ΠΈΡ ΠΆΠ΅ΡΡΠΊΠΎΡΡΠΈ.
- ΠΡΠΈΠ²Π°ΡΠΈΡΠ΅ ΠΎΠΏΠΎΡΠ½ΡΠ΅ ΡΡΠ°ΠΊΠ°Π½Ρ, ΠΎΠ±Π΅ΡΠΏΠ΅ΡΠΈΠ² ΠΈΡ ΡΠΎΠΎΡΠ½ΠΎΡΡΡ Ρ Π½ΠΈΠΆΠ½ΠΈΠΌΠΈ ΡΠ°ΡΡΡΠΌΠΈ ΠΎΠΏΠΎΡ, ΠΏΡΠΈΠ²Π°ΡΠ΅Π½Π½ΡΡ Π½Π° ΡΠ°ΠΌΠ΅.
- ΠΡΠΎΡΠ²Π΅ΡΠ»ΠΈΡΠ΅ ΠΎΡΠ²Π΅ΡΡΡΠΈΡ Π΄Π»Ρ ΠΊΡΠ΅ΠΏΠ»Π΅Π½ΠΈΡ Π²ΠΈΠ±ΡΠΎΠΌΠΎΡΠΎΡΠ°, Π½Π°Π΄Π΅ΠΆΠ½ΠΎ Π·Π°ΠΊΡΠ΅ΠΏΠΈΡΠ΅ Π²ΠΈΠ±ΡΠΎΠ΄Π²ΠΈΠ³Π°ΡΠ΅Π»Ρ Π½Π° ΠΊΠ°ΡΠΊΠ°ΡΠ΅ ΠΈΠ· ΡΠ²Π΅Π»Π»Π΅ΡΠΎΠ².
- Π‘ΠΎΠ±Π΅ΡΠΈΡΠ΅ ΡΠ°Π±ΠΎΡΡΡ ΠΏΠ»ΠΎΡΠ°Π΄ΠΊΡ Ρ ΠΎΠΏΠΎΡΠ½ΠΎΠΉ ΡΠ°ΠΌΠΎΠΉ, ΡΡΡΠ°Π½ΠΎΠ²ΠΈΠ² ΠΏΡΡΠΆΠΈΠ½Π½ΡΠ΅ Π±Π»ΠΎΠΊΠΈ.
- ΠΠ±Π΅ΡΠΏΠ΅ΡΡΡΠ΅ ΡΠΈΠΊΡΠ°ΡΠΈΡ ΡΠΎΠ±ΡΠ°Π½Π½ΠΎΠ³ΠΎ Π²ΠΈΠ±ΡΠ°ΡΠΈΠΎΠ½Π½ΠΎΠ³ΠΎ ΡΡΠΎΠ»Π° Ρ ΠΏΠΎΠΌΠΎΡΡΡ Π°Π½ΠΊΠ΅ΡΠ½ΠΎΠ³ΠΎ ΠΊΡΠ΅ΠΏΠ»Π΅Π½ΠΈΡ.
- ΠΠΎΠ΄ΠΊΠ»ΡΡΠΈΡΠ΅ ΡΠ»Π΅ΠΊΡΡΠΎΠΎΠ±ΠΎΡΡΠ΄ΠΎΠ²Π°Π½ΠΈΠ΅, Π²ΡΠΏΠΎΠ»Π½ΠΈΡΠ΅ ΠΏΡΠΎΠ±Π½ΡΠΉ ΠΏΡΡΠΊ.
- ΠΡΠΎΠ²Π΅ΡΡΡΠ΅ ΡΡΡΡΠΎΠΉΡΡΠ²ΠΎ Π½Π° ΡΠ°Π±ΠΎΡΠΎΡΠΏΠΎΡΠΎΠ±Π½ΠΎΡΡΡ ΠΏΠΎΠ΄ Π½Π°Π³ΡΡΠ·ΠΊΠΎΠΉ, ΡΡΡΠ°Π½ΠΎΠ²ΠΈΠ² Π½Π° ΡΠ°Π±ΠΎΡΠ΅ΠΉ ΠΏΠ»ΠΎΡΠ°Π΄ΠΊΠ΅ Π³ΡΡΠ·, ΡΠΎΠΎΡΠ²Π΅ΡΡΡΠ²ΡΡΡΠΈΠΉ ΠΏΠΎ ΠΌΠ°ΡΡΠ΅ ΡΠΎΡΠΌΠ°ΠΌ Ρ ΡΠ°ΡΡΠ²ΠΎΡΠΎΠΌ.
- ΠΡΠΊΠΎΡΡΠ΅ΠΊΡΠΈΡΡΠΉΡΠ΅, ΠΏΡΠΈ Π½Π΅ΠΎΠ±Ρ ΠΎΠ΄ΠΈΠΌΠΎΡΡΠΈ, Π°ΠΌΠΏΠ»ΠΈΡΡΠ΄Ρ Π²ΠΈΠ±ΡΠ°ΡΠΈΠΈ, ΠΈΡΠΏΠΎΠ»ΡΠ·ΡΡ ΡΠΊΡΡΠ΅Π½ΡΡΠΈΠΊ, ΡΠ°ΡΠΏΠΎΠ»ΠΎΠΆΠ΅Π½Π½ΡΠΉ Π½Π° Π²Π°Π»Ρ Π²ΠΈΠ±ΡΠΎΠ΄Π²ΠΈΠ³Π°ΡΠ΅Π»Ρ.
ΠΠ°ΠΊΠ»ΡΡΠ΅Π½ΠΈΠ΅
Π‘Π»Π΅Π΄ΡΡ ΠΏΡΠΈΠ²Π΅Π΄Π΅Π½Π½ΡΠΌ ΡΠ΅ΠΊΠΎΠΌΠ΅Π½Π΄Π°ΡΠΈΡΠΌ, Π½Π΅ΡΠ»ΠΎΠΆΠ½ΠΎ ΠΈΠ·Π³ΠΎΡΠΎΠ²ΠΈΡΡ ΡΠ²ΠΎΠΈΠΌΠΈ ΡΡΠΊΠ°ΠΌΠΈ Π²ΠΈΠ±ΡΠΎΡΡΠΎΠ». ΠΠ΅ΡΠΌΠΎΡΡΡ Π½Π° ΠΊΠ°ΠΆΡΡΡΡΡΡ ΠΏΡΠΎΡΡΠΎΡΡ ΠΊΠΎΠ½ΡΡΡΡΠΊΡΠΈΠΈ, Π²Π°ΠΆΠ½ΠΎ ΡΠ΅ΡΡΠ΅Π·Π½ΠΎ ΠΎΡΠ½Π΅ΡΡΠΈΡΡ ΠΊ ΡΠ°Π·ΡΠ°Π±ΠΎΡΠΊΠ΅ ΡΠ΅ΡΡΠ΅ΠΆΠ°, ΠΏΡΠΎΠ΄ΡΠΌΠ°ΡΡ Π²ΡΠ΅ ΡΠ΅Ρ Π½ΠΈΡΠ΅ΡΠΊΠΈΠ΅ Π½ΡΠ°Π½ΡΡ, ΠΈΡΠΏΠΎΠ»ΡΠ·ΠΎΠ²Π°ΡΡ ΠΊΠ°ΡΠ΅ΡΡΠ²Π΅Π½Π½ΡΠ΅ ΠΌΠ°ΡΠ΅ΡΠΈΠ°Π»Ρ ΠΈ ΡΠΎΠ±Π»ΡΠ΄Π°ΡΡ ΡΠ΅Ρ Π½ΠΎΠ»ΠΎΠ³ΠΈΡΠ΅ΡΠΊΠΈΠΉ ΠΏΡΠΎΡΠ΅ΡΡ ΡΠ±ΠΎΡΠΊΠΈ. Π‘Π°ΠΌΠΎΡΡΠΎΡΡΠ΅Π»ΡΠ½ΠΎ ΠΈΠ·Π³ΠΎΡΠΎΠ²Π»Π΅Π½Π½ΡΠΉ Π°Π³ΡΠ΅Π³Π°Ρ ΠΏΠΎΠ·Π²ΠΎΠ»ΠΈΡ Π½Π° ΠΏΡΠΎΡΡΠΆΠ΅Π½ΠΈΠΈ Π΄Π»ΠΈΡΠ΅Π»ΡΠ½ΠΎΠ³ΠΎ Π²ΡΠ΅ΠΌΠ΅Π½ΠΈ Π² Π΄ΠΎΠΌΠ°ΡΠ½ΠΈΡ ΡΡΠ»ΠΎΠ²ΠΈΡΡ ΡΠΎΡΠΌΠΎΠ²Π°ΡΡ Π±Π΅ΡΠΎΠ½Π½ΡΠ΅ ΠΈΠ·Π΄Π΅Π»ΠΈΡ.
ΠΠ° ΡΠ°ΠΉΡΠ΅: ΠΠ²ΡΠΎΡ ΠΈ ΡΠ΅Π΄Π°ΠΊΡΠΎΡ ΡΡΠ°ΡΠ΅ΠΉ Π½Π° ΡΠ°ΠΉΡΠ΅Β pobetony.ru
ΠΠ±ΡΠ°Π·ΠΎΠ²Π°Π½ΠΈΠ΅ ΠΈ ΠΎΠΏΡΡ ΡΠ°Π±ΠΎΡΡ: ΠΡΡΡΠ΅Π΅ ΡΠ΅Ρ
Π½ΠΈΡΠ΅ΡΠΊΠΎΠ΅ ΠΎΠ±ΡΠ°Π·ΠΎΠ²Π°Π½ΠΈΠ΅. ΠΠΏΡΡ ΡΠ°Π±ΠΎΡΡ Π½Π° ΡΠ°Π·Π»ΠΈΡΠ½ΡΡ
ΠΏΡΠΎΠΈΠ·Π²ΠΎΠ΄ΡΡΠ²Π°Ρ
ΠΈ ΡΡΡΠΎΠΉΠΊΠ°Ρ
β 12 Π»Π΅Ρ, ΠΈΠ· Π½ΠΈΡ
8 Π»Π΅Ρ β Π·Π° ΡΡΠ±Π΅ΠΆΠΎΠΌ.
ΠΡΡΠ³ΠΈΠ΅ ΡΠΌΠ΅Π½ΠΈΡ ΠΈ Π½Π°Π²ΡΠΊΠΈ: ΠΠΌΠ΅Π΅Ρ 4-Ρ Π³ΡΡΠΏΠΏΡ Π΄ΠΎΠΏΡΡΠΊΠ° ΠΏΠΎ ΡΠ»Π΅ΠΊΡΡΠΎΠ±Π΅Π·ΠΎΠΏΠ°ΡΠ½ΠΎΡΡΠΈ. ΠΡΠΏΠΎΠ»Π½Π΅Π½ΠΈΠ΅ ΡΠ°ΡΡΠ΅ΡΠΎΠ² Ρ ΠΈΡΠΏΠΎΠ»ΡΠ·ΠΎΠ²Π°Π½ΠΈΠ΅ΠΌ Π±ΠΎΠ»ΡΡΠΈΡ
ΠΌΠ°ΡΡΠΈΠ²ΠΎΠ² Π΄Π°Π½Π½ΡΡ
.
Π’Π΅ΠΊΡΡΠ°Ρ Π·Π°Π½ΡΡΠΎΡΡΡ: ΠΠΎΡΠ»Π΅Π΄Π½ΠΈΠ΅ 4 Π³ΠΎΠ΄Π° Π²ΡΡΡΡΠΏΠ°Π΅Ρ Π² ΡΠΎΠ»ΠΈ Π½Π΅Π·Π°Π²ΠΈΡΠΈΠΌΠΎΠ³ΠΎ ΠΊΠΎΠ½ΡΡΠ»ΡΡΠ°Π½ΡΠ° Π² ΡΡΠ΄Π΅ ΡΡΡΠΎΠΈΡΠ΅Π»ΡΠ½ΡΡ
ΠΊΠΎΠΌΠΏΠ°Π½ΠΈΠΉ.
pobetony.ru
ΡΠ΅ΡΡΠ΅ΠΆ ΠΈ ΡΠΎΠ²Π΅ΡΡ ΠΏΠΎ ΠΈΠ·Π³ΠΎΡΠΎΠ²Π»Π΅Π½ΠΈΡ
ΠΠ»Ρ Π±Π»Π°Π³ΠΎΡΡΡΡΠΎΠΉΡΡΠ²Π° ΠΏΡΠΈΡΡΠ°Π΄Π΅Π±Π½ΠΎΠΉ ΡΠ΅ΡΡΠΈΡΠΎΡΠΈΠΈ ΠΌΠ½ΠΎΠ³ΠΈΠ΅ Π΄Π°ΡΠ½ΠΈΠΊΠΈ ΠΈΡΠΏΠΎΠ»ΡΠ·ΡΡΡ ΡΡΠΎΡΡΠ°ΡΠ½ΡΡ ΠΏΠ»ΠΈΡΠΊΡ. ΠΡΠΎΡ ΠΌΠ°ΡΠ΅ΡΠΈΠ°Π» ΠΎΠ±Π»Π°Π΄Π°Π΅Ρ ΠΏΡΠ΅ΠΊΡΠ°ΡΠ½ΡΠΌΠΈ ΡΠ΅Ρ
Π½ΠΈΡΠ΅ΡΠΊΠΈΠΌΠΈ Ρ
Π°ΡΠ°ΠΊΡΠ΅ΡΠΈΡΡΠΈΠΊΠ°ΠΌΠΈ.Β 
ΠΡΠ»ΠΈ ΡΡΠΎΡΡΠ°ΡΠ½ΠΎΠΉ ΠΏΠ»ΠΈΡΠΊΠΈ Π½Π΅ΠΎΠ±Ρ ΠΎΠ΄ΠΈΠΌΠΎ ΠΌΠ½ΠΎΠ³ΠΎ, ΡΠΎ ΠΌΠ½ΠΎΠ³ΠΈΠ΅ ΡΠ°ΠΌΠΎΠ΄Π΅Π»ΠΊΠΈΠ½Ρ ΡΠ΅ΡΠ°ΡΡ ΠΈΠ·Π³ΠΎΡΠ°Π²Π»ΠΈΠ²Π°ΡΡ Π΅Π΅ ΡΠ°ΠΌΠΎΡΡΠΎΡΡΠ΅Π»ΡΠ½ΠΎ. ΠΠ»Ρ ΡΠ°ΠΌΠΎΠ΄Π΅Π»ΡΠ½ΠΎΠ³ΠΎ ΠΏΡΠΎΠΈΠ·Π²ΠΎΠ΄ΡΡΠ²Π° Π½Π΅ΠΎΠ±Ρ ΠΎΠ΄ΠΈΠΌΠΎ ΠΈΠΌΠ΅ΡΡ Π²ΠΈΠ±ΡΠΎΡΡΠΎΠ». Π ΡΡΠΎΠΉ ΡΡΠ°ΡΡΠ΅ Π±ΡΠ΄ΡΡ ΡΠ°ΡΡΠΌΠΎΡΡΠ΅Π½Ρ ΡΠΎΠ²Π΅ΡΡ ΠΈ ΡΠ΅ΠΊΠΎΠΌΠ΅Π½Π΄Π°ΡΠΈΠΈ ΡΠΎΠ³ΠΎ, ΠΊΠ°ΠΊ ΡΠ΄Π΅Π»Π°ΡΡ Π²ΠΈΠ±ΡΠΎΡΡΠΎΠ» Π΄Π»Ρ ΡΡΠΎΡΡΠ°ΡΠ½ΠΎΠΉ ΠΏΠ»ΠΈΡΠΊΠΈ.
Π§ΡΠΎ ΡΠ°ΠΊΠΎΠ΅ Π²ΠΈΠ±ΡΠΎΡΡΠΎΠ»
ΠΠΈΠ±ΡΠΎΡΡΠΎΠ» Π΄Π»Ρ ΡΡΠΎΡΡΠ°ΡΠ½ΠΎΠΉ ΠΏΠ»ΠΈΡΠΊΠΈ ΠΈΠΌΠ΅Π΅Ρ ΡΠΏΠ΅ΡΠΈΠ°Π»ΡΠ½ΡΡ ΡΠ°Π±ΠΎΡΡΡ ΠΏΠΎΠ²Π΅ΡΡ
Π½ΠΎΡΡΡ, ΠΏΡΠΈΠ²ΠΎΠ΄ΡΡΠ°ΡΡΡ Π² Π΄Π²ΠΈΠΆΠ΅Π½ΠΈΠ΅ Π·Π° ΡΡΠ΅Ρ ΡΠΏΠ΅ΡΠΈΠ°Π»ΡΠ½ΠΎΠ³ΠΎ Π²ΠΈΠ±ΡΠΎΠ΄Π²ΠΈΠ³Π°ΡΠ΅Π»Ρ Π΄Π»Ρ Π²ΠΈΠ±ΡΠΎΡΡΠΎΠ»Π°. Π’Π°ΠΊΠΆΠ΅ ΠΊΠΎΠ½ΡΡΡΡΠΊΡΠΈΡ ΠΈΠΌΠ΅Π΅Ρ Π½Π΅ΠΏΠΎΠ΄Π²ΠΈΠΆΠ½ΡΡ ΡΠ°ΡΡΡ, ΠΊΠΎΡΠΎΡΠ°Ρ ΠΏΡΠΈΠ½ΠΈΠΌΠ°Π΅Ρ Π½Π° ΡΠ΅Π±Ρ Π²ΡΡ Π½Π°Π³ΡΡΠ·ΠΊΡ.Β 
ΠΠ° ΡΠ°ΠΊΠΎΠΌ ΡΡΠΎΠ»Π΅ ΠΌΠΎΠΆΠ½ΠΎ ΠΈΠ·Π³ΠΎΡΠ°Π²Π»ΠΈΠ²Π°ΡΡ Π½Π΅ ΡΠΎΠ»ΡΠΊΠΎ Π±ΡΡΡΡΠ°ΡΠΊΡ, Π½ΠΎ ΠΈ ΡΠ°Π·Π»ΠΈΡΠ½ΡΠ΅ Π±Π΅ΡΠΎΠ½Π½ΡΠ΅ ΡΠ»Π΅ΠΌΠ΅Π½ΡΡ Π΄Π΅ΠΊΠΎΡΠ°.
ΠΠΎΠ½ΡΡΡΡΠΊΡΠΈΡ ΡΡΠΎΠ»Π°
ΠΠΈΠ±ΡΠΎΡΡΠΎΠ» Π΄Π»Ρ ΠΏΡΠΎΠΈΠ·Π²ΠΎΠ΄ΡΡΠ²Π° ΡΡΠΎΡΡΠ°ΡΠ½ΠΎΠΉ ΠΏΠ»ΠΈΡΠΊΠΈ ΡΠΎΡΡΠΎΠΈΡ ΠΈΠ· ΡΡΠ΅Ρ ΠΎΡΠ½ΠΎΠ²Π½ΡΡ ΡΠ»Π΅ΠΌΠ΅Π½ΡΠΎΠ²:
- ΠΠ΅ΠΏΠΎΠ΄Π²ΠΈΠΆΠ½ΡΠΉ ΠΊΠ°ΡΠΊΠ°Ρ.
- ΠΠΎΠ΄Π²ΠΈΠΆΠ½Π°Ρ ΡΡΠΎΠ»Π΅ΡΠ½ΠΈΡΠ°.
- ΠΠ²ΠΈΠ³Π°ΡΠ΅Π»Ρ.
Π’Π°ΠΊΠΆΠ΅ Π² ΠΊΠΎΠ½ΡΡΡΡΠΊΡΠΈΡ Π²Ρ ΠΎΠ΄ΡΡ Π΄ΠΎΠΏΠΎΠ»Π½ΠΈΡΠ΅Π»ΡΠ½ΡΠ΅ ΡΠ»Π΅ΠΌΠ΅Π½ΡΡ, Π½Π°Π±ΠΎΡ ΠΊΠΎΡΠΎΡΡΡ Π·Π°Π²ΠΈΡΠΈΡ ΠΎΡ ΠΎΡΠΎΠ±Π΅Π½Π½ΠΎΡΡΠΈ Π΅Π³ΠΎ ΠΈΠ·Π³ΠΎΡΠΎΠ²Π»Π΅Π½ΠΈΡ. ΠΠ°ΠΏΡΠΈΠΌΠ΅Ρ, ΠΌΠΎΠ³ΡΡ ΠΈΡΠΏΠΎΠ»ΡΠ·ΠΎΠ²Π°ΡΡΡΡ ΠΏΡΡΠΆΠΈΠ½Ρ, ΠΏΡΡΠΊΠΎΠ²ΠΎΠΉ ΠΌΠ΅Ρ Π°Π½ΠΈΠ·ΠΌ ΠΈ ΠΏΡΠΎΡΠ΅Π΅. Π Π°ΡΡΠΌΠΎΡΡΠΈΠΌ ΠΎΡΠΎΠ±Π΅Π½Π½ΠΎΡΡΠΈ ΠΎΡΠ½ΠΎΠ²Π½ΡΡ ΡΠ»Π΅ΠΌΠ΅Π½ΡΠΎΠ².
ΠΠ΅ΠΏΠΎΠ΄Π²ΠΈΠΆΠ½Π°Ρ ΡΠ°ΡΡΡ
ΠΡΠΎ ΠΊΠ°ΡΠΊΠ°Ρ ΠΊΠΎΠ½ΡΡΡΡΠΊΡΠΈΠΈ ΡΡΠΎΠ»Π°, ΠΈΠΌΠ΅ΡΡΠ΅Π³ΠΎ ΡΠ΅ΡΡΡΠ΅ Π½ΠΎΠΆΠΊΠΈ ΠΈ Π½Π΅ ΠΈΠΌΠ΅ΡΡΠ΅ΠΉ ΡΡΠΎΠ»Π΅ΡΠ½ΠΈΡΡ. Π€ΠΎΡΠΌΠ° Π½Π΅ΠΏΠΎΠ΄Π²ΠΈΠΆΠ½ΠΎΠΉ ΡΠ°ΡΡΠΈ ΠΌΠΎΠΆΠ΅Ρ Π±ΡΡΡ ΡΠ°Π·Π½ΠΎΠΉ β ΠΊΠ²Π°Π΄ΡΠ°Ρ ΠΈΠ»ΠΈ ΠΏΡΡΠΌΠΎΡΠ³ΠΎΠ»ΡΠ½ΠΈΠΊ. ΠΠΎΠ½ΡΡΡΡΠΊΡΠΈΡ Π΄ΠΎΠ»ΠΆΠ½Π° Π±ΡΡΡ Π΄ΠΎΡΡΠ°ΡΠΎΡΠ½ΠΎ ΠΏΡΠΎΡΠ½ΠΎΠΉ.

Β
ΠΡΠΎΡ ΠΏΠΎΠΊΠ°Π·Π°ΡΠ΅Π»Ρ Π·Π°Π²ΠΈΡΠΈΡ ΠΎΡ Π³Π°Π±Π°ΡΠΈΡΠΎΠ² ΠΏΠΎΠ΄Π²ΠΈΠΆΠ½ΠΎΠΉ ΡΠ°ΡΡΠΈ β ΡΡΠΎΠ»Π΅ΡΠ½ΠΈΡΡ. ΠΡΡΠΎΡΠ° Π΄ΠΎΠ»ΠΆΠ½Π° ΡΠΎΠΎΡΠ²Π΅ΡΡΡΠ²ΠΎΠ²Π°ΡΡ Π²Π°ΡΠ΅ΠΌΡ ΡΠΎΡΡΡ. Π’Π°ΠΊ, Π²ΡΡΠΎΡΠ° ΠΌΠΎΠΆΠ΅Ρ ΠΊΠΎΠ»Π΅Π±Π°ΡΡΡΡ ΠΎΡ 800 Π΄ΠΎ 1100 ΠΌΠΌ. ΠΡΠΈ ΡΡΠΎΠΌ ΡΡΠΈΡΡΠ²Π°Π΅ΡΡΡ, ΡΡΠΎ ΡΠ²Π΅ΡΡ Ρ Π±ΡΠ΄Π΅Ρ Π·Π°ΠΊΡΠ΅ΠΏΠ»ΡΡΡΡΡ ΠΏΠΎΠ΄Π²ΠΈΠΆΠ½Π°Ρ ΡΠ°ΡΡΡ ΠΊΠΎΠ½ΡΡΡΡΠΊΡΠΈΠΈ.
ΠΠ°ΡΠΊΠ°Ρ ΠΌΠΎΠΆΠ½ΠΎ ΠΈΠ·Π³ΠΎΡΠΎΠ²ΠΈΡΡ ΠΈΠ· ΠΏΡΠΎΡΠΈΠ»ΡΠ½ΠΎΠΉ ΡΡΡΠ±Ρ ΠΈΠ»ΠΈ ΠΌΠ΅ΡΠ°Π»Π»ΠΈΡΠ΅ΡΠΊΠΎΠ³ΠΎ ΡΠ³ΠΎΠ»ΠΊΠ°. ΠΡΡΡΠ΅ Π²ΡΠ΅Π³ΠΎ Π΄Π»Ρ ΠΈΠ·Π³ΠΎΡΠΎΠ²Π»Π΅Π½ΠΈΡ ΠΊΠ°ΡΠΊΠ°ΡΠ° ΠΈΡΠΏΠΎΠ»ΡΠ·ΠΎΠ²Π°ΡΡ ΡΠ²Π°ΡΠΊΡ. ΠΡΠΎ ΠΏΠΎΠ·Π²ΠΎΠ»ΠΈΡ Π΄ΠΎΡΡΠΈΡΡ Ρ ΠΎΡΠΎΡΠ΅ΠΉ ΠΆΠ΅ΡΡΠΊΠΎΡΡΠΈ.
ΠΠΎΠ΄Π²ΠΈΠΆΠ½Π°Ρ ΡΡΠΎΠ»Π΅ΡΠ½ΠΈΡΠ°
Π€ΠΎΡΠΌΠ° ΡΡΠΎΠ»Π΅ΡΠ½ΠΈΡΡ Π΄ΠΎΠ»ΠΆΠ½Π° ΡΠΎΠΎΡΠ²Π΅ΡΡΡΠ²ΠΎΠ²Π°ΡΡ ΡΠΎΡΠΌΠ΅ ΠΈΠ·Π³ΠΎΡΠΎΠ²Π»Π΅Π½Π½ΠΎΠΌΡ ΠΊΠ°ΡΠΊΠ°ΡΡ. ΠΠΎ ΡΠΈΡΠΈΠ½Π΅, ΠΎΠ½Π° ΠΌΠΎΠΆΠ΅Ρ Π½Π΅Π·Π½Π°ΡΠΈΡΠ΅Π»ΡΠ½ΠΎ ΠΏΡΠ΅Π²ΡΡΠ°ΡΡ. ΠΠ»ΠΎΡΠΊΠΎΡΡΡ ΠΏΠΎΠ΄Π²ΠΈΠΆΠ½ΠΎΠΉ ΡΠ°ΡΡΠΈ Π΄ΠΎΠ»ΠΆΠ½Π° Π±ΡΡΡ ΠΈΠ΄Π΅Π°Π»ΡΠ½ΠΎ ΡΠΎΠ²Π½ΠΎΠΉ Π±Π΅Π· ΠΏΠ΅ΡΠ΅ΠΏΠ°Π΄ΠΎΠ² ΠΏΠΎ Π²ΡΡΠΎΡΠ΅.Β 
ΠΠ°ΡΠΊΠ°Ρ ΡΡΠΎΠ»Π΅ΡΠ½ΠΈΡΡ ΠΈΠ·Π³ΠΎΡΠ°Π²Π»ΠΈΠ²Π°Π΅ΡΡΡ ΠΈΠ· ΠΌΠ΅ΡΠ°Π»Π»ΠΈΡΠ΅ΡΠΊΠΎΠ³ΠΎ ΡΠ³ΠΎΠ»ΠΊΠ° ΡΠ°Π·ΠΌΠ΅ΡΠΎΠΌ 60 Π½Π° 60 ΠΌΠΌ. ΠΠΎΡΠ»Π΅ ΡΡΠΎΠ³ΠΎ Π²Π½ΡΡΡΠ΅Π½Π½ΠΈΠΉ ΡΠ°Π·ΠΌΠ΅Ρ ΡΠ°ΠΌΠΊΠΈ ΠΈΠ·ΠΌΠ΅ΡΡΠ΅ΡΡΡ ΠΈ ΠΏΠΎ ΡΠ°Π·ΠΌΠ΅ΡΡ Π²ΡΠΌΠ΅ΡΡΠ΅ΡΡΡ Π»ΠΈΡΡ ΠΌΠ΅ΡΠ°Π»Π»Π° ΡΠΎΠ»ΡΠΈΠ½ΠΎΠΉ Π΄ΠΎ 10 ΠΌΠΌ.
Π‘ΠΎΠ²Π΅Ρ!
ΠΠ»Ρ ΡΡΠΎΠ»Π΅ΡΠ½ΠΈΡΡ Π²ΠΌΠ΅ΡΡΠΎ Π»ΠΈΡΡΠ° ΠΈΠ· ΠΌΠ΅ΡΠ°Π»Π»Π° ΠΌΠΎΠΆΠ½ΠΎ ΠΈΡΠΏΠΎΠ»ΡΠ·ΠΎΠ²Π°ΡΡ ΡΠ°Π½ΡΠΈΠΌΠ΅ΡΡΠΎΠ²ΡΡ Π΄ΡΡΠ°Π»Ρ, ΠΎΡΠ³ΡΡΠ΅ΠΊΠ»ΠΎ ΠΈ ΠΏΠΎΠ΄ΠΎΠ±Π½ΡΠΉ Π»ΠΈΡΡΠΎΠ²ΠΎΠΉ ΠΌΠ°ΡΠ΅ΡΠΈΠ°Π».
ΠΡΡΠ΅Π·Π°Π½Π½ΡΠΉ ΠΏΠΎ ΡΠ°Π·ΠΌΠ΅ΡΡ Π»ΠΈΡΡ ΠΌΠ΅ΡΠ°Π»Π»Π° ΠΏΡΠΈΠ²Π°ΡΠΈΠ²Π°Π΅ΡΡΡ ΠΊ ΡΠ³ΠΎΠ»ΠΊΡ ΡΠ²Π°ΡΠΊΠΎΠΉ. ΠΠ°ΠΆΠ½ΠΎ ΡΠ»Π΅Π΄ΠΈΡΡ Π·Π° ΡΠ΅ΠΌ, ΡΡΠΎΠ±Ρ Π² ΠΏΡΠΎΡΠ΅ΡΡΠ΅ ΡΠ²Π°ΡΠΊΠΈ ΠΎΠ½ Π½Π΅ ΠΈΡΠΊΡΠΈΠ²ΠΈΠ»ΡΡ ΠΏΠΎΠ΄ Π²ΠΎΠ·Π΄Π΅ΠΉΡΡΠ²ΠΈΠ΅ΠΌ Π²ΡΡΠΎΠΊΠΎΠΉ ΡΠ΅ΠΌΠΏΠ΅ΡΠ°ΡΡΡΡ. Π§ΡΠΎΠ±Ρ ΡΡΠΎ ΠΏΡΠ΅Π΄ΠΎΡΠ²ΡΠ°ΡΠΈΡΡ, Π½Π΅ΠΊΠΎΡΠΎΡΡΠ΅ ΠΏΡΠΈΠΊΡΡΡΠΈΠ²Π°ΡΡ ΠΊ ΡΠ³ΠΎΠ»ΠΊΠ°ΠΌ Π»ΠΈΡΡ Π±ΠΎΠ»ΡΠ°ΠΌΠΈ, Π° ΡΠ°ΠΌΠΈ Π±ΠΎΠ»ΡΡ ΠΏΡΠΈΠ²Π°ΡΠΈΠ²Π°ΡΡ ΠΊ ΡΠ³ΠΎΠ»ΠΊΡ.
Π ΡΠ΅Π·ΡΠ»ΡΡΠ°ΡΠ΅ ΡΠ°ΠΊΠΈΡ Π΄Π΅ΠΉΡΡΠ²ΠΈΠΉ, Ρ Π²Π°Ρ ΠΏΠΎΠ»ΡΡΠΈΡΡΡ ΡΡΠΎΠ»Π΅ΡΠ½ΠΈΡΠ°, ΠΈΠΌΠ΅ΡΡΠ°Ρ ΠΏΠΎ ΠΏΠ΅ΡΠΈΠΌΠ΅ΡΡΡ Π±ΠΎΡΡΠΈΠΊΠΈ ΠΎΡ ΡΠ³ΠΎΠ»ΠΊΠ°, ΠΊΠΎΡΠΎΡΡΠ΅ Π±ΡΠ΄ΡΡ ΠΏΡΠ΅ΠΏΡΡΡΡΠ²ΠΎΠ²Π°ΡΡ ΠΏΠ°Π΄Π΅Π½ΠΈΡ ΡΠΎΡΠΌ Ρ Π·Π°Π³ΠΎΡΠΎΠ²ΠΊΠ°ΠΌΠΈ ΠΏΡΠΈ Π²ΠΊΠ»ΡΡΠ΅Π½Π½ΠΎΠΌ Π΄Π²ΠΈΠ³Π°ΡΠ΅Π»ΠΈ.
ΠΠ²ΠΈΠ³Π°ΡΠ΅Π»Ρ
ΠΠΎΡΠ½ΠΎΡΡΡ Π²ΡΠ±ΡΠ°Π½Π½ΠΎΠ³ΠΎ Π΄Π²ΠΈΠ³Π°ΡΠ΅Π»Ρ Π΄ΠΎΠ»ΠΆΠ½Π° ΡΠΎΠΎΡΠ²Π΅ΡΡΡΠ²ΠΎΠ²Π°ΡΡ ΠΏΠ»ΠΎΡΠ°Π΄ΠΈ ΡΡΠΎΠ»Π°. ΠΠ°ΠΏΡΠΈΠΌΠ΅Ρ, Π΄Π»Ρ ΠΌΠΎΡΠ½ΠΎΡΡΠΈ Π² 1 ΠΊΠΡ, ΡΡΠΎΠ» ΠΌΠΎΠΆΠ΅Ρ ΠΈΠΌΠ΅ΡΡ ΡΠ°Π·ΠΌΠ΅ΡΡ 1500Γ800 ΠΌΠΌ. ΠΡΠΈ ΠΏΠ°ΡΠ°ΠΌΠ΅ΡΡΡ ΠΏΡΠΈΠ±Π»ΠΈΠ·ΠΈΡΠ΅Π»ΡΠ½ΡΠ΅ ΠΈ ΠΎΡΠΈΠ΅Π½ΡΠΈΡΠΎΠ²Π°Π½Ρ ΠΎΠ½ΠΈ ΠΏΡΠ΅ΠΈΠΌΡΡΠ΅ΡΡΠ²Π΅Π½Π½ΠΎ Π½Π° ΠΏΡΠ΅Π΄ΠΎΡΠ²ΡΠ°ΡΠ΅Π½ΠΈΠ΅ Π½Π°Π³ΡΡΠ·ΠΊΠΈ Π½Π° Π΄Π²ΠΈΠ³Π°ΡΠ΅Π»Ρ.

ΠΠΎΠΌΠΈΠΌΠΎ ΠΌΠΎΡΠ½ΠΎΡΡΠΈ, ΡΠ»Π΅Π΄ΡΠ΅Ρ ΠΎΠ±ΡΠ°ΡΠ°ΡΡ Π²Π½ΠΈΠΌΠ°Π½ΠΈΠ΅ ΠΈ Π½Π° Π΄ΡΡΠ³ΠΈΠ΅ Ρ Π°ΡΠ°ΠΊΡΠ΅ΡΠΈΡΡΠΈΠΊΠΈ. ΠΠ° Π²ΡΡΠ»ΠΊΠΈ ΠΈ ΠΏΠΎΠ΄ΡΠΈΠΏΠ½ΠΈΠΊ ΠΎΠΊΠ°Π·ΡΠ²Π°Π΅ΡΡΡ Π±ΠΎΠ»ΡΡΠ°Ρ Π½Π°Π³ΡΡΠ·ΠΊΠ°.
Π§ΡΠΎΠ±Ρ ΠΎΠ½ΠΈ ΡΠ°Π±ΠΎΡΠ°Π»ΠΈ ΠΈΡΠΏΡΠ°Π²Π½ΠΎ ΠΏΡΠΎΠ΄ΠΎΠ»ΠΆΠΈΡΠ΅Π»ΡΠ½ΡΠΉ ΠΏΠ΅ΡΠΈΠΎΠ΄ Π²ΡΠ΅ΠΌΠ΅Π½ΠΈ Π½Π΅ΠΎΠ±Ρ ΠΎΠ΄ΠΈΠΌΠΎ ΡΡΠ°Π·Ρ Π²ΡΠ±ΠΈΡΠ°ΡΡ Π΄Π²ΠΈΠ³Π°ΡΠ΅Π»Ρ Ρ ΡΠΎΠΎΡΠ²Π΅ΡΡΡΠ²ΡΡΡΠΈΠΌΠΈ Ρ Π°ΡΠ°ΠΊΡΠ΅ΡΠΈΡΡΠΈΠΊΠ°ΠΌΠΈ. ΠΠ΅ΠΊΠΎΡΠΎΡΡΠ΅ ΠΌΠΎΠ΄Π΅ΡΠ½ΠΈΠ·ΠΈΡΡΡΡ Π΅Π³ΠΎ, ΡΠ±ΠΈΡΠ°Ρ Π²ΡΡΠ»ΠΊΠΈ, ΠΈ Π·Π°ΠΌΠ΅Π½ΡΡΡ ΠΈΡ ΠΌΠΎΡΠ½ΡΠΌΠΈ ΠΏΠΎΠ΄ΡΠΈΠΏΠ½ΠΈΠΊΠ°ΠΌΠΈ.
Π‘ΠΎΠ²Π΅Ρ!
Π Π°Π±ΠΎΡΠΎΡΠΏΠΎΡΠΎΠ±Π½ΠΎΡΡΡ ΠΌΠΎΡΠΎΡΠ° ΠΌΠΎΠΆΠ½ΠΎ Π½Π΅Π·Π½Π°ΡΠΈΡΠ΅Π»ΡΠ½ΠΎ ΡΠ²Π΅Π»ΠΈΡΠΈΡΡ, Π΅ΡΠ»ΠΈ ΡΡΡΠ°Π½ΠΎΠ²ΠΈΡΡ Π½Π° Π²Π°Π» Π΄Π²ΠΈΠ³Π°ΡΠ΅Π»Ρ ΡΠΊΡΡΠ΅Π½ΡΡΠΈΠΊΠΈ.
ΠΡΠΎΠ±Π΅Π½Π½ΠΎΡΡΠΈ ΠΈΠ·Π³ΠΎΡΠΎΠ²Π»Π΅Π½ΠΈΡ Π²ΠΈΠ±ΡΠΎΡΡΠΎΠ»Π°
Π Π°ΡΡΠΌΠΎΡΡΠ΅Π² ΠΎΡΠ½ΠΎΠ²Π½ΡΠ΅ ΡΠ»Π΅ΠΌΠ΅Π½ΡΡ Π²ΠΈΠ±ΡΠΎΡΡΠΎΠ»Π°, ΡΠ°ΡΡΠΌΠΎΡΡΠΈΠΌ, ΠΊΠ°ΠΊ ΡΠ΄Π΅Π»Π°ΡΡ Π΅Π³ΠΎ ΡΠ²ΠΎΠΈΠΌΠΈ ΡΡΠΊΠ°ΠΌΠΈ. ΠΠ»Ρ Π½Π°ΡΠ°Π»Π° ΠΈΠ·Π³ΠΎΡΠ°Π²Π»ΠΈΠ²Π°Π΅ΡΡΡ Π½Π΅ΠΏΠΎΠ΄Π²ΠΈΠΆΠ½Π°Ρ ΡΠ°ΡΡΡ.Β 
ΠΡΠΎΡΠ΅ΡΡ Π΅Π΅ ΠΈΠ·Π³ΠΎΡΠΎΠ²Π»Π΅Π½ΠΈΡ ΡΠ²ΠΎΠ΄ΠΈΡΡΡ ΠΊ ΡΠ»Π΅Π΄ΡΡΡΠΈΠΌ Π΄Π΅ΠΉΡΡΠ²ΠΈΡΠΌ:
- Π ΠΏΠ΅ΡΠ²ΡΡ ΠΎΡΠ΅ΡΠ΅Π΄Ρ ΡΠΎΠ±ΠΈΡΠ°Π΅ΡΡΡ Π²Π΅ΡΡ Π½ΡΡ ΡΠ°ΠΌΠ°, ΠΊ ΠΊΠΎΡΠΎΡΠΎΠΉ Π±ΡΠ΄ΡΡ ΠΏΡΠΈΠ²Π°ΡΠΈΠ²Π°ΡΡΡΡ Π½ΠΎΠΆΠΊΠΈ.
- ΠΠ»Ρ ΡΠ°ΠΌΡ ΠΈΡΠΏΠΎΠ»ΡΠ·ΡΠ΅ΡΡΡ ΡΡΠ°Π»ΡΠ½ΠΎΠΉ ΡΠ³ΠΎΠ»ΠΎΠΊ Π½Π΅ ΠΌΠ΅Π½ΡΡΠ΅ 50Γ50 ΠΌΠΌ.
- ΠΡΠ»ΠΈ ΠΈΠ·Π³ΠΎΡΠ°Π²Π»ΠΈΠ²Π°Π΅ΠΌΡΠΉ Π²ΠΈΠ±ΡΠΎΡΡΠΎΠ» ΠΈΠΌΠ΅Π΅Ρ Π±ΠΎΠ»ΡΡΠΈΠ΅ Π³Π°Π±Π°ΡΠΈΡΡ, ΡΠΎ Π΄ΠΎΠΏΠΎΠ»Π½ΠΈΡΠ΅Π»ΡΠ½ΠΎ ΠΏΡΠΈΠ²Π°ΡΠΈΠ²Π°ΡΡΡΡ ΠΏΠΎΠΏΠ΅ΡΠ΅ΡΠΈΠ½Ρ Π΄Π»Ρ ΡΠ°ΡΠΏΠΎΡΠΊΠΈ Π²ΡΠ΅ΠΉ ΠΊΠΎΠ½ΡΡΡΡΠΊΡΠΈΠΈ.
- ΠΠ»Ρ ΡΠ΅Π·ΠΊΠΈ ΠΈΡΠΏΠΎΠ»ΡΠ·ΡΠ΅ΡΡΡ Π±ΠΎΠ»Π³Π°ΡΠΊΠ° Ρ Π΄ΠΈΡΠΊΠΎΠΌ ΠΏΠΎ ΠΌΠ΅ΡΠ°Π»Π»Ρ.
- ΠΠ»Ρ ΡΠ±ΠΎΡΠΊΠΈ Π²ΡΠ΅Ρ ΡΠ»Π΅ΠΌΠ΅Π½ΡΠΎΠ² Π½Π΅ΠΎΠ±Ρ ΠΎΠ΄ΠΈΠΌΠΎ ΠΏΠΎΠ±Π΅ΡΠΏΠΎΠΊΠΎΠΈΡΡΡΡ ΠΎΠ± ΠΈΠ΄Π΅Π°Π»ΡΠ½ΠΎ ΡΠΎΠ²Π½ΠΎΠΉ Π³ΠΎΡΠΈΠ·ΠΎΠ½ΡΠ°Π»ΡΠ½ΠΎΠΉ ΠΏΠΎΠ²Π΅ΡΡ Π½ΠΎΡΡΠΈ.
- ΠΠ»Ρ Π½ΠΎΠΆΠ΅ΠΊ ΠΏΡΠΈΠΌΠ΅Π½ΡΠ΅ΡΡΡ ΡΡΡΠ±Π° Γ50 ΠΈΠ»ΠΈ 80 ΠΌΠΌ.
- ΠΡΠ»ΠΈ Π²ΠΈΠ±ΡΠΎΡΡΠΎΠ» Π±ΡΠ΄Π΅Ρ ΠΏΠ΅ΡΠ΅Π½ΠΎΡΠ½ΡΠΌ, ΡΠΎ Π½ΠΎΠΆΠΊΠΈ Π΄ΠΎΠ»ΠΆΠ½Ρ ΠΈΠΌΠ΅ΡΡ ΠΎΠ΄ΠΈΠ½Π°ΠΊΠΎΠ²ΡΠΉ ΡΠ°Π·ΠΌΠ΅Ρ.
- ΠΠ° Π½ΠΈΠΆΠ½ΡΡ ΡΠ°ΡΡΡ Π½ΠΎΠΆΠ΅ΠΊ ΡΠ»Π΅Π΄ΡΠ΅Ρ ΠΏΡΠΈΠ²Π°ΡΠΈΡΡ ΠΌΠ΅ΡΠ°Π»Π»ΠΈΡΠ΅ΡΠΊΡΡ ΠΏΠ»Π°ΡΡΠΈΠ½Ρ ΡΠ°Π·ΠΌΠ΅ΡΠΎΠΌ 100 Π½Π° 150 ΠΌΠΌ.
- ΠΡΠΈ ΠΏΠ»Π°ΡΡΠΈΠ½Ρ Π±ΡΠ΄ΡΡ ΡΠΎΠ΄Π΅ΠΉΡΡΠ²ΠΎΠ²Π°ΡΡ ΡΠ°Π²Π½ΠΎΠΌΠ΅ΡΠ½ΠΎΠΌΡ ΡΠ°ΡΠΏΡΠ΅Π΄Π΅Π»Π΅Π½ΠΈΡ Π²Π΅ΡΠ° Π²ΡΠ΅ΠΉ ΠΊΠΎΠ½ΡΡΡΡΠΊΡΠΈΠΈ.
- ΠΡΠ»ΠΈ ΡΠΎΠΎΡΡΠΆΠ΅Π½ΠΈΠ΅ Π±ΡΠ΄Π΅Ρ ΡΡΠΎΡΡΡ Π½Π° ΠΎΠ΄Π½ΠΎΠΌ ΠΌΠ΅ΡΡΠ΅, ΡΠΎ Π½ΠΎΠΆΠΊΠΈ Π½Π΅ΠΎΠ±Ρ ΠΎΠ΄ΠΈΠΌΠΎ Π·Π°Π±Π΅ΡΠΎΠ½ΠΈΡΠΎΠ²Π°ΡΡ Π³Π»ΡΠ±ΠΈΠ½ΠΎΠΉ Π΄ΠΎ 300 ΠΌΠΌ.
- Π ΡΠ°ΠΌΠ΅ Π½ΠΎΠΆΠΊΠΈ ΡΠ»Π΅Π΄ΡΠ΅Ρ ΠΏΡΠΈΠ²Π°ΡΠΈΡΡ ΠΏΠΎ ΡΠ³Π»Π°ΠΌ ΠΏΠΎΠ΄ ΡΠ³Π»ΠΎΠΌ 90Β°. ΠΠ»Ρ Π΄ΠΎΡΡΠΈΠΆΠ΅Π½ΠΈΡ ΡΠΎΠ²Π½ΠΎΡΡΠΈ, Π΄ΠΎΠΏΠΎΠ»Π½ΠΈΡΠ΅Π»ΡΠ½ΠΎ ΠΏΡΠΈΠ²Π°ΡΠΈΠ²Π°ΡΡΡΡ ΡΡΠ΅ΡΠ³ΠΎΠ»ΡΠ½ΠΈΠΊΠΈ ΠΈΠ· ΡΡΠ°Π»ΠΈ ΡΠΎΠ»ΡΠΈΠ½ΠΎΠΉ ΠΎΠΊΠΎΠ»ΠΎ 3 ΠΌΠΌ. ΠΡΠΈ ΡΡΠ΅ΡΠ³ΠΎΠ»ΡΠ½ΠΈΠΊΠΈ ΠΈΠ»ΠΈ ΠΊΠΎΡΡΠ½ΠΊΠΈ ΡΠ»Π΅Π΄ΡΠ΅Ρ ΠΎΠ±Π²Π°ΡΠΈΡΡ ΡΠΎ Π²ΡΠ΅Ρ ΡΡΠΎΡΠΎΠ½ ΡΠΎΠΏΡΠΈΠΊΠΎΡΠ½ΠΎΠ²Π΅Π½ΠΈΡ Ρ ΠΊΠ°ΡΠΊΠ°ΡΠΎΠΌ.
Π ΡΠ΅Π·ΡΠ»ΡΡΠ°ΡΠ΅ Π²ΡΠ΅Ρ
Π΄Π΅ΠΉΡΡΠ²ΠΈΠΉ, ΠΏΠΎΠ»ΡΡΠ΅Π½Π½ΡΠΉ ΠΊΠ°ΡΠΊΠ°Ρ Π±ΡΠ΄Π΅Ρ Π½Π°Π΄Π΅ΠΆΠ½ΡΠΌ ΠΈ Π΄ΠΎΠ»Π³ΠΎΠ²Π΅ΡΠ½ΡΠΌ. ΠΠ½ Π΄ΠΎΠ»ΠΆΠ΅Π½ ΡΠΏΡΠ°Π²Π»ΡΡΡΡΡ Ρ ΡΠ½Π΅ΡΠ³ΠΈΠ΅ΠΉ Π²ΠΈΠ±ΡΠ°ΡΠΈΠΈ, ΠΊΠΎΡΠΎΡΠ°Ρ Π±ΡΠ΄Π΅Ρ ΠΏΠ΅ΡΠ΅Π΄Π°Π²Π°ΡΡΡΡ Ρ ΠΏΠΎΠ΄Π²ΠΈΠΆΠ½ΠΎΠΉ ΡΠ°ΡΡΠΈ Π²ΠΈΠ±ΡΠΎΡΡΠΎΠ»Π° Π½Π° Π½ΠΎΠΆΠΊΠΈ. ΠΡΠ»ΠΈ Π²Ρ ΡΠΎΠΌΠ½Π΅Π²Π°Π΅ΡΠ΅ΡΡ Π² Π΄ΠΎΡΡΠ°ΡΠΎΡΠ½ΠΎΠΉ ΠΏΡΠΎΡΠ½ΠΎΡΡΠΈ, ΡΠΎ Π΄ΠΎΠΏΠΎΠ»Π½ΠΈΡΠ΅Π»ΡΠ½ΠΎ ΠΏΡΠΈΠ²Π°ΡΠΈΡΠ΅ ΡΠ°ΡΠΊΠΎΡΡ.Β 
ΠΡΠΎΡΠ΅ΡΡ ΠΈΠ·Π³ΠΎΡΠΎΠ²Π»Π΅Π½ΠΈΡ ΡΡΠΎΠ»Π΅ΡΠ½ΠΈΡΡ Π±ΡΠ» ΠΎΠΏΠΈΡΠ°Π½ Π²ΡΡΠ΅, ΡΠ΅ΠΉΡΠ°Ρ ΡΠ΄Π΅Π»ΠΈΠΌ Π²Π½ΠΈΠΌΠ°Π½ΠΈΠ΅ ΡΠΎΠ½ΠΊΠΎΡΡΡΠΌ Π΅Π΅ ΡΡΡΠ°Π½ΠΎΠ²ΠΊΠΈ. Π‘ΡΠΎΠ»Π΅ΡΠ½ΠΈΡΠ° ΡΠΈΠΊΡΠΈΡΡΠ΅ΡΡΡ ΠΊ ΡΡΠΎΠ»Ρ ΠΏΠΎΡΡΠ΅Π΄ΡΡΠ²ΠΎΠΌ ΠΏΡΡΠΆΠΈΠ½. ΠΠ½ΠΈ Π²ΡΡΠ°Π²Π»ΡΡΡΡΡ Π² ΡΠΏΠ΅ΡΠΈΠ°Π»ΡΠ½ΡΠ΅ ΠΌΠΎΠ½ΡΠ°ΠΆΠ½ΡΠ΅ ΡΡΠ°ΠΊΠ°Π½Ρ.
Π‘ΠΎΠ²Π΅Ρ!
ΠΡΡΠΆΠΈΠ½Ρ ΠΌΠΎΠ³ΡΡ Π±ΡΡΡ ΠΈΡΠΏΠΎΠ»ΡΠ·ΠΎΠ²Π°Π½Ρ ΠΎΡ ΡΡΠ°ΡΠΎΠ³ΠΎ Π°Π²ΡΠΎΠΌΠΎΠ±ΠΈΠ»Ρ. Π ΡΡΠ΅Π΄Π½Π΅ΠΌ ΠΈΡ Π΄Π»ΠΈΠ½Π° Π΄ΠΎΠ»ΠΆΠ½Π° Π±ΡΡΡ Π² ΡΠ°ΠΉΠΎΠ½Π΅ ΠΎΠΊΠΎΠ»ΠΎ 100 ΠΌΠΌ, Π° Π΄ΠΈΠ°ΠΌΠ΅ΡΡ Π΄ΠΎ 150 ΠΌΠΌ.
Π’Π°ΠΊ, Π½Π° ΡΠΎΠΊΠ°ΡΠ½ΠΎΠΌ ΡΡΠΎΠ»Π΅ Π½Π΅ΠΎΠ±Ρ ΠΎΠ΄ΠΈΠΌΠΎ Π²ΡΡΠ΅Π·Π°ΡΡ 8 ΠΊΠΎΠ»Π΅Ρ ΠΈΠ· ΡΡΠ°Π»ΡΠ½ΠΎΠΉ ΡΡΡΠ±Ρ, Π΄ΠΈΠ°ΠΌΠ΅ΡΡ ΠΊΠΎΡΠΎΡΠΎΠΉ Π΄ΠΎΠ»ΠΆΠ΅Π½ Π±ΡΡΡ ΡΡΡΡ Π±ΠΎΠ»ΡΡΠΈΠΌ Π΄ΠΈΠ°ΠΌΠ΅ΡΡΠΎΠΌ ΠΏΡΡΠΆΠΈΠ½. ΠΡΠΈ ΠΊΠΎΠ»ΡΡΠ° Π΄ΠΎΠ»ΠΆΠ½Ρ ΠΈΠΌΠ΅ΡΡ Π΄Π»ΠΈΠ½Ρ ΠΎΠΊΠΎΠ»ΠΎ 30 ΠΌΠΌ. ΠΠ° ΡΠ»Π΅Π΄ΡΡΡΠ΅ΠΌ ΡΡΠ°ΠΏΠ΅ ΠΊΠ»Π°Π΄Π΅ΡΠ΅ ΠΏΡΡΠΆΠΈΠ½Ρ Π½Π° ΡΠ³Π»Ρ ΠΈΠ·Π³ΠΎΡΠΎΠ²Π»Π΅Π½Π½ΠΎΠΉ ΡΠ°ΠΌΡ ΠΈ ΠΏΡΠΈΠΊΠ»Π°Π΄ΡΠ²Π°Π΅ΡΠ΅ ΡΡΠΎΠ»Π΅ΡΠ½ΠΈΡΡ.
ΠΡΠΎ Π½Π΅ΠΎΠ±Ρ
ΠΎΠ΄ΠΈΠΌΠΎ Π΄Π»Ρ ΡΠΎΠ³ΠΎ, ΡΡΠΎΠ±Ρ ΠΌΠ΅Π»ΠΊΠΎΠΌ ΠΎΠ±ΡΠΈΡΠΎΠ²Π°ΡΡ ΠΊΠΎΠ½ΡΡΡ ΠΊΠΎΠ»Π΅Ρ Π½Π° ΡΠ°ΠΌΠ΅ ΠΈ ΡΡΠΎΠ»Π΅ΡΠ½ΠΈΡΠ΅. ΠΠΎ ΡΡΠΈΠΌ ΠΎΡΠΌΠ΅ΡΠΊΠ°ΠΌ ΠΏΡΠΈΠ²Π°ΡΠΈΠ²Π°ΡΡΡΡ ΠΊΠΎΠ»ΡΡΠ°-ΡΡΠ°ΠΊΠ°Π½Ρ. Π Π½ΠΈΡ
ΡΡΡΠ°Π½Π°Π²Π»ΠΈΠ²Π°ΡΡΡΡ ΠΏΡΡΠΆΠΈΠ½Ρ, Π° ΡΠ²Π΅ΡΡ
Ρ ΡΡΠΎΠ»Π΅ΡΠ½ΠΈΡΠ°.Β 
ΠΠ°ΠΆΠ½ΠΎ! ΠΠΎΡΠ»Π΅ ΡΡΡΠ°Π½ΠΎΠ²ΠΊΠΈ ΡΡΠΎΠ»Π΅ΡΠ½ΠΈΡΡ, ΡΠ±Π΅Π΄ΠΈΡΠ΅ΡΡ, ΡΡΠΎ ΠΎΠ½Π° ΡΡΠΎΠΈΡ ΠΏΠ°ΡΠ°Π»Π»Π΅Π»ΡΠ½ΠΎ Π²ΡΠ΅ΠΉ ΠΊΠΎΠ½ΡΡΡΡΠΊΡΠΈΠΈ ΠΊΠ°ΡΠΊΠ°ΡΠ°.
Π§ΡΠΎΠ±Ρ Π½ΠΈΠ²Π΅Π»ΠΈΡΠΎΠ²Π°ΡΡ Π½Π΅ΡΠΎΠ²Π½ΠΎΡΡΡ, Ρ ΠΏΡΡΠΆΠΈΠ½Ρ ΠΏΡΠΎΡΡΠΎ ΡΡΠ΅Π·Π°Π΅ΡΡΡ ΠΎΠΏΡΠ΅Π΄Π΅Π»Π΅Π½Π½ΠΎΠ΅ ΠΊΠΎΠ»ΠΈΡΠ΅ΡΡΠ²ΠΎ Π²ΠΈΡΠΊΠΎΠ². ΠΡΠ΅ ΠΎΠ΄ΠΈΠ½ Π²Π°ΠΆΠ½ΡΠΉ ΡΡΠ°ΠΏ ΡΠ°Π±ΠΎΡΡ Π·Π°ΠΊΠ»ΡΡΠ°Π΅ΡΡΡ Π² ΡΡΡΠ°Π½ΠΎΠ²ΠΊΠ΅ Π΄Π²ΠΈΠ³Π°ΡΠ΅Π»Ρ. ΠΠ³ΠΎ ΠΊΡΠ΅ΠΏΠ»Π΅Π½ΠΈΠ΅ ΠΎΡΡΡΠ΅ΡΡΠ²Π»ΡΠ΅ΡΡΡ ΠΏΡΠΈ ΠΏΠΎΠΌΠΎΡΠΈ Π±ΠΎΠ»ΡΠΎΠ².
Π§ΡΠΎΠ±Ρ ΠΏΠΎΠ΄ Π²ΠΎΠ·Π΄Π΅ΠΉΡΡΠ²ΠΈΠ΅ΠΌ Π²ΠΈΠ±ΡΠ°ΡΠΈΠΈ Π³Π°ΠΉΠΊΠΈ Π½Π΅ ΡΠ°ΡΠΊΡΡΡΠΈΠ²Π°Π»ΠΈΡΡ, ΠΏΠΎΠ΄ Π½ΠΈΡ
ΡΠ»Π΅Π΄ΡΠ΅Ρ ΡΠ»ΠΎΠΆΠΈΡΡ ΡΠ°ΠΉΠ±Ρ ΠΡΠΎΠ²Π΅Ρ. ΠΡΠΈ ΠΊΡΠ΅ΠΏΠ»Π΅Π½ΠΈΠΈ ΠΌΠΎΡΠΎΡΠ° ΠΏΠΎΠ±Π΅ΡΠΏΠΎΠΊΠΎΠΉΡΠ΅ΡΡ ΠΎ ΡΠΎΠΌ, ΡΡΠΎΠ±Ρ Π½Π° Π½Π΅Π³ΠΎ Π½Π΅ ΠΏΠΎΠΏΠ°Π΄Π°Π» Π±Π΅ΡΠΎΠ½ ΠΈ Π²ΠΎΠ΄Π°. ΠΠΎΠ·ΠΌΠΎΠΆΠ½ΠΎ, Π±ΡΠ΄Π΅Ρ ΡΠ΅Π»Π΅ΡΠΎΠΎΠ±ΡΠ°Π·Π½ΡΠΌ ΠΈΠ·Π³ΠΎΡΠΎΠ²ΠΈΡΡ Π·Π°ΡΠΈΡΠ½ΡΠΉ ΠΊΠΎΠΆΡΡ
.Β 
ΠΡΠΎΠΌΠ΅ Π²ΡΠ΅Π³ΠΎ ΠΏΡΠΎΡΠ΅Π³ΠΎ, ΡΡΡΠ°Π½Π°Π²Π»ΠΈΠ²Π°Π΅ΡΡΡ ΡΠ΅ΠΌΠ΅Π½Π½Π°Ρ ΠΏΠ΅ΡΠ΅Π΄Π°ΡΠ°, Π±Π»ΠΎΠΊ ΠΈ ΡΠΊΠΈΠ². ΠΡΠ΅ ΡΡΠΎ ΡΠ»Π΅Π΄ΡΠ΅Ρ Π·Π°ΠΊΡΡΡΡ ΠΊΠΎΠΆΡΡ ΠΎΠΌ. ΠΠ»Ρ ΡΠ»Π΅ΠΊΡΡΠΎΠ΄Π²ΠΈΠ³Π°ΡΠ΅Π»Ρ ΠΎΠ±ΡΠ·Π°ΡΠ΅Π»ΡΠ½ΠΎ ΠΎΠ±ΠΎΡΡΠ΄ΡΠ΅ΡΡΡ Π·Π°Π·Π΅ΠΌΠ»Π΅Π½ΠΈΠ΅. Π§ΡΠΎ ΠΊΠ°ΡΠ°Π΅ΡΡΡ ΠΊΠ½ΠΎΠΏΠΊΠΈ Π·Π°ΠΏΡΡΠΊΠ°, ΡΠΎ ΠΎΠ½Π° Π΄ΠΎΠ»ΠΆΠ½Π° ΡΠ°ΡΠΏΠΎΠ»Π°Π³Π°ΡΡΡΡ Π² ΡΠ΄ΠΎΠ±Π½ΠΎΠΌ ΠΌΠ΅ΡΡΠ΅ Π΄Π»Ρ ΡΠ°Π±ΠΎΡΠ΅Π³ΠΎ.
ΠΠ°ΠΊΠ»ΡΡΠ΅Π½ΠΈΠ΅
Π Π°ΡΡΠΌΠΎΡΡΠ΅Π² ΡΠ΅ΠΊΡΠ΅ΡΡ β ΠΊΠ°ΠΊ ΠΈΠ·Π³ΠΎΡΠ°Π²Π»ΠΈΠ²Π°Π΅ΡΡΡ Π²ΠΈΠ±ΡΠΎΡΡΠΎΠ» ΡΠ²ΠΎΠΈΠΌΠΈ ΡΡΠΊΠ°ΠΌΠΈ, ΠΌΠΎΠΆΠ½ΠΎ ΠΏΡΠΈΡΡΡΠΏΠ°ΡΡ ΠΊ ΡΠ°Π±ΠΎΡΠ΅. ΠΠ΅Π·ΡΡΠ»ΠΎΠ²Π½ΠΎ, ΡΠΏΡΠ°Π²ΠΈΡΡΡΡ ΡΠΎ Π²ΡΠ΅ΠΌΠΈ ΡΠ°Π±ΠΎΡΠ°ΠΌΠΈ ΡΠ°ΠΌΠΎΡΡΠΎΡΡΠ΅Π»ΡΠ½ΠΎ ΠΏΠΎΠΌΠΎΠΆΠ΅Ρ Π΄ΠΎΠΏΠΎΠ»Π½ΠΈΡΠ΅Π»ΡΠ½ΡΠΉ ΠΏΡΠΎΡΠΌΠΎΡΡ Π²ΠΈΠ΄Π΅ΠΎΠΌΠ°ΡΠ΅ΡΠΈΠ°Π»Π°.
ΠΠ»Π°Π³ΠΎΠ΄Π°ΡΡ ΡΡΠΎΠΌΡ, ΠΏΠΎΠ»ΡΡΠΈΡΡΡΡ ΠΈΠ·Π³ΠΎΡΠΎΠ²ΠΈΡΡ Π²ΠΈΠ±ΡΠΎΡΡΠΎΠ» Π΄Π»Ρ ΡΡΠΎΡΡΠ°ΡΠ½ΠΎΠΉ ΠΏΠ»ΠΈΡΠΊΠΈ. ΠΡΠΈ Π½Π°Π»ΠΈΡΠΈΠ΅ ΠΏΠΎΠ΄ΠΎΠ±Π½ΠΎΠ³ΠΎ ΠΎΠΏΡΡΠ°, ΠΎΡΡΠ°Π²Π»ΡΠΉΡΠ΅ ΠΊΠΎΠΌΠΌΠ΅Π½ΡΠ°ΡΠΈΠΈ Π² ΠΊΠΎΠ½ΡΠ΅ ΡΡΠ°ΡΡΠΈ.
ΠΠΈΠ΄Π΅ΠΎ ΠΈΠ½ΡΡΡΡΠΊΡΠΈΡ ΠΏΠΎ ΡΠ±ΠΎΡΠΊΠ΅ Π²ΠΈΠ±ΡΠΎΡΡΠΎΠ»Π° ΡΠ²ΠΎΠΈΠΌΠΈ ΡΡΠΊΠ°ΠΌΠΈ
ΠΡΠ΅ ΠΎΠ΄ΠΈΠ½ Π²Π°ΡΠΈΠ°Π½Ρ ΠΈΠ·Π³ΠΎΡΠΎΠ²Π»Π΅Π½ΠΈΡ ΡΠ°ΠΌΠΎΠ΄Π΅Π»ΡΠ½ΠΎΠ³ΠΎ Π²ΠΈΠ±ΡΠΎΡΡΠΎΠ»Π° β Π²ΠΈΠ΄Π΅ΠΎ
obplitke.ru
Π Π°Π·ΡΠ°Π±ΠΎΡΠΊΠ° ΡΠ²ΠΎΠΈΠΌΠΈ ΡΡΠΊΠ°ΠΌΠΈ ΡΠ΅ΡΡΠ΅ΠΆΠ΅ΠΉ Π²ΠΈΠ±ΡΠΎΡΡΠΎΠ»Π° Π΄Π»Ρ ΡΡΡΠ°ΠΌΠ±ΠΎΠ²ΠΊΠΈ ΡΡΡΠΎΠΈΡΠ΅Π»ΡΠ½ΡΡ ΡΠΌΠ΅ΡΠ΅ΠΉ
Π ΠΏΡΠΈΠ½ΡΠΈΠΏΠ΅, Π²ΡΠ΅ ΡΠ°Π±ΠΎΡΡ ΡΠ²ΡΠ·Π°Π½Π½ΡΠ΅ Ρ ΠΎΡΠ»ΠΈΡΠΈΠ΅ΠΌ ΡΠ»Π΅ΠΌΠ΅Π½ΡΠΎΠ² ΠΈΠ· ΡΠ°Π·Π»ΠΈΡΠ½ΡΡ
ΡΡΡΠΎΠΈΡΠ΅Π»ΡΠ½ΡΡ
ΡΠΌΠ΅ΡΠ΅ΠΉ ΠΌΠΎΠ³ΡΡ Π²ΡΠΏΠΎΠ»Π½ΡΡΡΡΡ ΠΈ Π±Π΅Π· ΠΏΡΠΈΠΌΠ΅Π½Π΅Π½ΠΈΡ Π΄Π°Π½Π½ΠΎΠ³ΠΎ Π°ΠΏΠΏΠ°ΡΠ°ΡΠ°. ΠΠΎ ΠΈΡΠΏΠΎΠ»ΡΠ·ΠΎΠ²Π°Π½ΠΈΠ΅ Π΅Π³ΠΎ Π²ΡΠ΅ ΠΆΠ΅ ΠΊΡΠ°ΠΉΠ½Π΅ ΠΆΠ΅Π»Π°ΡΠ΅Π»ΡΠ½ΠΎ. ΠΠ»Π°Π³ΠΎΠ΄Π°ΡΡ Π΅ΠΌΡ ΡΠ»ΡΡΡΠ°Π΅ΡΡΡ Π½Π΅ ΡΠΎΠ»ΡΠΊΠΎ Π΄Π΅ΠΊΠΎΡΠ°ΡΠΈΠ²Π½ΠΎΡΡΡ ΠΏΠΎΠ²Π΅ΡΡ
Π½ΠΎΡΡΠ΅ΠΉ ΡΡΠΈΡ
ΠΈΠ·Π΄Π΅Π»ΠΈΠΉ, Π½ΠΎ ΠΈ ΠΏΠΎΠ²ΡΡΠ°Π΅ΡΡΡ ΠΈΡ
ΠΊΠ°ΡΠ΅ΡΡΠ²ΠΎ ΠΈ ΠΊΡΠ΅ΠΏΠΎΡΡΡ. Π Π°ΡΡΠΌΠΎΡΡΠΈΠΌ, ΠΊΠ°ΠΊΠΈΠΌ ΠΎΠ±ΡΠ°Π·ΠΎΠΌ ΡΡΠΎ ΠΏΡΠΎΠΈΡΡ
ΠΎΠ΄ΠΈΡ ΠΈ ΠΊΠ°ΠΊ ΡΠΎΠ±ΡΠ°ΡΡ ΡΠ°ΠΊΠΎΠΉ Π°ΠΏΠΏΠ°ΡΠ°Ρ ΡΠ°ΠΌΠΎΡΡΠΎΡΡΠ΅Π»ΡΠ½ΠΎ.
ΠΡΠΈΠ½ΡΠΈΠΏ ΡΠ°Π±ΠΎΡΡ Π°ΠΏΠΏΠ°ΡΠ°ΡΠ° ΠΈ ΡΠΏΠΈΡΠΎΠΊ Π½Π΅ΠΎΠ±Ρ ΠΎΠ΄ΠΈΠΌΡΡ ΠΌΠ°ΡΠ΅ΡΠΈΠ°Π»ΠΎΠ²
ΠΡΠΏΠΎΠ»ΡΠ·ΡΠ΅ΠΌΡΠ΅ Π΄Π»Ρ ΠΎΡΠ»ΠΈΡΠΈΡ ΡΠ°Π·Π»ΠΈΡΠ½ΡΡ ΠΏΡΠ΅Π΄ΠΌΠ΅ΡΠΎΠ² ΡΠΌΠ΅ΡΠΈ ΠΈΠΌΠ΅ΡΡ ΡΠ»ΠΈΡΠΊΠΎΠΌ Π³ΡΡΡΡΡ ΠΊΠΎΠ½ΡΠΈΡΡΠ΅Π½ΡΠΈΡ. ΠΠΌΠ΅Π½Π½ΠΎ ΠΏΠΎΡΡΠΎΠΌΡ ΠΎΠ½ΠΈ Π½Π΅ ΡΠΏΠΎΡΠΎΠ±Π½Ρ, Π² ΠΎΡΠ»ΠΈΡΠΈΠ΅ ΠΎΡ Π±ΠΎΠ»Π΅Π΅ ΠΆΠΈΠ΄ΠΊΠΈΡ ΡΠ°ΡΡΠ²ΠΎΡΠΎΠ², ΠΊΠ°ΡΠ΅ΡΡΠ²Π΅Π½Π½ΠΎ Π·Π°ΠΏΠΎΠ»Π½ΡΡΡ ΡΠΎΠ±ΠΎΠΉ ΡΠ°Π·Π½ΠΎΠΎΠ±ΡΠ°Π·Π½ΡΠ΅ Π΅ΠΌΠΊΠΎΡΡΠΈ. ΠΡΠΈ Π·Π°ΠΏΠΎΠ»Π½Π΅Π½ΠΈΠΈ ΡΠΎΡΠΌ, ΡΠΌΠ΅ΡΡ Π»ΠΎΠΆΠΈΡΡΡ Π½Π΅ΡΠ°Π²Π½ΠΎΠΌΠ΅ΡΠ½ΠΎ, ΡΡΠΎ ΠΏΡΠΈΠ²ΠΎΠ΄ΠΈΡ ΠΊ ΠΎΠ±ΡΠ°Π·ΠΎΠ²Π°Π½ΠΈΡ Π²ΠΎΠ·Π΄ΡΡΠ½ΡΡ ΠΊΠ°ΡΠΌΠ°Π½ΠΎΠ².
ΠΠΎΠ·Π΄ΡΡ ΠΈΠ· ΡΡΠΈΡ ΠΏΡΠ·ΡΡΡΠΊΠΎΠ² ΠΏΡΠΈ Π·Π°ΡΡΡΠ²Π°Π½ΠΈΠΈ ΠΏΠΎΡΡΠ΅ΠΏΠ΅Π½Π½ΠΎ Π²ΡΡ ΠΎΠ΄ΠΈΡ, Π½ΠΎ ΠΏΡΡΡΠΎΡΠ° Π² ΡΠ΅Π»Π΅ ΡΠ»Π΅ΠΌΠ΅Π½ΡΠ° ΠΎΡΡΠ°Π΅ΡΡΡ. Π’Π°ΠΊΠΈΠΌ ΠΎΠ±ΡΠ°Π·ΠΎΠΌ, Π²ΠΎΠ·Π½ΠΈΠΊΠ°ΡΡ ΡΠ»Π°Π±ΡΠ΅ ΠΌΠ΅ΡΡΠ° Π², ΠΊΠ°Π·Π°Π»ΠΎΡΡ Π±Ρ, ΡΠ΅Π»ΡΠ½ΠΎΠ»ΠΈΡΠΎΠΌ ΠΈΠ·Π΄Π΅Π»ΠΈΠΈ. ΠΡΠΈ ΡΡΠ΅Π·ΠΌΠ΅ΡΠ½ΠΎΠΉ Π½Π°Π³ΡΡΠ·ΠΊΠ΅, ΠΈΠ»ΠΈ ΡΠ»ΡΡΠ°ΠΉΠ½ΠΎΠΌ ΡΠ΄Π°ΡΠ΅, Π»ΠΈΠ±ΠΎ ΠΏΠ°Π΄Π΅Π½ΠΈΠΈ ΡΠ°ΠΊΠΈΠ΅ ΠΏΡΡΡΠΎΡΡ ΡΡΠ°Π½ΠΎΠ²ΡΡΡΡ ΠΏΡΠΈΡΠΈΠ½ΠΎΠΉ ΠΏΠΎΠ»ΠΎΠΌΠΊΠΈ Π²ΡΠ΅Π³ΠΎ ΡΠ»Π΅ΠΌΠ΅Π½ΡΠ°.
-

- Π²ΠΈΠ±ΡΠΎΡΡΠΎΠ»
-

- ΡΠ΅ΡΡΠ΅ΠΆ Π²ΠΈΠ±ΡΠΎΡΡΠΎΠ»Π°
Β
ΠΡΠ»ΠΈ ΠΆΠ΅ ΠΏΡΡΡΠΎΡΡ ΠΎΠ±ΡΠ°Π·ΡΡΡΡΡ Π½Π° ΡΠ°ΠΌΠΎΠΌ Π΄Π½Π΅ ΡΠΎΡΠΌΡ (Π³Π΄Π΅ ΠΎΠ±ΡΡΠ½ΠΎ ΡΠΎΡΠΌΠΈΡΡΠ΅ΡΡΡ Π»ΠΈΡΠ΅Π²Π°Ρ ΡΡΠΎΡΠΎΠ½Π° ΠΈΠ·Π΄Π΅Π»ΠΈΡ), ΡΠΎ ΠΏΠΎΡΠ»Π΅ Π·Π°ΡΡΡΠ²Π°Π½ΠΈΡ Π½Π° ΠΏΠΎΠ²Π΅ΡΡ Π½ΠΎΡΡΠΈ ΡΠ»Π΅ΠΌΠ΅Π½ΡΠ° ΠΌΠΎΠΆΠ½ΠΎ ΠΎΠ±Π½Π°ΡΡΠΆΠΈΡΡ Π²ΡΠ΅ΠΌΠΊΠΈ, Π²ΠΏΠ°Π΄ΠΈΠ½ΠΊΠΈ ΠΈ ΡΠΌΠΊΠΈ ΡΠ°Π·Π»ΠΈΡΠ½ΡΡ ΡΠ°Π·ΠΌΠ΅ΡΠΎΠ², ΠΊΠΎΡΠΎΡΡΠ΅ ΡΡΡΠ΅ΡΡΠ²Π΅Π½Π½ΠΎ ΠΏΠΎΡΡΡΡ Π²Π½Π΅ΡΠ½ΠΈΠΉ Π²ΠΈΠ΄ ΠΎΡΠ»ΠΈΡΠΎΠΉ ΡΠΎΡΠΌΡ.
ΠΡΠΏΠΎΠ»ΡΠ·ΠΎΠ²Π°Π½ΠΈΠ΅ ΡΠ°ΡΡΠΌΠ°ΡΡΠΈΠ²Π°Π΅ΠΌΠΎΠ³ΠΎ Π°ΠΏΠΏΠ°ΡΠ°ΡΠ° ΠΏΠΎΠΌΠΎΠ³Π°Π΅Ρ ΠΈΠ·Π±Π΅ΠΆΠ°ΡΡ ΡΡΠΈΡ Π½Π΅ΠΏΡΠΈΡΡΠ½ΠΎΡΡΠ΅ΠΉ Π·Π° ΡΡΠ΅Ρ Π΅Π³ΠΎ Π²ΠΈΠ±ΡΠ°ΡΠΈΠΎΠ½Π½ΠΎΠΉ ΡΡΠ½ΠΊΡΠΈΠΈ. ΠΠ΅Π³ΠΊΠΎΠ΅ Π²ΠΈΠ±ΡΠΈΡΠΎΠ²Π°Π½ΠΈΠ΅ Π·Π°ΡΡΠ°Π²Π»ΡΠ΅Ρ ΠΌΠ°ΡΡΡ ΠΌΠ΅Π΄Π»Π΅Π½Π½ΠΎ ΠΎΠΏΡΡΠΊΠ°ΡΡΡΡ Π²Π½ΠΈΠ· ΠΏΠΎΠ΄ Π΄Π°Π²Π»Π΅Π½ΠΈΠ΅ΠΌ ΡΠΎΠ±ΡΡΠ²Π΅Π½Π½ΠΎΠ³ΠΎ Π²Π΅ΡΠ°. Π ΠΏΡΠΎΡΠ΅ΡΡΠ΅ ΡΡΠΎΠ³ΠΎ Π²ΠΎΠ·Π΄ΡΡΠ½ΡΠ΅ ΠΊΠ°ΡΠΌΠ°Π½Ρ Π·Π°ΠΏΠΎΠ»Π½ΡΡΡΡΡ ΡΠΌΠ΅ΡΡΡ, Π° ΡΠ°ΠΌ Π²ΠΎΠ·Π΄ΡΡ Π²ΡΡΡΠ°Π²Π»ΠΈΠ²Π°Π΅ΡΡΡ Π½Π°ΡΡΠΆΡ.
-

- Π§Π΅ΡΡΠ΅ΠΆ Π²ΠΈΠ±ΡΠΎΡΡΠΎΠ»Π° ΠΈ ΠΏΡΠΎΡΠ΅ΠΈΠ²Π°ΡΠ΅Π»Ρ ΠΏΠ΅ΡΠΊΠ°
-

- ΡΡ Π΅ΠΌΠ° ΡΡΠ°Π½ΠΈΠ½Ρ Π²ΠΈΠ±ΡΠΎΡΡΠΎΠ»Π°
Β
Π§ΡΠΎΠ±Ρ ΡΠΎΠ±ΡΠ°ΡΡ ΡΠ²ΠΎΠΈΠΌΠΈ ΡΡΠΊΠ°ΠΌΠΈ Π²ΠΈΠ±ΡΠΎΡΡΠΎΠ» ΠΏΠΎ ΡΠ΅ΡΡΠ΅ΠΆΡ, Π½Π΅ΠΎΠ±Ρ ΠΎΠ΄ΠΈΠΌΠΎ ΠΏΡΠ΅Π΄Π²Π°ΡΠΈΡΠ΅Π»ΡΠ½ΠΎ ΠΏΡΠΈΠΎΠ±ΡΠ΅ΡΡΠΈ ΡΠ»Π΅Π΄ΡΡΡΠΈΠ΅ ΠΌΠ°ΡΠ΅ΡΠΈΠ°Π»Ρ (Π²ΡΠ΅ ΡΠ°Π·ΠΌΠ΅ΡΡ ΠΏΡΠΈΠ²Π΅Π΄Π΅Π½Ρ ΠΎΡΠΈΠ΅Π½ΡΠΈΡΠΎΠ²ΠΎΡΠ½ΠΎ, ΠΌΠΎΠΆΠ½ΠΎ, ΠΊΠ°ΠΊ ΡΠ²Π΅Π»ΠΈΡΠΈΠ²Π°ΡΡ, ΡΠ°ΠΊ ΠΈ ΡΠΌΠ΅Π½ΡΡΠ°ΡΡ ΠΈΡ ΡΠΎΠ³Π»Π°ΡΠ½ΠΎ ΡΠΎΠ±ΡΡΠ²Π΅Π½Π½ΡΠΌ Π½ΡΠΆΠ΄Π°ΠΌ):
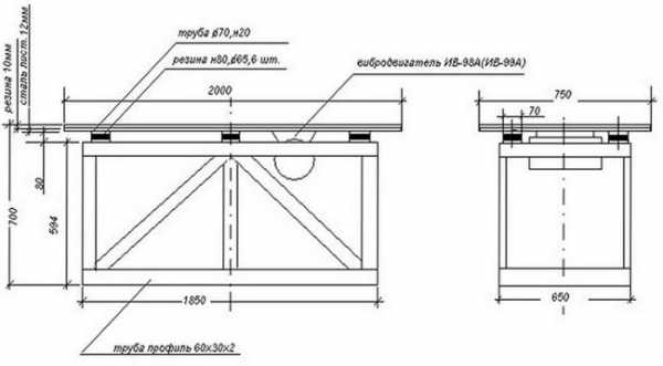
1. ΠΠΈΠ±ΡΠΎΠ΄Π²ΠΈΠ³Π°ΡΠ΅Π»Ρ.
2. Π‘Π²Π°ΡΠΎΡΠ½ΡΠΉ Π°ΠΏΠΏΠ°ΡΠ°Ρ.
3. ΠΡΡΠΆΠΈΠ½Ρ β ΠΠ Π Β«ΠΠ°ΠΌΠ°Π·Β» β 4 ΡΡΡΠΊΠΈ.
4. ΠΠ΅ΡΠ°Π»Π»ΠΈΡΠ΅ΡΠΊΠΈΠΉ Π»ΠΈΡΡ β 0,3Ρ 75Ρ 120 ΡΠΌ.
5. ΠΡΠΎΡΠΈΠ»ΡΠ½ΡΠ΅ ΡΡΡΠ±Ρ β 0,2Ρ 2Ρ 4 ΡΠΌ β 6 ΠΌΠ΅ΡΡΠΎΠ² (Π΄Π»Ρ Π½ΠΎΠΆΠ΅ΠΊ) 2,4 ΠΌΠ΅ΡΡΠ° (Π΄Π»Ρ ΠΊΠ°ΡΠΊΠ°ΡΠ° ΠΏΠΎΠ΄ ΠΊΡΡΡΠΊΡ).
6. ΠΠ΅ΡΠ°Π»Π»ΠΈΡΠ΅ΡΠΊΠΈΠ΅ ΡΠ³ΠΎΠ»ΠΊΠΈ β 0,2Ρ 4 ΡΠΌ β 4 ΠΌΠ΅ΡΡΠ°.
7. ΠΠΎΠ»ΡΡΒ (Π΄Π»Ρ ΠΊΡΠ΅ΠΏΠ»Π΅Π½ΠΈΡ Π΄Π²ΠΈΠ³Π°ΡΠ΅Π»Ρ).
8. Π‘ΠΏΠ΅Ρ. ΠΊΡΠ°ΡΠΊΠ° (Π΄Π»Ρ Π·Π°ΡΠΈΡΡ ΠΈΠ·Π΄Π΅Π»ΠΈΡ ΠΎΡ ΠΊΠΎΡΡΠΎΠ·ΠΈΠΈ).
9. ΠΠΎΠ΄ΠΎΠΏΡΠΎΠ²ΠΎΠ΄Π½ΡΠ΅ ΠΌΠ΅ΡΠ°Π»Π»ΠΈΡΠ΅ΡΠΊΠΈΠ΅ ΠΊΠΎΠ»ΡΡΠ° β 4 ΡΡ. (Π΄ΠΈΠ°ΠΌΠ΅ΡΡ Π΄ΠΎΠ»ΠΆΠ΅Π½ ΡΠΎΠ²ΠΏΠ°Π΄Π°ΡΡ Ρ Π΄ΠΈΠ°ΠΌΠ΅ΡΡΠΎΠΌ ΠΏΡΡΠΆΠΈΠ½, Π»ΠΈΠ±ΠΎ Π±ΡΡΡ Π½Π΅ΠΌΠ½ΠΎΠ³ΠΎ Π±ΠΎΠ»ΡΡΠ΅).
-

- ΠΊΡΠ΅ΠΏΠ»Π΅Π½ΠΈΠ΅ Π΄Π»Ρ Π²ΠΈΠ±ΡΠ°ΡΠΎΡΠ°
-

- ΠΊΡΠ΅ΠΏΠ»Π΅Π½ΠΈΠ΅ Π²ΠΈΠ±ΡΠ°ΡΠΎΡΠ° Π½Π° ΡΡΠΎΠ»Π΅ΡΠ½ΠΈΡΠ΅
-

- ΠΎΡΠ½ΠΎΠ²Π° Π²ΠΈΠ±ΡΠΎΡΡΠΎΠ»Π°
-

- ΠΈΡΠΎΠ³ ΡΠ°Π±ΠΎΡΡ
Β
Π§ΠΠ’ΠΠ’Π¬ ΠΠ Π’ΠΠΠ:
ΠΠΎΠ±Π°Π²ΠΊΠ° Π² Π±Π΅ΡΠΎΠ½ Π΄Π»Ρ Π²ΠΎΠ΄ΠΎΠ½Π΅ΠΏΡΠΎΠ½ΠΈΡΠ°Π΅ΠΌΠΎΡΡΠΈ β Π»ΡΡΡΠ΅Π΅ ΡΠ΅ΡΠ΅Π½ΠΈΠ΅ ΠΏΡΠΎΠ±Π»Π΅ΠΌΡ Π΅Π³ΠΎ ΡΠ°Π·ΡΡΡΠ΅Π½ΠΈΡ Ρ ΡΠ΅ΡΠ΅Π½ΠΈΠ΅ΠΌ Π²ΡΠ΅ΠΌΠ΅Π½ΠΈ.
Π‘Π±ΠΎΡΠΊΠ° ΡΠ²ΠΎΠΈΠΌΠΈ ΡΡΠΊΠ°ΠΌΠΈ Π²ΠΈΠ±ΡΠΎΡΡΠΎΠ»Π° ΠΏΠΎ ΡΠ΅ΡΡΠ΅ΠΆΡ ΠΏΡΠΎΡΡΠΎΠΉ ΠΊΠΎΠ½ΡΠΈΠ³ΡΡΠ°ΡΠΈΠΈ
Π‘Π±ΠΎΡΠΊΠ° ΡΠ²ΠΎΠΈΠΌΠΈ ΡΡΠΊΠ°ΠΌΠΈ Π²ΠΈΠ±ΡΠΎΡΡΠΎΠ»Π° ΠΏΠΎ ΡΠ΅ΡΡΠ΅ΠΆΡ, ΠΊΠΎΡΠΎΡΡΠΉ Π·Π΄Π΅ΡΡ ΠΏΡΠΈΠ²Π΅Π΄Π΅Π½, ΠΏΡΠΎΠΈΡΡ ΠΎΠ΄ΠΈΡ Π² ΡΠ»Π΅Π΄ΡΡΡΠ΅ΠΌ ΠΏΠΎΡΡΠ΄ΠΊΠ΅:
1. Π‘Π½Π°ΡΠ°Π»Π° Π²ΡΠ΅ Π·Π°ΠΊΡΠΏΠ»Π΅Π½Π½ΡΠ΅ ΠΌΠ°ΡΠ΅ΡΠΈΠ°Π»Ρ Π΄ΠΎΠ»ΠΆΠ½Ρ Π±ΡΡΡ ΡΠ°ΡΠΏΠΈΠ»Π΅Π½Ρ Π½Π° Π½Π΅ΠΎΠ±Ρ ΠΎΠ΄ΠΈΠΌΡΠ΅ Π΄Π΅ΡΠ°Π»ΠΈ.
2. Π’ΡΡΠ±Ρ, ΠΏΡΠ΅Π΄Π½Π°Π·Π½Π°ΡΠ΅Π½Π½ΡΠ΅ Π΄Π»Ρ Π½ΠΎΠΆΠ΅ΠΊ, ΡΠ°Π·Π΄Π΅Π»ΡΡΡΡΡ Π½Π° 4 ΡΠΎΠ²Π½ΡΡ ΡΠ°ΡΡΠΈ ΠΏΠΎ 75 ΡΠΌ ΠΊΠ°ΠΆΠ΄Π°Ρ.
3. Π’ΡΡΠ±Ρ, ΠΏΡΠ΅Π΄Π½Π°Π·Π½Π°ΡΠ΅Π½Π½ΡΠ΅ Π΄Π»Ρ ΠΊΠ°ΡΠΊΠ°ΡΠ°, ΡΠ°Π·Π΄Π΅Π»ΡΡΡΡΡ ΡΠ°ΠΊ: 2 ΡΠ°ΡΡΠΈ ΠΏΠΎ 60 ΡΠΌ ΠΈ 4 ΡΠ°ΡΡΠΈ ΠΏΠΎ 30 ΡΠΌ.
4. Π£Π³ΠΎΠ»ΠΊΠΈ ΡΠ°Π·Π΄Π΅Π»ΡΡΡΡΡ Π½Π° ΡΠ΅ΡΡΡΠ΅ ΡΠ°ΡΡΠΈ, Π΄Π»ΠΈΠ½Π° ΠΊΠΎΡΠΎΡΡΡ ΡΠΎΠΎΡΠ²Π΅ΡΡΡΠ²ΡΠ΅Ρ Π΄Π»ΠΈΠ½Π΅ ΡΡΠΎΡΠΎΠ½ ΠΌΠ΅ΡΠ°Π»Π»ΠΈΡΠ΅ΡΠΊΠΎΠ³ΠΎ Π»ΠΈΡΡΠ° Π΄Π»Ρ ΡΡΠΎΠ»Π΅ΡΠ½ΠΈΡΡ, Π²ΠΌΠ΅ΡΡΠ΅ Ρ Π²ΡΡΠ΅ΡΠΎΠΌ ΡΡΠΎΡΠΎΠ½ ΠΎΡΡΠ΅Π·ΠΎΠ² ΡΡΡΠ± Π΄Π»Ρ Π½ΠΎΠΆΠ΅ΠΊ (ΡΠΌΠΎΡΡΡ ΠΊΠ°ΠΊΠΎΠΉ ΡΡΠΎΡΠΎΠ½ΠΎΠΉ ΠΎΠ½ΠΈ Π±ΡΠ΄ΡΡ ΠΏΠΎΠ²Π΅ΡΠ½ΡΡΡ β 2 ΠΈΠ»ΠΈ 4 ΡΠΌ).
-

- Π²ΠΈΠ±ΡΠΎΡΡΠΎΠ»
-

- ΠΏΡΡΠΆΠΈΠ½Ρ Π²ΠΈΠ±ΡΠΎΡΡΠΎΠ»Π°
Β
5. Π’Π΅ΠΏΠ΅ΡΡ, ΡΠΎΠ³Π»Π°ΡΠ½ΠΎ ΡΠ΄Π΅Π»Π°Π½Π½ΠΎΠΌΡ ΡΠ²ΠΎΠΈΠΌΠΈ ΡΡΠΊΠ°ΠΌΠΈ ΡΠ΅ΡΡΠ΅ΠΆΡ Π²ΠΈΠ±ΡΠΎΡΡΠΎΠ»Π°, ΠΏΠ΅ΡΠ΅Ρ ΠΎΠ΄ΠΈΠΌ ΠΊ ΡΠ²Π°ΡΠΎΡΠ½ΡΠΌ ΡΠ°Π±ΠΎΡΠ°ΠΌ ΠΈ Π² ΠΏΠ΅ΡΠ²ΡΡ ΠΎΡΠ΅ΡΠ΅Π΄Ρ ΡΠΎΠ±ΠΈΡΠ°Π΅ΠΌ ΠΊΠ°ΡΠΊΠ°Ρ Π΄Π»Ρ ΠΊΡΠ΅ΠΏΠ»Π΅Π½ΠΈΡ Π΄Π²ΠΈΠ³Π°ΡΠ΅Π»Ρ ΠΊ ΠΊΡΡΡΠΊΠ΅. ΠΠ· Π΄Π²ΡΡ 30-ΡΠΈ ΠΈ Π΄Π²ΡΡ 60-ΡΠΈ ΡΠΌ ΠΎΡΡΠ΅Π·ΠΊΠΎΠ² ΡΠ²Π°ΡΠΈΠ²Π°Π΅ΠΌ ΠΏΡΡΠΌΠΎΡΠ³ΠΎΠ»ΡΠ½ΠΈΠΊ. ΠΠΎΡΡΠ΅Π΄ΠΈΠ½Π΅ Π½Π΅Π³ΠΎ Π±ΡΠ΄ΡΡ ΠΏΡΠΈΠ²Π°ΡΠ΅Π½Ρ Π΅ΡΠ΅ Π΄Π²Π΅ ΠΊΠΎΡΠΎΡΠΊΠΈΠ΅ Π΄Π΅ΡΠ°Π»ΠΈ Π½Π° Π½Π΅ΠΊΠΎΡΠΎΡΠΎΠΌ ΡΠ°ΡΡΡΠΎΡΠ½ΠΈΠΈ Π΄ΡΡΠ³ ΠΎΡ Π΄ΡΡΠ³Π°. ΠΠ°Π½Π½ΠΎΠ΅ ΡΠ°ΡΡΡΠΎΡΠ½ΠΈΠ΅ Π΄ΠΎΠ»ΠΆΠ½ΠΎ Π±ΡΡΡ ΡΠ°Π²Π½ΠΎ ΡΠ°ΡΡΡΠΎΡΠ½ΠΈΡ ΠΌΠ΅ΠΆΠ΄Ρ ΠΌΠ΅ΡΡΠ°ΠΌΠΈ ΠΊΡΠ΅ΠΏΠ»Π΅Π½ΠΈΡ Π΄Π²ΠΈΠ³Π°ΡΠ΅Π»Ρ. Π ΡΠΎΠΎΡΠ²Π΅ΡΡΡΠ²ΡΡΡΠΈΡ ΠΌΠ΅ΡΡΠ°Ρ Π½Π° ΡΡΠ΅Π΄ΠΈΠ½Π½ΡΡ ΠΎΡΡΠ΅Π·ΠΊΠ°Ρ ΠΏΡΠΎΡΠ²Π΅ΡΠ»ΠΈΠ²Π°ΡΡΡΡ ΠΎΡΠ²Π΅ΡΡΡΠΈΡ ΠΏΠΎΠ΄ ΠΊΡΠ΅ΠΏΠ΅ΠΆ.
6. Π ΡΠ³Π»Π°Ρ ΠΌΠ΅ΡΠ°Π»Π»ΠΈΡΠ΅ΡΠΊΠΎΠ³ΠΎ Π»ΠΈΡΡΠ° ΠΏΡΠΈΠ²Π°ΡΠΈΠ²Π°ΡΡΡΡ ΠΊΠΎΠ»ΡΡΠ°. Π Π½ΠΈΡ Π±ΡΠ΄ΡΡ ΠΏΡΠΎΠ΄Π΅Π²Π°ΡΡΡΡ ΠΏΡΡΠΆΠΈΠ½Ρ.
7. Π’Π΅ΠΏΠ΅ΡΡ ΡΠ²Π°ΡΠΈΠ²Π°Π΅ΡΡΡ ΠΎΠΏΠΎΡΠ½Π°Ρ ΡΡΠΎΠΉΠΊΠ° Ρ Π½ΠΎΠΆΠΊΠ°ΠΌΠΈ. ΠΠ»Ρ ΡΡΠΎΠ³ΠΎ Π±Π΅ΡΡΡΡΡ ΠΎΡΡΠ΅Π·Ρ ΡΡΡΠ± ΠΈ ΡΠ³ΠΎΠ»ΠΊΠΎΠ². Π£Π³ΠΎΠ»ΠΊΠΈ ΡΠ°ΡΠΏΠΎΠ»Π°Π³Π°ΡΡΡΡ ΡΠ°ΠΊ, ΡΡΠΎΠ±Ρ ΠΈΡ ΡΠ΅Π±ΡΠ° Π±ΡΠ»ΠΈ Π½Π°ΠΏΡΠ°Π²Π»Π΅Π½Ρ Π²Π²Π΅ΡΡ ΠΈ Π½Π°ΡΡΠΆΡ ΠΎΡ Π²Π½ΡΡΡΠ΅Π½Π½Π΅ΠΉ ΡΠ°ΡΡΠΈ ΠΊΠΎΠ½ΡΡΡΡΠΊΡΠΈΠΈ.
8. Π‘Π²Π°ΡΠ΅Π½Π½Π°Ρ ΡΠ°ΠΌΠ° Π΄Π»Ρ Π΄Π²ΠΈΠ³Π°ΡΠ΅Π»Ρ Π»ΠΈΠ±ΠΎ ΠΏΡΠΈΠΊΡΡΡΠΈΠ²Π°Π΅ΡΡΡ ΡΠ°ΠΌΠΎΡΠ΅Π·Π°ΠΌΠΈ, Π»ΠΈΠ±ΠΎ ΠΏΡΠΈΠ²Π°ΡΠΈΠ²Π°Π΅ΡΡΡ ΠΊ ΠΊΡΡΡΠΊΠ΅ ΡΡΠΎΠ»Π°.
9. ΠΠ° ΠΎΠΏΠΎΡΠ½ΡΡ ΡΡΠΎΠΉΠΊΡ ΠΏΠΎ ΡΠ³Π»Π°ΠΌ ΡΠ°ΡΡΡΠ°Π²Π»ΡΡΡΡΡ ΠΏΡΡΠΆΠΈΠ½Ρ. Π‘ΡΠΎΠ»Π΅ΡΠ½ΠΈΡΠ° Π½Π°ΠΊΠ»Π°Π΄ΡΠ²Π°Π΅ΡΡΡ Π½Π° ΡΡΠΎΠΉΠΊΡ ΡΠ°ΠΊ, ΡΡΠΎΠ±Ρ ΠΏΡΡΠΆΠΈΠ½Ρ Π²ΠΎΡΠ»ΠΈ Π² ΡΡΠ΅ΠΉΠΊΠΈ Π΄Π»Ρ Π½ΠΈΡ . Π Π΄Π½Ρ ΠΏΡΠΈΠΊΡΡΡΠΈΠ²Π°Π΅ΡΡΡ ΡΡΡΡΠΏΠ°ΠΌΠΈ Π΄Π²ΠΈΠ³Π°ΡΠ΅Π»Ρ. Π€ΠΈΠΊΡΠΈΡΠΎΠ²Π°ΡΡ ΠΊΠ°ΠΊΠΈΠΌ-ΡΠΎ ΠΎΠ±ΡΠ°Π·ΠΎΠΌ ΠΏΡΡΠΆΠΈΠ½Ρ Π½Π΅ Π½ΡΠΆΠ½ΠΎ, ΡΠ°ΠΊ ΠΊΠ°ΠΊ Π²Π΅Ρ ΡΠ°ΠΌΠΎΠΉ ΡΡΠΎΠ»Π΅ΡΠ½ΠΈΡΡ Π²ΠΌΠ΅ΡΡΠ΅ Ρ ΠΌΠΎΡΠΎΡΠΎΠΌ ΠΎΠ±Π΅ΡΠΏΠ΅ΡΠΈΠ²Π°Π΅Ρ ΠΈΡ Π½Π°Π΄Π΅ΠΆΠ½ΡΡ ΡΠΈΠΊΡΠ°ΡΠΈΡ Π² ΠΏΠΎΠ»ΠΎΠΆΠ΅Π½Π½ΠΎΠΌ ΠΌΠ΅ΡΡΠ΅.
ΠΠΎΡΠΎΠ²ΠΎΠ΅ ΠΈΠ·Π΄Π΅Π»ΠΈΠ΅ ΠΌΠΎΠΆΠ½ΠΎ ΠΏΠΎΠΊΡΡΡΡ ΠΊΡΠ°ΡΠΊΠΎΠΉ Π΄Π»Ρ Π΄ΠΎΠΏΠΎΠ»Π½ΠΈΡΠ΅Π»ΡΠ½ΠΎΠΉ Π·Π°ΡΠΈΡΡ. Π ΠΏΡΠΎΡΠ΅ΡΡΠ΅ ΡΠ°Π±ΠΎΡΡ, ΡΠΊΠΎΡΠ΅Π΅ Π²ΡΠ΅Π³ΠΎ, ΠΏΠΎΠ½Π°Π΄ΠΎΠ±ΠΈΡΡΡ Π΄ΠΎΠΏΠΎΠ»Π½ΠΈΡΠ΅Π»ΡΠ½Π°Ρ ΡΠ΅Π³ΡΠ»ΠΈΡΠΎΠ²ΠΊΠ° ΡΠΊΠΎΡΠΎΡΡΠΈ ΡΠ°Π±ΠΎΡΡ ΠΌΠΎΡΠΎΡΠ°, ΡΡΠΎΠ±Ρ ΡΠ²Π΅Π»ΠΈΡΠΈΡΡ, Π»ΠΈΠ±ΠΎ ΡΠΌΠ΅Π½ΡΡΠΈΡΡ Π²ΠΈΠ±ΡΠ°ΡΠΈΡ. ΠΠΌΠ΅Π½Π½ΠΎ ΠΏΠΎΡΡΠΎΠΌΡ ΠΎΠ½ Π½Π΅ ΠΏΡΠΈΠ²Π°ΡΠΈΠ²Π°Π΅ΡΡΡ Π½Π°ΠΌΠ΅ΡΡΠ²ΠΎ ΠΊ ΡΡΠΎΠ»Π΅ΡΠ½ΠΈΡΠ΅, Π° ΠΊΡΠ΅ΠΏΠΈΡΡΡ ΡΠ°ΠΊ, ΡΡΠΎΠ±Ρ Π΅Π³ΠΎ Π»Π΅Π³ΠΊΠΎ ΠΌΠΎΠΆΠ½ΠΎ Π±ΡΠ»ΠΎ ΡΠ½ΡΡΡ.
papamaster.su
ΡΡ Π΅ΠΌΠ° ΠΈ ΡΠ΅ΡΡΠ΅ΠΆΠΈ, ΡΠΎΡΠΎ ΠΈΠ½ΡΡΡΡΠΊΡΠΈΡ
Π ΡΠ°ΡΡΠ½ΠΎΠΌ ΡΠ΅ΠΊΡΠΎΡΠ΅ ΠΎΠΏΡΠΈΠΌΠΈΠ·Π°ΡΠΈΡ ΡΠ°ΡΡ ΠΎΠ΄ΠΎΠ² Π² ΠΏΡΠΎΡΠ΅ΡΡΠ΅ ΡΠ΅ΠΌΠΎΠ½ΡΠ° ΠΈΠ»ΠΈ ΡΡΡΠΎΠΈΡΠ΅Π»ΡΡΡΠ²Π° Π΄ΠΎΡΡΠΈΠ³Π°Π΅ΡΡΡ ΠΈ Π·Π° ΡΡΠ΅Ρ ΡΠΎΠ³ΠΎ, ΡΡΠΎ ΠΌΠ°ΠΊΡΠΈΠΌΡΠΌ ΡΠ΅Ρ Π½ΠΎΠ»ΠΎΠ³ΠΈΡΠ΅ΡΠΊΠΈΡ ΠΎΠΏΠ΅ΡΠ°ΡΠΈΠΉ Π²ΡΠΏΠΎΠ»Π½ΡΠ΅ΡΡΡ Ρ ΠΎΠ·ΡΠΈΠ½ΠΎΠΌ ΡΠ°ΠΌΠΎΡΡΠΎΡΡΠ΅Π»ΡΠ½ΠΎ. Π Π½Π΅ΠΊΠΎΡΠΎΡΡΡ ΠΆΠ΅ ΡΠ»ΡΡΠ°ΡΡ ΠΏΡΠΈΡ ΠΎΠ΄ΠΈΡΡΡ ΡΡΠ°ΡΠΈΡΡ Π΄Π΅Π½ΡΠ³ΠΈ ΠΈ Π°ΡΠ΅Π½Π΄ΠΎΠ²Π°ΡΡ ΡΠΏΠ΅Ρ/ΠΎΠ±ΠΎΡΡΠ΄ΠΎΠ²Π°Π½ΠΈΠ΅, ΡΠ°ΠΊ ΠΊΠ°ΠΊ Π±ΡΡΠΎΠ²ΠΎΠΉ ΠΈΠ½ΡΡΡΡΠΌΠ΅Π½Ρ, ΠΈΠΌΠ΅ΡΡΠΈΠΉΡΡ Π² Π΄ΠΎΠΌΠ΅, Π½Π΅ΡΠΊΠΎΠ»ΡΠΊΠΎ ΠΎΠ³ΡΠ°Π½ΠΈΡΠΈΠ²Π°Π΅Ρ Π²ΠΎΠ·ΠΌΠΎΠΆΠ½ΠΎΡΡΠΈ ΠΌΠ°ΡΡΠ΅ΡΠ°. Π Π°Π·Π±Π΅ΡΠ΅ΠΌΡΡ, ΠΊΠ°ΠΊ ΡΠ΄Π΅Π»Π°ΡΡ ΡΠ²ΠΎΠΈΠΌΠΈ ΡΡΠΊΠ°ΠΌΠΈ Π²ΠΈΠ±ΡΠΎΡΡΠΎΠ», ΡΡΠΎ ΡΡΠ΅ΡΡΡ ΠΈ Π½Π° ΡΡΠΎ ΠΎΠ±ΡΠ°ΡΠΈΡΡ ΠΎΡΠΎΠ±ΠΎΠ΅ Π²Π½ΠΈΠΌΠ°Π½ΠΈΠ΅.
ΠΠ° ΡΠ°ΠΉΡΠ°Ρ , ΠΏΠΎΡΠ²ΡΡΠ΅Π½Π½ΡΡ Π²ΠΎΠΏΡΠΎΡΡ ΠΊΠΎΠ½ΡΡΡΡΠΈΡΠΎΠ²Π°Π½ΠΈΡ ΠΏΠΎΠ΄ΠΎΠ±Π½ΠΎΠΉ ΡΡΡΠ°Π½ΠΎΠ²ΠΊΠΈ, Π°ΠΊΡΠ΅Π½Ρ Π΄Π΅Π»Π°Π΅ΡΡΡ Π½Π° ΡΠΎΠΌ, ΡΡΠΎ ΠΎΠ½Π° ΠΏΡΠΈΠΌΠ΅Π½ΡΠ΅ΡΡΡ Π΄Π»Ρ ΠΏΡΠΎΠΈΠ·Π²ΠΎΠ΄ΡΡΠ²Π° ΠΏΠ»ΠΈΡΠΊΠΈ (ΡΡΠΎΡΡΠ°ΡΠ½ΠΎΠΉ). Π ΡΠ΅Π°Π»ΡΠ½ΠΎΡΡΠΈ ΠΆΠ΅ ΡΡΠ΅ΡΠ° ΠΈΡΠΏΠΎΠ»ΡΠ·ΠΎΠ²Π°Π½ΠΈΡ ΡΡΠΎΠ»Π° Π½Π΅ΡΠΊΠΎΠ»ΡΠΊΠΎ ΡΠΈΡΠ΅. ΠΠ°ΠΏΡΠΈΠΌΠ΅Ρ, ΡΠ°ΠΌΠΎΡΡΠΎΡΡΠ΅Π»ΡΠ½ΠΎΠ΅ ΠΈΠ·Π³ΠΎΡΠΎΠ²Π»Π΅Π½ΠΈΠ΅ Π±Π»ΠΎΠΊΠΎΠ² (ΠΊΠΈΡΠΏΠΈΡΠ΅ΠΉ) ΠΈΠ· ΡΡΠ΅ΠΈΡΡΠΎΠ³ΠΎ Π±Π΅ΡΠΎΠ½Π°, ΠΏΡΠΎΡΠ΅ΠΈΠ²Π°Π½ΠΈΠ΅ ΠΏΠ΅ΡΠΊΠ°.
Π‘Ρ Π΅ΠΌΠ° ΡΡΠΎΠ»Π°
ΠΠ³ΠΎ ΠΏΡΠ΅Π΄Π½Π°Π·Π½Π°ΡΠ΅Π½ΠΈΠ΅ β ΡΠΎΠ·Π΄Π°Π½ΠΈΠ΅ Π² ΡΠ°Π±ΠΎΡΠ΅ΠΌ ΡΠ΅ΠΆΠΈΠΌΠ΅ Π²ΠΈΠ±ΡΠ°ΡΠΈΠΉ ΡΡΠΎΠ»Π΅ΡΠ½ΠΈΡΡ ΠΎΠΏΡΠ΅Π΄Π΅Π»Π΅Π½Π½ΠΎΠΉ ΡΠ°ΡΡΠΎΡΡ ΠΈ Π°ΠΌΠΏΠ»ΠΈΡΡΠ΄Ρ. ΠΠ»Π°Π²Π½ΠΎΠ΅ β ΠΏΠΎΠ½ΡΡΡ ΡΠΎΡΡΠ°Π² ΠΈ ΠΏΡΠΈΠ½ΡΠΈΠΏ ΡΡΠ½ΠΊΡΠΈΠΎΠ½ΠΈΡΠΎΠ²Π°Π½ΠΈΡ ΡΡΡΠ°Π½ΠΎΠ²ΠΊΠΈ. Π’ΠΎΠ³Π΄Π° Π±ΡΠ΄Π΅Ρ Π½Π΅ΡΠ»ΠΎΠΆΠ½ΠΎ ΡΠ΄Π΅Π»Π°ΡΡ ΡΠ°ΠΌΠΎΠ΄Π΅Π»ΡΠ½ΡΠΉ Π²ΠΈΠ±ΡΠΎΡΡΠΎΠ» β ΡΠ°ΠΌΠΎΡΡΠΎΡΡΠ΅Π»ΡΠ½ΠΎ ΡΠΎΡΡΠ°Π²ΠΈΡΡ Π΅Π³ΠΎ ΡΠ΅ΡΡΠ΅ΠΆ, ΠΎΠΏΡΠ΅Π΄Π΅Π»ΠΈΡΡΡΡ Ρ ΡΠ΅Ρ Π½ΠΎΠ»ΠΎΠ³ΠΈΠ΅ΠΉ ΠΈ ΠΏΠΎΠ΄ΠΎΠ±ΡΠ°ΡΡ Π½Π΅ΠΎΠ±Ρ ΠΎΠ΄ΠΈΠΌΡΠ΅ ΠΌΠ°ΡΠ΅ΡΠΈΠ°Π»Ρ. ΠΠ° ΠΈ ΠΊΠ°ΠΊΠ°Ρ-ΡΠΎ ΠΎΡΠΎΠ±Π°Ρ ΠΈΠ½ΡΡΡΡΠΊΡΠΈΡ Π½Π΅ ΠΏΠΎΠ½Π°Π΄ΠΎΠ±ΠΈΡΡΡ.
- Π‘ΡΠ°Π½ΠΈΠ½Π°. ΠΡΠ΅Π΄ΡΡΠ°Π²Π»ΡΠ΅Ρ ΡΠΎΠ±ΠΎΠΉ ΡΠ°ΠΌΠ½ΡΡ ΠΊΠΎΠ½ΡΡΡΡΠΊΡΠΈΡ (ΠΊΠ°ΡΠΊΠ°Ρ), ΠΊΠΎΡΠΎΡΠ°Ρ ΡΠ²Π»ΡΠ΅ΡΡΡ ΠΎΠΏΠΎΡΠ½ΠΎΠΉ ΡΠ°ΡΡΡΡ ΡΡΠΎΠ»Π°.
- Π‘ΡΠΎΠ»Π΅ΡΠ½ΠΈΡΠ°. ΠΠ° Π½Π΅Π΅ ΡΡΡΠ°Π½Π°Π²Π»ΠΈΠ²Π°ΡΡΡΡ ΡΠΎΡΠΌΡ Ρ ΡΠ°ΡΡΠ²ΠΎΡΠΎΠΌ, ΠΈΠ· ΠΊΠΎΡΠΎΡΠΎΠ³ΠΎ ΠΏΠΎΠ»ΡΡΠ°ΡΡ ΠΈΡΠΊΡΡΡΡΠ²Π΅Π½Π½ΡΠΉ ΠΊΠ°ΠΌΠ΅Π½Ρ.
- ΠΠΈΠ±ΡΠΎΡΠ·Π΅Π». Π Π½Π΅ΠΌΡ ΠΎΡΠ½ΠΎΡΡΡΡΡ β Π°ΠΌΠΎΡΡΠΈΠ·Π°ΡΠΈΠΎΠ½Π½Π°Ρ ΡΠΈΡΡΠ΅ΠΌΠ° + ΡΠ»/Π΄Π²ΠΈΠ³Π°ΡΠ΅Π»Ρ Ρ ΡΠΎΠΎΡΠ²Π΅ΡΡΡΠ²ΡΡΡΠ΅ΠΉ ΠΎΡΠ½Π°ΡΡΠΊΠΎΠΉ.
- ΠΠ»Π΅ΠΊΡΡΠΎΠΎΠ±ΠΎΡΡΠ΄ΠΎΠ²Π°Π½ΠΈΠ΅. ΠΠΎΠ½ΠΊΡΠ΅ΡΠ½ΠΎΠ΅ ΡΡ Π΅ΠΌΠ½ΠΎΠ΅ ΡΠ΅ΡΠ΅Π½ΠΈΠ΅ Π·Π°Π²ΠΈΡΠΈΡ ΠΎΡ ΠΏΠΎΠ·Π½Π°Π½ΠΈΠΉ ΠΌΠ°ΡΡΠ΅ΡΠ° Π² ΡΠ»/ΡΠ΅Ρ Π½ΠΈΠΊΠ΅ ΠΈ ΡΠΏΠ΅ΡΠΈΡΠΈΠΊΠ΅ ΠΈΡΠΏΠΎΠ»ΡΠ·ΠΎΠ²Π°Π½ΠΈΡ Π²ΠΈΠ±ΡΠΎΡΡΠΎΠ»Π°.

ΠΡΠ»ΠΈ ΠΏΡΠ΅Π΄ΠΏΠΎΠ»Π°Π³Π°Π΅ΡΡΡ ΠΈΠ·Π³ΠΎΡΠΎΠ²Π»Π΅Π½ΠΈΠ΅ ΡΠΎΠ»ΡΠΊΠΎ Π»ΠΈΡΡ ΡΡΠΎΡΡΠ°ΡΠ½ΠΎΠΉ ΠΏΠ»ΠΈΡΠΊΠΈ, ΠΏΡΠΈΡΠ΅ΠΌ Π΄Π»Ρ ΡΠ΅Π±Ρ, Π² Π½Π΅Π±ΠΎΠ»ΡΡΠΈΡ ΠΊΠΎΠ»ΠΈΡΠ΅ΡΡΠ²Π°Ρ , ΡΠΎ Ρ ΡΡΠ΅ΡΠΎΠΌ ΠΌΠ°Π»ΠΎΠ³ΠΎ Π²Π΅ΡΠ° ΠΎΠ±ΡΠ°Π·ΡΠΎΠ² ΡΠ΅Π»Π΅ΡΠΎΠΎΠ±ΡΠ°Π·Π½ΠΎ ΡΠ΄Π΅Π»Π°ΡΡ Π²ΠΈΠ±ΡΠΎΡΡΠΎΠ» Ρ Π΄Π²ΠΈΠ³Π°ΡΠ΅Π»Π΅ΠΌ ΠΎΡ ΡΡΠΈΡΠ°Π»ΡΠ½ΠΎΠΉ ΠΌΠ°ΡΠΈΠ½Ρ. Π’Π°ΠΊΠ°Ρ ΡΡΡΠ°Π½ΠΎΠ²ΠΊΠ° Π½Π΅ Π·Π°ΠΉΠΌΠ΅Ρ ΠΌΠ½ΠΎΠ³ΠΎ ΠΌΠ΅ΡΡΠ°, Π΄Π° ΠΈ Π½Π° ΠΌΠ°ΡΠ΅ΡΠΈΠ°Π»Π°Ρ ΠΌΠΎΠΆΠ½ΠΎ ΡΡΠΊΠΎΠ½ΠΎΠΌΠΈΡΡ.
ΠΠΎΡΠ°Π³ΠΎΠ²Π°Ρ ΠΈΠ½ΡΡΡΡΠΊΡΠΈΡ ΠΏΠΎ ΠΈΠ·Π³ΠΎΡΠΎΠ²Π»Π΅Π½ΠΈΡΒ Π²ΠΈΠ±ΡΠΎΡΡΠΎΠ»Π° Ρ ΡΠ»Π΅ΠΊΡΡΠΎΠ΄Π²ΠΈΠ³Π°ΡΠ΅Π»Π΅ΠΌ
ΠΠ»Ρ ΡΠ°ΠΌΡ Π΄ΠΎΡΡΠ°ΡΠΎΡΠ½ΠΎ ΡΠ³ΠΎΠ»ΠΊΠ° β Π½Π° 25 ΠΈΠ»ΠΈ Π½Π° 40. Π Π½Π΅ΠΌΡ Π±ΡΠ΄Π΅Ρ ΡΠ΄ΠΎΠ±Π½Π΅Π΅ ΠΊΡΠ΅ΠΏΠΈΡΡ Π²ΡΠ΅ ΠΎΡΡΠ°Π»ΡΠ½ΡΠ΅ ΡΠ°ΡΡΠΈ ΡΡ Π΅ΠΌΡ. Π Π²ΠΎΡ Π½ΠΎΠΆΠΊΠΈ ΠΌΠΎΠΆΠ½ΠΎ ΡΠ΄Π΅Π»Π°ΡΡ ΠΈΠ»ΠΈ ΠΈΠ· Π½Π΅Π³ΠΎ ΠΆΠ΅, ΠΈΠ»ΠΈ ΠΈΠ· Π΄ΡΡΠ³ΠΈΡ ΠΏΡΠΎΡΠΈΠ»ΠΈΡΠΎΠ²Π°Π½Π½ΡΡ ΠΈΠ·Π΄Π΅Π»ΠΈΠΉ β ΡΡΠ°Π»ΡΠ½ΠΎΠ³ΠΎ ΡΠ²Π΅Π»Π»Π΅ΡΠ°, ΡΡΡΠ±Ρ.
Π§ΡΠΎΠ±Ρ ΡΡΠΎΠ» Π²ΠΈΠ±ΡΠΈΡΠΎΠ²Π°Π», ΠΊ Π΅Π³ΠΎ ΠΎΠΏΠΎΡΠ°ΠΌ ΠΈ (ΠΈΠ»ΠΈ) ΡΠ°ΠΌΠ΅ ΠΏΡΠΈΠ²Π°ΡΠΈΠ²Π°ΡΡΡΡ ΠΌΠ΅ΡΠ°Π»Π»ΠΈΡΠ΅ΡΠΊΠΈΠ΅ ΡΡΠ°ΠΊΠ°Π½Ρ, Π² ΠΊΠΎΡΠΎΡΡΡ ΠΏΠΎΠΌΠ΅ΡΠ°ΡΡΡΡ Π°ΠΌΠΎΡΡΠΈΠ·ΠΈΡΡΡΡΠΈΠ΅ ΠΏΡΡΠΆΠΈΠ½Ρ. ΠΡ ΠΎΠΏΡΠΈΠΌΠ°Π»ΡΠ½ΠΎΠ΅ ΠΊΠΎΠ»ΠΈΡΠ΅ΡΡΠ²ΠΎ, ΡΠ°ΠΊ ΠΆΠ΅ ΠΊΠ°ΠΊ ΠΈ ΡΡ Π΅ΠΌΠ° ΡΠ°ΡΡΡΠ°Π½ΠΎΠ²ΠΊΠΈ, ΠΎΠΏΡΠ΅Π΄Π΅Π»ΡΠ΅ΡΡΡ ΠΏΠΎ ΠΊΠΎΠ½ΠΊΡΠ΅ΡΠ½ΠΎΠΌΡ ΡΠ΅ΡΡΠ΅ΠΆΡ, ΠΈΡΡ ΠΎΠ΄Ρ ΠΈΠ· Π³Π°Π±Π°ΡΠΈΡΠΎΠ² ΡΡΠΎΠ»Π΅ΡΠ½ΠΈΡΡ ΠΈ ΠΌΠΎΡΠ½ΠΎΡΡΠΈ Π΄Π²ΠΈΠ³Π°ΡΠ΅Π»Ρ.

ΠΡΡΡ ΠΈ Π΄ΡΡΠ³ΠΈΠ΅ Π²Π°ΡΠΈΠ°Π½ΡΡ. Π‘Ρ Π΅ΠΌΠ° ΡΡΡΡΠΎΠΉΡΡΠ²Π° ΡΠΈΡΡΠ΅ΠΌΡ Π°ΠΌΠΎΡΡΠΈΠ·Π°ΡΠΈΠΈ Π²ΠΈΠ΄Π½Π° Π½Π° ΡΠΎΡΠΎ.

Π Π΅ΠΊΠΎΠΌΠ΅Π½Π΄Π°ΡΠΈΠΈ
- ΠΡΠΈ ΠΈΠ·Π³ΠΎΡΠΎΠ²Π»Π΅Π½ΠΈΠΈ ΡΠ²ΠΎΠΈΠΌΠΈ ΡΡΠΊΠ°ΠΌΠΈ Π²ΠΈΠ±ΡΠΎΡΡΠΎΠ»Π° Π΄Π»Ρ ΡΡΠΎΡΡΠ°ΡΠ½ΠΎΠΉ ΠΏΠ»ΠΈΡΠΊΠΈ ΠΈΠ»ΠΈ ΠΈΠ½ΡΡ ΡΠ΅Π»Π΅ΠΉ Π΄ΡΠ΅Π²Π΅ΡΠΈΠ½Ρ Π΄Π»Ρ ΡΡΠ°Π½ΠΈΠ½Ρ Π»ΡΡΡΠ΅ Π½Π΅ ΠΈΡΠΏΠΎΠ»ΡΠ·ΠΎΠ²Π°ΡΡ, Ρ ΠΎΡΡ Π² Π½Π΅ΠΊΠΎΡΠΎΡΡΡ ΠΈΠ½ΡΡΡΡΠΊΡΠΈΡΡ ΡΡΠ²Π΅ΡΠΆΠ΄Π°Π΅ΡΡΡ ΠΎΠ±ΡΠ°ΡΠ½ΠΎΠ΅. ΠΠ»Π°Π²Π½Π°Ρ ΠΏΡΠΈΡΠΈΠ½Π° β Π΄Π΅ΡΠ΅Π²ΠΎ ΡΠΎ Π²ΡΠ΅ΠΌΠ΅Π½Π΅ΠΌ ΡΠ°ΡΡΡΡ Π°Π΅ΡΡΡ. Π‘Π»Π΅Π΄ΠΎΠ²Π°ΡΠ΅Π»ΡΠ½ΠΎ, Π½Π°ΡΡΡΠΈΡΡΡ Π³Π΅ΠΎΠΌΠ΅ΡΡΠΈΡ, ΡΠ΅Π½ΡΡΠΎΠ²ΠΊΠ°, ΠΈ ΡΠΎΠ·Π΄Π°ΡΡ Π²ΠΈΠ±ΡΠ°ΡΠΈΡ ΡΡΠ΅Π±ΡΠ΅ΠΌΠΎΠΉ Π°ΠΌΠΏΠ»ΠΈΡΡΠ΄Ρ Π²ΡΡΠ΄ Π»ΠΈ ΠΏΠΎΠ»ΡΡΠΈΡΡΡ. ΠΠΎ ΠΊΠ°ΠΊΠΎΠΌΡ Π±Ρ ΡΠ΅ΡΡΠ΅ΠΆΡ ΠΈ ΡΠ΅Ρ Π½ΠΎΠ»ΠΎΠ³ΠΈΠΈ Π½ΠΈ Π±ΡΠ» ΡΠ΄Π΅Π»Π°Π½ ΡΡΠΎΠ», ΠΊΠ°ΡΠ΅ΡΡΠ²ΠΎ ΠΈΡΠΊΡΡΡΡΠ²Π΅Π½Π½ΠΎΠ³ΠΎ ΠΊΠ°ΠΌΠ½Ρ Π±ΡΠ΄Π΅Ρ Π½ΠΈΠ·ΠΊΠΈΠΌ.
- Π Π½ΠΈΠΆΠ½ΠΈΠΌ ΡΠ°ΡΡΡΠΌ Π½ΠΎΠΆΠ΅ΠΊ ΡΠ»Π΅Π΄ΡΠ΅Ρ ΠΏΡΠΈΠ²Π°ΡΠΈΡΡ Β«ΠΏΡΡΠ°ΠΊΠΈΒ». ΠΡΠΎ ΠΏΡΠΈΠ΄Π°ΡΡ Π²ΠΈΠ±ΡΠΎΡΡΠΎΠ»Ρ ΡΡΡΠΎΠΉΡΠΈΠ²ΠΎΡΡΠΈ. ΠΡΠΈ Π½Π΅ΠΎΠ±Ρ ΠΎΠ΄ΠΈΠΌΠΎΡΡΠΈ ΠΈΡ ΠΌΠΎΠΆΠ½ΠΎ Π·Π°Π±Π΅ΡΠΎΠ½ΠΈΡΠΎΠ²Π°ΡΡ, Π° Π΅ΡΠ»ΠΈ Π² ΠΏΠ»Π°ΡΡΠΈΠ½Π°Ρ Π·Π°ΡΠ°Π½Π΅Π΅ Π²ΡΡΠ²Π΅ΡΠ»ΠΈΡΡ ΠΎΡΠ²Π΅ΡΡΡΠΈΡ β ΡΠΎ Π·Π°ΡΠΈΠΊΡΠΈΡΠΎΠ²Π°ΡΡ Π½Π° ΠΎΡΠ½ΠΎΠ²Π΅ Π°Π½ΠΊΠ΅ΡΠ°ΠΌΠΈ.
- ΠΡ Π²ΡΡΠΎΡΡ Π²ΠΈΠ±ΡΠΎΡΡΠΎΠ»Π° Π·Π°Π²ΠΈΡΠΈΡ ΡΠ΄ΠΎΠ±ΡΡΠ²ΠΎ ΡΠ°Π±ΠΎΡΡ Ρ ΡΠΎΡΠΌΠ°ΠΌΠΈ. ΠΠΏΡΠΈΠΌΠ°Π»ΡΠ½ΠΎ β ΠΏΠΎΡΡΠ΄ΠΊΠ° 75 β 85 ΡΠΌ.
- ΠΡΠ°ΠΊΡΠΈΠΊΠ° ΠΏΠΎΠΊΠ°Π·ΡΠ²Π°Π΅Ρ, ΡΡΠΎ Π΄Π»Ρ ΠΈΠ·Π³ΠΎΡΠΎΠ²Π»Π΅Π½ΠΈΡ ΠΎΠ±ΡΠ°Π·ΡΠΎΠ² ΠΈΡΠΊΡΡΡΡΠ²Π΅Π½Π½ΠΎΠ³ΠΎ ΠΊΠ°ΠΌΠ½Ρ Π½Π° Π΄ΠΎΠΌΡ, ΡΠ²ΠΎΠΈΠΌΠΈ ΡΡΠΊΠ°ΠΌΠΈ, Π²ΠΏΠΎΠ»Π½Π΅ Π΄ΠΎΡΡΠ°ΡΠΎΡΠ½ΠΎ ΡΠ°Π·ΡΠ°Π±ΠΎΡΠ°ΡΡ ΡΠ΅ΡΡΠ΅ΠΆ Π²ΠΈΠ±ΡΠΎΡΡΠΎΠ»Π°, ΠΎΡΠΈΠ΅Π½ΡΠΈΡΡΡΡΡ Π½Π° ΠΏΠ°ΡΠ°ΠΌΠ΅ΡΡΡ 75Ρ 75 (ΡΠΌ).
Π‘ΡΠΎΠ»Π΅ΡΠ½ΠΈΡΠ°
ΠΡΠΈ Π²ΡΠ±ΠΎΡΠ΅ ΠΌΠ°ΡΠ΅ΡΠΈΠ°Π»Π° Π΄Π»Ρ ΡΡΠΎΠΉ ΡΠ°ΡΡΠΈ ΡΡΠΎΠ»Π° Π½Π΅ΠΎΠ±Ρ ΠΎΠ΄ΠΈΠΌΠΎ ΡΡΠΊΠΎΠ²ΠΎΠ΄ΡΡΠ²ΠΎΠ²Π°ΡΡΡΡ Π½Π΅ΡΠΊΠΎΠ»ΡΠΊΠΈΠΌΠΈ ΠΊΡΠΈΡΠ΅ΡΠΈΡΠΌΠΈ β ΠΊΠ°ΠΊΠΈΠ΅ ΡΠ°ΡΡΠ²ΠΎΡΡ Π±ΡΠ΄ΡΡ ΠΈΡΠΏΠΎΠ»ΡΠ·ΠΎΠ²Π°ΡΡΡΡ, ΡΠΊΠΎΠ»ΡΠΊΠΎ ΠΎΠ΄Π½ΠΎΠ²ΡΠ΅ΠΌΠ΅Π½Π½ΠΎ ΡΠΎΡΠΌ ΠΏΡΠ΅Π΄ΠΏΠΎΠ»Π°Π³Π°Π΅ΡΡΡ ΡΡΡΠ°Π½Π°Π²Π»ΠΈΠ²Π°ΡΡ ΠΈ Ρ ΠΊΠ°ΠΊΠΎΠΉ ΠΈΠ½ΡΠ΅Π½ΡΠΈΠ²Π½ΠΎΡΡΡΡ Π±ΡΠ΄Π΅Ρ ΡΠΊΡΠΏΠ»ΡΠ°ΡΠΈΡΠΎΠ²Π°ΡΡΡΡ ΡΡΡΠ°Π½ΠΎΠ²ΠΊΠ°. ΠΡ ΡΡΠΎΠ³ΠΎ Π·Π°Π²ΠΈΡΠΈΡ Π΅Π΅ ΡΡ Π΅ΠΌΠ°, Π²Π΅Ρ ΡΡΠΎΠ»Π΅ΡΠ½ΠΈΡΡ ΠΈ Π°ΠΌΠΏΠ»ΠΈΡΡΠ΄Π° Π΅Π΅ ΠΊΠΎΠ»Π΅Π±Π°Π½ΠΈΠΉ.
ΠΡΠ»ΠΈ ΠΏΠ»Π°Π½ΠΈΡΡΠ΅ΡΡΡ ΡΠ°Π±ΠΎΡΠ°ΡΡ Ρ ΡΠ°ΡΡΠ²ΠΎΡΠ°ΠΌΠΈ Π΄Π»Ρ Π»Π΅Π³ΠΊΠΈΡ Π±Π΅ΡΠΎΠ½ΠΎΠ², Ρ ΠΎΠ΄Π½ΠΎΠΉ-Π΄Π²ΡΠΌΡ ΡΠΎΡΠΌΠ°ΠΌΠΈ Π½Π΅Π±ΠΎΠ»ΡΡΠΈΡ ΡΠ°Π·ΠΌΠ΅ΡΠΎΠ², ΡΠΎ Π΄Π»Ρ ΡΠ°Π±ΠΎΡΠ΅ΠΉ ΠΏΠΎΠ²Π΅ΡΡ Π½ΠΎΡΡΠΈ Π²ΠΈΠ±ΡΠΎΡΡΠΎΠ»Π° ΠΏΠΎΠ΄ΠΎΠΉΠ΄Π΅Ρ Π² ΠΏΡΠΈΠ½ΡΠΈΠΏΠ΅ Π»ΡΠ±ΠΎΠΉ ΠΌΠ°ΡΠ΅ΡΠΈΠ°Π», ΡΠΏΠΎΡΠΎΠ±Π½ΡΠΉ Π²ΡΠ΄Π΅ΡΠΆΠΈΠ²Π°ΡΡ ΡΠ°Π·Π»ΠΈΡΠ½ΡΠ΅ (ΡΡΠ°ΡΠΈΡΠ΅ΡΠΊΠΈΠ΅ + Π΄ΠΈΠ½Π°ΠΌΠΈΡΠ΅ΡΠΊΠΈΠ΅) Π½Π°Π³ΡΡΠ·ΠΊΠΈ. ΠΡΠΎ Π΅Π΄ΠΈΠ½ΡΡΠ²Π΅Π½Π½Π°Ρ ΠΈΠ½ΡΡΡΡΠΊΡΠΈΡ ΠΏΠΎ Π΄Π°Π½Π½ΠΎΠΌΡ ΠΏΡΠ½ΠΊΡΡ.
ΠΡΠΈ ΡΠ±ΠΎΡΠΊΠ΅ Π½Π΅Π±ΠΎΠ»ΡΡΠΎΠΉ ΡΡΡΠ°Π½ΠΎΠ²ΠΊΠΈ ΡΠ²ΠΎΠΈΠΌΠΈ ΡΡΠΊΠ°ΠΌΠΈ, Π΄Π»Ρ ΡΠ½ΠΈΠΆΠ΅Π½ΠΈΡ ΡΠΈΠ½Π°Π½ΡΠΎΠ²ΡΡ Π·Π°ΡΡΠ°Ρ, Π½Π΅ΡΠ΅Π΄ΠΊΠΎ ΡΡΠΎΠ»Π΅ΡΠ½ΠΈΡΡ Π΄Π΅Π»Π°ΡΡ ΠΈΠ· ΠΏΠ»ΠΈΡ ΠΠΠ€, ΠΠ‘Π ΠΈ ΡΠΎΠΌΡ ΠΏΠΎΠ΄ΠΎΠ±Π½ΠΎΠ΅. Π’Π°ΠΊΠΈΠ΅ ΠΌΠ°ΡΠ΅ΡΠΈΠ°Π»Ρ Π½Π΅ΡΠ»ΠΎΠΆΠ½ΠΎ ΡΠ°ΡΠΊΡΠΎΠΈΡΡ ΡΠ°ΠΌΠΎΠΌΡ, Ρ ΠΏΠΎΠΌΠΎΡΡΡ ΠΏΠΎΠ΄ΡΡΡΠ½ΡΡ ΠΈΠ½ΡΡΡΡΠΌΠ΅Π½ΡΠΎΠ². ΠΠΎ Π΅ΡΠ»ΠΈ ΡΠ΅ΡΡ ΠΈΠ΄Π΅Ρ ΠΎ ΠΏΡΠΎΠΈΠ·Π²ΠΎΠ΄ΡΡΠ²Π΅ Π½Π° Π²ΠΈΠ±ΡΠΎΡΡΠΎΠ»Π΅ Π±Π΅ΡΠΎΠ½Π½ΡΡ Π±Π»ΠΎΠΊΠΎΠ², Π΄Π° Π΅ΡΠ΅ Π±ΠΎΠ»ΡΡΠΈΠΌΠΈ ΠΏΠ°ΡΡΠΈΡΠΌΠΈ, ΡΠΎ ΠΎΠ΄Π½ΠΎΠ·Π½Π°ΡΠ½ΠΎ β ΡΠΎΠ»ΡΡΡΠΉ ΡΡΠ°Π»ΡΠ½ΠΎΠΉ Π»ΠΈΡΡ (6 ΠΌΠΌ β ΠΌΠΈΠ½ΠΈΠΌΡΠΌ).

ΠΠ²ΠΈΠ³Π°ΡΠ΅Π»Ρ
ΠΠ³ΠΎ ΠΌΠΎΡΠ½ΠΎΡΡΡ Π΄Π»Ρ Π²ΠΈΠ±ΡΠΎΡΡΠΎΠ»Π° Π²ΡΠ±ΠΈΡΠ°Π΅ΡΡΡ ΠΈΡΡ ΠΎΠ΄Ρ ΠΈΠ· ΠΎΠ±ΡΠ΅ΠΉ Π½Π°Π³ΡΡΠ·ΠΊΠΈ (Π²Π΅Ρ ΡΡΠΎΠ»Π΅ΡΠ½ΠΈΡΡ + ΡΠΎΡΠΌΡ + ΡΠ°ΡΡΠ²ΠΎΡ). ΠΠ°ΠΊ ΠΏΡΠ°Π²ΠΈΠ»ΠΎ, ΠΏΡΠΈ ΠΈΠ·Π³ΠΎΡΠΎΠ²Π»Π΅Π½ΠΈΠΈ ΠΎΠ±ΠΎΡΡΠ΄ΠΎΠ²Π°Π½ΠΈΡ ΡΠ²ΠΎΠΈΠΌΠΈ ΡΡΠΊΠ°ΠΌΠΈ ΠΎΡΠΈΠ΅Π½ΡΠΈΡΡΡΡΡΡ Π½Π° ΡΠΎΠΎΡΠ½ΠΎΡΠ΅Π½ΠΈΠ΅ 100 ΠΊΠ³ β 1 ΠΊΠΡ. Π₯ΠΎΡΡ Π½ΡΠΆΠ½ΠΎ ΠΏΡΠΈΠ½ΠΈΠΌΠ°ΡΡ Π² ΡΠ°ΡΡΠ΅Ρ ΠΈ ΡΡ Π΅ΠΌΡ ΡΡΡΠ°Π½ΠΎΠ²ΠΊΠΈ Π΄Π²ΠΈΠ³Π°ΡΠ΅Π»Ρ. Π Π΄Π°Π½Π½ΠΎΠΌ ΡΠ»ΡΡΠ°Π΅ β ΡΠ½ΠΈΠ·Ρ ΠΈ ΠΏΠΎ ΡΠ΅Π½ΡΡΡ Π²ΠΈΠ±ΡΠΎΡΡΠΎΠ»Π° (ΡΠΈΠΏΠΎΠ²ΡΠ΅ ΡΠ΅ΡΡΠ΅ΠΆΠΈ).
ΠΠ»Ρ ΡΠ°ΠΌΠΎΡΡΠΎΡΡΠ΅Π»ΡΠ½ΠΎΠ³ΠΎ ΠΈΠ·Π³ΠΎΡΠΎΠ²Π»Π΅Π½ΠΈΡ Π½Π° Π²ΠΈΠ±ΡΠΎΡΡΠΎΠ»Π΅ ΡΠΎΠ»ΡΠΊΠΎ Π»ΠΈΡΡ ΡΡΠΎΡΡΠ°ΡΠ½ΠΎΠΉ ΠΏΠ»ΠΈΡΠΊΠΈ Π΄ΠΎΡΡΠ°ΡΠΎΡΠ½ΠΎ ΠΈΠ·Π΄Π΅Π»ΠΈΡ Π½Π° 0,65 β 0,75 ΠΊΠΡ.
ΠΠΈΠ±ΡΠΎΡΠ·Π΅Π»
ΠΠ»Ρ ΡΠ°ΠΊΠΎΠ³ΠΎ ΡΡΠΎΠ»Π° Π½ΡΠΆΠ΅Π½ Π½Π΅ ΠΏΡΠΎΡΡΠΎ Π΄Π²ΠΈΠ³Π°ΡΠ΅Π»Ρ, Π° ΠΌΠ΅Ρ
Π°Π½ΠΈΠ·ΠΌ, ΡΠΎΠ·Π΄Π°ΡΡΠΈΠΉ ΠΊΠΎΠ»Π΅Π±Π°Π½ΠΈΡ ΡΠ°Π±ΠΎΡΠ΅ΠΉ ΠΏΠ»Π°ΡΡΠΎΡΠΌΡ. Π‘ΠΎΠΎΡΠ²Π΅ΡΡΡΠ²ΡΡΡΠΈΡ
ΡΠ΅ΡΡΠ΅ΠΆΠ΅ΠΉ ΠΈ ΠΈΠ½ΡΡΡΡΠΊΡΠΈΠΉ ΠΏΠΎ ΠΈΠ·Π³ΠΎΡΠΎΠ²Π»Π΅Π½ΠΈΡ Π΄ΠΎΠ²ΠΎΠ»ΡΠ½ΠΎ ΠΌΠ½ΠΎΠ³ΠΎ. ΠΡΠ»ΠΈ Π²ΠΈΠ±ΡΠΎΡΡΠΎΠ» ΠΏΠ»Π°Π½ΠΈΡΡΠ΅ΡΡΡ ΠΈΡΠΏΠΎΠ»ΡΠ·ΠΎΠ²Π°ΡΡ Π΄ΠΎΠ»Π³ΠΎΠ²ΡΠ΅ΠΌΠ΅Π½Π½ΠΎ, Π΄Π»Ρ ΠΏΡΠΎΠΈΠ·Π²ΠΎΠ΄ΡΡΠ²Π° ΡΠ°Π·Π»ΠΈΡΠ½ΠΎΠ³ΠΎ ΡΠΎΠ΄Π° ΡΠ°Π±ΠΎΡ, ΡΠΎ Π΅ΡΡΡ ΡΠΌΡΡΠ» ΡΠ΄Π΅Π»Π°ΡΡ ΡΠ½ΠΈΠ²Π΅ΡΡΠ°Π»ΡΠ½ΡΡ ΡΡΡΠ°Π½ΠΎΠ²ΠΊΡ.
ΠΠ° ΠΎΡΠΈ Π΄Π²ΠΈΠ³Π°ΡΠ΅Π»Ρ Π²ΠΈΠ±ΡΠΎΡΡΠΎΠ»Π° ΠΊΡΠ΅ΠΏΠΈΡΡΡ ΠΌΡΡΡΠ° Ρ ΡΠ°Π΄ΠΈΠ°Π»ΡΠ½ΠΎ Π²ΡΡΠ²Π΅ΡΠ»Π΅Π½Π½ΡΠΌΠΈ ΠΎΡΠ²Π΅ΡΡΡΠΈΡΠΌΠΈ. Π Π½ΠΈΡ β ΡΠ΅Π·ΡΠ±Π° ΠΏΠΎΠ΄ Π±ΠΎΠ»ΡΡ. Π Π΅Π³ΡΠ»ΠΈΡΡΡ Π³Π»ΡΠ±ΠΈΠ½Ρ ΠΈΡ ΠΏΠΎΡΠ°Π΄ΠΊΠΈ, ΠΌΠΎΠΆΠ½ΠΎ ΡΠ΅Π³ΡΠ»ΠΈΡΠΎΠ²Π°ΡΡ ΠΊΠ°ΠΊ ΡΠ°ΡΡΠΎΡΡ ΠΊΠΎΠ»Π΅Π±Π°Π½ΠΈΠΉ ΡΡΠΎΠ»Π΅ΡΠ½ΠΈΡΡ, ΡΠ°ΠΊ ΠΈ ΠΈΡ Π°ΠΌΠΏΠ»ΠΈΡΡΠ΄Ρ. Π‘Π²ΠΎΠΈΠΌΠΈ ΡΡΠΊΠ°ΠΌΠΈ ΠΈΠ·Π³ΠΎΡΠΎΠ²ΠΈΡΡ ΡΠ°ΠΊΠΎΠ΅ ΠΏΡΠΈΡΠΏΠΎΡΠΎΠ±Π»Π΅Π½ΠΈΠ΅ Π½Π΅ ΠΏΠΎΠ»ΡΡΠΈΡΡΡ β ΠΏΠΎΠ½Π°Π΄ΠΎΠ±ΠΈΡΡΡ ΡΡΠ°Π½ΠΎΠΊ. Π£ΡΠΈΡΡΠ²Π°Ρ, ΠΊΠ°ΠΊΠ°Ρ ΠΏΠΎΠ»ΡΠ·Π° ΠΎΡ Π²ΠΈΠ±ΡΠΎΡΡΠΎΠ»Π°, ΡΠ΄Π΅Π»Π°Π½Π½ΠΎΠ³ΠΎ ΠΏΠΎ ΡΠ°ΠΊΠΎΠΉ ΡΡ Π΅ΠΌΠ΅, ΠΌΠΎΠΆΠ½ΠΎ ΠΈ ΠΎΠΏΠ»Π°ΡΠΈΡΡ ΡΡΠ»ΡΠ³ΠΈ ΡΠΎΠΊΠ°ΡΡ.
ΠΠ°ΠΊ Π½Π°ΡΡΡΠΎΠΈΡΡ Π²ΠΈΠ±ΡΠΎΡΡΠΎΠ»?
Π’ΠΎΠ»ΡΠΊΠΎ ΠΎΠΏΡΡΠ½ΡΠΌ ΠΏΡΡΠ΅ΠΌ. ΠΡΠΈΠ΄Π΅ΡΡΡ ΡΠ°ΠΌΠΎΠΌΡ ΠΏΠΎΡΠΊΡΠΏΠ΅ΡΠΈΠΌΠ΅Π½ΡΠΈΡΠΎΠ²Π°ΡΡ, ΠΌΠ΅Π½ΡΡ ΡΠ°ΡΡΠΎΡΡ, Π°ΠΌΠΏΠ»ΠΈΡΡΠ΄Ρ (ΠΏΡΠΈ ΠΏΠΎΠΌΠΎΡΠΈ ΡΠ΅Π³ΡΠ»ΠΈΡΠΎΠ²ΠΎΡΠ½ΡΡ Π±ΠΎΠ»ΡΠΎΠ²), ΠΎΠ±ΡΡΡ ΠΌΠ°ΡΡΡ Π½Π°Π³ΡΡΠ·ΠΊΠΈ Π½Π° ΡΡΠΎΠ»Π΅ΡΠ½ΠΈΡΡ. ΠΠΎ Π² Π»ΡΠ±ΠΎΠΌ ΡΠ»ΡΡΠ°Π΅ ΠΌΠΎΠΆΠ½ΠΎ Π΄ΠΎΠ±ΠΈΡΡΡΡ Ρ ΠΎΡΠΎΡΠ΅Π³ΠΎ ΠΊΠ°ΡΠ΅ΡΡΠ²Π° ΠΏΡΠΎΠ΄ΡΠΊΡΠΈΠΈ, ΡΠ°ΠΊ ΠΊΠ°ΠΊ Π²ΠΈΠ±ΡΠΎΡΡΠΎΠ», Π² ΠΏΡΠΈΠ½ΡΠΈΠΏΠ΅, Π½Π΅ ΡΠ²Π»ΡΠ΅ΡΡΡ ΠΊΠΎΠ½ΡΡΡΡΠΊΡΠΈΠ΅ΠΉ ΠΎΡΠΎΠ±ΠΎΠΉ ΡΠ»ΠΎΠΆΠ½ΠΎΡΡΠΈ, ΠΏΠΎ ΠΊΠ°ΠΊΠΎΠΌΡ Π±Ρ ΡΠ΅ΡΡΠ΅ΠΆΡ ΠΎΠ½ Π½ΠΈ Π±ΡΠ» ΡΠ΄Π΅Π»Π°Π½.
ΠΡΠΈ ΡΠ°ΠΌΠΎΡΡΠΎΡΡΠ΅Π»ΡΠ½ΠΎΠΌ ΠΈΠ·Π³ΠΎΡΠΎΠ²Π»Π΅Π½ΠΈΠΈ Π½Π΅Π±ΠΎΠ»ΡΡΠΈΡ ΠΏΠΎ ΠΌΠ°ΡΡΠ΅ ΠΎΠ±ΡΠ°Π·ΡΠΎΠ² ΠΌΠΎΠΆΠ½ΠΎ ΠΎΠ±ΠΎΠΉΡΠΈΡΡ ΠΈ Π±Π΅Π· ΡΡΠ°Π½ΠΈΠ½Ρ. ΠΡΠ΅, ΡΡΠΎ ΠΏΠΎΠ½Π°Π΄ΠΎΠ±ΠΈΡΡΡ Π΄Π»Ρ Π²ΠΈΠ±ΡΠΎΡΡΠΎΠ»Π° β ΡΡΠΎΠ»Π΅ΡΠ½ΠΈΡΠ° Ρ Π·Π°ΠΊΡΠ΅ΠΏΠ»Π΅Π½Π½ΡΠΌ Π΄Π²ΠΈΠ³Π°ΡΠ΅Π»Π΅ΠΌ. Π ΠΎΠ»Ρ ΠΎΠΏΠΎΡΡ ΠΈΠ³ΡΠ°Π΅Ρ Π±ΠΎΠ»ΡΡΠΎΠΉ Π±Π°Π»Π»ΠΎΠ½ (Π½Π°ΠΏΡΠΈΠΌΠ΅Ρ, ΠΎΡ Π·Π°Π΄Π½ΠΈΡ ΠΊΠΎΠ»Π΅Ρ ΡΡΠ°ΠΊΡΠΎΡΠ° Β«ΠΠ΅Π»Π°ΡΡΡΡΒ»). ΠΡΠΈ Π²ΡΠ°ΡΠ΅Π½ΠΈΠΈ Π²Π°Π»Π° Π΄Π²ΠΈΠ³Π°ΡΠ΅Π»Ρ ΡΠ΅Π·ΠΈΠ½Π° Ρ ΠΎΡΠΎΡΠΎ Π°ΠΌΠΎΡΡΠΈΠ·ΠΈΡΡΠ΅Ρ, ΠΈ ΡΠ°ΠΊΠ°Ρ ΠΊΠΎΠ½ΡΡΡΡΠΊΡΠΈΡ Π²ΠΏΠΎΠ»Π½Π΅ Π·Π°ΠΌΠ΅Π½ΡΠ΅Ρ ΠΏΠΎΠ»Π½ΠΎΡΠ΅Π½Π½ΡΠΉ Π²ΠΈΠ±ΡΠΎΡΡΠΎΠ».
stroitel-list.ru
