Вид сверху лестница – как показать лестницу, ворота, окна с четвертью, двери – картинки, обозначения уклона, ширины, высоты, омов, материалов на планах, как обозначается бетон, чертежи пандуса, пожарной лестницы, лестничного марша, план первого этажа здания с размерами, как нарисовать лестницу в автокад, маркировочный план
как показать лестницу, ворота, окна с четвертью, двери – картинки, обозначения уклона, ширины, высоты, омов, материалов на планах, как обозначается бетон, чертежи пандуса, пожарной лестницы, лестничного марша, план первого этажа здания с размерами, как нарисовать лестницу в автокад, маркировочный план
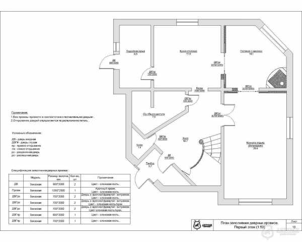
Чертеж лестницы
Составление плана здания — это основа любой строительной деятельность. Любое строение вдоль и поперек отображается на общих и подробных чертежах, на которых указываются размеры, чертежи, инженерные решения и так далее. Чтобы вы понимали, общий план строения отображается на сотнях чертежей, в которых кроме плана существуют отдельные сведения об обозначениях.

Проект лестницы на второй этаж
Чертеж лестницы особо сложен. Отобразить его в общих чертах можно на общем плане помещения.

Общий план помещения
Создать идеальное по размерам чудо инженерного строения по этим планам не получится, поэтому строители прибегают к детализации некоторых моментов. Обычно, чтобы получить лестницу идентичную задумке архитектора приходится производить детализирование с пяти сторон. Иногда затрагиваются даже планы различных этажей, при создании одной лестницы. Общая и детальная прорисовка будет понятна только человеку, умеющему читать чертежи, что потребует особого разбирательства.

Чертеж помещения
Обозначения
Первое, что вам потребуется уяснить, это общепринятые нормы обозначений. Далеко не всегда план одного и того же здания выглядит на чертеже одинаково, если его составляют разные люди. Планы помещений всегда имеют расшифровку и сносы.

Расшифровка и сносы плана дома
Обозначения на рабочих планах и инженерных могут отличаться, даже если использованы при создании одинаковые элементы.
На чертеже вы увидите:
- Размеры;

Размеры лестницы
- Материал;
- Общий и частичный план помещения;
- Обозначения каждого из используемых материалов и приспособлений.
Перед началом строительства обязательно нужно понять обозначение общепринятых сносок и терминов. Читать чертежи в институтах учат не один год, но даже поверхностных знаний будет достаточно для того, чтобы понять общую концепцию возведения лестничных конструкций, с межэтажными площадками и поворотами.
Использование популярных программ, если чертеж существует в электронном формате, существенно облегчит задачу. Программы, составленные на основе данных Автокада — одобрены во многих странах, они упростят вам понимание всех деталей. Если чертежи и планы есть только на бумаге, тогда нужно разобраться в обозначениях.

Лестница на основе данных Автокада
Ширина и высота
Общие размеры лестницы указываются в понятном для понимания человека формате. Стрелки и сноски от оснований и углов показывают длину, высоту и ширину конструкции. Размеры обозначаются цифрами и мерой измерения.

Размеры лестницы
В некоторых планах используют сантиметры, в других миллиметры, поэтому очень придирчиво изучайте планы.
Изменять размеры нельзя, потому что:
- Возможно разрушение конструкции;
- Дополнительная опасность при использовании;
- Изменение одного размера повлечет за собой цепочку неприятных последствий.
Плоскость измерения показывается линией сноса и чертой с двумя направлениями.

Вид лестницы сверху и сбоку
Несколько уровней могут обозначать не только общий размер детали, но и некоторые ее мелкие части. Сносы никогда не пересекаются и четко отображены, чтобы не получилось путаницы. Стоит обязательно рассмотреть и угол уклона.

Углы наклона лестниц
Он обычно указывается на одной странице с общими размерными показателями. Если угол уклона меняется, то на плане будет несколько сносок с обозначением места перепада угла.
На плане обязательно указывается направления лестничного марша. Обычно подобную информацию вы найдете на плане вида сверху.

Направление лестничного марша
Стрелка движения всегда показывает направление снизу вверх и слева направо. Подобные обозначения встречаются на каждом из листов чертежей, но нужны они будут только, если план охватывает сразу несколько этажей строения.
Лестничный марш
Как уже было сказано, мелкие детали и размеры, наподобие лестничного марша могут быть указаны и на общем плане. Одна сноска, затрагивающая размер ступени, обозначает, что все они имеют одинаковые размеры. На детализации чертежа вы сможете увидеть размер ступени, проступи и глубины каждой конструкции в более подробном формате.

Размеры лестничного марша
Зная общие правила расчета размеров лестничного марша, вы сможете самостоятельно проставить размеры, если план составляете лично для себя.
Важным параметром в этом деле может быть только различие материалов. Размеры, ширина и высота отдельных изделий на детальном плане подскажут какой именно материал, и какой толщины потребуется задействовать. Эти показатели используются по общим строительным нормам, обычно они применяются при создании надежных конструкций, а дело облицовки и обрамления полностью ложится на руки мастера.
Материал
Открывая перед собой чертеж, убедитесь, что на нем нанесены цифровые и буквенные показатели, обозначающие материал. Узнать о подобном обозначении можно при помощи листов с обозначением. Если подобная информация отсутствует, стоит получить информационную поддержку от общих государственных норм. Государственные стандарты предусматривают варианты, когда материал при строительстве не обозначается особыми знаками.
В правилах ГОСТ 5401-50 вы найдете способы графического отображения строительного материала.

ГОСТ 5401-50
По факту такое обозначение достаточно проблематичное для понимания общего плана чертежа. Сделать сноску с пояснением намного проще, чем заштриховывать каждую поверхность. Штрихование поверхностей производится только на обозначении торцевого значения. Некоторые материалы штрихуются на месте установки, а не разреза, но все нормы указанные в государственном стандарте обязательно исполняются, ведь это основополагающая часть строительства.

Заштрихованные материалы
План этажей
Рассматривая план этажей, вы найдете все входы, выходы и размеры каждого отдельно взятого помещения. Для понимания общего плана вам не потребуется особых знаний, ведь схематические рисунки понятны на общем фоне. Довольно сложно дается разъяснение деталей, но с использованием маркировок, обозначений и специальных программ понять общий принцип строения становится намного проще.

План этажей дома
Лестница в Автокад
О программе, работающей на принципе Автокад, вы уже знаете. В общих чертах, AutoCAD это самостоятельная программа, в которой создается двух и трехмерная графика.

Лестница, спроектированная в AutoCAD
Если вы понимаете принцип ее работы, то сделать собственный чертеж будет максимально просто. Люди, которые понимают, чего они хотят от общего или детального плана легко управятся в создании чертежа на графическом движке.

3D дизайн лестницы
Применение Автокад актуально:
- В детальном и общем строительстве;
- Машиностроении;
- Пояснительной части плана;
- Реконструкции уже построенных зданий.
Несмотря на улучшения с первой версии, программа имеет множество недоработок, которые легко устраняются дополнительными утилитами. Профессиональному архитектору работать в ней максимально комфортно, ведь с помощью Автокад можно создавать уникальные чертежи, даже сложных лестничных конструкций, но новичку придется изрядно потрудиться.

Проект лестницы
Чтобы вы понимали пользу от программы, стоит разобраться о ее преимуществах на одном конкретном примере. Обычно, составление простого чертежа профессиональным архитектором стоит около 1/10 части всего строения. Если лестница сложная, цена может увеличиться вдвое. К примеру, окончательная стоимость конструкции $1000, значит, за план ее разработки придется отдать 100—200 долларов. В некоторых случаях намного проще разобраться в азах архитекторской деятельности и сохранить эти деньги.
Маркировочный план
Маркировочные планы очень похожи на кладочные, но их отличие в том, что первые легко читаются именно строителем, а не инженером. Общие инженерные понятия здесь неуместны, ведь на маркировочных эскизах указаны типы покрытий, обозначены проемы, размеры и ведомости помещений. Обычно для работника узкой строительной специальности маркировочный план несет больше информации, чем все другие вместе взятые. Исполнительные листы и сметы в большей части составляют именно по этому документу.

Маркировочный план лестницы
Ворота, окна и двери
Для владельца важно понимание обозначений. Все проемы, дверные и оконные прорисовываются на плане в точном месте. Понимать это нужно, потому что при изменении плана появляется возможность нарушить конструкцию несущей стены. В архитектурно-строительном чертеже обязательно обозначаются проемы, в горизонтальном и вертикальном разрезе. Дверной проем на плане обязательно указывает на тип сторону открывания двери.

Дверной проем в плане
Картинки и фото
Более полную картину в составлении планов можно увидеть только на пояснительных или обучающих картинках. В некоторых случаях указывают обозначение чертежа и фотографию, сделанного по нему строения.

Чертеж и фотография к плану лестницы
Самообучение в данном случае должно быть максимально скрупулезным, ведь даже мельчайшие отличия обозначений на планах могут обозначать совсем иную задумку архитектора.
Условные обозначения на строительных чертежах: как показать лестницу, ворота, окна с четвертью, двери – картинки, обозначения уклона, ширины, высоты, омов, материалов на планах, как обозначается бетон, чертежи пандуса, пожарной лестницы, лестничного марша, план первого этажа здания с размерами, как нарисовать лестницу в автокад, маркировочный план
lestnicypro.ru
Чертежи лестниц на второй этаж: правила и примеры схем
Для того чтобы сделать чертежи лестницы с промежуточной площадкой, которая является наиболее популярным видом конструкций, следует предварительно собрать все необходимые данные. Подготовить это своими руками можно, если знать какие именно параметры нужны при проектировании и как правильно их определить. Для того чтобы разобраться в этом непростом деле, необходимо предварительно ознакомиться с особенностями разных видов конструкций и базовыми формулами расчетов.
Особенности лестниц
Для обустройства входа на второй этаж предусматривается строительство лестницы. Для частных домов и общественных зданий самым популярным видом является маршевая конструкция. Также для экономии места можно использовать винтовые разновидности, например, для чердачной лестницы.
Неким промежуточным вариантом можно назвать сложные маршевые конструкции. Их особенности заключаются в том, что помимо последовательного набора ступеней используются также более широкие площадки, разделяющие отдельные секции маршей.
Преимуществом таких конструкций является то, что можно сделать удобный разворот марша. К тому же площадка позволяет передохнуть во время подъема. Для разработки схемы данной лестницы на второй этаж, необходимо учитывать все доступные вариации:
- Прямой марш. Это стандартная лестница, которая состоит из тетивы и проступей, одинаковых по размерам. При дополнении промежуточной площадкой последняя располагается между двумя прямо расположенными лестничными секциями.
- Г-образный. Этот вариант часто используется в частных домах. В этом случае схема конструкции содержит поворот под 90 градусов. Разделительный элемент также представлен площадкой.
- П-образный. Здесь есть три варианта исполнения. Для двухмаршевых конструкций площадка может строиться широкой, занимая всю площадь выхода на неё параллельно расположенных ступеней. Второй вариант – комбинирование с забежными ступенями. В таком случае выходы на площадку будут плавно подводиться с помощью поворотных элементов. Третий вариант – это обустройство тройного лестничного марша. Иными словами, комбинируется две Г-образные конструкции.
- С произвольным поворотом. Для таких лестниц характерно наличие площадки нестандартной формы, например, треугольной или трапециевидной. Этот вид также может дополняться забежными ступенями. Разворот осуществляется на любой градус, будь то 30 или 120.

Примеры чертежей лестниц на второй этаж различной конфигурации
В качестве материалов для строительства таких изделий в многоэтажных зданиях зачастую используются железобетонные конструкции. В частных домах своими руками создать такую массивную модель не всегда удается. Здесь используются более простые в обращении материалы, такие как металл и древесина. Оптимальный вариант для внутренних работ – дерево. Именно поэтому наибольшей популярностью пользуются чертежи деревянной лестницы. Кроме того, подобным образом можно своими руками обустроить подъем по чердачной конструкции.
Вычисление основных параметров
Для того чтобы в процессе строительства не возникло проблем и несовпадений, используются заранее разработанные чертежи лестниц. Несмотря на то что для каждой модели марша используется своя схема, базовые параметры остаются общими для всех. Именно их нужно выяснить до начала проектных работ на бумаге.
В первую очередь нужно определить следующие данные:
- Высота пролета. Это расстояние от пола до верхних перекрытий, которое планируется занять лестницей.
- Длина лестницы. В эту категорию попадает расстояние от начала марша до его завершения по маршруту движения. Также учитывается количество ступеней. Так как планируется проект с площадкой, их количество должно быть не меньше трех для каждой секции, но не более 16. Оптимальное разделение – по 10 ступеней.
- Глубина проступи. Это основная часть ступени, берется в пределах 25-30 см. Конструкции с забежными ступенями рассчитываются индивидуально, но стандарт берется примерно на середину такой проступи.
- Высота ступени. Это размер подступенка. Для оптимального соотношения берется 15-20 см. Для чердачной модели можно взять соотношение с проступью 1:1.
- Размер площадки. Если подъем на второй этаж содержит площадку, выход на неё должен быть не меньшим по ширине, чем размер прилегающего марша.
- Уклон. Угол между конструкцией и полом не должен превышать 45 градусов. Оптимальное значение 30-35 градусов. Для чердачной модели допускается 50.
- Ширина лестницы. Минимальное значение – 70 см для стандартной модели и 60 см для чердачной. Если лестница с забежными ступенями, добавьте еще минимум 10 см для компенсации разницы в ширине проступи.

Схематическое изображение необходимых параметров для правильного расчета лестницы
Чтобы составить чертеж для чердачной лестницы или подъема на жилой этаж, можно использовать специальные программы, которые анализируют введенные данные для расчетов и выдают готовый проект. Однако, бесплатные приложения содержат множество неточностей, что может повлиять на результат проектирования. Именно поэтому рекомендуется все делать своими руками.
Если вы сомневаетесь, что ваш план является правильным, подыщите в интернете подходящий для вас, готовый вариант или закажите чертеж у профессионала.
Правила составления чертежей своими руками
Для того чтобы разработать для лестницы чертежный план на второй этаж, необходимо знать определенные нюансы. В первую очередь, обратите внимание на то, что чертеж для лестничного марша составляется в нескольких перспективах с указанием размеров всех деталей.

Примеры чертежей лестницы в горизонтальной и вертикальной проекции с указанием всех необходимых размеров
Чтобы сделать чертеж своими руками, используйте следующий алгоритм: для начала определяются параметры лестничной клетки, то есть пространства для подъема на второй этаж. После этого прорисовывается схема новой лестницы, ведущей на второй этаж, в вертикальном сечении. Эти чертежи составляются на основании определения положения начальной и конечной ступеней. На рисунке отмечается угол уклона, расстояние до перекрытий и пола верхнего яруса, габариты проема. Также указывается количество и расположение ступеней с их параметрами, рисуется площадка. Если имеется выступ над подступенком, все это в масштабе отмечается на плане.
Вторая часть работы – вид сверху. Если выполнять чертеж лестницы с поворотными забежными ступенями, за основу графического построения нужно взять центральную линию. По её расположению устанавливаются оптимальные параметры конструкции с забежными ступенями. На такой схеме четко видно ширину ступеней и их расположение относительно площадки и друг друга.
Выполнить чертеж обычной чердачной лестницы или модели на второй этаж с забежными ступенями своими руками будет одинаково непросто. Прежде чем начинать изготовление конструкции, перепроверьте план и при возможности сверьте его у профессионала.
Рекомендуем посмотреть видео:
vseolestnicah.ru
Примеры чертежей и эскизов лестниц, а также обозначение их основных элементов на схемах
Даже начинающий строитель знает, что прежде чем возвести какой-либо объект, необходимо вначале схематично изобразить его на чертеже. Не являются исключением из этого правила и лестничные конструкции. Чтобы самому сделать эскиз лестницы либо научиться хорошо ориентироваться в уже готовом изображении системы, нужно знать, как обозначаются на схеме ее основные элементы. Подробному изучению данной темы и посвящен этот материал, красно проиллюстрированный качественными фото и полезным видео.
Для того, чтобы построить лестницу, мало ее нарисовать, необходимо еще знать ее основные допустимые размеры, а также уметь разбираться в обозначениях ее основных элементов на чертежеЧертеж лестницы – первый шаг ее создания
Нарисовать лестницу свой мечты сможет даже человек, не обладающий особым талантом художника. Однако профессиональный строитель вряд ли, без сопутствующих пояснений сможет разобраться в таком рисунке. Поэтому прежде чем приступить к выполнению схемы, следует изучить хотя бы общие правила оформления чертежа.
Однако вы можете изобразить лестницу своей мечты на бумаге, а затем передать этот рисунок профессиональному проектировщику, который по нему сделает грамотный чертежКак правило, эскиз лестницы разрабатывается еще в ходе проектирования дома. Хотя ступенчатая конструкция может быть взведена в помещении уже после завершения строительства.
Такую лестницу обязательно необходимо включить в проект всего домаЧто такое проект
Проект (план) — это проекция горизонтального среза этажа, здания либо лестничной конструкции, перенесенная на плоскость.
При проектировании многоуровневого строения уделите должное внимание расположению в нем удобной лестничной конструкцииЧто присутствует на плане:
- Размещение всех помещений этажа с указанием их размеров.
- Месторасположение лестничных клеток и маршей.
- Размещение оконных и дверных просветов.
Эскиз будущей ступенчатой системы не обязательно делать самому, его можно заказать профессиональному проектировщику либо скачать понравившийся чертеж в интернете - Система строения, включая размещение опор и пролетов.
- Толщина несущих стен и колонн.
Еще одна подробная схема лестницы на второй этаж, которой вы можете воспользоваться и применить для возведения в своем домеИзображения и обозначения
Прежде чем приступить к созданию чертежа лестницы, необходимо научиться разбираться в общепринятой терминологии и обозначениях, касающихся данных конструкций.
Подробный чертеж лестницы поворотного прямого типа с уже рассчитанными размерамиДанное понятие включает в себя несколько пунктов – это терминология, связанная с:
- типом лестниц;
- основными ее элементами;
- обозначениями на чертежах;
- размерами конструкции;
- применяемым материалом.
Разберем подробнее каждый из этих определений.
Еще один готовый проектировочный чертеж лестничной системы комбинированного типа, который может вам также пригодитьсяТип лестницы
Перед тем, как начать выполнять схематичное изображение лестничной конструкции, определитесь, к какому типу она будет принадлежать:
- Маршевому.
- Винтовому.
- Спиралевидному.
- Модульному.
Если вы составите грамотный чертеж, соответствующий всем требованиям, предъявляемым к данной конструкции, у вас может получиться даже такая великолепная модульная лестница - Больцевидному.
- Чердачному (подвальному).
- Разборному (по типу трансформера).
- Пожарному.
На фото изображена пожарная лестница для эвакуации людей в случае ЧП, которая обязательно должна присутствовать в каждом здании
Основные элементы
Основными элементами, изображаемыми на схеме, являются:
- Марш — прямой участок конструкции.
- Проступь — горизонтальная поверхность ступени.
- Подступенок – вертикальная составляющая ступени.
Для того, чтобы сделать такую лестницу, внимательно ее рассчитайте и выполните грамотный чертеж - Косоур — опорная колода, сверху которой размещены ступеньки.
- Площадка — горизонтальный участок между маршами.
- Забежные ступеньки — имеют трапециевидную форму.
- Средняя линия — воображаемая полоса, вдоль которой поднимается либо спускается человек.
- Просвет — расстояние от плоскости ступеньки до потолка.
Готовый чертеж маршевой лестницы с поворотом на 180 градусов и одной площадкой (на заметку застройщикам)Обозначения на схемах
На чертеже лестничная система изображается в виде схемы, на которой обозначения выполняются в соответствии с ГОСТ 5401-50. Рассмотрим их подробнее на примере фото чертежа, приведенного ниже.
На фото представлен простейший чертеж лестницы, где а — это сечение, б — проект нижнего марша, в — проект переходного марша, г — схема верхнего марша.Итак, мы выяснили, что схема обычной лестницы (смотрите фото выше) имеет такие условные обозначения:
- А – сечение
- Б — проект нижнего марша
- В — проект переходного марша
- В — проект верхнего марша.
Кроме того, на схеме имеются специальные стрелки, указывающие направление движения по лестнице.
Подробная схема лестницы поворотного типа с расчетом размеров каждого ее элементаРазмеры конструкции
К основным размерам лестничной системы относятся такие параметры:
- Уклон – самым комфортным считается уклон 1:2, либо 30 градусов к горизонту. Спектр удобства — от 25 до 40 градусов, оптимальным вариантом считается уклон в 45 градусов (1:1).
- Количество ступеней в марше — не должно быть более 18-ти. При этом все проступи прямого марша должны быть строго одного размера.
Проектируя лестницу, обязательно учитывайте основные требования, которые предъявляются к размерам конструкции - Ширина конструкции – согласно СНиП 31-02, не должна быть менее 90 сантиметров для комфортного передвижения по лестнице.
- Ширина проступи — от 26 см до 35, 5 см, поскольку на ней должна свободно располагаться ступня человека.
- Высота проступи — от 12, 5 до 20 см, для комфорта чаще всего принимают размер 18 см.
- Просвет — делается не меньше 2-х метров, чтобы даже высокому человеку не приходилось пригибаться.

На фото изображена деревянная система с подробным изложением терминологии всех ее составляющих
Материалы
Руководство по графическому изображению материалов изготовления также содержится в ГОСТе 5401-50. Далее приведем подробное описание данных обозначении:
- Дерево — в поперечном торцевом разрезе штрихуют круговыми и радиальными линиями, имитируя годовые кольца и радиальные трещины. На продольном разрезе изображаются продольные полосы — имитация текстуры.
При проектировании чертежа лестницы, воспользуйтесь данными графическими изображениями материала ее изготовления - Бетон – схематично обозначается сочетанием точек и кружков, при армированном бетоне кружки смешиваются с диагональной штриховкой.
- Металл — штрихуется частыми диагональными линиями либо сплошной заливкой.
На данном фото представлены изображения схематического изображения поперечных сечений различных материаловВывод
Таким образом, в статье мы рассмотрели основные элементы лестничных систем и их условные обозначения на схемах и чертежах. Теперь собственноручно сделать эскиз любой конструкции и правильно схематически изобразить на нем все составляющие лестницы вам не составит труда.
Грамотный и правильно выполненный проект поможет в итоге возвести качественную и красивую лестницу в вашем домеОднако, если вы не обладает чертежными навыками либо для возведения лестницы у вас нет достаточного количества свободного времени, вы всегда сможете заказать уже готовую, качественную и правильно спроектированную лестничную систему в нашем популярном интернет-магазине «Супер Лестница»
Великолепную модульную конструкцию маршевого типа с поворотом на 90 градусов вы можете хоть сегодня приобрести в уникальном интернет-магазине «Супер Лестница»Видео по теме
На представленном ниже видео вы найдете интересный вспомогательный материал, касающийся темы статьи.
lestnicymaster.ru
винтовая, маршевая, на больцах, фото, видео
Если в частном доме не один этаж, без лестницы не обойтись. Но кроме того, что она должна соединять этажи, лестница еще должна вписываться в интерьер. Поэтому при выборе конструкции обращать надо внимание не только не габариты и то, сколько места она занимает в помещении, но и обязательно учитывать стилистику. Тогда лестница на второй этаж, сделанная своими руками будет не только функциональным предметом, но еще и украшением интерьера. Работа сложная и ответственная, но справится можно.
Виды лестниц на второй этаж в частном доме
Содержание статьи
Если говорить об устройстве, то межэтажные лестницы бывают трех типов:
- Винтовые или спиральные. Занимают меньше всего места, хорошо смотрятся, но не очень удобны в эксплуатации. Чаще всего используются как дополнительные.

Самые компактные межэтажные лестницы
- На больцах. Ступени крепятся на специальных металлических болтах — больцах. В конструкции отсутствуют тяжеловесные элементы крепления, из-за чего визуально сооружение смотрится легким.

Лестницы на больцах — очень интересно выглядят
- Маршевые. Самый распространенный тип. Могут состоять из одного, двух и более маршев (элементов). При наличии нескольких маршев между ними делают площадки — поворотные или нет — зависит от выбора владельцев, но в основном определяется габаритами помещения и выделенной площадью.

Маршевые есть двух типов — на косоурах и тетивах
Все эти конструкции могут быть сделаны из металла, дерева, бетона, стекла, мрамора и других декоративных камней, а еще часто используют комбинации этих материалов. Но чаще всего лестница на второй этаж своими руками делается из дерева, немного реже — из металла или комбинаций металла и древесины.
Кроме того есть два вида степеней — открытые и закрытые. В открытых лестницах есть только горизонтально расположенная часть — сама ступенька, в закрытых — еще и вертикальная часть — подступенок.

Ступени могут быть открытыми и закрытыми
Нормы для проектирования
Разрабатывая проект лестницы, важно сделать так, чтобы она была удобной и безопасной. Есть вполне конкретные цифры и рекомендации, которые касаются параметров ступеней и общего угла подъема:
- Угол наклона должен находиться в пределах 30-50°. Оптимальный наклон — 45°, при меньшем угле ходить удобно, но требуется много места, при большем слишком крутой подъем вызывает затруднения.

Желательно чтобы угол наклона лестницы вписывался в данный сектор. В таблице приведены стандартные размеры проступи и подступенка для каждого угла наклона
- Количество ступеней нечетное.
- Ширина ступени (проступи) находится в пределах 22-30 см. Самые удобные ступеньки имеют ширину порядка 25 см — на них становишься всей ступней. При более узких пятка висит, и основная нагрузка приходится на носок.
- Высота подступенка (расстояние от одной ступени до другой) 15-20 см. При слишком маленькой высоте приходится часто переставлять ноги, что некомфортно, при большой сложно задирать ноги (особенно пожилым людям).
- Высота перил 90-120 см.
- Минимальная ширина лестницы — 80 см.
Количество ступеней определяется путем элементарного деления высоты планируемой лестницы на выбранную высоту подступенка. Например, высота помещения 285 см. Решено сделать угол подъема в 40°. По таблице видим, что высота подступенка 19 см. Делим 285 см / 19 см = 15 ступеней. Если количество получается четным, соответственно чуть корректируем размер, чтобы получить нечетное число.
Если одна из ступеней получается меньше на несколько сантиметров, эту высоту «отбирают» у первой ступеньки. Все остальные, включая последнюю, должны быть одинаковыми.
При выборе размеров ступеней комфортность можно проверить. Если удвоенную высоту подступенка сложить с выбранной шириной ступени, результат должен быть от 60 мс до 64 см. Второй вариант проверки — сумма длин проступи и подступенка оптимально равна 45 см, но допустимы отклонения на 2 см в обе стороны.

Как проверить комфортность и безопасность лестницы
Все эти параметры должны закладываться при проектировании дома. Если же дом уже построен, приходится исходить из того, что есть и подгонять размеры к существующим габаритам.
Винтовая лестница
Как уже говорили, винтовая лестница в частном доме занимает меньше всего места. Но у нее есть серьезный недостаток: по ней неудобно ходить, а поднять на второй этаж что-либо громоздкое практически невозможно. Так что они не очень популярны, хотя смотрятся неплохо и нормально вписываются в любой интерьер.
Особенности расчета
При проектировании винтовой лестницы надо принимать во внимание, что в некоторых положениях, над головой находятся другие ступени. Поэтому сделать маленькие подступенки не получится.
Следующая особенность — ступени все имеют неодинаковую ширину — с одной уже, с другой — шире. Узкой частью они крепятся к центральной опоре (столбу), широкой — к стенам или балясинам. Норматив по ширине проступи измеряют в средней части, а широкая не должна быть больше 40 см.
Ширина пролета — от 50 см до 100 см. На всю конструкцию идет удвоенное расстояние — необходим квадрат со стороной от 100 см до 200 см.
Конструкция на сборной колонне
Этот тип винтовой лестницы сделать проще всего: ставится труба, на которую надеваются деревянные элементы — ступени, промежуточные цилиндры и т.д..

Устройство винтовой лестницы на центральном столбе
Если смотреть подробнее, то кроме металлической трубы (в данном случае диаметром 40 мм), ступеней и балясин (есть в любой конструкции) имеются точеные деревянные цилиндры (сегменты), которые задают расстояние от одной ступени до другой.

Элементы винтовой деревянной лестницы
С другой стороны расстояние между ступенями Выдерживается при помощи запилов на балясинах. В эти пазы крепят ступени (на клей + крепеж).

То же устройство, но в металле
Монтаж лестницы на второй этаж своими руками начитается с установки столба. В полу первого этажа и потолке второго делают отверстие, равное диаметру столба. Вставляем трубу в отверстие, надеваем увеличенную шайбу, закручиваем гайку. Далее сборка проста: на стержень насаживаются соответствующие элементы, параллельно с установкой ступени ставится и закрепляется балясина. Размеры ступеней для данной спиральной лестницы с заданными параметрами есть в чертеже.

Чертеж элементов винтовой лестницы с размерами
Ступени вырезаются из клееной доски или мебельного щита. Можно использовать массив, но мебельного качества, то есть без каких-либо дефектов и высушенный, с влажностью не более 8-12%. Хотя более надежной считается клеенная древесина: ее точно не поведет и она не растрескается при усушке.
Пример сборки подобной конструкции смотрите в видео. В нем столб сборный, но можно использовать и цельный, правда собирать ступени будет неудобно — каждый раз придется подниматься на лестницу.
Конструкция винтовой лестницы из металла представлена в следующем видео-фрагменте. Для тех, кто дружит со сваркой этот вариант будет проще.
Винтовая лестница на второй этаж: фото интересных вариантов
Маршевая лестница на второй этаж
Маршевые лестницы — самые популярные. Во-первых, ими пользоваться удобно, во-вторых, технология их строительства давно отработана. Особенностей расчета немного. Важно определиться с количеством маршей. В одном участке должно быть от 3 до 15 о ступеней. Самые удобные имеют 11-13 штук. Если по расчету получается, что ступеней должно быть больше, их делят на несколько участков, между которыми делают площадки. Размеры площадок кратны длине шага (600-630 мм). Тогда подъем и спуск не будут вызывать неудобств.
Виды
Лестницы с площадками занимают довольно много места. Если места не хватает, добавляют повороты. Самый распространенный вариант — расположить лестницу по двум смежным стенам углам. Также для экономии места можно вместо площадки сделать забежные (поворотные) ступени. Только один момент: участок с забежными ступенями — самый травмоопасный. Если в семье есть маленькие дети или пожилые люди, лучше сделайте площадку.

Забежные ступени еще можно описать как поворотные
Как уже говорили раньше, маршевые лестницы делают на косоурах (балки с пилообразным краем) и на теривах (просто наклонная балка). Крепление ступеней к балкам-тетивам требует больше времени и мастерства. Обычно под каждую ступень вырезается «посадочное» место — в доске выбирается паз. Для дополнительной надежности снизу еще прибиваются бруски или устанавливаются уголки. Вариант с уголками надежный, но довольно спорный с эстетической точки зрения. Если вся лестница сделана из дерева, металлические детали очень «режут» взгляд. Аккуратно обработанные бруски смотрятся намного органичнее. Впрочем, при достаточной толщине досок для ступеней и ширины тетивы, можно обойтись и без дополнительного крепежа. В этом случае важно, чтобы ступени не прогибались, иначе они могут выскочить из пазов.

Маршевая лестница на тетивах
Сборка ступеней на косоурах более простая: у вас есть две-три опоры, к которым крепят вырезанные по размерам детали. Основная задача — правильно разметить и выпилить косоуры.

Это лестница на косоурах — один из фрагментов сборки
Монтаж маршевой лестницы с пошаговыми фото
Косоуры делают из широкой доски 75-80 мм толщиной и 350-400 мм шириной. Если нет массивной сухой доски, можно использовать клеенные. Как рассчитать косоур описано в виде, но собирать лестницу на второй этаж можно не только как отдельно стоящую.
Пример сборки лестницы на косоурах у стены дальше. Сначала крепим опорные столбы, на которые будут опираться забежные ступени. К этим столбам крепим верхние косоуры.

Установка верхних косоуров
Затем ставим нижние. Косоур возле стены крепим поверх декоративной доски — ее проще мыть и грязь менее видна, чем на стене.

Крепим нижние косоуры — один к столбу, второй к отделочной доске
Промежуточные косоуры устанавливаются в последнюю очередь. Так проще состыковать все элементы.

Косоуры установлены
Начинается монтаж ступеней. После того как они нарезаны, отшлифованы и покрашены все просто: ставим на место, завсерливаем отверстие под саморез, потом закручиваем его.

Монтаж ступеней
Следующий шаг — крепление балясин. В данном случае они сделаны из нержавеющей трубы с деревянными вставками. Под каждую балясину сверлится отверстие, в которое вставляется трубка фиксируется она на шпильку или любым другим доступным способом.

Отверстия под установку балясин

Сами балясины и перила

Вид сверху
Фото интересных маршевых лестниц на 2 этаж
Лестницы на больцах
Самые необычные по виду — межэтажные лестницы на больцах. Больцы — это особый вид металлического крепежа, который одним краем крепится к ступням, вторым — к опоре.

Некоторые виды больцев
Конструкция получается очень легкой на вид, но несущая способность таких устройств немалая — порядка 220 кг.

Лестница на больцах — воздушное сооружение
Одной стороной ступени могут крепиться непосредственно к стене (тоже на больца), а также к тетиве или косоуру. Противоположная часть обычно крепится к раме, закрепленной в межэтажном перекрытии. Это и есть несущий элемент. От него опускаются вниз больца, которые затем крепятся к некоторой части ступеней. Те же, которые оказались без опоры, держатся за счет перераспределения нагрузки. Самостоятельный расчет и проектирование в этом случае очень проблематично, надежнее заказать разработку проекта.
Фото некоторых лестниц на 2 этаж на больцах
stroychik.ru
Виды лестниц: варианты и особенности конструкций
В современном строительстве используются самые разнообразные виды лестниц для обустройства подъема на второй этаж в частном доме. Для них характерно отличие используемых материалов, комбинаций и расположения деталей. В целом же, все изделия имеют общие характеристики.
Составляющие элементы
Несмотря на разнообразие моделей, базовое устройство лестницы остается общим для всех разновидностей. В стандартный набор элементов конструкции входят следующие детали:
- Тетива. Это основной поддерживающий элемент, располагающийся снизу или по бокам ступеней. Чаще всего выполняется из балок.
- Косоур. Аналог тетивы, однако в этом случае упор со стороны ступеней оказывается исключительно сверху вниз.
- Ступени. Обеспечивают комфорт передвижения по лестнице. Представляют собой горизонтальную поверхность, установленную на опорный каркас. Дополнительно проступь может иметь вертикальный элемент – подступенок. Благодаря ему обеспечивается вспомогательный упор и выполняется декоративная функция.
- Опоры. Это вертикальные элементы, которые принимают на себя нагрузку конструкции. К ним относятся опорные балки или столбы и больца.
- Ограждения. К этой категории относятся системы ограждений, состоящие из балясин, стоек и перил, а также стеновые поручни. Они гарантируют безопасность передвижения по ступеням, ограждают пролет по бокам, являются дополнительной поддержкой для человека и несут определенную эстетическую нагрузку.
Конструкция лестницы, оборудованная на второй этаж, может содержать эти детали в разных комбинациях.
Строение каждой конкретной лестницы, естественно, отличается. Сегодня наиболее популярными разновидностями для обустройства подъема на второй этаж в частных домах являются:
- маршевые;
- винтовые;
- больцевые.
В чем состоят их особенности и ключевые отличия, следует рассмотреть более подробно.

Варианты лестниц на второй этаж, применяемых в частном строительстве
Марши
Если говорить о том какие бывают лестницы, в первую очередь рассмотрим именно маршевые модели. Такие конструкции лестниц отличаются своим внешним видом и расположением составляющих деталей.
Маршевый подъем на этаж может устанавливаться на тетивы или косоуры. В первом случае ступени врезаются между двумя стойками. Для косоуров можно использовать те же тетивы, сместив их ближе к центру под ступенями или сделав гребенчатые вырезы в боковинах.
Кроме того, устройство лестниц может быть закрытым и открытым. Открытые модели обустраиваются простейшим образом, а именно проступи укладываются на тетивы без дополнительных ограничителей и отделки. В закрытых маршах обязательным является наличие подступенка и обшивки косоуров.
Для подъема на второй этаж можно сделать прямой или поворотный марш. Первый считается самым простым и удобным, но при этом он занимает слишком много места. Поворотные модели создают более плавный выход на второй этаж и позволяют экономить площадь. Различают следующие разновидности поворотных маршевых лестниц:
- Г-образная. Альтернативное её название – четвертьоборотная. Также могут использоваться L-образные конструкции. Их суть заключается в том, что два марша располагаются строго под 90 градусов по отношению друг к другу.
- П-образная. Альтернатива Г-образной модели. Это полуоборотная лестница, так как она выполняет разворот движения на 180 градусов. Марши располагаются параллельно друг другу, а расстояние для перехода между ними занимает площадка, которая может иметь выход на этаж (этажная) или между ярусами (промежуточная).
- Трехсекционная. В этом случае разворот выполняется за счет объединения площадками сразу трех маршей. Иными словами, это две Г-образные модели, объединенные в одну.
- Закругленная. Она состоит из нескольких маршей, расположенных таким образом, чтобы конечная точка выходила на то же направление, что и стартовая, то есть выполняется разворот на полные 360 градусов.
- Трапециевидная. Секции конструкции не имеют ограничений в плане уклона относительно друг друга. Угол их сопоставления может быть абсолютно любым. Такой вариант отлично подходит для тех зданий, в которых лестничный пролет имеет нестандартную форму.

Разновидности поворотных маршевых лестниц на второй этаж
В отдельных случаях можно использовать в одном изделии несколько принципов базовых моделей. Такие лестницы называют комбинированными, так как они сочетают в себе признаки разных типов маршей.
Винтовые лестницы
Винтовые конструкции лестниц очень популярны для использования в тех помещениях, где на установку изделия отводится слишком мало места. Для самых миниатюрных спиральных подъемов достаточно окружности в 100-120 см. Таким образом можно оборудовать проход в хозяйственные помещения, например, на чердак или цокольный этаж.
Главное отличие такой модели – установка вертикальной опоры и спиральное расположение ступеней вокруг центральной оси. Также доступны варианты винтовых лестниц в частном доме, сделанные из гнутых косоуров. Выглядят они невероятно эффектно, но построить их при этом гораздо сложнее.
Помимо компактности прохода на второй этаж и декоративности, винтовые лестницы имеют и другие отличия. Важно соблюдать оптимальное соотношение размеров ступеней, чтобы сохранить безопасность передвижения. Обязательными являются поручни, иначе можно травмироваться.

Разновидности винтовых лестниц
Больцевые конструкции
В последнее время все чаще используются виды лестниц для дома, построенные на больцах. Они отличаются от обычных конструкций тем, что в качестве каркаса используются наборные стойки и миниатюрные крепления для каждой ступени, которые соединяют между собой соседние проступи и таким образом переносят нагрузку на потолочные перекрытия и пол.
Дополнительно эти конструкции лестниц могут включать опорные столбы или же крепиться к стене с одной стороны, а с другой соединяться больцами. Такой выход на второй этаж выглядит более воздушным и занимает меньше места. Это позволяет использовать пространство под ступенями, например, чтобы расположить там мебель для хранения вещей или место отдыха в уединении.
К подобным моделям относится большинство модульных комплектных наборов. Такое устройство лестниц содержит наборной косоур, состоящий из сварных ступенчатых элементов, соединяющиеся между собой болтами. Крайние детали крепятся к перекрытиям в полу и потолке помещения. Далее, на установленный косоур крепятся проступи, подходящие по форме и размерам. Для поворотных моделей дополнительно используются забежные ступени и площадки. Для того чтобы конструкция не завалилась под 5, 9 и 11 ступени устанавливаются дополнительные опоры. Проступи соединяются больцами и обустраиваются поручнями.

Варианты больцевых лестниц
Материалы изготовления
Невозможно рассматривать виды лестниц для частного дома и не упомянуть о материалах для их изготовления. Для того чтобы конструкция прослужила как можно дольше, нужно обращать внимание не только на то как визуально выглядит выбранный вами материал, но и на его технические характеристики.
Для обустройства подъема на второй этаж очень часто используют натуральную древесину. Это приятный с виду и на ощупь материал, к тому же экологичный и хорошо поддается обработке. При этом следует учитывать, что далеко не все породы одинаково хорошо подходят для работы. Для создания лестницы многие отдают предпочтение недорогой сосне. Это самый доступный вариант, но он абсолютно не подходит для долгосрочного использования или размещения в помещениях с большой нагрузкой. Хвойные породы слишком восприимчивы к температурным колебаниям и изменениям влажности воздуха. К тому же это мягкая и склонная к гниению древесина.
Чтобы не пришлось тратить время и деньги на постоянный ремонт деревянной лестницы, лучше обратить внимание на лиственные породы. Лиственница, береза, вишня и груша – оптимальный вариант, так как при средней цене отличаются запасом прочности и износоустойчивостью. Более прочными и дорогими считаются дуб, клен, орех, бук, тик, венге и ясень.
Тем не менее здесь тоже есть свои нюансы. Например, дуб быстро впитывает масла, что может сказаться на его внешнем виде. Клен со временем желтеет и может рассыхаться до трещин. А вот бук очень восприимчив к влаге и легко деформируется под её воздействием.

Разновидности лестниц в зависимости от материала изготовления
Второй по популярности материал – металл. Он разделяется на две группы: не подверженные коррозии и менее устойчивые к коррозии. К первым относится нержавеющая сталь, которая по праву считается лучшим вариантом и внешнего вида, и по техническим характеристикам и долговечности. Также сюда можно причислить анодированный алюминий, но он значительно уступает в плане прочности и износостойкости. Также часто используются латунь и хромированная сталь, но преимущественно для декорирования. Железо и чугун – прочные, но могут ржаветь. Они требуют дополнительной обработки и при этом все равно служат меньше, чем нержавейка.
Отдельную категорию составляют бетон, кирпич и камень. Такие варианты лестниц выглядят мощно и в этом есть свои преимущества. При этом самым красивым вариантом можно по праву считать именно каменную лестницу. Они могут быть изготовлены полностью из камня или же иметь бетонное основание. Для таких конструкций используют кварцит, гранит или мрамор, а также их искусственные аналоги.
Их противоположностью являются стеклянные изделия. Они легкие и воздушные, с виду хрупкие, но это совсем не так. Для обустройства стеклянных ступеней и ограждений используют акриловые изделия, ламинированные и закаленные образцы. При этом никакая обработка не застрахует их от появления дефектов при неаккуратном обращении и точечных механических ударах.
Любая лестница, независимо от её принадлежности к той или иной категории, требует бережного отношения и надлежащего ухода. Тогда конструкция прослужит вам десятки лет без изменения своих прочностных и декоративных показателей.
Рекомендуем посмотреть видео:
vseolestnicah.ru
Разрез по лестнице: особенности и принципы планировки
При проектировании подъема на второй этаж необходимо позаботиться о наличии схематического разреза по лестнице. Этот чертеж является одной из составляющих проектной документации. Для того чтобы его составить нужно обладать полной информацией об объекте и знать некоторые нюансы касательно выполнения подобной работы.
Назначение плана
При строительстве дома или отдельных частей наполнения здания обязательным условием является наличие проектной документации. К ней в том числе относятся и чертежи. Для дома готовится фронтальное изображение строения, а также его разрез вдоль осевой точки и проекция сверху. В том числе здесь отражается и строение лестницы в плане. Так вы получаете наглядный пример того, как она будет выглядеть в интерьере.
В современных условиях к стандартным чертежам и планам дополнительно делаются компьютеризированные версии, они позволяют визуализировать внешний вид дома и его элементов с любого ракурса в 3D-варианте.

План лестницы содержит все необходимые данные для строительства
Подъем на второй этаж может проектироваться уже после того, как строительство дома будет завершено. В этом случае нужно составить отдельный план. Его функциональные задачи, помимо визуальной демонстрации проекта будущей лестницы, заключаются в следующем:
- На нем отражаются все проектные данные с указанием конкретной области применения.
- Планировка облегчает работу строителям благодаря визуальному отражению размеров элементов конструкции и их положения.
- Позволяет заранее выявить недочеты в проекте.
- В составе общего плана дома отражается положение лестницы в пространстве.
Особенности чертежей разного типа
Для выполнения планировки лестницы на второй этаж применяются разные подходы. Некоторые аспекты также зависят от типа самой конструкции. Тем не менее можно выделить следующие способы отображения лестницы на плане:
- Вертикальная проекция. Это и есть разрез по вертикали вдоль лестничной конструкции. На нем наглядно просматриваются зубцы ступеней и отражаются их габариты. Также можно оценить её положение между двумя уровнями и в целом рассмотреть визуальные характеристики.
- Горизонтальная проекция. Другими словами, это вид сверху. На нем отражается положение ступеней по всей ширине. Это позволяет выделить наличие забежных элементов. Для винтовой сложной конструкции предусматривается обозначение скрытых ступеней штрих-пунктиром. Каждая ступень получает свой порядковый номер, начиная с нижней.
- Отражение на общем плане. В этом случае точка разреза может проходить как по самому маршу, так и перед ним. Обязательно указываются размеры ступеней и самого пролета, также на чертеж переносятся схематические изображения поручней.

Разновидности чертежей в зависимости от способа отображения лестницы на плане
Необходимые данные
Для отображения лестницы в плане необходимо собрать определенный перечень данных, на основании которых и будет составляться чертеж. Независимо от конкретного типа лестничной конструкции для дальнейшей работы вам нужно рассчитать и измерить следующие параметры:
- Высота пролета. Это расстояние между полом на первом и втором этаже. Чтобы узнать эту величину можно измерить высоту рулеткой или просто умножить расчетную высоту ступени на общее их количество.
- Расстояние между первой и последней ступенью. Измеряется по полу на первом этаже. Вместе с высотой и длиной лестницы образует прямоугольный треугольник.
- Длина марша. Это длина лестницы по косоуру. Так как измерить её достаточно трудно, обычно её определяют расчетным способом. Для этого нужно взять за основу вышеописанные показатели и суммировать их значения, возведенные в квадрат. Затем извлеките квадрат из результата, и вы получите длину вашей гипотенузы, то есть самого марша. Второй способ: умножьте ширину проступи на количество ступеней.
- Количество ступеней. Учтите, что для составления плана лестницы на второй этаж нужно от общего количества ступеней отнять 1. Это фризовая ступень на верхней площадке. При этом на чертежах она все равно отмечается.
- Уклон. Градус наклона марша относительно пола.
- Ширина лестницы. Это расстояние между краями ступени по её длине.
- Ширина проступи. Это основной параметр для любой лестницы, ведущей на второй этаж. Это расстояние от внешнего края ступени до внутреннего, иными словами, её ширина.
- Высота подступенка. Это также важный показатель. Определяется как высота ступени, то есть расстояние между двумя соседними проступями. При этом соотношение проступи и подступенка должно удовлетворять требования касательно ширины шага человека, уровня удобства и безопасности.

Базовые параметры, необходимые для правильного проектирования лестницы
Это базовые параметры, дополнительно могут понадобиться размеры забежных ступеней и площадок, также следует отметить на плане поручни.
Правила построения
Для того чтобы отразить лестницу в разрезе вам понадобятся все вышеописанные данные. Прежде всего, нужно обозначить границы конструкции. Для этого отложите на чертеже высоту пролета на второй этаж, обозначьте уровень пола на обоих уровнях и отметьте начало марша.
После этого рекомендуется вывести линию косоура, с учетом уклона. Далее начертите сетку для построения ступеней. По горизонтали отложите отрезки, равные ширине проступи. Начинать нужно с верхней фризовой ступени, которая является по сути частью площадки второго этажа. Затем проведите линии по вертикальным отрезкам. Здесь откладывается размер ступени по высоте.

Примеры чертежей лестницы в горизонтальной и вертикальной проекции
В итоге у вас должна получиться сетка. С её помощью можно без труда вывести ступени в нужном количестве с заданными параметрами. Они должны быть одинаковыми по высоте и ширине, в том числе и фризовый элемент, ведущий на второй этаж, но, за исключением забежных проступей.
Если план будет составлен правильно, процесс подготовки элементов конструкции и непосредственно её строительство будут значительно облегчены. Так вы минимизируете риски нестыковки деталей во время их монтажа.
Рекомендуем посмотреть видео:
vseolestnicah.ru
Картинки лестницы с видом сверху, Стоковые Фотографии и Роялти-Фри Изображения лестницы с видом сверху
Картинки лестницы с видом сверху, Стоковые Фотографии и Роялти-Фри Изображения лестницы с видом сверху | Depositphotos®




KostyaKlimenko
7360 x 4912








KostyaKlimenko
7360 x 4912












EdZbarzhyvetsky
7169 x 4784







KostyaKlimenko
4912 x 7360







5562 x 3714

denisismagilov
5456 x 3464




KostyaKlimenko
7360 x 4912



denisismagilov
6155 x 5077


denisismagilov
5604 x 4357



KostyaKlimenko
7360 x 4912

ru.depositphotos.com


Эскиз будущей ступенчатой системы не обязательно делать самому, его можно заказать профессиональному проектировщику либо скачать понравившийся чертеж в интернете
Если вы составите грамотный чертеж, соответствующий всем требованиям, предъявляемым к данной конструкции, у вас может получиться даже такая великолепная модульная лестница
На фото изображена пожарная лестница для эвакуации людей в случае ЧП, которая обязательно должна присутствовать в каждом здании
Для того, чтобы сделать такую лестницу, внимательно ее рассчитайте и выполните грамотный чертеж
Проектируя лестницу, обязательно учитывайте основные требования, которые предъявляются к размерам конструкции
При проектировании чертежа лестницы, воспользуйтесь данными графическими изображениями материала ее изготовления


